ARAMA

e: 1/5.000

e: 1/1.000
FORJATUA ETA ESKAILERAREN GAUZATZEA

eskala
1/5.000
1/1.000

01
4,10

6,16

3,38

4,28

1,10
4,35

4,13

1,40

3,53
4,10

3,78
3,03

oharrak:

PROIEKTUA

FORJATUA ETA ESKAILERAREN GAUZATZEA

eragilea:

data:

JOXERRA ARRUE

2012KO MARTXOA

eskala
1/50

02
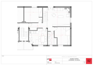
2,00
0,87

0,90

1,68
2,24
4,26

3,15

1,00

2,25
1,95
4,52

3,50

oharrak:

PROIEKTUA

FORJATUA ETA ESKAILERAREN GAUZATZEA

eragilea:

data:

JOXERRA ARRUE

2012KO MARTXOA

eskala
1/50

03
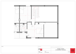
3,55

2,62

3,31
2,84

3,24

oharrak:

PROIEKTUA

FORJATUA ETA ESKAILERAREN GAUZATZEA

eragilea:

data:

JOXERRA ARRUE

2012KO MARTXOA

eskala
1/50

04
oharrak:

PROIEKTUA

FORJATUA ETA ESKAILERAREN GAUZATZEA

eragilea:

data:

JOXERRA ARRUE

2012KO MARTXOA

eskala
1/50

05
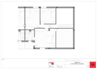
oharrak:

PROIEKTUA

FORJATUA ETA ESKAILERAREN GAUZATZEA

eragilea:

data:

JOXERRA ARRUE

2012KO MARTXOA

eskala
1/50

06
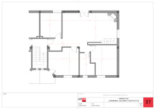
2,87

7,38

3,38
3,98

1,10
4,35

4,13

1,40

3,53
4,10

3,78
3,03

oharrak:

PROIEKTUA

FORJATUA ETA ESKAILERAREN GAUZATZEA

eragilea:

data:

JOXERRA ARRUE

2012KO MARTXOA

eskala
1/50

07
3,36

4,26

3,15

3,32

1,95

0,52
0,80

1,39

2,34

0,90

0,80

2,25
1,95
4,52
4,12

oharrak:

PROIEKTUA

FORJATUA ETA ESKAILERAREN GAUZATZEA

eragilea:

data:

JOXERRA ARRUE

2012KO MARTXOA

eskala
1/50

08
3,55

2,58

1,60

4.XEHETASUNA

2,62

6.XEHETASUNA

3,31
2,84

3,24

oharrak:

PROIEKTUA

FORJATUA ETA ESKAILERAREN GAUZATZEA

eragilea:

data:

JOXERRA ARRUE

2012KO MARTXOA

eskala
1/50

09
3,55

2,60
2,10

5.XEHETASUNA
2,10

3,12

6.XEHETASUNA

2,84

2,27

3,24

oharrak:

PROIEKTUA

FORJATUA ETA ESKAILERAREN GAUZATZEA

eragilea:

data:

JOXERRA ARRUE

2012KO MARTXOA

eskala
1/50

10
1.XEHETASUNA

3.XEHETASUNA

2.XEHETASUNA

oharrak:

PROIEKTUA

FORJATUA ETA ESKAILERAREN GAUZATZEA

eragilea:

data:

JOXERRA ARRUE

2012KO MARTXOA

eskala
1/50

11
HEB100 h=77cm
armado existente
IPE80

UPN160

IPE180

IPE180

angular 50x50

4,33

perno de anclaje a
poste existente
10mm chapa
anclaje a poste

4,85

IPE80 para apoyo de
chapa colaborante
IPE180
cartela refuerzo

existente

HEB100
rigidizador
10mm chapa de anclaje a murete
perno de anclaje
existente

1.XEHETASUNA

e: 1/10

2.XEHETASUNA

e: 1/10

15mm yeso proyectado
ladrillo hueco doble

1. SOLAIRUA

e: 1/50

15mm yeso proyectado
ladrillo hueco doble

22mm tarima flotante
aislamiento lana de roca

0,12

22mm tarima flotante
50x35mm rastrel
10mm impactodam
aislamiento lana de roca

perfil tirante
perfil de remate
22mm tarima flotante

chapa colaborante

remate madera

perfil
tirante

5mm chapa plegada

chapa colaborante
falso techo de pladur

perfil de
remate
perfil
tirante
perfil de
remate

200x5mm llanta

0,07
0,19
0,15

0,26

IPE180
IPE80 para apoyo de
chapa colaborante

e: 1/10

UPN160
perno de anclaje
a viga existente
viga existente

chapa de anclaje a
poste existente

falso techo de pladur

oharrak:

0,13

0,28

5mm chapa plegada

3.XEHETASUNA

tabique existente

4.XEHETASUNA

e: 1/10

5.XEHETASUNA

e: 1/10

6.XEHETASUNA

e: 1/10

PROIEKTUA

FORJATUA ETA ESKAILERAREN GAUZATZEA

eragilea:

data:

JOXERRA ARRUE

2012KO MARTXOA

eskala
1/50-1/10

12
EGUNGO EGOERA

PROIEKTUA

oharrak:

PROIEKTUA

FORJATUA ETA ESKAILERAREN GAUZATZEA

eragilea:

data:

eskala

JOXERRA ARRUE

2012KO MARTXOA

1/100

13

ampliación de forjado