DES – PLA ( GI  –  Z ) AR TALLER HABITAR 2 do  AÑO – 1 er  BIMESTRE 2011 PROF.: BLANCA ZUÑIGA – JAVIER BASUALDO AYUDANTE: RIENZI RIOS
“ diseñar es transformar precedentes” Peter Eisenman
1er DES-PLA (Z-GI) MIENTO EUROPA 1910 - 1945
 
 
 
 
 
 
 
 
 
 
 
 
 
 
 
 
 
 
 
2do DES-PLA (Z-GI) MIENTO CALIFORNIA 1945 - 1966 1er DES-PLA (Z-GI) MIENTO EUROPA 1910 - 1945
 
 
 
 
 
 
 
 
 
 
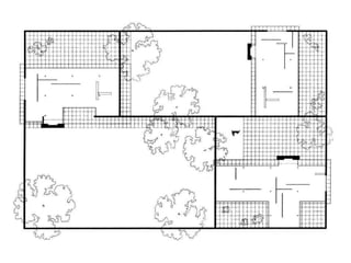
Vivienda Unifamiliar Realidad de Sur-California Encargo “Real” – Cliente “Ficticio” Libertad en Sistemas Constructivos y Materialidad Casa Replicable, no un objeto único. Presupuesto Ajustado Case Study Houses Arts & Architecture Magazine 1945 - 1966
“ A lo mejor, apelaremos  largamente al “símbolo “de la casa como lo conocemos. O tal vez nos demos cuenta de que para acomodarse a una nueva era, el paso mas importante para evadir un retroceso hacia el pasado, es la perseverancia en entender y aceptar  ideas contemporáneas en la creación de un ambiente que es responsable de dar forma a la mayor parte de nuestro habitar y pensar.” “ Lo que hemos aprendido de nosotros en los últimos cinco años es que , estamos seguros, expresarnos en el modo en que queremos habitar el futuro. Solo una cosa evitará la realización de ese deseo: la tenacidad de algunos en llorar por el pasado por ser incapaz de entender lo nuevo.” John Entenza Editor Arts & Architecture Presentación programa Case Study Houses, 1945
 
 
 
 
 
 
 
 
 
 
 
 
3 er  DES-PLA (Z-GI) MIENTO TALCA 2011 1 er  DES-PLA (Z-GI) MIENTO EUROPA 1910 - 1945 2 do  DES-PLA (Z-GI) MIENTO CALIFORNIA 1945 - 1966
 
 
 

Presentación1

  • 1.
    DES – PLA( GI – Z ) AR TALLER HABITAR 2 do AÑO – 1 er BIMESTRE 2011 PROF.: BLANCA ZUÑIGA – JAVIER BASUALDO AYUDANTE: RIENZI RIOS
  • 2.
    “ diseñar estransformar precedentes” Peter Eisenman
  • 3.
    1er DES-PLA (Z-GI)MIENTO EUROPA 1910 - 1945
  • 4.
  • 5.
  • 6.
  • 7.
  • 8.
  • 9.
  • 10.
  • 11.
  • 12.
  • 13.
  • 14.
  • 15.
  • 16.
  • 17.
  • 18.
  • 19.
  • 20.
  • 21.
  • 22.
  • 23.
    2do DES-PLA (Z-GI)MIENTO CALIFORNIA 1945 - 1966 1er DES-PLA (Z-GI) MIENTO EUROPA 1910 - 1945
  • 24.
  • 25.
  • 26.
  • 27.
  • 28.
  • 29.
  • 30.
  • 31.
  • 32.
  • 33.
  • 34.
    Vivienda Unifamiliar Realidadde Sur-California Encargo “Real” – Cliente “Ficticio” Libertad en Sistemas Constructivos y Materialidad Casa Replicable, no un objeto único. Presupuesto Ajustado Case Study Houses Arts & Architecture Magazine 1945 - 1966
  • 35.
    “ A lomejor, apelaremos largamente al “símbolo “de la casa como lo conocemos. O tal vez nos demos cuenta de que para acomodarse a una nueva era, el paso mas importante para evadir un retroceso hacia el pasado, es la perseverancia en entender y aceptar ideas contemporáneas en la creación de un ambiente que es responsable de dar forma a la mayor parte de nuestro habitar y pensar.” “ Lo que hemos aprendido de nosotros en los últimos cinco años es que , estamos seguros, expresarnos en el modo en que queremos habitar el futuro. Solo una cosa evitará la realización de ese deseo: la tenacidad de algunos en llorar por el pasado por ser incapaz de entender lo nuevo.” John Entenza Editor Arts & Architecture Presentación programa Case Study Houses, 1945
  • 36.
  • 37.
  • 38.
  • 39.
  • 40.
  • 41.
  • 42.
  • 43.
  • 44.
  • 45.
  • 46.
  • 47.
  • 48.
    3 er DES-PLA (Z-GI) MIENTO TALCA 2011 1 er DES-PLA (Z-GI) MIENTO EUROPA 1910 - 1945 2 do DES-PLA (Z-GI) MIENTO CALIFORNIA 1945 - 1966
  • 49.
  • 50.
  • 51.