Incrustar presentación
Descargado 41 veces




















































































































































































































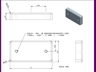
Este documento describe las funcionalidades de ensamble en ProEngineer. Explica cómo crear y modificar ensambles, modelar las partes y establecer relaciones y restricciones entre ellas. Presenta un ejemplo de ensamble de una chumacera con base, buje y tornillo, mostrando los subensambles y la interfaz gráfica.


















































































































































































































