Listado de Documentos:
1.- Listado de documentos
2.- Oficio
3.- Formulario único nacional MINVU
4.- Certificado de avalúo otorgado por el servicio de Impuestos internos -2016-
5.- Certificado de avalúo detallado
6.- Formulario único de Estadísticas de Edificación (INE)
7.- Patente del profesional que suscribe
8.- Antecedentes anexos al informe del arquitecto, que acrediten la existencia de las obras con anterioridad a la
promulgación de la ley 20.898 y sus modificaciones.
9.- Escritura
10.- Especificaciones técnicas resumidas
11.- Informe del arquitecto
12.- Planos numerados
JUAN-LUIS MENARES RODRÍGUEZ JOSE OSVALDO GONZALEZ FIERRO
Arquitecto ICA 10.867 Propietario
San Antonio, 22 de Noviembre de 2022
Adjunta:
Expediente.-
SOLICITUD DE REGULARIZACION
ANT: No considera
MAT: Ingreso antecedentes
A: SR. ARMANDO NUNCIO SABAJ ROJAS, DIRECTOR DE OBRAS
DE: JOSE OSVALDO GONZALEZ FIERRO PROPIETARIO
JUAN-LUIS MENARES RODRIGUEZ ARQUITECTO
Estimado Sr. Armando Nuncio Sabaj Rojas
Director de Obras
Ilustre Municipalidad de San Antonio
Mediante la presente, hacemos entrega a usted -y su equipo- de los antecedentes necesarios para SOLICITUD
DE REGULARIZACION. Esta correspondiente a obras, con destino HABITACIÓN, en propiedad rol 09062 −
00221. Específicamente ubicadas en RUTA G-904 #24, PC 46, CONDOMINIO LAS COLINAS DE STO.
DOMINGO, EX FUNDO SAN JUAN DE LLOLLEO, comuna de SAN ANTONIO, Provincia de SAN ANTONIO.
Sin otro particular y de antemano agradeciendo el valor de su tiempo, le saludan:
JUAN-LUIS MENARES RODRÍGUEZ JOSE OSVALDO GONZALEZ FIERRO
Arquitecto ICA 10.867 Propietario
San Antonio, 22 de noviembre de 2022
Adjunta:
Expediente.-
FORMULARIO 12.4 Ley 20.898 Título I
DECLARA BAJO SU RESPONSABILIDAD SER PROPIETARIO (O REPRESENTANTE LEGAL DEL PROPIETARIO) DEL BIEN RAÍZ UBICADO EN
CALLE/AVENIDA/CAMINO N°
ROL DE AVALÚO Nº
INSCRITO A FOJAS Nº
DE BIENES RAÍCES DE EN EL CUAL SE EMPLAZA LA VIVIENDA EXISTENTE A
REGULARIZAR, QUE SE ACOGE AL TÍTULO I DE LA LEY N° 20.898.
EN CASO QUE LA VIVIENDA A REGULARIZAR SE LOCALICE EN EL ÁREA RURAL, DECLARA QUE EL PREDIO EN EL QUE SE UBICA, NO TIENE
COMO ORIGEN UNA SUBDIVISIÓN APROBADA CONFORME AL D.L. 3.516 (DO 01 /12/ 1980) DEL MINISTERIO DE AGRICULTURA, QUE ESTABLECE
NORMAS SOBRE DIVISIÓN DE PREDIOS RÚSTICOS.
DECLARA ADEMÁS NO TENER A LA FECHA RECLAMACIONES ESCRITAS PENDIENTES POR INCUMPLIMIENTO DE NORMAS URBANÍSTICAS
INGRESADAS CON ANTERIORIDAD AL 04 DE FEBRERO DE 2016 ANTE LA DOM O EL JUZGADO DE POLICÍA LOCAL RESPECTIVO.
PERSONERÍA DEL REPRESENTANTE LEGAL : SE ACREDITA MEDIANTE
DE FECHA Y REDUCIDA A ESCRITURA PÚBLICA CON FECHA
ANTE EL NOTARIO SR (A)
O BIEN, SE ACREDITA MEDIANTE OTRO INSTRUMENTO (Especificar)*:
OTORGADO MEDIANTE DE FECHA
NOTA: según letra c) artículo 2° de la Ley N° 20.898 y según artículo 17° de la LGUC.
5 ANTECEDENTES DE LA EDIFICACIÓN A REGULARIZAR
5.1 LOCALIZACIÓN 5.2 PERMISO ANTERIOR/ RECEPCIÓN ANTERIOR
DIRECCIÓN/ CALLE/ PASAJE N° COMUNA
NOMBRE PROFESIONAL R.U.T.
PROFESIÓN PATENTE N°
(*) Para los efectos de Sociedades constituidas bajo el Régimen Simplificado de la Ley 20.659 de 2013, inscritas en el Registro de Empresas y Sociedades del Ministerio de Economía,
Fomento y Turismo, o bien aquellas personerías derivadas de otros actos jurídicos como un mandato especial u otro equivalente.
4 DATOS ARQUITECTO O PROFESIONAL COMPETENTE QUE SUSCRIBE SOLICITUD Y RECEPCIÓN DEFINITIVA (VER NOTA)
NOMBRE O RAZÓN SOCIAL DE LA EMPRESA (cuando corresponda) R.U.T. FIRMA
E-MAIL TELÉFONO CELULAR
PERSONA NATURAL O REPRESENTANTE LEGAL
REPRESENTANTE LEGAL R.U.T.
DIRECCIÓN / CALLE / PASAJE Nº COMUNA
DEL AÑO DEL REGISTRO DE PROPIEDAD DEL CONSERVADOR
3 DATOS DEL PROPIETARIO
NOMBRE O RAZÓN SOCIAL R.U.T. FIRMA DEL PROPIETARIO
2 DECLARACIÓN JURADA
CÉDULA DE IDENTIDAD Nº
NOMBRE
DE LA COMUNA DE
MANZANA LOTE LOTEO O LOCALIDAD PLANO DE LOTEO Nº
* A LLENAR POR LA LA DOM
1 DATOS DE LA PROPIEDAD
CALLE o CAMINO NÚMERO ROL SII
NÚMERO SOLICITUD
REGIÓN :
FECHA DE INGRESO
SOLICITUD DE REGULARIZACIÓN
(Permiso y Recepción definitiva)
VIVIENDA CUYOS RECINTOS HABITABLES INCLUIDOS BAÑO Y COCINA
QUE NO EXEDAN DE 140 m
2
, CON AVALÚO FISCAL NO SUPERIOR A 2.000 UF
ACOGIDA AL ARTÍCULO 3° DEL TÍTULO I DE LA LEY N° 20.898
(VIGENCIA PRORROGADA POR LA LEY 21.415 D.O. 04.02.2022)
DIRECCIÓN DE OBRAS MUNICIPALES DE :
RECEPCIÓN ANTERIOR N° / AÑO /
SÍ
NO
SÍ
RECEPCIÓN ANTERIOR
Nota: En caso que la edificacion a regularizar tenga más permisos, adjuntar esta misma hoja
indicando los permisos faltantes
PERMISO ANTERIOR SÍ
/
LA VIVIENDA A REGULARIZAR SE LOCALIZA AL INTERIOR DE
UNA COPROPIEDAD INMOBILIARIA NO
PERMISO ANTERIOR N° / AÑO
NO
RUTA G-904 (CONDOMINIO LAS COLINAS DE STO. DOMINGO) 24 9062-221
*** PC 46 EX FUNDO SAN JUAN DE LLOLLEO ***
JOSE OSVALDO GONZALEZ FIERRO 11.861.973 − 0
JOSE OSVALDO GONZALEZ FIERRO 11.861.973 − 0
RUTA G-904 (COLINAS DE STO. DOMINGO) #24, PC 46 SAN ANTONIO
jogonzalezfierro@gmail.com 941055309 +56941055309
JUAN LUIS MENARES RODRÍGUEZ 15069551-1
JUAN LUIS MENARES RODRÍGUEZ 15069551-1
ARQUITECTO PRO 207
J.M. CARRERA 1861 VIÑA DEL MAR
JOSE OSVALDO GONZALEZ FIERRO 11.861.973 − 0
RUTA G-904 24, PARCELA 46
9062-221 SAN ANTONIO
893 531 1999
SAN ANTONIO
DE VALPARAÍSO
SAN ANTONIO
FORMULARIO 12.4 Ley 20.898 Título I
5.3 SUPERFICIES (m
2
)
(*) Incluir superficies con permiso y superficies sin permiso a regularizar.
(**) La superficie total de estos recintos no puede superar los 140 m2
.
5.5 AVALÚO FISCAL DEL PREDIO SEGÚN S.I.I. (*)
5.7 NORMAS URBANÍSTICAS
ALTURA MÁXIMA EN METROS o PISOS
5.9 FORMA DE CUMPLIMIENTO ARTÍCULO 70° LGUC (*)
(*) SÓLO EN CASO DE PROYECTOS QUE CONLLEVEN CRECIMIENTO URBANO POR DENSIFICACIÓN (exigible conforme a plazos del Artículo primero transitorio de la Ley N° 20.958)
5.10 CÁLCULO PORCENTAJE DE CESIÓN (sólo en casos de proyectos de crecimiento urbano por densificación)
Exigible conforme a plazos del Artículo primero transitorio de la Ley N° 20.958 (artículo 2.2.5. Bis OGUC)
(a)
X 11 = %
(b)
Nota 3: La Densidad de Ocupación, se obtiene de la siguiente fórmula :
(Art. 2.2.5. Bis OGUC)
CÁLCULO DEL APORTE (EN LOS CASOS QUE CORRESPONDA)
(C)
TOTAL
Nota: la superficie total de recintos habitables (****)
incluidos baños y cocina no debe superar los 140 m2
de superficie (Este dato debe coincidir con penúltima
columna de cuadro anterior)
(***) La superficie total a regularizar debe incluir los recintos habitables y no habitables y descontadas las superficies con permiso.
Sobre esta superficie se calculan los Derechos Municipales.
(****)RECINTO HABITABLE : según N° 1 del inciso
primero del artículo 4.1.1. OGUC
2° Piso
X =
% DE CESIÓN
[(a) o (b)]
APORTE EQUIVALENTE EN DINERO [(c) x {(a) o (b)}]
(*) Avalúo Fiscal simple del predio, vigente a la fecha de
publicación de la Ley 20.898, el 04.02.2016.
No se puede acoger a la Ley 20.898 si este avalúo supera
las 2.000 UF.
Nota 1: se debe efectuar el cálculo solo de la edificación que se acoge a la ley 20.898 y sus modificaciones, sin discriminar sobre recintos habitables o no.
Nota 2: Para calcular la Densidad de Ocupación, se debe considerar la carga de ocupación (según art. 4.2.4. de la OGUC) que se incrementa en el o los terrenos del proyecto, sin
considerar en el cálculo, la cantidad de personas que ocupaban las edificaciones existentes, incluso si estas fuesen demolidas para materializar el proyecto. Sólo podrá descontarse
la carga de ocupacion de edificaciones a demoler, en los casos que el permiso de demolición se solicite en forma conjunta con la solicitud de permiso de edificación, y se adjunten
los antecedentes respectivos a dicha solicitud, conforme al inciso final del artículo 5.1.6. y al inciso tercero del artículo 5.1.4., ambos de la O.G.U.C.
(Carga de ocupación del proyecto calculada según el art. 4.2.4. de la OGUC) x 10.000
Superficie del terreno (que considera el terreno más la superficie exterior hasta el eje del
espacio público adyacente existente o previsto en el IPT hasta un máximo de 30 m)
AVALÚO FISCAL VIGENTE A LA FECHA DE LA SOLICITUD DE LA
MODIFICACIÓN, CORRESPONDIENTE AL TERRENO
(no se debe incluir valor de edificaciones existentes)
CON DENSIDAD DE OCUPACIÓN HASTA 8.000
Personas/Hectárea
(DENSIDAD DE OCUPACIÓN )
2000
CON DENSIDAD DE OCUPACIÓN SOBRE 8.000
Personas/Hectárea
44%
CESIÓN APORTE OTRO ESPECIFICAR;
PROYECTO PORCENTAJE DE CESIÓN
CLASIFICACIÓN(ES) CONSTRUCCIÓN PREDOMINANTE(S)
ESTACIONAMIENTOS Eximido de cumplir según Art. 3° Ley 20.899
DISTANCIAMIENTO
CLASIFICACIÓN m2
CLASIFICACIÓN m2
DENSIDAD
5.8 CLASIFICACIÓN
USO DE SUELO (solo puede emplazarse
donde se admita uso residencial)
ALTURA DE CIERROS Máximo 2,2 m
EXISTENTE
RASANTE
ANTEJARDINES Eximido de cumplir según Art. 3° Ley 20.898
SISTEMA DE AGRUPAMIENTO
NORMA URBANÍSTICA PERMITIDO EXISTENTE NORMA URBANÍSTICA PERMITIDO
Nota: Se debe efectuar el cálculo considerando la superficie total edificada que se acoge a la ley 20.898, incluyendo los recintos habitables y no habitables.
5.6 TIPO DE AGRUPAMIENTO
TIPO DE AGRUPAMIENTO
AVALÚO ($)
AISLADO PAREADO CONTINUO
AVALÚO (UF) NORMA COMPLEMENTARIA
ADOSAMIENTO
SUPERFICIE TOTAL TERRENO (m²)
5.4 CARGA DE OCUPACIÓN Y DENDIDAD DE OCUPACIÓN
CARGA DE OCUPACIÓN TOTAL DE LAS EDIFICACIONES A DENSIDAD DE OCUPACIÓN
REGULARIZAR (personas) según artículo 4.2.4. OGUC. (personas/hectárea)
1er. Piso
SUPERFICIE EDIFICADA TOTAL EDIFICADO (*)
SUPERFICIE RECINTOS
HABITABLES SIN PERMISO
(INCLUIDOS BAÑOS Y
COCINA) (**)
CON PERMISO Y
RECEPCIÓN
A REGULARIZAR (***)
TOTAL SUP. DE RECINTOS HABITABLES
INCLUIDOS BAÑO Y COCINA (m²)
3° y pisos superiores
ADOSAMIENTOS (Se exime de su
cumplimiento, siempre y cuando cumpla con
la resistencia al fuego y altura establecidos
en el artículo 2.6.2. de la OGUC, en lo
correspondiente)
COEFICIENTE DE CONSTRUCTIBILIDAD
(se exime de su cumplimiento siempre que la
vivienda no supere los dos pisos, incluyendo
mansardas)
COEF. DE OCUPACIÓN DE SUELO O
PISOS SUPERIORES (se exime de su
cumplimiento, siempre que no supere 0,8)
122.01 0.00 122.01 122.01
*** *** *** ***
*** ***
122.01 0.00
5192
122.01
e 122.01
***
122.01
***
122.01
7.633.909 225
6.10 11.75
11.17 0.06
$4.580
0.06
7.633.909
aporte en dinero
*** 2.35
*** 2.35
OGUC 0.00%
resdncl. resdncl.
*** 11.75
1.6
70 70
*** 1 piso
*** aislado
13.00
OGUC
FORMULARIO 12.4 Ley 20.898 Título I
ACOGIDA AL ARTÍCULO 3° DEL TÍTULO I DE LA LEY N° 20.898
CALLE o CAMINO NÚMERO
(VIGENCIA PRORROGADA POR LA LEY 21.415 D.O. 04.02.2022) NÚMERO SOLICITUD
TIMBRE DOM
DIRECCIÓN DE OBRAS - I. MUNICIPALIDAD DE :
Fecha de Ingreso
NOMBRE Y FIRMA FUNCIONARIO DOM
Ley 20.898 Título I
COMPROBANTE DE INGRESO
SOLICITUD DE REGULARIZACIÓN (PERMISO Y RECEPCIÓN DEFINITIVA)
VIVIENDA CUYOS RECINTOS HABITABLES INCLUIDOS BAÑO Y COCINA
QUE NO EXEDAN DE 140 m2
, CON AVALÚO FISCAL NO SUPERIOR A 2.000 UF
"
NOTA ( PARA SITUACIONES ESPECIALES )
DOM DOM
Acuerdo asamblea copropietarios en conformidad a lo dispuesto en
Ley 19.537, si procede.
Antecedentes anexos a informe del profesional competente que
permitan corroborar que la vivienda existía antes del 04/02/2016,
como por ejemplo: planos aprobados, cuentas de servicios,
certificados de contribuciones de bienes raíces, catastro municipal,
etc.
Fotocopia Patente del profesional que suscribe
Certificado de avalúo fiscal detallado, otorgado por el Servicio de
Impuestos Internos, vigente a la fecha de esta solicitud, para efectos
de determinar aportes, según la Ley 20.958.
6 ANTECEDENTES QUE SE ADJUNTAN
Informe del arquitecto o de un profesional competente que certifique
que la vivienda cumple con las normas de habitabilidad, seguridad,
estabilidad e instalaciones interiores señaladas en el numeral 6 del
artículo 1° de la Ley 20.898, y que no se emplaza en los terrenos a
que se refiere el numeral 2 del mismo artículo (áreas de riesgo o
protección, declarados de utilidad pública o bienes nacionales de uso
público).
Antecedentes administrativos Antecedentes técnicos
Listado de documentos y planos numerados,
Especificaciones técnicas resumidas suscritas por un arquitecto o
profesional competente
Certificado de avalúo fiscal simple, otorgado por el Servicio de
Impuestos Internos, vigente a la fecha de publicación de la Ley
20.898.
Croquis de ubicación y un plano de emplazamiento a escala 1:500
suscrito por un arquitecto o profesional competente .
Formulario único de estadísticas de Edificación (INE)
Proyecto de cálculo estructural, si procede.
Planos escala 1:50 que grafiquen todas las plantas, la elevación
principal y un corte representativo, señalando las medidas y superficie
de la vivienda existente, y un cuadro de superficie total construida y
superficie de terreno, suscritos por un arquitecto o profesional
competente.
RUTA G-904 (CONDOMINIO LAS COLINAS DE STO. DOMINGO) # 24 PC 46
SAN ANTONIO
Fecha de Emisión: 22 de Noviembre de 2022
CERTIFICADO DE AVALÚO FISCAL DE PERIODOS ANTERIORES
Válido para el SEGUNDO SEMESTRE DE 2022
Comuna : SAN ANTONIO
Número de Rol de Avalúo : 09062 − 00221
Dirección o Nombre del bien raíz : PC20 SAN JUAN PC 46 COLINAS DE STO DOMIN
Destino del bien raíz : SITIO ERIAZO
AVALÚO TOTAL al PRIMER SEMESTRE de 2016 $ 7.633.909
El avalúo que se certifica ha sido determinado de acuerdo a las tablas vigentes al semestre que se indica, y no
corresponde a una tasación comercial de la propiedad.
El avalúo certificado sólo incluye el valor del suelo y de las construcciones caracterizadas en la ley 17.235, por lo
que pudiesen existir bienes excluídos de esta tasación, los que deberán ser valorizados para efectos del
cálculo del impuesto a las herencias, asignaciones y donaciones.
Por Orden del Director
CERTIFICADO GRATUITO
1/1
Fecha de Emisión: 8 de Noviembre de 2022
Página 1 de 2
CERTIFICADO DE AVALÚO FISCAL DETALLADO
Avalúos en pesos del SEGUNDO SEMESTRE DE 2022
Comuna : SAN ANTONIO
Número de Rol de Avalúo : 09062 − 00221
Dirección o Nombre del bien raíz : PC20 SAN JUAN PC 46 COLINAS DE STO DOMIN
Destino del bien raíz : SITIO ERIAZO
Registrado a Nombre de : GONZALEZ FIERRO JOSE OSVALDO
RUN o RUT Registrado : 11.861.973 − 0
AVALÚO TERRENO PROPIO : $ 21.074.795
AVALÚO TOTAL : $ 21.074.795
AVALÚO EXENTO DE IMPUESTO : $ 0
AVALÚO AFECTO A IMPUESTO : $ 21.074.795
SUPERFICIE TERRENO (m²) : 5.192
SUPERFICIE CONSTRUCCIONES (m²) : 0
El avalúo que se explicita en este documento es el que corresponde a los antecedentes recopilados por el
Servicio en el presente proceso de reavalúo 2022 y que se considerará, de no existir modificaciones en el
catastro de los bienes raíces, en el proceso de exhibición que se regula en el articulo 6° de la Ley N° 17.235.
Se recuerda que la oportunidad para deducir eventuales impugnaciones al avalúo del predio es dentro del plazo
que establece el artículo 149 del Código Tributario.
Este Certificado no acredita dominio del bien raíz.
Por Orden del Director
CERTIFICADO GRATUITO
Certificado de Avalúo Fiscal Detallado
1/2
Fecha de Emisión: 8 de Noviembre de 2022
Página 2 de 2
ANEXO CERTIFICADO DE AVALÚO DETALLADO
Comuna : SAN ANTONIO
Número de Rol de Avalúo : 09062 − 00221
Dirección o Nombre del bien raíz : PC20 SAN JUAN PC 46 COLINAS DE STO DOMIN
Destino del bien raíz : SITIO ERIAZO
Detalle Avalúo Bienes Comunes
Rol Bien Común Tipo de
Copropiedad
Avalúo Total Bien Común % Prorrateo Avalúo Prorrateado
No Registra
Total Avalúo Bienes Comunes $ 0
Detalle Avalúo Líneas de Terreno
Línea Superficie (m²) Avalúo Unitario (Aprox.) Avalúo Línea
1 5.192 $ 4.059 $ 21.074.795
Total Avalúo Terreno $ 21.074.795
Detalle Avalúo Líneas de Construcción
Línea Clase Calidad Cantidad
(m² o m³)
Año
Constr
Avalúo Línea
No
Registra
Total Avalúo Construcciones $ 0
Por Orden del Director
CERTIFICADO GRATUITO
Certificado de Avalúo Fiscal Detallado
2/2
Instituto Nacional de Estadísticas
Subdirección de Operaciones
Subdepartamento Estadísticas Sectoriales de Industrias
Unidad de Edficación
Paseo Bulnes 418, piso 4°
Teléfonos: 02-28924410 02-28924406
Santiago - Chile
Con fecha 24/11/2022 el Instituto Nacional de Estadísticas da por recepcionada la
Encuesta de edificación, Correspondiente al mes de noviembre de 2022
CERTIFICADO DE INGRESO
FORMULARIO ÚNICO DE EDIFICACIÓN - WEB
Folio:
Nombre propietario:
Nombre Comuna:
Rol Avalúo:
Agradecemos su Colaboración
Señor Informante: Conserve este Certificado de Recepción. Este documento valida la
entrega de la información.
Pablo Araya Sepúlveda
Jefe de Producto
E-Mail : pablo.araya@ine.cl
560102704-1
GONZALEZ FIERRO JOSE OSVALDO
San Antonio
9062-221
Profesional responsable: JUAN LUIS MENARES RODRIGUEZ
E-Mail: MENARESJL@GMAIL.COM
Firma del Profesional competente
Superficie (M2): 122
Materialidad E / 3
Destino Casa aislada
Antecedentes anexos al informe del arquitecto, que acrediten la existencia de las obras con anterioridad a
la promulgación de la ley 20.898 y sus modificaciones.
ROL PREDIAL: 9062-221
COORDENADA UTM: -33.639721 -71.500573
DIRECCIÓN: RUTA G904 #24, PC 46 CONDOMINIO COLINAS DE STO. DOMINGO, EX PARCELA 20
DEL ANTIGUO FUNDO SAN JUAN
COMUNA : SAN ANTONIO
1.- Deuda histórica contribuciones
2.- Plancheta SII
3.- Imágenes históricas de google earth 2010-2016
2010
2011
2012
2013
2014
2015
2016
NOTA: Las obras exteriores son autoportantes y sujetas al art 5.1.2 de la OGUC.-
X Locales habitables poseen al menos una ventana que permite la entrada de aire y de luz
Locales habitables que no contemplan ventana poseen ductos de ventilación de aire
X Baños, cocinas y zonas húmedas en general contemplan ventana al exterior.
Baños, cocinas o zonas húmedas sin ventana al exterior poseen ductos de ventilación de aire.
X Altura mínima piso a cielo de 2,30 cm
EL INMUEBLE CUMPLE CON LA EXIGENCIA TÉRMICA PARA ZONA 2. ART. 4.1.10:
X Aislación para techumbre de espesor mínimo 60mm
Muros de albañilería de ladrillo o bloque de hormigón
X Tabiques exteriores con aislación de espesor mínimo 30mm
Aislación para pisos ventilados mínimo 50mm
X La superficie de ventanas no sobrepasa el 40% de la superficie de muros
EL INMUEBLE CUMPLE CON LA RESISTENCIA EL FUEGO. ART 4.3.3:
Muros cortafuego X
INFORME TÉCNICO
Sobre el cumplimiento de normas de habitabilidad, seguridad, estabilidad y de las instalaciones interiores. Según
Ordenanza General de Urbanismo y Construcción.
TIPO DE TRÁMITE
PROFESIONAL
RUT
EDIFICACION
POR EL PRESENTE INFORME SE ACREDITA QUE LA OBRA OBJETO DE ESTA SOLICITUD, CUMPLE CON LAS
SIGUIENTES NORMAS DE HABITABILIDAD, SEGURIDAD, ESTABILIDAD Y DE LAS INSTALACIONES INTERIORES:
EL INMUEBLE CUMPLE LAS SIGUIENTES NORMAS DE HABITABILIDAD.
ART. 4.1.1. , 4.1.2., 4.1.3.
F-120:
DIRECCION
ROL
SOLICITUD DE REGULARIZACIÓN LEY 20898
JUAN LUIS MENARES RODRIGUEZ
15.069.551-1
VIVIENDA UNIFAMILIAR
RUTA G-904 #24 PC 46 (CONDOMINIO LAS COLINAS DE STO. DOMINGO)
9062 - 221
Detallar:
Detallar:
NO APLICA
COMUNA SAN ANTONIO
LOCALIDAD EX FUNDO SAN JUAN DE LLOLLEO
Acero/ steel frame
Albañilería ladrillo/ hormigón
Fibrocemento 12 mm
Hormigón armado
Panel madera prensada
Acero recubierto de hormigón
Mampostería en piedra
Otros
Muro zona vertical y caja escalera X
Muro caja ascensor X
Muro de adosamiento proyectado sobre cubierta o divisorio unidades X
X Elementos soportantes verticales
X
X Muros no soportantes y tabiques
X
Escaleras X
X Elementos soportantes horizontales
X X
X
F-60:
Albañilería ladrillo princesa Albañilería hormigón
Acero/ steel frame Madera
Fibrocemento 12 mm Yeso cartón
NO APLICA
Fibrocemento 12 mm Yeso cartón
Hormigón armado Otros
F-60:
Albañilería ladrillo/ hormigón Mampostería en piedra
Hormigón armado Otros
F-60:
Albañilería ladrillo/ hormigón Mampostería en piedra
Acero/ steel frame Madera
F-30:
Albañilería ladrillo/ hormigón Mampostería en piedra
Acero/ steel frame Carpintería madera
Fibrocemento 12 mm Yeso cartón
Acero/ steel frame Madera
Fibrocemento 12 mm Yeso cartón
Hormigón armado Otros
F-30:
Albañilería armada ladrillo Muro hormigón
Envigado madera Muro madera
Envigado acero Envigado hormigón armado
Panel prefabricado acero Panel prefabricado madera
Hormigón armado Otros
Fibrocemento
NO APLICA
NO APLICA
NO APLICA
NO APLICA
NO APLICA
NO APLICA
Yeso cartón
Vidrio Otros
S/R:
Reticulados acero/ madera Otros: RADIER H°A°
Albañilería ladrillo/ hormigón Mampostería en piedra
Hormigón armado Otros
S/R:
Albañilería Panel hormigón
Acero Madera
Acero Carpintería madera
X Techumbre incluido cielo falso
X
X
X
Losa hormigón armado Piso madera impermeabilizada
EL INMUEBLE CUMPLE CON LAS SIGUIENTES NORMAS ESTRUCTURALES TÍTULO 5, CAPÍTULO 6:
Muros exteriores de albañilería
Muros interiores de albañilería
Pilares de H.A. sección mínima 20x20cm con armadura 4Ø 10 mm y estribos ø6@20cm
Pilares de H.A.de 15x15cm en construcción de un piso
Cadenas de H.A. con un ancho mínimo igual al espesor del muro y una altura no inferior
a 20cm y una armadura mínima de 4ø10mm y estribos ø6@20cm.
X Toda la madera estructural es impregnada.
X La dimensión mínima de la madera de tabiques estructurales es de 2”x4"
X La dimensión mínima de la madera estructural de techumbre es de 1”x4".
X Para entramados de piso la dimensión de los elementos de madera es de 2”x6"
X Las fundaciones tienen una dimensión mínima de 40x40cm penetrando a lo menos 60cm
en terreno no removido
Los pilares aislados tendrán una escuadría mínima de 4”x4” y 6”x6” cuando reciben carga de segundo piso
X Paneles de muros están arriostrados en los planos verticales, horizontales e inclinados.
X Soleras inferiores de los diafragmas se fijan al sobre cimiento mediante anclajes de acero liso de 6
mm de diámetro, colocados a una distancia máxima de 0,50 m entre sí.
X Los diafragmas se conectan entre sí, como mínimo, mediante 3 pernos de acero de 8 mm de
diámetro, distribuidos en la altura de cada piso u otro sistema equivalente.
X Los entramados en contacto directo con el exterior o ambientes húmedos, son estancos al agua y a la
humedad, mediante uso de polietileno, fieltros u otros impermeabilizantes.
Los entramados de acero se ejecutan en perfiles laminados según norma chilena.
X Los espacios intermedios se cubren con viguetas de madera/ planchas de acero/ aglomerados.
X El espaciamiento máximo de los pies derechos es de 0,50 m entre ejes.
X La distancia máxima entre ejes, de los travesaños o riostras, y entre éstos y las soleras, es de 0,65 m.
X La altura de los diafragmas (recubrimiento) de fachadas y tabiques no supera los 3 m en cada piso.
X La escuadría de las soleras, diagonales y travesaños es igual a la escuadría de los pies derechos.
X Las diagonales cortan los pies derechos manteniendo la continuidad estructural de soleras.
X Los diafragmas están dispuestos en dos direcciones ortogonales, con espaciamientos máximos entre ejes
de 3,6 m en cada dirección.
X Distanciamiento de vanos mayor a 3,6 metros en muros disponen de arriostramientos.
X La distribución de elementos será preferentemente simétrica y uniforme, en cuanto a materiales y
dimensiones, con el objeto de evitar solicitaciones de torsión en la estructura
F-15:
Cubierta acero galvanizado Cubierta tejuela asfáltica
NO APLICA
Cielo yeso cartón Cielo fibrocemento
Cercha de madera Cercha acero
Cubierta vidrio/ fibra de vidrio Cubierta fibrocemento
En casos de notoria asimetría o desuniformidad en la distribución de los diafragmas, se aplica
juntas de dilatación entre volúmenes.
X En tabiques razón altura/longitud inferior a 2,0 ó 3,5 -cuando posean revestimientos contrachapados-.
X Peso propio de techumbres inferior a 0,8 kPa (80 kgf/m2).
X Estructura de techos arriostrada tanto en los planos horizontales, como en los verticales e inclinados
EL INMUEBLE CUMPLE CON LAS SIGUIENTES INSTALACIONES FUNCIONANDO CORRECTAMENTE:
X Instalación eléctrica
X Instalación de agua potable
X Instalación de alcantarillado
Instalación de gas
Otro
EMPLAZAMIENTO
X Cumple
Juan-Luis Menares Rodríguez
Arquitecto U.T.F.S.M.
El inmueble no se emplaza en terrenos que sean considerados prohibitivos para el destino. Tampoco en aquellas zonas definidas por el
plan regulador como no aptas para la construcción o protegidas como área verde.
FUNDACIONES
ESTRUCTURA DE TECHUMBRE
*** ***
15.069.551-1
DIRECCIÓN / CALLE / PASAJE Nº
ESTRUCTURA DE MUROS
ESTRUCTURA CIERRE PERIMETRAL
ESTRUCTURA DE PISOS Y ENTREPISOS
JM CARRERA 1861 - B VINA DEL MAR
COMUNA
4.- ESPECIFICACIONES TECNICAS RESUMIDAS
NOMBRE O RAZÓN SOCIAL DE LA EMPRESA (cuando corresponda) R.U.T. FIRMA
MANZANA LOTE LOTEO O LOCALIDAD PLANO DE LOTEO Nº
2.- DATOS DEL PROPIETARIO
NOMBRE O RAZÓN SOCIAL R.U.T. FIRMA DEL PROPIETARIO
*** PC 46 CDMN LAS COLINAS DE STO. DGO. EX FDO. SN JUAN DE LLOLLEO ***
NOMBRE ARQUITECTO PROYECTISTA R.U.T.
JUAN LUIS MENARES RODRIGUEZ
JOSE OSVALDO GONZALEZ FIERRO 11.861.973-0
PATENTE PROFESIONAL N°
PRO 207
ESPECIFICACIONES TÉCNICAS RESUMIDAS
COMUNA ROLSII
SAN ANTONIO 9062-221
PERSONA NATURAL O REP.
LEGAL
REPRESENTANTE LEGAL R.U.T.
*** ***
TIPO DE SOLICITUD: SOLICITUD DE REGULARIZACIÓN -LEY 20898-.
1.- DIRECCIÓN DE LA PROPIEDAD
RUTA G-904
CALLE o CAMINO NUMERO
24
CUBIERTA
3.- ARQUITECTO PROYECTISTA
ZAPATA CORRIDA DE HORMIGÓN ARMADO
CARPINTERÍA DE MADERA, TABLEROS PREFABRICADOS DE MADERA.
RADIER DE HORMIGÓN ARMADO. NO EXISTE ENTREPISOS.
PANELES PREFABRICADOS DE MADERA SOBRE ENVIGADOS Y CERCHAS DE MADERA
POLINES DE MADERA Y ALAMBRADA
TEJUELA ASFÁLTICA
RED DE AGUA POTABLE
INSTALACION AGUA POTABLE
INSTALACION SANITARIA
PUERTAS
VENTANAS
REVESTIMIENTOS EXTERIORES
RED ALCANTARILLADO
REVESTIMIENTOS INTERIORES
CIELOS
PLANCHA FIBROCEMENTO EN ÁREAS SOCIALES Y DE SERVICIOS. PLANCHA YESO CARTÓN EN HABITACIONES
CERÁMICOS SOBRE PLANCHA FIBROCEMENTO
PLANCHA YESO CARTÓN
POLIESTIRENO EXPANDIDO
POLIESTIRENO EXPANDIDO
CERÁMICOS SOBRE RADIER EN TODAS LAS ÁREAS
ATABLERADAS
PERFILERIA DE ALUMINIO
AISLACIÓN EN MUROS PERIMETRALES
PAVIMENTOS
REVESTIMIENTOS INTERIORES BAÑO Y COCINA
AISLACIÓN EN TECHUMBRE
SISTEMA DE RED PÚBLICA
CAÑERÍAS DE COBRE EMBEBIDAS, GRIFERÍA CORRIENTE.
COLECTOR PÚBLICO
TUBERÍAS DE PVC HDPE, ARTEFACTOS ECONÓMICOS.
RED AÉREA PÚBLICA.
RED ELECTRICA
PLANCHA FIBROCEMENTO
RESISTENCIA AL FUEGO
RED DE GAS
NO TIENE
OBRAS EXTERIORES
TERMINACIÓN EXTERIOR
TERMINACIÓN CUBIERTA
PINTURA ESMALTE SINTÉTICO
TEJUELA ASFÁLTICA
CROMÁTICA CUBIERTAS
CROMÁTICA FACHADAS
PORCENTAJE VIDRIADO
NO TIENE, CONSIDERA VENTILACIÓN NATURAL EN TODAS LAS ÁREAS
40% EN VIDRIO MONOLÍTICO
S/R: TABIQUERÍA
MADERA
S/R: NO CONSIDERA F-30: CARPINTERÍA MADERA
F-15: VIGAS MADERA Y
TERCIADOS
F-15: YESO CARTON
TABIQUES Y MUROS NO
SOPORTANTES
ESCALERAS
ELEMENTOS SOPORTE
HORIZONTAL
TECHUMBRE CIELO FALSO
NO TIENE
MUROS DE CONTENCIÓN
VENTILACIÓN FORZADA
F-120: NO APLICA F-60: NO APLICA F-60: NO APLICA F-60: NO APLICA
F-30: CARPINTERÍA
MADERA
INSTALACIÓN DE GAS
INSTALACIÓN ELECTRICA
COLORES TERROSOS
MATERIAL VISTO
MUROS CORTAFUEGO
MUROS ZONA
VERTICAL
MUROS CAJA ASCENSORES
MUROS DIVISORIOS
UNIDADES
ELEMENTOS SOPORTE
VERTICAL
CANALIZACIÓN PVC EMBUTIDO, CABLES DE COBRE TIPO L, ARTEFACTOS ECONÓMICOS.
NO TIENE
NO TIENE
Regularizaciones Quillota
Regularizaciones Quillota
Regularizaciones Quillota
Regularizaciones Quillota
Regularizaciones Quillota
Regularizaciones Quillota
Regularizaciones Quillota
Regularizaciones Quillota
Regularizaciones Quillota
Regularizaciones Quillota
Regularizaciones Quillota
Regularizaciones Quillota

Regularizaciones Quillota

  • 2.
    Listado de Documentos: 1.-Listado de documentos 2.- Oficio 3.- Formulario único nacional MINVU 4.- Certificado de avalúo otorgado por el servicio de Impuestos internos -2016- 5.- Certificado de avalúo detallado 6.- Formulario único de Estadísticas de Edificación (INE) 7.- Patente del profesional que suscribe 8.- Antecedentes anexos al informe del arquitecto, que acrediten la existencia de las obras con anterioridad a la promulgación de la ley 20.898 y sus modificaciones. 9.- Escritura 10.- Especificaciones técnicas resumidas 11.- Informe del arquitecto 12.- Planos numerados JUAN-LUIS MENARES RODRÍGUEZ JOSE OSVALDO GONZALEZ FIERRO Arquitecto ICA 10.867 Propietario San Antonio, 22 de Noviembre de 2022 Adjunta: Expediente.-
  • 3.
    SOLICITUD DE REGULARIZACION ANT:No considera MAT: Ingreso antecedentes A: SR. ARMANDO NUNCIO SABAJ ROJAS, DIRECTOR DE OBRAS DE: JOSE OSVALDO GONZALEZ FIERRO PROPIETARIO JUAN-LUIS MENARES RODRIGUEZ ARQUITECTO Estimado Sr. Armando Nuncio Sabaj Rojas Director de Obras Ilustre Municipalidad de San Antonio Mediante la presente, hacemos entrega a usted -y su equipo- de los antecedentes necesarios para SOLICITUD DE REGULARIZACION. Esta correspondiente a obras, con destino HABITACIÓN, en propiedad rol 09062 − 00221. Específicamente ubicadas en RUTA G-904 #24, PC 46, CONDOMINIO LAS COLINAS DE STO. DOMINGO, EX FUNDO SAN JUAN DE LLOLLEO, comuna de SAN ANTONIO, Provincia de SAN ANTONIO. Sin otro particular y de antemano agradeciendo el valor de su tiempo, le saludan: JUAN-LUIS MENARES RODRÍGUEZ JOSE OSVALDO GONZALEZ FIERRO Arquitecto ICA 10.867 Propietario San Antonio, 22 de noviembre de 2022 Adjunta: Expediente.-
  • 4.
    FORMULARIO 12.4 Ley20.898 Título I DECLARA BAJO SU RESPONSABILIDAD SER PROPIETARIO (O REPRESENTANTE LEGAL DEL PROPIETARIO) DEL BIEN RAÍZ UBICADO EN CALLE/AVENIDA/CAMINO N° ROL DE AVALÚO Nº INSCRITO A FOJAS Nº DE BIENES RAÍCES DE EN EL CUAL SE EMPLAZA LA VIVIENDA EXISTENTE A REGULARIZAR, QUE SE ACOGE AL TÍTULO I DE LA LEY N° 20.898. EN CASO QUE LA VIVIENDA A REGULARIZAR SE LOCALICE EN EL ÁREA RURAL, DECLARA QUE EL PREDIO EN EL QUE SE UBICA, NO TIENE COMO ORIGEN UNA SUBDIVISIÓN APROBADA CONFORME AL D.L. 3.516 (DO 01 /12/ 1980) DEL MINISTERIO DE AGRICULTURA, QUE ESTABLECE NORMAS SOBRE DIVISIÓN DE PREDIOS RÚSTICOS. DECLARA ADEMÁS NO TENER A LA FECHA RECLAMACIONES ESCRITAS PENDIENTES POR INCUMPLIMIENTO DE NORMAS URBANÍSTICAS INGRESADAS CON ANTERIORIDAD AL 04 DE FEBRERO DE 2016 ANTE LA DOM O EL JUZGADO DE POLICÍA LOCAL RESPECTIVO. PERSONERÍA DEL REPRESENTANTE LEGAL : SE ACREDITA MEDIANTE DE FECHA Y REDUCIDA A ESCRITURA PÚBLICA CON FECHA ANTE EL NOTARIO SR (A) O BIEN, SE ACREDITA MEDIANTE OTRO INSTRUMENTO (Especificar)*: OTORGADO MEDIANTE DE FECHA NOTA: según letra c) artículo 2° de la Ley N° 20.898 y según artículo 17° de la LGUC. 5 ANTECEDENTES DE LA EDIFICACIÓN A REGULARIZAR 5.1 LOCALIZACIÓN 5.2 PERMISO ANTERIOR/ RECEPCIÓN ANTERIOR DIRECCIÓN/ CALLE/ PASAJE N° COMUNA NOMBRE PROFESIONAL R.U.T. PROFESIÓN PATENTE N° (*) Para los efectos de Sociedades constituidas bajo el Régimen Simplificado de la Ley 20.659 de 2013, inscritas en el Registro de Empresas y Sociedades del Ministerio de Economía, Fomento y Turismo, o bien aquellas personerías derivadas de otros actos jurídicos como un mandato especial u otro equivalente. 4 DATOS ARQUITECTO O PROFESIONAL COMPETENTE QUE SUSCRIBE SOLICITUD Y RECEPCIÓN DEFINITIVA (VER NOTA) NOMBRE O RAZÓN SOCIAL DE LA EMPRESA (cuando corresponda) R.U.T. FIRMA E-MAIL TELÉFONO CELULAR PERSONA NATURAL O REPRESENTANTE LEGAL REPRESENTANTE LEGAL R.U.T. DIRECCIÓN / CALLE / PASAJE Nº COMUNA DEL AÑO DEL REGISTRO DE PROPIEDAD DEL CONSERVADOR 3 DATOS DEL PROPIETARIO NOMBRE O RAZÓN SOCIAL R.U.T. FIRMA DEL PROPIETARIO 2 DECLARACIÓN JURADA CÉDULA DE IDENTIDAD Nº NOMBRE DE LA COMUNA DE MANZANA LOTE LOTEO O LOCALIDAD PLANO DE LOTEO Nº * A LLENAR POR LA LA DOM 1 DATOS DE LA PROPIEDAD CALLE o CAMINO NÚMERO ROL SII NÚMERO SOLICITUD REGIÓN : FECHA DE INGRESO SOLICITUD DE REGULARIZACIÓN (Permiso y Recepción definitiva) VIVIENDA CUYOS RECINTOS HABITABLES INCLUIDOS BAÑO Y COCINA QUE NO EXEDAN DE 140 m 2 , CON AVALÚO FISCAL NO SUPERIOR A 2.000 UF ACOGIDA AL ARTÍCULO 3° DEL TÍTULO I DE LA LEY N° 20.898 (VIGENCIA PRORROGADA POR LA LEY 21.415 D.O. 04.02.2022) DIRECCIÓN DE OBRAS MUNICIPALES DE : RECEPCIÓN ANTERIOR N° / AÑO / SÍ NO SÍ RECEPCIÓN ANTERIOR Nota: En caso que la edificacion a regularizar tenga más permisos, adjuntar esta misma hoja indicando los permisos faltantes PERMISO ANTERIOR SÍ / LA VIVIENDA A REGULARIZAR SE LOCALIZA AL INTERIOR DE UNA COPROPIEDAD INMOBILIARIA NO PERMISO ANTERIOR N° / AÑO NO RUTA G-904 (CONDOMINIO LAS COLINAS DE STO. DOMINGO) 24 9062-221 *** PC 46 EX FUNDO SAN JUAN DE LLOLLEO *** JOSE OSVALDO GONZALEZ FIERRO 11.861.973 − 0 JOSE OSVALDO GONZALEZ FIERRO 11.861.973 − 0 RUTA G-904 (COLINAS DE STO. DOMINGO) #24, PC 46 SAN ANTONIO jogonzalezfierro@gmail.com 941055309 +56941055309 JUAN LUIS MENARES RODRÍGUEZ 15069551-1 JUAN LUIS MENARES RODRÍGUEZ 15069551-1 ARQUITECTO PRO 207 J.M. CARRERA 1861 VIÑA DEL MAR JOSE OSVALDO GONZALEZ FIERRO 11.861.973 − 0 RUTA G-904 24, PARCELA 46 9062-221 SAN ANTONIO 893 531 1999 SAN ANTONIO DE VALPARAÍSO SAN ANTONIO
  • 5.
    FORMULARIO 12.4 Ley20.898 Título I 5.3 SUPERFICIES (m 2 ) (*) Incluir superficies con permiso y superficies sin permiso a regularizar. (**) La superficie total de estos recintos no puede superar los 140 m2 . 5.5 AVALÚO FISCAL DEL PREDIO SEGÚN S.I.I. (*) 5.7 NORMAS URBANÍSTICAS ALTURA MÁXIMA EN METROS o PISOS 5.9 FORMA DE CUMPLIMIENTO ARTÍCULO 70° LGUC (*) (*) SÓLO EN CASO DE PROYECTOS QUE CONLLEVEN CRECIMIENTO URBANO POR DENSIFICACIÓN (exigible conforme a plazos del Artículo primero transitorio de la Ley N° 20.958) 5.10 CÁLCULO PORCENTAJE DE CESIÓN (sólo en casos de proyectos de crecimiento urbano por densificación) Exigible conforme a plazos del Artículo primero transitorio de la Ley N° 20.958 (artículo 2.2.5. Bis OGUC) (a) X 11 = % (b) Nota 3: La Densidad de Ocupación, se obtiene de la siguiente fórmula : (Art. 2.2.5. Bis OGUC) CÁLCULO DEL APORTE (EN LOS CASOS QUE CORRESPONDA) (C) TOTAL Nota: la superficie total de recintos habitables (****) incluidos baños y cocina no debe superar los 140 m2 de superficie (Este dato debe coincidir con penúltima columna de cuadro anterior) (***) La superficie total a regularizar debe incluir los recintos habitables y no habitables y descontadas las superficies con permiso. Sobre esta superficie se calculan los Derechos Municipales. (****)RECINTO HABITABLE : según N° 1 del inciso primero del artículo 4.1.1. OGUC 2° Piso X = % DE CESIÓN [(a) o (b)] APORTE EQUIVALENTE EN DINERO [(c) x {(a) o (b)}] (*) Avalúo Fiscal simple del predio, vigente a la fecha de publicación de la Ley 20.898, el 04.02.2016. No se puede acoger a la Ley 20.898 si este avalúo supera las 2.000 UF. Nota 1: se debe efectuar el cálculo solo de la edificación que se acoge a la ley 20.898 y sus modificaciones, sin discriminar sobre recintos habitables o no. Nota 2: Para calcular la Densidad de Ocupación, se debe considerar la carga de ocupación (según art. 4.2.4. de la OGUC) que se incrementa en el o los terrenos del proyecto, sin considerar en el cálculo, la cantidad de personas que ocupaban las edificaciones existentes, incluso si estas fuesen demolidas para materializar el proyecto. Sólo podrá descontarse la carga de ocupacion de edificaciones a demoler, en los casos que el permiso de demolición se solicite en forma conjunta con la solicitud de permiso de edificación, y se adjunten los antecedentes respectivos a dicha solicitud, conforme al inciso final del artículo 5.1.6. y al inciso tercero del artículo 5.1.4., ambos de la O.G.U.C. (Carga de ocupación del proyecto calculada según el art. 4.2.4. de la OGUC) x 10.000 Superficie del terreno (que considera el terreno más la superficie exterior hasta el eje del espacio público adyacente existente o previsto en el IPT hasta un máximo de 30 m) AVALÚO FISCAL VIGENTE A LA FECHA DE LA SOLICITUD DE LA MODIFICACIÓN, CORRESPONDIENTE AL TERRENO (no se debe incluir valor de edificaciones existentes) CON DENSIDAD DE OCUPACIÓN HASTA 8.000 Personas/Hectárea (DENSIDAD DE OCUPACIÓN ) 2000 CON DENSIDAD DE OCUPACIÓN SOBRE 8.000 Personas/Hectárea 44% CESIÓN APORTE OTRO ESPECIFICAR; PROYECTO PORCENTAJE DE CESIÓN CLASIFICACIÓN(ES) CONSTRUCCIÓN PREDOMINANTE(S) ESTACIONAMIENTOS Eximido de cumplir según Art. 3° Ley 20.899 DISTANCIAMIENTO CLASIFICACIÓN m2 CLASIFICACIÓN m2 DENSIDAD 5.8 CLASIFICACIÓN USO DE SUELO (solo puede emplazarse donde se admita uso residencial) ALTURA DE CIERROS Máximo 2,2 m EXISTENTE RASANTE ANTEJARDINES Eximido de cumplir según Art. 3° Ley 20.898 SISTEMA DE AGRUPAMIENTO NORMA URBANÍSTICA PERMITIDO EXISTENTE NORMA URBANÍSTICA PERMITIDO Nota: Se debe efectuar el cálculo considerando la superficie total edificada que se acoge a la ley 20.898, incluyendo los recintos habitables y no habitables. 5.6 TIPO DE AGRUPAMIENTO TIPO DE AGRUPAMIENTO AVALÚO ($) AISLADO PAREADO CONTINUO AVALÚO (UF) NORMA COMPLEMENTARIA ADOSAMIENTO SUPERFICIE TOTAL TERRENO (m²) 5.4 CARGA DE OCUPACIÓN Y DENDIDAD DE OCUPACIÓN CARGA DE OCUPACIÓN TOTAL DE LAS EDIFICACIONES A DENSIDAD DE OCUPACIÓN REGULARIZAR (personas) según artículo 4.2.4. OGUC. (personas/hectárea) 1er. Piso SUPERFICIE EDIFICADA TOTAL EDIFICADO (*) SUPERFICIE RECINTOS HABITABLES SIN PERMISO (INCLUIDOS BAÑOS Y COCINA) (**) CON PERMISO Y RECEPCIÓN A REGULARIZAR (***) TOTAL SUP. DE RECINTOS HABITABLES INCLUIDOS BAÑO Y COCINA (m²) 3° y pisos superiores ADOSAMIENTOS (Se exime de su cumplimiento, siempre y cuando cumpla con la resistencia al fuego y altura establecidos en el artículo 2.6.2. de la OGUC, en lo correspondiente) COEFICIENTE DE CONSTRUCTIBILIDAD (se exime de su cumplimiento siempre que la vivienda no supere los dos pisos, incluyendo mansardas) COEF. DE OCUPACIÓN DE SUELO O PISOS SUPERIORES (se exime de su cumplimiento, siempre que no supere 0,8) 122.01 0.00 122.01 122.01 *** *** *** *** *** *** 122.01 0.00 5192 122.01 e 122.01 *** 122.01 *** 122.01 7.633.909 225 6.10 11.75 11.17 0.06 $4.580 0.06 7.633.909 aporte en dinero *** 2.35 *** 2.35 OGUC 0.00% resdncl. resdncl. *** 11.75 1.6 70 70 *** 1 piso *** aislado 13.00 OGUC
  • 6.
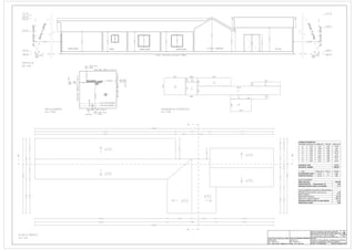
    FORMULARIO 12.4 Ley20.898 Título I ACOGIDA AL ARTÍCULO 3° DEL TÍTULO I DE LA LEY N° 20.898 CALLE o CAMINO NÚMERO (VIGENCIA PRORROGADA POR LA LEY 21.415 D.O. 04.02.2022) NÚMERO SOLICITUD TIMBRE DOM DIRECCIÓN DE OBRAS - I. MUNICIPALIDAD DE : Fecha de Ingreso NOMBRE Y FIRMA FUNCIONARIO DOM Ley 20.898 Título I COMPROBANTE DE INGRESO SOLICITUD DE REGULARIZACIÓN (PERMISO Y RECEPCIÓN DEFINITIVA) VIVIENDA CUYOS RECINTOS HABITABLES INCLUIDOS BAÑO Y COCINA QUE NO EXEDAN DE 140 m2 , CON AVALÚO FISCAL NO SUPERIOR A 2.000 UF " NOTA ( PARA SITUACIONES ESPECIALES ) DOM DOM Acuerdo asamblea copropietarios en conformidad a lo dispuesto en Ley 19.537, si procede. Antecedentes anexos a informe del profesional competente que permitan corroborar que la vivienda existía antes del 04/02/2016, como por ejemplo: planos aprobados, cuentas de servicios, certificados de contribuciones de bienes raíces, catastro municipal, etc. Fotocopia Patente del profesional que suscribe Certificado de avalúo fiscal detallado, otorgado por el Servicio de Impuestos Internos, vigente a la fecha de esta solicitud, para efectos de determinar aportes, según la Ley 20.958. 6 ANTECEDENTES QUE SE ADJUNTAN Informe del arquitecto o de un profesional competente que certifique que la vivienda cumple con las normas de habitabilidad, seguridad, estabilidad e instalaciones interiores señaladas en el numeral 6 del artículo 1° de la Ley 20.898, y que no se emplaza en los terrenos a que se refiere el numeral 2 del mismo artículo (áreas de riesgo o protección, declarados de utilidad pública o bienes nacionales de uso público). Antecedentes administrativos Antecedentes técnicos Listado de documentos y planos numerados, Especificaciones técnicas resumidas suscritas por un arquitecto o profesional competente Certificado de avalúo fiscal simple, otorgado por el Servicio de Impuestos Internos, vigente a la fecha de publicación de la Ley 20.898. Croquis de ubicación y un plano de emplazamiento a escala 1:500 suscrito por un arquitecto o profesional competente . Formulario único de estadísticas de Edificación (INE) Proyecto de cálculo estructural, si procede. Planos escala 1:50 que grafiquen todas las plantas, la elevación principal y un corte representativo, señalando las medidas y superficie de la vivienda existente, y un cuadro de superficie total construida y superficie de terreno, suscritos por un arquitecto o profesional competente. RUTA G-904 (CONDOMINIO LAS COLINAS DE STO. DOMINGO) # 24 PC 46 SAN ANTONIO
  • 7.
    Fecha de Emisión:22 de Noviembre de 2022 CERTIFICADO DE AVALÚO FISCAL DE PERIODOS ANTERIORES Válido para el SEGUNDO SEMESTRE DE 2022 Comuna : SAN ANTONIO Número de Rol de Avalúo : 09062 − 00221 Dirección o Nombre del bien raíz : PC20 SAN JUAN PC 46 COLINAS DE STO DOMIN Destino del bien raíz : SITIO ERIAZO AVALÚO TOTAL al PRIMER SEMESTRE de 2016 $ 7.633.909 El avalúo que se certifica ha sido determinado de acuerdo a las tablas vigentes al semestre que se indica, y no corresponde a una tasación comercial de la propiedad. El avalúo certificado sólo incluye el valor del suelo y de las construcciones caracterizadas en la ley 17.235, por lo que pudiesen existir bienes excluídos de esta tasación, los que deberán ser valorizados para efectos del cálculo del impuesto a las herencias, asignaciones y donaciones. Por Orden del Director CERTIFICADO GRATUITO 1/1
  • 8.
    Fecha de Emisión:8 de Noviembre de 2022 Página 1 de 2 CERTIFICADO DE AVALÚO FISCAL DETALLADO Avalúos en pesos del SEGUNDO SEMESTRE DE 2022 Comuna : SAN ANTONIO Número de Rol de Avalúo : 09062 − 00221 Dirección o Nombre del bien raíz : PC20 SAN JUAN PC 46 COLINAS DE STO DOMIN Destino del bien raíz : SITIO ERIAZO Registrado a Nombre de : GONZALEZ FIERRO JOSE OSVALDO RUN o RUT Registrado : 11.861.973 − 0 AVALÚO TERRENO PROPIO : $ 21.074.795 AVALÚO TOTAL : $ 21.074.795 AVALÚO EXENTO DE IMPUESTO : $ 0 AVALÚO AFECTO A IMPUESTO : $ 21.074.795 SUPERFICIE TERRENO (m²) : 5.192 SUPERFICIE CONSTRUCCIONES (m²) : 0 El avalúo que se explicita en este documento es el que corresponde a los antecedentes recopilados por el Servicio en el presente proceso de reavalúo 2022 y que se considerará, de no existir modificaciones en el catastro de los bienes raíces, en el proceso de exhibición que se regula en el articulo 6° de la Ley N° 17.235. Se recuerda que la oportunidad para deducir eventuales impugnaciones al avalúo del predio es dentro del plazo que establece el artículo 149 del Código Tributario. Este Certificado no acredita dominio del bien raíz. Por Orden del Director CERTIFICADO GRATUITO Certificado de Avalúo Fiscal Detallado 1/2
  • 9.
    Fecha de Emisión:8 de Noviembre de 2022 Página 2 de 2 ANEXO CERTIFICADO DE AVALÚO DETALLADO Comuna : SAN ANTONIO Número de Rol de Avalúo : 09062 − 00221 Dirección o Nombre del bien raíz : PC20 SAN JUAN PC 46 COLINAS DE STO DOMIN Destino del bien raíz : SITIO ERIAZO Detalle Avalúo Bienes Comunes Rol Bien Común Tipo de Copropiedad Avalúo Total Bien Común % Prorrateo Avalúo Prorrateado No Registra Total Avalúo Bienes Comunes $ 0 Detalle Avalúo Líneas de Terreno Línea Superficie (m²) Avalúo Unitario (Aprox.) Avalúo Línea 1 5.192 $ 4.059 $ 21.074.795 Total Avalúo Terreno $ 21.074.795 Detalle Avalúo Líneas de Construcción Línea Clase Calidad Cantidad (m² o m³) Año Constr Avalúo Línea No Registra Total Avalúo Construcciones $ 0 Por Orden del Director CERTIFICADO GRATUITO Certificado de Avalúo Fiscal Detallado 2/2
  • 10.
    Instituto Nacional deEstadísticas Subdirección de Operaciones Subdepartamento Estadísticas Sectoriales de Industrias Unidad de Edficación Paseo Bulnes 418, piso 4° Teléfonos: 02-28924410 02-28924406 Santiago - Chile Con fecha 24/11/2022 el Instituto Nacional de Estadísticas da por recepcionada la Encuesta de edificación, Correspondiente al mes de noviembre de 2022 CERTIFICADO DE INGRESO FORMULARIO ÚNICO DE EDIFICACIÓN - WEB Folio: Nombre propietario: Nombre Comuna: Rol Avalúo: Agradecemos su Colaboración Señor Informante: Conserve este Certificado de Recepción. Este documento valida la entrega de la información. Pablo Araya Sepúlveda Jefe de Producto E-Mail : pablo.araya@ine.cl 560102704-1 GONZALEZ FIERRO JOSE OSVALDO San Antonio 9062-221 Profesional responsable: JUAN LUIS MENARES RODRIGUEZ E-Mail: MENARESJL@GMAIL.COM Firma del Profesional competente Superficie (M2): 122 Materialidad E / 3 Destino Casa aislada
  • 11.
    Antecedentes anexos alinforme del arquitecto, que acrediten la existencia de las obras con anterioridad a la promulgación de la ley 20.898 y sus modificaciones. ROL PREDIAL: 9062-221 COORDENADA UTM: -33.639721 -71.500573 DIRECCIÓN: RUTA G904 #24, PC 46 CONDOMINIO COLINAS DE STO. DOMINGO, EX PARCELA 20 DEL ANTIGUO FUNDO SAN JUAN COMUNA : SAN ANTONIO 1.- Deuda histórica contribuciones
  • 12.
    2.- Plancheta SII 3.-Imágenes históricas de google earth 2010-2016 2010
  • 13.
  • 14.
  • 15.
    2015 2016 NOTA: Las obrasexteriores son autoportantes y sujetas al art 5.1.2 de la OGUC.-
  • 17.
    X Locales habitablesposeen al menos una ventana que permite la entrada de aire y de luz Locales habitables que no contemplan ventana poseen ductos de ventilación de aire X Baños, cocinas y zonas húmedas en general contemplan ventana al exterior. Baños, cocinas o zonas húmedas sin ventana al exterior poseen ductos de ventilación de aire. X Altura mínima piso a cielo de 2,30 cm EL INMUEBLE CUMPLE CON LA EXIGENCIA TÉRMICA PARA ZONA 2. ART. 4.1.10: X Aislación para techumbre de espesor mínimo 60mm Muros de albañilería de ladrillo o bloque de hormigón X Tabiques exteriores con aislación de espesor mínimo 30mm Aislación para pisos ventilados mínimo 50mm X La superficie de ventanas no sobrepasa el 40% de la superficie de muros EL INMUEBLE CUMPLE CON LA RESISTENCIA EL FUEGO. ART 4.3.3: Muros cortafuego X INFORME TÉCNICO Sobre el cumplimiento de normas de habitabilidad, seguridad, estabilidad y de las instalaciones interiores. Según Ordenanza General de Urbanismo y Construcción. TIPO DE TRÁMITE PROFESIONAL RUT EDIFICACION POR EL PRESENTE INFORME SE ACREDITA QUE LA OBRA OBJETO DE ESTA SOLICITUD, CUMPLE CON LAS SIGUIENTES NORMAS DE HABITABILIDAD, SEGURIDAD, ESTABILIDAD Y DE LAS INSTALACIONES INTERIORES: EL INMUEBLE CUMPLE LAS SIGUIENTES NORMAS DE HABITABILIDAD. ART. 4.1.1. , 4.1.2., 4.1.3. F-120: DIRECCION ROL SOLICITUD DE REGULARIZACIÓN LEY 20898 JUAN LUIS MENARES RODRIGUEZ 15.069.551-1 VIVIENDA UNIFAMILIAR RUTA G-904 #24 PC 46 (CONDOMINIO LAS COLINAS DE STO. DOMINGO) 9062 - 221 Detallar: Detallar: NO APLICA COMUNA SAN ANTONIO LOCALIDAD EX FUNDO SAN JUAN DE LLOLLEO Acero/ steel frame Albañilería ladrillo/ hormigón Fibrocemento 12 mm Hormigón armado Panel madera prensada Acero recubierto de hormigón Mampostería en piedra Otros
  • 18.
    Muro zona verticaly caja escalera X Muro caja ascensor X Muro de adosamiento proyectado sobre cubierta o divisorio unidades X X Elementos soportantes verticales X X Muros no soportantes y tabiques X Escaleras X X Elementos soportantes horizontales X X X F-60: Albañilería ladrillo princesa Albañilería hormigón Acero/ steel frame Madera Fibrocemento 12 mm Yeso cartón NO APLICA Fibrocemento 12 mm Yeso cartón Hormigón armado Otros F-60: Albañilería ladrillo/ hormigón Mampostería en piedra Hormigón armado Otros F-60: Albañilería ladrillo/ hormigón Mampostería en piedra Acero/ steel frame Madera F-30: Albañilería ladrillo/ hormigón Mampostería en piedra Acero/ steel frame Carpintería madera Fibrocemento 12 mm Yeso cartón Acero/ steel frame Madera Fibrocemento 12 mm Yeso cartón Hormigón armado Otros F-30: Albañilería armada ladrillo Muro hormigón Envigado madera Muro madera Envigado acero Envigado hormigón armado Panel prefabricado acero Panel prefabricado madera Hormigón armado Otros Fibrocemento NO APLICA NO APLICA NO APLICA NO APLICA NO APLICA NO APLICA Yeso cartón Vidrio Otros S/R: Reticulados acero/ madera Otros: RADIER H°A° Albañilería ladrillo/ hormigón Mampostería en piedra Hormigón armado Otros S/R: Albañilería Panel hormigón Acero Madera Acero Carpintería madera
  • 19.
    X Techumbre incluidocielo falso X X X Losa hormigón armado Piso madera impermeabilizada EL INMUEBLE CUMPLE CON LAS SIGUIENTES NORMAS ESTRUCTURALES TÍTULO 5, CAPÍTULO 6: Muros exteriores de albañilería Muros interiores de albañilería Pilares de H.A. sección mínima 20x20cm con armadura 4Ø 10 mm y estribos ø6@20cm Pilares de H.A.de 15x15cm en construcción de un piso Cadenas de H.A. con un ancho mínimo igual al espesor del muro y una altura no inferior a 20cm y una armadura mínima de 4ø10mm y estribos ø6@20cm. X Toda la madera estructural es impregnada. X La dimensión mínima de la madera de tabiques estructurales es de 2”x4" X La dimensión mínima de la madera estructural de techumbre es de 1”x4". X Para entramados de piso la dimensión de los elementos de madera es de 2”x6" X Las fundaciones tienen una dimensión mínima de 40x40cm penetrando a lo menos 60cm en terreno no removido Los pilares aislados tendrán una escuadría mínima de 4”x4” y 6”x6” cuando reciben carga de segundo piso X Paneles de muros están arriostrados en los planos verticales, horizontales e inclinados. X Soleras inferiores de los diafragmas se fijan al sobre cimiento mediante anclajes de acero liso de 6 mm de diámetro, colocados a una distancia máxima de 0,50 m entre sí. X Los diafragmas se conectan entre sí, como mínimo, mediante 3 pernos de acero de 8 mm de diámetro, distribuidos en la altura de cada piso u otro sistema equivalente. X Los entramados en contacto directo con el exterior o ambientes húmedos, son estancos al agua y a la humedad, mediante uso de polietileno, fieltros u otros impermeabilizantes. Los entramados de acero se ejecutan en perfiles laminados según norma chilena. X Los espacios intermedios se cubren con viguetas de madera/ planchas de acero/ aglomerados. X El espaciamiento máximo de los pies derechos es de 0,50 m entre ejes. X La distancia máxima entre ejes, de los travesaños o riostras, y entre éstos y las soleras, es de 0,65 m. X La altura de los diafragmas (recubrimiento) de fachadas y tabiques no supera los 3 m en cada piso. X La escuadría de las soleras, diagonales y travesaños es igual a la escuadría de los pies derechos. X Las diagonales cortan los pies derechos manteniendo la continuidad estructural de soleras. X Los diafragmas están dispuestos en dos direcciones ortogonales, con espaciamientos máximos entre ejes de 3,6 m en cada dirección. X Distanciamiento de vanos mayor a 3,6 metros en muros disponen de arriostramientos. X La distribución de elementos será preferentemente simétrica y uniforme, en cuanto a materiales y dimensiones, con el objeto de evitar solicitaciones de torsión en la estructura F-15: Cubierta acero galvanizado Cubierta tejuela asfáltica NO APLICA Cielo yeso cartón Cielo fibrocemento Cercha de madera Cercha acero Cubierta vidrio/ fibra de vidrio Cubierta fibrocemento
  • 20.
    En casos denotoria asimetría o desuniformidad en la distribución de los diafragmas, se aplica juntas de dilatación entre volúmenes. X En tabiques razón altura/longitud inferior a 2,0 ó 3,5 -cuando posean revestimientos contrachapados-. X Peso propio de techumbres inferior a 0,8 kPa (80 kgf/m2). X Estructura de techos arriostrada tanto en los planos horizontales, como en los verticales e inclinados EL INMUEBLE CUMPLE CON LAS SIGUIENTES INSTALACIONES FUNCIONANDO CORRECTAMENTE: X Instalación eléctrica X Instalación de agua potable X Instalación de alcantarillado Instalación de gas Otro EMPLAZAMIENTO X Cumple Juan-Luis Menares Rodríguez Arquitecto U.T.F.S.M. El inmueble no se emplaza en terrenos que sean considerados prohibitivos para el destino. Tampoco en aquellas zonas definidas por el plan regulador como no aptas para la construcción o protegidas como área verde.
  • 21.
    FUNDACIONES ESTRUCTURA DE TECHUMBRE ****** 15.069.551-1 DIRECCIÓN / CALLE / PASAJE Nº ESTRUCTURA DE MUROS ESTRUCTURA CIERRE PERIMETRAL ESTRUCTURA DE PISOS Y ENTREPISOS JM CARRERA 1861 - B VINA DEL MAR COMUNA 4.- ESPECIFICACIONES TECNICAS RESUMIDAS NOMBRE O RAZÓN SOCIAL DE LA EMPRESA (cuando corresponda) R.U.T. FIRMA MANZANA LOTE LOTEO O LOCALIDAD PLANO DE LOTEO Nº 2.- DATOS DEL PROPIETARIO NOMBRE O RAZÓN SOCIAL R.U.T. FIRMA DEL PROPIETARIO *** PC 46 CDMN LAS COLINAS DE STO. DGO. EX FDO. SN JUAN DE LLOLLEO *** NOMBRE ARQUITECTO PROYECTISTA R.U.T. JUAN LUIS MENARES RODRIGUEZ JOSE OSVALDO GONZALEZ FIERRO 11.861.973-0 PATENTE PROFESIONAL N° PRO 207 ESPECIFICACIONES TÉCNICAS RESUMIDAS COMUNA ROLSII SAN ANTONIO 9062-221 PERSONA NATURAL O REP. LEGAL REPRESENTANTE LEGAL R.U.T. *** *** TIPO DE SOLICITUD: SOLICITUD DE REGULARIZACIÓN -LEY 20898-. 1.- DIRECCIÓN DE LA PROPIEDAD RUTA G-904 CALLE o CAMINO NUMERO 24 CUBIERTA 3.- ARQUITECTO PROYECTISTA ZAPATA CORRIDA DE HORMIGÓN ARMADO CARPINTERÍA DE MADERA, TABLEROS PREFABRICADOS DE MADERA. RADIER DE HORMIGÓN ARMADO. NO EXISTE ENTREPISOS. PANELES PREFABRICADOS DE MADERA SOBRE ENVIGADOS Y CERCHAS DE MADERA POLINES DE MADERA Y ALAMBRADA TEJUELA ASFÁLTICA
  • 22.
    RED DE AGUAPOTABLE INSTALACION AGUA POTABLE INSTALACION SANITARIA PUERTAS VENTANAS REVESTIMIENTOS EXTERIORES RED ALCANTARILLADO REVESTIMIENTOS INTERIORES CIELOS PLANCHA FIBROCEMENTO EN ÁREAS SOCIALES Y DE SERVICIOS. PLANCHA YESO CARTÓN EN HABITACIONES CERÁMICOS SOBRE PLANCHA FIBROCEMENTO PLANCHA YESO CARTÓN POLIESTIRENO EXPANDIDO POLIESTIRENO EXPANDIDO CERÁMICOS SOBRE RADIER EN TODAS LAS ÁREAS ATABLERADAS PERFILERIA DE ALUMINIO AISLACIÓN EN MUROS PERIMETRALES PAVIMENTOS REVESTIMIENTOS INTERIORES BAÑO Y COCINA AISLACIÓN EN TECHUMBRE SISTEMA DE RED PÚBLICA CAÑERÍAS DE COBRE EMBEBIDAS, GRIFERÍA CORRIENTE. COLECTOR PÚBLICO TUBERÍAS DE PVC HDPE, ARTEFACTOS ECONÓMICOS. RED AÉREA PÚBLICA. RED ELECTRICA PLANCHA FIBROCEMENTO
  • 23.
    RESISTENCIA AL FUEGO REDDE GAS NO TIENE OBRAS EXTERIORES TERMINACIÓN EXTERIOR TERMINACIÓN CUBIERTA PINTURA ESMALTE SINTÉTICO TEJUELA ASFÁLTICA CROMÁTICA CUBIERTAS CROMÁTICA FACHADAS PORCENTAJE VIDRIADO NO TIENE, CONSIDERA VENTILACIÓN NATURAL EN TODAS LAS ÁREAS 40% EN VIDRIO MONOLÍTICO S/R: TABIQUERÍA MADERA S/R: NO CONSIDERA F-30: CARPINTERÍA MADERA F-15: VIGAS MADERA Y TERCIADOS F-15: YESO CARTON TABIQUES Y MUROS NO SOPORTANTES ESCALERAS ELEMENTOS SOPORTE HORIZONTAL TECHUMBRE CIELO FALSO NO TIENE MUROS DE CONTENCIÓN VENTILACIÓN FORZADA F-120: NO APLICA F-60: NO APLICA F-60: NO APLICA F-60: NO APLICA F-30: CARPINTERÍA MADERA INSTALACIÓN DE GAS INSTALACIÓN ELECTRICA COLORES TERROSOS MATERIAL VISTO MUROS CORTAFUEGO MUROS ZONA VERTICAL MUROS CAJA ASCENSORES MUROS DIVISORIOS UNIDADES ELEMENTOS SOPORTE VERTICAL CANALIZACIÓN PVC EMBUTIDO, CABLES DE COBRE TIPO L, ARTEFACTOS ECONÓMICOS. NO TIENE NO TIENE