Este curso vamos a iniciar nuestras visitas a Madrid con una nueva
visión y con el título “Paseos y Talleres Literarios (Literatura, Historia,
Arte, Filosofía y Música).
TALLER LITERARIO SOBRE MADRID
LA FUNDACIÓN DE MADRID
Muralla
árabe (siglo
IX)
LA CIUDAD MUSULMANA
Emir de Córdoba
Muhamad I (852-886)
Plano de Madrid
del siglo X en el
que se observa
la primera
muralla y
la extensión de
la medina.
Madrid, castillo famoso
que al rey moro alivia el miedo,
arde en fiestas en su coso,
por ser el natal dichoso
de Alimenón de Toledo.
Su bravo alcaide Aliatar,
de la hermosa Zaida amante,
las ordena celebrar,
por si la puede ablandar
el corazón de diamante.
Pasó, vencida a sus ruegos,
desde Aravaca a Madrid.
Hubo pandorgas y fuegos
con otros nocturnos juegos
que dispuso el adalid.
Se dice que la música clásica
andalusí nació durante el
Califato de Córdoba en el
siglo IX. El músico iraquí
Ziryab, músico de la corte de
Abd al-Rahman II en
Córdoba, muerto en el año
857, ha sido considerado
históricamente como su
creador. Posteriormente, el
poeta, compositor y filósofo
Ibn Bajjah de Zaragoza
(muerto en el año 1139), dio
un nuevo impulso al estilo de
Ziryab tomando elementos de
la música medieval hispana
para producir un estilo
totalmente nuevo que se
expandió por la Península
Ibérica y el África del Norte
Alfonso VI
EL MADRID CRISTIANO
-Madre –dice un rapazuelo
-A la mujer que lo lleva.
-¿A dónde van con la Virgen?
-Y le responde: -A esconderla.”
Llevan la Virgen a un cbo
Delante ponen dos velas
Encendidas, y lo tapian
Con más cuidado que priesa.”
-Iré a Magerit y buscaré la imagen oculta hasta encontrarla; si para dar con ella
es preciso tirar la muralla, yo la derribaré piedra a piedra.
Entre la piadosa turba
destácase una doncella
de hermosura peregrina,
que, entre llorosa y risueña,
va diciendo: -Virgen Santa
hora es ya de que parezcas.”
… húndese parte de un cubo
do brilla una luz intensa
y en él preséntase al pueblo
la Virgen de la Almudena,
con velas encendidas
que se escondieron con ella,
sin ser tres siglos bastantes
para mermarles la cera.
La Almudena. Relatos del viejo Madrid. Amalia Fernández y Miriam Romero
Iglesia de Santa María (letra A en el Plano
de Texeira, 1656)
San Miguel de la Sagra. El alcázar de Madrid h. 1534
San
Miguel
de
Octoes
Iglesia de San Justo (letra H en el Plano de Texeira, 1656)
Iglesia de San Nicolás (letra N
en el Plano de Texeira, 1656)
El primer dato que tenemos sobre su existencia es
el Fuero de 1202, en donde ya aparece como
parroquia de El Salvador.
Iglesias de San Juan (letra F) y de Santia-
go (letra C en el Plano de Texeira, 1656) [Sobre la parroquia de san Juan]
Su tamaño y fábrica es igualmente
pobre. En altar mayor hay tres
estatuas de mediano mérito, y son
san Juan, san Joaquín y san José.
Don Felipe de Castro hizo las
cabezas y las manos de la
Nuestra Señora y el Niño Dios que
están en el nicho del medio. En los
dos altares colaterales hay dos
pinturas de Carreño: una de san
Juan bautizando a Cristo, y otra
del convite de Herodes y
Herodías, a quien presentan la
cabeza del santo. De Claudio
Coello es un cuadro de la sacristía
de la Presentación de Nuestra
Señora al Templo. No es mala la
estatuita de san Juan sobre una
puerta de la iglesia. Viaje de
España, Antonio Ponz
No es su fábrica mucho mejor que las antecedentes; pero hay hacia la plazuela una
portadita arreglada con dos columnas dóricas, y en el frisco cruces de la Orden de
Santiago, entre los triglifos. En el remate se ve al Santo a caballo en acto de pelear,
escultura mezquina. El gran cuadro del altar mayor (...) es de lo mejor que hizo
Francisco Rizi. No se goza bien por la mucha y mala talla que se le ha pegado al
altar. En el colateral de la Epístola hay un san Francisco de Asís y un ángel de
medio cuerpo, pinturas de Alonso Cano; y del mismo autor es otro ángel que está
en el colateral del Evangelio. Viaje de España, Antonio Ponz2
San Pedro el Viejo
Ya aparece citada en el Fuero de 1202. En un
principio, estuvo ubicada cerca de la fuente de Puerta
Cerrada, trasladándose a su emplazamiento de la calle
del Nuncio en tiempos de Alfonso XI, tras la toma de
Algeciras a los musulmanes en 1345.
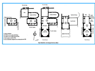
San Andrés
En 1126 el rey Alfonso VII concede facultad
para poblar el arrabal de San Martín.
Fundado en 1217,
el convento de
San Francisco el
Grande fue, tras
el de San Martín,
el segundo
cenobio
construido en la
villa de Madrid.
Según la
tradición, su
origen se debe al
propio San
Francisco de
Asís.
En 1218, dos frailes dominicos -posiblemente Pedro de Madrid y
Suero Gómez- decidieron fundar en la villa de Madrid un
monasterio de la orden de Santo Domingo sobre un terreno que
para tal efecto les había sido cedido extramuros, junto a la puerta
de Balnadú.
Dedicada a San Ginés de Arlés, pudo ser en sus orígenes una
antigua ermita ya existente a finales del siglo XIII, y entorno a la
cual se fue estructurando posteriormente el llamado arrabal de
San Ginés.
Situada en la plaza a la que ha dado
nombre, los orígenes de esta
parroquia se remontan a una antigua
ermita situada fuera de los muros de
la ciudad, y que fue fundada para
conmemorar el triunfo de Alfonso VIII
en la batalla de las Navas de Tolosa,
ocurrida el 16 de julio de 1212.
Situado sobre un terreno próximo al Alcázar conocido como “Campo del Rey”, –hoy
Plaza de la Armería-, fue fundado hacia 1420 por Garcí Álvarez de Toledo, obispo de
Astorga e hijo de Alonso Álvarez de Toledo, contador mayor de los reyes Juan II y
Enrique IV. Dedicado a Nuestra Señora de la Concepción, se trataba de un hospital
dedicado a la cura de mujeres y contaba con 12 camas.
También conocido como Hospital de la Merced, o del Campo del Rey, el nombre de la
“Caridad” le viene de una hermandad que en este hospital y bajo dicha advocación
fundaron Juan II y su mujer, doña María de Aragón,
Hospital de San Lázaro. Conocido popularmente como "Alto sano", se trataba de un
hospital de incurables cuya función no era otra que apartar de la ciudad a leprosos,
sifilíticos, y demás enfermos contagiosos.
La muralla era fortísima, de cal y canto y argamasa, levantada y gruesa de doce pies
en ancho, con grandes cubos, torres, barbacanas y fosos; el Alcázar, fuerte como hoy
se muestra. Había un castillo muy fuerte, que por serlo tanto le llamaban fortaleza, y
por otro nombre Torre Narigües del Pozacho, por estar en forma de nariz y junto a las
aguas del Pozacho, como consta de papeles antiguos, donde había un castellano y
gente de guarnición, el cual estaba enfrente del Alcázar, junto a la Puerta de la Vega, a
la parte del muro donde arriman las casas del marqués de Pomar, que son casi
frontero de la iglesia de Santa María.
Texto de Quintana de 1629. Recogido del libro De murallas Adentro, de José Simón
Díaz. Página 324. Ediciones La librería. Madrid, 1993.
Alfonso X en una miniatura
medieval del
Libro de los juegos.
La Virgen de Atocha sobre el escudo de la
Villa, grabado de la obra Teatro de las
grandezas de la villa de Madrid, siglo XVII
Pequeña de menos de tres cuartas de alto, aunque veftida parece mayor; el arte
y talla de gran primor, y de otra antiquíffima. Tiene el niño en el pecho izquierdo, muy
pequeño, con la mano derecha le da vna mançana, y un libro… (Gerónimo de
Quintana)
-Te juro, Señora, que aquí, junto a este lugar donde has sido arrojada, levantaré un
templo y en él recibirás la veneración de tus hijos. (Gracián Ramírez.
Relatos del viejo Madrid)
Antiochía
Antiocha
Atocha
Alfonso X - Cantiga 289 - Cuestionario Alfonso X - Cantiga 289
 Cómo Santa María de Atocha curó a un labrador que estaba segando el día de San 
Quirico/Quirce, por lo que se le agarrotaron las dos manos.
"Aunque otros santos toman venganza a veces contra los que les ofenden, la Madre de Dios 
no duda en valerles.”
Sobre esto os diré un gran milagro que hizo la Virgen en la iglesia de Atocha, junto a Madrid; 
oídme, pues, de buen grado y pedidle todos la gracia de que os consiga de su Hijo el perdón 
de vuestros pecados.
Ocurrió que, en una ocasión, un labrador estaba segando un extenso trigal a la hora de más 
calor del día de San Quirce, hoz en mano y con un sombrero de paja en la cabeza para 
protegerse del sol, y por segar en ese día de San Quirce, Dios, por honrar al santo, le paralizó 
la mano con que intentaba levantar la gavilla, agarrotándosela de modo que no podía 
soltarla, y, además, hizo lo mismo con la mano derecha que empuñaba la hoz, que se le 
quedó pegada a ella como con engrudo.
Así, paralizado, lo llevaron sus compañeros a su alojamiento, y ya aquel día no segaron más, 
sino que trasladaron apresuradamente al labrador, tal como estaba, a la Virgen de Atocha y 
rogaron por él con fervor a Santa María, llorando ante su altar, para que le perdonase el 
abultado yerro que cometió; él, también llorando, suplicaba a Santa María fervientemente 
que, por su misericordia, le valiese sin parar mientes en su necedad y que le librase sin 
tardanza de su desgracia.
Tras esta contrición, la Señora de los señores le auxilió en seguida, que Ella siempre socorre 
de buen grado a los pecadores, desaferrando sus manos y aliviando así sus dolores: en Ella es 
en quien debemos confiar siempre.
Alfonso VIII de Castilla, llamado «el de Las Navas» o «el
Noble» (Soria, 11 de noviembre de 1155-Gutierre-Muñoz, 6 de
octubre de 1214), fue rey de Castillaa
entre 1158 y 1214
"Pues el rey don Alonso ovo passados todos estos
trabajos en el comienço quando reinó, e fue casado según
que auedes oído, fuese para Toledo con su muger doña
Leonor: e estando y, pagóse mucho de una judía que auie
nombre Fermosa, e olvidó la muger, e ençerróse con ella
gran tiempo en guisa que non
se podié partir d'lla por ninguna manera, nin se pagaua
tanto de cosa ninguna: e estouo ençerrado con ella poco
menos de siete años, que no se membraua d’sí nin d' su
reino nin d' otra cosa ninguna. Entonçe ouieron su acuerdo
los omes buenos d'l reino cómo pusiesen algún recado en
aquel fecho tan malo e tan desaguisado: e acordaron que
la matasen, e que así cobraríen a su señor, que tienén por
perdido: e con este acuerdo fuéronse para allá: e entraron
al rey diziendo que queríen fabrar con él: e mientras los
unos fabraron con el rey, entraron los otros donde estaua
aquella judía en muy nobres estrados, e d'golláronla"
ALFONSO XI
LOS CONCEJOS
AMARGURA. RELATOS DEL VIEJO MADRID
Averroes Córdoba,
Al-Ándalus, 14 de abril de
1126–Marrakech,
10 de diciembre de 1198)
fue un filósofo y médico
andalusí, maestro de
filosofía y leyes islámicas,
matemáticas, astronomía y
medicina.
Maimónides (1138,
Córdoba - 1204, Fustat,
Egipto), fue un médico,
rabino y teólogo judío de
al-Ándalus de la
Edad Media. Tuvo
importancia como filósofo
en el pensamiento
medieval.
Tomás de Aquino (1224/
1225-anuova, 1274) fue un
teólogo y filósofo católico
perteneciente a la
Orden de Predicadores, el
principal representante de la
enseñanza escolástica, una
de las mayores figuras de la
teología sistemática y, a su
vez, una de las mayores
autoridades en metafísica.
Dos años, ocho meses y
veintiocho noches
comienza en Lucena, en la
España del siglo XI, donde
Ibn Rushd, ya viejo, vive
exiliado en una comunidad
judía que se pretende
conversa al islam. Ahí es
visitado un día por una
adolescente que se queda
con él cumpliendo las
funciones de ama de casa
y amante.
AVERROES, MAESTRO DE OCCIDENTE
Con Averroes culminó la filosofía en al-Ándalus, pero antes de él otros pensadores
notables roturaron este campo. Señalemos entre estos a Abenhazam de Córdoba
(994-1065), espíritu enciclopédico, introductor de la lógica aristotélica en las
argumentaciones jurídicas y teológicas, y autor de la primera obra andalusí de lógica
que se ha conservado. Escribió también una joya de la literatura árabe, El collar de la
Paloma, famoso tratado sobre el amor, un tratado de ética, La corrección de los
caracteres, y una innovadora historia de las religiones, el Fisal.
Los escritos de Averroes ocupan unos diez mil folios. La mayor parte de su
producción literaria fueron comentarios. Los dedicados a Aristóteles (prácticamente
todo el Corpus salvo la Política), Platón (La República), Porfirio (lógica), Galeno
(medicina), Ptolomeo (astronomía)…
Aristóteles es el más sabio de los griegos, fundador y culminador de la lógica, física y
metafísica; y digo que las ha fundado, porque todas las obras que se han escrito con
anterioridad a él sobre estas ciencias no merecen citarse, ya que han sido eclipsadas
por el Maestro; y digo que las ha culminado porque ninguno de los que las ha
continuado hasta nuestros días, o sea, durante mil quinientos años, ni han agregado
nada a sus escritos, ni han podido encontrar ningún error de gran importancia. Que
todo esto haya podido reunirse en un solo hombre es algo auténticamente raro y
milagroso; y por esta condición singular merece que se le llame más bien divino que
humano y esta es la razón por la que le llamaron divino los antiguos.
Las mujeres deben compartir con los hombres todos los deberes de los
ciudadanos.
MAIMÓNIDES: EMERGE EL JUDAÍSMO FILOSÓFICO
El pensador sefardí subraya en varias ocasiones la existencia de dos grandes
campos de conocimiento: el de la filosofía, específicamente humano y
sometido al ejercicio de la razón, y el de la religión, superior a aquella,
basado en la profecía y cuyo objetivo consiste en “el conocimiento de Dios,
que es la verdadera ciencia”.
Su magna obra Guía de perplejos está dirigida a quien, teniendo espíritu
religioso y conociendo las ciencias filosóficas, se encuentra perplejo a la hora
de interpretar la Torá o Ley judía.
La profecía es una emanación de Dios mediante el intelecto activo sobre la
facultad racional en primer término, y seguidamente sobre la [facultad]
imaginativa, y constituye el más alto grado del hombre y el ápice de la
percepción asequible a su especie. Son necesaria estas tres condiciones para
la profecía: la perfección de la razón mediante el estudio, la perfección de la
facultad imaginativa y la percepción ética mediante el alejamiento de los
placeres corporales.
TOMÁS DE AQUINO: LA MADUREZ DE LA ESCOLÁSTICA
En Suma contra los gentiles (II, cap. 4) contrapone “filósofo” a “teólogo”,
“filosofía humana” a “fe cristiana” o “sabiduría divina”. La filosofía añadirá,
considera las cosas en sí mismas, mientras que la teología las estudiará en
cuanto representan la grandeza divina y se ordenan a Dios. El filósofo examina
el mundo que le rodea según su propia naturaleza; el teólogo, según su
relación con Dios.
El desarrollo más completo de la naturaleza de la teología lo encontramos en
la Introducción a la primera cuestión de la Suma teológica. Distingue, en primer
lugar, la teología natural o teodicea, que considera a Dios por la luz natural de
la razón, de la teología sagrada que se basa en la revelación divina. Aquí trata
evidentemente de esta última. Tomás de Aquino se esforzó en demostrar
que la teología era ciencia. Su objeto material (que puede ser común a
varias ciencias) es Dios; su objeto formal (que es la perspectiva bajo la cual se
considera la anterior y, por tanto, distintivo de cada ciencia) es
la divina revelación.
En su afán por sistematizar la doctrina cristiana en su ambiciosa síntesis
teológica encontró en Aristóteles un sólido apoyo teórico.
El Cantar de mio Cid es un
cantar de gesta anónimo que
relata hazañas heroicas inspiradas
libremente en los últimos años de
la vida del caballero castellano
Rodrigo Díaz el Campeador. La
versión conservada fue
compuesta, según la mayoría de
la crítica actual, alrededor del año
1200,
Primer folio del manuscrito del Cantar de mio Cid
conservado en la Biblioteca Nacional de España
Las hijas del Cid, del romance XLIV del
Tesoro de Romanceros. Puebla Tolín,
Dióscoro Teófilo. Museo del Prado
entrados son los infantes al robledo de Corpes;
los montes son altos, las ramas pujan con las nubes;
y las bestias fieras que andan alrededor.
Hallaron un vergel con una limpia fuente;
mandan hincar la tienda los infantes de Carrión;
con cuantos ellos traen, allí yacen esa noche;
con sus mujeres en brazos demuéstranles amor.
¡Mal se lo cumplieron cuando salía el sol!
Mandaron cargar las acémilas con haberes de valor
han recogido la tienda donde albergaron de noche;
adelante eran idos los de criazón;
así lo mandaron los infantes de Carrión:
que no quedase allí ninguno, mujer ni varón,
sino ambas sus mujeres, doña Elvira y doña Sol:
solazarse quieren con ellas a todo su sabor
todos eran idos, ellos cuatro solos son.
Tanto mal urdieron los infantes de Carrión:
Infantes
Creedlo bien, doña Elvira y doña Sol,
aquí seréis escarnecidas en estos fieros montes.
Hoy nos partiremos y dejadas seréis de nos;
no tendréis parte en tierras de Carrión.
Irán estos mandados al Cid Campeador;
nos vengaremos en ésta por la del león.
Narrador
Allí les quitan los mantos y los pellizones;
déjanlas en cuerpo y en camisas y en ciclatones.
¡Espuelas tienen calzadas los malos traidores!
En mano prenden las cinchas resistentes y fuertes.
Doña Elvira y doña Sol, las hijas del Cid, aparecen semidesnudas y atadas a un árbol
en medio de un bosque tras haber sido mancilladas, y posteriormente abandonadas,
por sus esposos los condes de Carrión, Diego y Fernando. Estos aparecen huyendo a
caballo por el claro del fondo.
Al igual que en otras ocasiones, la leyenda ha falseado la verdad histórica de las hijas
de Rodrigo Díaz de Vivar. En realidad se llamaban Cristina -que casó con el infante
Ramiro de Navarra- y María -que casó con el conde Ramón Berenguer IV de
Barcelona-. El episodio del ultraje de las hijas del Cid sirvió de excusa a los pintores
de historia del siglo XIX para probar su habilidad en el dominio del desnudo femenino,
como demuestra en esta espléndida obra el pintor burgalés Dióscoro Teófilo Puebla
Tolín (1831-1901). Destaca en ella el magnífico dibujo y modelado de las figuras, la
brillantez en el empleo del color y un sabio uso de la iluminación, que centra la
atención del espectador sobre los elementos esenciales de la composición.
Pero aquella osa iba andando sobre un prado y
su actual posición, de pie y apoyada sobre un
árbol, la madroñera, es del siglo XIII.
El oso rampante apoyado en el madroño
se atribuye al resultado de un pleito que
mantuvieron el cabildo eclesiástico y el
Concejo sobre pastos y bosques en el
siglo XIII por el cual los pastos pasaron a
propiedad de la iglesia y el bosque al
Concejo. Esta fue la causa por la que el
Concejo adoptó el escudo con el oso
erguido sobre el madroño, árbol muy
abundante en la zona de Madrid.
La banda azul con las siete estrellas se
añadió más tarde y según López de
Hoyos, representan … las siete estrellas
que en el cielo llamamos “el carro” (Osa
Mayor). Y por último la corona real, el
mismo López de Hoyos la atribuye a
una concesión del rey Carlos I en las
Cortes de 1544.
Los niños enamorados.
Relatos del viejo Madrid
En las calles de Madrid,
que, son calles del
romero…
Juan Ruiz (Alcalá de Henares,
Madrid,1 n. 1
c. 1284 - c. 1351),
conocido como el Arcipreste de
Hita, fue el autor del
Libro de buen amor, obra
miscelánea predominantemente
narrativa considerada como una
de las más importantes de la
literatura medieval española.
Senda del Arcipreste de Hita
LA CIUDAD EN LA ÉPOCA DE LOS TRASTÁMARA
Enrique II de Castilla
o de Trastámara,
llamado «el
Fratricida» o «el de
las Mercedes» (
Sevilla, 13 de enero
de 1333 o a principios
de 1334-
Santo Domingo de la Calzada
, 29 de mayo de
1379), fue
rey de Castilla, el
primero de la
Casa de Trastámara.
-¿Dónde está ese judío hideputa que
se nombra Rey de Castilla?
- ¡El hideputa seréis vos, pues yo soy
hijo legítimo del buen Rey Alfonso! –
respondió inmediatamente Don Pedro
que fue el primero en iniciar el baile de
metales–.
Miniatura de Jean Froissart (s.
XV) describiendo la batalla de
Montiel (14 de marzo de1369) en
su libro "Crónicas"
Juan I de Castilla (Épila o
Tamarite de Litera,b c d
1358-
Alcalá de Henares, 1390).
En 1383 concedió la propia villa de Madrid
com sus rentas a León V de Armenia.
Imagen del rey Enrique III de Castilla,
vidriera s. XV
Enrique III (1379-1406). Hijo de
Juan I de Castilla, accedió al
trono a los 11 años.
Durante la regencia por la
minoría de este rey y coincidiendo
con las Cortes celebradas en
Madrid en 1390 (el mismo año de
la ascendencia al trono) se
desencadenaron graves ataques
contra la población judía
extendiéndose las matanzas de
judíos por toda Castilla de la que
no se libró Madrid, produciéndose
importantes destrozos en su
aljama, lo que supuso un
descenso notable de esta
población en la villa.
Crea la figura del corregidor.
EL rey Juan II (1405-
1454) sintió una gran
predilección por Madrid,
donde pasó
largas temporadas
viviendo en el Alcázar y
convocó cortes en la
Villa en numerosas
ocasiones. Durante su
reinado se levantó la
tapia de los
arrabales para contener
la terrible
epidemia de peste.
«El Rey estuvo en Ocaña tres meses, é porque
escomenzaron á morir de pestilencia, acordó de partir dende,
e ante de su partida mandó responder á los Procuradores de
las cibdades é villas á ciertas peticiones que le habían
hecho, ...» ".
Rodrigo Manrique de Lara (1406 - Ocaña,
11 de noviembre de 1476). Primer
conde de Paredes de Nava. Su hijo Jorge
Manrique, las Coplas a la muerte de su
padre.
Aquel de buenos abrigo,
amado por virtuoso
de la gente,
el maestre don Rodrigo
Manrique, tanto famoso
y tan valiente,
sus grandes hechos y claros
no cumple que los alabe,
pues los vieron,
ni los quiero hazer caros,
pues el mundo todo sabe
quáles fueron.
Amigo de sus amigos,
¡qué señor para criados
y parientes!,
¡qué enemigo de enemigos!,
¡qué maestro de esforçados
y valientes!
¡Qué seso para discretos!,
¡qué gracia para donosos!,
¡qué razón!,
¡qué benigno a los subjetos!
Y a los bravos y dañosos,
¡un león!
Las Coplas por la muerte de su padre,
también citadas como Coplas a la muerte
del maestro don Rodrigo o, simplemente,
Las coplas de Jorge Manrique, son una
elegía escrita por Jorge Manrique en la
muerte de su padre, el Maestre de
Santiago don Rodrigo Manrique.
Reproducción de la primera página de las
Coplas de Jorge Manrique.
Recuerde el alma dormida,
avive el seso e despierte
contemplando
cómo se passa la vida,
cómo se viene la muerte
tan callando;
cuán presto se va el plazer,
cómo, después de
acordado,
da dolor;
cómo, a nuestro parescer,
cualquiere tiempo passado
fue mejor.
Nuestras vidas son los ríos
que van a dar en la mar,
qu'es el morir;
allí van los señoríos
derechos a se acabar
e consumir;
allí los ríos caudales,
allí los otros medianos
e más chicos,
allegados, son iguales
los que viven por sus
manos
e los ricos.
Enrique IV de Castilla (Valladolid, 5
de enero de 1425-Madrid, 11 de diciembre
de 1474)
E luego el rey vino para la villa de
Madrid, é dende á quince días gele
agravió la dolencia que tenía é murió
allí en el alcázar á onze dias del mes
de Deciembre deste año de mil é
quatrocientos é setenta é quatro
años, a las once horas de la noche:
murió de edad de cinqüenta años, era
home de buena complexion, no bebía
vino; pero era doliente de la hijada é
de piedra; y esta dolencia le fatigaba
mucho a menudo.
Crónica de los Señores Reyes Católicos Don
Fernando y Doña Isabel de Castilla y de Aragón
Madrid: muy noble y muy leal.
El traje de don Beltrán. Relatos del viejo Madrid
JUANA “ LA BELTRANEJA”
Beltrán de la cueva
En 1464, Enrique IV fundó en la orilla del Manzanares un convento de jerónimos
llamado primero Santa María de Paso y luego San Jerónimo el Real.
A finales del siglo XV la población de Madrid había alcanzado una población cercana a
los 12.000 habitantes y prácticamente la totalidad del suelo urbano
Plano Madrid siglo XVI en el que podemos observar, además de las 10 parroquias, los
distintos conventos y hospitales existentes en la ciudad en este período. Unos y otros
eran fundados por las familias nobles que adquirían con estas fundaciones mayor
prestigio social. Los hospitales, todos ellos situados fuera de la muralla medieval, a
excepción del de la Caridad frente al Campo del Rey, no sólo se dedicaban al cuidado de
los enfermos, sino que, además, desarrollaban una labor asistencial a los pobres y
desamparados. Había algunos especiales, como el de San Lázaro, cercano al barranco
de San Pedro, que estaba dedicado al cuidado de los leprosos. (Fte. Madrazo, S. y Pinto,
V.: Madrid atlas histórico de la ciudad. Siglos IX al XIX. Lunwerg Editores, S: A., Madrid 1
"Yo nací en Madrid, pared por medio de
donde puso Carlos Quinto la soberbia de
Francia entre dos paredes". Lope de Vega
había nacido en una casa de la calle Mayor
esquina a la plaza de San Salvador, pared
con pared con la Torre de los Lujanes.
La historia sobre la estancia en
la Torre de Francisco I no ha
contado nunca con el
beneplácito unánime. Pero la
leyenda existía, y hasta quedó
recogida por Lope de Vega en
una carta cuando escribió:
Escudo
de Armas
de los
Lujanes
Portada del antiguo
hospital de La
Latina, un bello conjunto
gótico mudéjar,
en el que destacan el
arco de la puerta
ligeramente apuntado
formado por
grandes dovelas, y
enmarcados en un
alfiz, la ventana con
rejería y esculturas
con doseles góticos.
Esta portada se
encuentra adornando
los Jardines de la
Escuela de
Arquitectura en la
Ciudad Universitaria.
Reposa en una delicada escultura ataviada con hábito religioso, mientras apoya
sus pies en una cartela en la que se hace referencia a su esposo.
Retrato de Beatriz Galindo en su monumento funerario del año 1531.
Escultura yacente de Beatriz Galindo, en el Museo de San Isidro.
Forma parte del cenotafio que estuvo en el convento de la Concepción
Francisca (de la calle Toledo, de Madrid).
Monumento a Beatriz Galindo, en Madrid.
Su fecha de realización no la conocemos, pero basándonos en la fecha que
aparece en el cenotafio del convento de la Concepción Jerónima (El Goloso,
Madrid) 1531, y el tratarse de dos obras “gemelas” nos hace pensar que se
realizaran los dos a la vez. Parece ser que la realización de estos monumentos
fue encargada al cantero/tallador Hernán Pérez Alviz, que evidentemente contaría
con un grupo de colaboradores para realizar un encargo tan importante.
Puede que no mediara mucho tiempo entre la realización de ambos, o que se
realizaran incluso en paralelo por el artista y sus ayudantes. La calidad técnica y
artística de los dos cenotafios es similar lo cual apreciamos en la bella
decoración plateresca de ambos.
Por otro lado, las esculturas yacentes muestran indicios de diferente autoría.
Todo parece indicar que se quiso dar más protagonismo a este conjunto
escultórico del Hospital de la Latina, ya fuese por su emplazamiento en un lugar
público, o por ser la fundación conjunta de los dos esposos.
Pero también es verdad que al conjunto del Convento de la Concepción Jerónima
se le dotó de un mayor simbolismo personal con la incorporación en un medallón
de la imagen de Doña Beatriz, y la fecha de su realización.
EL CABALLERO
Don Francisco Ramírez de Madrid falleció en el año 1501 en una acción durante
la revuelta mudéjar en Sierra Bermeja.
Aunque la escultura nos muestra a un caballero vestido a la moda de la época en
que se realizó esta talla, supuestamente en el 1531.
Aparece Don Francisco recostado sobre tres cojines, con un libro entre las manos,
viste armadura completa con peto y sobrepeto, grandes escarcelas, protecciones
también para brazos y piernas así como escarpes de punta redondeada.
LLeva media capa abrochada sobre el pecho, un bonete pequeño en la cabeza, y
no porta espada. A sus pies encontramos un casco esculpido inspirado en los cascos
decorativos de tipo grecorromano que durante el Renacimiento pusieron de moda
algunos talleres de armeros, como los Negroli. El tipo de armadura con la que visten
a Don Francisco hacia el 1530, indica ya el final de una época y anuncia el comienzo
de otra.
LA DAMA
Doña Beatriz Galindo, "La Latina", una mujer adelantada a su tiempo, instructora en
latín de la Reina Isabel, y preceptora de sus hijos. Reposa en una delicada escultura
ataviada con hábito religioso, mientras apoya sus pies en una cartela en la que se
hace referencia a su esposo.
Dibujo del Palacio de los Lasso de Castilla
Cardenal Cisneros. Presidente del
Consejo de Regencia de Castilla
25 de septiembre de 1506 – 17 de
agosto de 1507.
1516
Un bello grabado del Madrid del siglo XVI en el que destacan la muralla y el Alcázar
Dibujo de 1562, en el que se ve desde la primera ermita
de San Isidro en Carabanchel la ribera del río Manzanares
y la Villa de Madrid en la que Felipe II ...
Por las sierras de Madrid
Por las sierras de Madrid tengo d´ir,
Que mal miedo hé de morir.
Soy chequita y agraciada.
En Segovia hé mi morada.
Mas, por verme desposada,
tengo d´ir que mal miedo hé de morir.
¿Dónde está Mançanares, que no viene?
Algo tiene en agosto que le detiene.
Francisco de Peñalosa (Siglo XV)
La pequeña obra que aquí recogemos es una de las más curiosas
perlas del repertorio cortesano de su época.
TALLER LITERARIO SOBRE MADRID

Madrid Medieval

  • 1.
    Este curso vamosa iniciar nuestras visitas a Madrid con una nueva visión y con el título “Paseos y Talleres Literarios (Literatura, Historia, Arte, Filosofía y Música). TALLER LITERARIO SOBRE MADRID
  • 7.
  • 9.
    Muralla árabe (siglo IX) LA CIUDADMUSULMANA Emir de Córdoba Muhamad I (852-886)
  • 10.
    Plano de Madrid delsiglo X en el que se observa la primera muralla y la extensión de la medina.
  • 11.
    Madrid, castillo famoso queal rey moro alivia el miedo, arde en fiestas en su coso, por ser el natal dichoso de Alimenón de Toledo. Su bravo alcaide Aliatar, de la hermosa Zaida amante, las ordena celebrar, por si la puede ablandar el corazón de diamante. Pasó, vencida a sus ruegos, desde Aravaca a Madrid. Hubo pandorgas y fuegos con otros nocturnos juegos que dispuso el adalid.
  • 13.
    Se dice quela música clásica andalusí nació durante el Califato de Córdoba en el siglo IX. El músico iraquí Ziryab, músico de la corte de Abd al-Rahman II en Córdoba, muerto en el año 857, ha sido considerado históricamente como su creador. Posteriormente, el poeta, compositor y filósofo Ibn Bajjah de Zaragoza (muerto en el año 1139), dio un nuevo impulso al estilo de Ziryab tomando elementos de la música medieval hispana para producir un estilo totalmente nuevo que se expandió por la Península Ibérica y el África del Norte
  • 14.
  • 15.
    -Madre –dice unrapazuelo -A la mujer que lo lleva. -¿A dónde van con la Virgen? -Y le responde: -A esconderla.” Llevan la Virgen a un cbo Delante ponen dos velas Encendidas, y lo tapian Con más cuidado que priesa.” -Iré a Magerit y buscaré la imagen oculta hasta encontrarla; si para dar con ella es preciso tirar la muralla, yo la derribaré piedra a piedra. Entre la piadosa turba destácase una doncella de hermosura peregrina, que, entre llorosa y risueña, va diciendo: -Virgen Santa hora es ya de que parezcas.” … húndese parte de un cubo do brilla una luz intensa y en él preséntase al pueblo la Virgen de la Almudena, con velas encendidas que se escondieron con ella, sin ser tres siglos bastantes para mermarles la cera. La Almudena. Relatos del viejo Madrid. Amalia Fernández y Miriam Romero
  • 17.
    Iglesia de SantaMaría (letra A en el Plano de Texeira, 1656)
  • 18.
    San Miguel dela Sagra. El alcázar de Madrid h. 1534
  • 19.
  • 20.
    Iglesia de SanJusto (letra H en el Plano de Texeira, 1656)
  • 21.
    Iglesia de SanNicolás (letra N en el Plano de Texeira, 1656)
  • 22.
    El primer datoque tenemos sobre su existencia es el Fuero de 1202, en donde ya aparece como parroquia de El Salvador.
  • 23.
    Iglesias de SanJuan (letra F) y de Santia- go (letra C en el Plano de Texeira, 1656) [Sobre la parroquia de san Juan] Su tamaño y fábrica es igualmente pobre. En altar mayor hay tres estatuas de mediano mérito, y son san Juan, san Joaquín y san José. Don Felipe de Castro hizo las cabezas y las manos de la Nuestra Señora y el Niño Dios que están en el nicho del medio. En los dos altares colaterales hay dos pinturas de Carreño: una de san Juan bautizando a Cristo, y otra del convite de Herodes y Herodías, a quien presentan la cabeza del santo. De Claudio Coello es un cuadro de la sacristía de la Presentación de Nuestra Señora al Templo. No es mala la estatuita de san Juan sobre una puerta de la iglesia. Viaje de España, Antonio Ponz
  • 24.
    No es sufábrica mucho mejor que las antecedentes; pero hay hacia la plazuela una portadita arreglada con dos columnas dóricas, y en el frisco cruces de la Orden de Santiago, entre los triglifos. En el remate se ve al Santo a caballo en acto de pelear, escultura mezquina. El gran cuadro del altar mayor (...) es de lo mejor que hizo Francisco Rizi. No se goza bien por la mucha y mala talla que se le ha pegado al altar. En el colateral de la Epístola hay un san Francisco de Asís y un ángel de medio cuerpo, pinturas de Alonso Cano; y del mismo autor es otro ángel que está en el colateral del Evangelio. Viaje de España, Antonio Ponz2
  • 25.
    San Pedro elViejo Ya aparece citada en el Fuero de 1202. En un principio, estuvo ubicada cerca de la fuente de Puerta Cerrada, trasladándose a su emplazamiento de la calle del Nuncio en tiempos de Alfonso XI, tras la toma de Algeciras a los musulmanes en 1345.
  • 26.
  • 28.
    En 1126 elrey Alfonso VII concede facultad para poblar el arrabal de San Martín.
  • 29.
    Fundado en 1217, elconvento de San Francisco el Grande fue, tras el de San Martín, el segundo cenobio construido en la villa de Madrid. Según la tradición, su origen se debe al propio San Francisco de Asís.
  • 30.
    En 1218, dosfrailes dominicos -posiblemente Pedro de Madrid y Suero Gómez- decidieron fundar en la villa de Madrid un monasterio de la orden de Santo Domingo sobre un terreno que para tal efecto les había sido cedido extramuros, junto a la puerta de Balnadú.
  • 31.
    Dedicada a SanGinés de Arlés, pudo ser en sus orígenes una antigua ermita ya existente a finales del siglo XIII, y entorno a la cual se fue estructurando posteriormente el llamado arrabal de San Ginés.
  • 32.
    Situada en laplaza a la que ha dado nombre, los orígenes de esta parroquia se remontan a una antigua ermita situada fuera de los muros de la ciudad, y que fue fundada para conmemorar el triunfo de Alfonso VIII en la batalla de las Navas de Tolosa, ocurrida el 16 de julio de 1212.
  • 34.
    Situado sobre unterreno próximo al Alcázar conocido como “Campo del Rey”, –hoy Plaza de la Armería-, fue fundado hacia 1420 por Garcí Álvarez de Toledo, obispo de Astorga e hijo de Alonso Álvarez de Toledo, contador mayor de los reyes Juan II y Enrique IV. Dedicado a Nuestra Señora de la Concepción, se trataba de un hospital dedicado a la cura de mujeres y contaba con 12 camas. También conocido como Hospital de la Merced, o del Campo del Rey, el nombre de la “Caridad” le viene de una hermandad que en este hospital y bajo dicha advocación fundaron Juan II y su mujer, doña María de Aragón,
  • 35.
    Hospital de SanLázaro. Conocido popularmente como "Alto sano", se trataba de un hospital de incurables cuya función no era otra que apartar de la ciudad a leprosos, sifilíticos, y demás enfermos contagiosos.
  • 37.
    La muralla erafortísima, de cal y canto y argamasa, levantada y gruesa de doce pies en ancho, con grandes cubos, torres, barbacanas y fosos; el Alcázar, fuerte como hoy se muestra. Había un castillo muy fuerte, que por serlo tanto le llamaban fortaleza, y por otro nombre Torre Narigües del Pozacho, por estar en forma de nariz y junto a las aguas del Pozacho, como consta de papeles antiguos, donde había un castellano y gente de guarnición, el cual estaba enfrente del Alcázar, junto a la Puerta de la Vega, a la parte del muro donde arriman las casas del marqués de Pomar, que son casi frontero de la iglesia de Santa María. Texto de Quintana de 1629. Recogido del libro De murallas Adentro, de José Simón Díaz. Página 324. Ediciones La librería. Madrid, 1993.
  • 39.
    Alfonso X enuna miniatura medieval del Libro de los juegos. La Virgen de Atocha sobre el escudo de la Villa, grabado de la obra Teatro de las grandezas de la villa de Madrid, siglo XVII
  • 40.
    Pequeña de menosde tres cuartas de alto, aunque veftida parece mayor; el arte y talla de gran primor, y de otra antiquíffima. Tiene el niño en el pecho izquierdo, muy pequeño, con la mano derecha le da vna mançana, y un libro… (Gerónimo de Quintana)
  • 41.
    -Te juro, Señora,que aquí, junto a este lugar donde has sido arrojada, levantaré un templo y en él recibirás la veneración de tus hijos. (Gracián Ramírez. Relatos del viejo Madrid) Antiochía Antiocha Atocha
  • 42.
    Alfonso X -Cantiga 289 - Cuestionario Alfonso X - Cantiga 289  Cómo Santa María de Atocha curó a un labrador que estaba segando el día de San  Quirico/Quirce, por lo que se le agarrotaron las dos manos. "Aunque otros santos toman venganza a veces contra los que les ofenden, la Madre de Dios  no duda en valerles.” Sobre esto os diré un gran milagro que hizo la Virgen en la iglesia de Atocha, junto a Madrid;  oídme, pues, de buen grado y pedidle todos la gracia de que os consiga de su Hijo el perdón  de vuestros pecados. Ocurrió que, en una ocasión, un labrador estaba segando un extenso trigal a la hora de más  calor del día de San Quirce, hoz en mano y con un sombrero de paja en la cabeza para  protegerse del sol, y por segar en ese día de San Quirce, Dios, por honrar al santo, le paralizó  la mano con que intentaba levantar la gavilla, agarrotándosela de modo que no podía  soltarla, y, además, hizo lo mismo con la mano derecha que empuñaba la hoz, que se le  quedó pegada a ella como con engrudo. Así, paralizado, lo llevaron sus compañeros a su alojamiento, y ya aquel día no segaron más,  sino que trasladaron apresuradamente al labrador, tal como estaba, a la Virgen de Atocha y  rogaron por él con fervor a Santa María, llorando ante su altar, para que le perdonase el  abultado yerro que cometió; él, también llorando, suplicaba a Santa María fervientemente  que, por su misericordia, le valiese sin parar mientes en su necedad y que le librase sin  tardanza de su desgracia. Tras esta contrición, la Señora de los señores le auxilió en seguida, que Ella siempre socorre  de buen grado a los pecadores, desaferrando sus manos y aliviando así sus dolores: en Ella es  en quien debemos confiar siempre.
  • 43.
    Alfonso VIII deCastilla, llamado «el de Las Navas» o «el Noble» (Soria, 11 de noviembre de 1155-Gutierre-Muñoz, 6 de octubre de 1214), fue rey de Castillaa entre 1158 y 1214 "Pues el rey don Alonso ovo passados todos estos trabajos en el comienço quando reinó, e fue casado según que auedes oído, fuese para Toledo con su muger doña Leonor: e estando y, pagóse mucho de una judía que auie nombre Fermosa, e olvidó la muger, e ençerróse con ella gran tiempo en guisa que non se podié partir d'lla por ninguna manera, nin se pagaua tanto de cosa ninguna: e estouo ençerrado con ella poco menos de siete años, que no se membraua d’sí nin d' su reino nin d' otra cosa ninguna. Entonçe ouieron su acuerdo los omes buenos d'l reino cómo pusiesen algún recado en aquel fecho tan malo e tan desaguisado: e acordaron que la matasen, e que así cobraríen a su señor, que tienén por perdido: e con este acuerdo fuéronse para allá: e entraron al rey diziendo que queríen fabrar con él: e mientras los unos fabraron con el rey, entraron los otros donde estaua aquella judía en muy nobres estrados, e d'golláronla"
  • 44.
    ALFONSO XI LOS CONCEJOS AMARGURA.RELATOS DEL VIEJO MADRID
  • 45.
    Averroes Córdoba, Al-Ándalus, 14de abril de 1126–Marrakech, 10 de diciembre de 1198) fue un filósofo y médico andalusí, maestro de filosofía y leyes islámicas, matemáticas, astronomía y medicina. Maimónides (1138, Córdoba - 1204, Fustat, Egipto), fue un médico, rabino y teólogo judío de al-Ándalus de la Edad Media. Tuvo importancia como filósofo en el pensamiento medieval. Tomás de Aquino (1224/ 1225-anuova, 1274) fue un teólogo y filósofo católico perteneciente a la Orden de Predicadores, el principal representante de la enseñanza escolástica, una de las mayores figuras de la teología sistemática y, a su vez, una de las mayores autoridades en metafísica.
  • 46.
    Dos años, ochomeses y veintiocho noches comienza en Lucena, en la España del siglo XI, donde Ibn Rushd, ya viejo, vive exiliado en una comunidad judía que se pretende conversa al islam. Ahí es visitado un día por una adolescente que se queda con él cumpliendo las funciones de ama de casa y amante.
  • 47.
    AVERROES, MAESTRO DEOCCIDENTE Con Averroes culminó la filosofía en al-Ándalus, pero antes de él otros pensadores notables roturaron este campo. Señalemos entre estos a Abenhazam de Córdoba (994-1065), espíritu enciclopédico, introductor de la lógica aristotélica en las argumentaciones jurídicas y teológicas, y autor de la primera obra andalusí de lógica que se ha conservado. Escribió también una joya de la literatura árabe, El collar de la Paloma, famoso tratado sobre el amor, un tratado de ética, La corrección de los caracteres, y una innovadora historia de las religiones, el Fisal. Los escritos de Averroes ocupan unos diez mil folios. La mayor parte de su producción literaria fueron comentarios. Los dedicados a Aristóteles (prácticamente todo el Corpus salvo la Política), Platón (La República), Porfirio (lógica), Galeno (medicina), Ptolomeo (astronomía)… Aristóteles es el más sabio de los griegos, fundador y culminador de la lógica, física y metafísica; y digo que las ha fundado, porque todas las obras que se han escrito con anterioridad a él sobre estas ciencias no merecen citarse, ya que han sido eclipsadas por el Maestro; y digo que las ha culminado porque ninguno de los que las ha continuado hasta nuestros días, o sea, durante mil quinientos años, ni han agregado nada a sus escritos, ni han podido encontrar ningún error de gran importancia. Que todo esto haya podido reunirse en un solo hombre es algo auténticamente raro y milagroso; y por esta condición singular merece que se le llame más bien divino que humano y esta es la razón por la que le llamaron divino los antiguos. Las mujeres deben compartir con los hombres todos los deberes de los ciudadanos.
  • 48.
    MAIMÓNIDES: EMERGE ELJUDAÍSMO FILOSÓFICO El pensador sefardí subraya en varias ocasiones la existencia de dos grandes campos de conocimiento: el de la filosofía, específicamente humano y sometido al ejercicio de la razón, y el de la religión, superior a aquella, basado en la profecía y cuyo objetivo consiste en “el conocimiento de Dios, que es la verdadera ciencia”. Su magna obra Guía de perplejos está dirigida a quien, teniendo espíritu religioso y conociendo las ciencias filosóficas, se encuentra perplejo a la hora de interpretar la Torá o Ley judía. La profecía es una emanación de Dios mediante el intelecto activo sobre la facultad racional en primer término, y seguidamente sobre la [facultad] imaginativa, y constituye el más alto grado del hombre y el ápice de la percepción asequible a su especie. Son necesaria estas tres condiciones para la profecía: la perfección de la razón mediante el estudio, la perfección de la facultad imaginativa y la percepción ética mediante el alejamiento de los placeres corporales.
  • 49.
    TOMÁS DE AQUINO:LA MADUREZ DE LA ESCOLÁSTICA En Suma contra los gentiles (II, cap. 4) contrapone “filósofo” a “teólogo”, “filosofía humana” a “fe cristiana” o “sabiduría divina”. La filosofía añadirá, considera las cosas en sí mismas, mientras que la teología las estudiará en cuanto representan la grandeza divina y se ordenan a Dios. El filósofo examina el mundo que le rodea según su propia naturaleza; el teólogo, según su relación con Dios. El desarrollo más completo de la naturaleza de la teología lo encontramos en la Introducción a la primera cuestión de la Suma teológica. Distingue, en primer lugar, la teología natural o teodicea, que considera a Dios por la luz natural de la razón, de la teología sagrada que se basa en la revelación divina. Aquí trata evidentemente de esta última. Tomás de Aquino se esforzó en demostrar que la teología era ciencia. Su objeto material (que puede ser común a varias ciencias) es Dios; su objeto formal (que es la perspectiva bajo la cual se considera la anterior y, por tanto, distintivo de cada ciencia) es la divina revelación. En su afán por sistematizar la doctrina cristiana en su ambiciosa síntesis teológica encontró en Aristóteles un sólido apoyo teórico.
  • 53.
    El Cantar demio Cid es un cantar de gesta anónimo que relata hazañas heroicas inspiradas libremente en los últimos años de la vida del caballero castellano Rodrigo Díaz el Campeador. La versión conservada fue compuesta, según la mayoría de la crítica actual, alrededor del año 1200, Primer folio del manuscrito del Cantar de mio Cid conservado en la Biblioteca Nacional de España
  • 54.
    Las hijas delCid, del romance XLIV del Tesoro de Romanceros. Puebla Tolín, Dióscoro Teófilo. Museo del Prado
  • 55.
    entrados son losinfantes al robledo de Corpes; los montes son altos, las ramas pujan con las nubes; y las bestias fieras que andan alrededor. Hallaron un vergel con una limpia fuente; mandan hincar la tienda los infantes de Carrión; con cuantos ellos traen, allí yacen esa noche; con sus mujeres en brazos demuéstranles amor. ¡Mal se lo cumplieron cuando salía el sol! Mandaron cargar las acémilas con haberes de valor han recogido la tienda donde albergaron de noche; adelante eran idos los de criazón; así lo mandaron los infantes de Carrión: que no quedase allí ninguno, mujer ni varón, sino ambas sus mujeres, doña Elvira y doña Sol: solazarse quieren con ellas a todo su sabor todos eran idos, ellos cuatro solos son. Tanto mal urdieron los infantes de Carrión:
  • 56.
    Infantes Creedlo bien, doñaElvira y doña Sol, aquí seréis escarnecidas en estos fieros montes. Hoy nos partiremos y dejadas seréis de nos; no tendréis parte en tierras de Carrión. Irán estos mandados al Cid Campeador; nos vengaremos en ésta por la del león. Narrador Allí les quitan los mantos y los pellizones; déjanlas en cuerpo y en camisas y en ciclatones. ¡Espuelas tienen calzadas los malos traidores! En mano prenden las cinchas resistentes y fuertes.
  • 57.
    Doña Elvira ydoña Sol, las hijas del Cid, aparecen semidesnudas y atadas a un árbol en medio de un bosque tras haber sido mancilladas, y posteriormente abandonadas, por sus esposos los condes de Carrión, Diego y Fernando. Estos aparecen huyendo a caballo por el claro del fondo. Al igual que en otras ocasiones, la leyenda ha falseado la verdad histórica de las hijas de Rodrigo Díaz de Vivar. En realidad se llamaban Cristina -que casó con el infante Ramiro de Navarra- y María -que casó con el conde Ramón Berenguer IV de Barcelona-. El episodio del ultraje de las hijas del Cid sirvió de excusa a los pintores de historia del siglo XIX para probar su habilidad en el dominio del desnudo femenino, como demuestra en esta espléndida obra el pintor burgalés Dióscoro Teófilo Puebla Tolín (1831-1901). Destaca en ella el magnífico dibujo y modelado de las figuras, la brillantez en el empleo del color y un sabio uso de la iluminación, que centra la atención del espectador sobre los elementos esenciales de la composición.
  • 60.
    Pero aquella osaiba andando sobre un prado y su actual posición, de pie y apoyada sobre un árbol, la madroñera, es del siglo XIII.
  • 61.
    El oso rampanteapoyado en el madroño se atribuye al resultado de un pleito que mantuvieron el cabildo eclesiástico y el Concejo sobre pastos y bosques en el siglo XIII por el cual los pastos pasaron a propiedad de la iglesia y el bosque al Concejo. Esta fue la causa por la que el Concejo adoptó el escudo con el oso erguido sobre el madroño, árbol muy abundante en la zona de Madrid. La banda azul con las siete estrellas se añadió más tarde y según López de Hoyos, representan … las siete estrellas que en el cielo llamamos “el carro” (Osa Mayor). Y por último la corona real, el mismo López de Hoyos la atribuye a una concesión del rey Carlos I en las Cortes de 1544.
  • 63.
    Los niños enamorados. Relatosdel viejo Madrid En las calles de Madrid, que, son calles del romero…
  • 64.
    Juan Ruiz (Alcaláde Henares, Madrid,1 n. 1 c. 1284 - c. 1351), conocido como el Arcipreste de Hita, fue el autor del Libro de buen amor, obra miscelánea predominantemente narrativa considerada como una de las más importantes de la literatura medieval española.
  • 65.
  • 66.
    LA CIUDAD ENLA ÉPOCA DE LOS TRASTÁMARA Enrique II de Castilla o de Trastámara, llamado «el Fratricida» o «el de las Mercedes» ( Sevilla, 13 de enero de 1333 o a principios de 1334- Santo Domingo de la Calzada , 29 de mayo de 1379), fue rey de Castilla, el primero de la Casa de Trastámara.
  • 67.
    -¿Dónde está esejudío hideputa que se nombra Rey de Castilla? - ¡El hideputa seréis vos, pues yo soy hijo legítimo del buen Rey Alfonso! – respondió inmediatamente Don Pedro que fue el primero en iniciar el baile de metales–. Miniatura de Jean Froissart (s. XV) describiendo la batalla de Montiel (14 de marzo de1369) en su libro "Crónicas"
  • 68.
    Juan I deCastilla (Épila o Tamarite de Litera,b c d 1358- Alcalá de Henares, 1390). En 1383 concedió la propia villa de Madrid com sus rentas a León V de Armenia.
  • 69.
    Imagen del reyEnrique III de Castilla, vidriera s. XV Enrique III (1379-1406). Hijo de Juan I de Castilla, accedió al trono a los 11 años. Durante la regencia por la minoría de este rey y coincidiendo con las Cortes celebradas en Madrid en 1390 (el mismo año de la ascendencia al trono) se desencadenaron graves ataques contra la población judía extendiéndose las matanzas de judíos por toda Castilla de la que no se libró Madrid, produciéndose importantes destrozos en su aljama, lo que supuso un descenso notable de esta población en la villa. Crea la figura del corregidor.
  • 70.
    EL rey JuanII (1405- 1454) sintió una gran predilección por Madrid, donde pasó largas temporadas viviendo en el Alcázar y convocó cortes en la Villa en numerosas ocasiones. Durante su reinado se levantó la tapia de los arrabales para contener la terrible epidemia de peste.
  • 71.
    «El Rey estuvoen Ocaña tres meses, é porque escomenzaron á morir de pestilencia, acordó de partir dende, e ante de su partida mandó responder á los Procuradores de las cibdades é villas á ciertas peticiones que le habían hecho, ...» ".
  • 72.
    Rodrigo Manrique deLara (1406 - Ocaña, 11 de noviembre de 1476). Primer conde de Paredes de Nava. Su hijo Jorge Manrique, las Coplas a la muerte de su padre. Aquel de buenos abrigo, amado por virtuoso de la gente, el maestre don Rodrigo Manrique, tanto famoso y tan valiente, sus grandes hechos y claros no cumple que los alabe, pues los vieron, ni los quiero hazer caros, pues el mundo todo sabe quáles fueron. Amigo de sus amigos, ¡qué señor para criados y parientes!, ¡qué enemigo de enemigos!, ¡qué maestro de esforçados y valientes! ¡Qué seso para discretos!, ¡qué gracia para donosos!, ¡qué razón!, ¡qué benigno a los subjetos! Y a los bravos y dañosos, ¡un león!
  • 73.
    Las Coplas porla muerte de su padre, también citadas como Coplas a la muerte del maestro don Rodrigo o, simplemente, Las coplas de Jorge Manrique, son una elegía escrita por Jorge Manrique en la muerte de su padre, el Maestre de Santiago don Rodrigo Manrique. Reproducción de la primera página de las Coplas de Jorge Manrique.
  • 74.
    Recuerde el almadormida, avive el seso e despierte contemplando cómo se passa la vida, cómo se viene la muerte tan callando; cuán presto se va el plazer, cómo, después de acordado, da dolor; cómo, a nuestro parescer, cualquiere tiempo passado fue mejor. Nuestras vidas son los ríos que van a dar en la mar, qu'es el morir; allí van los señoríos derechos a se acabar e consumir; allí los ríos caudales, allí los otros medianos e más chicos, allegados, son iguales los que viven por sus manos e los ricos.
  • 75.
    Enrique IV deCastilla (Valladolid, 5 de enero de 1425-Madrid, 11 de diciembre de 1474) E luego el rey vino para la villa de Madrid, é dende á quince días gele agravió la dolencia que tenía é murió allí en el alcázar á onze dias del mes de Deciembre deste año de mil é quatrocientos é setenta é quatro años, a las once horas de la noche: murió de edad de cinqüenta años, era home de buena complexion, no bebía vino; pero era doliente de la hijada é de piedra; y esta dolencia le fatigaba mucho a menudo. Crónica de los Señores Reyes Católicos Don Fernando y Doña Isabel de Castilla y de Aragón Madrid: muy noble y muy leal.
  • 76.
    El traje dedon Beltrán. Relatos del viejo Madrid
  • 77.
    JUANA “ LABELTRANEJA” Beltrán de la cueva
  • 79.
    En 1464, EnriqueIV fundó en la orilla del Manzanares un convento de jerónimos llamado primero Santa María de Paso y luego San Jerónimo el Real.
  • 81.
    A finales delsiglo XV la población de Madrid había alcanzado una población cercana a los 12.000 habitantes y prácticamente la totalidad del suelo urbano
  • 82.
    Plano Madrid sigloXVI en el que podemos observar, además de las 10 parroquias, los distintos conventos y hospitales existentes en la ciudad en este período. Unos y otros eran fundados por las familias nobles que adquirían con estas fundaciones mayor prestigio social. Los hospitales, todos ellos situados fuera de la muralla medieval, a excepción del de la Caridad frente al Campo del Rey, no sólo se dedicaban al cuidado de los enfermos, sino que, además, desarrollaban una labor asistencial a los pobres y desamparados. Había algunos especiales, como el de San Lázaro, cercano al barranco de San Pedro, que estaba dedicado al cuidado de los leprosos. (Fte. Madrazo, S. y Pinto, V.: Madrid atlas histórico de la ciudad. Siglos IX al XIX. Lunwerg Editores, S: A., Madrid 1
  • 83.
    "Yo nací enMadrid, pared por medio de donde puso Carlos Quinto la soberbia de Francia entre dos paredes". Lope de Vega había nacido en una casa de la calle Mayor esquina a la plaza de San Salvador, pared con pared con la Torre de los Lujanes. La historia sobre la estancia en la Torre de Francisco I no ha contado nunca con el beneplácito unánime. Pero la leyenda existía, y hasta quedó recogida por Lope de Vega en una carta cuando escribió:
  • 84.
  • 85.
    Portada del antiguo hospitalde La Latina, un bello conjunto gótico mudéjar, en el que destacan el arco de la puerta ligeramente apuntado formado por grandes dovelas, y enmarcados en un alfiz, la ventana con rejería y esculturas con doseles góticos.
  • 87.
    Esta portada se encuentraadornando los Jardines de la Escuela de Arquitectura en la Ciudad Universitaria.
  • 88.
    Reposa en unadelicada escultura ataviada con hábito religioso, mientras apoya sus pies en una cartela en la que se hace referencia a su esposo.
  • 90.
    Retrato de BeatrizGalindo en su monumento funerario del año 1531.
  • 91.
    Escultura yacente deBeatriz Galindo, en el Museo de San Isidro. Forma parte del cenotafio que estuvo en el convento de la Concepción Francisca (de la calle Toledo, de Madrid).
  • 92.
    Monumento a BeatrizGalindo, en Madrid.
  • 95.
    Su fecha derealización no la conocemos, pero basándonos en la fecha que aparece en el cenotafio del convento de la Concepción Jerónima (El Goloso, Madrid) 1531, y el tratarse de dos obras “gemelas” nos hace pensar que se realizaran los dos a la vez. Parece ser que la realización de estos monumentos fue encargada al cantero/tallador Hernán Pérez Alviz, que evidentemente contaría con un grupo de colaboradores para realizar un encargo tan importante. Puede que no mediara mucho tiempo entre la realización de ambos, o que se realizaran incluso en paralelo por el artista y sus ayudantes. La calidad técnica y artística de los dos cenotafios es similar lo cual apreciamos en la bella decoración plateresca de ambos. Por otro lado, las esculturas yacentes muestran indicios de diferente autoría. Todo parece indicar que se quiso dar más protagonismo a este conjunto escultórico del Hospital de la Latina, ya fuese por su emplazamiento en un lugar público, o por ser la fundación conjunta de los dos esposos. Pero también es verdad que al conjunto del Convento de la Concepción Jerónima se le dotó de un mayor simbolismo personal con la incorporación en un medallón de la imagen de Doña Beatriz, y la fecha de su realización. EL CABALLERO Don Francisco Ramírez de Madrid falleció en el año 1501 en una acción durante la revuelta mudéjar en Sierra Bermeja. Aunque la escultura nos muestra a un caballero vestido a la moda de la época en que se realizó esta talla, supuestamente en el 1531.
  • 96.
    Aparece Don Franciscorecostado sobre tres cojines, con un libro entre las manos, viste armadura completa con peto y sobrepeto, grandes escarcelas, protecciones también para brazos y piernas así como escarpes de punta redondeada. LLeva media capa abrochada sobre el pecho, un bonete pequeño en la cabeza, y no porta espada. A sus pies encontramos un casco esculpido inspirado en los cascos decorativos de tipo grecorromano que durante el Renacimiento pusieron de moda algunos talleres de armeros, como los Negroli. El tipo de armadura con la que visten a Don Francisco hacia el 1530, indica ya el final de una época y anuncia el comienzo de otra. LA DAMA Doña Beatriz Galindo, "La Latina", una mujer adelantada a su tiempo, instructora en latín de la Reina Isabel, y preceptora de sus hijos. Reposa en una delicada escultura ataviada con hábito religioso, mientras apoya sus pies en una cartela en la que se hace referencia a su esposo.
  • 97.
    Dibujo del Palaciode los Lasso de Castilla
  • 98.
    Cardenal Cisneros. Presidentedel Consejo de Regencia de Castilla 25 de septiembre de 1506 – 17 de agosto de 1507. 1516
  • 99.
    Un bello grabadodel Madrid del siglo XVI en el que destacan la muralla y el Alcázar
  • 100.
    Dibujo de 1562,en el que se ve desde la primera ermita de San Isidro en Carabanchel la ribera del río Manzanares y la Villa de Madrid en la que Felipe II ...
  • 101.
    Por las sierrasde Madrid Por las sierras de Madrid tengo d´ir, Que mal miedo hé de morir. Soy chequita y agraciada. En Segovia hé mi morada. Mas, por verme desposada, tengo d´ir que mal miedo hé de morir. ¿Dónde está Mançanares, que no viene? Algo tiene en agosto que le detiene. Francisco de Peñalosa (Siglo XV) La pequeña obra que aquí recogemos es una de las más curiosas perlas del repertorio cortesano de su época.
  • 104.

Notas del editor

  • #4 El retablo mayor fue construido en el siglo XVIII por Manuel Fernández, concretamente durante una reforma de la Iglesia en 1765. Está presidido por una escultura barroca de San Antonio de Padua con el Niño, ubicado en una cúpula decorada con varios ángeles, obra de Francisco Gutiérrez.