UNIBE

UNIVERSIDAD IBEROAMERICANA

   DISEÑO DE INTERIORES

   DISEÑO VI: HOSPEDAJES
    PROF. MAGALY CABA
      Eliana Rivera Florentino

             11-0420

        Prueba Diagnostica

           14-Sept-2012
ANÁLISIS DEL COMPORTAMIENTO DE MIS
HERMANOS EN SU HABITACIÓN
„  Tengo 2 hermanos ambos duerme en la misma habitación, cada uno tiene su cama.
  Tiene un closet compartido empotrado en la pared, pero dividido en dos. Tiene un
  baño para ellos en su propio cuarto.
Mi hermano mayor tiene 24 años, es         Mi hermano tiene menor 17 años, estudia
ingeniero civil y tiene su propia          en UNIBE, ingeniera civil y en sus tiempos
empresa.                                   libres se va a trabajar con mi hermano
Es muy trabajador.                         mayor. Es inquieto, imperactivo, y muy
Es muy social, le                          cariñoso.
gusta salir con sus
amigos.
„  Dormitorio: Ambos se levantan temprano a sus quehaceres, uno espera que el
    otro termine en el baño para entrar. Se van y no vuelven hasta el medio día, a la
    hora de comida. Comemos todos juntos en la mesa del comedor y después cada
    quien hace lo que tenga que hacer. Mi hermano mayor sube a su cuarto se
    recuesta un chin en su cama hasta a eso de las 2:30/3 para volver a trabajar. El
    menor es raro que suba en la tarde al cuarto y si lo hace es a utilizar su
    computadora. En la tarde el cuarto se queda intacto ambos se van hasta la noche,
    cuando regresan se ponen a ver televisión o usar su computadora en la cama,
    hasta que se duermen.
„  No desayuna, ni comen, ni cenan en el cuarto, solo a veces meriendan ahí. Ambos
    reciben a sus amigos dentro de la habitación.

„  Baño: Si ambos necesitan utilizar el baño, uno espera que el otro termine.


„  Closet: Es un closet empotrada en una de las paredes del cuarto, tiene tremerías y
  ellos mismo eligieron un lado para colocar su ropa por separado.
„  GUSTOS:


Colores: Negro, Rojo y Gris.

Ambos dicen que quieren su cuarto “moderno”, para ellos lo moderno lo ven
como un estilo minimalista, que en otras palabras es la tendencia de reducir a
lo esencial. Bajo ese estilo trabaje mi proyecto, utilizare los colores que a ellos
les gusta y siempre han querido utilizar en su cuarto, me base en lo básico de
sus necesidades, no hare mucho uso del espacio, y mantendré una misma línea
entre los colores, mobiliario, accesorios, etc.

Ambos reciben muchas visitas a diario, ya sea a jugar, a ver algún juego, a hablar,
entre muchas otras cosas mas; mi casa siempre esta llena de gente. Por eso
lograre un espacio dentro del cuarto para ellos y sus amigos.
B'
                           Area de estar                            UNIBE

                                                                  Universidad
                                                                Iberoamericana




       Habitacion 2
                                 Baño                             Escuela De
                                                              Diseño De Interiores



                                                                   Diseño VI
                                                                  Hospedajes
A                                          A'
    Habitacion 1


                                                               Prof. Magaly Caba



                                                                 Eliana Rivera
                           Closet

                                                                    11-0420


                                           Planta Amueblada    Prueba Diagnostica
                      B




                                           Scale: 1:50

                                                                   14-Sept-2012
B'
                           Area de estar                            UNIBE

                                                                  Universidad
                                                                Iberoamericana




       Habitacion 2
                                 Baño                             Escuela De
                                                              Diseño De Interiores



                                                                   Diseño VI
                                                                  Hospedajes
A                                          A'
    Habitacion 1


                                                               Prof. Magaly Caba



                                                                 Eliana Rivera
                           Closet

                                                                    11-0420


                                           Planta Amueblada    Prueba Diagnostica
                      B




                                           Scale: 1:50

                                                                   14-Sept-2012
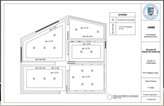
LEYENDA

                                        Fluorescente empotrable



                                           3 Par 30 Halogeno;
           2.   50   npt +2.75                                            UNIBE
      pt +
                                           en riel
     n

                                                                        Universidad
                                                                      Iberoamericana

npt +2.75
                       npt +2.50

                      npt +2.75
                                                                        Escuela De
                                                                    Diseño De Interiores



                                                                         Diseño VI
                                                                        Hospedajes

       npt +2.50

      npt +2.75                                                     Prof. Magaly Caba

                      npt +2.75

                                                                       Eliana Rivera


                                                                          11-0420


                                                                     Prueba Diagnostica
                                   Planta de Plafon E Iluminacion
                                   Scale: 1:50
                                                                         14-Sept-2012
UNIBE

                     Universidad
                   Iberoamericana




                     Escuela De
  Seccion A-A'   Diseño De Interiores
  Scale: 1:50



                      Diseño VI
                     Hospedajes




                 Prof. Magaly Caba



                    Eliana Rivera


                       11-0420

Seccion B-B'
Scale: 1:50       Prueba Diagnostica


                      14-Sept-2012
Presentacion 1
Presentacion 1

Presentacion 1

  • 1.
    UNIBE UNIVERSIDAD IBEROAMERICANA DISEÑO DE INTERIORES DISEÑO VI: HOSPEDAJES PROF. MAGALY CABA Eliana Rivera Florentino 11-0420 Prueba Diagnostica 14-Sept-2012
  • 2.
    ANÁLISIS DEL COMPORTAMIENTODE MIS HERMANOS EN SU HABITACIÓN „  Tengo 2 hermanos ambos duerme en la misma habitación, cada uno tiene su cama. Tiene un closet compartido empotrado en la pared, pero dividido en dos. Tiene un baño para ellos en su propio cuarto. Mi hermano mayor tiene 24 años, es Mi hermano tiene menor 17 años, estudia ingeniero civil y tiene su propia en UNIBE, ingeniera civil y en sus tiempos empresa. libres se va a trabajar con mi hermano Es muy trabajador. mayor. Es inquieto, imperactivo, y muy Es muy social, le cariñoso. gusta salir con sus amigos.
  • 3.
    „  Dormitorio: Ambosse levantan temprano a sus quehaceres, uno espera que el otro termine en el baño para entrar. Se van y no vuelven hasta el medio día, a la hora de comida. Comemos todos juntos en la mesa del comedor y después cada quien hace lo que tenga que hacer. Mi hermano mayor sube a su cuarto se recuesta un chin en su cama hasta a eso de las 2:30/3 para volver a trabajar. El menor es raro que suba en la tarde al cuarto y si lo hace es a utilizar su computadora. En la tarde el cuarto se queda intacto ambos se van hasta la noche, cuando regresan se ponen a ver televisión o usar su computadora en la cama, hasta que se duermen. „  No desayuna, ni comen, ni cenan en el cuarto, solo a veces meriendan ahí. Ambos reciben a sus amigos dentro de la habitación. „  Baño: Si ambos necesitan utilizar el baño, uno espera que el otro termine. „  Closet: Es un closet empotrada en una de las paredes del cuarto, tiene tremerías y ellos mismo eligieron un lado para colocar su ropa por separado.
  • 4.
    „  GUSTOS: Colores: Negro,Rojo y Gris. Ambos dicen que quieren su cuarto “moderno”, para ellos lo moderno lo ven como un estilo minimalista, que en otras palabras es la tendencia de reducir a lo esencial. Bajo ese estilo trabaje mi proyecto, utilizare los colores que a ellos les gusta y siempre han querido utilizar en su cuarto, me base en lo básico de sus necesidades, no hare mucho uso del espacio, y mantendré una misma línea entre los colores, mobiliario, accesorios, etc. Ambos reciben muchas visitas a diario, ya sea a jugar, a ver algún juego, a hablar, entre muchas otras cosas mas; mi casa siempre esta llena de gente. Por eso lograre un espacio dentro del cuarto para ellos y sus amigos.
  • 6.
    B' Area de estar UNIBE Universidad Iberoamericana Habitacion 2 Baño Escuela De Diseño De Interiores Diseño VI Hospedajes A A' Habitacion 1 Prof. Magaly Caba Eliana Rivera Closet 11-0420 Planta Amueblada Prueba Diagnostica B Scale: 1:50 14-Sept-2012
  • 7.
    B' Area de estar UNIBE Universidad Iberoamericana Habitacion 2 Baño Escuela De Diseño De Interiores Diseño VI Hospedajes A A' Habitacion 1 Prof. Magaly Caba Eliana Rivera Closet 11-0420 Planta Amueblada Prueba Diagnostica B Scale: 1:50 14-Sept-2012
  • 8.
    LEYENDA Fluorescente empotrable 3 Par 30 Halogeno; 2. 50 npt +2.75 UNIBE pt + en riel n Universidad Iberoamericana npt +2.75 npt +2.50 npt +2.75 Escuela De Diseño De Interiores Diseño VI Hospedajes npt +2.50 npt +2.75 Prof. Magaly Caba npt +2.75 Eliana Rivera 11-0420 Prueba Diagnostica Planta de Plafon E Iluminacion Scale: 1:50 14-Sept-2012
  • 9.
    UNIBE Universidad Iberoamericana Escuela De Seccion A-A' Diseño De Interiores Scale: 1:50 Diseño VI Hospedajes Prof. Magaly Caba Eliana Rivera 11-0420 Seccion B-B' Scale: 1:50 Prueba Diagnostica 14-Sept-2012