CORPORACIÓN EDUCACIONAL DE ASIMET
 LICEO INDUSTRIALCHILENO ALEMÁN




                            Cama Plegable




                                        Integrantes: Rodolfo Zúñiga
                                                    Bastían Iturriaga


                                        Profesor Guía: Jorge Gonzales




                               Ñuñoa, Chile
                                  20121
AGRADECIMIENTOS


Quisiera dedicar personalmente el éxito de este proyecto a mis padres que confiaron en mí
desde el primer momento en que les comente sobre el proyecto me ayudaron
económicamente sin dudarlo ningún momento incluso si tengo errores o el proyecto no sale
como yo esperaba se con toda confianza que me apoyaran a pesar de todo, di mucho de mí
y espero que todo salga satisfactoriamente, les agradezco de corazón.




Agradecemos primero que todo a los aportes monetarios que recibimos de nuestros padres
para poder crear (Fabricar) nuestro proyecto, también les agradezco al profesor guía por su
presente ayuda durante el transcurso del trabajo físico en el taller, a nuestros compañeros de
curso por brindarnos ayuda cuando la necesitábamos también agradecer a todos los
profesores de la especialidad ya que nos brindaron la ayuda necesaria para el desarrollo de
nuestro proyecto.




                                              2
Tabla de contenidos

                                                              Página
Cuerpo preliminar

Índice de ilustraciones y cuadros…………………………………………………           6

Resumen……………………………………………………………………………                           7

Texto

Introducción…………………………………………………………………………                        8

Fase de trabajo de planificación…………………………………………………            9 - 10

       Generación de idea
       Dibujar planos
       Calcular material
       Cotizar material
       Adquirir material
       Trazar material

Fase de trabajo practico……………………………………………………….....            10 - 13

       Trazar material
       Cortar material
       Perforar material
       Limar material
       Construir base cama
       Agregar somier cama
       Construir eje
       Cortar madera
       Perforar madera
       Apernar closet
       Estructurar closet
       Perforar closet para eje
       Colocar eje con la base de la cama
       Finalizar proyecto

Imágenes del proyecto…………………Está indicado en la pág. 6……………    14 - 17

Conclusiones………………………………………………………………………                         18

Referencias

Peso especifico…………..……………………………………………………….                     19

Herramientas y maquinas utilizadas ……………………………………………            20
                                             3
Glosario…………………………………………………………………………….      21

Bibliografía…………………………………………………………………………   22

Anexos……………………………………………………………………………..      23 - 28




                        4
Índice de ilustraciones y cuadros                                         Pagina Imagen


Se procede a perforar el perfil angular para el paso de los pernos……………… 14        1

Se perforan la pletinas para sostener la base de la cama………………………… 14              2

Se procede a estructurar la base de la cama……………………………………….. 14                    3

Se procede a la colocación de los pernos con la cama ya estructurada………… 14       4

Aquí las maderas ya están cortadas a la medida………………………………….. 15                  5

Aquí se colocaron las pletinas angulares…………………………………………… 15                       6

Se procedió a estructurar el closet…………………………………………………… 15                        7

Acá se ve finalizado el closet ………………………………………………………… 15                          8

Se ve el tubo ya soldado a la estructura de la cama………………………………. 16               9

Aquí se muestra el closet ya perforado a la medida del tubo principal………….. 16   10

Se procedió a la instalación de las pletinas que sostienen el eje………………… 16       11

Se ve la estructura del closet ya termina básica…………………………………… 16                 12

Se procede a cortar el perfil cuadrado de 25x25x2 a 45° para las patas……….. 17    13

Se ve en las patas listas ya soldadas………………………………………………… 17                       14




                                            5
TITULO
Este proyecto pretende alcanzar el desarrollo de una cama plegable o abatible de una plaza,
la cual con un eje de dos perfiles circulares? se guarda de forma paralela al mueble que la
contiene. En resumen

                                         TITULO
Nuestro objetivo general es la confección de esta clama plegable abatible que se guarda
en un closet el cual está hecho de madera y tiene un eje hecho de 2 perfiles tubulares, esto
tiene el propósito de tener una cama de un diseño formal y además ahorra mucho espacio en
un modelo simple

Los objetivos Específicos son lograr:

      Permitir un menor espacio al utilizarlo, esto debido a que se guarda horizontalmente

      Un confort suficiente y de sobra para un descanso reparador

      Un estilo elegante o formal ideal para cualquier gusto

      Una excelente precio económico sin perdidas de beneficios significativos

La confección de esta cama plegable la cual está constituida con un mueble hecho con
tableros con base a fibra de madera?, la estructura de la cama es a base de perfiles
angulares, todo está sujeto con pernos lo que permite que sea portable, un somier hecho de
un tablero de madera con un eje central de 2 perfiles circulares uno fijo y otro móvil el cual
permite el movimiento del somier. El mueble está fijado con pletinas que están fijados con
pernos, haciendo que absolutamente toda la estructura sea desarmable, además de un gran
ahorro en espacio con un modelo atractivo, convierte este proyecto en un gran partido en
cualquier sentido.




                                               6
Introducción

Este proyecto consiste en una unificación de una cama de una plaza, con un mueble, el cual
mediante un eje se guarda de forma paralela a este, de esta forma se resuelve una
necesidad la cual es el problema de espacio en por ejemplo en un departamento el cual el
espacio es fundamental, sobre todo con un modelo elegante y sencillo, un sistema simple
pero lo suficientemente complejo como para resolver este problema, además el mueble esta
hecho de una forma tal que el armado y desarmado de este esté completamente controlado,
no existen piezas muy complejas sino totalmente simples, esto también se aplica a la base
de la cama la cual es completamente apernada con pernos simples de grado 2?.

Por último el detalle del mueble que está recubierto de un color bastante sobrio y por sobre
todo el sistema de eje de 2 tubos es lo suficientemente simple como para armarlo pero, lo
bastante fuerte para sostener toda la estructura, además las patas de la cama son retractiles
lo que facilita aun mas su uso.




                                    ANALISIS FODA


Fortalezas                                  Oportunidades
    Contamos con las máquinas, equipos        Contamos con la ayuda de nuestros
       y herramientas necesarias para             compañeros de curso y la asesoría de
       desarrollar el proyecto.                   nuestro profesor guía.
    Facilidad en los planos de desarrollos    Existe una gran posibilidad de venderlo
    Metodología de construcción sencilla
    Todos los materiales están al alcance




Debilidades                              Amenazas
    Espacio reducido para el proyecto y    No contar a tiempo con los recursos
       complejidad de espacio libre           económicos necesarios para el término
    Dependencia del tiempo reducido          del proyecto.
                                            Pérdida de tiempo por culpa de la espera
                                              económica para seguir comprando
                                              materiales




                                             7
Fase de trabajo de planificación:


   1 Generación de Idea: Aquí sin lugar a duda es la parte más importante y el paso más
     grande en todo este proceso, aquí es donde se desarrolla todos los pasos para la
     construcción del proyecto además que en este paso es vital para el desarrollo de la
     Carta Gantt y los planos de confección (FABRICACIÓN) de este proyecto.

            El proceso comenzó con una pequeña investigación la cual se concedió
             buscando una necesidad y darle una solución a esa necesidad, ojala buscar
             relacionarlo de uso habitual

            Aquí se genero la idea de una cama abatible o plegable la cual por objetivos
             tenía que fuese completamente desarmable, que se guardara en un closet de
             forma horizontal para obtener un ahorro de espacio notorio y que el closet fuese
             confeccionado de madera que le diera un confort ideal para una habitación,
             además de que el closet también fuese desarmable para poder transportar de
             una forma sencilla y rápida.


   2 Dibujar plano: Un paso muy importante para la construcción del proyecto con la
     representación grafica lista y seguida por una comprobación exhaustiva para que no
     existan errores, con sus 3 proyecciones respectivas, aunque de principio debió ser un
     croquis con los detalles necesarios para poder comenzar a los pocos días se
     diseñaron los planos respectivos para el proyecto.(vea anexo 1)

   3 Desarrollar carta Gantt: Este paso es netamente planificación aquí se
     desarrollARON los pasos necesarios para la construcción del proyecto desde la
     generación de idea hasta la finalización del mismo incluye el tiempo que tardara las
     actividades en una escala real( véase anexo 2)

   4 Calculo del material: Aquí se debe calcular el material necesario para la construcción
     del proyecto, aquí se calculo según los planos un perfil angular laminado de acero de
     50x50x3 calidad A270ES ? ,3 tablones de fibra de madera mdf(MDF), pernos y
     pletinas.

   5 Cotizar Materiales: Acá se debe ir a cotizar lo materiales a los lugares de compra, los
     precios de los materiales están en una tabla de presupuesto.(vea anexo 3)


   6 Adquirir material: La adquisición del material, en el caso del perfil fue transportado al
     liceo por medio de la compra que venía incluida, la madera fue transportada al liceo
     por medios externos.




                                              8
Fase de trabajo Practico


   7 Trazar material: En este paso hay que comenzar a trazar el material, el orden fue el
     siguiente:

              Aquí se debe trazar el perfil angular a la medida de la base de la cama la cual
              es de una plaza (ancho 90cm y alto 190 cm) así se comenzó a trazar los
              perfiles a la medida para su posterior cortado, un detalles especial es el corte
              de unión de los extremos de los perfiles, los que van en forma horizontal tienen
              un destaje de 50x50 mm el cual permite el ingreso de los que van en forma
              vertical, con esto se reduce el movimiento y permite una mayor fijación,
              además del hecho de que se puedan apernar.

             También se trazo el perfil cuadrado de 25x25 que es el apoyo de la cama
              cuando esta plegada, tiene una longitud de 900mm y las patas una longitud de
              200mm la cual fue marcada en para un corte de 45°.

              Además también se trazaron las pletinas que sostienen la base de la cama las
              cuales tienen una medida de, también se marcaron los puntos de perforación
              de estos mismos.

             También se procedió a trazar los tubos necesarios para construir el eje los
              cuales tienen una longitud distinta, el tubo interior de Ø 25mm tiene una
              longitud de 1000mm y el tubo exterior de Ø 30mm posee una longitud de
              970mm.

             Por último se trazo(TRAZARON) las pletinas que tienen una medida de
              18x25x3 que sostienen el eje de la cama, marcando también los lugares de
              perforación.


   8 Corte del material: El corte del de los materiales fueron distintos por cada uno aquí
     esta cada uno con su respectivo corte:

             Los perfiles de la cama fueron cortados primero con esmeril angular, con las
              piezas ya cortadas era más sencillo trabajar los respectivos destajes, los
              destajes fueron cortados con arco sierra para un corte más preciso

             También el corte de las pletinas fue con esmeril angular.


             El corte de las pletinas que sostienen el eje fueron hechos con arco sierra
              debido a lo pequeñas que eran estas piezas y no permitían el corte por esmeril
              angular.




                                               9
     El corte del perfil cuadrado de 25x25 fue hecho con la sierra eléctrica que fue
           puesta para el corte a 45°.


          El corte de ambos tubos fueron hechos con esmeril angular.


9 Perforar material (acero): Acá se debe perforar los lugares donde van los pernos.

          En el caso de las pletinas y los perfiles angulares, todos se hicieron con una
           broca de Ø 8 mm, para posteriormente pasen con facilidad los pernos.

           La mayoría de las perforaciones se hicieron con un taladro de pedestal, los
           únicos que se hicieron con taladro fueron el de los perfiles de la cama.?

          También se perforaron las pletinas que sostienen el eje con una broca de 5 las
           cuales son un total de 3 perforaciones por pieza a una distancia de 18 mm
           cada una.


10 Limar material (acero): Aquí se debió limar todos los cortes que se hicieron,
   sobretodo los cortes que se hicieron con esmeril angular por lo irregular que deja el
   corte y la rebaba. También se limaron los cortes en sierra para dejar una superficie
   derecha, las rebabas de las perforaciones todos esto fueron hechos con una lima
   plana, y por último el destaje circular de las pletinas que sostienen el eje el cual fue
   limado con una lima media caña.

11 Construir base de la cama: Acá se comenzó a estructurar la base de la cama, la
   metodología usada fue la siguiente:

          Primero se prosiguió a ordenar los perfiles haciéndolos calzar con los destajes
           hechos anteriormente

          Posteriormente el lado plano de estos debían mirar hacia arriba

          Luego de estos se pusieron las pletinas de forma de que en cada esquina
           calzara la pletina necesaria

          Se procedió a colocar los pernos en las esquinas, la cabeza del perno quedo
           hacia el suelo

          Después de esto se apretaron con una llave Allen de 8

12 Agregar somier a la cama: El proceso de agregado del somier consiste en colocar la
   tabla de madera sobre la base de la cama, cuando se realizo esto se procedió a
   perforar los lados para colocar unos pernos simples grado 2, a medida que se agregan
   esto va adquiriendo firmeza y así al apernar toda la estructura se prosigue con el
   siguiente paso.
                                           10
13 Construcción del eje: La construcción del eje en si es sencilla ya que no requiere
   ningún tratamiento especial más que soldarlo a un perfil de la base de la cama. Se
   hizo el siguiente procedimiento:

         Se procedió a colocar el tubo de Ø 30mm al lado del perfil vertical de la cama,
          los cuales se fijaron con prensas por ambos lados

         Después de esto, se pincho con sistema semiautomático mig-mag (con el
          electrodo AWS: ER-70S-6) los extremos y longitudinalmente unos 2 pinchazos

         Se procedieron a quitar las prensas y soldar con un cordón de 50mm de largo
          cada 200 mm de distancia uno de otro, para evitar la mas mínima deformación
          ya sea del tubo o del perfil.

14 Cortar la madera: Aquí se procedió a cortar los tablones de madera mdf, se cortaron
   de las medidas dadas para el mueble las cuales son las siguientes:

         El respaldo del mueble mide 2100x1000mm

         Las partes horizontales del mueble miden 450x2100mm

15 Perforar madera: La madera se perforan para dos procesos, tanto para colocar los
   tornillos y una perforación más grande para colocar el eje. Los pasos fueron los
   siguientes

         Para los pernos las perforaciones se hizo un pequeño agujero así los tornillos
          pasarían con gran facilidad, estas perforaciones se hicieron para colocar las
          pletinas angulares las cuales tienen una distancia de …? están dan la firmeza y
          estabilidad necesaria para el mueble

         se perforaron las esquinas tanto de adentro como de afuera asegurando aun
          más la estabilidad del mueble

         Por último se perforo el lugar donde va el eje el cual se realizo con una broca
          trepanadora? de Ø 24 mm.

16 Apernar closet: Se procedió a apernar O ATORNILLAR? el closet, pero a las
   perforaciones se le agregaron un componente especial el cual consiste en la adición
   de pegamento y luego se le agrega el pegamento, esto lo que hace es afianzar el
   perno evitando un posible accidente, además de asegurar el hilo de la madera lo cual
   conlleva a que no se deshaga cuando se quiten el tornillo, lo que permite una mayor
   duración.

17 Estructurar closet: La estructuración del closet es relativamente sencilla ya que solo
   dependería de el apernado previo solo hay que tener en consideración el armado de

                                         11
las planchas verticales y horizontales, una vez colocadas en junto las pletinas y
   apernadas respectivamente

18 Perforar Closet para eje: Para este paso se utilizaron unas sierras de perforar
   madera del tamaño numero 24 mm, para esto se procedió a medir el tamaño de las
   patas y luego se aplico este tamaño al del closet restando el grosor de la madera
   base, luego se procedió a marcar y posteriormente a perforar, se perforo por ambos
   lados, y con esto se prosigue a el siguiente paso.

19 Colocar eje con la base cama: Aquí se prosigue a colocar el tubo base fijo con los
   agujeros ya hechos, cuando se coloca esto se coloca el tubo más grande que ya esta
   soldado a la base de la cama, así cuando se coloque ambos tubos cumplirán la
   función de eje.

20 Finalización proyecto: Como último paso se finaliza el proyecto, aquí solo seguirían
   detalles minúsculos como un pequeño control de calidad y que la estructura cumpla
   bien sus funciones respectivas.




                                        12
Imágenes del proyecto:


Imagen 1 Perforando perfil        Imagen2 perforando pletinas




Imagen 3    Estructurando                Imagen 4 apernando estructura




                             13
Imagen 5 Maderas ya cortadas          Imagen 6 Pletinas angunales




Imagen 7 Estructurando closet        Imagen 8 Closet finalizado




                                14
Imagen 9 Estructura soldada a tubo        Imagen 10 Perforación closet




Imagen 11   Colocación pletinas eje         Imagen 12 Closet estructurado




                                       15
Imagen 13 Cortando patas        Imagen 14 Patas ya soldadas




                           16
Conclusiones


En conclusión podemos destacar varios aspectos para dar un aborde general a todo el
proyecto:

   1. La planificaciones es sin lugar a dudas uno de los aspectos que aprendimos en todo
      este proceso, incluso con habilidades increíbles para el trabajo, no servirán para nada
      si no existe una planificación correcta antes de iniciar cualquier proceso, nosotros
      aprendimos esto de mucha importancia debido a que en algunos casos surgieron
      pequeños imprevistos que a la larga significaron un pequeño desfase en la carta
      Gantt, aunque se pudo corregir a tiempo por un apresuramiento del trabajo eso nos
      indica que siempre hay que planificar teniendo en cuenta lo difícil que parezca incluso
      algún imprevisto y ojala tener planes opcionales para así evitar un desfase muy
      grande y no lograr el objetivo esperado.

   2. Otra cosa bastante importante fue el hecho de la obtención de información a pesar de
      que este proyecto es relativamente sencillo implico informarse muy bien sobre los
      diferentes sistemas que tenia para poder ejercer la función de ser abatible y encontrar
      un sistema lo más simple y eficaz que se adecuara a nuestra situación, lo logramos a
      tiempo.

   3. Las habilidades técnicas necesarias para construir en su totalidad el proyecto las
      cuales involucran además de las ya mencionadas arriba cálculos en las medidas ya
      que un error que tuvimos fue por 15mm lo cual significo una solución rápida que
      afortunadamente soluciono el problema, además de esto aprendimos estructurar de
      una forma lógica un mueble utilizando madera algo nuevo para nosotros y por último,
      los errores cometidos que fueron considerables nos ayudaron mucho a no volver a
      cometerlos.




                                             17
Peso especifico:

Peso del mueble solo: según calculo
   Lados horizontales 4.2 kg c/u
   Lados verticales 9.2kg c/u
   Respaldo closet 23.9 kg
   Puerta 5.8 kg c/u

Total: 62.3 Kg

Peso de la base cama: según calculo
   Perfiles angulares horizontales 2.4 kg c/u
   Perfiles angulares verticales 5.2 kg c/u

Total: 15.2 kg

Patas cama 1.6 kg

Perfil tubular de 25x2 mm 1.15 kg
Perfil tubular de 30x2 mm 1.4 kg

Pletinas base cama 207 gr

Total: 4.97 kg



Peso estructura total: 82.47 kg




                                           18
Herramientas y maquinas utilizadas

Herramientas:

Rayador metálico
Lima plana bastarda
Lima media caña
Prensas
Reglilla de 500mm
Punto de marcar
Martillo de 1000 g
Corrector
Sierra de madera
Arco sierra
Desatornillador de cruz
Llave fija de 8
Broca trepanadora de madera
Broca de Ø8
Broca de Ø5
Pegamento de madera


Maquinas usadas:

Esmeril angular
Maquina de soldar mig-mag kempomat 250
Taladro de pedestal
Taladro eléctrico
Maquina de soldar tig-wig
Sierra eléctrica




                                         19
Glosario


Mdf: sigla en inglés de Médium Density Fibreboard es un aglomerado elaborado con fibras
de madera aglutinadas con resinas sintéticas mediante fuerte presión y calor, en seco, hasta
alcanzar una densidad media. Tiene las siguientes propiedades:

Una resistencia a la tracción de 179.88 kgf/cm2
Una densidad media de 760 kg/m3

*un kgf o kilogramo-fuerza equivale a 9.8 newton


Perfil angular laminado: Los Ángulos Estructurales, son productos cuyas alas son iguales y
forman un ángulo de 90º entre sí. Este perfil después de ser laminado es enderezado en
frío.

Perno simple grado 2: Son los pernos clasificados según la norma Sae los valores de
resistencia es 23 kg/mm2

A37-24ES: En las designaciones de los aceros, según las normas chilenas, la letra A indica
que el material es acero de carbono; los números se refieren a la resistencia a la tracción y al
límite de fluencia mínimo por tracción, respectivamente, expresados en MPa, la letra E indica
que el acero es para usos estructurales, la letra S que el acero es de soldabilidad
garantizada.
En este caso sería un acero que tiene una resistencia a la tracción de 37kgf por mm2 y un
límite de fluencia de 24 kgf por mm2 que es estructural y soldable.

Mig-Mag: La soldadura MIG/MAG es un proceso por arco bajo gas protector con electrodo
consumible (se trabajo a un voltaje de 22 volt lo que equivale a aprox 175 amperes)

AWS: ER-70S-6: Es un Alambre de acero usado en el sistema semiautomático mig-mag, es
un acero dulce para toda posición es de corriente continua y es un electrodo positivo sus
características son:

Revestimiento: Cobrizo
Resistencia a la tracción: 76.800 lb/pulg2 (453 MPa)
Límite de fluencia: 62.100 lb/pulg2 (384 MPa)


Tig-Wig :El sistema TIG es un sistema de soldadura al arco con protección gaseosa, que
utiliza el intenso calor de un arco eléctrico generado entre un electrodo de tungsteno no
consumible y la pieza a soldar, donde puede o no utilizarse metal de aporte.




                                              20
Bibliografía

   1   Maderas. Ciencia y tecnología versión On-line ISSN 0718-221X

   2   http://www.convertworld.com/es/

   3   http://www2.ing.puc.cl/~icm2312/apuntes/materiales/materials2.html7

   4   http://upcommons.upc.edu/pfc/bitstream/2099.1/3891/14/34039-14.pdf

   5   http://disensa.com/main/images/pdf/fichas_tecnicas.pdf

   6   http://www.lincolnelectric.com/en-
       us/Consumables/Pages/product.aspx?product=LincolnElectric_US_Consumable_MIGGMAWWires-
       SuperArc-SuperArcL-56%28LincolnElectric%29

   7   http://es.wikipedia.org/wiki/Soldadura_TIG

   8   http://www.aws.org/w/a/

   9   http://es.wikipedia.org/wiki/Soldadura_MIG/MAG

   10 http://es.metric-conversions.org/cgi-bin/util/conversion-chart.cgi?type=4&from=1&to=34




                                                    21
Anexo 1
Vista isométrica:




                    22
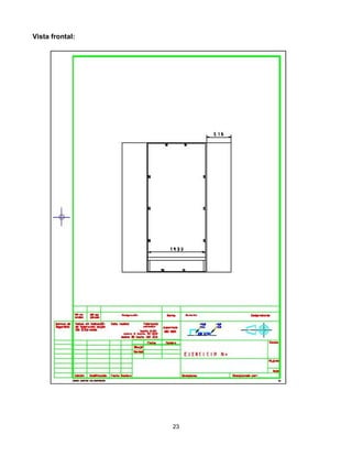
Vista frontal:




                 23
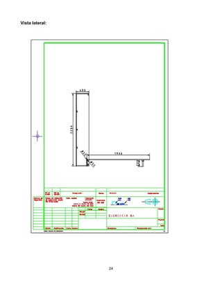
Vista lateral:




                 24
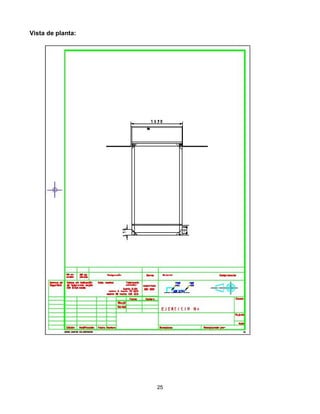
Vista de planta:




                   25
Anexo 2
Carta Gantt:




               26
Anexo 3
Tabla de presupuesto


Tabla de presupuesto de cama plegable o abatible

                                                               Precio            Costos
Materiales                                          Cantidad
                                                               Unitario          totales

Perfil angular de 50x50x3 mm                              1            $13,000        $13,000
Tablero a base de fibra de madera 2440x1220x10 mm         4            $18,350        $74,400
Pletinas ángulo 38x35 mm                                 14               $550         $7,700
Tornillo de 10 mm tipo lenteja                           72                $10           $720
Pernos de 8 mm grado 2                                   13                $80         $1,040

                                                               Total                  $95,860




                                            27

Zuñiga & iturriaga

  • 1.
    CORPORACIÓN EDUCACIONAL DEASIMET LICEO INDUSTRIALCHILENO ALEMÁN Cama Plegable Integrantes: Rodolfo Zúñiga Bastían Iturriaga Profesor Guía: Jorge Gonzales Ñuñoa, Chile 20121
  • 2.
    AGRADECIMIENTOS Quisiera dedicar personalmenteel éxito de este proyecto a mis padres que confiaron en mí desde el primer momento en que les comente sobre el proyecto me ayudaron económicamente sin dudarlo ningún momento incluso si tengo errores o el proyecto no sale como yo esperaba se con toda confianza que me apoyaran a pesar de todo, di mucho de mí y espero que todo salga satisfactoriamente, les agradezco de corazón. Agradecemos primero que todo a los aportes monetarios que recibimos de nuestros padres para poder crear (Fabricar) nuestro proyecto, también les agradezco al profesor guía por su presente ayuda durante el transcurso del trabajo físico en el taller, a nuestros compañeros de curso por brindarnos ayuda cuando la necesitábamos también agradecer a todos los profesores de la especialidad ya que nos brindaron la ayuda necesaria para el desarrollo de nuestro proyecto. 2
  • 3.
    Tabla de contenidos Página Cuerpo preliminar Índice de ilustraciones y cuadros………………………………………………… 6 Resumen…………………………………………………………………………… 7 Texto Introducción………………………………………………………………………… 8 Fase de trabajo de planificación………………………………………………… 9 - 10  Generación de idea  Dibujar planos  Calcular material  Cotizar material  Adquirir material  Trazar material Fase de trabajo practico………………………………………………………..... 10 - 13  Trazar material  Cortar material  Perforar material  Limar material  Construir base cama  Agregar somier cama  Construir eje  Cortar madera  Perforar madera  Apernar closet  Estructurar closet  Perforar closet para eje  Colocar eje con la base de la cama  Finalizar proyecto Imágenes del proyecto…………………Está indicado en la pág. 6…………… 14 - 17 Conclusiones……………………………………………………………………… 18 Referencias Peso especifico…………..………………………………………………………. 19 Herramientas y maquinas utilizadas …………………………………………… 20 3
  • 4.
    Glosario……………………………………………………………………………. 21 Bibliografía………………………………………………………………………… 22 Anexos…………………………………………………………………………….. 23 - 28 4
  • 5.
    Índice de ilustracionesy cuadros Pagina Imagen Se procede a perforar el perfil angular para el paso de los pernos……………… 14 1 Se perforan la pletinas para sostener la base de la cama………………………… 14 2 Se procede a estructurar la base de la cama……………………………………….. 14 3 Se procede a la colocación de los pernos con la cama ya estructurada………… 14 4 Aquí las maderas ya están cortadas a la medida………………………………….. 15 5 Aquí se colocaron las pletinas angulares…………………………………………… 15 6 Se procedió a estructurar el closet…………………………………………………… 15 7 Acá se ve finalizado el closet ………………………………………………………… 15 8 Se ve el tubo ya soldado a la estructura de la cama………………………………. 16 9 Aquí se muestra el closet ya perforado a la medida del tubo principal………….. 16 10 Se procedió a la instalación de las pletinas que sostienen el eje………………… 16 11 Se ve la estructura del closet ya termina básica…………………………………… 16 12 Se procede a cortar el perfil cuadrado de 25x25x2 a 45° para las patas……….. 17 13 Se ve en las patas listas ya soldadas………………………………………………… 17 14 5
  • 6.
    TITULO Este proyecto pretendealcanzar el desarrollo de una cama plegable o abatible de una plaza, la cual con un eje de dos perfiles circulares? se guarda de forma paralela al mueble que la contiene. En resumen TITULO Nuestro objetivo general es la confección de esta clama plegable abatible que se guarda en un closet el cual está hecho de madera y tiene un eje hecho de 2 perfiles tubulares, esto tiene el propósito de tener una cama de un diseño formal y además ahorra mucho espacio en un modelo simple Los objetivos Específicos son lograr:  Permitir un menor espacio al utilizarlo, esto debido a que se guarda horizontalmente  Un confort suficiente y de sobra para un descanso reparador  Un estilo elegante o formal ideal para cualquier gusto  Una excelente precio económico sin perdidas de beneficios significativos La confección de esta cama plegable la cual está constituida con un mueble hecho con tableros con base a fibra de madera?, la estructura de la cama es a base de perfiles angulares, todo está sujeto con pernos lo que permite que sea portable, un somier hecho de un tablero de madera con un eje central de 2 perfiles circulares uno fijo y otro móvil el cual permite el movimiento del somier. El mueble está fijado con pletinas que están fijados con pernos, haciendo que absolutamente toda la estructura sea desarmable, además de un gran ahorro en espacio con un modelo atractivo, convierte este proyecto en un gran partido en cualquier sentido. 6
  • 7.
    Introducción Este proyecto consisteen una unificación de una cama de una plaza, con un mueble, el cual mediante un eje se guarda de forma paralela a este, de esta forma se resuelve una necesidad la cual es el problema de espacio en por ejemplo en un departamento el cual el espacio es fundamental, sobre todo con un modelo elegante y sencillo, un sistema simple pero lo suficientemente complejo como para resolver este problema, además el mueble esta hecho de una forma tal que el armado y desarmado de este esté completamente controlado, no existen piezas muy complejas sino totalmente simples, esto también se aplica a la base de la cama la cual es completamente apernada con pernos simples de grado 2?. Por último el detalle del mueble que está recubierto de un color bastante sobrio y por sobre todo el sistema de eje de 2 tubos es lo suficientemente simple como para armarlo pero, lo bastante fuerte para sostener toda la estructura, además las patas de la cama son retractiles lo que facilita aun mas su uso. ANALISIS FODA Fortalezas Oportunidades  Contamos con las máquinas, equipos  Contamos con la ayuda de nuestros y herramientas necesarias para compañeros de curso y la asesoría de desarrollar el proyecto. nuestro profesor guía.  Facilidad en los planos de desarrollos  Existe una gran posibilidad de venderlo  Metodología de construcción sencilla  Todos los materiales están al alcance Debilidades Amenazas  Espacio reducido para el proyecto y  No contar a tiempo con los recursos complejidad de espacio libre económicos necesarios para el término  Dependencia del tiempo reducido del proyecto.  Pérdida de tiempo por culpa de la espera económica para seguir comprando materiales 7
  • 8.
    Fase de trabajode planificación: 1 Generación de Idea: Aquí sin lugar a duda es la parte más importante y el paso más grande en todo este proceso, aquí es donde se desarrolla todos los pasos para la construcción del proyecto además que en este paso es vital para el desarrollo de la Carta Gantt y los planos de confección (FABRICACIÓN) de este proyecto.  El proceso comenzó con una pequeña investigación la cual se concedió buscando una necesidad y darle una solución a esa necesidad, ojala buscar relacionarlo de uso habitual  Aquí se genero la idea de una cama abatible o plegable la cual por objetivos tenía que fuese completamente desarmable, que se guardara en un closet de forma horizontal para obtener un ahorro de espacio notorio y que el closet fuese confeccionado de madera que le diera un confort ideal para una habitación, además de que el closet también fuese desarmable para poder transportar de una forma sencilla y rápida. 2 Dibujar plano: Un paso muy importante para la construcción del proyecto con la representación grafica lista y seguida por una comprobación exhaustiva para que no existan errores, con sus 3 proyecciones respectivas, aunque de principio debió ser un croquis con los detalles necesarios para poder comenzar a los pocos días se diseñaron los planos respectivos para el proyecto.(vea anexo 1) 3 Desarrollar carta Gantt: Este paso es netamente planificación aquí se desarrollARON los pasos necesarios para la construcción del proyecto desde la generación de idea hasta la finalización del mismo incluye el tiempo que tardara las actividades en una escala real( véase anexo 2) 4 Calculo del material: Aquí se debe calcular el material necesario para la construcción del proyecto, aquí se calculo según los planos un perfil angular laminado de acero de 50x50x3 calidad A270ES ? ,3 tablones de fibra de madera mdf(MDF), pernos y pletinas. 5 Cotizar Materiales: Acá se debe ir a cotizar lo materiales a los lugares de compra, los precios de los materiales están en una tabla de presupuesto.(vea anexo 3) 6 Adquirir material: La adquisición del material, en el caso del perfil fue transportado al liceo por medio de la compra que venía incluida, la madera fue transportada al liceo por medios externos. 8
  • 9.
    Fase de trabajoPractico 7 Trazar material: En este paso hay que comenzar a trazar el material, el orden fue el siguiente:  Aquí se debe trazar el perfil angular a la medida de la base de la cama la cual es de una plaza (ancho 90cm y alto 190 cm) así se comenzó a trazar los perfiles a la medida para su posterior cortado, un detalles especial es el corte de unión de los extremos de los perfiles, los que van en forma horizontal tienen un destaje de 50x50 mm el cual permite el ingreso de los que van en forma vertical, con esto se reduce el movimiento y permite una mayor fijación, además del hecho de que se puedan apernar.  También se trazo el perfil cuadrado de 25x25 que es el apoyo de la cama cuando esta plegada, tiene una longitud de 900mm y las patas una longitud de 200mm la cual fue marcada en para un corte de 45°.  Además también se trazaron las pletinas que sostienen la base de la cama las cuales tienen una medida de, también se marcaron los puntos de perforación de estos mismos.  También se procedió a trazar los tubos necesarios para construir el eje los cuales tienen una longitud distinta, el tubo interior de Ø 25mm tiene una longitud de 1000mm y el tubo exterior de Ø 30mm posee una longitud de 970mm.  Por último se trazo(TRAZARON) las pletinas que tienen una medida de 18x25x3 que sostienen el eje de la cama, marcando también los lugares de perforación. 8 Corte del material: El corte del de los materiales fueron distintos por cada uno aquí esta cada uno con su respectivo corte:  Los perfiles de la cama fueron cortados primero con esmeril angular, con las piezas ya cortadas era más sencillo trabajar los respectivos destajes, los destajes fueron cortados con arco sierra para un corte más preciso  También el corte de las pletinas fue con esmeril angular.  El corte de las pletinas que sostienen el eje fueron hechos con arco sierra debido a lo pequeñas que eran estas piezas y no permitían el corte por esmeril angular. 9
  • 10.
    El corte del perfil cuadrado de 25x25 fue hecho con la sierra eléctrica que fue puesta para el corte a 45°.  El corte de ambos tubos fueron hechos con esmeril angular. 9 Perforar material (acero): Acá se debe perforar los lugares donde van los pernos.  En el caso de las pletinas y los perfiles angulares, todos se hicieron con una broca de Ø 8 mm, para posteriormente pasen con facilidad los pernos.  La mayoría de las perforaciones se hicieron con un taladro de pedestal, los únicos que se hicieron con taladro fueron el de los perfiles de la cama.?  También se perforaron las pletinas que sostienen el eje con una broca de 5 las cuales son un total de 3 perforaciones por pieza a una distancia de 18 mm cada una. 10 Limar material (acero): Aquí se debió limar todos los cortes que se hicieron, sobretodo los cortes que se hicieron con esmeril angular por lo irregular que deja el corte y la rebaba. También se limaron los cortes en sierra para dejar una superficie derecha, las rebabas de las perforaciones todos esto fueron hechos con una lima plana, y por último el destaje circular de las pletinas que sostienen el eje el cual fue limado con una lima media caña. 11 Construir base de la cama: Acá se comenzó a estructurar la base de la cama, la metodología usada fue la siguiente:  Primero se prosiguió a ordenar los perfiles haciéndolos calzar con los destajes hechos anteriormente  Posteriormente el lado plano de estos debían mirar hacia arriba  Luego de estos se pusieron las pletinas de forma de que en cada esquina calzara la pletina necesaria  Se procedió a colocar los pernos en las esquinas, la cabeza del perno quedo hacia el suelo  Después de esto se apretaron con una llave Allen de 8 12 Agregar somier a la cama: El proceso de agregado del somier consiste en colocar la tabla de madera sobre la base de la cama, cuando se realizo esto se procedió a perforar los lados para colocar unos pernos simples grado 2, a medida que se agregan esto va adquiriendo firmeza y así al apernar toda la estructura se prosigue con el siguiente paso. 10
  • 11.
    13 Construcción deleje: La construcción del eje en si es sencilla ya que no requiere ningún tratamiento especial más que soldarlo a un perfil de la base de la cama. Se hizo el siguiente procedimiento:  Se procedió a colocar el tubo de Ø 30mm al lado del perfil vertical de la cama, los cuales se fijaron con prensas por ambos lados  Después de esto, se pincho con sistema semiautomático mig-mag (con el electrodo AWS: ER-70S-6) los extremos y longitudinalmente unos 2 pinchazos  Se procedieron a quitar las prensas y soldar con un cordón de 50mm de largo cada 200 mm de distancia uno de otro, para evitar la mas mínima deformación ya sea del tubo o del perfil. 14 Cortar la madera: Aquí se procedió a cortar los tablones de madera mdf, se cortaron de las medidas dadas para el mueble las cuales son las siguientes:  El respaldo del mueble mide 2100x1000mm  Las partes horizontales del mueble miden 450x2100mm 15 Perforar madera: La madera se perforan para dos procesos, tanto para colocar los tornillos y una perforación más grande para colocar el eje. Los pasos fueron los siguientes  Para los pernos las perforaciones se hizo un pequeño agujero así los tornillos pasarían con gran facilidad, estas perforaciones se hicieron para colocar las pletinas angulares las cuales tienen una distancia de …? están dan la firmeza y estabilidad necesaria para el mueble  se perforaron las esquinas tanto de adentro como de afuera asegurando aun más la estabilidad del mueble  Por último se perforo el lugar donde va el eje el cual se realizo con una broca trepanadora? de Ø 24 mm. 16 Apernar closet: Se procedió a apernar O ATORNILLAR? el closet, pero a las perforaciones se le agregaron un componente especial el cual consiste en la adición de pegamento y luego se le agrega el pegamento, esto lo que hace es afianzar el perno evitando un posible accidente, además de asegurar el hilo de la madera lo cual conlleva a que no se deshaga cuando se quiten el tornillo, lo que permite una mayor duración. 17 Estructurar closet: La estructuración del closet es relativamente sencilla ya que solo dependería de el apernado previo solo hay que tener en consideración el armado de 11
  • 12.
    las planchas verticalesy horizontales, una vez colocadas en junto las pletinas y apernadas respectivamente 18 Perforar Closet para eje: Para este paso se utilizaron unas sierras de perforar madera del tamaño numero 24 mm, para esto se procedió a medir el tamaño de las patas y luego se aplico este tamaño al del closet restando el grosor de la madera base, luego se procedió a marcar y posteriormente a perforar, se perforo por ambos lados, y con esto se prosigue a el siguiente paso. 19 Colocar eje con la base cama: Aquí se prosigue a colocar el tubo base fijo con los agujeros ya hechos, cuando se coloca esto se coloca el tubo más grande que ya esta soldado a la base de la cama, así cuando se coloque ambos tubos cumplirán la función de eje. 20 Finalización proyecto: Como último paso se finaliza el proyecto, aquí solo seguirían detalles minúsculos como un pequeño control de calidad y que la estructura cumpla bien sus funciones respectivas. 12
  • 13.
    Imágenes del proyecto: Imagen1 Perforando perfil Imagen2 perforando pletinas Imagen 3 Estructurando Imagen 4 apernando estructura 13
  • 14.
    Imagen 5 Maderasya cortadas Imagen 6 Pletinas angunales Imagen 7 Estructurando closet Imagen 8 Closet finalizado 14
  • 15.
    Imagen 9 Estructurasoldada a tubo Imagen 10 Perforación closet Imagen 11 Colocación pletinas eje Imagen 12 Closet estructurado 15
  • 16.
    Imagen 13 Cortandopatas Imagen 14 Patas ya soldadas 16
  • 17.
    Conclusiones En conclusión podemosdestacar varios aspectos para dar un aborde general a todo el proyecto: 1. La planificaciones es sin lugar a dudas uno de los aspectos que aprendimos en todo este proceso, incluso con habilidades increíbles para el trabajo, no servirán para nada si no existe una planificación correcta antes de iniciar cualquier proceso, nosotros aprendimos esto de mucha importancia debido a que en algunos casos surgieron pequeños imprevistos que a la larga significaron un pequeño desfase en la carta Gantt, aunque se pudo corregir a tiempo por un apresuramiento del trabajo eso nos indica que siempre hay que planificar teniendo en cuenta lo difícil que parezca incluso algún imprevisto y ojala tener planes opcionales para así evitar un desfase muy grande y no lograr el objetivo esperado. 2. Otra cosa bastante importante fue el hecho de la obtención de información a pesar de que este proyecto es relativamente sencillo implico informarse muy bien sobre los diferentes sistemas que tenia para poder ejercer la función de ser abatible y encontrar un sistema lo más simple y eficaz que se adecuara a nuestra situación, lo logramos a tiempo. 3. Las habilidades técnicas necesarias para construir en su totalidad el proyecto las cuales involucran además de las ya mencionadas arriba cálculos en las medidas ya que un error que tuvimos fue por 15mm lo cual significo una solución rápida que afortunadamente soluciono el problema, además de esto aprendimos estructurar de una forma lógica un mueble utilizando madera algo nuevo para nosotros y por último, los errores cometidos que fueron considerables nos ayudaron mucho a no volver a cometerlos. 17
  • 18.
    Peso especifico: Peso delmueble solo: según calculo  Lados horizontales 4.2 kg c/u  Lados verticales 9.2kg c/u  Respaldo closet 23.9 kg  Puerta 5.8 kg c/u Total: 62.3 Kg Peso de la base cama: según calculo  Perfiles angulares horizontales 2.4 kg c/u  Perfiles angulares verticales 5.2 kg c/u Total: 15.2 kg Patas cama 1.6 kg Perfil tubular de 25x2 mm 1.15 kg Perfil tubular de 30x2 mm 1.4 kg Pletinas base cama 207 gr Total: 4.97 kg Peso estructura total: 82.47 kg 18
  • 19.
    Herramientas y maquinasutilizadas Herramientas: Rayador metálico Lima plana bastarda Lima media caña Prensas Reglilla de 500mm Punto de marcar Martillo de 1000 g Corrector Sierra de madera Arco sierra Desatornillador de cruz Llave fija de 8 Broca trepanadora de madera Broca de Ø8 Broca de Ø5 Pegamento de madera Maquinas usadas: Esmeril angular Maquina de soldar mig-mag kempomat 250 Taladro de pedestal Taladro eléctrico Maquina de soldar tig-wig Sierra eléctrica 19
  • 20.
    Glosario Mdf: sigla eninglés de Médium Density Fibreboard es un aglomerado elaborado con fibras de madera aglutinadas con resinas sintéticas mediante fuerte presión y calor, en seco, hasta alcanzar una densidad media. Tiene las siguientes propiedades: Una resistencia a la tracción de 179.88 kgf/cm2 Una densidad media de 760 kg/m3 *un kgf o kilogramo-fuerza equivale a 9.8 newton Perfil angular laminado: Los Ángulos Estructurales, son productos cuyas alas son iguales y forman un ángulo de 90º entre sí. Este perfil después de ser laminado es enderezado en frío. Perno simple grado 2: Son los pernos clasificados según la norma Sae los valores de resistencia es 23 kg/mm2 A37-24ES: En las designaciones de los aceros, según las normas chilenas, la letra A indica que el material es acero de carbono; los números se refieren a la resistencia a la tracción y al límite de fluencia mínimo por tracción, respectivamente, expresados en MPa, la letra E indica que el acero es para usos estructurales, la letra S que el acero es de soldabilidad garantizada. En este caso sería un acero que tiene una resistencia a la tracción de 37kgf por mm2 y un límite de fluencia de 24 kgf por mm2 que es estructural y soldable. Mig-Mag: La soldadura MIG/MAG es un proceso por arco bajo gas protector con electrodo consumible (se trabajo a un voltaje de 22 volt lo que equivale a aprox 175 amperes) AWS: ER-70S-6: Es un Alambre de acero usado en el sistema semiautomático mig-mag, es un acero dulce para toda posición es de corriente continua y es un electrodo positivo sus características son: Revestimiento: Cobrizo Resistencia a la tracción: 76.800 lb/pulg2 (453 MPa) Límite de fluencia: 62.100 lb/pulg2 (384 MPa) Tig-Wig :El sistema TIG es un sistema de soldadura al arco con protección gaseosa, que utiliza el intenso calor de un arco eléctrico generado entre un electrodo de tungsteno no consumible y la pieza a soldar, donde puede o no utilizarse metal de aporte. 20
  • 21.
    Bibliografía 1 Maderas. Ciencia y tecnología versión On-line ISSN 0718-221X 2 http://www.convertworld.com/es/ 3 http://www2.ing.puc.cl/~icm2312/apuntes/materiales/materials2.html7 4 http://upcommons.upc.edu/pfc/bitstream/2099.1/3891/14/34039-14.pdf 5 http://disensa.com/main/images/pdf/fichas_tecnicas.pdf 6 http://www.lincolnelectric.com/en- us/Consumables/Pages/product.aspx?product=LincolnElectric_US_Consumable_MIGGMAWWires- SuperArc-SuperArcL-56%28LincolnElectric%29 7 http://es.wikipedia.org/wiki/Soldadura_TIG 8 http://www.aws.org/w/a/ 9 http://es.wikipedia.org/wiki/Soldadura_MIG/MAG 10 http://es.metric-conversions.org/cgi-bin/util/conversion-chart.cgi?type=4&from=1&to=34 21
  • 22.
  • 23.
  • 24.
  • 25.
  • 26.
  • 27.
    Anexo 3 Tabla depresupuesto Tabla de presupuesto de cama plegable o abatible Precio Costos Materiales Cantidad Unitario totales Perfil angular de 50x50x3 mm 1 $13,000 $13,000 Tablero a base de fibra de madera 2440x1220x10 mm 4 $18,350 $74,400 Pletinas ángulo 38x35 mm 14 $550 $7,700 Tornillo de 10 mm tipo lenteja 72 $10 $720 Pernos de 8 mm grado 2 13 $80 $1,040 Total $95,860 27