Grupo 11 IPR
Mar Monfort Vengut
Enrique Orts Costa
Juan Gómez Verdú
Isabel Navarro Carreto
Pilar Notivoli Dávila
CASA PARA
UNA PAREJA
UBICACIÓN
BOCETOS
Volúmenes generales
Vista desde patio trasero
Vista cocina-comedor
Vista exterior
Planta estructura portante
Planta
Planta techos
Alzado Sur
Alzado Oeste
Alzado Este
Alzado Norte
Sección 1
Sección 2
Sección 3
Sección 4
Sección 5
Perspectiva cónica acceso
Perspectiva cónica posterior
REFERENCIAS
Acceso rodado y peatonal Bel Air Road (Craig Elwood)
Acceso rodado y peatonal
Patios Casa Sert (Josep Lluís Sert)
Glorieta Casa Moratiel (Jose Maria Sostres)
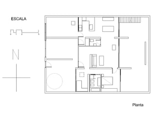
• La casa está situada en el centro de la parcela
ocupando su totalidad. Cuenta con tres patios; el
primero corresponde a la cocina, al segundo se puede
acceder desde el estudio, pero a su vez, queda a la
derecha del acceso peatonal como un espacio abierto; y
el tercero, de mayor dimensión, queda en la parte
posterior delimitando el comedor, el salón y el
dormitorio.
• Desde el patio posterior se puede acceder mediante una
escalera volada exterior a la glorieta que se encuentra
en el piso superior de la casa. Ésta está situada sobre el
comedor y la cocina. Ofrece vistas al mar (este) y a la
albufera (sur). Un sistema de lamas de madera oculta la
luz del oeste. El techado de la glorieta queda apoyado
sobre un muro de carga lateral y un muro interior que se
prolonga atravesando el forjado principal de la casa.
• El sistema de apertura de las ventanas, a un lado y otro
de la casa, ofrecen un buen sistema de ventilación.
PECULIARIDADES
• El acceso rodado y peatonal se realiza por el mismo sitio
y queda protegido bajo un voladizo de madera revestida.
Desde el acceso rodado encontramos una puerta que
lleva directamente a la cocina, mientras que por la
puerta principal se accede al salón.
• El patio posterior queda separado por medio de un muro
que evita las vistas desde el salón hacia el dormitorio.
• El concepto abierto queda reforzado por la ausencia de
puertas entre el salón, el comedor y la cocina. Sin
embargo cabe destacar que desde el salón no se
advierte si hay alguien trabajando en la cocina.
• Haremos hincapié en el baño de respeto con el que
cuenta el salón.
• Por último, para proteger el estudio del
sobrecalentamiento del soleamiento del oeste hemos
alargado el forjado y hemos puesto un árbol de hoja
caduca en el patio que ofrece sombra. Para
contrarrestar la escasa luminosidad del espacio, hemos
abierto un lucernario que permite la entrada de luz del
norte.

Casa para una pareja GRUPO 11 MAÑANAS

  • 1.
    Grupo 11 IPR MarMonfort Vengut Enrique Orts Costa Juan Gómez Verdú Isabel Navarro Carreto Pilar Notivoli Dávila CASA PARA UNA PAREJA
  • 2.
  • 3.
  • 4.
  • 5.
  • 6.
  • 7.
  • 8.
  • 9.
  • 10.
  • 11.
  • 12.
  • 13.
  • 14.
  • 15.
  • 16.
  • 17.
  • 18.
  • 19.
  • 20.
  • 21.
    REFERENCIAS Acceso rodado ypeatonal Bel Air Road (Craig Elwood)
  • 22.
  • 23.
    Patios Casa Sert(Josep Lluís Sert)
  • 25.
    Glorieta Casa Moratiel(Jose Maria Sostres)
  • 27.
    • La casaestá situada en el centro de la parcela ocupando su totalidad. Cuenta con tres patios; el primero corresponde a la cocina, al segundo se puede acceder desde el estudio, pero a su vez, queda a la derecha del acceso peatonal como un espacio abierto; y el tercero, de mayor dimensión, queda en la parte posterior delimitando el comedor, el salón y el dormitorio. • Desde el patio posterior se puede acceder mediante una escalera volada exterior a la glorieta que se encuentra en el piso superior de la casa. Ésta está situada sobre el comedor y la cocina. Ofrece vistas al mar (este) y a la albufera (sur). Un sistema de lamas de madera oculta la luz del oeste. El techado de la glorieta queda apoyado sobre un muro de carga lateral y un muro interior que se prolonga atravesando el forjado principal de la casa. • El sistema de apertura de las ventanas, a un lado y otro de la casa, ofrecen un buen sistema de ventilación. PECULIARIDADES
  • 28.
    • El accesorodado y peatonal se realiza por el mismo sitio y queda protegido bajo un voladizo de madera revestida. Desde el acceso rodado encontramos una puerta que lleva directamente a la cocina, mientras que por la puerta principal se accede al salón. • El patio posterior queda separado por medio de un muro que evita las vistas desde el salón hacia el dormitorio. • El concepto abierto queda reforzado por la ausencia de puertas entre el salón, el comedor y la cocina. Sin embargo cabe destacar que desde el salón no se advierte si hay alguien trabajando en la cocina. • Haremos hincapié en el baño de respeto con el que cuenta el salón. • Por último, para proteger el estudio del sobrecalentamiento del soleamiento del oeste hemos alargado el forjado y hemos puesto un árbol de hoja caduca en el patio que ofrece sombra. Para contrarrestar la escasa luminosidad del espacio, hemos abierto un lucernario que permite la entrada de luz del norte.