Características del Inmueble
PROPUESTA PARA RENTA DE INMUEBLE COMERCIAL Inmueble ubicado en la calle de Guerrero No. 274 Col. Guerrero, Delegación Cuauhtémoc,  con las siguientes características: Frente hacia el Eje Uno Poniente 24.80 m2. Situado en Zona Comercial con todos los servicios Uso de suelo múltiple Cercano al perímetro del Centro Histórico 1000 metros de estacionamiento Nos adaptamos a las necesidades de instalación que se requieran Excelentes vías de comunicación y transporte
UBICACIÓN Guerrero # 274 Col. Guerrero Delegación Cuauhtémoc
CARACTERÍSTICAS CUADRO DE SUPERFICIES m2 SUPERFICIE TOTAL DEL TERRENO 1,711.00 m2 SUPERFICIE CONTRUIDA PLANTA BAJA 670.52 m2 SUPERFICIE CONTRUIDA 1° NIVEL 175.04 m2 SUPERFICIE CONTRUIDA 2°  NIVEL 435.68 m2 SUPERFICIE CONTRUIDA 3°  NIVEL 387.17 m2 SUPERFICIE TOTAL CONSTRUIDA 1,668.41 m2 SUPERFICIE DE AREA LIBRE 1,024.48 m2 PORCENTAJE DE AREA LIBRE (59.88%) EDIFICIO QUE DA AL EJE DE GUERRERO m2 SUPERFICIE CONTRUIDA PLANTA BAJA 621.44 m2 SUPERFICIE CONTRUIDA 1° NIVEL 125.96 m2 SUPERFICIE CONTRUIDA 2°  NIVEL 386.80 m2 SUPERFICIE CONTRUIDA 3°  NIVEL 387.17 m2
CARACTERÍSTICAS AREAS PLANTA BAJA LOCAL AREAS AREA JUEGOS INFANTILES 55.83 m2 AREA DE MESAS 250.09 m2 AREA DE BAÑOS 14.83 m2 COCINA 36.49 m2 BODEGA 27.99 m2 CA v A 5.65 m2 OFICINA “A” 35.57 m2 AREA DE REFRIGERACION 6.17 m2 AREA DE FREGADEROS 11.89 m2 CUARTO DE VALET PARKING 2.47 m2 AREA DE ESTACIONAMIENTO 830.63 m2 AREA DE ANTENAS 124.86 m2 AREAS PRIMER NIVEL LOCAL AREA BAÑO DAMAS 11.66 m2 BAÑO CABALLEROS 15.78 m2 CUARTO “A” 28.24 m2 BODEGA “A” 6.22 m2 BAÑO “A” 7.15 m2 BODEGA 8.62 m2
CARACTERÍSTICAS AREAS SEGUNDO NIVEL LOCAL AREA OFICINA 1 88.34 m2 OFICIAN 2 62.07 m2 OFICINA 3 81.78 m2 BAÑO 1 6.75 m2 BAÑO 2 6.75 m2 BODEGA 23.27 m2 CISTERNA 11.12 m2 AREAS TERCER NIVEL LOCAL AREA OFICINA 4 88.34 m2 OFICIAN 5 62.07 m2 OFICINA 6 81.78 m2 BAÑO 3 6.75 m2 BAÑO 4 6.75 m2
 
 
 
 
 
 
 
 
 
Francisco Suárez Huerta Tels.: 5526 8394 5526 6839

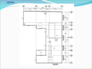
eje guerrero274

  • 1.
  • 2.
    PROPUESTA PARA RENTADE INMUEBLE COMERCIAL Inmueble ubicado en la calle de Guerrero No. 274 Col. Guerrero, Delegación Cuauhtémoc, con las siguientes características: Frente hacia el Eje Uno Poniente 24.80 m2. Situado en Zona Comercial con todos los servicios Uso de suelo múltiple Cercano al perímetro del Centro Histórico 1000 metros de estacionamiento Nos adaptamos a las necesidades de instalación que se requieran Excelentes vías de comunicación y transporte
  • 3.
    UBICACIÓN Guerrero #274 Col. Guerrero Delegación Cuauhtémoc
  • 4.
    CARACTERÍSTICAS CUADRO DESUPERFICIES m2 SUPERFICIE TOTAL DEL TERRENO 1,711.00 m2 SUPERFICIE CONTRUIDA PLANTA BAJA 670.52 m2 SUPERFICIE CONTRUIDA 1° NIVEL 175.04 m2 SUPERFICIE CONTRUIDA 2° NIVEL 435.68 m2 SUPERFICIE CONTRUIDA 3° NIVEL 387.17 m2 SUPERFICIE TOTAL CONSTRUIDA 1,668.41 m2 SUPERFICIE DE AREA LIBRE 1,024.48 m2 PORCENTAJE DE AREA LIBRE (59.88%) EDIFICIO QUE DA AL EJE DE GUERRERO m2 SUPERFICIE CONTRUIDA PLANTA BAJA 621.44 m2 SUPERFICIE CONTRUIDA 1° NIVEL 125.96 m2 SUPERFICIE CONTRUIDA 2° NIVEL 386.80 m2 SUPERFICIE CONTRUIDA 3° NIVEL 387.17 m2
  • 5.
    CARACTERÍSTICAS AREAS PLANTABAJA LOCAL AREAS AREA JUEGOS INFANTILES 55.83 m2 AREA DE MESAS 250.09 m2 AREA DE BAÑOS 14.83 m2 COCINA 36.49 m2 BODEGA 27.99 m2 CA v A 5.65 m2 OFICINA “A” 35.57 m2 AREA DE REFRIGERACION 6.17 m2 AREA DE FREGADEROS 11.89 m2 CUARTO DE VALET PARKING 2.47 m2 AREA DE ESTACIONAMIENTO 830.63 m2 AREA DE ANTENAS 124.86 m2 AREAS PRIMER NIVEL LOCAL AREA BAÑO DAMAS 11.66 m2 BAÑO CABALLEROS 15.78 m2 CUARTO “A” 28.24 m2 BODEGA “A” 6.22 m2 BAÑO “A” 7.15 m2 BODEGA 8.62 m2
  • 6.
    CARACTERÍSTICAS AREAS SEGUNDONIVEL LOCAL AREA OFICINA 1 88.34 m2 OFICIAN 2 62.07 m2 OFICINA 3 81.78 m2 BAÑO 1 6.75 m2 BAÑO 2 6.75 m2 BODEGA 23.27 m2 CISTERNA 11.12 m2 AREAS TERCER NIVEL LOCAL AREA OFICINA 4 88.34 m2 OFICIAN 5 62.07 m2 OFICINA 6 81.78 m2 BAÑO 3 6.75 m2 BAÑO 4 6.75 m2
  • 7.
  • 8.
  • 9.
  • 10.
  • 11.
  • 12.
  • 13.
  • 14.
  • 15.
  • 16.
    Francisco Suárez HuertaTels.: 5526 8394 5526 6839