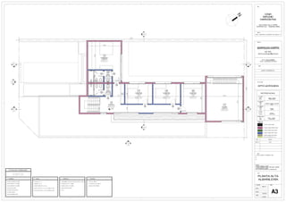
BALCARCE esq. E. MITRE
                                          MARCOS PAZ - BUENOS AIRES




                                         CIRC. I, SECCION B, MANZANA 160, PARCELA 15




                                                      B + S + B Arq. Asociados
                                                   FADAU - UNIVERSIDAD DE MORON




                                                                                       Print to PDF without this message by purchasing novaPDF (http://www.novapdf.com/)
                                                     AGOSTO / NOVIEMBRE 2012




                                          REV.                    FECHA

                                         REV. 01                  10-12




                                                      REV. 01




1
    PERSPECTIVAS EXTERIORES
                              s/escala
                                                      CE-AR-01            P1
                                                      M.A.E.B
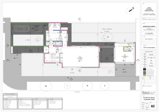
BALCARCE esq. E. MITRE
                                                                                                              MARCOS PAZ - BUENOS AIRES




                                                                                                            CIRC. I, SECCION B, MANZANA 160, PARCELA 15




                                                                                                                         B + S + B Arq. Asociados
                                                                                                                      FADAU - UNIVERSIDAD DE MORON




                                                                                                                                                          Print to PDF without this message by purchasing novaPDF (http://www.novapdf.com/)
                                                                                                                        AGOSTO / NOVIEMBRE 2012




                                                                                                             REV.                    FECHA

                                                                                                            REV. 01                  10-12




                                               PERSPECTIVAS EXTERIORES - INTERIORES
                                           2                                          s/escala




                                                                                                                         REV. 01




1
    PERSPECTIVAS EXTERIORES - INTERIORES
                                                                                                 s/escala
                                                                                                                         CE-AR-01         P2
                                                                                                                         M.A.E.B
TEMA A DESARROLLAR COMO PROYECTO FINAL DE CARRERA


             Barragan Martín A.E.
                   Mat. 830 0075
          Martin.a.e.barragan@gmail.com
Municipalidad de Marcos Paz

                        “Concurso de Proyectos”

       “CENTRO DE EXPOSICIONES, CONVENCIONES y EVENTOS”

                Plan Estratégico Participativo 2005-2020

En el marco del 133º Aniversario de la Creación del Partido de Marcos Paz




                  Casona Histórica
                 “Quinta de Devoto”
Restauración, puesta en valor, la re funcionalización, y
                reacondicionamiento,
 reciclaje y ampliación para centro de convenciones,
               exposiciones y eventos
El edificio y predio histórico perteneciente a la familia Devoto, posee aproximadamente
 ocho (8) hectáreas de superficie, poblada con una vasta arboleda, un molino y una cancha
  de pelota a paleta abierta. El edificio, según consta en las cedulas catastrales, tiene en su
 planta baja; halls, salas, comedores, una cocina, dos baños y quince (15) habitaciones. El
  primer piso exhibe varios halls y salas, un comedor, una cocina, los sanitarios y diez (10)
                                            habitaciones.
Esta ubicada en la Localidad de Marcos Paz, sobre Dr. Marcos Paz (Ruta Provincial 40) y Gral.
              Bosch, frente a las vías férreas del ex ramal Sarmiento (Merlo-Lobos)
  El fraccionamiento de este predio data del año 1873 y los registros de construcción de la
           Casona Histórica - Quinta de Devoto son del año 1930 aproximadamente.
 la edificación posee cerca de 463 m2 de superficie cubierta en planta baja y 261 m2 en el
              primer piso, esto nos da una totalidad de aproximadamente 724m2.
PROGRAMA DE NECESIDADES
Para propiciar un espacio de gran dinámica urbana y actividades participativas de múltiples características a alojarse
dentro del edificio y la futura ampliación en el predio; se ha consensuado, un programa de usos y necesidades que se
articula en 5 áreas temáticas:



A- Área Cultural
Esta área deberá albergar y dar cabida a expresiones culturales que se desarrollan en la ciudad y generar sinergia con
las otras áreas del programa para promover futuras actividades.
1- Museo marcospasence (40 m²)
2- Sala de exposiciones (100 m²-divisible en módulos mediante sistema de panelería móvil)



B - Área de Convenciones, Espectáculos escénicos y Eventos
Esta área contendrá principalmente las instalaciones de salas acondicionadas técnicamente (iluminación, acústica,
sonido, equipamiento) para desarrollar actividades de convenciones, reuniones, exposiciones, promociones, conciertos,
obras de teatro y otro tipo de expresiones artísticas.
1- Foyer (40 m²)
2- Sala flexible cap. 200 asistentes (180 m²)
3- Estrado con camarines (60 m²)
4- Salas anexas (25 m²)
5- Depósitos (10 m²)
6- Servicios sanitarios (25 m²)
Sup. Aprox. 340 m²
C- Área de Servicios y Promoción.
Esta área contendrá los lugares con usos de apoyo específico a las otras áreas, así como también aquellos destinados a
brindar servicios que garanticen y estimulen el uso cotidiano del lugar.
1- Tiendas de promoción de artículos de producción local y regional (quesos, embutidos, gourmet, cueros, talabartería,
artesanías, etc.) - sup. 20 m²
2- Tiendas de promoción de artículos de producciones artísticas (galerías de arte, locales de objetos de diseño) - 15 m²
3- Locales de provisión para las actividades del proyecto (drugstore, librería técnica y artística, artículos de fotografía y
video) - 15 m²
4- Locales de servicios gastronómicos (Restaurantes, confiterías, heladerías y/o bares) - 140 m²
5- Áreas Administrativas (Dirección, oficinas administrativas) 15 m²
6- Sanitarios - 30 m²
7- Áreas Técnicas y de Máquinas – 15 m²
8- Área de carga y descarga
9- Área de estacionamientos
Sup. Aprox. 250 m²
D- Área de Hospedaje:
Este sector deberá utilizar parte del edificio histórico para albergar huéspedes. Deberá especificarse que tipo, cantidad,
nivel de servicio y nivel de calidad de hospedaje para poder clasificarlo bajo las normas vigentes.
Capacidad 25 habitaciones

E- Área Espacio Verde.
Lugar optimizado del sector de parque para poder desarrollar distintas actividades al aire libre como exposiciones,
muestras, desfiles, festivales, etc.
Incluyendo en este ítem iluminación, sonido, sanitarios, agua, senderos, vallados, sectores, etc.

Superficie aproximada
Restauración y Reciclaje: 700 m²
Obra nueva: 730 m²
Barragan  8300075 1
Barragan  8300075 1
Barragan  8300075 1
Barragan  8300075 1
Barragan  8300075 1
Barragan  8300075 1
Barragan  8300075 1
Barragan  8300075 1
Barragan  8300075 1
Barragan  8300075 1
Barragan  8300075 1
Barragan  8300075 1
Barragan  8300075 1
Barragan  8300075 1
Barragan  8300075 1
Barragan  8300075 1
Barragan  8300075 1
Barragan  8300075 1
Barragan  8300075 1
Barragan  8300075 1
Barragan  8300075 1
Barragan  8300075 1
Barragan  8300075 1
Barragan  8300075 1
Barragan  8300075 1
Barragan  8300075 1
Barragan  8300075 1
Barragan  8300075 1
Barragan  8300075 1
Barragan  8300075 1
Barragan  8300075 1
Barragan  8300075 1
Barragan  8300075 1
Barragan  8300075 1
Barragan  8300075 1
Barragan  8300075 1

Barragan 8300075 1

  • 17.
    BALCARCE esq. E.MITRE MARCOS PAZ - BUENOS AIRES CIRC. I, SECCION B, MANZANA 160, PARCELA 15 B + S + B Arq. Asociados FADAU - UNIVERSIDAD DE MORON Print to PDF without this message by purchasing novaPDF (http://www.novapdf.com/) AGOSTO / NOVIEMBRE 2012 REV. FECHA REV. 01 10-12 REV. 01 1 PERSPECTIVAS EXTERIORES s/escala CE-AR-01 P1 M.A.E.B
  • 18.
    BALCARCE esq. E.MITRE MARCOS PAZ - BUENOS AIRES CIRC. I, SECCION B, MANZANA 160, PARCELA 15 B + S + B Arq. Asociados FADAU - UNIVERSIDAD DE MORON Print to PDF without this message by purchasing novaPDF (http://www.novapdf.com/) AGOSTO / NOVIEMBRE 2012 REV. FECHA REV. 01 10-12 PERSPECTIVAS EXTERIORES - INTERIORES 2 s/escala REV. 01 1 PERSPECTIVAS EXTERIORES - INTERIORES s/escala CE-AR-01 P2 M.A.E.B
  • 19.
    TEMA A DESARROLLARCOMO PROYECTO FINAL DE CARRERA Barragan Martín A.E. Mat. 830 0075 Martin.a.e.barragan@gmail.com
  • 20.
    Municipalidad de MarcosPaz “Concurso de Proyectos” “CENTRO DE EXPOSICIONES, CONVENCIONES y EVENTOS” Plan Estratégico Participativo 2005-2020 En el marco del 133º Aniversario de la Creación del Partido de Marcos Paz Casona Histórica “Quinta de Devoto”
  • 21.
    Restauración, puesta envalor, la re funcionalización, y reacondicionamiento, reciclaje y ampliación para centro de convenciones, exposiciones y eventos
  • 22.
    El edificio ypredio histórico perteneciente a la familia Devoto, posee aproximadamente ocho (8) hectáreas de superficie, poblada con una vasta arboleda, un molino y una cancha de pelota a paleta abierta. El edificio, según consta en las cedulas catastrales, tiene en su planta baja; halls, salas, comedores, una cocina, dos baños y quince (15) habitaciones. El primer piso exhibe varios halls y salas, un comedor, una cocina, los sanitarios y diez (10) habitaciones. Esta ubicada en la Localidad de Marcos Paz, sobre Dr. Marcos Paz (Ruta Provincial 40) y Gral. Bosch, frente a las vías férreas del ex ramal Sarmiento (Merlo-Lobos) El fraccionamiento de este predio data del año 1873 y los registros de construcción de la Casona Histórica - Quinta de Devoto son del año 1930 aproximadamente. la edificación posee cerca de 463 m2 de superficie cubierta en planta baja y 261 m2 en el primer piso, esto nos da una totalidad de aproximadamente 724m2.
  • 23.
    PROGRAMA DE NECESIDADES Parapropiciar un espacio de gran dinámica urbana y actividades participativas de múltiples características a alojarse dentro del edificio y la futura ampliación en el predio; se ha consensuado, un programa de usos y necesidades que se articula en 5 áreas temáticas: A- Área Cultural Esta área deberá albergar y dar cabida a expresiones culturales que se desarrollan en la ciudad y generar sinergia con las otras áreas del programa para promover futuras actividades. 1- Museo marcospasence (40 m²) 2- Sala de exposiciones (100 m²-divisible en módulos mediante sistema de panelería móvil) B - Área de Convenciones, Espectáculos escénicos y Eventos Esta área contendrá principalmente las instalaciones de salas acondicionadas técnicamente (iluminación, acústica, sonido, equipamiento) para desarrollar actividades de convenciones, reuniones, exposiciones, promociones, conciertos, obras de teatro y otro tipo de expresiones artísticas. 1- Foyer (40 m²) 2- Sala flexible cap. 200 asistentes (180 m²) 3- Estrado con camarines (60 m²) 4- Salas anexas (25 m²) 5- Depósitos (10 m²) 6- Servicios sanitarios (25 m²) Sup. Aprox. 340 m²
  • 24.
    C- Área deServicios y Promoción. Esta área contendrá los lugares con usos de apoyo específico a las otras áreas, así como también aquellos destinados a brindar servicios que garanticen y estimulen el uso cotidiano del lugar. 1- Tiendas de promoción de artículos de producción local y regional (quesos, embutidos, gourmet, cueros, talabartería, artesanías, etc.) - sup. 20 m² 2- Tiendas de promoción de artículos de producciones artísticas (galerías de arte, locales de objetos de diseño) - 15 m² 3- Locales de provisión para las actividades del proyecto (drugstore, librería técnica y artística, artículos de fotografía y video) - 15 m² 4- Locales de servicios gastronómicos (Restaurantes, confiterías, heladerías y/o bares) - 140 m² 5- Áreas Administrativas (Dirección, oficinas administrativas) 15 m² 6- Sanitarios - 30 m² 7- Áreas Técnicas y de Máquinas – 15 m² 8- Área de carga y descarga 9- Área de estacionamientos Sup. Aprox. 250 m² D- Área de Hospedaje: Este sector deberá utilizar parte del edificio histórico para albergar huéspedes. Deberá especificarse que tipo, cantidad, nivel de servicio y nivel de calidad de hospedaje para poder clasificarlo bajo las normas vigentes. Capacidad 25 habitaciones E- Área Espacio Verde. Lugar optimizado del sector de parque para poder desarrollar distintas actividades al aire libre como exposiciones, muestras, desfiles, festivales, etc. Incluyendo en este ítem iluminación, sonido, sanitarios, agua, senderos, vallados, sectores, etc. Superficie aproximada Restauración y Reciclaje: 700 m² Obra nueva: 730 m²