GRUPO-12
CÉSAR JIMÉNEZ GONZÁLEZ
PABLO LLUCH MORALES
CARLOS ENRIQUE LÓPEZ PIQUERAS
ADRIÁN SEMPERE
JAVIER TORRES VEGARA
CASA PATIO DOS
VOLÚMENES
10 VERANO
10 INVIERNO
SECCIONES
MEMORIA
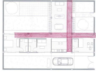
• La forma de la casa patio tiene dos volúmenes cruzados, en forma de cruz, de esta manera se divide la parcela
en 4 patios de diferentes tamaños.
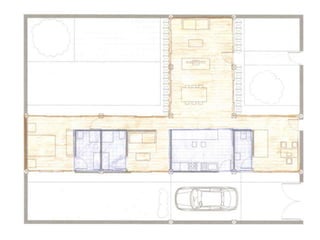
• La casa se divide en dos zonas, en una se encuentra la zona de día que comprende el estudio, salón-comedor
y cocina, y en la otra, la zona de noche que comprende la habitación principal y la sala de lectura-estar que
ocasionalmente se transforma en habitación de invitados. El estudio tiene un acceso desde el exterior y esta
comunicado con el salón-comedor. Para ofrecer intimidad, el estudio se puede cerrar con puertas correderas
cuando se desee, otorgando continuidad espacial, además posee cristales translucidos que permiten la
entrada de luz pero ofreciendo intimidad a la estancia y evitando las visuales con el resto de la casa. El estudio
tiene un aseo de respeto.
• La cocina posee dos bancadas, una funciona para cocinar y otra que sirve de mesa o de pasaplatos. En cuanto
salón- comedor, se encuentra en una zona con buena iluminación y ventilación. El acceso principal de la casa
se situa en pleno salón comedor. Desde el garaje se accede a la cocina y al patio privado de las habitaciones.
Un arbusto divide el garaje del patio, pero manteniendo la continuidad espacial visualmente.
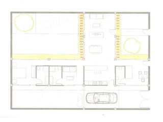
• En cuanto a la zona de noche, las habitaciones tienen un patio privado, además del principal que aporta una
buena iluminación y ventilación.
• Todas las zonas húmedas forman un bloque, ventiladas hacia el patio de norte, mediante ventanas abatibles
en la parte superior.
• La casa posee dos bandas de circulación paralelos a los dos volúmenes, una de ellas comunica el estudio con
la habitación principal, y la otra comunica el garaje con el salón. Estas bandas organizan las estancias de la
casa.
• Respecto a los patios, cada uno de ellos se sitúa en una orientación distinta de forma que se crea unas
ventilaciones cruzadas alrededor de las estancias. Un patio de acceso rodado y otro de acceso a pie, además
del patio privado de las habitaciones y el patio principal. Al mismo tiempo los patios sirven para iluminar las
estancias.
• En cuanto a la iluminación, hay varios sistemas de protección solar: Los forjados sobresalen de tal forma que
aportan protección solar en las horas centrales del día en verano y permite la entrada del sol en invierno.
Además el salón-comedor está protegido en sus caras este-oeste mediante unas lamas que giran y permiten
orientarlas para evitar la entrada del sol. Además se pueden desplazar lateralmente para permitir el acceso a
los patios. Las lamas solucionan los problemas de las vistas cruzadas que se originan en las casa de este tipo.
• En cuanto a la esturctura la casa esta fromada por pilares, que condicionan la forma de T.

CASA DOS VOLUMENES

  • 1.
    GRUPO-12 CÉSAR JIMÉNEZ GONZÁLEZ PABLOLLUCH MORALES CARLOS ENRIQUE LÓPEZ PIQUERAS ADRIÁN SEMPERE JAVIER TORRES VEGARA CASA PATIO DOS VOLÚMENES
  • 12.
  • 13.
  • 20.
  • 30.
    MEMORIA • La formade la casa patio tiene dos volúmenes cruzados, en forma de cruz, de esta manera se divide la parcela en 4 patios de diferentes tamaños. • La casa se divide en dos zonas, en una se encuentra la zona de día que comprende el estudio, salón-comedor y cocina, y en la otra, la zona de noche que comprende la habitación principal y la sala de lectura-estar que ocasionalmente se transforma en habitación de invitados. El estudio tiene un acceso desde el exterior y esta comunicado con el salón-comedor. Para ofrecer intimidad, el estudio se puede cerrar con puertas correderas cuando se desee, otorgando continuidad espacial, además posee cristales translucidos que permiten la entrada de luz pero ofreciendo intimidad a la estancia y evitando las visuales con el resto de la casa. El estudio tiene un aseo de respeto. • La cocina posee dos bancadas, una funciona para cocinar y otra que sirve de mesa o de pasaplatos. En cuanto salón- comedor, se encuentra en una zona con buena iluminación y ventilación. El acceso principal de la casa se situa en pleno salón comedor. Desde el garaje se accede a la cocina y al patio privado de las habitaciones. Un arbusto divide el garaje del patio, pero manteniendo la continuidad espacial visualmente. • En cuanto a la zona de noche, las habitaciones tienen un patio privado, además del principal que aporta una buena iluminación y ventilación. • Todas las zonas húmedas forman un bloque, ventiladas hacia el patio de norte, mediante ventanas abatibles en la parte superior. • La casa posee dos bandas de circulación paralelos a los dos volúmenes, una de ellas comunica el estudio con la habitación principal, y la otra comunica el garaje con el salón. Estas bandas organizan las estancias de la casa. • Respecto a los patios, cada uno de ellos se sitúa en una orientación distinta de forma que se crea unas ventilaciones cruzadas alrededor de las estancias. Un patio de acceso rodado y otro de acceso a pie, además del patio privado de las habitaciones y el patio principal. Al mismo tiempo los patios sirven para iluminar las estancias. • En cuanto a la iluminación, hay varios sistemas de protección solar: Los forjados sobresalen de tal forma que aportan protección solar en las horas centrales del día en verano y permite la entrada del sol en invierno. Además el salón-comedor está protegido en sus caras este-oeste mediante unas lamas que giran y permiten orientarlas para evitar la entrada del sol. Además se pueden desplazar lateralmente para permitir el acceso a los patios. Las lamas solucionan los problemas de las vistas cruzadas que se originan en las casa de este tipo. • En cuanto a la esturctura la casa esta fromada por pilares, que condicionan la forma de T.