EDICIÓN,ABRIL2010
Manual de Construcción
INTRODUCCION
• Los perfiles METALCON®
son fabricados en acero estructural galvanizado y de alta resistencia ASTM A 653-94 Grado 40, lo
que permite diseñar en bajos espesores, logrando estructuras livianas, resistentes e invariables ante el paso del tiempo.
• Sus especiales dimensiones permiten el calce de los perfilesmontantes dentro de las soleras, para hacer posible el armado de
los diferentes componentes estructurales de la vivienda.
• Familia de perfiles simples y reducida, que facilita su diseño y manejo en obra, permitiendo a la vez construir todos los
componentes estructurales de la vivienda.
• Tablas de cálculo para diseño de vigas y columnas según sus propias necesidades constructivas (MANUAL DE DISEÑO
METALCON®
).
• Esquemas de encuentros y fijaciones típicas, en formato AUTOCAD, para los diferentes elementos estructurales (MANUAL DE
DISEÑO METALCON®
).
• Estándares de fabricación avalados por CINTAC®
, para los diferentes elementos constructivos de una vivenda (MANUAL DE
DISEÑO METALCON®
).
- El presente MANUAL DE CONSTRUCCION, entrega información simple y práctica de cómo construir con METALCON®
.
Cabe señalar que todas las medidas, uniones, tipos de tornillos y diseños constructivos en general, que se muestran en este
manual, son sólo recomendaciones, ya que cada proyecto debe tener sus propios planos de cálculo debidamente firmados.
• Nota: CINTAC S.A.I.C., no se hace responsable del uso incorrecto de la información contenida en este manual.
Se recomienda el diseño y revisión de la estructura por parte de un ingeniero calculista.
¿Qué es el Sistema Constructivo METALCON®
?
Es un sistema constructivo integral que permite materializar viviendas completas totalmente en seco, en el cual los muros
perimetrales, tabiques, entrepisos, cielos y techos, son soportados por una estructura de perfiles de acero galvanizado liviano
de CINTAC®
.
¿Cómo se estructura una vivienda con METALCON®
?
• Muros perimetrales: Estos muros son el soporte estructural de toda la vivienda, construídos con montantes y soleras de acero
estructural (Metalcon Estructural), revestidos con planchas para exteriores e interiores, y una capa aislante en su interior.
• Tabiques: Estos tabiques se construyen con montantes y soleras de acero (Metalcon Tabiques), revestidos normalmente con
planchas de yeso cartón o fibrocemento.
• Entrepisos: Para casas de 2 pisos o mansardas, se construye un envigado formado con perfiles de acero estructural, cubiertos
con planchas de “OSB” o contra chapado de madera, sobre el cual se puede instalar alfombra o cualquier otra solución de
piso, incluso hasta una loseta liviana.
• Cielos: Bajo las vigas de los entrepisos o bien bajo las cerchas se coloca una estructura de Metalcon Cielos, sobre la cual se
colocan las planchas de yeso cartón que forman el cielo de las habitaciones.
• Techumbres: Las techumbres son estructuradas en su totalidad mediante perfiles Metalcon, para formar tanto las cerchas
como las costaneras necesarias para soportar los techos.
¿Qué se puede construir con METALCON®
?
• Viviendas completas
• Segundos pisos
• Mansardas
• Ampliaciones
• Casas Comerciales
• Campamentos
• Techumbres
• Multicines
• Tabiques y cielos de grandes tiendas o Multicines
Reacondicionamientos de viviendas y centros comerciales
• Cubiertas y Revestimientos
¿ Qué ofrece el Sistema Constructivo METALCON®
?
DIAGRAMA ESTRUCTURAL RESIDENCIAL 2º PISO
Cerchas
Entre pisos
Anclajes
AN 1
Muro panel
MP1-MP2
Frontón F1
Vigas maestras
Ventanas
Unión de
Paneles
• Sistema constructivo energitérmico y 100% asísmico.
• Optimo aislamiento acústico.
• Gran estabilidad dimensional de sus componentes.
• Material Incombustible.
• Material inerte. No es atacado por termitas ni otros organismos.
• Construcción en seco, de manera rápida y limpia.
• Permite la construcción modular y de fácil ampliación.
• Solución final más competitiva en costo/benefico.
Esquema General Vivienda
METALCON PERFILES Estructural
D=8mm
METALCON C 2x2x0,85 40CA085 40 38 8 0,85 0,83 6,0 4020
METALCON C 2x3x0,85 60CA085 60 38 8 0,85 0,96 2,4-6,0 4013
METALCON C 2x4x0,85 p 90CA085 90 38 12 0,85 1,23 2,5-3,0-6,0 4014
METALCON C 2x4x0,85 90CA085 90 38 12 0,85 1,23 4,0-6,0 4021
METALCON C 2x4x1,0 p 90CA10 90 38 12 1,0 1,44 6,0 4015
METALCON C 2x5x0,85 p 100CA085 100 40 12 0,85 1,32 6,0 4017
METALCON C 2x6x0,85 150CA085 150 40 12 0,85 1,64 6,0 4027
METALCON C 2x6x1,0 150CA10 150 40 12 1,0 1,94 4,0-6,0 4028
METALCON C 2x6x1,6 150CA16 150 40 12 1,6 3,06 6,0 4030
METALCON C 2x8x1,6 200CA16 200 40 12 1,6 3,67 6,0 4032
METALCON C 2x10x1,6 250CA16 250 50 15 1,6 4,64 6,0 4035
p: Perforado (para pasar canalizaciones).
METALCON U 2x2x0,85 42C085 42 25 0,85 0,58 6,0 4036
METALCON U 2x3x0,85 62C085 62 25 0,85 0,72 3,0-6,0 4037
METALCON U 2x4x0,85 92C085 92 30 0,85 1,00 3,0-6,0 4038
METALCON U 2x4x1,0 92C10 92 30 1,0 1,17 6,0 4039
METALCON U 2x5x0,85 103C085 103 30 0,85 1,06 6,0 4041
METALCON U 2x5x1,0 103C10 103 30 1,0 1,25 6,0 4042
METALCON U 2x6x1,0 153C10 153 30 1,0 1,65 6,0 4044
METALCON C 2x8x1,0 203C10 203 30 1,0 2,04 6,0 4046
METALCON C 2x10x1,0 253C10 253 30 1,0 2,91 6,0 4075
METALCON Tirante 50x0,85 50PL085 50 - 0,85 0,33 Rollos de 60 m 4073
METALCON Tirante 70x0,85 70PL085 70 - 0,85 0,46 Rollos de 60 m 4048
METALCON Tirante 100x0,85 100PL085 100 - 0,85 0,67 Rollos de 60 m 4051
METALCON Tirante 70x1,6 70PL16 70 - 1,60 0,88 Rollos de 60 m 4050
METALCON Tirante Gusset 1,60mm 286PL16 286 - 1,60 3,59 3,0 4058
METALCON Angulo 35x35x0,85 35A085 35 35 0,85 0,46 6,0 4055
METALCON Angulo 190x40x1,0 190A10 190 40 1,0 4 1203
METALCON Angulo 60x40x0,85 60A0,85 60 40 0,85 6 4088
METALCON Omega Normal 38/OMA085 38 35 15 0,85 0,98 6,0 4095
38x35x15x8x0,85
METALCON Omega Económica 38/OMA05 38 35 15 0,5 0,59 6,0 4094
38x35x15x8x0,5
Metalcon C
Metalcon U
Accesorios
Metalcon Omega
Producto disponible a pedido.
Dimensiones Peso
Nomenclatura A B C e P Largos Código
mm mm mm mm kg/m (m) Cintac
METALCON PERFILES Tabiques
Dimensiones Peso
Especificaciones Nomenclatura A B C e P Largos Código
Metalcon Tabiques mm mm mm mm kg/m (m) Cintac
MONTANTE NORMAL P 60x38x0,5 60 38 6 0,50 0,56 2,4-3,0 4003
MONTANTE ECONÓMICO 38x38x0,5 38 38 5 0,50 0,48 2,4-3,0 4001
CANAL NORMAL 61x20x0,5 61 20 - 0,50 0,39 3,0 4007
CANAL ECONÓMICO 39x20x0,5 39 20 - 0,50 0,31 3,0 4006
ESQUINERO PERF. 30x30 30 30 - - 0,18 2,4-3,0 4060
ESQUINERO PERF. ECO. 25x25 25 25 - - 0,15 3,0 4061
Dimensiones Peso
Especificaciones Nomenclatura A B C e P Largos Código
Metalcon Tabiques mm mm mm mm Kg/m (m) Cintac
MONTANTE ESPECIAL P 45x38x0,5 45 38 6 0,50 0,50 2,4 4002
MONTANTE BÁSICO 31x38x0,5 31 38 5 0,50 0,45 2,4 4000
CANAL ESPECIAL 46x20x0,5 46 20 - 0,50 0,33 3,0 4010
CANAL BÁSICO 32x20x0,5 32 20 - 0,50 0,28 3,0 4005
Productos a pedido
Canal Montante Esquinero
p: Perforado (para pasar canalizaciones).
Consultar por cantidades mínimas.
METALCON PERFILES Cielo
Ruleteado
por el exterior
Uso: Confección de cielo raso, como soporte de placa.
Nomenclatura A B C Espesor Largos (m) Peso (kg/ml)
40x18x10x0,5 40 18 10 0,5 3,0-6,0 0,38
Alternativas de luces entre elementos
yeso cartón (mm) Cerchas (cm) Conector TI®
(cm)
10 ó 12,5 ó 15 Luces hasta 150 Luz máxima 100
Recomendaciones para Estructura de Cielo
Ruleteado
por el exterior
Portante 40R
®
Código Cintac 4086
Uso: Conector nivelador de la cuerda interior o larguero, directamente a la cercha, losa o
costanera.
Nomenclatura Unidades Código Cintac
150x66x0,85 Caja (100 ) 9577
Caja (10 ) 9575
Uso: Permite fijar el nivel para estructuras de cielo raso.
Prolongación de cuerda interior de la cercha o larguero.
Nomenclatura A B C Espesor Largos (m) Peso (kg/ml)
20x25x4x0,5 20 25 4 0,42 3,0 0,25
Perfil AT
®
Código Cintac 4097
Conector TI
®
Espesor placa Perfil Distancia Placas yeso cartón
Portante 40R®
40 cm 8 - 10 mm
Portante 40R®
60 cm 12,5 - 15 mm
HERRAMIENTAS Y ACCESORIOS DE SEGURIDAD
• Un marcador de tinta tipo “marker”, negro o rojo.
• Alicate tipo “vise-grip” para sujetar perfiles y canales, mientras se atornilla.
• Alicate corriente “caimán”.
• Alicate “corte frontal” o “carpintero”, para sacar tornillos que tengan la “cruz” rodada.
• Tronzadora.
• Tijeras corta latas.
• Esmeril Angular 4 1/2”.
• Sierra Circular. Esta se usa con una sierra de 7 1/4” con 100 dientes (para cortar terciado) y se instala al revés.
• Atornillador eléctrico con embrague automático y con la punta magnetizada.
NOTA: no usar el atornillador de tabiques, que opera a 400RPM. A esta velocidad la punta autotaladrante se quema antes
que la operación de perforado esté completa. El atornillado adecuado es la velocidad variable de 0 a 2.500 RPM.
• Desatornillador de tipo “Phillip”.
• Martillo de goma.
• Huincha para medir.
• Nivel / Plomada.
Aunque el sistema Metalcon
®
es bastante seguro y sin peligros adicionales a la construcción tradicional, hay que
recordar al trabajar con metal existen los siguientes factores de riesgo.
Cortes:
Es imperioso el uso de guantes para evitar cortes y heridas producidas por la rebaba generada producto del corte en terreno y
eventualmente la de fábrica.
El calor:
Cuando se manejan perfiles o materiales de acero galvanizado en el verano, al estar expuestos al sol, se calientan lo suficiente
para recomendar el uso de guantes, al igual que al cortar un metal, tanto la herramienta como el metal se calientan pudiendo
producir quemaduras.
Partículas de metal o chispas:
Cuando se corta un metal galvanizado con una herramienta eléctrica, siempre use anteojos de protección.
Ruido:
El ruido que se produce al cortar metal con una herramienta eléctrica es mayor que al cortar madera, por lo tanto el operador
que esté constantemente cortando metal, se recomienda que utilice protección para los oídos.
SEGURIDAD
Las siguientes herramientas y elementos de seguridad, constituyen el equipamiento que un operador debe tener para
alcanzar un óptimo nivel de eficiencia en su trabajo.
TRANSPORTE DE MUROS, TABIQUES Y CERCHAS
INCORRECTO
CORRECTO
45º APROX.
Figura Nº 1
Transporte de Muros y Cerchas
Consejos Prácticos:
Al transportar muros, tabiques o cerchas, fabricados con
Metalcon®
, siempre deben ir “de canto”.
Esta regla se aplica al transporte en vehículo, camiones, trailer
etc., como también al transporte manual dentro de la obra.
Un muro, tabique o cercha al no estar de canto debe tener un
punto de apoyo cada 3 metros máximo, ya que de lo contrario
se puede deformar.
El ideal para transportar un muro, tabique o cercha dentro de
la obra, es hacerlo con el mayor personal posible y con una
posición de aproximadamente 45º.
COMPONENTES PRINCIPALES DEL SISTEMA METALCON
®
Montaje o Pie Derecho
Sus usos son:
• En la solera superior y solera inferior
• En la costrucción de vigas y dinteles
• Como conectar, apoyo y refuerzos en general
• Como elementos de unión
Canal o Solera
Costanera®
OmegaPerfil AT®
Sus usos son:
• Como costanera de techo y cielos
• Para puntos de apoyo y como elemento estabilizador
Sus usos son:
• Permitir fijar el nivel para la confección de estructuras de
cielo raso
• Prolongación de cuerda inferior de la cercha o larguero.
Otras aplicaciones
• Colgador o tirante para prolongar el Conector TI®
al colgar
el entramado de cielo raso de estructuras más altas
Sus usos son:
• Como pie derecho
• Como antiesador en conexiones y apoyos en general
• En la construcción de pilares, vigas y cerchas
Portante 4OR®
Sus usos son:
• En la confección de cielo raso se utiliza como soporte de
placa
Oras aplicaciones:
• Apoyo y estabilizador temporal utilizado durante las
costrucciones de cerchas , envigados, muros y tabiques
Pletinas
Sus usos son:
• Como diagonales para dar arriostramiento a un tabique
estructural
• Como tensor en general
• Como conector entre dos elementos
• Como conector tipo escuadra 90º
Tornillos
Los tornillos para conexiones entre dos elementos de espesor
igual o superior a 0.85 mm deberán ser autoperforantes y con
un mínimo de diámetro de 0.164 pulgadas (#8)
• Son resistentes a la corrosión.
• Se atornillan con una distancia mínima al borde y entre ejes de 3 veces al diámetro del tornillo usado.
• Deben penetrar dejando un mínimo de 3 hilos a la vista.
REGLAS GENERALES PARA TORNILLOS USADOS CON METALCON®
ANCLAJE
ESTABILIZADO
COMPACTADO
Figura Nº 2
El sistema METALCON®
, requiere ser anclado mediante diferentes opciones, cualquiera que sea el tipo de fundación, ya sea zapata corrida
con sobrecimiento, poyos aislados con vigas de fundación, o incluso radier con zarpa. Hay dos tipos de fundación comúnmente usadas
con METALCON®
.
Sistema Monolítico o Radier con Zarpa
Sistema Cimiento, Sobrecimiento y Radier
Es un sistema en el cual se hormigona, el radier y la zarpa al mismo tiempo. Esto se obtiene encajonando la línea perimetral a
ser construída y mediante un camión betonero, se rellena sin junturas y de una vez toda el área de la construcción.
Este sistema es el más común, en el cual se hacen cada una de las etapas por separado. Esto se hace generalmente a mano,
ya que permite detener la faena en diferentes puntos.
Hay 4 tipos de Anclajes que pueden ser usados:
• Pernos de anclaje
• Amarre con una tira de Pletinas Metalcon®
• Anclaje de metal tipo AN1
• Clavos y pernos de anclaje tipo “Hilti”
• Anclajes estructurales de esquinas y de arriostramientos, tipo “Simpson” o similar
Los pernos los determinará el proyecto de cálculo en su dimensión y ubicación, sin embargo se recomienda como mínimo usar
pernos de acero de 12 mm de diámetro, 250 mm de largo con gancho de 50 mm en su parte inferior. El extremo recto sin el
gancho tiene aproximadamente 50 mm de hilo, donde se instala una tuerca con golilla de 3 cm de diámetro por 3 mm de espesor.
Estos pernos se instalan a 45 mm aproximadamente del borde perimetral del radier, de manera que queden en el centro de la
canal (en el caso que la canal tenga 90 mm).
Debido a que la canal tiene 0,85 mm de espesor, es necesario agregar un “suple” de refuerzo del mismo perfil de los pie derecho
dentro de la canal, como golilla atiesadora. (Ver Figura Nº 3).
Típicamente estos pernos van uno a 30 cm máximo, del inicio del muro estructural y uno a cada lado de las puertas (en muros
estructurales), luego va uno cada 1,2 metros máximo entre perno y perno. El plano de cálculo indicará la exacta ubicación de
estos elementos.
* Tomar nota de la posición donde se ubican los pie derecho, para que no coincidan con los pernos de anclaje.
Pernos de Anclaje
RADIER MALLA ACMA
NIVEL
TERRENO
PLASTICO
ANCLAJE ESQUINA
ISOMÉTRICA CONECTOR AN
40
10 AUTOPERFORANTES
# 10 x 3/4”
L 5 x 50 x 230
(L = 40)
10 AUTOPERFORANTES
# 10 x 3/4”
PL 5 x 70 x 70
HILO 1 / 2” X 200
cód. 11215
ANCLAR CON MORTERO
EPOXICO CON SISTEMA
DE PREMEZCLADO
MECANICO TIPO HILTI
O SIMILAR
5 / 8”
TUERCA
GOLILLA
PLANA
200
CONECTOR DE ANCLAJE
AN 60 cód. 11183
AN 90 cód. 11184
L 5 x 90 x 230
(L = 40)
PL 5 x 70 x 702
ANCLAJE AN1
Figura Nº 3
Figura Nº 4
PERNO EXPANSIÓN
3/8 x2 3/4”
REF. INFERIOR
60CA085 LG:100
3 AUTOPERFORANTES
#8x1/2” A CADA LADO
SOLERA INF.
62C085
PIE DERECHO
60CA085
Clavos y Pernos tipo “Hilti”
Anclajes Estructurales de esquinas y arriostramientos
En los muros estructurales, éstos se recomiendan solamente como suplemento a los anclajes anteriores. Como norma general
instale un clavo tipo “Hilti” de 1 1/2” con golilla incorporada directamente a la canal (solera inferior), en el centro entre montante
y montante.
En los tabiques no estructurales como no es necesario utilizar pernos de anclaje, se instalan entre montante y montante.
Se utilizan preferentemente en las esquinas donde existe concentración de esfuerzo y/o para tomar las cargas transmitidas por
las diagonales de arriostramiento.
La figura 4 muestra el detalle del anclaje AN1.
Anclaje Distribuido
TRAZADO
4 TORNILLOS # 8
A CADA LADO
15 cm min
TROZO DE PIE DERECHO
DENTRO DE LA CANAL
Figura Nº 6
Figura Nº 5
• Marcar primero los pernos de anclaje, luego hacer las perforaciones correspondientes usando un taladro eléctrico con una broca de
1/2 ”.
• Marcar las esquinas.
• Marcar luego los encuentros de centro.
• Ahora marcar las puertas y ventanas. Referirse a los detalles de la construcción de vanos para puertas y ventanas.
• Por último, marcar los pie derecho a 40 o 60 cm de eje a eje, dependiendo de las especificaciones del plano de cálculo estructural.
Layout en Radier
Empalme de Soleras
LARGO TABIQUE Nº3
TIZAZO
NUMERACION DE
CADA TABIQUE
DIENSION DE LA CANAL
3
5
4
6
1
2
• Una vez listo el radier, marcar todos los muros exteriores
e interiores en el piso con un tizador, luego enumerárlos.
La canal o solera inferior va a seguir estas líneas. De esta
manera el tabique queda siempre derecho, aunque los
bordes del radier no estén regulares.(Figura Nº5).
• Alinear cada muro o tabique marcado en el radier con 2
canales (solera superior y solera inferior), previamente
cortadas del mismo largo que el muro o tabique respectivo.
Si es necesario empalme 2 canales (Figura Nº6) para
alcanzar el largo adecuado de extremo a extremo.
PIE DERCHO
SEGUN
CALCULO
TORNILLO # 10x5 / 8”
EN ZIG - ZAG
DETALLE ESQUINA
DETALLE DE EXTREMO
CONSTRUCCION DE MUROS Y TABIQUES
PIE DERECHO
SEGUN CALCULO
PUNTA BROCA
PLANCHA DE YESO CARTON
PIE DERECHO
PIE DERECHO DEBE
CALZAR APRETADO
A LA SOLERA
TORNILLO # 8 x 1/2
UNO A CADA LADO
CANAL SOLERA
Figura Nº 7
Figura Nº 8
PLETINA
4 TORNILLOS #8 A CADA CANAL
TORNILLOS # 10x5 /8”
EN ZIG - ZAG
• Ahora que se tienen las 2 soleras totalmente marcadas para
su ensamblaje, sacar los 3 tornillos temporales y ponerlos,
frente a frente sobre el radier aproximadamente a 2,5 m.
• Construir los extremos o esquinas del muro, como se muestra
en la Fig. 7. Estos pie derecho o montantes se atornillan entre
sí con tornillos # 8 ó # 6 x 11/2” cada 15 cm, según cálculo.
(Ver Figura Nº 7).
Construya los encuentros de centro, teniendo en cuenta que
el montante de encuentro vaya con la espalda hacia el tabique
de centro. (Ver Figura Nº 8).
* El largo de los montantes lo da el plano de estructuras.
Ej: 2,40 m.
• Está listo para construir un muro o tabique . Instalar sin
atornillar, primero las esquinas, luego los encuentros de centro
y finalmente los montantes, siguiendo las marcas previamente
hechas en las soleras. Recordar dejar el espacio libre (sin
montantes) para las puertas y ventanas.
Encuentro Centro Conexión de Pie Derecho a Canal (solera)
Ahora atornillar todos los elementos
de manera que cada perfil tenga
4 tornillos.
Construcción de muros y tabiques
VANOS DE VENTANAS Y PUERTAS
Figura Nº 9
Detalle Refuerzo Dintel Vano de Ventana
Cada ventana y puerta exterior, está formada por 4 montantes, de 0,85 mm como mínimo (2 montantes a cada lado) más una canal a
ambos lados y un dintel compuesto o viga estructural (la medida y dimensión de acuerdo al plano de cálculo).
1º Alinear y atornillar los 4 montantes, 2 a cada lado del vano.
2º Construir el dintel/viga e instálela en el vano.
3º Construir la mocheta para rebajar el dintel a la altura deseada de acuerdo al plano.
4º En el caso de las ventanas, armar el marco o vano de acuerdo a sus medidas.
Como alternativa en ambos casos, para puertas y ventanas, instalar trozos de un 2” x 4” ( en el caso de la canal de 92 mm) o trozos
de un 2” x 6” (en el caso de la canal de 152 mm) en el vano, para tener un punto para clavar las pilastras. De lo contrario, tendrá que
engomarlas o atornillarlas.
Además si la longitud del vano (L) es mayor que 2,4 metros se requiere reforzar el antepecho, usando un trozo de montante y canal
del largo L. (Figura Nº 9).
90CA085
DESPUNTE
90CA085
L=100 2 AUTOPERFORANTE
Nº 10x3/4”
(TIP.)
Nº8x1/2”
CABEZA PLANA
BORDE VANO
92C085
AUTOPERFORANTE
PERNO ANCLAJE
PLACA DE O.S.B.
/ TERCIADO
DINTEL
DOBLE
PIE DERECHO
ESQUINA
PLACA DE CORTE
MAX 60 CM
FIGURA 11
Figura Nº 10
Figura Nº 11
Detalle de antepecho de ventana
DOBLE PIE
DERECHO
MOCHETA
TORNILLOS # 8
PIE DERECHO
CANAL
VANO VENTANA
REFUERZO DE MONTANTE Y CANAL, SOLO
CUANDO LA LONGITUD DEL VANO SEA
MAYOR A 2,4 M
Esquema estructural casa 2º piso
DIAGONALES
Detalle 2
PLETINA ESTÁNDAR
GUSSET
CÓD. 11216
Detalle 1
ANGULO TENSOR
CÓD. 11199
AUTOPERFORANTE # 8
(SEGUN CALCULO)
ANGULOS MAX Y MIN
DE DIAGONALES
60º
30º
100PL085
100PL085
L30x30x4
Figura Nº 12
Figura Nº 14
Figura Nº 13
Figura Nº 15
Ubicación Diagonal y Placa Madera
Detalle Instalación Gusset, anclaje y diagonal
La función de éstas, es darle el
arriostramiento necesario, de acuerdo
al plano de cálculo. En el caso de no
existir placas de corte, el arriostramiento
se logra por medio de cruces, como
diafragma de rigidización.
La carga lateral, tiende a desplazar el
panel en forma horizontal, la colocación
de una pletina en diagonal al panel,
conjuntamente con su anclaje en los
extremos inferiores del mismo, resisten
este esfuerzo.
TORNILLOS
TEMPORALES
PIE DERECHO ESQUINA
PLACA O.S.B / TERCIADO
(1,2 X 2,4)
TABIQUE
ARMADO
Se aconseja colocar las diagonales con ángulos entre los 30º
y 60º.
Para colocar las diagonales se puede seguir el siguiente
procedimiento:
•Colocar un gusset de Metalcon de 200x200 con tornillos
autoperforantes 8x1/2” (cantidad según plano de cálculo)
sobre el montante y la canal de la esquina que va a recibir la
pletina (Fig. 13)
En el caso de las esquinas, cuando tenemos tres montantes
no es necesario colocar el gusset, se fija la pletina directamente
sobre los montantes.
Entre la diagonal y la fijación en ambos extremos, nunca se
atornillan las diagonales directamente a los montantes
intermedios.
Por lo general la especificación indicarla la colocación de
pletinas por ambos lados del panel.
•Una vez colocadas las diagonales, se procede a realizar la
tensión de éstas, mediante un accesorio llamado “ángulo
tensor” (Fig. 14)
•Como estabilizado lateral se puede instalar una pletina horizontal
a media altura del muro, por ambas caras atornillando a cada
montante para finalmente colocar el bloqueador al giro en los
extremos, con un perfil en U (Fig. 15)
INSTALACION DE LOS MUROS Y TABIQUES METALCON
®
Figura Nº 16
Una vez que tenga hecho un muro o tabique completo, ponerlo en posición como muestra la Figura x, asegurándolo al radier o al piso
mediante los anclajes y apoyos temporales.
• Proceder a construir el siguiente muro o tabique
• Una vez terminado, conectarlo al interior ya ubicado, atornillando las esquinas o encuentro de centro como correspondan, usando
tornillos #8/cada 15 cm. (Ver Figura; Nº16)
• Una vez atornillados estos encuentros, instale una pletina rectangular del ancho de la canal y de largo, el doble que el ancho, sobre
los encuentros de muro o tabique con un mínimo de 4 tornillos del #8, sobre cada muro o tabique.
PISOS Y LOSAS
Figura Nº 17
ESTABILIZADOR
ENVIGADO DE PISO
1.2x50
CANAL DE BORDE
SERIE 153; 203, 253
VIGA REFUERZO VANO,
COSTANERAS SERIE 150, 200; 250
ANGULO DE AMARRE
2x50x50 (min)
VIGA MAESTRA,
COSTANERAS SERIE 90,
100; 150; 200; 250
ENVIGADO DE PISO,
COSTANERAS SERIE 150; 200; 250
CHAPA DE PISO
CONTRACHAPADO DE 5/8”
Ó PLACA O.S.B. DE 15 mm
PL
PL
Esquema general envigado de piso
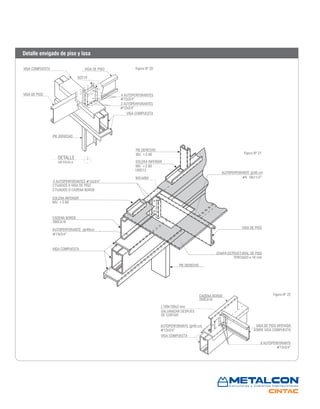
La construcción de pisos o losas con el sistema METALCON®
permite una construcción rígida, nivelada y liviana.
Las especificaciones variarán de acuerdo a cada diseño de construcción y carga a la que la estructura del piso sea sometida. Estas
especificaciones estarán indicadas en el plano de cálculo.
Las Figuras Nº 21 y Nº 23 de corte, muestran los requerimientos mínimos de este sistema de piso.
*Notar que las placas de corte, al igual que en el techo, van con traslapos y perpendiculares a las vigas de piso.
Como regla general, si las vigas de piso tienen una luz mayor que 3 m, el ala inferior de cada viga debe tener al menos un arriostramiento
central. En todo caso siempre deberá consultarse el plano de estructuras correspondiente.
Este arriostramiento inferior, colocado en L/2” se puede hacer con una tira de tirante 70PL085 mm con suficiente tensión para que quede
tirante.
(Figura Nº 17).
Instalando además bloqueadores de frío en los extremos. (tipo cadeneta)(Figura Nº 25 y 26).
Losa o Concreto liviano sobre placa de piso.
Una práctica común para obtener una barrera de sonido mejor, o para darle mayor solidez al piso, es agregar un concreto liviano de
aproximadamente 50 a 70 mm sobre el entablado de piso o cubierta de “OSB” como muestra la Figura Nº24 .
2º Piso.
El piso o losa para un segundo piso es igual al piso de un primer piso construído en elevación, como muestran las Figuras Nº xx y xx.
Observar los detalles de las conexiones. (Figuras Nº 21 y Nº 22).
Figura Nº 18
Figura Nº 19
La fabricación de pisos y losas con METALCON®
permite una construcción rígida, nivelada y liviana.
Las especificaciones variarán de acuerdo a cada diseño de construcción y carga a lo que la estructura del piso sea sometida.
Las estructuras de pisos se arman usando los perfiles C y U, de mayor tamaño (150CA, 200CA y 250CA) de acuerdo a la sobrecarga
de uso (NCh 1537) y el peso propio de la estructura.
Las vigas C, que se usarán como vigas de piso, podrán ser de espesores 0,85, 1,0 y 1,6 mm según cálculo, espaciados a 0,30, 0,40
ó 0,60m. según tablas del manual de diseño METALCON®
.
Se utilizará placa de piso que puede ser “OSB” de 15 mm ó terciado estructural de 18 mm.
En general, se puede cubrir luces de hasta 4 m. Las vigas se pueden colocar sobre la viga perimetral o a nivel, esta última alternativa,
permite conseguir menor espesor de entrepiso.
A todas las vigas simplemente apoyadas sobre la viga perimetral, en el punto de apoyo se recomienda estabilizar su alma al pandeo
con un “zapato” generado a partir de despuntes de perfil C y U. (Figura 20).
Sobre las vigas se dispone una placa “OSB” de 15 mm ó un terciado estructural el cual arriostra horizontalmente el envigado.
El arriostramiento inferior se realiza para luces mayores a 3 m con una pletina de 70PL085 en L/2 con bloqueadores al giro en los
extremos (fig. 25 y 26).
Una práctica común para obtener una barrera de sonido mejor, o para darle mayor solidez al piso, es agregar un hormigón liviano con
perlas de poliestireno expandido. El espesor de esta loseta varía entre 50 y 70 mm. Esta loseta se puede materializar sobre cubierta de
OSB, terciado estructural.
Siempre se debe considerar una malla electro soldada para minimizar la refracción del hormigón. Sobre las placas de madera se debe
incorporar polietileno de 0,2 mm de espesor.
Losa de Piso
PIE DERECHO
DIAGONAL
VIGAS
GOUSET
PERNO ANCLAJE
PLACA DE “O.S.B.” / TERCIADO
DINTEL
DOBLE PIE DERECHO
FIGURA N°11
ESQUINA
MAX 60 CM
PLACA DE “O.S.B.” / TERCIADO
Diagonales en 1º y 2º piso Esquema estructural casa 2º piso
Figura Nº 20
Figura Nº 21
Figura Nº 22
VIGA DE PISO
VIGA COMPUESTA
4 AUTOPERFORANTES
3 AUTOPERFORANTES
VIGA COMPUESTA
VIGA DE PISO
Detalle envigado de piso y losa
#12x3/4”
#12x3/4”
92C10
VIGA COMPUESTA
VIGA DE PISO
PIE DERECHO
SIN ESCALA
5
-
DETALLE
VIGA COMPUESTA
L100x100x3 mm
CADENA BORDE
200CA16
80
PIE DERECHO
.
#6 18x11/4”
PIE DERECHO
NIV. +2.60
SOLERA INFERIOR
NIV. +2.60
100C12
90CA085
4 AUTOPERFORANTES #12x3/4”
2 FIJADOS A VIGA DE PISO
2 FIJADOS O CADENA BORDE
SOLERA INFERIOR
NIV. +2.60
CADENA BORDE
200CA16
AUTOPERFORANTE @40cm .
#13x3/4”
GALVANIZAR DESPUES
DE CORTAR
AUTOPERFORANTE @40 cm
#12x3/4”
VIGA DE PISO APOYADA
SOBRE VIGA COMPUESTA
8 AUTOPERFORANTE
#12x3/4”
AUTOPERFORANTE @40 cm
CHAPA ESTRUCTURAL DE PISO
TERCIADO e:18 mm
PISOS Y LOSAS
Figura Nº 23
Figura Nº24 Figura Nº 25
Fijación chapa estructural a vigas de piso
CANAL DE BORDE/CB
ENVIGADO DE PISO /VP
VIGA DE PISO
VIGA DE PISO
L50x50x1,6 mm
L50x50x1,6 mm
ALFOMBRA
FILM POLIETILENO
PANEL “OSB”
MALLA ACMA
LOSETA HORMIGON
LANA MINERAL
TORNILLO
AUTOTALADRANTE
VIGA DE PISO
PLACA DE
YESO CARTON
Esquema estructural casa 2º piso Bloqueo de giro tipo cadeneta
CHAPA ESTRUCTURAL DE PISO,
CONTRACHAPADO DE 5/8”
O PLACA “O.S.B.” DE 15 mm
NOTA 1:
LA CHAPA ESTRUCTURAL DE PISO
SE FIJARA CON AUTOPERFORANTES
@150 EN BORDE DE PLACA Y @300
EN APOYOS INTERIORES DE PLACA
4 AUTOPERFORANTES
#12x3/4”
POR CADA LADO
CADENETA
150CA16
Figura Nº 26
Bloqueador de giro tipo estabilizador
VIGA DE PISO
VIGA DE PISO
BLOQUEADOR LA GIRO DE VIGAS
DE PISO PI50x0.85 mm
1 AUTOPERFORANTE
TIPO #8x1/2”
PLACA 70P085
1 AUTOPERFORANTE
TIPO #8x1/2”
CERCHAS
Figura Nº 27
Figura Nº 28
V1V1 40CA 40CAC.S.A.C.S.A.
90CA 90CA
40CA
40CA
60CA
P=130%P=130%
2,0 2,0 2,0
6,0
Dentro de las principales ventajas del sistema METALCON®
es la posibilidad de construir las cerchas con acero galvanizado, terminando
con una cercha perfectamente derecha y suficientemente liviana en donde una sola persona pueda levantarla fácilmente.
El sistema METALCON®
, permite diseñar cerchas cualquiera sea su necesidad y estilo. Aquí, algunos de los diseños típicos de cerchas.
(Figura Nº28).
La Figura Nº27 muestra una cercha típica y sus componentes, junto con sus uniones.
Para armar una cercha, asegurarse de disponer de un espacio plano y suficientemente amplio para construirla. Todas las uniones se
harán con tornillos del #10, como mínimo.
Nota: Antes de construir una cercha, consultar el plano de
cálculo para incorporar las características que el calculista ha
diseñado para su proyecto.
Elevación de Cercha
Diseños típicos de Cerchas
Figura Nº 29
Figura Nº 30
Figura Nº 31
Figura Nº 32
a) Usando una viga central de 2 perfiles (Figura Nº 29), y
b) Usando los mismos 2 cordones superiores de la cercha, cortándoles a uno de ellos un trozo del ala para que calcen uno
encima del otro y con el ángulo correcto. (Figura Nº 31), agregando un refuerzo con pletina de 1,6 mm.
La Figura Nº 32, muestra la conexión típica entre el cordón inferior y las diagonales de la cercha.
Las Figuras Nº 33, 34 y 35, nos muestran las 2 conexiones típicas entre el cordón superior y el cordón inferior, como también
el apoyo y unión de la cercha al muro correspondiente.
Existen 2 prácticas de unión en las CUMBRERAS
<70x70x1.6
L=140
(AMBOS LADOS)
153C10
L=300
150CA085
150CA085
153C10
L=300
<70x70x1.6
L=140
(AMBOS LADOS)
8+8 AUTOPERFORANTE
#10x3/4”
DETALLE
S/E
1
-
VIGA V2
AL CINTAC 60
5+5 AUTOP
No 10x3/4”
Ref 92C085
Lg=300
Conexión Cuerda Superior a Viga Central
1. Las cerchas tienen que ir apoyadas directamente sobre un pie derecho con un refuerzo de una viga simple o un ángulo de refuerzo
(60x40x0,85 o 190x40x1,0).
2. Las conexiones se pueden hacer de dos formas dependiendo del tipo de muro:
a) A METALCON®
se usa un conector AL
b) A cadena de albañilería se utiliza un ángulo de 65x65x3 L=90.
MONTANTES
Y DIAGONALES
CUERDA TORNILLOS # 10x5/8”
TIPICOS
6 AUTOPER
#10x3/4” (TIP.)
PL 1.6
3 AUTOPER
#10x3/4” (TIP.)
6 AUTOPER
#10x3/4” (TIP.)
Detalle Cumbrera Unión Diagonales y Montantes a Cordón Inferior
Figura Nº 33
Figura Nº 34
Figura Nº 35
Apoyo de Cercha a Paneles de Muro
Para fijación de
cerchas a cadena
Perno de expansión
HKB III
1/2” x 3 - 3/4”
METALCON®
C
según cálculo
Tapa
METALCON®
U
3+3
auto-perforante
# 10 x 3/4”
METALCON®
C
según cálculo
C 80 x 40 x 3 cód. 11193 AL 60 cód. 11209
CUERDA INFERIOR
CERCHA
TAPA
ANGULO DE CONEXION AL
REFUERZOS POR NO
ALINEAMIENTO DE PIE
DERECHOS Y APOYO
CERCHA
PIE DERECHO NO ALINEADO
CUERDA SUPERIOR
CERCHA
ESTABILIZADOR CONTINUO
SEGUN DISEÑO
L 5x90x230
Para fijación de cerchas a
muro METALCON®
4+4
auto-perforante
# 10 x 3/4”
ALEROS Y CIELOS FALSOS
Tipos de Aleros
CT/40 05 ó
CT/40 085
VIGA
COMPUESTA
(SEGUN CALCULO)
VIGA
COMPUESTA
(SEGUN CALCULO)
FRONTON
VIGA
COMPUESTA
CT/40 05 ó
CT/40 085
CT/40 05 ó
CT/40 085
CT/40 05 ó
CT/40 085
CT/40 05 ó
CT/40 085
SIN ALERO
ALERO SIMPLE
ALERO CAJON
ALERO CURVO ALERO MEDITERRANEO
GIGAL PORTANTE
VIGA
COMPUESTA
(SEGUN CALCULO)
VIGA
COMPUESTA
(SEGUN CALCULO)
VIGA
COMPUESTA
(SEGUN CALCULO)
GIGAL PORTANTE
TECHO Y CUBIERTA
COSTANERAS
CERCHAS
CUMBRERA
CUBIERTA
SEGUN
CALCULO
CERCHA
CERCHA
CERCHA
CERCHA
CERCHA
CERCHA
CERCHA
CERCHA
CERCHA
ALERO
PLACA
O.S.B.
ALERO
TRASLAPO
O.S.B.
CERCHA
Figura Nº 36
Figura Nº 37
CUERDA INFERIOR
CUERDA SUPERIOR
Costaneras
Planta Cubierta de Techo TípicaLa estructura de techo, construída con acero galvanizado, se
cubre de la misma forma que si fuera hecha en madera, excepto
que la cubierta va atornillada.
Costaneras: en el caso de costaneras, se usa METALCON®
Estructural Omega. La distancia entre costaneras lo determina
el diseño del plano de cálculo y la especificación técnica de la
cubierta. (Ver Figura Nº 36).
Cubierta con Placa: en el caso de cubierta que requiera un
entablado, se usa típicamente una placa tipo “OSB” con un
mínimo de 11,1 mm de espesor. Estas placas tienen que ir
traslapadas y en forma perpendicular a las cerchas.
Se fijan con tornillos autotaladrantes de # 8, con 1/4” más
largo que el espesor de la placa. La distancia entre tornillos es
de 15 cm en los bordes y a 20 cm en el centro.
Techumbres: las cerchas construidas con el sistema
METALCON®
y adecuadamente calculadas, de acuerdo a la
carga que recibirán, aceptan todo tipo de techos al igual que
una cercha de madera.
REVESTIMIENTOS
Revestimientos interiores
El sistema METALCON®
utiliza los mismos revestimientos interiores que un muro o tabique de madera.
Los típicos son:
Placa de yeso cartón: Esta se atornilla a los perfiles usando tornillos autorroscantes “Phillip” Fosfatados del # 6, de 1 a 1 1/4”,
cada 15 cm en cada perfil.
Planchas de Fibrocemento: Se atornilla igual que la placa yeso cartón, pero hay que tener en cuenta que los tornillos en este
tipo de material puede dejar parte de la cabeza a la vista lo que complica el enhuinchado y empastado. Este problema se puede
evitar con el caso de tornillos autotaladrante (seft drilling) Rock-onn # 8 x 1 1/4”.
Maderas tingladas o machihembradas: Igual que los anteriores, usando 1 a 2 tornillos por tabla.
Estuco: Para darle un aspecto sólido, se puede estucar usando una malla con fieltro incorporado, tipo Malla / Estuco Davis Wire.
Sobre este material se aplica un estuco corriente de 2,5 cm. Esta malla va atornillada a cada perfil con tornillos autorroscantes
# 8 x 1/2” galvanizados y sin ningún respaldo fuera de su propio papel fieltro.
Revestimientos Exteriores
El sistema METALCON®
utiliza cualquier tipo de revestimiento disponible en el mercado.
Los más usados son :
Planchas de Fibrocemento: Estas van instaladas sobre un papel fieltro y un aislante de 10 mm como mínimo para evitar el
puente térmico. Se atornillan con tornillos galvanizados autotaladrantes # 6 cada 15 cm.
Vinyl Siding: Este material se instala sobre una placa de madera tipo “OSB” que va atornillada a los montantes con tornillos
autoladrantes de # 8 o # 6 cada 15 cm y un papel fieltro de # 10 lb, para impedir la filtración de humedad.
Estuco: Al igual que en revestimiento interior con estuco, pero agregándole un mínimo de 10 mm de poliestireno o una placa
“OSB” Las terminaciones con este sistema de estucado son las típicas de un afinado liso o con terminación rústica.
* Nota: Debido a que el metal tiene una conductividad térmica mayor que la madera, es necesario evitar un puente térmico con
algún material aislante tipo poliestireno o madera. De lo contrario en zonas del país muy frías se podrían producir manchas
delineando la silueta de los pie derechos.
GUARDAPOLVO Y CORNIZAS
CUBIERTA
PERFIL CA
PERFIL OMEGA
TAPACAN
AUTOPERFORANTE
(TIPICO)
FILM DE POLIETILENO e=0,15 mm
CONTRA CHAPADO e=0,15 mm
VIGA DE PISO
CIELO VOLCANITACORNIZA
SOLERA SUPERIOR
AISLACION
SOLERA INFERIOR
AUTOPERFORANTE
(TIPICO)
ANGULO DE CONEXION
OCA20
AISLACION
PERFORACION DE
34X72 @600C.
REVESTIMIENTO
EXTERIOR
AUTOPERFORANTE
N.T.N. CLAVO
VIGA DE FUNDACION
VOLACNITA e=15 mm
PIE DERECHO @ 600
MALLA ACMA C92
LOSETA DE HORMIGON e=5 cm
FILM DE POLIETILENO e=0.15 cm
CONTRACHAPADO e=15 cm
VIGA DE PISO
CIELO VOLCANITACORNIZA
SOLERA SUPERIOR
PIE DERECHO @ 600
AISLACION
VOLCANITA e=15 mm
SOLERA INFERIOR
GUARDAPOLVO 9X75 RADIER e=10 cm
FILM POLIETILENO e=0,15 mm
BASE GRANULAR COMPACTADA
e=10 cm
SUB-BASE COMPACTADA e=10 cm Figura Nº 38
Los Guardapolvos: van siempre atornillados y/o engomados a la solera inferior. (Figura Nº 38).
• Para atornillar, use tornillos fosfatados, autorroscantes, cabeza “Phillip” # 6 x 1/4” más largos que el espesor del revestimiento
interior más el espesor del guardapolvo.
• Para engomar, use gomas aprobadas para esta función, directamente al revestimiento interior.
Las Cornisas: van clavadas o engomadas a la solera superior.
• Para clavar, instale una madera de un mínimo de 1” por el ancho del tabique, atornillada a la solera cada 15 cm. Esta madera le dará
la superficie necesaria para clavar la cornisa.
• Para engomar, (práctica más usada en las cornisas con este sistema), instale cornisas preformadas de poliestireno engomadas
directamente al revestimiento interior.
Escantillón
GASFITERIA Y ELECTRICIDAD
Figura Nº 40Figura Nº 39
Existen 2 prácticas de unión en las CUBRERAS
En el sistema METALCON®
, los 90CA 0,85 y 60x38x0,5 montantes, ya vienen perforados para facilitar las instalaciones de gasfitería
y electricidad.
El instalador normalmente sólo perfora las canales (soleras), ya que éstas no vienen perforadas. Siempre el instalador debe aislar
y proteger el cobre del galvanizado para evitar electrólisis, y además proteger el alambrado eléctrico de los roces físicos entre
un metal cortante y el cable eléctrico.
Esto se consigue usando cualquier material plástico (como cañería de luz o agua en PVC) o, con un aislante de poliestireno o
haciendo una separación con madera.
Todas estas separaciones y conexiones deben ir atornilladas a los perfiles para soportar movimientos sísmicos y para evitar ruidos
como los que se producen en las cañerías de agua. (Ver Figura 39).
Para las cajas eléctricas, instalar una caja metálica, atornillada directamente al montante. (Ver Figura Nº 40).
O instalar un trozo de perfil U fijado hacia los montantes, como muestra la figura Nº 39.
CAJA ELECTRICA
PERFIL MONTANTE
CANAL
2 CLAVOS O
TORNILLOS
A CADA LADO
Aislación
La colocación de la aislación, se efectúa de la misma forma que en un muro de madera. Los aislantes más típicos son:
Poliestireno expandido, tipo aislapol: Se cortan las planchas de este material de manera que queden semiapretadas entre los
perfiles, así no es necesario ningún mecanismo adicional para sujetarlas.
Lana mineral o de vidrio: Se instala una vez que uno de los revestimientos (una cara) ya esté instalada, de manera que sujete
este material. Se puede instalar a presión o con corchetes.
Bloque de Apoyo
TABLAS DE TORNILLOS
Fijaciones, Nomenclatura y Aplicación
Las siguientes tablas son para formarse un criterio general en el diseño de uniones y construcción con el sistema METALCON®
, teniendo
siempre en cuenta que el calculista dará las especificaciones de tamaño y diseño adecuadas para cada caso.
Tornillo de cabeza lenteja, para fijar
metal a metal, canal a montante
cuando irá plancha de revestimiento.
Tornillo cabeza de trompeta para fijar
paneles de yeso, aislación, etc. a
metal o pie derecho de espesor
menor o igual a 0,85 mm.
Tornillo cabeza de trompeta para
fijación de paneles de madera sobre
metal o pie derecho de espesor
mayor a 0,85 mm.
Tornillo cabeza trompeta para fijación
de paneles de madera.
Para fijar paneles de yeso, etc. a
metal o pie derecho de espesor entre
1 a 2 mm.
Tornillo para fijar Panel fibro cemento
Rock fix a Metal o pie derecho.
Broca
Broca
Broca
Tornillo cabeza hexagonal para fijar
metal a metal.
8x1/2 PPH SD
10x5/8 HWH SD
12x3/4 HWH SD
8x1
8x1 1/4
6x1 PBS S
6x2 PBS S
6x1- 5/8 PBS S
6x1- 1/4 PBS S
8x1
8x1 1/4
6x1 PBS SD
6x1- 1/4 PBS SD
6x1- 1/2 PBS SD
6x1- 5/8 PBS SD
6x2 PBS SD
8x1
8x1/4”
Figura Descripción Punta Aplicación
EDICIÓN,ABRIL2010
Manual de Construcción

Manual de construccion_en_metalcon_cintac

  • 1.
  • 2.
    INTRODUCCION • Los perfilesMETALCON® son fabricados en acero estructural galvanizado y de alta resistencia ASTM A 653-94 Grado 40, lo que permite diseñar en bajos espesores, logrando estructuras livianas, resistentes e invariables ante el paso del tiempo. • Sus especiales dimensiones permiten el calce de los perfilesmontantes dentro de las soleras, para hacer posible el armado de los diferentes componentes estructurales de la vivienda. • Familia de perfiles simples y reducida, que facilita su diseño y manejo en obra, permitiendo a la vez construir todos los componentes estructurales de la vivienda. • Tablas de cálculo para diseño de vigas y columnas según sus propias necesidades constructivas (MANUAL DE DISEÑO METALCON® ). • Esquemas de encuentros y fijaciones típicas, en formato AUTOCAD, para los diferentes elementos estructurales (MANUAL DE DISEÑO METALCON® ). • Estándares de fabricación avalados por CINTAC® , para los diferentes elementos constructivos de una vivenda (MANUAL DE DISEÑO METALCON® ). - El presente MANUAL DE CONSTRUCCION, entrega información simple y práctica de cómo construir con METALCON® . Cabe señalar que todas las medidas, uniones, tipos de tornillos y diseños constructivos en general, que se muestran en este manual, son sólo recomendaciones, ya que cada proyecto debe tener sus propios planos de cálculo debidamente firmados. • Nota: CINTAC S.A.I.C., no se hace responsable del uso incorrecto de la información contenida en este manual. Se recomienda el diseño y revisión de la estructura por parte de un ingeniero calculista. ¿Qué es el Sistema Constructivo METALCON® ? Es un sistema constructivo integral que permite materializar viviendas completas totalmente en seco, en el cual los muros perimetrales, tabiques, entrepisos, cielos y techos, son soportados por una estructura de perfiles de acero galvanizado liviano de CINTAC® . ¿Cómo se estructura una vivienda con METALCON® ? • Muros perimetrales: Estos muros son el soporte estructural de toda la vivienda, construídos con montantes y soleras de acero estructural (Metalcon Estructural), revestidos con planchas para exteriores e interiores, y una capa aislante en su interior. • Tabiques: Estos tabiques se construyen con montantes y soleras de acero (Metalcon Tabiques), revestidos normalmente con planchas de yeso cartón o fibrocemento. • Entrepisos: Para casas de 2 pisos o mansardas, se construye un envigado formado con perfiles de acero estructural, cubiertos con planchas de “OSB” o contra chapado de madera, sobre el cual se puede instalar alfombra o cualquier otra solución de piso, incluso hasta una loseta liviana. • Cielos: Bajo las vigas de los entrepisos o bien bajo las cerchas se coloca una estructura de Metalcon Cielos, sobre la cual se colocan las planchas de yeso cartón que forman el cielo de las habitaciones. • Techumbres: Las techumbres son estructuradas en su totalidad mediante perfiles Metalcon, para formar tanto las cerchas como las costaneras necesarias para soportar los techos. ¿Qué se puede construir con METALCON® ? • Viviendas completas • Segundos pisos • Mansardas • Ampliaciones • Casas Comerciales • Campamentos • Techumbres • Multicines • Tabiques y cielos de grandes tiendas o Multicines Reacondicionamientos de viviendas y centros comerciales • Cubiertas y Revestimientos ¿ Qué ofrece el Sistema Constructivo METALCON® ?
  • 3.
    DIAGRAMA ESTRUCTURAL RESIDENCIAL2º PISO Cerchas Entre pisos Anclajes AN 1 Muro panel MP1-MP2 Frontón F1 Vigas maestras Ventanas Unión de Paneles • Sistema constructivo energitérmico y 100% asísmico. • Optimo aislamiento acústico. • Gran estabilidad dimensional de sus componentes. • Material Incombustible. • Material inerte. No es atacado por termitas ni otros organismos. • Construcción en seco, de manera rápida y limpia. • Permite la construcción modular y de fácil ampliación. • Solución final más competitiva en costo/benefico. Esquema General Vivienda
  • 4.
    METALCON PERFILES Estructural D=8mm METALCONC 2x2x0,85 40CA085 40 38 8 0,85 0,83 6,0 4020 METALCON C 2x3x0,85 60CA085 60 38 8 0,85 0,96 2,4-6,0 4013 METALCON C 2x4x0,85 p 90CA085 90 38 12 0,85 1,23 2,5-3,0-6,0 4014 METALCON C 2x4x0,85 90CA085 90 38 12 0,85 1,23 4,0-6,0 4021 METALCON C 2x4x1,0 p 90CA10 90 38 12 1,0 1,44 6,0 4015 METALCON C 2x5x0,85 p 100CA085 100 40 12 0,85 1,32 6,0 4017 METALCON C 2x6x0,85 150CA085 150 40 12 0,85 1,64 6,0 4027 METALCON C 2x6x1,0 150CA10 150 40 12 1,0 1,94 4,0-6,0 4028 METALCON C 2x6x1,6 150CA16 150 40 12 1,6 3,06 6,0 4030 METALCON C 2x8x1,6 200CA16 200 40 12 1,6 3,67 6,0 4032 METALCON C 2x10x1,6 250CA16 250 50 15 1,6 4,64 6,0 4035 p: Perforado (para pasar canalizaciones). METALCON U 2x2x0,85 42C085 42 25 0,85 0,58 6,0 4036 METALCON U 2x3x0,85 62C085 62 25 0,85 0,72 3,0-6,0 4037 METALCON U 2x4x0,85 92C085 92 30 0,85 1,00 3,0-6,0 4038 METALCON U 2x4x1,0 92C10 92 30 1,0 1,17 6,0 4039 METALCON U 2x5x0,85 103C085 103 30 0,85 1,06 6,0 4041 METALCON U 2x5x1,0 103C10 103 30 1,0 1,25 6,0 4042 METALCON U 2x6x1,0 153C10 153 30 1,0 1,65 6,0 4044 METALCON C 2x8x1,0 203C10 203 30 1,0 2,04 6,0 4046 METALCON C 2x10x1,0 253C10 253 30 1,0 2,91 6,0 4075 METALCON Tirante 50x0,85 50PL085 50 - 0,85 0,33 Rollos de 60 m 4073 METALCON Tirante 70x0,85 70PL085 70 - 0,85 0,46 Rollos de 60 m 4048 METALCON Tirante 100x0,85 100PL085 100 - 0,85 0,67 Rollos de 60 m 4051 METALCON Tirante 70x1,6 70PL16 70 - 1,60 0,88 Rollos de 60 m 4050 METALCON Tirante Gusset 1,60mm 286PL16 286 - 1,60 3,59 3,0 4058 METALCON Angulo 35x35x0,85 35A085 35 35 0,85 0,46 6,0 4055 METALCON Angulo 190x40x1,0 190A10 190 40 1,0 4 1203 METALCON Angulo 60x40x0,85 60A0,85 60 40 0,85 6 4088 METALCON Omega Normal 38/OMA085 38 35 15 0,85 0,98 6,0 4095 38x35x15x8x0,85 METALCON Omega Económica 38/OMA05 38 35 15 0,5 0,59 6,0 4094 38x35x15x8x0,5 Metalcon C Metalcon U Accesorios Metalcon Omega Producto disponible a pedido. Dimensiones Peso Nomenclatura A B C e P Largos Código mm mm mm mm kg/m (m) Cintac
  • 5.
    METALCON PERFILES Tabiques DimensionesPeso Especificaciones Nomenclatura A B C e P Largos Código Metalcon Tabiques mm mm mm mm kg/m (m) Cintac MONTANTE NORMAL P 60x38x0,5 60 38 6 0,50 0,56 2,4-3,0 4003 MONTANTE ECONÓMICO 38x38x0,5 38 38 5 0,50 0,48 2,4-3,0 4001 CANAL NORMAL 61x20x0,5 61 20 - 0,50 0,39 3,0 4007 CANAL ECONÓMICO 39x20x0,5 39 20 - 0,50 0,31 3,0 4006 ESQUINERO PERF. 30x30 30 30 - - 0,18 2,4-3,0 4060 ESQUINERO PERF. ECO. 25x25 25 25 - - 0,15 3,0 4061 Dimensiones Peso Especificaciones Nomenclatura A B C e P Largos Código Metalcon Tabiques mm mm mm mm Kg/m (m) Cintac MONTANTE ESPECIAL P 45x38x0,5 45 38 6 0,50 0,50 2,4 4002 MONTANTE BÁSICO 31x38x0,5 31 38 5 0,50 0,45 2,4 4000 CANAL ESPECIAL 46x20x0,5 46 20 - 0,50 0,33 3,0 4010 CANAL BÁSICO 32x20x0,5 32 20 - 0,50 0,28 3,0 4005 Productos a pedido Canal Montante Esquinero p: Perforado (para pasar canalizaciones). Consultar por cantidades mínimas.
  • 6.
    METALCON PERFILES Cielo Ruleteado porel exterior Uso: Confección de cielo raso, como soporte de placa. Nomenclatura A B C Espesor Largos (m) Peso (kg/ml) 40x18x10x0,5 40 18 10 0,5 3,0-6,0 0,38 Alternativas de luces entre elementos yeso cartón (mm) Cerchas (cm) Conector TI® (cm) 10 ó 12,5 ó 15 Luces hasta 150 Luz máxima 100 Recomendaciones para Estructura de Cielo Ruleteado por el exterior Portante 40R ® Código Cintac 4086 Uso: Conector nivelador de la cuerda interior o larguero, directamente a la cercha, losa o costanera. Nomenclatura Unidades Código Cintac 150x66x0,85 Caja (100 ) 9577 Caja (10 ) 9575 Uso: Permite fijar el nivel para estructuras de cielo raso. Prolongación de cuerda interior de la cercha o larguero. Nomenclatura A B C Espesor Largos (m) Peso (kg/ml) 20x25x4x0,5 20 25 4 0,42 3,0 0,25 Perfil AT ® Código Cintac 4097 Conector TI ® Espesor placa Perfil Distancia Placas yeso cartón Portante 40R® 40 cm 8 - 10 mm Portante 40R® 60 cm 12,5 - 15 mm
  • 7.
    HERRAMIENTAS Y ACCESORIOSDE SEGURIDAD • Un marcador de tinta tipo “marker”, negro o rojo. • Alicate tipo “vise-grip” para sujetar perfiles y canales, mientras se atornilla. • Alicate corriente “caimán”. • Alicate “corte frontal” o “carpintero”, para sacar tornillos que tengan la “cruz” rodada. • Tronzadora. • Tijeras corta latas. • Esmeril Angular 4 1/2”. • Sierra Circular. Esta se usa con una sierra de 7 1/4” con 100 dientes (para cortar terciado) y se instala al revés. • Atornillador eléctrico con embrague automático y con la punta magnetizada. NOTA: no usar el atornillador de tabiques, que opera a 400RPM. A esta velocidad la punta autotaladrante se quema antes que la operación de perforado esté completa. El atornillado adecuado es la velocidad variable de 0 a 2.500 RPM. • Desatornillador de tipo “Phillip”. • Martillo de goma. • Huincha para medir. • Nivel / Plomada. Aunque el sistema Metalcon ® es bastante seguro y sin peligros adicionales a la construcción tradicional, hay que recordar al trabajar con metal existen los siguientes factores de riesgo. Cortes: Es imperioso el uso de guantes para evitar cortes y heridas producidas por la rebaba generada producto del corte en terreno y eventualmente la de fábrica. El calor: Cuando se manejan perfiles o materiales de acero galvanizado en el verano, al estar expuestos al sol, se calientan lo suficiente para recomendar el uso de guantes, al igual que al cortar un metal, tanto la herramienta como el metal se calientan pudiendo producir quemaduras. Partículas de metal o chispas: Cuando se corta un metal galvanizado con una herramienta eléctrica, siempre use anteojos de protección. Ruido: El ruido que se produce al cortar metal con una herramienta eléctrica es mayor que al cortar madera, por lo tanto el operador que esté constantemente cortando metal, se recomienda que utilice protección para los oídos. SEGURIDAD Las siguientes herramientas y elementos de seguridad, constituyen el equipamiento que un operador debe tener para alcanzar un óptimo nivel de eficiencia en su trabajo.
  • 8.
    TRANSPORTE DE MUROS,TABIQUES Y CERCHAS INCORRECTO CORRECTO 45º APROX. Figura Nº 1 Transporte de Muros y Cerchas Consejos Prácticos: Al transportar muros, tabiques o cerchas, fabricados con Metalcon® , siempre deben ir “de canto”. Esta regla se aplica al transporte en vehículo, camiones, trailer etc., como también al transporte manual dentro de la obra. Un muro, tabique o cercha al no estar de canto debe tener un punto de apoyo cada 3 metros máximo, ya que de lo contrario se puede deformar. El ideal para transportar un muro, tabique o cercha dentro de la obra, es hacerlo con el mayor personal posible y con una posición de aproximadamente 45º.
  • 9.
    COMPONENTES PRINCIPALES DELSISTEMA METALCON ® Montaje o Pie Derecho Sus usos son: • En la solera superior y solera inferior • En la costrucción de vigas y dinteles • Como conectar, apoyo y refuerzos en general • Como elementos de unión Canal o Solera Costanera® OmegaPerfil AT® Sus usos son: • Como costanera de techo y cielos • Para puntos de apoyo y como elemento estabilizador Sus usos son: • Permitir fijar el nivel para la confección de estructuras de cielo raso • Prolongación de cuerda inferior de la cercha o larguero. Otras aplicaciones • Colgador o tirante para prolongar el Conector TI® al colgar el entramado de cielo raso de estructuras más altas Sus usos son: • Como pie derecho • Como antiesador en conexiones y apoyos en general • En la construcción de pilares, vigas y cerchas Portante 4OR® Sus usos son: • En la confección de cielo raso se utiliza como soporte de placa Oras aplicaciones: • Apoyo y estabilizador temporal utilizado durante las costrucciones de cerchas , envigados, muros y tabiques Pletinas Sus usos son: • Como diagonales para dar arriostramiento a un tabique estructural • Como tensor en general • Como conector entre dos elementos • Como conector tipo escuadra 90º Tornillos Los tornillos para conexiones entre dos elementos de espesor igual o superior a 0.85 mm deberán ser autoperforantes y con un mínimo de diámetro de 0.164 pulgadas (#8) • Son resistentes a la corrosión. • Se atornillan con una distancia mínima al borde y entre ejes de 3 veces al diámetro del tornillo usado. • Deben penetrar dejando un mínimo de 3 hilos a la vista. REGLAS GENERALES PARA TORNILLOS USADOS CON METALCON®
  • 10.
    ANCLAJE ESTABILIZADO COMPACTADO Figura Nº 2 Elsistema METALCON® , requiere ser anclado mediante diferentes opciones, cualquiera que sea el tipo de fundación, ya sea zapata corrida con sobrecimiento, poyos aislados con vigas de fundación, o incluso radier con zarpa. Hay dos tipos de fundación comúnmente usadas con METALCON® . Sistema Monolítico o Radier con Zarpa Sistema Cimiento, Sobrecimiento y Radier Es un sistema en el cual se hormigona, el radier y la zarpa al mismo tiempo. Esto se obtiene encajonando la línea perimetral a ser construída y mediante un camión betonero, se rellena sin junturas y de una vez toda el área de la construcción. Este sistema es el más común, en el cual se hacen cada una de las etapas por separado. Esto se hace generalmente a mano, ya que permite detener la faena en diferentes puntos. Hay 4 tipos de Anclajes que pueden ser usados: • Pernos de anclaje • Amarre con una tira de Pletinas Metalcon® • Anclaje de metal tipo AN1 • Clavos y pernos de anclaje tipo “Hilti” • Anclajes estructurales de esquinas y de arriostramientos, tipo “Simpson” o similar Los pernos los determinará el proyecto de cálculo en su dimensión y ubicación, sin embargo se recomienda como mínimo usar pernos de acero de 12 mm de diámetro, 250 mm de largo con gancho de 50 mm en su parte inferior. El extremo recto sin el gancho tiene aproximadamente 50 mm de hilo, donde se instala una tuerca con golilla de 3 cm de diámetro por 3 mm de espesor. Estos pernos se instalan a 45 mm aproximadamente del borde perimetral del radier, de manera que queden en el centro de la canal (en el caso que la canal tenga 90 mm). Debido a que la canal tiene 0,85 mm de espesor, es necesario agregar un “suple” de refuerzo del mismo perfil de los pie derecho dentro de la canal, como golilla atiesadora. (Ver Figura Nº 3). Típicamente estos pernos van uno a 30 cm máximo, del inicio del muro estructural y uno a cada lado de las puertas (en muros estructurales), luego va uno cada 1,2 metros máximo entre perno y perno. El plano de cálculo indicará la exacta ubicación de estos elementos. * Tomar nota de la posición donde se ubican los pie derecho, para que no coincidan con los pernos de anclaje. Pernos de Anclaje RADIER MALLA ACMA NIVEL TERRENO PLASTICO
  • 11.
    ANCLAJE ESQUINA ISOMÉTRICA CONECTORAN 40 10 AUTOPERFORANTES # 10 x 3/4” L 5 x 50 x 230 (L = 40) 10 AUTOPERFORANTES # 10 x 3/4” PL 5 x 70 x 70 HILO 1 / 2” X 200 cód. 11215 ANCLAR CON MORTERO EPOXICO CON SISTEMA DE PREMEZCLADO MECANICO TIPO HILTI O SIMILAR 5 / 8” TUERCA GOLILLA PLANA 200 CONECTOR DE ANCLAJE AN 60 cód. 11183 AN 90 cód. 11184 L 5 x 90 x 230 (L = 40) PL 5 x 70 x 702 ANCLAJE AN1 Figura Nº 3 Figura Nº 4 PERNO EXPANSIÓN 3/8 x2 3/4” REF. INFERIOR 60CA085 LG:100 3 AUTOPERFORANTES #8x1/2” A CADA LADO SOLERA INF. 62C085 PIE DERECHO 60CA085 Clavos y Pernos tipo “Hilti” Anclajes Estructurales de esquinas y arriostramientos En los muros estructurales, éstos se recomiendan solamente como suplemento a los anclajes anteriores. Como norma general instale un clavo tipo “Hilti” de 1 1/2” con golilla incorporada directamente a la canal (solera inferior), en el centro entre montante y montante. En los tabiques no estructurales como no es necesario utilizar pernos de anclaje, se instalan entre montante y montante. Se utilizan preferentemente en las esquinas donde existe concentración de esfuerzo y/o para tomar las cargas transmitidas por las diagonales de arriostramiento. La figura 4 muestra el detalle del anclaje AN1. Anclaje Distribuido
  • 12.
    TRAZADO 4 TORNILLOS #8 A CADA LADO 15 cm min TROZO DE PIE DERECHO DENTRO DE LA CANAL Figura Nº 6 Figura Nº 5 • Marcar primero los pernos de anclaje, luego hacer las perforaciones correspondientes usando un taladro eléctrico con una broca de 1/2 ”. • Marcar las esquinas. • Marcar luego los encuentros de centro. • Ahora marcar las puertas y ventanas. Referirse a los detalles de la construcción de vanos para puertas y ventanas. • Por último, marcar los pie derecho a 40 o 60 cm de eje a eje, dependiendo de las especificaciones del plano de cálculo estructural. Layout en Radier Empalme de Soleras LARGO TABIQUE Nº3 TIZAZO NUMERACION DE CADA TABIQUE DIENSION DE LA CANAL 3 5 4 6 1 2 • Una vez listo el radier, marcar todos los muros exteriores e interiores en el piso con un tizador, luego enumerárlos. La canal o solera inferior va a seguir estas líneas. De esta manera el tabique queda siempre derecho, aunque los bordes del radier no estén regulares.(Figura Nº5). • Alinear cada muro o tabique marcado en el radier con 2 canales (solera superior y solera inferior), previamente cortadas del mismo largo que el muro o tabique respectivo. Si es necesario empalme 2 canales (Figura Nº6) para alcanzar el largo adecuado de extremo a extremo.
  • 13.
    PIE DERCHO SEGUN CALCULO TORNILLO #10x5 / 8” EN ZIG - ZAG DETALLE ESQUINA DETALLE DE EXTREMO CONSTRUCCION DE MUROS Y TABIQUES PIE DERECHO SEGUN CALCULO PUNTA BROCA PLANCHA DE YESO CARTON PIE DERECHO PIE DERECHO DEBE CALZAR APRETADO A LA SOLERA TORNILLO # 8 x 1/2 UNO A CADA LADO CANAL SOLERA Figura Nº 7 Figura Nº 8 PLETINA 4 TORNILLOS #8 A CADA CANAL TORNILLOS # 10x5 /8” EN ZIG - ZAG • Ahora que se tienen las 2 soleras totalmente marcadas para su ensamblaje, sacar los 3 tornillos temporales y ponerlos, frente a frente sobre el radier aproximadamente a 2,5 m. • Construir los extremos o esquinas del muro, como se muestra en la Fig. 7. Estos pie derecho o montantes se atornillan entre sí con tornillos # 8 ó # 6 x 11/2” cada 15 cm, según cálculo. (Ver Figura Nº 7). Construya los encuentros de centro, teniendo en cuenta que el montante de encuentro vaya con la espalda hacia el tabique de centro. (Ver Figura Nº 8). * El largo de los montantes lo da el plano de estructuras. Ej: 2,40 m. • Está listo para construir un muro o tabique . Instalar sin atornillar, primero las esquinas, luego los encuentros de centro y finalmente los montantes, siguiendo las marcas previamente hechas en las soleras. Recordar dejar el espacio libre (sin montantes) para las puertas y ventanas. Encuentro Centro Conexión de Pie Derecho a Canal (solera) Ahora atornillar todos los elementos de manera que cada perfil tenga 4 tornillos. Construcción de muros y tabiques
  • 14.
    VANOS DE VENTANASY PUERTAS Figura Nº 9 Detalle Refuerzo Dintel Vano de Ventana Cada ventana y puerta exterior, está formada por 4 montantes, de 0,85 mm como mínimo (2 montantes a cada lado) más una canal a ambos lados y un dintel compuesto o viga estructural (la medida y dimensión de acuerdo al plano de cálculo). 1º Alinear y atornillar los 4 montantes, 2 a cada lado del vano. 2º Construir el dintel/viga e instálela en el vano. 3º Construir la mocheta para rebajar el dintel a la altura deseada de acuerdo al plano. 4º En el caso de las ventanas, armar el marco o vano de acuerdo a sus medidas. Como alternativa en ambos casos, para puertas y ventanas, instalar trozos de un 2” x 4” ( en el caso de la canal de 92 mm) o trozos de un 2” x 6” (en el caso de la canal de 152 mm) en el vano, para tener un punto para clavar las pilastras. De lo contrario, tendrá que engomarlas o atornillarlas. Además si la longitud del vano (L) es mayor que 2,4 metros se requiere reforzar el antepecho, usando un trozo de montante y canal del largo L. (Figura Nº 9). 90CA085 DESPUNTE 90CA085 L=100 2 AUTOPERFORANTE Nº 10x3/4” (TIP.) Nº8x1/2” CABEZA PLANA BORDE VANO 92C085 AUTOPERFORANTE
  • 15.
    PERNO ANCLAJE PLACA DEO.S.B. / TERCIADO DINTEL DOBLE PIE DERECHO ESQUINA PLACA DE CORTE MAX 60 CM FIGURA 11 Figura Nº 10 Figura Nº 11 Detalle de antepecho de ventana DOBLE PIE DERECHO MOCHETA TORNILLOS # 8 PIE DERECHO CANAL VANO VENTANA REFUERZO DE MONTANTE Y CANAL, SOLO CUANDO LA LONGITUD DEL VANO SEA MAYOR A 2,4 M Esquema estructural casa 2º piso
  • 16.
    DIAGONALES Detalle 2 PLETINA ESTÁNDAR GUSSET CÓD.11216 Detalle 1 ANGULO TENSOR CÓD. 11199 AUTOPERFORANTE # 8 (SEGUN CALCULO) ANGULOS MAX Y MIN DE DIAGONALES 60º 30º 100PL085 100PL085 L30x30x4 Figura Nº 12 Figura Nº 14 Figura Nº 13 Figura Nº 15 Ubicación Diagonal y Placa Madera Detalle Instalación Gusset, anclaje y diagonal La función de éstas, es darle el arriostramiento necesario, de acuerdo al plano de cálculo. En el caso de no existir placas de corte, el arriostramiento se logra por medio de cruces, como diafragma de rigidización. La carga lateral, tiende a desplazar el panel en forma horizontal, la colocación de una pletina en diagonal al panel, conjuntamente con su anclaje en los extremos inferiores del mismo, resisten este esfuerzo. TORNILLOS TEMPORALES PIE DERECHO ESQUINA PLACA O.S.B / TERCIADO (1,2 X 2,4) TABIQUE ARMADO Se aconseja colocar las diagonales con ángulos entre los 30º y 60º. Para colocar las diagonales se puede seguir el siguiente procedimiento: •Colocar un gusset de Metalcon de 200x200 con tornillos autoperforantes 8x1/2” (cantidad según plano de cálculo) sobre el montante y la canal de la esquina que va a recibir la pletina (Fig. 13) En el caso de las esquinas, cuando tenemos tres montantes no es necesario colocar el gusset, se fija la pletina directamente sobre los montantes. Entre la diagonal y la fijación en ambos extremos, nunca se atornillan las diagonales directamente a los montantes intermedios. Por lo general la especificación indicarla la colocación de pletinas por ambos lados del panel. •Una vez colocadas las diagonales, se procede a realizar la tensión de éstas, mediante un accesorio llamado “ángulo tensor” (Fig. 14) •Como estabilizado lateral se puede instalar una pletina horizontal a media altura del muro, por ambas caras atornillando a cada montante para finalmente colocar el bloqueador al giro en los extremos, con un perfil en U (Fig. 15)
  • 17.
    INSTALACION DE LOSMUROS Y TABIQUES METALCON ® Figura Nº 16 Una vez que tenga hecho un muro o tabique completo, ponerlo en posición como muestra la Figura x, asegurándolo al radier o al piso mediante los anclajes y apoyos temporales. • Proceder a construir el siguiente muro o tabique • Una vez terminado, conectarlo al interior ya ubicado, atornillando las esquinas o encuentro de centro como correspondan, usando tornillos #8/cada 15 cm. (Ver Figura; Nº16) • Una vez atornillados estos encuentros, instale una pletina rectangular del ancho de la canal y de largo, el doble que el ancho, sobre los encuentros de muro o tabique con un mínimo de 4 tornillos del #8, sobre cada muro o tabique.
  • 18.
    PISOS Y LOSAS FiguraNº 17 ESTABILIZADOR ENVIGADO DE PISO 1.2x50 CANAL DE BORDE SERIE 153; 203, 253 VIGA REFUERZO VANO, COSTANERAS SERIE 150, 200; 250 ANGULO DE AMARRE 2x50x50 (min) VIGA MAESTRA, COSTANERAS SERIE 90, 100; 150; 200; 250 ENVIGADO DE PISO, COSTANERAS SERIE 150; 200; 250 CHAPA DE PISO CONTRACHAPADO DE 5/8” Ó PLACA O.S.B. DE 15 mm PL PL Esquema general envigado de piso La construcción de pisos o losas con el sistema METALCON® permite una construcción rígida, nivelada y liviana. Las especificaciones variarán de acuerdo a cada diseño de construcción y carga a la que la estructura del piso sea sometida. Estas especificaciones estarán indicadas en el plano de cálculo. Las Figuras Nº 21 y Nº 23 de corte, muestran los requerimientos mínimos de este sistema de piso. *Notar que las placas de corte, al igual que en el techo, van con traslapos y perpendiculares a las vigas de piso. Como regla general, si las vigas de piso tienen una luz mayor que 3 m, el ala inferior de cada viga debe tener al menos un arriostramiento central. En todo caso siempre deberá consultarse el plano de estructuras correspondiente. Este arriostramiento inferior, colocado en L/2” se puede hacer con una tira de tirante 70PL085 mm con suficiente tensión para que quede tirante. (Figura Nº 17). Instalando además bloqueadores de frío en los extremos. (tipo cadeneta)(Figura Nº 25 y 26). Losa o Concreto liviano sobre placa de piso. Una práctica común para obtener una barrera de sonido mejor, o para darle mayor solidez al piso, es agregar un concreto liviano de aproximadamente 50 a 70 mm sobre el entablado de piso o cubierta de “OSB” como muestra la Figura Nº24 . 2º Piso. El piso o losa para un segundo piso es igual al piso de un primer piso construído en elevación, como muestran las Figuras Nº xx y xx. Observar los detalles de las conexiones. (Figuras Nº 21 y Nº 22).
  • 19.
    Figura Nº 18 FiguraNº 19 La fabricación de pisos y losas con METALCON® permite una construcción rígida, nivelada y liviana. Las especificaciones variarán de acuerdo a cada diseño de construcción y carga a lo que la estructura del piso sea sometida. Las estructuras de pisos se arman usando los perfiles C y U, de mayor tamaño (150CA, 200CA y 250CA) de acuerdo a la sobrecarga de uso (NCh 1537) y el peso propio de la estructura. Las vigas C, que se usarán como vigas de piso, podrán ser de espesores 0,85, 1,0 y 1,6 mm según cálculo, espaciados a 0,30, 0,40 ó 0,60m. según tablas del manual de diseño METALCON® . Se utilizará placa de piso que puede ser “OSB” de 15 mm ó terciado estructural de 18 mm. En general, se puede cubrir luces de hasta 4 m. Las vigas se pueden colocar sobre la viga perimetral o a nivel, esta última alternativa, permite conseguir menor espesor de entrepiso. A todas las vigas simplemente apoyadas sobre la viga perimetral, en el punto de apoyo se recomienda estabilizar su alma al pandeo con un “zapato” generado a partir de despuntes de perfil C y U. (Figura 20). Sobre las vigas se dispone una placa “OSB” de 15 mm ó un terciado estructural el cual arriostra horizontalmente el envigado. El arriostramiento inferior se realiza para luces mayores a 3 m con una pletina de 70PL085 en L/2 con bloqueadores al giro en los extremos (fig. 25 y 26). Una práctica común para obtener una barrera de sonido mejor, o para darle mayor solidez al piso, es agregar un hormigón liviano con perlas de poliestireno expandido. El espesor de esta loseta varía entre 50 y 70 mm. Esta loseta se puede materializar sobre cubierta de OSB, terciado estructural. Siempre se debe considerar una malla electro soldada para minimizar la refracción del hormigón. Sobre las placas de madera se debe incorporar polietileno de 0,2 mm de espesor. Losa de Piso PIE DERECHO DIAGONAL VIGAS GOUSET PERNO ANCLAJE PLACA DE “O.S.B.” / TERCIADO DINTEL DOBLE PIE DERECHO FIGURA N°11 ESQUINA MAX 60 CM PLACA DE “O.S.B.” / TERCIADO Diagonales en 1º y 2º piso Esquema estructural casa 2º piso
  • 20.
    Figura Nº 20 FiguraNº 21 Figura Nº 22 VIGA DE PISO VIGA COMPUESTA 4 AUTOPERFORANTES 3 AUTOPERFORANTES VIGA COMPUESTA VIGA DE PISO Detalle envigado de piso y losa #12x3/4” #12x3/4” 92C10 VIGA COMPUESTA VIGA DE PISO PIE DERECHO SIN ESCALA 5 - DETALLE VIGA COMPUESTA L100x100x3 mm CADENA BORDE 200CA16 80 PIE DERECHO . #6 18x11/4” PIE DERECHO NIV. +2.60 SOLERA INFERIOR NIV. +2.60 100C12 90CA085 4 AUTOPERFORANTES #12x3/4” 2 FIJADOS A VIGA DE PISO 2 FIJADOS O CADENA BORDE SOLERA INFERIOR NIV. +2.60 CADENA BORDE 200CA16 AUTOPERFORANTE @40cm . #13x3/4” GALVANIZAR DESPUES DE CORTAR AUTOPERFORANTE @40 cm #12x3/4” VIGA DE PISO APOYADA SOBRE VIGA COMPUESTA 8 AUTOPERFORANTE #12x3/4” AUTOPERFORANTE @40 cm CHAPA ESTRUCTURAL DE PISO TERCIADO e:18 mm
  • 21.
    PISOS Y LOSAS FiguraNº 23 Figura Nº24 Figura Nº 25 Fijación chapa estructural a vigas de piso CANAL DE BORDE/CB ENVIGADO DE PISO /VP VIGA DE PISO VIGA DE PISO L50x50x1,6 mm L50x50x1,6 mm ALFOMBRA FILM POLIETILENO PANEL “OSB” MALLA ACMA LOSETA HORMIGON LANA MINERAL TORNILLO AUTOTALADRANTE VIGA DE PISO PLACA DE YESO CARTON Esquema estructural casa 2º piso Bloqueo de giro tipo cadeneta CHAPA ESTRUCTURAL DE PISO, CONTRACHAPADO DE 5/8” O PLACA “O.S.B.” DE 15 mm NOTA 1: LA CHAPA ESTRUCTURAL DE PISO SE FIJARA CON AUTOPERFORANTES @150 EN BORDE DE PLACA Y @300 EN APOYOS INTERIORES DE PLACA 4 AUTOPERFORANTES #12x3/4” POR CADA LADO CADENETA 150CA16
  • 22.
    Figura Nº 26 Bloqueadorde giro tipo estabilizador VIGA DE PISO VIGA DE PISO BLOQUEADOR LA GIRO DE VIGAS DE PISO PI50x0.85 mm 1 AUTOPERFORANTE TIPO #8x1/2” PLACA 70P085 1 AUTOPERFORANTE TIPO #8x1/2”
  • 23.
    CERCHAS Figura Nº 27 FiguraNº 28 V1V1 40CA 40CAC.S.A.C.S.A. 90CA 90CA 40CA 40CA 60CA P=130%P=130% 2,0 2,0 2,0 6,0 Dentro de las principales ventajas del sistema METALCON® es la posibilidad de construir las cerchas con acero galvanizado, terminando con una cercha perfectamente derecha y suficientemente liviana en donde una sola persona pueda levantarla fácilmente. El sistema METALCON® , permite diseñar cerchas cualquiera sea su necesidad y estilo. Aquí, algunos de los diseños típicos de cerchas. (Figura Nº28). La Figura Nº27 muestra una cercha típica y sus componentes, junto con sus uniones. Para armar una cercha, asegurarse de disponer de un espacio plano y suficientemente amplio para construirla. Todas las uniones se harán con tornillos del #10, como mínimo. Nota: Antes de construir una cercha, consultar el plano de cálculo para incorporar las características que el calculista ha diseñado para su proyecto. Elevación de Cercha Diseños típicos de Cerchas
  • 24.
    Figura Nº 29 FiguraNº 30 Figura Nº 31 Figura Nº 32 a) Usando una viga central de 2 perfiles (Figura Nº 29), y b) Usando los mismos 2 cordones superiores de la cercha, cortándoles a uno de ellos un trozo del ala para que calcen uno encima del otro y con el ángulo correcto. (Figura Nº 31), agregando un refuerzo con pletina de 1,6 mm. La Figura Nº 32, muestra la conexión típica entre el cordón inferior y las diagonales de la cercha. Las Figuras Nº 33, 34 y 35, nos muestran las 2 conexiones típicas entre el cordón superior y el cordón inferior, como también el apoyo y unión de la cercha al muro correspondiente. Existen 2 prácticas de unión en las CUMBRERAS <70x70x1.6 L=140 (AMBOS LADOS) 153C10 L=300 150CA085 150CA085 153C10 L=300 <70x70x1.6 L=140 (AMBOS LADOS) 8+8 AUTOPERFORANTE #10x3/4” DETALLE S/E 1 - VIGA V2 AL CINTAC 60 5+5 AUTOP No 10x3/4” Ref 92C085 Lg=300 Conexión Cuerda Superior a Viga Central 1. Las cerchas tienen que ir apoyadas directamente sobre un pie derecho con un refuerzo de una viga simple o un ángulo de refuerzo (60x40x0,85 o 190x40x1,0). 2. Las conexiones se pueden hacer de dos formas dependiendo del tipo de muro: a) A METALCON® se usa un conector AL b) A cadena de albañilería se utiliza un ángulo de 65x65x3 L=90. MONTANTES Y DIAGONALES CUERDA TORNILLOS # 10x5/8” TIPICOS 6 AUTOPER #10x3/4” (TIP.) PL 1.6 3 AUTOPER #10x3/4” (TIP.) 6 AUTOPER #10x3/4” (TIP.) Detalle Cumbrera Unión Diagonales y Montantes a Cordón Inferior
  • 25.
    Figura Nº 33 FiguraNº 34 Figura Nº 35 Apoyo de Cercha a Paneles de Muro Para fijación de cerchas a cadena Perno de expansión HKB III 1/2” x 3 - 3/4” METALCON® C según cálculo Tapa METALCON® U 3+3 auto-perforante # 10 x 3/4” METALCON® C según cálculo C 80 x 40 x 3 cód. 11193 AL 60 cód. 11209 CUERDA INFERIOR CERCHA TAPA ANGULO DE CONEXION AL REFUERZOS POR NO ALINEAMIENTO DE PIE DERECHOS Y APOYO CERCHA PIE DERECHO NO ALINEADO CUERDA SUPERIOR CERCHA ESTABILIZADOR CONTINUO SEGUN DISEÑO L 5x90x230 Para fijación de cerchas a muro METALCON® 4+4 auto-perforante # 10 x 3/4”
  • 26.
    ALEROS Y CIELOSFALSOS Tipos de Aleros CT/40 05 ó CT/40 085 VIGA COMPUESTA (SEGUN CALCULO) VIGA COMPUESTA (SEGUN CALCULO) FRONTON VIGA COMPUESTA CT/40 05 ó CT/40 085 CT/40 05 ó CT/40 085 CT/40 05 ó CT/40 085 CT/40 05 ó CT/40 085 SIN ALERO ALERO SIMPLE ALERO CAJON ALERO CURVO ALERO MEDITERRANEO GIGAL PORTANTE VIGA COMPUESTA (SEGUN CALCULO) VIGA COMPUESTA (SEGUN CALCULO) VIGA COMPUESTA (SEGUN CALCULO) GIGAL PORTANTE
  • 27.
    TECHO Y CUBIERTA COSTANERAS CERCHAS CUMBRERA CUBIERTA SEGUN CALCULO CERCHA CERCHA CERCHA CERCHA CERCHA CERCHA CERCHA CERCHA CERCHA ALERO PLACA O.S.B. ALERO TRASLAPO O.S.B. CERCHA FiguraNº 36 Figura Nº 37 CUERDA INFERIOR CUERDA SUPERIOR Costaneras Planta Cubierta de Techo TípicaLa estructura de techo, construída con acero galvanizado, se cubre de la misma forma que si fuera hecha en madera, excepto que la cubierta va atornillada. Costaneras: en el caso de costaneras, se usa METALCON® Estructural Omega. La distancia entre costaneras lo determina el diseño del plano de cálculo y la especificación técnica de la cubierta. (Ver Figura Nº 36). Cubierta con Placa: en el caso de cubierta que requiera un entablado, se usa típicamente una placa tipo “OSB” con un mínimo de 11,1 mm de espesor. Estas placas tienen que ir traslapadas y en forma perpendicular a las cerchas. Se fijan con tornillos autotaladrantes de # 8, con 1/4” más largo que el espesor de la placa. La distancia entre tornillos es de 15 cm en los bordes y a 20 cm en el centro. Techumbres: las cerchas construidas con el sistema METALCON® y adecuadamente calculadas, de acuerdo a la carga que recibirán, aceptan todo tipo de techos al igual que una cercha de madera.
  • 28.
    REVESTIMIENTOS Revestimientos interiores El sistemaMETALCON® utiliza los mismos revestimientos interiores que un muro o tabique de madera. Los típicos son: Placa de yeso cartón: Esta se atornilla a los perfiles usando tornillos autorroscantes “Phillip” Fosfatados del # 6, de 1 a 1 1/4”, cada 15 cm en cada perfil. Planchas de Fibrocemento: Se atornilla igual que la placa yeso cartón, pero hay que tener en cuenta que los tornillos en este tipo de material puede dejar parte de la cabeza a la vista lo que complica el enhuinchado y empastado. Este problema se puede evitar con el caso de tornillos autotaladrante (seft drilling) Rock-onn # 8 x 1 1/4”. Maderas tingladas o machihembradas: Igual que los anteriores, usando 1 a 2 tornillos por tabla. Estuco: Para darle un aspecto sólido, se puede estucar usando una malla con fieltro incorporado, tipo Malla / Estuco Davis Wire. Sobre este material se aplica un estuco corriente de 2,5 cm. Esta malla va atornillada a cada perfil con tornillos autorroscantes # 8 x 1/2” galvanizados y sin ningún respaldo fuera de su propio papel fieltro. Revestimientos Exteriores El sistema METALCON® utiliza cualquier tipo de revestimiento disponible en el mercado. Los más usados son : Planchas de Fibrocemento: Estas van instaladas sobre un papel fieltro y un aislante de 10 mm como mínimo para evitar el puente térmico. Se atornillan con tornillos galvanizados autotaladrantes # 6 cada 15 cm. Vinyl Siding: Este material se instala sobre una placa de madera tipo “OSB” que va atornillada a los montantes con tornillos autoladrantes de # 8 o # 6 cada 15 cm y un papel fieltro de # 10 lb, para impedir la filtración de humedad. Estuco: Al igual que en revestimiento interior con estuco, pero agregándole un mínimo de 10 mm de poliestireno o una placa “OSB” Las terminaciones con este sistema de estucado son las típicas de un afinado liso o con terminación rústica. * Nota: Debido a que el metal tiene una conductividad térmica mayor que la madera, es necesario evitar un puente térmico con algún material aislante tipo poliestireno o madera. De lo contrario en zonas del país muy frías se podrían producir manchas delineando la silueta de los pie derechos.
  • 29.
    GUARDAPOLVO Y CORNIZAS CUBIERTA PERFILCA PERFIL OMEGA TAPACAN AUTOPERFORANTE (TIPICO) FILM DE POLIETILENO e=0,15 mm CONTRA CHAPADO e=0,15 mm VIGA DE PISO CIELO VOLCANITACORNIZA SOLERA SUPERIOR AISLACION SOLERA INFERIOR AUTOPERFORANTE (TIPICO) ANGULO DE CONEXION OCA20 AISLACION PERFORACION DE 34X72 @600C. REVESTIMIENTO EXTERIOR AUTOPERFORANTE N.T.N. CLAVO VIGA DE FUNDACION VOLACNITA e=15 mm PIE DERECHO @ 600 MALLA ACMA C92 LOSETA DE HORMIGON e=5 cm FILM DE POLIETILENO e=0.15 cm CONTRACHAPADO e=15 cm VIGA DE PISO CIELO VOLCANITACORNIZA SOLERA SUPERIOR PIE DERECHO @ 600 AISLACION VOLCANITA e=15 mm SOLERA INFERIOR GUARDAPOLVO 9X75 RADIER e=10 cm FILM POLIETILENO e=0,15 mm BASE GRANULAR COMPACTADA e=10 cm SUB-BASE COMPACTADA e=10 cm Figura Nº 38 Los Guardapolvos: van siempre atornillados y/o engomados a la solera inferior. (Figura Nº 38). • Para atornillar, use tornillos fosfatados, autorroscantes, cabeza “Phillip” # 6 x 1/4” más largos que el espesor del revestimiento interior más el espesor del guardapolvo. • Para engomar, use gomas aprobadas para esta función, directamente al revestimiento interior. Las Cornisas: van clavadas o engomadas a la solera superior. • Para clavar, instale una madera de un mínimo de 1” por el ancho del tabique, atornillada a la solera cada 15 cm. Esta madera le dará la superficie necesaria para clavar la cornisa. • Para engomar, (práctica más usada en las cornisas con este sistema), instale cornisas preformadas de poliestireno engomadas directamente al revestimiento interior. Escantillón
  • 30.
    GASFITERIA Y ELECTRICIDAD FiguraNº 40Figura Nº 39 Existen 2 prácticas de unión en las CUBRERAS En el sistema METALCON® , los 90CA 0,85 y 60x38x0,5 montantes, ya vienen perforados para facilitar las instalaciones de gasfitería y electricidad. El instalador normalmente sólo perfora las canales (soleras), ya que éstas no vienen perforadas. Siempre el instalador debe aislar y proteger el cobre del galvanizado para evitar electrólisis, y además proteger el alambrado eléctrico de los roces físicos entre un metal cortante y el cable eléctrico. Esto se consigue usando cualquier material plástico (como cañería de luz o agua en PVC) o, con un aislante de poliestireno o haciendo una separación con madera. Todas estas separaciones y conexiones deben ir atornilladas a los perfiles para soportar movimientos sísmicos y para evitar ruidos como los que se producen en las cañerías de agua. (Ver Figura 39). Para las cajas eléctricas, instalar una caja metálica, atornillada directamente al montante. (Ver Figura Nº 40). O instalar un trozo de perfil U fijado hacia los montantes, como muestra la figura Nº 39. CAJA ELECTRICA PERFIL MONTANTE CANAL 2 CLAVOS O TORNILLOS A CADA LADO Aislación La colocación de la aislación, se efectúa de la misma forma que en un muro de madera. Los aislantes más típicos son: Poliestireno expandido, tipo aislapol: Se cortan las planchas de este material de manera que queden semiapretadas entre los perfiles, así no es necesario ningún mecanismo adicional para sujetarlas. Lana mineral o de vidrio: Se instala una vez que uno de los revestimientos (una cara) ya esté instalada, de manera que sujete este material. Se puede instalar a presión o con corchetes. Bloque de Apoyo
  • 31.
    TABLAS DE TORNILLOS Fijaciones,Nomenclatura y Aplicación Las siguientes tablas son para formarse un criterio general en el diseño de uniones y construcción con el sistema METALCON® , teniendo siempre en cuenta que el calculista dará las especificaciones de tamaño y diseño adecuadas para cada caso. Tornillo de cabeza lenteja, para fijar metal a metal, canal a montante cuando irá plancha de revestimiento. Tornillo cabeza de trompeta para fijar paneles de yeso, aislación, etc. a metal o pie derecho de espesor menor o igual a 0,85 mm. Tornillo cabeza de trompeta para fijación de paneles de madera sobre metal o pie derecho de espesor mayor a 0,85 mm. Tornillo cabeza trompeta para fijación de paneles de madera. Para fijar paneles de yeso, etc. a metal o pie derecho de espesor entre 1 a 2 mm. Tornillo para fijar Panel fibro cemento Rock fix a Metal o pie derecho. Broca Broca Broca Tornillo cabeza hexagonal para fijar metal a metal. 8x1/2 PPH SD 10x5/8 HWH SD 12x3/4 HWH SD 8x1 8x1 1/4 6x1 PBS S 6x2 PBS S 6x1- 5/8 PBS S 6x1- 1/4 PBS S 8x1 8x1 1/4 6x1 PBS SD 6x1- 1/4 PBS SD 6x1- 1/2 PBS SD 6x1- 5/8 PBS SD 6x2 PBS SD 8x1 8x1/4” Figura Descripción Punta Aplicación
  • 32.