HILUX (EWD630S)
1
HILUX
DIAGRAMA DEL CABLEADO
ELECTRICO
Sección N.° Página
INTRODUCCION A. . . . . . . . . . . . . . . . . . . . . . . . . . . . . . . . . . . . . . . . . . . . . . 2
COMO UTILIZAR ESTE MANUAL B. . . . . . . . . . . . . . . . . . . . . . . . . . . . . . 3
LOCALIZACION DE AVERIAS C. . . . . . . . . . . . . . . . . . . . . . . . . . . . . . . . . 12
ABREVIATURAS D. . . . . . . . . . . . . . . . . . . . . . . . . . . . . . . . . . . . . . . . . . . . . 17
GLOSARIO DE TERMINOS Y SIMBOLOS E. . . . . . . . . . . . . . . . . . . . . . . 18
UBICACION DE LOS RELES F. . . . . . . . . . . . . . . . . . . . . . . . . . . . . . . . . . . 20
RECORRIDO DE LOS CABLES ELECTRICOS G. . . . . . . . . . . . . . . . . . . 36
CIRCUITOS DE SISTEMAS H. . . . . . . . . . . . . . . . . . . . . . . . . . . . . . . . . . . . 61
PUNTO DE CONEXION A MASA I. . . . . . . . . . . . . . . . . . . . . . . . . . . . . . . . 206
FUENTE DE ALIMENTACION (Cuadro de flujo de corriente) J. . . . . . 212
LISTA DE CONECTORES K. . . . . . . . . . . . . . . . . . . . . . . . . . . . . . . . . . . . . 218
NUMERO DE LAS PARTES DE CONECTORES L. . . . . . . . . . . . . . . . . . 230
DIAGRAMA DE CONEXIONES ELECTRICAS GENERAL M. . . . . . . . . 234
2
HILUX (EWD630S)
A INTRODUCCION
Este manual consta de las siguientes 13 secciones:
Número Sección Descripción
A
INDICE Indice el contenido de este manual.
A
INTRODUCCION Breve axplicación de cada sección.
B
COMO UTILIZAR
ESTE MANUAL
Instrucciones relacionadas con el uso este manual.
C
LOCALIZACION DE
AVERIAS
Descripción de los procedimientos de inspección básicos para los circuitos
eléctricos.
D ABREVIATURAS Definiciones de las abreviaturas utilizadas en este manual.
E
GLOSARIO DE
TERMINOS Y
SIMBOLOS
Definiciones de los símbolos y funciones de las partes principales.
F
UBICACION DE LOS
RELES
Indicación de la Unidad de Control Electrónico, los Relés, el Bloque de Relés,
etc.
Esta sección está relacionada con el circuito del sistema.
G
RECORRIDO DE
LOS CABLES
ELECTRICOS
Descripción de los conectores de piezas, puntos de empalme, puntos de
conexión a masa, etc.
Esta sección está relacionada con el circuito del sistema.
INDICE Indice de los circuitos de los sistemas.
H
CIRCUITOS DE
SISTEMAS
Circuitos eléctricos de cada sistema indicados desde la fuente de alimentación
hasta los puntos de conexión a masa. Las conexiones del cableado y las
respectivas posiciones se indican y clasifican según el método de conexión. (Vea
la sección "COMO UTILIZAR ESTE MANUAL").
Esta sección asimismo contiene las secciones de "Descripción del sistemas" y
"Consejos para el servicio" que son sumamente útiles para la localización de aveías.
I
PUNTO DE
CONEXION A MASA
indicación de las conexiones a masa de todas las piezas descritas en este
manual.
J
FUENTE DE
ALIMENTACION
(Cuadro de flujo de
corriente)
Descripción de la distribución de la alimentación desde la fuente hasta las
diferentes cargas eléctricas.
K
LISTA DE
CONECTORES
Describe la forma de los conectores para las piezas que aparecen en este libro.
Esta sección está relacionada con el circuito del sistema.
L
NUMERO DE LAS
PARTES DE
CONECTORES
Se indica el número de las partes de los conectores utilizados en este manual.
M
DIAGRAMA DE
CONEXIONES
ELECTRICAS
GENERAL
Diagramas de los circuitos con indicación de las conexiones.
HILUX (EWD630S)
3
COMO UTILIZAR ESTE MANUAL B
Este manual proporciona informaciones acerca de los circuitos eléctricos de los
vehículos, divididas según los diferentes circuitos de sistemas.
El cableado específico de cada circuito de sistema aparece desde el punto de
conexión a la fuente de alimentación de la batería hasta el punto de conexión a
masa. (Todos los diagramas de circuito aparecen en condición de los
interruptores en la posición OFF.)
Al tratar de localizar un desperfecto, es necesario familiarizarse con el
funcionamiento del circuito en el cual se ha detectado el problema (vea la sección
de Circuitos de Sistemas), la fuente de alimentación del circuito (vea la sección
Fuente de Alimentación) y los puntos de conexión a masa (vea la sección Punto
de Conexión a Masa). Vea la descripción del sistema para comprender el
funcionamiento del circuito.
Una vez familiarizado con el funcionamiento del circuito, determine le causa
según los procedimientos de localización de averías especificados. Para la
ubicación decadapieza,losbloquesdeempalmesylosconectoresdelosmazos
de conductores, así como los puntos de empalme y los puntos de conexión a
masa de cada circuito, vea las secciones de Ubicación de los Relés y Ubicación
de los Cables. Se incluye además el diagrama de cableado interior de cada
bloque de empalme para facilitar la compresión de las conexiones dentro del
bloque.
El cableado relacionado con cada sistema aparece indicado en cada circuito de
sistema mediante flechas (de __, a__). En caso de requerirse conexiones
generales, vea el Diagrama de Cableado Electrico General, en la parte final de
este manual.
[A]
[B]
[H]
[D]
[F]
[E]
[ I ]
[L]
[M]
[J]
[K]
[G][C]
1
2
IB
IB
3
4
47
2 1 11
13
4
1
2
6
3
1
2
B18
BL
R L
B18
G R
3
4
R7
R6
H17
ECU del ABS
S 6
C 7
BV1
1
W B
BV1
1
I 5
G W
IB2
IB1
IE114
BO
50
8
L 4
15A
STOP
7.5A
GAUGE
Luz de parada
de montura alta
Sensor de fallo de las luces
Interruptor de la luz
de parada
Medidor de
combinación
Desde el sistema de la fuente de alimentación (Vea la página 66)
Luz de parada
(Protegido)
GRWBWB
WB
WB
GB
YGRL
R
GR
WRGW
WB
GW
W/G)
(S/D)LL
(
(S/D)
GR
Luzdecombinacióntraseraderecha
Luzdecombinacióntraseraizquierda
Paro
Paro
luces
traseras
4
HILUX (EWD630S)
B COMO UTILIZAR ESTE MANUAL
∗ El sistema aquí mostrado es SOLO UN EJEMPLO. Es distinto del
circuito real mostrado en la SECCION DE CIRCUITOS DEL SISTEMA.
HILUX (EWD630S)
5
B
[A] : Título del sistema
[B] : Indica un bloque de relés. N.° se utiliza sombreado
y se indica sólo el número del bloque de relés para
distinguirlo del bloque de empalme
Ejemplo: indica Bloque de Relés N.°1
[C] : ( ) se utiliza para indicar diferentes cableados,
conectores, etc. en caso de modelo de vehículo,
tipo de motor o especificaciones diferentes.
[D] : Indica un sistema relacionado.
[E] : Indica el mazo de conductores y el conector del
mazo de conductores. El mazo de conductores con
el terminal macho es indicado mediante las flechas
( ).
Las cifras exteriores corresponden al número de
clavijas.
Hembra Macho ( )
La primera letra del código para cada mazo de
conductores y conectores de mazo de conductores
indica la ubicación del componente, por ejemplo "E"
es para el compartimiento del motor, "I" para el
tablero de instrumentos y área circundante, y "B"
para la carrocería y área cincurdante. Cuando más
de un código tiene la primera y segunda letras en
común, seguidas de números (por ej. IH1, IH2)
indica el mismo tipo de mazo de conductores y
conector de mazo de conductores.
[F] : Representa una pieza (todas son indicadas en
celeste). El código es el mismo que el utilizado para
la ubicación de la pieza.
[G] : Bloque de empalme. (El número dentro del círculo
es el número del bloque de empalme, y el código del
conector aparece junto al mismo.) Los bloques de
empalme aparecen sombreados para distinguirlos
fácilmente de otras piezas.
3C indica que
está dentro del
bloque de
empalme N.°3
Ejemplo:
[H] : Indica el color del cable.
Los colores de los cables se dan según los
siguientes códigos alfabéticos.
B = Negro W = Blanco BR = Marrón
L = Azul V = Violeta SB = Azul del cielo
R = Rojo G = Verde LG = Verde Claro
P = Rosado Y = Amarillo GR = Gris
O = Anaranjado
La primera letra indica el color básico del cable y la
segunda letra indica el color de la banda.
Ejemplo: L - Y
L
(Azul)
Y
(Amarillo)
[I] : Indica un punto de empalme de cables (los códigos
son "E" para el interior del compartimiento del
motor, "I" para el tablero de instrumentos y "B" para
la carrocería.)
Ejemplo:
La ubicación del punto de empalme I 5 es indicada
mediante la sección sombreada.
[J] : Indica mazo de conductores blindado.
[K] : Indica el número de clavijas del conector. El
sistema de numeración es diferente según se trate
de un conector macho o de un conector hembra.
Ejemplo: Numerados de arriba
a la izquierda hacia
abajo a la derecha
Numerados de arriba a
la derecha hacia abajo
a la izquierda
Hembra Macho
[L] : Indica los PUNTOS de conexión a Masa.
La primera letra del código de cada punto de tierra
indica la ubicación del componente, por ejemplo "E"
es para el compartimiento del motor, "I" para el
tablero de instrumentos y área circundante, y "B"
para la carrocería y área cincurdante.
[M] : N.° de página
[N]
[O]
[P]
[Q]
[R]
[S]
[T]
[U]
6
HILUX (EWD630S)
B COMO UTILIZAR ESTE MANUAL
La corriente siempre se aplica a través del fusible STOP al TERMINAL 2 del interruptor de la luz de parada.
Cuando se conecta el interruptor de encendido, la corriente circula desde el fusible GAUGE al TERMINAL 8 del sensor de fallo
de las luces, y circula también a través de la luz de aviso de las luces traseras al TERMINAL 4 del sensor de fallo de las luces.
Aviso de desconexión de la luz de parada
Cuando se conecta el interruptor de encendido y se pisa el pedal del freno (interruptor de la luz de parada conectado), si se
abre el circuito de la luz de parada, cambia la corriente que circula desde el TERMINAL 7 del sensor de fallo de las luces a los
TERMINALES 1, 2, por lo que el sensor de fallo de las luces detecta la desconexión y se activa el circuito de aviso del sensor
de fallo de las luces.
Como resultado, la corriente circula desde el TERMINAL 4 del sensor de fallo de las luces al TERMINAL 11 y a TIERRA y se
enciende la luz de aviso de las luces traseras. Al pisar el pedal del freno, la corriente que circula al TERMINAL 8 del sensor de
fallo de las luces mantiene activado el circuito de aviso y mantiene encendida la luz de aviso hasta que se desconecta el
interruptor de encendido.
S6 Interruptor de la luz de parada
2-1 : Cerrado con el pedal del freno pisado
L4 Sensor de fallo de las luces
1, 2, 7-Tierra : Aprox. 12 voltios con el interruptor de la luz de parada conectado
4, 8-Tierra : Aprox. 12 voltios con el interruptor de encendido en la posición ON
11-Tierra : Siempre con continuidad
: Localización de partes
Código Vea la página Código Vea la página Código Vea la página
C7 34 L4 36 R7 37
H17 36 R6 37 S6 35
: Bloques de relés
Código Vea la página Bloque de relés (localización del bloque de relés)
1 18 R/B No.1 (Tensor del panel instrumental izquierdo)
: Bloque de empalmes y conector del mazo de cables
Código Vea la página Bloque de empalmes y mazo de cables (localización del conector)
IB 20 Alambre del panel instrumental y J/B del panel instrumental (Panel de acabado inferior)
3C 22 Alambre del panel instrumental y J/B No.3 (Tensor del panel instrumental izquierdo)
: Mazo de cables de la unión del conector y mazo de cables
Código Vea la página Mazo de cables de unión y mazo de cables (localización del conector)
IE1 42 Alambre del piso y Alambre del panel instrumental (Panel de arranque izquierdo)
BV1 50 Alambre del portaequipajes y Alambre del piso (Portaequipajes izquierdo)
: Puntos a tierra
Código Vea la página Localización de los puntos a tierra
BL 50 Debajo del pilar central izquierdo
BO 50 Panel trasero contral
: Puntos de la unión
Código Vea la página Mazo de cables con puntos de unión Código Vea la página Mazo de cables con puntos de unión
I5 44 Alambre del cubretablero B18 50 Alambre del portaequipajes
Descripción del sistema
Consejos para el servicio
HILUX (EWD630S)
7
B
[N] : Descripción del sistema.
[O] : Indica valores o explica la función para referencia durante la localización de averías.
[P] : Indica la página de referencia en la cual aparece la ubicación en el vehículo de las piezas del circuito del sistema.
Ejemplo : Pieza "L4" (Sensor de fallo de las luces) en la página 36 de este manual.
∗ La letra en el código es la primera letra de la pieza y el número indica el orden de las piezas que
comienzan con tal letra.
Ejemplo: L 4
ÁÁ
La pieza es la 4
Sensor de fallo de las luces
[Q] : Indica la página de referencia en la cual aparece la ubicación en el vehículo de los conectores del bloque de relés
en el circuito del sistema.
Ejemplo : La descripción del conector "1" aparece en la página 18 de este manual y el mismo está instalado en
la parte izquierda del tablero de instrumentos.
[R] : Indica la página de referencia en la cual aparece la ubicación en el vehículo del bloque de empalmes y del mazo
de conductores en el circuito del sistema.
Ejemplo : El conector "3C" conecta el cable de torpedo con el bloque de empalmes N.° 3. La descripción
correspondiente aparece en la página 22 de este manual y el mismo está instalado en el lado izquierdo
del tablero de instrumentos.
[S] : Indica la página de referencia en la cual se describe el mazo de conductores y el conector del mismo (el conector
hembra se describe primero y despues se describe el conector macho.)
Ejemplo : El conector "IE1"conecta el cable de la puerta derecha delantera (hembra) y el cable de torpedo
(macho). La descripción correspondiente aparece en la página 42 de este manual y el mismo está
instalado en el lado derecho de la caja pedalera.
[T] : Indica la página de referencia en la cual aparece la ubicación de los puntos de conexión a masa en la carrocería
del vehículo.
Ejemplo : La descripción del punto de conexión a masa "BO" aparece en la página 50 de este manual y el mismo
está en el lado izquierdo del torpedo.
[U] : Indica la página de referencia en la cual aparece la posición de los puntos de empalme en el vehículo.
Ejemplo : El punto de empalme "I5"está en el mazo de conductores del torpedo y la descripción correspondiente
aparece en la página 44 de este manual.
8
HILUX (EWD630S)
B COMO UTILIZAR ESTE MANUAL
El diagrama del circuito de los puntos de conexión a masa indica las conexiones a masa de todas las piezas
principales a los respectivos puntos de masa. Durante la localización de averías por fallas de conexión a masa, puede
resultar útil examinar los sistemas que tienen una conexión a masa en común para identificar rápidamente el
problema. La relación entre los puntos de conexión a masa ( EA , IB y IC indicada más abajo) asimismo puede
verificarse de esta manera.
5
5
5
5
4
4
4
4
4BA1
5
IB1
8
EA2
ID1
15
IC3
3
IA1
2
E 3
W-B
W-B
W-B
W-B
W-B
W-B
W-B
W-B
W-B W-B
W-B
W-B W-B
W-B
W-B W-B W-B
W-B
W-B
W-B
W-B
W-B
W-B
W-B
W-B W-B W-B
W-B
BR
W-B
BR BR
W-B
W-BW-B
W-B
W-B
W-B
W-BW-B W-B
W-B
W-B
W-B
W-B
W-B
BR
W-B
BRBR
BR
W-B(4A-GZE)
W-BW-B
I 2
I 2
B 5I 5
I 5
I 5
B 5
B 5
B 5
I 5
I 5
I 3I 3
E 3
E 3
E 3
E 2
E 4
E 5
E 4
E 5
E 6E 4
E 4
B 4
EA
I 4
B 4
B 4
I 4 I 8
IB IC
4
4
3E
5
3E
6
3G
13
3F
3
3D
1
3B
7
W-B
W-B
W-BW-B
W-B
W-B
W-B
W-B
W-B
W-B
W-B
W-B
W-B
W-B
W-B
I 6
I 6
I 23C
7
10
A
A
A
A
A
A
Conector de unión
J 1
W-B
W-B
W-BW-B
BR
W-B
W-B
W-B
W-B
W-B
W-B
I PUNTO DE CONEXION A MASA
Relé FAN MAIN
Relé FAN MAIN
Relé de A/C N.° 2
Relé de A/C N.° 3
Relé del limpiador del faro
Faro izquierdo
Faro derecho
Resistor del soplador
Amplificador del A/C
Radio y reproductor
Relé HEATER
Motor del soplador
Interruptor del nivel del
líquido de frenos
Interruptor principal
de O/D
Luz antiniebla frontal
derecha
Luz antiniebla frontal
izquierda
Interruptor del soplador
Medidor de combinación
Interruptor de combinación
ECU de control de crucero
Relé de control de la
ventanilla automática
Medidor de combinación
Medidor de combinación
Emisor de combustible
Encendedor de cigarrillos
Reloj
Interruptor de combinación
Motor del ventilador del
radiador
Luz de la señal de giro
delantera derecha
Luz de la señal de giro
delantera izquierda
Luz de paso delantera
izquierda
Luz de paso delantera
derecha
Interruptor de control de
bloqueo de la puerta
Interruptor de aumento
del ralent
Motor de la antena
eléctrica
Relé de control de bloqueo
de la puerta
Motor de bloqueo de la
puerta derecha
Interruptor de cortesía de
la puerta derecha
Interruptor del freno de
estacionamiento
Conjunto de control
del A/C
Interruptor del espejo retr-
ovisor de control remoto
Intermitente de la señal
de giro
Interruptor del
desempañador
Interruptor principal de la
ventanilla automática
Interruptor de advertencia
de desbloqueo
Interruptor de cortesía de
la puerta izquierda
Interruptor de control de
combustible
Amplificador del altavoz de
graves
Motor de bloqueo de la
puerta izquierda
Interruptor de control de
bloqueo de la puerta
∗ El sistema aquí mostrado es SOLO UN EJEMPLO. Es distinto del circuito real mostrado en la SECCION DE CIRCUITOS
DEL SISTEMA.
HILUX (EWD630S)
9
B
La sección del "Cuadro de Flujo de Corriente" describe las piezas (fusibles, eslabones fusibles y ruptores) que reciben
corriente. En el diagrama del circuito de fuente de alimentación, se explican las condiciones cuando se suministra la
alimentación desde la batería a cada sistema. Ya que todos los circuitos de sistema comienzan desde la fuente de
alimentación, es necesario comprender perfectamente el sistema de alimentación.
ACC
S 2
6
6 5
2
2
2
Batería 30A AM2
Arrancador
Patilla
cortocircuitador
100A ALT
Bloque de eslabones
fusibles
60A ABS
10A ECU-B
7.5A DOME
15A EFI
10A HAZARD
20A RADIO NO.1
10A HORN
20A
10A
Fusible Página
200
112
122
194
187
180
ABS
Medidor de combinación
Recordador de la llave y aviso del cintur ón de seguridad
Apagado automático de las luces
Sistema antirrobo y control de bloqueo de la puerta
ABS y control de tracción
Control de crucero
166Transmisión con control electrónico
210Sistema de comunicaciones multiplex
STOP
Sistema
DOME
Faro
Luz interior
3 EA2 1 EA1
E 6
E 7
E 7
2
2
22
2
2
2
2
Relé INJECTION
Relé STARTER
B
B
B
B-O 1
1
2
2
3
4
3
4
W-B
W-B
B-W
B-W
E 7
E 7
B
B
W 1.25B FL MAIN
50A MAIN
7.5A AM2
15A HAZ-RADIO
2
2
2
2
2
W
W
EB1
EB1
7
6W-R
I 2 I 2
I 2
W W
W
W
W
1
1
1
1
40A DOOR LOCK CB
7.5A DOME
1 W-L
R
1
1
2
4 3
1
11
1
1 1
1
G
G
W-R
15A TAIL
20A DEFOGB-Y
8 4
3 2
Interruptor
de encendido
I 8
B-Y
1 1
P-L
Batería
15A RAD CIG
2
TAIL
Relé
Alimentación
J FUENTE DE ALIMENTACION (Cuadro de flujo de corriente)
R/B del compartimiento del motor (Vea la página 20)
2
W
W
BBBBB
W-R
WWW
G-W
AM2
AM1
IG2
IG1
W
Encendedor de cigarrillos 214
W
El diagrama indicado abajo muestra la corriente desde la batería hasta cada fuente eléctrica (eslabón
fusible, ruptor de circuitos, fusible, etc.) y otras partes.
∗ El sistema aquí mostrado es SOLO UN EJEMPLO. Es distinto del circuito real mostrado en la SECCION DE CIRCUITOS
DEL SISTEMA.
K LISTA DE CONECTORES
1 2 3 4
Negro
I 6
1 2 3 4
5 6 7 8
I 7
1 2 3 4 5 76
Negro
I 8
1 2
3 4 5 6
J 1
1 2 3 4 5
6 7 8 9 10111213
J 2
1 2
Negro
K 1
1 2
Negro
K 2
1 2 3 4 5
6 7 8 9 10
Negro
L 1
1 2
Gris
L 2
1 2
Gris
L 3
1 2 3 4 5
Negro
M 1
1 2 3 4 5 6
Negro
M 2
1 32
M 3
1 2
Gris
N 1
[A]
[C]
[D]
[B]
10
HILUX (EWD630S)
B COMO UTILIZAR ESTE MANUAL
[A] : Indica el conector que debe conectarse a una pieza. (la cifra indica el número de clavijas del conector)
[B] : Conector de unión
Indica el conector que está conectado con el terminal cortocircuitador.
El conector de unión de este manual incluye un terminal de
cortocircuito que está conectado a cierto número de mazos de
conductores. Efectúe siempre la inspección con el terminal de
cortocircuito instalado.
Conector de unión
Terminal cortocircuitador
[C] : Código de las partes
La primera letra del código proviene de la letra inicial de las partes, y su número significa el orden de las partes
cuyo nombre empieza con la letra correspondiente.
[D] : Color del conector
Los conectores que no llevan indicación de color son blanquecinos.
A 1
L NUMERO DE LAS PARTES DE CONECTORES
Sensor del temperatura ambiente del A/C
Código
90980-11070
Número de las partes
D 4 Diodo (cortesía) 90980-11608
A 2
Motor del ventilador del condensador
del A/C
90980-11237
D 5 Diodo (luz interior) 90980-10962
A 3
Relé del ventilador del condensador
del A/C
90980-10940
D 6 Diodo (techo lunar) 90980-11608
A 4
Resistor del ventilador del condensador
del A/C
90980-10928
90980-11271
D 7 Relé de control de bloqueo de la puerta 90980-10848
A 5 Embrague magnético del A/C
90980-11413
D 8
Interruptor de control de bloqueo de la
puerta izquierda
90980-11148
A 6 Sensor de temperatura de aceite de A/T
90980-11151
D 9
Interruptor de control de bloqueo de la
puerta derecha
A 7 Actuador de ABS
90980-11009
Interruptor de cortesía de la puerta
izquierda
90980-11097
A 8 Actuador de ABS
90980-10941
Interruptor de cortesía de la puerta
derecha
A 9
Sensor de velocidad de ABS, frontal
izquierdo
90980-11002
Interruptor de cortes ía de la puerta
frontal izquierda
Sensor de velocidad de ABS, frontal
D10
D11
Nombre de las partes Código Número de las partesNombre de las partes
[A] [B] [C]
HILUX (EWD630S)
11
B
[A] : Código de las partes
[B] : Nombre de las partes
[C] : Número de las partes
Indica el número propio de Toyota.
No todos los números de las partes del conector indicados arriba están dispuestos para el suministro.
Al terminal IG del
interruptor de
encendido
Fusibles
VoltímetroSW 1
Relé
SW 2 Solenoide
[A]
[B]
[C]
Ohmiometro
SW
Ohmiometro
Diodo
Tipo digital Tipo analógico
12
HILUX (EWD630S)
C LOCALIZACION DE AVERIAS
VERIFICACION DE LA TENSION
(a) Establezca las condiciones en las cuales la tensión debe
llegar al punto en el cual debe efectuar la verificación.
Ejemplo:
[A] - Interruptor de encendido en la posición ON
[B] - Interruptor de encendido y SW 1 en la posición ON
[C] - Interruptor de encendido, SW 1 y relé en ON (SW
2 en OFF)
(b) Utilizando un voltímetro, conecte el cable negativo de a un
buen punto de conexión a masa o al borne negativo de la
batería y el cable positivo al conector o al terminal del
componente. Esta prueba puede efectuarse con una luz de
prueba en lugar de un voltímetro.
VERIFICACION DE LA CONTINUIDAD Y DE LA
RESISTENCIA
(a) Desconecte el cable del borne de la batería o el cable de
manera que no haya tensión entre los puntos a verifïcar.
(b) Conecte los dos cables de un ohmíometro a cada uno de los
puntos a verifïcar.
Si el circuito tiene diodos, conecte los cables en sentido
contrario y vuelva a verifïcar.
Debe existir continuidad al conectar el cable negativo al lado
positivo del diodo y el lado positivo al lado negativo del
mismo.
No debe existir continuidad si se conectan los cables en
sentido inverso.
(c) Utilice un voltímetro/ohmíometro de alta impedancia (10k/V
como mínimo) para la localización de averías en el circuito
eléctrico.
Al terminal IG del
interruptor de
encendido
Luz de prueba
ReléLuz
SW 2 Solenoide
Desconectar
Corto [A]
Desconectar
Desconectar
SW 1
Caja de
fusibles
Corto [B]
Corto [C]
Levantar
Oprimir Oprimir
Levantar
HILUX (EWD630S)
13
C
LOCALIZACION DE UN CORTOCIRCUITO
(a) Saque el fusible quemado y desconecte todas las cargas
eléctricas.
(b) Conecte una luz de prueba en lugar del fusible.
(c) Establezca las condiciones necesarias para que la luz de
prueba se encienda.
Ejemplo:
[A] - Interruptor de encendido en la posición ON
[B] - Interruptor de encendido y SW 1 en la posición ON
[C] - Interruptor de encendido, SW 1 y relé en ON
(conecte el relé) y SW 2 en OFF (o SW 2
desconectado)
(d) Desconecte y vuelva a conector los conectores, observando
la luz de prueba.
El cortocircuito está entre el conector en el cual la luz de
prueba queda encendida y el conector en el cual se apaga.
(e) Para localizar la posición exacta del cortocircuito, sacuda
ligeramente el cable defectuoso a lo largo de la carrocería.
PRECAUCION:
(a) Nunca abra la cubierta ni la caja de la ECU excepto en
caso de que sea absolutamente necesario. (Si se tocan
los terminales de los circuitos impresos, los circuitos
pueden resultar dañados por la electricidad estática.)
(b) Al reemplazar el mecanismo interno (parte de ECU) del
medidor digital, asegúrese de que ninguna parte de su
cuerpo ni ropa toque los terminales de conductores de
IC, etc., de la parte de reemplazo (parte de repuesto).
DESCONEXION DE LOS CONECTORES MACHO Y
HEMBRA
Para separar los conectores, tire del conector mismo y nunca
del cable.
CONSEJO : Antes de separarlo, verifique el tipo de conector
del que se trara.
10
3
0.2
1
1
(mm)
Referencia:
HerramientaLevantarEjemplo:
(Caso 1)
Retén del terminal
Retén del terminal
[Retenedor en posición de bloqueo
completo]
[Retenedor en posición de bloqueo temporal]
Tope Retén del terminal
Dispositivo de
bloqueo
secundario
Ejemplo:
(Caso 2)
14
HILUX (EWD630S)
C LOCALIZACION DE AVERIAS
COMO REEMPLAZAR LOS TERMINALES
(Con retenedor de terminal o dispositivo de
bloqueo secundario)
1. PREPARE LA HERRAMIENTA ESPECIAL
CONSEJO : Para extraer el terminal del conector, construya y
utilice una herramienta especial u objeto parecido
como se muestra a la izquierda.
2. DESCONECTE EL CONECTOR
3. SEPARE EL DISPOSITIVO DE BLOQUEO SECUNDARIO O EL
RETENEDOR DE TERMINAL
(a) El dispositivo de bloqueo debe separarse antes de que el
retenedor de bloqueo de terminal pueda liberarse y el
terminal extraerse del conector.
(b) Utilice una herramienta especial o el retenedor de terminal
para desbloquear el dispositivo de bloqueo secundario o
retenedor de terminal.
AVISO:
No extraiga el retenedor de terminal del cuerpo del conector.
[A] Para conector de tipo no resistente al agua.
CONSEJO : La posición para introducir el agujero varía
según la forma del conector (número de los
terminales, etc.), por lo que asegúrese de la
posición antes de introducirlo.
"Caso 1"
Levante el retén del terminal colocándolo
provisoriamente en la posición de asegurado.
"Caso 2"
Abra el dispositivo de bloqueo secundario.
HerramientaLengüeta
Lengüeta
Retén del terminal
Orifïcio de acceso
(Marca )
Herramienta
Herramienta
[Hembra]
Ejemplo:
(Caso 1)
[Macho]
[Macho] [Hembra]
(Retenedor en posición
de bloqueo completo)
(Retenedor en posición
de bloqueo temporal)
Retén del terminal
[Macho] Presione hacia abajo [Hembra]
Presione hacia abajo
Herramienta
Herramienta
Ejemplo:
(Caso 2)
HILUX (EWD630S)
15
C
[B] Para conector de tipo resistente al agua
CONSEJO : El color del retenedor de
terminal es diferente de acuerdo
al cuerpo del conector.
Retenedor de
terminal : Cuerpo del conector
Negro o blanco : Gris
Negro o blanco : Gris oscuro
Gris o blanco : Negro
"Caso 1"
Tipo donde el retenedor de terminal se
tira hacia arriba hacia la posición de
bloqueo temporal (tipo de tiro).
Inserte la herramienta especial en el
orifïcio de acceso del retenedor de
terminal (marca Y) y tire del retenedor
de terminal hacia arriba hacia la
posición de bloqueo temporal.
CONSEJOS : La posición de inserción de la
aguja varia de acuerdo a la
forma del conector (número de
terminales, etc.), por eso
compruebe la posición antes de
insertarla.
"Caso 2"
Tipo donde no se puede tirar hasta al
posición de bloqueo de potencia,
inserte la herramienta en el orifïcio de
acceso del retendor terminal tal como
se indica.
(Retenedor en posición
de bloqueo completo)
[Macho] [Hembra]
(Retenedor en
posición de bloqueo temporal)
Lengüeta de seguridad
Herramienta
16
HILUX (EWD630S)
C LOCALIZACION DE AVERIAS
Presione hacia abajo del retenedor de terminal hacia la posición
de bloqueo temporal.
(c) Suelte la lengüeta de segurided del terminal y extraiga el
terminal por atrás.
4. INSTALE EL TERMINAL EN EL CONECTOR
(a) Inserte el terminal
CONSEJOS:
1. Verifïque que el terminal quede correctamente ubicado.
2. Inserte el terminal hasta que la lengüeta del seguro quede
trabada.
3. Inserte el terminal con el retén del mismo en posición de
trabado provisorio.
(b) Empuje el retén del terminal hasta que quede en la posición
de completamente trabado.
5. CONECTE EL CONECTOR
∗ Los títulos dados dentro de los componentes son los nombres de los terminales (códigos de terminal) y no se tratan
como abreviaturas.
HILUX (EWD630S)
17
ABREVIATURAS D
ABREVIATURAS
En este manual se utilizan las siguientes abreviaturas.
2WD = Vehículos con tracción en dos ruedas (Two Wheel Drive Vehicles)
4WD = Vehículos con tracción en las cuatro ruedas
(Four Wheel Drive Vehicles)
A/C = Acondicionador de aire (Air Conditioner)
A/T = Transmisión automática (Automatic Transmission)
ABS = Sistema de frenos antibloqueo (Anti-Lock Brake System)
ADD = Diferencial de desconexion automatica
(Automatic Disconnecting Differential)
CAN = Red del área del controlador (Controller Area Network)
CD = Disco compacto (Compact Disc)
DLC3 = Conector de enlace de datos 3 (Data Link Connector 3)
ECT = Transmisión con control electrónico
(Electronic Control Transmission)
ECU = Unidad de control electrónico (Electronic Control Unit)
EDU = Unidad propulsora electrónica (Electronic Driving Unit)
EFI = Inyección de combustible electrónica (Electronic Fuel Injection)
EGR = Recirculación de gases de escape (Exhaust Gas Recirculation)
ESA = Advance electrónico de la chispa (Electronic Spark Advance)
EVAP = Emisiones evaporativas (Evaporative Emission)
IC = Circuito integrado (Integrated Circuit)
INT = Intermitente (Intermittent)
J/B = Bloque de enlaces (Junction Block)
LCD = Visualizador de cristal líquido (Liquid Crystal Display)
LH = Izquierda (Left-Hand)
M/T = Transmisión manual (Manual Transmission)
R/B = Bloque de relés (Relay Block)
RH = Derecha (Right-Hand)
SRS = Sistema suplementario de sujeción
(Supplemental Restraint System)
SW = Interruptor (Switch)
TEMP. = Temperatura (Temperature)
VRV = Válvula de regulación de vacío (Vacuum Regulating Valve)
VSV = Válvula conmutadora de vacío (Vacuum Switching Valve)
w/ = Con (With)
w/o = Sin (Without)
18
HILUX (EWD630S)
E GLOSARIO DE TERMINOS Y SIMBOLOS
BATERIA
Almacena energía química y la
convierte en energía eléctrica.
Proporciona corriente continua para
los diversos circuitos eléctricos del
vehículo.
MASA
Punto en el cual el cableado hace
contacto con la carrocería del vehículo,
proporcionando de esta manera una vía
de retorno para el circuito eléctrico. Sin
conexión a masa, la corriente no fluye.
CAPACITOR (Condensador)
Pequeña unidad de retención que
puede almacenar temporariamente
una tensión électrica.
FARO
El flujo de corriente hace que
el fïlamento del faro se
caliente y emita luz. Los faros
pueden ser de tipo
monofïlamento (1) o de
1. MONOFILAMENTO
ENCENDEDOR DE CIGARRILLOS
Elemento de calentamiento con
resistencia eléctrica.
( )
fïlamento doble (2).
2. DE
FILAMENTODOBLE
Básicamente un fusible reutilizable, el
ruptor se calienta y se abre si un flujo
excesivo de corriente fluye por el mismo.
Algunas unidades vuelven
automáticamente al estado inicial una vez
frías, mientras que otras deben ser
reposicionadas manualmente.
RUPTOR BOCINA
Dispositivo eléctrico que hace sonar
una señal audible.
DIODO
Semiconductor que permite el flujo
de corriente en un sólo sentido.
BOBINA DE ENCENCIDO
Convierte la corriente continua de
baja tensión en corriente de
encendido de alta tensión para
activar las bujías.
DIODO DE ZENER
Semiconductor que permite el flujo de corriente
en un sólo sentido pero bloquea el flujo en
sentido contrario hasta una tensión específïca.
Por encima de este valor, la tensión excesiva
pasa por este diodo. De esta manera, actúa
como un sencillo regulador de tensión.
LAMPARA
El flujo de corriente a través del
fïlamento hace que este se caliente
y emita luz
FOTODIODO
El fotodiodo es un semiconductor
que controla el flujo corriente según
la intensidad de la luz.
DEL (DIODO EMISOR DE LUZ)
Al pasar corriente, este diodo emite
luz sin producir el calor de otras
fuentes de luz.
DISTRIBUIDOR, IIA
Canaliza la alta tensión de la bobina
de encendido hacia las bujías
individuales.
MEDIDOR ANALOGICO
La corriente activa la bobina magnética
que hace que la aguja se desplace,
proporcionando de esta manera una
indicación relativa contra el cuadrante
ubicado detrás de la aguja.
FUSIBLE
Delgada tira de metal que se quema
cuando pasa un flujo de corriente
excesivo por el mismo, cortando de
esta manera el flujo de corriente y
protegiendo el circuito de posibles
MEDIDOR DIGITAL
El flujo de la corriente activa uno o varios
diodos emisores de luz, de cristal líquido o
indicadores fluorescentes, que
proporcionan una indicación relativa o
digital.
FUEL
p g p
daños.
ESLABON FUSIBLE
Alambre grueso colocado en
circuitos de alto amperaje que se
quema en caso de sobrecarga, para
proteger el circuito.
(para fusible de corriento
media)
(para fusible de corriente
alta o eslabón fusible)
MOTOR
Unidad de potencia que convierte
energía eléctrica en energía
mecánica, en especial, en
movimiento de rotación.
M
HILUX (EWD630S)
19
E
RELE
Básicamente, un interruptor
operado eléctricamente que
puede estar normalmente
cerrado (1) o bien
normalmente abierto (2).
El flujo de la corriente a
través de una pequeña
bobina crea un campo
2. NORMALMENTE
ABIERTO
1. NORMALMENTE
CERRADO
INTERRUPTOR, MANUAL
Abre o cierra los
ALTAVOZ
Dispositivo electromecánico que
crea ondas de sonido a partir de un
flujo de corriente.
magnético que abre o cierra
el interrupntor
correspondiente.
RELE DE DOS DIRECCIONES
Un relé que permite que la corriente
pase por un juego de contactos o
por el otro.
circuitos, cortando
(1) o permitiendo (2)
el flujo de la
corriente.
1. NORMALMENTE
ABIERTO
2. NORMALMENTE
CERRADO
RESISTENCIA
Componente eléctrico con
resistencia fïja colocado en un
circuito para reducir la tensión hasta
un valor específïco.
INTERRUPTOR DE DOS
DIRECCIONES
Interruptor que hace pasar la
corriente de manera continua por
uno de los dos grupos de contactos
o por el otro.
RESISTENCIA, CON TOMAS
Resistencia que suministra dos o
más valores de resistencia
diferentes no ajustables.
INTERRUPTOR DE ENCENDIDO
Interruptor accionado mediante una
llave con varias posiciones que
permiten que varios circuitos, en
especial, el circuito de encendido
primario, se activen.
RESISTENCIA VARIABLE o
REOSTATO
Resistencia cuyo valor puede
controlarse. Asimismo denominado
potenciometro o reostato.
p ,
SENSOR (Termistor)
Resistencia cuyo valor varía según
la temperatura.
INTERRUPTOR DE DETENCION DEL
LIMPIAPARABRISAS
Hace que las hojas del limpiaparabrisas
retornen automáticamente a la posición
de detenidos al colocar el interruptor del
limpiaparabrisas en la posición OFF.
SENSOR, VELOCIDAD
Utilizando impulsos magnéticos para
abrir y cerrar un interruptor con la
finalidad de crear una señal de
activación de otros componentes.(Tipo de interruptor
de lámioas)
TRANSISTOR
Dispositivo de estado sólido utilizado
típicamente como relé electrónico
que interrumpe o permite el paso de
la corriente aplicada a la "base" del
mismo.
PASADOR CORTO
Utilizado para proporcionar una
conexión continua dentro del bloque
de empalmes.
Los cables se representan
siempre mediante líneas
rectas en los diagramas de
cableado. Los cables
cruzados (1) sin un punto
negro en la intersección no
(1) NO
CONECTADOS
CABLES
SOLENOIDE
Bobina electromagnética que forma
un campo magnético cuando fluye
corriente por la misma para mover
un émbolo, etc.
negro en la intersección no
están conectados; los
cables cruzados (2) con un
punto negro o una marca
octogonal ( ) en la
intersección están
conectados (empalmados).
(2) EMPALMADOS
R/B del
compartimiento
del motor
ECU de control
de derrape con
actuador
* 1:2TR-FE
* 2:1KD-FTV, 2KD-FTV
Impulsor de
inyectores
(EDU) (*2)
Impulsor de
control de
inyección
de aire (*1)
J/B del
compartimiento
del motor
20
HILUX (EWD630S)
F UBICACION DE LOS RELES
[Compartimiento del motor]
ECU de control de
bloqueo de cambios
R/B N.˚3
ECU de aviso antirrobo
ECU del motor
J/B del lado
del conductor
Intermitente de
la señal de giro
Amplificador
de la llave de
transmisor
ECU de la llave
de transmisor
Amplificador del A/C Centro del conjunto del
sensor del colchón de aire
ECU de control de 4WDECU de control de la transmisión
HILUX (EWD630S)
21
F
[Tablero de instrumentos]
*1
*2
*3
*4
*5
*6
*7
*8*9
1 215A
FOG
1 210A
HORN
1 225A
EFI
130A
DCC
2
2 20A
H-LP RH
1
2 20A
H-LP LH
1
1
1
7.5A
20A
ALT-S
A/F
2
2
110A
ETCS
2
17.5A
DOME
2
17.5A
ECU-B
RAD
2
115A
TURN-HAZ
2
115A 2
Unidad D
* 1:100A ALT (para la corriente alta)
* 2:80A GLOW (para la corriente alta)
* 3:50A BATT P/I (para la corriente alta)
* 4:30A AM2 (para la corriente alta)
* 5:40A MAIN (para la corriente alta)
* 6:40A ABS NO.1 (para la corriente alta)
* 7:40A FR HTR (para la corriente alta)
* 8:30A ABS NO.2 (para la corriente alta)
* 9:50A A/PMP (para la corriente alta)
Unidad C
Unidad B
Unidad A
22
HILUX (EWD630S)
F UBICACION DE LOS RELES
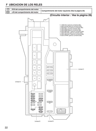
1 : R/B del compartimiento del motor
Compartimiento del motor izquierdo (Vea la página 20)
: J/B del compartimiento del motor
Compartimiento del motor izquierdo (Vea la página 20)
(Circuito interior : Vea la página 26)
3 4
A la unidad D
1 2
43
21
43
21
43
21
1 1 11
Vista posterior
Vista lateral
Vista lateral
Vista superior
(desde el cable principal del
compartimiento del motor)
(desde el cable principal del
compartimiento del motor)
(desde el cable
del motor)
(desde el cable principal del
compartimiento del motor)
(desde el cable principal del
compartimiento del motor)
(desde el cable principal del
compartimiento del motor)
Color del cable : W
1B
1E 1F 1G
1A
1C
Unidad A
Color del cable : B Color del cable : B Color del cable : B
HILUX (EWD630S)
23
F
2
3
4
5
6
7
8
1
8
7
6
5
4
3
2
1
Vista posterior
(desde el cable principal
del compartimiento del motor)
(desde el cable principal
del compartimiento del motor)
(desde el cable principal
del compartimiento del motor)
1
8
7
6
5
4
3
2
1
1
2
3
4
5
6
7
8
1
1I
1J
1H
Unidad B
Unidad C
Vista superior
2
1
5 3
2
1
5 3
Relé ST Relé ST
Relé GLOW
(2TR-FE) (1KD-FTV, 2KD-FTV)
12
3
5
1
2
35
Relé de A/F
24
HILUX (EWD630S)
F UBICACION DE LOS RELES
1 : R/B del compartimiento del motor
Compartimiento del motor izquierdo (Vea la página 20)
: J/B del compartimiento del motor
Compartimiento del motor izquierdo (Vea la página 20)
(Circuito interior : Vea la página 27)
HILUX (EWD630S)
25
Memorándum
1 1F
1 1E
2 1B
1 1C
2 1C
1
1
1
1
1
1 1G
3 1B
4 1B
3 1C
4 1C
1 1A
1
1
1
Unidad A
Unidad D
80A GLOW
100A ALT
40A ABS NO.1
40A FR HTR
30A ABS NO.2
30A AM2
40A MAIN
50A A/PMP
30A DCC 7.5A ECU-B
15A RAD
7.5A DOME
20A H-LP RH
20A H-LP LH
7.5A ALT-S
10A ETCS
20A A/F
15A TURN-HAZ
50A BATT P/I
21 21
21
21
21
21
12
12
12
12
26
HILUX (EWD630S)
F UBICACION DE LOS RELES
[Circuito interior del R/B del compartimiento del motor y J/B del compartimiento del motor]
1 1H
1 1I
4 1I
3 1I
2 1I
5 1I
8 1I
7 1I
6 1I
1 1J
4 1J
3 1J
2 1J
5 1J
8 1J
7 1J
6 1J
Unidad B
1 2
1 2
1 2
15A FOG
Relé FOG
Relé HORN
Relé MAIN
Relé EDU (*2)
Relé C/OPN (*1)
* 1:2TR-FE
* 2:1KD-FTV, 2KD-FTV
(*2)
10A HORN
25A EFI
HILUX (EWD630S)
27
F
2 1
34
1
1
2
5
7.5A
ST
7.5A
MET
7.5A
ACC
7.5A
IGN
20A
WIP
10A
ECU-IG&GAUGE
15A
CIG
15A
INJ
7.5A
OBD
10A
STOP
10A
TAIL
15A
PWR OUT
10A
A/C
4
3
2
1
9 8 7 6 5 4 3 2 1
101112131415161718
9101112 8 7
6 5 4 3 2 1
910 8 7
6 5 4 3 2 1
2 1
6 5 4 3
12
34561 2 3 4 5 6
107 8 9
1 2 3 4 5 6
7 8
(desde el cable del
panel instrumental)
(desde el cable del
panel instrumental)
(desde el cable del
panel instrumental)
(desde el cable del
panel instrumental)
(desde el cable del techo)
(desde el cable principal
del compartimiento del motor)
(desde el cable principal
del compartimiento del motor)
(desde el cable principal
del compartimiento del motor)
(desde el cable principal
del compartimiento del motor)
(desde el cable principal
del compartimiento del motor)
(desde el cable del piso)
(desde el cable del piso)
(desde el cable
del piso)
Amarillo
Negro Negro
9101112
1 2 3 4 5 6 7 8 9
101112131415161718
12
34
1
1
2
1
2
3
4
5
1
2
3
4
5
6
7
8
9
10
11
12
13
14
1
2
3
4
5
6
7
8
9
10
11
12
13
14
1
2
3
4
5
6
7
10
11
12
13
14
8
9
1
2
3
4
5
6
7
10
11
12
13
14
8
9
1
2
3
4
5
6
7
10
11
12
13
14
8
9
1
2
3
4
5
6
7
10
11
12
13
14
8
9
1
2
3
4
5
6
7
10
11
12
13
14
8
9
1
2
3
4
5
6
7
10
11
12
13
14
8
9
1
2
3
4
5
6
7
10
11
12
13
14
8
9
1
2
3
4
5
6
7
10
11
12
13
14
8
9
2B
2C
2D
2E
2F
2G
2H 2K 2L
2M
2J
2I
2A
28
HILUX (EWD630S)
F UBICACION DE LOS RELES
: J/B del lado del conductor Tensor del panel instrumental izquierdo (Vea la página 21)
1 2
3
4
5
3
5
1 2
1
2
1
2
9
10
11
12
13
14
15
16
17
18
8
7
6
5
4
3
2
1
1
2
3
4
5
6
7
8
9
10
11
12
13
14
15
16
17
18
19
20
21
22
23
24
25
26
27
28
29
30
31
32
1
2
3
4
5
6
7
8
9
10
11
12
13
14
15
16
17
18
19
20
21
22
23
24
25
26
27
28
29
30
31
32
1
2
3
4
5
6
7
8
9
10
11
12
13
14
15
16
17
18
19
20
21
22
23
24
25
26
27
28
29
30
31
32
1
2
3
4
5
6
7
8
9
10
11
12
13
14
15
16
17
18
19
20
21
22
23
24
25
26
27
28
29
30
31
32
1
2
3
4
5
6
7
8
9
10
11
12
13
14
15
16
17
18
19
20
21
22
23
24
25
26
27
28
29
30
31
32
1
2
3
4
5
6
7
8
9
10
11
12
13
14
15
16
17
18
19
20
21
22
23
24
25
26
27
28
29
30
31
32
1
2
3
4
5
6
7
8
9
10
11
12
13
14
15
16
17
18
19
20
21
22
23
24
25
26
27
28
29
30
31
32
1
2
3
4
5
6
7
8
Gris
Gris
(desde el cable del
panel instrumental)
Gris
(desde el cable del
panel instrumental)
(desde el cable del
panel instrumental)
(desde el cable del
panel instrumental)
(desde el cable del
panel instrumental)
Relé de integración
Relé HTR
40A IG1
(para la corriente alta)
40A AM1
(para la corriente alta)
Relé PWR OUT
(desde el cable del
panel instrumental)
9
10
11
12
13
14
15
16
17
18
19
20
21
22
23
24
25
26
27
28
29
30
31
32
1
2
3
4
5
6
7
8
9
10
11
12
13
14
15
16
17
18
19
20
21
22
23
24
25
26
27
28
29
30
31
32
1
2
3
4
5
6
7
8
9
10
11
12
13
14
15
16
17
18
19
20
21
22
23
24
25
26
27
28
29
30
31
32
1
2
3
4
5
6
7
8
9
10
11
12
13
14
15
16
17
18
19
20
21
22
23
24
25
26
27
28
29
30
31
32
1
2
3
4
5
6
7
8
9
10
11
12
13
14
15
16
17
18
19
20
21
22
23
24
25
26
27
28
29
30
31
32
2O
2N
2P
2R 2S
2Q
HILUX (EWD630S)
29
F
2 2J
2 2I
1 2E
9 2D
1 2F
2 2E
17 2D
18 2D
1 2B
2 2B
24 2N
8 2N
24 2O
8 2O
23 2N
7 2N
23 2O
7 2O
1 2G
2 2C
3 2C
4 2C
1 2H
5 2E
26 2R
10 2R
26 2S
10 2S
9 2L
9 2M
9 2K
30 2R
14 2R
30 2S
14 2S
2 2P
18 2P
18 2Q
2 2Q
3 2A
5 2A
13 2D
15 2D
16 2D
23 2P
7 2P
23 2Q
7 2Q
7 2J
7 2I
12 2C
1 2C
5 2C
14 2D
2 2F
2 2H
2 2A
6 2A
32 2R
16 2R
32 2S
16 2S
31 2R
15 2R
31 2S
15 2S
14 2L
14 2M
14 2K
5
4
1
Relé HTR
Relé PWR OUT
15A PWR OUT
7.5A ACC
15A CIG
10A TAIL
7.5A OBD
10A STOP
40A IG1
40A AM1
20A WIP
10A ECU-IG&GAUGE
10A A/C
3
2
5
2
3
1
21
21
(Sigue en la página siguiente)
30
HILUX (EWD630S)
F UBICACION DE LOS RELES
[Circuito interior del lado del conductor J/B]
13 2L
13 2M
13 2K
4 2L
4 2M
4 2K
8 2L
8 2M
8 2K
7 2C
6 2C
3 2B
21 2N
5 2N
21 2O
5 2O
8 2C
9 2C
10 2C
11 2C
24 2R
8 2R
24 2S
8 2S
25 2P
9 2P
25 2Q
9 2Q
8 2J
8 2I
4 2E
32 2N
16 2N
32 2O
16 2O
20 2R
4 2R
20 2S
4 2S
25 2R
9 2R
25 2S
9 2S
19 2N
3 2N
19 2O
3 2O
22 2R
6 2R
22 2S
6 2S
6 2L
6 2M
6 2K
8 2B
1 2D
10 2D
11 2D
12 2D
4 2B
21 2P
5 2P
21 2Q
5 2Q
5 2J
5 2I
7 2B
22 2P
6 2P
22 2Q
6 2Q
6 2J
6 2I
7.5A ST
7.5A IGN
7.5A MET
15A INJ
(Continuado)
(Sigue en la página siguiente)
HILUX (EWD630S)
31
F
4 2H
7 2D
6 2D
5 2D
4 2D
3 2D
2 2D
3 2E
31 2N
15 2N
31 2O
15 2O
30 2N
14 2N
30 2O
14 2O
1 2A
4 2A
28 2N
12 2N
28 2O
12 2O
27 2N
11 2N
27 2O
11 2O
22 2N
6 2N
22 2O
6 2O
29 2N
13 2N
29 2O
13 2O
26 2N
10 2N
26 2O
10 2O
25 2N
9 2N
25 2O
9 2O
27 2R
11 2R
27 2S
11 2S
10 2L
10 2M
10 2K
28 2R
12 2R
28 2S
12 2S
11 2L
11 2M
11 2K
29 2R
13 2R
29 2S
13 2S
12 2L
12 2M
12 2K
20 2N
4 2N
20 2O
4 2O
16
DCTY
ILE
L1
UL1
ALTB
GND
ACT-
Relé de integración
ACT+
BECU
15
14
13
12
11
10
9
8
5
6 1
17
18
2
3
4
(Continuado)
(Sigue en la página siguiente)
32
HILUX (EWD630S)
F UBICACION DE LOS RELES
[Circuito interior del lado del conductor J/B]
20 2P
4 2P
20 2Q
4 2Q
4 2J
4 2I
26 2P
10 2P
26 2Q
10 2Q
9 2J
9 2I
18 2N
2 2N
18 2O
2 2O
17 2N
1 2N
17 2O
1 2O
32 2P
16 2P
32 2Q
16 2Q
31 2P
15 2P
31 2Q
15 2Q
14 2J
14 2I
30 2P
14 2P
30 2Q
14 2Q
13 2J
13 2I
24 2P
8 2P
24 2Q
8 2Q
29 2P
13 2P
29 2Q
13 2Q
12 2J
12 2I
28 2P
12 2P
28 2Q
12 2Q
11 2J
11 2I
19 2P
3 2P
19 2Q
3 2Q
3 2J
3 2I
27 2P
11 2P
27 2Q
11 2Q
10 2J
10 2I
17 2P
1 2P
17 2Q
1 2Q
1 2J
1 2I
(Continuado)
(Sigue en la página siguiente)
HILUX (EWD630S)
33
F
23 2R
7 2R
23 2S
7 2S
7 2L
7 2M
7 2K
21 2R
5 2R
21 2S
5 2S
5 2L
5 2M
5 2K
19 2R
18 2R
2 2R
18 2S
2 2S
2 2L
2 2M
2 2K
17 2R
1 2R
17 2S
1 2S
1 2L
1 2M
1 2K
3 2R
19 2S
3 2S
3 2L
3 2M
3 2K
(Continuado)
34
HILUX (EWD630S)
F UBICACION DE LOS RELES
[Circuito interior del lado del conductor J/B]
5 3
2
1
35
1
2
2 1
1
2
25A
20A
DOOR
DEF
2
Relé IG1
Relé DEF
30A PWR (para la corriente alta)
1
HILUX (EWD630S)
35
F
3 : R/B N.° 3 Panel del lado del cubretablero derecho (Vea la página 21)
36
HILUX (EWD630S)
G RECORRIDO DE LOS CABLES ELECTRICOS
Posición de las piezas en el compartimiento del motor
[2TR-FE]
I9
A22
I10
A19
A20
I8
I7
A4
H2
B2
F8
F7
F6
H1
H6
(*2)
H6
(*1)
* 1:4WD
* 2:2WD
B1
C1H4E4A8 A3C3 A7A21 A18 F5 C14 A1 C4 C2
A 1 Compresor del A/C
A 3 Actuador de ADD
A 4 Medidor de flujo de aire
A 7 Alternador
A 8 Alternador
A18 Sensor de la relación de aire-combustible
(banco 1 sensor 1)
A19 Impulsor de control de inyección de aire
A20 Impulsor de control de inyección de aire
A21 Bomba de aire
A22 Válvula de conmutación de aire
B 1 Interruptor de la lámpara de marcha atrás
B 2 Interruptor de advertencia del nivel del líquido de frenos
C 1 Sensor de posición del árbol de levas
C 2 Lámpara de paso (delantera izquierda)
C 3 Lámpara de paso (delantera derecha)
C 4 Sensor de posición del cigüeñal
C14 Válvula de control del aceite de distribución del árbol
de levas
E 4 Sensor de presión del aceite de motor
F 5 Inyector de combustible (N.° 1)
F 6 Inyector de combustible (N.° 2)
F 7 Inyector de combustible (N.° 3)
F 8 Inyector de combustible (N.° 4)
H 1 Faro (izquierdo)
H 2 Faro (derecho)
H 4 Bocina (baja)
H 6 Sensor de oxígeno calentado (banco 1 sensor 1)
I 7 Bobina de encendido (N.° 1)
I 8 Bobina de encendido (N.° 2)
I 9 Bobina de encendido (N.° 3)
I 10 Bobina de encendido (N.° 4)
HILUX (EWD630S)
37
G
Posición de las piezas en el compartimiento del motor
[2TR-FE]
T15
P1
T13
T14
J35
S7
T12
W2
S3 T4W1 T3K2 T25 W3 S6
P12V3N2
J 35 Conector de unión
K 2 Sensor de control de golpeteo banco 1)
N 2 Filtro de ruido (encendido)
P 1 Interruptor de presión
P12 Interruptor de presión de aceite de la servodirección
S 3 Sensor de velocidad
S 6 Arrancador
S 7 Arrancador
T 3 Interruptor del indicador de la transferencia
(posición 4WD)
T 4 Interruptor del indicador de la transferencia (posición L4)
T 12 Lámpara de la señal de giro (frontal izquierda)
T 13 Lámpara de la señal de giro (frontal derecha)
T 14 Lámpara de la señal de giro (frontal lateral izquierda)
T 15 Lámpara de la señal de giro (frontal lateral derecha)
T 25 Conjunto del cuerpo del acelerador
V 3 VSV (EVAP)
W 1 Sensor de la temperatura del agua
W 2 Motor del lavador del parabrisas
W 3 Motor del limpiador del parabrisas
38
HILUX (EWD630S)
G RECORRIDO DE LOS CABLES ELECTRICOS
Posición de las piezas en el compartimiento del motor
[1KD-FTV, 2KD-FTV]
A2
F7
I1
I2
F8
F6
I3
A4
F5
H2
F3
B2
F10
F4
B3
I4
E4
H1
C1
F2
B1 E1 E2 G1
H4A1A8A6A7C3 A3E3 F11 F9 A5C4 C2
A 1 Compresor del A/C
A 2 Sensor de la temperatura del líquido de la A/T
A 3 Actuador de ADD
A 4 Medidor de flujo de aire
A 5 Sensor del colchón de aire (delantero izquierdo)
A 6 Sensor del colchón de aire (delantero derecho)
A 7 Alternador
A 8 Alternador
B 1 Interruptor de la lámpara de marcha atrás
B 2 Interruptor de advertencia del nivel del líquido de frenos
B 3 Interruptor de advertencia de vacío del freno
C 1 Sensor de posición del árbol de levas
C 2 Lámpara de paso (delantera izquierda)
C 3 Lámpara de paso (delantera derecha)
C 4 Sensor de posición del cigüeñal
E 1 Solenoide de ECT
E 2 Sensor de la posición de la válvula EGR
E 3 Interruptor de cortesía del capo del motor
E 4 Sensor de presión del aceite de motor
F 2 Lámpara antiniebla (delantera izquierda)
F 3 Lámpara antiniebla (delantera derecha)
F 4 Interruptor de advertencia del filtro de combustible
F 5 Inyector de combustible (N.° 1)
F 6 Inyector de combustible (N.° 2)
F 7 Inyector de combustible (N.° 3)
F 8 Inyector de combustible (N.° 4)
F 9 Sensor de presión de combustible
F 10 Interruptor de aviso del nivel de sedimentos
de combustible
F 11 Sensor de la temperatura del combustible
G 1 Bujía incandescente
H 1 Faro (izquierdo)
H 2 Faro (derecho)
H 4 Bocina (baja)
I 1 Impulsor de inyectores (EDU)
I 2 Impulsor de inyectores (EDU)
I 3 Sensor de la temperatura del aire de entrada
(Filtro de aire)
I 4 Sensor de la temperatura del aire de entrada
(Enfriador intermedio)
HILUX (EWD630S)
39
G
Posición de las piezas en el compartimiento del motor
[1KD-FTV, 2KD-FTV]
T10
S1
T15
T11
P1
T13
V2
S2
T1
J1
V1
T14
T12
W2
S3
(*3)
T7T2N1 T3 T5S3
(*2)
T4 S3
(*1)
* 1:M/T 2WD sin enfriador intermedio
* 2:A/T 2WD
* 3:4WD, M/T 2WD con enfriador intermedio
* 4:1KD-FTV
* 5:2KD-FTV
T6T9
(*4)
S9W3
S8 S4S7S6W1T9S5
(*5)
J 1 Conector de unión
N 1 Interruptor de arranque en punto muerto
P 1 Interruptor de presión
S 1 Bocina de seguridad
S 2 ECU de control de derrape con actuador
S 3 Sensor de velocidad
S 4 Sensor de velocidad (delantero izquierdo)
S 5 Sensor de velocidad (delantero derecho)
S 6 Arrancador
S 7 Arrancador
S 8 Válvula de control de la succión
S 9 Válvula de control de turbulencia
T 1 Conjunto del cuerpo del acelerador
T 2 Conjunto del cuerpo del acelerador
T 3 Interruptor del indicador de la transferencia
(posición 4WD)
T 4 Interruptor del indicador de la transferencia (posición L4)
T 5 Interruptor del indicador de la transferencia
(posición de punto muerto)
T 6 Sensor de revoluciones de la transmisión (entrada)
T 7 Sensor de revoluciones de la transmisión (salida)
T 9 Sensor de presión turbo
T 10 Motor de boquilla variable del turboalimentador
T 11 Sensor de boquilla variable del turboalimentador
T 12 Lámpara de la señal de giro (frontal izquierda)
T 13 Lámpara de la señal de giro (frontal derecha)
T 14 Lámpara de la señal de giro (frontal lateral izquierda)
T 15 Lámpara de la señal de giro (frontal lateral derecha)
V 1 VRV (EGR)
V 2 VSV (válvula de corte de EGR)
W 1 Sensor de la temperatura del agua
W 2 Motor del lavador del parabrisas
W 3 Motor del limpiador del parabrisas
40
HILUX (EWD630S)
G RECORRIDO DE LOS CABLES ELECTRICOS
Posición de las piezas en el panel instrumental
A13
C10
C8
C7 A23
A9C11C12 A15 B6 A24A10 A14 A12B4 B5 C6 C5 A16
A 9 Amplificador del A/C
A10 Termistor del A/C
A12 Iluminación de la palanca de cambios de la A/T
A13 Sensor de la posición del acelerador
A14 Centro del conjunto del sensor del colchón de aire
A15 Detonador del colchón de aire
(almohadilla del volante de dirección)
A16 Iluminación del cenicero
A23 Detonador del colchón de aire
(conjunto del colchón de aire del pasajero delantero)
A24 Interruptor del A/C
B 4 Motor del soplador
B 5 Resistor del soplador
B 6 Interruptor del soplador
C 5 Encendedor de cigarrillos
C 6 Iluminación del encendedor de cigarrillos
C 7 Reloj
C 8 Medidor de combinación
C10 Interruptor de combinación
C11 Interruptor de combinación
C12 Interruptor de combinación
HILUX (EWD630S)
41
G
Posición de las piezas en el panel instrumental
I5
I6
D1
E10
E6
(*2)
(*1)
(*3)
(*2)
(*1)
(*1)
(*2)
F14
E11
E7
H5
E12
E8
E5
(*2)
E9
(*1)
* 1:2TR-FE
* 2:1KD-FTV,
* 3:sin sistema inmovilizador del motor
2KD-FTV
D 1 DLC3
E 5 ECU del motor
E 6 ECU del motor
E 7 ECU del motor
E 8 ECU del motor
E 9 ECU del motor
E10 ECU del motor
E 11 ECU del motor
E12 ECU del motor
F 14 ECU de control de 4WD
H 5 Interruptor de la señal de aviso de peligro
I 5 Lámpara del cilindro de la llave de encendido
I 6 Interruptor de encendido
42
HILUX (EWD630S)
G RECORRIDO DE LOS CABLES ELECTRICOS
Posición de las piezas en el panel instrumental
J29
J2
J3
J22
J15
J25
J24
J26
J23
J28
J16
J17
J14
J13
J7
(*2)
J8
(*2)
J4J5 J30
(*1)
J6
(*2)
J32
(*1)
J31
(*1)
J9
(*2)
J33
(*1)
J10
(*2)
J34
(*1)
J12 J11
* 1:2TR-FE
* 2:1KD-FTV,
2KD-FTV
J19J18J27 J21 J20
J 2 Conector de unión
J 3 Conector de unión
J 4 Conector de unión
J 5 Conector de unión
J 6 Conector de unión
J 7 Conector de unión
J 8 Conector de unión
J 9 Conector de unión
J 10 Conector de unión
J 11 Conector de unión
J 12 Conector de unión
J 13 Conector de unión
J 14 Conector de unión
J 15 Conector de unión
J 16 Conector de unión
J 17 Conector de unión
J 18 Conector de unión
J 19 Conector de unión
J 20 Conector de unión
J 21 Conector de unión
J 22 Conector de unión
J 23 Conector de unión
J 24 Conector de unión
J 25 Conector de unión
J 26 Conector de unión
J 27 Conector de unión
J 28 Conector de unión
J 29 Conector de unión
J 30 Conector de unión
J 31 Conector de unión
J 32 Conector de unión
J 33 Conector de unión
J 34 Conector de unión
HILUX (EWD630S)
43
G
Posición de las piezas en el panel instrumental
S14
T22
K1
U1
O1
S10
T17
T18
T19
T8
R2T21 R1P13 S12 T16
P2 S11P3 R3S13T20
(*4)
* 4:con sistema inmovilizador del motor
K 1 Solenoide de interbloqueo de la llave
O 1 Interruptor del espejo exterior
P 2 Interruptor del freno de estacionamiento
P 3 Enchufe eléctrico
P13 Lámpara de aviso del cinturón de seguridad
del pasajero
R 1 Conjunto del receptor de radio
R 2 Conjunto del receptor de radio
R 3 Interruptor del desempañador de la ventanilla trasera
S10 Lámpara del indicador de seguridad
S 11 ECU de control de bloqueo de cambios
S12 Pasador de cortocircuito (ECU de aviso antirrobo)
S13 Cable espiral
S14 Interruptor de la lámpara de parada
T 8 Impulsor del motor de turboalimentación
T 16 ECU de aviso antirrobo
T 17 ECU de control de la transmisión
T 18 ECU de control de la transmisión
T 19 ECU de control de la transmisión
T 20 Amplificador de la llave de transmisor
T 21 ECU de la llave de transmisor
T 22 Intermitente de la señal de giro
U 1 Interruptor de advertencia de desbloqueo
44
HILUX (EWD630S)
G RECORRIDO DE LOS CABLES ELECTRICOS
Posición de las piezas en la carrocería
[Cabina doble]
D6
P5
P4
O2
P10
D2
P7
F12
C13
P6O3M1 P9 D3 D7 P11 P8 D9 D5
F13
(*2)
F15
(*1)
* 1:2TR-FE
* 2:1KD-FTV, 2KD-FTV
D4D8 A17F17 L2L1
A17 Sensor de desaceleración del ABS
C13 Lámpara de parada central
D 2 Interruptor de cortesía de la puerta (lado del conductor)
D 3 Interruptor de cortesía de la puerta
(lado del pasajero delantero)
D 4 Interruptor de cortesía de la puerta (trasera izquierda)
D 5 Interruptor de cortesía de la puerta (trasera derecha)
D 6 Conjunto de bloqueo de la puerta (lado del conductor)
D 7 Conjunto de bloqueo de la puerta
(lado del pasajero delantero)
D 8 Conjunto de bloqueo de la puerta (trasera izquierda)
D 9 Conjunto de bloqueo de la puerta (trasera derecha)
F 12 Cinturón interior del asiento delantero
(lado del conductor)
F 13 Medidor del emisor de combustible
F 15 Conjunto de la bomba de succión de combustible y
medidor
F 17 Conjunto del cinturón interior del asiento delantero
(lado del pasajero delantero)
L 1 Lámpara izquierda de la matrícula
L 2 Lámpara derecha de la matrícula
M 1 Lámpara para mapas
O 2 Espejo retrovisor exterior (izquierdo)
O 3 Espejo retrovisor exterior (derecho)
P 4 Interruptor principal de la ventanilla automática
P 5 Motor del regulador de la ventanilla automática
(frontal izquierda)
P 6 Motor del regulador de la ventanilla automática
(frontal derecha)
P 7 Motor del regulador de la ventanilla automática
(trasera izquierda)
P 8 Motor del regulador de la ventanilla automática
(trasera derecha)
P 9 Interruptor de la ventanilla automática
(lado del pasajero delantero)
P10 Interruptor de la ventanilla automática (trasera izquierda)
P 11 Interruptor de la ventanilla automática (trasera derecha)
HILUX (EWD630S)
45
G
Posición de las piezas en la carrocería
[Cabina doble]
S15
S17
S18
R5
S22
R8R7 R6S16
R4S21
R 4 Lámpara de combinación trasera (izquierda)
R 5 Lámpara de combinación trasera (derecha)
R 6 Desempañador de la ventanilla trasera
R 7 Desempañador de la ventanilla trasera
R 8 Lámpara del compartimiento
S15 Altavoz (puerta delantera izquierda)
S16 Altavoz (puerta delantera derecha)
S17 Altavoz (puerta trasera izquierda)
S18 Altavoz (puerta trasera derecha)
S21 Sensor de velocidad (trasero izquierdo)
S22 Sensor de velocidad (trasero derecho)
46
HILUX (EWD630S)
G RECORRIDO DE LOS CABLES ELECTRICOS
Posición de las piezas en la carrocería
[Cabina sencilla]
S15
D2
R5
L2
L1
R8 S16 D3
R4F15
(*1)
* 1:2TR-FE
* 2:1KD-FTV, 2KD-FTV
F13
(*2)
D 2 Interruptor de cortesía de la puerta (lado del conductor)
D 3 Interruptor de cortesía de la puerta
(lado del pasajero delantero)
F 13 Medidor del emisor de combustible
F 15 Conjunto de la bomba de succión de combustible y
medidor
L 1 Lámpara izquierda de la matrícula
L 2 Lámpara derecha de la matrícula
R 4 Lámpara de combinación trasera (izquierda)
R 5 Lámpara de combinación trasera (derecha)
R 8 Lámpara del compartimiento
S15 Altavoz (puerta delantera izquierda)
S16 Altavoz (puerta delantera derecha)
HILUX (EWD630S)
47
Memorándum
Alambre principal del
compartimiento del motor
Alambre del motor
Alambre
del sensor
Alambre del
motor N.˚ 2
EB1EE ED
EA2
EA1
EB
EA
;;;;;;;;;;;;;;
;;;;;;;;;;;;;;
;;;;;;;;
;;;;;;;;
;;;;;;;;;;;;;;;;;;;;;;;;
;;;;;;;;
E2
E1
48
HILUX (EWD630S)
G RECORRIDO DE LOS CABLES ELECTRICOS
: Localización del mazo de cables de la unión del conector y del mazo de cables
: Localización de los puntos a tierra
[2TR-FE]
: Localización de los puntos de unión
HILUX (EWD630S)
49
G
Mazo de cables de la unión del conector y mazo de cables
1 2 3 4 5
6 7 8 9 10 11 12 13
12345
13 6789101112
1 2 2 1
121 2
EA1
Negro
EA2
EB1
Código Mazo de cables de unión y mazo de cables (localización del conector)
EA1 Alambre del motor y Alambre principal del compartimiento del motor
EA2
y p p p
(Dentro del R/B del compartimiento del motor y J/B del compartimiento del motor)
EB1 Alambre del motor y Alambre del sensor (Lado izquierdo del bloque de cilindros)
EC
EA1
EA2
EB
EA
Alambre del motor Alambre del motor N.˚ 2
Alambre principal
del compartimiento
del motor
;;;;;;;;;;
;;;;;;;;;;
;;;;;;;;;;;;;;;;;;;;;;;;;;;;;;
;;;;;;;;;;
;;;;;;;;;;
;;;;;;
;;;;;;;;;;;;;;;;;;
;;;;;;
;;;;;;;;;;;;;;;;;;
;;;;;;
E2 E1
50
HILUX (EWD630S)
G RECORRIDO DE LOS CABLES ELECTRICOS
: Localización del mazo de cables de la unión del conector y del mazo de cables
: Localización de los puntos a tierra
[1KD-FTV, 2KD-FTV]
: Localización de los puntos de unión
HILUX (EWD630S)
51
G
Mazo de cables de la unión del conector y mazo de cables
1 2 3 4 5
6 7 8 9 10 11 12 13
12345
13 6789101112
1 2 2 1
EA1 EA2
Código Mazo de cables de unión y mazo de cables (localización del conector)
EA1 Alambre del motor y Alambre principal del compartimiento del motor
EA2
y p p p
(Dentro del R/B del compartimiento del motor y J/B del compartimiento del motor)
52
HILUX (EWD630S)
G RECORRIDO DE LOS CABLES ELECTRICOS
: Localización del mazo de cables de la unión del conector y del mazo de cables
Alambre del
motor
Alambre
del panel
instrumental
Conjunto de
cables del tablero
de instrumentos
Alambre
del techo
Alambre de la
puerta frontal
derecha
Alambre principal
del compartimiento
del motor
Alambre de
la puerta
frontal
izquierda
ID1ID2IE1
IA1
Alambre del piso Alambre del piso Alambre del piso
IC2
: Localización de los puntos a tierra
IDIE
IF
IG
HILUX (EWD630S)
53
G
Mazo de cables de la unión del conector y mazo de cables
1 2 3 4 5 6 7 8 9 10
11 1213141516171819 20
12345678910
11121314151617181920
124
567810
3
9
1 2
5
3 4
6 7 8 9 10
1 2 3 4 5
6 7 8 9 10 11 12 13
12345
13 6789101112
9
18
8
1716
76
1514
54
1312
32
11
1
10
89
18 17
7
16
6
15
5
14
4
13
3
12
2
11
1
10
1 2 3
4 5 6 6 5 4
3 2 1
IA1 IC2
IE1
ID1 ID2
Gris
Código Mazo de cables de unión y mazo de cables (localización del conector)
IA1 Alambre del panel instrumental y Alambre del piso (Panel de arranque derecho)
IC2 Alambre de la puerta frontal izquierda y Alambre del piso (Panel de arranque izquierdo)
ID1
Alambre del motor y Alambre del panel instrumental (Detrás de la guantera)
ID2
Alambre del motor y Alambre del panel instrumental (Detrás de la guantera)
IE1 Alambre del panel instrumental y Alambre del panel instrumental (Centro de refuerzo del tablero de instrumentos)
54
HILUX (EWD630S)
G RECORRIDO DE LOS CABLES ELECTRICOS
: Localización del mazo de cables de la unión del conector y del mazo de cables
IL1IF3IF4IF2IF1
II2
IK1
IJ1
IH1
IG2
IG1
Alambre
del motor
Alambre
del panel
instrumental
Alambre del
techo
Alambre de la
puerta frontal
derecha
Alambre principal
del compartimiento
del motor
Alambre de la
puerta frontal
izquierda
Alambre del piso Alambre del piso Alambre del piso
Conjunto de cables
del tablero de
instrumentos
: Localización de los puntos de unión
;;;;;;;;
;;;;
;;;;;;;;;;;;
;;;;;;
;;;;;;
;;;;;;;;;;;;;;;;;;
;;;;;;
;;;;;
;;;;;;;;;;;;;;;
;;;;;
;;;;;;;;;;;;;;;
I2
I1 I1
(*1)
* 1:2TR-FE
* 2:1KD-FTV,
2KD-FTV
(*2)
HILUX (EWD630S)
55
G
Mazo de cables de la unión del conector y mazo de cables
IF1 Amarillo IF2 IF3
IF4 IG1 IG2 IH1
II2 IJ1 IK1 IL1 Amarillo
2 1
4 3
1 2
3 4
64321
7 8 9 10 11 12 14
5
13
235
89101113
4
12
1
7
6
14
1 2 3 4 5 6 7 8 9 10
11 12 13 14 15 16 17 18 19 20
12345678910
11121314151617181920
1 2 2 1
1 2 2 1
1 2
3 4 5 6 7
8 9 10 11 12
12
34567
89101112
12
3456
1 2
3 4 5 6
21 12 2
7 6 5 4 3
121
3 4 5 6 7
124
567810
3
9
1 2
5
3 4
6 7 8 9 10
1 2 12
Código Mazo de cables de unión y mazo de cables (localización del conector)
IF1
IF2
Alambre principal del compartimiento del motor y Alambre del panel instrumental (Detrás del J/B del lado del conductor)
IF3
Alambre principal del compartimiento del motor y Alambre del panel instrumental (Detrás del J/B del lado del conductor)
IF4
IG1
Alambre principal del compartimiento del motor y Alambre del piso (Cerca del lado del conductor J/B)
IG2
Alambre principal del compartimiento del motor y Alambre del piso (Cerca del lado del conductor J/B)
IH1 Alambre del panel instrumental y Alambre del piso (Panel de arranque izquierdo)
II2 Alambre de la puerta frontal derecha y Alambre del piso (Panel de arranque derecho)
IJ1 Alambre del panel instrumental y Alambre del panel instrumental (Detrás de la guantera)
IK1 Alambre de la puerta frontal derecha y Alambre del panel instrumental (Panel de arranque derecho)
IL1
Alambre del panel instrumental y Conjunto de cables del tablero de instrumentos
(Cerca del conjunto del colchón de aire del pasajero delantero)
56
HILUX (EWD630S)
G RECORRIDO DE LOS CABLES ELECTRICOS
: Localización del mazo de cables de la unión del conector y del mazo de cables
[Cabina doble]
Alambre del techo
Cable N.˚ 1 de la
puerta trasera izquierda
Alambre principal
del compartimiento
del motor
Alambre del panel
instrumental
Alambre del
bastidor N.˚ 2
Cable N.˚ 1
de la puerta
trasera derecha
Alambre de la
puerta frontal
derecha
Alambre del piso
Alambre del motor
Alambre de
la puerta
frontal
izquierda
BD1BE1
BC1
Alambre del bastidor
Cable del sensor
de control antipatinaje
BB1
BA1
BA2
: Localización de los puntos de unión
;;;;;
;;;;;
;;;;;
;;;;;
;;;;;;;;
;;;;;;;;;;;;;;;;;;;;;;;;
;;;;;;;;
;;;;;;;;;
;;;;;;;;;
;;;;;;;;;;;;;;;;;;
B3B2
B1
HILUX (EWD630S)
57
G
Mazo de cables de la unión del conector y mazo de cables
1 2
3 4 5 6 7
8 9 10 11 12
12
34567
89101112
54321
6 7 8 9 10 1112
235
7891012
4
11
1
6
1 2 3 4 5
6 7 8 9 10
5 4 3 2 1
10 9 8 7 6
1 2 3 4 5
6 7 8 9 10
5 4 3 2 1
10 9 8 7 6
121 2
1 2
3 4
2 1
4 3
BA1 BA2
BB1 BC1
NegroBD1
Negro
BE1
Código Mazo de cables de unión y mazo de cables (localización del conector)
BA1
Alambre del bastidor y Alambre del piso (Debajo del asiento frontal izquierdo)
BA2
Alambre del bastidor y Alambre del piso (Debajo del asiento frontal izquierdo)
BB1 Cable N.° 1 de la puerta trasera izquierda y Alambre del piso (Pilar central izquierdo)
BC1 Cable N.° 1 de la puerta trasera derecha y Alambre del piso (Pilar central derecho)
BD1 Alambre del bastidor N.° 2 y Alambre del bastidor (Debajo del panel posterior izquierdo)
BE1 Alambre del bastidor y Cable del sensor de control antipatinaje (Parte trasera del diferencial trasero)
58
HILUX (EWD630S)
G RECORRIDO DE LOS CABLES ELECTRICOS
: Localización del mazo de cables de la unión del conector y del mazo de cables
[Cabina sencilla]
Alambre del techo Alambre de la
puerta frontal
derecha
Alambre principal del
compartimiento del motor
Alambre del
panel instrumental
Alambre del motor
Alambre del piso
Alambre de
la puerta
frontal
izquierda
Alambre del bastidor
BA1
: Localización de los puntos de unión
;;;;;;;;;;;;;;;
;;;;;
B3
HILUX (EWD630S)
59
G
Mazo de cables de la unión del conector y mazo de cables
1 2
3 4 5 6 7
8 9 10 11 12
12
34567
89101112
BA1
Código Mazo de cables de unión y mazo de cables (localización del conector)
BA1 Alambre del bastidor y Alambre del piso (Debajo del asiento frontal izquierdo)
60
HILUX (EWD630S)
Memorándum
HILUX (EWD630S)
61
CIRCUITOS DE SISTEMAS H
HILUX
DIAGRAMA DEL CABLEADO ELECTRICO
CIRCUITOS DE SISTEMAS
Página
ABS . . . . . . . . . . . . . . . . . . . . . . . . . . . . . . . . . . . . . . . . . . . . . . . . . . . . . . . . . . . . . . . 140
Acondicionador de aire . . . . . . . . . . . . . . . . . . . . . . . . . . . . . . . . . . . . . . . . . . . . . 202
Advertencia de cinturón de seguridad . . . . . . . . . . . . . . . . . . . . . . . . . . . . . . . . 124
Alimentación . . . . . . . . . . . . . . . . . . . . . . . . . . . . . . . . . . . . . . . . . . . . . . . . . . . . . . . 62
Arranque . . . . . . . . . . . . . . . . . . . . . . . . . . . . . . . . . . . . . . . . . . . . . . . . . . . . . . . . . . . 66
Bloqueo de cambios . . . . . . . . . . . . . . . . . . . . . . . . . . . . . . . . . . . . . . . . . . . . . . . . 154
Bocina . . . . . . . . . . . . . . . . . . . . . . . . . . . . . . . . . . . . . . . . . . . . . . . . . . . . . . . . . . . . . 182
Carga . . . . . . . . . . . . . . . . . . . . . . . . . . . . . . . . . . . . . . . . . . . . . . . . . . . . . . . . . . . . . . 68
Control de bloqueo de la puerta . . . . . . . . . . . . . . . . . . . . . . . . . . . . . . . . . . . . . . 156
Control de bloqueo de la puerta inalámbrico . . . . . . . . . . . . . . . . . . . . . . . . . . 162
Control de crucero . . . . . . . . . . . . . . . . . . . . . . . . . . . . . . . . . . . . . . . . . . . . . . . . . . 134
Control del motor (1KD-FTV, 2KD-FTV) . . . . . . . . . . . . . . . . . . . . . . . . . . . . . . 82
Control del motor (2TR-FE) . . . . . . . . . . . . . . . . . . . . . . . . . . . . . . . . . . . . . . . . . . 72
Desempañador de la ventanilla trasera . . . . . . . . . . . . . . . . . . . . . . . . . . . . . . . 190
ECT . . . . . . . . . . . . . . . . . . . . . . . . . . . . . . . . . . . . . . . . . . . . . . . . . . . . . . . . . . . . . . . . 126
Encendedor de cigarrillos . . . . . . . . . . . . . . . . . . . . . . . . . . . . . . . . . . . . . . . . . . . 184
Encendido . . . . . . . . . . . . . . . . . . . . . . . . . . . . . . . . . . . . . . . . . . . . . . . . . . . . . . . . . 70
Espejo retrovisor de control remoto . . . . . . . . . . . . . . . . . . . . . . . . . . . . . . . . . . 192
Faro . . . . . . . . . . . . . . . . . . . . . . . . . . . . . . . . . . . . . . . . . . . . . . . . . . . . . . . . . . . . . . . 98
Iluminación . . . . . . . . . . . . . . . . . . . . . . . . . . . . . . . . . . . . . . . . . . . . . . . . . . . . . . . . 102
Limpiador y lavador del parabrisas . . . . . . . . . . . . . . . . . . . . . . . . . . . . . . . . . . . 178
Luz antiniebla frontal . . . . . . . . . . . . . . . . . . . . . . . . . . . . . . . . . . . . . . . . . . . . . . . . 100
Luz de cola . . . . . . . . . . . . . . . . . . . . . . . . . . . . . . . . . . . . . . . . . . . . . . . . . . . . . . . . . 102
Luz de marcha atrás . . . . . . . . . . . . . . . . . . . . . . . . . . . . . . . . . . . . . . . . . . . . . . . . 114
Luz de parada . . . . . . . . . . . . . . . . . . . . . . . . . . . . . . . . . . . . . . . . . . . . . . . . . . . . . . 112
Luz interior . . . . . . . . . . . . . . . . . . . . . . . . . . . . . . . . . . . . . . . . . . . . . . . . . . . . . . . . . 116
Medidor de combinado . . . . . . . . . . . . . . . . . . . . . . . . . . . . . . . . . . . . . . . . . . . . . . 196
Recordador de la llave . . . . . . . . . . . . . . . . . . . . . . . . . . . . . . . . . . . . . . . . . . . . . . 120
Recordador de las luces . . . . . . . . . . . . . . . . . . . . . . . . . . . . . . . . . . . . . . . . . . . . . 120
Reloj . . . . . . . . . . . . . . . . . . . . . . . . . . . . . . . . . . . . . . . . . . . . . . . . . . . . . . . . . . . . . . . 188
Señal de giro y luz de advertencia de peligro . . . . . . . . . . . . . . . . . . . . . . . . . . 108
Sistema antirrobo . . . . . . . . . . . . . . . . . . . . . . . . . . . . . . . . . . . . . . . . . . . . . . . . . . . 168
Sistema de audio . . . . . . . . . . . . . . . . . . . . . . . . . . . . . . . . . . . . . . . . . . . . . . . . . . . 194
Sistema de comunicaciones multiplex (CAN) . . . . . . . . . . . . . . . . . . . . . . . . . 96
Sistema inmovilizador del motor . . . . . . . . . . . . . . . . . . . . . . . . . . . . . . . . . . . . . 94
SRS . . . . . . . . . . . . . . . . . . . . . . . . . . . . . . . . . . . . . . . . . . . . . . . . . . . . . . . . . . . . . . . 145
Toma de alimentación . . . . . . . . . . . . . . . . . . . . . . . . . . . . . . . . . . . . . . . . . . . . . . . 186
Ventanilla automática . . . . . . . . . . . . . . . . . . . . . . . . . . . . . . . . . . . . . . . . . . . . . . . 174
4WD (con ADD) . . . . . . . . . . . . . . . . . . . . . . . . . . . . . . . . . . . . . . . . . . . . . . . . . . . . . 148
4WD (sin ADD) . . . . . . . . . . . . . . . . . . . . . . . . . . . . . . . . . . . . . . . . . . . . . . . . . . . . . 152
62
HILUX (EWD630S)
Alimentación
1A1
Batería
W
30A AM2
1B
4
50A BATT P/I
1B
3
80A GLOW
1G
1
40A MAIN
1C
3
1 2
20A H–LP LH
1 2
20A H–LP RH
1
1
1
B
R
B–W
W–R
W–L
B
1 2
15A FOG
1 2
10A HORN
1H
21
1
25A EFI
1J
L
40A ABS NO. 1
1B
2
R
30A ABS NO. 2
1C
2
W–R
40A FR HTR
1C
1
L–B
1F
1
100A ALT
W–R
30A DCC
1 2
W
1
21
7. 5A ALT–S
1
B–Y1 2
15A TURN–HAZ
21
7. 5A ECU–B
21
L–Y
7. 5A DOME
1
1
R
21
L
1
15A RAD
B
W–R
B
L–B
1
IF3
11
IF4
1
(∗2)(∗1)
1
R–W1 2
10A ETCS
(∗2)
(∗1)
50A A/PMP
1C
4
B–Y
B–W
1
1 2
20A A/F
(∗1)
(∗1)
(con ABS)
(con ABS)
HILUX (EWD630S)
63
4
5
2
1
6
7
AM2
AM1
ACC
IG1
IG2
ST2
L–R
B–YB–R
B
B–W
I 6
A
3
B
4
7. 5A ACC
15A CIG
2C
12
2G
1
2F
1
5
1
3
2
4
10A A/C
Relé HTR
1 2
40A AM1
1 2
40A IG1
10A STOP
7. 5A OBD
10A TAIL
15A PWR OUT
10A ECU–IG&GAUGE
20A WIP
2A
6
B–Y
2A
2
B–R
7. 5A IGN
7. 5A MET
2C
6
7. 5A ST
2C
7
L–B
B
W–R
2H
2
1
3
2
5
3
3
3
3
30A PWR
21 L
3
25A DOOR
21 LG
3
20A DEF
21 B–Y
3
3
3
R–L W–B
W–G
W–G
W–R
W–R
Relé IG1
2K
8
A
7
B
11R–L
J16(A), J17(B)
Interruptor de encendido
Conector de unión
∗ 1 : 2TR–FE
∗ 2 : 1KD–FTV, 2KD–FTV
15A INJ
Conector de unión
J18(A), J19(B)
64
HILUX (EWD630S)
Alimentación
I6 Interruptor de encendido
4-2 : Cerrado con la llave de encendido en la posición ACC u ON
4-1 : Cerrado con el interruptor de encendido en la posición ON o ST
5-6 : Cerrado con el interruptor de encendido en la posición ON o ST
5-7 : Cerrado con el interruptor de encendido en la posición ST
: Localización de partes
Código Vea la página Código Vea la página Código Vea la página
I6 41 J17 B 42 J19 B 42
J16 A 42 J18 A 42
: Bloques de relés
Código Vea la página Bloque de relés (localización del bloque de relés)
1 22 R/B del compartimiento del motor (Compartimiento del motor izquierdo)
3 35 R/B N.° 3 (Panel del lado del cubretablero derecho)
: Bloque de empalmes y conector del mazo de cables
Código Vea la página Bloque de empalmes y mazo de cables (localización del conector)
1A
1B
1C 23
Alambre principal del compartimiento del motor y J/B del compartimiento del motor
1F
Alambre principal del compartimiento del motor y J/B del compartimiento del motor
(Compartimiento del motor izquierdo)
1G
(Compartimiento del motor izquierdo)
1H
24
1J
24
2A
28 Alambre del panel instrumental y J/B del lado del conductor (Tensor del panel instrumental izquierdo)
2C
28 Alambre del panel instrumental y J/B del lado del conductor (Tensor del panel instrumental izquierdo)
2F
28
Alambre principal del compartimiento del motor y J/B del lado del conductor
2G
28
Alambre principal del compartimiento del motor y J/B del lado del conductor
(Tensor del panel instrumental izquierdo)
2H
28 Alambre del piso y J/B del lado del conductor (Tensor del panel instrumental izquierdo)
2K
28 Alambre del piso y J/B del lado del conductor (Tensor del panel instrumental izquierdo)
: Mazo de cables de la unión del conector y mazo de cables
Código Vea la página Mazo de cables de unión y mazo de cables (localización del conector)
IF3
54
Alambre principal del compartimiento del motor y Alambre del panel instrumental
IF4
54
Alambre principal del compartimiento del motor y Alambre del panel instrumental
(Detrás del J/B del lado del conductor)
Consejos para el servicio
HILUX (EWD630S)
65
Memorándum
66
HILUX (EWD630S)
Arranque
Batería
A1
B
1
Relé ST
W–R
5
4
P
N
1
2
(∗1)5
(∗2)3
(∗1)3
(∗2)5
B–Y
B–Y
LL
L–Y
(M/T)
W–R
7. 5A
ST
5
∗ 3 : 1KD–FTV A/T
∗ 4 : con sistema antirrobo
W
30A
AM2
W–R
B–W
W–B
W–B
W–B
W–B
(∗6)
(∗6)
(∗6)
E(∗4)SRLY
(∗4)
∗ 1 : 2TR–FE
∗ 2 : 1KD–FTV, 2KD–FTV
∗ 5 : sin sistema antirrobo
∗ 6 : ∗5 con sistema de control de bloqueo de las puertas
B L
5
7
AM2 IG2
ST2
I 6
IF41
IF311 (∗2)
(∗1)
1B4
1A1
2O3
1 1
1 1
2C7
EA22
EA14
IF310
S 6(A), S 7(B)
M
A7
(∗3)
N 1
B12
1 A12 A
B1
S12(B)
T16(A)
A8
B12
ID
Interruptor
de encendido
Interruptor de arranque
en punto muerto
Arrancador
∗ 7 : sin sistema de control de bloqueo de las puertas
(∗4,∗6)
W–R
B–W
(∗5 ∗7)
B–W
(∗4, ∗6)
ECUdeavisoantirrobo
Pasadordecortocircuito
(ECUdeavisoantirrobo)
2N192O19
ID21
L–Y
(M/T)
A8
L–Y
(∗3)
L–Y
B12
ID27
B8
A11
∗ 8 : ∗2 M/T
ECU del motor
E 5
ECU del motor
E 9
ECU de control
de la transmisión
T19
STANSWSTASTANSW
11121276
B–Y
(∗3)
B–Y
(∗3)
B–Y
(∗3)
B–Y(∗3)
L–Y(∗3)
L–Y(∗1)
B–Y(∗3)
L–Y(∗8)
L–Y(∗3)
L–Y(∗1)
L–Y(∗8)
L–Y(∗3)
Conectordeunión
J11(A),J12(B)
L
W–B
(∗3)
B–Y
Conector
deunión
J22(A),J23(B)
B11
Conectordeunión
J11(A),J12(B)
L–Y
(∗3)
B–R(∗1)
B(∗2)
(∗3)
HILUX (EWD630S)
67
S6 (A), S7 (B) Arrancador
Punto cerrado con el interruptor de arranque en punto muerto en la posición P o N y
el interruptor de encendido en la posición ST (A/T)
Punto cerrado con el interruptor de encendido en la posición ST (M/T)
I6 Interruptor de encendido
5-7 : Cerrado con el interruptor de encendido en la posición ST
N1 Interruptor de arranque en punto muerto
4-5 : Cerrado con el interruptor de arranque en punto muerto en la posición P o N
Relé ST
5-3 : errado con el interruptor de arranque en punto muerto en la posición P o N y
el interruptor de encendido en la posición ST (A/T)
5-3 : Cerrado con el interruptor de encendido en la posición ST (M/T)
: Localización de partes
Código Vea la página Código Vea la página Código Vea la página
E5 41 J22 A 42
S7 B
37 (2TR-FE)
E9 41 J23 B 42
S7 B
39 (∗1)
I6 41 N1 39 (∗1) S12 B 43
J11 A 42
S6 A
37 (2TR-FE) T16 A 43
J12 B 42
S6 A
39 (∗1) T19 43
: Bloques de relés
Código Vea la página Bloque de relés (localización del bloque de relés)
1 22 R/B del compartimiento del motor (Compartimiento del motor izquierdo)
: Bloque de empalmes y conector del mazo de cables
Código Vea la página Bloque de empalmes y mazo de cables (localización del conector)
1A
23
Alambre principal del compartimiento del motor y J/B del compartimiento del motor
1B
23
Alambre principal del compartimiento del motor y J/B del compartimiento del motor
(Compartimiento del motor izquierdo)
2C 28
2N
29
Alambre del panel instrumental y J/B del lado del conductor (Tensor del panel instrumental izquierdo)
2O
29
p y / ( p q )
: Mazo de cables de la unión del conector y mazo de cables
Código Vea la página Mazo de cables de unión y mazo de cables (localización del conector)
EA1
48 (2TR-FE)
EA1
50 (∗1) Alambre del motor y Alambre principal del compartimiento del motor
EA2
48 (2TR-FE)
Alambre del motor y Alambre principal del compartimiento del motor
(Dentro del R/B del compartimiento del motor y J/B del compartimiento del motor)
EA2
50 (∗1)
ID2 52 Alambre del motor y Alambre del panel instrumental (Detrás de la guantera)
IF3
54
Alambre principal del compartimiento del motor y Alambre del panel instrumental
IF4
54
Alambre principal del compartimiento del motor y Alambre del panel instrumental
(Detrás del J/B del lado del conductor)
: Puntos a tierra
Código Vea la página Localización de los puntos a tierra
ID 52 Centro de refuerzo del tablero de instrumentos
∗ 1 : 1KD-FTV, 2KD-FTV ∗ 2 : Cabina doble ∗ 3 : Cabina sencilla
Consejos para el servicio
68
HILUX (EWD630S)
Carga
W
B–O
B
W
GR
R–L
GR
W
B
Batería
R–L
100A
ALT
W
1
2
7. 5A
ALT–S
Carga
37
21
IG L S B
Regulador IC
B2 B4 B1 A1
7. 5A
MET
2D1
10A
ECU–IG&GAUGE
Desde el sistema de la fuente de alimentación (Vea la página 62)
2S32
EA113ID24ID23
1A1
1E1 1
M
B3
4
5
ALT
GG
E 8
J 6
A 7(A), A 8(B)
C 8
Alternador
Medidor de
combinación
ECU del motor
Conector
de unión
8
∗ 2 : 1KD–FTV, 2KD–FTV
∗ 1 : 2TR–FE
G
ALT
10
E12
ECU del motor
(∗2)
(∗1)
(∗2)
HILUX (EWD630S)
69
A7 (A) Alternador
(A) 1-Tierra : 13,2-14,0 voltios con el motor en marcha a 5.000 rpm y 115°C
: Localización de partes
Código Vea la página Código Vea la página Código Vea la página
A7 A
36 (2TR-FE) A8 B 38 (∗1) E12 41
A7 A
38 (∗1) C8 40 J6 42
A8 B 36 (2TR-FE) E8 41
: Bloques de relés
Código Vea la página Bloque de relés (localización del bloque de relés)
1 22 R/B del compartimiento del motor (Compartimiento del motor izquierdo)
: Bloque de empalmes y conector del mazo de cables
Código Vea la página Bloque de empalmes y mazo de cables (localización del conector)
1A 23
Alambre principal del compartimiento del motor y J/B del compartimiento del motor
(Compartimiento del motor izquierdo)
1E 23 Alambre del motor y J/B del compartimiento del motor (Compartimiento del motor izquierdo)
2D 28
Alambre del panel instrumental y J/B del lado del conductor (Tensor del panel instrumental izquierdo)
2S 29
Alambre del panel instrumental y J/B del lado del conductor (Tensor del panel instrumental izquierdo)
: Mazo de cables de la unión del conector y mazo de cables
Código Vea la página Mazo de cables de unión y mazo de cables (localización del conector)
EA1
48 (2TR-FE) Alambre del motor y Alambre principal del compartimiento del motor
EA1
50 (∗1)
Alambre del motor y Alambre principal del compartimiento del motor
(Dentro del R/B del compartimiento del motor y J/B del compartimiento del motor)
ID2 52 Alambre del motor y Alambre del panel instrumental (Detrás de la guantera)
∗ 1 : 1KD-FTV, 2KD-FTV ∗ 2 : Cabina doble ∗ 3 : Cabina sencilla
Consejos para el servicio
70
HILUX (EWD630S)
Encendido
R
1
3 2 4
R–L
G–R
W–B
1
3 2 4
R
G–R
W–B
1
3 2 4
G–B
G–R
W–B
1
32 4
G
G–R
W–B
R
R
R
R
R R
G–R
W–B
W–BW–B
R
G–R
G–R
G–R
R–L
R
G–B
G
15A
INJ
Desde el sistema de la fuente de alimentación (Vea la página 62)
2D10
ID15
EE
17 16 15 23 14
IGT4IGF1IGT3IGT2IGT1
A9 A7
B10 B11
A8
J31(A),J32(B)
I 7 I 8 I 9 I10
1
N 2
RR
E 1 E 1 E 1 E 1
I 1I 1I 1
E12
ECU del motor
Bobina de encendido
(N. ˚ 1)
Bobina de encendido
(N. ˚ 2)
Bobina de encendido
(N. ˚ 3)
Bobina de encendido
(N. ˚ 4)
Conectordeunión
Filtro de ruido
(encendido)
+B
IGT1 IGF GND
+B
IGT2 IGF GND GNDIGFIGT3
+B
GNDIGT4IGF
+B
HILUX (EWD630S)
71
I7, I8, I9, I10 Bobina de encendido (N.° 1), (N.° 2), (N.° 3), (N.° 4)
1-Tierra : Aprox. 12 voltios con el interruptor de encendido en la posición ON u ST
4-Tierra : Siempre con continuidad
: Localización de partes
Código Vea la página Código Vea la página Código Vea la página
E12 41 I9 36 (2TR-FE) J32 B 42
I7 36 (2TR-FE) I10 36 (2TR-FE) N2 37 (2TR-FE)
I8 36 (2TR-FE) J31 A 42
: Bloque de empalmes y conector del mazo de cables
Código Vea la página Bloque de empalmes y mazo de cables (localización del conector)
2D 28 Alambre del panel instrumental y J/B del lado del conductor (Tensor del panel instrumental izquierdo)
: Mazo de cables de la unión del conector y mazo de cables
Código Vea la página Mazo de cables de unión y mazo de cables (localización del conector)
ID1 52 Alambre del motor y Alambre del panel instrumental (Detrás de la guantera)
: Puntos a tierra
Código Vea la página Localización de los puntos a tierra
EE 48 (2TR-FE) Lado trasero del bloque de cilindros
: Puntos de la unión
Código Vea la página Mazo de cables con puntos de unión Código Vea la página Mazo de cables con puntos de unión
E1 48 (2TR-FE) Alambre del motor I1 54 Alambre del motor
Consejos para el servicio
72
HILUX (EWD630S)
Control del motor (2TR-FE)
7
1
L
Relé
MAIN
B
L
W–GW–BW–B
W–BB–R
LG–B
10
W–BB–RB–R
Relé
C/OPN
B2
A6
J4(A),J5(B)
1J4 1J21J1 1J6
1J3 1J8 1J7
IGEB
J15
M
IG21 IF35
BA110
25A
EFI
20AA/F
Desde el sistema de la fuente de alimentación (Vea la página 62)
1
B–W
BA11
Conectordeunión
Conector
de unión
4
5
Bomba
1J5
EA112
B
Conjuntodelabombadesucción
decombustibleymedidor
F15
5 1
3 2
11
11
4W–B
Conector
de unión
J 1
R–L
W–B
50ABATTP/I
1B3
W–L
2
1
B–W
1H1
50AA/PMP
1C4
B–Y
Relé de A/F
EA19
R–L
L
B
W–G
B–Y
B–O
LG–B
B
R–L
2
7
1
BB
B
Conectordeunión
J35
HILUX (EWD630S)
73
B
W–G
B
W–G
+BMREL BATT
LG–B
FC
L
IF314 IF31
A3A1A8
A25
E 9(A), E10(B), E11(C), E12(D)
B–O
B
ECU del motor
BR
BR
B
B7 B8
A10 A12
B9
B
B
B
B
B
Conectordeunión
J31(A),J32(B)
C23
L
PRG
2
1
VSV(EVAP)
V3
V
3
SIV
B
D
AIRV
24
W–L
4
SIP
B
D
AIRP
11
G–W
2
DI
B
C
AIDI
20
VV
R–L
6 B
2
1
VP
B–R
2 A
EA
E
W–B
1 B
I 1
W–BW–B
W–B
W–B
B–Y
A
BATT
1
+B
B
5 B
R–L
L
B
W–G
B–Y
B–O
LG–B
B
R–L
B
Válvuladeconmutación
deaire
A22
Impulsor de control de inyección de aire
A19(A), A20(B)
M
1
2
Bombadeaire
A21
74
HILUX (EWD630S)
Control del motor (2TR-FE)
R–W
7. 5A
IGN
2M6
R–W
11 B
8 A
B–O
B–O
22 2S2L6
E 9(A), E10(B), E11(C), E12(D)
B–O
IGSW
A
C10
1
2
1
9 A
10A
ETCS
+BMST1–
16
R–LR–L
W–B
W–B
E02E01
W–B
4
3
G
ELS1
G–W
STP
IF3
Y
(Protegido)
4
B4
S14
2S
5
21
G–BG–W
2M
10A
STOP
2 2F
2
1
A7
10A
TAIL
Desde el sistema de la fuente de alimentación (Vea la página 62)
2C5 2R7
G–W
G
1013
OFF
Cola
Faro
Interruptorde
controldelas
luces
2S7 2Q12
2P13
G
A15
EE
J33(A), J34(B)
D7 D6
B
B–O
B
B6
A1 A2
J 4(A), J 5(B)
B1 T1
ECU del motor
Interruptor de combinación
Conector de unión
B
Conector
de unión
Interruptordela
lámparadeparada
E04
W–B
A1A+
W
21 DD2
HT1B
W–B
7 C 4 C
E03
B9
A10
E2+B
OX1BHT1B
B
L–Y
BR BR
BR
W–B
OX1B
25 D
HA1A
1 D
B
4
2
+B
D31
A1A–
W
A1A–
(Protegido)
B
3
1
HA1A
A1A+
(Protegido)
(Protegido)
J33(A),J34(B)
Conector
deunión
W–B
R–L
Y
R–L
2 4
1 3
Sensordeoxígeno
calentado
(banco1sensor1)
H6
Sensordelarelación
deaire–combustible
(banco1sensor1)
A18
HILUX (EWD630S)
75
1
G–Y
PSW
Y
P–L
2
OC1– OC1+
1
(Protegido)
D12 D13 C32
P12
Interruptordepresiónde
aceitedelaservodirección
D
BR
B
L–B
L–R
L–W
BR
E2
1
2
THA
4
E2
BR
5
+B
VG
3
1
B
2
E2G
VG E2G THA THW
E 9(A), E10(B), E11(C), E12(D)
BR
BR
GE01 M+
B
2
M+ M–
1
W
M– VTA2
LG
4
VTA2
VC
(Protegido)
17
R
R–L
G–B
G
G–R
IGF1
I 7
IGT4IGT3
IGF
2
IGT2
3
IGT1
IGT
BR
E2
3
VCVTA
56
B–RBR
LG–B
VTA1
C14
Válvuladecontroldelaceitede
distribucióndelárboldelevas
I 1I 1
I 1
T25
W1
A4
28 C C30 C29 D32 D28 D8 D5 D4 D19 D20 D18
16 D D15 D14D23
G–R
I 8
IGF
23
IGT
G–R
I 9
IGF
23
IGT
G–R
I10
IGF
2 3
IGT
G–R
8 A9 A
11 B10 B
7 A
J31(A),J32(B)
B
Medidordeflujodeaire
ECU del motor
Bobina de encendido
(N. ˚ 1)
Bobina de encendido
(N. ˚ 2)
Bobina de encendido
(N. ˚ 3)
Bobina de encendido
(N. ˚ 4)
Conectordeunión
Conjunto del cuerpo
del acelerador
Sensordelatemperatura
delagua
(Protegido)
BR
BR
(Protegido)(Protegido)
E2
THW
76
HILUX (EWD630S)
Control del motor (2TR-FE)
VCP2
BR–R
EPA2
BR–Y
VPA2
GR–G
W–L
VPA
BR–W
EPA
LG–R
VCPA
A27 A21 A19 A26 A20 A18
K2
Sensordecontroldegolpeteo
(banco1)
B
(Protegido)
2 A
W–B
E 9(A), E10(B), E11(C), E12(D)
W
2
W
E1
BR
(Protegido)
Y
L
NE+
1
3
R
GG
NE–
1
2
G2+
2
KNK1
B
EKNK
1
V
6
B
2 3 1
BR
V
9 78
BR
G
M
3
ALT
D10
A 8
L–Y
7. 5A
ST
2O19
STA
J30
J31(A), J32(B)
E 2
EB12 EB11 A1
(Protegido)
(Protegido)
(Protegido)
(Protegido)
D3D27D34D26D30D29
BR
Desde el sistema de la fuente de alimentación (Vea la página 62)
L–Y
Alternador
A
ECU del motor
Conector de unión
Conector de unión
Sensor de
posición
del árbol
de levas
C 1
Sensor de
posición
del cigüeñal
C 4
12
4(Protegido)
21 3 4 5 6
Sensor de la posición del acelerador
A13
(Protegido)
5
B
ELS3
B
ReléDEF
3
VCP2 EPA2 VPA2 VCPA EPA VPA
NE– NE
E
HILUX (EWD630S)
77
14 2D
Desde el sistema de la fuente de alimentación (Vea la página 62)
7. 5A
OBD
E 1
1425
2N
C6 C
E 9(A), E10(B), E11(C), E12(D)
ID1
BB
18
6
B24
13 B 17 B35
9
B–W
B–R
5
R
G
#40#30#20#10
W
2
1
2
1
2
1
2
1
B–R
B–R
B–R
B–R B–R
B–R
LL
4
Y
P
THWO
P
R–L
AC1 ACT
2
V–R
SPD
W–B
ME01
W–B
B
TACH
SIL
7
TC
13
ID2
SIL
B
J23(B)
TC
V
BAT
O
16
W–BG
6 2O
W
WFSE
1
WFSE
15
BR
CG
45
SG
R–Y
P–B
V
E 1E 1
B3
A3
J31(A),J32(B)
F5
F6
F7
F8
C2 C1
B8
ED IE
D 1
B–W
TAC
Conectordeunión
15A
INJ
2D11
BR
2Q21
2Q5
2Q22
2Q6
R–Y
P–B
30 B
1 IE1
W
R–BR–B
2O22
B–W
2Q16
2Q32
14
ACTAC1
C3
B–R
BR
J21
B–W
R–B
V–R
P
BR
W–B
EC
R
8
12
22 A
A 9
W–B
Amplificador del A/C
DLC3
ECU del motor
Inyectordecombustible
(N.˚1)
Inyectordecombustible
(N.˚2)
Inyectordecombustible
(N.˚3)
Inyectordecombustible
(N.˚4)
Conectordeunión
Conectordeunión
(∗1)
(∗1)
(∗1)
E
E0M
W–B
11
29 A
ECU de la llave de transmisor
EFIO EFII
T21
IMOIMI
Y–B
B15
13
Y–G
B16
12
∗ 1 : con sistema inmovilizador del motor
B1
B4
78
HILUX (EWD630S)
Control del motor (2TR-FE)
J30
Conector
de unión
Sensor de
velocidad
Conector de unión
Medidor de combinación
J22(A), J23(B)
12 B
10 A
W–B
W–BY
W–B
ID
S 3
BR
P
V–R
R–B
B–W
2
1
Desde el sistema de la fuente de alimentación (Vea la página 62)
7. 5A
DOME
30
15 ID2
2S
10A
ECU–IG&GAUGE
25 2Q
8 2J
6
7
1
R–BR–B
1
R
B–W
Velocímetro
Tacómetro
Temperatura
P
P–L
BRBR
P–L
2
3
R
V–RV–R
R–B
2Q26
2P26
ID216
C 8
R–BB–O
Revisarelmotor
7. 5A
MET
2D1
39 7 6 4 22 5
21 1
IG+SI
SE
HILUX (EWD630S)
79
Este sistema emplea una ECU del motor y mantiene el control general del motor, transmisión, etc. Aquí daremos una
descripción general del control del motor.
1. Señales de entrada
(1) Circuito de la señal de la temperatura del agua
El sensor de la temperatura del agua detecta la temperatura del refrigerante del motor y tiene un termistor incorporado
con una resistencia que varía de acuerdo con la temperatura del refrigerante del motor, y de este modo la temperatura
del refrigerante del motor se introduce en forma de una señal de control al TERMINAL THW de la ECU del motor.
(2) Circuito de la señal de la temperatura del aire de admisión
El sensor de la temperatura del aire de admisión está instalado en el medidor del flujo de aire y detecta la temperatura
del aire de admisión, que se introduce como una señal de control en el TERMINAL THA de la ECU del motor.
(3) Circuito de la señal de RPM
La posición del árbol de levas y la posición del cigüeñal se detectan mediante el sensor de posición del árbol de levas y
sensor de posición del cigüeñal. La posición del árbol de levas se introduce en forma de una señal de control al
TERMINAL G2+ de la ECU del motor, y la de RPM se introduce al TERMINAL NE+.
(4) Circuito de la señal del acelerador
El conjunto del cuerpo del acelerador detecta el ángulo de abertura de la válvula de aceleración, que se introduce en
forma de una señal de control a los TERMINALES VTA1 y VTA2 de la ECU del motor.
(5) Circuito de la señal de la velocidad del vehículo
El sensor de velocidad detecta la velocidad del vehículo e introduce una señal de control al TERMINAL SPD de la ECU
del motor a través del medidor de combinación.
(6) Circuito de la señal de la batería
La tensión se aplica constantemente al TERMINAL BATT de la ECU del motor. Cuando se conecta el interruptor de
encendido, la tensión para la operación de la ECU del motor se aplica al TERMINAL +B de la ECU del motor a través
del relé MAIN.
(7) Circuito de la señal del arrancador
Para confirmar si el motor está virando, se detecta la tensión aplicada al motor de arranque durante el viraje y la señal
se introduce al TERMINAL STA de la ECU del motor en forma de una señal de control.
(8) Circuito de la señal de golpeteo del motor
El sensor de control de golpeteo (banco 1) detecta el golpeteo del motor, y se introduce la señal en el TERMINAL KNK1
de la ECU del motor como una señal de control.
2. Sistema de control
∗ Sistema EFI
El sistema EFI monitoriza el estado del motor mediante las señales, que se introducen desde cada sensor a la ECU del
motor. Se decide el mejor volumen de inyección de combustible basándose en estos datos y en el programa
memorizado por la ECU del motor, y la señal de control se emite a los TERMINALES N.° 10, N.° 20, N.° 30 y N.° 40 de
la ECU del motor para operar el inyector de combustible. (Inyección del combustible). El sistema EFI produce el control
de la operación de inyección del combustible mediante la ECU del motor en respuesta a las condiciones de circulación.
∗ Sistema ESA
El sistema ESA monitoriza el estado del motor mediante las señales, que se introducen a la ECU del motor desde cada
sensor. La mejor distribución del encendido se detecta de acuerdo con estos datos y los datos memorizados en la ECU
del motor, y la señal de control se emite a los TERMINALES IGT1, IGT2, IGT3 y IGT4. Esta señal controla la bobina de
encendido para proporcionar la mejor distribución de encendido para las condiciones de circulación.
∗ Sistema de control de la bomba de combustible
La operación de la ECU del motor emite señales al TERMINAL FC y controla el relé C/OPN. De este modo, controla la
velocidad de impulsión de la bomba de combustible en respuesta a las condiciones.
3. Sistema de diagnosis
Con el sistema de diagnosis, cuando se produce un mal funcionamiento en el sistema de señales de la ECU del motor, el
sistema con mal funcionamiento se registra en la memoria. El sistema con mal funcionamiento puede encontrarse leyendo
la visualización (el código) de la luz de advertencia de comprobación del motor.
4. Sistema de seguridad doble
Cuando se produce un mal funcionamiento en algún sistema, si existe la posibilidad de originarse un problema del motor
causado por el control continuado basado en las señales procedentes de este sistema, el sistema de seguridad doble
controla el sistema empleando los datos (valores estándar) registrados en la memoria de la ECU del motor o para el motor.
Descripción del sistema
80
HILUX (EWD630S)
Control del motor (2TR-FE)
E9 (A), E10 (B), E11 (C), E12 (D) ECU del motor
BATT-E1 : Siempre aprox. 9-14 voltios
+B-E1 : 9-14 voltios con el interruptor de encendido conectado y el motor parado
VC-E1 : 4,5-5,5 voltios con el interruptor de encendido conectado y el motor parado
IGF1-E1 : Generación de pulsos con el motor al ralentí
THA-E1 : 0,5-3,4 voltios con el motor al ralentí y con una temperatura del aire de admisión de 0 °C - 80 °C
THW-E1 : 0,2-1,0 voltios con el motor al ralentí y con una temperatura del refrigerante del motor de 60 °C - 120 °C
W-E1 : 9-14 voltios con el motor al ralentí
STA-E1 : 6,0 voltios o más virando el motor
VTA1, VTA2-E1 : 0,3-1,0 voltios con el interruptor de encendido conectado y
la válvula del acelerador completamente cerrada
: 3,2-4,9 voltios con el interruptor de encendido conectado y
la válvula del acelerador completamente abierta
STP-E1 : 7,5-14 voltios con el pedal del freno pisado
FC-E1 : 9-14 voltios con el interruptor de encendido conectado y el motor parado
: 0-3 voltios con el motor al ralentí
NE+, G2+ -NE- : Generación de pulsos con el motor al ralentí
OC1+ -OC1- : Generación de pulsos con el interruptor de encendido conectado y el motor parado
IGT1, IGT2, IGT3, IGT4-E1 : Generación de pulsos con el motor al ralentí
#10, #20, #30, #40-E1 : Generación de pulsos con el motor al ralentí
E01, E02, ME01, E1, EC-Tierra : Siempre con continuidad
W1 Sensor de la temperatura del agua
2-1 : Aprox. 15,04 kΩ (-20 °C)
Aprox. 2,45 kΩ (20 °C)
Aprox. 0,31 kΩ (80 °C)
Aprox. 0,14 kΩ (110 °C)
: Localización de partes
Código Vea la página Código Vea la página Código Vea la página
A4 36 (2TR-FE) E11 C 41 J21 42
A8 36 (2TR-FE) E12 D 41 J22 A 42
A9 40 F5 36 (2TR-FE) J23 B 42
A13 40 F6 36 (2TR-FE) J30 42
A18 36 (2TR-FE) F7 36 (2TR-FE) J31 A 42
A19 A 36 (2TR-FE) F8 36 (2TR-FE) J32 B 42
A20 B 36 (2TR-FE)
F15
44 (∗2) J33 A 42
A21 36 (2TR-FE)
F15
46 (∗3) J34 B 42
A22 36 (2TR-FE) H6 36 (2TR-FE) J35 37 (2TR-FE)
C1 36 (2TR-FE) I7 36 (2TR-FE) K2 37 (2TR-FE)
C4 36 (2TR-FE) I8 36 (2TR-FE) P12 37 (2TR-FE)
C8 40 I9 36 (2TR-FE) S3 37 (2TR-FE)
C10 40 I10 36 (2TR-FE) S14 43
C14 36 (2TR-FE) J1 42 T21 43
D1 41 J4 A 42 T25 37 (2TR-FE)
E9 A 41 J5 B 42 V3 37 (2TR-FE)
E10 B 41 J15 42 W1 37 (2TR-FE)
: Bloques de relés
Código Vea la página Bloque de relés (localización del bloque de relés)
1 22 R/B del compartimiento del motor (Compartimiento del motor izquierdo)
∗ 1 : 1KD-FTV, 2KD-FTV ∗ 2 : Cabina doble ∗ 3 : Cabina sencilla
Consejos para el servicio
HILUX (EWD630S)
81
: Bloque de empalmes y conector del mazo de cables
Código Vea la página Bloque de empalmes y mazo de cables (localización del conector)
1B
23
1C
23
Alambre principal del compartimiento del motor y J/B del compartimiento del motor
1H
24
Alambre principal del compartimiento del motor y J/B del compartimiento del motor
(Compartimiento del motor izquierdo)
1J
24
2C
28 Alambre del panel instrumental y J/B del lado del conductor (Tensor del panel instrumental izquierdo)
2D
28 Alambre del panel instrumental y J/B del lado del conductor (Tensor del panel instrumental izquierdo)
2F
2J
28
Alambre principal del compartimiento del motor y J/B del lado del conductor
2L
28
Alambre principal del compartimiento del motor y J/B del lado del conductor
(Tensor del panel instrumental izquierdo)
2M
2N
2O
2P
29 Alambre del panel instrumental y J/B del lado del conductor (Tensor del panel instrumental izquierdo)
2Q
29 Alambre del panel instrumental y J/B del lado del conductor (Tensor del panel instrumental izquierdo)
2R
2S
: Mazo de cables de la unión del conector y mazo de cables
Código Vea la página Mazo de cables de unión y mazo de cables (localización del conector)
EA1 48 (2TR-FE)
Alambre del motor y Alambre principal del compartimiento del motor
(Dentro del R/B del compartimiento del motor y J/B del compartimiento del motor)
EB1 48 (2TR-FE) Alambre del motor y Alambre del sensor (Lado izquierdo del bloque de cilindros)
ID1
52 Alambre del motor y Alambre del panel instrumental (Detrás de la guantera)
ID2
52 Alambre del motor y Alambre del panel instrumental (Detrás de la guantera)
IE1 52 Alambre del panel instrumental y Alambre del panel instrumental (Centro de refuerzo del tablero de instrumentos)
IF3 54
Alambre principal del compartimiento del motor y Alambre del panel instrumental
(Detrás del J/B del lado del conductor)
IG2 54 Alambre principal del compartimiento del motor y Alambre del piso (Cerca del lado del conductor J/B)
BA1
56 (∗2)
Alambre del bastidor y Alambre del piso (Debajo del asiento frontal izquierdo)BA1
58 (∗3)
Alambre del bastidor y Alambre del piso (Debajo del asiento frontal izquierdo)
: Puntos a tierra
Código Vea la página Localización de los puntos a tierra
EA 48 (2TR-FE) Lado derecho del faldón del guardabarros
EB 48 (2TR-FE) Lado izquierdo del faldón del guardabarros
ED
48 (2TR-FE) Lado trasero del bloque de cilindros
EE
48 (2TR-FE) Lado trasero del bloque de cilindros
ID 52 Centro de refuerzo del tablero de instrumentos
IE 52 Refuerzo del panel instrumental izquierdo
IG 52 Panel del lado del cubretablero izquierdo
: Puntos de la unión
Código Vea la página Mazo de cables con puntos de unión Código Vea la página Mazo de cables con puntos de unión
E1
48 (2TR-FE) Alambre del motor
I1 54 Alambre del motor
E2
48 (2TR-FE) Alambre del motor
∗ 1 : 1KD-FTV, 2KD-FTV ∗ 2 : Cabina doble ∗ 3 : Cabina sencilla
82
HILUX (EWD630S)
Control del motor (1KD-FTV, 2KD-FTV)
50A
BATT
P/I
Desde el sistema de la fuente de alimentación (Vea la página 62)
1B3
W–L
4
1
B
1
25A
EFI
L
L
Relé
EDU
2
B
L
W–GW–B
B
B–R
W–B
R
B–WB–W
B–W
W–G
B
B
1
2
3
5
Relé GLOW
B–R
W–B
B
R
1
W–B
B
7
EB
G 1
J 1
11
11
1J5 1J3 1J8 1J7
1H1 1J1 1J4 1J2
EA21
EA112
IF212
J4(A),J5(B)
B2
A6
80A
GLOW
1G1
Relé
MAIN
B
Bujía incandescente
Conector de unión
Conectordeunión
∗ 1 : Protegido
∗ 2 : 1KD–FTV
HILUX (EWD630S)
83
E 5(A), E 6(B), E 7(C), E 8(D)
R
B–W
L
R
W–G
B
1
2
GREL
R
B
B
W–G
B
W–G
+BMREL BATT
B–W
IREL
L
B
A10
IF314 IF31 IF211
A15B2A1A8
29 A23 A27 A28 AA22
VCPA
LG–R
W–L
VPA EPA
BR–W
BR–R
VCP2
BR–Y
EPA2VPA2
GR–G
26 A
A13
4 6 5 1 3 2
B
B
W–B
Sensor de la posición del acelerador
ECU del motor
1 B
3 A
L–R
EGR
B
B
C9
E 2
1
2
VRV(EGR)
V1
Válvuladecontrol
delasucción
S8
(∗1)
W–B
2 B 6 B
5 A
Conectordeunión
J7(A),J8(B)
W–B
W–B
W–BW–B
W–B(∗1)
(∗2)
VPA2 EPA2VCP2EPAVPAVCPA
(∗2)
(∗2)
(∗2)(∗2)
(∗2)
VG THA E2G
+B E2
3
1
C24
VG
BW–R
4
D31
THA
Y–B
A4
Medidordeflujodeaire
2
5
C32
EVG
BR
B–W
D1
PCV+PCV–
2 D
G–W
G–Y
BR(∗2)
W–B(∗2)
84
HILUX (EWD630S)
Control del motor (1KD-FTV, 2KD-FTV)
B
T1(A),T2(B)
E 2
M+VTA2VNVC
VNTI
VTA1
VNTO
+B
8 1 5 2 10
Motordeboquilla
variabledel
turboalimentador
T11
T 8
(∗2)
9
D10
VNTO
B–O
(∗2)
4
6
D17
VNTI
W–B
R–B
(∗2)
(∗2)
(∗2)
(∗2)
(∗2)
B BB
E 2E 2
V2
2
1
C18
EGRC
BY–B
S9
1
2
D15
SCV
BLG
∗ 4 : con enfriador intermedio
∗ 3 : 2KD–FTV para Argentina
∗ 2 : 1KD–FTV
Válvuladecontroldeturbulencia
VSV(válvuladecortedeEGR)
Impulsor del motor de
turboalimentación
Impulsor de inyectores (EDU)
ECU del motor
∗ 1 : Protegido
W–B
(∗1)
B
+B
P
INJF
INJF
B–W
#10
#1
3
R
#40
#4
Y–R
V
#3
#30#20
#2
EA1
(∗1)(∗1)
B
GND
W–B
I 1(A), I 2(B)
B1A8 B7 B6 B3 B2 B5
D25 D24 D23 D22 D21
EA12
W–B
B
E 5(A), E 6(B), E 7(C), E 8(D)
BR
GND
3
M–
B
(∗2)
L
(∗2)
R
(∗2)
W
(∗2)
(∗1)
3
VNVC
1
VTA1
2
VNE2
2
1Sensor de boquilla variable
del turboalimentador
T10
W–B(∗2)
BR(∗2)
W–B
(∗2)
B
M–
M+
(∗2)
W–B
(∗1)
3 B
A2
C
VLU
VAF
29
A3
GR
B
C
B2
4
VCLUSL
A1
Conjuntodelcuerpodelacelerador
E2GND+B
B1
LUSL
B
W–B
R–W
BR
B(∗2)
HILUX (EWD630S)
85
B
Sensordelatemperatura
delairedeentrada
(Enfriadorintermedio)
Sensordela
posicióndela
válvulaEGR
(∗2)
A
BR
T9
Sensordepresión
turbo
E2
F9
Sensordepresión
decombustible
BR
I4
BR
20
Conector de uniónConector de unión
Conector de unión
Conector
de unión
Impulsor de inyectores (EDU)
Inyectordecombustible
(N.˚4)
Inyectordecombustible
(N.˚3)
Inyectordecombustible
(N.˚2)
Inyectordecombustible
(N.˚1)
ECU del motor
W–B
(∗1)
W–B
(∗1)
(∗1)
(∗1)
(∗1)
EGLS
17 19
2313
E2
32
2
16
18
J 7(A), J 8(B)
J 6
28 D 20 D C28 33 C 18 D 26 D
1 2
VC
Y–GBR
THIA
B 10 B8
1
A
1
B
9
BRBR
E2
A
BR
PCR1
7
PIM
L–BBR
EGLS
L–Y
(∗3)
VC
R–W
E
PIM VC
R–W
(∗3)
R–Y
BR
E2
PR
R–W
VC
BR
11
8A 7
9B
BR
COM2
(∗1)
(∗1)
(∗1)
(∗1)
INJ3INJ2INJ4INJ1COM1
R–B
R–B
L–W
L–W
W
G
L
P
J10(B)
Y
1
2
L
1
2
J10(B)
R
1
2
B
1
2
I 1(A), I 2(B)
F6
F8
F5
A1A2A6A34 AA5
F7
BR
E 5(A), E 6(B), E 7(C), E 8(D)
10
(2KD–FTV)
(∗1)
(∗4)(∗4)
(2KD–FTV)
BR
R–W
(∗3)
BR
BRR–W
R–W
B12B10B11B9B7B8
86
HILUX (EWD630S)
Control del motor (1KD-FTV, 2KD-FTV)
6 AA43 AA2
4 BB2
5
1J 9(A), J10(B)
BR
(∗1)
(∗1)
(∗1)
(∗1)
(∗1)
(∗1)
1
B
A A
BR
G–BBR
THF
R–LBR
THW
19 DD29
1
2
Conector de unión
(A/T)
B–Y
C7
8 A
12 B
BR
N 1
L–Y
STA
L–Y
7. 5A
ST
2O3
L–Y
54
P
N
A7
(A/T)(A/T)
1 ID2
(A/T)
B–Y
2O19
(M/T)
J11(A),J12(B)
23 C 31 C 27 D 34 D
E 1
EC
7 D 6 D
I 1
Desde el sistema de la fuente de alimentación (Vea la página 62)
E 5(A), E 6(B), E 7(C), E 8(D)
BR
W–B
E02
BR
E01
W–B
W
NE+
(∗1)
G+
2
1
G–
W–B
1
Y
L
NE–
2
3
Y
L
E1
BR
1
2
2F2
2M
G–WG–B
21
5
2S
15 B
4 IF3
STP
G–W
3
4
R–LR–L
14
ST1–
A9 B
IGSW
B–O
2S22
B–O
B–O
6 2M
7. 5A
IGN
(∗1)
(∗1)
(∗1)
(∗1)
W–B
W–B
B L
ECU del motor
Conectordeunión
Interruptor de arranque
en punto muerto
Sensordeposición
delárboldelevas
C1
Sensordeposición
delcigüeñal
C4(∗1)
(∗1)
Sensordelatemperaturadelagua
W1
Y–G
THA
D31
1
2
I3
BR
(2KD–FTV)
(∗1)
BR
L
(A/T)
6 A
NSW
L–Y
10A
STOP
BR
(2KD–FTV)
Sensordelatemperaturadelairedeentrada
(Filtrodeaire)
E2
THW
NE+ NE–
E
2
1
Sensordelatemperaturadelcombustible
F11
Interruptordela
lámparadeparada
S14
HILUX (EWD630S)
87
B
14
29
2 13
Y–G
14 2D
Desde el sistema de la fuente de alimentación (Vea la página 62)
7. 5A
OBD
219
2N
E 5(A), E 6(B), E 7(C), E 8(D)
AB
18
6
B18
P
18 A 11 A19
9
B–W
Y
P
THWO
P
R–L
AC1 ACT
V–R
SPD
J 6
A
TACH
SIL
7
TC
13
ID2
SIL
A
TC
BAT
O
16
W–BG
6 2O
W
WFSE
4
WFSE
15
BR
CG
45
SG
R–Y
P–B
BR
GG
M
3
ALT
D8
A 8 (A/T)
(A/T)
B17
IE
D 1
B–W
TAC
T17
22
P
CAN–
20
B
CAN+
21
CAN+
V
2Q21
2Q5
2Q22
2Q6
R–Y
P–B
12 A
1 IE1
W
R–B
2O22
B–W
2Q16
2Q32
B30
12
A 9
ACTAC1
CAN–
B21
B–W
R–B
V–R
BR
W
9 2C
10 2C4
5
Y–R
GIND
A14
Y–R
J23(B)
BR
BR
∗ 1 : Protegido
R–B
Y–B
Alternador
Amplificador del A/C
DLC3
ECU del motor
Conector
de unión
Conector
de unión
ECU de control de
la transmisión
IMI IMO
T21
EFIIEFIO
ECU de la llave de transmisor
A16
11
W–B
EOM
E
(∗5)
(∗5)
(∗5)
∗ 5 : con sistema inmovilizador del motor
B1
B4
88
HILUX (EWD630S)
Control del motor (1KD-FTV, 2KD-FTV)
Encendido
B–O
7. 5A
MET
2D1
2
1
Desde el sistema de la fuente de alimentación (Vea la página 62)
7. 5A
DOME
30 2S
10A
ECU–IG&GAUGE
25 2Q
8 2J
1
R
B–W
Velocímetro
Tacómetro
Temperatura
P
P–L
BR
P–L
2
3
RV–RV–R
R–B
2Q26
2P26
ID216
C 8
Y–R
15 ID2
1
R–BR–B
B–W
R–B
V–R
BR
S 3
P
Revisarelmotor
R–B
Y–R
YW–B
ID
J22(A), J23(B)
A10
B12
Medidor de combinación
Conector de unión
Sensor de
velocidad
39 40 7 6 4 22 5
21 1
SI IG+
SE
HILUX (EWD630S)
89
Este sistema emplea una ECU del motor y mantiene el control general del motor, transmisión, etc. Aquí daremos una
descripción general del control del motor.
1. Señales de entrada
(1) Circuito de la señal de la temperatura del agua
El sensor de la temperatura del agua detecta la temperatura del refrigerante del motor y tiene un termistor incorporado
con una resistencia que varía de acuerdo con la temperatura del refrigerante del motor, y de este modo la temperatura
del refrigerante del motor se introduce en forma de una señal de control al TERMINAL THW de la ECU del motor.
(2) Circuito de la señal de la temperatura del aire de admisión
El sensor de la temperatura del aire de admisión detecta la temperatura del aire de admisión del filtro de aire que se
introduce como una señal de control al TERMINAL THA de la ECU del motor.
El sensor de la temperatura del aire de admisión detecta la temperatura del aire de admisión del enfriador intermedio,
que se introduce como una señal de control al TERMINAL THIA de la ECU del motor.
(3) Circuito de la señal de RPM
La posición del árbol de levas y la posición del cigüeñal se detectan mediante el sensor de posición del árbol de levas y
sensor de posición del cigüeñal. La posición del árbol de levas se introduce en forma de una señal de control al
TERMINAL G+ de la ECU del motor, y la de RPM se introduce al TERMINAL NE+.
(4) Circuito de la señal del acelerador
El sensor de la posición del acelerador detecta el ángulo de abertura del pedal del acelerador, que se introduce en
forma de una señal de control a los TERMINALES VPA y VPA2 de la ECU del motor.
(5) Circuito de la señal de la velocidad del vehículo
El sensor de velocidad detecta la velocidad del vehículo e introduce una señal de control al TERMINAL SPD de la ECU
del motor a través del medidor de combinación.
(6) Circuito de la señal de la batería
La tensión se aplica constantemente al TERMINAL BATT de la ECU del motor. Cuando se conecta el interruptor de
encendido, la tensión para la operación de la ECU del motor se aplica al TERMINAL +B de la ECU del motor a través
del relé MAIN.
(7) Circuito de la señal de arranque
Para confirmar que el motor está virando, se detecta la tensión aplicada al motor de arranque durante el viraje y se
introduce en forma de una señal de control al TERMINAL STA de la ECU del motor.
(8) Circuito de la señal de la temperatura del combustible
El sensor de la temperatura del combustible detecta la temperatura del combustible que se introduce en forma de una
señal de control al TERMINAL THF de la ECU del motor.
(9) Sistema de la señal de la presión de vacío de aire de admisión
La presión de vacío del aire de admisión se detecta mediante el sensor de presión turbo y se introduce en forma de una
señal de control al TERMINAL PIM de la ECU del motor.
Descripción del sistema
90
HILUX (EWD630S)
Control del motor (1KD-FTV, 2KD-FTV)
2. Sistema de control
∗ Control EGR
El sistema de control EGR detecta las señales procedentes de cada sensor, y emite corriente al TERMINAL EGR para
controlar la VRV (EGR).
∗ Control de la presión del múltiple común
La presión del múltiple propuesta se calcula de acuerdo con el estado del motor (abertura del acelerador, velocidad del
motor) y los cambios ambientales detectados por los sensores. La cantidad de combustible que se suministrará a presión
desde la bomba de suministro se calcula para que el valor indicado del sensor de la presión del múltiple común coincida
con el valor propuesto, y se envía la señal a la válvula de ajuste de la cantidad de admisión de la bomba de suministro
para controlar la presión del múltiple.
∗ Control de la distribución de inyección de combustible
La distribución de la inyección de combustible se controla calculando la distribución de inyección de combustible básica,
basada en el estado del motor (abertura del acelerador, velocidad del motor), realizando correcciones de acuerdo con los
cambios ambientales detectados por los sensores, y enviando luego una señal a la válvula de control de solenoide del
inyector a través del impulsor de inyectores (EDU).
∗ Control del volumen de inyección de combustible
El volumen de la inyección de combustible se controla calculando el volumen de inyección de combustible básica,
basada en el estado del motor (abertura del acelerador, velocidad del motor), realizando correcciones de acuerdo con los
cambios ambientales detectados por los sensores y las condiciones de la presión interior en el múltiple, y enviando luego
una señal a la válvula de control de solenoide del inyector a través del impulsor de inyectores (EDU).
∗ Control de inyección piloto
El volumen y la distribución de la inyección de combustible se controla calculando el volumen/distribución de inyección
piloto, basada en el estado del motor (abertura del acelerador, velocidad del motor), realizando correcciones de acuerdo
con los cambios ambientales detectados por los sensores, y enviando luego una señal a la válvula de control de
solenoide del inyector a través del impulsor de inyectores (EDU).
3. Sistema de diagnosis
Con el sistema de diagnosis, cuando se produce un mal funcionamiento en el sistema de señales de la ECU del motor, el
sistema con mal funcionamiento se registra en la memoria. El sistema con mal funcionamiento puede encontrarse leyendo
la visualización (el código) de la luz de advertencia de comprobación del motor.
4. Sistema de seguridad doble
Cuando se produce un mal funcionamiento en algún sistema, si existe la posibilidad de originarse un problema del motor
causado por el control continuado basado en las señales procedentes de este sistema, el sistema de seguridad doble
controla el sistema empleando los datos (valores estándar) registrados en la memoria de la ECU del motor o para el motor.
HILUX (EWD630S)
91
E5 (A), E6 (B), E7 (C), E8 (D) ECU del motor
BATT-E1 : Siempre 9,0-14,0 voltios
+B-E1 : 9,0-14,0 voltios (interruptor de encendido en la posición ON)
VC, VCPA, VCP2-E2 : 4,5-5,5 voltios (interruptor de encendido en la posición ON)
STA-E1 : 6,0 voltios o más (virando el motor)
MREL-E1 : 9,0-14,0 voltios (interruptor de encendido en la posición ON)
0-1,5 voltios (han transcurrido más de 10 segundos desde que se puso el interruptor de encendido
en la posición OFF)
IREL-E1 : 0-1,5 voltios (motor al ralentí)
9,0-14,0 voltios (interruptor de encendido en la posición OFF)
GREL-E1 : 9,0-14,0 voltios (virando el motor)
0-1,5 voltios (motor al ralentí (han transcurrido más de 600 segundos desde que se puso el motor en marcha))
NE+ -NE- : Generación de pulsos (motor al ralentí)
G+ -G- : Generación de pulsos (motor al ralentí)
SPD-E1 : Generación de pulsos (circulando a unos 20 km/h)
VPA-EPA : 0,5-1,1 voltios (interruptor de encendido conectado y pedal del acelerador completamente cerrado)
3,0-4,6 voltios (interruptor de encendido conectado y pedal del acelerador completamente abierto)
VPA2-EPA2 : 0,9-2,3 voltios (interruptor de encendido conectado y pedal del acelerador completamente cerrado)
3,4-5,0 voltios (interruptor de encendido conectado y pedal del acelerador completamente abierto)
STP-E1 : 7,5-14,0 voltios (interruptor de encendido conectado y pedal del freno pisado)
0-1,5 voltios (interruptor de encendido conectado y pedal del freno suelto)
ST1- -E1 : 0-1,5 voltios (interruptor de encendido conectado y pedal del freno pisado)
7,5-14,0 voltios (interruptor de encendido conectado y pedal del freno suelto)
PIM-E2 : 1,2-1,6 voltios (cuando se aplica una presión negativa de 40 kPa)
1,3-1,9 voltios (durante la liberación de aire)
3,2-3,8 voltios (cuando se aplica una presión de 69 kPa (0,7 kg/cm3)
THW-E2 : 0,2-1,0 voltios (durante el precalentamiento y temperatura del refrigerante de 60°C - 120°C)
THA-E2 : 0,5-3,4 voltios (durante el precalentamiento y temperatura del aire de admisión de 0°C - 80°C)
THIA-E2 : 0,5-3,4 voltios (durante el precalentamiento y temperatura del aire de admisión de 0°C - 80°C)
THF-E2 : 0,5 -3,4 voltios (durante el enfriamiento manteniendo el interruptor de encendido en la posición ON)
VG-E2 : 0,5-3,4 voltios (motor al ralentí)
PCR1-E2 : 1,3-1,8 voltios (motor al ralentí)
ALT-E1 : Generación de pulsos (motor al ralentí)
PCV+ -PCV- : Generación de pulsos (motor al ralentí)
#1, #2, #3, #4-E1 : Generación de pulsos (motor al ralentí)
INJF-E1 : Generación de pulsos (motor al ralentí)
EGR-E1 : 9,0-14,0 voltios (interruptor de encendido en la posición ON)
: Generación de pulsos (EGR en la posición ON (estando a 1.500 rpm después del calentamiento))
EGLS-E2 : 0,6-1,4 voltios (interruptor de encendido en la posición ON)
AC1-E1 : 0-1,5 voltios (A/C encendido (embrague magnético activado (ON))
7,5-14,0 voltios (interruptor del A/C desconectado)
ACT-E1 : 3,5-14,0 voltios (interruptor de encendido en la posición ON)
0-1,5 voltios (durante el corte de operación del aire acondicionado
(durante 5 segundos circulando a 30 km/h o menos a aceleración completa))
W-E1 : 0-3,0 voltios (luz de aviso de comprobación del motor encendida e interruptor de encendido en la posición ON)
9,0-14,0 voltios (motor al ralentí y excepto cuando se enciende la luz de aviso de comprobación del motor)
GIND-E1 : 0-3,0 voltios (luz del indicador de encendido encendida y el interruptor de encendido en la posición ON)
9,0-14,0 voltios (motor al ralentí)
TACH-E1 : Generación de pulsos (motor al ralentí)
THWO-E1 : Generación de pulsos (motor al ralentí)
TC-E1 : 9,0-14,0 voltios (interruptor de encendido en la posición ON)
0-3,0 voltios (DLC3 cortocircuitado entre los TERMINALES TC y CG)
CAN+ -CAN- : 54,0-69,0 Ω (han transcurrido más de 10 segundos desde que se puso el interruptor de encendido
en la posición OFF)
VNTO-E1 : Generación de pulsos (motor al ralentí)
VNTI-E1 : Generación de pulsos (motor al ralentí)
NSW-E1 : 0-0,3 voltios (palanca de cambios en la posición P o N)
9-14,0 voltios (palanca de cambios en una posición que no es P ni N)
Consejos para el servicio
92
HILUX (EWD630S)
Control del motor (1KD-FTV, 2KD-FTV)
: Localización de partes
Código Vea la página Código Vea la página Código Vea la página
A4 38 (∗1) F11 38 (∗1) N1 39 (∗1)
A8 38 (∗1) G1 38 (∗1) S3 39 (∗1)
A9 40 I1 A 38 (∗1) S8 39 (∗1)
A13 40 I2 B 38 (∗1) S9 39 (∗1)
C1 38 (∗1) I3 38 (∗1) S14 43
C4 38 (∗1) I4 38 (∗1) T1 A 39 (∗1)
C8 40 J1 39 (∗1) T2 B 39 (∗1)
D1 41 J4 A 42 T8 43
E2 38 (∗1) J5 B 42 T9 39 (∗1)
E5 A 41 J6 42 T10 39 (∗1)
E6 B 41 J7 A 42 T11 39 (∗1)
E7 C 41 J8 B 42 T17 43
E8 D 41 J9 A 42 T21 43
F5 38 (∗1) J10 B 42 V1 39 (∗1)
F6 38 (∗1) J11 A 42 V2 39 (∗1)
F7 38 (∗1) J12 B 42 W1 39 (∗1)
F8 38 (∗1) J22 A 42
F9 38 (∗1) J23 B 42
: Bloques de relés
Código Vea la página Bloque de relés (localización del bloque de relés)
1 22 R/B del compartimiento del motor (Compartimiento del motor izquierdo)
: Bloque de empalmes y conector del mazo de cables
Código Vea la página Bloque de empalmes y mazo de cables (localización del conector)
1B
23
1G
23
Alambre principal del compartimiento del motor y J/B del compartimiento del motor
1H
24
Alambre principal del compartimiento del motor y J/B del compartimiento del motor
(Compartimiento del motor izquierdo)
1J
24
2C
28 Alambre del panel instrumental y J/B del lado del conductor (Tensor del panel instrumental izquierdo)
2D
28 Alambre del panel instrumental y J/B del lado del conductor (Tensor del panel instrumental izquierdo)
2F
Alambre principal del compartimiento del motor y J/B del lado del conductor
2J 28
Alambre principal del compartimiento del motor y J/B del lado del conductor
(Tensor del panel instrumental izquierdo)
2M
(Tensor del panel instrumental izquierdo)
2N
2O
2P 29 Alambre del panel instrumental y J/B del lado del conductor (Tensor del panel instrumental izquierdo)
2Q
p y / ( p q )
2S
: Mazo de cables de la unión del conector y mazo de cables
Código Vea la página Mazo de cables de unión y mazo de cables (localización del conector)
EA1
50 (∗1)
Alambre del motor y Alambre principal del compartimiento del motor
EA2
50 (∗1)
Alambre del motor y Alambre principal del compartimiento del motor
(Dentro del R/B del compartimiento del motor y J/B del compartimiento del motor)
ID2 52 Alambre del motor y Alambre del panel instrumental (Detrás de la guantera)
IE1 52 Alambre del panel instrumental y Alambre del panel instrumental (Centro de refuerzo del tablero de instrumentos)
IF2
54
Alambre principal del compartimiento del motor y Alambre del panel instrumental
IF3
54
Alambre principal del compartimiento del motor y Alambre del panel instrumental
(Detrás del J/B del lado del conductor)
∗ 1 : 1KD-FTV, 2KD-FTV ∗ 2 : Cabina doble ∗ 3 : Cabina sencilla
HILUX (EWD630S)
93
: Puntos a tierra
Código Vea la página Localización de los puntos a tierra
EB 50 (∗1) Lado izquierdo del faldón del guardabarros
EC 50 (∗1) Lado trasero del bloque de cilindros
ID 52 Centro de refuerzo del tablero de instrumentos
IE 52 Refuerzo del panel instrumental izquierdo
: Puntos de la unión
Código Vea la página Mazo de cables con puntos de unión Código Vea la página Mazo de cables con puntos de unión
E1
50 (∗1) Alambre del motor
I1 54 Alambre del motor
E2
50 (∗1) Alambre del motor
∗ 1 : 1KD-FTV, 2KD-FTV ∗ 2 : Cabina doble ∗ 3 : Cabina sencilla
94
HILUX (EWD630S)
Sistema inmovilizador del motor
7. 5A
IGN
B–O
2R6
2L12
2R29
2C3
2C4
B12
A11 A12
ID
2N26
2O10
B29 B30 A16
27 2O
27 2N
IA13
7
1457
16
1
2
31113121687
914154521
2
1
CTY IND GND EFII EFIO E KSW
AGND TXCT CODE VC5
SIL
W–B
W–BG–YBR
W–B
Y–G
Y–B
G
G–R
R–B
G–R
R–B
L
L–O
L–B
L–Y
L
B
L–Y
L–Y
G
ANT2ANT1
EOMIMIIMO
DVC5CODETXCTAGNDIG+B
Amplificador de la llave
de transmisor
T20
D 1
ECU de la llave de transmisor
T21
ECU del motor
E 5(A), E 6(B), E 9(C), E10(D)
Conector de unión
J22(A), J23(B)
Interruptordeadvertenciadedesbloqueo
U1
Conectordeunión
J23(B)
S10
Medidorde
combinación
C8
W–B
Bobina de la llave
del transmisor
2Q22
2P22
R–Y
15
R–BR–B
D 2
Interruptor de cortesía
de la puerta
(lado del conductor)
DLC3
Lámparadelindicadordeseguridad
1
∗ 1 : 1KD–FTV, 2KD–FTV
∗ 2 : 2TR–FE
D15 D16 C29 (∗2)
(∗1)LP
E
7. 5A
ECU–B
Desde el sistema de la fuente de alimentación (Vea la página 62)
1
2
1
B–O
B11
B12
HILUX (EWD630S)
95
T21 ECU de la llave de transmisor
1-Tierra : Siempre aprox. 12 voltios
16-Tierra : Siempre con continuidad
2-Tierra : Aprox. 12 voltios con el interruptor de encendido en la posición ON
: Localización de partes
Código Vea la página Código Vea la página Código Vea la página
C8 40 E6 B 41 S10 43
D1 41 E9 C 41 T20 43
D2
44 (∗2) E10 D 41 T21 43
D2
46 (∗3) J22 A 42 U1 43
E5 A 41 J23 B 42
: Bloques de relés
Código Vea la página Bloque de relés (localización del bloque de relés)
1 22 R/B del compartimiento del motor (Compartimiento del motor izquierdo)
: Bloque de empalmes y conector del mazo de cables
Código Vea la página Bloque de empalmes y mazo de cables (localización del conector)
2C 28 Alambre del panel instrumental y J/B del lado del conductor (Tensor del panel instrumental izquierdo)
2L 28
Alambre principal del compartimiento del motor y J/B del lado del conductor
(Tensor del panel instrumental izquierdo)
2N
2O
2P 29 Alambre del panel instrumental y J/B del lado del conductor (Tensor del panel instrumental izquierdo)
2Q
p y / ( p q )
2R
: Mazo de cables de la unión del conector y mazo de cables
Código Vea la página Mazo de cables de unión y mazo de cables (localización del conector)
IA1 52 Alambre del panel instrumental y Alambre del piso (Panel de arranque derecho)
: Puntos a tierra
Código Vea la página Localización de los puntos a tierra
ID 52 Centro de refuerzo del tablero de instrumentos
∗ 1 : 1KD-FTV, 2KD-FTV ∗ 2 : Cabina doble ∗ 3 : Cabina sencilla
Consejos para el servicio
96
HILUX (EWD630S)
Sistema de comunicaciones múltiplex - CAN
22
21
V
CAN+
CAN+
21
20
P
CAN–
CAN–
T17
E 6
ECU del motor
ECU de control de la transmisión
HILUX (EWD630S)
97
El sistema de comunicaciones múltiplex (CAN) emplea un protocolo de comunicaciones en serie y se comunica con una
tensión diferencial. En el sistema de esta red, los TERMINALES CAN+ y CAN- se emplean para las comunicaciones en las
ECU y los sensores, y se consiguen excelentes velocidad de comunicaciones de datos y facilidad de detección de errores
de comunicaciones. Este sistema funciona para los sistemas siguientes:
∗ Control del motor
∗ ECT
: Localización de partes
Código Vea la página Código Vea la página Código Vea la página
E6 41 T17 43
Descripción del sistema
98
HILUX (EWD630S)
Faro
1 2
3
1 2
3
B3 B6
A4 A1A2 A3
B5
A2
B4
IE
luzde
carretera
7. 5A
DOME
1
2Q25
2J8
20A
H–LP
LH
Desde el sistema de la fuente de alimentación (Vea la página 62)
1 1
20A
H–LP
RH
∗1
luz de
cruce
luz de
carretera
OFF
Cola
Faro
11
8 9
R
B
R
B–W
R–Y
B–W
B–R
R–Y
R–Y
R–YR
R–Y
BW–B
1
27
C 8
2
1
H 2H 1
J 4(A), J 5(B)
Interruptor de
control de las luces
Interruptor de
intensidad de los faros
2
1
2
1
B1 T1 (H) ED RF (ED) HL HU ED
Medidor de
combinación
Faro (izquierdo) Faro (derecho)
Conector
de unión
Conector de unión
J22(A), J23(B)
Interruptor de combinación
C10
∗ 1 : luz de intermitencia
HILUX (EWD630S)
99
C10 Interruptor de combinación
8-11 : Continuidad con el interruptor de la intensidad de los faros en la posición LOW y
el interruptor de control de las luces en la posición HEAD
9-11 : Continuidad con el interruptor de la intensidad de los faros en la posición FLASH o con el interruptor de la intensidad
de los faros en la posición HIGH el interruptor de control de las luces en la posición HEAD
: Localización de partes
Código Vea la página Código Vea la página Código Vea la página
C8 40
H2
36 (2TR-FE) J22 A 42
C10 40
H2
38 (∗1) J23 B 42
H1
36 (2TR-FE) J4 A 42
H1
38 (∗1) J5 B 42
: Bloques de relés
Código Vea la página Bloque de relés (localización del bloque de relés)
1 22 R/B del compartimiento del motor (Compartimiento del motor izquierdo)
: Bloque de empalmes y conector del mazo de cables
Código Vea la página Bloque de empalmes y mazo de cables (localización del conector)
2J 28
Alambre principal del compartimiento del motor y J/B del lado del conductor
(Tensor del panel instrumental izquierdo)
2Q 29 Alambre del panel instrumental y J/B del lado del conductor (Tensor del panel instrumental izquierdo)
: Puntos a tierra
Código Vea la página Localización de los puntos a tierra
IE 52 Refuerzo del panel instrumental izquierdo
∗ 1 : 1KD-FTV, 2KD-FTV ∗ 2 : Cabina doble ∗ 3 : Cabina sencilla
Consejos para el servicio
100
HILUX (EWD630S)
Luz antiniebla frontal
R–W
R–W
1
2
1
2
Conectado
OFF
Interruptor
delasluces
antiniebla
delanteras
3
Relé FOG
R–W
PW–B
J21
C10
3
6
4
R–W
G
G–B
1
2
W–L
15A
FOG
G–B
G
Interruptor
decontrol
delasluces
G
G–W
W–B
W–B
9
1
W–B
W–B
W–B12
Desde el sistema de la fuente de alimentación (Vea la página 62)
2C3
10A
TAIL
51B
EB EA ID
1H1 1I2
1I31I4
A10A9
B9 J 2(A), J 3(B)
J 1
2J13
2Q14
2Q30
2J12
2S7
2Q12
2S23 2R7
Antiniebla
delantera
8
30
OFF
Cola
Faro
1310
G–B
G
50A
BATT P/I
I 2
C 8
F 3F 2
BFG LFG B1T1
G–W
Medidor de
combinación
Lámpara antiniebla
(delantera izquierda)
Lámpara antiniebla
(delantera derecha)
Interruptor de
combinación
Conector
de unión
Conector de unión
Conector
de unión
HILUX (EWD630S)
101
F2, F3 Luces antiniebla (delantera izquierda), (delantera derecha)
2-Tierra : Aprox. 12 voltios con el interruptor de control de las luces en la posición TAIL o HEAD,
el interruptor de la intensidad de los far el interruptor de las luces antiniebla delanteras en la posición ON
: Localización de partes
Código Vea la página Código Vea la página Código Vea la página
C8 40 F3 38 (∗1) J3 B 42
C10 40 J1 39 (∗1) J21 42
F2 38 (∗1) J2 A 42
: Bloque de empalmes y conector del mazo de cables
Código Vea la página Bloque de empalmes y mazo de cables (localización del conector)
1B 23
Alambre principal del compartimiento del motor y J/B del compartimiento del motor
1H
24
Alambre principal del compartimiento del motor y J/B del compartimiento del motor
(Compartimiento del motor izquierdo)
1I
24 (Compartimiento del motor izquierdo)
2C 28 Alambre del panel instrumental y J/B del lado del conductor (Tensor del panel instrumental izquierdo)
2J 28
Alambre principal del compartimiento del motor y J/B del lado del conductor
(Tensor del panel instrumental izquierdo)
2Q
2R 29 Alambre del panel instrumental y J/B del lado del conductor (Tensor del panel instrumental izquierdo)
2S
p y / ( p q )
: Puntos a tierra
Código Vea la página Localización de los puntos a tierra
EA
48 (2TR-FE)
Lado derecho del faldón del guardabarrosEA
50 (∗1)
Lado derecho del faldón del guardabarros
EB
48 (2TR-FE)
Lado izquierdo del faldón del guardabarrosEB
50 (∗1)
Lado izquierdo del faldón del guardabarros
ID 52 Centro de refuerzo del tablero de instrumentos
: Puntos de la unión
Código Vea la página Mazo de cables con puntos de unión Código Vea la página Mazo de cables con puntos de unión
I2 54
Alambre principal del compartimiento
del motor
∗ 1 : 1KD-FTV, 2KD-FTV ∗ 2 : Cabina doble ∗ 3 : Cabina sencilla
Consejos para el servicio
102
HILUX (EWD630S)
Luz de cola y Iluminación
10A
TAIL
Desde el sistema de la fuente de alimentación (Vea la página 62)
2C5 2R7
1
2
1
2
2
1
2L7 2M7
EB EA
1
6
I 2
3
2
Cola
3
2
Cola
2K7
IG
12 W–B
GG
G
W–B
W–B
G
G
G
G
G–W
W–B
W–B
W–B
W–B
W–B
C2
C3
L2
J1
R4
R5
10
OFF
B1 T1
Cola
Faro
Interruptorde
controlde
lasluces
13
G
GW–B
W–B
C10
Lámparadepaso
(delanteraizquierda)
Lámparadepaso
(delanteraderecha)
Interruptor de combinación
Conector
deunión
Lámparadecombinacióntrasera
(izquierda)
Lámparadecombinacióntrasera
(derecha)
B 3B 3B 3
B 3B 3B 3
2
1
W–BG
L1
BA111
G
W–B W–B
GG
BA18
4
W–BW–B(∗1)
Lámparaderecha
delamatrícula
Lámparaizquierdadelamatrícula
W–R(∗2)
∗ 1 : Cabina doble
∗ 2 : Cabina sencilla
J15
Conector
deunión
HILUX (EWD630S)
103
2S23
7. 5A
MET
Desde el sistema de la fuente de alimentación (Vea la página 62)
2D12S7
22
218
Y
G
B–O
GY
G
Iluminación
Iluminacióndel
visualizadorLCD
1
R
2J8
2Q25
7. 5A
DOME
1
R
1
2
Medidor de combinación
C 8
104
HILUX (EWD630S)
Luz de cola y Iluminación
10
24 2P
W–B
L
L
R
W
W–B
L
BR
2Q28
G
G
G
G
G
G
G
ID
B12
B6
B9 B7 B8
A10 A9
3
8
10
2
1
2
1
1
2
2Q3 2Q29 2P29
W–B
2P19 2Q19
8
4
IE
2D92D18
2D17
12
Y
W–B
W–B
W–B
R3
A16
C6
R1
(∗3)
(∗5)
(∗4)
(A/T)
(∗3)
(∗4)
(∗5)
(A/T)
∗ 3 : con desempañador de la ventanilla trasera
∗ 4 : con iluminación del encendedor de cigarrillos
∗ 5 : con iluminación del cenicero
7
2Q12
G
Iluminacióndelcenicero
Iluminacióndelencendedor
decigarrillos
Conjuntodelreceptorderadio
Interruptordeldesempañadordelaventanillatrasera
Conector
de unión
J22(A), J23(B)
Interruptordelsoplador
Conectordeunión
J21
2P28
InterruptordelA/C
1
A24
3
GW
7
8
9
Interruptordelaseñaldeavisodepeligro
H5
IluminacióndelapalancadecambiosdelaA/T
A12
HILUX (EWD630S)
105
C10 Interruptor de combinación
13-10 : Continuidad con el interruptor de control de las luces en la posición FAROS o COLA
: Localización de partes
Código Vea la página Código Vea la página Código Vea la página
A12 40 C8 40 L1 46 (∗3)
A16 40 C10 40
L2
44 (∗2)
A24 40 H5 41
L2
46 (∗3)
B6 40 J1 39 (∗1) R1 43
C2
36 (2TR-FE) J15 42 R3 43
C2
38 (∗1) J21 42
R4
45 (∗2)
C3
36 (2TR-FE) J22 A 42
R4
46 (∗3)
C3
38 (∗1) J23 B 42
R5
45 (∗2)
C6 40 L1 44 (∗2)
R5
46 (∗3)
: Bloques de relés
Código Vea la página Bloque de relés (localización del bloque de relés)
1 22 R/B del compartimiento del motor (Compartimiento del motor izquierdo)
: Bloque de empalmes y conector del mazo de cables
Código Vea la página Bloque de empalmes y mazo de cables (localización del conector)
2C
28 Alambre del panel instrumental y J/B del lado del conductor (Tensor del panel instrumental izquierdo)
2D
28 Alambre del panel instrumental y J/B del lado del conductor (Tensor del panel instrumental izquierdo)
2J 28
Alambre principal del compartimiento del motor y J/B del lado del conductor
(Tensor del panel instrumental izquierdo)
2K 28 Alambre del piso y J/B del lado del conductor (Tensor del panel instrumental izquierdo)
2L
28
Alambre principal del compartimiento del motor y J/B del lado del conductor
2M
28
Alambre principal del compartimiento del motor y J/B del lado del conductor
(Tensor del panel instrumental izquierdo)
2P
2Q
29 Alambre del panel instrumental y J/B del lado del conductor (Tensor del panel instrumental izquierdo)
2R
29 Alambre del panel instrumental y J/B del lado del conductor (Tensor del panel instrumental izquierdo)
2S
: Mazo de cables de la unión del conector y mazo de cables
Código Vea la página Mazo de cables de unión y mazo de cables (localización del conector)
BA1
56 (∗2)
Alambre del bastidor y Alambre del piso (Debajo del asiento frontal izquierdo)BA1
58 (∗3)
Alambre del bastidor y Alambre del piso (Debajo del asiento frontal izquierdo)
: Puntos a tierra
Código Vea la página Localización de los puntos a tierra
EA
48 (2TR-FE)
Lado derecho del faldón del guardabarrosEA
50 (∗1)
Lado derecho del faldón del guardabarros
EB
48 (2TR-FE)
Lado izquierdo del faldón del guardabarrosEB
50 (∗1)
Lado izquierdo del faldón del guardabarros
ID 52 Centro de refuerzo del tablero de instrumentos
IE 52 Refuerzo del panel instrumental izquierdo
IG 52 Panel del lado del cubretablero izquierdo
∗ 1 : 1KD-FTV, 2KD-FTV ∗ 2 : Cabina doble ∗ 3 : Cabina sencilla
Consejos para el servicio
106
HILUX (EWD630S)
Luz de cola y Iluminación
: Puntos de la unión
Código Vea la página Mazo de cables con puntos de unión Código Vea la página Mazo de cables con puntos de unión
I2 54
Alambre principal del compartimiento
del motor
B3 58 (∗3) Alambre del bastidor
B3 56 (∗2) Alambre del bastidor
∗ 1 : 1KD-FTV, 2KD-FTV ∗ 2 : Cabina doble ∗ 3 : Cabina sencilla
HILUX (EWD630S)
107
Memorándum
108
HILUX (EWD630S)
Señal de giro y luz de advertencia de peligro
A10A2
B4 B6
B6
B12
2N9 2N25
2O25
IE ID
7
6578
5 6
G–O
LG
G–B
G–Y
W
Y
G–O
W–B
W–B
W–B
LH
N
RH
Interruptordela
señaldegiro
C10
(∗1)
28
HAZD
10A
ECU–IG&
GAUGE
Desde el sistema de la fuente de alimentación (Vea la página 62)
2S20
15A
TURN–HAZ
IF32
1
1 2
B–Y
G–Y
R–L
1
2
LRIG
ERELEHAZ
T22
Y
G–B
G–Y
TL E TR
J22(A),J23(B)
J20(A), J21(B) J22(A), J23(B)
Interruptor de
combinación
Conector de unión
Conectordeunión
Conector de unión
Intermitente de la señal de giro 3
G–B
LLB
B–Y
4
A4
ECUdeavisoantirrobo
T16
G–B
2 8
4 5 9
G–O
G–B
R
LG
B12
L
L
G
Interruptordecombinación
Interruptordelaseñal
deavisodepeligro
H5
HILUX (EWD630S)
109
2L32S3 2S2 2L2 2K3 2K2
EAEB
I 2
11
2
2524
2
12
33
1
22
1
3
1
W–B
W–B
W–B
W–B
W–B
W–B
G–Y
G–B
G–Y
G–Y
G–B
G–B
G–YW–B
R5
R4
T12
Y
∗ 1 : con sistema antirrobo
Viraje
haciala
izquierda
Viraje
haciala
derecha
Viraje
Viraje
G–Y
G–B
Lámparadecombinacióntrasera
(izquierda)
Lámparadecombinacióntrasera
(derecha)
Lámparadelaseñaldegiro
(frontalizquierda)
2S182S19
G–B
G–Y
Conector
deunión
J1
W–B
10
W–B
2
1
2M3
G–B
T14
Medidordecombinación
C8
Lámparadelaseñaldegiro
(frontalderecha)
T13
G–YW–B
1
2
2M2
T15
B 3
IG
Conector
de unión
J15
11
BA18
W–BW–B(∗2)
BA112 BA17
G–Y
G–B
Lámparadelaseñaldegiro
(frontallateralizquierda)
Lámparadelaseñaldegiro
(frontallateralderecha)
W–R(∗3)
∗ 2 : Cabina doble
∗ 3 : Cabina sencilla
2R2
G–B
G–B
G–YW–B
110
HILUX (EWD630S)
Señal de giro y luz de advertencia de peligro
T22 Intermitente de la señal de giro
1-Tierra : Aprox. 12 voltios con el interruptor de encendido en la posición ON
4-Tierra : Siempre aprox. 12 voltios
2, 3-Tierra : Cambia de aprox. 12 a 0 voltios con el interruptor de encendido en la posición ON y el interruptor de la señal
de giro en la posición LEFT o RIGTH o el interruptor de la señal de aviso de peligro en la posición ON
5-Tierra : Continuidad con el interruptor de la señal de giro en la posición IZQUIERDA
6-Tierra : Continuidad con el interruptor de la señal de giro en la posición DERECHA
8-Tierra : Continuidad con el interruptor de la señal de aviso de peligro en la posición ON
7-Tierra : Siempre con continuidad
: Localización de partes
Código Vea la página Código Vea la página Código Vea la página
C8 40 J23 B 42 T13 39 (∗1)
C10 40
R4
45 (∗2)
T14
37 (2TR-FE)
H5 41
R4
46 (∗3)
T14
39 (∗1)
J1 39 (∗1)
R5
45 (∗2)
T15
37 (2TR-FE)
J15 42
R5
46 (∗3)
T15
39 (∗1)
J20 A 42
T12
37 (2TR-FE) T16 43
J21 B 42
T12
39 (∗1) T22 43
J22 A 42 T13 37 (2TR-FE)
: Bloques de relés
Código Vea la página Bloque de relés (localización del bloque de relés)
1 22 R/B del compartimiento del motor (Compartimiento del motor izquierdo)
: Bloque de empalmes y conector del mazo de cables
Código Vea la página Bloque de empalmes y mazo de cables (localización del conector)
2K 28 Alambre del piso y J/B del lado del conductor (Tensor del panel instrumental izquierdo)
2L
28
Alambre principal del compartimiento del motor y J/B del lado del conductor
2M
28
Alambre principal del compartimiento del motor y J/B del lado del conductor
(Tensor del panel instrumental izquierdo)
2N
2O
29 Alambre del panel instrumental y J/B del lado del conductor (Tensor del panel instrumental izquierdo)
2R
29 Alambre del panel instrumental y J/B del lado del conductor (Tensor del panel instrumental izquierdo)
2S
: Mazo de cables de la unión del conector y mazo de cables
Código Vea la página Mazo de cables de unión y mazo de cables (localización del conector)
IF3 54
Alambre principal del compartimiento del motor y Alambre del panel instrumental
(Detrás del J/B del lado del conductor)
BA1
56 (∗2)
Alambre del bastidor y Alambre del piso (Debajo del asiento frontal izquierdo)BA1
58 (∗3)
Alambre del bastidor y Alambre del piso (Debajo del asiento frontal izquierdo)
: Puntos a tierra
Código Vea la página Localización de los puntos a tierra
EA
48 (2TR-FE)
Lado derecho del faldón del guardabarrosEA
50 (∗1)
Lado derecho del faldón del guardabarros
EB
48 (2TR-FE)
Lado izquierdo del faldón del guardabarrosEB
50 (∗1)
Lado izquierdo del faldón del guardabarros
ID 52 Centro de refuerzo del tablero de instrumentos
IE 52 Refuerzo del panel instrumental izquierdo
IG 52 Panel del lado del cubretablero izquierdo
∗ 1 : 1KD-FTV, 2KD-FTV ∗ 2 : Cabina doble ∗ 3 : Cabina sencilla
Consejos para el servicio
HILUX (EWD630S)
111
: Puntos de la unión
Código Vea la página Mazo de cables con puntos de unión Código Vea la página Mazo de cables con puntos de unión
I2 54
Alambre principal del compartimiento
del motor
B3 58 (∗3) Alambre del bastidor
B3 56 (∗2) Alambre del bastidor
∗ 1 : 1KD-FTV, 2KD-FTV ∗ 2 : Cabina doble ∗ 3 : Cabina sencilla
112
HILUX (EWD630S)
Luz de parada
10A
STOP
Desde el sistema de la fuente de alimentación (Vea la página 62)
2F2
2M5
2K5
3 3
4 4
Paro
Paro
W–BG–W
G–WW–BG–W
G–W
G–WG–WG–B
S14
BD12
G–WG–W
(∗1)(∗1)
1
2
∗ 1 : con lámpara de parada central
R4
R5
Lámparadecombinacióntrasera
(izquierda)
Lámparadecombinacióntrasera
(derecha)
Interruptor de la lámpara de parada
W–B
W–B
IF
Conector de unión
J2811
B 3
IG
11
BA18
W–BW–B(∗2)
W–B
Conector
deunión
J15
4
BA16
G–W
B 3 B 3
G–W
(∗1)
1
2
Lámpara de parada central
C13
W–B
(∗1)
G–W
BD11
W–B
(∗1)
W–R
(∗3)
∗ 2 : Cabina doble
∗ 3 : Cabina sencilla
HILUX (EWD630S)
113
S14 Interruptor de la lámpara de parada
2-1 : Cerrado con el pedal del freno pisado
: Localización de partes
Código Vea la página Código Vea la página Código Vea la página
C13 44 (∗2)
R4
45 (∗2) R5 46 (∗3)
J15 42
R4
46 (∗3) S14 43
J28 42 R5 45 (∗2)
: Bloque de empalmes y conector del mazo de cables
Código Vea la página Bloque de empalmes y mazo de cables (localización del conector)
2F 28
Alambre principal del compartimiento del motor y J/B del lado del conductor
(Tensor del panel instrumental izquierdo)
2K 28 Alambre del piso y J/B del lado del conductor (Tensor del panel instrumental izquierdo)
2M 28
Alambre principal del compartimiento del motor y J/B del lado del conductor
(Tensor del panel instrumental izquierdo)
: Mazo de cables de la unión del conector y mazo de cables
Código Vea la página Mazo de cables de unión y mazo de cables (localización del conector)
BA1
56 (∗2)
Alambre del bastidor y Alambre del piso (Debajo del asiento frontal izquierdo)BA1
58 (∗3)
Alambre del bastidor y Alambre del piso (Debajo del asiento frontal izquierdo)
BD1 56 (∗2) Alambre del bastidor N.° 2 y Alambre del bastidor (Debajo del panel posterior izquierdo)
: Puntos a tierra
Código Vea la página Localización de los puntos a tierra
IF 52 Panel del lado del cubretablero derecho
IG 52 Panel del lado del cubretablero izquierdo
: Puntos de la unión
Código Vea la página Mazo de cables con puntos de unión Código Vea la página Mazo de cables con puntos de unión
B3 56 (∗2) Alambre del bastidor B3 58 (∗3) Alambre del bastidor
∗ 1 : 1KD-FTV, 2KD-FTV ∗ 2 : Cabina doble ∗ 3 : Cabina sencilla
Consejos para el servicio
114
HILUX (EWD630S)
Luz de marcha atrás
10A
ECU–IG&GAUGE
Desde el sistema de la fuente de alimentación (Vea la página 62)
2S25
B2 (M/T)
A2 (A/T)
A1 (A/T)
B1 (M/T)
ID12
ID13
2Q27
2I10
3 3
5 5
Respaldo
Respaldo
W–BR–L
R–LW–BR–W
R–W
W–B
W–BR–WR–YY
R–LR–L
B1(B)
R 4 R 5
N1(A)
Interruptordearranque
enpuntomuerto
Interruptordelalámpara
demarchaatrás
Lámpara de combinación trasera
(izquierda)
Lámpara de combinación trasera
(derecha)
Y
BA15
B 3R–W
IF
Conector
de unión
J2811
B 3
IG
11
BA18
W–B
W–B
Conector
deunión
J15
4
W–B(∗1)
W–R
(∗2)
∗ 1 : Cabina doble
∗ 2 : Cabina sencilla
HILUX (EWD630S)
115
B1 (B) Interruptor de la luz de marcha atrás (M/T)
(B) 2-(B) 1 : Cerrado con la palanca de cambios en la posición R
N1 (A) Interruptor de arranque en punto muerto (A/T)
(A) 2-(A) 1 : Cerrado con la palanca de cambios en la posición R
: Localización de partes
Código Vea la página Código Vea la página Código Vea la página
B1 B
36 (2TR-FE) J28 42 R4 46 (∗3)
B1 B
38 (∗1) N1 A 39 (∗1)
R5
45 (∗2)
J15 42 R4 45 (∗2)
R5
46 (∗3)
: Bloque de empalmes y conector del mazo de cables
Código Vea la página Bloque de empalmes y mazo de cables (localización del conector)
2I 28 Alambre del piso y J/B del lado del conductor (Tensor del panel instrumental izquierdo)
2Q
29 Alambre del panel instrumental y J/B del lado del conductor (Tensor del panel instrumental izquierdo)
2S
29 Alambre del panel instrumental y J/B del lado del conductor (Tensor del panel instrumental izquierdo)
: Mazo de cables de la unión del conector y mazo de cables
Código Vea la página Mazo de cables de unión y mazo de cables (localización del conector)
ID1 52 Alambre del motor y Alambre del panel instrumental (Detrás de la guantera)
BA1
56 (∗2)
Alambre del bastidor y Alambre del piso (Debajo del asiento frontal izquierdo)BA1
58 (∗3)
Alambre del bastidor y Alambre del piso (Debajo del asiento frontal izquierdo)
: Puntos a tierra
Código Vea la página Localización de los puntos a tierra
IF 52 Panel del lado del cubretablero derecho
IG 52 Panel del lado del cubretablero izquierdo
: Puntos de la unión
Código Vea la página Mazo de cables con puntos de unión Código Vea la página Mazo de cables con puntos de unión
B3 56 (∗2) Alambre del bastidor B3 58 (∗3) Alambre del bastidor
∗ 1 : 1KD-FTV, 2KD-FTV ∗ 2 : Cabina doble ∗ 3 : Cabina sencilla
Consejos para el servicio
116
HILUX (EWD630S)
Luz interior
2O10
1
2
IA13
B12 B11
ID
7. 5A
DOME
Desde el sistema de la fuente de alimentación (Vea la página 62)
1
2
1
2J82E4
2R8
7. 5A
ECU–B
1
2
1
B 1
W–B
W–B(∗1)
P
GR
R–B
R–L
L
G–YG–Y
R–BR–L
R
R(∗3)
RW–B
Y
R(∗1 ∗3)
L
W–B
R8
M1
R
2
1
22 16 10 15 17
1
21
P
J22(A),J23(B)
(∗1)(∗1)
DOOR
OFF
ON
Puerta
Conectordeunión
Lámparaparamapas
10 A
R
P
(∗2)
2Q25
Medidordecombinación
C8
R
(∗2)
2O26
Interruptordeadvertenciadedesbloqueo
U1
Interruptordecortesíadelapuerta
(ladodelconductor)
D2
Lámparadelcilindrode
lallavedeencendido
Amplificadordelallave
detransmisor
T20(B)
B6 (∗5)
A6 (∗6)
A2 (∗6)
B2 (∗5)
I5(A)
(∗5)
(∗6)(∗6)
(∗5)
1
Lámparadelcompartimiento
Lámparadelcilindrode
lallavedeencendido
(∗1∗3)
R(∗4)
R(∗4)
HILUX (EWD630S)
117
2E1 2D18 2D92O152O27 2O31
IA113
IE
11
11
1083
2L12
L
R–L
R–B
W–B(∗1)
W–B
R–L
R–B
R–L
W–B
W–B
W–B
R–LR–L
R–L
R–L
J29
Relé de integración
16 1
4
2E3
P
∗ 1 : con lámpara para mapas
∗ 2 : con lámpara del cilindro de la llave de encendido
∗ 3 : Cabina doble
GNDDCTY
BECU
(∗1)
Conector de unión
Interruptordecortesíadelapuerta
(traseraizquierda)
D4
Interruptordecortesíadelapuerta
(traseraderecha)
D5
∗ 4 : Cabina sencilla
(∗3)(∗3)
(∗3)
(∗3)
P
2N12
15
(∗2)
ILE
P
∗ 5 : con sistema inmovilizador del motor
∗ 6 : sin sistema inmovilizador del motor
Interruptordecortesíadelapuerta
(ladodelpasajerodelantero)
D3
1
R–LR–L
(∗4)(∗4)
118
HILUX (EWD630S)
Luz interior
D2, D3, D4, D5 Interruptor de cortesía de la puerta (lado del conductor), (lado del pasajero delantero),
(trasera izquierda), (trasera derecha)
1-Tierra : Continuidad con cada una de las puertas abiertas
: Localización de partes
Código Vea la página Código Vea la página Código Vea la página
C8 40 D5 44 (∗2)
R8
45 (∗2)
D2
44 (∗2) I5 A 41
R8
46 (∗3)
D2
46 (∗3) J22 A 42 T20 B 43
D3
44 (∗2) J23 B 42 U1 43
D3
46 (∗3) J29 42
D4 44 (∗2) M1 44 (∗2)
: Bloques de relés
Código Vea la página Bloque de relés (localización del bloque de relés)
1 22 R/B del compartimiento del motor (Compartimiento del motor izquierdo)
: Bloque de empalmes y conector del mazo de cables
Código Vea la página Bloque de empalmes y mazo de cables (localización del conector)
2D 28 Alambre del panel instrumental y J/B del lado del conductor (Tensor del panel instrumental izquierdo)
2E 28 Alambre del techo y J/B del lado del conductor (Tensor del panel instrumental izquierdo)
2J
28
Alambre principal del compartimiento del motor y J/B del lado del conductor
2L
28
Alambre principal del compartimiento del motor y J/B del lado del conductor
(Tensor del panel instrumental izquierdo)
2N
2O
29 Alambre del panel instrumental y J/B del lado del conductor (Tensor del panel instrumental izquierdo)
2Q
29 Alambre del panel instrumental y J/B del lado del conductor (Tensor del panel instrumental izquierdo)
2R
: Mazo de cables de la unión del conector y mazo de cables
Código Vea la página Mazo de cables de unión y mazo de cables (localización del conector)
IA1 52 Alambre del panel instrumental y Alambre del piso (Panel de arranque derecho)
: Puntos a tierra
Código Vea la página Localización de los puntos a tierra
ID 52 Centro de refuerzo del tablero de instrumentos
IE 52 Refuerzo del panel instrumental izquierdo
: Puntos de la unión
Código Vea la página Mazo de cables con puntos de unión Código Vea la página Mazo de cables con puntos de unión
B1 58 (∗3) Alambre del techo
∗ 1 : 1KD-FTV, 2KD-FTV ∗ 2 : Cabina doble ∗ 3 : Cabina sencilla
Consejos para el servicio
HILUX (EWD630S)
119
Memorándum
120
HILUX (EWD630S)
Recordador de la llave y Recordador de las luces
G
G–W
B–O
GR
W–B
Zumbador
RR
7. 5A
MET
Desde el sistema de la fuente de alimentación (Vea la página 62)
2D1
10A
TAIL
2C5
7. 5A
DOME
1
2
1
OFF
Cola
Faro
Interruptorde
controlde
lasluces
1013
C10
ID
B12 B11
A10
J22(A), J23(B)
IA13
2O26
2O10
2
1
23 2S
7 2R
GR
G–Y
R–B
Y
G–Y
25 2Q
8 2J
22 10 16
8 1 21
C 8
B1 T1
Medidor de combinación
Interruptor de combinación
Conector de unión
Interruptordeadvertencia
dedesbloqueo
U1
G
R–L
D2
Interruptordecortesíadelapuerta
(ladodelconductor)
1
HILUX (EWD630S)
121
La corriente se aplica siempre al TERMINAL 1 del medidor de combinación a través del fusible DOME.
Cuando el interruptor de encendido se gira a la posición ON, la corriente circula al TERMINAL 21 del medidor de
combinación a través del fusible MET. Cuando el interruptor de control de las luces se gira a la posición TAIL o HEAD, la
corriente se aplica al TERMINAL 8 del medidor de combinación a través del fusible TAIL.
1. Sistema recordador de la llave
Cuando se abre la puerta del conductor con el interruptor de encendido desconectado y la llave de encendido colocada en
el cilindro de la llave (interruptor de advertencia de desbloqueo activado), se introduce una señal desde el interruptor de
advertencia de desbloqueo al TERMINAL 10 del medidor de combinación, y desde el interruptor de cortesía de la puerta
(lado del conductor) al TERMINAL 16 del medidor de combinación. Como resultado, se activa el zumbador del medidor de
combinación y avisa al conductor que la llave está puesta en el cilindro de la llave.
2. Sistema recordador de las luces
Cuando el interruptor de control de las luces está en la posición TAIL o HEAD, se gira el interruptor de encendido desde la
posición OFF a la posición ON, la llave de encendido no está en el cilindro de la llave y se abre la pureta del conductor
(interruptor de cortesía de la puerta activado), se detiene el flujo de la corriente al TERMINAL 21 del medidor de
combinación. Como resultado, se activa el medidor de combinación y la corriente circula desde el TERMINAL 1 del medidor
de combinación, y se activa el zumbador del medidor de combinación para recordarle que la luz está encendida.
C8 Medidor de combinación
21-Tierra : Aprox. 12 voltios con el interruptor de encendido en la posición ON
8-Tierra : Aprox. 12 voltios con el interruptor de control de las luces en la posición de las luces de COLA o FAROS
16-Tierra : Continuidad con la puerta del conductor abierta
22-Tierra : Siempre con continuidad
D2 Interruptor de cortesía de la puerta (lado del conductor)
1-Tierra : Cerrado con la puerta del conductor abierta
U1 Interruptor de advertencia de desbloqueo
1-2 : Cerrado con la llave de encendido en el cilindro
: Localización de partes
Código Vea la página Código Vea la página Código Vea la página
C8 40 D2 46 (∗3) U1 43
C10 40 J22 A 42
D2 44 (∗2) J23 B 42
: Bloques de relés
Código Vea la página Bloque de relés (localización del bloque de relés)
1 22 R/B del compartimiento del motor (Compartimiento del motor izquierdo)
: Bloque de empalmes y conector del mazo de cables
Código Vea la página Bloque de empalmes y mazo de cables (localización del conector)
2C
28 Alambre del panel instrumental y J/B del lado del conductor (Tensor del panel instrumental izquierdo)
2D
28 Alambre del panel instrumental y J/B del lado del conductor (Tensor del panel instrumental izquierdo)
2J 28
Alambre principal del compartimiento del motor y J/B del lado del conductor
(Tensor del panel instrumental izquierdo)
2O
2Q
29 Alambre del panel instrumental y J/B del lado del conductor (Tensor del panel instrumental izquierdo)
2R
29 Alambre del panel instrumental y J/B del lado del conductor (Tensor del panel instrumental izquierdo)
2S
: Mazo de cables de la unión del conector y mazo de cables
Código Vea la página Mazo de cables de unión y mazo de cables (localización del conector)
IA1 52 Alambre del panel instrumental y Alambre del piso (Panel de arranque derecho)
∗ 1 : 1KD-FTV, 2KD-FTV ∗ 2 : Cabina doble ∗ 3 : Cabina sencilla
Descripción del sistema
Consejos para el servicio
122
HILUX (EWD630S)
Recordador de la llave y Recordador de las luces
: Puntos a tierra
Código Vea la página Localización de los puntos a tierra
ID 52 Centro de refuerzo del tablero de instrumentos
HILUX (EWD630S)
123
Memorándum
124
HILUX (EWD630S)
Advertencia de cinturón de seguridad
7. 5A
MET
Desde el sistema de la fuente de alimentación (Vea la página 62)
2D1
Cinturónde
seguridaddel
conductor
2
1
IG
J15
2
A10
B12
ID
3
4
21
2211
R–Y
Y
R–YW–B
W–BB–O
R–Y
IA119
C 8
J26
Medidor de combinación
Conector de unión
Conector de unión
∗ 2 : sin sistema de control de bloqueo de las puertas
∗ 1 : con sistema de control de bloqueo de las puertas
R–Y
R–Y
(∗1)(∗1)
(∗2)
Conectordeunión
J22(A),J23(B)
10A
ECU–IG&GAUGE
2D1
A5
B6
J20(A),J21(B)
Conectordeunión
IF
Conector de unión
J28
3
3
1 2
R–LBR
G–W
W–B
W–B
W–B
2P15
2I14
G–W
Cinturóninteriordelasiento
delantero(ladodelconductor)
F12
Circuito de
parpadeo
2
1
Interruptorde
detecciónde
ocupante
Interruptor
delahebilla
Lámpara de aviso del cinturón de
seguridad del pasajero
P13
Conjuntodelcinturóninteriordelasientodelantero
(ladodelpasajerodelantero)
F17
HILUX (EWD630S)
125
Cuando el interruptor de encendido se gira a la posición ON, la corriente procedente del fusible MET circula al TERMINAL
21 del medidor de combinación.
Sistema de aviso del cinturón de seguridad
Cuando se conecta el interruptor de encendido, se introduce una señal al medidor de combinación. Para determinar si el
conductor se ha abrochado el cinturón de seguridad, se introduce una señal desde el cinturón interior del asiento delantero
(lado del conductor) al TERMINAL 11 del medidor de combinación. Cuando el cinturón de seguridad no está abrochado,
parpadea la luz de aviso del cinturón de seguridad del conductor en el medidor de combinación.
Además, en el asiento del pasajero delantero, un sensor reconoce que hay un pasajero, y cuando el pasajero no se ha
abrochado el cinturón de seguridad, parpadea la luz de advertencia del cinturón del asiento del pasajero delantero.
F12 Cinturón interior del asiento delantero (lado del conductor)
1-2 : Abierto cuando se está utilizando el cinturón de seguridad del conductor
C8 Medidor de combinación
21-Tierra : Aprox. 12 voltios con el interruptor de encendido en la posición ON
22-Tierra : Siempre con continuidad
: Localización de partes
Código Vea la página Código Vea la página Código Vea la página
C8 40 J20 A 42 J26 42
F12 44 (∗2) J21 B 42 J28 42
F17 44 (∗2) J22 A 42 P13 43
J15 42 J23 B 42
: Bloque de empalmes y conector del mazo de cables
Código Vea la página Bloque de empalmes y mazo de cables (localización del conector)
2D 28 Alambre del panel instrumental y J/B del lado del conductor (Tensor del panel instrumental izquierdo)
2I 28 Alambre del piso y J/B del lado del conductor (Tensor del panel instrumental izquierdo)
2P 29 Alambre del panel instrumental y J/B del lado del conductor (Tensor del panel instrumental izquierdo)
: Mazo de cables de la unión del conector y mazo de cables
Código Vea la página Mazo de cables de unión y mazo de cables (localización del conector)
IA1 52 Alambre del panel instrumental y Alambre del piso (Panel de arranque derecho)
: Puntos a tierra
Código Vea la página Localización de los puntos a tierra
ID 52 Centro de refuerzo del tablero de instrumentos
IF 52 Panel del lado del cubretablero derecho
IG 52 Panel del lado del cubretablero izquierdo
∗ 1 : 1KD-FTV, 2KD-FTV ∗ 2 : Cabina doble ∗ 3 : Cabina sencilla
Descripción del sistema
Consejos para el servicio
126
HILUX (EWD630S)
ECT
1
E 5(A), E 6(B), E 7(C), E 8(D)
1H
3 1J
8 A 1 A 2 B
EB
1 IF314 IF3
50A
BATT
P/I
Desde el sistema de la fuente de alimentación (Vea la página 62)
1B3
W–L
2
5 1J
4
B
1 1J
L
BATTMREL +B
W–G
B
W–G
B
A
2
W–B
1J
W–BW–G
L
B
2
L
25A
EFI
1
1
7
Relé
MAIN
W–B
W–BW–B
L
B1
B
1J4
EA112
B
J 4(A), J 5(B)
L
ECU del motor
Conector de unión
28
BR
E2
D
A10
B8
Conector
de unión
J 7(A), J 8(B)
B
Conectordeunión
J1
J7(A)
Conectordeunión
W–B
BR
BR
A5
A3
HILUX (EWD630S)
127
A26
GR–G
VPA2 EP2
BR–Y
VCP2
BR–R
BR–W
EP1VPA1
W–L
LG–R
VCP1
22 A A28 A27 A23
231564
A13
A29
W1
B7
A
R–WR–W
VC
8
E2
BRBR
9
B
R–LBR
THWVLU
B
BR
R–W
D18D28 19 DC29
16
20
1
2
∗ 1 : Protegido
E 5(A), E 6(B), E 7(C), E 8(D)
C4
C7 27 D 34 D
E 1
EC
7 D6 D
I 1
W–B
E02 E01
W–B
W
NE+
W–B
1
Y
L
NE–
2
3
E1
BR
W–B W–B
J 6
1
2
4
(∗1)
(∗1)
J10
BR
W–B
LL
Sensor de la posición del acelerador
Sensorde
posición
delcigüeñal
ECU del motor
Conector
de unión
Conector
de unión
Sensordelatemperaturadelagua
Conector
de unión
J 7(A), J 8(B)
4
15
31 D
THA
Y–B
BR
B
VG
3
W–R
24 C
2
EVG
B–W
32 C
+BE2
VG THA E2G
Medidor de
flujo de aire
A 4
B
VPA2 EPA2VCP2EPAVPAVCPA
W–B
BR
Conjuntodelcuerpo
delacelerador
T1(A),T2(B)
B2B1A2A3
B3A1
GND +B VC E2
LUSL VAF
4 C
GR
LUSL
W–B
E 2
B
B
E2
THW
E
NE–NE+
128
HILUX (EWD630S)
ECT
B–O22 2R
7. 5A
IGN
17 B
2M6
B–O
B–O
22 2S
B–O
SP1
V–R
IGSW
B9 A
ST1–
14
R–LR–L
4
3
G–W
STP
IF34
B15
5
G–BG–W
2M
2 2F
2
1
Desde el sistema de la fuente de alimentación
(Vea la página 62)
2R21
G–W
11 A
8 B
L–Y
NSW
12
B12
A
B–O
IG2
A5
V–R
6 A
26 2P
B–Y
BATT
L
G–W
STP
A14
Desde el sistema de la fuente de alimentación (Vea la página 62)
T17(A), T18(B), T19(C)
W
11 2P62C
L
R–Y
B
WFSE SIL
B24 B23
C
L–Y
B–Y
11 B
N 1
STA
L–Y
7. 5A
ST
2O3
L–Y
5 4
P
N
C11
1 ID2
B–Y
J11(A),J12(B)
20 A 21 A
CAN–
V
CAN+
P
A2
23 C24 C
B–Y
BR
8
B–Y
7 ID2
19 2N
V–R
SP1
A25
J11(A),J12(B)
V–R
2Q10
2Q26
STA
B–Y
P–B
R–Y
6 2Q
22 2Q
5 2Q
21 2Q
V
CAN+
B
P
22
P–B
R–Y
WFSE
WFSE
W
TCSIL
TCSIL
A19 A11A18
2C10
2C9
W
21 B
CAN–
E 5(A), E 6(B), E 7(C), E 8(D)
7 A
15 137
D 1
L
V–R
DLC3
ECU del motor
Conectordeunión
Conectordeunión
Interruptor de
arranque en
punto muerto
ECU de control de la transmisión
21 2S
THOC E2
10A
STOP
Interruptordela
lámparadeparada
S14
NSW
L–Y
6 A
2O19
L–Y
Sensordelatemperatura
dellíquidodelaA/T
2
1
HILUX (EWD630S)
129
V
P
NCO+ NCO–
2
1
C3 C2
17 C18 C16 C19 C20 C
29 CC30
2 4
SLT+
G–Y
6 7
SLT–
L–B
SL
G
W–L
S2
E 1
8
GR
S1
R
G
SP2+ SP2–
2
1
B
W
Y
G
O
8
E01
W–B
4
3
10 C
T17(A), T18(B), T19(C)
BR
E1
BR
EC
C1
V–R
BR
W–B
11 10
S2
L
L
2R
R–Y
9 B B B
P
R–L
B
DG–Y
V–R
Solenoide de ECT
ECU de control de la transmisión
Interruptor de arranque en punto muerto
Conectordeunión
18 2N
18 2O
1 B3 B
5 A3 A
27 2P
27 2Q
3 ID1
AT3
NSSD
9
3
YR–Y
G–O
1 7 3 8
2
5
G–Y
L
G–RG–R
L
G–Y
B
A1
B
Interruptor
decontrolde
latransmisión
J11(A),J12(B)
N 1
6
G–Y
RL DL 2L LL
RB
T6
ECUdecontrolde
bloqueodecambios
S11
7
8
L4
G–W
B15
W–G
TFN
B16
2
1
2
1
A4
B5
A3
T4
T5
Conector
deunión
J7(A),J8(B)
3
G–O
12 B
SL S1SLT–SLT+
8
OILW
A
W–GW–G
(4WD)
(4WD)
(4WD)(4WD)ID16
Conector
de unión
J 6
2
1
W–B
(4WD)
Conectordeunión
J6
Sensorderevolucionesde
latransmisión(entrada)
Interruptordelindicador
delatransferencia
(posiciónL4)
Interruptordel
indicadordela
transferencia
(posicióndepuntomuerto)
Sensorderevolucionesde
latransmisión(salida)
T7
ID18
W–B
(4WD)
W–B
(4WD)
G–W
(4WD)
G–W
(4WD)
Conector
deunión
J10
130
HILUX (EWD630S)
ECT
Sensordevelocidad
Conector de unión
Medidor de combinación
R–L
1 2D
7. 5A
MET
B–O
3
C 8
16 ID2
V–R
R–B
S3
R
2
P–LP–L
Temperatura
Tacómetro
Velocímetro
R
1
R–BR–B
1
2J8
2Q25
10A
ECU–IG&GAUGE
2S
ID215
30
7. 5A
DOME
Desde el sistema de la fuente de alimentación (Vea la página 62)
1
2
12 B
10 A
J22(A), J23(B)
W–BY
25 2S
R–L
B–O
BR
ID12
R–L
P
BR
V–R
ID
P
A/TOILTEMP
18 6 22
21 1 5
SESI
IG+
HILUX (EWD630S)
131
Las transmisiones automáticas anteriores seleccionaban los cambios de marcha empleando presión hidráulica del
acelerador controlada mecánicamente, presión hidráulica del regulador y presión hidráulica de enclavamiento. Sin embargo,
la transmisión de control electrónico controla eléctricamente la presión de línea, presión del acelerador, presión de
enclavamiento y presión del acumulador, etc. mediante la válvula de solenoide. La transmisión de control electrónico es un
sistema que controla con precisión el momento de los cambios de marcha y el momento de enclavamiento en respuesta a
las condiciones de marcha del vehículo y condiciones del motor detectadas por varios sensores. Hace posible una
conducción suave mediante la selección de cambio para cada marcha que es la más apropiada a las condiciones del
momento, y evitando la bajada, hundimiento y golpes de los cambios de engranajes, cuando se pone en marcha el
vehículo.
1. Operación de enclavamiento
Cuando la ECU de control de la transmisión decide, basándose en cada señal, que se ha satisfecho la condición de
enclavamiento, la corriente circula a través del TERMINAL SL de la ECU de control de la transmisión al TERMINAL 7 del
solenoide de ECT y a TIERRA, causando la operación de enclavamiento.
2. Circuito del interruptor de la lámpara de parada
Si se pisa el pedal del freno (interruptor de la lámpara de parada activado) cuando se circula en la condición de
enclavamiento, se introduce una señal al TERMINAL STP de la ECU de control de la transmisión. La ECU de control de la
transmisión opera y corta la corriente que va al solenoide para liberar el enclavamiento.
T17 (A), T19 (C) ECU de control de la transmisión
(A) 6-Tierra : Aprox. 12 voltios con el interruptor de encendido en la posición ON
(A) 5-Tierra : Siempre aprox. 12 voltios
(C)12-Tierra : Aprox. 12 voltios con el interruptor de encendido en la posición ST
(A)14-Tierra : Aprox. 12 voltios con el pedal del freno pisado
(C) 1, (C) 10-Tierra : Siempre con continuidad
N1 Interruptor de arranque en punto muerto
2-1 : Cerrado con la palanca de cambios en la posición R
2-7 : Cerrado con la palanca de cambios en la posición D
2-3 : Cerrado con la palanca de cambios en la posición 2
2-8 : Cerrado con la palanca de cambios en la posición L
: Localización de partes
Código Vea la página Código Vea la página Código Vea la página
A2 38 (∗1) J4 A 42 S11 43
A4 38 (∗1) J5 B 42 S14 43
A13 40 J6 42 T1 A 39 (∗1)
C4 38 (∗1) J7 A 42 T2 B 39 (∗1)
C8 40 J8 B 42 T4 39 (∗1)
D1 41 J10 42 T5 39 (∗1)
E1 38 (∗1) J11 A 42 T6 39 (∗1)
E5 A 41 J12 B 42 T7 39 (∗1)
E6 B 41 J22 A 42 T17 A 43
E7 C 41 J23 B 42 T18 B 43
E8 D 41 N1 39 (∗1) T19 C 43
J1 39 (∗1) S3 39 (∗1) W1 39 (∗1)
: Bloques de relés
Código Vea la página Bloque de relés (localización del bloque de relés)
1 22 R/B del compartimiento del motor (Compartimiento del motor izquierdo)
∗ 1 : 1KD-FTV, 2KD-FTV ∗ 2 : Cabina doble ∗ 3 : Cabina sencilla
Descripción del sistema
Consejos para el servicio
132
HILUX (EWD630S)
ECT
: Bloque de empalmes y conector del mazo de cables
Código Vea la página Bloque de empalmes y mazo de cables (localización del conector)
1B 23
Alambre principal del compartimiento del motor y J/B del compartimiento del motor
1H
24
Alambre principal del compartimiento del motor y J/B del compartimiento del motor
(Compartimiento del motor izquierdo)
1J
24 (Compartimiento del motor izquierdo)
2C
28 Alambre del panel instrumental y J/B del lado del conductor (Tensor del panel instrumental izquierdo)
2D
28 Alambre del panel instrumental y J/B del lado del conductor (Tensor del panel instrumental izquierdo)
2F
Alambre principal del compartimiento del motor y J/B del lado del conductor
2J 28
Alambre principal del compartimiento del motor y J/B del lado del conductor
(Tensor del panel instrumental izquierdo)
2M
(Tensor del panel instrumental izquierdo)
2N
2O
2P
29 Alambre del panel instrumental y J/B del lado del conductor (Tensor del panel instrumental izquierdo)
2Q
29 Alambre del panel instrumental y J/B del lado del conductor (Tensor del panel instrumental izquierdo)
2R
2S
: Mazo de cables de la unión del conector y mazo de cables
Código Vea la página Mazo de cables de unión y mazo de cables (localización del conector)
EA1 50 (∗1)
Alambre del motor y Alambre principal del compartimiento del motor
(Dentro del R/B del compartimiento del motor y J/B del compartimiento del motor)
ID1
52 Alambre del motor y Alambre del panel instrumental (Detrás de la guantera)
ID2
52 Alambre del motor y Alambre del panel instrumental (Detrás de la guantera)
IF3 54
Alambre principal del compartimiento del motor y Alambre del panel instrumental
(Detrás del J/B del lado del conductor)
: Puntos a tierra
Código Vea la página Localización de los puntos a tierra
EB 50 (∗1) Lado izquierdo del faldón del guardabarros
EC 50 (∗1) Lado trasero del bloque de cilindros
ID 52 Centro de refuerzo del tablero de instrumentos
: Puntos de la unión
Código Vea la página Mazo de cables con puntos de unión Código Vea la página Mazo de cables con puntos de unión
E1
50 (∗1) Alambre del motor
I1 54 Alambre del motor
E2
50 (∗1) Alambre del motor
∗ 1 : 1KD-FTV, 2KD-FTV ∗ 2 : Cabina doble ∗ 3 : Cabina sencilla
HILUX (EWD630S)
133
Memorándum
134
HILUX (EWD630S)
Control de crucero
1
E 5(A), E 6(B), E 7(C), E 8(D)
1H
3 1J
8 A 1 A 2 B
EB
1 IF314 IF3
50A
BATT
P/I
Desde el sistema de la fuente de alimentación (Vea la página 62)
1B3
W–L
A
5 1J
C
B
1 1J
L
BATTMREL +B
W–G
B
W–G
B
A
2
W–B
1J
W–BW–G
L
B
2
L
25A
EFI
1
1
7
Relé
MAIN
W–B
3
5
W–BW–B
L
BA
B
1J4
EA112
B
J 4(A), J 5(B)
L
ECU del motor
Conector de unión
B
Conectordeunión
J1
J7
Conectordeunión
W–B
A21
CCS
1
G–W
CCS
ID19
2
W–BBR
ECC
Interruptordecontroldecrucero
CRUISE
RES/ACC
SET/COAST
CANSEL
Cableespiral
S13
BR
HILUX (EWD630S)
135
A26
GR–G
VPA2 EP2
BR–Y
VCP2
BR–R
BR–W
EP1VPA1
W–L
LG–R
VCP1
22 A A28 A27 A23
231564
A13
A29
R–WR–W
VCE2
BR
VLU
B
BR
R–W
D18D28C29
16
20
∗ 1 : Protegido
E 5(A), E 6(B), E 7(C), E 8(D)
C7
EC
7 D6 D
I 1
W–B
E02 E01
W–B
W
E1
BR
W–B W–B
J 6
2
4
BR
W–B
LL
Sensor de la posición del acelerador
ECU del motor
Conector
de unión
B
VPA2 EPA2VCP2EPAVPAVCPA
W–B
Conjuntodelcuerpo
delacelerador
T1(A),T2(B)
B2B1A2A3
B3A1
GND +B VC E2
LUSL VAF
4 C
GR
LUSL
W–B
B
8
7
BR
Conectordeunión
J7
Conectordeunión
J10
BR BR
136
HILUX (EWD630S)
Control de crucero
B–O22 2R
7. 5A
IGN
17 B
2M6
B–O
B–O
22 2S
B–O
SP1
V–R
IGSW
B9 A
ST1–
14
R–LR–L
4
3
G–W
STP
IF34
B15
5
G–BG–W
2M
2 2F
2
1
Desde el sistema de la fuente de alimentación
(Vea la página 62)
2R21
G–W
V
P
NCO+ NCO–
2
B–O
STP
A5
V–R
1
6 A
26 2P
C3
IG2
L
G–W
BATT
A14 C2
T17(A), T18(B), T19(C)
W
11 2P62C
R–Y
WFSE SIL
B24 B23 20 A 21 A
CAN–
V
CAN+
P
E01
W–B
4
3
10 C
V–R
SP1
BR
E1
BR
A25
EC
C1
V–R
2Q10
2Q26
P–B
R–Y
6 2Q
22 2Q
5 2Q
21 2Q
V
CAN+
B
P
22
P–B
R–Y
WFSE
WFSE
W
TCSIL
TCSIL
A19 A11A18
2C10
2C9
W
21 B
CAN–
E 5(A), E 6(B), E 7(C), E 8(D)
15 137
D 1
L
V–R
DLC3
ECU del motor ECU de control de la transmisión
21 2S
T6
10A
STOP
Interruptordela
lámparadeparada
S14
Sensorderevolucionesdela
transmisión(entrada)
W–B
Conectordeunión
J10
BR
3 B
PI
L–B
L–B
HILUX (EWD630S)
137
17 C18 C16 C19 C20 C
29 CC30
2 4
SLT+
G–Y
6 7
SLT–
L–B
SL
G
W–L
S2
E 1
8
GR
S1
R
G
SP2+ SP2–
2
1
W
Y
G
O
T17(A), T18(B), T19(C)
S2
V–R
Solenoide de ECT
ECU de control de la transmisión
S3 S1SLT–SLT+
Sensorderevolucionesdela
transmisión(salida)
T7
BR
8
ID
BR
B–O
YW–B
J22(A), J23(B)
A10
B12
2
1
Desde el sistema de la fuente de alimentación (Vea la página 62)
7. 5A
DOME
30
15 ID2
2S
10A
ECU–IG&GAUGE
25 2Q
2J
1
R–BR–B
1
R
Velocímetro
SI
P–LP–L
2
R
R–B
V–R
ID216
3
B–O
7. 5A
MET
2D1
Conector de unión
SE
IG+
L–B
CRUISE
28 6 22
21 1 5
Medidor de combinación
C 8
Sensordevelocidad
S3
IE13
L–B
L–B
L–B
B
138
HILUX (EWD630S)
Control de crucero
Es un sistema que controla la marcha a una velocidad constante controlando el volumen de inyección de combustible
mediante la operación de interruptores al alcance de la mano en lugar del pedal del acelerador cuando el conductor desea
circular a una velocidad constante por una autopista.
1. Control de ajuste
Cuando el interruptor SET/COAST se gira desde ON a OFF durante la circulación con el interruptor principal en ON, la
velocidad del vehículo de ese momento se registra y el vehículo se controla a esta velocidad constante.
2. Control de marcha por inercia
Cuando el interruptor SET/COAST se mantiene en ON durante la circulación con el control de crucero, la abertura requerida
por el control de crucero obtiene cero para reducir la velocidad del vehículo. Si el interruptor SET/COAST se gira a OFF, la
velocidad del vehículo en ese momento se registra y el vehículo se controla a la velocidad constante.
3. Control de incremento por accionamientos
Siempre que se acciona a ON el interruptor RES/ACC de forma instantánea (durante aproximadamente 0,6 segundos), la
velocidad del vehículo registrada se incrementa aproximadamente en 1,6 km/h.
4. Control de reducción por accionamientos
Siempre que se acciona a ON el interruptor SET/COAST de forma instantánea (durante aproximadamente 0,6 segundos), la
velocidad del vehículo registrada se reduce aproximadamente en 1,6 km/h.
5. Control de aceleración
Cuando el interruptor RES/ACC se mantiene en ON durante la circulación con el control de crucero, el control de
aceleración tiene a incrementar el volumen de inyección de combustible para realizar el control constante de la aceleración.
Registra también la velocidad del vehículo cuando el interruptor RES/COAST se pone en OFF y controla el vehículo a la
velocidad constante.
6. Función de cancelación
Si se introduce alguna de las señales siguientes durante la circulación con control de crucero, se cancela el control de
crucero.
∗ Activación del interruptor de la lámpara de parada (se pisa el pedal del freno)
∗ Cambio de marcha desde la posición D a otra posición que no sea la posición D
∗ Activación del interruptor CANCEL
∗ Desactivación del interruptor principal de control de crucero
E5 (A), E6 (B), E7 (C), E8 (D) ECU del motor
(A) 2-Tierra : Siempre 9,0-14,0 voltios
(A) 1-Tierra : 9,0-14,0 voltios (interruptor de encendido en la posición ON)
(B)15-Tierra : 7,5-14,0 voltios (interruptor de encendido conectado y pedal del freno pisado)
(C) 7, (D) 6, (D) 7-Tierra : Siempre con continuidad
(A)21-Tierra : Continuidad con el interruptor principal de control de crucero conectado
T17 (A), T19 (C) ECU de control de la transmisión
(A) 6-Tierra : Aprox. 12 voltios con el interruptor de encendido en la posición ON
(A) 5-Tierra : Siempre aprox. 12 voltios
(A)14-Tierra : Aprox. 12 voltios con el pedal del freno pisado
(C) 1, (C) 10-Tierra : Siempre con continuidad
S13 Cable espiral
1-2 : Aprox. 1,540 Ω con el interruptor CANCEL conectado
: Aprox. 630 Ω con el interruptor SET/COAST conectado
Aprox. 240 Ω con el interruptor RES/COAST conectado
Descripción del sistema
Consejos para el servicio
HILUX (EWD630S)
139
: Localización de partes
Código Vea la página Código Vea la página Código Vea la página
A13 40 J4 A 42 S14 43
C8 40 J5 B 42 T1 A 39 (∗1)
D1 41 J6 42 T2 B 39 (∗1)
E1 38 (∗1) J7 42 T6 39 (∗1)
E5 A 41 J10 42 T7 39 (∗1)
E6 B 41 J22 A 42 T17 A 43
E7 C 41 J23 B 42 T18 B 43
E8 D 41 S3 39 (∗1) T19 C 43
J1 39 (∗1) S13 43
: Bloques de relés
Código Vea la página Bloque de relés (localización del bloque de relés)
1 22 R/B del compartimiento del motor (Compartimiento del motor izquierdo)
: Bloque de empalmes y conector del mazo de cables
Código Vea la página Bloque de empalmes y mazo de cables (localización del conector)
1B 23
Alambre principal del compartimiento del motor y J/B del compartimiento del motor
1H
24
Alambre principal del compartimiento del motor y J/B del compartimiento del motor
(Compartimiento del motor izquierdo)
1J
24 (Compartimiento del motor izquierdo)
2C
28 Alambre del panel instrumental y J/B del lado del conductor (Tensor del panel instrumental izquierdo)
2D
28 Alambre del panel instrumental y J/B del lado del conductor (Tensor del panel instrumental izquierdo)
2F
Alambre principal del compartimiento del motor y J/B del lado del conductor
2J 28
Alambre principal del compartimiento del motor y J/B del lado del conductor
(Tensor del panel instrumental izquierdo)
2M
(Tensor del panel instrumental izquierdo)
2P
2Q
29 Alambre del panel instrumental y J/B del lado del conductor (Tensor del panel instrumental izquierdo)
2R
29 Alambre del panel instrumental y J/B del lado del conductor (Tensor del panel instrumental izquierdo)
2S
: Mazo de cables de la unión del conector y mazo de cables
Código Vea la página Mazo de cables de unión y mazo de cables (localización del conector)
EA1 50 (∗1)
Alambre del motor y Alambre principal del compartimiento del motor
(Dentro del R/B del compartimiento del motor y J/B del compartimiento del motor)
ID1
52 Alambre del motor y Alambre del panel instrumental (Detrás de la guantera)
ID2
52 Alambre del motor y Alambre del panel instrumental (Detrás de la guantera)
IE1 52 Alambre del panel instrumental y Alambre del panel instrumental (Centro de refuerzo del tablero de instrumentos)
IF3 54
Alambre principal del compartimiento del motor y Alambre del panel instrumental
(Detrás del J/B del lado del conductor)
: Puntos a tierra
Código Vea la página Localización de los puntos a tierra
EB 50 (∗1) Lado izquierdo del faldón del guardabarros
EC 50 (∗1) Lado trasero del bloque de cilindros
ID 52 Centro de refuerzo del tablero de instrumentos
: Puntos de la unión
Código Vea la página Mazo de cables con puntos de unión Código Vea la página Mazo de cables con puntos de unión
I1 54 Alambre del motor
∗ 1 : 1KD-FTV, 2KD-FTV ∗ 2 : Cabina doble ∗ 3 : Cabina sencilla
140
HILUX (EWD630S)
ABS
IG1
25
B–O
B
23
R
1
W–R
G–W
STP
10
W–B
W–B
18
PKB
L–OL–O
ABS
Freno
R–G
3836
21
R–G
13 2 24
WA
+BM +BS
GND1 GND2
30A
ABS
NO. 2
1C2
40A
ABS
NO. 1
Desde el sistema de la fuente de alimentación (Vea la página 62)
1B2
10A
ECU–IG&
GAUGE
2L8
7. 5A
MET
2D1
C8
S 2
EA
S14
2L
5
5
G–BG–W
2M
10A
STOP
2 2F
2
1
11
LG
LG
LG
2
1
LG
A12
B7
J4(A),J5(B)
2K12M1 2L1
B 3
P2
IF23
2S1
W–B
Medidordecombinación
Conectordeunión
Interruptordelfreno
deestacionamiento
ECU de control de derrape
con actuador
Interruptordela
lámparadeparada
EA16
8
10
EC
2
1
3
W–B
W–BG–WG–WG–W
EXI4
Conectordeunión
J6T4
2S17
R–B
EXI
17
EA15
Interruptordeadvertenciadel
niveldellíquidodefrenos
B2
12
13
3
R–BR–B
(4WD)(4WD)(4WD)
(4WD)(4WD)(4WD)(4WD)
(4WD)
Interruptor de
advertencia de
vacío del freno
Interruptordelindicador
delatransferencia
(posiciónL4)
ActuadordeADD
A3
ADD
GND
Interruptor
dedetección
A3 A4
B4
Conectordeunión
J7(A),J8(B)
4
W–B
(4WD)
Conector
deunión
J6
2K4
25
EXI2
V
(4WD)
IG110
R–L
(4WD)
HILUX (EWD630S)
141
W
TS
15
L–Y
D/G
14
P–L
TC
16 9
FL+
R
YP
8
FL–
G
31
FR+
L–W
L
WP
L
30
FR–
O
M–
12
RL–RL+
11 34
RR–RR+
33
SRRR SRRHSFLHSFLRSFRHSFRR
M
+BS
M+
2
1
LL
G
R
GG
L
W
RR
S 2
BA21BA22BA26BA27
IG12IG11IG14IG13
S21
S22
IF27
12
W
TS SIL
7
TC
13
R–Y
P–B
2Q21
2J5
2Q22
2J6
D 1
DLC3
ECU de control de derrape con actuador
Sensordevelocidad
(traseroizquierdo)
Sensordevelocidad
(traseroderecho)
Sensordevelocidad
(delanteroizquierdo)
S4
Sensordevelocidad
(delanteroderecho)
S5
IG15IG17IG18IG16
B 2
IF
Conector de unión
J28
7
132
R
W
BB
W
R
4287
(Protegido)(Protegido)
BR
GL1VGSGGND
A17
GL1VGSGGND
BE13BE14BE11BE12
1
2
1
2
FR–
FR+
BW
1
2
WB
FL+
FL–
(4WD)
(4WD)
(4WD)(4WD)
(4WD)
(4WD)
(4WD)
Sensor de desaceleración
del ABS
142
HILUX (EWD630S)
ABS
Este sistema controla las presiones del líquido de frenos respectivas que actúan en los cilindros de los frenos de la rueda
delantera derecha, rueda delantera izquierda y ruedas traseras cuando se aplican los frenos en una parada repentina para
que no se enclaven las ruedas.
De este modo se mejora la estabilidad de marcha y el control de la dirección durante el frenado repentino.
1. Señal de entrada
(1) Señal del sensor de velocidad
La velocidad de las ruedas se detecta e introduce a los TERMINALES FL+, FR+, RL+ y RR+ de la ECU de control de
derrape con actuador.
(2) Señal del interruptor de la lámpara de parada
Se introduce una señal al TERMINAL STP de la ECU de control de derrape con actuador cuando se pisa el pedal del
freno.
2. Operación del sistema
Durante el frenado súbito, la ECU de control de derrape con actuador, a la que se introducen señales procedentes de cada
sensor, deja que se escape al depósito la presión hidráulica que actúa en el cilindro de cada rueda.
La bomba del interior de la ECU de control de derrape con actuador opera también en ese momento y hace retornar el
líquido de frenos desde el depósito al cilindro principal, evitando de este modo que se enclaven las ruedas del vehículo.
Si la ECU de control de derrape con actuador juzga que la presión hidráulica que actúa en el cilindro de la rueda es
insuficiente, se controla la corriente que actúa en el solenoide y se incrementa la presión hidráulica.
La retención de la presión hidráulica también se controla mediante la ECU, mediante el mismo método que el de arriba,
mediante la reducción repetida de la presión. La retención y el incremento se repiten para mantener la estabilidad del
vehículo y mejorar el control de la dirección durante los frenados súbitos.
S4, S5 Sensor de velocidad (delantero izquierdo), (delantero derecho)
1-2 : 0,9-1,3 kΩ (25°C)
S2 ECU de control de derrape con actuador
25-Tierra : Aprox. 12 voltios con el interruptor de encendido en la posición ON
10-Tierra : Aprox. 12 voltios con el interruptor de la luz de parada conectado (pedal del freno pisado)
2, 24-Tierra : Siempre con continuidad
1, 23-Tierra : Siempre aprox. 12 voltios
S14 Interruptor de la lámpara de parada
2-1 : Cerrado con el pedal del freno pisado
: Localización de partes
Código Vea la página Código Vea la página Código Vea la página
A3 38 (∗1) J5 B 42 S4 39 (∗1)
A17 44 J6 42 S5 39 (∗1)
B2 38 (∗1) J7 A 42 S14 43
B3 38 (∗1) J8 B 42 S21 45 (∗2)
C8 40 J28 42 S22 45 (∗2)
D1 41 P2 43 T4 39 (∗1)
J4 A 42 S2 39 (∗1)
∗ 1 : 1KD-FTV, 2KD-FTV ∗ 2 : Cabina doble ∗ 3 : Cabina sencilla
Descripción del sistema
Consejos para el servicio
HILUX (EWD630S)
143
: Bloque de empalmes y conector del mazo de cables
Código Vea la página Bloque de empalmes y mazo de cables (localización del conector)
1B
23
Alambre principal del compartimiento del motor y J/B del compartimiento del motor
1C
23
Alambre principal del compartimiento del motor y J/B del compartimiento del motor
(Compartimiento del motor izquierdo)
2D 28 Alambre del panel instrumental y J/B del lado del conductor (Tensor del panel instrumental izquierdo)
2F
28
Alambre principal del compartimiento del motor y J/B del lado del conductor
2J
28
Alambre principal del compartimiento del motor y J/B del lado del conductor
(Tensor del panel instrumental izquierdo)
2K 28 Alambre del piso y J/B del lado del conductor (Tensor del panel instrumental izquierdo)
2L
28
Alambre principal del compartimiento del motor y J/B del lado del conductor
2M
28
Alambre principal del compartimiento del motor y J/B del lado del conductor
(Tensor del panel instrumental izquierdo)
2Q
29 Alambre del panel instrumental y J/B del lado del conductor (Tensor del panel instrumental izquierdo)
2S
29 Alambre del panel instrumental y J/B del lado del conductor (Tensor del panel instrumental izquierdo)
: Mazo de cables de la unión del conector y mazo de cables
Código Vea la página Mazo de cables de unión y mazo de cables (localización del conector)
EA1 50 (∗1)
Alambre del motor y Alambre principal del compartimiento del motor
(Dentro del R/B del compartimiento del motor y J/B del compartimiento del motor)
IF2 54
Alambre principal del compartimiento del motor y Alambre del panel instrumental
(Detrás del J/B del lado del conductor)
IG1 54 Alambre principal del compartimiento del motor y Alambre del piso (Cerca del lado del conductor J/B)
BA2 56 (∗2) Alambre del bastidor y Alambre del piso (Debajo del asiento frontal izquierdo)
BE1 56 (∗2) Alambre del bastidor y Cable del sensor de control antipatinaje (Parte trasera del diferencial trasero)
: Puntos a tierra
Código Vea la página Localización de los puntos a tierra
EA 50 (∗1) Lado derecho del faldón del guardabarros
EC 50 (∗1) Lado trasero del bloque de cilindros
IF 52 Panel del lado del cubretablero derecho
: Puntos de la unión
Código Vea la página Mazo de cables con puntos de unión Código Vea la página Mazo de cables con puntos de unión
B2 56 (∗2) Alambre del piso
∗ 1 : 1KD-FTV, 2KD-FTV ∗ 2 : Cabina doble ∗ 3 : Cabina sencilla
144
HILUX (EWD630S)
Memorándum
HILUX (EWD630S)
145
SRS
AVISO: Cuando se inspeccione o repare el SRS, efectúe el servicio de acuerdo con las siguientes instrucciones de
precaución y procedimiento, y con las precauciones del manual de reparaciones aplicable para el año del modelo.
D Los síntomas de mal funcionamiento del SRS son difíciles de confirmar, por lo que los DTC son la fuente más
importante de información para realizar la localización y reparación de averías. Cuando efectúe la localización y
reparación de averías del SRS, inspeccione siempre los DTC antes de desconectar la batería.
D El trabajo debe comenzarse después de más de 90 segundos desde el momento en que se gira el interruptor de
encendido a la posición "LOCK" y se desconecta el cable del terminal negativo (-) de la batería.
(El SRS está provisto de una fuente de alimentación auxiliar de modo que si la operación se inicia dentro de 90
segundos desde que se desconecta el cable del terminal negativo (-) de la batería, pueda activarse el SRS.)
D Cuando se desconecta el cable del terminal negativo (-) de la batería, se borra la memoria del reloj y del sistema de
audio. Por lo tanto, antes de comenzar el trabajo, anote el memorizado del sistema de audio. Cuando termine el
trabajo, reajuste el sistema de audio como estaba antes y ponga en hora el reloj. Algunos vehículos tienen dirección
inclinable eléctrica, dirección telescópica eléctrica, asiento eléctrico y espejos retrovisores exteriores eléctricos, y todos
están provistos de función de memoria. Sin embargo, no es posible anotar el contenido de todas estas memorias. Por
lo tanto, cuando termine el trabajo, será necesario explicárselo al cliente, y solicitar al cliente que ajuste las funciones y
reajuste la memoria. Para evitar el borrado la memora de cada sistema, no emplee nunca un suministro de
alimentación auxiliar del exterior del vehículo.
D Antes de la reparación, extraiga el sensor del colchón de aire si es posible que el sensor reciba algún golpe durante la
reparación.
D No exponga las partes siguientes directamente al aire caliente ni al fuego;
D Incluso en los casos de pequeños choques en los que no se activa el SRS, deberán inspeccionarse las partes
siguientes;
D No emplee nunca partes del SRS de otro vehículo. Cuando reemplace las partes, reemplácelas por partes nuevas.
D No desmonte ni repare nunca las partes siguientes con el propósito de volverlas a utilizar.
D Si las partes siguientes se han caído o tienen grietas, abolladuras u otros defectos en su caja, ménsula, y conector,
reemplácelas por otras nuevas.
D Emplee un voltímetro/ohmiómetro de alta impedancia (10 kΩ/V como mínimo) para efectuar la localización y reparación
de averías de los circuitos eléctricos del sistema.
D Las etiquetas de información están adheridas en la periferia de los componentes del SRS. Siga las instrucciones de los
advertencias.
D Después de haber terminado el trabajo del SRS, compruebe la luz de advertencia del SRS.
D Si el vehículo está provisto de un sistema de comunicaciones móviles, consulte la precaución de la sección IN del
manual de reparaciones.
∗ Almohadilla del volante de dirección
∗ Conjunto del colchón de aire del pasajero delantero
∗ Conjunto del sensor del colchón de aire central
∗ Conjunto del sensor del colchón de aire delantero
146
HILUX (EWD630S)
SRS
7. 5A
MET
Desde el sistema de la fuente de alimentación (Vea la página 62)
2D1
SRS
7. 5A
IGN
2B8
2B32O21 2O5
2Q22
2B7
2Q21
2B4
IF14 IF13 IF12 IF11
1 2
Cable
espiral
2B1
2D18
2B2
2D9
ID IE
A10
B12
7 1311
2022
14 5 6 25 26
292730282116 15
21
2121
+SR+SL–SL –SRSIL TCA/B
LA D+ D– E1 E2
+SR–SR+SL–SLIG2SIL TC
B–W
BR–W
W–R
BR
B–O
B–W
BR–W
W–R
BR
R–Y
P–B
B–Y
W
P–B
B–O
B–Y
Y
W–B
W–B
W–B
W–B
Y
Y–B
B–Y
B–Y
W–B
W–B
A 6A 5
D 1
A15
A14
J22(A),J23(B)
C 8
Sensor del colchón de aire
(delantero izquierdo)
Sensor del colchón de aire
(delantero derecho)
Centro del conjunto del sensor del colchón de aire
Detonadordelcolchóndeaire
(almohadilladelvolantededirección)
Medidor de
combinación
DLC3
Conectordeunión
D+ D–
Y–G
Y–R
A23
P–P+
1 2
34
Detonador del colchón de aire
(conjunto del colchón de aire
del pasajero delantero)
IL11 IL12
Y–R
Y
HILUX (EWD630S)
147
El SRS es un dispositivo de protección del conductor y del pasajero delantero que desempeña un papel complementario
con los cinturones de seguridad.
Cuando el interruptor de encendido se gira a la posición ON, la corriente procedente del interruptor de encendido circula al
TERMINAL 21 del centro del conjunto del sensor del colchón de aire.
Si ocurre un accidente durante la circulación, cuando el impacto frontal excede un nivel ajustado, la corriente del interruptor
de encendido circula a los TERMINALES 5 y 4 del centro del conjunto del sensor del colchón de aire, al TERMINAL 25, 26
o TIERRA DE CARROCERÍA, y a TIERRA, de modo que la corriente circula a los detonadores de los colchones de aire y
hace que operen.
El colchón de aire guardado en la almohadilla del volante de dirección se infla instantáneamente para mitigar el golpe al
conductor.
El colchón de aire guardado dentro del tablero de instrumentos del pasajero se infla instantáneamente para mitigar el golpe
al pasajero delantero.
: Localización de partes
Código Vea la página Código Vea la página Código Vea la página
A5 38 (∗1) A15 40 D1 41
A6 38 (∗1) A23 40 J22 A 42
A14 40 C8 40 J23 B 42
: Bloque de empalmes y conector del mazo de cables
Código Vea la página Bloque de empalmes y mazo de cables (localización del conector)
2B
28
2D
28
Alambre del panel instrumental y J/B del lado del conductor (Tensor del panel instrumental izquierdo)
2O
29
Alambre del panel instrumental y J/B del lado del conductor (Tensor del panel instrumental izquierdo)
2Q
29
: Mazo de cables de la unión del conector y mazo de cables
Código Vea la página Mazo de cables de unión y mazo de cables (localización del conector)
IF1 54
Alambre principal del compartimiento del motor y Alambre del panel instrumental
(Detrás del J/B del lado del conductor)
IL1 54
Alambre del panel instrumental y conjunto de cables del tablero de instrumentos
(Cerca del conjunto del colchón de aire del pasajero delantero)
: Puntos a tierra
Código Vea la página Localización de los puntos a tierra
ID 52 Centro de refuerzo del tablero de instrumentos
IE 52 Refuerzo del panel instrumental izquierdo
∗ 1 : 1KD-FTV, 2KD-FTV ∗ 2 : Cabina doble ∗ 3 : Cabina sencilla
Descripción del sistema
148
HILUX (EWD630S)
4WD con ADD
Batería
1
2
40A
AM1
2A2
1F1
1A1
2G1
4 1AM1
ACC
IG1
Interruptor de encendido
I 6
ID112
13
14
EA15
10 8
7
ECU de control de
la transmisión
T18
3
15
8
10
17
ADD
L4
EXI4
B–Y
B–RBW
G–WR–BR–B
IG
EXI
Conector
deunión
J6
R–B
F14
16
TFN
1
2
12
Conector de unión
J 6
ID16
G–W
(∗4A/T)
G–W
(∗4A/T)
(∗3conABS)(∗3conABS)(∗3conABS)
2
W–G
W–G
W–G
(∗4A/T)
(∗4A/T)
(∗4A/T)
M
R
Y
R–Y
R–W
3
DM2 DM1 DL1 DL2 GND
DL2DL1DM1DM2
R–B
45612
ADD
2143
ECU de control de 4WD
B–Y
ID18
3 4
Conector
de unión
J18
W–B
(∗4A/T)
W–B
(∗2)
B–Y
W–B
(∗2)
W–B(∗3)
G–W
(∗1 ∗3)
G–W
(∗3 con ABS)
ECU de control de
derrape con actuador
S 2
Interruptor de detección
100A
ALT
ActuadordeADD
A3
Interruptordelindicadordelatransferencia
(posicióndepuntomuerto)
T5
1
3 W–G
(∗4 A/T)
W–B
(∗4 A/T)
R–B
EA1
6
HILUX (EWD630S)
149
7. 5A
MET
2D1
A4 A3
B5 B3
EC
A1
1
1
6 5
2
2
GNDDL
W–B
W–B
W–B
W–B
B4
B
W–B
(∗1∗3)
W–B
10A
ECU–IG&
GAUGE
Desde el sistema de la fuente de alimentación (Vea la página 62)
2S25
ID12
6
2
ID25
A/TP
4WD
122131
13
W–GR–LR–LG–BG–B
B–O
R–B
B–O
Interruptordearranque
enpuntomuerto
N1
(∗4A/T)(∗4A/T)(∗4A/T)(∗4A/T)(∗4A/T)
(∗4A/T)
∗ 1 : con ABS, A/T
EE
I 1 I 1
∗ 2 : 2TR–FE
∗ 3 : 1KD–FTV, 2KD–FTV
∗ 4 : 1KD–FTV
(∗3)
(∗3)
(∗3)
(∗3)
W–B
(∗2)
W–B
(∗2)
W–B
(∗2)
W–B
(∗3)
W–B
(∗2)
W–B
(∗2)
W–B
(∗2)
W–B
(∗2)
ID212
7
IND1
W–R
Medidor de combinación
C 8
G–W
(∗1∗3)
ID2
17
W–G
(∗4 A/T)
W–B
(∗2)
W–B(∗3)
G–W
(∗1 ∗3)
F14
ECU de control de 4WD
Interruptordelindicador
delatransferencia
(posiciónL4)
T4
W–G
(∗4 A/T)
Interruptordelindicadordela
transferencia(posición4WD)
T3
W–B
(∗4 A/T)
Conectordeunión
J7(A),J8(B)
150
HILUX (EWD630S)
4WD con ADD
El modo de tracción cambia a H2 o H4 o L4 cuando el conductor opera la palanca de cambios de la transferencia. El
interruptor del indicador de la transferencia (posición 4WD) se enciende cuando se cambia la posición de la palanca de
cambios de la transferencia en 4WD (H4 o L4).
1. 2-4 Sistema de selección
(1) Cambio de H4 a H2
Cuando la palanca de cambios de la transferencia se cambia de H4 a H2, el interruptor del indicador de la transferencia
(posición 4WD) detecta la señal de apagado para activar el motor ADD, lo que produce un cambio en la transferencia a
2WD (posición H2).
Entonces, se apaga el interruptor del indicador de la transferencia (posición 4WD).
(2) Cambio de H2 a H4
Cuando la palanca de cambios de la transferencia se cambia de H2 a H4, el interruptor del indicador de la transferencia
(posición 4WD) detecta la señal de encendido para activar el motor ADD, lo que produce un cambio en la transferencia
a 4WD (posición H4) para que se encienda el indicador 4WD.
(3) Cambio de H4 a L4
Cuando la palanca de cambios de la transferencia se cambia de H4 a L4, se mueve el eje de la horquilla de cambios
para cambiar la transferencia a 4WD (posición L4), lo que hace que se encienda el interruptor del indicador de la
transferencia (posición L4). El motor ADD no opera porque sólo se trata de la operación de la palanca.
(4) Cambio de L4 a H4
Cuando se cambia la palanca de cambios de la transferencia de la posición L4 a H4, se mueve el eje de la horquilla de
cambios. Cuando se apaga el interruptor del indicador de la transferencia (posición L4), la transferencia cambia a 4WD
(posición H4). El motor ADD no opera porque sólo se trata de la operación de la palanca.
2. Otro control
Cuando se encuentra alguna anormalidad en el sistema 4WD, se avisa al conductor haciendo parpadear la luz del indicador
de 4WD.
F14 ECU de control de 4WD
10-Tierra : Aprox. 12 voltios con el interruptor de encendido en la posición ON
5-Tierra : Siempre con continuidad
T3 Interruptor del indicador de la transferencia (posición 4WD)
2-1 : Cerrado con la palanca de cambios de la transferencia en la posición H4
T4 Interruptor del indicador de la transferencia (posición L4)
2-1 : Cerrado con la palanca de cambios de la transferencia en la posición L4
: Localización de partes
Código Vea la página Código Vea la página Código Vea la página
A3
36 (2TR-FE) J7 A 42 T3 39 (∗1)
A3
38 (∗1) J8 B 42
T4
37 (2TR-FE)
C8 40 J18 42
T4
39 (∗1)
F14 41 N1 39 (∗1) T5 39 (∗1)
I6 41 S2 39 (∗1) T18 43
J6 42 T3 37 (2TR-FE)
: Bloque de empalmes y conector del mazo de cables
Código Vea la página Bloque de empalmes y mazo de cables (localización del conector)
1A
23
Alambre principal del compartimiento del motor y J/B del compartimiento del motor
1F
23
Alambre principal del compartimiento del motor y J/B del compartimiento del motor
(Compartimiento del motor izquierdo)
2A
28 Alambre del panel instrumental y J/B del lado del conductor (Tensor del panel instrumental izquierdo)
2D
28 Alambre del panel instrumental y J/B del lado del conductor (Tensor del panel instrumental izquierdo)
2G 28
Alambre principal del compartimiento del motor y J/B del lado del conductor
(Tensor del panel instrumental izquierdo)
2S 29 Alambre del panel instrumental y J/B del lado del conductor (Tensor del panel instrumental izquierdo)
∗ 1 : 1KD-FTV, 2KD-FTV ∗ 2 : Cabina doble ∗ 3 : Cabina sencilla
Descripción del sistema
Consejos para el servicio
HILUX (EWD630S)
151
: Mazo de cables de la unión del conector y mazo de cables
Código Vea la página Mazo de cables de unión y mazo de cables (localización del conector)
EA1
48 (2TR-FE) Alambre del motor y Alambre principal del compartimiento del motor
EA1
50 (∗1)
Alambre del motor y Alambre principal del compartimiento del motor
(Dentro del R/B del compartimiento del motor y J/B del compartimiento del motor)
ID1
52 Alambre del motor y Alambre del panel instrumental (Detrás de la guantera)
ID2
52 Alambre del motor y Alambre del panel instrumental (Detrás de la guantera)
: Puntos a tierra
Código Vea la página Localización de los puntos a tierra
EC 50 (∗1)
Lado trasero del bloque de cilindros
EE 48 (2TR-FE)
Lado trasero del bloque de cilindros
: Puntos de la unión
Código Vea la página Mazo de cables con puntos de unión Código Vea la página Mazo de cables con puntos de unión
I1 54 Alambre del motor
∗ 1 : 1KD-FTV, 2KD-FTV ∗ 2 : Cabina doble ∗ 3 : Cabina sencilla
152
HILUX (EWD630S)
4WD sin ADD
7. 5A
MET
2D1
EC
14
1
2
Desde el sistema de la fuente de alimentación (Vea la página 62)
4WD
21
B–OW–B
Interruptordelindicador
delatransferencia
(posición4WD)
T3
R–B
Medidordecombinación
C8
ID212
R–B
12
Conector
deunión
J6
R–BW–B
3
1
J7
Conector
deunión
31
HILUX (EWD630S)
153
T3 Interruptor del indicador de la transferencia (posición 4WD)
2-1 : Cerrado con la palanca de cambios de la transferencia en la posición H4
: Localización de partes
Código Vea la página Código Vea la página Código Vea la página
C8 40 J7 42
J6 42 T3 39 (∗1)
: Bloque de empalmes y conector del mazo de cables
Código Vea la página Bloque de empalmes y mazo de cables (localización del conector)
2D 28 Alambre del panel instrumental y J/B del lado del conductor (Tensor del panel instrumental izquierdo)
: Mazo de cables de la unión del conector y mazo de cables
Código Vea la página Mazo de cables de unión y mazo de cables (localización del conector)
ID2 52 Alambre del motor y Alambre del panel instrumental (Detrás de la guantera)
: Puntos a tierra
Código Vea la página Localización de los puntos a tierra
EC 50 (∗1) Lado trasero del bloque de cilindros
∗ 1 : 1KD-FTV, 2KD-FTV ∗ 2 : Cabina doble ∗ 3 : Cabina sencilla
Consejos para el servicio
154
HILUX (EWD630S)
Bloqueo de cambios
L–WY
G–Y
Y
Solenoide de bloqueo
de cambios
5
G–BG–W
2M
Desde el sistema de la fuente de alimentación (Vea la página 62)
10A
STOP
2 2F
2
1
10A
ECU–IG&
GAUGE
7. 5A
ACC
2S4 2N8
IE
4
5
6
4
ID
2S5
B
GR
1 6 7
IG ACC STP
KLS+ E SLS– SLS+
12 8
1
2
S11
W–B
W–B
K 1
S14
J23 J21
Conector de uniónConector de unión
Solenoide de interbloqueo
de la llave
ECU de control de bloqueo
de cambios
Interruptor de la
lámpara de parada
HILUX (EWD630S)
155
Cuando el interruptor de encendido se gira a la posición ACC, la corriente procedente del fusible ACC circula al TERMINAL
6 de la ECU de control de bloqueo de cambios. Cuando el interruptor de encendido se gira a la posición ON, la corriente
procedente del fusible ECU-IG&GAUGE circula al TERMINAL 1 de la ECU de control de bloqueo de cambios.
1. Mecanismo de bloqueo de cambios
Si se pisa el pedal del freno con el interruptor de encendido puesto en la posición ON (el interruptor de la lámpara de parada
activado), se activa la ECU de control de bloqueo de cambios, y se permite al conductor que cambie la posición de la
palanca de cambios a una posición que no sea la P.
2. Mecanismo de interbloqueo de la llave
Con el interruptor de encendido en la posición ON o ACC, cuando se pone la palanca de cambios en la posición P, se corta
la corriente que circula desde el TERMINAL 12 de la ECU de control de bloqueo de cambios al solenoide de interbloqueo
de la llave. Esto hace que se desactive el solenoide de interbloqueo de la llave (la palanca de bloqueo se libera de la
posición LOCK) y la llave de encendido puede girarse desde la posición ACC a LOCK.
S11 ECU de control de bloqueo de cambios
6-Tierra : Aprox. 12 voltios con el interruptor de encendido en la posición ACC u ON
1-Tierra : Aprox. 12 voltios con el interruptor de encendido en la posición ON
7-Tierra : Aprox. 12 voltios con el pedal del freno pisado
8-Tierra : Siempre con continuidad
S14 Interruptor de la lámpara de parada
2-1 : Cerrado con el pedal del freno pisado
: Localización de partes
Código Vea la página Código Vea la página Código Vea la página
J21 42 K1 43 S14 43
J23 42 S11 43
: Bloque de empalmes y conector del mazo de cables
Código Vea la página Bloque de empalmes y mazo de cables (localización del conector)
2F
28
Alambre principal del compartimiento del motor y J/B del lado del conductor
2M
28
Alambre principal del compartimiento del motor y J/B del lado del conductor
(Tensor del panel instrumental izquierdo)
2N
29 Alambre del panel instrumental y J/B del lado del conductor (Tensor del panel instrumental izquierdo)
2S
29 Alambre del panel instrumental y J/B del lado del conductor (Tensor del panel instrumental izquierdo)
: Puntos a tierra
Código Vea la página Localización de los puntos a tierra
ID 52 Centro de refuerzo del tablero de instrumentos
IE 52 Refuerzo del panel instrumental izquierdo
Descripción del sistema
Consejos para el servicio
156
HILUX (EWD630S)
Control de bloqueo de la puerta
2A4 2D4
A16 A12
B21B17B22B18
Desbloqueo
Bloqueo
IF
1
2R28 2R27
B12 B7
A7 A11A8 A12 A13
B4 2
1
BC15 BC14
41714109
14 11 3 2
ACT–ACT+UL1L1
L
L–W
L
L–W
W–B
L
L–W
L
L–Y
R–Y
L–Y
L
R–Y
Relé de integración
F12
D 9D 6
Motor
Motor
Conjunto de bloqueo de la puerta
(lado del conductor)
Conjunto de bloqueo
de la puerta
(trasera derecha)
Cinturóninteriordel
asientodelantero
(ladodelconductor)
Interruptorprincipalde
laventanillaautomática
P4
Interruptor
decontrol
debloqueo
delapuerta
A13A17
L
L–W
L–W(∗1)
L(∗1)
J28
Conector
deunión
Conector de unión
J24(A), J25(B)
Desbloqueo
delallave
Bloqueo
delallave
IG
Conector de unión
J15
2
W–B
W–B
J26(A), J27(B)
Conector de unión
L
L–Y
R–Y
R
L
L–Y
(∗1)
(∗1)
85
3
IC24
L UL L UL E
R–Y
R
UL L
IH13 IH18
L
L–YL–Y
L
HILUX (EWD630S)
157
25A
DOOR
3
2
1
7. 5A
ECU–B
1
2
1
A8 A7 A10 A11
B10 B7
2K11 2K10
14 41
BB15 BB14
ID IE
2D18 2D9
1
GND
R
R–Y
L–Y
L
W–B
W–B
L–Y
L
Relé de integración
Motor
Motor
D 7 D 8
Conjunto de bloqueo de la puerta
(lado del pasajero delantero)
Conjunto de bloqueo
de la puerta
(trasera izquierda)
∗ 1 : con sistema antirrobo
Conectordeunión
J13(A),J14(B)
L–W(∗1)
L(∗1)
LG
UL3 L2
IH17
CTY
83 10
1 1
R–L
R–L
R–L
R–L
7
D4
D5
J29
31 2O
14 2N
Interruptordecortesía
delapuerta
(traseraizquierda)
Interruptordecortesía
delapuerta
(traseraderecha)
Conector de unión
R–L
2526
(∗1)
(∗1)
(∗1)
IA113
11
R–L
T16
2O15
2O27
DCTY
16
+B1
4 14
+B2
R–B
R–L
LG
(∗1)
R–L
Interruptordecortesía
delapuerta
(ladodelpasajerodelantero)
D3
2S13
5
ALTB
4
BECU
2L122H4
LG
L
L
L–Y
R–Y
R
L
L–Y
L–Y
L
L–W
1
ECU de aviso antirrobo
(∗1)
(∗1)
(∗1)
(∗1)
(∗1)
(∗1)
(∗1)
(∗1)
(∗1)
L UL UL L
R
R–Y
L–Y
L
(∗1)
Desde el sistema de la fuente de alimentación (Vea la página 62)
158
HILUX (EWD630S)
Control de bloqueo de la puerta
R–B
15
T16
J22(A),J23(B)
Conectordeunión
10A
ECU–IG&
GAUGE
2S30
2Q
R–L
8 2J
7. 5A
DOME
1
2
1
ID
B11
A8 A10
B12
W–BV–R
W–B
1
E
2Q25
SPD
17
GR
4
26
G–YG–Y
KSW
10 2O
10 2N
5
1
2
R
Interruptordeadvertenciadedesbloqueo
U1
1 2D
7. 5A
MET
Y
B–O
C 8
Desde el sistema de la fuente de alimentación (Vea la página 62)
Velocímetro
R–B
3
2
P–LW–B
1
P–L
R–B
EC
ID216 ID215
1 21
22 5
R
Medidor de combinación
16
R–B
IA13
17
R–L
R–B
2P
6
R–B
V–R
R–L
D 2
Interruptor de cortesía
de la puerta
(lado del conductor)
∗ 2 : 2TR–FE
∗ 1 : con sistema antirrobo
ED
7
6
W–B
(∗1∗2)
W–B
(∗1∗2)
Conectordeunión
J30
Sensordevelocidad
S3
(∗1∗3)
1
ECU de aviso antirrobo
∗ 3 : 1KD–FTV, 2KD–FTV
(∗1)
(∗1)
(∗1)
(∗1)(∗1)
(∗1)
(∗1)
(∗1)
(∗1)(∗1)
(∗1)
(∗1)(∗1)
(∗1)
(∗1)
(∗1)
(∗1)(∗1)(∗1)
(∗1)
(∗1)
(∗1)
SI IG+
SE
HILUX (EWD630S)
159
1. Operación de bloqueo manual
Cuando el interruptor de control de bloqueo de la puerta o el interruptor de bloqueo y desbloqueo de la llave de la puerta del
lado del conductor (cuando el cinturón de seguridad del conductor está desabrochado) se operan a la posición LOCK, se
introduce una señal de bloqueo al TERMINAL 14 del relé de integración y hace que funcione el relé de integración. La
corriente circula desde el TERMINAL 5 del relé de integración al TERMINAL 3, a los motores de bloqueo de la puerta, al
TERMINAL 2 del relé de integración, al TERMINAL 1 y a TIERRA y los motores de bloqueo de la puerta bloquean la puerta.
2. Operación de desbloqueo manual
Cuando el interruptor de control de bloqueo de la puerta o el interruptor de bloqueo y desbloqueo de la llave de la puerta del
lado del conductor (cuando el cinturón de seguridad del conductor está desabrochado) se operan a la posición UNLOCK,
se introduce una señal de desbloqueo al TERMINAL 11 del relé de integración y hace que funcione el relé de integración.
La corriente circula desde el TERMINAL 5 del relé de integración al TERMINAL 2, a los motores de bloqueo de la puerta, al
TERMINAL 3 del relé de integración, al TERMINAL 1 y a TIERRA y los motores de bloqueo de la puerta desbloquean la
puerta.
3. Bloqueo automático de la puerta sensible a la velocidad
Con la condición de que una de las puertas se abra con el interruptor de encendido en la posición OFF, la ECU de aviso
antirrobo emite la señal de bloqueo al relé de integración y el relé envía la señal de bloqueo a todos los motores de bloqueo
de las puertas cuando se satisfacen todas las condiciones siguientes.
∗ Todas las puertas están cerradas.
∗ El interruptor de advertencia de desbloqueo está en ON además de estar en ON el interruptor de encendido.
∗ La velocidad del vehículo ha llegado aproximadamente a 25 km/h.
4. Desbloqueo automático de la puerta enlazado con el interruptor de encendido
Con la condición de que el interruptor de advertencia de desbloqueo está en ON además de estar en ON el interruptor de
encendido después de bloquearse la puerta con el bloqueo automático de la puerta sensible a la velocidad, la ECU de
aviso antirrobo emite la señal de desbloqueo al relé de integración y el relé envía la señal de desbloqueo a todos los
motores de bloqueo de las puertas cuando se satisfacen todas las condiciones siguientes.
∗ El interruptor de advertencia de desbloqueo está en ON.
∗ El interruptor de encendido está en OFF.
Relé de integración
1-Tierra : Siempre con continuidad
4, 5-Tierra : Siempre aprox. 12 voltios
14-Tierra : Continuidad con el interruptor de control de bloqueo de la puerta o interruptor de bloqueo y desbloqueo
de la llave de la puerta bloqueado (cuando el cinturón de seguridad del conductor está desabrochado)
11-Tierra : Continuidad con el interruptor de control de bloqueo de la puerta o interruptor de bloqueo y desbloqueo
de la llave de la puerta desbloqueado (cuando el cinturón de seguridad del conductor está desabrochado)
D6 Conjunto de bloqueo de la puerta (lado del conductor)
10-7 : Continuidad con el cilindro de bloqueo de la puerta desbloqueado con la llave
9-7 : Continuidad con el cilindro de bloqueo de la puerta bloqueado con la llave
: Localización de partes
Código Vea la página Código Vea la página Código Vea la página
C8 40 F12 44 (∗2) J27 B 42
D2 44 (∗2) J13 A 42 J28 42
D3 44 (∗2) J14 B 42 J29 42
D4 44 (∗2) J15 42 J30 42
D5 44 (∗2) J22 A 42 P4 44 (∗2)
D6 44 (∗2) J23 B 42
S3
37 (2TR-FE)
D7 44 (∗2) J24 A 42
S3
39 (∗1)
D8 44 (∗2) J25 B 42 T16 43
D9 44 (∗2) J26 A 42 U1 43
∗ 1 : 1KD-FTV, 2KD-FTV ∗ 2 : Cabina doble ∗ 3 : Cabina sencilla
Descripción del sistema
Consejos para el servicio
160
HILUX (EWD630S)
Control de bloqueo de la puerta
: Bloques de relés
Código Vea la página Bloque de relés (localización del bloque de relés)
1 22 R/B del compartimiento del motor (Compartimiento del motor izquierdo)
3 35 R/B N.° 3 (Panel del lado del cubretablero derecho)
: Bloque de empalmes y conector del mazo de cables
Código Vea la página Bloque de empalmes y mazo de cables (localización del conector)
2A
28 Alambre del panel instrumental y J/B del lado del conductor (Tensor del panel instrumental izquierdo)
2D
28 Alambre del panel instrumental y J/B del lado del conductor (Tensor del panel instrumental izquierdo)
2H 28 Alambre del piso y J/B del lado del conductor (Tensor del panel instrumental izquierdo)
2J 28
Alambre principal del compartimiento del motor y J/B del lado del conductor
(Tensor del panel instrumental izquierdo)
2K 28 Alambre del piso y J/B del lado del conductor (Tensor del panel instrumental izquierdo)
2L 28
Alambre principal del compartimiento del motor y J/B del lado del conductor
(Tensor del panel instrumental izquierdo)
2N
2O
2P
29 Alambre del panel instrumental y J/B del lado del conductor (Tensor del panel instrumental izquierdo)
2Q
29 Alambre del panel instrumental y J/B del lado del conductor (Tensor del panel instrumental izquierdo)
2R
2S
: Mazo de cables de la unión del conector y mazo de cables
Código Vea la página Mazo de cables de unión y mazo de cables (localización del conector)
IA1 52 Alambre del panel instrumental y Alambre del piso (Panel de arranque derecho)
IC2 52 Alambre de la puerta frontal izquierda y Alambre del piso (Panel de arranque izquierdo)
ID2 52 Alambre del motor y Alambre del panel instrumental (Detrás de la guantera)
IH1 54 Alambre del panel instrumental y Alambre del piso (Panel de arranque izquierdo)
BB1 56 (∗2) Cable N.° 1 de la puerta trasera izquierda y Alambre del piso (Pilar central izquierdo)
BC1 56 (∗2) Cable N.° 1 de la puerta trasera derecha y Alambre del piso (Pilar central derecho)
: Puntos a tierra
Código Vea la página Localización de los puntos a tierra
EC 50 (∗1)
Lado trasero del bloque de cilindros
ED 48 (2TR-FE)
Lado trasero del bloque de cilindros
ID 52 Centro de refuerzo del tablero de instrumentos
IE 52 Refuerzo del panel instrumental izquierdo
IF 52 Panel del lado del cubretablero derecho
IG 52 Panel del lado del cubretablero izquierdo
∗ 1 : 1KD-FTV, 2KD-FTV ∗ 2 : Cabina doble ∗ 3 : Cabina sencilla
HILUX (EWD630S)
161
Memorándum
162
HILUX (EWD630S)
Control de bloqueo de la puerta inalámbrico
Desde el sistema de la fuente de alimentación (Vea la página 62)
LGLG
1
IF313
13
SH–
BB
25A
DOOR
IH17
+B2
14
8
IA1
3
13
10
1 1
R–L
R–L
R–L
R–L
D4
D5
J29
IG
18
R–L
3
1
2
5
2N10
2O10
KSW
G–YG–Y
2
1
GR
2N14
2O15
R–L
11
R–L
CTY
7
T16
Interruptordecortesíadelapuerta
(traseraizquierda)
Interruptordecortesíadelapuerta
(traseraderecha)
Conector de unión
S1
L2
25
UL3
26
L–W
L
B11
A8
2O25
2N9
HAZD
28
8
HAZ
G–OG–O
Intermitente de la señal de giro
T22
2O31
IA13
16 15
17
R–L
R–LR–BR–L
Medidordecombinación
C8
R–B
R–B
L–Y
L–Y
+B1
4
Conectordeunión
J22(A),J23(B)
Interruptorde
advertenciade
desbloqueo
U1
B–W
E
1
B–W
LG
10A
ECU–IG&GAUGE
2S16
R–L
B12
W–B
ID
D2
Interruptordecortesíadelapuerta
(ladodelconductor)
1 1
Bocinadeseguridad
ECU de aviso antirrobo
Interruptordecortesíadelapuerta
(ladodelpasajerodelantero)
D3
HILUX (EWD630S)
163
13 17
13 16
7. 5A
ECU–B
Desde el sistema de la fuente de alimentación (Vea la página 62)
1
D 9
2
1
2L12
4 2D 2A4 2R28 2R27
L
B12
R
B7
L–Y
A7
R–Y
A11A8 A12
R–Y
D 7
BC15
R
BC14
41
Relé de integración
14
L–Y
A8
L
A7
L
L–Y
A10
L–Y
A11
L
B10 B7
BECU
2K11
L
UL1
2K10
1
L1
4
ACT+ ACT–
Motor
4
Motor
2
Motor
31411
Conjunto de bloqueo
de la puerta
(lado del pasajero delantero)
Conjunto de bloqueo
de la puerta
(trasera derecha)
Conjunto de bloqueo de la puerta
(lado del conductor)
D 6
Conectordeunión
J26(A),J27(B)
R
Conectordeunión
J13(A),J14(B)
L–W
L
L
L–W
Conector
deunión
J24
2O27
R–B
R–B
16
DCTY
2S13
L–Y
2H4
5
ALTB
LG
L
L–Y
R–Y
L UL UL L L UL
IH18IH13
L–Y
L
L–Y
L
164
HILUX (EWD630S)
Control de bloqueo de la puerta inalámbrico
∗ 2 : sin sistema inmovilizador del motor
T20(B)
Amplificadordelallavedetransmisor
Lámparadelcilindrode
lallavedeencendido
P
P
R
ILE
15
12 2N
8 2J
8 2R
1
2
1
Desde el sistema de la fuente de alimentación (Vea la página 62)
7. 5A
DOME
Relé de integración
W–B
W–B
L
L–Y
Motor
D 8
GND
41
BB15 BB14
1
ID IE
2D18 2D9
Conjunto de bloqueo de la puerta
(trasera izquierda)
∗ 1 : con sistema inmovilizador del motor
B2 (∗1)
A2 (∗2)
A6 (∗2)
B6 (∗1)
I5(A)
L
L–Y
(∗2)
(∗1)
(∗2)
(∗1)
Lámparadelcilindrodela
llavedeencendido
UL L
HILUX (EWD630S)
165
El control de bloqueo de las puertas (bloqueo y desbloqueo) y el control de emergencia (alarma y parpadeo antirrobo) se
llevan a cabo mediante control remoto, sin insertar la llave en el cilindro de la llave de la puerta, empleando ondas eléctricas
de baja intensidad emitidas desde un transmisor.
1. Operación normal
∗ Operación de bloqueo
Cuando se presiona el botón de bloqueo del transmisor, se bloquean todas las puertas.
∗ Operación de desbloqueo
Cuando se presiona el botón de desbloqueo del transmisor, se desbloquean todas las puertas.
2. Confirmación visual de bloqueo o desbloqueo
Si todas las puertas indican que están bloqueadas después del comando de bloqueo, sonará la bocina de seguridad y
parpadearán las luces de aviso de peligro una vez. Si alguna puerta indica que está abierta después del comando de
desbloqueo, sonará la bocina del sistema antirrobo y parpadearán las luces de aviso de peligro dos veces.
3. Operación de bloqueo automático
Todas las puertas se vuelven a bloquear automáticamente si no se abre ninguna puerta antes de 15 segundos desde que
se presiona el botón (transmisor) para desbloquear todas las puertas con las condiciones de que la llave de encendido no
esté insertada en el cilindro de la llave de encendido (interruptor de advertencia de desbloqueo desactivado), el interruptor
de encendido esté en OFF y que todas las puertas estén completamente cerradas.
4. Función de entrada iluminada
Cuando se presiona el botón de desbloqueo (transmisor), se encienden las luces, tales como la lámpara del cilindro de la
llave de encendido, durante unos 30 segundos. Si las puertas se bloquean con el botón de bloqueo (transmisor) durante
esta operación y la llave de encendido está en el cilindro de la llave de encendido (interruptor de advertencia de desbloqueo
activado), al poner el interruptor de encendido en la posición ON se cancela la iluminación y las luces se apagan
inmediatamente.
5. Operación de alarma de emergencia
Cuando se presiona el botón de emergencia del transmisor, suena la alarma y se inicia el parpadeo de las luces. La
operación de alarma de emergencia se cancela cuando se presiona uno de los botones de bloqueo, de desbloqueo o de
alarma de emergencia.
6. Aviso de puerta mal cerrada (presionando el botón de bloqueo inalámbrico)
Un sonido de la bocina de seguridad avisa que una puerta está mal cerrada (durante 1 segundo) presionando el botón de
bloqueo (transmisor) cuando una de las puertas no está bien cerrada.
D2, D3, D4, D5 Interruptor de cortesía de la puerta (lado del conductor), (lado del pasajero delantero),
(trasera izquierda), (trasera derecha)
1-Tierra : Continuidad con cada una de las puertas abiertas
T16 ECU de aviso antirrobo
4, 14-Tierra : Siempre aprox. 12 voltios
1-Tierra : Siempre con continuidad
18-Tierra : Aprox. 12 voltios con el interruptor de encendido en la posición ON
U1 Interruptor de advertencia de desbloqueo
2-1 : Cerrado con la llave de encendido en el cilindro
: Localización de partes
Código Vea la página Código Vea la página Código Vea la página
C8 40 D9 44 (∗2) J27 B 42
D2 44 (∗2) I5 A 41 J29 42
D3 44 (∗2) J13 A 42 S1 39 (∗1)
D4 44 (∗2) J14 B 42 T16 43
D5 44 (∗2) J22 A 42 T20 B 43
D6 44 (∗2) J23 B 42 T22 43
D7 44 (∗2) J24 42 U1 43
D8 44 (∗2) J26 A 42
∗ 1 : 1KD-FTV, 2KD-FTV ∗ 2 : Cabina doble ∗ 3 : Cabina sencilla
Descripción del sistema
Consejos para el servicio
166
HILUX (EWD630S)
Control de bloqueo de la puerta inalámbrico
: Bloques de relés
Código Vea la página Bloque de relés (localización del bloque de relés)
1 22 R/B del compartimiento del motor (Compartimiento del motor izquierdo)
3 35 R/B N.° 3 (Panel del lado del cubretablero derecho)
: Bloque de empalmes y conector del mazo de cables
Código Vea la página Bloque de empalmes y mazo de cables (localización del conector)
2A
28 Alambre del panel instrumental y J/B del lado del conductor (Tensor del panel instrumental izquierdo)
2D
28 Alambre del panel instrumental y J/B del lado del conductor (Tensor del panel instrumental izquierdo)
2H 28 Alambre del piso y J/B del lado del conductor (Tensor del panel instrumental izquierdo)
2J 28
Alambre principal del compartimiento del motor y J/B del lado del conductor
(Tensor del panel instrumental izquierdo)
2K 28 Alambre del piso y J/B del lado del conductor (Tensor del panel instrumental izquierdo)
2L 28
Alambre principal del compartimiento del motor y J/B del lado del conductor
(Tensor del panel instrumental izquierdo)
2N
2O
29 Alambre del panel instrumental y J/B del lado del conductor (Tensor del panel instrumental izquierdo)
2R
29 Alambre del panel instrumental y J/B del lado del conductor (Tensor del panel instrumental izquierdo)
2S
: Mazo de cables de la unión del conector y mazo de cables
Código Vea la página Mazo de cables de unión y mazo de cables (localización del conector)
IA1 52 Alambre del panel instrumental y Alambre del piso (Panel de arranque derecho)
IF3 54
Alambre principal del compartimiento del motor y Alambre del panel instrumental
(Detrás del J/B del lado del conductor)
IH1 54 Alambre del panel instrumental y Alambre del piso (Panel de arranque izquierdo)
BB1 56 (∗2) Cable N.° 1 de la puerta trasera izquierda y Alambre del piso (Pilar central izquierdo)
BC1 56 (∗2) Cable N.° 1 de la puerta trasera derecha y Alambre del piso (Pilar central derecho)
: Puntos a tierra
Código Vea la página Localización de los puntos a tierra
ID 52 Centro de refuerzo del tablero de instrumentos
IE 52 Refuerzo del panel instrumental izquierdo
∗ 1 : 1KD-FTV, 2KD-FTV ∗ 2 : Cabina doble ∗ 3 : Cabina sencilla
HILUX (EWD630S)
167
Memorándum
168
HILUX (EWD630S)
Sistema antirrobo
Desde el sistema de la fuente de alimentación (Vea la página 62)
L
LG
L–Y
LG
1
IF315
1
2
2
1
EB
9
DSWH E3
J 1
G–RG–RW–BW–B
IF313
S 1
13
SH–
BB
L
L–W
L2
25 26
UL3
L
L–W
10A
HORN
2
1
Relé HORN
1I71I
IF312
1
2O16
2N16
W–R
B
W–R
H 4
W–R
25A
DOOR
7. 5A
ECU–B
2
1
2S13
2L12
IH17
+B2 +B1
14 4
8
SRLY
12
EA1
ID21
(A/T)
Relé ST
5
4
P
N
1
2(∗2)5
B–YB–Y
L–Y
L
L–Y
(M/T)
W–R
7. 5A
ST
4
(M/T)
L–Y
B L
2O3
1 1
1 1
W–B
J11
W–B
3 1
1
2
HORN
11
J24
T16
Interruptordecortesía
delcapodelmotor
Bocina (baja)
Conector
de unión
Conector
deunión
Conectordeunión
8
7
Interruptordearranqueenpuntomuerto
N1
10 IF3
W–B
(A/T)
B–Y
(∗1)5
(∗1)3
L–Y
(A/T)
(∗2)3
Bocina de
seguridad
ECU de aviso antirrobo
16 12
17 13
2A4
14
L1 UL1
11
4 2D
Relé de integración
∗ 1 : 2TR–FE
∗ 2 : 1KD–FTV, 2KD–FTV
HILUX (EWD630S)
169
10A
ECU–IG&
GAUGE
2S16
ID
B11
A8 A10
2S30
B–W
2
2C2
2C4
27
IND
G–RG–R
1
E
W–B
HAZD
28
2N9
2O25
HAZ
T22
G–OG–O
8
8
IA1
3
13
10
1 1
R–L
R–L
R–L
R–L
D4
D5
J29
IG
18
B12
SPD
R–L
R–B
V–R
2Q26
2P4
175
2N10
2O10
KSW
G–YG–Y
2
1
GR
2N14
2O15
R–L
11
R–L
CTY
7
J22(A), J23(B)
T16
Desde el sistema de la fuente de alimentación (Vea la página 62)
R–B
V–R
Y
Interruptordecortesíadelapuerta
(traseraizquierda)
Interruptordecortesíadelapuerta
(traseraderecha)
Conector de unión
Conector de unión
Intermitente de la señal de giro
Interruptordeadvertencia
dedesbloqueo
U1
S10
2O31
R–L
R–L
1
ECU de aviso antirrobo
Lámparadelindicador
deseguridad
Interruptordecortesíadelapuerta
(ladodelpasajerodelantero)
D3
E
LP
1
A11
L–Y
170
HILUX (EWD630S)
Sistema antirrobo
8 2J
7. 5A
DOME
1
2
1
RR
16
R–BR–L
3 IA1
25 2Q
1 2D
7. 5A
MET
YB–O
V–R
C 8
Desde el sistema de la fuente de alimentación (Vea la página 62)
Velocímetro
R–B
3
2
P–LBR
1
P–L
R–B
EC
ID216 ID215
1 21
22 56
S 3
R–B
V–R
Y
Medidor de combinación
Sensor de velocidad
17
R–L
R–L
Interruptor de cortesía
de la puerta
(lado del conductor)
D 2
1
SI IG+
SE
HILUX (EWD630S)
171
D2, D3, D4, D5 Interruptor de cortesía de la puerta (lado del conductor), (lado del pasajero delantero),
(trasera izquierda), (trasera derecha)
1-Tierra : Continuidad con cada una de las puertas abiertas
E3 Interruptor de cortesía del capo del motor
1-2 : Abierto con el capó del motor abierto
T16 ECU de aviso antirrobo
9-Tierra : Continuidad con el capó del motor cerrado
4, 14-Tierra : Siempre aprox. 12 voltios
1-Tierra : Siempre con continuidad
18-Tierra : Aprox. 12 voltios con el interruptor de encendido en la posición ON
: Localización de partes
Código Vea la página Código Vea la página Código Vea la página
C8 40 J1 39 (∗1) S1 39 (∗1)
D2 44 (∗2) J11 42 S3 39 (∗1)
D3 44 (∗2) J22 A 42 S10 43
D4 44 (∗2) J23 B 42 T16 43
D5 44 (∗2) J24 42 T22 43
E3 38 (∗1) J29 42 U1 43
H4 38 (∗1) N1 39 (∗1)
: Bloques de relés
Código Vea la página Bloque de relés (localización del bloque de relés)
1 22 R/B del compartimiento del motor (Compartimiento del motor izquierdo)
3 35 R/B N.° 3 (Panel del lado del cubretablero derecho)
: Bloque de empalmes y conector del mazo de cables
Código Vea la página Bloque de empalmes y mazo de cables (localización del conector)
1I 24
Alambre principal del compartimiento del motor y J/B del compartimiento del motor
(Compartimiento del motor izquierdo)
2A
2C 28 Alambre del panel instrumental y J/B del lado del conductor (Tensor del panel instrumental izquierdo)
2D
p y / ( p q )
2J
28
Alambre principal del compartimiento del motor y J/B del lado del conductor
2L
28
Alambre principal del compartimiento del motor y J/B del lado del conductor
(Tensor del panel instrumental izquierdo)
2N
2O
2P 29 Alambre del panel instrumental y J/B del lado del conductor (Tensor del panel instrumental izquierdo)
2Q
p y / ( p q )
2S
: Mazo de cables de la unión del conector y mazo de cables
Código Vea la página Mazo de cables de unión y mazo de cables (localización del conector)
EA1 50 (∗1)
Alambre del motor y Alambre principal del compartimiento del motor
(Dentro del R/B del compartimiento del motor y J/B del compartimiento del motor)
IA1 52 Alambre del panel instrumental y Alambre del piso (Panel de arranque derecho)
ID2 52 Alambre del motor y Alambre del panel instrumental (Detrás de la guantera)
IF3 54
Alambre principal del compartimiento del motor y Alambre del panel instrumental
(Detrás del J/B del lado del conductor)
IH1 54 Alambre del panel instrumental y Alambre del piso (Panel de arranque izquierdo)
∗ 1 : 1KD-FTV, 2KD-FTV ∗ 2 : Cabina doble ∗ 3 : Cabina sencilla
Consejos para el servicio
172
HILUX (EWD630S)
Sistema antirrobo
: Puntos a tierra
Código Vea la página Localización de los puntos a tierra
EB 50 (∗1) Lado izquierdo del faldón del guardabarros
EC 50 (∗1) Lado trasero del bloque de cilindros
ID 52 Centro de refuerzo del tablero de instrumentos
∗ 1 : 1KD-FTV, 2KD-FTV ∗ 2 : Cabina doble ∗ 3 : Cabina sencilla
HILUX (EWD630S)
173
Memorándum
174
HILUX (EWD630S)
Ventanilla automática
30A
PWR
Desde el sistema de la fuente de alimentación (Vea la página 62)
3
B6
B5
A1
A1 A2
B6
A1 A2
A2
M
L
L
R
L–R
IF
W–BW–B
1
W–B
LL
L
DUBE
1
2
J26(A),J27(B)
J16(A),J17(B)
J13(A), J14(B)
LL
L
P 4
J28
Conector de unión
Conectordeunión
Conectordeunión
Conector de unión
Interruptor principal de la ventanilla automática
Motordelreguladordelaventanillaautomática
(frontalizquierda)
P5
L
L
L
3 6 4 9
2 1
IC24
U D
HILUX (EWD630S)
175
3 1 4 3 1 4 3 1 4
2 5 2 5 2 5
BC17BC16BC18BB17BB16BB18
P9
P10
P11
R
L–R
R
L–R
R
L–R
G–B
R–B
L
G–B
R–B
G–W
R–L
Abajo
Arriba
Abajo
Arriba
Abajo
Arriba
G–B
R–B
G–Y
R–Y
G–W
R–LR–L
G–W
R–Y
G–Y
R–B
G–B
M
2 1
M
2 1
M
R–Y
G–Y
L
R–B
G–B
DUDUDU
L
L
P 4
Interruptor principal de la ventanilla automática
Interruptordelaventanillaautomática
(ladodelpasajerodelantero)
Interruptordelaventanillaautomática
(traseraizquierda)
Interruptordelaventanillaautomática
(traseraderecha)
L
Motordelreguladordela
ventanillaautomática
(frontalderecha)
P6
Motordelreguladordela
ventanillaautomática
(traseraizquierda)
P7
P8
Motordelreguladordela
ventanillaautomática
(traseraderecha)
L
L
L
161013121518
IC210 IC23 IC22 IC21 IC26 IC25
II23 II24
12
DUDUDU
SDSUBSDSUBSDSUB
DUDUDU
176
HILUX (EWD630S)
Ventanilla automática
1. Operación manual de bajada o de subida
Cuando se presiona un paso el interruptor principal de la ventanilla automática, el motor vira para abrir la ventanilla.
Cuando se empuja hacia arriba un paso el interruptor principal de la ventanilla automática, el motor vira en la dirección
opuesta para cerrar la ventanilla.
Todas las otras ventanillas también pueden abrirse/cerrarse mediante la operación del interruptor principal de la ventanilla
automática o interruptor de la ventanilla automática respectivo.
Cuando se presiona el interruptor de bloqueo de la ventanilla al lado de bloqueo, se abre el circuito de tierra de la ventanilla
del pasajero. Como resultado, aunque se intente la operación de abertura/cierre de la ventanilla del pasajero, la corriente
desde el TERMINAL E del interruptor principal de la ventanilla automática no tiene tierra y el motor no gira, por lo que la
ventanilla del pasajero no puede operarse y se produce el bloqueo de la ventanilla.
2. Operación de bajada automática (ventanilla del conductor)
Cuando se presiona dos pasos el interruptor principal de la ventanilla automática, el motor vira para abrir automáticamente
la ventanilla.
3. Parada de la operación de bajada automática (ventanilla del conductor)
La operación automática puede pararse a la mitad de recorrido accionando un paso hacia arriba el interruptor principal de la
ventanilla automática durante la operación de bajada.
P4 Interruptor principal de la ventanilla automática
B-Tierra : Aprox. 12 voltios con el interruptor de encendido en la posición ON
E-Tierra : Siempre con continuidad
U-Tierra : Aprox. 12 voltios con el interruptor de encendido conectado y el interruptor principal (ventanilla del conductor)
en la posición UP o AUTO UP
D-Tierra : Aprox. 12 voltios con el interruptor de encendido conectado y el interruptor principal (ventanilla del conductor)
en la posición DOWN o AUTO DOWN
: Localización de partes
Código Vea la página Código Vea la página Código Vea la página
J13 A 42 J27 B 42 P7 44 (∗2)
J14 B 42 J28 42 P8 44 (∗2)
J16 A 42 P4 44 (∗2) P9 44 (∗2)
J17 B 42 P5 44 (∗2) P10 44 (∗2)
J26 A 42 P6 44 (∗2) P11 44 (∗2)
: Bloques de relés
Código Vea la página Bloque de relés (localización del bloque de relés)
3 35 R/B N.° 3 (Panel del lado del cubretablero derecho)
: Mazo de cables de la unión del conector y mazo de cables
Código Vea la página Mazo de cables de unión y mazo de cables (localización del conector)
IC2 52 Alambre de la puerta frontal izquierda y Alambre del piso (Panel de arranque izquierdo)
II2 54 Alambre de la puerta frontal derecha y Alambre del piso (Panel de arranque derecho)
BB1 56 (∗2) Cable N.° 1 de la puerta trasera izquierda y Alambre del piso (Pilar central izquierdo)
BC1 56 (∗2) Cable N.° 1 de la puerta trasera derecha y Alambre del piso (Pilar central derecho)
: Puntos a tierra
Código Vea la página Localización de los puntos a tierra
IF 52 Panel del lado del cubretablero derecho
∗ 1 : 1KD-FTV, 2KD-FTV ∗ 2 : Cabina doble ∗ 3 : Cabina sencilla
Descripción del sistema
Consejos para el servicio
HILUX (EWD630S)
177
Memorándum
178
HILUX (EWD630S)
Limpiador y lavador del parabrisas
M
20A
WIP
2S262L9
IE
W–B
L–W
L–W
W–B
W–G
B–R
L–B
L–Y
EA
W–B
Desde el sistema de la fuente de alimentación (Vea la página 62)
2M9
L–W
W 3
MIST
∗4
∗3
HI
LO
INT
OFF
C11(A), C12(B)
+1+2+SINT1INT2B1+B
W
Interruptor del
limpiador delantero
∗5
EW
WF
EW
+B
+S
+2
+1
L–B
L–Y
W–G
L–W
IF25 IF26 IF24
2
1
L–W
IF2
13
+1 +2 +S B
E
∗ 1 : con interruptor de tiempo de intermitencia
(∗1)
(∗1)
(∗2)
∗ 2 : sin interruptor de tiempo de intermitencia
Motor del limpiador
del parabrisas
Interruptor de combinación
Relé del limpiador
Motordellavador
delparabrisas
W2
2341
5
A
3
A
2
B
2
B
1
B
4
B
3
M
B–R
∗ 3 : Conectado
∗ 4 : Desconectado
∗ 5 : Interruptor del lavador delantero
HILUX (EWD630S)
179
Con el interruptor de encendido conectado, la corriente circula al TERMINAL (B) 2 del interruptor del limpiador y lavador del
parabrisas, al TERMINAL 1 del motor del lavador del parabrisas y al TERMINAL 2 del motor del limpiador del parabrisas a
través del fusible WIP.
1. Posición de baja velocidad
Con el interruptor del limpiador del parabrisas en la posición LO, la corriente circula desde el TERMINAL (B) 2 del interruptor
del limpiador y lavador del parabrisas al TERMINAL (B) 3, al TERMINAL 1 del motor del limpiador del parabrisas, al
TERMINAL 5, y a TIERRA y hace que el motor del limpiador del parabrisas funcione a baja velocidad.
2. Posición de alta velocidad
Con el interruptor del limpiador del parabrisas en la posición HI, la corriente circula desde el TERMINAL (B) 2 del interruptor
del limpiador y lavador del parabrisas al TERMINAL (B) 4, al TERMINAL 4 del motor del limpiador del parabrisas, al
TERMINAL 5, y a TIERRA y hace que el motor del limpiador del parabrisas funcione a alta velocidad.
3. Posición INT
Con el interruptor del limpiador del parabrisas en la posición INT, opera el relé del limpiador y circula corriente desde el
TERMINAL (B) 2 del interruptor del limpiador y lavador del parabrisas al TERMINAL (A) 2 y a TIERRA. De este modo se
activa el circuito intermitente y la corriente circula desde el TERMINAL (B) 2 del interruptor del limpiador y lavador del
parabrisas al TERMINAL (B) 3, al TERMINAL 1 del motor del limpiador del parabrisas, al TERMINAL 5 y a TIERRA, y opera
el limpiador.
La operación intermitente se controla mediante la función de carga/descarga del condensador instalado en el relé, y el
tiempo de la intermitencia se controla mediante un interruptor de control del tiempo, para cambiar el tiempo de carga del
condensador (con interruptor de tiempo de intermitencia).
La operación intermitente se controla mediante una función de carga y descarga de condensador en el relé (sin interruptor
de tiempo de intermitencia).
4. Posición de llovizna
Con el interruptor del limpiador del parabrisas en la posición MIST, la corriente circula desde el TERMINAL (B) 2 del
interruptor del limpiador y lavador del parabrisas al TERMINAL (B) 3, al TERMINAL 1 del motor del limpiador del parabrisas,
al TERMINAL 5, y a TIERRA y hace que el motor del limpiador del parabrisas funcione a baja velocidad.
5. Operación interconectada con el lavador
Con el interruptor del lavador puesto en la posición ON, la corriente circula desde el fusible WIP al TERMINAL 1 del motor
del lavador del parabrisas, al TERMINAL 2, al TERMINAL (A) 3 del interruptor del limpiador y lavador del parabrisas, al
TERMINAL (A) 2 y a TIERRA y hace que funcione el motor del lavador del parabrisas para que el lavador del parabrisas
rocíe líquido. Simultáneamente, la corriente circula desde el fusible WIP al TERMINAL (B) 2 del interruptor del limpiador y
lavador del parabrisas, al TERMINAL (B) 3, al TERMINAL 1 del motor del limpiador del parabrisas, al TERMINAL 5 y a
TIERRA, haciendo que funcione el limpiador.
C11 (A), C12 (B) Interruptor de combinación
(A) 2-Tierra : Siempre con continuidad
(B) 2-Tierra : Aprox. 12 voltios con el interruptor de encendido en la posición ON
(B) 3-Tierra : Aprox. 12 voltios con el interruptor de encendido conectado y
el interruptor del limpiaparabrisas en la posición LO o MIST
Aprox. 12 voltios intermitentemente con el interruptor de encendido conectado y
el interruptor del limpiaparabrisas en la posición INT
(B) 1-Tierra : Aprox. 12 voltios con el interruptor de encendido conectado y
el motor del limpiaparabrisas en una posición que no sea la de STOP
(B) 4-Tierra : Aprox. 12 voltios con el interruptor de encendido conectado y
el interruptor del limpiaparabrisas en la posición HI
W3 Motor del limpiador del parabrisas
2-1 : Cerrado a menos que el motor del limpiador del parabrisas esté en la posición STOP
: Localización de partes
Código Vea la página Código Vea la página Código Vea la página
C11 A 40
W2
37 (2TR-FE)
W3
37 (2TR-FE)
C12 B 40
W2
39 (∗1)
W3
39 (∗1)
∗ 1 : 1KD-FTV, 2KD-FTV ∗ 2 : Cabina doble ∗ 3 : Cabina sencilla
Descripción del sistema
Consejos para el servicio
180
HILUX (EWD630S)
Limpiador y lavador del parabrisas
: Bloque de empalmes y conector del mazo de cables
Código Vea la página Bloque de empalmes y mazo de cables (localización del conector)
2L
28
Alambre principal del compartimiento del motor y J/B del lado del conductor
2M
28
Alambre principal del compartimiento del motor y J/B del lado del conductor
(Tensor del panel instrumental izquierdo)
2S 29 Alambre del panel instrumental y J/B del lado del conductor (Tensor del panel instrumental izquierdo)
: Mazo de cables de la unión del conector y mazo de cables
Código Vea la página Mazo de cables de unión y mazo de cables (localización del conector)
IF2 54
Alambre principal del compartimiento del motor y Alambre del panel instrumental
(Detrás del J/B del lado del conductor)
: Puntos a tierra
Código Vea la página Localización de los puntos a tierra
EA
48 (2TR-FE)
Lado derecho del faldón del guardabarrosEA
50 (∗1)
Lado derecho del faldón del guardabarros
IE 52 Refuerzo del panel instrumental izquierdo
∗ 1 : 1KD-FTV, 2KD-FTV ∗ 2 : Cabina doble ∗ 3 : Cabina sencilla
HILUX (EWD630S)
181
Memorándum
182
HILUX (EWD630S)
Bocina
10A
HORN
Desde el sistema de la fuente de alimentación (Vea la página 62)
2
1
1I7 1I8
IF312
1
2O32
2N16
Interruptor
delabocinaW–R
B
W–RW–R
H 4
Relé HORN
8
Bocina (baja)
Cable espiral
S13
B
HILUX (EWD630S)
183
H4 Bocina (baja)
1-Tierra : Aprox. 12 voltios con el interruptor de la bocina conectado
: Localización de partes
Código Vea la página Código Vea la página Código Vea la página
H4 36 (2TR-FE) H4 38 (∗1) S13 43
: Bloque de empalmes y conector del mazo de cables
Código Vea la página Bloque de empalmes y mazo de cables (localización del conector)
1I 24
Alambre principal del compartimiento del motor y J/B del compartimiento del motor
(Compartimiento del motor izquierdo)
2N
29 Alambre del panel instrumental y J/B del lado del conductor (Tensor del panel instrumental izquierdo)
2O
29 Alambre del panel instrumental y J/B del lado del conductor (Tensor del panel instrumental izquierdo)
: Mazo de cables de la unión del conector y mazo de cables
Código Vea la página Mazo de cables de unión y mazo de cables (localización del conector)
IF3 54
Alambre principal del compartimiento del motor y Alambre del panel instrumental
(Detrás del J/B del lado del conductor)
∗ 1 : 1KD-FTV, 2KD-FTV ∗ 2 : Cabina doble ∗ 3 : Cabina sencilla
Consejos para el servicio
184
HILUX (EWD630S)
Encendedor de cigarrillos
15A
CIG
IE
BRW–B
Desde el sistema de la fuente de alimentación (Vea la página 62)
2C1
1
2
B
C 5
3
4
J23
Encendedor de cigarrillos
Conector de unión
HILUX (EWD630S)
185
C5 Encendedor de cigarrillos
2-Tierra : Aprox. 12 voltios con el interruptor de encendido en la posición ACC u ON
1-Tierra : Siempre con continuidad
: Localización de partes
Código Vea la página Código Vea la página Código Vea la página
C5 40 J23 42
: Bloque de empalmes y conector del mazo de cables
Código Vea la página Bloque de empalmes y mazo de cables (localización del conector)
2C 28 Alambre del panel instrumental y J/B del lado del conductor (Tensor del panel instrumental izquierdo)
: Puntos a tierra
Código Vea la página Localización de los puntos a tierra
IE 52 Refuerzo del panel instrumental izquierdo
Consejos para el servicio
186
HILUX (EWD630S)
Toma de alimentación
15A
PWR OUT
7. 5A
ACC
3 2
5 1
2
1
2P23 2D9
IE
A6
B4
ID
2D18
PW–BW–B
W–B
W–BW–B
W–B
P 3
J22(A), J23(B)
Relé PWR OUT
Desde el sistema de la fuente de alimentación (Vea la página 62)
Conector de unión
Enchufe eléctrico
B
E
HILUX (EWD630S)
187
P3 Enchufe eléctrico
1-Tierra : Aprox. 12 voltios con el interruptor de encendido en la posición ACC u ON
2-Tierra : Siempre con continuidad
: Localización de partes
Código Vea la página Código Vea la página Código Vea la página
J22 A 42 J23 B 42 P3 43
: Bloque de empalmes y conector del mazo de cables
Código Vea la página Bloque de empalmes y mazo de cables (localización del conector)
2D 28
Alambre del panel instrumental y J/B del lado del conductor (Tensor del panel instrumental izquierdo)
2P 29
Alambre del panel instrumental y J/B del lado del conductor (Tensor del panel instrumental izquierdo)
: Puntos a tierra
Código Vea la página Localización de los puntos a tierra
ID 52 Centro de refuerzo del tablero de instrumentos
IE 52 Refuerzo del panel instrumental izquierdo
Consejos para el servicio
188
HILUX (EWD630S)
Reloj
B
1
25 2P
8 2J
R
7. 5A
DOME
Desde el sistema de la fuente de alimentación (Vea la página 62)
1
2
1
7. 5A
ACC
2N23
V
R
ACC
4
10A
TAIL
2C5
OFF
Cola
Faro
Interruptorde
controlde
lasluces
2S7
2R7
2Q12
2P8
ILL
3
G–W
GG
C10
C 7
ID
A1
B6
J20(A), J21(B)
2
E
W–BW–B
B1 T1
Reloj
Interruptor de combinación
Conector de unión
G
G
13 10
HILUX (EWD630S)
189
C7 Reloj
4-Tierra : Aprox. 12 voltios con el interruptor de encendido en la posición ACC u ON
1-Tierra : Siempre aprox. 12 voltios
3-Tierra : Aprox. 12 voltios con el interruptor de control de las luces en la posición de las luces de COLA o FAROS
2-Tierra : Siempre con continuidad
: Localización de partes
Código Vea la página Código Vea la página Código Vea la página
C7 40 J20 A 42
C10 40 J21 B 42
: Bloques de relés
Código Vea la página Bloque de relés (localización del bloque de relés)
1 22 R/B del compartimiento del motor (Compartimiento del motor izquierdo)
: Bloque de empalmes y conector del mazo de cables
Código Vea la página Bloque de empalmes y mazo de cables (localización del conector)
2C 28 Alambre del panel instrumental y J/B del lado del conductor (Tensor del panel instrumental izquierdo)
2J 28
Alambre principal del compartimiento del motor y J/B del lado del conductor
(Tensor del panel instrumental izquierdo)
2N
2P
2Q 29 Alambre del panel instrumental y J/B del lado del conductor (Tensor del panel instrumental izquierdo)
2R
p y / ( p q )
2S
: Puntos a tierra
Código Vea la página Localización de los puntos a tierra
ID 52 Centro de refuerzo del tablero de instrumentos
Consejos para el servicio
190
HILUX (EWD630S)
Desempañador de la ventanilla trasera
20A
DEF
Desde el sistema de la fuente de alimentación (Vea la página 62)
3
2
1
IE
B4
3 3
33
IH112
B12
A7
A1
B1
A3
10A
ECU–IG&GAUGE
2K8 2R4
4 5
5 1
3 2
3
J16(A), J17(B)
J22(A), J23(B)
R 3
BB
W–BBRR–L
BB–Y
R–L
R–L
R–L
R–L
Relé DEF
D IG
E
Conector de unión
Conector de unión
Interruptor del desempañador
de la ventanilla trasera
Desempañador de la
ventanilla trasera
R 6(A), R 7(B)
IG
Conector de unión
J15
6
J16(A)
Conector de unión
A11
A12
HILUX (EWD630S)
191
Relé DEF
5-3 : Cerrado con el interruptor de encendido en la posición ON y
el interruptor del desempañador de la ventanilla trasera en la posición ON
: Localización de partes
Código Vea la página Código Vea la página Código Vea la página
J15 42 J22 A 42 R6 A 45 (∗2)
J16 A 42 J23 B 42 R7 B 45 (∗2)
J17 B 42 R3 43
: Bloques de relés
Código Vea la página Bloque de relés (localización del bloque de relés)
3 35 R/B N.° 3 (Panel del lado del cubretablero derecho)
: Bloque de empalmes y conector del mazo de cables
Código Vea la página Bloque de empalmes y mazo de cables (localización del conector)
2K 28 Alambre del piso y J/B del lado del conductor (Tensor del panel instrumental izquierdo)
2R 29 Alambre del panel instrumental y J/B del lado del conductor (Tensor del panel instrumental izquierdo)
: Mazo de cables de la unión del conector y mazo de cables
Código Vea la página Mazo de cables de unión y mazo de cables (localización del conector)
IH1 54 Alambre del panel instrumental y Alambre del piso (Panel de arranque izquierdo)
: Puntos a tierra
Código Vea la página Localización de los puntos a tierra
IE 52 Refuerzo del panel instrumental izquierdo
IG 52 Panel del lado del cubretablero izquierdo
∗ 1 : 1KD-FTV, 2KD-FTV ∗ 2 : Cabina doble ∗ 3 : Cabina sencilla
Consejos para el servicio
192
HILUX (EWD630S)
Espejo retrovisor de control remoto
7. 5A
ACC
Desde el sistema de la fuente de alimentación (Vea la página 62)
O 2 O 3
MMMM
3 51351
B12
MH MV M+ MH MVM+
A22A21
O 1
2O23
V
BR–R
B
BR–R
BR–R
BR–R
IE
W–B
4
3
J23
B
5 2 4 3 6 7
8
MLVMLH MRH MRV M+ E
AbajoDerecha ArribaIzquierda
B
IzquierdaIzquierda Derecha
Izquierda/
Arriba
Derecha/Abajo
Derecha
MH MV
Interruptor
deoperación
Interruptor
selector
Conector
de unión
Interruptor del espejo exterior
Espejo retrovisor exterior
(izquierdo)
Espejo retrovisor exterior
(derecho)
Conectordeunión
J24(A),J25(B)
IK14 IK13
B9 B11
A3 A1
Conectordeunión
J24(A),J25(B)
R–G
RR
R–G
BR–R
LG
L
R–G
L
IK11
BR–R
BR–R
L
LG
R
R–G
HILUX (EWD630S)
193
O1 Interruptor del espejo exterior
8-Tierra : Aprox. 12 voltios con el interruptor de encendido en la posición ACC u ON
7-Tierra : Siempre con continuidad
6-7 : Continuidad con el interruptor de operación en la posición IZQUIERDA o ARRIBA
8-6 : Continuidad con el interruptor de operación en la posición DERECHA o ABAJO
: Localización de partes
Código Vea la página Código Vea la página Código Vea la página
J23 42 J25 B 42 O2 44 (∗2)
J24 A 42 O1 43 O3 44 (∗2)
: Bloque de empalmes y conector del mazo de cables
Código Vea la página Bloque de empalmes y mazo de cables (localización del conector)
2O 29 Alambre del panel instrumental y J/B del lado del conductor (Tensor del panel instrumental izquierdo)
: Mazo de cables de la unión del conector y mazo de cables
Código Vea la página Mazo de cables de unión y mazo de cables (localización del conector)
IK1 54 Alambre de la puerta frontal derecha y Alambre del panel instrumental (Panel de arranque derecho)
: Puntos a tierra
Código Vea la página Localización de los puntos a tierra
IE 52 Refuerzo del panel instrumental izquierdo
∗ 1 : 1KD-FTV, 2KD-FTV ∗ 2 : Cabina doble ∗ 3 : Cabina sencilla
Consejos para el servicio
194
HILUX (EWD630S)
Sistema de audio
GR
BR
B
Y
R
W
R
W
R
W
∗ 3 : sin reproductor de CD
+B (∗2)
BU+B(∗3)
GND RL+ RL– RR+ RR–
Y
B
L–Y
∗ 1 : 4 altavoces
∗ 2 : con reproductor de CD
R
R 1(A), R 2(B)
A3
ACC (∗2)
ACC+B(∗3)
7. 5A
ACC
Desde el sistema de la fuente de alimentación
(Vea la página 62)
2N24
A4
IF22
15A
RAD
1
2
A7 B2 B6 B1 B3
ID
1
IH15IH16IH11IH12
BB11 BB12 BC11 BC12
L–Y
Conjunto del receptor de radio
W
(∗1)(∗1)
(∗1)(∗1)
(∗1)
(∗1)(∗1)
(∗1)
(∗1)
(∗1)
(∗1)
(∗1)
2 A
P
FL+
6 A
V
FL–
IH19 IH14
IC28 IC27
1 2
V
P
V
P
Altavoz
(puerta delantera izquierda)
S15
1 A
FR+
5 A
FR–
IK16 IK15
1 2
L
LG
L
LG
Altavoz
(puerta delantera derecha)
S16
S18
Altavoz
(puerta trasera derecha)
S17
Altavoz
(puerta trasera izquierda)
11 22
HILUX (EWD630S)
195
R1 (A) Conjunto del receptor de radio
(A) 4-Tierra : Siempre aprox. 12 voltios
(A) 3-Tierra : Aprox. 12 voltios con el interruptor de encendido en la posición ACC u ON
(A) 7-Tierra : Siempre con continuidad
: Localización de partes
Código Vea la página Código Vea la página Código Vea la página
R1 A 43 S15 46 (∗3) S17 45 (∗2)
R2 B 43
S16
45 (∗2) S18 45 (∗2)
S15 45 (∗2)
S16
46 (∗3)
: Bloques de relés
Código Vea la página Bloque de relés (localización del bloque de relés)
1 22 R/B del compartimiento del motor (Compartimiento del motor izquierdo)
: Bloque de empalmes y conector del mazo de cables
Código Vea la página Bloque de empalmes y mazo de cables (localización del conector)
2N 29 Alambre del panel instrumental y J/B del lado del conductor (Tensor del panel instrumental izquierdo)
: Mazo de cables de la unión del conector y mazo de cables
Código Vea la página Mazo de cables de unión y mazo de cables (localización del conector)
IC2 52 Alambre de la puerta frontal izquierda y Alambre del piso (Panel de arranque izquierdo)
IF2 54
Alambre principal del compartimiento del motor y Alambre del panel instrumental
(Detrás del J/B del lado del conductor)
IH1 54 Alambre del panel instrumental y Alambre del piso (Panel de arranque izquierdo)
IK1 54 Alambre de la puerta frontal derecha y Alambre del panel instrumental (Panel de arranque derecho)
BB1 56 (∗2) Cable N.° 1 de la puerta trasera izquierda y Alambre del piso (Pilar central izquierdo)
BC1 56 (∗2) Cable N.° 1 de la puerta trasera derecha y Alambre del piso (Pilar central derecho)
: Puntos a tierra
Código Vea la página Localización de los puntos a tierra
ID 52 Centro de refuerzo del tablero de instrumentos
∗ 1 : 1KD-FTV, 2KD-FTV ∗ 2 : Cabina doble ∗ 3 : Cabina sencilla
Consejos para el servicio
196
HILUX (EWD630S)
Medidor de combinación
Interruptordecombinación
R
Velocímetro
Tacómetro
Combustible
Temperatura
Puerta
luzdecarretera
V–R
V–R
V–R
(∗3A/T)
(∗1)
V–R
R–B
7.5ADOME
Desde el sistema de la fuente de alimentación (Vea la página 62)
1
2
1
2J8
2Q25
R
10A
ECU–IG&
GAUGE
2S30
2Q26
2P262P42Q10
Interruptordecortesíadelapuerta
(traseraderecha)
Interruptordecortesíadelapuerta
(ladodelconductor)
Relédeintegración
Interruptordeadvertenciadedesbloqueo
R–Y
R–L
R–B
R–B
G–Y
Interruptordecortesíadelapuerta
(traseraizquierda)
Interruptordecortesíadelapuerta
(ladodelpasajerodelantero)
17
SPD
E 6
SPD
17
T16
SP1
25
T17
C 8
R–B
ECU del motor
Medidor de combinación
ECU de control
de la transmisión
SPD
8
V–R
E10
ECU del motor
(∗3,∗4)
(∗2)
ECU de aviso
antirrobo
27 17 16 15 10 6
1
HILUX (EWD630S)
197
T–BELT
Niveldecombustible
B–O
B–W
P
P–L
ODO/TRIP
BR–Y
BRBR
BR–Y
Zumbador
BR
BR
R–BP–L
1 2
3
L–R
2
1
L–RBR
BR–Y
Sistemade
combustible
2
1
W–GW–G
1
5
W–BW–B
7. 5A
MET
Desde el sistema de la fuente de alimentación (Vea la página 62)
2D1
C 8
I 1
EC
S3
F10
IA19 IA18
BA13 BA14
BR
ECU del motor
ID215
ID216 IF210
EA11
EB
IF28
F15(B)
F4
J 1
∗ 1 : con sistema antirrobo
R–B
Medidor de combinación
Interruptordeadvertencia
delfiltrodecombustible
Interruptordeavisodelnivel
desedimentosdecombustible
Conjunto de la bomba de
succión de combustible
y medidor Conector
de unión
Sensordevelocidad
Medidor
BR
∗ 2 : 2TR–FE
∗ 3 : 1KD–FTV
∗ 4 : 2KD–FTV
(∗3,∗4)(∗3,∗4)(∗3,∗4)(∗3,∗4)
(∗3,∗4)(∗3,∗4)(∗3,∗4)(∗3,∗4)
(∗3,∗4)(∗3,∗4)
ED
7
6
Conector
deunión
J30
BRBR
(∗2)(∗2)
F13(A)
B3 (∗2)
A3 (∗3, ∗4)
B2 (∗2)
A2 (∗3, ∗4)
Medidor del emisor
de combustible
5 23 2 3 7 4 14
21
SI
IG+ SE
(∗3,∗4)(∗3,∗4)
198
HILUX (EWD630S)
Medidor de combinación
Cinturónde
seguridaddel
conductor
SRSCinturóninteriordelasientodelantero
(ladodelconductor)
Interruptordecombinación
Iluminación
Antiniebla
delantera
YW–B
(sinSRS)
W–B
(sinSRS)
W–B
(conelSRS)
C 8
G
Interruptordecombinación
ID
R–Y
B–Y
IF21
DLC3
Centrodelconjuntodelsensor
delcolchóndeaire
G–B
(∗5)
J22(A), J23(B)
A10
B12
Virajehacialaizquierda
Virajehacialaderecha
G–B
G–Y
Intermitentedela
señaldegiro
W–B
(sin SRS)
Medidor de combinación
Conector de unión
Iluminacióndel
visualizadorLCD
11 20 19 30 22
8 24 25
CRUISE
(∗6)
ECUdelmotor
L–B
28
HILUX (EWD630S)
199
4WD
A/TOILTEMP
(∗3A/T)
P
ECUdecontroldelatransmisión
∗ 3 : 1KD–FTV
W–B
(sin SRS)
1
2L
2S
1 2K
Encendido
Alternador
Revisarelmotor
Carga
Freno
W–B
(sin SRS)
(sinABS)
W–B
R–GR–G
(sinABS)
1
(conABS)
LG
1
ABS
ECUdecontrolde
derrapeconactuador
W–B
2
LGW–B
LG–B
LG
LG–B
LG
1
Presióndeaceite
1
ECUdelmotor
R–B
Y–R
GR
1 2M
ID210
IF23
EA
I 2I 2
R–G
C 8
Medidor de combinación
ECUdecontrolde4WD
R–B
E4
Interruptordelfrenodeestacionamiento
P2
B3
Interruptorde
advertenciadelnivel
dellíquidodefrenos
B2
(∗3,∗4)
(∗3,∗4)
∗ 4 : 2KD–FTV
∗ 5 : con luz antiniebla delantera
A/TP
W–GInterruptordelindicador
delatransferencia
(posicióndepuntomuerto)
(4WD)
(4WDA/T)
G–B
(4WDA/T)
Interruptordearranque
enpuntomuerto
Interruptorde
advertenciade
vacíodelfreno
Sensordepresióndelaceitedemotor
18 13 31 37 40 39 38 36 35
12
∗ 6 : con control de crucero
1
200
HILUX (EWD630S)
Medidor de combinación
C8 (A) Medidor de combinación
(A)21-Tierra : Aprox. 12 voltios con el interruptor de encendido en la posición ON
(A) 1-Tierra : Siempre aprox. 12 voltios
(A)22-Tierra : Siempre con continuidad
F13 Medidor del emisor de combustible
2-3 : Aprox. 4 Ω con el depósito de combustible lleno
Aprox. 110 Ω con el depósito de combustible vacío
: Localización de partes
Código Vea la página Código Vea la página Código Vea la página
B2
36 (2TR-FE) F4 38 (∗1) J23 B 42
B2
38 (∗1) F10 38 (∗1) J30 42
B3 38 (∗1)
F13 A
44 (∗2) P2 43
C8 40
F13 A
46 (∗3)
S3
37 (2TR-FE)
E4
36 (2TR-FE)
F15 B
44 (∗2)
S3
39 (∗1)
E4
38 (∗1)
F15 B
46 (∗3) T16 43
E6 41 J1 39 (∗1) T17 43
E10 41 J22 A 42
: Bloques de relés
Código Vea la página Bloque de relés (localización del bloque de relés)
1 22 R/B del compartimiento del motor (Compartimiento del motor izquierdo)
: Bloque de empalmes y conector del mazo de cables
Código Vea la página Bloque de empalmes y mazo de cables (localización del conector)
2D 28 Alambre del panel instrumental y J/B del lado del conductor (Tensor del panel instrumental izquierdo)
2J 28
Alambre principal del compartimiento del motor y J/B del lado del conductor
(Tensor del panel instrumental izquierdo)
2K 28 Alambre del piso y J/B del lado del conductor (Tensor del panel instrumental izquierdo)
2L
28
Alambre principal del compartimiento del motor y J/B del lado del conductor
2M
28
Alambre principal del compartimiento del motor y J/B del lado del conductor
(Tensor del panel instrumental izquierdo)
2P
2Q 29 Alambre del panel instrumental y J/B del lado del conductor (Tensor del panel instrumental izquierdo)
2S
p y / ( p q )
: Mazo de cables de la unión del conector y mazo de cables
Código Vea la página Mazo de cables de unión y mazo de cables (localización del conector)
EA1
48 (2TR-FE) Alambre del motor y Alambre principal del compartimiento del motor
EA1
50 (∗1)
Alambre del motor y Alambre principal del compartimiento del motor
(Dentro del R/B del compartimiento del motor y J/B del compartimiento del motor)
IA1 52 Alambre del panel instrumental y Alambre del piso (Panel de arranque derecho)
ID2 52 Alambre del motor y Alambre del panel instrumental (Detrás de la guantera)
IF2 54
Alambre principal del compartimiento del motor y Alambre del panel instrumental
(Detrás del J/B del lado del conductor)
BA1
56 (∗2)
Alambre del bastidor y Alambre del piso (Debajo del asiento frontal izquierdo)BA1
58 (∗3)
Alambre del bastidor y Alambre del piso (Debajo del asiento frontal izquierdo)
∗ 1 : 1KD-FTV, 2KD-FTV ∗ 2 : Cabina doble ∗ 3 : Cabina sencilla
Consejos para el servicio
HILUX (EWD630S)
201
: Puntos a tierra
Código Vea la página Localización de los puntos a tierra
EA
48 (2TR-FE)
Lado derecho del faldón del guardabarrosEA
50 (∗1)
Lado derecho del faldón del guardabarros
EB
48 (2TR-FE)
Lado izquierdo del faldón del guardabarrosEB
50 (∗1)
Lado izquierdo del faldón del guardabarros
EC 50 (∗1)
Lado trasero del bloque de cilindros
ED 48 (2TR-FE)
Lado trasero del bloque de cilindros
ID 52 Centro de refuerzo del tablero de instrumentos
: Puntos de la unión
Código Vea la página Mazo de cables con puntos de unión Código Vea la página Mazo de cables con puntos de unión
I1 52 Alambre del motor I2 54
Alambre principal del compartimiento
del motor
∗ 1 : 1KD-FTV, 2KD-FTV ∗ 2 : Cabina doble ∗ 3 : Cabina sencilla
202
HILUX (EWD630S)
Acondicionador de aire
OFF
LO
1
W–B
B–WR
B–W
W–B
B–W
R–B
B–W
W–B
W–B
(∗1)
4
M1
M2
HI
6 5
2
18 2P30 2R
5
ID
9 2D
1 1C
Desde el sistema de la fuente de alimentación (Vea la página 62)
40A
FR HTR
R–L
1 2F
B4
W–B
W–B
W–B
W–B
B
2
1
L–W
L–B
ReléHTR
4
1
2
5
3
18 2D
L–O
16 2D2A
(∗1)
10AA/C
(∗1)
B 5
B 6
A1
B4
B2
A1 A2
IE
R–L
(∗1)
L–O
(∗1)
W–B
(∗1)
W
Motordelsoplador
Resistor del soplador
Interruptor del
soplador
1
423
Conectordeunión
J22(A),J23(B)
Conectordeunión
J18(A),J19(B)
2P2
(∗1)
R–L
(∗1)
R–G
(∗1)
L–O
BB–W
Bloqueo
Libre
6
(∗1)
R–G5
4
(∗1)
R–L
3
G
Interruptor del A/C
A24
M
10A
ECU–IG&
GAUGE
Interruptor
decombinación
HILUX (EWD630S)
203
18
2
1
(∗1)
10 14
1
2
78
Y–BY–BL–O
R–L
2
SG–1 TE
IG AC1 ACT
P
Y
R–L
∗ 1 : con acondicionador de aire
MGC
L–W
L
(∗1)
GND
1
3
(∗1)
L–W
1
(∗1)(∗1)(∗1)
PSW
W–B
(∗1)
L–O
(∗1)
(∗1)
(∗1)
(∗1)
(∗1)(∗1)
A10
A1
J20(A),J21(B)
P1
A 9
A6
B6
IF316
IF317
ID11
AC1
25 C
ACT
24 C
1
2
EC
(Protegido)BR
27 BB34
NE+NE–
2 1
L
Y
E 1
W–B
3
C4
(Protegido)
E 6(A), E 8(B), E10(C), E12(D)
R–L
(∗1)
W–B
(∗1)
CompresordelA/C
Interruptordepresión
Amplificador del A/C
TermistordelA/C
Sensordeposición
delcigüeñal
ECU del motor
Conectordeunión
27 DD34
12
Y
L
G
3
C4
Sensordeposición
delcigüeñal
E 2
A1
B6
W–B
J31(A),J32(B)
Conector
deunión
(Protegido)
(Protegido)
(Protegido)
Conectordeunión
J10
BR(Protegido)
ED
7
1
Conectordeunión
J30
A18 A19 (∗3)
(∗2) (∗3)
(∗3)
(∗3)(∗3)
(∗2)
(∗2)
(∗2)
(∗2)
(∗2)
(∗2) (∗2)
(∗3)(∗3)
(∗2)(∗2)
∗ 2 : ∗1 2TR–FE
∗ 3 : ∗1 1KD–FTV, 2KD–FTV
R–L
(∗1)
R–G
(∗1)
IND–
13
ACON
4
(∗1)
R–G
(∗1)
R–L
NE+NE–
E
E
NE+NE–
NENE–
G
204
HILUX (EWD630S)
Acondicionador de aire
Se aplica constantemente corriente a través del fusible FR HTR al TERMINAL 5 del relé HTR.
Cuando se activa el interruptor de encendido, la corriente circula a través del fusible ECU-IG&GAUGE al TERMINAL 1 del
relé HTR, al TERMINAL 2, y al TERMINAL 6 del interruptor del soplador.
Operación del motor del soplador
∗ Operación a baja velocidad
Cuando se mueve el interruptor del soplador a la posición LO, la corriente circula al TERMINAL 6 del interruptor del
soplador, al TERMINAL 5, y a TIERRA, haciendo que se active el relé HTR. Esto causa que circule la corriente desde el
fusible FR HTR al TERMINAL 5 del relé HTR, al TERMINAL 3, al TERMINAL 2 del motor del soplador, al TERMINAL 1,
al TERMINAL 4 del resistor del soplador, al TERMINAL 1 y a TIERRA, haciendo que el motor del soplador gire a baja
velocidad.
∗ Operación a velocidad media (operación en M1, M2)
Cuando se mueve el interruptor del soplador a la posición M1, la corriente circula al TERMINAL 6 del interruptor del
soplador, al TERMINAL 5, y a TIERRA, haciendo que se active el relé HTR. Esto causa que circule la corriente desde el
fusible FR HTR al TERMINAL 5 del relé HTR, al TERMINAL 3, al TERMINAL 2 del motor del soplador, al TERMINAL 1,
al TERMINAL 4 del resistor del soplador, al TERMINAL 3, al TERMINAL 2 del interruptor del soplador, al TERMINAL 5 y
a TIERRA. Entonces, la resistencia del soplador del resistor del soplador es menor que a baja velocidad, por lo que el
motor del soplador gira a velocidad baja media.
Cuando se mueve el interruptor del soplador a la posición M2, la corriente circula a través del relé HTR al TERMINAL 2
del motor del soplador, al TERMINAL 1, al TERMINAL 4 del resistor del soplador, al TERMINAL 2, al TERMINAL 1 del
interruptor del soplador, al TERMINAL 5 y a TIERRA. Entonces, la resistencia del resistor del soplador es menor que en
la posición M1, por lo que el motor del soplador gira a velocidad alta media.
∗ Operación a alta velocidad
Cuando se mueve el interruptor del soplador a la posición HI, la corriente circula al TERMINAL 6 del interruptor del
soplador, al TERMINAL 5, y a TIERRA, haciendo que se active el relé HTR.
Esto causa que circule la corriente desde el fusible FR HTR al TERMINAL 5 del relé HTR, al TERMINAL 3, al
TERMINAL 2 del motor del soplador, al TERMINAL 1, al TERMINAL 4 del interruptor del soplador, al TERMINAL 5 y a
TIERRA, haciendo que el motor del soplador gire a alta velocidad.
Relé HTR
5-3 : Cerrado con el interruptor de encendido en la posición ON y el interruptor del soplador conectado
P1 Interruptor de presión
1-2 : Abierto con la presión del refrigerante a menos de aprox. 2,0 kgf/cm2 (28,4 psi, 196,1 kPa) o más que
aprox. 32,0 kgf/cm2 (455 psi, 3138,1 kPa)
A9 Amplificador del A/C
10-Tierra : Aprox. 12 voltios con el interruptor de encendido en la posición ON
18-Tierra : Siempre con continuidad
: Localización de partes
Código Vea la página Código Vea la página Código Vea la página
A1
36 (2TR-FE) C4 38 (∗1) J21 B 42
A1
38 (∗1) E6 A 41 J22 A 42
A9 40 E8 B 41 J23 B 42
A10 40 E10 C 41 J30 42
A24 40 E12 D 41 J31 A 42
B4 40 J10 42 J32 B 42
B5 40 J18 A 42
P1
37 (2TR-FE)
B6 40 J19 B 42
P1
39 (∗1)
C4 36 (2TR-FE) J20 A 42
∗ 1 : 1KD-FTV, 2KD-FTV ∗ 2 : Cabina doble ∗ 3 : Cabina sencilla
Descripción del sistema
Consejos para el servicio
HILUX (EWD630S)
205
: Bloque de empalmes y conector del mazo de cables
Código Vea la página Bloque de empalmes y mazo de cables (localización del conector)
1C 23
Alambre principal del compartimiento del motor y J/B del compartimiento del motor
(Compartimiento del motor izquierdo)
2A
28 Alambre del panel instrumental y J/B del lado del conductor (Tensor del panel instrumental izquierdo)
2D
28 Alambre del panel instrumental y J/B del lado del conductor (Tensor del panel instrumental izquierdo)
2F 28
Alambre principal del compartimiento del motor y J/B del lado del conductor
(Tensor del panel instrumental izquierdo)
2P
29 Alambre del panel instrumental y J/B del lado del conductor (Tensor del panel instrumental izquierdo)
2R
29 Alambre del panel instrumental y J/B del lado del conductor (Tensor del panel instrumental izquierdo)
: Mazo de cables de la unión del conector y mazo de cables
Código Vea la página Mazo de cables de unión y mazo de cables (localización del conector)
ID1 52 Alambre del motor y Alambre del panel instrumental (Detrás de la guantera)
IF3 54
Alambre principal del compartimiento del motor y Alambre del panel instrumental
(Detrás del J/B del lado del conductor)
: Puntos a tierra
Código Vea la página Localización de los puntos a tierra
EC 50 (∗1)
Lado trasero del bloque de cilindros
ED 48 (2TR-FE)
Lado trasero del bloque de cilindros
ID 52 Centro de refuerzo del tablero de instrumentos
IE 52 Refuerzo del panel instrumental izquierdo
: Puntos de la unión
Código Vea la página Mazo de cables con puntos de unión Código Vea la página Mazo de cables con puntos de unión
E1
48 (2TR-FE)
Alambre del motor E2
48 (2TR-FE)
Alambre del motorE1
50 (∗1)
Alambre del motor E2
50 (∗1)
Alambre del motor
∗ 1 : 1KD-FTV, 2KD-FTV ∗ 2 : Cabina doble ∗ 3 : Cabina sencilla
206
HILUX (EWD630S)
I PUNTO DE CONEXION A MASA
Sensor de posición
del cigüeñal
(E1)
(E01)
(E01)
(E02)
DLC3
Interruptor de aviso del nivel
de sedimentos de combustible
Sensor de velocidad
EC
I 1
E 1
I 1
I 1
ID2
18
EA1
1
BR
BR
BR
BR
BR W–B W
W–B
W–B
BR
BR
W–B(Protegido)
BR
J10
BR
2
3
1
4
ECU de control de
la transmisión
(E1) ECU del motor
ECU del motor
(SG)
BR
BR
B
3
B
4
B
5
B
1
B
2
A
3
A
4
A
1
A
5
Interruptor del indicador de la
transferencia (posición L4)
Interruptor del indicador de la
transferencia (posición 4WD)
Conjunto del cuerpo
del acelerador
Actuador de ADD
∗9
ECU de control de 4WD
Impulsor de
inyectores (EDU)
Impulsor del motor
de turboalimentación
W–B
W–B
W–B
W–B
W–B
W–B
W–B
W–B
J 7(A), J 8(B)
Conector de unión
Conector de unión
ECU del motor
Bobina de encendido
(N. ˚ 4)
Bobina de encendido
(N. ˚ 3)
Bobina de encendido
(N. ˚ 2)
Bobina de encendido
(N. ˚ 1)
A1 A2
B6
EE
(E02)
(E01)
(E03)
(E04)
W–B
W–B
W–B
W–B
W–B
W–B
W–B
W–B
W–B
W–B
J33(A),J34(B)
Conectordeunión
Sensor de posición
del cigüeñal
(E1)
Sensor de velocidad
DLC3
ED
E 2
ID2
18
BR
BR
BR
W–B
V
BR
BR
(Protegido)
7
9681
BR
(ME01)
W–B
ECU del motor
ECU del motor
Conector de unión
J30
(∗2)
(∗1) (∗1)
(A/T)
(A/T)
W–B
Interruptor del indicador de la
transferencia (posición 4WD)
W–B
Interruptor del indicador de la
transferencia (posición L4)
W–B
Actuador de ADD
W–B
ECU de control de 4WD
W–B
Impulsor de control
de inyección de aire
W–B
Válvula de conmutación
de aire
W–B
I 1I 1
I 1
W–B
W–B
W–B
(RHD)
∗9
W–B
I 1
W–B
(SG)
Cable espiral
W–B
ID1
9
BR
(1KD–FTV A/T)
(1KD–FTV)
HILUX (EWD630S)
207
I
Medidor de combinación
Interruptor de advertencia del
nivel del líquido de frenos
Motor del limpiador del
parabrisas
Lámpara de la señal de giro
(frontal derecha)
Lámpara antiniebla
(delantera derecha)
Lámpara de paso
(delantera derecha)
Interruptor de advertencia del
filtro de combustible
Interruptor de cortesía del
capo del motor
Lámpara de la señal de giro
(frontal izquierda)
Lámpara antiniebla
(delantera izquierda)
Lámpara de paso
(delantera izquierda)
Relé MAIN
Relé GLOW
IF2
3
IF2
1
I 2
I 2
I 2
EA
EB
1J
3
1
5 W–B
2 W–B
3 W–B
9 W–B
6 W–B
7 W–B
4 W–B
12
1
W–B
R–G
W–B
W–B
W–B
W–B
W–B W–B
W–BW–BW–B
W–B
J 1
R–G
W–B
(sin ABS)(sin ABS)
(sin SRS) (sin SRS)
Lámpara de la señal de giro
(frontal lateral derecha)
Lámpara de la señal de giro
(frontal lateral izquierda)
W–B10
W–B
Conector
de unión
∗ 1 : 2TR–FE
∗ 2 : 1KD–FTV, 2KD–FTV
Relé de A/F1
W–BBomba de aire
W–B
(GND1)
(GND2)
W–B
W–B
ECU de control
de derrape
con actuador
∗ 9 : Interruptor del indicador de la transferencia (posición de punto muerto)
208
HILUX (EWD630S)
I PUNTO DE CONEXION A MASA
Relé ST
Medidor de combinación
Lámpara del indicador
de seguridad
Interruptor del soplador
Interruptor de la señal de
aviso de peligro
Interruptor de combinación
Interruptor del desempañador
de la ventanilla trasera
Enchufe eléctrico
Resistor del soplador
(CG)
Interruptor del espejo exterior
Intermitente de la señal
de giro
Encendedor de cigarrillos
Solenoide de interbloqueo
de la llave
Interruptor del soplador
Interruptor de combinación
Interruptor del desempañador
de la ventanilla trasera
Iluminación del cenicero
Iluminación del encendedor
de cigarrillos
Interruptor de advertencia
de desbloqueo
Conjunto del receptor de radio
Relé de integración
Centro del conjunto del
sensor del colchón de aire
Iluminación de la palanca
de cambios de la A/T
Lámpara para mapas
1
B–W
W–B
B12
A10
B9 B11
A11
B8 B7
A12 A9
IF3
10
W–B
B12 B1
A12 A1
ID
2 A4 A
3 B5 B
6 A3 A
2 B6 B
1 A
1 BB4
IE
S12(B)
T16(A)
Y
L–Y
W
R
GR
BR
R
B
BR
LG
BR
Y
W–B
W–B
J22(A), J23(B)
G
L
W–B
(∗5)
W
DLC3
W–B
W–B
W–BB
2D
9
2D18
2B
1
2E1
W–B
W–B
W–B
2B
2
W–B
2D
17
W–B
W–B
(E1)
(E2)
W–B
W–B
W–B
W–B
B–W
(∗3)
(∗5)
B–W
(∗3)
(∗5)(∗4)
8 A
L
ECU de la llave de
transmisor
(GND)
G
Relé PWR OUT
Relé HTR
B–W(∗6)
Conector de unión
(E) ECU de aviso antirrobo
Pasadordecortocircuito
(ECUdeavisoantirrobo)
ECUdeavisoantirrobo
HILUX (EWD630S)
209
I
Interruptor de combinación
(GND)
Interruptor de combinación
∗ 3 : con sistema antirrobo
∗ 4 : sin sistema antirrobo
B3
A6
8 B 12 B B 4 B6
J20(A), J21(B)
W
L
Y
P
W–B
W–B
W–B
W–B
Lámpara de combinación
trasera (izquierda)
Interruptor principal de la
ventanilla automática
Relé IG1
Conjunto del cinturón interior
del asiento delantero
(lado del pasajero delantero)
IF
3
3
9
W–B
W–B
IG
411 11
J15
W–BW–B
Reloj
W–B
A1
BA1
8
W–B(∗7)
B 3
Lámpara izquierda
de la matrícula
Lámpara de combinación
trasera (derecha)
Lámpara derecha
de la matrícula
B 3
1
W–B
W–B
Lámpara de parada central
Desempañador de la
ventanilla trasera
BD11
6
W–B
W–B
W–B
W–B
W–B
B
W–BW–B
A2
Amplificador del A/C
∗ 5 : ∗4 con sistema de control de bloqueo de las puertas
∗ 6 : ∗4 excepto ∗5
Conector
de unión
Conector de unión
(E) ECU de control de
bloqueo de cambios
10
BA1
1
W–B
∗10
W–B
10 B
Interruptor de la señal
de aviso de peligro
L
(EC)
(∗7)
R
ECU del motor
W–B Cinturón interior del asiento
delantero (lado del conductor)
2
W–R
(∗8)
IC24
∗ 7 : Cabina doble
∗ 8 : Cabina sencilla
7 B
W
Interruptor del A/C
A5
BR Lámpara de aviso del cinturón
de seguridad del pasajero
Conector
de unión
J28
∗ 1 : 2TE–FE
∗10 : Conjunto de la bomba de succión de combustible y medidor
210
HILUX (EWD630S)
I PUNTO DE CONEXION A MASA
: Localización de partes
Código Vea la página Código Vea la página Código Vea la página
J1 39 (∗1) J20 A 42 J30 42
J7 A 42 J21 B 42 J33 A 42
J8 B 42 J22 A 42 J34 B 42
J10 42 J23 B 42 S12 B 43
J15 42 J28 42 T16 A 43
: Bloques de relés
Código Vea la página Bloque de relés (localización del bloque de relés)
1 22 R/B del compartimiento del motor (Compartimiento del motor izquierdo)
3 35 R/B N.° 3 (Panel del lado del cubretablero derecho)
: Bloque de empalmes y conector del mazo de cables
Código Vea la página Bloque de empalmes y mazo de cables (localización del conector)
1J 24
Alambre principal del compartimiento del motor y J/B del compartimiento del motor
(Compartimiento del motor izquierdo)
2B
28 Alambre del panel instrumental y J/B del lado del conductor (Tensor del panel instrumental izquierdo)
2D
28 Alambre del panel instrumental y J/B del lado del conductor (Tensor del panel instrumental izquierdo)
2E 28 Alambre del techo y J/B del lado del conductor (Tensor del panel instrumental izquierdo)
: Mazo de cables de la unión del conector y mazo de cables
Código Vea la página Mazo de cables de unión y mazo de cables (localización del conector)
EA1
48 (2TR-FE) Alambre del motor y Alambre principal del compartimiento del motor
EA1
50 (∗1)
Alambre del motor y Alambre principal del compartimiento del motor
(Dentro del R/B del compartimiento del motor y J/B del compartimiento del motor)
IC2 52 Alambre de la puerta frontal izquierda y Alambre del piso (Panel de arranque izquierdo)
ID1
52 Alambre del motor y Alambre del panel instrumental (Detrás de la guantera)
ID2
52 Alambre del motor y Alambre del panel instrumental (Detrás de la guantera)
IF2
54
Alambre principal del compartimiento del motor y Alambre del panel instrumental
IF3
54
Alambre principal del compartimiento del motor y Alambre del panel instrumental
(Detrás del J/B del lado del conductor)
BA1
56 (∗2)
Alambre del bastidor y Alambre del piso (Debajo del asiento frontal izquierdo)BA1
58 (∗3)
Alambre del bastidor y Alambre del piso (Debajo del asiento frontal izquierdo)
BD1 56 (∗2) Alambre del bastidor N.° 2 y Alambre del bastidor (Debajo del panel posterior izquierdo)
: Puntos a tierra
Código Vea la página Localización de los puntos a tierra
EA
48 (2TR-FE)
Lado derecho del faldón del guardabarrosEA
50 (∗1)
Lado derecho del faldón del guardabarros
EB
48 (2TR-FE)
Lado izquierdo del faldón del guardabarrosEB
50 (∗1)
Lado izquierdo del faldón del guardabarros
EC 50 (∗1)
ED
48 (2TR-FE)
Lado trasero del bloque de cilindros
EE
48 (2TR-FE)
q
ID 52 Centro de refuerzo del tablero de instrumentos
IE 52 Refuerzo del panel instrumental izquierdo
IF 52 Panel del lado del cubretablero derecho
IG 52 Panel del lado del cubretablero izquierdo
∗ 1 : 1KD-FTV, 2KD-FTV ∗ 2 : Cabina doble ∗ 3 : Cabina sencilla
HILUX (EWD630S)
211
I
: Puntos de la unión
Código Vea la página Mazo de cables con puntos de unión Código Vea la página Mazo de cables con puntos de unión
48 (2TR-FE) I1 54 Alambre del motor
E1
50 (∗1)
Alambre del motor
I2 54
Alambre principal del compartimiento
del motor
E2
48 (2TR-FE)
Alambre del motor
B3
58 (∗3)
Alambre del bastidorE2
50 (∗1)
B3
68 (∗2)
Alambre del bastidor
∗ 1 : 1KD-FTV, 2KD-FTV ∗ 2 : Cabina doble ∗ 3 : Cabina sencilla
212
HILUX (EWD630S)
J FUENTE DE ALIMENTACION (Cuadro de flujo de corriente)
1 : R/B del compartimiento del motor y J/B del compartimiento del motor (Vea la página 22)
2 : J/B del lado del conductor (vea la página 28)
3 : R/B N.˚3 (vea la página 35)
[situación]
Batería
40A MAIN
20A H-LP LH
20A H-LP RH
10A HORN
15A FOG
25A EFI
40A AM1
7.5A OBD
10A STOP
10A TAIL
15A PWR OUT
40A IG1
30A ABS NO.2
40A ABS NO.1
40A FR HTR
7.5A DOME
7.5A ECU-B
15A RAD
50A BATT P/I
30A AM2
100A ALT
7.5A ALT-S
15A TURN-HAZ
80A GLOW
10A ETCS
20A A/F
50A A/PMP
30A DCC
1
1
1
1
1
1
1
1 1
1
1
2
2
2
El diagrama indicado abajo muestra la corriente desde la batería hasta cada fuente eléctrica
(eslabón fusible, ruptor de circuitos, fusible, etc.) y otras partes.
HILUX (EWD630S)
213
J
4
Código o ubicaciónPiezas
Fuente de electricidad
7.5A DRL
Arrancador S1
Situación
Ejemplo
Interruptor de
encendido (AM2)
Relé IG1
(Lado de la punta)
Relé HTR
(Lado de la punta)
Interruptor de
encendido (AM1)
I6
I6
20A DEF
7.5A IGN
7.5A MET
15A INJ
7.5A ST
7.5A ACC
15A CIG
10A ECU-IG&GAUGE
20A WIP
30A PWR
10A A/C
25A DOOR
3
3
2
2
2
2
2
3
2
214
HILUX (EWD630S)
J FUENTE DE ALIMENTACION (Cuadro de flujo de corriente)
R/B del compartimiento del motor y J/B del compartimiento del motor
(Vea la página 22)
Fusible Sistema Página
7.5A ALT-S Carga 68
7.5A DOME
Control de bloqueo de la puerta
Control de bloqueo de la puerta inalámbrico
Control de crucero
Control del motor (1KD-FTV, 2KD-FTV)
Control del motor (2TR-FE)
ECT
Faro
Luz de cola y Iluminación
Luz interior
Medidor de combinado
Recordador de la llave y Recordador de las luces
Reloj
Sistema antirrobo
156
162
134
82
72
126
98
102
116
196
120
188
168
7.5A ECU-B
Control de bloqueo de la puerta
Control de bloqueo de la puerta inalámbrico
Luz interior
Sistema antirrobo
Sistema inmovilizador del motor
156
162
116
168
94
10A ETCS Control del motor (2TR-FE) 72
10A HORN
Bocina
Sistema antirrobo
182
168
15A FOG Luz antiniebla frontal 100
15A RAD Sistema de audio 194
15A TURN-HAZ Señal de giro y luz de advertencia de peligro 108
20A A/F Control del motor (2TR-FE) 72
20A H-LP LH Faro 98
20A H-LP RH Faro 98
25A EFI
Control de crucero
Control del motor (1KD-FTV, 2KD-FTV)
Control del motor (2TR-FE)
ECT
134
82
72
126
30A ABS NO.2 ABS 140
30A AM2 Arranque 66
40A ABS NO.1 ABS 140
40A FR HTR Acondicionador de aire 202
50A A/PMP Control del motor (2TR-FE) 72
50A BATT P/I
Control de crucero
Control del motor (1KD-FTV, 2KD-FTV)
Control del motor (2TR-FE)
134
82
72
∗ Son números de la primera de las páginas en que está indicado el sistema correspondiente.
HILUX (EWD630S)
215
J
Fusible Sistema Página
50A BATT P/I
ECT
Luz antiniebla frontal
126
100
80A GLOW Control del motor (1KD-FTV, 2KD-FTV) 82
100A ALT
Carga
4WD (con ADD)
68
148
J/B del lado del conductor (Vea la página 28)
Fusible Sistema Página
7.5A ACC
Bloqueo de cambios
Espejo retrovisor de control remoto
Reloj
Sistema de audio
Toma de alimentación
154
192
188
194
186
7.5A IGN
Control de crucero
Control del motor (1KD-FTV, 2KD-FTV)
Control del motor (2TR-FE)
ECT
Sistema inmovilizador del motor
SRS
134
82
72
126
94
145
7.5A MET
ABS
Advertencia de cinturón de seguridad
Carga
Control de bloqueo de la puerta
Control de crucero
Control del motor (1KD-FTV, 2KD-FTV)
Control del motor (2TR-FE)
ECT
Luz de cola y Iluminación
Medidor de combinado
Recordador de la llave y Recordador de las luces
Sistema antirrobo
SRS
4WD (con ADD)
4WD (sin ADD)
140
124
68
156
134
82
72
126
102
196
120
168
145
148
152
7.5A OBD
Control del motor (1KD-FTV, 2KD-FTV)
Control del motor (2TR-FE)
82
72
7.5A ST
Arranque
Control del motor (1KD-FTV, 2KD-FTV)
Control del motor (2TR-FE)
ECT
Sistema antirrobo
66
82
72
126
168
10A A/C Acondicionador de aire 202
10A ECU-IG&GAUGE
ABS
Acondicionador de aire
140
202
∗ Son números de la primera de las páginas en que está indicado el sistema correspondiente.
216
HILUX (EWD630S)
J FUENTE DE ALIMENTACION (Cuadro de flujo de corriente)
Fusible Sistema Página
10A ECU-IG&GAUGE
Advertencia de cinturón de seguridad
Bloqueo de cambios
Carga
Control de bloqueo de la puerta
Control de bloqueo de la puerta inalámbrico
Control de crucero
Control del motor (1KD-FTV, 2KD-FTV)
Control del motor (2TR-FE)
Desempañador de la ventanilla trasera
ECT
Luz de marcha atrás
Medidor de combinado
Señal de giro y luz de advertencia de peligro
Sistema antirrobo
4WD (con ADD)
124
154
68
156
162
134
82
72
190
126
114
196
108
168
148
10A STOP
ABS
Bloqueo de cambios
Control de crucero
Control del motor (1KD-FTV, 2KD-FTV)
Control del motor (2TR-FE)
ECT
Luz de parada
140
154
134
82
72
126
112
10A TAIL
Control del motor (2TR-FE)
Luz antiniebla frontal
Luz de cola y Iluminación
Recordador de la llave y Recordador de las luces
Reloj
72
100
102
120
188
15A CIG Encendedor de cigarrillos 184
15A INJ
Control del motor (2TR-FE)
Encendido
72
70
15A PWR OUT Toma de alimentación 186
20A WIP Limpiador y lavador del parabrisas 178
40A AM1 4WD (con ADD) 148
R/B N.° 3 (Vea la página 35)
Fusible Sistema Página
20A DEF Desempañador de la ventanilla trasera 190
25A DOOR
Control de bloqueo de la puerta
Control de bloqueo de la puerta inalámbrico
Sistema antirrobo
156
162
168
30A PWR Ventanilla automática 174
∗ Son números de la primera de las páginas en que está indicado el sistema correspondiente.
HILUX (EWD630S)
217
Memorándum
218
HILUX (EWD630S)
K LISTA DE CONECTORES
1
Gris
A 1
1 2
A 2
1 2 3 4 5 6
Negro
A 3
54321
Negro
A 4
1 2
Amarillo
A 5
1 2
Amarillo
A 6
1
A 7
21
3 4
Negro
A 8
1 2 3 4 5 6 7 8 9 10
11 1213141516171819 20
A 9
21
A10
8765
431 2
A12
1 2 3 4 5 6
Negro
A13
11
1 3 4 5 6 7 8 9
13 14 15 16 17 18 19
21 23 24 25 26 27 28 29 30
20
10
22
12
2
Amarillo
A14
1 2 3 4
Amarillo
A15
1 2
Negro
A16
1 2 3
Negro
A17
21
3 4
Gris oscuro
A18
1 2
Gris
A19
1 2 3 4 5 6
Negro
A20
1 2
Gris
A21
1 2
Negro
A22
1 2
Amarillo
A23
1
3 4 5 6
2
Negro
A24
1 2
(*1) Gris
B 1
1 2
(2TR-FE) Gris
B 1
1 2
Gris
B 2
1
Gris
B 3
1 2
Negro
B 4
1 2
3 4
Negro
B 5
*1 : 1KD-FTV, 2KD-FTV
HILUX (EWD630S)
219
K
1 2 3
4 5 6 7 8
B 6
1 2
Negro
C 1
1 2
Gris
C 2
1 2
Gris
C 3
21
3
Gris
C 4
1
2
C 5
1 2
C 6
1 2 3 4
Negro
C 7
4
22
3
21 24
1
2623
62
27
7
28
8
30
10
31
11
32
12
33
13
35
15
36
16
37
17
38
18
29
95
25 34
14
39
19
40
20
C 8
1 2 3 4
5 6 7 8 9 10 11 12 13
C10
1 2 3
4
5 6
7
C11
1 2 3 4
5
6 7 8 9
10
C12
1 2
C13
1 2
Gris
C14
16 15 14 13 12 11 10 9
8 7 6 5 4 3 2 1
D 1
1
D 2
1
D 3
1
D 4
1
D 5
1 2 3 4
5 6 7 8 9 10
D 6
1 2 3 4
5 6 7 8 9 10
D 7
1 2 3 4
5 6 7 8 9 10
D 8
1 2 3 4
5 6 7 8 9 10
D 9
220
HILUX (EWD630S)
K LISTA DE CONECTORES
1 2 3 4
5 6 7 8
Gris
E 1
1 2 3
Negro
E 2
1 2
Negro
E 3
1
Negro
E 4
1
17
292827 31
19
9 10
30
11
76
13 14 15 16
22 23 24
12
432 5
25
26
18
8
20 21
Gris
E 5
6
3228 35
24 27
13 1612
29
11
1
10987
2118
3 4 52
17
34
26
15
33
25
14
2322
31
2019
30
Gris
E 6
1
19
333231 3528
2320
118 12
34
13
76
15 16 17 18
24 25 26
14
432 5
27
29
21
9
30
22
10
Gris
E 7
1
3128
24 27
118 12
34
13
7
14 15 16 17
2118
542 6
29
26
9
30
25
10
2322
32
2019
33
3
Gris
E 8
17
29 31
20
10 11
30
12
65
14 15 16
23 24
13
321 4
25
26
18
8
27
19
9
21 22
7
28
E 9
15
32 34
19
8 9
33
10
5
12 13 14
22 25
11
321 4
26
28
17
29
18
7
20 21
6
3130
23 24
35
16
27
E10
18
33 34
11 12 13
65
15 16 17
25
14
321 4
26
29
21
9
30
22
10
24
7
32 35
19
27
28
20
8
31
23
E11
17
32 34
20
10 11
33
12
65
14 15 16
23 26
13
321 4
27
28
18
8
29
19
9
21 22
7
3130
24 25
E12
1 2
Marrón
F 2
1 2
Marrón
F 3
1 2
Negro
F 4
1 2
(*1) Gris
F 5
1 2
(2TR-FE) Marrón
F 5
1 2
Gris
F 6
1 2
(*1) Gris
F 7
1 2
(2TR-FE) Marrón
F 7
1 2
Gris
F 8
*1 : 1KD-FTV, 2KD-FTV
HILUX (EWD630S)
221
K
1 2 3
Negro
F 9
1 2
Gris
F10
21
Gris oscuro
F11
1 2
F12
1 2 3
4 5
Negro
F13
1 2 3 4
5 6 7 8 9 10
Verde
F14
1 2 3
4 5
Negro
F15
1 2
F17
1
G 1
1
2 3
Negro
H 1
1
2 3
Negro
H 2
1
Negro
H 4
1 2
5
3 4
6 7 8 9 10
H 5
21
3 4
Gris oscuro
H 6
1 2 3 4 5 6 7 8
Negro
I 1
87654321
Gris oscuro
I 2
1 2
Negro
I 3
1 2
Gris oscuro
I 4
1 2 3 4 5 6 7
Negro
I 5
1 2 3 4
5 6 7 8
I 6
1 2 3 4
Negro
I 7
1 2 3 4
Negro
I 8
1 2 3 4
Negro
I 9
1 2 3 4
Negro
I10
54321
6 7 8 9 101112
J 1
1 2 3 4 5 6
7 8 9 10 11 12
J 2
222
HILUX (EWD630S)
K LISTA DE CONECTORES
1 2 3 4 5 6
7 8 9 10 11 12
J 3
1 2 3 4 5 6
7 8 9 10 11 12
Negro
J 4
1 2 3 4 5 6
7 8 9 10 11 12
J 5
11
2221
109
2019
87
1817
65
1615
43
1413
1 2
12
J 6
1 2 3 4 5 6
7 8 9 10 11 12
Azul
J 7
1 2 3 4 5 6
7 8 9 10 11 12
Azul
J 8
1 2 3 4 5 6
7 8 9 10 11 12
J 9
1 2 3 4 5 6
7 8 9 10 11 12
J10
1 2 3 4 5 6
7 8 9 10 11 12
J11
1 2 3 4 5 6
7 8 9 10 11 12
J12
HILUX (EWD630S)
223
K
1 2 3 4 5 6
7 8 9 10 11 12
Negro
J13
1 2 3 4 5 6
7 8 9 10 11 12
Negro
J14
1 2 3 4
5 6 10117 8 9
J15
1 2 3 4 5 6
7 8 9 10 11 12
J16
1 2 3 4 5 6
7 8 9 10 11 12
J17
1 2
3 4
J18
1 2
3 4
J19
1 2 3 4 5 6
7 8 9 10 11 12
J20
1 2 3 4 5 6
7 8 9 10 11 12
J21
1 2 3 4 5 6
7 8 9 10 11 12
J22
1 2 3 4 5 6
7 8 9 10 11 12
J23
224
HILUX (EWD630S)
K LISTA DE CONECTORES
11
2221
109
2019
87
1817
65
1615
43
1413
1 2
12
Azul
J24
11
2221
109
2019
87
1817
65
1615
43
1413
1 2
12
Azul
J25
1 2 3 4 5 6
7 8 9 10 11 12
Negro
J26
1 2 3 4 5 6
7 8 9 10 11 12
Negro
J27
1 2 3 4
5 6 10117 8 9
J28
1 2 3 4 5
6 7 8 9 10111213
J29
1 2 3 4
5 6 7 8 9 10 11
J30
1 2 3 4 5 6
7 8 9 10 11 12
Negro
J31
1 2 3 4 5 6
7 8 9 10 11 12
Negro
J32
HILUX (EWD630S)
225
K
1 2 3 4 5 6
7 8 9 10 11 12
J33
1 2 3 4 5 6
7 8 9 10 11 12
J34
54321
6 7 8 9 101112
J35
1 2
Negro
K 1
1 2
Negro
K 2
1 2
Negro
L 1
1 2
Negro
L 2
1 2
M 1
87 9
21 3 4
65
Gris
N 1
1 2
Gris
N 2
1 2 3 4 5 6 7 8 9 10
O 1
12
34
56
O 2
12
34
56
O 3
1 2
Gris
P 1
1
Negro
P 2
1 2
P 3
6 95 8
14
7
15
4
17
21
1816
3
11 1310 12
P 4
1 2
3 4 5 6
Negro
P 5
1 2
3 4 5 6
Negro
P 6
1 2
Negro
P 7
1 2
Negro
P 8
1 2 3 4 5
Negro
P 9
1 2 3 4 5
Negro
P10
1 2 3 4 5
Negro
P11
1
Negro
P12
1 32
Negro
P13
226
HILUX (EWD630S)
K LISTA DE CONECTORES
1 2 3 4
5 6 7 8 9 10
R 1
1 2
3 4 5 6
R 2
1 2 3 4 5
Negro
R 3
1 2 3
4 5 6
R 4
1 2 3
4 5 6
Negro
R 5
1
Negro
R 6
1
Negro
R 7
1
2
R 8
1
Negro
S 1
21
2423
3 4 5 6
13
25
161514
26 27 28 313029
17 18 19
987 10 11 12
222120
32 33 34
Negro
S 2
1 2 3
Negro
S 3
1 2
Gris
S 4
1 2
S 5
1
Negro
S 6
1
(*1)
S 7
1
(2TR-FE)
S 7
1 2
Gris
S 8
1 2
Gris
S 9
1 2
S10
7 8
1 2
12
4 5 6
9 1110
3
S11
10 9 8 7 6
23 2224 21 20
5
19
11
25
1
15
12
26
4
18
3
17
2
16
13
27
14
28
S12
7 8
1 2
12
4 5 6
9 1110
3
Negro
S13
1
3
2
4
S14
1
2
S15
*1 : 1KD-FTV, 2KD-FTV
HILUX (EWD630S)
227
K
1
2
S16
1
2
S17
1
2
S18
1 2
Gris
S21
1 2
Gris
S22
1 2 3
Negro
T 1
1 2 3
Negro
T 2
1 2
Azul
T 3
1 2
Azul
T 4
1 2
Gris
T 5
1 2
Negro
T 6
1 2
Negro
T 7
1 2
5
3 4
6 7 8 9 10
Gris
T 8
1 2 3
Negro
T 9
1 2
Negro
T10
1 2 3 4 5 6
Negro
T11
1 2
Gris
T12
1 2
Gris
T13
1 2
Gris
T14
1 2
Gris
T15
21
15 16
4
18
5
19
6
20
7
21
8
22
9
23
10
24
11
25
13
27
14
28
3
17
12
26
T16
2322 2618
107
25
13 14 16 17
19
8
20
9 11 12 15
2421
1 2 3 4 5 6
T17
18 2417
87 9 10
23
4
11 12 15
3
1613 14
19 20 2221
1 2 5 6
T18
26 3023
1411
3 4
29
5 7 8 9
17 18 21
6
22
24
12
25
13
2
15 16 19 20
2827
1 10
T19
1 2 3 4 5 6 7
Negro
T20
1
6
2
7
3
8 9 10 11 12 13 14
4
15
5
16
T21
228
HILUX (EWD630S)
K LISTA DE CONECTORES
1 2 3
4 5 6 7 8
Negro
T22
1 2 3 4 5 6
Negro
T25
1 2
U 1
1 2
Negro
V 1
1 2
Marrón
V 2
1 2
Negro
V 3
21
Negro
W 1
1 2
Negro
W 2
1 2 3
4 5
Negro
W 3
HILUX (EWD630S)
229
Memorándum
L NUMERO DE LAS PARTES DE CONECTORES
Código Nombre de las partes Número de las partes Código Nombre de las partes Número de las partes
HILUX (EWD630S)
Nota: No todos los números de las partes del conector indicados arriba están dispuestos para el suministro.
230
A 1 Compresor del A/C 90980-11271
A 2
Sensor de la temperatura del líquido de la
A/T
90980-11025
A 3 Actuador de ADD 90980-11858
A 4 Medidor de flujo de aire 90980-11317
A 5
Sensor del colchón de aire (delantero
izquierdo)
90980-11856
A 6
Sensor del colchón de aire (delantero
derecho)
90980-11856
A 7 Alternador 90980-09212
A 8 Alternador 90980-11964
A 9 Amplificador del A/C 90980-11971
A10 Termistor del A/C 90980-11918
A12
Iluminación de la palanca de cambios de la
A/T
90980-12221
A13 Sensor de la posición del acelerador 90980-11858
A14
Centro del conjunto del sensor del colchón
de aire
90980-12391
A15
Detonador del colchón de aire (almohadilla
del volante de dirección)
90980-12160
A16 Iluminación del cenicero 90980-12111
A17 Sensor de desaceleración del ABS 90980-10845
A18
Sensor de la relación de aire-combustible
(banco 1 sensor 1)
90980-11178
A19 Impulsor de control de inyección de aire 90980-12068
A20 Impulsor de control de inyección de aire 90980-11858
A21 Bomba de aire 90980-11032
A22 Válvula de conmutación de aire 90980-11149
A23
Detonador del colchón de aire (conjunto del
colchón de aire del pasajero delantero)
90980-11884
A24 Interruptor del A/C 90980-10414
B 1
Interruptor de la lámpara de marcha atrás
(1KD-FTV, 2KD-FTV)
90980-11250
B 1
Interruptor de la lámpara de marcha atrás
(2TR-FE)
90980-11142
B 2
Interruptor de advertencia del nivel del
líquido de frenos
90980-11207
B 3
Interruptor de advertencia de vacío del
freno
90980-11252
B 4 Motor del soplador 90980-10916
B 5 Resistor del soplador 90980-11136
B 6 Interruptor del soplador 90980-10877
C 1 Sensor de posición del árbol de levas 90980-10947
C 2 Lámpara de paso (delantera izquierda)
90980-11162
C 3 Lámpara de paso (delantera derecha)
90980-11162
C 4 Sensor de posición del cigüeñal 90980-11016
C 5 Encendedor de cigarrillos 90980-10760
C 6 Iluminación del encendedor de cigarrillos 90980-11148
C 7 Reloj 90980-11013
C 8 Medidor de combinación 90980-12169
C10 Interruptor de combinación 90980-12007
C11 Interruptor de combinación 90980-12358
C12 Interruptor de combinación 90980-12359
C13 Lámpara de parada central 90980-11003
C14
Válvula de control del aceite de distribución
del árbol de levas
90980-11162
D 1 DLC3 90980-11978
D 2
Interruptor de cortesía de la puerta (lado del
conductor)
D 3
Interruptor de cortesía de la puerta (lado del
pasajero delantero)
90980-10871
D 4
Interruptor de cortesía de la puerta (trasera
izquierda)
90980-10871
D 5
Interruptor de cortesía de la puerta (trasera
derecha)
D 6
Conjunto de bloqueo de la puerta (lado del
conductor)
D 7
Conjunto de bloqueo de la puerta (lado del
pasajero delantero)
90980-12226
D 8
Conjunto de bloqueo de la puerta (trasera
izquierda)
90980-12226
D 9
Conjunto de bloqueo de la puerta (trasera
derecha)
E 1 Solenoide de ECT 90980-10891
E 2 Sensor de la posición de la válvula EGR 90980-11143
E 3 Interruptor de cortesía del capo del motor 90980-11003
E 4 Sensor de presión del aceite de motor 90980-11363
E 5 ECU del motor 90980-12457
E 6 ECU del motor 90980-12455
E 7 ECU del motor 90980-12454
E 8 ECU del motor 90980-12456
E 9 ECU del motor 90980-12525
E10 ECU del motor 90980-12529
E11 ECU del motor 90980-12528
E12 ECU del motor 90980-12527
F 2 Lámpara antiniebla (delantera izquierda)
90980-11660
F 3 Lámpara antiniebla (delantera derecha)
90980-11660
F 4
Interruptor de advertencia del filtro de
combustible
90980-12416
F 5 Inyector de combustible (N.° 1)
F 6 Inyector de combustible (N.° 2)
90980-11875
F 7 Inyector de combustible (N.° 3)
90980-11875
F 8 Inyector de combustible (N.° 4)
F 9 Sensor de presión de combustible 90980-10845
F10
Interruptor de aviso del nivel de sedimentos
de combustible
90980-11003
F11 Sensor de la temperatura del combustible 90980-10737
F12
Cinturón interior del asiento delantero (lado
del conductor)
90980-11212
F13 Medidor del emisor de combustible 90980-11077
L
Código Nombre de las partes Número de las partes Código Nombre de las partes Número de las partes
HILUX (EWD630S)
231
F14 ECU de control de 4WD 90980-10997
F15
Conjunto de la bomba de succión de
combustible y medidor
90980-11077
F17
Conjunto del cinturón interior del asiento
delantero (lado del pasajero delantero)
90980-11212
G 1 Bujía incandescente 99141-13004
H 1 Faro (izquierdo)
90980-11314
H 2 Faro (derecho)
90980-11314
H 4 Bocina (baja) 90980-10619
H 5 Interruptor de la señal de aviso de peligro 90980-10801
H 6
Sensor de oxígeno calentado (banco 1
sensor 1)
90980-11028
I 1 Impulsor de inyectores (EDU) 90980-11592
I 2 Impulsor de inyectores (EDU) 90980-11593
I 3
Sensor de la temperatura del aire de
entrada (Filtro de aire)
90980-11163
I 4
Sensor de la temperatura del aire de
entrada (Enfriador intermedio)
90980-11025
I 5
Lámpara del cilindro de la llave de
encendido
90980-12092
I 6 Interruptor de encendido 90980-11615
I 7 Bobina de encendido (N.° 1)
I 8 Bobina de encendido (N.° 2)
90980-11885
I 9 Bobina de encendido (N.° 3)
90980-11885
I10 Bobina de encendido (N.° 4)
J 1 Conector de unión 90980-10803
J 2 Conector de unión
J 3 Conector de unión
90980-11661
J 4 Conector de unión
90980-11661
J 5 Conector de unión
J 6 Conector de unión 90980-11915
J 7 Conector de unión
J 8 Conector de unión
J 9 Conector de unión
J10 Conector de unión
90980-11661
J11 Conector de unión
90980-11661
J12 Conector de unión
J13 Conector de unión
J14 Conector de unión
J15 Conector de unión 90980-10830
J16 Conector de unión
90980-11661
J17 Conector de unión
90980-11661
J18 Conector de unión
90980-11742
J19 Conector de unión
90980-11742
J20 Conector de unión
J21 Conector de unión
90980-11661
J22 Conector de unión
90980-11661
J23 Conector de unión
J24 Conector de unión
90980-11915
J25 Conector de unión
90980-11915
J26 Conector de unión
90980-11661
J27 Conector de unión
90980-11661
J28 Conector de unión 90980-10830
J29 Conector de unión 90980-11542
J30 Conector de unión 90980-11539
J31 Conector de unión
J32 Conector de unión
90980-11661
J33 Conector de unión
90980-11661
J34 Conector de unión
J35 Conector de unión 90980-10803
K 1 Solenoide de interbloqueo de la llave 90980-12063
K 2 Sensor de control de golpeteo banco 1) 90980-11875
L 1 Lámpara izquierda de la matrícula
90980-11162
L 2 Lámpara derecha de la matrícula
90980-11162
M 1 Lámpara para mapas 90980-11148
N 1 Interruptor de arranque en punto muerto 90980-12362
N 2 Filtro de ruido (encendido) 90980-10843
O 1 Interruptor del espejo exterior 90980-11657
O 2 Espejo retrovisor exterior (izquierdo)
90980-11452
O 3 Espejo retrovisor exterior (derecho)
90980-11452
P 1 Interruptor de presión 90980-11149
P 2 Interruptor del freno de estacionamiento 90980-10871
P 3 Enchufe eléctrico 90980-12498
P 4
Interruptor principal de la ventanilla
automática
90980-12122
P 5
Motor del regulador de la ventanilla
automática (frontal izquierda)
90980-10797
P 6
Motor del regulador de la ventanilla
automática (frontal derecha)
90980-10797
P 7
Motor del regulador de la ventanilla
automática (trasera izquierda)
90980-11900
P 8
Motor del regulador de la ventanilla
automática (trasera derecha)
90980-11900
P 9
Interruptor de la ventanilla automática (lado
del pasajero delantero)
P10
Interruptor de la ventanilla automática
(trasera izquierda)
90980-10789
P11
Interruptor de la ventanilla automática
(trasera derecha)
P12
Interruptor de presión de aceite de la
servodirección
90980-11428
P13
Lámpara de aviso del cinturón de seguridad
del pasajero
90980-10908
R 1 Conjunto del receptor de radio 90980-10997
R 2 Conjunto del receptor de radio 90980-10996
R 3
Interruptor del desempañador de la
ventanilla trasera
90980-10789
L NUMERO DE LAS PARTES DE CONECTORES
Código Nombre de las partes Número de las partes Código Nombre de las partes Número de las partes
HILUX (EWD630S)
Nota: No todos los números de las partes del conector indicados arriba están dispuestos para el suministro.
232
R 4 Lámpara de combinación trasera (izquierda)
90980-10988
R 5 Lámpara de combinación trasera (derecha)
90980-10988
R 6 Desempañador de la ventanilla trasera
90980-10359
R 7 Desempañador de la ventanilla trasera
90980-10359
R 8 Lámpara del compartimiento 90980-10935
S 1 Bocina de seguridad 90980-10619
S 2 ECU de control de derrape con actuador 90980-12020
S 3 Sensor de velocidad 90980-11143
S 4 Sensor de velocidad (delantero izquierdo)
90980-11156
S 5 Sensor de velocidad (delantero derecho)
90980-11156
S 6 Arrancador 90980-11400
S 7
Arrancador (1KD-FTV, 2KD-FTV) 90980-09507
S 7
Arrancador (2TR-FE) 90980-09506
S 8 Válvula de control de la succión 90980-11285
S 9 Válvula de control de turbulencia 90980-11156
S10 Lámpara del indicador de seguridad 90980-12063
S11 ECU de control de bloqueo de cambios 90980-12183
S12
Pasador de cortocircuito (ECU de aviso
antirrobo)
90980-12409
S13 Cable espiral 90980-12183
S14 Interruptor de la lámpara de parada 90980-11118
S15 Altavoz (puerta delantera izquierda)
S16 Altavoz (puerta delantera derecha)
90980-10935
S17 Altavoz (puerta trasera izquierda)
90980-10935
S18 Altavoz (puerta trasera derecha)
S21 Sensor de velocidad (trasero izquierdo)
90980-11467
S22 Sensor de velocidad (trasero derecho)
90980-11467
T 1 Conjunto del cuerpo del acelerador 90980-11145
T 2 Conjunto del cuerpo del acelerador 90980-11261
T 3
Interruptor del indicador de la transferencia
(posición 4WD)
90980-11156
T 4
Interruptor del indicador de la transferencia
(posición L4)
90980-11156
T 5
Interruptor del indicador de la transferencia
(posición de punto muerto)
90980-10923
T 6
Sensor de revoluciones de la transmisión
(entrada)
90980-11156
T 7
Sensor de revoluciones de la transmisión
(salida)
90980-11156
T 8 Impulsor del motor de turboalimentación 90980-10801
T 9 Sensor de presión turbo 90980-10845
T10
Motor de boquilla variable del
turboalimentador
90980-11156
T11
Sensor de boquilla variable del
turboalimentador
90980-12303
T12
Lámpara de la señal de giro (frontal
izquierda)
90980-11019
T13
Lámpara de la señal de giro (frontal
derecha)
90980-11019
T14
Lámpara de la señal de giro (frontal lateral
izquierda)
90980-11162
T15
Lámpara de la señal de giro (frontal lateral
derecha)
90980-11162
T16 ECU de aviso antirrobo 90980-12410
T17 ECU de control de la transmisión 90980-12150
T18 ECU de control de la transmisión 90980-12149
T19 ECU de control de la transmisión 90980-12151
T20 Amplificador de la llave de transmisor 90980-12092
T21 ECU de la llave de transmisor 90980-12423
T22 Intermitente de la señal de giro 90980-10799
T25 Conjunto del cuerpo del acelerador 90980-11858
U 1 Interruptor de advertencia de desbloqueo 90980-12063
V 1 VRV (EGR) 90980-11162
V 2 VSV (válvula de corte de EGR) 90980-11149
V 3 VSV (EVAP) 90980-11156
W 1 Sensor de la temperatura del agua 90980-10735
W 2 Motor del lavador del parabrisas 90980-11019
W 3 Motor del limpiador del parabrisas 90980-11599
L
Código Nombre de las partes Número de las partes Código Nombre de las partes Número de las partes
HILUX (EWD630S)
233
2
4
1 2 3 4
ACC
IG1
ST1
IG2
ST2
AM2
6 EA4
7 EA3
2 A 2 B
1 A 1 B
4
B
5
A
B
1
B
EA
1
3C15
3C7
41 6
1
1
1
3
2 3
1
2
4 3
1
1
3
6
5
4
7
4 EA3
12 EA1
BO2
5
21 EA3
ID ECEA
1
2
1
2
1
2
1
2
16 BS1
1
2
M
EA3
17
1
4
8
6
9
B
W
W-R
B-W
B-R
B-L B-L
B-W(22R-E)
B-W
W-R
R-G
B
BR
B
GR
Y-R
B-W
Y-R
BR-W
G
G-R
Y-R
L-Y
Y-R
G-Y
GR-B
W-B
R-W
R-G
BR
W-R
W-R
Y-R
R-Y
B-W
Y-R
Y-R
W
B-R
W
R
W-RW-R
W
B-L
B-W
B-W
B-W
B-RB-R
B-R
B-R
B-R
B-RW-R
W-R
W-R
W-R
BR
BR
W-B
W-B
R-GY-R
W-B
B-R
Y-R
B
Y-R
W-B
B-W
W-B
B-R
R-YW-R
B-W
BR
100AALT
40AAM1
30AAM2
4
A
2
A
1
A
7
(22R-E)
(2L-T)
7. 5A
ST
7. 5A
IGN
B-W
R-G
15A
EFI
R-G
FP
OX1
+B
T1
VF
B-L
(2L-T)
1 A
1
B
R
AM1
B-W
2
BR
E1
3
(2L-T)
(22R-E)
(2L-T)
(2L-T)
B-W
R-G
Y-R
Y-R
Y-R
W-R W-R
B
8
B
A
B
C
D
E
F
G
H
I
K
L
M
N
O
P
Q
R
S
J
1
R-Y
B
BR
GR
(22R-E)
BR-W
G
G-R
L-Y
GR-B
G-Y
W-R
(2L-T)
BR
(22R-E)
[A]
[B]
[C]
[D]
[E]
[G]
[F]
[H]
[I]
[J]
[K]
[L]
C19
A 5
H11
K 2
I9
I11
I10
I12
F37
D 1
I 6 (A),(B)
S40 (A), S41 (B)
S38 (A), S39 (B)
2
2 2 2
B-W
Faldón del guardabarros
izquierdo
(Protegido)
Relé
EFI MAIN
Faldón del guardabarros
izquierdo
Panel de arranque
izquierdo
Arranque
Multiple de admisión
derecho
Alimentación Control del motor
Relé de abertura
del circuito
Medidor de flujo de aire
Sensor
de oxígeno
calentado
Sensor de golpeteo
InyectorN.˚1
InyectorN.˚3
InyectorN.˚2
InyectorN.˚4
Bombade
combustible
Conector
de enlace
de datos 1
Interruptor
de encendido
Relé del arrancador
Arrancador
Batería
ECUdeemisionesdeescape<9-8>
COMO LEER ESTA SECCION
* El sistema aquí mostrado es SOLO UN EJEMPLO. Es distino del circuito
real mostrado en la SECCION DE DIAGRAMA DEL CABLEADO.234
HILUX(EWD630S)
MDIAGRAMADECONEXIONESELECTRICASGENERAL
235
HILUX(EWD630S)
[A] : Título del sistema
[B] : Indica el color del cable.
Los colores de los cables se dan según los siguientes
códigos alfabéticos.
B = Negro W = Blanco BR = Marrón
L = Azul V = Violeta SB = Azul del cielo
R = Rojo G = Verde LG = Verde claro
P = Rosado Y = Amarillo GR = Gris
O = Anaranjado
La primera letra indica el color básico del cable y la segunda
letra indica el color de la banda.
Ejemplo: L - Y
L
(Azul)
Y
(Amarillo)
[C] : La posición de las piezas es la misma que la indicada en el
diagrama del cableado y en el trazado del cableado.
[D] : Indica el número de clavijas del conector. El sistema
de numeración es diferente según se trate de un conector
macho o de un conector hembra.
Ejemplo: Numerados de arriba
a la izquierda hacia
abajo a la derecha
Numerados de arriba a
la derecha hacia abajo
a la izquierda
Hembra Macho
[E] : Indica un bloque de relés. N.° se utiliza sombreado y se
indica sólo el número del bloque de relés para distinguirlo del
bloque de empalme
Ejemplo: indica Bloque de Relés N.°1
[F] : Bloque de empalme. (El número dentro del círculo es el
número del bloque de empalme, y el código del conector
aparece junto al mismo.) Los bloques de empalme aparecen
sombreados para distinguirlos fácilmente de otras piezas.
Ejemplo:
3Cindicaqueestádentro
del bloque de empalme
N.°3
[G] : Indica un sistema relacionado.
[H] : Indica el mazo de conductores y el conector del mazo de
conductores. El mazo de conductores con el terminal macho
es indicado mediante las flechas ( ).
Las cifras exteriores corresponden al número de clavijas.
Hembra Macho ( )
[I] : ( ) se utiliza para indicar diferentes cableados,
conectores, etc. en caso de modelo de vehículo, tipo de
motor o especificaciones diferentes.
[J] : Indica mazo de conductores blindado.
[K] : Indica los PUNTOS de conexión a Masa.
[L] : Cuando se indica el mismo código en la página
siguiente, significa que el mazo de cables es continuo.
M
INDICE DE SISTEMA236
HILUX(EWD630S)
SISTEMA COLOCACIÓN SISTEMA COLOCACIÓN
ABS 15-2. . . . . . . . . . . . . . . . . . . . . . . . . . . . . . . . . . . . . . . . . . . . . . . . . . . . . .
Acondicionador de aire 25-2. . . . . . . . . . . . . . . . . . . . . . . . . . . . . . . . . . . . . .
Advertencia de cinturón de seguridad 14-2. . . . . . . . . . . . . . . . . . . . . . . . .
Alimentación 1~25-1. . . . . . . . . . . . . . . . . . . . . . . . . . . . . . . . . . . . . . . . . . . . .
Arranque 1-2. . . . . . . . . . . . . . . . . . . . . . . . . . . . . . . . . . . . . . . . . . . . . . . . . . .
Bloqueo de cambios 21-3. . . . . . . . . . . . . . . . . . . . . . . . . . . . . . . . . . . . . . . .
Bocina 8-4. . . . . . . . . . . . . . . . . . . . . . . . . . . . . . . . . . . . . . . . . . . . . . . . . . . . .
Carga 1-4. . . . . . . . . . . . . . . . . . . . . . . . . . . . . . . . . . . . . . . . . . . . . . . . . . . . . .
Control de bloqueo de la puerta 16-2. . . . . . . . . . . . . . . . . . . . . . . . . . . . . .
Control de bloqueo de la puerta inalámbrico 17-2. . . . . . . . . . . . . . . . . . .
Control de crucero 4-15. . . . . . . . . . . . . . . . . . . . . . . . . . . . . . . . . . . . . . . . . .
Control del motor (1KD-FTV, 2KD-FTV) 4-3. . . . . . . . . . . . . . . . . . . . . . .
Control del motor (2TR-FE) 3-3. . . . . . . . . . . . . . . . . . . . . . . . . . . . . . . . . .
Desempañador de la ventanilla trasera 21-2. . . . . . . . . . . . . . . . . . . . . . . .
ECT 6-2. . . . . . . . . . . . . . . . . . . . . . . . . . . . . . . . . . . . . . . . . . . . . . . . . . . . . . .
Encendedor de cigarrillos 20-2. . . . . . . . . . . . . . . . . . . . . . . . . . . . . . . . . . . .
Encendido 2-2. . . . . . . . . . . . . . . . . . . . . . . . . . . . . . . . . . . . . . . . . . . . . . . . . .
Espejo retrovisor de control remoto 20-3. . . . . . . . . . . . . . . . . . . . . . . . . . .
Faro 8-2. . . . . . . . . . . . . . . . . . . . . . . . . . . . . . . . . . . . . . . . . . . . . . . . . . . . . . .
Iluminación 12-2. . . . . . . . . . . . . . . . . . . . . . . . . . . . . . . . . . . . . . . . . . . . . . . .
Limpiador y lavador del parabrisas 19-2. . . . . . . . . . . . . . . . . . . . . . . . . . . .
Luz antiniebla frontal 9-2. . . . . . . . . . . . . . . . . . . . . . . . . . . . . . . . . . . . . . . . .
Luz de cola 12-2. . . . . . . . . . . . . . . . . . . . . . . . . . . . . . . . . . . . . . . . . . . . . . . .
Luz de marcha atrás 10-2. . . . . . . . . . . . . . . . . . . . . . . . . . . . . . . . . . . . . . . .
Luz de parada 10-3. . . . . . . . . . . . . . . . . . . . . . . . . . . . . . . . . . . . . . . . . . . . .
Luz interior 13-2. . . . . . . . . . . . . . . . . . . . . . . . . . . . . . . . . . . . . . . . . . . . . . . .
Medidor de combinación 24-2. . . . . . . . . . . . . . . . . . . . . . . . . . . . . . . . . . . .
Recordador de la llave 9-3. . . . . . . . . . . . . . . . . . . . . . . . . . . . . . . . . . . . . . .
Recordador de las luces 9-3. . . . . . . . . . . . . . . . . . . . . . . . . . . . . . . . . . . . . .
Reloj 22-2. . . . . . . . . . . . . . . . . . . . . . . . . . . . . . . . . . . . . . . . . . . . . . . . . . . . . .
Señal de giro y luz de advertencia de peligro 11-2. . . . . . . . . . . . . . . . . . .
Sistema antirrobo 17-2. . . . . . . . . . . . . . . . . . . . . . . . . . . . . . . . . . . . . . . . . .
Sistema de audio 23-2. . . . . . . . . . . . . . . . . . . . . . . . . . . . . . . . . . . . . . . . . . .
Sistema inmovilizador del motor 5-2. . . . . . . . . . . . . . . . . . . . . . . . . . . . . . .
SRS 14-3. . . . . . . . . . . . . . . . . . . . . . . . . . . . . . . . . . . . . . . . . . . . . . . . . . . . . .
Toma de alimentación 20-2. . . . . . . . . . . . . . . . . . . . . . . . . . . . . . . . . . . . . . .
Ventanilla automática 18-2. . . . . . . . . . . . . . . . . . . . . . . . . . . . . . . . . . . . . . .
4WD (con ADD) 7-3. . . . . . . . . . . . . . . . . . . . . . . . . . . . . . . . . . . . . . . . . . . . .
4WD (sin ADD) 7-2. . . . . . . . . . . . . . . . . . . . . . . . . . . . . . . . . . . . . . . . . . . . .
MDIAGRAMADECONEXIONESELECTRICASGENERAL
HILUX(EWD630S)
237
M
3 421
1 HILUX
5
4
P
N
1
2
(∗1)5
(∗2)3
(∗1)3
(∗2)5
1 A
1
B
B–Y
B–Y
(∗3)
1
1 A
B B
1
B
B
S
L
IG
C argaA rranqueA limentación
ID2
W
B–O
B
W
GR
R–L
GR
4
2
LL
7
6
B–W
7.5AST
2C
7.5AMET
B–Y
10A
ECU–IG&GAUGE
AM2 6
2A
1AM1
ST2
B–R
2 2A
1
2
1 2G
IG2
IG1
ACC
5
4
W–R
(∗2)
32 2S
(∗1)
B
40A
AM1
Batería
1 IF4
IF311
∗ 3 : 1KD–FTV A/T
1 1F
B–YB–R
B
R–L
100A
ALT
1A1
W
30A
AM2
4 1B
W–R
I 6
6
B
2C
7 B–W
B
1 1E
W
1
7. 5A
ALT–S
2
1
W–R
2N192O19
2D1
2O3
L–YECUdelmotor
<4–10><3–11>
(∗3)
L–YECUdecontrolde
latransmisión
<6–4>
S 6(A), S 7(B)
3
A
4
B
J18(A), J19(B)
B–Y
1 1
1 1
Relé ST
2 EA2
10 IF3
12 A 1 A
12 B 1 B
8 A
12 B
ID Centro de refuerzo del
tablero de instrumentos
W–B
W–B
W–B
W–B
S12(B)
T16(A)
(∗6)
(∗6)
(∗6)
SRLY
(∗4)
E(∗4)
L–Y
L–Y
4 EA1
L–Y
(M/T)
(M/T)
7 A 8 A
12 B 11 B
B–YECUdelmotor
<4–10>
(∗3)
B–YECUdecontrol
delatransmisión
<6–4>
(∗3)
(∗3)
B–Y
∗ 1 : 2TR–FE
∗ 2 : 1KD–FTV, 2KD–FTV
J11(A),J12(B)
13 EA1 4 ID2 3 ID2
Carga
C8
37
21
A 7(A), A 8(B) 3 B
M
4 5
G
(∗1)
(∗2)
G
(∗2)
G
J 6
ECU del motor<3–11>
ECU del motor
<4–10>
∗ 4 : con sistema antirrobo
∗ 5 : sin sistema antirrobo
B–R(∗1)
B (∗2)
(A/T)
L–Y
(A/T)
L–Y
W–R
B L
Alternador
Medidordecombinación
Interruptor de encendido
Conector de unión
Conectordeunión
Conector de unión
Arrancador
Interruptor de arranque
en punto muerto
N 1
∗ 6 : con sistema de control de bloqueo de las puertas
∗ 7 : ∗5 sin sistema de control de bloqueo de las puertas
L–YECUdelmotor
<4–10>(A/T)
(∗7)
B–W
(∗4, ∗6)
B–W(∗4,∗6)
Conector
de unión
J22(A), J23(B)
Pasadordecortocircuito
(ECUdeavisoantirrobo)
ECUdeavisoantirrobo
HILUX(EWD630S)
238
MDIAGRAMADECONEXIONESELECTRICASGENERAL
1 2 3 4
2 HILUX
1
1
3 2 4
R–L
G–R
W–B
1
3 2 4
R
G–R
W–B
1
3 2 4
G–B
G–R
W–B
1
3 2 4
G
G–R
W–B
R
R
R
R
R R
G–R
W–B
A limentación E ncendido
5 ID1
I10I 9I 8I 7
R
W–BW–B
R
ECU del motor<3–12>
EELado trasero del bloque de cilindros
W–B
6
15A
INJ
2C
AM2 6
ST2
IG25W–R
Batería
BW–R
1A1
W
30A
AM2
4 1B
W–R
I 6
1 IF4
2D10
R
R
10 B 11 B
9 A 8 A 7 A
J31(A),J32(B)
G–R
G–R
G–R
R
R–L
R
G–B
G
Bobina de encendido
(N. ˚ 1)
Bobina de encendido
(N. ˚ 2)
Bobina de encendido
(N. ˚ 3)
Bobina de encendido
(N. ˚ 4)
Interruptor
de encendido
Conector
deunión
N 2
Filtro de ruido
(encendido)
IGT1 IGF GND
+B
IGT2 IGF GND
+B
IGT3 IGF GND
+B
IGT4 IGF GND
+B
HILUX (EWD630S)
239
Memorándum
HILUX(EWD630S)
240
MDIAGRAMADECONEXIONESELECTRICASGENERAL
1 2 3 4
3 HILUX (Sigue en la página siguiente)
A limentación
Batería
BW–R
1A1
W
1F1
B
B–Y
1C4
50AA/PMP
30AAM2
4 1B
W–RW–R
5 IG2
ST2
6AM2
7.5AIGN
15AINJ
2C
7.5AMET
6
1J 1J
1J 1J
ReléMAIN
W–GW–B
O
14 2D
2G1
I 6
W–B
EB
C ontrol del motor (2TR – FE )
B
LG–B
W–B
LG–B
R–W
1
10AETCS
2
1
7.5AOBD
5 3
4 2
11 B
8 A
J4(A),J5(B)
R–W
2S22 2D12D11
B–R
B–O
B–O
B–O
B–R
O
4 ID1
B–R
6 2L
B–O
B–O
2M6
B–O
B–O
1
2
1 1H
W–L
25AEFI
L
1J1
J4(A),J5(B)
2 B
6 A
L
L
12 EA1
B
1
7
J 1
W–G
B
R–W
5 IF3
1J6
1J8 1J7
1 IG2
10 BA1
10
Panel del lado del
cubretablero izquierdo
IG
J15
1 BA1
W–BB–RB–R
LG–B
1 IF4
B
L
I
J
D
E
A
F
H
K
G
Relé C/OPN
Interruptor
de encendido
Conector
de unión
Conectordeunión
Conector
deunión
Conector de unión
4
5
M
Bomba
Conjuntodelabombade
succióndecombustible
ymedidor
F15
B–O
B–R
Lado izquierdo del
faldón del guardabarros
1
2
5
3
1 1
1 1
RelédeA/F
B
7
B
W–B
W–B
R–LB–W
4
1
2
20AA/F
1
B–W
50ABATTP/I
3 1B
W–L
9 EA1
R–L
R–L
M
C
B–Y
100AALT
2
B1
BB
Conector de unión
J35
HILUX(EWD630S)
241
M
5 6 7 8
3 HILUX (Continuado) (Sigue en la página siguiente)
C ontrol del motor (2TR – FE )
3 A
IGSW
A9
B–O
R–W
R–B
Revisar
elmotor
IE11
B
LG–B
L
L
W–G
I
J
B
B–R
O
A
21
F7
F6
F5
R
G
#40
C1
#30
C2
#20
C5
#10
C6
W
2
1
2
1
2
1
2
1
B–R
B–R
B–R
B–R
B–R B–R
B–OR–B
39
C8
D
B–R
B–O
E
+BM
A7
R–W
W
B30
O
A
ST1–
16 A
4 IF3
F
B–O
B
H
R–L
B–O
S14
IF3
B
W–G
14
B
W–G
+BMREL
1 AA8
R–L
BR
A3
BATT
LG–B
FC
A25
K
B–O
1 IF3
L
E 9(A), E10(B), E11(C), E12(D)
F8
G
3 B
L
J31(A),J32(B)
B
J31(A),J32(B)
B
12 A
B
7
4
3
2
1
Sistemas de
luces de parada
<10–4>
Medidordecombinación
ECU del motor
Inyectordecombustible
(N.˚1)
Inyectordecombustible
(N.˚2)
Inyectordecombustible
(N.˚3)
Inyectordecombustible
(N.˚4)
Conectordeunión
Conector
deunión
Interruptordela
lámparadeparada
B
L
A10
E
(Protegido)
1
HT1B
A1A+
D D21
OX1B
B
HA1A
E2+B
10 A
9 B
B
BR
OX1B
D25
B
Conector de unión
J33(A), J34(B)
2 D
HT1B
L–Y
A1A–
D31
WR–L
BY
Y
A1A–
+B
1 2
3 4
A1A+
HA1A
D
(Protegido)
R–L
M
B–Y
C
1 A
B–Y
BATT
E
1 B
W–B
VV
6 B
R–L
VP
2 A
B–R
2
1
EELado trasero
del bloque
de cilindros
EA Lado derecho del
faldón del
guardabarros
W–B
W–B
W–BW–B
W–B
B
B8
B
B9
PRG
C23
L
2
1
VSV(EVAP)
V3
AIRP
D11
W–L
AIDI
C20
G–W
AIRV
D24
V
SIV
3 B
V
DI
2 B
G–W
SIP
4 B
W–L
+B
5 B
B
(Protegido)
(Protegido)
BR
B
B
C
Impulsor de control de
inyección de aire
A19(A), A20(B)
Válvuladeconmutación
deaire
A22
Sensordelarelación
deaire–combustible
(banco1sensor1)
A18
Sensordeoxígenocalentado
(banco1sensor1)
H6
2 4
1 3
1
2
M
Bombadeaire
A21
HILUX(EWD630S)
242
MDIAGRAMADECONEXIONESELECTRICASGENERAL
9 10 11 12
3 HILUX (Continuado) (Sigue en la página siguiente)
C ontrol del motor (2TR – FE )
Conector
de unión
J21
12
8
R
EC
22 A
ID
W–B
BR
BR
B
L–B
L–R
L–W
BR
BR
E2
D28
1
2
THA
4
E2
BR
5
+B
VG
3
1
B
2
E2G
28 C
VG E2G
C30 29 C
THA THW
D32
1
A
4
VCP2
BR–R
27
23
21 A
EPA2
BR–Y
19 A
VPA2
GR–G
A
W–L
VPA
A18
BR–W
EPA
A20
6 5
26
LG–R
VCPA
BR
W–B
1
G–Y
PSW
EE Lado trasero del
bloque de cilindros
W–B
E02
6 DD7
E01
W–B
Y
P–L
2
OC1–
D12
OC1+
D13 32
1
C
1 A 2 A
6 B J33(A), J34(B)
A4
W1
Medidordeflujodeaire
Conector
de unión
Lado trasero del
bloque de cilindros
Sensordelatemperaturadelagua
W–B
E04
W–B
E03
4 C7 C
BR
Válvuladecontroldelaceitede
distribucióndelárboldelevas
C14
Interruptordepresiónde
aceitedelaservodirección
P12
BR
GE01
D8 5 D
M+
B
2
M+ M–
Medidordecombinación
<24–4>
1
AmplificadordelA/C<25–4>
W
M–
D4 19 D
VTA2
LG
Y
2
P
THWO
B14
P
16
W
R–L
2
G
4
VTA2
T25
VC
D18
2Q
E
32 2Q
(Protegido)
30 D
AC1
25
Interruptordecombinación<12–5>
E 9(A), E10(B), E11(C), E12(D)
Bobinas de encendido<2–3><2–4>
R
R–L
G–B
G
G–R
IGF1
D23
IGT4
D14
IGT3
D15
IGT2
D16
IGT1
D17
G
B B
ELS1
A15
O
A
C4
C1
K2
W
D
E1
BR
BR
E2
3
VCVTA
56
B–RBR
LG–B
VTA1
D20
(Protegido)
(Protegido)
Y
L
NE+
D27
1
3
R
GG
NE–
D34
1
2
G2
D26
(Protegido)
2
KNK1
B
D29 3
ACT
EKNK
ED
1
24
Medidordecombinación<24–3>
V–R
SPD
B8 12 A
STA
L–Y
(Protegido)
FusibledelST<1–2>
Interruptordelalámparadeparada
<10–4>
G–W
STP
B4
Alternador<1–4>
ALT
10 D
B
V
O
A
6 B
2 A 1 A
J31(A), J32(B)
1 EB1EB12
B
5
3 1
BR
V
9 78
BR
W–B
ME01
3 C
W–B
W–B
Sensordeposición
delárboldelevas
Sensordeposición
delcigüeñal
ECU del motor
Conector de unión
Sensordecontrol
degolpeteo(banco1)
Conjunto del cuerpo
del acelerador
Centro de refuerzo del tablero de instrumentos
D
(Protegido)
4
BR
B
B
C
Conector de unión
J30
ReléDEF<21–2>
B
ELS3
3 B
B
10 IH1
B
VPA2 EPA2VCP2 EPAVPAVCPA
A13
Sensor de la posición del acelerador
THW
E2
E
NE+NE–
HILUX(EWD630S)
243
M
13 14 15 16
3 HILUX (Continuado)
C ontrol del motor (2TR – FE )
2Q5 2Q6 21
SIL
7
22 2Q
TC
13
R–Y
13 B
SIL
R–Y
17 B
TC
P–B
2Q
E 9(A), E10(B), E11(C), E12(D)
A
O
V
B
BAT
O
16
W–B
Refuerzo del panel instrumental izquierdoIE
G
W
WFSE
B35
W
WFSE
15
D 1
BR
CG
4
1 B
5
SG
TACH
B–W
R–Y
P–B
V
2N6
J23
1
4
18 ID2
2O22 2O6
B–W
TAC
9
Medidorde
combinación<24–4>
B–W
P–B
DLC3
ECU del motor
Conector de unión
15 B 16 B 29 A
W–B
(∗1)
ECUdelallave
detransmisor<5–3>
Y–B
Y–G
(∗1)
(∗1)
IMO IMI EOM
B
2P22
(∗1)
ECUdelallavedetransmisor<5–3>
∗ 1 : con sistema inmovilizador del motor
HILUX(EWD630S)
244
MDIAGRAMADECONEXIONESELECTRICASGENERAL
1 2 3 4
4 HILUX (Sigue en la página siguiente)
A limentación
Batería
BW–R
1A1
W
1F1
B
W–L
1B3
50ABATTP/I
30AAM2
4 1B
W–RW–R
5 IG2
ST2
6AM2
7.5AIGN
2C
7.5AMET
B
6
1J 1J
1J 1J
ReléMAIN
W–GW–B
B
O
14 2D
2G1
I 6
W–B
EB Lado izquierdo del faldón del guardabarros
C ontrol del motor (1K D – FTV , 2K D – FTV )
B
B–WB–W
7.5AOBD
5 3
4 2
2S22 2D1
B–O
B–O
B–O
O
B–O
2M6
B–O
1
2
1 1H
W–L
25AEFI
L
1J1
J4(A),J5(B)
2 B
6 A
L
L
12 EA1
B
1
4
W–G
B
R
12 IF2
1J8 1J7
B
B–W
11 IF3
B
H
G
J
C
A
D
F
I
E
B
B
1G1
80AGLOW
Relé
EDU
1
2
3
5
1 1
1 1
Relé GLOW
B–R
W–B
B
R
1 EA2
1
G 1
W–B
B–R
B
K
J 1
7
Bujía incandescente
Interruptor de encendido
Conector de unión
Conector
deunión
100AALT
B–O
HILUX(EWD630S)
245
M
5 6 7 8
4 HILUX (Continuado) (Sigue en la página siguiente)
C ontrol del motor (1K D – FTV , 2K D – FTV )
IGSW
A9
B–O
R
R–B
Revisar
elmotor
BB
IE11
B
R–W
A
GIND
B–W
H
BR
40
Y–R
L
W1
1
2
R
Y–GBR
THIA
D20
W–G
G
J
B
O
A
21
B–OR–B
39
C8
C
B–O
2
1
Encendido
LUSL
GR
4
D
C29
B
VLU
C
B
9 C
EGR
2
L–R
1
GREL
A15
R
W
A12
O
A
ST1–
14 B
4
3
4 IF3
D
B–O
B
F
R–L
B–O
R–L
S14
IF3
B
W–G
14
B
W–G
+BMREL
1 AA8
19
R–L
14B2
BATT
B–W
IREL
A10 D
THW
BRR–L
I
B–O
1 IF3
L
E 5(A), E 6(B), E 7(C), E 8(D)
2
1
I4
2
E
S8
W–B
29 D
THF
BRG–B
W–B
B
2
1
Sistemas de luces
de parada<10–4>
IF211
8 B 9 B
9 A 8 A
BRBR
E2
D28
7 B
BR
PCR1
11 B 10 B
7 A
PIM
L–B
28 C
T9
2
1
BR
EGLS
L–Y
33 C
E2
3
2
BR(∗2)
VC
R–W
18 D
1
E
PIM
20 19
16
17
3
VC
18R–W
R–W(∗2)
R–W
J 6
R–Y
26 D
F9
2
1
BR
3
E2
PR
R–W
VC
BR BR
C
B
K
B
2 D 1 D
PCV–PCV+
G–Y
G–W
18 C 15 D24 C 31 D 32 C
V1
I3
Y–G
(2KD–FTV)
2
1
THA
(∗3)
1 21
2 1
3 4 2
EGRC SCVVG THA EVG
B–W
Y–B
W–R
LG
Y–BB
B
B
B
BB BB(∗1)
V2
S9
10 A
BR
BR
(∗1)
(∗1)
(∗1)
(∗1)
(∗1)(∗1)
(∗1)
(∗1)
(∗1)
(∗1)(∗1) (∗1)
BR(∗1)
A4
∗ 1 : 1KD–FTV
∗ 2 : 2KD–FTV para Argentina
∗ 3 : con enfriador intermedio
5
(∗1)
(∗1)
B
B
(∗1)
31 D
BR
F11
Medidordeflujodeaire
Medidordecombinación
ECU del motor
Sensordepresión
decombustible
Sensordelatemperatura
delcombustible
Conector de unión
Válvuladecontroldelasucción
Interruptordela
lámparadeparada
Sensorde
presiónturbo
VRV(EGR)
Sensordela
temperaturadelagua
E2
VCEGLS
T1(A),T2(B)
(∗3)
(2KD–FTV)
BR
Sensordelatemperatura
delairedeentrada
(Enfriadorintermedio)
Sensordelaposición
delaválvulaEGR
Sensordelatemperaturadelairedeentrada
(Filtrodeaire)
VSV(válvuladecortedeEGR)
Válvuladecontrol
deturbulencia
Conjuntodelcuerpo
delacelerador
1 A
2 A 3 A 1 B 2 B
3 B
+B GND VC E2
LUSL VAF
(∗2)
CRUISE
28
L–B
IE13
L–B
PI
B3
(∗4)(∗4)
VG THA E2G
+BE2
E2
THW
∗ 4 : con sistema de control de crucero
Conector de unión
J 7(A), J 8(B)
1
HILUX(EWD630S)
246
MDIAGRAMADECONEXIONESELECTRICASGENERAL
9 10 11 12
4 HILUX (Continuado) (Sigue en la página siguiente)
C ontrol del motor (1K D – FTV , 2K D – FTV )
26 A
VCPA
LG–R
4
Medidorde
combinación
<24–4>
6
W–L
VPA
A22 28 A
EPA
BR–W
D
V
P
THWO
A2
P
C
16
3
P
#2
#20 #30
#3
2
B
SPD
5
A13
FusibledelST
(M/T)<1–2>
Interruptordearranque
enpuntomuerto(A/T)<1–3>
B–Y(A/T)
L–Y(M/T)
7 A
STAALT
D8
G
Alternador<1–4>
Interruptordela
lámparadeparada<10–4>
G–W
15 B
STP
W–B
17
2Q
32 2Q
CAN+
21
E 5(A), E 6(B), E 7(C), E 8(D)
B B
O
A
V
22
1
BR–R
VCP2
A27
2
BR–Y
EPA2
A29
B
CAN–
23 A
D
VPA2
GR–G
3
22
V–R
Medidordecombinación<24–3>
O
A
B
D21
Y–R
5
#4
#40
2
1
B
F5
2
1
R
F8
8 B B7 9 B
4 A 3 A
2
1
L
F6
2
1
Y
F7
11 B B10 12 B
2 A 1 A6 A
P
L
G
W
L–W
L–W
5 A
R–B
R–B
COM1 INJ1 INJ4 COM2 INJ2 INJ3
I 1(A), I 2(B)
J10(B) J10(B)
(∗5)
(∗5)
(∗5)
(∗5)
R
23 D
B6
#1
#10
B–W
24 D
B7
INJF
INJF
P
25 D
B8
+B
B
A
2 A 3 A
W–B
BR
W–B
B2
A1A5 4 A 6 A
1 B 4 B
2 EA13 EA1
(∗5)(∗5)
B
(∗5)
(∗5)
(∗5)
(∗5)
(∗5)
(∗5)
(∗5)
BR
BR
E1
C7
1 B
GND
1 B
5 A 3 A
EC Lado trasero del
bloque de cilindros
W–B
J 9(A), J10(B)
J7(A),J8(B)
C
(∗5)
F
(∗5)
B
AmplificadordelA/C<25–4>
Y
R–L
18
AC1
19B B
ACT
B
30 B 29 B 16 A
IMI IMO EOM
ECUdelallave
detransmisor<5–3>
Y–G
Y–B
W–B
∗ 5 : Protegido
B
B(∗1)B(∗1)
2 B 6 B
E
D
(∗5)
W–B
(∗1)
∗ 1 : 1KD–FTV
W–B(∗1)
Sensor de la posición del acelerador
ECU del motor
Inyectorde
combustible
(N.˚1)
Inyectorde
combustible
(N.˚2)
Inyectorde
combustible
(N.˚3)
Inyectorde
combustible
(N.˚4)
Impulsor de inyectores (EDU)
Conector
deunión
Conector
de unión
Conector de unión Conector de unión
FusibledelST<1–2>
L–Y
6 A
NSW
(A/T)
∗ 6 : con sistema inmovilizador del motor
(∗6)
(∗6)
(∗6)
(A/T)
(A/T)
ECU de control de la transmisión
T17
21 20
CAN+ CAN–
VPA2VCP2 EPA2EPAVPAVCPA
HILUX(EWD630S)
247
M
15 161413
4 HILUX (Continuado)
C ontrol de crucero
L
Y
3
2
34 D
NE–
L
Y
(∗5)
(∗5)
C1
C4
W
TS
(conABS)
12 11
B–Y
(conelSRS)
A/B
B–Y
1
(conelSRS)
W–B
G–
C31
1
2
G+
C23
(∗5)
ECU de control
de derrape
con actuador<15–3>
L–Y
P–L
W
P–B
7 2B
2Q52Q6 21
B–WMedidorde
combinación
<24–4>
9
TAC
B–W
SIL
7
22 2Q
2O6
TC
13
R–Y
18 A
SIL
R–Y
11 A
TC
P–B
2Q
2J6 2B45 2J
E 5(A), E 6(B), E 7(C), E 8(D)
A
O
BR
P–B
BAT
O
16
W–B
IE
G
6 2N
W
WFSE
A19
W
WFSE
15
D 1
BR
CG
4
4 A
5
(conABS)
SG
(conABS)
(conelSRS)
TACH
B–W
R–Y
P–B
(conelSRS)
22 2O
BR
27 D
NE+
W–B
1
4
18 ID2
C
(∗5)
F
(∗5)
W
W–B
E01
D7D
E02
6
EC Lado trasero del bloque de cilindros
W–B
9 2C
2C10
2P6
2C11
(A/T)
W
R–Y
(A/T)
ECUdecontroldela
transmisión<6–4>
R–Y
(A/T)
W
(A/T)
∗ 5 : Protegido
Centrodelconjuntodel
sensordelcolchóndeaire
<14–3<14–4>
Centrodelconjuntodel
sensordelcolchóndeaire<14–3>
Medidordecombinación
<14–3>
VNTO VNTI
2P22
M–
B
(∗6)
M+
ECUdelallave
detransmisor<5–3>
VNE2VTAIVNVC
10 D
VNTO VNTI
17 D
B
3 1 2 2
9 4
1 5 2 10
D
3
E
1
VNVC VTA1 VNE2
T11
GND
6
R–B
(∗1)
B–O
(∗1)
(∗1)
W
B
(∗1)
L
(∗1)
R
(∗1)
W
(∗1)
W–B
(∗1)
W–B
(∗1)
(∗5)
W–B(∗1)
(∗5)
(∗5)
T 8
∗ 1 : 1KD–FTV
∗ 6 : con sistema inmovilizador del motor
+B
8
B
(∗1)
Sensordeposición
delárboldelevas
Sensordeposición
delcigüeñal
DLC3
ECU del motor
M–
M+
Impulsor del motor
de turboalimentación
Sensor de boquilla variable
del turboalimentador
Motordeboquillavariable
delturboalimentador
T10
Refuerzo del panel instrumental izquierdo
E
NE–NE+
G–W
CCS
A21
(∗4)
∗ 4 : con sistema de control de crucero
C ontrol del motor (1K D – FTV , 2K D – FTV )
BR
Conector
deunión
J23
9 ID1
CCSECC
12
BR
(∗4)
(∗4)
W–B
CRUISE
RES/ACC
SET/COAST
CANSEL
Cableespiral
S13
BR
Interruptorde
controldecrucero
HILUX(EWD630S)
248
MDIAGRAMADECONEXIONESELECTRICASGENERAL
1 2 3 4
5 HILUX
Batería
+B
L–Y
A limentación S istema inmovilizador del motor
GND
B
B
1 1A
W
30AAM2
2R
I 6
W–R
IG2
ST2
65 AM2
7.5AIGN
6 2C
6
16
12
IG
B–O
T21
5
AGND
L–O
4
L–B
TXCT CODE
L–Y
15 14
L
VC5
7
AGND TXCT
5 4
CODE VC5
1
T20
D
B
9
G
BR
KSW
3
Interruptordeadvertenciadedesbloqueo
<13–4>
R–B
CTY
7 12
EFII
Y–B
Y–G
EFIO
13
ECUdelmotor<3–13><4–12>
Medidordecombinación<13–3>
DLC3
<3–14><4–15>
1B4
1
7.5AECU–B
2
2
30ADCC
1
1
12 2L
2R29
L–YL
W–B
E
11
G–R
8
IND
Bobina de la llave
del transmisor
ANT1 ANT2
Interruptor de encendido
Amplificador de la llave
de transmisor
ECU de la llave de transmisor
Lámparadelindicador
deseguridad<17–4>
B12
12 A
ID Centro de refuerzo del tablero de instrumentos
J22(A), J23(B)
W–B
Conector de unión
W–R
11 IF3
IF41 (∗1)
(∗2)
∗ 2 : 1KD–FTV, 2KD–FTV
∗ 1 : 2TR–FE
HILUX (EWD630S)
249
Memorándum
HILUX(EWD630S)
250
MDIAGRAMADECONEXIONESELECTRICASGENERAL
1 2 3 4
6 HILUX (Sigue en la página siguiente)
A limentación
Batería
1A1
WW–L
1B3
50ABATTP/I
30AAM2
4 1B
W–RW–R
5 IG2
ST2
6AM2
7.5AIGN
2C
B
6
I 6
E C T
CAN+
A21
EC Lado trasero del bloque de cilindros
2R22
B–O
R–L
L
1J1
J4(A),J5(B)
1 B
4 A
L
T17(A), T18(B), T19(C)
L
BATT
5 A
CAN–
A20
W–B
E01
10 C
11 IF3
A
B–O
6 A
IG2
B4
A3
6
B–Y
10A
ECU–IG&GAUGE
2A
1
B–Y
AM1
B–R
2 2A
1
2
1 2G
IG1
ACC
4
25 2S
B
40AAM1
1 1F
B–YB–R
R–L
J18(A),J19(B)
BR
E1
1 C
A2
23 C
E2
24 C
THOC
B–Y
BR
Sistemadecontroldelmotor
<4–11>
11 C
STA
7 ID2
B–YB–YInterruptorde
arranqueenpunto
muerto<1–3>
12 C
NSW
L–YL–Y
FusibledelST<1–2>
11
B8
A
J11(A),J12(B)
23 B
SIL
R–Y
24 B
WFSE
W
A
SP1
25
V–R
Medidordecombinación<24–3>
DLC3
<4–15>
25AEFI
2
1
1H1
A
STP
14
G–WInterruptordela
lámparadeparada<10–4>
L4
B15
G–WInterruptordelindicadordela
transferencia(posiciónL4)<7–4>
B
TFN
16
W–G
3
4
J10
A8
OILW
7.5AMET2D1
B–O
B–O
P
21
Interruptor
de encendido
Conectordeunión
Conectordeunión
Conectordeunión
Conectordeunión
ECU de control de la transmisión
BR
(4WD)
(4WD)
Interruptordelindicadordelatransferencia
(posicióndepuntomuerto)<7–3>
Sensordelatemperatura
dellíquidodelaA/T
A/TOILTEMP
18
P
Medidordecombinación
C8
(4WD)
(4WD)
(4WD)
(4WD)
100AALT
2
1
HILUX(EWD630S)
251
M
5 6 7 8
6 HILUX (Continuado)
E C T
R–L
A
T17(A), T18(B), T19(C)
3
B12
10 B
L
G–Y
2
B119 B
R
R–Y
2P27
27 2Q
L
G–RG–R
L
B6
A1
G–Y
B3
A3 5 A
1 B
N 1
2 ID1
RB
LL2LDLRL
2
8371
18 2N
2O18
S11
G–O
J11(A), J12(B)
3 ID1
R–YY
3
9
R–L
B5
G–O
2
C
4
SLT+
G–Y
20
6 7
19 C
SLT–
L–B
16 C
SL
G
C
W–L
S2
C17
8
18
GR
E 1
S1
B
W
Y
G
O
R–L
8 B
D
Interruptorde
controldela
transmisión
AT3
NSSD
G–Y
1
2
29 C
SP2–
30 C
SP2+
G
R
T7
1
2
2 C
NCO–
3 C
NCO+
P
V
T6
SLT+ SLT– SL S1 S2
Solenoide de ECT
Conector de unión
Interruptor de arranque
en punto muerto
ECU de control de bloqueo de cambios
ECU de control de la transmisión
Sensorderevolucionesde
latransmisión(salida)
Sensorderevolucionesde
latransmisión(entrada)
HILUX(EWD630S)
252
MDIAGRAMADECONEXIONESELECTRICASGENERAL
1 2 3 4
7 HILUX
4
5
ACC
IG1
IG2
ST2
AM1 1
6AM2
2A2
40AAM1
2
1
2G1
1F1 1B4
30AAM2
1A1
12 ID1
EC Lado trasero del
bloque de cilindros
5 B 3 B
3 A 1 A
2
1
13
65213 487
10
14 12
2
1
DLGNDDL2DL1DM2 DM1ADDIND1
B–Y
G–W
G–WG–WW–B
B
W–B
R–W
R–Y
R
Y
R–B
W–R(∗5)B–Y
W–R
B
W–R
B–R
R–B
W–B
W–B
IG
4W D (con A D D )A limentación
I 6
F14
J7(A),J8(B)
R–BECUdecontrolde
derrapeconactuador
<15–3>
4 A
T4
W–B
ECUdecontrolde
derrapeconactuador
<15–3>
W
Interruptor de encendido
Conectordeunión
Batería
6 ID1
G–W
(∗4A/T)(A/T)
51
ADD
2
GND
6
3 4
DL2DM1DM2 DL1
M
(∗3conABS)
(∗1∗3)(∗1∗3)
(∗1∗3)
(conABS)
2A6
2S25
31
21
B–OR–B
4WD
Medidordecombinación
C8
2C6
7.5AMET
2D1
10AECU–IG&GAUGE
6
2
5 ID2
(A/T)
R–L
(A/T)
R–L
(A/T)
G–B
(A/T)
G–B
(A/T)
W–G
12
13
Interruptordearranque
enpuntomuerto
N1
A/TP
B
3
A
4
B
4
A
B–Y
Conector
de unión
J18(A), J19(B)
2
1
T5
3 2
1
(∗4A/T)
W–G
(∗4A/T)
W–G
17 ID2
(A/T)
W–G
ECUdecontrolde
latransmisión<6–3>
4 B
W–B
(∗4A/T)
ECU de control de 4WD
Interruptordelindicadordela
transferencia(posiciónL4)
Interruptordelindicadordelatransferencia
(posicióndepuntomuerto)
2 ID1
11 IF3
IF41 (∗2)
(∗3)
B–Y
(A/T)
(conABS)
R–B
5 EA1 8 ID1
W–G
(A/T)
(∗3)
(∗3)
(∗3)
W–B
(∗3)
Interruptordelindicador
delatransferencia
(posición4WD)
T3
EE Lado derecho del
bloque de cilindros
W–B
(∗2)
8
7
10
Conectordeunión
J6
G–W
(conABS)
6 EA1
W–B
(∗2)
W–B
(∗2)
W–B
(∗2)
W–B
(∗2)
W–B
(∗2)
(∗2)
W–B
∗ 4 : 1KD–FTV
W–B
(∗3)
W–B
(∗3)
ECUdecontrolde
latransmisión<6–4>
Interruptor de detección
100AALT
(∗4 A/T)
W–G
∗ 3 : 1KD–FTV, 2KD–FTV
∗ 2 : 2TR–FE
∗ 1 : con ABS, A/T
W–R(∗5)
2
1
Interruptordelindicadordela
transferencia(posición4WD)
T3
∗ 5 : 2KD–FTV con ADD
∗ 6 : 2KD–FTV sin ADD
Actuador de ADD
A 3
Conectordeunión
J6
ECLado trasero
del bloque
de cilindros
1 A
3 A
ID2
12
Conectordeunión
J7(A)
Conectordeunión
J6
R–B(∗6)
R–B(∗6)B
W–BW–B
W–B
14
12
4W D (sin A D D )
HILUX(EWD630S)
253
M
3 421
8 HILUX
B–W
B
B–R
R–Y
20A
H–LP RH
IE
8
W–BR–Y
A limentación Faro B ocina
2121
33
10A
HORN
B
W–RW–R
B
11
2 2
1
1 1
1I[1I[
1H1
Refuerzo del panel instrumental izquierdo
1
H 4
S13
Interruptor
delabocina
2N16
2O322O16
12 IF3
W–R
W–R
(∗1)
ECUdeavisoantirrobo<17–3>
7 8
Relé HORN
W–L
1
2
50A
BATT
P/I
3 1B
Batería
W–L
1A1
W
40A
MAIN
3 1C
B–W
2 A
4 B
J22(A), J23(B)
R
20A
H–LP LH
B–W
4 A 2 A
3 B 5 B
H 1 H 2
Interruptorde
intensidaddelosfaros
Interruptor de
control de las luces
98
EDHUHL(ED)
luz de
carretera
luz de
cruce
∗2
ED(H)T1B1
Faro
Cola
OFF
11
R–Y
3 A 1 A
6 B
B–W
C10
J 4(A), J 5(B)
luzde
carretera
27
1
C 8
R–Y
B
R
8 2J
R
1
1
2
30ADCC7.5ADOME
2
1
2Q25
R
RF
Medidor de
combinación
Faro
(izquierdo)
Faro
(derecho)
Bocina (baja)
Interruptor de combinación
Conector de unión
Conector de unión
Cableespiral
R–Y
∗ 1 : con sistema antirrobo
∗ 2 : luz de intermitencia
HILUX(EWD630S)
254
MDIAGRAMADECONEXIONESELECTRICASGENERAL
1 2 3 4
9 HILUX
IDCentro de refuerzo del
tablero de instrumentos
1I 1I
Relé FOG
A limentación Luz antiniebla frontal
Antiniebla
delantera
C8
P
2
1
2
1
R–W
R–W
F2
F3
A10
9 B
R–W
23 2S
G
7 2S
G–B
6
3
J21
9 A
R–W
R–W
J 2(A), J 3(B)
14 2Q
G–BG–B
13 2J
2Q30
30
8
34
50ABATTP/I
10ATAIL
1 2G
3 1B
B
Batería
1 1F
1A1
WG–W
2C5
15A
FOG
W–L
1H1
2
1
W–L
1I2
12 2Q
2J12
G
G
W–B
W–B
Lado derecho del
faldón del guardabarros
EALado izquierdo del
faldón del guardabarros
EB
9
J 1
1
W–B
W–B
W–B12
2R7
G
21
B–O
1 2D6
B
2C
7.5AMET
AM2 6
ST2
22
IG25
30AAM2
4 1B
W–R
I 6
B–OW–B
B12
A10
Y
W–R
J22(A),J23(B)
C 8
8
10 16
Sistemadelucesdecolayiluminación<12–4>
Sistemadelaslucesinteriores<13–2>
Zumbador
R ecordador de la llave y
R ecordador de las luces
25 2Q
2J8
1
2
7.5ADOME30ADCC
2
1
1
R
1
RR
Medidordecombinación
Medidor de
combinación
Lámparaantiniebla
(delanteraizquierda)
Lámparaantiniebla
(delanteraderecha)
Interruptor
de encendido
Conector
de unión
Conector de unión
Conector
de unión
Conectordeunión
Conectado
LFG
OFFInterruptor
de las luces
antiniebla
delanteras
BFG
Cola
T1
OFFInterruptor
de control
de las luces
B1
Faro
G–B
G
G–W
3 10 13
4
W–B
Interruptor
de combinación
C10
11 IF3
IF41 (∗1)
(∗2)
∗ 1 : 2TR–FE
∗ 2 : 1KD–FTV, 2KD–FTV
100AALT
HILUX(EWD630S)
255
M
3 421
10 HILUX
2 A
2 B
1 B
1 A
Respaldo
Paro
Respaldo
Paro
A limentación Luz de marcha atrás Luz de parada
(M/T)
(M/T)
(A/T)
(A/T)
W–B
G–W
∗ 3 : 1KD–FTV A/T
G–W
(∗2)
G–W
G–W
2S
R–L
2A6
W–B
10A
ECU–IG&
GAUGE
R5
R4
3 3
455 4
R–W
R–W
B1(B)
N1(A)
G–W
2I10
R–W
2 ID1
25
2K5
B4
A3
B–Y
1
B–Y
AM1
B–R
2 2A
1
2
1 2G
IG1
ACC
4
B
40A
AM1
Batería
1 1F
B–R
1A1
W
I 6
J18(A),J19(B)10A
STOP
G–B
2 2F
R–L
2Q27
R–Y
2M5
2S5
G–Y
(A/T)
(∗1)
G–W
5 2L
ECUdelmotor
<3–11><4–10>
G–W
21 2S
ECUdecontrolde
latransmisión<6–4>
G–W
(∗3)
2R21
ECUdecontroldebloqueodecambios
<21–4>
ECUdecontroldederrapeconactuador
<15–3>
∗ 1 : con ABS
W–B
∗ 2 : con lámpara de parada central
6 BA15 BA1
G–W
R–W
IG
11
J28
Panel del lado del
cubretablero derecho
IF
11
8 BA1
W–B
G–W
(∗2)
W–B4
W–B
(∗2)
C13
1
2
3 ID1
BD1
1
BD1
2
(∗2)
W–B
Y
Interruptordearranqueenpuntomuerto
Lámparadeparadacentral
Interruptor
de encendido
Conectordeunión
Conector de unión
Interruptordelalámparademarchaatrás
Lámparadecombinacióntrasera
(izquierda)
Lámparadecombinacióntrasera
(derecha)
1
2
S14
Interruptordela
lámparadeparada
G–W
G–B
G–W
R–L
G–W
R–LW–BW–B
W–BW–B
W–BW–B
W–B(∗4)
W–R(∗5) Panel del lado del
cubretablero izquierdo
Conector
deunión
J15
100A
ALT
∗ 4 : Cabina doble
∗ 5 : Cabina sencilla
HILUX(EWD630S)
256
MDIAGRAMADECONEXIONESELECTRICASGENERAL
3 421
11 HILUX
5
41
6
LH
RH
TL E TR
7
G–B
1
2 2
1
EA
G–Y
G–B
R–L
B–Y
G–Y
G–Y
G–B
G–Y
G–B
A limentación S eñal de giro y luz de advertencia de peligro
W–B
W–B
W
W–B
W–B
W–B
1
EB
Y
10
3
W–B
Lado izquierdo del faldón
del guardabarros
B4
A3
6
B–Y
10A
ECU–IG&GAUGE
2A
1AM1
2 2A
1
2
1 2G
IG1
ACC
4
20 2S
B
40AAM1
Batería
1 1F
B–YB–R
1A1
W
15ATURN–HAZ
2
1
I 6
J18(A),J19(B)
1
3
1
3
2K3 2K2
R4
R5
∗4
∗5
22
24 25
2L22S22S3 2L3
T13
T12
J 1
C 8
W–B
W–B
Interruptor
delaseñal
degiro
5 6
2 A
6 B
ID Centro de refuerzo del
tablero de instrumentos
W–B
J20(A), J21(B)
B12
A10
J22(A), J23(B)
W–B
C10
T22
EL ER
IG B
Viraje
Viraje
LG
1
B–Y
2 IF3
B–Y
4 A
6 B
IE Refuerzo del panel
instrumental izquierdo
2O25
2N9 2N25
HAZ
G–O
8
G–O
(∗1)
ECUdeavisoantirrobo<17–3>
W–B
LG
7
E
B–Y
Lado derecho del
faldón del
guardabarros
LR
2 3
G–B
LL 2S19 2S18
G–Y
G–B
G–Y
2M
1
2
G–BW–B
T14
2M
T15
1
W–BG–Y
2
12
3 2
W–B
G–Y
G–B
12 BA1 7 BA1
8 BA1
J15
Panel del lado del
cubretablero izquierdo
IG
11
W–B
∗ 1 : con sistema antirrobo
Medidor de
combinación
Interruptor
de combinación
Interruptor
de encendido
Conector de unión
Conector
de unión
Conectordeunión
Conector
de unión Conector de unión
Lámparadecombinación
trasera(izquierda)
Lámparadecombinación
trasera(derecha)
Lámparadelaseñaldegiro
(frontalizquierda)
Lámparadelaseñaldegiro
(frontalderecha)
Intermitente de la señal de giro
G–YW–B
G–YW–B
N
Lámparadelaseñaldegiro
(frontallateralizquierda)
Lámparadelaseñaldegiro
(frontallateralderecha)
100AALT
W–B(∗2)
W–R(∗3)
∗ 2 : Cabina doble
∗ 3 : Cabina sencilla
Conectordeunión
J22(A),J23(B)
12 B
4 B
2 8
4 5 9
G–O
G–B
R
L
L
2R2
G–B
Sistemadelucesdecola
yiluminación<12–6>
Interruptordelaseñal
deavisodepeligro
H5
∗ 4 : Viraje hacia la izquierda
∗ 5 : Viraje hacia la derecha
HILUX (EWD630S)
257
Memorándum
HILUX(EWD630S)
258
MDIAGRAMADECONEXIONESELECTRICASGENERAL
3 421
12 HILUX
1
2 2
1 2
1
EB
W–B
G
G
G
G
G
GW–B
Luz de cola y iluminaciónA limentación
W–B
G
W–B
Y
BA111
W–BW–B
W–B
C8
7 2R
8
22
5 2C
G–WW
1 1A
1F1
Batería
B
2G1
10A
TAIL
13
Cola
T1
OFF
∗8
B1
C10
10
G
Faro
G–W
2
3
2
3
R4
R5
Cola
Cola
L2
2K7 2S232L7 2M7
Iluminación
C3
C2
1
6
EA Lado derecho del faldón del guardabarros
12 W–B
J1
Lado izquierdo del faldón del guardabarros
B–O
21
6
7.5AMET
2C
AM2 6
ST2
IG25
W–R
30A
AM2
4 1B
W–R
I 6
B–O
2D1
2S7
G
A
B
Y
G
(Sigue en la página siguiente)
B
2
1
GW–B
L1
G
G
W–B W–B
8 BA1
J15
Panel del lado del cubretablero izquierdoIG
4
W–B
W–B(∗3)
W–R(∗4)
Lámparadepaso
(delanteraizquierda)
Lámparadepaso
(delanteraderecha)
Medidordecombinación
Interruptor
de combinación
Interruptor de encendido
Conectordeunión
Conector de unión
Lámparadecombinacióntrasera
(izquierda)
Lámparadecombinacióntrasera
(derecha)
G
GW–B
W–B
∗9
11 IF3
IF41 (∗1)
(∗2)
∗ 1 : 2TR–FE
∗ 2 : 1KD–FTV, 2KD–FTV
Lámparaderechadelamatrícula
Lámparaizquierdadelamatrícula
100A
ALT
∗ 4 : Cabina sencilla
∗ 3 : Cabina doble
∗ 8 : Interruptor de control de las luces
∗ 9 : Iluminación del visualizador LCD
HILUX(EWD630S)
259
M
5 6 7 8
12 HILUX (Continuado)
Luz de cola y iluminación
∗ 5 : con iluminación del cenicero
∗ 6 : con desempañador de la ventanilla trasera
∗ 7 : con iluminación del encendedor de cigarrillos
R
(∗7)
(∗5)
W
BR
Y
G
Y
B
A
C6
(∗7)(∗7)
1
2
GR
2P19
A16
(∗5)(∗5)
2
1
GW
2P
B9
G
8
292Q28
R3
(∗6)(∗6)
2
1
GL
2Q29
12 2Q
B7
A9
J22(A),J23(B)
J21
2D18
17 2D
2D9
Refuerzo del panel instrumental izquierdoIE
W–B
12
B8B12
A10
R1
B6
A12
W–B
(A/T)(A/T)
G
8
4
GW–B
GBR
L
3
8
7
10
W–B
2P24
ID Centro de refuerzo del tablero de instrumentos
W–B
2Q3 2Q19
10
Iluminacióndel
cenicero
Iluminacióndelencendedor
decigarrillos
Conector
deunión
Conector
deunión
Conjuntodel
receptorderadio
Interruptordeldesempañador
delaventanillatrasera
2P13
G
(∗1)
ECUdelmotor<3–11>
∗ 1 : 2TR–FE
L
Interruptordelsoplador
Iluminacióndelapalanca
decambiosdelaA/T
A24
GW
1
3
2P28
InterruptordelA/C
7W
W–B
9
Interruptordelaseñalde
avisodepeligro
H5
HILUX(EWD630S)
260
MDIAGRAMADECONEXIONESELECTRICASGENERAL
3 421
13 HILUX
1
2
DOOR
OFF
ON
1 1
A limentación Luz interior
R–L
R–L
R–L
∗ 2 : Cabina doble
3 8 10
11
13 IA1
1
2
RW–B
R8
M1
P
R–L
J29
D5
D4
D2
3 IA1
R–LR–B
R–L
2O15
1
2
7.5ADOME
Batería
1A1
W
30ADCC
2
1
1
R
2D92D18
IERefuerzo del panel instrumental izquierdo
W–B
2J8
2Q252E4
R–B
2O27
16
R–L
31 2O
Puerta
G–Y
26 2O
10 15 1716
R–L
R–B
G–Y
DCTY
22
10 A
11 B
Y
J22(A),J23(B)
1
C 8
Relé de integración
R
GND
1
2E1
1
2
7.5AECU–B
1
L
4
BECU
L
2L12
P
3 2E
∗ 1 : con sistema antirrobo
ID Centro de refuerzo del tablero de instrumentos
Y
G–Y
2O10
2
1
W–B
W–B
14 2N
R–L
G–Y
2N10
(∗1)
(∗1)
12 B
W–B
U1
G–YG–YGR
W–B
R
∗ 3 : Cabina sencilla
ECUdeaviso
antirrobo<17–3>
(∗5)
26 2N
BRECUdelallave
detransmisor<5–2>
(∗2)
(∗2)(∗2)
(∗2)
R–L
(∗3)
15
2N122R8
I 5(A)
R
(∗5)
27
R–B
2N
ECUdelallave
detransmisor<5–2>
Medidor de combinación
Interruptordecortesía
delapuerta
(ladodelconductor)
Interruptordecortesía
delapuerta
(traseraizquierda)
Interruptordecortesía
delapuerta
(traseraderecha)
Conectordeunión
Conector de unión
Lámparaparamapas
Interruptordeadvertencia
dedesbloqueo
GR
∗ 4 : con lámpara para mapas
(∗4)(∗4)
(∗4)
Lámpara del cilindro
de la llave de
encendido
(∗7)
P
(∗7)
R
ILE
∗ 7 : con lámpara del cilindro de la llave de encendido
D3
Interruptordecortesía
delapuerta
(ladodelpasajerodelantero)
∗ 6 : sin sistema inmovilizador del motor
∗ 5 : con sistema inmovilizador del motor
T20(B)
Amplificador de la
llave de transmisor
2
B
2
A
(∗6)
(∗5)
6
B
6
A
(∗6)
(∗5)
(∗5)(∗5)
(∗6)(∗6)
1 1
Lámpara del cilindro de
la llave de encendido
Lámparadelcompartimiento
W–B
R
(∗2∗4)
R(∗3)
R(∗3)
(∗2)
HILUX(EWD630S)
261
M
3 421
14 HILUX
B–O
W
P–B
TCSIL IG2 +SL–SL
W–R
BR
21
+SR–SR
B–W
BR–W
21
E1 E2
ID IE
W–B
W–B
S R SA limentación
+SR+SL –SR–SL
D+ D–
Y–B
Y
1 2
Cable
espiral
Refuerzo del panel
instrumental izquierdo
SRS
B–O
W–R
1B4
30AAM2
W
1 1A
Batería
W–R
7.5AMET
7.5AIGN
22
21
Y
10 A
12 B
W–B
1516 21 27 2928 30
5 625 26
W–B
W–B
18 2D
2B1
9 2D
2B2
A15
A14
20
B–Y
2B32O21 2O5
LA
B–Y
14
B–YB–Y
DLC3<4–16>
2 IF1
W–R
BR
B–W
BR–W
IF11IF14 IF13
A 6A 5
∗ 2 : sin control de bloqueo de las puertas
W–R
J22(A),J23(B)
J26(A),J27(B)
R–Y
4 A 3 A
4 B
R–Y
19 IA1
2
1
IG
W–B
2
Cinturónde
seguridaddel
conductor
11
R–Y
C 8
Conjunto de bloqueo
de la puerta
(lado del conductor)<16–2>
DLC3<4–16>
A dvertencia de cinturón
de seguridad
∗ 1 : con control de bloqueo de las puertas
(∗1)(∗1)
R–Y(∗2)
R–Y(∗1)
Sensor del colchón de aire
(delantero izquierdo)
Sensor del colchón de aire
(delantero derecho)
Centro del conjunto del sensor del colchón de aire
Detonador del
colchón de aire
(almohadilla del
volante de dirección)
Medidor de combinación
Conectordeunión
Conectordeunión
11 IF3
IF41 (∗3)
(∗4)
∗ 3 : 2TR–FE
∗ 4 : 1KD–FTV, 2KD–FTV
1 2
P+ P–
Y–R
Y–G
4 3
Detonadordel
colchóndeaire
(conjuntodelcolchónde
airedelpasajerodelantero)
A23
IF
3
J28
Conector de unión
∗6
100AALT
1
40AAM1
2
1
2A2
2G1
B–RB
3 A
4 B
10A
ECU–IG&GAUGE
2R14
2A6
5 A
6 B
Conector
deunión
J18(A),J19(B)
3
R–L
W–B
B–YB–Y
Conectordeunión
J20(A),J21(B)
B–O
2
G–W
2P15
2I14
1
BR
Conector
de unión
J15
Panel del lado del
cubretablero izquierdo
Centro de refuerzo del
tablero de instrumentos
2D12B82C6
G–W
B–O
B–O
Lámpara de aviso del cinturón
de seguridad del pasajero
P13
D–
W–B
W–B
Cinturóninteriordel
asientodelantero
(ladodelconductor)
F12
BR
4
5
ACC
IG1
ST1
IG2
ST2
AM1 1
6AM2
Interruptor
de encendido
I 6
B–O
D+
1 IL1 2 IL1
Y–R
Y
Circuito de
parpadeo
1
2
W–B
W–B
G–W
Interruptorde
detecciónde
ocupante
∗5
Conjuntodelcinturóninterior
delasientodelantero
(ladodelpasajerodelantero)
F17
∗ 5 : Interruptor de la hebilla
∗ 7 : Panel del lado del cubretablero derecho
HILUX(EWD630S)
262
MDIAGRAMADECONEXIONESELECTRICASGENERAL
1 2 3 4
15 HILUX
A limentación A B S
6
6
2C
7.5AMET
10A
ECU–IG&GAUGE
AM2 6
2A
1AM1
ST2
2 2A
1
2
1 2G
IG2
IG1
ACC
5
4
W–R
8 2L
B
40AAM1
Batería
1 1F
B–YB–R
B
100AALT
1A1
W
30AAM2
4 1B
W–R
I 6
2D1
B–O
∗ 1 : Protegido
B
40AABSNO.1
30AABSNO.2
2 1C
W–R
2 1B
R
23
R
1
W–R
EBLado izquierdo del faldón del guardabarros
2
W–B
24
W–B
3
A
4
B
J18(A), J19(B)
B–Y
25
IG1
S 2
ABS
Freno
R–G
Sistemadelmedidor
decombinación<24–9>
13
WA
R–GR–G
3 IF2
M–
SRRR
SRRH
SFLH
SFLR
SFRH
SFRR
M
+BS
M+
+BM +BS
7
GGND
B
28
VGS
W
6 IG1
B
8 IG1
W
4
GL1
R
(∗1)
7 IG1
R
5 IG1
(∗1)
2 3 1
A17
GL1VGSGGND
Panel del lado del
cubretablero derecho
IF
7
BR
J28
18
PKB
L–O
12 A
7 B
L–O
J4(A),J5(B)
Interruptordelfreno
deestacionamiento<24–10>
Interruptordeadvertencia
devacíodelfreno<24–10>
Interruptordeadvertenciadel
niveldellíquidodefrenos<24–10>
G–W
STP
10
Interruptordela
lámparadeparada<10–4>
W
TS
15
W
L–Y
D/G
14
P–L
TC
16
7 IF2
DLC3<4–15>
9
FL+
R
8
FL–
G
S 4
31
FR+
L–W
30
FR–
O
S 5
R–B
EXI
17
ActuadordeADD<7–2>
G–W
EXI4
3
Interruptordelindicador
delatransferencia
(posiciónL4)<7–4>
2121
B
W
B
W
FL+ FL– FR+ FR–
7 BA2
W
6 BA2
L
2 BA2
W
1 BA2
L
11
RL+
P
12
RL–
L
3 IG1
P
4 IG1
L
33
RR+
G
34
RR–
R
1 IG1
G
2 IG1
R
2 BE1 1 BE1 4 BE1 3 BE1
Y
L
G
R
S22
S21
Interruptor
de encendido
Conectordeunión
Conector de unión
Conector de unión
ECU de control de derrape con actuador
Sensor de velocidad
(delantero izquierdo)
Sensor de velocidad
(delantero derecho)
Sensordevelocidad
(traseroizquierdo)
Sensordevelocidad
(traseroderecho)
1 1
22
Medidordecombinación
C8
(4WD)
(4WD)
(4WD)
(4WD)
(4WD)(4WD)
(4WD)
(4WD)
(4WD)
Sensor de
desaceleración del ABS
36 38
21
GND1 GND2
2K4
10 IG1
22
EXI2
V
(4WD)
R–L
(4WD)
R–L
(4WD)
11 IF3
HILUX(EWD630S)
263
M
3 421
16 HILUX
IF
4 BC15 BC1
5 BB1 4 BB1
R
R–Y
L–Y
L
A limentación C ontrol de bloqueo de la puerta
Desbloqueo
W–B
Panel del lado del cubretablero derecho
17 A 16 A
18 B 17 B
13 A 12 A
22 B 21 B
1
W–B
J28
P4
J24(A),J25(B)
7 A 8 A
12 B
11 A 12 A
7 B
L
9
L–W
10
L
4
L–Y
1
R–Y
7
D 6
J26(A),J27(B)
IH18
L–Y
IH13
L
11 A
7 B
7 A 10 A
10 B
L
A
L–Y
8
2K11 2K10
1
2
7.5AECU–B
2
1
2H2
W–R
1 2G
B
40AIG1
Batería
1 1F
1A1
W
30ADCC
2
1
1
L
LG
2H4
2D92D18
IERefuerzo del
panel instrumental
izquierdo
IDCentro de refuerzo del tablero de instrumentos
W–B
W–B
Cinturón interior
del asiento delantero
(lado del conductor)
<14–2>
2D42A4
L
(∗1)
L–W
(∗1)
L
L–W
ECUdeavisoantirrobo<17–4> 14 11
L1 UL1
W–B
W–B
2R28
3
ACT+
2R27
2
ACT–
L
L–Y
1
GND
Relé de integración
L–Y
L
LG
3
2
1
3
25ADOOR
5
ALTB
12 2L
L
4
BECU
J13(A),J14(B)
L
L–W
Motor
4
Motor
D8
1
Motor
D9
Motor
D 7
4 1
Conjunto de bloqueo de la puerta (lado del conductor)
Conjunto de bloqueo de la puerta
(lado del pasajero delantero)
Conjuntodebloqueodelapuerta
(traseraizquierda)
Conjuntodebloqueodelapuerta
(traseraderecha)
Conectordeunión
Conectordeunión
Conectordeunión
Conector
de unión
Interruptorprincipalde
laventanillaautomática
Bloqueo
de la
llave
Desbloqueo
de la llave
Bloqueo
Interruptorde
controlde
bloqueodela
puerta
R
L–Y
L
R–Y
L
L–Y
R–Y
∗ 1 : con sistema antirrobo
100AALT
4 IC2
3
5 8
L UL L UL E
L
UL
4
1
L UL
L
UL
HILUX(EWD630S)
264
MDIAGRAMADECONEXIONESELECTRICASGENERAL
3 421
17 HILUX
A limentación S istema antirrobo y control de bloqueo de la puerta inalámbrico
1
2
7.5AECU–B
2
6
1
2H2
W–R
10A
ECU–IG&GAUGE
2A
1AM1
B–R
2 2A
1
2
1 2G
IG1
ACC
4
B
40AAM1
40AIG1
Batería
1 1F
B–Y
1A1
W
30ADCC
2
1
1
L
I 6
LG
3
2
1
3
25ADOOR
3
A
4
B
J18(A), J19(B)
B–Y
IG
2S16
18 A
R–L
LG
A14
+B2
L–Y
A4
+B1
7 IH1 13 2S
2L12
L
R–L
A7
CTY
Interruptordeadvertencia
dedesbloqueo<13–4>
KSW
5 A
G–Y
W–R
A11
HORN
ReléHORN<8–4>
Medidordecombinación<24–3>
SPD
17 A
V–R
G–O
A28
HAZD
Intermitentedelaseñaldegiro<11–1>
T16(A)
S12(B)
DSWH
9 A
G–R
15 IF3
G–R
SH–
13 A
B
13 IF3
B
2
1
1
2
EB Lado izquierdo del faldón del guardabarros
W–BW–B
1
E3
S1
J 1
L–W
A26
UL3L2
25 A
L
Relédeintegración<16–1>
∗ 1 : con sistema antirrobo
Interruptordecortesíadelapuerta
(traseraizquierda)<13–4>
Interruptordecortesíadelapuerta
(traseraderecha)<13–4>
Interruptordecortesíadelapuerta
(ladodelpasajerodelantero)<13–4>
Interruptordecortesía
delcapodelmotor
Interruptor de encendido
Conector de unión
Conector de unión
LG
4 2C
2C3
B12
G–R
11 A
2C
S10
ID
J22(A), J23(B)
G–RW–B
2
ECUdelallave
detransmisor<5–3>
1
2
Conector
de unión
L–Y
G–R
A27
IND
Sistemadearranque<1–2>
B–W
A1A12
SRLY
(∗1) E(∗1)
W–B
(∗2)
1 B12 B
(∗2)
(∗2)
8 A
B–W
∗ 3 : con sistema inmovilizador del motor
∗ 2 : sin sistema antirrobo
(∗3)
Centro de refuerzo del tablero de instrumentos
ECU de aviso antirrobo
Pasador de cortocircuito (ECU de aviso antirrobo)
Bocinadeseguridad
Lámparadelindicador
deseguridad
∗ 4 : Cabina doble con dirección a la derecha
∗ 5 : excepto ∗4
100AALT
LP
E
HILUX(EWD630S)
265
M
3 421
18 HILUX
IF
8 BB1 6 BB1 7 BB1 7 BC16 BC1BC18
Abajo
Arriba
2 5
3 1 4
R
Abajo
Arriba
2 5
3 1 4
R
Abajo
Arriba
2 5
3 1 4
R
G–B
R–Y
R–B
G–Y
G–W
R–LR–L
W–B
L–R
R
G–Y
G–W
R–B
G–B
R–B
G–B
G–B
R–B
L
R–Y
L
G–W
R–L
L–R
L
L–R
L–R
A limentación V entanilla automática
Panel del lado del cubretablero derecho
P 4
1
J28
W–BW–B
P 5
P11
P10
P9
1 A 2 A
6 B
L
6 B
1 A 2 A
5 B
2 A1 A
J16(A),J17(B)
L
B4
A3
2
3
5
6
2
1
2H2
W–R
B–Y
10AECU–IG&GAUGE
2A
1
B–Y
AM1B–R
B11
A7
2 2A
1
2
1 2G
IG1
ACC
4
R–L
8 2K
B
40AAM1
40AIG1
Batería
1 1F
ReléIG1
R–L
W–R
1
1A1
W
3
3 3
3
W–B
30APWR
3
2
1
3
W–G
I 6
J18(A),J19(B)J16(A),J17(B)
9W–B
DUDUDUDUE
R–L
G–Y
G–W
R–Y
R–B
G–B
L
B
J26(A), J27(B)
J13(A),J14(B)
P 6
R–L
L
P 8
2 1
P 7
2 1
Interruptor
de encendido
Conector
deunión
Conector
deunión
Conector
deunión
Conector
deunión
Conector
de unión
Conector de unión
Interruptor principal de la ventanilla automática
Motor del regulador de la
ventanilla automática
(frontal derecha)
Motor del regulador de
la ventanilla automática
(frontal izquierda)
Motor del regulador de la
ventanilla automática
(trasera izquierda)
Motor del regulador de la
ventanilla automática
(trasera derecha)
Interruptordelaventanillaautomática
(ladodelpasajerodelantero)
Interruptordelaventanillaautomática
(traseraizquierda)
Interruptordelaventanillaautomática
(traseraderecha)
M
L
L
L
L
M M M
100AALT
4 IC2
3 6 4 9 18 15 12 13 10 16
10 IC2 3 IC2 2 IC2 1 IC2 6 IC2 5 IC2UD L
3 II2 4 II2
SU SD
D U
B SUB SD SDB SU
U UD D
2 1
U D U D U D
2 1
HILUX(EWD630S)
266
MDIAGRAMADECONEXIONESELECTRICASGENERAL
3 421
19 HILUX
M
3 214
A limentación Limpiador y lavador del parabrisas
B4
A3
6
B–Y
20AWIP2A
1AM1
B–R
2 2A
1
2
1 2G
IG1
ACC
4
26 2S
B
Batería
1 1F
B–YB–R
L–W
1A1
W
I 6
J18(A),J19(B)
L–Y
L–B
W–G
6 IF2 5 IF2 4 IF2
EALado derecho del faldón del guardabarros
W 3 5
W–BL–W
9 2M
L–W
Refuerzo del panel instrumental izquierdoIE
W–B
13 IF2
9
L–W
2L
B–R
2
1
M
L–W
W2
40A
AM1
Interruptor
de encendido
Conectordeunión
Motordellavador
delparabrisas
Motor del limpiador
del parabrisas
2
L–Y
L–B
W–G
W–B
B
L–W
B4 3 B 1 B 3 A2 A
B–R
MIST
(∗1)
(∗1)
C11(A), C12(B)
OFF
INT
LO
+B +2 +1
HI
INT1 INT2+S B1
∗2
Conectado
W EW
Interruptor del
lavador delanteroInterruptor del limpiador delantero
+B +2 +1 +S WFEW
Interruptor de combinación
Relé del
limpiador
∗ 1 : con interruptor de tiempo de intermitencia
100A
ALT
+2 +1 +S B
E
∗ 2 : Desconectado
HILUX(EWD630S)
267
M
3 421
20 HILUX
5 2 4 3 6 7
8
M M
MH MV M+
1 5 3
M M
MH MV M+
1 5 3
E spejo retrovisor de control remotoA limentación
B
2
AM1
2 2A
1
2
1 2G
12
IG1
ACC
4
2C
B
40A
AM1
7. 5A
ACC
Batería
1 1F
L–R
B–R
1A1
W
I 6
2D92D18
IE Refuerzo del panel instrumental izquierdoIDCentro de refuerzo
del tablero de
instrumentos
W–B
W–B
15A
CIG
15A
PWR OUT
2
1
3
5
2O23
2P23
Relé PWR OUT
2
1
2
1
6 A
4 B 2 B 3 B
W–BP
BRB
2C1
W–B
B
BR
C 5P 3
J22(A), J23(B)
E ncendedor de
cigarrillos
Toma de
alimentación
V
O 2 O 3
BR–R
BR–R
BR–R
Encendedor
de cigarrillos
Interruptor de encendido
Conector
de unión
Espejo retrovisor exterior
(izquierdo)
Espejo retrovisor exterior
(derecho)
Enchufe eléctrico
MLVHLH HRH MRV M+ E
AbajoDerecha ArribaIzquierda
O 1
IzquierdaIzquierda Derecha
Izquierda/
Arriba
Derecha/
Abajo
Derecha
MH MV
Interruptor
deoperación
Interruptor
selector
Interruptor del espejo exterior
LG
L
B11B9
A1A3
4 IK1 3 IK1
Conectordeunión
J24(A),J25(B)
L
LG
R
R–G
R
R–G
V
B
100A
ALT
E
B
1 IK1
BR–R
BR–R
22 A 21 A
12 B
Conectordeunión
J24(A),J25(B)
LG
R
BR–R
HILUX(EWD630S)
268
MDIAGRAMADECONEXIONESELECTRICASGENERAL
3 421
21 HILUX
5
3
1
2
B
B1
1 A
B
54
3
IE
BRW–B
12 8
L–W
1
2
Y
1 6 7
G–Y
GR
R–L
KLS+ E
IG ACC STP
Relé DEF
B loqueo de cambiosD esempañador de la ventanilla traseraA limentación
Interruptordelalámparadeparada<10–4>
IGD
E
3 3
3 3
SLS– SLS+
R–L
Refuerzo del panel instrumental izquierdo
B4
A3
2
6
1
2H2
W–R
B–Y
10A
ECU–IG&GAUGE
2A
1
2
AM1
B–R
B12
A7
2 2A
1
2
1 2G
12
IG1
ACC
4
2C
4 2R
B
40AAM1
40AIG1
7.5AACC
Batería
1 1F
L–R
B–Y
R–L
L–R
1A1
W
20ADEF
3
2
1
3
B–Y
I 6
J18(A),J19(B)
J16(A),J17(B)
W–R
R6(A),R7(B)
3 A
4 B 5 B
R–L
R–L
8 2K 2S4
B
12 IH1
R–L
J22(A),J23(B)
R 3
K 1
S11
2N8
ID Centro de refuerzo del tablero de instrumentos
Y
B–Y
Y
9
NSSD
3
AT3
J15
Panel del lado del cubretablero izquierdo IG
6
R–L
6
4
W–B
J21
Solenoide de
bloqueo de cambios
Interruptor
de encendido
Conector
de unión
Conectordeunión
Conectordeunión
Conector de unión
Conectordeunión
Solenoide de
interbloqueo de
la llave
Interruptor del desempañador
de la ventanilla trasera
Desempañadordela
ventanillatrasera
ECU de control de bloqueo de cambios
SistemaECT<6–6>
11 A 12 A
7 B
ECUdelmotor<3–10>
B
(∗1)
B
B
∗ 1 : 2TR–FE
Conectordeunión
J16(A),J17(B)
100A
ALT
HILUX(EWD630S)
269
M
3 421
22 HILUX
W–B
2
W–B
14
E
BACC ILL
R elojA limentación
2
AM1
B–R
2 2A
1
2
1 2G
12
IG1
ACC
4
2C
B
40A
AM1
7. 5A
ACC
Batería
1 1F
L–R
L–R
1A1
W
I 6
1 A
6 B
R
2N23
1
2
7. 5A
DOME
30A
DCC
2
1
1
IDCentro de refuerzo del tablero de instrumentos
R
GGG
V
C 7
J20(A), J21(B)
OFF
Cola
Faro
Interruptor
decontrol
delasluces
B1 T1
13
C10
10A
TAIL
8 2P
2Q12
7 2S
2R7
25 2P
2J8
2C5
G–W
R
10
G–W
3
Reloj
Interruptor de
combinación
Interruptor de encendido
Conector de unión
100A
ALT
HILUX(EWD630S)
270
MDIAGRAMADECONEXIONESELECTRICASGENERAL
3 421
23 HILUX
A3 4 A
7 A
GR
BR
A limentación S istema de audio
ACC (∗2)
ACC+B(∗3)
+B (∗2)
BU+B(∗3)
GND
ID
L–Y
∗ 1 : 4 altavoces
∗ 2 : con reproductor de CD
Centro de refuerzo del tablero de instrumentos
1
2
15A
RAD
2
AM1
2 2A
1
2
1 2G
12
IG1
ACC
4
2CB
40A
AM1
7. 5A
ACC
Batería
1 1F
L–R
B–R
1A1
W
30A
DCC
2
1
1
L–Y
I 6
2N24
2 IF2
L–Y
∗ 3 : sin reproductor de CD
10 A
ILL+B
Sistemadelucesdecolayiluminación
<12–5>
Interruptor de encendido
IH16IH11IH12
BB1 BB1
2 B 6 B 1 B 3 B
B
Y
R
W
R
W
R
W
RL+ RL– RR+ RR–
Y
B
1 2
IH15
W
R
BC1 BC11 2
(∗1)(∗1)
(∗1)(∗1)
(∗1)(∗1)
(∗1)(∗1)
(∗1)
(∗1)
(∗1)
(∗1)
P
2 A
8 IC2 7 IC2
6 A 1 A 5 A
P
V
LG
L
FR+FL+ FL– FR–
1 2
IH14
6 IK1 5 IK1
S16
L
LG
1 2
S15
V
P
Altavoz
(puerta delantera izquierda)
Altavoz
(puerta delantera derecha)
9 IH1
V
S17 S18
Altavoz
(puerta trasera
derecha)
Altavoz
(puerta trasera
izquierda)
100A
ALT
22 11
Conjunto del receptor de radio
R 1(A), R 2(B)
HILUX (EWD630S)
271
Memorándum
HILUX(EWD630S)
272
MDIAGRAMADECONEXIONESELECTRICASGENERAL
1 2 3 4
24 HILUX (Sigue en la página siguiente)
Sistema de las
luces interiores
<13–2>
A limentación M edidor de combinación
B–O
R
B–W
Sistemadefaros<8–3>
Velocímetro
Tacómetro
Combustible
Temperatura
Puerta
luzdecarretera
ECUdelmotor
<3–13><4–14>
PECUdelmotor
<3–12><4–10>
BR–Y
BRBR
BR–Y
ODO/TRIP
T–BELT
Combustible
C 8
V–RECUdelmotor
<3–11><4–11>
P–L
16 ID2
15 ID2
EC Lado trasero del bloque de cilindros
1 EA1
S 3
BR
BRBR
R–BP–L
1 2
3
3 BA1 4 BA1
Zumbador
1
2
7.5ADOME
B4
A3
6 6
B
2C
7.5AMET
B–Y
10A
ECU–IG&GAUGE
AM2 6
2A
1
B–Y
AM1
ST2
B–R
2 2A
1
2
1 2G
IG2
IG1
ACC
5
4
W–R
30 2S
B
40AAM1
Batería
1 1F
B–YB–R
B
1A1
W
30ADCC
2
1
1
R
30AAM2
4 1B
W–R
2J8
I 6
J18(A),J19(B)
∗ 1 : con sistema antirrobo
2Q25
R
2D1
B–O
2P42Q102P26
2Q26
ECUdecontrolde
latransmisión
<6–4>
V–R
ECUdeaviso
antirrobo<17–3>
V–R
(∗4)
(∗1)
V–R
R–B
R–B
IF210
L–R
2
1
F10
L–R
BR
9 IA1 8 IA1
BR–Y
BR
Medidor de combinación
Interruptordeavisodelnivel
desedimentosdecombustible
Interruptor
de encendido
Conector
deunión
Sensor de velocidad
1 IF4
IF311 (∗2)
(∗3)
∗ 2 : 1KD–FTV, 2KD–FTV
∗ 3 : 2TR–FE
(∗2)(∗2)
(∗2)
(∗2)
(∗2)
(∗2)
∗ 4 : 1KD–FTV A/T
Conjunto de la bomba
de succión de
combustible y medidor
F15(B)
F13(A)
3 B (∗3)
3 A (∗2)
(∗3)B2
2 A (∗2)
Medidor
Medidor del emisor
de combustible
(∗2)(∗2)
27 17 16 15 10 6 5 23 2 3 7 4
1 21
100AALT
IG+ SE
SI
EDLado trasero del bloque de cilindros
7
6
BR
(∗3)
BR
(∗3)
Conector
deunión
J30
HILUX(EWD630S)
273
M
5 6 7 8
24 HILUX (Continuado) (Sigue en la página siguiente)
M edidor de combinación
Carga
Revisarelmotor
Y
Sistemadecarga<1–4>
Sistemadecontroldelmotor
<3–8><4–6>
Antiniebladelantera
Iluminación
C 8
Encendido
Sistemadecontroldelmotor
<4–7>
J22(A), J23(B)
Sistemadelucesde
colayiluminación
<12–4>
SRS
Sistemadeluces
antiniebladelanteras
<9–3>
Cinturónde
seguridaddel
conductor
Sistemadeavisodel
cinturóndeseguridad<14–2>
SistemaSRS<14–3>
2
1
W–GW–G
IF28
F4
Virajehacialaderecha
Virajehacialaizquierda
Sistema de las señales de giro
y luz de aviso de peligro<11–3>
J 1
5
1
EB Lado izquierdo del faldón del guardabarros
W–BW–B
10 A
12 B
ID Centro de refuerzo del tablero de instrumentos
W–B
SistemaECT<6–3>
W–B
(sinSRS)
1 IF2
(sinSRS)
W–B
(sin SRS)
W–B
A
(conelSRS)
Sistemade
combustible
Iluminacióndel
visualizadorLCD
A/TOILTEMP
4WD
Medidor de combinación
Interruptordeadvertencia
delfiltrodecombustible
Conector
de unión
Conector
de unión
∗ 2 : 1KD–FTV, 2KD–FTV
(∗2)(∗2)(∗2)(∗2)
A/TP
Sistema4WD<7–2>
Sistema4WD<7–2>
(∗2)(∗2)
2524128
14 11 20 19 30 22 394037181331
(∗2)(∗2)
HILUX(EWD630S)
274
MDIAGRAMADECONEXIONESELECTRICASGENERAL
9 10 11 12
24 HILUX (Continuado)
M edidor de combinación
ABS
SistemaABS
<15–2>
EALado derecho del faldón
del guardabarros
2
10 ID2
LGW–B
LG–B
LG
LG–B
LG
1 1
Presióndeaceite
1
C 8
Freno
2S1 2S17
2L1 2K12M1
1
LG
(con ABS)
L–O ECU de control de
derrape con actuador
<15–2>
(conABS)
3 IF2
R–GR–G
W–B
(sinABS)(sinABS)
(sin SRS)
W–B
A
Medidor de combinación
E4
Interruptordelfreno
deestacionamiento
P2
B3
Interruptordeadvertenciadel
niveldellíquidodefrenos
B2
(∗2)
∗ 2 : 1KD–FTV, 2KD–FTV
Sensordepresióndel
aceitedemotor
Interruptordeadvertencia
devacíodelfreno
38 36 35
CRUISE
28
Sistemadecontroldelmotor
<4–6>
HILUX(EWD630S)
275
M
3 421
25 HILUX
2
1
G
16 IF3
10 14
78
Y–BY–BL–O
R–L
B–W
A limentación A condicionador de aire
2
ECUdelmotor<3–11><4–11>
SG–1 TE
IG+ AC1 ACT
P
Y
R–L
∗ 1 : con acondicionador de aire
MGC
L–W
(∗1)
1
6 2A
1AM1
2 2A
1
2
1 2G
40AFRHTR
IG1
ACC
4B
40AAM1
Batería
1 1F
B–Y
100AALT
1A1
W
1 1C
L–B
I 6
2D92D18
IE Refuerzo del panel instrumental izquierdoID Centro de refuerzo del tablero de instrumentos
W–B
W–B
W–B
5
W–B
W–B
B
W–B
B4
1
2
M
2A
B–W
L–W
1
16
L–B
Relé
HTR
2D
2F
4
1
2
5
3
10A
ECU–IG&GAUGE
3
A
4
B
J18(A), J19(B)
2R30
R–L
P1
A10
A 9
1 ID1
1
L–W
A1
1 A 2 A
2 B
1 A
4 B
18
L–O
2P
10AA/C
17 IF3
(∗1)
(∗1)(∗1)(∗1)
(∗1)
W–B
J22(A),J23(B)
L
18
GND
W–B
J20(A),J21(B)
6 A
6 B
B–R
B–W
(∗1)
L–O
3
PSW
B–Y
(∗1)
(∗1)
(∗1)
(∗1)
(∗1)
(∗1)(∗1)
(∗1)
J18(A),J19(B)
CompresordelA/C
Interruptordepresión
Amplificador del A/C
TermistordelA/C
Interruptor
de encendido
Conectordeunión
Conector de unión
Conectordeunión
Conectordeunión
B 6
Libre
Bloqueo
1
M1M2 LOHI
4
M1
M2
HI
6 5
2
E
B5
R
R–B
3 2 4
W–B
L–W
B–W
B–W
W
1
B–W
Motordelsoplador
Interruptor
del soplador
Resistordelsoplador
2 2P
13
R–L
IND–
(∗1)
4
R–G
ACON
(∗1)
4
R–L
(∗1)
L–O
OFF
LO
6
5
R–G
(∗1)
InterruptordelA/C
A24
3
1
Sistemadelucesde
colayiluminación
<12–6>
(∗1)
1
2

Circuitos elect toyota

  • 1.
    HILUX (EWD630S) 1 HILUX DIAGRAMA DELCABLEADO ELECTRICO Sección N.° Página INTRODUCCION A. . . . . . . . . . . . . . . . . . . . . . . . . . . . . . . . . . . . . . . . . . . . . . 2 COMO UTILIZAR ESTE MANUAL B. . . . . . . . . . . . . . . . . . . . . . . . . . . . . . 3 LOCALIZACION DE AVERIAS C. . . . . . . . . . . . . . . . . . . . . . . . . . . . . . . . . 12 ABREVIATURAS D. . . . . . . . . . . . . . . . . . . . . . . . . . . . . . . . . . . . . . . . . . . . . 17 GLOSARIO DE TERMINOS Y SIMBOLOS E. . . . . . . . . . . . . . . . . . . . . . . 18 UBICACION DE LOS RELES F. . . . . . . . . . . . . . . . . . . . . . . . . . . . . . . . . . . 20 RECORRIDO DE LOS CABLES ELECTRICOS G. . . . . . . . . . . . . . . . . . . 36 CIRCUITOS DE SISTEMAS H. . . . . . . . . . . . . . . . . . . . . . . . . . . . . . . . . . . . 61 PUNTO DE CONEXION A MASA I. . . . . . . . . . . . . . . . . . . . . . . . . . . . . . . . 206 FUENTE DE ALIMENTACION (Cuadro de flujo de corriente) J. . . . . . 212 LISTA DE CONECTORES K. . . . . . . . . . . . . . . . . . . . . . . . . . . . . . . . . . . . . 218 NUMERO DE LAS PARTES DE CONECTORES L. . . . . . . . . . . . . . . . . . 230 DIAGRAMA DE CONEXIONES ELECTRICAS GENERAL M. . . . . . . . . 234
  • 2.
    2 HILUX (EWD630S) A INTRODUCCION Estemanual consta de las siguientes 13 secciones: Número Sección Descripción A INDICE Indice el contenido de este manual. A INTRODUCCION Breve axplicación de cada sección. B COMO UTILIZAR ESTE MANUAL Instrucciones relacionadas con el uso este manual. C LOCALIZACION DE AVERIAS Descripción de los procedimientos de inspección básicos para los circuitos eléctricos. D ABREVIATURAS Definiciones de las abreviaturas utilizadas en este manual. E GLOSARIO DE TERMINOS Y SIMBOLOS Definiciones de los símbolos y funciones de las partes principales. F UBICACION DE LOS RELES Indicación de la Unidad de Control Electrónico, los Relés, el Bloque de Relés, etc. Esta sección está relacionada con el circuito del sistema. G RECORRIDO DE LOS CABLES ELECTRICOS Descripción de los conectores de piezas, puntos de empalme, puntos de conexión a masa, etc. Esta sección está relacionada con el circuito del sistema. INDICE Indice de los circuitos de los sistemas. H CIRCUITOS DE SISTEMAS Circuitos eléctricos de cada sistema indicados desde la fuente de alimentación hasta los puntos de conexión a masa. Las conexiones del cableado y las respectivas posiciones se indican y clasifican según el método de conexión. (Vea la sección "COMO UTILIZAR ESTE MANUAL"). Esta sección asimismo contiene las secciones de "Descripción del sistemas" y "Consejos para el servicio" que son sumamente útiles para la localización de aveías. I PUNTO DE CONEXION A MASA indicación de las conexiones a masa de todas las piezas descritas en este manual. J FUENTE DE ALIMENTACION (Cuadro de flujo de corriente) Descripción de la distribución de la alimentación desde la fuente hasta las diferentes cargas eléctricas. K LISTA DE CONECTORES Describe la forma de los conectores para las piezas que aparecen en este libro. Esta sección está relacionada con el circuito del sistema. L NUMERO DE LAS PARTES DE CONECTORES Se indica el número de las partes de los conectores utilizados en este manual. M DIAGRAMA DE CONEXIONES ELECTRICAS GENERAL Diagramas de los circuitos con indicación de las conexiones.
  • 3.
    HILUX (EWD630S) 3 COMO UTILIZARESTE MANUAL B Este manual proporciona informaciones acerca de los circuitos eléctricos de los vehículos, divididas según los diferentes circuitos de sistemas. El cableado específico de cada circuito de sistema aparece desde el punto de conexión a la fuente de alimentación de la batería hasta el punto de conexión a masa. (Todos los diagramas de circuito aparecen en condición de los interruptores en la posición OFF.) Al tratar de localizar un desperfecto, es necesario familiarizarse con el funcionamiento del circuito en el cual se ha detectado el problema (vea la sección de Circuitos de Sistemas), la fuente de alimentación del circuito (vea la sección Fuente de Alimentación) y los puntos de conexión a masa (vea la sección Punto de Conexión a Masa). Vea la descripción del sistema para comprender el funcionamiento del circuito. Una vez familiarizado con el funcionamiento del circuito, determine le causa según los procedimientos de localización de averías especificados. Para la ubicación decadapieza,losbloquesdeempalmesylosconectoresdelosmazos de conductores, así como los puntos de empalme y los puntos de conexión a masa de cada circuito, vea las secciones de Ubicación de los Relés y Ubicación de los Cables. Se incluye además el diagrama de cableado interior de cada bloque de empalme para facilitar la compresión de las conexiones dentro del bloque. El cableado relacionado con cada sistema aparece indicado en cada circuito de sistema mediante flechas (de __, a__). En caso de requerirse conexiones generales, vea el Diagrama de Cableado Electrico General, en la parte final de este manual.
  • 4.
    [A] [B] [H] [D] [F] [E] [ I ] [L] [M] [J] [K] [G][C] 1 2 IB IB 3 4 47 21 11 13 4 1 2 6 3 1 2 B18 BL R L B18 G R 3 4 R7 R6 H17 ECU del ABS S 6 C 7 BV1 1 W B BV1 1 I 5 G W IB2 IB1 IE114 BO 50 8 L 4 15A STOP 7.5A GAUGE Luz de parada de montura alta Sensor de fallo de las luces Interruptor de la luz de parada Medidor de combinación Desde el sistema de la fuente de alimentación (Vea la página 66) Luz de parada (Protegido) GRWBWB WB WB GB YGRL R GR WRGW WB GW W/G) (S/D)LL ( (S/D) GR Luzdecombinacióntraseraderecha Luzdecombinacióntraseraizquierda Paro Paro luces traseras 4 HILUX (EWD630S) B COMO UTILIZAR ESTE MANUAL ∗ El sistema aquí mostrado es SOLO UN EJEMPLO. Es distinto del circuito real mostrado en la SECCION DE CIRCUITOS DEL SISTEMA.
  • 5.
    HILUX (EWD630S) 5 B [A] :Título del sistema [B] : Indica un bloque de relés. N.° se utiliza sombreado y se indica sólo el número del bloque de relés para distinguirlo del bloque de empalme Ejemplo: indica Bloque de Relés N.°1 [C] : ( ) se utiliza para indicar diferentes cableados, conectores, etc. en caso de modelo de vehículo, tipo de motor o especificaciones diferentes. [D] : Indica un sistema relacionado. [E] : Indica el mazo de conductores y el conector del mazo de conductores. El mazo de conductores con el terminal macho es indicado mediante las flechas ( ). Las cifras exteriores corresponden al número de clavijas. Hembra Macho ( ) La primera letra del código para cada mazo de conductores y conectores de mazo de conductores indica la ubicación del componente, por ejemplo "E" es para el compartimiento del motor, "I" para el tablero de instrumentos y área circundante, y "B" para la carrocería y área cincurdante. Cuando más de un código tiene la primera y segunda letras en común, seguidas de números (por ej. IH1, IH2) indica el mismo tipo de mazo de conductores y conector de mazo de conductores. [F] : Representa una pieza (todas son indicadas en celeste). El código es el mismo que el utilizado para la ubicación de la pieza. [G] : Bloque de empalme. (El número dentro del círculo es el número del bloque de empalme, y el código del conector aparece junto al mismo.) Los bloques de empalme aparecen sombreados para distinguirlos fácilmente de otras piezas. 3C indica que está dentro del bloque de empalme N.°3 Ejemplo: [H] : Indica el color del cable. Los colores de los cables se dan según los siguientes códigos alfabéticos. B = Negro W = Blanco BR = Marrón L = Azul V = Violeta SB = Azul del cielo R = Rojo G = Verde LG = Verde Claro P = Rosado Y = Amarillo GR = Gris O = Anaranjado La primera letra indica el color básico del cable y la segunda letra indica el color de la banda. Ejemplo: L - Y L (Azul) Y (Amarillo) [I] : Indica un punto de empalme de cables (los códigos son "E" para el interior del compartimiento del motor, "I" para el tablero de instrumentos y "B" para la carrocería.) Ejemplo: La ubicación del punto de empalme I 5 es indicada mediante la sección sombreada. [J] : Indica mazo de conductores blindado. [K] : Indica el número de clavijas del conector. El sistema de numeración es diferente según se trate de un conector macho o de un conector hembra. Ejemplo: Numerados de arriba a la izquierda hacia abajo a la derecha Numerados de arriba a la derecha hacia abajo a la izquierda Hembra Macho [L] : Indica los PUNTOS de conexión a Masa. La primera letra del código de cada punto de tierra indica la ubicación del componente, por ejemplo "E" es para el compartimiento del motor, "I" para el tablero de instrumentos y área circundante, y "B" para la carrocería y área cincurdante. [M] : N.° de página
  • 6.
    [N] [O] [P] [Q] [R] [S] [T] [U] 6 HILUX (EWD630S) B COMOUTILIZAR ESTE MANUAL La corriente siempre se aplica a través del fusible STOP al TERMINAL 2 del interruptor de la luz de parada. Cuando se conecta el interruptor de encendido, la corriente circula desde el fusible GAUGE al TERMINAL 8 del sensor de fallo de las luces, y circula también a través de la luz de aviso de las luces traseras al TERMINAL 4 del sensor de fallo de las luces. Aviso de desconexión de la luz de parada Cuando se conecta el interruptor de encendido y se pisa el pedal del freno (interruptor de la luz de parada conectado), si se abre el circuito de la luz de parada, cambia la corriente que circula desde el TERMINAL 7 del sensor de fallo de las luces a los TERMINALES 1, 2, por lo que el sensor de fallo de las luces detecta la desconexión y se activa el circuito de aviso del sensor de fallo de las luces. Como resultado, la corriente circula desde el TERMINAL 4 del sensor de fallo de las luces al TERMINAL 11 y a TIERRA y se enciende la luz de aviso de las luces traseras. Al pisar el pedal del freno, la corriente que circula al TERMINAL 8 del sensor de fallo de las luces mantiene activado el circuito de aviso y mantiene encendida la luz de aviso hasta que se desconecta el interruptor de encendido. S6 Interruptor de la luz de parada 2-1 : Cerrado con el pedal del freno pisado L4 Sensor de fallo de las luces 1, 2, 7-Tierra : Aprox. 12 voltios con el interruptor de la luz de parada conectado 4, 8-Tierra : Aprox. 12 voltios con el interruptor de encendido en la posición ON 11-Tierra : Siempre con continuidad : Localización de partes Código Vea la página Código Vea la página Código Vea la página C7 34 L4 36 R7 37 H17 36 R6 37 S6 35 : Bloques de relés Código Vea la página Bloque de relés (localización del bloque de relés) 1 18 R/B No.1 (Tensor del panel instrumental izquierdo) : Bloque de empalmes y conector del mazo de cables Código Vea la página Bloque de empalmes y mazo de cables (localización del conector) IB 20 Alambre del panel instrumental y J/B del panel instrumental (Panel de acabado inferior) 3C 22 Alambre del panel instrumental y J/B No.3 (Tensor del panel instrumental izquierdo) : Mazo de cables de la unión del conector y mazo de cables Código Vea la página Mazo de cables de unión y mazo de cables (localización del conector) IE1 42 Alambre del piso y Alambre del panel instrumental (Panel de arranque izquierdo) BV1 50 Alambre del portaequipajes y Alambre del piso (Portaequipajes izquierdo) : Puntos a tierra Código Vea la página Localización de los puntos a tierra BL 50 Debajo del pilar central izquierdo BO 50 Panel trasero contral : Puntos de la unión Código Vea la página Mazo de cables con puntos de unión Código Vea la página Mazo de cables con puntos de unión I5 44 Alambre del cubretablero B18 50 Alambre del portaequipajes Descripción del sistema Consejos para el servicio
  • 7.
    HILUX (EWD630S) 7 B [N] :Descripción del sistema. [O] : Indica valores o explica la función para referencia durante la localización de averías. [P] : Indica la página de referencia en la cual aparece la ubicación en el vehículo de las piezas del circuito del sistema. Ejemplo : Pieza "L4" (Sensor de fallo de las luces) en la página 36 de este manual. ∗ La letra en el código es la primera letra de la pieza y el número indica el orden de las piezas que comienzan con tal letra. Ejemplo: L 4 ÁÁ La pieza es la 4 Sensor de fallo de las luces [Q] : Indica la página de referencia en la cual aparece la ubicación en el vehículo de los conectores del bloque de relés en el circuito del sistema. Ejemplo : La descripción del conector "1" aparece en la página 18 de este manual y el mismo está instalado en la parte izquierda del tablero de instrumentos. [R] : Indica la página de referencia en la cual aparece la ubicación en el vehículo del bloque de empalmes y del mazo de conductores en el circuito del sistema. Ejemplo : El conector "3C" conecta el cable de torpedo con el bloque de empalmes N.° 3. La descripción correspondiente aparece en la página 22 de este manual y el mismo está instalado en el lado izquierdo del tablero de instrumentos. [S] : Indica la página de referencia en la cual se describe el mazo de conductores y el conector del mismo (el conector hembra se describe primero y despues se describe el conector macho.) Ejemplo : El conector "IE1"conecta el cable de la puerta derecha delantera (hembra) y el cable de torpedo (macho). La descripción correspondiente aparece en la página 42 de este manual y el mismo está instalado en el lado derecho de la caja pedalera. [T] : Indica la página de referencia en la cual aparece la ubicación de los puntos de conexión a masa en la carrocería del vehículo. Ejemplo : La descripción del punto de conexión a masa "BO" aparece en la página 50 de este manual y el mismo está en el lado izquierdo del torpedo. [U] : Indica la página de referencia en la cual aparece la posición de los puntos de empalme en el vehículo. Ejemplo : El punto de empalme "I5"está en el mazo de conductores del torpedo y la descripción correspondiente aparece en la página 44 de este manual.
  • 8.
    8 HILUX (EWD630S) B COMOUTILIZAR ESTE MANUAL El diagrama del circuito de los puntos de conexión a masa indica las conexiones a masa de todas las piezas principales a los respectivos puntos de masa. Durante la localización de averías por fallas de conexión a masa, puede resultar útil examinar los sistemas que tienen una conexión a masa en común para identificar rápidamente el problema. La relación entre los puntos de conexión a masa ( EA , IB y IC indicada más abajo) asimismo puede verificarse de esta manera. 5 5 5 5 4 4 4 4 4BA1 5 IB1 8 EA2 ID1 15 IC3 3 IA1 2 E 3 W-B W-B W-B W-B W-B W-B W-B W-B W-B W-B W-B W-B W-B W-B W-B W-B W-B W-B W-B W-B W-B W-B W-B W-B W-B W-B W-B W-B BR W-B BR BR W-B W-BW-B W-B W-B W-B W-BW-B W-B W-B W-B W-B W-B W-B BR W-B BRBR BR W-B(4A-GZE) W-BW-B I 2 I 2 B 5I 5 I 5 I 5 B 5 B 5 B 5 I 5 I 5 I 3I 3 E 3 E 3 E 3 E 2 E 4 E 5 E 4 E 5 E 6E 4 E 4 B 4 EA I 4 B 4 B 4 I 4 I 8 IB IC 4 4 3E 5 3E 6 3G 13 3F 3 3D 1 3B 7 W-B W-B W-BW-B W-B W-B W-B W-B W-B W-B W-B W-B W-B W-B W-B I 6 I 6 I 23C 7 10 A A A A A A Conector de unión J 1 W-B W-B W-BW-B BR W-B W-B W-B W-B W-B W-B I PUNTO DE CONEXION A MASA Relé FAN MAIN Relé FAN MAIN Relé de A/C N.° 2 Relé de A/C N.° 3 Relé del limpiador del faro Faro izquierdo Faro derecho Resistor del soplador Amplificador del A/C Radio y reproductor Relé HEATER Motor del soplador Interruptor del nivel del líquido de frenos Interruptor principal de O/D Luz antiniebla frontal derecha Luz antiniebla frontal izquierda Interruptor del soplador Medidor de combinación Interruptor de combinación ECU de control de crucero Relé de control de la ventanilla automática Medidor de combinación Medidor de combinación Emisor de combustible Encendedor de cigarrillos Reloj Interruptor de combinación Motor del ventilador del radiador Luz de la señal de giro delantera derecha Luz de la señal de giro delantera izquierda Luz de paso delantera izquierda Luz de paso delantera derecha Interruptor de control de bloqueo de la puerta Interruptor de aumento del ralent Motor de la antena eléctrica Relé de control de bloqueo de la puerta Motor de bloqueo de la puerta derecha Interruptor de cortesía de la puerta derecha Interruptor del freno de estacionamiento Conjunto de control del A/C Interruptor del espejo retr- ovisor de control remoto Intermitente de la señal de giro Interruptor del desempañador Interruptor principal de la ventanilla automática Interruptor de advertencia de desbloqueo Interruptor de cortesía de la puerta izquierda Interruptor de control de combustible Amplificador del altavoz de graves Motor de bloqueo de la puerta izquierda Interruptor de control de bloqueo de la puerta ∗ El sistema aquí mostrado es SOLO UN EJEMPLO. Es distinto del circuito real mostrado en la SECCION DE CIRCUITOS DEL SISTEMA.
  • 9.
    HILUX (EWD630S) 9 B La seccióndel "Cuadro de Flujo de Corriente" describe las piezas (fusibles, eslabones fusibles y ruptores) que reciben corriente. En el diagrama del circuito de fuente de alimentación, se explican las condiciones cuando se suministra la alimentación desde la batería a cada sistema. Ya que todos los circuitos de sistema comienzan desde la fuente de alimentación, es necesario comprender perfectamente el sistema de alimentación. ACC S 2 6 6 5 2 2 2 Batería 30A AM2 Arrancador Patilla cortocircuitador 100A ALT Bloque de eslabones fusibles 60A ABS 10A ECU-B 7.5A DOME 15A EFI 10A HAZARD 20A RADIO NO.1 10A HORN 20A 10A Fusible Página 200 112 122 194 187 180 ABS Medidor de combinación Recordador de la llave y aviso del cintur ón de seguridad Apagado automático de las luces Sistema antirrobo y control de bloqueo de la puerta ABS y control de tracción Control de crucero 166Transmisión con control electrónico 210Sistema de comunicaciones multiplex STOP Sistema DOME Faro Luz interior 3 EA2 1 EA1 E 6 E 7 E 7 2 2 22 2 2 2 2 Relé INJECTION Relé STARTER B B B B-O 1 1 2 2 3 4 3 4 W-B W-B B-W B-W E 7 E 7 B B W 1.25B FL MAIN 50A MAIN 7.5A AM2 15A HAZ-RADIO 2 2 2 2 2 W W EB1 EB1 7 6W-R I 2 I 2 I 2 W W W W W 1 1 1 1 40A DOOR LOCK CB 7.5A DOME 1 W-L R 1 1 2 4 3 1 11 1 1 1 1 G G W-R 15A TAIL 20A DEFOGB-Y 8 4 3 2 Interruptor de encendido I 8 B-Y 1 1 P-L Batería 15A RAD CIG 2 TAIL Relé Alimentación J FUENTE DE ALIMENTACION (Cuadro de flujo de corriente) R/B del compartimiento del motor (Vea la página 20) 2 W W BBBBB W-R WWW G-W AM2 AM1 IG2 IG1 W Encendedor de cigarrillos 214 W El diagrama indicado abajo muestra la corriente desde la batería hasta cada fuente eléctrica (eslabón fusible, ruptor de circuitos, fusible, etc.) y otras partes. ∗ El sistema aquí mostrado es SOLO UN EJEMPLO. Es distinto del circuito real mostrado en la SECCION DE CIRCUITOS DEL SISTEMA.
  • 10.
    K LISTA DECONECTORES 1 2 3 4 Negro I 6 1 2 3 4 5 6 7 8 I 7 1 2 3 4 5 76 Negro I 8 1 2 3 4 5 6 J 1 1 2 3 4 5 6 7 8 9 10111213 J 2 1 2 Negro K 1 1 2 Negro K 2 1 2 3 4 5 6 7 8 9 10 Negro L 1 1 2 Gris L 2 1 2 Gris L 3 1 2 3 4 5 Negro M 1 1 2 3 4 5 6 Negro M 2 1 32 M 3 1 2 Gris N 1 [A] [C] [D] [B] 10 HILUX (EWD630S) B COMO UTILIZAR ESTE MANUAL [A] : Indica el conector que debe conectarse a una pieza. (la cifra indica el número de clavijas del conector) [B] : Conector de unión Indica el conector que está conectado con el terminal cortocircuitador. El conector de unión de este manual incluye un terminal de cortocircuito que está conectado a cierto número de mazos de conductores. Efectúe siempre la inspección con el terminal de cortocircuito instalado. Conector de unión Terminal cortocircuitador [C] : Código de las partes La primera letra del código proviene de la letra inicial de las partes, y su número significa el orden de las partes cuyo nombre empieza con la letra correspondiente. [D] : Color del conector Los conectores que no llevan indicación de color son blanquecinos.
  • 11.
    A 1 L NUMERODE LAS PARTES DE CONECTORES Sensor del temperatura ambiente del A/C Código 90980-11070 Número de las partes D 4 Diodo (cortesía) 90980-11608 A 2 Motor del ventilador del condensador del A/C 90980-11237 D 5 Diodo (luz interior) 90980-10962 A 3 Relé del ventilador del condensador del A/C 90980-10940 D 6 Diodo (techo lunar) 90980-11608 A 4 Resistor del ventilador del condensador del A/C 90980-10928 90980-11271 D 7 Relé de control de bloqueo de la puerta 90980-10848 A 5 Embrague magnético del A/C 90980-11413 D 8 Interruptor de control de bloqueo de la puerta izquierda 90980-11148 A 6 Sensor de temperatura de aceite de A/T 90980-11151 D 9 Interruptor de control de bloqueo de la puerta derecha A 7 Actuador de ABS 90980-11009 Interruptor de cortesía de la puerta izquierda 90980-11097 A 8 Actuador de ABS 90980-10941 Interruptor de cortesía de la puerta derecha A 9 Sensor de velocidad de ABS, frontal izquierdo 90980-11002 Interruptor de cortes ía de la puerta frontal izquierda Sensor de velocidad de ABS, frontal D10 D11 Nombre de las partes Código Número de las partesNombre de las partes [A] [B] [C] HILUX (EWD630S) 11 B [A] : Código de las partes [B] : Nombre de las partes [C] : Número de las partes Indica el número propio de Toyota. No todos los números de las partes del conector indicados arriba están dispuestos para el suministro.
  • 12.
    Al terminal IGdel interruptor de encendido Fusibles VoltímetroSW 1 Relé SW 2 Solenoide [A] [B] [C] Ohmiometro SW Ohmiometro Diodo Tipo digital Tipo analógico 12 HILUX (EWD630S) C LOCALIZACION DE AVERIAS VERIFICACION DE LA TENSION (a) Establezca las condiciones en las cuales la tensión debe llegar al punto en el cual debe efectuar la verificación. Ejemplo: [A] - Interruptor de encendido en la posición ON [B] - Interruptor de encendido y SW 1 en la posición ON [C] - Interruptor de encendido, SW 1 y relé en ON (SW 2 en OFF) (b) Utilizando un voltímetro, conecte el cable negativo de a un buen punto de conexión a masa o al borne negativo de la batería y el cable positivo al conector o al terminal del componente. Esta prueba puede efectuarse con una luz de prueba en lugar de un voltímetro. VERIFICACION DE LA CONTINUIDAD Y DE LA RESISTENCIA (a) Desconecte el cable del borne de la batería o el cable de manera que no haya tensión entre los puntos a verifïcar. (b) Conecte los dos cables de un ohmíometro a cada uno de los puntos a verifïcar. Si el circuito tiene diodos, conecte los cables en sentido contrario y vuelva a verifïcar. Debe existir continuidad al conectar el cable negativo al lado positivo del diodo y el lado positivo al lado negativo del mismo. No debe existir continuidad si se conectan los cables en sentido inverso. (c) Utilice un voltímetro/ohmíometro de alta impedancia (10k/V como mínimo) para la localización de averías en el circuito eléctrico.
  • 13.
    Al terminal IGdel interruptor de encendido Luz de prueba ReléLuz SW 2 Solenoide Desconectar Corto [A] Desconectar Desconectar SW 1 Caja de fusibles Corto [B] Corto [C] Levantar Oprimir Oprimir Levantar HILUX (EWD630S) 13 C LOCALIZACION DE UN CORTOCIRCUITO (a) Saque el fusible quemado y desconecte todas las cargas eléctricas. (b) Conecte una luz de prueba en lugar del fusible. (c) Establezca las condiciones necesarias para que la luz de prueba se encienda. Ejemplo: [A] - Interruptor de encendido en la posición ON [B] - Interruptor de encendido y SW 1 en la posición ON [C] - Interruptor de encendido, SW 1 y relé en ON (conecte el relé) y SW 2 en OFF (o SW 2 desconectado) (d) Desconecte y vuelva a conector los conectores, observando la luz de prueba. El cortocircuito está entre el conector en el cual la luz de prueba queda encendida y el conector en el cual se apaga. (e) Para localizar la posición exacta del cortocircuito, sacuda ligeramente el cable defectuoso a lo largo de la carrocería. PRECAUCION: (a) Nunca abra la cubierta ni la caja de la ECU excepto en caso de que sea absolutamente necesario. (Si se tocan los terminales de los circuitos impresos, los circuitos pueden resultar dañados por la electricidad estática.) (b) Al reemplazar el mecanismo interno (parte de ECU) del medidor digital, asegúrese de que ninguna parte de su cuerpo ni ropa toque los terminales de conductores de IC, etc., de la parte de reemplazo (parte de repuesto). DESCONEXION DE LOS CONECTORES MACHO Y HEMBRA Para separar los conectores, tire del conector mismo y nunca del cable. CONSEJO : Antes de separarlo, verifique el tipo de conector del que se trara.
  • 14.
    10 3 0.2 1 1 (mm) Referencia: HerramientaLevantarEjemplo: (Caso 1) Retén delterminal Retén del terminal [Retenedor en posición de bloqueo completo] [Retenedor en posición de bloqueo temporal] Tope Retén del terminal Dispositivo de bloqueo secundario Ejemplo: (Caso 2) 14 HILUX (EWD630S) C LOCALIZACION DE AVERIAS COMO REEMPLAZAR LOS TERMINALES (Con retenedor de terminal o dispositivo de bloqueo secundario) 1. PREPARE LA HERRAMIENTA ESPECIAL CONSEJO : Para extraer el terminal del conector, construya y utilice una herramienta especial u objeto parecido como se muestra a la izquierda. 2. DESCONECTE EL CONECTOR 3. SEPARE EL DISPOSITIVO DE BLOQUEO SECUNDARIO O EL RETENEDOR DE TERMINAL (a) El dispositivo de bloqueo debe separarse antes de que el retenedor de bloqueo de terminal pueda liberarse y el terminal extraerse del conector. (b) Utilice una herramienta especial o el retenedor de terminal para desbloquear el dispositivo de bloqueo secundario o retenedor de terminal. AVISO: No extraiga el retenedor de terminal del cuerpo del conector. [A] Para conector de tipo no resistente al agua. CONSEJO : La posición para introducir el agujero varía según la forma del conector (número de los terminales, etc.), por lo que asegúrese de la posición antes de introducirlo. "Caso 1" Levante el retén del terminal colocándolo provisoriamente en la posición de asegurado. "Caso 2" Abra el dispositivo de bloqueo secundario.
  • 15.
    HerramientaLengüeta Lengüeta Retén del terminal Orifïciode acceso (Marca ) Herramienta Herramienta [Hembra] Ejemplo: (Caso 1) [Macho] [Macho] [Hembra] (Retenedor en posición de bloqueo completo) (Retenedor en posición de bloqueo temporal) Retén del terminal [Macho] Presione hacia abajo [Hembra] Presione hacia abajo Herramienta Herramienta Ejemplo: (Caso 2) HILUX (EWD630S) 15 C [B] Para conector de tipo resistente al agua CONSEJO : El color del retenedor de terminal es diferente de acuerdo al cuerpo del conector. Retenedor de terminal : Cuerpo del conector Negro o blanco : Gris Negro o blanco : Gris oscuro Gris o blanco : Negro "Caso 1" Tipo donde el retenedor de terminal se tira hacia arriba hacia la posición de bloqueo temporal (tipo de tiro). Inserte la herramienta especial en el orifïcio de acceso del retenedor de terminal (marca Y) y tire del retenedor de terminal hacia arriba hacia la posición de bloqueo temporal. CONSEJOS : La posición de inserción de la aguja varia de acuerdo a la forma del conector (número de terminales, etc.), por eso compruebe la posición antes de insertarla. "Caso 2" Tipo donde no se puede tirar hasta al posición de bloqueo de potencia, inserte la herramienta en el orifïcio de acceso del retendor terminal tal como se indica.
  • 16.
    (Retenedor en posición debloqueo completo) [Macho] [Hembra] (Retenedor en posición de bloqueo temporal) Lengüeta de seguridad Herramienta 16 HILUX (EWD630S) C LOCALIZACION DE AVERIAS Presione hacia abajo del retenedor de terminal hacia la posición de bloqueo temporal. (c) Suelte la lengüeta de segurided del terminal y extraiga el terminal por atrás. 4. INSTALE EL TERMINAL EN EL CONECTOR (a) Inserte el terminal CONSEJOS: 1. Verifïque que el terminal quede correctamente ubicado. 2. Inserte el terminal hasta que la lengüeta del seguro quede trabada. 3. Inserte el terminal con el retén del mismo en posición de trabado provisorio. (b) Empuje el retén del terminal hasta que quede en la posición de completamente trabado. 5. CONECTE EL CONECTOR
  • 17.
    ∗ Los títulosdados dentro de los componentes son los nombres de los terminales (códigos de terminal) y no se tratan como abreviaturas. HILUX (EWD630S) 17 ABREVIATURAS D ABREVIATURAS En este manual se utilizan las siguientes abreviaturas. 2WD = Vehículos con tracción en dos ruedas (Two Wheel Drive Vehicles) 4WD = Vehículos con tracción en las cuatro ruedas (Four Wheel Drive Vehicles) A/C = Acondicionador de aire (Air Conditioner) A/T = Transmisión automática (Automatic Transmission) ABS = Sistema de frenos antibloqueo (Anti-Lock Brake System) ADD = Diferencial de desconexion automatica (Automatic Disconnecting Differential) CAN = Red del área del controlador (Controller Area Network) CD = Disco compacto (Compact Disc) DLC3 = Conector de enlace de datos 3 (Data Link Connector 3) ECT = Transmisión con control electrónico (Electronic Control Transmission) ECU = Unidad de control electrónico (Electronic Control Unit) EDU = Unidad propulsora electrónica (Electronic Driving Unit) EFI = Inyección de combustible electrónica (Electronic Fuel Injection) EGR = Recirculación de gases de escape (Exhaust Gas Recirculation) ESA = Advance electrónico de la chispa (Electronic Spark Advance) EVAP = Emisiones evaporativas (Evaporative Emission) IC = Circuito integrado (Integrated Circuit) INT = Intermitente (Intermittent) J/B = Bloque de enlaces (Junction Block) LCD = Visualizador de cristal líquido (Liquid Crystal Display) LH = Izquierda (Left-Hand) M/T = Transmisión manual (Manual Transmission) R/B = Bloque de relés (Relay Block) RH = Derecha (Right-Hand) SRS = Sistema suplementario de sujeción (Supplemental Restraint System) SW = Interruptor (Switch) TEMP. = Temperatura (Temperature) VRV = Válvula de regulación de vacío (Vacuum Regulating Valve) VSV = Válvula conmutadora de vacío (Vacuum Switching Valve) w/ = Con (With) w/o = Sin (Without)
  • 18.
    18 HILUX (EWD630S) E GLOSARIODE TERMINOS Y SIMBOLOS BATERIA Almacena energía química y la convierte en energía eléctrica. Proporciona corriente continua para los diversos circuitos eléctricos del vehículo. MASA Punto en el cual el cableado hace contacto con la carrocería del vehículo, proporcionando de esta manera una vía de retorno para el circuito eléctrico. Sin conexión a masa, la corriente no fluye. CAPACITOR (Condensador) Pequeña unidad de retención que puede almacenar temporariamente una tensión électrica. FARO El flujo de corriente hace que el fïlamento del faro se caliente y emita luz. Los faros pueden ser de tipo monofïlamento (1) o de 1. MONOFILAMENTO ENCENDEDOR DE CIGARRILLOS Elemento de calentamiento con resistencia eléctrica. ( ) fïlamento doble (2). 2. DE FILAMENTODOBLE Básicamente un fusible reutilizable, el ruptor se calienta y se abre si un flujo excesivo de corriente fluye por el mismo. Algunas unidades vuelven automáticamente al estado inicial una vez frías, mientras que otras deben ser reposicionadas manualmente. RUPTOR BOCINA Dispositivo eléctrico que hace sonar una señal audible. DIODO Semiconductor que permite el flujo de corriente en un sólo sentido. BOBINA DE ENCENCIDO Convierte la corriente continua de baja tensión en corriente de encendido de alta tensión para activar las bujías. DIODO DE ZENER Semiconductor que permite el flujo de corriente en un sólo sentido pero bloquea el flujo en sentido contrario hasta una tensión específïca. Por encima de este valor, la tensión excesiva pasa por este diodo. De esta manera, actúa como un sencillo regulador de tensión. LAMPARA El flujo de corriente a través del fïlamento hace que este se caliente y emita luz FOTODIODO El fotodiodo es un semiconductor que controla el flujo corriente según la intensidad de la luz. DEL (DIODO EMISOR DE LUZ) Al pasar corriente, este diodo emite luz sin producir el calor de otras fuentes de luz. DISTRIBUIDOR, IIA Canaliza la alta tensión de la bobina de encendido hacia las bujías individuales. MEDIDOR ANALOGICO La corriente activa la bobina magnética que hace que la aguja se desplace, proporcionando de esta manera una indicación relativa contra el cuadrante ubicado detrás de la aguja. FUSIBLE Delgada tira de metal que se quema cuando pasa un flujo de corriente excesivo por el mismo, cortando de esta manera el flujo de corriente y protegiendo el circuito de posibles MEDIDOR DIGITAL El flujo de la corriente activa uno o varios diodos emisores de luz, de cristal líquido o indicadores fluorescentes, que proporcionan una indicación relativa o digital. FUEL p g p daños. ESLABON FUSIBLE Alambre grueso colocado en circuitos de alto amperaje que se quema en caso de sobrecarga, para proteger el circuito. (para fusible de corriento media) (para fusible de corriente alta o eslabón fusible) MOTOR Unidad de potencia que convierte energía eléctrica en energía mecánica, en especial, en movimiento de rotación. M
  • 19.
    HILUX (EWD630S) 19 E RELE Básicamente, uninterruptor operado eléctricamente que puede estar normalmente cerrado (1) o bien normalmente abierto (2). El flujo de la corriente a través de una pequeña bobina crea un campo 2. NORMALMENTE ABIERTO 1. NORMALMENTE CERRADO INTERRUPTOR, MANUAL Abre o cierra los ALTAVOZ Dispositivo electromecánico que crea ondas de sonido a partir de un flujo de corriente. magnético que abre o cierra el interrupntor correspondiente. RELE DE DOS DIRECCIONES Un relé que permite que la corriente pase por un juego de contactos o por el otro. circuitos, cortando (1) o permitiendo (2) el flujo de la corriente. 1. NORMALMENTE ABIERTO 2. NORMALMENTE CERRADO RESISTENCIA Componente eléctrico con resistencia fïja colocado en un circuito para reducir la tensión hasta un valor específïco. INTERRUPTOR DE DOS DIRECCIONES Interruptor que hace pasar la corriente de manera continua por uno de los dos grupos de contactos o por el otro. RESISTENCIA, CON TOMAS Resistencia que suministra dos o más valores de resistencia diferentes no ajustables. INTERRUPTOR DE ENCENDIDO Interruptor accionado mediante una llave con varias posiciones que permiten que varios circuitos, en especial, el circuito de encendido primario, se activen. RESISTENCIA VARIABLE o REOSTATO Resistencia cuyo valor puede controlarse. Asimismo denominado potenciometro o reostato. p , SENSOR (Termistor) Resistencia cuyo valor varía según la temperatura. INTERRUPTOR DE DETENCION DEL LIMPIAPARABRISAS Hace que las hojas del limpiaparabrisas retornen automáticamente a la posición de detenidos al colocar el interruptor del limpiaparabrisas en la posición OFF. SENSOR, VELOCIDAD Utilizando impulsos magnéticos para abrir y cerrar un interruptor con la finalidad de crear una señal de activación de otros componentes.(Tipo de interruptor de lámioas) TRANSISTOR Dispositivo de estado sólido utilizado típicamente como relé electrónico que interrumpe o permite el paso de la corriente aplicada a la "base" del mismo. PASADOR CORTO Utilizado para proporcionar una conexión continua dentro del bloque de empalmes. Los cables se representan siempre mediante líneas rectas en los diagramas de cableado. Los cables cruzados (1) sin un punto negro en la intersección no (1) NO CONECTADOS CABLES SOLENOIDE Bobina electromagnética que forma un campo magnético cuando fluye corriente por la misma para mover un émbolo, etc. negro en la intersección no están conectados; los cables cruzados (2) con un punto negro o una marca octogonal ( ) en la intersección están conectados (empalmados). (2) EMPALMADOS
  • 20.
    R/B del compartimiento del motor ECUde control de derrape con actuador * 1:2TR-FE * 2:1KD-FTV, 2KD-FTV Impulsor de inyectores (EDU) (*2) Impulsor de control de inyección de aire (*1) J/B del compartimiento del motor 20 HILUX (EWD630S) F UBICACION DE LOS RELES [Compartimiento del motor]
  • 21.
    ECU de controlde bloqueo de cambios R/B N.˚3 ECU de aviso antirrobo ECU del motor J/B del lado del conductor Intermitente de la señal de giro Amplificador de la llave de transmisor ECU de la llave de transmisor Amplificador del A/C Centro del conjunto del sensor del colchón de aire ECU de control de 4WDECU de control de la transmisión HILUX (EWD630S) 21 F [Tablero de instrumentos]
  • 22.
    *1 *2 *3 *4 *5 *6 *7 *8*9 1 215A FOG 1 210A HORN 1225A EFI 130A DCC 2 2 20A H-LP RH 1 2 20A H-LP LH 1 1 1 7.5A 20A ALT-S A/F 2 2 110A ETCS 2 17.5A DOME 2 17.5A ECU-B RAD 2 115A TURN-HAZ 2 115A 2 Unidad D * 1:100A ALT (para la corriente alta) * 2:80A GLOW (para la corriente alta) * 3:50A BATT P/I (para la corriente alta) * 4:30A AM2 (para la corriente alta) * 5:40A MAIN (para la corriente alta) * 6:40A ABS NO.1 (para la corriente alta) * 7:40A FR HTR (para la corriente alta) * 8:30A ABS NO.2 (para la corriente alta) * 9:50A A/PMP (para la corriente alta) Unidad C Unidad B Unidad A 22 HILUX (EWD630S) F UBICACION DE LOS RELES 1 : R/B del compartimiento del motor Compartimiento del motor izquierdo (Vea la página 20) : J/B del compartimiento del motor Compartimiento del motor izquierdo (Vea la página 20) (Circuito interior : Vea la página 26)
  • 23.
    3 4 A launidad D 1 2 43 21 43 21 43 21 1 1 11 Vista posterior Vista lateral Vista lateral Vista superior (desde el cable principal del compartimiento del motor) (desde el cable principal del compartimiento del motor) (desde el cable del motor) (desde el cable principal del compartimiento del motor) (desde el cable principal del compartimiento del motor) (desde el cable principal del compartimiento del motor) Color del cable : W 1B 1E 1F 1G 1A 1C Unidad A Color del cable : B Color del cable : B Color del cable : B HILUX (EWD630S) 23 F
  • 24.
    2 3 4 5 6 7 8 1 8 7 6 5 4 3 2 1 Vista posterior (desde elcable principal del compartimiento del motor) (desde el cable principal del compartimiento del motor) (desde el cable principal del compartimiento del motor) 1 8 7 6 5 4 3 2 1 1 2 3 4 5 6 7 8 1 1I 1J 1H Unidad B Unidad C Vista superior 2 1 5 3 2 1 5 3 Relé ST Relé ST Relé GLOW (2TR-FE) (1KD-FTV, 2KD-FTV) 12 3 5 1 2 35 Relé de A/F 24 HILUX (EWD630S) F UBICACION DE LOS RELES 1 : R/B del compartimiento del motor Compartimiento del motor izquierdo (Vea la página 20) : J/B del compartimiento del motor Compartimiento del motor izquierdo (Vea la página 20) (Circuito interior : Vea la página 27)
  • 25.
  • 26.
    1 1F 1 1E 21B 1 1C 2 1C 1 1 1 1 1 1 1G 3 1B 4 1B 3 1C 4 1C 1 1A 1 1 1 Unidad A Unidad D 80A GLOW 100A ALT 40A ABS NO.1 40A FR HTR 30A ABS NO.2 30A AM2 40A MAIN 50A A/PMP 30A DCC 7.5A ECU-B 15A RAD 7.5A DOME 20A H-LP RH 20A H-LP LH 7.5A ALT-S 10A ETCS 20A A/F 15A TURN-HAZ 50A BATT P/I 21 21 21 21 21 21 12 12 12 12 26 HILUX (EWD630S) F UBICACION DE LOS RELES [Circuito interior del R/B del compartimiento del motor y J/B del compartimiento del motor]
  • 27.
    1 1H 1 1I 41I 3 1I 2 1I 5 1I 8 1I 7 1I 6 1I 1 1J 4 1J 3 1J 2 1J 5 1J 8 1J 7 1J 6 1J Unidad B 1 2 1 2 1 2 15A FOG Relé FOG Relé HORN Relé MAIN Relé EDU (*2) Relé C/OPN (*1) * 1:2TR-FE * 2:1KD-FTV, 2KD-FTV (*2) 10A HORN 25A EFI HILUX (EWD630S) 27 F
  • 28.
    2 1 34 1 1 2 5 7.5A ST 7.5A MET 7.5A ACC 7.5A IGN 20A WIP 10A ECU-IG&GAUGE 15A CIG 15A INJ 7.5A OBD 10A STOP 10A TAIL 15A PWR OUT 10A A/C 4 3 2 1 98 7 6 5 4 3 2 1 101112131415161718 9101112 8 7 6 5 4 3 2 1 910 8 7 6 5 4 3 2 1 2 1 6 5 4 3 12 34561 2 3 4 5 6 107 8 9 1 2 3 4 5 6 7 8 (desde el cable del panel instrumental) (desde el cable del panel instrumental) (desde el cable del panel instrumental) (desde el cable del panel instrumental) (desde el cable del techo) (desde el cable principal del compartimiento del motor) (desde el cable principal del compartimiento del motor) (desde el cable principal del compartimiento del motor) (desde el cable principal del compartimiento del motor) (desde el cable principal del compartimiento del motor) (desde el cable del piso) (desde el cable del piso) (desde el cable del piso) Amarillo Negro Negro 9101112 1 2 3 4 5 6 7 8 9 101112131415161718 12 34 1 1 2 1 2 3 4 5 1 2 3 4 5 6 7 8 9 10 11 12 13 14 1 2 3 4 5 6 7 8 9 10 11 12 13 14 1 2 3 4 5 6 7 10 11 12 13 14 8 9 1 2 3 4 5 6 7 10 11 12 13 14 8 9 1 2 3 4 5 6 7 10 11 12 13 14 8 9 1 2 3 4 5 6 7 10 11 12 13 14 8 9 1 2 3 4 5 6 7 10 11 12 13 14 8 9 1 2 3 4 5 6 7 10 11 12 13 14 8 9 1 2 3 4 5 6 7 10 11 12 13 14 8 9 1 2 3 4 5 6 7 10 11 12 13 14 8 9 2B 2C 2D 2E 2F 2G 2H 2K 2L 2M 2J 2I 2A 28 HILUX (EWD630S) F UBICACION DE LOS RELES : J/B del lado del conductor Tensor del panel instrumental izquierdo (Vea la página 21)
  • 29.
    1 2 3 4 5 3 5 1 2 1 2 1 2 9 10 11 12 13 14 15 16 17 18 8 7 6 5 4 3 2 1 1 2 3 4 5 6 7 8 9 10 11 12 13 14 15 16 17 18 19 20 21 22 23 24 25 26 27 28 29 30 31 32 1 2 3 4 5 6 7 8 9 10 11 12 13 14 15 16 17 18 19 20 21 22 23 24 25 26 27 28 29 30 31 32 1 2 3 4 5 6 7 8 9 10 11 12 13 14 15 16 17 18 19 20 21 22 23 24 25 26 27 28 29 30 31 32 1 2 3 4 5 6 7 8 9 10 11 12 13 14 15 16 17 18 19 20 21 22 23 24 25 26 27 28 29 30 31 32 1 2 3 4 5 6 7 8 9 10 11 12 13 14 15 16 17 18 19 20 21 22 23 24 25 26 27 28 29 30 31 32 1 2 3 4 5 6 7 8 9 10 11 12 13 14 15 16 17 18 19 20 21 22 23 24 25 26 27 28 29 30 31 32 1 2 3 4 5 6 7 8 9 10 11 12 13 14 15 16 17 18 19 20 21 22 23 24 25 26 27 28 29 30 31 32 1 2 3 4 5 6 7 8 Gris Gris (desdeel cable del panel instrumental) Gris (desde el cable del panel instrumental) (desde el cable del panel instrumental) (desde el cable del panel instrumental) (desde el cable del panel instrumental) Relé de integración Relé HTR 40A IG1 (para la corriente alta) 40A AM1 (para la corriente alta) Relé PWR OUT (desde el cable del panel instrumental) 9 10 11 12 13 14 15 16 17 18 19 20 21 22 23 24 25 26 27 28 29 30 31 32 1 2 3 4 5 6 7 8 9 10 11 12 13 14 15 16 17 18 19 20 21 22 23 24 25 26 27 28 29 30 31 32 1 2 3 4 5 6 7 8 9 10 11 12 13 14 15 16 17 18 19 20 21 22 23 24 25 26 27 28 29 30 31 32 1 2 3 4 5 6 7 8 9 10 11 12 13 14 15 16 17 18 19 20 21 22 23 24 25 26 27 28 29 30 31 32 1 2 3 4 5 6 7 8 9 10 11 12 13 14 15 16 17 18 19 20 21 22 23 24 25 26 27 28 29 30 31 32 2O 2N 2P 2R 2S 2Q HILUX (EWD630S) 29 F
  • 30.
    2 2J 2 2I 12E 9 2D 1 2F 2 2E 17 2D 18 2D 1 2B 2 2B 24 2N 8 2N 24 2O 8 2O 23 2N 7 2N 23 2O 7 2O 1 2G 2 2C 3 2C 4 2C 1 2H 5 2E 26 2R 10 2R 26 2S 10 2S 9 2L 9 2M 9 2K 30 2R 14 2R 30 2S 14 2S 2 2P 18 2P 18 2Q 2 2Q 3 2A 5 2A 13 2D 15 2D 16 2D 23 2P 7 2P 23 2Q 7 2Q 7 2J 7 2I 12 2C 1 2C 5 2C 14 2D 2 2F 2 2H 2 2A 6 2A 32 2R 16 2R 32 2S 16 2S 31 2R 15 2R 31 2S 15 2S 14 2L 14 2M 14 2K 5 4 1 Relé HTR Relé PWR OUT 15A PWR OUT 7.5A ACC 15A CIG 10A TAIL 7.5A OBD 10A STOP 40A IG1 40A AM1 20A WIP 10A ECU-IG&GAUGE 10A A/C 3 2 5 2 3 1 21 21 (Sigue en la página siguiente) 30 HILUX (EWD630S) F UBICACION DE LOS RELES [Circuito interior del lado del conductor J/B]
  • 31.
    13 2L 13 2M 132K 4 2L 4 2M 4 2K 8 2L 8 2M 8 2K 7 2C 6 2C 3 2B 21 2N 5 2N 21 2O 5 2O 8 2C 9 2C 10 2C 11 2C 24 2R 8 2R 24 2S 8 2S 25 2P 9 2P 25 2Q 9 2Q 8 2J 8 2I 4 2E 32 2N 16 2N 32 2O 16 2O 20 2R 4 2R 20 2S 4 2S 25 2R 9 2R 25 2S 9 2S 19 2N 3 2N 19 2O 3 2O 22 2R 6 2R 22 2S 6 2S 6 2L 6 2M 6 2K 8 2B 1 2D 10 2D 11 2D 12 2D 4 2B 21 2P 5 2P 21 2Q 5 2Q 5 2J 5 2I 7 2B 22 2P 6 2P 22 2Q 6 2Q 6 2J 6 2I 7.5A ST 7.5A IGN 7.5A MET 15A INJ (Continuado) (Sigue en la página siguiente) HILUX (EWD630S) 31 F
  • 32.
    4 2H 7 2D 62D 5 2D 4 2D 3 2D 2 2D 3 2E 31 2N 15 2N 31 2O 15 2O 30 2N 14 2N 30 2O 14 2O 1 2A 4 2A 28 2N 12 2N 28 2O 12 2O 27 2N 11 2N 27 2O 11 2O 22 2N 6 2N 22 2O 6 2O 29 2N 13 2N 29 2O 13 2O 26 2N 10 2N 26 2O 10 2O 25 2N 9 2N 25 2O 9 2O 27 2R 11 2R 27 2S 11 2S 10 2L 10 2M 10 2K 28 2R 12 2R 28 2S 12 2S 11 2L 11 2M 11 2K 29 2R 13 2R 29 2S 13 2S 12 2L 12 2M 12 2K 20 2N 4 2N 20 2O 4 2O 16 DCTY ILE L1 UL1 ALTB GND ACT- Relé de integración ACT+ BECU 15 14 13 12 11 10 9 8 5 6 1 17 18 2 3 4 (Continuado) (Sigue en la página siguiente) 32 HILUX (EWD630S) F UBICACION DE LOS RELES [Circuito interior del lado del conductor J/B]
  • 33.
    20 2P 4 2P 202Q 4 2Q 4 2J 4 2I 26 2P 10 2P 26 2Q 10 2Q 9 2J 9 2I 18 2N 2 2N 18 2O 2 2O 17 2N 1 2N 17 2O 1 2O 32 2P 16 2P 32 2Q 16 2Q 31 2P 15 2P 31 2Q 15 2Q 14 2J 14 2I 30 2P 14 2P 30 2Q 14 2Q 13 2J 13 2I 24 2P 8 2P 24 2Q 8 2Q 29 2P 13 2P 29 2Q 13 2Q 12 2J 12 2I 28 2P 12 2P 28 2Q 12 2Q 11 2J 11 2I 19 2P 3 2P 19 2Q 3 2Q 3 2J 3 2I 27 2P 11 2P 27 2Q 11 2Q 10 2J 10 2I 17 2P 1 2P 17 2Q 1 2Q 1 2J 1 2I (Continuado) (Sigue en la página siguiente) HILUX (EWD630S) 33 F
  • 34.
    23 2R 7 2R 232S 7 2S 7 2L 7 2M 7 2K 21 2R 5 2R 21 2S 5 2S 5 2L 5 2M 5 2K 19 2R 18 2R 2 2R 18 2S 2 2S 2 2L 2 2M 2 2K 17 2R 1 2R 17 2S 1 2S 1 2L 1 2M 1 2K 3 2R 19 2S 3 2S 3 2L 3 2M 3 2K (Continuado) 34 HILUX (EWD630S) F UBICACION DE LOS RELES [Circuito interior del lado del conductor J/B]
  • 35.
    5 3 2 1 35 1 2 2 1 1 2 25A 20A DOOR DEF 2 ReléIG1 Relé DEF 30A PWR (para la corriente alta) 1 HILUX (EWD630S) 35 F 3 : R/B N.° 3 Panel del lado del cubretablero derecho (Vea la página 21)
  • 36.
    36 HILUX (EWD630S) G RECORRIDODE LOS CABLES ELECTRICOS Posición de las piezas en el compartimiento del motor [2TR-FE] I9 A22 I10 A19 A20 I8 I7 A4 H2 B2 F8 F7 F6 H1 H6 (*2) H6 (*1) * 1:4WD * 2:2WD B1 C1H4E4A8 A3C3 A7A21 A18 F5 C14 A1 C4 C2 A 1 Compresor del A/C A 3 Actuador de ADD A 4 Medidor de flujo de aire A 7 Alternador A 8 Alternador A18 Sensor de la relación de aire-combustible (banco 1 sensor 1) A19 Impulsor de control de inyección de aire A20 Impulsor de control de inyección de aire A21 Bomba de aire A22 Válvula de conmutación de aire B 1 Interruptor de la lámpara de marcha atrás B 2 Interruptor de advertencia del nivel del líquido de frenos C 1 Sensor de posición del árbol de levas C 2 Lámpara de paso (delantera izquierda) C 3 Lámpara de paso (delantera derecha) C 4 Sensor de posición del cigüeñal C14 Válvula de control del aceite de distribución del árbol de levas E 4 Sensor de presión del aceite de motor F 5 Inyector de combustible (N.° 1) F 6 Inyector de combustible (N.° 2) F 7 Inyector de combustible (N.° 3) F 8 Inyector de combustible (N.° 4) H 1 Faro (izquierdo) H 2 Faro (derecho) H 4 Bocina (baja) H 6 Sensor de oxígeno calentado (banco 1 sensor 1) I 7 Bobina de encendido (N.° 1) I 8 Bobina de encendido (N.° 2) I 9 Bobina de encendido (N.° 3) I 10 Bobina de encendido (N.° 4)
  • 37.
    HILUX (EWD630S) 37 G Posición delas piezas en el compartimiento del motor [2TR-FE] T15 P1 T13 T14 J35 S7 T12 W2 S3 T4W1 T3K2 T25 W3 S6 P12V3N2 J 35 Conector de unión K 2 Sensor de control de golpeteo banco 1) N 2 Filtro de ruido (encendido) P 1 Interruptor de presión P12 Interruptor de presión de aceite de la servodirección S 3 Sensor de velocidad S 6 Arrancador S 7 Arrancador T 3 Interruptor del indicador de la transferencia (posición 4WD) T 4 Interruptor del indicador de la transferencia (posición L4) T 12 Lámpara de la señal de giro (frontal izquierda) T 13 Lámpara de la señal de giro (frontal derecha) T 14 Lámpara de la señal de giro (frontal lateral izquierda) T 15 Lámpara de la señal de giro (frontal lateral derecha) T 25 Conjunto del cuerpo del acelerador V 3 VSV (EVAP) W 1 Sensor de la temperatura del agua W 2 Motor del lavador del parabrisas W 3 Motor del limpiador del parabrisas
  • 38.
    38 HILUX (EWD630S) G RECORRIDODE LOS CABLES ELECTRICOS Posición de las piezas en el compartimiento del motor [1KD-FTV, 2KD-FTV] A2 F7 I1 I2 F8 F6 I3 A4 F5 H2 F3 B2 F10 F4 B3 I4 E4 H1 C1 F2 B1 E1 E2 G1 H4A1A8A6A7C3 A3E3 F11 F9 A5C4 C2 A 1 Compresor del A/C A 2 Sensor de la temperatura del líquido de la A/T A 3 Actuador de ADD A 4 Medidor de flujo de aire A 5 Sensor del colchón de aire (delantero izquierdo) A 6 Sensor del colchón de aire (delantero derecho) A 7 Alternador A 8 Alternador B 1 Interruptor de la lámpara de marcha atrás B 2 Interruptor de advertencia del nivel del líquido de frenos B 3 Interruptor de advertencia de vacío del freno C 1 Sensor de posición del árbol de levas C 2 Lámpara de paso (delantera izquierda) C 3 Lámpara de paso (delantera derecha) C 4 Sensor de posición del cigüeñal E 1 Solenoide de ECT E 2 Sensor de la posición de la válvula EGR E 3 Interruptor de cortesía del capo del motor E 4 Sensor de presión del aceite de motor F 2 Lámpara antiniebla (delantera izquierda) F 3 Lámpara antiniebla (delantera derecha) F 4 Interruptor de advertencia del filtro de combustible F 5 Inyector de combustible (N.° 1) F 6 Inyector de combustible (N.° 2) F 7 Inyector de combustible (N.° 3) F 8 Inyector de combustible (N.° 4) F 9 Sensor de presión de combustible F 10 Interruptor de aviso del nivel de sedimentos de combustible F 11 Sensor de la temperatura del combustible G 1 Bujía incandescente H 1 Faro (izquierdo) H 2 Faro (derecho) H 4 Bocina (baja) I 1 Impulsor de inyectores (EDU) I 2 Impulsor de inyectores (EDU) I 3 Sensor de la temperatura del aire de entrada (Filtro de aire) I 4 Sensor de la temperatura del aire de entrada (Enfriador intermedio)
  • 39.
    HILUX (EWD630S) 39 G Posición delas piezas en el compartimiento del motor [1KD-FTV, 2KD-FTV] T10 S1 T15 T11 P1 T13 V2 S2 T1 J1 V1 T14 T12 W2 S3 (*3) T7T2N1 T3 T5S3 (*2) T4 S3 (*1) * 1:M/T 2WD sin enfriador intermedio * 2:A/T 2WD * 3:4WD, M/T 2WD con enfriador intermedio * 4:1KD-FTV * 5:2KD-FTV T6T9 (*4) S9W3 S8 S4S7S6W1T9S5 (*5) J 1 Conector de unión N 1 Interruptor de arranque en punto muerto P 1 Interruptor de presión S 1 Bocina de seguridad S 2 ECU de control de derrape con actuador S 3 Sensor de velocidad S 4 Sensor de velocidad (delantero izquierdo) S 5 Sensor de velocidad (delantero derecho) S 6 Arrancador S 7 Arrancador S 8 Válvula de control de la succión S 9 Válvula de control de turbulencia T 1 Conjunto del cuerpo del acelerador T 2 Conjunto del cuerpo del acelerador T 3 Interruptor del indicador de la transferencia (posición 4WD) T 4 Interruptor del indicador de la transferencia (posición L4) T 5 Interruptor del indicador de la transferencia (posición de punto muerto) T 6 Sensor de revoluciones de la transmisión (entrada) T 7 Sensor de revoluciones de la transmisión (salida) T 9 Sensor de presión turbo T 10 Motor de boquilla variable del turboalimentador T 11 Sensor de boquilla variable del turboalimentador T 12 Lámpara de la señal de giro (frontal izquierda) T 13 Lámpara de la señal de giro (frontal derecha) T 14 Lámpara de la señal de giro (frontal lateral izquierda) T 15 Lámpara de la señal de giro (frontal lateral derecha) V 1 VRV (EGR) V 2 VSV (válvula de corte de EGR) W 1 Sensor de la temperatura del agua W 2 Motor del lavador del parabrisas W 3 Motor del limpiador del parabrisas
  • 40.
    40 HILUX (EWD630S) G RECORRIDODE LOS CABLES ELECTRICOS Posición de las piezas en el panel instrumental A13 C10 C8 C7 A23 A9C11C12 A15 B6 A24A10 A14 A12B4 B5 C6 C5 A16 A 9 Amplificador del A/C A10 Termistor del A/C A12 Iluminación de la palanca de cambios de la A/T A13 Sensor de la posición del acelerador A14 Centro del conjunto del sensor del colchón de aire A15 Detonador del colchón de aire (almohadilla del volante de dirección) A16 Iluminación del cenicero A23 Detonador del colchón de aire (conjunto del colchón de aire del pasajero delantero) A24 Interruptor del A/C B 4 Motor del soplador B 5 Resistor del soplador B 6 Interruptor del soplador C 5 Encendedor de cigarrillos C 6 Iluminación del encendedor de cigarrillos C 7 Reloj C 8 Medidor de combinación C10 Interruptor de combinación C11 Interruptor de combinación C12 Interruptor de combinación
  • 41.
    HILUX (EWD630S) 41 G Posición delas piezas en el panel instrumental I5 I6 D1 E10 E6 (*2) (*1) (*3) (*2) (*1) (*1) (*2) F14 E11 E7 H5 E12 E8 E5 (*2) E9 (*1) * 1:2TR-FE * 2:1KD-FTV, * 3:sin sistema inmovilizador del motor 2KD-FTV D 1 DLC3 E 5 ECU del motor E 6 ECU del motor E 7 ECU del motor E 8 ECU del motor E 9 ECU del motor E10 ECU del motor E 11 ECU del motor E12 ECU del motor F 14 ECU de control de 4WD H 5 Interruptor de la señal de aviso de peligro I 5 Lámpara del cilindro de la llave de encendido I 6 Interruptor de encendido
  • 42.
    42 HILUX (EWD630S) G RECORRIDODE LOS CABLES ELECTRICOS Posición de las piezas en el panel instrumental J29 J2 J3 J22 J15 J25 J24 J26 J23 J28 J16 J17 J14 J13 J7 (*2) J8 (*2) J4J5 J30 (*1) J6 (*2) J32 (*1) J31 (*1) J9 (*2) J33 (*1) J10 (*2) J34 (*1) J12 J11 * 1:2TR-FE * 2:1KD-FTV, 2KD-FTV J19J18J27 J21 J20 J 2 Conector de unión J 3 Conector de unión J 4 Conector de unión J 5 Conector de unión J 6 Conector de unión J 7 Conector de unión J 8 Conector de unión J 9 Conector de unión J 10 Conector de unión J 11 Conector de unión J 12 Conector de unión J 13 Conector de unión J 14 Conector de unión J 15 Conector de unión J 16 Conector de unión J 17 Conector de unión J 18 Conector de unión J 19 Conector de unión J 20 Conector de unión J 21 Conector de unión J 22 Conector de unión J 23 Conector de unión J 24 Conector de unión J 25 Conector de unión J 26 Conector de unión J 27 Conector de unión J 28 Conector de unión J 29 Conector de unión J 30 Conector de unión J 31 Conector de unión J 32 Conector de unión J 33 Conector de unión J 34 Conector de unión
  • 43.
    HILUX (EWD630S) 43 G Posición delas piezas en el panel instrumental S14 T22 K1 U1 O1 S10 T17 T18 T19 T8 R2T21 R1P13 S12 T16 P2 S11P3 R3S13T20 (*4) * 4:con sistema inmovilizador del motor K 1 Solenoide de interbloqueo de la llave O 1 Interruptor del espejo exterior P 2 Interruptor del freno de estacionamiento P 3 Enchufe eléctrico P13 Lámpara de aviso del cinturón de seguridad del pasajero R 1 Conjunto del receptor de radio R 2 Conjunto del receptor de radio R 3 Interruptor del desempañador de la ventanilla trasera S10 Lámpara del indicador de seguridad S 11 ECU de control de bloqueo de cambios S12 Pasador de cortocircuito (ECU de aviso antirrobo) S13 Cable espiral S14 Interruptor de la lámpara de parada T 8 Impulsor del motor de turboalimentación T 16 ECU de aviso antirrobo T 17 ECU de control de la transmisión T 18 ECU de control de la transmisión T 19 ECU de control de la transmisión T 20 Amplificador de la llave de transmisor T 21 ECU de la llave de transmisor T 22 Intermitente de la señal de giro U 1 Interruptor de advertencia de desbloqueo
  • 44.
    44 HILUX (EWD630S) G RECORRIDODE LOS CABLES ELECTRICOS Posición de las piezas en la carrocería [Cabina doble] D6 P5 P4 O2 P10 D2 P7 F12 C13 P6O3M1 P9 D3 D7 P11 P8 D9 D5 F13 (*2) F15 (*1) * 1:2TR-FE * 2:1KD-FTV, 2KD-FTV D4D8 A17F17 L2L1 A17 Sensor de desaceleración del ABS C13 Lámpara de parada central D 2 Interruptor de cortesía de la puerta (lado del conductor) D 3 Interruptor de cortesía de la puerta (lado del pasajero delantero) D 4 Interruptor de cortesía de la puerta (trasera izquierda) D 5 Interruptor de cortesía de la puerta (trasera derecha) D 6 Conjunto de bloqueo de la puerta (lado del conductor) D 7 Conjunto de bloqueo de la puerta (lado del pasajero delantero) D 8 Conjunto de bloqueo de la puerta (trasera izquierda) D 9 Conjunto de bloqueo de la puerta (trasera derecha) F 12 Cinturón interior del asiento delantero (lado del conductor) F 13 Medidor del emisor de combustible F 15 Conjunto de la bomba de succión de combustible y medidor F 17 Conjunto del cinturón interior del asiento delantero (lado del pasajero delantero) L 1 Lámpara izquierda de la matrícula L 2 Lámpara derecha de la matrícula M 1 Lámpara para mapas O 2 Espejo retrovisor exterior (izquierdo) O 3 Espejo retrovisor exterior (derecho) P 4 Interruptor principal de la ventanilla automática P 5 Motor del regulador de la ventanilla automática (frontal izquierda) P 6 Motor del regulador de la ventanilla automática (frontal derecha) P 7 Motor del regulador de la ventanilla automática (trasera izquierda) P 8 Motor del regulador de la ventanilla automática (trasera derecha) P 9 Interruptor de la ventanilla automática (lado del pasajero delantero) P10 Interruptor de la ventanilla automática (trasera izquierda) P 11 Interruptor de la ventanilla automática (trasera derecha)
  • 45.
    HILUX (EWD630S) 45 G Posición delas piezas en la carrocería [Cabina doble] S15 S17 S18 R5 S22 R8R7 R6S16 R4S21 R 4 Lámpara de combinación trasera (izquierda) R 5 Lámpara de combinación trasera (derecha) R 6 Desempañador de la ventanilla trasera R 7 Desempañador de la ventanilla trasera R 8 Lámpara del compartimiento S15 Altavoz (puerta delantera izquierda) S16 Altavoz (puerta delantera derecha) S17 Altavoz (puerta trasera izquierda) S18 Altavoz (puerta trasera derecha) S21 Sensor de velocidad (trasero izquierdo) S22 Sensor de velocidad (trasero derecho)
  • 46.
    46 HILUX (EWD630S) G RECORRIDODE LOS CABLES ELECTRICOS Posición de las piezas en la carrocería [Cabina sencilla] S15 D2 R5 L2 L1 R8 S16 D3 R4F15 (*1) * 1:2TR-FE * 2:1KD-FTV, 2KD-FTV F13 (*2) D 2 Interruptor de cortesía de la puerta (lado del conductor) D 3 Interruptor de cortesía de la puerta (lado del pasajero delantero) F 13 Medidor del emisor de combustible F 15 Conjunto de la bomba de succión de combustible y medidor L 1 Lámpara izquierda de la matrícula L 2 Lámpara derecha de la matrícula R 4 Lámpara de combinación trasera (izquierda) R 5 Lámpara de combinación trasera (derecha) R 8 Lámpara del compartimiento S15 Altavoz (puerta delantera izquierda) S16 Altavoz (puerta delantera derecha)
  • 47.
  • 48.
    Alambre principal del compartimientodel motor Alambre del motor Alambre del sensor Alambre del motor N.˚ 2 EB1EE ED EA2 EA1 EB EA ;;;;;;;;;;;;;; ;;;;;;;;;;;;;; ;;;;;;;; ;;;;;;;; ;;;;;;;;;;;;;;;;;;;;;;;; ;;;;;;;; E2 E1 48 HILUX (EWD630S) G RECORRIDO DE LOS CABLES ELECTRICOS : Localización del mazo de cables de la unión del conector y del mazo de cables : Localización de los puntos a tierra [2TR-FE] : Localización de los puntos de unión
  • 49.
    HILUX (EWD630S) 49 G Mazo decables de la unión del conector y mazo de cables 1 2 3 4 5 6 7 8 9 10 11 12 13 12345 13 6789101112 1 2 2 1 121 2 EA1 Negro EA2 EB1 Código Mazo de cables de unión y mazo de cables (localización del conector) EA1 Alambre del motor y Alambre principal del compartimiento del motor EA2 y p p p (Dentro del R/B del compartimiento del motor y J/B del compartimiento del motor) EB1 Alambre del motor y Alambre del sensor (Lado izquierdo del bloque de cilindros)
  • 50.
    EC EA1 EA2 EB EA Alambre del motorAlambre del motor N.˚ 2 Alambre principal del compartimiento del motor ;;;;;;;;;; ;;;;;;;;;; ;;;;;;;;;;;;;;;;;;;;;;;;;;;;;; ;;;;;;;;;; ;;;;;;;;;; ;;;;;; ;;;;;;;;;;;;;;;;;; ;;;;;; ;;;;;;;;;;;;;;;;;; ;;;;;; E2 E1 50 HILUX (EWD630S) G RECORRIDO DE LOS CABLES ELECTRICOS : Localización del mazo de cables de la unión del conector y del mazo de cables : Localización de los puntos a tierra [1KD-FTV, 2KD-FTV] : Localización de los puntos de unión
  • 51.
    HILUX (EWD630S) 51 G Mazo decables de la unión del conector y mazo de cables 1 2 3 4 5 6 7 8 9 10 11 12 13 12345 13 6789101112 1 2 2 1 EA1 EA2 Código Mazo de cables de unión y mazo de cables (localización del conector) EA1 Alambre del motor y Alambre principal del compartimiento del motor EA2 y p p p (Dentro del R/B del compartimiento del motor y J/B del compartimiento del motor)
  • 52.
    52 HILUX (EWD630S) G RECORRIDODE LOS CABLES ELECTRICOS : Localización del mazo de cables de la unión del conector y del mazo de cables Alambre del motor Alambre del panel instrumental Conjunto de cables del tablero de instrumentos Alambre del techo Alambre de la puerta frontal derecha Alambre principal del compartimiento del motor Alambre de la puerta frontal izquierda ID1ID2IE1 IA1 Alambre del piso Alambre del piso Alambre del piso IC2 : Localización de los puntos a tierra IDIE IF IG
  • 53.
    HILUX (EWD630S) 53 G Mazo decables de la unión del conector y mazo de cables 1 2 3 4 5 6 7 8 9 10 11 1213141516171819 20 12345678910 11121314151617181920 124 567810 3 9 1 2 5 3 4 6 7 8 9 10 1 2 3 4 5 6 7 8 9 10 11 12 13 12345 13 6789101112 9 18 8 1716 76 1514 54 1312 32 11 1 10 89 18 17 7 16 6 15 5 14 4 13 3 12 2 11 1 10 1 2 3 4 5 6 6 5 4 3 2 1 IA1 IC2 IE1 ID1 ID2 Gris Código Mazo de cables de unión y mazo de cables (localización del conector) IA1 Alambre del panel instrumental y Alambre del piso (Panel de arranque derecho) IC2 Alambre de la puerta frontal izquierda y Alambre del piso (Panel de arranque izquierdo) ID1 Alambre del motor y Alambre del panel instrumental (Detrás de la guantera) ID2 Alambre del motor y Alambre del panel instrumental (Detrás de la guantera) IE1 Alambre del panel instrumental y Alambre del panel instrumental (Centro de refuerzo del tablero de instrumentos)
  • 54.
    54 HILUX (EWD630S) G RECORRIDODE LOS CABLES ELECTRICOS : Localización del mazo de cables de la unión del conector y del mazo de cables IL1IF3IF4IF2IF1 II2 IK1 IJ1 IH1 IG2 IG1 Alambre del motor Alambre del panel instrumental Alambre del techo Alambre de la puerta frontal derecha Alambre principal del compartimiento del motor Alambre de la puerta frontal izquierda Alambre del piso Alambre del piso Alambre del piso Conjunto de cables del tablero de instrumentos : Localización de los puntos de unión ;;;;;;;; ;;;; ;;;;;;;;;;;; ;;;;;; ;;;;;; ;;;;;;;;;;;;;;;;;; ;;;;;; ;;;;; ;;;;;;;;;;;;;;; ;;;;; ;;;;;;;;;;;;;;; I2 I1 I1 (*1) * 1:2TR-FE * 2:1KD-FTV, 2KD-FTV (*2)
  • 55.
    HILUX (EWD630S) 55 G Mazo decables de la unión del conector y mazo de cables IF1 Amarillo IF2 IF3 IF4 IG1 IG2 IH1 II2 IJ1 IK1 IL1 Amarillo 2 1 4 3 1 2 3 4 64321 7 8 9 10 11 12 14 5 13 235 89101113 4 12 1 7 6 14 1 2 3 4 5 6 7 8 9 10 11 12 13 14 15 16 17 18 19 20 12345678910 11121314151617181920 1 2 2 1 1 2 2 1 1 2 3 4 5 6 7 8 9 10 11 12 12 34567 89101112 12 3456 1 2 3 4 5 6 21 12 2 7 6 5 4 3 121 3 4 5 6 7 124 567810 3 9 1 2 5 3 4 6 7 8 9 10 1 2 12 Código Mazo de cables de unión y mazo de cables (localización del conector) IF1 IF2 Alambre principal del compartimiento del motor y Alambre del panel instrumental (Detrás del J/B del lado del conductor) IF3 Alambre principal del compartimiento del motor y Alambre del panel instrumental (Detrás del J/B del lado del conductor) IF4 IG1 Alambre principal del compartimiento del motor y Alambre del piso (Cerca del lado del conductor J/B) IG2 Alambre principal del compartimiento del motor y Alambre del piso (Cerca del lado del conductor J/B) IH1 Alambre del panel instrumental y Alambre del piso (Panel de arranque izquierdo) II2 Alambre de la puerta frontal derecha y Alambre del piso (Panel de arranque derecho) IJ1 Alambre del panel instrumental y Alambre del panel instrumental (Detrás de la guantera) IK1 Alambre de la puerta frontal derecha y Alambre del panel instrumental (Panel de arranque derecho) IL1 Alambre del panel instrumental y Conjunto de cables del tablero de instrumentos (Cerca del conjunto del colchón de aire del pasajero delantero)
  • 56.
    56 HILUX (EWD630S) G RECORRIDODE LOS CABLES ELECTRICOS : Localización del mazo de cables de la unión del conector y del mazo de cables [Cabina doble] Alambre del techo Cable N.˚ 1 de la puerta trasera izquierda Alambre principal del compartimiento del motor Alambre del panel instrumental Alambre del bastidor N.˚ 2 Cable N.˚ 1 de la puerta trasera derecha Alambre de la puerta frontal derecha Alambre del piso Alambre del motor Alambre de la puerta frontal izquierda BD1BE1 BC1 Alambre del bastidor Cable del sensor de control antipatinaje BB1 BA1 BA2 : Localización de los puntos de unión ;;;;; ;;;;; ;;;;; ;;;;; ;;;;;;;; ;;;;;;;;;;;;;;;;;;;;;;;; ;;;;;;;; ;;;;;;;;; ;;;;;;;;; ;;;;;;;;;;;;;;;;;; B3B2 B1
  • 57.
    HILUX (EWD630S) 57 G Mazo decables de la unión del conector y mazo de cables 1 2 3 4 5 6 7 8 9 10 11 12 12 34567 89101112 54321 6 7 8 9 10 1112 235 7891012 4 11 1 6 1 2 3 4 5 6 7 8 9 10 5 4 3 2 1 10 9 8 7 6 1 2 3 4 5 6 7 8 9 10 5 4 3 2 1 10 9 8 7 6 121 2 1 2 3 4 2 1 4 3 BA1 BA2 BB1 BC1 NegroBD1 Negro BE1 Código Mazo de cables de unión y mazo de cables (localización del conector) BA1 Alambre del bastidor y Alambre del piso (Debajo del asiento frontal izquierdo) BA2 Alambre del bastidor y Alambre del piso (Debajo del asiento frontal izquierdo) BB1 Cable N.° 1 de la puerta trasera izquierda y Alambre del piso (Pilar central izquierdo) BC1 Cable N.° 1 de la puerta trasera derecha y Alambre del piso (Pilar central derecho) BD1 Alambre del bastidor N.° 2 y Alambre del bastidor (Debajo del panel posterior izquierdo) BE1 Alambre del bastidor y Cable del sensor de control antipatinaje (Parte trasera del diferencial trasero)
  • 58.
    58 HILUX (EWD630S) G RECORRIDODE LOS CABLES ELECTRICOS : Localización del mazo de cables de la unión del conector y del mazo de cables [Cabina sencilla] Alambre del techo Alambre de la puerta frontal derecha Alambre principal del compartimiento del motor Alambre del panel instrumental Alambre del motor Alambre del piso Alambre de la puerta frontal izquierda Alambre del bastidor BA1 : Localización de los puntos de unión ;;;;;;;;;;;;;;; ;;;;; B3
  • 59.
    HILUX (EWD630S) 59 G Mazo decables de la unión del conector y mazo de cables 1 2 3 4 5 6 7 8 9 10 11 12 12 34567 89101112 BA1 Código Mazo de cables de unión y mazo de cables (localización del conector) BA1 Alambre del bastidor y Alambre del piso (Debajo del asiento frontal izquierdo)
  • 60.
  • 61.
    HILUX (EWD630S) 61 CIRCUITOS DESISTEMAS H HILUX DIAGRAMA DEL CABLEADO ELECTRICO CIRCUITOS DE SISTEMAS Página ABS . . . . . . . . . . . . . . . . . . . . . . . . . . . . . . . . . . . . . . . . . . . . . . . . . . . . . . . . . . . . . . . 140 Acondicionador de aire . . . . . . . . . . . . . . . . . . . . . . . . . . . . . . . . . . . . . . . . . . . . . 202 Advertencia de cinturón de seguridad . . . . . . . . . . . . . . . . . . . . . . . . . . . . . . . . 124 Alimentación . . . . . . . . . . . . . . . . . . . . . . . . . . . . . . . . . . . . . . . . . . . . . . . . . . . . . . . 62 Arranque . . . . . . . . . . . . . . . . . . . . . . . . . . . . . . . . . . . . . . . . . . . . . . . . . . . . . . . . . . . 66 Bloqueo de cambios . . . . . . . . . . . . . . . . . . . . . . . . . . . . . . . . . . . . . . . . . . . . . . . . 154 Bocina . . . . . . . . . . . . . . . . . . . . . . . . . . . . . . . . . . . . . . . . . . . . . . . . . . . . . . . . . . . . . 182 Carga . . . . . . . . . . . . . . . . . . . . . . . . . . . . . . . . . . . . . . . . . . . . . . . . . . . . . . . . . . . . . . 68 Control de bloqueo de la puerta . . . . . . . . . . . . . . . . . . . . . . . . . . . . . . . . . . . . . . 156 Control de bloqueo de la puerta inalámbrico . . . . . . . . . . . . . . . . . . . . . . . . . . 162 Control de crucero . . . . . . . . . . . . . . . . . . . . . . . . . . . . . . . . . . . . . . . . . . . . . . . . . . 134 Control del motor (1KD-FTV, 2KD-FTV) . . . . . . . . . . . . . . . . . . . . . . . . . . . . . . 82 Control del motor (2TR-FE) . . . . . . . . . . . . . . . . . . . . . . . . . . . . . . . . . . . . . . . . . . 72 Desempañador de la ventanilla trasera . . . . . . . . . . . . . . . . . . . . . . . . . . . . . . . 190 ECT . . . . . . . . . . . . . . . . . . . . . . . . . . . . . . . . . . . . . . . . . . . . . . . . . . . . . . . . . . . . . . . . 126 Encendedor de cigarrillos . . . . . . . . . . . . . . . . . . . . . . . . . . . . . . . . . . . . . . . . . . . 184 Encendido . . . . . . . . . . . . . . . . . . . . . . . . . . . . . . . . . . . . . . . . . . . . . . . . . . . . . . . . . 70 Espejo retrovisor de control remoto . . . . . . . . . . . . . . . . . . . . . . . . . . . . . . . . . . 192 Faro . . . . . . . . . . . . . . . . . . . . . . . . . . . . . . . . . . . . . . . . . . . . . . . . . . . . . . . . . . . . . . . 98 Iluminación . . . . . . . . . . . . . . . . . . . . . . . . . . . . . . . . . . . . . . . . . . . . . . . . . . . . . . . . 102 Limpiador y lavador del parabrisas . . . . . . . . . . . . . . . . . . . . . . . . . . . . . . . . . . . 178 Luz antiniebla frontal . . . . . . . . . . . . . . . . . . . . . . . . . . . . . . . . . . . . . . . . . . . . . . . . 100 Luz de cola . . . . . . . . . . . . . . . . . . . . . . . . . . . . . . . . . . . . . . . . . . . . . . . . . . . . . . . . . 102 Luz de marcha atrás . . . . . . . . . . . . . . . . . . . . . . . . . . . . . . . . . . . . . . . . . . . . . . . . 114 Luz de parada . . . . . . . . . . . . . . . . . . . . . . . . . . . . . . . . . . . . . . . . . . . . . . . . . . . . . . 112 Luz interior . . . . . . . . . . . . . . . . . . . . . . . . . . . . . . . . . . . . . . . . . . . . . . . . . . . . . . . . . 116 Medidor de combinado . . . . . . . . . . . . . . . . . . . . . . . . . . . . . . . . . . . . . . . . . . . . . . 196 Recordador de la llave . . . . . . . . . . . . . . . . . . . . . . . . . . . . . . . . . . . . . . . . . . . . . . 120 Recordador de las luces . . . . . . . . . . . . . . . . . . . . . . . . . . . . . . . . . . . . . . . . . . . . . 120 Reloj . . . . . . . . . . . . . . . . . . . . . . . . . . . . . . . . . . . . . . . . . . . . . . . . . . . . . . . . . . . . . . . 188 Señal de giro y luz de advertencia de peligro . . . . . . . . . . . . . . . . . . . . . . . . . . 108 Sistema antirrobo . . . . . . . . . . . . . . . . . . . . . . . . . . . . . . . . . . . . . . . . . . . . . . . . . . . 168 Sistema de audio . . . . . . . . . . . . . . . . . . . . . . . . . . . . . . . . . . . . . . . . . . . . . . . . . . . 194 Sistema de comunicaciones multiplex (CAN) . . . . . . . . . . . . . . . . . . . . . . . . . 96 Sistema inmovilizador del motor . . . . . . . . . . . . . . . . . . . . . . . . . . . . . . . . . . . . . 94 SRS . . . . . . . . . . . . . . . . . . . . . . . . . . . . . . . . . . . . . . . . . . . . . . . . . . . . . . . . . . . . . . . 145 Toma de alimentación . . . . . . . . . . . . . . . . . . . . . . . . . . . . . . . . . . . . . . . . . . . . . . . 186 Ventanilla automática . . . . . . . . . . . . . . . . . . . . . . . . . . . . . . . . . . . . . . . . . . . . . . . 174 4WD (con ADD) . . . . . . . . . . . . . . . . . . . . . . . . . . . . . . . . . . . . . . . . . . . . . . . . . . . . . 148 4WD (sin ADD) . . . . . . . . . . . . . . . . . . . . . . . . . . . . . . . . . . . . . . . . . . . . . . . . . . . . . 152
  • 62.
    62 HILUX (EWD630S) Alimentación 1A1 Batería W 30A AM2 1B 4 50ABATT P/I 1B 3 80A GLOW 1G 1 40A MAIN 1C 3 1 2 20A H–LP LH 1 2 20A H–LP RH 1 1 1 B R B–W W–R W–L B 1 2 15A FOG 1 2 10A HORN 1H 21 1 25A EFI 1J L 40A ABS NO. 1 1B 2 R 30A ABS NO. 2 1C 2 W–R 40A FR HTR 1C 1 L–B 1F 1 100A ALT W–R 30A DCC 1 2 W 1 21 7. 5A ALT–S 1 B–Y1 2 15A TURN–HAZ 21 7. 5A ECU–B 21 L–Y 7. 5A DOME 1 1 R 21 L 1 15A RAD B W–R B L–B 1 IF3 11 IF4 1 (∗2)(∗1) 1 R–W1 2 10A ETCS (∗2) (∗1) 50A A/PMP 1C 4 B–Y B–W 1 1 2 20A A/F (∗1) (∗1) (con ABS) (con ABS)
  • 63.
    HILUX (EWD630S) 63 4 5 2 1 6 7 AM2 AM1 ACC IG1 IG2 ST2 L–R B–YB–R B B–W I 6 A 3 B 4 7.5A ACC 15A CIG 2C 12 2G 1 2F 1 5 1 3 2 4 10A A/C Relé HTR 1 2 40A AM1 1 2 40A IG1 10A STOP 7. 5A OBD 10A TAIL 15A PWR OUT 10A ECU–IG&GAUGE 20A WIP 2A 6 B–Y 2A 2 B–R 7. 5A IGN 7. 5A MET 2C 6 7. 5A ST 2C 7 L–B B W–R 2H 2 1 3 2 5 3 3 3 3 30A PWR 21 L 3 25A DOOR 21 LG 3 20A DEF 21 B–Y 3 3 3 R–L W–B W–G W–G W–R W–R Relé IG1 2K 8 A 7 B 11R–L J16(A), J17(B) Interruptor de encendido Conector de unión ∗ 1 : 2TR–FE ∗ 2 : 1KD–FTV, 2KD–FTV 15A INJ Conector de unión J18(A), J19(B)
  • 64.
    64 HILUX (EWD630S) Alimentación I6 Interruptorde encendido 4-2 : Cerrado con la llave de encendido en la posición ACC u ON 4-1 : Cerrado con el interruptor de encendido en la posición ON o ST 5-6 : Cerrado con el interruptor de encendido en la posición ON o ST 5-7 : Cerrado con el interruptor de encendido en la posición ST : Localización de partes Código Vea la página Código Vea la página Código Vea la página I6 41 J17 B 42 J19 B 42 J16 A 42 J18 A 42 : Bloques de relés Código Vea la página Bloque de relés (localización del bloque de relés) 1 22 R/B del compartimiento del motor (Compartimiento del motor izquierdo) 3 35 R/B N.° 3 (Panel del lado del cubretablero derecho) : Bloque de empalmes y conector del mazo de cables Código Vea la página Bloque de empalmes y mazo de cables (localización del conector) 1A 1B 1C 23 Alambre principal del compartimiento del motor y J/B del compartimiento del motor 1F Alambre principal del compartimiento del motor y J/B del compartimiento del motor (Compartimiento del motor izquierdo) 1G (Compartimiento del motor izquierdo) 1H 24 1J 24 2A 28 Alambre del panel instrumental y J/B del lado del conductor (Tensor del panel instrumental izquierdo) 2C 28 Alambre del panel instrumental y J/B del lado del conductor (Tensor del panel instrumental izquierdo) 2F 28 Alambre principal del compartimiento del motor y J/B del lado del conductor 2G 28 Alambre principal del compartimiento del motor y J/B del lado del conductor (Tensor del panel instrumental izquierdo) 2H 28 Alambre del piso y J/B del lado del conductor (Tensor del panel instrumental izquierdo) 2K 28 Alambre del piso y J/B del lado del conductor (Tensor del panel instrumental izquierdo) : Mazo de cables de la unión del conector y mazo de cables Código Vea la página Mazo de cables de unión y mazo de cables (localización del conector) IF3 54 Alambre principal del compartimiento del motor y Alambre del panel instrumental IF4 54 Alambre principal del compartimiento del motor y Alambre del panel instrumental (Detrás del J/B del lado del conductor) Consejos para el servicio
  • 65.
  • 66.
    66 HILUX (EWD630S) Arranque Batería A1 B 1 Relé ST W–R 5 4 P N 1 2 (∗1)5 (∗2)3 (∗1)3 (∗2)5 B–Y B–Y LL L–Y (M/T) W–R 7.5A ST 5 ∗ 3 : 1KD–FTV A/T ∗ 4 : con sistema antirrobo W 30A AM2 W–R B–W W–B W–B W–B W–B (∗6) (∗6) (∗6) E(∗4)SRLY (∗4) ∗ 1 : 2TR–FE ∗ 2 : 1KD–FTV, 2KD–FTV ∗ 5 : sin sistema antirrobo ∗ 6 : ∗5 con sistema de control de bloqueo de las puertas B L 5 7 AM2 IG2 ST2 I 6 IF41 IF311 (∗2) (∗1) 1B4 1A1 2O3 1 1 1 1 2C7 EA22 EA14 IF310 S 6(A), S 7(B) M A7 (∗3) N 1 B12 1 A12 A B1 S12(B) T16(A) A8 B12 ID Interruptor de encendido Interruptor de arranque en punto muerto Arrancador ∗ 7 : sin sistema de control de bloqueo de las puertas (∗4,∗6) W–R B–W (∗5 ∗7) B–W (∗4, ∗6) ECUdeavisoantirrobo Pasadordecortocircuito (ECUdeavisoantirrobo) 2N192O19 ID21 L–Y (M/T) A8 L–Y (∗3) L–Y B12 ID27 B8 A11 ∗ 8 : ∗2 M/T ECU del motor E 5 ECU del motor E 9 ECU de control de la transmisión T19 STANSWSTASTANSW 11121276 B–Y (∗3) B–Y (∗3) B–Y (∗3) B–Y(∗3) L–Y(∗3) L–Y(∗1) B–Y(∗3) L–Y(∗8) L–Y(∗3) L–Y(∗1) L–Y(∗8) L–Y(∗3) Conectordeunión J11(A),J12(B) L W–B (∗3) B–Y Conector deunión J22(A),J23(B) B11 Conectordeunión J11(A),J12(B) L–Y (∗3) B–R(∗1) B(∗2) (∗3)
  • 67.
    HILUX (EWD630S) 67 S6 (A),S7 (B) Arrancador Punto cerrado con el interruptor de arranque en punto muerto en la posición P o N y el interruptor de encendido en la posición ST (A/T) Punto cerrado con el interruptor de encendido en la posición ST (M/T) I6 Interruptor de encendido 5-7 : Cerrado con el interruptor de encendido en la posición ST N1 Interruptor de arranque en punto muerto 4-5 : Cerrado con el interruptor de arranque en punto muerto en la posición P o N Relé ST 5-3 : errado con el interruptor de arranque en punto muerto en la posición P o N y el interruptor de encendido en la posición ST (A/T) 5-3 : Cerrado con el interruptor de encendido en la posición ST (M/T) : Localización de partes Código Vea la página Código Vea la página Código Vea la página E5 41 J22 A 42 S7 B 37 (2TR-FE) E9 41 J23 B 42 S7 B 39 (∗1) I6 41 N1 39 (∗1) S12 B 43 J11 A 42 S6 A 37 (2TR-FE) T16 A 43 J12 B 42 S6 A 39 (∗1) T19 43 : Bloques de relés Código Vea la página Bloque de relés (localización del bloque de relés) 1 22 R/B del compartimiento del motor (Compartimiento del motor izquierdo) : Bloque de empalmes y conector del mazo de cables Código Vea la página Bloque de empalmes y mazo de cables (localización del conector) 1A 23 Alambre principal del compartimiento del motor y J/B del compartimiento del motor 1B 23 Alambre principal del compartimiento del motor y J/B del compartimiento del motor (Compartimiento del motor izquierdo) 2C 28 2N 29 Alambre del panel instrumental y J/B del lado del conductor (Tensor del panel instrumental izquierdo) 2O 29 p y / ( p q ) : Mazo de cables de la unión del conector y mazo de cables Código Vea la página Mazo de cables de unión y mazo de cables (localización del conector) EA1 48 (2TR-FE) EA1 50 (∗1) Alambre del motor y Alambre principal del compartimiento del motor EA2 48 (2TR-FE) Alambre del motor y Alambre principal del compartimiento del motor (Dentro del R/B del compartimiento del motor y J/B del compartimiento del motor) EA2 50 (∗1) ID2 52 Alambre del motor y Alambre del panel instrumental (Detrás de la guantera) IF3 54 Alambre principal del compartimiento del motor y Alambre del panel instrumental IF4 54 Alambre principal del compartimiento del motor y Alambre del panel instrumental (Detrás del J/B del lado del conductor) : Puntos a tierra Código Vea la página Localización de los puntos a tierra ID 52 Centro de refuerzo del tablero de instrumentos ∗ 1 : 1KD-FTV, 2KD-FTV ∗ 2 : Cabina doble ∗ 3 : Cabina sencilla Consejos para el servicio
  • 68.
    68 HILUX (EWD630S) Carga W B–O B W GR R–L GR W B Batería R–L 100A ALT W 1 2 7. 5A ALT–S Carga 37 21 IGL S B Regulador IC B2 B4 B1 A1 7. 5A MET 2D1 10A ECU–IG&GAUGE Desde el sistema de la fuente de alimentación (Vea la página 62) 2S32 EA113ID24ID23 1A1 1E1 1 M B3 4 5 ALT GG E 8 J 6 A 7(A), A 8(B) C 8 Alternador Medidor de combinación ECU del motor Conector de unión 8 ∗ 2 : 1KD–FTV, 2KD–FTV ∗ 1 : 2TR–FE G ALT 10 E12 ECU del motor (∗2) (∗1) (∗2)
  • 69.
    HILUX (EWD630S) 69 A7 (A)Alternador (A) 1-Tierra : 13,2-14,0 voltios con el motor en marcha a 5.000 rpm y 115°C : Localización de partes Código Vea la página Código Vea la página Código Vea la página A7 A 36 (2TR-FE) A8 B 38 (∗1) E12 41 A7 A 38 (∗1) C8 40 J6 42 A8 B 36 (2TR-FE) E8 41 : Bloques de relés Código Vea la página Bloque de relés (localización del bloque de relés) 1 22 R/B del compartimiento del motor (Compartimiento del motor izquierdo) : Bloque de empalmes y conector del mazo de cables Código Vea la página Bloque de empalmes y mazo de cables (localización del conector) 1A 23 Alambre principal del compartimiento del motor y J/B del compartimiento del motor (Compartimiento del motor izquierdo) 1E 23 Alambre del motor y J/B del compartimiento del motor (Compartimiento del motor izquierdo) 2D 28 Alambre del panel instrumental y J/B del lado del conductor (Tensor del panel instrumental izquierdo) 2S 29 Alambre del panel instrumental y J/B del lado del conductor (Tensor del panel instrumental izquierdo) : Mazo de cables de la unión del conector y mazo de cables Código Vea la página Mazo de cables de unión y mazo de cables (localización del conector) EA1 48 (2TR-FE) Alambre del motor y Alambre principal del compartimiento del motor EA1 50 (∗1) Alambre del motor y Alambre principal del compartimiento del motor (Dentro del R/B del compartimiento del motor y J/B del compartimiento del motor) ID2 52 Alambre del motor y Alambre del panel instrumental (Detrás de la guantera) ∗ 1 : 1KD-FTV, 2KD-FTV ∗ 2 : Cabina doble ∗ 3 : Cabina sencilla Consejos para el servicio
  • 70.
    70 HILUX (EWD630S) Encendido R 1 3 24 R–L G–R W–B 1 3 2 4 R G–R W–B 1 3 2 4 G–B G–R W–B 1 32 4 G G–R W–B R R R R R R G–R W–B W–BW–B R G–R G–R G–R R–L R G–B G 15A INJ Desde el sistema de la fuente de alimentación (Vea la página 62) 2D10 ID15 EE 17 16 15 23 14 IGT4IGF1IGT3IGT2IGT1 A9 A7 B10 B11 A8 J31(A),J32(B) I 7 I 8 I 9 I10 1 N 2 RR E 1 E 1 E 1 E 1 I 1I 1I 1 E12 ECU del motor Bobina de encendido (N. ˚ 1) Bobina de encendido (N. ˚ 2) Bobina de encendido (N. ˚ 3) Bobina de encendido (N. ˚ 4) Conectordeunión Filtro de ruido (encendido) +B IGT1 IGF GND +B IGT2 IGF GND GNDIGFIGT3 +B GNDIGT4IGF +B
  • 71.
    HILUX (EWD630S) 71 I7, I8,I9, I10 Bobina de encendido (N.° 1), (N.° 2), (N.° 3), (N.° 4) 1-Tierra : Aprox. 12 voltios con el interruptor de encendido en la posición ON u ST 4-Tierra : Siempre con continuidad : Localización de partes Código Vea la página Código Vea la página Código Vea la página E12 41 I9 36 (2TR-FE) J32 B 42 I7 36 (2TR-FE) I10 36 (2TR-FE) N2 37 (2TR-FE) I8 36 (2TR-FE) J31 A 42 : Bloque de empalmes y conector del mazo de cables Código Vea la página Bloque de empalmes y mazo de cables (localización del conector) 2D 28 Alambre del panel instrumental y J/B del lado del conductor (Tensor del panel instrumental izquierdo) : Mazo de cables de la unión del conector y mazo de cables Código Vea la página Mazo de cables de unión y mazo de cables (localización del conector) ID1 52 Alambre del motor y Alambre del panel instrumental (Detrás de la guantera) : Puntos a tierra Código Vea la página Localización de los puntos a tierra EE 48 (2TR-FE) Lado trasero del bloque de cilindros : Puntos de la unión Código Vea la página Mazo de cables con puntos de unión Código Vea la página Mazo de cables con puntos de unión E1 48 (2TR-FE) Alambre del motor I1 54 Alambre del motor Consejos para el servicio
  • 72.
    72 HILUX (EWD630S) Control delmotor (2TR-FE) 7 1 L Relé MAIN B L W–GW–BW–B W–BB–R LG–B 10 W–BB–RB–R Relé C/OPN B2 A6 J4(A),J5(B) 1J4 1J21J1 1J6 1J3 1J8 1J7 IGEB J15 M IG21 IF35 BA110 25A EFI 20AA/F Desde el sistema de la fuente de alimentación (Vea la página 62) 1 B–W BA11 Conectordeunión Conector de unión 4 5 Bomba 1J5 EA112 B Conjuntodelabombadesucción decombustibleymedidor F15 5 1 3 2 11 11 4W–B Conector de unión J 1 R–L W–B 50ABATTP/I 1B3 W–L 2 1 B–W 1H1 50AA/PMP 1C4 B–Y Relé de A/F EA19 R–L L B W–G B–Y B–O LG–B B R–L 2 7 1 BB B Conectordeunión J35
  • 73.
    HILUX (EWD630S) 73 B W–G B W–G +BMREL BATT LG–B FC L IF314IF31 A3A1A8 A25 E 9(A), E10(B), E11(C), E12(D) B–O B ECU del motor BR BR B B7 B8 A10 A12 B9 B B B B B Conectordeunión J31(A),J32(B) C23 L PRG 2 1 VSV(EVAP) V3 V 3 SIV B D AIRV 24 W–L 4 SIP B D AIRP 11 G–W 2 DI B C AIDI 20 VV R–L 6 B 2 1 VP B–R 2 A EA E W–B 1 B I 1 W–BW–B W–B W–B B–Y A BATT 1 +B B 5 B R–L L B W–G B–Y B–O LG–B B R–L B Válvuladeconmutación deaire A22 Impulsor de control de inyección de aire A19(A), A20(B) M 1 2 Bombadeaire A21
  • 74.
    74 HILUX (EWD630S) Control delmotor (2TR-FE) R–W 7. 5A IGN 2M6 R–W 11 B 8 A B–O B–O 22 2S2L6 E 9(A), E10(B), E11(C), E12(D) B–O IGSW A C10 1 2 1 9 A 10A ETCS +BMST1– 16 R–LR–L W–B W–B E02E01 W–B 4 3 G ELS1 G–W STP IF3 Y (Protegido) 4 B4 S14 2S 5 21 G–BG–W 2M 10A STOP 2 2F 2 1 A7 10A TAIL Desde el sistema de la fuente de alimentación (Vea la página 62) 2C5 2R7 G–W G 1013 OFF Cola Faro Interruptorde controldelas luces 2S7 2Q12 2P13 G A15 EE J33(A), J34(B) D7 D6 B B–O B B6 A1 A2 J 4(A), J 5(B) B1 T1 ECU del motor Interruptor de combinación Conector de unión B Conector de unión Interruptordela lámparadeparada E04 W–B A1A+ W 21 DD2 HT1B W–B 7 C 4 C E03 B9 A10 E2+B OX1BHT1B B L–Y BR BR BR W–B OX1B 25 D HA1A 1 D B 4 2 +B D31 A1A– W A1A– (Protegido) B 3 1 HA1A A1A+ (Protegido) (Protegido) J33(A),J34(B) Conector deunión W–B R–L Y R–L 2 4 1 3 Sensordeoxígeno calentado (banco1sensor1) H6 Sensordelarelación deaire–combustible (banco1sensor1) A18
  • 75.
    HILUX (EWD630S) 75 1 G–Y PSW Y P–L 2 OC1– OC1+ 1 (Protegido) D12D13 C32 P12 Interruptordepresiónde aceitedelaservodirección D BR B L–B L–R L–W BR E2 1 2 THA 4 E2 BR 5 +B VG 3 1 B 2 E2G VG E2G THA THW E 9(A), E10(B), E11(C), E12(D) BR BR GE01 M+ B 2 M+ M– 1 W M– VTA2 LG 4 VTA2 VC (Protegido) 17 R R–L G–B G G–R IGF1 I 7 IGT4IGT3 IGF 2 IGT2 3 IGT1 IGT BR E2 3 VCVTA 56 B–RBR LG–B VTA1 C14 Válvuladecontroldelaceitede distribucióndelárboldelevas I 1I 1 I 1 T25 W1 A4 28 C C30 C29 D32 D28 D8 D5 D4 D19 D20 D18 16 D D15 D14D23 G–R I 8 IGF 23 IGT G–R I 9 IGF 23 IGT G–R I10 IGF 2 3 IGT G–R 8 A9 A 11 B10 B 7 A J31(A),J32(B) B Medidordeflujodeaire ECU del motor Bobina de encendido (N. ˚ 1) Bobina de encendido (N. ˚ 2) Bobina de encendido (N. ˚ 3) Bobina de encendido (N. ˚ 4) Conectordeunión Conjunto del cuerpo del acelerador Sensordelatemperatura delagua (Protegido) BR BR (Protegido)(Protegido) E2 THW
  • 76.
    76 HILUX (EWD630S) Control delmotor (2TR-FE) VCP2 BR–R EPA2 BR–Y VPA2 GR–G W–L VPA BR–W EPA LG–R VCPA A27 A21 A19 A26 A20 A18 K2 Sensordecontroldegolpeteo (banco1) B (Protegido) 2 A W–B E 9(A), E10(B), E11(C), E12(D) W 2 W E1 BR (Protegido) Y L NE+ 1 3 R GG NE– 1 2 G2+ 2 KNK1 B EKNK 1 V 6 B 2 3 1 BR V 9 78 BR G M 3 ALT D10 A 8 L–Y 7. 5A ST 2O19 STA J30 J31(A), J32(B) E 2 EB12 EB11 A1 (Protegido) (Protegido) (Protegido) (Protegido) D3D27D34D26D30D29 BR Desde el sistema de la fuente de alimentación (Vea la página 62) L–Y Alternador A ECU del motor Conector de unión Conector de unión Sensor de posición del árbol de levas C 1 Sensor de posición del cigüeñal C 4 12 4(Protegido) 21 3 4 5 6 Sensor de la posición del acelerador A13 (Protegido) 5 B ELS3 B ReléDEF 3 VCP2 EPA2 VPA2 VCPA EPA VPA NE– NE E
  • 77.
    HILUX (EWD630S) 77 14 2D Desdeel sistema de la fuente de alimentación (Vea la página 62) 7. 5A OBD E 1 1425 2N C6 C E 9(A), E10(B), E11(C), E12(D) ID1 BB 18 6 B24 13 B 17 B35 9 B–W B–R 5 R G #40#30#20#10 W 2 1 2 1 2 1 2 1 B–R B–R B–R B–R B–R B–R LL 4 Y P THWO P R–L AC1 ACT 2 V–R SPD W–B ME01 W–B B TACH SIL 7 TC 13 ID2 SIL B J23(B) TC V BAT O 16 W–BG 6 2O W WFSE 1 WFSE 15 BR CG 45 SG R–Y P–B V E 1E 1 B3 A3 J31(A),J32(B) F5 F6 F7 F8 C2 C1 B8 ED IE D 1 B–W TAC Conectordeunión 15A INJ 2D11 BR 2Q21 2Q5 2Q22 2Q6 R–Y P–B 30 B 1 IE1 W R–BR–B 2O22 B–W 2Q16 2Q32 14 ACTAC1 C3 B–R BR J21 B–W R–B V–R P BR W–B EC R 8 12 22 A A 9 W–B Amplificador del A/C DLC3 ECU del motor Inyectordecombustible (N.˚1) Inyectordecombustible (N.˚2) Inyectordecombustible (N.˚3) Inyectordecombustible (N.˚4) Conectordeunión Conectordeunión (∗1) (∗1) (∗1) E E0M W–B 11 29 A ECU de la llave de transmisor EFIO EFII T21 IMOIMI Y–B B15 13 Y–G B16 12 ∗ 1 : con sistema inmovilizador del motor B1 B4
  • 78.
    78 HILUX (EWD630S) Control delmotor (2TR-FE) J30 Conector de unión Sensor de velocidad Conector de unión Medidor de combinación J22(A), J23(B) 12 B 10 A W–B W–BY W–B ID S 3 BR P V–R R–B B–W 2 1 Desde el sistema de la fuente de alimentación (Vea la página 62) 7. 5A DOME 30 15 ID2 2S 10A ECU–IG&GAUGE 25 2Q 8 2J 6 7 1 R–BR–B 1 R B–W Velocímetro Tacómetro Temperatura P P–L BRBR P–L 2 3 R V–RV–R R–B 2Q26 2P26 ID216 C 8 R–BB–O Revisarelmotor 7. 5A MET 2D1 39 7 6 4 22 5 21 1 IG+SI SE
  • 79.
    HILUX (EWD630S) 79 Este sistemaemplea una ECU del motor y mantiene el control general del motor, transmisión, etc. Aquí daremos una descripción general del control del motor. 1. Señales de entrada (1) Circuito de la señal de la temperatura del agua El sensor de la temperatura del agua detecta la temperatura del refrigerante del motor y tiene un termistor incorporado con una resistencia que varía de acuerdo con la temperatura del refrigerante del motor, y de este modo la temperatura del refrigerante del motor se introduce en forma de una señal de control al TERMINAL THW de la ECU del motor. (2) Circuito de la señal de la temperatura del aire de admisión El sensor de la temperatura del aire de admisión está instalado en el medidor del flujo de aire y detecta la temperatura del aire de admisión, que se introduce como una señal de control en el TERMINAL THA de la ECU del motor. (3) Circuito de la señal de RPM La posición del árbol de levas y la posición del cigüeñal se detectan mediante el sensor de posición del árbol de levas y sensor de posición del cigüeñal. La posición del árbol de levas se introduce en forma de una señal de control al TERMINAL G2+ de la ECU del motor, y la de RPM se introduce al TERMINAL NE+. (4) Circuito de la señal del acelerador El conjunto del cuerpo del acelerador detecta el ángulo de abertura de la válvula de aceleración, que se introduce en forma de una señal de control a los TERMINALES VTA1 y VTA2 de la ECU del motor. (5) Circuito de la señal de la velocidad del vehículo El sensor de velocidad detecta la velocidad del vehículo e introduce una señal de control al TERMINAL SPD de la ECU del motor a través del medidor de combinación. (6) Circuito de la señal de la batería La tensión se aplica constantemente al TERMINAL BATT de la ECU del motor. Cuando se conecta el interruptor de encendido, la tensión para la operación de la ECU del motor se aplica al TERMINAL +B de la ECU del motor a través del relé MAIN. (7) Circuito de la señal del arrancador Para confirmar si el motor está virando, se detecta la tensión aplicada al motor de arranque durante el viraje y la señal se introduce al TERMINAL STA de la ECU del motor en forma de una señal de control. (8) Circuito de la señal de golpeteo del motor El sensor de control de golpeteo (banco 1) detecta el golpeteo del motor, y se introduce la señal en el TERMINAL KNK1 de la ECU del motor como una señal de control. 2. Sistema de control ∗ Sistema EFI El sistema EFI monitoriza el estado del motor mediante las señales, que se introducen desde cada sensor a la ECU del motor. Se decide el mejor volumen de inyección de combustible basándose en estos datos y en el programa memorizado por la ECU del motor, y la señal de control se emite a los TERMINALES N.° 10, N.° 20, N.° 30 y N.° 40 de la ECU del motor para operar el inyector de combustible. (Inyección del combustible). El sistema EFI produce el control de la operación de inyección del combustible mediante la ECU del motor en respuesta a las condiciones de circulación. ∗ Sistema ESA El sistema ESA monitoriza el estado del motor mediante las señales, que se introducen a la ECU del motor desde cada sensor. La mejor distribución del encendido se detecta de acuerdo con estos datos y los datos memorizados en la ECU del motor, y la señal de control se emite a los TERMINALES IGT1, IGT2, IGT3 y IGT4. Esta señal controla la bobina de encendido para proporcionar la mejor distribución de encendido para las condiciones de circulación. ∗ Sistema de control de la bomba de combustible La operación de la ECU del motor emite señales al TERMINAL FC y controla el relé C/OPN. De este modo, controla la velocidad de impulsión de la bomba de combustible en respuesta a las condiciones. 3. Sistema de diagnosis Con el sistema de diagnosis, cuando se produce un mal funcionamiento en el sistema de señales de la ECU del motor, el sistema con mal funcionamiento se registra en la memoria. El sistema con mal funcionamiento puede encontrarse leyendo la visualización (el código) de la luz de advertencia de comprobación del motor. 4. Sistema de seguridad doble Cuando se produce un mal funcionamiento en algún sistema, si existe la posibilidad de originarse un problema del motor causado por el control continuado basado en las señales procedentes de este sistema, el sistema de seguridad doble controla el sistema empleando los datos (valores estándar) registrados en la memoria de la ECU del motor o para el motor. Descripción del sistema
  • 80.
    80 HILUX (EWD630S) Control delmotor (2TR-FE) E9 (A), E10 (B), E11 (C), E12 (D) ECU del motor BATT-E1 : Siempre aprox. 9-14 voltios +B-E1 : 9-14 voltios con el interruptor de encendido conectado y el motor parado VC-E1 : 4,5-5,5 voltios con el interruptor de encendido conectado y el motor parado IGF1-E1 : Generación de pulsos con el motor al ralentí THA-E1 : 0,5-3,4 voltios con el motor al ralentí y con una temperatura del aire de admisión de 0 °C - 80 °C THW-E1 : 0,2-1,0 voltios con el motor al ralentí y con una temperatura del refrigerante del motor de 60 °C - 120 °C W-E1 : 9-14 voltios con el motor al ralentí STA-E1 : 6,0 voltios o más virando el motor VTA1, VTA2-E1 : 0,3-1,0 voltios con el interruptor de encendido conectado y la válvula del acelerador completamente cerrada : 3,2-4,9 voltios con el interruptor de encendido conectado y la válvula del acelerador completamente abierta STP-E1 : 7,5-14 voltios con el pedal del freno pisado FC-E1 : 9-14 voltios con el interruptor de encendido conectado y el motor parado : 0-3 voltios con el motor al ralentí NE+, G2+ -NE- : Generación de pulsos con el motor al ralentí OC1+ -OC1- : Generación de pulsos con el interruptor de encendido conectado y el motor parado IGT1, IGT2, IGT3, IGT4-E1 : Generación de pulsos con el motor al ralentí #10, #20, #30, #40-E1 : Generación de pulsos con el motor al ralentí E01, E02, ME01, E1, EC-Tierra : Siempre con continuidad W1 Sensor de la temperatura del agua 2-1 : Aprox. 15,04 kΩ (-20 °C) Aprox. 2,45 kΩ (20 °C) Aprox. 0,31 kΩ (80 °C) Aprox. 0,14 kΩ (110 °C) : Localización de partes Código Vea la página Código Vea la página Código Vea la página A4 36 (2TR-FE) E11 C 41 J21 42 A8 36 (2TR-FE) E12 D 41 J22 A 42 A9 40 F5 36 (2TR-FE) J23 B 42 A13 40 F6 36 (2TR-FE) J30 42 A18 36 (2TR-FE) F7 36 (2TR-FE) J31 A 42 A19 A 36 (2TR-FE) F8 36 (2TR-FE) J32 B 42 A20 B 36 (2TR-FE) F15 44 (∗2) J33 A 42 A21 36 (2TR-FE) F15 46 (∗3) J34 B 42 A22 36 (2TR-FE) H6 36 (2TR-FE) J35 37 (2TR-FE) C1 36 (2TR-FE) I7 36 (2TR-FE) K2 37 (2TR-FE) C4 36 (2TR-FE) I8 36 (2TR-FE) P12 37 (2TR-FE) C8 40 I9 36 (2TR-FE) S3 37 (2TR-FE) C10 40 I10 36 (2TR-FE) S14 43 C14 36 (2TR-FE) J1 42 T21 43 D1 41 J4 A 42 T25 37 (2TR-FE) E9 A 41 J5 B 42 V3 37 (2TR-FE) E10 B 41 J15 42 W1 37 (2TR-FE) : Bloques de relés Código Vea la página Bloque de relés (localización del bloque de relés) 1 22 R/B del compartimiento del motor (Compartimiento del motor izquierdo) ∗ 1 : 1KD-FTV, 2KD-FTV ∗ 2 : Cabina doble ∗ 3 : Cabina sencilla Consejos para el servicio
  • 81.
    HILUX (EWD630S) 81 : Bloquede empalmes y conector del mazo de cables Código Vea la página Bloque de empalmes y mazo de cables (localización del conector) 1B 23 1C 23 Alambre principal del compartimiento del motor y J/B del compartimiento del motor 1H 24 Alambre principal del compartimiento del motor y J/B del compartimiento del motor (Compartimiento del motor izquierdo) 1J 24 2C 28 Alambre del panel instrumental y J/B del lado del conductor (Tensor del panel instrumental izquierdo) 2D 28 Alambre del panel instrumental y J/B del lado del conductor (Tensor del panel instrumental izquierdo) 2F 2J 28 Alambre principal del compartimiento del motor y J/B del lado del conductor 2L 28 Alambre principal del compartimiento del motor y J/B del lado del conductor (Tensor del panel instrumental izquierdo) 2M 2N 2O 2P 29 Alambre del panel instrumental y J/B del lado del conductor (Tensor del panel instrumental izquierdo) 2Q 29 Alambre del panel instrumental y J/B del lado del conductor (Tensor del panel instrumental izquierdo) 2R 2S : Mazo de cables de la unión del conector y mazo de cables Código Vea la página Mazo de cables de unión y mazo de cables (localización del conector) EA1 48 (2TR-FE) Alambre del motor y Alambre principal del compartimiento del motor (Dentro del R/B del compartimiento del motor y J/B del compartimiento del motor) EB1 48 (2TR-FE) Alambre del motor y Alambre del sensor (Lado izquierdo del bloque de cilindros) ID1 52 Alambre del motor y Alambre del panel instrumental (Detrás de la guantera) ID2 52 Alambre del motor y Alambre del panel instrumental (Detrás de la guantera) IE1 52 Alambre del panel instrumental y Alambre del panel instrumental (Centro de refuerzo del tablero de instrumentos) IF3 54 Alambre principal del compartimiento del motor y Alambre del panel instrumental (Detrás del J/B del lado del conductor) IG2 54 Alambre principal del compartimiento del motor y Alambre del piso (Cerca del lado del conductor J/B) BA1 56 (∗2) Alambre del bastidor y Alambre del piso (Debajo del asiento frontal izquierdo)BA1 58 (∗3) Alambre del bastidor y Alambre del piso (Debajo del asiento frontal izquierdo) : Puntos a tierra Código Vea la página Localización de los puntos a tierra EA 48 (2TR-FE) Lado derecho del faldón del guardabarros EB 48 (2TR-FE) Lado izquierdo del faldón del guardabarros ED 48 (2TR-FE) Lado trasero del bloque de cilindros EE 48 (2TR-FE) Lado trasero del bloque de cilindros ID 52 Centro de refuerzo del tablero de instrumentos IE 52 Refuerzo del panel instrumental izquierdo IG 52 Panel del lado del cubretablero izquierdo : Puntos de la unión Código Vea la página Mazo de cables con puntos de unión Código Vea la página Mazo de cables con puntos de unión E1 48 (2TR-FE) Alambre del motor I1 54 Alambre del motor E2 48 (2TR-FE) Alambre del motor ∗ 1 : 1KD-FTV, 2KD-FTV ∗ 2 : Cabina doble ∗ 3 : Cabina sencilla
  • 82.
    82 HILUX (EWD630S) Control delmotor (1KD-FTV, 2KD-FTV) 50A BATT P/I Desde el sistema de la fuente de alimentación (Vea la página 62) 1B3 W–L 4 1 B 1 25A EFI L L Relé EDU 2 B L W–GW–B B B–R W–B R B–WB–W B–W W–G B B 1 2 3 5 Relé GLOW B–R W–B B R 1 W–B B 7 EB G 1 J 1 11 11 1J5 1J3 1J8 1J7 1H1 1J1 1J4 1J2 EA21 EA112 IF212 J4(A),J5(B) B2 A6 80A GLOW 1G1 Relé MAIN B Bujía incandescente Conector de unión Conectordeunión ∗ 1 : Protegido ∗ 2 : 1KD–FTV
  • 83.
    HILUX (EWD630S) 83 E 5(A),E 6(B), E 7(C), E 8(D) R B–W L R W–G B 1 2 GREL R B B W–G B W–G +BMREL BATT B–W IREL L B A10 IF314 IF31 IF211 A15B2A1A8 29 A23 A27 A28 AA22 VCPA LG–R W–L VPA EPA BR–W BR–R VCP2 BR–Y EPA2VPA2 GR–G 26 A A13 4 6 5 1 3 2 B B W–B Sensor de la posición del acelerador ECU del motor 1 B 3 A L–R EGR B B C9 E 2 1 2 VRV(EGR) V1 Válvuladecontrol delasucción S8 (∗1) W–B 2 B 6 B 5 A Conectordeunión J7(A),J8(B) W–B W–B W–BW–B W–B(∗1) (∗2) VPA2 EPA2VCP2EPAVPAVCPA (∗2) (∗2) (∗2)(∗2) (∗2) VG THA E2G +B E2 3 1 C24 VG BW–R 4 D31 THA Y–B A4 Medidordeflujodeaire 2 5 C32 EVG BR B–W D1 PCV+PCV– 2 D G–W G–Y BR(∗2) W–B(∗2)
  • 84.
    84 HILUX (EWD630S) Control delmotor (1KD-FTV, 2KD-FTV) B T1(A),T2(B) E 2 M+VTA2VNVC VNTI VTA1 VNTO +B 8 1 5 2 10 Motordeboquilla variabledel turboalimentador T11 T 8 (∗2) 9 D10 VNTO B–O (∗2) 4 6 D17 VNTI W–B R–B (∗2) (∗2) (∗2) (∗2) (∗2) B BB E 2E 2 V2 2 1 C18 EGRC BY–B S9 1 2 D15 SCV BLG ∗ 4 : con enfriador intermedio ∗ 3 : 2KD–FTV para Argentina ∗ 2 : 1KD–FTV Válvuladecontroldeturbulencia VSV(válvuladecortedeEGR) Impulsor del motor de turboalimentación Impulsor de inyectores (EDU) ECU del motor ∗ 1 : Protegido W–B (∗1) B +B P INJF INJF B–W #10 #1 3 R #40 #4 Y–R V #3 #30#20 #2 EA1 (∗1)(∗1) B GND W–B I 1(A), I 2(B) B1A8 B7 B6 B3 B2 B5 D25 D24 D23 D22 D21 EA12 W–B B E 5(A), E 6(B), E 7(C), E 8(D) BR GND 3 M– B (∗2) L (∗2) R (∗2) W (∗2) (∗1) 3 VNVC 1 VTA1 2 VNE2 2 1Sensor de boquilla variable del turboalimentador T10 W–B(∗2) BR(∗2) W–B (∗2) B M– M+ (∗2) W–B (∗1) 3 B A2 C VLU VAF 29 A3 GR B C B2 4 VCLUSL A1 Conjuntodelcuerpodelacelerador E2GND+B B1 LUSL B W–B R–W BR B(∗2)
  • 85.
    HILUX (EWD630S) 85 B Sensordelatemperatura delairedeentrada (Enfriadorintermedio) Sensordela posicióndela válvulaEGR (∗2) A BR T9 Sensordepresión turbo E2 F9 Sensordepresión decombustible BR I4 BR 20 Conector deuniónConector de unión Conector de unión Conector de unión Impulsor de inyectores (EDU) Inyectordecombustible (N.˚4) Inyectordecombustible (N.˚3) Inyectordecombustible (N.˚2) Inyectordecombustible (N.˚1) ECU del motor W–B (∗1) W–B (∗1) (∗1) (∗1) (∗1) EGLS 17 19 2313 E2 32 2 16 18 J 7(A), J 8(B) J 6 28 D 20 D C28 33 C 18 D 26 D 1 2 VC Y–GBR THIA B 10 B8 1 A 1 B 9 BRBR E2 A BR PCR1 7 PIM L–BBR EGLS L–Y (∗3) VC R–W E PIM VC R–W (∗3) R–Y BR E2 PR R–W VC BR 11 8A 7 9B BR COM2 (∗1) (∗1) (∗1) (∗1) INJ3INJ2INJ4INJ1COM1 R–B R–B L–W L–W W G L P J10(B) Y 1 2 L 1 2 J10(B) R 1 2 B 1 2 I 1(A), I 2(B) F6 F8 F5 A1A2A6A34 AA5 F7 BR E 5(A), E 6(B), E 7(C), E 8(D) 10 (2KD–FTV) (∗1) (∗4)(∗4) (2KD–FTV) BR R–W (∗3) BR BRR–W R–W B12B10B11B9B7B8
  • 86.
    86 HILUX (EWD630S) Control delmotor (1KD-FTV, 2KD-FTV) 6 AA43 AA2 4 BB2 5 1J 9(A), J10(B) BR (∗1) (∗1) (∗1) (∗1) (∗1) (∗1) 1 B A A BR G–BBR THF R–LBR THW 19 DD29 1 2 Conector de unión (A/T) B–Y C7 8 A 12 B BR N 1 L–Y STA L–Y 7. 5A ST 2O3 L–Y 54 P N A7 (A/T)(A/T) 1 ID2 (A/T) B–Y 2O19 (M/T) J11(A),J12(B) 23 C 31 C 27 D 34 D E 1 EC 7 D 6 D I 1 Desde el sistema de la fuente de alimentación (Vea la página 62) E 5(A), E 6(B), E 7(C), E 8(D) BR W–B E02 BR E01 W–B W NE+ (∗1) G+ 2 1 G– W–B 1 Y L NE– 2 3 Y L E1 BR 1 2 2F2 2M G–WG–B 21 5 2S 15 B 4 IF3 STP G–W 3 4 R–LR–L 14 ST1– A9 B IGSW B–O 2S22 B–O B–O 6 2M 7. 5A IGN (∗1) (∗1) (∗1) (∗1) W–B W–B B L ECU del motor Conectordeunión Interruptor de arranque en punto muerto Sensordeposición delárboldelevas C1 Sensordeposición delcigüeñal C4(∗1) (∗1) Sensordelatemperaturadelagua W1 Y–G THA D31 1 2 I3 BR (2KD–FTV) (∗1) BR L (A/T) 6 A NSW L–Y 10A STOP BR (2KD–FTV) Sensordelatemperaturadelairedeentrada (Filtrodeaire) E2 THW NE+ NE– E 2 1 Sensordelatemperaturadelcombustible F11 Interruptordela lámparadeparada S14
  • 87.
    HILUX (EWD630S) 87 B 14 29 2 13 Y–G 142D Desde el sistema de la fuente de alimentación (Vea la página 62) 7. 5A OBD 219 2N E 5(A), E 6(B), E 7(C), E 8(D) AB 18 6 B18 P 18 A 11 A19 9 B–W Y P THWO P R–L AC1 ACT V–R SPD J 6 A TACH SIL 7 TC 13 ID2 SIL A TC BAT O 16 W–BG 6 2O W WFSE 4 WFSE 15 BR CG 45 SG R–Y P–B BR GG M 3 ALT D8 A 8 (A/T) (A/T) B17 IE D 1 B–W TAC T17 22 P CAN– 20 B CAN+ 21 CAN+ V 2Q21 2Q5 2Q22 2Q6 R–Y P–B 12 A 1 IE1 W R–B 2O22 B–W 2Q16 2Q32 B30 12 A 9 ACTAC1 CAN– B21 B–W R–B V–R BR W 9 2C 10 2C4 5 Y–R GIND A14 Y–R J23(B) BR BR ∗ 1 : Protegido R–B Y–B Alternador Amplificador del A/C DLC3 ECU del motor Conector de unión Conector de unión ECU de control de la transmisión IMI IMO T21 EFIIEFIO ECU de la llave de transmisor A16 11 W–B EOM E (∗5) (∗5) (∗5) ∗ 5 : con sistema inmovilizador del motor B1 B4
  • 88.
    88 HILUX (EWD630S) Control delmotor (1KD-FTV, 2KD-FTV) Encendido B–O 7. 5A MET 2D1 2 1 Desde el sistema de la fuente de alimentación (Vea la página 62) 7. 5A DOME 30 2S 10A ECU–IG&GAUGE 25 2Q 8 2J 1 R B–W Velocímetro Tacómetro Temperatura P P–L BR P–L 2 3 RV–RV–R R–B 2Q26 2P26 ID216 C 8 Y–R 15 ID2 1 R–BR–B B–W R–B V–R BR S 3 P Revisarelmotor R–B Y–R YW–B ID J22(A), J23(B) A10 B12 Medidor de combinación Conector de unión Sensor de velocidad 39 40 7 6 4 22 5 21 1 SI IG+ SE
  • 89.
    HILUX (EWD630S) 89 Este sistemaemplea una ECU del motor y mantiene el control general del motor, transmisión, etc. Aquí daremos una descripción general del control del motor. 1. Señales de entrada (1) Circuito de la señal de la temperatura del agua El sensor de la temperatura del agua detecta la temperatura del refrigerante del motor y tiene un termistor incorporado con una resistencia que varía de acuerdo con la temperatura del refrigerante del motor, y de este modo la temperatura del refrigerante del motor se introduce en forma de una señal de control al TERMINAL THW de la ECU del motor. (2) Circuito de la señal de la temperatura del aire de admisión El sensor de la temperatura del aire de admisión detecta la temperatura del aire de admisión del filtro de aire que se introduce como una señal de control al TERMINAL THA de la ECU del motor. El sensor de la temperatura del aire de admisión detecta la temperatura del aire de admisión del enfriador intermedio, que se introduce como una señal de control al TERMINAL THIA de la ECU del motor. (3) Circuito de la señal de RPM La posición del árbol de levas y la posición del cigüeñal se detectan mediante el sensor de posición del árbol de levas y sensor de posición del cigüeñal. La posición del árbol de levas se introduce en forma de una señal de control al TERMINAL G+ de la ECU del motor, y la de RPM se introduce al TERMINAL NE+. (4) Circuito de la señal del acelerador El sensor de la posición del acelerador detecta el ángulo de abertura del pedal del acelerador, que se introduce en forma de una señal de control a los TERMINALES VPA y VPA2 de la ECU del motor. (5) Circuito de la señal de la velocidad del vehículo El sensor de velocidad detecta la velocidad del vehículo e introduce una señal de control al TERMINAL SPD de la ECU del motor a través del medidor de combinación. (6) Circuito de la señal de la batería La tensión se aplica constantemente al TERMINAL BATT de la ECU del motor. Cuando se conecta el interruptor de encendido, la tensión para la operación de la ECU del motor se aplica al TERMINAL +B de la ECU del motor a través del relé MAIN. (7) Circuito de la señal de arranque Para confirmar que el motor está virando, se detecta la tensión aplicada al motor de arranque durante el viraje y se introduce en forma de una señal de control al TERMINAL STA de la ECU del motor. (8) Circuito de la señal de la temperatura del combustible El sensor de la temperatura del combustible detecta la temperatura del combustible que se introduce en forma de una señal de control al TERMINAL THF de la ECU del motor. (9) Sistema de la señal de la presión de vacío de aire de admisión La presión de vacío del aire de admisión se detecta mediante el sensor de presión turbo y se introduce en forma de una señal de control al TERMINAL PIM de la ECU del motor. Descripción del sistema
  • 90.
    90 HILUX (EWD630S) Control delmotor (1KD-FTV, 2KD-FTV) 2. Sistema de control ∗ Control EGR El sistema de control EGR detecta las señales procedentes de cada sensor, y emite corriente al TERMINAL EGR para controlar la VRV (EGR). ∗ Control de la presión del múltiple común La presión del múltiple propuesta se calcula de acuerdo con el estado del motor (abertura del acelerador, velocidad del motor) y los cambios ambientales detectados por los sensores. La cantidad de combustible que se suministrará a presión desde la bomba de suministro se calcula para que el valor indicado del sensor de la presión del múltiple común coincida con el valor propuesto, y se envía la señal a la válvula de ajuste de la cantidad de admisión de la bomba de suministro para controlar la presión del múltiple. ∗ Control de la distribución de inyección de combustible La distribución de la inyección de combustible se controla calculando la distribución de inyección de combustible básica, basada en el estado del motor (abertura del acelerador, velocidad del motor), realizando correcciones de acuerdo con los cambios ambientales detectados por los sensores, y enviando luego una señal a la válvula de control de solenoide del inyector a través del impulsor de inyectores (EDU). ∗ Control del volumen de inyección de combustible El volumen de la inyección de combustible se controla calculando el volumen de inyección de combustible básica, basada en el estado del motor (abertura del acelerador, velocidad del motor), realizando correcciones de acuerdo con los cambios ambientales detectados por los sensores y las condiciones de la presión interior en el múltiple, y enviando luego una señal a la válvula de control de solenoide del inyector a través del impulsor de inyectores (EDU). ∗ Control de inyección piloto El volumen y la distribución de la inyección de combustible se controla calculando el volumen/distribución de inyección piloto, basada en el estado del motor (abertura del acelerador, velocidad del motor), realizando correcciones de acuerdo con los cambios ambientales detectados por los sensores, y enviando luego una señal a la válvula de control de solenoide del inyector a través del impulsor de inyectores (EDU). 3. Sistema de diagnosis Con el sistema de diagnosis, cuando se produce un mal funcionamiento en el sistema de señales de la ECU del motor, el sistema con mal funcionamiento se registra en la memoria. El sistema con mal funcionamiento puede encontrarse leyendo la visualización (el código) de la luz de advertencia de comprobación del motor. 4. Sistema de seguridad doble Cuando se produce un mal funcionamiento en algún sistema, si existe la posibilidad de originarse un problema del motor causado por el control continuado basado en las señales procedentes de este sistema, el sistema de seguridad doble controla el sistema empleando los datos (valores estándar) registrados en la memoria de la ECU del motor o para el motor.
  • 91.
    HILUX (EWD630S) 91 E5 (A),E6 (B), E7 (C), E8 (D) ECU del motor BATT-E1 : Siempre 9,0-14,0 voltios +B-E1 : 9,0-14,0 voltios (interruptor de encendido en la posición ON) VC, VCPA, VCP2-E2 : 4,5-5,5 voltios (interruptor de encendido en la posición ON) STA-E1 : 6,0 voltios o más (virando el motor) MREL-E1 : 9,0-14,0 voltios (interruptor de encendido en la posición ON) 0-1,5 voltios (han transcurrido más de 10 segundos desde que se puso el interruptor de encendido en la posición OFF) IREL-E1 : 0-1,5 voltios (motor al ralentí) 9,0-14,0 voltios (interruptor de encendido en la posición OFF) GREL-E1 : 9,0-14,0 voltios (virando el motor) 0-1,5 voltios (motor al ralentí (han transcurrido más de 600 segundos desde que se puso el motor en marcha)) NE+ -NE- : Generación de pulsos (motor al ralentí) G+ -G- : Generación de pulsos (motor al ralentí) SPD-E1 : Generación de pulsos (circulando a unos 20 km/h) VPA-EPA : 0,5-1,1 voltios (interruptor de encendido conectado y pedal del acelerador completamente cerrado) 3,0-4,6 voltios (interruptor de encendido conectado y pedal del acelerador completamente abierto) VPA2-EPA2 : 0,9-2,3 voltios (interruptor de encendido conectado y pedal del acelerador completamente cerrado) 3,4-5,0 voltios (interruptor de encendido conectado y pedal del acelerador completamente abierto) STP-E1 : 7,5-14,0 voltios (interruptor de encendido conectado y pedal del freno pisado) 0-1,5 voltios (interruptor de encendido conectado y pedal del freno suelto) ST1- -E1 : 0-1,5 voltios (interruptor de encendido conectado y pedal del freno pisado) 7,5-14,0 voltios (interruptor de encendido conectado y pedal del freno suelto) PIM-E2 : 1,2-1,6 voltios (cuando se aplica una presión negativa de 40 kPa) 1,3-1,9 voltios (durante la liberación de aire) 3,2-3,8 voltios (cuando se aplica una presión de 69 kPa (0,7 kg/cm3) THW-E2 : 0,2-1,0 voltios (durante el precalentamiento y temperatura del refrigerante de 60°C - 120°C) THA-E2 : 0,5-3,4 voltios (durante el precalentamiento y temperatura del aire de admisión de 0°C - 80°C) THIA-E2 : 0,5-3,4 voltios (durante el precalentamiento y temperatura del aire de admisión de 0°C - 80°C) THF-E2 : 0,5 -3,4 voltios (durante el enfriamiento manteniendo el interruptor de encendido en la posición ON) VG-E2 : 0,5-3,4 voltios (motor al ralentí) PCR1-E2 : 1,3-1,8 voltios (motor al ralentí) ALT-E1 : Generación de pulsos (motor al ralentí) PCV+ -PCV- : Generación de pulsos (motor al ralentí) #1, #2, #3, #4-E1 : Generación de pulsos (motor al ralentí) INJF-E1 : Generación de pulsos (motor al ralentí) EGR-E1 : 9,0-14,0 voltios (interruptor de encendido en la posición ON) : Generación de pulsos (EGR en la posición ON (estando a 1.500 rpm después del calentamiento)) EGLS-E2 : 0,6-1,4 voltios (interruptor de encendido en la posición ON) AC1-E1 : 0-1,5 voltios (A/C encendido (embrague magnético activado (ON)) 7,5-14,0 voltios (interruptor del A/C desconectado) ACT-E1 : 3,5-14,0 voltios (interruptor de encendido en la posición ON) 0-1,5 voltios (durante el corte de operación del aire acondicionado (durante 5 segundos circulando a 30 km/h o menos a aceleración completa)) W-E1 : 0-3,0 voltios (luz de aviso de comprobación del motor encendida e interruptor de encendido en la posición ON) 9,0-14,0 voltios (motor al ralentí y excepto cuando se enciende la luz de aviso de comprobación del motor) GIND-E1 : 0-3,0 voltios (luz del indicador de encendido encendida y el interruptor de encendido en la posición ON) 9,0-14,0 voltios (motor al ralentí) TACH-E1 : Generación de pulsos (motor al ralentí) THWO-E1 : Generación de pulsos (motor al ralentí) TC-E1 : 9,0-14,0 voltios (interruptor de encendido en la posición ON) 0-3,0 voltios (DLC3 cortocircuitado entre los TERMINALES TC y CG) CAN+ -CAN- : 54,0-69,0 Ω (han transcurrido más de 10 segundos desde que se puso el interruptor de encendido en la posición OFF) VNTO-E1 : Generación de pulsos (motor al ralentí) VNTI-E1 : Generación de pulsos (motor al ralentí) NSW-E1 : 0-0,3 voltios (palanca de cambios en la posición P o N) 9-14,0 voltios (palanca de cambios en una posición que no es P ni N) Consejos para el servicio
  • 92.
    92 HILUX (EWD630S) Control delmotor (1KD-FTV, 2KD-FTV) : Localización de partes Código Vea la página Código Vea la página Código Vea la página A4 38 (∗1) F11 38 (∗1) N1 39 (∗1) A8 38 (∗1) G1 38 (∗1) S3 39 (∗1) A9 40 I1 A 38 (∗1) S8 39 (∗1) A13 40 I2 B 38 (∗1) S9 39 (∗1) C1 38 (∗1) I3 38 (∗1) S14 43 C4 38 (∗1) I4 38 (∗1) T1 A 39 (∗1) C8 40 J1 39 (∗1) T2 B 39 (∗1) D1 41 J4 A 42 T8 43 E2 38 (∗1) J5 B 42 T9 39 (∗1) E5 A 41 J6 42 T10 39 (∗1) E6 B 41 J7 A 42 T11 39 (∗1) E7 C 41 J8 B 42 T17 43 E8 D 41 J9 A 42 T21 43 F5 38 (∗1) J10 B 42 V1 39 (∗1) F6 38 (∗1) J11 A 42 V2 39 (∗1) F7 38 (∗1) J12 B 42 W1 39 (∗1) F8 38 (∗1) J22 A 42 F9 38 (∗1) J23 B 42 : Bloques de relés Código Vea la página Bloque de relés (localización del bloque de relés) 1 22 R/B del compartimiento del motor (Compartimiento del motor izquierdo) : Bloque de empalmes y conector del mazo de cables Código Vea la página Bloque de empalmes y mazo de cables (localización del conector) 1B 23 1G 23 Alambre principal del compartimiento del motor y J/B del compartimiento del motor 1H 24 Alambre principal del compartimiento del motor y J/B del compartimiento del motor (Compartimiento del motor izquierdo) 1J 24 2C 28 Alambre del panel instrumental y J/B del lado del conductor (Tensor del panel instrumental izquierdo) 2D 28 Alambre del panel instrumental y J/B del lado del conductor (Tensor del panel instrumental izquierdo) 2F Alambre principal del compartimiento del motor y J/B del lado del conductor 2J 28 Alambre principal del compartimiento del motor y J/B del lado del conductor (Tensor del panel instrumental izquierdo) 2M (Tensor del panel instrumental izquierdo) 2N 2O 2P 29 Alambre del panel instrumental y J/B del lado del conductor (Tensor del panel instrumental izquierdo) 2Q p y / ( p q ) 2S : Mazo de cables de la unión del conector y mazo de cables Código Vea la página Mazo de cables de unión y mazo de cables (localización del conector) EA1 50 (∗1) Alambre del motor y Alambre principal del compartimiento del motor EA2 50 (∗1) Alambre del motor y Alambre principal del compartimiento del motor (Dentro del R/B del compartimiento del motor y J/B del compartimiento del motor) ID2 52 Alambre del motor y Alambre del panel instrumental (Detrás de la guantera) IE1 52 Alambre del panel instrumental y Alambre del panel instrumental (Centro de refuerzo del tablero de instrumentos) IF2 54 Alambre principal del compartimiento del motor y Alambre del panel instrumental IF3 54 Alambre principal del compartimiento del motor y Alambre del panel instrumental (Detrás del J/B del lado del conductor) ∗ 1 : 1KD-FTV, 2KD-FTV ∗ 2 : Cabina doble ∗ 3 : Cabina sencilla
  • 93.
    HILUX (EWD630S) 93 : Puntosa tierra Código Vea la página Localización de los puntos a tierra EB 50 (∗1) Lado izquierdo del faldón del guardabarros EC 50 (∗1) Lado trasero del bloque de cilindros ID 52 Centro de refuerzo del tablero de instrumentos IE 52 Refuerzo del panel instrumental izquierdo : Puntos de la unión Código Vea la página Mazo de cables con puntos de unión Código Vea la página Mazo de cables con puntos de unión E1 50 (∗1) Alambre del motor I1 54 Alambre del motor E2 50 (∗1) Alambre del motor ∗ 1 : 1KD-FTV, 2KD-FTV ∗ 2 : Cabina doble ∗ 3 : Cabina sencilla
  • 94.
    94 HILUX (EWD630S) Sistema inmovilizadordel motor 7. 5A IGN B–O 2R6 2L12 2R29 2C3 2C4 B12 A11 A12 ID 2N26 2O10 B29 B30 A16 27 2O 27 2N IA13 7 1457 16 1 2 31113121687 914154521 2 1 CTY IND GND EFII EFIO E KSW AGND TXCT CODE VC5 SIL W–B W–BG–YBR W–B Y–G Y–B G G–R R–B G–R R–B L L–O L–B L–Y L B L–Y L–Y G ANT2ANT1 EOMIMIIMO DVC5CODETXCTAGNDIG+B Amplificador de la llave de transmisor T20 D 1 ECU de la llave de transmisor T21 ECU del motor E 5(A), E 6(B), E 9(C), E10(D) Conector de unión J22(A), J23(B) Interruptordeadvertenciadedesbloqueo U1 Conectordeunión J23(B) S10 Medidorde combinación C8 W–B Bobina de la llave del transmisor 2Q22 2P22 R–Y 15 R–BR–B D 2 Interruptor de cortesía de la puerta (lado del conductor) DLC3 Lámparadelindicadordeseguridad 1 ∗ 1 : 1KD–FTV, 2KD–FTV ∗ 2 : 2TR–FE D15 D16 C29 (∗2) (∗1)LP E 7. 5A ECU–B Desde el sistema de la fuente de alimentación (Vea la página 62) 1 2 1 B–O B11 B12
  • 95.
    HILUX (EWD630S) 95 T21 ECUde la llave de transmisor 1-Tierra : Siempre aprox. 12 voltios 16-Tierra : Siempre con continuidad 2-Tierra : Aprox. 12 voltios con el interruptor de encendido en la posición ON : Localización de partes Código Vea la página Código Vea la página Código Vea la página C8 40 E6 B 41 S10 43 D1 41 E9 C 41 T20 43 D2 44 (∗2) E10 D 41 T21 43 D2 46 (∗3) J22 A 42 U1 43 E5 A 41 J23 B 42 : Bloques de relés Código Vea la página Bloque de relés (localización del bloque de relés) 1 22 R/B del compartimiento del motor (Compartimiento del motor izquierdo) : Bloque de empalmes y conector del mazo de cables Código Vea la página Bloque de empalmes y mazo de cables (localización del conector) 2C 28 Alambre del panel instrumental y J/B del lado del conductor (Tensor del panel instrumental izquierdo) 2L 28 Alambre principal del compartimiento del motor y J/B del lado del conductor (Tensor del panel instrumental izquierdo) 2N 2O 2P 29 Alambre del panel instrumental y J/B del lado del conductor (Tensor del panel instrumental izquierdo) 2Q p y / ( p q ) 2R : Mazo de cables de la unión del conector y mazo de cables Código Vea la página Mazo de cables de unión y mazo de cables (localización del conector) IA1 52 Alambre del panel instrumental y Alambre del piso (Panel de arranque derecho) : Puntos a tierra Código Vea la página Localización de los puntos a tierra ID 52 Centro de refuerzo del tablero de instrumentos ∗ 1 : 1KD-FTV, 2KD-FTV ∗ 2 : Cabina doble ∗ 3 : Cabina sencilla Consejos para el servicio
  • 96.
    96 HILUX (EWD630S) Sistema decomunicaciones múltiplex - CAN 22 21 V CAN+ CAN+ 21 20 P CAN– CAN– T17 E 6 ECU del motor ECU de control de la transmisión
  • 97.
    HILUX (EWD630S) 97 El sistemade comunicaciones múltiplex (CAN) emplea un protocolo de comunicaciones en serie y se comunica con una tensión diferencial. En el sistema de esta red, los TERMINALES CAN+ y CAN- se emplean para las comunicaciones en las ECU y los sensores, y se consiguen excelentes velocidad de comunicaciones de datos y facilidad de detección de errores de comunicaciones. Este sistema funciona para los sistemas siguientes: ∗ Control del motor ∗ ECT : Localización de partes Código Vea la página Código Vea la página Código Vea la página E6 41 T17 43 Descripción del sistema
  • 98.
    98 HILUX (EWD630S) Faro 1 2 3 12 3 B3 B6 A4 A1A2 A3 B5 A2 B4 IE luzde carretera 7. 5A DOME 1 2Q25 2J8 20A H–LP LH Desde el sistema de la fuente de alimentación (Vea la página 62) 1 1 20A H–LP RH ∗1 luz de cruce luz de carretera OFF Cola Faro 11 8 9 R B R B–W R–Y B–W B–R R–Y R–Y R–YR R–Y BW–B 1 27 C 8 2 1 H 2H 1 J 4(A), J 5(B) Interruptor de control de las luces Interruptor de intensidad de los faros 2 1 2 1 B1 T1 (H) ED RF (ED) HL HU ED Medidor de combinación Faro (izquierdo) Faro (derecho) Conector de unión Conector de unión J22(A), J23(B) Interruptor de combinación C10 ∗ 1 : luz de intermitencia
  • 99.
    HILUX (EWD630S) 99 C10 Interruptorde combinación 8-11 : Continuidad con el interruptor de la intensidad de los faros en la posición LOW y el interruptor de control de las luces en la posición HEAD 9-11 : Continuidad con el interruptor de la intensidad de los faros en la posición FLASH o con el interruptor de la intensidad de los faros en la posición HIGH el interruptor de control de las luces en la posición HEAD : Localización de partes Código Vea la página Código Vea la página Código Vea la página C8 40 H2 36 (2TR-FE) J22 A 42 C10 40 H2 38 (∗1) J23 B 42 H1 36 (2TR-FE) J4 A 42 H1 38 (∗1) J5 B 42 : Bloques de relés Código Vea la página Bloque de relés (localización del bloque de relés) 1 22 R/B del compartimiento del motor (Compartimiento del motor izquierdo) : Bloque de empalmes y conector del mazo de cables Código Vea la página Bloque de empalmes y mazo de cables (localización del conector) 2J 28 Alambre principal del compartimiento del motor y J/B del lado del conductor (Tensor del panel instrumental izquierdo) 2Q 29 Alambre del panel instrumental y J/B del lado del conductor (Tensor del panel instrumental izquierdo) : Puntos a tierra Código Vea la página Localización de los puntos a tierra IE 52 Refuerzo del panel instrumental izquierdo ∗ 1 : 1KD-FTV, 2KD-FTV ∗ 2 : Cabina doble ∗ 3 : Cabina sencilla Consejos para el servicio
  • 100.
    100 HILUX (EWD630S) Luz antinieblafrontal R–W R–W 1 2 1 2 Conectado OFF Interruptor delasluces antiniebla delanteras 3 Relé FOG R–W PW–B J21 C10 3 6 4 R–W G G–B 1 2 W–L 15A FOG G–B G Interruptor decontrol delasluces G G–W W–B W–B 9 1 W–B W–B W–B12 Desde el sistema de la fuente de alimentación (Vea la página 62) 2C3 10A TAIL 51B EB EA ID 1H1 1I2 1I31I4 A10A9 B9 J 2(A), J 3(B) J 1 2J13 2Q14 2Q30 2J12 2S7 2Q12 2S23 2R7 Antiniebla delantera 8 30 OFF Cola Faro 1310 G–B G 50A BATT P/I I 2 C 8 F 3F 2 BFG LFG B1T1 G–W Medidor de combinación Lámpara antiniebla (delantera izquierda) Lámpara antiniebla (delantera derecha) Interruptor de combinación Conector de unión Conector de unión Conector de unión
  • 101.
    HILUX (EWD630S) 101 F2, F3Luces antiniebla (delantera izquierda), (delantera derecha) 2-Tierra : Aprox. 12 voltios con el interruptor de control de las luces en la posición TAIL o HEAD, el interruptor de la intensidad de los far el interruptor de las luces antiniebla delanteras en la posición ON : Localización de partes Código Vea la página Código Vea la página Código Vea la página C8 40 F3 38 (∗1) J3 B 42 C10 40 J1 39 (∗1) J21 42 F2 38 (∗1) J2 A 42 : Bloque de empalmes y conector del mazo de cables Código Vea la página Bloque de empalmes y mazo de cables (localización del conector) 1B 23 Alambre principal del compartimiento del motor y J/B del compartimiento del motor 1H 24 Alambre principal del compartimiento del motor y J/B del compartimiento del motor (Compartimiento del motor izquierdo) 1I 24 (Compartimiento del motor izquierdo) 2C 28 Alambre del panel instrumental y J/B del lado del conductor (Tensor del panel instrumental izquierdo) 2J 28 Alambre principal del compartimiento del motor y J/B del lado del conductor (Tensor del panel instrumental izquierdo) 2Q 2R 29 Alambre del panel instrumental y J/B del lado del conductor (Tensor del panel instrumental izquierdo) 2S p y / ( p q ) : Puntos a tierra Código Vea la página Localización de los puntos a tierra EA 48 (2TR-FE) Lado derecho del faldón del guardabarrosEA 50 (∗1) Lado derecho del faldón del guardabarros EB 48 (2TR-FE) Lado izquierdo del faldón del guardabarrosEB 50 (∗1) Lado izquierdo del faldón del guardabarros ID 52 Centro de refuerzo del tablero de instrumentos : Puntos de la unión Código Vea la página Mazo de cables con puntos de unión Código Vea la página Mazo de cables con puntos de unión I2 54 Alambre principal del compartimiento del motor ∗ 1 : 1KD-FTV, 2KD-FTV ∗ 2 : Cabina doble ∗ 3 : Cabina sencilla Consejos para el servicio
  • 102.
    102 HILUX (EWD630S) Luz decola y Iluminación 10A TAIL Desde el sistema de la fuente de alimentación (Vea la página 62) 2C5 2R7 1 2 1 2 2 1 2L7 2M7 EB EA 1 6 I 2 3 2 Cola 3 2 Cola 2K7 IG 12 W–B GG G W–B W–B G G G G G–W W–B W–B W–B W–B W–B C2 C3 L2 J1 R4 R5 10 OFF B1 T1 Cola Faro Interruptorde controlde lasluces 13 G GW–B W–B C10 Lámparadepaso (delanteraizquierda) Lámparadepaso (delanteraderecha) Interruptor de combinación Conector deunión Lámparadecombinacióntrasera (izquierda) Lámparadecombinacióntrasera (derecha) B 3B 3B 3 B 3B 3B 3 2 1 W–BG L1 BA111 G W–B W–B GG BA18 4 W–BW–B(∗1) Lámparaderecha delamatrícula Lámparaizquierdadelamatrícula W–R(∗2) ∗ 1 : Cabina doble ∗ 2 : Cabina sencilla J15 Conector deunión
  • 103.
    HILUX (EWD630S) 103 2S23 7. 5A MET Desdeel sistema de la fuente de alimentación (Vea la página 62) 2D12S7 22 218 Y G B–O GY G Iluminación Iluminacióndel visualizadorLCD 1 R 2J8 2Q25 7. 5A DOME 1 R 1 2 Medidor de combinación C 8
  • 104.
    104 HILUX (EWD630S) Luz decola y Iluminación 10 24 2P W–B L L R W W–B L BR 2Q28 G G G G G G G ID B12 B6 B9 B7 B8 A10 A9 3 8 10 2 1 2 1 1 2 2Q3 2Q29 2P29 W–B 2P19 2Q19 8 4 IE 2D92D18 2D17 12 Y W–B W–B W–B R3 A16 C6 R1 (∗3) (∗5) (∗4) (A/T) (∗3) (∗4) (∗5) (A/T) ∗ 3 : con desempañador de la ventanilla trasera ∗ 4 : con iluminación del encendedor de cigarrillos ∗ 5 : con iluminación del cenicero 7 2Q12 G Iluminacióndelcenicero Iluminacióndelencendedor decigarrillos Conjuntodelreceptorderadio Interruptordeldesempañadordelaventanillatrasera Conector de unión J22(A), J23(B) Interruptordelsoplador Conectordeunión J21 2P28 InterruptordelA/C 1 A24 3 GW 7 8 9 Interruptordelaseñaldeavisodepeligro H5 IluminacióndelapalancadecambiosdelaA/T A12
  • 105.
    HILUX (EWD630S) 105 C10 Interruptorde combinación 13-10 : Continuidad con el interruptor de control de las luces en la posición FAROS o COLA : Localización de partes Código Vea la página Código Vea la página Código Vea la página A12 40 C8 40 L1 46 (∗3) A16 40 C10 40 L2 44 (∗2) A24 40 H5 41 L2 46 (∗3) B6 40 J1 39 (∗1) R1 43 C2 36 (2TR-FE) J15 42 R3 43 C2 38 (∗1) J21 42 R4 45 (∗2) C3 36 (2TR-FE) J22 A 42 R4 46 (∗3) C3 38 (∗1) J23 B 42 R5 45 (∗2) C6 40 L1 44 (∗2) R5 46 (∗3) : Bloques de relés Código Vea la página Bloque de relés (localización del bloque de relés) 1 22 R/B del compartimiento del motor (Compartimiento del motor izquierdo) : Bloque de empalmes y conector del mazo de cables Código Vea la página Bloque de empalmes y mazo de cables (localización del conector) 2C 28 Alambre del panel instrumental y J/B del lado del conductor (Tensor del panel instrumental izquierdo) 2D 28 Alambre del panel instrumental y J/B del lado del conductor (Tensor del panel instrumental izquierdo) 2J 28 Alambre principal del compartimiento del motor y J/B del lado del conductor (Tensor del panel instrumental izquierdo) 2K 28 Alambre del piso y J/B del lado del conductor (Tensor del panel instrumental izquierdo) 2L 28 Alambre principal del compartimiento del motor y J/B del lado del conductor 2M 28 Alambre principal del compartimiento del motor y J/B del lado del conductor (Tensor del panel instrumental izquierdo) 2P 2Q 29 Alambre del panel instrumental y J/B del lado del conductor (Tensor del panel instrumental izquierdo) 2R 29 Alambre del panel instrumental y J/B del lado del conductor (Tensor del panel instrumental izquierdo) 2S : Mazo de cables de la unión del conector y mazo de cables Código Vea la página Mazo de cables de unión y mazo de cables (localización del conector) BA1 56 (∗2) Alambre del bastidor y Alambre del piso (Debajo del asiento frontal izquierdo)BA1 58 (∗3) Alambre del bastidor y Alambre del piso (Debajo del asiento frontal izquierdo) : Puntos a tierra Código Vea la página Localización de los puntos a tierra EA 48 (2TR-FE) Lado derecho del faldón del guardabarrosEA 50 (∗1) Lado derecho del faldón del guardabarros EB 48 (2TR-FE) Lado izquierdo del faldón del guardabarrosEB 50 (∗1) Lado izquierdo del faldón del guardabarros ID 52 Centro de refuerzo del tablero de instrumentos IE 52 Refuerzo del panel instrumental izquierdo IG 52 Panel del lado del cubretablero izquierdo ∗ 1 : 1KD-FTV, 2KD-FTV ∗ 2 : Cabina doble ∗ 3 : Cabina sencilla Consejos para el servicio
  • 106.
    106 HILUX (EWD630S) Luz decola y Iluminación : Puntos de la unión Código Vea la página Mazo de cables con puntos de unión Código Vea la página Mazo de cables con puntos de unión I2 54 Alambre principal del compartimiento del motor B3 58 (∗3) Alambre del bastidor B3 56 (∗2) Alambre del bastidor ∗ 1 : 1KD-FTV, 2KD-FTV ∗ 2 : Cabina doble ∗ 3 : Cabina sencilla
  • 107.
  • 108.
    108 HILUX (EWD630S) Señal degiro y luz de advertencia de peligro A10A2 B4 B6 B6 B12 2N9 2N25 2O25 IE ID 7 6578 5 6 G–O LG G–B G–Y W Y G–O W–B W–B W–B LH N RH Interruptordela señaldegiro C10 (∗1) 28 HAZD 10A ECU–IG& GAUGE Desde el sistema de la fuente de alimentación (Vea la página 62) 2S20 15A TURN–HAZ IF32 1 1 2 B–Y G–Y R–L 1 2 LRIG ERELEHAZ T22 Y G–B G–Y TL E TR J22(A),J23(B) J20(A), J21(B) J22(A), J23(B) Interruptor de combinación Conector de unión Conectordeunión Conector de unión Intermitente de la señal de giro 3 G–B LLB B–Y 4 A4 ECUdeavisoantirrobo T16 G–B 2 8 4 5 9 G–O G–B R LG B12 L L G Interruptordecombinación Interruptordelaseñal deavisodepeligro H5
  • 109.
    HILUX (EWD630S) 109 2L32S3 2S22L2 2K3 2K2 EAEB I 2 11 2 2524 2 12 33 1 22 1 3 1 W–B W–B W–B W–B W–B W–B G–Y G–B G–Y G–Y G–B G–B G–YW–B R5 R4 T12 Y ∗ 1 : con sistema antirrobo Viraje haciala izquierda Viraje haciala derecha Viraje Viraje G–Y G–B Lámparadecombinacióntrasera (izquierda) Lámparadecombinacióntrasera (derecha) Lámparadelaseñaldegiro (frontalizquierda) 2S182S19 G–B G–Y Conector deunión J1 W–B 10 W–B 2 1 2M3 G–B T14 Medidordecombinación C8 Lámparadelaseñaldegiro (frontalderecha) T13 G–YW–B 1 2 2M2 T15 B 3 IG Conector de unión J15 11 BA18 W–BW–B(∗2) BA112 BA17 G–Y G–B Lámparadelaseñaldegiro (frontallateralizquierda) Lámparadelaseñaldegiro (frontallateralderecha) W–R(∗3) ∗ 2 : Cabina doble ∗ 3 : Cabina sencilla 2R2 G–B G–B G–YW–B
  • 110.
    110 HILUX (EWD630S) Señal degiro y luz de advertencia de peligro T22 Intermitente de la señal de giro 1-Tierra : Aprox. 12 voltios con el interruptor de encendido en la posición ON 4-Tierra : Siempre aprox. 12 voltios 2, 3-Tierra : Cambia de aprox. 12 a 0 voltios con el interruptor de encendido en la posición ON y el interruptor de la señal de giro en la posición LEFT o RIGTH o el interruptor de la señal de aviso de peligro en la posición ON 5-Tierra : Continuidad con el interruptor de la señal de giro en la posición IZQUIERDA 6-Tierra : Continuidad con el interruptor de la señal de giro en la posición DERECHA 8-Tierra : Continuidad con el interruptor de la señal de aviso de peligro en la posición ON 7-Tierra : Siempre con continuidad : Localización de partes Código Vea la página Código Vea la página Código Vea la página C8 40 J23 B 42 T13 39 (∗1) C10 40 R4 45 (∗2) T14 37 (2TR-FE) H5 41 R4 46 (∗3) T14 39 (∗1) J1 39 (∗1) R5 45 (∗2) T15 37 (2TR-FE) J15 42 R5 46 (∗3) T15 39 (∗1) J20 A 42 T12 37 (2TR-FE) T16 43 J21 B 42 T12 39 (∗1) T22 43 J22 A 42 T13 37 (2TR-FE) : Bloques de relés Código Vea la página Bloque de relés (localización del bloque de relés) 1 22 R/B del compartimiento del motor (Compartimiento del motor izquierdo) : Bloque de empalmes y conector del mazo de cables Código Vea la página Bloque de empalmes y mazo de cables (localización del conector) 2K 28 Alambre del piso y J/B del lado del conductor (Tensor del panel instrumental izquierdo) 2L 28 Alambre principal del compartimiento del motor y J/B del lado del conductor 2M 28 Alambre principal del compartimiento del motor y J/B del lado del conductor (Tensor del panel instrumental izquierdo) 2N 2O 29 Alambre del panel instrumental y J/B del lado del conductor (Tensor del panel instrumental izquierdo) 2R 29 Alambre del panel instrumental y J/B del lado del conductor (Tensor del panel instrumental izquierdo) 2S : Mazo de cables de la unión del conector y mazo de cables Código Vea la página Mazo de cables de unión y mazo de cables (localización del conector) IF3 54 Alambre principal del compartimiento del motor y Alambre del panel instrumental (Detrás del J/B del lado del conductor) BA1 56 (∗2) Alambre del bastidor y Alambre del piso (Debajo del asiento frontal izquierdo)BA1 58 (∗3) Alambre del bastidor y Alambre del piso (Debajo del asiento frontal izquierdo) : Puntos a tierra Código Vea la página Localización de los puntos a tierra EA 48 (2TR-FE) Lado derecho del faldón del guardabarrosEA 50 (∗1) Lado derecho del faldón del guardabarros EB 48 (2TR-FE) Lado izquierdo del faldón del guardabarrosEB 50 (∗1) Lado izquierdo del faldón del guardabarros ID 52 Centro de refuerzo del tablero de instrumentos IE 52 Refuerzo del panel instrumental izquierdo IG 52 Panel del lado del cubretablero izquierdo ∗ 1 : 1KD-FTV, 2KD-FTV ∗ 2 : Cabina doble ∗ 3 : Cabina sencilla Consejos para el servicio
  • 111.
    HILUX (EWD630S) 111 : Puntosde la unión Código Vea la página Mazo de cables con puntos de unión Código Vea la página Mazo de cables con puntos de unión I2 54 Alambre principal del compartimiento del motor B3 58 (∗3) Alambre del bastidor B3 56 (∗2) Alambre del bastidor ∗ 1 : 1KD-FTV, 2KD-FTV ∗ 2 : Cabina doble ∗ 3 : Cabina sencilla
  • 112.
    112 HILUX (EWD630S) Luz deparada 10A STOP Desde el sistema de la fuente de alimentación (Vea la página 62) 2F2 2M5 2K5 3 3 4 4 Paro Paro W–BG–W G–WW–BG–W G–W G–WG–WG–B S14 BD12 G–WG–W (∗1)(∗1) 1 2 ∗ 1 : con lámpara de parada central R4 R5 Lámparadecombinacióntrasera (izquierda) Lámparadecombinacióntrasera (derecha) Interruptor de la lámpara de parada W–B W–B IF Conector de unión J2811 B 3 IG 11 BA18 W–BW–B(∗2) W–B Conector deunión J15 4 BA16 G–W B 3 B 3 G–W (∗1) 1 2 Lámpara de parada central C13 W–B (∗1) G–W BD11 W–B (∗1) W–R (∗3) ∗ 2 : Cabina doble ∗ 3 : Cabina sencilla
  • 113.
    HILUX (EWD630S) 113 S14 Interruptorde la lámpara de parada 2-1 : Cerrado con el pedal del freno pisado : Localización de partes Código Vea la página Código Vea la página Código Vea la página C13 44 (∗2) R4 45 (∗2) R5 46 (∗3) J15 42 R4 46 (∗3) S14 43 J28 42 R5 45 (∗2) : Bloque de empalmes y conector del mazo de cables Código Vea la página Bloque de empalmes y mazo de cables (localización del conector) 2F 28 Alambre principal del compartimiento del motor y J/B del lado del conductor (Tensor del panel instrumental izquierdo) 2K 28 Alambre del piso y J/B del lado del conductor (Tensor del panel instrumental izquierdo) 2M 28 Alambre principal del compartimiento del motor y J/B del lado del conductor (Tensor del panel instrumental izquierdo) : Mazo de cables de la unión del conector y mazo de cables Código Vea la página Mazo de cables de unión y mazo de cables (localización del conector) BA1 56 (∗2) Alambre del bastidor y Alambre del piso (Debajo del asiento frontal izquierdo)BA1 58 (∗3) Alambre del bastidor y Alambre del piso (Debajo del asiento frontal izquierdo) BD1 56 (∗2) Alambre del bastidor N.° 2 y Alambre del bastidor (Debajo del panel posterior izquierdo) : Puntos a tierra Código Vea la página Localización de los puntos a tierra IF 52 Panel del lado del cubretablero derecho IG 52 Panel del lado del cubretablero izquierdo : Puntos de la unión Código Vea la página Mazo de cables con puntos de unión Código Vea la página Mazo de cables con puntos de unión B3 56 (∗2) Alambre del bastidor B3 58 (∗3) Alambre del bastidor ∗ 1 : 1KD-FTV, 2KD-FTV ∗ 2 : Cabina doble ∗ 3 : Cabina sencilla Consejos para el servicio
  • 114.
    114 HILUX (EWD630S) Luz demarcha atrás 10A ECU–IG&GAUGE Desde el sistema de la fuente de alimentación (Vea la página 62) 2S25 B2 (M/T) A2 (A/T) A1 (A/T) B1 (M/T) ID12 ID13 2Q27 2I10 3 3 5 5 Respaldo Respaldo W–BR–L R–LW–BR–W R–W W–B W–BR–WR–YY R–LR–L B1(B) R 4 R 5 N1(A) Interruptordearranque enpuntomuerto Interruptordelalámpara demarchaatrás Lámpara de combinación trasera (izquierda) Lámpara de combinación trasera (derecha) Y BA15 B 3R–W IF Conector de unión J2811 B 3 IG 11 BA18 W–B W–B Conector deunión J15 4 W–B(∗1) W–R (∗2) ∗ 1 : Cabina doble ∗ 2 : Cabina sencilla
  • 115.
    HILUX (EWD630S) 115 B1 (B)Interruptor de la luz de marcha atrás (M/T) (B) 2-(B) 1 : Cerrado con la palanca de cambios en la posición R N1 (A) Interruptor de arranque en punto muerto (A/T) (A) 2-(A) 1 : Cerrado con la palanca de cambios en la posición R : Localización de partes Código Vea la página Código Vea la página Código Vea la página B1 B 36 (2TR-FE) J28 42 R4 46 (∗3) B1 B 38 (∗1) N1 A 39 (∗1) R5 45 (∗2) J15 42 R4 45 (∗2) R5 46 (∗3) : Bloque de empalmes y conector del mazo de cables Código Vea la página Bloque de empalmes y mazo de cables (localización del conector) 2I 28 Alambre del piso y J/B del lado del conductor (Tensor del panel instrumental izquierdo) 2Q 29 Alambre del panel instrumental y J/B del lado del conductor (Tensor del panel instrumental izquierdo) 2S 29 Alambre del panel instrumental y J/B del lado del conductor (Tensor del panel instrumental izquierdo) : Mazo de cables de la unión del conector y mazo de cables Código Vea la página Mazo de cables de unión y mazo de cables (localización del conector) ID1 52 Alambre del motor y Alambre del panel instrumental (Detrás de la guantera) BA1 56 (∗2) Alambre del bastidor y Alambre del piso (Debajo del asiento frontal izquierdo)BA1 58 (∗3) Alambre del bastidor y Alambre del piso (Debajo del asiento frontal izquierdo) : Puntos a tierra Código Vea la página Localización de los puntos a tierra IF 52 Panel del lado del cubretablero derecho IG 52 Panel del lado del cubretablero izquierdo : Puntos de la unión Código Vea la página Mazo de cables con puntos de unión Código Vea la página Mazo de cables con puntos de unión B3 56 (∗2) Alambre del bastidor B3 58 (∗3) Alambre del bastidor ∗ 1 : 1KD-FTV, 2KD-FTV ∗ 2 : Cabina doble ∗ 3 : Cabina sencilla Consejos para el servicio
  • 116.
    116 HILUX (EWD630S) Luz interior 2O10 1 2 IA13 B12B11 ID 7. 5A DOME Desde el sistema de la fuente de alimentación (Vea la página 62) 1 2 1 2J82E4 2R8 7. 5A ECU–B 1 2 1 B 1 W–B W–B(∗1) P GR R–B R–L L G–YG–Y R–BR–L R R(∗3) RW–B Y R(∗1 ∗3) L W–B R8 M1 R 2 1 22 16 10 15 17 1 21 P J22(A),J23(B) (∗1)(∗1) DOOR OFF ON Puerta Conectordeunión Lámparaparamapas 10 A R P (∗2) 2Q25 Medidordecombinación C8 R (∗2) 2O26 Interruptordeadvertenciadedesbloqueo U1 Interruptordecortesíadelapuerta (ladodelconductor) D2 Lámparadelcilindrode lallavedeencendido Amplificadordelallave detransmisor T20(B) B6 (∗5) A6 (∗6) A2 (∗6) B2 (∗5) I5(A) (∗5) (∗6)(∗6) (∗5) 1 Lámparadelcompartimiento Lámparadelcilindrode lallavedeencendido (∗1∗3) R(∗4) R(∗4)
  • 117.
    HILUX (EWD630S) 117 2E1 2D182D92O152O27 2O31 IA113 IE 11 11 1083 2L12 L R–L R–B W–B(∗1) W–B R–L R–B R–L W–B W–B W–B R–LR–L R–L R–L J29 Relé de integración 16 1 4 2E3 P ∗ 1 : con lámpara para mapas ∗ 2 : con lámpara del cilindro de la llave de encendido ∗ 3 : Cabina doble GNDDCTY BECU (∗1) Conector de unión Interruptordecortesíadelapuerta (traseraizquierda) D4 Interruptordecortesíadelapuerta (traseraderecha) D5 ∗ 4 : Cabina sencilla (∗3)(∗3) (∗3) (∗3) P 2N12 15 (∗2) ILE P ∗ 5 : con sistema inmovilizador del motor ∗ 6 : sin sistema inmovilizador del motor Interruptordecortesíadelapuerta (ladodelpasajerodelantero) D3 1 R–LR–L (∗4)(∗4)
  • 118.
    118 HILUX (EWD630S) Luz interior D2,D3, D4, D5 Interruptor de cortesía de la puerta (lado del conductor), (lado del pasajero delantero), (trasera izquierda), (trasera derecha) 1-Tierra : Continuidad con cada una de las puertas abiertas : Localización de partes Código Vea la página Código Vea la página Código Vea la página C8 40 D5 44 (∗2) R8 45 (∗2) D2 44 (∗2) I5 A 41 R8 46 (∗3) D2 46 (∗3) J22 A 42 T20 B 43 D3 44 (∗2) J23 B 42 U1 43 D3 46 (∗3) J29 42 D4 44 (∗2) M1 44 (∗2) : Bloques de relés Código Vea la página Bloque de relés (localización del bloque de relés) 1 22 R/B del compartimiento del motor (Compartimiento del motor izquierdo) : Bloque de empalmes y conector del mazo de cables Código Vea la página Bloque de empalmes y mazo de cables (localización del conector) 2D 28 Alambre del panel instrumental y J/B del lado del conductor (Tensor del panel instrumental izquierdo) 2E 28 Alambre del techo y J/B del lado del conductor (Tensor del panel instrumental izquierdo) 2J 28 Alambre principal del compartimiento del motor y J/B del lado del conductor 2L 28 Alambre principal del compartimiento del motor y J/B del lado del conductor (Tensor del panel instrumental izquierdo) 2N 2O 29 Alambre del panel instrumental y J/B del lado del conductor (Tensor del panel instrumental izquierdo) 2Q 29 Alambre del panel instrumental y J/B del lado del conductor (Tensor del panel instrumental izquierdo) 2R : Mazo de cables de la unión del conector y mazo de cables Código Vea la página Mazo de cables de unión y mazo de cables (localización del conector) IA1 52 Alambre del panel instrumental y Alambre del piso (Panel de arranque derecho) : Puntos a tierra Código Vea la página Localización de los puntos a tierra ID 52 Centro de refuerzo del tablero de instrumentos IE 52 Refuerzo del panel instrumental izquierdo : Puntos de la unión Código Vea la página Mazo de cables con puntos de unión Código Vea la página Mazo de cables con puntos de unión B1 58 (∗3) Alambre del techo ∗ 1 : 1KD-FTV, 2KD-FTV ∗ 2 : Cabina doble ∗ 3 : Cabina sencilla Consejos para el servicio
  • 119.
  • 120.
    120 HILUX (EWD630S) Recordador dela llave y Recordador de las luces G G–W B–O GR W–B Zumbador RR 7. 5A MET Desde el sistema de la fuente de alimentación (Vea la página 62) 2D1 10A TAIL 2C5 7. 5A DOME 1 2 1 OFF Cola Faro Interruptorde controlde lasluces 1013 C10 ID B12 B11 A10 J22(A), J23(B) IA13 2O26 2O10 2 1 23 2S 7 2R GR G–Y R–B Y G–Y 25 2Q 8 2J 22 10 16 8 1 21 C 8 B1 T1 Medidor de combinación Interruptor de combinación Conector de unión Interruptordeadvertencia dedesbloqueo U1 G R–L D2 Interruptordecortesíadelapuerta (ladodelconductor) 1
  • 121.
    HILUX (EWD630S) 121 La corrientese aplica siempre al TERMINAL 1 del medidor de combinación a través del fusible DOME. Cuando el interruptor de encendido se gira a la posición ON, la corriente circula al TERMINAL 21 del medidor de combinación a través del fusible MET. Cuando el interruptor de control de las luces se gira a la posición TAIL o HEAD, la corriente se aplica al TERMINAL 8 del medidor de combinación a través del fusible TAIL. 1. Sistema recordador de la llave Cuando se abre la puerta del conductor con el interruptor de encendido desconectado y la llave de encendido colocada en el cilindro de la llave (interruptor de advertencia de desbloqueo activado), se introduce una señal desde el interruptor de advertencia de desbloqueo al TERMINAL 10 del medidor de combinación, y desde el interruptor de cortesía de la puerta (lado del conductor) al TERMINAL 16 del medidor de combinación. Como resultado, se activa el zumbador del medidor de combinación y avisa al conductor que la llave está puesta en el cilindro de la llave. 2. Sistema recordador de las luces Cuando el interruptor de control de las luces está en la posición TAIL o HEAD, se gira el interruptor de encendido desde la posición OFF a la posición ON, la llave de encendido no está en el cilindro de la llave y se abre la pureta del conductor (interruptor de cortesía de la puerta activado), se detiene el flujo de la corriente al TERMINAL 21 del medidor de combinación. Como resultado, se activa el medidor de combinación y la corriente circula desde el TERMINAL 1 del medidor de combinación, y se activa el zumbador del medidor de combinación para recordarle que la luz está encendida. C8 Medidor de combinación 21-Tierra : Aprox. 12 voltios con el interruptor de encendido en la posición ON 8-Tierra : Aprox. 12 voltios con el interruptor de control de las luces en la posición de las luces de COLA o FAROS 16-Tierra : Continuidad con la puerta del conductor abierta 22-Tierra : Siempre con continuidad D2 Interruptor de cortesía de la puerta (lado del conductor) 1-Tierra : Cerrado con la puerta del conductor abierta U1 Interruptor de advertencia de desbloqueo 1-2 : Cerrado con la llave de encendido en el cilindro : Localización de partes Código Vea la página Código Vea la página Código Vea la página C8 40 D2 46 (∗3) U1 43 C10 40 J22 A 42 D2 44 (∗2) J23 B 42 : Bloques de relés Código Vea la página Bloque de relés (localización del bloque de relés) 1 22 R/B del compartimiento del motor (Compartimiento del motor izquierdo) : Bloque de empalmes y conector del mazo de cables Código Vea la página Bloque de empalmes y mazo de cables (localización del conector) 2C 28 Alambre del panel instrumental y J/B del lado del conductor (Tensor del panel instrumental izquierdo) 2D 28 Alambre del panel instrumental y J/B del lado del conductor (Tensor del panel instrumental izquierdo) 2J 28 Alambre principal del compartimiento del motor y J/B del lado del conductor (Tensor del panel instrumental izquierdo) 2O 2Q 29 Alambre del panel instrumental y J/B del lado del conductor (Tensor del panel instrumental izquierdo) 2R 29 Alambre del panel instrumental y J/B del lado del conductor (Tensor del panel instrumental izquierdo) 2S : Mazo de cables de la unión del conector y mazo de cables Código Vea la página Mazo de cables de unión y mazo de cables (localización del conector) IA1 52 Alambre del panel instrumental y Alambre del piso (Panel de arranque derecho) ∗ 1 : 1KD-FTV, 2KD-FTV ∗ 2 : Cabina doble ∗ 3 : Cabina sencilla Descripción del sistema Consejos para el servicio
  • 122.
    122 HILUX (EWD630S) Recordador dela llave y Recordador de las luces : Puntos a tierra Código Vea la página Localización de los puntos a tierra ID 52 Centro de refuerzo del tablero de instrumentos
  • 123.
  • 124.
    124 HILUX (EWD630S) Advertencia decinturón de seguridad 7. 5A MET Desde el sistema de la fuente de alimentación (Vea la página 62) 2D1 Cinturónde seguridaddel conductor 2 1 IG J15 2 A10 B12 ID 3 4 21 2211 R–Y Y R–YW–B W–BB–O R–Y IA119 C 8 J26 Medidor de combinación Conector de unión Conector de unión ∗ 2 : sin sistema de control de bloqueo de las puertas ∗ 1 : con sistema de control de bloqueo de las puertas R–Y R–Y (∗1)(∗1) (∗2) Conectordeunión J22(A),J23(B) 10A ECU–IG&GAUGE 2D1 A5 B6 J20(A),J21(B) Conectordeunión IF Conector de unión J28 3 3 1 2 R–LBR G–W W–B W–B W–B 2P15 2I14 G–W Cinturóninteriordelasiento delantero(ladodelconductor) F12 Circuito de parpadeo 2 1 Interruptorde detecciónde ocupante Interruptor delahebilla Lámpara de aviso del cinturón de seguridad del pasajero P13 Conjuntodelcinturóninteriordelasientodelantero (ladodelpasajerodelantero) F17
  • 125.
    HILUX (EWD630S) 125 Cuando elinterruptor de encendido se gira a la posición ON, la corriente procedente del fusible MET circula al TERMINAL 21 del medidor de combinación. Sistema de aviso del cinturón de seguridad Cuando se conecta el interruptor de encendido, se introduce una señal al medidor de combinación. Para determinar si el conductor se ha abrochado el cinturón de seguridad, se introduce una señal desde el cinturón interior del asiento delantero (lado del conductor) al TERMINAL 11 del medidor de combinación. Cuando el cinturón de seguridad no está abrochado, parpadea la luz de aviso del cinturón de seguridad del conductor en el medidor de combinación. Además, en el asiento del pasajero delantero, un sensor reconoce que hay un pasajero, y cuando el pasajero no se ha abrochado el cinturón de seguridad, parpadea la luz de advertencia del cinturón del asiento del pasajero delantero. F12 Cinturón interior del asiento delantero (lado del conductor) 1-2 : Abierto cuando se está utilizando el cinturón de seguridad del conductor C8 Medidor de combinación 21-Tierra : Aprox. 12 voltios con el interruptor de encendido en la posición ON 22-Tierra : Siempre con continuidad : Localización de partes Código Vea la página Código Vea la página Código Vea la página C8 40 J20 A 42 J26 42 F12 44 (∗2) J21 B 42 J28 42 F17 44 (∗2) J22 A 42 P13 43 J15 42 J23 B 42 : Bloque de empalmes y conector del mazo de cables Código Vea la página Bloque de empalmes y mazo de cables (localización del conector) 2D 28 Alambre del panel instrumental y J/B del lado del conductor (Tensor del panel instrumental izquierdo) 2I 28 Alambre del piso y J/B del lado del conductor (Tensor del panel instrumental izquierdo) 2P 29 Alambre del panel instrumental y J/B del lado del conductor (Tensor del panel instrumental izquierdo) : Mazo de cables de la unión del conector y mazo de cables Código Vea la página Mazo de cables de unión y mazo de cables (localización del conector) IA1 52 Alambre del panel instrumental y Alambre del piso (Panel de arranque derecho) : Puntos a tierra Código Vea la página Localización de los puntos a tierra ID 52 Centro de refuerzo del tablero de instrumentos IF 52 Panel del lado del cubretablero derecho IG 52 Panel del lado del cubretablero izquierdo ∗ 1 : 1KD-FTV, 2KD-FTV ∗ 2 : Cabina doble ∗ 3 : Cabina sencilla Descripción del sistema Consejos para el servicio
  • 126.
    126 HILUX (EWD630S) ECT 1 E 5(A),E 6(B), E 7(C), E 8(D) 1H 3 1J 8 A 1 A 2 B EB 1 IF314 IF3 50A BATT P/I Desde el sistema de la fuente de alimentación (Vea la página 62) 1B3 W–L 2 5 1J 4 B 1 1J L BATTMREL +B W–G B W–G B A 2 W–B 1J W–BW–G L B 2 L 25A EFI 1 1 7 Relé MAIN W–B W–BW–B L B1 B 1J4 EA112 B J 4(A), J 5(B) L ECU del motor Conector de unión 28 BR E2 D A10 B8 Conector de unión J 7(A), J 8(B) B Conectordeunión J1 J7(A) Conectordeunión W–B BR BR A5 A3
  • 127.
    HILUX (EWD630S) 127 A26 GR–G VPA2 EP2 BR–Y VCP2 BR–R BR–W EP1VPA1 W–L LG–R VCP1 22A A28 A27 A23 231564 A13 A29 W1 B7 A R–WR–W VC 8 E2 BRBR 9 B R–LBR THWVLU B BR R–W D18D28 19 DC29 16 20 1 2 ∗ 1 : Protegido E 5(A), E 6(B), E 7(C), E 8(D) C4 C7 27 D 34 D E 1 EC 7 D6 D I 1 W–B E02 E01 W–B W NE+ W–B 1 Y L NE– 2 3 E1 BR W–B W–B J 6 1 2 4 (∗1) (∗1) J10 BR W–B LL Sensor de la posición del acelerador Sensorde posición delcigüeñal ECU del motor Conector de unión Conector de unión Sensordelatemperaturadelagua Conector de unión J 7(A), J 8(B) 4 15 31 D THA Y–B BR B VG 3 W–R 24 C 2 EVG B–W 32 C +BE2 VG THA E2G Medidor de flujo de aire A 4 B VPA2 EPA2VCP2EPAVPAVCPA W–B BR Conjuntodelcuerpo delacelerador T1(A),T2(B) B2B1A2A3 B3A1 GND +B VC E2 LUSL VAF 4 C GR LUSL W–B E 2 B B E2 THW E NE–NE+
  • 128.
    128 HILUX (EWD630S) ECT B–O22 2R 7.5A IGN 17 B 2M6 B–O B–O 22 2S B–O SP1 V–R IGSW B9 A ST1– 14 R–LR–L 4 3 G–W STP IF34 B15 5 G–BG–W 2M 2 2F 2 1 Desde el sistema de la fuente de alimentación (Vea la página 62) 2R21 G–W 11 A 8 B L–Y NSW 12 B12 A B–O IG2 A5 V–R 6 A 26 2P B–Y BATT L G–W STP A14 Desde el sistema de la fuente de alimentación (Vea la página 62) T17(A), T18(B), T19(C) W 11 2P62C L R–Y B WFSE SIL B24 B23 C L–Y B–Y 11 B N 1 STA L–Y 7. 5A ST 2O3 L–Y 5 4 P N C11 1 ID2 B–Y J11(A),J12(B) 20 A 21 A CAN– V CAN+ P A2 23 C24 C B–Y BR 8 B–Y 7 ID2 19 2N V–R SP1 A25 J11(A),J12(B) V–R 2Q10 2Q26 STA B–Y P–B R–Y 6 2Q 22 2Q 5 2Q 21 2Q V CAN+ B P 22 P–B R–Y WFSE WFSE W TCSIL TCSIL A19 A11A18 2C10 2C9 W 21 B CAN– E 5(A), E 6(B), E 7(C), E 8(D) 7 A 15 137 D 1 L V–R DLC3 ECU del motor Conectordeunión Conectordeunión Interruptor de arranque en punto muerto ECU de control de la transmisión 21 2S THOC E2 10A STOP Interruptordela lámparadeparada S14 NSW L–Y 6 A 2O19 L–Y Sensordelatemperatura dellíquidodelaA/T 2 1
  • 129.
    HILUX (EWD630S) 129 V P NCO+ NCO– 2 1 C3C2 17 C18 C16 C19 C20 C 29 CC30 2 4 SLT+ G–Y 6 7 SLT– L–B SL G W–L S2 E 1 8 GR S1 R G SP2+ SP2– 2 1 B W Y G O 8 E01 W–B 4 3 10 C T17(A), T18(B), T19(C) BR E1 BR EC C1 V–R BR W–B 11 10 S2 L L 2R R–Y 9 B B B P R–L B DG–Y V–R Solenoide de ECT ECU de control de la transmisión Interruptor de arranque en punto muerto Conectordeunión 18 2N 18 2O 1 B3 B 5 A3 A 27 2P 27 2Q 3 ID1 AT3 NSSD 9 3 YR–Y G–O 1 7 3 8 2 5 G–Y L G–RG–R L G–Y B A1 B Interruptor decontrolde latransmisión J11(A),J12(B) N 1 6 G–Y RL DL 2L LL RB T6 ECUdecontrolde bloqueodecambios S11 7 8 L4 G–W B15 W–G TFN B16 2 1 2 1 A4 B5 A3 T4 T5 Conector deunión J7(A),J8(B) 3 G–O 12 B SL S1SLT–SLT+ 8 OILW A W–GW–G (4WD) (4WD) (4WD)(4WD)ID16 Conector de unión J 6 2 1 W–B (4WD) Conectordeunión J6 Sensorderevolucionesde latransmisión(entrada) Interruptordelindicador delatransferencia (posiciónL4) Interruptordel indicadordela transferencia (posicióndepuntomuerto) Sensorderevolucionesde latransmisión(salida) T7 ID18 W–B (4WD) W–B (4WD) G–W (4WD) G–W (4WD) Conector deunión J10
  • 130.
    130 HILUX (EWD630S) ECT Sensordevelocidad Conector deunión Medidor de combinación R–L 1 2D 7. 5A MET B–O 3 C 8 16 ID2 V–R R–B S3 R 2 P–LP–L Temperatura Tacómetro Velocímetro R 1 R–BR–B 1 2J8 2Q25 10A ECU–IG&GAUGE 2S ID215 30 7. 5A DOME Desde el sistema de la fuente de alimentación (Vea la página 62) 1 2 12 B 10 A J22(A), J23(B) W–BY 25 2S R–L B–O BR ID12 R–L P BR V–R ID P A/TOILTEMP 18 6 22 21 1 5 SESI IG+
  • 131.
    HILUX (EWD630S) 131 Las transmisionesautomáticas anteriores seleccionaban los cambios de marcha empleando presión hidráulica del acelerador controlada mecánicamente, presión hidráulica del regulador y presión hidráulica de enclavamiento. Sin embargo, la transmisión de control electrónico controla eléctricamente la presión de línea, presión del acelerador, presión de enclavamiento y presión del acumulador, etc. mediante la válvula de solenoide. La transmisión de control electrónico es un sistema que controla con precisión el momento de los cambios de marcha y el momento de enclavamiento en respuesta a las condiciones de marcha del vehículo y condiciones del motor detectadas por varios sensores. Hace posible una conducción suave mediante la selección de cambio para cada marcha que es la más apropiada a las condiciones del momento, y evitando la bajada, hundimiento y golpes de los cambios de engranajes, cuando se pone en marcha el vehículo. 1. Operación de enclavamiento Cuando la ECU de control de la transmisión decide, basándose en cada señal, que se ha satisfecho la condición de enclavamiento, la corriente circula a través del TERMINAL SL de la ECU de control de la transmisión al TERMINAL 7 del solenoide de ECT y a TIERRA, causando la operación de enclavamiento. 2. Circuito del interruptor de la lámpara de parada Si se pisa el pedal del freno (interruptor de la lámpara de parada activado) cuando se circula en la condición de enclavamiento, se introduce una señal al TERMINAL STP de la ECU de control de la transmisión. La ECU de control de la transmisión opera y corta la corriente que va al solenoide para liberar el enclavamiento. T17 (A), T19 (C) ECU de control de la transmisión (A) 6-Tierra : Aprox. 12 voltios con el interruptor de encendido en la posición ON (A) 5-Tierra : Siempre aprox. 12 voltios (C)12-Tierra : Aprox. 12 voltios con el interruptor de encendido en la posición ST (A)14-Tierra : Aprox. 12 voltios con el pedal del freno pisado (C) 1, (C) 10-Tierra : Siempre con continuidad N1 Interruptor de arranque en punto muerto 2-1 : Cerrado con la palanca de cambios en la posición R 2-7 : Cerrado con la palanca de cambios en la posición D 2-3 : Cerrado con la palanca de cambios en la posición 2 2-8 : Cerrado con la palanca de cambios en la posición L : Localización de partes Código Vea la página Código Vea la página Código Vea la página A2 38 (∗1) J4 A 42 S11 43 A4 38 (∗1) J5 B 42 S14 43 A13 40 J6 42 T1 A 39 (∗1) C4 38 (∗1) J7 A 42 T2 B 39 (∗1) C8 40 J8 B 42 T4 39 (∗1) D1 41 J10 42 T5 39 (∗1) E1 38 (∗1) J11 A 42 T6 39 (∗1) E5 A 41 J12 B 42 T7 39 (∗1) E6 B 41 J22 A 42 T17 A 43 E7 C 41 J23 B 42 T18 B 43 E8 D 41 N1 39 (∗1) T19 C 43 J1 39 (∗1) S3 39 (∗1) W1 39 (∗1) : Bloques de relés Código Vea la página Bloque de relés (localización del bloque de relés) 1 22 R/B del compartimiento del motor (Compartimiento del motor izquierdo) ∗ 1 : 1KD-FTV, 2KD-FTV ∗ 2 : Cabina doble ∗ 3 : Cabina sencilla Descripción del sistema Consejos para el servicio
  • 132.
    132 HILUX (EWD630S) ECT : Bloquede empalmes y conector del mazo de cables Código Vea la página Bloque de empalmes y mazo de cables (localización del conector) 1B 23 Alambre principal del compartimiento del motor y J/B del compartimiento del motor 1H 24 Alambre principal del compartimiento del motor y J/B del compartimiento del motor (Compartimiento del motor izquierdo) 1J 24 (Compartimiento del motor izquierdo) 2C 28 Alambre del panel instrumental y J/B del lado del conductor (Tensor del panel instrumental izquierdo) 2D 28 Alambre del panel instrumental y J/B del lado del conductor (Tensor del panel instrumental izquierdo) 2F Alambre principal del compartimiento del motor y J/B del lado del conductor 2J 28 Alambre principal del compartimiento del motor y J/B del lado del conductor (Tensor del panel instrumental izquierdo) 2M (Tensor del panel instrumental izquierdo) 2N 2O 2P 29 Alambre del panel instrumental y J/B del lado del conductor (Tensor del panel instrumental izquierdo) 2Q 29 Alambre del panel instrumental y J/B del lado del conductor (Tensor del panel instrumental izquierdo) 2R 2S : Mazo de cables de la unión del conector y mazo de cables Código Vea la página Mazo de cables de unión y mazo de cables (localización del conector) EA1 50 (∗1) Alambre del motor y Alambre principal del compartimiento del motor (Dentro del R/B del compartimiento del motor y J/B del compartimiento del motor) ID1 52 Alambre del motor y Alambre del panel instrumental (Detrás de la guantera) ID2 52 Alambre del motor y Alambre del panel instrumental (Detrás de la guantera) IF3 54 Alambre principal del compartimiento del motor y Alambre del panel instrumental (Detrás del J/B del lado del conductor) : Puntos a tierra Código Vea la página Localización de los puntos a tierra EB 50 (∗1) Lado izquierdo del faldón del guardabarros EC 50 (∗1) Lado trasero del bloque de cilindros ID 52 Centro de refuerzo del tablero de instrumentos : Puntos de la unión Código Vea la página Mazo de cables con puntos de unión Código Vea la página Mazo de cables con puntos de unión E1 50 (∗1) Alambre del motor I1 54 Alambre del motor E2 50 (∗1) Alambre del motor ∗ 1 : 1KD-FTV, 2KD-FTV ∗ 2 : Cabina doble ∗ 3 : Cabina sencilla
  • 133.
  • 134.
    134 HILUX (EWD630S) Control decrucero 1 E 5(A), E 6(B), E 7(C), E 8(D) 1H 3 1J 8 A 1 A 2 B EB 1 IF314 IF3 50A BATT P/I Desde el sistema de la fuente de alimentación (Vea la página 62) 1B3 W–L A 5 1J C B 1 1J L BATTMREL +B W–G B W–G B A 2 W–B 1J W–BW–G L B 2 L 25A EFI 1 1 7 Relé MAIN W–B 3 5 W–BW–B L BA B 1J4 EA112 B J 4(A), J 5(B) L ECU del motor Conector de unión B Conectordeunión J1 J7 Conectordeunión W–B A21 CCS 1 G–W CCS ID19 2 W–BBR ECC Interruptordecontroldecrucero CRUISE RES/ACC SET/COAST CANSEL Cableespiral S13 BR
  • 135.
    HILUX (EWD630S) 135 A26 GR–G VPA2 EP2 BR–Y VCP2 BR–R BR–W EP1VPA1 W–L LG–R VCP1 22A A28 A27 A23 231564 A13 A29 R–WR–W VCE2 BR VLU B BR R–W D18D28C29 16 20 ∗ 1 : Protegido E 5(A), E 6(B), E 7(C), E 8(D) C7 EC 7 D6 D I 1 W–B E02 E01 W–B W E1 BR W–B W–B J 6 2 4 BR W–B LL Sensor de la posición del acelerador ECU del motor Conector de unión B VPA2 EPA2VCP2EPAVPAVCPA W–B Conjuntodelcuerpo delacelerador T1(A),T2(B) B2B1A2A3 B3A1 GND +B VC E2 LUSL VAF 4 C GR LUSL W–B B 8 7 BR Conectordeunión J7 Conectordeunión J10 BR BR
  • 136.
    136 HILUX (EWD630S) Control decrucero B–O22 2R 7. 5A IGN 17 B 2M6 B–O B–O 22 2S B–O SP1 V–R IGSW B9 A ST1– 14 R–LR–L 4 3 G–W STP IF34 B15 5 G–BG–W 2M 2 2F 2 1 Desde el sistema de la fuente de alimentación (Vea la página 62) 2R21 G–W V P NCO+ NCO– 2 B–O STP A5 V–R 1 6 A 26 2P C3 IG2 L G–W BATT A14 C2 T17(A), T18(B), T19(C) W 11 2P62C R–Y WFSE SIL B24 B23 20 A 21 A CAN– V CAN+ P E01 W–B 4 3 10 C V–R SP1 BR E1 BR A25 EC C1 V–R 2Q10 2Q26 P–B R–Y 6 2Q 22 2Q 5 2Q 21 2Q V CAN+ B P 22 P–B R–Y WFSE WFSE W TCSIL TCSIL A19 A11A18 2C10 2C9 W 21 B CAN– E 5(A), E 6(B), E 7(C), E 8(D) 15 137 D 1 L V–R DLC3 ECU del motor ECU de control de la transmisión 21 2S T6 10A STOP Interruptordela lámparadeparada S14 Sensorderevolucionesdela transmisión(entrada) W–B Conectordeunión J10 BR 3 B PI L–B L–B
  • 137.
    HILUX (EWD630S) 137 17 C18C16 C19 C20 C 29 CC30 2 4 SLT+ G–Y 6 7 SLT– L–B SL G W–L S2 E 1 8 GR S1 R G SP2+ SP2– 2 1 W Y G O T17(A), T18(B), T19(C) S2 V–R Solenoide de ECT ECU de control de la transmisión S3 S1SLT–SLT+ Sensorderevolucionesdela transmisión(salida) T7 BR 8 ID BR B–O YW–B J22(A), J23(B) A10 B12 2 1 Desde el sistema de la fuente de alimentación (Vea la página 62) 7. 5A DOME 30 15 ID2 2S 10A ECU–IG&GAUGE 25 2Q 2J 1 R–BR–B 1 R Velocímetro SI P–LP–L 2 R R–B V–R ID216 3 B–O 7. 5A MET 2D1 Conector de unión SE IG+ L–B CRUISE 28 6 22 21 1 5 Medidor de combinación C 8 Sensordevelocidad S3 IE13 L–B L–B L–B B
  • 138.
    138 HILUX (EWD630S) Control decrucero Es un sistema que controla la marcha a una velocidad constante controlando el volumen de inyección de combustible mediante la operación de interruptores al alcance de la mano en lugar del pedal del acelerador cuando el conductor desea circular a una velocidad constante por una autopista. 1. Control de ajuste Cuando el interruptor SET/COAST se gira desde ON a OFF durante la circulación con el interruptor principal en ON, la velocidad del vehículo de ese momento se registra y el vehículo se controla a esta velocidad constante. 2. Control de marcha por inercia Cuando el interruptor SET/COAST se mantiene en ON durante la circulación con el control de crucero, la abertura requerida por el control de crucero obtiene cero para reducir la velocidad del vehículo. Si el interruptor SET/COAST se gira a OFF, la velocidad del vehículo en ese momento se registra y el vehículo se controla a la velocidad constante. 3. Control de incremento por accionamientos Siempre que se acciona a ON el interruptor RES/ACC de forma instantánea (durante aproximadamente 0,6 segundos), la velocidad del vehículo registrada se incrementa aproximadamente en 1,6 km/h. 4. Control de reducción por accionamientos Siempre que se acciona a ON el interruptor SET/COAST de forma instantánea (durante aproximadamente 0,6 segundos), la velocidad del vehículo registrada se reduce aproximadamente en 1,6 km/h. 5. Control de aceleración Cuando el interruptor RES/ACC se mantiene en ON durante la circulación con el control de crucero, el control de aceleración tiene a incrementar el volumen de inyección de combustible para realizar el control constante de la aceleración. Registra también la velocidad del vehículo cuando el interruptor RES/COAST se pone en OFF y controla el vehículo a la velocidad constante. 6. Función de cancelación Si se introduce alguna de las señales siguientes durante la circulación con control de crucero, se cancela el control de crucero. ∗ Activación del interruptor de la lámpara de parada (se pisa el pedal del freno) ∗ Cambio de marcha desde la posición D a otra posición que no sea la posición D ∗ Activación del interruptor CANCEL ∗ Desactivación del interruptor principal de control de crucero E5 (A), E6 (B), E7 (C), E8 (D) ECU del motor (A) 2-Tierra : Siempre 9,0-14,0 voltios (A) 1-Tierra : 9,0-14,0 voltios (interruptor de encendido en la posición ON) (B)15-Tierra : 7,5-14,0 voltios (interruptor de encendido conectado y pedal del freno pisado) (C) 7, (D) 6, (D) 7-Tierra : Siempre con continuidad (A)21-Tierra : Continuidad con el interruptor principal de control de crucero conectado T17 (A), T19 (C) ECU de control de la transmisión (A) 6-Tierra : Aprox. 12 voltios con el interruptor de encendido en la posición ON (A) 5-Tierra : Siempre aprox. 12 voltios (A)14-Tierra : Aprox. 12 voltios con el pedal del freno pisado (C) 1, (C) 10-Tierra : Siempre con continuidad S13 Cable espiral 1-2 : Aprox. 1,540 Ω con el interruptor CANCEL conectado : Aprox. 630 Ω con el interruptor SET/COAST conectado Aprox. 240 Ω con el interruptor RES/COAST conectado Descripción del sistema Consejos para el servicio
  • 139.
    HILUX (EWD630S) 139 : Localizaciónde partes Código Vea la página Código Vea la página Código Vea la página A13 40 J4 A 42 S14 43 C8 40 J5 B 42 T1 A 39 (∗1) D1 41 J6 42 T2 B 39 (∗1) E1 38 (∗1) J7 42 T6 39 (∗1) E5 A 41 J10 42 T7 39 (∗1) E6 B 41 J22 A 42 T17 A 43 E7 C 41 J23 B 42 T18 B 43 E8 D 41 S3 39 (∗1) T19 C 43 J1 39 (∗1) S13 43 : Bloques de relés Código Vea la página Bloque de relés (localización del bloque de relés) 1 22 R/B del compartimiento del motor (Compartimiento del motor izquierdo) : Bloque de empalmes y conector del mazo de cables Código Vea la página Bloque de empalmes y mazo de cables (localización del conector) 1B 23 Alambre principal del compartimiento del motor y J/B del compartimiento del motor 1H 24 Alambre principal del compartimiento del motor y J/B del compartimiento del motor (Compartimiento del motor izquierdo) 1J 24 (Compartimiento del motor izquierdo) 2C 28 Alambre del panel instrumental y J/B del lado del conductor (Tensor del panel instrumental izquierdo) 2D 28 Alambre del panel instrumental y J/B del lado del conductor (Tensor del panel instrumental izquierdo) 2F Alambre principal del compartimiento del motor y J/B del lado del conductor 2J 28 Alambre principal del compartimiento del motor y J/B del lado del conductor (Tensor del panel instrumental izquierdo) 2M (Tensor del panel instrumental izquierdo) 2P 2Q 29 Alambre del panel instrumental y J/B del lado del conductor (Tensor del panel instrumental izquierdo) 2R 29 Alambre del panel instrumental y J/B del lado del conductor (Tensor del panel instrumental izquierdo) 2S : Mazo de cables de la unión del conector y mazo de cables Código Vea la página Mazo de cables de unión y mazo de cables (localización del conector) EA1 50 (∗1) Alambre del motor y Alambre principal del compartimiento del motor (Dentro del R/B del compartimiento del motor y J/B del compartimiento del motor) ID1 52 Alambre del motor y Alambre del panel instrumental (Detrás de la guantera) ID2 52 Alambre del motor y Alambre del panel instrumental (Detrás de la guantera) IE1 52 Alambre del panel instrumental y Alambre del panel instrumental (Centro de refuerzo del tablero de instrumentos) IF3 54 Alambre principal del compartimiento del motor y Alambre del panel instrumental (Detrás del J/B del lado del conductor) : Puntos a tierra Código Vea la página Localización de los puntos a tierra EB 50 (∗1) Lado izquierdo del faldón del guardabarros EC 50 (∗1) Lado trasero del bloque de cilindros ID 52 Centro de refuerzo del tablero de instrumentos : Puntos de la unión Código Vea la página Mazo de cables con puntos de unión Código Vea la página Mazo de cables con puntos de unión I1 54 Alambre del motor ∗ 1 : 1KD-FTV, 2KD-FTV ∗ 2 : Cabina doble ∗ 3 : Cabina sencilla
  • 140.
    140 HILUX (EWD630S) ABS IG1 25 B–O B 23 R 1 W–R G–W STP 10 W–B W–B 18 PKB L–OL–O ABS Freno R–G 3836 21 R–G 13 224 WA +BM +BS GND1 GND2 30A ABS NO. 2 1C2 40A ABS NO. 1 Desde el sistema de la fuente de alimentación (Vea la página 62) 1B2 10A ECU–IG& GAUGE 2L8 7. 5A MET 2D1 C8 S 2 EA S14 2L 5 5 G–BG–W 2M 10A STOP 2 2F 2 1 11 LG LG LG 2 1 LG A12 B7 J4(A),J5(B) 2K12M1 2L1 B 3 P2 IF23 2S1 W–B Medidordecombinación Conectordeunión Interruptordelfreno deestacionamiento ECU de control de derrape con actuador Interruptordela lámparadeparada EA16 8 10 EC 2 1 3 W–B W–BG–WG–WG–W EXI4 Conectordeunión J6T4 2S17 R–B EXI 17 EA15 Interruptordeadvertenciadel niveldellíquidodefrenos B2 12 13 3 R–BR–B (4WD)(4WD)(4WD) (4WD)(4WD)(4WD)(4WD) (4WD) Interruptor de advertencia de vacío del freno Interruptordelindicador delatransferencia (posiciónL4) ActuadordeADD A3 ADD GND Interruptor dedetección A3 A4 B4 Conectordeunión J7(A),J8(B) 4 W–B (4WD) Conector deunión J6 2K4 25 EXI2 V (4WD) IG110 R–L (4WD)
  • 141.
    HILUX (EWD630S) 141 W TS 15 L–Y D/G 14 P–L TC 16 9 FL+ R YP 8 FL– G 31 FR+ L–W L WP L 30 FR– O M– 12 RL–RL+ 1134 RR–RR+ 33 SRRR SRRHSFLHSFLRSFRHSFRR M +BS M+ 2 1 LL G R GG L W RR S 2 BA21BA22BA26BA27 IG12IG11IG14IG13 S21 S22 IF27 12 W TS SIL 7 TC 13 R–Y P–B 2Q21 2J5 2Q22 2J6 D 1 DLC3 ECU de control de derrape con actuador Sensordevelocidad (traseroizquierdo) Sensordevelocidad (traseroderecho) Sensordevelocidad (delanteroizquierdo) S4 Sensordevelocidad (delanteroderecho) S5 IG15IG17IG18IG16 B 2 IF Conector de unión J28 7 132 R W BB W R 4287 (Protegido)(Protegido) BR GL1VGSGGND A17 GL1VGSGGND BE13BE14BE11BE12 1 2 1 2 FR– FR+ BW 1 2 WB FL+ FL– (4WD) (4WD) (4WD)(4WD) (4WD) (4WD) (4WD) Sensor de desaceleración del ABS
  • 142.
    142 HILUX (EWD630S) ABS Este sistemacontrola las presiones del líquido de frenos respectivas que actúan en los cilindros de los frenos de la rueda delantera derecha, rueda delantera izquierda y ruedas traseras cuando se aplican los frenos en una parada repentina para que no se enclaven las ruedas. De este modo se mejora la estabilidad de marcha y el control de la dirección durante el frenado repentino. 1. Señal de entrada (1) Señal del sensor de velocidad La velocidad de las ruedas se detecta e introduce a los TERMINALES FL+, FR+, RL+ y RR+ de la ECU de control de derrape con actuador. (2) Señal del interruptor de la lámpara de parada Se introduce una señal al TERMINAL STP de la ECU de control de derrape con actuador cuando se pisa el pedal del freno. 2. Operación del sistema Durante el frenado súbito, la ECU de control de derrape con actuador, a la que se introducen señales procedentes de cada sensor, deja que se escape al depósito la presión hidráulica que actúa en el cilindro de cada rueda. La bomba del interior de la ECU de control de derrape con actuador opera también en ese momento y hace retornar el líquido de frenos desde el depósito al cilindro principal, evitando de este modo que se enclaven las ruedas del vehículo. Si la ECU de control de derrape con actuador juzga que la presión hidráulica que actúa en el cilindro de la rueda es insuficiente, se controla la corriente que actúa en el solenoide y se incrementa la presión hidráulica. La retención de la presión hidráulica también se controla mediante la ECU, mediante el mismo método que el de arriba, mediante la reducción repetida de la presión. La retención y el incremento se repiten para mantener la estabilidad del vehículo y mejorar el control de la dirección durante los frenados súbitos. S4, S5 Sensor de velocidad (delantero izquierdo), (delantero derecho) 1-2 : 0,9-1,3 kΩ (25°C) S2 ECU de control de derrape con actuador 25-Tierra : Aprox. 12 voltios con el interruptor de encendido en la posición ON 10-Tierra : Aprox. 12 voltios con el interruptor de la luz de parada conectado (pedal del freno pisado) 2, 24-Tierra : Siempre con continuidad 1, 23-Tierra : Siempre aprox. 12 voltios S14 Interruptor de la lámpara de parada 2-1 : Cerrado con el pedal del freno pisado : Localización de partes Código Vea la página Código Vea la página Código Vea la página A3 38 (∗1) J5 B 42 S4 39 (∗1) A17 44 J6 42 S5 39 (∗1) B2 38 (∗1) J7 A 42 S14 43 B3 38 (∗1) J8 B 42 S21 45 (∗2) C8 40 J28 42 S22 45 (∗2) D1 41 P2 43 T4 39 (∗1) J4 A 42 S2 39 (∗1) ∗ 1 : 1KD-FTV, 2KD-FTV ∗ 2 : Cabina doble ∗ 3 : Cabina sencilla Descripción del sistema Consejos para el servicio
  • 143.
    HILUX (EWD630S) 143 : Bloquede empalmes y conector del mazo de cables Código Vea la página Bloque de empalmes y mazo de cables (localización del conector) 1B 23 Alambre principal del compartimiento del motor y J/B del compartimiento del motor 1C 23 Alambre principal del compartimiento del motor y J/B del compartimiento del motor (Compartimiento del motor izquierdo) 2D 28 Alambre del panel instrumental y J/B del lado del conductor (Tensor del panel instrumental izquierdo) 2F 28 Alambre principal del compartimiento del motor y J/B del lado del conductor 2J 28 Alambre principal del compartimiento del motor y J/B del lado del conductor (Tensor del panel instrumental izquierdo) 2K 28 Alambre del piso y J/B del lado del conductor (Tensor del panel instrumental izquierdo) 2L 28 Alambre principal del compartimiento del motor y J/B del lado del conductor 2M 28 Alambre principal del compartimiento del motor y J/B del lado del conductor (Tensor del panel instrumental izquierdo) 2Q 29 Alambre del panel instrumental y J/B del lado del conductor (Tensor del panel instrumental izquierdo) 2S 29 Alambre del panel instrumental y J/B del lado del conductor (Tensor del panel instrumental izquierdo) : Mazo de cables de la unión del conector y mazo de cables Código Vea la página Mazo de cables de unión y mazo de cables (localización del conector) EA1 50 (∗1) Alambre del motor y Alambre principal del compartimiento del motor (Dentro del R/B del compartimiento del motor y J/B del compartimiento del motor) IF2 54 Alambre principal del compartimiento del motor y Alambre del panel instrumental (Detrás del J/B del lado del conductor) IG1 54 Alambre principal del compartimiento del motor y Alambre del piso (Cerca del lado del conductor J/B) BA2 56 (∗2) Alambre del bastidor y Alambre del piso (Debajo del asiento frontal izquierdo) BE1 56 (∗2) Alambre del bastidor y Cable del sensor de control antipatinaje (Parte trasera del diferencial trasero) : Puntos a tierra Código Vea la página Localización de los puntos a tierra EA 50 (∗1) Lado derecho del faldón del guardabarros EC 50 (∗1) Lado trasero del bloque de cilindros IF 52 Panel del lado del cubretablero derecho : Puntos de la unión Código Vea la página Mazo de cables con puntos de unión Código Vea la página Mazo de cables con puntos de unión B2 56 (∗2) Alambre del piso ∗ 1 : 1KD-FTV, 2KD-FTV ∗ 2 : Cabina doble ∗ 3 : Cabina sencilla
  • 144.
  • 145.
    HILUX (EWD630S) 145 SRS AVISO: Cuandose inspeccione o repare el SRS, efectúe el servicio de acuerdo con las siguientes instrucciones de precaución y procedimiento, y con las precauciones del manual de reparaciones aplicable para el año del modelo. D Los síntomas de mal funcionamiento del SRS son difíciles de confirmar, por lo que los DTC son la fuente más importante de información para realizar la localización y reparación de averías. Cuando efectúe la localización y reparación de averías del SRS, inspeccione siempre los DTC antes de desconectar la batería. D El trabajo debe comenzarse después de más de 90 segundos desde el momento en que se gira el interruptor de encendido a la posición "LOCK" y se desconecta el cable del terminal negativo (-) de la batería. (El SRS está provisto de una fuente de alimentación auxiliar de modo que si la operación se inicia dentro de 90 segundos desde que se desconecta el cable del terminal negativo (-) de la batería, pueda activarse el SRS.) D Cuando se desconecta el cable del terminal negativo (-) de la batería, se borra la memoria del reloj y del sistema de audio. Por lo tanto, antes de comenzar el trabajo, anote el memorizado del sistema de audio. Cuando termine el trabajo, reajuste el sistema de audio como estaba antes y ponga en hora el reloj. Algunos vehículos tienen dirección inclinable eléctrica, dirección telescópica eléctrica, asiento eléctrico y espejos retrovisores exteriores eléctricos, y todos están provistos de función de memoria. Sin embargo, no es posible anotar el contenido de todas estas memorias. Por lo tanto, cuando termine el trabajo, será necesario explicárselo al cliente, y solicitar al cliente que ajuste las funciones y reajuste la memoria. Para evitar el borrado la memora de cada sistema, no emplee nunca un suministro de alimentación auxiliar del exterior del vehículo. D Antes de la reparación, extraiga el sensor del colchón de aire si es posible que el sensor reciba algún golpe durante la reparación. D No exponga las partes siguientes directamente al aire caliente ni al fuego; D Incluso en los casos de pequeños choques en los que no se activa el SRS, deberán inspeccionarse las partes siguientes; D No emplee nunca partes del SRS de otro vehículo. Cuando reemplace las partes, reemplácelas por partes nuevas. D No desmonte ni repare nunca las partes siguientes con el propósito de volverlas a utilizar. D Si las partes siguientes se han caído o tienen grietas, abolladuras u otros defectos en su caja, ménsula, y conector, reemplácelas por otras nuevas. D Emplee un voltímetro/ohmiómetro de alta impedancia (10 kΩ/V como mínimo) para efectuar la localización y reparación de averías de los circuitos eléctricos del sistema. D Las etiquetas de información están adheridas en la periferia de los componentes del SRS. Siga las instrucciones de los advertencias. D Después de haber terminado el trabajo del SRS, compruebe la luz de advertencia del SRS. D Si el vehículo está provisto de un sistema de comunicaciones móviles, consulte la precaución de la sección IN del manual de reparaciones. ∗ Almohadilla del volante de dirección ∗ Conjunto del colchón de aire del pasajero delantero ∗ Conjunto del sensor del colchón de aire central ∗ Conjunto del sensor del colchón de aire delantero
  • 146.
    146 HILUX (EWD630S) SRS 7. 5A MET Desdeel sistema de la fuente de alimentación (Vea la página 62) 2D1 SRS 7. 5A IGN 2B8 2B32O21 2O5 2Q22 2B7 2Q21 2B4 IF14 IF13 IF12 IF11 1 2 Cable espiral 2B1 2D18 2B2 2D9 ID IE A10 B12 7 1311 2022 14 5 6 25 26 292730282116 15 21 2121 +SR+SL–SL –SRSIL TCA/B LA D+ D– E1 E2 +SR–SR+SL–SLIG2SIL TC B–W BR–W W–R BR B–O B–W BR–W W–R BR R–Y P–B B–Y W P–B B–O B–Y Y W–B W–B W–B W–B Y Y–B B–Y B–Y W–B W–B A 6A 5 D 1 A15 A14 J22(A),J23(B) C 8 Sensor del colchón de aire (delantero izquierdo) Sensor del colchón de aire (delantero derecho) Centro del conjunto del sensor del colchón de aire Detonadordelcolchóndeaire (almohadilladelvolantededirección) Medidor de combinación DLC3 Conectordeunión D+ D– Y–G Y–R A23 P–P+ 1 2 34 Detonador del colchón de aire (conjunto del colchón de aire del pasajero delantero) IL11 IL12 Y–R Y
  • 147.
    HILUX (EWD630S) 147 El SRSes un dispositivo de protección del conductor y del pasajero delantero que desempeña un papel complementario con los cinturones de seguridad. Cuando el interruptor de encendido se gira a la posición ON, la corriente procedente del interruptor de encendido circula al TERMINAL 21 del centro del conjunto del sensor del colchón de aire. Si ocurre un accidente durante la circulación, cuando el impacto frontal excede un nivel ajustado, la corriente del interruptor de encendido circula a los TERMINALES 5 y 4 del centro del conjunto del sensor del colchón de aire, al TERMINAL 25, 26 o TIERRA DE CARROCERÍA, y a TIERRA, de modo que la corriente circula a los detonadores de los colchones de aire y hace que operen. El colchón de aire guardado en la almohadilla del volante de dirección se infla instantáneamente para mitigar el golpe al conductor. El colchón de aire guardado dentro del tablero de instrumentos del pasajero se infla instantáneamente para mitigar el golpe al pasajero delantero. : Localización de partes Código Vea la página Código Vea la página Código Vea la página A5 38 (∗1) A15 40 D1 41 A6 38 (∗1) A23 40 J22 A 42 A14 40 C8 40 J23 B 42 : Bloque de empalmes y conector del mazo de cables Código Vea la página Bloque de empalmes y mazo de cables (localización del conector) 2B 28 2D 28 Alambre del panel instrumental y J/B del lado del conductor (Tensor del panel instrumental izquierdo) 2O 29 Alambre del panel instrumental y J/B del lado del conductor (Tensor del panel instrumental izquierdo) 2Q 29 : Mazo de cables de la unión del conector y mazo de cables Código Vea la página Mazo de cables de unión y mazo de cables (localización del conector) IF1 54 Alambre principal del compartimiento del motor y Alambre del panel instrumental (Detrás del J/B del lado del conductor) IL1 54 Alambre del panel instrumental y conjunto de cables del tablero de instrumentos (Cerca del conjunto del colchón de aire del pasajero delantero) : Puntos a tierra Código Vea la página Localización de los puntos a tierra ID 52 Centro de refuerzo del tablero de instrumentos IE 52 Refuerzo del panel instrumental izquierdo ∗ 1 : 1KD-FTV, 2KD-FTV ∗ 2 : Cabina doble ∗ 3 : Cabina sencilla Descripción del sistema
  • 148.
    148 HILUX (EWD630S) 4WD conADD Batería 1 2 40A AM1 2A2 1F1 1A1 2G1 4 1AM1 ACC IG1 Interruptor de encendido I 6 ID112 13 14 EA15 10 8 7 ECU de control de la transmisión T18 3 15 8 10 17 ADD L4 EXI4 B–Y B–RBW G–WR–BR–B IG EXI Conector deunión J6 R–B F14 16 TFN 1 2 12 Conector de unión J 6 ID16 G–W (∗4A/T) G–W (∗4A/T) (∗3conABS)(∗3conABS)(∗3conABS) 2 W–G W–G W–G (∗4A/T) (∗4A/T) (∗4A/T) M R Y R–Y R–W 3 DM2 DM1 DL1 DL2 GND DL2DL1DM1DM2 R–B 45612 ADD 2143 ECU de control de 4WD B–Y ID18 3 4 Conector de unión J18 W–B (∗4A/T) W–B (∗2) B–Y W–B (∗2) W–B(∗3) G–W (∗1 ∗3) G–W (∗3 con ABS) ECU de control de derrape con actuador S 2 Interruptor de detección 100A ALT ActuadordeADD A3 Interruptordelindicadordelatransferencia (posicióndepuntomuerto) T5 1 3 W–G (∗4 A/T) W–B (∗4 A/T) R–B EA1 6
  • 149.
    HILUX (EWD630S) 149 7. 5A MET 2D1 A4A3 B5 B3 EC A1 1 1 6 5 2 2 GNDDL W–B W–B W–B W–B B4 B W–B (∗1∗3) W–B 10A ECU–IG& GAUGE Desde el sistema de la fuente de alimentación (Vea la página 62) 2S25 ID12 6 2 ID25 A/TP 4WD 122131 13 W–GR–LR–LG–BG–B B–O R–B B–O Interruptordearranque enpuntomuerto N1 (∗4A/T)(∗4A/T)(∗4A/T)(∗4A/T)(∗4A/T) (∗4A/T) ∗ 1 : con ABS, A/T EE I 1 I 1 ∗ 2 : 2TR–FE ∗ 3 : 1KD–FTV, 2KD–FTV ∗ 4 : 1KD–FTV (∗3) (∗3) (∗3) (∗3) W–B (∗2) W–B (∗2) W–B (∗2) W–B (∗3) W–B (∗2) W–B (∗2) W–B (∗2) W–B (∗2) ID212 7 IND1 W–R Medidor de combinación C 8 G–W (∗1∗3) ID2 17 W–G (∗4 A/T) W–B (∗2) W–B(∗3) G–W (∗1 ∗3) F14 ECU de control de 4WD Interruptordelindicador delatransferencia (posiciónL4) T4 W–G (∗4 A/T) Interruptordelindicadordela transferencia(posición4WD) T3 W–B (∗4 A/T) Conectordeunión J7(A),J8(B)
  • 150.
    150 HILUX (EWD630S) 4WD conADD El modo de tracción cambia a H2 o H4 o L4 cuando el conductor opera la palanca de cambios de la transferencia. El interruptor del indicador de la transferencia (posición 4WD) se enciende cuando se cambia la posición de la palanca de cambios de la transferencia en 4WD (H4 o L4). 1. 2-4 Sistema de selección (1) Cambio de H4 a H2 Cuando la palanca de cambios de la transferencia se cambia de H4 a H2, el interruptor del indicador de la transferencia (posición 4WD) detecta la señal de apagado para activar el motor ADD, lo que produce un cambio en la transferencia a 2WD (posición H2). Entonces, se apaga el interruptor del indicador de la transferencia (posición 4WD). (2) Cambio de H2 a H4 Cuando la palanca de cambios de la transferencia se cambia de H2 a H4, el interruptor del indicador de la transferencia (posición 4WD) detecta la señal de encendido para activar el motor ADD, lo que produce un cambio en la transferencia a 4WD (posición H4) para que se encienda el indicador 4WD. (3) Cambio de H4 a L4 Cuando la palanca de cambios de la transferencia se cambia de H4 a L4, se mueve el eje de la horquilla de cambios para cambiar la transferencia a 4WD (posición L4), lo que hace que se encienda el interruptor del indicador de la transferencia (posición L4). El motor ADD no opera porque sólo se trata de la operación de la palanca. (4) Cambio de L4 a H4 Cuando se cambia la palanca de cambios de la transferencia de la posición L4 a H4, se mueve el eje de la horquilla de cambios. Cuando se apaga el interruptor del indicador de la transferencia (posición L4), la transferencia cambia a 4WD (posición H4). El motor ADD no opera porque sólo se trata de la operación de la palanca. 2. Otro control Cuando se encuentra alguna anormalidad en el sistema 4WD, se avisa al conductor haciendo parpadear la luz del indicador de 4WD. F14 ECU de control de 4WD 10-Tierra : Aprox. 12 voltios con el interruptor de encendido en la posición ON 5-Tierra : Siempre con continuidad T3 Interruptor del indicador de la transferencia (posición 4WD) 2-1 : Cerrado con la palanca de cambios de la transferencia en la posición H4 T4 Interruptor del indicador de la transferencia (posición L4) 2-1 : Cerrado con la palanca de cambios de la transferencia en la posición L4 : Localización de partes Código Vea la página Código Vea la página Código Vea la página A3 36 (2TR-FE) J7 A 42 T3 39 (∗1) A3 38 (∗1) J8 B 42 T4 37 (2TR-FE) C8 40 J18 42 T4 39 (∗1) F14 41 N1 39 (∗1) T5 39 (∗1) I6 41 S2 39 (∗1) T18 43 J6 42 T3 37 (2TR-FE) : Bloque de empalmes y conector del mazo de cables Código Vea la página Bloque de empalmes y mazo de cables (localización del conector) 1A 23 Alambre principal del compartimiento del motor y J/B del compartimiento del motor 1F 23 Alambre principal del compartimiento del motor y J/B del compartimiento del motor (Compartimiento del motor izquierdo) 2A 28 Alambre del panel instrumental y J/B del lado del conductor (Tensor del panel instrumental izquierdo) 2D 28 Alambre del panel instrumental y J/B del lado del conductor (Tensor del panel instrumental izquierdo) 2G 28 Alambre principal del compartimiento del motor y J/B del lado del conductor (Tensor del panel instrumental izquierdo) 2S 29 Alambre del panel instrumental y J/B del lado del conductor (Tensor del panel instrumental izquierdo) ∗ 1 : 1KD-FTV, 2KD-FTV ∗ 2 : Cabina doble ∗ 3 : Cabina sencilla Descripción del sistema Consejos para el servicio
  • 151.
    HILUX (EWD630S) 151 : Mazode cables de la unión del conector y mazo de cables Código Vea la página Mazo de cables de unión y mazo de cables (localización del conector) EA1 48 (2TR-FE) Alambre del motor y Alambre principal del compartimiento del motor EA1 50 (∗1) Alambre del motor y Alambre principal del compartimiento del motor (Dentro del R/B del compartimiento del motor y J/B del compartimiento del motor) ID1 52 Alambre del motor y Alambre del panel instrumental (Detrás de la guantera) ID2 52 Alambre del motor y Alambre del panel instrumental (Detrás de la guantera) : Puntos a tierra Código Vea la página Localización de los puntos a tierra EC 50 (∗1) Lado trasero del bloque de cilindros EE 48 (2TR-FE) Lado trasero del bloque de cilindros : Puntos de la unión Código Vea la página Mazo de cables con puntos de unión Código Vea la página Mazo de cables con puntos de unión I1 54 Alambre del motor ∗ 1 : 1KD-FTV, 2KD-FTV ∗ 2 : Cabina doble ∗ 3 : Cabina sencilla
  • 152.
    152 HILUX (EWD630S) 4WD sinADD 7. 5A MET 2D1 EC 14 1 2 Desde el sistema de la fuente de alimentación (Vea la página 62) 4WD 21 B–OW–B Interruptordelindicador delatransferencia (posición4WD) T3 R–B Medidordecombinación C8 ID212 R–B 12 Conector deunión J6 R–BW–B 3 1 J7 Conector deunión 31
  • 153.
    HILUX (EWD630S) 153 T3 Interruptordel indicador de la transferencia (posición 4WD) 2-1 : Cerrado con la palanca de cambios de la transferencia en la posición H4 : Localización de partes Código Vea la página Código Vea la página Código Vea la página C8 40 J7 42 J6 42 T3 39 (∗1) : Bloque de empalmes y conector del mazo de cables Código Vea la página Bloque de empalmes y mazo de cables (localización del conector) 2D 28 Alambre del panel instrumental y J/B del lado del conductor (Tensor del panel instrumental izquierdo) : Mazo de cables de la unión del conector y mazo de cables Código Vea la página Mazo de cables de unión y mazo de cables (localización del conector) ID2 52 Alambre del motor y Alambre del panel instrumental (Detrás de la guantera) : Puntos a tierra Código Vea la página Localización de los puntos a tierra EC 50 (∗1) Lado trasero del bloque de cilindros ∗ 1 : 1KD-FTV, 2KD-FTV ∗ 2 : Cabina doble ∗ 3 : Cabina sencilla Consejos para el servicio
  • 154.
    154 HILUX (EWD630S) Bloqueo decambios L–WY G–Y Y Solenoide de bloqueo de cambios 5 G–BG–W 2M Desde el sistema de la fuente de alimentación (Vea la página 62) 10A STOP 2 2F 2 1 10A ECU–IG& GAUGE 7. 5A ACC 2S4 2N8 IE 4 5 6 4 ID 2S5 B GR 1 6 7 IG ACC STP KLS+ E SLS– SLS+ 12 8 1 2 S11 W–B W–B K 1 S14 J23 J21 Conector de uniónConector de unión Solenoide de interbloqueo de la llave ECU de control de bloqueo de cambios Interruptor de la lámpara de parada
  • 155.
    HILUX (EWD630S) 155 Cuando elinterruptor de encendido se gira a la posición ACC, la corriente procedente del fusible ACC circula al TERMINAL 6 de la ECU de control de bloqueo de cambios. Cuando el interruptor de encendido se gira a la posición ON, la corriente procedente del fusible ECU-IG&GAUGE circula al TERMINAL 1 de la ECU de control de bloqueo de cambios. 1. Mecanismo de bloqueo de cambios Si se pisa el pedal del freno con el interruptor de encendido puesto en la posición ON (el interruptor de la lámpara de parada activado), se activa la ECU de control de bloqueo de cambios, y se permite al conductor que cambie la posición de la palanca de cambios a una posición que no sea la P. 2. Mecanismo de interbloqueo de la llave Con el interruptor de encendido en la posición ON o ACC, cuando se pone la palanca de cambios en la posición P, se corta la corriente que circula desde el TERMINAL 12 de la ECU de control de bloqueo de cambios al solenoide de interbloqueo de la llave. Esto hace que se desactive el solenoide de interbloqueo de la llave (la palanca de bloqueo se libera de la posición LOCK) y la llave de encendido puede girarse desde la posición ACC a LOCK. S11 ECU de control de bloqueo de cambios 6-Tierra : Aprox. 12 voltios con el interruptor de encendido en la posición ACC u ON 1-Tierra : Aprox. 12 voltios con el interruptor de encendido en la posición ON 7-Tierra : Aprox. 12 voltios con el pedal del freno pisado 8-Tierra : Siempre con continuidad S14 Interruptor de la lámpara de parada 2-1 : Cerrado con el pedal del freno pisado : Localización de partes Código Vea la página Código Vea la página Código Vea la página J21 42 K1 43 S14 43 J23 42 S11 43 : Bloque de empalmes y conector del mazo de cables Código Vea la página Bloque de empalmes y mazo de cables (localización del conector) 2F 28 Alambre principal del compartimiento del motor y J/B del lado del conductor 2M 28 Alambre principal del compartimiento del motor y J/B del lado del conductor (Tensor del panel instrumental izquierdo) 2N 29 Alambre del panel instrumental y J/B del lado del conductor (Tensor del panel instrumental izquierdo) 2S 29 Alambre del panel instrumental y J/B del lado del conductor (Tensor del panel instrumental izquierdo) : Puntos a tierra Código Vea la página Localización de los puntos a tierra ID 52 Centro de refuerzo del tablero de instrumentos IE 52 Refuerzo del panel instrumental izquierdo Descripción del sistema Consejos para el servicio
  • 156.
    156 HILUX (EWD630S) Control debloqueo de la puerta 2A4 2D4 A16 A12 B21B17B22B18 Desbloqueo Bloqueo IF 1 2R28 2R27 B12 B7 A7 A11A8 A12 A13 B4 2 1 BC15 BC14 41714109 14 11 3 2 ACT–ACT+UL1L1 L L–W L L–W W–B L L–W L L–Y R–Y L–Y L R–Y Relé de integración F12 D 9D 6 Motor Motor Conjunto de bloqueo de la puerta (lado del conductor) Conjunto de bloqueo de la puerta (trasera derecha) Cinturóninteriordel asientodelantero (ladodelconductor) Interruptorprincipalde laventanillaautomática P4 Interruptor decontrol debloqueo delapuerta A13A17 L L–W L–W(∗1) L(∗1) J28 Conector deunión Conector de unión J24(A), J25(B) Desbloqueo delallave Bloqueo delallave IG Conector de unión J15 2 W–B W–B J26(A), J27(B) Conector de unión L L–Y R–Y R L L–Y (∗1) (∗1) 85 3 IC24 L UL L UL E R–Y R UL L IH13 IH18 L L–YL–Y L
  • 157.
    HILUX (EWD630S) 157 25A DOOR 3 2 1 7. 5A ECU–B 1 2 1 A8A7 A10 A11 B10 B7 2K11 2K10 14 41 BB15 BB14 ID IE 2D18 2D9 1 GND R R–Y L–Y L W–B W–B L–Y L Relé de integración Motor Motor D 7 D 8 Conjunto de bloqueo de la puerta (lado del pasajero delantero) Conjunto de bloqueo de la puerta (trasera izquierda) ∗ 1 : con sistema antirrobo Conectordeunión J13(A),J14(B) L–W(∗1) L(∗1) LG UL3 L2 IH17 CTY 83 10 1 1 R–L R–L R–L R–L 7 D4 D5 J29 31 2O 14 2N Interruptordecortesía delapuerta (traseraizquierda) Interruptordecortesía delapuerta (traseraderecha) Conector de unión R–L 2526 (∗1) (∗1) (∗1) IA113 11 R–L T16 2O15 2O27 DCTY 16 +B1 4 14 +B2 R–B R–L LG (∗1) R–L Interruptordecortesía delapuerta (ladodelpasajerodelantero) D3 2S13 5 ALTB 4 BECU 2L122H4 LG L L L–Y R–Y R L L–Y L–Y L L–W 1 ECU de aviso antirrobo (∗1) (∗1) (∗1) (∗1) (∗1) (∗1) (∗1) (∗1) (∗1) L UL UL L R R–Y L–Y L (∗1) Desde el sistema de la fuente de alimentación (Vea la página 62)
  • 158.
    158 HILUX (EWD630S) Control debloqueo de la puerta R–B 15 T16 J22(A),J23(B) Conectordeunión 10A ECU–IG& GAUGE 2S30 2Q R–L 8 2J 7. 5A DOME 1 2 1 ID B11 A8 A10 B12 W–BV–R W–B 1 E 2Q25 SPD 17 GR 4 26 G–YG–Y KSW 10 2O 10 2N 5 1 2 R Interruptordeadvertenciadedesbloqueo U1 1 2D 7. 5A MET Y B–O C 8 Desde el sistema de la fuente de alimentación (Vea la página 62) Velocímetro R–B 3 2 P–LW–B 1 P–L R–B EC ID216 ID215 1 21 22 5 R Medidor de combinación 16 R–B IA13 17 R–L R–B 2P 6 R–B V–R R–L D 2 Interruptor de cortesía de la puerta (lado del conductor) ∗ 2 : 2TR–FE ∗ 1 : con sistema antirrobo ED 7 6 W–B (∗1∗2) W–B (∗1∗2) Conectordeunión J30 Sensordevelocidad S3 (∗1∗3) 1 ECU de aviso antirrobo ∗ 3 : 1KD–FTV, 2KD–FTV (∗1) (∗1) (∗1) (∗1)(∗1) (∗1) (∗1) (∗1) (∗1)(∗1) (∗1) (∗1)(∗1) (∗1) (∗1) (∗1) (∗1)(∗1)(∗1) (∗1) (∗1) (∗1) SI IG+ SE
  • 159.
    HILUX (EWD630S) 159 1. Operaciónde bloqueo manual Cuando el interruptor de control de bloqueo de la puerta o el interruptor de bloqueo y desbloqueo de la llave de la puerta del lado del conductor (cuando el cinturón de seguridad del conductor está desabrochado) se operan a la posición LOCK, se introduce una señal de bloqueo al TERMINAL 14 del relé de integración y hace que funcione el relé de integración. La corriente circula desde el TERMINAL 5 del relé de integración al TERMINAL 3, a los motores de bloqueo de la puerta, al TERMINAL 2 del relé de integración, al TERMINAL 1 y a TIERRA y los motores de bloqueo de la puerta bloquean la puerta. 2. Operación de desbloqueo manual Cuando el interruptor de control de bloqueo de la puerta o el interruptor de bloqueo y desbloqueo de la llave de la puerta del lado del conductor (cuando el cinturón de seguridad del conductor está desabrochado) se operan a la posición UNLOCK, se introduce una señal de desbloqueo al TERMINAL 11 del relé de integración y hace que funcione el relé de integración. La corriente circula desde el TERMINAL 5 del relé de integración al TERMINAL 2, a los motores de bloqueo de la puerta, al TERMINAL 3 del relé de integración, al TERMINAL 1 y a TIERRA y los motores de bloqueo de la puerta desbloquean la puerta. 3. Bloqueo automático de la puerta sensible a la velocidad Con la condición de que una de las puertas se abra con el interruptor de encendido en la posición OFF, la ECU de aviso antirrobo emite la señal de bloqueo al relé de integración y el relé envía la señal de bloqueo a todos los motores de bloqueo de las puertas cuando se satisfacen todas las condiciones siguientes. ∗ Todas las puertas están cerradas. ∗ El interruptor de advertencia de desbloqueo está en ON además de estar en ON el interruptor de encendido. ∗ La velocidad del vehículo ha llegado aproximadamente a 25 km/h. 4. Desbloqueo automático de la puerta enlazado con el interruptor de encendido Con la condición de que el interruptor de advertencia de desbloqueo está en ON además de estar en ON el interruptor de encendido después de bloquearse la puerta con el bloqueo automático de la puerta sensible a la velocidad, la ECU de aviso antirrobo emite la señal de desbloqueo al relé de integración y el relé envía la señal de desbloqueo a todos los motores de bloqueo de las puertas cuando se satisfacen todas las condiciones siguientes. ∗ El interruptor de advertencia de desbloqueo está en ON. ∗ El interruptor de encendido está en OFF. Relé de integración 1-Tierra : Siempre con continuidad 4, 5-Tierra : Siempre aprox. 12 voltios 14-Tierra : Continuidad con el interruptor de control de bloqueo de la puerta o interruptor de bloqueo y desbloqueo de la llave de la puerta bloqueado (cuando el cinturón de seguridad del conductor está desabrochado) 11-Tierra : Continuidad con el interruptor de control de bloqueo de la puerta o interruptor de bloqueo y desbloqueo de la llave de la puerta desbloqueado (cuando el cinturón de seguridad del conductor está desabrochado) D6 Conjunto de bloqueo de la puerta (lado del conductor) 10-7 : Continuidad con el cilindro de bloqueo de la puerta desbloqueado con la llave 9-7 : Continuidad con el cilindro de bloqueo de la puerta bloqueado con la llave : Localización de partes Código Vea la página Código Vea la página Código Vea la página C8 40 F12 44 (∗2) J27 B 42 D2 44 (∗2) J13 A 42 J28 42 D3 44 (∗2) J14 B 42 J29 42 D4 44 (∗2) J15 42 J30 42 D5 44 (∗2) J22 A 42 P4 44 (∗2) D6 44 (∗2) J23 B 42 S3 37 (2TR-FE) D7 44 (∗2) J24 A 42 S3 39 (∗1) D8 44 (∗2) J25 B 42 T16 43 D9 44 (∗2) J26 A 42 U1 43 ∗ 1 : 1KD-FTV, 2KD-FTV ∗ 2 : Cabina doble ∗ 3 : Cabina sencilla Descripción del sistema Consejos para el servicio
  • 160.
    160 HILUX (EWD630S) Control debloqueo de la puerta : Bloques de relés Código Vea la página Bloque de relés (localización del bloque de relés) 1 22 R/B del compartimiento del motor (Compartimiento del motor izquierdo) 3 35 R/B N.° 3 (Panel del lado del cubretablero derecho) : Bloque de empalmes y conector del mazo de cables Código Vea la página Bloque de empalmes y mazo de cables (localización del conector) 2A 28 Alambre del panel instrumental y J/B del lado del conductor (Tensor del panel instrumental izquierdo) 2D 28 Alambre del panel instrumental y J/B del lado del conductor (Tensor del panel instrumental izquierdo) 2H 28 Alambre del piso y J/B del lado del conductor (Tensor del panel instrumental izquierdo) 2J 28 Alambre principal del compartimiento del motor y J/B del lado del conductor (Tensor del panel instrumental izquierdo) 2K 28 Alambre del piso y J/B del lado del conductor (Tensor del panel instrumental izquierdo) 2L 28 Alambre principal del compartimiento del motor y J/B del lado del conductor (Tensor del panel instrumental izquierdo) 2N 2O 2P 29 Alambre del panel instrumental y J/B del lado del conductor (Tensor del panel instrumental izquierdo) 2Q 29 Alambre del panel instrumental y J/B del lado del conductor (Tensor del panel instrumental izquierdo) 2R 2S : Mazo de cables de la unión del conector y mazo de cables Código Vea la página Mazo de cables de unión y mazo de cables (localización del conector) IA1 52 Alambre del panel instrumental y Alambre del piso (Panel de arranque derecho) IC2 52 Alambre de la puerta frontal izquierda y Alambre del piso (Panel de arranque izquierdo) ID2 52 Alambre del motor y Alambre del panel instrumental (Detrás de la guantera) IH1 54 Alambre del panel instrumental y Alambre del piso (Panel de arranque izquierdo) BB1 56 (∗2) Cable N.° 1 de la puerta trasera izquierda y Alambre del piso (Pilar central izquierdo) BC1 56 (∗2) Cable N.° 1 de la puerta trasera derecha y Alambre del piso (Pilar central derecho) : Puntos a tierra Código Vea la página Localización de los puntos a tierra EC 50 (∗1) Lado trasero del bloque de cilindros ED 48 (2TR-FE) Lado trasero del bloque de cilindros ID 52 Centro de refuerzo del tablero de instrumentos IE 52 Refuerzo del panel instrumental izquierdo IF 52 Panel del lado del cubretablero derecho IG 52 Panel del lado del cubretablero izquierdo ∗ 1 : 1KD-FTV, 2KD-FTV ∗ 2 : Cabina doble ∗ 3 : Cabina sencilla
  • 161.
  • 162.
    162 HILUX (EWD630S) Control debloqueo de la puerta inalámbrico Desde el sistema de la fuente de alimentación (Vea la página 62) LGLG 1 IF313 13 SH– BB 25A DOOR IH17 +B2 14 8 IA1 3 13 10 1 1 R–L R–L R–L R–L D4 D5 J29 IG 18 R–L 3 1 2 5 2N10 2O10 KSW G–YG–Y 2 1 GR 2N14 2O15 R–L 11 R–L CTY 7 T16 Interruptordecortesíadelapuerta (traseraizquierda) Interruptordecortesíadelapuerta (traseraderecha) Conector de unión S1 L2 25 UL3 26 L–W L B11 A8 2O25 2N9 HAZD 28 8 HAZ G–OG–O Intermitente de la señal de giro T22 2O31 IA13 16 15 17 R–L R–LR–BR–L Medidordecombinación C8 R–B R–B L–Y L–Y +B1 4 Conectordeunión J22(A),J23(B) Interruptorde advertenciade desbloqueo U1 B–W E 1 B–W LG 10A ECU–IG&GAUGE 2S16 R–L B12 W–B ID D2 Interruptordecortesíadelapuerta (ladodelconductor) 1 1 Bocinadeseguridad ECU de aviso antirrobo Interruptordecortesíadelapuerta (ladodelpasajerodelantero) D3
  • 163.
    HILUX (EWD630S) 163 13 17 1316 7. 5A ECU–B Desde el sistema de la fuente de alimentación (Vea la página 62) 1 D 9 2 1 2L12 4 2D 2A4 2R28 2R27 L B12 R B7 L–Y A7 R–Y A11A8 A12 R–Y D 7 BC15 R BC14 41 Relé de integración 14 L–Y A8 L A7 L L–Y A10 L–Y A11 L B10 B7 BECU 2K11 L UL1 2K10 1 L1 4 ACT+ ACT– Motor 4 Motor 2 Motor 31411 Conjunto de bloqueo de la puerta (lado del pasajero delantero) Conjunto de bloqueo de la puerta (trasera derecha) Conjunto de bloqueo de la puerta (lado del conductor) D 6 Conectordeunión J26(A),J27(B) R Conectordeunión J13(A),J14(B) L–W L L L–W Conector deunión J24 2O27 R–B R–B 16 DCTY 2S13 L–Y 2H4 5 ALTB LG L L–Y R–Y L UL UL L L UL IH18IH13 L–Y L L–Y L
  • 164.
    164 HILUX (EWD630S) Control debloqueo de la puerta inalámbrico ∗ 2 : sin sistema inmovilizador del motor T20(B) Amplificadordelallavedetransmisor Lámparadelcilindrode lallavedeencendido P P R ILE 15 12 2N 8 2J 8 2R 1 2 1 Desde el sistema de la fuente de alimentación (Vea la página 62) 7. 5A DOME Relé de integración W–B W–B L L–Y Motor D 8 GND 41 BB15 BB14 1 ID IE 2D18 2D9 Conjunto de bloqueo de la puerta (trasera izquierda) ∗ 1 : con sistema inmovilizador del motor B2 (∗1) A2 (∗2) A6 (∗2) B6 (∗1) I5(A) L L–Y (∗2) (∗1) (∗2) (∗1) Lámparadelcilindrodela llavedeencendido UL L
  • 165.
    HILUX (EWD630S) 165 El controlde bloqueo de las puertas (bloqueo y desbloqueo) y el control de emergencia (alarma y parpadeo antirrobo) se llevan a cabo mediante control remoto, sin insertar la llave en el cilindro de la llave de la puerta, empleando ondas eléctricas de baja intensidad emitidas desde un transmisor. 1. Operación normal ∗ Operación de bloqueo Cuando se presiona el botón de bloqueo del transmisor, se bloquean todas las puertas. ∗ Operación de desbloqueo Cuando se presiona el botón de desbloqueo del transmisor, se desbloquean todas las puertas. 2. Confirmación visual de bloqueo o desbloqueo Si todas las puertas indican que están bloqueadas después del comando de bloqueo, sonará la bocina de seguridad y parpadearán las luces de aviso de peligro una vez. Si alguna puerta indica que está abierta después del comando de desbloqueo, sonará la bocina del sistema antirrobo y parpadearán las luces de aviso de peligro dos veces. 3. Operación de bloqueo automático Todas las puertas se vuelven a bloquear automáticamente si no se abre ninguna puerta antes de 15 segundos desde que se presiona el botón (transmisor) para desbloquear todas las puertas con las condiciones de que la llave de encendido no esté insertada en el cilindro de la llave de encendido (interruptor de advertencia de desbloqueo desactivado), el interruptor de encendido esté en OFF y que todas las puertas estén completamente cerradas. 4. Función de entrada iluminada Cuando se presiona el botón de desbloqueo (transmisor), se encienden las luces, tales como la lámpara del cilindro de la llave de encendido, durante unos 30 segundos. Si las puertas se bloquean con el botón de bloqueo (transmisor) durante esta operación y la llave de encendido está en el cilindro de la llave de encendido (interruptor de advertencia de desbloqueo activado), al poner el interruptor de encendido en la posición ON se cancela la iluminación y las luces se apagan inmediatamente. 5. Operación de alarma de emergencia Cuando se presiona el botón de emergencia del transmisor, suena la alarma y se inicia el parpadeo de las luces. La operación de alarma de emergencia se cancela cuando se presiona uno de los botones de bloqueo, de desbloqueo o de alarma de emergencia. 6. Aviso de puerta mal cerrada (presionando el botón de bloqueo inalámbrico) Un sonido de la bocina de seguridad avisa que una puerta está mal cerrada (durante 1 segundo) presionando el botón de bloqueo (transmisor) cuando una de las puertas no está bien cerrada. D2, D3, D4, D5 Interruptor de cortesía de la puerta (lado del conductor), (lado del pasajero delantero), (trasera izquierda), (trasera derecha) 1-Tierra : Continuidad con cada una de las puertas abiertas T16 ECU de aviso antirrobo 4, 14-Tierra : Siempre aprox. 12 voltios 1-Tierra : Siempre con continuidad 18-Tierra : Aprox. 12 voltios con el interruptor de encendido en la posición ON U1 Interruptor de advertencia de desbloqueo 2-1 : Cerrado con la llave de encendido en el cilindro : Localización de partes Código Vea la página Código Vea la página Código Vea la página C8 40 D9 44 (∗2) J27 B 42 D2 44 (∗2) I5 A 41 J29 42 D3 44 (∗2) J13 A 42 S1 39 (∗1) D4 44 (∗2) J14 B 42 T16 43 D5 44 (∗2) J22 A 42 T20 B 43 D6 44 (∗2) J23 B 42 T22 43 D7 44 (∗2) J24 42 U1 43 D8 44 (∗2) J26 A 42 ∗ 1 : 1KD-FTV, 2KD-FTV ∗ 2 : Cabina doble ∗ 3 : Cabina sencilla Descripción del sistema Consejos para el servicio
  • 166.
    166 HILUX (EWD630S) Control debloqueo de la puerta inalámbrico : Bloques de relés Código Vea la página Bloque de relés (localización del bloque de relés) 1 22 R/B del compartimiento del motor (Compartimiento del motor izquierdo) 3 35 R/B N.° 3 (Panel del lado del cubretablero derecho) : Bloque de empalmes y conector del mazo de cables Código Vea la página Bloque de empalmes y mazo de cables (localización del conector) 2A 28 Alambre del panel instrumental y J/B del lado del conductor (Tensor del panel instrumental izquierdo) 2D 28 Alambre del panel instrumental y J/B del lado del conductor (Tensor del panel instrumental izquierdo) 2H 28 Alambre del piso y J/B del lado del conductor (Tensor del panel instrumental izquierdo) 2J 28 Alambre principal del compartimiento del motor y J/B del lado del conductor (Tensor del panel instrumental izquierdo) 2K 28 Alambre del piso y J/B del lado del conductor (Tensor del panel instrumental izquierdo) 2L 28 Alambre principal del compartimiento del motor y J/B del lado del conductor (Tensor del panel instrumental izquierdo) 2N 2O 29 Alambre del panel instrumental y J/B del lado del conductor (Tensor del panel instrumental izquierdo) 2R 29 Alambre del panel instrumental y J/B del lado del conductor (Tensor del panel instrumental izquierdo) 2S : Mazo de cables de la unión del conector y mazo de cables Código Vea la página Mazo de cables de unión y mazo de cables (localización del conector) IA1 52 Alambre del panel instrumental y Alambre del piso (Panel de arranque derecho) IF3 54 Alambre principal del compartimiento del motor y Alambre del panel instrumental (Detrás del J/B del lado del conductor) IH1 54 Alambre del panel instrumental y Alambre del piso (Panel de arranque izquierdo) BB1 56 (∗2) Cable N.° 1 de la puerta trasera izquierda y Alambre del piso (Pilar central izquierdo) BC1 56 (∗2) Cable N.° 1 de la puerta trasera derecha y Alambre del piso (Pilar central derecho) : Puntos a tierra Código Vea la página Localización de los puntos a tierra ID 52 Centro de refuerzo del tablero de instrumentos IE 52 Refuerzo del panel instrumental izquierdo ∗ 1 : 1KD-FTV, 2KD-FTV ∗ 2 : Cabina doble ∗ 3 : Cabina sencilla
  • 167.
  • 168.
    168 HILUX (EWD630S) Sistema antirrobo Desdeel sistema de la fuente de alimentación (Vea la página 62) L LG L–Y LG 1 IF315 1 2 2 1 EB 9 DSWH E3 J 1 G–RG–RW–BW–B IF313 S 1 13 SH– BB L L–W L2 25 26 UL3 L L–W 10A HORN 2 1 Relé HORN 1I71I IF312 1 2O16 2N16 W–R B W–R H 4 W–R 25A DOOR 7. 5A ECU–B 2 1 2S13 2L12 IH17 +B2 +B1 14 4 8 SRLY 12 EA1 ID21 (A/T) Relé ST 5 4 P N 1 2(∗2)5 B–YB–Y L–Y L L–Y (M/T) W–R 7. 5A ST 4 (M/T) L–Y B L 2O3 1 1 1 1 W–B J11 W–B 3 1 1 2 HORN 11 J24 T16 Interruptordecortesía delcapodelmotor Bocina (baja) Conector de unión Conector deunión Conectordeunión 8 7 Interruptordearranqueenpuntomuerto N1 10 IF3 W–B (A/T) B–Y (∗1)5 (∗1)3 L–Y (A/T) (∗2)3 Bocina de seguridad ECU de aviso antirrobo 16 12 17 13 2A4 14 L1 UL1 11 4 2D Relé de integración ∗ 1 : 2TR–FE ∗ 2 : 1KD–FTV, 2KD–FTV
  • 169.
    HILUX (EWD630S) 169 10A ECU–IG& GAUGE 2S16 ID B11 A8 A10 2S30 B–W 2 2C2 2C4 27 IND G–RG–R 1 E W–B HAZD 28 2N9 2O25 HAZ T22 G–OG–O 8 8 IA1 3 13 10 11 R–L R–L R–L R–L D4 D5 J29 IG 18 B12 SPD R–L R–B V–R 2Q26 2P4 175 2N10 2O10 KSW G–YG–Y 2 1 GR 2N14 2O15 R–L 11 R–L CTY 7 J22(A), J23(B) T16 Desde el sistema de la fuente de alimentación (Vea la página 62) R–B V–R Y Interruptordecortesíadelapuerta (traseraizquierda) Interruptordecortesíadelapuerta (traseraderecha) Conector de unión Conector de unión Intermitente de la señal de giro Interruptordeadvertencia dedesbloqueo U1 S10 2O31 R–L R–L 1 ECU de aviso antirrobo Lámparadelindicador deseguridad Interruptordecortesíadelapuerta (ladodelpasajerodelantero) D3 E LP 1 A11 L–Y
  • 170.
    170 HILUX (EWD630S) Sistema antirrobo 82J 7. 5A DOME 1 2 1 RR 16 R–BR–L 3 IA1 25 2Q 1 2D 7. 5A MET YB–O V–R C 8 Desde el sistema de la fuente de alimentación (Vea la página 62) Velocímetro R–B 3 2 P–LBR 1 P–L R–B EC ID216 ID215 1 21 22 56 S 3 R–B V–R Y Medidor de combinación Sensor de velocidad 17 R–L R–L Interruptor de cortesía de la puerta (lado del conductor) D 2 1 SI IG+ SE
  • 171.
    HILUX (EWD630S) 171 D2, D3,D4, D5 Interruptor de cortesía de la puerta (lado del conductor), (lado del pasajero delantero), (trasera izquierda), (trasera derecha) 1-Tierra : Continuidad con cada una de las puertas abiertas E3 Interruptor de cortesía del capo del motor 1-2 : Abierto con el capó del motor abierto T16 ECU de aviso antirrobo 9-Tierra : Continuidad con el capó del motor cerrado 4, 14-Tierra : Siempre aprox. 12 voltios 1-Tierra : Siempre con continuidad 18-Tierra : Aprox. 12 voltios con el interruptor de encendido en la posición ON : Localización de partes Código Vea la página Código Vea la página Código Vea la página C8 40 J1 39 (∗1) S1 39 (∗1) D2 44 (∗2) J11 42 S3 39 (∗1) D3 44 (∗2) J22 A 42 S10 43 D4 44 (∗2) J23 B 42 T16 43 D5 44 (∗2) J24 42 T22 43 E3 38 (∗1) J29 42 U1 43 H4 38 (∗1) N1 39 (∗1) : Bloques de relés Código Vea la página Bloque de relés (localización del bloque de relés) 1 22 R/B del compartimiento del motor (Compartimiento del motor izquierdo) 3 35 R/B N.° 3 (Panel del lado del cubretablero derecho) : Bloque de empalmes y conector del mazo de cables Código Vea la página Bloque de empalmes y mazo de cables (localización del conector) 1I 24 Alambre principal del compartimiento del motor y J/B del compartimiento del motor (Compartimiento del motor izquierdo) 2A 2C 28 Alambre del panel instrumental y J/B del lado del conductor (Tensor del panel instrumental izquierdo) 2D p y / ( p q ) 2J 28 Alambre principal del compartimiento del motor y J/B del lado del conductor 2L 28 Alambre principal del compartimiento del motor y J/B del lado del conductor (Tensor del panel instrumental izquierdo) 2N 2O 2P 29 Alambre del panel instrumental y J/B del lado del conductor (Tensor del panel instrumental izquierdo) 2Q p y / ( p q ) 2S : Mazo de cables de la unión del conector y mazo de cables Código Vea la página Mazo de cables de unión y mazo de cables (localización del conector) EA1 50 (∗1) Alambre del motor y Alambre principal del compartimiento del motor (Dentro del R/B del compartimiento del motor y J/B del compartimiento del motor) IA1 52 Alambre del panel instrumental y Alambre del piso (Panel de arranque derecho) ID2 52 Alambre del motor y Alambre del panel instrumental (Detrás de la guantera) IF3 54 Alambre principal del compartimiento del motor y Alambre del panel instrumental (Detrás del J/B del lado del conductor) IH1 54 Alambre del panel instrumental y Alambre del piso (Panel de arranque izquierdo) ∗ 1 : 1KD-FTV, 2KD-FTV ∗ 2 : Cabina doble ∗ 3 : Cabina sencilla Consejos para el servicio
  • 172.
    172 HILUX (EWD630S) Sistema antirrobo :Puntos a tierra Código Vea la página Localización de los puntos a tierra EB 50 (∗1) Lado izquierdo del faldón del guardabarros EC 50 (∗1) Lado trasero del bloque de cilindros ID 52 Centro de refuerzo del tablero de instrumentos ∗ 1 : 1KD-FTV, 2KD-FTV ∗ 2 : Cabina doble ∗ 3 : Cabina sencilla
  • 173.
  • 174.
    174 HILUX (EWD630S) Ventanilla automática 30A PWR Desdeel sistema de la fuente de alimentación (Vea la página 62) 3 B6 B5 A1 A1 A2 B6 A1 A2 A2 M L L R L–R IF W–BW–B 1 W–B LL L DUBE 1 2 J26(A),J27(B) J16(A),J17(B) J13(A), J14(B) LL L P 4 J28 Conector de unión Conectordeunión Conectordeunión Conector de unión Interruptor principal de la ventanilla automática Motordelreguladordelaventanillaautomática (frontalizquierda) P5 L L L 3 6 4 9 2 1 IC24 U D
  • 175.
    HILUX (EWD630S) 175 3 14 3 1 4 3 1 4 2 5 2 5 2 5 BC17BC16BC18BB17BB16BB18 P9 P10 P11 R L–R R L–R R L–R G–B R–B L G–B R–B G–W R–L Abajo Arriba Abajo Arriba Abajo Arriba G–B R–B G–Y R–Y G–W R–LR–L G–W R–Y G–Y R–B G–B M 2 1 M 2 1 M R–Y G–Y L R–B G–B DUDUDU L L P 4 Interruptor principal de la ventanilla automática Interruptordelaventanillaautomática (ladodelpasajerodelantero) Interruptordelaventanillaautomática (traseraizquierda) Interruptordelaventanillaautomática (traseraderecha) L Motordelreguladordela ventanillaautomática (frontalderecha) P6 Motordelreguladordela ventanillaautomática (traseraizquierda) P7 P8 Motordelreguladordela ventanillaautomática (traseraderecha) L L L 161013121518 IC210 IC23 IC22 IC21 IC26 IC25 II23 II24 12 DUDUDU SDSUBSDSUBSDSUB DUDUDU
  • 176.
    176 HILUX (EWD630S) Ventanilla automática 1.Operación manual de bajada o de subida Cuando se presiona un paso el interruptor principal de la ventanilla automática, el motor vira para abrir la ventanilla. Cuando se empuja hacia arriba un paso el interruptor principal de la ventanilla automática, el motor vira en la dirección opuesta para cerrar la ventanilla. Todas las otras ventanillas también pueden abrirse/cerrarse mediante la operación del interruptor principal de la ventanilla automática o interruptor de la ventanilla automática respectivo. Cuando se presiona el interruptor de bloqueo de la ventanilla al lado de bloqueo, se abre el circuito de tierra de la ventanilla del pasajero. Como resultado, aunque se intente la operación de abertura/cierre de la ventanilla del pasajero, la corriente desde el TERMINAL E del interruptor principal de la ventanilla automática no tiene tierra y el motor no gira, por lo que la ventanilla del pasajero no puede operarse y se produce el bloqueo de la ventanilla. 2. Operación de bajada automática (ventanilla del conductor) Cuando se presiona dos pasos el interruptor principal de la ventanilla automática, el motor vira para abrir automáticamente la ventanilla. 3. Parada de la operación de bajada automática (ventanilla del conductor) La operación automática puede pararse a la mitad de recorrido accionando un paso hacia arriba el interruptor principal de la ventanilla automática durante la operación de bajada. P4 Interruptor principal de la ventanilla automática B-Tierra : Aprox. 12 voltios con el interruptor de encendido en la posición ON E-Tierra : Siempre con continuidad U-Tierra : Aprox. 12 voltios con el interruptor de encendido conectado y el interruptor principal (ventanilla del conductor) en la posición UP o AUTO UP D-Tierra : Aprox. 12 voltios con el interruptor de encendido conectado y el interruptor principal (ventanilla del conductor) en la posición DOWN o AUTO DOWN : Localización de partes Código Vea la página Código Vea la página Código Vea la página J13 A 42 J27 B 42 P7 44 (∗2) J14 B 42 J28 42 P8 44 (∗2) J16 A 42 P4 44 (∗2) P9 44 (∗2) J17 B 42 P5 44 (∗2) P10 44 (∗2) J26 A 42 P6 44 (∗2) P11 44 (∗2) : Bloques de relés Código Vea la página Bloque de relés (localización del bloque de relés) 3 35 R/B N.° 3 (Panel del lado del cubretablero derecho) : Mazo de cables de la unión del conector y mazo de cables Código Vea la página Mazo de cables de unión y mazo de cables (localización del conector) IC2 52 Alambre de la puerta frontal izquierda y Alambre del piso (Panel de arranque izquierdo) II2 54 Alambre de la puerta frontal derecha y Alambre del piso (Panel de arranque derecho) BB1 56 (∗2) Cable N.° 1 de la puerta trasera izquierda y Alambre del piso (Pilar central izquierdo) BC1 56 (∗2) Cable N.° 1 de la puerta trasera derecha y Alambre del piso (Pilar central derecho) : Puntos a tierra Código Vea la página Localización de los puntos a tierra IF 52 Panel del lado del cubretablero derecho ∗ 1 : 1KD-FTV, 2KD-FTV ∗ 2 : Cabina doble ∗ 3 : Cabina sencilla Descripción del sistema Consejos para el servicio
  • 177.
  • 178.
    178 HILUX (EWD630S) Limpiador ylavador del parabrisas M 20A WIP 2S262L9 IE W–B L–W L–W W–B W–G B–R L–B L–Y EA W–B Desde el sistema de la fuente de alimentación (Vea la página 62) 2M9 L–W W 3 MIST ∗4 ∗3 HI LO INT OFF C11(A), C12(B) +1+2+SINT1INT2B1+B W Interruptor del limpiador delantero ∗5 EW WF EW +B +S +2 +1 L–B L–Y W–G L–W IF25 IF26 IF24 2 1 L–W IF2 13 +1 +2 +S B E ∗ 1 : con interruptor de tiempo de intermitencia (∗1) (∗1) (∗2) ∗ 2 : sin interruptor de tiempo de intermitencia Motor del limpiador del parabrisas Interruptor de combinación Relé del limpiador Motordellavador delparabrisas W2 2341 5 A 3 A 2 B 2 B 1 B 4 B 3 M B–R ∗ 3 : Conectado ∗ 4 : Desconectado ∗ 5 : Interruptor del lavador delantero
  • 179.
    HILUX (EWD630S) 179 Con elinterruptor de encendido conectado, la corriente circula al TERMINAL (B) 2 del interruptor del limpiador y lavador del parabrisas, al TERMINAL 1 del motor del lavador del parabrisas y al TERMINAL 2 del motor del limpiador del parabrisas a través del fusible WIP. 1. Posición de baja velocidad Con el interruptor del limpiador del parabrisas en la posición LO, la corriente circula desde el TERMINAL (B) 2 del interruptor del limpiador y lavador del parabrisas al TERMINAL (B) 3, al TERMINAL 1 del motor del limpiador del parabrisas, al TERMINAL 5, y a TIERRA y hace que el motor del limpiador del parabrisas funcione a baja velocidad. 2. Posición de alta velocidad Con el interruptor del limpiador del parabrisas en la posición HI, la corriente circula desde el TERMINAL (B) 2 del interruptor del limpiador y lavador del parabrisas al TERMINAL (B) 4, al TERMINAL 4 del motor del limpiador del parabrisas, al TERMINAL 5, y a TIERRA y hace que el motor del limpiador del parabrisas funcione a alta velocidad. 3. Posición INT Con el interruptor del limpiador del parabrisas en la posición INT, opera el relé del limpiador y circula corriente desde el TERMINAL (B) 2 del interruptor del limpiador y lavador del parabrisas al TERMINAL (A) 2 y a TIERRA. De este modo se activa el circuito intermitente y la corriente circula desde el TERMINAL (B) 2 del interruptor del limpiador y lavador del parabrisas al TERMINAL (B) 3, al TERMINAL 1 del motor del limpiador del parabrisas, al TERMINAL 5 y a TIERRA, y opera el limpiador. La operación intermitente se controla mediante la función de carga/descarga del condensador instalado en el relé, y el tiempo de la intermitencia se controla mediante un interruptor de control del tiempo, para cambiar el tiempo de carga del condensador (con interruptor de tiempo de intermitencia). La operación intermitente se controla mediante una función de carga y descarga de condensador en el relé (sin interruptor de tiempo de intermitencia). 4. Posición de llovizna Con el interruptor del limpiador del parabrisas en la posición MIST, la corriente circula desde el TERMINAL (B) 2 del interruptor del limpiador y lavador del parabrisas al TERMINAL (B) 3, al TERMINAL 1 del motor del limpiador del parabrisas, al TERMINAL 5, y a TIERRA y hace que el motor del limpiador del parabrisas funcione a baja velocidad. 5. Operación interconectada con el lavador Con el interruptor del lavador puesto en la posición ON, la corriente circula desde el fusible WIP al TERMINAL 1 del motor del lavador del parabrisas, al TERMINAL 2, al TERMINAL (A) 3 del interruptor del limpiador y lavador del parabrisas, al TERMINAL (A) 2 y a TIERRA y hace que funcione el motor del lavador del parabrisas para que el lavador del parabrisas rocíe líquido. Simultáneamente, la corriente circula desde el fusible WIP al TERMINAL (B) 2 del interruptor del limpiador y lavador del parabrisas, al TERMINAL (B) 3, al TERMINAL 1 del motor del limpiador del parabrisas, al TERMINAL 5 y a TIERRA, haciendo que funcione el limpiador. C11 (A), C12 (B) Interruptor de combinación (A) 2-Tierra : Siempre con continuidad (B) 2-Tierra : Aprox. 12 voltios con el interruptor de encendido en la posición ON (B) 3-Tierra : Aprox. 12 voltios con el interruptor de encendido conectado y el interruptor del limpiaparabrisas en la posición LO o MIST Aprox. 12 voltios intermitentemente con el interruptor de encendido conectado y el interruptor del limpiaparabrisas en la posición INT (B) 1-Tierra : Aprox. 12 voltios con el interruptor de encendido conectado y el motor del limpiaparabrisas en una posición que no sea la de STOP (B) 4-Tierra : Aprox. 12 voltios con el interruptor de encendido conectado y el interruptor del limpiaparabrisas en la posición HI W3 Motor del limpiador del parabrisas 2-1 : Cerrado a menos que el motor del limpiador del parabrisas esté en la posición STOP : Localización de partes Código Vea la página Código Vea la página Código Vea la página C11 A 40 W2 37 (2TR-FE) W3 37 (2TR-FE) C12 B 40 W2 39 (∗1) W3 39 (∗1) ∗ 1 : 1KD-FTV, 2KD-FTV ∗ 2 : Cabina doble ∗ 3 : Cabina sencilla Descripción del sistema Consejos para el servicio
  • 180.
    180 HILUX (EWD630S) Limpiador ylavador del parabrisas : Bloque de empalmes y conector del mazo de cables Código Vea la página Bloque de empalmes y mazo de cables (localización del conector) 2L 28 Alambre principal del compartimiento del motor y J/B del lado del conductor 2M 28 Alambre principal del compartimiento del motor y J/B del lado del conductor (Tensor del panel instrumental izquierdo) 2S 29 Alambre del panel instrumental y J/B del lado del conductor (Tensor del panel instrumental izquierdo) : Mazo de cables de la unión del conector y mazo de cables Código Vea la página Mazo de cables de unión y mazo de cables (localización del conector) IF2 54 Alambre principal del compartimiento del motor y Alambre del panel instrumental (Detrás del J/B del lado del conductor) : Puntos a tierra Código Vea la página Localización de los puntos a tierra EA 48 (2TR-FE) Lado derecho del faldón del guardabarrosEA 50 (∗1) Lado derecho del faldón del guardabarros IE 52 Refuerzo del panel instrumental izquierdo ∗ 1 : 1KD-FTV, 2KD-FTV ∗ 2 : Cabina doble ∗ 3 : Cabina sencilla
  • 181.
  • 182.
    182 HILUX (EWD630S) Bocina 10A HORN Desde elsistema de la fuente de alimentación (Vea la página 62) 2 1 1I7 1I8 IF312 1 2O32 2N16 Interruptor delabocinaW–R B W–RW–R H 4 Relé HORN 8 Bocina (baja) Cable espiral S13 B
  • 183.
    HILUX (EWD630S) 183 H4 Bocina(baja) 1-Tierra : Aprox. 12 voltios con el interruptor de la bocina conectado : Localización de partes Código Vea la página Código Vea la página Código Vea la página H4 36 (2TR-FE) H4 38 (∗1) S13 43 : Bloque de empalmes y conector del mazo de cables Código Vea la página Bloque de empalmes y mazo de cables (localización del conector) 1I 24 Alambre principal del compartimiento del motor y J/B del compartimiento del motor (Compartimiento del motor izquierdo) 2N 29 Alambre del panel instrumental y J/B del lado del conductor (Tensor del panel instrumental izquierdo) 2O 29 Alambre del panel instrumental y J/B del lado del conductor (Tensor del panel instrumental izquierdo) : Mazo de cables de la unión del conector y mazo de cables Código Vea la página Mazo de cables de unión y mazo de cables (localización del conector) IF3 54 Alambre principal del compartimiento del motor y Alambre del panel instrumental (Detrás del J/B del lado del conductor) ∗ 1 : 1KD-FTV, 2KD-FTV ∗ 2 : Cabina doble ∗ 3 : Cabina sencilla Consejos para el servicio
  • 184.
    184 HILUX (EWD630S) Encendedor decigarrillos 15A CIG IE BRW–B Desde el sistema de la fuente de alimentación (Vea la página 62) 2C1 1 2 B C 5 3 4 J23 Encendedor de cigarrillos Conector de unión
  • 185.
    HILUX (EWD630S) 185 C5 Encendedorde cigarrillos 2-Tierra : Aprox. 12 voltios con el interruptor de encendido en la posición ACC u ON 1-Tierra : Siempre con continuidad : Localización de partes Código Vea la página Código Vea la página Código Vea la página C5 40 J23 42 : Bloque de empalmes y conector del mazo de cables Código Vea la página Bloque de empalmes y mazo de cables (localización del conector) 2C 28 Alambre del panel instrumental y J/B del lado del conductor (Tensor del panel instrumental izquierdo) : Puntos a tierra Código Vea la página Localización de los puntos a tierra IE 52 Refuerzo del panel instrumental izquierdo Consejos para el servicio
  • 186.
    186 HILUX (EWD630S) Toma dealimentación 15A PWR OUT 7. 5A ACC 3 2 5 1 2 1 2P23 2D9 IE A6 B4 ID 2D18 PW–BW–B W–B W–BW–B W–B P 3 J22(A), J23(B) Relé PWR OUT Desde el sistema de la fuente de alimentación (Vea la página 62) Conector de unión Enchufe eléctrico B E
  • 187.
    HILUX (EWD630S) 187 P3 Enchufeeléctrico 1-Tierra : Aprox. 12 voltios con el interruptor de encendido en la posición ACC u ON 2-Tierra : Siempre con continuidad : Localización de partes Código Vea la página Código Vea la página Código Vea la página J22 A 42 J23 B 42 P3 43 : Bloque de empalmes y conector del mazo de cables Código Vea la página Bloque de empalmes y mazo de cables (localización del conector) 2D 28 Alambre del panel instrumental y J/B del lado del conductor (Tensor del panel instrumental izquierdo) 2P 29 Alambre del panel instrumental y J/B del lado del conductor (Tensor del panel instrumental izquierdo) : Puntos a tierra Código Vea la página Localización de los puntos a tierra ID 52 Centro de refuerzo del tablero de instrumentos IE 52 Refuerzo del panel instrumental izquierdo Consejos para el servicio
  • 188.
    188 HILUX (EWD630S) Reloj B 1 25 2P 82J R 7. 5A DOME Desde el sistema de la fuente de alimentación (Vea la página 62) 1 2 1 7. 5A ACC 2N23 V R ACC 4 10A TAIL 2C5 OFF Cola Faro Interruptorde controlde lasluces 2S7 2R7 2Q12 2P8 ILL 3 G–W GG C10 C 7 ID A1 B6 J20(A), J21(B) 2 E W–BW–B B1 T1 Reloj Interruptor de combinación Conector de unión G G 13 10
  • 189.
    HILUX (EWD630S) 189 C7 Reloj 4-Tierra: Aprox. 12 voltios con el interruptor de encendido en la posición ACC u ON 1-Tierra : Siempre aprox. 12 voltios 3-Tierra : Aprox. 12 voltios con el interruptor de control de las luces en la posición de las luces de COLA o FAROS 2-Tierra : Siempre con continuidad : Localización de partes Código Vea la página Código Vea la página Código Vea la página C7 40 J20 A 42 C10 40 J21 B 42 : Bloques de relés Código Vea la página Bloque de relés (localización del bloque de relés) 1 22 R/B del compartimiento del motor (Compartimiento del motor izquierdo) : Bloque de empalmes y conector del mazo de cables Código Vea la página Bloque de empalmes y mazo de cables (localización del conector) 2C 28 Alambre del panel instrumental y J/B del lado del conductor (Tensor del panel instrumental izquierdo) 2J 28 Alambre principal del compartimiento del motor y J/B del lado del conductor (Tensor del panel instrumental izquierdo) 2N 2P 2Q 29 Alambre del panel instrumental y J/B del lado del conductor (Tensor del panel instrumental izquierdo) 2R p y / ( p q ) 2S : Puntos a tierra Código Vea la página Localización de los puntos a tierra ID 52 Centro de refuerzo del tablero de instrumentos Consejos para el servicio
  • 190.
    190 HILUX (EWD630S) Desempañador dela ventanilla trasera 20A DEF Desde el sistema de la fuente de alimentación (Vea la página 62) 3 2 1 IE B4 3 3 33 IH112 B12 A7 A1 B1 A3 10A ECU–IG&GAUGE 2K8 2R4 4 5 5 1 3 2 3 J16(A), J17(B) J22(A), J23(B) R 3 BB W–BBRR–L BB–Y R–L R–L R–L R–L Relé DEF D IG E Conector de unión Conector de unión Interruptor del desempañador de la ventanilla trasera Desempañador de la ventanilla trasera R 6(A), R 7(B) IG Conector de unión J15 6 J16(A) Conector de unión A11 A12
  • 191.
    HILUX (EWD630S) 191 Relé DEF 5-3: Cerrado con el interruptor de encendido en la posición ON y el interruptor del desempañador de la ventanilla trasera en la posición ON : Localización de partes Código Vea la página Código Vea la página Código Vea la página J15 42 J22 A 42 R6 A 45 (∗2) J16 A 42 J23 B 42 R7 B 45 (∗2) J17 B 42 R3 43 : Bloques de relés Código Vea la página Bloque de relés (localización del bloque de relés) 3 35 R/B N.° 3 (Panel del lado del cubretablero derecho) : Bloque de empalmes y conector del mazo de cables Código Vea la página Bloque de empalmes y mazo de cables (localización del conector) 2K 28 Alambre del piso y J/B del lado del conductor (Tensor del panel instrumental izquierdo) 2R 29 Alambre del panel instrumental y J/B del lado del conductor (Tensor del panel instrumental izquierdo) : Mazo de cables de la unión del conector y mazo de cables Código Vea la página Mazo de cables de unión y mazo de cables (localización del conector) IH1 54 Alambre del panel instrumental y Alambre del piso (Panel de arranque izquierdo) : Puntos a tierra Código Vea la página Localización de los puntos a tierra IE 52 Refuerzo del panel instrumental izquierdo IG 52 Panel del lado del cubretablero izquierdo ∗ 1 : 1KD-FTV, 2KD-FTV ∗ 2 : Cabina doble ∗ 3 : Cabina sencilla Consejos para el servicio
  • 192.
    192 HILUX (EWD630S) Espejo retrovisorde control remoto 7. 5A ACC Desde el sistema de la fuente de alimentación (Vea la página 62) O 2 O 3 MMMM 3 51351 B12 MH MV M+ MH MVM+ A22A21 O 1 2O23 V BR–R B BR–R BR–R BR–R IE W–B 4 3 J23 B 5 2 4 3 6 7 8 MLVMLH MRH MRV M+ E AbajoDerecha ArribaIzquierda B IzquierdaIzquierda Derecha Izquierda/ Arriba Derecha/Abajo Derecha MH MV Interruptor deoperación Interruptor selector Conector de unión Interruptor del espejo exterior Espejo retrovisor exterior (izquierdo) Espejo retrovisor exterior (derecho) Conectordeunión J24(A),J25(B) IK14 IK13 B9 B11 A3 A1 Conectordeunión J24(A),J25(B) R–G RR R–G BR–R LG L R–G L IK11 BR–R BR–R L LG R R–G
  • 193.
    HILUX (EWD630S) 193 O1 Interruptordel espejo exterior 8-Tierra : Aprox. 12 voltios con el interruptor de encendido en la posición ACC u ON 7-Tierra : Siempre con continuidad 6-7 : Continuidad con el interruptor de operación en la posición IZQUIERDA o ARRIBA 8-6 : Continuidad con el interruptor de operación en la posición DERECHA o ABAJO : Localización de partes Código Vea la página Código Vea la página Código Vea la página J23 42 J25 B 42 O2 44 (∗2) J24 A 42 O1 43 O3 44 (∗2) : Bloque de empalmes y conector del mazo de cables Código Vea la página Bloque de empalmes y mazo de cables (localización del conector) 2O 29 Alambre del panel instrumental y J/B del lado del conductor (Tensor del panel instrumental izquierdo) : Mazo de cables de la unión del conector y mazo de cables Código Vea la página Mazo de cables de unión y mazo de cables (localización del conector) IK1 54 Alambre de la puerta frontal derecha y Alambre del panel instrumental (Panel de arranque derecho) : Puntos a tierra Código Vea la página Localización de los puntos a tierra IE 52 Refuerzo del panel instrumental izquierdo ∗ 1 : 1KD-FTV, 2KD-FTV ∗ 2 : Cabina doble ∗ 3 : Cabina sencilla Consejos para el servicio
  • 194.
    194 HILUX (EWD630S) Sistema deaudio GR BR B Y R W R W R W ∗ 3 : sin reproductor de CD +B (∗2) BU+B(∗3) GND RL+ RL– RR+ RR– Y B L–Y ∗ 1 : 4 altavoces ∗ 2 : con reproductor de CD R R 1(A), R 2(B) A3 ACC (∗2) ACC+B(∗3) 7. 5A ACC Desde el sistema de la fuente de alimentación (Vea la página 62) 2N24 A4 IF22 15A RAD 1 2 A7 B2 B6 B1 B3 ID 1 IH15IH16IH11IH12 BB11 BB12 BC11 BC12 L–Y Conjunto del receptor de radio W (∗1)(∗1) (∗1)(∗1) (∗1) (∗1)(∗1) (∗1) (∗1) (∗1) (∗1) (∗1) 2 A P FL+ 6 A V FL– IH19 IH14 IC28 IC27 1 2 V P V P Altavoz (puerta delantera izquierda) S15 1 A FR+ 5 A FR– IK16 IK15 1 2 L LG L LG Altavoz (puerta delantera derecha) S16 S18 Altavoz (puerta trasera derecha) S17 Altavoz (puerta trasera izquierda) 11 22
  • 195.
    HILUX (EWD630S) 195 R1 (A)Conjunto del receptor de radio (A) 4-Tierra : Siempre aprox. 12 voltios (A) 3-Tierra : Aprox. 12 voltios con el interruptor de encendido en la posición ACC u ON (A) 7-Tierra : Siempre con continuidad : Localización de partes Código Vea la página Código Vea la página Código Vea la página R1 A 43 S15 46 (∗3) S17 45 (∗2) R2 B 43 S16 45 (∗2) S18 45 (∗2) S15 45 (∗2) S16 46 (∗3) : Bloques de relés Código Vea la página Bloque de relés (localización del bloque de relés) 1 22 R/B del compartimiento del motor (Compartimiento del motor izquierdo) : Bloque de empalmes y conector del mazo de cables Código Vea la página Bloque de empalmes y mazo de cables (localización del conector) 2N 29 Alambre del panel instrumental y J/B del lado del conductor (Tensor del panel instrumental izquierdo) : Mazo de cables de la unión del conector y mazo de cables Código Vea la página Mazo de cables de unión y mazo de cables (localización del conector) IC2 52 Alambre de la puerta frontal izquierda y Alambre del piso (Panel de arranque izquierdo) IF2 54 Alambre principal del compartimiento del motor y Alambre del panel instrumental (Detrás del J/B del lado del conductor) IH1 54 Alambre del panel instrumental y Alambre del piso (Panel de arranque izquierdo) IK1 54 Alambre de la puerta frontal derecha y Alambre del panel instrumental (Panel de arranque derecho) BB1 56 (∗2) Cable N.° 1 de la puerta trasera izquierda y Alambre del piso (Pilar central izquierdo) BC1 56 (∗2) Cable N.° 1 de la puerta trasera derecha y Alambre del piso (Pilar central derecho) : Puntos a tierra Código Vea la página Localización de los puntos a tierra ID 52 Centro de refuerzo del tablero de instrumentos ∗ 1 : 1KD-FTV, 2KD-FTV ∗ 2 : Cabina doble ∗ 3 : Cabina sencilla Consejos para el servicio
  • 196.
    196 HILUX (EWD630S) Medidor decombinación Interruptordecombinación R Velocímetro Tacómetro Combustible Temperatura Puerta luzdecarretera V–R V–R V–R (∗3A/T) (∗1) V–R R–B 7.5ADOME Desde el sistema de la fuente de alimentación (Vea la página 62) 1 2 1 2J8 2Q25 R 10A ECU–IG& GAUGE 2S30 2Q26 2P262P42Q10 Interruptordecortesíadelapuerta (traseraderecha) Interruptordecortesíadelapuerta (ladodelconductor) Relédeintegración Interruptordeadvertenciadedesbloqueo R–Y R–L R–B R–B G–Y Interruptordecortesíadelapuerta (traseraizquierda) Interruptordecortesíadelapuerta (ladodelpasajerodelantero) 17 SPD E 6 SPD 17 T16 SP1 25 T17 C 8 R–B ECU del motor Medidor de combinación ECU de control de la transmisión SPD 8 V–R E10 ECU del motor (∗3,∗4) (∗2) ECU de aviso antirrobo 27 17 16 15 10 6 1
  • 197.
    HILUX (EWD630S) 197 T–BELT Niveldecombustible B–O B–W P P–L ODO/TRIP BR–Y BRBR BR–Y Zumbador BR BR R–BP–L 1 2 3 L–R 2 1 L–RBR BR–Y Sistemade combustible 2 1 W–GW–G 1 5 W–BW–B 7.5A MET Desde el sistema de la fuente de alimentación (Vea la página 62) 2D1 C 8 I 1 EC S3 F10 IA19 IA18 BA13 BA14 BR ECU del motor ID215 ID216 IF210 EA11 EB IF28 F15(B) F4 J 1 ∗ 1 : con sistema antirrobo R–B Medidor de combinación Interruptordeadvertencia delfiltrodecombustible Interruptordeavisodelnivel desedimentosdecombustible Conjunto de la bomba de succión de combustible y medidor Conector de unión Sensordevelocidad Medidor BR ∗ 2 : 2TR–FE ∗ 3 : 1KD–FTV ∗ 4 : 2KD–FTV (∗3,∗4)(∗3,∗4)(∗3,∗4)(∗3,∗4) (∗3,∗4)(∗3,∗4)(∗3,∗4)(∗3,∗4) (∗3,∗4)(∗3,∗4) ED 7 6 Conector deunión J30 BRBR (∗2)(∗2) F13(A) B3 (∗2) A3 (∗3, ∗4) B2 (∗2) A2 (∗3, ∗4) Medidor del emisor de combustible 5 23 2 3 7 4 14 21 SI IG+ SE (∗3,∗4)(∗3,∗4)
  • 198.
    198 HILUX (EWD630S) Medidor decombinación Cinturónde seguridaddel conductor SRSCinturóninteriordelasientodelantero (ladodelconductor) Interruptordecombinación Iluminación Antiniebla delantera YW–B (sinSRS) W–B (sinSRS) W–B (conelSRS) C 8 G Interruptordecombinación ID R–Y B–Y IF21 DLC3 Centrodelconjuntodelsensor delcolchóndeaire G–B (∗5) J22(A), J23(B) A10 B12 Virajehacialaizquierda Virajehacialaderecha G–B G–Y Intermitentedela señaldegiro W–B (sin SRS) Medidor de combinación Conector de unión Iluminacióndel visualizadorLCD 11 20 19 30 22 8 24 25 CRUISE (∗6) ECUdelmotor L–B 28
  • 199.
    HILUX (EWD630S) 199 4WD A/TOILTEMP (∗3A/T) P ECUdecontroldelatransmisión ∗ 3: 1KD–FTV W–B (sin SRS) 1 2L 2S 1 2K Encendido Alternador Revisarelmotor Carga Freno W–B (sin SRS) (sinABS) W–B R–GR–G (sinABS) 1 (conABS) LG 1 ABS ECUdecontrolde derrapeconactuador W–B 2 LGW–B LG–B LG LG–B LG 1 Presióndeaceite 1 ECUdelmotor R–B Y–R GR 1 2M ID210 IF23 EA I 2I 2 R–G C 8 Medidor de combinación ECUdecontrolde4WD R–B E4 Interruptordelfrenodeestacionamiento P2 B3 Interruptorde advertenciadelnivel dellíquidodefrenos B2 (∗3,∗4) (∗3,∗4) ∗ 4 : 2KD–FTV ∗ 5 : con luz antiniebla delantera A/TP W–GInterruptordelindicador delatransferencia (posicióndepuntomuerto) (4WD) (4WDA/T) G–B (4WDA/T) Interruptordearranque enpuntomuerto Interruptorde advertenciade vacíodelfreno Sensordepresióndelaceitedemotor 18 13 31 37 40 39 38 36 35 12 ∗ 6 : con control de crucero 1
  • 200.
    200 HILUX (EWD630S) Medidor decombinación C8 (A) Medidor de combinación (A)21-Tierra : Aprox. 12 voltios con el interruptor de encendido en la posición ON (A) 1-Tierra : Siempre aprox. 12 voltios (A)22-Tierra : Siempre con continuidad F13 Medidor del emisor de combustible 2-3 : Aprox. 4 Ω con el depósito de combustible lleno Aprox. 110 Ω con el depósito de combustible vacío : Localización de partes Código Vea la página Código Vea la página Código Vea la página B2 36 (2TR-FE) F4 38 (∗1) J23 B 42 B2 38 (∗1) F10 38 (∗1) J30 42 B3 38 (∗1) F13 A 44 (∗2) P2 43 C8 40 F13 A 46 (∗3) S3 37 (2TR-FE) E4 36 (2TR-FE) F15 B 44 (∗2) S3 39 (∗1) E4 38 (∗1) F15 B 46 (∗3) T16 43 E6 41 J1 39 (∗1) T17 43 E10 41 J22 A 42 : Bloques de relés Código Vea la página Bloque de relés (localización del bloque de relés) 1 22 R/B del compartimiento del motor (Compartimiento del motor izquierdo) : Bloque de empalmes y conector del mazo de cables Código Vea la página Bloque de empalmes y mazo de cables (localización del conector) 2D 28 Alambre del panel instrumental y J/B del lado del conductor (Tensor del panel instrumental izquierdo) 2J 28 Alambre principal del compartimiento del motor y J/B del lado del conductor (Tensor del panel instrumental izquierdo) 2K 28 Alambre del piso y J/B del lado del conductor (Tensor del panel instrumental izquierdo) 2L 28 Alambre principal del compartimiento del motor y J/B del lado del conductor 2M 28 Alambre principal del compartimiento del motor y J/B del lado del conductor (Tensor del panel instrumental izquierdo) 2P 2Q 29 Alambre del panel instrumental y J/B del lado del conductor (Tensor del panel instrumental izquierdo) 2S p y / ( p q ) : Mazo de cables de la unión del conector y mazo de cables Código Vea la página Mazo de cables de unión y mazo de cables (localización del conector) EA1 48 (2TR-FE) Alambre del motor y Alambre principal del compartimiento del motor EA1 50 (∗1) Alambre del motor y Alambre principal del compartimiento del motor (Dentro del R/B del compartimiento del motor y J/B del compartimiento del motor) IA1 52 Alambre del panel instrumental y Alambre del piso (Panel de arranque derecho) ID2 52 Alambre del motor y Alambre del panel instrumental (Detrás de la guantera) IF2 54 Alambre principal del compartimiento del motor y Alambre del panel instrumental (Detrás del J/B del lado del conductor) BA1 56 (∗2) Alambre del bastidor y Alambre del piso (Debajo del asiento frontal izquierdo)BA1 58 (∗3) Alambre del bastidor y Alambre del piso (Debajo del asiento frontal izquierdo) ∗ 1 : 1KD-FTV, 2KD-FTV ∗ 2 : Cabina doble ∗ 3 : Cabina sencilla Consejos para el servicio
  • 201.
    HILUX (EWD630S) 201 : Puntosa tierra Código Vea la página Localización de los puntos a tierra EA 48 (2TR-FE) Lado derecho del faldón del guardabarrosEA 50 (∗1) Lado derecho del faldón del guardabarros EB 48 (2TR-FE) Lado izquierdo del faldón del guardabarrosEB 50 (∗1) Lado izquierdo del faldón del guardabarros EC 50 (∗1) Lado trasero del bloque de cilindros ED 48 (2TR-FE) Lado trasero del bloque de cilindros ID 52 Centro de refuerzo del tablero de instrumentos : Puntos de la unión Código Vea la página Mazo de cables con puntos de unión Código Vea la página Mazo de cables con puntos de unión I1 52 Alambre del motor I2 54 Alambre principal del compartimiento del motor ∗ 1 : 1KD-FTV, 2KD-FTV ∗ 2 : Cabina doble ∗ 3 : Cabina sencilla
  • 202.
    202 HILUX (EWD630S) Acondicionador deaire OFF LO 1 W–B B–WR B–W W–B B–W R–B B–W W–B W–B (∗1) 4 M1 M2 HI 6 5 2 18 2P30 2R 5 ID 9 2D 1 1C Desde el sistema de la fuente de alimentación (Vea la página 62) 40A FR HTR R–L 1 2F B4 W–B W–B W–B W–B B 2 1 L–W L–B ReléHTR 4 1 2 5 3 18 2D L–O 16 2D2A (∗1) 10AA/C (∗1) B 5 B 6 A1 B4 B2 A1 A2 IE R–L (∗1) L–O (∗1) W–B (∗1) W Motordelsoplador Resistor del soplador Interruptor del soplador 1 423 Conectordeunión J22(A),J23(B) Conectordeunión J18(A),J19(B) 2P2 (∗1) R–L (∗1) R–G (∗1) L–O BB–W Bloqueo Libre 6 (∗1) R–G5 4 (∗1) R–L 3 G Interruptor del A/C A24 M 10A ECU–IG& GAUGE Interruptor decombinación
  • 203.
    HILUX (EWD630S) 203 18 2 1 (∗1) 10 14 1 2 78 Y–BY–BL–O R–L 2 SG–1TE IG AC1 ACT P Y R–L ∗ 1 : con acondicionador de aire MGC L–W L (∗1) GND 1 3 (∗1) L–W 1 (∗1)(∗1)(∗1) PSW W–B (∗1) L–O (∗1) (∗1) (∗1) (∗1) (∗1)(∗1) A10 A1 J20(A),J21(B) P1 A 9 A6 B6 IF316 IF317 ID11 AC1 25 C ACT 24 C 1 2 EC (Protegido)BR 27 BB34 NE+NE– 2 1 L Y E 1 W–B 3 C4 (Protegido) E 6(A), E 8(B), E10(C), E12(D) R–L (∗1) W–B (∗1) CompresordelA/C Interruptordepresión Amplificador del A/C TermistordelA/C Sensordeposición delcigüeñal ECU del motor Conectordeunión 27 DD34 12 Y L G 3 C4 Sensordeposición delcigüeñal E 2 A1 B6 W–B J31(A),J32(B) Conector deunión (Protegido) (Protegido) (Protegido) Conectordeunión J10 BR(Protegido) ED 7 1 Conectordeunión J30 A18 A19 (∗3) (∗2) (∗3) (∗3) (∗3)(∗3) (∗2) (∗2) (∗2) (∗2) (∗2) (∗2) (∗2) (∗3)(∗3) (∗2)(∗2) ∗ 2 : ∗1 2TR–FE ∗ 3 : ∗1 1KD–FTV, 2KD–FTV R–L (∗1) R–G (∗1) IND– 13 ACON 4 (∗1) R–G (∗1) R–L NE+NE– E E NE+NE– NENE– G
  • 204.
    204 HILUX (EWD630S) Acondicionador deaire Se aplica constantemente corriente a través del fusible FR HTR al TERMINAL 5 del relé HTR. Cuando se activa el interruptor de encendido, la corriente circula a través del fusible ECU-IG&GAUGE al TERMINAL 1 del relé HTR, al TERMINAL 2, y al TERMINAL 6 del interruptor del soplador. Operación del motor del soplador ∗ Operación a baja velocidad Cuando se mueve el interruptor del soplador a la posición LO, la corriente circula al TERMINAL 6 del interruptor del soplador, al TERMINAL 5, y a TIERRA, haciendo que se active el relé HTR. Esto causa que circule la corriente desde el fusible FR HTR al TERMINAL 5 del relé HTR, al TERMINAL 3, al TERMINAL 2 del motor del soplador, al TERMINAL 1, al TERMINAL 4 del resistor del soplador, al TERMINAL 1 y a TIERRA, haciendo que el motor del soplador gire a baja velocidad. ∗ Operación a velocidad media (operación en M1, M2) Cuando se mueve el interruptor del soplador a la posición M1, la corriente circula al TERMINAL 6 del interruptor del soplador, al TERMINAL 5, y a TIERRA, haciendo que se active el relé HTR. Esto causa que circule la corriente desde el fusible FR HTR al TERMINAL 5 del relé HTR, al TERMINAL 3, al TERMINAL 2 del motor del soplador, al TERMINAL 1, al TERMINAL 4 del resistor del soplador, al TERMINAL 3, al TERMINAL 2 del interruptor del soplador, al TERMINAL 5 y a TIERRA. Entonces, la resistencia del soplador del resistor del soplador es menor que a baja velocidad, por lo que el motor del soplador gira a velocidad baja media. Cuando se mueve el interruptor del soplador a la posición M2, la corriente circula a través del relé HTR al TERMINAL 2 del motor del soplador, al TERMINAL 1, al TERMINAL 4 del resistor del soplador, al TERMINAL 2, al TERMINAL 1 del interruptor del soplador, al TERMINAL 5 y a TIERRA. Entonces, la resistencia del resistor del soplador es menor que en la posición M1, por lo que el motor del soplador gira a velocidad alta media. ∗ Operación a alta velocidad Cuando se mueve el interruptor del soplador a la posición HI, la corriente circula al TERMINAL 6 del interruptor del soplador, al TERMINAL 5, y a TIERRA, haciendo que se active el relé HTR. Esto causa que circule la corriente desde el fusible FR HTR al TERMINAL 5 del relé HTR, al TERMINAL 3, al TERMINAL 2 del motor del soplador, al TERMINAL 1, al TERMINAL 4 del interruptor del soplador, al TERMINAL 5 y a TIERRA, haciendo que el motor del soplador gire a alta velocidad. Relé HTR 5-3 : Cerrado con el interruptor de encendido en la posición ON y el interruptor del soplador conectado P1 Interruptor de presión 1-2 : Abierto con la presión del refrigerante a menos de aprox. 2,0 kgf/cm2 (28,4 psi, 196,1 kPa) o más que aprox. 32,0 kgf/cm2 (455 psi, 3138,1 kPa) A9 Amplificador del A/C 10-Tierra : Aprox. 12 voltios con el interruptor de encendido en la posición ON 18-Tierra : Siempre con continuidad : Localización de partes Código Vea la página Código Vea la página Código Vea la página A1 36 (2TR-FE) C4 38 (∗1) J21 B 42 A1 38 (∗1) E6 A 41 J22 A 42 A9 40 E8 B 41 J23 B 42 A10 40 E10 C 41 J30 42 A24 40 E12 D 41 J31 A 42 B4 40 J10 42 J32 B 42 B5 40 J18 A 42 P1 37 (2TR-FE) B6 40 J19 B 42 P1 39 (∗1) C4 36 (2TR-FE) J20 A 42 ∗ 1 : 1KD-FTV, 2KD-FTV ∗ 2 : Cabina doble ∗ 3 : Cabina sencilla Descripción del sistema Consejos para el servicio
  • 205.
    HILUX (EWD630S) 205 : Bloquede empalmes y conector del mazo de cables Código Vea la página Bloque de empalmes y mazo de cables (localización del conector) 1C 23 Alambre principal del compartimiento del motor y J/B del compartimiento del motor (Compartimiento del motor izquierdo) 2A 28 Alambre del panel instrumental y J/B del lado del conductor (Tensor del panel instrumental izquierdo) 2D 28 Alambre del panel instrumental y J/B del lado del conductor (Tensor del panel instrumental izquierdo) 2F 28 Alambre principal del compartimiento del motor y J/B del lado del conductor (Tensor del panel instrumental izquierdo) 2P 29 Alambre del panel instrumental y J/B del lado del conductor (Tensor del panel instrumental izquierdo) 2R 29 Alambre del panel instrumental y J/B del lado del conductor (Tensor del panel instrumental izquierdo) : Mazo de cables de la unión del conector y mazo de cables Código Vea la página Mazo de cables de unión y mazo de cables (localización del conector) ID1 52 Alambre del motor y Alambre del panel instrumental (Detrás de la guantera) IF3 54 Alambre principal del compartimiento del motor y Alambre del panel instrumental (Detrás del J/B del lado del conductor) : Puntos a tierra Código Vea la página Localización de los puntos a tierra EC 50 (∗1) Lado trasero del bloque de cilindros ED 48 (2TR-FE) Lado trasero del bloque de cilindros ID 52 Centro de refuerzo del tablero de instrumentos IE 52 Refuerzo del panel instrumental izquierdo : Puntos de la unión Código Vea la página Mazo de cables con puntos de unión Código Vea la página Mazo de cables con puntos de unión E1 48 (2TR-FE) Alambre del motor E2 48 (2TR-FE) Alambre del motorE1 50 (∗1) Alambre del motor E2 50 (∗1) Alambre del motor ∗ 1 : 1KD-FTV, 2KD-FTV ∗ 2 : Cabina doble ∗ 3 : Cabina sencilla
  • 206.
    206 HILUX (EWD630S) I PUNTODE CONEXION A MASA Sensor de posición del cigüeñal (E1) (E01) (E01) (E02) DLC3 Interruptor de aviso del nivel de sedimentos de combustible Sensor de velocidad EC I 1 E 1 I 1 I 1 ID2 18 EA1 1 BR BR BR BR BR W–B W W–B W–B BR BR W–B(Protegido) BR J10 BR 2 3 1 4 ECU de control de la transmisión (E1) ECU del motor ECU del motor (SG) BR BR B 3 B 4 B 5 B 1 B 2 A 3 A 4 A 1 A 5 Interruptor del indicador de la transferencia (posición L4) Interruptor del indicador de la transferencia (posición 4WD) Conjunto del cuerpo del acelerador Actuador de ADD ∗9 ECU de control de 4WD Impulsor de inyectores (EDU) Impulsor del motor de turboalimentación W–B W–B W–B W–B W–B W–B W–B W–B J 7(A), J 8(B) Conector de unión Conector de unión ECU del motor Bobina de encendido (N. ˚ 4) Bobina de encendido (N. ˚ 3) Bobina de encendido (N. ˚ 2) Bobina de encendido (N. ˚ 1) A1 A2 B6 EE (E02) (E01) (E03) (E04) W–B W–B W–B W–B W–B W–B W–B W–B W–B W–B J33(A),J34(B) Conectordeunión Sensor de posición del cigüeñal (E1) Sensor de velocidad DLC3 ED E 2 ID2 18 BR BR BR W–B V BR BR (Protegido) 7 9681 BR (ME01) W–B ECU del motor ECU del motor Conector de unión J30 (∗2) (∗1) (∗1) (A/T) (A/T) W–B Interruptor del indicador de la transferencia (posición 4WD) W–B Interruptor del indicador de la transferencia (posición L4) W–B Actuador de ADD W–B ECU de control de 4WD W–B Impulsor de control de inyección de aire W–B Válvula de conmutación de aire W–B I 1I 1 I 1 W–B W–B W–B (RHD) ∗9 W–B I 1 W–B (SG) Cable espiral W–B ID1 9 BR (1KD–FTV A/T) (1KD–FTV)
  • 207.
    HILUX (EWD630S) 207 I Medidor decombinación Interruptor de advertencia del nivel del líquido de frenos Motor del limpiador del parabrisas Lámpara de la señal de giro (frontal derecha) Lámpara antiniebla (delantera derecha) Lámpara de paso (delantera derecha) Interruptor de advertencia del filtro de combustible Interruptor de cortesía del capo del motor Lámpara de la señal de giro (frontal izquierda) Lámpara antiniebla (delantera izquierda) Lámpara de paso (delantera izquierda) Relé MAIN Relé GLOW IF2 3 IF2 1 I 2 I 2 I 2 EA EB 1J 3 1 5 W–B 2 W–B 3 W–B 9 W–B 6 W–B 7 W–B 4 W–B 12 1 W–B R–G W–B W–B W–B W–B W–B W–B W–BW–BW–B W–B J 1 R–G W–B (sin ABS)(sin ABS) (sin SRS) (sin SRS) Lámpara de la señal de giro (frontal lateral derecha) Lámpara de la señal de giro (frontal lateral izquierda) W–B10 W–B Conector de unión ∗ 1 : 2TR–FE ∗ 2 : 1KD–FTV, 2KD–FTV Relé de A/F1 W–BBomba de aire W–B (GND1) (GND2) W–B W–B ECU de control de derrape con actuador ∗ 9 : Interruptor del indicador de la transferencia (posición de punto muerto)
  • 208.
    208 HILUX (EWD630S) I PUNTODE CONEXION A MASA Relé ST Medidor de combinación Lámpara del indicador de seguridad Interruptor del soplador Interruptor de la señal de aviso de peligro Interruptor de combinación Interruptor del desempañador de la ventanilla trasera Enchufe eléctrico Resistor del soplador (CG) Interruptor del espejo exterior Intermitente de la señal de giro Encendedor de cigarrillos Solenoide de interbloqueo de la llave Interruptor del soplador Interruptor de combinación Interruptor del desempañador de la ventanilla trasera Iluminación del cenicero Iluminación del encendedor de cigarrillos Interruptor de advertencia de desbloqueo Conjunto del receptor de radio Relé de integración Centro del conjunto del sensor del colchón de aire Iluminación de la palanca de cambios de la A/T Lámpara para mapas 1 B–W W–B B12 A10 B9 B11 A11 B8 B7 A12 A9 IF3 10 W–B B12 B1 A12 A1 ID 2 A4 A 3 B5 B 6 A3 A 2 B6 B 1 A 1 BB4 IE S12(B) T16(A) Y L–Y W R GR BR R B BR LG BR Y W–B W–B J22(A), J23(B) G L W–B (∗5) W DLC3 W–B W–B W–BB 2D 9 2D18 2B 1 2E1 W–B W–B W–B 2B 2 W–B 2D 17 W–B W–B (E1) (E2) W–B W–B W–B W–B B–W (∗3) (∗5) B–W (∗3) (∗5)(∗4) 8 A L ECU de la llave de transmisor (GND) G Relé PWR OUT Relé HTR B–W(∗6) Conector de unión (E) ECU de aviso antirrobo Pasadordecortocircuito (ECUdeavisoantirrobo) ECUdeavisoantirrobo
  • 209.
    HILUX (EWD630S) 209 I Interruptor decombinación (GND) Interruptor de combinación ∗ 3 : con sistema antirrobo ∗ 4 : sin sistema antirrobo B3 A6 8 B 12 B B 4 B6 J20(A), J21(B) W L Y P W–B W–B W–B W–B Lámpara de combinación trasera (izquierda) Interruptor principal de la ventanilla automática Relé IG1 Conjunto del cinturón interior del asiento delantero (lado del pasajero delantero) IF 3 3 9 W–B W–B IG 411 11 J15 W–BW–B Reloj W–B A1 BA1 8 W–B(∗7) B 3 Lámpara izquierda de la matrícula Lámpara de combinación trasera (derecha) Lámpara derecha de la matrícula B 3 1 W–B W–B Lámpara de parada central Desempañador de la ventanilla trasera BD11 6 W–B W–B W–B W–B W–B B W–BW–B A2 Amplificador del A/C ∗ 5 : ∗4 con sistema de control de bloqueo de las puertas ∗ 6 : ∗4 excepto ∗5 Conector de unión Conector de unión (E) ECU de control de bloqueo de cambios 10 BA1 1 W–B ∗10 W–B 10 B Interruptor de la señal de aviso de peligro L (EC) (∗7) R ECU del motor W–B Cinturón interior del asiento delantero (lado del conductor) 2 W–R (∗8) IC24 ∗ 7 : Cabina doble ∗ 8 : Cabina sencilla 7 B W Interruptor del A/C A5 BR Lámpara de aviso del cinturón de seguridad del pasajero Conector de unión J28 ∗ 1 : 2TE–FE ∗10 : Conjunto de la bomba de succión de combustible y medidor
  • 210.
    210 HILUX (EWD630S) I PUNTODE CONEXION A MASA : Localización de partes Código Vea la página Código Vea la página Código Vea la página J1 39 (∗1) J20 A 42 J30 42 J7 A 42 J21 B 42 J33 A 42 J8 B 42 J22 A 42 J34 B 42 J10 42 J23 B 42 S12 B 43 J15 42 J28 42 T16 A 43 : Bloques de relés Código Vea la página Bloque de relés (localización del bloque de relés) 1 22 R/B del compartimiento del motor (Compartimiento del motor izquierdo) 3 35 R/B N.° 3 (Panel del lado del cubretablero derecho) : Bloque de empalmes y conector del mazo de cables Código Vea la página Bloque de empalmes y mazo de cables (localización del conector) 1J 24 Alambre principal del compartimiento del motor y J/B del compartimiento del motor (Compartimiento del motor izquierdo) 2B 28 Alambre del panel instrumental y J/B del lado del conductor (Tensor del panel instrumental izquierdo) 2D 28 Alambre del panel instrumental y J/B del lado del conductor (Tensor del panel instrumental izquierdo) 2E 28 Alambre del techo y J/B del lado del conductor (Tensor del panel instrumental izquierdo) : Mazo de cables de la unión del conector y mazo de cables Código Vea la página Mazo de cables de unión y mazo de cables (localización del conector) EA1 48 (2TR-FE) Alambre del motor y Alambre principal del compartimiento del motor EA1 50 (∗1) Alambre del motor y Alambre principal del compartimiento del motor (Dentro del R/B del compartimiento del motor y J/B del compartimiento del motor) IC2 52 Alambre de la puerta frontal izquierda y Alambre del piso (Panel de arranque izquierdo) ID1 52 Alambre del motor y Alambre del panel instrumental (Detrás de la guantera) ID2 52 Alambre del motor y Alambre del panel instrumental (Detrás de la guantera) IF2 54 Alambre principal del compartimiento del motor y Alambre del panel instrumental IF3 54 Alambre principal del compartimiento del motor y Alambre del panel instrumental (Detrás del J/B del lado del conductor) BA1 56 (∗2) Alambre del bastidor y Alambre del piso (Debajo del asiento frontal izquierdo)BA1 58 (∗3) Alambre del bastidor y Alambre del piso (Debajo del asiento frontal izquierdo) BD1 56 (∗2) Alambre del bastidor N.° 2 y Alambre del bastidor (Debajo del panel posterior izquierdo) : Puntos a tierra Código Vea la página Localización de los puntos a tierra EA 48 (2TR-FE) Lado derecho del faldón del guardabarrosEA 50 (∗1) Lado derecho del faldón del guardabarros EB 48 (2TR-FE) Lado izquierdo del faldón del guardabarrosEB 50 (∗1) Lado izquierdo del faldón del guardabarros EC 50 (∗1) ED 48 (2TR-FE) Lado trasero del bloque de cilindros EE 48 (2TR-FE) q ID 52 Centro de refuerzo del tablero de instrumentos IE 52 Refuerzo del panel instrumental izquierdo IF 52 Panel del lado del cubretablero derecho IG 52 Panel del lado del cubretablero izquierdo ∗ 1 : 1KD-FTV, 2KD-FTV ∗ 2 : Cabina doble ∗ 3 : Cabina sencilla
  • 211.
    HILUX (EWD630S) 211 I : Puntosde la unión Código Vea la página Mazo de cables con puntos de unión Código Vea la página Mazo de cables con puntos de unión 48 (2TR-FE) I1 54 Alambre del motor E1 50 (∗1) Alambre del motor I2 54 Alambre principal del compartimiento del motor E2 48 (2TR-FE) Alambre del motor B3 58 (∗3) Alambre del bastidorE2 50 (∗1) B3 68 (∗2) Alambre del bastidor ∗ 1 : 1KD-FTV, 2KD-FTV ∗ 2 : Cabina doble ∗ 3 : Cabina sencilla
  • 212.
    212 HILUX (EWD630S) J FUENTEDE ALIMENTACION (Cuadro de flujo de corriente) 1 : R/B del compartimiento del motor y J/B del compartimiento del motor (Vea la página 22) 2 : J/B del lado del conductor (vea la página 28) 3 : R/B N.˚3 (vea la página 35) [situación] Batería 40A MAIN 20A H-LP LH 20A H-LP RH 10A HORN 15A FOG 25A EFI 40A AM1 7.5A OBD 10A STOP 10A TAIL 15A PWR OUT 40A IG1 30A ABS NO.2 40A ABS NO.1 40A FR HTR 7.5A DOME 7.5A ECU-B 15A RAD 50A BATT P/I 30A AM2 100A ALT 7.5A ALT-S 15A TURN-HAZ 80A GLOW 10A ETCS 20A A/F 50A A/PMP 30A DCC 1 1 1 1 1 1 1 1 1 1 1 2 2 2 El diagrama indicado abajo muestra la corriente desde la batería hasta cada fuente eléctrica (eslabón fusible, ruptor de circuitos, fusible, etc.) y otras partes.
  • 213.
    HILUX (EWD630S) 213 J 4 Código oubicaciónPiezas Fuente de electricidad 7.5A DRL Arrancador S1 Situación Ejemplo Interruptor de encendido (AM2) Relé IG1 (Lado de la punta) Relé HTR (Lado de la punta) Interruptor de encendido (AM1) I6 I6 20A DEF 7.5A IGN 7.5A MET 15A INJ 7.5A ST 7.5A ACC 15A CIG 10A ECU-IG&GAUGE 20A WIP 30A PWR 10A A/C 25A DOOR 3 3 2 2 2 2 2 3 2
  • 214.
    214 HILUX (EWD630S) J FUENTEDE ALIMENTACION (Cuadro de flujo de corriente) R/B del compartimiento del motor y J/B del compartimiento del motor (Vea la página 22) Fusible Sistema Página 7.5A ALT-S Carga 68 7.5A DOME Control de bloqueo de la puerta Control de bloqueo de la puerta inalámbrico Control de crucero Control del motor (1KD-FTV, 2KD-FTV) Control del motor (2TR-FE) ECT Faro Luz de cola y Iluminación Luz interior Medidor de combinado Recordador de la llave y Recordador de las luces Reloj Sistema antirrobo 156 162 134 82 72 126 98 102 116 196 120 188 168 7.5A ECU-B Control de bloqueo de la puerta Control de bloqueo de la puerta inalámbrico Luz interior Sistema antirrobo Sistema inmovilizador del motor 156 162 116 168 94 10A ETCS Control del motor (2TR-FE) 72 10A HORN Bocina Sistema antirrobo 182 168 15A FOG Luz antiniebla frontal 100 15A RAD Sistema de audio 194 15A TURN-HAZ Señal de giro y luz de advertencia de peligro 108 20A A/F Control del motor (2TR-FE) 72 20A H-LP LH Faro 98 20A H-LP RH Faro 98 25A EFI Control de crucero Control del motor (1KD-FTV, 2KD-FTV) Control del motor (2TR-FE) ECT 134 82 72 126 30A ABS NO.2 ABS 140 30A AM2 Arranque 66 40A ABS NO.1 ABS 140 40A FR HTR Acondicionador de aire 202 50A A/PMP Control del motor (2TR-FE) 72 50A BATT P/I Control de crucero Control del motor (1KD-FTV, 2KD-FTV) Control del motor (2TR-FE) 134 82 72 ∗ Son números de la primera de las páginas en que está indicado el sistema correspondiente.
  • 215.
    HILUX (EWD630S) 215 J Fusible SistemaPágina 50A BATT P/I ECT Luz antiniebla frontal 126 100 80A GLOW Control del motor (1KD-FTV, 2KD-FTV) 82 100A ALT Carga 4WD (con ADD) 68 148 J/B del lado del conductor (Vea la página 28) Fusible Sistema Página 7.5A ACC Bloqueo de cambios Espejo retrovisor de control remoto Reloj Sistema de audio Toma de alimentación 154 192 188 194 186 7.5A IGN Control de crucero Control del motor (1KD-FTV, 2KD-FTV) Control del motor (2TR-FE) ECT Sistema inmovilizador del motor SRS 134 82 72 126 94 145 7.5A MET ABS Advertencia de cinturón de seguridad Carga Control de bloqueo de la puerta Control de crucero Control del motor (1KD-FTV, 2KD-FTV) Control del motor (2TR-FE) ECT Luz de cola y Iluminación Medidor de combinado Recordador de la llave y Recordador de las luces Sistema antirrobo SRS 4WD (con ADD) 4WD (sin ADD) 140 124 68 156 134 82 72 126 102 196 120 168 145 148 152 7.5A OBD Control del motor (1KD-FTV, 2KD-FTV) Control del motor (2TR-FE) 82 72 7.5A ST Arranque Control del motor (1KD-FTV, 2KD-FTV) Control del motor (2TR-FE) ECT Sistema antirrobo 66 82 72 126 168 10A A/C Acondicionador de aire 202 10A ECU-IG&GAUGE ABS Acondicionador de aire 140 202 ∗ Son números de la primera de las páginas en que está indicado el sistema correspondiente.
  • 216.
    216 HILUX (EWD630S) J FUENTEDE ALIMENTACION (Cuadro de flujo de corriente) Fusible Sistema Página 10A ECU-IG&GAUGE Advertencia de cinturón de seguridad Bloqueo de cambios Carga Control de bloqueo de la puerta Control de bloqueo de la puerta inalámbrico Control de crucero Control del motor (1KD-FTV, 2KD-FTV) Control del motor (2TR-FE) Desempañador de la ventanilla trasera ECT Luz de marcha atrás Medidor de combinado Señal de giro y luz de advertencia de peligro Sistema antirrobo 4WD (con ADD) 124 154 68 156 162 134 82 72 190 126 114 196 108 168 148 10A STOP ABS Bloqueo de cambios Control de crucero Control del motor (1KD-FTV, 2KD-FTV) Control del motor (2TR-FE) ECT Luz de parada 140 154 134 82 72 126 112 10A TAIL Control del motor (2TR-FE) Luz antiniebla frontal Luz de cola y Iluminación Recordador de la llave y Recordador de las luces Reloj 72 100 102 120 188 15A CIG Encendedor de cigarrillos 184 15A INJ Control del motor (2TR-FE) Encendido 72 70 15A PWR OUT Toma de alimentación 186 20A WIP Limpiador y lavador del parabrisas 178 40A AM1 4WD (con ADD) 148 R/B N.° 3 (Vea la página 35) Fusible Sistema Página 20A DEF Desempañador de la ventanilla trasera 190 25A DOOR Control de bloqueo de la puerta Control de bloqueo de la puerta inalámbrico Sistema antirrobo 156 162 168 30A PWR Ventanilla automática 174 ∗ Son números de la primera de las páginas en que está indicado el sistema correspondiente.
  • 217.
  • 218.
    218 HILUX (EWD630S) K LISTADE CONECTORES 1 Gris A 1 1 2 A 2 1 2 3 4 5 6 Negro A 3 54321 Negro A 4 1 2 Amarillo A 5 1 2 Amarillo A 6 1 A 7 21 3 4 Negro A 8 1 2 3 4 5 6 7 8 9 10 11 1213141516171819 20 A 9 21 A10 8765 431 2 A12 1 2 3 4 5 6 Negro A13 11 1 3 4 5 6 7 8 9 13 14 15 16 17 18 19 21 23 24 25 26 27 28 29 30 20 10 22 12 2 Amarillo A14 1 2 3 4 Amarillo A15 1 2 Negro A16 1 2 3 Negro A17 21 3 4 Gris oscuro A18 1 2 Gris A19 1 2 3 4 5 6 Negro A20 1 2 Gris A21 1 2 Negro A22 1 2 Amarillo A23 1 3 4 5 6 2 Negro A24 1 2 (*1) Gris B 1 1 2 (2TR-FE) Gris B 1 1 2 Gris B 2 1 Gris B 3 1 2 Negro B 4 1 2 3 4 Negro B 5 *1 : 1KD-FTV, 2KD-FTV
  • 219.
    HILUX (EWD630S) 219 K 1 23 4 5 6 7 8 B 6 1 2 Negro C 1 1 2 Gris C 2 1 2 Gris C 3 21 3 Gris C 4 1 2 C 5 1 2 C 6 1 2 3 4 Negro C 7 4 22 3 21 24 1 2623 62 27 7 28 8 30 10 31 11 32 12 33 13 35 15 36 16 37 17 38 18 29 95 25 34 14 39 19 40 20 C 8 1 2 3 4 5 6 7 8 9 10 11 12 13 C10 1 2 3 4 5 6 7 C11 1 2 3 4 5 6 7 8 9 10 C12 1 2 C13 1 2 Gris C14 16 15 14 13 12 11 10 9 8 7 6 5 4 3 2 1 D 1 1 D 2 1 D 3 1 D 4 1 D 5 1 2 3 4 5 6 7 8 9 10 D 6 1 2 3 4 5 6 7 8 9 10 D 7 1 2 3 4 5 6 7 8 9 10 D 8 1 2 3 4 5 6 7 8 9 10 D 9
  • 220.
    220 HILUX (EWD630S) K LISTADE CONECTORES 1 2 3 4 5 6 7 8 Gris E 1 1 2 3 Negro E 2 1 2 Negro E 3 1 Negro E 4 1 17 292827 31 19 9 10 30 11 76 13 14 15 16 22 23 24 12 432 5 25 26 18 8 20 21 Gris E 5 6 3228 35 24 27 13 1612 29 11 1 10987 2118 3 4 52 17 34 26 15 33 25 14 2322 31 2019 30 Gris E 6 1 19 333231 3528 2320 118 12 34 13 76 15 16 17 18 24 25 26 14 432 5 27 29 21 9 30 22 10 Gris E 7 1 3128 24 27 118 12 34 13 7 14 15 16 17 2118 542 6 29 26 9 30 25 10 2322 32 2019 33 3 Gris E 8 17 29 31 20 10 11 30 12 65 14 15 16 23 24 13 321 4 25 26 18 8 27 19 9 21 22 7 28 E 9 15 32 34 19 8 9 33 10 5 12 13 14 22 25 11 321 4 26 28 17 29 18 7 20 21 6 3130 23 24 35 16 27 E10 18 33 34 11 12 13 65 15 16 17 25 14 321 4 26 29 21 9 30 22 10 24 7 32 35 19 27 28 20 8 31 23 E11 17 32 34 20 10 11 33 12 65 14 15 16 23 26 13 321 4 27 28 18 8 29 19 9 21 22 7 3130 24 25 E12 1 2 Marrón F 2 1 2 Marrón F 3 1 2 Negro F 4 1 2 (*1) Gris F 5 1 2 (2TR-FE) Marrón F 5 1 2 Gris F 6 1 2 (*1) Gris F 7 1 2 (2TR-FE) Marrón F 7 1 2 Gris F 8 *1 : 1KD-FTV, 2KD-FTV
  • 221.
    HILUX (EWD630S) 221 K 1 23 Negro F 9 1 2 Gris F10 21 Gris oscuro F11 1 2 F12 1 2 3 4 5 Negro F13 1 2 3 4 5 6 7 8 9 10 Verde F14 1 2 3 4 5 Negro F15 1 2 F17 1 G 1 1 2 3 Negro H 1 1 2 3 Negro H 2 1 Negro H 4 1 2 5 3 4 6 7 8 9 10 H 5 21 3 4 Gris oscuro H 6 1 2 3 4 5 6 7 8 Negro I 1 87654321 Gris oscuro I 2 1 2 Negro I 3 1 2 Gris oscuro I 4 1 2 3 4 5 6 7 Negro I 5 1 2 3 4 5 6 7 8 I 6 1 2 3 4 Negro I 7 1 2 3 4 Negro I 8 1 2 3 4 Negro I 9 1 2 3 4 Negro I10 54321 6 7 8 9 101112 J 1 1 2 3 4 5 6 7 8 9 10 11 12 J 2
  • 222.
    222 HILUX (EWD630S) K LISTADE CONECTORES 1 2 3 4 5 6 7 8 9 10 11 12 J 3 1 2 3 4 5 6 7 8 9 10 11 12 Negro J 4 1 2 3 4 5 6 7 8 9 10 11 12 J 5 11 2221 109 2019 87 1817 65 1615 43 1413 1 2 12 J 6 1 2 3 4 5 6 7 8 9 10 11 12 Azul J 7 1 2 3 4 5 6 7 8 9 10 11 12 Azul J 8 1 2 3 4 5 6 7 8 9 10 11 12 J 9 1 2 3 4 5 6 7 8 9 10 11 12 J10 1 2 3 4 5 6 7 8 9 10 11 12 J11 1 2 3 4 5 6 7 8 9 10 11 12 J12
  • 223.
    HILUX (EWD630S) 223 K 1 23 4 5 6 7 8 9 10 11 12 Negro J13 1 2 3 4 5 6 7 8 9 10 11 12 Negro J14 1 2 3 4 5 6 10117 8 9 J15 1 2 3 4 5 6 7 8 9 10 11 12 J16 1 2 3 4 5 6 7 8 9 10 11 12 J17 1 2 3 4 J18 1 2 3 4 J19 1 2 3 4 5 6 7 8 9 10 11 12 J20 1 2 3 4 5 6 7 8 9 10 11 12 J21 1 2 3 4 5 6 7 8 9 10 11 12 J22 1 2 3 4 5 6 7 8 9 10 11 12 J23
  • 224.
    224 HILUX (EWD630S) K LISTADE CONECTORES 11 2221 109 2019 87 1817 65 1615 43 1413 1 2 12 Azul J24 11 2221 109 2019 87 1817 65 1615 43 1413 1 2 12 Azul J25 1 2 3 4 5 6 7 8 9 10 11 12 Negro J26 1 2 3 4 5 6 7 8 9 10 11 12 Negro J27 1 2 3 4 5 6 10117 8 9 J28 1 2 3 4 5 6 7 8 9 10111213 J29 1 2 3 4 5 6 7 8 9 10 11 J30 1 2 3 4 5 6 7 8 9 10 11 12 Negro J31 1 2 3 4 5 6 7 8 9 10 11 12 Negro J32
  • 225.
    HILUX (EWD630S) 225 K 1 23 4 5 6 7 8 9 10 11 12 J33 1 2 3 4 5 6 7 8 9 10 11 12 J34 54321 6 7 8 9 101112 J35 1 2 Negro K 1 1 2 Negro K 2 1 2 Negro L 1 1 2 Negro L 2 1 2 M 1 87 9 21 3 4 65 Gris N 1 1 2 Gris N 2 1 2 3 4 5 6 7 8 9 10 O 1 12 34 56 O 2 12 34 56 O 3 1 2 Gris P 1 1 Negro P 2 1 2 P 3 6 95 8 14 7 15 4 17 21 1816 3 11 1310 12 P 4 1 2 3 4 5 6 Negro P 5 1 2 3 4 5 6 Negro P 6 1 2 Negro P 7 1 2 Negro P 8 1 2 3 4 5 Negro P 9 1 2 3 4 5 Negro P10 1 2 3 4 5 Negro P11 1 Negro P12 1 32 Negro P13
  • 226.
    226 HILUX (EWD630S) K LISTADE CONECTORES 1 2 3 4 5 6 7 8 9 10 R 1 1 2 3 4 5 6 R 2 1 2 3 4 5 Negro R 3 1 2 3 4 5 6 R 4 1 2 3 4 5 6 Negro R 5 1 Negro R 6 1 Negro R 7 1 2 R 8 1 Negro S 1 21 2423 3 4 5 6 13 25 161514 26 27 28 313029 17 18 19 987 10 11 12 222120 32 33 34 Negro S 2 1 2 3 Negro S 3 1 2 Gris S 4 1 2 S 5 1 Negro S 6 1 (*1) S 7 1 (2TR-FE) S 7 1 2 Gris S 8 1 2 Gris S 9 1 2 S10 7 8 1 2 12 4 5 6 9 1110 3 S11 10 9 8 7 6 23 2224 21 20 5 19 11 25 1 15 12 26 4 18 3 17 2 16 13 27 14 28 S12 7 8 1 2 12 4 5 6 9 1110 3 Negro S13 1 3 2 4 S14 1 2 S15 *1 : 1KD-FTV, 2KD-FTV
  • 227.
    HILUX (EWD630S) 227 K 1 2 S16 1 2 S17 1 2 S18 1 2 Gris S21 12 Gris S22 1 2 3 Negro T 1 1 2 3 Negro T 2 1 2 Azul T 3 1 2 Azul T 4 1 2 Gris T 5 1 2 Negro T 6 1 2 Negro T 7 1 2 5 3 4 6 7 8 9 10 Gris T 8 1 2 3 Negro T 9 1 2 Negro T10 1 2 3 4 5 6 Negro T11 1 2 Gris T12 1 2 Gris T13 1 2 Gris T14 1 2 Gris T15 21 15 16 4 18 5 19 6 20 7 21 8 22 9 23 10 24 11 25 13 27 14 28 3 17 12 26 T16 2322 2618 107 25 13 14 16 17 19 8 20 9 11 12 15 2421 1 2 3 4 5 6 T17 18 2417 87 9 10 23 4 11 12 15 3 1613 14 19 20 2221 1 2 5 6 T18 26 3023 1411 3 4 29 5 7 8 9 17 18 21 6 22 24 12 25 13 2 15 16 19 20 2827 1 10 T19 1 2 3 4 5 6 7 Negro T20 1 6 2 7 3 8 9 10 11 12 13 14 4 15 5 16 T21
  • 228.
    228 HILUX (EWD630S) K LISTADE CONECTORES 1 2 3 4 5 6 7 8 Negro T22 1 2 3 4 5 6 Negro T25 1 2 U 1 1 2 Negro V 1 1 2 Marrón V 2 1 2 Negro V 3 21 Negro W 1 1 2 Negro W 2 1 2 3 4 5 Negro W 3
  • 229.
  • 230.
    L NUMERO DELAS PARTES DE CONECTORES Código Nombre de las partes Número de las partes Código Nombre de las partes Número de las partes HILUX (EWD630S) Nota: No todos los números de las partes del conector indicados arriba están dispuestos para el suministro. 230 A 1 Compresor del A/C 90980-11271 A 2 Sensor de la temperatura del líquido de la A/T 90980-11025 A 3 Actuador de ADD 90980-11858 A 4 Medidor de flujo de aire 90980-11317 A 5 Sensor del colchón de aire (delantero izquierdo) 90980-11856 A 6 Sensor del colchón de aire (delantero derecho) 90980-11856 A 7 Alternador 90980-09212 A 8 Alternador 90980-11964 A 9 Amplificador del A/C 90980-11971 A10 Termistor del A/C 90980-11918 A12 Iluminación de la palanca de cambios de la A/T 90980-12221 A13 Sensor de la posición del acelerador 90980-11858 A14 Centro del conjunto del sensor del colchón de aire 90980-12391 A15 Detonador del colchón de aire (almohadilla del volante de dirección) 90980-12160 A16 Iluminación del cenicero 90980-12111 A17 Sensor de desaceleración del ABS 90980-10845 A18 Sensor de la relación de aire-combustible (banco 1 sensor 1) 90980-11178 A19 Impulsor de control de inyección de aire 90980-12068 A20 Impulsor de control de inyección de aire 90980-11858 A21 Bomba de aire 90980-11032 A22 Válvula de conmutación de aire 90980-11149 A23 Detonador del colchón de aire (conjunto del colchón de aire del pasajero delantero) 90980-11884 A24 Interruptor del A/C 90980-10414 B 1 Interruptor de la lámpara de marcha atrás (1KD-FTV, 2KD-FTV) 90980-11250 B 1 Interruptor de la lámpara de marcha atrás (2TR-FE) 90980-11142 B 2 Interruptor de advertencia del nivel del líquido de frenos 90980-11207 B 3 Interruptor de advertencia de vacío del freno 90980-11252 B 4 Motor del soplador 90980-10916 B 5 Resistor del soplador 90980-11136 B 6 Interruptor del soplador 90980-10877 C 1 Sensor de posición del árbol de levas 90980-10947 C 2 Lámpara de paso (delantera izquierda) 90980-11162 C 3 Lámpara de paso (delantera derecha) 90980-11162 C 4 Sensor de posición del cigüeñal 90980-11016 C 5 Encendedor de cigarrillos 90980-10760 C 6 Iluminación del encendedor de cigarrillos 90980-11148 C 7 Reloj 90980-11013 C 8 Medidor de combinación 90980-12169 C10 Interruptor de combinación 90980-12007 C11 Interruptor de combinación 90980-12358 C12 Interruptor de combinación 90980-12359 C13 Lámpara de parada central 90980-11003 C14 Válvula de control del aceite de distribución del árbol de levas 90980-11162 D 1 DLC3 90980-11978 D 2 Interruptor de cortesía de la puerta (lado del conductor) D 3 Interruptor de cortesía de la puerta (lado del pasajero delantero) 90980-10871 D 4 Interruptor de cortesía de la puerta (trasera izquierda) 90980-10871 D 5 Interruptor de cortesía de la puerta (trasera derecha) D 6 Conjunto de bloqueo de la puerta (lado del conductor) D 7 Conjunto de bloqueo de la puerta (lado del pasajero delantero) 90980-12226 D 8 Conjunto de bloqueo de la puerta (trasera izquierda) 90980-12226 D 9 Conjunto de bloqueo de la puerta (trasera derecha) E 1 Solenoide de ECT 90980-10891 E 2 Sensor de la posición de la válvula EGR 90980-11143 E 3 Interruptor de cortesía del capo del motor 90980-11003 E 4 Sensor de presión del aceite de motor 90980-11363 E 5 ECU del motor 90980-12457 E 6 ECU del motor 90980-12455 E 7 ECU del motor 90980-12454 E 8 ECU del motor 90980-12456 E 9 ECU del motor 90980-12525 E10 ECU del motor 90980-12529 E11 ECU del motor 90980-12528 E12 ECU del motor 90980-12527 F 2 Lámpara antiniebla (delantera izquierda) 90980-11660 F 3 Lámpara antiniebla (delantera derecha) 90980-11660 F 4 Interruptor de advertencia del filtro de combustible 90980-12416 F 5 Inyector de combustible (N.° 1) F 6 Inyector de combustible (N.° 2) 90980-11875 F 7 Inyector de combustible (N.° 3) 90980-11875 F 8 Inyector de combustible (N.° 4) F 9 Sensor de presión de combustible 90980-10845 F10 Interruptor de aviso del nivel de sedimentos de combustible 90980-11003 F11 Sensor de la temperatura del combustible 90980-10737 F12 Cinturón interior del asiento delantero (lado del conductor) 90980-11212 F13 Medidor del emisor de combustible 90980-11077
  • 231.
    L Código Nombre delas partes Número de las partes Código Nombre de las partes Número de las partes HILUX (EWD630S) 231 F14 ECU de control de 4WD 90980-10997 F15 Conjunto de la bomba de succión de combustible y medidor 90980-11077 F17 Conjunto del cinturón interior del asiento delantero (lado del pasajero delantero) 90980-11212 G 1 Bujía incandescente 99141-13004 H 1 Faro (izquierdo) 90980-11314 H 2 Faro (derecho) 90980-11314 H 4 Bocina (baja) 90980-10619 H 5 Interruptor de la señal de aviso de peligro 90980-10801 H 6 Sensor de oxígeno calentado (banco 1 sensor 1) 90980-11028 I 1 Impulsor de inyectores (EDU) 90980-11592 I 2 Impulsor de inyectores (EDU) 90980-11593 I 3 Sensor de la temperatura del aire de entrada (Filtro de aire) 90980-11163 I 4 Sensor de la temperatura del aire de entrada (Enfriador intermedio) 90980-11025 I 5 Lámpara del cilindro de la llave de encendido 90980-12092 I 6 Interruptor de encendido 90980-11615 I 7 Bobina de encendido (N.° 1) I 8 Bobina de encendido (N.° 2) 90980-11885 I 9 Bobina de encendido (N.° 3) 90980-11885 I10 Bobina de encendido (N.° 4) J 1 Conector de unión 90980-10803 J 2 Conector de unión J 3 Conector de unión 90980-11661 J 4 Conector de unión 90980-11661 J 5 Conector de unión J 6 Conector de unión 90980-11915 J 7 Conector de unión J 8 Conector de unión J 9 Conector de unión J10 Conector de unión 90980-11661 J11 Conector de unión 90980-11661 J12 Conector de unión J13 Conector de unión J14 Conector de unión J15 Conector de unión 90980-10830 J16 Conector de unión 90980-11661 J17 Conector de unión 90980-11661 J18 Conector de unión 90980-11742 J19 Conector de unión 90980-11742 J20 Conector de unión J21 Conector de unión 90980-11661 J22 Conector de unión 90980-11661 J23 Conector de unión J24 Conector de unión 90980-11915 J25 Conector de unión 90980-11915 J26 Conector de unión 90980-11661 J27 Conector de unión 90980-11661 J28 Conector de unión 90980-10830 J29 Conector de unión 90980-11542 J30 Conector de unión 90980-11539 J31 Conector de unión J32 Conector de unión 90980-11661 J33 Conector de unión 90980-11661 J34 Conector de unión J35 Conector de unión 90980-10803 K 1 Solenoide de interbloqueo de la llave 90980-12063 K 2 Sensor de control de golpeteo banco 1) 90980-11875 L 1 Lámpara izquierda de la matrícula 90980-11162 L 2 Lámpara derecha de la matrícula 90980-11162 M 1 Lámpara para mapas 90980-11148 N 1 Interruptor de arranque en punto muerto 90980-12362 N 2 Filtro de ruido (encendido) 90980-10843 O 1 Interruptor del espejo exterior 90980-11657 O 2 Espejo retrovisor exterior (izquierdo) 90980-11452 O 3 Espejo retrovisor exterior (derecho) 90980-11452 P 1 Interruptor de presión 90980-11149 P 2 Interruptor del freno de estacionamiento 90980-10871 P 3 Enchufe eléctrico 90980-12498 P 4 Interruptor principal de la ventanilla automática 90980-12122 P 5 Motor del regulador de la ventanilla automática (frontal izquierda) 90980-10797 P 6 Motor del regulador de la ventanilla automática (frontal derecha) 90980-10797 P 7 Motor del regulador de la ventanilla automática (trasera izquierda) 90980-11900 P 8 Motor del regulador de la ventanilla automática (trasera derecha) 90980-11900 P 9 Interruptor de la ventanilla automática (lado del pasajero delantero) P10 Interruptor de la ventanilla automática (trasera izquierda) 90980-10789 P11 Interruptor de la ventanilla automática (trasera derecha) P12 Interruptor de presión de aceite de la servodirección 90980-11428 P13 Lámpara de aviso del cinturón de seguridad del pasajero 90980-10908 R 1 Conjunto del receptor de radio 90980-10997 R 2 Conjunto del receptor de radio 90980-10996 R 3 Interruptor del desempañador de la ventanilla trasera 90980-10789
  • 232.
    L NUMERO DELAS PARTES DE CONECTORES Código Nombre de las partes Número de las partes Código Nombre de las partes Número de las partes HILUX (EWD630S) Nota: No todos los números de las partes del conector indicados arriba están dispuestos para el suministro. 232 R 4 Lámpara de combinación trasera (izquierda) 90980-10988 R 5 Lámpara de combinación trasera (derecha) 90980-10988 R 6 Desempañador de la ventanilla trasera 90980-10359 R 7 Desempañador de la ventanilla trasera 90980-10359 R 8 Lámpara del compartimiento 90980-10935 S 1 Bocina de seguridad 90980-10619 S 2 ECU de control de derrape con actuador 90980-12020 S 3 Sensor de velocidad 90980-11143 S 4 Sensor de velocidad (delantero izquierdo) 90980-11156 S 5 Sensor de velocidad (delantero derecho) 90980-11156 S 6 Arrancador 90980-11400 S 7 Arrancador (1KD-FTV, 2KD-FTV) 90980-09507 S 7 Arrancador (2TR-FE) 90980-09506 S 8 Válvula de control de la succión 90980-11285 S 9 Válvula de control de turbulencia 90980-11156 S10 Lámpara del indicador de seguridad 90980-12063 S11 ECU de control de bloqueo de cambios 90980-12183 S12 Pasador de cortocircuito (ECU de aviso antirrobo) 90980-12409 S13 Cable espiral 90980-12183 S14 Interruptor de la lámpara de parada 90980-11118 S15 Altavoz (puerta delantera izquierda) S16 Altavoz (puerta delantera derecha) 90980-10935 S17 Altavoz (puerta trasera izquierda) 90980-10935 S18 Altavoz (puerta trasera derecha) S21 Sensor de velocidad (trasero izquierdo) 90980-11467 S22 Sensor de velocidad (trasero derecho) 90980-11467 T 1 Conjunto del cuerpo del acelerador 90980-11145 T 2 Conjunto del cuerpo del acelerador 90980-11261 T 3 Interruptor del indicador de la transferencia (posición 4WD) 90980-11156 T 4 Interruptor del indicador de la transferencia (posición L4) 90980-11156 T 5 Interruptor del indicador de la transferencia (posición de punto muerto) 90980-10923 T 6 Sensor de revoluciones de la transmisión (entrada) 90980-11156 T 7 Sensor de revoluciones de la transmisión (salida) 90980-11156 T 8 Impulsor del motor de turboalimentación 90980-10801 T 9 Sensor de presión turbo 90980-10845 T10 Motor de boquilla variable del turboalimentador 90980-11156 T11 Sensor de boquilla variable del turboalimentador 90980-12303 T12 Lámpara de la señal de giro (frontal izquierda) 90980-11019 T13 Lámpara de la señal de giro (frontal derecha) 90980-11019 T14 Lámpara de la señal de giro (frontal lateral izquierda) 90980-11162 T15 Lámpara de la señal de giro (frontal lateral derecha) 90980-11162 T16 ECU de aviso antirrobo 90980-12410 T17 ECU de control de la transmisión 90980-12150 T18 ECU de control de la transmisión 90980-12149 T19 ECU de control de la transmisión 90980-12151 T20 Amplificador de la llave de transmisor 90980-12092 T21 ECU de la llave de transmisor 90980-12423 T22 Intermitente de la señal de giro 90980-10799 T25 Conjunto del cuerpo del acelerador 90980-11858 U 1 Interruptor de advertencia de desbloqueo 90980-12063 V 1 VRV (EGR) 90980-11162 V 2 VSV (válvula de corte de EGR) 90980-11149 V 3 VSV (EVAP) 90980-11156 W 1 Sensor de la temperatura del agua 90980-10735 W 2 Motor del lavador del parabrisas 90980-11019 W 3 Motor del limpiador del parabrisas 90980-11599
  • 233.
    L Código Nombre delas partes Número de las partes Código Nombre de las partes Número de las partes HILUX (EWD630S) 233
  • 234.
    2 4 1 2 34 ACC IG1 ST1 IG2 ST2 AM2 6 EA4 7 EA3 2 A 2 B 1 A 1 B 4 B 5 A B 1 B EA 1 3C15 3C7 41 6 1 1 1 3 2 3 1 2 4 3 1 1 3 6 5 4 7 4 EA3 12 EA1 BO2 5 21 EA3 ID ECEA 1 2 1 2 1 2 1 2 16 BS1 1 2 M EA3 17 1 4 8 6 9 B W W-R B-W B-R B-L B-L B-W(22R-E) B-W W-R R-G B BR B GR Y-R B-W Y-R BR-W G G-R Y-R L-Y Y-R G-Y GR-B W-B R-W R-G BR W-R W-R Y-R R-Y B-W Y-R Y-R W B-R W R W-RW-R W B-L B-W B-W B-W B-RB-R B-R B-R B-R B-RW-R W-R W-R W-R BR BR W-B W-B R-GY-R W-B B-R Y-R B Y-R W-B B-W W-B B-R R-YW-R B-W BR 100AALT 40AAM1 30AAM2 4 A 2 A 1 A 7 (22R-E) (2L-T) 7. 5A ST 7. 5A IGN B-W R-G 15A EFI R-G FP OX1 +B T1 VF B-L (2L-T) 1 A 1 B R AM1 B-W 2 BR E1 3 (2L-T) (22R-E) (2L-T) (2L-T) B-W R-G Y-R Y-R Y-R W-R W-R B 8 B A B C D E F G H I K L M N O P Q R S J 1 R-Y B BR GR (22R-E) BR-W G G-R L-Y GR-B G-Y W-R (2L-T) BR (22R-E) [A] [B] [C] [D] [E] [G] [F] [H] [I] [J] [K] [L] C19 A 5 H11 K 2 I9 I11 I10 I12 F37 D 1 I 6 (A),(B) S40 (A), S41 (B) S38 (A), S39 (B) 2 2 2 2 B-W Faldón del guardabarros izquierdo (Protegido) Relé EFI MAIN Faldón del guardabarros izquierdo Panel de arranque izquierdo Arranque Multiple de admisión derecho Alimentación Control del motor Relé de abertura del circuito Medidor de flujo de aire Sensor de oxígeno calentado Sensor de golpeteo InyectorN.˚1 InyectorN.˚3 InyectorN.˚2 InyectorN.˚4 Bombade combustible Conector de enlace de datos 1 Interruptor de encendido Relé del arrancador Arrancador Batería ECUdeemisionesdeescape<9-8> COMO LEER ESTA SECCION * El sistema aquí mostrado es SOLO UN EJEMPLO. Es distino del circuito real mostrado en la SECCION DE DIAGRAMA DEL CABLEADO.234 HILUX(EWD630S) MDIAGRAMADECONEXIONESELECTRICASGENERAL
  • 235.
    235 HILUX(EWD630S) [A] : Títulodel sistema [B] : Indica el color del cable. Los colores de los cables se dan según los siguientes códigos alfabéticos. B = Negro W = Blanco BR = Marrón L = Azul V = Violeta SB = Azul del cielo R = Rojo G = Verde LG = Verde claro P = Rosado Y = Amarillo GR = Gris O = Anaranjado La primera letra indica el color básico del cable y la segunda letra indica el color de la banda. Ejemplo: L - Y L (Azul) Y (Amarillo) [C] : La posición de las piezas es la misma que la indicada en el diagrama del cableado y en el trazado del cableado. [D] : Indica el número de clavijas del conector. El sistema de numeración es diferente según se trate de un conector macho o de un conector hembra. Ejemplo: Numerados de arriba a la izquierda hacia abajo a la derecha Numerados de arriba a la derecha hacia abajo a la izquierda Hembra Macho [E] : Indica un bloque de relés. N.° se utiliza sombreado y se indica sólo el número del bloque de relés para distinguirlo del bloque de empalme Ejemplo: indica Bloque de Relés N.°1 [F] : Bloque de empalme. (El número dentro del círculo es el número del bloque de empalme, y el código del conector aparece junto al mismo.) Los bloques de empalme aparecen sombreados para distinguirlos fácilmente de otras piezas. Ejemplo: 3Cindicaqueestádentro del bloque de empalme N.°3 [G] : Indica un sistema relacionado. [H] : Indica el mazo de conductores y el conector del mazo de conductores. El mazo de conductores con el terminal macho es indicado mediante las flechas ( ). Las cifras exteriores corresponden al número de clavijas. Hembra Macho ( ) [I] : ( ) se utiliza para indicar diferentes cableados, conectores, etc. en caso de modelo de vehículo, tipo de motor o especificaciones diferentes. [J] : Indica mazo de conductores blindado. [K] : Indica los PUNTOS de conexión a Masa. [L] : Cuando se indica el mismo código en la página siguiente, significa que el mazo de cables es continuo. M
  • 236.
    INDICE DE SISTEMA236 HILUX(EWD630S) SISTEMACOLOCACIÓN SISTEMA COLOCACIÓN ABS 15-2. . . . . . . . . . . . . . . . . . . . . . . . . . . . . . . . . . . . . . . . . . . . . . . . . . . . . . Acondicionador de aire 25-2. . . . . . . . . . . . . . . . . . . . . . . . . . . . . . . . . . . . . . Advertencia de cinturón de seguridad 14-2. . . . . . . . . . . . . . . . . . . . . . . . . Alimentación 1~25-1. . . . . . . . . . . . . . . . . . . . . . . . . . . . . . . . . . . . . . . . . . . . . Arranque 1-2. . . . . . . . . . . . . . . . . . . . . . . . . . . . . . . . . . . . . . . . . . . . . . . . . . . Bloqueo de cambios 21-3. . . . . . . . . . . . . . . . . . . . . . . . . . . . . . . . . . . . . . . . Bocina 8-4. . . . . . . . . . . . . . . . . . . . . . . . . . . . . . . . . . . . . . . . . . . . . . . . . . . . . Carga 1-4. . . . . . . . . . . . . . . . . . . . . . . . . . . . . . . . . . . . . . . . . . . . . . . . . . . . . . Control de bloqueo de la puerta 16-2. . . . . . . . . . . . . . . . . . . . . . . . . . . . . . Control de bloqueo de la puerta inalámbrico 17-2. . . . . . . . . . . . . . . . . . . Control de crucero 4-15. . . . . . . . . . . . . . . . . . . . . . . . . . . . . . . . . . . . . . . . . . Control del motor (1KD-FTV, 2KD-FTV) 4-3. . . . . . . . . . . . . . . . . . . . . . . Control del motor (2TR-FE) 3-3. . . . . . . . . . . . . . . . . . . . . . . . . . . . . . . . . . Desempañador de la ventanilla trasera 21-2. . . . . . . . . . . . . . . . . . . . . . . . ECT 6-2. . . . . . . . . . . . . . . . . . . . . . . . . . . . . . . . . . . . . . . . . . . . . . . . . . . . . . . Encendedor de cigarrillos 20-2. . . . . . . . . . . . . . . . . . . . . . . . . . . . . . . . . . . . Encendido 2-2. . . . . . . . . . . . . . . . . . . . . . . . . . . . . . . . . . . . . . . . . . . . . . . . . . Espejo retrovisor de control remoto 20-3. . . . . . . . . . . . . . . . . . . . . . . . . . . Faro 8-2. . . . . . . . . . . . . . . . . . . . . . . . . . . . . . . . . . . . . . . . . . . . . . . . . . . . . . . Iluminación 12-2. . . . . . . . . . . . . . . . . . . . . . . . . . . . . . . . . . . . . . . . . . . . . . . . Limpiador y lavador del parabrisas 19-2. . . . . . . . . . . . . . . . . . . . . . . . . . . . Luz antiniebla frontal 9-2. . . . . . . . . . . . . . . . . . . . . . . . . . . . . . . . . . . . . . . . . Luz de cola 12-2. . . . . . . . . . . . . . . . . . . . . . . . . . . . . . . . . . . . . . . . . . . . . . . . Luz de marcha atrás 10-2. . . . . . . . . . . . . . . . . . . . . . . . . . . . . . . . . . . . . . . . Luz de parada 10-3. . . . . . . . . . . . . . . . . . . . . . . . . . . . . . . . . . . . . . . . . . . . . Luz interior 13-2. . . . . . . . . . . . . . . . . . . . . . . . . . . . . . . . . . . . . . . . . . . . . . . . Medidor de combinación 24-2. . . . . . . . . . . . . . . . . . . . . . . . . . . . . . . . . . . . Recordador de la llave 9-3. . . . . . . . . . . . . . . . . . . . . . . . . . . . . . . . . . . . . . . Recordador de las luces 9-3. . . . . . . . . . . . . . . . . . . . . . . . . . . . . . . . . . . . . . Reloj 22-2. . . . . . . . . . . . . . . . . . . . . . . . . . . . . . . . . . . . . . . . . . . . . . . . . . . . . . Señal de giro y luz de advertencia de peligro 11-2. . . . . . . . . . . . . . . . . . . Sistema antirrobo 17-2. . . . . . . . . . . . . . . . . . . . . . . . . . . . . . . . . . . . . . . . . . Sistema de audio 23-2. . . . . . . . . . . . . . . . . . . . . . . . . . . . . . . . . . . . . . . . . . . Sistema inmovilizador del motor 5-2. . . . . . . . . . . . . . . . . . . . . . . . . . . . . . . SRS 14-3. . . . . . . . . . . . . . . . . . . . . . . . . . . . . . . . . . . . . . . . . . . . . . . . . . . . . . Toma de alimentación 20-2. . . . . . . . . . . . . . . . . . . . . . . . . . . . . . . . . . . . . . . Ventanilla automática 18-2. . . . . . . . . . . . . . . . . . . . . . . . . . . . . . . . . . . . . . . 4WD (con ADD) 7-3. . . . . . . . . . . . . . . . . . . . . . . . . . . . . . . . . . . . . . . . . . . . . 4WD (sin ADD) 7-2. . . . . . . . . . . . . . . . . . . . . . . . . . . . . . . . . . . . . . . . . . . . . MDIAGRAMADECONEXIONESELECTRICASGENERAL
  • 237.
    HILUX(EWD630S) 237 M 3 421 1 HILUX 5 4 P N 1 2 (∗1)5 (∗2)3 (∗1)3 (∗2)5 1A 1 B B–Y B–Y (∗3) 1 1 A B B 1 B B S L IG C argaA rranqueA limentación ID2 W B–O B W GR R–L GR 4 2 LL 7 6 B–W 7.5AST 2C 7.5AMET B–Y 10A ECU–IG&GAUGE AM2 6 2A 1AM1 ST2 B–R 2 2A 1 2 1 2G IG2 IG1 ACC 5 4 W–R (∗2) 32 2S (∗1) B 40A AM1 Batería 1 IF4 IF311 ∗ 3 : 1KD–FTV A/T 1 1F B–YB–R B R–L 100A ALT 1A1 W 30A AM2 4 1B W–R I 6 6 B 2C 7 B–W B 1 1E W 1 7. 5A ALT–S 2 1 W–R 2N192O19 2D1 2O3 L–YECUdelmotor <4–10><3–11> (∗3) L–YECUdecontrolde latransmisión <6–4> S 6(A), S 7(B) 3 A 4 B J18(A), J19(B) B–Y 1 1 1 1 Relé ST 2 EA2 10 IF3 12 A 1 A 12 B 1 B 8 A 12 B ID Centro de refuerzo del tablero de instrumentos W–B W–B W–B W–B S12(B) T16(A) (∗6) (∗6) (∗6) SRLY (∗4) E(∗4) L–Y L–Y 4 EA1 L–Y (M/T) (M/T) 7 A 8 A 12 B 11 B B–YECUdelmotor <4–10> (∗3) B–YECUdecontrol delatransmisión <6–4> (∗3) (∗3) B–Y ∗ 1 : 2TR–FE ∗ 2 : 1KD–FTV, 2KD–FTV J11(A),J12(B) 13 EA1 4 ID2 3 ID2 Carga C8 37 21 A 7(A), A 8(B) 3 B M 4 5 G (∗1) (∗2) G (∗2) G J 6 ECU del motor<3–11> ECU del motor <4–10> ∗ 4 : con sistema antirrobo ∗ 5 : sin sistema antirrobo B–R(∗1) B (∗2) (A/T) L–Y (A/T) L–Y W–R B L Alternador Medidordecombinación Interruptor de encendido Conector de unión Conectordeunión Conector de unión Arrancador Interruptor de arranque en punto muerto N 1 ∗ 6 : con sistema de control de bloqueo de las puertas ∗ 7 : ∗5 sin sistema de control de bloqueo de las puertas L–YECUdelmotor <4–10>(A/T) (∗7) B–W (∗4, ∗6) B–W(∗4,∗6) Conector de unión J22(A), J23(B) Pasadordecortocircuito (ECUdeavisoantirrobo) ECUdeavisoantirrobo
  • 238.
    HILUX(EWD630S) 238 MDIAGRAMADECONEXIONESELECTRICASGENERAL 1 2 34 2 HILUX 1 1 3 2 4 R–L G–R W–B 1 3 2 4 R G–R W–B 1 3 2 4 G–B G–R W–B 1 3 2 4 G G–R W–B R R R R R R G–R W–B A limentación E ncendido 5 ID1 I10I 9I 8I 7 R W–BW–B R ECU del motor<3–12> EELado trasero del bloque de cilindros W–B 6 15A INJ 2C AM2 6 ST2 IG25W–R Batería BW–R 1A1 W 30A AM2 4 1B W–R I 6 1 IF4 2D10 R R 10 B 11 B 9 A 8 A 7 A J31(A),J32(B) G–R G–R G–R R R–L R G–B G Bobina de encendido (N. ˚ 1) Bobina de encendido (N. ˚ 2) Bobina de encendido (N. ˚ 3) Bobina de encendido (N. ˚ 4) Interruptor de encendido Conector deunión N 2 Filtro de ruido (encendido) IGT1 IGF GND +B IGT2 IGF GND +B IGT3 IGF GND +B IGT4 IGF GND +B
  • 239.
  • 240.
    HILUX(EWD630S) 240 MDIAGRAMADECONEXIONESELECTRICASGENERAL 1 2 34 3 HILUX (Sigue en la página siguiente) A limentación Batería BW–R 1A1 W 1F1 B B–Y 1C4 50AA/PMP 30AAM2 4 1B W–RW–R 5 IG2 ST2 6AM2 7.5AIGN 15AINJ 2C 7.5AMET 6 1J 1J 1J 1J ReléMAIN W–GW–B O 14 2D 2G1 I 6 W–B EB C ontrol del motor (2TR – FE ) B LG–B W–B LG–B R–W 1 10AETCS 2 1 7.5AOBD 5 3 4 2 11 B 8 A J4(A),J5(B) R–W 2S22 2D12D11 B–R B–O B–O B–O B–R O 4 ID1 B–R 6 2L B–O B–O 2M6 B–O B–O 1 2 1 1H W–L 25AEFI L 1J1 J4(A),J5(B) 2 B 6 A L L 12 EA1 B 1 7 J 1 W–G B R–W 5 IF3 1J6 1J8 1J7 1 IG2 10 BA1 10 Panel del lado del cubretablero izquierdo IG J15 1 BA1 W–BB–RB–R LG–B 1 IF4 B L I J D E A F H K G Relé C/OPN Interruptor de encendido Conector de unión Conectordeunión Conector deunión Conector de unión 4 5 M Bomba Conjuntodelabombade succióndecombustible ymedidor F15 B–O B–R Lado izquierdo del faldón del guardabarros 1 2 5 3 1 1 1 1 RelédeA/F B 7 B W–B W–B R–LB–W 4 1 2 20AA/F 1 B–W 50ABATTP/I 3 1B W–L 9 EA1 R–L R–L M C B–Y 100AALT 2 B1 BB Conector de unión J35
  • 241.
    HILUX(EWD630S) 241 M 5 6 78 3 HILUX (Continuado) (Sigue en la página siguiente) C ontrol del motor (2TR – FE ) 3 A IGSW A9 B–O R–W R–B Revisar elmotor IE11 B LG–B L L W–G I J B B–R O A 21 F7 F6 F5 R G #40 C1 #30 C2 #20 C5 #10 C6 W 2 1 2 1 2 1 2 1 B–R B–R B–R B–R B–R B–R B–OR–B 39 C8 D B–R B–O E +BM A7 R–W W B30 O A ST1– 16 A 4 IF3 F B–O B H R–L B–O S14 IF3 B W–G 14 B W–G +BMREL 1 AA8 R–L BR A3 BATT LG–B FC A25 K B–O 1 IF3 L E 9(A), E10(B), E11(C), E12(D) F8 G 3 B L J31(A),J32(B) B J31(A),J32(B) B 12 A B 7 4 3 2 1 Sistemas de luces de parada <10–4> Medidordecombinación ECU del motor Inyectordecombustible (N.˚1) Inyectordecombustible (N.˚2) Inyectordecombustible (N.˚3) Inyectordecombustible (N.˚4) Conectordeunión Conector deunión Interruptordela lámparadeparada B L A10 E (Protegido) 1 HT1B A1A+ D D21 OX1B B HA1A E2+B 10 A 9 B B BR OX1B D25 B Conector de unión J33(A), J34(B) 2 D HT1B L–Y A1A– D31 WR–L BY Y A1A– +B 1 2 3 4 A1A+ HA1A D (Protegido) R–L M B–Y C 1 A B–Y BATT E 1 B W–B VV 6 B R–L VP 2 A B–R 2 1 EELado trasero del bloque de cilindros EA Lado derecho del faldón del guardabarros W–B W–B W–BW–B W–B B B8 B B9 PRG C23 L 2 1 VSV(EVAP) V3 AIRP D11 W–L AIDI C20 G–W AIRV D24 V SIV 3 B V DI 2 B G–W SIP 4 B W–L +B 5 B B (Protegido) (Protegido) BR B B C Impulsor de control de inyección de aire A19(A), A20(B) Válvuladeconmutación deaire A22 Sensordelarelación deaire–combustible (banco1sensor1) A18 Sensordeoxígenocalentado (banco1sensor1) H6 2 4 1 3 1 2 M Bombadeaire A21
  • 242.
    HILUX(EWD630S) 242 MDIAGRAMADECONEXIONESELECTRICASGENERAL 9 10 1112 3 HILUX (Continuado) (Sigue en la página siguiente) C ontrol del motor (2TR – FE ) Conector de unión J21 12 8 R EC 22 A ID W–B BR BR B L–B L–R L–W BR BR E2 D28 1 2 THA 4 E2 BR 5 +B VG 3 1 B 2 E2G 28 C VG E2G C30 29 C THA THW D32 1 A 4 VCP2 BR–R 27 23 21 A EPA2 BR–Y 19 A VPA2 GR–G A W–L VPA A18 BR–W EPA A20 6 5 26 LG–R VCPA BR W–B 1 G–Y PSW EE Lado trasero del bloque de cilindros W–B E02 6 DD7 E01 W–B Y P–L 2 OC1– D12 OC1+ D13 32 1 C 1 A 2 A 6 B J33(A), J34(B) A4 W1 Medidordeflujodeaire Conector de unión Lado trasero del bloque de cilindros Sensordelatemperaturadelagua W–B E04 W–B E03 4 C7 C BR Válvuladecontroldelaceitede distribucióndelárboldelevas C14 Interruptordepresiónde aceitedelaservodirección P12 BR GE01 D8 5 D M+ B 2 M+ M– Medidordecombinación <24–4> 1 AmplificadordelA/C<25–4> W M– D4 19 D VTA2 LG Y 2 P THWO B14 P 16 W R–L 2 G 4 VTA2 T25 VC D18 2Q E 32 2Q (Protegido) 30 D AC1 25 Interruptordecombinación<12–5> E 9(A), E10(B), E11(C), E12(D) Bobinas de encendido<2–3><2–4> R R–L G–B G G–R IGF1 D23 IGT4 D14 IGT3 D15 IGT2 D16 IGT1 D17 G B B ELS1 A15 O A C4 C1 K2 W D E1 BR BR E2 3 VCVTA 56 B–RBR LG–B VTA1 D20 (Protegido) (Protegido) Y L NE+ D27 1 3 R GG NE– D34 1 2 G2 D26 (Protegido) 2 KNK1 B D29 3 ACT EKNK ED 1 24 Medidordecombinación<24–3> V–R SPD B8 12 A STA L–Y (Protegido) FusibledelST<1–2> Interruptordelalámparadeparada <10–4> G–W STP B4 Alternador<1–4> ALT 10 D B V O A 6 B 2 A 1 A J31(A), J32(B) 1 EB1EB12 B 5 3 1 BR V 9 78 BR W–B ME01 3 C W–B W–B Sensordeposición delárboldelevas Sensordeposición delcigüeñal ECU del motor Conector de unión Sensordecontrol degolpeteo(banco1) Conjunto del cuerpo del acelerador Centro de refuerzo del tablero de instrumentos D (Protegido) 4 BR B B C Conector de unión J30 ReléDEF<21–2> B ELS3 3 B B 10 IH1 B VPA2 EPA2VCP2 EPAVPAVCPA A13 Sensor de la posición del acelerador THW E2 E NE+NE–
  • 243.
    HILUX(EWD630S) 243 M 13 14 1516 3 HILUX (Continuado) C ontrol del motor (2TR – FE ) 2Q5 2Q6 21 SIL 7 22 2Q TC 13 R–Y 13 B SIL R–Y 17 B TC P–B 2Q E 9(A), E10(B), E11(C), E12(D) A O V B BAT O 16 W–B Refuerzo del panel instrumental izquierdoIE G W WFSE B35 W WFSE 15 D 1 BR CG 4 1 B 5 SG TACH B–W R–Y P–B V 2N6 J23 1 4 18 ID2 2O22 2O6 B–W TAC 9 Medidorde combinación<24–4> B–W P–B DLC3 ECU del motor Conector de unión 15 B 16 B 29 A W–B (∗1) ECUdelallave detransmisor<5–3> Y–B Y–G (∗1) (∗1) IMO IMI EOM B 2P22 (∗1) ECUdelallavedetransmisor<5–3> ∗ 1 : con sistema inmovilizador del motor
  • 244.
    HILUX(EWD630S) 244 MDIAGRAMADECONEXIONESELECTRICASGENERAL 1 2 34 4 HILUX (Sigue en la página siguiente) A limentación Batería BW–R 1A1 W 1F1 B W–L 1B3 50ABATTP/I 30AAM2 4 1B W–RW–R 5 IG2 ST2 6AM2 7.5AIGN 2C 7.5AMET B 6 1J 1J 1J 1J ReléMAIN W–GW–B B O 14 2D 2G1 I 6 W–B EB Lado izquierdo del faldón del guardabarros C ontrol del motor (1K D – FTV , 2K D – FTV ) B B–WB–W 7.5AOBD 5 3 4 2 2S22 2D1 B–O B–O B–O O B–O 2M6 B–O 1 2 1 1H W–L 25AEFI L 1J1 J4(A),J5(B) 2 B 6 A L L 12 EA1 B 1 4 W–G B R 12 IF2 1J8 1J7 B B–W 11 IF3 B H G J C A D F I E B B 1G1 80AGLOW Relé EDU 1 2 3 5 1 1 1 1 Relé GLOW B–R W–B B R 1 EA2 1 G 1 W–B B–R B K J 1 7 Bujía incandescente Interruptor de encendido Conector de unión Conector deunión 100AALT B–O
  • 245.
    HILUX(EWD630S) 245 M 5 6 78 4 HILUX (Continuado) (Sigue en la página siguiente) C ontrol del motor (1K D – FTV , 2K D – FTV ) IGSW A9 B–O R R–B Revisar elmotor BB IE11 B R–W A GIND B–W H BR 40 Y–R L W1 1 2 R Y–GBR THIA D20 W–G G J B O A 21 B–OR–B 39 C8 C B–O 2 1 Encendido LUSL GR 4 D C29 B VLU C B 9 C EGR 2 L–R 1 GREL A15 R W A12 O A ST1– 14 B 4 3 4 IF3 D B–O B F R–L B–O R–L S14 IF3 B W–G 14 B W–G +BMREL 1 AA8 19 R–L 14B2 BATT B–W IREL A10 D THW BRR–L I B–O 1 IF3 L E 5(A), E 6(B), E 7(C), E 8(D) 2 1 I4 2 E S8 W–B 29 D THF BRG–B W–B B 2 1 Sistemas de luces de parada<10–4> IF211 8 B 9 B 9 A 8 A BRBR E2 D28 7 B BR PCR1 11 B 10 B 7 A PIM L–B 28 C T9 2 1 BR EGLS L–Y 33 C E2 3 2 BR(∗2) VC R–W 18 D 1 E PIM 20 19 16 17 3 VC 18R–W R–W(∗2) R–W J 6 R–Y 26 D F9 2 1 BR 3 E2 PR R–W VC BR BR C B K B 2 D 1 D PCV–PCV+ G–Y G–W 18 C 15 D24 C 31 D 32 C V1 I3 Y–G (2KD–FTV) 2 1 THA (∗3) 1 21 2 1 3 4 2 EGRC SCVVG THA EVG B–W Y–B W–R LG Y–BB B B B BB BB(∗1) V2 S9 10 A BR BR (∗1) (∗1) (∗1) (∗1) (∗1)(∗1) (∗1) (∗1) (∗1) (∗1)(∗1) (∗1) BR(∗1) A4 ∗ 1 : 1KD–FTV ∗ 2 : 2KD–FTV para Argentina ∗ 3 : con enfriador intermedio 5 (∗1) (∗1) B B (∗1) 31 D BR F11 Medidordeflujodeaire Medidordecombinación ECU del motor Sensordepresión decombustible Sensordelatemperatura delcombustible Conector de unión Válvuladecontroldelasucción Interruptordela lámparadeparada Sensorde presiónturbo VRV(EGR) Sensordela temperaturadelagua E2 VCEGLS T1(A),T2(B) (∗3) (2KD–FTV) BR Sensordelatemperatura delairedeentrada (Enfriadorintermedio) Sensordelaposición delaválvulaEGR Sensordelatemperaturadelairedeentrada (Filtrodeaire) VSV(válvuladecortedeEGR) Válvuladecontrol deturbulencia Conjuntodelcuerpo delacelerador 1 A 2 A 3 A 1 B 2 B 3 B +B GND VC E2 LUSL VAF (∗2) CRUISE 28 L–B IE13 L–B PI B3 (∗4)(∗4) VG THA E2G +BE2 E2 THW ∗ 4 : con sistema de control de crucero Conector de unión J 7(A), J 8(B) 1
  • 246.
    HILUX(EWD630S) 246 MDIAGRAMADECONEXIONESELECTRICASGENERAL 9 10 1112 4 HILUX (Continuado) (Sigue en la página siguiente) C ontrol del motor (1K D – FTV , 2K D – FTV ) 26 A VCPA LG–R 4 Medidorde combinación <24–4> 6 W–L VPA A22 28 A EPA BR–W D V P THWO A2 P C 16 3 P #2 #20 #30 #3 2 B SPD 5 A13 FusibledelST (M/T)<1–2> Interruptordearranque enpuntomuerto(A/T)<1–3> B–Y(A/T) L–Y(M/T) 7 A STAALT D8 G Alternador<1–4> Interruptordela lámparadeparada<10–4> G–W 15 B STP W–B 17 2Q 32 2Q CAN+ 21 E 5(A), E 6(B), E 7(C), E 8(D) B B O A V 22 1 BR–R VCP2 A27 2 BR–Y EPA2 A29 B CAN– 23 A D VPA2 GR–G 3 22 V–R Medidordecombinación<24–3> O A B D21 Y–R 5 #4 #40 2 1 B F5 2 1 R F8 8 B B7 9 B 4 A 3 A 2 1 L F6 2 1 Y F7 11 B B10 12 B 2 A 1 A6 A P L G W L–W L–W 5 A R–B R–B COM1 INJ1 INJ4 COM2 INJ2 INJ3 I 1(A), I 2(B) J10(B) J10(B) (∗5) (∗5) (∗5) (∗5) R 23 D B6 #1 #10 B–W 24 D B7 INJF INJF P 25 D B8 +B B A 2 A 3 A W–B BR W–B B2 A1A5 4 A 6 A 1 B 4 B 2 EA13 EA1 (∗5)(∗5) B (∗5) (∗5) (∗5) (∗5) (∗5) (∗5) (∗5) BR BR E1 C7 1 B GND 1 B 5 A 3 A EC Lado trasero del bloque de cilindros W–B J 9(A), J10(B) J7(A),J8(B) C (∗5) F (∗5) B AmplificadordelA/C<25–4> Y R–L 18 AC1 19B B ACT B 30 B 29 B 16 A IMI IMO EOM ECUdelallave detransmisor<5–3> Y–G Y–B W–B ∗ 5 : Protegido B B(∗1)B(∗1) 2 B 6 B E D (∗5) W–B (∗1) ∗ 1 : 1KD–FTV W–B(∗1) Sensor de la posición del acelerador ECU del motor Inyectorde combustible (N.˚1) Inyectorde combustible (N.˚2) Inyectorde combustible (N.˚3) Inyectorde combustible (N.˚4) Impulsor de inyectores (EDU) Conector deunión Conector de unión Conector de unión Conector de unión FusibledelST<1–2> L–Y 6 A NSW (A/T) ∗ 6 : con sistema inmovilizador del motor (∗6) (∗6) (∗6) (A/T) (A/T) ECU de control de la transmisión T17 21 20 CAN+ CAN– VPA2VCP2 EPA2EPAVPAVCPA
  • 247.
    HILUX(EWD630S) 247 M 15 161413 4 HILUX(Continuado) C ontrol de crucero L Y 3 2 34 D NE– L Y (∗5) (∗5) C1 C4 W TS (conABS) 12 11 B–Y (conelSRS) A/B B–Y 1 (conelSRS) W–B G– C31 1 2 G+ C23 (∗5) ECU de control de derrape con actuador<15–3> L–Y P–L W P–B 7 2B 2Q52Q6 21 B–WMedidorde combinación <24–4> 9 TAC B–W SIL 7 22 2Q 2O6 TC 13 R–Y 18 A SIL R–Y 11 A TC P–B 2Q 2J6 2B45 2J E 5(A), E 6(B), E 7(C), E 8(D) A O BR P–B BAT O 16 W–B IE G 6 2N W WFSE A19 W WFSE 15 D 1 BR CG 4 4 A 5 (conABS) SG (conABS) (conelSRS) TACH B–W R–Y P–B (conelSRS) 22 2O BR 27 D NE+ W–B 1 4 18 ID2 C (∗5) F (∗5) W W–B E01 D7D E02 6 EC Lado trasero del bloque de cilindros W–B 9 2C 2C10 2P6 2C11 (A/T) W R–Y (A/T) ECUdecontroldela transmisión<6–4> R–Y (A/T) W (A/T) ∗ 5 : Protegido Centrodelconjuntodel sensordelcolchóndeaire <14–3<14–4> Centrodelconjuntodel sensordelcolchóndeaire<14–3> Medidordecombinación <14–3> VNTO VNTI 2P22 M– B (∗6) M+ ECUdelallave detransmisor<5–3> VNE2VTAIVNVC 10 D VNTO VNTI 17 D B 3 1 2 2 9 4 1 5 2 10 D 3 E 1 VNVC VTA1 VNE2 T11 GND 6 R–B (∗1) B–O (∗1) (∗1) W B (∗1) L (∗1) R (∗1) W (∗1) W–B (∗1) W–B (∗1) (∗5) W–B(∗1) (∗5) (∗5) T 8 ∗ 1 : 1KD–FTV ∗ 6 : con sistema inmovilizador del motor +B 8 B (∗1) Sensordeposición delárboldelevas Sensordeposición delcigüeñal DLC3 ECU del motor M– M+ Impulsor del motor de turboalimentación Sensor de boquilla variable del turboalimentador Motordeboquillavariable delturboalimentador T10 Refuerzo del panel instrumental izquierdo E NE–NE+ G–W CCS A21 (∗4) ∗ 4 : con sistema de control de crucero C ontrol del motor (1K D – FTV , 2K D – FTV ) BR Conector deunión J23 9 ID1 CCSECC 12 BR (∗4) (∗4) W–B CRUISE RES/ACC SET/COAST CANSEL Cableespiral S13 BR Interruptorde controldecrucero
  • 248.
    HILUX(EWD630S) 248 MDIAGRAMADECONEXIONESELECTRICASGENERAL 1 2 34 5 HILUX Batería +B L–Y A limentación S istema inmovilizador del motor GND B B 1 1A W 30AAM2 2R I 6 W–R IG2 ST2 65 AM2 7.5AIGN 6 2C 6 16 12 IG B–O T21 5 AGND L–O 4 L–B TXCT CODE L–Y 15 14 L VC5 7 AGND TXCT 5 4 CODE VC5 1 T20 D B 9 G BR KSW 3 Interruptordeadvertenciadedesbloqueo <13–4> R–B CTY 7 12 EFII Y–B Y–G EFIO 13 ECUdelmotor<3–13><4–12> Medidordecombinación<13–3> DLC3 <3–14><4–15> 1B4 1 7.5AECU–B 2 2 30ADCC 1 1 12 2L 2R29 L–YL W–B E 11 G–R 8 IND Bobina de la llave del transmisor ANT1 ANT2 Interruptor de encendido Amplificador de la llave de transmisor ECU de la llave de transmisor Lámparadelindicador deseguridad<17–4> B12 12 A ID Centro de refuerzo del tablero de instrumentos J22(A), J23(B) W–B Conector de unión W–R 11 IF3 IF41 (∗1) (∗2) ∗ 2 : 1KD–FTV, 2KD–FTV ∗ 1 : 2TR–FE
  • 249.
  • 250.
    HILUX(EWD630S) 250 MDIAGRAMADECONEXIONESELECTRICASGENERAL 1 2 34 6 HILUX (Sigue en la página siguiente) A limentación Batería 1A1 WW–L 1B3 50ABATTP/I 30AAM2 4 1B W–RW–R 5 IG2 ST2 6AM2 7.5AIGN 2C B 6 I 6 E C T CAN+ A21 EC Lado trasero del bloque de cilindros 2R22 B–O R–L L 1J1 J4(A),J5(B) 1 B 4 A L T17(A), T18(B), T19(C) L BATT 5 A CAN– A20 W–B E01 10 C 11 IF3 A B–O 6 A IG2 B4 A3 6 B–Y 10A ECU–IG&GAUGE 2A 1 B–Y AM1 B–R 2 2A 1 2 1 2G IG1 ACC 4 25 2S B 40AAM1 1 1F B–YB–R R–L J18(A),J19(B) BR E1 1 C A2 23 C E2 24 C THOC B–Y BR Sistemadecontroldelmotor <4–11> 11 C STA 7 ID2 B–YB–YInterruptorde arranqueenpunto muerto<1–3> 12 C NSW L–YL–Y FusibledelST<1–2> 11 B8 A J11(A),J12(B) 23 B SIL R–Y 24 B WFSE W A SP1 25 V–R Medidordecombinación<24–3> DLC3 <4–15> 25AEFI 2 1 1H1 A STP 14 G–WInterruptordela lámparadeparada<10–4> L4 B15 G–WInterruptordelindicadordela transferencia(posiciónL4)<7–4> B TFN 16 W–G 3 4 J10 A8 OILW 7.5AMET2D1 B–O B–O P 21 Interruptor de encendido Conectordeunión Conectordeunión Conectordeunión Conectordeunión ECU de control de la transmisión BR (4WD) (4WD) Interruptordelindicadordelatransferencia (posicióndepuntomuerto)<7–3> Sensordelatemperatura dellíquidodelaA/T A/TOILTEMP 18 P Medidordecombinación C8 (4WD) (4WD) (4WD) (4WD) 100AALT 2 1
  • 251.
    HILUX(EWD630S) 251 M 5 6 78 6 HILUX (Continuado) E C T R–L A T17(A), T18(B), T19(C) 3 B12 10 B L G–Y 2 B119 B R R–Y 2P27 27 2Q L G–RG–R L B6 A1 G–Y B3 A3 5 A 1 B N 1 2 ID1 RB LL2LDLRL 2 8371 18 2N 2O18 S11 G–O J11(A), J12(B) 3 ID1 R–YY 3 9 R–L B5 G–O 2 C 4 SLT+ G–Y 20 6 7 19 C SLT– L–B 16 C SL G C W–L S2 C17 8 18 GR E 1 S1 B W Y G O R–L 8 B D Interruptorde controldela transmisión AT3 NSSD G–Y 1 2 29 C SP2– 30 C SP2+ G R T7 1 2 2 C NCO– 3 C NCO+ P V T6 SLT+ SLT– SL S1 S2 Solenoide de ECT Conector de unión Interruptor de arranque en punto muerto ECU de control de bloqueo de cambios ECU de control de la transmisión Sensorderevolucionesde latransmisión(salida) Sensorderevolucionesde latransmisión(entrada)
  • 252.
    HILUX(EWD630S) 252 MDIAGRAMADECONEXIONESELECTRICASGENERAL 1 2 34 7 HILUX 4 5 ACC IG1 IG2 ST2 AM1 1 6AM2 2A2 40AAM1 2 1 2G1 1F1 1B4 30AAM2 1A1 12 ID1 EC Lado trasero del bloque de cilindros 5 B 3 B 3 A 1 A 2 1 13 65213 487 10 14 12 2 1 DLGNDDL2DL1DM2 DM1ADDIND1 B–Y G–W G–WG–WW–B B W–B R–W R–Y R Y R–B W–R(∗5)B–Y W–R B W–R B–R R–B W–B W–B IG 4W D (con A D D )A limentación I 6 F14 J7(A),J8(B) R–BECUdecontrolde derrapeconactuador <15–3> 4 A T4 W–B ECUdecontrolde derrapeconactuador <15–3> W Interruptor de encendido Conectordeunión Batería 6 ID1 G–W (∗4A/T)(A/T) 51 ADD 2 GND 6 3 4 DL2DM1DM2 DL1 M (∗3conABS) (∗1∗3)(∗1∗3) (∗1∗3) (conABS) 2A6 2S25 31 21 B–OR–B 4WD Medidordecombinación C8 2C6 7.5AMET 2D1 10AECU–IG&GAUGE 6 2 5 ID2 (A/T) R–L (A/T) R–L (A/T) G–B (A/T) G–B (A/T) W–G 12 13 Interruptordearranque enpuntomuerto N1 A/TP B 3 A 4 B 4 A B–Y Conector de unión J18(A), J19(B) 2 1 T5 3 2 1 (∗4A/T) W–G (∗4A/T) W–G 17 ID2 (A/T) W–G ECUdecontrolde latransmisión<6–3> 4 B W–B (∗4A/T) ECU de control de 4WD Interruptordelindicadordela transferencia(posiciónL4) Interruptordelindicadordelatransferencia (posicióndepuntomuerto) 2 ID1 11 IF3 IF41 (∗2) (∗3) B–Y (A/T) (conABS) R–B 5 EA1 8 ID1 W–G (A/T) (∗3) (∗3) (∗3) W–B (∗3) Interruptordelindicador delatransferencia (posición4WD) T3 EE Lado derecho del bloque de cilindros W–B (∗2) 8 7 10 Conectordeunión J6 G–W (conABS) 6 EA1 W–B (∗2) W–B (∗2) W–B (∗2) W–B (∗2) W–B (∗2) (∗2) W–B ∗ 4 : 1KD–FTV W–B (∗3) W–B (∗3) ECUdecontrolde latransmisión<6–4> Interruptor de detección 100AALT (∗4 A/T) W–G ∗ 3 : 1KD–FTV, 2KD–FTV ∗ 2 : 2TR–FE ∗ 1 : con ABS, A/T W–R(∗5) 2 1 Interruptordelindicadordela transferencia(posición4WD) T3 ∗ 5 : 2KD–FTV con ADD ∗ 6 : 2KD–FTV sin ADD Actuador de ADD A 3 Conectordeunión J6 ECLado trasero del bloque de cilindros 1 A 3 A ID2 12 Conectordeunión J7(A) Conectordeunión J6 R–B(∗6) R–B(∗6)B W–BW–B W–B 14 12 4W D (sin A D D )
  • 253.
    HILUX(EWD630S) 253 M 3 421 8 HILUX B–W B B–R R–Y 20A H–LPRH IE 8 W–BR–Y A limentación Faro B ocina 2121 33 10A HORN B W–RW–R B 11 2 2 1 1 1 1I[1I[ 1H1 Refuerzo del panel instrumental izquierdo 1 H 4 S13 Interruptor delabocina 2N16 2O322O16 12 IF3 W–R W–R (∗1) ECUdeavisoantirrobo<17–3> 7 8 Relé HORN W–L 1 2 50A BATT P/I 3 1B Batería W–L 1A1 W 40A MAIN 3 1C B–W 2 A 4 B J22(A), J23(B) R 20A H–LP LH B–W 4 A 2 A 3 B 5 B H 1 H 2 Interruptorde intensidaddelosfaros Interruptor de control de las luces 98 EDHUHL(ED) luz de carretera luz de cruce ∗2 ED(H)T1B1 Faro Cola OFF 11 R–Y 3 A 1 A 6 B B–W C10 J 4(A), J 5(B) luzde carretera 27 1 C 8 R–Y B R 8 2J R 1 1 2 30ADCC7.5ADOME 2 1 2Q25 R RF Medidor de combinación Faro (izquierdo) Faro (derecho) Bocina (baja) Interruptor de combinación Conector de unión Conector de unión Cableespiral R–Y ∗ 1 : con sistema antirrobo ∗ 2 : luz de intermitencia
  • 254.
    HILUX(EWD630S) 254 MDIAGRAMADECONEXIONESELECTRICASGENERAL 1 2 34 9 HILUX IDCentro de refuerzo del tablero de instrumentos 1I 1I Relé FOG A limentación Luz antiniebla frontal Antiniebla delantera C8 P 2 1 2 1 R–W R–W F2 F3 A10 9 B R–W 23 2S G 7 2S G–B 6 3 J21 9 A R–W R–W J 2(A), J 3(B) 14 2Q G–BG–B 13 2J 2Q30 30 8 34 50ABATTP/I 10ATAIL 1 2G 3 1B B Batería 1 1F 1A1 WG–W 2C5 15A FOG W–L 1H1 2 1 W–L 1I2 12 2Q 2J12 G G W–B W–B Lado derecho del faldón del guardabarros EALado izquierdo del faldón del guardabarros EB 9 J 1 1 W–B W–B W–B12 2R7 G 21 B–O 1 2D6 B 2C 7.5AMET AM2 6 ST2 22 IG25 30AAM2 4 1B W–R I 6 B–OW–B B12 A10 Y W–R J22(A),J23(B) C 8 8 10 16 Sistemadelucesdecolayiluminación<12–4> Sistemadelaslucesinteriores<13–2> Zumbador R ecordador de la llave y R ecordador de las luces 25 2Q 2J8 1 2 7.5ADOME30ADCC 2 1 1 R 1 RR Medidordecombinación Medidor de combinación Lámparaantiniebla (delanteraizquierda) Lámparaantiniebla (delanteraderecha) Interruptor de encendido Conector de unión Conector de unión Conector de unión Conectordeunión Conectado LFG OFFInterruptor de las luces antiniebla delanteras BFG Cola T1 OFFInterruptor de control de las luces B1 Faro G–B G G–W 3 10 13 4 W–B Interruptor de combinación C10 11 IF3 IF41 (∗1) (∗2) ∗ 1 : 2TR–FE ∗ 2 : 1KD–FTV, 2KD–FTV 100AALT
  • 255.
    HILUX(EWD630S) 255 M 3 421 10 HILUX 2A 2 B 1 B 1 A Respaldo Paro Respaldo Paro A limentación Luz de marcha atrás Luz de parada (M/T) (M/T) (A/T) (A/T) W–B G–W ∗ 3 : 1KD–FTV A/T G–W (∗2) G–W G–W 2S R–L 2A6 W–B 10A ECU–IG& GAUGE R5 R4 3 3 455 4 R–W R–W B1(B) N1(A) G–W 2I10 R–W 2 ID1 25 2K5 B4 A3 B–Y 1 B–Y AM1 B–R 2 2A 1 2 1 2G IG1 ACC 4 B 40A AM1 Batería 1 1F B–R 1A1 W I 6 J18(A),J19(B)10A STOP G–B 2 2F R–L 2Q27 R–Y 2M5 2S5 G–Y (A/T) (∗1) G–W 5 2L ECUdelmotor <3–11><4–10> G–W 21 2S ECUdecontrolde latransmisión<6–4> G–W (∗3) 2R21 ECUdecontroldebloqueodecambios <21–4> ECUdecontroldederrapeconactuador <15–3> ∗ 1 : con ABS W–B ∗ 2 : con lámpara de parada central 6 BA15 BA1 G–W R–W IG 11 J28 Panel del lado del cubretablero derecho IF 11 8 BA1 W–B G–W (∗2) W–B4 W–B (∗2) C13 1 2 3 ID1 BD1 1 BD1 2 (∗2) W–B Y Interruptordearranqueenpuntomuerto Lámparadeparadacentral Interruptor de encendido Conectordeunión Conector de unión Interruptordelalámparademarchaatrás Lámparadecombinacióntrasera (izquierda) Lámparadecombinacióntrasera (derecha) 1 2 S14 Interruptordela lámparadeparada G–W G–B G–W R–L G–W R–LW–BW–B W–BW–B W–BW–B W–B(∗4) W–R(∗5) Panel del lado del cubretablero izquierdo Conector deunión J15 100A ALT ∗ 4 : Cabina doble ∗ 5 : Cabina sencilla
  • 256.
    HILUX(EWD630S) 256 MDIAGRAMADECONEXIONESELECTRICASGENERAL 3 421 11 HILUX 5 41 6 LH RH TLE TR 7 G–B 1 2 2 1 EA G–Y G–B R–L B–Y G–Y G–Y G–B G–Y G–B A limentación S eñal de giro y luz de advertencia de peligro W–B W–B W W–B W–B W–B 1 EB Y 10 3 W–B Lado izquierdo del faldón del guardabarros B4 A3 6 B–Y 10A ECU–IG&GAUGE 2A 1AM1 2 2A 1 2 1 2G IG1 ACC 4 20 2S B 40AAM1 Batería 1 1F B–YB–R 1A1 W 15ATURN–HAZ 2 1 I 6 J18(A),J19(B) 1 3 1 3 2K3 2K2 R4 R5 ∗4 ∗5 22 24 25 2L22S22S3 2L3 T13 T12 J 1 C 8 W–B W–B Interruptor delaseñal degiro 5 6 2 A 6 B ID Centro de refuerzo del tablero de instrumentos W–B J20(A), J21(B) B12 A10 J22(A), J23(B) W–B C10 T22 EL ER IG B Viraje Viraje LG 1 B–Y 2 IF3 B–Y 4 A 6 B IE Refuerzo del panel instrumental izquierdo 2O25 2N9 2N25 HAZ G–O 8 G–O (∗1) ECUdeavisoantirrobo<17–3> W–B LG 7 E B–Y Lado derecho del faldón del guardabarros LR 2 3 G–B LL 2S19 2S18 G–Y G–B G–Y 2M 1 2 G–BW–B T14 2M T15 1 W–BG–Y 2 12 3 2 W–B G–Y G–B 12 BA1 7 BA1 8 BA1 J15 Panel del lado del cubretablero izquierdo IG 11 W–B ∗ 1 : con sistema antirrobo Medidor de combinación Interruptor de combinación Interruptor de encendido Conector de unión Conector de unión Conectordeunión Conector de unión Conector de unión Lámparadecombinación trasera(izquierda) Lámparadecombinación trasera(derecha) Lámparadelaseñaldegiro (frontalizquierda) Lámparadelaseñaldegiro (frontalderecha) Intermitente de la señal de giro G–YW–B G–YW–B N Lámparadelaseñaldegiro (frontallateralizquierda) Lámparadelaseñaldegiro (frontallateralderecha) 100AALT W–B(∗2) W–R(∗3) ∗ 2 : Cabina doble ∗ 3 : Cabina sencilla Conectordeunión J22(A),J23(B) 12 B 4 B 2 8 4 5 9 G–O G–B R L L 2R2 G–B Sistemadelucesdecola yiluminación<12–6> Interruptordelaseñal deavisodepeligro H5 ∗ 4 : Viraje hacia la izquierda ∗ 5 : Viraje hacia la derecha
  • 257.
  • 258.
    HILUX(EWD630S) 258 MDIAGRAMADECONEXIONESELECTRICASGENERAL 3 421 12 HILUX 1 22 1 2 1 EB W–B G G G G G GW–B Luz de cola y iluminaciónA limentación W–B G W–B Y BA111 W–BW–B W–B C8 7 2R 8 22 5 2C G–WW 1 1A 1F1 Batería B 2G1 10A TAIL 13 Cola T1 OFF ∗8 B1 C10 10 G Faro G–W 2 3 2 3 R4 R5 Cola Cola L2 2K7 2S232L7 2M7 Iluminación C3 C2 1 6 EA Lado derecho del faldón del guardabarros 12 W–B J1 Lado izquierdo del faldón del guardabarros B–O 21 6 7.5AMET 2C AM2 6 ST2 IG25 W–R 30A AM2 4 1B W–R I 6 B–O 2D1 2S7 G A B Y G (Sigue en la página siguiente) B 2 1 GW–B L1 G G W–B W–B 8 BA1 J15 Panel del lado del cubretablero izquierdoIG 4 W–B W–B(∗3) W–R(∗4) Lámparadepaso (delanteraizquierda) Lámparadepaso (delanteraderecha) Medidordecombinación Interruptor de combinación Interruptor de encendido Conectordeunión Conector de unión Lámparadecombinacióntrasera (izquierda) Lámparadecombinacióntrasera (derecha) G GW–B W–B ∗9 11 IF3 IF41 (∗1) (∗2) ∗ 1 : 2TR–FE ∗ 2 : 1KD–FTV, 2KD–FTV Lámparaderechadelamatrícula Lámparaizquierdadelamatrícula 100A ALT ∗ 4 : Cabina sencilla ∗ 3 : Cabina doble ∗ 8 : Interruptor de control de las luces ∗ 9 : Iluminación del visualizador LCD
  • 259.
    HILUX(EWD630S) 259 M 5 6 78 12 HILUX (Continuado) Luz de cola y iluminación ∗ 5 : con iluminación del cenicero ∗ 6 : con desempañador de la ventanilla trasera ∗ 7 : con iluminación del encendedor de cigarrillos R (∗7) (∗5) W BR Y G Y B A C6 (∗7)(∗7) 1 2 GR 2P19 A16 (∗5)(∗5) 2 1 GW 2P B9 G 8 292Q28 R3 (∗6)(∗6) 2 1 GL 2Q29 12 2Q B7 A9 J22(A),J23(B) J21 2D18 17 2D 2D9 Refuerzo del panel instrumental izquierdoIE W–B 12 B8B12 A10 R1 B6 A12 W–B (A/T)(A/T) G 8 4 GW–B GBR L 3 8 7 10 W–B 2P24 ID Centro de refuerzo del tablero de instrumentos W–B 2Q3 2Q19 10 Iluminacióndel cenicero Iluminacióndelencendedor decigarrillos Conector deunión Conector deunión Conjuntodel receptorderadio Interruptordeldesempañador delaventanillatrasera 2P13 G (∗1) ECUdelmotor<3–11> ∗ 1 : 2TR–FE L Interruptordelsoplador Iluminacióndelapalanca decambiosdelaA/T A24 GW 1 3 2P28 InterruptordelA/C 7W W–B 9 Interruptordelaseñalde avisodepeligro H5
  • 260.
    HILUX(EWD630S) 260 MDIAGRAMADECONEXIONESELECTRICASGENERAL 3 421 13 HILUX 1 2 DOOR OFF ON 11 A limentación Luz interior R–L R–L R–L ∗ 2 : Cabina doble 3 8 10 11 13 IA1 1 2 RW–B R8 M1 P R–L J29 D5 D4 D2 3 IA1 R–LR–B R–L 2O15 1 2 7.5ADOME Batería 1A1 W 30ADCC 2 1 1 R 2D92D18 IERefuerzo del panel instrumental izquierdo W–B 2J8 2Q252E4 R–B 2O27 16 R–L 31 2O Puerta G–Y 26 2O 10 15 1716 R–L R–B G–Y DCTY 22 10 A 11 B Y J22(A),J23(B) 1 C 8 Relé de integración R GND 1 2E1 1 2 7.5AECU–B 1 L 4 BECU L 2L12 P 3 2E ∗ 1 : con sistema antirrobo ID Centro de refuerzo del tablero de instrumentos Y G–Y 2O10 2 1 W–B W–B 14 2N R–L G–Y 2N10 (∗1) (∗1) 12 B W–B U1 G–YG–YGR W–B R ∗ 3 : Cabina sencilla ECUdeaviso antirrobo<17–3> (∗5) 26 2N BRECUdelallave detransmisor<5–2> (∗2) (∗2)(∗2) (∗2) R–L (∗3) 15 2N122R8 I 5(A) R (∗5) 27 R–B 2N ECUdelallave detransmisor<5–2> Medidor de combinación Interruptordecortesía delapuerta (ladodelconductor) Interruptordecortesía delapuerta (traseraizquierda) Interruptordecortesía delapuerta (traseraderecha) Conectordeunión Conector de unión Lámparaparamapas Interruptordeadvertencia dedesbloqueo GR ∗ 4 : con lámpara para mapas (∗4)(∗4) (∗4) Lámpara del cilindro de la llave de encendido (∗7) P (∗7) R ILE ∗ 7 : con lámpara del cilindro de la llave de encendido D3 Interruptordecortesía delapuerta (ladodelpasajerodelantero) ∗ 6 : sin sistema inmovilizador del motor ∗ 5 : con sistema inmovilizador del motor T20(B) Amplificador de la llave de transmisor 2 B 2 A (∗6) (∗5) 6 B 6 A (∗6) (∗5) (∗5)(∗5) (∗6)(∗6) 1 1 Lámpara del cilindro de la llave de encendido Lámparadelcompartimiento W–B R (∗2∗4) R(∗3) R(∗3) (∗2)
  • 261.
    HILUX(EWD630S) 261 M 3 421 14 HILUX B–O W P–B TCSILIG2 +SL–SL W–R BR 21 +SR–SR B–W BR–W 21 E1 E2 ID IE W–B W–B S R SA limentación +SR+SL –SR–SL D+ D– Y–B Y 1 2 Cable espiral Refuerzo del panel instrumental izquierdo SRS B–O W–R 1B4 30AAM2 W 1 1A Batería W–R 7.5AMET 7.5AIGN 22 21 Y 10 A 12 B W–B 1516 21 27 2928 30 5 625 26 W–B W–B 18 2D 2B1 9 2D 2B2 A15 A14 20 B–Y 2B32O21 2O5 LA B–Y 14 B–YB–Y DLC3<4–16> 2 IF1 W–R BR B–W BR–W IF11IF14 IF13 A 6A 5 ∗ 2 : sin control de bloqueo de las puertas W–R J22(A),J23(B) J26(A),J27(B) R–Y 4 A 3 A 4 B R–Y 19 IA1 2 1 IG W–B 2 Cinturónde seguridaddel conductor 11 R–Y C 8 Conjunto de bloqueo de la puerta (lado del conductor)<16–2> DLC3<4–16> A dvertencia de cinturón de seguridad ∗ 1 : con control de bloqueo de las puertas (∗1)(∗1) R–Y(∗2) R–Y(∗1) Sensor del colchón de aire (delantero izquierdo) Sensor del colchón de aire (delantero derecho) Centro del conjunto del sensor del colchón de aire Detonador del colchón de aire (almohadilla del volante de dirección) Medidor de combinación Conectordeunión Conectordeunión 11 IF3 IF41 (∗3) (∗4) ∗ 3 : 2TR–FE ∗ 4 : 1KD–FTV, 2KD–FTV 1 2 P+ P– Y–R Y–G 4 3 Detonadordel colchóndeaire (conjuntodelcolchónde airedelpasajerodelantero) A23 IF 3 J28 Conector de unión ∗6 100AALT 1 40AAM1 2 1 2A2 2G1 B–RB 3 A 4 B 10A ECU–IG&GAUGE 2R14 2A6 5 A 6 B Conector deunión J18(A),J19(B) 3 R–L W–B B–YB–Y Conectordeunión J20(A),J21(B) B–O 2 G–W 2P15 2I14 1 BR Conector de unión J15 Panel del lado del cubretablero izquierdo Centro de refuerzo del tablero de instrumentos 2D12B82C6 G–W B–O B–O Lámpara de aviso del cinturón de seguridad del pasajero P13 D– W–B W–B Cinturóninteriordel asientodelantero (ladodelconductor) F12 BR 4 5 ACC IG1 ST1 IG2 ST2 AM1 1 6AM2 Interruptor de encendido I 6 B–O D+ 1 IL1 2 IL1 Y–R Y Circuito de parpadeo 1 2 W–B W–B G–W Interruptorde detecciónde ocupante ∗5 Conjuntodelcinturóninterior delasientodelantero (ladodelpasajerodelantero) F17 ∗ 5 : Interruptor de la hebilla ∗ 7 : Panel del lado del cubretablero derecho
  • 262.
    HILUX(EWD630S) 262 MDIAGRAMADECONEXIONESELECTRICASGENERAL 1 2 34 15 HILUX A limentación A B S 6 6 2C 7.5AMET 10A ECU–IG&GAUGE AM2 6 2A 1AM1 ST2 2 2A 1 2 1 2G IG2 IG1 ACC 5 4 W–R 8 2L B 40AAM1 Batería 1 1F B–YB–R B 100AALT 1A1 W 30AAM2 4 1B W–R I 6 2D1 B–O ∗ 1 : Protegido B 40AABSNO.1 30AABSNO.2 2 1C W–R 2 1B R 23 R 1 W–R EBLado izquierdo del faldón del guardabarros 2 W–B 24 W–B 3 A 4 B J18(A), J19(B) B–Y 25 IG1 S 2 ABS Freno R–G Sistemadelmedidor decombinación<24–9> 13 WA R–GR–G 3 IF2 M– SRRR SRRH SFLH SFLR SFRH SFRR M +BS M+ +BM +BS 7 GGND B 28 VGS W 6 IG1 B 8 IG1 W 4 GL1 R (∗1) 7 IG1 R 5 IG1 (∗1) 2 3 1 A17 GL1VGSGGND Panel del lado del cubretablero derecho IF 7 BR J28 18 PKB L–O 12 A 7 B L–O J4(A),J5(B) Interruptordelfreno deestacionamiento<24–10> Interruptordeadvertencia devacíodelfreno<24–10> Interruptordeadvertenciadel niveldellíquidodefrenos<24–10> G–W STP 10 Interruptordela lámparadeparada<10–4> W TS 15 W L–Y D/G 14 P–L TC 16 7 IF2 DLC3<4–15> 9 FL+ R 8 FL– G S 4 31 FR+ L–W 30 FR– O S 5 R–B EXI 17 ActuadordeADD<7–2> G–W EXI4 3 Interruptordelindicador delatransferencia (posiciónL4)<7–4> 2121 B W B W FL+ FL– FR+ FR– 7 BA2 W 6 BA2 L 2 BA2 W 1 BA2 L 11 RL+ P 12 RL– L 3 IG1 P 4 IG1 L 33 RR+ G 34 RR– R 1 IG1 G 2 IG1 R 2 BE1 1 BE1 4 BE1 3 BE1 Y L G R S22 S21 Interruptor de encendido Conectordeunión Conector de unión Conector de unión ECU de control de derrape con actuador Sensor de velocidad (delantero izquierdo) Sensor de velocidad (delantero derecho) Sensordevelocidad (traseroizquierdo) Sensordevelocidad (traseroderecho) 1 1 22 Medidordecombinación C8 (4WD) (4WD) (4WD) (4WD) (4WD)(4WD) (4WD) (4WD) (4WD) Sensor de desaceleración del ABS 36 38 21 GND1 GND2 2K4 10 IG1 22 EXI2 V (4WD) R–L (4WD) R–L (4WD) 11 IF3
  • 263.
    HILUX(EWD630S) 263 M 3 421 16 HILUX IF 4BC15 BC1 5 BB1 4 BB1 R R–Y L–Y L A limentación C ontrol de bloqueo de la puerta Desbloqueo W–B Panel del lado del cubretablero derecho 17 A 16 A 18 B 17 B 13 A 12 A 22 B 21 B 1 W–B J28 P4 J24(A),J25(B) 7 A 8 A 12 B 11 A 12 A 7 B L 9 L–W 10 L 4 L–Y 1 R–Y 7 D 6 J26(A),J27(B) IH18 L–Y IH13 L 11 A 7 B 7 A 10 A 10 B L A L–Y 8 2K11 2K10 1 2 7.5AECU–B 2 1 2H2 W–R 1 2G B 40AIG1 Batería 1 1F 1A1 W 30ADCC 2 1 1 L LG 2H4 2D92D18 IERefuerzo del panel instrumental izquierdo IDCentro de refuerzo del tablero de instrumentos W–B W–B Cinturón interior del asiento delantero (lado del conductor) <14–2> 2D42A4 L (∗1) L–W (∗1) L L–W ECUdeavisoantirrobo<17–4> 14 11 L1 UL1 W–B W–B 2R28 3 ACT+ 2R27 2 ACT– L L–Y 1 GND Relé de integración L–Y L LG 3 2 1 3 25ADOOR 5 ALTB 12 2L L 4 BECU J13(A),J14(B) L L–W Motor 4 Motor D8 1 Motor D9 Motor D 7 4 1 Conjunto de bloqueo de la puerta (lado del conductor) Conjunto de bloqueo de la puerta (lado del pasajero delantero) Conjuntodebloqueodelapuerta (traseraizquierda) Conjuntodebloqueodelapuerta (traseraderecha) Conectordeunión Conectordeunión Conectordeunión Conector de unión Interruptorprincipalde laventanillaautomática Bloqueo de la llave Desbloqueo de la llave Bloqueo Interruptorde controlde bloqueodela puerta R L–Y L R–Y L L–Y R–Y ∗ 1 : con sistema antirrobo 100AALT 4 IC2 3 5 8 L UL L UL E L UL 4 1 L UL L UL
  • 264.
    HILUX(EWD630S) 264 MDIAGRAMADECONEXIONESELECTRICASGENERAL 3 421 17 HILUX Alimentación S istema antirrobo y control de bloqueo de la puerta inalámbrico 1 2 7.5AECU–B 2 6 1 2H2 W–R 10A ECU–IG&GAUGE 2A 1AM1 B–R 2 2A 1 2 1 2G IG1 ACC 4 B 40AAM1 40AIG1 Batería 1 1F B–Y 1A1 W 30ADCC 2 1 1 L I 6 LG 3 2 1 3 25ADOOR 3 A 4 B J18(A), J19(B) B–Y IG 2S16 18 A R–L LG A14 +B2 L–Y A4 +B1 7 IH1 13 2S 2L12 L R–L A7 CTY Interruptordeadvertencia dedesbloqueo<13–4> KSW 5 A G–Y W–R A11 HORN ReléHORN<8–4> Medidordecombinación<24–3> SPD 17 A V–R G–O A28 HAZD Intermitentedelaseñaldegiro<11–1> T16(A) S12(B) DSWH 9 A G–R 15 IF3 G–R SH– 13 A B 13 IF3 B 2 1 1 2 EB Lado izquierdo del faldón del guardabarros W–BW–B 1 E3 S1 J 1 L–W A26 UL3L2 25 A L Relédeintegración<16–1> ∗ 1 : con sistema antirrobo Interruptordecortesíadelapuerta (traseraizquierda)<13–4> Interruptordecortesíadelapuerta (traseraderecha)<13–4> Interruptordecortesíadelapuerta (ladodelpasajerodelantero)<13–4> Interruptordecortesía delcapodelmotor Interruptor de encendido Conector de unión Conector de unión LG 4 2C 2C3 B12 G–R 11 A 2C S10 ID J22(A), J23(B) G–RW–B 2 ECUdelallave detransmisor<5–3> 1 2 Conector de unión L–Y G–R A27 IND Sistemadearranque<1–2> B–W A1A12 SRLY (∗1) E(∗1) W–B (∗2) 1 B12 B (∗2) (∗2) 8 A B–W ∗ 3 : con sistema inmovilizador del motor ∗ 2 : sin sistema antirrobo (∗3) Centro de refuerzo del tablero de instrumentos ECU de aviso antirrobo Pasador de cortocircuito (ECU de aviso antirrobo) Bocinadeseguridad Lámparadelindicador deseguridad ∗ 4 : Cabina doble con dirección a la derecha ∗ 5 : excepto ∗4 100AALT LP E
  • 265.
    HILUX(EWD630S) 265 M 3 421 18 HILUX IF 8BB1 6 BB1 7 BB1 7 BC16 BC1BC18 Abajo Arriba 2 5 3 1 4 R Abajo Arriba 2 5 3 1 4 R Abajo Arriba 2 5 3 1 4 R G–B R–Y R–B G–Y G–W R–LR–L W–B L–R R G–Y G–W R–B G–B R–B G–B G–B R–B L R–Y L G–W R–L L–R L L–R L–R A limentación V entanilla automática Panel del lado del cubretablero derecho P 4 1 J28 W–BW–B P 5 P11 P10 P9 1 A 2 A 6 B L 6 B 1 A 2 A 5 B 2 A1 A J16(A),J17(B) L B4 A3 2 3 5 6 2 1 2H2 W–R B–Y 10AECU–IG&GAUGE 2A 1 B–Y AM1B–R B11 A7 2 2A 1 2 1 2G IG1 ACC 4 R–L 8 2K B 40AAM1 40AIG1 Batería 1 1F ReléIG1 R–L W–R 1 1A1 W 3 3 3 3 W–B 30APWR 3 2 1 3 W–G I 6 J18(A),J19(B)J16(A),J17(B) 9W–B DUDUDUDUE R–L G–Y G–W R–Y R–B G–B L B J26(A), J27(B) J13(A),J14(B) P 6 R–L L P 8 2 1 P 7 2 1 Interruptor de encendido Conector deunión Conector deunión Conector deunión Conector deunión Conector de unión Conector de unión Interruptor principal de la ventanilla automática Motor del regulador de la ventanilla automática (frontal derecha) Motor del regulador de la ventanilla automática (frontal izquierda) Motor del regulador de la ventanilla automática (trasera izquierda) Motor del regulador de la ventanilla automática (trasera derecha) Interruptordelaventanillaautomática (ladodelpasajerodelantero) Interruptordelaventanillaautomática (traseraizquierda) Interruptordelaventanillaautomática (traseraderecha) M L L L L M M M 100AALT 4 IC2 3 6 4 9 18 15 12 13 10 16 10 IC2 3 IC2 2 IC2 1 IC2 6 IC2 5 IC2UD L 3 II2 4 II2 SU SD D U B SUB SD SDB SU U UD D 2 1 U D U D U D 2 1
  • 266.
    HILUX(EWD630S) 266 MDIAGRAMADECONEXIONESELECTRICASGENERAL 3 421 19 HILUX M 3214 A limentación Limpiador y lavador del parabrisas B4 A3 6 B–Y 20AWIP2A 1AM1 B–R 2 2A 1 2 1 2G IG1 ACC 4 26 2S B Batería 1 1F B–YB–R L–W 1A1 W I 6 J18(A),J19(B) L–Y L–B W–G 6 IF2 5 IF2 4 IF2 EALado derecho del faldón del guardabarros W 3 5 W–BL–W 9 2M L–W Refuerzo del panel instrumental izquierdoIE W–B 13 IF2 9 L–W 2L B–R 2 1 M L–W W2 40A AM1 Interruptor de encendido Conectordeunión Motordellavador delparabrisas Motor del limpiador del parabrisas 2 L–Y L–B W–G W–B B L–W B4 3 B 1 B 3 A2 A B–R MIST (∗1) (∗1) C11(A), C12(B) OFF INT LO +B +2 +1 HI INT1 INT2+S B1 ∗2 Conectado W EW Interruptor del lavador delanteroInterruptor del limpiador delantero +B +2 +1 +S WFEW Interruptor de combinación Relé del limpiador ∗ 1 : con interruptor de tiempo de intermitencia 100A ALT +2 +1 +S B E ∗ 2 : Desconectado
  • 267.
    HILUX(EWD630S) 267 M 3 421 20 HILUX 52 4 3 6 7 8 M M MH MV M+ 1 5 3 M M MH MV M+ 1 5 3 E spejo retrovisor de control remotoA limentación B 2 AM1 2 2A 1 2 1 2G 12 IG1 ACC 4 2C B 40A AM1 7. 5A ACC Batería 1 1F L–R B–R 1A1 W I 6 2D92D18 IE Refuerzo del panel instrumental izquierdoIDCentro de refuerzo del tablero de instrumentos W–B W–B 15A CIG 15A PWR OUT 2 1 3 5 2O23 2P23 Relé PWR OUT 2 1 2 1 6 A 4 B 2 B 3 B W–BP BRB 2C1 W–B B BR C 5P 3 J22(A), J23(B) E ncendedor de cigarrillos Toma de alimentación V O 2 O 3 BR–R BR–R BR–R Encendedor de cigarrillos Interruptor de encendido Conector de unión Espejo retrovisor exterior (izquierdo) Espejo retrovisor exterior (derecho) Enchufe eléctrico MLVHLH HRH MRV M+ E AbajoDerecha ArribaIzquierda O 1 IzquierdaIzquierda Derecha Izquierda/ Arriba Derecha/ Abajo Derecha MH MV Interruptor deoperación Interruptor selector Interruptor del espejo exterior LG L B11B9 A1A3 4 IK1 3 IK1 Conectordeunión J24(A),J25(B) L LG R R–G R R–G V B 100A ALT E B 1 IK1 BR–R BR–R 22 A 21 A 12 B Conectordeunión J24(A),J25(B) LG R BR–R
  • 268.
    HILUX(EWD630S) 268 MDIAGRAMADECONEXIONESELECTRICASGENERAL 3 421 21 HILUX 5 3 1 2 B B1 1A B 54 3 IE BRW–B 12 8 L–W 1 2 Y 1 6 7 G–Y GR R–L KLS+ E IG ACC STP Relé DEF B loqueo de cambiosD esempañador de la ventanilla traseraA limentación Interruptordelalámparadeparada<10–4> IGD E 3 3 3 3 SLS– SLS+ R–L Refuerzo del panel instrumental izquierdo B4 A3 2 6 1 2H2 W–R B–Y 10A ECU–IG&GAUGE 2A 1 2 AM1 B–R B12 A7 2 2A 1 2 1 2G 12 IG1 ACC 4 2C 4 2R B 40AAM1 40AIG1 7.5AACC Batería 1 1F L–R B–Y R–L L–R 1A1 W 20ADEF 3 2 1 3 B–Y I 6 J18(A),J19(B) J16(A),J17(B) W–R R6(A),R7(B) 3 A 4 B 5 B R–L R–L 8 2K 2S4 B 12 IH1 R–L J22(A),J23(B) R 3 K 1 S11 2N8 ID Centro de refuerzo del tablero de instrumentos Y B–Y Y 9 NSSD 3 AT3 J15 Panel del lado del cubretablero izquierdo IG 6 R–L 6 4 W–B J21 Solenoide de bloqueo de cambios Interruptor de encendido Conector de unión Conectordeunión Conectordeunión Conector de unión Conectordeunión Solenoide de interbloqueo de la llave Interruptor del desempañador de la ventanilla trasera Desempañadordela ventanillatrasera ECU de control de bloqueo de cambios SistemaECT<6–6> 11 A 12 A 7 B ECUdelmotor<3–10> B (∗1) B B ∗ 1 : 2TR–FE Conectordeunión J16(A),J17(B) 100A ALT
  • 269.
    HILUX(EWD630S) 269 M 3 421 22 HILUX W–B 2 W–B 14 E BACCILL R elojA limentación 2 AM1 B–R 2 2A 1 2 1 2G 12 IG1 ACC 4 2C B 40A AM1 7. 5A ACC Batería 1 1F L–R L–R 1A1 W I 6 1 A 6 B R 2N23 1 2 7. 5A DOME 30A DCC 2 1 1 IDCentro de refuerzo del tablero de instrumentos R GGG V C 7 J20(A), J21(B) OFF Cola Faro Interruptor decontrol delasluces B1 T1 13 C10 10A TAIL 8 2P 2Q12 7 2S 2R7 25 2P 2J8 2C5 G–W R 10 G–W 3 Reloj Interruptor de combinación Interruptor de encendido Conector de unión 100A ALT
  • 270.
    HILUX(EWD630S) 270 MDIAGRAMADECONEXIONESELECTRICASGENERAL 3 421 23 HILUX A34 A 7 A GR BR A limentación S istema de audio ACC (∗2) ACC+B(∗3) +B (∗2) BU+B(∗3) GND ID L–Y ∗ 1 : 4 altavoces ∗ 2 : con reproductor de CD Centro de refuerzo del tablero de instrumentos 1 2 15A RAD 2 AM1 2 2A 1 2 1 2G 12 IG1 ACC 4 2CB 40A AM1 7. 5A ACC Batería 1 1F L–R B–R 1A1 W 30A DCC 2 1 1 L–Y I 6 2N24 2 IF2 L–Y ∗ 3 : sin reproductor de CD 10 A ILL+B Sistemadelucesdecolayiluminación <12–5> Interruptor de encendido IH16IH11IH12 BB1 BB1 2 B 6 B 1 B 3 B B Y R W R W R W RL+ RL– RR+ RR– Y B 1 2 IH15 W R BC1 BC11 2 (∗1)(∗1) (∗1)(∗1) (∗1)(∗1) (∗1)(∗1) (∗1) (∗1) (∗1) (∗1) P 2 A 8 IC2 7 IC2 6 A 1 A 5 A P V LG L FR+FL+ FL– FR– 1 2 IH14 6 IK1 5 IK1 S16 L LG 1 2 S15 V P Altavoz (puerta delantera izquierda) Altavoz (puerta delantera derecha) 9 IH1 V S17 S18 Altavoz (puerta trasera derecha) Altavoz (puerta trasera izquierda) 100A ALT 22 11 Conjunto del receptor de radio R 1(A), R 2(B)
  • 271.
  • 272.
    HILUX(EWD630S) 272 MDIAGRAMADECONEXIONESELECTRICASGENERAL 1 2 34 24 HILUX (Sigue en la página siguiente) Sistema de las luces interiores <13–2> A limentación M edidor de combinación B–O R B–W Sistemadefaros<8–3> Velocímetro Tacómetro Combustible Temperatura Puerta luzdecarretera ECUdelmotor <3–13><4–14> PECUdelmotor <3–12><4–10> BR–Y BRBR BR–Y ODO/TRIP T–BELT Combustible C 8 V–RECUdelmotor <3–11><4–11> P–L 16 ID2 15 ID2 EC Lado trasero del bloque de cilindros 1 EA1 S 3 BR BRBR R–BP–L 1 2 3 3 BA1 4 BA1 Zumbador 1 2 7.5ADOME B4 A3 6 6 B 2C 7.5AMET B–Y 10A ECU–IG&GAUGE AM2 6 2A 1 B–Y AM1 ST2 B–R 2 2A 1 2 1 2G IG2 IG1 ACC 5 4 W–R 30 2S B 40AAM1 Batería 1 1F B–YB–R B 1A1 W 30ADCC 2 1 1 R 30AAM2 4 1B W–R 2J8 I 6 J18(A),J19(B) ∗ 1 : con sistema antirrobo 2Q25 R 2D1 B–O 2P42Q102P26 2Q26 ECUdecontrolde latransmisión <6–4> V–R ECUdeaviso antirrobo<17–3> V–R (∗4) (∗1) V–R R–B R–B IF210 L–R 2 1 F10 L–R BR 9 IA1 8 IA1 BR–Y BR Medidor de combinación Interruptordeavisodelnivel desedimentosdecombustible Interruptor de encendido Conector deunión Sensor de velocidad 1 IF4 IF311 (∗2) (∗3) ∗ 2 : 1KD–FTV, 2KD–FTV ∗ 3 : 2TR–FE (∗2)(∗2) (∗2) (∗2) (∗2) (∗2) ∗ 4 : 1KD–FTV A/T Conjunto de la bomba de succión de combustible y medidor F15(B) F13(A) 3 B (∗3) 3 A (∗2) (∗3)B2 2 A (∗2) Medidor Medidor del emisor de combustible (∗2)(∗2) 27 17 16 15 10 6 5 23 2 3 7 4 1 21 100AALT IG+ SE SI EDLado trasero del bloque de cilindros 7 6 BR (∗3) BR (∗3) Conector deunión J30
  • 273.
    HILUX(EWD630S) 273 M 5 6 78 24 HILUX (Continuado) (Sigue en la página siguiente) M edidor de combinación Carga Revisarelmotor Y Sistemadecarga<1–4> Sistemadecontroldelmotor <3–8><4–6> Antiniebladelantera Iluminación C 8 Encendido Sistemadecontroldelmotor <4–7> J22(A), J23(B) Sistemadelucesde colayiluminación <12–4> SRS Sistemadeluces antiniebladelanteras <9–3> Cinturónde seguridaddel conductor Sistemadeavisodel cinturóndeseguridad<14–2> SistemaSRS<14–3> 2 1 W–GW–G IF28 F4 Virajehacialaderecha Virajehacialaizquierda Sistema de las señales de giro y luz de aviso de peligro<11–3> J 1 5 1 EB Lado izquierdo del faldón del guardabarros W–BW–B 10 A 12 B ID Centro de refuerzo del tablero de instrumentos W–B SistemaECT<6–3> W–B (sinSRS) 1 IF2 (sinSRS) W–B (sin SRS) W–B A (conelSRS) Sistemade combustible Iluminacióndel visualizadorLCD A/TOILTEMP 4WD Medidor de combinación Interruptordeadvertencia delfiltrodecombustible Conector de unión Conector de unión ∗ 2 : 1KD–FTV, 2KD–FTV (∗2)(∗2)(∗2)(∗2) A/TP Sistema4WD<7–2> Sistema4WD<7–2> (∗2)(∗2) 2524128 14 11 20 19 30 22 394037181331 (∗2)(∗2)
  • 274.
    HILUX(EWD630S) 274 MDIAGRAMADECONEXIONESELECTRICASGENERAL 9 10 1112 24 HILUX (Continuado) M edidor de combinación ABS SistemaABS <15–2> EALado derecho del faldón del guardabarros 2 10 ID2 LGW–B LG–B LG LG–B LG 1 1 Presióndeaceite 1 C 8 Freno 2S1 2S17 2L1 2K12M1 1 LG (con ABS) L–O ECU de control de derrape con actuador <15–2> (conABS) 3 IF2 R–GR–G W–B (sinABS)(sinABS) (sin SRS) W–B A Medidor de combinación E4 Interruptordelfreno deestacionamiento P2 B3 Interruptordeadvertenciadel niveldellíquidodefrenos B2 (∗2) ∗ 2 : 1KD–FTV, 2KD–FTV Sensordepresióndel aceitedemotor Interruptordeadvertencia devacíodelfreno 38 36 35 CRUISE 28 Sistemadecontroldelmotor <4–6>
  • 275.
    HILUX(EWD630S) 275 M 3 421 25 HILUX 2 1 G 16IF3 10 14 78 Y–BY–BL–O R–L B–W A limentación A condicionador de aire 2 ECUdelmotor<3–11><4–11> SG–1 TE IG+ AC1 ACT P Y R–L ∗ 1 : con acondicionador de aire MGC L–W (∗1) 1 6 2A 1AM1 2 2A 1 2 1 2G 40AFRHTR IG1 ACC 4B 40AAM1 Batería 1 1F B–Y 100AALT 1A1 W 1 1C L–B I 6 2D92D18 IE Refuerzo del panel instrumental izquierdoID Centro de refuerzo del tablero de instrumentos W–B W–B W–B 5 W–B W–B B W–B B4 1 2 M 2A B–W L–W 1 16 L–B Relé HTR 2D 2F 4 1 2 5 3 10A ECU–IG&GAUGE 3 A 4 B J18(A), J19(B) 2R30 R–L P1 A10 A 9 1 ID1 1 L–W A1 1 A 2 A 2 B 1 A 4 B 18 L–O 2P 10AA/C 17 IF3 (∗1) (∗1)(∗1)(∗1) (∗1) W–B J22(A),J23(B) L 18 GND W–B J20(A),J21(B) 6 A 6 B B–R B–W (∗1) L–O 3 PSW B–Y (∗1) (∗1) (∗1) (∗1) (∗1) (∗1)(∗1) (∗1) J18(A),J19(B) CompresordelA/C Interruptordepresión Amplificador del A/C TermistordelA/C Interruptor de encendido Conectordeunión Conector de unión Conectordeunión Conectordeunión B 6 Libre Bloqueo 1 M1M2 LOHI 4 M1 M2 HI 6 5 2 E B5 R R–B 3 2 4 W–B L–W B–W B–W W 1 B–W Motordelsoplador Interruptor del soplador Resistordelsoplador 2 2P 13 R–L IND– (∗1) 4 R–G ACON (∗1) 4 R–L (∗1) L–O OFF LO 6 5 R–G (∗1) InterruptordelA/C A24 3 1 Sistemadelucesde colayiluminación <12–6> (∗1) 1 2