-EDITORIAL GUADAL
"NO HAY OFICIO MAS BIZARRO
QUE EL TRABAJO CON BARRO
DIOS FUE EL PRIMER ALFARERO
Y EL HOMBRE SU PRIMER CACHARRO"
;de épocasmuy remotas, loshornos-o lugaresdecocciónde losalimentos-,
unacaracterísticaesencialen lavida y costumbre de la humanidad.
3eshiMmientodelíuqpel hombre cocinó sus alimentos mediantedistintas
3doselementosdeuso. Unodeellosfue eldecocinaren loshornosde barro.
Jaremos conceptos práctico-resolutivosa la hora de construir un hornode
ios esta propuestacon pleno conocimientode causa: después de haber
EVO país todo tipo de hornos de barro y habertransitado a través de los
eno de satisfactorios resultados.
e barro unfundamento arquitectónicotan especialpara nuestragastrono-
stamente por la aparición de fogones y parrillas, es menester reubicarlos
contextohogareño.
sintrascendenteFa comparacióncon los demás mediosde cocción (coci-
) impuestos por lasociedad de consumo. Nuestroplanteo nos convocaa
S",a lasauténticas, y con su usotratar de poner en prácticauna serie de
a costumbres,b y casi perdidas.
le barro nos ofrecerá,entonces, compartir en ruedade amigos o en fami-
deliciosopan caseroy todo un universo de maravillosas comidas que, de
!ncasi mágicamente,en forma naturaly con su gusto exquisito.
a de este libro, Ud. conocerá todos los secretos de los hornos de barro,
so recetariode comidas especiales.Y le recordamos que...
JN HORNO DE BARRO, NOS ASEGURAMOS LA CALIDADY ELECCIÓNDE
S.SINEMBARGO,NUESTRAPROPUESTAVA MUCHOMASALLA DEESTO...
lTANTE ES NUESTRA CREACIÓNAL COCINAR, EL TIEMPO QUE LE
AMOR CON QUE LO HACEMOS Y TODA ESA ENERGIA QUE NOS
A CONVERTIR CADA BOCADO EN FRUTODEL CIELO".
Le presentamosa continuación:
EL GRAN LIBRO DE LOS HORNOS DE BARRO
Ricardo Miguel Elías
A
1 analizar un horno de barro desde el punto de vista cultural, una de las primeras
preguntasque debemos hacernoses si cocinar en éI constituye unaactitud seriao
impartante dentro de la vida de la vivienda, o simplemente una manera distinta de
alimentamos.
Cocinar en un horno de barro es un rito en muchas culturas, que forma parte de intere-
ses fundamentales en hombresy mujeres.
Puederesultarcuriosoque unaspectoculturalfuera adefinir el interéspor elartedecoci-
nar, previoa cualquier otra qwiskleración, Peroes fácil ver que pueden obtenerse distin-
tas solucionescuando se piensa en el horno como arte, o cuando se lo piensa como un
simple accesorio alimentario.
EL HOMBREY LA COCCIÓN DE LOSALIMENTOS
Cuando el hombre tuvo & primeravivienda, probablemente una cueva, reciénentonces
comenzó a cocinar sus alimentos. Estoes un hecho histOricode singular importancia. El
cambio de su condic?Ónde hombre nórnadea sedentario tiene su explicación porque a
partir de ese momento, empieza a cuidar de sus incipientes cultivos. Fue así como las
gramíneas, que en principio alimentaban a lasaves, pasaron a incorporarse a la alimen-
tación a través de una primeracocción, posibilitada por el uso del fuego.
Estefuego que solo pudoser usado, mantenidoy cuidado cuando el hombre estableció
su primer asentamiento. El hombre comenzó a cocinar casi al mismo tiempo que empe-
zó a cultivar sus campos. Y como cultivo es sinónimo de cultura, casi podríamos decir
sin temor a equivocarnos, que cocinar es una actividad nacidajuntamente con la cultu-
ra del hombre tal cual lo conocemos hoy,
A través de la historia, el desarrollo de la cocción fue marcando un paralelismo con el
desarrollosocial, político, econ6tnico-técnico,artístico, etc. De estamanera,el tugar para
cocinar ha ido transformándose lenta pero definidamente desde el 'alredeúor" de la
hoguera hasta el entorno de nuestros días.
En cualquier momento de esta transformación, podremos ver la manera casi documen-
tal en que el "horno de barro" expresa la situación particular de su usuario y del entorno
históricoque lo rodea.
Con el tiempo, el fuego, el calor fue evolucionando desde las primeras hogueras y hor-
nos hasta nuestros días, sin perderjamas su identidadproyectada en el alimento.
Cuandose revenlos aspectosculturalesen el diseñode un hornode barro, debemos observar
wcho detenimientoqué hpos de comida prepárarmo quién/quiénes la prepararan.
mtemente, un análisis cuidadoso nos encaminm'a a determinar las necesidadesde
3 usuario de los hornos de barro, porqueaunque estos parezcan todos iguales, nos
lrenderásaber cuántas posibilidades de desarrollo se están perdiendo.
3 lo mismo un usuario que lo prende una sola vez por mes o cada tanto, que aquel
realmenteaprwechatodo su potencialgastronómicoparasu alimentación periódica.
fos son también los ejemplos intermedios, teniendo en cuenta que se cocina con
asiduidad (carnes- panificados - etc.).
le así otro interrogantedetipo cultural: el hornoy su entorno deben diseñarsetenien-
!n cuenta quién o quiénes lo van a utilizar y qué tipo de cocción se realizaráen él.
iE6lA HlST6RICA DE LOS HORNOS DE BARRO
datosprecisossobreel nacimientodel arte de cocinar en los hornosde barrose pier-
en la historia de la humanidad. Su origen, según recientes descubrimientos, nos
mta a Egipto (4000años a.c.) y una amplia región, más precisamenteen la media
formada por los ríos Tigris y Eufrates. Lugar bendecido por la calidad de arcilla,
:lente, muy particular por su dureza y aislación, por lo cual conserva el calor mucho
)rque aros "'barros " o tierras arcillosas.
ste tiempo de desnibtimientos surge casi de la mano con los hornos de barro una
stria, la más vieja industriade la humanidad: "laalfarería".
ladoa esto, sevan agregando los "nacimientosculturales"como lofue lafabricaciónde
irimerastablas de barro, con las que se hicieronlas primeras escrituras.
í, desdeel antiguoEgiptoy através del tiempo, el arte de cocinar en hornos de barro
lanifiestaen distintas culturas que reconocen su uso como complemento indispen-
? y necesario para la cocción de los alimentos.
igiosarqueológicos los sitúan en lugares muy dispares y alejados unos de otros. En
~pa,p r ejemplo, eran famosos los grandes hornos comunitarios donde expertos
?@roscocinaban el pan del día, primero parael Rey y su corte y luego para la plebe.
;hile e islas aledañas de todo el Pacífico,famosos reductosde piratas, a los hoyos o
:os que hacíancon piedrasen laarena paracocinar sus alimentos,se los llamó "bou-
m"(deallí el nombre de bucaneros).
cercanoa nuestro país, los primerosindiciosvienen de la mano de los indios guarani-
stablecidosen el actual Paraguay)que lo llamaban al horno de barro "tatacua" pata:
)O, Cua: Cueva).
ita la historia que, en la guerra con el Paraguay, las tropas argentinas (en su viaje de
a) estaban muy escasas de víveres y vituallas, y en consecuencia demolían estos hor-
nos que encontraban a su paso, y tomaban la sal con que sus basesestaban construidas
(correspondientesal piso refractario).
ELGRAN LIBRODE LOS HORNOS DE BARRO
EnArgentina y conla herencia de criollos y españoles, su uso se vuelve casi obligado en
los primeros asentarnientos rurales y son las regiones del norte-noreste-noroestey cen-
tro donde se impuso con más fuerza (Salta-Jujuy-LaRioja-San Juan y Mendoza). Toda
esta zona constituyó la "Meca de los hornos de barro". Luego alcanzó, muy lentamen-
te, al resto del país.
Así, de esta manera, las costumbres gastrmórnicas argentinas incorporan desde un
principioa estos hornos de barro,también llamados "hornosde pan, ~livianos,chilenos,
de campana, etc." que, además de jalonar una etapa histórica, eran verdaderos baluar-
tes de las zonas rurales, expandiéndose su uso en países limítrofescomo Chile, Brasil,
Bolivia, Uruguay y Paraguay.
¿Y por qué se llamanhornos de barro?
Se los denomina así porque en su construccióntotal (base-bóveda-pisoy recubrimiento)
se emplea como base el barro criollo campero, el primer refractario natural que existe,
también llamado chorizo o adobe criollo. A este barro, que es una tierra arcillosa selec-
cionada, se le agrega, tambidn, bosta de caballa o paja vizcacheray agua, transforrnán-
dose, entonces, en unmatefialmuy noble, luegode unadelicaday paciente uniónde sus
elementos y su posterior oreado y cocinado. Nos enmtramos aquí con un producto
ecológico, refractario, sin cmtaminantes ni efectos nocivosy extraído de nuestra Madre
Naturaleza.
El barro criollo campero es un material que se encuentra en todos lados, de muy bajo
costo, y muy usado en la industria ladrillera donde se lo manufacturacon técnicas tam-
bién ancestralesy se lo cocina en altos hornos.
GENERALIDADES
A continuación, abordaremos toda la información general y prioritaria a la hora de cons-
truir o instalar un horno de barro.
Tomaremos como modelo el hornode barro clásico u hornocriolloartesanal usadoy ele-
gido mayoritariamentepor el gusto gastronómico de los argentinosy su cocina autócto-
na llamada "del Río de la Plata".
Ya decidida su incorporación en el ámbito hogareño, debemos tener en cuenta las
siguientes generalidades:
PROYECTO DEL HORNO DE BARRO
Cuando elegimos qué tipo de horno vamos a utilizar, debemos primero saber la periodi-
cidad de su uso, la cantidad de comensales promedio que degustarán sus comidas y
quién o quiénes lo van a trabajar.
Un horno chico de unos 0,75 m de bóveda interna (diámetro)puede resultar práctico
para que coman unas 8 a 10 personaspor su rapidez de calentado y economía de com-
TIPO!
Al ana
y cual
Presa
a) Ha
Medid
Altura
Calenl
Durac
Panific
Tempf
Cantic
)le.Por e( contrario, un horno medianode 0,95 m de bóveda interna(diámetro)será
o para atender a más de 20 personas.
:ocinar para un número menor de comensales, no se justifica el tiempo que llevael
idido del misma.
IS fabricados en medidas mayores estarán destinados para emprendimientos
rcialeso para ser instaladesenhigarescon mayor autonomía de producción.
:omienda estudiar muy bien la elección de hornos a construir, en lo que a la medi-
erna de bóveda se refiere por la importancia futura de su uso. Es regla aconsejar
tanto más se usa mejor funciona pues se endurece su mezclaformándose el ladri-
ural y, de esta manera, ahorrará tiempo de calentado, energía y combustible.
3 UTILIZACIÓNDE UN HORNO DE BARRO PRODUCE DETERIOROS EN TODO
INTDCTOcon sus consiguientesrajaduras,grietas, envejecimiento, malolor, etc. Deahí
~ortanciade tener muy presente este punto con antelación a su incorporación al
S DE HORNOS
ifizar el puntoanterior, surge la pregunta sobre cuál será la medida más apropiada
acompaíiará mejor nuestras aspiraciones gastronómicas.
itamos, a continuación, los dos tipos de hornos de barro más usados:
mo de barro chico
las interiores: diámetro de bóveda 0,75 m.
de bóveda máxima: 0,50 m.
Lado:en t / 1 según clima y comida a realizar.
iónde temperatura: carnes de 2 a 3 hs.
:ación: 4 /5hs.
3raturas sujetas a tipo de aislación (ver Capítulo 11).
iad de leña necesaria: maderas secas más 10 k. de leña,
ede cocinar (a modo de ejemplo):
xhón/corderito de hasta 10 a 12 k.: 1 hora y media.
,110s enteros: en una hora.
zzas: cada 10 minutos en fuentes de 30 cm.
Fuente para cocción:se elige la medida más grande, es decir la de 0,45 m ancho por
0,75 m de largo.
Se puede construir un soporte y cocinar en doble altura. En este caso es necesario
acomodar la medida de la puerta. Con esta opción, se duplican las cantidades.
Ver Dibujo no 1
ELGRANLIBRODE LOS HORNOSDE BARRO
b) Horno de barro mediano
Medidas interiores: diámetro de la bóveda 0,95 m.
Altura de Wveda mCtitima: 0,60 m.
Calentado: en 1 h / 130, y según clima y comida a realizar.
Duraci6n de la temperatura: carnes de 2/3hs.
Panificación: 415 hs.
Temperaturas sujetas a tipo de aislación (ver Capítub 11).
Cantidadde leAa necesaria:maderassecas más 18 k.de leña.
Se puede cocinar a modo de ejemplo:
# un lechónkorderogrande de 1 metro de largo: durante 1 hora y media.
# 10 a 12 pollos enteros: en una hora.
# 6 pizzas: cada 10 minutos en fuentes de 30 cm.
Fuentepara cocci6n: se elige la medida másgrande,es decir la de 0,45/0,50 m de ancho
por 1,00 mde largo.
Se puede construir un soporte y cocinaren doble altura (preverla medida de la puerta).
Con esta opción, se duplican las cantidades.
Ver Dibujo no2
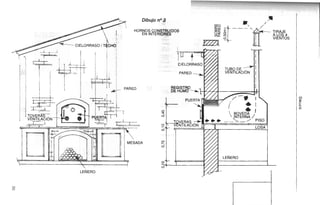
LUGARES DE EMPLAZAMIENTO
Luego de elegir qué tipo de horno es el más adecuado para nuestro hogar, decidiremos
entonces dónde emplazarlo.
a) Hornos construidos en interiores
El más común es aquel que se construye en quinchos, generalmente formando grupo
con parrillas o bien en cocinas grandes o como un complemento gastronómico.
Lo positivo de estos casos es que se pueden usar a toda hora y momento, m impor-
tando el estado climático exterior.
Como siempre pasa cerca un caño de gas, se puede lograr una conexióny usarlo de las
dos maneras posibles según se menciona en el Capítulo 111.
Podemos construir el cuerpo del horno en el exterior del ambiente; pero que la boca y
la puerta queden en el interior, ahorrando m2de circulacióny espacio.
La condición esencial para un resultado efectivo del horno gira alrededor de la combus-
tión y la puerta. Para que no ingrese el humo en el interior del lugar, es aconsejable rea-
lizar un cálculo previo de dimensión de puerta con respecto al interior de bóveda y tiraje
a los cuatro vientos.
No debemos olvidarnos de instalar una salida de agua y una puerta de escape regla-
mentaria cerca (reglamentariaes que abre para afuera) para casos de incendios.
Es importante la protección contra incendios(ver Capítulo IV).
Ver Dibujo no3
'YBICAI
vnos
3 s mo
- d i d a
~ ~ g a rp
~ g a rp
-ugar p
' lesads
' fesade
' ?esadl
3ancos
Electrici
Jas par
sombra
31eros ci
~ g a rp
PISOfirn
de aguz
Sector
Si tener
talar nuc
tornos construidosen exteriores
3s típicos hornosde exterior. Se construyen en patios,jardines, quinchos y lugares
.%S, ya sea solos o como complemento en islas con parrillas y asadores. Para su
+vamiento debemos tener en cuenta las siguientes consideraciones:
TACI~NIDEAL: en lo posible la puertadebe estar ubicadade espaldas (encontra)
mtos más predominantes por el tiraje y el efecto chimenea que ocasiona eventual-
~emolinosde humo sobre la cara. Esto es por ejemplo si el viento predominante
e del oeste, la puertadebe colocarseorientada al este.
ideal incorporar el horno al paisaje, enredando hojarasca y follaje junto al mismo.
2 tener precaucióncon la salidade la llama de lachimenea.Paratener sombra en
y calidez en invierno, deberán elegir árboles de hoja caduca o estacionaria. Hay
er sumo cuidado con incendios accidentales (ver Capítulo IV).
C I ~ NY COMODIDAD:superados los dos primeros ítems (orientacióny sol),ten-
muy en cuenta su ubicacióncon respecto a su comodidad.
vimientos deben ser coordinadosy precisossi queremos evitar accidenteso inco-
des. Un sector óptimo alrededor de un horno debe tener:
lara moverse solo o con ayudantes.
ara almacenamiento de leña.
ara guardar los utensilios (fuentes/parrillas/herramientas/etc.)
i con piietaprofunday conexi6n de manguera.
1s para apoyary/o trabajar.
e trabajo de madera dura (amacar/preparar/etc.).
o sillas para la mesa.
dad para una buena iluminaciónen todo momento.
-auna posible conexión al horno.
Inaturalo artificialprodigadapor cañas de bambú,o mediantelaconstrucciónde
le tejas, chapas, etc,
ara almacenar brasa encendida o apagada (braseros/tarros)
?ede ladrillosconstruidocon piedras, baldosas, etc. y que presente buenacaída
1.
ara colocar la proteccióncontra incendios.
nos en cuenta cada uno de estos ítems,ya podemos pensar en construir o ins-
3stro horno de barro y abordar el paso siguiente.
CAPITULO II
LOS HORNOS DE BARRO
os siguientes aspectos constructivosde este capítulo dan a conocer paso a paso
cómo construir, de una manera simple pero precisa, hornos de barro.
Si bien es una tarea sencilla que sólo demandará del ingenio o de la habilidad del
"constructor". no siempre resultaun buentrabajo y debemos repetirlaoperación otravez
o en el peor de los casos, consultar a especialistas(fabricantesde hornos). De cualquier
manera, ya sea para construirlo nosotros o mandarlo a construir, será de gran utilidad
tener en cuenta los siguientes puntos, si queremos ostentar, en nuestra casa, el verda-
dero horno de barro, el tradicional, aunque adaptado al tiempo moderno.
BASESDEAPOYO
En la base de apoyo de un horno de barro, es indispensable que se observe robustez,
estéticay complemento.
Estosrasgosvarían de acuerdo con la altura,el diseño, y los materiales con que se cons-
truyen. A continuación presentamoslos modelos más difundidos:
Bases de apoyo de madera:Bstas pueden ser de madera dura tipo anchico, quebracho
o similar, cortada regular o irregular, cepillada o rústica, atornillada, clavada o encastrada;
de maderade pino impregnadoo de troncos de cualquier madera, siempre y cuando esté
calculada para resistir un peso que oscila entre los 500 y 700 kg aproximadamente.
Acwnpafiando estas basesseagreganloscomplemento$, cano ser leñeros,mesadas,etc.
En la práctica, si se quiere construir el hmnoencimade la basede madera, deberá ana-
Irzarse cómo quitar el encofrado previo de la losa del horno, o dejarlo como encofrado
perdido. La opción más común es prefabricar la losa por separado y luego apoyarla
cobre la base de madera.
Ver Dibujos n04y 5
Bases de apoyo de ladrillería:estas bases,bastantesdifundidas, soportanmuy biencual-
quier peso, incluso son excelentes contra las inclemencias del tiempo.
Puedenser de ladrilleríavista, rasada, tomada, pintada,bolseada,rebocada, estucada, con
materialde frente o siguiendo cualquier tipo de decoracióndel lugar donde se levante.
Ver Dibujos n06y 7
Conceptos
En interiores, estas bases se pueden acoplar perfectamente a mesadas, parrillas y asa-
dores. siguiendo la misma línea decorativa.
rner en cuenta1
,Yra de constnxción guardará estrecha relación con la altura con la que nosotros
;-qtamos cdmodos para trabajar.
+riente, la altura de base no debe superar los 0,75 m, la que sumada a la losa y al
+canzar& la aRura ideal de 0,85/ 0,90 m de trabajo (medidas ergonométricas).
'7prevenci6n y sólo para bases de madera, se deberá verificar constantemente la
riilidad de Iás mismas, realizando un servicio anual compuesto de ajuste de tornille-
aceitadoo pintado de la madera.
eeriores, noseles debe permitira los niños quejueguen debajo de estetipo de bases.
tipo de prevencióna tener en cuenta es laeleccióndel lugar,es decir el piso de apoyo.
ás apoyar estas bases de madera sobre césped o tierra por más firme que se vea.
3so del horno más la base es muy grande y con una lluvia o regadores cercanos
le haber peligro de desmoronamiento y/o hundimiento.
?donos encontramoscon este percance, lo recomendable es compactar la superfi-
le apoyo de las patas con materialo en relación con la decoración,se pueden cons-
plateasde hormigónde 7 cm de espesor revestidas con cualquier tipo de piso (pie-
cemento alisado, cerámica, adoquines, durmientes, etc.).
opci6n consiste en amurar los palos de la base al piso. Éstos tienen que ser de
era dura, pintados previamentecon pinturaasfáltica y rellenadosen su contorno con
ligón armado.
s bases: segun el tipo de decoración, las bases de apoyo se pueden construir con
íos simples o sofisticados, quedando a elección del proyectistael modelo a utilizar.
A REFRACTARIA
3ma así porquesu construcción incluyemateriales aislantes y refractariosdel calor inter-
3raqueéste nose pierday, de esa manera,se enfríey nococinenuestrohornode barro.
osas refractariasse puedenfabricar sobre la basede apoyo (maderao ladrillería, con
)fiado perdido o a la vista) o aparte, y ser colocadas posteriormente.
]dos los casos, una buena tosa refractaria debe tener:
ensiones generosas; calcular siempre un poco más grande que la medida de la
!da del horno; por ejemplo 10 cm en laterales y contrafrente y 30/40 cm de frente.
S medidas son ideales para mesada.
unhornochico: lalozaserádel, 10mx1,10ma1,10mx1,40m(anchoporlargo).
horno mediano: 1, 30 m x 1,30 m a 1,30 m x 1,70 m (anchopor largo).
?sor:en todos los casos, el espesor debe ser tenido muy en cuenta. Como guía
tica recomendamos de 10 a 15 cm de espesor.
strucción ideal: sobre el encofrado y laterales bien aceitados y nivelados, colocar
~imeracapa de 8 cm de hormigónarmado (cemento, arena, piedra binder, mallade
2 de 8mm, cruzada y levantada en los bordes). Esta capa tendrá una zona central,
xción de la bóveda-contornodel futuro horno, de unos 3 cm de profundidad.
vez seco y fraguado, comenzaremos a aislar el hormigón, colocando primero sobre
la zona central una mezclade sal, vidrio y adobe (3cm en total ). Luego, sobretoda
ELGRANLIBRODE LOS HORNOSDE BARRO
la superficie nivelada y fratazada se coloca un manto de colchonetaaislante de lana tér-
mica (ver tipolcgia de matetiates)que cubra bientodo.
Estas colchonetas (las de mejor calidad) vienen con una malla metálica incorporada.Si
no latraen se deberácolocar unade hierroo fibra de vidrio, Sobre la misma se esparce
una capa final de unos 5 cm de adobe/sal/vidrio molido, encajonando la lana térmica
paraque no sobresalga.
Se deja orear un día, se rellenan lasposibles rajaduras del asentamiento,se desencofran
los laterales y se deja preparadapararecibir el piso de losetas.
Muchos fabricantes cometenel error de soldar el marcode la puerta a la basede hierro
de esta losa. Por su inestabilidadal calor, el hierroexpuestotrabaja de tal forma que pro-
duce deformaciones hasta el fondo de la loca, dilatando, rajando y desgastando los
materiales cercanos a él.
Ver Dibujo no8
PISO DEL HORNO DE BARRO
Una de las preguntasmás frecuentes en este punto es qué tipo de piso es el ideal.
Sintetizaremos los casos más comunesy su aplicacibn.
a)Plso de tejuelas y10 ladrillos refractarios
Lastejuelas o ladrillos refractarios varían de medidas según cadafabricante. Lo usual para
estos hornos es la tejuela de 11x 22 x 2 cm de espesor y el ladrillode 11 x 22 x 6 cm de
espesor; debemos manejarnosdentro de estos parámetros.
Es importantísimo su colocación y pegado a la losa refractaria. En muchos casos la
acción del fuego afloja este piso; por ello se debe usar coma pegamento unmortero de
cemento refractariocon tierra refractariaque se venden en el mercadoen forma de com-
puestoso por separado, los primeros son de mejor adherenciay calidad.
Es de suma importanciael tomado de las juntas con el mismo materialde pegado y el
no dejar espacios libres que puedan aflojar el piso.
El uso de piso de tejuelas o ladrillos refractarios se acorc~ejaUNICAMENTE cuando el
prendido del hornose realizadiariamente,puestarda muchoen calentarsey esta demo-
ra la temperatura interior del horno.
En muchos lugares de uso continuo de estos hornos (pineríaslrestaurantes/minipana-
derías/etc.), y con encendido a leña, se dejan las brasas sobrantes, para que en el
momento de la no utilizacióndel horno el piso se mantengacon calor.
b) Piso de tejuelas de ladrillos, ladrillos y ladrillones
Este tipo de piso es el Ideal para hornos de uso casero o temporarios, pues es de fácil
calentamiento. Se presentanen el mercado de diferentes medidas y espesores, siendo
los más usuales las tejuelas de 20x20 x 3 cm y 10 x 10 x 3 cm y 30 x 30 x 3 cm y los
ladrillosde 12x 24 x 6 cm y los ladrillonesde 14 x 26 x 6 cm.
Las tejueias y los ladrillos mndocinos son los de mejor dureza, puesto que están coci-
nados a temperaturasconstantesy parejas de 400 OC en hornosde gas. Los quemados
:'radicionales) se deben elegir por su dureza y su perfectaescuadria, sin rebarbas
m e s filosas.
;3do se debe realizarcon unamezclacompuestade unapartede adobe bienama-
rina parte de sal y una parte de cemento refractario, realizándose la junta bien
?a y rehundidacon el mismo material.
romienda unespesor dejunta de no másde 1 cm, ejecutando esta operación con
ia prolijidady limpieza.
.lez colocado este piso, se lo debe orear 1día.
xesario lijar bien y emparejar con lija gruesa y mediana toda la superficie; luego,
10 cubriéndolocan sal, hasta que se termine la construcción del horno.
5 0 de adobe
m& simple de todos y quizá el mhs antiguo- De fácil y económicaejecuciónsu ren-
nto al cabo del tiempo será similar a los de ladrillos de adobe.
are una cantidadde adobe "especial" o sea incorporándolesal (no mucha cantidad)
lento refractario para endurecedo, mezcle muy bien el adobe con bastante bosta o
ver tipologia)e inoorporea lamezclalosotroscomponentes.Aplique muyfuerte unas
das previas(mojarsiempre antes la losa)y sobreéstas una capa de mezclade ums
de espesor. Oree y repare (silashubiera)rajadurasy fisuras. Para un mejor secado,
I con sal toda la superficiedel piso y siga con la construcciónde la bóveda.
lipade pisoadquirirámayor dureza al tiempo de quemado (cuandose cocinaqueda
como el ladrillo), unos 6 meses aproximadamente.
UEñTA
cesarioun estudioantes de encarar la construcción de la puertadel horno. La rela-
;erá en base al diámetro interno del horno y de la utilizaciónen lo que respecta a la
lad de fuentes a emplear.
nedidas dependerán entonces de algunas variantes a tener en cuenta. Citaremos
as de ellas:
Jidas: nunca excederse en construir una gran puerta que técnica y estéticamente
,nás grande de 45 cm de ancho por 37 cm de alto. Si bien estas medidas varían
Ún el tipo de horno, son ideales para que se trabaje con dos fuentes con soporte.
is puertas ideales pararealizaruna buenatrabazón son las que presentanuna curva-
I en su parte posterior, logrando un arquitrabe más parejo con respecto a los movi-
ntos propios del horno.
ando hablamos de puerta, ésta vendrá con el marco incorporado siendo el mismo
m material bien pesado y sin lengüetasde amarre en hierro o chapa pues su dilata-
i con el calor raja la pared de ladrillos.
ELGRANLIBRODE LOS HORNOSDE BARRO
Se suprimen estas lengüetas por accesorioscobreados o similares que no transmitan el
calor (aisladostérmicamente).
- Elmaterialidealparaconstruir unapuertaes lafundiciónde hierroque nodilatanise modi-
fica con las temperaturasdel horno. Su único problema radica en el costo para realizarla.
Se puedenconstruir en otros materialescomo chapa estampada o hierro ángulo, reves-
tidas con piedra o ladrillos, con chapas decorativas, lisas, rugosas, etc.
- En el caso de puertas construidas con doble chapa, se recomienda utilizar chapa de
acero laminado de 3 mm de espesor enlozado con cámara aislante, con fibrado de lana
térmica cerámica para tal fin.
- El cierre de las mismas debe ser hermético; no debe quedar ninguna luz entre marco y
puerta por donde se pueda escapar el calor.
- En el caso de puertas de hierro ángulo o chapa común de acero sin enlozar se reco-
mienda realizar unatarea de empavonado previa a la colocación. Se entiende por empa-
vonado sumergirp e varios minutosenaceiteo gasoil hirviendoa calor constante la puer-
ta y el marco, con lo que adquirirá un tono negro y dureza que impedirá su deterioro o
modificaciónmolecular.
- En el caso de las puertasde fundición de hierro, se puedenpintar con pintura paraaltas
temperaturas.
- Toda puerta para horno (de cualquier material)debe poseer uno o dos reguladores de
aire que, en combinación con el tiraje y el interior de la bóveda, evitarán que la brasa se
apaguey ademásdejaranescapar el monóxido de carbono provenientede la quemazón,
que es un resultantetóxico en contactocon los alimentos.
- Como accesoriosde puertas, contamos con el reloj pirómetro, el visor y lastronerasde
ventilación, elementos que completan el buen funcionamiento.
- Existen en fabricación diseños para realizar puertas de abrir laterales, horizontales,de
apertura bisagra, superior o inferior y de guillotina, quedando a elección del proyectista
según la decoración que el hornoo su entorno posea.
- Tipos de puertas.
Ver Dibujo no 11
LA BÓVEDA
Para laconstrucción de la bóveda,debemos emplear todo nuestrogusto estético-creativo,
sumado a la relación teórico-prácticapara que su uso sea óptimo.
lizavaríasegúnlaexperienciade su ejecutor.Existenmuchosconceptoscam-
mados clásicos" que se han difundidodesde hace muchísimosaños. En la actua-
bemos descomer dichos conceptos, p m la inserción del hornoen el contex-
ce que busquemos una salida moderna, sobretodo al deterioro progresivo.
..GII cuenta la construcciónde un horno hogareñoy para exterior (situaciónmás
?-able expuesta a cambios climáticos), indicaremos cómo construir una bóveda
w l a con los requisitos actriales.
on ae materiales
e empezar debemos seleccionar muy bien los materiales a utilizar. Los ladrillos
y enteros) tienen que ser cortados en forma pareja y en cuña bien duros y de
icuadría{sindeformación).
remossiempe mojados y los cortes a la mitady en forma de cuña, tienen que ser
1s. Para la fabricación del adobe criollo debemos mezclar tierra bien negrdbosta
~llo/carbonilldasenin/salcon agua, logrando un pastón espeso semiduro. Este
deberá dejarse orear por lo menos 3 días, dándole vueltas periódicamente. En
querer obviarse su trabajo de mezclado,se lo puedecomprar en hornos de ladri-
:o para usar, pues éste es muy bien mezcladoy, con el tiempo, el adobe se endu-
le tal manera que la junta de unión quedará tan dura como un ladrillo ya cocido.
rcciónde la bbveda
na losa refractaria y piso de tejuelas o adobe, se deberá marcar con tiza y piolín
interior de la pared.Esta se trabará con medios, cuñas o enteros según la medi-
orno. Tenemos que tener en cuenta la colocación, según se vaya avanzando,de
?mentoque corresponda en su debido lugar y que quede ya fijo. Estos elemen-
marcos de puerta/mecheros/tiraje/ventilaciones/iluminaciÓn/etc.
~tahastala cuarta o quinta hiladay, luego, con moldecolocado, se cierralabóve-
n lo muestra el gráfico adjunto.
do de la ladrilleríase debe hacer con el adobe tal como explicáramos anterior-
:eniendoen cuenta su relleno total y la precauciónde rasarlo en su cara interior.
ado se puede realizar con esponja, apretando bien y dejando de junta la menor
a posible.
ben mojar muy bien los ladrillos antes de pegarlos y toda el área, según se vaya
ando.
dijimos al principio, es todo un arte o un desafio levantar una bóvedade un horno
70.
damentalel uso de un moldesemiesférico, que se coloca internamente,con la pre-
ln de que éste, al cerrarse la bóvedaen todo su contexto, deberá salir por la puer-
armado.
ELGRANLIBRODE LOS HORNOSDE BARRO
La no utilizaciónde este molde nos puede llevar a equívocosy queconstruyamoslosIla-
mados "hornoshuevos"que así surgen en forma naturalal no poder terminar de asentar
bien los ladrillos para que no se caigan.
Estos moldes, también llamadas cimbras, nos harán descubrs uno de los tecnicismos
másapasionantesdel arte de construir: los arcos de descarga (bóvedas,aroos, arquitra-
ves, claves, etc.), usados desde épocas remotas en puentes, dinteles, vigas, arcos de
iglesia, etc. y también en nuestros especiales hornos de barro mrno hoy endía.
El principio es que la bóveda se sostiene por el esfuerzo de compresi6ncompartidode
los ladrillos, evitando que estos se desprendan o caigan.
Al cierre final con el último ladrillo es famosa la historia de que sl la bóveda está bien
hecha se debe poder parar una persona, sin que se derrumbe la construido.
Ver Dibujo no12
AISLACIONES Y RECUBRIMIENTOS
El recubrimiento de la bóveda
Ya tenemos la bóveda levantada con la puerta/tiraje y accesorios colocados, el molde
retirado de su interior y el rasado listoy esponjado prolijo.Ahora nos resta la etapa semi-
final, que tiene como objetivo proteger la bóveda de las inclemencias del tiempo y que el
calor no se escape de su interior, lograndouna mayor economíay rendimiento.
Distintos tipos de recubrirnientos:
Horno de barro con recubrimiento ecológico
Horno de barro con recubrimiento cementicio
Horno de barro con recubrimientoaislante
Otros recubrirnientos
1) Horno de barro con recubrimiento"ecológico"
Llamadoasí porque el adobe en toda su construcción no recibe ningúnagente externo quí-
mico en su mezcladoy terminación.
Una vez terminada la bóveda, aplicamos una capa "azotada" de adobe chirlo sobre la
misma, dejamos orear y luego aplicamos una supercapade adobe con bastantebostao
paja vizcacheracon terminación final a la bolsa o con esponja fina.
Este tipo de recubrimiento tiene en contra que, por la acción del calor interno se forman
rajadurasy grietas bastantes considerables, las que si no son reparadasinmediatamen-
te se agravan mediante la acción del agua de lluvia que se impregna en ellas internán-
dose hasta el ladrillo aflojando y este recubrimiento.
Pero, como para todo hay una solución, los que se decidan por este recubrimientoten-
drán que tener preparada un poco de mezcla (adobe) para aplicar enseguida a la raja-
dura y además "proteger"el hornocon untecho que puedeser de chapa, losa, teja, etc.
Ver Dibujo no13
16
no de barro con recubrimientocementicio
-a capa es de adobe (refractarionatural)azotada muy fuerte contra la superficie
59 la bóveda. Lasegundacapatambién es de adobe, peroya tipo revoquegrue-
3 3 de 3 cm de espesor (una sola capa). Debe ser firme y dejarse orear un poco
-7 la formacidn de grietas y fisuras.
ira capa seaplicarácuandoesteadobe empiecea "tira? o sea cuandoestésecan-
:consistencia sea semidura. Esta capa que llamaremos recubrimientocementicio
N mezcla de arena, cemento, cal y agua (5 partes de arena-1/2 de cemento - 3 de
:u espesor será de 1 cm.
arta y última capa se aplicará cuando la anterior esté secando. Será del mismo
31 que la tercera capa, pero zarandeado fino y de espesor 2j3 mm. Podernoscitar
variantede la tercera y cuarta capa, técnicas como por ejemplo:
rimiento bolseado(finoa la cal).
nmiento al estuco.
rimientocon materialde frente.
omienda ver en Tipología de materiales las característicasde cada uno.
no de barro con recubrimiento aislante
imo resultado, mantienelaternpratura por mucho mCis tiempo (de0 a 10 hs) que
;anteriorescon una sola carga de combustión.
2 realiza inicialmentesiguiendo las mismas instruccionesque el anterior en lo que
ta a la primeray segunda capa.
3 de la segundacapa, se debe aplicar una lana térmica fibrada (lamismaque usa-
n la losa) con malla adherida o separada. Esta se moja antes de su colocación
incida lo mejw posibleal adobe,
esta lana térmica (ver Tipologia), o sea sobre la malla se efectúa la tercera capa,
azotado. Estacapaes cementicia (arenakal/cemento)pudiendoreemplazarsepor
i refractariacomercial. El espesor tendrá que ser generoso (3cm) y observar que
be sentirse ruido a hueco en su interior (tensarbien la mallacon alambrey clavos).
-a vez que tenemos esta capa terminada gruesa, rayada y bien oreada, le aplicamos (lo
-smo que en el ítemanterior) losposiMes reaibriimientosenumerados anteriormente:
--cubrimiento fim a la cal,
'3cubnmiento bolseado.
=xubrimiento al estuco.
2icubnmientoconmaterialde frente.
4 Otros recubrímientos
Sobrela base del puntoanterior (recubrimientoaislante)y en algunas situaciones donde
puede obviar el formato clásico y dar lugar a otros (cuadrados, m& altos, etc.), ten-
+emos la oportunidadde "aislar" y recubrirlos con otras opciones,
3 r ejemplo, citaremos la más efectiva :
-Sobrela Mveda ya construida y aislada con lana t&mica, se ejecuta una pared "peri-
ELGRANLIBRODE LOS HORNOSDE BARRO
metral" redondao cuadradadonde queda libresolo la puertay el tiraje de humo con una
altura de no menosde 50 cm. Unavez hecha esta pared, se la puede rellenar con suce-
sivas capas de sal gruesa y arena (10 cm c/u)terminando con un techo de losa que hace
de tapa a esta aislación. Los remates decorativos sobre esta losa pueden ser de diver-
sos diseños según lo requiera el proyectista o diseñador.
Este "superrecubrimiento"hace que latemperatura dure muchísimas horasmás que el resto
de ellos con el agregado del ahorro de leñay10 gas que se produce. Ladesventaja es que el
horno "pierde"sucaracterísticoaspectocampero,aunquesu rendimientoes superioratodos.
Técnicas de pintado
Todo horno que se deja en "blanco" para pintar, es decir con materiales de frente duros
sin color, podrá ser recubiertocon una pinturaexterior acrílica elástica y durable (de pri-
mera calidad) con los elementos de hierro combinados (puerta/chimenea/utensiliosy
herramientas).
Los colores de esta pintura variarán segun el gusto exclusivo del dueño de la casa,
pudiendo combinarse con los colores de paredes contiguas, terrosos, óxidos, marrones
o pátinas en cueros (imitación),la que a continuación explicaremos.
Pátina símil cuero:consiste en aplicar primero una mano diluida de fijador al agua para
exterior color beige manila (blanco más ocre).Sobre éste (pasadaslas 24 hs de secado)
se puede realizar un esponjado y fileteado a pincel imitando el cuero.
Esta tarea se puede hacer combinando pintura acríiica exterior marrón, negra y beige
manita.
Unavez que se cubriótoda lasuperficie,hayquedejarorear 24hs m&. Al término,con una
lija medianalfina,se lija toda la superficieunificándolalomás posible. Limpie todo elpolvoy
aplique una o dos manosde protecciónsemimatede ladrillossilimada transparente.
Combine este efecto con la puerta de color cobrdgrafito o negra (incluyela chimenea y
los utensilios/herramientas).
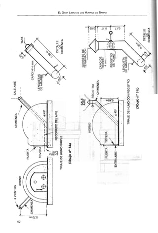
TIRAJE Y CONDUCTOS DE HUMO
Todo horno necesitaparasu calentadarecibir el suficienteoxígeno paralograr la combustión.
Comovamos aver m6sadelante, dichacombustiónse logracuandoexisteunaaperturao un
paso de aire. Este paso se logra a través de las toveras de la puertay el tiraje al exterior.
El tiraje al exterior deberá calcularse en funci6n de la capacidad intefw del horno, pero
una medida ideal para no tener problemases hacerlosde un diámetro no menor a 4 ó 5
pulgadas en chapa de acero enlozada o común empavorlada de espesor grueso para
evitar su deterioro, pues esth en contacto directo con el fuego.
Otro material excelente para fabricar cañerías de tiraje es d cafia de hierro de fundición
(fundición gris) con la recomendación que tendrá que ir bien amurada tanto al horno
como a la pared.
,iecomendaciones a tener en cuenta:
' tiraje en hornosparaexterior puede construirse hasta 50 cm más arriba que la bóve-
orientado sobre unlateralcaído y terminación con gorrete herméticodel mismo mate-
. Es opcional el tiraje con registro de humo.
ri casosde hornos para interior, o al exterior mparedescercanas muy altas se reco-
wda extender las prolongacionesa los cuatro vientos (librede construccionescerca-
:) y colocar en el primer tramo el registro de humo bien hermético.
sten en el mercado complementos muy decorativos como ser terminaciones,gorre-
codos, cafios, sobreretes, etc. Siempre recuerde que todo puede ser posible a la
de la creatividad. Si no se consigue, se diseñay se construye.
caso de que la prolongación del caño de tiraje sea muy alta se deberá prever un
i m& de ditimetroen el cálculo inicial.
;conductospueden ser también cuadrados o rectangulares de medidas 15 x 15cm
x 20 cm aprox. (cuantomás grande, más conducción de humo realiza, pero tam-
más consumo de leña y/o gas).
deberA colocara45" volcado sobrecualquierángulo posterior del horno. Estadeter-
ción favorece la combustión, originando un campo energético de circulación envol-
5 con ahorro de combustibley poca pérdida de calorías.
mtrario, si ubicamos el conducto al centro del horno (ver dibujo), se producirá un
Irconsumoy costarámás calentarlo.Se recomienda,en estos casos, caños de diá-
3 menor de salida con buen cierre (registro).
'OLOGIADE MATERIALES
obe
fractano natural, mezcla campera que surge del amasado y oreado de tierra negra
illosa, bosta de caballo o paja vizcacheray agua. Existendiversos tipos de "prepara-
;de adobes" para nuestro horno, se le puede agregar a esta mezcla carbonilla, sal y
?rrínbien molido.
Mlos comunes
sa rectangular de medidas 0,12 x 0,23 x 0,04 m que surge de la cocción en hornos
~ecialesde los adobes secos.
mismo se aplica a latejuela parapisode medidas0,20 x 0,20 m - 0,10 x 0,20m - 0,30
,30m.
ito losladrillosc o m lastejuelas se fabrican en hornos a leña o a gas a más de 4000C,
;Últimos son de una gran dureza y equilibrio de medidas, mientras que los primeros
1 que seleccionarlos, buscando los de mayor dureza (boquerones).
Cal
--efractarionatural; comúnmenteusamosla"gruesa"quevieneen bolsasde 40 k de lacan-
ELGRANLIBRODE LOS HORNOSDE BARRO
tera o salina. Es sal sin lavar, pero se puede usar tanto en el piso, el adobe y el recubri-
mientocwno enla cocci6ndebajo o al costadode lasfuentes (calientay secael interior).
Vidrio
Refractarioartificial, es usado en aislación de piso (mrefractaria). Se debe conseguir
vidrio en Virierías (descarte) o de botellas/damajuanas/etc., y luego martillarlo en un
corte de bolsa arpillera hasta que quede bien m0lido.
Tápese cuando realicela operacióny tenga cuidado con Imojosy manos(utilice guan-
tes y gafas protectoras de ojos).
Recubrimiento cernenticio
Mezcla especialde cal, cementoy arena mediana con agua. Se aplica sobre el adobe o
let malla de metal desplegado/fibra de vidrio. La primera aplicación se debe hacer con
mcreto 1/1 (cemento +arena + agua) y a la segunda se le debe agregar cal.
Materialdesplegado
Puede ser de hierro o su Últimaversi6n enfibra de vidrio. La tarea que desempeña en el
horno es la de prevenir laformxibn de grietas o fisuras enel recubrimientofinal, pudien-
do sobre ella aplicar las capas correspondientes.
Aislación térmica
Pueden ser:
- Colchoneta de fibra cerámica con malla de hierro: posee una gran resistenciaal cho-
que térmico (resistehasta 1.482"C). No contiene asbesto. Economíade colocación (no
se necesita malla desplegadaposterior).Nocontamina.
- Cokhoneta de lana de vidrio sin aglomerante: cosida sobre rrialla hexagonalde hierro.
Es incombustible, presenta una resistenciatermica hasta 500°C.
Cualquiera de estas aislaciones retieneel calor del horno hasta8110 hs de utilizacióncon
una combustiónmínima de 1 hora.
- Otra posibilidad sería latradicionallanade vidrio (sinasbesto),que se coloca después del
adobede revoque y antes de la malla metálica. Su resistenciatérmica es de sólo 100°C,
encontrándose ésta al límitede lo necesario.
Revoquefino: mezclapara revocar exteriormenteel horno, previo a la capa de pintura.
Se obtiene mezclandocemento,arena zarandeada, cal y agua parael amasado.
Revoque"al stucado": hoy en día el estucado se consigue en casas de materiales de
construcción, sin necesidad de mezclado previo.
Revoquebdseado:este revoquese denomina tambien grueso a la bolsa, ídemal revo-
que cementicio pero termmadúal finoonduladoconunabolsade arpillera y/o esponja.
Material de frente: 6ste se coloca sobre el revoquegrueso y se consigue en bolsas ya
premezclado. Su función es proteger, embellecer y hacer durar la capa final. Es permea-
ble al vapor de agua en forma ideal, pero impermeableal agua de lluvia y agentes inde-
seados. El mercado los provee en una amplia gama de colores y texturas (rayados/tex-
turablec/símil piedraparís/pétreos mltiolores/graníticos/estucos/etc.).
on todos aquelos elementos que acornpaí5an el buen uso y funcionamiento de
los hornosde barro. Estos accesoriosy complementos, algunos devenidosde la
Antigüedad y otros de uso moderno, son indispensablesa la hora de cocinar.
2y de todo tipo y modelos, mássofisticadoso menos"aparatosos" pero todos per-
7 un Único fin: acompañar. ayudar y colaborar siempre teniendo en cuenta los
itos culturales setialados en el Capítulo l.
3 guía prhctica de losmás usados citaremos:
Relojesmarcadores de temperatura
Herramientasde uso
Utensiliospara cocinar
Hornos adaptados a gas
Iluminaciónde la bóveda
Mobiliario
Empavonados
UES MARCADORES DE TEMPERATURA
instrumento que sirve para medir temperaturas muy elevadas.
gso en la actualidad es muy corriente. Antiguamente se constataba si el horno esta-
3 punto arrojando una bola de papel al centro y si éste se doraba, era señal de que
3ba listo. Métodoque hoy se sigue usando pero es muy conflictivoa la hora de coci-
panificados, pues requierede una precisión casi exacta de la temperatura para que
se pase o queme, o quede sin cocinarse (es decir crudo).
3s relojes se presentanen el mercado según el requerimiento.
, más usuales son:
oj pirómetro de puerta
coloca en el centro alto de la puertade doble chapa aislada o de fundición. Se reco-
nda sellar internamente con silicona de alta temperatura, antes de colocarlo y no
-arla puerta cuando el horno se encuentreencendido porqueel calor altera el meca-
no del relojy se puede llegar a dai'iar.
3s relojes vienen calibrados de O0 a 600°C o O0 a 400°C.
oj pirómetro de pared con vástago largo
de calidad superior y se coloca al costado, a unos 30 cm del piso del horno (jamás
Wjarnás abajo). Su calibre varía de O" a 400°C (ideal).
3 elecci6n es colocarlo, se debe tener en cuenta que el vhstago largo tiene que que-
en contacto directo conel calor interno.
ste m llega a pasar por lo menos 1 cm sobre lacara internade la bóvedaquedando
escubierto, no funciona. Un método para lograrlo consiste en colocarla dentro de un
o con cabeza roscada (1 pulgada más o menos)y amurado a la pared de la bóveda.
ELGRANLIBRODE LOS HORNOSDE BARRO
Este reloj, si el horno se encuentra a la intemperie, se deberá colocar roscado al caño
(parasacarlo),o a un nipleamurado por la simple razónde que las inclemenciasdeltiem-
po (lluvia)y la temperatura alta del horno durante la quemazón lo pueden dañar.
Relojpirórnetmde pared con termosensor
Esterelojde igualescaracterísticasque el anterior (ensu cuadrante), se diferencia enque
posee un alambre termico con sensor en punta que puede ser llevado internamente al
lugar deseado tomando de allí la temperatura y transmitiéndola al reloj.
Idealpara grandes hornos o para lugares de difícil acceso a la toma de temperatura.
Reloj termómetro de mínima y máxima
Es el más sencillo de toda la línea recomendada. Se coloca en puerta doble solamente
(con protección)y su vida útil es corta. De características parecidas al reloj pirómetro de
puerta, se diferencia en su cuadrante, que no mide en grados sino en zonas; por ejem-
plo mínimo-medio-máximo o bajo-medio-alto. Estas zonas poseen cada una un color
característico. Es muy económico.
Otros modelos
Existen en el mercado otro tipo de relojes del tipo analógicos, digitales o para altísimas
temperaturas. Marcan con exactitud y vienen computarizados con censores y otras
característicastécnicas que los alejan, por su alta complejidad, paraser usadosen nues-
tros hornos de barro.
HERRAMIENTASDE USO
Indispensablesa la hora de trabajar en nuestro horno de barro. Estas son adaptables a
la creación y necesidad de cada uno.
Como guía práctica describiremos cuáles son las más usadas:
Rastrillo largo o atizador
Es un elemento largo (2 m) hecho con un hierro de 16 mm con un mango de maderaen
un extremo y una planchuelade 20 cm x 5 cm soldada al otro extremo (ver dibujo).
Su función es la de acomodar la leña durante la combustión y la de limpiar y correr la
brasa al término de la misma.
Es necesario empavonarla (ver "empavonado" en este capítulo) y cubrir el mango de
madera con una laca fuerte.
Ganchos de amarre largos y cortos
Son elementosde hierro que varían su largode 1,OOm (corto)a 2,00 m (largo),según la
rnedida del horno.
Estánhéchs can unhierrode 16rmconwi mangode maderaen un extremoy un gan-
cho de hierro redondo afinado en la puntade otro extremo.
Su funcidnes "pescar"las fuentes del interior del horno y llevarlas a la puerta.
~esariosu empavonadoy cubrir el mango de madera con una lacafuerte.
3 de hierm
~ n t ode hierrocon un largovariable de 1,50m a 2,00m,según la medida del horno.
lechaen hierro de 16 mm con un mango de maderaen un extremoy una palita de
2 reforzada (NO14) en el otro.
riciónes sacar la brasa de adentro del horno cuando termina la combustióny colo-
en un brasero aledaño. Esta operación puede ocurrir a la inversa (del brasero al
3). Tiene que ser profunda (5 cm) y también empavonada y cubierto el mango de
?racon taca fuerte.
.los hierros de 16 mm pueden ser redondos o cuadrados.
ia corta
tradicional, hecha de unos 50 cm de largo con punta afilada en hierro (se encuen-
iel mercado).
ncidn es la de hachar (cortar) trozos grandes de madera, leña, astillas, etc., para
- más fácil la combustión. Se puede empavonar su extremo cortante y cubrir con
1 fuerte el mango.
s de madera
nente de madera, con un extremo plano de medidasvariables, de 37 cm de ancho
cm de largo (piuasltartaslcalzones)o 20 cm de ancho x 47 cm de largo (panes)y
?spesorde aproximadamente1 cm con la cara de frente rebajada(verdibujo no16).
une a un mango de unos 6 cm de diámetro y un largo de aprox. 2 m.
funciónespecífica es trabajar con la masa, entrándola y sacándola del horno.
madera debe ser resistenteal calor y al roce con el piso caliente del horno.
msejamos el inciensoo el algarrobo.
i hora de protegertas palas no se deben dejar a la intemperiey se podrán pintar con
t fuerte (sólo el mango largo) y aceitarlas con aceite comestible y enharinar la parte
ide se apoya la masa (base).
a: los hierros de 16 mm pueden ser redondos o cuadrados.-
~illosde limpieza
:has veces, al retirar las brasasde horno nos encontramos que éste queda sudo con
eniza de las mismas. Si apoyamos fuentes, no hay muchos problemas pero se com-
3 al trabajar con masa sobre el piso caliente.
3 esto, aconsejamos el uso de cepillosde limpieza. Se describen dos modelos:
estropajo",llamado así porque a un palo de unos 2 m de largo por unos 5 a 6 cm
ELGRANLIBRODE LOS HORNOSDE BARRO
de espesor, le adosamos, mediante un anclaje de arandela o similar, un corte de bolsa
de arpillera húmedo en forma de estropajo bienamarrado a la arandela. Con este méto-
do, antiguamentese limpiaban los hornos.
La cerda para brasa es un cepillo que se adapta a un palo largo idéntico que el ante-
rior, al cual se une un cepillo especial parabrasa-hecho con cerdas especiales- que no
se quema con la ceniza. Es más práctico que el anterior, y limpia mucho mejor y más
rápido.
Recipiente para brasa
En muchas ocasiones nuestro horno está ubicado lejos de un brasero o un lugar donde
transportar con lapalalasbrasasque sacamos lo másrápidoposible. Eltrámite de trans-
porte de brasas es muy peligroso pues se pueden caer de la pala si el trayecto es largo.
Lo mismo sucede si se cae alguna y no se ve: puede haber quemadurasde pies, zapa-
tillas/zapatos/etc.
Para esto, será necesariocontar con un recipientetipo lata de un volumentotal de unos
40/50 1, de medidas aproximadas: 0,35m de diámetroy unos 0,70 m de alto. Será de
unachapa reforzaday conunatapade terminación. Enel fondo es aconsejgble(paraque
no orade la base)llenarlo conun púcode ama. Este recipientese puedecolocar al lado
del horno y es muy práctm pues la brasa quemada (carbónnatural) se puede volver a
usar en una parrilla,tambores, minas económicas, etc.
UTENSILIOS DE COCINA
Son los complementos con los cuales el maestro asador de un horno de barro cuenta
para dar curso a toda su creatividad e imaginaci6na la hora de cocinar.
Como guía ilustrativa sobre qué utensilios acompafíaian el buen uso, le daremos a conti-
nuación una síntesis de los principales.
Fuentes de chapa (o fuentes de panadería)
Estasfuentes de diferentes medidas (segunel tipo de horno que tengamos)son hechas
en la líneade chapa negrareforzada, chapa lisa comúno chapa enlozada ( i l ) .
Son estampadasy soldadas y casi siempre presentan 1 a 2 rnanijmesde agarre. Como
nocibn, para un horno chico la medida ideal es de 40 mde ancho por 70 / 75 cm de
largo por 5 ó 7 cm de alto (chapaNo16).
Se pueden realizarotrasde distintas medidas40 / 40 cm-40 / 50 cm -30 / 30 cm etc.
En el caso de las fuentes de chapa o chapa negra reforzada, se deben empavonar muy
bien antes de realizar una comida sobre ellas.
Caso contrario, debemos recurrir al papel de aluminio hasta que se empavone.
Con las enlozadas, no hay problemasya que vienen de f&rica con un esmalte protector.
Rejillaso parrillaspara fuentes
Están hechas en hierro perfiltubo de 15 / 15 mrn y hierro redondo de 6 mm.
-miidas idealesson unos milímetros más chicasque lasfuentes de chapaenancho
?q, pero 2 cm mr5i.saiias.
-milla superior puede ser fabricada con hierro redondo común o trefilado en acero
-3d superior), lo mismo que tos tubos lateralesy patas.
qlerros redondos deberán colocarse de tal manera que puedan moverse rotativa-
%, facilitando la limpieza, es decir no deben ir soldados al tubo sino sueltos. Ade-
. conviene siempre dejar una zona de 30 a 35 cm para colocarlos más juntos que
*.a.
 es paraei caso de achuras (parrillada)y otros que puedencaerse a iafuente. Estas
-Iraspuedenser complementadascon mallassoldadas, pisosdefundición gris, etc.
iortes para panillas
11 caso de querer cocinar para una gran cantidad de comensales, se puedeagrandar
ipacidadcolocandoestos soportes para parrillas,cuya utilidad es el doble piso o sea
se puedecolocar otra u otras fuentels sobre la que ya tenemos.
I para trabajar con varios menúes. Por ejemplo, Ud. puede colocar la fuente con la
ie por debajo y en el soporte, al fondo, las papas y, más adelante, la fuente con
ianadas (primerservicio),
1s soportes tambibn se construyen en hierro común o trefilado de acero.
urtes para parrillascon corredera
en igual función que los soportesdel puntoanterior,pero mmássofisticados. Consis-
7 dejar previsto en la construcción del piso y la bóveda unos hierros para amarrar
o este soporte que accionado por una corredera, hace que la fuente con la parrilla
3 y se besliceautomáticamente sin tener que sostenerlacon las manos.
:ticosy de gran uso.
ispectoa tener encuentaes que los hierrosdebenser resistentesal calor de la bóveda.
lisefio se adapta a los distintos requerimientos(2 a 3 pisos, etc.).
Todos estos utensilios para cocinar, se pueden construir con hierros, chapas,
.rederas y accesorios galvanizados, cabreados, cromados o bronceados de venta en
; comercios o en casas que realizanbaños por electrólisis.
izas especiales para amarre de fuentes
lri de venta comercial, cromadas con mango de madera. Su función es tomar la fuen-
del borde de la solapa, haciendo presión sobre la misma, acción que impide que la
iza se desprenda. Se remiendan dos para sacar lasfuentes pesadas (carnes)y una
ra pesos normales(piueracitarterasletc.).
rantestémiicos
ri los dásicos guantes para sacar fuentes del horno de cocina aunque más aislados.
oeralmentese usan cuando hay que meter unpoca la mano dentro del horno calien-
y correr o sacar algún cacharro que las pinzas no puedanalcanzar. Se encuentranen
nercado a la venta directa (sugerimoslos de mejor calidad paraevitar quemaduras).
ELGRANLIBRODE LOS HORNOSDE BARRO
Cacharrosde barro
Ultimamente, de gran vigencia en la gastronomía argentina, han vuelto a usarse como
utensilio esencial a la hora de cocinar.
En nuestro horno de barro,su uso no tiene contraindicaciones. Sirven tanto paracocinar
como paraservir.
Los cacharros más usuales son las fuentes grandes y chicas, platos playos y hondos,
vasijas chicas, etc.
Hay que observar atentamentepues sevenden en el mercado, distintas clases de cacha-
rros de barro (arcilla cocida) y de varias calidades. A veces hay que recurrir a talleres
especializados para que nos hagan los cacharros a "medida", y así nos aseguramos la
calidad de sus componentes.
Su función específica, siendo el barro cocido un gran refractario natural, es cocinar parejo
los alimentosy mantenerlosluego con la temperatura ideal, por muchotiempo, al servirlos.
Tablas de madera multiuso
Son aquellas que complementan el buen uso en la preparacióny el servido de los alimentos.
Vienen de distintas medidas adaptables a nuestras necesidades y de madera dura o
semidura (algarrobo/quebracho/anchico~rar6/etc.).
Sólo necesitan de una buena aceitada o engrasada previa, con ptwiuctoscomestibles,
durante algunosdías paracurarlas y poder usarlas libres de tóxicos.
Sus usos pueden ser:
Corte y preparacion de carnes/pollos/pescados/etc.
Amasado de panificados.
Para servir todo tipo de comidas.
Para servir cortes cuadrados/porciones de pitrasltartas/calzones/empanadas.
Conseio: tener sumo cuidadoen la manipulaciónde losalimentos(limpieza)por lasenfer-
medades tóxicas como la que transmite el pollo crudo (salmonella)/carnes/etc. Ver
"recomendacionespara la correcta manipulaciónde alimentos" (capítulo IV).
Elementos de fundición gris
Como los cacharros de barro, los elementos de fundición gris son muy usados en la
actualidad m la cocción y et seMdo de los alimentos.
No hay muchas variantes en el mercado argentino pero en el caso de querer fabricarlos
a "medida" se debe solicitar su hechura a las fundiciones de4 lugar.
La fundicidngris es ungran refractario usado también en puertasy tiajes de los hornos
de barro. Se puedecocinar enellos y luego usartosparaservir. Los más usuales son las
fuentecitas redondas con o sin asas, que se apoyanen la mesa, colocando una madera
por debajo paraque no queme. Otro elementode importanciason lasfuentes ranuradas
o parrilladasideales para cocinar "a la pancha"dentro del horno.
Enseres
Los enseres son todos los elementos que complementan los ítemsanteriores, infaltables
a la horade cocinar en estos hornos de barro.
-i s usados:
+dlas de corte para carnes/pollos/pescados/etc.
i+iIionesde corteplanopara pizzas/taflss/calzones/etc.
-&ores largosasaderos.
-dores medianosde corte para carnes.
-+m para brochettes simples.
-??esdobles para chorizos/morcillas/brochettes/etc.
-=as largas para dar vuelta las porciones en el horno sin sacar la fuente, y por
.psto, se recomiendauna buenapiedra de afilar de disco grande (muy usadosen los
-7 ecimientosruralescon base de maderay movimiento impulsado con el pie). Origi-
;? y muy prácticos.
?SNOSADAPTADOS A GAS
sdaptacióri de un pico de gas, o quemador en estos hornos, requiere para su insta-
?nde un gasista matriculado.Como guía práctica, le damos algunos consejos:
:cinstruir el horno de barro y tener ya decidido el doble uso leña/gas, se debe dejar
-!isto un caño amurado en la bóveda del horno del tamaño que el matriculado sugie-
Estecaño deberá sobresalir internay externamentey ser roscadoo preparedoen sus
'.emos para la conexión posterior.
jar indicado puede ser variable, los más comunes son:
Jre un lateralmuy cerca de la puerta, loque permitecocinar con la mismaabierta sin
er calorías pues actúa como una cortina de calor.
x e bsfondos o lateralesen el espacio al que no lleganlasfuentes. Laalturade colo-
5n deberá ser a 7 cm del piso del horno.
artefactos más usados son:
iero en media luna, hecho a medida con una o dos prolongaciones perforadas con
! de gas y válvula de seguridad ¡-as junto a unrobinetede mínima/ máxima.
quemador simple o doble; es m& práctica que el anterior con paso de gas, válvu-
! seguridad y robinete de min / max.
lgunos casos, cuando el horno es muy grande y el tiraje de ventilación (oxígeno)no
iza, se puede agregar un quemador de gas con forzador de aire. Este elemento es
usado en hornos comercialesque en los hogareños.
10se cocina con gas
la aplicaci6ndel gas en nuestro horno, nos vamos alejando del tradicional modo de
lar; no obstante, se los puede usar de las dos maneras, combinadas o indepen-
,es una de la otra. Aquí los ejemplos:
los combinados gas / leña: se aconseja, para no perder el gusto ckhico calentar-
merocon leñay sostenerloluegocongas a mediapresión,dejando la brasitaalcos-
y aromatizándolo constantemente. De uso frecuente, pues con muy poca leña
iiere el aroma que luego se continúa. Es limpio, pero el ambiente que se crea inte-
iente es algo húmedo (idealpara panificación).
ELGRANLIBRODE LOS HORNOSDE BARRO
Hornos a gas: Con el horno limpio por dentro, se prendeel quemador cerrando la puer-
ta, dejando solo la tobera abiertay se entorna el registro de humootap6n de salida del
tiraje sin cerrarlo del todo. SQue calentando por 1 hora aprox. A fuego medio no muy
alto y luego se cocina con el quemador encendido o no, con la puerta abierta o cerrada
(segúnel quemador), dependiendo de la marcacibn del reloj pirixnetro. Rápiday limpio,
sin mucho gusto a horno de barroRse recomienda colocar un poco de brasa para ahu-
mar el húmedo ambiente internoque se forma durante la cornbustidn.
Idealespara uso continuo.Unasolución apropiada paracontrarrestarlahuwadiambiente
es colocar un recipiente(al costado interior del horno) llena con sal g m uotra solución.
También se puede"ahumar"el interiorcon2tstillasderobleuotramaderadurantelaoocción.
Ver Dibujo no17
Iluminación de hornos de barro
Antiguamente la iluminación era96toparabgrandeshwnosde panama que pwsu gran
capacidad interna para cocinar los panificacbsse losdebía tener mluz constantemente.
El método, muy sencillo, se basaba en abrir un boquete sobre el frmte del Rwno que
podría ir tapado o no.
El hueco de cim0,30x 0,30x 030 mde profundidadiba acompañado de una bombi-
lla eléctrica común, protegida por un chapón de hierro. Esta primitiva iluminación, por
demásefectiva, es adaptable a nuestroshornospor mediode artefactoslumínicoso hue-
cos preparadosespecialmentepara cuando levantamos la bóveda, tal cual lo hicieronen
la construcción de los grandes hornos panaderosde antaño.
Siempre es aconsejable tener en cuenta su ubicaciónen la bóveda. No se debe colocar
alto o medio alto, pues la Iámparase llena rápidamentede hollíny no ilumina. Lo ideales
que se coloque a unos 10 cm del piso, lo más adelante posiblecon la debida inclinación
hacia el interior.A continuación,detallaremos los dos tipos de iluminaciónmás usados:
Artefactos para iluminar bóvedas
a) Spot pesado:
Sobre uncaiio de hierro de aprox. IM"' de espesor, 3" de d i ~ ~ € ? t ~ ~y 30 cm de largo se
le suefda en un extremo una tapa rebatible y en el otro un soporte:para portalámparas.
La lámpara (que puedeser reflectora)se guarece de la combustión al cerrarse la tapa
del interior con un pasador del lado de afuera. La tapa donde va este portalámparas es
de quita y pone con mari-s con unagujerocentral para pasar un cable aislado para
calor.
Otro método consiste en aplicar a uncaño similar un vidrio de alta temperatura (1000°C
a la rotura) quedando fijo. El d n o deberh ir pegado con silicona de alta temperatura al
caño. No sirven los vidrios de cocina común, ya que se rompen al instante con la llama.
Estos caños también pueden ser de fundición gris y deberán tener lengüetas de amarre
parafijarlos en la bóveda del horno.
's abra quedana gusto del que manejeel hornoperoel campovisual tendrá que
-9bien la posiciónde las fuentes, según lo explicamos en el puntoanterior.
,amóvil:
x a una puerta de medidas 0,20 x 0,20 m aprox. según el tamaño del horno,
Ja en fundicidn u con marco y puerta de doble chapa fuerte, de igual modelo a
lal.
fla, cuyo marco irá adherido a la pared lateral de la bóveda, cumplirá la función
lar tal cual lo hacían las antiguas iluminacionesde los hornos panaderos, pero
recauciónde que aquí no hay escape de temperatura.
colocado y ubicado el marco, según nuestra necesidad y tal como lo describe
anterior, se colocasobreéste la puerta (abisagrada)a la que adherimos el equi-
ico que consta de:
Portalámparade cerámica
Lámpara incandescente para alta temperatura (hasta 600°C)
Cable de conexión fibrado para alta temperatura
Cañitos y terminales decorativos finales
abre y cierra con la puertay se acoplaa un toma cotccadoEXla cercanía. El equipo
puede ser doble (dosluces),según la Recesidad, pero no tenemos que ohidar-
uidarel detalledeltamaño de lapuertaparaque lasbombillasnotoquen la mima.
,uciona seguir en este caso es que cuando el horno se está quemando a pleno,
abrir la puertay no exponerlas bombillasa la llama. Sólocerrarlacuando laque-
aya bajado.
puerta (y el marco) se coloca sobre la parte exterior de la pared (bóveda),se
Irmar el hueco con inclinacionespara una mejor iluminación.
para horno de barro
iltatanta sofisticación?
ie si tenemos la bóvedailuminada, podremosobservar nuestra cocción.
nos que abrir siempre la puerta para mirar la cocción?
ión hace que, por cada apertura de puerta, la bóveda pierdahasta20°C de tem-
Imposible realizar un hueco como en el horno de panadería.
Oemos entonces un vidrio de alta temperatura como puerta?
damos vidrio t&mlcode 1M30"Ca la rotura.
:r una solución, aunque lo ideal y que no rompería nuestro esquema básico es
xporarle una tronera a la puerta que hará de visor.
ar alrededor de un horno de barro se transforma. Desde la preparación de los
s hasta la degustación de los mismos.
ELGRANLIBRODE LOS HORNOSDE BARRO
La madera, fiel aliada a la hora de elegir nuestro "mobiliario campero para hornos de
barro", será la encargada de dar forma a la siguiente lista:
a) Mobiliario paraexteriores
Madera a utilizar: lapacho, pino impregnado, pino saligna, incienso, anchico o cualquier
madera para exterior dura o semidura.
Componentes:
Mesadaadosadaal horno: idealparaapoyar lasfuentes a laentradao salida, ancho míni-
mo 40 cm. Puede ser fija, rebatible o de arrime.
Mesa de trabajo: cómoda, alta (un poco más de lo normal pues muchas veces trabaja-
remos de pie)se recomiendade 85 cm. Ideal para preparar los alimentos.
Mesa para comer con bancos o sillas: podemos usar la mesa de trabajo para este fin.
El sector de un horno al exterior deberá tener follaje cercanolhojarascalarbustos1árboles
es decir buena sombra en el verano y mucho sol en el invierno. También tenemos que
tener en cuenta lugares de guarda para utensilios y complementos, leñero, etc.
b) Mobiliariopara interiores
Madera a utilizar: cedro, pino, lapacho, álamo, o cualquier madera resistente blanda o
semidura.
Los componentes en el interior son los mismos que los de exterior, variando su comodi-
dad al encontrarnos con mesadas ya hechas y otros muebles de la decoracióndel lugar
(quinchos,cocinas, etc.).
Ideales son los lugares para "esperar" en cómodos sillones, tomando un matecito con
amigos o familiares o saboreando las entraditas que salen en primera "fila" de nuestro
horno de barro.
EMPAVONADOS
Su definición exacta es dar pavón a los objetos de hierro.
El pavón es el color que toman (un negruzco azulado oscuro) luego del proceso.
El procesode empavonamiento es sencillo, pudiendo realizarsede 2 maneras:
a) Untando la superficie de fuentes, hierro, herramientas, etc. con un aceite comestible
para luego llevar a fuego reiteradasveces. El fuego no será muy fuerte, porque se eva-
poraráfácilmente el aceite secando la chapa 1hierro.
b) Preparandounacisternabajasobre unmecheroespecial, llenamos con aceite o gasoil
y dejamos hervir sumergiendola pieza a empavonar.Este método es complicadoy debe
ser realizado por personal competente (herreros, artesanos, etc.).
Nuestro hornode barrotiene laparticubndadde empavonarpor sus propios medios. Por ejemplo:
Aceitar repetidasveces durante la quemazón el interior de puerta y marcoy el exterior de
tiraje de humo y todo elemento adosado a la bóveda.
Aceitar fuentes y elementos de uso y colocar sobre la quemazón repetidas veces. Estos
métodos caseros dejan la superficie apta para cocinar sobre ellas (fuentes)y evitan que
el óxido arrumbe y ensucie puertasy tiraje.
1 n este capitulo, abordaremostemas relacionadoscon el buen uso de estos hor-
tnos do barro.
Los consejos y las recomendacionesson tomados en base a experiencias per-
nales, en loque respecta al cocinado de alimentos.
1s temas sobresalientes en este capítulo son:
Maderas a utilizar
Aromatizantes
Primerosfuegos y curado del horno
Cómo encendemosel fuego
iA cocinar!
Recomendacionespara la correctamanipulación de alimentos
Proteccionescontra incendios y quemaduras
Quemaduras: Primeros auxilios
sderas a utilizar
te y los próximos items son casi. sin lugar a dudas, los más importantes a tener en
enta, pues son la vida útil de nuestro hornode barro.
lué maderavamos a utilizar?
esencialque el fuego, que es sólo calor producidopor la combustión, nos iricxxpore la
ergíacalórica suficientepara cocinar nuestros alimentos lo más sanos y ricosposible.
N deberá elegir muy bien la madera para ia combustión. Según sea la zona donde viva-
1s o se encuentre nuestro horno, será la madera a utilizar. Por ejemplo: son recomen-
blestodo loquesea de poda (seca)idealesparael primerfuego, enramitasfinaso tron-
'tos,maderitasde cajones de fruta y verdura, álamo, chañar (ideal), eucaliptus, piquillín
d a maderablanda a semidura. No aconsejarnos el uso de maderascomo el anchico,
gró, quebracho, etc. por su poder calórico que retarda la combustión. Sólo en algunos
sos, se usanestasúltimasparaaromatizar. Loideales darle llama intensa, muchallama.
omatizántes
-&mino de la combustión, y según sea el alimento a cocinar se puede "aromatizar" la
de un hornode barro. En hojas, o ramitas, estas plantastienen lafinalidadde dar
toque personal a nuestras preparacionesgastronómicas. Se introducen húmedas o
:as (no mucho), ahumando profundamente la bóveda. Algunas recomendadas:
- Laurel
- Tomillo
- Romero
- Albahaca - Orégano
- Menta - Estragón
- Canela - Perejil
11~elassobre las brasitas un rato antes y durante la cocción de los alimentos.
3 misma manera, se puede aromatizar con virutas de: roble, lapacho, cedro, que-
::Y,guatambú, lenga, etc.
ELGRANLIBRODE LOS HORNOSDE BARRO
Primerosfuegae y curado del horno
Unavez terminado nuestrohornode barro, se deberá dejar asentar y secar bastantebien
hasta que )os materialesque lo componensequen y se acomoden.
Por el contrarioalgunosfabricantes sugieren prenderlosenseguidadeconstruidos loque
a nuestro entenderes ungran riesgo por la rápida calcinación que sufriría el adobe fres-
co.
Esa calcinación corta su "tiempo de secado normal"y lo precipita hasta desgranarlo.
Un adobe bien amasado necesita su tiempo de secado hasta obtener cierta dureza. El
tiempo que le daremos de presecado será de aproximadamente 7/10 días menos en
verano y más en invierno y de acuerdo con la situación meteorológica.
Aconsejamos tapar el horno, una vez terminado, por 3 días.
Nuestroprimerfuego iniciaráel "curado" del horno de barro, que se extenderápor 7 días
seguidos, calentándolo de menor a mayor según pasen los días.
Damos a continuación un ejemplo práctico:
Primer &a: un fmgo c m p s t o de ramites/ mderitas y algunos tronquitos de leña de
chaAar. Total de fuego: 1 hora a la mafiana -1 hora a la tarde.
Segundo día al cuarto día: aumentar en 1 horay media por ver.
Quintoy sexto día: aumentar en 2 hs. por vez.
S6ptimo día: nos preparamosa cocina coneste fuego. Aconsejamos una horay media
de llama constante, alternando al chatiar (primeramedia hora) con el piquillín el resto del
tiempo. Aromatizar a gusto.
C á m encendemosel fuego
Abrimos la puerta y el registro de humoo el tapón de chimenea.
Introducimosen la bóveda unos bollos de papel rodeados de maderitas o ramas secas
y la primera pila de troncos finos de chañar. Encendemos y veremos cómo el papel
enciende las ramitasy las maderitasy éstas la leña que se consumirá rápidamente.
Superponemoselrestodea pocoparaque noseahogue.Todaestaoperaciónduraráapro-
ximadamente 1hwa y media, según loveremos en el próximo ítem "A cocinar".
iA cocinar!
A esta altura ya hemos curado el horno, hemos elegido nuestra madera para la com-
bustióny nuestro aromatizantefinal. Ahora, paracocinar nuestrosalimentos, deberemos
regirnos por nuestra destreza o por el reloj pirómetrodel que ya hablamosen el capítulo
anterior,
Si el horno no tiene reloj pirbmetro, se verificar&si está a punto cuando después de 1
horay media aproximadamentetiremos una bola de papel al centro de la bóveda limpia.
Si se prende muy rápido, está muy caliente y hay que dejarlo enfria; si no se prende
enseguida, le falta fuego y si solo se dora, "estaa punto". De ahí en más, nuestra des-
Wza y experiencia nos acompañarán.
~rqtrarionuestro horno posee reloj pirómetro, "todo ser&más fácil".
r $e la horay media de calentado y cuando la brasa ha bajado y ya hemosaro-
?. tapamos la salida del tiraje y cerramos la puerta tomando la temperatura del
3 ouerta que nos acompañarátoda la cocción.
xición, mostraremosuna tabla comparativa de temperaturas ideales.
ninar todo tipo de carnes: arranque 350°C, desciende a 250°C
mar panificados (harinas): arranque 280°C,desdende a 220°C
1s prácticos
mperaturasno son absolutas, puedenvariar según el tipo de comida y el tipo de
ebe cocinar cuando el arranque según reloj sea más de 360°C, como tampoco
cocinar cuando el reloj marque menos de 200°C.
:sode que el horno este muy fuerte, se lo deja enfriar abriendo la puerta unos
iso de que el horno este muy bajo de temperatura, se debe volver a calentar
de 3WbCde arranque).
4ficados, se recomiendacolocar 1 recipiente rnetAlicocon agua hervidadurante
h.De esta forma, se cocinará en un ambiente humidificado.
o aves o pescados con piel muy sensible se los debe arropar con papel de alu-
;primeros 15 minutos.
mescomo IecMn, cordero o ternerase les puededar un toque de dorado con
tura fuerte y dados vuelta y vuelta.
se cocina en la misma fuente. ésta debe ser "empavonada" o esmaltada para
el calor. Si no bestá, coloque papel de aluminio para no contaminar.
ea la receta, puedecocinara lafuente o a lafuente con pamlladesgrasadora. En
-a,se cocinará en sus propiosjugos; y en la segunda, totalmentedesgrasada.
equeen el casode cocinarpollos, estoscaben mássi los presentaenteros(ata-
3s patitas) perotambién tardan mas en cocinarseque si b s presentaabiertos.
so de fuentes con parrillas divididas, coloque siempre las carnes al fondo y las
rnAs cerca de la puerta (morcillaen primer lugar).Siempre el mayor calor estar6
?ndoy el menw cercano a la puerta.
)?amuchocuidado con el calor de puertas y manijas y fuentes. Este puede ocasionar
%maduras.Trabajecon lasherramientasy losutensiliosdesaiptosen el capítulo anterior.
-abajaendoble pisoconsoporte recuerdeque en el pisodearriba habrámuchocalor.
? será ideal para lascomidas que tardan un poco más (papas/batatas/etc.).
dmente, NO SE DESANIMEsi lascosas no salen bien al principio(sino le cocinó y se
3 la temperatura, si salió crudoa muy quemado, etc.].
;tique mucho y sea persistente. De esa manera obtendrá su brevet de experto asa-
del horno de barro.
:e muchísimosu horno, entable una relaci6ncon éI y conozcatodos sus secretos.
-2 hornoes Unico; por ende siempretiene que instalarloso construirlos enformaarte-
ELGRANLBRODE LOS ~~DE BARRO
sanal, es decir hechos con la mano del hombre con materiales nobles de nuestratierra.
Con el buen uso adquirirá experiencia, la suficiente como para manejarse sin reloj piró-
metro y dar lugar a todas sus creaciones gastron6micas sorprendiendo a familiares y
amigos. Recuerde siempre que cuanto más lo usamás rápido endurecey mejor funcio-
na por el contrario la no utilizacidn ¡o debilita todo, enmohece y lo raja inevitablemente
con el paso del tiempo.
"Tener un horno de barro implica toda unafiiasofía de viday valores. Realmenteun
hobby que, de ahora en más, puede convertirse en una excelente idea".
RECOMENDACIONES PARA LA CORRECTA MANIPULACIONDE ALIMENTOS
Según INPPAZ, OPS, OMS
1) Conservacióny Almacenamiento
Mantenga las carnes en cámaras o heladeras en todo momento, a una temperatura
menor o igual a 5°C para evitar el crecimiento y la multiplicaciixide las bacterias.
Evite la contaminaci&n cruzada durante el almacenamiento. Las bacterias pueden
pasar de un alimento a otro por contacto directo, o bien a través de !as superficies en
contacto c m los mismos.
Mantengael orden dentro de heladeras, congeladores, etc. Separe las carnes según
su especie: carne vacuna, pollo, cerdo, etc.
Controle la temperatura de las carnes en heladeras.
Las carnes crudas y todos los alimentos listos para consumir que necesitanrefrigeración,
deberán conservarse a una temperatura menor o igual a 5°C (menor a 2°C para carne
picada).
Las carnes conservadas por congelacióndeben mantenerseatemperaturasentre-1 2°C
y 18"C, salvo que el rótulo del producto congelado especifiqueotra temperatura.
Tenga siempre en cuenta que los valores de temperatura que se mencionancorrespon-
den a la temperaturaen el interior de los alimentos y NO a la del aire que los rodea den-
tro de la heladera.
La temperatura del aire puede no reflejar adecuadamente la temperatura del interior de
los alimentos,Cuanto másgrande es el producto almacenado, mástiempo tarda el cen-
tro del alimentoen alcanzar la temperatura del aire.
Asegúrese de que existan mínimas variaciones de temperatura durante el almace-
namiento. Para esto, deberá tener en cuenta que: no se deben abrir las puertas de la
heladera constantementey se debe minimizar el tiempo que la puerta permaneceabier-
ta, porqueasí ayuda a mantener la temperatura apropiada y ahorra energía.
2) Higiene personal
Los nianipuladores de alimentos pueden convertirse en vehículo de las STEC (Shiga
Toxiri Producing EscherichiaGoti)y facilitar latransmisión por medio de sus manos. Lave
sus manos antes de tocar los alimentos, despu6s de haber ido al baño, luego de mani-
pular cajas, tachos de basura, trapos, rejillas, etc, Y toda vez que un cambio de actividad
- :Y fa coritaminaciónde las manos. Los manipuladorespueden ser portado-
-c e n a y si luego de haber ido al bai70. no se lavan las manos correctamente,
'-3wnitir la bacteria a los alimentos que tocan.
-+P es un procedimientoadecuado para el lavado de manos.
miento para un oorrectolavado de manos
%n y agua corriente.
;manos una contraotra con jabón vigorosamentemientras las lava.
Jas lassuperficies(incluyendo la partede atrás de las manos, las muñecas, entre
S, y bajo las uñas).
bien las manos hasta que no queden restosde jabón y dejar el agua corriendo
;manoscon una toalla de papel descartableo aire calente.
agua, utilizando la toalla de papel en el caso que lo deba hacer con las manos
$enizadas.
r la toalla de papel luego de salir de la zona de lavado de manos.
?ante contar con las siguientes facilidades en el lavamanos y los baños para
slizar un correcto lavado de manos:
*mitaque personas ajenas o animales domésticos tengan acceso al área
e manipulan y almacenan los alimentos.
iga las ropasdetrabajoen perfectascondicionesde higiene. Cadavez que
S se manchen deberá cambiarlas o lavarlas, desinfectadas y secarlas siempre
posible (ej., delantales de plástico) paraevitar la contaminaci6n de otras super-
e los alimentos.
)ode sufrir una diarrea aguda debe abstenerse de manipular alimentos o
al responsabledel establecimiento paraque éste tome las medidascorrespon-
sza y desinfeccidn
tareas de limpieza y desinfeccidn diariamente para asegurar que todas las
$1 hogar (pisos, paredes, techos, áreas auxiliares) esten apropiadamentelimpias,
lo los equipos y utensiliosque se utilizan paraesta tarea.
que estén en buenas condiciones higiénicas y ordenados, antes de comenzar
s y durante las mismas. Para alcanzar una adecuada condición higiénica se
realizar tareas de limpieza y desinfección.
significa eliminar la suciedad visible de las superficies-restos de carne, huesos,
2.- mediante el uso de agua, detergentes, cepillos, etc.
:tarsignificaeliminar lasuciedad novisiblede lassuperficies-microorganismos-
! el uso de productos químicos desinfectantes, agua caliente,vapor, etc.
deber6 mantener limpioy desinfectado?
1s:cuchillos, tablas, recipientes, afiladores de cuchillos, ganchos y todos los
que utilice.
ELGRANLIBRODE LOS HORNOSDE BARRO
Equipos: máquinasde picar carne, cortadoras, balanzas, mesada, heladerasy todo el
equipamientoque esté en contacto con lascarnes.
Utensilios para limpieza: trapos y todos tos utensiliosque se utilizanpara limpiar y des-
infectar. Se recomienda el uso de toallas de papel descartables para la limpieza de las
superficies. Si utilizatrapos, presteatención a la higiene de lostrapos debido a que pue-
den dejar de cumplir lafunciónde limpiar y convertirseen vehículo de bacterias que con-
taminarán su mercadería. Lávelos fmuentemente con agua caliente y jabón; si posee
lavarropas automático, use el ciclo de agua caliente. Descartesus trapos cada 15 días.
¿Cómo y cada cuánto tiempo se deberán realizar las tareas?
- Parafines de limpieza de utensilios, cuchillos, etc, que entren en contacto directo con
los productos cárnicos, la temperatura adecuada del agua es 65°C.
- Parafines de desinfección de utensilios, cuchillos, etc., que entren en contacto direc-
to con los alimentos podrá utiiizarse agua caliente a 80°C durante dos minutos como
mínimo, disponiendo la superficie a desinfectar de forma tal que puedaestar sumergida
bien en el agua duranteun tiempo no inferior a dos minutos.
4) Consejos
La desinfección puede realizarsecon agua y lavandina. Recuerdeque toda vez que rea-
lice la desinfeccidn mediante el uso de estos productos, deberá eliminar completamente
los residuos del desinfectante mediante un enjuague completo de la superficie tratada.
Nunca aplique de manera conjunta detergente y lavandina, ya que el material orgánico
(detergente) inactiva a la lavandina, perdiendo así su acción desinfectante. Además, la
mezcla de ambos productos provoca la liberacion de vapores tóxicos.
Todo el equipamientoy los utensiliosdeberán higienizarseantes de comenzar lajoma-
da de trabajo, al finalizarla y a intervalos de 4-5 horas durante la misma, a menos
que se mantenga la sala a una temperatura inferior a 10°C, en cuyo caso se podrán
espaciar más los intervalos para la realización de las tareas de higienización.
Mantengaen buenas condiciones de higiene y orden el lugar destinado a la elimi-
nación de los desechos. Los tachos de basuradeberán tener bolsa y tapa.
Protecciones contra incendios y quemaduras
Como lo hemos visto ya en otros capítulos anteriores, nuestro horno de barro funciona
sólo si hay combustión interna dentro de la bóveda, producida por la quemazón de
maderas,hojas, ramitas,etc. Se deben extremar los cuidados y, por supuesto, estar pre-
parados para una ocasión de incendio o quemadura. Por muy leve que éste sea, la "pro-
tección" es ipportantísima.Por ello aconsejamos lo siguiente:
Al encender el fuego interno no utilice solventes, querosenes, naftas o cualquier ele-
mento peligroso, ya sea por su toxicidad hacia la comida a realizar como por su rápida
combustión
Aleje a los niños en el momento de la quemazón, pues las llamas suelen salirse por la
puerta y por la chimenea unos 50 cm aproximadamente.
-73 muchocuidado al acercarsedurante la quemazón,a cargar con más madera @
- Extremesu precaución en manos, brazosy ojos.
40extraigabrasasutilicelas herramientaspropiasque se recomiendanen el Capi-
v NO IMPROVISE.Estéatento a lacaidade brasitasen el piso, pues son muy peli-
:S al ser pisadas.
'zque la puertadel horno de barro ni el tiraje de la chimenea sin protección (guan-
-300 mojado, etc.).El hierro se calienta con muchafacilidad durante la quemazón y
rcion. Tampoco introduzcasusmanossinproteccióndentro del hornodurantelacoc-
3 la mesada sobre el horno es de madera, extreme los cuidados cuando se pro-
2 la quemazón y el retiro de las brasas.
dese con las puntas de herramientas y utensiliosque trabajen dentro de la bóveda
-te la q u m x 6 n y cocción; éstas salen muy calientes del interior y tendremos que
var muy bien dónde las apoyamos.
sndo trabaje c mfuentesy parrillas,tenga extremocuidadoal moverlsacaridarwel-
:., pues la grasa o el jugo de la cocción puede ocasionar quemadurasgraves si se
a o salpica.
lga siempre a mano agua o baldes de arena muy cerca en canillas o mangueras.
es el uso de extintores para incendios aprobados reglamentariamente.
I se desespere, no arroje fuentes/henamientas/parrillas/etc. si se quema, puede
r más personascerca y resultar dañadas.
permita el uso del horno a niños, ni que jueguen debajo de él, sobre todo cuando
está apoyado en bases de madera.
igacuidado con la hojarascade decoraciónsi ésta estaal lado de la chimenea (peli-
le incendio).
nadurac: primeros auxilios
urre alguno de los accidentes que hemos descripto en el ítemanterior, se aconseja:
toma fuego en buena parte del cuerpo, apartar a la persona del fuego, usar agua
l, proteger con trapos las zonas quemadas y dar palmadas. No dejar correr porque
go se reanimará.
manos, brazos/etc., es mejor colocar la parte quemada en agua fría, no debajo de
iilla, sino en un recipiente con agua fría. Renovarla a medida que se entibie. Para
ierida leve, el tiempo de inmersiónes de media hora como mínimo.
caso de quemaduras grandes, no sacar la ropa pues sacaremos parte de la piel
iada. Envolver a la personaen una sabana y mantay llevarlaal hospital con urgen-
;i hay dolor darle una aspirina.
grandes quemados, darle agua y sal cada 15 minutos.
unaquemadurapequeña, lepodemoscolocar unapomadaperosiempreantecual-
emergencia, recuerde consultar a su mtJdico o concumr al centro asistencial más
no.
caso de dificultadde trasladoy de asesoramientopuedaseguir lasinstruccionesde
'-m,mientrasse procura asistenciamédica.
CONStws uIILES
A LA HORA DE COCINAR
Y
a hemos visto en Iuc capltulos anteriores todo lo referido a temperaturas, coc-
cih, usos, recomendaciones, etc.
A modo de resumen, indicaremos una serie de consejos a tener en cuenta a la
hora de cocinar nuestros alimentos en un horno de barro.
Elección de la maderaa quemar:
Según sea la comidaa realizar, prepararemosla quemazóny el aromatizado de la bóveda.
Dato útil paracarnes: calienteel horno con chañar, piquillíny aromaticecon romero.
Para panificados: caliente con piquillínsin aromatizar.
Relacióntiempo-temperatura:
Siempre es preferible calentar el horno de más. Para bajar la temperatura siempre hay
tiempo, pero para subirla iiitendremosque empezar todo de nuevo!!!
Como medida prácticay que no falla: 1 hora y media de fuego (llama)constante le ren-
dirá unas 3 hs de buenatemperatura (paracarnes).
Administración de la relación tiempo-temperatura:
Planifique con antelación qué alimentos va a cocinar.
Una vez que el horno de barro se prende, conviene aprovechar al máximo toda su tem-
peratura.
Por ejemplo, las primeras cocciones, donde las temperaturas son altas, resultan efecti-
vas para la c w i ó n de carnes. Luego, vienen las empanadas, pizzas, tartas, calzones,
verduras, pastas, etc.
Para combinar los tiempos, cocine primero todas las carnes; luego con el calor sobran-
te, dedíquese a los panificados. Junto con la carney casi al final de la cocción de éstas,
puede calentar rapldo empanadas, verduras, pastas. De esta manera los comensales
podrán degustar mas de un plato en una sola cocci0n.
Un consejo saludable: cocineprimerola carne (poIlo/lechón/cordero/res, etc.),y antes de
sacarlo del horno (unos 10minutos), cocine unas ricas empanadas.
Junto con la carne, cocine las papas y verduras y sirva, no olvidándosede darle un gol-
pecito de calor al pan del día.
Mientrascome, cocine los panificados (panes,tortas, galletas, etc) paraluego agasajar a
los invitadoscon el matecitode latarde, con dulzurasy de regaloobséquielesun ricopan
caliente.
Finalmente, muchos amantes de la cocina al hornode barro dedican un día para pre-
parar sus comidas realizando no sólo la del momentoo la de la Cena, sinotambibn, para
toda la semana.
-90de la cocción se pueden freenar carnes, panificados, prepiudmasas, o guar.jzr
-:panesde todo tipo paratodos losdías;éstospermaneceránfrescos por mucho mas
U Fnpo que loscomercializadosen plaza.
':onsejamos envolvercon papelfilm (panes)y papel de aluminio (carnes, etc.) lo que va
'wzar.
"ADMINISTRANDO MUY BIEN EL HORNO DE BARRO, SE CONSIGUE UNA GRAN
ECONOM~AHOGAREÑA,SUMADOA LA EXCELENTECALIDADDESUSCOMIDAS".
RECETAS ESPECIALES PARA HORNO DE BARRO
temperatura de 3500 C) co!oqueel pollo mnsOmé de poilOr lr2 taza.
sobre una band~iasin rejilla y cocine 1/2 taza.
hasta que dore (45 minutos aproximada- de limón, cucharadas.
-Receta N% -
T O ~a Iá naranja
mente). Delo vueita para que el dorado ' . - -sea parejo.
Mientrastanto, combine el resto de los ingredientes p r i un tLx?ngrande.
~ s t e p o l l otiene un ykndídoaspecto rfe
hanquete y resuka excehntepara of;ecerb
en ha c m a sus invitad&.
PREPARACI~N
Arregle el pollo, ya que se cocina entero.
Untelo con manteca sazonada con sal,
pimienta y tomillo oor dentro y por fuera.
Can el horno m iente (inaresar a Imi
Vierta la mezcla sobre el pollo ya dorado y cocindo 1 %ra mas. darldolo vuelta (por
lo menos una vez) y rociándolo constantemente.
Al finalde este procesode cocción, hierva losjugo. o ~ i sxti?el pollo inezcladoscon
la salsa, espere que espese y rocíe finalmente 31 SPR Ir l ~ .
INGREDIENTES
(4 porciones)
Polloentero, uno de 2 k.
Aceite o manteca, 2 cucharadas.
y pimienta.
Una pizca de tomillo.
de naranjas y 112 taza.
Cáscara de naranja rallada?1 taza-
PRESENTACI~N
Sírvalo entero, adrmado con gajos de~orativosde naranjafresca y jugosa.
ACOMPAÑAMIENTO
Sirva con papas a la criolla.
ELGRANLIBRODE LOS HORNOSDE BARRO
vuelta 2 d 3 veces, rociándolocon la salmuera.
Tiempo de coccidn:
A punto: 50 minutos.
Cocido: 1 hora.
Bien cocido: 1 hora20 minutos
PRESENTACI~N
Al plato, con decoracióndi verduras.
ACOMPAÑANIIENTO
h z cocido al horno.
ELGRANLIBRODE LOS HORNOSDE BARRO
l
í a com6ínación a r t é c d 6!Ios
íyjrdíentes, que cmnúnmente se
encuentranen cuafquier cocina,yued!
convettír una simple hm6ur8uesa en
una hltcía que &e q u a la boca.
PREPARACI~N
Combine la picada, el huevo y el ketchup
en un tazón que contenga la sopa de
cebollay el ajo. Sazonecon saly pimienta.
INGREDIENTES
(4 Porciones)
Picadaespecialdesgrasada, 1/2 k.
Ketchup, 1 cucharada.
Huevo, 1.
Sal y pimienta.
Sopa instantáneade cebolla,
1 paquete.
1 diente de ajo finamente picado.
Arme las hamburguesasde lamaneratra-
dicional, tratando de unificar bien el bollo. Caliente el hornoa temperatura media 3000
- - . . . . .. .. . ... . - - .
c;.NO saque las brasitase introduzca"có~oia parrillasin fuente". por la rapidezen que
se cocinan, es ideal para realizar las clásicas "harnburgueseadas". Delevuelta y vuelta
y las mismas quedarán selladas y marcadas. Estaoperación se debe realizar "a puerta
casiabierta"mevitarel acimado.Si no auier~utilizar la ~arrilla.corralas brasasa un
costadoy, en unafuente acitada le~rrnente(o engrasada), realicelacocción.
PRESENTACI~N
Al plato, con las diferentes guarnicinner q ~ i i: indican a cantinuación, o sda con
un pan para hamburguesacortado ai mrrf*c.
Uvasverdes y rojasmrabanitos
Salsa detomatesy cebollines
Mostazade "Dijbn"
Champiñones rebanadas y perejil.
Aceitunas y queso
Hongosalavinagretacon semillasde sésamo
Vinagretade c o l ¡finamente picada
Germinadosconcebollamorada
KNviy estragón
Rabaniiospicantesy jengibre
Pepinilloscon salsa barbacoa
Puerrosalteado
Berenjenapicada
Nar: ryar ;p n71Eriajrn-,xias
Rebir31jasI;: i-atfilla rnciraday blanca
Melm y eutragsq
vmAnchoasy da,,
Pimientosde 2 o 3 colws
Cebnilinesde tai':l lar@o
Pepidosy cebollas miniatura
Tomatesy albahaca
Salsa paracarney pizcade tornillo
W v a z a f r h
Rábmosrojosy Mancosconromero
Calabacitasrebanadasy floretes decoi¡¡
Agreguesu propiaseieccionae quesoraiaaoacuaiqwaae iascomotnacionesmencionaaas.
asado de cerdo
~Schásúo''Ldh~criolló" alh o di
barro. una tradúwn argentina c m
pocas.
PREPARACI~N
Caliente el aceite en una sartén, selle el
asado por todos lados y colóquelo en
una fuente grande con parrilla desgrasa-
dora, con las costillas hacia abajo.
Mezcle el agua, la melaza, la mostaza,
sal y pimienta t?n un tazón; después
vierta sobre el I~chón,t a p ~con papel
de aluminio (los r~rimeros15 minutos) y
INGREDIENTES
(10112 porciones)
Lechónde 12 k., 1.
Aceite de maní.
Sal y pimienta.
Agua, 3 tazas.
Melaza, 2 tazas.
Mostaza, 1 taza.
Féculade maíz, 1 taza.
Caldo de pollo, 3 tazas.
Vinagre de vino, 5 cucharadas.
hornee por una hora y media. rociándolocada 20 minutos aproximadamente sin
darlo vuelta.
Pasados los20 minutos, saque el lechóndel horno. Disuelvalafécula de maíz en un
tazón con el calcio de polloy deje aparte. Mientrastanto, quite el exceso de grasa
del jugo donde se cocinó la carne, agregue el vinagre y la fécula disuelta y hierva
mientrasrevuelve constantemente. Sazonea gusto y utiliceesta mezclaparacondi-
mentar el asado. Sírvalo frío o caliente
RECOMENDACI~N
El horno debe estar debidamwte calentado (aproximadamentepor 2 horas), estan-
do la temperatura al inicio de pntrar el asa& en unos 400" C (por ello el papel de
aluminio, para que el primer calor no queme o1 cueroi
PRESENTACI~N
Cortado en trozos, adobado con la mezcla de conciirri~nt~
Si desea "decorarlow,rodee la fuente con anillos de ra3w t ~ sxtnahorias, etc.
ACOMPAQAMIENTO
Verduras varias, como batatasacarameladas, papas y zanahorias al horno.
VERDURAS AL HORNO
Lave las verdura.; con la cáscara; en d caso de la batata, imtela con miel y azúcar.
Envuelva cada una con papel de aluminio y cocinelas 1 hora sobre la brasa del
horno. Puede cocinar papa, batata, zanahoria, morrones, cebollas.
--.
Limpie el carre qui:w?- 1. -. --- -
(,+2 2 1 - > r . -de grasa; haga un c.
gar a los extremos ~ 7 ~ ' - ' - ~ -
especie de bolsillo.
Rell6nelocon laTapenade 4's - -- r-
apretadamente; salpiment~c r ' =.'
úntelo ligeramentecon aceite Y ll?.= _ r
horno de barro, cocinándole aprw-1.-
darnente unos 35 a 40 minutosdanc?-
vuelta a la mitad del tiempo.
PRESEN
Sirva la c
Una receta hp"a di b drepatría,
ffseramentemodífiadÚ.
Lec
PREPARACI~N de
Coloque el cochinillo sobre la mesada, Ajc
con la piel haciaabajo, limpie bien y ase- Sal
. . . . . . . F r l
.J.U. .Vi
al, pimienta,
sque con un papel
ACOMPAÑAMIENTO
Morronesasados sin piel, aderezados con awite dr 11 c: 21: rI :--1' sal y pimienta.
-Receta @g -
mudo de cordero
PREPARACI~N
Derritala mantecaenunacacerolay selle
el cordero por completo.Sazonecon sal,
pimienta y tomillo y agregue los trocitos
de panceta.
Hornee por unos 60 minutos rociándo-
lo constantemente con los jugos de la
cocción (ideal&vio vuelta por lo r n w x
una vez).
INGREDIENTES
Corderito de 10 k., 1.
Manteca, 2 cucharadas.
Sal y pimienta.
Tomillo, una pizca.
Trocitos de panceta, (bien
magra) 1/2 k.
Cebollitas miniatura, 50.
Dientes de ajo finamente picados,5.
Perejil picado, 6 cucharadas.
Agregue las cebnllitas y cocíndo en su jugo 20 minutos mas.
Saque el asado del horno y acomódelo en otra bandeja, manteniéndolocaliente i7
el horno. Saquelagrasade losjugos de lacocción, agrégueleel ajo y el perqily L ier-
ta esta mezclasobre el asado. Sirva caliente.
Temperaturaideal delhorno: 3500 C al arranque.
PRESENTACI~N
Cortado en trozos, condimentadocon la mezcla de jugos d
perejilcomo decoracibn.
esgrasada y h
ACOMPAÑAMIENTO
Papasrellenas.
ACOMPAÑAMIENTO
Se completa la preparacióndecorandocon ui :?-tit.: t; :::-1 .-,I!; ;;ic rxda, algunos
tomates cherry, rodajas de limón, rociando cori[ir1 hil: e+,x;i:c- iriba.
nadas criollas
llévela
INGREDIENTES
Discos de empanadas para
iliente
horno, 2 docenas.
1
ELGRANLIBRODE LOS HORNOGDE BARRO
PRIFPARACI~N
Extienda los bollos sobre las pizreras y
sobre estos la salsa de tomate o bs
tomates triturados. Uevesr hornodien-
te (250° C)y cocine por lo menos 5/7
minutos hasta obtener la empanada
"prepizza".Saque del hornoy agregue el
restode lcls ingredimtes,esparcigtndolos
por la masade prepiua.
Vuelva a llevar al horno por otros 5/7
minutos y sirva.
INGREDIENTES
(Para4/ 6 comensales)
Masa b&sica,2 bollos (2 piuas)
Salsa de tomate, 1/2lata o tomates
triturados, 300 gr.
MozzareHadesmenuzada 250 gr.
Orégano, 2 cucharadas.
Aceite de oliva, 2 cucharadas.
rara que queae a ia pieara esrire lo mas posi~tela masa a m a y a aasea que
quede más crocante, cocine sobre el piso del horno caliente la prepiua con los
ingredientes.
Recetaválida para realizar todo tipo de combmaciones con sus ingredientes.
variedades de?izzas
Cobre la m&a Wka,podemosformar 3 tipos de pina:
-a hpiedra (masafina bien estirada).
-meda masa ( m a ~medianamenteestirada).
-masa parapina rellena (biengruesa y consistente).
PRESM~WGI~N
Las pkas sepuedenpmentar de cñfmnles fmnas. La clásica, en la mismafuen-
te cortadaen 8 triángubs por pinm,o b uttimalovedad es Wi *dglsLPeta~io-
nes"de pizzas cortadas en porcionescuadradas, cenJidassobre tab& de mr#lera
des íidgmth.
unchsíco défhumo 118 6awoy una
mqgnffiEsfmnaa 88 aprowhrlo, fuyo
dé k w un nadítow,cuancló su
Harina 000, 1 k.
tmyeratura a &alpava cocinar efpn. Levadura prensada, 50 gr.
Sal fina, 25 gr,
VARIOS
Materia grasa (aceite, manteca,
Rocío vegetal oleoso, harina, azúcar y 2
grasa bovina), 5 cucharadas.
moldesde aprox. 8 cm dealto, 10cm de Agua, cantidad necesaria (aprox.
mcho y 31 cm de largo. 500 cc).
Disuelva la levadura en un poco de agua tibia conuna pizca de azúcar y deje des-
cansar hasta que se forme espuma en la supemcie.
C.. i ... L.-1 m--,rrl- 1- L.---- 1- m-1 -1 m-. .P. 1," 1- -A. .w .i -1 ---A- *ri.."Ww.irAri i .m..
duura y vi awrra, IUIIIICU iuu ui iil
. .
CI I ui I VVI, t Iw~1;77tr la Iialiiia GUI I ia wi, cn ayua, ia IGV
masa ligeramenteconsistente
Vuelque la preparación sobre la mesaday amase energicamente hasta que quede
elástica, tersa y se desne-LIDsin Miciiitad d~ las manos y de la mesada.
Deje en un ambient~calilv. ';~:c~ai!-,basta 3 ~ 1 i1.3 masa duplique su volumen.
Divida la masa en dos :ar,>r-x!e I r 5 t'z'Y -1 'rs 1 ~ 7 l r j - Spreviamente engrasados
,<.-,,r.79 T.; ~ k - , : ~
> . ,, - - . J . pTDs.
ni:l+,=5;3 45minutos.
ELGRANLIBRO DE LOS HORNOSDE BARRO
Dibujo no3
HORNOS CONSTRUIDOS
EN INTERIORES TIRAJE
A LOS 4
VIENTOS
ELGRANLIBRODE LOS HORNOSDE BARRO
+.- ocC l4
Vi
Q> Dibujo no8
PISO DE LOSETAS
) n n n n 1--
n
a ,) 102 ,/
PISO DE LOSETAS HORMIGÓNARMADO
LOSA REFRACTARIA-CORTE (HORNO CHICO)
Dibujo no9
JUNTA DE ADOBE
TOMADA AL RAS
DISTRIBUCIÓN DEL PlSO DE LOSETAS (HORNO CHICO)
TEJUELA
n'
Dibujo no10
mnLADRlLLo UTEJuEiw
TIPO DE PISOS
- -
ESPESOR DE 4 cm
PUERTA DE FUNDICIÓN GRIS
13L 45 13L11 1
MARCO
1 481
PUERTA
.G
CHAPA 114"
. 51 t
PUERTA
-
Dibujo no11
PUERTA DE HIERRO DOBLE CHAPA
ELGRANLIBRODE LOS HORNOSDE BARRO
LADRILLO
LOSA REFRACTARIA
Dibujo no 12
VISTA LATERAL
DETALLE
DECORATIVO
1VISTA FRONTAL
HORNODEBARROCONTECHADOPROTECTOR
Dibujo no13
ELGRANLIBRODE LOS HORNOS DE BARRO
1 O
'I
UJOL'O
1
PALA- PALA
PlZZERA PARA PAN
DETALLE
DETALLE DE FlLO
DE FlLO
1 DETALLE FILO DE PALA
I
PLANCHUEU
O
w
a:
u
4
Q
O
*O
GANCHO PALA ATIZADOR
DE BRASA
L
a-aW
O
3w
Dibujo no16 Dibujo no 15
Di9
ROBl
SALIDAA TOMA
DE GAS
Y VALVULA
DE SEGURIDAD
PISO DE LOSETAS
i tLOSA REFRACTARIA
E
n
O
S
PICO QUEMADOR SIMPLE
Dibujo no17
63
9
O
?
7
2
Prólogo ............................................................................................................................... 3
CAPITULO 1: Aspectos culturales
El hombre y la cocción de los alimentos ............................................................................ 4
Reseñahistóricade los hornosde barro ...............................................................................5
Generalidades...................................................................................................................... 6
Proyecto del horno de barro ................................................................................................ 6
Tipos de hornos .................................................................................................................. 7
Lugares de emplazamiento ................................................................................................. 8
Orientaciónideal .................................................................................................................. 9
Ubicacióny comodidad .......................................................................................................9
CAPITULO 11: Construcciónde los hornos de barro
Basesde apoyo ................................................................................................................. 10
Losa refractaria.................................................................................................................. 11
Piso del horno de barro ......................................................................................................12
La puerta ...........................................................................................................................13
La bóveda ..........................................................................................................................14
Aislaciones y recubrimientos.............................................................................................. 16
Tirajey conductos de humo ..............................................................................................18
Tipología de materiales ......................................................................................................19
CAPITULO III: Accesorios y complementos
Relojes marcadores de temperatura .................................................................................. 21
Herramientasde uso ..........................................................................................................22
Utensilios de cocina ......................................................................................................... 24
Hornosadaptadosa gas ....................................................................................................27..Iluminacionde labóveda....................................................................................................28
Mobiliario ........................................................................................................................... 29
Empavonados ................................................................................................................... 30
CAPITULO IV: Usos y recomendaciones
Maderasa utilizar ...............................................................................................................31
Aromatizantes .................................................................................................................... 31
Primerosfuegos y curado del horno ...................................................................................32
Cómo encendemos el fuego ..............................................................................................32
iA cocinar! .......................................................................................................................... 32
Recomendacionespara la correcta manipulaciónde alimentos .....................................34
Proteccióncontra incendios ...............................................................................................36
Quemaduras: primeros auxilios ..........................................................................................37
CAPITULO V: Consejos útiles a la hora de cocinar
Recetasespeciales para horno de barro ............................................................................39
Recetano1: Pollo a la naranja ........................................................................................... 39
Recetano2: Asado tradicionalde res ................................................................................. 40
Recetano3: Matambrearrollado "Tatacua" ..........................................................................41
Recetano4: Hamburguesascriollas con 25 guarniciones ................................................ 42
Receta no5: Asado de cerdo ............................................................................................ 43
Recetano6: Carré de cerdo a laTapenade .........................................................................44
Recetano7: Cochinillo asado ..................;-........................................................................... 45
Recetano8: Pierna de cordero patagónico ........................................................................ 46
Recetano9: Asado de cordero ...........................................................................................47
Receta no10: Truchas al natural ......................................................................................... 48
Recetano11: Empanadascriollas ...................................................................................... 49
Recetano12: Piza a la piedra "Margarita".............................................................. .,. ......... 50
Recetano13:Variedades de piuas .................................................................................... 51
Recetano14: Pan casero ................................................................................................... 52
Recetano15: Pandulce ..................................................................................................... 53
Dibujos .............................................................................................................................. 54
Detallede fotos ................................................................................................................. 65
DEUNHORNODEBARRO
(CANÓN CORRIDO),
PASO A PASO
S
e denominan así a los hornos construidosde tal maneraqueel largo (profundidad)
es más grande que el ancho y se f m en el sector ck!puerta un compartimiento
más largo, el doble que el h mcormencional.Estecompartimientoes ideal para
trabajarlo con soportes en 2 o 3 nivelas (para M e s )ya que el fuego se desarrolla en la
parte posterior.
FygY . .
Base de madera de quebracho.
Encofrado perdido e inicio de losa refractaria.
Construcción de losa a nivel.
66
Construcción de losa refractaria.
Llenado con hormigón de losa refractaria.
ELGRANLIBRODE LOS HC~RNOSDE BARRO
Base de quebracho, encofrado perdido e inicio de losa refractaria.
Aplici-.-~nde mezcla refrac--..J sobre nigón.
68
Aplicación de mezcla refractaria sobre hormigón.
Y * -
-a-..-
Colocación de baldwaa sobre loba rdraciaria.
ELGRANLIBRODE LOS HORNOSDE BARRO
Corte saliente de bases, losa y piso.
Vista de piso de baldosas 20/20.
Lknado de junias con mezcla refractarla.
Pmmntaclónde puerta.
ELGRANLIBRODE LOS HORNOSDE BARRO
Constiueci6n de la bóveda.
7-
Construcción de la bóveda de ladrillos y sardinel sobre puerta.
Construcción de la bóveda de ladrillosy colocacibn de chimenea.
ubrlmlmto refractario.
Recubrimientorslteetrño.
Colocación de fibra cerámica y tejido rpoQm mcubrimknto.
Colocación de fibra cerámica y tejido sobre recubrimiento.
Recubrimientorefractariosobre tejido.
ELGRANLIBRODE LOS HORNOSDE BARRO
Horno terminado.
ELGRANLIBRODE LOS HORNOSDE BARRO
Horno terminado, véase detalle de puerta con reloj pirdmetro y tovera interior.
80

Hornitos

  • 1.
  • 2.
    "NO HAY OFICIOMAS BIZARRO QUE EL TRABAJO CON BARRO DIOS FUE EL PRIMER ALFARERO Y EL HOMBRE SU PRIMER CACHARRO" ;de épocasmuy remotas, loshornos-o lugaresdecocciónde losalimentos-, unacaracterísticaesencialen lavida y costumbre de la humanidad. 3eshiMmientodelíuqpel hombre cocinó sus alimentos mediantedistintas 3doselementosdeuso. Unodeellosfue eldecocinaren loshornosde barro. Jaremos conceptos práctico-resolutivosa la hora de construir un hornode ios esta propuestacon pleno conocimientode causa: después de haber EVO país todo tipo de hornos de barro y habertransitado a través de los eno de satisfactorios resultados. e barro unfundamento arquitectónicotan especialpara nuestragastrono- stamente por la aparición de fogones y parrillas, es menester reubicarlos contextohogareño. sintrascendenteFa comparacióncon los demás mediosde cocción (coci- ) impuestos por lasociedad de consumo. Nuestroplanteo nos convocaa S",a lasauténticas, y con su usotratar de poner en prácticauna serie de a costumbres,b y casi perdidas. le barro nos ofrecerá,entonces, compartir en ruedade amigos o en fami- deliciosopan caseroy todo un universo de maravillosas comidas que, de !ncasi mágicamente,en forma naturaly con su gusto exquisito. a de este libro, Ud. conocerá todos los secretos de los hornos de barro, so recetariode comidas especiales.Y le recordamos que... JN HORNO DE BARRO, NOS ASEGURAMOS LA CALIDADY ELECCIÓNDE S.SINEMBARGO,NUESTRAPROPUESTAVA MUCHOMASALLA DEESTO... lTANTE ES NUESTRA CREACIÓNAL COCINAR, EL TIEMPO QUE LE AMOR CON QUE LO HACEMOS Y TODA ESA ENERGIA QUE NOS A CONVERTIR CADA BOCADO EN FRUTODEL CIELO". Le presentamosa continuación: EL GRAN LIBRO DE LOS HORNOS DE BARRO Ricardo Miguel Elías
  • 3.
    A 1 analizar unhorno de barro desde el punto de vista cultural, una de las primeras preguntasque debemos hacernoses si cocinar en éI constituye unaactitud seriao impartante dentro de la vida de la vivienda, o simplemente una manera distinta de alimentamos. Cocinar en un horno de barro es un rito en muchas culturas, que forma parte de intere- ses fundamentales en hombresy mujeres. Puederesultarcuriosoque unaspectoculturalfuera adefinir el interéspor elartedecoci- nar, previoa cualquier otra qwiskleración, Peroes fácil ver que pueden obtenerse distin- tas solucionescuando se piensa en el horno como arte, o cuando se lo piensa como un simple accesorio alimentario. EL HOMBREY LA COCCIÓN DE LOSALIMENTOS Cuando el hombre tuvo & primeravivienda, probablemente una cueva, reciénentonces comenzó a cocinar sus alimentos. Estoes un hecho histOricode singular importancia. El cambio de su condic?Ónde hombre nórnadea sedentario tiene su explicación porque a partir de ese momento, empieza a cuidar de sus incipientes cultivos. Fue así como las gramíneas, que en principio alimentaban a lasaves, pasaron a incorporarse a la alimen- tación a través de una primeracocción, posibilitada por el uso del fuego. Estefuego que solo pudoser usado, mantenidoy cuidado cuando el hombre estableció su primer asentamiento. El hombre comenzó a cocinar casi al mismo tiempo que empe- zó a cultivar sus campos. Y como cultivo es sinónimo de cultura, casi podríamos decir sin temor a equivocarnos, que cocinar es una actividad nacidajuntamente con la cultu- ra del hombre tal cual lo conocemos hoy, A través de la historia, el desarrollo de la cocción fue marcando un paralelismo con el desarrollosocial, político, econ6tnico-técnico,artístico, etc. De estamanera,el tugar para cocinar ha ido transformándose lenta pero definidamente desde el 'alredeúor" de la hoguera hasta el entorno de nuestros días. En cualquier momento de esta transformación, podremos ver la manera casi documen- tal en que el "horno de barro" expresa la situación particular de su usuario y del entorno históricoque lo rodea. Con el tiempo, el fuego, el calor fue evolucionando desde las primeras hogueras y hor- nos hasta nuestros días, sin perderjamas su identidadproyectada en el alimento. Cuandose revenlos aspectosculturalesen el diseñode un hornode barro, debemos observar
  • 4.
    wcho detenimientoqué hposde comida prepárarmo quién/quiénes la prepararan. mtemente, un análisis cuidadoso nos encaminm'a a determinar las necesidadesde 3 usuario de los hornos de barro, porqueaunque estos parezcan todos iguales, nos lrenderásaber cuántas posibilidades de desarrollo se están perdiendo. 3 lo mismo un usuario que lo prende una sola vez por mes o cada tanto, que aquel realmenteaprwechatodo su potencialgastronómicoparasu alimentación periódica. fos son también los ejemplos intermedios, teniendo en cuenta que se cocina con asiduidad (carnes- panificados - etc.). le así otro interrogantedetipo cultural: el hornoy su entorno deben diseñarsetenien- !n cuenta quién o quiénes lo van a utilizar y qué tipo de cocción se realizaráen él. iE6lA HlST6RICA DE LOS HORNOS DE BARRO datosprecisossobreel nacimientodel arte de cocinar en los hornosde barrose pier- en la historia de la humanidad. Su origen, según recientes descubrimientos, nos mta a Egipto (4000años a.c.) y una amplia región, más precisamenteen la media formada por los ríos Tigris y Eufrates. Lugar bendecido por la calidad de arcilla, :lente, muy particular por su dureza y aislación, por lo cual conserva el calor mucho )rque aros "'barros " o tierras arcillosas. ste tiempo de desnibtimientos surge casi de la mano con los hornos de barro una stria, la más vieja industriade la humanidad: "laalfarería". ladoa esto, sevan agregando los "nacimientosculturales"como lofue lafabricaciónde irimerastablas de barro, con las que se hicieronlas primeras escrituras. í, desdeel antiguoEgiptoy através del tiempo, el arte de cocinar en hornos de barro lanifiestaen distintas culturas que reconocen su uso como complemento indispen- ? y necesario para la cocción de los alimentos. igiosarqueológicos los sitúan en lugares muy dispares y alejados unos de otros. En ~pa,p r ejemplo, eran famosos los grandes hornos comunitarios donde expertos ?@roscocinaban el pan del día, primero parael Rey y su corte y luego para la plebe. ;hile e islas aledañas de todo el Pacífico,famosos reductosde piratas, a los hoyos o :os que hacíancon piedrasen laarena paracocinar sus alimentos,se los llamó "bou- m"(deallí el nombre de bucaneros). cercanoa nuestro país, los primerosindiciosvienen de la mano de los indios guarani- stablecidosen el actual Paraguay)que lo llamaban al horno de barro "tatacua" pata: )O, Cua: Cueva). ita la historia que, en la guerra con el Paraguay, las tropas argentinas (en su viaje de a) estaban muy escasas de víveres y vituallas, y en consecuencia demolían estos hor- nos que encontraban a su paso, y tomaban la sal con que sus basesestaban construidas (correspondientesal piso refractario).
  • 5.
    ELGRAN LIBRODE LOSHORNOS DE BARRO EnArgentina y conla herencia de criollos y españoles, su uso se vuelve casi obligado en los primeros asentarnientos rurales y son las regiones del norte-noreste-noroestey cen- tro donde se impuso con más fuerza (Salta-Jujuy-LaRioja-San Juan y Mendoza). Toda esta zona constituyó la "Meca de los hornos de barro". Luego alcanzó, muy lentamen- te, al resto del país. Así, de esta manera, las costumbres gastrmórnicas argentinas incorporan desde un principioa estos hornos de barro,también llamados "hornosde pan, ~livianos,chilenos, de campana, etc." que, además de jalonar una etapa histórica, eran verdaderos baluar- tes de las zonas rurales, expandiéndose su uso en países limítrofescomo Chile, Brasil, Bolivia, Uruguay y Paraguay. ¿Y por qué se llamanhornos de barro? Se los denomina así porque en su construccióntotal (base-bóveda-pisoy recubrimiento) se emplea como base el barro criollo campero, el primer refractario natural que existe, también llamado chorizo o adobe criollo. A este barro, que es una tierra arcillosa selec- cionada, se le agrega, tambidn, bosta de caballa o paja vizcacheray agua, transforrnán- dose, entonces, en unmatefialmuy noble, luegode unadelicaday paciente uniónde sus elementos y su posterior oreado y cocinado. Nos enmtramos aquí con un producto ecológico, refractario, sin cmtaminantes ni efectos nocivosy extraído de nuestra Madre Naturaleza. El barro criollo campero es un material que se encuentra en todos lados, de muy bajo costo, y muy usado en la industria ladrillera donde se lo manufacturacon técnicas tam- bién ancestralesy se lo cocina en altos hornos. GENERALIDADES A continuación, abordaremos toda la información general y prioritaria a la hora de cons- truir o instalar un horno de barro. Tomaremos como modelo el hornode barro clásico u hornocriolloartesanal usadoy ele- gido mayoritariamentepor el gusto gastronómico de los argentinosy su cocina autócto- na llamada "del Río de la Plata". Ya decidida su incorporación en el ámbito hogareño, debemos tener en cuenta las siguientes generalidades: PROYECTO DEL HORNO DE BARRO Cuando elegimos qué tipo de horno vamos a utilizar, debemos primero saber la periodi- cidad de su uso, la cantidad de comensales promedio que degustarán sus comidas y quién o quiénes lo van a trabajar. Un horno chico de unos 0,75 m de bóveda interna (diámetro)puede resultar práctico para que coman unas 8 a 10 personaspor su rapidez de calentado y economía de com-
  • 6.
    TIPO! Al ana y cual Presa a)Ha Medid Altura Calenl Durac Panific Tempf Cantic )le.Por e( contrario, un horno medianode 0,95 m de bóveda interna(diámetro)será o para atender a más de 20 personas. :ocinar para un número menor de comensales, no se justifica el tiempo que llevael idido del misma. IS fabricados en medidas mayores estarán destinados para emprendimientos rcialeso para ser instaladesenhigarescon mayor autonomía de producción. :omienda estudiar muy bien la elección de hornos a construir, en lo que a la medi- erna de bóveda se refiere por la importancia futura de su uso. Es regla aconsejar tanto más se usa mejor funciona pues se endurece su mezclaformándose el ladri- ural y, de esta manera, ahorrará tiempo de calentado, energía y combustible. 3 UTILIZACIÓNDE UN HORNO DE BARRO PRODUCE DETERIOROS EN TODO INTDCTOcon sus consiguientesrajaduras,grietas, envejecimiento, malolor, etc. Deahí ~ortanciade tener muy presente este punto con antelación a su incorporación al S DE HORNOS ifizar el puntoanterior, surge la pregunta sobre cuál será la medida más apropiada acompaíiará mejor nuestras aspiraciones gastronómicas. itamos, a continuación, los dos tipos de hornos de barro más usados: mo de barro chico las interiores: diámetro de bóveda 0,75 m. de bóveda máxima: 0,50 m. Lado:en t / 1 según clima y comida a realizar. iónde temperatura: carnes de 2 a 3 hs. :ación: 4 /5hs. 3raturas sujetas a tipo de aislación (ver Capítulo 11). iad de leña necesaria: maderas secas más 10 k. de leña, ede cocinar (a modo de ejemplo): xhón/corderito de hasta 10 a 12 k.: 1 hora y media. ,110s enteros: en una hora. zzas: cada 10 minutos en fuentes de 30 cm. Fuente para cocción:se elige la medida más grande, es decir la de 0,45 m ancho por 0,75 m de largo. Se puede construir un soporte y cocinar en doble altura. En este caso es necesario acomodar la medida de la puerta. Con esta opción, se duplican las cantidades. Ver Dibujo no 1
  • 7.
    ELGRANLIBRODE LOS HORNOSDEBARRO b) Horno de barro mediano Medidas interiores: diámetro de la bóveda 0,95 m. Altura de Wveda mCtitima: 0,60 m. Calentado: en 1 h / 130, y según clima y comida a realizar. Duraci6n de la temperatura: carnes de 2/3hs. Panificación: 415 hs. Temperaturas sujetas a tipo de aislación (ver Capítub 11). Cantidadde leAa necesaria:maderassecas más 18 k.de leña. Se puede cocinar a modo de ejemplo: # un lechónkorderogrande de 1 metro de largo: durante 1 hora y media. # 10 a 12 pollos enteros: en una hora. # 6 pizzas: cada 10 minutos en fuentes de 30 cm. Fuentepara cocci6n: se elige la medida másgrande,es decir la de 0,45/0,50 m de ancho por 1,00 mde largo. Se puede construir un soporte y cocinaren doble altura (preverla medida de la puerta). Con esta opción, se duplican las cantidades. Ver Dibujo no2 LUGARES DE EMPLAZAMIENTO Luego de elegir qué tipo de horno es el más adecuado para nuestro hogar, decidiremos entonces dónde emplazarlo. a) Hornos construidos en interiores El más común es aquel que se construye en quinchos, generalmente formando grupo con parrillas o bien en cocinas grandes o como un complemento gastronómico. Lo positivo de estos casos es que se pueden usar a toda hora y momento, m impor- tando el estado climático exterior. Como siempre pasa cerca un caño de gas, se puede lograr una conexióny usarlo de las dos maneras posibles según se menciona en el Capítulo 111. Podemos construir el cuerpo del horno en el exterior del ambiente; pero que la boca y la puerta queden en el interior, ahorrando m2de circulacióny espacio. La condición esencial para un resultado efectivo del horno gira alrededor de la combus- tión y la puerta. Para que no ingrese el humo en el interior del lugar, es aconsejable rea- lizar un cálculo previo de dimensión de puerta con respecto al interior de bóveda y tiraje a los cuatro vientos. No debemos olvidarnos de instalar una salida de agua y una puerta de escape regla- mentaria cerca (reglamentariaes que abre para afuera) para casos de incendios. Es importante la protección contra incendios(ver Capítulo IV). Ver Dibujo no3
  • 8.
    'YBICAI vnos 3 s mo -d i d a ~ ~ g a rp ~ g a rp -ugar p ' lesads ' fesade ' ?esadl 3ancos Electrici Jas par sombra 31eros ci ~ g a rp PISOfirn de aguz Sector Si tener talar nuc tornos construidosen exteriores 3s típicos hornosde exterior. Se construyen en patios,jardines, quinchos y lugares .%S, ya sea solos o como complemento en islas con parrillas y asadores. Para su +vamiento debemos tener en cuenta las siguientes consideraciones: TACI~NIDEAL: en lo posible la puertadebe estar ubicadade espaldas (encontra) mtos más predominantes por el tiraje y el efecto chimenea que ocasiona eventual- ~emolinosde humo sobre la cara. Esto es por ejemplo si el viento predominante e del oeste, la puertadebe colocarseorientada al este. ideal incorporar el horno al paisaje, enredando hojarasca y follaje junto al mismo. 2 tener precaucióncon la salidade la llama de lachimenea.Paratener sombra en y calidez en invierno, deberán elegir árboles de hoja caduca o estacionaria. Hay er sumo cuidado con incendios accidentales (ver Capítulo IV). C I ~ NY COMODIDAD:superados los dos primeros ítems (orientacióny sol),ten- muy en cuenta su ubicacióncon respecto a su comodidad. vimientos deben ser coordinadosy precisossi queremos evitar accidenteso inco- des. Un sector óptimo alrededor de un horno debe tener: lara moverse solo o con ayudantes. ara almacenamiento de leña. ara guardar los utensilios (fuentes/parrillas/herramientas/etc.) i con piietaprofunday conexi6n de manguera. 1s para apoyary/o trabajar. e trabajo de madera dura (amacar/preparar/etc.). o sillas para la mesa. dad para una buena iluminaciónen todo momento. -auna posible conexión al horno. Inaturalo artificialprodigadapor cañas de bambú,o mediantelaconstrucciónde le tejas, chapas, etc, ara almacenar brasa encendida o apagada (braseros/tarros) ?ede ladrillosconstruidocon piedras, baldosas, etc. y que presente buenacaída 1. ara colocar la proteccióncontra incendios. nos en cuenta cada uno de estos ítems,ya podemos pensar en construir o ins- 3stro horno de barro y abordar el paso siguiente.
  • 9.
    CAPITULO II LOS HORNOSDE BARRO os siguientes aspectos constructivosde este capítulo dan a conocer paso a paso cómo construir, de una manera simple pero precisa, hornos de barro. Si bien es una tarea sencilla que sólo demandará del ingenio o de la habilidad del "constructor". no siempre resultaun buentrabajo y debemos repetirlaoperación otravez o en el peor de los casos, consultar a especialistas(fabricantesde hornos). De cualquier manera, ya sea para construirlo nosotros o mandarlo a construir, será de gran utilidad tener en cuenta los siguientes puntos, si queremos ostentar, en nuestra casa, el verda- dero horno de barro, el tradicional, aunque adaptado al tiempo moderno. BASESDEAPOYO En la base de apoyo de un horno de barro, es indispensable que se observe robustez, estéticay complemento. Estosrasgosvarían de acuerdo con la altura,el diseño, y los materiales con que se cons- truyen. A continuación presentamoslos modelos más difundidos: Bases de apoyo de madera:Bstas pueden ser de madera dura tipo anchico, quebracho o similar, cortada regular o irregular, cepillada o rústica, atornillada, clavada o encastrada; de maderade pino impregnadoo de troncos de cualquier madera, siempre y cuando esté calculada para resistir un peso que oscila entre los 500 y 700 kg aproximadamente. Acwnpafiando estas basesseagreganloscomplemento$, cano ser leñeros,mesadas,etc. En la práctica, si se quiere construir el hmnoencimade la basede madera, deberá ana- Irzarse cómo quitar el encofrado previo de la losa del horno, o dejarlo como encofrado perdido. La opción más común es prefabricar la losa por separado y luego apoyarla cobre la base de madera. Ver Dibujos n04y 5 Bases de apoyo de ladrillería:estas bases,bastantesdifundidas, soportanmuy biencual- quier peso, incluso son excelentes contra las inclemencias del tiempo. Puedenser de ladrilleríavista, rasada, tomada, pintada,bolseada,rebocada, estucada, con materialde frente o siguiendo cualquier tipo de decoracióndel lugar donde se levante. Ver Dibujos n06y 7 Conceptos En interiores, estas bases se pueden acoplar perfectamente a mesadas, parrillas y asa- dores. siguiendo la misma línea decorativa.
  • 10.
    rner en cuenta1 ,Yrade constnxción guardará estrecha relación con la altura con la que nosotros ;-qtamos cdmodos para trabajar. +riente, la altura de base no debe superar los 0,75 m, la que sumada a la losa y al +canzar& la aRura ideal de 0,85/ 0,90 m de trabajo (medidas ergonométricas). '7prevenci6n y sólo para bases de madera, se deberá verificar constantemente la riilidad de Iás mismas, realizando un servicio anual compuesto de ajuste de tornille- aceitadoo pintado de la madera. eeriores, noseles debe permitira los niños quejueguen debajo de estetipo de bases. tipo de prevencióna tener en cuenta es laeleccióndel lugar,es decir el piso de apoyo. ás apoyar estas bases de madera sobre césped o tierra por más firme que se vea. 3so del horno más la base es muy grande y con una lluvia o regadores cercanos le haber peligro de desmoronamiento y/o hundimiento. ?donos encontramoscon este percance, lo recomendable es compactar la superfi- le apoyo de las patas con materialo en relación con la decoración,se pueden cons- plateasde hormigónde 7 cm de espesor revestidas con cualquier tipo de piso (pie- cemento alisado, cerámica, adoquines, durmientes, etc.). opci6n consiste en amurar los palos de la base al piso. Éstos tienen que ser de era dura, pintados previamentecon pinturaasfáltica y rellenadosen su contorno con ligón armado. s bases: segun el tipo de decoración, las bases de apoyo se pueden construir con íos simples o sofisticados, quedando a elección del proyectistael modelo a utilizar. A REFRACTARIA 3ma así porquesu construcción incluyemateriales aislantes y refractariosdel calor inter- 3raqueéste nose pierday, de esa manera,se enfríey nococinenuestrohornode barro. osas refractariasse puedenfabricar sobre la basede apoyo (maderao ladrillería, con )fiado perdido o a la vista) o aparte, y ser colocadas posteriormente. ]dos los casos, una buena tosa refractaria debe tener: ensiones generosas; calcular siempre un poco más grande que la medida de la !da del horno; por ejemplo 10 cm en laterales y contrafrente y 30/40 cm de frente. S medidas son ideales para mesada. unhornochico: lalozaserádel, 10mx1,10ma1,10mx1,40m(anchoporlargo). horno mediano: 1, 30 m x 1,30 m a 1,30 m x 1,70 m (anchopor largo). ?sor:en todos los casos, el espesor debe ser tenido muy en cuenta. Como guía tica recomendamos de 10 a 15 cm de espesor. strucción ideal: sobre el encofrado y laterales bien aceitados y nivelados, colocar ~imeracapa de 8 cm de hormigónarmado (cemento, arena, piedra binder, mallade 2 de 8mm, cruzada y levantada en los bordes). Esta capa tendrá una zona central, xción de la bóveda-contornodel futuro horno, de unos 3 cm de profundidad. vez seco y fraguado, comenzaremos a aislar el hormigón, colocando primero sobre la zona central una mezclade sal, vidrio y adobe (3cm en total ). Luego, sobretoda
  • 11.
    ELGRANLIBRODE LOS HORNOSDEBARRO la superficie nivelada y fratazada se coloca un manto de colchonetaaislante de lana tér- mica (ver tipolcgia de matetiates)que cubra bientodo. Estas colchonetas (las de mejor calidad) vienen con una malla metálica incorporada.Si no latraen se deberácolocar unade hierroo fibra de vidrio, Sobre la misma se esparce una capa final de unos 5 cm de adobe/sal/vidrio molido, encajonando la lana térmica paraque no sobresalga. Se deja orear un día, se rellenan lasposibles rajaduras del asentamiento,se desencofran los laterales y se deja preparadapararecibir el piso de losetas. Muchos fabricantes cometenel error de soldar el marcode la puerta a la basede hierro de esta losa. Por su inestabilidadal calor, el hierroexpuestotrabaja de tal forma que pro- duce deformaciones hasta el fondo de la loca, dilatando, rajando y desgastando los materiales cercanos a él. Ver Dibujo no8 PISO DEL HORNO DE BARRO Una de las preguntasmás frecuentes en este punto es qué tipo de piso es el ideal. Sintetizaremos los casos más comunesy su aplicacibn. a)Plso de tejuelas y10 ladrillos refractarios Lastejuelas o ladrillos refractarios varían de medidas según cadafabricante. Lo usual para estos hornos es la tejuela de 11x 22 x 2 cm de espesor y el ladrillode 11 x 22 x 6 cm de espesor; debemos manejarnosdentro de estos parámetros. Es importantísimo su colocación y pegado a la losa refractaria. En muchos casos la acción del fuego afloja este piso; por ello se debe usar coma pegamento unmortero de cemento refractariocon tierra refractariaque se venden en el mercadoen forma de com- puestoso por separado, los primeros son de mejor adherenciay calidad. Es de suma importanciael tomado de las juntas con el mismo materialde pegado y el no dejar espacios libres que puedan aflojar el piso. El uso de piso de tejuelas o ladrillos refractarios se acorc~ejaUNICAMENTE cuando el prendido del hornose realizadiariamente,puestarda muchoen calentarsey esta demo- ra la temperatura interior del horno. En muchos lugares de uso continuo de estos hornos (pineríaslrestaurantes/minipana- derías/etc.), y con encendido a leña, se dejan las brasas sobrantes, para que en el momento de la no utilizacióndel horno el piso se mantengacon calor. b) Piso de tejuelas de ladrillos, ladrillos y ladrillones Este tipo de piso es el Ideal para hornos de uso casero o temporarios, pues es de fácil calentamiento. Se presentanen el mercado de diferentes medidas y espesores, siendo los más usuales las tejuelas de 20x20 x 3 cm y 10 x 10 x 3 cm y 30 x 30 x 3 cm y los ladrillosde 12x 24 x 6 cm y los ladrillonesde 14 x 26 x 6 cm. Las tejueias y los ladrillos mndocinos son los de mejor dureza, puesto que están coci- nados a temperaturasconstantesy parejas de 400 OC en hornosde gas. Los quemados
  • 12.
    :'radicionales) se debenelegir por su dureza y su perfectaescuadria, sin rebarbas m e s filosas. ;3do se debe realizarcon unamezclacompuestade unapartede adobe bienama- rina parte de sal y una parte de cemento refractario, realizándose la junta bien ?a y rehundidacon el mismo material. romienda unespesor dejunta de no másde 1 cm, ejecutando esta operación con ia prolijidady limpieza. .lez colocado este piso, se lo debe orear 1día. xesario lijar bien y emparejar con lija gruesa y mediana toda la superficie; luego, 10 cubriéndolocan sal, hasta que se termine la construcción del horno. 5 0 de adobe m& simple de todos y quizá el mhs antiguo- De fácil y económicaejecuciónsu ren- nto al cabo del tiempo será similar a los de ladrillos de adobe. are una cantidadde adobe "especial" o sea incorporándolesal (no mucha cantidad) lento refractario para endurecedo, mezcle muy bien el adobe con bastante bosta o ver tipologia)e inoorporea lamezclalosotroscomponentes.Aplique muyfuerte unas das previas(mojarsiempre antes la losa)y sobreéstas una capa de mezclade ums de espesor. Oree y repare (silashubiera)rajadurasy fisuras. Para un mejor secado, I con sal toda la superficiedel piso y siga con la construcciónde la bóveda. lipade pisoadquirirámayor dureza al tiempo de quemado (cuandose cocinaqueda como el ladrillo), unos 6 meses aproximadamente. UEñTA cesarioun estudioantes de encarar la construcción de la puertadel horno. La rela- ;erá en base al diámetro interno del horno y de la utilizaciónen lo que respecta a la lad de fuentes a emplear. nedidas dependerán entonces de algunas variantes a tener en cuenta. Citaremos as de ellas: Jidas: nunca excederse en construir una gran puerta que técnica y estéticamente ,nás grande de 45 cm de ancho por 37 cm de alto. Si bien estas medidas varían Ún el tipo de horno, son ideales para que se trabaje con dos fuentes con soporte. is puertas ideales pararealizaruna buenatrabazón son las que presentanuna curva- I en su parte posterior, logrando un arquitrabe más parejo con respecto a los movi- ntos propios del horno. ando hablamos de puerta, ésta vendrá con el marco incorporado siendo el mismo m material bien pesado y sin lengüetasde amarre en hierro o chapa pues su dilata- i con el calor raja la pared de ladrillos.
  • 13.
    ELGRANLIBRODE LOS HORNOSDEBARRO Se suprimen estas lengüetas por accesorioscobreados o similares que no transmitan el calor (aisladostérmicamente). - Elmaterialidealparaconstruir unapuertaes lafundiciónde hierroque nodilatanise modi- fica con las temperaturasdel horno. Su único problema radica en el costo para realizarla. Se puedenconstruir en otros materialescomo chapa estampada o hierro ángulo, reves- tidas con piedra o ladrillos, con chapas decorativas, lisas, rugosas, etc. - En el caso de puertas construidas con doble chapa, se recomienda utilizar chapa de acero laminado de 3 mm de espesor enlozado con cámara aislante, con fibrado de lana térmica cerámica para tal fin. - El cierre de las mismas debe ser hermético; no debe quedar ninguna luz entre marco y puerta por donde se pueda escapar el calor. - En el caso de puertas de hierro ángulo o chapa común de acero sin enlozar se reco- mienda realizar unatarea de empavonado previa a la colocación. Se entiende por empa- vonado sumergirp e varios minutosenaceiteo gasoil hirviendoa calor constante la puer- ta y el marco, con lo que adquirirá un tono negro y dureza que impedirá su deterioro o modificaciónmolecular. - En el caso de las puertasde fundición de hierro, se puedenpintar con pintura paraaltas temperaturas. - Toda puerta para horno (de cualquier material)debe poseer uno o dos reguladores de aire que, en combinación con el tiraje y el interior de la bóveda, evitarán que la brasa se apaguey ademásdejaranescapar el monóxido de carbono provenientede la quemazón, que es un resultantetóxico en contactocon los alimentos. - Como accesoriosde puertas, contamos con el reloj pirómetro, el visor y lastronerasde ventilación, elementos que completan el buen funcionamiento. - Existen en fabricación diseños para realizar puertas de abrir laterales, horizontales,de apertura bisagra, superior o inferior y de guillotina, quedando a elección del proyectista según la decoración que el hornoo su entorno posea. - Tipos de puertas. Ver Dibujo no 11 LA BÓVEDA Para laconstrucción de la bóveda,debemos emplear todo nuestrogusto estético-creativo, sumado a la relación teórico-prácticapara que su uso sea óptimo.
  • 14.
    lizavaríasegúnlaexperienciade su ejecutor.Existenmuchosconceptoscam- madosclásicos" que se han difundidodesde hace muchísimosaños. En la actua- bemos descomer dichos conceptos, p m la inserción del hornoen el contex- ce que busquemos una salida moderna, sobretodo al deterioro progresivo. ..GII cuenta la construcciónde un horno hogareñoy para exterior (situaciónmás ?-able expuesta a cambios climáticos), indicaremos cómo construir una bóveda w l a con los requisitos actriales. on ae materiales e empezar debemos seleccionar muy bien los materiales a utilizar. Los ladrillos y enteros) tienen que ser cortados en forma pareja y en cuña bien duros y de icuadría{sindeformación). remossiempe mojados y los cortes a la mitady en forma de cuña, tienen que ser 1s. Para la fabricación del adobe criollo debemos mezclar tierra bien negrdbosta ~llo/carbonilldasenin/salcon agua, logrando un pastón espeso semiduro. Este deberá dejarse orear por lo menos 3 días, dándole vueltas periódicamente. En querer obviarse su trabajo de mezclado,se lo puedecomprar en hornos de ladri- :o para usar, pues éste es muy bien mezcladoy, con el tiempo, el adobe se endu- le tal manera que la junta de unión quedará tan dura como un ladrillo ya cocido. rcciónde la bbveda na losa refractaria y piso de tejuelas o adobe, se deberá marcar con tiza y piolín interior de la pared.Esta se trabará con medios, cuñas o enteros según la medi- orno. Tenemos que tener en cuenta la colocación, según se vaya avanzando,de ?mentoque corresponda en su debido lugar y que quede ya fijo. Estos elemen- marcos de puerta/mecheros/tiraje/ventilaciones/iluminaciÓn/etc. ~tahastala cuarta o quinta hiladay, luego, con moldecolocado, se cierralabóve- n lo muestra el gráfico adjunto. do de la ladrilleríase debe hacer con el adobe tal como explicáramos anterior- :eniendoen cuenta su relleno total y la precauciónde rasarlo en su cara interior. ado se puede realizar con esponja, apretando bien y dejando de junta la menor a posible. ben mojar muy bien los ladrillos antes de pegarlos y toda el área, según se vaya ando. dijimos al principio, es todo un arte o un desafio levantar una bóvedade un horno 70. damentalel uso de un moldesemiesférico, que se coloca internamente,con la pre- ln de que éste, al cerrarse la bóvedaen todo su contexto, deberá salir por la puer- armado.
  • 15.
    ELGRANLIBRODE LOS HORNOSDEBARRO La no utilizaciónde este molde nos puede llevar a equívocosy queconstruyamoslosIla- mados "hornoshuevos"que así surgen en forma naturalal no poder terminar de asentar bien los ladrillos para que no se caigan. Estos moldes, también llamadas cimbras, nos harán descubrs uno de los tecnicismos másapasionantesdel arte de construir: los arcos de descarga (bóvedas,aroos, arquitra- ves, claves, etc.), usados desde épocas remotas en puentes, dinteles, vigas, arcos de iglesia, etc. y también en nuestros especiales hornos de barro mrno hoy endía. El principio es que la bóveda se sostiene por el esfuerzo de compresi6ncompartidode los ladrillos, evitando que estos se desprendan o caigan. Al cierre final con el último ladrillo es famosa la historia de que sl la bóveda está bien hecha se debe poder parar una persona, sin que se derrumbe la construido. Ver Dibujo no12 AISLACIONES Y RECUBRIMIENTOS El recubrimiento de la bóveda Ya tenemos la bóveda levantada con la puerta/tiraje y accesorios colocados, el molde retirado de su interior y el rasado listoy esponjado prolijo.Ahora nos resta la etapa semi- final, que tiene como objetivo proteger la bóveda de las inclemencias del tiempo y que el calor no se escape de su interior, lograndouna mayor economíay rendimiento. Distintos tipos de recubrirnientos: Horno de barro con recubrimiento ecológico Horno de barro con recubrimiento cementicio Horno de barro con recubrimientoaislante Otros recubrirnientos 1) Horno de barro con recubrimiento"ecológico" Llamadoasí porque el adobe en toda su construcción no recibe ningúnagente externo quí- mico en su mezcladoy terminación. Una vez terminada la bóveda, aplicamos una capa "azotada" de adobe chirlo sobre la misma, dejamos orear y luego aplicamos una supercapade adobe con bastantebostao paja vizcacheracon terminación final a la bolsa o con esponja fina. Este tipo de recubrimiento tiene en contra que, por la acción del calor interno se forman rajadurasy grietas bastantes considerables, las que si no son reparadasinmediatamen- te se agravan mediante la acción del agua de lluvia que se impregna en ellas internán- dose hasta el ladrillo aflojando y este recubrimiento. Pero, como para todo hay una solución, los que se decidan por este recubrimientoten- drán que tener preparada un poco de mezcla (adobe) para aplicar enseguida a la raja- dura y además "proteger"el hornocon untecho que puedeser de chapa, losa, teja, etc. Ver Dibujo no13 16
  • 16.
    no de barrocon recubrimientocementicio -a capa es de adobe (refractarionatural)azotada muy fuerte contra la superficie 59 la bóveda. Lasegundacapatambién es de adobe, peroya tipo revoquegrue- 3 3 de 3 cm de espesor (una sola capa). Debe ser firme y dejarse orear un poco -7 la formacidn de grietas y fisuras. ira capa seaplicarácuandoesteadobe empiecea "tira? o sea cuandoestésecan- :consistencia sea semidura. Esta capa que llamaremos recubrimientocementicio N mezcla de arena, cemento, cal y agua (5 partes de arena-1/2 de cemento - 3 de :u espesor será de 1 cm. arta y última capa se aplicará cuando la anterior esté secando. Será del mismo 31 que la tercera capa, pero zarandeado fino y de espesor 2j3 mm. Podernoscitar variantede la tercera y cuarta capa, técnicas como por ejemplo: rimiento bolseado(finoa la cal). nmiento al estuco. rimientocon materialde frente. omienda ver en Tipología de materiales las característicasde cada uno. no de barro con recubrimiento aislante imo resultado, mantienelaternpratura por mucho mCis tiempo (de0 a 10 hs) que ;anteriorescon una sola carga de combustión. 2 realiza inicialmentesiguiendo las mismas instruccionesque el anterior en lo que ta a la primeray segunda capa. 3 de la segundacapa, se debe aplicar una lana térmica fibrada (lamismaque usa- n la losa) con malla adherida o separada. Esta se moja antes de su colocación incida lo mejw posibleal adobe, esta lana térmica (ver Tipologia), o sea sobre la malla se efectúa la tercera capa, azotado. Estacapaes cementicia (arenakal/cemento)pudiendoreemplazarsepor i refractariacomercial. El espesor tendrá que ser generoso (3cm) y observar que be sentirse ruido a hueco en su interior (tensarbien la mallacon alambrey clavos). -a vez que tenemos esta capa terminada gruesa, rayada y bien oreada, le aplicamos (lo -smo que en el ítemanterior) losposiMes reaibriimientosenumerados anteriormente: --cubrimiento fim a la cal, '3cubnmiento bolseado. =xubrimiento al estuco. 2icubnmientoconmaterialde frente. 4 Otros recubrímientos Sobrela base del puntoanterior (recubrimientoaislante)y en algunas situaciones donde puede obviar el formato clásico y dar lugar a otros (cuadrados, m& altos, etc.), ten- +emos la oportunidadde "aislar" y recubrirlos con otras opciones, 3 r ejemplo, citaremos la más efectiva : -Sobrela Mveda ya construida y aislada con lana t&mica, se ejecuta una pared "peri-
  • 17.
    ELGRANLIBRODE LOS HORNOSDEBARRO metral" redondao cuadradadonde queda libresolo la puertay el tiraje de humo con una altura de no menosde 50 cm. Unavez hecha esta pared, se la puede rellenar con suce- sivas capas de sal gruesa y arena (10 cm c/u)terminando con un techo de losa que hace de tapa a esta aislación. Los remates decorativos sobre esta losa pueden ser de diver- sos diseños según lo requiera el proyectista o diseñador. Este "superrecubrimiento"hace que latemperatura dure muchísimas horasmás que el resto de ellos con el agregado del ahorro de leñay10 gas que se produce. Ladesventaja es que el horno "pierde"sucaracterísticoaspectocampero,aunquesu rendimientoes superioratodos. Técnicas de pintado Todo horno que se deja en "blanco" para pintar, es decir con materiales de frente duros sin color, podrá ser recubiertocon una pinturaexterior acrílica elástica y durable (de pri- mera calidad) con los elementos de hierro combinados (puerta/chimenea/utensiliosy herramientas). Los colores de esta pintura variarán segun el gusto exclusivo del dueño de la casa, pudiendo combinarse con los colores de paredes contiguas, terrosos, óxidos, marrones o pátinas en cueros (imitación),la que a continuación explicaremos. Pátina símil cuero:consiste en aplicar primero una mano diluida de fijador al agua para exterior color beige manila (blanco más ocre).Sobre éste (pasadaslas 24 hs de secado) se puede realizar un esponjado y fileteado a pincel imitando el cuero. Esta tarea se puede hacer combinando pintura acríiica exterior marrón, negra y beige manita. Unavez que se cubriótoda lasuperficie,hayquedejarorear 24hs m&. Al término,con una lija medianalfina,se lija toda la superficieunificándolalomás posible. Limpie todo elpolvoy aplique una o dos manosde protecciónsemimatede ladrillossilimada transparente. Combine este efecto con la puerta de color cobrdgrafito o negra (incluyela chimenea y los utensilios/herramientas). TIRAJE Y CONDUCTOS DE HUMO Todo horno necesitaparasu calentadarecibir el suficienteoxígeno paralograr la combustión. Comovamos aver m6sadelante, dichacombustiónse logracuandoexisteunaaperturao un paso de aire. Este paso se logra a través de las toveras de la puertay el tiraje al exterior. El tiraje al exterior deberá calcularse en funci6n de la capacidad intefw del horno, pero una medida ideal para no tener problemases hacerlosde un diámetro no menor a 4 ó 5 pulgadas en chapa de acero enlozada o común empavorlada de espesor grueso para evitar su deterioro, pues esth en contacto directo con el fuego. Otro material excelente para fabricar cañerías de tiraje es d cafia de hierro de fundición (fundición gris) con la recomendación que tendrá que ir bien amurada tanto al horno como a la pared.
  • 18.
    ,iecomendaciones a teneren cuenta: ' tiraje en hornosparaexterior puede construirse hasta 50 cm más arriba que la bóve- orientado sobre unlateralcaído y terminación con gorrete herméticodel mismo mate- . Es opcional el tiraje con registro de humo. ri casosde hornos para interior, o al exterior mparedescercanas muy altas se reco- wda extender las prolongacionesa los cuatro vientos (librede construccionescerca- :) y colocar en el primer tramo el registro de humo bien hermético. sten en el mercado complementos muy decorativos como ser terminaciones,gorre- codos, cafios, sobreretes, etc. Siempre recuerde que todo puede ser posible a la de la creatividad. Si no se consigue, se diseñay se construye. caso de que la prolongación del caño de tiraje sea muy alta se deberá prever un i m& de ditimetroen el cálculo inicial. ;conductospueden ser también cuadrados o rectangulares de medidas 15 x 15cm x 20 cm aprox. (cuantomás grande, más conducción de humo realiza, pero tam- más consumo de leña y/o gas). deberA colocara45" volcado sobrecualquierángulo posterior del horno. Estadeter- ción favorece la combustión, originando un campo energético de circulación envol- 5 con ahorro de combustibley poca pérdida de calorías. mtrario, si ubicamos el conducto al centro del horno (ver dibujo), se producirá un Irconsumoy costarámás calentarlo.Se recomienda,en estos casos, caños de diá- 3 menor de salida con buen cierre (registro). 'OLOGIADE MATERIALES obe fractano natural, mezcla campera que surge del amasado y oreado de tierra negra illosa, bosta de caballo o paja vizcacheray agua. Existendiversos tipos de "prepara- ;de adobes" para nuestro horno, se le puede agregar a esta mezcla carbonilla, sal y ?rrínbien molido. Mlos comunes sa rectangular de medidas 0,12 x 0,23 x 0,04 m que surge de la cocción en hornos ~ecialesde los adobes secos. mismo se aplica a latejuela parapisode medidas0,20 x 0,20 m - 0,10 x 0,20m - 0,30 ,30m. ito losladrillosc o m lastejuelas se fabrican en hornos a leña o a gas a más de 4000C, ;Últimos son de una gran dureza y equilibrio de medidas, mientras que los primeros 1 que seleccionarlos, buscando los de mayor dureza (boquerones). Cal --efractarionatural; comúnmenteusamosla"gruesa"quevieneen bolsasde 40 k de lacan-
  • 19.
    ELGRANLIBRODE LOS HORNOSDEBARRO tera o salina. Es sal sin lavar, pero se puede usar tanto en el piso, el adobe y el recubri- mientocwno enla cocci6ndebajo o al costadode lasfuentes (calientay secael interior). Vidrio Refractarioartificial, es usado en aislación de piso (mrefractaria). Se debe conseguir vidrio en Virierías (descarte) o de botellas/damajuanas/etc., y luego martillarlo en un corte de bolsa arpillera hasta que quede bien m0lido. Tápese cuando realicela operacióny tenga cuidado con Imojosy manos(utilice guan- tes y gafas protectoras de ojos). Recubrimiento cernenticio Mezcla especialde cal, cementoy arena mediana con agua. Se aplica sobre el adobe o let malla de metal desplegado/fibra de vidrio. La primera aplicación se debe hacer con mcreto 1/1 (cemento +arena + agua) y a la segunda se le debe agregar cal. Materialdesplegado Puede ser de hierro o su Últimaversi6n enfibra de vidrio. La tarea que desempeña en el horno es la de prevenir laformxibn de grietas o fisuras enel recubrimientofinal, pudien- do sobre ella aplicar las capas correspondientes. Aislación térmica Pueden ser: - Colchoneta de fibra cerámica con malla de hierro: posee una gran resistenciaal cho- que térmico (resistehasta 1.482"C). No contiene asbesto. Economíade colocación (no se necesita malla desplegadaposterior).Nocontamina. - Cokhoneta de lana de vidrio sin aglomerante: cosida sobre rrialla hexagonalde hierro. Es incombustible, presenta una resistenciatermica hasta 500°C. Cualquiera de estas aislaciones retieneel calor del horno hasta8110 hs de utilizacióncon una combustiónmínima de 1 hora. - Otra posibilidad sería latradicionallanade vidrio (sinasbesto),que se coloca después del adobede revoque y antes de la malla metálica. Su resistenciatérmica es de sólo 100°C, encontrándose ésta al límitede lo necesario. Revoquefino: mezclapara revocar exteriormenteel horno, previo a la capa de pintura. Se obtiene mezclandocemento,arena zarandeada, cal y agua parael amasado. Revoque"al stucado": hoy en día el estucado se consigue en casas de materiales de construcción, sin necesidad de mezclado previo. Revoquebdseado:este revoquese denomina tambien grueso a la bolsa, ídemal revo- que cementicio pero termmadúal finoonduladoconunabolsade arpillera y/o esponja. Material de frente: 6ste se coloca sobre el revoquegrueso y se consigue en bolsas ya premezclado. Su función es proteger, embellecer y hacer durar la capa final. Es permea- ble al vapor de agua en forma ideal, pero impermeableal agua de lluvia y agentes inde- seados. El mercado los provee en una amplia gama de colores y texturas (rayados/tex- turablec/símil piedraparís/pétreos mltiolores/graníticos/estucos/etc.).
  • 20.
    on todos aqueloselementos que acornpaí5an el buen uso y funcionamiento de los hornosde barro. Estos accesoriosy complementos, algunos devenidosde la Antigüedad y otros de uso moderno, son indispensablesa la hora de cocinar. 2y de todo tipo y modelos, mássofisticadoso menos"aparatosos" pero todos per- 7 un Único fin: acompañar. ayudar y colaborar siempre teniendo en cuenta los itos culturales setialados en el Capítulo l. 3 guía prhctica de losmás usados citaremos: Relojesmarcadores de temperatura Herramientasde uso Utensiliospara cocinar Hornos adaptados a gas Iluminaciónde la bóveda Mobiliario Empavonados UES MARCADORES DE TEMPERATURA instrumento que sirve para medir temperaturas muy elevadas. gso en la actualidad es muy corriente. Antiguamente se constataba si el horno esta- 3 punto arrojando una bola de papel al centro y si éste se doraba, era señal de que 3ba listo. Métodoque hoy se sigue usando pero es muy conflictivoa la hora de coci- panificados, pues requierede una precisión casi exacta de la temperatura para que se pase o queme, o quede sin cocinarse (es decir crudo). 3s relojes se presentanen el mercado según el requerimiento. , más usuales son: oj pirómetro de puerta coloca en el centro alto de la puertade doble chapa aislada o de fundición. Se reco- nda sellar internamente con silicona de alta temperatura, antes de colocarlo y no -arla puerta cuando el horno se encuentreencendido porqueel calor altera el meca- no del relojy se puede llegar a dai'iar. 3s relojes vienen calibrados de O0 a 600°C o O0 a 400°C. oj pirómetro de pared con vástago largo de calidad superior y se coloca al costado, a unos 30 cm del piso del horno (jamás Wjarnás abajo). Su calibre varía de O" a 400°C (ideal). 3 elecci6n es colocarlo, se debe tener en cuenta que el vhstago largo tiene que que- en contacto directo conel calor interno. ste m llega a pasar por lo menos 1 cm sobre lacara internade la bóvedaquedando escubierto, no funciona. Un método para lograrlo consiste en colocarla dentro de un o con cabeza roscada (1 pulgada más o menos)y amurado a la pared de la bóveda.
  • 21.
    ELGRANLIBRODE LOS HORNOSDEBARRO Este reloj, si el horno se encuentra a la intemperie, se deberá colocar roscado al caño (parasacarlo),o a un nipleamurado por la simple razónde que las inclemenciasdeltiem- po (lluvia)y la temperatura alta del horno durante la quemazón lo pueden dañar. Relojpirórnetmde pared con termosensor Esterelojde igualescaracterísticasque el anterior (ensu cuadrante), se diferencia enque posee un alambre termico con sensor en punta que puede ser llevado internamente al lugar deseado tomando de allí la temperatura y transmitiéndola al reloj. Idealpara grandes hornos o para lugares de difícil acceso a la toma de temperatura. Reloj termómetro de mínima y máxima Es el más sencillo de toda la línea recomendada. Se coloca en puerta doble solamente (con protección)y su vida útil es corta. De características parecidas al reloj pirómetro de puerta, se diferencia en su cuadrante, que no mide en grados sino en zonas; por ejem- plo mínimo-medio-máximo o bajo-medio-alto. Estas zonas poseen cada una un color característico. Es muy económico. Otros modelos Existen en el mercado otro tipo de relojes del tipo analógicos, digitales o para altísimas temperaturas. Marcan con exactitud y vienen computarizados con censores y otras característicastécnicas que los alejan, por su alta complejidad, paraser usadosen nues- tros hornos de barro. HERRAMIENTASDE USO Indispensablesa la hora de trabajar en nuestro horno de barro. Estas son adaptables a la creación y necesidad de cada uno. Como guía práctica describiremos cuáles son las más usadas: Rastrillo largo o atizador Es un elemento largo (2 m) hecho con un hierro de 16 mm con un mango de maderaen un extremo y una planchuelade 20 cm x 5 cm soldada al otro extremo (ver dibujo). Su función es la de acomodar la leña durante la combustión y la de limpiar y correr la brasa al término de la misma. Es necesario empavonarla (ver "empavonado" en este capítulo) y cubrir el mango de madera con una laca fuerte. Ganchos de amarre largos y cortos Son elementosde hierro que varían su largode 1,OOm (corto)a 2,00 m (largo),según la rnedida del horno. Estánhéchs can unhierrode 16rmconwi mangode maderaen un extremoy un gan- cho de hierro redondo afinado en la puntade otro extremo. Su funcidnes "pescar"las fuentes del interior del horno y llevarlas a la puerta.
  • 22.
    ~esariosu empavonadoy cubrirel mango de madera con una lacafuerte. 3 de hierm ~ n t ode hierrocon un largovariable de 1,50m a 2,00m,según la medida del horno. lechaen hierro de 16 mm con un mango de maderaen un extremoy una palita de 2 reforzada (NO14) en el otro. riciónes sacar la brasa de adentro del horno cuando termina la combustióny colo- en un brasero aledaño. Esta operación puede ocurrir a la inversa (del brasero al 3). Tiene que ser profunda (5 cm) y también empavonada y cubierto el mango de ?racon taca fuerte. .los hierros de 16 mm pueden ser redondos o cuadrados. ia corta tradicional, hecha de unos 50 cm de largo con punta afilada en hierro (se encuen- iel mercado). ncidn es la de hachar (cortar) trozos grandes de madera, leña, astillas, etc., para - más fácil la combustión. Se puede empavonar su extremo cortante y cubrir con 1 fuerte el mango. s de madera nente de madera, con un extremo plano de medidasvariables, de 37 cm de ancho cm de largo (piuasltartaslcalzones)o 20 cm de ancho x 47 cm de largo (panes)y ?spesorde aproximadamente1 cm con la cara de frente rebajada(verdibujo no16). une a un mango de unos 6 cm de diámetro y un largo de aprox. 2 m. funciónespecífica es trabajar con la masa, entrándola y sacándola del horno. madera debe ser resistenteal calor y al roce con el piso caliente del horno. msejamos el inciensoo el algarrobo. i hora de protegertas palas no se deben dejar a la intemperiey se podrán pintar con t fuerte (sólo el mango largo) y aceitarlas con aceite comestible y enharinar la parte ide se apoya la masa (base). a: los hierros de 16 mm pueden ser redondos o cuadrados.- ~illosde limpieza :has veces, al retirar las brasasde horno nos encontramos que éste queda sudo con eniza de las mismas. Si apoyamos fuentes, no hay muchos problemas pero se com- 3 al trabajar con masa sobre el piso caliente. 3 esto, aconsejamos el uso de cepillosde limpieza. Se describen dos modelos: estropajo",llamado así porque a un palo de unos 2 m de largo por unos 5 a 6 cm
  • 23.
    ELGRANLIBRODE LOS HORNOSDEBARRO de espesor, le adosamos, mediante un anclaje de arandela o similar, un corte de bolsa de arpillera húmedo en forma de estropajo bienamarrado a la arandela. Con este méto- do, antiguamentese limpiaban los hornos. La cerda para brasa es un cepillo que se adapta a un palo largo idéntico que el ante- rior, al cual se une un cepillo especial parabrasa-hecho con cerdas especiales- que no se quema con la ceniza. Es más práctico que el anterior, y limpia mucho mejor y más rápido. Recipiente para brasa En muchas ocasiones nuestro horno está ubicado lejos de un brasero o un lugar donde transportar con lapalalasbrasasque sacamos lo másrápidoposible. Eltrámite de trans- porte de brasas es muy peligroso pues se pueden caer de la pala si el trayecto es largo. Lo mismo sucede si se cae alguna y no se ve: puede haber quemadurasde pies, zapa- tillas/zapatos/etc. Para esto, será necesariocontar con un recipientetipo lata de un volumentotal de unos 40/50 1, de medidas aproximadas: 0,35m de diámetroy unos 0,70 m de alto. Será de unachapa reforzaday conunatapade terminación. Enel fondo es aconsejgble(paraque no orade la base)llenarlo conun púcode ama. Este recipientese puedecolocar al lado del horno y es muy práctm pues la brasa quemada (carbónnatural) se puede volver a usar en una parrilla,tambores, minas económicas, etc. UTENSILIOS DE COCINA Son los complementos con los cuales el maestro asador de un horno de barro cuenta para dar curso a toda su creatividad e imaginaci6na la hora de cocinar. Como guía ilustrativa sobre qué utensilios acompafíaian el buen uso, le daremos a conti- nuación una síntesis de los principales. Fuentes de chapa (o fuentes de panadería) Estasfuentes de diferentes medidas (segunel tipo de horno que tengamos)son hechas en la líneade chapa negrareforzada, chapa lisa comúno chapa enlozada ( i l ) . Son estampadasy soldadas y casi siempre presentan 1 a 2 rnanijmesde agarre. Como nocibn, para un horno chico la medida ideal es de 40 mde ancho por 70 / 75 cm de largo por 5 ó 7 cm de alto (chapaNo16). Se pueden realizarotrasde distintas medidas40 / 40 cm-40 / 50 cm -30 / 30 cm etc. En el caso de las fuentes de chapa o chapa negra reforzada, se deben empavonar muy bien antes de realizar una comida sobre ellas. Caso contrario, debemos recurrir al papel de aluminio hasta que se empavone. Con las enlozadas, no hay problemasya que vienen de f&rica con un esmalte protector. Rejillaso parrillaspara fuentes Están hechas en hierro perfiltubo de 15 / 15 mrn y hierro redondo de 6 mm.
  • 24.
    -miidas idealesson unosmilímetros más chicasque lasfuentes de chapaenancho ?q, pero 2 cm mr5i.saiias. -milla superior puede ser fabricada con hierro redondo común o trefilado en acero -3d superior), lo mismo que tos tubos lateralesy patas. qlerros redondos deberán colocarse de tal manera que puedan moverse rotativa- %, facilitando la limpieza, es decir no deben ir soldados al tubo sino sueltos. Ade- . conviene siempre dejar una zona de 30 a 35 cm para colocarlos más juntos que *.a. es paraei caso de achuras (parrillada)y otros que puedencaerse a iafuente. Estas -Iraspuedenser complementadascon mallassoldadas, pisosdefundición gris, etc. iortes para panillas 11 caso de querer cocinar para una gran cantidad de comensales, se puedeagrandar ipacidadcolocandoestos soportes para parrillas,cuya utilidad es el doble piso o sea se puedecolocar otra u otras fuentels sobre la que ya tenemos. I para trabajar con varios menúes. Por ejemplo, Ud. puede colocar la fuente con la ie por debajo y en el soporte, al fondo, las papas y, más adelante, la fuente con ianadas (primerservicio), 1s soportes tambibn se construyen en hierro común o trefilado de acero. urtes para parrillascon corredera en igual función que los soportesdel puntoanterior,pero mmássofisticados. Consis- 7 dejar previsto en la construcción del piso y la bóveda unos hierros para amarrar o este soporte que accionado por una corredera, hace que la fuente con la parrilla 3 y se besliceautomáticamente sin tener que sostenerlacon las manos. :ticosy de gran uso. ispectoa tener encuentaes que los hierrosdebenser resistentesal calor de la bóveda. lisefio se adapta a los distintos requerimientos(2 a 3 pisos, etc.). Todos estos utensilios para cocinar, se pueden construir con hierros, chapas, .rederas y accesorios galvanizados, cabreados, cromados o bronceados de venta en ; comercios o en casas que realizanbaños por electrólisis. izas especiales para amarre de fuentes lri de venta comercial, cromadas con mango de madera. Su función es tomar la fuen- del borde de la solapa, haciendo presión sobre la misma, acción que impide que la iza se desprenda. Se remiendan dos para sacar lasfuentes pesadas (carnes)y una ra pesos normales(piueracitarterasletc.). rantestémiicos ri los dásicos guantes para sacar fuentes del horno de cocina aunque más aislados. oeralmentese usan cuando hay que meter unpoca la mano dentro del horno calien- y correr o sacar algún cacharro que las pinzas no puedanalcanzar. Se encuentranen nercado a la venta directa (sugerimoslos de mejor calidad paraevitar quemaduras).
  • 25.
    ELGRANLIBRODE LOS HORNOSDEBARRO Cacharrosde barro Ultimamente, de gran vigencia en la gastronomía argentina, han vuelto a usarse como utensilio esencial a la hora de cocinar. En nuestro horno de barro,su uso no tiene contraindicaciones. Sirven tanto paracocinar como paraservir. Los cacharros más usuales son las fuentes grandes y chicas, platos playos y hondos, vasijas chicas, etc. Hay que observar atentamentepues sevenden en el mercado, distintas clases de cacha- rros de barro (arcilla cocida) y de varias calidades. A veces hay que recurrir a talleres especializados para que nos hagan los cacharros a "medida", y así nos aseguramos la calidad de sus componentes. Su función específica, siendo el barro cocido un gran refractario natural, es cocinar parejo los alimentosy mantenerlosluego con la temperatura ideal, por muchotiempo, al servirlos. Tablas de madera multiuso Son aquellas que complementan el buen uso en la preparacióny el servido de los alimentos. Vienen de distintas medidas adaptables a nuestras necesidades y de madera dura o semidura (algarrobo/quebracho/anchico~rar6/etc.). Sólo necesitan de una buena aceitada o engrasada previa, con ptwiuctoscomestibles, durante algunosdías paracurarlas y poder usarlas libres de tóxicos. Sus usos pueden ser: Corte y preparacion de carnes/pollos/pescados/etc. Amasado de panificados. Para servir todo tipo de comidas. Para servir cortes cuadrados/porciones de pitrasltartas/calzones/empanadas. Conseio: tener sumo cuidadoen la manipulaciónde losalimentos(limpieza)por lasenfer- medades tóxicas como la que transmite el pollo crudo (salmonella)/carnes/etc. Ver "recomendacionespara la correcta manipulaciónde alimentos" (capítulo IV). Elementos de fundición gris Como los cacharros de barro, los elementos de fundición gris son muy usados en la actualidad m la cocción y et seMdo de los alimentos. No hay muchas variantes en el mercado argentino pero en el caso de querer fabricarlos a "medida" se debe solicitar su hechura a las fundiciones de4 lugar. La fundicidngris es ungran refractario usado también en puertasy tiajes de los hornos de barro. Se puedecocinar enellos y luego usartosparaservir. Los más usuales son las fuentecitas redondas con o sin asas, que se apoyanen la mesa, colocando una madera por debajo paraque no queme. Otro elementode importanciason lasfuentes ranuradas o parrilladasideales para cocinar "a la pancha"dentro del horno. Enseres Los enseres son todos los elementos que complementan los ítemsanteriores, infaltables a la horade cocinar en estos hornos de barro.
  • 26.
    -i s usados: +dlasde corte para carnes/pollos/pescados/etc. i+iIionesde corteplanopara pizzas/taflss/calzones/etc. -&ores largosasaderos. -dores medianosde corte para carnes. -+m para brochettes simples. -??esdobles para chorizos/morcillas/brochettes/etc. -=as largas para dar vuelta las porciones en el horno sin sacar la fuente, y por .psto, se recomiendauna buenapiedra de afilar de disco grande (muy usadosen los -7 ecimientosruralescon base de maderay movimiento impulsado con el pie). Origi- ;? y muy prácticos. ?SNOSADAPTADOS A GAS sdaptacióri de un pico de gas, o quemador en estos hornos, requiere para su insta- ?nde un gasista matriculado.Como guía práctica, le damos algunos consejos: :cinstruir el horno de barro y tener ya decidido el doble uso leña/gas, se debe dejar -!isto un caño amurado en la bóveda del horno del tamaño que el matriculado sugie- Estecaño deberá sobresalir internay externamentey ser roscadoo preparedoen sus '.emos para la conexión posterior. jar indicado puede ser variable, los más comunes son: Jre un lateralmuy cerca de la puerta, loque permitecocinar con la mismaabierta sin er calorías pues actúa como una cortina de calor. x e bsfondos o lateralesen el espacio al que no lleganlasfuentes. Laalturade colo- 5n deberá ser a 7 cm del piso del horno. artefactos más usados son: iero en media luna, hecho a medida con una o dos prolongaciones perforadas con ! de gas y válvula de seguridad ¡-as junto a unrobinetede mínima/ máxima. quemador simple o doble; es m& práctica que el anterior con paso de gas, válvu- ! seguridad y robinete de min / max. lgunos casos, cuando el horno es muy grande y el tiraje de ventilación (oxígeno)no iza, se puede agregar un quemador de gas con forzador de aire. Este elemento es usado en hornos comercialesque en los hogareños. 10se cocina con gas la aplicaci6ndel gas en nuestro horno, nos vamos alejando del tradicional modo de lar; no obstante, se los puede usar de las dos maneras, combinadas o indepen- ,es una de la otra. Aquí los ejemplos: los combinados gas / leña: se aconseja, para no perder el gusto ckhico calentar- merocon leñay sostenerloluegocongas a mediapresión,dejando la brasitaalcos- y aromatizándolo constantemente. De uso frecuente, pues con muy poca leña iiere el aroma que luego se continúa. Es limpio, pero el ambiente que se crea inte- iente es algo húmedo (idealpara panificación).
  • 27.
    ELGRANLIBRODE LOS HORNOSDEBARRO Hornos a gas: Con el horno limpio por dentro, se prendeel quemador cerrando la puer- ta, dejando solo la tobera abiertay se entorna el registro de humootap6n de salida del tiraje sin cerrarlo del todo. SQue calentando por 1 hora aprox. A fuego medio no muy alto y luego se cocina con el quemador encendido o no, con la puerta abierta o cerrada (segúnel quemador), dependiendo de la marcacibn del reloj pirixnetro. Rápiday limpio, sin mucho gusto a horno de barroRse recomienda colocar un poco de brasa para ahu- mar el húmedo ambiente internoque se forma durante la cornbustidn. Idealespara uso continuo.Unasolución apropiada paracontrarrestarlahuwadiambiente es colocar un recipiente(al costado interior del horno) llena con sal g m uotra solución. También se puede"ahumar"el interiorcon2tstillasderobleuotramaderadurantelaoocción. Ver Dibujo no17 Iluminación de hornos de barro Antiguamente la iluminación era96toparabgrandeshwnosde panama que pwsu gran capacidad interna para cocinar los panificacbsse losdebía tener mluz constantemente. El método, muy sencillo, se basaba en abrir un boquete sobre el frmte del Rwno que podría ir tapado o no. El hueco de cim0,30x 0,30x 030 mde profundidadiba acompañado de una bombi- lla eléctrica común, protegida por un chapón de hierro. Esta primitiva iluminación, por demásefectiva, es adaptable a nuestroshornospor mediode artefactoslumínicoso hue- cos preparadosespecialmentepara cuando levantamos la bóveda, tal cual lo hicieronen la construcción de los grandes hornos panaderosde antaño. Siempre es aconsejable tener en cuenta su ubicaciónen la bóveda. No se debe colocar alto o medio alto, pues la Iámparase llena rápidamentede hollíny no ilumina. Lo ideales que se coloque a unos 10 cm del piso, lo más adelante posiblecon la debida inclinación hacia el interior.A continuación,detallaremos los dos tipos de iluminaciónmás usados: Artefactos para iluminar bóvedas a) Spot pesado: Sobre uncaiio de hierro de aprox. IM"' de espesor, 3" de d i ~ ~ € ? t ~ ~y 30 cm de largo se le suefda en un extremo una tapa rebatible y en el otro un soporte:para portalámparas. La lámpara (que puedeser reflectora)se guarece de la combustión al cerrarse la tapa del interior con un pasador del lado de afuera. La tapa donde va este portalámparas es de quita y pone con mari-s con unagujerocentral para pasar un cable aislado para calor. Otro método consiste en aplicar a uncaño similar un vidrio de alta temperatura (1000°C a la rotura) quedando fijo. El d n o deberh ir pegado con silicona de alta temperatura al caño. No sirven los vidrios de cocina común, ya que se rompen al instante con la llama. Estos caños también pueden ser de fundición gris y deberán tener lengüetas de amarre parafijarlos en la bóveda del horno.
  • 28.
    's abra quedanagusto del que manejeel hornoperoel campovisual tendrá que -9bien la posiciónde las fuentes, según lo explicamos en el puntoanterior. ,amóvil: x a una puerta de medidas 0,20 x 0,20 m aprox. según el tamaño del horno, Ja en fundicidn u con marco y puerta de doble chapa fuerte, de igual modelo a lal. fla, cuyo marco irá adherido a la pared lateral de la bóveda, cumplirá la función lar tal cual lo hacían las antiguas iluminacionesde los hornos panaderos, pero recauciónde que aquí no hay escape de temperatura. colocado y ubicado el marco, según nuestra necesidad y tal como lo describe anterior, se colocasobreéste la puerta (abisagrada)a la que adherimos el equi- ico que consta de: Portalámparade cerámica Lámpara incandescente para alta temperatura (hasta 600°C) Cable de conexión fibrado para alta temperatura Cañitos y terminales decorativos finales abre y cierra con la puertay se acoplaa un toma cotccadoEXla cercanía. El equipo puede ser doble (dosluces),según la Recesidad, pero no tenemos que ohidar- uidarel detalledeltamaño de lapuertaparaque lasbombillasnotoquen la mima. ,uciona seguir en este caso es que cuando el horno se está quemando a pleno, abrir la puertay no exponerlas bombillasa la llama. Sólocerrarlacuando laque- aya bajado. puerta (y el marco) se coloca sobre la parte exterior de la pared (bóveda),se Irmar el hueco con inclinacionespara una mejor iluminación. para horno de barro iltatanta sofisticación? ie si tenemos la bóvedailuminada, podremosobservar nuestra cocción. nos que abrir siempre la puerta para mirar la cocción? ión hace que, por cada apertura de puerta, la bóveda pierdahasta20°C de tem- Imposible realizar un hueco como en el horno de panadería. Oemos entonces un vidrio de alta temperatura como puerta? damos vidrio t&mlcode 1M30"Ca la rotura. :r una solución, aunque lo ideal y que no rompería nuestro esquema básico es xporarle una tronera a la puerta que hará de visor. ar alrededor de un horno de barro se transforma. Desde la preparación de los s hasta la degustación de los mismos.
  • 29.
    ELGRANLIBRODE LOS HORNOSDEBARRO La madera, fiel aliada a la hora de elegir nuestro "mobiliario campero para hornos de barro", será la encargada de dar forma a la siguiente lista: a) Mobiliario paraexteriores Madera a utilizar: lapacho, pino impregnado, pino saligna, incienso, anchico o cualquier madera para exterior dura o semidura. Componentes: Mesadaadosadaal horno: idealparaapoyar lasfuentes a laentradao salida, ancho míni- mo 40 cm. Puede ser fija, rebatible o de arrime. Mesa de trabajo: cómoda, alta (un poco más de lo normal pues muchas veces trabaja- remos de pie)se recomiendade 85 cm. Ideal para preparar los alimentos. Mesa para comer con bancos o sillas: podemos usar la mesa de trabajo para este fin. El sector de un horno al exterior deberá tener follaje cercanolhojarascalarbustos1árboles es decir buena sombra en el verano y mucho sol en el invierno. También tenemos que tener en cuenta lugares de guarda para utensilios y complementos, leñero, etc. b) Mobiliariopara interiores Madera a utilizar: cedro, pino, lapacho, álamo, o cualquier madera resistente blanda o semidura. Los componentes en el interior son los mismos que los de exterior, variando su comodi- dad al encontrarnos con mesadas ya hechas y otros muebles de la decoracióndel lugar (quinchos,cocinas, etc.). Ideales son los lugares para "esperar" en cómodos sillones, tomando un matecito con amigos o familiares o saboreando las entraditas que salen en primera "fila" de nuestro horno de barro. EMPAVONADOS Su definición exacta es dar pavón a los objetos de hierro. El pavón es el color que toman (un negruzco azulado oscuro) luego del proceso. El procesode empavonamiento es sencillo, pudiendo realizarsede 2 maneras: a) Untando la superficie de fuentes, hierro, herramientas, etc. con un aceite comestible para luego llevar a fuego reiteradasveces. El fuego no será muy fuerte, porque se eva- poraráfácilmente el aceite secando la chapa 1hierro. b) Preparandounacisternabajasobre unmecheroespecial, llenamos con aceite o gasoil y dejamos hervir sumergiendola pieza a empavonar.Este método es complicadoy debe ser realizado por personal competente (herreros, artesanos, etc.). Nuestro hornode barrotiene laparticubndadde empavonarpor sus propios medios. Por ejemplo: Aceitar repetidasveces durante la quemazón el interior de puerta y marcoy el exterior de tiraje de humo y todo elemento adosado a la bóveda. Aceitar fuentes y elementos de uso y colocar sobre la quemazón repetidas veces. Estos métodos caseros dejan la superficie apta para cocinar sobre ellas (fuentes)y evitan que el óxido arrumbe y ensucie puertasy tiraje.
  • 30.
    1 n estecapitulo, abordaremostemas relacionadoscon el buen uso de estos hor- tnos do barro. Los consejos y las recomendacionesson tomados en base a experiencias per- nales, en loque respecta al cocinado de alimentos. 1s temas sobresalientes en este capítulo son: Maderas a utilizar Aromatizantes Primerosfuegos y curado del horno Cómo encendemosel fuego iA cocinar! Recomendacionespara la correctamanipulación de alimentos Proteccionescontra incendios y quemaduras Quemaduras: Primeros auxilios sderas a utilizar te y los próximos items son casi. sin lugar a dudas, los más importantes a tener en enta, pues son la vida útil de nuestro hornode barro. lué maderavamos a utilizar? esencialque el fuego, que es sólo calor producidopor la combustión, nos iricxxpore la ergíacalórica suficientepara cocinar nuestros alimentos lo más sanos y ricosposible. N deberá elegir muy bien la madera para ia combustión. Según sea la zona donde viva- 1s o se encuentre nuestro horno, será la madera a utilizar. Por ejemplo: son recomen- blestodo loquesea de poda (seca)idealesparael primerfuego, enramitasfinaso tron- 'tos,maderitasde cajones de fruta y verdura, álamo, chañar (ideal), eucaliptus, piquillín d a maderablanda a semidura. No aconsejarnos el uso de maderascomo el anchico, gró, quebracho, etc. por su poder calórico que retarda la combustión. Sólo en algunos sos, se usanestasúltimasparaaromatizar. Loideales darle llama intensa, muchallama. omatizántes -&mino de la combustión, y según sea el alimento a cocinar se puede "aromatizar" la de un hornode barro. En hojas, o ramitas, estas plantastienen lafinalidadde dar toque personal a nuestras preparacionesgastronómicas. Se introducen húmedas o :as (no mucho), ahumando profundamente la bóveda. Algunas recomendadas: - Laurel - Tomillo - Romero - Albahaca - Orégano - Menta - Estragón - Canela - Perejil 11~elassobre las brasitas un rato antes y durante la cocción de los alimentos. 3 misma manera, se puede aromatizar con virutas de: roble, lapacho, cedro, que- ::Y,guatambú, lenga, etc.
  • 31.
    ELGRANLIBRODE LOS HORNOSDEBARRO Primerosfuegae y curado del horno Unavez terminado nuestrohornode barro, se deberá dejar asentar y secar bastantebien hasta que )os materialesque lo componensequen y se acomoden. Por el contrarioalgunosfabricantes sugieren prenderlosenseguidadeconstruidos loque a nuestro entenderes ungran riesgo por la rápida calcinación que sufriría el adobe fres- co. Esa calcinación corta su "tiempo de secado normal"y lo precipita hasta desgranarlo. Un adobe bien amasado necesita su tiempo de secado hasta obtener cierta dureza. El tiempo que le daremos de presecado será de aproximadamente 7/10 días menos en verano y más en invierno y de acuerdo con la situación meteorológica. Aconsejamos tapar el horno, una vez terminado, por 3 días. Nuestroprimerfuego iniciaráel "curado" del horno de barro, que se extenderápor 7 días seguidos, calentándolo de menor a mayor según pasen los días. Damos a continuación un ejemplo práctico: Primer &a: un fmgo c m p s t o de ramites/ mderitas y algunos tronquitos de leña de chaAar. Total de fuego: 1 hora a la mafiana -1 hora a la tarde. Segundo día al cuarto día: aumentar en 1 horay media por ver. Quintoy sexto día: aumentar en 2 hs. por vez. S6ptimo día: nos preparamosa cocina coneste fuego. Aconsejamos una horay media de llama constante, alternando al chatiar (primeramedia hora) con el piquillín el resto del tiempo. Aromatizar a gusto. C á m encendemosel fuego Abrimos la puerta y el registro de humoo el tapón de chimenea. Introducimosen la bóveda unos bollos de papel rodeados de maderitas o ramas secas y la primera pila de troncos finos de chañar. Encendemos y veremos cómo el papel enciende las ramitasy las maderitasy éstas la leña que se consumirá rápidamente. Superponemoselrestodea pocoparaque noseahogue.Todaestaoperaciónduraráapro- ximadamente 1hwa y media, según loveremos en el próximo ítem "A cocinar". iA cocinar! A esta altura ya hemos curado el horno, hemos elegido nuestra madera para la com- bustióny nuestro aromatizantefinal. Ahora, paracocinar nuestrosalimentos, deberemos regirnos por nuestra destreza o por el reloj pirómetrodel que ya hablamosen el capítulo anterior, Si el horno no tiene reloj pirbmetro, se verificar&si está a punto cuando después de 1 horay media aproximadamentetiremos una bola de papel al centro de la bóveda limpia. Si se prende muy rápido, está muy caliente y hay que dejarlo enfria; si no se prende enseguida, le falta fuego y si solo se dora, "estaa punto". De ahí en más, nuestra des- Wza y experiencia nos acompañarán.
  • 32.
    ~rqtrarionuestro horno poseereloj pirómetro, "todo ser&más fácil". r $e la horay media de calentado y cuando la brasa ha bajado y ya hemosaro- ?. tapamos la salida del tiraje y cerramos la puerta tomando la temperatura del 3 ouerta que nos acompañarátoda la cocción. xición, mostraremosuna tabla comparativa de temperaturas ideales. ninar todo tipo de carnes: arranque 350°C, desciende a 250°C mar panificados (harinas): arranque 280°C,desdende a 220°C 1s prácticos mperaturasno son absolutas, puedenvariar según el tipo de comida y el tipo de ebe cocinar cuando el arranque según reloj sea más de 360°C, como tampoco cocinar cuando el reloj marque menos de 200°C. :sode que el horno este muy fuerte, se lo deja enfriar abriendo la puerta unos iso de que el horno este muy bajo de temperatura, se debe volver a calentar de 3WbCde arranque). 4ficados, se recomiendacolocar 1 recipiente rnetAlicocon agua hervidadurante h.De esta forma, se cocinará en un ambiente humidificado. o aves o pescados con piel muy sensible se los debe arropar con papel de alu- ;primeros 15 minutos. mescomo IecMn, cordero o ternerase les puededar un toque de dorado con tura fuerte y dados vuelta y vuelta. se cocina en la misma fuente. ésta debe ser "empavonada" o esmaltada para el calor. Si no bestá, coloque papel de aluminio para no contaminar. ea la receta, puedecocinara lafuente o a lafuente con pamlladesgrasadora. En -a,se cocinará en sus propiosjugos; y en la segunda, totalmentedesgrasada. equeen el casode cocinarpollos, estoscaben mássi los presentaenteros(ata- 3s patitas) perotambién tardan mas en cocinarseque si b s presentaabiertos. so de fuentes con parrillas divididas, coloque siempre las carnes al fondo y las rnAs cerca de la puerta (morcillaen primer lugar).Siempre el mayor calor estar6 ?ndoy el menw cercano a la puerta. )?amuchocuidado con el calor de puertas y manijas y fuentes. Este puede ocasionar %maduras.Trabajecon lasherramientasy losutensiliosdesaiptosen el capítulo anterior. -abajaendoble pisoconsoporte recuerdeque en el pisodearriba habrámuchocalor. ? será ideal para lascomidas que tardan un poco más (papas/batatas/etc.). dmente, NO SE DESANIMEsi lascosas no salen bien al principio(sino le cocinó y se 3 la temperatura, si salió crudoa muy quemado, etc.]. ;tique mucho y sea persistente. De esa manera obtendrá su brevet de experto asa- del horno de barro. :e muchísimosu horno, entable una relaci6ncon éI y conozcatodos sus secretos. -2 hornoes Unico; por ende siempretiene que instalarloso construirlos enformaarte-
  • 33.
    ELGRANLBRODE LOS ~~DEBARRO sanal, es decir hechos con la mano del hombre con materiales nobles de nuestratierra. Con el buen uso adquirirá experiencia, la suficiente como para manejarse sin reloj piró- metro y dar lugar a todas sus creaciones gastron6micas sorprendiendo a familiares y amigos. Recuerde siempre que cuanto más lo usamás rápido endurecey mejor funcio- na por el contrario la no utilizacidn ¡o debilita todo, enmohece y lo raja inevitablemente con el paso del tiempo. "Tener un horno de barro implica toda unafiiasofía de viday valores. Realmenteun hobby que, de ahora en más, puede convertirse en una excelente idea". RECOMENDACIONES PARA LA CORRECTA MANIPULACIONDE ALIMENTOS Según INPPAZ, OPS, OMS 1) Conservacióny Almacenamiento Mantenga las carnes en cámaras o heladeras en todo momento, a una temperatura menor o igual a 5°C para evitar el crecimiento y la multiplicaciixide las bacterias. Evite la contaminaci&n cruzada durante el almacenamiento. Las bacterias pueden pasar de un alimento a otro por contacto directo, o bien a través de !as superficies en contacto c m los mismos. Mantengael orden dentro de heladeras, congeladores, etc. Separe las carnes según su especie: carne vacuna, pollo, cerdo, etc. Controle la temperatura de las carnes en heladeras. Las carnes crudas y todos los alimentos listos para consumir que necesitanrefrigeración, deberán conservarse a una temperatura menor o igual a 5°C (menor a 2°C para carne picada). Las carnes conservadas por congelacióndeben mantenerseatemperaturasentre-1 2°C y 18"C, salvo que el rótulo del producto congelado especifiqueotra temperatura. Tenga siempre en cuenta que los valores de temperatura que se mencionancorrespon- den a la temperaturaen el interior de los alimentos y NO a la del aire que los rodea den- tro de la heladera. La temperatura del aire puede no reflejar adecuadamente la temperatura del interior de los alimentos,Cuanto másgrande es el producto almacenado, mástiempo tarda el cen- tro del alimentoen alcanzar la temperatura del aire. Asegúrese de que existan mínimas variaciones de temperatura durante el almace- namiento. Para esto, deberá tener en cuenta que: no se deben abrir las puertas de la heladera constantementey se debe minimizar el tiempo que la puerta permaneceabier- ta, porqueasí ayuda a mantener la temperatura apropiada y ahorra energía. 2) Higiene personal Los nianipuladores de alimentos pueden convertirse en vehículo de las STEC (Shiga Toxiri Producing EscherichiaGoti)y facilitar latransmisión por medio de sus manos. Lave sus manos antes de tocar los alimentos, despu6s de haber ido al baño, luego de mani- pular cajas, tachos de basura, trapos, rejillas, etc, Y toda vez que un cambio de actividad
  • 34.
    - :Y facoritaminaciónde las manos. Los manipuladorespueden ser portado- -c e n a y si luego de haber ido al bai70. no se lavan las manos correctamente, '-3wnitir la bacteria a los alimentos que tocan. -+P es un procedimientoadecuado para el lavado de manos. miento para un oorrectolavado de manos %n y agua corriente. ;manos una contraotra con jabón vigorosamentemientras las lava. Jas lassuperficies(incluyendo la partede atrás de las manos, las muñecas, entre S, y bajo las uñas). bien las manos hasta que no queden restosde jabón y dejar el agua corriendo ;manoscon una toalla de papel descartableo aire calente. agua, utilizando la toalla de papel en el caso que lo deba hacer con las manos $enizadas. r la toalla de papel luego de salir de la zona de lavado de manos. ?ante contar con las siguientes facilidades en el lavamanos y los baños para slizar un correcto lavado de manos: *mitaque personas ajenas o animales domésticos tengan acceso al área e manipulan y almacenan los alimentos. iga las ropasdetrabajoen perfectascondicionesde higiene. Cadavez que S se manchen deberá cambiarlas o lavarlas, desinfectadas y secarlas siempre posible (ej., delantales de plástico) paraevitar la contaminaci6n de otras super- e los alimentos. )ode sufrir una diarrea aguda debe abstenerse de manipular alimentos o al responsabledel establecimiento paraque éste tome las medidascorrespon- sza y desinfeccidn tareas de limpieza y desinfeccidn diariamente para asegurar que todas las $1 hogar (pisos, paredes, techos, áreas auxiliares) esten apropiadamentelimpias, lo los equipos y utensiliosque se utilizan paraesta tarea. que estén en buenas condiciones higiénicas y ordenados, antes de comenzar s y durante las mismas. Para alcanzar una adecuada condición higiénica se realizar tareas de limpieza y desinfección. significa eliminar la suciedad visible de las superficies-restos de carne, huesos, 2.- mediante el uso de agua, detergentes, cepillos, etc. :tarsignificaeliminar lasuciedad novisiblede lassuperficies-microorganismos- ! el uso de productos químicos desinfectantes, agua caliente,vapor, etc. deber6 mantener limpioy desinfectado? 1s:cuchillos, tablas, recipientes, afiladores de cuchillos, ganchos y todos los que utilice.
  • 35.
    ELGRANLIBRODE LOS HORNOSDEBARRO Equipos: máquinasde picar carne, cortadoras, balanzas, mesada, heladerasy todo el equipamientoque esté en contacto con lascarnes. Utensilios para limpieza: trapos y todos tos utensiliosque se utilizanpara limpiar y des- infectar. Se recomienda el uso de toallas de papel descartables para la limpieza de las superficies. Si utilizatrapos, presteatención a la higiene de lostrapos debido a que pue- den dejar de cumplir lafunciónde limpiar y convertirseen vehículo de bacterias que con- taminarán su mercadería. Lávelos fmuentemente con agua caliente y jabón; si posee lavarropas automático, use el ciclo de agua caliente. Descartesus trapos cada 15 días. ¿Cómo y cada cuánto tiempo se deberán realizar las tareas? - Parafines de limpieza de utensilios, cuchillos, etc, que entren en contacto directo con los productos cárnicos, la temperatura adecuada del agua es 65°C. - Parafines de desinfección de utensilios, cuchillos, etc., que entren en contacto direc- to con los alimentos podrá utiiizarse agua caliente a 80°C durante dos minutos como mínimo, disponiendo la superficie a desinfectar de forma tal que puedaestar sumergida bien en el agua duranteun tiempo no inferior a dos minutos. 4) Consejos La desinfección puede realizarsecon agua y lavandina. Recuerdeque toda vez que rea- lice la desinfeccidn mediante el uso de estos productos, deberá eliminar completamente los residuos del desinfectante mediante un enjuague completo de la superficie tratada. Nunca aplique de manera conjunta detergente y lavandina, ya que el material orgánico (detergente) inactiva a la lavandina, perdiendo así su acción desinfectante. Además, la mezcla de ambos productos provoca la liberacion de vapores tóxicos. Todo el equipamientoy los utensiliosdeberán higienizarseantes de comenzar lajoma- da de trabajo, al finalizarla y a intervalos de 4-5 horas durante la misma, a menos que se mantenga la sala a una temperatura inferior a 10°C, en cuyo caso se podrán espaciar más los intervalos para la realización de las tareas de higienización. Mantengaen buenas condiciones de higiene y orden el lugar destinado a la elimi- nación de los desechos. Los tachos de basuradeberán tener bolsa y tapa. Protecciones contra incendios y quemaduras Como lo hemos visto ya en otros capítulos anteriores, nuestro horno de barro funciona sólo si hay combustión interna dentro de la bóveda, producida por la quemazón de maderas,hojas, ramitas,etc. Se deben extremar los cuidados y, por supuesto, estar pre- parados para una ocasión de incendio o quemadura. Por muy leve que éste sea, la "pro- tección" es ipportantísima.Por ello aconsejamos lo siguiente: Al encender el fuego interno no utilice solventes, querosenes, naftas o cualquier ele- mento peligroso, ya sea por su toxicidad hacia la comida a realizar como por su rápida combustión Aleje a los niños en el momento de la quemazón, pues las llamas suelen salirse por la puerta y por la chimenea unos 50 cm aproximadamente.
  • 36.
    -73 muchocuidado alacercarsedurante la quemazón,a cargar con más madera @ - Extremesu precaución en manos, brazosy ojos. 40extraigabrasasutilicelas herramientaspropiasque se recomiendanen el Capi- v NO IMPROVISE.Estéatento a lacaidade brasitasen el piso, pues son muy peli- :S al ser pisadas. 'zque la puertadel horno de barro ni el tiraje de la chimenea sin protección (guan- -300 mojado, etc.).El hierro se calienta con muchafacilidad durante la quemazón y rcion. Tampoco introduzcasusmanossinproteccióndentro del hornodurantelacoc- 3 la mesada sobre el horno es de madera, extreme los cuidados cuando se pro- 2 la quemazón y el retiro de las brasas. dese con las puntas de herramientas y utensiliosque trabajen dentro de la bóveda -te la q u m x 6 n y cocción; éstas salen muy calientes del interior y tendremos que var muy bien dónde las apoyamos. sndo trabaje c mfuentesy parrillas,tenga extremocuidadoal moverlsacaridarwel- :., pues la grasa o el jugo de la cocción puede ocasionar quemadurasgraves si se a o salpica. lga siempre a mano agua o baldes de arena muy cerca en canillas o mangueras. es el uso de extintores para incendios aprobados reglamentariamente. I se desespere, no arroje fuentes/henamientas/parrillas/etc. si se quema, puede r más personascerca y resultar dañadas. permita el uso del horno a niños, ni que jueguen debajo de él, sobre todo cuando está apoyado en bases de madera. igacuidado con la hojarascade decoraciónsi ésta estaal lado de la chimenea (peli- le incendio). nadurac: primeros auxilios urre alguno de los accidentes que hemos descripto en el ítemanterior, se aconseja: toma fuego en buena parte del cuerpo, apartar a la persona del fuego, usar agua l, proteger con trapos las zonas quemadas y dar palmadas. No dejar correr porque go se reanimará. manos, brazos/etc., es mejor colocar la parte quemada en agua fría, no debajo de iilla, sino en un recipiente con agua fría. Renovarla a medida que se entibie. Para ierida leve, el tiempo de inmersiónes de media hora como mínimo. caso de quemaduras grandes, no sacar la ropa pues sacaremos parte de la piel iada. Envolver a la personaen una sabana y mantay llevarlaal hospital con urgen- ;i hay dolor darle una aspirina. grandes quemados, darle agua y sal cada 15 minutos. unaquemadurapequeña, lepodemoscolocar unapomadaperosiempreantecual- emergencia, recuerde consultar a su mtJdico o concumr al centro asistencial más no. caso de dificultadde trasladoy de asesoramientopuedaseguir lasinstruccionesde '-m,mientrasse procura asistenciamédica.
  • 37.
    CONStws uIILES A LAHORA DE COCINAR Y a hemos visto en Iuc capltulos anteriores todo lo referido a temperaturas, coc- cih, usos, recomendaciones, etc. A modo de resumen, indicaremos una serie de consejos a tener en cuenta a la hora de cocinar nuestros alimentos en un horno de barro. Elección de la maderaa quemar: Según sea la comidaa realizar, prepararemosla quemazóny el aromatizado de la bóveda. Dato útil paracarnes: calienteel horno con chañar, piquillíny aromaticecon romero. Para panificados: caliente con piquillínsin aromatizar. Relacióntiempo-temperatura: Siempre es preferible calentar el horno de más. Para bajar la temperatura siempre hay tiempo, pero para subirla iiitendremosque empezar todo de nuevo!!! Como medida prácticay que no falla: 1 hora y media de fuego (llama)constante le ren- dirá unas 3 hs de buenatemperatura (paracarnes). Administración de la relación tiempo-temperatura: Planifique con antelación qué alimentos va a cocinar. Una vez que el horno de barro se prende, conviene aprovechar al máximo toda su tem- peratura. Por ejemplo, las primeras cocciones, donde las temperaturas son altas, resultan efecti- vas para la c w i ó n de carnes. Luego, vienen las empanadas, pizzas, tartas, calzones, verduras, pastas, etc. Para combinar los tiempos, cocine primero todas las carnes; luego con el calor sobran- te, dedíquese a los panificados. Junto con la carney casi al final de la cocción de éstas, puede calentar rapldo empanadas, verduras, pastas. De esta manera los comensales podrán degustar mas de un plato en una sola cocci0n. Un consejo saludable: cocineprimerola carne (poIlo/lechón/cordero/res, etc.),y antes de sacarlo del horno (unos 10minutos), cocine unas ricas empanadas. Junto con la carne, cocine las papas y verduras y sirva, no olvidándosede darle un gol- pecito de calor al pan del día. Mientrascome, cocine los panificados (panes,tortas, galletas, etc) paraluego agasajar a los invitadoscon el matecitode latarde, con dulzurasy de regaloobséquielesun ricopan caliente. Finalmente, muchos amantes de la cocina al hornode barro dedican un día para pre- parar sus comidas realizando no sólo la del momentoo la de la Cena, sinotambibn, para toda la semana.
  • 38.
    -90de la cocciónse pueden freenar carnes, panificados, prepiudmasas, o guar.jzr -:panesde todo tipo paratodos losdías;éstospermaneceránfrescos por mucho mas U Fnpo que loscomercializadosen plaza. ':onsejamos envolvercon papelfilm (panes)y papel de aluminio (carnes, etc.) lo que va 'wzar. "ADMINISTRANDO MUY BIEN EL HORNO DE BARRO, SE CONSIGUE UNA GRAN ECONOM~AHOGAREÑA,SUMADOA LA EXCELENTECALIDADDESUSCOMIDAS". RECETAS ESPECIALES PARA HORNO DE BARRO temperatura de 3500 C) co!oqueel pollo mnsOmé de poilOr lr2 taza. sobre una band~iasin rejilla y cocine 1/2 taza. hasta que dore (45 minutos aproximada- de limón, cucharadas. -Receta N% - T O ~a Iá naranja mente). Delo vueita para que el dorado ' . - -sea parejo. Mientrastanto, combine el resto de los ingredientes p r i un tLx?ngrande. ~ s t e p o l l otiene un ykndídoaspecto rfe hanquete y resuka excehntepara of;ecerb en ha c m a sus invitad&. PREPARACI~N Arregle el pollo, ya que se cocina entero. Untelo con manteca sazonada con sal, pimienta y tomillo oor dentro y por fuera. Can el horno m iente (inaresar a Imi Vierta la mezcla sobre el pollo ya dorado y cocindo 1 %ra mas. darldolo vuelta (por lo menos una vez) y rociándolo constantemente. Al finalde este procesode cocción, hierva losjugo. o ~ i sxti?el pollo inezcladoscon la salsa, espere que espese y rocíe finalmente 31 SPR Ir l ~ . INGREDIENTES (4 porciones) Polloentero, uno de 2 k. Aceite o manteca, 2 cucharadas. y pimienta. Una pizca de tomillo. de naranjas y 112 taza. Cáscara de naranja rallada?1 taza- PRESENTACI~N Sírvalo entero, adrmado con gajos de~orativosde naranjafresca y jugosa. ACOMPAÑAMIENTO Sirva con papas a la criolla.
  • 39.
    ELGRANLIBRODE LOS HORNOSDEBARRO vuelta 2 d 3 veces, rociándolocon la salmuera. Tiempo de coccidn: A punto: 50 minutos. Cocido: 1 hora. Bien cocido: 1 hora20 minutos PRESENTACI~N Al plato, con decoracióndi verduras. ACOMPAÑANIIENTO h z cocido al horno.
  • 41.
    ELGRANLIBRODE LOS HORNOSDEBARRO l í a com6ínación a r t é c d 6!Ios íyjrdíentes, que cmnúnmente se encuentranen cuafquier cocina,yued! convettír una simple hm6ur8uesa en una hltcía que &e q u a la boca. PREPARACI~N Combine la picada, el huevo y el ketchup en un tazón que contenga la sopa de cebollay el ajo. Sazonecon saly pimienta. INGREDIENTES (4 Porciones) Picadaespecialdesgrasada, 1/2 k. Ketchup, 1 cucharada. Huevo, 1. Sal y pimienta. Sopa instantáneade cebolla, 1 paquete. 1 diente de ajo finamente picado. Arme las hamburguesasde lamaneratra- dicional, tratando de unificar bien el bollo. Caliente el hornoa temperatura media 3000 - - . . . . .. .. . ... . - - . c;.NO saque las brasitase introduzca"có~oia parrillasin fuente". por la rapidezen que se cocinan, es ideal para realizar las clásicas "harnburgueseadas". Delevuelta y vuelta y las mismas quedarán selladas y marcadas. Estaoperación se debe realizar "a puerta casiabierta"mevitarel acimado.Si no auier~utilizar la ~arrilla.corralas brasasa un costadoy, en unafuente acitada le~rrnente(o engrasada), realicelacocción. PRESENTACI~N Al plato, con las diferentes guarnicinner q ~ i i: indican a cantinuación, o sda con un pan para hamburguesacortado ai mrrf*c. Uvasverdes y rojasmrabanitos Salsa detomatesy cebollines Mostazade "Dijbn" Champiñones rebanadas y perejil. Aceitunas y queso Hongosalavinagretacon semillasde sésamo Vinagretade c o l ¡finamente picada Germinadosconcebollamorada KNviy estragón Rabaniiospicantesy jengibre Pepinilloscon salsa barbacoa Puerrosalteado Berenjenapicada Nar: ryar ;p n71Eriajrn-,xias Rebir31jasI;: i-atfilla rnciraday blanca Melm y eutragsq vmAnchoasy da,, Pimientosde 2 o 3 colws Cebnilinesde tai':l lar@o Pepidosy cebollas miniatura Tomatesy albahaca Salsa paracarney pizcade tornillo W v a z a f r h Rábmosrojosy Mancosconromero Calabacitasrebanadasy floretes decoi¡¡ Agreguesu propiaseieccionae quesoraiaaoacuaiqwaae iascomotnacionesmencionaaas.
  • 42.
    asado de cerdo ~Schásúo''Ldh~criolló"alh o di barro. una tradúwn argentina c m pocas. PREPARACI~N Caliente el aceite en una sartén, selle el asado por todos lados y colóquelo en una fuente grande con parrilla desgrasa- dora, con las costillas hacia abajo. Mezcle el agua, la melaza, la mostaza, sal y pimienta t?n un tazón; después vierta sobre el I~chón,t a p ~con papel de aluminio (los r~rimeros15 minutos) y INGREDIENTES (10112 porciones) Lechónde 12 k., 1. Aceite de maní. Sal y pimienta. Agua, 3 tazas. Melaza, 2 tazas. Mostaza, 1 taza. Féculade maíz, 1 taza. Caldo de pollo, 3 tazas. Vinagre de vino, 5 cucharadas. hornee por una hora y media. rociándolocada 20 minutos aproximadamente sin darlo vuelta. Pasados los20 minutos, saque el lechóndel horno. Disuelvalafécula de maíz en un tazón con el calcio de polloy deje aparte. Mientrastanto, quite el exceso de grasa del jugo donde se cocinó la carne, agregue el vinagre y la fécula disuelta y hierva mientrasrevuelve constantemente. Sazonea gusto y utiliceesta mezclaparacondi- mentar el asado. Sírvalo frío o caliente RECOMENDACI~N El horno debe estar debidamwte calentado (aproximadamentepor 2 horas), estan- do la temperatura al inicio de pntrar el asa& en unos 400" C (por ello el papel de aluminio, para que el primer calor no queme o1 cueroi PRESENTACI~N Cortado en trozos, adobado con la mezcla de conciirri~nt~ Si desea "decorarlow,rodee la fuente con anillos de ra3w t ~ sxtnahorias, etc. ACOMPAQAMIENTO Verduras varias, como batatasacarameladas, papas y zanahorias al horno. VERDURAS AL HORNO Lave las verdura.; con la cáscara; en d caso de la batata, imtela con miel y azúcar. Envuelva cada una con papel de aluminio y cocinelas 1 hora sobre la brasa del horno. Puede cocinar papa, batata, zanahoria, morrones, cebollas.
  • 43.
    --. Limpie el carrequi:w?- 1. -. --- - (,+2 2 1 - > r . -de grasa; haga un c. gar a los extremos ~ 7 ~ ' - ' - ~ - especie de bolsillo. Rell6nelocon laTapenade 4's - -- r- apretadamente; salpiment~c r ' =.' úntelo ligeramentecon aceite Y ll?.= _ r horno de barro, cocinándole aprw-1.- darnente unos 35 a 40 minutosdanc?- vuelta a la mitad del tiempo. PRESEN Sirva la c
  • 44.
    Una receta hp"adi b drepatría, ffseramentemodífiadÚ. Lec PREPARACI~N de Coloque el cochinillo sobre la mesada, Ajc con la piel haciaabajo, limpie bien y ase- Sal . . . . . . . F r l
  • 45.
    .J.U. .Vi al, pimienta, squecon un papel ACOMPAÑAMIENTO Morronesasados sin piel, aderezados con awite dr 11 c: 21: rI :--1' sal y pimienta.
  • 46.
    -Receta @g - mudode cordero PREPARACI~N Derritala mantecaenunacacerolay selle el cordero por completo.Sazonecon sal, pimienta y tomillo y agregue los trocitos de panceta. Hornee por unos 60 minutos rociándo- lo constantemente con los jugos de la cocción (ideal&vio vuelta por lo r n w x una vez). INGREDIENTES Corderito de 10 k., 1. Manteca, 2 cucharadas. Sal y pimienta. Tomillo, una pizca. Trocitos de panceta, (bien magra) 1/2 k. Cebollitas miniatura, 50. Dientes de ajo finamente picados,5. Perejil picado, 6 cucharadas. Agregue las cebnllitas y cocíndo en su jugo 20 minutos mas. Saque el asado del horno y acomódelo en otra bandeja, manteniéndolocaliente i7 el horno. Saquelagrasade losjugos de lacocción, agrégueleel ajo y el perqily L ier- ta esta mezclasobre el asado. Sirva caliente. Temperaturaideal delhorno: 3500 C al arranque. PRESENTACI~N Cortado en trozos, condimentadocon la mezcla de jugos d perejilcomo decoracibn. esgrasada y h ACOMPAÑAMIENTO Papasrellenas.
  • 47.
    ACOMPAÑAMIENTO Se completa lapreparacióndecorandocon ui :?-tit.: t; :::-1 .-,I!; ;;ic rxda, algunos tomates cherry, rodajas de limón, rociando cori[ir1 hil: e+,x;i:c- iriba.
  • 48.
    nadas criollas llévela INGREDIENTES Discos deempanadas para iliente horno, 2 docenas.
  • 49.
    1 ELGRANLIBRODE LOS HORNOGDEBARRO PRIFPARACI~N Extienda los bollos sobre las pizreras y sobre estos la salsa de tomate o bs tomates triturados. Uevesr hornodien- te (250° C)y cocine por lo menos 5/7 minutos hasta obtener la empanada "prepizza".Saque del hornoy agregue el restode lcls ingredimtes,esparcigtndolos por la masade prepiua. Vuelva a llevar al horno por otros 5/7 minutos y sirva. INGREDIENTES (Para4/ 6 comensales) Masa b&sica,2 bollos (2 piuas) Salsa de tomate, 1/2lata o tomates triturados, 300 gr. MozzareHadesmenuzada 250 gr. Orégano, 2 cucharadas. Aceite de oliva, 2 cucharadas. rara que queae a ia pieara esrire lo mas posi~tela masa a m a y a aasea que quede más crocante, cocine sobre el piso del horno caliente la prepiua con los ingredientes. Recetaválida para realizar todo tipo de combmaciones con sus ingredientes.
  • 50.
    variedades de?izzas Cobre lam&a Wka,podemosformar 3 tipos de pina: -a hpiedra (masafina bien estirada). -meda masa ( m a ~medianamenteestirada). -masa parapina rellena (biengruesa y consistente). PRESM~WGI~N Las pkas sepuedenpmentar de cñfmnles fmnas. La clásica, en la mismafuen- te cortadaen 8 triángubs por pinm,o b uttimalovedad es Wi *dglsLPeta~io- nes"de pizzas cortadas en porcionescuadradas, cenJidassobre tab& de mr#lera des íidgmth.
  • 51.
    unchsíco défhumo 1186awoy una mqgnffiEsfmnaa 88 aprowhrlo, fuyo dé k w un nadítow,cuancló su Harina 000, 1 k. tmyeratura a &alpava cocinar efpn. Levadura prensada, 50 gr. Sal fina, 25 gr, VARIOS Materia grasa (aceite, manteca, Rocío vegetal oleoso, harina, azúcar y 2 grasa bovina), 5 cucharadas. moldesde aprox. 8 cm dealto, 10cm de Agua, cantidad necesaria (aprox. mcho y 31 cm de largo. 500 cc). Disuelva la levadura en un poco de agua tibia conuna pizca de azúcar y deje des- cansar hasta que se forme espuma en la supemcie. C.. i ... L.-1 m--,rrl- 1- L.---- 1- m-1 -1 m-. .P. 1," 1- -A. .w .i -1 ---A- *ri.."Ww.irAri i .m.. duura y vi awrra, IUIIIICU iuu ui iil . . CI I ui I VVI, t Iw~1;77tr la Iialiiia GUI I ia wi, cn ayua, ia IGV masa ligeramenteconsistente Vuelque la preparación sobre la mesaday amase energicamente hasta que quede elástica, tersa y se desne-LIDsin Miciiitad d~ las manos y de la mesada. Deje en un ambient~calilv. ';~:c~ai!-,basta 3 ~ 1 i1.3 masa duplique su volumen. Divida la masa en dos :ar,>r-x!e I r 5 t'z'Y -1 'rs 1 ~ 7 l r j - Spreviamente engrasados ,<.-,,r.79 T.; ~ k - , : ~ > . ,, - - . J . pTDs. ni:l+,=5;3 45minutos.
  • 53.
    ELGRANLIBRO DE LOSHORNOSDE BARRO
  • 54.
    Dibujo no3 HORNOS CONSTRUIDOS ENINTERIORES TIRAJE A LOS 4 VIENTOS
  • 55.
  • 56.
  • 57.
    Vi Q> Dibujo no8 PISODE LOSETAS ) n n n n 1-- n a ,) 102 ,/ PISO DE LOSETAS HORMIGÓNARMADO LOSA REFRACTARIA-CORTE (HORNO CHICO) Dibujo no9 JUNTA DE ADOBE TOMADA AL RAS DISTRIBUCIÓN DEL PlSO DE LOSETAS (HORNO CHICO) TEJUELA n' Dibujo no10 mnLADRlLLo UTEJuEiw TIPO DE PISOS
  • 58.
    - - ESPESOR DE4 cm PUERTA DE FUNDICIÓN GRIS 13L 45 13L11 1 MARCO 1 481 PUERTA .G CHAPA 114" . 51 t PUERTA - Dibujo no11 PUERTA DE HIERRO DOBLE CHAPA
  • 59.
    ELGRANLIBRODE LOS HORNOSDEBARRO LADRILLO LOSA REFRACTARIA Dibujo no 12
  • 60.
  • 61.
    ELGRANLIBRODE LOS HORNOSDE BARRO 1 O 'I UJOL'O 1
  • 62.
    PALA- PALA PlZZERA PARAPAN DETALLE DETALLE DE FlLO DE FlLO 1 DETALLE FILO DE PALA I PLANCHUEU O w a: u 4 Q O *O GANCHO PALA ATIZADOR DE BRASA L a-aW O 3w Dibujo no16 Dibujo no 15 Di9 ROBl SALIDAA TOMA DE GAS Y VALVULA DE SEGURIDAD PISO DE LOSETAS i tLOSA REFRACTARIA E n O S PICO QUEMADOR SIMPLE Dibujo no17 63 9 O ? 7 2
  • 63.
    Prólogo ............................................................................................................................... 3 CAPITULO1: Aspectos culturales El hombre y la cocción de los alimentos ............................................................................ 4 Reseñahistóricade los hornosde barro ...............................................................................5 Generalidades...................................................................................................................... 6 Proyecto del horno de barro ................................................................................................ 6 Tipos de hornos .................................................................................................................. 7 Lugares de emplazamiento ................................................................................................. 8 Orientaciónideal .................................................................................................................. 9 Ubicacióny comodidad .......................................................................................................9 CAPITULO 11: Construcciónde los hornos de barro Basesde apoyo ................................................................................................................. 10 Losa refractaria.................................................................................................................. 11 Piso del horno de barro ......................................................................................................12 La puerta ...........................................................................................................................13 La bóveda ..........................................................................................................................14 Aislaciones y recubrimientos.............................................................................................. 16 Tirajey conductos de humo ..............................................................................................18 Tipología de materiales ......................................................................................................19 CAPITULO III: Accesorios y complementos Relojes marcadores de temperatura .................................................................................. 21 Herramientasde uso ..........................................................................................................22 Utensilios de cocina ......................................................................................................... 24 Hornosadaptadosa gas ....................................................................................................27..Iluminacionde labóveda....................................................................................................28 Mobiliario ........................................................................................................................... 29 Empavonados ................................................................................................................... 30 CAPITULO IV: Usos y recomendaciones Maderasa utilizar ...............................................................................................................31 Aromatizantes .................................................................................................................... 31 Primerosfuegos y curado del horno ...................................................................................32 Cómo encendemos el fuego ..............................................................................................32 iA cocinar! .......................................................................................................................... 32 Recomendacionespara la correcta manipulaciónde alimentos .....................................34 Proteccióncontra incendios ...............................................................................................36 Quemaduras: primeros auxilios ..........................................................................................37 CAPITULO V: Consejos útiles a la hora de cocinar Recetasespeciales para horno de barro ............................................................................39 Recetano1: Pollo a la naranja ........................................................................................... 39 Recetano2: Asado tradicionalde res ................................................................................. 40 Recetano3: Matambrearrollado "Tatacua" ..........................................................................41 Recetano4: Hamburguesascriollas con 25 guarniciones ................................................ 42 Receta no5: Asado de cerdo ............................................................................................ 43 Recetano6: Carré de cerdo a laTapenade .........................................................................44 Recetano7: Cochinillo asado ..................;-........................................................................... 45 Recetano8: Pierna de cordero patagónico ........................................................................ 46 Recetano9: Asado de cordero ...........................................................................................47 Receta no10: Truchas al natural ......................................................................................... 48 Recetano11: Empanadascriollas ...................................................................................... 49 Recetano12: Piza a la piedra "Margarita".............................................................. .,. ......... 50 Recetano13:Variedades de piuas .................................................................................... 51 Recetano14: Pan casero ................................................................................................... 52 Recetano15: Pandulce ..................................................................................................... 53 Dibujos .............................................................................................................................. 54 Detallede fotos ................................................................................................................. 65
  • 64.
    DEUNHORNODEBARRO (CANÓN CORRIDO), PASO APASO S e denominan así a los hornos construidosde tal maneraqueel largo (profundidad) es más grande que el ancho y se f m en el sector ck!puerta un compartimiento más largo, el doble que el h mcormencional.Estecompartimientoes ideal para trabajarlo con soportes en 2 o 3 nivelas (para M e s )ya que el fuego se desarrolla en la parte posterior. FygY . . Base de madera de quebracho.
  • 65.
    Encofrado perdido einicio de losa refractaria. Construcción de losa a nivel. 66
  • 66.
    Construcción de losarefractaria. Llenado con hormigón de losa refractaria.
  • 67.
    ELGRANLIBRODE LOS HC~RNOSDEBARRO Base de quebracho, encofrado perdido e inicio de losa refractaria. Aplici-.-~nde mezcla refrac--..J sobre nigón. 68
  • 68.
    Aplicación de mezclarefractaria sobre hormigón. Y * - -a-..- Colocación de baldwaa sobre loba rdraciaria.
  • 69.
    ELGRANLIBRODE LOS HORNOSDEBARRO Corte saliente de bases, losa y piso. Vista de piso de baldosas 20/20.
  • 70.
    Lknado de juniascon mezcla refractarla. Pmmntaclónde puerta.
  • 71.
    ELGRANLIBRODE LOS HORNOSDEBARRO Constiueci6n de la bóveda. 7-
  • 72.
    Construcción de labóveda de ladrillos y sardinel sobre puerta.
  • 73.
    Construcción de labóveda de ladrillosy colocacibn de chimenea.
  • 74.
  • 75.
    Recubrimientorslteetrño. Colocación de fibracerámica y tejido rpoQm mcubrimknto.
  • 76.
    Colocación de fibracerámica y tejido sobre recubrimiento. Recubrimientorefractariosobre tejido.
  • 77.
  • 78.
  • 79.
    ELGRANLIBRODE LOS HORNOSDEBARRO Horno terminado, véase detalle de puerta con reloj pirdmetro y tovera interior. 80