Página 1 de 22 
CBTis 172 
Centro de Bachillerato Tecnologico Industrial y de Servicios 172 
Diseña la Red LAN de acuerdo a las condiciones y requerimientos de la organización 
DISEÑO DE UNA RED DE AREA LOCAL 
Luis Adrian Quintana Pitayo 
5”D” 
Soporte y Mantenimiento del Equipo de Computo
Página 2 de 22 
INDICE 
1. PRESENTACION 
2. INDICE 
3. INTRODUCCION 
4. UBICACIÓN FISICA DEL LUGAR (UBICACIÓN) 
5. MEDIDAS Y CARACTERISTICAS 
6. NOMBRE, OBJETIVO, IMPACTO Y TIEMPO ESTIMADO DE INSTALACION 
7. REQUERIMIENTOS DEL PROYECTO 
8. REQUERIMIENTOS DEL PROYECTO 
9. APLICACIÓN DE SOFTWARE 
10. MOBILIARIO 
11. MOBILIARIO 
12. EQUIPO NECESARIO 
13. EQUIPO NECESARIO 
14. RECURSO QUE SE COMPARTIRAN EN LA RED 
15. TIPO DE CABLE Y DE DIRECCIONAMIENTO 
16. DIAGRAMA DISTRIBUCION DE LUGAR 
17. DIAGRAMA DE ALIMENTACION ELECTRICA 
18. DIAGRAMA DE CANALETAS Y ROSETAS 
19. DIAGRAMA DE DISTRIBUCION DE CABLES 
20. DIAGRAMA DE MOBILIARIO 
21. DIAGRAMA DE PROYECTO COMPLETAMENTE PLANIFICADO 
22. SECUANCIA DE ACTIVIDADES Y CONCLUCION
Página 3 de 22 
INTRODUCCION 
En este proyecto se llevara acabo una instalación de una red LAN de área local dentro de un local o lugar desocupado, la red LAN tendrá que ocupar todos los instrumentos o elementos necesarios para realizar una comunicacion entre varias computadoras como un tipo ciber o sala de computacion de una escuela. 
Se tendrá una canalización de precios, tomando en cuenta las medidas de el lugar elegido junto con los precios de todos los equipos necesarios tanto como computadoras, cantidad de cable UTP independientemente de la categoría requerida, jacks, plugs, rosetas, canaletas, reguladores de voltaje, tarjetas de red (si se requiere), racks, switch, 
Este proyecto pondrá en practica el conocimiento adquirido durante las clases de redes, y se hara y ajustara un ciber con 15 maquinas.
Página 4 de 22 
DESARROLLO 
Ubicación física del espacio 
Calle Corregidora #11 Col. Revolución, Villagrán, Gto
Página 5 de 22 
Medidas y características 
El lugar localizado en la calle Corregidora #11 de la Col. Revolución es un local rentable lo cual se rentara para el uso con respecto a un ciber. 
Las medidas del local son de 4 metros de ancho por 15 de largo, este lugar es largo y pueden caber perfectamente un estimado de 15 computadoras junto con el mobiliario seleccionado, acompañado de impresoras, baño, sillas de espera.
Página 6 de 22 
INSTALACION DE UNA RED DE AREA LOCAL LAN 
CREACION DE UN CIBER 
El objetivo de este proyecto es el crear un ciber en un local de villagran listo para arrancar a funcionar, revisando y canalizando precios para comprar lo mas económico y bueno que ocupe el ciber en sí. 
Es también benefico para la comunidad cercana para la gente que no cuenten con el servicio de internet y tengan necesidad de un trabajo o información. Se tendrá una localización y precios accesibles para el uso de internet. 
El tiempo que se estima en la instalación de este proyecto ciber es estimado entre uno y dos meses, empezando tal vez desde el 2 de enero de 2015 hasta el tiempo limite que seria 2 de marzo del 2015, si no sucede un retraso por x cuestión.
Página 7 de 22 
APLIREQUERIMIENTOS DEL PROYECTO 
Número de equipos: El ciber tendría 15 computadoras marca COMPAQ 
Modelo: Compaq Presario CQ1 
Tipo: All-in-one PC 
Precio: $3.600 pesos en M.N. 
Lugar de compra: Bodega Aurrera, sucursal Celaya, Gto 
Pago total (15 equipos): $54,000 menos descuento de 15% por mayoreo = $45,900 pesos M.N.
Página 8 de 22 
Numero de reguladores: Para esto se ocuparan 6 reguladores, cada uno distribuirá a tres 
Equipos cada uno 
Marca: ISB 
Modelo: CVR 2500 
Precio: $450 
Lugar de compra: Steren, sucursal Celaya,Gto 
Pago total (6 equipo): $2700 pesos menos descuento de 10% = $2430 M.N.
Página 9 de 22 
APLICACIONES DE SOFTWARE 
MICROSOFT OFFICE COMPLETO: Office Hogar y Estudiantes $1499 pesos M.N. ( Word, Excel, Power Point y One Note ) 
Antivirus Avast Premier: Descarga internet 
CCleaner Easy Driver Atubecatcher Google Chrome
Página 10 de 22 
MOBILIARIO 
Estante: En el se colocaría los documentos que se requieran para funcionamiento del ciber Costo: $400 pesos Cantidad: 1 
Silla de espera: Estas servirían para que las personas esperen en lo que se les atiende, para su comodidad Costo: $500 pesos Cantidad: 1 juego de sillas 
Mesa para computadora: este mueble esta diseñado para que se puedan poner dos equipos en una sola mesa separándose con una tabla y para que los usuarios gozen de comodidad y privacidad. Costo: $600 Cantidad: 8 mesas
Página 11 de 22 
Silla: Servira para los clientes o usuarios de los equipos para una mayor comodidad 
Costo: $300 pesos Cantidad: 17 sillas, se tendrán de reserva 2 sillas 
Bancos: Estos se utilizaran para cuando los clientes lleguen acompañados por alguien y para que no tomen una silla que le podría ser útil a otro cliente 
Costo: $30 pesos Cantidad: 10 bancos 
El costo total por todo el mobiliario seria de: $11,100 pesos
Página 12 de 22 
Metros de cable UTP 
Se contara con 200 metros de cable UTP categoría 6 lo cual costaría $2400, distribuidos entre los 15 equipos conectados a rosetas, siwtch, enrutador, etc 
Rosetas 
Se ocuparan 8 rosetas dobles lo cual costaran $336, cada roseta abarcara lo de dos equipos juntos 
Jacks, plugs, paneles de parcheo 
 40 plugs categoría 6 lo cual costara $480 
 Panel de parche de 24 puertos para categoría 6 lo cual seria $720, para cualquier extensión de cantidad de equipos 
Canaletas 
20 Canaleta auto adheribles de 2 metros para cable de 8 hilos o 15mm 
Costo: $58 pesos Costo por cantidad: $1160 pesos
Página 13 de 22 
Switch Se necesitara un Switch Gigabit Ethernet 16 Puertos 1000mbps Rack Sg1016d con valor de $1258.99 pesos 
Access Point 
Se necesitara un Repetidor Wifi Expansor Inalámbrico Tp-link Wa830re 300mbps con valor de $489.99 pesos
Página 14 de 22 
Recursos que se compartirán en la red 
Impresora: EPSON Multifuncional Xp211 con tinta continua 
Costo: $1700 pesos 
Cantidad: 2 impresoras 
Valor total: $3400 pesos 
Servicios que se compartirán con la RED 
INTERNET
Página 15 de 22 
Tipos de cable a usar 
Categoría: 6 Velocidad de transmisión: Alcanza frecuencias de hasta 250 MHz en cada par y una velocidad de 1 Gbps 
Distancia máxima entre dos computadoras: 60 cm por cada una 
Topología: Estrella 
Estándar utilizado para cables: EIA/TIA 568 A y EIA/TIA 568 B 
Tipo de direccionamiento 
Direccionamiento: IPv4 
Clase de dirección: clase C 
Creacion de subredes: 
Asignación de IPs: Fijas 
Direcciones: Privadas
Página 16 de 22 
DIAGRAMA DISTRIBUCION DEL LUGAR 
PuertasVentanas
Página 17 de 22 
DIAGRAMA DE ALIMENTACION ELECTRICA 
PuertasVentanasAlimentación eléctricaConectores de luzLamparas
Página 18 de 22 
DIAGRAMA DE CANALETAS Y ROSETAS 
PuertasVentanasAlimentación eléctricaConectores de luzLamparasCanaletas
Página 19 de 22 
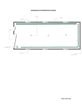
DIAGRAMA DE DISTRIBUCION DE CABLES 
PuertasVentanasAlimentación eléctricaConectores de luzLamparasCanaletasCables de distribucion
Página 20 de 22 
DIAGRAMA DEL MOBILIARIO 
PuertasVentanasAlimentación eléctricaConectores de luzLamparasCanaletasCables de distribucion
Página 21 de 22 
DIAGRAMA YA TODO LISTO 
PuertasVentanasAlimentación eléctricaConectores de luzLamparasCanaletasCables de distribucion
Página 22 de 22 
SECUENCIA DE ACTIVIDADES A LLEVAR ACABO PARA LA INSTALACION DEL PROYECTO 
 Tener lugar y local en donde llevar acabo el proyecto 
 Canalizar todos los precios sobre todos lo necesario para tener un estimado de cuanto costara el proyecto 
 Medir el lugar o local y hacer planos de acuerdo al acomodamiento de todo el equipo 
 Tener en cuenta todo lo necesario para empezar con el desarrollo 
 Tener distribuido bien el lugar 
 Tener en cuenta la alimentación eléctrica del local 
 Acomodar canaletas y rosetas de acuerdo al orden planeado siguiendo los protocolos 
 Tener bien diseñado el acomodo de los cables para que no ahiga un cableria pordoquier 
 Medir el espacio y cavidades del mobiliario elegido de acuerdo a su tamaño y acomodamiento 
 Colocar el rack en donde sea conveniente (si se tiene) 
 Colocar los equipos sobre el mobiliario y hacer todos los ajustes y configuraciones de acuerdo a su conectividad entre si y a un servidor 
CONCLUSION 
Un diseño de una red local LAN no es tan difícil pero siempre se deben tener en cuenta todos los detalles, hasta los mas pequeños para que esa red siempre este bien y no ahiga tantaos problemas. 
Esto requiere de tiempo y por supuesto también de dinero ya que por los dato recavados anteriormente no es tan barato obtener todo el equipo para un buen ciber.

Proyecto del adry

  • 1.
    Página 1 de22 CBTis 172 Centro de Bachillerato Tecnologico Industrial y de Servicios 172 Diseña la Red LAN de acuerdo a las condiciones y requerimientos de la organización DISEÑO DE UNA RED DE AREA LOCAL Luis Adrian Quintana Pitayo 5”D” Soporte y Mantenimiento del Equipo de Computo
  • 2.
    Página 2 de22 INDICE 1. PRESENTACION 2. INDICE 3. INTRODUCCION 4. UBICACIÓN FISICA DEL LUGAR (UBICACIÓN) 5. MEDIDAS Y CARACTERISTICAS 6. NOMBRE, OBJETIVO, IMPACTO Y TIEMPO ESTIMADO DE INSTALACION 7. REQUERIMIENTOS DEL PROYECTO 8. REQUERIMIENTOS DEL PROYECTO 9. APLICACIÓN DE SOFTWARE 10. MOBILIARIO 11. MOBILIARIO 12. EQUIPO NECESARIO 13. EQUIPO NECESARIO 14. RECURSO QUE SE COMPARTIRAN EN LA RED 15. TIPO DE CABLE Y DE DIRECCIONAMIENTO 16. DIAGRAMA DISTRIBUCION DE LUGAR 17. DIAGRAMA DE ALIMENTACION ELECTRICA 18. DIAGRAMA DE CANALETAS Y ROSETAS 19. DIAGRAMA DE DISTRIBUCION DE CABLES 20. DIAGRAMA DE MOBILIARIO 21. DIAGRAMA DE PROYECTO COMPLETAMENTE PLANIFICADO 22. SECUANCIA DE ACTIVIDADES Y CONCLUCION
  • 3.
    Página 3 de22 INTRODUCCION En este proyecto se llevara acabo una instalación de una red LAN de área local dentro de un local o lugar desocupado, la red LAN tendrá que ocupar todos los instrumentos o elementos necesarios para realizar una comunicacion entre varias computadoras como un tipo ciber o sala de computacion de una escuela. Se tendrá una canalización de precios, tomando en cuenta las medidas de el lugar elegido junto con los precios de todos los equipos necesarios tanto como computadoras, cantidad de cable UTP independientemente de la categoría requerida, jacks, plugs, rosetas, canaletas, reguladores de voltaje, tarjetas de red (si se requiere), racks, switch, Este proyecto pondrá en practica el conocimiento adquirido durante las clases de redes, y se hara y ajustara un ciber con 15 maquinas.
  • 4.
    Página 4 de22 DESARROLLO Ubicación física del espacio Calle Corregidora #11 Col. Revolución, Villagrán, Gto
  • 5.
    Página 5 de22 Medidas y características El lugar localizado en la calle Corregidora #11 de la Col. Revolución es un local rentable lo cual se rentara para el uso con respecto a un ciber. Las medidas del local son de 4 metros de ancho por 15 de largo, este lugar es largo y pueden caber perfectamente un estimado de 15 computadoras junto con el mobiliario seleccionado, acompañado de impresoras, baño, sillas de espera.
  • 6.
    Página 6 de22 INSTALACION DE UNA RED DE AREA LOCAL LAN CREACION DE UN CIBER El objetivo de este proyecto es el crear un ciber en un local de villagran listo para arrancar a funcionar, revisando y canalizando precios para comprar lo mas económico y bueno que ocupe el ciber en sí. Es también benefico para la comunidad cercana para la gente que no cuenten con el servicio de internet y tengan necesidad de un trabajo o información. Se tendrá una localización y precios accesibles para el uso de internet. El tiempo que se estima en la instalación de este proyecto ciber es estimado entre uno y dos meses, empezando tal vez desde el 2 de enero de 2015 hasta el tiempo limite que seria 2 de marzo del 2015, si no sucede un retraso por x cuestión.
  • 7.
    Página 7 de22 APLIREQUERIMIENTOS DEL PROYECTO Número de equipos: El ciber tendría 15 computadoras marca COMPAQ Modelo: Compaq Presario CQ1 Tipo: All-in-one PC Precio: $3.600 pesos en M.N. Lugar de compra: Bodega Aurrera, sucursal Celaya, Gto Pago total (15 equipos): $54,000 menos descuento de 15% por mayoreo = $45,900 pesos M.N.
  • 8.
    Página 8 de22 Numero de reguladores: Para esto se ocuparan 6 reguladores, cada uno distribuirá a tres Equipos cada uno Marca: ISB Modelo: CVR 2500 Precio: $450 Lugar de compra: Steren, sucursal Celaya,Gto Pago total (6 equipo): $2700 pesos menos descuento de 10% = $2430 M.N.
  • 9.
    Página 9 de22 APLICACIONES DE SOFTWARE MICROSOFT OFFICE COMPLETO: Office Hogar y Estudiantes $1499 pesos M.N. ( Word, Excel, Power Point y One Note ) Antivirus Avast Premier: Descarga internet CCleaner Easy Driver Atubecatcher Google Chrome
  • 10.
    Página 10 de22 MOBILIARIO Estante: En el se colocaría los documentos que se requieran para funcionamiento del ciber Costo: $400 pesos Cantidad: 1 Silla de espera: Estas servirían para que las personas esperen en lo que se les atiende, para su comodidad Costo: $500 pesos Cantidad: 1 juego de sillas Mesa para computadora: este mueble esta diseñado para que se puedan poner dos equipos en una sola mesa separándose con una tabla y para que los usuarios gozen de comodidad y privacidad. Costo: $600 Cantidad: 8 mesas
  • 11.
    Página 11 de22 Silla: Servira para los clientes o usuarios de los equipos para una mayor comodidad Costo: $300 pesos Cantidad: 17 sillas, se tendrán de reserva 2 sillas Bancos: Estos se utilizaran para cuando los clientes lleguen acompañados por alguien y para que no tomen una silla que le podría ser útil a otro cliente Costo: $30 pesos Cantidad: 10 bancos El costo total por todo el mobiliario seria de: $11,100 pesos
  • 12.
    Página 12 de22 Metros de cable UTP Se contara con 200 metros de cable UTP categoría 6 lo cual costaría $2400, distribuidos entre los 15 equipos conectados a rosetas, siwtch, enrutador, etc Rosetas Se ocuparan 8 rosetas dobles lo cual costaran $336, cada roseta abarcara lo de dos equipos juntos Jacks, plugs, paneles de parcheo  40 plugs categoría 6 lo cual costara $480  Panel de parche de 24 puertos para categoría 6 lo cual seria $720, para cualquier extensión de cantidad de equipos Canaletas 20 Canaleta auto adheribles de 2 metros para cable de 8 hilos o 15mm Costo: $58 pesos Costo por cantidad: $1160 pesos
  • 13.
    Página 13 de22 Switch Se necesitara un Switch Gigabit Ethernet 16 Puertos 1000mbps Rack Sg1016d con valor de $1258.99 pesos Access Point Se necesitara un Repetidor Wifi Expansor Inalámbrico Tp-link Wa830re 300mbps con valor de $489.99 pesos
  • 14.
    Página 14 de22 Recursos que se compartirán en la red Impresora: EPSON Multifuncional Xp211 con tinta continua Costo: $1700 pesos Cantidad: 2 impresoras Valor total: $3400 pesos Servicios que se compartirán con la RED INTERNET
  • 15.
    Página 15 de22 Tipos de cable a usar Categoría: 6 Velocidad de transmisión: Alcanza frecuencias de hasta 250 MHz en cada par y una velocidad de 1 Gbps Distancia máxima entre dos computadoras: 60 cm por cada una Topología: Estrella Estándar utilizado para cables: EIA/TIA 568 A y EIA/TIA 568 B Tipo de direccionamiento Direccionamiento: IPv4 Clase de dirección: clase C Creacion de subredes: Asignación de IPs: Fijas Direcciones: Privadas
  • 16.
    Página 16 de22 DIAGRAMA DISTRIBUCION DEL LUGAR PuertasVentanas
  • 17.
    Página 17 de22 DIAGRAMA DE ALIMENTACION ELECTRICA PuertasVentanasAlimentación eléctricaConectores de luzLamparas
  • 18.
    Página 18 de22 DIAGRAMA DE CANALETAS Y ROSETAS PuertasVentanasAlimentación eléctricaConectores de luzLamparasCanaletas
  • 19.
    Página 19 de22 DIAGRAMA DE DISTRIBUCION DE CABLES PuertasVentanasAlimentación eléctricaConectores de luzLamparasCanaletasCables de distribucion
  • 20.
    Página 20 de22 DIAGRAMA DEL MOBILIARIO PuertasVentanasAlimentación eléctricaConectores de luzLamparasCanaletasCables de distribucion
  • 21.
    Página 21 de22 DIAGRAMA YA TODO LISTO PuertasVentanasAlimentación eléctricaConectores de luzLamparasCanaletasCables de distribucion
  • 22.
    Página 22 de22 SECUENCIA DE ACTIVIDADES A LLEVAR ACABO PARA LA INSTALACION DEL PROYECTO  Tener lugar y local en donde llevar acabo el proyecto  Canalizar todos los precios sobre todos lo necesario para tener un estimado de cuanto costara el proyecto  Medir el lugar o local y hacer planos de acuerdo al acomodamiento de todo el equipo  Tener en cuenta todo lo necesario para empezar con el desarrollo  Tener distribuido bien el lugar  Tener en cuenta la alimentación eléctrica del local  Acomodar canaletas y rosetas de acuerdo al orden planeado siguiendo los protocolos  Tener bien diseñado el acomodo de los cables para que no ahiga un cableria pordoquier  Medir el espacio y cavidades del mobiliario elegido de acuerdo a su tamaño y acomodamiento  Colocar el rack en donde sea conveniente (si se tiene)  Colocar los equipos sobre el mobiliario y hacer todos los ajustes y configuraciones de acuerdo a su conectividad entre si y a un servidor CONCLUSION Un diseño de una red local LAN no es tan difícil pero siempre se deben tener en cuenta todos los detalles, hasta los mas pequeños para que esa red siempre este bien y no ahiga tantaos problemas. Esto requiere de tiempo y por supuesto también de dinero ya que por los dato recavados anteriormente no es tan barato obtener todo el equipo para un buen ciber.