1
TESIS HERIBERTO SALVADOR CASTRO
INSTITUTO POLITECNICO NACIONAL
ESCUELA SUPERIOR DE INGENIERIA
MECANICA Y ELECTRICA
UNIDAD ZACATENCO
TESIS
QUE PARA OBTENER EL TÍTULO DE:
INGENIERO ELECTRICISTA
PRESENTA:
HERIBERTO SALVADOR
CASTRO
MÉXICO D. F. A 11 DE NOVIEMBRE DE 2009
“CALCULO DE LAS CARGAS Y SELECCIÓN DEL CONDUCTOR MAS
ADECUADO PARA UN EDIFICIO GUBERNAMENTAL”
2
TESIS HERIBERTO SALVADOR CASTRO
INTITUTO POLITECNICO NACIONAL
ESCUELA SUPERIOR DE INGENIERIA MECANICA Y ELECTRICA
UNIDAD PROFESIONAL “ADOLFO LOPEZ MATEOS”
TEMA DE TESIS
QUE PARA OBTENER EL TITULO DE INGENIERO ELECTRICISTA
POR LA OPCIÓN DE TITULACIÓN TESIS Y EXAMEN ORAL INDIVIDUAL
DEBERÁ(N) DESARROLLAR C. HERIBERTO SALVADOR CASTRO
“CÁLCULO DE LAS CARGAS Y SELECCIÓN DEL CONDUCTOR MAS
ADECUADO PARA UN EDIFICIO GUBERNAMENTAL”
DETERMINAR EL CALIBRE DEL CONDUCTOR EN BASE A LAS CARGAS INSTALADAS
PARA UNA OPTIMA EFICIENCIA DE ACUERDO A LA NORMATIVIDAD VIGENTE PARA
UN EDIFICIO GUBERNAMENTAL.
INTRODUCCIÓN
1. CONSIDERACIONES GENERALES DE LOS SISTEMAS ELÉCTRICOS DE
POTENCIA
2. DEFINICIÓN Y CLASIFICACION DE LAS SUBESTACIONES ELÉCTRICAS
3. ELEMENTOS DE LAS INSTALACIONES ELÉCTRICAS
4. ESTUDIO DE CARGAS DEL EDIFICIO
5. SELECCIÓN DE PROTECCIONES, CALIBRE DE CONDUCTOR Y
CANALIZACIÓN
6. PRUEBAS AL TRANSFORMADOR Y A LOS ALIMENTADORES PRIMARIOS Y
SECUNDARIOS
7. EVALUACION DE COSTOS
CONCLUSIONES Y/O RECOMENDACIONES
México D. F. a 11 de Noviembre de 2009.
ING. ISRAEL CAMACHO RODRIGUEZ ING. DANIEL ANTONIO MATA JIMENEZ
ING. JORGE HERRERA AYALA
JEFE DEL DEPARTAMENTO ACADEMICO DE
INGENIERIA ELECTRICA
3
TESIS HERIBERTO SALVADOR CASTRO
DEDICATORIA Y AGRADECIMIENTOS
PRIMERAMENTE A DIOS,
POR DARME EL VALOR, LA INTELIGENCIA Y LA FUERZA PARA CUMPLIR
MIS METAS Y OBJETIVOS, POR MI FAMILIA Y POR TODO LO QUE ME HA DADO.
A MIS PADRES,
POR QUE SIEMPRE ME INCULCARON EL ESTUDIO Y LA SUPERACION PERSONAL.
A MI TIO MELQUIADES SALVADOR,
POR SUS CONSEJOS Y SU APOYO INCONDICIONAL PARA CONCLUIR MIS ESTUDIOS.
A MI ABUELO HERIBERTO SALVADOR,
POR QUE GRACIAS A EL TUVE LA FUERZA PARA SEGUIR ADELANTE.
A MI ESPOSA,
POR TODO SU APOYO DURANTE MIS ESTUDIOS,
SU COMPRENSION Y EL AMOR BRINDADO EN LOS MOMENTOS MÁS DIFÍCILES.
A MIS HIJOS,
PARA QUE NUNCA OLVIDEN, QUE EL ESTUDIO
Y EL CONOCIMIENTO, ES LA BASE DEL ÉXITO Y LA HERENCIA
MÁS GRANDE, QUE UN PADRE LES PUEDE DAR A SUS HIJOS.
4
TESIS HERIBERTO SALVADOR CASTRO
CONTENIDO
PROLOGO……………………………………………………………………...……….. 06
OBJETIVO…………………………………………………………………………….… 07
INTRODUCCIÓN………………………………………………………….…………… 08
INDICE
CAPITULO 1.
CONSIDERACIONES GENERALES DE
LOS SISTEMAS ELÉCTRICOS DE POTENCIA ………………………………...……13
1.1 Función de los sistemas eléctricos de potencia ……………………………………... 13
1.2 Representación y definición de un Sistema Eléctrico de Potencia (SEP)………….. 14
1.3 Características fundamentales que influyen sobre
la generación y transporte de la energía eléctrica ………………………………… 17
CAPITULO 2.
DEFINICIÓN Y CLASIFICACION DE LAS SUBESTACIONES ELÉCTRICAS….... 20
2.1 Elementos constitutivos de una subestación………………………………………… 21
2.2 Transformador………………………………………………………………………. 21
2.2.1 Elementos que constituyen un transformador………………………….…. 22
2.2.2 Clasificación de Transformadores………………………….…………...… 23
2.2.3 Conexión de transformadores………………………………………….….. 24
2.2.4 Puesta en servicio y mantenimiento de transformadores…………….…… 26
2.3 Interruptores………………………………………………………………………… 26
2.3.1 Interruptor de Potencia …………………………………………………..... 27
2.3.2 Interruptores de bajo voltaje………………………………….…………… 32
2.3.3 Interrupción de circuitos en líneas inductivas…………………….………. 35
2.3.4 Interrupción de circuitos capacitivos…………………………………….... 36
2.4 Restaurador y Seccionadores………………………………………………………... 36
2.4.1 Operación de un restaurador ……………………………………….……...37
2.4.2 Cuchillas de operación con carga (Seccionador)………………….………. 39
2.5 Cuchillas fusible…………………………………………………………………..… 39
2.5.1 Clasificación de cuchillas desconectadoras………………………….…..... 40
2.6 Apartarrayos………………………………………………………………………… 43
2.7 Tableros duplex de control………………………………………………………….. 45
2.7.1 Tableros principales de distribución……………………………….……… 46
2.7.2 Tableros secundarios de distribución……………………………………... 47
2.7.3 Centros de control de motores……………………………………………. 48
2.8 Condensadores………………………………………………………………………. 48
2.8.1Experimentación de la carga-descarga del condensador…….…………….. 49
2.9 Transformadores para instrumento ………………………………………………….50
2.9.1 Transformadores de corriente…………………………………………...… 51
2.9.2 Transformadores de potencial……………………………………………... 51
CAPITULO 3.
ELEMENTOS DE LAS INSTALACIONES ELÉCTRICAS…………………………... 53
3.1 Elementos para el diseño eléctrico ………………………………………………….. 54
5
TESIS HERIBERTO SALVADOR CASTRO
3.2 Alimentadores, subalimentadores, circuitos derivados y tableros…………………... 57
3.2.1 Circuitos derivados para alumbrado …………….……………….…….… 57
3.3 Conductores y canalizaciones eléctricas………………………….………….…….… 60
3.3.1 Conductores eléctricos…………………………………………….……….. 61
3.3.2 Canalizaciones eléctricas…………………………….….…….…………….65
3.3.3 Cajas de conexiones………………………………..………........…………. 69
3.3.4 Conectores y accesorios en las instalaciones eléctricas………….….….…. 70
3.4 Planeación de las instalaciones eléctricas…………………………………...………. 71
3.4.1 Planeación de instalaciones eléctricas residenciales....………………….…. 71
3.4.2 Planeación de instalaciones eléctricas comerciales…………..…………….. 72
3.4.3 Planeación de instalaciones eléctricas industriales……….…..……………. 73
3.5 Calculo de los conductores por caída de voltaje ……………..………………...…… 74
3.6 Utilización recomendable de los sistemas de distribución………………….………. 79
3.7 Sistemas de distribución en baja tensión ……………………………………..………80
CAPITULO 4
ESTUDIO DE CARGAS DEL EDIFICIO ……………………………….…….………. 81
CAPITULO 5
SELECCIÓN DE PROTECCIONES, CALIBRE
DE CONDUCTOR Y CANALIZACION………………………………………………..110
Cálculo de protección y alimentador en media tensión (23,000V)…………………….....111
Cálculo de protecciones y calibre de conductores
en baja tensión para tableros de fuerza y alumbrado…………………………………..…112
CAPITULO 6
PRUEBAS AL TRANSFORMADOR Y
A LOS ALIMENTADORES PRIMARIOS Y SECUNDARIOS………………….…….135
6.1 Pruebas de aceptación a cables de energía……..………………..................................136
6.1.1 Prueba de Rigidez Dieléctrica (HI POT)
a cables XLP de media tensión……………………………………….……136
6.1.2 Prueba de Resistencia de Aislamiento (MEGGER)
Acometida a 23 kV de la Subestación Eléctrica Receptora
Principal a Subestación del Edificio Gubernamental…….……………..…..138
6.1.3 Prueba de Resistencia de Aislamiento (MEGGER)
Alimentadores Generales en Baja tensión………………………..................139
6.2 Prueba de resistencia de aislamiento al transformador (MEGGER)…..…………..….141
6.3 Prueba de relación de transformación (TTR) ………………….…………….……..144
CAPITULO 7
7.1 Evaluación de costos…………………………………….……………………..……..146
CONCLUSIONES Y RECOMENDACIONES….…………………….…………………149
BIBLIOGRAFIA….………………………………………………………………………151
ANEXO:
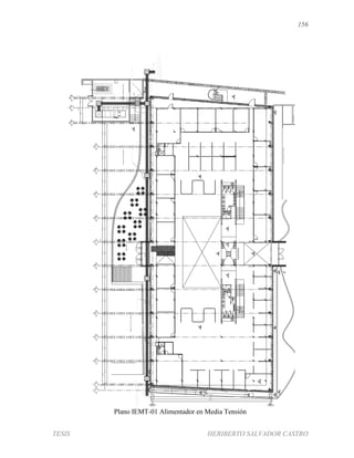
A. Planos.....................................................................................................152
B. Equipamiento Subestacion....................................................................157
C. Pruebas .................................................................................................159
6
TESIS HERIBERTO SALVADOR CASTRO
PROLOGO
La ingeniería desarrollada en la presente tesis, tiene como finalidad primordial la de
exponer el procedimiento básico para la elaboración de un Proyecto de Ingeniería Eléctrica
de un Edificio Administrativo Gubernamental, el cual en forma general puede ser utilizado
para cualquier Edificio Administrativo.
Para la elaboración del proyecto es necesario contar con la mayor información posible del
inmueble, de la ubicación de las diferentes áreas que integran el edificio (área de oficinas,
site de computo, áreas exteriores, cuarto de maquinas y Subestación Eléctrica Derivada) y
de cualquier información adicional que permita tener una idea total del proyecto, y en esa
medida, poder proponer los materiales adecuados y equipos a utilizar en la ejecución de
dicha instalación eléctrica; los cuales deben ser de la mejor calidad y de las marcas mas
reconocidas comercialmente en el mercado.
Lo anterior permitirá desarrollar una ingeniería los mas apegada a las condiciones
requeridas por el cliente, con la finalidad de obtener las cargas instaladas totales para no
sobredimensionar tanto los alimentadores como las protecciones termomagnéticas y en esa
medida seleccionar adecuadamente los tableros de distribución, transformador y
subestación eléctrica.
En el análisis no debemos perder de vista jamás, la protección de la vida y la propiedad de
las personas contra riesgos que presenta el uso y suministro de la energía eléctrica ya que
son lo mas importante y lo primero. Tomando en cuenta siempre los requisitos mínimos
de seguridad que nos marcan las Normas Técnicas de Instalación Eléctrica para llevar
acabo un diseño eléctrico.
7
TESIS HERIBERTO SALVADOR CASTRO
OBJETIVO:
DETERMINAR EL CALIBRE DEL
CONDUCTOR EN BASE A LAS CARGAS
INSTALADAS PARA UNA OPTIMA
EFICIENCIA DE ACUERDO A LA
NORMATIVIDAD VIGENTE PARA UN
EDIFICIO GUBERNAMENTAL.
8
TESIS HERIBERTO SALVADOR CASTRO
INTRODUCCION
9
TESIS HERIBERTO SALVADOR CASTRO
INTRODUCCIÓN
LA ELECTRICIDAD EN MÉXICO
La generación de energía eléctrica se inició en México a fines del siglo XIX. La primera
planta generadora que se instaló (1879) en el país estuvo en León, Guanajuato, y
era utilizada por la fábrica textil “La Americana”. Para 1889 operaba la primera planta
hidroeléctrica en Batopilas, Chihuahua; la cual extendió sus redes de distribución hacia
mercados urbanos y comerciales donde la población era de mayor capacidad económica.
A partir de entonces, algunas compañías internacionales con gran capacidad vinieron a
crear filiales: The Mexican Light and Power Company, de origen canadiense (en el centro
del país), el consorcio The American and Foreign Power Company (con tres sistemas
interconectados en el norte de México) y la Compañía Eléctrica de Chapala (en el
occidente).
Al iniciarse el siglo XX, México contaba con una capacidad de 31.0 MW, propiedad de
empresas privadas. Para 1910 eran 50.0 MW, de los cuales 80% lo generaba The Mexican
Light and Power Company, con el primer gran proyecto hidroeléctrico: la planta Necaxa,
en Puebla.
En ese período se comenzó el primer esfuerzo para ordenar la industria eléctrica con la
creación de la Comisión Nacional para el Fomento y Control de la Industria de Generación
y Fuerza, conocida posteriormente como Comisión Nacional de Fuerza Motriz. Y fue hasta
el 2 de diciembre de 1933, cuando se decretó integrar la Comisión Federal de Electricidad.
Cuatro años después, el 14 de agosto de 1937, CFE entró en operación formal. En ese
momento, la capacidad instalada en el país era de 629.0 MW.
Los primeros proyectos de generación de energía eléctrica de CFE se realizaron en
Teloloapan, Guerrero; Pátzcuaro, Michoacán; Suchiate y Xía, en Oaxaca, y Ures y Altar, en
Sonora; el primer gran proyecto hidroeléctrico se inició en 1938 con la construcción de los
canales, caminos y carreteras de lo que después se convirtió en el Sistema Hidroeléctrico
Ixtapantongo, en el Estado de México, que posteriormente fue nombrado Sistema
Hidroeléctrico Miguel Alemán. En 1938, Comisión tenía apenas una capacidad de 64 kW,
misma que, en ocho años, aumentó hasta alcanzar 45,594 kW.
Para 1960 la CFE aportaba 54% de los 2,308 MW de capacidad instalada; la Mexican
Light, 25%; la American and Foreign, 12%, y el resto de las compañías, 9%. A partir de
entonces, se comenzó a integrar el Sistema Eléctrico Nacional, extendiendo la cobertura del
suministro y acelerando la industrialización. El Estado mexicano adquirió los bienes e
instalaciones de las compañías privadas, las cuales operaban con serias deficiencias por la
falta de inversión y los problemas laborales.
10
TESIS HERIBERTO SALVADOR CASTRO
En poco más de 20 años, nuestra empresa había cumplido uno de sus más importantes
cometidos: ser la entidad rectora en la generación de energía eléctrica. En esa década, la
inversión pública se destinó en más de 50% a obras de infraestructura. Se construyeron
importantes centros generadores, entre ellos los de Infiernillo y Temascal. También se
instalaron plantas generadoras, alcanzando, en 1971, una capacidad instalada de 7,874 MW.
Luego, unificó la frecuencia a 60 Hertz e integró los sistemas de transmisión en el Sistema
Interconectado Nacional.
Actualmente, la capacidad instalada en el país es de 49,931 MW*, de los cuales 44.87%
corresponde a generación termoeléctrica de CFE; 22.95% a *productores independientes de
energía (PIE); 22.14% a hidroelectricidad; 5.21% a centrales carboeléctricas; 1.93% a
geotérmica; 2.73% a nucleoeléctrica, y 0.17% a eoloeléctrica.
Otro rubro se refiere a la red de transmisión de electricidad, el cual se compone de 49,012
kilómetros de líneas de 400, 230 y 161 kV; 353 subestaciones de potencia con una
capacidad de 143,960 MVA, y 47,283 kilómetros de líneas de subtransmisión de 138 kV y
tensiones menores. Por su parte, el sistema de distribución (que también estaba en ceros en
1937) cuenta actualmente con 1,649 subestaciones con 44,140 MVA de capacidad; 7,292
circuitos de distribución con una longitud de 388,076 kilómetros; 1,063,333
transformadores de distribución con una capacidad de 35,097 MVA; 246,106 kilómetros de
líneas secundarias de baja tensión y 660,874 kilómetros de acometidas. Actualmente
136,747 localidades tienen electricidad.
IMPORTANCIA DEL CALIBRE DE CONDUCTOR Y DEL CORRECTO
DIMENSIONAMIENTO DE LAS PROTECCIONES ELÉCTRICAS.
Instalar un conductor del calibre correcto e incluso mayor que el mínimo requerido por las
normas eléctricas, incrementa la eficiencia en el uso de la energía eléctrica. Al seleccionar
el calibre correcto de conductor se reducen las pérdidas de potencia eléctrica y aumenta el
ahorro en el gasto de la energía, así mismo disminuyen las perdidas por calor, aumenta la
flexibilidad de la instalación y se tiene mayor eficiencia en la carga eléctrica. Cuando se
genera menos calor se reduce el requerimiento de energía de ventiladores, motores y
sistemas de aire acondicionado.
Por otro lado, la electricidad es elemento facilitador de la vida de las personas, pero al
mismo tiempo, puede ser causa de accidentes e incluso de muerte si no se respetan los
procedimientos para su manejo eficiente. Por eso es de gran importancia el conocimiento
que los profesionales eléctricos tengan sobre el correcto dimensionamiento y utilización de
las protecciones eléctricas, para la seguridad de los bienes y los usuarios a los que servirá
una instalación determinada.
Cualquier instalación eléctrica debe estar provista de protecciones, cuyo objetivo es reducir
al máximo los efectos producidos por un cortocircuito o una sobrecarga. Para que esto sea
posible, las protecciones deben ser dimensionadas adecuadamente según las características
11
TESIS HERIBERTO SALVADOR CASTRO
del circuito. Las protecciones más comunes que existen son los llamados fusibles o
disyuntores magneto-térmicos.
La selectividad de las protecciones es un concepto de extraordinaria importancia, el cual
lamentablemente, no es de aplicación frecuente por parte de los proyectistas en la industria
de la construcción eléctrica.
Salvo en instalaciones muy elementales, hay siempre dos o más protecciones conectadas en
serie entre el punto de alimentación y los posibles puntos de falla. Para delimitar la falla a
la menor área posible, de modo que las perturbación que ella introduzca al resto de la
instalación sean mínimas, la protección que este más próxima al punto de la falla debe
operar primero y, si esta, por cualquier motivo, no opera dentro de su tiempo normal, la que
sigue inmediatamente detrás deberá hacerlo y así sucesivamente. Vale decir, debe haber un
funcionamiento escalonado que partiendo desde el punto de falla debe ir acercándose al
punto de alimentación, si es que ello fuese necesario. Las protecciones deberán entonces
elegirse y regularse, de acuerdo a sus curvas características de modo que operen frente a
cualquier eventualidad en la forma descrita. Cuando ello se consigue que las protecciones
sean selectivas y el estudio que se ha hecho para conseguirlo se denomina coordinación de
protecciones.
CONTENIDO DEL TRABAJO
A continuación se comenta en forma sucinta el contenido de esta tesis, que tiene como
finalidad obtener mi título profesional de ingeniero electricista, si es aprobada en el examen
profesional.
El primer capítulo, define y muestra un esquema general de un sistema eléctrico de
potencia. Así como las características principales que influyen sobre la generación y
transporte de la energía eléctrica.
El segundo capítulo, define y muestra la clasificación de los elementos constitutivos de las
subestaciones eléctricas (transformador, interruptor, restaurador y seccionadores, cuchillas,
Apartarrayos, condensadores y transformadores de instrumento.
El tercer capítulo, habla de los elementos que intervienen en las instalaciones para el diseño
eléctrico, alimentadores, subalimentadores, circuitos derivados, tableros y canalizaciones
eléctricas.
En el cuarto capítulo se realiza un estudio de las cargas instaladas en el edificio.
El quinto capítulo, muestra el cálculo de las protecciones, el calibre del conductor y las
canalizaciones eléctricas.
El sexto capítulo muestra, las pruebas realizadas a los cables de energía y al transformador.
En el séptimo capítulo se muestra la evaluación de costo.
12
TESIS HERIBERTO SALVADOR CASTRO
EDIFICIO
GUBERNAMENTAL
CAPITULO 1
INTRODUCCION A LOS
SISTEMAS ELÉCTRICOS DE
POTENCIA
13
TESIS HERIBERTO SALVADOR CASTRO
CAPITULO 1.
CONSIDERACIONES GENERALES DE LOS SISTEMAS ELÉCTRICOS DE
POTENCIA
De todas las formas de energía conocidas en la actualidad, la que más se emplea para la
economía de cualquier nación, es la energía eléctrica.
La posibilidad de explotar distintos tipos de fuentes de energía como corrientes de ríos,
combustóleo, gas, uranio, carbón, la fuerza de los mares y vientos, geiser, etc. de sitios
alejados de los centros de consumo, hace posible que la energía eléctrica se transmita a
grandes distancias, lo que resulta relativamente económico, ya que es necesaria en la gran
mayoría de procesos de producción de la sociedad actual.
Sin embargo para que se cumpla lo anterior es indispensable disponer un sistema
interconectado mediante el cual nos sea posible generar la energía, transportarla y
distribuirla a todos los usuarios en forma eficaz, segura y con calidad. A este sistema lo
llamamos sistema eléctrico de potencia (SEP). En este sistema la energía eléctrica, desde su
generación hasta su entrega en los puntos de consumo, pasa por diferentes etapas de
adaptación, transformación y maniobra. Para la correcta operación del sistema son
necesarios equipos que sean capaces de transformar regular, maniobrar y proteger.
1.1 Función de los sistemas eléctricos de potencia
Las centrales generadoras se construyen de tal forma, que por las características del terreno
se adaptan para su mejor funcionamiento, rendimiento y rentabilidad.
Actualmente los sistemas operan con energía eléctrica en forma de corriente alterna
trifásica, esto debido a su facilidad para transformarse en comparación con la corriente
directa. A parte de que requiere menos niveles de aislamiento que la corriente directa lo
que implica ahorro en aislamiento y en general equipos menos bromosos. Otra razón para el
uso de corriente alterna trifásica es la simplicidad de los generadores y transformadores que
trabajan con este tipo de corriente, así mismo resulta también más sencilla y económica la
transmisión y distribución de este tipo de corriente.
Por razones técnicas, las tensiones de generación en las centrales generadoras son
relativamente bajos en relación con las tensiones de transmisión, por lo que si la energía
eléctrica se va a transportar a grandes distancias estos voltajes de generación resultarían
antieconómicos debido a que se tendría gran caída de voltajes. Otra de las ventajas
derivadas de transportar la energía eléctrica a valores altos tensión y en consecuencia
valores reducidos de corriente, es el ahorro económico que implica poder utilizar cables con
menor sección transversal o calibre. Pues para la misma potencia a transportar pero a
menores valores tensión seria necesario conductores de mayor calibre, más costosos para
14
TESIS HERIBERTO SALVADOR CASTRO
transmitir energía con valores más altos de corriente. Por ejemplo, si se va a transmitir
energía eléctrica de una central generadora a un centro de consumo que esta situado a 1000
km de distancia, será necesario elevar el voltaje de generación que supondremos de 13.8 kV
a otro de transmisión mas conveniente que asumimos sea de 110 kV, como se ilustra en la
figura 1.1
Figura 1.1
Para poder elevar el voltaje de generación de 13.8 kV al de transmisión de 110 kV es
necesario emplear una S.E. “A” (ver figura 1.2).
Figura 1.2
Suponiendo que la caída de tensión en la línea de transmisión fuera cero volts, tendríamos
en el centro de consumo 110 kV. Es claro que este voltaje no es posible emplearlo en
instalaciones industriales y aun menos en comerciales y residenciales, de donde se
desprende la necesidad de reducir el voltaje de transmisión de 110 kV a otro y otros más
convenientes de distribución en centros urbanos de consumo. Por tal razón, será necesario
emplear otra subestación eléctrica B, como se ilustra en la figura 1.3
Figura 1.3
1.2 Representación y definición de un Sistema Eléctrico de Potencia (SEP)
Un sistema eléctrico de potencia (SEP), es un conjunto de elementos componentes y
dispositivos eléctricos interconectados diseñados para transmitir y distribuir la energía
eléctrica producida por los generadores hasta los lugares de consumo.
Esta energía se debe distribuir con calidad a los usuarios, los principales índices son:
confiabilidad del servicio, desviaciones de la frecuencia, desviaciones y fluctuaciones de
tensión, distorsión de la onda de tensión y corriente, por último asimetría de las tensiones
trifásicas.
G
CENTRAL
GENERADO
13.8 KV
G
110 KV
SE
G
1000 KM
110 KV
SE LINEA DE TRANS
15
TESIS HERIBERTO SALVADOR CASTRO
Elementos principales de un sistema eléctrico de potencia (SEP): Planta generadora,
Subestación eléctrica de potencia, Líneas de transmisión, Subestación eléctrica de
distribución, Redes de distribución y los Centros de carga o consumo, como se ilustra en la
figura 1.4
Figura 1.4 Elementos principales de un sistema eléctrico de potencia.
Generación: es un conjunto de elementos que convierten energía primaria en energía
eléctrica. Habitualmente las tensiones de generación oscilan entre 3 y 23 kV y dependiendo
de la fuente primaria de energía se pueden clasificar en:
Centrales hidroeléctricas
Centrales termoeléctricas
Centrales geotermoeléctricas
Centrales nucleoeléctricas
Centrales de ciclo combinado
Centrales de turbo-gas
Centrales eólicas
Centrales solares
Transmisión: constituyen los eslabones de conexión entre las centrales generadoras y redes
de distribución. El sistema de transmisión está compuesto por dos diferentes redes con
objetivos funcionales definidos.
A) Red de transmisión troncal
B) Red de subtransmisión
16
TESIS HERIBERTO SALVADOR CASTRO
La primera está formada por instalaciones de transmisión entre 161 kV y 400 kV. Al
finalizar julio del 2009 esta red alcanzo una longitud de 49,051 km de Líneas de
Transmisión en 161 kV, 230 kV y 400 kV. La segunda utiliza tensiones de transmisión de
69 kV, 85 kV, 115 kV y 38 kV, a julio de 2009, la longitud de estas líneas fue de 46,360
km, respectivamente.
Distribución: una red de distribución es el conjunto de instalaciones que conectan las
cargas aisladas de una zona determinada con las líneas de transmisión, en niveles de 34.5,
23, 13.8, 6.6, 4.16, 2.4 kV y baja tensión, a julio de 2009, la longitud de estas líneas fue
de 637,055 km, la red de distribución está constituida por dos diferentes redes.
Redes de distribución en Media Tensión (2.4 kV a 34.5 kV)
Redes de distribución de Baja tensión (220 V entre fases)
En la figura 1.5 se muestra un esquema general de un sistema eléctrico de potencia.
Figura 1.5 Sistema Eléctrico de Potencia
a) Subsistema de generación
b) Subestaciones elevadoras
c) Líneas de transmisión
d) Subestaciones reductoras
e) Red de subtransmisión
f) Subestaciones de distribución
g) Redes de distribución en media tensión
h) Bancos de transformación
i) Redes de distribución en baja tensión
Aunque se procura evitar en todo lo posible el empleo del argot profesional, será necesario
recurrir a ciertos términos:
Sistema. Se utiliza para describir la red eléctrica completa, los generadores, las cargas y los
motores que accionan a aquellos.
G
G
17
TESIS HERIBERTO SALVADOR CASTRO
Carga. Esta expresión puede utilizarse en distintos sentidos; para indicar un dispositivo o
reunión de dispositivos que consumen electricidad; para indicar la energía necesaria para un
determinado circuito de suministro de energía; la potencia o corriente que pasa a través de
una línea o maquina.
Barra De Distribución. Conexión eléctrica de impedancia cero que une varios aparatos o
elementos tales como líneas, cargas, etc. Con frecuencia tiene la forma real de una barra de
cobre o aluminio.
Conexión A Tierra. La conexión de un conductor o armazón de un dispositivo al cuerpo
principal de la tierra. Debe hacerse de tal manera que la resistencia entre el aparato y la
tierra este por debajo de ciertos límites prescritos. Exige con frecuencia enterrar conjuntos
grandes de varias conductoras en tierra y el empleo de conectores de área de sección recta
grande.
Avería. Consiste en un mal funcionamiento de la red normalmente debido a corto circuito
de dos conductores o de un conductor activo que se conecta con la tierra.
Seguridad de suministro. Debe tenerse en cuenta que hay que asegurar la continuidad de
suministro a los consumidores aunque estén fuera de funcionamiento ciertos aparatos de la
central. Normalmente se utilizan dos circuitos en paralelo y se dice que un sistema es
seguro cuando está asegurada la continuidad. Es evidentemente el tema de principal
prioridad en el diseño y funcionamiento.
1.3 Características fundamentales que influyen sobre la generación y transporte de la
energía eléctrica.
Existen tres características fundamentales en la generación de la energía eléctrica que,
aunque resultan evidentes, tienen una profunda influencia sobre la forma en que se produce
técnicamente. Estas características son las siguientes:
a) La electricidad, a diferencia del gas y del agua, no puede almacenarse y el
suministrador o fabricante tiene poco control sobre su consumo o carga en cualquier
instante. Los técnicos de control tienen que procurar mantener la salida de los
generadores de modo que sea igual a la carga conectada para la tensión y frecuencia
especificada; la dificultad de esta tarea resulta evidente a partir de un estudio de una
curva de carga diaria. Se verá que la carga se compone básicamente de una
componente constante, conocida como carga base, más picos que dependen de la
hora del día, de los programas de televisión populares y de otros factores.
b) Existe un incremento continuo de la demanda de esta energía que equivale
aproximadamente a duplicar su demanda cada diez años. Esto se aplica a la mayor
parte de los países, aunque en algunos países subdesarrollados esta proporción es
incluso más elevada. Así pues, se produce un proceso grande y continúo de
adicionar al sistema más centros de producción. Por lo tanto, las redes deben
18
TESIS HERIBERTO SALVADOR CASTRO
desarrollarse a lo largo de los años y no deben planificarse de un modo definitivo
para quedar invariables en el futuro.
c) La distribución y naturaleza del combustible disponible. Este aspecto es de gran
interés puesto que el carbón se obtiene en minas que están situadas en zonas
normalmente alejadas de los centros de consumo principales; la energía
hidroeléctrica también se acostumbra obtener en lugares remotos de los centros de
carga fundamentales. Estas dos son las fuentes convencionales de energía en la
mayoría de los países y el problema de fijar donde se sitúa la estación generadora y
la distancia de transporte es un problema de economía. Hoy en día el uso creciente
de combustibles líquidos derivados del petróleo y de la energía nuclear tiende a
modificar el esquema existente de fuentes de suministro de energía.
Un aspecto adicional de naturaleza diferente que resulta cada día más importante, es el de
su influencia sobre el paisaje. Existen presiones de la opinión pública en contra de la
proliferación de líneas aéreas que se produce cuando aumenta de modo constante la
demanda de electricidad. Aunque la elevación de tensiones de suministro aumenta
sustancialmente la energía transportada en cada línea aérea, el número de líneas va
creciendo rápidamente y pareciera lógico que partes limitadas de la red estuvieran
enterradas a pesar de su costo mucho más elevado. Estos cables subterráneos se instalarían
además de los utilizados normalmente en las zonas edificadas. En el caso de distancias
relativamente pequeñas es factible utilizar corriente alterna de alta tensión con cables
subterráneos, pero en el caso de distancias más largas habrá de utilizarse corrientes
continuas a tensiones elevadas.
19
TESIS HERIBERTO SALVADOR CASTRO
EDIFICIO
GUBERNAMENTAL
CAPITULO 2
DEFINICION Y CLASIFICACION
DE LAS SUBESTACIONES
ELECTRICAS
20
TESIS HERIBERTO SALVADOR CASTRO
CAPITULO 2.
DEFINICIÓN Y CLASIFICACION DE LAS SUBESTACIONES ELÉCTRICAS
En el empleo de la energía eléctrica, ya sea para fines industriales, comerciales o de uso
residencial, interviene una gran cantidad de máquina y equipo eléctrico.
Un conjunto de equipo eléctrico utilizado para un fin determinado se le conoce con el
nombre de subestación eléctrica.
Subestación. Es un conjunto de elementos o dispositivos que permiten cambiar las
características de energía eléctrica (voltaje, corriente, frecuencia, etc.), tipo C.A. a C.C., o
bien conservarle dentro de ciertas características.
Su función es interconectar líneas de transmisión de distintas centrales generadoras,
transformar los niveles de voltaje para su transmisión o consumo.
Clasificación de las subestaciones eléctricas
a) Por su operación.
1. Corriente alterna
2. Corriente continúa
b) Por su servicio
c) Por su construcción
1. Tipo intemperie
2. Tipo interior
3. Tipo blindado
Elevadoras
Receptoras reductoras
De enlace o distribución
De switcheo o de maniobra
Convertidoras o
Rectificadoras
Primarias
Elevadoras
Distribuidoras
De enlace
Convertidoras o
Rectificadoras
Secundarias
Reductoras
Elevadoras
21
TESIS HERIBERTO SALVADOR CASTRO
2.1 Elementos constitutivos de una subestación
Los elementos que constituyen una subestación se pueden clasificar en elementos
principales y elementos secundarios.
Elementos principales
1. Transformador
2. Interruptor de potencia
3. Restaurador y seccionadores
4. Cuchillas fusible
5. Cuchillas desconectadoras y cuchillas de prueba
6. Apartarrayos
7. Tableros duplex de control
8. Condensadores
9. Transformadores de instrumento
Elementos secundarios
1. Cables de potencia
2. Cables de control
3. Alumbrado
4. Estructura
5. Herrajes
6. Equipo contra incendio
7. Equipo de filtrado de aceite
8. Sistema de tierras
9. Carrier
10. Intercomunicación
11. Trincheras, ductos, conducto, drenajes
12. Cercas
2.2 Transformador
Un transformador es un dispositivo que:
a) Transfiere energía eléctrica de un circuito a otro conservando la frecuencia
constante.
b) Lo hace bajo el principio de inducción electromagnética.
c) Tiene circuitos eléctricos que están eslabonados magnéticamente y aislados
eléctricamente.
d) Usualmente lo hace con un cambio de voltaje, aunque esto no es necesario.
22
TESIS HERIBERTO SALVADOR CASTRO
Diagrama elemental de un transformador Figura 2.1
2.2.1 Elementos que constituyen un transformador
1. Núcleo de circuito magnético
2. Devanados
3. Aislamiento
4. Aislantes
5. Tanque o recipiente
6. Boquillas
7. Ganchos de sujeción
8. Válvula de carga de aceite
9. Válvula de drenaje
10. Tanque conservador
11. Tubos radiadores
12. Base para rolar
13. Placa de tierra
14. Placa de características
15. Termómetro
16. Manómetro
17. Cambiador de derivaciones o taps
23
TESIS HERIBERTO SALVADOR CASTRO
Figura 2.2 Transformador de potencia
2.2.2 Clasificación de Transformadores
Los transformadores se pueden clasificar por:
a) La forma de su núcleo.
1. Tipo columnas
2. Tipo acorazado
3. Tipo envolvente
4. Tipo radial
b) Por el numero de fases
1. Monofásico
2. Trifásico
c) Por el numero de devanados
1. Dos devanados
2. Tres devanados
d) Por el medio refrigerante
1. Aire
2. Aceite
3. Liquido inerte
e) Por el tipo de enfriamiento
1. Enfriamiento OA
2. Enfriamiento OW
3. Enfriamiento OW/A
24
TESIS HERIBERTO SALVADOR CASTRO
4. Enfriamiento OA/AF
5. Enfriamiento OA/FA/FA
6. Enfriamiento FOA
7. Enfriamiento OA/FA/FOA
8. Enfriamiento FOW
9. Enfriamiento A/A
10. Enfriamiento AA/FA
f) Por la regulación
a) Regulación fija
b) Regulación variable con carga
c) Regulación variable sin carga
g) Por la operación
1. De potencia
2. Distribución
3. De instrumento
4. De horno eléctrico
5. De ferrocarril
2.2.3 Conexión de transformadores
Conexión delta-delta
La conexión delta-delta en transformadores trifásicos se emplea normalmente en lugares
donde existen tensiones relativamente bajas; en sistemas de distribución se utiliza para
alimentar cargas trifásicas a tres hilos.
Conexión delta-delta. Figura 2.3
Conexión delta-estrella
Esta conexión se emplea en aquellos sistemas de transmisión en que es necesario elevar
voltajes de generación. En sistemas de distribución es conveniente su uso debido a que se
pueden tener dos voltajes diferentes (entre fase y neutro). H1
1
2
25
TESIS HERIBERTO SALVADOR CASTRO
Conexión estrella-estrella
Esta conexión se emplea en tensiones muy elevadas, ya que se disminuye la cantidad de
aislamiento. Tiene la desventaja de no presentar oposición a las armónicas impares; en
cambio pueden conectarse a hilos de retorno.
Conexión estrella-delta
Se utiliza esta conexión en los sistemas de transmisión de la subestación receptora cuya
función es reducir voltajes. En sistemas de distribución es poco usual; se emplea en algunas
ocasiones para distribución rural a 20 kV.
Conexión estrella-delta. Figura 2.4
Conexión delta abierta-delta abierta
Esta puede considerarse como una conexión de emergencia en transformadores trifásicos,
ya que si en un transformador se quema o sufre una avería cualquiera de sus fases, se puede
seguir alimentando carga trifásica operando el transformador a dos fases, solo que su
capacidad disminuye a 58.8% aproximadamente.
Los transformadores trifásicos en V-V se emplean en sistemas de baja capacidad y
usualmente operan como auto transformadores.
Conexión delta abierta-delta abierta. Figura 2.5
642
531
H3H2H1 X2
X1 X3
H1 H2
H3
2 3
1
6 5
4
1
2
6
5
4
3
X1 X2 X3
2 4 6
1 3 5
26
TESIS HERIBERTO SALVADOR CASTRO
2.2.4 Puesta en servicio y mantenimiento de transformadores
Antes de poner en operación un transformador dentro de una subestación eléctrica conviene
efectuar una revisión de lo siguiente:
1. Rigidez dieléctrica del aceite. Una lectura baja de rigidez dieléctrica del aceite
nos indicara suciedad, humedad en el aceite. Para corregir esto se filtra el aceite
las veces que sea necesario hasta obtener un valor correcto.
2. Resistencia de aislamiento
3. Secuencia de fases correcta (polaridad)
4. Tener cuidado de que las lecturas de parámetros (V, I, W), sean la adecuadas.
Mantenimiento: es el cuidado que se debe tener en cualquier tipo de maquinas durante su
operación, para prolongar su vida y obtener un funcionamiento correcto.
En el caso particular de los transformadores se requiere poco mantenimiento, en virtud de
ser maquinas estáticas. Sin embargo conviene que periódicamente se haga una revisión de
algunas de sus partes, como son:
Inspección ocular de su estado externo en general, para observar fugas de aceite, etc.
Revisar si las boquillas no están flameadas por sobretensiones de origen externo o
atmosférico.
Cerciorarse de que la rigidez dieléctrica del aceite sea la correcta, de acuerdo con las
normas.
Observar que los aparatos indicadores funcionen debidamente.
Tener cuidado que los aparatos de protección y control operen en forma correcta.
2.3 Interruptores
Interruptor: es un dispositivo cuya función es interrumpir y restablecer la continuidad de un
circuito, eléctrico.
Si la operación se efectúa sin carga (corriente), el interruptor recibe el nombre de
desconectador o cuchilla desconectadora.
Si en cambio la operación de apertura o cierre la efectúa con carga (corriente nominal) o
con corriente de corto circuito (en caso de alguna perturbación), el interruptor recibe el
nombre de disyuntor o interruptor de potencia.
27
TESIS HERIBERTO SALVADOR CASTRO
Los estados de operación de un interruptor son los siguientes:
Abierto (O) aislamiento seguro entre terminales, para corriente nominales de operación o
hasta de corto circuito según el caso.
Cerrado (I) soporte de esfuerzos térmicos y dinámicos que implica la conexión bajo
corrientes nominales de operación.
2.3.1 Interruptor de Potencia
Los interruptores de potencia, interrumpen y restablecen la continuidad de un circuito
eléctrico. La interrupción la deben efectuar con carga o corriente de corto circuito.
Se clasifican en los siguientes tipos:
a) Interruptores de aceite
1. Interruptores de gran volumen de aceite
2. Interruptores de gran volumen de aceite con cámara de extinción
3. Interruptores de pequeño volumen de aceite
b) Interruptores neumáticos
c) Interruptores en hexafloruro de azufre (SF6)
Interruptores en gran volumen de aceite
Reciben ese nombre debido a la gran cantidad de aceite que contienen, generalmente se
construyen en tanques cilíndricos y pueden ser monofásicos y trifásicos. Los trifásicos son
para operar a voltajes relativamente pequeños y sus contactos se encuentran contenidos en
un recipiente común separados entre si por separadores (aislantes).
Por razones de seguridad, en tensiones elevadas se emplean interruptores monofásicos (1
por base en circuitos trifásicos). Las partes fundamentales en estos interruptores son:
Tanque o recipientes............................................................ 1
Boquillas y Contactos fijos.................................................. 2-5
Conectores (elementos de conexión al circuito).................. 3
Vástago y contactos móviles................................................4-6
Aceite de refrigeración.........................................................7
28
TESIS HERIBERTO SALVADOR CASTRO
Figura 2.6 Partes fundamentales de un interruptor en gran volumen de aceite
En general, el tanque se construye cilíndrico, debido a las fuertes presiones internas que se
presentan durante la interrupción. También el fondo del tanque lleva “costillas” de refuerzo
para soportar estas presiones.
Interruptores en gran volumen de aceite con cámara de extinción
Los interruptores de grandes capacidades con gran volumen de aceite originan fuertes
presiones internas que en algunas ocasiones pueden ocasionar explosiones. Para disminuir
estos riesgos, se idearon dispositivos donde se forman las burbujas de gas, reduciendo las
presiones a un volumen menor. Estos dispositivos reciben el nombre de “cámara de
extracción” y dentro de estas cámaras se extingue el arco. El procedimiento de extinción es
el siguiente:
1. Al ocurrir una falla, se separan los contactos que se encuentran dentro de la
cámara de extinción.
2. Los gases que se producen tienden a escapar pero como se hallan dentro de la
cámara que contiene aceite, origina una violenta circulación de aceite que
extingue el arco.
3. Cuando el contacto móvil sale de la cámara, el arco residual se acaba de
extinguir, entrando nuevamente aceite frió a la cámara.
4. Cuando los arcos se han extinguido se cierran los elementos de admisión de la
cámara.
29
TESIS HERIBERTO SALVADOR CASTRO
Figura 2.7 Interruptor de gran volumen de aceite
Interruptores de pequeño volumen de aceite
Los interruptores de reducido volumen de aceite reciben este nombre debido a que su
cantidad de aceite es pequeña en comparación con los de gran volumen. (Su contenido de
aceite varía entre 1.5 y 2.5% del que contienen los de gran volumen).
Se construye para diferentes capacidades y voltajes de operación y su construcción es
básicamente una cámara de extinción modificada que permite mayor flexibilidad de
operación.
Figura 2.8 Interruptor de pequeño volumen de aceite
30
TESIS HERIBERTO SALVADOR CASTRO
Interruptores de aire (neumáticos)
En estos interruptores, el medio de extinción del arco es aire a presión.
El aire a presión se obtiene por un sistema de aire comprimido que incluye una o varias
compresoras, un tanque principal, un tanque de reserva y un sistema de distribución en caso
de que sean varios interruptores. Se fabrican monofásicos y trifásicos, para uso interior y
exterior.
Las ventajas del interruptor neumático sobre los interruptores de aceite son:
1. Mejores condiciones de seguridad, ya que evita explosiones o incendios
2. Interrumpe las corrientes de falla en menos ciclos (3 a 5).
3. Disminuye la posibilidad de reencebados de arco
4. Es más barato
Interruptores en hexafloruro de azufre (SF6)
El hexafloruro de azufre (SF6) tiene excelentes propiedades aislantes y para extinguir arcos
eléctricos, su uso representa una solución ventajosa, funcional y económica. Otra gran
ventaja es el mantenimiento relativamente reducido en comparación con otros interruptores.
Actualmente se fabrican en tensiones de hasta 800 kV y corrientes de corto circuito de
hasta 63 kA con dos cámaras de interrupción por polo, dependiendo del voltaje y de la
capacidad interruptiva, se encuentran disponibles en diferentes versiones:
 Como cámara sencilla hasta 245 kV y 50 kA.
 Como dos cámaras y columna sencilla entre 245-550 kV y 63 kA.
 Como cuatro cámaras y dos columnas hasta 800 kV y 63 kA.
31
TESIS HERIBERTO SALVADOR CASTRO
Figura 2.9 Interruptores en hexafloruro de azufre (SF6)
Magnitudes características a considerar durante el proceso de cierre-apertura de los
interruptores de potencia:
1. Tensión nominal. Se debe considerar porque es la tensión normal de operación
del interruptor.
2. Corriente inicial de corto circuito. Es el valor instantáneo de la corriente de falla.
3. Corriente de ruptura. Es el valor permanente de la corriente de corto circuito.
4. Capacidad interruptiva. Es la potencia trifásica de interrupción para una
corriente de ruptura determinada.
5. Tensión de restablecimiento. Es el voltaje en el interruptor después de la
desconexión.
32
TESIS HERIBERTO SALVADOR CASTRO
2.3.2 Interruptores de bajo voltaje
En baja tensión no se justifica económicamente el uso de medios aislantes como gases, aire
a presión o aceite. Aquí se utilizan cámaras de extinción de arco eléctrico que se encuentran
entre ambos contactos al separarse. Estas cámaras se enfrían y desionizan el arco,
conduciéndolo de tal manera que es forzado a tener una trayectoria mas larga. Lo que
demanda un voltaje mucho mayor para su permanencia. De manera que al instante del
cruce por cero de la señal de alterna, el arco esta tan extendido o tan largo que ya no se
restablece después del cruce por cero.
Los tipos de accionamiento son en baja tensión predominantemente manual aunque existen
también accionamiento por medio de relevadores de voltaje y otros accionamientos del tipo
magnético, con motor o de presión de aire.
Los parámetros principales que describen las características de interruptores en baja tensión
son:
1. Voltaje y corriente nominal
2. Capacidad interruptiva para desconexión en kA (valor efectivo a un factor de
potencia determinado cosφ.
3. Capacidad interruptiva para conexión (valor pico) en kA.
4. Voltaje de control para accionamiento remoto.
Los fusibles protegen equipos principalmente conductores, de sobrecorrientes que pueden
causar sobrecalentamiento y daños mecánicos. La corriente fluye a través de un hilo o
lamina de metal el cual se funde al sobrepasarse un valor dado de corriente. La curva
corriente-tiempo marca la operación del fusible. El tiempo de fusión de la laminilla o hilo
está en función de la temperatura y esta a su vez de la corriente.
Están construidos de metal fusionable a temperaturas relativamente bajas y calibradas de tal
manera que se fundan cuando se alcanza una corriente determinada, debido a que se
encuentran en serie con la carga, estos abren el circuito cuando se funden. Tienen una
característica de tiempo inversa; si un fusible es 30 A debe conducir 30 A en forma
continua con un 10% de sobrecarga (33 A) se debe fundir en algunos minutos, con una
sobrecarga del 20 % (36 A) se funde en menos de un minuto y si se alcanza una sobrecarga
del 100%, (60 A) el fusible se funde en fracciones de segundo es decir, que a mayor
sobrecarga, menor tiempo de fusión, es decir, de interrupción del circuito.
Los fusibles se dividen en dos clases dependiendo de la potencia a la cual van a operan.
1. Fusibles de bajo voltaje (600 volts) y menos. Estos a su vez se subdividen en:
a) Tipo tapón
b) Tipo cartucho
33
TESIS HERIBERTO SALVADOR CASTRO
2. Fusibles de potencia (sobre 600 volts). Están en uso dos tipos de fusibles de potencia que
son:
a) Limitadores de corriente
b) Tipo de expulsión
Fusibles tipo tapón con rosca: En este tipo de fusibles en una base roscada se encuentra
encerrado un listón fusible para prevenir que el metal se disperse cuando el listón fusible se
funda la condición en que se encuentra el fusible se puede determinar observando a través
de una mirilla de plástico transparente localizada en la parte superior del conjunto que
constituye al fusible. Este tipo de fusible no se debe usar en circuitos con un voltaje
superior a 127 volts y se deben instalar en el lado de la carga del circuito en que se van a
localizar.
Los fusibles del tipo tapón por lo general se encuentran montados en bases o zoclos de
porcelana asociados a desconectadores de navajas de dos polos y su característica es tal que
cuando se funden se deben reemplazar por otro, es decir, son desechables, se encuentran en
el mercado de 15 A y 30A.
Fusible tipo cartucho: En las instalaciones eléctricas en donde la corriente exceda a 30A, es
necesario usar fusibles del llamado tipo cartucho y su correspondiente portafusibles. Este
tipo de fusibles se fabrican para una gama más amplia de voltajes y corrientes. Se fabrican
en dos tipos:
a) Fusibles de cartucho conectados de casquillo; con capacidades de corriente de 3, 5,
10, 15, 20, 25, 30, 35, 40, 45, 50 y 60 Amperes.
b) Fusibles de cartucho con contactos de navaja; con capacidades de corriente de 75,
80, 90, 100, 110, 125, 150, 175, 200, 225, 250, 300, 350, 400, 500 y 600 amperes.
Estos fusibles son de aplicación en instalaciones industriales o comerciales de gran
capacidad.
Figura 2.10 Fusibles de baja tensión.
Interruptores termomagnéticos: Han desplazado en muchas aplicaciones a los fusibles. En
este caso se tiene en combinación un interruptor térmico (bimetal) como protección contra
sobrecorriente y uno electromagnético con accionamiento rápido para protección contra
34
TESIS HERIBERTO SALVADOR CASTRO
corto circuito. Dependiendo de la aplicación existen diferentes curvas de operación con
ambas regiones de protección: contra sobrecorriente (inversa) y contra corto circuito
(rápida o instantánea).
Los interruptores termomagnéticos son también conocidos como “Breaker” diseñados para
conectar y desconectar un circuito por medios no automáticos y desconectar el circuito
automáticamente para un valor predeterminado de sobrecorriente sin que se dañe así mismo
cuando se aplica dentro de sus valores de diseño.
La característica particular de los interruptores termomagnéticos, es el elemento térmico
conectado en serie con los contactos y que tiene como función proteger contra condiciones
de sobrecarga gradual la corriente pasa a través del elemento térmico conectado en serie y
origina su calentamiento cuando se produce un excesivo calentamiento como resultado de
un incremento en la sobrecarga, unas cintas bimetálicas operan sobre los elementos de
sujeción de los contactos desconectándolos automáticamente. Las cintas bimetálicas están
hechas de dos metales diferentes, unidas en un punto una a otra.
Se fabrican en los siguientes tipos y capacidades:
Un polo: 15, 20, 30, 40 y 50 amperes.
Dos polos: 15, 20, 30, 40, 50 y 70 amperes.
Tres polos: 100, 125, 150, 175, 200, 225, 250, 300, 350, 400, 500, 600 amperes.
En A.T. son dos los tipos de fusibles más utilizados; siendo su diferencia principal la forma
de eliminar el arco de energía que se produce en la falla del sistema. De esta forma tenemos
de Alto poder de ruptura y los Cortacircuitos de expulsión.
Fusible de alto poder de ruptura (A.P.R.): También denominados fusibles de ruptura
rápida, tienen como característica principal la rapidez de intervención ante un corto
circuito, impidiendo que el valor de corriente producido llegue al nivel de cresta que se
alcanzaría, en su ausencia, en el circuito. Son por tanto limitadores de corriente.
La extrema velocidad de corte se logra repartiendo la corriente que atraviesa el fusible entre
varios hilos conductores de pequeña sección, dispuestos en paralelo, que están construidos
de plata. A parte de tener unas excelentes cualidades eléctricas, la plata no se oxida a altas
temperaturas, a diferencia del cobre, con lo que no pierde sección útil, permitiendo asegurar
un mejor calibrado y eliminando de esta forma un corte no deseado.
Los fusibles A.P.R. se utilizan como elementos de protección de baterías de condensadores,
motores, líneas áreas de M.T. y transformadores de M.T. siempre en instalaciones de poca
potencia.
35
TESIS HERIBERTO SALVADOR CASTRO
Figura 2.11 Fusible en alta tensión
Cortacircuitos de expulsión: Están constituidos por un tubo protector en cuyo interior está
dispuesto el elemento fusible, y unido a él la trencilla de conexión. En el momento de
producirse el arco, la generación consiguiente de gases provoca la expulsión de la trencilla
con el posterior alargamiento y soplado del arco, que provoca su extinción.
La expulsión de gases en estos dispositivos hace que se utilice exclusivamente en
instalaciones exteriores. Su ámbito de aplicación se encuentra reducido a tensiones de hasta
36 kV, y se utilizan para la protección de transformadores tipo poste, baterías de
condensadores y derivaciones de líneas aéreas y subterráneas.
2.3.3 Interrupción de circuitos en líneas inductivas
Entre los factores que afectan las prestaciones de los interruptores se menciona la
interrupción de circuitos por los que circula corrientes inductivas, como son
transformadores o bobinas en vacío. Desde luego que esto se refiere a la alimentación por
medio de líneas de transmisión, que es un caso interesante. Para entender el funcionamiento
o fenómeno que se presenta, consideremos el siguiente circuito de la figura 2.12.
R’ y L’ son la resistencia y la reactancia inductiva del circuito de alimentación, L y C son
las capacitancias caductancia del circuito alimentado. La inductancia del circuito y la
capacitancia de la línea, un instante antes de abrirse el interruptor debido a una falla en las
inductancias del circuito circulaba corriente, de tal manera que al abrirse almacenan cierta
cantidad de energía magnética, la cual se descarga sobre la capacitancia del circuito, lo que
hace que se presente un potencial debido a la energía almacenada por dicha capacitancia. Si
la diferencia de potencial entre la capacitancia y el circuito de alimentación es grande, se
produce un reencebado del arco entre los contactos.
Si la energía almacenada por la capacitancia es grande, este fenómeno se repite varias veces
hasta que la energía disminuye a un valor tal que la diferencia de potencial sea pequeña.
36
TESIS HERIBERTO SALVADOR CASTRO
G C L
R1 L1
Figura 2.12 Interrupción de circuitos en líneas inductivas.
2.3.4 Interrupción de circuitos capacitivos
Los circuitos capacitivos están representados por cargas capacitivas o líneas de muy alta
tensión operando en vacío. Consideremos el segundo caso por ser el de más importancia
(ver figura 2.13).
En líneas de muy alta tensión y gran longitud se presenta un cierto valor de capacitancia; en
estos circuitos la corriente y el voltaje están defasados 90°, de tal forma que el voltaje al
final de la línea es mayor que al principio, con lo que se tiene una diferencia de potencial
“natural” por las características del circuito.
Al producirse un corto circuito se abre el interruptor D quedando la línea en vacío (por que
circula corriente). Entonces existe una diferencia de potencial entre los contactos del
interruptor debido al potencial de la capacitancia; esto hace que se produzca el reencebado
del arco, dando origen a un fenómeno semejante al del caso anterior al formarse un circuito
oscilatorio L y C entre la capacitancia y la inductancia de la línea.
2.4 Restaurador y Seccionadores
Un restaurador es un interruptor de operación automática que no necesita de accionamiento
manual para sus operaciones de cierre o apertura (la operación manual se refiere al mando
por control remoto), es decir, construido de tal manera que un disparo o un cierre esta
calibrado de antemano y opera bajo una secuencia lógica predeterminada y constituye un
interruptor de operación automática con características de apertura y cierre regulables de
acuerdo con las necesidades de la red de distribución que se va a proteger.
G V2V1
D
I
C
V1 es la tensión al principio de la línea
Figura 2.13 Interrupción de circuitos capacitivos.
37
TESIS HERIBERTO SALVADOR CASTRO
Este interruptor recibe por tales condiciones el nombre de restaurador. Un restaurador no es
más que un interruptor de aceite con sus tres contactos dentro de un mismo tanque y que
opera en capacidades interruptivas relativamente bajas y tensiones no muy elevadas.
Los restauradores normalmente están construidos para funcionar con tres operaciones de
recierre y cuatro aperturas, con un intervalo entre una y otra calibrado de antemano en la
última apertura el cierre debe ser manual, ya que indica que la falla es permanente.
2.4.1 Operación de un restaurador
El restaurador opera en forma semejante a un interruptor trifásico, ya que sus contactos
móviles son accionados por un vástago común, conectando y desconectando en forma
simultánea.
El proceso de apertura y recierre se puede describir brevemente como sigue:
1. Cuando ocurre una falla la bobina de disparo se energiza y actúa sobre un trinquete
mecánico que hace caer a los contactos móviles.
2. Los contactos móviles disponen de resortes tensionados de tal forma que la apertura
es rápida. Al caer los contactos móviles energizan la bobina de recierre que se
encuentra calibrada para operar con un cierto intervalo.
3. La bobina de recierre acciona un dispositivo mecánico que opera los contactos
móviles, conectándose nuevamente con los contactos fijos.
4. Si la falla es transitoria, el restaurador queda conectado y preparado para otra falla;
si la falla es permanente, repetirá todo el proceso anterior hasta quedar fuera según
el número de recierres para el cual se ha calibrado.
La interrupción del arco tiene lugar en una cámara de extinción que contiene a los
contactos.
Figura 2.14 Restaurador.
38
TESIS HERIBERTO SALVADOR CASTRO
Los restauradores que más se emplean son de los tipos R y W.
Restaurado tipo R
El restaurador tipo R es semejante en construcción al tipo W, pero se emplea para
capacidades menores. A continuación se dan algunos datos de este tipo de restaurador.
Voltaje nominal 2.4-14.4 kV
Corriente nominal 25-400 A
Voltaje de diseño 15.5 kV
Restaurador tipo W
Se construye trifásico en forma parecida al tipo R, pero es un poco mas robusto.
Los siguientes requisitos son básicos para asegurar la efectiva operación de un restaurador:
1. La capacidad normal de operación del restaurador deberá ser igual o mayor de la
máxima corriente de falla.
2. La capacidad normal de corriente constante del restaurador deberá ser igual o mayor
que la máxima corriente de carga.
3. El mínimo valor de disparo seleccionado deberá permitir al restaurador ser sensible
al corto circuito que se presenta en la zona que se desea proteger.
Figura 2.15 Imagen de un restaurador.
39
TESIS HERIBERTO SALVADOR CASTRO
2.4.2 Cuchillas de operación con carga (Seccionador)
Existen cuchillas que pueden desconectar circuitos con carga. Estas cuchillas generalmente
reciben el nombre de seccionador, y son elementos que no están diseñados para interrumpir
corrientes de corto circuito ya que su función es el abrir circuitos en forma automática
después de cortar y responder a un numero predeterminado de impulsos de corriente de
igual a mayor valor que una magnitud previamente predeterminada, abren cuando el
alimentador primario de distribución queda desenergizado. En cierto modo el seccionador
permite aislar sectores del sistema de distribución llevando un conteo de las operaciones de
sobrecorriente del dispositivo de respaldo.
Por su principio de operación el medio aislante de interrupción puede ser aire, aceite o
vacío y en cuanto al control es similar al caso de los restauradores ósea puede ser
hidráulico, electrónico o electromecánico. La misión de este aparato es la de unir o separar
de una forma visible diferentes elementos, componentes o tramos de una instalación o
circuito.
Aunque los seccionadores han de maniobrarse normalmente sin carga, en determinadas
circunstancias pueden conectarse o desconectarse en pequeñas cargas. Cuando se trata de
corrientes magnetizantes, como la corriente de vacío de los transformadores, y que tienen
un carácter claramente inductivo, la carga que pueden cortar los seccionadores es menor. Se
puede decir que en tales circunstancias, la potencia máxima que pueden cortar los
seccionadores es de 50 kVA.
Dentro de esta clasificación se pude añadir que todos ellos pueden tener una constitución
monopolar o tripolar (ver figura 2.16)
Figura 2.16 Seccionador de cuchillas monopolar y tripolar.
2.5 Cuchillas fusible
La cuchilla fusible es un elemento de conexión y desconexión de circuitos eléctricos. Tiene
dos funciones: como cuchilla desconectadora y como elemento de protección.
40
TESIS HERIBERTO SALVADOR CASTRO
El elemento de protección lo constituye el dispositivo fusible, que se encuentra dentro del
cartucho de conexión y desconexión. El dispositivo fusible se selecciona de acuerdo con el
valor de corriente nominal que va circular por él.
Los elementos fusibles se construyen fundamentalmente de plata (en casos especiales),
cobre electrolito con aleación de plata, o cobre aleado con estaño.
Existen diferentes tipos de cuchillas fusibles, de acuerdo con el empleo que se les dé. Entre
los principales tipos y características tenemos los siguientes:
Figura 2.17 Cuchillas desconectadoras (seccionadores).
La cuchilla desconectadora es un elemento que sirve para desconectar físicamente un
circuito eléctrico.
Por lo general, se operan sin carga, pero con algunos aditamentos se puede operar con carga
hasta ciertos límites.
2.5.1 Clasificación de cuchillas desconectadoras
Por su operación:
a) Con carga (con tensión nominal).
b) Sin carga (con tensión nominal).
c) De puesta a tierra
Por el tipo de accionamiento:
a) Manual
41
TESIS HERIBERTO SALVADOR CASTRO
b) Automático
Por su forma de conexión:
a) Cuchillas con tres aisladores, dos fijos y giratorio el del centro. Estas cuchillas se
emplean sobre todo en subestaciones tipo intemperie con corrientes elevadas y
tensiones del orden de 34.5 kV; son generalmente operadas en grupo, por mando
eléctrico. No representan peligro para el operario, ya que es grande la separación
entre polos.
Figura 2.18 Cuchillas con tres aisladores, dos fijos y giratorio el del centro.
b) Cuchillas con dos aisladores de operación vertical (normal e invertida). Este tipo de
cuchillas es de los más usuales por su operación simple, puede emplearse en
instalaciones interiores o a la intemperie. Para usos interiores se recomienda usarla
en tensiones no mayores de 23 kV, para operación con pértiga, el lugar donde se
pare el operario para efectuar la desconexión debe ser, de acuerdo con las normas de
seguridad, una madera con capa de hule.
Para montaje a la intemperie puede usarse en cualquiera de las tensiones normales
de operación, con mando por barra o motor eléctrico.
Figura 2.19 Cuchillas con dos aisladores de operación vertical (normal e invertida).
c) Cuchilla con dos aisladores de operación horizontal (un aislador fijo). Este tipo de
cuchillas es de uso a la intemperie generalmente. Presenta muchas ventajas cuando
son accionadas neumáticamente; por tal razón es conveniente emplearlas cuando se
disponga de aire comprimido. Se usan para cualquiera de las tensiones normales de
operación. Pueden accionarse también por barra o motor eléctrico. Tienen el
inconveniente de que la hoja de desconexión se desajusta después de varias
operaciones.
42
TESIS HERIBERTO SALVADOR CASTRO
Figura 2.20 Cuchilla con dos aisladores de operación horizontal (un aislador fijo).
d) Cuchillas tipo pantógrafo. En la actualidad este tipo de cuchillas no se emplea con
frecuencia sobre todo en América. La razón es que su mecanismo de operación es
complicado y falla en ocasiones; además su costo es elevado y ocupa mucho
espacio, lo cual va en contra de la tendencia actual de reducir el espacio en las
instalaciones.
Figura 2.21 Cuchillas tipo pantógrafo.
e) Cuchillas con tres aisladores de doble arco (tipo AV). Estas cuchillas se emplean en
instalaciones de corrientes elevadas y tensiones medias; se operan generalmente por
barra o motor eléctrico pero también pueden accionarse con aire comprimido. En
sistemas de distribución a 33 y 23 kV se usan para interconexión de líneas.
Figura 2.22 Cuchillas con tres aisladores de doble arco (tipo AV).
f) Cuchillas de tres aisladores, con el aislador central desplazable por cremallera. El
rango de aplicación de estas cuchillas es semejante al de las cuchillas de operación
vertical; debido a su tamaño, generalmente son accionadas por motor eléctrico,
aunque se pueden accionar por barra o aire comprimido.
43
TESIS HERIBERTO SALVADOR CASTRO
Figura 2.23 Cuchillas de tres aisladores, con el aislador central desplazable por cremallera.
g) Cuchillas con cuernos de arqueo. Estas cuchillas pueden ser de operación horizontal
o vertical. Se usan por lo general en sistemas que operan en tensiones muy elevadas,
por ejemplo 66, 88, 115 kV, etc. Su empleo es indispensable en líneas largas los
cuernos de arqueo sirven para que entre ellos se forme el arco al desconectar las
cuchillas, y a la conexión a tierra para disipar la energía del arco.
El arco se forma debido a la energía residual que conservan las líneas largas al
quedar en vacío después de la apertura del interruptor.
Figura 2.24 Cuchillas con cuernos de arqueo.
2.6 Apartarrayos
Las sobretensiones que se presentan en las instalaciones de un sistema pueden ser de dos
tipos:
1. Sobretensiones de origen atmosférico.
2. Sobretensiones por fallas en el sistema
Apartarrayos es un dispositivo destinado a proteger las instalaciones contra sobre tensiones
producidas por descargas atmosféricas, por maniobras o por otras causas que en otro caso,
se descargarían sobre aisladores o perforarían el aislamiento. Ocasionando interrupciones
en el sistema eléctrico y, en muchos casos, desperfectos en los generadores,
transformadores, etc. Para su correcto funcionamiento el apartarrayos se encuentra
conectado permanentemente en el sistema, opera cuando se presenta una sobretensión de
determinada magnitud, descargando la corriente a tierra, y debe de elegirse con
características tales que sea capaz de actuar antes de que el valor de la sobretensión alcance
los valores de tensión de aislamiento de los elementos a proteger (lo que se conoce como
coordinación de aislamiento), pero nunca para los valores de tensión normales.
44
TESIS HERIBERTO SALVADOR CASTRO
Figura 2.25 Apartarrayos autovalvular
Se fabrican diferentes tipos de apartarrayos, basados en el principio general de operación;
los más empleados son los conocidos como “apartarrayos tipo autovalvular” y
“apartarrayos de resistencia variable”.
El apartarrayos tipo autovalvular consiste de varias chapas de explosores conectados en
serie por medio de resistencias variables cuya función es dar una operación más sensible y
precisa. Se emplea en los sistemas que operan a grandes tensiones, ya que se presenta una
gran seguridad de operación. El apartarrayos de resistencia variable funda su principio de
operación en el principio general, es decir, con dos explosores, y se conecta en serie a una
resistencia variable. Se emplea en tensiones medianas y tiene mucha aceptación en sistemas
de distribución.
Figura 2.26 Apartarrayos tipo Autovalvular y de Resistencias Variables.
La función del apartarrayos no es eliminar las ondas de sobre tensión presentadas durante
las descargas atmosféricas, sino limitar su magnitud a valores que no sean perjudiciales
para las maquinas del sistema.
Las ondas que normalmente se presentan son de 1.5 x 40 μseg. (Onda americana) y 1 x 40
μseg. (Onda europea). Esto quiere decir que alcanza su valor de frente en 1.5 a 1 μseg.
(Tiempo de frente de onda). La función del apartarrayos es cortar su valor máximo de onda
(aplanar la onda).
45
TESIS HERIBERTO SALVADOR CASTRO
Figura 2.27 Onda de choque de un apartarrayos.
Las sobre tensiones originadas por descargas indirectas se deben a que se almacenan sobre
las líneas cargas electrostáticas que al ocurrir la descarga se parten en dos y viajan en
ambos sentidos de la línea a la velocidad de la luz.
Los apartarrayos protegen también a las instalaciones contra descargas directas, para lo cual
tiene un cierto radio de protección. Para dar mayor seguridad a las instalaciones contra
descargas directas se instalan unas varillas conocidas como bayonetas e hilos de guarda
semejantes a los que se colocan en las líneas de transmisión.
2.7 Tableros duplex de control
Los equipos de protección y control, así como los instrumentos de medición, por lo general
se instalan en tableros eléctricos, estos equipos e instrumentos se instalan tomando como
referencia una serie de planos y dibujos, en donde se muestra la interconexión del equipo y
el arreglo y disposición del mismo, la mayoría de los trabajos en tableros eléctricos se inicia
con un diagrama unifilar, pero el conjunto de planos debe contener lo siguiente:
1. Diagrama unifilar
2. Diagrama de control
3. Diagrama de interconexión
Estos dibujos son necesarios para la interpretación de la instalación de equipos y
componentes de protección, medición y control, para los fines de su utilización, los tableros
se pueden clasificar como:
a) Tableros de baja tensión
b) Tableros de alta tensión
46
TESIS HERIBERTO SALVADOR CASTRO
Los tableros de baja tensión son aquellos que trabajan a una tensión no mayor de 1000 V en
corriente alterna o no mayor de 1500 V en corriente continua. Los valores de tensiones
nominales para tableros de corriente alterna en baja tensión son:
120, 240, 480 y 550 V.
Para corriente continua las tensiones nominales son:
125, 250 y 550 V.
Los valores de corriente nominales para los tableros de baja tensión, tanto en corriente
alterna como en corriente continua, son los siguientes:
600, 1200, 2000, 3000, 4000 y 5000 A.
Los tableros de alta tensión son aquellos que trabajan a una tensión mayor de 1000 V en
corriente alterna o mayor de 1500 V en corriente continua.
Las tensiones nominales para los tableros de corriente alterna alta tensión son:
2400, 4160, 7200, 13800, 23000 y 34500 V.
Las corrientes nominales para tableros de alta tensión en corriente alterna o continua son:
600,1200, 2000, 3000, 4000 y 5000 A.
Con relación a la función para la cual se destinan, los tableros se pueden subdividir en la
forma siguiente:
1) Tableros principales de distribución
2) Tableros secundarios de distribución
3) Centros de control de motores
2.7.1 Tableros principales de distribución
Estos tableros se instalan por lo general inmediatamente después de los transformadores de
media tensión/baja tensión o de los generadores, se les conoce también como “centros de
carga.
Los tableros principales de distribución comprenden una o más unidades de entrada,
eventualmente concentradores de barras y un número relativamente reducido de salidas;
otros, a una serie de instrumentos de medición y aparatos de comando y control. Una
característica particular de estos tableros son los elevados valores de las corrientes de corto
47
TESIS HERIBERTO SALVADOR CASTRO
circuito y nominal, por lo que su estructura debe ser robusta para soportar las solicitaciones
electrodinámicas y el peso de aparatos de gran tamaño.
Figura 2.28 Tablero principal de distribución
2.7.2 Tableros secundarios de distribución
Comprenden una basta categoría de tableros destinados a la distribución de la energía y, por
lo general, son dotados de una unidad de entrada y de numerosas unidades de salida.
Los aparatos alojados en el tablero son principalmente interruptores automáticos
(interruptores termomagnéticos) de tamaño estándar y tipo modular, y también pueden
tener una amplia gama de otros dispositivos de control, señalización, etc.
Las corrientes nominales y de corto circuito de los tableros de distribución secundaria son
menores que aquellas del tablero principal. Los modelos constructivos permiten el empleo
de tableros metálicos o de material aislante y pueden estar instalados en el piso o en pared o
muro, dependiendo de las dimensiones y el peso.
Figura 2.29 Tablero secundario de distribución
48
TESIS HERIBERTO SALVADOR CASTRO
2.7.3 Centros de control de motores
Estos tableros están destinados al control y a la protección centralizada de los motores; por
lo tanto, comprenden los aparatos relacionados con la operación coordinada de maniobra y
protección (unidad funcional autónoma) y aquellos auxiliares de control y señalización.
Cada motor tiene asignada una unidad o caja del centro de control, de modo que sea posible
intervenir con seguridad sobre una sola unidad de salida, sin cortar la alimentación a los
otros usuarios.
Figura 2.30 Centro de control de motores
2.8 Condensadores
Los condensadores son componentes normalmente utilizados en electricidad y electrónica.
Básicamente, la función que realiza un condensador es almacenar una carga eléctrica; se
comporta como un “almacén de electricidad” cuyo símil hidráulico puede ser un depósito
de agua.
Cuando se le aplica una tensión mediante una fuente externa, se produce un efecto de
campo eléctrico en su interior, y adquiere cierta magnitud de carga eléctrica (culombios)
que da lugar a una diferencia de potencial entre sus terminales.
Los condensadores son componentes de dos terminales cuya simbología se representa en la
figura 2.31.
A)
A) Vista de conjunto
B) Particularidad de una sección
extraíble o enchufable
B)
49
TESIS HERIBERTO SALVADOR CASTRO
Figura 2.31 Simbología para los condensadores a) general, b) electrolítico (tiene polaridad).
Tipos de condensadores
Según el dieléctrico utilizado en su construcción existen distintos tipos de condensadores.
Básicamente tenemos:
Papel
Mica
Cerámicos
Plásticos (poliéster, poliestireno, etc.).
Electrolíticos (aluminio y tantalio).
Excepto los electrolíticos, el resto son condensadores de relativa baja capacidad; van desde
unos pocos picofaradios hasta alrededor de 1µF.
2.8.1 Experimentación de la carga-descarga del condensador
Carga: Mediante el montaje de la figura 2.32, se puede comprobar el efecto de almacenaje
de carga eléctrica. Al cerrar el interruptor, la fuente tensión continua (VB), por medio de
una transferencia de electrones, hace que cada una de las placas del condensador adquiera
la polaridad del polo de la fuente de tensión a la que esta conectada. Al abrir el interruptor,
debido a su característica de retener (almacenar) cargas, el condensador presenta entre sus
terminales un voltaje prácticamente igual al de la fuente de tensión; la carga eléctrica
almacenada en sus placas de lugar a una diferencia de potencial. En este estado, si se vuelve
a cerrar el interruptor, ya no se detecta ninguna circulación de corriente por que el
condensador tiene la misma magnitud de tensión que la fuente; no existe diferencia de
potencial entre ambos.
Figura 2.32 Al conectar un condensador a una fuente de tensión (VB),
este quedo cargado con un voltaje aproximadamente igual al de la fuente.
a) b)
50
TESIS HERIBERTO SALVADOR CASTRO
Descarga: Mediante el circuito de la figura 2.33, se puede comprobar el efecto de descarga
del condensador. Con el condensador cargado, cerramos el interruptor, la carga eléctrica
almacenada hace que circule una cierta corriente a través de la resistencia, que dará lugar, a
su vez, a una tensión (VR=IR). Esto se puede verificar por medio de un voltímetro. A
medida que el condensador va cediendo corriente (descargándose), su carga almacenada se
va haciendo menor hasta quedar prácticamente descargado. Por ello, solo se puede detectar
corriente de salida durante el tiempo que dura la descarga.
Y si en vez de utilizar una resistencia se conecta una pequeña bombilla, se puede observar
un destello de luz (cuya duración dependerá de la capacidad del condensador y de la
magnitud de corriente absorbida por la bombilla).
Así pues, los condensadores cargados de electricidad se pueden descargar sobre cierto
elemento receptor. Y una vez consumida su carga, el condensador puede volver a cargarse;
es pues, un elemento que puede almacenar electricidad.
Aunque un condensador cargado presenta entre sus terminales una cierta tensión, como si
fuera una pila, existe una gran diferencia entre un condensador cargado y una pila (o
acumulador); en el interior del condensador no existe un proceso de generación de f.e.m. y
su energía se extingue más o menos rápidamente en el momento de conectarle una carga.
En cambio, en un generador, al existir un proceso interno de generación de energía (f.e.m.),
se puede obtener de él continuamente una cierta magnitud de corriente sin que su voltaje
apenas varíe (hasta que empiece a agotarse).
A nivel comparativo, la diferencia entre un condensador y un generador es análoga a la
diferencia que hay entre un vaso de agua y una fuente de agua, respectivamente.
Figura 2.33
2.9 Transformadores para instrumento
Se denominan transformadores para instrumento los que se emplean para alimentación de
equipos de medición, control o protección. Los transformadores para instrumento se
dividen en dos clases:
1. Transformadores de corriente
2. Transformadores de potencial
51
TESIS HERIBERTO SALVADOR CASTRO
2.9.1 Transformadores de corriente
Es aquel cuya función principal es cambiar el valor de la corriente de uno mas o menos
elevado a otro con el cual se puedan alimentar instrumentos de medición, control o
protección, como amperímetros, wattmetros, instrumentos registradores, relevadores de
sobrecorriente, etc.
Su construcción es semejante a la de cualquier tipo de transformador, ya que
fundamentalmente consiste de un devanado primario y un devanado secundario. La
capacidad de estos transformadores es muy baja, se determina sumando las capacidades de
los instrumentos que se van a alimentar, y puede ser 15, 30, 50, 60 y 70 VA.
Hay transformadores de corriente que operan con corrientes relativamente bajas; estos
transformadores pueden construirse sin devanado primario, ya que el primario lo constituye
la línea a la que van a conectarse. En este caso los transformadores se les denomina tipo
dona.
Figura 2.34 Representación de un
transformador de corriente en un diagrama unifilar.
Las relaciones de transformación son de diferentes valores, pero la corriente en el devanado
secundario normalmente es de 5 amperes.
2.9.2 Transformadores de potencial
Es aquel cuya función principal es transformar los valores de voltaje sin tomar en cuenta la
corriente. Estos transformadores sirven para alimentar instrumentos de medición, control o
protección que requieran señal de voltaje.
Los transformadores de potencial se construyen con un devanado primario y otro
secundario; su capacidad es baja, ya que se determina sumando las capacidades de los
instrumentos de medición que se van a alimentar, y varían de 15 a 60 VA.
52
TESIS HERIBERTO SALVADOR CASTRO
Se construyen para diferentes relaciones de transformación pero el voltaje en el devanado
secundario es normalmente 115 volts.
Figura 2.35 Representación de un transformador
de potencial en un diagrama unifilar.
Especificaciones para transformadores de instrumento
a) Transformador de corriente
1. Función a desempeñar
2. Relación de transformación (corriente primaria)
3. Tensión de operación
4. Clase de precisión y tolerancia
b) Transformador de potencial
1. Función a desempeñar
2. Relación de transformación (voltaje primario)
3. Colocación de las boquillas (en caso de subestación a la intemperie)
4. Clase de precisión y tolerancia
53
TESIS HERIBERTO SALVADOR CASTRO
EDIFICIO
GUBERNAMENTAL
CAPITULO 3
ELEMENTOS DE LAS
INSTALACIONES ELECTRICAS
54
TESIS HERIBERTO SALVADOR CASTRO
CAPITULO 3.
ELEMENTOS DE LAS INSTALACIONES ELECTRICAS
Las instalaciones eléctricas comerciales o industriales, cuyos fundamentos son los mismos
que los de cualquier instalación eléctrica en baja tensión, se tratan en forma general y el
término se usa para diferenciarlo de las instalaciones eléctricas residenciales o de las
industriales.
Concepto de instalación eléctrica en baja tensión
Dentro de una instalación eléctrica en baja tensión, se incluyen edificios de oficinas y
departamentos, hoteles, escuelas, hospitales, edificios públicos, cines, restaurantes, centros
comerciales, etc., que deben cumplir con ciertos requerimientos y disponen de ciertas
facilidades no consideradas en otros tipos de instalaciones y que son entre otras las
siguientes:
Alumbrado interior y exterior, tanto funcional como decorativo,
Servicios de comunicación como: teléfono, circuito cerrado de radio y televisión, enlaces
para servicios de cómputo, etc.
Sistemas de alarma y control como: sistemas de alarma contra robo y alarmas contra
incendio,
Transporte como: escaleras eléctricas y elevadores,
Aire acondicionado y ventilación,
Sanitarios y medios para el manejo de desperdicio,
Instalaciones para sistemas de cómputo, cajas registradoras, etc.
3.1 Elementos para el diseño eléctrico
Los principales elementos de diseño que se deben considerar en las instalaciones de
alumbrado, fuerza y sistemas auxiliares son los siguientes:
1) Magnitudes como son: características de la carga, factores de demanda, diversidad,
coincidencia y de carga.
55
TESIS HERIBERTO SALVADOR CASTRO
2) Servicios como son niveles de voltaje a emplear y distribución por niveles de
voltaje en la instalación.
3) Flexibilidad y previsión para ampliaciones futuras,
4) Confiabilidad (seguridad en el suministro de la energía eléctrica)
5) Seguridad del personal
6) Costos de operación y mantenimiento
7) Fuentes de alimentación
8) Planta de emergencia
9) Cumplimiento con normas y especificaciones oficiales.
El diseño eléctrico se define como el desarrollo de un método que permita la distribución
de la energía eléctrica, desde el punto de alimentación del servicio eléctrico, hasta los
puntos de utilización.
Los conceptos relacionados con una instalación eléctrica se muestran en la figura 3.1.
ALIMENTACION
PLANTA DE UN PISO
PARA UN EDIFICIO
TABLERO DE
ALUMBRADO
CUARTO DE SUBIDAS
DE CABLE
CANALIZACION
INTERRUPTOR PRINCIPAL
TABLERO PRINCIPAL
I
S
T
P
T
A
TA1
TA2
TA3
TA
TABLERO DE
FUERZA
TABLERO DE
ALUMBRADO
AZOTEA
3° PISO
2° PISO
1° PISO
P. B.
ELEVACION DE LA INSTALACION ELECTRICA
Figura 3.1. Elevación de una instalación eléctrica
56
TESIS HERIBERTO SALVADOR CASTRO
Donde:
A Alimentación
IS Interruptor principal de servicio
TP Tablero principal de alimentación
TA Tableros de alumbrado
Estos elementos deben ser considerados en el diseño de una instalación eléctrica, además de
factores como los siguientes:
1. Uso de las normas técnicas para instalaciones eléctricas
2. Diseños económicos y eficientes
3. Localización conveniente y accesible del equipo para fácil reparación y
mantenimiento
4. Previsiones para ampliaciones futuras.
Tabla 3.1 Símbolos convencionales más usuales en las instalaciones eléctricas.
Salida de centro incandescente
Arbotante incandescente interior
Arbotante incandescente intemperie
Arbotante fluorescente interior
Lampara fluorescente
Contacto sencillo en muro
Contacto sencillo en piso
Contacto sencillo controlado por apagador
Contacto multiple en muro
Conta
Salida
Apag
Apag
Apag
p
c
Apag
Apag
Tabler
Tabler
Medid
SIMBOLOS CONVENCIONALES USADOS E
INSTALACIONES ELECTRICAS
57
TESIS HERIBERTO SALVADOR CASTRO
3.2 Alimentadores, subalimentadores, circuitos derivados y tableros.
La distribución de la potencia eléctrica desde el punto de alimentación se hace por medio
de alimentadores y circuitos derivados, hasta la última carga.
Circuito derivado: un circuito derivado se define como un conjunto de conductores que van
hasta el último dispositivo de sobrecorriente en el sistema, por lo general un circuito
derivado alimenta solo a una pequeña parte del sistema.
Alimentador. Un alimentador es un conjunto de conductores que alimentan a un grupo de
circuitos derivados.
Tableros: Los tableros son básicamente conjuntos de dispositivos de sobrecorriente
contenidos en gabinetes accesibles solo por el frente.
Subalimentadores: Cuando se requieren muchos alimentadores, un segundo tablero
instalado en algún punto entre el tablero principal y los circuitos derivados, requieren de
alimentadores secundarios o Subalimentadores.
Salida: Es la caja de conexiones de la cual se toma la alimentación para una o varias cargas
eléctricas determinadas tales como las luminarias, motores, contactos, etc.
3.2.1 Circuitos derivados para alumbrado
Las normas técnicas para instalaciones eléctricas permiten solo el uso de circuitos
derivados de 15 A o 20 A para alimentar unidades de alumbrado con portalámparas
estándar. Los circuitos derivados mayores de 20 A se permiten solo para alimentar unidades
de alumbrado fijas con portalámparas de uso rudo. Los circuitos derivados de más de 20 A
no se permiten para alimentar habitaciones unifamiliares o en edificios de departamentos.
El numero de circuitos derivados está determinado por la carga y se calcula como:
WattsencircuitocadadeCapacidad
WattsentotalaC
circuitosdeNo
arg
. 
Un circuito de 15 Amperes a 127 volts tiene una capacidad de 15 x 127 = 1905 Watts, si el
circuito es para 20 amperes, a 127 volts, su capacidad es: 20 x 127 = 2540 Watts.
58
TESIS HERIBERTO SALVADOR CASTRO
Tabla 3.2 Formulas eléctricas usuales:
EJEMPLO:
Calcular el número de circuitos derivados de 20 amperes a 127 volts para alimentar una
carga total de alumbrado de 30,000 watts. Si las lámparas son de 150 watts, calcular el
número de lámparas por circuito.
Solución: para circuitos derivados de 20 amperes a 127 volts, la capacidad en watts es de
2540.
59
TESIS HERIBERTO SALVADOR CASTRO
El número de circuitos derivados es:
WattsencircuitocadadeCapacidad
WattsentotalaC
circuitosdeNo
arg
. 
81.11
2540
000,30

No. De circuitos derivados = 12 circuitos
El número de lámparas por circuito es:
lámparaporWatts
wattsencircuitocadadeCapacidad
circuitoporlámparasdeNo .
93.16
150
2540

No. de lámparas = 17
Como verificación se puede hacer:
La corriente por lámpara =
127
150
=1.181 amperes
No. de lámparas por circuito=
lámparaporcorriente
circuitocortoporcorriente
=
181.1
20
=16.93 ó 17 lámparas
Circuitos derivados para contactos
Contactos generales. Método de cálculo del valor de la carga mayor de 180 watts por salida o bien:
El valor real de la carga si se conoce un incremento de 25% si es continua se requiere una capacidad
en el circuito derivado de 15 amperes ó 20 amperes, entonces el numero de circuitos necesario es:
Para 15 amperes:
voltsxamperes
wattsxcontactosdeNúmero
circuitosdeNo
12715
180
. 
Para 20 amperes:
60
TESIS HERIBERTO SALVADOR CASTRO
voltsxamperes
wattsxcontactosdeNúmero
circuitosdeNo
12720
180
. 
3.3 Conductores y canalizaciones eléctricas
La mayoría de los conductores usados en la actualidad para instalaciones eléctricas
comerciales, industriales o residenciales, son de cobre o aluminio. Una propiedad
importante a considerar de estos materiales desde el punto de vista de las instalaciones
eléctricas es su resistencia o resistividad.
La unidad de la resistencia eléctrica es el ohm, la corriente eléctrica se mide en amperes, y
se dice que un ampere (1A) circula, cuando se aplica un volt (1V) a través de un circuito
con una resistencia de 1 ohm (1Ω).
En cualquier instalación eléctrica, los elementos que conducen la corriente eléctrica de las
fuentes a las cargas o que interconectan los elementos de control, son los conductores
eléctricos, por otra parte, por razones de protección de los propios conductores y de
seguridad, normalmente estos conductores se encuentran instalados dentro de
canalizaciones eléctricas de distinta naturaleza y cuya aplicación depende del tipo de
instalación eléctrica de que se trate.
En la figura 3.2 se muestra, un diagrama de bloques en donde aparecen algunas de las
aplicaciones de los conductores eléctricos en las instalaciones.
IS IP
TF
TA
A
B
B
C
C
D
D
SIMBOLOGIA
CARGA DE ALUMBRADO
CARGA DE MOTORESM
Figura 3.2. Diagrama de bloques
IS = Interruptor de servicio
IP = Interruptor principal
TA = Tablero de alumbrado
TF = Tablero de fuerza
A = Conductores de servicio de la compañía suministradora al interruptor principal
B = Conductores que llevan la potencia del interruptor principal al tablero de alumbrado
(TA) y al tablero de fuerza (TF).
61
TESIS HERIBERTO SALVADOR CASTRO
C = Conductores que llevan la potencia de los circuitos derivados del tablero de alumbrado
(TA) a la carga de alumbrado.
D = Conductores que llevan la potencia de los circuitos derivados del tablero de fuerza (TF)
a la carga de motores M.
Los elementos que contienen a los conductores se conocen como canalizaciones y son de
distinto tipo según la aplicación, conociéndose como tubos conduit, ductos, charolas, etc.
3.3.1 Conductores eléctricos
La palabra “conductor” se usa con un sentido distinto al de alambre, ya que por lo general
un alambre es de sección circular, mientras que un conductor puede tener otras formas (por
ejemplo barras rectangulares o circulares), sin embargo es común que a los alambres se les
designe como conductores.
La mayor parte de los conductores usados en las instalaciones eléctricas son de cobre (Cu)
o aluminio (Al) debido a su buena conductividad.
Comparativamente el aluminio es aproximadamente un 16% menos conductor que el cobre
y más liviano que este, ya que a igualdad de peso se tiene hasta cuatro veces mas conductor
que el cobre.
Los conductores eléctricos se fabrican de sección circular de material sólido o como cables
dependiendo la cantidad de corriente por conducir (ampacidad) y su utilización aunque en
algunos casos se fabrican en secciones rectangulares y tubulares para altas corrientes.
Desde el punto de vista de las normas los conductores se han identificado por un numero
que corresponde al calibre y que normalmente se sigue el sistema americano de designación
AWG (American Wire Gage) siendo el más grueso el numero 4/0 siguiendo un orden
descendente del área del conductor los numero 3/0, 2/0, 1/0, 1, 2, 4, 6, 8, 10, 12, 14, 16, 18
y 20 que el más delgado usado en instalaciones eléctricas para conductores con un área
mayor del designado como 4/0, se hace una designación que está en función de su área en
pulgadas para lo cual se emplea una unidad denominada en circular mil siendo así como un
conductor de 250 corresponderá aquel cuya sección sea de 250,000 CM y así
sucesivamente.
Se denomina circular mil a la sección de un círculo que tiene un diámetro de un milésimo
de pulgada (0.001 plg.), como se muestra en la figura 3.3.
62
TESIS HERIBERTO SALVADOR CASTRO
Figura 3.3. Sección de un circular mil
La relación entre circular mil y el área en mm2
para un conductor se obtiene como sigue:
mmPLG 4.251 
mmPLG 0254.0
1000
1

Siendo el circular mil un área
4
)0254.0(1416.3
4
..1
22
xD
MC 
24
10064506.5 mmx 

De donde:
CMmm 1974
064506.5
10
1
4
2

O en forma aproximada
CMmm 20001 2

Los conductores empleados en las instalaciones eléctricas tienen aislantes del tipo
termoplásticos (T) con distintas denominaciones comerciales según el tipo de fabricante
siendo los mas conocidos por ser a prueba de agua entre otras propiedades los siguientes:
tipo TW, vinanel 900, vinanel nylon, vulcanel EP, vulcanel XLP, THWN, RUW, TWD,
THW, PILC, V, RHH.
Cada tipo de conductor tiene propiedades específicas que lo diferencian de otro, en la
selección de un conductor deben considerarse los agentes que los afectan durante su
operación y que se pueden agrupar como:
I.- Agentes mecánicos
II.- Agentes químicos
III.- Agentes eléctricos
63
TESIS HERIBERTO SALVADOR CASTRO
Agentes mecánicos. La mayor parte de los ataques mecánicos que sufre un conductor se
deben a agentes externos como son el desempaque, manejo e instalación que pueden afectar
las características del conductor dañado y que producen fallas de operación, por lo que es
necesario prevenir el deterioro por agentes externos usando las técnicas adecuadas de
manejo de materiales e inserción de conductores en canalizaciones.
Los principales agentes que pueden afectar mecánicamente a los conductores se pueden
dividir en cuatro clases:
a).- Presión mecánica
b).- Abrasión
c).- Elongación
d).- Doblez a 180°
a).- Presión mecánica.- se puede presentar en el manejo de los conductores por el paso o
colocación de objetos pesados sobre los conductores su efecto puede ser una deformación
permanente del aislamiento disminuyendo el espesor del mismo y apareciendo fisuras que
pueden provocar fallas eléctricas futuras.
b).- Abrasión.- es un fenómeno que se presenta normalmente al introducir los conductores a
las canalizaciones, cuando estas están mal preparadas y contienen rebabas o bordes punzo-
cortantes también se pueden presentar durante el manejo de los conductores en las obras
civiles semiterminadas.
c).- Elongación.- se presenta cuando hay mas de dos curvas de 90° en una trayectoria
unitaria de tubería, o cuando se trata de introducir mas conductores en el tubo conduit de
los permitidos por reglamento (deben ocupar el 40% de la sección disponible dejando libre
la sección restante).
Tratándose de conductores de cobre debe tenerse cuidado que la tensión no exceda a
7kg/mm2
ya que se corre el riesgo de alargar el propio metal, creándose un problema de
aumento de resistencia eléctrica por disminución en la sección del conductor por otra parte
la falta de adherencia del aislamiento provocado por el deslizamiento provoca puntos de
falla latente.
d).- Doblez a 180°.- este problema se presenta principalmente por el mal manejo de
material, de tal forma que las moléculas del aislamiento que se encuentran en la parte
exterior están sometidas a la tensión y las que se encuentran en la parte interior a la
compresión este fenómeno se conoce en el argot técnico como la formación de “cocas”.
Agentes químicos. Un conductor se ve sujeto a ataques por agentes químicos que pueden
ser diversos y que dependen de los contaminantes que se encuentran en el lugar de la
instalación.
Estos agentes químicos contaminantes se pueden identificar en cuatro tipos generales que
son:
64
TESIS HERIBERTO SALVADOR CASTRO
- Agua o humedad
- Hidrocarburos
- Ácidos
- Álcalis
Por lo general no es posible eliminar en su totalidad los contaminantes de una instalación
eléctrica por lo que se hace necesario el uso de conductores eléctricos que resistan los
contaminantes en cada instalación eléctrica.
Las fallas por agentes químicos en los conductores se manifiestan como una disminución
en el espesor del aislamiento como grietas con trazos de sulfatación en el aislamiento o por
oxidación en el aislamiento caso típico que se manifiesta como un desprendimiento en
forma de escamas.
En la tabla 3.3 se indican algunas propiedades de aislamientos a la acción de los
contaminantes más comunes.
TABLA 3.3 CARACTERÍSTICAS DE RESISTENCIA DE LOS CONDUCTORES DE BAJA
TENSIÓN AL ATAQUE DE AGENTES QUIMICOS
Tipo comercial Álcalis Ácidos Humedad Hidrocarburos
TW Muy bueno Muy
bueno
Muy bueno Bueno
VINANEL 900 Muy bueno Muy
bueno
Muy bueno Bueno
VINANEL NYLON Muy bueno Excelente Excelente Inerte
VULCANEL EP Muy bueno Muy
bueno
Excelente Regular
VULCANEL XLP Muy bueno Muy
bueno
Excelente Regular
Agentes eléctricos. Desde el punto de vista eléctrico la característica principal de los
conductores de baja tensión se mide por la rigidez dieléctrica del aislamiento que es la que
determina las condiciones de operación manteniendo la diferencia de potencial requerida
dentro de los limites de seguridad permite soportar sobre cargas transitorias e impulsos de
corriente provocados por corto circuito.
La habilidad eléctrica de los aislamientos para conductores en baja tensión es del orden de
600 Volts que es la tensión máxima a que están especificados por esta razón los
conductores empleados en instalaciones eléctricas de baja tensión difícilmente fallan por
causas meramente eléctricas en la mayoría de los casos fallan por fenómenos térmicos
provocados por sobrecargas sostenidas o deficiencias en los sistemas de protección en caso
de corto circuito.
En la tabla 3.4 se indican algunas propiedades de los conductores eléctricos comerciales
desde el punto de vista de la rigidez dieléctrica en sus aislamientos.
65
TESIS HERIBERTO SALVADOR CASTRO
TABLA 3.4. RIGIDEZ DIELECTRICA DE LOS AISLAMIENTO USADOS EN
CONDUCTORES DE BAJA TENSION
IDENTIFICACIÓN
COMERCIAL
kV/MM C.A.
ELEVACIÓN RAPIDA
kW/MM C.A.
IMPULSO
TW 12 40
VINANEL 900 12 40
VINANEL NYLON 15 45
VULCANEL EP 18 54
VULCANEL XLP 20 60
3.3.2 Canalizaciones eléctricas
Se entiende por canalización eléctrica a los dispositivos que se emplean en las instalaciones
eléctricas para contener a los conductores de manera que queden protegidos contra
deterioro mecánico y contaminación.
Los medios de canalización más comunes en las instalaciones eléctricas son:
a) tubos conduit
b) ductos
c) charolas
Figura 3.4 Elementos para canalización de conductores eléctricos
66
TESIS HERIBERTO SALVADOR CASTRO
a) Tubos Conduit; es un tipo de tubo (de metal o plástico) usado para contener o
proteger los conductores eléctricos usados en las instalaciones.
Los tubos conduit metálicos pueden ser de aluminio, acero o aleaciones especiales,
los tubos de acero a su vez se fabrican en los tipos pesados, semipesado y ligero,
distinguiéndose uno de otro por el espesor de la pared.
- Tubo conduit de acero pesado (pared gruesa); Se fabrican en secciones circulares
con diámetros que van de 13mm (1/2”) a 152.4mm (6”). Se puede emplear en
instalaciones visibles u ocultas ya sea embebido en concreto o embutido en
mampostería en cualquier tipo de edificios y bajo cualquier condición atmosférica.
Figura 3.5 Tubo conduit pared gruesa y uniones
- Tubo conduit metálico de pared delgada; El diámetro máximo recomendable para
este tubo es 51mm (2”). Su uso es permitido en instalaciones visibles u ocultas ya
sea embebido en concreto o embutido en mampostería en lugares de ambiente seco
no expuestos a humedad o ambiente corrosivo.
Figura 3.6 Tubo conduit pared delgada y uniones
67
TESIS HERIBERTO SALVADOR CASTRO
- Tubo conduit metálico flexible; No se recomienda su uso en diámetros inferiores a
13mm (1/2”) ni superiores a 102mm (4”). Se recomienda su uso en lugares secos
donde no esté expuesto a corrosión o daño mecánico, o sea que se puede instalar
embutido en muro de ladrillo o bloques similares así como en ranuras en contacto.
Figura 3.7 Tubo conduit flexible
- Tubo conduit de plástico rígido (PVC); Debe ser auto extinguible, resistente al
aplastamiento, a la humedad y a ciertos agentes químicos. No se recomienda su uso
en instalaciones visibles donde el tubo este expuesto a daño mecánico.
b) Ductos metálicos; los ductos metálicos se instalan en la superficie, proporcionan
protección mecánica a los conductores y además los hacen accesibles para cambios
o modificaciones en el alumbrado.
Los ductos metálicos se seleccionan sobre la base del número y tamaño de los
conductores que deben alojar, existen distintas formas de ductos por aplicación.
- Bus ducto (electroducto). Consiste de conductores en forma de barra dentro de un
elemento metálico (ducto) que los contiene. Con la adecuada ventilación. El bus
ducto se usa con mayor frecuencia para la conducción de corrientes elevadas.
Se fabrican en distintos estilos, tipo enchufable, atornillados, con aluminio o cobre,
etc.
Debido a la característica de manejar altas corrientes o demandas de potencia
elevadas, su aplicación más común se encuentra en las instalaciones industriales, sin
embargo su uso no está limitado a las instalaciones comerciales o de edificios de
oficinas. Se usan frecuentemente como un sistema completo, tienen la desventaja de
su alto costo y los accesorios complementarios que pueden ser de alto costo
también.
68
TESIS HERIBERTO SALVADOR CASTRO
Figura 3.8 Trayectoria de electroductos en instalaciones eléctricas
69
TESIS HERIBERTO SALVADOR CASTRO
c) Charola; los soportes tipo charola para cables. Es una unidad o conjunto de
unidades o secciones y accesorios, que forman un sistema estructural rígido
utilizado para portar cables y canalizaciones.
Los soportes tipo charola para cables no se limitan a los establecimientos
industriales. Se fabrican de distintos tipos: escalera, malla, fondo ventilado y no
metálico para zonas corrosivas en las que requiere aislamiento a la tensión eléctrica.
Instalación. Los soportes tipo charola para cables se instalan como sistemas
completos. En campo o durante la instalación se hacen curvas o modificaciones que
deben estar de manera que se mantenga la continuidad eléctrica del sistema y el
soporte continuo de los cables. En ocasiones se puede tener segmentos
mecánicamente discontinuos entre tramos pero se debe mantener continuidad con
uno o varios puentes de unión.
Figura 3.9 Soporte tipo charola para cables
3.3.3 Cajas de conexiones
En los métodos modernos para instalaciones eléctricas se puede decir que todas las
conexiones de conductores o uniones entre conductores se deben realizar en cajas de
conexión aprobadas para tal fin y que deben estar instaladas en donde puedan ser accesibles
para poder hacer cambios en el alumbrado.
Por otra parte todos los apagadores y salidas para lámparas se deben encontrar alojados en
cajas y en forma similar los contactos.
Las cajas se construyen metálicas y de plástico según se usen para instalaciones con tubo
conduit metálico o con tubo de PVC o polietileno. Las cajas metálicas se construyen de
70
TESIS HERIBERTO SALVADOR CASTRO
acero galvanizado de cuatro formas principalmente: cuadradas, octagonales, rectangulares y
circulares se fabrican de varios anchos, profundidades y perforaciones para acceso de
tubería, hay perforaciones para acceso de tubería, hay perforaciones en las caras laterales y
en el fondo.
En la figura siguiente se muestran algunos tipos de cajas de conexión
Figura 3.10 Cajas de unión para instalaciones eléctricas
Dimensiones de cajas de conexión
Tipo rectangular: 6 x 10 cm de base por 3.8 cm de profundidad con perforaciones para tubo
conduit de 13 mm. Tipo redondas: diámetro de 7.5 cm y 3.8 cm de profundidad
perforaciones para tubo conduit de 13 mm.
Tipo cuadradas: estas cajas tienen distintas medidas y se designan o clasifican de acuerdo
con el diámetro de sus perforaciones en donde se conectan los tubos, designándose así
como cajas cuadradas de 13, 19, 25, 32 mm, etc.
3.3.4 Conectores y accesorios en las instalaciones eléctricas
Los conectores y accesorios son elementos relacionados principalmente con la parte
“mecánica” de las instalaciones eléctricas, tubos conduit, ductos y electroductos o sea con
las canalizaciones y no con los conductores eléctricos.
Dentro de la categoría de conectores y accesorios se tienen los llamados condulets, las cajas
de conexión, las cajas para accesorios como son los conductos, apagadores, tapas, etc.
71
TESIS HERIBERTO SALVADOR CASTRO
Condulets. Los condulets son elementos de conexión de los tubos conduit están fabricados
por lo general de material rígido para trabajo rudo y permiten interconectar tramos de tubo,
cambios de dirección en las canalizaciones, derivaciones, etc. De acuerdo con su función y
forma se les da una designación como tipo “C”, tipo “LB”, tipo “LL”, tipo “LR”, tipo “T”.
Cajas de salida. Las cajas de salida se usan por lo general para conectar equipo o
accesorios pequeños por lo general (contactos, apagadores, lámparas) y se en encuentran en
distintos tamaños. Una caja de salida puede servir también para seccionar conductores o
para interconectarlos, generalmente se usan hasta conductores calibre No. 6 AWG, con
perforaciones laterales y en el fondo terminadas de manera tal que los conductores que
entren queden protegidos contra la abrasión (deterioro por rozamiento o corte de partes no
pulidas o con rebabas).
Tapas o cubiertas. Todas las cajas de salida deben estar previstas de una tapa metálica en el
caso de las cajas metálicas y en el caso de las no metálicas preferentemente del mismo
material de la caja.
Conectores. Los tubos conduit deben ir fijos a las cajas de conexión, para esto se usan
normalmente conectores de la medida apropiada, es común el uso de contras y monitores en
las cajas de conexión metálicas.
Apagadores. Se define como un interruptor pequeño de acción rápida, operación manual, y
baja capacidad, se usa para el control de aparatos domésticos y comerciales, así como
unidades de alumbrado, debido a que la operación de los apagadores es manual, el voltaje
nominal no debe exceder 600 volts.
3.4 Planeación de las instalaciones eléctricas
En términos generales se puede considerar la planeación de tres tipos de instalaciones
eléctricas: residenciales, comerciales e industriales.
3.4.1 Planeación de instalaciones eléctricas residenciales
El uso primario de las instalaciones eléctricas residenciales estaba dirigido hacia el
alumbrado y salidas (contactos), en la actualidad dependiendo del tamaño y tipo de la
instalación eléctrica se deben considerar elementos adicionales a los antes mencionados
para ciertos casos especiales como son:
1. Calefacción y aire acondicionado
2. Aparatos eléctricos
3. Estufas eléctricas
4. Alumbrado interior y exterior
5. Sistema de comunicación
72
TESIS HERIBERTO SALVADOR CASTRO
6. Sistema de alarma
En la planeación general de cualquier sistema eléctrico se deben considerar los siguientes
factores generales:
1. Método de alambrado
2. Alimentación de la compañía suministradora en forma aérea o subterránea.
3. Tipo de construcción del edificio
4. Equipo de medición y protección en la alimentación
5. Grado de alambrado requerido en luminarias y aparatos
6. Selección de luminarias
7. Tipo de calefacción y sistema de mantenimiento
8. Alambrado de control para calefacción y aire acondicionado
9. Sistema de alarma y señalización
Para la mayoría de los servicios en casas habitación la alimentación es monofásica a 120
volts, de fase a neutro. Cuando la carga es mayor y requiere de un servicio trifásico
entonces la alimentación es a 220 volts tres fases.
3.4.2 Planeación de instalaciones eléctricas comerciales
Algunos aspectos a considerar en la instalación eléctrica de pequeños comercios, son los
siguientes:
Sistema de distribución (radial, secundario selectivo o primario selectivo).
1. Tipo de construcción del edificio en donde se encuentra.
2. Determinar si la instalación formara parte de una nueva construcción o la
ampliación o modernización de una ya existente.
3. Tipo de construcción de paredes, techo y piso, así como sus dimensiones.
4. Métodos de alambrado
5. Localización y tipo de servicio de alimentación (aéreo o subterráneo).
6. Localización y tipo del equipo de medición y protección.
7. Tamaño de los circuitos alimentadores, tablero y equipo.
8. Alambrado para aparatos y áreas de exhibición.
9. Requerimientos de instalación para luminarias de acuerdo a su tipo.
10. Elección de la tensión para distribución de la energía en baja tensión (440, 220 o
127V).
En el caso de centros comerciales de tamaño medio, prácticamente se aplican los mismos
criterios de planeación que en los pequeños, guardando las debidas proporciones. La
tensión de alimentación en los pequeños centros comerciales puede ser de 127 volts de fase
a neutro o 220 volts trifásico, en tanto que en los medianos es por lo general trifásico a 220
volts con una derivación a 127 volts de fase a neutro.
73
TESIS HERIBERTO SALVADOR CASTRO
En los grandes centros comerciales, la tensión de distribución interna dependiendo de la
magnitud de la carga y de las dimensiones del local puede ser 440 volts trifásicos, 220 volts
trifásicos y en ambos casos se dispone por lo general de 127 volts de fase a neutro. Debido
al valor de la carga total la alimentación es en alta tensión (6.6 kV o 13.2 kV) y entonces es
necesario disponer de una subestación eléctrica para reducir el voltaje y distribuir a los
centros de carga.
Los factores que se deben considerar en la instalación eléctrica de un centro comercial
grande son:
1. Tipo de construcción de edificio (ladrillo, tabicón, concreto reforzado, madera, etc.)
y acabados.
2. Tipo de techo, pisos, altura de techo, plafón o falso plafón, separación de piso y
plafones, áreas dentro del mismo comercio, etc.
3. Método de alambrado recomendable, (tubo conduit, charola, ductos).
4. Tipo de equipo de medición y protección de la compañía suministradora.
5. Tipo y localización (acometida) de los conductores de servicio.
6. Tipo de luminarias, forma de montaje de las mismas, lámparas a usar de las distintas
áreas, etc.
7. Aire acondicionado y alimentación a equipos de refrigeración.
8. Alimentación a las áreas de exhibición.
9. Alimentación al alumbrado de estacionamientos, área de descarga y carga de
materiales.
3.4.3 Planeación de instalaciones eléctricas industriales
Por lo general se requiere de alimentación en alta tensión trifásica, usando una o mas
subestaciones eléctricas para la reducción de tensiones de utilización y la distribución
apropiada.
Los factores más importantes a considerar, son los siguientes:
Sistema de distribución (radial, secundario selectivo o primario selectivo).
1. Si se trata de una nueva instalación o bien una ampliación o modificación de una ya
existente.
2. Tipo de construcción general del edificio, es decir, ladrillo, tabicón, concreto
reforzado, estructura de acero, techo de diente de sierra, etc.
3. Tipo de piso, techo, niveles de piso, etc.
4. Tipo de servicio de alimentación (tensión, conexión del transformador, valor de
corriente de corto circuito, alimentación aérea o subterránea, etc.)
5. Voltaje de distribución para alumbrado y fuerza.
6. Tipo de equipo requerido y sus características principales (subestación unitaria,
interruptor, tableros de fuerza, centro de control de motores, etc.)
7. Tipo de distribución de voltaje interno, incluyendo subestaciones reductoras.
8. Método de alambrado, charolas, ductos, tubos conduit, etc.
74
TESIS HERIBERTO SALVADOR CASTRO
9. Tipo de tableros de alumbrado y fuerza.
10. Lista de motores, potencias tipos de arrancadores y control en general.
11. Tipos de luminarias, formas de montaje y alimentación.
12. Sistemas de alarma y señalización.
13. Métodos de conexión a tierra de equipo y red a tierra en caso de ser requerida.
14. Ciclo de trabajo, numero de turnos de trabajo, condiciones de seguridad e higiene.
15. Elección de la tensión para distribución de la energía en baja tensión (440, 220 o
127V).
3.5 Calculo de los conductores por caída de voltaje
El voltaje en las terminales de la carga es por lo general menor que el voltaje de
alimentación, la diferencia de voltaje entre estos dos puntos se conoce como “la caída de
voltaje” las normas técnicas para instalaciones eléctricas recomiendan que la máxima caída
de tensión (desde la alimentación hasta la carga) no debe exceder al 5%, 3% se permite a
los circuitos derivados ( del tablero o interruptor a la salida para utilización ) y el otro 2%
se permite al alimentador (de la alimentación al tablero principal).
Una caída de tensión excesiva ( mayor del 5% ) conduce a resultados indeseables debido a
que el voltaje en la carga se reduce, en las lámparas incandescentes se reduce notablemente
el nivel de iluminación, en las lámparas fluorescentes se tiene problemas, como dificultad
para arrancar, parpadeo, calentamiento de las balastras, etc., en el equipo de control, los
relevadores pueden no operar; en los motores la reducción de voltaje se traduce en un
incremento en la corriente, lo cual produce sobrecalentamiento y algunas veces causa
problemas de arranque, por esta razón no es suficiente calcular los conductores por
corriente, es decir, seleccionar el calibre de un conductor de acuerdo por la corriente que
circulara por el. También es necesario que la caída de voltaje en el conductor no exceda los
valores establecidos por el reglamento de obras e instalaciones eléctricas ( que son 2%
caída de voltaje en instalaciones residenciales y un máximo de 5% en instalaciones
industriales, desde el punto de alimentación hasta el último punto.
Para estar seguros de que las caídas de voltaje no excedan esos valores es necesario calcular
las caídas de voltaje en los circuitos derivados y en los alimentadores.
En las formulas que se desarrollan a continuación, se empleara la siguiente nomenclatura:
W = Potencia en watts
I = Corriente en amperes por conductor
VF = Voltaje entre fases
VN = Voltaje de línea a neutro
cosθ = Factor de potencia
R = Resistencia de un conductor en ohms
ρ = Resistividad del cobre 1/58 (m2
/mm2
) ≈1/50
L = Longitud del conductor en metros
S = Sección del conductor en mm2
75
TESIS HERIBERTO SALVADOR CASTRO
e = Caída de voltaje de fase a neutro en Volts
eF = Caída de voltaje entre fases, en Volts
e% = Caída de voltaje en porciento
F
F
N V
xE
V
Ex
e
100100
% 
Sistemas monofásicos
El estudio de la caída de tensión se puede efectuar para casos específicos, similares a los
que se tienen en las instalaciones eléctricas, pero el concepto general es el mismo usado en
circuitos eléctricos. Considérese el siguiente circuito simplificado.
Figura 3.11 Circuito monofásico simplificado
La potencia que consume la carga es:
cosIVW N
cosNV
W
I 
la caída de voltaje por resistencia en el conductor es:
RIe 2
la resistencia del conductor es:
S
L
S
L
R
50
1


de donde:
S
LI
e
25
1

76
TESIS HERIBERTO SALVADOR CASTRO
SV
LI
VS
LI
e
NN
4
100
25
% 
Ejemplo: Calcular la caída de voltaje en el circuito derivado de un motor de 2 HP,
monofásico a 115 volts, que tiene una longitud de conductor del punto de alimentación al
punto de conexión del motor de 25 metros, el alambre es de cobre (ver figura 3.12).
M
2HP
115 V
ALIMENTACION
Figura 3.12 Circuito derivado de un motor
Para un motor monofásico de 2 HP a 115 V, la corriente a plena carga es:
AI pc 24
AxI pc 302425.125.1 
Calibre del conductor (dos conductores en tubo conduit) No. 10 AWG.
Para un alambre No. 10, S = 5.26 mm2
; también de datos L = 25 metros.
La caída de voltaje en porciento es:
%4
26.5115
24254
% 
x
xx
e
Sistema trifásico a tres hilos
El circuito simplificado se puede representar en la forma siguiente:
Figura 3.13 Sistema trifásico a tres hilos
77
TESIS HERIBERTO SALVADOR CASTRO
La potencia que consume la carga trifásica es:
cos3 IVW F
cos3 FV
W
I 
La caída de voltaje entre fases es:
RIeF 3
Pero si el conductor utilizado es de Cu entonces ρ=1/50, sustituyendo en la ecuación de R:
S
L
S
L
R
50
1


S
LI
eF
50
3

El porciento de caída de voltaje es:
100% x
V
E
e
F
F

100
50
3
% x
SV
LI
e
F

FSV
LI
e
32
% 
Sistema trifásico a cuatro hilos
Este es caso típico de los sistemas conectados en estrella ( 3 hilos ) con neutro ( el cuarto
hilo ), se representa como sigue:
78
TESIS HERIBERTO SALVADOR CASTRO
Figura 3.14 Sistema trifásico a cuatro hilos
La potencia que consume la carga trifásica es:
 cos3cos3 IVIVW NF 
 cos3cos3 NF V
W
V
W
I 
La caída de voltaje entre fases es:
S
LI
RIeF
50
3
3 
Expresando esta caída de voltaje en porciento:
S
LI
RIe
50

100
50
100% x
SxV
LI
x
V
E
e
NN

NSV
LI
e
2
% 
79
TESIS HERIBERTO SALVADOR CASTRO
3.6 Utilización recomendable de los sistemas de distribución
Para alimentar distintos tipos de cargas, ya sea comercial o industrial, que tienen
características variables, el proyectista debe tener una idea clara de cuales son los
elementos importantes a considerar en la selección de un sistema de distribución. Las
características más importantes de cada uno de estos sistemas se describen a continuación:
a).- Sistema monofásico con dos conductores
Este sistema se usa por lo general para alimentar cargas de alumbrado cuyo valor no excede
a 3750 Watts por circuito, se usa también en la alimentación de circuitos de 20 y 30
amperes.
b).- Sistema trifásico con tres conductores
Este sistema puede ser la salida de una conexión delta en un transformador o bien de una
conexión estrella sin conductor al neutro. Desde luego que la conexión se usara para
alimentar cargas trifásicas, como es el caso de los motores que operan con voltajes de 220
Volts ó 440 Volts.
c).- Sistema trifásico a cuatro hilos
Este es uno de los sistemas de alimentación más usados ya que resulta flexible para la
alimentación de cargas trifásicas (con los tres conductores de fase) y monofásicos (con una
fase y neutro), por ejemplo, se pueden alimentar motores trifásicos a 220 Volts y alumbrado
a Volts1273220  .
Debido a esta flexibilidad para la alimentación de distintos tipos de cargas tanto
monofásicas como trifásicas, el sistema a 4 hilos es uno de los preferidos en México.
Figura 3.15 Utilización de un sistema trifásico a cuatro hilos
80
TESIS HERIBERTO SALVADOR CASTRO
3.7 Sistemas de distribución en baja tensión
El sistema de distribución secundario se limita a aquella parte del sistema eléctrico que
conecta el equipo de la planta con la subestación en el centro de carga. Es de tanta
importancia como la subestación misma o como el sistema primario.
a) Sistema radial. Consiste en un cable primario alimentado un transformador y de ahí
unas barras alimentadoras en baja tensión; este sistema es el más económico,
ofrece una buena seguridad, bastante adaptabilidad y fácil aumento de
capacidad, junto con sencillez de conservación, poca inversión en equipo y
ventaja de no requerirse operarios para su operación.
b) Sistema secundario selectivo. Consiste en dos sistemas radiales con un enlace
disponible para casos de emergencia, este sistema permite una división completa
desde el primario hasta las barras del secundario, de tal manera que cualquier
parte del sistema se pueda desconectar en caso de falla y el resto de la carga ser
alimentada por el interruptor de enlace más conveniente. En resumen este
sistema aumenta la flexibilidad en la operación y en el mantenimiento con un
incremento en el costo inicial.
c) Sistema primario selectivo. Consiste en dos fuentes de energía en el lado primario,
lo cual prevé mayor seguridad a cualquiera de los sistemas secundarios básicos,
a pesar de que no es parte integral del sistema secundario.
81
TESIS HERIBERTO SALVADOR CASTRO
EDIFICIO
GUBERNAMENTAL
CAPITULO 4
ESTUDIO DE CARGAS
DEL EDIFICIO
82
TESIS HERIBERTO SALVADOR CASTRO
CAPITULO 4
ESTUDIO DE CARGAS DEL EDIFICIO
DESCRIPCION DEL EDIFICIO
El edificio gubernamental consta de dos niveles, planta baja (1500 m2
aproximadamente) y
plata alta (1300 m2
aproximadamente). La distribución de la carga en el interior de las
oficinas gubernamentales se divide en cuatro secciones; dos en planta baja (oriente y
poniente) y dos en planta alta (oriente y poniente), cada sección esta formada por tres
tableros de alumbrado, Tablero de alimentación normal, Tablero de alimentación de
emergencia y Tablero de alimentación regulada respectivamente. Los tableros de
alumbrado se ubican en los accesos a los sanitarios generales (ver apéndice A y B, planos
arquitectónicos A-1-01 y A-1-02).
Así mismo se contara con alumbrado exterior en jardineras y fachada, Cuarto de Bombas,
Site de Computo y Subestación Eléctrica (Subestación Compacta de 300 kVA, Planta de
Emergencia de 150 kVA y Sistema Ininterrumpible de Energía “UPS” de 100 kVA, (ver
apéndice C y B, Plano IEALG-01 Alimentadores generales baja tensión y Plano IEMT-01
Alimentador en media tensión).
83
TESIS HERIBERTO SALVADOR CASTRO
CARACTERISTICAS DE LA CARGA
CARGAS CONECTADAS
TABLERO
POTENCIA
W
SERVICIO TIPO ALIMENTACION TENSION
A 25,849.25 NORMAL
ALUMBRADO
Y
CONTACTOS
3F, 4H, 60 HZ 220/127 V
B 23,271 NORMAL
ALUMBRADO
Y
CONTACTOS
3F, 4H, 60 HZ 220/127 V
C 17,598 NORMAL
ALUMBRADO
Y
CONTACTOS
3F, 4H, 60 HZ 220/127 V
D 19,831 NORMAL
ALUMBRADO
Y
CONTACTOS
3F, 4H, 60 HZ 220/127 V
TOTAL 86,549.25
TABLERO
POTENCIA
W
SERVICIO TIPO ALIMENTACION TENSION
AE 4,727.5 EMERGENCIA ALUMBRADO 3F, 4H, 60 HZ 127 V
BE 4,547.5 EMERGENCIA ALUMBRADO 3F, 4H, 60 HZ 127 V
CE 4,551.25 EMERGENCIA ALUMBRADO 3F, 4H, 60 HZ 220/127 V
DE 3,587.5 EMERGENCIA ALUMBRADO 3F, 4H, 60 HZ 127 V
EE 16,485.31 EMERGENCIA FUERZA 3F, 4H, 60 HZ 220/127 V
FE 9,007.25 EMERGENCIA
ALUMBRADO
Y
CONTACTOS
3F, 4H, 60 HZ 220/127 V
TOTAL 42,906.31
AR 25,800 REGULADO CONTACTOS 3F, 4H, 60 HZ 127 V
BR 21,600 REGULADO CONTACTOS 3F, 4H, 60 HZ 127 V
CR 16,500 REGULADO CONTACTOS 3F, 4H, 60 HZ 127 V
DR 20,700 REGULADO CONTACTOS 3F, 4H, 60 HZ 127 V
ER 11,112 REGULADO CONTACTOS 3F, 4H, 60 HZ 127 V
TOTAL 95,712
CARGA TOTAL
SERVICIO NORMAL
CARGA TOTAL
SERVICIO DE
EMERGENCIA
CARGA TOTAL
INSTALADA
86,549.25 138,618.31 W 225,167.56 W
84
TESIS HERIBERTO SALVADOR CASTRO
MEMORIA DE CÁLCULO
ACOMETIDA
La acometida eléctrica en media tensión es por parte de Luz y Fuerza del Centro a 23,000
Volts, 3 fases-3 hilos, 60 Hz en forma subterránea que remata en el gabinete de medición
de la subestación eléctrica tipo compacta servicio interior de 300 kVA de capacidad de
transformación.
RESUMEN DE CARGA
Servicio normal a 220 V. 86,549.25 W
Servicio emergencia a 220 V. 138,618.31 W
Carga total a 220 V. 225,167.56 W
CALCULO DEL TRANSFORMADOR
CARGA EN RESERVA
Para los cálculos se contemplara entre un 20% y 30% adicional a la carga instalada, con la
finalidad de agregar futuras cargas al sistema.
FACTOR DE DEMANDA
La demanda en una instalación eléctrica es la carga en las terminales receptoras, tomada como un
valor medio en un intervalo de tiempo determinado. El factor de demanda en un intervalo de
tiempo, de una carga es la razón entre la demanda máxima y su carga total instalada siendo la
demanda máxima, la demanda instantánea mayor que se representa en una carga en un periodo de
trabajo previamente establecido.
FACTOR DE DIVERSIDAD
Es la razón entre la sumatoria de las demandas máximas individuales y la demanda máxima del
sistema. Este factor podrá aplicarse a diferentes niveles del sistema; es decir, entre los
transformadores de un mismo alimentador, entre los alimentadores pertenecientes a una misma
subestación eléctrica o entre subestaciones de un mismo sistema.
85
TESIS HERIBERTO SALVADOR CASTRO
Para efectos prácticos suele considerarse el factor de diversidad igual a la unidad y utilizar factores
de demanda previamente establecidos dependiendo del tipo de edificio que se trate para nuestro
caso, se considera un factor de demanda de 95%, por lo tanto se tiene que:
..PF
kW
kVA 
INSTALADOS
W
kVA 17.250
9.0
56.167,225

kVA de transformación = kVA instalados x F.D.
= 250.17 x 0.95
= 237.66
Dado que se tiene considerado una carga en reserva a la instalada de 20% a 30%, que se sumara a la
carga en kVA de transformación calculada, lo que resulta:
kVA de transformación = 237.66 x 1.3
= 308.95
Lo que demanda una capacidad de transformación de aproximadamente 300 kVA, por lo que se
instalara. Un transformador de 300 kVA (TR-1).
CALCULO DE LA PLANTA DE EMERGENCIA
..PF
kW
kVA 
INSTALADOS
W
kVA 06.154
9.0
31.658,138

kVA de P. E. = kVA instalados x F.D.
= 154.06 x 0.95
= 146.36
Por lo que se instalara, una planta de emergencia de 150 kVA (PE-1).
86
TESIS HERIBERTO SALVADOR CASTRO
TABLERO “A”
ALUMBRADO PONIENTE PLANTA BAJA
CARGA INSTALADA
25 Lámpara fluorescente 2 x 28W 25x (2x 28)x 1.25 = 1,750 W
34 Lámpara fluorescente 2 x 28W 34x (2x 28)x 1.25 = 2,380 W
6 Lámpara 2 x 13W 6x (2x 13)x 1.25 = 195 W
5 Lámpara dicroica 50 W, 127 V 5x 50 = 250 W
5 Lámpara 2x 75 W 5x (2x 75) = 750 W
2 Lámpara 2x 26 W 2x (2x 26) x1.25 = 130 W
4 Lámpara IL9/P30D 75 W 4x 75 W = 300 W
5 Led 1W 5x 1x 1.25 = 6.25 W
SUMA 5,761.25W
2 Boiler 1500 W 2 x 1,500 W = 3,000 W
1 Ventilador 500 W 500 W
1 Contacto 1000 W, 220 V 1,000 W
30 Contacto en muro180 VA, 127 V 30x (180x 0.9) = 4,860 W
54 Contacto en mueble 180 VA, 127 V 54x (180x 0.9) = 8,748 W
11 Contacto en muro 200 VA, 127 V 11x (200x 0.9) = 1,980 W
SUMA 20,088 W
TOTAL 25,849.25W
ESTIMAR FACTOR DEMANDA
Alumbrado ── 100% ── 5,761.25 W
Contactos 10,000 W ── 100% ── 10,000 W
Contactos 10,088 W ── 50% ── 5,044 W
Total ── 20,805.25 W
%80100
25.849,25
25.805,20
 xndaFactorDema
POTENCIA DEMANDADA
DemandaFactorxInstaladaaCDemandaPotencia arg. 
WxDemandaPotencia 4.679,2080.025.849,25 
87
TESIS HERIBERTO SALVADOR CASTRO
TABLERO “B”
ALUMBRADO ORIENTE PLANTA BAJA
CARGA INSTALADA
27 Lámpara fluorescente 2 x 28W 27x (2x 28)x 1.25 = 1,890 W
34 Lámpara fluorescente 2 x 28W 34x (2x 28)x 1.25 = 2,380 W
6 Lámpara 2 x 13W 6x (2x 13)x 1.25 = 195 W
5 Lámpara dicroica 50 W, 127 V 5x 50 = 250 W
5 Lámpara 2x 75 W 5x (2x 75) = 750 W
2 Lámpara 2x 26 W 2x (2x 26) x1.25 = 130 W
3 Lámpara 60 W, 127 V 3x 60 W = 180 W
SUMA 5,775 W
2 Boiler 1500 W 2 x 1,500 W = 3,000 W
1 Ventilador 500 W 500 W
1 Contacto 1000 W, 220 V 1,000 W
44 Contacto en muro180 VA, 127 V 44x (180x 0.9) = 7,128 W
24 Contacto en mueble 180 VA, 127 V 24x (180x 0.9) = 3,888 W
11 Contacto en muro 200 VA, 127 V 11x (200x 0.9) = 1,980 W
SUMA 17,496 W
TOTAL 23,271 W
ESTIMAR FACTOR DEMANDA
Alumbrado ── 100% ── 5,775 W
Contactos 10,000 W ── 100% ── 10,000 W
Contactos 7,496 W ── 50% ── 3,748 W
Total ── 19,523 W
%84100
271,23
523,19
 xndaFactorDema
POTENCIA DEMANDADA
DemandaFactorxInstaladaaCDemandaPotencia arg. 
WxDemandaPotencia 64.547,1984.0271,23 
88
TESIS HERIBERTO SALVADOR CASTRO
TABLERO “C”
ALUMBRADO PONIENTE PLANTA ALTA
CARGA INSTALADA
31 Lámpara fluorescente 2 x 28W 31x (2x 28)x 1.25 = 2,170 W
25 Lámpara fluorescente 2 x 28W 25x (2x 28)x 1.25 = 1,750 W
6 Lámpara 175 W, 220 V 6x 175 = 1,050 W
1 Lámpara Fluorescente 2x 26 W, 127 V 1x (2x 26)x 1.25 = 65 W
2 Lámpara Fluorescente 2x 26 W, 127 V 2x (2x 26)x 1.25 = 130 W
5 Lámpara dicroica 50 W, 127 V 5x 50 = 250 W
6 Lámpara fluorescente 2x 13 W 6x (2x 13)x 1.25 = 195 W
2 Lámpara 2x 75 W 2x (2x 75) 300 W
SUMA 5,910 W
1 Ventilador 500 W 500 W
1 Contacto 1000 W, 220 V 1,000 W
38 Contacto en muro180 VA, 127 V 38x (180x 0.9) = 6,156 W
16 Contacto en mueble 180 VA, 127 V 16x (180x 0.9) = 2,592 W
8 Contacto en muro 200 VA, 127 V 8x (200x 0.9) = 1,440 W
SUMA 11,688 W
TOTAL 17,598W
ESTIMAR FACTOR DEMANDA
Alumbrado ── 100% ── 5,910 W
Contactos 10,000 W ── 100% ── 10,000 W
Contactos 1,688 W ── 50% ── 844 W
Total ── 16,754 W
%95100
598,17
754,16
 xndaFactorDema
POTENCIA DEMANDADA
DemandaFactorxInstaladaaCDemandaPotencia arg. 
WxDemandaPotencia 1.718,1695.0598,17 
89
TESIS HERIBERTO SALVADOR CASTRO
TABLERO “D”
ALUMBRADO ORIENTE PLANTA ALTA
CARGA INSTALADA
27 Lámpara fluorescente 2 x 28W 27x (2x 28)x 1.25 = 1,890 W
22 Lámpara fluorescente 2 x 28W 22x (2x 28)x 1.25 = 1,540 W
4 Lámpara fluorescente 2 x 28W 4x (2x 28)x 1.25 = 280 W
5 Lámpara 60 W, 127 V 5x 60 = 300 W
2 Lámpara 2x 75 W 2x (2x 75) 300 W
2 Lámpara Fluorescente 2x 26 W, 127 V 2x (2x 26)x 1.25 = 130 W
5 Lámpara dicroica 50 W, 127 V 5x 50 = 250 W
6 Lámpara fluorescente 2x 13 W 6x (2x 13)x 1.25 = 195 W
SUMA 4,885 W
1 Ventilador 500 W 500 W
1 Contacto 1000 W, 220 V 1,000 W
43 Contacto en muro180 VA, 127 V 43x (180x 0.9) = 6,966 W
30 Contacto en mueble 180 VA, 127 V 30x (180x 0.9) = 4,860 W
9 Contacto en muro 200 VA, 127 V 9x (200x 0.9) = 1,620 W
SUMA 14,946 W
TOTAL 19,831 W
ESTIMAR FACTOR DEMANDA
Alumbrado ── 100% ── 4,885 W
Contactos 10,000 W ── 100% ── 10,000 W
Contactos 4,946 W ── 50% ── 2,473 W
Total ── 17,358 W
%87100
831,19
358,17
 xndaFactorDema
POTENCIA DEMANDADA
DemandaFactorxInstaladaaCDemandaPotencia arg. 
WxDemandaPotencia 97.252,1787.0831,19 
90
TESIS HERIBERTO SALVADOR CASTRO
TABLERO “AE”
ALUMBRADO DE EMERGENCIA PONIENTE PLANTA BAJA
CARGA INSTALADA
23 Lámpara fluorescente 2 x 28W 23x (2x 28)x 1.25 = 1,610 W
29 Lámpara fluorescente 2 x 28W 29x (2x 28)x 1.25 = 2,030 W
3 Lámpara 60 W, 127 V 3x 60 = 180 W
1 Lámpara 60 W, 127 V 1x 60 = 60 W
3 Lámpara 2 x 13W 3x (2x 13)x 1.25 = 97.5 W
5 Lámpara 2x 75 W 5x (2x 75) = 750 W
TOTAL 4,727.5 W
ESTIMAR FACTOR DEMANDA
Alumbrado ── 100% ── 4,727.5
%100100
5.727,4
5.727,4
 xndaFactorDema
POTENCIA DEMANDADA
DemandaFactorxInstaladaaCDemandaPotencia arg. 
WxDemandaPotencia 5.727,400.15.727,4 
TABLERO “BE”
ALUMBRADO DE EMERGENCIA ORIENTE PLANTA BAJA
CARGA INSTALADA
28 Lámpara fluorescente 2 x 28W 28x (2x 28)x 1.25 = 1,960 W
30 Lámpara fluorescente 2 x 28W 30x (2x 28)x 1.25 = 2,100 W
3 Lámpara 60 W, 127 V 3x 60 = 180 W
1 Lámpara 60 W, 127 V 1x 60 = 60 W
3 Lámpara 2 x 13W 3x (2x 13)x 1.25 = 97.5 W
1 Lámpara 2x 75 W 1x (2x 75) = 150 W
TOTAL 4,547.5 W
ESTIMAR FACTOR DEMANDA
Alumbrado ── 100% ── 4,547.5
91
TESIS HERIBERTO SALVADOR CASTRO
%100100
5.547,4
5.547,4
 xndaFactorDema
POTENCIA DEMANDADA
DemandaFactorxInstaladaaCDemandaPotencia arg. 
WxDemandaPotencia 5.547,400.15.547,4 
TABLERO “CE”
ALUMBRADO DE EMERGENCIA PONIENTE PLANTA ALTA
CARGA INSTALADA
19 Lámpara fluorescente 2 x 28W 19x (2x 28)x 1.25 = 1,330 W
26 Lámpara fluorescente 2 x 28W 26x (2x 28)x 1.25 = 1,820 W
1 Lámpara 60 W, 127 V 1x 60 = 60 W
5 Lámpara 175 W, 220 V 5x 175x 1.25 = 1,093.75 W
3 Lámpara 2 x 13W 3x (2x 13)x 1.25 = 97.5 W
1 Lámpara 2x 75 W 1x (2x 75) = 150 W
TOTAL 4,551.25 W
ESTIMAR FACTOR DEMANDA
Alumbrado ── 100% ── 4,551.25
%100100
25.551,4
25.551,4
 xndaFactorDema
POTENCIA DEMANDADA
DemandaFactorxInstaladaaCDemandaPotencia arg. 
WxDemandaPotencia 25.551,400.125.551,4 
TABLERO “DE”
ALUMBRADO DE EMERGENCIA ORIENTE PLANTA ALTA
CARGA INSTALADA
25 Lámpara fluorescente 2 x 28W 25x (2x 28)x 1.25 = 1,750 W
17 Lámpara fluorescente 2 x 28W 17x (2x 28)x 1.25 = 1,190 W
92
TESIS HERIBERTO SALVADOR CASTRO
4 Lámpara fluorescente 2 x 28W 4x (2x 28)x 1.25 = 280 W
2 Lámpara 60 W, 127 V 2x 60 = 120 W
1 Lámpara 2x 75 W 1x (2x 75) = 150 W
3 Lámpara 2 x 13W 3x (2x 13)x 1.25 = 97.5 W
TOTAL 3,587.5 W
ESTIMAR FACTOR DEMANDA
Alumbrado ── 100% ── 3,587.5
%100100
5.587,3
5.587,3
 xndaFactorDema
POTENCIA DEMANDADA
DemandaFactorxInstaladaaCDemandaPotencia arg. 
WxDemandaPotencia 5.587,300.15.587,3 
TABLERO “EE”
CUARTO DE MAQUINAS
CARGA INSTALADA
2 Lámpara fluorescente 2 x 32W 2x (2x 32)x 1.25 = 160 W
1 Contacto 180W, 127V 1x (180x 0.9) = 162 W
2 Motor de 1HP Wx
x
PF
hpx
P 77.657,1)2(
9.0
7461
..
746

2 Motor de 5HP Wx
x
PF
hpx
P 88.288,8)2(
9.0
7465
..
746

1 Motor de 7.5HP W
x
PF
hpx
P 66.216,6
9.0
7465.7
..
746

TOTAL 16,485.31 W
ESTIMAR FACTOR DEMANDA
Alumbrado y Contactos── 100% ── 322 W
Motores── 80% ── 12,930.65 W
Total ──13,252.65 W
%80100
31.485,16
5.6.252,13
 xndaFactorDema
93
TESIS HERIBERTO SALVADOR CASTRO
POTENCIA DEMANDADA
DemandaFactorxInstaladaaCDemandaPotencia arg. 
WxDemandaPotencia 25.188,1380.031.485,16 
TABLERO “FE”
ALUMBRADO EXTERIOR Y SUBESTACIÓN
CARGA INSTALADA
1 Centro de carga en cafetería 5000 W
18 Lámpara fluorescente 13W, 127V 18x13x1.25 = 292.5 W
4 Lámpara 75W 4x75 = 300 W
14 Led 1W 14x1x1.25 = 17.5 W
35 Led 1W 35x1x1.25 = 43.75 W
30 Lámpara fluorescente 13 W 30x13x1.25 = 487.5 W
11 Lámpara fluorescente 2x32 W 11x(2x32)x1.25 = 880 W
1 Ventilador para UPS 1500 W, 127 V 1,500 W
3 Contacto general 3x(180x0.9) = 486 W
TOTAL 9,007.25W
FACTOR DEMANDA
9007.25 ── 100%
POTENCIA DEMANDADA
DemandaFactorxInstaladaaCDemandaPotencia arg. 
WxDemandaPotencia 25.007,9125.007,9 
94
TESIS HERIBERTO SALVADOR CASTRO
TABLERO “AR”
CONTACTOS REGULADOS PONIENTE PLANTA BAJA
CARGA INSTALADA
28 Contacto en muro 300 W 28x 300 = 8,400 W
54 Contacto en piso 300 W 54x 300 = 16,200 W
4 Contacto en mueble 300 W 4x 300 = 1,200 W
TOTAL 25,800 W
ESTIMAR FACTOR DEMANDA
Contactos Regulados ── 100% ── 25,800 W
POTENCIA DEMANDADA
DemandaFactorxInstaladaaCDemandaPotencia arg. 
WxDemandaPotencia 800,2500.1800,25 
TABLERO “BR”
CONTACTOS REGULADOS ORIENTE PLANTA BAJA
CARGA INSTALADA
44 Contacto en muro 300 W 44x 300 = 13,200 W
4 Contacto en piso 300 W 4x 300 = 1,200 W
24 Contacto en mueble 300 W 24x 300 = 7,200 W
TOTAL 21,600 W
ESTIMAR FACTOR DEMANDA
Contactos Regulados ── 100% ── 21,600 W
%100100
800,25
800,25
 xndaFactorDema
%100100
600,21
600,21
 xndaFactorDema
95
TESIS HERIBERTO SALVADOR CASTRO
POTENCIA DEMANDADA
DemandaFactorxInstaladaaCDemandaPotencia arg. 
WxDemandaPotencia 600,2100.1600,21 
TABLERO “CR”
CONTACTOS REGULADOS PONIENTE PLANTA ALTA
CARGA INSTALADA
35 Contacto en muro 300 W 35x 300 = 10,500 W
4 Contacto en piso 300 W 4x 300 = 1,200 W
16 Contacto en mueble 300 W 16x 300 = 4,800 W
TOTAL 16,500 W
ESTIMAR FACTOR DEMANDA
Contactos Regulados ── 100% ── 16,500 W
POTENCIA DEMANDADA
DemandaFactorxInstaladaaCDemandaPotencia arg. 
WxDemandaPotencia 500,1600.1500,16 
TABLERO “DR”
CONTACTOS REGULADOS ORIENTE PLANTA ALTA
CARGA INSTALADA
36 Contacto en muro 300 W 36x 300 = 10,800 W
3 Contacto en piso 300 W 3x 300 = 900 W
30 Contacto en mueble 300 W 30x 300 = 9,000 W
TOTAL 20,700 W
%100100
500,16
500,16
 xndaFactorDema
96
TESIS HERIBERTO SALVADOR CASTRO
ESTIMAR FACTOR DEMANDA
Contactos Regulados ── 100% ── 20,700 W
POTENCIA DEMANDADA
DemandaFactorxInstaladaaCDemandaPotencia arg. 
WxDemandaPotencia 700,2000.1700,20 
TABLERO “ER”
SITE DE CÓMPUTO
CARGA INSTALADA
1 Centro de carga 3F, 4H, 220/127V 11,112 W
TOTAL 11,112 W
ESTIMAR FACTOR DEMANDA
Alumbrado ── 100% ── 11,112 W
POTENCIA DEMANDADA
DemandaFactorxInstaladaaCDemandaPotencia arg. 
WxDemandaPotencia 112,1100.1112,11 
%100100
700,20
700,20
 xndaFactorDema
%100100
112,11
112,11
 xndaFactorDema
97
TESIS HERIBERTO SALVADOR CASTRO
CUADRO DE CARGAS TAB. “A”
CIRCUITO
DERIVADO
70W 70W 32.5W 50W 150W 65W 75W 1500W 500W 1000W 162W 162W 180W 1.25W FASES
INT.
“QOB”A B C
1 9 1458 1 x20A
2 1 500 2x20A
3 500
4 9 1458 1 x20A
5 9 1458 1 x20A
6 3 6 1458 1 x20A
7 8 1440 1 x20A
8 1 500 1 x15A
9 3 3 1026 1 x20A
10 1 750 2x20A
11 750
12 1 750 2x20A
13 750
14 9 1458 1 x20A
15 9 1458 1 x20A
16 9 1458 1 x20A
17 9 1458 1 x20A
18 9 1458 1 x20A
19 4 5 306.25 1 x15A
20 15 1050 1 x15A
21 10 700 1 x15A
22 13 910 1 x15A
23 5 1 2 530 1 x15A
24 5 750 1 x15A
25 16 1120 1 x15A
26 1 x15A
27 6 4 395 1 x15A
28
29
30
TOTAL UNIDADES 25 34 6 5 5 2 4 2 1 1 30 54 11 5
TOTAL WATTS 1750 2380 195 250 750 130 300 3000 500 1000 4860 8748 1980 6.25 8582.25 8655 8612
%84.0100
8655
25.85828655
100
arg
argarg
% 



 xx
MayoraC
MenoraCMayoraC
oDesbalance
BARRAS CU.
100 AMP.
A B C
1 2
3 4
5 6
7 8
9 10
11 12
13 14
15 16
17 18
19 20
21 22
23 24
25 26
27 28
29 30
3 x 70 A
98
TESIS HERIBERTO SALVADOR CASTRO
CUADRO DE CARGAS TAB. “B”
CIRCUITO
DERIVADO
70W 70W 32.5W 50W 150W 65W 60W 1500W 500W 1000W 162W 162W 180W FASES
INT.
“QOB”A B C
1 9 1458 1 x20A
2 1 500 2 x20A
3 500
4 9 1458 1 x20A
5 9 1458 1 x20A
6 9 1458 1 x20A
7 8 1 1476 1 x20A
8 8 1440 1 x20A
9 7 2 1494 1 x20A
10 9 1458 1 x20A
11 8 1296 1 x20A
12 1 750 2 x20A
13 750
14 1 750 2 x20A
15 750
16 1 500 1 x15A
17 15 1050 1 x15A
18 12 6 1035 1 x15A
19 15 1050 1 x15A
20 2 300 1 x15A
21 15 1050 1 x15A
22 4 5 530 1 x15A
23 3 450 1 x15A
24 2 3 310 1 x15A
25
26
27
28
29
30
TOTAL UNIDADES 27 34 6 5 5 2 3 2 1 1 44 24 11
TOTAL WATTS 1890 2380 195 250 750 130 180 3000 500 1000 7128 3888 1980 7724 7740 7807
%06.1100
7807
77247807
100
arg
argarg
% 



 xx
MayoraC
MenoraCMayoraC
oDesbalance
BARRAS CU.
100 AMP.
A B C
1 2
3 4
5 6
7 8
9 10
11 12
13 14
15 16
17 18
19 20
21 22
23 24
25 26
27 28
29 30
3 x 70 A
99
TESIS HERIBERTO SALVADOR CASTRO
CUADRO DE CARGAS TAB. “C”
CIRCUITO
DERIVADO
70W 70W 32.5W 50W 150W 65W 175W 65W 500W 1000W 162W 162W 180W FASES
INT.
“QOB”A B C
1 9 1458 1x20A
2 9 1458 1x20A
3 9 1458 1x20A
4 9 1458 1x20A
5 2 7 1458 1x20A
6 9 1458 1x20A
7 8 1440 1x20A
8 1 500 2x20A
9 500
10 1 500 1 x15A
11 15 1050 1 x15A
12 16 1120 1 x15A
13 8 560 1 x15A
14 7 490 1 x15A
15 6 525 2x20A
16 5 2 2 1 745 1 x15A
17 525
18 6 195 1 x15A
19
20
21 10 700 1 x15A
22
23
24
25
26
27
28
29
30
TOTAL UNIDADES 31 25 6 5 2 2 6 1 1 1 38 16 8
TOTAL WATTS 2170 1750 195 250 300 130 1050 60 500 1000 6156 2592 1440 5906 5886 5806
%69.1100
5906
58065906
100
arg
argarg
% 



 xx
MayoraC
MenoraCMayoraC
oDesbalance
BARRAS CU.
100 AMP.
A B C
1 2
3 4
5 6
7 8
9 10
11 12
13 14
15 16
17 18
19 20
21 22
23 24
3 x 70 A
100
TESIS HERIBERTO SALVADOR CASTRO
CUADRO DE CARGAS TAB. “D”
CIRCUITO
DERIVADO
70W 70W 32.5W 50W 150W 65W 70 W 60W 500W 1000W 162W 162W 180W FASES
INT.
“QOB”A B C
1 9 1458 1P x 15A
2 9 1458
3 9 1458
4 9 1458
5 7 2 1458
6 9 1458
7 9 1458
8 10 1620
9 9 1620
10 1 500
11 500
12 1 500
13 4 280
14 2 300
15 12 840
16 11 770
17 13 910
18 11 6 5 1265
19
20
21
22
23 2 2 270
24 5 250
25
26
27
28
29
30
TOTAL UNIDADES 27 22 6 5 2 2 4 5 1 1 43 30 9
TOTAL WATTS 1890 1540 195 250 300 130 280 300 500 1000 6966 4860 1620 6574 6646 6611
%08.1100
6646
65746646
100
arg
argarg
% 



 xx
MayoraC
MenoraCMayoraC
oDesbalance
BARRAS CU.
100 AMP.
A B C
1 2
3 4
5 6
7 8
9 10
11 12
13 14
15 16
17 18
19 20
21 22
23 24
3 x 70 A
101
TESIS HERIBERTO SALVADOR CASTRO
CUADRO DE CARGAS TAB. “AE”
CIRCUITO
DERIVADO
70W 70W 60W 60W 32.5W 150W FASES
INT.
“QOB”A B C
1 3 180 1P x 15A
2 6 420 1P x 15A
3 1 3 157.5 1P x 15A
4 8 560 1P x 15A
5 5 750 1P x 15A
6 6 420 1P x 15A
7 3 5 560 1P x 15A
8 6 420 1P x 15A
9 6 420 1P x 15A
10 6 420 1P x 15A
11 6 420 1P x 15A
12
TOTAL UNIDADES 23 29 3 1 3 5
TOTAL WATTS 1610 2030 180 60 97.5 750 1580 1557.5 1590
%04.2100
1590
5.15571590
100
arg
argarg
% 



 xx
MayoraC
MenoraCMayoraC
oDesbalance
CUADRO DE CARGAS TAB. “BE”
CIRCUITO
DERIVADO
70W 70W 60W 60W 32.5W 150W FASES
INT.
“QOB”A B C
1 3 180 1P x 15A
2 6 420 1P x 15A
3 1 1 2 195 1P x 15A
4 6 420 1P x 15A
5 5 1 500 1P x 15A
6 5 1 382.5 1P x 15A
7 6 420 1P x 15A
8 7 490 1P x 15A
9 6 420 1P x 15A
10 7 490 1P x 15A
11 9 630 1P x 15A
12
TOTAL UNIDADES 28 30 3 1 3 1
TOTAL WATTS 1960 2100 180 60 97.5 150 1510 1525 1512.5
BARRAS CU.
100 AMP.
A B C
1 2
3 4
5 6
7 8
9 10
11 12
3 x 70 A
BARRAS CU.
100 AMP.
A B C
1 2
3 4
5 6
7 8
9 10
11 12
3 x 70 A
102
TESIS HERIBERTO SALVADOR CASTRO
%98.0100
1525
15101525
100
arg
argarg
% 



 xx
MayoraC
MenoraCMayoraC
oDesbalance
CUADRO DE CARGAS TAB. “CE”
CIRCUITO
DERIVADO
70W 70W 175W 60W 32.5W 150W FASES
INT.
“QOB”A B C
1 5 546.875 1P x 15A
2 4 280 1P x 15A
3 546.875 1P x 15A
4 3 210 1P x 15A
5 7 1 550 1P x 15A
6 5 350 1P x 15A
7 9 630 1P x 15A
8 1 70 1P x 15A
9 9 630 1P x 15A
10 1 2 135 1P x 15A
11 6 1 452.5 1P x 15A
12 1 150
TOTAL UNIDADES 19 26 5 1 3 1
TOTAL WATTS 1330 1820 1093.75 60 97.5 150 1526.88 1521.87 1502.5
%59.1100
88.1526
5.150288.1526
100
arg
argarg
% 



 xx
MayoraC
MenoraCMayoraC
oDesbalance
BARRAS CU.
100 AMP.
A B C
1 2
3 4
5 6
7 8
9 10
11 12
3 x 70 A
103
TESIS HERIBERTO SALVADOR CASTRO
CUADRO DE CARGAS TAB. “DE”
CIRCUITO
DERIVADO
70W 70W 80W 60W 32.5W 150W FASES
INT.
“QOB”A B C
1 7 490 1P x 15A
2 8 560 1P x 15A
3 5 350 1P x 15A
4 6 420 1P x 15A
5 4 320 1P x 15A
6 11 770 1P x 15A
7 1 150 1P x 15A
8 1P x 15A
9 5 2 470 1P x 15A
10 1P x 15A
11 3 97.5 1P x 15A
12
TOTAL UNIDADES 25 17 4 2 3 1
TOTAL WATTS 1750 1190 280 120 97.5 150 1200 1240 1187.5
23.4100
1240
5.11871240
100
arg
argarg
% 



 xx
MayoraC
MenoraCMayoraC
oDesbalance
BARRAS CU.
100 AMP.
A B C
1 2
3 4
5 6
7 8
9 10
11 12
3 x 70 A
104
TESIS HERIBERTO SALVADOR CASTRO
CUADROS DE CARGAS TAB. “EE”
CIRCUITO
DERIVADO
80W 162W 828.88W 828.88W 4144.44W 4144.44W 6216.66W FASES INT.
“QOB”A B C
1 1 276.3
2 1 276.3
3 276.3
4 276.3
5 276.3
6 276.3
7 1 1381.5
8 1 1381.5
9 1381.5
10 1381.5
11 1381.5
12 1381.5
13 1 2072.22
14 1 162
15 2072.22
16 1 80
17 2072.22
18 1 80
TOTAL UNIDADES 2 1 1 1 1 1 1
TOTAL WATTS 160 162 828.88 828.88 4144.44 4144.44 6216.66 5549.82 5467.82 5467.82
47.1100
82.5549
82.546782.5549
100
arg
argarg
% 



 xx
MayoraC
MenoraCMayoraC
oDesbalance
BARRAS CU.
100 AMP.
A B C
1 2
3 4
5 6
7 8
9 10
11 12
3 x 70 A
105
TESIS HERIBERTO SALVADOR CASTRO
CUADRO DE CARGAS TAB. “FE”
CIRCUITO
DERIVADO
13W 75W 1.25W 1.25W 13W 80W 162W 5000W 1500W FASES INT.
“QOB”A B C
1 11 880
2 6 97.5
3 6 97.5
4 4 300
5 6 97.5
6 14 17.5
7 1 1500
8
9 1 2500
10 10 162.5
11 2500
12 10 162.5
13 3 486
14
15
16
17 35 43.75
18 10 162.5
19
20
21
22
23
24
25
26
27
28
29
30
TOTAL UNIDADES 18 4 14 35 30 11 3 1 1
TOTAL WATTS 292.5 300 17.5 42.75 487.5 880 486 5000 1500 2963.5 3060 2983.75
%2.3100
5.2963
5.29633060
100
arg
argarg
% 



 xx
MayoraC
MenoraCMayoraC
oDesbalance
BARRAS CU.
100 AMP.
A B C
1 2
3 4
5 6
7 8
9 10
11 12
13 14
15 16
17 18
19 20
21 22
23 24
3 x 70 A
106
TESIS HERIBERTO SALVADOR CASTRO
CUADRO DE CARGAS TAB. “AR”
CIRCUITO
DERIVADO
300W 300W 300W FASES
INT.
“QOB”A B C
1 4 1200 1x20 A
2 4 1200 1x20 A
3 4 1200 1x20 A
4 4 1200 1x20 A
5 4 1200 1x20 A
6 4 1200 1x20 A
7 4 1200 1x20 A
8 4 1200 1x20 A
9 4 1200 1x20 A
10 4 1200 1x20 A
11 4 1200 1x20 A
12 4 1200 1x20 A
13 4 1200 1x20 A
14 4 1200 1x20 A
15 4 1200 1x20 A
16 4 1200 1x20 A
17 4 1200 1x20 A
18 4 1200 1x20 A
19 4 1200 1x20 A
20
21 5 1500 1x20 A
22
23 5 1500 1x20 A
24
TOTAL UNIDADES 28 54 4
TOTAL WATTS 8400 16200 1200 8400 8700 8700
%44.3100
8700
84008700
100
arg
argarg
% 



 xx
MayoraC
MenoraCMayoraC
oDesbalance
BARRAS CU.
100 AMP.
A B C
1 2
3 4
5 6
7 8
9 10
11 12
13 14
15 16
17 18
19 20
21 22
23 24
3 x 70 A
107
TESIS HERIBERTO SALVADOR CASTRO
CUADRO DE CARGAS TAB. “BR”
CIRCUITO
DERIVADO
300W 300W 300W FASES
INT.
“QOB”A B C
1 4 1200 1x20 A
2 4 1200 1x20 A
3 4 1200 1x20 A
4 4 1200 1x20 A
5 4 1200 1x20 A
6 4 1200 1x20 A
7 4 1200 1x20 A
8 4 1200 1x20 A
9 4 1200 1x20 A
10 4 1200 1x20 A
11 4 1200 1x20 A
12 4 1200 1x20 A
13 4 1200 1x20 A
14 4 1200 1x20 A
15 4 1200 1x20 A
16 4 1200 1x20 A
17 4 1200 1x20 A
18 4 1200 1x20 A
19
20
21
22
23
24
TOTAL UNIDADES 44 24 4
TOTAL WATTS 13200 7200 1200 7200 7200 7200
%00.0100
7200
72007200
100
arg
argarg
% 



 xx
MayoraC
MenoraCMayoraC
oDesbalance
BARRAS CU.
100 AMP.
A B C
1 2
3 4
5 6
7 8
9 10
11 12
13 14
15 16
17 18
19 20
21 22
23 24
3 x 70 A
108
TESIS HERIBERTO SALVADOR CASTRO
CUADRO DE CARGAS TAB. “CR”
CIRCUITO
DERIVADO
300W 300W 300W FASES
INT.
“QOB”A B C
1 4 1200 1x20 A
2 4 1200 1x20 A
3 4 1200 1x20 A
4 4 1200 1x20 A
5 4 1200 1x20 A
6 4 1200 1x20 A
7 3 900 1x20 A
8 4 1200 1x20 A
9 3 900 1x20 A
10 4 1200 1x20 A
11 4 1200 1x20 A
12 4 1200 1x20 A
13 3 900 1x20 A
14
15 3 900 1x20 A
16
17 3 900 1x20 A
18
19
20
21
22
23
24
TOTAL UNIDADES 35 4 16
TOTAL WATTS 10500 1200 4800 5400 5400 5700
%26.5100
5700
54005700
100
arg
argarg
% 



 xx
MayoraC
MenoraCMayoraC
oDesbalance
BARRAS CU.
100 AMP.
A B C
1 2
3 4
5 6
7 8
9 10
11 12
13 14
15 16
17 18
19 20
21 22
23 24
3 x 70 A
109
TESIS HERIBERTO SALVADOR CASTRO
CUADRO DE CARGAS TAB. “DR”
CIRCUITO
DERIVADO
300W 300W 300W FASES
INT.
“QOB”A B C
1 4 1200 1x20 A
2 4 1200 1x20 A
3 4 1200 1x20 A
4 4 1200 1x20 A
5 4 1200 1x20 A
6 4 1200 1x20 A
7 4 1200 1x20 A
8 4 1200 1x20 A
9 4 1200 1x20 A
10 4 1200 1x20 A
11 4 1200 1x20 A
12 4 1200 1x20 A
13 4 1200 1x20 A
14 3 900 1x20 A
15 4 1200 1x20 A
16 3 900 1x20 A
17 4 1200 1x20 A
18 3 900 1x20 A
19
20
21
22
23
24
TOTAL UNIDADES 36 3 30
TOTAL WATTS 10800 900 9000 6900 6900 6900
%00.0100
6900
69006900
100
arg
argarg
% 



 xx
MayoraC
MenoraCMayoraC
oDesbalance
BARRAS CU.
100 AMP.
A B C
1 2
3 4
5 6
7 8
9 10
11 12
13 14
15 16
17 18
19 20
21 22
23 24
3 x 70 A
110
TESIS HERIBERTO SALVADOR CASTRO
EDIFICIO
GUBERNAMENTAL
CAPITULO 5
SELECCIÓN DE
PROTECCIONES, CALIBRE
DE CONDUCTOR Y
CANALIZACION
111
TESIS HERIBERTO SALVADOR CASTRO
CAPITULO 5
SELECCIÓN DE PROTECCIONES, CALIBRE DE CONDUCTOR Y
CANALIZACION
Cálculo de protección y alimentador en media tensión (23,000V).
Como interruptor principal se utiliza un seccionador de potencia de operación en aire con
tres fusibles limitadores de corriente de disparo tripolar en base al Art. 450 de la NOM-001-
SEDE-2005 que establece, que cuando se empleen fusibles, la capacidad de la corriente de
estos no debe exceder el 250% de la corriente primaria de transformación.
a) Calculo de la protección en MT, 23 kV
kV
kVA
Ipc
3

AmpIpc 53.7
)23(732.1
300

Corriente máxima del fusible:
AmpxImáx 82.185.253.7. 
Por lo que se utilizaran fusibles de corriente nominal de 15 Amp.
b) Para el alimentador principal en media tensión, se selecciona la utilización de cable de
energía monoconductor tipo DS con aislamiento tipo XLP (polietileno de cadena cruzada)
adecuado para este tipo de instalación y de acuerdo a la Tabla 310-5 de la NOM-001-
SEDE-2005. El conductor adecuado es 1 AWG de sección transversal 42.4 mm2
y
ampacidad de 175 Amp. de acuerdo Tabla 310-77 de la NOM-001-SEDE-2005.
.53.7
)23(732.1
300
3
Amp
kV
kVA
Ipc 
.41.925.1 AmpIpcxIMáx 
El conductor es adecuado por ampacidad
Por caída de tensión. Para una longitud de 15 mts. En el caso más critico
ExS
xLxIpc
e
32
% 
112
TESIS HERIBERTO SALVADOR CASTRO
Donde:
%e = caída de tensión por ciento
Ipc = corriente a plena carga en amperes
L = longitud del circuito
S = sección transversal del conductor
E = tensión entre fases
0004.0
)23000(4.42
)732.1(21553.7
% 
xx
e
lo que demuestra que el conductor cal. 1 AWG. Es adecuado por caída de tensión.
Los equipos y luminarias indicados en el proyecto ejecutivo, operan a 220V y 127V,
razón por la cual se determinan dichos voltajes de alimentación en baja tensión.
Cálculo de protecciones y calibre de conductores en baja tensión para tableros de
fuerza y alumbrado.
Se utilizaran conductores aislados con PVC tipo THW-LS clasificados como
termoplásticos, resistentes a la humedad al calor y a la propagación de incendios, de
emisión reducida de humos y gas ácido, para ser instalados en lugares secos y mojados y
para una temperatura de operación máxima de 75°C.
Los circuitos alimentadores, desde el transformador hasta los interruptores principales en
baja tensión serán canalizados por trinchera subterránea de 60x60 cm soportados con
ménsulas de canal tipo strut en ambas caras de la trinchera y sujetas con cinturones de
plástico en cada ménsula separadas a no más de 100 cm una de la otra.
La selección del calibre de los conductores se hará de acuerdo al Art. 220-10 (a) (b)
considerando el 125% de la carga continua, por lo tanto:
Alimentador ATGN del tablero general TGN en el que se aloja la protección principal
del transformador TR-1 con una capacidad de 300 kV.
a) Cálculo de la protección
AMP
kV
kVA
IN 29.787
)22(.3
300
3

AMPxIMAX 11.98425.129.787 
113
TESIS HERIBERTO SALVADOR CASTRO
Por lo que se instalara un interruptor electromagnético de 3P-1,000 Amp. de acuerdo al
Art. 220-10 (a) (b).
b) Cálculo del alimentador por corriente
De acuerdo al Art. 240-3 y para una corriente de 984.11 Amp. Consultando la Tabla 310-16
para conductores cal. 250 KCM con ampacidad de 255 Amp. Se instalaran 12 cables
(4xfase) cal. 250 KCM, 2 cables cal. 250 KCM en el neutro y uno cal. 1/0 AWG desnudo
para conexión a tierra física.
4x255 = 1020 Amp.
c) Por caída de tensión para una longitud de 10 mts.
24.0
)1274(127
)29.787)(10(22
% 
xxxSV
LI
e
N
d) Canalización
De acuerdo a la Tabla No. 5 del cap. 10 el conductor cal. 250 KCM tiene un diámetro
exterior de 19.4 mm y un área de 297 mm2
de sección transversal por lo que:
297(12+2)+70.1 = 4,228.1 mm2
Se instalara en una trinchera de 600 x 600 mm con una sección transversal disponible al
40% de 144,000 mm2
Alimentador ATGN del tablero general TGE con una carga total instalada de
138,618.31W.
a) Cálculo de la protección
AMP
kV
kVA
IN 19.404
)22(.3
02.154
.3

AMPxIMAX 23.50525.119.404 
Por lo que se instalara un interruptor electromagnético de 3P-500 Amp. de acuerdo al Art.
220-10 (a) (b).
b) Cálculo del alimentador por corriente
De acuerdo al Art. 240-3 y para una corriente de 505.23 Amp. Consultando la Tabla 310-16
para conductores cal. 250 KCM con ampacidad de 255 Amp. Se instalaran 6 cables
114
TESIS HERIBERTO SALVADOR CASTRO
(2xfase) cal. 250 KCM, 1 cable cal. 250 KCM en el neutro y uno cal. 2 AWG desnudo
para conexión a tierra física.
2x255 = 510 Amp.
c) Por caída de tensión para una longitud de 10 mts.
37.0
)1272(127
)19.404)(15(22
% 
xxxSV
LI
e
N
d) Canalización
De acuerdo a la Tabla No. 5 del cap. 10 el conductor cal. 250 KCM tiene un diámetro
exterior de 19.4 mm y un área de 297 mm2
de sección transversal por lo que:
297(6+1)+43.2 = 2,122.2 mm2
Se instalara en una charola de 150 x 55 mm con una sección transversal disponible al 40%
de 3,300 mm2
Alimentador ATGN del tablero general TGR con una carga total instalada de 95,712W.
a) Cálculo de la protección
AMP
kV
kVA
IN 08.279
)22(.3
34.106
3

AMPxIMAX 85.34825.108.279 
Por lo que se instalara un interruptor electromagnético de 3P-350 Amp. de acuerdo al Art.
220-10 (a) (b).
b) Cálculo del alimentador por corriente
De acuerdo al Art. 240-3 y para una corriente de 348.85 Amp. Consultando la Tabla 310-16
para conductores cal. 400 kCM con ampacidad de 335 Amp. Se instalaran 3 cables (1xfase)
cal. 400 KCM, 1 cable cal. 250 KCM en el neutro y uno cal. 2 AWG desnudo para
conexión a tierra física.
1x335 = 335 Amp.
c) Por caída de tensión para una longitud de 10.5 mts.
22.0
)203(127
)08.279)(5.10(22
% 
xxSV
LI
e
N
115
TESIS HERIBERTO SALVADOR CASTRO
d) Canalización
De acuerdo a la Tabla No. 5 del cap. 10 el conductor cal. 400 KCM tiene un diámetro
exterior de 23.3 mm y un área de 427 mm2
de sección transversal por lo que:
427(3)+297+43.2 = 1,621.2 mm2
Se instalara en una charola de 150 x 55 mm con una sección transversal disponible al 40%
de 3,300 mm2
Alimentador APE1 de la planta de emergencia PE-1 de 150 kVA.
a) Cálculo de la protección
AMP
kV
kVA
IN 64.393
)22(.3
150
3

AMPxIMAX 05.49225.164.393 
Por lo que se instalara un interruptor electromagnético de 3P-500 Amp. de acuerdo al Art.
220-10 (a) (b).
b) Cálculo del alimentador por corriente
De acuerdo al Art. 240-3 y para una corriente de 492.05 Amp. Consultando la Tabla 310-16
para conductores cal. 250 KCM con ampacidad de 255 Amp. Se instalaran 2 cables
(2xfase) cal. 250 KCM, 1 cable cal. 250 KCM en el neutro y uno cal. 2 AWG desnudo
para conexión a tierra física.
2x255 = 510 Amp.
c) Por caída de tensión para una longitud de 20 mts.
48.0
)1272(127
)64.393)(20(22
% 
xxSV
LI
e
N
d) Canalización
De acuerdo a la Tabla No. 5 del cap. 10 el conductor cal. 250 KCM tiene un diámetro
exterior de 19.4 mm y un área de 297 mm2
de sección transversal por lo que:
297(6+1)+43.2 = 2,122.2 mm2
116
TESIS HERIBERTO SALVADOR CASTRO
Se instalara en una charola de 150 x 55 mm con una sección transversal disponible al 40%
de 3,300 mm2
Alimentador del tablero A con una carga total instalada de 25,849.25 W.
a) Cálculo de la protección
AMP
PFV
W
I
f
N 37.75
)9.0)(220(3
25.849,25
..3

AMPxIMAX 21.9425.137.75 
Por lo que se instalara un interruptor electromagnético de 3P-100 Amp. de acuerdo al Art.
220-10 (a) (b).
b) Cálculo del alimentador por corriente
De acuerdo al Art. 240-3 y para una corriente de 94.21 Amp. Consultando la Tabla 310-16
para conductores cal. 3 AWG con ampacidad de 100 Amp. Se instalaran 3 cables (1xfase)
cal. 3 AWG, 1 cable cal. 3 AWG en el neutro y uno cal. 8 AWG desnudo para conexión a
tierra física.
1x100 = 100 Amp.
c) Por caída de tensión para una longitud de 65 mts.
88.2
)7.26(127
)37.75)(65(22
% 
xxSV
LI
e
N
Alimentador del tablero B con una carga total instalada de 23,271 W.
a) Cálculo de la protección
AMP
PFV
W
I
f
N 86.67
)9.0)(220(3
271,23
..3

AMPxIMAX 82.8425.186.67 
Por lo que se instalara un interruptor electromagnético de 3P-90 Amp. de acuerdo al Art.
220-10 (a) (b).
b) Cálculo del alimentador por corriente
117
TESIS HERIBERTO SALVADOR CASTRO
De acuerdo al Art. 240-3 y para una corriente de 84.82 Amp. Consultando la Tabla 310-16
para conductores cal. 4 AWG con ampacidad de 85 Amp. Se instalaran 3 cables (1xfase)
cal. 4 AWG, 1 cable cal. 4 AWG en el neutro y uno cal. 8 AWG desnudo para conexión a
tierra física.
1x100 = 85 Amp.
c) Por caída de tensión para una longitud de 50 mts.
52.2
)2.21(127
)86.67)(50(22
% 
xxSV
LI
e
N
Alimentador del tablero C con una carga total instalada de 17,598 W.
a) Cálculo de la protección
AMP
PFV
W
I
f
N 31.51
)9.0)(220(3
598,17
..3

AMPxIMAX 13.6425.131.51 
Por lo que se instalara un interruptor electromagnético de 3P-70 Amp. de acuerdo al Art.
220-10 (a) (b).
b) Cálculo del alimentador por corriente
De acuerdo al Art. 240-3 y para una corriente de 64.13 Amp. Consultando la Tabla 310-16
para conductores cal. 6 AWG con ampacidad de 65 Amp. Se instalaran 3 cables (1xfase)
cal. 6 AWG, 1 cable cal. 6 AWG en el neutro y uno cal. 10 AWG desnudo para conexión a
tierra física.
1x65 = 65 Amp.
c) Por caída de tensión para una longitud de 68.50 mts.
16.4
)3.13(127
)31.51)(50.68(22
% 
xxSV
LI
e
N
Alimentador del tablero D con una carga total instalada de 19,831 W.
a) Cálculo de la protección
118
TESIS HERIBERTO SALVADOR CASTRO
AMP
PFV
W
I
f
N 82.57
)9.0)(220(3
831,19
..3

AMPxIMAX 27.7225.182.57 
Por lo que se instalara un interruptor electromagnético de 3P-70 Amp. de acuerdo al Art.
220-10 (a) (b).
b) Cálculo del alimentador por corriente
De acuerdo al Art. 240-3 y para una corriente de 72.27 Amp. Consultando la Tabla 310-16
para conductores cal. 4 AWG con ampacidad de 85 Amp. Se instalaran 3 cables (1xfase)
cal. 4 AWG, 1 cable cal. 4 AWG en el neutro y uno cal. 8 AWG desnudo para conexión a
tierra física.
1x85 = 85 Amp.
c) Por caída de tensión para una longitud de 53.5 mts.
29.2
)2.21(127
)82.57)(5.53(22
% 
xxSV
LI
e
N
Corrección de los alimentadores para los tableros A, B, C, D
e% para alimentadores 5%
2.88+2.52+4.16+2.29=11.85 %
Por lo tanto 25.1
4
5

Alimentador del tablero A
2
72.61
12725.1
37.75652
%
2
mm
x
xx
Ve
LI
S
N

Consultando la Tabla 310-16 para un área de 61.72 mm2
. Se instalaran 3 cables (1xfase)
cal. 2/0 AWG, 1 cable cal. 2/0 AWG en el neutro y uno cal. 6 AWG desnudo para
conexión a tierra física.
Caída de tensión real para el alimentador A
119
TESIS HERIBERTO SALVADOR CASTRO
14.1
1274.67
37.756522
% 
x
xx
SxV
LI
e
N
d) Canalización
De acuerdo a la Tabla No. 5 del cap. 10 el conductor cal. 2/0 AWG tiene un diámetro
aproximado de 14.7 mm y un área de 169 mm2
de sección transversal por lo que:
169(4)+17.2 = 693.2 mm2
Se instalara en tubería (conduit) pvc pesado 53mm de diámetro con una sección transversal
disponible al 40% de 866 mm2
Alimentador del tablero B
2
74.42
12725.1
86.67502
%
2
mm
x
xx
Ve
LI
S
N

Consultando la Tabla 310-16 para un área de 42.74 mm2
. Se instalaran 3 cables (1xfase)
cal. 1/0 AWG, 1 cable cal. 1/0 AWG en el neutro y uno cal. 6 AWG desnudo para
conexión a tierra física.
Caída de tensión real para el alimentador B
99.0
1275.53
86.675022
% 
x
xx
SxV
LI
e
N
d) Canalización
De acuerdo a la Tabla No. 5 del cap. 10 el conductor cal. 1/0 AWG tiene un diámetro
aproximado de 13.5 mm y un área de 143 mm2
de sección transversal por lo que:
143(4)+17.2 = 589.2 mm2
Se instalara en tubería (conduit) pvc pesado 53mm de diámetro con una sección transversal
disponible al 40% de 866 mm2
Alimentador del tablero C
2
27.44
12725.1
30.5150.682
%
2
mm
x
xx
Ve
LI
S
N

120
TESIS HERIBERTO SALVADOR CASTRO
Consultando la Tabla 310-16 para un área de 44.27 mm2
. Se instalaran 3 cables (1xfase)
cal. 1/0 AWG, 1 cable cal. 1/0 AWG en el neutro y uno cal. 6 AWG desnudo para
conexión a tierra física.
Caída de tensión real para el alimentador C
03.1
1275.53
3.515.6822
% 
x
xx
SxV
LI
e
N
d) Canalización
De acuerdo a la Tabla No. 5 del cap. 10 el conductor cal. 1/0 AWG tiene un diámetro
aproximado de 13.5 mm y un área de 143 mm2
de sección transversal por lo que:
143(4)+17.2 = 589.2 mm2
Se instalara en tubería (conduit) pvc pesado 53mm de diámetro con una sección transversal
disponible al 40% de 866 mm2
Alimentador del tablero D
2
97.38
12725.1
82.575.532
%
2
mm
x
xx
Ve
LI
S
N

Consultando la Tabla 310-16 para un área de 38.97 mm2
. Se instalaran 3 cables (1xfase)
cal. 1 AWG, 1 cable cal. 1 AWG en el neutro y uno cal. 8 AWG desnudo para conexión a
tierra física.
Caída de tensión real para el alimentador D
14.1
1274.42
82.575.5322
% 
x
xx
SxV
LI
e
N
d) Canalización
De acuerdo a la Tabla No. 5 del cap. 10 el conductor cal. 1 AWG tiene un diámetro
aproximado de 12.5 mm y un área de 123 mm2
de sección transversal por lo que:
123(4)+10.8 = 502.8 mm2
Se instalara en tubería (conduit) pvc pesado 41 mm de diámetro con una sección transversal
disponible al 40% de 525.2 mm2
Σe%=1.14+0.99+1.03+1.14 = 4.3
121
TESIS HERIBERTO SALVADOR CASTRO
Alimentador del tablero AE con una carga total instalada de 4,727.5 W.
a) Cálculo de la protección
AMP
PFV
W
I
f
N 78.13
)9.0)(220(3
5.727,4
..3

AMPxIMAX 22.1725.178.13 
Por lo que se instalara un interruptor electromagnético de 3P-20 Amp. de acuerdo al Art.
220-10 (a) (b).
b) Cálculo del alimentador por corriente
De acuerdo al Art. 240-3 y para una corriente de 17.22 Amp. Consultando la Tabla 310-16
para conductores cal. 10 AWG con ampacidad de 35 Amp. Se instalaran 3 cables (1xfase)
cal. 10 AWG, 1 cable cal. 10 AWG en el neutro y uno cal. 12 AWG desnudo para
conexión a tierra física.
1x35 = 35 Amp.
c) Por caída de tensión para una longitud de 70 mts.
88.2
)26.5(127
)78.13)(70(22
% 
xxSV
LI
e
N
Alimentador del tablero BE con una carga total instalada de 4,547.5 W.
a) Cálculo de la protección
AMP
PFV
W
I
f
N 26.13
)9.0)(220(3
5.547,4
..3

AMPxIMAX 57.1625.126.13 
Por lo que se instalara un interruptor electromagnético de 3P-20 Amp. de acuerdo al Art.
220-10 (a) (b).
b) Cálculo del alimentador por corriente
De acuerdo al Art. 240-3 y para una corriente de 16.57 Amp. Consultando la Tabla 310-16
para conductores cal. 10 AWG con ampacidad de 35 Amp. Se instalaran 3 cables (1xfase)
122
TESIS HERIBERTO SALVADOR CASTRO
cal. 10 AWG, 1 cable cal. 10 AWG en el neutro y uno cal. 12 AWG desnudo para
conexión a tierra física.
1x35 = 35 Amp.
c) Por caída de tensión para una longitud de 54 mts.
14.2
)26.5(127
)26.13)(54(22
% 
xxSV
LI
e
N
Alimentador del tablero CE con una carga total instalada de 4,551.25 W.
a) Cálculo de la protección
AMP
PFV
W
I
f
N 27.13
)9.0)(220(3
25.551,4
..3

AMPxIMAX 58.1625.117.13 
Por lo que se instalara un interruptor electromagnético de 3P-20 Amp. de acuerdo al Art.
220-10 (a) (b).
b) Cálculo del alimentador por corriente
De acuerdo al Art. 240-3 y para una corriente de 16.58 Amp. Consultando la Tabla 310-16
para conductores cal. 10 AWG con ampacidad de 35 Amp. Se instalaran 3 cables (1xfase)
cal. 10 AWG, 1 cable cal. 10 AWG en el neutro y uno cal. 12 AWG desnudo para
conexión a tierra física.
1x35 = 35 Amp.
c) Por caída de tensión para una longitud de 72 mts.
86.2
)26.5(127
)27.13)(72(22
% 
xxSV
LI
e
N
Alimentador del tablero DE con una carga total instalada de 3,587.5 W.
a) Cálculo de la protección
AMP
PFV
W
I
f
N 46.10
)9.0)(220(3
5.587,3
..3

123
TESIS HERIBERTO SALVADOR CASTRO
AMPxIMAX 07.1325.146.10 
Por lo que se instalara un interruptor electromagnético de 3P-20 Amp. de acuerdo al Art.
220-10 (a) (b).
b) Cálculo del alimentador por corriente
De acuerdo al Art. 240-3 y para una corriente de 13.07 Amp. Consultando la Tabla 310-16
para conductores cal. 10 AWG con ampacidad de 35 Amp. Se instalaran 3 cables (1xfase)
cal. 10 AWG, 1 cable cal. 10 AWG en el neutro y uno cal. 12 AWG desnudo para
conexión a tierra física.
1x35 = 35 Amp.
c) Por caída de tensión para una longitud de 57.5 mts.
8.1
)26.5(127
)46.10)(5.57(22
% 
xxSV
LI
e
N
Alimentador del tablero EE con una carga total instalada de 16,485.31 W.
a) Cálculo de la protección
  AdicionalaCHPnIHPnIxmMII NNNN arg1525.1 
%855.7 HPmM
%855 HPm
%751 HPm
AMP
x
IN 9.19
)9.0)(85.0)(220(3
7465.7







  AMP
x
IN 6.252
)9.0)(85.0)(220(3
7465







  AMP
x
IN 8.52
)9.0)(75.0)(220(3
7461







124
TESIS HERIBERTO SALVADOR CASTRO
AMP
PFV
W
I
f
N 94.0
)9.0)(220(3
322
..3

  22.5794.08.56.2525.19.19  xIN
AMPxIMAX 52.7125.122.57 
Por lo que se instalara un interruptor electromagnético de 3P-70 Amp. de acuerdo al Art.
220-10 (a) (b).
b) Cálculo del alimentador por corriente
De acuerdo al Art. 240-3 y para una corriente de 71.52 Amp. Consultando la Tabla 310-16
para conductores cal. 6 AWG con ampacidad de 65 Amp. Se instalaran 3 cables (1xfase)
cal. 6 AWG, 1 cable cal. 6 AWG en el neutro y uno cal. 10 AWG desnudo para conexión a
tierra física.
1x65 = 65 Amp.
c) Por caída de tensión para una longitud de 46.5 mts.
15.3
)3.13(127
)22.57)(5.46(22
% 
xxSV
LI
e
N
Alimentador del tablero FE con una carga total instalada de 9007.25 W.
a) Cálculo de la protección
AMP
PFV
W
I
f
N 26.26
)9.0)(220(3
25.007,9
..3

AMPxIMAX 82.3225.126.26 
Por lo que se instalara un interruptor electromagnético de 3P-40 Amp. de acuerdo al Art.
220-10 (a) (b).
b) Cálculo del alimentador por corriente
De acuerdo al Art. 240-3 y para una corriente de 32.82 Amp. Consultando la Tabla 310-16
para conductores cal. 8 AWG con ampacidad de 50 Amp. Se instalaran 3 cables (1xfase)
cal. 8 AWG, 1 cable cal. 8 AWG en el neutro y uno cal. 10 AWG desnudo para conexión a
tierra física.
125
TESIS HERIBERTO SALVADOR CASTRO
1x50 = 50 Amp.
c) Por caída de tensión para una longitud de 10.5 mts.
51.0
)37.8(127
)26.26)(5.10(22
% 
xxSV
LI
e
N
d) Canalización
De acuerdo a la Tabla No. 5 del cap. 10 el conductor cal. 8 AWG tiene un diámetro
aproximado de 5.99 mm y un área de 28.2 mm2
de sección transversal por lo que:
28.2(4)+6.82 = 119.62 mm2
Se instalara en tubería (conduit) pvc pesado 21 mm de diámetro con una sección transversal
disponible al 40% de 137.6 mm2
Corrección de los alimentadores para los tableros AE, BE, CE, DE, EE, FE
e% para alimentadores 5%
2.88+2.14+2.86+1.8+3.15+0.51=13.34 %
Por lo tanto 89.
5
49.4
49.451.05 
Alimentador del tablero AE
2
06.17
12789.0
78.13702
%
2
mm
x
xx
Ve
LI
S
N

Consultando la Tabla 310-16 para un área de 17.06 mm2
. Se instalaran 3 cables (1xfase)
cal. 4 AWG, 1 cable cal. 4 AWG en el neutro y uno cal. 8 AWG desnudo para conexión a
tierra física.
Caída de tensión real para el alimentador A
71.0
12722.21
78.137022
% 
x
xx
SxV
LI
e
N
d) Canalización
126
TESIS HERIBERTO SALVADOR CASTRO
De acuerdo a la Tabla No. 5 del cap. 10 el conductor cal. 4 AWG tiene un diámetro
aproximado de 8.94 mm y un área de 62.8 mm2
de sección transversal por lo que:
62.8(4)+10.8 = 262 mm2
Se instalara en tubería (conduit) pvc pesado 35 mm de diámetro con una sección transversal
disponible al 40% de 386 mm2
Alimentador del tablero BE
2
66.12
12789.0
26.13542
%
2
mm
x
xx
Ve
LI
S
N

Consultando la Tabla 310-16 para un área de 12.66 mm2
. Se instalaran 3 cables (1xfase)
cal. 6 AWG, 1 cable cal. 6 AWG en el neutro y uno cal. 8 AWG desnudo para conexión a
tierra física.
Caída de tensión real para el alimentador BE
84.0
1273.13
26.135422
% 
x
xx
SxV
LI
e
N
d) Canalización
De acuerdo a la Tabla No. 5 del cap. 10 el conductor cal. 6 AWG tiene un diámetro
aproximado de 7.72 mm y un área de 46.8 mm2
de sección transversal por lo que:
46.8(4)+10.8 = 198 mm2
Se instalara en tubería (conduit) pvc pesado 27 mm de diámetro con una sección transversal
disponible al 40% de 222.8 mm2
Alimentador del tablero CE
2
90.16
12789.0
27.13722
%
2
mm
x
xx
Ve
LI
S
N

Consultando la Tabla 310-16 para un área de 16.90 mm2
. Se instalaran 3 cables (1xfase)
cal. 4 AWG, 1 cable cal. 4 AWG en el neutro y uno cal. 8 AWG desnudo para conexión a
tierra física
Caída de tensión real para el alimentador CE
127
TESIS HERIBERTO SALVADOR CASTRO
70.0
1272.21
27.137222
% 
x
xx
SxV
LI
e
N
d) Canalización
De acuerdo a la Tabla No. 5 del cap. 10 el conductor cal. 4 AWG tiene un diámetro
aproximado de 8.94 mm y un área de 62.8 mm2
de sección transversal por lo que:
62.8(4)+10.8 = 262 mm2
Se instalara en tubería (conduit) pvc pesado 35 mm de diámetro con una sección transversal
disponible al 40% de 386 mm2
Alimentador del tablero DE
2
64.10
12789.0
46.105.572
%
2
mm
x
xx
Ve
LI
S
N

Consultando la Tabla 310-16 para un área de 10.64 mm2
. Se instalaran 3 cables (1xfase)
cal. 6 AWG, 1 cable cal. 6 AWG en el neutro y uno cal. 8 AWG desnudo para conexión a
tierra física.
Caída de tensión real para el alimentador DE
72.0
1273.13
64.105.5722
% 
x
xx
SxV
LI
e
N
d) Canalización
De acuerdo a la Tabla No. 5 del cap. 10 el conductor cal. 6 AWG tiene un diámetro
aproximado de 7.72 mm y un área de 46.8 mm2
de sección transversal por lo que:
46.8(4)+10.8 = 198 mm2
Se instalara en tubería (conduit) pvc pesado 27 mm de diámetro con una sección transversal
disponible al 40% de 222.8 mm2
Alimentador del tablero EE
2
08.47
12789.0
22.575.462
%
2
mm
x
xx
Ve
LI
S
N

128
TESIS HERIBERTO SALVADOR CASTRO
Consultando la Tabla 310-16 para un área de 47.08 mm2
. Se instalaran 3 cables (1xfase)
cal. 1/0 AWG, 1 cable cal. 1/0 AWG en el neutro y uno cal. 6 AWG desnudo para
conexión a tierra física.
Caída de tensión real para el alimentador EE
78.0
1275.53
22.575.4622
% 
x
xx
SxV
LI
e
N
d) Canalización
De acuerdo a la Tabla No. 5 del cap. 10 el conductor cal. 1/0 AWG tiene un diámetro
aproximado de 13.5 mm y un área de 143 mm2
de sección transversal por lo que:
143(4)+17.2 = 589.2 mm2
Se instalara en tubería (conduit) pvc pesado 53 mm de diámetro con una sección transversal
disponible al 40% de 866 mm2
Σe% = 0.71+0.84+0.70+0.72+0.78+0.51 = 4.26
Alimentador del tablero AR con una carga total instalada de 25,800 W.
a) Cálculo de la protección, de acuerdo Art. 645-5 la corriente nominal para equipo de
cómputo se debe considerar al 125%.
  AMP
PFV
W
I
f
N 03.9425.1
)9.0)(220(3
800,25
..3







AMPxIMAX 53.11725.103.94 
Por lo que se instalara un interruptor electromagnético de 3P-100 Amp. de acuerdo al Art.
220-10 (a) (b).
b) Cálculo del alimentador por corriente
De acuerdo al Art. 240-3 y para una corriente de 117.53 Amp. Consultando la Tabla 310-16
para conductores cal. 2 AWG con ampacidad de 115 Amp. Se instalaran 3 cables (1xfase)
cal. 2 AWG, 1 cable cal. 2 AWG en el neutro y uno cal. 8 AWG desnudo para conexión a
tierra física.
1x115 = 115 Amp.
c) Por caída de tensión para una longitud de 65 mts.
129
TESIS HERIBERTO SALVADOR CASTRO
86.2
)6.33(127
)03.94)(65(22
% 
xxSV
LI
e
N
Alimentador del tablero BR con una carga total instalada de 21,600 W.
a) Cálculo de la protección, de acuerdo Art. 645-5 la corriente nominal para equipo de
computo se debe considerar al 125%.
  AMP
PFV
W
I
f
N 73.7825.1
)9.0)(220(3
600,21
..3







AMPxIMAX 41.9825.173.78 
Por lo que se instalara un interruptor electromagnético de 3P-100 Amp. de acuerdo al Art.
220-10 (a) (b).
b) Cálculo del alimentador por corriente
De acuerdo al Art. 240-3 y para una corriente de 98.41 Amp. Consultando la Tabla 310-16
para conductores cal. 3 AWG con ampacidad de 100 Amp. Se instalaran 3 cables (1xfase)
cal. 3 AWG, 1 cable cal. 3 AWG en el neutro y uno cal. 8 AWG desnudo para conexión a
tierra física.
1x100 = 100 Amp.
c) Por caída de tensión para una longitud de 50 mts.
32.2
)7.26(127
)73.78)(50(22
% 
xxSV
LI
e
N
Alimentador del tablero CR con una carga total instalada de 16,500 W.
a) Cálculo de la protección, de acuerdo Art. 645-5 la corriente nominal para equipo de
cómputo se debe considerar al 125%.
  AMP
PFV
W
I
f
N 14.6025.1
)9.0)(220(3
500,16
..3







AMPxIMAX 17.7525.114.60 
130
TESIS HERIBERTO SALVADOR CASTRO
Por lo que se instalara un interruptor electromagnético de 3P-70 Amp. de acuerdo al Art.
220-10 (a) (b).
b) Cálculo del alimentador por corriente
De acuerdo al Art. 240-3 y para una corriente de 75.17 Amp. Consultando la Tabla 310-16
para conductores cal. 4 AWG con ampacidad de 85 Amp. Se instalaran 3 cables (1xfase)
cal. 4 AWG, 1 cable cal. 4 AWG en el neutro y uno cal. 8 AWG desnudo para conexión a
tierra física.
1x115 = 115 Amp.
c) Por caída de tensión para una longitud de 68.5 mts.
06.3
)2.21(127
)14.60)(5.68(22
% 
xxSV
LI
e
N
Alimentador del tablero DR con una carga total instalada de 20,700 W.
a) Cálculo de la protección, de acuerdo Art. 645-5 la corriente nominal para equipo de
cómputo se debe considerar al 125%.
  AMP
PFV
W
I
f
N 44.7525.1
)9.0)(220(3
700,20
..3







AMPxIMAX 3.9425.144.75 
Por lo que se instalara un interruptor electromagnético de 3P-90 Amp. de acuerdo al Art.
220-10 (a) (b).
b) Cálculo del alimentador por corriente
De acuerdo al Art. 240-3 y para una corriente de 94.3 Amp. Consultando la Tabla 310-16
para conductores cal. 3 AWG con ampacidad de 100 Amp. Se instalaran 3 cables (1xfase)
cal. 3 AWG, 1 cable cal. 3 AWG en el neutro y uno cal. 8 AWG desnudo para conexión a
tierra física.
1x100 = 100 Amp.
c) Por caída de tensión para una longitud de 53.5 mts.
38.2
)7.26(127
)44.75)(5.53(22
% 
xxSV
LI
e
N
131
TESIS HERIBERTO SALVADOR CASTRO
Alimentador del tablero ER con una carga total instalada de 11,112 W.
a) Cálculo de la protección, de acuerdo Art. 645-5 la corriente nominal para equipo de
cómputo se debe considerar al 125%.
  AMP
PFV
W
I
f
N 5.4025.1
)9.0)(220(3
112,11
..3







AMPxIMAX 62.5025.15.40 
Por lo que se instalara un interruptor electromagnético de 3P-50 Amp. de acuerdo al Art.
220-10 (a) (b).
b) Cálculo del alimentador por corriente
De acuerdo al Art. 240-3 y para una corriente de 50.62 Amp. Consultando la Tabla 310-16
para conductores cal. 8 AWG con ampacidad de 50 Amp. Se instalaran 3 cables (1xfase)
cal. 8 AWG, 1 cable cal. 8 AWG en el neutro y uno cal. 10 AWG desnudo para conexión a
tierra física.
1x50 = 50 Amp.
c) Por caída de tensión para una longitud de 92 mts.
01.7
)37.8(127
)5.40)(92(22
% 
xxSV
LI
e
N
Corrección de los alimentadores para los tableros AR, BR, CR, DR, ER
e% para alimentadores regulados 5%
2.86+2.32+3.06+2.38+7.01=18.63 %
Por lo tanto 1
5
5

Alimentador del tablero AR
2
25.96
1271
03.94652
%
2
mm
x
xx
Ve
LI
S
N

132
TESIS HERIBERTO SALVADOR CASTRO
Consultando la Tabla 310-16 para un área de 96.25 mm2
. Se instalaran 3 cables (1xfase)
cal. 3/0 AWG, 1 cable cal. 3/0 AWG en el neutro y uno cal. 6 AWG desnudo para
conexión a tierra física.
Caída de tensión real para el alimentador AR
13.1
12785
03.946522
% 
x
xx
SxV
LI
e
N
d) Canalización
De acuerdo a la Tabla No. 5 del cap. 10 el conductor cal. 3/0 AWG tiene un diámetro
aproximado de 16 mm y un área de 201 mm2
de sección transversal por lo que:
201(4)+17.2 = 821.2 mm2
Se instalara en tubería (conduit) pvc pesado 53 mm de diámetro con una sección transversal
disponible al 40% de 866 mm2
Alimentador del tablero BR
2
99.61
1271
73.78502
%
2
mm
x
xx
Ve
LI
S
N

Consultando la Tabla 310-16 para un área de 61.99 mm2
. Se instalaran 3 cables (1xfase)
cal. 2/0 AWG, 1 cable cal. 2/0 AWG en el neutro y uno cal. 6 AWG desnudo para
conexión a tierra física.
Caída de tensión real para el alimentador BR
91.0
1274.67
73.785022
% 
x
xx
SxV
LI
e
N
d) Canalización
De acuerdo a la Tabla No. 5 del cap. 10 el conductor cal. 2/0 AWG tiene un diámetro
aproximado de 14.7 mm y un área de 169 mm2
de sección transversal por lo que:
169(4)+17.2 = 693.2 mm2
Se instalara en tubería (conduit) pvc pesado 53 mm de diámetro con una sección transversal
disponible al 40% de 866 mm2
133
TESIS HERIBERTO SALVADOR CASTRO
Alimentador del tablero CR
2
87.64
1271
14.605.682
%
2
mm
x
xx
Ve
LI
S
N

Consultando la Tabla 310-16 para un área de 64.87 mm2
. Se instalaran 3 cables (1xfase)
cal. 2/0 AWG, 1 cable cal. 2/0 AWG en el neutro y uno cal. 6 AWG desnudo para
conexión a tierra física
Caída de tensión real para el alimentador CR
96.0
1274.67
14.605.6822
% 
x
xx
SxV
LI
e
N
d) Canalización
De acuerdo a la Tabla No. 5 del cap. 10 el conductor cal. 2/0 AWG tiene un diámetro
aproximado de 14.7 mm y un área de 169 mm2
de sección transversal por lo que:
169(4)+17.2 = 693.2 mm2
Se instalara en tubería (conduit) pvc pesado 53 mm de diámetro con una sección transversal
disponible al 40% de 866 mm2
Alimentador del tablero DR
2
55.63
1271
44.755.532
%
2
mm
x
xx
Ve
LI
S
N

Consultando la Tabla 310-16 para un área de 63.55 mm2
. Se instalaran 3 cables (1xfase)
cal. 2/0 AWG, 1 cable cal. 2/0 AWG en el neutro y uno cal. 6 AWG desnudo para
conexión a tierra física.
Caída de tensión real para el alimentador DR
94.0
1274.67
44.755.5322
% 
x
xx
SxV
LI
e
N
d) Canalización
De acuerdo a la Tabla No. 5 del cap. 10 el conductor cal. 2/0 AWG tiene un diámetro
aproximado de 14.7 mm y un área de 169 mm2
de sección transversal por lo que:
169(4)+17.2 = 693.2 mm2
134
TESIS HERIBERTO SALVADOR CASTRO
Se instalara en tubería (conduit) pvc pesado 53 mm de diámetro con una sección transversal
disponible al 40% de 866 mm2
Alimentador del tablero ER
2
67.58
1271
5.40922
%
2
mm
x
xx
Ve
LI
S
N

Consultando la Tabla 310-16 para un área de 58.67 mm2
. Se instalaran 3 cables (1xfase)
cal. 2/0 AWG, 1 cable cal. 2/0 AWG en el neutro y uno cal. 6 AWG desnudo para
conexión a tierra física.
Caída de tensión real para el alimentador ER
87.0
1274.67
5.409222
% 
x
xx
SxV
LI
e
N
d) Canalización
De acuerdo a la Tabla No. 5 del cap. 10 el conductor cal. 2/0 AWG tiene un diámetro
aproximado de 14.7 mm y un área de 169 mm2
de sección transversal por lo que:
169(4)+17.2 = 693.2 mm2
Se instalara en tubería (conduit) pvc pesado 53 mm de diámetro con una sección transversal
disponible al 40% de 866 mm2
Σe% = 1.13+0.91+0.96+0.94+0.87 = 4.81
135
TESIS HERIBERTO SALVADOR CASTRO
EDIFICIO
GUBERNAMENTAL
CAPITULO 6
PRUEBAS AL TRANSFORMADOR
Y A LOS ALIMENTADORES
PRIMARIOS Y SECUNDARIOS
136
TESIS HERIBERTO SALVADOR CASTRO
CAPITULO 6
6.1 PRUEBAS DE ACEPTACION A CABLES DE ENERGÍA
La función primordial de los conductores eléctricos, es la de transferir eficientemente la
energía eléctrica. Esto puede asegurarse mediante el control de calidad de los cables a
través de las pruebas que se realizan en los laboratorios de los fabricantes, para garantizar la
continuidad del servicio y la confiabilidad durante la operación; sin embargo en la mayoría
de los casos el fabricante tiene poco o ningún control sobre las operaciones de: Transporte,
almacenaje, instalación y conexión, por lo que es recomendable efectuar pruebas eléctricas
para tener la seguridad que el cable se encuentre en condiciones de entrar en servicio. Los
equipos utilizados para realizar dichas pruebas, deben de contar con un certificado de
calibración vigente, que avalé los valores reportados de incertidumbre a un factor de
cobertura 2 para un nivel de confianza del 95%.
Las pruebas con alta tensión pueden ser efectuadas con corriente alterna o con corriente
directa, sin embargo las condiciones de campo con equipo de corriente directa tienen varias
ventajas y por ello, son las más usadas. El equipo para pruebas con corriente directa es
ligero y portátil, también es menos ambiguo y mas fácil de interpretar.
6.1.1 Prueba de Rigidez Dieléctrica (HI POT) a cables XLP de media tensión
Acometida a 23 kV de la Subestación Eléctrica Receptora Principal a Subestación del
edificio Gubernamental.
Datos Generales:
Cable Marca Condumex, 3 piezas de 126m aproximadamente.
Calibre 1/0
Tipo XLP
Clase 25 kV
3 Piezas longitud aproximada 126 m
Temperatura 25°C
Tensión de prueba 0 a 35,000 V CD
Equipo de prueba: Fuente de voltaje, Marca HIGH VOLTEGE, Modelo PTS-75
137
TESIS HERIBERTO SALVADOR CASTRO
Método de prueba
1. Antes de iniciar, deben desconectarse los cables que serán sometidos a prueba, de
todo equipo eléctrico (transformador, motores, tableros, cuchillas).
2. Los cables próximos que no se vayan a probar deben de conectarse a tierra, de igual
manera el conductor (pantalla) del cable XLP bajo prueba.
3. Las pruebas se realizaran con el método por pasos que consiste en aplicar la tensión
lentamente en incrementos de igual magnitud hasta llegar al valor de tensión
especificado. La ventaja de este método permite tomar valores de corriente de fuga
en cada paso para poder trazar la curva de Rigidez Dieléctrica (HI POT).
4. Las especificaciones ICEA para cables con pantalla en pruebas de aceptación en
campo, recomiendan que la tensión de prueba no se mayor al 80% de la tensión de
prueba en fabrica. Esta tensión máxima debe mantenerse por 15 minutos durante los
cuales se toman valores de corriente de conducción cada minuto. La prueba se
considera como buena a menos que el interruptor del circuito del equipo de pruebas
opere si el cable falla.
Resultados de la prueba:
Voltaje aplicado
kV
Corriente de Fuga
MICROAMPERES
FASE A FASE A FASE A
5 0.02 0.02 0.02
10 0.06 0.08 0.04
20 0.14 0.20 0.08
30 0.30 0.50 0.36
35 0.80 0.80 0.92
35 / 1 minuto 0.38 0.84 0.70
35 / 2 minutos 0.36 0.78 0.78
35 / 3 minutos 0.34 0.76 0.76
35 / 4 minutos 0.32 0.78 0.84
35 / 5 minutos 0.36 0.70 0.78
Resultado Satisfactorio Satisfactorio Satisfactorio
Constante utilizada K = 1
5
20
35
35x2min
35x4min
0
0.2
0.4
0.6
0.8
1
CORRIENTEEN
MICROAMPERES
TENSION APLICADA (kV)
CURVA DE RIGIDEZ DIELECTRICA A CABLES (HI POT)
FASE A
FASE B
FASE C
138
TESIS HERIBERTO SALVADOR CASTRO
6.1.2 Prueba de Resistencia de Aislamiento (MEGGER)
Acometida a 23 kV de la Subestación Eléctrica Receptora Principal a Subestación del
edificio Gubernamental.
Datos Generales:
Cable Marca Condumex
Calibre 1/0
Tipo XLP
Clase 25 kV
3 Piezas longitud aproximada 126 m
Temperatura 26°C
Tensión de prueba 5,000 V CD
Equipo de prueba: Megger Digital, Marca Megger, Modelo BM21
Fecha de calibración: 26/08/2008
Fecha de caducidad: 26/08/2009
Método de prueba:
1. Antes de iniciar, deben desconectarse los cables que serán sometidos a prueba, de
todo equipo eléctrico (transformador, motores, tableros, cuchillas).
2. Los cables próximos que no se vayan a probar deben de conectarse a tierra, de igual
manera el conductor (pantalla) del cable XLP bajo prueba.
3. La prueba se realizara aplicando, una tensión constante durante 1 minuto al cable
bajo prueba, tiempo en el que se toma el valor de la lectura.
4. La prueba se considera como buena a menos que el interruptor del circuito del
equipo de pruebas opere si el cable falla.
5. El límite mínimo para este tipo de conductor es 100 MΩ.
Diagrama de conexión:
v
G00.00
- +G
MEGGER
N
C
B
A
CABLE BAJO PRUEBA
139
TESIS HERIBERTO SALVADOR CASTRO
Resultados de la prueba:
PRUEBA TIEMPO LECTURA EN
MΩ
LIMITE MINIMO
EN MΩ
RESULTADOS
FASE “A” CONTRA TIERRA 1 MIN. 614 100 SATISFACTORIO
FASE “B” CONTRA TIERRA 1 MIN. 626 100 SATISFACTORIO
FASE “C” CONTRA TIERRA 1 MIN. 638 100 SATISFACTORIO
6.1.3 Prueba de Resistencia de Aislamiento (MEGGER)
Alimentadores Generales en Baja tensión.
Datos Generales:
Cable Marca Condumex
Distintos Calibres
Tipo THW-LS
Tensión de prueba 500 V CD
Equipo de prueba: Megger Digital, Marca Megger, Modelo BM21
Fecha de calibración: 26/08/2008
Fecha de caducidad: 26/08/2009
Resultados de la prueba:
140
TESIS HERIBERTO SALVADOR CASTRO
141
TESIS HERIBERTO SALVADOR CASTRO
6.2 PRUEBA DE RESISTENCIA DE AISLAMIENTO AL
TRANSFORMADOR (MEGGER)
Objetivo de la prueba:
La prueba de resistencia de aislamiento se realiza en fábrica, después de que el
transformador ha terminado su proceso de secado y se encuentra a una temperatura entre 0
y 40° C. Esta prueba sirve, básicamente para determinar la cantidad de humedad e
impurezas que contienen los aislamientos del transformador.
142
TESIS HERIBERTO SALVADOR CASTRO
El método más usual para medir la resistencia de aislamiento de un transformador, es
haciendo uso del aparato llamado MEGGER, que es un instrumento indicador de lectura
directa y cuya escala esta graduada en MΩ. Su principio se basa en aplicar un determinado
voltaje de prueba al aislamiento y medir la corriente que proporciona, indicando la lectura
en la escala graduada en MΩ.
La potencia para la medición, es proporcionada por un pequeño generador operado a mano
o motorizado, siendo este último tipo el de mayor aceptación, debido a la uniformidad de la
tensión aplicada.
Cuando el aislamiento esta húmedo o sucio, la corriente de fuga será grande en relación con
las de absorción y esto resultará, en que la aguja del aparato se moverá rápidamente a un
valor donde comienza a amortiguarse el movimiento, tendiendo a estabilizarse, de tal forma
que se obtiene una diferencia en las lecturas muy pequeñas, lo que indica la sospecha de
humedad. Por otro lado, si el aislamiento se encuentra en buenas condiciones, la corriente
de fuga será pequeña con relación a la de absorción dieléctrica, y ésta tendrá un efecto
pronunciado mientras fluye. Por lo que si el aislamiento se encuentra seco, la absorción
dieléctrica es grande al principio y gradualmente decae a medida que el aislamiento alcanza
su estado final de carga. Si el aparato es operado a mano, la lectura se puede hacer al
minuto y si se cuenta con un instrumento motorizado, se deben tomar las lecturas cada 15
segundos hasta el primer minuto y posteriormente cada minuto hasta llegar a 10 minutos.
Procedimiento de la prueba.
La prueba de resistencia de aislamiento de un transformador debe de involucrar las
siguientes maniobras de conexión:
 Alta tensión contra baja tensión.
 Baja tensión contra alta tensión más tierra.
 Alta tensión contra baja tensión más tierra.
Diagramas de Conexión Resistencia de Aislamiento:
v
G00.00
- +G
MEGGER
X XX X1 2 30
HH H1 2 3
TRANSFORMADOR
ALTA VS BAJA
143
TESIS HERIBERTO SALVADOR CASTRO
Resultados de la prueba:
RESULTADOS DE LA PRUEBA DE RESISTENCIA DE AISLAMIENTO (MEGGER)
v
G00.00
- +G
MEGGER
X XX X1 2 30
HH H1 2 3
TRANSFORMADOR
BAJA VS ALTA A TIERRA
v
G00.00
- +G
MEGGER
X XX X1 2 30
HH H1 2 3
TRANSFORMADOR
ALTA VS BAJA A TIERRA
144
TESIS HERIBERTO SALVADOR CASTRO
CURVA RESISTENCIA DE AISLAMIENTO
0
500
1000
1500
2000
2500
3000
SEG. SEG. SEG. M IN. M IN. M IN. M IN. M IN. M IN. M IN. M IN. M IN. M IN.
15 30 45 1 2 3 4 5 6 7 8 9 10
TIEMPO
MEGAOHMS
A.T. VS B.T
A.T. VS B.T. + T.
B.T. VS A.T. + T.
6.3 PRUEBA DE RELACION DE TRANSFORMACION (TTR)
Objetivo de la prueba:
El objetivo de esta prueba, es detectar el desbalance en el voltaje de salida del
transformador así como devanados en corto circuito o abiertos. Esta prueba se realizara
con un equipo TTR marca BIDDLE y en todas las posiciones del cambiador de
derivaciones.
Datos Generales:
Transformador Δ/Y: Marca PROLEC
Capacidad: 300 kVA
Impedancia: 3.36%
Serie: KD493-01-001
Lts. de aceite: 529
Tensión en el Primario: 23 kV
Tensión en el Secundario: 220/127 V
Enfriamiento: OA
Equipo de prueba: Medidor de relación de transformación
Marca: BIDDLE
Modelo: 550005
Serie: 10965
Fecha de calibración: 27/02/2009
Fecha de caducidad: 27/02/2010
CURVAS DE LA RESISTENCIA DE AISLAMIENTO
TRANSFORMADOR 300kVA
145
TESIS HERIBERTO SALVADOR CASTRO
Diagrama de conexión en la fase H3:
Resultados de la prueba:
RESULTADOS DE LA PRUEBA DE RELACION DE TRANSFORMACION (TTR)
Posición del
Cambiador de Derivaciones
VOLTAJE LECTURAS
RESULTADO
A.T. B.T. H 1 H 2 H3
1 24,000 220/127 94.530 94.533 94.525 Satisfactorio
2 23,000 220/127 90.592 90.596 90.582 Satisfactorio
3 22,000 220/127 86.653 86.650 86.647 Satisfactorio
4 21,000 220/127 82.716 82.715 82.709 Satisfactorio
5 20,000 220/127 78.760 78.766 78.757 Satisfactorio
Las pruebas realizadas al transformador de 300 KVA, fueron ejecutadas de acuerdo a
normas y documento siguientes:
1.- Norma ANSI C57.12-2000
2.- Norma Oficial Mexicana NOM-J-169, Métodos de Prueba para Transformadores de
Distribución y Potencia.
3.- Norma Oficial Mexicana NOM-J-308-2004, control y tratamiento de aceites aislantes
para Transformadores en servicio.
+
- B.T.
---------TTR-----------+
- A.T.
X XX X1 2 30
HH H1 2 3
TRANSFORMADOR
PRUEBA DE RELACION DE
TRANFORMACION (TTR) EN LA FASE H3
- B.T.
+
-
+ A.T.
146
TESIS HERIBERTO SALVADOR CASTRO
EDIFICIO
GUBERNAMENTAL
CAPITULO 7
EVALUACION DE COSTOS
147
TESIS HERIBERTO SALVADOR CASTRO
CAPITULO 7
ANALISIS FACTOR DE CONVERSION SALARIO BASE A SALARIO REAL (FSR)
148
TESIS HERIBERTO SALVADOR CASTRO
ANALISIS DE PRECIO UNITARIO PARA EL CALCULO DE SELECCIÓN Y
CALIBRE DE CONDUCTOR MAS ADECUADO PARA UN EDIFICIO
GUBERNAMENTAL
149
TESIS HERIBERTO SALVADOR CASTRO
CONCLUSIONES Y RECOMENDACIONES
CONCLUSIONES
Como ya se vio en la presente tesis, para realizar un proyecto eléctrico es necesario contar
con la mayor información posible del inmueble donde se realizara la Instalación Eléctrica.
Esto con la finalidad de desarrollar una ingeniería lo más apegada posible a las necesidades
del cliente, para calcular la carga instalada total, y así, poder determinar el calibre de los
alimentadores y dimensionar correctamente las protecciones termomagnéticas, para
seleccionar adecuadamente los tableros de distribución, transformador, subestación
eléctrica y planta de emergencia.
Al seleccionar el calibre correcto de conductor, mínimo requerido por las normas de
instalaciones eléctricas se incrementa la eficiencia en el uso de la energía eléctrica,
reducimos las pérdidas de potencia eléctrica, las pérdidas debido al calentamiento de los
conductores, aumentamos el ahorro en el uso de la energía eléctrica y tenemos mayor
flexibilidad en la instalación.
Así mismo, es importante dimensionar y coordinar correctamente las protecciones de una
instalación eléctrica, para reducir al máximo los efectos producidos por un cortocircuito o
una sobrecarga. Aunado a esto, el uso de la energía eléctrica se debe realizar por personal
calificado para salvaguardar la seguridad de los bienes y los usuarios a los que servirá dicha
instalación.
RECOMENDACIONES
Se debe supervisar que, la instalación eléctrica se construya en congruencia y apegándose a
la última edición de la reglamentación de observación obligatoria, indicada en la norma
oficial mexicana vigente. Todos los equipos eléctricos y accesorios deben cumplir con la
norma oficial mexicana vigente.
Es de vital importancia que en toda instalación eléctrica se efectúen pruebas preliminares al
uso la energía eléctrica, a cables de energía, tableros, equipos eléctricos, transformadores,
etc. Dichas pruebas son una obligación tanto para el contratista que ejecuta la obra como
para el usuario mismo, ya que con dichas pruebas se obtiene la seguridad absoluta de que
los materiales y la mano de obra cumplen con los requisitos mínimos de calidad que
señalan los reglamentos de instalaciones eléctricas vigentes y con el índice de confiabilidad
especificado para las instalaciones. Las pruebas deben ser realizadas por laboratorios
certificados, que cuenten con equipos de prueba calibrados y con vigencia actualizada.
150
TESIS HERIBERTO SALVADOR CASTRO
Una vez en funcionamiento las instalaciones se recomienda, realizar pruebas periódicas
(mantenimiento preventivo), mismas que contribuyan a afirmar la seguridad de contar con
la confiabilidad y continuidad en el servicio en todo sistema eléctrico.
Se recomienda realizar pruebas de mantenimiento preventivo y pruebas eléctricas a las
subestaciones eléctricas, transformadores de distribución y transformadores potencia, por lo
menos una vez al año.
En resumen, el proyecto presentado cumple con cada uno de los artículos mencionados en
las Normas Técnicas para Instalaciones Eléctricas; tomando en cuenta la perspectiva de un
futuro crecimiento de carga eléctrica y sobre todo, con los requisitos mínimos de seguridad
tanto como para el personal como para el equipo instalado.
151
TESIS HERIBERTO SALVADOR CASTRO
BIBLIOGRAFIA
— TESIS “Proyecto de la instalación eléctrica de fuerza y alumbrado para la casa de
maquinas del centro médico la raza
Autor: Rubén Ortiz Yáñez, Octubre 1983
— Fundamentos de Sistemas de Energía Eléctrica
Autor: Gilberto Enríquez Harper, 1985
— Protección de Sistemas eléctricos de potencia
Altuve Ferrer, Héctor Jorge
— Sistemas de Distribución de Energía Eléctrica
Juárez Cervantes, José Dolores, México 1995
— Introducción al Análisis de los Sistemas Eléctricos de Potencia
Autor: Gilberto Enríquez Harper, 1982
— Sistemas Eléctricos de Gran Potencia
Autor: J. Aguilar Peris, Weedy B. M.
— Fundamentos de Instalaciones Eléctricas de Media Tensión y Alta Tensión
Autor: Gilberto Enríquez Harper, 1997
— Instalaciones Eléctricas de Alta Tensión, 2da.Edición 1999
Autor: Navarro Márquez, José A.,
— Fundamentos de Instalaciones Eléctricas de Media Tensión y Alta Tensión
Autor: Gilberto Enríquez Harper, 2001
— Alta Tensión y Sistemas de Transmisión, Noriega-Limusa 1983
Siegert C., Luis A.
— El ABC de las Instalaciones Eléctricas Industriales
Autor: Gilberto Enríquez Harper
— Principios de Electricidad y Electrónica
Autor: Antonio Hermosa Donate
— Manual Eléctrico Cuarta Edición
Industrias Conelec, S. A. de C. V.
— NORMA Oficial Mexicana NOM-001-SEDE-2005,
Instalaciones Eléctricas (utilización).
— Pagina Web. www.cfe.gob.mx (Comisión Federal de Electricidad).
152
TESIS HERIBERTO SALVADOR CASTRO
ANEXO A
153
TESIS HERIBERTO SALVADOR CASTRO
Plano arquitectónico Planta Baja A-1-01
154
TESIS HERIBERTO SALVADOR CASTRO
Plano arquitectónico Planta Alta A-1-02
155
TESIS HERIBERTO SALVADOR CASTRO
Plano IEALG-01 Alimentadores Generales Baja Tensión
1'234567891011
1213'
A
B
61,40
6,305,105,105,105,105,105,105,105,105,105,10
5,350,18
4,704,754,754,754,754,750,354,750,354,750,354,750,354,750,354,75
0,353,08
TERRAZA
ZONADEEVACUACIÓN
5678123491011121314
BAJA
SUBESTACION
ELECTRICA
CISTERNA
26,05
25,45
0,600,60
0,30 0,30
24,85
0,10
Origen0,0
0,350,350,350,350,350,35
13
2,10
1
CONSTRUCCION1NIVEL
1234101198765121314151617
SUBE
1234101198765121314151617
TANQUEDEAGUA1NIVEL
BAPBAPBAP
BAPBAPBAP
RAMPA
RAMPA
CUARTO
DEBOMBAS
SITE
SUBE
SUBE
SUBE
156
TESIS HERIBERTO SALVADOR CASTRO
Plano IEMT-01 Alimentador en Media Tensión
157
TESIS HERIBERTO SALVADOR CASTRO
ANEXO B
158
TESIS HERIBERTO SALVADOR CASTRO
EQUIPAMIENTO EN SUBESACION ELÉCTRICA
159
TESIS HERIBERTO SALVADOR CASTRO
ANEXO C
160
TESIS HERIBERTO SALVADOR CASTRO
PRUEBA DE RESISTENCIA DE AISLAMIENTO A CABLES (MEGGER)
161
TESIS HERIBERTO SALVADOR CASTRO
PRUEBA DE RESISTENCIA DE AISLAMIENTO AL
TRANSFORMADOR (MEGGER)
162
TESIS HERIBERTO SALVADOR CASTRO
PRUEBA DE RELACION DE TRANSFORMACION (TTR)

Calculocargas

  • 1.
    1 TESIS HERIBERTO SALVADORCASTRO INSTITUTO POLITECNICO NACIONAL ESCUELA SUPERIOR DE INGENIERIA MECANICA Y ELECTRICA UNIDAD ZACATENCO TESIS QUE PARA OBTENER EL TÍTULO DE: INGENIERO ELECTRICISTA PRESENTA: HERIBERTO SALVADOR CASTRO MÉXICO D. F. A 11 DE NOVIEMBRE DE 2009 “CALCULO DE LAS CARGAS Y SELECCIÓN DEL CONDUCTOR MAS ADECUADO PARA UN EDIFICIO GUBERNAMENTAL”
  • 2.
    2 TESIS HERIBERTO SALVADORCASTRO INTITUTO POLITECNICO NACIONAL ESCUELA SUPERIOR DE INGENIERIA MECANICA Y ELECTRICA UNIDAD PROFESIONAL “ADOLFO LOPEZ MATEOS” TEMA DE TESIS QUE PARA OBTENER EL TITULO DE INGENIERO ELECTRICISTA POR LA OPCIÓN DE TITULACIÓN TESIS Y EXAMEN ORAL INDIVIDUAL DEBERÁ(N) DESARROLLAR C. HERIBERTO SALVADOR CASTRO “CÁLCULO DE LAS CARGAS Y SELECCIÓN DEL CONDUCTOR MAS ADECUADO PARA UN EDIFICIO GUBERNAMENTAL” DETERMINAR EL CALIBRE DEL CONDUCTOR EN BASE A LAS CARGAS INSTALADAS PARA UNA OPTIMA EFICIENCIA DE ACUERDO A LA NORMATIVIDAD VIGENTE PARA UN EDIFICIO GUBERNAMENTAL. INTRODUCCIÓN 1. CONSIDERACIONES GENERALES DE LOS SISTEMAS ELÉCTRICOS DE POTENCIA 2. DEFINICIÓN Y CLASIFICACION DE LAS SUBESTACIONES ELÉCTRICAS 3. ELEMENTOS DE LAS INSTALACIONES ELÉCTRICAS 4. ESTUDIO DE CARGAS DEL EDIFICIO 5. SELECCIÓN DE PROTECCIONES, CALIBRE DE CONDUCTOR Y CANALIZACIÓN 6. PRUEBAS AL TRANSFORMADOR Y A LOS ALIMENTADORES PRIMARIOS Y SECUNDARIOS 7. EVALUACION DE COSTOS CONCLUSIONES Y/O RECOMENDACIONES México D. F. a 11 de Noviembre de 2009. ING. ISRAEL CAMACHO RODRIGUEZ ING. DANIEL ANTONIO MATA JIMENEZ ING. JORGE HERRERA AYALA JEFE DEL DEPARTAMENTO ACADEMICO DE INGENIERIA ELECTRICA
  • 3.
    3 TESIS HERIBERTO SALVADORCASTRO DEDICATORIA Y AGRADECIMIENTOS PRIMERAMENTE A DIOS, POR DARME EL VALOR, LA INTELIGENCIA Y LA FUERZA PARA CUMPLIR MIS METAS Y OBJETIVOS, POR MI FAMILIA Y POR TODO LO QUE ME HA DADO. A MIS PADRES, POR QUE SIEMPRE ME INCULCARON EL ESTUDIO Y LA SUPERACION PERSONAL. A MI TIO MELQUIADES SALVADOR, POR SUS CONSEJOS Y SU APOYO INCONDICIONAL PARA CONCLUIR MIS ESTUDIOS. A MI ABUELO HERIBERTO SALVADOR, POR QUE GRACIAS A EL TUVE LA FUERZA PARA SEGUIR ADELANTE. A MI ESPOSA, POR TODO SU APOYO DURANTE MIS ESTUDIOS, SU COMPRENSION Y EL AMOR BRINDADO EN LOS MOMENTOS MÁS DIFÍCILES. A MIS HIJOS, PARA QUE NUNCA OLVIDEN, QUE EL ESTUDIO Y EL CONOCIMIENTO, ES LA BASE DEL ÉXITO Y LA HERENCIA MÁS GRANDE, QUE UN PADRE LES PUEDE DAR A SUS HIJOS.
  • 4.
    4 TESIS HERIBERTO SALVADORCASTRO CONTENIDO PROLOGO……………………………………………………………………...……….. 06 OBJETIVO…………………………………………………………………………….… 07 INTRODUCCIÓN………………………………………………………….…………… 08 INDICE CAPITULO 1. CONSIDERACIONES GENERALES DE LOS SISTEMAS ELÉCTRICOS DE POTENCIA ………………………………...……13 1.1 Función de los sistemas eléctricos de potencia ……………………………………... 13 1.2 Representación y definición de un Sistema Eléctrico de Potencia (SEP)………….. 14 1.3 Características fundamentales que influyen sobre la generación y transporte de la energía eléctrica ………………………………… 17 CAPITULO 2. DEFINICIÓN Y CLASIFICACION DE LAS SUBESTACIONES ELÉCTRICAS….... 20 2.1 Elementos constitutivos de una subestación………………………………………… 21 2.2 Transformador………………………………………………………………………. 21 2.2.1 Elementos que constituyen un transformador………………………….…. 22 2.2.2 Clasificación de Transformadores………………………….…………...… 23 2.2.3 Conexión de transformadores………………………………………….….. 24 2.2.4 Puesta en servicio y mantenimiento de transformadores…………….…… 26 2.3 Interruptores………………………………………………………………………… 26 2.3.1 Interruptor de Potencia …………………………………………………..... 27 2.3.2 Interruptores de bajo voltaje………………………………….…………… 32 2.3.3 Interrupción de circuitos en líneas inductivas…………………….………. 35 2.3.4 Interrupción de circuitos capacitivos…………………………………….... 36 2.4 Restaurador y Seccionadores………………………………………………………... 36 2.4.1 Operación de un restaurador ……………………………………….……...37 2.4.2 Cuchillas de operación con carga (Seccionador)………………….………. 39 2.5 Cuchillas fusible…………………………………………………………………..… 39 2.5.1 Clasificación de cuchillas desconectadoras………………………….…..... 40 2.6 Apartarrayos………………………………………………………………………… 43 2.7 Tableros duplex de control………………………………………………………….. 45 2.7.1 Tableros principales de distribución……………………………….……… 46 2.7.2 Tableros secundarios de distribución……………………………………... 47 2.7.3 Centros de control de motores……………………………………………. 48 2.8 Condensadores………………………………………………………………………. 48 2.8.1Experimentación de la carga-descarga del condensador…….…………….. 49 2.9 Transformadores para instrumento ………………………………………………….50 2.9.1 Transformadores de corriente…………………………………………...… 51 2.9.2 Transformadores de potencial……………………………………………... 51 CAPITULO 3. ELEMENTOS DE LAS INSTALACIONES ELÉCTRICAS…………………………... 53 3.1 Elementos para el diseño eléctrico ………………………………………………….. 54
  • 5.
    5 TESIS HERIBERTO SALVADORCASTRO 3.2 Alimentadores, subalimentadores, circuitos derivados y tableros…………………... 57 3.2.1 Circuitos derivados para alumbrado …………….……………….…….… 57 3.3 Conductores y canalizaciones eléctricas………………………….………….…….… 60 3.3.1 Conductores eléctricos…………………………………………….……….. 61 3.3.2 Canalizaciones eléctricas…………………………….….…….…………….65 3.3.3 Cajas de conexiones………………………………..………........…………. 69 3.3.4 Conectores y accesorios en las instalaciones eléctricas………….….….…. 70 3.4 Planeación de las instalaciones eléctricas…………………………………...………. 71 3.4.1 Planeación de instalaciones eléctricas residenciales....………………….…. 71 3.4.2 Planeación de instalaciones eléctricas comerciales…………..…………….. 72 3.4.3 Planeación de instalaciones eléctricas industriales……….…..……………. 73 3.5 Calculo de los conductores por caída de voltaje ……………..………………...…… 74 3.6 Utilización recomendable de los sistemas de distribución………………….………. 79 3.7 Sistemas de distribución en baja tensión ……………………………………..………80 CAPITULO 4 ESTUDIO DE CARGAS DEL EDIFICIO ……………………………….…….………. 81 CAPITULO 5 SELECCIÓN DE PROTECCIONES, CALIBRE DE CONDUCTOR Y CANALIZACION………………………………………………..110 Cálculo de protección y alimentador en media tensión (23,000V)…………………….....111 Cálculo de protecciones y calibre de conductores en baja tensión para tableros de fuerza y alumbrado…………………………………..…112 CAPITULO 6 PRUEBAS AL TRANSFORMADOR Y A LOS ALIMENTADORES PRIMARIOS Y SECUNDARIOS………………….…….135 6.1 Pruebas de aceptación a cables de energía……..………………..................................136 6.1.1 Prueba de Rigidez Dieléctrica (HI POT) a cables XLP de media tensión……………………………………….……136 6.1.2 Prueba de Resistencia de Aislamiento (MEGGER) Acometida a 23 kV de la Subestación Eléctrica Receptora Principal a Subestación del Edificio Gubernamental…….……………..…..138 6.1.3 Prueba de Resistencia de Aislamiento (MEGGER) Alimentadores Generales en Baja tensión………………………..................139 6.2 Prueba de resistencia de aislamiento al transformador (MEGGER)…..…………..….141 6.3 Prueba de relación de transformación (TTR) ………………….…………….……..144 CAPITULO 7 7.1 Evaluación de costos…………………………………….……………………..……..146 CONCLUSIONES Y RECOMENDACIONES….…………………….…………………149 BIBLIOGRAFIA….………………………………………………………………………151 ANEXO: A. Planos.....................................................................................................152 B. Equipamiento Subestacion....................................................................157 C. Pruebas .................................................................................................159
  • 6.
    6 TESIS HERIBERTO SALVADORCASTRO PROLOGO La ingeniería desarrollada en la presente tesis, tiene como finalidad primordial la de exponer el procedimiento básico para la elaboración de un Proyecto de Ingeniería Eléctrica de un Edificio Administrativo Gubernamental, el cual en forma general puede ser utilizado para cualquier Edificio Administrativo. Para la elaboración del proyecto es necesario contar con la mayor información posible del inmueble, de la ubicación de las diferentes áreas que integran el edificio (área de oficinas, site de computo, áreas exteriores, cuarto de maquinas y Subestación Eléctrica Derivada) y de cualquier información adicional que permita tener una idea total del proyecto, y en esa medida, poder proponer los materiales adecuados y equipos a utilizar en la ejecución de dicha instalación eléctrica; los cuales deben ser de la mejor calidad y de las marcas mas reconocidas comercialmente en el mercado. Lo anterior permitirá desarrollar una ingeniería los mas apegada a las condiciones requeridas por el cliente, con la finalidad de obtener las cargas instaladas totales para no sobredimensionar tanto los alimentadores como las protecciones termomagnéticas y en esa medida seleccionar adecuadamente los tableros de distribución, transformador y subestación eléctrica. En el análisis no debemos perder de vista jamás, la protección de la vida y la propiedad de las personas contra riesgos que presenta el uso y suministro de la energía eléctrica ya que son lo mas importante y lo primero. Tomando en cuenta siempre los requisitos mínimos de seguridad que nos marcan las Normas Técnicas de Instalación Eléctrica para llevar acabo un diseño eléctrico.
  • 7.
    7 TESIS HERIBERTO SALVADORCASTRO OBJETIVO: DETERMINAR EL CALIBRE DEL CONDUCTOR EN BASE A LAS CARGAS INSTALADAS PARA UNA OPTIMA EFICIENCIA DE ACUERDO A LA NORMATIVIDAD VIGENTE PARA UN EDIFICIO GUBERNAMENTAL.
  • 8.
    8 TESIS HERIBERTO SALVADORCASTRO INTRODUCCION
  • 9.
    9 TESIS HERIBERTO SALVADORCASTRO INTRODUCCIÓN LA ELECTRICIDAD EN MÉXICO La generación de energía eléctrica se inició en México a fines del siglo XIX. La primera planta generadora que se instaló (1879) en el país estuvo en León, Guanajuato, y era utilizada por la fábrica textil “La Americana”. Para 1889 operaba la primera planta hidroeléctrica en Batopilas, Chihuahua; la cual extendió sus redes de distribución hacia mercados urbanos y comerciales donde la población era de mayor capacidad económica. A partir de entonces, algunas compañías internacionales con gran capacidad vinieron a crear filiales: The Mexican Light and Power Company, de origen canadiense (en el centro del país), el consorcio The American and Foreign Power Company (con tres sistemas interconectados en el norte de México) y la Compañía Eléctrica de Chapala (en el occidente). Al iniciarse el siglo XX, México contaba con una capacidad de 31.0 MW, propiedad de empresas privadas. Para 1910 eran 50.0 MW, de los cuales 80% lo generaba The Mexican Light and Power Company, con el primer gran proyecto hidroeléctrico: la planta Necaxa, en Puebla. En ese período se comenzó el primer esfuerzo para ordenar la industria eléctrica con la creación de la Comisión Nacional para el Fomento y Control de la Industria de Generación y Fuerza, conocida posteriormente como Comisión Nacional de Fuerza Motriz. Y fue hasta el 2 de diciembre de 1933, cuando se decretó integrar la Comisión Federal de Electricidad. Cuatro años después, el 14 de agosto de 1937, CFE entró en operación formal. En ese momento, la capacidad instalada en el país era de 629.0 MW. Los primeros proyectos de generación de energía eléctrica de CFE se realizaron en Teloloapan, Guerrero; Pátzcuaro, Michoacán; Suchiate y Xía, en Oaxaca, y Ures y Altar, en Sonora; el primer gran proyecto hidroeléctrico se inició en 1938 con la construcción de los canales, caminos y carreteras de lo que después se convirtió en el Sistema Hidroeléctrico Ixtapantongo, en el Estado de México, que posteriormente fue nombrado Sistema Hidroeléctrico Miguel Alemán. En 1938, Comisión tenía apenas una capacidad de 64 kW, misma que, en ocho años, aumentó hasta alcanzar 45,594 kW. Para 1960 la CFE aportaba 54% de los 2,308 MW de capacidad instalada; la Mexican Light, 25%; la American and Foreign, 12%, y el resto de las compañías, 9%. A partir de entonces, se comenzó a integrar el Sistema Eléctrico Nacional, extendiendo la cobertura del suministro y acelerando la industrialización. El Estado mexicano adquirió los bienes e instalaciones de las compañías privadas, las cuales operaban con serias deficiencias por la falta de inversión y los problemas laborales.
  • 10.
    10 TESIS HERIBERTO SALVADORCASTRO En poco más de 20 años, nuestra empresa había cumplido uno de sus más importantes cometidos: ser la entidad rectora en la generación de energía eléctrica. En esa década, la inversión pública se destinó en más de 50% a obras de infraestructura. Se construyeron importantes centros generadores, entre ellos los de Infiernillo y Temascal. También se instalaron plantas generadoras, alcanzando, en 1971, una capacidad instalada de 7,874 MW. Luego, unificó la frecuencia a 60 Hertz e integró los sistemas de transmisión en el Sistema Interconectado Nacional. Actualmente, la capacidad instalada en el país es de 49,931 MW*, de los cuales 44.87% corresponde a generación termoeléctrica de CFE; 22.95% a *productores independientes de energía (PIE); 22.14% a hidroelectricidad; 5.21% a centrales carboeléctricas; 1.93% a geotérmica; 2.73% a nucleoeléctrica, y 0.17% a eoloeléctrica. Otro rubro se refiere a la red de transmisión de electricidad, el cual se compone de 49,012 kilómetros de líneas de 400, 230 y 161 kV; 353 subestaciones de potencia con una capacidad de 143,960 MVA, y 47,283 kilómetros de líneas de subtransmisión de 138 kV y tensiones menores. Por su parte, el sistema de distribución (que también estaba en ceros en 1937) cuenta actualmente con 1,649 subestaciones con 44,140 MVA de capacidad; 7,292 circuitos de distribución con una longitud de 388,076 kilómetros; 1,063,333 transformadores de distribución con una capacidad de 35,097 MVA; 246,106 kilómetros de líneas secundarias de baja tensión y 660,874 kilómetros de acometidas. Actualmente 136,747 localidades tienen electricidad. IMPORTANCIA DEL CALIBRE DE CONDUCTOR Y DEL CORRECTO DIMENSIONAMIENTO DE LAS PROTECCIONES ELÉCTRICAS. Instalar un conductor del calibre correcto e incluso mayor que el mínimo requerido por las normas eléctricas, incrementa la eficiencia en el uso de la energía eléctrica. Al seleccionar el calibre correcto de conductor se reducen las pérdidas de potencia eléctrica y aumenta el ahorro en el gasto de la energía, así mismo disminuyen las perdidas por calor, aumenta la flexibilidad de la instalación y se tiene mayor eficiencia en la carga eléctrica. Cuando se genera menos calor se reduce el requerimiento de energía de ventiladores, motores y sistemas de aire acondicionado. Por otro lado, la electricidad es elemento facilitador de la vida de las personas, pero al mismo tiempo, puede ser causa de accidentes e incluso de muerte si no se respetan los procedimientos para su manejo eficiente. Por eso es de gran importancia el conocimiento que los profesionales eléctricos tengan sobre el correcto dimensionamiento y utilización de las protecciones eléctricas, para la seguridad de los bienes y los usuarios a los que servirá una instalación determinada. Cualquier instalación eléctrica debe estar provista de protecciones, cuyo objetivo es reducir al máximo los efectos producidos por un cortocircuito o una sobrecarga. Para que esto sea posible, las protecciones deben ser dimensionadas adecuadamente según las características
  • 11.
    11 TESIS HERIBERTO SALVADORCASTRO del circuito. Las protecciones más comunes que existen son los llamados fusibles o disyuntores magneto-térmicos. La selectividad de las protecciones es un concepto de extraordinaria importancia, el cual lamentablemente, no es de aplicación frecuente por parte de los proyectistas en la industria de la construcción eléctrica. Salvo en instalaciones muy elementales, hay siempre dos o más protecciones conectadas en serie entre el punto de alimentación y los posibles puntos de falla. Para delimitar la falla a la menor área posible, de modo que las perturbación que ella introduzca al resto de la instalación sean mínimas, la protección que este más próxima al punto de la falla debe operar primero y, si esta, por cualquier motivo, no opera dentro de su tiempo normal, la que sigue inmediatamente detrás deberá hacerlo y así sucesivamente. Vale decir, debe haber un funcionamiento escalonado que partiendo desde el punto de falla debe ir acercándose al punto de alimentación, si es que ello fuese necesario. Las protecciones deberán entonces elegirse y regularse, de acuerdo a sus curvas características de modo que operen frente a cualquier eventualidad en la forma descrita. Cuando ello se consigue que las protecciones sean selectivas y el estudio que se ha hecho para conseguirlo se denomina coordinación de protecciones. CONTENIDO DEL TRABAJO A continuación se comenta en forma sucinta el contenido de esta tesis, que tiene como finalidad obtener mi título profesional de ingeniero electricista, si es aprobada en el examen profesional. El primer capítulo, define y muestra un esquema general de un sistema eléctrico de potencia. Así como las características principales que influyen sobre la generación y transporte de la energía eléctrica. El segundo capítulo, define y muestra la clasificación de los elementos constitutivos de las subestaciones eléctricas (transformador, interruptor, restaurador y seccionadores, cuchillas, Apartarrayos, condensadores y transformadores de instrumento. El tercer capítulo, habla de los elementos que intervienen en las instalaciones para el diseño eléctrico, alimentadores, subalimentadores, circuitos derivados, tableros y canalizaciones eléctricas. En el cuarto capítulo se realiza un estudio de las cargas instaladas en el edificio. El quinto capítulo, muestra el cálculo de las protecciones, el calibre del conductor y las canalizaciones eléctricas. El sexto capítulo muestra, las pruebas realizadas a los cables de energía y al transformador. En el séptimo capítulo se muestra la evaluación de costo.
  • 12.
    12 TESIS HERIBERTO SALVADORCASTRO EDIFICIO GUBERNAMENTAL CAPITULO 1 INTRODUCCION A LOS SISTEMAS ELÉCTRICOS DE POTENCIA
  • 13.
    13 TESIS HERIBERTO SALVADORCASTRO CAPITULO 1. CONSIDERACIONES GENERALES DE LOS SISTEMAS ELÉCTRICOS DE POTENCIA De todas las formas de energía conocidas en la actualidad, la que más se emplea para la economía de cualquier nación, es la energía eléctrica. La posibilidad de explotar distintos tipos de fuentes de energía como corrientes de ríos, combustóleo, gas, uranio, carbón, la fuerza de los mares y vientos, geiser, etc. de sitios alejados de los centros de consumo, hace posible que la energía eléctrica se transmita a grandes distancias, lo que resulta relativamente económico, ya que es necesaria en la gran mayoría de procesos de producción de la sociedad actual. Sin embargo para que se cumpla lo anterior es indispensable disponer un sistema interconectado mediante el cual nos sea posible generar la energía, transportarla y distribuirla a todos los usuarios en forma eficaz, segura y con calidad. A este sistema lo llamamos sistema eléctrico de potencia (SEP). En este sistema la energía eléctrica, desde su generación hasta su entrega en los puntos de consumo, pasa por diferentes etapas de adaptación, transformación y maniobra. Para la correcta operación del sistema son necesarios equipos que sean capaces de transformar regular, maniobrar y proteger. 1.1 Función de los sistemas eléctricos de potencia Las centrales generadoras se construyen de tal forma, que por las características del terreno se adaptan para su mejor funcionamiento, rendimiento y rentabilidad. Actualmente los sistemas operan con energía eléctrica en forma de corriente alterna trifásica, esto debido a su facilidad para transformarse en comparación con la corriente directa. A parte de que requiere menos niveles de aislamiento que la corriente directa lo que implica ahorro en aislamiento y en general equipos menos bromosos. Otra razón para el uso de corriente alterna trifásica es la simplicidad de los generadores y transformadores que trabajan con este tipo de corriente, así mismo resulta también más sencilla y económica la transmisión y distribución de este tipo de corriente. Por razones técnicas, las tensiones de generación en las centrales generadoras son relativamente bajos en relación con las tensiones de transmisión, por lo que si la energía eléctrica se va a transportar a grandes distancias estos voltajes de generación resultarían antieconómicos debido a que se tendría gran caída de voltajes. Otra de las ventajas derivadas de transportar la energía eléctrica a valores altos tensión y en consecuencia valores reducidos de corriente, es el ahorro económico que implica poder utilizar cables con menor sección transversal o calibre. Pues para la misma potencia a transportar pero a menores valores tensión seria necesario conductores de mayor calibre, más costosos para
  • 14.
    14 TESIS HERIBERTO SALVADORCASTRO transmitir energía con valores más altos de corriente. Por ejemplo, si se va a transmitir energía eléctrica de una central generadora a un centro de consumo que esta situado a 1000 km de distancia, será necesario elevar el voltaje de generación que supondremos de 13.8 kV a otro de transmisión mas conveniente que asumimos sea de 110 kV, como se ilustra en la figura 1.1 Figura 1.1 Para poder elevar el voltaje de generación de 13.8 kV al de transmisión de 110 kV es necesario emplear una S.E. “A” (ver figura 1.2). Figura 1.2 Suponiendo que la caída de tensión en la línea de transmisión fuera cero volts, tendríamos en el centro de consumo 110 kV. Es claro que este voltaje no es posible emplearlo en instalaciones industriales y aun menos en comerciales y residenciales, de donde se desprende la necesidad de reducir el voltaje de transmisión de 110 kV a otro y otros más convenientes de distribución en centros urbanos de consumo. Por tal razón, será necesario emplear otra subestación eléctrica B, como se ilustra en la figura 1.3 Figura 1.3 1.2 Representación y definición de un Sistema Eléctrico de Potencia (SEP) Un sistema eléctrico de potencia (SEP), es un conjunto de elementos componentes y dispositivos eléctricos interconectados diseñados para transmitir y distribuir la energía eléctrica producida por los generadores hasta los lugares de consumo. Esta energía se debe distribuir con calidad a los usuarios, los principales índices son: confiabilidad del servicio, desviaciones de la frecuencia, desviaciones y fluctuaciones de tensión, distorsión de la onda de tensión y corriente, por último asimetría de las tensiones trifásicas. G CENTRAL GENERADO 13.8 KV G 110 KV SE G 1000 KM 110 KV SE LINEA DE TRANS
  • 15.
    15 TESIS HERIBERTO SALVADORCASTRO Elementos principales de un sistema eléctrico de potencia (SEP): Planta generadora, Subestación eléctrica de potencia, Líneas de transmisión, Subestación eléctrica de distribución, Redes de distribución y los Centros de carga o consumo, como se ilustra en la figura 1.4 Figura 1.4 Elementos principales de un sistema eléctrico de potencia. Generación: es un conjunto de elementos que convierten energía primaria en energía eléctrica. Habitualmente las tensiones de generación oscilan entre 3 y 23 kV y dependiendo de la fuente primaria de energía se pueden clasificar en: Centrales hidroeléctricas Centrales termoeléctricas Centrales geotermoeléctricas Centrales nucleoeléctricas Centrales de ciclo combinado Centrales de turbo-gas Centrales eólicas Centrales solares Transmisión: constituyen los eslabones de conexión entre las centrales generadoras y redes de distribución. El sistema de transmisión está compuesto por dos diferentes redes con objetivos funcionales definidos. A) Red de transmisión troncal B) Red de subtransmisión
  • 16.
    16 TESIS HERIBERTO SALVADORCASTRO La primera está formada por instalaciones de transmisión entre 161 kV y 400 kV. Al finalizar julio del 2009 esta red alcanzo una longitud de 49,051 km de Líneas de Transmisión en 161 kV, 230 kV y 400 kV. La segunda utiliza tensiones de transmisión de 69 kV, 85 kV, 115 kV y 38 kV, a julio de 2009, la longitud de estas líneas fue de 46,360 km, respectivamente. Distribución: una red de distribución es el conjunto de instalaciones que conectan las cargas aisladas de una zona determinada con las líneas de transmisión, en niveles de 34.5, 23, 13.8, 6.6, 4.16, 2.4 kV y baja tensión, a julio de 2009, la longitud de estas líneas fue de 637,055 km, la red de distribución está constituida por dos diferentes redes. Redes de distribución en Media Tensión (2.4 kV a 34.5 kV) Redes de distribución de Baja tensión (220 V entre fases) En la figura 1.5 se muestra un esquema general de un sistema eléctrico de potencia. Figura 1.5 Sistema Eléctrico de Potencia a) Subsistema de generación b) Subestaciones elevadoras c) Líneas de transmisión d) Subestaciones reductoras e) Red de subtransmisión f) Subestaciones de distribución g) Redes de distribución en media tensión h) Bancos de transformación i) Redes de distribución en baja tensión Aunque se procura evitar en todo lo posible el empleo del argot profesional, será necesario recurrir a ciertos términos: Sistema. Se utiliza para describir la red eléctrica completa, los generadores, las cargas y los motores que accionan a aquellos. G G
  • 17.
    17 TESIS HERIBERTO SALVADORCASTRO Carga. Esta expresión puede utilizarse en distintos sentidos; para indicar un dispositivo o reunión de dispositivos que consumen electricidad; para indicar la energía necesaria para un determinado circuito de suministro de energía; la potencia o corriente que pasa a través de una línea o maquina. Barra De Distribución. Conexión eléctrica de impedancia cero que une varios aparatos o elementos tales como líneas, cargas, etc. Con frecuencia tiene la forma real de una barra de cobre o aluminio. Conexión A Tierra. La conexión de un conductor o armazón de un dispositivo al cuerpo principal de la tierra. Debe hacerse de tal manera que la resistencia entre el aparato y la tierra este por debajo de ciertos límites prescritos. Exige con frecuencia enterrar conjuntos grandes de varias conductoras en tierra y el empleo de conectores de área de sección recta grande. Avería. Consiste en un mal funcionamiento de la red normalmente debido a corto circuito de dos conductores o de un conductor activo que se conecta con la tierra. Seguridad de suministro. Debe tenerse en cuenta que hay que asegurar la continuidad de suministro a los consumidores aunque estén fuera de funcionamiento ciertos aparatos de la central. Normalmente se utilizan dos circuitos en paralelo y se dice que un sistema es seguro cuando está asegurada la continuidad. Es evidentemente el tema de principal prioridad en el diseño y funcionamiento. 1.3 Características fundamentales que influyen sobre la generación y transporte de la energía eléctrica. Existen tres características fundamentales en la generación de la energía eléctrica que, aunque resultan evidentes, tienen una profunda influencia sobre la forma en que se produce técnicamente. Estas características son las siguientes: a) La electricidad, a diferencia del gas y del agua, no puede almacenarse y el suministrador o fabricante tiene poco control sobre su consumo o carga en cualquier instante. Los técnicos de control tienen que procurar mantener la salida de los generadores de modo que sea igual a la carga conectada para la tensión y frecuencia especificada; la dificultad de esta tarea resulta evidente a partir de un estudio de una curva de carga diaria. Se verá que la carga se compone básicamente de una componente constante, conocida como carga base, más picos que dependen de la hora del día, de los programas de televisión populares y de otros factores. b) Existe un incremento continuo de la demanda de esta energía que equivale aproximadamente a duplicar su demanda cada diez años. Esto se aplica a la mayor parte de los países, aunque en algunos países subdesarrollados esta proporción es incluso más elevada. Así pues, se produce un proceso grande y continúo de adicionar al sistema más centros de producción. Por lo tanto, las redes deben
  • 18.
    18 TESIS HERIBERTO SALVADORCASTRO desarrollarse a lo largo de los años y no deben planificarse de un modo definitivo para quedar invariables en el futuro. c) La distribución y naturaleza del combustible disponible. Este aspecto es de gran interés puesto que el carbón se obtiene en minas que están situadas en zonas normalmente alejadas de los centros de consumo principales; la energía hidroeléctrica también se acostumbra obtener en lugares remotos de los centros de carga fundamentales. Estas dos son las fuentes convencionales de energía en la mayoría de los países y el problema de fijar donde se sitúa la estación generadora y la distancia de transporte es un problema de economía. Hoy en día el uso creciente de combustibles líquidos derivados del petróleo y de la energía nuclear tiende a modificar el esquema existente de fuentes de suministro de energía. Un aspecto adicional de naturaleza diferente que resulta cada día más importante, es el de su influencia sobre el paisaje. Existen presiones de la opinión pública en contra de la proliferación de líneas aéreas que se produce cuando aumenta de modo constante la demanda de electricidad. Aunque la elevación de tensiones de suministro aumenta sustancialmente la energía transportada en cada línea aérea, el número de líneas va creciendo rápidamente y pareciera lógico que partes limitadas de la red estuvieran enterradas a pesar de su costo mucho más elevado. Estos cables subterráneos se instalarían además de los utilizados normalmente en las zonas edificadas. En el caso de distancias relativamente pequeñas es factible utilizar corriente alterna de alta tensión con cables subterráneos, pero en el caso de distancias más largas habrá de utilizarse corrientes continuas a tensiones elevadas.
  • 19.
    19 TESIS HERIBERTO SALVADORCASTRO EDIFICIO GUBERNAMENTAL CAPITULO 2 DEFINICION Y CLASIFICACION DE LAS SUBESTACIONES ELECTRICAS
  • 20.
    20 TESIS HERIBERTO SALVADORCASTRO CAPITULO 2. DEFINICIÓN Y CLASIFICACION DE LAS SUBESTACIONES ELÉCTRICAS En el empleo de la energía eléctrica, ya sea para fines industriales, comerciales o de uso residencial, interviene una gran cantidad de máquina y equipo eléctrico. Un conjunto de equipo eléctrico utilizado para un fin determinado se le conoce con el nombre de subestación eléctrica. Subestación. Es un conjunto de elementos o dispositivos que permiten cambiar las características de energía eléctrica (voltaje, corriente, frecuencia, etc.), tipo C.A. a C.C., o bien conservarle dentro de ciertas características. Su función es interconectar líneas de transmisión de distintas centrales generadoras, transformar los niveles de voltaje para su transmisión o consumo. Clasificación de las subestaciones eléctricas a) Por su operación. 1. Corriente alterna 2. Corriente continúa b) Por su servicio c) Por su construcción 1. Tipo intemperie 2. Tipo interior 3. Tipo blindado Elevadoras Receptoras reductoras De enlace o distribución De switcheo o de maniobra Convertidoras o Rectificadoras Primarias Elevadoras Distribuidoras De enlace Convertidoras o Rectificadoras Secundarias Reductoras Elevadoras
  • 21.
    21 TESIS HERIBERTO SALVADORCASTRO 2.1 Elementos constitutivos de una subestación Los elementos que constituyen una subestación se pueden clasificar en elementos principales y elementos secundarios. Elementos principales 1. Transformador 2. Interruptor de potencia 3. Restaurador y seccionadores 4. Cuchillas fusible 5. Cuchillas desconectadoras y cuchillas de prueba 6. Apartarrayos 7. Tableros duplex de control 8. Condensadores 9. Transformadores de instrumento Elementos secundarios 1. Cables de potencia 2. Cables de control 3. Alumbrado 4. Estructura 5. Herrajes 6. Equipo contra incendio 7. Equipo de filtrado de aceite 8. Sistema de tierras 9. Carrier 10. Intercomunicación 11. Trincheras, ductos, conducto, drenajes 12. Cercas 2.2 Transformador Un transformador es un dispositivo que: a) Transfiere energía eléctrica de un circuito a otro conservando la frecuencia constante. b) Lo hace bajo el principio de inducción electromagnética. c) Tiene circuitos eléctricos que están eslabonados magnéticamente y aislados eléctricamente. d) Usualmente lo hace con un cambio de voltaje, aunque esto no es necesario.
  • 22.
    22 TESIS HERIBERTO SALVADORCASTRO Diagrama elemental de un transformador Figura 2.1 2.2.1 Elementos que constituyen un transformador 1. Núcleo de circuito magnético 2. Devanados 3. Aislamiento 4. Aislantes 5. Tanque o recipiente 6. Boquillas 7. Ganchos de sujeción 8. Válvula de carga de aceite 9. Válvula de drenaje 10. Tanque conservador 11. Tubos radiadores 12. Base para rolar 13. Placa de tierra 14. Placa de características 15. Termómetro 16. Manómetro 17. Cambiador de derivaciones o taps
  • 23.
    23 TESIS HERIBERTO SALVADORCASTRO Figura 2.2 Transformador de potencia 2.2.2 Clasificación de Transformadores Los transformadores se pueden clasificar por: a) La forma de su núcleo. 1. Tipo columnas 2. Tipo acorazado 3. Tipo envolvente 4. Tipo radial b) Por el numero de fases 1. Monofásico 2. Trifásico c) Por el numero de devanados 1. Dos devanados 2. Tres devanados d) Por el medio refrigerante 1. Aire 2. Aceite 3. Liquido inerte e) Por el tipo de enfriamiento 1. Enfriamiento OA 2. Enfriamiento OW 3. Enfriamiento OW/A
  • 24.
    24 TESIS HERIBERTO SALVADORCASTRO 4. Enfriamiento OA/AF 5. Enfriamiento OA/FA/FA 6. Enfriamiento FOA 7. Enfriamiento OA/FA/FOA 8. Enfriamiento FOW 9. Enfriamiento A/A 10. Enfriamiento AA/FA f) Por la regulación a) Regulación fija b) Regulación variable con carga c) Regulación variable sin carga g) Por la operación 1. De potencia 2. Distribución 3. De instrumento 4. De horno eléctrico 5. De ferrocarril 2.2.3 Conexión de transformadores Conexión delta-delta La conexión delta-delta en transformadores trifásicos se emplea normalmente en lugares donde existen tensiones relativamente bajas; en sistemas de distribución se utiliza para alimentar cargas trifásicas a tres hilos. Conexión delta-delta. Figura 2.3 Conexión delta-estrella Esta conexión se emplea en aquellos sistemas de transmisión en que es necesario elevar voltajes de generación. En sistemas de distribución es conveniente su uso debido a que se pueden tener dos voltajes diferentes (entre fase y neutro). H1 1 2
  • 25.
    25 TESIS HERIBERTO SALVADORCASTRO Conexión estrella-estrella Esta conexión se emplea en tensiones muy elevadas, ya que se disminuye la cantidad de aislamiento. Tiene la desventaja de no presentar oposición a las armónicas impares; en cambio pueden conectarse a hilos de retorno. Conexión estrella-delta Se utiliza esta conexión en los sistemas de transmisión de la subestación receptora cuya función es reducir voltajes. En sistemas de distribución es poco usual; se emplea en algunas ocasiones para distribución rural a 20 kV. Conexión estrella-delta. Figura 2.4 Conexión delta abierta-delta abierta Esta puede considerarse como una conexión de emergencia en transformadores trifásicos, ya que si en un transformador se quema o sufre una avería cualquiera de sus fases, se puede seguir alimentando carga trifásica operando el transformador a dos fases, solo que su capacidad disminuye a 58.8% aproximadamente. Los transformadores trifásicos en V-V se emplean en sistemas de baja capacidad y usualmente operan como auto transformadores. Conexión delta abierta-delta abierta. Figura 2.5 642 531 H3H2H1 X2 X1 X3 H1 H2 H3 2 3 1 6 5 4 1 2 6 5 4 3 X1 X2 X3 2 4 6 1 3 5
  • 26.
    26 TESIS HERIBERTO SALVADORCASTRO 2.2.4 Puesta en servicio y mantenimiento de transformadores Antes de poner en operación un transformador dentro de una subestación eléctrica conviene efectuar una revisión de lo siguiente: 1. Rigidez dieléctrica del aceite. Una lectura baja de rigidez dieléctrica del aceite nos indicara suciedad, humedad en el aceite. Para corregir esto se filtra el aceite las veces que sea necesario hasta obtener un valor correcto. 2. Resistencia de aislamiento 3. Secuencia de fases correcta (polaridad) 4. Tener cuidado de que las lecturas de parámetros (V, I, W), sean la adecuadas. Mantenimiento: es el cuidado que se debe tener en cualquier tipo de maquinas durante su operación, para prolongar su vida y obtener un funcionamiento correcto. En el caso particular de los transformadores se requiere poco mantenimiento, en virtud de ser maquinas estáticas. Sin embargo conviene que periódicamente se haga una revisión de algunas de sus partes, como son: Inspección ocular de su estado externo en general, para observar fugas de aceite, etc. Revisar si las boquillas no están flameadas por sobretensiones de origen externo o atmosférico. Cerciorarse de que la rigidez dieléctrica del aceite sea la correcta, de acuerdo con las normas. Observar que los aparatos indicadores funcionen debidamente. Tener cuidado que los aparatos de protección y control operen en forma correcta. 2.3 Interruptores Interruptor: es un dispositivo cuya función es interrumpir y restablecer la continuidad de un circuito, eléctrico. Si la operación se efectúa sin carga (corriente), el interruptor recibe el nombre de desconectador o cuchilla desconectadora. Si en cambio la operación de apertura o cierre la efectúa con carga (corriente nominal) o con corriente de corto circuito (en caso de alguna perturbación), el interruptor recibe el nombre de disyuntor o interruptor de potencia.
  • 27.
    27 TESIS HERIBERTO SALVADORCASTRO Los estados de operación de un interruptor son los siguientes: Abierto (O) aislamiento seguro entre terminales, para corriente nominales de operación o hasta de corto circuito según el caso. Cerrado (I) soporte de esfuerzos térmicos y dinámicos que implica la conexión bajo corrientes nominales de operación. 2.3.1 Interruptor de Potencia Los interruptores de potencia, interrumpen y restablecen la continuidad de un circuito eléctrico. La interrupción la deben efectuar con carga o corriente de corto circuito. Se clasifican en los siguientes tipos: a) Interruptores de aceite 1. Interruptores de gran volumen de aceite 2. Interruptores de gran volumen de aceite con cámara de extinción 3. Interruptores de pequeño volumen de aceite b) Interruptores neumáticos c) Interruptores en hexafloruro de azufre (SF6) Interruptores en gran volumen de aceite Reciben ese nombre debido a la gran cantidad de aceite que contienen, generalmente se construyen en tanques cilíndricos y pueden ser monofásicos y trifásicos. Los trifásicos son para operar a voltajes relativamente pequeños y sus contactos se encuentran contenidos en un recipiente común separados entre si por separadores (aislantes). Por razones de seguridad, en tensiones elevadas se emplean interruptores monofásicos (1 por base en circuitos trifásicos). Las partes fundamentales en estos interruptores son: Tanque o recipientes............................................................ 1 Boquillas y Contactos fijos.................................................. 2-5 Conectores (elementos de conexión al circuito).................. 3 Vástago y contactos móviles................................................4-6 Aceite de refrigeración.........................................................7
  • 28.
    28 TESIS HERIBERTO SALVADORCASTRO Figura 2.6 Partes fundamentales de un interruptor en gran volumen de aceite En general, el tanque se construye cilíndrico, debido a las fuertes presiones internas que se presentan durante la interrupción. También el fondo del tanque lleva “costillas” de refuerzo para soportar estas presiones. Interruptores en gran volumen de aceite con cámara de extinción Los interruptores de grandes capacidades con gran volumen de aceite originan fuertes presiones internas que en algunas ocasiones pueden ocasionar explosiones. Para disminuir estos riesgos, se idearon dispositivos donde se forman las burbujas de gas, reduciendo las presiones a un volumen menor. Estos dispositivos reciben el nombre de “cámara de extracción” y dentro de estas cámaras se extingue el arco. El procedimiento de extinción es el siguiente: 1. Al ocurrir una falla, se separan los contactos que se encuentran dentro de la cámara de extinción. 2. Los gases que se producen tienden a escapar pero como se hallan dentro de la cámara que contiene aceite, origina una violenta circulación de aceite que extingue el arco. 3. Cuando el contacto móvil sale de la cámara, el arco residual se acaba de extinguir, entrando nuevamente aceite frió a la cámara. 4. Cuando los arcos se han extinguido se cierran los elementos de admisión de la cámara.
  • 29.
    29 TESIS HERIBERTO SALVADORCASTRO Figura 2.7 Interruptor de gran volumen de aceite Interruptores de pequeño volumen de aceite Los interruptores de reducido volumen de aceite reciben este nombre debido a que su cantidad de aceite es pequeña en comparación con los de gran volumen. (Su contenido de aceite varía entre 1.5 y 2.5% del que contienen los de gran volumen). Se construye para diferentes capacidades y voltajes de operación y su construcción es básicamente una cámara de extinción modificada que permite mayor flexibilidad de operación. Figura 2.8 Interruptor de pequeño volumen de aceite
  • 30.
    30 TESIS HERIBERTO SALVADORCASTRO Interruptores de aire (neumáticos) En estos interruptores, el medio de extinción del arco es aire a presión. El aire a presión se obtiene por un sistema de aire comprimido que incluye una o varias compresoras, un tanque principal, un tanque de reserva y un sistema de distribución en caso de que sean varios interruptores. Se fabrican monofásicos y trifásicos, para uso interior y exterior. Las ventajas del interruptor neumático sobre los interruptores de aceite son: 1. Mejores condiciones de seguridad, ya que evita explosiones o incendios 2. Interrumpe las corrientes de falla en menos ciclos (3 a 5). 3. Disminuye la posibilidad de reencebados de arco 4. Es más barato Interruptores en hexafloruro de azufre (SF6) El hexafloruro de azufre (SF6) tiene excelentes propiedades aislantes y para extinguir arcos eléctricos, su uso representa una solución ventajosa, funcional y económica. Otra gran ventaja es el mantenimiento relativamente reducido en comparación con otros interruptores. Actualmente se fabrican en tensiones de hasta 800 kV y corrientes de corto circuito de hasta 63 kA con dos cámaras de interrupción por polo, dependiendo del voltaje y de la capacidad interruptiva, se encuentran disponibles en diferentes versiones:  Como cámara sencilla hasta 245 kV y 50 kA.  Como dos cámaras y columna sencilla entre 245-550 kV y 63 kA.  Como cuatro cámaras y dos columnas hasta 800 kV y 63 kA.
  • 31.
    31 TESIS HERIBERTO SALVADORCASTRO Figura 2.9 Interruptores en hexafloruro de azufre (SF6) Magnitudes características a considerar durante el proceso de cierre-apertura de los interruptores de potencia: 1. Tensión nominal. Se debe considerar porque es la tensión normal de operación del interruptor. 2. Corriente inicial de corto circuito. Es el valor instantáneo de la corriente de falla. 3. Corriente de ruptura. Es el valor permanente de la corriente de corto circuito. 4. Capacidad interruptiva. Es la potencia trifásica de interrupción para una corriente de ruptura determinada. 5. Tensión de restablecimiento. Es el voltaje en el interruptor después de la desconexión.
  • 32.
    32 TESIS HERIBERTO SALVADORCASTRO 2.3.2 Interruptores de bajo voltaje En baja tensión no se justifica económicamente el uso de medios aislantes como gases, aire a presión o aceite. Aquí se utilizan cámaras de extinción de arco eléctrico que se encuentran entre ambos contactos al separarse. Estas cámaras se enfrían y desionizan el arco, conduciéndolo de tal manera que es forzado a tener una trayectoria mas larga. Lo que demanda un voltaje mucho mayor para su permanencia. De manera que al instante del cruce por cero de la señal de alterna, el arco esta tan extendido o tan largo que ya no se restablece después del cruce por cero. Los tipos de accionamiento son en baja tensión predominantemente manual aunque existen también accionamiento por medio de relevadores de voltaje y otros accionamientos del tipo magnético, con motor o de presión de aire. Los parámetros principales que describen las características de interruptores en baja tensión son: 1. Voltaje y corriente nominal 2. Capacidad interruptiva para desconexión en kA (valor efectivo a un factor de potencia determinado cosφ. 3. Capacidad interruptiva para conexión (valor pico) en kA. 4. Voltaje de control para accionamiento remoto. Los fusibles protegen equipos principalmente conductores, de sobrecorrientes que pueden causar sobrecalentamiento y daños mecánicos. La corriente fluye a través de un hilo o lamina de metal el cual se funde al sobrepasarse un valor dado de corriente. La curva corriente-tiempo marca la operación del fusible. El tiempo de fusión de la laminilla o hilo está en función de la temperatura y esta a su vez de la corriente. Están construidos de metal fusionable a temperaturas relativamente bajas y calibradas de tal manera que se fundan cuando se alcanza una corriente determinada, debido a que se encuentran en serie con la carga, estos abren el circuito cuando se funden. Tienen una característica de tiempo inversa; si un fusible es 30 A debe conducir 30 A en forma continua con un 10% de sobrecarga (33 A) se debe fundir en algunos minutos, con una sobrecarga del 20 % (36 A) se funde en menos de un minuto y si se alcanza una sobrecarga del 100%, (60 A) el fusible se funde en fracciones de segundo es decir, que a mayor sobrecarga, menor tiempo de fusión, es decir, de interrupción del circuito. Los fusibles se dividen en dos clases dependiendo de la potencia a la cual van a operan. 1. Fusibles de bajo voltaje (600 volts) y menos. Estos a su vez se subdividen en: a) Tipo tapón b) Tipo cartucho
  • 33.
    33 TESIS HERIBERTO SALVADORCASTRO 2. Fusibles de potencia (sobre 600 volts). Están en uso dos tipos de fusibles de potencia que son: a) Limitadores de corriente b) Tipo de expulsión Fusibles tipo tapón con rosca: En este tipo de fusibles en una base roscada se encuentra encerrado un listón fusible para prevenir que el metal se disperse cuando el listón fusible se funda la condición en que se encuentra el fusible se puede determinar observando a través de una mirilla de plástico transparente localizada en la parte superior del conjunto que constituye al fusible. Este tipo de fusible no se debe usar en circuitos con un voltaje superior a 127 volts y se deben instalar en el lado de la carga del circuito en que se van a localizar. Los fusibles del tipo tapón por lo general se encuentran montados en bases o zoclos de porcelana asociados a desconectadores de navajas de dos polos y su característica es tal que cuando se funden se deben reemplazar por otro, es decir, son desechables, se encuentran en el mercado de 15 A y 30A. Fusible tipo cartucho: En las instalaciones eléctricas en donde la corriente exceda a 30A, es necesario usar fusibles del llamado tipo cartucho y su correspondiente portafusibles. Este tipo de fusibles se fabrican para una gama más amplia de voltajes y corrientes. Se fabrican en dos tipos: a) Fusibles de cartucho conectados de casquillo; con capacidades de corriente de 3, 5, 10, 15, 20, 25, 30, 35, 40, 45, 50 y 60 Amperes. b) Fusibles de cartucho con contactos de navaja; con capacidades de corriente de 75, 80, 90, 100, 110, 125, 150, 175, 200, 225, 250, 300, 350, 400, 500 y 600 amperes. Estos fusibles son de aplicación en instalaciones industriales o comerciales de gran capacidad. Figura 2.10 Fusibles de baja tensión. Interruptores termomagnéticos: Han desplazado en muchas aplicaciones a los fusibles. En este caso se tiene en combinación un interruptor térmico (bimetal) como protección contra sobrecorriente y uno electromagnético con accionamiento rápido para protección contra
  • 34.
    34 TESIS HERIBERTO SALVADORCASTRO corto circuito. Dependiendo de la aplicación existen diferentes curvas de operación con ambas regiones de protección: contra sobrecorriente (inversa) y contra corto circuito (rápida o instantánea). Los interruptores termomagnéticos son también conocidos como “Breaker” diseñados para conectar y desconectar un circuito por medios no automáticos y desconectar el circuito automáticamente para un valor predeterminado de sobrecorriente sin que se dañe así mismo cuando se aplica dentro de sus valores de diseño. La característica particular de los interruptores termomagnéticos, es el elemento térmico conectado en serie con los contactos y que tiene como función proteger contra condiciones de sobrecarga gradual la corriente pasa a través del elemento térmico conectado en serie y origina su calentamiento cuando se produce un excesivo calentamiento como resultado de un incremento en la sobrecarga, unas cintas bimetálicas operan sobre los elementos de sujeción de los contactos desconectándolos automáticamente. Las cintas bimetálicas están hechas de dos metales diferentes, unidas en un punto una a otra. Se fabrican en los siguientes tipos y capacidades: Un polo: 15, 20, 30, 40 y 50 amperes. Dos polos: 15, 20, 30, 40, 50 y 70 amperes. Tres polos: 100, 125, 150, 175, 200, 225, 250, 300, 350, 400, 500, 600 amperes. En A.T. son dos los tipos de fusibles más utilizados; siendo su diferencia principal la forma de eliminar el arco de energía que se produce en la falla del sistema. De esta forma tenemos de Alto poder de ruptura y los Cortacircuitos de expulsión. Fusible de alto poder de ruptura (A.P.R.): También denominados fusibles de ruptura rápida, tienen como característica principal la rapidez de intervención ante un corto circuito, impidiendo que el valor de corriente producido llegue al nivel de cresta que se alcanzaría, en su ausencia, en el circuito. Son por tanto limitadores de corriente. La extrema velocidad de corte se logra repartiendo la corriente que atraviesa el fusible entre varios hilos conductores de pequeña sección, dispuestos en paralelo, que están construidos de plata. A parte de tener unas excelentes cualidades eléctricas, la plata no se oxida a altas temperaturas, a diferencia del cobre, con lo que no pierde sección útil, permitiendo asegurar un mejor calibrado y eliminando de esta forma un corte no deseado. Los fusibles A.P.R. se utilizan como elementos de protección de baterías de condensadores, motores, líneas áreas de M.T. y transformadores de M.T. siempre en instalaciones de poca potencia.
  • 35.
    35 TESIS HERIBERTO SALVADORCASTRO Figura 2.11 Fusible en alta tensión Cortacircuitos de expulsión: Están constituidos por un tubo protector en cuyo interior está dispuesto el elemento fusible, y unido a él la trencilla de conexión. En el momento de producirse el arco, la generación consiguiente de gases provoca la expulsión de la trencilla con el posterior alargamiento y soplado del arco, que provoca su extinción. La expulsión de gases en estos dispositivos hace que se utilice exclusivamente en instalaciones exteriores. Su ámbito de aplicación se encuentra reducido a tensiones de hasta 36 kV, y se utilizan para la protección de transformadores tipo poste, baterías de condensadores y derivaciones de líneas aéreas y subterráneas. 2.3.3 Interrupción de circuitos en líneas inductivas Entre los factores que afectan las prestaciones de los interruptores se menciona la interrupción de circuitos por los que circula corrientes inductivas, como son transformadores o bobinas en vacío. Desde luego que esto se refiere a la alimentación por medio de líneas de transmisión, que es un caso interesante. Para entender el funcionamiento o fenómeno que se presenta, consideremos el siguiente circuito de la figura 2.12. R’ y L’ son la resistencia y la reactancia inductiva del circuito de alimentación, L y C son las capacitancias caductancia del circuito alimentado. La inductancia del circuito y la capacitancia de la línea, un instante antes de abrirse el interruptor debido a una falla en las inductancias del circuito circulaba corriente, de tal manera que al abrirse almacenan cierta cantidad de energía magnética, la cual se descarga sobre la capacitancia del circuito, lo que hace que se presente un potencial debido a la energía almacenada por dicha capacitancia. Si la diferencia de potencial entre la capacitancia y el circuito de alimentación es grande, se produce un reencebado del arco entre los contactos. Si la energía almacenada por la capacitancia es grande, este fenómeno se repite varias veces hasta que la energía disminuye a un valor tal que la diferencia de potencial sea pequeña.
  • 36.
    36 TESIS HERIBERTO SALVADORCASTRO G C L R1 L1 Figura 2.12 Interrupción de circuitos en líneas inductivas. 2.3.4 Interrupción de circuitos capacitivos Los circuitos capacitivos están representados por cargas capacitivas o líneas de muy alta tensión operando en vacío. Consideremos el segundo caso por ser el de más importancia (ver figura 2.13). En líneas de muy alta tensión y gran longitud se presenta un cierto valor de capacitancia; en estos circuitos la corriente y el voltaje están defasados 90°, de tal forma que el voltaje al final de la línea es mayor que al principio, con lo que se tiene una diferencia de potencial “natural” por las características del circuito. Al producirse un corto circuito se abre el interruptor D quedando la línea en vacío (por que circula corriente). Entonces existe una diferencia de potencial entre los contactos del interruptor debido al potencial de la capacitancia; esto hace que se produzca el reencebado del arco, dando origen a un fenómeno semejante al del caso anterior al formarse un circuito oscilatorio L y C entre la capacitancia y la inductancia de la línea. 2.4 Restaurador y Seccionadores Un restaurador es un interruptor de operación automática que no necesita de accionamiento manual para sus operaciones de cierre o apertura (la operación manual se refiere al mando por control remoto), es decir, construido de tal manera que un disparo o un cierre esta calibrado de antemano y opera bajo una secuencia lógica predeterminada y constituye un interruptor de operación automática con características de apertura y cierre regulables de acuerdo con las necesidades de la red de distribución que se va a proteger. G V2V1 D I C V1 es la tensión al principio de la línea Figura 2.13 Interrupción de circuitos capacitivos.
  • 37.
    37 TESIS HERIBERTO SALVADORCASTRO Este interruptor recibe por tales condiciones el nombre de restaurador. Un restaurador no es más que un interruptor de aceite con sus tres contactos dentro de un mismo tanque y que opera en capacidades interruptivas relativamente bajas y tensiones no muy elevadas. Los restauradores normalmente están construidos para funcionar con tres operaciones de recierre y cuatro aperturas, con un intervalo entre una y otra calibrado de antemano en la última apertura el cierre debe ser manual, ya que indica que la falla es permanente. 2.4.1 Operación de un restaurador El restaurador opera en forma semejante a un interruptor trifásico, ya que sus contactos móviles son accionados por un vástago común, conectando y desconectando en forma simultánea. El proceso de apertura y recierre se puede describir brevemente como sigue: 1. Cuando ocurre una falla la bobina de disparo se energiza y actúa sobre un trinquete mecánico que hace caer a los contactos móviles. 2. Los contactos móviles disponen de resortes tensionados de tal forma que la apertura es rápida. Al caer los contactos móviles energizan la bobina de recierre que se encuentra calibrada para operar con un cierto intervalo. 3. La bobina de recierre acciona un dispositivo mecánico que opera los contactos móviles, conectándose nuevamente con los contactos fijos. 4. Si la falla es transitoria, el restaurador queda conectado y preparado para otra falla; si la falla es permanente, repetirá todo el proceso anterior hasta quedar fuera según el número de recierres para el cual se ha calibrado. La interrupción del arco tiene lugar en una cámara de extinción que contiene a los contactos. Figura 2.14 Restaurador.
  • 38.
    38 TESIS HERIBERTO SALVADORCASTRO Los restauradores que más se emplean son de los tipos R y W. Restaurado tipo R El restaurador tipo R es semejante en construcción al tipo W, pero se emplea para capacidades menores. A continuación se dan algunos datos de este tipo de restaurador. Voltaje nominal 2.4-14.4 kV Corriente nominal 25-400 A Voltaje de diseño 15.5 kV Restaurador tipo W Se construye trifásico en forma parecida al tipo R, pero es un poco mas robusto. Los siguientes requisitos son básicos para asegurar la efectiva operación de un restaurador: 1. La capacidad normal de operación del restaurador deberá ser igual o mayor de la máxima corriente de falla. 2. La capacidad normal de corriente constante del restaurador deberá ser igual o mayor que la máxima corriente de carga. 3. El mínimo valor de disparo seleccionado deberá permitir al restaurador ser sensible al corto circuito que se presenta en la zona que se desea proteger. Figura 2.15 Imagen de un restaurador.
  • 39.
    39 TESIS HERIBERTO SALVADORCASTRO 2.4.2 Cuchillas de operación con carga (Seccionador) Existen cuchillas que pueden desconectar circuitos con carga. Estas cuchillas generalmente reciben el nombre de seccionador, y son elementos que no están diseñados para interrumpir corrientes de corto circuito ya que su función es el abrir circuitos en forma automática después de cortar y responder a un numero predeterminado de impulsos de corriente de igual a mayor valor que una magnitud previamente predeterminada, abren cuando el alimentador primario de distribución queda desenergizado. En cierto modo el seccionador permite aislar sectores del sistema de distribución llevando un conteo de las operaciones de sobrecorriente del dispositivo de respaldo. Por su principio de operación el medio aislante de interrupción puede ser aire, aceite o vacío y en cuanto al control es similar al caso de los restauradores ósea puede ser hidráulico, electrónico o electromecánico. La misión de este aparato es la de unir o separar de una forma visible diferentes elementos, componentes o tramos de una instalación o circuito. Aunque los seccionadores han de maniobrarse normalmente sin carga, en determinadas circunstancias pueden conectarse o desconectarse en pequeñas cargas. Cuando se trata de corrientes magnetizantes, como la corriente de vacío de los transformadores, y que tienen un carácter claramente inductivo, la carga que pueden cortar los seccionadores es menor. Se puede decir que en tales circunstancias, la potencia máxima que pueden cortar los seccionadores es de 50 kVA. Dentro de esta clasificación se pude añadir que todos ellos pueden tener una constitución monopolar o tripolar (ver figura 2.16) Figura 2.16 Seccionador de cuchillas monopolar y tripolar. 2.5 Cuchillas fusible La cuchilla fusible es un elemento de conexión y desconexión de circuitos eléctricos. Tiene dos funciones: como cuchilla desconectadora y como elemento de protección.
  • 40.
    40 TESIS HERIBERTO SALVADORCASTRO El elemento de protección lo constituye el dispositivo fusible, que se encuentra dentro del cartucho de conexión y desconexión. El dispositivo fusible se selecciona de acuerdo con el valor de corriente nominal que va circular por él. Los elementos fusibles se construyen fundamentalmente de plata (en casos especiales), cobre electrolito con aleación de plata, o cobre aleado con estaño. Existen diferentes tipos de cuchillas fusibles, de acuerdo con el empleo que se les dé. Entre los principales tipos y características tenemos los siguientes: Figura 2.17 Cuchillas desconectadoras (seccionadores). La cuchilla desconectadora es un elemento que sirve para desconectar físicamente un circuito eléctrico. Por lo general, se operan sin carga, pero con algunos aditamentos se puede operar con carga hasta ciertos límites. 2.5.1 Clasificación de cuchillas desconectadoras Por su operación: a) Con carga (con tensión nominal). b) Sin carga (con tensión nominal). c) De puesta a tierra Por el tipo de accionamiento: a) Manual
  • 41.
    41 TESIS HERIBERTO SALVADORCASTRO b) Automático Por su forma de conexión: a) Cuchillas con tres aisladores, dos fijos y giratorio el del centro. Estas cuchillas se emplean sobre todo en subestaciones tipo intemperie con corrientes elevadas y tensiones del orden de 34.5 kV; son generalmente operadas en grupo, por mando eléctrico. No representan peligro para el operario, ya que es grande la separación entre polos. Figura 2.18 Cuchillas con tres aisladores, dos fijos y giratorio el del centro. b) Cuchillas con dos aisladores de operación vertical (normal e invertida). Este tipo de cuchillas es de los más usuales por su operación simple, puede emplearse en instalaciones interiores o a la intemperie. Para usos interiores se recomienda usarla en tensiones no mayores de 23 kV, para operación con pértiga, el lugar donde se pare el operario para efectuar la desconexión debe ser, de acuerdo con las normas de seguridad, una madera con capa de hule. Para montaje a la intemperie puede usarse en cualquiera de las tensiones normales de operación, con mando por barra o motor eléctrico. Figura 2.19 Cuchillas con dos aisladores de operación vertical (normal e invertida). c) Cuchilla con dos aisladores de operación horizontal (un aislador fijo). Este tipo de cuchillas es de uso a la intemperie generalmente. Presenta muchas ventajas cuando son accionadas neumáticamente; por tal razón es conveniente emplearlas cuando se disponga de aire comprimido. Se usan para cualquiera de las tensiones normales de operación. Pueden accionarse también por barra o motor eléctrico. Tienen el inconveniente de que la hoja de desconexión se desajusta después de varias operaciones.
  • 42.
    42 TESIS HERIBERTO SALVADORCASTRO Figura 2.20 Cuchilla con dos aisladores de operación horizontal (un aislador fijo). d) Cuchillas tipo pantógrafo. En la actualidad este tipo de cuchillas no se emplea con frecuencia sobre todo en América. La razón es que su mecanismo de operación es complicado y falla en ocasiones; además su costo es elevado y ocupa mucho espacio, lo cual va en contra de la tendencia actual de reducir el espacio en las instalaciones. Figura 2.21 Cuchillas tipo pantógrafo. e) Cuchillas con tres aisladores de doble arco (tipo AV). Estas cuchillas se emplean en instalaciones de corrientes elevadas y tensiones medias; se operan generalmente por barra o motor eléctrico pero también pueden accionarse con aire comprimido. En sistemas de distribución a 33 y 23 kV se usan para interconexión de líneas. Figura 2.22 Cuchillas con tres aisladores de doble arco (tipo AV). f) Cuchillas de tres aisladores, con el aislador central desplazable por cremallera. El rango de aplicación de estas cuchillas es semejante al de las cuchillas de operación vertical; debido a su tamaño, generalmente son accionadas por motor eléctrico, aunque se pueden accionar por barra o aire comprimido.
  • 43.
    43 TESIS HERIBERTO SALVADORCASTRO Figura 2.23 Cuchillas de tres aisladores, con el aislador central desplazable por cremallera. g) Cuchillas con cuernos de arqueo. Estas cuchillas pueden ser de operación horizontal o vertical. Se usan por lo general en sistemas que operan en tensiones muy elevadas, por ejemplo 66, 88, 115 kV, etc. Su empleo es indispensable en líneas largas los cuernos de arqueo sirven para que entre ellos se forme el arco al desconectar las cuchillas, y a la conexión a tierra para disipar la energía del arco. El arco se forma debido a la energía residual que conservan las líneas largas al quedar en vacío después de la apertura del interruptor. Figura 2.24 Cuchillas con cuernos de arqueo. 2.6 Apartarrayos Las sobretensiones que se presentan en las instalaciones de un sistema pueden ser de dos tipos: 1. Sobretensiones de origen atmosférico. 2. Sobretensiones por fallas en el sistema Apartarrayos es un dispositivo destinado a proteger las instalaciones contra sobre tensiones producidas por descargas atmosféricas, por maniobras o por otras causas que en otro caso, se descargarían sobre aisladores o perforarían el aislamiento. Ocasionando interrupciones en el sistema eléctrico y, en muchos casos, desperfectos en los generadores, transformadores, etc. Para su correcto funcionamiento el apartarrayos se encuentra conectado permanentemente en el sistema, opera cuando se presenta una sobretensión de determinada magnitud, descargando la corriente a tierra, y debe de elegirse con características tales que sea capaz de actuar antes de que el valor de la sobretensión alcance los valores de tensión de aislamiento de los elementos a proteger (lo que se conoce como coordinación de aislamiento), pero nunca para los valores de tensión normales.
  • 44.
    44 TESIS HERIBERTO SALVADORCASTRO Figura 2.25 Apartarrayos autovalvular Se fabrican diferentes tipos de apartarrayos, basados en el principio general de operación; los más empleados son los conocidos como “apartarrayos tipo autovalvular” y “apartarrayos de resistencia variable”. El apartarrayos tipo autovalvular consiste de varias chapas de explosores conectados en serie por medio de resistencias variables cuya función es dar una operación más sensible y precisa. Se emplea en los sistemas que operan a grandes tensiones, ya que se presenta una gran seguridad de operación. El apartarrayos de resistencia variable funda su principio de operación en el principio general, es decir, con dos explosores, y se conecta en serie a una resistencia variable. Se emplea en tensiones medianas y tiene mucha aceptación en sistemas de distribución. Figura 2.26 Apartarrayos tipo Autovalvular y de Resistencias Variables. La función del apartarrayos no es eliminar las ondas de sobre tensión presentadas durante las descargas atmosféricas, sino limitar su magnitud a valores que no sean perjudiciales para las maquinas del sistema. Las ondas que normalmente se presentan son de 1.5 x 40 μseg. (Onda americana) y 1 x 40 μseg. (Onda europea). Esto quiere decir que alcanza su valor de frente en 1.5 a 1 μseg. (Tiempo de frente de onda). La función del apartarrayos es cortar su valor máximo de onda (aplanar la onda).
  • 45.
    45 TESIS HERIBERTO SALVADORCASTRO Figura 2.27 Onda de choque de un apartarrayos. Las sobre tensiones originadas por descargas indirectas se deben a que se almacenan sobre las líneas cargas electrostáticas que al ocurrir la descarga se parten en dos y viajan en ambos sentidos de la línea a la velocidad de la luz. Los apartarrayos protegen también a las instalaciones contra descargas directas, para lo cual tiene un cierto radio de protección. Para dar mayor seguridad a las instalaciones contra descargas directas se instalan unas varillas conocidas como bayonetas e hilos de guarda semejantes a los que se colocan en las líneas de transmisión. 2.7 Tableros duplex de control Los equipos de protección y control, así como los instrumentos de medición, por lo general se instalan en tableros eléctricos, estos equipos e instrumentos se instalan tomando como referencia una serie de planos y dibujos, en donde se muestra la interconexión del equipo y el arreglo y disposición del mismo, la mayoría de los trabajos en tableros eléctricos se inicia con un diagrama unifilar, pero el conjunto de planos debe contener lo siguiente: 1. Diagrama unifilar 2. Diagrama de control 3. Diagrama de interconexión Estos dibujos son necesarios para la interpretación de la instalación de equipos y componentes de protección, medición y control, para los fines de su utilización, los tableros se pueden clasificar como: a) Tableros de baja tensión b) Tableros de alta tensión
  • 46.
    46 TESIS HERIBERTO SALVADORCASTRO Los tableros de baja tensión son aquellos que trabajan a una tensión no mayor de 1000 V en corriente alterna o no mayor de 1500 V en corriente continua. Los valores de tensiones nominales para tableros de corriente alterna en baja tensión son: 120, 240, 480 y 550 V. Para corriente continua las tensiones nominales son: 125, 250 y 550 V. Los valores de corriente nominales para los tableros de baja tensión, tanto en corriente alterna como en corriente continua, son los siguientes: 600, 1200, 2000, 3000, 4000 y 5000 A. Los tableros de alta tensión son aquellos que trabajan a una tensión mayor de 1000 V en corriente alterna o mayor de 1500 V en corriente continua. Las tensiones nominales para los tableros de corriente alterna alta tensión son: 2400, 4160, 7200, 13800, 23000 y 34500 V. Las corrientes nominales para tableros de alta tensión en corriente alterna o continua son: 600,1200, 2000, 3000, 4000 y 5000 A. Con relación a la función para la cual se destinan, los tableros se pueden subdividir en la forma siguiente: 1) Tableros principales de distribución 2) Tableros secundarios de distribución 3) Centros de control de motores 2.7.1 Tableros principales de distribución Estos tableros se instalan por lo general inmediatamente después de los transformadores de media tensión/baja tensión o de los generadores, se les conoce también como “centros de carga. Los tableros principales de distribución comprenden una o más unidades de entrada, eventualmente concentradores de barras y un número relativamente reducido de salidas; otros, a una serie de instrumentos de medición y aparatos de comando y control. Una característica particular de estos tableros son los elevados valores de las corrientes de corto
  • 47.
    47 TESIS HERIBERTO SALVADORCASTRO circuito y nominal, por lo que su estructura debe ser robusta para soportar las solicitaciones electrodinámicas y el peso de aparatos de gran tamaño. Figura 2.28 Tablero principal de distribución 2.7.2 Tableros secundarios de distribución Comprenden una basta categoría de tableros destinados a la distribución de la energía y, por lo general, son dotados de una unidad de entrada y de numerosas unidades de salida. Los aparatos alojados en el tablero son principalmente interruptores automáticos (interruptores termomagnéticos) de tamaño estándar y tipo modular, y también pueden tener una amplia gama de otros dispositivos de control, señalización, etc. Las corrientes nominales y de corto circuito de los tableros de distribución secundaria son menores que aquellas del tablero principal. Los modelos constructivos permiten el empleo de tableros metálicos o de material aislante y pueden estar instalados en el piso o en pared o muro, dependiendo de las dimensiones y el peso. Figura 2.29 Tablero secundario de distribución
  • 48.
    48 TESIS HERIBERTO SALVADORCASTRO 2.7.3 Centros de control de motores Estos tableros están destinados al control y a la protección centralizada de los motores; por lo tanto, comprenden los aparatos relacionados con la operación coordinada de maniobra y protección (unidad funcional autónoma) y aquellos auxiliares de control y señalización. Cada motor tiene asignada una unidad o caja del centro de control, de modo que sea posible intervenir con seguridad sobre una sola unidad de salida, sin cortar la alimentación a los otros usuarios. Figura 2.30 Centro de control de motores 2.8 Condensadores Los condensadores son componentes normalmente utilizados en electricidad y electrónica. Básicamente, la función que realiza un condensador es almacenar una carga eléctrica; se comporta como un “almacén de electricidad” cuyo símil hidráulico puede ser un depósito de agua. Cuando se le aplica una tensión mediante una fuente externa, se produce un efecto de campo eléctrico en su interior, y adquiere cierta magnitud de carga eléctrica (culombios) que da lugar a una diferencia de potencial entre sus terminales. Los condensadores son componentes de dos terminales cuya simbología se representa en la figura 2.31. A) A) Vista de conjunto B) Particularidad de una sección extraíble o enchufable B)
  • 49.
    49 TESIS HERIBERTO SALVADORCASTRO Figura 2.31 Simbología para los condensadores a) general, b) electrolítico (tiene polaridad). Tipos de condensadores Según el dieléctrico utilizado en su construcción existen distintos tipos de condensadores. Básicamente tenemos: Papel Mica Cerámicos Plásticos (poliéster, poliestireno, etc.). Electrolíticos (aluminio y tantalio). Excepto los electrolíticos, el resto son condensadores de relativa baja capacidad; van desde unos pocos picofaradios hasta alrededor de 1µF. 2.8.1 Experimentación de la carga-descarga del condensador Carga: Mediante el montaje de la figura 2.32, se puede comprobar el efecto de almacenaje de carga eléctrica. Al cerrar el interruptor, la fuente tensión continua (VB), por medio de una transferencia de electrones, hace que cada una de las placas del condensador adquiera la polaridad del polo de la fuente de tensión a la que esta conectada. Al abrir el interruptor, debido a su característica de retener (almacenar) cargas, el condensador presenta entre sus terminales un voltaje prácticamente igual al de la fuente de tensión; la carga eléctrica almacenada en sus placas de lugar a una diferencia de potencial. En este estado, si se vuelve a cerrar el interruptor, ya no se detecta ninguna circulación de corriente por que el condensador tiene la misma magnitud de tensión que la fuente; no existe diferencia de potencial entre ambos. Figura 2.32 Al conectar un condensador a una fuente de tensión (VB), este quedo cargado con un voltaje aproximadamente igual al de la fuente. a) b)
  • 50.
    50 TESIS HERIBERTO SALVADORCASTRO Descarga: Mediante el circuito de la figura 2.33, se puede comprobar el efecto de descarga del condensador. Con el condensador cargado, cerramos el interruptor, la carga eléctrica almacenada hace que circule una cierta corriente a través de la resistencia, que dará lugar, a su vez, a una tensión (VR=IR). Esto se puede verificar por medio de un voltímetro. A medida que el condensador va cediendo corriente (descargándose), su carga almacenada se va haciendo menor hasta quedar prácticamente descargado. Por ello, solo se puede detectar corriente de salida durante el tiempo que dura la descarga. Y si en vez de utilizar una resistencia se conecta una pequeña bombilla, se puede observar un destello de luz (cuya duración dependerá de la capacidad del condensador y de la magnitud de corriente absorbida por la bombilla). Así pues, los condensadores cargados de electricidad se pueden descargar sobre cierto elemento receptor. Y una vez consumida su carga, el condensador puede volver a cargarse; es pues, un elemento que puede almacenar electricidad. Aunque un condensador cargado presenta entre sus terminales una cierta tensión, como si fuera una pila, existe una gran diferencia entre un condensador cargado y una pila (o acumulador); en el interior del condensador no existe un proceso de generación de f.e.m. y su energía se extingue más o menos rápidamente en el momento de conectarle una carga. En cambio, en un generador, al existir un proceso interno de generación de energía (f.e.m.), se puede obtener de él continuamente una cierta magnitud de corriente sin que su voltaje apenas varíe (hasta que empiece a agotarse). A nivel comparativo, la diferencia entre un condensador y un generador es análoga a la diferencia que hay entre un vaso de agua y una fuente de agua, respectivamente. Figura 2.33 2.9 Transformadores para instrumento Se denominan transformadores para instrumento los que se emplean para alimentación de equipos de medición, control o protección. Los transformadores para instrumento se dividen en dos clases: 1. Transformadores de corriente 2. Transformadores de potencial
  • 51.
    51 TESIS HERIBERTO SALVADORCASTRO 2.9.1 Transformadores de corriente Es aquel cuya función principal es cambiar el valor de la corriente de uno mas o menos elevado a otro con el cual se puedan alimentar instrumentos de medición, control o protección, como amperímetros, wattmetros, instrumentos registradores, relevadores de sobrecorriente, etc. Su construcción es semejante a la de cualquier tipo de transformador, ya que fundamentalmente consiste de un devanado primario y un devanado secundario. La capacidad de estos transformadores es muy baja, se determina sumando las capacidades de los instrumentos que se van a alimentar, y puede ser 15, 30, 50, 60 y 70 VA. Hay transformadores de corriente que operan con corrientes relativamente bajas; estos transformadores pueden construirse sin devanado primario, ya que el primario lo constituye la línea a la que van a conectarse. En este caso los transformadores se les denomina tipo dona. Figura 2.34 Representación de un transformador de corriente en un diagrama unifilar. Las relaciones de transformación son de diferentes valores, pero la corriente en el devanado secundario normalmente es de 5 amperes. 2.9.2 Transformadores de potencial Es aquel cuya función principal es transformar los valores de voltaje sin tomar en cuenta la corriente. Estos transformadores sirven para alimentar instrumentos de medición, control o protección que requieran señal de voltaje. Los transformadores de potencial se construyen con un devanado primario y otro secundario; su capacidad es baja, ya que se determina sumando las capacidades de los instrumentos de medición que se van a alimentar, y varían de 15 a 60 VA.
  • 52.
    52 TESIS HERIBERTO SALVADORCASTRO Se construyen para diferentes relaciones de transformación pero el voltaje en el devanado secundario es normalmente 115 volts. Figura 2.35 Representación de un transformador de potencial en un diagrama unifilar. Especificaciones para transformadores de instrumento a) Transformador de corriente 1. Función a desempeñar 2. Relación de transformación (corriente primaria) 3. Tensión de operación 4. Clase de precisión y tolerancia b) Transformador de potencial 1. Función a desempeñar 2. Relación de transformación (voltaje primario) 3. Colocación de las boquillas (en caso de subestación a la intemperie) 4. Clase de precisión y tolerancia
  • 53.
    53 TESIS HERIBERTO SALVADORCASTRO EDIFICIO GUBERNAMENTAL CAPITULO 3 ELEMENTOS DE LAS INSTALACIONES ELECTRICAS
  • 54.
    54 TESIS HERIBERTO SALVADORCASTRO CAPITULO 3. ELEMENTOS DE LAS INSTALACIONES ELECTRICAS Las instalaciones eléctricas comerciales o industriales, cuyos fundamentos son los mismos que los de cualquier instalación eléctrica en baja tensión, se tratan en forma general y el término se usa para diferenciarlo de las instalaciones eléctricas residenciales o de las industriales. Concepto de instalación eléctrica en baja tensión Dentro de una instalación eléctrica en baja tensión, se incluyen edificios de oficinas y departamentos, hoteles, escuelas, hospitales, edificios públicos, cines, restaurantes, centros comerciales, etc., que deben cumplir con ciertos requerimientos y disponen de ciertas facilidades no consideradas en otros tipos de instalaciones y que son entre otras las siguientes: Alumbrado interior y exterior, tanto funcional como decorativo, Servicios de comunicación como: teléfono, circuito cerrado de radio y televisión, enlaces para servicios de cómputo, etc. Sistemas de alarma y control como: sistemas de alarma contra robo y alarmas contra incendio, Transporte como: escaleras eléctricas y elevadores, Aire acondicionado y ventilación, Sanitarios y medios para el manejo de desperdicio, Instalaciones para sistemas de cómputo, cajas registradoras, etc. 3.1 Elementos para el diseño eléctrico Los principales elementos de diseño que se deben considerar en las instalaciones de alumbrado, fuerza y sistemas auxiliares son los siguientes: 1) Magnitudes como son: características de la carga, factores de demanda, diversidad, coincidencia y de carga.
  • 55.
    55 TESIS HERIBERTO SALVADORCASTRO 2) Servicios como son niveles de voltaje a emplear y distribución por niveles de voltaje en la instalación. 3) Flexibilidad y previsión para ampliaciones futuras, 4) Confiabilidad (seguridad en el suministro de la energía eléctrica) 5) Seguridad del personal 6) Costos de operación y mantenimiento 7) Fuentes de alimentación 8) Planta de emergencia 9) Cumplimiento con normas y especificaciones oficiales. El diseño eléctrico se define como el desarrollo de un método que permita la distribución de la energía eléctrica, desde el punto de alimentación del servicio eléctrico, hasta los puntos de utilización. Los conceptos relacionados con una instalación eléctrica se muestran en la figura 3.1. ALIMENTACION PLANTA DE UN PISO PARA UN EDIFICIO TABLERO DE ALUMBRADO CUARTO DE SUBIDAS DE CABLE CANALIZACION INTERRUPTOR PRINCIPAL TABLERO PRINCIPAL I S T P T A TA1 TA2 TA3 TA TABLERO DE FUERZA TABLERO DE ALUMBRADO AZOTEA 3° PISO 2° PISO 1° PISO P. B. ELEVACION DE LA INSTALACION ELECTRICA Figura 3.1. Elevación de una instalación eléctrica
  • 56.
    56 TESIS HERIBERTO SALVADORCASTRO Donde: A Alimentación IS Interruptor principal de servicio TP Tablero principal de alimentación TA Tableros de alumbrado Estos elementos deben ser considerados en el diseño de una instalación eléctrica, además de factores como los siguientes: 1. Uso de las normas técnicas para instalaciones eléctricas 2. Diseños económicos y eficientes 3. Localización conveniente y accesible del equipo para fácil reparación y mantenimiento 4. Previsiones para ampliaciones futuras. Tabla 3.1 Símbolos convencionales más usuales en las instalaciones eléctricas. Salida de centro incandescente Arbotante incandescente interior Arbotante incandescente intemperie Arbotante fluorescente interior Lampara fluorescente Contacto sencillo en muro Contacto sencillo en piso Contacto sencillo controlado por apagador Contacto multiple en muro Conta Salida Apag Apag Apag p c Apag Apag Tabler Tabler Medid SIMBOLOS CONVENCIONALES USADOS E INSTALACIONES ELECTRICAS
  • 57.
    57 TESIS HERIBERTO SALVADORCASTRO 3.2 Alimentadores, subalimentadores, circuitos derivados y tableros. La distribución de la potencia eléctrica desde el punto de alimentación se hace por medio de alimentadores y circuitos derivados, hasta la última carga. Circuito derivado: un circuito derivado se define como un conjunto de conductores que van hasta el último dispositivo de sobrecorriente en el sistema, por lo general un circuito derivado alimenta solo a una pequeña parte del sistema. Alimentador. Un alimentador es un conjunto de conductores que alimentan a un grupo de circuitos derivados. Tableros: Los tableros son básicamente conjuntos de dispositivos de sobrecorriente contenidos en gabinetes accesibles solo por el frente. Subalimentadores: Cuando se requieren muchos alimentadores, un segundo tablero instalado en algún punto entre el tablero principal y los circuitos derivados, requieren de alimentadores secundarios o Subalimentadores. Salida: Es la caja de conexiones de la cual se toma la alimentación para una o varias cargas eléctricas determinadas tales como las luminarias, motores, contactos, etc. 3.2.1 Circuitos derivados para alumbrado Las normas técnicas para instalaciones eléctricas permiten solo el uso de circuitos derivados de 15 A o 20 A para alimentar unidades de alumbrado con portalámparas estándar. Los circuitos derivados mayores de 20 A se permiten solo para alimentar unidades de alumbrado fijas con portalámparas de uso rudo. Los circuitos derivados de más de 20 A no se permiten para alimentar habitaciones unifamiliares o en edificios de departamentos. El numero de circuitos derivados está determinado por la carga y se calcula como: WattsencircuitocadadeCapacidad WattsentotalaC circuitosdeNo arg .  Un circuito de 15 Amperes a 127 volts tiene una capacidad de 15 x 127 = 1905 Watts, si el circuito es para 20 amperes, a 127 volts, su capacidad es: 20 x 127 = 2540 Watts.
  • 58.
    58 TESIS HERIBERTO SALVADORCASTRO Tabla 3.2 Formulas eléctricas usuales: EJEMPLO: Calcular el número de circuitos derivados de 20 amperes a 127 volts para alimentar una carga total de alumbrado de 30,000 watts. Si las lámparas son de 150 watts, calcular el número de lámparas por circuito. Solución: para circuitos derivados de 20 amperes a 127 volts, la capacidad en watts es de 2540.
  • 59.
    59 TESIS HERIBERTO SALVADORCASTRO El número de circuitos derivados es: WattsencircuitocadadeCapacidad WattsentotalaC circuitosdeNo arg .  81.11 2540 000,30  No. De circuitos derivados = 12 circuitos El número de lámparas por circuito es: lámparaporWatts wattsencircuitocadadeCapacidad circuitoporlámparasdeNo . 93.16 150 2540  No. de lámparas = 17 Como verificación se puede hacer: La corriente por lámpara = 127 150 =1.181 amperes No. de lámparas por circuito= lámparaporcorriente circuitocortoporcorriente = 181.1 20 =16.93 ó 17 lámparas Circuitos derivados para contactos Contactos generales. Método de cálculo del valor de la carga mayor de 180 watts por salida o bien: El valor real de la carga si se conoce un incremento de 25% si es continua se requiere una capacidad en el circuito derivado de 15 amperes ó 20 amperes, entonces el numero de circuitos necesario es: Para 15 amperes: voltsxamperes wattsxcontactosdeNúmero circuitosdeNo 12715 180 .  Para 20 amperes:
  • 60.
    60 TESIS HERIBERTO SALVADORCASTRO voltsxamperes wattsxcontactosdeNúmero circuitosdeNo 12720 180 .  3.3 Conductores y canalizaciones eléctricas La mayoría de los conductores usados en la actualidad para instalaciones eléctricas comerciales, industriales o residenciales, son de cobre o aluminio. Una propiedad importante a considerar de estos materiales desde el punto de vista de las instalaciones eléctricas es su resistencia o resistividad. La unidad de la resistencia eléctrica es el ohm, la corriente eléctrica se mide en amperes, y se dice que un ampere (1A) circula, cuando se aplica un volt (1V) a través de un circuito con una resistencia de 1 ohm (1Ω). En cualquier instalación eléctrica, los elementos que conducen la corriente eléctrica de las fuentes a las cargas o que interconectan los elementos de control, son los conductores eléctricos, por otra parte, por razones de protección de los propios conductores y de seguridad, normalmente estos conductores se encuentran instalados dentro de canalizaciones eléctricas de distinta naturaleza y cuya aplicación depende del tipo de instalación eléctrica de que se trate. En la figura 3.2 se muestra, un diagrama de bloques en donde aparecen algunas de las aplicaciones de los conductores eléctricos en las instalaciones. IS IP TF TA A B B C C D D SIMBOLOGIA CARGA DE ALUMBRADO CARGA DE MOTORESM Figura 3.2. Diagrama de bloques IS = Interruptor de servicio IP = Interruptor principal TA = Tablero de alumbrado TF = Tablero de fuerza A = Conductores de servicio de la compañía suministradora al interruptor principal B = Conductores que llevan la potencia del interruptor principal al tablero de alumbrado (TA) y al tablero de fuerza (TF).
  • 61.
    61 TESIS HERIBERTO SALVADORCASTRO C = Conductores que llevan la potencia de los circuitos derivados del tablero de alumbrado (TA) a la carga de alumbrado. D = Conductores que llevan la potencia de los circuitos derivados del tablero de fuerza (TF) a la carga de motores M. Los elementos que contienen a los conductores se conocen como canalizaciones y son de distinto tipo según la aplicación, conociéndose como tubos conduit, ductos, charolas, etc. 3.3.1 Conductores eléctricos La palabra “conductor” se usa con un sentido distinto al de alambre, ya que por lo general un alambre es de sección circular, mientras que un conductor puede tener otras formas (por ejemplo barras rectangulares o circulares), sin embargo es común que a los alambres se les designe como conductores. La mayor parte de los conductores usados en las instalaciones eléctricas son de cobre (Cu) o aluminio (Al) debido a su buena conductividad. Comparativamente el aluminio es aproximadamente un 16% menos conductor que el cobre y más liviano que este, ya que a igualdad de peso se tiene hasta cuatro veces mas conductor que el cobre. Los conductores eléctricos se fabrican de sección circular de material sólido o como cables dependiendo la cantidad de corriente por conducir (ampacidad) y su utilización aunque en algunos casos se fabrican en secciones rectangulares y tubulares para altas corrientes. Desde el punto de vista de las normas los conductores se han identificado por un numero que corresponde al calibre y que normalmente se sigue el sistema americano de designación AWG (American Wire Gage) siendo el más grueso el numero 4/0 siguiendo un orden descendente del área del conductor los numero 3/0, 2/0, 1/0, 1, 2, 4, 6, 8, 10, 12, 14, 16, 18 y 20 que el más delgado usado en instalaciones eléctricas para conductores con un área mayor del designado como 4/0, se hace una designación que está en función de su área en pulgadas para lo cual se emplea una unidad denominada en circular mil siendo así como un conductor de 250 corresponderá aquel cuya sección sea de 250,000 CM y así sucesivamente. Se denomina circular mil a la sección de un círculo que tiene un diámetro de un milésimo de pulgada (0.001 plg.), como se muestra en la figura 3.3.
  • 62.
    62 TESIS HERIBERTO SALVADORCASTRO Figura 3.3. Sección de un circular mil La relación entre circular mil y el área en mm2 para un conductor se obtiene como sigue: mmPLG 4.251  mmPLG 0254.0 1000 1  Siendo el circular mil un área 4 )0254.0(1416.3 4 ..1 22 xD MC  24 10064506.5 mmx   De donde: CMmm 1974 064506.5 10 1 4 2  O en forma aproximada CMmm 20001 2  Los conductores empleados en las instalaciones eléctricas tienen aislantes del tipo termoplásticos (T) con distintas denominaciones comerciales según el tipo de fabricante siendo los mas conocidos por ser a prueba de agua entre otras propiedades los siguientes: tipo TW, vinanel 900, vinanel nylon, vulcanel EP, vulcanel XLP, THWN, RUW, TWD, THW, PILC, V, RHH. Cada tipo de conductor tiene propiedades específicas que lo diferencian de otro, en la selección de un conductor deben considerarse los agentes que los afectan durante su operación y que se pueden agrupar como: I.- Agentes mecánicos II.- Agentes químicos III.- Agentes eléctricos
  • 63.
    63 TESIS HERIBERTO SALVADORCASTRO Agentes mecánicos. La mayor parte de los ataques mecánicos que sufre un conductor se deben a agentes externos como son el desempaque, manejo e instalación que pueden afectar las características del conductor dañado y que producen fallas de operación, por lo que es necesario prevenir el deterioro por agentes externos usando las técnicas adecuadas de manejo de materiales e inserción de conductores en canalizaciones. Los principales agentes que pueden afectar mecánicamente a los conductores se pueden dividir en cuatro clases: a).- Presión mecánica b).- Abrasión c).- Elongación d).- Doblez a 180° a).- Presión mecánica.- se puede presentar en el manejo de los conductores por el paso o colocación de objetos pesados sobre los conductores su efecto puede ser una deformación permanente del aislamiento disminuyendo el espesor del mismo y apareciendo fisuras que pueden provocar fallas eléctricas futuras. b).- Abrasión.- es un fenómeno que se presenta normalmente al introducir los conductores a las canalizaciones, cuando estas están mal preparadas y contienen rebabas o bordes punzo- cortantes también se pueden presentar durante el manejo de los conductores en las obras civiles semiterminadas. c).- Elongación.- se presenta cuando hay mas de dos curvas de 90° en una trayectoria unitaria de tubería, o cuando se trata de introducir mas conductores en el tubo conduit de los permitidos por reglamento (deben ocupar el 40% de la sección disponible dejando libre la sección restante). Tratándose de conductores de cobre debe tenerse cuidado que la tensión no exceda a 7kg/mm2 ya que se corre el riesgo de alargar el propio metal, creándose un problema de aumento de resistencia eléctrica por disminución en la sección del conductor por otra parte la falta de adherencia del aislamiento provocado por el deslizamiento provoca puntos de falla latente. d).- Doblez a 180°.- este problema se presenta principalmente por el mal manejo de material, de tal forma que las moléculas del aislamiento que se encuentran en la parte exterior están sometidas a la tensión y las que se encuentran en la parte interior a la compresión este fenómeno se conoce en el argot técnico como la formación de “cocas”. Agentes químicos. Un conductor se ve sujeto a ataques por agentes químicos que pueden ser diversos y que dependen de los contaminantes que se encuentran en el lugar de la instalación. Estos agentes químicos contaminantes se pueden identificar en cuatro tipos generales que son:
  • 64.
    64 TESIS HERIBERTO SALVADORCASTRO - Agua o humedad - Hidrocarburos - Ácidos - Álcalis Por lo general no es posible eliminar en su totalidad los contaminantes de una instalación eléctrica por lo que se hace necesario el uso de conductores eléctricos que resistan los contaminantes en cada instalación eléctrica. Las fallas por agentes químicos en los conductores se manifiestan como una disminución en el espesor del aislamiento como grietas con trazos de sulfatación en el aislamiento o por oxidación en el aislamiento caso típico que se manifiesta como un desprendimiento en forma de escamas. En la tabla 3.3 se indican algunas propiedades de aislamientos a la acción de los contaminantes más comunes. TABLA 3.3 CARACTERÍSTICAS DE RESISTENCIA DE LOS CONDUCTORES DE BAJA TENSIÓN AL ATAQUE DE AGENTES QUIMICOS Tipo comercial Álcalis Ácidos Humedad Hidrocarburos TW Muy bueno Muy bueno Muy bueno Bueno VINANEL 900 Muy bueno Muy bueno Muy bueno Bueno VINANEL NYLON Muy bueno Excelente Excelente Inerte VULCANEL EP Muy bueno Muy bueno Excelente Regular VULCANEL XLP Muy bueno Muy bueno Excelente Regular Agentes eléctricos. Desde el punto de vista eléctrico la característica principal de los conductores de baja tensión se mide por la rigidez dieléctrica del aislamiento que es la que determina las condiciones de operación manteniendo la diferencia de potencial requerida dentro de los limites de seguridad permite soportar sobre cargas transitorias e impulsos de corriente provocados por corto circuito. La habilidad eléctrica de los aislamientos para conductores en baja tensión es del orden de 600 Volts que es la tensión máxima a que están especificados por esta razón los conductores empleados en instalaciones eléctricas de baja tensión difícilmente fallan por causas meramente eléctricas en la mayoría de los casos fallan por fenómenos térmicos provocados por sobrecargas sostenidas o deficiencias en los sistemas de protección en caso de corto circuito. En la tabla 3.4 se indican algunas propiedades de los conductores eléctricos comerciales desde el punto de vista de la rigidez dieléctrica en sus aislamientos.
  • 65.
    65 TESIS HERIBERTO SALVADORCASTRO TABLA 3.4. RIGIDEZ DIELECTRICA DE LOS AISLAMIENTO USADOS EN CONDUCTORES DE BAJA TENSION IDENTIFICACIÓN COMERCIAL kV/MM C.A. ELEVACIÓN RAPIDA kW/MM C.A. IMPULSO TW 12 40 VINANEL 900 12 40 VINANEL NYLON 15 45 VULCANEL EP 18 54 VULCANEL XLP 20 60 3.3.2 Canalizaciones eléctricas Se entiende por canalización eléctrica a los dispositivos que se emplean en las instalaciones eléctricas para contener a los conductores de manera que queden protegidos contra deterioro mecánico y contaminación. Los medios de canalización más comunes en las instalaciones eléctricas son: a) tubos conduit b) ductos c) charolas Figura 3.4 Elementos para canalización de conductores eléctricos
  • 66.
    66 TESIS HERIBERTO SALVADORCASTRO a) Tubos Conduit; es un tipo de tubo (de metal o plástico) usado para contener o proteger los conductores eléctricos usados en las instalaciones. Los tubos conduit metálicos pueden ser de aluminio, acero o aleaciones especiales, los tubos de acero a su vez se fabrican en los tipos pesados, semipesado y ligero, distinguiéndose uno de otro por el espesor de la pared. - Tubo conduit de acero pesado (pared gruesa); Se fabrican en secciones circulares con diámetros que van de 13mm (1/2”) a 152.4mm (6”). Se puede emplear en instalaciones visibles u ocultas ya sea embebido en concreto o embutido en mampostería en cualquier tipo de edificios y bajo cualquier condición atmosférica. Figura 3.5 Tubo conduit pared gruesa y uniones - Tubo conduit metálico de pared delgada; El diámetro máximo recomendable para este tubo es 51mm (2”). Su uso es permitido en instalaciones visibles u ocultas ya sea embebido en concreto o embutido en mampostería en lugares de ambiente seco no expuestos a humedad o ambiente corrosivo. Figura 3.6 Tubo conduit pared delgada y uniones
  • 67.
    67 TESIS HERIBERTO SALVADORCASTRO - Tubo conduit metálico flexible; No se recomienda su uso en diámetros inferiores a 13mm (1/2”) ni superiores a 102mm (4”). Se recomienda su uso en lugares secos donde no esté expuesto a corrosión o daño mecánico, o sea que se puede instalar embutido en muro de ladrillo o bloques similares así como en ranuras en contacto. Figura 3.7 Tubo conduit flexible - Tubo conduit de plástico rígido (PVC); Debe ser auto extinguible, resistente al aplastamiento, a la humedad y a ciertos agentes químicos. No se recomienda su uso en instalaciones visibles donde el tubo este expuesto a daño mecánico. b) Ductos metálicos; los ductos metálicos se instalan en la superficie, proporcionan protección mecánica a los conductores y además los hacen accesibles para cambios o modificaciones en el alumbrado. Los ductos metálicos se seleccionan sobre la base del número y tamaño de los conductores que deben alojar, existen distintas formas de ductos por aplicación. - Bus ducto (electroducto). Consiste de conductores en forma de barra dentro de un elemento metálico (ducto) que los contiene. Con la adecuada ventilación. El bus ducto se usa con mayor frecuencia para la conducción de corrientes elevadas. Se fabrican en distintos estilos, tipo enchufable, atornillados, con aluminio o cobre, etc. Debido a la característica de manejar altas corrientes o demandas de potencia elevadas, su aplicación más común se encuentra en las instalaciones industriales, sin embargo su uso no está limitado a las instalaciones comerciales o de edificios de oficinas. Se usan frecuentemente como un sistema completo, tienen la desventaja de su alto costo y los accesorios complementarios que pueden ser de alto costo también.
  • 68.
    68 TESIS HERIBERTO SALVADORCASTRO Figura 3.8 Trayectoria de electroductos en instalaciones eléctricas
  • 69.
    69 TESIS HERIBERTO SALVADORCASTRO c) Charola; los soportes tipo charola para cables. Es una unidad o conjunto de unidades o secciones y accesorios, que forman un sistema estructural rígido utilizado para portar cables y canalizaciones. Los soportes tipo charola para cables no se limitan a los establecimientos industriales. Se fabrican de distintos tipos: escalera, malla, fondo ventilado y no metálico para zonas corrosivas en las que requiere aislamiento a la tensión eléctrica. Instalación. Los soportes tipo charola para cables se instalan como sistemas completos. En campo o durante la instalación se hacen curvas o modificaciones que deben estar de manera que se mantenga la continuidad eléctrica del sistema y el soporte continuo de los cables. En ocasiones se puede tener segmentos mecánicamente discontinuos entre tramos pero se debe mantener continuidad con uno o varios puentes de unión. Figura 3.9 Soporte tipo charola para cables 3.3.3 Cajas de conexiones En los métodos modernos para instalaciones eléctricas se puede decir que todas las conexiones de conductores o uniones entre conductores se deben realizar en cajas de conexión aprobadas para tal fin y que deben estar instaladas en donde puedan ser accesibles para poder hacer cambios en el alumbrado. Por otra parte todos los apagadores y salidas para lámparas se deben encontrar alojados en cajas y en forma similar los contactos. Las cajas se construyen metálicas y de plástico según se usen para instalaciones con tubo conduit metálico o con tubo de PVC o polietileno. Las cajas metálicas se construyen de
  • 70.
    70 TESIS HERIBERTO SALVADORCASTRO acero galvanizado de cuatro formas principalmente: cuadradas, octagonales, rectangulares y circulares se fabrican de varios anchos, profundidades y perforaciones para acceso de tubería, hay perforaciones para acceso de tubería, hay perforaciones en las caras laterales y en el fondo. En la figura siguiente se muestran algunos tipos de cajas de conexión Figura 3.10 Cajas de unión para instalaciones eléctricas Dimensiones de cajas de conexión Tipo rectangular: 6 x 10 cm de base por 3.8 cm de profundidad con perforaciones para tubo conduit de 13 mm. Tipo redondas: diámetro de 7.5 cm y 3.8 cm de profundidad perforaciones para tubo conduit de 13 mm. Tipo cuadradas: estas cajas tienen distintas medidas y se designan o clasifican de acuerdo con el diámetro de sus perforaciones en donde se conectan los tubos, designándose así como cajas cuadradas de 13, 19, 25, 32 mm, etc. 3.3.4 Conectores y accesorios en las instalaciones eléctricas Los conectores y accesorios son elementos relacionados principalmente con la parte “mecánica” de las instalaciones eléctricas, tubos conduit, ductos y electroductos o sea con las canalizaciones y no con los conductores eléctricos. Dentro de la categoría de conectores y accesorios se tienen los llamados condulets, las cajas de conexión, las cajas para accesorios como son los conductos, apagadores, tapas, etc.
  • 71.
    71 TESIS HERIBERTO SALVADORCASTRO Condulets. Los condulets son elementos de conexión de los tubos conduit están fabricados por lo general de material rígido para trabajo rudo y permiten interconectar tramos de tubo, cambios de dirección en las canalizaciones, derivaciones, etc. De acuerdo con su función y forma se les da una designación como tipo “C”, tipo “LB”, tipo “LL”, tipo “LR”, tipo “T”. Cajas de salida. Las cajas de salida se usan por lo general para conectar equipo o accesorios pequeños por lo general (contactos, apagadores, lámparas) y se en encuentran en distintos tamaños. Una caja de salida puede servir también para seccionar conductores o para interconectarlos, generalmente se usan hasta conductores calibre No. 6 AWG, con perforaciones laterales y en el fondo terminadas de manera tal que los conductores que entren queden protegidos contra la abrasión (deterioro por rozamiento o corte de partes no pulidas o con rebabas). Tapas o cubiertas. Todas las cajas de salida deben estar previstas de una tapa metálica en el caso de las cajas metálicas y en el caso de las no metálicas preferentemente del mismo material de la caja. Conectores. Los tubos conduit deben ir fijos a las cajas de conexión, para esto se usan normalmente conectores de la medida apropiada, es común el uso de contras y monitores en las cajas de conexión metálicas. Apagadores. Se define como un interruptor pequeño de acción rápida, operación manual, y baja capacidad, se usa para el control de aparatos domésticos y comerciales, así como unidades de alumbrado, debido a que la operación de los apagadores es manual, el voltaje nominal no debe exceder 600 volts. 3.4 Planeación de las instalaciones eléctricas En términos generales se puede considerar la planeación de tres tipos de instalaciones eléctricas: residenciales, comerciales e industriales. 3.4.1 Planeación de instalaciones eléctricas residenciales El uso primario de las instalaciones eléctricas residenciales estaba dirigido hacia el alumbrado y salidas (contactos), en la actualidad dependiendo del tamaño y tipo de la instalación eléctrica se deben considerar elementos adicionales a los antes mencionados para ciertos casos especiales como son: 1. Calefacción y aire acondicionado 2. Aparatos eléctricos 3. Estufas eléctricas 4. Alumbrado interior y exterior 5. Sistema de comunicación
  • 72.
    72 TESIS HERIBERTO SALVADORCASTRO 6. Sistema de alarma En la planeación general de cualquier sistema eléctrico se deben considerar los siguientes factores generales: 1. Método de alambrado 2. Alimentación de la compañía suministradora en forma aérea o subterránea. 3. Tipo de construcción del edificio 4. Equipo de medición y protección en la alimentación 5. Grado de alambrado requerido en luminarias y aparatos 6. Selección de luminarias 7. Tipo de calefacción y sistema de mantenimiento 8. Alambrado de control para calefacción y aire acondicionado 9. Sistema de alarma y señalización Para la mayoría de los servicios en casas habitación la alimentación es monofásica a 120 volts, de fase a neutro. Cuando la carga es mayor y requiere de un servicio trifásico entonces la alimentación es a 220 volts tres fases. 3.4.2 Planeación de instalaciones eléctricas comerciales Algunos aspectos a considerar en la instalación eléctrica de pequeños comercios, son los siguientes: Sistema de distribución (radial, secundario selectivo o primario selectivo). 1. Tipo de construcción del edificio en donde se encuentra. 2. Determinar si la instalación formara parte de una nueva construcción o la ampliación o modernización de una ya existente. 3. Tipo de construcción de paredes, techo y piso, así como sus dimensiones. 4. Métodos de alambrado 5. Localización y tipo de servicio de alimentación (aéreo o subterráneo). 6. Localización y tipo del equipo de medición y protección. 7. Tamaño de los circuitos alimentadores, tablero y equipo. 8. Alambrado para aparatos y áreas de exhibición. 9. Requerimientos de instalación para luminarias de acuerdo a su tipo. 10. Elección de la tensión para distribución de la energía en baja tensión (440, 220 o 127V). En el caso de centros comerciales de tamaño medio, prácticamente se aplican los mismos criterios de planeación que en los pequeños, guardando las debidas proporciones. La tensión de alimentación en los pequeños centros comerciales puede ser de 127 volts de fase a neutro o 220 volts trifásico, en tanto que en los medianos es por lo general trifásico a 220 volts con una derivación a 127 volts de fase a neutro.
  • 73.
    73 TESIS HERIBERTO SALVADORCASTRO En los grandes centros comerciales, la tensión de distribución interna dependiendo de la magnitud de la carga y de las dimensiones del local puede ser 440 volts trifásicos, 220 volts trifásicos y en ambos casos se dispone por lo general de 127 volts de fase a neutro. Debido al valor de la carga total la alimentación es en alta tensión (6.6 kV o 13.2 kV) y entonces es necesario disponer de una subestación eléctrica para reducir el voltaje y distribuir a los centros de carga. Los factores que se deben considerar en la instalación eléctrica de un centro comercial grande son: 1. Tipo de construcción de edificio (ladrillo, tabicón, concreto reforzado, madera, etc.) y acabados. 2. Tipo de techo, pisos, altura de techo, plafón o falso plafón, separación de piso y plafones, áreas dentro del mismo comercio, etc. 3. Método de alambrado recomendable, (tubo conduit, charola, ductos). 4. Tipo de equipo de medición y protección de la compañía suministradora. 5. Tipo y localización (acometida) de los conductores de servicio. 6. Tipo de luminarias, forma de montaje de las mismas, lámparas a usar de las distintas áreas, etc. 7. Aire acondicionado y alimentación a equipos de refrigeración. 8. Alimentación a las áreas de exhibición. 9. Alimentación al alumbrado de estacionamientos, área de descarga y carga de materiales. 3.4.3 Planeación de instalaciones eléctricas industriales Por lo general se requiere de alimentación en alta tensión trifásica, usando una o mas subestaciones eléctricas para la reducción de tensiones de utilización y la distribución apropiada. Los factores más importantes a considerar, son los siguientes: Sistema de distribución (radial, secundario selectivo o primario selectivo). 1. Si se trata de una nueva instalación o bien una ampliación o modificación de una ya existente. 2. Tipo de construcción general del edificio, es decir, ladrillo, tabicón, concreto reforzado, estructura de acero, techo de diente de sierra, etc. 3. Tipo de piso, techo, niveles de piso, etc. 4. Tipo de servicio de alimentación (tensión, conexión del transformador, valor de corriente de corto circuito, alimentación aérea o subterránea, etc.) 5. Voltaje de distribución para alumbrado y fuerza. 6. Tipo de equipo requerido y sus características principales (subestación unitaria, interruptor, tableros de fuerza, centro de control de motores, etc.) 7. Tipo de distribución de voltaje interno, incluyendo subestaciones reductoras. 8. Método de alambrado, charolas, ductos, tubos conduit, etc.
  • 74.
    74 TESIS HERIBERTO SALVADORCASTRO 9. Tipo de tableros de alumbrado y fuerza. 10. Lista de motores, potencias tipos de arrancadores y control en general. 11. Tipos de luminarias, formas de montaje y alimentación. 12. Sistemas de alarma y señalización. 13. Métodos de conexión a tierra de equipo y red a tierra en caso de ser requerida. 14. Ciclo de trabajo, numero de turnos de trabajo, condiciones de seguridad e higiene. 15. Elección de la tensión para distribución de la energía en baja tensión (440, 220 o 127V). 3.5 Calculo de los conductores por caída de voltaje El voltaje en las terminales de la carga es por lo general menor que el voltaje de alimentación, la diferencia de voltaje entre estos dos puntos se conoce como “la caída de voltaje” las normas técnicas para instalaciones eléctricas recomiendan que la máxima caída de tensión (desde la alimentación hasta la carga) no debe exceder al 5%, 3% se permite a los circuitos derivados ( del tablero o interruptor a la salida para utilización ) y el otro 2% se permite al alimentador (de la alimentación al tablero principal). Una caída de tensión excesiva ( mayor del 5% ) conduce a resultados indeseables debido a que el voltaje en la carga se reduce, en las lámparas incandescentes se reduce notablemente el nivel de iluminación, en las lámparas fluorescentes se tiene problemas, como dificultad para arrancar, parpadeo, calentamiento de las balastras, etc., en el equipo de control, los relevadores pueden no operar; en los motores la reducción de voltaje se traduce en un incremento en la corriente, lo cual produce sobrecalentamiento y algunas veces causa problemas de arranque, por esta razón no es suficiente calcular los conductores por corriente, es decir, seleccionar el calibre de un conductor de acuerdo por la corriente que circulara por el. También es necesario que la caída de voltaje en el conductor no exceda los valores establecidos por el reglamento de obras e instalaciones eléctricas ( que son 2% caída de voltaje en instalaciones residenciales y un máximo de 5% en instalaciones industriales, desde el punto de alimentación hasta el último punto. Para estar seguros de que las caídas de voltaje no excedan esos valores es necesario calcular las caídas de voltaje en los circuitos derivados y en los alimentadores. En las formulas que se desarrollan a continuación, se empleara la siguiente nomenclatura: W = Potencia en watts I = Corriente en amperes por conductor VF = Voltaje entre fases VN = Voltaje de línea a neutro cosθ = Factor de potencia R = Resistencia de un conductor en ohms ρ = Resistividad del cobre 1/58 (m2 /mm2 ) ≈1/50 L = Longitud del conductor en metros S = Sección del conductor en mm2
  • 75.
    75 TESIS HERIBERTO SALVADORCASTRO e = Caída de voltaje de fase a neutro en Volts eF = Caída de voltaje entre fases, en Volts e% = Caída de voltaje en porciento F F N V xE V Ex e 100100 %  Sistemas monofásicos El estudio de la caída de tensión se puede efectuar para casos específicos, similares a los que se tienen en las instalaciones eléctricas, pero el concepto general es el mismo usado en circuitos eléctricos. Considérese el siguiente circuito simplificado. Figura 3.11 Circuito monofásico simplificado La potencia que consume la carga es: cosIVW N cosNV W I  la caída de voltaje por resistencia en el conductor es: RIe 2 la resistencia del conductor es: S L S L R 50 1   de donde: S LI e 25 1 
  • 76.
    76 TESIS HERIBERTO SALVADORCASTRO SV LI VS LI e NN 4 100 25 %  Ejemplo: Calcular la caída de voltaje en el circuito derivado de un motor de 2 HP, monofásico a 115 volts, que tiene una longitud de conductor del punto de alimentación al punto de conexión del motor de 25 metros, el alambre es de cobre (ver figura 3.12). M 2HP 115 V ALIMENTACION Figura 3.12 Circuito derivado de un motor Para un motor monofásico de 2 HP a 115 V, la corriente a plena carga es: AI pc 24 AxI pc 302425.125.1  Calibre del conductor (dos conductores en tubo conduit) No. 10 AWG. Para un alambre No. 10, S = 5.26 mm2 ; también de datos L = 25 metros. La caída de voltaje en porciento es: %4 26.5115 24254 %  x xx e Sistema trifásico a tres hilos El circuito simplificado se puede representar en la forma siguiente: Figura 3.13 Sistema trifásico a tres hilos
  • 77.
    77 TESIS HERIBERTO SALVADORCASTRO La potencia que consume la carga trifásica es: cos3 IVW F cos3 FV W I  La caída de voltaje entre fases es: RIeF 3 Pero si el conductor utilizado es de Cu entonces ρ=1/50, sustituyendo en la ecuación de R: S L S L R 50 1   S LI eF 50 3  El porciento de caída de voltaje es: 100% x V E e F F  100 50 3 % x SV LI e F  FSV LI e 32 %  Sistema trifásico a cuatro hilos Este es caso típico de los sistemas conectados en estrella ( 3 hilos ) con neutro ( el cuarto hilo ), se representa como sigue:
  • 78.
    78 TESIS HERIBERTO SALVADORCASTRO Figura 3.14 Sistema trifásico a cuatro hilos La potencia que consume la carga trifásica es:  cos3cos3 IVIVW NF   cos3cos3 NF V W V W I  La caída de voltaje entre fases es: S LI RIeF 50 3 3  Expresando esta caída de voltaje en porciento: S LI RIe 50  100 50 100% x SxV LI x V E e NN  NSV LI e 2 % 
  • 79.
    79 TESIS HERIBERTO SALVADORCASTRO 3.6 Utilización recomendable de los sistemas de distribución Para alimentar distintos tipos de cargas, ya sea comercial o industrial, que tienen características variables, el proyectista debe tener una idea clara de cuales son los elementos importantes a considerar en la selección de un sistema de distribución. Las características más importantes de cada uno de estos sistemas se describen a continuación: a).- Sistema monofásico con dos conductores Este sistema se usa por lo general para alimentar cargas de alumbrado cuyo valor no excede a 3750 Watts por circuito, se usa también en la alimentación de circuitos de 20 y 30 amperes. b).- Sistema trifásico con tres conductores Este sistema puede ser la salida de una conexión delta en un transformador o bien de una conexión estrella sin conductor al neutro. Desde luego que la conexión se usara para alimentar cargas trifásicas, como es el caso de los motores que operan con voltajes de 220 Volts ó 440 Volts. c).- Sistema trifásico a cuatro hilos Este es uno de los sistemas de alimentación más usados ya que resulta flexible para la alimentación de cargas trifásicas (con los tres conductores de fase) y monofásicos (con una fase y neutro), por ejemplo, se pueden alimentar motores trifásicos a 220 Volts y alumbrado a Volts1273220  . Debido a esta flexibilidad para la alimentación de distintos tipos de cargas tanto monofásicas como trifásicas, el sistema a 4 hilos es uno de los preferidos en México. Figura 3.15 Utilización de un sistema trifásico a cuatro hilos
  • 80.
    80 TESIS HERIBERTO SALVADORCASTRO 3.7 Sistemas de distribución en baja tensión El sistema de distribución secundario se limita a aquella parte del sistema eléctrico que conecta el equipo de la planta con la subestación en el centro de carga. Es de tanta importancia como la subestación misma o como el sistema primario. a) Sistema radial. Consiste en un cable primario alimentado un transformador y de ahí unas barras alimentadoras en baja tensión; este sistema es el más económico, ofrece una buena seguridad, bastante adaptabilidad y fácil aumento de capacidad, junto con sencillez de conservación, poca inversión en equipo y ventaja de no requerirse operarios para su operación. b) Sistema secundario selectivo. Consiste en dos sistemas radiales con un enlace disponible para casos de emergencia, este sistema permite una división completa desde el primario hasta las barras del secundario, de tal manera que cualquier parte del sistema se pueda desconectar en caso de falla y el resto de la carga ser alimentada por el interruptor de enlace más conveniente. En resumen este sistema aumenta la flexibilidad en la operación y en el mantenimiento con un incremento en el costo inicial. c) Sistema primario selectivo. Consiste en dos fuentes de energía en el lado primario, lo cual prevé mayor seguridad a cualquiera de los sistemas secundarios básicos, a pesar de que no es parte integral del sistema secundario.
  • 81.
    81 TESIS HERIBERTO SALVADORCASTRO EDIFICIO GUBERNAMENTAL CAPITULO 4 ESTUDIO DE CARGAS DEL EDIFICIO
  • 82.
    82 TESIS HERIBERTO SALVADORCASTRO CAPITULO 4 ESTUDIO DE CARGAS DEL EDIFICIO DESCRIPCION DEL EDIFICIO El edificio gubernamental consta de dos niveles, planta baja (1500 m2 aproximadamente) y plata alta (1300 m2 aproximadamente). La distribución de la carga en el interior de las oficinas gubernamentales se divide en cuatro secciones; dos en planta baja (oriente y poniente) y dos en planta alta (oriente y poniente), cada sección esta formada por tres tableros de alumbrado, Tablero de alimentación normal, Tablero de alimentación de emergencia y Tablero de alimentación regulada respectivamente. Los tableros de alumbrado se ubican en los accesos a los sanitarios generales (ver apéndice A y B, planos arquitectónicos A-1-01 y A-1-02). Así mismo se contara con alumbrado exterior en jardineras y fachada, Cuarto de Bombas, Site de Computo y Subestación Eléctrica (Subestación Compacta de 300 kVA, Planta de Emergencia de 150 kVA y Sistema Ininterrumpible de Energía “UPS” de 100 kVA, (ver apéndice C y B, Plano IEALG-01 Alimentadores generales baja tensión y Plano IEMT-01 Alimentador en media tensión).
  • 83.
    83 TESIS HERIBERTO SALVADORCASTRO CARACTERISTICAS DE LA CARGA CARGAS CONECTADAS TABLERO POTENCIA W SERVICIO TIPO ALIMENTACION TENSION A 25,849.25 NORMAL ALUMBRADO Y CONTACTOS 3F, 4H, 60 HZ 220/127 V B 23,271 NORMAL ALUMBRADO Y CONTACTOS 3F, 4H, 60 HZ 220/127 V C 17,598 NORMAL ALUMBRADO Y CONTACTOS 3F, 4H, 60 HZ 220/127 V D 19,831 NORMAL ALUMBRADO Y CONTACTOS 3F, 4H, 60 HZ 220/127 V TOTAL 86,549.25 TABLERO POTENCIA W SERVICIO TIPO ALIMENTACION TENSION AE 4,727.5 EMERGENCIA ALUMBRADO 3F, 4H, 60 HZ 127 V BE 4,547.5 EMERGENCIA ALUMBRADO 3F, 4H, 60 HZ 127 V CE 4,551.25 EMERGENCIA ALUMBRADO 3F, 4H, 60 HZ 220/127 V DE 3,587.5 EMERGENCIA ALUMBRADO 3F, 4H, 60 HZ 127 V EE 16,485.31 EMERGENCIA FUERZA 3F, 4H, 60 HZ 220/127 V FE 9,007.25 EMERGENCIA ALUMBRADO Y CONTACTOS 3F, 4H, 60 HZ 220/127 V TOTAL 42,906.31 AR 25,800 REGULADO CONTACTOS 3F, 4H, 60 HZ 127 V BR 21,600 REGULADO CONTACTOS 3F, 4H, 60 HZ 127 V CR 16,500 REGULADO CONTACTOS 3F, 4H, 60 HZ 127 V DR 20,700 REGULADO CONTACTOS 3F, 4H, 60 HZ 127 V ER 11,112 REGULADO CONTACTOS 3F, 4H, 60 HZ 127 V TOTAL 95,712 CARGA TOTAL SERVICIO NORMAL CARGA TOTAL SERVICIO DE EMERGENCIA CARGA TOTAL INSTALADA 86,549.25 138,618.31 W 225,167.56 W
  • 84.
    84 TESIS HERIBERTO SALVADORCASTRO MEMORIA DE CÁLCULO ACOMETIDA La acometida eléctrica en media tensión es por parte de Luz y Fuerza del Centro a 23,000 Volts, 3 fases-3 hilos, 60 Hz en forma subterránea que remata en el gabinete de medición de la subestación eléctrica tipo compacta servicio interior de 300 kVA de capacidad de transformación. RESUMEN DE CARGA Servicio normal a 220 V. 86,549.25 W Servicio emergencia a 220 V. 138,618.31 W Carga total a 220 V. 225,167.56 W CALCULO DEL TRANSFORMADOR CARGA EN RESERVA Para los cálculos se contemplara entre un 20% y 30% adicional a la carga instalada, con la finalidad de agregar futuras cargas al sistema. FACTOR DE DEMANDA La demanda en una instalación eléctrica es la carga en las terminales receptoras, tomada como un valor medio en un intervalo de tiempo determinado. El factor de demanda en un intervalo de tiempo, de una carga es la razón entre la demanda máxima y su carga total instalada siendo la demanda máxima, la demanda instantánea mayor que se representa en una carga en un periodo de trabajo previamente establecido. FACTOR DE DIVERSIDAD Es la razón entre la sumatoria de las demandas máximas individuales y la demanda máxima del sistema. Este factor podrá aplicarse a diferentes niveles del sistema; es decir, entre los transformadores de un mismo alimentador, entre los alimentadores pertenecientes a una misma subestación eléctrica o entre subestaciones de un mismo sistema.
  • 85.
    85 TESIS HERIBERTO SALVADORCASTRO Para efectos prácticos suele considerarse el factor de diversidad igual a la unidad y utilizar factores de demanda previamente establecidos dependiendo del tipo de edificio que se trate para nuestro caso, se considera un factor de demanda de 95%, por lo tanto se tiene que: ..PF kW kVA  INSTALADOS W kVA 17.250 9.0 56.167,225  kVA de transformación = kVA instalados x F.D. = 250.17 x 0.95 = 237.66 Dado que se tiene considerado una carga en reserva a la instalada de 20% a 30%, que se sumara a la carga en kVA de transformación calculada, lo que resulta: kVA de transformación = 237.66 x 1.3 = 308.95 Lo que demanda una capacidad de transformación de aproximadamente 300 kVA, por lo que se instalara. Un transformador de 300 kVA (TR-1). CALCULO DE LA PLANTA DE EMERGENCIA ..PF kW kVA  INSTALADOS W kVA 06.154 9.0 31.658,138  kVA de P. E. = kVA instalados x F.D. = 154.06 x 0.95 = 146.36 Por lo que se instalara, una planta de emergencia de 150 kVA (PE-1).
  • 86.
    86 TESIS HERIBERTO SALVADORCASTRO TABLERO “A” ALUMBRADO PONIENTE PLANTA BAJA CARGA INSTALADA 25 Lámpara fluorescente 2 x 28W 25x (2x 28)x 1.25 = 1,750 W 34 Lámpara fluorescente 2 x 28W 34x (2x 28)x 1.25 = 2,380 W 6 Lámpara 2 x 13W 6x (2x 13)x 1.25 = 195 W 5 Lámpara dicroica 50 W, 127 V 5x 50 = 250 W 5 Lámpara 2x 75 W 5x (2x 75) = 750 W 2 Lámpara 2x 26 W 2x (2x 26) x1.25 = 130 W 4 Lámpara IL9/P30D 75 W 4x 75 W = 300 W 5 Led 1W 5x 1x 1.25 = 6.25 W SUMA 5,761.25W 2 Boiler 1500 W 2 x 1,500 W = 3,000 W 1 Ventilador 500 W 500 W 1 Contacto 1000 W, 220 V 1,000 W 30 Contacto en muro180 VA, 127 V 30x (180x 0.9) = 4,860 W 54 Contacto en mueble 180 VA, 127 V 54x (180x 0.9) = 8,748 W 11 Contacto en muro 200 VA, 127 V 11x (200x 0.9) = 1,980 W SUMA 20,088 W TOTAL 25,849.25W ESTIMAR FACTOR DEMANDA Alumbrado ── 100% ── 5,761.25 W Contactos 10,000 W ── 100% ── 10,000 W Contactos 10,088 W ── 50% ── 5,044 W Total ── 20,805.25 W %80100 25.849,25 25.805,20  xndaFactorDema POTENCIA DEMANDADA DemandaFactorxInstaladaaCDemandaPotencia arg.  WxDemandaPotencia 4.679,2080.025.849,25 
  • 87.
    87 TESIS HERIBERTO SALVADORCASTRO TABLERO “B” ALUMBRADO ORIENTE PLANTA BAJA CARGA INSTALADA 27 Lámpara fluorescente 2 x 28W 27x (2x 28)x 1.25 = 1,890 W 34 Lámpara fluorescente 2 x 28W 34x (2x 28)x 1.25 = 2,380 W 6 Lámpara 2 x 13W 6x (2x 13)x 1.25 = 195 W 5 Lámpara dicroica 50 W, 127 V 5x 50 = 250 W 5 Lámpara 2x 75 W 5x (2x 75) = 750 W 2 Lámpara 2x 26 W 2x (2x 26) x1.25 = 130 W 3 Lámpara 60 W, 127 V 3x 60 W = 180 W SUMA 5,775 W 2 Boiler 1500 W 2 x 1,500 W = 3,000 W 1 Ventilador 500 W 500 W 1 Contacto 1000 W, 220 V 1,000 W 44 Contacto en muro180 VA, 127 V 44x (180x 0.9) = 7,128 W 24 Contacto en mueble 180 VA, 127 V 24x (180x 0.9) = 3,888 W 11 Contacto en muro 200 VA, 127 V 11x (200x 0.9) = 1,980 W SUMA 17,496 W TOTAL 23,271 W ESTIMAR FACTOR DEMANDA Alumbrado ── 100% ── 5,775 W Contactos 10,000 W ── 100% ── 10,000 W Contactos 7,496 W ── 50% ── 3,748 W Total ── 19,523 W %84100 271,23 523,19  xndaFactorDema POTENCIA DEMANDADA DemandaFactorxInstaladaaCDemandaPotencia arg.  WxDemandaPotencia 64.547,1984.0271,23 
  • 88.
    88 TESIS HERIBERTO SALVADORCASTRO TABLERO “C” ALUMBRADO PONIENTE PLANTA ALTA CARGA INSTALADA 31 Lámpara fluorescente 2 x 28W 31x (2x 28)x 1.25 = 2,170 W 25 Lámpara fluorescente 2 x 28W 25x (2x 28)x 1.25 = 1,750 W 6 Lámpara 175 W, 220 V 6x 175 = 1,050 W 1 Lámpara Fluorescente 2x 26 W, 127 V 1x (2x 26)x 1.25 = 65 W 2 Lámpara Fluorescente 2x 26 W, 127 V 2x (2x 26)x 1.25 = 130 W 5 Lámpara dicroica 50 W, 127 V 5x 50 = 250 W 6 Lámpara fluorescente 2x 13 W 6x (2x 13)x 1.25 = 195 W 2 Lámpara 2x 75 W 2x (2x 75) 300 W SUMA 5,910 W 1 Ventilador 500 W 500 W 1 Contacto 1000 W, 220 V 1,000 W 38 Contacto en muro180 VA, 127 V 38x (180x 0.9) = 6,156 W 16 Contacto en mueble 180 VA, 127 V 16x (180x 0.9) = 2,592 W 8 Contacto en muro 200 VA, 127 V 8x (200x 0.9) = 1,440 W SUMA 11,688 W TOTAL 17,598W ESTIMAR FACTOR DEMANDA Alumbrado ── 100% ── 5,910 W Contactos 10,000 W ── 100% ── 10,000 W Contactos 1,688 W ── 50% ── 844 W Total ── 16,754 W %95100 598,17 754,16  xndaFactorDema POTENCIA DEMANDADA DemandaFactorxInstaladaaCDemandaPotencia arg.  WxDemandaPotencia 1.718,1695.0598,17 
  • 89.
    89 TESIS HERIBERTO SALVADORCASTRO TABLERO “D” ALUMBRADO ORIENTE PLANTA ALTA CARGA INSTALADA 27 Lámpara fluorescente 2 x 28W 27x (2x 28)x 1.25 = 1,890 W 22 Lámpara fluorescente 2 x 28W 22x (2x 28)x 1.25 = 1,540 W 4 Lámpara fluorescente 2 x 28W 4x (2x 28)x 1.25 = 280 W 5 Lámpara 60 W, 127 V 5x 60 = 300 W 2 Lámpara 2x 75 W 2x (2x 75) 300 W 2 Lámpara Fluorescente 2x 26 W, 127 V 2x (2x 26)x 1.25 = 130 W 5 Lámpara dicroica 50 W, 127 V 5x 50 = 250 W 6 Lámpara fluorescente 2x 13 W 6x (2x 13)x 1.25 = 195 W SUMA 4,885 W 1 Ventilador 500 W 500 W 1 Contacto 1000 W, 220 V 1,000 W 43 Contacto en muro180 VA, 127 V 43x (180x 0.9) = 6,966 W 30 Contacto en mueble 180 VA, 127 V 30x (180x 0.9) = 4,860 W 9 Contacto en muro 200 VA, 127 V 9x (200x 0.9) = 1,620 W SUMA 14,946 W TOTAL 19,831 W ESTIMAR FACTOR DEMANDA Alumbrado ── 100% ── 4,885 W Contactos 10,000 W ── 100% ── 10,000 W Contactos 4,946 W ── 50% ── 2,473 W Total ── 17,358 W %87100 831,19 358,17  xndaFactorDema POTENCIA DEMANDADA DemandaFactorxInstaladaaCDemandaPotencia arg.  WxDemandaPotencia 97.252,1787.0831,19 
  • 90.
    90 TESIS HERIBERTO SALVADORCASTRO TABLERO “AE” ALUMBRADO DE EMERGENCIA PONIENTE PLANTA BAJA CARGA INSTALADA 23 Lámpara fluorescente 2 x 28W 23x (2x 28)x 1.25 = 1,610 W 29 Lámpara fluorescente 2 x 28W 29x (2x 28)x 1.25 = 2,030 W 3 Lámpara 60 W, 127 V 3x 60 = 180 W 1 Lámpara 60 W, 127 V 1x 60 = 60 W 3 Lámpara 2 x 13W 3x (2x 13)x 1.25 = 97.5 W 5 Lámpara 2x 75 W 5x (2x 75) = 750 W TOTAL 4,727.5 W ESTIMAR FACTOR DEMANDA Alumbrado ── 100% ── 4,727.5 %100100 5.727,4 5.727,4  xndaFactorDema POTENCIA DEMANDADA DemandaFactorxInstaladaaCDemandaPotencia arg.  WxDemandaPotencia 5.727,400.15.727,4  TABLERO “BE” ALUMBRADO DE EMERGENCIA ORIENTE PLANTA BAJA CARGA INSTALADA 28 Lámpara fluorescente 2 x 28W 28x (2x 28)x 1.25 = 1,960 W 30 Lámpara fluorescente 2 x 28W 30x (2x 28)x 1.25 = 2,100 W 3 Lámpara 60 W, 127 V 3x 60 = 180 W 1 Lámpara 60 W, 127 V 1x 60 = 60 W 3 Lámpara 2 x 13W 3x (2x 13)x 1.25 = 97.5 W 1 Lámpara 2x 75 W 1x (2x 75) = 150 W TOTAL 4,547.5 W ESTIMAR FACTOR DEMANDA Alumbrado ── 100% ── 4,547.5
  • 91.
    91 TESIS HERIBERTO SALVADORCASTRO %100100 5.547,4 5.547,4  xndaFactorDema POTENCIA DEMANDADA DemandaFactorxInstaladaaCDemandaPotencia arg.  WxDemandaPotencia 5.547,400.15.547,4  TABLERO “CE” ALUMBRADO DE EMERGENCIA PONIENTE PLANTA ALTA CARGA INSTALADA 19 Lámpara fluorescente 2 x 28W 19x (2x 28)x 1.25 = 1,330 W 26 Lámpara fluorescente 2 x 28W 26x (2x 28)x 1.25 = 1,820 W 1 Lámpara 60 W, 127 V 1x 60 = 60 W 5 Lámpara 175 W, 220 V 5x 175x 1.25 = 1,093.75 W 3 Lámpara 2 x 13W 3x (2x 13)x 1.25 = 97.5 W 1 Lámpara 2x 75 W 1x (2x 75) = 150 W TOTAL 4,551.25 W ESTIMAR FACTOR DEMANDA Alumbrado ── 100% ── 4,551.25 %100100 25.551,4 25.551,4  xndaFactorDema POTENCIA DEMANDADA DemandaFactorxInstaladaaCDemandaPotencia arg.  WxDemandaPotencia 25.551,400.125.551,4  TABLERO “DE” ALUMBRADO DE EMERGENCIA ORIENTE PLANTA ALTA CARGA INSTALADA 25 Lámpara fluorescente 2 x 28W 25x (2x 28)x 1.25 = 1,750 W 17 Lámpara fluorescente 2 x 28W 17x (2x 28)x 1.25 = 1,190 W
  • 92.
    92 TESIS HERIBERTO SALVADORCASTRO 4 Lámpara fluorescente 2 x 28W 4x (2x 28)x 1.25 = 280 W 2 Lámpara 60 W, 127 V 2x 60 = 120 W 1 Lámpara 2x 75 W 1x (2x 75) = 150 W 3 Lámpara 2 x 13W 3x (2x 13)x 1.25 = 97.5 W TOTAL 3,587.5 W ESTIMAR FACTOR DEMANDA Alumbrado ── 100% ── 3,587.5 %100100 5.587,3 5.587,3  xndaFactorDema POTENCIA DEMANDADA DemandaFactorxInstaladaaCDemandaPotencia arg.  WxDemandaPotencia 5.587,300.15.587,3  TABLERO “EE” CUARTO DE MAQUINAS CARGA INSTALADA 2 Lámpara fluorescente 2 x 32W 2x (2x 32)x 1.25 = 160 W 1 Contacto 180W, 127V 1x (180x 0.9) = 162 W 2 Motor de 1HP Wx x PF hpx P 77.657,1)2( 9.0 7461 .. 746  2 Motor de 5HP Wx x PF hpx P 88.288,8)2( 9.0 7465 .. 746  1 Motor de 7.5HP W x PF hpx P 66.216,6 9.0 7465.7 .. 746  TOTAL 16,485.31 W ESTIMAR FACTOR DEMANDA Alumbrado y Contactos── 100% ── 322 W Motores── 80% ── 12,930.65 W Total ──13,252.65 W %80100 31.485,16 5.6.252,13  xndaFactorDema
  • 93.
    93 TESIS HERIBERTO SALVADORCASTRO POTENCIA DEMANDADA DemandaFactorxInstaladaaCDemandaPotencia arg.  WxDemandaPotencia 25.188,1380.031.485,16  TABLERO “FE” ALUMBRADO EXTERIOR Y SUBESTACIÓN CARGA INSTALADA 1 Centro de carga en cafetería 5000 W 18 Lámpara fluorescente 13W, 127V 18x13x1.25 = 292.5 W 4 Lámpara 75W 4x75 = 300 W 14 Led 1W 14x1x1.25 = 17.5 W 35 Led 1W 35x1x1.25 = 43.75 W 30 Lámpara fluorescente 13 W 30x13x1.25 = 487.5 W 11 Lámpara fluorescente 2x32 W 11x(2x32)x1.25 = 880 W 1 Ventilador para UPS 1500 W, 127 V 1,500 W 3 Contacto general 3x(180x0.9) = 486 W TOTAL 9,007.25W FACTOR DEMANDA 9007.25 ── 100% POTENCIA DEMANDADA DemandaFactorxInstaladaaCDemandaPotencia arg.  WxDemandaPotencia 25.007,9125.007,9 
  • 94.
    94 TESIS HERIBERTO SALVADORCASTRO TABLERO “AR” CONTACTOS REGULADOS PONIENTE PLANTA BAJA CARGA INSTALADA 28 Contacto en muro 300 W 28x 300 = 8,400 W 54 Contacto en piso 300 W 54x 300 = 16,200 W 4 Contacto en mueble 300 W 4x 300 = 1,200 W TOTAL 25,800 W ESTIMAR FACTOR DEMANDA Contactos Regulados ── 100% ── 25,800 W POTENCIA DEMANDADA DemandaFactorxInstaladaaCDemandaPotencia arg.  WxDemandaPotencia 800,2500.1800,25  TABLERO “BR” CONTACTOS REGULADOS ORIENTE PLANTA BAJA CARGA INSTALADA 44 Contacto en muro 300 W 44x 300 = 13,200 W 4 Contacto en piso 300 W 4x 300 = 1,200 W 24 Contacto en mueble 300 W 24x 300 = 7,200 W TOTAL 21,600 W ESTIMAR FACTOR DEMANDA Contactos Regulados ── 100% ── 21,600 W %100100 800,25 800,25  xndaFactorDema %100100 600,21 600,21  xndaFactorDema
  • 95.
    95 TESIS HERIBERTO SALVADORCASTRO POTENCIA DEMANDADA DemandaFactorxInstaladaaCDemandaPotencia arg.  WxDemandaPotencia 600,2100.1600,21  TABLERO “CR” CONTACTOS REGULADOS PONIENTE PLANTA ALTA CARGA INSTALADA 35 Contacto en muro 300 W 35x 300 = 10,500 W 4 Contacto en piso 300 W 4x 300 = 1,200 W 16 Contacto en mueble 300 W 16x 300 = 4,800 W TOTAL 16,500 W ESTIMAR FACTOR DEMANDA Contactos Regulados ── 100% ── 16,500 W POTENCIA DEMANDADA DemandaFactorxInstaladaaCDemandaPotencia arg.  WxDemandaPotencia 500,1600.1500,16  TABLERO “DR” CONTACTOS REGULADOS ORIENTE PLANTA ALTA CARGA INSTALADA 36 Contacto en muro 300 W 36x 300 = 10,800 W 3 Contacto en piso 300 W 3x 300 = 900 W 30 Contacto en mueble 300 W 30x 300 = 9,000 W TOTAL 20,700 W %100100 500,16 500,16  xndaFactorDema
  • 96.
    96 TESIS HERIBERTO SALVADORCASTRO ESTIMAR FACTOR DEMANDA Contactos Regulados ── 100% ── 20,700 W POTENCIA DEMANDADA DemandaFactorxInstaladaaCDemandaPotencia arg.  WxDemandaPotencia 700,2000.1700,20  TABLERO “ER” SITE DE CÓMPUTO CARGA INSTALADA 1 Centro de carga 3F, 4H, 220/127V 11,112 W TOTAL 11,112 W ESTIMAR FACTOR DEMANDA Alumbrado ── 100% ── 11,112 W POTENCIA DEMANDADA DemandaFactorxInstaladaaCDemandaPotencia arg.  WxDemandaPotencia 112,1100.1112,11  %100100 700,20 700,20  xndaFactorDema %100100 112,11 112,11  xndaFactorDema
  • 97.
    97 TESIS HERIBERTO SALVADORCASTRO CUADRO DE CARGAS TAB. “A” CIRCUITO DERIVADO 70W 70W 32.5W 50W 150W 65W 75W 1500W 500W 1000W 162W 162W 180W 1.25W FASES INT. “QOB”A B C 1 9 1458 1 x20A 2 1 500 2x20A 3 500 4 9 1458 1 x20A 5 9 1458 1 x20A 6 3 6 1458 1 x20A 7 8 1440 1 x20A 8 1 500 1 x15A 9 3 3 1026 1 x20A 10 1 750 2x20A 11 750 12 1 750 2x20A 13 750 14 9 1458 1 x20A 15 9 1458 1 x20A 16 9 1458 1 x20A 17 9 1458 1 x20A 18 9 1458 1 x20A 19 4 5 306.25 1 x15A 20 15 1050 1 x15A 21 10 700 1 x15A 22 13 910 1 x15A 23 5 1 2 530 1 x15A 24 5 750 1 x15A 25 16 1120 1 x15A 26 1 x15A 27 6 4 395 1 x15A 28 29 30 TOTAL UNIDADES 25 34 6 5 5 2 4 2 1 1 30 54 11 5 TOTAL WATTS 1750 2380 195 250 750 130 300 3000 500 1000 4860 8748 1980 6.25 8582.25 8655 8612 %84.0100 8655 25.85828655 100 arg argarg %      xx MayoraC MenoraCMayoraC oDesbalance BARRAS CU. 100 AMP. A B C 1 2 3 4 5 6 7 8 9 10 11 12 13 14 15 16 17 18 19 20 21 22 23 24 25 26 27 28 29 30 3 x 70 A
  • 98.
    98 TESIS HERIBERTO SALVADORCASTRO CUADRO DE CARGAS TAB. “B” CIRCUITO DERIVADO 70W 70W 32.5W 50W 150W 65W 60W 1500W 500W 1000W 162W 162W 180W FASES INT. “QOB”A B C 1 9 1458 1 x20A 2 1 500 2 x20A 3 500 4 9 1458 1 x20A 5 9 1458 1 x20A 6 9 1458 1 x20A 7 8 1 1476 1 x20A 8 8 1440 1 x20A 9 7 2 1494 1 x20A 10 9 1458 1 x20A 11 8 1296 1 x20A 12 1 750 2 x20A 13 750 14 1 750 2 x20A 15 750 16 1 500 1 x15A 17 15 1050 1 x15A 18 12 6 1035 1 x15A 19 15 1050 1 x15A 20 2 300 1 x15A 21 15 1050 1 x15A 22 4 5 530 1 x15A 23 3 450 1 x15A 24 2 3 310 1 x15A 25 26 27 28 29 30 TOTAL UNIDADES 27 34 6 5 5 2 3 2 1 1 44 24 11 TOTAL WATTS 1890 2380 195 250 750 130 180 3000 500 1000 7128 3888 1980 7724 7740 7807 %06.1100 7807 77247807 100 arg argarg %      xx MayoraC MenoraCMayoraC oDesbalance BARRAS CU. 100 AMP. A B C 1 2 3 4 5 6 7 8 9 10 11 12 13 14 15 16 17 18 19 20 21 22 23 24 25 26 27 28 29 30 3 x 70 A
  • 99.
    99 TESIS HERIBERTO SALVADORCASTRO CUADRO DE CARGAS TAB. “C” CIRCUITO DERIVADO 70W 70W 32.5W 50W 150W 65W 175W 65W 500W 1000W 162W 162W 180W FASES INT. “QOB”A B C 1 9 1458 1x20A 2 9 1458 1x20A 3 9 1458 1x20A 4 9 1458 1x20A 5 2 7 1458 1x20A 6 9 1458 1x20A 7 8 1440 1x20A 8 1 500 2x20A 9 500 10 1 500 1 x15A 11 15 1050 1 x15A 12 16 1120 1 x15A 13 8 560 1 x15A 14 7 490 1 x15A 15 6 525 2x20A 16 5 2 2 1 745 1 x15A 17 525 18 6 195 1 x15A 19 20 21 10 700 1 x15A 22 23 24 25 26 27 28 29 30 TOTAL UNIDADES 31 25 6 5 2 2 6 1 1 1 38 16 8 TOTAL WATTS 2170 1750 195 250 300 130 1050 60 500 1000 6156 2592 1440 5906 5886 5806 %69.1100 5906 58065906 100 arg argarg %      xx MayoraC MenoraCMayoraC oDesbalance BARRAS CU. 100 AMP. A B C 1 2 3 4 5 6 7 8 9 10 11 12 13 14 15 16 17 18 19 20 21 22 23 24 3 x 70 A
  • 100.
    100 TESIS HERIBERTO SALVADORCASTRO CUADRO DE CARGAS TAB. “D” CIRCUITO DERIVADO 70W 70W 32.5W 50W 150W 65W 70 W 60W 500W 1000W 162W 162W 180W FASES INT. “QOB”A B C 1 9 1458 1P x 15A 2 9 1458 3 9 1458 4 9 1458 5 7 2 1458 6 9 1458 7 9 1458 8 10 1620 9 9 1620 10 1 500 11 500 12 1 500 13 4 280 14 2 300 15 12 840 16 11 770 17 13 910 18 11 6 5 1265 19 20 21 22 23 2 2 270 24 5 250 25 26 27 28 29 30 TOTAL UNIDADES 27 22 6 5 2 2 4 5 1 1 43 30 9 TOTAL WATTS 1890 1540 195 250 300 130 280 300 500 1000 6966 4860 1620 6574 6646 6611 %08.1100 6646 65746646 100 arg argarg %      xx MayoraC MenoraCMayoraC oDesbalance BARRAS CU. 100 AMP. A B C 1 2 3 4 5 6 7 8 9 10 11 12 13 14 15 16 17 18 19 20 21 22 23 24 3 x 70 A
  • 101.
    101 TESIS HERIBERTO SALVADORCASTRO CUADRO DE CARGAS TAB. “AE” CIRCUITO DERIVADO 70W 70W 60W 60W 32.5W 150W FASES INT. “QOB”A B C 1 3 180 1P x 15A 2 6 420 1P x 15A 3 1 3 157.5 1P x 15A 4 8 560 1P x 15A 5 5 750 1P x 15A 6 6 420 1P x 15A 7 3 5 560 1P x 15A 8 6 420 1P x 15A 9 6 420 1P x 15A 10 6 420 1P x 15A 11 6 420 1P x 15A 12 TOTAL UNIDADES 23 29 3 1 3 5 TOTAL WATTS 1610 2030 180 60 97.5 750 1580 1557.5 1590 %04.2100 1590 5.15571590 100 arg argarg %      xx MayoraC MenoraCMayoraC oDesbalance CUADRO DE CARGAS TAB. “BE” CIRCUITO DERIVADO 70W 70W 60W 60W 32.5W 150W FASES INT. “QOB”A B C 1 3 180 1P x 15A 2 6 420 1P x 15A 3 1 1 2 195 1P x 15A 4 6 420 1P x 15A 5 5 1 500 1P x 15A 6 5 1 382.5 1P x 15A 7 6 420 1P x 15A 8 7 490 1P x 15A 9 6 420 1P x 15A 10 7 490 1P x 15A 11 9 630 1P x 15A 12 TOTAL UNIDADES 28 30 3 1 3 1 TOTAL WATTS 1960 2100 180 60 97.5 150 1510 1525 1512.5 BARRAS CU. 100 AMP. A B C 1 2 3 4 5 6 7 8 9 10 11 12 3 x 70 A BARRAS CU. 100 AMP. A B C 1 2 3 4 5 6 7 8 9 10 11 12 3 x 70 A
  • 102.
    102 TESIS HERIBERTO SALVADORCASTRO %98.0100 1525 15101525 100 arg argarg %      xx MayoraC MenoraCMayoraC oDesbalance CUADRO DE CARGAS TAB. “CE” CIRCUITO DERIVADO 70W 70W 175W 60W 32.5W 150W FASES INT. “QOB”A B C 1 5 546.875 1P x 15A 2 4 280 1P x 15A 3 546.875 1P x 15A 4 3 210 1P x 15A 5 7 1 550 1P x 15A 6 5 350 1P x 15A 7 9 630 1P x 15A 8 1 70 1P x 15A 9 9 630 1P x 15A 10 1 2 135 1P x 15A 11 6 1 452.5 1P x 15A 12 1 150 TOTAL UNIDADES 19 26 5 1 3 1 TOTAL WATTS 1330 1820 1093.75 60 97.5 150 1526.88 1521.87 1502.5 %59.1100 88.1526 5.150288.1526 100 arg argarg %      xx MayoraC MenoraCMayoraC oDesbalance BARRAS CU. 100 AMP. A B C 1 2 3 4 5 6 7 8 9 10 11 12 3 x 70 A
  • 103.
    103 TESIS HERIBERTO SALVADORCASTRO CUADRO DE CARGAS TAB. “DE” CIRCUITO DERIVADO 70W 70W 80W 60W 32.5W 150W FASES INT. “QOB”A B C 1 7 490 1P x 15A 2 8 560 1P x 15A 3 5 350 1P x 15A 4 6 420 1P x 15A 5 4 320 1P x 15A 6 11 770 1P x 15A 7 1 150 1P x 15A 8 1P x 15A 9 5 2 470 1P x 15A 10 1P x 15A 11 3 97.5 1P x 15A 12 TOTAL UNIDADES 25 17 4 2 3 1 TOTAL WATTS 1750 1190 280 120 97.5 150 1200 1240 1187.5 23.4100 1240 5.11871240 100 arg argarg %      xx MayoraC MenoraCMayoraC oDesbalance BARRAS CU. 100 AMP. A B C 1 2 3 4 5 6 7 8 9 10 11 12 3 x 70 A
  • 104.
    104 TESIS HERIBERTO SALVADORCASTRO CUADROS DE CARGAS TAB. “EE” CIRCUITO DERIVADO 80W 162W 828.88W 828.88W 4144.44W 4144.44W 6216.66W FASES INT. “QOB”A B C 1 1 276.3 2 1 276.3 3 276.3 4 276.3 5 276.3 6 276.3 7 1 1381.5 8 1 1381.5 9 1381.5 10 1381.5 11 1381.5 12 1381.5 13 1 2072.22 14 1 162 15 2072.22 16 1 80 17 2072.22 18 1 80 TOTAL UNIDADES 2 1 1 1 1 1 1 TOTAL WATTS 160 162 828.88 828.88 4144.44 4144.44 6216.66 5549.82 5467.82 5467.82 47.1100 82.5549 82.546782.5549 100 arg argarg %      xx MayoraC MenoraCMayoraC oDesbalance BARRAS CU. 100 AMP. A B C 1 2 3 4 5 6 7 8 9 10 11 12 3 x 70 A
  • 105.
    105 TESIS HERIBERTO SALVADORCASTRO CUADRO DE CARGAS TAB. “FE” CIRCUITO DERIVADO 13W 75W 1.25W 1.25W 13W 80W 162W 5000W 1500W FASES INT. “QOB”A B C 1 11 880 2 6 97.5 3 6 97.5 4 4 300 5 6 97.5 6 14 17.5 7 1 1500 8 9 1 2500 10 10 162.5 11 2500 12 10 162.5 13 3 486 14 15 16 17 35 43.75 18 10 162.5 19 20 21 22 23 24 25 26 27 28 29 30 TOTAL UNIDADES 18 4 14 35 30 11 3 1 1 TOTAL WATTS 292.5 300 17.5 42.75 487.5 880 486 5000 1500 2963.5 3060 2983.75 %2.3100 5.2963 5.29633060 100 arg argarg %      xx MayoraC MenoraCMayoraC oDesbalance BARRAS CU. 100 AMP. A B C 1 2 3 4 5 6 7 8 9 10 11 12 13 14 15 16 17 18 19 20 21 22 23 24 3 x 70 A
  • 106.
    106 TESIS HERIBERTO SALVADORCASTRO CUADRO DE CARGAS TAB. “AR” CIRCUITO DERIVADO 300W 300W 300W FASES INT. “QOB”A B C 1 4 1200 1x20 A 2 4 1200 1x20 A 3 4 1200 1x20 A 4 4 1200 1x20 A 5 4 1200 1x20 A 6 4 1200 1x20 A 7 4 1200 1x20 A 8 4 1200 1x20 A 9 4 1200 1x20 A 10 4 1200 1x20 A 11 4 1200 1x20 A 12 4 1200 1x20 A 13 4 1200 1x20 A 14 4 1200 1x20 A 15 4 1200 1x20 A 16 4 1200 1x20 A 17 4 1200 1x20 A 18 4 1200 1x20 A 19 4 1200 1x20 A 20 21 5 1500 1x20 A 22 23 5 1500 1x20 A 24 TOTAL UNIDADES 28 54 4 TOTAL WATTS 8400 16200 1200 8400 8700 8700 %44.3100 8700 84008700 100 arg argarg %      xx MayoraC MenoraCMayoraC oDesbalance BARRAS CU. 100 AMP. A B C 1 2 3 4 5 6 7 8 9 10 11 12 13 14 15 16 17 18 19 20 21 22 23 24 3 x 70 A
  • 107.
    107 TESIS HERIBERTO SALVADORCASTRO CUADRO DE CARGAS TAB. “BR” CIRCUITO DERIVADO 300W 300W 300W FASES INT. “QOB”A B C 1 4 1200 1x20 A 2 4 1200 1x20 A 3 4 1200 1x20 A 4 4 1200 1x20 A 5 4 1200 1x20 A 6 4 1200 1x20 A 7 4 1200 1x20 A 8 4 1200 1x20 A 9 4 1200 1x20 A 10 4 1200 1x20 A 11 4 1200 1x20 A 12 4 1200 1x20 A 13 4 1200 1x20 A 14 4 1200 1x20 A 15 4 1200 1x20 A 16 4 1200 1x20 A 17 4 1200 1x20 A 18 4 1200 1x20 A 19 20 21 22 23 24 TOTAL UNIDADES 44 24 4 TOTAL WATTS 13200 7200 1200 7200 7200 7200 %00.0100 7200 72007200 100 arg argarg %      xx MayoraC MenoraCMayoraC oDesbalance BARRAS CU. 100 AMP. A B C 1 2 3 4 5 6 7 8 9 10 11 12 13 14 15 16 17 18 19 20 21 22 23 24 3 x 70 A
  • 108.
    108 TESIS HERIBERTO SALVADORCASTRO CUADRO DE CARGAS TAB. “CR” CIRCUITO DERIVADO 300W 300W 300W FASES INT. “QOB”A B C 1 4 1200 1x20 A 2 4 1200 1x20 A 3 4 1200 1x20 A 4 4 1200 1x20 A 5 4 1200 1x20 A 6 4 1200 1x20 A 7 3 900 1x20 A 8 4 1200 1x20 A 9 3 900 1x20 A 10 4 1200 1x20 A 11 4 1200 1x20 A 12 4 1200 1x20 A 13 3 900 1x20 A 14 15 3 900 1x20 A 16 17 3 900 1x20 A 18 19 20 21 22 23 24 TOTAL UNIDADES 35 4 16 TOTAL WATTS 10500 1200 4800 5400 5400 5700 %26.5100 5700 54005700 100 arg argarg %      xx MayoraC MenoraCMayoraC oDesbalance BARRAS CU. 100 AMP. A B C 1 2 3 4 5 6 7 8 9 10 11 12 13 14 15 16 17 18 19 20 21 22 23 24 3 x 70 A
  • 109.
    109 TESIS HERIBERTO SALVADORCASTRO CUADRO DE CARGAS TAB. “DR” CIRCUITO DERIVADO 300W 300W 300W FASES INT. “QOB”A B C 1 4 1200 1x20 A 2 4 1200 1x20 A 3 4 1200 1x20 A 4 4 1200 1x20 A 5 4 1200 1x20 A 6 4 1200 1x20 A 7 4 1200 1x20 A 8 4 1200 1x20 A 9 4 1200 1x20 A 10 4 1200 1x20 A 11 4 1200 1x20 A 12 4 1200 1x20 A 13 4 1200 1x20 A 14 3 900 1x20 A 15 4 1200 1x20 A 16 3 900 1x20 A 17 4 1200 1x20 A 18 3 900 1x20 A 19 20 21 22 23 24 TOTAL UNIDADES 36 3 30 TOTAL WATTS 10800 900 9000 6900 6900 6900 %00.0100 6900 69006900 100 arg argarg %      xx MayoraC MenoraCMayoraC oDesbalance BARRAS CU. 100 AMP. A B C 1 2 3 4 5 6 7 8 9 10 11 12 13 14 15 16 17 18 19 20 21 22 23 24 3 x 70 A
  • 110.
    110 TESIS HERIBERTO SALVADORCASTRO EDIFICIO GUBERNAMENTAL CAPITULO 5 SELECCIÓN DE PROTECCIONES, CALIBRE DE CONDUCTOR Y CANALIZACION
  • 111.
    111 TESIS HERIBERTO SALVADORCASTRO CAPITULO 5 SELECCIÓN DE PROTECCIONES, CALIBRE DE CONDUCTOR Y CANALIZACION Cálculo de protección y alimentador en media tensión (23,000V). Como interruptor principal se utiliza un seccionador de potencia de operación en aire con tres fusibles limitadores de corriente de disparo tripolar en base al Art. 450 de la NOM-001- SEDE-2005 que establece, que cuando se empleen fusibles, la capacidad de la corriente de estos no debe exceder el 250% de la corriente primaria de transformación. a) Calculo de la protección en MT, 23 kV kV kVA Ipc 3  AmpIpc 53.7 )23(732.1 300  Corriente máxima del fusible: AmpxImáx 82.185.253.7.  Por lo que se utilizaran fusibles de corriente nominal de 15 Amp. b) Para el alimentador principal en media tensión, se selecciona la utilización de cable de energía monoconductor tipo DS con aislamiento tipo XLP (polietileno de cadena cruzada) adecuado para este tipo de instalación y de acuerdo a la Tabla 310-5 de la NOM-001- SEDE-2005. El conductor adecuado es 1 AWG de sección transversal 42.4 mm2 y ampacidad de 175 Amp. de acuerdo Tabla 310-77 de la NOM-001-SEDE-2005. .53.7 )23(732.1 300 3 Amp kV kVA Ipc  .41.925.1 AmpIpcxIMáx  El conductor es adecuado por ampacidad Por caída de tensión. Para una longitud de 15 mts. En el caso más critico ExS xLxIpc e 32 % 
  • 112.
    112 TESIS HERIBERTO SALVADORCASTRO Donde: %e = caída de tensión por ciento Ipc = corriente a plena carga en amperes L = longitud del circuito S = sección transversal del conductor E = tensión entre fases 0004.0 )23000(4.42 )732.1(21553.7 %  xx e lo que demuestra que el conductor cal. 1 AWG. Es adecuado por caída de tensión. Los equipos y luminarias indicados en el proyecto ejecutivo, operan a 220V y 127V, razón por la cual se determinan dichos voltajes de alimentación en baja tensión. Cálculo de protecciones y calibre de conductores en baja tensión para tableros de fuerza y alumbrado. Se utilizaran conductores aislados con PVC tipo THW-LS clasificados como termoplásticos, resistentes a la humedad al calor y a la propagación de incendios, de emisión reducida de humos y gas ácido, para ser instalados en lugares secos y mojados y para una temperatura de operación máxima de 75°C. Los circuitos alimentadores, desde el transformador hasta los interruptores principales en baja tensión serán canalizados por trinchera subterránea de 60x60 cm soportados con ménsulas de canal tipo strut en ambas caras de la trinchera y sujetas con cinturones de plástico en cada ménsula separadas a no más de 100 cm una de la otra. La selección del calibre de los conductores se hará de acuerdo al Art. 220-10 (a) (b) considerando el 125% de la carga continua, por lo tanto: Alimentador ATGN del tablero general TGN en el que se aloja la protección principal del transformador TR-1 con una capacidad de 300 kV. a) Cálculo de la protección AMP kV kVA IN 29.787 )22(.3 300 3  AMPxIMAX 11.98425.129.787 
  • 113.
    113 TESIS HERIBERTO SALVADORCASTRO Por lo que se instalara un interruptor electromagnético de 3P-1,000 Amp. de acuerdo al Art. 220-10 (a) (b). b) Cálculo del alimentador por corriente De acuerdo al Art. 240-3 y para una corriente de 984.11 Amp. Consultando la Tabla 310-16 para conductores cal. 250 KCM con ampacidad de 255 Amp. Se instalaran 12 cables (4xfase) cal. 250 KCM, 2 cables cal. 250 KCM en el neutro y uno cal. 1/0 AWG desnudo para conexión a tierra física. 4x255 = 1020 Amp. c) Por caída de tensión para una longitud de 10 mts. 24.0 )1274(127 )29.787)(10(22 %  xxxSV LI e N d) Canalización De acuerdo a la Tabla No. 5 del cap. 10 el conductor cal. 250 KCM tiene un diámetro exterior de 19.4 mm y un área de 297 mm2 de sección transversal por lo que: 297(12+2)+70.1 = 4,228.1 mm2 Se instalara en una trinchera de 600 x 600 mm con una sección transversal disponible al 40% de 144,000 mm2 Alimentador ATGN del tablero general TGE con una carga total instalada de 138,618.31W. a) Cálculo de la protección AMP kV kVA IN 19.404 )22(.3 02.154 .3  AMPxIMAX 23.50525.119.404  Por lo que se instalara un interruptor electromagnético de 3P-500 Amp. de acuerdo al Art. 220-10 (a) (b). b) Cálculo del alimentador por corriente De acuerdo al Art. 240-3 y para una corriente de 505.23 Amp. Consultando la Tabla 310-16 para conductores cal. 250 KCM con ampacidad de 255 Amp. Se instalaran 6 cables
  • 114.
    114 TESIS HERIBERTO SALVADORCASTRO (2xfase) cal. 250 KCM, 1 cable cal. 250 KCM en el neutro y uno cal. 2 AWG desnudo para conexión a tierra física. 2x255 = 510 Amp. c) Por caída de tensión para una longitud de 10 mts. 37.0 )1272(127 )19.404)(15(22 %  xxxSV LI e N d) Canalización De acuerdo a la Tabla No. 5 del cap. 10 el conductor cal. 250 KCM tiene un diámetro exterior de 19.4 mm y un área de 297 mm2 de sección transversal por lo que: 297(6+1)+43.2 = 2,122.2 mm2 Se instalara en una charola de 150 x 55 mm con una sección transversal disponible al 40% de 3,300 mm2 Alimentador ATGN del tablero general TGR con una carga total instalada de 95,712W. a) Cálculo de la protección AMP kV kVA IN 08.279 )22(.3 34.106 3  AMPxIMAX 85.34825.108.279  Por lo que se instalara un interruptor electromagnético de 3P-350 Amp. de acuerdo al Art. 220-10 (a) (b). b) Cálculo del alimentador por corriente De acuerdo al Art. 240-3 y para una corriente de 348.85 Amp. Consultando la Tabla 310-16 para conductores cal. 400 kCM con ampacidad de 335 Amp. Se instalaran 3 cables (1xfase) cal. 400 KCM, 1 cable cal. 250 KCM en el neutro y uno cal. 2 AWG desnudo para conexión a tierra física. 1x335 = 335 Amp. c) Por caída de tensión para una longitud de 10.5 mts. 22.0 )203(127 )08.279)(5.10(22 %  xxSV LI e N
  • 115.
    115 TESIS HERIBERTO SALVADORCASTRO d) Canalización De acuerdo a la Tabla No. 5 del cap. 10 el conductor cal. 400 KCM tiene un diámetro exterior de 23.3 mm y un área de 427 mm2 de sección transversal por lo que: 427(3)+297+43.2 = 1,621.2 mm2 Se instalara en una charola de 150 x 55 mm con una sección transversal disponible al 40% de 3,300 mm2 Alimentador APE1 de la planta de emergencia PE-1 de 150 kVA. a) Cálculo de la protección AMP kV kVA IN 64.393 )22(.3 150 3  AMPxIMAX 05.49225.164.393  Por lo que se instalara un interruptor electromagnético de 3P-500 Amp. de acuerdo al Art. 220-10 (a) (b). b) Cálculo del alimentador por corriente De acuerdo al Art. 240-3 y para una corriente de 492.05 Amp. Consultando la Tabla 310-16 para conductores cal. 250 KCM con ampacidad de 255 Amp. Se instalaran 2 cables (2xfase) cal. 250 KCM, 1 cable cal. 250 KCM en el neutro y uno cal. 2 AWG desnudo para conexión a tierra física. 2x255 = 510 Amp. c) Por caída de tensión para una longitud de 20 mts. 48.0 )1272(127 )64.393)(20(22 %  xxSV LI e N d) Canalización De acuerdo a la Tabla No. 5 del cap. 10 el conductor cal. 250 KCM tiene un diámetro exterior de 19.4 mm y un área de 297 mm2 de sección transversal por lo que: 297(6+1)+43.2 = 2,122.2 mm2
  • 116.
    116 TESIS HERIBERTO SALVADORCASTRO Se instalara en una charola de 150 x 55 mm con una sección transversal disponible al 40% de 3,300 mm2 Alimentador del tablero A con una carga total instalada de 25,849.25 W. a) Cálculo de la protección AMP PFV W I f N 37.75 )9.0)(220(3 25.849,25 ..3  AMPxIMAX 21.9425.137.75  Por lo que se instalara un interruptor electromagnético de 3P-100 Amp. de acuerdo al Art. 220-10 (a) (b). b) Cálculo del alimentador por corriente De acuerdo al Art. 240-3 y para una corriente de 94.21 Amp. Consultando la Tabla 310-16 para conductores cal. 3 AWG con ampacidad de 100 Amp. Se instalaran 3 cables (1xfase) cal. 3 AWG, 1 cable cal. 3 AWG en el neutro y uno cal. 8 AWG desnudo para conexión a tierra física. 1x100 = 100 Amp. c) Por caída de tensión para una longitud de 65 mts. 88.2 )7.26(127 )37.75)(65(22 %  xxSV LI e N Alimentador del tablero B con una carga total instalada de 23,271 W. a) Cálculo de la protección AMP PFV W I f N 86.67 )9.0)(220(3 271,23 ..3  AMPxIMAX 82.8425.186.67  Por lo que se instalara un interruptor electromagnético de 3P-90 Amp. de acuerdo al Art. 220-10 (a) (b). b) Cálculo del alimentador por corriente
  • 117.
    117 TESIS HERIBERTO SALVADORCASTRO De acuerdo al Art. 240-3 y para una corriente de 84.82 Amp. Consultando la Tabla 310-16 para conductores cal. 4 AWG con ampacidad de 85 Amp. Se instalaran 3 cables (1xfase) cal. 4 AWG, 1 cable cal. 4 AWG en el neutro y uno cal. 8 AWG desnudo para conexión a tierra física. 1x100 = 85 Amp. c) Por caída de tensión para una longitud de 50 mts. 52.2 )2.21(127 )86.67)(50(22 %  xxSV LI e N Alimentador del tablero C con una carga total instalada de 17,598 W. a) Cálculo de la protección AMP PFV W I f N 31.51 )9.0)(220(3 598,17 ..3  AMPxIMAX 13.6425.131.51  Por lo que se instalara un interruptor electromagnético de 3P-70 Amp. de acuerdo al Art. 220-10 (a) (b). b) Cálculo del alimentador por corriente De acuerdo al Art. 240-3 y para una corriente de 64.13 Amp. Consultando la Tabla 310-16 para conductores cal. 6 AWG con ampacidad de 65 Amp. Se instalaran 3 cables (1xfase) cal. 6 AWG, 1 cable cal. 6 AWG en el neutro y uno cal. 10 AWG desnudo para conexión a tierra física. 1x65 = 65 Amp. c) Por caída de tensión para una longitud de 68.50 mts. 16.4 )3.13(127 )31.51)(50.68(22 %  xxSV LI e N Alimentador del tablero D con una carga total instalada de 19,831 W. a) Cálculo de la protección
  • 118.
    118 TESIS HERIBERTO SALVADORCASTRO AMP PFV W I f N 82.57 )9.0)(220(3 831,19 ..3  AMPxIMAX 27.7225.182.57  Por lo que se instalara un interruptor electromagnético de 3P-70 Amp. de acuerdo al Art. 220-10 (a) (b). b) Cálculo del alimentador por corriente De acuerdo al Art. 240-3 y para una corriente de 72.27 Amp. Consultando la Tabla 310-16 para conductores cal. 4 AWG con ampacidad de 85 Amp. Se instalaran 3 cables (1xfase) cal. 4 AWG, 1 cable cal. 4 AWG en el neutro y uno cal. 8 AWG desnudo para conexión a tierra física. 1x85 = 85 Amp. c) Por caída de tensión para una longitud de 53.5 mts. 29.2 )2.21(127 )82.57)(5.53(22 %  xxSV LI e N Corrección de los alimentadores para los tableros A, B, C, D e% para alimentadores 5% 2.88+2.52+4.16+2.29=11.85 % Por lo tanto 25.1 4 5  Alimentador del tablero A 2 72.61 12725.1 37.75652 % 2 mm x xx Ve LI S N  Consultando la Tabla 310-16 para un área de 61.72 mm2 . Se instalaran 3 cables (1xfase) cal. 2/0 AWG, 1 cable cal. 2/0 AWG en el neutro y uno cal. 6 AWG desnudo para conexión a tierra física. Caída de tensión real para el alimentador A
  • 119.
    119 TESIS HERIBERTO SALVADORCASTRO 14.1 1274.67 37.756522 %  x xx SxV LI e N d) Canalización De acuerdo a la Tabla No. 5 del cap. 10 el conductor cal. 2/0 AWG tiene un diámetro aproximado de 14.7 mm y un área de 169 mm2 de sección transversal por lo que: 169(4)+17.2 = 693.2 mm2 Se instalara en tubería (conduit) pvc pesado 53mm de diámetro con una sección transversal disponible al 40% de 866 mm2 Alimentador del tablero B 2 74.42 12725.1 86.67502 % 2 mm x xx Ve LI S N  Consultando la Tabla 310-16 para un área de 42.74 mm2 . Se instalaran 3 cables (1xfase) cal. 1/0 AWG, 1 cable cal. 1/0 AWG en el neutro y uno cal. 6 AWG desnudo para conexión a tierra física. Caída de tensión real para el alimentador B 99.0 1275.53 86.675022 %  x xx SxV LI e N d) Canalización De acuerdo a la Tabla No. 5 del cap. 10 el conductor cal. 1/0 AWG tiene un diámetro aproximado de 13.5 mm y un área de 143 mm2 de sección transversal por lo que: 143(4)+17.2 = 589.2 mm2 Se instalara en tubería (conduit) pvc pesado 53mm de diámetro con una sección transversal disponible al 40% de 866 mm2 Alimentador del tablero C 2 27.44 12725.1 30.5150.682 % 2 mm x xx Ve LI S N 
  • 120.
    120 TESIS HERIBERTO SALVADORCASTRO Consultando la Tabla 310-16 para un área de 44.27 mm2 . Se instalaran 3 cables (1xfase) cal. 1/0 AWG, 1 cable cal. 1/0 AWG en el neutro y uno cal. 6 AWG desnudo para conexión a tierra física. Caída de tensión real para el alimentador C 03.1 1275.53 3.515.6822 %  x xx SxV LI e N d) Canalización De acuerdo a la Tabla No. 5 del cap. 10 el conductor cal. 1/0 AWG tiene un diámetro aproximado de 13.5 mm y un área de 143 mm2 de sección transversal por lo que: 143(4)+17.2 = 589.2 mm2 Se instalara en tubería (conduit) pvc pesado 53mm de diámetro con una sección transversal disponible al 40% de 866 mm2 Alimentador del tablero D 2 97.38 12725.1 82.575.532 % 2 mm x xx Ve LI S N  Consultando la Tabla 310-16 para un área de 38.97 mm2 . Se instalaran 3 cables (1xfase) cal. 1 AWG, 1 cable cal. 1 AWG en el neutro y uno cal. 8 AWG desnudo para conexión a tierra física. Caída de tensión real para el alimentador D 14.1 1274.42 82.575.5322 %  x xx SxV LI e N d) Canalización De acuerdo a la Tabla No. 5 del cap. 10 el conductor cal. 1 AWG tiene un diámetro aproximado de 12.5 mm y un área de 123 mm2 de sección transversal por lo que: 123(4)+10.8 = 502.8 mm2 Se instalara en tubería (conduit) pvc pesado 41 mm de diámetro con una sección transversal disponible al 40% de 525.2 mm2 Σe%=1.14+0.99+1.03+1.14 = 4.3
  • 121.
    121 TESIS HERIBERTO SALVADORCASTRO Alimentador del tablero AE con una carga total instalada de 4,727.5 W. a) Cálculo de la protección AMP PFV W I f N 78.13 )9.0)(220(3 5.727,4 ..3  AMPxIMAX 22.1725.178.13  Por lo que se instalara un interruptor electromagnético de 3P-20 Amp. de acuerdo al Art. 220-10 (a) (b). b) Cálculo del alimentador por corriente De acuerdo al Art. 240-3 y para una corriente de 17.22 Amp. Consultando la Tabla 310-16 para conductores cal. 10 AWG con ampacidad de 35 Amp. Se instalaran 3 cables (1xfase) cal. 10 AWG, 1 cable cal. 10 AWG en el neutro y uno cal. 12 AWG desnudo para conexión a tierra física. 1x35 = 35 Amp. c) Por caída de tensión para una longitud de 70 mts. 88.2 )26.5(127 )78.13)(70(22 %  xxSV LI e N Alimentador del tablero BE con una carga total instalada de 4,547.5 W. a) Cálculo de la protección AMP PFV W I f N 26.13 )9.0)(220(3 5.547,4 ..3  AMPxIMAX 57.1625.126.13  Por lo que se instalara un interruptor electromagnético de 3P-20 Amp. de acuerdo al Art. 220-10 (a) (b). b) Cálculo del alimentador por corriente De acuerdo al Art. 240-3 y para una corriente de 16.57 Amp. Consultando la Tabla 310-16 para conductores cal. 10 AWG con ampacidad de 35 Amp. Se instalaran 3 cables (1xfase)
  • 122.
    122 TESIS HERIBERTO SALVADORCASTRO cal. 10 AWG, 1 cable cal. 10 AWG en el neutro y uno cal. 12 AWG desnudo para conexión a tierra física. 1x35 = 35 Amp. c) Por caída de tensión para una longitud de 54 mts. 14.2 )26.5(127 )26.13)(54(22 %  xxSV LI e N Alimentador del tablero CE con una carga total instalada de 4,551.25 W. a) Cálculo de la protección AMP PFV W I f N 27.13 )9.0)(220(3 25.551,4 ..3  AMPxIMAX 58.1625.117.13  Por lo que se instalara un interruptor electromagnético de 3P-20 Amp. de acuerdo al Art. 220-10 (a) (b). b) Cálculo del alimentador por corriente De acuerdo al Art. 240-3 y para una corriente de 16.58 Amp. Consultando la Tabla 310-16 para conductores cal. 10 AWG con ampacidad de 35 Amp. Se instalaran 3 cables (1xfase) cal. 10 AWG, 1 cable cal. 10 AWG en el neutro y uno cal. 12 AWG desnudo para conexión a tierra física. 1x35 = 35 Amp. c) Por caída de tensión para una longitud de 72 mts. 86.2 )26.5(127 )27.13)(72(22 %  xxSV LI e N Alimentador del tablero DE con una carga total instalada de 3,587.5 W. a) Cálculo de la protección AMP PFV W I f N 46.10 )9.0)(220(3 5.587,3 ..3 
  • 123.
    123 TESIS HERIBERTO SALVADORCASTRO AMPxIMAX 07.1325.146.10  Por lo que se instalara un interruptor electromagnético de 3P-20 Amp. de acuerdo al Art. 220-10 (a) (b). b) Cálculo del alimentador por corriente De acuerdo al Art. 240-3 y para una corriente de 13.07 Amp. Consultando la Tabla 310-16 para conductores cal. 10 AWG con ampacidad de 35 Amp. Se instalaran 3 cables (1xfase) cal. 10 AWG, 1 cable cal. 10 AWG en el neutro y uno cal. 12 AWG desnudo para conexión a tierra física. 1x35 = 35 Amp. c) Por caída de tensión para una longitud de 57.5 mts. 8.1 )26.5(127 )46.10)(5.57(22 %  xxSV LI e N Alimentador del tablero EE con una carga total instalada de 16,485.31 W. a) Cálculo de la protección   AdicionalaCHPnIHPnIxmMII NNNN arg1525.1  %855.7 HPmM %855 HPm %751 HPm AMP x IN 9.19 )9.0)(85.0)(220(3 7465.7          AMP x IN 6.252 )9.0)(85.0)(220(3 7465          AMP x IN 8.52 )9.0)(75.0)(220(3 7461       
  • 124.
    124 TESIS HERIBERTO SALVADORCASTRO AMP PFV W I f N 94.0 )9.0)(220(3 322 ..3    22.5794.08.56.2525.19.19  xIN AMPxIMAX 52.7125.122.57  Por lo que se instalara un interruptor electromagnético de 3P-70 Amp. de acuerdo al Art. 220-10 (a) (b). b) Cálculo del alimentador por corriente De acuerdo al Art. 240-3 y para una corriente de 71.52 Amp. Consultando la Tabla 310-16 para conductores cal. 6 AWG con ampacidad de 65 Amp. Se instalaran 3 cables (1xfase) cal. 6 AWG, 1 cable cal. 6 AWG en el neutro y uno cal. 10 AWG desnudo para conexión a tierra física. 1x65 = 65 Amp. c) Por caída de tensión para una longitud de 46.5 mts. 15.3 )3.13(127 )22.57)(5.46(22 %  xxSV LI e N Alimentador del tablero FE con una carga total instalada de 9007.25 W. a) Cálculo de la protección AMP PFV W I f N 26.26 )9.0)(220(3 25.007,9 ..3  AMPxIMAX 82.3225.126.26  Por lo que se instalara un interruptor electromagnético de 3P-40 Amp. de acuerdo al Art. 220-10 (a) (b). b) Cálculo del alimentador por corriente De acuerdo al Art. 240-3 y para una corriente de 32.82 Amp. Consultando la Tabla 310-16 para conductores cal. 8 AWG con ampacidad de 50 Amp. Se instalaran 3 cables (1xfase) cal. 8 AWG, 1 cable cal. 8 AWG en el neutro y uno cal. 10 AWG desnudo para conexión a tierra física.
  • 125.
    125 TESIS HERIBERTO SALVADORCASTRO 1x50 = 50 Amp. c) Por caída de tensión para una longitud de 10.5 mts. 51.0 )37.8(127 )26.26)(5.10(22 %  xxSV LI e N d) Canalización De acuerdo a la Tabla No. 5 del cap. 10 el conductor cal. 8 AWG tiene un diámetro aproximado de 5.99 mm y un área de 28.2 mm2 de sección transversal por lo que: 28.2(4)+6.82 = 119.62 mm2 Se instalara en tubería (conduit) pvc pesado 21 mm de diámetro con una sección transversal disponible al 40% de 137.6 mm2 Corrección de los alimentadores para los tableros AE, BE, CE, DE, EE, FE e% para alimentadores 5% 2.88+2.14+2.86+1.8+3.15+0.51=13.34 % Por lo tanto 89. 5 49.4 49.451.05  Alimentador del tablero AE 2 06.17 12789.0 78.13702 % 2 mm x xx Ve LI S N  Consultando la Tabla 310-16 para un área de 17.06 mm2 . Se instalaran 3 cables (1xfase) cal. 4 AWG, 1 cable cal. 4 AWG en el neutro y uno cal. 8 AWG desnudo para conexión a tierra física. Caída de tensión real para el alimentador A 71.0 12722.21 78.137022 %  x xx SxV LI e N d) Canalización
  • 126.
    126 TESIS HERIBERTO SALVADORCASTRO De acuerdo a la Tabla No. 5 del cap. 10 el conductor cal. 4 AWG tiene un diámetro aproximado de 8.94 mm y un área de 62.8 mm2 de sección transversal por lo que: 62.8(4)+10.8 = 262 mm2 Se instalara en tubería (conduit) pvc pesado 35 mm de diámetro con una sección transversal disponible al 40% de 386 mm2 Alimentador del tablero BE 2 66.12 12789.0 26.13542 % 2 mm x xx Ve LI S N  Consultando la Tabla 310-16 para un área de 12.66 mm2 . Se instalaran 3 cables (1xfase) cal. 6 AWG, 1 cable cal. 6 AWG en el neutro y uno cal. 8 AWG desnudo para conexión a tierra física. Caída de tensión real para el alimentador BE 84.0 1273.13 26.135422 %  x xx SxV LI e N d) Canalización De acuerdo a la Tabla No. 5 del cap. 10 el conductor cal. 6 AWG tiene un diámetro aproximado de 7.72 mm y un área de 46.8 mm2 de sección transversal por lo que: 46.8(4)+10.8 = 198 mm2 Se instalara en tubería (conduit) pvc pesado 27 mm de diámetro con una sección transversal disponible al 40% de 222.8 mm2 Alimentador del tablero CE 2 90.16 12789.0 27.13722 % 2 mm x xx Ve LI S N  Consultando la Tabla 310-16 para un área de 16.90 mm2 . Se instalaran 3 cables (1xfase) cal. 4 AWG, 1 cable cal. 4 AWG en el neutro y uno cal. 8 AWG desnudo para conexión a tierra física Caída de tensión real para el alimentador CE
  • 127.
    127 TESIS HERIBERTO SALVADORCASTRO 70.0 1272.21 27.137222 %  x xx SxV LI e N d) Canalización De acuerdo a la Tabla No. 5 del cap. 10 el conductor cal. 4 AWG tiene un diámetro aproximado de 8.94 mm y un área de 62.8 mm2 de sección transversal por lo que: 62.8(4)+10.8 = 262 mm2 Se instalara en tubería (conduit) pvc pesado 35 mm de diámetro con una sección transversal disponible al 40% de 386 mm2 Alimentador del tablero DE 2 64.10 12789.0 46.105.572 % 2 mm x xx Ve LI S N  Consultando la Tabla 310-16 para un área de 10.64 mm2 . Se instalaran 3 cables (1xfase) cal. 6 AWG, 1 cable cal. 6 AWG en el neutro y uno cal. 8 AWG desnudo para conexión a tierra física. Caída de tensión real para el alimentador DE 72.0 1273.13 64.105.5722 %  x xx SxV LI e N d) Canalización De acuerdo a la Tabla No. 5 del cap. 10 el conductor cal. 6 AWG tiene un diámetro aproximado de 7.72 mm y un área de 46.8 mm2 de sección transversal por lo que: 46.8(4)+10.8 = 198 mm2 Se instalara en tubería (conduit) pvc pesado 27 mm de diámetro con una sección transversal disponible al 40% de 222.8 mm2 Alimentador del tablero EE 2 08.47 12789.0 22.575.462 % 2 mm x xx Ve LI S N 
  • 128.
    128 TESIS HERIBERTO SALVADORCASTRO Consultando la Tabla 310-16 para un área de 47.08 mm2 . Se instalaran 3 cables (1xfase) cal. 1/0 AWG, 1 cable cal. 1/0 AWG en el neutro y uno cal. 6 AWG desnudo para conexión a tierra física. Caída de tensión real para el alimentador EE 78.0 1275.53 22.575.4622 %  x xx SxV LI e N d) Canalización De acuerdo a la Tabla No. 5 del cap. 10 el conductor cal. 1/0 AWG tiene un diámetro aproximado de 13.5 mm y un área de 143 mm2 de sección transversal por lo que: 143(4)+17.2 = 589.2 mm2 Se instalara en tubería (conduit) pvc pesado 53 mm de diámetro con una sección transversal disponible al 40% de 866 mm2 Σe% = 0.71+0.84+0.70+0.72+0.78+0.51 = 4.26 Alimentador del tablero AR con una carga total instalada de 25,800 W. a) Cálculo de la protección, de acuerdo Art. 645-5 la corriente nominal para equipo de cómputo se debe considerar al 125%.   AMP PFV W I f N 03.9425.1 )9.0)(220(3 800,25 ..3        AMPxIMAX 53.11725.103.94  Por lo que se instalara un interruptor electromagnético de 3P-100 Amp. de acuerdo al Art. 220-10 (a) (b). b) Cálculo del alimentador por corriente De acuerdo al Art. 240-3 y para una corriente de 117.53 Amp. Consultando la Tabla 310-16 para conductores cal. 2 AWG con ampacidad de 115 Amp. Se instalaran 3 cables (1xfase) cal. 2 AWG, 1 cable cal. 2 AWG en el neutro y uno cal. 8 AWG desnudo para conexión a tierra física. 1x115 = 115 Amp. c) Por caída de tensión para una longitud de 65 mts.
  • 129.
    129 TESIS HERIBERTO SALVADORCASTRO 86.2 )6.33(127 )03.94)(65(22 %  xxSV LI e N Alimentador del tablero BR con una carga total instalada de 21,600 W. a) Cálculo de la protección, de acuerdo Art. 645-5 la corriente nominal para equipo de computo se debe considerar al 125%.   AMP PFV W I f N 73.7825.1 )9.0)(220(3 600,21 ..3        AMPxIMAX 41.9825.173.78  Por lo que se instalara un interruptor electromagnético de 3P-100 Amp. de acuerdo al Art. 220-10 (a) (b). b) Cálculo del alimentador por corriente De acuerdo al Art. 240-3 y para una corriente de 98.41 Amp. Consultando la Tabla 310-16 para conductores cal. 3 AWG con ampacidad de 100 Amp. Se instalaran 3 cables (1xfase) cal. 3 AWG, 1 cable cal. 3 AWG en el neutro y uno cal. 8 AWG desnudo para conexión a tierra física. 1x100 = 100 Amp. c) Por caída de tensión para una longitud de 50 mts. 32.2 )7.26(127 )73.78)(50(22 %  xxSV LI e N Alimentador del tablero CR con una carga total instalada de 16,500 W. a) Cálculo de la protección, de acuerdo Art. 645-5 la corriente nominal para equipo de cómputo se debe considerar al 125%.   AMP PFV W I f N 14.6025.1 )9.0)(220(3 500,16 ..3        AMPxIMAX 17.7525.114.60 
  • 130.
    130 TESIS HERIBERTO SALVADORCASTRO Por lo que se instalara un interruptor electromagnético de 3P-70 Amp. de acuerdo al Art. 220-10 (a) (b). b) Cálculo del alimentador por corriente De acuerdo al Art. 240-3 y para una corriente de 75.17 Amp. Consultando la Tabla 310-16 para conductores cal. 4 AWG con ampacidad de 85 Amp. Se instalaran 3 cables (1xfase) cal. 4 AWG, 1 cable cal. 4 AWG en el neutro y uno cal. 8 AWG desnudo para conexión a tierra física. 1x115 = 115 Amp. c) Por caída de tensión para una longitud de 68.5 mts. 06.3 )2.21(127 )14.60)(5.68(22 %  xxSV LI e N Alimentador del tablero DR con una carga total instalada de 20,700 W. a) Cálculo de la protección, de acuerdo Art. 645-5 la corriente nominal para equipo de cómputo se debe considerar al 125%.   AMP PFV W I f N 44.7525.1 )9.0)(220(3 700,20 ..3        AMPxIMAX 3.9425.144.75  Por lo que se instalara un interruptor electromagnético de 3P-90 Amp. de acuerdo al Art. 220-10 (a) (b). b) Cálculo del alimentador por corriente De acuerdo al Art. 240-3 y para una corriente de 94.3 Amp. Consultando la Tabla 310-16 para conductores cal. 3 AWG con ampacidad de 100 Amp. Se instalaran 3 cables (1xfase) cal. 3 AWG, 1 cable cal. 3 AWG en el neutro y uno cal. 8 AWG desnudo para conexión a tierra física. 1x100 = 100 Amp. c) Por caída de tensión para una longitud de 53.5 mts. 38.2 )7.26(127 )44.75)(5.53(22 %  xxSV LI e N
  • 131.
    131 TESIS HERIBERTO SALVADORCASTRO Alimentador del tablero ER con una carga total instalada de 11,112 W. a) Cálculo de la protección, de acuerdo Art. 645-5 la corriente nominal para equipo de cómputo se debe considerar al 125%.   AMP PFV W I f N 5.4025.1 )9.0)(220(3 112,11 ..3        AMPxIMAX 62.5025.15.40  Por lo que se instalara un interruptor electromagnético de 3P-50 Amp. de acuerdo al Art. 220-10 (a) (b). b) Cálculo del alimentador por corriente De acuerdo al Art. 240-3 y para una corriente de 50.62 Amp. Consultando la Tabla 310-16 para conductores cal. 8 AWG con ampacidad de 50 Amp. Se instalaran 3 cables (1xfase) cal. 8 AWG, 1 cable cal. 8 AWG en el neutro y uno cal. 10 AWG desnudo para conexión a tierra física. 1x50 = 50 Amp. c) Por caída de tensión para una longitud de 92 mts. 01.7 )37.8(127 )5.40)(92(22 %  xxSV LI e N Corrección de los alimentadores para los tableros AR, BR, CR, DR, ER e% para alimentadores regulados 5% 2.86+2.32+3.06+2.38+7.01=18.63 % Por lo tanto 1 5 5  Alimentador del tablero AR 2 25.96 1271 03.94652 % 2 mm x xx Ve LI S N 
  • 132.
    132 TESIS HERIBERTO SALVADORCASTRO Consultando la Tabla 310-16 para un área de 96.25 mm2 . Se instalaran 3 cables (1xfase) cal. 3/0 AWG, 1 cable cal. 3/0 AWG en el neutro y uno cal. 6 AWG desnudo para conexión a tierra física. Caída de tensión real para el alimentador AR 13.1 12785 03.946522 %  x xx SxV LI e N d) Canalización De acuerdo a la Tabla No. 5 del cap. 10 el conductor cal. 3/0 AWG tiene un diámetro aproximado de 16 mm y un área de 201 mm2 de sección transversal por lo que: 201(4)+17.2 = 821.2 mm2 Se instalara en tubería (conduit) pvc pesado 53 mm de diámetro con una sección transversal disponible al 40% de 866 mm2 Alimentador del tablero BR 2 99.61 1271 73.78502 % 2 mm x xx Ve LI S N  Consultando la Tabla 310-16 para un área de 61.99 mm2 . Se instalaran 3 cables (1xfase) cal. 2/0 AWG, 1 cable cal. 2/0 AWG en el neutro y uno cal. 6 AWG desnudo para conexión a tierra física. Caída de tensión real para el alimentador BR 91.0 1274.67 73.785022 %  x xx SxV LI e N d) Canalización De acuerdo a la Tabla No. 5 del cap. 10 el conductor cal. 2/0 AWG tiene un diámetro aproximado de 14.7 mm y un área de 169 mm2 de sección transversal por lo que: 169(4)+17.2 = 693.2 mm2 Se instalara en tubería (conduit) pvc pesado 53 mm de diámetro con una sección transversal disponible al 40% de 866 mm2
  • 133.
    133 TESIS HERIBERTO SALVADORCASTRO Alimentador del tablero CR 2 87.64 1271 14.605.682 % 2 mm x xx Ve LI S N  Consultando la Tabla 310-16 para un área de 64.87 mm2 . Se instalaran 3 cables (1xfase) cal. 2/0 AWG, 1 cable cal. 2/0 AWG en el neutro y uno cal. 6 AWG desnudo para conexión a tierra física Caída de tensión real para el alimentador CR 96.0 1274.67 14.605.6822 %  x xx SxV LI e N d) Canalización De acuerdo a la Tabla No. 5 del cap. 10 el conductor cal. 2/0 AWG tiene un diámetro aproximado de 14.7 mm y un área de 169 mm2 de sección transversal por lo que: 169(4)+17.2 = 693.2 mm2 Se instalara en tubería (conduit) pvc pesado 53 mm de diámetro con una sección transversal disponible al 40% de 866 mm2 Alimentador del tablero DR 2 55.63 1271 44.755.532 % 2 mm x xx Ve LI S N  Consultando la Tabla 310-16 para un área de 63.55 mm2 . Se instalaran 3 cables (1xfase) cal. 2/0 AWG, 1 cable cal. 2/0 AWG en el neutro y uno cal. 6 AWG desnudo para conexión a tierra física. Caída de tensión real para el alimentador DR 94.0 1274.67 44.755.5322 %  x xx SxV LI e N d) Canalización De acuerdo a la Tabla No. 5 del cap. 10 el conductor cal. 2/0 AWG tiene un diámetro aproximado de 14.7 mm y un área de 169 mm2 de sección transversal por lo que: 169(4)+17.2 = 693.2 mm2
  • 134.
    134 TESIS HERIBERTO SALVADORCASTRO Se instalara en tubería (conduit) pvc pesado 53 mm de diámetro con una sección transversal disponible al 40% de 866 mm2 Alimentador del tablero ER 2 67.58 1271 5.40922 % 2 mm x xx Ve LI S N  Consultando la Tabla 310-16 para un área de 58.67 mm2 . Se instalaran 3 cables (1xfase) cal. 2/0 AWG, 1 cable cal. 2/0 AWG en el neutro y uno cal. 6 AWG desnudo para conexión a tierra física. Caída de tensión real para el alimentador ER 87.0 1274.67 5.409222 %  x xx SxV LI e N d) Canalización De acuerdo a la Tabla No. 5 del cap. 10 el conductor cal. 2/0 AWG tiene un diámetro aproximado de 14.7 mm y un área de 169 mm2 de sección transversal por lo que: 169(4)+17.2 = 693.2 mm2 Se instalara en tubería (conduit) pvc pesado 53 mm de diámetro con una sección transversal disponible al 40% de 866 mm2 Σe% = 1.13+0.91+0.96+0.94+0.87 = 4.81
  • 135.
    135 TESIS HERIBERTO SALVADORCASTRO EDIFICIO GUBERNAMENTAL CAPITULO 6 PRUEBAS AL TRANSFORMADOR Y A LOS ALIMENTADORES PRIMARIOS Y SECUNDARIOS
  • 136.
    136 TESIS HERIBERTO SALVADORCASTRO CAPITULO 6 6.1 PRUEBAS DE ACEPTACION A CABLES DE ENERGÍA La función primordial de los conductores eléctricos, es la de transferir eficientemente la energía eléctrica. Esto puede asegurarse mediante el control de calidad de los cables a través de las pruebas que se realizan en los laboratorios de los fabricantes, para garantizar la continuidad del servicio y la confiabilidad durante la operación; sin embargo en la mayoría de los casos el fabricante tiene poco o ningún control sobre las operaciones de: Transporte, almacenaje, instalación y conexión, por lo que es recomendable efectuar pruebas eléctricas para tener la seguridad que el cable se encuentre en condiciones de entrar en servicio. Los equipos utilizados para realizar dichas pruebas, deben de contar con un certificado de calibración vigente, que avalé los valores reportados de incertidumbre a un factor de cobertura 2 para un nivel de confianza del 95%. Las pruebas con alta tensión pueden ser efectuadas con corriente alterna o con corriente directa, sin embargo las condiciones de campo con equipo de corriente directa tienen varias ventajas y por ello, son las más usadas. El equipo para pruebas con corriente directa es ligero y portátil, también es menos ambiguo y mas fácil de interpretar. 6.1.1 Prueba de Rigidez Dieléctrica (HI POT) a cables XLP de media tensión Acometida a 23 kV de la Subestación Eléctrica Receptora Principal a Subestación del edificio Gubernamental. Datos Generales: Cable Marca Condumex, 3 piezas de 126m aproximadamente. Calibre 1/0 Tipo XLP Clase 25 kV 3 Piezas longitud aproximada 126 m Temperatura 25°C Tensión de prueba 0 a 35,000 V CD Equipo de prueba: Fuente de voltaje, Marca HIGH VOLTEGE, Modelo PTS-75
  • 137.
    137 TESIS HERIBERTO SALVADORCASTRO Método de prueba 1. Antes de iniciar, deben desconectarse los cables que serán sometidos a prueba, de todo equipo eléctrico (transformador, motores, tableros, cuchillas). 2. Los cables próximos que no se vayan a probar deben de conectarse a tierra, de igual manera el conductor (pantalla) del cable XLP bajo prueba. 3. Las pruebas se realizaran con el método por pasos que consiste en aplicar la tensión lentamente en incrementos de igual magnitud hasta llegar al valor de tensión especificado. La ventaja de este método permite tomar valores de corriente de fuga en cada paso para poder trazar la curva de Rigidez Dieléctrica (HI POT). 4. Las especificaciones ICEA para cables con pantalla en pruebas de aceptación en campo, recomiendan que la tensión de prueba no se mayor al 80% de la tensión de prueba en fabrica. Esta tensión máxima debe mantenerse por 15 minutos durante los cuales se toman valores de corriente de conducción cada minuto. La prueba se considera como buena a menos que el interruptor del circuito del equipo de pruebas opere si el cable falla. Resultados de la prueba: Voltaje aplicado kV Corriente de Fuga MICROAMPERES FASE A FASE A FASE A 5 0.02 0.02 0.02 10 0.06 0.08 0.04 20 0.14 0.20 0.08 30 0.30 0.50 0.36 35 0.80 0.80 0.92 35 / 1 minuto 0.38 0.84 0.70 35 / 2 minutos 0.36 0.78 0.78 35 / 3 minutos 0.34 0.76 0.76 35 / 4 minutos 0.32 0.78 0.84 35 / 5 minutos 0.36 0.70 0.78 Resultado Satisfactorio Satisfactorio Satisfactorio Constante utilizada K = 1 5 20 35 35x2min 35x4min 0 0.2 0.4 0.6 0.8 1 CORRIENTEEN MICROAMPERES TENSION APLICADA (kV) CURVA DE RIGIDEZ DIELECTRICA A CABLES (HI POT) FASE A FASE B FASE C
  • 138.
    138 TESIS HERIBERTO SALVADORCASTRO 6.1.2 Prueba de Resistencia de Aislamiento (MEGGER) Acometida a 23 kV de la Subestación Eléctrica Receptora Principal a Subestación del edificio Gubernamental. Datos Generales: Cable Marca Condumex Calibre 1/0 Tipo XLP Clase 25 kV 3 Piezas longitud aproximada 126 m Temperatura 26°C Tensión de prueba 5,000 V CD Equipo de prueba: Megger Digital, Marca Megger, Modelo BM21 Fecha de calibración: 26/08/2008 Fecha de caducidad: 26/08/2009 Método de prueba: 1. Antes de iniciar, deben desconectarse los cables que serán sometidos a prueba, de todo equipo eléctrico (transformador, motores, tableros, cuchillas). 2. Los cables próximos que no se vayan a probar deben de conectarse a tierra, de igual manera el conductor (pantalla) del cable XLP bajo prueba. 3. La prueba se realizara aplicando, una tensión constante durante 1 minuto al cable bajo prueba, tiempo en el que se toma el valor de la lectura. 4. La prueba se considera como buena a menos que el interruptor del circuito del equipo de pruebas opere si el cable falla. 5. El límite mínimo para este tipo de conductor es 100 MΩ. Diagrama de conexión: v G00.00 - +G MEGGER N C B A CABLE BAJO PRUEBA
  • 139.
    139 TESIS HERIBERTO SALVADORCASTRO Resultados de la prueba: PRUEBA TIEMPO LECTURA EN MΩ LIMITE MINIMO EN MΩ RESULTADOS FASE “A” CONTRA TIERRA 1 MIN. 614 100 SATISFACTORIO FASE “B” CONTRA TIERRA 1 MIN. 626 100 SATISFACTORIO FASE “C” CONTRA TIERRA 1 MIN. 638 100 SATISFACTORIO 6.1.3 Prueba de Resistencia de Aislamiento (MEGGER) Alimentadores Generales en Baja tensión. Datos Generales: Cable Marca Condumex Distintos Calibres Tipo THW-LS Tensión de prueba 500 V CD Equipo de prueba: Megger Digital, Marca Megger, Modelo BM21 Fecha de calibración: 26/08/2008 Fecha de caducidad: 26/08/2009 Resultados de la prueba:
  • 140.
  • 141.
    141 TESIS HERIBERTO SALVADORCASTRO 6.2 PRUEBA DE RESISTENCIA DE AISLAMIENTO AL TRANSFORMADOR (MEGGER) Objetivo de la prueba: La prueba de resistencia de aislamiento se realiza en fábrica, después de que el transformador ha terminado su proceso de secado y se encuentra a una temperatura entre 0 y 40° C. Esta prueba sirve, básicamente para determinar la cantidad de humedad e impurezas que contienen los aislamientos del transformador.
  • 142.
    142 TESIS HERIBERTO SALVADORCASTRO El método más usual para medir la resistencia de aislamiento de un transformador, es haciendo uso del aparato llamado MEGGER, que es un instrumento indicador de lectura directa y cuya escala esta graduada en MΩ. Su principio se basa en aplicar un determinado voltaje de prueba al aislamiento y medir la corriente que proporciona, indicando la lectura en la escala graduada en MΩ. La potencia para la medición, es proporcionada por un pequeño generador operado a mano o motorizado, siendo este último tipo el de mayor aceptación, debido a la uniformidad de la tensión aplicada. Cuando el aislamiento esta húmedo o sucio, la corriente de fuga será grande en relación con las de absorción y esto resultará, en que la aguja del aparato se moverá rápidamente a un valor donde comienza a amortiguarse el movimiento, tendiendo a estabilizarse, de tal forma que se obtiene una diferencia en las lecturas muy pequeñas, lo que indica la sospecha de humedad. Por otro lado, si el aislamiento se encuentra en buenas condiciones, la corriente de fuga será pequeña con relación a la de absorción dieléctrica, y ésta tendrá un efecto pronunciado mientras fluye. Por lo que si el aislamiento se encuentra seco, la absorción dieléctrica es grande al principio y gradualmente decae a medida que el aislamiento alcanza su estado final de carga. Si el aparato es operado a mano, la lectura se puede hacer al minuto y si se cuenta con un instrumento motorizado, se deben tomar las lecturas cada 15 segundos hasta el primer minuto y posteriormente cada minuto hasta llegar a 10 minutos. Procedimiento de la prueba. La prueba de resistencia de aislamiento de un transformador debe de involucrar las siguientes maniobras de conexión:  Alta tensión contra baja tensión.  Baja tensión contra alta tensión más tierra.  Alta tensión contra baja tensión más tierra. Diagramas de Conexión Resistencia de Aislamiento: v G00.00 - +G MEGGER X XX X1 2 30 HH H1 2 3 TRANSFORMADOR ALTA VS BAJA
  • 143.
    143 TESIS HERIBERTO SALVADORCASTRO Resultados de la prueba: RESULTADOS DE LA PRUEBA DE RESISTENCIA DE AISLAMIENTO (MEGGER) v G00.00 - +G MEGGER X XX X1 2 30 HH H1 2 3 TRANSFORMADOR BAJA VS ALTA A TIERRA v G00.00 - +G MEGGER X XX X1 2 30 HH H1 2 3 TRANSFORMADOR ALTA VS BAJA A TIERRA
  • 144.
    144 TESIS HERIBERTO SALVADORCASTRO CURVA RESISTENCIA DE AISLAMIENTO 0 500 1000 1500 2000 2500 3000 SEG. SEG. SEG. M IN. M IN. M IN. M IN. M IN. M IN. M IN. M IN. M IN. M IN. 15 30 45 1 2 3 4 5 6 7 8 9 10 TIEMPO MEGAOHMS A.T. VS B.T A.T. VS B.T. + T. B.T. VS A.T. + T. 6.3 PRUEBA DE RELACION DE TRANSFORMACION (TTR) Objetivo de la prueba: El objetivo de esta prueba, es detectar el desbalance en el voltaje de salida del transformador así como devanados en corto circuito o abiertos. Esta prueba se realizara con un equipo TTR marca BIDDLE y en todas las posiciones del cambiador de derivaciones. Datos Generales: Transformador Δ/Y: Marca PROLEC Capacidad: 300 kVA Impedancia: 3.36% Serie: KD493-01-001 Lts. de aceite: 529 Tensión en el Primario: 23 kV Tensión en el Secundario: 220/127 V Enfriamiento: OA Equipo de prueba: Medidor de relación de transformación Marca: BIDDLE Modelo: 550005 Serie: 10965 Fecha de calibración: 27/02/2009 Fecha de caducidad: 27/02/2010 CURVAS DE LA RESISTENCIA DE AISLAMIENTO TRANSFORMADOR 300kVA
  • 145.
    145 TESIS HERIBERTO SALVADORCASTRO Diagrama de conexión en la fase H3: Resultados de la prueba: RESULTADOS DE LA PRUEBA DE RELACION DE TRANSFORMACION (TTR) Posición del Cambiador de Derivaciones VOLTAJE LECTURAS RESULTADO A.T. B.T. H 1 H 2 H3 1 24,000 220/127 94.530 94.533 94.525 Satisfactorio 2 23,000 220/127 90.592 90.596 90.582 Satisfactorio 3 22,000 220/127 86.653 86.650 86.647 Satisfactorio 4 21,000 220/127 82.716 82.715 82.709 Satisfactorio 5 20,000 220/127 78.760 78.766 78.757 Satisfactorio Las pruebas realizadas al transformador de 300 KVA, fueron ejecutadas de acuerdo a normas y documento siguientes: 1.- Norma ANSI C57.12-2000 2.- Norma Oficial Mexicana NOM-J-169, Métodos de Prueba para Transformadores de Distribución y Potencia. 3.- Norma Oficial Mexicana NOM-J-308-2004, control y tratamiento de aceites aislantes para Transformadores en servicio. + - B.T. ---------TTR-----------+ - A.T. X XX X1 2 30 HH H1 2 3 TRANSFORMADOR PRUEBA DE RELACION DE TRANFORMACION (TTR) EN LA FASE H3 - B.T. + - + A.T.
  • 146.
    146 TESIS HERIBERTO SALVADORCASTRO EDIFICIO GUBERNAMENTAL CAPITULO 7 EVALUACION DE COSTOS
  • 147.
    147 TESIS HERIBERTO SALVADORCASTRO CAPITULO 7 ANALISIS FACTOR DE CONVERSION SALARIO BASE A SALARIO REAL (FSR)
  • 148.
    148 TESIS HERIBERTO SALVADORCASTRO ANALISIS DE PRECIO UNITARIO PARA EL CALCULO DE SELECCIÓN Y CALIBRE DE CONDUCTOR MAS ADECUADO PARA UN EDIFICIO GUBERNAMENTAL
  • 149.
    149 TESIS HERIBERTO SALVADORCASTRO CONCLUSIONES Y RECOMENDACIONES CONCLUSIONES Como ya se vio en la presente tesis, para realizar un proyecto eléctrico es necesario contar con la mayor información posible del inmueble donde se realizara la Instalación Eléctrica. Esto con la finalidad de desarrollar una ingeniería lo más apegada posible a las necesidades del cliente, para calcular la carga instalada total, y así, poder determinar el calibre de los alimentadores y dimensionar correctamente las protecciones termomagnéticas, para seleccionar adecuadamente los tableros de distribución, transformador, subestación eléctrica y planta de emergencia. Al seleccionar el calibre correcto de conductor, mínimo requerido por las normas de instalaciones eléctricas se incrementa la eficiencia en el uso de la energía eléctrica, reducimos las pérdidas de potencia eléctrica, las pérdidas debido al calentamiento de los conductores, aumentamos el ahorro en el uso de la energía eléctrica y tenemos mayor flexibilidad en la instalación. Así mismo, es importante dimensionar y coordinar correctamente las protecciones de una instalación eléctrica, para reducir al máximo los efectos producidos por un cortocircuito o una sobrecarga. Aunado a esto, el uso de la energía eléctrica se debe realizar por personal calificado para salvaguardar la seguridad de los bienes y los usuarios a los que servirá dicha instalación. RECOMENDACIONES Se debe supervisar que, la instalación eléctrica se construya en congruencia y apegándose a la última edición de la reglamentación de observación obligatoria, indicada en la norma oficial mexicana vigente. Todos los equipos eléctricos y accesorios deben cumplir con la norma oficial mexicana vigente. Es de vital importancia que en toda instalación eléctrica se efectúen pruebas preliminares al uso la energía eléctrica, a cables de energía, tableros, equipos eléctricos, transformadores, etc. Dichas pruebas son una obligación tanto para el contratista que ejecuta la obra como para el usuario mismo, ya que con dichas pruebas se obtiene la seguridad absoluta de que los materiales y la mano de obra cumplen con los requisitos mínimos de calidad que señalan los reglamentos de instalaciones eléctricas vigentes y con el índice de confiabilidad especificado para las instalaciones. Las pruebas deben ser realizadas por laboratorios certificados, que cuenten con equipos de prueba calibrados y con vigencia actualizada.
  • 150.
    150 TESIS HERIBERTO SALVADORCASTRO Una vez en funcionamiento las instalaciones se recomienda, realizar pruebas periódicas (mantenimiento preventivo), mismas que contribuyan a afirmar la seguridad de contar con la confiabilidad y continuidad en el servicio en todo sistema eléctrico. Se recomienda realizar pruebas de mantenimiento preventivo y pruebas eléctricas a las subestaciones eléctricas, transformadores de distribución y transformadores potencia, por lo menos una vez al año. En resumen, el proyecto presentado cumple con cada uno de los artículos mencionados en las Normas Técnicas para Instalaciones Eléctricas; tomando en cuenta la perspectiva de un futuro crecimiento de carga eléctrica y sobre todo, con los requisitos mínimos de seguridad tanto como para el personal como para el equipo instalado.
  • 151.
    151 TESIS HERIBERTO SALVADORCASTRO BIBLIOGRAFIA — TESIS “Proyecto de la instalación eléctrica de fuerza y alumbrado para la casa de maquinas del centro médico la raza Autor: Rubén Ortiz Yáñez, Octubre 1983 — Fundamentos de Sistemas de Energía Eléctrica Autor: Gilberto Enríquez Harper, 1985 — Protección de Sistemas eléctricos de potencia Altuve Ferrer, Héctor Jorge — Sistemas de Distribución de Energía Eléctrica Juárez Cervantes, José Dolores, México 1995 — Introducción al Análisis de los Sistemas Eléctricos de Potencia Autor: Gilberto Enríquez Harper, 1982 — Sistemas Eléctricos de Gran Potencia Autor: J. Aguilar Peris, Weedy B. M. — Fundamentos de Instalaciones Eléctricas de Media Tensión y Alta Tensión Autor: Gilberto Enríquez Harper, 1997 — Instalaciones Eléctricas de Alta Tensión, 2da.Edición 1999 Autor: Navarro Márquez, José A., — Fundamentos de Instalaciones Eléctricas de Media Tensión y Alta Tensión Autor: Gilberto Enríquez Harper, 2001 — Alta Tensión y Sistemas de Transmisión, Noriega-Limusa 1983 Siegert C., Luis A. — El ABC de las Instalaciones Eléctricas Industriales Autor: Gilberto Enríquez Harper — Principios de Electricidad y Electrónica Autor: Antonio Hermosa Donate — Manual Eléctrico Cuarta Edición Industrias Conelec, S. A. de C. V. — NORMA Oficial Mexicana NOM-001-SEDE-2005, Instalaciones Eléctricas (utilización). — Pagina Web. www.cfe.gob.mx (Comisión Federal de Electricidad).
  • 152.
  • 153.
    153 TESIS HERIBERTO SALVADORCASTRO Plano arquitectónico Planta Baja A-1-01
  • 154.
    154 TESIS HERIBERTO SALVADORCASTRO Plano arquitectónico Planta Alta A-1-02
  • 155.
    155 TESIS HERIBERTO SALVADORCASTRO Plano IEALG-01 Alimentadores Generales Baja Tensión 1'234567891011 1213' A B 61,40 6,305,105,105,105,105,105,105,105,105,105,10 5,350,18 4,704,754,754,754,754,750,354,750,354,750,354,750,354,750,354,75 0,353,08 TERRAZA ZONADEEVACUACIÓN 5678123491011121314 BAJA SUBESTACION ELECTRICA CISTERNA 26,05 25,45 0,600,60 0,30 0,30 24,85 0,10 Origen0,0 0,350,350,350,350,350,35 13 2,10 1 CONSTRUCCION1NIVEL 1234101198765121314151617 SUBE 1234101198765121314151617 TANQUEDEAGUA1NIVEL BAPBAPBAP BAPBAPBAP RAMPA RAMPA CUARTO DEBOMBAS SITE SUBE SUBE SUBE
  • 156.
    156 TESIS HERIBERTO SALVADORCASTRO Plano IEMT-01 Alimentador en Media Tensión
  • 157.
  • 158.
    158 TESIS HERIBERTO SALVADORCASTRO EQUIPAMIENTO EN SUBESACION ELÉCTRICA
  • 159.
  • 160.
    160 TESIS HERIBERTO SALVADORCASTRO PRUEBA DE RESISTENCIA DE AISLAMIENTO A CABLES (MEGGER)
  • 161.
    161 TESIS HERIBERTO SALVADORCASTRO PRUEBA DE RESISTENCIA DE AISLAMIENTO AL TRANSFORMADOR (MEGGER)
  • 162.
    162 TESIS HERIBERTO SALVADORCASTRO PRUEBA DE RELACION DE TRANSFORMACION (TTR)