CIV-325 1
UNIV.: WILVER FAJARDO MAMANI ‘UATF’ LABORATORIO DE CARRETERAS II
ENSAYO MARSHALL
MÉTODO PARA DETERMINAR LA RESISTENCIA A LA
DEFORMACIÓN PLÁSTICA DE MEZCLAS BITUMINOSAS
UTILIZANDO EL APARATO MARSHALL (AASHTO T 245-97)
1. OBJETIVO
Este método describe la medición de la resistencia a la deformación plástica de probetas cilíndricas
de mezclas bituminosas, cargadas sobre su manto lateral, usando el aparato Marshall.
Este método es aplicable a mezclas asfálticas con árido de tamaño máximo 25 mm.
También otro de los objetivos principales es determinar la estabilidad, deformación, densidad y
huecos de mezclas bituminosas compactadas.
2. MARCO TEORICO
El Método de dosificación Marshall desarrollado por el Ing. Bruce Marshall, inicialmente fue
utilizado por el Cuerpo de Ingenieros del Ejército Norteamericano, actualmente es el método más
utilizado para la elaboración de fórmulas de mezcla.
El criterio para conseguir una mezcla satisfactoria está basado en requisitos mínimos de estabilidad,
fluencia, densidad y porcentaje de vacíos.
Este método determina el procedimiento para realizar los ensayos de estabilidad y fluencia de
mezclas asfálticas preparadas en caliente, utilizando el equipo Marshall, determina características
físicas de las mezclas y analiza los parámetros que definen el contenido de asfalto. La estabilidad se
determina empleando el principio de corte en compresión semi-confinada, sometiendo a la muestra
a esfuerzos de compresión diametral a una temperatura de 60 ºC (140 ºF). La aplicación de
esfuerzos y la rotura de las muestras se consiguen con un dispositivo especialmente proyectado
para las pruebas de estabilidad.
El valor de estabilidad representa la resistencia estructural de la mezcla compactada y está afectada
principalmente por el contenido de asfalto, la composición granulométrica y el tipo de agregado. El
valor de estabilidad es un índice de la calidad del agregado.
Además, la mezcla debe tener la fluidez necesaria para que pueda compactarse a la densidad
exigida y producir una textura superficial adecuada. El valor del Flujo representa la deformación
producida en el sentido del diámetro del espécimen antes de que se produzca su fractura. Este valor
es un indicador de la tendencia para alcanzar una condición plástica y consecuentemente de la
resistencia que ofrecerá la carpeta asfáltica a deformarse bajo la acción de las cargas que por ella
transiten.
CRITERIOS PARA EL PROYECTO DE UNA MEZCLA ASFÁLTICA
CIV-325 2
UNIV.: WILVER FAJARDO MAMANI ‘UATF’ LABORATORIO DE CARRETERAS II
ENSAYO MARSHALL
Se debe establecer los criterios que se van a considerar para la preparación de la mezcla, de acuerdo
a las especificaciones técnicas que regirán el proyecto:
 Porcentaje de vacíos de aire en la mezcla total
 Porcentaje de vacíos llenados con el asfalto
 Porcentaje mínimo de vacíos en el agregado mineral
 Valor mínimo de la estabilidad
 Rango de valores límite de fluencia
Es conveniente, en forma previa, analizar la susceptibilidad de la mezcla al agua, para determinar
su comportamiento con relación al desplazamiento de la película de ligante por el agua
(“stripping”), que depende del porcentaje de vacíos de aire, a través de los cuales la humedad debe
ser secada.
El resultado final de la etapa de diseño es una tabla donde se muestra, para cada nivel de
compactación, el rango de contenidos de asfalto que satisface cada uno de los criterios
seleccionados. El proyectista puede ajustar los criterios establecidos al principio, sobre la base de
su experiencia personal, hasta que la faja de contenidos de asfalto sea razonable.
DESCRIPCIÓN DEL MÉTODO MARSHALL
 El método Marshall usa muestras de prueba normalizadas (briquetas) de 2 y ½” de espesor
por 4” de diámetro (64 x 102 mm).
 Se selecciona el agregado que cumpla con las especificaciones requeridas. El tipo y grado
del asfalto, de acuerdo al tipo de agregado y las condiciones climáticas.
Para determinar el contenido óptimo de asfalto se preparan y compactan una serie de muestras de
prueba (briquetas), con distintos porcentajes de asfalto cuyo rango de variación no debe ser mayor
a 0,5%. Como mínimo se debe incluir dos porcentajes por encima y dos por debajo del óptimo de
contenido de asfalto estimado.
En la práctica se observa que el contenido óptimo de asfalto se encuentra alrededor del 6 %, con
referencia al peso de los agregados pétreos. Mayores porcentajes deben conducir a una verificación
cuidadosa del diseño de la mezcla.
Para verificar la idoneidad de los datos se deben hacer tres muestras (briquetas) por cada contenido
de asfalto. Generalmente para un diseño, se deben tomar 6 porcentajes de asfalto diferentes, por lo
cual se requerirán 18 briquetas. Adicionalmente se deben incluir 6 briquetas para determinar los
efectos del agua en la estabilidad y el flujo. Aproximadamente para cada briqueta, se necesitan
1200 g de agregados, por lo cual la cantidad representativa de los agregados, debe tener un peso
mínimo de 29 kg (65 lb). Además se requerirá aproximadamente un galón de asfalto.
PREPARACIÓN DE LAS MUESTRAS PARA ENSAYO
CIV-325 3
UNIV.: WILVER FAJARDO MAMANI ‘UATF’ LABORATORIO DE CARRETERAS II
ENSAYO MARSHALL
Número de muestras: Por lo menos 3 para cada contenido de asfalto.
Chequeo y preparación de agregados:
- Determinar la gradación de los agregados propuestos, de acuerdo a los métodos de ensayo
C-117 y C-136 de la ASTM.
- Determinar el peso específico Bulk y el aparente de los agregados, de acuerdo a los
métodos de ensayo C-127 y C-128 de la ASTM.
- Seleccionar la dosificación de agregados que cumpla con la curva de densidad máxima para
el tamaño máximo de partículas, además que cumpla el requisito del porcentaje mínimo de
vacíos en el agregado mineral.
- Calcular los pesos específicos Bulk y aparente de la combinación de agregados elegida.
- Determinación de la temperatura de mezclado y de compactación: Sobre la base de la curva
Viscosidad-Temperatura, se elige la temperatura a la cual el asfalto alcanzará una
viscosidad cinemática de 170+-20 Centistokes para la temperatura de mezclado y 280+- 30
Centistokes para la temperatura de compactación.
PREPARACIÓN DE LAS MEZCLAS
Pesar por separado en bandejas, para cada muestra de ensayo, la cantidad adecuada de cada
fracción que produzca una bachada que de cómo resultado una muestra compactada de 2,5 ± 0,1”
de espesor (63,5 ± 1,3 mm).
Colocar las bandejas para el mezclado en el horno y calentarlas a una temperatura aproximada de
25 ºF (13,9 ºC), por encima de la de mezclado. Calentar el asfalto a una temperatura lo
suficientemente alta para que fluya fácilmente, pero sin que ésta sea mayor que la de mezclado.
Colocar la bandeja de mezclado y su contenido en la balanza y pesar agregando el asfalto necesario.
10
100
1000
10000
225 250 275 300 325
VISCOSIDAD(centistokes)
TEMPERATURA ºF
FiguraVII.1.CurvaViscosidad–TemperaturaparaCementosAsfálticos
CIV-325 4
UNIV.: WILVER FAJARDO MAMANI ‘UATF’ LABORATORIO DE CARRETERAS II
ENSAYO MARSHALL
Luego se coloca el palustre en la bandeja y se determina el peso total de los componentes de la
mezcla más el equipo de mezclado con aproximación a 0,2 g. Se mezclan los agregados y el asfalto
con el palustre hasta obtener una mezcla homogénea.
COMPACTACIÓN DE LOS NÚCLEOS DE PRUEBA
Colocar toda la mezcla preparada dentro del molde, emparejando la mezcla con la espátula, unas 15
veces alrededor del perímetro y 10 veces en la parte central. Se quita el collar y se alisa suavemente
la superficie, hasta obtener una forma ligeramente redondeada. Inmediatamente antes del proceso
de compactación la temperatura de la mezcla debe estar muy cercana a los límites de la temperatura
de compactación establecida.
Colocar nuevamente el collar de extensión, y ubicarlo en el pedestal de compactación. Se aplican
75 (35 ó 50) golpes con el martillo, según lo especificado para la categoría de tráfico. Se quitan la
base y el collar se le da vuelta y se vuelva a armar el conjunto. Se aplica el mismo número de
golpes a la cara opuesta de la muestra. Después de la compactación, se quita la base del molde y se
expone la muestra a la temperatura ambiente dentro del molde. Se saca la muestra del molde por
medio de un extractor.
CONDICIONES QUE DEBEN CUMPLIR LAS MEZCLAS BITUMINOSAS
RESULTANTES
La mezcla resultante debe cumplir con las siguientes condiciones:
DURABILIDAD: La durabilidad de un pavimento asfáltico es su habilidad para resistir factores
tales como la desintegración del agregado, cambios en laspropiedades del asfalto y separación de
las películas de asfalto.
ESTABILIDAD: Es la capacidad para resistir desplazamiento y deformaciónbajo las cargas del
tránsito. Depende de la fricción y de la cohesión interna.
FLEXIBILIDAD: Es la capacidad de un pavimento asfáltico para acomodarse sin que se agriete a
movimientos y asentamientos graduales de la subrasante.
IMPERMEABILIDAD: Es la resistencia al paso de aire y agua hacia su interior o a través de él.
TRABAJABILIDAD: Es la facilidad con que una mezcla puede ser colocada y compactada. Las
mezclas gruesas tienen tendencia a segregarse durante su manejo y también pueden ser difíciles de
compactar.
El propósito del Método Marshall es determinar el contenido óptimo de asfalto para una
combinación específica de agregados.
El método también provee información sobre propiedades de la mezcla asfáltica en caliente, y
establece densidades y contenidos óptimos de vació que deben ser cumplidos durante la elaboración
de la mezcla.
CIV-325 5
UNIV.: WILVER FAJARDO MAMANI ‘UATF’ LABORATORIO DE CARRETERAS II
ENSAYO MARSHALL
El método original de Marshall, sólo es aplicable a mezclas asfálticas en caliente que contengan
agregados con un tamaño máximo de 25 mm (1 pulg) o menor.
El método puede ser usado para el diseño en laboratorio, como para el control de campo de mezclas
asfálticas en caliente.
(Composición típica de una mezcla asfáltica)
3. EQUIPO
 Moldes de compactación
Constituidos por una placa base, molde y collar. El molde debe tener un diámetro interior de
101,6 ± 0,1 mm y una altura de 80 mm; la placa base y el collar se diseñan de modo de poder
ajustarse a cualquier extremo del molde, conforme a los detalles de la Figura mostrada.
 Extractor
Que sirva para sacar las probetas del molde; debe estar provisto de un disco desplazador de 100
mm de diámetro por 10 mm de espesor.
 Martillo de compactación
Consiste en una cara circular de 100 mm de diámetro equipada con un peso de 4.515 ± 15 g y
construido de modo de obtener una altura de caída 460 ± 2 mm, conforme a los detalles de la
Figura. Las condiciones señaladas aseguran la obtención de una energía por caída de 20,75 J.
 Pedestal de compactación
Consiste en un poste de madera de 205 x 205 x 455 mm cubierto con una placa de acero de 305
x 305 x 25 mm. El poste va empotrado en hormigón mediante cuatro perfiles ángulo; debe
quedar a plomo y la placa de acero debe quedar firmemente afianzada y a nivel. El poste puede
ser de roble, pino u otra madera que tenga una densidad seca media de 0,67 a 0,77 g/cm3.
 Sujetador de molde
CIV-325 6
UNIV.: WILVER FAJARDO MAMANI ‘UATF’ LABORATORIO DE CARRETERAS II
ENSAYO MARSHALL
Consiste en un aro con resorte diseñado para mantener centrado y fijo el molde en el pedestal
durante la compactación.
 Mordaza
Consiste en dos segmentos de cilindro, superior e inferior, con un radio interno de 51 ± 0,2
mm, diseñado según la Figura, para transmitir la carga a la probeta en el ensaye.
 Máquina Marshall
Aparato eléctrico, diseñado para aplicar carga a las probetas durante el ensaye, a una velocidad
de deformación de 50 ± 1 mm/min. Está equipada con un anillo de prueba calibrado para
determinar la carga aplicada, de una capacidad superior a 25 kN y una sensibilidad de 45N con
un dial graduado de 0,0025 mm y un medidor de flujo con una precisión de 0,01 mm, para
determinar la deformación que se produce en la carga máxima. Se puede emplear también esta
máquina equipada con sensor y registrador de estabilidad v/s fluencia.
 Hornos
Horno de convección forzada y placas calientes, que deben incluir un termostato capaz de
controlar y mantener la temperatura requerida dentro de ± 3 ºC.
 Baño de agua
De a lo menos 150 mm de profundidad y controlado termostáticamente a 60 ± 1 º C. El
estanque debe tener un fondo falso perforado y un termómetro centrado y fijo.
 Equipo misceláneo
- Pailas para calentar el árido.
- Recipiente, para calentar el asfalto.
- Bol, para mezclar el asfalto y árido.
- Espátulas, para el mezclado manual de la mezcla.
- Mezclador mecánico, opcional.
- Termómetros de rango 10 a 200º C para determinar las temperaturas del árido, asfalto y
mezcla bituminosa.
- Balanzas con capacidad 5 kg y precisión 1 g.
- Poruñas.
- Guantes aislantes para resistir rango de de temperatura indicadas en f) y guantes de
goma.
- Pintura, tinta u otro elemento de marcación indeleble, para identificar las probetas
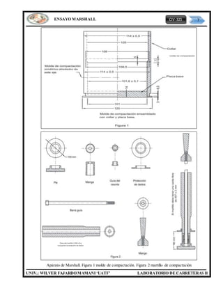
A continuación se presenta las gráficas de los instrumentos y equipo de laboratorio para desarrollar
dicho ensayo.
CIV-325 7
UNIV.: WILVER FAJARDO MAMANI ‘UATF’ LABORATORIO DE CARRETERAS II
ENSAYO MARSHALL
Aparato de Marshall. Figura 1 molde de compactación. Figura 2 martillo de compactación
CIV-325 8
UNIV.: WILVER FAJARDO MAMANI ‘UATF’ LABORATORIO DE CARRETERAS II
ENSAYO MARSHALL
Aparato de Marshall. Mordaza
CIV-325 9
UNIV.: WILVER FAJARDO MAMANI ‘UATF’ LABORATORIO DE CARRETERAS II
ENSAYO MARSHALL
Molde anillo y collarin, Horno electrico y Maquina Marshall
4. PROCEDIMIENTO
EXTRACCIÓN Y PREPARACIÓN DE LA MUESTRA
Probetas de ensayo
 Número de probetas
Prepare a lo menos 3 y de preferencia 5 probetas para cada contenido de asfalto.
 Preparación del árido
Seque el agregado hasta masa constante a una temperatura de 110 ± 5º C y sepárelo por
tamizado en seco en las siguientes fracciones: 25-19 mm; 19-12,5 mm; 12,5-9,5 mm; 9,5-4,75
mm; 4,75-2,36 mm y bajo 2,36 mm.
 Temperatura de mezclado
Es la temperatura a la cual debe calentarse el cemento asfáltico y el asfalto cortado para
producir una viscosidad de 170 ± 20 cSt.
 Temperatura de compactación
a) Para cementos asfálticos la temperatura de compactación debe ser aquélla a la cual el
cemento asfáltico acanza una viscosidad de 280 ± 30 cSt.
CIV-325 10
UNIV.: WILVER FAJARDO MAMANI ‘UATF’ LABORATORIO DE CARRETERAS II
ENSAYO MARSHALL
b) Para asfaltos cortados la temperatura de compactación debe ser aquélla a la cual el asfalto
cortado alcanza una viscosidad de 280 ± 30 cSt, después de perder un 50% del solvente
original.
 Preparación de muestras
a) Pese en bandejas separadas para cada probeta de ensaye, la cantidad necesaria de cada
fracción para producir una muestra que dé como resultado una probeta compacta de una altura
aproximada de 65 mm; normalmente se requieren 1.100 g. Coloque las bandejas en el horno o
en una placa caliente y llévelas a una temperatura de aproximadamente 30 ºC sobre la
temperatura de mezclado especificada en 13 para cementos asfálticos, y de 15 ºC sobre dicha
temperatura para asfaltos cortados. Coloque el árido caliente en el bol de mezclado y revuelva
completamente. Forme un cráter en el árido y pese la cantidad necesaria de cemento asfáltico o
asfalto cortado e incorpórela al bol. En ese instante las temperaturas del árido y del asfalto
deben estar dentro de los límites establecidos en el numeral 13. El asfalto no debe mantenerse a
la temperatura de mezclado por más de 1 h antes de usarlo. Mezcle el árido y asfalto tan rápido
como sea posible hasta que la mezcla quede totalmente cubierta y uniforme.
b) Terminado el mezclado, coloque las mezclas con asfaltos cortados en un horno ventilado,
mantenido a una temperatura de aproximadamente 10º C sobre la de compactación. Continúe el
curado hasta que se haya evaporado el 50% del solvente. La mezcla debe revolverse para
acelerar el proceso de pérdida de solvente, teniendo cuidado de no perder mezcla. Durante este
proceso, pese la mezcla inicialmente en intervalos de 15 min y, cuando se aproxima a la
pérdida del 50%, en intervalos menores de 10 min.
 Compactación de probetas
a) Prepare el molde y el martillo, limpiando completamente el conjunto del molde y cara del
martillo de compactación y caliéntelos durante 15 min en un baño de agua o en una placa
caliente a una temperatura próxima a la de compactación. Coloque un disco de papel filtro,
cortado a medida, en la parte inferior del molde antes de colocar la mezcla. Suavice la parte
interior del molde y la cara del martillo con un aceite grueso. Coloque el conjunto collar, molde
y base en el pedestal del compactador.
b) Llene el molde con una espátula, acomodando la mezcla 15 veces en el perímetro y 10
veces en el centro. La temperatura antes de compactar debe estar en los límites establecidos en
14 a) y si no es así, descártela; en ningún caso la mezcla debe recalentarse.
c) Con el martillo de compactación aplique 75 golpes en un tiempo no superior a 90 s. Saque
la base y el collar, invierta y reensamble el molde. Aplique en la otra cara el mismo número de
golpes en un tiempo no mayor al indicado. Después de compactar, saque la base y deje enfriar
CIV-325 11
UNIV.: WILVER FAJARDO MAMANI ‘UATF’ LABORATORIO DE CARRETERAS II
ENSAYO MARSHALL
la probeta al aire. Si se desea un enfriamiento más rápido puede usar ventiladores.
Normalmente la probeta se deja enfriar toda una noche.
Nota 1: Podrá especificarse una cantidad diferente de golpes, de acuerdo al tránsito de diseño.
 Determinación de densidad y espesor
Tan pronto como la probeta se enfríe a temperatura ambiente, desmolde y determine su
espesor. Luego proceda a determinar su densidad de acuerdo al Método A0606.
 Para probetas confeccionadas con cementos asfálticos, coloque éstas en un baño de agua a 60 ±
1º C durante 30 a 40 min, antes de ensayar. Para probetas confeccionadas con asfaltos cortados,
colóquelas en una corriente de aire por un lapso no inferior a 2 h; mantenga la temperatura del
aire a 25 ± 1º C.
 Limpie completamente la mordaza. La temperatura de ésta debe mantenerse entre 21 y 38º C,
usando un baño de agua si es necesario. Lubrique las barras guías con una película delgada de
aceite de modo que la parte superior de la mordaza deslice suavemente. Si se usa un anillo de
prueba para medir la carga aplicada, asegúrese que el dial esté firmemente ajustado y en cero.
 Saque la probeta del agua y seque cuidadosamente la superficie. Coloque y centre la probeta en
la parte inferior de la mordaza, luego coloque la parte superior y centre el conjunto en el
aparato de carga.
 Aplique carga a la probeta a una velocidad constante de deformación de 50 ± 1 mm/min, hasta
que se produzca la falla. El punto de falla queda definido por la carga máxima obtenida. Se
define la estabilidad Marshall como el número total de newtons (N) necesarios para producir la
falla de la probeta a 60º C, corregida de acuerdo a Tabla.
 A medida que avanza el ensaye de estabilidad, sujete firmemente el medidor de flujo sobre la
barra guía. Cuando se produzca la carga máxima, tome la lectura y anótela. Esta lectura es el
valor de la fluidez de la probeta expresada en unidades de 0,25 mm (1/100 pulg). El
procedimiento completo, estabilidad y fluencia, comenzando desde el momento en que se retira
la probeta del agua, no debe durar más de 30 s.
INFORME
Además de la identificación de la obra (nombre del contrato y contratista), identificación y
procedencia de los materiales (asfalto y árido) y fecha del ensaye, el informe debe incluir lo
siguiente:
a) Carga máxima promedio (newton) de a lo menos 3 probetas, corregidas cuando sea necesario.
b) Valor promedio de la fluidez (0,25 mm) de a lo menos 3 probetas.
c) Temperatura de mezclado.
d) Temperatura de compactación.
CIV-325 12
UNIV.: WILVER FAJARDO MAMANI ‘UATF’ LABORATORIO DE CARRETERAS II
ENSAYO MARSHALL
FACTORES DE CORRECCION POR ALTURA PARA ESTABILIDAD MARSHALL
CIV-325 13
UNIV.: WILVER FAJARDO MAMANI ‘UATF’ LABORATORIO DE CARRETERAS II
ENSAYO MARSHALL
CIV-325 14
UNIV.: WILVER FAJARDO MAMANI ‘UATF’ LABORATORIO DE CARRETERAS II
ENSAYO MARSHALL
5. CALCULOS
Para cumplir con los objetivos planteados se aplica las siguientes formulas:
𝑉𝑜𝑙𝑢𝑚𝑒𝑛 ( 𝑐𝑚3) = 𝑃. 𝑃𝑟𝑜𝑏. 𝑆𝑎𝑡𝑢𝑟𝑎𝑑𝑎 𝑎𝑖𝑟𝑒 − 𝑃. 𝑃𝑟𝑜𝑏. 𝑆𝑎𝑡𝑢𝑟𝑎𝑑𝑎 𝑎𝑔𝑢𝑎
𝐷𝑒𝑛𝑠𝑖𝑑𝑎𝑑 (𝑔𝑟/𝑐𝑚3) =
𝑃. 𝐴𝑖𝑟𝑒 𝑃𝑟𝑜𝑏𝑒𝑡𝑎. 𝑆𝑒𝑐𝑎
𝑉𝑜𝑙𝑢𝑚𝑒𝑛 𝑃𝑟𝑜𝑏𝑒𝑡𝑎
𝑉𝑜𝑙𝑢𝑚𝑒𝑛 𝑑𝑒 𝐴𝑟𝑖𝑑𝑜𝑠 ( 𝑐𝑚3) =
100 − %𝐵𝑒𝑡𝑢𝑛 𝑠𝑜𝑏𝑟𝑒 𝑚𝑒𝑧𝑐𝑙𝑎
𝑃. 𝐸𝑠𝑝𝑒𝑐𝑖𝑓𝑖𝑐𝑜 𝑐𝑜𝑛𝑗𝑢𝑛𝑡𝑜 𝑎𝑟𝑖𝑑𝑜𝑠
𝑉𝑜𝑙𝑢𝑚𝑒𝑛 𝑑𝑒 𝐵𝑒𝑡𝑢𝑛 ( 𝑐𝑚3) =
%𝐵𝑒𝑡𝑢𝑛 𝑠𝑜𝑏𝑟𝑒 𝑚𝑒𝑧𝑐𝑙𝑎
𝑃𝑒𝑠𝑜 𝑒𝑠𝑝𝑒𝑐𝑖𝑓𝑖𝑐𝑜 𝑏𝑒𝑡𝑢𝑛
𝐷𝑒𝑛𝑠𝑖𝑑𝑎𝑑 𝑇𝑒𝑜𝑟𝑖𝑐𝑎 𝑀𝑎𝑥𝑖𝑚𝑎 (𝑔𝑟/𝑐𝑚3) = 100 − (𝑉. 𝐴𝑟𝑖𝑑𝑜𝑠+ 𝑉. 𝐵𝑒𝑡𝑢𝑛)
𝐻𝑢𝑒𝑐𝑜𝑠 𝑒𝑛 𝑙𝑜𝑠 𝐴𝑟𝑖𝑑𝑜𝑠% = 100 − (𝐷. 𝑀𝑒𝑧𝑐𝑙𝑎 ∗ 𝑉. 𝐴𝑟𝑖𝑑𝑜)
𝐻𝑢𝑒𝑐𝑜𝑠 𝑒𝑛 𝑙𝑎 𝑀𝑒𝑧𝑐𝑙𝑎 % = 100 −
100 ∗ 𝐷𝑒𝑛𝑠𝑖𝑑𝑎𝑑 𝑀𝑒𝑧𝑐𝑙𝑎𝑠
𝐷𝑒𝑛𝑠𝑖𝑑𝑎𝑑 𝑇𝑒𝑜𝑟𝑖𝑐𝑎 𝑀𝑎𝑥𝑖𝑚𝑎
CALCULO ESTABILIDAD Y DEFORMACION
𝐶𝑜𝑛𝑠𝑡𝑎𝑛𝑡𝑒 𝑑𝑒𝑙 𝑎𝑛𝑖𝑙𝑙𝑜 = 2.4
6. IMÁGENES VISUALES.
Mezcla Bituminosa conformados en caliente Mezcla Bituminosa conformados en frio
Compactación de la muestra en molde Tres probetas preparados compactadas a 75 golpes
CIV-325 15
UNIV.: WILVER FAJARDO MAMANI ‘UATF’ LABORATORIO DE CARRETERAS II
ENSAYO MARSHALL
Probeta preparada desmoldada Aplicación a la maquina de Marshall mordazas
7. CONCLUSIONES Y RECOMENDACIONES
 El método Marshall, es un método muy simple para el diseño de pavimentos, y es por ello
que es el más usado en los proyectos de obras Viales en nuestro país.
 Para el uso del método Marshall en obras Viales, es de vital importancia conocer las cargas
que deberá soportar, así también las características de los agregados y el asfalto con el que
se va realizar el diseño.
 El método Marshall tiene la desventaja de que la compactación del laboratorio por impacto
no refleja la densificación real de la mezcla que ocurriría bajo cargas de tránsito.
 El diseño que se empleara será aquel que cumpla con todos los requerimientos del
proyecto, de manera más económica.
 Es muy importante que los agregados con los que se ensaye sean los mismos con los que se
realizara la mezcla final, debido a que cualquier cambio en las características de estos
afectara directamente el diseño del pavimento.
 El método Marshall puede ser usado para el diseño en laboratorio como también para el
control de campo de las mezclas asfálticas (en caliente) de pavimentación.
 Se recomienda realizar el procedimiento del ensayo conforme a las normas especificadas y
establecidas para llegar a obtener resultados satisfactorios.
 Se recomienda que todos los materiales y equipos a usar cumplan con las especificaciones
técnicas adecuadas.
 Tener conocimiento acerca del vocabulario técnico normativo.
CIV-325 16
UNIV.: WILVER FAJARDO MAMANI ‘UATF’ LABORATORIO DE CARRETERAS II
ENSAYO MARSHALL
8. APORTE PERSONAL
Este aporte es referido al procedimiento y determinación del ensayo Marshall, basados en ensayos
con resultados obtenidos mediante prueba de laboratorio.
Procedimiento del ensayo
Existen tres procedimientos en el método del ensayo Marshall. Estos son:
-Determinación del peso específico Total
-Ensayos de Estabilidad y fluencia Marshall
-Densidad-vacíos
Determinación del peso específico Total
El peso específico total se determina de cada probeta se determina tan pronto como las probetas
recién compactadas se hayan enfriado a la temperatura ambiente. Esta medición de peso específico
es esencial para un análisis preciso de densidad-vacíos.
Ensayos de Estabilidad y Fluencia
El ensayo de estabilidad está dirigido a medir la resistencia a la deformación de la mezcla. La
fluencia mide la deformación, bajo carga, que ocurre en la mezcla.
El procedimiento de los ensayos es el siguiente:
1) Las probetas son calentadas en un baño de agua a 60°C (140°F).Esta temperatura representa,
normalmente, la temperatura más caliente que un pavimento en servicio va a experimentar.
2) La probeta es removida del baño, secada y colocada rápidamente en el aparato Marshall. El
aparato consiste en un dispositivo que
aplica una carga sobre la probeta, y de
unos medidores de carga y deformación
(fluencia).
3) La carga del ensayo es aplicada a la
probeta a una velocidad constante de
51mm por minuto hasta que la muestra
falle. La falla está definida como la carga
máxima que la brigueta puede resistir.
4) La carga con la cual falla la brigueta se
registra como el la valor de estabilidad de
Marshall y la lectura de la deformación se
registra como la fluencia de Marshall.
(Equipo para el ensayo Marshall)
CIV-325 17
UNIV.: WILVER FAJARDO MAMANI ‘UATF’ LABORATORIO DE CARRETERAS II
ENSAYO MARSHALL
RESULTADOS
GRAFICOS DE LOS RESULTADOS MARSHALL
Se trazan los resultados en gráficas para entender las características particulares de cada probeta
usada en la serie. Mediante el estudio de las gráficas se puede determinar cuál probeta de la serie
cumple mejor los criterios establecidos para el pavimento terminado. Las proporciones de asfalto y
agregado se convierten en las proporciones usadas en la mezcla final.
Fig. 12 (Vacíos vs cemento asfaltico)
CIV-325 18
UNIV.: WILVER FAJARDO MAMANI ‘UATF’ LABORATORIO DE CARRETERAS II
ENSAYO MARSHALL
CIV-325 19
UNIV.: WILVER FAJARDO MAMANI ‘UATF’ LABORATORIO DE CARRETERAS II
ENSAYO MARSHALL
Análisis y métodos
Análisis de densidad y vacíos
Una vez que se completan los ensayos de estabilidad y fluencia, se procede a efectuar un análisis de
densidad y vacíos para cada serie de probetas de prueba. El propósito del análisis es el de
determinar el porcentaje de vacíos en la mezcla compactada.
Los vacíos son pequeñas bolsas de aire que se encuentran entre las partículas de los agregados
revestidas de asfalto. El porcentaje de vacíos se calcula a partir del peso específico total de cada
probeta compactada y del peso específico teórico de la mezcla de pavimentación (sin vacíos).Este
último puede ser calculado a partir de los pesos específicos del asfalto y el agregado de la mezcla,
con un margen apropiado para tener en cuenta la cantidad de asfalto absorbido por el agregado; o
directamente mediante un ensayo normalizado (AASHTO T209) efectuado sobre la muestra de
mezcla sin compactar. El peso específico total de las probetas compactadas se determina pesando
las probetas en aire y agua.
Análisis de Peso Unitario
El peso Unitario promedio para cada muestra se determina multiplicando el peso específico total de
la mezcla por 100kg/m3 (62.4 lb/ft3).
Análisis de VMA
L os vacíos en el agregado mineral (VMA), están definidos por el espacio intergranular de vacíos
que se encuentran entre las partículas de agregado de la mezcla de pavimentación compactada,
incluyendo los vacíos de aire y el contenido efectivo de asfalto, y se expresan como un porcentaje
del volumen total de la mezcla compactada. Por lo tanto, el VMA puede ser calculado al restar el
volumen de agregado (determinado mediante el peso específico total del agregado) del volumen
total de la mezcla compactada.
Análisis de VFA
Los vacíos llenos de asfalto (VFA), son el porcentaje de vacíos intergranulares entre las partículas
de agregado (VMA) que se encuentran llenos de asfalto. El VMA abarca asfalto y aire, y por lo
tanto, el VFA se calcula al restar los vacíos del aire del VMA y luego por el VMA, expresarlo el
valor final como un porcentaje
Cuando los resultados de los ensayos se trazan en gráficas,usualmente revelan ciertas tendencias en
las relaciones entre el contenido de asfalto y las propiedades de la mezcla. A continuación se
enuncian ciertas tendencias que pueden observarse al estudiar las gráficas.
1) El porcentaje de vacíos disminuye a medida que aumenta el contenido de asfalto
CIV-325 20
UNIV.: WILVER FAJARDO MAMANI ‘UATF’ LABORATORIO DE CARRETERAS II
ENSAYO MARSHALL
2) El porcentaje de vacíos en el agregado mineral (VMA) generalmente disminuye hasta un valor
mínimo, y luego aumenta con aumentos en el contenido de asfalto.
3) El porcentaje de vacíos llenos de asfalto (VFA) aumenta con aumentos en el contenido de
asfalto.
4) La curva para el peso unitario de la mezcla es similar a la curva de estabilidad, excepto que el
peso unitario máximo se presenta a un contenido de asfalto ligeramente mayor que el que determina
la máxima estabilidad.
5) Hasta cierto punto, los valores de estabilidad aumenta a medida que el contenido de asfalto
aumenta. Más allá de este punto, la estabilidad disminuye con cualquier aumento en el contenido de
asfalto.
6) Los valores de fluencia aumentan con aumentos en el contenido de asfalto.
Determinación del contenido de asfalto
El contenido de asfalto en el diseño del pavimento se determina a partir de los resultados descritos
anteriormente.
Primero, determine el contenido de asfalto para el cual el contenido de vacíos es de 4%.Luego,
evalué todas las propiedades calculadas u medidas para este contenido de asfalto, y compárelas con
los criterios de diseño. Si se cumplen todos los criterios, es el contenido de diseño de asfalto. Si no
se cumplen todos los criterios, es el contenido de diseño de asfalto. Si no se cumplen todos los
criterios será necesario hacer algunos ajustes o volver a diseñar la mezcla.
9. BIBLIOGRAFIA
REFERENCIAS BIBLIOGRAFICAS
- ASPHALT INSTITUTE, STRATEGIC HIGHWAY RESEARCH
PROGRAM, PAN AMERICAN INSTITUTE OF HIGHWAYS.
ANTECEDENTES DEL DISEÑO Y ANÁLISIS DE MEZCLAS
ASFÁLTICAS DE SUPERPAVE.
-INSTITUTO DE ASFALTO.PRINCIPIOS DE CONSTRUCCION DE
PAVIMENTOS DE MEZCLA ASFALTICA EN CALIENTE.
- GUÍA BÁSICA DE DISEÑO, CONTROL DE PRODUCCIÓN Y
COLOCACIÓN DE MEZCLAS ASFÁLTICAS EN CALIENTE.
CIV-325 21
UNIV.: WILVER FAJARDO MAMANI ‘UATF’ LABORATORIO DE CARRETERAS II
ENSAYO MARSHALL

Ensayo marshall

  • 1.
    CIV-325 1 UNIV.: WILVERFAJARDO MAMANI ‘UATF’ LABORATORIO DE CARRETERAS II ENSAYO MARSHALL MÉTODO PARA DETERMINAR LA RESISTENCIA A LA DEFORMACIÓN PLÁSTICA DE MEZCLAS BITUMINOSAS UTILIZANDO EL APARATO MARSHALL (AASHTO T 245-97) 1. OBJETIVO Este método describe la medición de la resistencia a la deformación plástica de probetas cilíndricas de mezclas bituminosas, cargadas sobre su manto lateral, usando el aparato Marshall. Este método es aplicable a mezclas asfálticas con árido de tamaño máximo 25 mm. También otro de los objetivos principales es determinar la estabilidad, deformación, densidad y huecos de mezclas bituminosas compactadas. 2. MARCO TEORICO El Método de dosificación Marshall desarrollado por el Ing. Bruce Marshall, inicialmente fue utilizado por el Cuerpo de Ingenieros del Ejército Norteamericano, actualmente es el método más utilizado para la elaboración de fórmulas de mezcla. El criterio para conseguir una mezcla satisfactoria está basado en requisitos mínimos de estabilidad, fluencia, densidad y porcentaje de vacíos. Este método determina el procedimiento para realizar los ensayos de estabilidad y fluencia de mezclas asfálticas preparadas en caliente, utilizando el equipo Marshall, determina características físicas de las mezclas y analiza los parámetros que definen el contenido de asfalto. La estabilidad se determina empleando el principio de corte en compresión semi-confinada, sometiendo a la muestra a esfuerzos de compresión diametral a una temperatura de 60 ºC (140 ºF). La aplicación de esfuerzos y la rotura de las muestras se consiguen con un dispositivo especialmente proyectado para las pruebas de estabilidad. El valor de estabilidad representa la resistencia estructural de la mezcla compactada y está afectada principalmente por el contenido de asfalto, la composición granulométrica y el tipo de agregado. El valor de estabilidad es un índice de la calidad del agregado. Además, la mezcla debe tener la fluidez necesaria para que pueda compactarse a la densidad exigida y producir una textura superficial adecuada. El valor del Flujo representa la deformación producida en el sentido del diámetro del espécimen antes de que se produzca su fractura. Este valor es un indicador de la tendencia para alcanzar una condición plástica y consecuentemente de la resistencia que ofrecerá la carpeta asfáltica a deformarse bajo la acción de las cargas que por ella transiten. CRITERIOS PARA EL PROYECTO DE UNA MEZCLA ASFÁLTICA
  • 2.
    CIV-325 2 UNIV.: WILVERFAJARDO MAMANI ‘UATF’ LABORATORIO DE CARRETERAS II ENSAYO MARSHALL Se debe establecer los criterios que se van a considerar para la preparación de la mezcla, de acuerdo a las especificaciones técnicas que regirán el proyecto:  Porcentaje de vacíos de aire en la mezcla total  Porcentaje de vacíos llenados con el asfalto  Porcentaje mínimo de vacíos en el agregado mineral  Valor mínimo de la estabilidad  Rango de valores límite de fluencia Es conveniente, en forma previa, analizar la susceptibilidad de la mezcla al agua, para determinar su comportamiento con relación al desplazamiento de la película de ligante por el agua (“stripping”), que depende del porcentaje de vacíos de aire, a través de los cuales la humedad debe ser secada. El resultado final de la etapa de diseño es una tabla donde se muestra, para cada nivel de compactación, el rango de contenidos de asfalto que satisface cada uno de los criterios seleccionados. El proyectista puede ajustar los criterios establecidos al principio, sobre la base de su experiencia personal, hasta que la faja de contenidos de asfalto sea razonable. DESCRIPCIÓN DEL MÉTODO MARSHALL  El método Marshall usa muestras de prueba normalizadas (briquetas) de 2 y ½” de espesor por 4” de diámetro (64 x 102 mm).  Se selecciona el agregado que cumpla con las especificaciones requeridas. El tipo y grado del asfalto, de acuerdo al tipo de agregado y las condiciones climáticas. Para determinar el contenido óptimo de asfalto se preparan y compactan una serie de muestras de prueba (briquetas), con distintos porcentajes de asfalto cuyo rango de variación no debe ser mayor a 0,5%. Como mínimo se debe incluir dos porcentajes por encima y dos por debajo del óptimo de contenido de asfalto estimado. En la práctica se observa que el contenido óptimo de asfalto se encuentra alrededor del 6 %, con referencia al peso de los agregados pétreos. Mayores porcentajes deben conducir a una verificación cuidadosa del diseño de la mezcla. Para verificar la idoneidad de los datos se deben hacer tres muestras (briquetas) por cada contenido de asfalto. Generalmente para un diseño, se deben tomar 6 porcentajes de asfalto diferentes, por lo cual se requerirán 18 briquetas. Adicionalmente se deben incluir 6 briquetas para determinar los efectos del agua en la estabilidad y el flujo. Aproximadamente para cada briqueta, se necesitan 1200 g de agregados, por lo cual la cantidad representativa de los agregados, debe tener un peso mínimo de 29 kg (65 lb). Además se requerirá aproximadamente un galón de asfalto. PREPARACIÓN DE LAS MUESTRAS PARA ENSAYO
  • 3.
    CIV-325 3 UNIV.: WILVERFAJARDO MAMANI ‘UATF’ LABORATORIO DE CARRETERAS II ENSAYO MARSHALL Número de muestras: Por lo menos 3 para cada contenido de asfalto. Chequeo y preparación de agregados: - Determinar la gradación de los agregados propuestos, de acuerdo a los métodos de ensayo C-117 y C-136 de la ASTM. - Determinar el peso específico Bulk y el aparente de los agregados, de acuerdo a los métodos de ensayo C-127 y C-128 de la ASTM. - Seleccionar la dosificación de agregados que cumpla con la curva de densidad máxima para el tamaño máximo de partículas, además que cumpla el requisito del porcentaje mínimo de vacíos en el agregado mineral. - Calcular los pesos específicos Bulk y aparente de la combinación de agregados elegida. - Determinación de la temperatura de mezclado y de compactación: Sobre la base de la curva Viscosidad-Temperatura, se elige la temperatura a la cual el asfalto alcanzará una viscosidad cinemática de 170+-20 Centistokes para la temperatura de mezclado y 280+- 30 Centistokes para la temperatura de compactación. PREPARACIÓN DE LAS MEZCLAS Pesar por separado en bandejas, para cada muestra de ensayo, la cantidad adecuada de cada fracción que produzca una bachada que de cómo resultado una muestra compactada de 2,5 ± 0,1” de espesor (63,5 ± 1,3 mm). Colocar las bandejas para el mezclado en el horno y calentarlas a una temperatura aproximada de 25 ºF (13,9 ºC), por encima de la de mezclado. Calentar el asfalto a una temperatura lo suficientemente alta para que fluya fácilmente, pero sin que ésta sea mayor que la de mezclado. Colocar la bandeja de mezclado y su contenido en la balanza y pesar agregando el asfalto necesario. 10 100 1000 10000 225 250 275 300 325 VISCOSIDAD(centistokes) TEMPERATURA ºF FiguraVII.1.CurvaViscosidad–TemperaturaparaCementosAsfálticos
  • 4.
    CIV-325 4 UNIV.: WILVERFAJARDO MAMANI ‘UATF’ LABORATORIO DE CARRETERAS II ENSAYO MARSHALL Luego se coloca el palustre en la bandeja y se determina el peso total de los componentes de la mezcla más el equipo de mezclado con aproximación a 0,2 g. Se mezclan los agregados y el asfalto con el palustre hasta obtener una mezcla homogénea. COMPACTACIÓN DE LOS NÚCLEOS DE PRUEBA Colocar toda la mezcla preparada dentro del molde, emparejando la mezcla con la espátula, unas 15 veces alrededor del perímetro y 10 veces en la parte central. Se quita el collar y se alisa suavemente la superficie, hasta obtener una forma ligeramente redondeada. Inmediatamente antes del proceso de compactación la temperatura de la mezcla debe estar muy cercana a los límites de la temperatura de compactación establecida. Colocar nuevamente el collar de extensión, y ubicarlo en el pedestal de compactación. Se aplican 75 (35 ó 50) golpes con el martillo, según lo especificado para la categoría de tráfico. Se quitan la base y el collar se le da vuelta y se vuelva a armar el conjunto. Se aplica el mismo número de golpes a la cara opuesta de la muestra. Después de la compactación, se quita la base del molde y se expone la muestra a la temperatura ambiente dentro del molde. Se saca la muestra del molde por medio de un extractor. CONDICIONES QUE DEBEN CUMPLIR LAS MEZCLAS BITUMINOSAS RESULTANTES La mezcla resultante debe cumplir con las siguientes condiciones: DURABILIDAD: La durabilidad de un pavimento asfáltico es su habilidad para resistir factores tales como la desintegración del agregado, cambios en laspropiedades del asfalto y separación de las películas de asfalto. ESTABILIDAD: Es la capacidad para resistir desplazamiento y deformaciónbajo las cargas del tránsito. Depende de la fricción y de la cohesión interna. FLEXIBILIDAD: Es la capacidad de un pavimento asfáltico para acomodarse sin que se agriete a movimientos y asentamientos graduales de la subrasante. IMPERMEABILIDAD: Es la resistencia al paso de aire y agua hacia su interior o a través de él. TRABAJABILIDAD: Es la facilidad con que una mezcla puede ser colocada y compactada. Las mezclas gruesas tienen tendencia a segregarse durante su manejo y también pueden ser difíciles de compactar. El propósito del Método Marshall es determinar el contenido óptimo de asfalto para una combinación específica de agregados. El método también provee información sobre propiedades de la mezcla asfáltica en caliente, y establece densidades y contenidos óptimos de vació que deben ser cumplidos durante la elaboración de la mezcla.
  • 5.
    CIV-325 5 UNIV.: WILVERFAJARDO MAMANI ‘UATF’ LABORATORIO DE CARRETERAS II ENSAYO MARSHALL El método original de Marshall, sólo es aplicable a mezclas asfálticas en caliente que contengan agregados con un tamaño máximo de 25 mm (1 pulg) o menor. El método puede ser usado para el diseño en laboratorio, como para el control de campo de mezclas asfálticas en caliente. (Composición típica de una mezcla asfáltica) 3. EQUIPO  Moldes de compactación Constituidos por una placa base, molde y collar. El molde debe tener un diámetro interior de 101,6 ± 0,1 mm y una altura de 80 mm; la placa base y el collar se diseñan de modo de poder ajustarse a cualquier extremo del molde, conforme a los detalles de la Figura mostrada.  Extractor Que sirva para sacar las probetas del molde; debe estar provisto de un disco desplazador de 100 mm de diámetro por 10 mm de espesor.  Martillo de compactación Consiste en una cara circular de 100 mm de diámetro equipada con un peso de 4.515 ± 15 g y construido de modo de obtener una altura de caída 460 ± 2 mm, conforme a los detalles de la Figura. Las condiciones señaladas aseguran la obtención de una energía por caída de 20,75 J.  Pedestal de compactación Consiste en un poste de madera de 205 x 205 x 455 mm cubierto con una placa de acero de 305 x 305 x 25 mm. El poste va empotrado en hormigón mediante cuatro perfiles ángulo; debe quedar a plomo y la placa de acero debe quedar firmemente afianzada y a nivel. El poste puede ser de roble, pino u otra madera que tenga una densidad seca media de 0,67 a 0,77 g/cm3.  Sujetador de molde
  • 6.
    CIV-325 6 UNIV.: WILVERFAJARDO MAMANI ‘UATF’ LABORATORIO DE CARRETERAS II ENSAYO MARSHALL Consiste en un aro con resorte diseñado para mantener centrado y fijo el molde en el pedestal durante la compactación.  Mordaza Consiste en dos segmentos de cilindro, superior e inferior, con un radio interno de 51 ± 0,2 mm, diseñado según la Figura, para transmitir la carga a la probeta en el ensaye.  Máquina Marshall Aparato eléctrico, diseñado para aplicar carga a las probetas durante el ensaye, a una velocidad de deformación de 50 ± 1 mm/min. Está equipada con un anillo de prueba calibrado para determinar la carga aplicada, de una capacidad superior a 25 kN y una sensibilidad de 45N con un dial graduado de 0,0025 mm y un medidor de flujo con una precisión de 0,01 mm, para determinar la deformación que se produce en la carga máxima. Se puede emplear también esta máquina equipada con sensor y registrador de estabilidad v/s fluencia.  Hornos Horno de convección forzada y placas calientes, que deben incluir un termostato capaz de controlar y mantener la temperatura requerida dentro de ± 3 ºC.  Baño de agua De a lo menos 150 mm de profundidad y controlado termostáticamente a 60 ± 1 º C. El estanque debe tener un fondo falso perforado y un termómetro centrado y fijo.  Equipo misceláneo - Pailas para calentar el árido. - Recipiente, para calentar el asfalto. - Bol, para mezclar el asfalto y árido. - Espátulas, para el mezclado manual de la mezcla. - Mezclador mecánico, opcional. - Termómetros de rango 10 a 200º C para determinar las temperaturas del árido, asfalto y mezcla bituminosa. - Balanzas con capacidad 5 kg y precisión 1 g. - Poruñas. - Guantes aislantes para resistir rango de de temperatura indicadas en f) y guantes de goma. - Pintura, tinta u otro elemento de marcación indeleble, para identificar las probetas A continuación se presenta las gráficas de los instrumentos y equipo de laboratorio para desarrollar dicho ensayo.
  • 7.
    CIV-325 7 UNIV.: WILVERFAJARDO MAMANI ‘UATF’ LABORATORIO DE CARRETERAS II ENSAYO MARSHALL Aparato de Marshall. Figura 1 molde de compactación. Figura 2 martillo de compactación
  • 8.
    CIV-325 8 UNIV.: WILVERFAJARDO MAMANI ‘UATF’ LABORATORIO DE CARRETERAS II ENSAYO MARSHALL Aparato de Marshall. Mordaza
  • 9.
    CIV-325 9 UNIV.: WILVERFAJARDO MAMANI ‘UATF’ LABORATORIO DE CARRETERAS II ENSAYO MARSHALL Molde anillo y collarin, Horno electrico y Maquina Marshall 4. PROCEDIMIENTO EXTRACCIÓN Y PREPARACIÓN DE LA MUESTRA Probetas de ensayo  Número de probetas Prepare a lo menos 3 y de preferencia 5 probetas para cada contenido de asfalto.  Preparación del árido Seque el agregado hasta masa constante a una temperatura de 110 ± 5º C y sepárelo por tamizado en seco en las siguientes fracciones: 25-19 mm; 19-12,5 mm; 12,5-9,5 mm; 9,5-4,75 mm; 4,75-2,36 mm y bajo 2,36 mm.  Temperatura de mezclado Es la temperatura a la cual debe calentarse el cemento asfáltico y el asfalto cortado para producir una viscosidad de 170 ± 20 cSt.  Temperatura de compactación a) Para cementos asfálticos la temperatura de compactación debe ser aquélla a la cual el cemento asfáltico acanza una viscosidad de 280 ± 30 cSt.
  • 10.
    CIV-325 10 UNIV.: WILVERFAJARDO MAMANI ‘UATF’ LABORATORIO DE CARRETERAS II ENSAYO MARSHALL b) Para asfaltos cortados la temperatura de compactación debe ser aquélla a la cual el asfalto cortado alcanza una viscosidad de 280 ± 30 cSt, después de perder un 50% del solvente original.  Preparación de muestras a) Pese en bandejas separadas para cada probeta de ensaye, la cantidad necesaria de cada fracción para producir una muestra que dé como resultado una probeta compacta de una altura aproximada de 65 mm; normalmente se requieren 1.100 g. Coloque las bandejas en el horno o en una placa caliente y llévelas a una temperatura de aproximadamente 30 ºC sobre la temperatura de mezclado especificada en 13 para cementos asfálticos, y de 15 ºC sobre dicha temperatura para asfaltos cortados. Coloque el árido caliente en el bol de mezclado y revuelva completamente. Forme un cráter en el árido y pese la cantidad necesaria de cemento asfáltico o asfalto cortado e incorpórela al bol. En ese instante las temperaturas del árido y del asfalto deben estar dentro de los límites establecidos en el numeral 13. El asfalto no debe mantenerse a la temperatura de mezclado por más de 1 h antes de usarlo. Mezcle el árido y asfalto tan rápido como sea posible hasta que la mezcla quede totalmente cubierta y uniforme. b) Terminado el mezclado, coloque las mezclas con asfaltos cortados en un horno ventilado, mantenido a una temperatura de aproximadamente 10º C sobre la de compactación. Continúe el curado hasta que se haya evaporado el 50% del solvente. La mezcla debe revolverse para acelerar el proceso de pérdida de solvente, teniendo cuidado de no perder mezcla. Durante este proceso, pese la mezcla inicialmente en intervalos de 15 min y, cuando se aproxima a la pérdida del 50%, en intervalos menores de 10 min.  Compactación de probetas a) Prepare el molde y el martillo, limpiando completamente el conjunto del molde y cara del martillo de compactación y caliéntelos durante 15 min en un baño de agua o en una placa caliente a una temperatura próxima a la de compactación. Coloque un disco de papel filtro, cortado a medida, en la parte inferior del molde antes de colocar la mezcla. Suavice la parte interior del molde y la cara del martillo con un aceite grueso. Coloque el conjunto collar, molde y base en el pedestal del compactador. b) Llene el molde con una espátula, acomodando la mezcla 15 veces en el perímetro y 10 veces en el centro. La temperatura antes de compactar debe estar en los límites establecidos en 14 a) y si no es así, descártela; en ningún caso la mezcla debe recalentarse. c) Con el martillo de compactación aplique 75 golpes en un tiempo no superior a 90 s. Saque la base y el collar, invierta y reensamble el molde. Aplique en la otra cara el mismo número de golpes en un tiempo no mayor al indicado. Después de compactar, saque la base y deje enfriar
  • 11.
    CIV-325 11 UNIV.: WILVERFAJARDO MAMANI ‘UATF’ LABORATORIO DE CARRETERAS II ENSAYO MARSHALL la probeta al aire. Si se desea un enfriamiento más rápido puede usar ventiladores. Normalmente la probeta se deja enfriar toda una noche. Nota 1: Podrá especificarse una cantidad diferente de golpes, de acuerdo al tránsito de diseño.  Determinación de densidad y espesor Tan pronto como la probeta se enfríe a temperatura ambiente, desmolde y determine su espesor. Luego proceda a determinar su densidad de acuerdo al Método A0606.  Para probetas confeccionadas con cementos asfálticos, coloque éstas en un baño de agua a 60 ± 1º C durante 30 a 40 min, antes de ensayar. Para probetas confeccionadas con asfaltos cortados, colóquelas en una corriente de aire por un lapso no inferior a 2 h; mantenga la temperatura del aire a 25 ± 1º C.  Limpie completamente la mordaza. La temperatura de ésta debe mantenerse entre 21 y 38º C, usando un baño de agua si es necesario. Lubrique las barras guías con una película delgada de aceite de modo que la parte superior de la mordaza deslice suavemente. Si se usa un anillo de prueba para medir la carga aplicada, asegúrese que el dial esté firmemente ajustado y en cero.  Saque la probeta del agua y seque cuidadosamente la superficie. Coloque y centre la probeta en la parte inferior de la mordaza, luego coloque la parte superior y centre el conjunto en el aparato de carga.  Aplique carga a la probeta a una velocidad constante de deformación de 50 ± 1 mm/min, hasta que se produzca la falla. El punto de falla queda definido por la carga máxima obtenida. Se define la estabilidad Marshall como el número total de newtons (N) necesarios para producir la falla de la probeta a 60º C, corregida de acuerdo a Tabla.  A medida que avanza el ensaye de estabilidad, sujete firmemente el medidor de flujo sobre la barra guía. Cuando se produzca la carga máxima, tome la lectura y anótela. Esta lectura es el valor de la fluidez de la probeta expresada en unidades de 0,25 mm (1/100 pulg). El procedimiento completo, estabilidad y fluencia, comenzando desde el momento en que se retira la probeta del agua, no debe durar más de 30 s. INFORME Además de la identificación de la obra (nombre del contrato y contratista), identificación y procedencia de los materiales (asfalto y árido) y fecha del ensaye, el informe debe incluir lo siguiente: a) Carga máxima promedio (newton) de a lo menos 3 probetas, corregidas cuando sea necesario. b) Valor promedio de la fluidez (0,25 mm) de a lo menos 3 probetas. c) Temperatura de mezclado. d) Temperatura de compactación.
  • 12.
    CIV-325 12 UNIV.: WILVERFAJARDO MAMANI ‘UATF’ LABORATORIO DE CARRETERAS II ENSAYO MARSHALL FACTORES DE CORRECCION POR ALTURA PARA ESTABILIDAD MARSHALL
  • 13.
    CIV-325 13 UNIV.: WILVERFAJARDO MAMANI ‘UATF’ LABORATORIO DE CARRETERAS II ENSAYO MARSHALL
  • 14.
    CIV-325 14 UNIV.: WILVERFAJARDO MAMANI ‘UATF’ LABORATORIO DE CARRETERAS II ENSAYO MARSHALL 5. CALCULOS Para cumplir con los objetivos planteados se aplica las siguientes formulas: 𝑉𝑜𝑙𝑢𝑚𝑒𝑛 ( 𝑐𝑚3) = 𝑃. 𝑃𝑟𝑜𝑏. 𝑆𝑎𝑡𝑢𝑟𝑎𝑑𝑎 𝑎𝑖𝑟𝑒 − 𝑃. 𝑃𝑟𝑜𝑏. 𝑆𝑎𝑡𝑢𝑟𝑎𝑑𝑎 𝑎𝑔𝑢𝑎 𝐷𝑒𝑛𝑠𝑖𝑑𝑎𝑑 (𝑔𝑟/𝑐𝑚3) = 𝑃. 𝐴𝑖𝑟𝑒 𝑃𝑟𝑜𝑏𝑒𝑡𝑎. 𝑆𝑒𝑐𝑎 𝑉𝑜𝑙𝑢𝑚𝑒𝑛 𝑃𝑟𝑜𝑏𝑒𝑡𝑎 𝑉𝑜𝑙𝑢𝑚𝑒𝑛 𝑑𝑒 𝐴𝑟𝑖𝑑𝑜𝑠 ( 𝑐𝑚3) = 100 − %𝐵𝑒𝑡𝑢𝑛 𝑠𝑜𝑏𝑟𝑒 𝑚𝑒𝑧𝑐𝑙𝑎 𝑃. 𝐸𝑠𝑝𝑒𝑐𝑖𝑓𝑖𝑐𝑜 𝑐𝑜𝑛𝑗𝑢𝑛𝑡𝑜 𝑎𝑟𝑖𝑑𝑜𝑠 𝑉𝑜𝑙𝑢𝑚𝑒𝑛 𝑑𝑒 𝐵𝑒𝑡𝑢𝑛 ( 𝑐𝑚3) = %𝐵𝑒𝑡𝑢𝑛 𝑠𝑜𝑏𝑟𝑒 𝑚𝑒𝑧𝑐𝑙𝑎 𝑃𝑒𝑠𝑜 𝑒𝑠𝑝𝑒𝑐𝑖𝑓𝑖𝑐𝑜 𝑏𝑒𝑡𝑢𝑛 𝐷𝑒𝑛𝑠𝑖𝑑𝑎𝑑 𝑇𝑒𝑜𝑟𝑖𝑐𝑎 𝑀𝑎𝑥𝑖𝑚𝑎 (𝑔𝑟/𝑐𝑚3) = 100 − (𝑉. 𝐴𝑟𝑖𝑑𝑜𝑠+ 𝑉. 𝐵𝑒𝑡𝑢𝑛) 𝐻𝑢𝑒𝑐𝑜𝑠 𝑒𝑛 𝑙𝑜𝑠 𝐴𝑟𝑖𝑑𝑜𝑠% = 100 − (𝐷. 𝑀𝑒𝑧𝑐𝑙𝑎 ∗ 𝑉. 𝐴𝑟𝑖𝑑𝑜) 𝐻𝑢𝑒𝑐𝑜𝑠 𝑒𝑛 𝑙𝑎 𝑀𝑒𝑧𝑐𝑙𝑎 % = 100 − 100 ∗ 𝐷𝑒𝑛𝑠𝑖𝑑𝑎𝑑 𝑀𝑒𝑧𝑐𝑙𝑎𝑠 𝐷𝑒𝑛𝑠𝑖𝑑𝑎𝑑 𝑇𝑒𝑜𝑟𝑖𝑐𝑎 𝑀𝑎𝑥𝑖𝑚𝑎 CALCULO ESTABILIDAD Y DEFORMACION 𝐶𝑜𝑛𝑠𝑡𝑎𝑛𝑡𝑒 𝑑𝑒𝑙 𝑎𝑛𝑖𝑙𝑙𝑜 = 2.4 6. IMÁGENES VISUALES. Mezcla Bituminosa conformados en caliente Mezcla Bituminosa conformados en frio Compactación de la muestra en molde Tres probetas preparados compactadas a 75 golpes
  • 15.
    CIV-325 15 UNIV.: WILVERFAJARDO MAMANI ‘UATF’ LABORATORIO DE CARRETERAS II ENSAYO MARSHALL Probeta preparada desmoldada Aplicación a la maquina de Marshall mordazas 7. CONCLUSIONES Y RECOMENDACIONES  El método Marshall, es un método muy simple para el diseño de pavimentos, y es por ello que es el más usado en los proyectos de obras Viales en nuestro país.  Para el uso del método Marshall en obras Viales, es de vital importancia conocer las cargas que deberá soportar, así también las características de los agregados y el asfalto con el que se va realizar el diseño.  El método Marshall tiene la desventaja de que la compactación del laboratorio por impacto no refleja la densificación real de la mezcla que ocurriría bajo cargas de tránsito.  El diseño que se empleara será aquel que cumpla con todos los requerimientos del proyecto, de manera más económica.  Es muy importante que los agregados con los que se ensaye sean los mismos con los que se realizara la mezcla final, debido a que cualquier cambio en las características de estos afectara directamente el diseño del pavimento.  El método Marshall puede ser usado para el diseño en laboratorio como también para el control de campo de las mezclas asfálticas (en caliente) de pavimentación.  Se recomienda realizar el procedimiento del ensayo conforme a las normas especificadas y establecidas para llegar a obtener resultados satisfactorios.  Se recomienda que todos los materiales y equipos a usar cumplan con las especificaciones técnicas adecuadas.  Tener conocimiento acerca del vocabulario técnico normativo.
  • 16.
    CIV-325 16 UNIV.: WILVERFAJARDO MAMANI ‘UATF’ LABORATORIO DE CARRETERAS II ENSAYO MARSHALL 8. APORTE PERSONAL Este aporte es referido al procedimiento y determinación del ensayo Marshall, basados en ensayos con resultados obtenidos mediante prueba de laboratorio. Procedimiento del ensayo Existen tres procedimientos en el método del ensayo Marshall. Estos son: -Determinación del peso específico Total -Ensayos de Estabilidad y fluencia Marshall -Densidad-vacíos Determinación del peso específico Total El peso específico total se determina de cada probeta se determina tan pronto como las probetas recién compactadas se hayan enfriado a la temperatura ambiente. Esta medición de peso específico es esencial para un análisis preciso de densidad-vacíos. Ensayos de Estabilidad y Fluencia El ensayo de estabilidad está dirigido a medir la resistencia a la deformación de la mezcla. La fluencia mide la deformación, bajo carga, que ocurre en la mezcla. El procedimiento de los ensayos es el siguiente: 1) Las probetas son calentadas en un baño de agua a 60°C (140°F).Esta temperatura representa, normalmente, la temperatura más caliente que un pavimento en servicio va a experimentar. 2) La probeta es removida del baño, secada y colocada rápidamente en el aparato Marshall. El aparato consiste en un dispositivo que aplica una carga sobre la probeta, y de unos medidores de carga y deformación (fluencia). 3) La carga del ensayo es aplicada a la probeta a una velocidad constante de 51mm por minuto hasta que la muestra falle. La falla está definida como la carga máxima que la brigueta puede resistir. 4) La carga con la cual falla la brigueta se registra como el la valor de estabilidad de Marshall y la lectura de la deformación se registra como la fluencia de Marshall. (Equipo para el ensayo Marshall)
  • 17.
    CIV-325 17 UNIV.: WILVERFAJARDO MAMANI ‘UATF’ LABORATORIO DE CARRETERAS II ENSAYO MARSHALL RESULTADOS GRAFICOS DE LOS RESULTADOS MARSHALL Se trazan los resultados en gráficas para entender las características particulares de cada probeta usada en la serie. Mediante el estudio de las gráficas se puede determinar cuál probeta de la serie cumple mejor los criterios establecidos para el pavimento terminado. Las proporciones de asfalto y agregado se convierten en las proporciones usadas en la mezcla final. Fig. 12 (Vacíos vs cemento asfaltico)
  • 18.
    CIV-325 18 UNIV.: WILVERFAJARDO MAMANI ‘UATF’ LABORATORIO DE CARRETERAS II ENSAYO MARSHALL
  • 19.
    CIV-325 19 UNIV.: WILVERFAJARDO MAMANI ‘UATF’ LABORATORIO DE CARRETERAS II ENSAYO MARSHALL Análisis y métodos Análisis de densidad y vacíos Una vez que se completan los ensayos de estabilidad y fluencia, se procede a efectuar un análisis de densidad y vacíos para cada serie de probetas de prueba. El propósito del análisis es el de determinar el porcentaje de vacíos en la mezcla compactada. Los vacíos son pequeñas bolsas de aire que se encuentran entre las partículas de los agregados revestidas de asfalto. El porcentaje de vacíos se calcula a partir del peso específico total de cada probeta compactada y del peso específico teórico de la mezcla de pavimentación (sin vacíos).Este último puede ser calculado a partir de los pesos específicos del asfalto y el agregado de la mezcla, con un margen apropiado para tener en cuenta la cantidad de asfalto absorbido por el agregado; o directamente mediante un ensayo normalizado (AASHTO T209) efectuado sobre la muestra de mezcla sin compactar. El peso específico total de las probetas compactadas se determina pesando las probetas en aire y agua. Análisis de Peso Unitario El peso Unitario promedio para cada muestra se determina multiplicando el peso específico total de la mezcla por 100kg/m3 (62.4 lb/ft3). Análisis de VMA L os vacíos en el agregado mineral (VMA), están definidos por el espacio intergranular de vacíos que se encuentran entre las partículas de agregado de la mezcla de pavimentación compactada, incluyendo los vacíos de aire y el contenido efectivo de asfalto, y se expresan como un porcentaje del volumen total de la mezcla compactada. Por lo tanto, el VMA puede ser calculado al restar el volumen de agregado (determinado mediante el peso específico total del agregado) del volumen total de la mezcla compactada. Análisis de VFA Los vacíos llenos de asfalto (VFA), son el porcentaje de vacíos intergranulares entre las partículas de agregado (VMA) que se encuentran llenos de asfalto. El VMA abarca asfalto y aire, y por lo tanto, el VFA se calcula al restar los vacíos del aire del VMA y luego por el VMA, expresarlo el valor final como un porcentaje Cuando los resultados de los ensayos se trazan en gráficas,usualmente revelan ciertas tendencias en las relaciones entre el contenido de asfalto y las propiedades de la mezcla. A continuación se enuncian ciertas tendencias que pueden observarse al estudiar las gráficas. 1) El porcentaje de vacíos disminuye a medida que aumenta el contenido de asfalto
  • 20.
    CIV-325 20 UNIV.: WILVERFAJARDO MAMANI ‘UATF’ LABORATORIO DE CARRETERAS II ENSAYO MARSHALL 2) El porcentaje de vacíos en el agregado mineral (VMA) generalmente disminuye hasta un valor mínimo, y luego aumenta con aumentos en el contenido de asfalto. 3) El porcentaje de vacíos llenos de asfalto (VFA) aumenta con aumentos en el contenido de asfalto. 4) La curva para el peso unitario de la mezcla es similar a la curva de estabilidad, excepto que el peso unitario máximo se presenta a un contenido de asfalto ligeramente mayor que el que determina la máxima estabilidad. 5) Hasta cierto punto, los valores de estabilidad aumenta a medida que el contenido de asfalto aumenta. Más allá de este punto, la estabilidad disminuye con cualquier aumento en el contenido de asfalto. 6) Los valores de fluencia aumentan con aumentos en el contenido de asfalto. Determinación del contenido de asfalto El contenido de asfalto en el diseño del pavimento se determina a partir de los resultados descritos anteriormente. Primero, determine el contenido de asfalto para el cual el contenido de vacíos es de 4%.Luego, evalué todas las propiedades calculadas u medidas para este contenido de asfalto, y compárelas con los criterios de diseño. Si se cumplen todos los criterios, es el contenido de diseño de asfalto. Si no se cumplen todos los criterios, es el contenido de diseño de asfalto. Si no se cumplen todos los criterios será necesario hacer algunos ajustes o volver a diseñar la mezcla. 9. BIBLIOGRAFIA REFERENCIAS BIBLIOGRAFICAS - ASPHALT INSTITUTE, STRATEGIC HIGHWAY RESEARCH PROGRAM, PAN AMERICAN INSTITUTE OF HIGHWAYS. ANTECEDENTES DEL DISEÑO Y ANÁLISIS DE MEZCLAS ASFÁLTICAS DE SUPERPAVE. -INSTITUTO DE ASFALTO.PRINCIPIOS DE CONSTRUCCION DE PAVIMENTOS DE MEZCLA ASFALTICA EN CALIENTE. - GUÍA BÁSICA DE DISEÑO, CONTROL DE PRODUCCIÓN Y COLOCACIÓN DE MEZCLAS ASFÁLTICAS EN CALIENTE.
  • 21.
    CIV-325 21 UNIV.: WILVERFAJARDO MAMANI ‘UATF’ LABORATORIO DE CARRETERAS II ENSAYO MARSHALL