Generadores de vapor
Máquinas Térmicas
Gerardo Pauwels Sergio Galfione
Maximiliano Cabestrero Mariano Ettore
Cristian Drappo Maximiliano Heiss
Federico Rolt
Máquinas Térmicas
Generadores de vapor
Un generador de vapor es un conjunto de equipos mediante
los cuales se transforma agua tratada en estado líquido, a estado de
vapor, con distintas presiones y temperaturas, entregando caudales
más o menos variables según el equipo.
más o menos variables según el equipo.
La transformación se logra mediante el aporte de energía calorífica,
obtenida al quemar combustibles que pueden ser sólidos, líquidos
o gaseosos, o a través de energía atómica.
Generadores de vapor
Clasificación
• UTILITY STEAM GENERATORS, son aquellos usados en el
servicio de la generación de potencia eléctrica y existen como:
• Sub críticos
– Operan entre 130 bar a 190bar.
– Alcanzan hasta 550°C con una o dos etapas de re
– Alcanzan hasta 550°C con una o dos etapas de re
calentadores.
– Capacidad, en los modernos podemos alcanzar de 1 a 10
millones Lbm/hora de vapor. En la planta eléctrica la potencia
de salida está en el rango de 125 a 1300 megawatts (MW).
• Super críticos
– Operan por arriba de 3200 psia, usualmente 3500psia
(240bar).
• INDUSTRIAL STEAM GENERATORS, son aquellos que se
utilizan en la industria pequeña de generación eléctrica,
establecimientos institucionales, industriales, comerciales y en
muchos usos más como en:
• Plásticos
Clasificación
• Industria Alimenticia
• Construcción
• Cerámicas
• Industria del Caucho
• Plásticos
• Lavanderías
• Farmacéutica
• Química
• Papel y Cartón
Clasificación de calderas:
• Uso
• Presión
Las calderas se clasifican basándose en algunas de las
características siguientes:
• Sistema del fogón
• Fuente de Calor
• Presión
• Materiales de que están
construidas
• Tamaño
• Contenido de los tubos, su
forma y posición
• Fuente de Calor
• Clase de
combustible
• Sistema de
circulación
• Posición del hogar
Tipos de calderas
•Calderas de tubos de humo (Pirotubulares)
-De fogón externo
-De fogón interno
-Horizontales tubulares
-Calderas verticales tubulares
-Calderas tipo residencial
•Calderas de aceite térmico
•Calderas de hierro colado
•Reactores de energía nuclear
Tipos de calderas
•Calderas de tubos de agua (acuotubulares)
-Calderas horizontales de tubos rectos
-Calderas de tubos curvados
-De circulación natural
-De circulación forzada
-Calderas de cuerpo de acero
-Calderas de presión subcrítica
-Calderas de presión supercríticas
CALDERAS PIROTUBULARES O TUBOS DE HUMO
Calderas Pirotubulares O Tubos
De Humo
Ventaja
•Almacenan gran cantidad de agua
•Producen gran cantidad de vapor.
•Permiten efectos de fluctuaciones en la demanda de vapor.
•Su costo instalada es relativamente bajo y considerablemente menor
•Su costo instalada es relativamente bajo y considerablemente menor
que la correspondiente caldera Acuotubular de domo.
•Son eficientes de 79% a 85%.
•La caldera vertical ocupa poco espacio.
•La caldera compacta adaptable a toda clase de combustible y para
cualquier sistema de combustión.
•Fáciles de transportar
Calderas Pirotubulares O Tubos
De Humo
Desventajas:
•Su arranque en frío es demasiado lento para alcanzar la presión de
trabajo.
•Su posibilidad de sobrecalentamiento es limitado y depende del tipo de
caldera.
•No se utilizan para el accionamiento de turbinas.
•El tamaño de la caja del hogar no puede ser ampliado.
•Su operación se torna crítica al operar con sobrecarga de más del 40%.
•Su mantenimiento interior es dificultoso.
CALDERAS PIROTUBULARES O TUBOS DE HUMO
Calderas Acuotubulares O Tubos De Agua
Calderas Acuotubulares O Tubos De
Agua
Calderas Acuotubulares O Tubos De
Agua
Ventajas:
•Son de horno propio interior ubicado lejos de la zona de
evaporación
•Menor peso por unidad de potencia generada, con de gran
volumen y altura
volumen y altura
•Admiten gran cantidad de aire en su hogar
•La combustión se puede controlar
•Son de alto rendimiento y producción de alta presión, apta para
generación de energía eléctrica.
•Menor tiempo para levantar presión.
•Entre más alta es la caldera más se aprovecha la energía calórica
de los gases de combustión
Ventajas (cont):
•Mayor flexibilidad para variaciones de consumo, debido a la pequeña
cantidad de agua que contienen
•La posición de sus quemadores en diagonal son aptos para quemar
Calderas Acuotubulares O Tubos De
Agua
•La posición de sus quemadores en diagonal son aptos para quemar
carbón
•Puede quemar combustible líquido, gaseoso, sólido y biomásico.
•Producen un vapor seco por lo que en el sistema de transmisión de
calor existe un mayor aprovechamiento.
•Mayor flexibilidad para variaciones de consumo, debido a la pequeña
cantidad de agua que contienen.
Desventajas
•Es de difícil realizar mantenimiento por lo incomodo el acceso a la zona
de convección.
•Mantenimiento más costoso.
Calderas Acuotubulares O Tubos De
Agua
•Mantenimiento más costoso.
•El coeficiente de evaporación está estrechamente limitado por la
circulación interna.
•La superficie limitada para la liberación de vapor, dificulta la separación
correcta del agua y el vapor durante los consumos altos.
•Para su instalación requieren de una extensa área de terreno.
•Su montaje con puesta en servicio pueden tomarse de uno a dos años.
COMPONENTES PRINCIPALES DE UN
GENERADOR DE VAPOR
Hogar
Domo o Hervidor
Domo o Hervidor
Quemadores
Economizador
Precalentador
Sobrecalentador y Recalentador
Hogar
Es el espacio donde se
produce la combustión. Se
le conoce también
con el nombre de Cámara
de Combustión.
Las calderas pueden
Las calderas pueden
instalarse con hogares
para combustibles sólidos,
líquidos o gaseosos, todo
dependerá del proyecto
del equipo y de la
selección del combustible
a utilizar.
Domo o Hervidor
Es un recipiente metálico diseñado con las condiciones de
presión a las que debe trabajar el generador de vapor.
La función básica del domo es la de separar el vapor de la
mezcla vapor-agua y mantener el vapor seco.
En las unidades que no tienen economizador, es en el domo
donde se dispone el agua previamente tratada y desde ahí se
distribuye por todos los tubos del circuito bien sea por medio
distribuye por todos los tubos del circuito bien sea por medio
de flujo natural o por flujo forzado. En las unidades con
economizador, el agua es precalentada en el economizador
antes de ser
llevado al domo.
Aquellas unidades denominadas “de un solo paso” carecen
de domo.
Quemadores
Son los elementos de la caldera
encargados de suministrar y
acondicionar el combustible para
mezclarlo con el aire y obtener una
buena combustión. Deben producir
una llama estable y uniforme de
manera que se realice una cierta
manera que se realice una cierta
distribución en el hogar.
El economizador, es
básicamente un
intercambiador de calor
gases-agua, El
economizador, instalado
en una caldera, consigue
aprovechar el calor
Economizador
aprovechar el calor
residual de los gases de
combustión,
traspasándolo al agua de
alimentación de la
caldera, con lo que se
consigue reducir el
consumo de combustible
y mejorar el rendimiento
de manera considerable.
Precalentador de aire
Los precalentadores de aire al igual que los economizadores
extraen calor de los gases de combustión con temperaturas
relativamente bajas. La temperatura del aire de entrada es
menor que la del agua que entra al economizador y por tanto es
posible reducir aún más la temperatura de los productos
gaseosos de la combustión, antes de que se descarguen en las
chimeneas.
chimeneas.
El uso de aire precalentado para la combustión acelera la
ignición y fomenta una combustión rápida y completa del
combustible.
Sobrecalentador y Recalentador
La adición de calor al vapor después de la evaporación o el cambio de estado,
viene por un aumento en la temperatura y la entalpía del fluido. El calor se agrega al
vapor en componentes de la caldera llamados sobrecalentadores y recalentadores,
los cuales se componen de elementos tubulares expuestos a los productos gaseosos
a alta temperatura de la combustión.
Las ventajas del sobrecalentamiento y recalentamiento en la generación de
potencia son resultado de la ganancia termodinámica en el Ciclo de Ranking y de la
reducción de las pérdidas de calor debidas a la humedad en las etapas de baja de
presión en la turbina. Con presiones y temperaturas altas del vapor se dispone de
presión en la turbina. Con presiones y temperaturas altas del vapor se dispone de
más energía útil, pero los avances hacia temperaturas altas del vapor a menudo son
restringidos por la resistencia mecánica y la oxidación del acero y de las aleaciones
ferrosas con los que se cuenta en la actualidad y son económicamente prácticos para
su uso en la parte a presión de las calderas y en las construcciones de alabes de las
turbinas.
El término “sobrecalentado” se aplica al vapor de más alta presión y el de
“recalentado” se refiere al vapor de presión más baja que ha liberado parte de su
energía durante la expansión en la turbina de alta presión. Con presión de vapor
inicial alta pueden emplearse una o más etapas de recalentamientos con el fin de
mejorar la eficiencia térmica.
Además podemos hacer mención de otros
componentes que hacen al funcionamiento
como ser:
 Emparrillado
 Cenicero
 Conductos de Humos
 Conductos de Humos
 Caja de Humos
 Forzador (Ventilador/es)
 Chimenea
 Sopladores de Hollín
Control en calderas
•El sistema de control de una caldera es la herramienta mediante la
cual se consiguen los equilibrios de masa y de energía de la misma
ante las variaciones en la demanda de los consumidores.
Controles necesarios en las calderas de vapor
• Secuencia de encendido
• Nivel de agua de alimentación
• Control de la llama.
• Control de la presión.
• Control de la presión.
• Temperatura del combustible.
• Temperatura de los gases de salida.
• Total de sólidos disueltos
Control de temperatura del vapor
Objetivo
Existen gran cantidad de calderas en las que el vapor generado
ha de estar a una cierta temperatura, que asegure el correcto
funcionamiento de sus consumidores. En estos casos, la
funcionamiento de sus consumidores. En estos casos, la
imposibilidad de diseñar la caldera para que en todas las cargas
requeridas produzca el vapor a la temperatura deseada, obliga a
controlar ésta de forma que se mantenga dentro de los márgenes
de operación deseados.
Control de temperatura del vapor
Filosofía del control
Existen distintos métodos de control de la temperatura del vapor,
los más extendidos están basados en mecanismos de control en
la parte de agua de la caldera. Consisten en atemperar el vapor
bien mediante la inyección directa de agua, bien mediante el uso
de un intercambiador de calor agua-vapor. Para el primer método
su respuesta será más rápida. Sin embargo, al introducir agua en
su respuesta será más rápida. Sin embargo, al introducir agua en
el vapor la calidad de éste se verá modificada. En el segundo
caso esta posible contaminación del vapor no existe, pero la
respuesta del sistema será mucho mayor, con los inconvenientes
que esto puede originar al proceso y al ajuste del sistema de
control.
Control de la demanda
Objetivo
El objetivo de este lazo es generar una señal de demanda de
carga para los quemadores que mantenga el equilibrio entre la
energía entregada y suministrada por el sistema. Al mantener
este equilibrio se asegurara una producción de vapor en las
condiciones de operación necesarias para todo el rango de
funcionamiento.
funcionamiento.
Control de nivel de alimentación
Objetivo
• Controlar el nivel en el valor deseado.
• Minimizar la interacción con el control de combustión.
• Crear suaves cambios en el agua almacenada ante los cambios
de carga.
• Equilibrar adecuadamente la salida de vapor con la entrada de
agua.
agua.
• Compensar las variaciones de presión del agua de alimentación
sin perturbar el proceso ni modificar el punto de operación.
Para una mayor seguridad las calderas están provistas de las
siguientes indicaciones y protecciones.
Nivel normal de trabajo.
Bajo nivel.
Extra bajo nivel
Control de nivel de alimentación
Control a un elemento. Control a dos elemento. Control a tres elemento.
Control de dos elementos
Control de nivel de alimentación
Control de nivel de alimentación
Instrumentos para controlar el nivel
• Control vertical usando flotante.
• Medidor capacitivo.
• Medidor ultrasónico.
Mantenimiento
EL PERSONAL
-Designar un responsable de la instalación
-Designar operarios con conocimientos en:
-Válvulas automáticas de control.
-Válvulas automáticas de control.
-Válvulas de cierre manuales, eléctricas o neumáticas.
-Válvulas de seguridad.
-Controles eléctricos: fusibles, reles, temporizadores.
-Cambios de presión y temperatura: cuales son las
temperaturas y presiones normales de funcionamiento.
Mantenimiento
PRUEBA HIDROSTÁTICA. PRUEBA DE PRESIÓN
[Normas UNE 9-105-92 ]
Definición:
La primera prueba de presión de un aparato a presión es la que
permite verificar su estanquidad y su resistencia a las
permite verificar su estanquidad y su resistencia a las
deformaciones
La presión de Prueba Pp, viene dada por la expresión:
Pp = 1.5 Pd
Donde Pd es la presión de diseño.
Mantenimiento
Realización de la prueba
-Proceso de presurización. Tiempo
-Mediciones e inspección durante la prueba
-Mediciones después de la prueba
-Informe
Mantenimiento
PRUEBAS HIDROSTÁTICAS DE REDES DE TUBERÍAS
Se realizará una prueba de estanqueidad hidrostática, siguiendo
las siguientes indicaciones:
- Taponar extremos de los conductos en el montaje, antes de
- Taponar extremos de los conductos en el montaje, antes de
conectar los terminales.
- Dejar las conducciones y equipos a una presión 1,5 veces mayor
a la de trabajo.
- Realizar pruebas de circulación de agua, limpieza, filtros,
estanqueidad en temperatura de régimen y medir presiones.
- Efectuar el tarado de órganos de seguridad.
- Limpiar también bombas, accesorios, filtros.
Mantenimiento
PRIMERA PUESTA EN MARCHA
Antes de poner en servicio el generador:
*Comprobar que las válvulas de cierre del circuito de combustible
están abiertas.
*Comprobar que las válvulas de cierre del circuito de agua de
alimentación están abiertas.
*Si comenzamos con el generador desde presión cero, abrir la
válvula de aireación.
*Si comenzamos con el generador desde presión cero, abrir la
válvula de aireación.
*Observar el agua en los niveles.
*Colocar el interruptor general en posición ON
*Accionar el pulsador de desbloqueo.
*Colocar el interruptor del quemador en posición conectado.
*Cerrar la válvula de aireación cuando salga un flujo continuo de
vapor por la misma.
Mantenimiento
COMPROBACIONES EN RÉGIMEN
DIARIO
-Purgado de indicadores de nivel.
- Comprobación de alarma, desconexión y bloqueo del quemador
- Comprobación de alarma, desconexión y bloqueo del quemador
por bajo nivel de agua
- Comprobación del control de llama en marcha continua
- Comprobación del control de llama durante el encendido.
- Control de las características del agua de alimentación de la
caldera
Mantenimiento
COMPROBACIONES EN RÉGIMEN
SEMANAL
Se comprobara:
- Las tuberías (deterioros y estado del aislamiento)
- Las tuberías (deterioros y estado del aislamiento)
- Los aparatos e intercambiadores de calor (suciedad, purgas,
filtros...)
- La ausencia de transpiración y fugas por los prensaestopas,
juntas, etc.
- Las bombas (ruidos o vibraciones anormales)
- Las válvulas de seguridad, aparatos de control y los pilotos de
señalización.
Mantenimiento
COMPROBACIONES EN RÉGIMEN
MENSUAL
-Limpieza de la instalación
-Limpieza del hollín de los tubos del generador
-Limpieza de las partes internas de la caja de humos.
- Comprobación los manómetros, termómetros, presostatos y
termostatos
Mantenimiento
COMPROBACIONES EN RÉGIMEN
SEMESTRAL
- Control del estado de juntas y acoplamientos (corrosión).
- Revisión, limpieza y puesta a punto de los equipos de regulación
de combustión
- Revisión de las purgas, se comprobara si hay fugas.
- Engrasado de válvulas.
Mantenimiento
COMPROBACIONES EN RÉGIMEN
ANUAL
-Inspeccionar y limpiar los filtros.
-Comprobar si las tuberías presentan corrosiones, picaduras o
-Comprobar si las tuberías presentan corrosiones, picaduras o
daños mecánicos.
-Comprobar si hay condensación en las tuberías.
-Inspeccionar si el aislamiento y la barrera de vapor están
deteriorados.
-Comprobar la suciedad y las incrustaciones en el lado del agua
de los aparatos de presión.
-Control del correcto funcionamiento de los ventiladores
-Inspeccionar el estado de los componentes de la instalación
eléctrica.
Mantenimiento
PURGADO
-Los purgadores van en la parte mas baja de la caldera
-Se utilizan para extraer los lodos, sedimentos y espumas.
-Se emplea un purgado continuo, por medio de un tubo pequeño.
-No obstante, los purgadores grandes hay que abrirlos
periódicamente
Mantenimiento
LIMPIEZA Y MANTENIMIENTO CON CALDERA FUERA DE
SERVICIO
Toda caldera cuyo servicio no se precise durante un periodo de
tiempo prolongado, deberá acondicionarse debidamente para
evitar corrosiones internas y externas.
Procedimiento Seco: se utilizara cuando la caldera tenga que
estar fuera de servicio durante varios meses y no esté expuesta a
que se recurra a ella al menor aviso.
Procedimiento Húmedo: se utilizará en aquellos casos en que la
caldera vaya a permanecer inactiva únicamente durante unas
semanas y sujeta a entrar en servicio en cualquier momento.
Generadores de vapor
Hogares
Hogares
Recinto o cámara donde se efectúa la combustión. La cámara
confina el producto de la combustión y puede resistir las altas
temperaturas que se presentan y las presiones que se utilizan.
Dado que los generadores de vapor son esencialmente
Dado que los generadores de vapor son esencialmente
intercambiadores, y que el calor a transferir proviene de la
energía del combustible, se puede inferir que el hogar
constituye el transductor primario de la energía. Por ello, la gran
influencia de este conjunto en el rendimiento global de una
instalación.
La combustión se completa siempre dentro de los límites del
hogar si la caldera está bien diseñada y funciona
perfectamente.
Hogares
Parámetros característicos de un hogar:
• Clase de combustible a utilizar:
• Máxima generación de vapor y probables limites de carga de la caldera:
El tipo de combustible que se utilizará puede predecir en primera
aproximación el volumen físico requerido, así como también la geometría
para el hogar y ciertas partes constitutivas
• Presión de funcionamiento y temperatura total deseada:
El diseño determinará la capacidad de la caldera para sostener una
carga normal con una eficiencia alta.
Las paredes del hogar deben estar soportadas de forma adecuada
tomando en cuenta la expansión térmica y diferencias de presiones.
La temperatura de los gases a la salida del hogar está relacionada con el
aporte de calor por el combustible y con la efectividad de las paredes del
hogar.
Hogares
Refrigeración de hogares
El enfriamiento por agua de las paredes del hogar reduce la
transferencia de calor hacia los elementos estructurales y, en
consecuencia, puede limitarse su temperatura a la que satisfaga los
requisitos de resistencia mecánica, etc.
El uso de hogares con enfriamiento por agua reduce las perdidas de
El uso de hogares con enfriamiento por agua reduce las perdidas de
calor al exterior
Tipos de hogares
Clasificación
Paralelos:
Cuando los quemadores están
colocados al frente o al frente
• Según la colocación de los quemadores el hogar de la caldera puede ser:
colocados al frente o al frente
y atrás.
Turbulentos:
Cuando los quemadores están
ubicados en las esquinas e
inyectan el combustible en forma
tangencial.
Hogares para combustibles sólidos:
• Según el tipo de combustible a utilizar la caldera
Tipos de hogares
Clasificación
Hogares para combustibles sólidos:
Hogares de
emparrillado
mecánico
Tipos de hogares
Hogares para combustibles sólidos, líquidos y gaseosos:
• Según el tipo de combustible a utilizar la caldera
Hogares
ciclónicos
ciclónicos
Tipos de hogares
Hogares internos: Se encuentran dentro de la caldera y totalmente rodeados
por el agua de la misma
•Otros tipos de hogares
Hogares externos: Se encuentran fuera del alcance del cuerpo de agua, o sea,
no tienen un contacto directo con el cuerpo de agua a evaporar
Generadores de vapor
6) Combustión
Combustión
• Los elementos básicos para que se produzca la combustión son:
• Reacción:
combustible + comburente  calor
1. El oxígeno del aire como comburente
2. El carbono y el hidrógeno del combustible + otros elementos
(azufre), e inertes (cenizas)
3. Temperatura de ignición
Combustión
• Condiciones a satisfacer para que se produzca la combustión son:
• Reacción:
combustible + comburente  calor
• Condiciones a satisfacer para que se produzca la combustión son:
1. Adecuada proporción entre combustible y comburente.
2. La mezcla de las dos sustancias debe ser uniforme.
3. La temperatura de ignición se establecerá y será monitorizada de manera
que el combustible continúe su ignición sin calor externo cuando comience
la combustión.
Combustión
• Combustión con exceso de aire: Existe una cantidad de aire superior al
mínimo necesario. Cuando se utiliza exceso de aire, no se producen
inquemados.
• Combustión con defecto de aire: Es la que se lleva a cabo con menor
• Tipos de combustión:
cantidad que el aire mínimo necesario. Cuando se utiliza un defecto de aire
tiene a producirse inquemados.
• Combustión completa: Es aquella donde el carbono se consume
completamente; caso contrario la combustión es incompleta.
• Combustión perfecta: Es aquella en la cual el carbono se transforma
totalmente en CO2; En el caso de producirse CO la combustión imperfecta.
Combustión
Rendimiento de la combustión
El rendimiento de combustión es la relación entre la fracción de
energía realmente liberada en el proceso, y el total teórico
disponible, que da una idea del grado de aprovechamiento del
combustible, para las condiciones de trabajo dadas.
Control de la combustión
Control de la combustión
Consiste en regular la entrada de combustible para mantener un
suministro continuo de vapor a una presión constante, y de
regular la entrada de aire a la caldera en proporción correcta a la
entrada de combustible.
Control mecánico/neumático
Control de medida en serie/paralelo
Control de medida en paralelo con límites cruzados:
COMBUSTIBLES
• Poder Calorífico: Es la energía por unidad de masa del
combustible que se libera en una combustión completa y
perfecta.
• Poder Calorífico Superior (PCS): Tiene en cuenta el calor
latente de vaporización del agua generada en la combustión.
• Poder Calorífico Inferior (PCI): No tiene en cuenta el calor
latente de vaporización del agua formada en la combustión.
Tipos de Combustibles
I - Combustibles Sólidos
• Madera PCI = 4.500 Kcal/Kg.
• Carbón Natural
# Turba : 50/60% C – 70/80% Humedad – PCI = 750 Kcal/Kg.
# Lignito: 65/75% C – 50/70% Humedad – PCI = 3.500 Kcal/Kg.
# Hulla: 75/85% C – 5/15% Humedad – PCI = 8.500 Kcal/Kg.
# Antracita:  90% C -  3% Humedad – PCI = 8.000 Kcal/Kg.
• Carbón Vegetal PCI = 6.500 Kcal/Kg.
II - Combustibles Líquidos
• Gas Oil: PCI = 10.200 Kcal/Kg.
• Fuel Oil: PCI = 9.800 Kcal/Kg.
Propiedades de los Combustibles Líquidos
1. Viscosidad
1. Viscosidad
2. Fluidez Crítica
3. Inflamabilidad
4. Contenido de Azufre
5. Contenido de Agua
II - Combustibles Gaseosos
• Gas Natural: PCS = 9.300 Kcal/m3.
• GLP: PCI = 10.950 Kcal/Kg.
Propiedades de los Combustibles Gaseosos
1. Densidad Relativa (ρr )
1. Densidad Relativa (ρr )
2. Intercambiabilidad de los Gases Combustibles
3. Módulo de un Gas
Criterios para la elección de un
combustible
• Ubicación geográfica de la industria
• Posibilidades de aprovisionamiento
• Precio del combustible
• Problemas ambientales derivados de su uso.
QUEMADORES
Criterios para la elección de un
quemador
• Combustible
• Exceso de Aire
• Margen de Regulación
• Estabilidad de Funcionamiento
• Estabilidad de Funcionamiento
- Turbulencia en la mezcla aire / combustible
- Precalentar el aire de combustión
• Forma y Dimensiones de la Llama
- Turbulencia
- Exceso de Aire
- Presión del Aire de Combustión
- Tamaño de las Gotas Pulverizadas
Clasificación de los
Quemadores
Quemadores
Quemadores para
combustibles sólidos
* Quemadores de Carbón Pulverizado
Quemadores para combustibles
líquidos
* Quemadores Rotativos de Pulverización Centrífuga
Quemadores para
combustibles líquidos
* Quemadores de * Quemadores de
Pulverización Mecánica Pulverización Asistida
Quemadores para combustibles
líquidos
* Quemadores Rotativos de Pulverización Centrífuga
Quemadores para combustibles
gaseosos
• Quemadores Atmosféricos * Quemadores de
Premezcla
• Quemadores de Flujo Paralelo con Mezcla por Turbulencia
• Quemadores Mixtos
Quemadores para combustibles
gaseosos
• Quemadores de Flujo Paralelo con Mezcla por Turbulencia
Quemadores Mixtos
Para quemar combustibles líquidos y gaseosos con el fin de
garantizar la continuidad del servicio.
Generadores de vapor
Tiro de una caldera
CORRIENTE DE TIRO DE UNA
CHIMENEA
• La combustión en el hogar lo llena de gases neutros (no se
pueden utilizar para seguir quemando más combustible) siendo
necesario eliminarlos y hacer penetrar el aire nuevo que permita
que la combustión prosiga.
• Al mismo tiempo este mismo gas que se encuentra a elevada
• Al mismo tiempo este mismo gas que se encuentra a elevada
temperatura debe intercambiar esa energía de la combustión al
líquido por los conductos y cámaras que hacen contacto.
• Se designa chimenea
chimenea a cualquier clase de tubo o hueco
destinado a conducir los gases de la combustión hacia arriba,
dándoles salida al exterior.
• Se llama corriente
corriente de
de tiro
tiro a la establecida por la depresión que
se genera en la base de una chimenea por la diferencia de peso
específico entre los humos y el aire exterior.
DIFERENTES TIPOS DE TIRO
• En el tiro
tiro natural
natural la aspiración debe ser suficiente para
vencer todas las resistencias opuestas al movimiento del
aire y de los gases de la combustión.
• El tiro
tiro artificial
artificial consiste en hacer llegar al hogar el aire
necesario para la combustión, utilizando un ventilador,
extractor u otro medio mecánico. Se subdivide en:
• tiro forzado y
• tiro aspirado o inducido
• Combinación de ambos
TIRO ARTIFICIAL O MECÁNICO
• Se designa tiro forzado a la corriente que se genera cuando el
aire es inyectado con el combustible al hogar de la caldera.
• Se llama tiro
tiro aspirado
aspirado o
o inducido
inducido a la corriente que se genera
• Se llama tiro
tiro aspirado
aspirado o
o inducido
inducido a la corriente que se genera
cuando los gases de la combustión son aspirados luego de la
caldera.
• Se llama tiro
tiro balanceado
balanceado o
o equilibrado
equilibrado a la combinación de los
anteriores.
INFLUENCIA DE LAS CONDICIONES
ATMOSFÉRICAS
• Presión: Al aumentar la presión atmosférica crece el peso
específico del aire, también el tiro.
• Temperatura: Al disminuir la temperatura exterior aumenta el
∆
∆ con gases en la chimenea, esto aumenta el tiro.
• Humedad: Al aumentar la humedad, disminuye el peso
específico del aire, también el tiro.
• Viento: puede favorecer o perjudicar el tiro
CORRIENTE DE TIRO DE UNA
CHIMENEA
Tipo Ventaja Desventaja
Natural
• No es necesario un gasto de
energía adicional.
• Se regula fácilmente (con
consumo bajo y uniforme)
• Inútil en instalaciones
industriales
• no permite baja calidad
combustibles sólidos
consumo bajo y uniforme) combustibles sólidos
• gran altura chimenea
Artificial o
mecánico
• suprime la necesidad de tiro
de natural de chimenea
• Fácil regulación mediante
variador
• Independiente de las
condiciones del clima
• Se adapta a las condiciones
de carga
• mayor gasto de energía
• Debe regularse la
combustión para evitar
excesos de aire y
pérdidas
CORRIENTE DE TIRO DE UNA
CHIMENEA
Tipo Ventaja Desventaja
Artificial
Forzado
• Reduce el tiro de una
chimenea
• Se puede agregar el
combustible
• puede instalarse antes de
precalentador
• Debe evitarse un soplado
enérgico capaz de
arrastrar cenizas y finos
precalentador
Artificial
inducido
• Es posible reducir al mínimo
o reforzar la acción de la
chimenea
• Puede utilizarse un by-pass
según las condiciones
•Calentamiento del motor ya
que todo el gas pasa por él
•Mayor consumo energético
•Necesita la adecuada
adición del combustible
Artificial
equilibrado
• Combina ambas ventajas
• Reduce al mínimo el tiro
necesario
• Mayor inversión
• Grandes instalaciones
CORRIENTE DE TIRO DE UNA
CHIMENEA
Economizadores
Economizadores
Economizadores
El economizador representa una sección independiente de superficie
de intercambio que absorbe calor sensible de los gases de
combustión para entregárselo al agua de alimentación antes que la
misma ingrese a la caldera.
•Recupera la energía de los humos antes de ser evacuados a la
atmósfera y por lo tanto aumenta el rendimiento del generador de
vapor
•Reduce la posibilidad de que se presenten choques térmicos y
grandes fluctuaciones en la temperatura del agua de alimentación
de la caldera
Economizadores
Como aproximación tenemos que, por cada 22ºC de disminución
de la temperatura de los humos en un economizador, el
rendimiento de la caldera aumenta un 1%
Clasificación de los
economizadores
De acuerdo a la disposición geométrica:
•Horizontales
•Verticales
De acuerdo a la dirección del gas con respecto a los tubos:
•De flujo longitudinal
•De flujo cruzado
De acuerdo a la dirección relativa del flujo de gas y de agua:
•De flujos en paralelo
•De contracorriente
De acuerdo al tipo de superficie absorbente del calor:
•De tubos desnudos o lisos
•De tubos con superficies extendidas
Clasificación de los
economizadores
De acuerdo a la disposición geométrica:
•Verticales
Clasificación de los
economizadores
Horizontales
De acuerdo a la disposición geométrica:
Clasificación de los
economizadores
De tubos lisos
De acuerdo a la superficie absorbente del calor:
Alineación regular
(flujo longitudinal)
Alineación al tresbolillo
(flujo cruzado)
Clasificación de los
economizadores
De superficies extendidas
De acuerdo a la superficie absorbente del calor:
a) Protuberancias
Protuberancia
parabólica cóncava
Protuberancia parabólica
convexa
Paralelepípedo de sección
cuadrada
Protuberancia cilíndrica
Pirámide cuadrangular Protuberancia cónica
Clasificación de los
economizadores
De superficies extendidas
De acuerdo a la superficie absorbente del calor:
b) Aletas longitudinales c) Aletas helicoidales
d) Aletas anulares de perfil rectangular
Economizadores
Deflectores
Para evitar que los humos rodeen los tramos rectos aleteados, que
ofrecen una sección de paso más restringida, se disponen tabiques
deflectores
Economizadores
Consideraciones generales
Para mantener la velocidad de los humos a través de las distintas secciones del
economizador, el banco inferior se diseña con tubos de mayor diámetro, lo que reduce la
sección de paso de humos, mejora la transferencia de calor y requiere menor superficie e
inversión.
• Límite de velocidades
• Necesidad de acceso
Alrededor de los bancos tubulares del economizador, se necesitan una serie de huecos para:
• Facilitar los trabajos de mantenimiento en cada una de las diferentes ramas tubulares
individuales
• Características geométricas
individuales
• Disponer del espacio requerido por los sopladores durante el servicio de la unidad
Los diámetros de tubos están comprendidos entre 44,5 y 65,5mm
Si se usan superficies ampliadas, los espaciados laterales y verticales deben permitir una
separación entre aletas de 13 mm.
Para tubos lisos conviene un espaciado con holgura mínima de 19 mm.
El espaciado mínimo vertical de los tubos debe ser 1,25 veces el diámetro exterior de los
mismos.
-Si éste espaciado es menor, la transferencia de calor se puede reducir hasta un 30%.
-Si éste espaciado es mayor la transferencia de calor queda poco afectada, aumentando la
profundidad del banco y la resistencia en el lado de humos.
Calentadores de aire
Se utilizan para calentar el aire comburente, mejorando el proceso de
combustión, obteniendo un incremento en la eficiencia la caldera.
Clasificación:
- Recuperativos, son en los que la transferencia de calor se verifica
de forma directa y continua
- Regenerativos, son en los que la transferencia de calor es indirecta
Calentadores tubulares
Calentadores de aire
Calentadores de aire
Calentadores de chapa
Calentadores de aire
Calentadores de tubos isotermicos
Calentador Ljungström
Calentadores de aire
Regenerativos
 Calentador Ljungström
 Calentador de aire Rothemühle
Calentador Ljungström
Calentador de Aire Rothemühle
AGUA PARA GENERACIÓN DE
VAPOR
En su utilización para la generación de vapor el hecho de
poseer sales, gases, partículas, bacterias, etc., conlleva a una serie
de fenómenos negativos para su utilización, por ello es indispensable
su previo tratamiento de prevención.
Problemas:
•Incrustaciones,
•Corrosión
•Espumas
•Arrastres
PRUEBAS QUIMICAS
•Prueba de acidez o alcalinidad
•Prueba de dureza, calcio y magnesio
•Prueba del hidróxido
•Prueba del fosfato
•Prueba del fosfato
•Prueba del sulfito
•Prueba del hierro
•Prueba del cobre
•Prueba de conductividad eléctrica
TRATAMIENTO DEL AGUA
• Pretratamiento del suministro de agua bruta.
• Tratamiento del agua de aportación que va a la caldera.
• Tratamiento del agua de aportación que va a la caldera.
• Tratamiento del condensado que está siendo retornado a la
caldera.
• Control de purga para eliminación de los lodos precipitados en la
caldera.
TRATAMIENTO DEL AGUA
TRATAMIENTO DEL AGUA
Ablandador:
Un ablandador consta de tres
elementos principales: estanque de
resina, válvula y estanque de
salmuera. En el estanque de resina es
donde se produce el “ablandamiento”
donde se produce el “ablandamiento”
del agua, al producirse un intercambio
iónico entre el agua “dura”, rica en
Calcio y Magnesio y la resina, rica en
Sodio. Cuando esto ocurre la resina
retiene el Calcio y Magnesio y el agua
se lleva el Sodio.
Formación de depósitos
La incrustación es indeseable ya que al
formar una capa en los tubos y demás
componentes del equipo, evitan la
transmisión efectiva del calor. Los
transmisión efectiva del calor. Los
depósitos se producen por sólidos
suspendidos que el agua pueda contener y
principalmente por formación de depósitos
de sulfatos y carbonatos de calcio y
magnesio, en mezclas complejas con otros
componentes como sílice, bario, etc.
Los principales componentes de la caldera son metálicos. Los
agentes que atacan el hierro y lo disuelven son los gases corrosivos
(oxigeno y dióxido de carbono) y agentes oxidantes (como los
compuestos clorados).
También la acidez del agua causa corrosión por lo que el pH debe
mantenerse entre 9.0 y 11.5.
Corrosión por Oxidación
del metal
mantenerse entre 9.0 y 11.5.
Esto ocurre cuando hay presencia de materia orgánica o de una
gran cantidad de sólidos, así como de grasas y aceites del equipo de
proceso que puedan contaminar el agua de la caldera.
Formación de Espumas
Prevención de arrastre
El Arrastre se puede dividir en dos partes:
•Elementos transportados mecánicamente por el vapor y agua.
•Elementos que se volatilizan en el vapor.
El arrastre mecánico se controla manteniendo la concentración de
sólidos.
La sílice se volatiliza a altas presiones siendo arrastrada por el
vapor. Para reducir estos arrastres, se mantiene la sílice por debajo
de 5 ppm en el agua de la caldera.
Polímeros o acondicionamiento de
lodos
Se utilizan para la formación de lodos provocando la precipitación
intencionada de las sales de dureza cálcica. Esto introduce en los
lodos un grado de dispersión o fluidez que permite la eliminación de
los mismos más fácilmente por purga inferior de caldera.
Depósitos de aceite
Depósitos de aceite
El aceite es un aíslate del calor
Un origen común
→uso de equipos alternativos de vapor de escape
→lubricación de motores de vapor y bombas de retorno de
condensado
Debería utilizarse un tipo eficiente de separador de aceite en el
sistema de escape.
La eliminación mecánica de la
incrustación
Las zonas accesibles, se limpian mecánicamente
Las superficies interiores de los tubos de agua con una
Turbina Tubular.
Los depósitos exteriores sobre las superficies externas de
los tubos de humos pueden desprenderse por vibración con
los tubos de humos pueden desprenderse por vibración con
un resonador o vibrador tubular o por medio de sacudidas
con una barra larga y pesada en cada tubo.
La limpieza con ácido de las calderas se usa a menudo
para eliminar óxidos metálicos.
Los disolventes utilizados para la limpieza acida son
variados
•. ácido clorhídrico
• ácido fosfórico.

generadores-combustiblestabla-130307111949-phpapp02.pdf

  • 1.
    Generadores de vapor MáquinasTérmicas Gerardo Pauwels Sergio Galfione Maximiliano Cabestrero Mariano Ettore Cristian Drappo Maximiliano Heiss Federico Rolt Máquinas Térmicas
  • 2.
    Generadores de vapor Ungenerador de vapor es un conjunto de equipos mediante los cuales se transforma agua tratada en estado líquido, a estado de vapor, con distintas presiones y temperaturas, entregando caudales más o menos variables según el equipo. más o menos variables según el equipo. La transformación se logra mediante el aporte de energía calorífica, obtenida al quemar combustibles que pueden ser sólidos, líquidos o gaseosos, o a través de energía atómica.
  • 3.
  • 4.
    Clasificación • UTILITY STEAMGENERATORS, son aquellos usados en el servicio de la generación de potencia eléctrica y existen como: • Sub críticos – Operan entre 130 bar a 190bar. – Alcanzan hasta 550°C con una o dos etapas de re – Alcanzan hasta 550°C con una o dos etapas de re calentadores. – Capacidad, en los modernos podemos alcanzar de 1 a 10 millones Lbm/hora de vapor. En la planta eléctrica la potencia de salida está en el rango de 125 a 1300 megawatts (MW). • Super críticos – Operan por arriba de 3200 psia, usualmente 3500psia (240bar).
  • 5.
    • INDUSTRIAL STEAMGENERATORS, son aquellos que se utilizan en la industria pequeña de generación eléctrica, establecimientos institucionales, industriales, comerciales y en muchos usos más como en: • Plásticos Clasificación • Industria Alimenticia • Construcción • Cerámicas • Industria del Caucho • Plásticos • Lavanderías • Farmacéutica • Química • Papel y Cartón
  • 6.
    Clasificación de calderas: •Uso • Presión Las calderas se clasifican basándose en algunas de las características siguientes: • Sistema del fogón • Fuente de Calor • Presión • Materiales de que están construidas • Tamaño • Contenido de los tubos, su forma y posición • Fuente de Calor • Clase de combustible • Sistema de circulación • Posición del hogar
  • 7.
    Tipos de calderas •Calderasde tubos de humo (Pirotubulares) -De fogón externo -De fogón interno -Horizontales tubulares -Calderas verticales tubulares -Calderas tipo residencial •Calderas de aceite térmico •Calderas de hierro colado •Reactores de energía nuclear
  • 8.
    Tipos de calderas •Calderasde tubos de agua (acuotubulares) -Calderas horizontales de tubos rectos -Calderas de tubos curvados -De circulación natural -De circulación forzada -Calderas de cuerpo de acero -Calderas de presión subcrítica -Calderas de presión supercríticas
  • 9.
  • 10.
    Calderas Pirotubulares OTubos De Humo Ventaja •Almacenan gran cantidad de agua •Producen gran cantidad de vapor. •Permiten efectos de fluctuaciones en la demanda de vapor. •Su costo instalada es relativamente bajo y considerablemente menor •Su costo instalada es relativamente bajo y considerablemente menor que la correspondiente caldera Acuotubular de domo. •Son eficientes de 79% a 85%. •La caldera vertical ocupa poco espacio. •La caldera compacta adaptable a toda clase de combustible y para cualquier sistema de combustión. •Fáciles de transportar
  • 11.
    Calderas Pirotubulares OTubos De Humo Desventajas: •Su arranque en frío es demasiado lento para alcanzar la presión de trabajo. •Su posibilidad de sobrecalentamiento es limitado y depende del tipo de caldera. •No se utilizan para el accionamiento de turbinas. •El tamaño de la caja del hogar no puede ser ampliado. •Su operación se torna crítica al operar con sobrecarga de más del 40%. •Su mantenimiento interior es dificultoso.
  • 12.
  • 13.
  • 14.
  • 15.
    Calderas Acuotubulares OTubos De Agua Ventajas: •Son de horno propio interior ubicado lejos de la zona de evaporación •Menor peso por unidad de potencia generada, con de gran volumen y altura volumen y altura •Admiten gran cantidad de aire en su hogar •La combustión se puede controlar •Son de alto rendimiento y producción de alta presión, apta para generación de energía eléctrica. •Menor tiempo para levantar presión. •Entre más alta es la caldera más se aprovecha la energía calórica de los gases de combustión
  • 16.
    Ventajas (cont): •Mayor flexibilidadpara variaciones de consumo, debido a la pequeña cantidad de agua que contienen •La posición de sus quemadores en diagonal son aptos para quemar Calderas Acuotubulares O Tubos De Agua •La posición de sus quemadores en diagonal son aptos para quemar carbón •Puede quemar combustible líquido, gaseoso, sólido y biomásico. •Producen un vapor seco por lo que en el sistema de transmisión de calor existe un mayor aprovechamiento. •Mayor flexibilidad para variaciones de consumo, debido a la pequeña cantidad de agua que contienen.
  • 17.
    Desventajas •Es de difícilrealizar mantenimiento por lo incomodo el acceso a la zona de convección. •Mantenimiento más costoso. Calderas Acuotubulares O Tubos De Agua •Mantenimiento más costoso. •El coeficiente de evaporación está estrechamente limitado por la circulación interna. •La superficie limitada para la liberación de vapor, dificulta la separación correcta del agua y el vapor durante los consumos altos. •Para su instalación requieren de una extensa área de terreno. •Su montaje con puesta en servicio pueden tomarse de uno a dos años.
  • 18.
    COMPONENTES PRINCIPALES DEUN GENERADOR DE VAPOR Hogar Domo o Hervidor Domo o Hervidor Quemadores Economizador Precalentador Sobrecalentador y Recalentador
  • 20.
    Hogar Es el espaciodonde se produce la combustión. Se le conoce también con el nombre de Cámara de Combustión. Las calderas pueden Las calderas pueden instalarse con hogares para combustibles sólidos, líquidos o gaseosos, todo dependerá del proyecto del equipo y de la selección del combustible a utilizar.
  • 21.
    Domo o Hervidor Esun recipiente metálico diseñado con las condiciones de presión a las que debe trabajar el generador de vapor. La función básica del domo es la de separar el vapor de la mezcla vapor-agua y mantener el vapor seco. En las unidades que no tienen economizador, es en el domo donde se dispone el agua previamente tratada y desde ahí se distribuye por todos los tubos del circuito bien sea por medio distribuye por todos los tubos del circuito bien sea por medio de flujo natural o por flujo forzado. En las unidades con economizador, el agua es precalentada en el economizador antes de ser llevado al domo. Aquellas unidades denominadas “de un solo paso” carecen de domo.
  • 22.
    Quemadores Son los elementosde la caldera encargados de suministrar y acondicionar el combustible para mezclarlo con el aire y obtener una buena combustión. Deben producir una llama estable y uniforme de manera que se realice una cierta manera que se realice una cierta distribución en el hogar.
  • 23.
    El economizador, es básicamenteun intercambiador de calor gases-agua, El economizador, instalado en una caldera, consigue aprovechar el calor Economizador aprovechar el calor residual de los gases de combustión, traspasándolo al agua de alimentación de la caldera, con lo que se consigue reducir el consumo de combustible y mejorar el rendimiento de manera considerable.
  • 24.
    Precalentador de aire Losprecalentadores de aire al igual que los economizadores extraen calor de los gases de combustión con temperaturas relativamente bajas. La temperatura del aire de entrada es menor que la del agua que entra al economizador y por tanto es posible reducir aún más la temperatura de los productos gaseosos de la combustión, antes de que se descarguen en las chimeneas. chimeneas. El uso de aire precalentado para la combustión acelera la ignición y fomenta una combustión rápida y completa del combustible.
  • 25.
    Sobrecalentador y Recalentador Laadición de calor al vapor después de la evaporación o el cambio de estado, viene por un aumento en la temperatura y la entalpía del fluido. El calor se agrega al vapor en componentes de la caldera llamados sobrecalentadores y recalentadores, los cuales se componen de elementos tubulares expuestos a los productos gaseosos a alta temperatura de la combustión. Las ventajas del sobrecalentamiento y recalentamiento en la generación de potencia son resultado de la ganancia termodinámica en el Ciclo de Ranking y de la reducción de las pérdidas de calor debidas a la humedad en las etapas de baja de presión en la turbina. Con presiones y temperaturas altas del vapor se dispone de presión en la turbina. Con presiones y temperaturas altas del vapor se dispone de más energía útil, pero los avances hacia temperaturas altas del vapor a menudo son restringidos por la resistencia mecánica y la oxidación del acero y de las aleaciones ferrosas con los que se cuenta en la actualidad y son económicamente prácticos para su uso en la parte a presión de las calderas y en las construcciones de alabes de las turbinas. El término “sobrecalentado” se aplica al vapor de más alta presión y el de “recalentado” se refiere al vapor de presión más baja que ha liberado parte de su energía durante la expansión en la turbina de alta presión. Con presión de vapor inicial alta pueden emplearse una o más etapas de recalentamientos con el fin de mejorar la eficiencia térmica.
  • 26.
    Además podemos hacermención de otros componentes que hacen al funcionamiento como ser: Emparrillado Cenicero Conductos de Humos Conductos de Humos Caja de Humos Forzador (Ventilador/es) Chimenea Sopladores de Hollín
  • 27.
    Control en calderas •Elsistema de control de una caldera es la herramienta mediante la cual se consiguen los equilibrios de masa y de energía de la misma ante las variaciones en la demanda de los consumidores.
  • 28.
    Controles necesarios enlas calderas de vapor • Secuencia de encendido • Nivel de agua de alimentación • Control de la llama. • Control de la presión. • Control de la presión. • Temperatura del combustible. • Temperatura de los gases de salida. • Total de sólidos disueltos
  • 29.
    Control de temperaturadel vapor Objetivo Existen gran cantidad de calderas en las que el vapor generado ha de estar a una cierta temperatura, que asegure el correcto funcionamiento de sus consumidores. En estos casos, la funcionamiento de sus consumidores. En estos casos, la imposibilidad de diseñar la caldera para que en todas las cargas requeridas produzca el vapor a la temperatura deseada, obliga a controlar ésta de forma que se mantenga dentro de los márgenes de operación deseados.
  • 30.
    Control de temperaturadel vapor Filosofía del control Existen distintos métodos de control de la temperatura del vapor, los más extendidos están basados en mecanismos de control en la parte de agua de la caldera. Consisten en atemperar el vapor bien mediante la inyección directa de agua, bien mediante el uso de un intercambiador de calor agua-vapor. Para el primer método su respuesta será más rápida. Sin embargo, al introducir agua en su respuesta será más rápida. Sin embargo, al introducir agua en el vapor la calidad de éste se verá modificada. En el segundo caso esta posible contaminación del vapor no existe, pero la respuesta del sistema será mucho mayor, con los inconvenientes que esto puede originar al proceso y al ajuste del sistema de control.
  • 31.
    Control de lademanda Objetivo El objetivo de este lazo es generar una señal de demanda de carga para los quemadores que mantenga el equilibrio entre la energía entregada y suministrada por el sistema. Al mantener este equilibrio se asegurara una producción de vapor en las condiciones de operación necesarias para todo el rango de funcionamiento. funcionamiento.
  • 32.
    Control de nivelde alimentación Objetivo • Controlar el nivel en el valor deseado. • Minimizar la interacción con el control de combustión. • Crear suaves cambios en el agua almacenada ante los cambios de carga. • Equilibrar adecuadamente la salida de vapor con la entrada de agua. agua. • Compensar las variaciones de presión del agua de alimentación sin perturbar el proceso ni modificar el punto de operación. Para una mayor seguridad las calderas están provistas de las siguientes indicaciones y protecciones. Nivel normal de trabajo. Bajo nivel. Extra bajo nivel
  • 33.
    Control de nivelde alimentación Control a un elemento. Control a dos elemento. Control a tres elemento.
  • 34.
    Control de doselementos Control de nivel de alimentación
  • 35.
    Control de nivelde alimentación Instrumentos para controlar el nivel • Control vertical usando flotante. • Medidor capacitivo. • Medidor ultrasónico.
  • 36.
    Mantenimiento EL PERSONAL -Designar unresponsable de la instalación -Designar operarios con conocimientos en: -Válvulas automáticas de control. -Válvulas automáticas de control. -Válvulas de cierre manuales, eléctricas o neumáticas. -Válvulas de seguridad. -Controles eléctricos: fusibles, reles, temporizadores. -Cambios de presión y temperatura: cuales son las temperaturas y presiones normales de funcionamiento.
  • 37.
    Mantenimiento PRUEBA HIDROSTÁTICA. PRUEBADE PRESIÓN [Normas UNE 9-105-92 ] Definición: La primera prueba de presión de un aparato a presión es la que permite verificar su estanquidad y su resistencia a las permite verificar su estanquidad y su resistencia a las deformaciones La presión de Prueba Pp, viene dada por la expresión: Pp = 1.5 Pd Donde Pd es la presión de diseño.
  • 38.
    Mantenimiento Realización de laprueba -Proceso de presurización. Tiempo -Mediciones e inspección durante la prueba -Mediciones después de la prueba -Informe
  • 39.
    Mantenimiento PRUEBAS HIDROSTÁTICAS DEREDES DE TUBERÍAS Se realizará una prueba de estanqueidad hidrostática, siguiendo las siguientes indicaciones: - Taponar extremos de los conductos en el montaje, antes de - Taponar extremos de los conductos en el montaje, antes de conectar los terminales. - Dejar las conducciones y equipos a una presión 1,5 veces mayor a la de trabajo. - Realizar pruebas de circulación de agua, limpieza, filtros, estanqueidad en temperatura de régimen y medir presiones. - Efectuar el tarado de órganos de seguridad. - Limpiar también bombas, accesorios, filtros.
  • 40.
    Mantenimiento PRIMERA PUESTA ENMARCHA Antes de poner en servicio el generador: *Comprobar que las válvulas de cierre del circuito de combustible están abiertas. *Comprobar que las válvulas de cierre del circuito de agua de alimentación están abiertas. *Si comenzamos con el generador desde presión cero, abrir la válvula de aireación. *Si comenzamos con el generador desde presión cero, abrir la válvula de aireación. *Observar el agua en los niveles. *Colocar el interruptor general en posición ON *Accionar el pulsador de desbloqueo. *Colocar el interruptor del quemador en posición conectado. *Cerrar la válvula de aireación cuando salga un flujo continuo de vapor por la misma.
  • 41.
    Mantenimiento COMPROBACIONES EN RÉGIMEN DIARIO -Purgadode indicadores de nivel. - Comprobación de alarma, desconexión y bloqueo del quemador - Comprobación de alarma, desconexión y bloqueo del quemador por bajo nivel de agua - Comprobación del control de llama en marcha continua - Comprobación del control de llama durante el encendido. - Control de las características del agua de alimentación de la caldera
  • 42.
    Mantenimiento COMPROBACIONES EN RÉGIMEN SEMANAL Secomprobara: - Las tuberías (deterioros y estado del aislamiento) - Las tuberías (deterioros y estado del aislamiento) - Los aparatos e intercambiadores de calor (suciedad, purgas, filtros...) - La ausencia de transpiración y fugas por los prensaestopas, juntas, etc. - Las bombas (ruidos o vibraciones anormales) - Las válvulas de seguridad, aparatos de control y los pilotos de señalización.
  • 43.
    Mantenimiento COMPROBACIONES EN RÉGIMEN MENSUAL -Limpiezade la instalación -Limpieza del hollín de los tubos del generador -Limpieza de las partes internas de la caja de humos. - Comprobación los manómetros, termómetros, presostatos y termostatos
  • 44.
    Mantenimiento COMPROBACIONES EN RÉGIMEN SEMESTRAL -Control del estado de juntas y acoplamientos (corrosión). - Revisión, limpieza y puesta a punto de los equipos de regulación de combustión - Revisión de las purgas, se comprobara si hay fugas. - Engrasado de válvulas.
  • 45.
    Mantenimiento COMPROBACIONES EN RÉGIMEN ANUAL -Inspeccionary limpiar los filtros. -Comprobar si las tuberías presentan corrosiones, picaduras o -Comprobar si las tuberías presentan corrosiones, picaduras o daños mecánicos. -Comprobar si hay condensación en las tuberías. -Inspeccionar si el aislamiento y la barrera de vapor están deteriorados. -Comprobar la suciedad y las incrustaciones en el lado del agua de los aparatos de presión. -Control del correcto funcionamiento de los ventiladores -Inspeccionar el estado de los componentes de la instalación eléctrica.
  • 46.
    Mantenimiento PURGADO -Los purgadores vanen la parte mas baja de la caldera -Se utilizan para extraer los lodos, sedimentos y espumas. -Se emplea un purgado continuo, por medio de un tubo pequeño. -No obstante, los purgadores grandes hay que abrirlos periódicamente
  • 47.
    Mantenimiento LIMPIEZA Y MANTENIMIENTOCON CALDERA FUERA DE SERVICIO Toda caldera cuyo servicio no se precise durante un periodo de tiempo prolongado, deberá acondicionarse debidamente para evitar corrosiones internas y externas. Procedimiento Seco: se utilizara cuando la caldera tenga que estar fuera de servicio durante varios meses y no esté expuesta a que se recurra a ella al menor aviso. Procedimiento Húmedo: se utilizará en aquellos casos en que la caldera vaya a permanecer inactiva únicamente durante unas semanas y sujeta a entrar en servicio en cualquier momento.
  • 48.
  • 49.
    Hogares Recinto o cámaradonde se efectúa la combustión. La cámara confina el producto de la combustión y puede resistir las altas temperaturas que se presentan y las presiones que se utilizan. Dado que los generadores de vapor son esencialmente Dado que los generadores de vapor son esencialmente intercambiadores, y que el calor a transferir proviene de la energía del combustible, se puede inferir que el hogar constituye el transductor primario de la energía. Por ello, la gran influencia de este conjunto en el rendimiento global de una instalación. La combustión se completa siempre dentro de los límites del hogar si la caldera está bien diseñada y funciona perfectamente.
  • 50.
    Hogares Parámetros característicos deun hogar: • Clase de combustible a utilizar: • Máxima generación de vapor y probables limites de carga de la caldera: El tipo de combustible que se utilizará puede predecir en primera aproximación el volumen físico requerido, así como también la geometría para el hogar y ciertas partes constitutivas • Presión de funcionamiento y temperatura total deseada: El diseño determinará la capacidad de la caldera para sostener una carga normal con una eficiencia alta. Las paredes del hogar deben estar soportadas de forma adecuada tomando en cuenta la expansión térmica y diferencias de presiones. La temperatura de los gases a la salida del hogar está relacionada con el aporte de calor por el combustible y con la efectividad de las paredes del hogar.
  • 51.
    Hogares Refrigeración de hogares Elenfriamiento por agua de las paredes del hogar reduce la transferencia de calor hacia los elementos estructurales y, en consecuencia, puede limitarse su temperatura a la que satisfaga los requisitos de resistencia mecánica, etc. El uso de hogares con enfriamiento por agua reduce las perdidas de El uso de hogares con enfriamiento por agua reduce las perdidas de calor al exterior
  • 52.
    Tipos de hogares Clasificación Paralelos: Cuandolos quemadores están colocados al frente o al frente • Según la colocación de los quemadores el hogar de la caldera puede ser: colocados al frente o al frente y atrás. Turbulentos: Cuando los quemadores están ubicados en las esquinas e inyectan el combustible en forma tangencial.
  • 53.
    Hogares para combustiblessólidos: • Según el tipo de combustible a utilizar la caldera Tipos de hogares Clasificación Hogares para combustibles sólidos: Hogares de emparrillado mecánico
  • 54.
    Tipos de hogares Hogarespara combustibles sólidos, líquidos y gaseosos: • Según el tipo de combustible a utilizar la caldera Hogares ciclónicos ciclónicos
  • 55.
    Tipos de hogares Hogaresinternos: Se encuentran dentro de la caldera y totalmente rodeados por el agua de la misma •Otros tipos de hogares Hogares externos: Se encuentran fuera del alcance del cuerpo de agua, o sea, no tienen un contacto directo con el cuerpo de agua a evaporar
  • 56.
  • 57.
    Combustión • Los elementosbásicos para que se produzca la combustión son: • Reacción: combustible + comburente calor 1. El oxígeno del aire como comburente 2. El carbono y el hidrógeno del combustible + otros elementos (azufre), e inertes (cenizas) 3. Temperatura de ignición
  • 58.
    Combustión • Condiciones asatisfacer para que se produzca la combustión son: • Reacción: combustible + comburente calor • Condiciones a satisfacer para que se produzca la combustión son: 1. Adecuada proporción entre combustible y comburente. 2. La mezcla de las dos sustancias debe ser uniforme. 3. La temperatura de ignición se establecerá y será monitorizada de manera que el combustible continúe su ignición sin calor externo cuando comience la combustión.
  • 59.
    Combustión • Combustión conexceso de aire: Existe una cantidad de aire superior al mínimo necesario. Cuando se utiliza exceso de aire, no se producen inquemados. • Combustión con defecto de aire: Es la que se lleva a cabo con menor • Tipos de combustión: cantidad que el aire mínimo necesario. Cuando se utiliza un defecto de aire tiene a producirse inquemados. • Combustión completa: Es aquella donde el carbono se consume completamente; caso contrario la combustión es incompleta. • Combustión perfecta: Es aquella en la cual el carbono se transforma totalmente en CO2; En el caso de producirse CO la combustión imperfecta.
  • 60.
    Combustión Rendimiento de lacombustión El rendimiento de combustión es la relación entre la fracción de energía realmente liberada en el proceso, y el total teórico disponible, que da una idea del grado de aprovechamiento del combustible, para las condiciones de trabajo dadas. Control de la combustión Control de la combustión Consiste en regular la entrada de combustible para mantener un suministro continuo de vapor a una presión constante, y de regular la entrada de aire a la caldera en proporción correcta a la entrada de combustible. Control mecánico/neumático Control de medida en serie/paralelo Control de medida en paralelo con límites cruzados:
  • 61.
    COMBUSTIBLES • Poder Calorífico:Es la energía por unidad de masa del combustible que se libera en una combustión completa y perfecta. • Poder Calorífico Superior (PCS): Tiene en cuenta el calor latente de vaporización del agua generada en la combustión. • Poder Calorífico Inferior (PCI): No tiene en cuenta el calor latente de vaporización del agua formada en la combustión.
  • 62.
  • 63.
    I - CombustiblesSólidos • Madera PCI = 4.500 Kcal/Kg. • Carbón Natural # Turba : 50/60% C – 70/80% Humedad – PCI = 750 Kcal/Kg. # Lignito: 65/75% C – 50/70% Humedad – PCI = 3.500 Kcal/Kg. # Hulla: 75/85% C – 5/15% Humedad – PCI = 8.500 Kcal/Kg. # Antracita: 90% C - 3% Humedad – PCI = 8.000 Kcal/Kg. • Carbón Vegetal PCI = 6.500 Kcal/Kg.
  • 64.
    II - CombustiblesLíquidos • Gas Oil: PCI = 10.200 Kcal/Kg. • Fuel Oil: PCI = 9.800 Kcal/Kg. Propiedades de los Combustibles Líquidos 1. Viscosidad 1. Viscosidad 2. Fluidez Crítica 3. Inflamabilidad 4. Contenido de Azufre 5. Contenido de Agua
  • 65.
    II - CombustiblesGaseosos • Gas Natural: PCS = 9.300 Kcal/m3. • GLP: PCI = 10.950 Kcal/Kg. Propiedades de los Combustibles Gaseosos 1. Densidad Relativa (ρr ) 1. Densidad Relativa (ρr ) 2. Intercambiabilidad de los Gases Combustibles 3. Módulo de un Gas
  • 66.
    Criterios para laelección de un combustible • Ubicación geográfica de la industria • Posibilidades de aprovisionamiento • Precio del combustible • Problemas ambientales derivados de su uso.
  • 67.
  • 68.
    Criterios para laelección de un quemador • Combustible • Exceso de Aire • Margen de Regulación • Estabilidad de Funcionamiento • Estabilidad de Funcionamiento - Turbulencia en la mezcla aire / combustible - Precalentar el aire de combustión • Forma y Dimensiones de la Llama - Turbulencia - Exceso de Aire - Presión del Aire de Combustión - Tamaño de las Gotas Pulverizadas
  • 69.
  • 70.
    Quemadores para combustibles sólidos *Quemadores de Carbón Pulverizado
  • 71.
    Quemadores para combustibles líquidos *Quemadores Rotativos de Pulverización Centrífuga
  • 72.
    Quemadores para combustibles líquidos *Quemadores de * Quemadores de Pulverización Mecánica Pulverización Asistida
  • 73.
    Quemadores para combustibles líquidos *Quemadores Rotativos de Pulverización Centrífuga
  • 74.
    Quemadores para combustibles gaseosos •Quemadores Atmosféricos * Quemadores de Premezcla • Quemadores de Flujo Paralelo con Mezcla por Turbulencia • Quemadores Mixtos
  • 75.
    Quemadores para combustibles gaseosos •Quemadores de Flujo Paralelo con Mezcla por Turbulencia
  • 76.
    Quemadores Mixtos Para quemarcombustibles líquidos y gaseosos con el fin de garantizar la continuidad del servicio.
  • 77.
  • 78.
    CORRIENTE DE TIRODE UNA CHIMENEA • La combustión en el hogar lo llena de gases neutros (no se pueden utilizar para seguir quemando más combustible) siendo necesario eliminarlos y hacer penetrar el aire nuevo que permita que la combustión prosiga. • Al mismo tiempo este mismo gas que se encuentra a elevada • Al mismo tiempo este mismo gas que se encuentra a elevada temperatura debe intercambiar esa energía de la combustión al líquido por los conductos y cámaras que hacen contacto. • Se designa chimenea chimenea a cualquier clase de tubo o hueco destinado a conducir los gases de la combustión hacia arriba, dándoles salida al exterior. • Se llama corriente corriente de de tiro tiro a la establecida por la depresión que se genera en la base de una chimenea por la diferencia de peso específico entre los humos y el aire exterior.
  • 79.
    DIFERENTES TIPOS DETIRO • En el tiro tiro natural natural la aspiración debe ser suficiente para vencer todas las resistencias opuestas al movimiento del aire y de los gases de la combustión. • El tiro tiro artificial artificial consiste en hacer llegar al hogar el aire necesario para la combustión, utilizando un ventilador, extractor u otro medio mecánico. Se subdivide en: • tiro forzado y • tiro aspirado o inducido • Combinación de ambos
  • 80.
    TIRO ARTIFICIAL OMECÁNICO • Se designa tiro forzado a la corriente que se genera cuando el aire es inyectado con el combustible al hogar de la caldera. • Se llama tiro tiro aspirado aspirado o o inducido inducido a la corriente que se genera • Se llama tiro tiro aspirado aspirado o o inducido inducido a la corriente que se genera cuando los gases de la combustión son aspirados luego de la caldera. • Se llama tiro tiro balanceado balanceado o o equilibrado equilibrado a la combinación de los anteriores.
  • 81.
    INFLUENCIA DE LASCONDICIONES ATMOSFÉRICAS • Presión: Al aumentar la presión atmosférica crece el peso específico del aire, también el tiro. • Temperatura: Al disminuir la temperatura exterior aumenta el ∆ ∆ con gases en la chimenea, esto aumenta el tiro. • Humedad: Al aumentar la humedad, disminuye el peso específico del aire, también el tiro. • Viento: puede favorecer o perjudicar el tiro
  • 82.
    CORRIENTE DE TIRODE UNA CHIMENEA Tipo Ventaja Desventaja Natural • No es necesario un gasto de energía adicional. • Se regula fácilmente (con consumo bajo y uniforme) • Inútil en instalaciones industriales • no permite baja calidad combustibles sólidos consumo bajo y uniforme) combustibles sólidos • gran altura chimenea Artificial o mecánico • suprime la necesidad de tiro de natural de chimenea • Fácil regulación mediante variador • Independiente de las condiciones del clima • Se adapta a las condiciones de carga • mayor gasto de energía • Debe regularse la combustión para evitar excesos de aire y pérdidas
  • 83.
    CORRIENTE DE TIRODE UNA CHIMENEA Tipo Ventaja Desventaja Artificial Forzado • Reduce el tiro de una chimenea • Se puede agregar el combustible • puede instalarse antes de precalentador • Debe evitarse un soplado enérgico capaz de arrastrar cenizas y finos precalentador Artificial inducido • Es posible reducir al mínimo o reforzar la acción de la chimenea • Puede utilizarse un by-pass según las condiciones •Calentamiento del motor ya que todo el gas pasa por él •Mayor consumo energético •Necesita la adecuada adición del combustible Artificial equilibrado • Combina ambas ventajas • Reduce al mínimo el tiro necesario • Mayor inversión • Grandes instalaciones
  • 84.
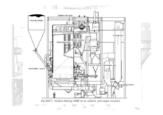
    CORRIENTE DE TIRODE UNA CHIMENEA
  • 85.
  • 86.
    Economizadores El economizador representauna sección independiente de superficie de intercambio que absorbe calor sensible de los gases de combustión para entregárselo al agua de alimentación antes que la misma ingrese a la caldera. •Recupera la energía de los humos antes de ser evacuados a la atmósfera y por lo tanto aumenta el rendimiento del generador de vapor •Reduce la posibilidad de que se presenten choques térmicos y grandes fluctuaciones en la temperatura del agua de alimentación de la caldera
  • 88.
    Economizadores Como aproximación tenemosque, por cada 22ºC de disminución de la temperatura de los humos en un economizador, el rendimiento de la caldera aumenta un 1%
  • 89.
    Clasificación de los economizadores Deacuerdo a la disposición geométrica: •Horizontales •Verticales De acuerdo a la dirección del gas con respecto a los tubos: •De flujo longitudinal •De flujo cruzado De acuerdo a la dirección relativa del flujo de gas y de agua: •De flujos en paralelo •De contracorriente De acuerdo al tipo de superficie absorbente del calor: •De tubos desnudos o lisos •De tubos con superficies extendidas
  • 90.
    Clasificación de los economizadores Deacuerdo a la disposición geométrica: •Verticales
  • 91.
    Clasificación de los economizadores Horizontales Deacuerdo a la disposición geométrica:
  • 92.
    Clasificación de los economizadores Detubos lisos De acuerdo a la superficie absorbente del calor: Alineación regular (flujo longitudinal) Alineación al tresbolillo (flujo cruzado)
  • 93.
    Clasificación de los economizadores Desuperficies extendidas De acuerdo a la superficie absorbente del calor: a) Protuberancias Protuberancia parabólica cóncava Protuberancia parabólica convexa Paralelepípedo de sección cuadrada Protuberancia cilíndrica Pirámide cuadrangular Protuberancia cónica
  • 94.
    Clasificación de los economizadores Desuperficies extendidas De acuerdo a la superficie absorbente del calor: b) Aletas longitudinales c) Aletas helicoidales d) Aletas anulares de perfil rectangular
  • 95.
    Economizadores Deflectores Para evitar quelos humos rodeen los tramos rectos aleteados, que ofrecen una sección de paso más restringida, se disponen tabiques deflectores
  • 96.
    Economizadores Consideraciones generales Para mantenerla velocidad de los humos a través de las distintas secciones del economizador, el banco inferior se diseña con tubos de mayor diámetro, lo que reduce la sección de paso de humos, mejora la transferencia de calor y requiere menor superficie e inversión. • Límite de velocidades • Necesidad de acceso Alrededor de los bancos tubulares del economizador, se necesitan una serie de huecos para: • Facilitar los trabajos de mantenimiento en cada una de las diferentes ramas tubulares individuales • Características geométricas individuales • Disponer del espacio requerido por los sopladores durante el servicio de la unidad Los diámetros de tubos están comprendidos entre 44,5 y 65,5mm Si se usan superficies ampliadas, los espaciados laterales y verticales deben permitir una separación entre aletas de 13 mm. Para tubos lisos conviene un espaciado con holgura mínima de 19 mm. El espaciado mínimo vertical de los tubos debe ser 1,25 veces el diámetro exterior de los mismos. -Si éste espaciado es menor, la transferencia de calor se puede reducir hasta un 30%. -Si éste espaciado es mayor la transferencia de calor queda poco afectada, aumentando la profundidad del banco y la resistencia en el lado de humos.
  • 97.
    Calentadores de aire Seutilizan para calentar el aire comburente, mejorando el proceso de combustión, obteniendo un incremento en la eficiencia la caldera. Clasificación: - Recuperativos, son en los que la transferencia de calor se verifica de forma directa y continua - Regenerativos, son en los que la transferencia de calor es indirecta
  • 98.
  • 99.
  • 100.
  • 101.
    Calentador Ljungström Calentadores deaire Regenerativos Calentador Ljungström Calentador de aire Rothemühle
  • 102.
  • 103.
    Calentador de AireRothemühle
  • 104.
    AGUA PARA GENERACIÓNDE VAPOR En su utilización para la generación de vapor el hecho de poseer sales, gases, partículas, bacterias, etc., conlleva a una serie de fenómenos negativos para su utilización, por ello es indispensable su previo tratamiento de prevención. Problemas: •Incrustaciones, •Corrosión •Espumas •Arrastres
  • 105.
    PRUEBAS QUIMICAS •Prueba deacidez o alcalinidad •Prueba de dureza, calcio y magnesio •Prueba del hidróxido •Prueba del fosfato •Prueba del fosfato •Prueba del sulfito •Prueba del hierro •Prueba del cobre •Prueba de conductividad eléctrica
  • 106.
    TRATAMIENTO DEL AGUA •Pretratamiento del suministro de agua bruta. • Tratamiento del agua de aportación que va a la caldera. • Tratamiento del agua de aportación que va a la caldera. • Tratamiento del condensado que está siendo retornado a la caldera. • Control de purga para eliminación de los lodos precipitados en la caldera.
  • 107.
  • 108.
    TRATAMIENTO DEL AGUA Ablandador: Unablandador consta de tres elementos principales: estanque de resina, válvula y estanque de salmuera. En el estanque de resina es donde se produce el “ablandamiento” donde se produce el “ablandamiento” del agua, al producirse un intercambio iónico entre el agua “dura”, rica en Calcio y Magnesio y la resina, rica en Sodio. Cuando esto ocurre la resina retiene el Calcio y Magnesio y el agua se lleva el Sodio.
  • 109.
    Formación de depósitos Laincrustación es indeseable ya que al formar una capa en los tubos y demás componentes del equipo, evitan la transmisión efectiva del calor. Los transmisión efectiva del calor. Los depósitos se producen por sólidos suspendidos que el agua pueda contener y principalmente por formación de depósitos de sulfatos y carbonatos de calcio y magnesio, en mezclas complejas con otros componentes como sílice, bario, etc.
  • 110.
    Los principales componentesde la caldera son metálicos. Los agentes que atacan el hierro y lo disuelven son los gases corrosivos (oxigeno y dióxido de carbono) y agentes oxidantes (como los compuestos clorados). También la acidez del agua causa corrosión por lo que el pH debe mantenerse entre 9.0 y 11.5. Corrosión por Oxidación del metal mantenerse entre 9.0 y 11.5.
  • 111.
    Esto ocurre cuandohay presencia de materia orgánica o de una gran cantidad de sólidos, así como de grasas y aceites del equipo de proceso que puedan contaminar el agua de la caldera. Formación de Espumas Prevención de arrastre El Arrastre se puede dividir en dos partes: •Elementos transportados mecánicamente por el vapor y agua. •Elementos que se volatilizan en el vapor. El arrastre mecánico se controla manteniendo la concentración de sólidos. La sílice se volatiliza a altas presiones siendo arrastrada por el vapor. Para reducir estos arrastres, se mantiene la sílice por debajo de 5 ppm en el agua de la caldera.
  • 112.
    Polímeros o acondicionamientode lodos Se utilizan para la formación de lodos provocando la precipitación intencionada de las sales de dureza cálcica. Esto introduce en los lodos un grado de dispersión o fluidez que permite la eliminación de los mismos más fácilmente por purga inferior de caldera. Depósitos de aceite Depósitos de aceite El aceite es un aíslate del calor Un origen común →uso de equipos alternativos de vapor de escape →lubricación de motores de vapor y bombas de retorno de condensado Debería utilizarse un tipo eficiente de separador de aceite en el sistema de escape.
  • 113.
    La eliminación mecánicade la incrustación Las zonas accesibles, se limpian mecánicamente Las superficies interiores de los tubos de agua con una Turbina Tubular. Los depósitos exteriores sobre las superficies externas de los tubos de humos pueden desprenderse por vibración con los tubos de humos pueden desprenderse por vibración con un resonador o vibrador tubular o por medio de sacudidas con una barra larga y pesada en cada tubo. La limpieza con ácido de las calderas se usa a menudo para eliminar óxidos metálicos. Los disolventes utilizados para la limpieza acida son variados •. ácido clorhídrico • ácido fosfórico.