PROCEDIMIENTO DE TRABAJO SEGURO PARA MONTAJE DE
TUBERIA EN DIFERENTES AREAS DEL PROYECTO
EXPANSIÓN METOR OBRA: MONTAJE MECANICO, TUBERIA, Y
ESTRUCTURAS METALICAS
No de Rev.: 1
FECHA: 14/10/08
PÁGINA: 1 de 31
PROCEDIMIENTO DE TRABAJO SEGURO
PARA MONTAJE DE TUBERIA Y SPOOL EN DIFERENTES AREAS DEL
PROYECTO EXPANSIÓN METOR OBRA: MONTAJE MECANICO, TUBERIAS Y
ESTRUCTURAS METALICAS
Octubre, 2008
PROCEDIMIENTO DE TRABAJO SEGURO PARA MONTAJE DE
TUBERIA EN DIFERENTES AREAS DEL PROYECTO
EXPANSIÓN METOR OBRA: MONTAJE MECANICO, TUBERIA, Y
ESTRUCTURAS METALICAS
No de Rev.: 1
FECHA: 14/10/08
PÁGINA: 2 de 31
HOJA DE APROBACIÓN:
URIMAN,SA
APROBADO POR: APROBADO POR:
___________________
JOSE L RODRIGUEZ
SUPERINTENDENTE GENERAL
________________
CARLOS SEMECO
GERENTE. SHA
CONSORCIO GBC-PROYCCA
ELABORADO POR: REVISADO POR:
___________________
SUPERVISOR DE CONSTRUCCION
PASTOR CASTILLO
________________
GERENTE DE CONSTRUCCION
FREDDY HERNANDEZ
APROBADO POR: APROBADO POR:
________________
GERENTE DE PROYECTO
JUAN SABARICH
_______________
COORD. SHA
ALVARO LOPEZ
PROCEDIMIENTO DE TRABAJO SEGURO PARA MONTAJE DE
TUBERIA EN DIFERENTES AREAS DEL PROYECTO
EXPANSIÓN METOR OBRA: MONTAJE MECANICO, TUBERIA, Y
ESTRUCTURAS METALICAS
No de Rev.: 1
FECHA: 14/10/08
PÁGINA: 3 de 31
CONTENIDO
DESCRIPCIÓN PAG
Título 1
Hoja de aprobación 2
Contenido 3
I Objetivo 4
II Alcance 4
III Tiempo de ejecución 4
IV Referencias 4
V Lugar de trabajo 4
VI Tipo de Trabajo 4
VII Listado de Equipos 5
VIII Listado de Materiales y Herramientas 5
IX Listado de Equipo de Protección Personal 6
X Personal Involucrado 6
PROCEDIMIENTO DE TRABAJO SEGURO PARA MONTAJE DE
TUBERIA EN DIFERENTES AREAS DEL PROYECTO
EXPANSIÓN METOR OBRA: MONTAJE MECANICO, TUBERIA, Y
ESTRUCTURAS METALICAS
No de Rev.: 1
FECHA: 14/10/08
PÁGINA: 4 de 31
XI Descripción de las actividades 9
XII Medidas de Seguridad, Higiene y Ambiente 20
XIII Plan de Emergencia 22
XIV Anexos 27
Anexo 1. Flujograma de Notificación en caso de Accidente e Incidente 28
Anexo 2. Ruta de evacuación especifica del lugar de trabajo 29
Anexo 3. Croquis de planta de construcción de plataformas en Pipe Rack 31
Anexo 4. Croquis de sección típica en Pipe Rack 33
Anexo 5. Croquis de referencial de tubería en Pipe Rack según elevaciones 35
Anexo 6. Tabla de carga para el calculo de izamiento 36
I OBJETIVO:
El propósito de este procedimiento es asegurar que todas la actividades relacionadas con el MONTAJE
DE TUBERIA EN DIFERENTES AREAS DEL PROYECTO EXPANSION METOR se ejecuten de
acuerdo al diseño de ingeniería, especificaciones y prácticas de Trabajo Seguro del Consorcio GBC-
PROYCCA, de forma asegurar que las normas que rigen esta materia se cumplan cabalmente,
garantizando la integridad física de los trabajadores, instalaciones en general, ambiente y terceros.
II ALCANCE:
El alcance contempla los trabajos de MONTAJE DE TUBERIA EN DIFERENTES AREAS DEL
PROYECTO EXPANSION METOR en la obra: Montaje Mecánico, Tuberías y estructuras metálicas,
siguiendo los pasos y lineamientos especificados en este procedimiento. Este Procedimiento es aplicable
al personal de Consorcio GBC-PROYCCA y terceros, involucrado en la actividad.
III TIEMPO DE EJECUCIÓN:
Las actividades tienen un tiempo estimado de duración de acuerdo con lo estimado en la planificación a
partir de la fecha de inicio de la misma, laborándose en turnos de 8 horas comprendido desde las 7:00
AM hasta las 4:00 PM.
IV REFERENCIAS:
• Procedimiento de operaciones de izamiento 1145-01-900-039-ADM-128
• Procedimiento de permiso de trabajo.
PROCEDIMIENTO DE TRABAJO SEGURO PARA MONTAJE DE
TUBERIA EN DIFERENTES AREAS DEL PROYECTO
EXPANSIÓN METOR OBRA: MONTAJE MECANICO, TUBERIA, Y
ESTRUCTURAS METALICAS
No de Rev.: 1
FECHA: 14/10/08
PÁGINA: 5 de 31
• Procedimiento para la Identificación y Análisis de Riesgos.
• Ver plan de inspección y prueba de fabricación, montaje y prueba de tubería.
V LUGAR DE TRABAJO:
Esta actividad se va a ejecutar en el área del Proyecto Expansión Metor en el Criogénico de José estado
Anzoátegui.
VI TIPO DE TRABAJO:
• MONTAJE DE TUBERIA Y SPOOL EN DIFERENTES AREAS DEL PROYECTO EXPANSION
METOR
VII LISTADO DE EQUIPOS:
EQUIPOS CANTIDAD
Grúa de 30 /45 /60/ 75/90 Ton 01
Elevadores tipo Manlift
03
Gandola con batea 02
Camión 350 01
Camioneta Pick-up 01
Guinche 02
Planta eléctrica 02
VIII LISTADO DE MATERIALES Y HERRAMIENTAS:
MATERIALES Y HERRAMIENTAS CANTIDAD
Rodillos 15
Tirfold de 1.5 a 5 Ton 10
Señoritas de 3 a 5 Ton 10
Extintores PQS de 20 lb 02
Troley 06
Radios Portátiles 06
Cuerpos de andamios (Construcción de plataforma )
Varios
Conos de señalización, Avisos preventivos y Cinta de señalización
preventiva.
Varios
Grilletes de 1” de diámetro.
10
Grillete de 2” de diámetro.
10
Caja de Herramientas 02
Agua potable, vasos, bolsas plásticas, hielo y demás consumibles Varios
Mecate (cabos guías) Varios.
PROCEDIMIENTO DE TRABAJO SEGURO PARA MONTAJE DE
TUBERIA EN DIFERENTES AREAS DEL PROYECTO
EXPANSIÓN METOR OBRA: MONTAJE MECANICO, TUBERIA, Y
ESTRUCTURAS METALICAS
No de Rev.: 1
FECHA: 14/10/08
PÁGINA: 6 de 31
Línea de vida Varios
Aros de vida (guayas de 3/8” * 1,70 mts) Varios
Fajas de nylon 4” x 6 metros Varias
Cuñas de madera Varias
Nivel Varios
Abrazaderas para cable Varias
Equipo de topografía. 01
IX LISTADO DE EQUIPO DE PROTECCIÓN PERSONAL:
EQUIPOS DE PROTECCIÓN PERSONAL NORMAS
Casco ANSI Z.89.1 COVENIN 815-1999
Lentes contra impacto ANSI Z.87.1
Botas de seguridad ANSI Z.41 COVENIN 39-1997
Guantes COVENIN 82-1997
Protección auditiva COVENIN 1565-1995
Bragas TIPO CONSTRUCCIÓN
Arnés de seguridad COVENIN 1042
X PERSONAL INVOLUCRADO:
Gerente de Construcción 01
Superintendente de Construcción 01
Supervisores/Capataces 01
Coordinador SHA 01
Cordinador QA/QC 01
Inspector SHA 01
Inspector QA/QC 01
Paramédico 01
Chofer de Ambulancia 01
Obreros 08
Operadores 04
Rigger 02
Montadores mecánicos 08
Topografo 01
PROCEDIMIENTO DE TRABAJO SEGURO PARA MONTAJE DE
TUBERIA EN DIFERENTES AREAS DEL PROYECTO
EXPANSIÓN METOR OBRA: MONTAJE MECANICO, TUBERIA, Y
ESTRUCTURAS METALICAS
No de Rev.: 1
FECHA: 14/10/08
PÁGINA: 7 de 31
Responsabilidades:
GERENTE / SUPERINTENDENTE DE CONSTRUCCIÓN:
• Implantar y asegurar el cumpliendo del presente procedimiento.
• Velar por el cumplimiento de las Normas, Reglamentos, Leyes y Ordenanzas en materia de
Seguridad, Higiene y Ambiente.
• Notificar ante la gerencia contratante cualquier evento indeseado ocurrido en la obra.
• Aportar recursos requeridos para la ejecución segura del trabajo.
• Dar el apoyo necesario y plena autoridad al Departamento de Seguridad, Higiene y Ambiente para el
cumplimiento de sus funciones.
• Asegurar la divulgación del Procedimiento de Trabajo Seguro a todo el personal involucrado.
COORDINADOR SHA:
• Asesorar a la empresa contratista en materia de Seguridad, Higiene y Ambiente.
• Controlar y verificar cumplimiento del plan específico de S.H.A.
• Participar en la preparación de planes de emergencia.
• Asesorar a la Supervisión de línea en la investigación de accidentes / incidentes.
• Verificar el cumplimiento de las recomendaciones surgidas de las investigaciones de accidentes /
incidentes.
• Asistir a la Supervisión de línea en la elaboración del Análisis de Riesgos en tareas específicas
(ARETE).
COORDINADOR QA/QC:
• Asesorar a la empresa contratista en materia de QA/QC.
• Controlar y verificar cumplimiento del plan de QA/QC y procedimiento exigidos por el cliente.
• Verificar la certificación, archivo y control de los registros que se generen de la aplicación de este
procedimiento y procedimientos relacionados.
• Verificar el cumplimiento de las recomendaciones surgidas durante la realización de trabajos en
materia de QA/QC.
• Asistir a las reuniones de seguimiento semanal con el cliente.
INSPECTOR SHA:
• Detectar actos y condiciones inseguras.
• Motivar al trabajador en las prácticas seguras de trabajo.
• Revisar credenciales de la certificación de los operadores / equipos.
• Velar por el cumplimiento de las normas de Seguridad, Higiene y Ambiente.
• Asesorar al supervisor de la obra en la realización del sistema de Análisis de Riesgos en Tareas
Especificas (ARETE).
• Asistir a la Supervisión de línea en el dictado de las Charlas Seguridad.
• Chequear e inspeccionar maquinarias y equipo.
• Mantenerse en el área de trabajo durante los trabajos.
PROCEDIMIENTO DE TRABAJO SEGURO PARA MONTAJE DE
TUBERIA EN DIFERENTES AREAS DEL PROYECTO
EXPANSIÓN METOR OBRA: MONTAJE MECANICO, TUBERIA, Y
ESTRUCTURAS METALICAS
No de Rev.: 1
FECHA: 14/10/08
PÁGINA: 8 de 31
SUPERVISORES / CAPATACES:
• Elaborar el Análisis de Riesgos en Tareas Específicas (ARETE).
• Instruir a todo trabajador antes de realizar cualquier tarea.
• Hacer cumplir las reglas, normas y procedimientos de seguridad establecidos.
• Realizar inspecciones periódicas en busca de prácticas y condiciones de trabajo inseguras, dar
medidas correctivas para mitigar estas.
• Investigar los accidentes e incidentes.
• Dictar charlas de seguridad.
• Desarrollar y administrar un programa de orden y limpieza.
• Asegurar que se suministren los equipos y dispositivos de seguridad para cada tarea.
• Solicitar los permisos de trabajo requeridos.
• Cumplir con lo establecido en presente Procedimiento de Trabajo Seguro.
• Mantenerse en el área de trabajo durante los trabajos.
PARAMEDICO:
• Brindar asistencia de primeros auxilios ante cualquier emergencia / lesionado (leve o grave).
• Reportar al Inspector SHA el estado físico que se encuentre el lesionado, para medidas relacionadas
con el caso.
• Llevar registro de control de pacientes.
• Inspeccionar periódicamente los botiquines de primeros auxilios y realizar requisición de
medicamentos faltantes.
• Interviene en la logística del traslado de pacientes.
CHOFER DE AMBULANCIA:
• Inspeccionar regularmente la ambulancia, reportando deficiencias al Médico y Departamento SHA
Consorcio GBC-PROYCCA.
• Verificar vías de acceso a los diferentes sitios de trabajo.
• Conducir unidad en caso de emergencia siguiendo los principios de manejo seguro en el Proyecto
Expansión Uriman.
MANO DE OBRA CALIFICADA Y OBREROS:
• Acatar todas las normativas de prevención establecidas en este procedimiento.
• Acatar las instrucciones de trabajos asignados por los Supervisores.
• Seguir el Procedimiento de Trabajo Seguro establecido evitando las improvisaciones.
• Evitar actos inseguros.
• Adoptar posiciones físicas corporales adecuadas.
PROCEDIMIENTO DE TRABAJO SEGURO PARA MONTAJE DE
TUBERIA EN DIFERENTES AREAS DEL PROYECTO
EXPANSIÓN METOR OBRA: MONTAJE MECANICO, TUBERIA, Y
ESTRUCTURAS METALICAS
No de Rev.: 1
FECHA: 14/10/08
PÁGINA: 9 de 31
• Asistir y participar en las charlas y adiestramientos realizados por el Inspector SHA, Coordinadores y
Supervisores.
• Leer y firmar el ARETE, en señal de demostrar y darse por enterado de los riesgos inherentes las
actividades a realizar.
• Mantenerse en el área de trabajo durante los trabajos.
XI DESCRIPCIÓN DE LAS ACTIVIDADES:
ACTIVIDADES PREVIAS:
• Solicitar firmas de ARETES por el personal responsable de Uriman Y CGP.
• Verificar y/o Suministrar el equipo de protección personal (guantes, lente, mascarilla, casco, zapatos
con punta de acero, bragas, arnés de seguridad, barbiquejos etc.)
• Verificar certificación de las grúas y revisión de accesorios de izaje (grilletes, eslingas, etc.).
• Colocación de cabos guías antes del izamiento de la carga.
• Instalación de los polines (rodillos) de lanzamiento de tubería en Pipe Rack previa inspección y
liberación de los mismos.
• Instalación de líneas de vida previo al inicio del trabajo cuyos accesos no excederán entre si 10 mts.
• En la plataforma debe permanecer el personal estrictamente necesario para la maniobra.
• Involucrar al personal en la actividad a través del ARETE de los riesgos asociados con la actividad,
charla de 5 minutos y divulgación del Procedimiento de Trabajo Seguro. Firmar el ARETE.
• Reconocer y evaluar el área de trabajo. Se debe verificar que las condiciones climatológicas sean las
más favorables para la realización de los trabajos (no debe haber atmósferas explosivas, lluvias
fuertes, vientos fuertes, etc.).
• Todas las herramientas y equipos a utilizar serán inspeccionados previamente, revisados diariamente
antes de comenzar cualquier actividad y se comprobará el correcto funcionamiento de los mismos.
• Colocar los materiales, equipos y herramientas en sitio.
• Verificar con el Supervisor de Andamios que los andamios (plataforma) hechos en el área. Tengan la
tarjeta verde o roja con fecha y firma vigente.
• Limpiar y ordenar el área de trabajo antes, durante y después de la actividad.
• Acordonamiento y señalizar el área de trabajo con cinta de color rojo.
• Se debe tener en cuenta en lo que respecta al lanzamiento de tubería en Pipe Rack, no instalar
tuberías en niveles que pueda obstruir el deslizamiento de las tuberías, ya que al momento de
pilotearlos, éstos serían obstruidos por las tuberías.
• Mantener rigger en sitio para la maniobra de izamiento.
• Todas las herramientas y materiales en altura deberán estar aseguradas.
PROCEDIMIENTO DE TRABAJO SEGURO PARA MONTAJE DE
TUBERIA EN DIFERENTES AREAS DEL PROYECTO
EXPANSIÓN METOR OBRA: MONTAJE MECANICO, TUBERIA, Y
ESTRUCTURAS METALICAS
No de Rev.: 1
FECHA: 14/10/08
PÁGINA: 10 de 31
• Dar a conocer a todo el personal el plan de rescate de altura.
PASÓ A PASO MONTAJE E INSTALACIÓN DE TUBERÍAS:
El trabajo consiste en el montaje e instalación de tuberías de diferentes diámetros, incluyendo soportaría,
en sus respectivas áreas del Proyecto Expansión Metor:
a. Movimiento 1: Instalación de rodillo en cada pórtico y asegurando los mismos
cada por nivel de la tubería a instalar dependiendo del diámetro, utilizando
elevador tipo Man Lift.
b. Movimiento 2: Se colocaran alfombras en todas las vigas por donde se
deslizará la tubería con el fin de no dañar el revestimiento de los mismos
c. Movimiento 3: Se ubicara la grúa en el pórtico (1) donde se iniciara con la
introducción de tubería de acuerdo a las prioridades y la programación. Al
introducir el tubo 6 mts. Se asegura con un amarre del segundo pórtico para
poder rodar la faja y seguir deslizando el tubo hacia el tercer pórtico, se
trabajara en conjunto con la grúa y un elevador para cambio de faja (eslinga) de
posición y con el elevador para la posición de amarre del primer pórtico. Esta
maniobra se realizara para cada tubo de 12 mts.
d. Movimiento 4: Descansado el tubo en los dos primeros dos polines (6 mts) se
procede a asegurar el extremo que se encuentra en el Pipe Rack con un tirfor o
una faja mas grillete contra la viga del Pipe Rack, se afloja la eslinga y el
operador de Man Lift cambiara la posición del amarre del tubo y se procede a
deslizar el tubo con el tirford y/o guinche electrico. Luego se retira la eslinga y en
forma manual se coloca el tubo en la posición donde se realizara la soldadura
en la cual estará colocada una plataforma de andamios.
PROCEDIMIENTO DE TRABAJO SEGURO PARA MONTAJE DE
TUBERIA EN DIFERENTES AREAS DEL PROYECTO
EXPANSIÓN METOR OBRA: MONTAJE MECANICO, TUBERIA, Y
ESTRUCTURAS METALICAS
No de Rev.: 1
FECHA: 14/10/08
PÁGINA: 11 de 31
CROQUIS DE MONTAJE DE TUBERÍAS EN PIPE RACK
040301 02 05 06 07
6 mts
6 mts
Tubería
Man lift
Faja de 4”*6
Guinche eléctrico
PROCEDIMIENTO DE TRABAJO SEGURO PARA MONTAJE DE
TUBERIA EN DIFERENTES AREAS DEL PROYECTO
EXPANSIÓN METOR OBRA: MONTAJE MECANICO, TUBERIA, Y
ESTRUCTURAS METALICAS
No de Rev.: 1
FECHA: 14/10/08
PÁGINA: 12 de 31
Cálculos de izaje:
Grúa de 55 Ton. Terex Crane RT555-1.
RADIO MÁXIMO 25´
ANGULO BOOM 35 º
LONGITUD BOOM 35´
CAPACIDAD DE LA GRÚA 40.600 lbs.
PESO DE LA CARGA 13.227 lbs.
PESO DE BLOQUE Y ACCESORIOS 913 lbs.
PESO TOTAL DE LA CARGA 14.140
Factor de seguridad:
Peso total de la carga / Cap de la grúa * 100 35,29%
PROCEDIMIENTO DE TRABAJO SEGURO PARA MONTAJE DE
TUBERIA EN DIFERENTES AREAS DEL PROYECTO
EXPANSIÓN METOR OBRA: MONTAJE MECANICO, TUBERIA, Y
ESTRUCTURAS METALICAS
No de Rev.: 1
FECHA: 14/10/08
PÁGINA: 13 de 31
PASÓ A PASO TRASLADO DE TUBERÍAS EN PIPE RACK:
El trabajo consiste en traslado de la tubería recta sobre el Pipe Rack que luego serán soldadas
cada 12 mts. En extensiones o plataformas de andamios.
a. Movimiento 1: Se inicia con la instalación y deslizamiento de tuberías de
12 mts de longitud desde el eje No.1del Pipe Rack llevándolo hasta su
posición y luego iniciando el proceso de soldadura de junta a todo lo largo
del Pipe Rack, en la posición indicada en los planos aprobados para
construcción y las indicaciones del topografo.
b. Movimiento 2: El proceso de deslizamiento de la tubería sobre rodillos
se hará a través del guinche eléctrico alimentado por una planta así como
con tirfor apoyado en vigas transversales del Pipe Rack, llevando cada
tubo de 12 mts. hasta su posición final para así luego iniciar con el
proceso de soldadura de junta de cada tubo en plataformas
acondicionadas para ejecutar estas actividades.
c. Movimiento 3: Al tener toda la tubería recta, instalada y soldada se
iniciara con el proceso de alineación y colocación de soportes y guías, en
las coordenadas indicadas en los planos aprobados para construcción.
NOTA: No se eliminara la plataforma de andamios hasta tanto no se
termine los ensayos no destructivos (RX, TP y/o Tratamiento térmico)
donde se requiera.
PROCEDIMIENTO DE TRABAJO SEGURO PARA MONTAJE DE
TUBERIA EN DIFERENTES AREAS DEL PROYECTO
EXPANSIÓN METOR OBRA: MONTAJE MECANICO, TUBERIA, Y
ESTRUCTURAS METALICAS
No de Rev.: 1
FECHA: 14/10/08
PÁGINA: 14 de 31
6 mts
Guinche
CROQUIS DE TRASLADO DE TUBERÍAS Ø 2” HASTA 40” PIPE RACK PARA CADA
NIVEL
Planta
PROCEDIMIENTO DE TRABAJO SEGURO PARA MONTAJE DE
TUBERIA EN DIFERENTES AREAS DEL PROYECTO
EXPANSIÓN METOR OBRA: MONTAJE MECANICO, TUBERIA, Y
ESTRUCTURAS METALICAS
No de Rev.: 1
FECHA: 14/10/08
PÁGINA: 15 de 31
INSTALACIÓN DE TUBERIAS Y SPOOL EN DIFERENTES AREAS DEL PROYECTO
EXPANSION METOR:
a. Generalidades.
• Se dispone de todos los materiales (tuberías, bridas, accesorios, válvulas,
espárragos, pernos, empacaduras, material de aislamiento, anillos de refuerzo,
electrodos) conforme a sus especificaciones técnicas y de las herramientas y
medios necesarios a emplear en el montaje.
• Todos los spool suministrados por proveedores de prefabricación deben estar
debidamente liberados por QA/QC antes de proceder a su montaje.
• Se verifican todos los planos correspondientes a la obra (incluyendo los de otras
especialidades), para verificar las condiciones de la misma y determinar posibles
interferencias o necesidad de modificaciones y verificar que los espacios previstos
son adecuados para las partes a instalar. En este sentido y antes de comenzar los
trabajos, se informa al Cliente cualquier condición que no permita realizar un
trabajo con la calidad adecuada.
• Para facilitar el proceso de instalación de los spools en campo, el personal de
topografía identifica las coordenadas en las columnas existentes e identifica los
equipos con sus códigos en los cuales serán conectadas las tuberías.
• Los isométricos elaborados para construcción tienen validez para el montaje. En
este sentido, los isométricos para diámetros menores de 2" deben considerarse
como referenciales. El trazo y las dimensiones de éstos son aproximadas, el
estudio de su recorrido exacto y la orientación de las volantes de las válvulas
deben verificarse y presentar cualquier modificación para aprobación del Cliente.
• La zona de montaje debe estar limpia y bien iluminada, con los accesos en
condiciones que garanticen la buena y segura ejecución de los trabajos.
• Todas las tuberías y/o spool se protegen/cubren en sus extremos antes de ser
transportadas y almacenadas a fin de evitar la penetración de cuerpos extraños,
por medio de tapones de madera, plástico u otro material apropiado. Las caras de
las bridas deben ser protegidas de una manera eficaz con discos de madera,
plástico u otro elemento adecuado.
PROCEDIMIENTO DE TRABAJO SEGURO PARA MONTAJE DE
TUBERIA EN DIFERENTES AREAS DEL PROYECTO
EXPANSIÓN METOR OBRA: MONTAJE MECANICO, TUBERIA, Y
ESTRUCTURAS METALICAS
No de Rev.: 1
FECHA: 14/10/08
PÁGINA: 16 de 31
b. Requisitos previos.
• Se preparan los esquemas que muestren los tramos de tubería que se van a
instalar.
• Las tuberías, antes de su colocación, serán limpiadas por tramos de acuerdo a las
indicaciones siguientes:
 Se verifica cada tubo antes de su colocación con el fin de asegurarse de su
limpieza. Cuando los tapones de protección han sido removidos, dañados, o
cuando haya indicios de posible contaminación, la tubería se limpiará antes
de colocarse. Esto puede hacerse mediante un soplado con compresor.
 Los extremos abiertos de los tubos son taponados al final de cada jornada de
trabajo, con un tipo de sello tal que impida que el agua, arena u otro material
extraño penetre en la tubería. Tales tapones o sellos no se removerán hasta
que el trabajo no se reanude.
• Durante el montaje de las tuberías, no se usarán como áreas de almacenaje
temporal ninguna estructura o instalación existente en la zona, salvo expresa
autorización del Cliente.
• El manipuleo de la tubería se hará evitando que ésta se aplaste, distorsione, raye
o sufra cualquier otro daño. En el caso que la tubería tenga cubierta protectora, se
tendrá especial cuidado en no dañarla. No se permitirá arrastrar o deslizar la
tubería, y los tapones protectores de ella no se removerán hasta que esté lista
para su inmediata instalación.
• Previo a la instalación, la tubería será inspeccionada visualmente. Cualquier
tubería dañada o distorsionada a tal punto que supere las tolerancias
especificadas y no ofrezca garantías de un óptimo servicio, será reemplazada por
otra nueva aprobada por el Cliente. En caso que se apruebe utilizar parte de la
tubería dañada, se cortará la parte dañada y acondicionará el resto.
PROCEDIMIENTO DE TRABAJO SEGURO PARA MONTAJE DE
TUBERIA EN DIFERENTES AREAS DEL PROYECTO
EXPANSIÓN METOR OBRA: MONTAJE MECANICO, TUBERIA, Y
ESTRUCTURAS METALICAS
No de Rev.: 1
FECHA: 14/10/08
PÁGINA: 17 de 31
c. Montaje.
• Se verifica antes de la fijación de los soportes que no haya interferencias ni con
equipos ni con otras líneas de tubos.
• Los soportes que se instalan antes que la tubería se inspeccionan para confirmar
su corrección en cuanto a las ubicaciones y niveles indicados en los planos y/o
autorizados por el Cliente (replanteo topográfico).
• Si es necesario se colocan soportes temporales como apoyo o elementos
colgantes. Para los mismos, se evita en la medida de lo posible se suelden a otros
elementos y nunca se soldarán a tuberías o equipos.
• Se tiene en cuenta que las tuberías cuya instalación presente un sistema de
calentamiento, deben llevar patines soldados al tubo en cada apoyo, de acuerdo a
las especificaciones técnicas correspondientes.
• Para mantener los elementos a unir alineados, se pueden retener en una posición
determinada durante la operación de soldadura mediante puntos de soldadura,
puentes o acoplamientos temporales.
• Los puntos de soldadura utilizados para asegurar la alineación se eliminan luego
completamente o se preparan para su posterior incorporación a la soldadura.
• Los acoplamientos temporales tales como “perros” o abrazaderas soldados podrán
emplearse para la alineación siempre que se cumplan con los siguientes
requisitos:
 Elaborar una instrucción de trabajo específica y aprobada por Uriman.
 El material a soldar será identificado, apropiado y compatible para soldar el
componente. No se necesita certificado de material.
 Dichos acoplamientos serán retirados por esmerilado de sus puntos de
fijación. No se permite hacerlo por impacto (martilleo).
• Los diámetros interiores de las tuberías se alinean considerando la tolerancia que
indican los fabricantes para diámetros y espesores:
 Cuando el desalineamiento interno exceda de 1/16" (1.6 mm), se mecaniza la
superficie interior de la tubería de la parte más gruesa.
PROCEDIMIENTO DE TRABAJO SEGURO PARA MONTAJE DE
TUBERIA EN DIFERENTES AREAS DEL PROYECTO
EXPANSIÓN METOR OBRA: MONTAJE MECANICO, TUBERIA, Y
ESTRUCTURAS METALICAS
No de Rev.: 1
FECHA: 14/10/08
PÁGINA: 18 de 31
 Cuando el desalineamiento interno no exceda de 1/16" (1.6 mm) se puede
soldar sin necesidad de modificar la junta.
• En caso de existir ovalamiento en los tubos y uno de ellos permita ser girado
alrededor de su eje sin alterar la posición final en el sistema (es decir, no tiene
ramificaciones), se colocan los diámetros mayores de cada uno coincidentes para
evitar sobrepasar las tolerancias anteriormente especificadas.
• No se preparan ni se soldaran dos elementos que se compruebe una vez
ensamblados van a exceder las tolerancias permitidas. Estos desalineamientos se
corrigen de manera pertinente siempre que ello no repercuta sobre otras
tolerancias de fabricación o reduzca espesores de pared por debajo del mínimo
especificado.
• En uniones bridadas, debe existir un perfecto acoplamiento y coincidencia en los
agujeros antes de colocar ningún perno; el contacto entre las caras de las bridas
debe ser uniforme. Si las bridas son de material distinto, se coloca un aislamiento
entre ellas para prevenir la corrosión y en ese sentido los pernos deben ser
también de material compatible con el de las bridas. Antes de ajustar los pernos se
revisan las caras de las bridas, las cuales no deben presentar daños superficiales,
suciedad o exceso de aceite o grasa.
• Se usa una secuencia de ajuste (apriete) de los pernos para asegurar la adecuada
compresión de las empacaduras.
• Los accesorios y válvulas se montan de acuerdo a planos e instrucciones de los
fabricantes. Antes de montarse, las válvulas son revisadas y comprobadas en su
limpieza, estado y funcionamiento.
• Las nomenclaturas y los colores de tuberías para los distintos fluidos serán los
especificados por el Cliente.
• Una vez posicionado el tubo y/o spool en su coordenada conforme lo indicado en
los planos, sé verifica la correcta ubicación utilizando cintas métricas y niveles y,
en caso de que sea necesario la verificación por topografía, se solicita la presencia
del topógrafo para una inspección. En caso de que sea detectada alguna
interferencia que no posibilite la continuación de la instalación de la tubería se
emite una solicitud de aclaración de información.
• Para los casos de conexiones bridadas se verifica que los accesorios utilizados
(empacaduras, válvulas, filtros, otros) son originales (según lo especificado por el
Proyecto) y si el sentido de flujo está correcto antes de ejecutar el apernado. Se
PROCEDIMIENTO DE TRABAJO SEGURO PARA MONTAJE DE
TUBERIA EN DIFERENTES AREAS DEL PROYECTO
EXPANSIÓN METOR OBRA: MONTAJE MECANICO, TUBERIA, Y
ESTRUCTURAS METALICAS
No de Rev.: 1
FECHA: 14/10/08
PÁGINA: 19 de 31
debe verificar la cantidad de hilos (3 hilos) pasante en los pernos para asegurar él
apriete adecuado y que el perno o espárrago sea el indicado en el isométrico.
• Una vez instalados y soldados los spool, se verifica que toda la soportería y
derivaciones para instrumentación requeridas según lo indicado en los planos
están completas; caso contrario, se procede a la completación.
PROCEDIMIENTO DE TRABAJO SEGURO PARA MONTAJE DE
TUBERIA EN DIFERENTES AREAS DEL PROYECTO
EXPANSIÓN METOR OBRA: MONTAJE MECANICO, TUBERIA, Y
ESTRUCTURAS METALICAS
No de Rev.: 1
FECHA: 14/10/08
PÁGINA: 20 de 31
ACTIVIDADES POSTERIORES:
• Realizar limpieza y saneamiento general de toda el área de trabajo.
• Desmovilizar todos los materiales y herramientas.
• Inspeccionar y aprobar el estado final del sitio de trabajo.
• Verificar que no se haya ocasionado daño al Ambiente y a los Ecosistemas presentes.
• Acordonar el área de trabajo con cinta de color rojo.
• Efectuar orden y limpieza antes, durante y después de la actividad.
XII MEDIDAS DE SEGURIDAD, HIGIENE Y AMBIENTE:
RIESGOS ASOCIADOS A LA ACTIVIDAD:
• Explosión / Incendio
• Golpeado por / contra
• Caída a un mismo nivel
• Caída de diferente nivel
• Atrapado por / contra
• Exposición a Ruido
• Arrollado por movilización de vehículos en el área
• Contacto con temperaturas extremas
• Inhalación de vapores y gases.
• Proyección de partículas al cuerpo
• Contacto con objetos filosos punzopenetrante
PROCEDIMIENTO DE TRABAJO SEGURO PARA MONTAJE DE
TUBERIA EN DIFERENTES AREAS DEL PROYECTO
EXPANSIÓN METOR OBRA: MONTAJE MECANICO, TUBERIA, Y
ESTRUCTURAS METALICAS
No de Rev.: 1
FECHA: 14/10/08
PÁGINA: 21 de 31
ACCIONES DE PREVENCIÓN Y CONTROL:
• Verificar las áreas de trabajo y garantizar que los riesgos sean identificados antes de la ejecución del
trabajo.
• Uso del equipo de protección personal obligatorio (casco, lentes, guantes, botas, barbiquejos,
bragas, arnés de seguridad, aros de vida, cabos de vida)
• Mantenerse atentos y precavidos a las actividades que se están realizando.
• Cumplir con los pasos contemplados en el ARETE.
• Todo el personal debe conocer los aspectos constructivos y las acciones preventivas de los riesgos
implícitos en cada uno de los pasos a ejecutar.
• Restringir el acceso de personal no involucrado en la actividad.
• Ubicar equipos para combate de incendios (extintores de 20 libras de PQS).
• Eslingarse en todo momento uso obligatorio de arnés con cabo de vida doble a partir de 1,5 mts al
igual de las líneas de vida y aros de vida donde no exista plataforma.
• Divulgación del ARETE mediante charla de 05 minutos para así mantener informado al personal de
los riesgos a los cuales están expuestos.
• Emplear operadores de equipo de izamiento y aparejadores competentes y certificados.
• Usar 2 cabos guías para el control de la carga.
• No exponerse debajo de la carga suspendida, ni pasar la carga sobre el personal.
• Emplear cintas de color rojo para señalizar los sitios de trabajo de izamiento de carga.
• Asegurar herramientas menores cuando se trabaje en altura.
• Las herramientas a utilizar deben estar inspeccionadas y deberán cumplir con el código de colores
correspondiente al trimestre.
• Las operaciones de traslación de tubería serán autorizadas y dirigidas por el supervisor responsable
del trabajo.
• Antes de trasladar la tubería, se deben chequear la posición de las eslingas, grilletes y los amarres
para evitar movimientos bruscos
• Mantener radios de comunicación en el sitio de la maniobra.
• Divulgar, mantener y cumplir con el procedimiento de trabajo seguro.
PROCEDIMIENTO DE TRABAJO SEGURO PARA MONTAJE DE
TUBERIA EN DIFERENTES AREAS DEL PROYECTO
EXPANSIÓN METOR OBRA: MONTAJE MECANICO, TUBERIA, Y
ESTRUCTURAS METALICAS
No de Rev.: 1
FECHA: 14/10/08
PÁGINA: 22 de 31
XIII PLAN DE EMERGENCIA:
Este plan comprende las acciones a seguir en caso de presentarse una emergencia durante la ejecución
de la obra, a fin de facilitar su control y minimizar las pérdidas.
OBJETIVOS:
• Establecer los lineamientos y/ o procedimientos a seguir en caso de emergencias y la organización
necesaria para la aplicación de los mismos.
• Desarrollar estrategias para manejar situaciones de emergencia a fin de garantizar la seguridad
del personal, instalaciones, áreas circunvecinas y la preservación del medio ambiente, así como
minimizar las posibles consecuencias.
• Definir responsabilidades en las acciones de control de emergencia.
ALCANCE:
• Orientado a contrarrestar los efectos por accidentes e incidentes, aplicables a todas las
actividades a realizar en los trabajos de Montaje de tubería en diferentes áreas del Proyecto
Expansión Metor. Como parte de la estrategia para la aplicación del plan, se dará a conocer al
personal el contenido del mismo para garantizar el éxito y minimizar los efectos de eventos no
deseados. Se identificarán los equipos en servicio asociados al área de trabajo.
PROCEDIMIENTO DEL PLAN DE EMERGENCIA EN CASO DE ACCIDENTES PERSONALES:
Pasos a seguir:
• El supervisor de obra, suspende inmediatamente la actividad que se esté realizando y reporta el
accidente al supervisor inmediato, al Inspector de construcción de URIMAN y al custodio del área
de trabajo.
• Mantener serenidad y control de la situación.
• Desalojar el área para evitar aglomeración de las personas, nuevas lesiones y permitir el acceso al
personal paramédico para prestar los primeros auxilios que se requieran.
• Despejar el lugar donde se encuentre el accidentado para brindarle mayor ventilación.
PROCEDIMIENTO DE TRABAJO SEGURO PARA MONTAJE DE
TUBERIA EN DIFERENTES AREAS DEL PROYECTO
EXPANSIÓN METOR OBRA: MONTAJE MECANICO, TUBERIA, Y
ESTRUCTURAS METALICAS
No de Rev.: 1
FECHA: 14/10/08
PÁGINA: 23 de 31
• No mover el paciente del lugar donde se encuentra accidentado, hasta no identificar con el
paramédico la lesión y la gravedad de la misma.
• Trasladar al lesionado inmediatamente al centro asistencial más cercano Servicios Médicos
URIMAN y desde allí de ser necesario, a un centro especializado.
• Reportar al departamento de Seguridad, Higiene y ambiente de URIMAN.
• En caso de accidente fatal, no mover a la víctima, e informar a las autoridades competentes.
• El supervisor de obra y el Inspector de Seguridad, Higiene y Ambiente del consorcio GBC-
PROYCCA, darán inicio a la investigación del evento. Así como la notificación e información, al
Instituto Nacional de Prevención, Salud y Seguridad Laboral (Reporte inmediato al Inpsasel), entre
otros.
• El coordinador de Seguridad, Higiene y Ambiente del consorcio GBC-PROYCCA, debe elaborar
un informe antes de las 24 horas siguientes, detallado de lo acontecido.
PERSONAL INVOLUCRADO EN EL PLAN DE EMERGENCIA:
• Los trabajadores.
• Paramédico.
• Conductor de la ambulancia.
• Inspector de S.H.A CGP.
• Supervisor de obra CGP.
• Superintendente CGP.
• Gerente de Construcción CGP.
• Gerente de Proyecto CGP.
EQUIPO INVOLUCRADO PLAN DE EMERGENCIA:
• Ambulancia.
• Vehículo del supervisor.
• Equipos de extintores tipo PQS 20 lbs.
• Radios portátiles.
PROCEDIMIENTO DE TRABAJO SEGURO PARA MONTAJE DE
TUBERIA EN DIFERENTES AREAS DEL PROYECTO
EXPANSIÓN METOR OBRA: MONTAJE MECANICO, TUBERIA, Y
ESTRUCTURAS METALICAS
No de Rev.: 1
FECHA: 14/10/08
PÁGINA: 24 de 31
TELEFONOS EN CASO DE EMERGENCIA
BOMBEROS DE PLANTA 0281-2774641
GUARDIA NACIONAL 0281- 2606343
POLICIA 0281-2761815
HOSPITAL DE BARCELONA 0281-2772033
HOSPITAL DEL SEGURO SOCIAL 0281-2862365
CLINICA DE PEQUIVEN 0281-2708029
CLINICA ZAMBRANO 0281-2701311
PERSONAL A SER NOTIFICADO EN CASO DE EMERGENCIA CGP:
CARGO NOMBRE TELEFONO
GTTE. DE PROYECTO JUAN SABARICH 0414-2650963
GTTE. DE CONSTRUCCION FREDDY HERNANDEZ 0414-7653001
COORD. SHA ALVARO LOPEZ 0424-8086790
COORD. LABORALES RENE LOPEZ 0414-7814853
PERSONAL DE URIMAN
CARGO NOMBRE TELEFONO
JUAN GUERRA GERENTE DE CONSTRUCCIÓN 0414-1261513
CARLOS SEMECO GERENTE SHA
0414-2325788
PROCEDIMIENTO DE TRABAJO SEGURO PARA MONTAJE DE
TUBERIA EN DIFERENTES AREAS DEL PROYECTO
EXPANSIÓN METOR OBRA: MONTAJE MECANICO, TUBERIA, Y
ESTRUCTURAS METALICAS
No de Rev.: 1
FECHA: 14/10/08
PÁGINA: 25 de 31
JOSE L RODRIGUEZ SUPERINTENDENTE GENERAL 0414-0283862
HECTOR ZERPA COORD. LABORAL 0414-7727124
WILLIAN GALVAN SUPERINTENDENTE LIDER 0412-7193522
LUCILA MEDINA MÉDICO
0414-8412015
PROCEDIMIENTO DE DESALOJO:
Para el desalojo del área el personal debe utilizar las vías de escape indicadas en el sitio de la
instalación por avisos, dirigirse al lugar de concentración y quedar a la espera de instrucciones por el
custodio de la instalación. Esta instrucción debe seguirse de acuerdo al Sistema de Alarma de
Desalojo previsto en las instalaciones de METOR, y el Plan General para Control de Emergencia PI-
P 030 de URIMAN. Todo el personal deberá cumplir con los siguientes lineamientos:
• Al ocurrir la emergencia, los vehículos, equipos pesados y cualquier maquina eléctrica o de
combustión interna se deben desconectar o apagar y dirigirse a pie hacia las áreas de
concentración por rutas de escape.
• Previamente el supervisor involucrado en la actividad conjuntamente con la brigada de
emergencia, utilizarán la ruta de escape, indicada por los avisos, para desalojar a todo el personal
del área crítica.
• Una vez en el área de concentración se procederá al conteo del personal involucrado en el
proyecto.
• Se contará con equipo de radio portátil en los vehículos y equipos manuales que tendrá el
supervisor de la actividad, coordinador de Seguridad, Higiene y Ambiente y paramédico.
• Notificar telefónicamente al personal de Uriman.
• El Coordinador de SHA comunica (vía radio) a los supervisores de la empresa y al respectivo
gerente de construcción.
• Nadie puede regresar a las áreas de trabajo hasta que el Supervisor de Uriman responsable del
trabajo y Gerente SHA de URIMAN, hayan dado orden después de verificar que todo está
despejado.
INCENDIO EN INMEDIACIONES DE ÁREAS DE TRABAJO:
PROCEDIMIENTO DE TRABAJO SEGURO PARA MONTAJE DE
TUBERIA EN DIFERENTES AREAS DEL PROYECTO
EXPANSIÓN METOR OBRA: MONTAJE MECANICO, TUBERIA, Y
ESTRUCTURAS METALICAS
No de Rev.: 1
FECHA: 14/10/08
PÁGINA: 26 de 31
• En caso de que se genere un fuego en el área de trabajo de la empresa, se procurará hacer la
extinción del mismo con los medios propios disponibles en el área. A tal efecto, los supervisores
estarán debidamente entrenados y facultados en las técnicas de combate de incendios y en el uso
efectivo de los extintores contra incendios.
• En caso de que no se logre extinguir el incendio y se observa la propagación acelerada del mismo,
se procederá a notificar al custodio de la instalación y avisar de inmediato en paralelo a la
extinción, de tal manera que pueda comunicarse inmediatamente con el cuerpo de bomberos.
Paralelo a ello, el inspector de SHA destacado en sitio conjuntamente con la brigada de
emergencia procederá a retirar al personal ubicado en el área, movilizándolo hacia el área de
concentración en espera de instrucciones por parte del supervisor URIMAN.
• El personal involucrado en la emergencia deberá caminar hacia los sitios de concentración
usando las rutas de evacuación previamente señalizadas.
EN PRESENCIA DE NH3 (AMONIACO):
• En caso de fuga de amoníaco NH3 utilizar los Kit para Amoníaco y mantenerlos en los sitios de
trabajo de manera accesible
• Esperar siempre la autorización por personal de URIMAN para ingreso al área de trabajo,
mantenerse alerta.
• El personal deberá mantener su rostro siempre afeitado y/o rasurado para el buen ajuste al
momento del uso de la máscara de NH3.
• Evacuar siempre en dirección contraria a la dirección del viento hacia el punto de concentración
más cercano.
PROCEDIMIENTO DE TRABAJO SEGURO PARA MONTAJE DE
TUBERIA EN DIFERENTES AREAS DEL PROYECTO
EXPANSIÓN METOR OBRA: MONTAJE MECANICO, TUBERIA, Y
ESTRUCTURAS METALICAS
No de Rev.: 1
FECHA: 14/10/08
PÁGINA: 27 de 31
XIV ANEXOS
PROCEDIMIENTO DE TRABAJO SEGURO PARA MONTAJE DE
TUBERIA EN DIFERENTES AREAS DEL PROYECTO
EXPANSIÓN METOR OBRA: MONTAJE MECANICO, TUBERIA, Y
ESTRUCTURAS METALICAS
No de Rev.: 1
FECHA: 14/10/08
PÁGINA: 28 de 31
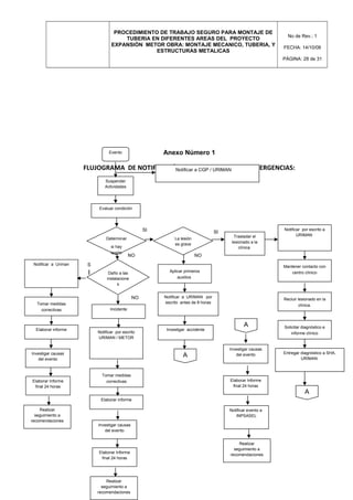
Anexo Número 1
FLUJOGRAMA DE NOTIFICACIÓN Y ACCION EN CASO DE EMERGENCIAS:
NO NO
Evento
Suspender
Actividades
Notificar a CGP / URIMAN
Evaluar condición
Determinar
si hay
lesión
La lesión
es grave
Daño a las
instalacione
s
Mantener contacto con
centro clínico
Recluir lesionado en la
clínica.
Solicitar diagnóstico e
informe clínico
Entregar diagnóstico a SHA,
URIMAN
A
Aplicar primeros
auxilios
Notificar a URIMAN por
escrito antes de 8 horas
Investigar accidente
A
Incidente
Notificar por escrito
URIMAN / METOR
Tomar medidas
correctivas
Notificar a Uriman
Elaborar informe
Tomar medidas
correctivas
Elaborar informe
SI SI
S
I
NO
Trasladar el
lesionado a la
clínica
Notificar por escrito a
URIMAN
Investigar causas
del evento
Elaborar Informe
final 24 horas
A
Notificar evento a
INPSASEL
Realizar
seguimiento a
recomendaciones
Investigar causas
del evento
Elaborar Informe
final 24 horas
Realizar
seguimiento a
recomendaciones
Investigar causas
del evento
Elaborar Informe
final 24 horas
Realizar
seguimiento a
recomendaciones
PROCEDIMIENTO DE TRABAJO SEGURO PARA MONTAJE DE
TUBERIA EN DIFERENTES AREAS DEL PROYECTO
EXPANSIÓN METOR OBRA: MONTAJE MECANICO, TUBERIA, Y
ESTRUCTURAS METALICAS
No de Rev.: 1
FECHA: 14/10/08
PÁGINA: 29 de 31
ANEXO 2
Ruta de evacuación especifica del lugar de trabajo
PROCEDIMIENTO DE TRABAJO SEGURO PARA MONTAJE DE
TUBERIA EN DIFERENTES AREAS DEL PROYECTO
EXPANSIÓN METOR OBRA: MONTAJE MECANICO, TUBERIA, Y
ESTRUCTURAS METALICAS
No de Rev.: 1
FECHA: 14/10/08
PÁGINA: 30 de 31
ANEXO 3
Croquis de planta de la construcción de plataformas en Pipe Rack
PROCEDIMIENTO DE TRABAJO SEGURO PARA MONTAJE DE
TUBERIA EN DIFERENTES AREAS DEL PROYECTO
EXPANSIÓN METOR OBRA: MONTAJE MECANICO, TUBERIA, Y
ESTRUCTURAS METALICAS
No de Rev.: 1
FECHA: 14/10/08
PÁGINA: 31 de 31
PROCEDIMIENTO DE TRABAJO SEGURO PARA MONTAJE DE
TUBERIA EN DIFERENTES AREAS DEL PROYECTO
EXPANSIÓN METOR OBRA: MONTAJE MECANICO, TUBERIA, Y
ESTRUCTURAS METALICAS
No de Rev.: 1
FECHA: 14/10/08
PÁGINA: 32 de 31
PROCEDIMIENTO DE TRABAJO SEGURO PARA MONTAJE DE
TUBERIA EN DIFERENTES AREAS DEL PROYECTO
EXPANSIÓN METOR OBRA: MONTAJE MECANICO, TUBERIA, Y
ESTRUCTURAS METALICAS
No de Rev.: 1
FECHA: 14/10/08
PÁGINA: 33 de 31
PROCEDIMIENTO DE TRABAJO SEGURO PARA MONTAJE DE
TUBERIA EN DIFERENTES AREAS DEL PROYECTO
EXPANSIÓN METOR OBRA: MONTAJE MECANICO, TUBERIA, Y
ESTRUCTURAS METALICAS
No de Rev.: 1
FECHA: 14/10/08
PÁGINA: 34 de 31
ANEXO 4
Croquis de sección típica de tubería en Pipe Rack
PROCEDIMIENTO DE TRABAJO SEGURO PARA MONTAJE DE
TUBERIA EN DIFERENTES AREAS DEL PROYECTO
EXPANSIÓN METOR OBRA: MONTAJE MECANICO, TUBERIA, Y
ESTRUCTURAS METALICAS
No de Rev.: 1
FECHA: 14/10/08
PÁGINA: 35 de 31
PROCEDIMIENTO DE TRABAJO SEGURO PARA MONTAJE DE
TUBERIA EN DIFERENTES AREAS DEL PROYECTO
EXPANSIÓN METOR OBRA: MONTAJE MECANICO, TUBERIA, Y
ESTRUCTURAS METALICAS
No de Rev.: 1
FECHA: 14/10/08
PÁGINA: 36 de 31
PROCEDIMIENTO DE TRABAJO SEGURO PARA MONTAJE DE
TUBERIA EN DIFERENTES AREAS DEL PROYECTO
EXPANSIÓN METOR OBRA: MONTAJE MECANICO, TUBERIA, Y
ESTRUCTURAS METALICAS
No de Rev.: 1
FECHA: 14/10/08
PÁGINA: 37 de 31
ANEXO 5
Croquis referencial de tubería en Pipe Rack según elevaciones
PROCEDIMIENTO DE TRABAJO SEGURO PARA MONTAJE DE
TUBERIA EN DIFERENTES AREAS DEL PROYECTO
EXPANSIÓN METOR OBRA: MONTAJE MECANICO, TUBERIA, Y
ESTRUCTURAS METALICAS
No de Rev.: 1
FECHA: 14/10/08
PÁGINA: 38 de 31
PROCEDIMIENTO DE TRABAJO SEGURO PARA MONTAJE DE
TUBERIA EN DIFERENTES AREAS DEL PROYECTO
EXPANSIÓN METOR OBRA: MONTAJE MECANICO, TUBERIA, Y
ESTRUCTURAS METALICAS
No de Rev.: 1
FECHA: 14/10/08
PÁGINA: 39 de 31
18.300
14.300
21.300
8.300
PROCEDIMIENTO DE TRABAJO SEGURO PARA MONTAJE DE
TUBERIA EN DIFERENTES AREAS DEL PROYECTO
EXPANSIÓN METOR OBRA: MONTAJE MECANICO, TUBERIA, Y
ESTRUCTURAS METALICAS
No de Rev.: 1
FECHA: 14/10/08
PÁGINA: 40 de 31
ANEXO 6
Tabla de carga para el cálculo de izamiento

139316157 procedimiento-montaje-de-tuberia-en-general

  • 1.
    PROCEDIMIENTO DE TRABAJOSEGURO PARA MONTAJE DE TUBERIA EN DIFERENTES AREAS DEL PROYECTO EXPANSIÓN METOR OBRA: MONTAJE MECANICO, TUBERIA, Y ESTRUCTURAS METALICAS No de Rev.: 1 FECHA: 14/10/08 PÁGINA: 1 de 31 PROCEDIMIENTO DE TRABAJO SEGURO PARA MONTAJE DE TUBERIA Y SPOOL EN DIFERENTES AREAS DEL PROYECTO EXPANSIÓN METOR OBRA: MONTAJE MECANICO, TUBERIAS Y ESTRUCTURAS METALICAS Octubre, 2008
  • 2.
    PROCEDIMIENTO DE TRABAJOSEGURO PARA MONTAJE DE TUBERIA EN DIFERENTES AREAS DEL PROYECTO EXPANSIÓN METOR OBRA: MONTAJE MECANICO, TUBERIA, Y ESTRUCTURAS METALICAS No de Rev.: 1 FECHA: 14/10/08 PÁGINA: 2 de 31 HOJA DE APROBACIÓN: URIMAN,SA APROBADO POR: APROBADO POR: ___________________ JOSE L RODRIGUEZ SUPERINTENDENTE GENERAL ________________ CARLOS SEMECO GERENTE. SHA CONSORCIO GBC-PROYCCA ELABORADO POR: REVISADO POR: ___________________ SUPERVISOR DE CONSTRUCCION PASTOR CASTILLO ________________ GERENTE DE CONSTRUCCION FREDDY HERNANDEZ APROBADO POR: APROBADO POR: ________________ GERENTE DE PROYECTO JUAN SABARICH _______________ COORD. SHA ALVARO LOPEZ
  • 3.
    PROCEDIMIENTO DE TRABAJOSEGURO PARA MONTAJE DE TUBERIA EN DIFERENTES AREAS DEL PROYECTO EXPANSIÓN METOR OBRA: MONTAJE MECANICO, TUBERIA, Y ESTRUCTURAS METALICAS No de Rev.: 1 FECHA: 14/10/08 PÁGINA: 3 de 31 CONTENIDO DESCRIPCIÓN PAG Título 1 Hoja de aprobación 2 Contenido 3 I Objetivo 4 II Alcance 4 III Tiempo de ejecución 4 IV Referencias 4 V Lugar de trabajo 4 VI Tipo de Trabajo 4 VII Listado de Equipos 5 VIII Listado de Materiales y Herramientas 5 IX Listado de Equipo de Protección Personal 6 X Personal Involucrado 6
  • 4.
    PROCEDIMIENTO DE TRABAJOSEGURO PARA MONTAJE DE TUBERIA EN DIFERENTES AREAS DEL PROYECTO EXPANSIÓN METOR OBRA: MONTAJE MECANICO, TUBERIA, Y ESTRUCTURAS METALICAS No de Rev.: 1 FECHA: 14/10/08 PÁGINA: 4 de 31 XI Descripción de las actividades 9 XII Medidas de Seguridad, Higiene y Ambiente 20 XIII Plan de Emergencia 22 XIV Anexos 27 Anexo 1. Flujograma de Notificación en caso de Accidente e Incidente 28 Anexo 2. Ruta de evacuación especifica del lugar de trabajo 29 Anexo 3. Croquis de planta de construcción de plataformas en Pipe Rack 31 Anexo 4. Croquis de sección típica en Pipe Rack 33 Anexo 5. Croquis de referencial de tubería en Pipe Rack según elevaciones 35 Anexo 6. Tabla de carga para el calculo de izamiento 36 I OBJETIVO: El propósito de este procedimiento es asegurar que todas la actividades relacionadas con el MONTAJE DE TUBERIA EN DIFERENTES AREAS DEL PROYECTO EXPANSION METOR se ejecuten de acuerdo al diseño de ingeniería, especificaciones y prácticas de Trabajo Seguro del Consorcio GBC- PROYCCA, de forma asegurar que las normas que rigen esta materia se cumplan cabalmente, garantizando la integridad física de los trabajadores, instalaciones en general, ambiente y terceros. II ALCANCE: El alcance contempla los trabajos de MONTAJE DE TUBERIA EN DIFERENTES AREAS DEL PROYECTO EXPANSION METOR en la obra: Montaje Mecánico, Tuberías y estructuras metálicas, siguiendo los pasos y lineamientos especificados en este procedimiento. Este Procedimiento es aplicable al personal de Consorcio GBC-PROYCCA y terceros, involucrado en la actividad. III TIEMPO DE EJECUCIÓN: Las actividades tienen un tiempo estimado de duración de acuerdo con lo estimado en la planificación a partir de la fecha de inicio de la misma, laborándose en turnos de 8 horas comprendido desde las 7:00 AM hasta las 4:00 PM. IV REFERENCIAS: • Procedimiento de operaciones de izamiento 1145-01-900-039-ADM-128 • Procedimiento de permiso de trabajo.
  • 5.
    PROCEDIMIENTO DE TRABAJOSEGURO PARA MONTAJE DE TUBERIA EN DIFERENTES AREAS DEL PROYECTO EXPANSIÓN METOR OBRA: MONTAJE MECANICO, TUBERIA, Y ESTRUCTURAS METALICAS No de Rev.: 1 FECHA: 14/10/08 PÁGINA: 5 de 31 • Procedimiento para la Identificación y Análisis de Riesgos. • Ver plan de inspección y prueba de fabricación, montaje y prueba de tubería. V LUGAR DE TRABAJO: Esta actividad se va a ejecutar en el área del Proyecto Expansión Metor en el Criogénico de José estado Anzoátegui. VI TIPO DE TRABAJO: • MONTAJE DE TUBERIA Y SPOOL EN DIFERENTES AREAS DEL PROYECTO EXPANSION METOR VII LISTADO DE EQUIPOS: EQUIPOS CANTIDAD Grúa de 30 /45 /60/ 75/90 Ton 01 Elevadores tipo Manlift 03 Gandola con batea 02 Camión 350 01 Camioneta Pick-up 01 Guinche 02 Planta eléctrica 02 VIII LISTADO DE MATERIALES Y HERRAMIENTAS: MATERIALES Y HERRAMIENTAS CANTIDAD Rodillos 15 Tirfold de 1.5 a 5 Ton 10 Señoritas de 3 a 5 Ton 10 Extintores PQS de 20 lb 02 Troley 06 Radios Portátiles 06 Cuerpos de andamios (Construcción de plataforma ) Varios Conos de señalización, Avisos preventivos y Cinta de señalización preventiva. Varios Grilletes de 1” de diámetro. 10 Grillete de 2” de diámetro. 10 Caja de Herramientas 02 Agua potable, vasos, bolsas plásticas, hielo y demás consumibles Varios Mecate (cabos guías) Varios.
  • 6.
    PROCEDIMIENTO DE TRABAJOSEGURO PARA MONTAJE DE TUBERIA EN DIFERENTES AREAS DEL PROYECTO EXPANSIÓN METOR OBRA: MONTAJE MECANICO, TUBERIA, Y ESTRUCTURAS METALICAS No de Rev.: 1 FECHA: 14/10/08 PÁGINA: 6 de 31 Línea de vida Varios Aros de vida (guayas de 3/8” * 1,70 mts) Varios Fajas de nylon 4” x 6 metros Varias Cuñas de madera Varias Nivel Varios Abrazaderas para cable Varias Equipo de topografía. 01 IX LISTADO DE EQUIPO DE PROTECCIÓN PERSONAL: EQUIPOS DE PROTECCIÓN PERSONAL NORMAS Casco ANSI Z.89.1 COVENIN 815-1999 Lentes contra impacto ANSI Z.87.1 Botas de seguridad ANSI Z.41 COVENIN 39-1997 Guantes COVENIN 82-1997 Protección auditiva COVENIN 1565-1995 Bragas TIPO CONSTRUCCIÓN Arnés de seguridad COVENIN 1042 X PERSONAL INVOLUCRADO: Gerente de Construcción 01 Superintendente de Construcción 01 Supervisores/Capataces 01 Coordinador SHA 01 Cordinador QA/QC 01 Inspector SHA 01 Inspector QA/QC 01 Paramédico 01 Chofer de Ambulancia 01 Obreros 08 Operadores 04 Rigger 02 Montadores mecánicos 08 Topografo 01
  • 7.
    PROCEDIMIENTO DE TRABAJOSEGURO PARA MONTAJE DE TUBERIA EN DIFERENTES AREAS DEL PROYECTO EXPANSIÓN METOR OBRA: MONTAJE MECANICO, TUBERIA, Y ESTRUCTURAS METALICAS No de Rev.: 1 FECHA: 14/10/08 PÁGINA: 7 de 31 Responsabilidades: GERENTE / SUPERINTENDENTE DE CONSTRUCCIÓN: • Implantar y asegurar el cumpliendo del presente procedimiento. • Velar por el cumplimiento de las Normas, Reglamentos, Leyes y Ordenanzas en materia de Seguridad, Higiene y Ambiente. • Notificar ante la gerencia contratante cualquier evento indeseado ocurrido en la obra. • Aportar recursos requeridos para la ejecución segura del trabajo. • Dar el apoyo necesario y plena autoridad al Departamento de Seguridad, Higiene y Ambiente para el cumplimiento de sus funciones. • Asegurar la divulgación del Procedimiento de Trabajo Seguro a todo el personal involucrado. COORDINADOR SHA: • Asesorar a la empresa contratista en materia de Seguridad, Higiene y Ambiente. • Controlar y verificar cumplimiento del plan específico de S.H.A. • Participar en la preparación de planes de emergencia. • Asesorar a la Supervisión de línea en la investigación de accidentes / incidentes. • Verificar el cumplimiento de las recomendaciones surgidas de las investigaciones de accidentes / incidentes. • Asistir a la Supervisión de línea en la elaboración del Análisis de Riesgos en tareas específicas (ARETE). COORDINADOR QA/QC: • Asesorar a la empresa contratista en materia de QA/QC. • Controlar y verificar cumplimiento del plan de QA/QC y procedimiento exigidos por el cliente. • Verificar la certificación, archivo y control de los registros que se generen de la aplicación de este procedimiento y procedimientos relacionados. • Verificar el cumplimiento de las recomendaciones surgidas durante la realización de trabajos en materia de QA/QC. • Asistir a las reuniones de seguimiento semanal con el cliente. INSPECTOR SHA: • Detectar actos y condiciones inseguras. • Motivar al trabajador en las prácticas seguras de trabajo. • Revisar credenciales de la certificación de los operadores / equipos. • Velar por el cumplimiento de las normas de Seguridad, Higiene y Ambiente. • Asesorar al supervisor de la obra en la realización del sistema de Análisis de Riesgos en Tareas Especificas (ARETE). • Asistir a la Supervisión de línea en el dictado de las Charlas Seguridad. • Chequear e inspeccionar maquinarias y equipo. • Mantenerse en el área de trabajo durante los trabajos.
  • 8.
    PROCEDIMIENTO DE TRABAJOSEGURO PARA MONTAJE DE TUBERIA EN DIFERENTES AREAS DEL PROYECTO EXPANSIÓN METOR OBRA: MONTAJE MECANICO, TUBERIA, Y ESTRUCTURAS METALICAS No de Rev.: 1 FECHA: 14/10/08 PÁGINA: 8 de 31 SUPERVISORES / CAPATACES: • Elaborar el Análisis de Riesgos en Tareas Específicas (ARETE). • Instruir a todo trabajador antes de realizar cualquier tarea. • Hacer cumplir las reglas, normas y procedimientos de seguridad establecidos. • Realizar inspecciones periódicas en busca de prácticas y condiciones de trabajo inseguras, dar medidas correctivas para mitigar estas. • Investigar los accidentes e incidentes. • Dictar charlas de seguridad. • Desarrollar y administrar un programa de orden y limpieza. • Asegurar que se suministren los equipos y dispositivos de seguridad para cada tarea. • Solicitar los permisos de trabajo requeridos. • Cumplir con lo establecido en presente Procedimiento de Trabajo Seguro. • Mantenerse en el área de trabajo durante los trabajos. PARAMEDICO: • Brindar asistencia de primeros auxilios ante cualquier emergencia / lesionado (leve o grave). • Reportar al Inspector SHA el estado físico que se encuentre el lesionado, para medidas relacionadas con el caso. • Llevar registro de control de pacientes. • Inspeccionar periódicamente los botiquines de primeros auxilios y realizar requisición de medicamentos faltantes. • Interviene en la logística del traslado de pacientes. CHOFER DE AMBULANCIA: • Inspeccionar regularmente la ambulancia, reportando deficiencias al Médico y Departamento SHA Consorcio GBC-PROYCCA. • Verificar vías de acceso a los diferentes sitios de trabajo. • Conducir unidad en caso de emergencia siguiendo los principios de manejo seguro en el Proyecto Expansión Uriman. MANO DE OBRA CALIFICADA Y OBREROS: • Acatar todas las normativas de prevención establecidas en este procedimiento. • Acatar las instrucciones de trabajos asignados por los Supervisores. • Seguir el Procedimiento de Trabajo Seguro establecido evitando las improvisaciones. • Evitar actos inseguros. • Adoptar posiciones físicas corporales adecuadas.
  • 9.
    PROCEDIMIENTO DE TRABAJOSEGURO PARA MONTAJE DE TUBERIA EN DIFERENTES AREAS DEL PROYECTO EXPANSIÓN METOR OBRA: MONTAJE MECANICO, TUBERIA, Y ESTRUCTURAS METALICAS No de Rev.: 1 FECHA: 14/10/08 PÁGINA: 9 de 31 • Asistir y participar en las charlas y adiestramientos realizados por el Inspector SHA, Coordinadores y Supervisores. • Leer y firmar el ARETE, en señal de demostrar y darse por enterado de los riesgos inherentes las actividades a realizar. • Mantenerse en el área de trabajo durante los trabajos. XI DESCRIPCIÓN DE LAS ACTIVIDADES: ACTIVIDADES PREVIAS: • Solicitar firmas de ARETES por el personal responsable de Uriman Y CGP. • Verificar y/o Suministrar el equipo de protección personal (guantes, lente, mascarilla, casco, zapatos con punta de acero, bragas, arnés de seguridad, barbiquejos etc.) • Verificar certificación de las grúas y revisión de accesorios de izaje (grilletes, eslingas, etc.). • Colocación de cabos guías antes del izamiento de la carga. • Instalación de los polines (rodillos) de lanzamiento de tubería en Pipe Rack previa inspección y liberación de los mismos. • Instalación de líneas de vida previo al inicio del trabajo cuyos accesos no excederán entre si 10 mts. • En la plataforma debe permanecer el personal estrictamente necesario para la maniobra. • Involucrar al personal en la actividad a través del ARETE de los riesgos asociados con la actividad, charla de 5 minutos y divulgación del Procedimiento de Trabajo Seguro. Firmar el ARETE. • Reconocer y evaluar el área de trabajo. Se debe verificar que las condiciones climatológicas sean las más favorables para la realización de los trabajos (no debe haber atmósferas explosivas, lluvias fuertes, vientos fuertes, etc.). • Todas las herramientas y equipos a utilizar serán inspeccionados previamente, revisados diariamente antes de comenzar cualquier actividad y se comprobará el correcto funcionamiento de los mismos. • Colocar los materiales, equipos y herramientas en sitio. • Verificar con el Supervisor de Andamios que los andamios (plataforma) hechos en el área. Tengan la tarjeta verde o roja con fecha y firma vigente. • Limpiar y ordenar el área de trabajo antes, durante y después de la actividad. • Acordonamiento y señalizar el área de trabajo con cinta de color rojo. • Se debe tener en cuenta en lo que respecta al lanzamiento de tubería en Pipe Rack, no instalar tuberías en niveles que pueda obstruir el deslizamiento de las tuberías, ya que al momento de pilotearlos, éstos serían obstruidos por las tuberías. • Mantener rigger en sitio para la maniobra de izamiento. • Todas las herramientas y materiales en altura deberán estar aseguradas.
  • 10.
    PROCEDIMIENTO DE TRABAJOSEGURO PARA MONTAJE DE TUBERIA EN DIFERENTES AREAS DEL PROYECTO EXPANSIÓN METOR OBRA: MONTAJE MECANICO, TUBERIA, Y ESTRUCTURAS METALICAS No de Rev.: 1 FECHA: 14/10/08 PÁGINA: 10 de 31 • Dar a conocer a todo el personal el plan de rescate de altura. PASÓ A PASO MONTAJE E INSTALACIÓN DE TUBERÍAS: El trabajo consiste en el montaje e instalación de tuberías de diferentes diámetros, incluyendo soportaría, en sus respectivas áreas del Proyecto Expansión Metor: a. Movimiento 1: Instalación de rodillo en cada pórtico y asegurando los mismos cada por nivel de la tubería a instalar dependiendo del diámetro, utilizando elevador tipo Man Lift. b. Movimiento 2: Se colocaran alfombras en todas las vigas por donde se deslizará la tubería con el fin de no dañar el revestimiento de los mismos c. Movimiento 3: Se ubicara la grúa en el pórtico (1) donde se iniciara con la introducción de tubería de acuerdo a las prioridades y la programación. Al introducir el tubo 6 mts. Se asegura con un amarre del segundo pórtico para poder rodar la faja y seguir deslizando el tubo hacia el tercer pórtico, se trabajara en conjunto con la grúa y un elevador para cambio de faja (eslinga) de posición y con el elevador para la posición de amarre del primer pórtico. Esta maniobra se realizara para cada tubo de 12 mts. d. Movimiento 4: Descansado el tubo en los dos primeros dos polines (6 mts) se procede a asegurar el extremo que se encuentra en el Pipe Rack con un tirfor o una faja mas grillete contra la viga del Pipe Rack, se afloja la eslinga y el operador de Man Lift cambiara la posición del amarre del tubo y se procede a deslizar el tubo con el tirford y/o guinche electrico. Luego se retira la eslinga y en forma manual se coloca el tubo en la posición donde se realizara la soldadura en la cual estará colocada una plataforma de andamios.
  • 11.
    PROCEDIMIENTO DE TRABAJOSEGURO PARA MONTAJE DE TUBERIA EN DIFERENTES AREAS DEL PROYECTO EXPANSIÓN METOR OBRA: MONTAJE MECANICO, TUBERIA, Y ESTRUCTURAS METALICAS No de Rev.: 1 FECHA: 14/10/08 PÁGINA: 11 de 31 CROQUIS DE MONTAJE DE TUBERÍAS EN PIPE RACK 040301 02 05 06 07 6 mts 6 mts Tubería Man lift Faja de 4”*6 Guinche eléctrico
  • 12.
    PROCEDIMIENTO DE TRABAJOSEGURO PARA MONTAJE DE TUBERIA EN DIFERENTES AREAS DEL PROYECTO EXPANSIÓN METOR OBRA: MONTAJE MECANICO, TUBERIA, Y ESTRUCTURAS METALICAS No de Rev.: 1 FECHA: 14/10/08 PÁGINA: 12 de 31 Cálculos de izaje: Grúa de 55 Ton. Terex Crane RT555-1. RADIO MÁXIMO 25´ ANGULO BOOM 35 º LONGITUD BOOM 35´ CAPACIDAD DE LA GRÚA 40.600 lbs. PESO DE LA CARGA 13.227 lbs. PESO DE BLOQUE Y ACCESORIOS 913 lbs. PESO TOTAL DE LA CARGA 14.140 Factor de seguridad: Peso total de la carga / Cap de la grúa * 100 35,29%
  • 13.
    PROCEDIMIENTO DE TRABAJOSEGURO PARA MONTAJE DE TUBERIA EN DIFERENTES AREAS DEL PROYECTO EXPANSIÓN METOR OBRA: MONTAJE MECANICO, TUBERIA, Y ESTRUCTURAS METALICAS No de Rev.: 1 FECHA: 14/10/08 PÁGINA: 13 de 31 PASÓ A PASO TRASLADO DE TUBERÍAS EN PIPE RACK: El trabajo consiste en traslado de la tubería recta sobre el Pipe Rack que luego serán soldadas cada 12 mts. En extensiones o plataformas de andamios. a. Movimiento 1: Se inicia con la instalación y deslizamiento de tuberías de 12 mts de longitud desde el eje No.1del Pipe Rack llevándolo hasta su posición y luego iniciando el proceso de soldadura de junta a todo lo largo del Pipe Rack, en la posición indicada en los planos aprobados para construcción y las indicaciones del topografo. b. Movimiento 2: El proceso de deslizamiento de la tubería sobre rodillos se hará a través del guinche eléctrico alimentado por una planta así como con tirfor apoyado en vigas transversales del Pipe Rack, llevando cada tubo de 12 mts. hasta su posición final para así luego iniciar con el proceso de soldadura de junta de cada tubo en plataformas acondicionadas para ejecutar estas actividades. c. Movimiento 3: Al tener toda la tubería recta, instalada y soldada se iniciara con el proceso de alineación y colocación de soportes y guías, en las coordenadas indicadas en los planos aprobados para construcción. NOTA: No se eliminara la plataforma de andamios hasta tanto no se termine los ensayos no destructivos (RX, TP y/o Tratamiento térmico) donde se requiera.
  • 14.
    PROCEDIMIENTO DE TRABAJOSEGURO PARA MONTAJE DE TUBERIA EN DIFERENTES AREAS DEL PROYECTO EXPANSIÓN METOR OBRA: MONTAJE MECANICO, TUBERIA, Y ESTRUCTURAS METALICAS No de Rev.: 1 FECHA: 14/10/08 PÁGINA: 14 de 31 6 mts Guinche CROQUIS DE TRASLADO DE TUBERÍAS Ø 2” HASTA 40” PIPE RACK PARA CADA NIVEL Planta
  • 15.
    PROCEDIMIENTO DE TRABAJOSEGURO PARA MONTAJE DE TUBERIA EN DIFERENTES AREAS DEL PROYECTO EXPANSIÓN METOR OBRA: MONTAJE MECANICO, TUBERIA, Y ESTRUCTURAS METALICAS No de Rev.: 1 FECHA: 14/10/08 PÁGINA: 15 de 31 INSTALACIÓN DE TUBERIAS Y SPOOL EN DIFERENTES AREAS DEL PROYECTO EXPANSION METOR: a. Generalidades. • Se dispone de todos los materiales (tuberías, bridas, accesorios, válvulas, espárragos, pernos, empacaduras, material de aislamiento, anillos de refuerzo, electrodos) conforme a sus especificaciones técnicas y de las herramientas y medios necesarios a emplear en el montaje. • Todos los spool suministrados por proveedores de prefabricación deben estar debidamente liberados por QA/QC antes de proceder a su montaje. • Se verifican todos los planos correspondientes a la obra (incluyendo los de otras especialidades), para verificar las condiciones de la misma y determinar posibles interferencias o necesidad de modificaciones y verificar que los espacios previstos son adecuados para las partes a instalar. En este sentido y antes de comenzar los trabajos, se informa al Cliente cualquier condición que no permita realizar un trabajo con la calidad adecuada. • Para facilitar el proceso de instalación de los spools en campo, el personal de topografía identifica las coordenadas en las columnas existentes e identifica los equipos con sus códigos en los cuales serán conectadas las tuberías. • Los isométricos elaborados para construcción tienen validez para el montaje. En este sentido, los isométricos para diámetros menores de 2" deben considerarse como referenciales. El trazo y las dimensiones de éstos son aproximadas, el estudio de su recorrido exacto y la orientación de las volantes de las válvulas deben verificarse y presentar cualquier modificación para aprobación del Cliente. • La zona de montaje debe estar limpia y bien iluminada, con los accesos en condiciones que garanticen la buena y segura ejecución de los trabajos. • Todas las tuberías y/o spool se protegen/cubren en sus extremos antes de ser transportadas y almacenadas a fin de evitar la penetración de cuerpos extraños, por medio de tapones de madera, plástico u otro material apropiado. Las caras de las bridas deben ser protegidas de una manera eficaz con discos de madera, plástico u otro elemento adecuado.
  • 16.
    PROCEDIMIENTO DE TRABAJOSEGURO PARA MONTAJE DE TUBERIA EN DIFERENTES AREAS DEL PROYECTO EXPANSIÓN METOR OBRA: MONTAJE MECANICO, TUBERIA, Y ESTRUCTURAS METALICAS No de Rev.: 1 FECHA: 14/10/08 PÁGINA: 16 de 31 b. Requisitos previos. • Se preparan los esquemas que muestren los tramos de tubería que se van a instalar. • Las tuberías, antes de su colocación, serán limpiadas por tramos de acuerdo a las indicaciones siguientes:  Se verifica cada tubo antes de su colocación con el fin de asegurarse de su limpieza. Cuando los tapones de protección han sido removidos, dañados, o cuando haya indicios de posible contaminación, la tubería se limpiará antes de colocarse. Esto puede hacerse mediante un soplado con compresor.  Los extremos abiertos de los tubos son taponados al final de cada jornada de trabajo, con un tipo de sello tal que impida que el agua, arena u otro material extraño penetre en la tubería. Tales tapones o sellos no se removerán hasta que el trabajo no se reanude. • Durante el montaje de las tuberías, no se usarán como áreas de almacenaje temporal ninguna estructura o instalación existente en la zona, salvo expresa autorización del Cliente. • El manipuleo de la tubería se hará evitando que ésta se aplaste, distorsione, raye o sufra cualquier otro daño. En el caso que la tubería tenga cubierta protectora, se tendrá especial cuidado en no dañarla. No se permitirá arrastrar o deslizar la tubería, y los tapones protectores de ella no se removerán hasta que esté lista para su inmediata instalación. • Previo a la instalación, la tubería será inspeccionada visualmente. Cualquier tubería dañada o distorsionada a tal punto que supere las tolerancias especificadas y no ofrezca garantías de un óptimo servicio, será reemplazada por otra nueva aprobada por el Cliente. En caso que se apruebe utilizar parte de la tubería dañada, se cortará la parte dañada y acondicionará el resto.
  • 17.
    PROCEDIMIENTO DE TRABAJOSEGURO PARA MONTAJE DE TUBERIA EN DIFERENTES AREAS DEL PROYECTO EXPANSIÓN METOR OBRA: MONTAJE MECANICO, TUBERIA, Y ESTRUCTURAS METALICAS No de Rev.: 1 FECHA: 14/10/08 PÁGINA: 17 de 31 c. Montaje. • Se verifica antes de la fijación de los soportes que no haya interferencias ni con equipos ni con otras líneas de tubos. • Los soportes que se instalan antes que la tubería se inspeccionan para confirmar su corrección en cuanto a las ubicaciones y niveles indicados en los planos y/o autorizados por el Cliente (replanteo topográfico). • Si es necesario se colocan soportes temporales como apoyo o elementos colgantes. Para los mismos, se evita en la medida de lo posible se suelden a otros elementos y nunca se soldarán a tuberías o equipos. • Se tiene en cuenta que las tuberías cuya instalación presente un sistema de calentamiento, deben llevar patines soldados al tubo en cada apoyo, de acuerdo a las especificaciones técnicas correspondientes. • Para mantener los elementos a unir alineados, se pueden retener en una posición determinada durante la operación de soldadura mediante puntos de soldadura, puentes o acoplamientos temporales. • Los puntos de soldadura utilizados para asegurar la alineación se eliminan luego completamente o se preparan para su posterior incorporación a la soldadura. • Los acoplamientos temporales tales como “perros” o abrazaderas soldados podrán emplearse para la alineación siempre que se cumplan con los siguientes requisitos:  Elaborar una instrucción de trabajo específica y aprobada por Uriman.  El material a soldar será identificado, apropiado y compatible para soldar el componente. No se necesita certificado de material.  Dichos acoplamientos serán retirados por esmerilado de sus puntos de fijación. No se permite hacerlo por impacto (martilleo). • Los diámetros interiores de las tuberías se alinean considerando la tolerancia que indican los fabricantes para diámetros y espesores:  Cuando el desalineamiento interno exceda de 1/16" (1.6 mm), se mecaniza la superficie interior de la tubería de la parte más gruesa.
  • 18.
    PROCEDIMIENTO DE TRABAJOSEGURO PARA MONTAJE DE TUBERIA EN DIFERENTES AREAS DEL PROYECTO EXPANSIÓN METOR OBRA: MONTAJE MECANICO, TUBERIA, Y ESTRUCTURAS METALICAS No de Rev.: 1 FECHA: 14/10/08 PÁGINA: 18 de 31  Cuando el desalineamiento interno no exceda de 1/16" (1.6 mm) se puede soldar sin necesidad de modificar la junta. • En caso de existir ovalamiento en los tubos y uno de ellos permita ser girado alrededor de su eje sin alterar la posición final en el sistema (es decir, no tiene ramificaciones), se colocan los diámetros mayores de cada uno coincidentes para evitar sobrepasar las tolerancias anteriormente especificadas. • No se preparan ni se soldaran dos elementos que se compruebe una vez ensamblados van a exceder las tolerancias permitidas. Estos desalineamientos se corrigen de manera pertinente siempre que ello no repercuta sobre otras tolerancias de fabricación o reduzca espesores de pared por debajo del mínimo especificado. • En uniones bridadas, debe existir un perfecto acoplamiento y coincidencia en los agujeros antes de colocar ningún perno; el contacto entre las caras de las bridas debe ser uniforme. Si las bridas son de material distinto, se coloca un aislamiento entre ellas para prevenir la corrosión y en ese sentido los pernos deben ser también de material compatible con el de las bridas. Antes de ajustar los pernos se revisan las caras de las bridas, las cuales no deben presentar daños superficiales, suciedad o exceso de aceite o grasa. • Se usa una secuencia de ajuste (apriete) de los pernos para asegurar la adecuada compresión de las empacaduras. • Los accesorios y válvulas se montan de acuerdo a planos e instrucciones de los fabricantes. Antes de montarse, las válvulas son revisadas y comprobadas en su limpieza, estado y funcionamiento. • Las nomenclaturas y los colores de tuberías para los distintos fluidos serán los especificados por el Cliente. • Una vez posicionado el tubo y/o spool en su coordenada conforme lo indicado en los planos, sé verifica la correcta ubicación utilizando cintas métricas y niveles y, en caso de que sea necesario la verificación por topografía, se solicita la presencia del topógrafo para una inspección. En caso de que sea detectada alguna interferencia que no posibilite la continuación de la instalación de la tubería se emite una solicitud de aclaración de información. • Para los casos de conexiones bridadas se verifica que los accesorios utilizados (empacaduras, válvulas, filtros, otros) son originales (según lo especificado por el Proyecto) y si el sentido de flujo está correcto antes de ejecutar el apernado. Se
  • 19.
    PROCEDIMIENTO DE TRABAJOSEGURO PARA MONTAJE DE TUBERIA EN DIFERENTES AREAS DEL PROYECTO EXPANSIÓN METOR OBRA: MONTAJE MECANICO, TUBERIA, Y ESTRUCTURAS METALICAS No de Rev.: 1 FECHA: 14/10/08 PÁGINA: 19 de 31 debe verificar la cantidad de hilos (3 hilos) pasante en los pernos para asegurar él apriete adecuado y que el perno o espárrago sea el indicado en el isométrico. • Una vez instalados y soldados los spool, se verifica que toda la soportería y derivaciones para instrumentación requeridas según lo indicado en los planos están completas; caso contrario, se procede a la completación.
  • 20.
    PROCEDIMIENTO DE TRABAJOSEGURO PARA MONTAJE DE TUBERIA EN DIFERENTES AREAS DEL PROYECTO EXPANSIÓN METOR OBRA: MONTAJE MECANICO, TUBERIA, Y ESTRUCTURAS METALICAS No de Rev.: 1 FECHA: 14/10/08 PÁGINA: 20 de 31 ACTIVIDADES POSTERIORES: • Realizar limpieza y saneamiento general de toda el área de trabajo. • Desmovilizar todos los materiales y herramientas. • Inspeccionar y aprobar el estado final del sitio de trabajo. • Verificar que no se haya ocasionado daño al Ambiente y a los Ecosistemas presentes. • Acordonar el área de trabajo con cinta de color rojo. • Efectuar orden y limpieza antes, durante y después de la actividad. XII MEDIDAS DE SEGURIDAD, HIGIENE Y AMBIENTE: RIESGOS ASOCIADOS A LA ACTIVIDAD: • Explosión / Incendio • Golpeado por / contra • Caída a un mismo nivel • Caída de diferente nivel • Atrapado por / contra • Exposición a Ruido • Arrollado por movilización de vehículos en el área • Contacto con temperaturas extremas • Inhalación de vapores y gases. • Proyección de partículas al cuerpo • Contacto con objetos filosos punzopenetrante
  • 21.
    PROCEDIMIENTO DE TRABAJOSEGURO PARA MONTAJE DE TUBERIA EN DIFERENTES AREAS DEL PROYECTO EXPANSIÓN METOR OBRA: MONTAJE MECANICO, TUBERIA, Y ESTRUCTURAS METALICAS No de Rev.: 1 FECHA: 14/10/08 PÁGINA: 21 de 31 ACCIONES DE PREVENCIÓN Y CONTROL: • Verificar las áreas de trabajo y garantizar que los riesgos sean identificados antes de la ejecución del trabajo. • Uso del equipo de protección personal obligatorio (casco, lentes, guantes, botas, barbiquejos, bragas, arnés de seguridad, aros de vida, cabos de vida) • Mantenerse atentos y precavidos a las actividades que se están realizando. • Cumplir con los pasos contemplados en el ARETE. • Todo el personal debe conocer los aspectos constructivos y las acciones preventivas de los riesgos implícitos en cada uno de los pasos a ejecutar. • Restringir el acceso de personal no involucrado en la actividad. • Ubicar equipos para combate de incendios (extintores de 20 libras de PQS). • Eslingarse en todo momento uso obligatorio de arnés con cabo de vida doble a partir de 1,5 mts al igual de las líneas de vida y aros de vida donde no exista plataforma. • Divulgación del ARETE mediante charla de 05 minutos para así mantener informado al personal de los riesgos a los cuales están expuestos. • Emplear operadores de equipo de izamiento y aparejadores competentes y certificados. • Usar 2 cabos guías para el control de la carga. • No exponerse debajo de la carga suspendida, ni pasar la carga sobre el personal. • Emplear cintas de color rojo para señalizar los sitios de trabajo de izamiento de carga. • Asegurar herramientas menores cuando se trabaje en altura. • Las herramientas a utilizar deben estar inspeccionadas y deberán cumplir con el código de colores correspondiente al trimestre. • Las operaciones de traslación de tubería serán autorizadas y dirigidas por el supervisor responsable del trabajo. • Antes de trasladar la tubería, se deben chequear la posición de las eslingas, grilletes y los amarres para evitar movimientos bruscos • Mantener radios de comunicación en el sitio de la maniobra. • Divulgar, mantener y cumplir con el procedimiento de trabajo seguro.
  • 22.
    PROCEDIMIENTO DE TRABAJOSEGURO PARA MONTAJE DE TUBERIA EN DIFERENTES AREAS DEL PROYECTO EXPANSIÓN METOR OBRA: MONTAJE MECANICO, TUBERIA, Y ESTRUCTURAS METALICAS No de Rev.: 1 FECHA: 14/10/08 PÁGINA: 22 de 31 XIII PLAN DE EMERGENCIA: Este plan comprende las acciones a seguir en caso de presentarse una emergencia durante la ejecución de la obra, a fin de facilitar su control y minimizar las pérdidas. OBJETIVOS: • Establecer los lineamientos y/ o procedimientos a seguir en caso de emergencias y la organización necesaria para la aplicación de los mismos. • Desarrollar estrategias para manejar situaciones de emergencia a fin de garantizar la seguridad del personal, instalaciones, áreas circunvecinas y la preservación del medio ambiente, así como minimizar las posibles consecuencias. • Definir responsabilidades en las acciones de control de emergencia. ALCANCE: • Orientado a contrarrestar los efectos por accidentes e incidentes, aplicables a todas las actividades a realizar en los trabajos de Montaje de tubería en diferentes áreas del Proyecto Expansión Metor. Como parte de la estrategia para la aplicación del plan, se dará a conocer al personal el contenido del mismo para garantizar el éxito y minimizar los efectos de eventos no deseados. Se identificarán los equipos en servicio asociados al área de trabajo. PROCEDIMIENTO DEL PLAN DE EMERGENCIA EN CASO DE ACCIDENTES PERSONALES: Pasos a seguir: • El supervisor de obra, suspende inmediatamente la actividad que se esté realizando y reporta el accidente al supervisor inmediato, al Inspector de construcción de URIMAN y al custodio del área de trabajo. • Mantener serenidad y control de la situación. • Desalojar el área para evitar aglomeración de las personas, nuevas lesiones y permitir el acceso al personal paramédico para prestar los primeros auxilios que se requieran. • Despejar el lugar donde se encuentre el accidentado para brindarle mayor ventilación.
  • 23.
    PROCEDIMIENTO DE TRABAJOSEGURO PARA MONTAJE DE TUBERIA EN DIFERENTES AREAS DEL PROYECTO EXPANSIÓN METOR OBRA: MONTAJE MECANICO, TUBERIA, Y ESTRUCTURAS METALICAS No de Rev.: 1 FECHA: 14/10/08 PÁGINA: 23 de 31 • No mover el paciente del lugar donde se encuentra accidentado, hasta no identificar con el paramédico la lesión y la gravedad de la misma. • Trasladar al lesionado inmediatamente al centro asistencial más cercano Servicios Médicos URIMAN y desde allí de ser necesario, a un centro especializado. • Reportar al departamento de Seguridad, Higiene y ambiente de URIMAN. • En caso de accidente fatal, no mover a la víctima, e informar a las autoridades competentes. • El supervisor de obra y el Inspector de Seguridad, Higiene y Ambiente del consorcio GBC- PROYCCA, darán inicio a la investigación del evento. Así como la notificación e información, al Instituto Nacional de Prevención, Salud y Seguridad Laboral (Reporte inmediato al Inpsasel), entre otros. • El coordinador de Seguridad, Higiene y Ambiente del consorcio GBC-PROYCCA, debe elaborar un informe antes de las 24 horas siguientes, detallado de lo acontecido. PERSONAL INVOLUCRADO EN EL PLAN DE EMERGENCIA: • Los trabajadores. • Paramédico. • Conductor de la ambulancia. • Inspector de S.H.A CGP. • Supervisor de obra CGP. • Superintendente CGP. • Gerente de Construcción CGP. • Gerente de Proyecto CGP. EQUIPO INVOLUCRADO PLAN DE EMERGENCIA: • Ambulancia. • Vehículo del supervisor. • Equipos de extintores tipo PQS 20 lbs. • Radios portátiles.
  • 24.
    PROCEDIMIENTO DE TRABAJOSEGURO PARA MONTAJE DE TUBERIA EN DIFERENTES AREAS DEL PROYECTO EXPANSIÓN METOR OBRA: MONTAJE MECANICO, TUBERIA, Y ESTRUCTURAS METALICAS No de Rev.: 1 FECHA: 14/10/08 PÁGINA: 24 de 31 TELEFONOS EN CASO DE EMERGENCIA BOMBEROS DE PLANTA 0281-2774641 GUARDIA NACIONAL 0281- 2606343 POLICIA 0281-2761815 HOSPITAL DE BARCELONA 0281-2772033 HOSPITAL DEL SEGURO SOCIAL 0281-2862365 CLINICA DE PEQUIVEN 0281-2708029 CLINICA ZAMBRANO 0281-2701311 PERSONAL A SER NOTIFICADO EN CASO DE EMERGENCIA CGP: CARGO NOMBRE TELEFONO GTTE. DE PROYECTO JUAN SABARICH 0414-2650963 GTTE. DE CONSTRUCCION FREDDY HERNANDEZ 0414-7653001 COORD. SHA ALVARO LOPEZ 0424-8086790 COORD. LABORALES RENE LOPEZ 0414-7814853 PERSONAL DE URIMAN CARGO NOMBRE TELEFONO JUAN GUERRA GERENTE DE CONSTRUCCIÓN 0414-1261513 CARLOS SEMECO GERENTE SHA 0414-2325788
  • 25.
    PROCEDIMIENTO DE TRABAJOSEGURO PARA MONTAJE DE TUBERIA EN DIFERENTES AREAS DEL PROYECTO EXPANSIÓN METOR OBRA: MONTAJE MECANICO, TUBERIA, Y ESTRUCTURAS METALICAS No de Rev.: 1 FECHA: 14/10/08 PÁGINA: 25 de 31 JOSE L RODRIGUEZ SUPERINTENDENTE GENERAL 0414-0283862 HECTOR ZERPA COORD. LABORAL 0414-7727124 WILLIAN GALVAN SUPERINTENDENTE LIDER 0412-7193522 LUCILA MEDINA MÉDICO 0414-8412015 PROCEDIMIENTO DE DESALOJO: Para el desalojo del área el personal debe utilizar las vías de escape indicadas en el sitio de la instalación por avisos, dirigirse al lugar de concentración y quedar a la espera de instrucciones por el custodio de la instalación. Esta instrucción debe seguirse de acuerdo al Sistema de Alarma de Desalojo previsto en las instalaciones de METOR, y el Plan General para Control de Emergencia PI- P 030 de URIMAN. Todo el personal deberá cumplir con los siguientes lineamientos: • Al ocurrir la emergencia, los vehículos, equipos pesados y cualquier maquina eléctrica o de combustión interna se deben desconectar o apagar y dirigirse a pie hacia las áreas de concentración por rutas de escape. • Previamente el supervisor involucrado en la actividad conjuntamente con la brigada de emergencia, utilizarán la ruta de escape, indicada por los avisos, para desalojar a todo el personal del área crítica. • Una vez en el área de concentración se procederá al conteo del personal involucrado en el proyecto. • Se contará con equipo de radio portátil en los vehículos y equipos manuales que tendrá el supervisor de la actividad, coordinador de Seguridad, Higiene y Ambiente y paramédico. • Notificar telefónicamente al personal de Uriman. • El Coordinador de SHA comunica (vía radio) a los supervisores de la empresa y al respectivo gerente de construcción. • Nadie puede regresar a las áreas de trabajo hasta que el Supervisor de Uriman responsable del trabajo y Gerente SHA de URIMAN, hayan dado orden después de verificar que todo está despejado. INCENDIO EN INMEDIACIONES DE ÁREAS DE TRABAJO:
  • 26.
    PROCEDIMIENTO DE TRABAJOSEGURO PARA MONTAJE DE TUBERIA EN DIFERENTES AREAS DEL PROYECTO EXPANSIÓN METOR OBRA: MONTAJE MECANICO, TUBERIA, Y ESTRUCTURAS METALICAS No de Rev.: 1 FECHA: 14/10/08 PÁGINA: 26 de 31 • En caso de que se genere un fuego en el área de trabajo de la empresa, se procurará hacer la extinción del mismo con los medios propios disponibles en el área. A tal efecto, los supervisores estarán debidamente entrenados y facultados en las técnicas de combate de incendios y en el uso efectivo de los extintores contra incendios. • En caso de que no se logre extinguir el incendio y se observa la propagación acelerada del mismo, se procederá a notificar al custodio de la instalación y avisar de inmediato en paralelo a la extinción, de tal manera que pueda comunicarse inmediatamente con el cuerpo de bomberos. Paralelo a ello, el inspector de SHA destacado en sitio conjuntamente con la brigada de emergencia procederá a retirar al personal ubicado en el área, movilizándolo hacia el área de concentración en espera de instrucciones por parte del supervisor URIMAN. • El personal involucrado en la emergencia deberá caminar hacia los sitios de concentración usando las rutas de evacuación previamente señalizadas. EN PRESENCIA DE NH3 (AMONIACO): • En caso de fuga de amoníaco NH3 utilizar los Kit para Amoníaco y mantenerlos en los sitios de trabajo de manera accesible • Esperar siempre la autorización por personal de URIMAN para ingreso al área de trabajo, mantenerse alerta. • El personal deberá mantener su rostro siempre afeitado y/o rasurado para el buen ajuste al momento del uso de la máscara de NH3. • Evacuar siempre en dirección contraria a la dirección del viento hacia el punto de concentración más cercano.
  • 27.
    PROCEDIMIENTO DE TRABAJOSEGURO PARA MONTAJE DE TUBERIA EN DIFERENTES AREAS DEL PROYECTO EXPANSIÓN METOR OBRA: MONTAJE MECANICO, TUBERIA, Y ESTRUCTURAS METALICAS No de Rev.: 1 FECHA: 14/10/08 PÁGINA: 27 de 31 XIV ANEXOS
  • 28.
    PROCEDIMIENTO DE TRABAJOSEGURO PARA MONTAJE DE TUBERIA EN DIFERENTES AREAS DEL PROYECTO EXPANSIÓN METOR OBRA: MONTAJE MECANICO, TUBERIA, Y ESTRUCTURAS METALICAS No de Rev.: 1 FECHA: 14/10/08 PÁGINA: 28 de 31 Anexo Número 1 FLUJOGRAMA DE NOTIFICACIÓN Y ACCION EN CASO DE EMERGENCIAS: NO NO Evento Suspender Actividades Notificar a CGP / URIMAN Evaluar condición Determinar si hay lesión La lesión es grave Daño a las instalacione s Mantener contacto con centro clínico Recluir lesionado en la clínica. Solicitar diagnóstico e informe clínico Entregar diagnóstico a SHA, URIMAN A Aplicar primeros auxilios Notificar a URIMAN por escrito antes de 8 horas Investigar accidente A Incidente Notificar por escrito URIMAN / METOR Tomar medidas correctivas Notificar a Uriman Elaborar informe Tomar medidas correctivas Elaborar informe SI SI S I NO Trasladar el lesionado a la clínica Notificar por escrito a URIMAN Investigar causas del evento Elaborar Informe final 24 horas A Notificar evento a INPSASEL Realizar seguimiento a recomendaciones Investigar causas del evento Elaborar Informe final 24 horas Realizar seguimiento a recomendaciones Investigar causas del evento Elaborar Informe final 24 horas Realizar seguimiento a recomendaciones
  • 29.
    PROCEDIMIENTO DE TRABAJOSEGURO PARA MONTAJE DE TUBERIA EN DIFERENTES AREAS DEL PROYECTO EXPANSIÓN METOR OBRA: MONTAJE MECANICO, TUBERIA, Y ESTRUCTURAS METALICAS No de Rev.: 1 FECHA: 14/10/08 PÁGINA: 29 de 31 ANEXO 2 Ruta de evacuación especifica del lugar de trabajo
  • 30.
    PROCEDIMIENTO DE TRABAJOSEGURO PARA MONTAJE DE TUBERIA EN DIFERENTES AREAS DEL PROYECTO EXPANSIÓN METOR OBRA: MONTAJE MECANICO, TUBERIA, Y ESTRUCTURAS METALICAS No de Rev.: 1 FECHA: 14/10/08 PÁGINA: 30 de 31 ANEXO 3 Croquis de planta de la construcción de plataformas en Pipe Rack
  • 31.
    PROCEDIMIENTO DE TRABAJOSEGURO PARA MONTAJE DE TUBERIA EN DIFERENTES AREAS DEL PROYECTO EXPANSIÓN METOR OBRA: MONTAJE MECANICO, TUBERIA, Y ESTRUCTURAS METALICAS No de Rev.: 1 FECHA: 14/10/08 PÁGINA: 31 de 31
  • 32.
    PROCEDIMIENTO DE TRABAJOSEGURO PARA MONTAJE DE TUBERIA EN DIFERENTES AREAS DEL PROYECTO EXPANSIÓN METOR OBRA: MONTAJE MECANICO, TUBERIA, Y ESTRUCTURAS METALICAS No de Rev.: 1 FECHA: 14/10/08 PÁGINA: 32 de 31
  • 33.
    PROCEDIMIENTO DE TRABAJOSEGURO PARA MONTAJE DE TUBERIA EN DIFERENTES AREAS DEL PROYECTO EXPANSIÓN METOR OBRA: MONTAJE MECANICO, TUBERIA, Y ESTRUCTURAS METALICAS No de Rev.: 1 FECHA: 14/10/08 PÁGINA: 33 de 31
  • 34.
    PROCEDIMIENTO DE TRABAJOSEGURO PARA MONTAJE DE TUBERIA EN DIFERENTES AREAS DEL PROYECTO EXPANSIÓN METOR OBRA: MONTAJE MECANICO, TUBERIA, Y ESTRUCTURAS METALICAS No de Rev.: 1 FECHA: 14/10/08 PÁGINA: 34 de 31 ANEXO 4 Croquis de sección típica de tubería en Pipe Rack
  • 35.
    PROCEDIMIENTO DE TRABAJOSEGURO PARA MONTAJE DE TUBERIA EN DIFERENTES AREAS DEL PROYECTO EXPANSIÓN METOR OBRA: MONTAJE MECANICO, TUBERIA, Y ESTRUCTURAS METALICAS No de Rev.: 1 FECHA: 14/10/08 PÁGINA: 35 de 31
  • 36.
    PROCEDIMIENTO DE TRABAJOSEGURO PARA MONTAJE DE TUBERIA EN DIFERENTES AREAS DEL PROYECTO EXPANSIÓN METOR OBRA: MONTAJE MECANICO, TUBERIA, Y ESTRUCTURAS METALICAS No de Rev.: 1 FECHA: 14/10/08 PÁGINA: 36 de 31
  • 37.
    PROCEDIMIENTO DE TRABAJOSEGURO PARA MONTAJE DE TUBERIA EN DIFERENTES AREAS DEL PROYECTO EXPANSIÓN METOR OBRA: MONTAJE MECANICO, TUBERIA, Y ESTRUCTURAS METALICAS No de Rev.: 1 FECHA: 14/10/08 PÁGINA: 37 de 31 ANEXO 5 Croquis referencial de tubería en Pipe Rack según elevaciones
  • 38.
    PROCEDIMIENTO DE TRABAJOSEGURO PARA MONTAJE DE TUBERIA EN DIFERENTES AREAS DEL PROYECTO EXPANSIÓN METOR OBRA: MONTAJE MECANICO, TUBERIA, Y ESTRUCTURAS METALICAS No de Rev.: 1 FECHA: 14/10/08 PÁGINA: 38 de 31
  • 39.
    PROCEDIMIENTO DE TRABAJOSEGURO PARA MONTAJE DE TUBERIA EN DIFERENTES AREAS DEL PROYECTO EXPANSIÓN METOR OBRA: MONTAJE MECANICO, TUBERIA, Y ESTRUCTURAS METALICAS No de Rev.: 1 FECHA: 14/10/08 PÁGINA: 39 de 31 18.300 14.300 21.300 8.300
  • 40.
    PROCEDIMIENTO DE TRABAJOSEGURO PARA MONTAJE DE TUBERIA EN DIFERENTES AREAS DEL PROYECTO EXPANSIÓN METOR OBRA: MONTAJE MECANICO, TUBERIA, Y ESTRUCTURAS METALICAS No de Rev.: 1 FECHA: 14/10/08 PÁGINA: 40 de 31 ANEXO 6 Tabla de carga para el cálculo de izamiento