α
                                      Visat nº:     P02904970
                                      Data:         07/10/2009




    ALPHA
                                      Col·legiat:   9083




    ENGINYERIA DE TELECOMUNICACIONS




         PROYECTO DE RED FTTH GPON

                 DE RIBA-ROJA D’EBRE




                                       αET
Visat nº:    P02904970
                                                                            Data:        07/10/2009
                          ______________________________________________________________________________
                                                                            Col·legiat:  9083




MEMORIA

INSTALACIONES DE TELECOMUNICACIONES



                                 PROYECTO RED FTTH/GPON
                                                                                      SEPTIEMBRE 2009




                                                                              RED FTTH RIBA-ROJA D’EBRE

FTTH RIBA-ROJA Anteproyecto
Visat nº:    P02904970
                                                                                    Data:        07/10/2009
                                  ______________________________________________________________________________
                                                                                    Col·legiat:  9083

ÍNDICE GENERAL



MEMORIA

0. INTRODUCCIÓN ....................................................................................................................1

   0.1. PROMOTOR .....................................................................................................................1

   0.2. DESCRIPCIÓN .................................................................................................................1

   0.3. SITUACIÓN ......................................................................................................................1

   0.4. OBJETO DEL PROYECTO ..............................................................................................1

1. FTTH GPONT .........................................................................................................................3

   1.1. INTRODUCCIÓN ..............................................................................................................3

   1.2. SISTEMA PROPUESTO...................................................................................................3

   1.3. CABECERA, CENTRO DE DATOS .................................................................................5

   1.4. RED DE DISPERSIÓN PLANTA EXTERNA..................................................................13

   1.5. INFRAESTRUCTURA A UTILIZAR................................................................................21

   1.6. SUBSISTEMA DE ADMINISTRACIÓN ..........................................................................29

      1.6.1. DIMENSIONAMIENTO DE LA CABECERA DATOS...............................................29

      1.6.2. GESTORES DE EQUIPOS .......................................................................................31

      1.6.3. PABX ........................................................................................................................31




                                                                                                        RED FTTH RIBA-ROJA D’EBRE

FTTH RIBA-ROJA Anteproyecto
Visat nº:    P02904970
                                                                            Data:        07/10/2009
                          ______________________________________________________________________________
                                                                            Col·legiat:  9083




0. INTRODUCCIÓN

0.1. PROMOTOR
El promotor del proyecto es:

Ajuntament de Riba-roja d’Ebre

Plaça de la Vila, 1

NIF: P4312700J

43790 Riba-roja d’Ebre

Ribera d’Ebre (Tarragona)

Telf: 977 41 60 03 / Fax: 977 41 64 04

0.2. DESCRIPCIÓN
Municipio de 833 viviendas situadas todas ellas en el núcleo de la población.

Donde se quiere dar servicio de telecomunicaciones a todas las viviendas del núcleo del
municipio.

0.3. SITUACIÓN
El municipio esta situado en la comarca de la Ribera d’Ebre en Tarragona.

0.4. OBJETO DEL PROYECTO
La fibra óptica (FO) es un medio de transmisión clave en las redes de telecomunicación de alta
capacidad del futuro. La principal virtud de la FO es su ancho de banda, prácticamente infinito,
juntamente con una muy baja atenuación. Esto hace que la relación entre ancho de banda y
distancia de la FO sea muy superior a cualquier medio eléctrico.

El disponer de un enlace de fibra que comunica directamente desde el centro de control al
usuario final, presenta, como ventajas más importantes:

Plataforma pasiva alta durabilidad: un despliegue de FTTH asegura que la planta externa no se
deberá modificar en un mínimo de 20 años, ofreciendo los anchos de banda necesarios en un
futuro para poder suministrar todos los servicios avanzados.



                                                                              RED FTTH RIBA-ROJA D’EBRE

FTTH RIBA-ROJA Proyecto                                                                                1
Visat nº:    P02904970
                                                                            Data:        07/10/2009
                          ______________________________________________________________________________
                                                                            Col·legiat:  9083

Bajo mantenimiento: Al tratarse de una solución pasiva y no disponer de equipos alimentados,
el mantenimiento de la red se reduce a mantener los equipos localizados en el centro de control
ya que al no disponer de elementos activos en la planta externa, el coste del mantenimiento de
la red es muy reducido. La reducción se hace palpable en el OPEX, que en redes de fibra
óptica es muchísimo más bajo que en redes de cable tradicional.

Solución integrada: la solución presentada integra todos los servicios en una única red (fibra
óptica), reduciendo los costes de despliegue y mantenimientos futuros. Pueden integrarse
servicios de voz, datos y cable sobre la misma infraestructura de fibra.

Gran ancho de banda: la utilización de la fibra óptica como medio de transmisión ofrece
grandes capacidades de transmisión, muy superiores al cable coaxial o al par trenzado
telefónico, ofreciendo escalabilidades futuras muy superiores a las soluciones basadas en
cobre.

Despliegue compacto: el tamaño de las arquetas y canalizaciones necesarias es
incomparablemente más reducido que en un despliegue de cableado coaxial o de telefonía
básica.

Solución de futuro e innovadora: un despliegue de FTTH ofrece nuevas posibilidades de
despliegues de aplicaciones y servicios, siendo el modelo elegido en los países punteros para
sus redes de nueva generación (NGN).

El objeto del presente proyecto es el diseño ejecutivo y la definición de las instalaciones
que constituyen la red FTTH a si como los elementos que se utilizaran para dar servicio de
televisión, Internet, telefonía, etc. dentro de la red de FTTH.

El centro de datos, la cabecera de TV en RF existente actualmente (da señal a la red de cable
de la población) y los armarios de cableado de F.O., están situados en la cabecera de la red
(edificio del Ayuntamiento), y se contempla el diseño de toda la red de despliegue en el
municipio, y la administración de la red, así como las acometidas a los usuarios dentro de las
viviendas

Dicha infraestructura es el principal soporte físico de las comunicaciones entre todos los
sistemas. Se reparte por todo el municipio y se compone de los armarios principales en el
centro de datos y de las cajas de empalme y repartición; así como los sistemas de TV en RF
voz y datos en el centro de datos.




                                                                              RED FTTH RIBA-ROJA D’EBRE

FTTH RIBA-ROJA Proyecto                                                                                2
Visat nº:    P02904970
                                                                            Data:        07/10/2009
                          ______________________________________________________________________________
                                                                            Col·legiat:  9083


1. FTTH GPONT

1.1. INTRODUCCIÓN
Se implantará una red de telecomunicaciones, que inspirada en los conceptos de una red
pasiva de fibra óptica (PONT) FTTH (fibra óptica hasta la vivienda), asegure el correcto
funcionamiento de cada uno de los Sistemas de de Telecomunicación, proporcionando la
infraestructura de conectividad pasiva.

La solución FTTH propuesta debería tener la compatibilidad de ofrecer servicios de voz (POTS,
VoIP), servicios de datos (10/100/1000 Ethernet) y servicios de video (video IP, emisión RF en
Analógico/Digital para CATV y DBS) dentro de una única red de fibra óptica monofibra.

Esta plataforma de acceso también debe ser compatible con los principales estándares del
mercado de acceso FTTH universal los cuales incluyen la tecnología punto a punto Metro
Ethernet, así como los estándares ITU G.984 GPON y IEEE 802.3 GE-PON (EFM PON) sobre
la misma plataforma.

Se valorará positivamente que la misma plataforma pueda adoptar futuros estándares ópticos
para poder mejorar la red de acceso al largo de los años.

Este sistema se divide, en Cuatro partes, que son:

1. Centro de procesos de datos (MDF) o cabecera

2. Red de dispersión de de la red FTTH o planta externa

3. Red de acometida de usuario

4. Subsistema de Administración DE SERVICIOS.

No se contempla la instalación de infraestructuras de obra civil.

Para dar cobertura a todas las viviendas del municipio son necesarios diferentes cajas de
dispersión, para cumplir con los límites de distancias y optimizar el coste de las instalaciones:

El dimensionamiento de los sistemas de administración de los servicios viene dado por el
desarrollo de los proyectos de cada área específica, en los que se han definido el número de
enlaces necesarios de cada servicio con el usuario.

1.2.   SISTEMA PROPUESTO

La plataforma deberá soportar preferentemente el estándar de acceso óptico ITU-T G.984
GPON junto con todos sus complementos, por delante de los otros estándares IEEE 802.av E-


                                                                              RED FTTH RIBA-ROJA D’EBRE

FTTH RIBA-ROJA Proyecto                                                                                3
Visat nº:    P02904970
                                                                              Data:        07/10/2009
                            ______________________________________________________________________________
                                                                              Col·legiat:  9083

PON y Ethernet P2P.

La tecnología FTTH GPON propuesta para la realización del proyecto en Riba-roja de l’Ebre
utiliza una longitud de onda de 1490nm, en el canal de bajada, y una longitud de onda de
1310nm, en el canal de subida, para transmitir los servicios IP ópticos de Ethernet.
Adicionalmente, usa una tercera longitud de onda de 1550nm downstream para la transmisión
de la señal de video sobre RF. La longitud de onda de 1550nm se introduce en la red PON a
través de un multiplexor de división de onda (WDM). Entre el chasis y el multiplexor, nos
encontramos con las longitudes de onda 1310/1490nm mientras que entre el WDM y los
equipos clientes ONT, nos encontramos con las longitudes de onda de 1310/1490/1550nm.

                                                             Oficina de conmutación



   Servicios de Internet


                             Red de          Equipo óptico                                                         ONT GPON
  Servicios de telefonía   Transporte          cabecera
                                                                                            FTTH PON
                                                                          WDM         Red de distribución óptica
    Servicios video IP                                                                      Hasta 20Km

                                                                                         1490nm                    ONT GPON
                                                                                         1310nm
                             Servidor
                                                                                         1550nm
                            de gestión                                                                             Hasta 512 ONTs por
                                                                                                                          COLT
   Servicios Video RF
                               RF 1550nm
                                               EDFA




Solución estándar ITU-T G.984 GPON

La arquitectura de la solución propuesta deberá complacer, en mayor o menor medida, el
diagrama de bloques ilustrando en la anterior figura. También se pueden ofrecer diferentes
equipos ópticos de cabecera para aumentar la capacidad y cumplir con las expectativas en
caso de ampliar el área de influencia del proyecto de Riba-roja.

La elección de la tecnología nos viene dada por los servicios que en un principio desea dar el
operador, que son los siguientes:

    -      Servicio de TV por RF (servicio que esta dando actualmente sobre una red coaxial)

    -      Servicio de conexión a Internet

    -      Servicio de Telefonía

Y la estimación del número de usuarios, que a corto plazo, estarán conectados (estudio
realizado en el anteproyecto)

* 400 usuarios




                                                                                           RED FTTH RIBA-ROJA D’EBRE

FTTH RIBA-ROJA Proyecto                                                                                                                 4
Visat nº:    P02904970
                                                                            Data:        07/10/2009
                          ______________________________________________________________________________
                                                                            Col·legiat:  9083

Para las redes FTTH tenemos varias soluciones en el mercado:

   •   P2P Ethernet (Punto a Punto)

   •   P2MP: IEEE802.3ah EPONT vs ITU-T G.984 GPONT (Punto Multipunto)

De las soluciones anteriores solo es posible dar Video overlay (televisión en RF) en las redes
P2MP

 En el mercado existen dos soluciones que vienen definidas en sus parámetros básicos en la
siguiente tabla:

Las configuraciones estándares en cabeceras son:

EPONT : 256 USUARIOS

GPONT: 512 USUARIOS

Según las prestaciones de las soluciones en el anteproyecto anterior y las premisas de
servicios la solución óptima es utilizar la tecnología GPONT.

Por las distancias de fibra entre cabecera y usuario más alejado es menor de 10 Km. y el split
máximo a utilizar es de 1:64 se escogerá electrónica activa de

Class B+ : 28 dB




1.3. CABECERA, CENTRO DE DATOS
La cabecera, centro de procesos de datos es el espacio donde se ubicarán los equipos activos
de cabecera de la red, en este recinto tendremos los equipos activos de RF de una cabecera
analógica, ya instalada que se conectara con los elementos ópticos de la cabecera GPON, y de
IP. Igualmente tendremos los equipos activos del sistema GPON de cabecera, también
denominados OLT (Optical Layer Terminal), así como los distribuidores y repartidores de fibra
(ODF: Optical Distribution Frame) para realizar la interconexión entre las OLTs y los cables de
planta externa.

Adicionalmente, en el centro de control se ubicarán los servidores necesarios para dar servicios
de gestión y mantenimiento a la red, así como las pasarelas y equipos de interconexión para
los diferentes operadores de servicio de la plataforma.

El tamaño de dicho dentro de control depende del número de puntos de conexión y de los
servicios prestados.



                                                                              RED FTTH RIBA-ROJA D’EBRE

FTTH RIBA-ROJA Proyecto                                                                                5
Visat nº:    P02904970
                                                                             Data:        07/10/2009
                           ______________________________________________________________________________
                                                                             Col·legiat:  9083

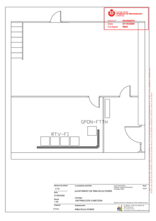
La cabecera o MDF esta situado en el Ayuntamiento en su planta baja donde se encuentra
estudios de la televisión local, en este es donde se concentran todos los equipos, servidores,
centralita, láser, etc., y es donde esta situado el centro de recepción de las señales RF y su
procesamiento.

A) Distribución de la señal de televisión

Consideraciones sobre el diseño.

El operador debe transmitir las señales de televisión que se reciben en su cabecera de TV ya
existente,

Configuración de la cabecera y plan de frecuencias

Se ha establecido un plan de frecuencias para la distribución de las señales de televisión y
radiodifusión terrenal como satélite que permita la distribución de las señales por los canales
previstos, se respeten los canales destinados a otros servicios que puedan incorporarse en un
futuro.

El plan de frecuencias es el siguiente.


CANAL           CONTENIDO             MODULO TIPO
  69    TXT
  68    40 LATINOS                 OV 36 + OR 21
  67    ANDALUCIA                  OV 76
  66    TVE i                      OV 76
  65    TELE MADRID                OV 76
  64    CNN                        OV 85
  63    TV VALENCIANA              OV 96 + OV36
  62    EXTREMADURA                OV 76
  61    CANARIAS                   OV 76
  59    Disney  Chanel                   OV 79 - T
  58    C 33                               OV 45
  56    TV 3                               OV 45
  54    ETV.                               OV 76
  53    SEXTA                         OV 36 + OR 21
  52    TVE 24 H                   OV 36 + OV 96 T
  49    ¿?
  48    TV GALICIA                 OV 76
  47    TV Local R-R               OV 36 + FIBRA
  46    TDT-TXT TV LOCAL           OV 75 MUX VIDEO
  45    TV5 FRANCES
  44    TDT -8 TV                  OV 45 D MUX
  43    TDT AUTONOMICO             0V 75 M MUX SAT
  42    ASTURIAS                   OV 76



                                                                               RED FTTH RIBA-ROJA D’EBRE

FTTH RIBA-ROJA Proyecto                                                                                 6
Visat nº:    P02904970
                                                                             Data:        07/10/2009
                           ______________________________________________________________________________
                                                                             Col·legiat:  9083

CANAL          CONTENIDO             MODULO TIPO
  41      PARLAMENTO               OV 76
  40      CLAN TV                  OV 36 + OV 96 T
  39      TDT    VEO                  OV 45 D- MUX
  38      TDT    TV 3                 OV 45 D- MUX
  37      TDT    TV 5                 OV 45 D- MUX
  36      TDT    LA SEXTA             OV 45 D- MUX
  35      TDT ANTENA 3             OV 45 D- MUX
  34      TDT    TVE 1                OV 45 D- MUX
  33      ARAGON , terrestre       OV 45
  32      TVE 2                    OV 79 - T
  30      F.D.F.                   OV 79 - T
  28      TVE 1                    OV 79 - T
  26      ANTENA 3                 OV 79 - T
  24      TELE 5                   OV 79 - T
  22      CUATRO                   OV 79 –T
  21      EURO-NEWS                0V 76



Las señales se conectaran al transmisor óptico con los siguientes valores:

                      80 dBμv por cada canal analógico (-10dB para digitales)

Las características de entrada del transmisor óptico, en 3 ventanas, son las siguientes:


RF-Frequency Range              [MHz]                              47 –1000
Flatness                         [dB]           <±0.75 (47...860 MHz) <±1.5 (860 MHz...1 GHz)
Version                                C42                    D84                     N77
Channel plan                     CENELEC 42                PAL-D 84                NTSC 77
number of channels                 42 / 0 / 0              84 / 0 / 0              77 / 0 / 0
TV / FM (-4dB) /
QAM64 (-10dB)
Noise bandwidth                [MHz]            5              5          4
CNR Tx/Rx                      [dB]            55.5           52.5        53.5
CNR Link 1                     [dB]            55.0           52.0        53.0
CNR Link 2                     [dB]            53.0           50.5        52.0
CNR Link 3                     [dB]            50.5           49.0        50.0
CSO Tx/Rx and Link 1           [dBc]           64              65         65
CSO Link 2                     [dBc]           63              65         65
CSO
        at output #1           [dB]            62       63                65
Link 3
CTB                            [dBc]           65              65         65




                                                                               RED FTTH RIBA-ROJA D’EBRE

FTTH RIBA-ROJA Proyecto                                                                                 7
Visat nº:    P02904970
                                                                             Data:        07/10/2009
                           ______________________________________________________________________________
                                                                             Col·legiat:  9083

El transmisor en su salida óptica debe de cumplir los parámetros siguientes:



Wavelength                       [nm] 1548.....1560
Optical power,
                              [dBm] 2 x 7 min.
ES10-L-70
SBS-Suppression               [dBm] Fixed threshold +16.5 dBm
Laser linewidth
(typ.)                        [MHz] 0.65


Para cumplir con los requisitos del diseño que son de clase B+ debemos de conectar el
trasmisor óptico al amplificador óptico de las características siguientes:


Input signal wavelength                          [nm]     1545 - 1565
Max. optical output power                      [dBm]     4 x 20.0 ± 0.5
Factory setting optical output
                                               [dBm]     4 x 18.0 ± 0.5
power
Wavelength of pump lasers
                                                 [nm]        < 1000
(typ.)
Optical return loss                              [dB]         > 45
Min. optical input level                       [dBm]            -5
Max. opt. input level                          [dBm]           +10
Polarization dependent gain                      [dB]          0.5
Noise figure (@Pin=0dBm,
                                                 [dB]         < 5.5
λ=1550nm)
Optical isolation @ input                        [dB]          35
Optical isolation @ output                       [dB]          35


Y sus salidas se conectaran a los módulos de conexión óptica

B) Centro de procesos de datos GPON

Existe un único armario.

                 Armario          MEDIDAS (WxD) mm              SITUACIÓN

                 A1               42 UA 600 x 800               cabecera




                                                                               RED FTTH RIBA-ROJA D’EBRE

FTTH RIBA-ROJA Proyecto                                                                                 8
Visat nº:    P02904970
                                                                            Data:        07/10/2009
                          ______________________________________________________________________________
                                                                            Col·legiat:  9083

En este armario se instalara el equipo activo de cabecera para 512 usuarios, así como los
distribuidores, repartidores de fibra y el equipamiento de video overlay (RF), según el esquema
siguiente




En dicho armario existente en la cabecera se integraran los servidores de gestión de la red, de
usuarios, gestor de planta externa y PBX para telefonía y el switch de usuario más el router del
operador.

Todo el sistemas Irá cableado con cable de 4 pares trenzados cat 6 utp o cordones ópticos.

El despliegue realizado es para el 100% de las viviendas de Riba-roja (833), para que cualquier
vivienda pueda tener los servicios de la red.

En un inicio la cabecera no se debe de diseñarse para dar servicio al 100% de las viviendas
debido que tendremos siempre una penetración menor del 100% en este ante proyecto se
escoge una penetración del 50%.

Penetración de 50% = 417 usuarios

Teniendo como premisa los 417 usuarios diseñaremos primero la cabecera de FTTH con
tecnología GPON.

La cabecera estar constituida por un equipo modular de características carrier class que son
montados sobre rack de 19”

El equipo de cabecera OLT esta montado en una cabecera compacta de 2U



                                                                              RED FTTH RIBA-ROJA D’EBRE

FTTH RIBA-ROJA Proyecto                                                                                9
Visat nº:    P02904970
                                                                            Data:        07/10/2009
                          ______________________________________________________________________________
                                                                            Col·legiat:  9083

Componentes activos

Los OLT compactos existentes en el mercado son de 8 láseres por lo que tendremos 512
usuarios sus características serán las siguientes:

   •   Tarjeta Cabecera OLT ITU G.984 GPON Platform Interface Module - 8 PONs (512
       usuarios con splitting 1:64)

   •   Modulo Interfície PON con Óptica SFP - Óptica G.984 Classe B+

   •   Port agregación GigE, 550m, Óptica SFP - 1000Base-SX (multimode-550m)

Como por diseño tendremos el primer nivel de spliting en la cabecera con splitrs 1X8 tenemos
de dimensionar los elementos pasivos para dar servicio a 512 usuarios de la red.

En la siguiente tabla resumimos el dimensionamiento de la cabecera de datos


EQUIPS ACTIUS OPTICS CENTRE CONTROL


Xassís OLT Compacte, amb interfície de xarxa, fan assembly                                        1

Targeta Capçalera OLT ITU G.984 GPON Platform Interface Module - 8 PONs (512 1
usuaris amb splitting 1:64)

Mòdul Interfície PON amb Òptica SFP - Óptica G.984 Classe B+                                      8

Port agregació GigE, 550m, Òptica SFP - 1000Base-SX (multimode-550m)                              2



Elementos pasivos

Los elementos pasivos están compuestos por módulos SMT estándar para terminación de
cables de distribución, los módulos compactos podrán incluir los filtros multiplexores de la señal
óptica de RF y la de OLT ( WDM) y los divisores 1:8

En la siguiente tabla resumimos el dimensionamiento de los pasivos:




                                                                              RED FTTH RIBA-ROJA D’EBRE

FTTH RIBA-ROJA Proyecto                                                                               10
Visat nº:    P02904970
                                                                            Data:        07/10/2009
                          ______________________________________________________________________________
                                                                            Col·legiat:  9083


       COMPONENTES FO PASIVOS                                                   unidades


       ROM ARMARI0 PLANTA INTERNA 600 x 800 x 42 U con
       bastidor 19" con paneles laterales y guía cables                                        1


       CAJA RACK 19" MODULAR                                                                   2


       MODUL SMT WDM-SPLITTER 1:8 SC/APC cada modulo
       incluye: 1 modulo SMT para Subrack 19” 3U; 1 WDM para
       aplicación de TX video RF; 1 splitter PLC SM
       1310/1490/15501:8; 10 adaptadores SC/APC y pigtails
       SC/APC, tubos de fusión                                                                 8


       Modulo Slot Subrack 3U 12 SC/APC con adaptadores SC/APc y
       pigtalls                                                                                6


       Cordón óptico Patchcord SC/APC-SC/APC SM 2 m                                          72


       Frontal ciego subrack 3U; 7 pasos                                                     10

En este Rack se conecta los cables de F.O de dispersión de la red.

El etiquetaje se realizara con material indeleble y en un lugar que sea facil de localizar

Se deberá etiquetar la cabecera indicando modulo de salida, divisor.

Requisitos a nivel de servicio

   •   Características principales para las VLAN:

   •   Cumplir con el estándar IEEE 802.1Q en los puertos NT y LT.

   •   Capacidad de asignación de VLAN por cliente/servicio.

   •   Disponer del mecanismo QinQ.

   •   Disponer de mecanismo de escritura del campo 802.1p en las etiquetas 802.1Q.

   •   Disponer de mecanismos de sobre escritura de etiquetado VLAN para tramas
       procedentes de cliente en puertos PON.




                                                                              RED FTTH RIBA-ROJA D’EBRE

FTTH RIBA-ROJA Proyecto                                                                               11
Visat nº:    P02904970
                                                                            Data:        07/10/2009
                          ______________________________________________________________________________
                                                                            Col·legiat:  9083

Sobre QoS:

   •   Disponer de mecanismos DiffServ para la gestión de CoS.

   •   Disponer de mecanismos para el marcaje y clasificación de paquetes.

   •   Disponer de mecanismos para la gestión de la congestión de tráfico descendente (red-
       cliente) y ascendente (cliente-red).

   •   Disponer de mecanismos de limitación de tráfico descendente por ONT.

Sobre el servicio de Datos:

   •   Soportar DHCP Relay Agent.

   •   Sobre el servició de Video IP (Multicast):

   •   Soportar IGMPv2, IGMPv3 y IGMP proxy.

Requisitos de Redundancia y Balanceo de Carga

   •   Tener capacidad para realizar LAG (LACP, 802.3ad) en tarjetas NT.

   •   Soportar protocolo STP (Spanning Tree).

Características generales del equipo propuesto

   •   Se deberán nombrar las siguientes características de la cabecera OLT propuesta:

   •   Número de puertos GPON por tarjeta de línea y bastidor.

   •   Número de tarjetas de línea GPON por bastidor.

   •   Número de puertos uplink por tarjeta y por bastidor.

   •   Capacidad de implementar otras tecnologías ópticas (punto-a-punto, E-PON, etc…)

   •   Capacidades de conmutación entre:

   •   Tarjetas LT y NT.

   •   Tarjeta Uplink.

   •   Bastidor OLT.



                                                                              RED FTTH RIBA-ROJA D’EBRE

FTTH RIBA-ROJA Proyecto                                                                               12
Visat nº:    P02904970
                                                                            Data:        07/10/2009
                          ______________________________________________________________________________
                                                                            Col·legiat:  9083

   •   Indicar el balance óptico (dB) y el alcance (Km) de los puertos PON para cada nivel de
       división.

   •   Número de colas para cada uno de los puertos de las tarjetas NT.

   •   Soporte para DHCP opción 82 y opción 60.

   •   Datos de tensión de alimentación, consumo y disipación.

   •   Gama de temperaturas de operación y almacenamiento.

   •   Humedad relativa de funcionamiento.




1.4. RED DE DISPERSIÓN PLANTA EXTERNA
Los criterios de despliegue de la planta externa se basan en una solución PON con un nivel de
división òptica de 1:64 en dos etapas de 1:8.

La primera etapa de división se efectuará en el centro de control y la segunda etapa de división
en las cajas terminales de usuario. Teniendo en cuenta que se migrarán los clientes de la red
actual de cable a la nueva solución de FTTH, se espera una penetración superior a los puntos
de cable actuales, ya que adicionalmente a los servicios de video que actualmente se ofrecen,
se ofrecerá servicio de Internet y voz.

En el esquema siguiente indica como son las redes de plante externa de FTTH.




                                                                              RED FTTH RIBA-ROJA D’EBRE

FTTH RIBA-ROJA Proyecto                                                                               13
Visat nº:    P02904970
                                                                            Data:        07/10/2009
                          ______________________________________________________________________________
                                                                            Col·legiat:  9083




El despliegue que realizamos en Riba-roja es del 100% de las viviendas del municipio.
Instalaremos una primera etapa de splitting de potencia en la cabecera para conseguir una
granularidad superior de nuestra red FTTH.

En el anteproyecto elegimos spliter 1:8 que nos permitirán colgar de cada fibra 8 cajas de 1x8
de spliting cumpliendo la condición de GPONT de 1:64 de spliting máximo.

Así pues, los requisitos y el planteamiento de desligue, tanto para cables como para cajas será
el que se enumera a continuación:

Fibra óptica
En función del replanteo, existen puntos de la red donde se saldrá del centro de control con
cables de alimentación. Las especificaciones de dichos cables serán:




                                                                              RED FTTH RIBA-ROJA D’EBRE

FTTH RIBA-ROJA Proyecto                                                                               14
Visat nº:    P02904970
                                                                            Data:        07/10/2009
                          ______________________________________________________________________________
                                                                            Col·legiat:  9083

  Atributos de la fibra G.652.D
  Atributo                                     Dato                               Valor
  Diámetro del campo modal                     Longitud de onda                   1310 nm
                                               Gama de valores nominales          8,6-9,5 um
                                               Tolerancia                         ±0,6 um
  Diámetro del revestimiento                   Nominal                            125,0 um
                                               Tolerancia                         ±1 um
  Error de concentricidad del núcleo           Máximo                             0,6 um
  No circularidad del revestimiento            Máximo                             1,0 %
  Longitud de onda de corte del cable          Máximo                             1260 nm
  Pérdidas de macroflexión                     Radio                              30 mm
                                               Número de vueltas                  100
                                               Máximo a 1625 nm                   0,1 dB
  Prueba de tensión                            Mínimo                             0,69 GPa
  Coeficiente de dispersión cromática          λomín                              1300 nm
                                               λomáx                              1324 nm
                                               somáx                              0,092 ps/nm2 x km
  Atributos del cable
  Atributo                                     Dato                               Valor
  Coeficiente de atenuación                    Máximo de 1310 nm a 1625           0,4 dB/km
                                               nm (nota 2)
                                               Máximo de 1383 nm ± 3 nm           (Nota 3)
                                               Máximo a 1550 nm                   0,3 dB/km
  Coeficiente de PMD                           M                                  20 cables
                                               Q                                  0,01 %
                                               PMDQ máximo
                                                                                  0,20 ps/ km



  NOTA 1- De conformidad con el Punto 6.2 de UIT-T G.652 (2005), se especifica un valor
  máximo del parámetro PMDQ en la fibra no cableada para soportar el requisito primario de
  PMDQ del cable.

  NOTA 2- Esta región de longitud de onda puede ampliarse hasta 1260 añadiendo 0,07 dB/km
  de pérdida por dispersión de Rayleigh inducida al valor de atenuación a 1310 nm. En este
  caso, la longitud de onda de corte del cable no deberá sobrepasar 1250 nm.

  NOTA 3- La atenuación media detectada en muestras a esta longitud de onda debe ser
  menor o igual al valor especificado para el intervalo 1310 nm a 1625 nm después del proceso
  de envejecimiento del hidrógeno conforme a CEI 60793-2-50 en relación con la categoría de
  fibra B1.3.




                                                                              RED FTTH RIBA-ROJA D’EBRE

FTTH RIBA-ROJA Proyecto                                                                               15
Visat nº:    P02904970
                                                                            Data:        07/10/2009
                          ______________________________________________________________________________
                                                                            Col·legiat:  9083


Especificaciones de los cables de fibra óptica

Se definen tres tipos de cables de fibra óptica, según su utilidad y disposición en la red FTTH:



   •   Cable de alimentación de 64 fibras ópticas o superior
   •   Cable de distribución de 24 fibras ópticas
   •   Cable de acometida de usuario de 1 fibra óptica


A continuación se detallas las funcionalidades y características de cada uno de ellos

Cable de alimentación de 64 fibras o superior


El cable de alimentación será de cómo mínimo 64 fibras ópticas y conectará el centro de control
con un nodo intermedio de segregación desde donde continuará la red FTTH con cables de
distribución. Se contempla que como máximo un cable de alimentación se divida en 3 cables de
distribución de 24 fibras ópticas.



   •   Los cables de alimentación deberán estar formados por tubos de métrica 12 o 8 en
       función del número final de fibras que incluyan.


   •   La instalación se realizará mayoritariamente por fachada y los tramos aéreos se
       soportarán mediante cable tensor de acero.


   •   Algunos de los tramos del despliegue serán también canalizados


   •   El cable de alimentación no servirá directamente a ninguna caja de abonados, sirviendo
       únicamente para reducir el número de cables de salida del centro de control.


Cable de distribución de 24 fibras ópticas


El cable de alimentación de 24 fibras ópticas conectará los cables de alimentación (o
directamente la central), con las cajas terminales desde donde saldrán las acometidas de
usuario. Cada cable de 24 fibras ópticas dará cobertura a 8 cajas terminales, debiendo de
terminar 2 fibras cada caja terminal, una de las cuales se conectará a un splitter 1:8 y la
segunda se dejará en punta para la instalación de un splitter adicional. El resto de fibras ópticas

                                                                              RED FTTH RIBA-ROJA D’EBRE

FTTH RIBA-ROJA Proyecto                                                                               16
Visat nº:    P02904970
                                                                            Data:        07/10/2009
                          ______________________________________________________________________________
                                                                            Col·legiat:  9083

se dejarán pasantes para ampliaciones futuras de la red o bien para aplicaciones específicas
punto a punto.



   •   Los cables de alimentación deberán estar formados por tubos a elección del
       suministrador, pero optimizados para el diseño que se acaba de presentar.


   •   La instalación se realizará mayoritariamente por fachada y los tramos aereos se
       soportarán mediante cable tensor de acero.


   •   El cable de distribución servirá a 8 cajas terminales, con dos fibras por caja para la
       instalación de dos splitters 1:8 (el primero instalado inicialmente y el segundo como
       ampliación), para una ocupación máxima de 16 usuarios por caja.


Todas las fibras se etiquetaran con el numero de fibra y tipo de fibra

Especificaciones de los elementos pasivos

Para la interconexión de los cables de fibra óptica en planta externa y los elementos
electrónicos se definen los siguientes elementos:



   •   Repartidor interior modular
   •   Caja de empalmes estanca
   •   Caja terminal de usuario


Los requerimientos de cada uno de los elementos se detallan a continuación:



Repartidor interior modular


El repartidor interior modular conectará los cables de planta externa con los equipos de planta
interna para una fácil interconexión.

Dicho repartidor será modular, con un tamaño máximo de 4 unidades de rack ofreciendo una
unidad para funcionalidades de guía cables.




                                                                              RED FTTH RIBA-ROJA D’EBRE

FTTH RIBA-ROJA Proyecto                                                                               17
Visat nº:    P02904970
                                                                            Data:        07/10/2009
                          ______________________________________________________________________________
                                                                            Col·legiat:  9083

   •   El repartidor modular deberá estar compuesto por módulos de métrica 12 para que dos
       módulos permitan acabar un cable de distribución completo.


   •   Cada repartidor deberá tener una capacidad mínima de 12 módulos, para una
       capacidad de gestión de fibras de 144 unidades.


   •   Los repartidores deberán tener conexión frontal con los equipos de planta interna.


   •   Los repartidores deberán tener conexión posterior o lateral para los cables de planta
       externa.


   •   A ser posible, tendrán facilidades para conectar los cables de planta externa con los pig-
       tails.


   •   Los conectores que se ofrecerán a los equipos de planta interna serán SC/APC.


Caja de empalmes estanca


La caja de empalmes estanca se utilizará para realizar fusiones intermedias y como segregador
de los cables de alimentación. Deberá tener protección IP 66 para poder ser utilizada con
garantías tanto en exterior como en arquetas.



   •   La caja de empalme tendrá una capacidad de cómo mínimo cuatro entradas/salidas


   •   Dispondrá de cómo mínimo de dos entradas en cada lado


   •   Debe poder realizar como mínimo 72 fusiones


   •   Las bandejas de fusión serán de cómo mínimo 24 fusiones, para poder albergar un
       cable de distribución en su totalidad


   •   La caja de empalmes deberá ser capaz de sangrado




                                                                              RED FTTH RIBA-ROJA D’EBRE

FTTH RIBA-ROJA Proyecto                                                                               18
Visat nº:    P02904970
                                                                            Data:        07/10/2009
                          ______________________________________________________________________________
                                                                            Col·legiat:  9083

Caja terminal de usuario


La caja terminal de usuario determinará el punto final de la red FTTH en el momento de su
ejecución antes de instalar las acometidas de usuario. Por regla general irá instalada en
exterior, ofreciendo las acometidas aéreas, por fachada o interiores en función de los casos.



   •   La caja terminal de usuario deberá permitir el sangrado de cables


   •   Ofrecerá capacidad para instalar dos splitters 1:8 de manera independiente en dos
       bandejas separadas


   •   Ofrecerá como mínimo capacidad de 16 acometicas de usuario


   •   Ofrecerá espacio para fusionar la fibra de distribución con el divisor óptico 1:8
       correspondiente


   •   Las acometidas de usuario serán preconectorizadas por lo que deberá albergar espacio
       para 16 conectores SC/APC, inicialmente instalándose únicamente 8, correspondientes
       al primer divisor 1:8 que se instalará en el momento del despliegue.


Divisores ópticos y multiplexores WDM

Los divisores ópticos 1:8 realizarán la interconexión de 1 a 8 para conseguir el factor de división
de 64 que se utilizará en este despliegue.



   •   Las pérdidas máximas de los divisores serán de 10dB.


   •   Los divisores ubicados en el centro de control deberán ir instalados en módulos
       compatibles con el repartidor modular, con entradas y salidas SC/APC.


   •   Los divisores ubicados en las cajas terminales de usuario deberán proporcionarse en
       una bandeja que permita fusionar la fibra de distribución y con 8 conectores SC/APC
       para conectar con las acometidas de usuario.




                                                                              RED FTTH RIBA-ROJA D’EBRE

FTTH RIBA-ROJA Proyecto                                                                               19
Visat nº:    P02904970
                                                                            Data:        07/10/2009
                          ______________________________________________________________________________
                                                                            Col·legiat:  9083

Los multiplexores ópticos WDM permitirán la conexión de los equipos de distribución de video
con los equipos de cabecera OLT y la red FTTH.



   •   Dispondrán de una salida común, una entrada a 1550nm y otra entrada a 1310/1490nm
       para separar el tráfico


   •   Las pérdidas de los MUX serán inferiores a 1dB


   •   Cada MUX irá montado en un módulo compatible con el multiplexor modular ubicado en
       el rack del centro de control.


   •   Los conectores para la entrada 1310/1490 serán SC/PC y para la entrada 1550nm y
       para la salida serán SC/APC


   •   Todas las entradas irán correctamente etiquetadas para evitar confusiones e
       interconexiones que puedan dañar los equipos.


En nuestro proyecto sale las siguientes cantidades:


                               Material                    unidades


                               Manguera de 64 F.O.              1.647 m


                               Manguera de 24 F.O.              6.102 m


                               Cajas distribución 8                     4


                               Cajas distribución 16                  63


                               Cajas de empalme                       22




Etiquetado cada caja se etiquetara con su número de caja




                                                                              RED FTTH RIBA-ROJA D’EBRE

FTTH RIBA-ROJA Proyecto                                                                               20
Visat nº:    P02904970
                                                                            Data:        07/10/2009
                          ______________________________________________________________________________
                                                                            Col·legiat:  9083


Conclusiones

El presente documento describe los equipos pasivos a instalar en el despliegue FTTH de Riba-
Roja d’Ebre, según los siguientes criterios de despliegue:



   •   Se desplegará una solución GPON ITU-T G984 con ópticas clase B+
   •   El despliegue se realizará con factor de división 1:64
   •   Se hará en dos etapas de splitting, una 1:8 en centro de control y la segunda 1:8 en la
       caja terminal de usuario
   •   Se desplegarán tres tipos de cable: cable de alimentación de +64 fibras, cable de
       distribución de 24 fibras y cable de acometida de 1 fibra óptica.
   •   El cable de alimentación interconectará 3 cables de distribución.
   •   Cada cable de distribución servirá a 8 cajas terminales, dejando 2 fibras en cada caja y
       sangrando el resto hasta el final del cable para futuras ampliaciones.
   •   Cada caja terminal dará servicio a una area de influencia de 16 usuarios potenciales.
   •   Las cajas inicialmente se instalarán con un divisor de 1:8 para conseguir una
       penetración del 50%
   •   Deberán disponer de espacio adicional para ampliar la caja con otro divisor de 1:8 para
       llegar a una cobertura del 100%
   •   La conexión entre cables de alimentación y distribución y los splitters se realizará
       mediante fusión.
   •   La terminación de las cajas terminales de usuario ser realizará mediante conector
       SC/APC.
   •   Las acometidas de usuario se realizarán mediante conector SC/APC a ambos lados.
   •   El centro de control dispondrá de un distribuidor de fibras modular que permita la
       instalación de splitters, mux WDM y terminaciones de fibra en módulos.
   •   Debe albergar como mínimo 12 módulos en un espacio de 4U, incluyendo un guía-
       cables.
   •   El conector standard para el despliegue será SC/APC, salvo para las entradas/salidas
       de la OLT, que serán SC/PC.


1.5. INFRAESTRUCTURA A UTILIZAR
La red de dispersión se sustenta en una infraestructura que ocupa el espacio publico de la
población, esta red en general ira por fachada donde se instalaran los cables y cajas.

En parte de la población existe una infraestructura canalizada que se aprovechará en los
tramos que discurra la fibra.

Estas infraestructuras deben de cumplir las siguientes normas tanto en su ejecución como en la
instalación de los elementos de la red de dispersión.



                                                                              RED FTTH RIBA-ROJA D’EBRE

FTTH RIBA-ROJA Proyecto                                                                               21
Visat nº:    P02904970
                                                                            Data:        07/10/2009
                          ______________________________________________________________________________
                                                                            Col·legiat:  9083

La normativa a seguir son las Normas UNE 133100

Infraestructura sobre fachada



Norma UNE 133100-5 Instalación en fachada

La instalación de infraestructura por fachada se realizará en la parte final de distribución a los
abonados, y siempre con el permiso de las Comunidades de Vecinos de los inmuebles por los
que discurra el cableado. En todos estos edificios ya existen cables sobre fachada
pertenecientes a otros servicios públicos.

La transición de tendido subterráneo a fachada se realizará a través de unos tubos adosados a
las mismas, aplicando al final de éstos un manguito de reducción y sellado correspondiente.

En este tipo de accesos se cuidará al máximo la estética existente y que su situación no
suponga un obstáculo o molestia para el ciudadano.

Las conducciones, tanto horizontal como verticalmente, llevarán abrazaderas de alineación y
fijación normalizadas con el fin de conseguir un tendido del cable perfectamente rectilíneo. Los
tramos horizontales discurrirán a una altura aproximadamente de 2,5 a 5 metros, manteniendo
las separaciones entre servicios que exijan las normativas vigentes.

Las conducciones sobre fachada de edificios singulares se protegerán con canaleta, siendo
ésta similar al color del edificio para minimizar al máximo el impacto medioambiental.

Condiciones generales de instalación
   •   Los cables se instalarán siempre verticales u horizontales

   •   No se instalarán cables en paredes de edificios sobre las que vaya a actuarse en fecha
       próxima.

   •   Se elegirá el trazado de forma que los cables encuentren el menor número de
       obstáculos (curvas, desviaciones, bajadas de agua, cables eléctricos, etc.)

Instalación de cables de fibras en paredes
Altura de los cables en tendido horizontal: La altura mínima de los cables desde el suelo debe


                                                                              RED FTTH RIBA-ROJA D’EBRE

FTTH RIBA-ROJA Proyecto                                                                               22
Visat nº:    P02904970
                                                                            Data:        07/10/2009
                          ______________________________________________________________________________
                                                                            Col·legiat:  9083

ser de 2,5 metros.

Separación de las aristas en tendidos verticales: Los cables en las instalaciones verticales
estarán siempre separados de las aristas de los edificios como mínimo 30 centímetros.

Sujeción de los cables: La sujeción de los cables a las paredes se realiza mediante tacos y
tornillo de diámetro mínimo de 6 mm. el tornillo será de acero inoxidable o con protección
contra corrosión mediante galvanizado en caliente. Con abrazadera de fleje con hebilla, brida o
grapa metálica.

Distancias de las bridas: Las distancias entre bridas y demás elementos de sujeción vendrán
dadas por la naturaleza de los tramos, así,

   -   Tramos verticales: En todos los cables la separación de las bridas será alrededor de los
       60 cm. Si son accesibles. Si no son accesibles se realizaran fijaciones que puedan
       soportar dichos cables.
   -   Tramos horizontales: La separación entre bridas será alrededor de 65 cm.

Curvas
Los cables se curvarán respetando el radio mínimo admisible en cada cable. En cosos de curva
y contra curva se intentara realizar la fijación de forma simétrica y equidistante de los arcos de
circunferencia formados.



Salvar elementos de fachada

Se colocarán fijaciones de protección que eviten el rozamiento con los salientes. Los cables
discurrirán lo más rectilíneo posible, evitando curvas y contra curvas para salvar obstáculos,
aunque para ello haya de modificarse la altura del trazado.

En cruces con postes metálicos así como tuberías de agua o salidas de humos o de otro tipo se
intentara pasar entre el obstáculo y la pared y, si no es posible, se pasará por delante de el,
fijando el cable antes y después del obstáculo, a no más de 10 cm. de él,




                                                                              RED FTTH RIBA-ROJA D’EBRE

FTTH RIBA-ROJA Proyecto                                                                               23
Visat nº:    P02904970
                                                                            Data:        07/10/2009
                          ______________________________________________________________________________
                                                                            Col·legiat:  9083

Cajas

Se instalarán en los emplazamientos de segregación de red troncal y en los emplazamientos de
conexión a usuarios en la red de dispersión. Las cajas servirán para ubicar los elementos de
repartición y segregación de fibras, así como el conexionado con la acometida del usuario.

Para la mejor conservación y de la minimización de averías provocadas por agentes externos a
la propia red, principalmente efectos meteorológicos, aconsejan la instalación de estos equipos
en espacios interiores, intemperie, frente al empleo de arquetas.

La selección de los emplazamientos donde hubiera que instalar las cajas se determina tras un
proceso de análisis muy cuidadoso, procurando optimizar la coexistencia de las cajas con la
estética del vecindario. Siempre que sea posible se instalarán las cajas en zonas que no sean
de paso.

Se minimiza en todos los casos el tamaño de la caja a instalar, que siempre será función del
tipo de equipamiento que albergue.

Precableado de edificios

La red prevista dejará un punto de conexión en las inmediaciones de cada uno de los hogares
de la zona considerada. La localización de este punto dependerá del método de precableado
del edificio que se adopte.

Existen dos alternativas:

   -    Cableado interno del edificio cuando existan conductos interiores libres y capaces, o
        cuando no sea posible el cableado exterior. En este caso el punto de conexión de cada
        hogar quedaría en el descansillo de la escalera.

   -    Cableado exterior del edificio con cables grapados en fachada, cuando no existan
        conductos internos. El punto de conexión de cada hogar queda en las inmediaciones de
        la ventana del salón.

Cualquiera de los dos trabajos descritos se efectuaría previa aprobación de la Comunidad de
vecinos.




                                                                              RED FTTH RIBA-ROJA D’EBRE

FTTH RIBA-ROJA Proyecto                                                                               24
Visat nº:    P02904970
                                                                            Data:        07/10/2009
                          ______________________________________________________________________________
                                                                            Col·legiat:  9083

Infraestructuras Comunes en los Edificios

Se entiende por infraestructura común de acceso a servicios de telecomunicación, la que exista
o se instale en los edificios para cumplir, como mínimo, las siguientes funciones:

   -   Captación y adaptación de las señales de radiodifusión sonora y televisión terrenal, y su
       distribución hasta puntos de conexión situados en las distintas viviendas o locales del
       edificio, y la distribución de las señales de televisión y radiodifusión sonora por satélite
       hasta los citados puntos de conexión.

   -   Proporcionar acceso al servicio telefónico básico y al servicio de telecomunicaciones
       por cable, mediante la infraestructura necesaria para permitir la conexión de las distintas
       viviendas o locales del edificio a las redes de los operadores habilitados.

Las normas contenidas en el Real Decreto 401/2003, de 4 de abril, sobre infraestructuras
comunes en los edificios para el acceso a los servicios de telecomunicación se aplicarán.

   a) A todos los edificios de uso residencial o no, sean o no de nueva construcción, que
       estén acogidos, o deban acogerse, al régimen de propiedad horizontal regulado por la
       Ley 49/1960 de 21 de Julio de Propiedad Horizontal, modificada por la Ley 8/1999 de 6
       de Abril.

   b) A los edificios que, en todo o en parte, hayan sido o sean objeto de arrendamiento por
       plazo superior a un año, salvo los que alberguen una sola vivienda.

Instalación se realizará obligatoriamente a través de las infraestructuras en edificios de nueva
construcción. Esta infraestructura deberá reunir las condiciones técnicas adecuadas para
cumplir, al menos, las funciones indicadas anteriormente.

Los gastos necesarios para la instalación de las infraestructuras deberán estar incluidos en el
coste de la comunidad de propietarios.

En cuanto a la instalación de la infraestructura en los edificios ya construidos, cuando la
comunidad de propietarios o el propietario de un edificio que esté concluido, decidan la
instalación de una infraestructura      común de acceso a servicios de telecomunicación o la
adaptación de la existente, el acuerdo en su seno habrá de ser aprobado, en junta de
propietarios, por un tercio de sus integrantes que representen, a su vez, un tercio de las cuotas
de participación en los elementos comunes.


                                                                              RED FTTH RIBA-ROJA D’EBRE

FTTH RIBA-ROJA Proyecto                                                                               25
Visat nº:    P02904970
                                                                            Data:        07/10/2009
                          ______________________________________________________________________________
                                                                            Col·legiat:  9083

No se tendrá que instalar la infraestructura citada en aquellos edificios construidos que no
reúnan condiciones para soportarla, de acuerdo con el informe emitido al respecto por la
Administración competente.

En el caso de que se realice la instalación de un a infraestructura ésta pasará a formar parte
del edificio, como elemento común del mismo. La infraestructura instalada deberá cumplir todas
las especificaciones técnicas de calidad y seguridad exigidas por la normativa vigente sobre
construcción y, en especial, por la reguladora de la              compatibilidad de aquéllas con las
instalaciones de suministro de agua, gas y electricidad.

Para realizar la instalación de los elementos necesarios para disfrutar de este servicio podrán
aprovecharse no sólo de los elementos privativos, sino también de los comunes de los
inmuebles, siempre que no menoscaben la infraestructura que existiera en los edificios y no
interfieran ni modifiquen las señales correspondientes a servicios que previamente hubiesen
contratado otros usuarios.

Norma UNE 133100-1 Canalizaciones en calzada


Apertura de zanja

La apertura de zanja en acera con tubos hormigonados se realizará según las dimensiones
mínimas que vienen determinadas de acuerdo con el número de tubos de la siguiente tabla:

                                         DIMENSIONES DE LA ZANJA
Número de Tubos Tubo diámetro < 90 mm                      Tubo diámetro = 110 mm
                      Anchura (m)     Profundidad (m)      Anchura (m)     Profundidad (m)
1 Tubo                0,20            0,40                 0,20            0,40
2 Tubos               0,20            0,40                 0,30            0,40
4 Tubos               0,20            0,50                 0,30            0,60
1 Tritubo             0,20            0,40                 ---             ---
2 Tritubos            0,20            0,50                 ---             ---



En terrenos de relleno o de poca consistencia se recurrirá al entubado en previsión de
desmontes.


                                                                                 RED FTTH RIBA-ROJA D’EBRE

FTTH RIBA-ROJA Proyecto                                                                                26
Visat nº:    P02904970
                                                                            Data:        07/10/2009
                          ______________________________________________________________________________
                                                                            Col·legiat:  9083

El fondo de la zanja, establecida en su profundidad, es necesario que esté en terreno firme,
para evitar corrimientos que someterían a los tubos a esfuerzos por estiramiento.

Todas las tierras extraídas serán retiradas a vertederos especialmente destinados a este fin.

Acondicionamiento de zanja

Una vez abierta la zanja, el suelo de la misma será raseado y será colocado un lecho de arena
de 0,05m de espesor que servirá de camada para el asentamiento de los tubos.

Cierre y reposición del firme

Se procederá a la colocación de tubos de PVC o polietileno, que serán de diámetros de
110mm, 90mm, 73mm, 63mm, o tritubos de 40 o 63mm, incluyendo los accesorios
correspondientes (separadores, obturadores, hilo guía, etc.).

La unión de estos tubos se efectuará mediante adhesivo / pegamento.

Se procederá al hormigonado de los tubos hasta 0,30m por encima de ellos con hormigón en
masa HM-20.

El relleno de la zanja hasta 0,30m por encima de los tubos, se realizará a base de arena,
compactando con medios mecánicos, por tongadas de 0,10m de espesor, colocando una
banda de señalización a una distancia de 0.25 de los tubos.

Se rellenará 0.08 m con hormigón en masa HM-20 y se continuará con una capa de mortero de
asiento para baldosa y terminación de firme.

El relleno con arena a continuación del hormigón de los tubos puede sustituirse con tierra
procedente de la excavación, exenta de piedras o cascotes, siempre que no existan
disposiciones legales que puedan imponer los organismos competentes.

Se efectuará la reposición del firme existente, para lo cual se recuadrará perfectamente éste, a
continuación se efectuará un riego de imprimación con emulsión E.C.R.I. y seguidamente se
extenderá la capa de aglomerado que corresponda, compactándose debidamente, con medios
mecánicos, hasta conseguir un perfecto nivelado con el firme existente.




                                                                              RED FTTH RIBA-ROJA D’EBRE

FTTH RIBA-ROJA Proyecto                                                                               27
Visat nº:    P02904970
                                                                            Data:        07/10/2009
                          ______________________________________________________________________________
                                                                            Col·legiat:  9083

Norma UNE 13310-2 Arquetas



Se emplearán típicamente allí donde ocurra un cambio brusco en la dirección del trazado o
haya cruces de calzada. En tramos rectos se dispondrán arquetas para ayuda al tendido (cada
30 – 50 metros).

Se emplearán unidades prefabricadas de dimensiones típicas, o bien arquetas de hormigón
construidas en obra, con marco y tapa de fundición (FGE 42-12 o FGE 50-7).

En cuento a tamaños se emplearán fundamentalmente dos tipos de arqueta:

   -   Clase B 450 x 450 x 600mm, para las arquetas de apoyo al tendido, derivaciones para
       cruces, curvas, etc.
   -   Clase C 600 x 600 x 1310mm, para puntos de la red troncal o de distribución que
       concentren gran número de conductos.



Instalación del cable de fibras en canalización

En nuestro caso la infraestructura canalizada es la existente en la zona por lo que se debe de
seguir los pasos siguientes:

   -   Comprobación que el conducto a utilizar esta libre de obstáculos para no dañar el cable
       (Mandrilado de la canalización)

   -   Si no existe hilo guía se deberá tender una guía en la canalización

   -   Utilizando la guía se extenderá el cable de arqueta a arqueta, si existen más de una
       arqueta se realizara el tendido de una en una dejando una Valona en cada arqueta que
       se pase.

   -   Se procurara no forzar el cable en su tendido. Deberá de existir un operario por arqueta
       que se tienda el cable o se realizara el tendido entre arquetas próximas y después con
       la siguiente.

   -   Los cables se tenderán respetando el radio de curvatura de cada uno.




                                                                              RED FTTH RIBA-ROJA D’EBRE

FTTH RIBA-ROJA Proyecto                                                                               28
Visat nº:    P02904970
                                                                                        Data:        07/10/2009
                                      ______________________________________________________________________________
                                                                                        Col·legiat:  9083


1.6. SUBSISTEMA DE ADMINISTRACIÓN
En el presente apartado se cuantifican el dimensionamiento de los sistemas de servicio y
administración de la cabecera.

Dado que en este anteproyecto se completa el enlace entre cabecera y usuario de todos los
servicios deberíamos tener en cuenta el número máximo de usuarios.

Por las características intrínsecas de la red siempre se puede ampliar el número máximo de
usuarios por servicio.

1.6.1. DIMENSIONAMIENTO DE LA CABECERA DATOS

La siguiente ilustración describe los diferentes componentes a instalar y su futura conexión
dentro de la oficina de conmutación principal del proyecto, situada dentro del Ayuntamiento de
Riba-roja de l’Ebre, así como la situación de los dos niveles de división de la red PON y su
interconexión con el usuario final.

 Oficina de conmutación principal – Ayuntamiento de Riba-roja de l’Ebre                  Planta Externa    Equipos Cliente
                                                                                                                ONU
                                                                                                                G-221


                                         Equipo OLT                                           Divisor
   Server EMS+DHCP+DNS                     GPON                                              2 ndo Nivel        G-221


                                                                                               1:8
                                                                                                                G-221



                                                                                                                G-221
                                                                  Repartidor
                                                                    ODF
                                                                   Divisor
                                                                                                                G-221
                                                                   1er Nivel

                                                                      1:8                      1:8
                                                                                                                G-221




                                                                                                               G-221
                                                    Core Router

                                                                                                                G-221
                                                                                               1:8
      PBX VoIP

                                                                                                                G-221
                                         Internet




                                                                    Gestión remota EMS



Esquemático de la oficina de conmutación.




                                                                                                                   RED FTTH RIBA-ROJA D’EBRE

FTTH RIBA-ROJA Proyecto                                                                                                                  29
Visat nº:    P02904970
                                                                            Data:        07/10/2009
                          ______________________________________________________________________________
                                                                            Col·legiat:  9083

Como muestra el esquema, la oficina de conmutación dispondrá de los siguientes elementos:

   -   Equipo cabecera FTTH OLT
          o Mínimo 8 puertos GPON


   -   Servidor de gestión de elementos ópticos y servicios de datos básico
          o Plataforma de gestión servidor-cliente para la gestión de los elementos de red
              ópticos.
          o Implementación de los servicios DHCP y DNS.


   -   Centralita virtual de VoIP
          o Para ofrecer el servicio de telefonía IP a un máximo de 512 usuarios
          o Debe cumplir con las siguientes características:
                       Interfaz Web para su configuración.
                       Reportes de uso de recursos.
                       Opciones para reiniciar/apagar remotamente.
                       Reportes de llamadas entrantes/salientes y uso de canales.
                       Módulo de correo de voz integrado.
                       Módulo de panel operador integrado.
                       Interfaz de ayuda embebido.
                       Soporte Multi-lenguaje.


   -   Repartidor de fibra óptica
          o Para enrutar las fibras ópticas al exterior y almacenar los divisores de primer
              nivel


   -   Core Router
          o Para interconexión de elementos y acceso a Internet.
          o Debe permitir la conexión de clientes remotos a la plataforma de gestión de los
             distintos elementos de red ópticos.


El grafico también muestra el segundo nivel de división realizado en la planta externa de Riba-
roja de l’Ebre, donde se prevé la instalación de las diferentes cajas terminales para dar acceso
de fibra óptica al usuario.

El despliegue realizado es para el 100% de las viviendas de Riba-roja (833), para que cualquier
vivienda pueda tener los servicios de la red.

En un inicio la cabecera no se debe de diseñarse para dar servicio al 100% de las viviendas
debido que tendremos siempre una penetración menor del 100% en este ante proyecto se
escoge una penetración del 50%.




                                                                              RED FTTH RIBA-ROJA D’EBRE

FTTH RIBA-ROJA Proyecto                                                                               30
Visat nº:    P02904970
                                                                            Data:        07/10/2009
                          ______________________________________________________________________________
                                                                            Col·legiat:  9083

Penetración de 50% = 417 usuarios

Las f.o. se conectaran a estos pasivos según se den las altas.

1.6.2. GESTORES DE EQUIPOS

Los gestores de los equipos deberán disponer de las siguientes características y
funcionalidades:

       -   Realizar la gestión integrada de alarmas y fallos de toda la plataforma en la misma
           herramienta.
       -   Realizar remotamente la configuración de los equipos de red.
       -   Representar gráficamente la topología de red.
       -   Disponer de bases de datos de red centralizadas.
       -   Realizar la gestión centralizada de los equipos de red y los servicios de cliente.
       -   Detección y representación de los equipos en red.
       -   Realizar la gestión centralizada de los equipos de red y los servicios al cliente.
       -   Disponer de alta disponibilidad.
       -   Permitir la asignación de distintos privilegios a distintos grupos de usuarios.
       -   Permitir la creación de grupos de equipos.
       -   Realizar asignaciones de usuarios independientes para cada agrupación de
           equipos.

Características generales del equipo propuesto
Se deberán nombrar las siguientes características de los equipos ONT propuestos:

       -   Número de interfaces Ethernet 10/100, Gigabit Ethernet, POTS y video RF.
       -   Numero de colas para cada uno de los puertos Ethernet/GigabitEthernet.
       -   Datos de la tensión de alimentación, consumo y disipación de los distintos equipos
           ONT.
       -   Posibilidad de instalar baterías que garanticen unas cuatro horas de alimentación.
       -   Gama de temperaturas de operación y mantenimiento.


   •   se deberá incluir la formación de los sistemas a un mínimo de 2 personas.

1.6.3. PABX

El presente anteproyecto dimensionaremos la central de telefonía Ip para dar servicio a la red
de FTTH.

La PABX a dimensionar deberá soportar como mínimo 512 usuarios (máxima capacidad de la
cabecera) ampliable. Nos deberá de controlar todas las llamadas entrantes desde el operador
mayorista a usuario de nuestra red, también las llamadas salientes de la red que realizan
nuestros usuarios, así como las llamadas internas entre los usuarios de la red.



                                                                              RED FTTH RIBA-ROJA D’EBRE

FTTH RIBA-ROJA Proyecto                                                                               31
Visat nº:    P02904970
                                                                            Data:        07/10/2009
                          ______________________________________________________________________________
                                                                            Col·legiat:  9083

Las características de la central serán como mínimo las siguientes:

FUNCIONALIDADES

   Ud. Servidor de telefonía VoIP con sistema operativo SIP@net, para disponer de
   conectividad IP (SIP) para LAN y WAN y extensión , soporta VoIP (SIP),

   Licencias para 512 terminales IP(SIP)

   Aplicación. Operadora automática Multiidioma, versión                 Hospitality,   con   mensajes
   programables por el usuario, buzones de voz, audio.

Se incluye instalación, programación y formación para 2 personas.

CONFIGURACIÓN CENTRAL

   El Procesador Principal CPU (MP), que consta de las Placas de Control y del Software del
   Sistema, proporciona la función de Procesador Principal, la interfaz Ethernet, y controla las
   Licencias IP.

   El Procesador de Firmware (FP), que controla las Placas de Circuitos de Líneas y de
   Enlaces

   Los Procesadores de Aplicación (AP) son placas que ejecutan un protocolo o una
   aplicación, por ejemplo, los Enlaces Digitales, las Placas Manejadoras de Datos y
   Protocolos, IPT y Conferencia para 512 abonados.



Enlaces:

   En principio solo se realizaran enlaces de conectividad IP (SIP)

   Configurar los dispositivos para disponer de la capacidad de establecer enlaces H323 y SIP


SERVICIOS

   Música de espera interna y externa

   Plataforma de Gestión incluye servidor 1U enrackable.

   Consola formato rack (pantalla y teclado en rack)




                                                                              RED FTTH RIBA-ROJA D’EBRE

FTTH RIBA-ROJA Proyecto                                                                               32
Visat nº:    P02904970
                                                                            Data:        07/10/2009
                          ______________________________________________________________________________
                                                                            Col·legiat:  9083

REQUISITOS DE LA RED

   -   ITU G.711: 80 Kbps por canal, G.729: 32 Kbps por canal

   -   Tolerancia al retardo ITU G.114 < 150 ms

   -   Jitter <100 ms

   -   Perdidas de paquetes ITU G.729, debe ser < 1%



La red deberá priorizar la voz sobre los demás servicios existentes.




Barcelona, 30 de septiembre de 2.009




Fdo. Xavier Edo Ibañez
Ingeniero de Telecomunicación
Colegiado nº 9.083




                                                                              RED FTTH RIBA-ROJA D’EBRE

FTTH RIBA-ROJA Proyecto                                                                               33
Visat nº:    P02904970
                                                                            Data:        07/10/2009
                          ______________________________________________________________________________
                                                                            Col·legiat:  9083




PLANOS

   2.1   SITUACIÓ

   2.2    INFRAESTRUCTURA FTTH

   2.3   INFRAESTRUCTURA FTTH

   2.4   INFRAESTRUCTURA FTTH

   2.5   INFRAESTRUCTURA FTTH

   2.6 INFRAESTRUCTURA FTTH

   2.7 INFRAESTRUCTURA FTTH

   2.8 INFRAESTRUCTURA FTTH

   2.9 SITUACIÓN CABECERA

   2.10 DISTRIBUCIÓN CABECERA

   2.11 ARMARIO FTTH-GPON

   2.12 ANEXOS




                                                                              RED FTTH RIBA-ROJA D’EBRE

FTTH RIBA-ROJA Proyecto                                                                               34
Visat nº:     P02904970
Data:         07/10/2009
Col·legiat:   9083
Visat nº:     P02904970
Data:         07/10/2009
Col·legiat:   9083
Visat nº:     P02904970
Data:         07/10/2009
Col·legiat:   9083
Visat nº:     P02904970
Data:         07/10/2009
Col·legiat:   9083
Visat nº:     P02904970
Data:         07/10/2009
Col·legiat:   9083
Visat nº:     P02904970
Data:         07/10/2009
Col·legiat:   9083
Visat nº:     P02904970
Data:         07/10/2009
Col·legiat:   9083
Visat nº:     P02904970
Data:         07/10/2009
Col·legiat:   9083
Visat nº:     P02904970
Data:         07/10/2009
Col·legiat:   9083
Visat nº:     P02904970
Data:         07/10/2009
Col·legiat:   9083
Visat nº:     P02904970
Data:         07/10/2009
Col·legiat:   9083
Visat nº:     P02904970
ANEXO SOBRE CONDICIONES DE SEGURIDAD Y SALUD                                  Data:         07/10/2009
                                                                              Col·legiat:   9083
   A) DISPOSICIONES LEGALES DE APLICACIÓN.

A continuación se detalla una lista de Leyes, Decretos y Normas actualmente en vigor que de una
forma directa afectan a la Prevención de Riesgos Laborales y cuyas disposiciones son de obligado
cumplimiento:

Ley 31/1995 de 8 de Noviembre (BOE 10/11/95), de Prevención de Riesgos Laborales.
Transposición al Derecho Español de la Directiva 89/391/CEE relativa a la aplicación de las
medidas para promover la mejora de la seguridad y salud de los trabajadores en el trabajo, así como
las Directivas 92/85/CEE, 94/33/CEE y 91/383/CEE relativas a la aplicación de la maternidad y
de los jóvenes y al tratamiento de las relaciones de trabajo temporales, de duración determinada y
en empresas de trabajo temporal.

Ley 50/1998, de 30 de diciembre (BOE 31/12/1998), de Medidas Fiscales, Administrativas y de
Orden Social. (Modificación de la Ley de Prevención de Riesgos Laborales, artículo 45, 47, 48 y 49).

Ley 54/2003, de 12 de diciembre, de reforma del marco normativo de la Prevención de Riesgos
Laborales que modifica la Ley 31/1995 de 8 de noviembre, de Prevención de Riesgos Laborales e
incluye las modificaciones que se introducen en la Ley sobre Infracciones y Sanciones en el Orden
Social, texto refundido aprobado por R.D. 5/2000, de 4 de agosto.

Real Decreto Legislativo 1/1995, de 24 de marzo, (BOE 29/03/1995), (Estatuto de los
trabajadores).

Real Decreto 39/1997, de 17 de Enero (BOE 31/01/97), por el que se aprueba el Reglamento de
los Servicios de Prevención, modificado por R.D. 780/1998 de 30 de abril (BOE 01/05/98).

Real Decreto 485/1997, de 14 de Abril (BOE 23/04/97), sobre disposiciones mínimas en materia
de señalización de seguridad y salud en el trabajo. Transposición al Derecho Español de la Directiva
92/58/CEE de 24 de junio.

Real Decreto 486/1997, de 14 de Abril (BOE 23/04/97), por el que se establecen las disposiciones
mínimas de seguridad y salud en los lugares de trabajo. Transposición al Derecho Español de la
Directiva 89/654/CEE de 30 de noviembre.

Real Decreto 773/1997, de 30 de mayo (BOE 12/06/97) sobre disposiciones mínimas de
seguridad y salud relativas a la utilización por los trabajadores de equipos de protección individual.
En BOE 18/07/97 (página 22094) se hace referencia a una corrección de errores de dicho R.D.
773/1997 de 30 de mayo.

Real Decreto 1215/97, de 18 de julio (BOE 07/08/97), por el que se establecen las disposiciones
mínimas de seguridad y salud para la utilización por los trabajadores de los equipos de trabajo.

Real Decreto 614/2001 de 8 de Junio (BOE 21/06/2001), sobre disposiciones mínimas para la
protección de la salud y seguridad de los trabajadores frente al riesgo eléctrico.

Real Decreto 842/2002, de 2 de agosto, por el que se aprueba el Reglamento electrotécnico para
Baja Tensión (BOE 18/09/2002).

Ordenanza General de Seguridad e Higiene en el trabajo. Vigente el art. 24 y el capítulo VII del título
II, aprobada por Orden de 9 de marzo de 1971 (Trabajo) (BOE 16/03/1971).

Reglamento de régimen interno de la empresa constructora, caso de existir y que no se oponga a
ninguna de las disposiciones citadas anteriormente.

Así mismo existen otras Leyes, Decretos y Normas actualmente en vigor, que de una forma indirecta
pueden afectar a la Prevención de Riesgos Laborales, pero que se omiten por no estar directamente
relacionadas con los trabajos a realizar.


α _____________________________________________________________ 1
Visat nº:     P02904970
   B) CARACTERÍSTICAS ESPECÍFICAS DE SEGURIDAD Y SALUD A TENER EN CUENTA EN
                                                             Data:       07/10/2009
   LOS PROYECTOS TÉCNICOS DE INFRAESTRUCTURA COMÚN DE TELECOMUNICACIONES.
                                                             Col·legiat: 9083

Se describen a continuación las actividades y tareas que deben realizarse para la ejecución de las
infraestructuras proyectadas, así como para el mantenimiento previsto de las mismas, para que el
responsable de la redacción del Estudio de Seguridad y Salud ( o del Estudio Básico de Seguridad y
Salud), de la obra de edificación, evalúe los riesgos que se derivan de las mismas y establezca las
medidas preventivas adecuadas.

La ejecución de un Proyecto de Infraestructura de Telecomunicaciones en los edificios, tiene dos
partes claramente diferenciadas que se realizan en dos momentos diferentes de la construcción:

1) INSTALACIÓN DE LA INFRAESTRUCTURA Y CANALIZACIÓN DE SOPORTE DE LAS REDES, que
normalmente se realiza durante la fase de CERRAMIENTO Y ALBAÑILERÍA DE LA OBRA.

2) INSTALACIÓN DE LOS ELEMENTOS DE CAPTACIÓN, LOS EQUIPOS DE CABECERA, Y EL TENDIDO Y
CONEXIONADO DE LOS CABLES Y REGLETAS QUE CONSTITUYEN LAS DIFERENTES REDES, que
normalmente se realiza durante la fase de INSTALACIONES DE LA OBRA.

Se describen a continuación estas actividades.

       1) INSTALACIÓN DE LA INFRAESTRUCTURA Y CANALIZACIÓN DE SOPORTE DE LAS
       REDES.

Esta infraestructura se puede subdividir en dos partes, una que se realiza en exterior del edificio y
otra que se realiza en el interior del edificio.

Normalmente se realizan durante la fase de CERRAMIENTO Y ALBAÑILERÍA DE LA OBRA.

A continuación se detallan estas dos partes y los trabajos que conllevan.

          1.1) Instalación de la infraestructura en el exterior del edificio.

La infraestructura en el exterior del edificio está constituida por:

Una arqueta que se instala en el exterior del edificio.
Una canalización externa que parte de la arqueta y finaliza en el interior del Recinto Inferior de
Instalaciones de Telecomunicaciones, o en el Registro de Enlace Inferior.

Los trabajos que comportan la instalación de la arqueta, y la canalización externa, consisten en:

Excavación del hueco para la colocación de la arqueta.
Excavación de zanja para la colocación de la canalización.
Instalación de la arqueta y cerrado del hueco.
Instalación de la canalización, confección del prisma que la contiene y cerrado del mismo.
Reposición del pavimento.

Pueden ser realizados bien con medios mecánicos o bien con medios manuales.

          1.2) Instalación de la infraestructura en el interior del edificio.

La infraestructura en el interior del edificio está constituida por:

Unos Recintos de Infraestructuras de Telecomunicación que pueden ser de obra o Modulares.
Pueden ser dos Recintos en ubicaciones situadas en el interior del edificio, o un Recinto Único
(RITU) en el interior o exterior del mismo.

Una red de tubos que unen el Registro de Enlace Inferior con los Recintos.




α _____________________________________________________________ 2
Una red de tubos que une los Recintos entre sí, discurriendo por la vertical deVisat nº:
                                                                                la escalera, con
                                                                                             P02904970
interrupción en los rellanos de los pisos, donde se instalan los Registros secundarios.
                                                                               Data:         07/10/2009
                                                                                Col·legiat:   9083
Una red de tubos que parten de los Registros secundarios de los rellanos y discurren por éstos hasta
los Registros de terminación de Red, situado a la entrada de cada vivienda.

Una red de tubos que parte de los Registros de terminación de Red situados a la entrada de cada
vivienda, y discurren por el interior de las mismas hasta puntos concretos de diversas estancias.

Los trabajos que comportan consisten en:

Tendido de tubos de canalización y su fijación.
Realización de rozas para conductos y registros.
Colocación de los diversos registros.

      2) INSTALACIÓN DE LOS ELEMENTOS DE CAPTACIÓN, LOS EQUIPOS DE CABECERA, Y
      EL TENDIDO Y CONEXIONADO DE LOS CABLES Y REGLETAS QUE CONSTITUYEN LAS
      DIFERENTES REDES.

Normalmente se realiza durante la fase de INSTALACIONES.

Se pueden considerar cuatro partes diferenciadas:

- La instalación en la cubierta de los elementos captadores de señal y sus soportes (antenas y
mástiles y/o torretas).

- La instalación eléctrica en el interior de los Recintos consistente en, un cuadro de protección,
enchufes y alumbrado.

- El montaje de los equipos de cabecera y de los Registros Principales de los diferentes servicios en
los Recintos.

- El tendido de los diferentes cables de conexión a través de los tubos y registros y el conexionado de
los mismos.

A continuación se detallan estas cuatro partes y los trabajos que conllevan.

         2.1) Instalación de los elementos de captación,

Los trabajos a realizar para la instalación de los elementos de captación se realizan en la cubierta
del edificio que puede ser plana o inclinada (se definirá en el proyecto la naturaleza de la misma).

Serán uno o varios de los siguientes:

A) Instalación de un mástil arriostrado, o no, sobre paramento de cubierta que consiste en:

Colocación de base de mástil.
Arriostramiento del mismo, si procede.
Colocación de antena sobre el mástil.
Conexión de cable coaxial a la antena.
Conexión a tierra del conjunto sistema de captación-elementos de soporte.
Instalación y conexión, si procede, de un preamplificador de mástil, en el mástil, conectado a la
antena.

B) Instalación de un mástil arriostrado o no sobre paramento vertical situado en cubierta, que
consiste en:

Colocación de base de mástil
Arriostramiento del mismo, si procede.
Colocación de antena sobre el mástil.
Conexión de cable coaxial a la antena.


α _____________________________________________________________ 3
Conexión a tierra del conjunto sistema de captación-elementos de soporte. Visat nº:         P02904970
Instalación y conexión, si procede, de un preamplificador de mástil, en el mástil, conectado07/10/2009
                                                                              Data:          a la
antena.                                                                       Col·legiat:   9083

C) Instalación de un conjunto torreta mástil arriostrado o no, sobre cubierta o sobre el suelo (la
torreta puede ser de una o varias secciones y llevará un mástil, en su parte superior), que consiste
en:

Colocación del mástil sobre la Torreta.
(En ciertos casos, dependiendo de la longitud de la torreta el operario debe trepar sobre la misma
para montar el mástil y una antena sobre el mismo).
Arriostramiento de la torreta y del mástil, cuando proceda.
Instalación de Antena sobre el mástil.
Conexión a tierra del conjunto sistema de captación-elementos de soporte.
Conexión de cable coaxial a la antena ubicada sobre el mástil.
Instalación y conexión, si procede, de un preamplificador de mástil, en el mástil, conectado a la
antena.

D) Instalación de parábola sobre zapata que consiste en:

Colocación de la parábola sobre una zapata existente en la cubierta del edificio.
Colocación del elemento captador en el brazo de la parábola y conexión del cable.
Orientación de la pantalla.
Conexión a tierra del conjunto sistema de captación-elementos de soporte.

E) Instalación de parábola sobre torreta, o mástil, que consiste en:

Colocación de la parábola sobre el mástil o sobre la torreta de sujeción de la antena.
Colocación del elemento captador en el brazo de la parábola y conexión del cable.
Orientación de la pantalla.
Conexión a tierra del conjunto sistema de captación-elementos de soporte.

F) Instalación de parábola sobre paramento vertical, que consiste en:

Colocación de la parábola sobre el soporte de sujeción.
Colocación del elemento captador en el brazo de la parábola y conexión del cable.
Orientación de la pantalla.
Conexión a tierra del conjunto sistema de captación-elementos de soporte.

Las instalaciones antes descritas deben ser mantenidas periódicamente, ser complementadas con
otras similares o incluso sustituidas.
Dado que estos trabajos se realizarán después de finalizada la obra y terminado el edificio, las
medidas de protección que se hayan definido como necesarias para la realización de los trabajos de
instalación serán también necesarios durante estos trabajos de mantenimiento.

Por ello en el estudio de Seguridad y Salud o en el Estudio Básico de Seguridad y Salud de la obra de
edificación, se definirán dichas protecciones como permanentes, definiendo, igualmente las
medidas de conservación de las mismas para garantizar su eficacia a lo largo del tiempo.

         2.2) Instalaciones eléctricas en los Recintos y conexión de cables y regletas.

La instalación eléctrica en los Recintos consiste en:

Canalización directa desde el cuadro de servicios generales del inmueble hasta el cuadro de
protección de cada Recinto.
Instalación en cada Recinto del cuadro de protección con las protecciones correspondientes.
Montaje en el interior del cuadro de protección de los interruptores magnetotérmicos y diferenciales.
Instalación de las bases de toma de corriente.
Instalación de alumbrado normal y de emergencia.
Red de alimentación de los equipos que lo requieran.




α _____________________________________________________________ 4
Se manejan tensiones máximas de 220 V-50 Hz para alimentación del equipamiento.
                                                                       Visat nº:               P02904970
                                                                              Data:            07/10/2009
         2.3) Instalación de los equipos de cabecera y de los Registros Principales.
                                                                              Col·legiat:      9083

La instalación de los equipos de cabecera, y los Registros principales, consiste en la fijación a la
pared de un chasis para el montaje en el mismo de amplificadores y otros elementos de pequeño
tamaño y peso ( así como manguitos, regletas, etc.) mediante tornillos, y la conexión eléctrica a una
base de corriente.

         2.4) Tendido y conexionado de los cables y regletas que constituyen las diferentes redes.

Consiste en:

Pelado de cables coaxiales y cables eléctricos.
Conexión de los mismos a bases u otros elementos de conexión mediante atornilladores.
Utilización esporádica de soldadores eléctricos.
Todas ellas se realizan en el interior del edificio (salvo el cable coaxial de conexión a las antenas).




α _____________________________________________________________ 5
Visat nº:    P02904970
                                                                            Data:        07/10/2009
                          ______________________________________________________________________________
                                                                            Col·legiat:  9083




PLIEGO DE CONDICIONES



                             PROYECTO BASE RED FTTH/GPON
                                                                                      SEPTIEMBRE 2009




                                                                              RED FTTH RIBA-ROJA D’EBRE

FTTH RIBA-ROJA Proyecto
Visat nº:    P02904970
                                                                                      Data:        07/10/2009
                                    ______________________________________________________________________________
                                                                                      Col·legiat:  9083

ÍNDICE

0.     PLIEGO DE CONDICIONES PARTICULARES....................................................................1

1.     GPON ....................................................................................................................................1

     1.1.      CABECERA .................................................................................................................1

2.     FTTH PLANTA EXTERNA....................................................................................................8

     2.1.      CAJAS DE EMPALME Y DISTRIBUCIÓN...................................................................8

     2.2.      DIVISORES O SPLITERS ............................................................................................9

     2.3.      MANGUERAS DE FIBRA ÓPTICA ..............................................................................9

     2.4.      PRUEBAS Y CUMPLIMIENTO DE NORMATIVAS ...................................................14

       2.4.1.         CUMPLIMIENTO DE NORMATIVAS..................................................................14

       2.4.2.         PRUEBAS ...........................................................................................................14

3.     TELEFONIA ........................................................................................................................18

       3.1.1.         PABX ..................................................................................................................18

4.     ADMINISTRACIÓN .............................................................................................................21



PLIEGO DE CONDICIONES GENERALES...............................................................................24

1.     DOCUMENTACION COMPLEMENTARIA .........................................................................24

2.     MUESTRA DE MATERIALES.............................................................................................24

3.     CONTROL DE CALIDAD....................................................................................................25

4.     CONTROL DE CALIDAD DE LOS MATERIALES .............................................................25

5.     PLANOS DE MONTAJE .....................................................................................................26

6.     REPLANTEO.......................................................................................................................26

7.     SUMINISTROS AUXILIARES .............................................................................................27

8.     NORMAS GENERALES DE MONTAJE .............................................................................27


                                                                                                            RED FTTH RIBA-ROJA D’EBRE

FTTH RIBA-ROJA Proyecto
Visat nº:    P02904970
                                                                                    Data:        07/10/2009
                                  ______________________________________________________________________________
                                                                                    Col·legiat:  9083

9.    PRUEBAS ...........................................................................................................................27

10. RECEPCION PROVISIONAL..............................................................................................29

11. GARANTIA DE RESULTADOS ..........................................................................................29

12. PERMISOS (POR CUENTA DEL CONTRATISTA)............................................................30

13. CRITERIOS DE MEDICION DE LAS INSTALACIONES....................................................30

14. DIRECCIÓN TÉCNICA DE LA PUESTA EN MARCHA .....................................................31

15. FORMACIÓN.......................................................................................................................31




                                                                                                       RED FTTH RIBA-ROJA D’EBRE

FTTH RIBA-ROJA Proyecto
Visat nº:    P02904970
                                                                            Data:        07/10/2009
                          ______________________________________________________________________________
                                                                            Col·legiat:  9083


0. PLIEGO DE CONDICIONES PARTICULARES
Ya se ha comentado en la Memoria de este proyecto que éste afecta a la infraestructura que
permita la correcta distribución de las señales de Telecomunicación que puedan llegar a los
usuarios.

         La recepción de señales de TV y Radiodifusión sonora terrestre no es objeto de este
anteproyecto, las señales ya nos serán dadas en las condiciones técnicas necesarias para
utilizarlas.

En el presente pliego se especifican las características de los materiales y las condiciones de
instalación de los mismos, siguiendo las directrices de los documentos.

En caso de discrepancia entre lo especificado en este proyecto y las especificaciones de los
materiales, se deberá consultar a la Dirección Facultativa.




1. GPON
En general se seguirán las especificaciones recogidas en la normativa ITU-T G.984.1…4
GPON

1.1. CABECERA


Cabecera de datos

Los OLT compactos existentes en el mercado son de 8 láseres por lo que tendremos 512
usuarios sus características serán las siguientes:

   •   Tarjeta Cabecera OLT ITU G.984 GPON Platform Interface Module - 8 PONs (512
       usuarios con splitting 1:64)

   •   Modulo Interfície PON con Óptica SFP - Óptica G.984 Classe B+

   •   Port agregación GigE, 550m, Óptica SFP - 1000Base-SX (multimode-550m)

La cabecera sus componentes tanto para IP como RF deben de cumplir los terminos de Class
B+ (10-28 dBm).

Deberá de cumplir los requisitos siguientes:



                                                                              RED FTTH RIBA-ROJA D’EBRE

FTTH RIBA-ROJA Proyecto                                                                                1
Visat nº:    P02904970
                                                                            Data:        07/10/2009
                          ______________________________________________________________________________
                                                                            Col·legiat:  9083

CHASSIS:

1 Platform Management Module (PMM) Slot

2 Platform Switch Module (PSM) Slots

18 Platform Interface Module (PIM) Slots

SUBSCRIBER-SIDE INTERFACES:

ITU G.984 GPON

8 PIMs per OLT x 8 PONs per PIM = 64 PONs

64 PONs with 1 x 32 split = 2,048 GPON ONTs per OLT

NETWORK-SIDE INTERFACES:

10 x IEEE 802.3z Gigabit Ethernet via SFP (PSM-01)

8 x IEEE 802.3ae 10 Gigabit Ethernet vía XFP (PSM-02)

MANAGEMENT:

T7 Element Management Suite

Flow-Through Provisioning

Strong QoS & SLA Enforcement Tools

GUI & Cisco-based CLI

SNMP

POWER REQUIREMENTS:

Dual Inputs, -40.5 VDC to -60 VDC

560 W nominal, 700 W maximum for the T7 OLT

75 W nominal, 85 W maximum for the T7 COLT

ENVIRONMENTAL OPERATING TEMPERATURE:

0° C to +50° C for the T7 OLT



                                                                              RED FTTH RIBA-ROJA D’EBRE

FTTH RIBA-ROJA Proyecto                                                                                2
Visat nº:    P02904970
                                                                            Data:        07/10/2009
                          ______________________________________________________________________________
                                                                            Col·legiat:  9083

-40° C to +60° C for the T7 COLT



HUMIDITY:

10% to 90% relative humidity, non-condensing

SAFETY:

ANSI / UL60950-2000 with UL50

FCC FDA CFR21, Part 1040

IEC 60950

PHYSICAL DIMENSIONS:

T7 COLT

17.5” W x 3.5” H x 12” D

44.45 cm x 8.89 cm x 30.48 cm

WEIGHT:

T7 COLT (fully populated)

22 lbs.

9.98 kg

NEBS:

NEBS Level 1

NEBS Level 3 (pending)

EMI/EMC:

FCC CFR47, Part 15

EN 55024: 1998

EN 55022: 1998



                                                                              RED FTTH RIBA-ROJA D’EBRE

FTTH RIBA-ROJA Proyecto                                                                                3
Visat nº:    P02904970
                                                                            Data:        07/10/2009
                          ______________________________________________________________________________
                                                                            Col·legiat:  9083




RELIABILITY:

MTBF redundant configuration availability:

> 0.99999 at 40°C, ground fixed in accordance with

Telecordia TR-332

SERVICE:

Modular design for ease of maintenance and upgrades

All modules are hot-swappable

MOUNTING OPTIONS:

Standard relay rack (19” or 23”)

La cabecera incluirá los módulos activos para ofrecer Video Overlay:

Transmisor óptico:

Nos convertirá los canales de RF (60-860 Mhz) de cualquier tipo de modulación (AM-VSM, FM;
QAM, COFDM) en señal óptica a 1550 nm en DFB láser. Deberá de cumplir las características
siguientes:


4 Low noise, narrow linewidth CW-DFB laser
4 ITU-Grid wavelength (XL-Version)
4 Wavelength adjustable +/-100 GHz (XL-Version)
4 Electrooptical modulator with 2 optical outputs
4 Automatic RF gain control: CW, video, manual mode
4 > 2 x 10 dBm output power (XL-100-Version)
4 Adjustable SBS threshold up to 19 dBm
to increase transmission distance (XL-Version)
4 Front panel RF test point –20 dB
4 Dual, hot-plug-in power supply modules for
100...240 VA, ±36...±72 VDC or 23.5...24.5 VDC
4 Web and SNMP Interface (a-version)



                                                                              RED FTTH RIBA-ROJA D’EBRE

FTTH RIBA-ROJA Proyecto                                                                                4
Visat nº:    P02904970
                                                                            Data:        07/10/2009
                          ______________________________________________________________________________
                                                                            Col·legiat:  9083


4 RS485/232 interface (b-version)
4 LC display and LED status indication
4 General purpose I/O interface for remote functions
4 Very thin, only 1 RU design for mounting into 19”, ETSI or
JIS racks

Optical Properties
Wavelength                     [nm] 1548.....1560
Optical power,
                             [dBm] 2 x 7 min.
ES10-L-70
SBS-                                    Fixed threshold
                             [dBm]
Suppression                             +16.5 dBm
Laser linewidth
                             [MHz] 0.65
(typ.)
Electrical
Properties
RF-Frequency
                             [MHz] 47 –862
Range
Flatness                       [dB] <±0.75

Version                               C42                   D84         N77
                                                                       NTSC
Channel plan                   CENELEC 42                 PAL-D 84
                                                                         77
number of channels                  42 / 0 / 0            84 / 0 / 0   77 / 0 /
TV / FM (-4dB) /                                                          0
QAM64 (-10dB)
Noise bandwidth             [MHz]                 5           5           4
CNR Tx/Rx                    [dB]                55.5       52.5        53.5
CNR Link 1                   [dB]                55.0       52.0        53.0
CNR Link 2                   [dB]                53.0       50.5        52.0
CNR Link 3                   [dB]                50.5       49.0        50.0
CSO Tx/Rx and Link
                             [dBc]               64          65          65
1
CSO Link 2                   [dBc]               63          65          65
CSO
       at output #1          [dB]                62          63          65
Link 3
CTB                          [dBc]               65          65          65


Amplificador WDM:

Nos amplificara la señal óptica de video a 1550 nm y nos multiplexara a 8 salidas para inyectar
esta señal a la red FTTH. Las características a cumplir son:


                                                                                  RED FTTH RIBA-ROJA D’EBRE

FTTH RIBA-ROJA Proyecto                                                                                  5
Visat nº:    P02904970
                                                                             Data:        07/10/2009
                           ______________________________________________________________________________
                                                                             Col·legiat:  9083




General
Input signal wavelength                          [nm]   1545 - 1565
                                                         4 x 20.0 ±
Max. optical output power                      [dBm]
                                                             0.5
Factory setting optical output                           4 x 18.0 ±
                                               [dBm]
power                                                        0.5
Wavelength of pump lasers
                                                 [nm]      < 1000
(typ.)
Optical return loss                              [dB]       > 45
Min. optical input level                       [dBm]          -5
Max. opt. input level                          [dBm]         +10
Polarization dependent gain                      [dB]        0.5
Noise figure (@Pin=0dBm,
                                                 [dB]       < 5.5
λ=1550nm)
Optical isolation @ input                        [dB]        35
Optical isolation @ output                       [dB]        35


El repartidor Óptico modular que se encuentra en la cabecera que se utiliza en la interconexión
y terminación de cables de fibra óptica así como para la conexión de las fibras ópticas a los
distintos usuarios o equipos.

El Repartidor Óptico Modular (ODF), dispone de los distintos accesorios para garantizar la
organización, guiado y gestión de las fibras:

- Elementos de fijación de los cables en el repartidor y guiado de los tubos del cable.

- Elementos de guiado y almacenamiento de los cordones de salida a los usuarios o equipos.

- Elementos de guiado y almacenamiento de los cordones de entrada de los cables de red.

- Elementos de guiado de cordones entre diferentes repartidores.

Las características básicas son:

Composición básica
Armario Rack 19” con bastidor pivotante
Conjunto de guía cables verticales
Conjunto de guía cables horizontales
Módulo guía cables superior
Módulo guía cables inferior

Dimensiones
Altura 42 U


                                                                               RED FTTH RIBA-ROJA D’EBRE

FTTH RIBA-ROJA Proyecto                                                                                 6
Visat nº:    P02904970
                                                                            Data:        07/10/2009
                          ______________________________________________________________________________
                                                                            Col·legiat:  9083

Anchura 600 mm
Profundidad 600 mm

Materiales
Paneles laterales desmontables Acero de 1,5 mm de espesor.
Puerta posterior parcial Acero de 1,5 mm de espesor.
Doble puerta frontal acristalada Cristal tamizado de 4mm de espesor.
Panel superior troquelado Acero de 1,5 mm de espesor.
Espesor perfiles 2 mm
Color Gris RAL 7035, Negro RAL 9011

Cierres
Puerta frontal Cerradura Nº333. Puerta reversible.
Puerta posterior parcial Cerradura Nº333.
Paneles laterales Pestillos con cierre opcional Nº333.

Compuesto por:

Guía cables superiores
La Bandeja superior guía cables de acero para armario Repartidor Óptico Modular (ODF), junto
con la bandeja guía cables inferiores, facilita el almacenamiento y ordenación de los cables de
red y de distribución, separando perfectamente los tramos de cable de la zona de interconexión
del armario.
Guía cables inferiores
La Bandeja inferior guía cables de acero para armario Repartidor Óptico Modular (ODF), junto
con la bandeja guía cables superiores, garantiza además el correcto radio de curvatura para
todos los cables de fibra óptica alojados en el armario.
Guía cables horizontales con bridas aislantes
El conjunto de guía cables horizontales de acero de para armario Repartidor Óptico Modular
(ODF) facilita la manipulación y ordenación del cableado dentro del armario, permitiendo
múltiples modos de operación e interconexión.
Guía cables verticales
El conjunto de guía cables verticales para armario Repartidor Óptico Modular (ODF) facilita la
ordenación y guiado de los cables alrededor del armario, proporcionando un encaminamiento
óptimo de cada uno de los enlaces, asegurando los radios de curvatura de todas las fibras
ópticas instaladas en el repartidor.
Distribuidor óptico DOB-4U
El distribuidor óptico DOB-4U para bastidor se utiliza para la terminación e interconexión de
cables de fibra óptica, mediante slots frontales de hasta 12 adaptadores de terminación de
fibra. Permite la entrada de hasta 12 cables de fibra, para la terminación de un máximo de 144
fibras ópticas.
Slots Precableados SMT
La familia de slots SMT (Sistema Modular de Terminación) es idónea para la terminación e
interconexión de cables de fibra óptica, mediante slots precableados de terminación de fibra.
Los slots son extraíbles, las fibras disponen de suficiente reserva de maniobra para permitir un
mantenimiento fácil y eficaz de las instalaciones.




                                                                              RED FTTH RIBA-ROJA D’EBRE

FTTH RIBA-ROJA Proyecto                                                                                7
Visat nº:    P02904970
                                                                            Data:        07/10/2009
                          ______________________________________________________________________________
                                                                            Col·legiat:  9083




2. FTTH PLANTA EXTERNA

2.1. CAJAS DE EMPALME Y DISTRIBUCIÓN
La caja de empalme será una caja modular de conexión estanca de cables de fibra óptica,
permite la conexión por medio de empalmes de fusión o mecánicos tanto en instalaciones de
redes troncales de fibra como en redes de distribución.

La caja de conexión permite la instalación de splitters de tecnología planar PLC.
El modelo básico permite fusionar hasta 2 cables de entrada, con una capacidad
Máxima estándar de 72 fusiones, gracias a sus 3 bandejas de empalmes de 24 fusiones cada
una.



Características mínimas

Caja de distribución


Capacidad             Nº Entradas                              4 (2+2)
                      Nº máximo fusiones                                  72
                      Nº bandejas de empalmes (24)                        3
Diámetro Cables Ent/Sal                                          6 mm – 20 mm
Estanqueidad                                                             IP 67

Tendré capacidad de sangrado.


La caja Terminal de cables de fibra óptica, con conectores, permite la conexión del cable
troncal con los cables de acometida a los clientes por medio de empalmes de fusión o
mecánicos o por medio de la unión a través de adaptadores.

La caja de conexión permite la instalación de splitters de tecnología planar PLC.
.


   •   La caja terminal de usuario deberá permitir el sangrado de cables


   •   Ofrecerá capacidad para instalar dos splitters 1:8 de manera independiente en dos
       bandejas separadas




                                                                                 RED FTTH RIBA-ROJA D’EBRE

FTTH RIBA-ROJA Proyecto                                                                                 8
Visat nº:    P02904970
                                                                            Data:        07/10/2009
                          ______________________________________________________________________________
                                                                            Col·legiat:  9083

   •   Ofrecerá como mínimo capacidad de 16 acometidas de usuario


   •   Ofrecerá espacio para fusionar la fibra de distribución con el divisor óptico 1:8
       correspondiente


   •   Las acometidas de usuario serán preconectorizadas por lo que deberá albergar espacio
       para 16 conectores SC/APC, inicialmente instalándose únicamente 8, correspondientes
       al primer divisor 1:8 que se instalará en el momento del despliegue.


2.2. DIVISORES O SPLITERS
Los divisores o Splitters de tecnología planar PLC 1xN tienen unas altas prestaciones, unas
muy bajas pérdidas de inserción, una excelente uniformabilidad, bajas PLD y puede trabajar
entres las longitudes de onda de 1260 a 1650 nm. Los Splitters de tecnología planar se fabrican
en las configuraciones de 1x4, 1x8, 1x16, 1x32 y 1x64, se pueden suministrar sin conectores o
con los distintos tipo de conector así como con fibra de de 250 μm, 900 μm o ribbon.

                                              Características


                                                               1x4      1x8     1x16     1x32               1x64
 Dimensiones       Ancho (mm)                                   4      4         5        7            12
                   Largo (mm)                                   40       40      50        50                60
                   Alto (mm)                                    4        4        4        4                  4
Características Pérdidas de Inserción Typ. (dB)                6.8      9.8     13.0      16.5              19.5
   técnicas        Pérdidas de Inserción Max. (dB)             7.3     10.7     13.9    17.2            20.4
                   Uniformidad (dB)                           < 0.5    < 1.0 < 1.4 < 1.5 < 1.7 < 0.25 < 0.30
                  Pérdidas de Retorno                                                   > 55 dB
                   Longitud de Onda                                               1260 – 1650 nm
           Temperatura de almacenamiento                                              -40 - +85 ºC
              Temperatura de Trabajo                                                  -40 - +85 ºC


2.3. MANGUERAS DE FIBRA ÓPTICA
El cable empleado para el despliegue que se emplea en Planta exterior, es decir, un cable con
doble cubierta de polietileno y compuesto de Kevlar que le da resistencia a la tracción. El tipo
de fibra óptica empleada es fibra monomodo.




                                                                              RED FTTH RIBA-ROJA D’EBRE

FTTH RIBA-ROJA Proyecto                                                                                9
Visat nº:    P02904970
                                                                            Data:        07/10/2009
                          ______________________________________________________________________________
                                                                            Col·legiat:  9083

Cables de fibra óptica monomodo, de 4 a 144 f.o, con segunda protección holgada, núcleo
dieléctrico seco con material bloqueante de agua que evita su propagación, cableado en S-Z
para optimizar la segregación de tubos en derivaciones de red y cubierta PKP.

Núcleo
(1) Elemento Central de Refuerzo (E.C.R.) dieléctrico compuesto de fibra de vidrio, recubierto
con polietileno en función del número de fibras del cable.
(2) Tubos Activos Holgados de PBT, conteniendo de 2 a 8 f.o. y Tubos Pasivos de PE – cuando
la geometría del núcleo lo requiera cableados en S-Z en torno al E.C.R. en material bloqueante
de agua para evitar su propagación

Cubierta PKP
(3) (P) Primera cubierta de Polietileno.
(4) (K) Cabos de fibra de aramida de elevado módulo, como elemento de refuerzo resistente a
tracción.
(5) (P) Segunda cubierta de Polietileno.


Características generales

Las fibras ópticas serán acordes con los siguientes valores (UIT-T G.652).

Transmisión
Atenuación máxima (dB/km)
• 0.38 a 1310nm
• 0.25 a 1550nm
Diámetro de campo modal en 1310 nm
• 8.6 - 9.5 um
Longitud de onda de corte fibra (nm)
• 1100 - 1320 nm
Máxima dispersión total en 1285-1330 nm
• 3.5 ps/nm.km
Máxima dispersión total en 1550 nm
• 18 ps/nm.km

Físicas
Diámetro sobre 1ª protección
• 245 ± 10 um
Proof test
• 100 Kpsi.

Las marcas de cubierta contendrán la
Siguiente información:

   •   TELNET-RI – AÑO
   •   Número de fibras
   •   Tipo de fibra
   •   Tipo de cubierta


                                                                              RED FTTH RIBA-ROJA D’EBRE

FTTH RIBA-ROJA Proyecto                                                                               10
Visat nº:    P02904970
                                                                            Data:        07/10/2009
                          ______________________________________________________________________________
                                                                            Col·legiat:  9083

   •     Metraje


Características físicas y mecánicas

TRACCIÓN MÁXIMA IEC 794-1-E1 3000 N
RESISTENCIA AL APLASTAMIENTO IEC 794-1-E3 30 N/mm
RESISTENCIA AL IMPACTO IEC 794-1-E4 5 J.
CICLO TERMICO OPERACION IEC 794-1-F1 -20°C/+60°C
CURVATURA IEC 794-1-E11, proc. 1. 15 x diam. Cable
PENETRACIÓN DE AGUA IEC 794-1-F5

Dimensión, formación y pesos

 F.O.                                        F.O.      Diámetro         Peso
             Formación Núcleo Óptico
 Cable                                       Tubo      nominal         nominal
               Tubos Activos Tubos
                                                         (mm)         (Kg/Km)
                     Pasivos
    4               2             4            2         14,3            155
    6               3             3            2         14,3            155
    8               4             2            2         14,3            155
   12               6             0            2         14,3            155
   16               4             2            4         14,3            155
   24               6             0            4         14,3            155
   32               4             2            8         14,3            155
   48               6             0            8         14,3            155
   64               8             0            8         15,2            175
   96               12            0            8         18,4            255
   128             4+12          2+0           8         19,2            265
   144             6+12          0+0           8         19,2            265




                                                                               RED FTTH RIBA-ROJA D’EBRE

FTTH RIBA-ROJA Proyecto                                                                               11
Visat nº:    P02904970
                                                                              Data:        07/10/2009
                            ______________________________________________________________________________
                                                                              Col·legiat:  9083


CODIGO DE COLORES PARA TUBOS HOLGADOS

     Cable con 4 tubos holgados         Cable con 6 tubos holgados        Cable con 8 tubos holgados
     Tubo Nº             Color          Tubo Nº             Color         Tubo Nº             Color
        1                Blanco            1                Blanco           1                Blanco
        2                 Rojo             2                Blanco           2                Blanco
        3                 Azul             3                 Rojo            3                 Rojo
        4                Verde             4                 Rojo            4                 Rojo
                                           5                 Azul            5                 Azul
                                           6                 Azul            6                 Azul
                                                                             7                Verde
                                                                             8                Verde



    Cable con 12 tubos holgados         Cable con 16 tubos holgados       Cable con 18 tubos holgados
    Tubo Nº             Color           Tubo Nº              Color        Tubo Nº              Color
        1              Blanco               1              Blanco            1               Blanco
        2              Blanco               2               Rojo             2               Blanco
        3              Blanco               3               Azul             3                Rojo
        4               Rojo               4               Verde             4                Rojo
        5               Rojo               5               Blanco            5                Azul
        6               Rojo               6               Blanco            6                Azul
        7               Azul                7              Blanco            7               Blanco
        8               Azul                8               Rojo             8               Blanco
        9               Azul                9               Rojo             9               Blanco
       10              Verde               10               Rojo            10                Rojo
       11              Verde               11               Azul            11                Rojo
       12              Verde               12               Azul            12                Rojo
                                           13               Azul            13                Azul
                                           14              Verde            14                Azul
                                           15              Verde            15                Azul
                                           16              Verde            16               Verde
                                                                            17               Verde
                                                                            18               Verde




                                                                                 RED FTTH RIBA-ROJA D’EBRE

FTTH RIBA-ROJA Proyecto                                                                                 12
Visat nº:    P02904970
                                                                            Data:        07/10/2009
                          ______________________________________________________________________________
                                                                            Col·legiat:  9083


ANEXO 2.      CODIGO DE COLORES PARA FIBRAS

Las fibras en su primera protección presentarán la misma coloración en cada tubo

              Tubos con 8 fibras                     Tubos con 16 fibras
           Fibra Nº          Color             Fibra Nº             Color
              1              Verde                 1                 Verde
              2              Rojo                  2                 Rojo
              3              Azul                 3                  Azul
              4            Amarillo                4               Amarillo
              5               Gris                5                  Gris
              6             Violeta               6                 Violeta
              7             Marrón                7                 Marrón
              8             Naranja               8                 Naranja
                                                  9                 Blanco
                                                  10                Negro
                                                  11                 Rosa
                                                  12               Turquesa
                                                  13               Blanco *
                                                  14              Amarillo *
                                                  15               Naranja *
                                                  16                Rosa *


                 (*): las fibras 13 a 16 serán marcadas con un anillo negro cada 50 mm.



El cable mono fibra para acometida individual debe de tener las características siguientes:

Cables ópticos de una fibra óptica, protegida individualmente con una protección ajustada y una
cubierta individual ignífuga no propagadora de la llama y con baja emisión de humos no tóxicos
ni corrosivos (LSZH).

Núcleo
(1) Fibra Óptica con segunda protección ajustada con diámetro nominal de 0.9mm.

Cubierta KT
(2) (K) Cabos de fibra aramida como elemento resistente a tracción.
(3) (T) Cubierta de material termoplástico ignífugo, no propagador de la llama y baja emisión de
humos no tóxicos ni corrosivos.

Las fibras ópticas serán acordes con los siguientes valores (UIT-T G.652).

Transmisión
Atenuación máxima (dB/km)
   • 0.38 a 1310nm
   • 0.25 a 1550nm


                                                                                   RED FTTH RIBA-ROJA D’EBRE

FTTH RIBA-ROJA Proyecto                                                                                  13
Visat nº:    P02904970
                                                                            Data:        07/10/2009
                          ______________________________________________________________________________
                                                                            Col·legiat:  9083

Diámetro de campo modal en 1300 nm
   • 8.8 - 9.6 um
Longitud de onda de corte fibra (nm)
   • 1190 - 1320 nm
Máxima dispersión total en 1285-1330 nm
   • 3.5 ps/nm.km
Máxima dispersión total en 1550 nm
   • 18 ps/nm.km

Físicas
Diámetro sobre 1ª protección
    • 245 ± 10 um
Carga de rotura
    • 100 Kpsi.

Características físicas

TRACCIÓN MÁXIMA IEC 794-1-E1 150 N
RESISTENCIA AL APLASTAMIENTO IEC 794-1-E3 10 N/mm
RESISTENCIA AL IMPACTO IEC 794-1-E4 1 J.
CICLO TERMICO OPERACION IEC 794-1-F1 -5°C/+60°C
CURVATURA IEC 794-1-E11, proc. 1. 15 x diam. Cable
NO PROPAGACION DE LLAMA IEC 332.1 IEC.332.1
EMISIÓN DE HALÓGENOS UNE 21147/1 < 0,5 %
DENSIDAD DE HUMOS UNE 21172/2 > 50 % luz transmitida




2.4. PRUEBAS Y CUMPLIMIENTO DE NORMATIVAS
2.4.1. CUMPLIMIENTO DE NORMATIVAS

La instalación del sistema de FTTH deberá cumplir las siguientes normativas:

   ITU-T G.984.1..4 – Sistemas FTTH

2.4.2. PRUEBAS

Las medidas se realizaran en los cables de fibra óptica antes y después de su instalación con
objeto de comprobar que sus parámetros de transmisión: Atenuación y Dispersión, así como
la Pérdida de Retorno de componentes pasivos, estén dentro de los valores reflejados en este
documento. Con carácter general las medidas se harán en 2ª y 3ª ventana (1310 y 1550 nm)
salvo que se indique lo contrario.




                                                                              RED FTTH RIBA-ROJA D’EBRE

FTTH RIBA-ROJA Proyecto                                                                               14
Visat nº:    P02904970
                                                                            Data:        07/10/2009
                          ______________________________________________________________________________
                                                                            Col·legiat:  9083

Los métodos que se emplearán serán no destructivos, es decir se emplearan los denominados
"métodos de campo" que se describirán más adelante.

En general se observará la máxima limpieza en todos los puntos de inserción-extracción de
señal óptica, es decir en conectores de aparatos, de repartidores y de rabillos auxiliares, así
como en los cortes de las fibras.

El personal que realice las medidas deberá observar las Normas de Seguridad e Higiene en el
Trabajo relativas a las precauciones para evitar riesgos oculares.

Las pruebas del sistema consistirán en la comprobación del correcto funcionamiento del mismo
e integración con otros sistemas, así como de los diferentes elementos del mismo.

En las instalaciones de fibra óptica monomodo la longitud máxima de la sección de
regeneración, para una ganancia del sistema conocida, estará determinada en general, por uno
de los dos parámetros siguientes:

      -   Atenuación total.

      -   Dispersión máxima.

En las instalaciones de fibra óptica monomodo la longitud máxima de la sección de
regeneración, para una ganancia del sistema conocida, estará determinada en general, por uno
de los dos parámetros siguientes:

      -   Atenuación total.

      -   Dispersión máxima.

La Atenuación A (λ ) a una longitud de onda entre dos secciones transversales separadas por
una distancia L, se define como:

      A ( λ ) = 10 log P1/P2     (dB)

Donde P1 es la potencia óptica que atraviesa la sección 1ª y P2 la potencia que atraviesa la
sección 2ª.

Dispersión se denomina al efecto distorsionante de la señal en propagación. En fibras
monomodo se consideran dos tipos de dispersión:

Dispersión cromática

Dispersión por polarización del modo




                                                                              RED FTTH RIBA-ROJA D’EBRE

FTTH RIBA-ROJA Proyecto                                                                               15
Visat nº:    P02904970
                                                                            Data:        07/10/2009
                          ______________________________________________________________________________
                                                                            Col·legiat:  9083

El Coeficiente de Dispersión Cromática es la variación del retardo de grupo por unidad de
longitud de onda en propagación y por unidad de longitud:

         D(λ ) = 1/L . dT( λ )/d λ (ps/Km.nm)

El valor del coeficiente D(λ ) es un dato del fabricante. La dispersión cromática es un
parámetro intrínseco de la fibra, que no suele verse afectado durante el proceso de fabricación
o instalación del cable. En general no será necesario medirlo, salvo en los casos que se
indique.

La dispersión cromática puede limitar la velocidad de transmisión y la distancia de un sistema,
pero puede ser compensada con diferentes técnicas, por ejemplo mediante fibras
compensadoras de dispersión, con un valor negativo de DC alto. La compensación de DC sólo
será necesaria para sistemas de 10 Gb/s o mayores velocidades.

Los valores de las cotas máximas del coeficiente de dispersión cromática (Dmax) en las
regiones espectrales que se indican, para fibras ópticas monomodo del tipo G.652.D, son los
siguientes:

DC (1285-1330 nm): ≤ 3.5 ps/Km.nm

DC (1550 nm) ≤ 18 ps/Km.nm

DC (1625 nm) ≤ 22 ps/Km.nm

La dispersión por polarización del modo (PMD) limita el funcionamiento de sistemas de alta
velocidad sobre distancias largas. En sistemas de transmisión digitales provoca el aumento de
la tasa de error y limita el ancho de banda.

La luz que se propaga por una fibra óptica monomodo se descompone en dos ejes llamados
modos de polarización ortogonales. Todas las fibras presentan algún grado de birrefringencia
(el índice de refracción no es constante, depende direccionalmente), lo cual provoca que los
dos modos de polarización viajen a diferentes velocidades.

El grado de birrefringencia está asociado con las asimetrías en la geometría y/o la distribución
de la tensión en el núcleo de la fibra. Este efecto además se combina con el acoplamiento
aleatorio de energía entre los modos de polarización, por lo que el valor del PMD fluctúa.

Cuando el impulso óptico se propaga en la fibra, el retraso en tiempo, con que llega al receptor
un modo de polarización respecto al otro se denomina retraso diferencial de grupo (DGD).
Además se produce un acoplamiento aleatorio de energía entre los modos de polarización. El
DGD es una magnitud que varía aleatoriamente con la longitud de onda y en el tiempo, debido
a vibraciones, movimientos de la fibra o cambios de temperatura o perturbaciones mecánicas
de la fibra. Por esta razón, una forma útil de caracterizar el PMD de fibras largas, en las que


                                                                              RED FTTH RIBA-ROJA D’EBRE

FTTH RIBA-ROJA Proyecto                                                                               16
Visat nº:    P02904970
                                                                            Data:        07/10/2009
                          ______________________________________________________________________________
                                                                            Col·legiat:  9083

hay un acoplamiento fuerte de energía entre los modos, es definiendo la PMD como el valor
esperado o promedio de la DGD en la longitud de onda.

El coeficiente de PMD se define como función de la longitud de la fibra o cable y se expresa en
ps/Km1/2 .

La medida de PMD se realizará en los enlaces de fibras ópticas de larga distancia, que vayan a
transportar sistemas de 10 Gb/s o velocidades mayores.

El PMD de 2º orden describe la variación del PMD con respecto a la longitud de onda. Está
muy relacionado con la dispersión cromática y se expresa en ps/nm. Su orden de magnitud es
mucho menor que el PMD de primer orden.

Medidas de atenuación entre dos puntos

Para las medidas de atenuación entre dos puntos (medidas de atenuación kilométrica o de
balance de atenuación de una ruta), se utilizará el método de medida LSA, siempre que sea
posible.

Para este tipo de medidas se prestará especial atención en situar los puntos de medida en
zonas lineales del oscilograma, fuera de las zonas de relajación de los conectores o empalmes
mecánicos.

En general sólo es necesario realizar estas medidas en un solo sentido. Cuando se realiza una
medida de atenuación total de una fibra que incluye empalmes, hay que tener en cuenta que el
valor de estos puede variar según el sentido de la medida.

Medidas de distancia

Las medidas de distancia deben realizarse en las condiciones de mayor precisión y resolución.
En el equipo se ajustará el índice de refracción a 1,465 cuando no se conozca su valor real
para la fibra bajo prueba.

método de perdida de inserción

Las medidas de potencia en la instalación, serán efectuadas por el método de "Inserción" a las
longitudes de onda de 1310 nm y/o 1550 nm, salvo que se especifique lo contrario en los
apartados correspondientes.

Se procederá al cálculo de atenuaciones desde la cabecera hasta las salidas de las cajas de
derivación, su valor no podrá exceder de 28 dB

Dispersión cromática < 18 ps/nm*Km




                                                                              RED FTTH RIBA-ROJA D’EBRE

FTTH RIBA-ROJA Proyecto                                                                               17
Visat nº:    P02904970
                                                                            Data:        07/10/2009
                          ______________________________________________________________________________
                                                                            Col·legiat:  9083


3. TELEFONIA
3.1.1. PABX

   Ud. Servidor de telefonía VoIP con sistema operativo SIP@net, para disponer de
   conectividad IP (SIP) para LAN y WAN y extensión , soporta VoIP (SIP),

   Licencias para 512 terminales IP(SIP)

   DPNSS y CCIS para red propia y paquete avanzado.

   Aplicación. Operadora automática VM505 Multiidioma, versión Hospitality, con mensajes
   programables por el usuario, buzones de voz, audio-texto e integración con software de
   gestión.

   Ud.Software especifico CHAR Utile+ , PC Multiidioma, integrado con el servidor de
   mensajes VM505, versión Hospitality . Aplicación que garantiza la interconexión con el
   sistema de gestión y automatización de la operadora automática, de los buzones de voz y el
   análisis de costes económicos.

Se incluye instalación, programación y formación.



CONFIGURACIÓN CENTRAL

   El Procesador Principal CPU (MP), que consta de las Placas de Control y del Software del
   Sistema, proporciona la función de Procesador Principal, la interfaz Ethernet, y controla las
   Licencias IP.

   El segundo Procesador Principal (MP) está en situación de espera“Inactiva”. En caso de un
   fallo del MP, el MP en espera “se activará” y tomará el control – el tiempo de transición
   depende de la configuración instalada (tiempo medio de 30 a 120 segundos).

   El Procesador de Firmware (FP), que controla las Placas de Circuitos de Líneas y de
   Enlaces, los Enlaces y las Estaciones Analógicas, las Estaciones Digitales, RST, IP PAD,
   DAT, VCT, Interfaz de Fibra, Repetidores Externos, y las estaciones RDSI.

   Los Procesadores de Aplicación (AP) son placas que ejecutan un protocolo o una
   aplicación, por ejemplo, los Enlaces Digitales, las Placas Manejadoras de Datos y
   Protocolos, IPT y Conferencia para512 abonados.

   Repartidor enrackable tipo “Patch Panel” de 24 puertos RJ45




                                                                              RED FTTH RIBA-ROJA D’EBRE

FTTH RIBA-ROJA Proyecto                                                                               18
Visat nº:    P02904970
                                                                            Data:        07/10/2009
                          ______________________________________________________________________________
                                                                            Col·legiat:  9083

Enlaces:

   2 Tarjeta 32ILP (IP PAD), para la conexión mediante 32 canales de comunicación con la
   red de datos IP, entre los terminales IP y las extensiones TDM, así como el resto de
   unidades en red privada o números de la red pública.


SERVICIOS

   Música de espera interna y externa

   Servidor anuncios en espera

   Plataforma de Gestión incluye servidor 1U enrackable.

   Consola formato rack (pantalla y teclado en rack)



Las líneas Analógicas de entrada nos las servirá la empresa operadora, que dejara sus PTR en
el recinto de telecomunicaciones del edificio en la planta. De este recinto saldrá un cable de 25
pares que conectara con el MDF para que desde aquí podamos conectar con la IP/PABx.
Directamente a las tomas para los servicios de urgencia, (Ascensores, teléfono de alarma...)

La conexión con los E1 el operador los trasladará al MDF para conectarlo con la IP/PABX.

Network interface

   10/100BASE-T IEEE802.3

   Connector: 8-pin RJ45

   Cable: Cat 5 UTP or better

   IP version 4, DHCP, TFTP

   QoS: IEEE 801.1Q, 802.1P and DiffServ

   Audio algorithm: G.711

   DTMF generation: H.245

   Multicast: IEEE 802




                                                                              RED FTTH RIBA-ROJA D’EBRE

FTTH RIBA-ROJA Proyecto                                                                               19
Visat nº:    P02904970
                                                                            Data:        07/10/2009
                          ______________________________________________________________________________
                                                                            Col·legiat:  9083

Environmental conditions

   ETS 300 019-1-3, temperature range:

   Storage class 1.2 (–25° C to +60° C)

   Transport class 2.3 (–40° C to +70° C)

   Operation class 3.1 (0° C to +60° C)

   Relative humidity < 90% (non condensing)

   The equipment is in compliance with the requirements of

   EU directive 2002/95/EC (RoHS) and 2002/96/EC (WEEE


Compílanse

   Safety

   EN60950-1: 2001

   EN50385

   Electro Magnetic Compatibility (EMC)

   EN301 489-1 and 6

   EN61000-3-2/3 (AC supply)

   DECT

   EN301 406-V1.4.1: 2001-03

   EN300 757 (Service Class 2)


Manager PC platform

   CPU: minimum 2.4 GHz

   RAM: minimum 256 Mb

   HD minimun 250 Gb



                                                                              RED FTTH RIBA-ROJA D’EBRE

FTTH RIBA-ROJA Proyecto                                                                               20
Visat nº:    P02904970
                                                                            Data:        07/10/2009
                          ______________________________________________________________________________
                                                                            Col·legiat:  9083




4. ADMINISTRACIÓN
La electrónica de la red es aquélla que soporta la gestión de los servicios, creando las redes
virtuales necesarias porque los servicios vayan a los terminales adecuados. (Telefonía, Datos,
Internet...)

La solución está diseñada para dotar a la red de los mecanismos necesarios que hacen posible
soportar voz, datos y video.


El programa de control de servicios deberá estar optimizado en diferentes aspectos:

   •   Excelente calidad de voz · Priorización voz, QoS

   •   Control de admisión/ancho de banda

   •   Handover transparente

   •   Latencia/jitter optimizado mediante Direct Path

   •   Extensas Facilidades

   •   Alta escalabilidad y disponibilidad

   •   Controlador distribuido

   •   Dominio de movilidad

   •   Gestión centralizada

   •   Redundancia

   •   Seguridad Capa 2: IEEE 802.1X (EAP-TLS/TTLS/PEAP%[MSCHAPv2]/ MD5) MAC
       filtering, WEP (64/128 bits), WPA (TKIP), WPA2 (AES/TKIP).

   •   Seguridad Capa 3: Autenticación Web. Listas de Control de Acceso (ACL), Detección de
       intrusión, IDS, Listas negras.

Por lo cual en el nodo central instalaremos el controlador, el software no tienen prescripciones
especiales, puede instalarse en cualquier PC.

Las especificaciones son:



                                                                              RED FTTH RIBA-ROJA D’EBRE

FTTH RIBA-ROJA Proyecto                                                                               21
Visat nº:    P02904970
                                                                              Data:        07/10/2009
                            ______________________________________________________________________________
                                                                              Col·legiat:  9083

Specific intelligent RF capabilities managed by Cisco Wireless LAN Controllers include:

   •   Dynamic channel assignment—802.11 channels are adjusted to optimize network
       coverage and performance based on changing RF conditions.

   •   Interference detection and avoidance—The system detects interference and
       recalibrates the network to avoid performance problems.

   •   Load balancing—The system provides automatic load balancing of users across
       multiple access points for optimum network performance, even under heavy loads.

   •   Coverage hole detection and correction—Radio Resource Management (RMM)
       software detects coverage holes and attempts to correct them by adjusting the power
       output of access points.

   •   Dynamic power control—The system dynamically adjusts the power output of
       individual access points to accommodate changing network conditions, helping ensure
       predictable wireless performance and availability.

   Todo este programario será soportado por un servidor con las características mínimas
   siguientes:


Processor                 Intel® Pentium® 4 Processor 3.40GHz, Intel® or Equivalent
Operating Systems         Microsoft® Windows® XP Professional, SP2 with Media or Microsoft® Windows® 2000
                          Pro, LINUX o, MAC-OS
Memory                    2GB, DDR2 400MHz (2x512)
Keyboard                  Microsoft® compatible
Monitors                  19.0 inch VGA
Graphics Card             64MB PCIe x16 nVidia Quadro NVS 280, Dual VGA Capable
Boot Hard Drive           100GB SATA, 7200 RPM Hard Drive without RAID
Hard Drive                C1 All SATA drives, Non-RAID, 1 or 2 drive total configuration
Configuration
Floppy Drive Options      Optional
Mouse                     Microsoft® compatible
File System               NTFS File System
CD-ROM                    48X CD-ROM



   El programa de control gestión de planta externa deberá optimizar los servicios:

   •   Base de datos de inventario de la red

   •   Gestión de la base de datos de planta externa tanto listada como visual geográfica

   •   Generación de trazados y consultas sobre la base de datos




                                                                                RED FTTH RIBA-ROJA D’EBRE

FTTH RIBA-ROJA Proyecto                                                                                     22
Visat nº:    P02904970
                                                                              Data:        07/10/2009
                            ______________________________________________________________________________
                                                                              Col·legiat:  9083

   Todo este software será soportado por un servidor con las características mínimas
   siguientes:


Processor                 Intel® Pentium® 4 Processor 3.40GHz, Intel® or Equivalent
Operating Systems         Microsoft® Windows® XP Professional, SP2 with Media or Microsoft® Windows® 2000
                          Pro, LINUX o, MAC-OS
Memory                    2GB, DDR2 400MHz (2x512)
Keyboard                  Microsoft® compatible
Monitors                  19.0 inch VGA
Graphics Card             64MB PCIe x16 nVidia Quadro NVS 280, Dual VGA Capable
Boot Hard Drive           100GB SATA, 7200 RPM Hard Drive without RAID
Hard Drive                C1 All SATA drives, Non-RAID, 1 or 2 drive total configuration
Configuration
Floppy Drive Options      Optional
Mouse                     Microsoft® compatible
File System               NTFS File System
CD-ROM                    48X CD-ROM




                                                                                RED FTTH RIBA-ROJA D’EBRE

FTTH RIBA-ROJA Proyecto                                                                                     23
Visat nº:    P02904970
                                                                            Data:        07/10/2009
                          ______________________________________________________________________________
                                                                            Col·legiat:  9083




PLIEGO DE CONDICIONES GENERALES

1. DOCUMENTACION COMPLEMENTARIA
Además de los documentos anteriores e independientemente de los mismos, serán de obligado
cumplimiento todas las órdenes y documentación complementaria o aclaratoria, facilitadas por
la Dirección Facultativa y la Propiedad. Igualmente tendrán carácter de documentación
contractual, con carácter de obligatorias, e independientemente de los documentos citados,
todas las normas, disposiciones y reglamentos que por su carácter puedan ser de obligada
aplicación.

El Contratista deberá seguir la normativa propia de las compañías suministradoras de servicios
y deberá solicitar los informes e inspecciones preceptivas y necesarias para dejar los trabajos
en perfecta consonancia con las exigencias de las compañías de suministro externo.

La interpretación del Proyecto y documentación contractual corresponderá a la Dirección
Facultativa.

2. MUESTRA DE MATERIALES
Los materiales objeto de contratación son los indicados en la oferta obligatoriamente. Si en
alguna partida del Proyecto aparece el "o equivalente" se entiende que el tipo y marca objeto
de contrato es el indicado como modelo en el Proyecto, es decir, de las mismas características,
siempre a juicio de la Propiedad y la Dirección Facultativa.

A petición de la Dirección Facultativa, el Contratista presentará las muestras de los materiales
que se soliciten, siempre con la antelación prevista en el calendario de la obra.

Cualquier cambio que efectúe el Contratista sin tenerlo aprobado por escrito y de la forma que
le indique la Dirección Facultativa, representará en el momento de su advertencia su inmediata
sustitución, con todo lo que ello lleve consigo de trabajos, coste y responsabilidades. De no
hacerlo, podrá la Dirección Facultativa buscar soluciones alternativas con cargo al Presupuesto
de contrato y/o garantía.

Los materiales que hayan de constituir parte integrante de las unidades de obra definitivas, los
que el Contratista emplee en los medios auxiliares para su ejecución, así como los materiales
de aquellas instalaciones y obras auxiliares que parcialmente hayan de formar parte de las
obras objeto del contrato, tanto provisionalmente como definitivas, deberán cumplir las
especificaciones establecidas en el Pliego de Condiciones Técnicas de los materiales.


                                                                              RED FTTH RIBA-ROJA D’EBRE

FTTH RIBA-ROJA Proyecto                                                                               24
Visat nº:    P02904970
                                                                            Data:        07/10/2009
                          ______________________________________________________________________________
                                                                            Col·legiat:  9083

Cualquier trabajo que se realice con materiales de procedencia no autorizada podrá ser
considerado como defectuoso, con las consecuencias que en este Pliego se especifican.

3. CONTROL DE CALIDAD
LA PROPIEDAD contratará directamente o a través del Contratista una ASISTENCIA TECNICA
para el Control de Calidad de las instalaciones de acuerdo con las especificaciones del
proyecto.

La Asistencia Técnica propuesta tendrá las siguientes fases de actuación sobre las
instalaciones previstas:

a) Preparación Plan de Control ó confirmación del Plan de Control del Proyecto, si lo hubiese.

b) Control de Calidad sobre Materiales y Equipos.

c) Control de Ejecución Instalaciones según Normativas.

d) Control sobre Pruebas de funcionamiento, Regulación y Seguridad realizadas por el
   Contratista.

La Asistencia Técnica del Control de Calidad, estará vinculada y al servicio de la Dirección
Facultativa y la Propiedad a la cual dirigirá toda su actividad.

La empresa adjudicataria de esta Asistencia Técnica realizará el Plan de Control de las
instalaciones de acuerdo con las indicaciones existentes en la documentación del proyecto,
dentro del apartado denominado "Control de Calidad", o en su defecto, con la normativa
vigente.

En caso de que sea el Contratista el que contrate esta Asistencia Técnica presentará al menos
tres nombres de empresas capacitadas para este trabajo, siendo elegida la adjudicataria por la
Dirección Facultativa. El Contratista destinará para estos trabajos en caso de no existir partida
presupuestada en los presupuestos del proyecto, al menos el 1,5% (uno y medio por ciento) del
importe de ejecución material de los capítulos correspondientes a instalaciones, estando
abierta la posibilidad de que el Contratista oferte un porcentaje mayor para este fin.

En cada certificación deberá venir explícitamente el importe destinado a Control de Calidad.

4. CONTROL DE CALIDAD DE LOS MATERIALES
El Contratista entregará a la Dirección Facultativa una lista de materiales que considere
definitiva dentro de los 30 días después de haberse firmado el Contrato de Ejecución. Se
incluirán los nombres de fabricantes, de la marca, referencia, tipo, características técnicas y


                                                                              RED FTTH RIBA-ROJA D’EBRE

FTTH RIBA-ROJA Proyecto                                                                               25
Visat nº:    P02904970
                                                                            Data:        07/10/2009
                          ______________________________________________________________________________
                                                                            Col·legiat:  9083

plazo de entrega. Cuando algún elemento sea distinto de los que se exponen en el Proyecto,
se expresará claramente en dicha descripción.

El Contratista informará fehacientemente a la Dirección Facultativa de las fechas en que
estarán preparados los diferentes materiales que componen la instalación, para su envío a
obra.

De aquellos materiales que estime la Dirección Facultativa oportuno y de los materiales que
presente el Contratista como variante, la Dirección Facultativa procederá a realizar, las pruebas
y ensayos de control de calidad, para comprobar que cumplen las especificaciones indicadas
en el Proyecto, cargando a cuenta del Contratista los gastos originados.

Toda prueba que no haya resultado satisfactorio o que no ofrezca las suficientes garantías
podrá comenzarse de nuevo a cargo del mismo Contratista. Aquellos materiales que no
cumplan alguna de las especificaciones indicadas en Proyecto no serán autorizados para
montaje en obra. Los elementos mandados a obra sin estos requisitos podrán ser rechazados
sin ulteriores pruebas.

En el apartado de documentos anexos se encuentra la ficha estándar para el control de los
materiales suministrados en la obra.

5. PLANOS DE MONTAJE
Los planos de montaje son los que complementan a los planos del Proyecto en aquellos
aspectos propios de la ejecución de la instalación, y que permiten detectar y resolver
problemas de ejecución y coordinación con otras instalaciones antes de que se presenten en la
obra.

El Contratista presentará al inicio de la obra una lista de los planos de montaje que va a
realizar, que será aprobada por la Dirección Facultativa. También presentará un programa de
producción de estos planos de acuerdo con el programa general de la obra.

El Contratista presentará los planos de montaje a la Dirección Facultativa, que los revisará en
un plazo no superior a dos semanas.

Sin ser exhaustivos, los planos de montaje deben incluir: coordinación en falsos techos,
detalles de patios de instalaciones, relación de las instalaciones con la estructura, salas de
máquinas, ejecución de bancadas y soportes, etc.

6. REPLANTEO
De acuerdo con los planos de montaje conformados y en el momento oportuno según el plan
de obra, el Contratista marcará de forma visible la instalación con puntos de anclaje, rozas,


                                                                              RED FTTH RIBA-ROJA D’EBRE

FTTH RIBA-ROJA Proyecto                                                                               26
Visat nº:    P02904970
                                                                            Data:        07/10/2009
                          ______________________________________________________________________________
                                                                            Col·legiat:  9083

taladros, etc. lo cual deberá ser aprobado por la Dirección Facultativa antes de empezar su
ejecución.

7. SUMINISTROS AUXILIARES
Todas las ayudas tales como cualquier ayuda de peonaje o elementos mecánicos para
transporte y colocación de material, descarga de camiones, suministros etc. sin que sea esta
relación limitativa, corren por cuenta del Contratista de la instalación ya que debe prever una
instalación completa, perfectamente terminada y entregada en completo y buen orden de
marcha.

8. NORMAS GENERALES DE MONTAJE
Las instalaciones se realizarán siguiendo las prácticas normales para obtener un buen
funcionamiento, por lo que se respetarán las especificaciones e instrucciones de las empresas
suministradoras.

El montaje de la instalación se realizará ajustándose a las indicaciones y Planos del proyecto y
a los Planos de montaje realizados por el Contratista y aprobados por la Dirección Facultativa.

Cuando en la obra sea necesario hacer modificaciones en estos Planos o sustituir los
materiales aprobados por otros, se solicitará permiso a la Dirección Facultativa en la forma por
ella establecida.

En todos los equipos se dispondrán las protecciones pertinentes para evitar accidentes. En
aquellas partes móviles de las máquinas y herramientas se dispondrán de su correspondiente
protección.

Durante el proceso de instalación se protegerán debidamente todos los aparatos.

9. PRUEBAS
Al finalizar la ejecución de la instalación, el Contratista está obligado a configurar y programar
todos los sistemas y a realizar las pruebas de funcionamiento, rendimiento y seguridad de los
diferentes equipos de la instalación.

Salvo en los sistemas en los que exista un protocolo de medidas objetivo, tales como el
Sistema de Cableado Estructurado o la red de distribución de radiotelevisión en coaxial, las
pruebas consistirán en la comprobación del correcto funcionamiento de los sistemas y de cada
uno de los elementos que lo componen.




                                                                              RED FTTH RIBA-ROJA D’EBRE

FTTH RIBA-ROJA Proyecto                                                                               27
Visat nº:    P02904970
                                                                            Data:        07/10/2009
                          ______________________________________________________________________________
                                                                            Col·legiat:  9083

El Contratista cumplimentará las fichas Resumen de Control de Instalaciones (I01-A) en su
totalidad (una ficha para los elementos de cada sistema).

El Contratista preparará con todo ello la siguiente documentación que denominaríamos
Documentación Final de Obra:

1) Memoria actualizada con todos sus apartados.

2) Resultado de las pruebas realizadas de acuerdo con el protocolo de Proyecto y/o
   Reglamento vigente.

3) Manual de instrucciones de la instalación.

4) Libro de mantenimiento.

5) Planos de la instalación terminada.

6) Lista de materiales empleados y catálogos.

7) Relación de suministradores y teléfonos.

8) Y la necesaria para cumplimentar la normativa vigente y conseguir la legalización y
   suministros energía o telecomunicaciones. (Boletines de la instalación, libro de
   mantenimiento, etc.).

De la documentación anterior se entregará una primera copia sin aprobar a la Dirección
Facultativa o a la empresa de control de Calidad.

En un plazo de 15 días laborables, la Dirección Facultativa o el Control de Calidad según el
caso, comprobará la documentación entregada y emitirá un plan de comprobaciones y pruebas
que deberán ser realizadas por el Contratista en presencia de la Dirección Facultativa o
personal de la empresa de Control de Calidad.

Caso de resultar negativas, aunque sea en parte, se propondrá otro día para efectuar las
pruebas, cuando el Contratista considere pueda tener resueltas las anomalías observadas y
corregidos los Planos no concordantes.

Si en esta segunda revisión se observan de nuevo anomalías que impidan a juicio de la
Dirección Facultativa proceder a la Recepción Provisional, los gastos ocasionados por las
siguientes revisiones correrán por cuenta del Contratista, con cargo a la liquidación.

Al mismo tiempo el Contratista aclarará a los Servicios de Mantenimiento cuantas dudas
encuentren.




                                                                              RED FTTH RIBA-ROJA D’EBRE

FTTH RIBA-ROJA Proyecto                                                                               28
Visat nº:    P02904970
                                                                            Data:        07/10/2009
                          ______________________________________________________________________________
                                                                            Col·legiat:  9083


10. RECEPCION PROVISIONAL
Al resultar positivas las Pruebas y aclaradas las dudas al Servicio de Mantenimiento se
procederá a formalizar la Recepción Provisional de la obra que será firmada por la Propiedad,
su Servicio de Mantenimiento, caso de que así lo decida la Propiedad, la Dirección Facultativa
y el Contratista.

Para formalizar la Recepción Provisional será necesario que el Contratista haya entregado
previamente, tres copias en papel y tres copias en soporte informático de la Documentación
Final de Obra corregidas con las observaciones correspondientes.

Una copia será para la Dirección Facultativa, otra copia para la Propiedad y la tercera para le
Empresa de Control de Calidad.

En el documento de la Recepción Provisional deberá adjuntarse fotocopia conforme la
Propiedad o la Dirección Facultativa han recibido la documentación final de obra corregida.

Si en el momento de ocupar la obra y utilizar las instalaciones no han sido completadas las
Pruebas o la documentación correspondiente por causas ajenas a la Propiedad, Dirección
Facultativa o Control de Calidad, se le retendrá al Contratista la liquidación final y la fianza
establecida, cuyas cantidades podrá la Propiedad utilizarlas para terminar los trabajos
pendientes y abonar el mayor coste y los daños y perjuicios ocasionados a los intervinientes en
los trabajos y a los usuarios de la obra.

11. GARANTIA DE RESULTADOS
Se establece una garantía de aseguramiento de los resultados y de entrega de la
documentación pertinente previa a la Recepción Provisional que vencerá en el momento en
que el Contratista obtenga de la Propiedad o Dirección Facultativa, la aprobación fehaciente de
la documentación pedida en el capítulo PRUEBAS y de forma ineludible la correspondiente a
los apartados:

1) Resultado de las pruebas realizadas de acuerdo con el Protocolo de Proyecto y/o
   Reglamento vigente.

2) Libro de mantenimiento.

3) Planos de la instalación terminada.

4) Y la necesaria para cumplimentar la normativa vigente y conseguir la legalización y
   suministros de fluidos o energía. (Boletines de la instalación, libro de mantenimiento, etc.).




                                                                              RED FTTH RIBA-ROJA D’EBRE

FTTH RIBA-ROJA Proyecto                                                                               29
Visat nº:    P02904970
                                                                            Data:        07/10/2009
                          ______________________________________________________________________________
                                                                            Col·legiat:  9083

Caso que el Contratista no cumpla satisfactoriamente con lo expresado anteriormente, la
Propiedad, a requerimiento de la Dirección Facultativa podrá, si lo desea, recibir
provisionalmente la Obra, y encargar a terceros, con cargo a las cantidades pendientes de
liquidación o fianza, los trabajos de documentación y obtención de resultados pendientes.

12. PERMISOS (POR CUENTA DEL CONTRATISTA)
Corre por cuenta del Contratista la confección y presentación de los boletines de la instalación
y libro de mantenimiento oficial, así como el resto de documentos que reglamentariamente
deben ser preparados y aportados por el Contratista.

Corre por cuenta del Contratista la redacción, visado y tramitación ante Organismos Oficiales
(Delegación de Industria, Ayuntamiento, etc.) de los Proyectos necesarios para obtener todos
los permisos oficiales para la construcción, puesta en marcha y conexión de las instalaciones
objeto del Pliego.

Asimismo, el Contratista es el responsable de la confección, visado y tramitación de los
Certificados Finales de Obra necesarios.

Los costes de las tasas de visado y tramitación corren por cuenta del Contratista.

13. CRITERIOS DE MEDICION DE LAS INSTALACIONES
Toda medición deberá ser reproducible admitiendo márgenes de error tolerables. Se emplearán
los instrumentos de medición de uso normal en una obra (reglas rígidas o cintas métricas) en
aquellos casos en que sea posible hacerlo.

La unidad de medida será la que se exprese en el Estado de Mediciones o la que la Dirección
Facultativa dictamine, en caso de duda.

Los elementos discretos se medirán por unidades instaladas.

Los tubos para cableado se medirán por su eje, siguiendo su recorrido real, incluyendo tramos
rectos, sin descontar de la medición la longitud ocupada por cajas de empalme y derivación. No
se admitirán suplementos por curvas, derivaciones, empalmes, etc. ni por mermas de material.

Las bandejas para cableado se medirán por su eje, siguiendo su recorrido real, incluyendo
tramos rectos y curvas. Los codos y las curvas se medirán por su parte exterior. No se
admitirán suplementos de medición por curvas, injertos, derivaciones, etc. ni por mermas de
material.




                                                                              RED FTTH RIBA-ROJA D’EBRE

FTTH RIBA-ROJA Proyecto                                                                               30
Visat nº:    P02904970
                                                                            Data:        07/10/2009
                          ______________________________________________________________________________
                                                                            Col·legiat:  9083

El cableado (que no esté incluido en los conceptos del proyecto) se medirá por su recorrido real
desde inicio al final de conexión. No se admitirán suplementos de medición por derivaciones,
empalmes, reservas o mermas de material.

14. DIRECCIÓN TÉCNICA DE LA PUESTA EN MARCHA
Para conseguir una correcta puesta en marcha de las instalaciones, la empresa instaladora
tendrá que disponer de un equipo totalmente diferenciado del de montaje y manipulación de las
instalaciones, encargado de sistematizar los procesos, cumplimiento de parámetros técnicos y
entrega de las instalaciones. La gestión de este proceso se llama DIRECCIÓN TÉCNICA DE
LA PUESTA EN MARCHA.

La dirección técnica de la puesta en marcha, tendrá las siguientes fases de actuación.

1.- Definición del plan de puesta en marcha, para unidades de trabajo con indicación del tiempo
previsto, según ficha del plan de puesta en marcha. Este planning tendrá que presentarse a
dirección de obra para recibir su aprobación, antes de iniciar cualquier actuación.

2.- Dirección de los equipos de trabajo de la empresa instaladora con:

   Seguimiento e interpretación de las especificaciones de proyecto y de la dirección de obra.

   Definición de los parámetros de regulación

   Uso de instrumentos adecuados a cada medida

   Entrega de los protocolos de puesta en marcha a la dirección de obra para su aprobación

   Asistencia al control de calidad en caso de haber

También realizará asistencia técnica a las consultas presentadas para la dirección de obra,
servicios de mantenimiento u otros agentes de la obra.

El contratista, en caso de no tener partida correspondiente al presupuesto, destinará para la
Dirección Técnica de la Puesta en Marcha al menos un 1% del importe de ejecución de
materiales de los capítulos correspondientes a las instalaciones objeto.

En caso que el contratista sea quien tenga de que contratar al equipo técnico que realice los
trabajos escritos, quedara la elección a criterio de la dirección de la obra.

15. FORMACIÓN
Con posterioridad a la puesta en marcha, el contratista deberá realizar un programa de
formación del funcionamiento de los diferentes sistemas instalados.


                                                                              RED FTTH RIBA-ROJA D’EBRE

FTTH RIBA-ROJA Proyecto                                                                               31
Visat nº:    P02904970
                                                                            Data:        07/10/2009
                          ______________________________________________________________________________
                                                                            Col·legiat:  9083

Esta formación podrá realizarse en cualquier momento que la propiedad o gestor del hotel
considere oportuno, y al número de personas que determine.

El contratista presentará a la D.F. un programa de formación indicando la duración de la
misma, las personas objetivo a las que será dirigida y los apartados del mismo.



Barcelona, 30 de septiembre de 2.009




Fdo. Xavier Edo Ibañez
Ingeniero de Telecomunicación
Colegiado nº 9.083




                                                                              RED FTTH RIBA-ROJA D’EBRE

FTTH RIBA-ROJA Proyecto                                                                               32
Ficha control materiales
                                                                            M02-A
Proyecto

Instalación:                                                                                    Visat nº:      P02904970
Equipo:                                                                                         Data:          07/10/2009
Denominación                                                                                    Col·legiat:    9083



Objeto de control

                Tipo:
                Marca:
                Dimensiones:
                Nº Elementos de la partida:
                Nº de muestras:
                Porcentaje:                   %
                La partida es el              % del total del presupuesto

                Observaciones




Debe cumplir:

                Especificaciones Proyecto:




Resultado del control:

                - Todas las muestras cumplen requisitos del las especificaciones del proyecto
                - Las muestras no cumplen especificaciones
                               Descripción de las anomalias.




* Adjuntar mediciones realizadas en caso de F.O, Cable coaxial,

CONCLUSIONES/OBSERVACIONES




Fecha y firma                                 Fecha y firma                               Fecha y firma




                Instalador                                    Persona de Calidad                          Dir. Facultativa
Ficha resumen control
                                                                     M01-A
Proyecto

Instalación:                                                                           Visat nº:       P02904970
Empresa instaladora:                                                                   Data:           07/10/2009
Control de materiales:                                                                 Col·legiat:     9083

  ESPECIF.       MATERIAL DEL PROYECTO     MATERIAL INSTALADO           CONTRO                OBSERVACIONES




Fecha y firma                            Fecha y firma                            Fecha y firma




                Instalador                               Persona de Calidad                       Dir. Facultativa
Visat nº:    P02904970
                                                                            Data:        07/10/2009
                          ______________________________________________________________________________
                                                                            Col·legiat:  9083




PRESUPUESTO



                             PROYECTO BASE RED FTTH/GPON
                                                                                        SETIEMBRE 2009




                                                                              RED FTTH RIBA-ROJA D’EBRE

FTTH RIBA-ROJA Proyecto                                                                               33
Visat nº:    P02904970
                                                                            Data:        07/10/2009
                          ______________________________________________________________________________
                                                                            Col·legiat:  9083

1.- PRESUPUESTO EJECUCIÓN DE MATERIAL DE LA RED FTTH




                                                PRESUPUESTO
 POS.     UDS.     CONCEPTO                                                                     P. UNITARIO      P. TOTAL



  CAPÍTULO 1: EQUIPOS DE RECEPCIÓN



  1.1      1       central pbx pArA 512 lineas instalación y puesta en marcha                       4.200,00     4.200,00 €
                   incluyendo materiales auxiliares

  1.2      1       formacion 2 personas                                                               650,00       650,00 €




                  TOTAL CAPITULO 1............................................................................   4.850,00 €




                                                                                                RED FTTH RIBA-ROJA D’EBRE

FTTH RIBA-ROJA Proyecto                                                                                               34
Visat nº:    P02904970
                                                                             Data:        07/10/2009
                           ______________________________________________________________________________
                                                                             Col·legiat:  9083


                                                PRESUPUESTO
 POS.     UDS.     CONCEPTO                                                                     P. UNITARIO       P. TOTAL



  CAPÍTULO 2: CABECERA DE RED



  2.1      1       Armario 19 " 24 U (                                                                670,00        670,00 €

  2.2      1       CHASIS OLT                                                                       1.513,00       1.513,00 €

  2.3      1       TARJETA OLT ITU G.984 GPONT 8 MODULOS 512 USUARIOS                             12.078,00      12.078,00 €
  2.4      8       MODULO INTERFASE PON G.984 CLASE B+                                               456,00       3.648,00 €

  2.5      2       PORT AGREGABLE GIGABIT                                                             135,00        270,00 €

  2.6      1       SWITCH                                                                           1.570,00       1.570,00 €


  2.7      2       DOBEXT-4U                                                                            83,77       167,54 €

  2.15     8       MODUL SPLITER                                                                      293,00       2.344,00 €


  2.16     6       MODULO SUBRACK 12 SC/APC                                                             76,30       457,80 €

  2.17     72      CORDON OPTICO                                                                          5,20      374,40 €

  2.18     10      FRONTAL CEC                                                                            3,85       38,50 €

  2.19     1       LASER TRANSMISIÓM VIDEO 2 SALIDAS 10 dbm                                       10.241,00      10.241,00 €

  2.20     1       EDFA 8X20 dbm                                                                  12.922,00      12.922,00 €

  2.21     1       Instalación y puesta en marcha incluyendo materiales auxiliares                16.000,00      16.000,00 €

  2.22     1       Formación 2 personas                                                               600,00        600,00 €




                  TOTAL CAPITULO 2............................................................................   62.894,24 €




                                                                                                RED FTTH RIBA-ROJA D’EBRE

FTTH RIBA-ROJA Proyecto                                                                                                35
Visat nº:    P02904970
                                                                            Data:        07/10/2009
                          ______________________________________________________________________________
                                                                            Col·legiat:  9083




                                                PRESUPUESTO
 POS.     UDS.     CONCEPTO                                                                     P. UNITARIO       P. TOTAL



  CAPÍTULO 3: DESPLIEGUE FTTH



  3.1      63      CAJAS FACHADA INTEMPERIE 16 SALIDAS CON SPLITER                                    195,00     12.285,00 €
                   1X8

  3.2      4       CAJAS FACHADA INTEMPERIE 8 SALIDAS CON SPLITER 1:8                                 172,00        688,00 €

  3.3      22      CAJAS FACHADAS INTEMPERIE EMPALMES                                                   60,50      1.331,00 €

  3.3    1.647     FIBRA 6 F.O. POR TUBO INTEMPERIE- CANALIZADO 64 X                                      2,34     3.853,98 €
                   9/125 G652D

  3.5    6.102     FIBRA 6 F.O. POR TUBO INTEMPERIE CANALIZADO 24 X                                       0,74     4.515,48 €
                   9/125 G652D

  3.6     600      FUSIONS                                                                                6,00     3.600,00 €

  3.7     600      CONECTORS SC/APC                                                                       0,20      120,00 €


  3.8    19.373    MATERIAL AUXILIAR: BRIDAS DE FIJACIÓN, TACOS                                           0,15     2.905,88 €
                   EXPANSIÓN PVC, CABLE ACERADO, PINZAS FIJACIÓN
                   FIADOR, MATERIAL VARIO,…

  3.8    1.918     TENDIDO   DE    CABLEADO,  MONTAJE    EQUIPOS,                                       23,00    44.114,00 €
                   CONEXIONADO Y COMPROBACIÓN DE SISTEMA



                  TOTAL CAPITULO 3............................................................................   73.413,34 €




                                                                                                RED FTTH RIBA-ROJA D’EBRE

FTTH RIBA-ROJA Proyecto                                                                                                36
Visat nº:    P02904970
                                                                            Data:        07/10/2009
                          ______________________________________________________________________________
                                                                            Col·legiat:  9083


                                                   PRESUPUESTO
 POS.    UDS.     CONCEPTO                                                                         P. UNITARIO      P. TOTAL



 CAPÍTULO 4: INFRAESTRUCTURA



  4.1     400     Mts de mandrilado de canalización existente                                                9,31     3.724,00 €




                   TOTAL CAPITULO 3............................................................................      3.724,00 €




                                                                                                RED FTTH RIBA-ROJA D’EBRE

FTTH RIBA-ROJA Proyecto                                                                                               37
Visat nº:    P02904970
                                                                                       Data:        07/10/2009
                                     ______________________________________________________________________________
                                                                                       Col·legiat:  9083




                                                                PRESUPUESTO
                            CONCEPTO                                                                                 P. UNITARIO        P. TOTAL


                          RESUMEN DE COSTES



      CAPÍTULO 1:           EQUIPOS DE RECEPCIÓN                                                                           4.850,00

      CAPÍTULO 2:           CEBERA DE RED                                                                              62.894,24

      CAPÍTULO 3:           DESPLIEGUE FTTH                                                                            73.413,34

      CAPÍTULO 4:           INFRAESTRUCTURA                                                                                3.724,00




                                      TOTAL ............................................................................               144.881,58 €

                                                13 % GASTOS GENERALES                                                                   18.834,60 €
                                                6% BENEFICIO INDUSTRIAL                                                                  8.692,89 €
                                                                                                    TOTAL                              172.409,07 €

                                                                                                         IVA                  16%        27.585,45 €
                                                                                     TOTAL OBRA                                       199.994,53 €


     El total de la realización del proyecto es de CIENTO NOVENTA NUEVE MIL NOVECIENTOS
     NOVENTA Y CUATRO CON CINCUENTA Y TRES CENTIMOS

     Barcelona, 30 de septiembre de 2.009




     Fdo. Xavier Edo Ibañez
     Ingeniero de Telecomunicación
     Colegiado nº 9.083



                                                                                                                  RED FTTH RIBA-ROJA D’EBRE

    FTTH RIBA-ROJA Proyecto
Signature Not Verified                                                                                                                    38
Signat digitalment per Perfil del contractant
Data: 2010.03.31 12:39:15 CEST
Reason: Aprovant la publicaci� del document
Location: Tarragona

3.cpliego

  • 1.
    α Visat nº: P02904970 Data: 07/10/2009 ALPHA Col·legiat: 9083 ENGINYERIA DE TELECOMUNICACIONS PROYECTO DE RED FTTH GPON DE RIBA-ROJA D’EBRE αET
  • 2.
    Visat nº: P02904970 Data: 07/10/2009 ______________________________________________________________________________ Col·legiat: 9083 MEMORIA INSTALACIONES DE TELECOMUNICACIONES PROYECTO RED FTTH/GPON SEPTIEMBRE 2009 RED FTTH RIBA-ROJA D’EBRE FTTH RIBA-ROJA Anteproyecto
  • 3.
    Visat nº: P02904970 Data: 07/10/2009 ______________________________________________________________________________ Col·legiat: 9083 ÍNDICE GENERAL MEMORIA 0. INTRODUCCIÓN ....................................................................................................................1 0.1. PROMOTOR .....................................................................................................................1 0.2. DESCRIPCIÓN .................................................................................................................1 0.3. SITUACIÓN ......................................................................................................................1 0.4. OBJETO DEL PROYECTO ..............................................................................................1 1. FTTH GPONT .........................................................................................................................3 1.1. INTRODUCCIÓN ..............................................................................................................3 1.2. SISTEMA PROPUESTO...................................................................................................3 1.3. CABECERA, CENTRO DE DATOS .................................................................................5 1.4. RED DE DISPERSIÓN PLANTA EXTERNA..................................................................13 1.5. INFRAESTRUCTURA A UTILIZAR................................................................................21 1.6. SUBSISTEMA DE ADMINISTRACIÓN ..........................................................................29 1.6.1. DIMENSIONAMIENTO DE LA CABECERA DATOS...............................................29 1.6.2. GESTORES DE EQUIPOS .......................................................................................31 1.6.3. PABX ........................................................................................................................31 RED FTTH RIBA-ROJA D’EBRE FTTH RIBA-ROJA Anteproyecto
  • 4.
    Visat nº: P02904970 Data: 07/10/2009 ______________________________________________________________________________ Col·legiat: 9083 0. INTRODUCCIÓN 0.1. PROMOTOR El promotor del proyecto es: Ajuntament de Riba-roja d’Ebre Plaça de la Vila, 1 NIF: P4312700J 43790 Riba-roja d’Ebre Ribera d’Ebre (Tarragona) Telf: 977 41 60 03 / Fax: 977 41 64 04 0.2. DESCRIPCIÓN Municipio de 833 viviendas situadas todas ellas en el núcleo de la población. Donde se quiere dar servicio de telecomunicaciones a todas las viviendas del núcleo del municipio. 0.3. SITUACIÓN El municipio esta situado en la comarca de la Ribera d’Ebre en Tarragona. 0.4. OBJETO DEL PROYECTO La fibra óptica (FO) es un medio de transmisión clave en las redes de telecomunicación de alta capacidad del futuro. La principal virtud de la FO es su ancho de banda, prácticamente infinito, juntamente con una muy baja atenuación. Esto hace que la relación entre ancho de banda y distancia de la FO sea muy superior a cualquier medio eléctrico. El disponer de un enlace de fibra que comunica directamente desde el centro de control al usuario final, presenta, como ventajas más importantes: Plataforma pasiva alta durabilidad: un despliegue de FTTH asegura que la planta externa no se deberá modificar en un mínimo de 20 años, ofreciendo los anchos de banda necesarios en un futuro para poder suministrar todos los servicios avanzados. RED FTTH RIBA-ROJA D’EBRE FTTH RIBA-ROJA Proyecto 1
  • 5.
    Visat nº: P02904970 Data: 07/10/2009 ______________________________________________________________________________ Col·legiat: 9083 Bajo mantenimiento: Al tratarse de una solución pasiva y no disponer de equipos alimentados, el mantenimiento de la red se reduce a mantener los equipos localizados en el centro de control ya que al no disponer de elementos activos en la planta externa, el coste del mantenimiento de la red es muy reducido. La reducción se hace palpable en el OPEX, que en redes de fibra óptica es muchísimo más bajo que en redes de cable tradicional. Solución integrada: la solución presentada integra todos los servicios en una única red (fibra óptica), reduciendo los costes de despliegue y mantenimientos futuros. Pueden integrarse servicios de voz, datos y cable sobre la misma infraestructura de fibra. Gran ancho de banda: la utilización de la fibra óptica como medio de transmisión ofrece grandes capacidades de transmisión, muy superiores al cable coaxial o al par trenzado telefónico, ofreciendo escalabilidades futuras muy superiores a las soluciones basadas en cobre. Despliegue compacto: el tamaño de las arquetas y canalizaciones necesarias es incomparablemente más reducido que en un despliegue de cableado coaxial o de telefonía básica. Solución de futuro e innovadora: un despliegue de FTTH ofrece nuevas posibilidades de despliegues de aplicaciones y servicios, siendo el modelo elegido en los países punteros para sus redes de nueva generación (NGN). El objeto del presente proyecto es el diseño ejecutivo y la definición de las instalaciones que constituyen la red FTTH a si como los elementos que se utilizaran para dar servicio de televisión, Internet, telefonía, etc. dentro de la red de FTTH. El centro de datos, la cabecera de TV en RF existente actualmente (da señal a la red de cable de la población) y los armarios de cableado de F.O., están situados en la cabecera de la red (edificio del Ayuntamiento), y se contempla el diseño de toda la red de despliegue en el municipio, y la administración de la red, así como las acometidas a los usuarios dentro de las viviendas Dicha infraestructura es el principal soporte físico de las comunicaciones entre todos los sistemas. Se reparte por todo el municipio y se compone de los armarios principales en el centro de datos y de las cajas de empalme y repartición; así como los sistemas de TV en RF voz y datos en el centro de datos. RED FTTH RIBA-ROJA D’EBRE FTTH RIBA-ROJA Proyecto 2
  • 6.
    Visat nº: P02904970 Data: 07/10/2009 ______________________________________________________________________________ Col·legiat: 9083 1. FTTH GPONT 1.1. INTRODUCCIÓN Se implantará una red de telecomunicaciones, que inspirada en los conceptos de una red pasiva de fibra óptica (PONT) FTTH (fibra óptica hasta la vivienda), asegure el correcto funcionamiento de cada uno de los Sistemas de de Telecomunicación, proporcionando la infraestructura de conectividad pasiva. La solución FTTH propuesta debería tener la compatibilidad de ofrecer servicios de voz (POTS, VoIP), servicios de datos (10/100/1000 Ethernet) y servicios de video (video IP, emisión RF en Analógico/Digital para CATV y DBS) dentro de una única red de fibra óptica monofibra. Esta plataforma de acceso también debe ser compatible con los principales estándares del mercado de acceso FTTH universal los cuales incluyen la tecnología punto a punto Metro Ethernet, así como los estándares ITU G.984 GPON y IEEE 802.3 GE-PON (EFM PON) sobre la misma plataforma. Se valorará positivamente que la misma plataforma pueda adoptar futuros estándares ópticos para poder mejorar la red de acceso al largo de los años. Este sistema se divide, en Cuatro partes, que son: 1. Centro de procesos de datos (MDF) o cabecera 2. Red de dispersión de de la red FTTH o planta externa 3. Red de acometida de usuario 4. Subsistema de Administración DE SERVICIOS. No se contempla la instalación de infraestructuras de obra civil. Para dar cobertura a todas las viviendas del municipio son necesarios diferentes cajas de dispersión, para cumplir con los límites de distancias y optimizar el coste de las instalaciones: El dimensionamiento de los sistemas de administración de los servicios viene dado por el desarrollo de los proyectos de cada área específica, en los que se han definido el número de enlaces necesarios de cada servicio con el usuario. 1.2. SISTEMA PROPUESTO La plataforma deberá soportar preferentemente el estándar de acceso óptico ITU-T G.984 GPON junto con todos sus complementos, por delante de los otros estándares IEEE 802.av E- RED FTTH RIBA-ROJA D’EBRE FTTH RIBA-ROJA Proyecto 3
  • 7.
    Visat nº: P02904970 Data: 07/10/2009 ______________________________________________________________________________ Col·legiat: 9083 PON y Ethernet P2P. La tecnología FTTH GPON propuesta para la realización del proyecto en Riba-roja de l’Ebre utiliza una longitud de onda de 1490nm, en el canal de bajada, y una longitud de onda de 1310nm, en el canal de subida, para transmitir los servicios IP ópticos de Ethernet. Adicionalmente, usa una tercera longitud de onda de 1550nm downstream para la transmisión de la señal de video sobre RF. La longitud de onda de 1550nm se introduce en la red PON a través de un multiplexor de división de onda (WDM). Entre el chasis y el multiplexor, nos encontramos con las longitudes de onda 1310/1490nm mientras que entre el WDM y los equipos clientes ONT, nos encontramos con las longitudes de onda de 1310/1490/1550nm. Oficina de conmutación Servicios de Internet Red de Equipo óptico ONT GPON Servicios de telefonía Transporte cabecera FTTH PON WDM Red de distribución óptica Servicios video IP Hasta 20Km 1490nm ONT GPON 1310nm Servidor 1550nm de gestión Hasta 512 ONTs por COLT Servicios Video RF RF 1550nm EDFA Solución estándar ITU-T G.984 GPON La arquitectura de la solución propuesta deberá complacer, en mayor o menor medida, el diagrama de bloques ilustrando en la anterior figura. También se pueden ofrecer diferentes equipos ópticos de cabecera para aumentar la capacidad y cumplir con las expectativas en caso de ampliar el área de influencia del proyecto de Riba-roja. La elección de la tecnología nos viene dada por los servicios que en un principio desea dar el operador, que son los siguientes: - Servicio de TV por RF (servicio que esta dando actualmente sobre una red coaxial) - Servicio de conexión a Internet - Servicio de Telefonía Y la estimación del número de usuarios, que a corto plazo, estarán conectados (estudio realizado en el anteproyecto) * 400 usuarios RED FTTH RIBA-ROJA D’EBRE FTTH RIBA-ROJA Proyecto 4
  • 8.
    Visat nº: P02904970 Data: 07/10/2009 ______________________________________________________________________________ Col·legiat: 9083 Para las redes FTTH tenemos varias soluciones en el mercado: • P2P Ethernet (Punto a Punto) • P2MP: IEEE802.3ah EPONT vs ITU-T G.984 GPONT (Punto Multipunto) De las soluciones anteriores solo es posible dar Video overlay (televisión en RF) en las redes P2MP En el mercado existen dos soluciones que vienen definidas en sus parámetros básicos en la siguiente tabla: Las configuraciones estándares en cabeceras son: EPONT : 256 USUARIOS GPONT: 512 USUARIOS Según las prestaciones de las soluciones en el anteproyecto anterior y las premisas de servicios la solución óptima es utilizar la tecnología GPONT. Por las distancias de fibra entre cabecera y usuario más alejado es menor de 10 Km. y el split máximo a utilizar es de 1:64 se escogerá electrónica activa de Class B+ : 28 dB 1.3. CABECERA, CENTRO DE DATOS La cabecera, centro de procesos de datos es el espacio donde se ubicarán los equipos activos de cabecera de la red, en este recinto tendremos los equipos activos de RF de una cabecera analógica, ya instalada que se conectara con los elementos ópticos de la cabecera GPON, y de IP. Igualmente tendremos los equipos activos del sistema GPON de cabecera, también denominados OLT (Optical Layer Terminal), así como los distribuidores y repartidores de fibra (ODF: Optical Distribution Frame) para realizar la interconexión entre las OLTs y los cables de planta externa. Adicionalmente, en el centro de control se ubicarán los servidores necesarios para dar servicios de gestión y mantenimiento a la red, así como las pasarelas y equipos de interconexión para los diferentes operadores de servicio de la plataforma. El tamaño de dicho dentro de control depende del número de puntos de conexión y de los servicios prestados. RED FTTH RIBA-ROJA D’EBRE FTTH RIBA-ROJA Proyecto 5
  • 9.
    Visat nº: P02904970 Data: 07/10/2009 ______________________________________________________________________________ Col·legiat: 9083 La cabecera o MDF esta situado en el Ayuntamiento en su planta baja donde se encuentra estudios de la televisión local, en este es donde se concentran todos los equipos, servidores, centralita, láser, etc., y es donde esta situado el centro de recepción de las señales RF y su procesamiento. A) Distribución de la señal de televisión Consideraciones sobre el diseño. El operador debe transmitir las señales de televisión que se reciben en su cabecera de TV ya existente, Configuración de la cabecera y plan de frecuencias Se ha establecido un plan de frecuencias para la distribución de las señales de televisión y radiodifusión terrenal como satélite que permita la distribución de las señales por los canales previstos, se respeten los canales destinados a otros servicios que puedan incorporarse en un futuro. El plan de frecuencias es el siguiente. CANAL CONTENIDO MODULO TIPO 69 TXT 68 40 LATINOS OV 36 + OR 21 67 ANDALUCIA OV 76 66 TVE i OV 76 65 TELE MADRID OV 76 64 CNN OV 85 63 TV VALENCIANA OV 96 + OV36 62 EXTREMADURA OV 76 61 CANARIAS OV 76 59 Disney Chanel OV 79 - T 58 C 33 OV 45 56 TV 3 OV 45 54 ETV. OV 76 53 SEXTA OV 36 + OR 21 52 TVE 24 H OV 36 + OV 96 T 49 ¿? 48 TV GALICIA OV 76 47 TV Local R-R OV 36 + FIBRA 46 TDT-TXT TV LOCAL OV 75 MUX VIDEO 45 TV5 FRANCES 44 TDT -8 TV OV 45 D MUX 43 TDT AUTONOMICO 0V 75 M MUX SAT 42 ASTURIAS OV 76 RED FTTH RIBA-ROJA D’EBRE FTTH RIBA-ROJA Proyecto 6
  • 10.
    Visat nº: P02904970 Data: 07/10/2009 ______________________________________________________________________________ Col·legiat: 9083 CANAL CONTENIDO MODULO TIPO 41 PARLAMENTO OV 76 40 CLAN TV OV 36 + OV 96 T 39 TDT VEO OV 45 D- MUX 38 TDT TV 3 OV 45 D- MUX 37 TDT TV 5 OV 45 D- MUX 36 TDT LA SEXTA OV 45 D- MUX 35 TDT ANTENA 3 OV 45 D- MUX 34 TDT TVE 1 OV 45 D- MUX 33 ARAGON , terrestre OV 45 32 TVE 2 OV 79 - T 30 F.D.F. OV 79 - T 28 TVE 1 OV 79 - T 26 ANTENA 3 OV 79 - T 24 TELE 5 OV 79 - T 22 CUATRO OV 79 –T 21 EURO-NEWS 0V 76 Las señales se conectaran al transmisor óptico con los siguientes valores: 80 dBμv por cada canal analógico (-10dB para digitales) Las características de entrada del transmisor óptico, en 3 ventanas, son las siguientes: RF-Frequency Range [MHz] 47 –1000 Flatness [dB] <±0.75 (47...860 MHz) <±1.5 (860 MHz...1 GHz) Version C42 D84 N77 Channel plan CENELEC 42 PAL-D 84 NTSC 77 number of channels 42 / 0 / 0 84 / 0 / 0 77 / 0 / 0 TV / FM (-4dB) / QAM64 (-10dB) Noise bandwidth [MHz] 5 5 4 CNR Tx/Rx [dB] 55.5 52.5 53.5 CNR Link 1 [dB] 55.0 52.0 53.0 CNR Link 2 [dB] 53.0 50.5 52.0 CNR Link 3 [dB] 50.5 49.0 50.0 CSO Tx/Rx and Link 1 [dBc] 64 65 65 CSO Link 2 [dBc] 63 65 65 CSO at output #1 [dB] 62 63 65 Link 3 CTB [dBc] 65 65 65 RED FTTH RIBA-ROJA D’EBRE FTTH RIBA-ROJA Proyecto 7
  • 11.
    Visat nº: P02904970 Data: 07/10/2009 ______________________________________________________________________________ Col·legiat: 9083 El transmisor en su salida óptica debe de cumplir los parámetros siguientes: Wavelength [nm] 1548.....1560 Optical power, [dBm] 2 x 7 min. ES10-L-70 SBS-Suppression [dBm] Fixed threshold +16.5 dBm Laser linewidth (typ.) [MHz] 0.65 Para cumplir con los requisitos del diseño que son de clase B+ debemos de conectar el trasmisor óptico al amplificador óptico de las características siguientes: Input signal wavelength [nm] 1545 - 1565 Max. optical output power [dBm] 4 x 20.0 ± 0.5 Factory setting optical output [dBm] 4 x 18.0 ± 0.5 power Wavelength of pump lasers [nm] < 1000 (typ.) Optical return loss [dB] > 45 Min. optical input level [dBm] -5 Max. opt. input level [dBm] +10 Polarization dependent gain [dB] 0.5 Noise figure (@Pin=0dBm, [dB] < 5.5 λ=1550nm) Optical isolation @ input [dB] 35 Optical isolation @ output [dB] 35 Y sus salidas se conectaran a los módulos de conexión óptica B) Centro de procesos de datos GPON Existe un único armario. Armario MEDIDAS (WxD) mm SITUACIÓN A1 42 UA 600 x 800 cabecera RED FTTH RIBA-ROJA D’EBRE FTTH RIBA-ROJA Proyecto 8
  • 12.
    Visat nº: P02904970 Data: 07/10/2009 ______________________________________________________________________________ Col·legiat: 9083 En este armario se instalara el equipo activo de cabecera para 512 usuarios, así como los distribuidores, repartidores de fibra y el equipamiento de video overlay (RF), según el esquema siguiente En dicho armario existente en la cabecera se integraran los servidores de gestión de la red, de usuarios, gestor de planta externa y PBX para telefonía y el switch de usuario más el router del operador. Todo el sistemas Irá cableado con cable de 4 pares trenzados cat 6 utp o cordones ópticos. El despliegue realizado es para el 100% de las viviendas de Riba-roja (833), para que cualquier vivienda pueda tener los servicios de la red. En un inicio la cabecera no se debe de diseñarse para dar servicio al 100% de las viviendas debido que tendremos siempre una penetración menor del 100% en este ante proyecto se escoge una penetración del 50%. Penetración de 50% = 417 usuarios Teniendo como premisa los 417 usuarios diseñaremos primero la cabecera de FTTH con tecnología GPON. La cabecera estar constituida por un equipo modular de características carrier class que son montados sobre rack de 19” El equipo de cabecera OLT esta montado en una cabecera compacta de 2U RED FTTH RIBA-ROJA D’EBRE FTTH RIBA-ROJA Proyecto 9
  • 13.
    Visat nº: P02904970 Data: 07/10/2009 ______________________________________________________________________________ Col·legiat: 9083 Componentes activos Los OLT compactos existentes en el mercado son de 8 láseres por lo que tendremos 512 usuarios sus características serán las siguientes: • Tarjeta Cabecera OLT ITU G.984 GPON Platform Interface Module - 8 PONs (512 usuarios con splitting 1:64) • Modulo Interfície PON con Óptica SFP - Óptica G.984 Classe B+ • Port agregación GigE, 550m, Óptica SFP - 1000Base-SX (multimode-550m) Como por diseño tendremos el primer nivel de spliting en la cabecera con splitrs 1X8 tenemos de dimensionar los elementos pasivos para dar servicio a 512 usuarios de la red. En la siguiente tabla resumimos el dimensionamiento de la cabecera de datos EQUIPS ACTIUS OPTICS CENTRE CONTROL Xassís OLT Compacte, amb interfície de xarxa, fan assembly 1 Targeta Capçalera OLT ITU G.984 GPON Platform Interface Module - 8 PONs (512 1 usuaris amb splitting 1:64) Mòdul Interfície PON amb Òptica SFP - Óptica G.984 Classe B+ 8 Port agregació GigE, 550m, Òptica SFP - 1000Base-SX (multimode-550m) 2 Elementos pasivos Los elementos pasivos están compuestos por módulos SMT estándar para terminación de cables de distribución, los módulos compactos podrán incluir los filtros multiplexores de la señal óptica de RF y la de OLT ( WDM) y los divisores 1:8 En la siguiente tabla resumimos el dimensionamiento de los pasivos: RED FTTH RIBA-ROJA D’EBRE FTTH RIBA-ROJA Proyecto 10
  • 14.
    Visat nº: P02904970 Data: 07/10/2009 ______________________________________________________________________________ Col·legiat: 9083 COMPONENTES FO PASIVOS unidades ROM ARMARI0 PLANTA INTERNA 600 x 800 x 42 U con bastidor 19" con paneles laterales y guía cables 1 CAJA RACK 19" MODULAR 2 MODUL SMT WDM-SPLITTER 1:8 SC/APC cada modulo incluye: 1 modulo SMT para Subrack 19” 3U; 1 WDM para aplicación de TX video RF; 1 splitter PLC SM 1310/1490/15501:8; 10 adaptadores SC/APC y pigtails SC/APC, tubos de fusión 8 Modulo Slot Subrack 3U 12 SC/APC con adaptadores SC/APc y pigtalls 6 Cordón óptico Patchcord SC/APC-SC/APC SM 2 m 72 Frontal ciego subrack 3U; 7 pasos 10 En este Rack se conecta los cables de F.O de dispersión de la red. El etiquetaje se realizara con material indeleble y en un lugar que sea facil de localizar Se deberá etiquetar la cabecera indicando modulo de salida, divisor. Requisitos a nivel de servicio • Características principales para las VLAN: • Cumplir con el estándar IEEE 802.1Q en los puertos NT y LT. • Capacidad de asignación de VLAN por cliente/servicio. • Disponer del mecanismo QinQ. • Disponer de mecanismo de escritura del campo 802.1p en las etiquetas 802.1Q. • Disponer de mecanismos de sobre escritura de etiquetado VLAN para tramas procedentes de cliente en puertos PON. RED FTTH RIBA-ROJA D’EBRE FTTH RIBA-ROJA Proyecto 11
  • 15.
    Visat nº: P02904970 Data: 07/10/2009 ______________________________________________________________________________ Col·legiat: 9083 Sobre QoS: • Disponer de mecanismos DiffServ para la gestión de CoS. • Disponer de mecanismos para el marcaje y clasificación de paquetes. • Disponer de mecanismos para la gestión de la congestión de tráfico descendente (red- cliente) y ascendente (cliente-red). • Disponer de mecanismos de limitación de tráfico descendente por ONT. Sobre el servicio de Datos: • Soportar DHCP Relay Agent. • Sobre el servició de Video IP (Multicast): • Soportar IGMPv2, IGMPv3 y IGMP proxy. Requisitos de Redundancia y Balanceo de Carga • Tener capacidad para realizar LAG (LACP, 802.3ad) en tarjetas NT. • Soportar protocolo STP (Spanning Tree). Características generales del equipo propuesto • Se deberán nombrar las siguientes características de la cabecera OLT propuesta: • Número de puertos GPON por tarjeta de línea y bastidor. • Número de tarjetas de línea GPON por bastidor. • Número de puertos uplink por tarjeta y por bastidor. • Capacidad de implementar otras tecnologías ópticas (punto-a-punto, E-PON, etc…) • Capacidades de conmutación entre: • Tarjetas LT y NT. • Tarjeta Uplink. • Bastidor OLT. RED FTTH RIBA-ROJA D’EBRE FTTH RIBA-ROJA Proyecto 12
  • 16.
    Visat nº: P02904970 Data: 07/10/2009 ______________________________________________________________________________ Col·legiat: 9083 • Indicar el balance óptico (dB) y el alcance (Km) de los puertos PON para cada nivel de división. • Número de colas para cada uno de los puertos de las tarjetas NT. • Soporte para DHCP opción 82 y opción 60. • Datos de tensión de alimentación, consumo y disipación. • Gama de temperaturas de operación y almacenamiento. • Humedad relativa de funcionamiento. 1.4. RED DE DISPERSIÓN PLANTA EXTERNA Los criterios de despliegue de la planta externa se basan en una solución PON con un nivel de división òptica de 1:64 en dos etapas de 1:8. La primera etapa de división se efectuará en el centro de control y la segunda etapa de división en las cajas terminales de usuario. Teniendo en cuenta que se migrarán los clientes de la red actual de cable a la nueva solución de FTTH, se espera una penetración superior a los puntos de cable actuales, ya que adicionalmente a los servicios de video que actualmente se ofrecen, se ofrecerá servicio de Internet y voz. En el esquema siguiente indica como son las redes de plante externa de FTTH. RED FTTH RIBA-ROJA D’EBRE FTTH RIBA-ROJA Proyecto 13
  • 17.
    Visat nº: P02904970 Data: 07/10/2009 ______________________________________________________________________________ Col·legiat: 9083 El despliegue que realizamos en Riba-roja es del 100% de las viviendas del municipio. Instalaremos una primera etapa de splitting de potencia en la cabecera para conseguir una granularidad superior de nuestra red FTTH. En el anteproyecto elegimos spliter 1:8 que nos permitirán colgar de cada fibra 8 cajas de 1x8 de spliting cumpliendo la condición de GPONT de 1:64 de spliting máximo. Así pues, los requisitos y el planteamiento de desligue, tanto para cables como para cajas será el que se enumera a continuación: Fibra óptica En función del replanteo, existen puntos de la red donde se saldrá del centro de control con cables de alimentación. Las especificaciones de dichos cables serán: RED FTTH RIBA-ROJA D’EBRE FTTH RIBA-ROJA Proyecto 14
  • 18.
    Visat nº: P02904970 Data: 07/10/2009 ______________________________________________________________________________ Col·legiat: 9083 Atributos de la fibra G.652.D Atributo Dato Valor Diámetro del campo modal Longitud de onda 1310 nm Gama de valores nominales 8,6-9,5 um Tolerancia ±0,6 um Diámetro del revestimiento Nominal 125,0 um Tolerancia ±1 um Error de concentricidad del núcleo Máximo 0,6 um No circularidad del revestimiento Máximo 1,0 % Longitud de onda de corte del cable Máximo 1260 nm Pérdidas de macroflexión Radio 30 mm Número de vueltas 100 Máximo a 1625 nm 0,1 dB Prueba de tensión Mínimo 0,69 GPa Coeficiente de dispersión cromática λomín 1300 nm λomáx 1324 nm somáx 0,092 ps/nm2 x km Atributos del cable Atributo Dato Valor Coeficiente de atenuación Máximo de 1310 nm a 1625 0,4 dB/km nm (nota 2) Máximo de 1383 nm ± 3 nm (Nota 3) Máximo a 1550 nm 0,3 dB/km Coeficiente de PMD M 20 cables Q 0,01 % PMDQ máximo 0,20 ps/ km NOTA 1- De conformidad con el Punto 6.2 de UIT-T G.652 (2005), se especifica un valor máximo del parámetro PMDQ en la fibra no cableada para soportar el requisito primario de PMDQ del cable. NOTA 2- Esta región de longitud de onda puede ampliarse hasta 1260 añadiendo 0,07 dB/km de pérdida por dispersión de Rayleigh inducida al valor de atenuación a 1310 nm. En este caso, la longitud de onda de corte del cable no deberá sobrepasar 1250 nm. NOTA 3- La atenuación media detectada en muestras a esta longitud de onda debe ser menor o igual al valor especificado para el intervalo 1310 nm a 1625 nm después del proceso de envejecimiento del hidrógeno conforme a CEI 60793-2-50 en relación con la categoría de fibra B1.3. RED FTTH RIBA-ROJA D’EBRE FTTH RIBA-ROJA Proyecto 15
  • 19.
    Visat nº: P02904970 Data: 07/10/2009 ______________________________________________________________________________ Col·legiat: 9083 Especificaciones de los cables de fibra óptica Se definen tres tipos de cables de fibra óptica, según su utilidad y disposición en la red FTTH: • Cable de alimentación de 64 fibras ópticas o superior • Cable de distribución de 24 fibras ópticas • Cable de acometida de usuario de 1 fibra óptica A continuación se detallas las funcionalidades y características de cada uno de ellos Cable de alimentación de 64 fibras o superior El cable de alimentación será de cómo mínimo 64 fibras ópticas y conectará el centro de control con un nodo intermedio de segregación desde donde continuará la red FTTH con cables de distribución. Se contempla que como máximo un cable de alimentación se divida en 3 cables de distribución de 24 fibras ópticas. • Los cables de alimentación deberán estar formados por tubos de métrica 12 o 8 en función del número final de fibras que incluyan. • La instalación se realizará mayoritariamente por fachada y los tramos aéreos se soportarán mediante cable tensor de acero. • Algunos de los tramos del despliegue serán también canalizados • El cable de alimentación no servirá directamente a ninguna caja de abonados, sirviendo únicamente para reducir el número de cables de salida del centro de control. Cable de distribución de 24 fibras ópticas El cable de alimentación de 24 fibras ópticas conectará los cables de alimentación (o directamente la central), con las cajas terminales desde donde saldrán las acometidas de usuario. Cada cable de 24 fibras ópticas dará cobertura a 8 cajas terminales, debiendo de terminar 2 fibras cada caja terminal, una de las cuales se conectará a un splitter 1:8 y la segunda se dejará en punta para la instalación de un splitter adicional. El resto de fibras ópticas RED FTTH RIBA-ROJA D’EBRE FTTH RIBA-ROJA Proyecto 16
  • 20.
    Visat nº: P02904970 Data: 07/10/2009 ______________________________________________________________________________ Col·legiat: 9083 se dejarán pasantes para ampliaciones futuras de la red o bien para aplicaciones específicas punto a punto. • Los cables de alimentación deberán estar formados por tubos a elección del suministrador, pero optimizados para el diseño que se acaba de presentar. • La instalación se realizará mayoritariamente por fachada y los tramos aereos se soportarán mediante cable tensor de acero. • El cable de distribución servirá a 8 cajas terminales, con dos fibras por caja para la instalación de dos splitters 1:8 (el primero instalado inicialmente y el segundo como ampliación), para una ocupación máxima de 16 usuarios por caja. Todas las fibras se etiquetaran con el numero de fibra y tipo de fibra Especificaciones de los elementos pasivos Para la interconexión de los cables de fibra óptica en planta externa y los elementos electrónicos se definen los siguientes elementos: • Repartidor interior modular • Caja de empalmes estanca • Caja terminal de usuario Los requerimientos de cada uno de los elementos se detallan a continuación: Repartidor interior modular El repartidor interior modular conectará los cables de planta externa con los equipos de planta interna para una fácil interconexión. Dicho repartidor será modular, con un tamaño máximo de 4 unidades de rack ofreciendo una unidad para funcionalidades de guía cables. RED FTTH RIBA-ROJA D’EBRE FTTH RIBA-ROJA Proyecto 17
  • 21.
    Visat nº: P02904970 Data: 07/10/2009 ______________________________________________________________________________ Col·legiat: 9083 • El repartidor modular deberá estar compuesto por módulos de métrica 12 para que dos módulos permitan acabar un cable de distribución completo. • Cada repartidor deberá tener una capacidad mínima de 12 módulos, para una capacidad de gestión de fibras de 144 unidades. • Los repartidores deberán tener conexión frontal con los equipos de planta interna. • Los repartidores deberán tener conexión posterior o lateral para los cables de planta externa. • A ser posible, tendrán facilidades para conectar los cables de planta externa con los pig- tails. • Los conectores que se ofrecerán a los equipos de planta interna serán SC/APC. Caja de empalmes estanca La caja de empalmes estanca se utilizará para realizar fusiones intermedias y como segregador de los cables de alimentación. Deberá tener protección IP 66 para poder ser utilizada con garantías tanto en exterior como en arquetas. • La caja de empalme tendrá una capacidad de cómo mínimo cuatro entradas/salidas • Dispondrá de cómo mínimo de dos entradas en cada lado • Debe poder realizar como mínimo 72 fusiones • Las bandejas de fusión serán de cómo mínimo 24 fusiones, para poder albergar un cable de distribución en su totalidad • La caja de empalmes deberá ser capaz de sangrado RED FTTH RIBA-ROJA D’EBRE FTTH RIBA-ROJA Proyecto 18
  • 22.
    Visat nº: P02904970 Data: 07/10/2009 ______________________________________________________________________________ Col·legiat: 9083 Caja terminal de usuario La caja terminal de usuario determinará el punto final de la red FTTH en el momento de su ejecución antes de instalar las acometidas de usuario. Por regla general irá instalada en exterior, ofreciendo las acometidas aéreas, por fachada o interiores en función de los casos. • La caja terminal de usuario deberá permitir el sangrado de cables • Ofrecerá capacidad para instalar dos splitters 1:8 de manera independiente en dos bandejas separadas • Ofrecerá como mínimo capacidad de 16 acometicas de usuario • Ofrecerá espacio para fusionar la fibra de distribución con el divisor óptico 1:8 correspondiente • Las acometidas de usuario serán preconectorizadas por lo que deberá albergar espacio para 16 conectores SC/APC, inicialmente instalándose únicamente 8, correspondientes al primer divisor 1:8 que se instalará en el momento del despliegue. Divisores ópticos y multiplexores WDM Los divisores ópticos 1:8 realizarán la interconexión de 1 a 8 para conseguir el factor de división de 64 que se utilizará en este despliegue. • Las pérdidas máximas de los divisores serán de 10dB. • Los divisores ubicados en el centro de control deberán ir instalados en módulos compatibles con el repartidor modular, con entradas y salidas SC/APC. • Los divisores ubicados en las cajas terminales de usuario deberán proporcionarse en una bandeja que permita fusionar la fibra de distribución y con 8 conectores SC/APC para conectar con las acometidas de usuario. RED FTTH RIBA-ROJA D’EBRE FTTH RIBA-ROJA Proyecto 19
  • 23.
    Visat nº: P02904970 Data: 07/10/2009 ______________________________________________________________________________ Col·legiat: 9083 Los multiplexores ópticos WDM permitirán la conexión de los equipos de distribución de video con los equipos de cabecera OLT y la red FTTH. • Dispondrán de una salida común, una entrada a 1550nm y otra entrada a 1310/1490nm para separar el tráfico • Las pérdidas de los MUX serán inferiores a 1dB • Cada MUX irá montado en un módulo compatible con el multiplexor modular ubicado en el rack del centro de control. • Los conectores para la entrada 1310/1490 serán SC/PC y para la entrada 1550nm y para la salida serán SC/APC • Todas las entradas irán correctamente etiquetadas para evitar confusiones e interconexiones que puedan dañar los equipos. En nuestro proyecto sale las siguientes cantidades: Material unidades Manguera de 64 F.O. 1.647 m Manguera de 24 F.O. 6.102 m Cajas distribución 8 4 Cajas distribución 16 63 Cajas de empalme 22 Etiquetado cada caja se etiquetara con su número de caja RED FTTH RIBA-ROJA D’EBRE FTTH RIBA-ROJA Proyecto 20
  • 24.
    Visat nº: P02904970 Data: 07/10/2009 ______________________________________________________________________________ Col·legiat: 9083 Conclusiones El presente documento describe los equipos pasivos a instalar en el despliegue FTTH de Riba- Roja d’Ebre, según los siguientes criterios de despliegue: • Se desplegará una solución GPON ITU-T G984 con ópticas clase B+ • El despliegue se realizará con factor de división 1:64 • Se hará en dos etapas de splitting, una 1:8 en centro de control y la segunda 1:8 en la caja terminal de usuario • Se desplegarán tres tipos de cable: cable de alimentación de +64 fibras, cable de distribución de 24 fibras y cable de acometida de 1 fibra óptica. • El cable de alimentación interconectará 3 cables de distribución. • Cada cable de distribución servirá a 8 cajas terminales, dejando 2 fibras en cada caja y sangrando el resto hasta el final del cable para futuras ampliaciones. • Cada caja terminal dará servicio a una area de influencia de 16 usuarios potenciales. • Las cajas inicialmente se instalarán con un divisor de 1:8 para conseguir una penetración del 50% • Deberán disponer de espacio adicional para ampliar la caja con otro divisor de 1:8 para llegar a una cobertura del 100% • La conexión entre cables de alimentación y distribución y los splitters se realizará mediante fusión. • La terminación de las cajas terminales de usuario ser realizará mediante conector SC/APC. • Las acometidas de usuario se realizarán mediante conector SC/APC a ambos lados. • El centro de control dispondrá de un distribuidor de fibras modular que permita la instalación de splitters, mux WDM y terminaciones de fibra en módulos. • Debe albergar como mínimo 12 módulos en un espacio de 4U, incluyendo un guía- cables. • El conector standard para el despliegue será SC/APC, salvo para las entradas/salidas de la OLT, que serán SC/PC. 1.5. INFRAESTRUCTURA A UTILIZAR La red de dispersión se sustenta en una infraestructura que ocupa el espacio publico de la población, esta red en general ira por fachada donde se instalaran los cables y cajas. En parte de la población existe una infraestructura canalizada que se aprovechará en los tramos que discurra la fibra. Estas infraestructuras deben de cumplir las siguientes normas tanto en su ejecución como en la instalación de los elementos de la red de dispersión. RED FTTH RIBA-ROJA D’EBRE FTTH RIBA-ROJA Proyecto 21
  • 25.
    Visat nº: P02904970 Data: 07/10/2009 ______________________________________________________________________________ Col·legiat: 9083 La normativa a seguir son las Normas UNE 133100 Infraestructura sobre fachada Norma UNE 133100-5 Instalación en fachada La instalación de infraestructura por fachada se realizará en la parte final de distribución a los abonados, y siempre con el permiso de las Comunidades de Vecinos de los inmuebles por los que discurra el cableado. En todos estos edificios ya existen cables sobre fachada pertenecientes a otros servicios públicos. La transición de tendido subterráneo a fachada se realizará a través de unos tubos adosados a las mismas, aplicando al final de éstos un manguito de reducción y sellado correspondiente. En este tipo de accesos se cuidará al máximo la estética existente y que su situación no suponga un obstáculo o molestia para el ciudadano. Las conducciones, tanto horizontal como verticalmente, llevarán abrazaderas de alineación y fijación normalizadas con el fin de conseguir un tendido del cable perfectamente rectilíneo. Los tramos horizontales discurrirán a una altura aproximadamente de 2,5 a 5 metros, manteniendo las separaciones entre servicios que exijan las normativas vigentes. Las conducciones sobre fachada de edificios singulares se protegerán con canaleta, siendo ésta similar al color del edificio para minimizar al máximo el impacto medioambiental. Condiciones generales de instalación • Los cables se instalarán siempre verticales u horizontales • No se instalarán cables en paredes de edificios sobre las que vaya a actuarse en fecha próxima. • Se elegirá el trazado de forma que los cables encuentren el menor número de obstáculos (curvas, desviaciones, bajadas de agua, cables eléctricos, etc.) Instalación de cables de fibras en paredes Altura de los cables en tendido horizontal: La altura mínima de los cables desde el suelo debe RED FTTH RIBA-ROJA D’EBRE FTTH RIBA-ROJA Proyecto 22
  • 26.
    Visat nº: P02904970 Data: 07/10/2009 ______________________________________________________________________________ Col·legiat: 9083 ser de 2,5 metros. Separación de las aristas en tendidos verticales: Los cables en las instalaciones verticales estarán siempre separados de las aristas de los edificios como mínimo 30 centímetros. Sujeción de los cables: La sujeción de los cables a las paredes se realiza mediante tacos y tornillo de diámetro mínimo de 6 mm. el tornillo será de acero inoxidable o con protección contra corrosión mediante galvanizado en caliente. Con abrazadera de fleje con hebilla, brida o grapa metálica. Distancias de las bridas: Las distancias entre bridas y demás elementos de sujeción vendrán dadas por la naturaleza de los tramos, así, - Tramos verticales: En todos los cables la separación de las bridas será alrededor de los 60 cm. Si son accesibles. Si no son accesibles se realizaran fijaciones que puedan soportar dichos cables. - Tramos horizontales: La separación entre bridas será alrededor de 65 cm. Curvas Los cables se curvarán respetando el radio mínimo admisible en cada cable. En cosos de curva y contra curva se intentara realizar la fijación de forma simétrica y equidistante de los arcos de circunferencia formados. Salvar elementos de fachada Se colocarán fijaciones de protección que eviten el rozamiento con los salientes. Los cables discurrirán lo más rectilíneo posible, evitando curvas y contra curvas para salvar obstáculos, aunque para ello haya de modificarse la altura del trazado. En cruces con postes metálicos así como tuberías de agua o salidas de humos o de otro tipo se intentara pasar entre el obstáculo y la pared y, si no es posible, se pasará por delante de el, fijando el cable antes y después del obstáculo, a no más de 10 cm. de él, RED FTTH RIBA-ROJA D’EBRE FTTH RIBA-ROJA Proyecto 23
  • 27.
    Visat nº: P02904970 Data: 07/10/2009 ______________________________________________________________________________ Col·legiat: 9083 Cajas Se instalarán en los emplazamientos de segregación de red troncal y en los emplazamientos de conexión a usuarios en la red de dispersión. Las cajas servirán para ubicar los elementos de repartición y segregación de fibras, así como el conexionado con la acometida del usuario. Para la mejor conservación y de la minimización de averías provocadas por agentes externos a la propia red, principalmente efectos meteorológicos, aconsejan la instalación de estos equipos en espacios interiores, intemperie, frente al empleo de arquetas. La selección de los emplazamientos donde hubiera que instalar las cajas se determina tras un proceso de análisis muy cuidadoso, procurando optimizar la coexistencia de las cajas con la estética del vecindario. Siempre que sea posible se instalarán las cajas en zonas que no sean de paso. Se minimiza en todos los casos el tamaño de la caja a instalar, que siempre será función del tipo de equipamiento que albergue. Precableado de edificios La red prevista dejará un punto de conexión en las inmediaciones de cada uno de los hogares de la zona considerada. La localización de este punto dependerá del método de precableado del edificio que se adopte. Existen dos alternativas: - Cableado interno del edificio cuando existan conductos interiores libres y capaces, o cuando no sea posible el cableado exterior. En este caso el punto de conexión de cada hogar quedaría en el descansillo de la escalera. - Cableado exterior del edificio con cables grapados en fachada, cuando no existan conductos internos. El punto de conexión de cada hogar queda en las inmediaciones de la ventana del salón. Cualquiera de los dos trabajos descritos se efectuaría previa aprobación de la Comunidad de vecinos. RED FTTH RIBA-ROJA D’EBRE FTTH RIBA-ROJA Proyecto 24
  • 28.
    Visat nº: P02904970 Data: 07/10/2009 ______________________________________________________________________________ Col·legiat: 9083 Infraestructuras Comunes en los Edificios Se entiende por infraestructura común de acceso a servicios de telecomunicación, la que exista o se instale en los edificios para cumplir, como mínimo, las siguientes funciones: - Captación y adaptación de las señales de radiodifusión sonora y televisión terrenal, y su distribución hasta puntos de conexión situados en las distintas viviendas o locales del edificio, y la distribución de las señales de televisión y radiodifusión sonora por satélite hasta los citados puntos de conexión. - Proporcionar acceso al servicio telefónico básico y al servicio de telecomunicaciones por cable, mediante la infraestructura necesaria para permitir la conexión de las distintas viviendas o locales del edificio a las redes de los operadores habilitados. Las normas contenidas en el Real Decreto 401/2003, de 4 de abril, sobre infraestructuras comunes en los edificios para el acceso a los servicios de telecomunicación se aplicarán. a) A todos los edificios de uso residencial o no, sean o no de nueva construcción, que estén acogidos, o deban acogerse, al régimen de propiedad horizontal regulado por la Ley 49/1960 de 21 de Julio de Propiedad Horizontal, modificada por la Ley 8/1999 de 6 de Abril. b) A los edificios que, en todo o en parte, hayan sido o sean objeto de arrendamiento por plazo superior a un año, salvo los que alberguen una sola vivienda. Instalación se realizará obligatoriamente a través de las infraestructuras en edificios de nueva construcción. Esta infraestructura deberá reunir las condiciones técnicas adecuadas para cumplir, al menos, las funciones indicadas anteriormente. Los gastos necesarios para la instalación de las infraestructuras deberán estar incluidos en el coste de la comunidad de propietarios. En cuanto a la instalación de la infraestructura en los edificios ya construidos, cuando la comunidad de propietarios o el propietario de un edificio que esté concluido, decidan la instalación de una infraestructura común de acceso a servicios de telecomunicación o la adaptación de la existente, el acuerdo en su seno habrá de ser aprobado, en junta de propietarios, por un tercio de sus integrantes que representen, a su vez, un tercio de las cuotas de participación en los elementos comunes. RED FTTH RIBA-ROJA D’EBRE FTTH RIBA-ROJA Proyecto 25
  • 29.
    Visat nº: P02904970 Data: 07/10/2009 ______________________________________________________________________________ Col·legiat: 9083 No se tendrá que instalar la infraestructura citada en aquellos edificios construidos que no reúnan condiciones para soportarla, de acuerdo con el informe emitido al respecto por la Administración competente. En el caso de que se realice la instalación de un a infraestructura ésta pasará a formar parte del edificio, como elemento común del mismo. La infraestructura instalada deberá cumplir todas las especificaciones técnicas de calidad y seguridad exigidas por la normativa vigente sobre construcción y, en especial, por la reguladora de la compatibilidad de aquéllas con las instalaciones de suministro de agua, gas y electricidad. Para realizar la instalación de los elementos necesarios para disfrutar de este servicio podrán aprovecharse no sólo de los elementos privativos, sino también de los comunes de los inmuebles, siempre que no menoscaben la infraestructura que existiera en los edificios y no interfieran ni modifiquen las señales correspondientes a servicios que previamente hubiesen contratado otros usuarios. Norma UNE 133100-1 Canalizaciones en calzada Apertura de zanja La apertura de zanja en acera con tubos hormigonados se realizará según las dimensiones mínimas que vienen determinadas de acuerdo con el número de tubos de la siguiente tabla: DIMENSIONES DE LA ZANJA Número de Tubos Tubo diámetro < 90 mm Tubo diámetro = 110 mm Anchura (m) Profundidad (m) Anchura (m) Profundidad (m) 1 Tubo 0,20 0,40 0,20 0,40 2 Tubos 0,20 0,40 0,30 0,40 4 Tubos 0,20 0,50 0,30 0,60 1 Tritubo 0,20 0,40 --- --- 2 Tritubos 0,20 0,50 --- --- En terrenos de relleno o de poca consistencia se recurrirá al entubado en previsión de desmontes. RED FTTH RIBA-ROJA D’EBRE FTTH RIBA-ROJA Proyecto 26
  • 30.
    Visat nº: P02904970 Data: 07/10/2009 ______________________________________________________________________________ Col·legiat: 9083 El fondo de la zanja, establecida en su profundidad, es necesario que esté en terreno firme, para evitar corrimientos que someterían a los tubos a esfuerzos por estiramiento. Todas las tierras extraídas serán retiradas a vertederos especialmente destinados a este fin. Acondicionamiento de zanja Una vez abierta la zanja, el suelo de la misma será raseado y será colocado un lecho de arena de 0,05m de espesor que servirá de camada para el asentamiento de los tubos. Cierre y reposición del firme Se procederá a la colocación de tubos de PVC o polietileno, que serán de diámetros de 110mm, 90mm, 73mm, 63mm, o tritubos de 40 o 63mm, incluyendo los accesorios correspondientes (separadores, obturadores, hilo guía, etc.). La unión de estos tubos se efectuará mediante adhesivo / pegamento. Se procederá al hormigonado de los tubos hasta 0,30m por encima de ellos con hormigón en masa HM-20. El relleno de la zanja hasta 0,30m por encima de los tubos, se realizará a base de arena, compactando con medios mecánicos, por tongadas de 0,10m de espesor, colocando una banda de señalización a una distancia de 0.25 de los tubos. Se rellenará 0.08 m con hormigón en masa HM-20 y se continuará con una capa de mortero de asiento para baldosa y terminación de firme. El relleno con arena a continuación del hormigón de los tubos puede sustituirse con tierra procedente de la excavación, exenta de piedras o cascotes, siempre que no existan disposiciones legales que puedan imponer los organismos competentes. Se efectuará la reposición del firme existente, para lo cual se recuadrará perfectamente éste, a continuación se efectuará un riego de imprimación con emulsión E.C.R.I. y seguidamente se extenderá la capa de aglomerado que corresponda, compactándose debidamente, con medios mecánicos, hasta conseguir un perfecto nivelado con el firme existente. RED FTTH RIBA-ROJA D’EBRE FTTH RIBA-ROJA Proyecto 27
  • 31.
    Visat nº: P02904970 Data: 07/10/2009 ______________________________________________________________________________ Col·legiat: 9083 Norma UNE 13310-2 Arquetas Se emplearán típicamente allí donde ocurra un cambio brusco en la dirección del trazado o haya cruces de calzada. En tramos rectos se dispondrán arquetas para ayuda al tendido (cada 30 – 50 metros). Se emplearán unidades prefabricadas de dimensiones típicas, o bien arquetas de hormigón construidas en obra, con marco y tapa de fundición (FGE 42-12 o FGE 50-7). En cuento a tamaños se emplearán fundamentalmente dos tipos de arqueta: - Clase B 450 x 450 x 600mm, para las arquetas de apoyo al tendido, derivaciones para cruces, curvas, etc. - Clase C 600 x 600 x 1310mm, para puntos de la red troncal o de distribución que concentren gran número de conductos. Instalación del cable de fibras en canalización En nuestro caso la infraestructura canalizada es la existente en la zona por lo que se debe de seguir los pasos siguientes: - Comprobación que el conducto a utilizar esta libre de obstáculos para no dañar el cable (Mandrilado de la canalización) - Si no existe hilo guía se deberá tender una guía en la canalización - Utilizando la guía se extenderá el cable de arqueta a arqueta, si existen más de una arqueta se realizara el tendido de una en una dejando una Valona en cada arqueta que se pase. - Se procurara no forzar el cable en su tendido. Deberá de existir un operario por arqueta que se tienda el cable o se realizara el tendido entre arquetas próximas y después con la siguiente. - Los cables se tenderán respetando el radio de curvatura de cada uno. RED FTTH RIBA-ROJA D’EBRE FTTH RIBA-ROJA Proyecto 28
  • 32.
    Visat nº: P02904970 Data: 07/10/2009 ______________________________________________________________________________ Col·legiat: 9083 1.6. SUBSISTEMA DE ADMINISTRACIÓN En el presente apartado se cuantifican el dimensionamiento de los sistemas de servicio y administración de la cabecera. Dado que en este anteproyecto se completa el enlace entre cabecera y usuario de todos los servicios deberíamos tener en cuenta el número máximo de usuarios. Por las características intrínsecas de la red siempre se puede ampliar el número máximo de usuarios por servicio. 1.6.1. DIMENSIONAMIENTO DE LA CABECERA DATOS La siguiente ilustración describe los diferentes componentes a instalar y su futura conexión dentro de la oficina de conmutación principal del proyecto, situada dentro del Ayuntamiento de Riba-roja de l’Ebre, así como la situación de los dos niveles de división de la red PON y su interconexión con el usuario final. Oficina de conmutación principal – Ayuntamiento de Riba-roja de l’Ebre Planta Externa Equipos Cliente ONU G-221 Equipo OLT Divisor Server EMS+DHCP+DNS GPON 2 ndo Nivel G-221 1:8 G-221 G-221 Repartidor ODF Divisor G-221 1er Nivel 1:8 1:8 G-221 G-221 Core Router G-221 1:8 PBX VoIP G-221 Internet Gestión remota EMS Esquemático de la oficina de conmutación. RED FTTH RIBA-ROJA D’EBRE FTTH RIBA-ROJA Proyecto 29
  • 33.
    Visat nº: P02904970 Data: 07/10/2009 ______________________________________________________________________________ Col·legiat: 9083 Como muestra el esquema, la oficina de conmutación dispondrá de los siguientes elementos: - Equipo cabecera FTTH OLT o Mínimo 8 puertos GPON - Servidor de gestión de elementos ópticos y servicios de datos básico o Plataforma de gestión servidor-cliente para la gestión de los elementos de red ópticos. o Implementación de los servicios DHCP y DNS. - Centralita virtual de VoIP o Para ofrecer el servicio de telefonía IP a un máximo de 512 usuarios o Debe cumplir con las siguientes características: Interfaz Web para su configuración. Reportes de uso de recursos. Opciones para reiniciar/apagar remotamente. Reportes de llamadas entrantes/salientes y uso de canales. Módulo de correo de voz integrado. Módulo de panel operador integrado. Interfaz de ayuda embebido. Soporte Multi-lenguaje. - Repartidor de fibra óptica o Para enrutar las fibras ópticas al exterior y almacenar los divisores de primer nivel - Core Router o Para interconexión de elementos y acceso a Internet. o Debe permitir la conexión de clientes remotos a la plataforma de gestión de los distintos elementos de red ópticos. El grafico también muestra el segundo nivel de división realizado en la planta externa de Riba- roja de l’Ebre, donde se prevé la instalación de las diferentes cajas terminales para dar acceso de fibra óptica al usuario. El despliegue realizado es para el 100% de las viviendas de Riba-roja (833), para que cualquier vivienda pueda tener los servicios de la red. En un inicio la cabecera no se debe de diseñarse para dar servicio al 100% de las viviendas debido que tendremos siempre una penetración menor del 100% en este ante proyecto se escoge una penetración del 50%. RED FTTH RIBA-ROJA D’EBRE FTTH RIBA-ROJA Proyecto 30
  • 34.
    Visat nº: P02904970 Data: 07/10/2009 ______________________________________________________________________________ Col·legiat: 9083 Penetración de 50% = 417 usuarios Las f.o. se conectaran a estos pasivos según se den las altas. 1.6.2. GESTORES DE EQUIPOS Los gestores de los equipos deberán disponer de las siguientes características y funcionalidades: - Realizar la gestión integrada de alarmas y fallos de toda la plataforma en la misma herramienta. - Realizar remotamente la configuración de los equipos de red. - Representar gráficamente la topología de red. - Disponer de bases de datos de red centralizadas. - Realizar la gestión centralizada de los equipos de red y los servicios de cliente. - Detección y representación de los equipos en red. - Realizar la gestión centralizada de los equipos de red y los servicios al cliente. - Disponer de alta disponibilidad. - Permitir la asignación de distintos privilegios a distintos grupos de usuarios. - Permitir la creación de grupos de equipos. - Realizar asignaciones de usuarios independientes para cada agrupación de equipos. Características generales del equipo propuesto Se deberán nombrar las siguientes características de los equipos ONT propuestos: - Número de interfaces Ethernet 10/100, Gigabit Ethernet, POTS y video RF. - Numero de colas para cada uno de los puertos Ethernet/GigabitEthernet. - Datos de la tensión de alimentación, consumo y disipación de los distintos equipos ONT. - Posibilidad de instalar baterías que garanticen unas cuatro horas de alimentación. - Gama de temperaturas de operación y mantenimiento. • se deberá incluir la formación de los sistemas a un mínimo de 2 personas. 1.6.3. PABX El presente anteproyecto dimensionaremos la central de telefonía Ip para dar servicio a la red de FTTH. La PABX a dimensionar deberá soportar como mínimo 512 usuarios (máxima capacidad de la cabecera) ampliable. Nos deberá de controlar todas las llamadas entrantes desde el operador mayorista a usuario de nuestra red, también las llamadas salientes de la red que realizan nuestros usuarios, así como las llamadas internas entre los usuarios de la red. RED FTTH RIBA-ROJA D’EBRE FTTH RIBA-ROJA Proyecto 31
  • 35.
    Visat nº: P02904970 Data: 07/10/2009 ______________________________________________________________________________ Col·legiat: 9083 Las características de la central serán como mínimo las siguientes: FUNCIONALIDADES Ud. Servidor de telefonía VoIP con sistema operativo SIP@net, para disponer de conectividad IP (SIP) para LAN y WAN y extensión , soporta VoIP (SIP), Licencias para 512 terminales IP(SIP) Aplicación. Operadora automática Multiidioma, versión Hospitality, con mensajes programables por el usuario, buzones de voz, audio. Se incluye instalación, programación y formación para 2 personas. CONFIGURACIÓN CENTRAL El Procesador Principal CPU (MP), que consta de las Placas de Control y del Software del Sistema, proporciona la función de Procesador Principal, la interfaz Ethernet, y controla las Licencias IP. El Procesador de Firmware (FP), que controla las Placas de Circuitos de Líneas y de Enlaces Los Procesadores de Aplicación (AP) son placas que ejecutan un protocolo o una aplicación, por ejemplo, los Enlaces Digitales, las Placas Manejadoras de Datos y Protocolos, IPT y Conferencia para 512 abonados. Enlaces: En principio solo se realizaran enlaces de conectividad IP (SIP) Configurar los dispositivos para disponer de la capacidad de establecer enlaces H323 y SIP SERVICIOS Música de espera interna y externa Plataforma de Gestión incluye servidor 1U enrackable. Consola formato rack (pantalla y teclado en rack) RED FTTH RIBA-ROJA D’EBRE FTTH RIBA-ROJA Proyecto 32
  • 36.
    Visat nº: P02904970 Data: 07/10/2009 ______________________________________________________________________________ Col·legiat: 9083 REQUISITOS DE LA RED - ITU G.711: 80 Kbps por canal, G.729: 32 Kbps por canal - Tolerancia al retardo ITU G.114 < 150 ms - Jitter <100 ms - Perdidas de paquetes ITU G.729, debe ser < 1% La red deberá priorizar la voz sobre los demás servicios existentes. Barcelona, 30 de septiembre de 2.009 Fdo. Xavier Edo Ibañez Ingeniero de Telecomunicación Colegiado nº 9.083 RED FTTH RIBA-ROJA D’EBRE FTTH RIBA-ROJA Proyecto 33
  • 37.
    Visat nº: P02904970 Data: 07/10/2009 ______________________________________________________________________________ Col·legiat: 9083 PLANOS 2.1 SITUACIÓ 2.2 INFRAESTRUCTURA FTTH 2.3 INFRAESTRUCTURA FTTH 2.4 INFRAESTRUCTURA FTTH 2.5 INFRAESTRUCTURA FTTH 2.6 INFRAESTRUCTURA FTTH 2.7 INFRAESTRUCTURA FTTH 2.8 INFRAESTRUCTURA FTTH 2.9 SITUACIÓN CABECERA 2.10 DISTRIBUCIÓN CABECERA 2.11 ARMARIO FTTH-GPON 2.12 ANEXOS RED FTTH RIBA-ROJA D’EBRE FTTH RIBA-ROJA Proyecto 34
  • 38.
    Visat nº: P02904970 Data: 07/10/2009 Col·legiat: 9083
  • 39.
    Visat nº: P02904970 Data: 07/10/2009 Col·legiat: 9083
  • 40.
    Visat nº: P02904970 Data: 07/10/2009 Col·legiat: 9083
  • 41.
    Visat nº: P02904970 Data: 07/10/2009 Col·legiat: 9083
  • 42.
    Visat nº: P02904970 Data: 07/10/2009 Col·legiat: 9083
  • 43.
    Visat nº: P02904970 Data: 07/10/2009 Col·legiat: 9083
  • 44.
    Visat nº: P02904970 Data: 07/10/2009 Col·legiat: 9083
  • 45.
    Visat nº: P02904970 Data: 07/10/2009 Col·legiat: 9083
  • 46.
    Visat nº: P02904970 Data: 07/10/2009 Col·legiat: 9083
  • 47.
    Visat nº: P02904970 Data: 07/10/2009 Col·legiat: 9083
  • 48.
    Visat nº: P02904970 Data: 07/10/2009 Col·legiat: 9083
  • 49.
    Visat nº: P02904970 ANEXO SOBRE CONDICIONES DE SEGURIDAD Y SALUD Data: 07/10/2009 Col·legiat: 9083 A) DISPOSICIONES LEGALES DE APLICACIÓN. A continuación se detalla una lista de Leyes, Decretos y Normas actualmente en vigor que de una forma directa afectan a la Prevención de Riesgos Laborales y cuyas disposiciones son de obligado cumplimiento: Ley 31/1995 de 8 de Noviembre (BOE 10/11/95), de Prevención de Riesgos Laborales. Transposición al Derecho Español de la Directiva 89/391/CEE relativa a la aplicación de las medidas para promover la mejora de la seguridad y salud de los trabajadores en el trabajo, así como las Directivas 92/85/CEE, 94/33/CEE y 91/383/CEE relativas a la aplicación de la maternidad y de los jóvenes y al tratamiento de las relaciones de trabajo temporales, de duración determinada y en empresas de trabajo temporal. Ley 50/1998, de 30 de diciembre (BOE 31/12/1998), de Medidas Fiscales, Administrativas y de Orden Social. (Modificación de la Ley de Prevención de Riesgos Laborales, artículo 45, 47, 48 y 49). Ley 54/2003, de 12 de diciembre, de reforma del marco normativo de la Prevención de Riesgos Laborales que modifica la Ley 31/1995 de 8 de noviembre, de Prevención de Riesgos Laborales e incluye las modificaciones que se introducen en la Ley sobre Infracciones y Sanciones en el Orden Social, texto refundido aprobado por R.D. 5/2000, de 4 de agosto. Real Decreto Legislativo 1/1995, de 24 de marzo, (BOE 29/03/1995), (Estatuto de los trabajadores). Real Decreto 39/1997, de 17 de Enero (BOE 31/01/97), por el que se aprueba el Reglamento de los Servicios de Prevención, modificado por R.D. 780/1998 de 30 de abril (BOE 01/05/98). Real Decreto 485/1997, de 14 de Abril (BOE 23/04/97), sobre disposiciones mínimas en materia de señalización de seguridad y salud en el trabajo. Transposición al Derecho Español de la Directiva 92/58/CEE de 24 de junio. Real Decreto 486/1997, de 14 de Abril (BOE 23/04/97), por el que se establecen las disposiciones mínimas de seguridad y salud en los lugares de trabajo. Transposición al Derecho Español de la Directiva 89/654/CEE de 30 de noviembre. Real Decreto 773/1997, de 30 de mayo (BOE 12/06/97) sobre disposiciones mínimas de seguridad y salud relativas a la utilización por los trabajadores de equipos de protección individual. En BOE 18/07/97 (página 22094) se hace referencia a una corrección de errores de dicho R.D. 773/1997 de 30 de mayo. Real Decreto 1215/97, de 18 de julio (BOE 07/08/97), por el que se establecen las disposiciones mínimas de seguridad y salud para la utilización por los trabajadores de los equipos de trabajo. Real Decreto 614/2001 de 8 de Junio (BOE 21/06/2001), sobre disposiciones mínimas para la protección de la salud y seguridad de los trabajadores frente al riesgo eléctrico. Real Decreto 842/2002, de 2 de agosto, por el que se aprueba el Reglamento electrotécnico para Baja Tensión (BOE 18/09/2002). Ordenanza General de Seguridad e Higiene en el trabajo. Vigente el art. 24 y el capítulo VII del título II, aprobada por Orden de 9 de marzo de 1971 (Trabajo) (BOE 16/03/1971). Reglamento de régimen interno de la empresa constructora, caso de existir y que no se oponga a ninguna de las disposiciones citadas anteriormente. Así mismo existen otras Leyes, Decretos y Normas actualmente en vigor, que de una forma indirecta pueden afectar a la Prevención de Riesgos Laborales, pero que se omiten por no estar directamente relacionadas con los trabajos a realizar. α _____________________________________________________________ 1
  • 50.
    Visat nº: P02904970 B) CARACTERÍSTICAS ESPECÍFICAS DE SEGURIDAD Y SALUD A TENER EN CUENTA EN Data: 07/10/2009 LOS PROYECTOS TÉCNICOS DE INFRAESTRUCTURA COMÚN DE TELECOMUNICACIONES. Col·legiat: 9083 Se describen a continuación las actividades y tareas que deben realizarse para la ejecución de las infraestructuras proyectadas, así como para el mantenimiento previsto de las mismas, para que el responsable de la redacción del Estudio de Seguridad y Salud ( o del Estudio Básico de Seguridad y Salud), de la obra de edificación, evalúe los riesgos que se derivan de las mismas y establezca las medidas preventivas adecuadas. La ejecución de un Proyecto de Infraestructura de Telecomunicaciones en los edificios, tiene dos partes claramente diferenciadas que se realizan en dos momentos diferentes de la construcción: 1) INSTALACIÓN DE LA INFRAESTRUCTURA Y CANALIZACIÓN DE SOPORTE DE LAS REDES, que normalmente se realiza durante la fase de CERRAMIENTO Y ALBAÑILERÍA DE LA OBRA. 2) INSTALACIÓN DE LOS ELEMENTOS DE CAPTACIÓN, LOS EQUIPOS DE CABECERA, Y EL TENDIDO Y CONEXIONADO DE LOS CABLES Y REGLETAS QUE CONSTITUYEN LAS DIFERENTES REDES, que normalmente se realiza durante la fase de INSTALACIONES DE LA OBRA. Se describen a continuación estas actividades. 1) INSTALACIÓN DE LA INFRAESTRUCTURA Y CANALIZACIÓN DE SOPORTE DE LAS REDES. Esta infraestructura se puede subdividir en dos partes, una que se realiza en exterior del edificio y otra que se realiza en el interior del edificio. Normalmente se realizan durante la fase de CERRAMIENTO Y ALBAÑILERÍA DE LA OBRA. A continuación se detallan estas dos partes y los trabajos que conllevan. 1.1) Instalación de la infraestructura en el exterior del edificio. La infraestructura en el exterior del edificio está constituida por: Una arqueta que se instala en el exterior del edificio. Una canalización externa que parte de la arqueta y finaliza en el interior del Recinto Inferior de Instalaciones de Telecomunicaciones, o en el Registro de Enlace Inferior. Los trabajos que comportan la instalación de la arqueta, y la canalización externa, consisten en: Excavación del hueco para la colocación de la arqueta. Excavación de zanja para la colocación de la canalización. Instalación de la arqueta y cerrado del hueco. Instalación de la canalización, confección del prisma que la contiene y cerrado del mismo. Reposición del pavimento. Pueden ser realizados bien con medios mecánicos o bien con medios manuales. 1.2) Instalación de la infraestructura en el interior del edificio. La infraestructura en el interior del edificio está constituida por: Unos Recintos de Infraestructuras de Telecomunicación que pueden ser de obra o Modulares. Pueden ser dos Recintos en ubicaciones situadas en el interior del edificio, o un Recinto Único (RITU) en el interior o exterior del mismo. Una red de tubos que unen el Registro de Enlace Inferior con los Recintos. α _____________________________________________________________ 2
  • 51.
    Una red detubos que une los Recintos entre sí, discurriendo por la vertical deVisat nº: la escalera, con P02904970 interrupción en los rellanos de los pisos, donde se instalan los Registros secundarios. Data: 07/10/2009 Col·legiat: 9083 Una red de tubos que parten de los Registros secundarios de los rellanos y discurren por éstos hasta los Registros de terminación de Red, situado a la entrada de cada vivienda. Una red de tubos que parte de los Registros de terminación de Red situados a la entrada de cada vivienda, y discurren por el interior de las mismas hasta puntos concretos de diversas estancias. Los trabajos que comportan consisten en: Tendido de tubos de canalización y su fijación. Realización de rozas para conductos y registros. Colocación de los diversos registros. 2) INSTALACIÓN DE LOS ELEMENTOS DE CAPTACIÓN, LOS EQUIPOS DE CABECERA, Y EL TENDIDO Y CONEXIONADO DE LOS CABLES Y REGLETAS QUE CONSTITUYEN LAS DIFERENTES REDES. Normalmente se realiza durante la fase de INSTALACIONES. Se pueden considerar cuatro partes diferenciadas: - La instalación en la cubierta de los elementos captadores de señal y sus soportes (antenas y mástiles y/o torretas). - La instalación eléctrica en el interior de los Recintos consistente en, un cuadro de protección, enchufes y alumbrado. - El montaje de los equipos de cabecera y de los Registros Principales de los diferentes servicios en los Recintos. - El tendido de los diferentes cables de conexión a través de los tubos y registros y el conexionado de los mismos. A continuación se detallan estas cuatro partes y los trabajos que conllevan. 2.1) Instalación de los elementos de captación, Los trabajos a realizar para la instalación de los elementos de captación se realizan en la cubierta del edificio que puede ser plana o inclinada (se definirá en el proyecto la naturaleza de la misma). Serán uno o varios de los siguientes: A) Instalación de un mástil arriostrado, o no, sobre paramento de cubierta que consiste en: Colocación de base de mástil. Arriostramiento del mismo, si procede. Colocación de antena sobre el mástil. Conexión de cable coaxial a la antena. Conexión a tierra del conjunto sistema de captación-elementos de soporte. Instalación y conexión, si procede, de un preamplificador de mástil, en el mástil, conectado a la antena. B) Instalación de un mástil arriostrado o no sobre paramento vertical situado en cubierta, que consiste en: Colocación de base de mástil Arriostramiento del mismo, si procede. Colocación de antena sobre el mástil. Conexión de cable coaxial a la antena. α _____________________________________________________________ 3
  • 52.
    Conexión a tierradel conjunto sistema de captación-elementos de soporte. Visat nº: P02904970 Instalación y conexión, si procede, de un preamplificador de mástil, en el mástil, conectado07/10/2009 Data: a la antena. Col·legiat: 9083 C) Instalación de un conjunto torreta mástil arriostrado o no, sobre cubierta o sobre el suelo (la torreta puede ser de una o varias secciones y llevará un mástil, en su parte superior), que consiste en: Colocación del mástil sobre la Torreta. (En ciertos casos, dependiendo de la longitud de la torreta el operario debe trepar sobre la misma para montar el mástil y una antena sobre el mismo). Arriostramiento de la torreta y del mástil, cuando proceda. Instalación de Antena sobre el mástil. Conexión a tierra del conjunto sistema de captación-elementos de soporte. Conexión de cable coaxial a la antena ubicada sobre el mástil. Instalación y conexión, si procede, de un preamplificador de mástil, en el mástil, conectado a la antena. D) Instalación de parábola sobre zapata que consiste en: Colocación de la parábola sobre una zapata existente en la cubierta del edificio. Colocación del elemento captador en el brazo de la parábola y conexión del cable. Orientación de la pantalla. Conexión a tierra del conjunto sistema de captación-elementos de soporte. E) Instalación de parábola sobre torreta, o mástil, que consiste en: Colocación de la parábola sobre el mástil o sobre la torreta de sujeción de la antena. Colocación del elemento captador en el brazo de la parábola y conexión del cable. Orientación de la pantalla. Conexión a tierra del conjunto sistema de captación-elementos de soporte. F) Instalación de parábola sobre paramento vertical, que consiste en: Colocación de la parábola sobre el soporte de sujeción. Colocación del elemento captador en el brazo de la parábola y conexión del cable. Orientación de la pantalla. Conexión a tierra del conjunto sistema de captación-elementos de soporte. Las instalaciones antes descritas deben ser mantenidas periódicamente, ser complementadas con otras similares o incluso sustituidas. Dado que estos trabajos se realizarán después de finalizada la obra y terminado el edificio, las medidas de protección que se hayan definido como necesarias para la realización de los trabajos de instalación serán también necesarios durante estos trabajos de mantenimiento. Por ello en el estudio de Seguridad y Salud o en el Estudio Básico de Seguridad y Salud de la obra de edificación, se definirán dichas protecciones como permanentes, definiendo, igualmente las medidas de conservación de las mismas para garantizar su eficacia a lo largo del tiempo. 2.2) Instalaciones eléctricas en los Recintos y conexión de cables y regletas. La instalación eléctrica en los Recintos consiste en: Canalización directa desde el cuadro de servicios generales del inmueble hasta el cuadro de protección de cada Recinto. Instalación en cada Recinto del cuadro de protección con las protecciones correspondientes. Montaje en el interior del cuadro de protección de los interruptores magnetotérmicos y diferenciales. Instalación de las bases de toma de corriente. Instalación de alumbrado normal y de emergencia. Red de alimentación de los equipos que lo requieran. α _____________________________________________________________ 4
  • 53.
    Se manejan tensionesmáximas de 220 V-50 Hz para alimentación del equipamiento. Visat nº: P02904970 Data: 07/10/2009 2.3) Instalación de los equipos de cabecera y de los Registros Principales. Col·legiat: 9083 La instalación de los equipos de cabecera, y los Registros principales, consiste en la fijación a la pared de un chasis para el montaje en el mismo de amplificadores y otros elementos de pequeño tamaño y peso ( así como manguitos, regletas, etc.) mediante tornillos, y la conexión eléctrica a una base de corriente. 2.4) Tendido y conexionado de los cables y regletas que constituyen las diferentes redes. Consiste en: Pelado de cables coaxiales y cables eléctricos. Conexión de los mismos a bases u otros elementos de conexión mediante atornilladores. Utilización esporádica de soldadores eléctricos. Todas ellas se realizan en el interior del edificio (salvo el cable coaxial de conexión a las antenas). α _____________________________________________________________ 5
  • 54.
    Visat nº: P02904970 Data: 07/10/2009 ______________________________________________________________________________ Col·legiat: 9083 PLIEGO DE CONDICIONES PROYECTO BASE RED FTTH/GPON SEPTIEMBRE 2009 RED FTTH RIBA-ROJA D’EBRE FTTH RIBA-ROJA Proyecto
  • 55.
    Visat nº: P02904970 Data: 07/10/2009 ______________________________________________________________________________ Col·legiat: 9083 ÍNDICE 0. PLIEGO DE CONDICIONES PARTICULARES....................................................................1 1. GPON ....................................................................................................................................1 1.1. CABECERA .................................................................................................................1 2. FTTH PLANTA EXTERNA....................................................................................................8 2.1. CAJAS DE EMPALME Y DISTRIBUCIÓN...................................................................8 2.2. DIVISORES O SPLITERS ............................................................................................9 2.3. MANGUERAS DE FIBRA ÓPTICA ..............................................................................9 2.4. PRUEBAS Y CUMPLIMIENTO DE NORMATIVAS ...................................................14 2.4.1. CUMPLIMIENTO DE NORMATIVAS..................................................................14 2.4.2. PRUEBAS ...........................................................................................................14 3. TELEFONIA ........................................................................................................................18 3.1.1. PABX ..................................................................................................................18 4. ADMINISTRACIÓN .............................................................................................................21 PLIEGO DE CONDICIONES GENERALES...............................................................................24 1. DOCUMENTACION COMPLEMENTARIA .........................................................................24 2. MUESTRA DE MATERIALES.............................................................................................24 3. CONTROL DE CALIDAD....................................................................................................25 4. CONTROL DE CALIDAD DE LOS MATERIALES .............................................................25 5. PLANOS DE MONTAJE .....................................................................................................26 6. REPLANTEO.......................................................................................................................26 7. SUMINISTROS AUXILIARES .............................................................................................27 8. NORMAS GENERALES DE MONTAJE .............................................................................27 RED FTTH RIBA-ROJA D’EBRE FTTH RIBA-ROJA Proyecto
  • 56.
    Visat nº: P02904970 Data: 07/10/2009 ______________________________________________________________________________ Col·legiat: 9083 9. PRUEBAS ...........................................................................................................................27 10. RECEPCION PROVISIONAL..............................................................................................29 11. GARANTIA DE RESULTADOS ..........................................................................................29 12. PERMISOS (POR CUENTA DEL CONTRATISTA)............................................................30 13. CRITERIOS DE MEDICION DE LAS INSTALACIONES....................................................30 14. DIRECCIÓN TÉCNICA DE LA PUESTA EN MARCHA .....................................................31 15. FORMACIÓN.......................................................................................................................31 RED FTTH RIBA-ROJA D’EBRE FTTH RIBA-ROJA Proyecto
  • 57.
    Visat nº: P02904970 Data: 07/10/2009 ______________________________________________________________________________ Col·legiat: 9083 0. PLIEGO DE CONDICIONES PARTICULARES Ya se ha comentado en la Memoria de este proyecto que éste afecta a la infraestructura que permita la correcta distribución de las señales de Telecomunicación que puedan llegar a los usuarios. La recepción de señales de TV y Radiodifusión sonora terrestre no es objeto de este anteproyecto, las señales ya nos serán dadas en las condiciones técnicas necesarias para utilizarlas. En el presente pliego se especifican las características de los materiales y las condiciones de instalación de los mismos, siguiendo las directrices de los documentos. En caso de discrepancia entre lo especificado en este proyecto y las especificaciones de los materiales, se deberá consultar a la Dirección Facultativa. 1. GPON En general se seguirán las especificaciones recogidas en la normativa ITU-T G.984.1…4 GPON 1.1. CABECERA Cabecera de datos Los OLT compactos existentes en el mercado son de 8 láseres por lo que tendremos 512 usuarios sus características serán las siguientes: • Tarjeta Cabecera OLT ITU G.984 GPON Platform Interface Module - 8 PONs (512 usuarios con splitting 1:64) • Modulo Interfície PON con Óptica SFP - Óptica G.984 Classe B+ • Port agregación GigE, 550m, Óptica SFP - 1000Base-SX (multimode-550m) La cabecera sus componentes tanto para IP como RF deben de cumplir los terminos de Class B+ (10-28 dBm). Deberá de cumplir los requisitos siguientes: RED FTTH RIBA-ROJA D’EBRE FTTH RIBA-ROJA Proyecto 1
  • 58.
    Visat nº: P02904970 Data: 07/10/2009 ______________________________________________________________________________ Col·legiat: 9083 CHASSIS: 1 Platform Management Module (PMM) Slot 2 Platform Switch Module (PSM) Slots 18 Platform Interface Module (PIM) Slots SUBSCRIBER-SIDE INTERFACES: ITU G.984 GPON 8 PIMs per OLT x 8 PONs per PIM = 64 PONs 64 PONs with 1 x 32 split = 2,048 GPON ONTs per OLT NETWORK-SIDE INTERFACES: 10 x IEEE 802.3z Gigabit Ethernet via SFP (PSM-01) 8 x IEEE 802.3ae 10 Gigabit Ethernet vía XFP (PSM-02) MANAGEMENT: T7 Element Management Suite Flow-Through Provisioning Strong QoS & SLA Enforcement Tools GUI & Cisco-based CLI SNMP POWER REQUIREMENTS: Dual Inputs, -40.5 VDC to -60 VDC 560 W nominal, 700 W maximum for the T7 OLT 75 W nominal, 85 W maximum for the T7 COLT ENVIRONMENTAL OPERATING TEMPERATURE: 0° C to +50° C for the T7 OLT RED FTTH RIBA-ROJA D’EBRE FTTH RIBA-ROJA Proyecto 2
  • 59.
    Visat nº: P02904970 Data: 07/10/2009 ______________________________________________________________________________ Col·legiat: 9083 -40° C to +60° C for the T7 COLT HUMIDITY: 10% to 90% relative humidity, non-condensing SAFETY: ANSI / UL60950-2000 with UL50 FCC FDA CFR21, Part 1040 IEC 60950 PHYSICAL DIMENSIONS: T7 COLT 17.5” W x 3.5” H x 12” D 44.45 cm x 8.89 cm x 30.48 cm WEIGHT: T7 COLT (fully populated) 22 lbs. 9.98 kg NEBS: NEBS Level 1 NEBS Level 3 (pending) EMI/EMC: FCC CFR47, Part 15 EN 55024: 1998 EN 55022: 1998 RED FTTH RIBA-ROJA D’EBRE FTTH RIBA-ROJA Proyecto 3
  • 60.
    Visat nº: P02904970 Data: 07/10/2009 ______________________________________________________________________________ Col·legiat: 9083 RELIABILITY: MTBF redundant configuration availability: > 0.99999 at 40°C, ground fixed in accordance with Telecordia TR-332 SERVICE: Modular design for ease of maintenance and upgrades All modules are hot-swappable MOUNTING OPTIONS: Standard relay rack (19” or 23”) La cabecera incluirá los módulos activos para ofrecer Video Overlay: Transmisor óptico: Nos convertirá los canales de RF (60-860 Mhz) de cualquier tipo de modulación (AM-VSM, FM; QAM, COFDM) en señal óptica a 1550 nm en DFB láser. Deberá de cumplir las características siguientes: 4 Low noise, narrow linewidth CW-DFB laser 4 ITU-Grid wavelength (XL-Version) 4 Wavelength adjustable +/-100 GHz (XL-Version) 4 Electrooptical modulator with 2 optical outputs 4 Automatic RF gain control: CW, video, manual mode 4 > 2 x 10 dBm output power (XL-100-Version) 4 Adjustable SBS threshold up to 19 dBm to increase transmission distance (XL-Version) 4 Front panel RF test point –20 dB 4 Dual, hot-plug-in power supply modules for 100...240 VA, ±36...±72 VDC or 23.5...24.5 VDC 4 Web and SNMP Interface (a-version) RED FTTH RIBA-ROJA D’EBRE FTTH RIBA-ROJA Proyecto 4
  • 61.
    Visat nº: P02904970 Data: 07/10/2009 ______________________________________________________________________________ Col·legiat: 9083 4 RS485/232 interface (b-version) 4 LC display and LED status indication 4 General purpose I/O interface for remote functions 4 Very thin, only 1 RU design for mounting into 19”, ETSI or JIS racks Optical Properties Wavelength [nm] 1548.....1560 Optical power, [dBm] 2 x 7 min. ES10-L-70 SBS- Fixed threshold [dBm] Suppression +16.5 dBm Laser linewidth [MHz] 0.65 (typ.) Electrical Properties RF-Frequency [MHz] 47 –862 Range Flatness [dB] <±0.75 Version C42 D84 N77 NTSC Channel plan CENELEC 42 PAL-D 84 77 number of channels 42 / 0 / 0 84 / 0 / 0 77 / 0 / TV / FM (-4dB) / 0 QAM64 (-10dB) Noise bandwidth [MHz] 5 5 4 CNR Tx/Rx [dB] 55.5 52.5 53.5 CNR Link 1 [dB] 55.0 52.0 53.0 CNR Link 2 [dB] 53.0 50.5 52.0 CNR Link 3 [dB] 50.5 49.0 50.0 CSO Tx/Rx and Link [dBc] 64 65 65 1 CSO Link 2 [dBc] 63 65 65 CSO at output #1 [dB] 62 63 65 Link 3 CTB [dBc] 65 65 65 Amplificador WDM: Nos amplificara la señal óptica de video a 1550 nm y nos multiplexara a 8 salidas para inyectar esta señal a la red FTTH. Las características a cumplir son: RED FTTH RIBA-ROJA D’EBRE FTTH RIBA-ROJA Proyecto 5
  • 62.
    Visat nº: P02904970 Data: 07/10/2009 ______________________________________________________________________________ Col·legiat: 9083 General Input signal wavelength [nm] 1545 - 1565 4 x 20.0 ± Max. optical output power [dBm] 0.5 Factory setting optical output 4 x 18.0 ± [dBm] power 0.5 Wavelength of pump lasers [nm] < 1000 (typ.) Optical return loss [dB] > 45 Min. optical input level [dBm] -5 Max. opt. input level [dBm] +10 Polarization dependent gain [dB] 0.5 Noise figure (@Pin=0dBm, [dB] < 5.5 λ=1550nm) Optical isolation @ input [dB] 35 Optical isolation @ output [dB] 35 El repartidor Óptico modular que se encuentra en la cabecera que se utiliza en la interconexión y terminación de cables de fibra óptica así como para la conexión de las fibras ópticas a los distintos usuarios o equipos. El Repartidor Óptico Modular (ODF), dispone de los distintos accesorios para garantizar la organización, guiado y gestión de las fibras: - Elementos de fijación de los cables en el repartidor y guiado de los tubos del cable. - Elementos de guiado y almacenamiento de los cordones de salida a los usuarios o equipos. - Elementos de guiado y almacenamiento de los cordones de entrada de los cables de red. - Elementos de guiado de cordones entre diferentes repartidores. Las características básicas son: Composición básica Armario Rack 19” con bastidor pivotante Conjunto de guía cables verticales Conjunto de guía cables horizontales Módulo guía cables superior Módulo guía cables inferior Dimensiones Altura 42 U RED FTTH RIBA-ROJA D’EBRE FTTH RIBA-ROJA Proyecto 6
  • 63.
    Visat nº: P02904970 Data: 07/10/2009 ______________________________________________________________________________ Col·legiat: 9083 Anchura 600 mm Profundidad 600 mm Materiales Paneles laterales desmontables Acero de 1,5 mm de espesor. Puerta posterior parcial Acero de 1,5 mm de espesor. Doble puerta frontal acristalada Cristal tamizado de 4mm de espesor. Panel superior troquelado Acero de 1,5 mm de espesor. Espesor perfiles 2 mm Color Gris RAL 7035, Negro RAL 9011 Cierres Puerta frontal Cerradura Nº333. Puerta reversible. Puerta posterior parcial Cerradura Nº333. Paneles laterales Pestillos con cierre opcional Nº333. Compuesto por: Guía cables superiores La Bandeja superior guía cables de acero para armario Repartidor Óptico Modular (ODF), junto con la bandeja guía cables inferiores, facilita el almacenamiento y ordenación de los cables de red y de distribución, separando perfectamente los tramos de cable de la zona de interconexión del armario. Guía cables inferiores La Bandeja inferior guía cables de acero para armario Repartidor Óptico Modular (ODF), junto con la bandeja guía cables superiores, garantiza además el correcto radio de curvatura para todos los cables de fibra óptica alojados en el armario. Guía cables horizontales con bridas aislantes El conjunto de guía cables horizontales de acero de para armario Repartidor Óptico Modular (ODF) facilita la manipulación y ordenación del cableado dentro del armario, permitiendo múltiples modos de operación e interconexión. Guía cables verticales El conjunto de guía cables verticales para armario Repartidor Óptico Modular (ODF) facilita la ordenación y guiado de los cables alrededor del armario, proporcionando un encaminamiento óptimo de cada uno de los enlaces, asegurando los radios de curvatura de todas las fibras ópticas instaladas en el repartidor. Distribuidor óptico DOB-4U El distribuidor óptico DOB-4U para bastidor se utiliza para la terminación e interconexión de cables de fibra óptica, mediante slots frontales de hasta 12 adaptadores de terminación de fibra. Permite la entrada de hasta 12 cables de fibra, para la terminación de un máximo de 144 fibras ópticas. Slots Precableados SMT La familia de slots SMT (Sistema Modular de Terminación) es idónea para la terminación e interconexión de cables de fibra óptica, mediante slots precableados de terminación de fibra. Los slots son extraíbles, las fibras disponen de suficiente reserva de maniobra para permitir un mantenimiento fácil y eficaz de las instalaciones. RED FTTH RIBA-ROJA D’EBRE FTTH RIBA-ROJA Proyecto 7
  • 64.
    Visat nº: P02904970 Data: 07/10/2009 ______________________________________________________________________________ Col·legiat: 9083 2. FTTH PLANTA EXTERNA 2.1. CAJAS DE EMPALME Y DISTRIBUCIÓN La caja de empalme será una caja modular de conexión estanca de cables de fibra óptica, permite la conexión por medio de empalmes de fusión o mecánicos tanto en instalaciones de redes troncales de fibra como en redes de distribución. La caja de conexión permite la instalación de splitters de tecnología planar PLC. El modelo básico permite fusionar hasta 2 cables de entrada, con una capacidad Máxima estándar de 72 fusiones, gracias a sus 3 bandejas de empalmes de 24 fusiones cada una. Características mínimas Caja de distribución Capacidad Nº Entradas 4 (2+2) Nº máximo fusiones 72 Nº bandejas de empalmes (24) 3 Diámetro Cables Ent/Sal 6 mm – 20 mm Estanqueidad IP 67 Tendré capacidad de sangrado. La caja Terminal de cables de fibra óptica, con conectores, permite la conexión del cable troncal con los cables de acometida a los clientes por medio de empalmes de fusión o mecánicos o por medio de la unión a través de adaptadores. La caja de conexión permite la instalación de splitters de tecnología planar PLC. . • La caja terminal de usuario deberá permitir el sangrado de cables • Ofrecerá capacidad para instalar dos splitters 1:8 de manera independiente en dos bandejas separadas RED FTTH RIBA-ROJA D’EBRE FTTH RIBA-ROJA Proyecto 8
  • 65.
    Visat nº: P02904970 Data: 07/10/2009 ______________________________________________________________________________ Col·legiat: 9083 • Ofrecerá como mínimo capacidad de 16 acometidas de usuario • Ofrecerá espacio para fusionar la fibra de distribución con el divisor óptico 1:8 correspondiente • Las acometidas de usuario serán preconectorizadas por lo que deberá albergar espacio para 16 conectores SC/APC, inicialmente instalándose únicamente 8, correspondientes al primer divisor 1:8 que se instalará en el momento del despliegue. 2.2. DIVISORES O SPLITERS Los divisores o Splitters de tecnología planar PLC 1xN tienen unas altas prestaciones, unas muy bajas pérdidas de inserción, una excelente uniformabilidad, bajas PLD y puede trabajar entres las longitudes de onda de 1260 a 1650 nm. Los Splitters de tecnología planar se fabrican en las configuraciones de 1x4, 1x8, 1x16, 1x32 y 1x64, se pueden suministrar sin conectores o con los distintos tipo de conector así como con fibra de de 250 μm, 900 μm o ribbon. Características 1x4 1x8 1x16 1x32 1x64 Dimensiones Ancho (mm) 4 4 5 7 12 Largo (mm) 40 40 50 50 60 Alto (mm) 4 4 4 4 4 Características Pérdidas de Inserción Typ. (dB) 6.8 9.8 13.0 16.5 19.5 técnicas Pérdidas de Inserción Max. (dB) 7.3 10.7 13.9 17.2 20.4 Uniformidad (dB) < 0.5 < 1.0 < 1.4 < 1.5 < 1.7 < 0.25 < 0.30 Pérdidas de Retorno > 55 dB Longitud de Onda 1260 – 1650 nm Temperatura de almacenamiento -40 - +85 ºC Temperatura de Trabajo -40 - +85 ºC 2.3. MANGUERAS DE FIBRA ÓPTICA El cable empleado para el despliegue que se emplea en Planta exterior, es decir, un cable con doble cubierta de polietileno y compuesto de Kevlar que le da resistencia a la tracción. El tipo de fibra óptica empleada es fibra monomodo. RED FTTH RIBA-ROJA D’EBRE FTTH RIBA-ROJA Proyecto 9
  • 66.
    Visat nº: P02904970 Data: 07/10/2009 ______________________________________________________________________________ Col·legiat: 9083 Cables de fibra óptica monomodo, de 4 a 144 f.o, con segunda protección holgada, núcleo dieléctrico seco con material bloqueante de agua que evita su propagación, cableado en S-Z para optimizar la segregación de tubos en derivaciones de red y cubierta PKP. Núcleo (1) Elemento Central de Refuerzo (E.C.R.) dieléctrico compuesto de fibra de vidrio, recubierto con polietileno en función del número de fibras del cable. (2) Tubos Activos Holgados de PBT, conteniendo de 2 a 8 f.o. y Tubos Pasivos de PE – cuando la geometría del núcleo lo requiera cableados en S-Z en torno al E.C.R. en material bloqueante de agua para evitar su propagación Cubierta PKP (3) (P) Primera cubierta de Polietileno. (4) (K) Cabos de fibra de aramida de elevado módulo, como elemento de refuerzo resistente a tracción. (5) (P) Segunda cubierta de Polietileno. Características generales Las fibras ópticas serán acordes con los siguientes valores (UIT-T G.652). Transmisión Atenuación máxima (dB/km) • 0.38 a 1310nm • 0.25 a 1550nm Diámetro de campo modal en 1310 nm • 8.6 - 9.5 um Longitud de onda de corte fibra (nm) • 1100 - 1320 nm Máxima dispersión total en 1285-1330 nm • 3.5 ps/nm.km Máxima dispersión total en 1550 nm • 18 ps/nm.km Físicas Diámetro sobre 1ª protección • 245 ± 10 um Proof test • 100 Kpsi. Las marcas de cubierta contendrán la Siguiente información: • TELNET-RI – AÑO • Número de fibras • Tipo de fibra • Tipo de cubierta RED FTTH RIBA-ROJA D’EBRE FTTH RIBA-ROJA Proyecto 10
  • 67.
    Visat nº: P02904970 Data: 07/10/2009 ______________________________________________________________________________ Col·legiat: 9083 • Metraje Características físicas y mecánicas TRACCIÓN MÁXIMA IEC 794-1-E1 3000 N RESISTENCIA AL APLASTAMIENTO IEC 794-1-E3 30 N/mm RESISTENCIA AL IMPACTO IEC 794-1-E4 5 J. CICLO TERMICO OPERACION IEC 794-1-F1 -20°C/+60°C CURVATURA IEC 794-1-E11, proc. 1. 15 x diam. Cable PENETRACIÓN DE AGUA IEC 794-1-F5 Dimensión, formación y pesos F.O. F.O. Diámetro Peso Formación Núcleo Óptico Cable Tubo nominal nominal Tubos Activos Tubos (mm) (Kg/Km) Pasivos 4 2 4 2 14,3 155 6 3 3 2 14,3 155 8 4 2 2 14,3 155 12 6 0 2 14,3 155 16 4 2 4 14,3 155 24 6 0 4 14,3 155 32 4 2 8 14,3 155 48 6 0 8 14,3 155 64 8 0 8 15,2 175 96 12 0 8 18,4 255 128 4+12 2+0 8 19,2 265 144 6+12 0+0 8 19,2 265 RED FTTH RIBA-ROJA D’EBRE FTTH RIBA-ROJA Proyecto 11
  • 68.
    Visat nº: P02904970 Data: 07/10/2009 ______________________________________________________________________________ Col·legiat: 9083 CODIGO DE COLORES PARA TUBOS HOLGADOS Cable con 4 tubos holgados Cable con 6 tubos holgados Cable con 8 tubos holgados Tubo Nº Color Tubo Nº Color Tubo Nº Color 1 Blanco 1 Blanco 1 Blanco 2 Rojo 2 Blanco 2 Blanco 3 Azul 3 Rojo 3 Rojo 4 Verde 4 Rojo 4 Rojo 5 Azul 5 Azul 6 Azul 6 Azul 7 Verde 8 Verde Cable con 12 tubos holgados Cable con 16 tubos holgados Cable con 18 tubos holgados Tubo Nº Color Tubo Nº Color Tubo Nº Color 1 Blanco 1 Blanco 1 Blanco 2 Blanco 2 Rojo 2 Blanco 3 Blanco 3 Azul 3 Rojo 4 Rojo 4 Verde 4 Rojo 5 Rojo 5 Blanco 5 Azul 6 Rojo 6 Blanco 6 Azul 7 Azul 7 Blanco 7 Blanco 8 Azul 8 Rojo 8 Blanco 9 Azul 9 Rojo 9 Blanco 10 Verde 10 Rojo 10 Rojo 11 Verde 11 Azul 11 Rojo 12 Verde 12 Azul 12 Rojo 13 Azul 13 Azul 14 Verde 14 Azul 15 Verde 15 Azul 16 Verde 16 Verde 17 Verde 18 Verde RED FTTH RIBA-ROJA D’EBRE FTTH RIBA-ROJA Proyecto 12
  • 69.
    Visat nº: P02904970 Data: 07/10/2009 ______________________________________________________________________________ Col·legiat: 9083 ANEXO 2. CODIGO DE COLORES PARA FIBRAS Las fibras en su primera protección presentarán la misma coloración en cada tubo Tubos con 8 fibras Tubos con 16 fibras Fibra Nº Color Fibra Nº Color 1 Verde 1 Verde 2 Rojo 2 Rojo 3 Azul 3 Azul 4 Amarillo 4 Amarillo 5 Gris 5 Gris 6 Violeta 6 Violeta 7 Marrón 7 Marrón 8 Naranja 8 Naranja 9 Blanco 10 Negro 11 Rosa 12 Turquesa 13 Blanco * 14 Amarillo * 15 Naranja * 16 Rosa * (*): las fibras 13 a 16 serán marcadas con un anillo negro cada 50 mm. El cable mono fibra para acometida individual debe de tener las características siguientes: Cables ópticos de una fibra óptica, protegida individualmente con una protección ajustada y una cubierta individual ignífuga no propagadora de la llama y con baja emisión de humos no tóxicos ni corrosivos (LSZH). Núcleo (1) Fibra Óptica con segunda protección ajustada con diámetro nominal de 0.9mm. Cubierta KT (2) (K) Cabos de fibra aramida como elemento resistente a tracción. (3) (T) Cubierta de material termoplástico ignífugo, no propagador de la llama y baja emisión de humos no tóxicos ni corrosivos. Las fibras ópticas serán acordes con los siguientes valores (UIT-T G.652). Transmisión Atenuación máxima (dB/km) • 0.38 a 1310nm • 0.25 a 1550nm RED FTTH RIBA-ROJA D’EBRE FTTH RIBA-ROJA Proyecto 13
  • 70.
    Visat nº: P02904970 Data: 07/10/2009 ______________________________________________________________________________ Col·legiat: 9083 Diámetro de campo modal en 1300 nm • 8.8 - 9.6 um Longitud de onda de corte fibra (nm) • 1190 - 1320 nm Máxima dispersión total en 1285-1330 nm • 3.5 ps/nm.km Máxima dispersión total en 1550 nm • 18 ps/nm.km Físicas Diámetro sobre 1ª protección • 245 ± 10 um Carga de rotura • 100 Kpsi. Características físicas TRACCIÓN MÁXIMA IEC 794-1-E1 150 N RESISTENCIA AL APLASTAMIENTO IEC 794-1-E3 10 N/mm RESISTENCIA AL IMPACTO IEC 794-1-E4 1 J. CICLO TERMICO OPERACION IEC 794-1-F1 -5°C/+60°C CURVATURA IEC 794-1-E11, proc. 1. 15 x diam. Cable NO PROPAGACION DE LLAMA IEC 332.1 IEC.332.1 EMISIÓN DE HALÓGENOS UNE 21147/1 < 0,5 % DENSIDAD DE HUMOS UNE 21172/2 > 50 % luz transmitida 2.4. PRUEBAS Y CUMPLIMIENTO DE NORMATIVAS 2.4.1. CUMPLIMIENTO DE NORMATIVAS La instalación del sistema de FTTH deberá cumplir las siguientes normativas: ITU-T G.984.1..4 – Sistemas FTTH 2.4.2. PRUEBAS Las medidas se realizaran en los cables de fibra óptica antes y después de su instalación con objeto de comprobar que sus parámetros de transmisión: Atenuación y Dispersión, así como la Pérdida de Retorno de componentes pasivos, estén dentro de los valores reflejados en este documento. Con carácter general las medidas se harán en 2ª y 3ª ventana (1310 y 1550 nm) salvo que se indique lo contrario. RED FTTH RIBA-ROJA D’EBRE FTTH RIBA-ROJA Proyecto 14
  • 71.
    Visat nº: P02904970 Data: 07/10/2009 ______________________________________________________________________________ Col·legiat: 9083 Los métodos que se emplearán serán no destructivos, es decir se emplearan los denominados "métodos de campo" que se describirán más adelante. En general se observará la máxima limpieza en todos los puntos de inserción-extracción de señal óptica, es decir en conectores de aparatos, de repartidores y de rabillos auxiliares, así como en los cortes de las fibras. El personal que realice las medidas deberá observar las Normas de Seguridad e Higiene en el Trabajo relativas a las precauciones para evitar riesgos oculares. Las pruebas del sistema consistirán en la comprobación del correcto funcionamiento del mismo e integración con otros sistemas, así como de los diferentes elementos del mismo. En las instalaciones de fibra óptica monomodo la longitud máxima de la sección de regeneración, para una ganancia del sistema conocida, estará determinada en general, por uno de los dos parámetros siguientes: - Atenuación total. - Dispersión máxima. En las instalaciones de fibra óptica monomodo la longitud máxima de la sección de regeneración, para una ganancia del sistema conocida, estará determinada en general, por uno de los dos parámetros siguientes: - Atenuación total. - Dispersión máxima. La Atenuación A (λ ) a una longitud de onda entre dos secciones transversales separadas por una distancia L, se define como: A ( λ ) = 10 log P1/P2 (dB) Donde P1 es la potencia óptica que atraviesa la sección 1ª y P2 la potencia que atraviesa la sección 2ª. Dispersión se denomina al efecto distorsionante de la señal en propagación. En fibras monomodo se consideran dos tipos de dispersión: Dispersión cromática Dispersión por polarización del modo RED FTTH RIBA-ROJA D’EBRE FTTH RIBA-ROJA Proyecto 15
  • 72.
    Visat nº: P02904970 Data: 07/10/2009 ______________________________________________________________________________ Col·legiat: 9083 El Coeficiente de Dispersión Cromática es la variación del retardo de grupo por unidad de longitud de onda en propagación y por unidad de longitud: D(λ ) = 1/L . dT( λ )/d λ (ps/Km.nm) El valor del coeficiente D(λ ) es un dato del fabricante. La dispersión cromática es un parámetro intrínseco de la fibra, que no suele verse afectado durante el proceso de fabricación o instalación del cable. En general no será necesario medirlo, salvo en los casos que se indique. La dispersión cromática puede limitar la velocidad de transmisión y la distancia de un sistema, pero puede ser compensada con diferentes técnicas, por ejemplo mediante fibras compensadoras de dispersión, con un valor negativo de DC alto. La compensación de DC sólo será necesaria para sistemas de 10 Gb/s o mayores velocidades. Los valores de las cotas máximas del coeficiente de dispersión cromática (Dmax) en las regiones espectrales que se indican, para fibras ópticas monomodo del tipo G.652.D, son los siguientes: DC (1285-1330 nm): ≤ 3.5 ps/Km.nm DC (1550 nm) ≤ 18 ps/Km.nm DC (1625 nm) ≤ 22 ps/Km.nm La dispersión por polarización del modo (PMD) limita el funcionamiento de sistemas de alta velocidad sobre distancias largas. En sistemas de transmisión digitales provoca el aumento de la tasa de error y limita el ancho de banda. La luz que se propaga por una fibra óptica monomodo se descompone en dos ejes llamados modos de polarización ortogonales. Todas las fibras presentan algún grado de birrefringencia (el índice de refracción no es constante, depende direccionalmente), lo cual provoca que los dos modos de polarización viajen a diferentes velocidades. El grado de birrefringencia está asociado con las asimetrías en la geometría y/o la distribución de la tensión en el núcleo de la fibra. Este efecto además se combina con el acoplamiento aleatorio de energía entre los modos de polarización, por lo que el valor del PMD fluctúa. Cuando el impulso óptico se propaga en la fibra, el retraso en tiempo, con que llega al receptor un modo de polarización respecto al otro se denomina retraso diferencial de grupo (DGD). Además se produce un acoplamiento aleatorio de energía entre los modos de polarización. El DGD es una magnitud que varía aleatoriamente con la longitud de onda y en el tiempo, debido a vibraciones, movimientos de la fibra o cambios de temperatura o perturbaciones mecánicas de la fibra. Por esta razón, una forma útil de caracterizar el PMD de fibras largas, en las que RED FTTH RIBA-ROJA D’EBRE FTTH RIBA-ROJA Proyecto 16
  • 73.
    Visat nº: P02904970 Data: 07/10/2009 ______________________________________________________________________________ Col·legiat: 9083 hay un acoplamiento fuerte de energía entre los modos, es definiendo la PMD como el valor esperado o promedio de la DGD en la longitud de onda. El coeficiente de PMD se define como función de la longitud de la fibra o cable y se expresa en ps/Km1/2 . La medida de PMD se realizará en los enlaces de fibras ópticas de larga distancia, que vayan a transportar sistemas de 10 Gb/s o velocidades mayores. El PMD de 2º orden describe la variación del PMD con respecto a la longitud de onda. Está muy relacionado con la dispersión cromática y se expresa en ps/nm. Su orden de magnitud es mucho menor que el PMD de primer orden. Medidas de atenuación entre dos puntos Para las medidas de atenuación entre dos puntos (medidas de atenuación kilométrica o de balance de atenuación de una ruta), se utilizará el método de medida LSA, siempre que sea posible. Para este tipo de medidas se prestará especial atención en situar los puntos de medida en zonas lineales del oscilograma, fuera de las zonas de relajación de los conectores o empalmes mecánicos. En general sólo es necesario realizar estas medidas en un solo sentido. Cuando se realiza una medida de atenuación total de una fibra que incluye empalmes, hay que tener en cuenta que el valor de estos puede variar según el sentido de la medida. Medidas de distancia Las medidas de distancia deben realizarse en las condiciones de mayor precisión y resolución. En el equipo se ajustará el índice de refracción a 1,465 cuando no se conozca su valor real para la fibra bajo prueba. método de perdida de inserción Las medidas de potencia en la instalación, serán efectuadas por el método de "Inserción" a las longitudes de onda de 1310 nm y/o 1550 nm, salvo que se especifique lo contrario en los apartados correspondientes. Se procederá al cálculo de atenuaciones desde la cabecera hasta las salidas de las cajas de derivación, su valor no podrá exceder de 28 dB Dispersión cromática < 18 ps/nm*Km RED FTTH RIBA-ROJA D’EBRE FTTH RIBA-ROJA Proyecto 17
  • 74.
    Visat nº: P02904970 Data: 07/10/2009 ______________________________________________________________________________ Col·legiat: 9083 3. TELEFONIA 3.1.1. PABX Ud. Servidor de telefonía VoIP con sistema operativo SIP@net, para disponer de conectividad IP (SIP) para LAN y WAN y extensión , soporta VoIP (SIP), Licencias para 512 terminales IP(SIP) DPNSS y CCIS para red propia y paquete avanzado. Aplicación. Operadora automática VM505 Multiidioma, versión Hospitality, con mensajes programables por el usuario, buzones de voz, audio-texto e integración con software de gestión. Ud.Software especifico CHAR Utile+ , PC Multiidioma, integrado con el servidor de mensajes VM505, versión Hospitality . Aplicación que garantiza la interconexión con el sistema de gestión y automatización de la operadora automática, de los buzones de voz y el análisis de costes económicos. Se incluye instalación, programación y formación. CONFIGURACIÓN CENTRAL El Procesador Principal CPU (MP), que consta de las Placas de Control y del Software del Sistema, proporciona la función de Procesador Principal, la interfaz Ethernet, y controla las Licencias IP. El segundo Procesador Principal (MP) está en situación de espera“Inactiva”. En caso de un fallo del MP, el MP en espera “se activará” y tomará el control – el tiempo de transición depende de la configuración instalada (tiempo medio de 30 a 120 segundos). El Procesador de Firmware (FP), que controla las Placas de Circuitos de Líneas y de Enlaces, los Enlaces y las Estaciones Analógicas, las Estaciones Digitales, RST, IP PAD, DAT, VCT, Interfaz de Fibra, Repetidores Externos, y las estaciones RDSI. Los Procesadores de Aplicación (AP) son placas que ejecutan un protocolo o una aplicación, por ejemplo, los Enlaces Digitales, las Placas Manejadoras de Datos y Protocolos, IPT y Conferencia para512 abonados. Repartidor enrackable tipo “Patch Panel” de 24 puertos RJ45 RED FTTH RIBA-ROJA D’EBRE FTTH RIBA-ROJA Proyecto 18
  • 75.
    Visat nº: P02904970 Data: 07/10/2009 ______________________________________________________________________________ Col·legiat: 9083 Enlaces: 2 Tarjeta 32ILP (IP PAD), para la conexión mediante 32 canales de comunicación con la red de datos IP, entre los terminales IP y las extensiones TDM, así como el resto de unidades en red privada o números de la red pública. SERVICIOS Música de espera interna y externa Servidor anuncios en espera Plataforma de Gestión incluye servidor 1U enrackable. Consola formato rack (pantalla y teclado en rack) Las líneas Analógicas de entrada nos las servirá la empresa operadora, que dejara sus PTR en el recinto de telecomunicaciones del edificio en la planta. De este recinto saldrá un cable de 25 pares que conectara con el MDF para que desde aquí podamos conectar con la IP/PABx. Directamente a las tomas para los servicios de urgencia, (Ascensores, teléfono de alarma...) La conexión con los E1 el operador los trasladará al MDF para conectarlo con la IP/PABX. Network interface 10/100BASE-T IEEE802.3 Connector: 8-pin RJ45 Cable: Cat 5 UTP or better IP version 4, DHCP, TFTP QoS: IEEE 801.1Q, 802.1P and DiffServ Audio algorithm: G.711 DTMF generation: H.245 Multicast: IEEE 802 RED FTTH RIBA-ROJA D’EBRE FTTH RIBA-ROJA Proyecto 19
  • 76.
    Visat nº: P02904970 Data: 07/10/2009 ______________________________________________________________________________ Col·legiat: 9083 Environmental conditions ETS 300 019-1-3, temperature range: Storage class 1.2 (–25° C to +60° C) Transport class 2.3 (–40° C to +70° C) Operation class 3.1 (0° C to +60° C) Relative humidity < 90% (non condensing) The equipment is in compliance with the requirements of EU directive 2002/95/EC (RoHS) and 2002/96/EC (WEEE Compílanse Safety EN60950-1: 2001 EN50385 Electro Magnetic Compatibility (EMC) EN301 489-1 and 6 EN61000-3-2/3 (AC supply) DECT EN301 406-V1.4.1: 2001-03 EN300 757 (Service Class 2) Manager PC platform CPU: minimum 2.4 GHz RAM: minimum 256 Mb HD minimun 250 Gb RED FTTH RIBA-ROJA D’EBRE FTTH RIBA-ROJA Proyecto 20
  • 77.
    Visat nº: P02904970 Data: 07/10/2009 ______________________________________________________________________________ Col·legiat: 9083 4. ADMINISTRACIÓN La electrónica de la red es aquélla que soporta la gestión de los servicios, creando las redes virtuales necesarias porque los servicios vayan a los terminales adecuados. (Telefonía, Datos, Internet...) La solución está diseñada para dotar a la red de los mecanismos necesarios que hacen posible soportar voz, datos y video. El programa de control de servicios deberá estar optimizado en diferentes aspectos: • Excelente calidad de voz · Priorización voz, QoS • Control de admisión/ancho de banda • Handover transparente • Latencia/jitter optimizado mediante Direct Path • Extensas Facilidades • Alta escalabilidad y disponibilidad • Controlador distribuido • Dominio de movilidad • Gestión centralizada • Redundancia • Seguridad Capa 2: IEEE 802.1X (EAP-TLS/TTLS/PEAP%[MSCHAPv2]/ MD5) MAC filtering, WEP (64/128 bits), WPA (TKIP), WPA2 (AES/TKIP). • Seguridad Capa 3: Autenticación Web. Listas de Control de Acceso (ACL), Detección de intrusión, IDS, Listas negras. Por lo cual en el nodo central instalaremos el controlador, el software no tienen prescripciones especiales, puede instalarse en cualquier PC. Las especificaciones son: RED FTTH RIBA-ROJA D’EBRE FTTH RIBA-ROJA Proyecto 21
  • 78.
    Visat nº: P02904970 Data: 07/10/2009 ______________________________________________________________________________ Col·legiat: 9083 Specific intelligent RF capabilities managed by Cisco Wireless LAN Controllers include: • Dynamic channel assignment—802.11 channels are adjusted to optimize network coverage and performance based on changing RF conditions. • Interference detection and avoidance—The system detects interference and recalibrates the network to avoid performance problems. • Load balancing—The system provides automatic load balancing of users across multiple access points for optimum network performance, even under heavy loads. • Coverage hole detection and correction—Radio Resource Management (RMM) software detects coverage holes and attempts to correct them by adjusting the power output of access points. • Dynamic power control—The system dynamically adjusts the power output of individual access points to accommodate changing network conditions, helping ensure predictable wireless performance and availability. Todo este programario será soportado por un servidor con las características mínimas siguientes: Processor Intel® Pentium® 4 Processor 3.40GHz, Intel® or Equivalent Operating Systems Microsoft® Windows® XP Professional, SP2 with Media or Microsoft® Windows® 2000 Pro, LINUX o, MAC-OS Memory 2GB, DDR2 400MHz (2x512) Keyboard Microsoft® compatible Monitors 19.0 inch VGA Graphics Card 64MB PCIe x16 nVidia Quadro NVS 280, Dual VGA Capable Boot Hard Drive 100GB SATA, 7200 RPM Hard Drive without RAID Hard Drive C1 All SATA drives, Non-RAID, 1 or 2 drive total configuration Configuration Floppy Drive Options Optional Mouse Microsoft® compatible File System NTFS File System CD-ROM 48X CD-ROM El programa de control gestión de planta externa deberá optimizar los servicios: • Base de datos de inventario de la red • Gestión de la base de datos de planta externa tanto listada como visual geográfica • Generación de trazados y consultas sobre la base de datos RED FTTH RIBA-ROJA D’EBRE FTTH RIBA-ROJA Proyecto 22
  • 79.
    Visat nº: P02904970 Data: 07/10/2009 ______________________________________________________________________________ Col·legiat: 9083 Todo este software será soportado por un servidor con las características mínimas siguientes: Processor Intel® Pentium® 4 Processor 3.40GHz, Intel® or Equivalent Operating Systems Microsoft® Windows® XP Professional, SP2 with Media or Microsoft® Windows® 2000 Pro, LINUX o, MAC-OS Memory 2GB, DDR2 400MHz (2x512) Keyboard Microsoft® compatible Monitors 19.0 inch VGA Graphics Card 64MB PCIe x16 nVidia Quadro NVS 280, Dual VGA Capable Boot Hard Drive 100GB SATA, 7200 RPM Hard Drive without RAID Hard Drive C1 All SATA drives, Non-RAID, 1 or 2 drive total configuration Configuration Floppy Drive Options Optional Mouse Microsoft® compatible File System NTFS File System CD-ROM 48X CD-ROM RED FTTH RIBA-ROJA D’EBRE FTTH RIBA-ROJA Proyecto 23
  • 80.
    Visat nº: P02904970 Data: 07/10/2009 ______________________________________________________________________________ Col·legiat: 9083 PLIEGO DE CONDICIONES GENERALES 1. DOCUMENTACION COMPLEMENTARIA Además de los documentos anteriores e independientemente de los mismos, serán de obligado cumplimiento todas las órdenes y documentación complementaria o aclaratoria, facilitadas por la Dirección Facultativa y la Propiedad. Igualmente tendrán carácter de documentación contractual, con carácter de obligatorias, e independientemente de los documentos citados, todas las normas, disposiciones y reglamentos que por su carácter puedan ser de obligada aplicación. El Contratista deberá seguir la normativa propia de las compañías suministradoras de servicios y deberá solicitar los informes e inspecciones preceptivas y necesarias para dejar los trabajos en perfecta consonancia con las exigencias de las compañías de suministro externo. La interpretación del Proyecto y documentación contractual corresponderá a la Dirección Facultativa. 2. MUESTRA DE MATERIALES Los materiales objeto de contratación son los indicados en la oferta obligatoriamente. Si en alguna partida del Proyecto aparece el "o equivalente" se entiende que el tipo y marca objeto de contrato es el indicado como modelo en el Proyecto, es decir, de las mismas características, siempre a juicio de la Propiedad y la Dirección Facultativa. A petición de la Dirección Facultativa, el Contratista presentará las muestras de los materiales que se soliciten, siempre con la antelación prevista en el calendario de la obra. Cualquier cambio que efectúe el Contratista sin tenerlo aprobado por escrito y de la forma que le indique la Dirección Facultativa, representará en el momento de su advertencia su inmediata sustitución, con todo lo que ello lleve consigo de trabajos, coste y responsabilidades. De no hacerlo, podrá la Dirección Facultativa buscar soluciones alternativas con cargo al Presupuesto de contrato y/o garantía. Los materiales que hayan de constituir parte integrante de las unidades de obra definitivas, los que el Contratista emplee en los medios auxiliares para su ejecución, así como los materiales de aquellas instalaciones y obras auxiliares que parcialmente hayan de formar parte de las obras objeto del contrato, tanto provisionalmente como definitivas, deberán cumplir las especificaciones establecidas en el Pliego de Condiciones Técnicas de los materiales. RED FTTH RIBA-ROJA D’EBRE FTTH RIBA-ROJA Proyecto 24
  • 81.
    Visat nº: P02904970 Data: 07/10/2009 ______________________________________________________________________________ Col·legiat: 9083 Cualquier trabajo que se realice con materiales de procedencia no autorizada podrá ser considerado como defectuoso, con las consecuencias que en este Pliego se especifican. 3. CONTROL DE CALIDAD LA PROPIEDAD contratará directamente o a través del Contratista una ASISTENCIA TECNICA para el Control de Calidad de las instalaciones de acuerdo con las especificaciones del proyecto. La Asistencia Técnica propuesta tendrá las siguientes fases de actuación sobre las instalaciones previstas: a) Preparación Plan de Control ó confirmación del Plan de Control del Proyecto, si lo hubiese. b) Control de Calidad sobre Materiales y Equipos. c) Control de Ejecución Instalaciones según Normativas. d) Control sobre Pruebas de funcionamiento, Regulación y Seguridad realizadas por el Contratista. La Asistencia Técnica del Control de Calidad, estará vinculada y al servicio de la Dirección Facultativa y la Propiedad a la cual dirigirá toda su actividad. La empresa adjudicataria de esta Asistencia Técnica realizará el Plan de Control de las instalaciones de acuerdo con las indicaciones existentes en la documentación del proyecto, dentro del apartado denominado "Control de Calidad", o en su defecto, con la normativa vigente. En caso de que sea el Contratista el que contrate esta Asistencia Técnica presentará al menos tres nombres de empresas capacitadas para este trabajo, siendo elegida la adjudicataria por la Dirección Facultativa. El Contratista destinará para estos trabajos en caso de no existir partida presupuestada en los presupuestos del proyecto, al menos el 1,5% (uno y medio por ciento) del importe de ejecución material de los capítulos correspondientes a instalaciones, estando abierta la posibilidad de que el Contratista oferte un porcentaje mayor para este fin. En cada certificación deberá venir explícitamente el importe destinado a Control de Calidad. 4. CONTROL DE CALIDAD DE LOS MATERIALES El Contratista entregará a la Dirección Facultativa una lista de materiales que considere definitiva dentro de los 30 días después de haberse firmado el Contrato de Ejecución. Se incluirán los nombres de fabricantes, de la marca, referencia, tipo, características técnicas y RED FTTH RIBA-ROJA D’EBRE FTTH RIBA-ROJA Proyecto 25
  • 82.
    Visat nº: P02904970 Data: 07/10/2009 ______________________________________________________________________________ Col·legiat: 9083 plazo de entrega. Cuando algún elemento sea distinto de los que se exponen en el Proyecto, se expresará claramente en dicha descripción. El Contratista informará fehacientemente a la Dirección Facultativa de las fechas en que estarán preparados los diferentes materiales que componen la instalación, para su envío a obra. De aquellos materiales que estime la Dirección Facultativa oportuno y de los materiales que presente el Contratista como variante, la Dirección Facultativa procederá a realizar, las pruebas y ensayos de control de calidad, para comprobar que cumplen las especificaciones indicadas en el Proyecto, cargando a cuenta del Contratista los gastos originados. Toda prueba que no haya resultado satisfactorio o que no ofrezca las suficientes garantías podrá comenzarse de nuevo a cargo del mismo Contratista. Aquellos materiales que no cumplan alguna de las especificaciones indicadas en Proyecto no serán autorizados para montaje en obra. Los elementos mandados a obra sin estos requisitos podrán ser rechazados sin ulteriores pruebas. En el apartado de documentos anexos se encuentra la ficha estándar para el control de los materiales suministrados en la obra. 5. PLANOS DE MONTAJE Los planos de montaje son los que complementan a los planos del Proyecto en aquellos aspectos propios de la ejecución de la instalación, y que permiten detectar y resolver problemas de ejecución y coordinación con otras instalaciones antes de que se presenten en la obra. El Contratista presentará al inicio de la obra una lista de los planos de montaje que va a realizar, que será aprobada por la Dirección Facultativa. También presentará un programa de producción de estos planos de acuerdo con el programa general de la obra. El Contratista presentará los planos de montaje a la Dirección Facultativa, que los revisará en un plazo no superior a dos semanas. Sin ser exhaustivos, los planos de montaje deben incluir: coordinación en falsos techos, detalles de patios de instalaciones, relación de las instalaciones con la estructura, salas de máquinas, ejecución de bancadas y soportes, etc. 6. REPLANTEO De acuerdo con los planos de montaje conformados y en el momento oportuno según el plan de obra, el Contratista marcará de forma visible la instalación con puntos de anclaje, rozas, RED FTTH RIBA-ROJA D’EBRE FTTH RIBA-ROJA Proyecto 26
  • 83.
    Visat nº: P02904970 Data: 07/10/2009 ______________________________________________________________________________ Col·legiat: 9083 taladros, etc. lo cual deberá ser aprobado por la Dirección Facultativa antes de empezar su ejecución. 7. SUMINISTROS AUXILIARES Todas las ayudas tales como cualquier ayuda de peonaje o elementos mecánicos para transporte y colocación de material, descarga de camiones, suministros etc. sin que sea esta relación limitativa, corren por cuenta del Contratista de la instalación ya que debe prever una instalación completa, perfectamente terminada y entregada en completo y buen orden de marcha. 8. NORMAS GENERALES DE MONTAJE Las instalaciones se realizarán siguiendo las prácticas normales para obtener un buen funcionamiento, por lo que se respetarán las especificaciones e instrucciones de las empresas suministradoras. El montaje de la instalación se realizará ajustándose a las indicaciones y Planos del proyecto y a los Planos de montaje realizados por el Contratista y aprobados por la Dirección Facultativa. Cuando en la obra sea necesario hacer modificaciones en estos Planos o sustituir los materiales aprobados por otros, se solicitará permiso a la Dirección Facultativa en la forma por ella establecida. En todos los equipos se dispondrán las protecciones pertinentes para evitar accidentes. En aquellas partes móviles de las máquinas y herramientas se dispondrán de su correspondiente protección. Durante el proceso de instalación se protegerán debidamente todos los aparatos. 9. PRUEBAS Al finalizar la ejecución de la instalación, el Contratista está obligado a configurar y programar todos los sistemas y a realizar las pruebas de funcionamiento, rendimiento y seguridad de los diferentes equipos de la instalación. Salvo en los sistemas en los que exista un protocolo de medidas objetivo, tales como el Sistema de Cableado Estructurado o la red de distribución de radiotelevisión en coaxial, las pruebas consistirán en la comprobación del correcto funcionamiento de los sistemas y de cada uno de los elementos que lo componen. RED FTTH RIBA-ROJA D’EBRE FTTH RIBA-ROJA Proyecto 27
  • 84.
    Visat nº: P02904970 Data: 07/10/2009 ______________________________________________________________________________ Col·legiat: 9083 El Contratista cumplimentará las fichas Resumen de Control de Instalaciones (I01-A) en su totalidad (una ficha para los elementos de cada sistema). El Contratista preparará con todo ello la siguiente documentación que denominaríamos Documentación Final de Obra: 1) Memoria actualizada con todos sus apartados. 2) Resultado de las pruebas realizadas de acuerdo con el protocolo de Proyecto y/o Reglamento vigente. 3) Manual de instrucciones de la instalación. 4) Libro de mantenimiento. 5) Planos de la instalación terminada. 6) Lista de materiales empleados y catálogos. 7) Relación de suministradores y teléfonos. 8) Y la necesaria para cumplimentar la normativa vigente y conseguir la legalización y suministros energía o telecomunicaciones. (Boletines de la instalación, libro de mantenimiento, etc.). De la documentación anterior se entregará una primera copia sin aprobar a la Dirección Facultativa o a la empresa de control de Calidad. En un plazo de 15 días laborables, la Dirección Facultativa o el Control de Calidad según el caso, comprobará la documentación entregada y emitirá un plan de comprobaciones y pruebas que deberán ser realizadas por el Contratista en presencia de la Dirección Facultativa o personal de la empresa de Control de Calidad. Caso de resultar negativas, aunque sea en parte, se propondrá otro día para efectuar las pruebas, cuando el Contratista considere pueda tener resueltas las anomalías observadas y corregidos los Planos no concordantes. Si en esta segunda revisión se observan de nuevo anomalías que impidan a juicio de la Dirección Facultativa proceder a la Recepción Provisional, los gastos ocasionados por las siguientes revisiones correrán por cuenta del Contratista, con cargo a la liquidación. Al mismo tiempo el Contratista aclarará a los Servicios de Mantenimiento cuantas dudas encuentren. RED FTTH RIBA-ROJA D’EBRE FTTH RIBA-ROJA Proyecto 28
  • 85.
    Visat nº: P02904970 Data: 07/10/2009 ______________________________________________________________________________ Col·legiat: 9083 10. RECEPCION PROVISIONAL Al resultar positivas las Pruebas y aclaradas las dudas al Servicio de Mantenimiento se procederá a formalizar la Recepción Provisional de la obra que será firmada por la Propiedad, su Servicio de Mantenimiento, caso de que así lo decida la Propiedad, la Dirección Facultativa y el Contratista. Para formalizar la Recepción Provisional será necesario que el Contratista haya entregado previamente, tres copias en papel y tres copias en soporte informático de la Documentación Final de Obra corregidas con las observaciones correspondientes. Una copia será para la Dirección Facultativa, otra copia para la Propiedad y la tercera para le Empresa de Control de Calidad. En el documento de la Recepción Provisional deberá adjuntarse fotocopia conforme la Propiedad o la Dirección Facultativa han recibido la documentación final de obra corregida. Si en el momento de ocupar la obra y utilizar las instalaciones no han sido completadas las Pruebas o la documentación correspondiente por causas ajenas a la Propiedad, Dirección Facultativa o Control de Calidad, se le retendrá al Contratista la liquidación final y la fianza establecida, cuyas cantidades podrá la Propiedad utilizarlas para terminar los trabajos pendientes y abonar el mayor coste y los daños y perjuicios ocasionados a los intervinientes en los trabajos y a los usuarios de la obra. 11. GARANTIA DE RESULTADOS Se establece una garantía de aseguramiento de los resultados y de entrega de la documentación pertinente previa a la Recepción Provisional que vencerá en el momento en que el Contratista obtenga de la Propiedad o Dirección Facultativa, la aprobación fehaciente de la documentación pedida en el capítulo PRUEBAS y de forma ineludible la correspondiente a los apartados: 1) Resultado de las pruebas realizadas de acuerdo con el Protocolo de Proyecto y/o Reglamento vigente. 2) Libro de mantenimiento. 3) Planos de la instalación terminada. 4) Y la necesaria para cumplimentar la normativa vigente y conseguir la legalización y suministros de fluidos o energía. (Boletines de la instalación, libro de mantenimiento, etc.). RED FTTH RIBA-ROJA D’EBRE FTTH RIBA-ROJA Proyecto 29
  • 86.
    Visat nº: P02904970 Data: 07/10/2009 ______________________________________________________________________________ Col·legiat: 9083 Caso que el Contratista no cumpla satisfactoriamente con lo expresado anteriormente, la Propiedad, a requerimiento de la Dirección Facultativa podrá, si lo desea, recibir provisionalmente la Obra, y encargar a terceros, con cargo a las cantidades pendientes de liquidación o fianza, los trabajos de documentación y obtención de resultados pendientes. 12. PERMISOS (POR CUENTA DEL CONTRATISTA) Corre por cuenta del Contratista la confección y presentación de los boletines de la instalación y libro de mantenimiento oficial, así como el resto de documentos que reglamentariamente deben ser preparados y aportados por el Contratista. Corre por cuenta del Contratista la redacción, visado y tramitación ante Organismos Oficiales (Delegación de Industria, Ayuntamiento, etc.) de los Proyectos necesarios para obtener todos los permisos oficiales para la construcción, puesta en marcha y conexión de las instalaciones objeto del Pliego. Asimismo, el Contratista es el responsable de la confección, visado y tramitación de los Certificados Finales de Obra necesarios. Los costes de las tasas de visado y tramitación corren por cuenta del Contratista. 13. CRITERIOS DE MEDICION DE LAS INSTALACIONES Toda medición deberá ser reproducible admitiendo márgenes de error tolerables. Se emplearán los instrumentos de medición de uso normal en una obra (reglas rígidas o cintas métricas) en aquellos casos en que sea posible hacerlo. La unidad de medida será la que se exprese en el Estado de Mediciones o la que la Dirección Facultativa dictamine, en caso de duda. Los elementos discretos se medirán por unidades instaladas. Los tubos para cableado se medirán por su eje, siguiendo su recorrido real, incluyendo tramos rectos, sin descontar de la medición la longitud ocupada por cajas de empalme y derivación. No se admitirán suplementos por curvas, derivaciones, empalmes, etc. ni por mermas de material. Las bandejas para cableado se medirán por su eje, siguiendo su recorrido real, incluyendo tramos rectos y curvas. Los codos y las curvas se medirán por su parte exterior. No se admitirán suplementos de medición por curvas, injertos, derivaciones, etc. ni por mermas de material. RED FTTH RIBA-ROJA D’EBRE FTTH RIBA-ROJA Proyecto 30
  • 87.
    Visat nº: P02904970 Data: 07/10/2009 ______________________________________________________________________________ Col·legiat: 9083 El cableado (que no esté incluido en los conceptos del proyecto) se medirá por su recorrido real desde inicio al final de conexión. No se admitirán suplementos de medición por derivaciones, empalmes, reservas o mermas de material. 14. DIRECCIÓN TÉCNICA DE LA PUESTA EN MARCHA Para conseguir una correcta puesta en marcha de las instalaciones, la empresa instaladora tendrá que disponer de un equipo totalmente diferenciado del de montaje y manipulación de las instalaciones, encargado de sistematizar los procesos, cumplimiento de parámetros técnicos y entrega de las instalaciones. La gestión de este proceso se llama DIRECCIÓN TÉCNICA DE LA PUESTA EN MARCHA. La dirección técnica de la puesta en marcha, tendrá las siguientes fases de actuación. 1.- Definición del plan de puesta en marcha, para unidades de trabajo con indicación del tiempo previsto, según ficha del plan de puesta en marcha. Este planning tendrá que presentarse a dirección de obra para recibir su aprobación, antes de iniciar cualquier actuación. 2.- Dirección de los equipos de trabajo de la empresa instaladora con: Seguimiento e interpretación de las especificaciones de proyecto y de la dirección de obra. Definición de los parámetros de regulación Uso de instrumentos adecuados a cada medida Entrega de los protocolos de puesta en marcha a la dirección de obra para su aprobación Asistencia al control de calidad en caso de haber También realizará asistencia técnica a las consultas presentadas para la dirección de obra, servicios de mantenimiento u otros agentes de la obra. El contratista, en caso de no tener partida correspondiente al presupuesto, destinará para la Dirección Técnica de la Puesta en Marcha al menos un 1% del importe de ejecución de materiales de los capítulos correspondientes a las instalaciones objeto. En caso que el contratista sea quien tenga de que contratar al equipo técnico que realice los trabajos escritos, quedara la elección a criterio de la dirección de la obra. 15. FORMACIÓN Con posterioridad a la puesta en marcha, el contratista deberá realizar un programa de formación del funcionamiento de los diferentes sistemas instalados. RED FTTH RIBA-ROJA D’EBRE FTTH RIBA-ROJA Proyecto 31
  • 88.
    Visat nº: P02904970 Data: 07/10/2009 ______________________________________________________________________________ Col·legiat: 9083 Esta formación podrá realizarse en cualquier momento que la propiedad o gestor del hotel considere oportuno, y al número de personas que determine. El contratista presentará a la D.F. un programa de formación indicando la duración de la misma, las personas objetivo a las que será dirigida y los apartados del mismo. Barcelona, 30 de septiembre de 2.009 Fdo. Xavier Edo Ibañez Ingeniero de Telecomunicación Colegiado nº 9.083 RED FTTH RIBA-ROJA D’EBRE FTTH RIBA-ROJA Proyecto 32
  • 89.
    Ficha control materiales M02-A Proyecto Instalación: Visat nº: P02904970 Equipo: Data: 07/10/2009 Denominación Col·legiat: 9083 Objeto de control Tipo: Marca: Dimensiones: Nº Elementos de la partida: Nº de muestras: Porcentaje: % La partida es el % del total del presupuesto Observaciones Debe cumplir: Especificaciones Proyecto: Resultado del control: - Todas las muestras cumplen requisitos del las especificaciones del proyecto - Las muestras no cumplen especificaciones Descripción de las anomalias. * Adjuntar mediciones realizadas en caso de F.O, Cable coaxial, CONCLUSIONES/OBSERVACIONES Fecha y firma Fecha y firma Fecha y firma Instalador Persona de Calidad Dir. Facultativa
  • 90.
    Ficha resumen control M01-A Proyecto Instalación: Visat nº: P02904970 Empresa instaladora: Data: 07/10/2009 Control de materiales: Col·legiat: 9083 ESPECIF. MATERIAL DEL PROYECTO MATERIAL INSTALADO CONTRO OBSERVACIONES Fecha y firma Fecha y firma Fecha y firma Instalador Persona de Calidad Dir. Facultativa
  • 91.
    Visat nº: P02904970 Data: 07/10/2009 ______________________________________________________________________________ Col·legiat: 9083 PRESUPUESTO PROYECTO BASE RED FTTH/GPON SETIEMBRE 2009 RED FTTH RIBA-ROJA D’EBRE FTTH RIBA-ROJA Proyecto 33
  • 92.
    Visat nº: P02904970 Data: 07/10/2009 ______________________________________________________________________________ Col·legiat: 9083 1.- PRESUPUESTO EJECUCIÓN DE MATERIAL DE LA RED FTTH PRESUPUESTO POS. UDS. CONCEPTO P. UNITARIO P. TOTAL CAPÍTULO 1: EQUIPOS DE RECEPCIÓN 1.1 1 central pbx pArA 512 lineas instalación y puesta en marcha 4.200,00 4.200,00 € incluyendo materiales auxiliares 1.2 1 formacion 2 personas 650,00 650,00 € TOTAL CAPITULO 1............................................................................ 4.850,00 € RED FTTH RIBA-ROJA D’EBRE FTTH RIBA-ROJA Proyecto 34
  • 93.
    Visat nº: P02904970 Data: 07/10/2009 ______________________________________________________________________________ Col·legiat: 9083 PRESUPUESTO POS. UDS. CONCEPTO P. UNITARIO P. TOTAL CAPÍTULO 2: CABECERA DE RED 2.1 1 Armario 19 " 24 U ( 670,00 670,00 € 2.2 1 CHASIS OLT 1.513,00 1.513,00 € 2.3 1 TARJETA OLT ITU G.984 GPONT 8 MODULOS 512 USUARIOS 12.078,00 12.078,00 € 2.4 8 MODULO INTERFASE PON G.984 CLASE B+ 456,00 3.648,00 € 2.5 2 PORT AGREGABLE GIGABIT 135,00 270,00 € 2.6 1 SWITCH 1.570,00 1.570,00 € 2.7 2 DOBEXT-4U 83,77 167,54 € 2.15 8 MODUL SPLITER 293,00 2.344,00 € 2.16 6 MODULO SUBRACK 12 SC/APC 76,30 457,80 € 2.17 72 CORDON OPTICO 5,20 374,40 € 2.18 10 FRONTAL CEC 3,85 38,50 € 2.19 1 LASER TRANSMISIÓM VIDEO 2 SALIDAS 10 dbm 10.241,00 10.241,00 € 2.20 1 EDFA 8X20 dbm 12.922,00 12.922,00 € 2.21 1 Instalación y puesta en marcha incluyendo materiales auxiliares 16.000,00 16.000,00 € 2.22 1 Formación 2 personas 600,00 600,00 € TOTAL CAPITULO 2............................................................................ 62.894,24 € RED FTTH RIBA-ROJA D’EBRE FTTH RIBA-ROJA Proyecto 35
  • 94.
    Visat nº: P02904970 Data: 07/10/2009 ______________________________________________________________________________ Col·legiat: 9083 PRESUPUESTO POS. UDS. CONCEPTO P. UNITARIO P. TOTAL CAPÍTULO 3: DESPLIEGUE FTTH 3.1 63 CAJAS FACHADA INTEMPERIE 16 SALIDAS CON SPLITER 195,00 12.285,00 € 1X8 3.2 4 CAJAS FACHADA INTEMPERIE 8 SALIDAS CON SPLITER 1:8 172,00 688,00 € 3.3 22 CAJAS FACHADAS INTEMPERIE EMPALMES 60,50 1.331,00 € 3.3 1.647 FIBRA 6 F.O. POR TUBO INTEMPERIE- CANALIZADO 64 X 2,34 3.853,98 € 9/125 G652D 3.5 6.102 FIBRA 6 F.O. POR TUBO INTEMPERIE CANALIZADO 24 X 0,74 4.515,48 € 9/125 G652D 3.6 600 FUSIONS 6,00 3.600,00 € 3.7 600 CONECTORS SC/APC 0,20 120,00 € 3.8 19.373 MATERIAL AUXILIAR: BRIDAS DE FIJACIÓN, TACOS 0,15 2.905,88 € EXPANSIÓN PVC, CABLE ACERADO, PINZAS FIJACIÓN FIADOR, MATERIAL VARIO,… 3.8 1.918 TENDIDO DE CABLEADO, MONTAJE EQUIPOS, 23,00 44.114,00 € CONEXIONADO Y COMPROBACIÓN DE SISTEMA TOTAL CAPITULO 3............................................................................ 73.413,34 € RED FTTH RIBA-ROJA D’EBRE FTTH RIBA-ROJA Proyecto 36
  • 95.
    Visat nº: P02904970 Data: 07/10/2009 ______________________________________________________________________________ Col·legiat: 9083 PRESUPUESTO POS. UDS. CONCEPTO P. UNITARIO P. TOTAL CAPÍTULO 4: INFRAESTRUCTURA 4.1 400 Mts de mandrilado de canalización existente 9,31 3.724,00 € TOTAL CAPITULO 3............................................................................ 3.724,00 € RED FTTH RIBA-ROJA D’EBRE FTTH RIBA-ROJA Proyecto 37
  • 96.
    Visat nº: P02904970 Data: 07/10/2009 ______________________________________________________________________________ Col·legiat: 9083 PRESUPUESTO CONCEPTO P. UNITARIO P. TOTAL RESUMEN DE COSTES CAPÍTULO 1: EQUIPOS DE RECEPCIÓN 4.850,00 CAPÍTULO 2: CEBERA DE RED 62.894,24 CAPÍTULO 3: DESPLIEGUE FTTH 73.413,34 CAPÍTULO 4: INFRAESTRUCTURA 3.724,00 TOTAL ............................................................................ 144.881,58 € 13 % GASTOS GENERALES 18.834,60 € 6% BENEFICIO INDUSTRIAL 8.692,89 € TOTAL 172.409,07 € IVA 16% 27.585,45 € TOTAL OBRA 199.994,53 € El total de la realización del proyecto es de CIENTO NOVENTA NUEVE MIL NOVECIENTOS NOVENTA Y CUATRO CON CINCUENTA Y TRES CENTIMOS Barcelona, 30 de septiembre de 2.009 Fdo. Xavier Edo Ibañez Ingeniero de Telecomunicación Colegiado nº 9.083 RED FTTH RIBA-ROJA D’EBRE FTTH RIBA-ROJA Proyecto Signature Not Verified 38 Signat digitalment per Perfil del contractant Data: 2010.03.31 12:39:15 CEST Reason: Aprovant la publicaci� del document Location: Tarragona