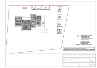
PLANOS
PLAN DE SEGURIDAD Y SALUD
VIVIENDA UNIFAMILIAR Y PISCINA
PASAJE CERCAS DE FRANCISCO Nº 13
NAVACERRADA – MADRID.
MAQUINARIA EN GENERAL
Requisitos exigibles a la máquina
n Dispondrá de marcado CE, declaración de conformidad y manual de instrucciones.
n Se asegurará el buen estado de mantenimiento de las protecciones colectivas existentes en la propia
maquinaria.
Normas de uso de carácter general
n El operario mantendrá en todo momento el contacto visual con las máquinas que estén en movimiento.
n No se pondrá en marcha la máquina ni se accionarán los mandos si el operario no se encuentra en su
puesto correspondiente.
n No se utilizarán accesorios no permitidos por el fabricante.
n Se comprobará el correcto alumbrado en trabajos nocturnos o en zonas
de escasa iluminación.
Normas de mantenimiento de carácter general
n Los residuos generados como consecuencia de una avería se verterán en contenedores adecuados.
Cód. Riesgos Medidas preventivas a adoptar
Choque contra objetos
móviles.
n Se colocarán y se mantendrán en buen estado las protecciones
de los elementos móviles de la maquinaria.
Proyección de fragmentos
o partículas.
n Se verificará la ausencia de personas en el radio de acción de la
máquina.
Atrapamiento por objetos. n No se utilizará ropa holgada ni joyas.
Aplastamiento por vuelco
de máquinas.
n No se sobrepasarán los límites de inclinación especificados por el
fabricante.
Contacto térmico. n Las operaciones de reparación se realizarán con el motor parado,
evitandoel contacto con las partes calientes de la máquina.
Exposición a agentes
químicos.
n Se asegurará la correcta ventilación de las emisiones de gases de
la maquinaria.
Grúa torre.
Normas de uso de carácter específico
n Antes de iniciar los trabajos:
n Se verificará que los ganchos de los elementos de elevación llevan marcada su capacidad de carga
máxima y están dotados de pestillo de seguridad.
n Se verificará la existencia de un extintor en un lugar accesible cerca de la máquina.
n Durante el desarrollo de los trabajos:
n No se transportarán personas.
n Se prohibirá el paso de trabajadores por debajo de elementos con riesgo de caída de materiales.
n No se elevarán cargas que no estén bien sujetas.
n No se balanceará la carga.
n No se dejará la carga en suspensión en ausencia del conductor.
n Se evitará la entrada de humedad en los componentes eléctricos.
n Se comprobará que los mandos de la máquina son de
material aislante.
n No se utilizarán cables eléctricos en mal estado.
n No se realizarán empalmes manuales.
n Las conexiones se realizarán mediante enchufes y clavijas normalizadas.
n Las tomas de corriente serán de tipo industrial y adecuadas para el uso a la intemperie.
n No se abandonará la máquina con el motor en marcha.
n Se evitará la presencia de trapos impregnados de grasa, combustible, aceite u otros líquidos
inflamables.
Equipo
s de protección individual (EPI)
n Par de botas bajas de seguridad.
n Ropa de protección de alta visibilidad.
n Casco de protección.
n Gafas de protección con montura integral.
n Par de guantes contra riesgos mecánicos.
n Par de guantes contra riesgos térmicos.
n Mascarilla autofiltrante.
Transporte y retirada de grúa torre para transporte de materiales.
En operaciones de carga y descarga
n Se descargará a su llegada a obra, desde los camiones de transporte, mediante grúa y elementos de
izado adecuados. Posteriormente se realizará el proceso inverso de carga a los camiones, para su
retirada de obra.
Normas de montaje y desmontaje
n Se tendrá preparado en la obra un espacio con la superficie adecuada para ser ocupado por la máquina
durante las operaciones de montaje y desmontaje.
n El montaje y el desmontaje serán realizados por personas con la experiencia y formación necesarias
para ello.
n El montaje y el desmontaje serán realizados siguiendo las indicaciones del manual de instrucciones del
fabricante.
IDENTIFICACIÓN DE LOS RIESGO
S DURANTE EL TRANSPORTE Y RETIRADA DEL
EQUIPO
Cód. Riesgos Medidas preventivas a adoptar
Caída de personas a
distinto nivel.
n En las operaciones de carga y descarga de las máquinas desde
los camiones de transporte, será obligatorio el uso de equipos
de protección individual contra caídas de altura.
Caída de objetos
desprendidos.
n No se sobrepasará la carga máxima de los elemen tos de
elevación.
n Se prohibirá el paso de trabajadores por debajo de cargas
suspendidas.
Atrapamiento por objetos. n Para controlar el movimiento de los elementos suspendidos se
emplearán cuerdas guía.
Equipos de protección individual (EPI)
n Casco de protección.
n Ropa de protección.
n Par de zapatos de seguridad.
n Par de guantes contra riesgos mecánicos.
SI
SI
NO
NO
d2
d2d
.93
6.53
7.32
1.38
7.53
.92
11.67
2.71
2.71
.21
.21
2.56
2.71
1.35
1.35
.42
.35
.05
1.31
.42
.09
Tema: Protecciones colectivas
MASTIL DE
BRAZO MOVIL
RETENCION
RED DE
PROTECCION DEL 1º PISO
BARANDAS
SISTEMA POR
MORDAZA
PROTECCION DE 1º Y 2º PISO
1º PISO
2º PISO
3º PISO
PROTECCION DE 3º Y 2º PISO
Los mástiles se desplazarán a través de una pequeña abertura
pasante, de 70 mm x 70 mm, que se repite en el conjunto de pisos
como guía según se indica en los planos, cada 3 m, con una
separación al borde de 15 cm como mínimo.; quedarán sujetos a
traves de un pasador. En los pisos donde ya no debe apoyar
pueden rellenarse los "huecos guías".
Las redes irán atadas al borde de las losas a través de ganchos de
sujeción de Fe 8 mm de diámetro, colocados cada 50 cm, con una
separación del borde mínima de 10 cm.
>1m
DETALLE DE EJECUCIÓN PARAMENTO EXTERIOR
El arnés a usar tendrá
una longitud de 1m.,
cuando la altura del
paramento llegue a los
90 cm. ya no será
necesario el uso de
arnés de seguridad.
EL CONJUNTO DEBERA SER RESISTENTE Y ESTABLE.
BORRIQUETA
TABLONES
DEL TABLON 5 CM.
MAXIMO 3.00 METROS
ESPESOR MINIMO
EN ALTURAS SUPERIORES A 2 METROS, SE DISPONDRAN BARANDILLAS EN TODO EL PERIMETRO.
LOS TABLONES DE LA PLATAFORMA IRAN ATADOS O BIEN SUJETOS A LAS BORRIQUETAS.
LA ANCHURA MINIMA DE LA PLATAFORMA DEL ANDAMIO SERA DE 60 CENTIMETROS.
REPARTIR EL PESO DE MANERA UNIFORME Y SIN CARGAS EXCESIVAS.
NO UTILIZAR PARA EL APOYO DE LOS TABLONES, OTRO ELEMENTO DISTINTO DE LAS
EN UN MISMO PUNTO QUE PODRIA DESEQUILIBRAR O INCLUSO LLEGAR A PARTIR LOS TABLONES
NO SOBRECARGAR LOS TABLONES CON EXCESIVA CANTIDAD DE MATERIALES CONCENTRADOS
NO APOYARSE EN EL CONJUNTO EN NINGUNO DE SUS EXTREMOS.
LOS TABLONES DE LA PLATAFORMA PUEDAN FLECHAR O INCLUSO LLEGAR A ROMPERSE.
SI LA DISTANCIA ENTRE BORRIQUETAS ES MAYOR DE 3 METROS, EXISTE EL PELIGRO QUE
Altura de trabajo inferior a 2 metros.
AMDAMIO DE BORRIQUETA
h<
2
metros
0.60 minim
o
RUEDAS GIRATORIAS
crucetas, pudiendo alzanzar una altura máxima de 13 metros sin necesidad de arriostramiento.
TORRE DE 3'00 x 2'73 metros de Base. Está formada por elementos de 3'00 x 1'00 metros y
diagonales, pudiendo alzanzar una altura máxima de 10 metros sin necesidad de arriostramiento.
TORRE DE 2'00 x 2'00 metros de Base. Está formada por elementos de 2'00 x 1'00 metros y
DESCRIPCION GENERAL DE LAS TORRES :
PLANCHAS DE TRABAJO
MONTAJE
DE 3'00 x 2.73)
EN LAS TORRES
DIAGONAL (CRUCETA
MONTAJE DE TORRES MOVILES
SI
Para castilletes o torres moviles sobre ruedas de hierro (incluido su peso propio).
Para castilletes o torres moviles sobre ruedas de goma (incluido su peso propio).
Para castilletes o torres moviles sobre ruedas de hierro (incluido su peso propio).
EN ENCOFRADOS DE PILARES)
NO (PRECAUCIONES A TENER EN CUENTA
ANDAMIOS TUBULARES
4 Veces
3 Veces
ALTURAS MAXIMAS DE TRABAJO
Para castilletes o torres fijas (incluido su peso propio).
Para castilletes o torres fijas (incluido su peso propio).
1000 Kg.
NORMALES
RUEDAS GIRATORIAS
2000 Kg.
2400 Kg.
CARGAS ADMISIBLES
LARGUERO
DIAGONALES
ALTURAS MAXIMAS Y CARGAS ADMISIBLES
QUITAMIEDO
EN TORRES O CASTILLETES
DIAGONALE
NORMALES
QUITAMIEDO
EN
BR
D
TL
Detalle del enganche
BR
EN Detalle de la brida
y diagonal
Brida sencilla
SA
BR
ANDAMIOS DE BORRIQUETAS
MEDIOS AUXILIARES
ANDAMIOS TUBULARES
MEDIOS AUXILIARES
ANDAMIOS TABULARES
MEDIOS AUXILIARES
MOSQUETON DE SEGURIDAD CON VIROLA ROSCADA
CUERDA DEL CINTURON DE SEGURIDAD
RONA "UNETRA"
CABLE TRENZADO DE ACERO Ø 8
ANCLAJES CINTURON DE SEGURIDAD
DETALLE DE BARANDILLA PROTECCIÓN EN BORDE DE FORJADOS
LEYENDA
FASES DE MONTAJE
DETALLE DE RED DE SEGURIDAD PARA CAIDAS DE ALTURA
DE SUSTENTACIÓN DE REDES
OMEGA DE ANCLAJE PARA DOBLAR DE LAS HORCAS
TIPO 2
DETALLE DE GANCHO DE SUJECIÓN INFERIOR
REDES DE PROTECCIÓN MEDIANTE HORCAS TIPO COMERCIAL
SECCION TIPO
LEYENDA
240 cm.
100
cm.
100
cm.
10
cm.
DETALLE DE SOPORTE TIPO HORCA
400
cm.
800
cm.
SISTEMA DE ANCLAJE DE LAS HORCAS DE SUJECCIÓN DE REDES EN LA
CONSTRUCCIÓN DE ESTRUCTURAS
DE ESCALERAS DE MANO
PRECAUCIONES EN EL USO
DE SUSTENTACIÓN DE REDES
OMEGA DE ANCLAJE ESPECIAL PARA DOBLAR DE LAS HORCAS
1.67
2.50
ANCLAJE DE HORCAS
0
'
5
0
m
.
GUARDACABOS
LAZO CON
TIPO F Y G
HIERRO DULCE
Ø 10 mm EN
LA ARMADURA,
CONECTADO A
ANCLAJE
PARA PUNTALES ADAPTADOS
TRIPODE DE MONTAJE
20x5 cm
DURMIENTE DE MADERA
AMARRE OPCIONAL
CON ARGOLLA DE
BASE DE HORMIGON
OPCIONAL
TENSOR ACERO Ø 8 mm
Ø 3 mm
CUERDA DE POLIAMIDA
ENNUDADA CON
MALLA DE 7x7 cm
METALICA
SOPANDA
ENCOFRADO
TABIQUA
PERIMETRAL
ZUNCHO
ENCOFRADO
LAZO CON 3 APRIETOS
INMOVILIZACION DE HORCA
TENSOR ACERO Ø 8 mm
VUELO UTIL 3,50 m
EN CHAPA DE 4mm DE ESPESOR
HORCA EN TUBO 100x50 mm
SIMPLE A LA HORCA
SUJECCION POR APRIETO
DE LOS PANOS DE RED
MOVIMIENTOS Y ANCLAJE
Ø 10 mm PARA
CUERDA DE POLIAMIDA
ANCLAJES CINTURON DE SEGURIDAD (Seguro de anclaje móvil)
LEYENDA
DETALLE DE BARANDILLA PROTECCIÓN EN ESCALERAS
REDES DE HORCA
0'50
3'00
1'50
1'50
PIE DERECHO
MÁXIMO 2,50 m
RODAPIE 15*5 mm
EN FORJADO
CARTUCHO EMBEBIDO
BANDAS AMARILLAS Y NEGRAS
TUBO PINTADO EN
PIE DERECHO
0,90
m
BARANDILLAS CON SOPORTE TIPO "SARGENTO"
ESTRUCTURAS.REDES DE PROTECCION
SOPORTE " TIPO - 1 "
SOPORTE " TIPO - 3 "
1.00
SOPORTE " TIPO - 2 "
1.00
1.00
2.50
PLANTA
GRILLETE PARA IZADO
CONJUNTO
ESLINGA DE SEGURIDAD
ESCALERA PARA
MONTAJE DE PILARES METÁLICOS
3.42
2.89
3.89
2.50
4.27
3.01
TOMA CORRIENTES DE SEGURIDAD
TOMA MÓVIL PARA MANGUERA
BASE FIJA EN CUADRO
TOMA CORRIENTES DE SEGURIDAD
12.00
4.80
12.00
4.80
3.50
2.00
4. planos plan-s+s_navacerrada

4. planos plan-s+s_navacerrada

  • 1.
    PLANOS PLAN DE SEGURIDADY SALUD VIVIENDA UNIFAMILIAR Y PISCINA PASAJE CERCAS DE FRANCISCO Nº 13 NAVACERRADA – MADRID.
  • 7.
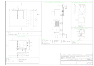
    MAQUINARIA EN GENERAL Requisitosexigibles a la máquina n Dispondrá de marcado CE, declaración de conformidad y manual de instrucciones. n Se asegurará el buen estado de mantenimiento de las protecciones colectivas existentes en la propia maquinaria. Normas de uso de carácter general n El operario mantendrá en todo momento el contacto visual con las máquinas que estén en movimiento. n No se pondrá en marcha la máquina ni se accionarán los mandos si el operario no se encuentra en su puesto correspondiente. n No se utilizarán accesorios no permitidos por el fabricante. n Se comprobará el correcto alumbrado en trabajos nocturnos o en zonas de escasa iluminación. Normas de mantenimiento de carácter general n Los residuos generados como consecuencia de una avería se verterán en contenedores adecuados. Cód. Riesgos Medidas preventivas a adoptar Choque contra objetos móviles. n Se colocarán y se mantendrán en buen estado las protecciones de los elementos móviles de la maquinaria. Proyección de fragmentos o partículas. n Se verificará la ausencia de personas en el radio de acción de la máquina. Atrapamiento por objetos. n No se utilizará ropa holgada ni joyas. Aplastamiento por vuelco de máquinas. n No se sobrepasarán los límites de inclinación especificados por el fabricante. Contacto térmico. n Las operaciones de reparación se realizarán con el motor parado, evitandoel contacto con las partes calientes de la máquina. Exposición a agentes químicos. n Se asegurará la correcta ventilación de las emisiones de gases de la maquinaria. Grúa torre. Normas de uso de carácter específico n Antes de iniciar los trabajos: n Se verificará que los ganchos de los elementos de elevación llevan marcada su capacidad de carga máxima y están dotados de pestillo de seguridad. n Se verificará la existencia de un extintor en un lugar accesible cerca de la máquina. n Durante el desarrollo de los trabajos: n No se transportarán personas. n Se prohibirá el paso de trabajadores por debajo de elementos con riesgo de caída de materiales. n No se elevarán cargas que no estén bien sujetas. n No se balanceará la carga. n No se dejará la carga en suspensión en ausencia del conductor. n Se evitará la entrada de humedad en los componentes eléctricos. n Se comprobará que los mandos de la máquina son de material aislante. n No se utilizarán cables eléctricos en mal estado. n No se realizarán empalmes manuales. n Las conexiones se realizarán mediante enchufes y clavijas normalizadas. n Las tomas de corriente serán de tipo industrial y adecuadas para el uso a la intemperie. n No se abandonará la máquina con el motor en marcha. n Se evitará la presencia de trapos impregnados de grasa, combustible, aceite u otros líquidos inflamables. Equipo s de protección individual (EPI) n Par de botas bajas de seguridad. n Ropa de protección de alta visibilidad. n Casco de protección. n Gafas de protección con montura integral. n Par de guantes contra riesgos mecánicos. n Par de guantes contra riesgos térmicos. n Mascarilla autofiltrante. Transporte y retirada de grúa torre para transporte de materiales. En operaciones de carga y descarga n Se descargará a su llegada a obra, desde los camiones de transporte, mediante grúa y elementos de izado adecuados. Posteriormente se realizará el proceso inverso de carga a los camiones, para su retirada de obra. Normas de montaje y desmontaje n Se tendrá preparado en la obra un espacio con la superficie adecuada para ser ocupado por la máquina durante las operaciones de montaje y desmontaje. n El montaje y el desmontaje serán realizados por personas con la experiencia y formación necesarias para ello. n El montaje y el desmontaje serán realizados siguiendo las indicaciones del manual de instrucciones del fabricante. IDENTIFICACIÓN DE LOS RIESGO S DURANTE EL TRANSPORTE Y RETIRADA DEL EQUIPO Cód. Riesgos Medidas preventivas a adoptar Caída de personas a distinto nivel. n En las operaciones de carga y descarga de las máquinas desde los camiones de transporte, será obligatorio el uso de equipos de protección individual contra caídas de altura. Caída de objetos desprendidos. n No se sobrepasará la carga máxima de los elemen tos de elevación. n Se prohibirá el paso de trabajadores por debajo de cargas suspendidas. Atrapamiento por objetos. n Para controlar el movimiento de los elementos suspendidos se emplearán cuerdas guía. Equipos de protección individual (EPI) n Casco de protección. n Ropa de protección. n Par de zapatos de seguridad. n Par de guantes contra riesgos mecánicos. SI SI NO NO d2 d2d .93 6.53 7.32 1.38 7.53 .92 11.67 2.71 2.71 .21 .21 2.56 2.71 1.35 1.35 .42 .35 .05 1.31 .42 .09
  • 8.
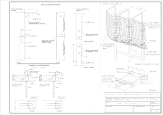
    Tema: Protecciones colectivas MASTILDE BRAZO MOVIL RETENCION RED DE PROTECCION DEL 1º PISO BARANDAS SISTEMA POR MORDAZA PROTECCION DE 1º Y 2º PISO 1º PISO 2º PISO 3º PISO PROTECCION DE 3º Y 2º PISO Los mástiles se desplazarán a través de una pequeña abertura pasante, de 70 mm x 70 mm, que se repite en el conjunto de pisos como guía según se indica en los planos, cada 3 m, con una separación al borde de 15 cm como mínimo.; quedarán sujetos a traves de un pasador. En los pisos donde ya no debe apoyar pueden rellenarse los "huecos guías". Las redes irán atadas al borde de las losas a través de ganchos de sujeción de Fe 8 mm de diámetro, colocados cada 50 cm, con una separación del borde mínima de 10 cm.
  • 9.
    >1m DETALLE DE EJECUCIÓNPARAMENTO EXTERIOR El arnés a usar tendrá una longitud de 1m., cuando la altura del paramento llegue a los 90 cm. ya no será necesario el uso de arnés de seguridad. EL CONJUNTO DEBERA SER RESISTENTE Y ESTABLE. BORRIQUETA TABLONES DEL TABLON 5 CM. MAXIMO 3.00 METROS ESPESOR MINIMO EN ALTURAS SUPERIORES A 2 METROS, SE DISPONDRAN BARANDILLAS EN TODO EL PERIMETRO. LOS TABLONES DE LA PLATAFORMA IRAN ATADOS O BIEN SUJETOS A LAS BORRIQUETAS. LA ANCHURA MINIMA DE LA PLATAFORMA DEL ANDAMIO SERA DE 60 CENTIMETROS. REPARTIR EL PESO DE MANERA UNIFORME Y SIN CARGAS EXCESIVAS. NO UTILIZAR PARA EL APOYO DE LOS TABLONES, OTRO ELEMENTO DISTINTO DE LAS EN UN MISMO PUNTO QUE PODRIA DESEQUILIBRAR O INCLUSO LLEGAR A PARTIR LOS TABLONES NO SOBRECARGAR LOS TABLONES CON EXCESIVA CANTIDAD DE MATERIALES CONCENTRADOS NO APOYARSE EN EL CONJUNTO EN NINGUNO DE SUS EXTREMOS. LOS TABLONES DE LA PLATAFORMA PUEDAN FLECHAR O INCLUSO LLEGAR A ROMPERSE. SI LA DISTANCIA ENTRE BORRIQUETAS ES MAYOR DE 3 METROS, EXISTE EL PELIGRO QUE Altura de trabajo inferior a 2 metros. AMDAMIO DE BORRIQUETA h< 2 metros 0.60 minim o RUEDAS GIRATORIAS crucetas, pudiendo alzanzar una altura máxima de 13 metros sin necesidad de arriostramiento. TORRE DE 3'00 x 2'73 metros de Base. Está formada por elementos de 3'00 x 1'00 metros y diagonales, pudiendo alzanzar una altura máxima de 10 metros sin necesidad de arriostramiento. TORRE DE 2'00 x 2'00 metros de Base. Está formada por elementos de 2'00 x 1'00 metros y DESCRIPCION GENERAL DE LAS TORRES : PLANCHAS DE TRABAJO MONTAJE DE 3'00 x 2.73) EN LAS TORRES DIAGONAL (CRUCETA MONTAJE DE TORRES MOVILES SI Para castilletes o torres moviles sobre ruedas de hierro (incluido su peso propio). Para castilletes o torres moviles sobre ruedas de goma (incluido su peso propio). Para castilletes o torres moviles sobre ruedas de hierro (incluido su peso propio). EN ENCOFRADOS DE PILARES) NO (PRECAUCIONES A TENER EN CUENTA ANDAMIOS TUBULARES 4 Veces 3 Veces ALTURAS MAXIMAS DE TRABAJO Para castilletes o torres fijas (incluido su peso propio). Para castilletes o torres fijas (incluido su peso propio). 1000 Kg. NORMALES RUEDAS GIRATORIAS 2000 Kg. 2400 Kg. CARGAS ADMISIBLES LARGUERO DIAGONALES ALTURAS MAXIMAS Y CARGAS ADMISIBLES QUITAMIEDO EN TORRES O CASTILLETES DIAGONALE NORMALES QUITAMIEDO EN BR D TL Detalle del enganche BR EN Detalle de la brida y diagonal Brida sencilla SA BR ANDAMIOS DE BORRIQUETAS MEDIOS AUXILIARES ANDAMIOS TUBULARES MEDIOS AUXILIARES ANDAMIOS TABULARES MEDIOS AUXILIARES
  • 11.
    MOSQUETON DE SEGURIDADCON VIROLA ROSCADA CUERDA DEL CINTURON DE SEGURIDAD RONA "UNETRA" CABLE TRENZADO DE ACERO Ø 8 ANCLAJES CINTURON DE SEGURIDAD
  • 12.
    DETALLE DE BARANDILLAPROTECCIÓN EN BORDE DE FORJADOS LEYENDA FASES DE MONTAJE DETALLE DE RED DE SEGURIDAD PARA CAIDAS DE ALTURA DE SUSTENTACIÓN DE REDES OMEGA DE ANCLAJE PARA DOBLAR DE LAS HORCAS TIPO 2 DETALLE DE GANCHO DE SUJECIÓN INFERIOR REDES DE PROTECCIÓN MEDIANTE HORCAS TIPO COMERCIAL SECCION TIPO LEYENDA
  • 13.
    240 cm. 100 cm. 100 cm. 10 cm. DETALLE DESOPORTE TIPO HORCA 400 cm. 800 cm. SISTEMA DE ANCLAJE DE LAS HORCAS DE SUJECCIÓN DE REDES EN LA CONSTRUCCIÓN DE ESTRUCTURAS
  • 14.
    DE ESCALERAS DEMANO PRECAUCIONES EN EL USO DE SUSTENTACIÓN DE REDES OMEGA DE ANCLAJE ESPECIAL PARA DOBLAR DE LAS HORCAS 1.67 2.50 ANCLAJE DE HORCAS 0 ' 5 0 m . GUARDACABOS LAZO CON TIPO F Y G HIERRO DULCE Ø 10 mm EN LA ARMADURA, CONECTADO A ANCLAJE PARA PUNTALES ADAPTADOS TRIPODE DE MONTAJE 20x5 cm DURMIENTE DE MADERA AMARRE OPCIONAL CON ARGOLLA DE BASE DE HORMIGON OPCIONAL TENSOR ACERO Ø 8 mm Ø 3 mm CUERDA DE POLIAMIDA ENNUDADA CON MALLA DE 7x7 cm METALICA SOPANDA ENCOFRADO TABIQUA PERIMETRAL ZUNCHO ENCOFRADO LAZO CON 3 APRIETOS INMOVILIZACION DE HORCA TENSOR ACERO Ø 8 mm VUELO UTIL 3,50 m EN CHAPA DE 4mm DE ESPESOR HORCA EN TUBO 100x50 mm SIMPLE A LA HORCA SUJECCION POR APRIETO DE LOS PANOS DE RED MOVIMIENTOS Y ANCLAJE Ø 10 mm PARA CUERDA DE POLIAMIDA
  • 15.
    ANCLAJES CINTURON DESEGURIDAD (Seguro de anclaje móvil) LEYENDA DETALLE DE BARANDILLA PROTECCIÓN EN ESCALERAS REDES DE HORCA 0'50 3'00 1'50 1'50
  • 16.
    PIE DERECHO MÁXIMO 2,50m RODAPIE 15*5 mm EN FORJADO CARTUCHO EMBEBIDO BANDAS AMARILLAS Y NEGRAS TUBO PINTADO EN PIE DERECHO 0,90 m
  • 17.
    BARANDILLAS CON SOPORTETIPO "SARGENTO" ESTRUCTURAS.REDES DE PROTECCION SOPORTE " TIPO - 1 " SOPORTE " TIPO - 3 " 1.00 SOPORTE " TIPO - 2 " 1.00 1.00 2.50 PLANTA GRILLETE PARA IZADO CONJUNTO ESLINGA DE SEGURIDAD ESCALERA PARA MONTAJE DE PILARES METÁLICOS
  • 18.
  • 19.
    TOMA CORRIENTES DESEGURIDAD TOMA MÓVIL PARA MANGUERA BASE FIJA EN CUADRO TOMA CORRIENTES DE SEGURIDAD
  • 21.
  • 22.