Se denomina cimentación al conjunto de elementos
estructurales cuya misión es transmitir las cargas de la
edificación o elementos apoyados a al suelo que lo soporta ;
distribuyéndolas de forma que no superen su presión
admisible ni produzcan cargas zonales.
Debido a que la resistencia del suelo es, generalmente,
menor que la de los columnas o muros que soportará, el área
de contacto entre el suelo y la cimentación será
proporcionalmente más grande que los elementos soportados
(excepto en suelos rocosos muy coherentes).
La cimentación es importante porque es el grupo de elementos
que soportan a la superestructura. Hay que prestar especial
atención ya que la estabilidad de la construcción depende en
gran medida del tipo de terreno.
cimentación
Las funciones principales, que los cimientos han de cumplir
son:
Ser suficientemente resistentes para no romper por cortante.
Soportar esfuerzos de flexión que produce el terreno, para lo
cual se dispondrán armaduras en su cara inferior, que
absorberán las tracciones. armaduras en
Acomodarse a posibles movimientos del terreno.
Soportar las agresiones del terreno y del agua y su presión,
si la hubiera.
FUNCIÓN DE LA CIMENTACION
La elección del tipo de cimentación depende especialmente de las
características mecánicas del terreno, como su cohesión, su
ángulo de rozamiento interno, posición del nivel freático y
también de la magnitud de las cargas existentes. A partir de todos
esos datos se calcula la capacidad portante, que junto con la
homogeneidad del terreno aconsejan usar un tipo u otro diferente
de cimentación.
Siempre que es posible se emplean cimentaciones superficiales,
ya que son el tipo de cimentación menos costoso y más simple de
ejecutar. Cuando por problemas con la capacidad portante o la
homogeneidad del mismo no es posible usar cimentación
superficial se valoran otros tipos de cimentaciones.
Hay dos tipos fundamentales de cimentación: directas y
profundas.
ELECION DE LA CIMENTACION
Para poder realizar una buena cimentación es necesario un
conocimiento previo del terreno en el que
se va a construir la estructura. Aquí vamos a realizar una
pequeña introducción sobre el suelo y la roca.
Los términos roca y suelo, tal como se usan en la ingeniería civil,
implican una clara distinción entre dos clases de materiales de
cimentación.
Se dice que roca es un agregado natural de granos
minerales unidos por grandes y permanentes fuerzas de
cohesión. Por otra parte, se considera que
suelo es un agregado natural de granos minerales, con o sin
componentes orgánicos, que pueden separarse por medios
mecánicos comunes, tales como la agitación en el agua.
CONSIDERACIONES SOBRE EL SUELO
El ingeniero especialista en cimentaciones también debe
conocer las propiedades hidráulicas de los suelos.
Si, por ejemplo, en la construcción de una cimentación se
requiere abatir el nivel de agua freática, el ingeniero deberá
estar informado con respecto a las propiedades hidráulicas y
las características de drenaje de los materiales del subsuelo.
Las características de esfuerzo-deformación de un suelo o
de una roca, determinan el asiento que una estructura
dada puede experimentar. Los asentamientos de las
estructuras construidas sobre mantos de arcilla blanda,
que algunas veces están enterrados profundamente
debajo de materiales
mas resistentes y menos compresibles, pueden
producirse lentamente y alcanzar grandes magnitudes
Estas características del terreno son fundamentales a la hora de la
elección de la cimentación.
La influencia del tipo de edificio a ejecutar también es importante
en la selección de la cimentación.
Las características más importantes de los edificios a la hora de la
cimentación pueden ser:
a) Existencia de sótanos
a) Edificios ligeros de poca altura: se usará cimentación superficial
b) Edificios de poca altura: losas, pilotaje
c) Edificios de gran altura: Cimentaciones profundas o losas de
cimentación
Antes de la selección de la cimentación, y como parte previa a la
redacción del proyecto, debe realizarse un estudio geotécnico del
terreno que en sus conclusiones debe recomendar los tipos de
cimentaciones más adecuados
CLASIFICACION DE CIMIENTOS
1. POR SU PROFUNDIDAD 2. POR SU ESTRUCTURA
CIMIENTOS SUPERFICIALES
CIMIENTOS PROFUNDOS
CONCRETO SIMPLE
CONCRETO ARMADO
•CIMIENTOS CORRIDOS
•ZAPATAS
•VIGAS DE CIMENTACION
•LOSA DE CIMENTACION
•PILOTES
•CIMIENTOS CORRIDOS:
C:H, 1 : 10 + 30% DE
PIEDRA GRANDE
•ZAPATAS SIMPLES: SIN
ARMADURA; C:H, 1 : 10 +
30% DE PIEDRA GRANDE
• CIMIENTACION CON
ACERO DE REFUERZO Y
CONCRETO F’c=210, 280,
Kg/cm2
Cimentaciones superficiales
Cuando a nivel de la zona inferior de la estructura, el
terreno presenta características adecuadas
desde los puntos de vista técnico y económico para
cimentar sobre él, la cimentación se denominará
superficial o directa.
Las cimentaciones superficiales estarán constituidas por
zapatas, vigas y placas, o por combinaciones de estos
elementos.
Zapatas
Se trata de la solución más usada, debido a que es la más económica, de
más fácil ejecución y adaptarse bien a terrenos resistentes.
Es además una solución interesante para luces importantes.
Una zapata es una ampliación de la base de una columna o muro que
tiene por objeto transmitir la carga al subsuelo a una presión adecuada a
las propiedades del suelo.
A las zapatas que soportan una sola columna se llaman individuales o
zapatas aisladas.
La zapata que se construye debajo de un muro se llama zapata corrida o
zapata continua.
Si una zapata soporta varias columnas se llama zapata combinada.
Una forma especial de zapata combinada que se usa normalmente en el
caso que
una de las columnas soporte un muro exterior es la zapata en voladizo o
cantiléver.
Una zapata excéntrica unida a través de una viga con una zapata céntrica
se llama zapata conectada
. Como características principales una zapata debe
cumplir:
a) Conducción de las cargas al terreno a través de
los elementos estructurales.
b) Reparto uniforme de las cargas para que no se
superen las tensiones superficiales del terreno.
c) Deben limitarse los asientos de la estructura a los
máximos admisibles por ésta, y evitar asimismo los
asientos diferenciales.
d) Las cimentaciones deben quedar ocultas
CARACTERÍSTICAS PRINCIPALES
UNA ZAPATA
TIPOS DE ZAPATAS AISLADAS
ZAPATAS
CENTRICAS
ZAPATAS
EXCENTRICAS
Existe una segunda clasificación, mas extendida, en la que se considera:
- zapatas rígidas, aquellas en las que el vuelo es menor o igual que el
canto.
- zapatas flexibles, aquellas en las que el vuelo es mayor que el canto
ZAPATAS AISLADAS DETALLE
ZAPATA COMBINADA
ZAPATA CONECTADA CON VIGA DE CIMENTACION
El dimensionamiento de las armaduras necesarias en las zapatas de hormigón
armado se
efectuará de acuerdo con la norma E060,E020,E030. En la misma se establece
primero una
clasificación de las zapatas atendiendo a la relación entre el vuelo y su canto, siendo
las mismas:
Tipo I. en las que el vuelo está comprendido entre: 0.5 h v 2 h.
El las que el cálculo de la armadura se realiza a flexión simple, generalmente por el
método del momento tope, comprobando la adherencia de las mismas, así como, el
esfuerzo
cortante. El cálculo del punzonamiento generalmente no es necesario.
Tipo II. en las que el vuelo está comprendido entre: v 0.5 h.
Se calculará la armadura como si se tratara de una mensula corta.
Tipo III. en las que el vuelo está comprendido entre: v 2 h.
Se calculará como losa la armadura necesaria.
Tipo IV. Se trata de zapatas en masa (sin armar), en las que deberá comprobarse
que no se
sobrepasen los valores de las resistencias virtuales de cálculo del hormigón a
tracción por
flexión, al esfuerzo cortante y al punzonamient
Una losa de cimentación es una placa de concreto armado apoyada sobre el
terreno que sirve de cimentación que reparte el peso y las cargas del edificio
sobre toda la superficie de apoyo.
Las losas son un tipo de cimentación superficial que tiene muy buen
comportamiento en terrenos poco homogéneos que con otro tipo de
cimentación podrían sufrir asentamientos diferenciales.
También en terrenos con muy poca capacidad portante.
Las losas más sencillas son las losas de espesor constante, aunque también
existen la losas nervadas que son más gruesas según la dirección de muros o
filas de pilares.
Su cálculo es similar al de una losa plana de azotea invirtiendo las direcciones
de los esfuerzos y aplicando las cargas tanto axiales como uniformes
provenientes de todo el edificio.
Las trabes de estas losas se invierten para quedar enterradas en el terreno y
evitar obstáculos al aprovechamiento de la superficie, que queda lista para
ocuparse como un firme aunque su superficie aún es rugosa
LOSA DE CIMENTACIÓN
Cimentaciones profundas
Se basan en el esfuerzo cortante entre el terreno y la cimentación para
soportar las cargas aplicadas, o más exactamente en la fricción vertical entre la
cimentación y el terreno.
Por eso deben ser más profundas, para poder proveer sobre una gran área
sobre la que distribuir un esfuerzo suficientemente grande para soportar la
carga. Algunos métodos utilizados en cimentaciones profundas son:
Pilotes: son elementos de cimentación esbeltos que se hincan (pilotes de
desplazamiento prefabricados) o construyen en una cavidad previamente
abierta en el terreno (pilotes de extracción ejecutados in situ).
Antiguamente eran de madera, hasta que en los años 1940 comenzó a
emplearse el concreto armado
Pantallas: es necesario anclar el muro al terreno.
pantallas isostáticas: con una línea de anclajes
pantallas hiperestáticas: dos o más líneas de anclajes
Cimentación por pilotes:
En ocasiones, cuando comenzamos a realizar la excavación para la
ejecución de obra, podemos encontrarnos diversas dificultades para
encontrar el estrato resistente o firme donde queremos cimentar.
O simplemente se nos presenta la necesidad de apoyar una carga
aislada sobre un terreno sin firme, o difícilmente accesible por
métodos habituales.
Los cimientos, a fin de distribuir la carga, pueden extenderse
horizontalmente, pero también pueden desarrollarse verticalmente
hasta alcanzar estratos más bajos capaces de soportarla.
En estos casos se recurre a la solución de cimentación profunda,
que se constituye por medio de muros verticales profundos de
hormigón, los muros pantalla o bien a base de pilares hincados o
perforados en el terreno, denominados pilotes.
Un pilote es un soporte, normalmente de hormigón armado, de
una gran longitud en relación a su sección transversal, que puede
hincarse o construirse “in situ” en una cavidad abierta en el
terreno.
Los pilotes son columnas esbeltas con capacidad para soportar y
transmitir cargas a estratos más resistentes o de roca, o por
rozamiento en el fuste.
Por lo general, su diámetro o lado no es mayor de 60 cms.
Constituye un sistema constructivo de cimentación profunda al
que denominaremos cimentación por pilotaje.
Los pilotes son necesarios cuando la capa superficial o suelo
portante no es capaz de resistir el peso del edificio o bien cuando
esta se encuentra a gran profundidad; también cuando el terreno
esta lleno de agua y ello dificulta los trabajos de excavación.
Con la construcción de pilotes se evitan edificaciones costosas y
volúmenes grandes de cimentación
Los pilotes pueden alcanzar profundidades superiores a los 40 mts
teniendo una sección transversal de 2-4 mts, pudiendo gravitar sobre
ellos una carga de 2000 t. Los pilotes deben recibir fuerzas longitudinales
de compresión, ya que las cargas por flexión producen deformaciones
mayores con alto grado de peligrosidad; sin embargo, en ocasiones
deberán tomarse en cuenta otras solicitaciones de cargas horizontales
como viento y sismo.
Una excentricidad por pequeña que sea provoca cambios importantes en
los esfuerzos de los pilotes.
La capacidad de estos para soportar las cargas dependerá de la resistencia
desarrollada entre ellos y el subsuelo.
De acuerdo con su función de trabajo, los tipos de pilotes son:
• Pilotes apoyados en manto resistente.
• Pilotes trabajando por fricción del fuste con el suelo.
• Una combinación de ambos, es decir, por apoyo directo en la capa
resistente y por rozamiento sobre una parte de su longitud
empotrada.
El empleo de cimentaciones mediante pilotaje esta indicado en los
siguientes casos:
• Cuando la carga transmitida por las estructuras no puede ser
distribuida en el terreno de forma uniforme mediante el empleo de
sistemas de cimentación directa como zapatas o losas.
• Cuando el nivel del firme no puede ser alcanzado de forma sencilla o
se encuentra a gran pofundidad.
• Cuando los estratos superiores del terreno son poco consistentes hasta
cotas profundas, contienen gran cantidad de agua o bien se necesita
cimentar por debajo del nivel freático.
• Cuando se prevea que los estratos inmediatos a la superficie de
cimentación pueden determinar asientos imprevisibles de cierta
importancia.
Si se quiere reducir o limitar los posibles asientos de la edificación.
En presencia de grandes cargas y concentradas.
Si las distintas capas superficiales de los terrenos pueden sufrir
variaciones estacionales como hinchamientos, retracciones, etc.
En edificaciones sobre el agua.
Cimentaciones
Cimentaciones
Cimentaciones
Cimentaciones
Cimentaciones
Cimentaciones
Cimentaciones
Cimentaciones
Cimentaciones
Cimentaciones
Cimentaciones
Cimentaciones
Cimentaciones

Cimentaciones

  • 3.
    Se denomina cimentaciónal conjunto de elementos estructurales cuya misión es transmitir las cargas de la edificación o elementos apoyados a al suelo que lo soporta ; distribuyéndolas de forma que no superen su presión admisible ni produzcan cargas zonales. Debido a que la resistencia del suelo es, generalmente, menor que la de los columnas o muros que soportará, el área de contacto entre el suelo y la cimentación será proporcionalmente más grande que los elementos soportados (excepto en suelos rocosos muy coherentes). La cimentación es importante porque es el grupo de elementos que soportan a la superestructura. Hay que prestar especial atención ya que la estabilidad de la construcción depende en gran medida del tipo de terreno. cimentación
  • 4.
    Las funciones principales,que los cimientos han de cumplir son: Ser suficientemente resistentes para no romper por cortante. Soportar esfuerzos de flexión que produce el terreno, para lo cual se dispondrán armaduras en su cara inferior, que absorberán las tracciones. armaduras en Acomodarse a posibles movimientos del terreno. Soportar las agresiones del terreno y del agua y su presión, si la hubiera. FUNCIÓN DE LA CIMENTACION
  • 5.
    La elección deltipo de cimentación depende especialmente de las características mecánicas del terreno, como su cohesión, su ángulo de rozamiento interno, posición del nivel freático y también de la magnitud de las cargas existentes. A partir de todos esos datos se calcula la capacidad portante, que junto con la homogeneidad del terreno aconsejan usar un tipo u otro diferente de cimentación. Siempre que es posible se emplean cimentaciones superficiales, ya que son el tipo de cimentación menos costoso y más simple de ejecutar. Cuando por problemas con la capacidad portante o la homogeneidad del mismo no es posible usar cimentación superficial se valoran otros tipos de cimentaciones. Hay dos tipos fundamentales de cimentación: directas y profundas. ELECION DE LA CIMENTACION
  • 6.
    Para poder realizaruna buena cimentación es necesario un conocimiento previo del terreno en el que se va a construir la estructura. Aquí vamos a realizar una pequeña introducción sobre el suelo y la roca. Los términos roca y suelo, tal como se usan en la ingeniería civil, implican una clara distinción entre dos clases de materiales de cimentación. Se dice que roca es un agregado natural de granos minerales unidos por grandes y permanentes fuerzas de cohesión. Por otra parte, se considera que suelo es un agregado natural de granos minerales, con o sin componentes orgánicos, que pueden separarse por medios mecánicos comunes, tales como la agitación en el agua. CONSIDERACIONES SOBRE EL SUELO
  • 7.
    El ingeniero especialistaen cimentaciones también debe conocer las propiedades hidráulicas de los suelos. Si, por ejemplo, en la construcción de una cimentación se requiere abatir el nivel de agua freática, el ingeniero deberá estar informado con respecto a las propiedades hidráulicas y las características de drenaje de los materiales del subsuelo. Las características de esfuerzo-deformación de un suelo o de una roca, determinan el asiento que una estructura dada puede experimentar. Los asentamientos de las estructuras construidas sobre mantos de arcilla blanda, que algunas veces están enterrados profundamente debajo de materiales mas resistentes y menos compresibles, pueden producirse lentamente y alcanzar grandes magnitudes
  • 8.
    Estas características delterreno son fundamentales a la hora de la elección de la cimentación. La influencia del tipo de edificio a ejecutar también es importante en la selección de la cimentación. Las características más importantes de los edificios a la hora de la cimentación pueden ser: a) Existencia de sótanos a) Edificios ligeros de poca altura: se usará cimentación superficial b) Edificios de poca altura: losas, pilotaje c) Edificios de gran altura: Cimentaciones profundas o losas de cimentación Antes de la selección de la cimentación, y como parte previa a la redacción del proyecto, debe realizarse un estudio geotécnico del terreno que en sus conclusiones debe recomendar los tipos de cimentaciones más adecuados
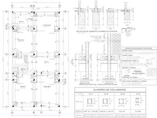
  • 10.
    CLASIFICACION DE CIMIENTOS 1.POR SU PROFUNDIDAD 2. POR SU ESTRUCTURA CIMIENTOS SUPERFICIALES CIMIENTOS PROFUNDOS CONCRETO SIMPLE CONCRETO ARMADO •CIMIENTOS CORRIDOS •ZAPATAS •VIGAS DE CIMENTACION •LOSA DE CIMENTACION •PILOTES •CIMIENTOS CORRIDOS: C:H, 1 : 10 + 30% DE PIEDRA GRANDE •ZAPATAS SIMPLES: SIN ARMADURA; C:H, 1 : 10 + 30% DE PIEDRA GRANDE • CIMIENTACION CON ACERO DE REFUERZO Y CONCRETO F’c=210, 280, Kg/cm2
  • 12.
    Cimentaciones superficiales Cuando anivel de la zona inferior de la estructura, el terreno presenta características adecuadas desde los puntos de vista técnico y económico para cimentar sobre él, la cimentación se denominará superficial o directa. Las cimentaciones superficiales estarán constituidas por zapatas, vigas y placas, o por combinaciones de estos elementos.
  • 13.
    Zapatas Se trata dela solución más usada, debido a que es la más económica, de más fácil ejecución y adaptarse bien a terrenos resistentes. Es además una solución interesante para luces importantes. Una zapata es una ampliación de la base de una columna o muro que tiene por objeto transmitir la carga al subsuelo a una presión adecuada a las propiedades del suelo. A las zapatas que soportan una sola columna se llaman individuales o zapatas aisladas. La zapata que se construye debajo de un muro se llama zapata corrida o zapata continua. Si una zapata soporta varias columnas se llama zapata combinada. Una forma especial de zapata combinada que se usa normalmente en el caso que una de las columnas soporte un muro exterior es la zapata en voladizo o cantiléver. Una zapata excéntrica unida a través de una viga con una zapata céntrica se llama zapata conectada
  • 14.
    . Como característicasprincipales una zapata debe cumplir: a) Conducción de las cargas al terreno a través de los elementos estructurales. b) Reparto uniforme de las cargas para que no se superen las tensiones superficiales del terreno. c) Deben limitarse los asientos de la estructura a los máximos admisibles por ésta, y evitar asimismo los asientos diferenciales. d) Las cimentaciones deben quedar ocultas CARACTERÍSTICAS PRINCIPALES UNA ZAPATA
  • 15.
    TIPOS DE ZAPATASAISLADAS ZAPATAS CENTRICAS ZAPATAS EXCENTRICAS Existe una segunda clasificación, mas extendida, en la que se considera: - zapatas rígidas, aquellas en las que el vuelo es menor o igual que el canto. - zapatas flexibles, aquellas en las que el vuelo es mayor que el canto
  • 17.
  • 19.
  • 21.
    ZAPATA CONECTADA CONVIGA DE CIMENTACION
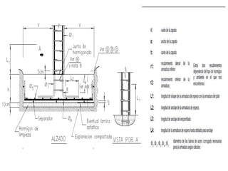
  • 43.
    El dimensionamiento delas armaduras necesarias en las zapatas de hormigón armado se efectuará de acuerdo con la norma E060,E020,E030. En la misma se establece primero una clasificación de las zapatas atendiendo a la relación entre el vuelo y su canto, siendo las mismas: Tipo I. en las que el vuelo está comprendido entre: 0.5 h v 2 h. El las que el cálculo de la armadura se realiza a flexión simple, generalmente por el método del momento tope, comprobando la adherencia de las mismas, así como, el esfuerzo cortante. El cálculo del punzonamiento generalmente no es necesario. Tipo II. en las que el vuelo está comprendido entre: v 0.5 h. Se calculará la armadura como si se tratara de una mensula corta. Tipo III. en las que el vuelo está comprendido entre: v 2 h. Se calculará como losa la armadura necesaria. Tipo IV. Se trata de zapatas en masa (sin armar), en las que deberá comprobarse que no se sobrepasen los valores de las resistencias virtuales de cálculo del hormigón a tracción por flexión, al esfuerzo cortante y al punzonamient
  • 46.
    Una losa decimentación es una placa de concreto armado apoyada sobre el terreno que sirve de cimentación que reparte el peso y las cargas del edificio sobre toda la superficie de apoyo. Las losas son un tipo de cimentación superficial que tiene muy buen comportamiento en terrenos poco homogéneos que con otro tipo de cimentación podrían sufrir asentamientos diferenciales. También en terrenos con muy poca capacidad portante. Las losas más sencillas son las losas de espesor constante, aunque también existen la losas nervadas que son más gruesas según la dirección de muros o filas de pilares. Su cálculo es similar al de una losa plana de azotea invirtiendo las direcciones de los esfuerzos y aplicando las cargas tanto axiales como uniformes provenientes de todo el edificio. Las trabes de estas losas se invierten para quedar enterradas en el terreno y evitar obstáculos al aprovechamiento de la superficie, que queda lista para ocuparse como un firme aunque su superficie aún es rugosa LOSA DE CIMENTACIÓN
  • 52.
    Cimentaciones profundas Se basanen el esfuerzo cortante entre el terreno y la cimentación para soportar las cargas aplicadas, o más exactamente en la fricción vertical entre la cimentación y el terreno. Por eso deben ser más profundas, para poder proveer sobre una gran área sobre la que distribuir un esfuerzo suficientemente grande para soportar la carga. Algunos métodos utilizados en cimentaciones profundas son: Pilotes: son elementos de cimentación esbeltos que se hincan (pilotes de desplazamiento prefabricados) o construyen en una cavidad previamente abierta en el terreno (pilotes de extracción ejecutados in situ). Antiguamente eran de madera, hasta que en los años 1940 comenzó a emplearse el concreto armado Pantallas: es necesario anclar el muro al terreno. pantallas isostáticas: con una línea de anclajes pantallas hiperestáticas: dos o más líneas de anclajes
  • 54.
    Cimentación por pilotes: Enocasiones, cuando comenzamos a realizar la excavación para la ejecución de obra, podemos encontrarnos diversas dificultades para encontrar el estrato resistente o firme donde queremos cimentar. O simplemente se nos presenta la necesidad de apoyar una carga aislada sobre un terreno sin firme, o difícilmente accesible por métodos habituales. Los cimientos, a fin de distribuir la carga, pueden extenderse horizontalmente, pero también pueden desarrollarse verticalmente hasta alcanzar estratos más bajos capaces de soportarla. En estos casos se recurre a la solución de cimentación profunda, que se constituye por medio de muros verticales profundos de hormigón, los muros pantalla o bien a base de pilares hincados o perforados en el terreno, denominados pilotes.
  • 55.
    Un pilote esun soporte, normalmente de hormigón armado, de una gran longitud en relación a su sección transversal, que puede hincarse o construirse “in situ” en una cavidad abierta en el terreno. Los pilotes son columnas esbeltas con capacidad para soportar y transmitir cargas a estratos más resistentes o de roca, o por rozamiento en el fuste. Por lo general, su diámetro o lado no es mayor de 60 cms. Constituye un sistema constructivo de cimentación profunda al que denominaremos cimentación por pilotaje. Los pilotes son necesarios cuando la capa superficial o suelo portante no es capaz de resistir el peso del edificio o bien cuando esta se encuentra a gran profundidad; también cuando el terreno esta lleno de agua y ello dificulta los trabajos de excavación. Con la construcción de pilotes se evitan edificaciones costosas y volúmenes grandes de cimentación
  • 56.
    Los pilotes puedenalcanzar profundidades superiores a los 40 mts teniendo una sección transversal de 2-4 mts, pudiendo gravitar sobre ellos una carga de 2000 t. Los pilotes deben recibir fuerzas longitudinales de compresión, ya que las cargas por flexión producen deformaciones mayores con alto grado de peligrosidad; sin embargo, en ocasiones deberán tomarse en cuenta otras solicitaciones de cargas horizontales como viento y sismo. Una excentricidad por pequeña que sea provoca cambios importantes en los esfuerzos de los pilotes. La capacidad de estos para soportar las cargas dependerá de la resistencia desarrollada entre ellos y el subsuelo. De acuerdo con su función de trabajo, los tipos de pilotes son: • Pilotes apoyados en manto resistente. • Pilotes trabajando por fricción del fuste con el suelo. • Una combinación de ambos, es decir, por apoyo directo en la capa resistente y por rozamiento sobre una parte de su longitud empotrada.
  • 57.
    El empleo decimentaciones mediante pilotaje esta indicado en los siguientes casos: • Cuando la carga transmitida por las estructuras no puede ser distribuida en el terreno de forma uniforme mediante el empleo de sistemas de cimentación directa como zapatas o losas. • Cuando el nivel del firme no puede ser alcanzado de forma sencilla o se encuentra a gran pofundidad. • Cuando los estratos superiores del terreno son poco consistentes hasta cotas profundas, contienen gran cantidad de agua o bien se necesita cimentar por debajo del nivel freático. • Cuando se prevea que los estratos inmediatos a la superficie de cimentación pueden determinar asientos imprevisibles de cierta importancia. Si se quiere reducir o limitar los posibles asientos de la edificación. En presencia de grandes cargas y concentradas. Si las distintas capas superficiales de los terrenos pueden sufrir variaciones estacionales como hinchamientos, retracciones, etc. En edificaciones sobre el agua.