Incrustar presentación
Descargado 643 veces





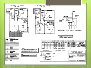
El cuadro de cargas proporciona una vista clara y rápida del circuito eléctrico de una vivienda, identificando el número de circuito, la ubicación cubierta y el tipo y cantidad de carga. Los circuitos ramales no deben exceder 1000w, los sistemas monofásicos requieren al menos 9 circuitos para 9kw de carga máxima, y se deben usar cajas trifásicas para 12 o más circuitos.



