La mec
La mecá
ánica
nica
del ascensor
del ascensor
Y as
Y así
í comenz
comenzó
ó el tema
el tema
Ascensor Hidr
Ascensor Hidrá
áulico.
ulico.
Hidráulico diferencial Hidráulico directo.
Ascensor Electromec
Ascensor Electromecá
ánico
nico
Equipo tipo: con sala de máquinas.
Equipo tipo: sin sala de máquinas.
Versión 2V Versión VVVF
M
Má
áquinas tractoras.
quinas tractoras.
Tipo Sinf
Tipo Sinfí
ín
n-
-corona.
corona.
ENGRANAJES SINFÍN-CORONA.
NIVEL DE RUIDO 60-65 dBA.
VENTAJAS
- BAJO COSTE.
- UTILIZADA EN EL 90% ASCENSORES.
- MUCHOS RATIOS DE TRANSMISION (VELOCIDADES).
INCONVENIENTES
- RENDIMIENTO BAJO 65%.
- ALTO CONSUMO.
- NECESITA ACEITE.
- VELOCIDAD DEL MOTOR 1500 RPM.
EC
EC-
-1 : AS
1 : AS-
-88 de SASSI
88 de SASSI
M
Má
áquinas tractoras.
quinas tractoras.
Tipo
Tipo Gearless
Gearless.
.
MÁQUINAS GEARLESS.
NIVEL DE RUIDO 50-55 dBA.
VENTAJAS
- MUY COMPACTO.
- FABRICACION DE ALTA CALIDAD.
- MUY ALTO RENDIMIENTO.
- BAJO CONSUMO.
- NO PRECISA DE ACEITE.
- VELOCIDAD DEL MOTOR 90 - 150 RPM.
INCONVENIENTES
- ALTO COSTE.
- NECESITAN VARIADOR DE FRECUENCIA.
- MAYORES NECESIDADES DE POTENCIA.
ALPHA EPM100
ALPHA EPM100
Componentes para
Componentes para
ascensores.
ascensores.
Bastidores:
Bastidores:
- Bastidor cabina.
- Bastidor contrapeso.
Enor Compact Ec-4
Enor Compact Ec-4
Componentes para
Componentes para
ascensores.
ascensores.
Limitador velocidad.
Limitador velocidad.
Componentes para
Componentes para
ascensores.
ascensores.
Paraca
Paracaí
ídas.
das.
Paracaídas instantáneos.
Paracaídas progresivos.
INSTALACIONES ESPECIALES
INSTALACIONES ESPECIALES
TORRE CONTROL MAR
TORRE CONTROL MARÍ
ÍTIMO
TIMO
INSTALACIONES ESPECIALES
INSTALACIONES ESPECIALES
PANOR
PANORÁ
ÁMICO
MICO “
“LOS TELARES
LOS TELARES”
”
SECCION VERTICAL C-C
!
PLANTA GENERAL B-B
SALA DE MAQUINAS A-A
NOTA : PREVER VENTILACION AL EXTERIOR
INSTALACIONES ESPECIALES
INSTALACIONES ESPECIALES
SECCION VERTICAL C-C
Superf.: 1 ,5 4 m²
!
!
!
!
SALA DE MAQUINAS A-A
C A I X A
!
!
!
CORTE NO POÇO
PLANTA GERAL A-A
Superf.: 1 ,54 m²
!
CASA DAS MAQUINAS EM PL. 1 ª
NOTA : PREVER VENTILAÇAO AO EXTERIOR
CORTE VERTICAL C-C
SECCION VERTICAL C-C
!
!
PLANTA GENERAL A-A
Superf.: 1 ,5 4 m²
!
!
!
!
!
Superficie: 1 3 ,19 m²
PLANTA GENERAL A-A
Superficie: 1 2,6 4 m²
! !
CONTROL DE
CONTROL DE
ASCENSORES
ASCENSORES
GUION:
GUION:

 SISTEMAS DE TRACCION
SISTEMAS DE TRACCION

 MANIOBRA DE CONTROL ( HARDWARE )
MANIOBRA DE CONTROL ( HARDWARE )

 MANIOBRA DE CONTROL ( SOFTWARE )
MANIOBRA DE CONTROL ( SOFTWARE )

 SISTEMAS DE EMERGENCIA
SISTEMAS DE EMERGENCIA

 MONITORIZACION
MONITORIZACION
SISTEMAS DE
SISTEMAS DE
TRACCION
TRACCION
ELECTRONICA
ELECTRONICA
DE POTENCIA
DE POTENCIA
ACELERACIONES Y VELOCIDADES
ACELERACIONES Y VELOCIDADES

 ASCENSOR MODERNO
ASCENSOR MODERNO

 REQUISITOS DE CONFORT
REQUISITOS DE CONFORT

 ARRANQUE Y PARADAS SUAVES
ARRANQUE Y PARADAS SUAVES

 PRECISION EN LA NIVELACION
PRECISION EN LA NIVELACION

 AHORRO DE ENERGIA
AHORRO DE ENERGIA

 DEBE EVITARSE
DEBE EVITARSE

 VIBRACIONES Y RUIDOS
VIBRACIONES Y RUIDOS

 ARRANQUE, CAMBIOS DE VELOCIDAD Y
ARRANQUE, CAMBIOS DE VELOCIDAD Y
PARADA BRUSCOS
PARADA BRUSCOS

 DESPLAZAMIENTOS LATERALES DE LA CABINA
DESPLAZAMIENTOS LATERALES DE LA CABINA

 ES FUNDAMENTAL
ES FUNDAMENTAL

 EJECUCION MECANICA IMPECABLE
EJECUCION MECANICA IMPECABLE

 SISTEMAS DE TRACCION ADECUADOS
SISTEMAS DE TRACCION ADECUADOS
LIMITACIONES
LIMITACIONES FISIOLOGICAS
FISIOLOGICAS
AL
AL MOVIMIENTO
MOVIMIENTO

 SE PRODUCEN MOLESTIAS EN EL
SE PRODUCEN MOLESTIAS EN EL
CUERPO HUMANO:
CUERPO HUMANO:

 CON ACELERACIONES SUPERIORES A 1,5 m/s
CON ACELERACIONES SUPERIORES A 1,5 m/s2
2

 CON VARIACIONES DE ACELERACION (JERK)
CON VARIACIONES DE ACELERACION (JERK)
SUPERIORES A 2 m/s
SUPERIORES A 2 m/s3
3

 LA VELOCIDAD CONSTANTE DE VIAJE NO
LA VELOCIDAD CONSTANTE DE VIAJE NO
PRODUCE NINGUN EFECTO SOBRE EL CUERPO
PRODUCE NINGUN EFECTO SOBRE EL CUERPO
HUMANO
HUMANO
COMPARATIVA DE PERFILES DE
COMPARATIVA DE PERFILES DE
VIAJE
VIAJE
m/s
FRECUENCIA VARIABLE
2 VELOCIDADES
1 VELOCIDAD
m/s
m/s
VELOCIDAD
S
S
S
TIEMPO
SISTEMA DE TRACCION
SISTEMA DE TRACCION

 COMPUESTO POR
COMPUESTO POR

 MAQUINA DE TRACCION
MAQUINA DE TRACCION

 MOTOR
MOTOR

 CONTROL DE VELOCIDAD
CONTROL DE VELOCIDAD

 PARAMETRO FUNDAMENTAL DE
PARAMETRO FUNDAMENTAL DE
ELECCION
ELECCION

 VELOCIDAD, TENIENDO EN CUENTA
VELOCIDAD, TENIENDO EN CUENTA

 N
Nº
º DE PLANTAS
DE PLANTAS

 DESTINO DEL EDIFICIO
DESTINO DEL EDIFICIO

 USO AL QUE SE DESTINA (PERSONA / CARGA)
USO AL QUE SE DESTINA (PERSONA / CARGA)

 PRECISION REQUERIDA EN LA PARADA
PRECISION REQUERIDA EN LA PARADA

 COSTE DE LA INSTALACION
COSTE DE LA INSTALACION
SISTEMAS EMPLEADOS
SISTEMAS EMPLEADOS

 MAQUINA
MAQUINA

 CON REDUCCION:
CON REDUCCION:

 SINFIN
SINFIN -
- CORONA
CORONA

 HELICOIDAL
HELICOIDAL

 SIN REDUCCION (GEARLESS)
SIN REDUCCION (GEARLESS)

 HIDRAULICO (OLEODINAMICO)
HIDRAULICO (OLEODINAMICO)

 MOTOR:
MOTOR:

 CORRIENTE CONTINUA (CC)
CORRIENTE CONTINUA (CC)

 CORRIENTE ALTERNA (CA)
CORRIENTE ALTERNA (CA)

 CONTROL DE VELOCIDAD
CONTROL DE VELOCIDAD

 NO CONTROLADO
NO CONTROLADO

 VARIACION DE TENSION (VV)
VARIACION DE TENSION (VV)

 VARIACION DE TENSION
VARIACION DE TENSION-
-FRECUENCIA (VVVF)
FRECUENCIA (VVVF)
DIAGRAMA DE VIAJE
DIAGRAMA DE VIAJE
3
JERK
ACELERACION
VELOCIDAD
DISTANCIA
m
m/s
m/s
m/s
S
S
S
S
1 2 4
3.6 m
1.7
1.2
-1.2
1.8
3
2
ASCENSOR CON CONTROL DE VELOCIDAD ELECTRONICO DE
ASCENSOR CON CONTROL DE VELOCIDAD ELECTRONICO DE
TENSION Y FRECUENCIA VARIABLES
TENSION Y FRECUENCIA VARIABLES ( VVVF )
( VVVF )
RANGO DE APLICACION DE LOS DISTINTOS
RANGO DE APLICACION DE LOS DISTINTOS
TIPOS DE TRACCION
TIPOS DE TRACCION
0 1 2 3 4 5 6 7 8 9 10 11 12 13
MAQUINA MOTOR REGULACION
SIN
REDUCCION
HELICOIDAL
CON
REDUCCION
CON
REDUCCION
HIDRAULICO
DC
AC
AC
DC
AC
AC-1V
AC-2V
Ward Leonard
VVVF
VVVF
VV
VVVF
Resistencias
AC
12.5 m/s
Baja Media Alta Muy alta
Velocidad
0.6 1.2 1.6
m/s
6 m/s
4 m/s
2.5 m/s
9 m/s
2.5
RECORDS DE VELOCIDAD
RECORDS DE VELOCIDAD
El r
El ré
écord. TAIPEI 101
cord. TAIPEI 101

 508 m altura
508 m altura

 101 paradas
101 paradas

 17 m/s = 60
17 m/s = 60 km
km/h
/h

 Capacidad 24 personas
Capacidad 24 personas
Innovaciones
Innovaciones

 Paraca
Paracaí
ídas cer
das cerá
ámicos
micos

 Sistema de regulaci
Sistema de regulació
ón
n
de presi
de presió
ón
n

 Amortiguador activo
Amortiguador activo

 Control de vibraci
Control de vibració
ón
n
CONVERTIDOR DE TENSION
CONVERTIDOR DE TENSION
FRECUENCIA PWM
FRECUENCIA PWM

 CARACTERISTICAS BASICAS:
CARACTERISTICAS BASICAS:

 SE UTILIZA CON MOTORES DE 1 VELOCIDAD
SE UTILIZA CON MOTORES DE 1 VELOCIDAD

 CONSISTE EN:
CONSISTE EN:

 RECTIFICADOR TRIFASICO (DIODOS)
RECTIFICADOR TRIFASICO (DIODOS)

 ONDULADOR CON TRANSISTORES
ONDULADOR CON TRANSISTORES

 TENSION DE SALIDA MODULADA EN ANCHO DE
TENSION DE SALIDA MODULADA EN ANCHO DE
PULSO. CORRIENTE EN EL MOTOR
PULSO. CORRIENTE EN EL MOTOR
PRACTICAMENTE SENOIDAL
PRACTICAMENTE SENOIDAL

 FRECUENCIA DE CONMUTACION 15KHz.
FRECUENCIA DE CONMUTACION 15KHz.
BAJO NIVEL SONORO
BAJO NIVEL SONORO

 FRENADO CON O SIN RECUPERACION DE
FRENADO CON O SIN RECUPERACION DE
ENERGIA
ENERGIA
EMC
EMC electromagnetic
electromagnetic compatibility
compatibility
INVERSOR PWM APLICADO A
INVERSOR PWM APLICADO A
LA ELEVACION
LA ELEVACION

 COMPORTAMIENTO INDEPENDIENTE DE LA CARGA
COMPORTAMIENTO INDEPENDIENTE DE LA CARGA

 MUY BUENA NIVELACION (+/
MUY BUENA NIVELACION (+/-
- 1mm.)
1mm.)

 REALIMENTACION DE VELOCIDAD PARA V1m/s
REALIMENTACION DE VELOCIDAD PARA V1m/s

 AHORRO DE ENERGIA
AHORRO DE ENERGIA

 65% CON RECUPERACION A RED
65% CON RECUPERACION A RED

 50% SIN RECUPERACION A RED
50% SIN RECUPERACION A RED

 OPTIMO CONFORT
OPTIMO CONFORT

 FACTOR DE POTENCIA CERCANO A 1
FACTOR DE POTENCIA CERCANO A 1

 BAJO NIVEL DE PARASITOS
BAJO NIVEL DE PARASITOS

 COSTES CADA VEZ MAS ASEQUIBLES
COSTES CADA VEZ MAS ASEQUIBLES

 POSIBILIDAD DE ALIMENTACION MEDIANTE BATERIAS EN CASO
POSIBILIDAD DE ALIMENTACION MEDIANTE BATERIAS EN CASO
DE FALTA DE RED
DE FALTA DE RED

 ES EL SISTEMA DEL FUTURO
ES EL SISTEMA DEL FUTURO
Velocidad
Velocidad -
- Tiempo
Tiempo
Intensidad
Intensidad -
- Tiempo
Tiempo
COMPARACION DE CONSUMOS
COMPARACION DE CONSUMOS
DE ENERGIA
DE ENERGIA

 SIN REGULACION DE VELOCIDAD
SIN REGULACION DE VELOCIDAD

 ASCENSOR DE TRACCION: 100%
ASCENSOR DE TRACCION: 100%

 ASCENSOR HIDRAULICO: 170%
ASCENSOR HIDRAULICO: 170%

 CON VARIACION DE TENSION Y FRENADO
CON VARIACION DE TENSION Y FRENADO
POR CC
POR CC

 CONSUMO 65%
CONSUMO 65%

 CON VARIACION DE TENSION
CON VARIACION DE TENSION-
-
FRECUENCIA
FRECUENCIA

 SIN RECUPERACION DE ENERGIA: 50%
SIN RECUPERACION DE ENERGIA: 50%

 CON RECUPERACION DE ENERGIA: 33%
CON RECUPERACION DE ENERGIA: 33%
COMPARATIVA CONSUMOS
COMPARATIVA CONSUMOS
170
100
65
50
0
20
40
60
80
100
120
140
160
180
HID R.
HID R.
HID R.
HID R. AC -
AC -
AC -
AC -
VV
VV
VV
VV
%
ENERGIA
MANIOBRA DE
MANIOBRA DE
CONTROL
CONTROL
( HARDWARE )
( HARDWARE )
EVOLUCION TECNOLOGICA
EVOLUCION TECNOLOGICA

 LOGICA DE RELES
LOGICA DE RELES ( 1975 )
( 1975 )

 C. INTEGRADOS DIGITALES DE BAJA
C. INTEGRADOS DIGITALES DE BAJA
ESCALA DE INTEGRACION ( 1980 )
ESCALA DE INTEGRACION ( 1980 )

 MICROPROCESADORES
MICROPROCESADORES

 AUTOMATAS PROGRAMABLES
AUTOMATAS PROGRAMABLES
HARDWARE
HARDWARE

 BLOQUES FUNDAMENTALES
BLOQUES FUNDAMENTALES

 MICROPROCESADOR
MICROPROCESADOR

 MEMORIA RAM: CALCULOS INTERMEDIOS
MEMORIA RAM: CALCULOS INTERMEDIOS

 MEMORIA ROM: ALGORITMO DE CONTROL
MEMORIA ROM: ALGORITMO DE CONTROL

 MEMORIA EEPROM: PARAMETROS
MEMORIA EEPROM: PARAMETROS
OPERATIVOS
OPERATIVOS

 SECCION E/S DIGITALES
SECCION E/S DIGITALES

 LECTURA DE SE
LECTURA DE SEÑ
ÑALES
ALES

 ACCION SOBRE ELEMENTOS
ACCION SOBRE ELEMENTOS

 SECCION E/S ANALOGICAS
SECCION E/S ANALOGICAS

 SE
SEÑ
ÑALES DEL SISTEMA DE REGULACION DE
ALES DEL SISTEMA DE REGULACION DE
VELOCIDAD EMPLEADO
VELOCIDAD EMPLEADO

 SECCION DE COMUNICACIONES
SECCION DE COMUNICACIONES

 RS
RS-
-232, RS485, TCP/IP,
232, RS485, TCP/IP, ethernet
ethernet, etc.
, etc.

 MODEM, LINEA TELEFONICA
MODEM, LINEA TELEFONICA
MANIOBRA DE CONTROL
MANIOBRA DE CONTROL

 FUNCIONES QUE REALIZA
FUNCIONES QUE REALIZA

 LECTURA DE SE
LECTURA DE SEÑ
ÑALES
ALES

 LLAMADAS
LLAMADAS

 SEGURIDADES
SEGURIDADES

 ESTADO DEL ASCENSOR
ESTADO DEL ASCENSOR

 CARGA EN CABINA
CARGA EN CABINA

 OBSTACULOS EN PUERTA
OBSTACULOS EN PUERTA

 etc.
etc.

 INTERPRETACION DE LAS SE
INTERPRETACION DE LAS SEÑ
ÑALES
ALES

 EJ. : DESCARTA CABINAS EN FUERA DE
EJ. : DESCARTA CABINAS EN FUERA DE
SERVICIO
SERVICIO

 RELACIONA LA INFORMACION DE VARIAS
RELACIONA LA INFORMACION DE VARIAS
CABINAS
CABINAS

 REPARTE LAS NECESIDADES DE LA FORMA
REPARTE LAS NECESIDADES DE LA FORMA
MAS ADECUADA
MAS ADECUADA
MANIOBRA DE CONTROL
MANIOBRA DE CONTROL

 TRANSMITE ORDENES A CADA CABINA
TRANSMITE ORDENES A CADA CABINA

 PREPARACION PARA LA MARCHA
PREPARACION PARA LA MARCHA

 CIERRE DE PUERTAS
CIERRE DE PUERTAS

 SE
SEÑ
ÑALES AL CONTROL DE POTENCIA
ALES AL CONTROL DE POTENCIA

 ORDEN DE PARADA
ORDEN DE PARADA

 APERTURA DE PUERTAS
APERTURA DE PUERTAS

 INFORMACION AL USUARIO
INFORMACION AL USUARIO

 PILOTOS
PILOTOS

 SE
SEÑ
ÑALES ACUSTICAS
ALES ACUSTICAS

 PANELES DE VISUALIZACION
PANELES DE VISUALIZACION

 FACILITA EL SERVICIO DE MANTENIMIENTO
FACILITA EL SERVICIO DE MANTENIMIENTO

 PARAMETRIZACION
PARAMETRIZACION

 MONITORIZACION
MONITORIZACION LOCAL
LOCAL

 DIAGNOSTICOS
DIAGNOSTICOS REMOTO
REMOTO
SENSORES, ACTUADORES Y
SENSORES, ACTUADORES Y
SE
SEÑ
ÑALIZACION
ALIZACION
MICROCONTACTOS SEGURIDADES
PULSADORES BRAILE, SENSITIVOS
FOTORRUPTORES SEÑALES DE CONTAJE
BARRERA FOTOELECTRICA OBSTACULO EN PUERTA
CELULA DE CARGA PESAJE CARGA CABINA
ENCODER REALIM. DE VELOCIDAD
RELOJ FECHA/HORA
DETECTORES DE INCENDIO MANIOBRA DE BOMBEROS
CAMARA TV. DENSIDAD DE USUARIOS
RECONOCIMIENTO DE VOZ LLAMADAS POR VOZ
ELEMENTO FUNCION
SENSORES, ACTUADORES Y
SENSORES, ACTUADORES Y
SE
SEÑ
ÑALIZACION
ALIZACION

 SE
SEÑ
ÑALIZACION
ALIZACION

 LUMINOSA
LUMINOSA

 REGISTRO DE LLAMADAS
REGISTRO DE LLAMADAS

 SENTIDO DE MARCHA
SENTIDO DE MARCHA

 INDICADOR DE PLANTA
INDICADOR DE PLANTA

 FUERA DE SERVICIO
FUERA DE SERVICIO

 ACUSTICA
ACUSTICA

 SOBRECARGA
SOBRECARGA

 OBSTACULO EN PUERTA
OBSTACULO EN PUERTA

 GONG DE AVISO DE LLEGADA
GONG DE AVISO DE LLEGADA

 SINTESIS DE VOZ (CIEGOS)
SINTESIS DE VOZ (CIEGOS)
SENSORES, ACTUADORES
SENSORES, ACTUADORES
Y SE
Y SEÑ
ÑALIZACION
ALIZACION

 ACTUADORES
ACTUADORES

 CONTACTORES
CONTACTORES

 SISTEMA ELECTRONICO DE CONTROL DE
SISTEMA ELECTRONICO DE CONTROL DE
VELOCIDAD
VELOCIDAD

 ELEMENTOS DE SEGURIDAD
ELEMENTOS DE SEGURIDAD

 ESPECIALES
ESPECIALES

 SISTEMAS DE EMERGENCIA (RESCATA
SISTEMAS DE EMERGENCIA (RESCATA-
-
PERSONAS)
PERSONAS)

 PARA ASCENSORES DE TRACCION
PARA ASCENSORES DE TRACCION

 PARA ASCENSORES HIDRAULICOS
PARA ASCENSORES HIDRAULICOS

 SISTEMA DE TELEFONIA DE EMERGENCIA
SISTEMA DE TELEFONIA DE EMERGENCIA

 AUTONOMO
AUTONOMO

 LLAMADA AUTOMATICA AL SERVICIO 24H
LLAMADA AUTOMATICA AL SERVICIO 24H
MANIOBRA DE
MANIOBRA DE
CONTROL
CONTROL
( SOFTWARE )
( SOFTWARE )
MANIOBRA DE CONTROL
MANIOBRA DE CONTROL
SOFTWARE
SOFTWARE

 SOFTWARE DE CONTROL. MOVIMIENTO DE CADA
SOFTWARE DE CONTROL. MOVIMIENTO DE CADA
CABINA
CABINA

 SOFTWARE DE DISTRIBUCION DE SERVICIOS
SOFTWARE DE DISTRIBUCION DE SERVICIOS

 ASCENSOR INDIVIDUAL
ASCENSOR INDIVIDUAL

 EDIFICIOS CON BAJO NIVEL DE TRAFICO
EDIFICIOS CON BAJO NIVEL DE TRAFICO

 POCAS PLANTAS
POCAS PLANTAS

 ELEVADORES DE MERCANCIAS
ELEVADORES DE MERCANCIAS

 MANIOBRAS ELEMENTALES
MANIOBRAS ELEMENTALES

 AUTOMATICA SIMPLE
AUTOMATICA SIMPLE

 COLECTIVA SELECTIVA EN BAJADA
COLECTIVA SELECTIVA EN BAJADA

 COLECTIVA SELECTIVA EN SUBIDA Y BAJADA
COLECTIVA SELECTIVA EN SUBIDA Y BAJADA
MANIOBRAS INDIVIDUALES
MANIOBRAS INDIVIDUALES
maniobra UNIVERSAL
maniobra UNIVERSAL

 Atiende una sola llamada por viaje. No
Atiende una sola llamada por viaje. No
responde a otras hasta finalizar el servicio.
responde a otras hasta finalizar el servicio.

 Recomendable en :
Recomendable en :

 Edificios de poco tr
Edificios de poco trá
áfico y bajo n
fico y bajo nº
º de paradas.
de paradas.

 Elevadores de mercanc
Elevadores de mercancí
ías.
as.

 Montacoches
Montacoches.
.
1 pulsador por planta
MANIOBRAS INDIVIDUALES
MANIOBRAS INDIVIDUALES
maniobra COLECTIVA EN BAJADA
maniobra COLECTIVA EN BAJADA

 Memoriza las llamadas de cabina y plantas.
Memoriza las llamadas de cabina y plantas.
Las llamadas de cabina se atienden en el
Las llamadas de cabina se atienden en el
orden l
orden ló
ógico de movimiento.
gico de movimiento. Las
Las
llamadas de planta se atienden en sentido de
llamadas de planta se atienden en sentido de
bajada
bajada.
.

 Recomendable en :
Recomendable en :

 Edificios de viviendas de tr
Edificios de viviendas de trá
áfico medio en los que no
fico medio en los que no
son habituales los desplazamientos entre plantas.
son habituales los desplazamientos entre plantas.
1 pulsador por planta
MANIOBRAS INDIVIDUALES
MANIOBRAS INDIVIDUALES
maniobra COLECTIVA EN SUBIDA Y BAJADA
maniobra COLECTIVA EN SUBIDA Y BAJADA

 Memoriza las llamadas de cabina y plantas.
Memoriza las llamadas de cabina y plantas.
Las llamadas de cabina se atienden en el
Las llamadas de cabina se atienden en el
orden l
orden ló
ógico de movimiento.
gico de movimiento. Las
Las
llamadas de planta se atienden en
llamadas de planta se atienden en subida o
subida o
bajada
bajada seg
segú
ún hayan sido seleccionadas.
n hayan sido seleccionadas.

 Recomendable en :
Recomendable en :

 Edificios p
Edificios pú
úblicos, locales comerciales, oficinas,
blicos, locales comerciales, oficinas,etc
etc, con
, con
tr
trá
áfico medio y frecuentes desplazamientos entre
fico medio y frecuentes desplazamientos entre
plantas.
plantas.
2 pulsadores por planta
Comparaci
Comparació
ón de las maniobras
n de las maniobras
UNIVERSAL y COLECTIVA
UNIVERSAL y COLECTIVA
0 0,5 1 1,5 2 2,5 3 3,5 4 4,5 5
TIEMPO en minutos
Maniobra colectiva selectiva en bajada
Maniobra universal
B
B
B
B
6
3
B
1
2
3
4
5
6
7
8
126 m
48 m
MANIOBRA DE CONTROL
MANIOBRA DE CONTROL
SOFTWARE
SOFTWARE

 GRUPOS DE ASCENSORES
GRUPOS DE ASCENSORES

 EDIFICIOS CON NIVEL DE TRAFICO MODERADO O ALTO
EDIFICIOS CON NIVEL DE TRAFICO MODERADO O ALTO

 ELEVADO NUMERO DE PLANTAS
ELEVADO NUMERO DE PLANTAS

 MANIOBRAS COMPLEJAS
MANIOBRAS COMPLEJAS

 REPARTO DE SERVICIOS DE FORMA OPTIMA
REPARTO DE SERVICIOS DE FORMA OPTIMA

 DUPLEX, TRIPLEX, CUADRUPLEX, ETC.
DUPLEX, TRIPLEX, CUADRUPLEX, ETC.
COMPLEJIDAD DEL MANEJO DE UN
COMPLEJIDAD DEL MANEJO DE UN
GRUPO DE ASCENSORES
GRUPO DE ASCENSORES

 OBJETIVO
OBJETIVO

 DISTRIBUIR DE FORMA OPTIMA LOS
DISTRIBUIR DE FORMA OPTIMA LOS
RECURSOS DE UN GRUPO DE ASCENSORES
RECURSOS DE UN GRUPO DE ASCENSORES
QUE SIRVEN A LAS MISMAS PLANTAS DEL
QUE SIRVEN A LAS MISMAS PLANTAS DEL
EDIFICIO
EDIFICIO

 SISTEMAS EMPLEADOS
SISTEMAS EMPLEADOS-
-EVOLUCION
EVOLUCION

 ALGORITMOS BASADOS EN PATRONES
ALGORITMOS BASADOS EN PATRONES

 ALGORITMOS DE MINIMO TIEMPO DE ESPERA
ALGORITMOS DE MINIMO TIEMPO DE ESPERA

 EVALUACION GLOBAL DE PRESTACIONES
EVALUACION GLOBAL DE PRESTACIONES

 EMPLEO DE
EMPLEO DE INTELIGENCIA ARTIFICIAL
INTELIGENCIA ARTIFICIAL
EVOLUCION DE LOS SISTEMAS DE
EVOLUCION DE LOS SISTEMAS DE
CONTROL Y SUPERVISION DE GRUPOS
CONTROL Y SUPERVISION DE GRUPOS
SISTEMAS
DE
SUPERVISION
DE
GRUPOS
AÑO
TIPO
ALGORITMO
BASE
SISTEMA
DE AVISO
Maniobras basadas
en patrones(Relé)
Empleo de
C. Integrados
Control del Mínimo
Tiempo de Espera
Evaluación
Global
Utilización de
Inteligencia Artificial
1971 1975 1982 1988
Asignación por zonas Asignación por llamadas
Control de Intervalos
Predicción de
Tiempo de Espera
Sistema Experto
Control Predictivo
con Funciones de Aprendizaje
Aviso de Asignación
Inmediata de Cabina
Aviso de Llegada
Inmediata de Cabina
Microprocesador
0
50
100
150
200
250
300
350
400
450
500
550
600
650
700
750
800
850
900
950
1000
2 4 6 8 10 12 14 16 18 20
Nº de plantas
4x816
4x812
3x616
3x612
3x610
2x816
2x812
2x616
2x612
2x610
1x812
1x810
1x612
1x610
1x606
1x412
1x410
Población
ESTUDIOS DE TRAFICO
ESTUDIOS DE TRAFICO

 EN FUNCION DE
EN FUNCION DE

 DESTINO DEL EDIFICIO
DESTINO DEL EDIFICIO

 NUMERO DE PLANTAS
NUMERO DE PLANTAS

 POBLACION ESTIMADA
POBLACION ESTIMADA

 TIEMPOS DE ESPERA (CALIDAD DE SERVICIO)
TIEMPOS DE ESPERA (CALIDAD DE SERVICIO)

 PERFIL HORARIO DE DENSIDAD DE LLAMADAS
PERFIL HORARIO DE DENSIDAD DE LLAMADAS

 SE SELECCIONA
SE SELECCIONA

 NUMERO DE ASCENSORES
NUMERO DE ASCENSORES

 CAPACIDAD DE LAS CABINAS
CAPACIDAD DE LAS CABINAS

 VELOCIDAD
VELOCIDAD

 TIPO DE MANIOBRA
TIPO DE MANIOBRA
SISTEMAS DE
SISTEMAS DE
EMERGENCIA
EMERGENCIA
SISTEMAS ELECTRONICOS DE
SISTEMAS ELECTRONICOS DE
EMERGENCIA
EMERGENCIA
VOZ
SISTEMA SCA
AYUDA ON - LINE
CONTROL REMOTO
MANTENIMIENTO
PREVENTIVO
DATOS
SISTEMA STD
SISTEMAS DE COMUNICACION
POR LINEA TELEFONICA
ASCENSOR
ELECTRICO
ASCENSOR
HIDRAULICO
RESCATAPERSONAS
AUTOMATICOS
Sistema AVT
Sistema AVT -
- SCA
SCA

 Dispositivo que efect
Dispositivo que efectú
úa una llamada al
a una llamada al
servicio de mantenimiento de 24H.
servicio de mantenimiento de 24H.

 Activo en situaciones de:
Activo en situaciones de:

 FALTA DE ENERGIA
FALTA DE ENERGIA

 AVERIA
AVERIA

 Equipo aut
Equipo autó
ónomo. Alimentado por
nomo. Alimentado por
bater
baterí
ía.
a.

 La persona atrapada es tranquilizada e
La persona atrapada es tranquilizada e
informada de las acciones puestas en
informada de las acciones puestas en
marcha para su rescate
marcha para su rescate
Sistema STD
Sistema STD

 Dispositivo electr
Dispositivo electró
ónico que permite la
nico que permite la
comunicaci
comunicació
ón de datos entre el armario
n de datos entre el armario
de control y la central de mantenimiento
de control y la central de mantenimiento
mediante una l
mediante una lí
ínea telef
nea telefó
ónica en la sala
nica en la sala
de m
de má
áquinas.
quinas.

 Permite la comunicaci
Permite la comunicació
ón
n bidireccional
bidireccional :
:

 CENTRAL ===== SALA DE MAQUINAS
CENTRAL ===== SALA DE MAQUINAS

 Ventajas :
Ventajas :

 Ayuda ON
Ayuda ON-
-LINE
LINE

 Mantenimiento preventivo
Mantenimiento preventivo
RESCATAPERSONAS
RESCATAPERSONAS
AUTOMATICOS
AUTOMATICOS

 Equipos electr
Equipos electró
ónicos de potencia que
nicos de potencia que
suministran energ
suministran energí
ía mediante bater
a mediante baterí
ías al
as al
ascensor en situaciones de emergencia.
ascensor en situaciones de emergencia.

 La causa m
La causa má
ás habitual de parada de un
s habitual de parada de un
ascensor es la falta de fluido el
ascensor es la falta de fluido elé
éctrico.
ctrico.

 Los
Los rescatapersonas
rescatapersonas autom
automá
áticos mueven la
ticos mueven la
cabina y abren las puertas al llegar a planta,
cabina y abren las puertas al llegar a planta,
evacuando as
evacuando así
í a los pasajeros.
a los pasajeros.

 El rescate s
El rescate só
ólo es posible si todos los
lo es posible si todos los
elementos de seguridad est
elementos de seguridad está
án correctos.
n correctos.
MONITORIZACION
MONITORIZACION
EL PAPEL DE LA
EL PAPEL DE LA
MONITORIZACION REMOTA
MONITORIZACION REMOTA

 LA TECNOLOGIA DEL MICROPROCESADOR
LA TECNOLOGIA DEL MICROPROCESADOR
PERMITE:
PERMITE:

 MANEJAR GRAN CANTIDAD DE INFORMACION
MANEJAR GRAN CANTIDAD DE INFORMACION

 COSTE RAZONABLE
COSTE RAZONABLE

 FALLOS REPETITIVOS EN EL ASCENSOR
FALLOS REPETITIVOS EN EL ASCENSOR
PROVOCAN:
PROVOCAN:

 MOLESTIAS PARA EL USUARIO
MOLESTIAS PARA EL USUARIO

 DESCREDITO PARA EL EDIFICIO
DESCREDITO PARA EL EDIFICIO

 REPERCUSIONES FINANCIERAS
REPERCUSIONES FINANCIERAS
MONITORIZACION
MONITORIZACION

 DOS TIPOS :
DOS TIPOS :

 LOCAL :
LOCAL :

 Conexi
Conexió
ón directa COMPUTADOR
n directa COMPUTADOR -
- MICRO.
MICRO.

 REMOTA :
REMOTA :

 Conexi
Conexió
ón
n ‘
‘ CENTRO DE MANTENIMIENTO
CENTRO DE MANTENIMIENTO’
’
con la maniobra de control del ascensor a
con la maniobra de control del ascensor a
trav
travé
és de l
s de lí
ínea telef
nea telefó
ónica.
nica.
EL PAPEL DE LA
EL PAPEL DE LA
MONITORIZACION REMOTA
MONITORIZACION REMOTA

 MONITORIZACION
MONITORIZACION

 FACILITA INFORMACION EN TIEMPO REAL DEL ESTADO DEL
FACILITA INFORMACION EN TIEMPO REAL DEL ESTADO DEL
ASCENSOR.
ASCENSOR.

 FACILITA INFORMACION HISTORICA DEL ASCENSOR
FACILITA INFORMACION HISTORICA DEL ASCENSOR

 APLICACIONES
APLICACIONES

 EN EDIFICIOS ALTOS
EN EDIFICIOS ALTOS

 INSTITUCIONES COMO :
INSTITUCIONES COMO :

 HOSPITALES
HOSPITALES

 AEROPUERTOS
AEROPUERTOS

 UNIVERSIDADES
UNIVERSIDADES

 EDIFICIOS PUBLICOS
EDIFICIOS PUBLICOS

 COMPA
COMPAÑ
ÑIAS PRIVADAS
IAS PRIVADAS

 LA MONITORIZACION REQUIERE
LA MONITORIZACION REQUIERE

 EL EMPLEO DE EQUIPOS ESPECIALES
EL EMPLEO DE EQUIPOS ESPECIALES

 TECNICOS EXPERTOS
TECNICOS EXPERTOS

 NO INTERFERENCIA EN LA PROPIA SEGURIDAD DEL ELEVADOR
NO INTERFERENCIA EN LA PROPIA SEGURIDAD DEL ELEVADOR
SISTEMAS DE
SISTEMAS DE
MONITORIZACION
MONITORIZACION

 TRES FUNCIONES PRINCIPALES :
TRES FUNCIONES PRINCIPALES :

 NOTIFICAR RAPIDAMENTE UNA ALARMA O
NOTIFICAR RAPIDAMENTE UNA ALARMA O
CONDICION DE FALLO
CONDICION DE FALLO

 INFORMAR AL SERVICIO TECNICO:
INFORMAR AL SERVICIO TECNICO:

 ESTADO ACTUAL E HISTORICO
ESTADO ACTUAL E HISTORICO

 MOTIVO DEL FALLO (AYUDA A LA
MOTIVO DEL FALLO (AYUDA A LA
DIAGNOSIS)
DIAGNOSIS)

 APORTAR DATOS GENERALES DEL
APORTAR DATOS GENERALES DEL
FUNCIONAMIENTO DE LA INSTALACION
FUNCIONAMIENTO DE LA INSTALACION
( Interesante para los propietarios del
( Interesante para los propietarios del
edificio )
edificio )
Dpto
Dpto I+D
I+D
Proyecto ID10
Proyecto ID10-
-03
03
eBus
eBus
Comunicaci
Comunicació
ón 2 hilos
n 2 hilos
Tendencias
Tendencias

 La tendencia actual en control de ascensores y otro
La tendencia actual en control de ascensores y otro
tipo de sistemas es la utilizaci
tipo de sistemas es la utilizació
ón de buses de
n de buses de
comunicaci
comunicació
ón.
n.

 La aparici
La aparició
ón de microcontroladores de bajo coste y
n de microcontroladores de bajo coste y
altas prestaciones permite realizar nodos de E/S
altas prestaciones permite realizar nodos de E/S
remotas a un precio muy competitivo de forma que
remotas a un precio muy competitivo de forma que
el coste total de una instalaci
el coste total de una instalació
ón convencional es
n convencional es
semejante o superior a una instalaci
semejante o superior a una instalació
ón basada en un
n basada en un
bus.
bus.
eBus
eBus

 Esquema b
Esquema bá
ásico
sico
Nuestro concepto
Nuestro concepto

 Alimentaci
Alimentació
ón a 24
n a 24 Vdc
Vdc.
.

 Preparado para conexi
Preparado para conexió
ón
n “
“daisy
daisy chain
chain”
”.
.

 Microswitch
Microswitch rotativo para seleccionar la direcci
rotativo para seleccionar la direcció
ón del nodo
n del nodo
en el BUS.
en el BUS.

 Dispone de 4
Dispone de 4 microswitches
microswitches para selecci
para selecció
ón de modos de
n de modos de
funcionamiento.
funcionamiento.

 Indicadores de
Indicadores de alimentaci
alimentació
ón
n (
(V
V),
), comunicaci
comunicació
ón
n (
(A
A) y
) y error
error
(
(R
R).
).

 Lectura de 8 se
Lectura de 8 señ
ñales de entrada. Activas con 0 voltios.
ales de entrada. Activas con 0 voltios.

 Control de 8 salidas. Presenta en cada salida activa 0
Control de 8 salidas. Presenta en cada salida activa 0
voltios.
voltios.
Indicaci
Indicació
ón mediante
n mediante led
led del estado de cada entrada y cada
del estado de cada entrada y cada
Nodo
Nodo eBus
eBus
Alternativas
Alternativas

 2 plantas/nodo
2 plantas/nodo

 4 plantas/nodo
4 plantas/nodo

 8 plantas/nodo
8 plantas/nodo
Ideal: 1
Ideal: 1
nodo/planta
nodo/planta
SALA DE MÁQUINAS SALA DE MÁQUINAS SALA DE MÁQUINAS
UN NODO CADA
DOS PLANTAS
UN NODO CADA
CUATRO PLANTAS
NODOS SITUADOS EN
CUADRO DE
N1
N2
N4
N3
N1
N2
N1 N2
Ventajas
Ventajas

 Disminuci
Disminució
ón dr
n drá
ástica del cableado
stica del cableado

 Cableado
Cableado standard
standard e independiente del n
e independiente del nú
úmero
mero
de plantas.
de plantas.

 Sustituci
Sustitució
ón de mangueras de cableado de hueco
n de mangueras de cableado de hueco
por latiguillos prefabricados entre planta y
por latiguillos prefabricados entre planta y
planta.
planta.

 Facilidad de inserci
Facilidad de inserció
ón de nuevos nodos
n de nuevos nodos

 Personalizaci
Personalizació
ón de la maniobra y cableado
n de la maniobra y cableado
(piratas)
(piratas)
Aut
Autó
ómata
mata eBus
eBus
eBus
eBus.
. Gearless
Gearless. Diana
. Diana

 Motor de imanes permanentes
Motor de imanes permanentes -
- Motor PM
Motor PM

 Sin reductora.
Sin reductora.

 Variador
Variador especial L7B
especial L7B omron
omron ó
ó Vacon
Vacon

 Llevan siempre
Llevan siempre encoder
encoder tipo ENDAT
tipo ENDAT

 Freno normalmente a 190Vcc
Freno normalmente a 190Vcc

 Necesario
Necesario autotunning
autotunning motor.
motor.

 Necesario
Necesario tunning
tunning de posici
de posició
ón cero de
n cero de encoder
encoder.
.

 NO tienen aceite
NO tienen aceite
eBus
eBus.
. Gearless
Gearless

 Ajuste m
Ajuste má
ás cr
s crí
ítico que los motores as
tico que los motores así
íncronos.
ncronos.

 Frenado regenerativo en reposo mediante
Frenado regenerativo en reposo mediante
contactor
contactor.
.

 Rescate posible abriendo freno el
Rescate posible abriendo freno elé
éctricamente
ctricamente
con SAI
con SAI ó
ó mediante palanca manual.
mediante palanca manual.

 Rescate a velocidad controlada y reducida.
Rescate a velocidad controlada y reducida.
Implantaci
Implantació
ón motores
n motores gearless
gearless
gearless
gearless
Rescatapersonas
Rescatapersonas autom
automá
ático para
tico para EC
EC’
’s
s
rescate
rescate
Potencia SAI: 3kVA
Potencia SAI: 3kVA aprox
aprox

ENOR.pdf,.................................

  • 1.
    La mec La mecá ánica nica delascensor del ascensor
  • 2.
    Y as Y así ícomenz comenzó ó el tema el tema
  • 3.
  • 5.
  • 20.
  • 22.
    Equipo tipo: consala de máquinas. Equipo tipo: sin sala de máquinas.
  • 23.
  • 31.
    M Má áquinas tractoras. quinas tractoras. TipoSinf Tipo Sinfí ín n- -corona. corona.
  • 32.
    ENGRANAJES SINFÍN-CORONA. NIVEL DERUIDO 60-65 dBA. VENTAJAS - BAJO COSTE. - UTILIZADA EN EL 90% ASCENSORES. - MUCHOS RATIOS DE TRANSMISION (VELOCIDADES). INCONVENIENTES - RENDIMIENTO BAJO 65%. - ALTO CONSUMO. - NECESITA ACEITE. - VELOCIDAD DEL MOTOR 1500 RPM.
  • 35.
    EC EC- -1 : AS 1: AS- -88 de SASSI 88 de SASSI
  • 44.
  • 45.
    MÁQUINAS GEARLESS. NIVEL DERUIDO 50-55 dBA. VENTAJAS - MUY COMPACTO. - FABRICACION DE ALTA CALIDAD. - MUY ALTO RENDIMIENTO. - BAJO CONSUMO. - NO PRECISA DE ACEITE. - VELOCIDAD DEL MOTOR 90 - 150 RPM. INCONVENIENTES - ALTO COSTE. - NECESITAN VARIADOR DE FRECUENCIA. - MAYORES NECESIDADES DE POTENCIA.
  • 47.
  • 55.
  • 57.
  • 58.
  • 60.
  • 63.
  • 64.
  • 65.
  • 66.
    INSTALACIONES ESPECIALES INSTALACIONES ESPECIALES TORRECONTROL MAR TORRE CONTROL MARÍ ÍTIMO TIMO
  • 69.
  • 70.
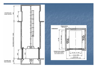
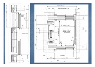
    SECCION VERTICAL C-C ! PLANTAGENERAL B-B SALA DE MAQUINAS A-A NOTA : PREVER VENTILACION AL EXTERIOR
  • 72.
  • 73.
  • 74.
  • 77.
    C A IX A ! ! ! CORTE NO POÇO PLANTA GERAL A-A Superf.: 1 ,54 m² ! CASA DAS MAQUINAS EM PL. 1 ª NOTA : PREVER VENTILAÇAO AO EXTERIOR CORTE VERTICAL C-C
  • 78.
    SECCION VERTICAL C-C ! ! PLANTAGENERAL A-A Superf.: 1 ,5 4 m² ! ! ! ! !
  • 94.
    Superficie: 1 3,19 m² PLANTA GENERAL A-A
  • 96.
  • 100.
  • 101.
    GUION: GUION: SISTEMAS DETRACCION SISTEMAS DE TRACCION MANIOBRA DE CONTROL ( HARDWARE ) MANIOBRA DE CONTROL ( HARDWARE ) MANIOBRA DE CONTROL ( SOFTWARE ) MANIOBRA DE CONTROL ( SOFTWARE ) SISTEMAS DE EMERGENCIA SISTEMAS DE EMERGENCIA MONITORIZACION MONITORIZACION
  • 102.
  • 103.
    ACELERACIONES Y VELOCIDADES ACELERACIONESY VELOCIDADES ASCENSOR MODERNO ASCENSOR MODERNO REQUISITOS DE CONFORT REQUISITOS DE CONFORT ARRANQUE Y PARADAS SUAVES ARRANQUE Y PARADAS SUAVES PRECISION EN LA NIVELACION PRECISION EN LA NIVELACION AHORRO DE ENERGIA AHORRO DE ENERGIA DEBE EVITARSE DEBE EVITARSE VIBRACIONES Y RUIDOS VIBRACIONES Y RUIDOS ARRANQUE, CAMBIOS DE VELOCIDAD Y ARRANQUE, CAMBIOS DE VELOCIDAD Y PARADA BRUSCOS PARADA BRUSCOS DESPLAZAMIENTOS LATERALES DE LA CABINA DESPLAZAMIENTOS LATERALES DE LA CABINA ES FUNDAMENTAL ES FUNDAMENTAL EJECUCION MECANICA IMPECABLE EJECUCION MECANICA IMPECABLE SISTEMAS DE TRACCION ADECUADOS SISTEMAS DE TRACCION ADECUADOS
  • 104.
    LIMITACIONES LIMITACIONES FISIOLOGICAS FISIOLOGICAS AL AL MOVIMIENTO MOVIMIENTO SE PRODUCEN MOLESTIAS EN EL SE PRODUCEN MOLESTIAS EN EL CUERPO HUMANO: CUERPO HUMANO: CON ACELERACIONES SUPERIORES A 1,5 m/s CON ACELERACIONES SUPERIORES A 1,5 m/s2 2 CON VARIACIONES DE ACELERACION (JERK) CON VARIACIONES DE ACELERACION (JERK) SUPERIORES A 2 m/s SUPERIORES A 2 m/s3 3 LA VELOCIDAD CONSTANTE DE VIAJE NO LA VELOCIDAD CONSTANTE DE VIAJE NO PRODUCE NINGUN EFECTO SOBRE EL CUERPO PRODUCE NINGUN EFECTO SOBRE EL CUERPO HUMANO HUMANO
  • 105.
    COMPARATIVA DE PERFILESDE COMPARATIVA DE PERFILES DE VIAJE VIAJE m/s FRECUENCIA VARIABLE 2 VELOCIDADES 1 VELOCIDAD m/s m/s VELOCIDAD S S S TIEMPO
  • 106.
    SISTEMA DE TRACCION SISTEMADE TRACCION COMPUESTO POR COMPUESTO POR MAQUINA DE TRACCION MAQUINA DE TRACCION MOTOR MOTOR CONTROL DE VELOCIDAD CONTROL DE VELOCIDAD PARAMETRO FUNDAMENTAL DE PARAMETRO FUNDAMENTAL DE ELECCION ELECCION VELOCIDAD, TENIENDO EN CUENTA VELOCIDAD, TENIENDO EN CUENTA N Nº º DE PLANTAS DE PLANTAS DESTINO DEL EDIFICIO DESTINO DEL EDIFICIO USO AL QUE SE DESTINA (PERSONA / CARGA) USO AL QUE SE DESTINA (PERSONA / CARGA) PRECISION REQUERIDA EN LA PARADA PRECISION REQUERIDA EN LA PARADA COSTE DE LA INSTALACION COSTE DE LA INSTALACION
  • 107.
    SISTEMAS EMPLEADOS SISTEMAS EMPLEADOS MAQUINA MAQUINA CON REDUCCION: CON REDUCCION: SINFIN SINFIN - - CORONA CORONA HELICOIDAL HELICOIDAL SIN REDUCCION (GEARLESS) SIN REDUCCION (GEARLESS) HIDRAULICO (OLEODINAMICO) HIDRAULICO (OLEODINAMICO) MOTOR: MOTOR: CORRIENTE CONTINUA (CC) CORRIENTE CONTINUA (CC) CORRIENTE ALTERNA (CA) CORRIENTE ALTERNA (CA) CONTROL DE VELOCIDAD CONTROL DE VELOCIDAD NO CONTROLADO NO CONTROLADO VARIACION DE TENSION (VV) VARIACION DE TENSION (VV) VARIACION DE TENSION VARIACION DE TENSION- -FRECUENCIA (VVVF) FRECUENCIA (VVVF)
  • 108.
    DIAGRAMA DE VIAJE DIAGRAMADE VIAJE 3 JERK ACELERACION VELOCIDAD DISTANCIA m m/s m/s m/s S S S S 1 2 4 3.6 m 1.7 1.2 -1.2 1.8 3 2 ASCENSOR CON CONTROL DE VELOCIDAD ELECTRONICO DE ASCENSOR CON CONTROL DE VELOCIDAD ELECTRONICO DE TENSION Y FRECUENCIA VARIABLES TENSION Y FRECUENCIA VARIABLES ( VVVF ) ( VVVF )
  • 109.
    RANGO DE APLICACIONDE LOS DISTINTOS RANGO DE APLICACION DE LOS DISTINTOS TIPOS DE TRACCION TIPOS DE TRACCION 0 1 2 3 4 5 6 7 8 9 10 11 12 13 MAQUINA MOTOR REGULACION SIN REDUCCION HELICOIDAL CON REDUCCION CON REDUCCION HIDRAULICO DC AC AC DC AC AC-1V AC-2V Ward Leonard VVVF VVVF VV VVVF Resistencias AC 12.5 m/s Baja Media Alta Muy alta Velocidad 0.6 1.2 1.6 m/s 6 m/s 4 m/s 2.5 m/s 9 m/s 2.5
  • 110.
  • 111.
    El r El ré écord.TAIPEI 101 cord. TAIPEI 101 508 m altura 508 m altura 101 paradas 101 paradas 17 m/s = 60 17 m/s = 60 km km/h /h Capacidad 24 personas Capacidad 24 personas
  • 112.
    Innovaciones Innovaciones Paraca Paracaí ídas cer dascerá ámicos micos Sistema de regulaci Sistema de regulació ón n de presi de presió ón n Amortiguador activo Amortiguador activo Control de vibraci Control de vibració ón n
  • 113.
    CONVERTIDOR DE TENSION CONVERTIDORDE TENSION FRECUENCIA PWM FRECUENCIA PWM CARACTERISTICAS BASICAS: CARACTERISTICAS BASICAS: SE UTILIZA CON MOTORES DE 1 VELOCIDAD SE UTILIZA CON MOTORES DE 1 VELOCIDAD CONSISTE EN: CONSISTE EN: RECTIFICADOR TRIFASICO (DIODOS) RECTIFICADOR TRIFASICO (DIODOS) ONDULADOR CON TRANSISTORES ONDULADOR CON TRANSISTORES TENSION DE SALIDA MODULADA EN ANCHO DE TENSION DE SALIDA MODULADA EN ANCHO DE PULSO. CORRIENTE EN EL MOTOR PULSO. CORRIENTE EN EL MOTOR PRACTICAMENTE SENOIDAL PRACTICAMENTE SENOIDAL FRECUENCIA DE CONMUTACION 15KHz. FRECUENCIA DE CONMUTACION 15KHz. BAJO NIVEL SONORO BAJO NIVEL SONORO FRENADO CON O SIN RECUPERACION DE FRENADO CON O SIN RECUPERACION DE ENERGIA ENERGIA
  • 114.
  • 115.
    INVERSOR PWM APLICADOA INVERSOR PWM APLICADO A LA ELEVACION LA ELEVACION COMPORTAMIENTO INDEPENDIENTE DE LA CARGA COMPORTAMIENTO INDEPENDIENTE DE LA CARGA MUY BUENA NIVELACION (+/ MUY BUENA NIVELACION (+/- - 1mm.) 1mm.) REALIMENTACION DE VELOCIDAD PARA V1m/s REALIMENTACION DE VELOCIDAD PARA V1m/s AHORRO DE ENERGIA AHORRO DE ENERGIA 65% CON RECUPERACION A RED 65% CON RECUPERACION A RED 50% SIN RECUPERACION A RED 50% SIN RECUPERACION A RED OPTIMO CONFORT OPTIMO CONFORT FACTOR DE POTENCIA CERCANO A 1 FACTOR DE POTENCIA CERCANO A 1 BAJO NIVEL DE PARASITOS BAJO NIVEL DE PARASITOS COSTES CADA VEZ MAS ASEQUIBLES COSTES CADA VEZ MAS ASEQUIBLES POSIBILIDAD DE ALIMENTACION MEDIANTE BATERIAS EN CASO POSIBILIDAD DE ALIMENTACION MEDIANTE BATERIAS EN CASO DE FALTA DE RED DE FALTA DE RED ES EL SISTEMA DEL FUTURO ES EL SISTEMA DEL FUTURO
  • 116.
  • 117.
    COMPARACION DE CONSUMOS COMPARACIONDE CONSUMOS DE ENERGIA DE ENERGIA SIN REGULACION DE VELOCIDAD SIN REGULACION DE VELOCIDAD ASCENSOR DE TRACCION: 100% ASCENSOR DE TRACCION: 100% ASCENSOR HIDRAULICO: 170% ASCENSOR HIDRAULICO: 170% CON VARIACION DE TENSION Y FRENADO CON VARIACION DE TENSION Y FRENADO POR CC POR CC CONSUMO 65% CONSUMO 65% CON VARIACION DE TENSION CON VARIACION DE TENSION- - FRECUENCIA FRECUENCIA SIN RECUPERACION DE ENERGIA: 50% SIN RECUPERACION DE ENERGIA: 50% CON RECUPERACION DE ENERGIA: 33% CON RECUPERACION DE ENERGIA: 33%
  • 118.
    COMPARATIVA CONSUMOS COMPARATIVA CONSUMOS 170 100 65 50 0 20 40 60 80 100 120 140 160 180 HIDR. HID R. HID R. HID R. AC - AC - AC - AC - VV VV VV VV % ENERGIA
  • 119.
  • 120.
    EVOLUCION TECNOLOGICA EVOLUCION TECNOLOGICA LOGICA DE RELES LOGICA DE RELES ( 1975 ) ( 1975 ) C. INTEGRADOS DIGITALES DE BAJA C. INTEGRADOS DIGITALES DE BAJA ESCALA DE INTEGRACION ( 1980 ) ESCALA DE INTEGRACION ( 1980 ) MICROPROCESADORES MICROPROCESADORES AUTOMATAS PROGRAMABLES AUTOMATAS PROGRAMABLES
  • 121.
    HARDWARE HARDWARE BLOQUES FUNDAMENTALES BLOQUESFUNDAMENTALES MICROPROCESADOR MICROPROCESADOR MEMORIA RAM: CALCULOS INTERMEDIOS MEMORIA RAM: CALCULOS INTERMEDIOS MEMORIA ROM: ALGORITMO DE CONTROL MEMORIA ROM: ALGORITMO DE CONTROL MEMORIA EEPROM: PARAMETROS MEMORIA EEPROM: PARAMETROS OPERATIVOS OPERATIVOS SECCION E/S DIGITALES SECCION E/S DIGITALES LECTURA DE SE LECTURA DE SEÑ ÑALES ALES ACCION SOBRE ELEMENTOS ACCION SOBRE ELEMENTOS SECCION E/S ANALOGICAS SECCION E/S ANALOGICAS SE SEÑ ÑALES DEL SISTEMA DE REGULACION DE ALES DEL SISTEMA DE REGULACION DE VELOCIDAD EMPLEADO VELOCIDAD EMPLEADO SECCION DE COMUNICACIONES SECCION DE COMUNICACIONES RS RS- -232, RS485, TCP/IP, 232, RS485, TCP/IP, ethernet ethernet, etc. , etc. MODEM, LINEA TELEFONICA MODEM, LINEA TELEFONICA
  • 122.
    MANIOBRA DE CONTROL MANIOBRADE CONTROL FUNCIONES QUE REALIZA FUNCIONES QUE REALIZA LECTURA DE SE LECTURA DE SEÑ ÑALES ALES LLAMADAS LLAMADAS SEGURIDADES SEGURIDADES ESTADO DEL ASCENSOR ESTADO DEL ASCENSOR CARGA EN CABINA CARGA EN CABINA OBSTACULOS EN PUERTA OBSTACULOS EN PUERTA etc. etc. INTERPRETACION DE LAS SE INTERPRETACION DE LAS SEÑ ÑALES ALES EJ. : DESCARTA CABINAS EN FUERA DE EJ. : DESCARTA CABINAS EN FUERA DE SERVICIO SERVICIO RELACIONA LA INFORMACION DE VARIAS RELACIONA LA INFORMACION DE VARIAS CABINAS CABINAS REPARTE LAS NECESIDADES DE LA FORMA REPARTE LAS NECESIDADES DE LA FORMA MAS ADECUADA MAS ADECUADA
  • 123.
    MANIOBRA DE CONTROL MANIOBRADE CONTROL TRANSMITE ORDENES A CADA CABINA TRANSMITE ORDENES A CADA CABINA PREPARACION PARA LA MARCHA PREPARACION PARA LA MARCHA CIERRE DE PUERTAS CIERRE DE PUERTAS SE SEÑ ÑALES AL CONTROL DE POTENCIA ALES AL CONTROL DE POTENCIA ORDEN DE PARADA ORDEN DE PARADA APERTURA DE PUERTAS APERTURA DE PUERTAS INFORMACION AL USUARIO INFORMACION AL USUARIO PILOTOS PILOTOS SE SEÑ ÑALES ACUSTICAS ALES ACUSTICAS PANELES DE VISUALIZACION PANELES DE VISUALIZACION FACILITA EL SERVICIO DE MANTENIMIENTO FACILITA EL SERVICIO DE MANTENIMIENTO PARAMETRIZACION PARAMETRIZACION MONITORIZACION MONITORIZACION LOCAL LOCAL DIAGNOSTICOS DIAGNOSTICOS REMOTO REMOTO
  • 124.
    SENSORES, ACTUADORES Y SENSORES,ACTUADORES Y SE SEÑ ÑALIZACION ALIZACION MICROCONTACTOS SEGURIDADES PULSADORES BRAILE, SENSITIVOS FOTORRUPTORES SEÑALES DE CONTAJE BARRERA FOTOELECTRICA OBSTACULO EN PUERTA CELULA DE CARGA PESAJE CARGA CABINA ENCODER REALIM. DE VELOCIDAD RELOJ FECHA/HORA DETECTORES DE INCENDIO MANIOBRA DE BOMBEROS CAMARA TV. DENSIDAD DE USUARIOS RECONOCIMIENTO DE VOZ LLAMADAS POR VOZ ELEMENTO FUNCION
  • 125.
    SENSORES, ACTUADORES Y SENSORES,ACTUADORES Y SE SEÑ ÑALIZACION ALIZACION SE SEÑ ÑALIZACION ALIZACION LUMINOSA LUMINOSA REGISTRO DE LLAMADAS REGISTRO DE LLAMADAS SENTIDO DE MARCHA SENTIDO DE MARCHA INDICADOR DE PLANTA INDICADOR DE PLANTA FUERA DE SERVICIO FUERA DE SERVICIO ACUSTICA ACUSTICA SOBRECARGA SOBRECARGA OBSTACULO EN PUERTA OBSTACULO EN PUERTA GONG DE AVISO DE LLEGADA GONG DE AVISO DE LLEGADA SINTESIS DE VOZ (CIEGOS) SINTESIS DE VOZ (CIEGOS)
  • 126.
    SENSORES, ACTUADORES SENSORES, ACTUADORES YSE Y SEÑ ÑALIZACION ALIZACION ACTUADORES ACTUADORES CONTACTORES CONTACTORES SISTEMA ELECTRONICO DE CONTROL DE SISTEMA ELECTRONICO DE CONTROL DE VELOCIDAD VELOCIDAD ELEMENTOS DE SEGURIDAD ELEMENTOS DE SEGURIDAD ESPECIALES ESPECIALES SISTEMAS DE EMERGENCIA (RESCATA SISTEMAS DE EMERGENCIA (RESCATA- - PERSONAS) PERSONAS) PARA ASCENSORES DE TRACCION PARA ASCENSORES DE TRACCION PARA ASCENSORES HIDRAULICOS PARA ASCENSORES HIDRAULICOS SISTEMA DE TELEFONIA DE EMERGENCIA SISTEMA DE TELEFONIA DE EMERGENCIA AUTONOMO AUTONOMO LLAMADA AUTOMATICA AL SERVICIO 24H LLAMADA AUTOMATICA AL SERVICIO 24H
  • 127.
  • 128.
    MANIOBRA DE CONTROL MANIOBRADE CONTROL SOFTWARE SOFTWARE SOFTWARE DE CONTROL. MOVIMIENTO DE CADA SOFTWARE DE CONTROL. MOVIMIENTO DE CADA CABINA CABINA SOFTWARE DE DISTRIBUCION DE SERVICIOS SOFTWARE DE DISTRIBUCION DE SERVICIOS ASCENSOR INDIVIDUAL ASCENSOR INDIVIDUAL EDIFICIOS CON BAJO NIVEL DE TRAFICO EDIFICIOS CON BAJO NIVEL DE TRAFICO POCAS PLANTAS POCAS PLANTAS ELEVADORES DE MERCANCIAS ELEVADORES DE MERCANCIAS MANIOBRAS ELEMENTALES MANIOBRAS ELEMENTALES AUTOMATICA SIMPLE AUTOMATICA SIMPLE COLECTIVA SELECTIVA EN BAJADA COLECTIVA SELECTIVA EN BAJADA COLECTIVA SELECTIVA EN SUBIDA Y BAJADA COLECTIVA SELECTIVA EN SUBIDA Y BAJADA
  • 129.
    MANIOBRAS INDIVIDUALES MANIOBRAS INDIVIDUALES maniobraUNIVERSAL maniobra UNIVERSAL Atiende una sola llamada por viaje. No Atiende una sola llamada por viaje. No responde a otras hasta finalizar el servicio. responde a otras hasta finalizar el servicio. Recomendable en : Recomendable en : Edificios de poco tr Edificios de poco trá áfico y bajo n fico y bajo nº º de paradas. de paradas. Elevadores de mercanc Elevadores de mercancí ías. as. Montacoches Montacoches. . 1 pulsador por planta
  • 130.
    MANIOBRAS INDIVIDUALES MANIOBRAS INDIVIDUALES maniobraCOLECTIVA EN BAJADA maniobra COLECTIVA EN BAJADA Memoriza las llamadas de cabina y plantas. Memoriza las llamadas de cabina y plantas. Las llamadas de cabina se atienden en el Las llamadas de cabina se atienden en el orden l orden ló ógico de movimiento. gico de movimiento. Las Las llamadas de planta se atienden en sentido de llamadas de planta se atienden en sentido de bajada bajada. . Recomendable en : Recomendable en : Edificios de viviendas de tr Edificios de viviendas de trá áfico medio en los que no fico medio en los que no son habituales los desplazamientos entre plantas. son habituales los desplazamientos entre plantas. 1 pulsador por planta
  • 131.
    MANIOBRAS INDIVIDUALES MANIOBRAS INDIVIDUALES maniobraCOLECTIVA EN SUBIDA Y BAJADA maniobra COLECTIVA EN SUBIDA Y BAJADA Memoriza las llamadas de cabina y plantas. Memoriza las llamadas de cabina y plantas. Las llamadas de cabina se atienden en el Las llamadas de cabina se atienden en el orden l orden ló ógico de movimiento. gico de movimiento. Las Las llamadas de planta se atienden en llamadas de planta se atienden en subida o subida o bajada bajada seg segú ún hayan sido seleccionadas. n hayan sido seleccionadas. Recomendable en : Recomendable en : Edificios p Edificios pú úblicos, locales comerciales, oficinas, blicos, locales comerciales, oficinas,etc etc, con , con tr trá áfico medio y frecuentes desplazamientos entre fico medio y frecuentes desplazamientos entre plantas. plantas. 2 pulsadores por planta
  • 132.
    Comparaci Comparació ón de lasmaniobras n de las maniobras UNIVERSAL y COLECTIVA UNIVERSAL y COLECTIVA 0 0,5 1 1,5 2 2,5 3 3,5 4 4,5 5 TIEMPO en minutos Maniobra colectiva selectiva en bajada Maniobra universal B B B B 6 3 B 1 2 3 4 5 6 7 8 126 m 48 m
  • 133.
    MANIOBRA DE CONTROL MANIOBRADE CONTROL SOFTWARE SOFTWARE GRUPOS DE ASCENSORES GRUPOS DE ASCENSORES EDIFICIOS CON NIVEL DE TRAFICO MODERADO O ALTO EDIFICIOS CON NIVEL DE TRAFICO MODERADO O ALTO ELEVADO NUMERO DE PLANTAS ELEVADO NUMERO DE PLANTAS MANIOBRAS COMPLEJAS MANIOBRAS COMPLEJAS REPARTO DE SERVICIOS DE FORMA OPTIMA REPARTO DE SERVICIOS DE FORMA OPTIMA DUPLEX, TRIPLEX, CUADRUPLEX, ETC. DUPLEX, TRIPLEX, CUADRUPLEX, ETC.
  • 134.
    COMPLEJIDAD DEL MANEJODE UN COMPLEJIDAD DEL MANEJO DE UN GRUPO DE ASCENSORES GRUPO DE ASCENSORES OBJETIVO OBJETIVO DISTRIBUIR DE FORMA OPTIMA LOS DISTRIBUIR DE FORMA OPTIMA LOS RECURSOS DE UN GRUPO DE ASCENSORES RECURSOS DE UN GRUPO DE ASCENSORES QUE SIRVEN A LAS MISMAS PLANTAS DEL QUE SIRVEN A LAS MISMAS PLANTAS DEL EDIFICIO EDIFICIO SISTEMAS EMPLEADOS SISTEMAS EMPLEADOS- -EVOLUCION EVOLUCION ALGORITMOS BASADOS EN PATRONES ALGORITMOS BASADOS EN PATRONES ALGORITMOS DE MINIMO TIEMPO DE ESPERA ALGORITMOS DE MINIMO TIEMPO DE ESPERA EVALUACION GLOBAL DE PRESTACIONES EVALUACION GLOBAL DE PRESTACIONES EMPLEO DE EMPLEO DE INTELIGENCIA ARTIFICIAL INTELIGENCIA ARTIFICIAL
  • 135.
    EVOLUCION DE LOSSISTEMAS DE EVOLUCION DE LOS SISTEMAS DE CONTROL Y SUPERVISION DE GRUPOS CONTROL Y SUPERVISION DE GRUPOS SISTEMAS DE SUPERVISION DE GRUPOS AÑO TIPO ALGORITMO BASE SISTEMA DE AVISO Maniobras basadas en patrones(Relé) Empleo de C. Integrados Control del Mínimo Tiempo de Espera Evaluación Global Utilización de Inteligencia Artificial 1971 1975 1982 1988 Asignación por zonas Asignación por llamadas Control de Intervalos Predicción de Tiempo de Espera Sistema Experto Control Predictivo con Funciones de Aprendizaje Aviso de Asignación Inmediata de Cabina Aviso de Llegada Inmediata de Cabina Microprocesador
  • 136.
    0 50 100 150 200 250 300 350 400 450 500 550 600 650 700 750 800 850 900 950 1000 2 4 68 10 12 14 16 18 20 Nº de plantas 4x816 4x812 3x616 3x612 3x610 2x816 2x812 2x616 2x612 2x610 1x812 1x810 1x612 1x610 1x606 1x412 1x410 Población ESTUDIOS DE TRAFICO ESTUDIOS DE TRAFICO EN FUNCION DE EN FUNCION DE DESTINO DEL EDIFICIO DESTINO DEL EDIFICIO NUMERO DE PLANTAS NUMERO DE PLANTAS POBLACION ESTIMADA POBLACION ESTIMADA TIEMPOS DE ESPERA (CALIDAD DE SERVICIO) TIEMPOS DE ESPERA (CALIDAD DE SERVICIO) PERFIL HORARIO DE DENSIDAD DE LLAMADAS PERFIL HORARIO DE DENSIDAD DE LLAMADAS SE SELECCIONA SE SELECCIONA NUMERO DE ASCENSORES NUMERO DE ASCENSORES CAPACIDAD DE LAS CABINAS CAPACIDAD DE LAS CABINAS VELOCIDAD VELOCIDAD TIPO DE MANIOBRA TIPO DE MANIOBRA
  • 137.
  • 138.
    SISTEMAS ELECTRONICOS DE SISTEMASELECTRONICOS DE EMERGENCIA EMERGENCIA VOZ SISTEMA SCA AYUDA ON - LINE CONTROL REMOTO MANTENIMIENTO PREVENTIVO DATOS SISTEMA STD SISTEMAS DE COMUNICACION POR LINEA TELEFONICA ASCENSOR ELECTRICO ASCENSOR HIDRAULICO RESCATAPERSONAS AUTOMATICOS
  • 139.
    Sistema AVT Sistema AVT- - SCA SCA Dispositivo que efect Dispositivo que efectú úa una llamada al a una llamada al servicio de mantenimiento de 24H. servicio de mantenimiento de 24H. Activo en situaciones de: Activo en situaciones de: FALTA DE ENERGIA FALTA DE ENERGIA AVERIA AVERIA Equipo aut Equipo autó ónomo. Alimentado por nomo. Alimentado por bater baterí ía. a. La persona atrapada es tranquilizada e La persona atrapada es tranquilizada e informada de las acciones puestas en informada de las acciones puestas en marcha para su rescate marcha para su rescate
  • 140.
    Sistema STD Sistema STD Dispositivo electr Dispositivo electró ónico que permite la nico que permite la comunicaci comunicació ón de datos entre el armario n de datos entre el armario de control y la central de mantenimiento de control y la central de mantenimiento mediante una l mediante una lí ínea telef nea telefó ónica en la sala nica en la sala de m de má áquinas. quinas. Permite la comunicaci Permite la comunicació ón n bidireccional bidireccional : : CENTRAL ===== SALA DE MAQUINAS CENTRAL ===== SALA DE MAQUINAS Ventajas : Ventajas : Ayuda ON Ayuda ON- -LINE LINE Mantenimiento preventivo Mantenimiento preventivo
  • 141.
    RESCATAPERSONAS RESCATAPERSONAS AUTOMATICOS AUTOMATICOS Equipos electr Equiposelectró ónicos de potencia que nicos de potencia que suministran energ suministran energí ía mediante bater a mediante baterí ías al as al ascensor en situaciones de emergencia. ascensor en situaciones de emergencia. La causa m La causa má ás habitual de parada de un s habitual de parada de un ascensor es la falta de fluido el ascensor es la falta de fluido elé éctrico. ctrico. Los Los rescatapersonas rescatapersonas autom automá áticos mueven la ticos mueven la cabina y abren las puertas al llegar a planta, cabina y abren las puertas al llegar a planta, evacuando as evacuando así í a los pasajeros. a los pasajeros. El rescate s El rescate só ólo es posible si todos los lo es posible si todos los elementos de seguridad est elementos de seguridad está án correctos. n correctos.
  • 142.
  • 143.
    EL PAPEL DELA EL PAPEL DE LA MONITORIZACION REMOTA MONITORIZACION REMOTA LA TECNOLOGIA DEL MICROPROCESADOR LA TECNOLOGIA DEL MICROPROCESADOR PERMITE: PERMITE: MANEJAR GRAN CANTIDAD DE INFORMACION MANEJAR GRAN CANTIDAD DE INFORMACION COSTE RAZONABLE COSTE RAZONABLE FALLOS REPETITIVOS EN EL ASCENSOR FALLOS REPETITIVOS EN EL ASCENSOR PROVOCAN: PROVOCAN: MOLESTIAS PARA EL USUARIO MOLESTIAS PARA EL USUARIO DESCREDITO PARA EL EDIFICIO DESCREDITO PARA EL EDIFICIO REPERCUSIONES FINANCIERAS REPERCUSIONES FINANCIERAS
  • 144.
    MONITORIZACION MONITORIZACION DOS TIPOS: DOS TIPOS : LOCAL : LOCAL : Conexi Conexió ón directa COMPUTADOR n directa COMPUTADOR - - MICRO. MICRO. REMOTA : REMOTA : Conexi Conexió ón n ‘ ‘ CENTRO DE MANTENIMIENTO CENTRO DE MANTENIMIENTO’ ’ con la maniobra de control del ascensor a con la maniobra de control del ascensor a trav travé és de l s de lí ínea telef nea telefó ónica. nica.
  • 145.
    EL PAPEL DELA EL PAPEL DE LA MONITORIZACION REMOTA MONITORIZACION REMOTA MONITORIZACION MONITORIZACION FACILITA INFORMACION EN TIEMPO REAL DEL ESTADO DEL FACILITA INFORMACION EN TIEMPO REAL DEL ESTADO DEL ASCENSOR. ASCENSOR. FACILITA INFORMACION HISTORICA DEL ASCENSOR FACILITA INFORMACION HISTORICA DEL ASCENSOR APLICACIONES APLICACIONES EN EDIFICIOS ALTOS EN EDIFICIOS ALTOS INSTITUCIONES COMO : INSTITUCIONES COMO : HOSPITALES HOSPITALES AEROPUERTOS AEROPUERTOS UNIVERSIDADES UNIVERSIDADES EDIFICIOS PUBLICOS EDIFICIOS PUBLICOS COMPA COMPAÑ ÑIAS PRIVADAS IAS PRIVADAS LA MONITORIZACION REQUIERE LA MONITORIZACION REQUIERE EL EMPLEO DE EQUIPOS ESPECIALES EL EMPLEO DE EQUIPOS ESPECIALES TECNICOS EXPERTOS TECNICOS EXPERTOS NO INTERFERENCIA EN LA PROPIA SEGURIDAD DEL ELEVADOR NO INTERFERENCIA EN LA PROPIA SEGURIDAD DEL ELEVADOR
  • 146.
    SISTEMAS DE SISTEMAS DE MONITORIZACION MONITORIZACION TRES FUNCIONES PRINCIPALES : TRES FUNCIONES PRINCIPALES : NOTIFICAR RAPIDAMENTE UNA ALARMA O NOTIFICAR RAPIDAMENTE UNA ALARMA O CONDICION DE FALLO CONDICION DE FALLO INFORMAR AL SERVICIO TECNICO: INFORMAR AL SERVICIO TECNICO: ESTADO ACTUAL E HISTORICO ESTADO ACTUAL E HISTORICO MOTIVO DEL FALLO (AYUDA A LA MOTIVO DEL FALLO (AYUDA A LA DIAGNOSIS) DIAGNOSIS) APORTAR DATOS GENERALES DEL APORTAR DATOS GENERALES DEL FUNCIONAMIENTO DE LA INSTALACION FUNCIONAMIENTO DE LA INSTALACION ( Interesante para los propietarios del ( Interesante para los propietarios del edificio ) edificio )
  • 147.
    Dpto Dpto I+D I+D Proyecto ID10 ProyectoID10- -03 03 eBus eBus Comunicaci Comunicació ón 2 hilos n 2 hilos
  • 148.
    Tendencias Tendencias La tendenciaactual en control de ascensores y otro La tendencia actual en control de ascensores y otro tipo de sistemas es la utilizaci tipo de sistemas es la utilizació ón de buses de n de buses de comunicaci comunicació ón. n. La aparici La aparició ón de microcontroladores de bajo coste y n de microcontroladores de bajo coste y altas prestaciones permite realizar nodos de E/S altas prestaciones permite realizar nodos de E/S remotas a un precio muy competitivo de forma que remotas a un precio muy competitivo de forma que el coste total de una instalaci el coste total de una instalació ón convencional es n convencional es semejante o superior a una instalaci semejante o superior a una instalació ón basada en un n basada en un bus. bus.
  • 149.
  • 150.
    Nuestro concepto Nuestro concepto Alimentaci Alimentació ón a 24 n a 24 Vdc Vdc. . Preparado para conexi Preparado para conexió ón n “ “daisy daisy chain chain” ”. . Microswitch Microswitch rotativo para seleccionar la direcci rotativo para seleccionar la direcció ón del nodo n del nodo en el BUS. en el BUS. Dispone de 4 Dispone de 4 microswitches microswitches para selecci para selecció ón de modos de n de modos de funcionamiento. funcionamiento. Indicadores de Indicadores de alimentaci alimentació ón n ( (V V), ), comunicaci comunicació ón n ( (A A) y ) y error error ( (R R). ). Lectura de 8 se Lectura de 8 señ ñales de entrada. Activas con 0 voltios. ales de entrada. Activas con 0 voltios. Control de 8 salidas. Presenta en cada salida activa 0 Control de 8 salidas. Presenta en cada salida activa 0 voltios. voltios. Indicaci Indicació ón mediante n mediante led led del estado de cada entrada y cada del estado de cada entrada y cada Nodo Nodo eBus eBus
  • 151.
    Alternativas Alternativas 2 plantas/nodo 2plantas/nodo 4 plantas/nodo 4 plantas/nodo 8 plantas/nodo 8 plantas/nodo Ideal: 1 Ideal: 1 nodo/planta nodo/planta SALA DE MÁQUINAS SALA DE MÁQUINAS SALA DE MÁQUINAS UN NODO CADA DOS PLANTAS UN NODO CADA CUATRO PLANTAS NODOS SITUADOS EN CUADRO DE N1 N2 N4 N3 N1 N2 N1 N2
  • 152.
    Ventajas Ventajas Disminuci Disminució ón dr ndrá ástica del cableado stica del cableado Cableado Cableado standard standard e independiente del n e independiente del nú úmero mero de plantas. de plantas. Sustituci Sustitució ón de mangueras de cableado de hueco n de mangueras de cableado de hueco por latiguillos prefabricados entre planta y por latiguillos prefabricados entre planta y planta. planta. Facilidad de inserci Facilidad de inserció ón de nuevos nodos n de nuevos nodos Personalizaci Personalizació ón de la maniobra y cableado n de la maniobra y cableado (piratas) (piratas) Aut Autó ómata mata eBus eBus
  • 153.
    eBus eBus. . Gearless Gearless. Diana .Diana Motor de imanes permanentes Motor de imanes permanentes - - Motor PM Motor PM Sin reductora. Sin reductora. Variador Variador especial L7B especial L7B omron omron ó ó Vacon Vacon Llevan siempre Llevan siempre encoder encoder tipo ENDAT tipo ENDAT Freno normalmente a 190Vcc Freno normalmente a 190Vcc Necesario Necesario autotunning autotunning motor. motor. Necesario Necesario tunning tunning de posici de posició ón cero de n cero de encoder encoder. . NO tienen aceite NO tienen aceite
  • 154.
    eBus eBus. . Gearless Gearless Ajustem Ajuste má ás cr s crí ítico que los motores as tico que los motores así íncronos. ncronos. Frenado regenerativo en reposo mediante Frenado regenerativo en reposo mediante contactor contactor. . Rescate posible abriendo freno el Rescate posible abriendo freno elé éctricamente ctricamente con SAI con SAI ó ó mediante palanca manual. mediante palanca manual. Rescate a velocidad controlada y reducida. Rescate a velocidad controlada y reducida.
  • 155.
    Implantaci Implantació ón motores n motoresgearless gearless gearless gearless
  • 156.
    Rescatapersonas Rescatapersonas autom automá ático para ticopara EC EC’ ’s s rescate rescate Potencia SAI: 3kVA Potencia SAI: 3kVA aprox aprox