ESQUEMAS ELECTRICOS




Un circuito eléctrico no es otra cosa que un conjunto de cables y mecanismos de control. Los
cuales son necesarios para que los aparatos eléctricos funcionen correctamente. Cuando solo
tenemos un punto de control (interruptor) se denomina circuito simple. Si el control lo
realizamos desde dos puntos, es decir una bombilla y dos interruptores, el circuito será
conmutado.




A TENER EN CUENTA


Deberemos tener presentes unos principios básicos para poder entender estos conceptos.
Todo aparato eléctrico receptor de electricidad posee dos bornes de conexión, en uno le entra
la energía y el otro sirve de salida, siendo indistintamente cualquiera de ellos validos para
estos cometidos.

En la instalación eléctrica de nuestra vivienda podemos encontrar tres tipos de cables, la fase,
de color negro, marrón o gris encargada de llevar la energía. El neutro, de color azul para el
retorno. Y el amarillo o bicolor para la toma de tierra. Este utilizado para los enchufes. Los
cables deberán ser de la suficiente sección, dependiendo de la energía que deba pasar por
ellos, dependiendo del aparato que vamos a conectar a esa línea, una lavadora, una cocina, un
secador de pelo. etc.
La sección del cableado dependerá de la utilización que de el vamos a realizar. Para el
alumbrado utilizaremos una sección mínima de cable de 1.5 mm2, y 10A. Para usos normales
la sección deberá ser de 2,5 mm2 y 16A. Para lavadoras y lavavajillas la sección será de 4 mm2
y 20A. Para el horno y la cocina la sección será de 6 mm2 y 25A.




L, Fase, N, Neutro




Interruptor Simple.
Interruptores Conmutados, Control de un punto de luz desde dos lugares




Parte trasera de un interruptor Parte Trasera de un interruptor conmutador

conmutador de cruce




Conmutador de cruce, control de un punto de luz desde mas de dos lugares.



Como podemos apreciar el conmutador de cruce ( Pieza central en el esquema ) se emplea
para colocar dos conmutadores mas el de cruce y tener tres puntos de encendido apagado de
un elemento como puede ser una bombilla.
Doble conmutador, control de dos puntos de luz

desde dos lugares.




Doble interruptor, control de dos puntos de luz.




El busca fases se emplea para poder encontrar la fase

(el cable que trae la corriente eléctrica) Colocamos el

dedo en su parte superior y la punta del destornillador

en el cable, si la luz interior se enciende, esto significara

que hemos encontrado la fase, por el contrario si no se

enciende, este será el neutro.
Ahora bien, teniendo en cuenta que algunas instalaciones o circuitos son realmente
complicados de representar esquemáticamente, tanto el ingeniero como el técnico pueden
encontrarse          con          dos           tipos           de           esquemas.

a) Unificar: son los que representan en un solo trazo las distintas fases o conductores.
b) Multifilar: son los esquemas que representan todos los trazos correspondientes a las
distintas                    fases                   o                      conductores.

En la sección de PLANOS, iré colocando diversos tipos de esquemas, para que podáis ver las
diferencias; pero esta claro, que lo que realmente nos interesa son los esquemas de
conexiones.




Información mínima para los planos eléctricos



3.1. Todos los planos eléctricos, tanto de obra mayor como de obra menor, deben definir y
detallar todos los sistemas eléctricos que requiere la obra, sin dejar duda sobre
interpretaciones ambiguas que puedan inducir a equivocaciones o mala “praxis”. Por lo menos
y en forma obligatoria, definirán y detallarán el sistema eléctrico y de telecomunicaciones de
acuerdo con lo que más adelante se detalla.



3.2. Los planos eléctricos deberán contar como mínimo la siguiente información:



3.2.1. Simbología que indique en su totalidad los elementos involucrados en la información
gráfica, con las características eléctricas y las alturas de montaje.



3.2.2. Distribución de las plantas físicas de toda la obra con la información gráfica de todos los
circuitos eléctricos.



3.2.3. Detalle de los tableros de distribución con la siguiente información:

a. Características eléctricas y físicas de cada tablero.

b. Carga eléctrica conectada y demandada
c. Factor de potencia y factor de demanda

d. Corriente total por fase

e. Protección, alimentadores por fase y conductor a tierra

f. Detalle de cada circuito eléctrico conectado con la posición en el tablero, calibre y
aislamiento de los alimentadores, diámetro de la canalización, características de las
protecciones, detalle de la carga de cada uno, voltaje de operación de cada uno y porcentaje
de caída de voltaje por circuito.

g. Cuando el proyecto cuente con un transformador, se deberá indicar el valor de la corriente
de corto circuito en cada tablero.

h. Las unidades de potencia deberán ser indicadas de acuerdo al del sistema internacional de
medidas vigentes por ley en el país.



3.2.4. Diagrama unifilar eléctrico indicando al menos lo siguiente:

a. Calibre de acometidas, elementos de protección, elementos de medición, alimentadores
principales, subalimentadores, sistemas de puesta a tierra, identificación de tableros de
distribución y centros de carga según diseño en planta.

b. Cuando la carga instalada amerite la instalación de un transformador o banco de
transformadores, indicar el tipo de conexión (estrella o delta), voltajes de operación y
capacidad instalada en kilovatios-amperios, indicando el factor de potencia del sistema.
Asimismo detalles constructivos de bóvedas de transformadores, cuartos de control, cuartos
para planta de emergencia, encierros y toda infraestructura que aloje sistemas de
transformación de voltaje o corriente.

c. Diagrama de trayectoria de canalizaciones para alimentadores de acometida a tableros y
subtableros y sus características (tipo, dimensiones, etc.).



3.2.5. Notas aclaratorias que complementen la información gráfica que permita definir con
claridad todos los criterios empleados en el diseño.



3.2.6. Diagramas adicionales que complementen la información del sistema de montaje o
construcción de algunos elementos eléctricos a instalar.



3.2.7. La escala en los planos de áreas interiores para detalle de circuitos ramales deberá ser
tal que la información sea legible.
3.2.8. En planos de telecomunicaciones se debe incluir la siguiente información:

a. Diagrama de localización del inmueble para ubicación de arquetas y puntos de acometida.

b. Tipo de acometida indicando si es aérea, subterránea o ambas.

c. Ubicación en la vía pública de la canalización y de la arqueta de entrada al edificio cuando se
requiera de acuerdo con el Reglamento que el CFIA publique. En caso de exoneración de
arqueta, un inspector de la compañía que suministre el servicio deberá anotarlo en el libro
bitácora.

d. Sitio de entrada al edificio; ubicación de las arquetas.

e. Características de las canalizaciones (tipo, dimensiones, etc.).

f. Esquema de la instalación de telecomunicaciones del edificio, que describe el sistema de
distribución empleado (diagrama unifilar).

g. Tipo de cable y elementos de conexión a utilizar.

h. Tipo, altura de ubicación, dimensiones y capacidad del distribuidores y elementos de
interconexión.

i. Identificación de todos los elementos del sistema (cables de cobre F.O., salidas, tableros de
interconexión, etc.

j. Identificación en planta de todas las salidas de telecomunicaciones.

k. Sistema de puesta a tierra.

l. En sistemas de telecomunicaciones de todos los elementos, debe indicarse la interconexión
de todos los elementos.

m. Características de los cables con su cantidad e identificación en todos los puntos de
conexión.

n. Simbología y notas generales.



3.2.9. En planos eléctricos de remodelaciones o ampliaciones se debe presentar además un
diagrama unifilar indicando los elementos existentes y los nuevos sistemas que se incluirán,
con todos los detalles necesarios para su interpretación.



3.2.10. En planos de ampliaciones o remodelaciones de telecomunicaciones se debe incluir la
siguiente información:

a. Esquema de la ampliación o remodelación propuesta, indicando elementos existentes desde
donde se conectará; capacidad de reserva y disponibilidad existente.
b. Descripción del sistema de telecomunicaciones propuesto.

c. Asignación de los nuevos elementos (ampliación) en el sistema existente.

d. Ubicación de elementos en planta de la zona ampliada.

e. Diagrama unificar.



3.2.11. En planos para sistema de señales, controles u otros sistemas operados por
electricidad, se deberá indicar en detalle todos los elementos que lo integran, con los
diagramas, notas y simbología que definan, sin lugar a duda, el sistema que se desea construir,
tomando en consideración todas las características eléctricas de todos los elementos que lo
componen.



3.2.12. La información en los planos de casas de habitación de los proyectos de obra menor, se
deberá cumplir con lo establecido en el artículo 1.5a de este reglamento y con el NEC en lo que
corresponda. Por lo tanto, debe contar al menos con los siguientes circuitos

a. Un circuito de iluminación cuya carga será de 10 voltios-amperios por metro cuadrado.

b. Dos circuitos de tomas para el área de cocina de 1500 voltios-amperios cada uno.

c. Un circuito de tomas para uso general de 1500 voltios-amperios.

d. Si tiene termo ducha o tanque de agua caliente, un circuito de 4500 voltios-amperios.

e. Si tiene cocina eléctrica ésta no tendrá una carga inferior a 8000 voltios-amperios a 240
voltios. Cuando por razones de carga eléctrica el proyecto sobrepase los 15 kW, se deberá
aplicar el artículo 1.6 de este Reglamento.



3.2.13. En todo proyecto eléctrico se deberá incluir una tabla de resumen con la información
indicada en las tablas A y B de los anexos. Se usará sólo una de las tablas, dependiendo si el
proyecto cuenta con transformadores o no. La tabla se colocará en la esquina superior derecha
de la primera lámina eléctrica. Se deberá mantener el formato, agregando o quitando
columnas de acuerdo a los transformadores y/o tableros eléctricos del proyecto. Se deben
incluir todos los transformadores y tableros eléctricos del proyecto. Según lo requiera cada
caso, se utilizará la tabla A o la tabla B.
TIPOS DE ESQUEMAS



Como se a indicado el dibujo industrial electrico se plantea como reto establecer
inequívocamente las relaciones de dependencia entre los elementos que integran un circuito
electrico.

Esto se logra por medio de distintas presentaciones o esquemas electricos complementarias
entre si. Fundamentalmente podemos distinguir entre esquemas explicativos y esquemas
conexionados.



Los esquemas explicativos están especialmente orientados a resolver los problemas propios
de la fase de diseño. Su destinatario es por tanto un ingeniero. En esta fase se plantean
problemas muy diversos: cual va a ser la estructura general del circuito (esquema explicativo
funcional) donde se remplazan físicamente sus componentes (esquema explicativo de
emplazamiento) o como se relacionan entre si estos componentes electricos (esquema
explicativo de circuitos).

Los esquemas de conexiones están orientados a resolver los problemas de ejecución material.
Su destinatario es por tanto un tecnico electricista.



En ambos casos son especialmente en los esquemas de conexiones puede presentar resultar
conveniente por simplicidad representar agrupados distintos conductores en un mismo trazo
en este caso hablamos de representación unificar y tenemos tambien representación
multifilar.



A continuación se revisa esta clasificacion de los esquemas electricos tomando como ejemplo
la sencilla instalacion electrica mostrada en la siguiente figura se trata de una ehabitación
dotada de una lampara. Y gobernada por un interruptor y con dos tomas de corriente TC1 y
TC2 la alimentación parte de una caja de distribución que recibe una linea y neutro a 220V,
50Hz.
4.1 Esquema explicativo funcional.



El esquema explicativo funcional pretende definir la estructura general del circuito de forma
que pueda ser interpretada por un ingeniero en la FESE de diseño se trata de una primera
definición del circuito y por tanto no entra en analizar todos los elementos del circuito
detalladamente.

En ocaciones al esquema funcional se le denomina esquema de bloques o esquema sinóptico.
Esto es asi por que como se observa en la figura siguiente el circuito se representa como
distintos bloques que pueden coincidir con uno o varios dispositivos electricos relacionados
entre si por flechas.

No es necesario utilizar símbolos normalizados para la definición de estos bloques. Las flechas
no representan necesariamente a los conductores electricos sino a las relaciones de
dependencia entre los bloques.




4.2 Esquema explicativo de emplazamiento



El esquema explicativo de emplazamiento define la ubicación fisica de los
principales componentes de las instalaciones. Esta información es
especialmente útil para el ingeniero en la fase del diseño pues permite
coordinar la obra electrica con otros trabajos en el seno de un proyecto
por ejemplo y significativamente la obra civil.
En esta esquema se emplea simbologia normalizada es habitual en
instalacionesde electrificacion de viviendas planos de distribución en
planta de oficinas y talleres plano de redes electricas etc.




4.3 Esquema explicativo de circuitos



El sistema explicativo de circuitos es el mas importante para el ingeniero
en la fase de diseño su objetivo es describir la forma en que se
relacionaran entre si los componentes eléctricos que integran el circuito
debe ser por tanto muy didáctico y claro.


Los componentes eléctricos se presentan entre dos conductores horizontales
correspondientes en dos fases o bien a una fase y el neutro como muestra el ejemplo cada
componente con función de recepción de energía ocupa una columna en la representación así
TC1 y TC2 podrían compartir una misma columna pero resulta mas claro separarlas de una en
una los componentes de control como es el caso del interruptor S se representan sobre los
componentes de consumo que gobiernan (

la lámpara E en el ejemplo).




4.4 Esquema de conexión o realización



Los esquemas de conexiones estan orientados a resolver los problemas de ejecución material
su destinatario es el tecnico electricista encargado de la ejecución de la obra no pretenden ser
didacticos en cuanto a las relaciones entre los componentes de la instalacion de hecho a partir
de ellos suele ser difícil interpretar el funcionamiento de la instalacion sin embargo son muy
claros en cuanto a los aspectos basicos de la ejecución material de la institución.



Los esquemas de conexión deben responder en forma inmediata a preguntas como cuantos
conductores tenemos en esta canalización o como debo conectar los bornes de este equipo.
Para responder a la pregunta de cual es la longitud de los conductores se representa el
esquema de conexiones sobre el esquema explicativo de emplazamiento.



En este ultimo caso resulta especialmente conveniente por simplicidad representar
acumulados conductores en un mismo trazo en este caso hablamos de REPRESENTECION
UNIFILAR por el contrario cuando cada conductor sea representado por un trazo
independiente tendremos una REPRESENTACION MULTIFILAR a continuación se muestran
algunos ejemplos.



4.4.1 Representacion unificar



La siguiente figura muestra la instalacion electrica de una habitación como esquema de
conexión unificar en este caso se a tomado como referencia el esquema explicativo de
emplazamiento de los equipos este esquema permite calcular la longitud de los conductores y
el numero de los mismos en cada canalización.
El esquema de conexión unifilar puede presentarse ignorando el desplazamiento de los
equipos en este caso no sera posible calcular la longitud de los conductores pero si el numero
de conductores en cada localización.
4.4.2 Representación multifilar



Cuando se representan los conductores con trazos independientes tenemos el esquema de
conexión multifilar es evidente en el siguiente ejemplo que el resultado no es el mas adecuado
para interpretar el comportamiento de la instalacion (aun siendo un ejemplo sencillo) pero si
es muy adecuado para el tecnico de montaje.




Determinación de escalas en los planos



Que es?

La escala cartográfica es la relación matemática entre las dimensiones en el mapa, carta
o plano y la superficie terrestre que representa. Por extensión puede referirse a la mayor
o menor profundidad del enfoque en un tema geográfico
Representación

Las escalas se escriben en forma de fracción donde el numerador indica el valor del
plano y el denominador el valor de la realidad. Por ejemplo la escala 1:500, significa
que 1 cm del plano equivale a 5 m en la realidad.

      Ejemplos: 1:1, 1:10, 1:500, 5:1, 50:1

Si lo que se desea medir del dibujo es una superficie, habrá que tener en cuenta la
relación de áreas de figuras semejantes, por ejemplo un cuadrado de 1cm de lado en el
dibujo.

Tipos de escalas

Existen tres tipos de escalas:

      Escala natural. Es cuando el tamaño físico del objeto representado en el plano
       coincide con la realidad. Existen varios formatos normalizados de planos para procurar
       que la mayoría de piezas que se mecanizan, estén dibujadas a escala natural, o sea,
       escala 1:1

      Escala de reducción. Se utiliza cuando el tamaño físico del plano es menor que la
       realidad. Esta escala se utiliza mucho para representar pie cerio (E.1:2 o E.1:5), planos
       de viviendas (E: 1:50), o mapas físicos de territorios donde la reducción es mucho
       mayor y pueden ser escalas del orden de E.1:50.000 o E.1:100.000. Para conocer el
       valor real de una dimensión hay que multiplicar la medida del plano por el valor del
       denominador.

      Escala de ampliación. Cuando hay que hacer el plano de piezas muy pequeñas o de
       detalles de un plano se utilizan la escala de ampliación en este caso el valor del
       numerador es más alto que el valor del denominador o sea que se deberá dividir por el
       numerador para conocer el valor real de la pieza. Ejemplos de escalas de ampliación
       son: E.2:1 o E.10:1

Escala gráfica, numérica y unidad por unidad

      La escala numérica representa una relación entre el valor de la realidad (el número a
       la izquierda del símbolo ":") y el valor de la representación (el valor a la derecha del
       símbolo ":"). Un ejemplo de ello sería 1:100.000, lo que indica que 1 unidad representa
       100.000 de las mismas unidades (cm, m, km, entre otras).

      La escala unidad por unidad es la igualdad expresa de dos longitudes: la del mapa (a la
       izquierda del signo "=") y la de la realidad (a la derecha del signo "="). Un ejemplo de
       ello sería 1 cm = 4 km; 2cm = 500 m, etc.

      Finalmente la escala gráfica es la representación dibujada de la escala unidad por
       unidad, donde cada segmento muestra la relación entre la longitud de la
       representación y el de la realidad. Un ejemplo de ello sería:

       0_________10 km
Normalización de escalas
      Según la norma UNE EN ISO 5455:1996. "Dibujos técnicos. Escalas" se recomienda
       utilizar las siguientes escalas normalizadas:

       Escalas de ampliación: 100:1, 50:1, 20:1, 10:1, 5:1, 2:1

       Escala natural: 1:1

       Escalas de reducción: 1:2, 1:5, 1:10, 1:20, 1:50, 1:100, 1:200, 1:500, 1:1000, 1:2000,
       1:5000, 1:20000


Representación de mapas
En los mapas suele aparecer una escala gráfica, que es un pequeño rótulo representando
una regla graduada, con la equivalencia de la distancia. Para calcular la distancia real
debemos medir la distancia en el mapa y compararla, es decir, medirla, con la escala
gráfica. Para pasar de la distancia real a la representación sobre el mapa debemos
dividirla por la escala. Hay que tener en cuenta que siempre obtendremos resultados en
las unidades en las que hayamos tomado las medidas.

Cuanto mayor sea el denominador más pequeño será el mapa final que obtengamos,
decimos que una escala es pequeña cuando obtenemos un mapa pequeño, y grande
cuando obtenemos mapas grandes para la representación del mismo elemento.

Las diferentes escalas nos permiten estudiar fenómenos diferentes. A una escala de 1:50
y 1:100 se pueden estudiar fenómenos de mucho detalle (se puede dibujar una casa, por
ejemplo). Esas representaciones se llaman específicamente planos.

Con escalas entre 1:5.000 y 1:20.000 podemos representar planos callejeros de
ciudades. Entre 1:20.000 y 1:50.000 podemos estudiar comarcas y municipios. Entre el
1:50.000 y el 1:200.000 podemos estudiar regiones y carreteras. Entre 1:200.000 y
1:1.000.000 podemos ver los países y sus divisiones. A escalas inferiores a 1:1.000.000
podemos ver continentes y hasta el mundo entero.

En los mapas pequeños, menores de 1:50.000, la información que aparece sobre ellos no
está dibujada a escala, de tal manera que no podemos calcular en ellos la anchura de una
carretera, o el radio de una curva, o la extensión de una ciudad con sólo multiplicar el
tamaño del dibujo por la escala.

También hay que tener en cuenta que en mapas menores de 1:1.000.000 sólo el centro
del mapa mantiene la equivalencia de la escala. Cuanto más al borde nos encontremos
más deformaciones encontraremos. El carácter de esas deformaciones depende del tipo
de proyección.

El término "escala" también se usa en la Cuestionarios en escalas, cuando se dice por
ejemplo que valore del 0 al 5 la importancia de una variable.
Para la representación de una escala se utiliza la fórmula E/1=d/D donde E :escala d:
distancia en el plano, D:distancia real. para encontrar alguna de las variables es
necesario despejar la formula

Muchas personas no se sienten cómodas al tratar con los números y les cuesta entender el
significado de la escala; pero interpretar una escala no exige necesariamente su traducción a
unidades métricas para entenderla; es más sencillo: si un plano indica que su escala es 1:50
coloca sobre él, por ejemplo, un zapato, y la distancia que el zapato cubra sobre el plano
significa que para cubrir esa misma distancia en la realidad necesitarás enfilar 50 zapatos como
el utilizado.
Simbologia
EJEMPLO DE SU APLICACIÓN
planos de instalaciones elec

planos de instalaciones elec

  • 1.
    ESQUEMAS ELECTRICOS Un circuitoeléctrico no es otra cosa que un conjunto de cables y mecanismos de control. Los cuales son necesarios para que los aparatos eléctricos funcionen correctamente. Cuando solo tenemos un punto de control (interruptor) se denomina circuito simple. Si el control lo realizamos desde dos puntos, es decir una bombilla y dos interruptores, el circuito será conmutado. A TENER EN CUENTA Deberemos tener presentes unos principios básicos para poder entender estos conceptos. Todo aparato eléctrico receptor de electricidad posee dos bornes de conexión, en uno le entra la energía y el otro sirve de salida, siendo indistintamente cualquiera de ellos validos para estos cometidos. En la instalación eléctrica de nuestra vivienda podemos encontrar tres tipos de cables, la fase, de color negro, marrón o gris encargada de llevar la energía. El neutro, de color azul para el retorno. Y el amarillo o bicolor para la toma de tierra. Este utilizado para los enchufes. Los cables deberán ser de la suficiente sección, dependiendo de la energía que deba pasar por ellos, dependiendo del aparato que vamos a conectar a esa línea, una lavadora, una cocina, un secador de pelo. etc.
  • 2.
    La sección delcableado dependerá de la utilización que de el vamos a realizar. Para el alumbrado utilizaremos una sección mínima de cable de 1.5 mm2, y 10A. Para usos normales la sección deberá ser de 2,5 mm2 y 16A. Para lavadoras y lavavajillas la sección será de 4 mm2 y 20A. Para el horno y la cocina la sección será de 6 mm2 y 25A. L, Fase, N, Neutro Interruptor Simple.
  • 3.
    Interruptores Conmutados, Controlde un punto de luz desde dos lugares Parte trasera de un interruptor Parte Trasera de un interruptor conmutador conmutador de cruce Conmutador de cruce, control de un punto de luz desde mas de dos lugares. Como podemos apreciar el conmutador de cruce ( Pieza central en el esquema ) se emplea para colocar dos conmutadores mas el de cruce y tener tres puntos de encendido apagado de un elemento como puede ser una bombilla.
  • 4.
    Doble conmutador, controlde dos puntos de luz desde dos lugares. Doble interruptor, control de dos puntos de luz. El busca fases se emplea para poder encontrar la fase (el cable que trae la corriente eléctrica) Colocamos el dedo en su parte superior y la punta del destornillador en el cable, si la luz interior se enciende, esto significara que hemos encontrado la fase, por el contrario si no se enciende, este será el neutro.
  • 5.
    Ahora bien, teniendoen cuenta que algunas instalaciones o circuitos son realmente complicados de representar esquemáticamente, tanto el ingeniero como el técnico pueden encontrarse con dos tipos de esquemas. a) Unificar: son los que representan en un solo trazo las distintas fases o conductores. b) Multifilar: son los esquemas que representan todos los trazos correspondientes a las distintas fases o conductores. En la sección de PLANOS, iré colocando diversos tipos de esquemas, para que podáis ver las diferencias; pero esta claro, que lo que realmente nos interesa son los esquemas de conexiones. Información mínima para los planos eléctricos 3.1. Todos los planos eléctricos, tanto de obra mayor como de obra menor, deben definir y detallar todos los sistemas eléctricos que requiere la obra, sin dejar duda sobre interpretaciones ambiguas que puedan inducir a equivocaciones o mala “praxis”. Por lo menos y en forma obligatoria, definirán y detallarán el sistema eléctrico y de telecomunicaciones de acuerdo con lo que más adelante se detalla. 3.2. Los planos eléctricos deberán contar como mínimo la siguiente información: 3.2.1. Simbología que indique en su totalidad los elementos involucrados en la información gráfica, con las características eléctricas y las alturas de montaje. 3.2.2. Distribución de las plantas físicas de toda la obra con la información gráfica de todos los circuitos eléctricos. 3.2.3. Detalle de los tableros de distribución con la siguiente información: a. Características eléctricas y físicas de cada tablero. b. Carga eléctrica conectada y demandada
  • 6.
    c. Factor depotencia y factor de demanda d. Corriente total por fase e. Protección, alimentadores por fase y conductor a tierra f. Detalle de cada circuito eléctrico conectado con la posición en el tablero, calibre y aislamiento de los alimentadores, diámetro de la canalización, características de las protecciones, detalle de la carga de cada uno, voltaje de operación de cada uno y porcentaje de caída de voltaje por circuito. g. Cuando el proyecto cuente con un transformador, se deberá indicar el valor de la corriente de corto circuito en cada tablero. h. Las unidades de potencia deberán ser indicadas de acuerdo al del sistema internacional de medidas vigentes por ley en el país. 3.2.4. Diagrama unifilar eléctrico indicando al menos lo siguiente: a. Calibre de acometidas, elementos de protección, elementos de medición, alimentadores principales, subalimentadores, sistemas de puesta a tierra, identificación de tableros de distribución y centros de carga según diseño en planta. b. Cuando la carga instalada amerite la instalación de un transformador o banco de transformadores, indicar el tipo de conexión (estrella o delta), voltajes de operación y capacidad instalada en kilovatios-amperios, indicando el factor de potencia del sistema. Asimismo detalles constructivos de bóvedas de transformadores, cuartos de control, cuartos para planta de emergencia, encierros y toda infraestructura que aloje sistemas de transformación de voltaje o corriente. c. Diagrama de trayectoria de canalizaciones para alimentadores de acometida a tableros y subtableros y sus características (tipo, dimensiones, etc.). 3.2.5. Notas aclaratorias que complementen la información gráfica que permita definir con claridad todos los criterios empleados en el diseño. 3.2.6. Diagramas adicionales que complementen la información del sistema de montaje o construcción de algunos elementos eléctricos a instalar. 3.2.7. La escala en los planos de áreas interiores para detalle de circuitos ramales deberá ser tal que la información sea legible.
  • 7.
    3.2.8. En planosde telecomunicaciones se debe incluir la siguiente información: a. Diagrama de localización del inmueble para ubicación de arquetas y puntos de acometida. b. Tipo de acometida indicando si es aérea, subterránea o ambas. c. Ubicación en la vía pública de la canalización y de la arqueta de entrada al edificio cuando se requiera de acuerdo con el Reglamento que el CFIA publique. En caso de exoneración de arqueta, un inspector de la compañía que suministre el servicio deberá anotarlo en el libro bitácora. d. Sitio de entrada al edificio; ubicación de las arquetas. e. Características de las canalizaciones (tipo, dimensiones, etc.). f. Esquema de la instalación de telecomunicaciones del edificio, que describe el sistema de distribución empleado (diagrama unifilar). g. Tipo de cable y elementos de conexión a utilizar. h. Tipo, altura de ubicación, dimensiones y capacidad del distribuidores y elementos de interconexión. i. Identificación de todos los elementos del sistema (cables de cobre F.O., salidas, tableros de interconexión, etc. j. Identificación en planta de todas las salidas de telecomunicaciones. k. Sistema de puesta a tierra. l. En sistemas de telecomunicaciones de todos los elementos, debe indicarse la interconexión de todos los elementos. m. Características de los cables con su cantidad e identificación en todos los puntos de conexión. n. Simbología y notas generales. 3.2.9. En planos eléctricos de remodelaciones o ampliaciones se debe presentar además un diagrama unifilar indicando los elementos existentes y los nuevos sistemas que se incluirán, con todos los detalles necesarios para su interpretación. 3.2.10. En planos de ampliaciones o remodelaciones de telecomunicaciones se debe incluir la siguiente información: a. Esquema de la ampliación o remodelación propuesta, indicando elementos existentes desde donde se conectará; capacidad de reserva y disponibilidad existente.
  • 8.
    b. Descripción delsistema de telecomunicaciones propuesto. c. Asignación de los nuevos elementos (ampliación) en el sistema existente. d. Ubicación de elementos en planta de la zona ampliada. e. Diagrama unificar. 3.2.11. En planos para sistema de señales, controles u otros sistemas operados por electricidad, se deberá indicar en detalle todos los elementos que lo integran, con los diagramas, notas y simbología que definan, sin lugar a duda, el sistema que se desea construir, tomando en consideración todas las características eléctricas de todos los elementos que lo componen. 3.2.12. La información en los planos de casas de habitación de los proyectos de obra menor, se deberá cumplir con lo establecido en el artículo 1.5a de este reglamento y con el NEC en lo que corresponda. Por lo tanto, debe contar al menos con los siguientes circuitos a. Un circuito de iluminación cuya carga será de 10 voltios-amperios por metro cuadrado. b. Dos circuitos de tomas para el área de cocina de 1500 voltios-amperios cada uno. c. Un circuito de tomas para uso general de 1500 voltios-amperios. d. Si tiene termo ducha o tanque de agua caliente, un circuito de 4500 voltios-amperios. e. Si tiene cocina eléctrica ésta no tendrá una carga inferior a 8000 voltios-amperios a 240 voltios. Cuando por razones de carga eléctrica el proyecto sobrepase los 15 kW, se deberá aplicar el artículo 1.6 de este Reglamento. 3.2.13. En todo proyecto eléctrico se deberá incluir una tabla de resumen con la información indicada en las tablas A y B de los anexos. Se usará sólo una de las tablas, dependiendo si el proyecto cuenta con transformadores o no. La tabla se colocará en la esquina superior derecha de la primera lámina eléctrica. Se deberá mantener el formato, agregando o quitando columnas de acuerdo a los transformadores y/o tableros eléctricos del proyecto. Se deben incluir todos los transformadores y tableros eléctricos del proyecto. Según lo requiera cada caso, se utilizará la tabla A o la tabla B.
  • 9.
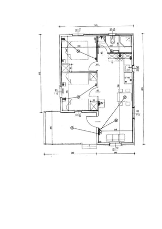
    TIPOS DE ESQUEMAS Comose a indicado el dibujo industrial electrico se plantea como reto establecer inequívocamente las relaciones de dependencia entre los elementos que integran un circuito electrico. Esto se logra por medio de distintas presentaciones o esquemas electricos complementarias entre si. Fundamentalmente podemos distinguir entre esquemas explicativos y esquemas conexionados. Los esquemas explicativos están especialmente orientados a resolver los problemas propios de la fase de diseño. Su destinatario es por tanto un ingeniero. En esta fase se plantean problemas muy diversos: cual va a ser la estructura general del circuito (esquema explicativo funcional) donde se remplazan físicamente sus componentes (esquema explicativo de emplazamiento) o como se relacionan entre si estos componentes electricos (esquema explicativo de circuitos). Los esquemas de conexiones están orientados a resolver los problemas de ejecución material. Su destinatario es por tanto un tecnico electricista. En ambos casos son especialmente en los esquemas de conexiones puede presentar resultar conveniente por simplicidad representar agrupados distintos conductores en un mismo trazo en este caso hablamos de representación unificar y tenemos tambien representación multifilar. A continuación se revisa esta clasificacion de los esquemas electricos tomando como ejemplo la sencilla instalacion electrica mostrada en la siguiente figura se trata de una ehabitación dotada de una lampara. Y gobernada por un interruptor y con dos tomas de corriente TC1 y TC2 la alimentación parte de una caja de distribución que recibe una linea y neutro a 220V, 50Hz.
  • 10.
    4.1 Esquema explicativofuncional. El esquema explicativo funcional pretende definir la estructura general del circuito de forma que pueda ser interpretada por un ingeniero en la FESE de diseño se trata de una primera definición del circuito y por tanto no entra en analizar todos los elementos del circuito detalladamente. En ocaciones al esquema funcional se le denomina esquema de bloques o esquema sinóptico. Esto es asi por que como se observa en la figura siguiente el circuito se representa como distintos bloques que pueden coincidir con uno o varios dispositivos electricos relacionados entre si por flechas. No es necesario utilizar símbolos normalizados para la definición de estos bloques. Las flechas no representan necesariamente a los conductores electricos sino a las relaciones de dependencia entre los bloques. 4.2 Esquema explicativo de emplazamiento El esquema explicativo de emplazamiento define la ubicación fisica de los principales componentes de las instalaciones. Esta información es especialmente útil para el ingeniero en la fase del diseño pues permite coordinar la obra electrica con otros trabajos en el seno de un proyecto por ejemplo y significativamente la obra civil.
  • 11.
    En esta esquemase emplea simbologia normalizada es habitual en instalacionesde electrificacion de viviendas planos de distribución en planta de oficinas y talleres plano de redes electricas etc. 4.3 Esquema explicativo de circuitos El sistema explicativo de circuitos es el mas importante para el ingeniero en la fase de diseño su objetivo es describir la forma en que se relacionaran entre si los componentes eléctricos que integran el circuito debe ser por tanto muy didáctico y claro. Los componentes eléctricos se presentan entre dos conductores horizontales correspondientes en dos fases o bien a una fase y el neutro como muestra el ejemplo cada componente con función de recepción de energía ocupa una columna en la representación así TC1 y TC2 podrían compartir una misma columna pero resulta mas claro separarlas de una en una los componentes de control como es el caso del interruptor S se representan sobre los componentes de consumo que gobiernan ( la lámpara E en el ejemplo). 4.4 Esquema de conexión o realización Los esquemas de conexiones estan orientados a resolver los problemas de ejecución material su destinatario es el tecnico electricista encargado de la ejecución de la obra no pretenden ser didacticos en cuanto a las relaciones entre los componentes de la instalacion de hecho a partir de ellos suele ser difícil interpretar el funcionamiento de la instalacion sin embargo son muy claros en cuanto a los aspectos basicos de la ejecución material de la institución. Los esquemas de conexión deben responder en forma inmediata a preguntas como cuantos conductores tenemos en esta canalización o como debo conectar los bornes de este equipo.
  • 12.
    Para responder ala pregunta de cual es la longitud de los conductores se representa el esquema de conexiones sobre el esquema explicativo de emplazamiento. En este ultimo caso resulta especialmente conveniente por simplicidad representar acumulados conductores en un mismo trazo en este caso hablamos de REPRESENTECION UNIFILAR por el contrario cuando cada conductor sea representado por un trazo independiente tendremos una REPRESENTACION MULTIFILAR a continuación se muestran algunos ejemplos. 4.4.1 Representacion unificar La siguiente figura muestra la instalacion electrica de una habitación como esquema de conexión unificar en este caso se a tomado como referencia el esquema explicativo de emplazamiento de los equipos este esquema permite calcular la longitud de los conductores y el numero de los mismos en cada canalización.
  • 13.
    El esquema deconexión unifilar puede presentarse ignorando el desplazamiento de los equipos en este caso no sera posible calcular la longitud de los conductores pero si el numero de conductores en cada localización.
  • 14.
    4.4.2 Representación multifilar Cuandose representan los conductores con trazos independientes tenemos el esquema de conexión multifilar es evidente en el siguiente ejemplo que el resultado no es el mas adecuado para interpretar el comportamiento de la instalacion (aun siendo un ejemplo sencillo) pero si es muy adecuado para el tecnico de montaje. Determinación de escalas en los planos Que es? La escala cartográfica es la relación matemática entre las dimensiones en el mapa, carta o plano y la superficie terrestre que representa. Por extensión puede referirse a la mayor o menor profundidad del enfoque en un tema geográfico
  • 15.
    Representación Las escalas seescriben en forma de fracción donde el numerador indica el valor del plano y el denominador el valor de la realidad. Por ejemplo la escala 1:500, significa que 1 cm del plano equivale a 5 m en la realidad.  Ejemplos: 1:1, 1:10, 1:500, 5:1, 50:1 Si lo que se desea medir del dibujo es una superficie, habrá que tener en cuenta la relación de áreas de figuras semejantes, por ejemplo un cuadrado de 1cm de lado en el dibujo. Tipos de escalas Existen tres tipos de escalas:  Escala natural. Es cuando el tamaño físico del objeto representado en el plano coincide con la realidad. Existen varios formatos normalizados de planos para procurar que la mayoría de piezas que se mecanizan, estén dibujadas a escala natural, o sea, escala 1:1  Escala de reducción. Se utiliza cuando el tamaño físico del plano es menor que la realidad. Esta escala se utiliza mucho para representar pie cerio (E.1:2 o E.1:5), planos de viviendas (E: 1:50), o mapas físicos de territorios donde la reducción es mucho mayor y pueden ser escalas del orden de E.1:50.000 o E.1:100.000. Para conocer el valor real de una dimensión hay que multiplicar la medida del plano por el valor del denominador.  Escala de ampliación. Cuando hay que hacer el plano de piezas muy pequeñas o de detalles de un plano se utilizan la escala de ampliación en este caso el valor del numerador es más alto que el valor del denominador o sea que se deberá dividir por el numerador para conocer el valor real de la pieza. Ejemplos de escalas de ampliación son: E.2:1 o E.10:1 Escala gráfica, numérica y unidad por unidad  La escala numérica representa una relación entre el valor de la realidad (el número a la izquierda del símbolo ":") y el valor de la representación (el valor a la derecha del símbolo ":"). Un ejemplo de ello sería 1:100.000, lo que indica que 1 unidad representa 100.000 de las mismas unidades (cm, m, km, entre otras).  La escala unidad por unidad es la igualdad expresa de dos longitudes: la del mapa (a la izquierda del signo "=") y la de la realidad (a la derecha del signo "="). Un ejemplo de ello sería 1 cm = 4 km; 2cm = 500 m, etc.  Finalmente la escala gráfica es la representación dibujada de la escala unidad por unidad, donde cada segmento muestra la relación entre la longitud de la representación y el de la realidad. Un ejemplo de ello sería: 0_________10 km
  • 16.
    Normalización de escalas  Según la norma UNE EN ISO 5455:1996. "Dibujos técnicos. Escalas" se recomienda utilizar las siguientes escalas normalizadas: Escalas de ampliación: 100:1, 50:1, 20:1, 10:1, 5:1, 2:1 Escala natural: 1:1 Escalas de reducción: 1:2, 1:5, 1:10, 1:20, 1:50, 1:100, 1:200, 1:500, 1:1000, 1:2000, 1:5000, 1:20000 Representación de mapas En los mapas suele aparecer una escala gráfica, que es un pequeño rótulo representando una regla graduada, con la equivalencia de la distancia. Para calcular la distancia real debemos medir la distancia en el mapa y compararla, es decir, medirla, con la escala gráfica. Para pasar de la distancia real a la representación sobre el mapa debemos dividirla por la escala. Hay que tener en cuenta que siempre obtendremos resultados en las unidades en las que hayamos tomado las medidas. Cuanto mayor sea el denominador más pequeño será el mapa final que obtengamos, decimos que una escala es pequeña cuando obtenemos un mapa pequeño, y grande cuando obtenemos mapas grandes para la representación del mismo elemento. Las diferentes escalas nos permiten estudiar fenómenos diferentes. A una escala de 1:50 y 1:100 se pueden estudiar fenómenos de mucho detalle (se puede dibujar una casa, por ejemplo). Esas representaciones se llaman específicamente planos. Con escalas entre 1:5.000 y 1:20.000 podemos representar planos callejeros de ciudades. Entre 1:20.000 y 1:50.000 podemos estudiar comarcas y municipios. Entre el 1:50.000 y el 1:200.000 podemos estudiar regiones y carreteras. Entre 1:200.000 y 1:1.000.000 podemos ver los países y sus divisiones. A escalas inferiores a 1:1.000.000 podemos ver continentes y hasta el mundo entero. En los mapas pequeños, menores de 1:50.000, la información que aparece sobre ellos no está dibujada a escala, de tal manera que no podemos calcular en ellos la anchura de una carretera, o el radio de una curva, o la extensión de una ciudad con sólo multiplicar el tamaño del dibujo por la escala. También hay que tener en cuenta que en mapas menores de 1:1.000.000 sólo el centro del mapa mantiene la equivalencia de la escala. Cuanto más al borde nos encontremos más deformaciones encontraremos. El carácter de esas deformaciones depende del tipo de proyección. El término "escala" también se usa en la Cuestionarios en escalas, cuando se dice por ejemplo que valore del 0 al 5 la importancia de una variable.
  • 17.
    Para la representaciónde una escala se utiliza la fórmula E/1=d/D donde E :escala d: distancia en el plano, D:distancia real. para encontrar alguna de las variables es necesario despejar la formula Muchas personas no se sienten cómodas al tratar con los números y les cuesta entender el significado de la escala; pero interpretar una escala no exige necesariamente su traducción a unidades métricas para entenderla; es más sencillo: si un plano indica que su escala es 1:50 coloca sobre él, por ejemplo, un zapato, y la distancia que el zapato cubra sobre el plano significa que para cubrir esa misma distancia en la realidad necesitarás enfilar 50 zapatos como el utilizado.
  • 18.
  • 25.
    EJEMPLO DE SUAPLICACIÓN