Incrustar presentación
Descargado 13 veces





















































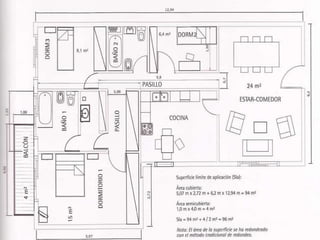
El documento presenta un proyecto eléctrico para una escuela de ingeniería en San Juan, Argentina. Incluye un recordatorio de las siglas de la escuela y una lista de las áreas a considerar en el proyecto como baños, vestíbulos, pasillos, balcón y garaje. También menciona ordenar el proyecto en una segunda parte.




















































