CONECTIVIDAD 
1 
ESQUEMA DEL INFORME DE 
PRACTICAS PROFESIONALES PARA EL DISEÑO E 
IMPLEMENTACION DE CABLEADO DE REDES DE 
DATOS 
Curso: 
Conectividad 
Tema: 
Implementación de Cableado de Redes De Datos 
Profesor: 
Bermejo Terrones Henry Paul 
Alumnos: 
Gonzalez Anticona, Alexis 
Quispe Mendoza, Fernando 
Marcelo Días, Andy 
Romero meza, Javier 
Mogollón Urtecho, Max Wilman 
Ciclo: 
“VI”
CONECTIVIDAD 
2 
INDICE DE CONTENIDO 
CAPITULO I: ASPECTOS GENERALES DE LA EMPRESA ................................................ 5 
1.1 Historia y localización de la Empresa donde se realizó la Práctica ............................ 5 
1.2 Organigrama de la Empresa y descripción de funciones ................................................ 9 
Gerente general: ................................................................................................................11 
Asistente de Gerencia:.......................................................................................................11 
Área de Ventas: .................................................................................................................11 
Área de contabilidad: .........................................................................................................11 
1.3. Área donde se efectuó la Práctica ................................................................................12 
1.4. Objetivos de la Práctica.................................................................................................12 
1.4.1. Objetivos de la Empresa .........................................................................................12 
1.4.2. Objetivos del Practicante .........................................................................................12 
CAPITULO II: ASPECTOS TECNICOS ................................................................................13 
2.1. Descripción de las actividades realizadas .....................................................................13 
2.2. Propuesta a la empresa .................................................................................................13 
2.2.1. Problemática ............................................................................................................13 
2.2.2. Descripción de la Propuesta....................................................................................13 
2.2.3 Dificultades y logros alcanzados en el desarrollo de la propuesta..........................13 
CAPÍTULO III: MARCO TEÓRICO........................................................................................14 
3.1. Marco Referencial ...................................................................................................14 
Preguntas y respuestas sobre Telefonía IP...................................................................14 
3.2. Metodología de diseño .............................................................................................19 
3.3. Sistema de Cableado Estructurado............................................................................20 
Beneficios de Un Sistema de Cableado Estructurado ......................................................26 
3.4. Normas y estándares de cableado estructurado .........................................................27 
Normas ...........................................................................................................................27 
3.5. Pruebas de certificación de cableado estructurado.....................................................29 
CAPITULO IV: DESARROLLO DE LA PROPUESTA ...........................................................................32 
4.1. Equipamiento de hardware y software de la empresa o institución ...................................32 
4.2. Hardware Equipos: .........................................................................................................32 
4.3. Software ........................................................................................................................32
CONECTIVIDAD 
4.4. Diseño y planificación de la red..................................................................................34 
4.4.1. Planos de Red Actual: ...............................................................................................34 
Plano de Topología................................................................................................................37 
Plano de Canaletas............................................................................................................37 
Plano de direccionamiento. ...............................................................................................37 
Plano de etiquetado. ..........................................................................................................38 
Plano de cableado eléctrico...............................................................................................38 
4.4.2. Plano de Red Propuesta: ....................................................................................39 
4.5. Materiales, Herramientas e Instrumentos para realizar el proyecto ..............................49 
Monto Total del Proyecto.......................................................................................................52 
4.7. Colocación de canaletas, cableado y gabinetes. ...........................................................53 
4.8. Configuración del direccionamiento de red (IP). ..........................................................54 
4.9. Configuración del Servidor y/o Configuración del Cliente. ............................................55 
4.10. Configuración de los Servicios. ......................................................................................55 
4.11. Plan de pruebas y correcciones. ....................................................................................55 
CAPÍTULO V: CONCLUSIONES Y RECOMENDACIONES ................................................55 
5.1. Conclusiones ..............................................................................................................55 
5.2. Recomendaciones ......................................................................................................55 
CAPÍTULO VI: REFERENCIAS BIBLIOGRÁFICAS .............................................................56 
6.1. Bibliografía ..................................................................................................................56 
6.2. Web Grafía..................................................................................................................56 
6.3. Anexos ........................................................................................................................56 
3
CONECTIVIDAD 
4 
INTRODUCCIÓN 
La tecnología informática (hardware, software, redes, bases de datos, etc.) es una 
herramienta estratégica que brinda rentabilidad y ventajas competitivas a los 
negocios frente a otros negocios similares en el mercado, pero puede originar 
costos y desventajas si no es bien administrada por el personal encargado. La 
solución clara es entonces realizar evaluaciones oportunas y completas de la 
función informática, a cargo de personal calificado, consultores externos, auditores 
en informática o evaluaciones periódicas realizadas por el mismo personal de 
informática. Surge entonces la obvia necesidad de auditar la función informática, 
ya que resulta innegable que la misma se ha convertido en una herramienta 
permanente y necesaria delos procesos principales de los negocios, en un aliado 
confiable y oportuno. Esto es posible si se implementan los controles y esquemas 
de seguridad requeridos para su aprovechamiento óptimo. Una vez que la alta 
dirección comprenda la importancia de contar con un área independiente que 
asegure y promueva el buen uso y aprovechamiento de la tecnología de 
informática, ya puede delegar la responsabilidad en personal altamente capacitado 
para ejercer la auditoría en informática dentro de la organización de manera formal 
y permanente .Debemos recordar que en los tiempos modernos existen grandes 
retos tanto dentro de la empresa privada como también en las instituciones del 
estado, si se puede observar porque los presupuesto del estado son tan altos pero 
no tienen los resultados esperados en otras palabras no es eficaz es porque 
algunas veces los recursos no se están utilizando de la manera necesaria e 
indicada. Debido a esto solamente se pretende hacer una auditoría de una forma 
sencilla en tan solamente una institución del estado y de está formar poder 
contribuir al mejoramiento y rendimiento del l área informática del “complejo 
educativo Prof. Carlos Lobato”. El propósito de estar llevando a cabo dicho 
proyecto es con el fin de poder contribuir con el personal asignado a administrar el 
centro de cómputo proveyéndole algunas recomendaciones y herramientas 
necesarias para que el rendimiento de este sea más óptimo; y de esta manera 
hacer más eficiente la función correspondiente del centro de cómputo para que la 
institución cumpla sus objetivos propuestos.
CONECTIVIDAD 
CAPITULO I: ASPECTOS GENERALES DE LA EMPRESA 
1.1 Historia y localización de la Empresa donde se realizó la Práctica 
HISTORIA 
XOLAR COMUNICACIONES nace como propuesta a los nuevos avances 
tecnológicos y en especial en la rama de la telefonía Ip. 
XOLAR se desarrolla como empresa proveedora de telefonía Ip para las 
empresas privadas y públicas, pero luego de un estudio decide proveer y 
brindar sus servicios en el campo de los locutorios públicos, logrando gran 
aceptación entre las diferentes estaciones de telefonía. 
En el año 2008 decide extenderse en todo el Perú creando sub estaciones 
en las ciudades de Trujillo, Chiclayo, Arequipa, Piura y Huancayo. 
En la ciudad de Trujillo se crea su sub estación el 5 de abril del mismo año 
dejando como gerente administrativo al Ing. Gino D’Angelo Sánchez, el cual 
en una primera instancia se encarga de brindar servicios por dentro de la 
ciudad de Trujillo. Luego decide extender su crecimiento por todo el norte 
hasta Cajamarca y por el sur hasta Chimbote. Xolar Comunicaciones Trujillo 
actualmente cuenta con 500 clientes hábiles brindándole servicios y 
atendiéndoles de manera eficaz y eficiente. 
MISIÓN 
5 
Desarrollar soluciones de última generación en comunicaciones con 
la ayuda de nuestro personal altamente capacitado a fin de brindar 
un servicio que exceda las expectativas de nuestros clientes.
CONECTIVIDAD 
VISIÓN 
6 
Ser la empresa líder en comunicación Ip a nivel nacional, logrando 
este posicionamiento a través de la aceptación del público, ya que 
buscamos satisfacer sus necesidades al máximo con un servicio de 
la más alta calidad. 
VALORES CORPORATIVOS 
Puntualidad: 
En este caso se hace referencia a este valor para exigir a los empleados 
el respeto de los tiempos de llegada y salida, pero sobre todo para con los 
clientes, por ejemplos a la hora de presentar proyectos o realizar entregas. 
Calidad: 
En este caso se intenta que los productos o servicios ofrecidos sean de 
excelencia. 
Trabajo en equipo: 
Desde éste se intenta la integración de cada uno de miembros de la 
empresa al grupo laboral, que sean promovidos mejores resultados 
gracias a un ambiente positivo. Para ello es elemental la participación de 
los distintos miembros de la empresa en diversos ámbitos.
CONECTIVIDAD 
Honestidad: 
7 
Orientado tanto para los miembros de la empresa entre sí, como con los 
clientes. Se promueve la verdad como una herramienta elemental para 
generar confianza y la credibilidad de la empresa. 
UBICACIÓN:
CONECTIVIDAD 
8
CONECTIVIDAD 
1.2 Organigrama de la Empresa y descripción de funciones 
SOPORTE TÉCNICO 
Funciones Principales 
• Instalación de Cabinas de Locutorio (montaje y desmontaje). 
• Instalación de Locutorios (cableado eléctrico, red y telefónico) 
• Configuración de Locutorios (configuración del sistema de tarifación y 
linksys) 
• Visitas de Soporte y Mantenimiento Correctivo y Preventivo Locutorios 
• Soporte vía Monitoreo y Teléfono 
• Capacitación Cliente en el uso de los sistemas. 
9 
Gerencia general 
Gerencia de ventas Secretaria 
Supervisión de soporte 
técnico 
Soporte e 
instalaciones 
Supervisión de ventas 
Ventas oficina 
Ventas puerteo 
Soporte en 
Oficina
CONECTIVIDAD 
• Soporte técnico a nivel de post-venta (actualización de tablas, series 
nuevas, coordinación de reclamos de clientes, etc.). 
• Ensamblaje e instalación de computadoras. Instalación y configuración de 
software para tarifadores, formateo y limpieza de virus de PC. 
Mantenimiento DE PC’S 
• Mantener actualizados cuadros estadísticos para control de atenciones de 
locutorios, visitas, mantenimiento, servicio técnico. 
Conocimientos 
• Manuales (eléctrico, red, telefónico) 
Valor Agregado 
• Experiencia instalación eléctrica, red y telefónica. 
• Personal masculino 
10
CONECTIVIDAD 
Gerente general: 
-ser un líder para sus trabajadores guiarlos y orientarlos para que la empresa pueda crear 
conjuntamente con todos. 
-planear y desarrollar metas a corto y largo plazo junto con objetivos anuales y entregar 
las proyecciones de dichas metas para la aprobación de los gerentes corporativos. 
-crear y mantener buenas relaciones con los clientes, gerentes corporativos y 
proveedores para mantener el buen funcionamiento de la empresa. 
Asistente de Gerencia: 
-Organizar y analizar la informa la información de la gerencia referida pronósticos, 
presupuesto, indicadores de gestión, entre otros con objetivos de identificar desviaciones 
y plantear acciones de mejora. 
-Elaboración y gestión de reportes y presentaciones de la gerencia. 
–Reemplazar al gerente de ventas cuando este no esté presente. 
Área de Ventas: 
Elaborar pronósticos de ventas: 
 Establecer precios 
 Realizar publicidad y promoción de ventas 
 Llevar un adecuado control y análisis de las ventas 
Dentro de las medidas de control para realizar las operaciones de venta tenemos que: El 
departamento de venta debe mantener una relación directa con el almacén a fin de contar 
con suficiente inventario para cubrir la demanda. 
Área de contabilidad: 
Realizar las acciones necesarias para garantizar que el sistema contable del organismo, 
de su actualización, así como las modificaciones que se generen por motivos de su 
actualización, cuenten con las autorizaciones legales para su funcionamiento y operación. 
Llevar a cabo la contabilidad del centro en los términos que establece la ley de 
presupuesto, contabilidad y gasto públicos. 
Emitir por escrito los principales políticos cantables necesarios para asegurar que las 
cuentas se operen bajo eficiente y consistencia, así como para la clara definición y 
asignación de responsabilidad de funcionarios y empleados. 
Mantener actualizado el catálogo de cuentas y guía contabilizadora, de manera que estos 
satisfagan las necesidades institucionales y fiscalizadoras de información relativa a los 
activos, pasivos, ingresos costo, gastos y avance en la ejecución de programa, recabando 
para el efecto, las autorizaciones suficientes de la autoridad competentes. 
11
CONECTIVIDAD 
1.3. Área donde se efectuó la Práctica 
Para efectuar nuestro trabajo no seleccionamos ni un área en especial si no que 
trabajamos a nivel general de la empresa, ya que vinos muchas deficiencias en esta y no 
se encontraba orden respecto a las cosas. 
1.4. Objetivos de la Práctica 
1.4.1. Objetivos de la Empresa 
12 
 Ser la empresa líder en comunicación IP a nivel nacional, logrando este 
posicionamiento a través de la aceptación del público, ya que buscamos 
satisfacer sus necesidades al máximo con un servicio de la más alta 
calidad. 
1.4.2. Objetivos del Practicante 
 Poder aplicar los conocimientos adquiridos en el trascurso del semestre 
académico. 
 Formular y/o proponer objetivos y estrategias para el desarrollo e 
implementación del sistema informático necesario en los distintos lugares 
de la empresa con una sofisticada infraestructura de redes. 
 Ayudar a la empresa en cuanto a la tecnología.
CONECTIVIDAD 
CAPITULO II: ASPECTOS TECNICOS 
2.1. Descripción de las actividades realizadas 
13 
 Medidas del área que se planea implementar la red. 
 Costos de los equipos para la implementación de la red. 
 Presentación de la propuesta de implementación de la red en la empresa. 
2.2. Propuesta a la empresa 
2.2.1. Problemática 
¿La implementación de la red ubicada en la empresa se encuentra en 
terribles condiciones debido al descuido de los usuarios y la 
manipulación? 
2.2.2. Descripción de la Propuesta 
 Se plantea utilizar los equipos antiguos al igual que comprar nuevos equipos 
para poder mejorar la implementación de la red y a la vez poder mejorar el 
flujo de datos interno. 
2.2.3 Dificultades y logros alcanzados en el desarrollo de la 
propuesta 
 La información de los equipos, herramientas y materiales no se obtuvo de 
manera apresurada, desorden de las áreas de almacén. 
 Se realizó una propuesta de mejora para la implementación de una red. 
 Se mostraron los fallos de seguridad en cuanto a seguridad del usuario y la 
las posibles fallas que provocaría la red.
CONECTIVIDAD 
CAPÍTULO III: MARCO TEÓRICO 
3.1. Marco Referencial 
La telefonía VoIP se ha convertido en una excelente alternativa para los pequeños 
negocios, venda esa solución de negocios 
La telefonía VoIP consiste básicamente en la posibilidad de usar el internet para 
hacer llamadas telefónicas. El costo es mucho menor dado que usualmente el 
costo del internet es un costo fijo mientras que el costo telefónico es variable. 
Usted puede vender esta solución a los pequeños y medianos negocios 
incorporando el concepto de la cabina pública de internet dentro de la empresa. 
Los equipos los puede conseguir fácilmente de diversos proveedores o 
directamente de los fabricantes y usted se convierte en un revendedor de los 
mismos. 
Preguntas y respuestas sobre Telefonía IP 
1. ¿Qué es la telefonía IP y cuáles son sus ventajas? 
La Telefonía IP es básicamente el uso de la red de datos y/o Internet para realizar 
llamadas telefónicas. Debemos distinguir el termino VoIP (Voz sobre IP) de la 
Telefonía IP. La Telefonía IP, es básicamente VoIP con salida hacia la Red 
Pública de Telefonía, es decir el uso de la red de datos para transmitir el audio de 
nuestras llamadas telefónicas hacia teléfonos “normales” y viceversa, de aquí sus 
ventajas, al convertir las llamadas en datos, ya no hay límites de distancia (la larga 
distancia ya no existe, siempre es una llamada local), ya no hay límite de cantidad 
de llamadas (normalmente estamos limitados a una llamada simultanea por línea), 
movilidad (donde tengamos internet, podemos tener nuestro teléfono, sin importar 
en que parte del mundo estemos), los nuevos teléfonos móviles inteligentes 
pueden contar con aplicativos que nos permitan hacer y recibir llamadas vía IP 
tanto por WiFi como por redes 3G. Otra ventaja y quizá una de las más atractivas, 
es el costo, las llamadas son más económicas, siempre son locales y en el caso 
que tengamos extensiones o anexos distribuidos por nuestra red de datos o entre 
nuestras oficinas y locales con solo tener Internet, el costo de comunicación entre 
ellas es CERO ya que no pasan por un operador telefónico. 
14
CONECTIVIDAD 
2. ¿Qué otras formas de comunicación telefónica por Internet existen? 
Como comente antes, muchas aplicaciones de internet nos permiten hacer 
llamadas de Voz sobre IP, como son el MSN Messenger, el Yahoo messenger, 
Gtalk de Google, o el famoso Skype, estas aplicaciones nos permiten hacer 
llamadas VoIP a otro usuario conectado en la red con la misma aplicación, pero 
contar con Telefonía IP es algo un poco más complicado, requiere que podamos 
hacer llamadas hacia la red pública de telefonía, es decir, poder llamar a teléfonos 
normales, locales o internacionales, para esto debemos considerar otros 
aplicativos, equipos y definitivamente servicios de uno o varios proveedores 
especializados que nos conecte hacia la red pública de telefonía. 
En el Perú, hay operadores 100% ip, como Convergía, PeruSat, Globalcrossing 
entre otros y también hay integradores que proveen los equipos y recomiendan el 
operador e integran todo con sus propios servidores y servicios 
profesionales. http://www.infomagia.com por dar un buen ejemplo. 
3. ¿Cómo puedo aprovechar la telefonía IP para bajar los costos de llamadas 
nacionales e internacionales de mi empresa? ¿De cuánto es el ahorro que se 
puede generar? Puede darme algunos ejemplos. 
Aunque cada caso debe analizarse de forma específica, puedo comentar que en la 
telefonía IP no hay “renta básica”, tampoco se necesitan múltiples líneas para 
recibir más llamadas simultáneas, muchos proveedores tarifican las llamadas al 
segundo, es decir que solo se paga por lo exactamente hablado, y en la mayoría 
de los casos a tarifas mucho más bajas, por dar un ejemplo actualmente un minuto 
de una llamada local no debe costar más de S/. 0.048 centavos de nuevo sol y 
esto dividido entre 60 segundos. En las llamadas internacionales los ahorros son 
mucho más altos, ya que como comente anteriormente, gracias a esta tecnología 
ya no existen largas distancias y el costo de la comunicación con otros países solo 
cuestan lo que costaría una llamada local en el país de destino. 
En la Telefonía IP existen también los llamados “números geográficos”, con estos 
Ud. puede asignar números de otros países o incluso de otras provincias y recibir 
estas llamadas en su central telefónica habilitada para telefonía IP, haciendo que 
para sus clientes su empresa tenga carácter “local” aunque físicamente no esté 
ubicado en esa localidad o país. 
15
CONECTIVIDAD 
Si tiene múltiples locales, o personal viajero o distribuido puede aprovechar el 
internet y su red local para comunicarse gratuita e ilimitadamente entre estos 
locales o con sus trabajadores. 
4. ¿cuál es el impedimento para que se expanda esta tecnología? ¿Es caro 
contratar el servicio o comprar los equipos? 
La telefonía IP se está expandiendo y muy rápidamente, pero ha comenzado por 
las grandes empresas, donde hay más consultores o especialistas y también 
porque los ahorros son mucho más grandes por el gran volumen de llamadas. 
Para dar un ejemplo la red asistencial de hospitales de ESSALUD, cuentan con 
casi 10,000 anexos IP a nivel nacional y todas las llamadas que realizan entre 
cualquiera de estos anexos no tienen costo y no pasan por ningún operador 
telefónico. 
Adicionalmente los operadores telefónicos tradicionales son los más preocupados 
por NO fomentar este tipo de tecnología ya que no los beneficia económicamente, 
algunos operadores móviles bloquean las aplicaciones o el protocolo de 
comunicación para evitar que los usuarios puedan usar esta tecnología para 
ahorrar en llamadas. Pero hay mucha información publicada en internet para 
ayudarnos entre los usuarios. 
Sobre si es caro o no, definitivamente cada día es mas económico, esto debido a 
que cada día hay más marcas que producen más equipos que cumplen el 
estándar SIP (Session Initiation Protocol) el cual es un estándar abierto y es el 
más utilizado actualmente en la Telefonía IP, por lo tanto estas marcas se 
enfrentan a una gran competencia, y el consumidor se beneficia con productos de 
mayor calidad y funcionalidades por un menor precio. Para dar un ejemplo, los 
costos del equipamiento pueden variar desde un softphone gratuito operado con 
un auricular y micrófono de S/. 15 soles a teléfonos IP que varían desde los $50 
hasta el video teléfonos IP de $380, pasando por una amplia gama de teléfonos a 
precios inferiores a los de un teléfono digital propietario promedio. 
16
CONECTIVIDAD 
5. ¿Qué tanto le serviría la telefonía IP a un negocio que hace delivery? 
¿Solo me sirve dependiendo del volumen de pedidos? 
Puede ayudar de diversas formas, por ejemplo al contratar un número de teléfono 
vía IP, no se requiere la instalación de líneas físicas y podrías recibir múltiples 
llamadas simultáneas a un solo número, ya que no existe la limitación de una 
llamada por línea, no dando tono de ocupado. Pero donde realmente te podría 
aportar valor y mucha inteligencia al negocio es utilizar una IP-PBX o central 
telefónica IP, la cual básicamente es una computadora, que puede grabar 
digitalmente las llamadas para control de calidad, generar reportes de llamadas no 
atendidas o perdidas, reconocer a los clientes habituales por el número de 
teléfono. Al ser una computadora es muy sencillo sincronizar las funciones de 
telefonía con una base de datos de clientes, con sus direcciones y acumulando 
sus preferencias de compra, pudiendo los operadores telefónicos de delivery 
“recordar” siempre a sus clientes y acelerar el proceso de toma de pedido ya que 
solo bastaría confirmar la dirección de envió y generar la orden, este tipo de 
soluciones son utilizadas por grandes servicios de delivery, empresas de taxis, o 
atención a clientes en bancos y otras empresas grandes, pero actualmente hay 
soluciones basadas en software libre que están disponibles para mypes y pymes. 
6. Tengo oficina en Lima, otras dos en Quito y Guayaquil, y también en 
Colombia. Queremos dar servicio conjuntamente al cliente final que está 
localizado en Lima y provincias. ¿Puedo integrar todas las oficinas de tal 
manera que pueda hacer transferencias y conferencias entre todas las 
oficinas? ¿Qué costo tendrían estas llamadas entre oficinas? ¿Hay 
limitación del número de llamadas simultáneas de este tipo que podemos 
lograr? ¿Si le agregamos capacidad de videoconferencia entre las oficinas, 
los costos se mantienen razonables? 
Su caso, es el ideal para las soluciones en la “nube”, la mayoría de empresas 
podría utilizar una IP-PBX o central telefónica IP, para atender llamadas con una 
recepcionista virtual, establecer las reglas y permisos de marcación de llamadas, 
emitir reportes y poder colocar los anexos IP a esta Central Telefónica IP, pero 
como su empresa está distribuida en diversas localidades lo conveniente es usar 
una Central IP virtual alojada en la nube, lo cual garantiza que estará siempre 
disponible de igual manera para todas las locaciones de su empresa. Solo se 
requiere que cada una de las oficinas cuente con una conexión a internet confiable 
17
CONECTIVIDAD 
y de preferencia simétrica y rentar o adquirir los teléfonos IP como anexos, 
algunos servicios de Hosted IP-PBX o Central Telefónica virtual ofrecen incluso los 
equipos telefónicos como parte de su servicio de renta mensual, que incluye 
numeración local y el trafico saliente de llamadas. Costo “cero” en la comunicación 
entre todos los anexos sin importar donde se encuentren, también es una ventaja 
para sus clientes, que al llamar a su número, pueden ser atendidos por una 
secretaria que este ubicada en otra ciudad y transferir la llamada a una tercera 
ubicación, sin tener impacto en el costo de la llamada del cliente que llamo desde 
el teléfono de su casa en Lima, por ejemplo. 
7. ¿Qué características debe tener mi conexión a internet para usar esta 
telefonía? 
Básicamente, hay un mínimo de ancho de banda que es necesario, son 
aproximadamente 30 Kbps, por cada llamada simultánea. Cuando el número de 
llamadas aumenta, se recomienda revisar el cableado y los switches de red, ya 
que la voz sobre IP es muy sensible a retrasos o pérdidas en una red en mal 
estado. Es muy diferente enviar emails o navegar páginas webs, donde algunos 
segundos de demora no es sensible, pero en una llamada telefónica, los retrasos 
producen vacíos, eco o entrecortes que causan molestias en la comunicación. 
8. Por mis deberes de trabajo, tengo que viajar mucho, tanto al interior como 
al exterior del país. Mi pregunta viene, como hago para ahorrar el costoso 
Roaming cuando viajo al extranjero. Sé que hay una posibilidad a través de 
la telefonía IP. ¿Cómo funciona? ¿Cómo puedo hacerlo?, ¿Qué contrato?, 
gracias por sus respuestas 
Sobre el ROAMING, he recibido muchas quejas sobre su altísimo costo. 
Definitivamente viajar con su propio número tiene grandes ventajas para seguir 
recibiendo llamadas de trabajo o familiares desde su lugar de origen cuando se 
encuentra fuera del país. Lo más económico es llevar configurado un teléfono en 
software (Softphone), el cual es un teléfono en software, que lleva su número y se 
conecta cuando Ud. tenga internet, ya sea en hoteles, restaurantes y cafés o 
lugares de trabajo, pudiendo hacer y recibir llamadas como si estuviera sentado en 
su propia oficina. Otra solución es tener un celular multibanda desbloqueado, es 
decir que permita cambiar de chip de operador, y al momento de viajar se pueden 
18
CONECTIVIDAD 
contratar los servicios de números telefónicos “geográficos” que permitan reenviar 
las llamadas de un número fijo local a un celular internacional, aprovechando la 
ventaja de la telefonía IP que se mencionó antes, la larga distancia no existe, solo 
se paga el costo local de cada país de destino. Para tener una idea un celular en 
USA, que haga y reciba llamadas ilimitadas desde y hacia Perú, con este sistema 
no supera los $30 semanales, lo cual puede resultar hasta 10 veces menos que el 
servicio de Roaming. 
3.2. Metodología de diseño 
¿Cómo se Investigara el problema? 
1. Análisis de Vulnerabilidad: 
Punto más crítico de toda la auditoria porque de él depende el curso de 
acción a tomar en las siguientes etapas y el éxito de ellas. 
2. Estrategia de Saneamiento: 
Parchea la red después haber identificado las brechas, brechas, 
reconfigurándolas o reemplazándolas por otra más segura. 
Las bases de datos, servidores internos correo, correo, comunicación sin 
cifrar, cifrar, estaciones de trabajo 
Se deben reducir el riesgo. 
3. Plan Contingencia: 
Replantear la red 
Software reconfigurado o rediseñado 
Reportar nuevos fallos de seguridad 
El riesgo con estos ítems del plan de contingencia disminuye. 
19
CONECTIVIDAD 
4. Seguimiento continúo: 
Se debe estar pendiente a los fallos que se presentan los cuales facilitan intrusión 
de los sistemas. Pero existen nuevas tecnologías para prevenir estos problemas. 
Se debe estar pendientes de lo que sucede para cubrir las nuevas brechas y hacer 
el trabajo más difícil a nuestros atacantes. 
1.- Usuarios (equipos) no autorizados en nuestra red. 
2.- El tráfico de nuestra red (para detectar tráfico sospechoso). 
3.- Vulnerabilidad en nuestros usuarios (sobre todo en los equipos de los jefes). 
4.- En caso de tener servidores en nuestra red, se deberán llevar a cabo auditorias 
específicas para cada servicio. 
3.3. Sistema de Cableado Estructurado 
20
CONECTIVIDAD 
Definición: Los componentes del área de trabajo se extienden desde la 
terminación del cableado horizontal en la salida de 
información, hasta el equipo en el cual se está corriendo una aplicación sea de 
voz, datos, vídeo o control. 
Normalmente no es de carácter permanente y está diseñado para facilitar los 
cambios y la re estructuración de los dispositivos conectados. 
Área de trabajo: Componentes 
El cableado del área de trabajo puede variar en su forma dependiendo de la 
21 
aplicación. 
– Cable de enlace de cobre (patch cord)
CONECTIVIDAD 
• Se compone de un cable de cobre y dos conectores de 8 pines 
tipo RJ-45 ubicados a los extremos del mismo. Puede tener 
protectores o botas. 
• La categoría del cable de enlace debe ser igual o mayor a la 
categoría del cable utilizado en el cableado horizontal. 
• La máxima longitud del patch cord es de 3m. 
• Cuando se utilizan “puntos de consolidación”, el cable puede 
tener hasta 20m. 
Uso de Baluns y Splitters. 
Si se usan baluns o splitters, deben colocarse fuera de la salida o el conector del 
área de trabajo. 
22 
Cableado Horizontal 
Definición: Se extiende desde el área de trabajo hasta el armario del Cuarto de 
Telecomunicaciones (TC). 
• Incluye el conector de salida de telecomunicaciones en el área de trabajo, el 
medio de transmisión empleado para cubrir la distancia hasta el armario, las 
terminaciones mecánicas y la conexión cruzada horizontal. 
• Conexión cruzada: elemento usado para terminar y administrar circuitos de 
comunicación. Se emplean cables de puente (jumper) o de interconexión (patch 
cord). Existen en cobre y fibra óptica. 
• El término “horizontal” se emplea ya que típicamente el cable en esta parte del 
cableado se instala horizontalmente a lo largo del piso o techo falso.
CONECTIVIDAD 
• En el diseño se debe tener en cuenta los servicios y sistemas que se tiene en 
común: 
– Sistemas de voz y centrales telefónicas. 
– Sistemas de datos. 
– Redes de área local. 
– Sistemas de video. 
– Sistemas de seguridad. 
– Sistemas de control. 
– Otros servicios. 
• El sistema diseñado debe satisfacer los requerimientos actuales y facilitar el 
mantenimiento, crecimiento y reubicación de los equipos y las áreas a servir. 
• Es el que mayor cantidad de cables individuales posee. 
• No se permiten puentes, derivaciones y empalmes a lo largo de todo el trayecto 
del cableado. 
• Se debe considerar su proximidad con el cableado eléctrico que genera altos 
niveles de interferencia electromagnética (motores, elevadores, transformadores, 
etc.) y cuyas limitaciones se encuentran en el estándar ANSI/EIA/TIA 569. 
Cableado Horizontal: Topología 
Se utiliza una topología tipo estrella. Todos los nodos o estaciones de trabajo 
se conectan con cable UTP o fibra óptica hacia un concentrador (patch panel) 
ubicado en el armario de telecomunicaciones de cada piso. 
• Esta topología otorga la flexibilidad necesaria para implementar diferentes 
servicios, a través de conexiones cruzadas en el armario de telecomunicaciones. 
Cableado Horizontal: Longitud 
• La máxima longitud permitida independientemente del tipo de medio de Tx 
utilizado es 90 m. 
• Se mide desde la salida de telecomunicaciones en el área de trabajo hasta las 
conexiones de distribución horizontal en el armario de telecomunicaciones. 
• La longitud máxima de los cables de conexión cruzada y puenteo (que 
interconectan el cableado horizontal con el vertical en el armario de 
telecomunicaciones) es 6m. Y los patch cords (que interconectan la salida 
de telecomunicaciones con los equipos terminales en al área de trabajo) es de 3m 
máximo. 
23
CONECTIVIDAD 
• El área horizontal que puede ser atendida efectivamente por un armario de 
telecomunicaciones está dentro de un radio de 60m aproximadamente alrededor 
del mismo. 
• Holgura del cable: longitud adicional que debe ser considerada a ambos lados 
del cable para facilitar la terminación del mismo en los conectores y permitir 
cambios de ubicación. 
– En el lado del armario de telecomunicaciones: de 2 a 3 metros. 
– En el área de trabajo: 30 cm. para cobre y 1 m para fibra óptica. 
Cableado Horizontal: distancias Máximas 
 La distancia máxima horizontal para cumplir con la categoría es 90m. 
 Longitudes máximas del cable en el TC: 
 Se permiten hasta 2 cables/puentes en la TC. 
Permite la interconexión o la conexión cruzada. 
 Ningún cable (patch cord) sencillo puede exceder de 6 m de longitud. 
 El total de los cables (patch cords) en la TC no puede exceder de 7 m. 
Los cables del área de trabajo no deben exceder 3 metros (10 pies) de longitud. 
Total de 10m horizontalmente para todos los cables de conexiones, puentes y 
cables de equipos en el área de trabajo y en el closet de telecomunicaciones. 
10 m de cables más 90 m de cableado en el enlace = 100 metros totales de 
longitud del canal. 
24
CONECTIVIDAD 
25 
Cableado Horizontal: Elementos 
Conector /Salida de Telecomunicaciones Punto de acceso de los usuarios a los 
servicios de telecomunicaciones del edificio. 
Consta de conectores modulares de 8 contactos del tipo RJ-45 hembra. (Cable de 
cobre). 
Para fibra óptica, el cableado debe terminar en un conector duplex, cumpliendo los 
requerimientos 
de TIA/EIA 568 B.3 
• Selección del medio de transmisión. 
– Es necesario contar con al menos 2 servicios por cada puesto de trabajo, uno de 
voz y otro de datos. 
– Se tendrá un mínimo de 2 conectores por puesto, configurados de la siguiente 
manera: 
Una debe ser UTP de 100 Ω de cuatro pares (Cat. 3 mínimo). La norma 
recomienda categoría 5e. (568 B-1) 
• La segunda toma debe ser uno de los siguientes tipos: 
– Cable UTP de 4 pares de 100 Ω (Cat. 5e) 
– Cable UTP de 4 pares de 100 Ω (Cat. 6) 
– Cable de fibra óptica multimodo de 62.5/125 μm de dos fibras. 
– Cable de fibra óptica multimodo de 50/125 μm de dos fibras.
CONECTIVIDAD 
Beneficios de Un Sistema de Cableado Estructurado 
Un Sistema de Cableado Estructurado permite hacer convivir muchos servicios en 
una sola red (voz, datos, vídeo,...) con la misma instalación, independientemente 
de los equipos de transmisión y terminales electrónicos que se utilicen. 
El beneficio real para la empresa que implanta un Sistema de Cableado 
Estructurado en su oficina es uno económico, aunque no se trata de la inversión 
inicial, sino del reducido coste de utilización a lo largo de la vida de la instalación, 
debido principalmente a los siguientes puntos: 
 Se facilita y agiliza mucho las labores de mantenimiento 
 La instalación es fácilmente ampliable 
 El Sistema de Cableado es seguro tanto a nivel de datos como a nivel de 
seguridad personal 
 Las instalaciones estén regulados mediante estándares, lo que garantiza al cliente 
su certificación para las aplicaciones exigentes 
 Cada instalación es independientemente del fabricante de la electrónica de la red, 
permitiendo al cliente elegir la solución más adecuado para sus necesidades en 
cada momento 
 Son soluciones abiertas, fiables y muy seguras 
 El tipo de cable instalado es de tal calidad que permite la transmisión de altas 
velocidades para redes de área local 
 No hace falta una nueva instalación para efectuar un traslado de equipo 
 Tienen una largo plazo de amortización y de vida útil 
26
CONECTIVIDAD 
3.4. Normas y estándares de cableado estructurado 
Consideraciones y Normas del Cableado Estructurado 
A la hora de garantizar una infraestructura, instalación o proyecto de un sistema 
de cableado, Unitel se basa en una serie de Normas sobre cableado estructurado, 
establecidas por una serie de organismo implicado en la elaboración de las 
mismas. 
Organismos 
 TIA (TelecommunicationsIndustryAssociation), fundada en 1985 después del 
rompimiento del monopolio de AT&T. Desarrolla normas de cableado industrial 
voluntario para muchos productos de las telecomunicaciones y tiene más de 70 
normas preestablecidas. 
 ANSI (American Nacional Standards Institute), es una organización sin ánimo 
de lucro que supervisa el desarrollo de estándares para productos, servicios, 
procesos y sistemas en los Estados Unidos. ANSI es miembro de 
la Organización Internacional para la Estandarización (ISO) y de la Comisión 
Electrotécnica Internacional (International Electrotechnical Commission, IEC). 
 EIA (Electronic Industries Alliance), es una organización formada por la 
asociación de las compañías electrónicas y de alta tecnología de los Estados 
Unidos, cuya misión es promover el desarrollo de mercado y la competitividad de 
la industria de alta tecnología de los Estados Unidos con esfuerzos locales e 
internacionales de la política. 
 ISO (International Standards Organization), es una organización no 
gubernamental creada en 1947 a nivel mundial, de cuerpos de normas 
nacionales, con más de 140 países. 
 IEEE (Instituto de Ingenieros Eléctricos y de Electrónica), principalmente 
responsable por las especificaciones de redes de área local como 802.3 
Ethernet, 802.5 TokenRing, ATM y las normas de GigabitEthernet. 
Normas 
27
CONECTIVIDAD 
 ANSI/TIA/EIA-568-B: Cableado de Telecomunicaciones en Edificios 
Comerciales sobre cómo instalar el Cableado: TIA/EIA 568-B1 Requerimientos 
generales; TÍA/EIA 568-B2: Componentes de cableado mediante par trenzado 
balanceado; TIA/EIA 568-B3 Componentes de cableado, Fibra óptica. 
 ANSI/TIA/EIA-569-A: Normas de Recorridos y Espacios de Telecomunicaciones 
en Edificios Comerciales sobre cómo enrutar el cableado. 
 ANSI/TIA/EIA-570-A: Normas de Infraestructura Residencial de 
Telecomunicaciones. 
 ANSI/TIA/EIA-606-A: Normas de Administración de Infraestructura de 
Telecomunicaciones en Edificios Comerciales. 
 ANSI/TIA/EIA-607: Requerimientos para instalaciones de sistemas de puesta a 
tierra de Telecomunicaciones en Edificios Comerciales. 
 ANSI/TIA/EIA-758: Norma Cliente-Propietario de cableado de Planta Externa de 
Telecomunicaciones. 
Consideraciones a tener en cuenta 
Cableado Horizontal, es decir, el cableado que va desde el armario de 
Telecomunicaciones a la toma de usuario. 
 No se permiten puentes, derivaciones y empalmes a lo largo de todo el trayecto 
del cableado. 
 Se debe considerar su proximidad con el cableado eléctrico que genera altos 
niveles de interferencia electromagnética (motores, elevadores, transformadores, 
etc.) y cuyas limitaciones se encuentran en el estándar ANSI/EIA/TIA 569. 
 La máxima longitud permitida independientemente del tipo de medio de Tx 
utilizado es 100m = 90 m + 3 m usuario + 7 m patchpanel. 
Cableado vertical, es decir, la interconexión entre los armarios de 
telecomunicaciones, cuarto de equipos y entrada de servicios. 
 Se utiliza un cableado Multipar UTP y STP, y también, Fibra óptica Multimodo y 
Monomodo. 
 La Distancia Máximas sobre Voz, es de: UTP 800 metros; STP 700 metros; Fibra 
MM 62.5/125um 2000 metros. 
28
CONECTIVIDAD 
3.5. Pruebas de certificación de cableado estructurado 
Certificación del cableado estructurado, verificando la calidad de la 
instalación 
Somos una empresa especializada en la certificación y auditoría del cableado 
estructurado, tras la consecución de una instalación, es un proceso por el cual se 
compara el rendimiento de transmisión de un sistema de cableado instalado con 
un estándar determinado empleando un método definido por el estándar para 
medir dicho rendimiento. Esta certificación de un sistema de cableado 
estructurado, nos demuestra la calidad de los componentes y de la instalación, es 
decir, nos dice si cumple una conectividad y un funcionamiento correcto. 
Normalmente, es necesario para obtener la garantía del fabricante del cableado 
estructurado. La certificación nos va a exigir que los enlaces del cableado 
proporcionen el resultado “Pasa”. En caso negativo, nuestros técnicos cualificados 
y certificados le diagnosticarán los enlaces que fallan y, tras implementar una 
acción correctiva, volverán a comprobarlos para garantizar que cumplen los 
requisitos de transmisión pertinentes. El tiempo necesario para certificar una 
instalación no sólo incluye la realización de las mediciones de certificación, sino 
también de una documentación y una solución de problemas. 
29
CONECTIVIDAD 
¿Por qué se necesitan diagnósticos avanzados? 
Nuestros técnicos certificados de las instalaciones de cableado que ofrece Unitel, 
saben cómo diagnosticar y solucionar los problemas de los sistemas de cableado 
de alto rendimiento. A medida que se van desarrollando e implementado nuevos 
sistemas de cableado de gran alto rendimiento, cada aspecto de la instalación 
demanda un mayor nivel de capacidad y mayor atención al detalle. Se han 
añadido nuevos parámetros de comprobación. Los enlaces se tienen que 
comprobar usando uno de los dos modelos de enlace (el “enlace permanente” o el 
“canal”), y se prueban y evalúan sobre un mayor rango de frecuencias y con más 
puntos de datos. Los componentes con los que se construyen los enlaces han de 
proporcionar un mejor rendimiento y la calidad del acabado durante la instalación 
debe mejorar de forma correspondiente. 
Debido al aumento de la complejidad de estos sistemas de cableado, la 
determinación de la causa del fallo y la rápida restauración del rendimiento 
adecuado se han convertido en todo un reto. Este manual le guiará a través del 
proceso de solución de problemas de los sistemas de cableado estructurado 
avanzados usando el certificador CableAnalyzer™ serie DTX de Fluke Networks 
para que pueda aumentar la productividad y ofrecer un mayor valor a su empresa. 
CERTIFICACIÓN Y AUDITORÍA DE LA INSTALACIÓN 
La certificación de una instalación significa que todos los cables que la componen 
cumplen con esos patrones de referencia y, por tanto, se tiene la garantía de que 
cumplirán con las exigencias para las que fueron diseñados. Por ejemplo, los 
cables UTP de categoría 5 y clase D, la longitud del segmento que no debe 
superar los 90m, hay que tener en cuenta el NEXT (Near-End Crosstalk), etc 
CUÁNTO MÁS CAMBIA SU RED, MÁS NECESITA MEJORAR LA VISIÓN Y EL 
CONTROL SOBRE ELLA 
En general, las redes actuales son muy estables. Sin embargo, también se 
caracterizan por no ser estáticas. Tanto las empresas como los usuarios exigen la 
instalación de nuevas tecnologías, nuevos servicios y un mejor rendimiento, que 
inevitablemente requieren cambiar la infraestructura, implementar nuevas 
aplicaciones y gestionar la seguridad. Al mismo tiempo, es necesario controlar los 
costes de TI y minimizar las interrupciones que se generan. Por todo ello, es 
necesario poder estudiar y auditar cada uno de los aspectos de la red para evaluar 
con precisión el impacto que la incorporación de nuevas tecnologías y servicios 
30
CONECTIVIDAD 
ejerce sobre ella, y para asegurarse de que se obtiene el rendimiento máximo en 
todo momento. 
PARA LA CERTIFICACIÓN DEL CABLEADO ESTRUCTURADO, 
RECOMENDAMOS EL ANALIZADOR ETHERSCOPE, de FLUKE 
Analizador EtherScope de Fluke 
Para la certificación del cableado estructurado, sobre redes LAN y WiFi, 
recomendamos la utilización del analizador EtherScope. Bien sea para comprobar 
y solucionar problemas durante la instalación o durante la actualización, o bien, 
para validar el funcionamiento de dicha LAN verificando los servicios de red y 
midiendo el rendimiento de Ethernet después de una instalación. El asistente de 
instalación de EtherScope se encargará de las tareas de verificación y su propia 
certificación. 
31
CONECTIVIDAD 
CAPITULO IV: DESARROLLO DE LA PROPUESTA 
4.1. Equipamiento de hardware y software de la empresa o institución 
4.2. Hardware Equipos: 
4.3. Software 
32 
No. Marca Modelo 
Sistema 
operativo 
Antivirus Office Lugar 
Disco 
duro 
RAM Conexión Mantenimiento 
1 VAIO 
PCV-RX100M 
Win XP NOD32 2007 
Centro de 
inv. 
60.5GB 224MB Internet CCleaner 
2 COMPAQ SR1420LA Win XP 
Security 
essentials 
2007 
Centro de 
inv. 
71.2GB 248MB Internet CCleaner 
3 COMPAQ SR1220LA Win XP 
Security 
essentials 
2007 
Centro de 
inv. 
70.6GB 504MB Internet CCleaner 
4 COMPAQ SR1420LA Win XP 
Security 
essentials 
2007 
Centro de 
inv. 
71.2GB 504MB no CCleaner 
5 COMPAQ SR1920LA Win XP 
Security 
essentials 
2007 
Centro de 
inv. 
179GB 448MB no CCleaner 
6 COMPAQ 
PRESARIO 
CQ1 
Win7 
Security 
essentials 
2007 
Centro de 
inv. 
289GB 2GB Internet CCleaner 
7 COMPAQ 
PRESARIO 
CQ1 
Win7 
Security 
essentials 
2007 
Centro de 
inv. 
289GB 2GB Internet CCleaner 
8 COMPAQ 
PRESARIO 
CQ1 
Win7 
Security 
essentials 
2007 
Centro de 
inv. 
289GB 2GB Internet CCleaner
CONECTIVIDAD 
33 
Observaciones Monitor CPU Mouse Bocinas Teclado Descripción 
Nombre 
del equipo 
Grupo de 
Trabajo 
Formateada en 
agosto 2011 
si si si si si investigación uno Halcones 
Formateada en 
agosto 2011 
si si si no si investigación dos Halcones 
Formateada en 
agosto 2011 
si si si si si investigación tres Halcones 
Formateada en 
agosto 2011 
si si si si si investigación cuatro Halcones 
Formateada en 
agosto 2011 
si si si si si investigación cinco Halcones 
Formateada en 
agosto 2011 
si si si si si investigación seis Halcones 
Formateada en 
agosto 2011 
si si si si si investigación siete Halcones 
Formateada en 
agosto 2011 
si si si si si investigación ocho Halcones
CONECTIVIDAD 
4.4. Diseño y planificación de la red 
4.4.1. Planos de Red Actual: 
34 
Planos de Cableado de datos 
Primer Piso 
Segundo Piso 
Administracion Recepción 
Leyenda 
Cableado 
Utp cat 5e 
Patch cord 
Switch 
Router 
Leyenda 
Cableado 
Utp cat 5e 
Patch cord 
Switch 
Router
CONECTIVIDAD 
Plano lógico de la red actual 
35
CONECTIVIDAD 
Plano físico 
36
CONECTIVIDAD 
Plano de Topología. 
IP: 192.168.1.5 
IP: 192.168.1.39 
37 
Plano de Canaletas. 
La empresa no cuenta con canaletas en su estructura. 
Plano de direccionamiento. 
IP: 192.168.1.4 
IP: 192.168.1.3 
IP: 192.168.1.9 
IP: 192.168.1.7 IP: 192.168.1.8 
IP: 192.168.1.6 IP: 192.168.1.6 
Segundo Piso 
Recepción 
Administracion 
IP: 192.168.1.15
CONECTIVIDAD 
38 
Plano de etiquetado. 
No cuenta con un plano de etiquetados 
Plano de cableado eléctrico. 
Primer piso 
Segundo piso 
Administracion Recepcion 
Leyenda 
Cable Eléctrico 
Mellizo 
Leyenda 
Switch 
Router 
Caja eléctrica 
Cable Eléctrico 
Mellizo 
Switch 
Router 
Caja eléctrica
CONECTIVIDAD 
4.4.2. Plano de Red Propuesta: 
39 
Plano de Cableado de Datos 
Primer Piso 
Segundo Piso 
Administracion Recepcion 
Leyenda 
Cableado 
Conector 
Switch 
Router 
Leyenda 
Cableado 
Conector 
Switch 
Router
CONECTIVIDAD 
Vertical 
40 
5131mm 
3481mm 
Resepcion Administracion 
3481mm 
5131mm 
Soporte 
Tecnico 
V 
e 
r 
t 
i 
c 
a 
l
CONECTIVIDAD 
Plano de Topología. 
41 
Segundo 
piso 
Primer piso
CONECTIVIDAD 
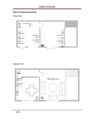
Plano de direccionamiento. 
Primer Piso 
42 
IP: 192.168.1.3 
IP: 192.168.1.4 
IP: 192.168.1.5 
IP: 192.168.1.6 
IP: 192.168.1.7 
IP: 192.168.1.8 
IP: 192.168.1.9 
IP: 192.168.1.10 
Segundo Piso 
Recepcion 
Administracion 
IP: 192.168.1.1 
IP: 192.168.1.2
CONECTIVIDAD 
Plano de Canaletas. 
Primer Piso 
Segundo Piso 
43 
Administracion Recepcion 
Leyenda 
Canaletas 
Conector 
Switch 
Router 
Leyenda 
Canaletas 
Conector 
Switch 
Router
CONECTIVIDAD 
Vista Vertical 
44 
5131mm 
3481mm 
Recepción Administracion 
5131mm3481mm 
Soporte 
Tecnico 
V 
e 
r 
t 
i 
c 
a 
l
CONECTIVIDAD 
Plano de etiquetado 
IP: 192.168.1.3 
IP: 192.168.1.4 
IP: 192.168.1.5 
IP: 192.168.1.6 
45 
IP: 192.168.1.7 
IP: 192.168.1.8 
IP: 192.168.1.9 
3 
4 
5 
6 
IP: 192.168.1.10 
7 
8 
9 
10
CONECTIVIDAD 
Segundo Piso 
Plano de cableado eléctrico. 
Primer piso 
46 
Recepcion 
Administracion 
IP: 192.168.1.1 
IP: 192.168.1.2 
1 
2
CONECTIVIDAD 
Plano de Cableado Eléctrico 
Primer Piso 
Segundo piso 
47 
Administracion Recepcion 
Leyenda 
Cable Eléctrico 
Mellizo 
Caja eléctrica 
Leyenda 
Switch 
Router 
Cable Eléctrico 
Mellizo 
Switch 
Router 
Caja eléctrica
CONECTIVIDAD 
Vertical 
48 
5131mm 
3481mm 
Recepcion Administracion 
5131mm3481mm 
Soporte 
Tecnico 
V 
e 
r 
t 
i 
c 
a 
l
CONECTIVIDAD 
4.5. Materiales, Herramientas e Instrumentos para realizar el proyecto 
49 
Materiales 
Descripción 
Unidad 
Medida 
Detalle/Mar 
ca 
Cantid 
ad 
Precio Total 
JACK Unidad Dickson 8 5 S/. 40 
Cable UTP Metros AMP 
120mtr 
s 
s/.60.00 S/. 180 
RJ45 Unidad 
Amp 
20 0.5 S/. 20 
Canaletas Metros Ticino 3 S/.40 S/. 120 
Tarugo Unidad 
Tarugos 
Marca Fishe 
r S8g 
1 s/.9.00 S/. 10 
Tornillos Unidad 
Jon Elster 
10 s/.5.00 S/. 15
CONECTIVIDAD 
Herramientas e Instrumentos 
Descripción Marca Cantidad Precio 
Crimping 
50 
Crimping tool para rj- 
45, rj-11, rj-6 "oubao" 
sz-315 con 
pelacables - punch 
grip 
3 
S/. 20.00 
Ponchador 
Ponchador utp rj45 
hurricane ht-354b 
3 
S/. 35.00 
LAN Tester 
CABLE TESTER 
PARA RJ-45 Y RJ- 
11INCLUYE funda 
(estuche) y BATERIA 
9 VOLTIOS 
1 
S/. 25.00 
PLACA PARA 
PARED 
PLACA PARA 
PARED 
(FACEPLATE) 
Marca DIXON 
1 PUERTO 
4 S/. 2.50 
Capuchas Capuchas RJ-45 20 S/. 25.00 CIENTO 
EMPALME RJ45 
EMPALME RJ45 (8 
contactos) 
4 
S/. 8.00
CONECTIVIDAD 
Equipos 
Personal o Recursos Humanos 
51 
Descripción Marca Cantidad 
CPU DESKTOP AVATEC 4 
MONITOR LG 4 
IMPRESORA CANON 2 
Cargo Especialidad Cantidad 
Jefe de Soporte 
Computación e 
Informática 
1 
Técnicos 
Computación e 
Informática 
3
CONECTIVIDAD 
52 
Monto Total del Proyecto 
4.6. Plan de implementación (Diagrama de Gantt).
CONECTIVIDAD 
4.7. Colocación de canaletas, cableado y gabinetes. 
Primer Piso 
Segundo Piso 
53 
Administracion Recepcion 
Leyenda 
Canaletas 
patch cord 
Switch 
Router 
Leyenda 
Canaletas 
patch cord 
Switch 
Router
CONECTIVIDAD 
4.8. Configuración del direccionamiento de red (IP). 
54 
IP: 192.168.1.3 
IP: 192.168.1.4 
IP: 192.168.1.5 
IP: 192.168.1.6 
IP: 192.168.1.7 
IP: 192.168.1.8 
IP: 192.168.1.9 
3 
4 
5 
6 
IP: 192.168.1.10 
7 
8 
9 
10 
Recepcion 
Administracion 
IP: 192.168.1.1 
IP: 192.168.1.2 
1 
2
CONECTIVIDAD 
4.9. Configuración del Servidor y/o Configuración del Cliente. 
La empresa no establece configuración a los clientes, solo fue necesario la 
conexión entre los equipos. 
4.10. Configuración de los Servicios. 
55 
No se estableció políticas de grupo. 
4.11. Plan de pruebas y correcciones. 
CAPÍTULO V: CONCLUSIONES Y RECOMENDACIONES 
5.1. Conclusiones 
 Estableciendo las normas y o los estándares se una solucionó los problemas de la 
red LAN eficientemente, tanto en el hardware de conectividad, hardware de 
interfaz, software de comunicaciones y las fallas de usuario. 
 Se demostró que el uso de la red LAN y las reglas de producción son válidas y 
aceptables para modelar los conocimientos de los especialistas de una manera 
práctica. 
 Una oficina con una red LAN, brindan otros valores agregados adicionales a los de 
tiempo de implementación y costos. Brindarles nuevos servicios a los clientes, los 
clientes con sus dispositivos inalámbricos puedan ingresar a la página Web del 
Banco para que ellos mismos realicen sus operaciones. 
 Implementar una red inalámbrica en la LAN resulta más económica para la 
empresa que el hecho de tener que realizar todo el cableado para datos 
principalmente tomando en así la inversión inicial en el aspecto de las 
telecomunicaciones se reducen. 
5.2. Recomendaciones 
 Implantar un cronograma para contemplar las actividades de las diferentes fases 
del proyecto, teniendo en consideración los recursos, tiempos estimados y 
prioridades. 
 Establecer un plan mensual de capacitación, con el objetivo de mantener 
actualizados al personal de la empresa para poder brindar una adecuada función 
en la empresa. 
Realizar un análisis financiero tomando como insumo las referencias de precios 
emitidas por los proveedores identificados en este estudio. Esto permitiría 
proyectar el presupuesto necesario para realizar completamente la 
implementación de la red LAN.
CONECTIVIDAD 
CAPÍTULO VI: REFERENCIAS BIBLIOGRÁFICAS 
6.1. Bibliografía 
6.2. Web Grafía 
 http://cetemredes2.blogspot.com/2014/05/sistema-de-cableado-estructurado-grupo. 
56 
html 
6.3. Anexos
CONECTIVIDAD 
57
CONECTIVIDAD 
58
CONECTIVIDAD 
59
CONECTIVIDAD 
60

Proyecto de Conectividad

  • 1.
    CONECTIVIDAD 1 ESQUEMADEL INFORME DE PRACTICAS PROFESIONALES PARA EL DISEÑO E IMPLEMENTACION DE CABLEADO DE REDES DE DATOS Curso: Conectividad Tema: Implementación de Cableado de Redes De Datos Profesor: Bermejo Terrones Henry Paul Alumnos: Gonzalez Anticona, Alexis Quispe Mendoza, Fernando Marcelo Días, Andy Romero meza, Javier Mogollón Urtecho, Max Wilman Ciclo: “VI”
  • 2.
    CONECTIVIDAD 2 INDICEDE CONTENIDO CAPITULO I: ASPECTOS GENERALES DE LA EMPRESA ................................................ 5 1.1 Historia y localización de la Empresa donde se realizó la Práctica ............................ 5 1.2 Organigrama de la Empresa y descripción de funciones ................................................ 9 Gerente general: ................................................................................................................11 Asistente de Gerencia:.......................................................................................................11 Área de Ventas: .................................................................................................................11 Área de contabilidad: .........................................................................................................11 1.3. Área donde se efectuó la Práctica ................................................................................12 1.4. Objetivos de la Práctica.................................................................................................12 1.4.1. Objetivos de la Empresa .........................................................................................12 1.4.2. Objetivos del Practicante .........................................................................................12 CAPITULO II: ASPECTOS TECNICOS ................................................................................13 2.1. Descripción de las actividades realizadas .....................................................................13 2.2. Propuesta a la empresa .................................................................................................13 2.2.1. Problemática ............................................................................................................13 2.2.2. Descripción de la Propuesta....................................................................................13 2.2.3 Dificultades y logros alcanzados en el desarrollo de la propuesta..........................13 CAPÍTULO III: MARCO TEÓRICO........................................................................................14 3.1. Marco Referencial ...................................................................................................14 Preguntas y respuestas sobre Telefonía IP...................................................................14 3.2. Metodología de diseño .............................................................................................19 3.3. Sistema de Cableado Estructurado............................................................................20 Beneficios de Un Sistema de Cableado Estructurado ......................................................26 3.4. Normas y estándares de cableado estructurado .........................................................27 Normas ...........................................................................................................................27 3.5. Pruebas de certificación de cableado estructurado.....................................................29 CAPITULO IV: DESARROLLO DE LA PROPUESTA ...........................................................................32 4.1. Equipamiento de hardware y software de la empresa o institución ...................................32 4.2. Hardware Equipos: .........................................................................................................32 4.3. Software ........................................................................................................................32
  • 3.
    CONECTIVIDAD 4.4. Diseñoy planificación de la red..................................................................................34 4.4.1. Planos de Red Actual: ...............................................................................................34 Plano de Topología................................................................................................................37 Plano de Canaletas............................................................................................................37 Plano de direccionamiento. ...............................................................................................37 Plano de etiquetado. ..........................................................................................................38 Plano de cableado eléctrico...............................................................................................38 4.4.2. Plano de Red Propuesta: ....................................................................................39 4.5. Materiales, Herramientas e Instrumentos para realizar el proyecto ..............................49 Monto Total del Proyecto.......................................................................................................52 4.7. Colocación de canaletas, cableado y gabinetes. ...........................................................53 4.8. Configuración del direccionamiento de red (IP). ..........................................................54 4.9. Configuración del Servidor y/o Configuración del Cliente. ............................................55 4.10. Configuración de los Servicios. ......................................................................................55 4.11. Plan de pruebas y correcciones. ....................................................................................55 CAPÍTULO V: CONCLUSIONES Y RECOMENDACIONES ................................................55 5.1. Conclusiones ..............................................................................................................55 5.2. Recomendaciones ......................................................................................................55 CAPÍTULO VI: REFERENCIAS BIBLIOGRÁFICAS .............................................................56 6.1. Bibliografía ..................................................................................................................56 6.2. Web Grafía..................................................................................................................56 6.3. Anexos ........................................................................................................................56 3
  • 4.
    CONECTIVIDAD 4 INTRODUCCIÓN La tecnología informática (hardware, software, redes, bases de datos, etc.) es una herramienta estratégica que brinda rentabilidad y ventajas competitivas a los negocios frente a otros negocios similares en el mercado, pero puede originar costos y desventajas si no es bien administrada por el personal encargado. La solución clara es entonces realizar evaluaciones oportunas y completas de la función informática, a cargo de personal calificado, consultores externos, auditores en informática o evaluaciones periódicas realizadas por el mismo personal de informática. Surge entonces la obvia necesidad de auditar la función informática, ya que resulta innegable que la misma se ha convertido en una herramienta permanente y necesaria delos procesos principales de los negocios, en un aliado confiable y oportuno. Esto es posible si se implementan los controles y esquemas de seguridad requeridos para su aprovechamiento óptimo. Una vez que la alta dirección comprenda la importancia de contar con un área independiente que asegure y promueva el buen uso y aprovechamiento de la tecnología de informática, ya puede delegar la responsabilidad en personal altamente capacitado para ejercer la auditoría en informática dentro de la organización de manera formal y permanente .Debemos recordar que en los tiempos modernos existen grandes retos tanto dentro de la empresa privada como también en las instituciones del estado, si se puede observar porque los presupuesto del estado son tan altos pero no tienen los resultados esperados en otras palabras no es eficaz es porque algunas veces los recursos no se están utilizando de la manera necesaria e indicada. Debido a esto solamente se pretende hacer una auditoría de una forma sencilla en tan solamente una institución del estado y de está formar poder contribuir al mejoramiento y rendimiento del l área informática del “complejo educativo Prof. Carlos Lobato”. El propósito de estar llevando a cabo dicho proyecto es con el fin de poder contribuir con el personal asignado a administrar el centro de cómputo proveyéndole algunas recomendaciones y herramientas necesarias para que el rendimiento de este sea más óptimo; y de esta manera hacer más eficiente la función correspondiente del centro de cómputo para que la institución cumpla sus objetivos propuestos.
  • 5.
    CONECTIVIDAD CAPITULO I:ASPECTOS GENERALES DE LA EMPRESA 1.1 Historia y localización de la Empresa donde se realizó la Práctica HISTORIA XOLAR COMUNICACIONES nace como propuesta a los nuevos avances tecnológicos y en especial en la rama de la telefonía Ip. XOLAR se desarrolla como empresa proveedora de telefonía Ip para las empresas privadas y públicas, pero luego de un estudio decide proveer y brindar sus servicios en el campo de los locutorios públicos, logrando gran aceptación entre las diferentes estaciones de telefonía. En el año 2008 decide extenderse en todo el Perú creando sub estaciones en las ciudades de Trujillo, Chiclayo, Arequipa, Piura y Huancayo. En la ciudad de Trujillo se crea su sub estación el 5 de abril del mismo año dejando como gerente administrativo al Ing. Gino D’Angelo Sánchez, el cual en una primera instancia se encarga de brindar servicios por dentro de la ciudad de Trujillo. Luego decide extender su crecimiento por todo el norte hasta Cajamarca y por el sur hasta Chimbote. Xolar Comunicaciones Trujillo actualmente cuenta con 500 clientes hábiles brindándole servicios y atendiéndoles de manera eficaz y eficiente. MISIÓN 5 Desarrollar soluciones de última generación en comunicaciones con la ayuda de nuestro personal altamente capacitado a fin de brindar un servicio que exceda las expectativas de nuestros clientes.
  • 6.
    CONECTIVIDAD VISIÓN 6 Ser la empresa líder en comunicación Ip a nivel nacional, logrando este posicionamiento a través de la aceptación del público, ya que buscamos satisfacer sus necesidades al máximo con un servicio de la más alta calidad. VALORES CORPORATIVOS Puntualidad: En este caso se hace referencia a este valor para exigir a los empleados el respeto de los tiempos de llegada y salida, pero sobre todo para con los clientes, por ejemplos a la hora de presentar proyectos o realizar entregas. Calidad: En este caso se intenta que los productos o servicios ofrecidos sean de excelencia. Trabajo en equipo: Desde éste se intenta la integración de cada uno de miembros de la empresa al grupo laboral, que sean promovidos mejores resultados gracias a un ambiente positivo. Para ello es elemental la participación de los distintos miembros de la empresa en diversos ámbitos.
  • 7.
    CONECTIVIDAD Honestidad: 7 Orientado tanto para los miembros de la empresa entre sí, como con los clientes. Se promueve la verdad como una herramienta elemental para generar confianza y la credibilidad de la empresa. UBICACIÓN:
  • 8.
  • 9.
    CONECTIVIDAD 1.2 Organigramade la Empresa y descripción de funciones SOPORTE TÉCNICO Funciones Principales • Instalación de Cabinas de Locutorio (montaje y desmontaje). • Instalación de Locutorios (cableado eléctrico, red y telefónico) • Configuración de Locutorios (configuración del sistema de tarifación y linksys) • Visitas de Soporte y Mantenimiento Correctivo y Preventivo Locutorios • Soporte vía Monitoreo y Teléfono • Capacitación Cliente en el uso de los sistemas. 9 Gerencia general Gerencia de ventas Secretaria Supervisión de soporte técnico Soporte e instalaciones Supervisión de ventas Ventas oficina Ventas puerteo Soporte en Oficina
  • 10.
    CONECTIVIDAD • Soportetécnico a nivel de post-venta (actualización de tablas, series nuevas, coordinación de reclamos de clientes, etc.). • Ensamblaje e instalación de computadoras. Instalación y configuración de software para tarifadores, formateo y limpieza de virus de PC. Mantenimiento DE PC’S • Mantener actualizados cuadros estadísticos para control de atenciones de locutorios, visitas, mantenimiento, servicio técnico. Conocimientos • Manuales (eléctrico, red, telefónico) Valor Agregado • Experiencia instalación eléctrica, red y telefónica. • Personal masculino 10
  • 11.
    CONECTIVIDAD Gerente general: -ser un líder para sus trabajadores guiarlos y orientarlos para que la empresa pueda crear conjuntamente con todos. -planear y desarrollar metas a corto y largo plazo junto con objetivos anuales y entregar las proyecciones de dichas metas para la aprobación de los gerentes corporativos. -crear y mantener buenas relaciones con los clientes, gerentes corporativos y proveedores para mantener el buen funcionamiento de la empresa. Asistente de Gerencia: -Organizar y analizar la informa la información de la gerencia referida pronósticos, presupuesto, indicadores de gestión, entre otros con objetivos de identificar desviaciones y plantear acciones de mejora. -Elaboración y gestión de reportes y presentaciones de la gerencia. –Reemplazar al gerente de ventas cuando este no esté presente. Área de Ventas: Elaborar pronósticos de ventas:  Establecer precios  Realizar publicidad y promoción de ventas  Llevar un adecuado control y análisis de las ventas Dentro de las medidas de control para realizar las operaciones de venta tenemos que: El departamento de venta debe mantener una relación directa con el almacén a fin de contar con suficiente inventario para cubrir la demanda. Área de contabilidad: Realizar las acciones necesarias para garantizar que el sistema contable del organismo, de su actualización, así como las modificaciones que se generen por motivos de su actualización, cuenten con las autorizaciones legales para su funcionamiento y operación. Llevar a cabo la contabilidad del centro en los términos que establece la ley de presupuesto, contabilidad y gasto públicos. Emitir por escrito los principales políticos cantables necesarios para asegurar que las cuentas se operen bajo eficiente y consistencia, así como para la clara definición y asignación de responsabilidad de funcionarios y empleados. Mantener actualizado el catálogo de cuentas y guía contabilizadora, de manera que estos satisfagan las necesidades institucionales y fiscalizadoras de información relativa a los activos, pasivos, ingresos costo, gastos y avance en la ejecución de programa, recabando para el efecto, las autorizaciones suficientes de la autoridad competentes. 11
  • 12.
    CONECTIVIDAD 1.3. Áreadonde se efectuó la Práctica Para efectuar nuestro trabajo no seleccionamos ni un área en especial si no que trabajamos a nivel general de la empresa, ya que vinos muchas deficiencias en esta y no se encontraba orden respecto a las cosas. 1.4. Objetivos de la Práctica 1.4.1. Objetivos de la Empresa 12  Ser la empresa líder en comunicación IP a nivel nacional, logrando este posicionamiento a través de la aceptación del público, ya que buscamos satisfacer sus necesidades al máximo con un servicio de la más alta calidad. 1.4.2. Objetivos del Practicante  Poder aplicar los conocimientos adquiridos en el trascurso del semestre académico.  Formular y/o proponer objetivos y estrategias para el desarrollo e implementación del sistema informático necesario en los distintos lugares de la empresa con una sofisticada infraestructura de redes.  Ayudar a la empresa en cuanto a la tecnología.
  • 13.
    CONECTIVIDAD CAPITULO II:ASPECTOS TECNICOS 2.1. Descripción de las actividades realizadas 13  Medidas del área que se planea implementar la red.  Costos de los equipos para la implementación de la red.  Presentación de la propuesta de implementación de la red en la empresa. 2.2. Propuesta a la empresa 2.2.1. Problemática ¿La implementación de la red ubicada en la empresa se encuentra en terribles condiciones debido al descuido de los usuarios y la manipulación? 2.2.2. Descripción de la Propuesta  Se plantea utilizar los equipos antiguos al igual que comprar nuevos equipos para poder mejorar la implementación de la red y a la vez poder mejorar el flujo de datos interno. 2.2.3 Dificultades y logros alcanzados en el desarrollo de la propuesta  La información de los equipos, herramientas y materiales no se obtuvo de manera apresurada, desorden de las áreas de almacén.  Se realizó una propuesta de mejora para la implementación de una red.  Se mostraron los fallos de seguridad en cuanto a seguridad del usuario y la las posibles fallas que provocaría la red.
  • 14.
    CONECTIVIDAD CAPÍTULO III:MARCO TEÓRICO 3.1. Marco Referencial La telefonía VoIP se ha convertido en una excelente alternativa para los pequeños negocios, venda esa solución de negocios La telefonía VoIP consiste básicamente en la posibilidad de usar el internet para hacer llamadas telefónicas. El costo es mucho menor dado que usualmente el costo del internet es un costo fijo mientras que el costo telefónico es variable. Usted puede vender esta solución a los pequeños y medianos negocios incorporando el concepto de la cabina pública de internet dentro de la empresa. Los equipos los puede conseguir fácilmente de diversos proveedores o directamente de los fabricantes y usted se convierte en un revendedor de los mismos. Preguntas y respuestas sobre Telefonía IP 1. ¿Qué es la telefonía IP y cuáles son sus ventajas? La Telefonía IP es básicamente el uso de la red de datos y/o Internet para realizar llamadas telefónicas. Debemos distinguir el termino VoIP (Voz sobre IP) de la Telefonía IP. La Telefonía IP, es básicamente VoIP con salida hacia la Red Pública de Telefonía, es decir el uso de la red de datos para transmitir el audio de nuestras llamadas telefónicas hacia teléfonos “normales” y viceversa, de aquí sus ventajas, al convertir las llamadas en datos, ya no hay límites de distancia (la larga distancia ya no existe, siempre es una llamada local), ya no hay límite de cantidad de llamadas (normalmente estamos limitados a una llamada simultanea por línea), movilidad (donde tengamos internet, podemos tener nuestro teléfono, sin importar en que parte del mundo estemos), los nuevos teléfonos móviles inteligentes pueden contar con aplicativos que nos permitan hacer y recibir llamadas vía IP tanto por WiFi como por redes 3G. Otra ventaja y quizá una de las más atractivas, es el costo, las llamadas son más económicas, siempre son locales y en el caso que tengamos extensiones o anexos distribuidos por nuestra red de datos o entre nuestras oficinas y locales con solo tener Internet, el costo de comunicación entre ellas es CERO ya que no pasan por un operador telefónico. 14
  • 15.
    CONECTIVIDAD 2. ¿Quéotras formas de comunicación telefónica por Internet existen? Como comente antes, muchas aplicaciones de internet nos permiten hacer llamadas de Voz sobre IP, como son el MSN Messenger, el Yahoo messenger, Gtalk de Google, o el famoso Skype, estas aplicaciones nos permiten hacer llamadas VoIP a otro usuario conectado en la red con la misma aplicación, pero contar con Telefonía IP es algo un poco más complicado, requiere que podamos hacer llamadas hacia la red pública de telefonía, es decir, poder llamar a teléfonos normales, locales o internacionales, para esto debemos considerar otros aplicativos, equipos y definitivamente servicios de uno o varios proveedores especializados que nos conecte hacia la red pública de telefonía. En el Perú, hay operadores 100% ip, como Convergía, PeruSat, Globalcrossing entre otros y también hay integradores que proveen los equipos y recomiendan el operador e integran todo con sus propios servidores y servicios profesionales. http://www.infomagia.com por dar un buen ejemplo. 3. ¿Cómo puedo aprovechar la telefonía IP para bajar los costos de llamadas nacionales e internacionales de mi empresa? ¿De cuánto es el ahorro que se puede generar? Puede darme algunos ejemplos. Aunque cada caso debe analizarse de forma específica, puedo comentar que en la telefonía IP no hay “renta básica”, tampoco se necesitan múltiples líneas para recibir más llamadas simultáneas, muchos proveedores tarifican las llamadas al segundo, es decir que solo se paga por lo exactamente hablado, y en la mayoría de los casos a tarifas mucho más bajas, por dar un ejemplo actualmente un minuto de una llamada local no debe costar más de S/. 0.048 centavos de nuevo sol y esto dividido entre 60 segundos. En las llamadas internacionales los ahorros son mucho más altos, ya que como comente anteriormente, gracias a esta tecnología ya no existen largas distancias y el costo de la comunicación con otros países solo cuestan lo que costaría una llamada local en el país de destino. En la Telefonía IP existen también los llamados “números geográficos”, con estos Ud. puede asignar números de otros países o incluso de otras provincias y recibir estas llamadas en su central telefónica habilitada para telefonía IP, haciendo que para sus clientes su empresa tenga carácter “local” aunque físicamente no esté ubicado en esa localidad o país. 15
  • 16.
    CONECTIVIDAD Si tienemúltiples locales, o personal viajero o distribuido puede aprovechar el internet y su red local para comunicarse gratuita e ilimitadamente entre estos locales o con sus trabajadores. 4. ¿cuál es el impedimento para que se expanda esta tecnología? ¿Es caro contratar el servicio o comprar los equipos? La telefonía IP se está expandiendo y muy rápidamente, pero ha comenzado por las grandes empresas, donde hay más consultores o especialistas y también porque los ahorros son mucho más grandes por el gran volumen de llamadas. Para dar un ejemplo la red asistencial de hospitales de ESSALUD, cuentan con casi 10,000 anexos IP a nivel nacional y todas las llamadas que realizan entre cualquiera de estos anexos no tienen costo y no pasan por ningún operador telefónico. Adicionalmente los operadores telefónicos tradicionales son los más preocupados por NO fomentar este tipo de tecnología ya que no los beneficia económicamente, algunos operadores móviles bloquean las aplicaciones o el protocolo de comunicación para evitar que los usuarios puedan usar esta tecnología para ahorrar en llamadas. Pero hay mucha información publicada en internet para ayudarnos entre los usuarios. Sobre si es caro o no, definitivamente cada día es mas económico, esto debido a que cada día hay más marcas que producen más equipos que cumplen el estándar SIP (Session Initiation Protocol) el cual es un estándar abierto y es el más utilizado actualmente en la Telefonía IP, por lo tanto estas marcas se enfrentan a una gran competencia, y el consumidor se beneficia con productos de mayor calidad y funcionalidades por un menor precio. Para dar un ejemplo, los costos del equipamiento pueden variar desde un softphone gratuito operado con un auricular y micrófono de S/. 15 soles a teléfonos IP que varían desde los $50 hasta el video teléfonos IP de $380, pasando por una amplia gama de teléfonos a precios inferiores a los de un teléfono digital propietario promedio. 16
  • 17.
    CONECTIVIDAD 5. ¿Quétanto le serviría la telefonía IP a un negocio que hace delivery? ¿Solo me sirve dependiendo del volumen de pedidos? Puede ayudar de diversas formas, por ejemplo al contratar un número de teléfono vía IP, no se requiere la instalación de líneas físicas y podrías recibir múltiples llamadas simultáneas a un solo número, ya que no existe la limitación de una llamada por línea, no dando tono de ocupado. Pero donde realmente te podría aportar valor y mucha inteligencia al negocio es utilizar una IP-PBX o central telefónica IP, la cual básicamente es una computadora, que puede grabar digitalmente las llamadas para control de calidad, generar reportes de llamadas no atendidas o perdidas, reconocer a los clientes habituales por el número de teléfono. Al ser una computadora es muy sencillo sincronizar las funciones de telefonía con una base de datos de clientes, con sus direcciones y acumulando sus preferencias de compra, pudiendo los operadores telefónicos de delivery “recordar” siempre a sus clientes y acelerar el proceso de toma de pedido ya que solo bastaría confirmar la dirección de envió y generar la orden, este tipo de soluciones son utilizadas por grandes servicios de delivery, empresas de taxis, o atención a clientes en bancos y otras empresas grandes, pero actualmente hay soluciones basadas en software libre que están disponibles para mypes y pymes. 6. Tengo oficina en Lima, otras dos en Quito y Guayaquil, y también en Colombia. Queremos dar servicio conjuntamente al cliente final que está localizado en Lima y provincias. ¿Puedo integrar todas las oficinas de tal manera que pueda hacer transferencias y conferencias entre todas las oficinas? ¿Qué costo tendrían estas llamadas entre oficinas? ¿Hay limitación del número de llamadas simultáneas de este tipo que podemos lograr? ¿Si le agregamos capacidad de videoconferencia entre las oficinas, los costos se mantienen razonables? Su caso, es el ideal para las soluciones en la “nube”, la mayoría de empresas podría utilizar una IP-PBX o central telefónica IP, para atender llamadas con una recepcionista virtual, establecer las reglas y permisos de marcación de llamadas, emitir reportes y poder colocar los anexos IP a esta Central Telefónica IP, pero como su empresa está distribuida en diversas localidades lo conveniente es usar una Central IP virtual alojada en la nube, lo cual garantiza que estará siempre disponible de igual manera para todas las locaciones de su empresa. Solo se requiere que cada una de las oficinas cuente con una conexión a internet confiable 17
  • 18.
    CONECTIVIDAD y depreferencia simétrica y rentar o adquirir los teléfonos IP como anexos, algunos servicios de Hosted IP-PBX o Central Telefónica virtual ofrecen incluso los equipos telefónicos como parte de su servicio de renta mensual, que incluye numeración local y el trafico saliente de llamadas. Costo “cero” en la comunicación entre todos los anexos sin importar donde se encuentren, también es una ventaja para sus clientes, que al llamar a su número, pueden ser atendidos por una secretaria que este ubicada en otra ciudad y transferir la llamada a una tercera ubicación, sin tener impacto en el costo de la llamada del cliente que llamo desde el teléfono de su casa en Lima, por ejemplo. 7. ¿Qué características debe tener mi conexión a internet para usar esta telefonía? Básicamente, hay un mínimo de ancho de banda que es necesario, son aproximadamente 30 Kbps, por cada llamada simultánea. Cuando el número de llamadas aumenta, se recomienda revisar el cableado y los switches de red, ya que la voz sobre IP es muy sensible a retrasos o pérdidas en una red en mal estado. Es muy diferente enviar emails o navegar páginas webs, donde algunos segundos de demora no es sensible, pero en una llamada telefónica, los retrasos producen vacíos, eco o entrecortes que causan molestias en la comunicación. 8. Por mis deberes de trabajo, tengo que viajar mucho, tanto al interior como al exterior del país. Mi pregunta viene, como hago para ahorrar el costoso Roaming cuando viajo al extranjero. Sé que hay una posibilidad a través de la telefonía IP. ¿Cómo funciona? ¿Cómo puedo hacerlo?, ¿Qué contrato?, gracias por sus respuestas Sobre el ROAMING, he recibido muchas quejas sobre su altísimo costo. Definitivamente viajar con su propio número tiene grandes ventajas para seguir recibiendo llamadas de trabajo o familiares desde su lugar de origen cuando se encuentra fuera del país. Lo más económico es llevar configurado un teléfono en software (Softphone), el cual es un teléfono en software, que lleva su número y se conecta cuando Ud. tenga internet, ya sea en hoteles, restaurantes y cafés o lugares de trabajo, pudiendo hacer y recibir llamadas como si estuviera sentado en su propia oficina. Otra solución es tener un celular multibanda desbloqueado, es decir que permita cambiar de chip de operador, y al momento de viajar se pueden 18
  • 19.
    CONECTIVIDAD contratar losservicios de números telefónicos “geográficos” que permitan reenviar las llamadas de un número fijo local a un celular internacional, aprovechando la ventaja de la telefonía IP que se mencionó antes, la larga distancia no existe, solo se paga el costo local de cada país de destino. Para tener una idea un celular en USA, que haga y reciba llamadas ilimitadas desde y hacia Perú, con este sistema no supera los $30 semanales, lo cual puede resultar hasta 10 veces menos que el servicio de Roaming. 3.2. Metodología de diseño ¿Cómo se Investigara el problema? 1. Análisis de Vulnerabilidad: Punto más crítico de toda la auditoria porque de él depende el curso de acción a tomar en las siguientes etapas y el éxito de ellas. 2. Estrategia de Saneamiento: Parchea la red después haber identificado las brechas, brechas, reconfigurándolas o reemplazándolas por otra más segura. Las bases de datos, servidores internos correo, correo, comunicación sin cifrar, cifrar, estaciones de trabajo Se deben reducir el riesgo. 3. Plan Contingencia: Replantear la red Software reconfigurado o rediseñado Reportar nuevos fallos de seguridad El riesgo con estos ítems del plan de contingencia disminuye. 19
  • 20.
    CONECTIVIDAD 4. Seguimientocontinúo: Se debe estar pendiente a los fallos que se presentan los cuales facilitan intrusión de los sistemas. Pero existen nuevas tecnologías para prevenir estos problemas. Se debe estar pendientes de lo que sucede para cubrir las nuevas brechas y hacer el trabajo más difícil a nuestros atacantes. 1.- Usuarios (equipos) no autorizados en nuestra red. 2.- El tráfico de nuestra red (para detectar tráfico sospechoso). 3.- Vulnerabilidad en nuestros usuarios (sobre todo en los equipos de los jefes). 4.- En caso de tener servidores en nuestra red, se deberán llevar a cabo auditorias específicas para cada servicio. 3.3. Sistema de Cableado Estructurado 20
  • 21.
    CONECTIVIDAD Definición: Loscomponentes del área de trabajo se extienden desde la terminación del cableado horizontal en la salida de información, hasta el equipo en el cual se está corriendo una aplicación sea de voz, datos, vídeo o control. Normalmente no es de carácter permanente y está diseñado para facilitar los cambios y la re estructuración de los dispositivos conectados. Área de trabajo: Componentes El cableado del área de trabajo puede variar en su forma dependiendo de la 21 aplicación. – Cable de enlace de cobre (patch cord)
  • 22.
    CONECTIVIDAD • Secompone de un cable de cobre y dos conectores de 8 pines tipo RJ-45 ubicados a los extremos del mismo. Puede tener protectores o botas. • La categoría del cable de enlace debe ser igual o mayor a la categoría del cable utilizado en el cableado horizontal. • La máxima longitud del patch cord es de 3m. • Cuando se utilizan “puntos de consolidación”, el cable puede tener hasta 20m. Uso de Baluns y Splitters. Si se usan baluns o splitters, deben colocarse fuera de la salida o el conector del área de trabajo. 22 Cableado Horizontal Definición: Se extiende desde el área de trabajo hasta el armario del Cuarto de Telecomunicaciones (TC). • Incluye el conector de salida de telecomunicaciones en el área de trabajo, el medio de transmisión empleado para cubrir la distancia hasta el armario, las terminaciones mecánicas y la conexión cruzada horizontal. • Conexión cruzada: elemento usado para terminar y administrar circuitos de comunicación. Se emplean cables de puente (jumper) o de interconexión (patch cord). Existen en cobre y fibra óptica. • El término “horizontal” se emplea ya que típicamente el cable en esta parte del cableado se instala horizontalmente a lo largo del piso o techo falso.
  • 23.
    CONECTIVIDAD • Enel diseño se debe tener en cuenta los servicios y sistemas que se tiene en común: – Sistemas de voz y centrales telefónicas. – Sistemas de datos. – Redes de área local. – Sistemas de video. – Sistemas de seguridad. – Sistemas de control. – Otros servicios. • El sistema diseñado debe satisfacer los requerimientos actuales y facilitar el mantenimiento, crecimiento y reubicación de los equipos y las áreas a servir. • Es el que mayor cantidad de cables individuales posee. • No se permiten puentes, derivaciones y empalmes a lo largo de todo el trayecto del cableado. • Se debe considerar su proximidad con el cableado eléctrico que genera altos niveles de interferencia electromagnética (motores, elevadores, transformadores, etc.) y cuyas limitaciones se encuentran en el estándar ANSI/EIA/TIA 569. Cableado Horizontal: Topología Se utiliza una topología tipo estrella. Todos los nodos o estaciones de trabajo se conectan con cable UTP o fibra óptica hacia un concentrador (patch panel) ubicado en el armario de telecomunicaciones de cada piso. • Esta topología otorga la flexibilidad necesaria para implementar diferentes servicios, a través de conexiones cruzadas en el armario de telecomunicaciones. Cableado Horizontal: Longitud • La máxima longitud permitida independientemente del tipo de medio de Tx utilizado es 90 m. • Se mide desde la salida de telecomunicaciones en el área de trabajo hasta las conexiones de distribución horizontal en el armario de telecomunicaciones. • La longitud máxima de los cables de conexión cruzada y puenteo (que interconectan el cableado horizontal con el vertical en el armario de telecomunicaciones) es 6m. Y los patch cords (que interconectan la salida de telecomunicaciones con los equipos terminales en al área de trabajo) es de 3m máximo. 23
  • 24.
    CONECTIVIDAD • Elárea horizontal que puede ser atendida efectivamente por un armario de telecomunicaciones está dentro de un radio de 60m aproximadamente alrededor del mismo. • Holgura del cable: longitud adicional que debe ser considerada a ambos lados del cable para facilitar la terminación del mismo en los conectores y permitir cambios de ubicación. – En el lado del armario de telecomunicaciones: de 2 a 3 metros. – En el área de trabajo: 30 cm. para cobre y 1 m para fibra óptica. Cableado Horizontal: distancias Máximas  La distancia máxima horizontal para cumplir con la categoría es 90m.  Longitudes máximas del cable en el TC:  Se permiten hasta 2 cables/puentes en la TC. Permite la interconexión o la conexión cruzada.  Ningún cable (patch cord) sencillo puede exceder de 6 m de longitud.  El total de los cables (patch cords) en la TC no puede exceder de 7 m. Los cables del área de trabajo no deben exceder 3 metros (10 pies) de longitud. Total de 10m horizontalmente para todos los cables de conexiones, puentes y cables de equipos en el área de trabajo y en el closet de telecomunicaciones. 10 m de cables más 90 m de cableado en el enlace = 100 metros totales de longitud del canal. 24
  • 25.
    CONECTIVIDAD 25 CableadoHorizontal: Elementos Conector /Salida de Telecomunicaciones Punto de acceso de los usuarios a los servicios de telecomunicaciones del edificio. Consta de conectores modulares de 8 contactos del tipo RJ-45 hembra. (Cable de cobre). Para fibra óptica, el cableado debe terminar en un conector duplex, cumpliendo los requerimientos de TIA/EIA 568 B.3 • Selección del medio de transmisión. – Es necesario contar con al menos 2 servicios por cada puesto de trabajo, uno de voz y otro de datos. – Se tendrá un mínimo de 2 conectores por puesto, configurados de la siguiente manera: Una debe ser UTP de 100 Ω de cuatro pares (Cat. 3 mínimo). La norma recomienda categoría 5e. (568 B-1) • La segunda toma debe ser uno de los siguientes tipos: – Cable UTP de 4 pares de 100 Ω (Cat. 5e) – Cable UTP de 4 pares de 100 Ω (Cat. 6) – Cable de fibra óptica multimodo de 62.5/125 μm de dos fibras. – Cable de fibra óptica multimodo de 50/125 μm de dos fibras.
  • 26.
    CONECTIVIDAD Beneficios deUn Sistema de Cableado Estructurado Un Sistema de Cableado Estructurado permite hacer convivir muchos servicios en una sola red (voz, datos, vídeo,...) con la misma instalación, independientemente de los equipos de transmisión y terminales electrónicos que se utilicen. El beneficio real para la empresa que implanta un Sistema de Cableado Estructurado en su oficina es uno económico, aunque no se trata de la inversión inicial, sino del reducido coste de utilización a lo largo de la vida de la instalación, debido principalmente a los siguientes puntos:  Se facilita y agiliza mucho las labores de mantenimiento  La instalación es fácilmente ampliable  El Sistema de Cableado es seguro tanto a nivel de datos como a nivel de seguridad personal  Las instalaciones estén regulados mediante estándares, lo que garantiza al cliente su certificación para las aplicaciones exigentes  Cada instalación es independientemente del fabricante de la electrónica de la red, permitiendo al cliente elegir la solución más adecuado para sus necesidades en cada momento  Son soluciones abiertas, fiables y muy seguras  El tipo de cable instalado es de tal calidad que permite la transmisión de altas velocidades para redes de área local  No hace falta una nueva instalación para efectuar un traslado de equipo  Tienen una largo plazo de amortización y de vida útil 26
  • 27.
    CONECTIVIDAD 3.4. Normasy estándares de cableado estructurado Consideraciones y Normas del Cableado Estructurado A la hora de garantizar una infraestructura, instalación o proyecto de un sistema de cableado, Unitel se basa en una serie de Normas sobre cableado estructurado, establecidas por una serie de organismo implicado en la elaboración de las mismas. Organismos  TIA (TelecommunicationsIndustryAssociation), fundada en 1985 después del rompimiento del monopolio de AT&T. Desarrolla normas de cableado industrial voluntario para muchos productos de las telecomunicaciones y tiene más de 70 normas preestablecidas.  ANSI (American Nacional Standards Institute), es una organización sin ánimo de lucro que supervisa el desarrollo de estándares para productos, servicios, procesos y sistemas en los Estados Unidos. ANSI es miembro de la Organización Internacional para la Estandarización (ISO) y de la Comisión Electrotécnica Internacional (International Electrotechnical Commission, IEC).  EIA (Electronic Industries Alliance), es una organización formada por la asociación de las compañías electrónicas y de alta tecnología de los Estados Unidos, cuya misión es promover el desarrollo de mercado y la competitividad de la industria de alta tecnología de los Estados Unidos con esfuerzos locales e internacionales de la política.  ISO (International Standards Organization), es una organización no gubernamental creada en 1947 a nivel mundial, de cuerpos de normas nacionales, con más de 140 países.  IEEE (Instituto de Ingenieros Eléctricos y de Electrónica), principalmente responsable por las especificaciones de redes de área local como 802.3 Ethernet, 802.5 TokenRing, ATM y las normas de GigabitEthernet. Normas 27
  • 28.
    CONECTIVIDAD  ANSI/TIA/EIA-568-B:Cableado de Telecomunicaciones en Edificios Comerciales sobre cómo instalar el Cableado: TIA/EIA 568-B1 Requerimientos generales; TÍA/EIA 568-B2: Componentes de cableado mediante par trenzado balanceado; TIA/EIA 568-B3 Componentes de cableado, Fibra óptica.  ANSI/TIA/EIA-569-A: Normas de Recorridos y Espacios de Telecomunicaciones en Edificios Comerciales sobre cómo enrutar el cableado.  ANSI/TIA/EIA-570-A: Normas de Infraestructura Residencial de Telecomunicaciones.  ANSI/TIA/EIA-606-A: Normas de Administración de Infraestructura de Telecomunicaciones en Edificios Comerciales.  ANSI/TIA/EIA-607: Requerimientos para instalaciones de sistemas de puesta a tierra de Telecomunicaciones en Edificios Comerciales.  ANSI/TIA/EIA-758: Norma Cliente-Propietario de cableado de Planta Externa de Telecomunicaciones. Consideraciones a tener en cuenta Cableado Horizontal, es decir, el cableado que va desde el armario de Telecomunicaciones a la toma de usuario.  No se permiten puentes, derivaciones y empalmes a lo largo de todo el trayecto del cableado.  Se debe considerar su proximidad con el cableado eléctrico que genera altos niveles de interferencia electromagnética (motores, elevadores, transformadores, etc.) y cuyas limitaciones se encuentran en el estándar ANSI/EIA/TIA 569.  La máxima longitud permitida independientemente del tipo de medio de Tx utilizado es 100m = 90 m + 3 m usuario + 7 m patchpanel. Cableado vertical, es decir, la interconexión entre los armarios de telecomunicaciones, cuarto de equipos y entrada de servicios.  Se utiliza un cableado Multipar UTP y STP, y también, Fibra óptica Multimodo y Monomodo.  La Distancia Máximas sobre Voz, es de: UTP 800 metros; STP 700 metros; Fibra MM 62.5/125um 2000 metros. 28
  • 29.
    CONECTIVIDAD 3.5. Pruebasde certificación de cableado estructurado Certificación del cableado estructurado, verificando la calidad de la instalación Somos una empresa especializada en la certificación y auditoría del cableado estructurado, tras la consecución de una instalación, es un proceso por el cual se compara el rendimiento de transmisión de un sistema de cableado instalado con un estándar determinado empleando un método definido por el estándar para medir dicho rendimiento. Esta certificación de un sistema de cableado estructurado, nos demuestra la calidad de los componentes y de la instalación, es decir, nos dice si cumple una conectividad y un funcionamiento correcto. Normalmente, es necesario para obtener la garantía del fabricante del cableado estructurado. La certificación nos va a exigir que los enlaces del cableado proporcionen el resultado “Pasa”. En caso negativo, nuestros técnicos cualificados y certificados le diagnosticarán los enlaces que fallan y, tras implementar una acción correctiva, volverán a comprobarlos para garantizar que cumplen los requisitos de transmisión pertinentes. El tiempo necesario para certificar una instalación no sólo incluye la realización de las mediciones de certificación, sino también de una documentación y una solución de problemas. 29
  • 30.
    CONECTIVIDAD ¿Por quése necesitan diagnósticos avanzados? Nuestros técnicos certificados de las instalaciones de cableado que ofrece Unitel, saben cómo diagnosticar y solucionar los problemas de los sistemas de cableado de alto rendimiento. A medida que se van desarrollando e implementado nuevos sistemas de cableado de gran alto rendimiento, cada aspecto de la instalación demanda un mayor nivel de capacidad y mayor atención al detalle. Se han añadido nuevos parámetros de comprobación. Los enlaces se tienen que comprobar usando uno de los dos modelos de enlace (el “enlace permanente” o el “canal”), y se prueban y evalúan sobre un mayor rango de frecuencias y con más puntos de datos. Los componentes con los que se construyen los enlaces han de proporcionar un mejor rendimiento y la calidad del acabado durante la instalación debe mejorar de forma correspondiente. Debido al aumento de la complejidad de estos sistemas de cableado, la determinación de la causa del fallo y la rápida restauración del rendimiento adecuado se han convertido en todo un reto. Este manual le guiará a través del proceso de solución de problemas de los sistemas de cableado estructurado avanzados usando el certificador CableAnalyzer™ serie DTX de Fluke Networks para que pueda aumentar la productividad y ofrecer un mayor valor a su empresa. CERTIFICACIÓN Y AUDITORÍA DE LA INSTALACIÓN La certificación de una instalación significa que todos los cables que la componen cumplen con esos patrones de referencia y, por tanto, se tiene la garantía de que cumplirán con las exigencias para las que fueron diseñados. Por ejemplo, los cables UTP de categoría 5 y clase D, la longitud del segmento que no debe superar los 90m, hay que tener en cuenta el NEXT (Near-End Crosstalk), etc CUÁNTO MÁS CAMBIA SU RED, MÁS NECESITA MEJORAR LA VISIÓN Y EL CONTROL SOBRE ELLA En general, las redes actuales son muy estables. Sin embargo, también se caracterizan por no ser estáticas. Tanto las empresas como los usuarios exigen la instalación de nuevas tecnologías, nuevos servicios y un mejor rendimiento, que inevitablemente requieren cambiar la infraestructura, implementar nuevas aplicaciones y gestionar la seguridad. Al mismo tiempo, es necesario controlar los costes de TI y minimizar las interrupciones que se generan. Por todo ello, es necesario poder estudiar y auditar cada uno de los aspectos de la red para evaluar con precisión el impacto que la incorporación de nuevas tecnologías y servicios 30
  • 31.
    CONECTIVIDAD ejerce sobreella, y para asegurarse de que se obtiene el rendimiento máximo en todo momento. PARA LA CERTIFICACIÓN DEL CABLEADO ESTRUCTURADO, RECOMENDAMOS EL ANALIZADOR ETHERSCOPE, de FLUKE Analizador EtherScope de Fluke Para la certificación del cableado estructurado, sobre redes LAN y WiFi, recomendamos la utilización del analizador EtherScope. Bien sea para comprobar y solucionar problemas durante la instalación o durante la actualización, o bien, para validar el funcionamiento de dicha LAN verificando los servicios de red y midiendo el rendimiento de Ethernet después de una instalación. El asistente de instalación de EtherScope se encargará de las tareas de verificación y su propia certificación. 31
  • 32.
    CONECTIVIDAD CAPITULO IV:DESARROLLO DE LA PROPUESTA 4.1. Equipamiento de hardware y software de la empresa o institución 4.2. Hardware Equipos: 4.3. Software 32 No. Marca Modelo Sistema operativo Antivirus Office Lugar Disco duro RAM Conexión Mantenimiento 1 VAIO PCV-RX100M Win XP NOD32 2007 Centro de inv. 60.5GB 224MB Internet CCleaner 2 COMPAQ SR1420LA Win XP Security essentials 2007 Centro de inv. 71.2GB 248MB Internet CCleaner 3 COMPAQ SR1220LA Win XP Security essentials 2007 Centro de inv. 70.6GB 504MB Internet CCleaner 4 COMPAQ SR1420LA Win XP Security essentials 2007 Centro de inv. 71.2GB 504MB no CCleaner 5 COMPAQ SR1920LA Win XP Security essentials 2007 Centro de inv. 179GB 448MB no CCleaner 6 COMPAQ PRESARIO CQ1 Win7 Security essentials 2007 Centro de inv. 289GB 2GB Internet CCleaner 7 COMPAQ PRESARIO CQ1 Win7 Security essentials 2007 Centro de inv. 289GB 2GB Internet CCleaner 8 COMPAQ PRESARIO CQ1 Win7 Security essentials 2007 Centro de inv. 289GB 2GB Internet CCleaner
  • 33.
    CONECTIVIDAD 33 ObservacionesMonitor CPU Mouse Bocinas Teclado Descripción Nombre del equipo Grupo de Trabajo Formateada en agosto 2011 si si si si si investigación uno Halcones Formateada en agosto 2011 si si si no si investigación dos Halcones Formateada en agosto 2011 si si si si si investigación tres Halcones Formateada en agosto 2011 si si si si si investigación cuatro Halcones Formateada en agosto 2011 si si si si si investigación cinco Halcones Formateada en agosto 2011 si si si si si investigación seis Halcones Formateada en agosto 2011 si si si si si investigación siete Halcones Formateada en agosto 2011 si si si si si investigación ocho Halcones
  • 34.
    CONECTIVIDAD 4.4. Diseñoy planificación de la red 4.4.1. Planos de Red Actual: 34 Planos de Cableado de datos Primer Piso Segundo Piso Administracion Recepción Leyenda Cableado Utp cat 5e Patch cord Switch Router Leyenda Cableado Utp cat 5e Patch cord Switch Router
  • 35.
    CONECTIVIDAD Plano lógicode la red actual 35
  • 36.
  • 37.
    CONECTIVIDAD Plano deTopología. IP: 192.168.1.5 IP: 192.168.1.39 37 Plano de Canaletas. La empresa no cuenta con canaletas en su estructura. Plano de direccionamiento. IP: 192.168.1.4 IP: 192.168.1.3 IP: 192.168.1.9 IP: 192.168.1.7 IP: 192.168.1.8 IP: 192.168.1.6 IP: 192.168.1.6 Segundo Piso Recepción Administracion IP: 192.168.1.15
  • 38.
    CONECTIVIDAD 38 Planode etiquetado. No cuenta con un plano de etiquetados Plano de cableado eléctrico. Primer piso Segundo piso Administracion Recepcion Leyenda Cable Eléctrico Mellizo Leyenda Switch Router Caja eléctrica Cable Eléctrico Mellizo Switch Router Caja eléctrica
  • 39.
    CONECTIVIDAD 4.4.2. Planode Red Propuesta: 39 Plano de Cableado de Datos Primer Piso Segundo Piso Administracion Recepcion Leyenda Cableado Conector Switch Router Leyenda Cableado Conector Switch Router
  • 40.
    CONECTIVIDAD Vertical 40 5131mm 3481mm Resepcion Administracion 3481mm 5131mm Soporte Tecnico V e r t i c a l
  • 41.
    CONECTIVIDAD Plano deTopología. 41 Segundo piso Primer piso
  • 42.
    CONECTIVIDAD Plano dedireccionamiento. Primer Piso 42 IP: 192.168.1.3 IP: 192.168.1.4 IP: 192.168.1.5 IP: 192.168.1.6 IP: 192.168.1.7 IP: 192.168.1.8 IP: 192.168.1.9 IP: 192.168.1.10 Segundo Piso Recepcion Administracion IP: 192.168.1.1 IP: 192.168.1.2
  • 43.
    CONECTIVIDAD Plano deCanaletas. Primer Piso Segundo Piso 43 Administracion Recepcion Leyenda Canaletas Conector Switch Router Leyenda Canaletas Conector Switch Router
  • 44.
    CONECTIVIDAD Vista Vertical 44 5131mm 3481mm Recepción Administracion 5131mm3481mm Soporte Tecnico V e r t i c a l
  • 45.
    CONECTIVIDAD Plano deetiquetado IP: 192.168.1.3 IP: 192.168.1.4 IP: 192.168.1.5 IP: 192.168.1.6 45 IP: 192.168.1.7 IP: 192.168.1.8 IP: 192.168.1.9 3 4 5 6 IP: 192.168.1.10 7 8 9 10
  • 46.
    CONECTIVIDAD Segundo Piso Plano de cableado eléctrico. Primer piso 46 Recepcion Administracion IP: 192.168.1.1 IP: 192.168.1.2 1 2
  • 47.
    CONECTIVIDAD Plano deCableado Eléctrico Primer Piso Segundo piso 47 Administracion Recepcion Leyenda Cable Eléctrico Mellizo Caja eléctrica Leyenda Switch Router Cable Eléctrico Mellizo Switch Router Caja eléctrica
  • 48.
    CONECTIVIDAD Vertical 48 5131mm 3481mm Recepcion Administracion 5131mm3481mm Soporte Tecnico V e r t i c a l
  • 49.
    CONECTIVIDAD 4.5. Materiales,Herramientas e Instrumentos para realizar el proyecto 49 Materiales Descripción Unidad Medida Detalle/Mar ca Cantid ad Precio Total JACK Unidad Dickson 8 5 S/. 40 Cable UTP Metros AMP 120mtr s s/.60.00 S/. 180 RJ45 Unidad Amp 20 0.5 S/. 20 Canaletas Metros Ticino 3 S/.40 S/. 120 Tarugo Unidad Tarugos Marca Fishe r S8g 1 s/.9.00 S/. 10 Tornillos Unidad Jon Elster 10 s/.5.00 S/. 15
  • 50.
    CONECTIVIDAD Herramientas eInstrumentos Descripción Marca Cantidad Precio Crimping 50 Crimping tool para rj- 45, rj-11, rj-6 "oubao" sz-315 con pelacables - punch grip 3 S/. 20.00 Ponchador Ponchador utp rj45 hurricane ht-354b 3 S/. 35.00 LAN Tester CABLE TESTER PARA RJ-45 Y RJ- 11INCLUYE funda (estuche) y BATERIA 9 VOLTIOS 1 S/. 25.00 PLACA PARA PARED PLACA PARA PARED (FACEPLATE) Marca DIXON 1 PUERTO 4 S/. 2.50 Capuchas Capuchas RJ-45 20 S/. 25.00 CIENTO EMPALME RJ45 EMPALME RJ45 (8 contactos) 4 S/. 8.00
  • 51.
    CONECTIVIDAD Equipos Personalo Recursos Humanos 51 Descripción Marca Cantidad CPU DESKTOP AVATEC 4 MONITOR LG 4 IMPRESORA CANON 2 Cargo Especialidad Cantidad Jefe de Soporte Computación e Informática 1 Técnicos Computación e Informática 3
  • 52.
    CONECTIVIDAD 52 MontoTotal del Proyecto 4.6. Plan de implementación (Diagrama de Gantt).
  • 53.
    CONECTIVIDAD 4.7. Colocaciónde canaletas, cableado y gabinetes. Primer Piso Segundo Piso 53 Administracion Recepcion Leyenda Canaletas patch cord Switch Router Leyenda Canaletas patch cord Switch Router
  • 54.
    CONECTIVIDAD 4.8. Configuracióndel direccionamiento de red (IP). 54 IP: 192.168.1.3 IP: 192.168.1.4 IP: 192.168.1.5 IP: 192.168.1.6 IP: 192.168.1.7 IP: 192.168.1.8 IP: 192.168.1.9 3 4 5 6 IP: 192.168.1.10 7 8 9 10 Recepcion Administracion IP: 192.168.1.1 IP: 192.168.1.2 1 2
  • 55.
    CONECTIVIDAD 4.9. Configuracióndel Servidor y/o Configuración del Cliente. La empresa no establece configuración a los clientes, solo fue necesario la conexión entre los equipos. 4.10. Configuración de los Servicios. 55 No se estableció políticas de grupo. 4.11. Plan de pruebas y correcciones. CAPÍTULO V: CONCLUSIONES Y RECOMENDACIONES 5.1. Conclusiones  Estableciendo las normas y o los estándares se una solucionó los problemas de la red LAN eficientemente, tanto en el hardware de conectividad, hardware de interfaz, software de comunicaciones y las fallas de usuario.  Se demostró que el uso de la red LAN y las reglas de producción son válidas y aceptables para modelar los conocimientos de los especialistas de una manera práctica.  Una oficina con una red LAN, brindan otros valores agregados adicionales a los de tiempo de implementación y costos. Brindarles nuevos servicios a los clientes, los clientes con sus dispositivos inalámbricos puedan ingresar a la página Web del Banco para que ellos mismos realicen sus operaciones.  Implementar una red inalámbrica en la LAN resulta más económica para la empresa que el hecho de tener que realizar todo el cableado para datos principalmente tomando en así la inversión inicial en el aspecto de las telecomunicaciones se reducen. 5.2. Recomendaciones  Implantar un cronograma para contemplar las actividades de las diferentes fases del proyecto, teniendo en consideración los recursos, tiempos estimados y prioridades.  Establecer un plan mensual de capacitación, con el objetivo de mantener actualizados al personal de la empresa para poder brindar una adecuada función en la empresa. Realizar un análisis financiero tomando como insumo las referencias de precios emitidas por los proveedores identificados en este estudio. Esto permitiría proyectar el presupuesto necesario para realizar completamente la implementación de la red LAN.
  • 56.
    CONECTIVIDAD CAPÍTULO VI:REFERENCIAS BIBLIOGRÁFICAS 6.1. Bibliografía 6.2. Web Grafía  http://cetemredes2.blogspot.com/2014/05/sistema-de-cableado-estructurado-grupo. 56 html 6.3. Anexos
  • 57.
  • 58.
  • 59.
  • 60.