PUENTE TINGO
CAJAMARCA PERU
MEDICO CIRUJANO
JOSE BONIFACIO
DE SOUZA LEITE CUADROS
CMP Nº 38402
HUANCAYO JUNIN PERU
16 DE JULIO DEL 2018
20/02/2017
TORRESCÁMARA se adjudica las obras de Construcción del puente Tingo y accesos, para el
Ministerio de Transportes y Comunicaciones de Perú
Las obras se sitúan en la región de Cajamarca y tienen un importe de 5 millones de euros
TORRESCÁMARA se ha adjudicado las obras de Construcción del puente Tingo y
accesos.
La actuación, promovida por el Ministerio de Transportes y Comunicaciones de
Perú, tiene un importe de 5 millones de euros y está situada en el departamento de
Cajamarca, provincia de Cajamarca.
El puente forma parte de una serie de obras de mejora de trazado que el Ministerio
de Transportes y Comunicaciones está acometiendo en la Ruta PE-8 (Pacasmayo –
Cajamarca) de la Red Vial Nacional, de gran importancia para Perú debido a que
conecta la Costa con la Sierra, y en particular con la ciudad de Cajamarca, la más
importante de la sierra norte de Perú y de gran atractivo turístico.
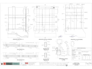
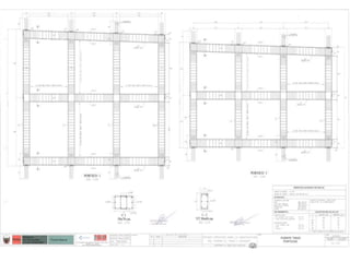
La tipología estructural es un arco de hormigón de tablero superior, de 75 m de luz,
que salva el paso sobre un barranco de gran profundidad.
http://www.torrescamara.com/recursos-corporativos/noticias/i/1085/59/torrescamara-se-
adjudica-las-obras-de-construccion-del-puente-tingo-y-accesos-para-el-ministerio-de-
transportes-y-comuni
20/02/2017
TORRESCÁMARA é premiada com a construção da ponte Tingo e obras de acesso para o
Ministério dos Transportes e Comunicações do Peru
As obras estão localizadas na região de Cajamarca e têm um montante de 5 milhões de
euros
Torrescámara foi premiado com a construção da ponte e ação Tingo accesos.??La,
promovido pelo Ministério dos Transportes e Comunicações do Peru, tem um montante de
5 milhões de euros e está localizado no departamento de Cajamarca, província de
Cajamarca A ponte faz parte de uma série de obras para melhorar o layout que o
Ministério dos Transportes e Comunicações está realizando na Rota PE-8 (Pacasmayo -
Cajamarca) da Rede Rodoviária Nacional, de grande importância para o Peru, porque que
liga o litoral com a Sierra, especialmente com a cidade de Cajamarca, a mais importante
das terras altas do norte e grande atração turística do Peru. ?? o tipo estrutural é um arco
de concreto placa de topo 75 m luz , que salva a passagem por uma ravina profunda.
http://www.torrescamara.com/recursos-corporativos/noticias/i/1085/59/torrescamara-se-
adjudica-las-obras-de-construccion-del-puente-tingo-y-accesos-para-el- Ministério de
transporte e comuni
02/20/2017
TORRESCÁMARA IS AWARDED THE CONSTRUCTION OF THE TINGO BRIDGE AND ACCESS
WORKS FOR THE MINISTRY OF TRANSPORT AND COMMUNICATIONS OF PERU
The works are located in the Cajamarca region and have an amount of 5 million euros
TORRESCÁMARA has been awarded the construction of the Tingo bridge and accesses. The
action, promoted by the Ministry of Transport and Communications of Peru, has an
amount of 5 million euros and is located in the department of Cajamarca, province of
Cajamarca The bridge is part of a series of works to improve the layout that the Ministry of
Transport and Communications is undertaking on Route PE-8 (Pacasmayo - Cajamarca) of
the National Road Network, of great importance for Peru because connects the coast with
the Sierra, and in particular with the city of Cajamarca, the most important of the northern
highlands of Peru and of great tourist attraction. ?? The structural typology is a concrete
arch of upper board, 75 m of light , which saves the passage over a deep ravine.
http://www.torrescamara.com/recursos-corporativos/noticias/i/1085/59/torrescamara-
se-adjudica-las-obras-de-construccion-del-puente-tingo-y-accesos-para-el- ministry-of-
transportation-and-comuni
20/02/2017
Torrescámara la construction du pont et des approches Tingo attribué au ministère des
Transports et des communications du Pérou
Les travaux sont situés dans la région de Cajamarca et ont un montant de 5 millions
d'euros
Torrescámara a obtenu la construction du pont et de l'action Tingo accesos.??La, promu
par le ministère des Transports et des communications du Pérou, il a un montant de 5
millions d'euros et est situé dans le département de Cajamarca, province de Cajamarca . ??
le pont fait partie d'une série de travaux d'amélioration du traçage Ministère des
transports et des communications entreprend en voie EP-8 (Pacasmayo - Cajamarca) du
réseau routier national, d'une grande importance pour le Pérou car reliant la côte avec la
Sierra, en particulier avec la ville de Cajamarca, le plus important des régions
montagneuses du nord du Pérou et une attraction touristique majeure. ?? le type de
structure est un panneau supérieur voûte en béton de 75 m de lumière , qui sauve le
passage sur un ravin profond.
http://www.torrescamara.com/recursos-corporativos/noticias/i/1085/59/torrescamara-se-
adjudica-las-obras-de-construccion-del-puente-tingo-y-accesos-para-el- ministère-de-
transport-et-comuni
2017/02/20
‫منحت‬TORRESCÁMARA ‫جسر‬ ‫بناء‬Tingo ‫النقل‬ ‫وزارة‬ ‫أعمال‬ ‫إلى‬ ‫والوصول‬
‫بيرو‬ ‫في‬ ‫واالتصاالت‬
‫قيمتها‬ ‫وتبلغ‬ ‫كاخاماركا‬ ‫منطقة‬ ‫في‬ ‫األعمال‬ ‫تقع‬5‫يورو‬ ‫ماليين‬
‫منح‬ ‫تم‬ ‫وقد‬TORRESCÁMARA ‫جسر‬ ‫بناء‬Tingo ‫العمل‬ ‫قيمة‬ ‫وتبلغ‬ ، ‫إليه‬ ‫والوصول‬
‫بيرو‬ ‫في‬ ‫واالتصاالت‬ ‫النقل‬ ‫وزارة‬ ‫ترعاه‬ ‫الذي‬5‫مقاطعة‬ ‫في‬ ‫ويقع‬ ‫يورو‬ ‫ماليين‬
Cajamarca ‫بمقاطعة‬Cajamarca. ‫لتحسين‬ ‫األعمال‬ ‫من‬ ‫سلسلة‬ ‫من‬ ‫جزء‬ ‫هو‬ ‫الجسر‬
‫الطريق‬ ‫على‬ ‫واالتصاالت‬ ‫النقل‬ ‫وزارة‬ ‫به‬ ‫تقوم‬ ‫الذي‬ ‫التصميم‬PE-8 (Pacasmayo -
Cajamarca) ‫ألن‬ ‫لبيرو‬ ‫بالنسبة‬ ‫كبيرة‬ ‫أهمية‬ ‫ذو‬ ‫أمر‬ ‫وهو‬ ، ‫الوطنية‬ ‫الطرق‬ ‫لشبكة‬
‫أهمها‬ ، ‫كاخاماركا‬ ‫مدينة‬ ‫مع‬ ‫الخصوص‬ ‫وجه‬ ‫وعلى‬ ، ‫بسيراليون‬ ‫الساحل‬ ‫يربط‬
‫الرائعة‬ ‫السياحية‬ ‫وجاذبيتها‬ ‫بيرو‬ ‫في‬ ‫الشمالية‬ ‫المرتفعات‬.‫ق‬ ‫هو‬ ‫البنيوي‬ ‫التصنيف‬‫وس‬
، ‫العلوية‬ ‫األلواح‬ ‫من‬ ‫خرساني‬75‫عميق‬ ‫واد‬ ‫فوق‬ ‫الممر‬ ‫يحفظ‬ ‫والذي‬ ، ‫الضوء‬ ‫من‬ ‫م‬.
http://www.torrescamara.com/recursos-
corporativos/noticias/i/1085/59/torrescamara-se-adjudica-las-
obras-de-construccion-del-puente-tingo-y-accesos-para-el- ‫من‬ ‫وزارة‬
‫والتصال‬ ‫النقل‬ ‫بين‬
2017/02/20
MANAHAT TORRESCAMARA BINA' JISR TINGO WALWUSUL 'IILAA 'AEMAL
WIZARAT ALNAQL WALAITISALAT FI BYRU
TAQAE AL'AEMAL FI MINTAQAT KAKHAMARKA WATABLUGH QIMATUHA 5
MALAYIN YWRW
WAQAD TAMA MANH TORRESCAMARA BINA' JISR TINGO WALWUSUL 'IILAYH ,
WATABLUGH QIMAT ALEAMAL ALDHY TARAEAH WIZARAT ALNAQL
WALAITISALAT FI BIRU 5 MALAYIN YWRW WAYAQAE FI MUQATAEAT
CAJAMARCA BIMUQATAEAT CAJAMARCA. ALJISR HU JUZ' MIN SILSILAT MIN
AL'AEMAL LITAHSIN ALTASMIM ALDHY TAQUM BIH WIZARAT ALNAQL
WALAITISALAT EALAA ALTARIQ PE-8 (PACASMAYO - CAJAMARCA)
LISHABAKAT ALTURUQ ALWATANIAT , WAHU 'AMR DHU 'AHAMIYAT KABIRAT
BALNSBT LIBAYRU LI'AN YARBIT ALSSAHIL BSIRALIUN , WAEALAA WAJH
ALKHUSUS MAE MADINAT KAKHAMARKA , 'AHAMIHA ALMURTAFAEAT
ALSHAMALIAT FI BAYRU WAJADHIBIATUHA ALSIYAHIAT ALRRAYIEA. ALTASNIF
ALBINIWIU HU QUS KHURSANI MIN AL'ALWAH ALEULWIAT , 75 M MIN ALDAW' ,
WALADHI YAHFAZ ALMAMARA FAWQ WAD EAMIQ.
HTTP://WWW.TORRESCAMARA.COM/RECURSOS-
CORPORATIVOS/NOTICIAS/I/1085/59/TORRESCAMARA-SE-ADJUDICA-LAS-
OBRAS-DE-CONSTRUCCION-DEL-PUENTE-TINGO-Y-ACCESOS-PARA-EL-
WIZARAT MIN BAYN ALNAQL WALTISAL
FORMATO DE HOJA TAMAÑO:
868.5 X 617.7 mm REAL AL 100%
FORMATO DE HOJA TAMAÑO:
843.5 X 623.0mm REAL AL 100%
FORMATO DE HOJA TAMAÑO:
842.4 X 624.4 mm REAL AL 100%
FORMATO DE HOJA TAMAÑO:
840.3 X 618.8 mm REAL AL 100%
FORMATO DE HOJA TAMAÑO:
873.1 X 617.7 mm REAL AL 100%

Puente tingo cajamarca peru

  • 1.
    PUENTE TINGO CAJAMARCA PERU MEDICOCIRUJANO JOSE BONIFACIO DE SOUZA LEITE CUADROS CMP Nº 38402 HUANCAYO JUNIN PERU 16 DE JULIO DEL 2018
  • 2.
    20/02/2017 TORRESCÁMARA se adjudicalas obras de Construcción del puente Tingo y accesos, para el Ministerio de Transportes y Comunicaciones de Perú Las obras se sitúan en la región de Cajamarca y tienen un importe de 5 millones de euros TORRESCÁMARA se ha adjudicado las obras de Construcción del puente Tingo y accesos. La actuación, promovida por el Ministerio de Transportes y Comunicaciones de Perú, tiene un importe de 5 millones de euros y está situada en el departamento de Cajamarca, provincia de Cajamarca. El puente forma parte de una serie de obras de mejora de trazado que el Ministerio de Transportes y Comunicaciones está acometiendo en la Ruta PE-8 (Pacasmayo – Cajamarca) de la Red Vial Nacional, de gran importancia para Perú debido a que conecta la Costa con la Sierra, y en particular con la ciudad de Cajamarca, la más importante de la sierra norte de Perú y de gran atractivo turístico. La tipología estructural es un arco de hormigón de tablero superior, de 75 m de luz, que salva el paso sobre un barranco de gran profundidad. http://www.torrescamara.com/recursos-corporativos/noticias/i/1085/59/torrescamara-se- adjudica-las-obras-de-construccion-del-puente-tingo-y-accesos-para-el-ministerio-de- transportes-y-comuni
  • 3.
    20/02/2017 TORRESCÁMARA é premiadacom a construção da ponte Tingo e obras de acesso para o Ministério dos Transportes e Comunicações do Peru As obras estão localizadas na região de Cajamarca e têm um montante de 5 milhões de euros Torrescámara foi premiado com a construção da ponte e ação Tingo accesos.??La, promovido pelo Ministério dos Transportes e Comunicações do Peru, tem um montante de 5 milhões de euros e está localizado no departamento de Cajamarca, província de Cajamarca A ponte faz parte de uma série de obras para melhorar o layout que o Ministério dos Transportes e Comunicações está realizando na Rota PE-8 (Pacasmayo - Cajamarca) da Rede Rodoviária Nacional, de grande importância para o Peru, porque que liga o litoral com a Sierra, especialmente com a cidade de Cajamarca, a mais importante das terras altas do norte e grande atração turística do Peru. ?? o tipo estrutural é um arco de concreto placa de topo 75 m luz , que salva a passagem por uma ravina profunda. http://www.torrescamara.com/recursos-corporativos/noticias/i/1085/59/torrescamara-se- adjudica-las-obras-de-construccion-del-puente-tingo-y-accesos-para-el- Ministério de transporte e comuni
  • 4.
    02/20/2017 TORRESCÁMARA IS AWARDEDTHE CONSTRUCTION OF THE TINGO BRIDGE AND ACCESS WORKS FOR THE MINISTRY OF TRANSPORT AND COMMUNICATIONS OF PERU The works are located in the Cajamarca region and have an amount of 5 million euros TORRESCÁMARA has been awarded the construction of the Tingo bridge and accesses. The action, promoted by the Ministry of Transport and Communications of Peru, has an amount of 5 million euros and is located in the department of Cajamarca, province of Cajamarca The bridge is part of a series of works to improve the layout that the Ministry of Transport and Communications is undertaking on Route PE-8 (Pacasmayo - Cajamarca) of the National Road Network, of great importance for Peru because connects the coast with the Sierra, and in particular with the city of Cajamarca, the most important of the northern highlands of Peru and of great tourist attraction. ?? The structural typology is a concrete arch of upper board, 75 m of light , which saves the passage over a deep ravine. http://www.torrescamara.com/recursos-corporativos/noticias/i/1085/59/torrescamara- se-adjudica-las-obras-de-construccion-del-puente-tingo-y-accesos-para-el- ministry-of- transportation-and-comuni
  • 5.
    20/02/2017 Torrescámara la constructiondu pont et des approches Tingo attribué au ministère des Transports et des communications du Pérou Les travaux sont situés dans la région de Cajamarca et ont un montant de 5 millions d'euros Torrescámara a obtenu la construction du pont et de l'action Tingo accesos.??La, promu par le ministère des Transports et des communications du Pérou, il a un montant de 5 millions d'euros et est situé dans le département de Cajamarca, province de Cajamarca . ?? le pont fait partie d'une série de travaux d'amélioration du traçage Ministère des transports et des communications entreprend en voie EP-8 (Pacasmayo - Cajamarca) du réseau routier national, d'une grande importance pour le Pérou car reliant la côte avec la Sierra, en particulier avec la ville de Cajamarca, le plus important des régions montagneuses du nord du Pérou et une attraction touristique majeure. ?? le type de structure est un panneau supérieur voûte en béton de 75 m de lumière , qui sauve le passage sur un ravin profond. http://www.torrescamara.com/recursos-corporativos/noticias/i/1085/59/torrescamara-se- adjudica-las-obras-de-construccion-del-puente-tingo-y-accesos-para-el- ministère-de- transport-et-comuni
  • 6.
    2017/02/20 ‫منحت‬TORRESCÁMARA ‫جسر‬ ‫بناء‬Tingo‫النقل‬ ‫وزارة‬ ‫أعمال‬ ‫إلى‬ ‫والوصول‬ ‫بيرو‬ ‫في‬ ‫واالتصاالت‬ ‫قيمتها‬ ‫وتبلغ‬ ‫كاخاماركا‬ ‫منطقة‬ ‫في‬ ‫األعمال‬ ‫تقع‬5‫يورو‬ ‫ماليين‬ ‫منح‬ ‫تم‬ ‫وقد‬TORRESCÁMARA ‫جسر‬ ‫بناء‬Tingo ‫العمل‬ ‫قيمة‬ ‫وتبلغ‬ ، ‫إليه‬ ‫والوصول‬ ‫بيرو‬ ‫في‬ ‫واالتصاالت‬ ‫النقل‬ ‫وزارة‬ ‫ترعاه‬ ‫الذي‬5‫مقاطعة‬ ‫في‬ ‫ويقع‬ ‫يورو‬ ‫ماليين‬ Cajamarca ‫بمقاطعة‬Cajamarca. ‫لتحسين‬ ‫األعمال‬ ‫من‬ ‫سلسلة‬ ‫من‬ ‫جزء‬ ‫هو‬ ‫الجسر‬ ‫الطريق‬ ‫على‬ ‫واالتصاالت‬ ‫النقل‬ ‫وزارة‬ ‫به‬ ‫تقوم‬ ‫الذي‬ ‫التصميم‬PE-8 (Pacasmayo - Cajamarca) ‫ألن‬ ‫لبيرو‬ ‫بالنسبة‬ ‫كبيرة‬ ‫أهمية‬ ‫ذو‬ ‫أمر‬ ‫وهو‬ ، ‫الوطنية‬ ‫الطرق‬ ‫لشبكة‬ ‫أهمها‬ ، ‫كاخاماركا‬ ‫مدينة‬ ‫مع‬ ‫الخصوص‬ ‫وجه‬ ‫وعلى‬ ، ‫بسيراليون‬ ‫الساحل‬ ‫يربط‬ ‫الرائعة‬ ‫السياحية‬ ‫وجاذبيتها‬ ‫بيرو‬ ‫في‬ ‫الشمالية‬ ‫المرتفعات‬.‫ق‬ ‫هو‬ ‫البنيوي‬ ‫التصنيف‬‫وس‬ ، ‫العلوية‬ ‫األلواح‬ ‫من‬ ‫خرساني‬75‫عميق‬ ‫واد‬ ‫فوق‬ ‫الممر‬ ‫يحفظ‬ ‫والذي‬ ، ‫الضوء‬ ‫من‬ ‫م‬. http://www.torrescamara.com/recursos- corporativos/noticias/i/1085/59/torrescamara-se-adjudica-las- obras-de-construccion-del-puente-tingo-y-accesos-para-el- ‫من‬ ‫وزارة‬ ‫والتصال‬ ‫النقل‬ ‫بين‬
  • 7.
    2017/02/20 MANAHAT TORRESCAMARA BINA'JISR TINGO WALWUSUL 'IILAA 'AEMAL WIZARAT ALNAQL WALAITISALAT FI BYRU TAQAE AL'AEMAL FI MINTAQAT KAKHAMARKA WATABLUGH QIMATUHA 5 MALAYIN YWRW WAQAD TAMA MANH TORRESCAMARA BINA' JISR TINGO WALWUSUL 'IILAYH , WATABLUGH QIMAT ALEAMAL ALDHY TARAEAH WIZARAT ALNAQL WALAITISALAT FI BIRU 5 MALAYIN YWRW WAYAQAE FI MUQATAEAT CAJAMARCA BIMUQATAEAT CAJAMARCA. ALJISR HU JUZ' MIN SILSILAT MIN AL'AEMAL LITAHSIN ALTASMIM ALDHY TAQUM BIH WIZARAT ALNAQL WALAITISALAT EALAA ALTARIQ PE-8 (PACASMAYO - CAJAMARCA) LISHABAKAT ALTURUQ ALWATANIAT , WAHU 'AMR DHU 'AHAMIYAT KABIRAT BALNSBT LIBAYRU LI'AN YARBIT ALSSAHIL BSIRALIUN , WAEALAA WAJH ALKHUSUS MAE MADINAT KAKHAMARKA , 'AHAMIHA ALMURTAFAEAT ALSHAMALIAT FI BAYRU WAJADHIBIATUHA ALSIYAHIAT ALRRAYIEA. ALTASNIF ALBINIWIU HU QUS KHURSANI MIN AL'ALWAH ALEULWIAT , 75 M MIN ALDAW' , WALADHI YAHFAZ ALMAMARA FAWQ WAD EAMIQ. HTTP://WWW.TORRESCAMARA.COM/RECURSOS- CORPORATIVOS/NOTICIAS/I/1085/59/TORRESCAMARA-SE-ADJUDICA-LAS- OBRAS-DE-CONSTRUCCION-DEL-PUENTE-TINGO-Y-ACCESOS-PARA-EL- WIZARAT MIN BAYN ALNAQL WALTISAL
  • 8.
    FORMATO DE HOJATAMAÑO: 868.5 X 617.7 mm REAL AL 100%
  • 17.
    FORMATO DE HOJATAMAÑO: 843.5 X 623.0mm REAL AL 100%
  • 18.
    FORMATO DE HOJATAMAÑO: 842.4 X 624.4 mm REAL AL 100%
  • 36.
    FORMATO DE HOJATAMAÑO: 840.3 X 618.8 mm REAL AL 100%
  • 39.
    FORMATO DE HOJATAMAÑO: 873.1 X 617.7 mm REAL AL 100%