Í NDI CE
1. Introducción............................................................................ 2
2.Briefing................................................................................... 2
2.1.A quién va dirigido........................................................ 2
2.2.Características del mercado y puntos de venta.................. 2
2.3.Objetivos de marketing.................................................. 2
2.4.Estudio ergonómico....................................................... 3
2.5.Estudio de mercado....................................................... 4
3.Desarrollo de la idea..................................................................7
3.1.Bocetos iniciales............................................................ 7
3.2.Materiales.................................................................... 8
4.Proceso de fabricación............................................................... 11
5. Ecodiseño............................................................................... 15
6.Presupuesto............................................................................. 17
7.Normativa............................................................................... 23
8.Embalaje................................................................................. 25
9.Renders.................................................................................. 27
10.Bibliografía............................................................................ 29
Anejo I: Diagrama de Gantt.......................................................... 30
Anejo II: Diagrama Sinóptico........................................................ 31
Planos………………………………………………….…….…………………………………………… 33
1
1 .I ntroducción
Vamos a realizar el estudio y diseño de una silla infantil para bicicletas.
Nuestro objetivo es rediseñar el concepto actual del producto,
adaptándonos a las nuevas demandas del mercado. Además, debe reflejar
la calidad del producto para su posterior comercialización.
2 .Briefing
2.1. A quién va dirigido
Hemos analizado el tipo de población que suele usar asientos
suplementarios en la bicicleta. Lo más común es verlos en familias con
padres relativamente jóvenes y con hijos pequeños.
La idea de llevar pasajeros en la bicicleta se ha usado desde hace
muchos años, pero ha sido en la última década, en la que hemos visto un
incremento de esta tendencia. Este crecimiento puede estar relacionado con
la preocupación incipiente por el medioambiente, la comodidad del uso de la
bicicleta en la ciudad frente al coche o el ahorro económico que conlleva.
También se puede sobreentender la aceptación y transmisión a sus hijos de
unos valores respetuosos con la naturaleza.
2.2. Características del mercado y puntos de venta
Nuestro artículo se podrá adquirir en varias tiendas físicas
especializadas en bicicletas y también se podrá comprar a través de internet
de una manera cómoda y fácil.
2.3. Objetivos de marketing
Nuestro objetivo es transmitir un nuevo concepto simplificando
formas y volúmenes de los productos actuales, que es una de las exigencias
más potentes en el mercado hoy en día.
La parte estética es decisiva a la hora de la elección del consumidor,
por ello queremos, además de su mejora en las prestaciones de nuestro
producto, una línea atractiva y dinámica.
2
2.4. Estudio ergonómico
La postura correcta del niño es fundamental para su correcto
desarrollo y crecimiento. Por ello hay que prestar especial atención a este
aspecto.
La espalda debe ir recta, formando un ángulo de 90º respecto de las
piernas. Se incentivará esta postura añadiendo un respaldo del tamaño y
forma adecuada.
Además de esto, hay que tener en cuenta varias medidas a la hora
del diseño del asiento, como la distancia poplítea y la altura poplítea.
Realizando un estudio de los percentiles de niños y niñas de 4 hasta 7
años, se han seleccionado estas medidas significativas:
3
2 .5 . Estudio de m ercado
El estudio de mercado tiene como finalidad cuantificar el número de
individuos, empresas y otras entidades económicas generadoras de una
demanda que justifique la puesta en marcha de un determinado programa
de producción de bienes o servicios, sus especificaciones y el precio que los
consumidores estarían dispuestos a pagar por ellos.
o Productos existentes
Analizando los productos que hay en el mercado, podemos dividir los
asientos según donde van colocados en la bicicleta.
- Parte delantera
Sillas para bebés WeeRide
En la imagen observamos un asiento destinado a niños hasta los 4
años. Y con una limitación de peso de 18 kilos. Una de las ventajas de ir
colocada en la parte delantera es que puedes ver a tu hijo en todo
momento. Por contra, te dificulta la visión.
El asiento incluye un cinturón de seguridad y fijación para los pies,
además de una mesita en la que el niño puede apoyarse y dormir. El
sistema empleado es WeeRide, una gran innovación, proporciona una
gran estabilidad e interacción.
Precio: 120€
4
o SILLA SOBRE EL MANILLAR
Este tipo de bicicletas son usados
por las madres de Japón para llevar a sus
hijos en las bicicletas, soportando un peso
de 100 kg.
No se pueden comprar la bicicleta o
el asiento por separado, si no que va todo
junto, lo que aporta una gran estabilidad
pues se adapta perfectamente a la forma
de la bicicleta, por ello su precio es muy
elevado, 1366€
o Silla con perneras en el manillar
Este tipo de asiento se suele utilizar cuando los niños son muy
pequeños porque pesan poco, a medida que van creciendo ya no se
pueden poner en el manillar porque desestabilizan a los padres.
- Parte trasera
o Silla trasera con trasportín incluido
Este asiento está destinado para niños
de entre 6 y 9 años con un peso máximo de 35
kilogramos. Su montaje se hace sobre el
trasportín EASYFIT para mejorar la seguridad.
Además, como no lleva reposapiés, la
rueda trasera va provista de un protector de
plástico para evitar accidentes. Y en la parte
trasera lleva unos reflectantes para mejorar la
visibilidad. Precio: 89,90€
5
o Silla trasera
Esta silla se puede adaptar a cualquier
tipo de bicicleta que tenga portabultos.
Destaca del resto porque incluye un
dispositivo antirrobo y el material es
antibacteriano y de muy fácil limpieza.
Precio: 134,00 €
o Silla portabebés
La silla portabebés Hamax Kiss, es
más voluminosa que el resto de sillas
traseras que hemos analizado.
Es una silla que garantiza seguridad y
protege la columna vertebral del niño ante
cualquier impacto. No es necesaria la
existencia de un portabultos para que
pueda montarse sobre la bicicleta.
Precio: 60,45 €
o Silla con amortiguación
Es una silla que la distingue de las
demás por incluir amortiguación en el
asiento y hacerla más cómoda.
Además incluye un protector para la rueda
trasera.
Precio: 96€
6
CONCLUSIONES DEL ESTUDIO DE MERCADO
Analizando los diferentes asientos, hemos obtenido una serie de
características que queremos incluir en nuestro producto:
- protector para cubrir las ruedas
- cinturón de seguridad
- reflectantes
- sujeción de los pies
Concluir que las sillas para niños existentes en el mercado son
aparatosas y poco estéticas. Además, en algunos casos hay que disponer de
una bicicleta especial para adjuntarlos a la misma. Por ello, nuestro objetivo
es diseñar un asiento cómodo, fácil de manejar y plegable para poder
transportarlo.
3 . DESARROLLO DE LA I DEA
3 .1 . Bocetos iniciales
7
Como se puede apreciar en los bocetos iniciales, el asiento carece de
ergonomía y de seguridad. Así, como veremos más adelante, todos esos
aspectos serán resueltos.
3 .2 . Materiales
o PORTABULTOS: Acero 1 0 4 5 .
Características a destacar:
-Buena soldabilidad.
-Gracias a su dureza y tenacidad, es un material adecuado para la
fabricación de componentes de maquinaria.
-Responde muy bien a los tratamientos térmicos.
Propiedades mecánicas:
Dureza 163 HB (84 HRb)
Esfuerzo de fluencia 310 MPa (45000 PSI)
Esfuerzo máximo 565 MPa (81900 PSI)
Elongación 16% (en 50 mm)
Reducción de área (40% )
Módulo de elasticidad 200 GPa (29000 KSI)
Maquinabilidad 57% (AISI 1212 = 100% )
8
Propiedades físicas:
Densidad 7.87 g/ cm3 (0.284 lb/ in3)
Propiedades químicas: 0.43 – 0.50 % C
0.60 – 0.90 % Mn
0.04 % P máx
0.05 % S máx
o ASI ENTO: Polipropileno
Características del polipropileno:
-Gran resistencia a la flexión y al impacto
-Dificultad al pintar o a la impresión
-Posee la densidad más baja de todos los plásticos
-Precio bajo
-Facilidad de admitir cargas
-Opaco
-Gran resistencia al calor, funde a 160 º C
o ZONA I NTERI OR: Espum a de poliuretano
Es un material plástico poroso formado por una agregación de burbujas.
Características:
- Buena amortiguación.
- Resistencia a la oxidación y el envejecimiento.
- Baja densidad: 12-15 kg/ m^ 3
- Alta rigidez dieléctrica
- Inalterables con agentes químicos
9
o REVESTI MI ENTO: Polipiel de PV y Poliam ida
Características:
- Impermeabilidad.
- Resistencia al rasgado y a la rotura.
- Buena relación calidad-precio.
- Rango de temperatura de trabajo -15º C + 60º C
- Resistencia, rigidez y dureza mecánicas elevadas
- Buen aislante eléctrico
- Elevada resistencia a sustancias químicas
- Autoextingible
- Impermeable a gases y líquidos
- Mínima absorción de agua
- Resistente a la acción de hongos, bacterias, insectos y roedores
-Fácil de pegar y soldar Resistente a la intemperie (sol, lluvia,
viento y aire marino)
o BI SAGRAS DE COMPÁS: Hierro con niquelado de acabado.
Este niquelado lo que nos aportará será una mejora considerable de
la resistencia a la corrosión y un acabado superficial más estético.
Características:
- Alta dureza y densidad.
- Propiedades magnéticas y ferromagnéticas a tª ambiente.
10
4 . PROCESOS DE FABRI CACI ÓN
o ASIENTO y REPOSAPIÉS/ CUBRERRUEDA
Para la fabricación del asiento, se recurrirá al moldeo por inyección, en la
que a través del uso del calor y la presión, se moldean las piezas
necesarias. A continuación se hará una descripción detallada de todo el
proceso de montaje del asiento:
En primer lugar, se introduce el material, polipropileno, junto con los
colorantes y estabilizantes, a la unidad de inyección a través de la tolva de
alimentación. La función principal de la unidad de inyección es la de fundir,
mezclar e inyectar el polímero. Al tratarse del polipropileno, tendrá que
alcanzar temperaturas de más de 160º , ya que ésta es su punto de fusión.
Este calentamiento se realiza mediante calor y fricción del material con la
cámara y el husillo. En todo momento hay que controlar las temperaturas
ya que el incremento de la misma disminuye la viscosidad del polímero, y
esto puede llegar a ser un problema.
A medida que el material va siendo transportado por acción del husillo al
otro extremo de la unidad de inyección, la profundidad del canal del husillo
va disminuyendo. Así, cada vez existe más presión en la cámara.
Cuando el material llega a la zona de dosificación, el husillo retrocede,
para dejar pasar al plástico y se acumule en esa zona para ser inyectado.
Entonces, se abre la válvula del molde y el husillo hace de émbolo,
inyectando el polipropileno a través de la boquilla hacia las cavidades del
molde. En este proceso, la presión ejercida se mantiene constante para que
las dimensiones de la pieza resulten las adecuadas. Se debe tener en
cuenta en el molde la sobredimensión debido a la contracción que sufre la
pieza al enfriarse.
A continuación, la presión se elimina, y la válvula se cierra. La pieza se
termina de enfriar en el molde, y tras este procedimiento, que interrumpe el
desarrollo continuo del proceso ya que se prolonga en el tiempo, el molde
se abre y se expulsa la pieza moldeada mediante unas barras eyectoras.
11
Técnicamente, el ciclo de inyección se compone de los siguientes tiempos:
Tiem po de inyección ( ti) : Es el tiempo necesario para que el material
pase de la unidad de inyección a las cavidades en el molde. Este tiempo
puede abarcar entre el 5 y el 30% del tiempo de ciclo total.
Tiem po de presión de sostenim iento ( tp): En esta etapa lo que se
busca es compensar la contracción que sufre el material durante la
solidificación, para evitar rechupes y distorsiones pronunciadas de la pieza.
Sin embargo, no se justifica mantener la presión de sostenimiento durante
todo el tiempo de solidificación de la pieza pues esto hace aumentar el
tiempo de ciclo y el gasto de energía.
Tiem po de solidificación o de enfriam iento ( ts) : Este tiempo transcurre
entre el final de la aplicación de la presión de sostenimiento y el comienzo
de la apertura del molde. En este tiempo se debe asegurar que el material
ha solidificado y que al extraer la pieza, no se distorsionará. Es el tiempo
más largo del ciclo, llegando a alcanzar entre el 50 y el 85% del tiempo
total.
Tras la eyección de la pieza del molde, se deben tratar las posibles
imperfecciones que han podido surgir. Se comprueban las dimensiones y a
continuación se pasa al ensamblaje del resto de piezas.
12
En cuanto al conformado del reposapiés/ cubrerrueda, se procederá
de manera similar a la anterior, utilizando la misma unidad de inyección y el
molde adecuado para su forma final.
Para hacer posible el mecanismo de pliegue del asiento con topes, se
fabrican bisagras de compás, que van unidos a los laterales de las piezas de
plástico del asiento mediante remaches de cabezas esféricas. A continuación
se introduce una barra de acero de 4 mm di diámetro en el eje coincidente
entre la pieza superior (que constituiría el respaldo) e inferior del asiento.
La función de esta barra es permitir el plegado del asiento restringido a ese
eje. Para evitar que esta barra se salga, se pondrán topes de plástico
mediante la aplicación de presión en cada extremo de la misma.
o PORTABULTOS DE ACERO
La estructura de acero del asiento, que irá unida permanentemente a la
bicicleta, se realizará mediante fundición con molde permanente. Se ha
elegido la fundición, porque por otro método resultaría complicada la
fabricación de esta estructura compleja y de secciones no constantes. Se
utilizará un molde permanente para permitir la repetitividad y la fabricación
en serie.
Primero, se funde el acero en horno eléctrico de inducción. Se ha
seleccionado un horno de estas características para mayor eficiencia
energética y reducción de emisiones. A lo largo de este proceso, se debe
controlar la temperatura. Para asegurarse de que el metal haya fundido
completamente, se calienta el caldo a más temperatura de su punto de
fusión, por lo tanto, se opta por calentarlo a 1400º C, siendo la temperatura
de fusión del acero elegido de 1300º C.
A continuación, se procede al funcionamiento de la máquina de fundición
a presión. Mediante la requerida presión se alcanzan las especificaciones
dimensiones deseadas con gran exactitud. Tras este proceso, se eyecta el
molde y empieza el enfriamiento de la pieza.
El ciclo de enfriamiento es crítico para la adecuación de la pieza final a
las especificaciones. En el siguiente gráfico se indican los tiempos y las
temperaturas de cada etapa de este ciclo.
13
Cuando haya pasado el tiempo requerido para el correcto enfriamiento
de la pieza, se eyecta del molde, y se cortarán los bebederos y mazarotas
necesitados para la correcta colada de la fundición. Para conseguir las
especificaciones dimensionales y superficiales requeridas, se procederá al
esmerilado de la pieza. Para comprobar que se han cumplido estas
especificaciones, se realizará una inspección mecánica de la pieza.
o MONTAJE PORTABULTOS
Una vez fabricados el portabultos y el reposapiés/ cubrerrueda, se
engancha al perfil del portabultos el reposapiés/ cubrerrueda, mediante las
abrazaderas que han sido conformadas en la misma pieza. Este
procedimiento se realiza mediante presión y gracias a la elasticidad del
polipropileno. Estas abrazaderas se adaptan al perfil del portabultos en
cuatro puntos del mismo.
14
5 . ECODI SEÑO: RUEDA DE LI DS
1. Desarrollo de un nuevo concepto: Nuestro producto simplifica
claramente la estructura de las sillas para acompañante en bicicletas.
Por tanto reduce el peso, además, puede transportarse fácilmente y
posee una colocación clara e intuitiva.
2. Selección de materiales: Hemos optado por una utilización de
materiales de menor impacto que los empleados actualmente en el
mercado. Utilizamos el acero en lugar del aluminio par el portabultos,
lo cual disminuye el impacto a la hora de la obtención del material.
También posee una altísima reciclabilidad, versatilidad y
disponibilidad.
No podemos obviar el hecho de la reducción de volumen y
dimensiones de nuestro producto, lo que conlleva una reducción
considerable de la cantidad de material utilizado.
3. Técnicas para optimizar la producción: Hemos reducido el número de
procesos de producción distintos para optimizar las máquinas
adquiridas y así reducir tanto la cantidad de emisiones al medio
ambiente como el gasto que genera la obtención de maquinaria
nueva. Además hemos tenido en cuenta a la hora de realizar el
diseño de proyectar las partes de los productos de tal forma que se
facilite su manufactura.
0
1
2
3
4
5
1
2
3
45
6
7
Silla portable
Silla convencional
15
4. Optimización del sistema de distribución: Encontramos dos ventajas
claras con respecto a otros productos similares del mercado y es que
al ser abatible, la distribución se realizará optimizando el espacio de
los medios de distribución empleados. Sus reducidas dimensiones y
peso lo hacen fácil de transportar y empaquetar.
5. Reducción del impacto durante el uso: Muy similar a los productos
existentes, no consumen energía una vez producidos. Además, se
incentiva el uso de la bicicleta, un medio de transporte ecológico y sin
emisiones
6. Optimización de vida útil: Los materiales utilizados están pensados
para aguantar prácticamente todos los cambios ambientales, además
no son corrosivos y cuentan con tratamientos superficiales que
confieren características más resistentes y por lo tanto, hace al
producto más duradero.
7. Optimización del sistema de fin de vida: Las partes independientes de
nuestro producto se separan con mucha facilidad, requiriendo
sencillamente de una mano adulta que separe el asiento del
portabultos. El portabultos se desatornilla de la bici y ambos
componentes son 100% reciclables.
16
6 . PRESUPUESTO
6.1. COSTO DE MATERIALES
HOJA DE COSTO DE MATERIALES EII
TALLER III
Conjunto: Silla Infantil Nº Conjuntos: 1 Ejecutado por:
Grupo 2
Fecha: Hoja
nº : 1
Pieza Material Plano Nº
piezas
Dimensiones
Mat. bruto
Cantidad UM Costo
Unitario
Importe
Marca Designación
1. Portabultos Acero
1045
1 2,7 1 kg 8,4 8,4
2. Cubre ruedas PP 1 0,45 1 kg 0,48 0,48
3. Base asiento PP 1 0,5 1 kg 0,650 0,650
4. Respaldo
asiento
PP 1 0,5 1 kg 0,650 0,650
5. Varilla Comercial 1 0,139 1 kg 1,16 1,16
6. Cinturón
seguridad
Comercial 1 - 1 - 12,3 12,3
7. Remaches Comercial 8 - 8 - 0,01 0,08
8. Espuma
poliuretano
Comercial 1 - 1 - 3,99 3,99
9. Polipiel de PV
y Poliamida
Comercial 1 - 1 - 1,9 1,9
10. Asa Comercial 1 - 1 - 4,56 4,56
11. Cincha Comercial 2 - 2 - - -
12. Tornillo Hex.
M4x25
Comercial 2 - 2 - 0,00001
98
0,00003
96
13. Arandela 4x9 Comercial 2 - 2 - 0,075 0,15
14. Tornillo Hex.
M4x16
Comercial 8 - 8 - 0,02 0,16
17
6 .2 . Mano de obra directa
Días reales de trabajo al año
Días naturales, Dn 365
Deducciones, D 132
Domingos
Sábados
Vacaciones
Fiestas
52
52
20
8
Días reales, Dr= Dn-D 233
Horas de trabajo efectivas al año.
Se establecen anualmente para cada sector industrial o empresa convenio
colectivo propio.
He= 1800 h.
Horas de trabajo efectivas al día.
Es el resultado de dividir las horas de trabajo efectivas/ año, He.
Jd= He/ Dr= 1800/ 233= 7,73 horas
Salario por día.
Se calcula calculando el salario base/ día ( Sbd) y plus/ día ( Pd) , y es
establecido para cada categoría profesional:
Sd= Sbd+ Pd
18
6 .3 . COSTE M.O.D
Concepto(sin
c. ocultos)
Of. 1º Of. 2ª Of. 3ª Especialista Peón Aprendiz Pinche
Salario
base/ día Sbd
19,38 18,08 16,96 15,84 15,10 11,18 10,25
Plus/ día Pd 24,67 23,00 21,58 20,16 19,21 14,23 3,04
Salario/ día Sd 44,05 41,08 38,54 36,00 34,31 25,41 23,29
Remuneración
anual Ra
18.720 17.460 16.380 15.300 14.580 10.800 9.900
Salario/ hora
S
10,40 9,70 9,10 8,50 8,10 6,00 5,50
6 .4 .PUESTOS DE TRABAJO
Relación de m aquinarias y operarios que la m anejan
PUESTOS DE TRABAJO M.O.D
Nº Denominación Características KW 1º 2º 3º Esp.
1. Máquina de fundición a
presión
Capacidad: 320 kg 7,5 X
2. Horno de fundición Capacidad: 90kg 36 X
3. Tronzadora Doble cabezal 5,2 X
4. Esmeriladora Diámetro
disco: 115mm
0,9 X
5. Inyectora PP Proveedor. No
instalada
10 x
6. Pistola pulverizadora Capacidad: 0,9 L 0,4 X
7. Máquina estampadora Capacidad:
1250mm
11 X
19
5.5. CÁLCULO DEL COSTO DE FUNCIONAMIENTO DE CADA PUESTO
N Precio
euros
Amortización,
p en años
Funcionamiento
h/ año
Vida
prevista
h
Costo del puesto de trabajo euros/ h
Interés
Ih
Amortización
Ah
Manten
Mh
Energía
Eh
Total
f
1. 30.000 24 1.800 43.200 1,67 0,69 0,67 0,57 3,6
2. 25.000 20 1.800 36.000 1,39 0,69 0,55 2,74 5,37
3. 2.100 10 1.800 18.000 0,17 0,12 0,05 0,39 0,73
4. 1.000 11 1.000 11.000 0,1 0,09 0,04 0,07 0,3
5. 8.000 10 1.800 18.000 0,44 0,44 0,18 0,76 1,82
6. 400 12 1.000 12.000 0,04 0,03 0,016 0,03 0,12
Hemos considerado:
r= 10% m= 4% , Coste energía kWh= 0,076€, consumo 3kW
Fórmulas empleadas:
Ih= I/ Hf= (C* r)/ Hf= 30.000* 0,10/ 1.800= 1,67
Ah= A/ Af= (C/ p)/ Hf= 30.000/ 24/ 1.800= 0,69
Mh= C* 0,04/ 1800= 30.000* 0,04/ 18000= 0,67
Eh= kWh* 0,076= 7,5* 0,076= 0,57
Costo total hora (f)= Ih+ Ah+ Mh+ Eh= 1,67+ 0,69+ 0,67+ 0,57= 3,6
6 .6 . Presupuesto industrial
Para calcular el presupuesto industrial tenemos que tener en cuenta:
- Costo de fabricación (incluido el montaje)
- Mano de obra directa (m.o.i)
- Cargas sociales (C.S.)
- Gastos Generales (G. G.)
- Beneficio Industrial (B.I.)
- Otros tales como embalaje, transporte e I.V.A…
20
E.U.P.
INGENIERÍA DE PROCESOS
RESUMEN euros EFECTUADO: Grupo 2
FECHA:
COMPROBADO:
FECHA:
ESTUDIO
Nº
Material
M.O.D.
P. TRABAJO
TOTAL Cf
PIEZA CA
NT
FICHA
FASE
Nº
Tf 6
Tm
hora
s
Euros/hora COSTO DE FABRICACIÓN Cf euros
Marca PLANO Nº S f MATERI
AL
M.O.D P. TRABAJO TOTAL
1. 1 13,7
6
9,25 9,27 8,9 125,83 126,11 260,84
2. 1 0,45 6,69 2,12 0,48 3,01 0,95 4,44
3. 1 2,16 6,69 2,12 1,3 14,45 4,58 20,33
4. 1 0,57 9,20 0,66 1,16 5,24 0,37 6,77
5. Comercial 8 0,16 0,16
6. Comercial 1 12,3 12,3
7. Comercial 8 0,08 0,08
8. Comercial 1 3,99 3,99
9. Comercial 1 1,9 1,9
10. Comercial 1 4,56 4,56
11. Comercial 2 3,95 3,95
12. Comercial 2 0,00003
96
0,0000396
13. Comercial 2 0,15 0,15
Total 38,93 148,53 132,01 319,47
21
PRESUPUESTO INDUSTRIAL EII
TALLER III
CONJUNTO: asiento infantil Cliente
Nº conjuntos 1
EFECTUADO POR: GRUPO 2
FECHA:
CONCEPTO DESCRIPCIÓN IMPORTE (EUROS)
1. COSTO DE FABRICACIÓN
Cf= mat+MOD+PT
MATERIAL 38,93 319,47
MANO DE OBRA,
MOD
148,53
PUESTO DE
TRABAJO
132,01
2. MANO DE OBRA INDIRECTA, MOI 53,53
3. CARGAS SOCIALES, CS 74,95
4. GASTOS GENERALES, GG 69,81
5. COSTO TOTAL EN FÁBRICA, Ct 517,76
6. BENEFICIO INDUSTRIALL, B 50,53
7. PRECIO DE VENTA EN FÁBRICA DEL PEDIDO: 70.000
UNITARIO: 370
22
7 . NORMATI VA
Para el desarrollo de la idea hemos tenido que tener en cuenta una serie
de normativa que nos afectaba directamente
o UNE-EN 14344-> Asientos de niños para bicicletas: Requisitos de
seguridad y métodos de ensayos
A partir de esta tabla hemos ido definiendo las dimensiones
que tenía que tener nuestro asiento para cumplir con la norma,
mirando la columna A22, que es la que afecta a los asientos traseros.
Atendiendo a esta normativa nuestro producto establece las
siguientes características que se especifican a continuación:
- Todos los bordes, esquinas o salientes deben cumplir con unos
radios mínimos para evitar posibles accidentes mediante un
golpe.
- Hemos cumplido todos los requisitos generales de fijación para
asientos en las bicicletas, como por ejemplo:
-Para evitar que el asiento se suelte libremente , el mecanismo
de bloqueo debe requerir de dos mecanismos de bloqueo
independientes que sean accionados simultáneamente
-Como estamos diseñando un asiento trasero, deberá ir fijado
al portaequipajes para que limite el movimiento hacia atrás del
asiento.
23
- El asiento deberá incluir cinturón ajustable que mantengan al
niño en una posición fija y segura al asiento, para ello lo mejor
es que vayan sujetos por los hombros y la entrepierna.
- Para garantizar la total seguridad, hay que evitar que el niño
introduzca los pies entre los radios de las ruedas. Para ello
incluiremos unos protectores que cubran la rueda trasera.
- Como el asiento hay que montarlo incluiremos manual de
instrucciones para que todo se ejecute correctamente y no se
produzcan ningún improvisto.
o Norma UNE-EN 14872-> Accesorios para bicicletas: portaequipajes
Según esta norma nuestro portabultos se definiría como "un soporte
trasero normal".
En función de esta normativa podemos decir que el portabultos
cumple con los requisitos establecidos, a destacar:
- Todos los tornillos que hemos empleado en el portabultos van
provistos de dispositivos de bloqueo.
- Todas las aristas están redondeadas para evitar cualquier
posible corte o accidente que pueda dañar la vida del ciclista.
- Va provisto de señalización.
- El portaequipajes va marcado con el peso que soporta, el
nombre del fabricante y la normativa europea que cumple.
- Manual de instrucciones.
24
8 . EMBALAJE
Los tres elementos principales de nuestro diseño son, en orden de
imágenes, el portabultos con los sistemas de anclaje a la bicicleta, el
cubrerruedas que sirve de apoyo a los pies del niño y el asiento
desmontable.
Para facilitar el embalaje y transporte de los elementos diseñados hemos
localizado una empresa especializada en el diseño y fabricación de
packaging.
La empresa es ROVIDAE EMBALAJES S.L, que tiene su sede en Madrid y se
encargaría de la elaboración de un embalado en cajas de cartón corrugado
con las debidas protecciones en poliestireno expandido de todos los
elementos, evitando así su posible daño.
25
El equipo de diseño ha planteado un ejemplo de disposición en la que se
consigue aprovechar el espacio en gran medida. Pero consideramos que la
propia empresa en la que delegamos la elaboración de este empaquetado,
plateará la solución más acertada.
La caja no sólo contendrá los tres elementos arriba mencionados, sino que
además incluirá unas bolsitas con la tornillería normalizada que se utiliza
para anclar el portabultos a la bicicleta y un manual de instrucciones con las
recomendaciones de montaje, uso, mantenimiento y plan de fin de vida.
26
9 . RENDERS
27
28
1 0 . BI BLI OGRAFÍ A
http: / / biobike.es/ tienda/ silla-trasera-gmg-35-kgs
http: / / www.ciclotraveling.com/ cicloturismo-con-ninos-i-como-llevarlos/
http: / / www.bicitecla.com/ tienda/ producto/ 134-GMG-YEPP-Maxi-trasera
file: / / / C: / Users/ ALMUNO/ Downloads/ Dialnet-
EstudioAntropometricoParaElDisenoDeMobiliarioParaN-4835614.pdf
http: / / www.mead-johnson.com.mx/ todo-sobre-tu-bebe/ desarrollo-del-
bebe-3-a-5-anos.aspx
http: / / www.deporvillage.com/ silla-infantil-hamax-kiss-trasera-gris-verde
http: / / www.sumiteccr.com/ Aplicaciones/ Articulos/ pdfs/ AISI% 201045.pdf
http: / / www.grupocopo.com/ futuretense_cs/ Archivo/ P8-9.pdf
http: / / www.solostocks.com/ venta-productos/ otra-ropa/ stock-de-polipiel-
6584030
http: / / www.jq.com.ar/ Imagenes/ Productos/ PVC/ PVCprop/ propiedades.htm
http: / / www.stilbox.es/ spa/ item/ 270103.html
http: / / www.goodfellow.com/ catalogue/ GFCat4.php?ewd_token= ii0QQ6mGG
EHFzEKol7um9fAta1ARtE&n= tXP97RXDss4Sx1E0yh9Agh5EkBahww
Norma española
29
ANEJO I :
Diagram a de GANTT
30
Raquel Juárez, Marta
Mancebo, Claudia
Ochagavías, Elisa Pérez,
Patricia Sinobas, Jenny
Smith
101
5
5
R
2.25
R
3R
179.52
R
154.25
R
25
17
3
R
87
208.2
4
9.52
5.96
21.5
5
R
3R
196.25
323.67
265.45
315.12
386.04
39.12
R
26.47
R
80
240
345.4
25
134.89
143.4
10
10R
15
364.2
32.52
143.09
FECHA:
Enero-2015
N PLANO:
ESCALA:
PLANO:
PROMOTOR:
UVA
SEATCASE
Grado en Diseño Industrial
UNIVERSIDAD DE VALLADOLID
ESCUELA DE INGENIERÍAS INDUSTRIALES
Convocatoria: 1ª
SAP
IENTIA
E
D
ICAVIT FI
S
IBI
DOM
V
M
AREA I.P.F.
PROYECTOS TÉCNICOS
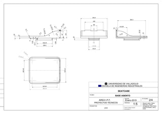
1:5
BASE ASIENTO
2/4
Raquel Juárez, Marta
Mancebo, Claudia
Ochagavías, Elisa Pérez,
Patricia Sinobas, Jenny
Smith
23.1
R
73R
74.3
R 5
122.4
58.1
83.616.9
R
7.9R
76.5
29.1
246
603.7R
414.6R
314.5
40
25
R
21.5
R
10
R
393R
393R
5.1
R
25
31
8R
8
R
5
R
31.4
68.3R
84.8
R
79.2
R
30.6
20
36.4
28.3
69.6
129.6
54.8
60
20
239.1
187.4
10.5
FECHA:
Enero-2015
N PLANO:
ESCALA:
PLANO:
PROMOTOR:
UVA
SEATCASE
Grado en Diseño Industrial
UNIVERSIDAD DE VALLADOLID
ESCUELA DE INGENIERÍAS INDUSTRIALES
Convocatoria: 1ª
SAP
IENTIA
E
D
ICAVIT FI
S
IBI
DOM
V
M
AREA I.P.F.
PROYECTOS TÉCNICOS
1:5
CUBRE RUEDAS
3/4
Raquel Juárez, Marta
Mancebo, Claudia
Ochagavías, Elisa Pérez,
Patricia Sinobas, Jenny
Smith
193.2
2449.7R
1056.6R
2147.2R
722.4R
7
177.3
3.1
R
185.4
401.6
28.4
R
3.4
R
25
25
344.8
128.6
196.4
16
A A
16
16
5
R
8
R
25
25
20.3
R
4.5
R
376.6
202.2
43.1
383
788.8
R
456
R
551.2R
436
R
2.9
R
FECHA:
Enero-2015 4/4
N PLANO:
ESCALA:
PLANO:
PROMOTOR:
UVA
SEATCASE
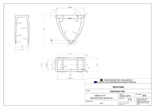
PORTABULTOS
Grado en Diseño Industrial
UNIVERSIDAD DE VALLADOLID
ESCUELA DE INGENIERÍAS INDUSTRIALES
Convocatoria: 1ª
SAP
IENTIA
E
D
ICAVIT FI
S
IBI
DOM
V
M
AREA I.P.F.
PROYECTOS TÉCNICOS
1:5
Raquel Juárez, Marta
Mancebo, Claudia
Ochagavías, Elisa Pérez,
Patricia Sinobas, Jenny
Smith
80
240
328.3
345.4
315.4
40
R
265.4
30
R
50
R
79
215.4
285.4
15
47.5
R
9
152.2
R
177.7
R
311.1
170.9
39.5
337.5
10
4.5
140.14
FECHA:
Enero-2015 1/4
N PLANO:
ESCALA:
PLANO:
PROMOTOR:
UVA
SEATCASE
RESPALDO ASIENTO
Grado en Diseño Industrial
UNIVERSIDAD DE VALLADOLID
ESCUELA DE INGENIERÍAS INDUSTRIALES
Convocatoria: 1ª
SAP
IENTIA
E
D
ICAVIT FI
S
IBI
DOM
V
M
AREA I.P.F.
PROYECTOS TÉCNICOS
1:5

Seatcase asiento infantil para bicicletas

  • 2.
    Í NDI CE 1.Introducción............................................................................ 2 2.Briefing................................................................................... 2 2.1.A quién va dirigido........................................................ 2 2.2.Características del mercado y puntos de venta.................. 2 2.3.Objetivos de marketing.................................................. 2 2.4.Estudio ergonómico....................................................... 3 2.5.Estudio de mercado....................................................... 4 3.Desarrollo de la idea..................................................................7 3.1.Bocetos iniciales............................................................ 7 3.2.Materiales.................................................................... 8 4.Proceso de fabricación............................................................... 11 5. Ecodiseño............................................................................... 15 6.Presupuesto............................................................................. 17 7.Normativa............................................................................... 23 8.Embalaje................................................................................. 25 9.Renders.................................................................................. 27 10.Bibliografía............................................................................ 29 Anejo I: Diagrama de Gantt.......................................................... 30 Anejo II: Diagrama Sinóptico........................................................ 31 Planos………………………………………………….…….…………………………………………… 33 1
  • 3.
    1 .I ntroducción Vamosa realizar el estudio y diseño de una silla infantil para bicicletas. Nuestro objetivo es rediseñar el concepto actual del producto, adaptándonos a las nuevas demandas del mercado. Además, debe reflejar la calidad del producto para su posterior comercialización. 2 .Briefing 2.1. A quién va dirigido Hemos analizado el tipo de población que suele usar asientos suplementarios en la bicicleta. Lo más común es verlos en familias con padres relativamente jóvenes y con hijos pequeños. La idea de llevar pasajeros en la bicicleta se ha usado desde hace muchos años, pero ha sido en la última década, en la que hemos visto un incremento de esta tendencia. Este crecimiento puede estar relacionado con la preocupación incipiente por el medioambiente, la comodidad del uso de la bicicleta en la ciudad frente al coche o el ahorro económico que conlleva. También se puede sobreentender la aceptación y transmisión a sus hijos de unos valores respetuosos con la naturaleza. 2.2. Características del mercado y puntos de venta Nuestro artículo se podrá adquirir en varias tiendas físicas especializadas en bicicletas y también se podrá comprar a través de internet de una manera cómoda y fácil. 2.3. Objetivos de marketing Nuestro objetivo es transmitir un nuevo concepto simplificando formas y volúmenes de los productos actuales, que es una de las exigencias más potentes en el mercado hoy en día. La parte estética es decisiva a la hora de la elección del consumidor, por ello queremos, además de su mejora en las prestaciones de nuestro producto, una línea atractiva y dinámica. 2
  • 4.
    2.4. Estudio ergonómico Lapostura correcta del niño es fundamental para su correcto desarrollo y crecimiento. Por ello hay que prestar especial atención a este aspecto. La espalda debe ir recta, formando un ángulo de 90º respecto de las piernas. Se incentivará esta postura añadiendo un respaldo del tamaño y forma adecuada. Además de esto, hay que tener en cuenta varias medidas a la hora del diseño del asiento, como la distancia poplítea y la altura poplítea. Realizando un estudio de los percentiles de niños y niñas de 4 hasta 7 años, se han seleccionado estas medidas significativas: 3
  • 5.
    2 .5 .Estudio de m ercado El estudio de mercado tiene como finalidad cuantificar el número de individuos, empresas y otras entidades económicas generadoras de una demanda que justifique la puesta en marcha de un determinado programa de producción de bienes o servicios, sus especificaciones y el precio que los consumidores estarían dispuestos a pagar por ellos. o Productos existentes Analizando los productos que hay en el mercado, podemos dividir los asientos según donde van colocados en la bicicleta. - Parte delantera Sillas para bebés WeeRide En la imagen observamos un asiento destinado a niños hasta los 4 años. Y con una limitación de peso de 18 kilos. Una de las ventajas de ir colocada en la parte delantera es que puedes ver a tu hijo en todo momento. Por contra, te dificulta la visión. El asiento incluye un cinturón de seguridad y fijación para los pies, además de una mesita en la que el niño puede apoyarse y dormir. El sistema empleado es WeeRide, una gran innovación, proporciona una gran estabilidad e interacción. Precio: 120€ 4
  • 6.
    o SILLA SOBREEL MANILLAR Este tipo de bicicletas son usados por las madres de Japón para llevar a sus hijos en las bicicletas, soportando un peso de 100 kg. No se pueden comprar la bicicleta o el asiento por separado, si no que va todo junto, lo que aporta una gran estabilidad pues se adapta perfectamente a la forma de la bicicleta, por ello su precio es muy elevado, 1366€ o Silla con perneras en el manillar Este tipo de asiento se suele utilizar cuando los niños son muy pequeños porque pesan poco, a medida que van creciendo ya no se pueden poner en el manillar porque desestabilizan a los padres. - Parte trasera o Silla trasera con trasportín incluido Este asiento está destinado para niños de entre 6 y 9 años con un peso máximo de 35 kilogramos. Su montaje se hace sobre el trasportín EASYFIT para mejorar la seguridad. Además, como no lleva reposapiés, la rueda trasera va provista de un protector de plástico para evitar accidentes. Y en la parte trasera lleva unos reflectantes para mejorar la visibilidad. Precio: 89,90€ 5
  • 7.
    o Silla trasera Estasilla se puede adaptar a cualquier tipo de bicicleta que tenga portabultos. Destaca del resto porque incluye un dispositivo antirrobo y el material es antibacteriano y de muy fácil limpieza. Precio: 134,00 € o Silla portabebés La silla portabebés Hamax Kiss, es más voluminosa que el resto de sillas traseras que hemos analizado. Es una silla que garantiza seguridad y protege la columna vertebral del niño ante cualquier impacto. No es necesaria la existencia de un portabultos para que pueda montarse sobre la bicicleta. Precio: 60,45 € o Silla con amortiguación Es una silla que la distingue de las demás por incluir amortiguación en el asiento y hacerla más cómoda. Además incluye un protector para la rueda trasera. Precio: 96€ 6
  • 8.
    CONCLUSIONES DEL ESTUDIODE MERCADO Analizando los diferentes asientos, hemos obtenido una serie de características que queremos incluir en nuestro producto: - protector para cubrir las ruedas - cinturón de seguridad - reflectantes - sujeción de los pies Concluir que las sillas para niños existentes en el mercado son aparatosas y poco estéticas. Además, en algunos casos hay que disponer de una bicicleta especial para adjuntarlos a la misma. Por ello, nuestro objetivo es diseñar un asiento cómodo, fácil de manejar y plegable para poder transportarlo. 3 . DESARROLLO DE LA I DEA 3 .1 . Bocetos iniciales 7
  • 9.
    Como se puedeapreciar en los bocetos iniciales, el asiento carece de ergonomía y de seguridad. Así, como veremos más adelante, todos esos aspectos serán resueltos. 3 .2 . Materiales o PORTABULTOS: Acero 1 0 4 5 . Características a destacar: -Buena soldabilidad. -Gracias a su dureza y tenacidad, es un material adecuado para la fabricación de componentes de maquinaria. -Responde muy bien a los tratamientos térmicos. Propiedades mecánicas: Dureza 163 HB (84 HRb) Esfuerzo de fluencia 310 MPa (45000 PSI) Esfuerzo máximo 565 MPa (81900 PSI) Elongación 16% (en 50 mm) Reducción de área (40% ) Módulo de elasticidad 200 GPa (29000 KSI) Maquinabilidad 57% (AISI 1212 = 100% ) 8
  • 10.
    Propiedades físicas: Densidad 7.87g/ cm3 (0.284 lb/ in3) Propiedades químicas: 0.43 – 0.50 % C 0.60 – 0.90 % Mn 0.04 % P máx 0.05 % S máx o ASI ENTO: Polipropileno Características del polipropileno: -Gran resistencia a la flexión y al impacto -Dificultad al pintar o a la impresión -Posee la densidad más baja de todos los plásticos -Precio bajo -Facilidad de admitir cargas -Opaco -Gran resistencia al calor, funde a 160 º C o ZONA I NTERI OR: Espum a de poliuretano Es un material plástico poroso formado por una agregación de burbujas. Características: - Buena amortiguación. - Resistencia a la oxidación y el envejecimiento. - Baja densidad: 12-15 kg/ m^ 3 - Alta rigidez dieléctrica - Inalterables con agentes químicos 9
  • 11.
    o REVESTI MIENTO: Polipiel de PV y Poliam ida Características: - Impermeabilidad. - Resistencia al rasgado y a la rotura. - Buena relación calidad-precio. - Rango de temperatura de trabajo -15º C + 60º C - Resistencia, rigidez y dureza mecánicas elevadas - Buen aislante eléctrico - Elevada resistencia a sustancias químicas - Autoextingible - Impermeable a gases y líquidos - Mínima absorción de agua - Resistente a la acción de hongos, bacterias, insectos y roedores -Fácil de pegar y soldar Resistente a la intemperie (sol, lluvia, viento y aire marino) o BI SAGRAS DE COMPÁS: Hierro con niquelado de acabado. Este niquelado lo que nos aportará será una mejora considerable de la resistencia a la corrosión y un acabado superficial más estético. Características: - Alta dureza y densidad. - Propiedades magnéticas y ferromagnéticas a tª ambiente. 10
  • 12.
    4 . PROCESOSDE FABRI CACI ÓN o ASIENTO y REPOSAPIÉS/ CUBRERRUEDA Para la fabricación del asiento, se recurrirá al moldeo por inyección, en la que a través del uso del calor y la presión, se moldean las piezas necesarias. A continuación se hará una descripción detallada de todo el proceso de montaje del asiento: En primer lugar, se introduce el material, polipropileno, junto con los colorantes y estabilizantes, a la unidad de inyección a través de la tolva de alimentación. La función principal de la unidad de inyección es la de fundir, mezclar e inyectar el polímero. Al tratarse del polipropileno, tendrá que alcanzar temperaturas de más de 160º , ya que ésta es su punto de fusión. Este calentamiento se realiza mediante calor y fricción del material con la cámara y el husillo. En todo momento hay que controlar las temperaturas ya que el incremento de la misma disminuye la viscosidad del polímero, y esto puede llegar a ser un problema. A medida que el material va siendo transportado por acción del husillo al otro extremo de la unidad de inyección, la profundidad del canal del husillo va disminuyendo. Así, cada vez existe más presión en la cámara. Cuando el material llega a la zona de dosificación, el husillo retrocede, para dejar pasar al plástico y se acumule en esa zona para ser inyectado. Entonces, se abre la válvula del molde y el husillo hace de émbolo, inyectando el polipropileno a través de la boquilla hacia las cavidades del molde. En este proceso, la presión ejercida se mantiene constante para que las dimensiones de la pieza resulten las adecuadas. Se debe tener en cuenta en el molde la sobredimensión debido a la contracción que sufre la pieza al enfriarse. A continuación, la presión se elimina, y la válvula se cierra. La pieza se termina de enfriar en el molde, y tras este procedimiento, que interrumpe el desarrollo continuo del proceso ya que se prolonga en el tiempo, el molde se abre y se expulsa la pieza moldeada mediante unas barras eyectoras. 11
  • 13.
    Técnicamente, el ciclode inyección se compone de los siguientes tiempos: Tiem po de inyección ( ti) : Es el tiempo necesario para que el material pase de la unidad de inyección a las cavidades en el molde. Este tiempo puede abarcar entre el 5 y el 30% del tiempo de ciclo total. Tiem po de presión de sostenim iento ( tp): En esta etapa lo que se busca es compensar la contracción que sufre el material durante la solidificación, para evitar rechupes y distorsiones pronunciadas de la pieza. Sin embargo, no se justifica mantener la presión de sostenimiento durante todo el tiempo de solidificación de la pieza pues esto hace aumentar el tiempo de ciclo y el gasto de energía. Tiem po de solidificación o de enfriam iento ( ts) : Este tiempo transcurre entre el final de la aplicación de la presión de sostenimiento y el comienzo de la apertura del molde. En este tiempo se debe asegurar que el material ha solidificado y que al extraer la pieza, no se distorsionará. Es el tiempo más largo del ciclo, llegando a alcanzar entre el 50 y el 85% del tiempo total. Tras la eyección de la pieza del molde, se deben tratar las posibles imperfecciones que han podido surgir. Se comprueban las dimensiones y a continuación se pasa al ensamblaje del resto de piezas. 12
  • 14.
    En cuanto alconformado del reposapiés/ cubrerrueda, se procederá de manera similar a la anterior, utilizando la misma unidad de inyección y el molde adecuado para su forma final. Para hacer posible el mecanismo de pliegue del asiento con topes, se fabrican bisagras de compás, que van unidos a los laterales de las piezas de plástico del asiento mediante remaches de cabezas esféricas. A continuación se introduce una barra de acero de 4 mm di diámetro en el eje coincidente entre la pieza superior (que constituiría el respaldo) e inferior del asiento. La función de esta barra es permitir el plegado del asiento restringido a ese eje. Para evitar que esta barra se salga, se pondrán topes de plástico mediante la aplicación de presión en cada extremo de la misma. o PORTABULTOS DE ACERO La estructura de acero del asiento, que irá unida permanentemente a la bicicleta, se realizará mediante fundición con molde permanente. Se ha elegido la fundición, porque por otro método resultaría complicada la fabricación de esta estructura compleja y de secciones no constantes. Se utilizará un molde permanente para permitir la repetitividad y la fabricación en serie. Primero, se funde el acero en horno eléctrico de inducción. Se ha seleccionado un horno de estas características para mayor eficiencia energética y reducción de emisiones. A lo largo de este proceso, se debe controlar la temperatura. Para asegurarse de que el metal haya fundido completamente, se calienta el caldo a más temperatura de su punto de fusión, por lo tanto, se opta por calentarlo a 1400º C, siendo la temperatura de fusión del acero elegido de 1300º C. A continuación, se procede al funcionamiento de la máquina de fundición a presión. Mediante la requerida presión se alcanzan las especificaciones dimensiones deseadas con gran exactitud. Tras este proceso, se eyecta el molde y empieza el enfriamiento de la pieza. El ciclo de enfriamiento es crítico para la adecuación de la pieza final a las especificaciones. En el siguiente gráfico se indican los tiempos y las temperaturas de cada etapa de este ciclo. 13
  • 15.
    Cuando haya pasadoel tiempo requerido para el correcto enfriamiento de la pieza, se eyecta del molde, y se cortarán los bebederos y mazarotas necesitados para la correcta colada de la fundición. Para conseguir las especificaciones dimensionales y superficiales requeridas, se procederá al esmerilado de la pieza. Para comprobar que se han cumplido estas especificaciones, se realizará una inspección mecánica de la pieza. o MONTAJE PORTABULTOS Una vez fabricados el portabultos y el reposapiés/ cubrerrueda, se engancha al perfil del portabultos el reposapiés/ cubrerrueda, mediante las abrazaderas que han sido conformadas en la misma pieza. Este procedimiento se realiza mediante presión y gracias a la elasticidad del polipropileno. Estas abrazaderas se adaptan al perfil del portabultos en cuatro puntos del mismo. 14
  • 16.
    5 . ECODISEÑO: RUEDA DE LI DS 1. Desarrollo de un nuevo concepto: Nuestro producto simplifica claramente la estructura de las sillas para acompañante en bicicletas. Por tanto reduce el peso, además, puede transportarse fácilmente y posee una colocación clara e intuitiva. 2. Selección de materiales: Hemos optado por una utilización de materiales de menor impacto que los empleados actualmente en el mercado. Utilizamos el acero en lugar del aluminio par el portabultos, lo cual disminuye el impacto a la hora de la obtención del material. También posee una altísima reciclabilidad, versatilidad y disponibilidad. No podemos obviar el hecho de la reducción de volumen y dimensiones de nuestro producto, lo que conlleva una reducción considerable de la cantidad de material utilizado. 3. Técnicas para optimizar la producción: Hemos reducido el número de procesos de producción distintos para optimizar las máquinas adquiridas y así reducir tanto la cantidad de emisiones al medio ambiente como el gasto que genera la obtención de maquinaria nueva. Además hemos tenido en cuenta a la hora de realizar el diseño de proyectar las partes de los productos de tal forma que se facilite su manufactura. 0 1 2 3 4 5 1 2 3 45 6 7 Silla portable Silla convencional 15
  • 17.
    4. Optimización delsistema de distribución: Encontramos dos ventajas claras con respecto a otros productos similares del mercado y es que al ser abatible, la distribución se realizará optimizando el espacio de los medios de distribución empleados. Sus reducidas dimensiones y peso lo hacen fácil de transportar y empaquetar. 5. Reducción del impacto durante el uso: Muy similar a los productos existentes, no consumen energía una vez producidos. Además, se incentiva el uso de la bicicleta, un medio de transporte ecológico y sin emisiones 6. Optimización de vida útil: Los materiales utilizados están pensados para aguantar prácticamente todos los cambios ambientales, además no son corrosivos y cuentan con tratamientos superficiales que confieren características más resistentes y por lo tanto, hace al producto más duradero. 7. Optimización del sistema de fin de vida: Las partes independientes de nuestro producto se separan con mucha facilidad, requiriendo sencillamente de una mano adulta que separe el asiento del portabultos. El portabultos se desatornilla de la bici y ambos componentes son 100% reciclables. 16
  • 18.
    6 . PRESUPUESTO 6.1.COSTO DE MATERIALES HOJA DE COSTO DE MATERIALES EII TALLER III Conjunto: Silla Infantil Nº Conjuntos: 1 Ejecutado por: Grupo 2 Fecha: Hoja nº : 1 Pieza Material Plano Nº piezas Dimensiones Mat. bruto Cantidad UM Costo Unitario Importe Marca Designación 1. Portabultos Acero 1045 1 2,7 1 kg 8,4 8,4 2. Cubre ruedas PP 1 0,45 1 kg 0,48 0,48 3. Base asiento PP 1 0,5 1 kg 0,650 0,650 4. Respaldo asiento PP 1 0,5 1 kg 0,650 0,650 5. Varilla Comercial 1 0,139 1 kg 1,16 1,16 6. Cinturón seguridad Comercial 1 - 1 - 12,3 12,3 7. Remaches Comercial 8 - 8 - 0,01 0,08 8. Espuma poliuretano Comercial 1 - 1 - 3,99 3,99 9. Polipiel de PV y Poliamida Comercial 1 - 1 - 1,9 1,9 10. Asa Comercial 1 - 1 - 4,56 4,56 11. Cincha Comercial 2 - 2 - - - 12. Tornillo Hex. M4x25 Comercial 2 - 2 - 0,00001 98 0,00003 96 13. Arandela 4x9 Comercial 2 - 2 - 0,075 0,15 14. Tornillo Hex. M4x16 Comercial 8 - 8 - 0,02 0,16 17
  • 19.
    6 .2 .Mano de obra directa Días reales de trabajo al año Días naturales, Dn 365 Deducciones, D 132 Domingos Sábados Vacaciones Fiestas 52 52 20 8 Días reales, Dr= Dn-D 233 Horas de trabajo efectivas al año. Se establecen anualmente para cada sector industrial o empresa convenio colectivo propio. He= 1800 h. Horas de trabajo efectivas al día. Es el resultado de dividir las horas de trabajo efectivas/ año, He. Jd= He/ Dr= 1800/ 233= 7,73 horas Salario por día. Se calcula calculando el salario base/ día ( Sbd) y plus/ día ( Pd) , y es establecido para cada categoría profesional: Sd= Sbd+ Pd 18
  • 20.
    6 .3 .COSTE M.O.D Concepto(sin c. ocultos) Of. 1º Of. 2ª Of. 3ª Especialista Peón Aprendiz Pinche Salario base/ día Sbd 19,38 18,08 16,96 15,84 15,10 11,18 10,25 Plus/ día Pd 24,67 23,00 21,58 20,16 19,21 14,23 3,04 Salario/ día Sd 44,05 41,08 38,54 36,00 34,31 25,41 23,29 Remuneración anual Ra 18.720 17.460 16.380 15.300 14.580 10.800 9.900 Salario/ hora S 10,40 9,70 9,10 8,50 8,10 6,00 5,50 6 .4 .PUESTOS DE TRABAJO Relación de m aquinarias y operarios que la m anejan PUESTOS DE TRABAJO M.O.D Nº Denominación Características KW 1º 2º 3º Esp. 1. Máquina de fundición a presión Capacidad: 320 kg 7,5 X 2. Horno de fundición Capacidad: 90kg 36 X 3. Tronzadora Doble cabezal 5,2 X 4. Esmeriladora Diámetro disco: 115mm 0,9 X 5. Inyectora PP Proveedor. No instalada 10 x 6. Pistola pulverizadora Capacidad: 0,9 L 0,4 X 7. Máquina estampadora Capacidad: 1250mm 11 X 19
  • 21.
    5.5. CÁLCULO DELCOSTO DE FUNCIONAMIENTO DE CADA PUESTO N Precio euros Amortización, p en años Funcionamiento h/ año Vida prevista h Costo del puesto de trabajo euros/ h Interés Ih Amortización Ah Manten Mh Energía Eh Total f 1. 30.000 24 1.800 43.200 1,67 0,69 0,67 0,57 3,6 2. 25.000 20 1.800 36.000 1,39 0,69 0,55 2,74 5,37 3. 2.100 10 1.800 18.000 0,17 0,12 0,05 0,39 0,73 4. 1.000 11 1.000 11.000 0,1 0,09 0,04 0,07 0,3 5. 8.000 10 1.800 18.000 0,44 0,44 0,18 0,76 1,82 6. 400 12 1.000 12.000 0,04 0,03 0,016 0,03 0,12 Hemos considerado: r= 10% m= 4% , Coste energía kWh= 0,076€, consumo 3kW Fórmulas empleadas: Ih= I/ Hf= (C* r)/ Hf= 30.000* 0,10/ 1.800= 1,67 Ah= A/ Af= (C/ p)/ Hf= 30.000/ 24/ 1.800= 0,69 Mh= C* 0,04/ 1800= 30.000* 0,04/ 18000= 0,67 Eh= kWh* 0,076= 7,5* 0,076= 0,57 Costo total hora (f)= Ih+ Ah+ Mh+ Eh= 1,67+ 0,69+ 0,67+ 0,57= 3,6 6 .6 . Presupuesto industrial Para calcular el presupuesto industrial tenemos que tener en cuenta: - Costo de fabricación (incluido el montaje) - Mano de obra directa (m.o.i) - Cargas sociales (C.S.) - Gastos Generales (G. G.) - Beneficio Industrial (B.I.) - Otros tales como embalaje, transporte e I.V.A… 20
  • 22.
    E.U.P. INGENIERÍA DE PROCESOS RESUMENeuros EFECTUADO: Grupo 2 FECHA: COMPROBADO: FECHA: ESTUDIO Nº Material M.O.D. P. TRABAJO TOTAL Cf PIEZA CA NT FICHA FASE Nº Tf 6 Tm hora s Euros/hora COSTO DE FABRICACIÓN Cf euros Marca PLANO Nº S f MATERI AL M.O.D P. TRABAJO TOTAL 1. 1 13,7 6 9,25 9,27 8,9 125,83 126,11 260,84 2. 1 0,45 6,69 2,12 0,48 3,01 0,95 4,44 3. 1 2,16 6,69 2,12 1,3 14,45 4,58 20,33 4. 1 0,57 9,20 0,66 1,16 5,24 0,37 6,77 5. Comercial 8 0,16 0,16 6. Comercial 1 12,3 12,3 7. Comercial 8 0,08 0,08 8. Comercial 1 3,99 3,99 9. Comercial 1 1,9 1,9 10. Comercial 1 4,56 4,56 11. Comercial 2 3,95 3,95 12. Comercial 2 0,00003 96 0,0000396 13. Comercial 2 0,15 0,15 Total 38,93 148,53 132,01 319,47 21
  • 23.
    PRESUPUESTO INDUSTRIAL EII TALLERIII CONJUNTO: asiento infantil Cliente Nº conjuntos 1 EFECTUADO POR: GRUPO 2 FECHA: CONCEPTO DESCRIPCIÓN IMPORTE (EUROS) 1. COSTO DE FABRICACIÓN Cf= mat+MOD+PT MATERIAL 38,93 319,47 MANO DE OBRA, MOD 148,53 PUESTO DE TRABAJO 132,01 2. MANO DE OBRA INDIRECTA, MOI 53,53 3. CARGAS SOCIALES, CS 74,95 4. GASTOS GENERALES, GG 69,81 5. COSTO TOTAL EN FÁBRICA, Ct 517,76 6. BENEFICIO INDUSTRIALL, B 50,53 7. PRECIO DE VENTA EN FÁBRICA DEL PEDIDO: 70.000 UNITARIO: 370 22
  • 24.
    7 . NORMATIVA Para el desarrollo de la idea hemos tenido que tener en cuenta una serie de normativa que nos afectaba directamente o UNE-EN 14344-> Asientos de niños para bicicletas: Requisitos de seguridad y métodos de ensayos A partir de esta tabla hemos ido definiendo las dimensiones que tenía que tener nuestro asiento para cumplir con la norma, mirando la columna A22, que es la que afecta a los asientos traseros. Atendiendo a esta normativa nuestro producto establece las siguientes características que se especifican a continuación: - Todos los bordes, esquinas o salientes deben cumplir con unos radios mínimos para evitar posibles accidentes mediante un golpe. - Hemos cumplido todos los requisitos generales de fijación para asientos en las bicicletas, como por ejemplo: -Para evitar que el asiento se suelte libremente , el mecanismo de bloqueo debe requerir de dos mecanismos de bloqueo independientes que sean accionados simultáneamente -Como estamos diseñando un asiento trasero, deberá ir fijado al portaequipajes para que limite el movimiento hacia atrás del asiento. 23
  • 25.
    - El asientodeberá incluir cinturón ajustable que mantengan al niño en una posición fija y segura al asiento, para ello lo mejor es que vayan sujetos por los hombros y la entrepierna. - Para garantizar la total seguridad, hay que evitar que el niño introduzca los pies entre los radios de las ruedas. Para ello incluiremos unos protectores que cubran la rueda trasera. - Como el asiento hay que montarlo incluiremos manual de instrucciones para que todo se ejecute correctamente y no se produzcan ningún improvisto. o Norma UNE-EN 14872-> Accesorios para bicicletas: portaequipajes Según esta norma nuestro portabultos se definiría como "un soporte trasero normal". En función de esta normativa podemos decir que el portabultos cumple con los requisitos establecidos, a destacar: - Todos los tornillos que hemos empleado en el portabultos van provistos de dispositivos de bloqueo. - Todas las aristas están redondeadas para evitar cualquier posible corte o accidente que pueda dañar la vida del ciclista. - Va provisto de señalización. - El portaequipajes va marcado con el peso que soporta, el nombre del fabricante y la normativa europea que cumple. - Manual de instrucciones. 24
  • 26.
    8 . EMBALAJE Lostres elementos principales de nuestro diseño son, en orden de imágenes, el portabultos con los sistemas de anclaje a la bicicleta, el cubrerruedas que sirve de apoyo a los pies del niño y el asiento desmontable. Para facilitar el embalaje y transporte de los elementos diseñados hemos localizado una empresa especializada en el diseño y fabricación de packaging. La empresa es ROVIDAE EMBALAJES S.L, que tiene su sede en Madrid y se encargaría de la elaboración de un embalado en cajas de cartón corrugado con las debidas protecciones en poliestireno expandido de todos los elementos, evitando así su posible daño. 25
  • 27.
    El equipo dediseño ha planteado un ejemplo de disposición en la que se consigue aprovechar el espacio en gran medida. Pero consideramos que la propia empresa en la que delegamos la elaboración de este empaquetado, plateará la solución más acertada. La caja no sólo contendrá los tres elementos arriba mencionados, sino que además incluirá unas bolsitas con la tornillería normalizada que se utiliza para anclar el portabultos a la bicicleta y un manual de instrucciones con las recomendaciones de montaje, uso, mantenimiento y plan de fin de vida. 26
  • 28.
  • 29.
  • 30.
    1 0 .BI BLI OGRAFÍ A http: / / biobike.es/ tienda/ silla-trasera-gmg-35-kgs http: / / www.ciclotraveling.com/ cicloturismo-con-ninos-i-como-llevarlos/ http: / / www.bicitecla.com/ tienda/ producto/ 134-GMG-YEPP-Maxi-trasera file: / / / C: / Users/ ALMUNO/ Downloads/ Dialnet- EstudioAntropometricoParaElDisenoDeMobiliarioParaN-4835614.pdf http: / / www.mead-johnson.com.mx/ todo-sobre-tu-bebe/ desarrollo-del- bebe-3-a-5-anos.aspx http: / / www.deporvillage.com/ silla-infantil-hamax-kiss-trasera-gris-verde http: / / www.sumiteccr.com/ Aplicaciones/ Articulos/ pdfs/ AISI% 201045.pdf http: / / www.grupocopo.com/ futuretense_cs/ Archivo/ P8-9.pdf http: / / www.solostocks.com/ venta-productos/ otra-ropa/ stock-de-polipiel- 6584030 http: / / www.jq.com.ar/ Imagenes/ Productos/ PVC/ PVCprop/ propiedades.htm http: / / www.stilbox.es/ spa/ item/ 270103.html http: / / www.goodfellow.com/ catalogue/ GFCat4.php?ewd_token= ii0QQ6mGG EHFzEKol7um9fAta1ARtE&n= tXP97RXDss4Sx1E0yh9Agh5EkBahww Norma española 29
  • 31.
    ANEJO I : Diagrama de GANTT 30
  • 34.
    Raquel Juárez, Marta Mancebo,Claudia Ochagavías, Elisa Pérez, Patricia Sinobas, Jenny Smith 101 5 5 R 2.25 R 3R 179.52 R 154.25 R 25 17 3 R 87 208.2 4 9.52 5.96 21.5 5 R 3R 196.25 323.67 265.45 315.12 386.04 39.12 R 26.47 R 80 240 345.4 25 134.89 143.4 10 10R 15 364.2 32.52 143.09 FECHA: Enero-2015 N PLANO: ESCALA: PLANO: PROMOTOR: UVA SEATCASE Grado en Diseño Industrial UNIVERSIDAD DE VALLADOLID ESCUELA DE INGENIERÍAS INDUSTRIALES Convocatoria: 1ª SAP IENTIA E D ICAVIT FI S IBI DOM V M AREA I.P.F. PROYECTOS TÉCNICOS 1:5 BASE ASIENTO 2/4
  • 35.
    Raquel Juárez, Marta Mancebo,Claudia Ochagavías, Elisa Pérez, Patricia Sinobas, Jenny Smith 23.1 R 73R 74.3 R 5 122.4 58.1 83.616.9 R 7.9R 76.5 29.1 246 603.7R 414.6R 314.5 40 25 R 21.5 R 10 R 393R 393R 5.1 R 25 31 8R 8 R 5 R 31.4 68.3R 84.8 R 79.2 R 30.6 20 36.4 28.3 69.6 129.6 54.8 60 20 239.1 187.4 10.5 FECHA: Enero-2015 N PLANO: ESCALA: PLANO: PROMOTOR: UVA SEATCASE Grado en Diseño Industrial UNIVERSIDAD DE VALLADOLID ESCUELA DE INGENIERÍAS INDUSTRIALES Convocatoria: 1ª SAP IENTIA E D ICAVIT FI S IBI DOM V M AREA I.P.F. PROYECTOS TÉCNICOS 1:5 CUBRE RUEDAS 3/4
  • 36.
    Raquel Juárez, Marta Mancebo,Claudia Ochagavías, Elisa Pérez, Patricia Sinobas, Jenny Smith 193.2 2449.7R 1056.6R 2147.2R 722.4R 7 177.3 3.1 R 185.4 401.6 28.4 R 3.4 R 25 25 344.8 128.6 196.4 16 A A 16 16 5 R 8 R 25 25 20.3 R 4.5 R 376.6 202.2 43.1 383 788.8 R 456 R 551.2R 436 R 2.9 R FECHA: Enero-2015 4/4 N PLANO: ESCALA: PLANO: PROMOTOR: UVA SEATCASE PORTABULTOS Grado en Diseño Industrial UNIVERSIDAD DE VALLADOLID ESCUELA DE INGENIERÍAS INDUSTRIALES Convocatoria: 1ª SAP IENTIA E D ICAVIT FI S IBI DOM V M AREA I.P.F. PROYECTOS TÉCNICOS 1:5
  • 37.
    Raquel Juárez, Marta Mancebo,Claudia Ochagavías, Elisa Pérez, Patricia Sinobas, Jenny Smith 80 240 328.3 345.4 315.4 40 R 265.4 30 R 50 R 79 215.4 285.4 15 47.5 R 9 152.2 R 177.7 R 311.1 170.9 39.5 337.5 10 4.5 140.14 FECHA: Enero-2015 1/4 N PLANO: ESCALA: PLANO: PROMOTOR: UVA SEATCASE RESPALDO ASIENTO Grado en Diseño Industrial UNIVERSIDAD DE VALLADOLID ESCUELA DE INGENIERÍAS INDUSTRIALES Convocatoria: 1ª SAP IENTIA E D ICAVIT FI S IBI DOM V M AREA I.P.F. PROYECTOS TÉCNICOS 1:5