2014
Gianfranco Ottazzi Pasino
i APUNTES DEL CURSO
ANÁLISIS ESTRUCTURAL I
PONTIFICIA
UN IV,ERSIDAD
CATOJ.ICA
DEL PERU
FACULTAD DE
CIENCIAS E INGENIERíA
DEPARTAMENTO DE
INGENIERíA
SECCiÓN INGENIERíA CIVIL
,)
-,
)
)
);,
. , "
.; )
. ;
i )
¡ )
[4
t )
J ,--),
¡ )
; ;
1 ~¡ )
1 ¡ J
¡ )
¡ ,,
I )
1 ),
I
¡ )
j
j
-)
~
}
)
)
)
~
- ?JI
¡
i ?i )

~
,)
)
f
-" )
I
)
I
1)
J .
..
e
(
f
e
e
e
e
G
~
e
G
e
(
(
(
e
e
(
(
(
(
(
(
(
b
e
r
(
(
(
(
e(;
(
(,)
('
1.,
L··
c.
(_)
C;
()
t1
G
(W
€>
2014
i
)
~---._-_.-- -.--...- -------..-.-------
OCTAVA EDICiÓN
Gianfranco Ottazzi Pasino
-APUNTES DEL CURSO
ANÁLISIS ESTRUCTURAL I
PONTIFICIA
UNIV.ERSIDAD
CATO~ICA
DEL PERU
FACULTAD DE
CIENCIAS E INGENIERíA
DEPARTAMENTO DE
INGENIERfA
SECCiÓN INGENIERfA CIVIL
}
~
}'
,
),
¡
)~
~ ),
J
.....
)
J _j
¡
1 ~
~ ")
~
¡ )
j 1
",-
-
t
1
!
!¡
~
t
J
)
_)
)
J
)
)
.)
,)
:J
>
--)
)
=i
I
1,
'}
,'1
r
(
e
(
<'
(,
(
(,
(
(
(
~
r
(-:
(
e
t
e
é
(_
(.
(
(
C
l
(
(
(
(
t
e
~.
(~,
f·
i.--
r-,
). .
(
.,r:
76
78
79
72
73
73
40
45
14
14
10
11
3
5
5
6
7
8
Capítulo 3 Indet erminación Cinemática
3.1 Número de Grados de Libertad de una Estructura
3.2 Armaduras Planas - 20
3.3 Vigas 20
Capítulo 1 Introducción
1.1 Breve Historia del Análisis Estructural
1.2 El Análisis Matricial
1.3 El Objetivo de los Métodos Matriciales
1.4 ¿Qué es un Computador?
1.4.1 El Computador y el Análisis Matricial
1.5 El Ingeniero, El Análisis Matricial y el Computador
1.6 Estructuras (algunas definiciones)
1.6.1 Definición General de una Estructuras
1.6.2 Función de una Estructura
1.6.3 Los Edificios son el Resultado del Ensamblaje de Diversos Sistemas
1.6.4 Sistema Estructural de un Edificio de Concreto Armado
1.6.5 Definición de Estructura para un Ingeniero Estructural
1.6.6 Definición de Estructuras para Análisis Estructural 1
1.7 Objetivo del Análisis Estructural
1.8 Objetivo del Diseño Estructural
1.8.1 Etapas del Proyecto Estructural
1.8.1,a Ejemplo de un Plano de Estructuras
1.9 Elementos Estructurales y No Estructurales
1.10 Modelos (idealización) de las Estructuras
1.10.1 Algunos Modelos de Estructuras Simples
1.10.2 Otro Modelo Simple de una Estructura Plana
1.10.3 Algunos Modelos 3-D de Edificios
1.10.4 Conversión de un Modelo 3-D a un Modelo de Pórticos Planos 2-D
1.10.5 otro Caso de Modelo 3-0 a un Modelo de Pórticos Planos 2-D
1.10.6 Otro Caso de Modelo 3-0 a un Modelo de Pórticos Planos 2-D
1.10.7 Algunos Modelos 3-D de Estructuras
1.10.8 Pórtico 2-D (plano) con Muros de Corte o Placas de Concreto Armado
1.10.9 Clasificación de las Estructuras
1.10.1.0 Grandes Grupos en la Clasificación de las Estructuras
1.10.11 Nudos de Pórticos
Capítulo 2 Basesdel Análisis Estructural
2.1 Bases del Análisis Estructural
2.2 Hipótesis Básicas del Análisis Estructural
2.2.1 Primera Hipótesis Básica - Desplazamientos Pequeños
2.2.1.a Algunos Ejemplos de No Linealidad Geométrica
2.2.2 Segunda Hipótesis Básica - Equilibrio Estático
2.2.3 Tercera Hipótesis Básica - Compatibilidad
2.2.4 Cuarta Hipótesis Básica - Condiciones de Contorno
2.2.5 Quinta Hipótesis Básica - Unicidad de las Soluciones
2.2.6 Sexta Hipótesis Básica - Comportamiento Elástico Uneal
2.2.6.a Fuentes de No linealidad en una Estructura
2.2.7 Sétima Hipótesis Básica - Principio de Superposición
2.2.7.a Superposición de Fuerzas
2.2.7.b Método de Flexibilidad
2.2.7.c Superposición de Desplazamientos
2.2.7.d Método de Rigidez
2.3 Principio de las Fuerzas Virtuales
2.4 Principio de los Desplazamientos Virtuales
2.5 Teorema de Betti
INOleE
,
j
)
_)
)
)
t
)
I
,
)
-)
j
)
-}
)
~
i
J
J
-J
)
,J
)
, )
I _)
)
J _j
!¡
j
~
"
)
}
)
)
3.4 Pórticos Planos 2D 79
3.4.1 Pórticos Planos Ortogonales
3.4.2 Pórticos Planos No Ortogonales
3.5 Pórticos Espaciales 3D 87
3.6 Estructuras Simétricas 88
3.6.1 Tipos de Simetría
3.6.1.1 Simetrfa Respecto a un Eje
3.6.1.2 Simetría Respecto a un Punto
3.6.1.3 Simetrfa Respecto a un Plano
3.7 Estructuras Simétricas Cargadas Simétricamente 89
3.7.1 Condiciones de Contorno en el Plano (eje) de Simetrla. Carga Simétrica
3.8 Estructuras Simétricas con Carga Antisimétrica 95
3.8.1 Condiciones de Contorno en el Plano (eje) de Simetrfa. Carga Antislmétrica 83
3.9 Simetrra Respecto a un Punto 98
3.10 Simetrfa de Armaduras 99
3.11 Simetrla en Parrillas 100
3.12 Simetrra en Pórticos Espaciales 101
3.13 Descomposición en Carga Simétrica y Antisimétrica 102
3.14 Ejemplo de Simetrfa y Antisimetrra en un Pórtico Plano 103
Caprtulo 4 Ritrldecesde Barra
4.1 Coeficientes de Rigidez de Barra 109
4.2 Barras Tipo Armadura 109
4.3 Barras Tipo Viga o Columna - Rigidez al Giro 111
4.4 Barras Tipo Viga o Columna - Rigidez al Giro Modificada 114
4.5 Barras Tipo Viga o Columna - Rigidez en Traslación 116
4.6 Barras con Brazos Rígidos - Rigidez al Giro 117
4.7 Barras con Rótulas Internas 118
4.8 Barras Quebradas 121
4.9 Elementos de Sección Variable 122
4.9.1 Relación entre los Coeficientes de Rigidez de Barras de Sección Variable
4.9.2 Coeficientes de Rigidez de Barras de Sección Variable
4.9.3 Rigidez al Giro Modificada
4.9.4 Coeficientes de Rigidez - Barras con Desplazamiento Relativo
4.9.5 Rigidez para Barras con Empotramiento Deslizante
4.9.6 Momento~"de Empotramiento en Barras de Sección Variable
4.9.7 Momento de Empotramiento en Barras de Sección Variable - Extremo Articulado
4.9.8 Momentos de Empotramiento en Barras de Sección Variable .... Extremo
Empotramiento Deslizante
4.10 Influencia de las Deformaciones por Fuerza Cortante 132
4.10.1 Factor de Forma de una Sección
4.10.2 Ejemplo de la Influencia de la Fuerza Cortante
4.10.3 Matriz de Rigidez de una Barra con Deformaciones por Corte
4.10.4 Factores de Transporte en Barras con Deformaciones por Corte
4.10.5 Variación de los Coeficientes de Rigidez - Barras de Sección Constante con
Deformaciones por Corte
4.10.6 Rigidez al Giro Modificada de una Barra con Deformaciones por Corte
4.10.7 Momentos de Empotramiento con Deformaciones por Corte
4.11 Resumen de los Casos más Comunes - Coeficientes de Rigidez Vigas de Sección
Constante sin Deformaciones por Cortante . 140
4.1~Resumen de los Casos más Comunes - Momentos de Empotramiento en Vigas de
reCCión Constante sin Deformaciones por Cortante 141
Capítulo S Ecuaciones de Pendiente - Deflexión
5.1 Introducción 144
5.2 Ecuaciones de Pendiente - Deflexiones. Barras sin Desplazamiento Relativo de los
I Extremos 144
5.3 Solución de Estructuras Utilizando las Ecuaciones de Pendiente - Deflexión 145
-'11
<:::J
(~
,jf)
-::')
)
)
)
')
)
)
)
)
)
)
)
_)
1
)
)
--:)
)
~
)
)
)
,)
)
)
)
')
,)
)
)
)
,.)
~
,)
.,:)
)
,)
,)
J
II
271
272
272
273
275
293
294
305
309
316
318
234
250
252
255
267
270
270
226
229
198
200
209
210
220
171
163
163
163
167
Capitulo 7 FormulAción Matricial del Método de Rigidez
7.1 Introducción
7.2 Expresiones del Trabajo Real y del Trabajo Complementario
7.3 Matriz de Transformación de Desplazamientos
7.4 Ensamblaje de la Matriz de Rigidez
7.5 Principio de Contragradiencia
7.6 Ensamblaje del Vector de Cargas en Nudos
7.7 Etapas de la Formulación Matricial del Método de Rigidez
7.8 Sistematización Parcial del Ensamblaje de la Matriz de Rigidez
7.8.1 Resumen del Procedimiento
7.9 Transformación de Coordenadas
7.10 Matrices de Rigidez de Barra en Sistema Global
7.11 Condensación de la Matriz de Rigidez
7.11.1 Desplazamientos Impuestos en algunas de las Coordenadas
7.11.2 Cargas Nulas en algunas de las Coordenadas
111
5.4 Ecuaciones de Pendiente - Deflexión. Barras con Desplazamiento Relativo de los
Extremos 148
5.5 Modificación de las Ecuaciones de Pendiente - Deflexión 149
5.6 Estructuras con Desplazamiento Lateral 154
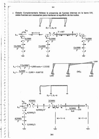
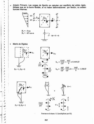
5.7 Estado Primario y Complementario 160
Capitulo 6 Método de Ril!idez
6.1 Introducción
6.2 Etapas del Método de Rigidez
6.3 Ejemplos Introductorios al Método de Rigidez
6.4 Propiedades de la Matriz de Rigidez
6.4.1 La Matriz de Rigidez es Simétrica
6.4.2 Los Términos de la Diagonal Principal (kii) son Positivos
6.4.3 El Producto de las Matrices de Rigidez y Flexibilidad es la Matriz Unitaria
6.4.4 La Matriz de Rigidez es Definida Positiva
6.4.5 Relación entre la Energía Interna y los Coeficientes de Rigidez
6.4.6 La Matriz de Rigidez No Depende del Sistema de Cargas
6.4.7 El Ensamblaje de la Matriz de Rigidez es Fácil de Sistematizar
6.5 Cargas en Barras
6.5.1- Estado Primario y Estado Complementario
6.5.1.a Estado Primario (cargas de fijación)
6.5.1.b Estado Complementario
6.6 Relaciones entre [F] y [K]
6.7 Elementos con Discontinuidades - Reducción de Coordenadas
6.8 Fuerzas de Empotramiento en Elementos Inclinados
6.9 Pórticos Planos con Elementos Inclinados -
6.10 Pórticos Planos Sujetos a Cargas Laterales
6.10.1 Matriz de Flexibilidad Lateral de Pórticos Planos
6.10.2 Matriz de Rigidez lateral de Pórticos Planos
6.11 Efecto del Desplazamiento o Movimiento de Apoyos
6.12 Efecto de los Cambios de Temperatura
6.12.1 Cambio uniformes de Temperatura
6.12.2 Gradientes de Temperatura
6.13 Parrillas
6.14 Deformaciones por Cortante
6.15 Estructuras con Elementos de Sección Variable
6.16 Estructuras con Elementos Indeformables
6.17 Estructuras Espaciales
6.18 Análisis para Diversos Casos o Estados de Carga
6.19 Ámbito de Aplicación del Método de Rigidez
)
_)
)
_}
~
J
J
)
)
)
)
)
J
-j
_)
_.,)
)
=J
.)
d
~
)
-1
,
¡
j
I
Ii
r
i
Nociones de Álgebra MatricialAnexo2
Tablas de Rigideces de Barras de Sección VariableAnexo 1
Capítulo 9 Lineas de Influencia (Cargas'Móviles)
Capítulo en construcción
Capítulo 8. Método de Cross
8.1 Introducción
8.2 Algunas Ideas Centrales del Método de Cross
8.3 Ejemplo de Introducción al Método de Cross
8.4 Definiciones Preliminares en el Método de Cross
8.5 Método de Cross Liberación de Nudo por Nudo
8.6 Método de eross Liberación Simultánea de Nudos
8.7 Pórticos sin Desplazamientos Laterales
8.8 Elementos con Discontinuidades - Reducción de Coordenadas
8.9 Movimientos de Apoyo
8.10 Vigas de Sección Variable
8.11 Estructuras con Desplazamiento (Traslación) de Nudos
8.11.1 Método de Cross Indirecto
8.12 Consideraciones Finales
,)
,:),.,
•2
328 )
329 )
329 ')
333
335 ')
337 )
341
)348
354 )
357 )
365
)
379 )
)
380
)
)
)
)
-7
)
-2)
)
)
)
)
_)
)
)
)
)
)
)
)
,)
-3
)
~
::}
)
')
.)
:)
_-)
)
.
-,)
,~
N
1
4) Análisis de Estructuras - Métodos Clásico y Matricial. McCormac - Nelson.
Segunda Edición. Alfaomega.
- Capitulo 1. Introducción.
- Capítulo 4. Reacciones.
- Capitulo 9. Líneas de Influencia.
- Capítulo 11. Deflexiones y rotaciones: métodos de energía.
- Capítulo 16. Pendiente - Deñexión: un método de análisis por desplazamientos.
5) Structural Analysis - A Unified Classical and Matrix Approach. Ghali - Neville.
Cuarta Edición. E&FN Spon.
- Capítulo 2. Introduction to the analysis of statically indetermínate structures
- Capitulo 4. Displacement method of analysis.
- Capítulo 15. Analysis of Shear - Walls structures.
- Capítulo 22. Computer analysis of framed structures.
- Capítulo 23. Implementation of computer analysis.
3) Teoría Elemental de Estructuras. Yuan-Yu Hsieh. Prentice Hall.
- Capitulo 6. Lineas de influencia para estructuras estáticamente determinadas.
- Capítulo 7. Cargas concentradas móviles: Criterios para los valores máximos.
- Capítulo 9. Análisis de estructuras estáticamente indeterminadas por el Método de las
Deformaciones Compatibles (Método de Flexibilidad).
Volumen 2
- Capítulo 8. La esencia del análisis estructural.
- Capítulo 14. Distribución de momentos una introducción al Método de Rigidez.
2) Ingenierla Estructural. White, Gergely Sexsmith. Limusa.
Volumen 1
- Capítulo 1. La evoluci6n de una estructura.
- Capitulo 2. Los objetivos del diseño estructural.
- Capitulo 3. Cargas.
- Capltulo 4. Forma estructural.
- Capitulo 5. Introducción al análisis estructural.
- Capítulo 7. Análisis aproximado de estructuras estáticamente indeterminadas.
1) Anexo 2 de estos apuntes. Nociones de Algebra Matricial, tomado del libro Análisis
Estructural, Jeffrey P. Laible, McGraw HiII.
Lecturas obligatorias:
Las lecturas que se señalan a continuación, complementan los aspectos teóricos y
prácticos de varios de los temas que serán cubiertos durante el desarrollo del curso.
Estas lecturas son de carácter obligatorio y pueden formar parte de la evaluación tanto
en las prácticas como en los exámenes.
~
;)
,)
j
J
)
)
)
)
)
)
I
j
,
--i
1
~
)
="1
)
)
¡
1

...;
~
)
.~
t
,
)
j
J
_)
)
j _)
r.
)
)
i
,)
J
}
)
!
,
}
t
i}
~
~
9
-)
)
)
)
)
')
)
)
)
)
_)
~)
')
')
)
---J
)
""1
)
)
)
)
)
)
.)
)
")
)
)
)
)
:j
)
..,
~
.)
J
.)
.)
.;3
)
.)
:)
.:)
_)
2
Bibliografía
- Ingeniería Estructural (Volúmenes 1 y 2). White, Gergely, Sexsmith. Limusa.
- Structural Analysis. A Unified Classical and Matrix Approach. Ghali - Neville.
Cuarta Edición. E&FN SPON.
- Análisis Estructural. Jeffrey P. Laible. Mc Graw HiII.
- Análisis de Estructuras. H.H. West. CECSA.
- Teoria Elemental de Estructuras. Yuan-Yu Hsieh. Prentice Hall.
- Análisis de Edificios. Angel San Bartolomé. Fondo Editorial PUCP.
- Análisis de Estructuras - Métodos Clásico y Matricial. McCormac - Nelson...
Segunda Edición. Alfaomega.
- Structural Análisis. R.e. Hibbeler. Cuarta Edición. Prentíce Hall.
El Contenido del Curso
Introducción, Sistemas Estructurales.
Principios Fundamentales de Análisis Estructural.
Determinación Cinemática de las estructuras. Grados de Libertad.
- Ecuaciones de Pendiente - Deflexión.
- Método de Rigidez.
- Método de Cross.
Cargas Móviles. Lineas de Influencia.
- Sistematización del Método de Rigidez.
Los ObLetivos del Curso
1. Entender las nociones fundamentales del análisis estructural.
2. Entender el comportamiento (respuesta) bajo solicitaciones estáticas de las
estructuras simples de barras linealmente elásticas.
3. Aprender a analizar estructuras de barras por el Método de Rigidez
(desplazamientos).
4. Aprender el Método de Cross o de Distribución de Momentos.
5. Aprender el concepto y la construcción de las Uneas de Influencia (Cargas Móviles).
6. Mostrar las bases o. fundamentos sobre los cuales funcionan los programas de
análisis automático de estructuras. Sistematización del Método de Rigidez.
¿Qué se estudia en el curso?
Se estudian los principales métodos para el análisis de estructuras simples, conformadas
por el ensamblaje de barras linealmente elásticas. Se hace énfasis en el comportamiento
(respuesta) bajo solicitaciones estáticas de este tipo de estructuras.
Curso de Análisis Estructurall
2
3
La historia del análisis estructural comienza mucho antes de la era antigua de los
Egipcios, Romanos y Griegos. Aunque no se consiguen escritos sobre los principios del
análisis de estructuras desde esa época, las ruinas actuales indican que ciertos
principios de la estática y del análisis estructural fueron conocidos por sus constructores.
Por ejemplo, Arqutmedes- (287-212 A.C.) introdujo el concepto de centro de gravedad y
llevó a su más simple expresión los principios fundamentales de la estática y el equilibrio.
Escritos sobre el análisis estructural se han encontrado solamente- después del
RenaCimiento. La tendencia histórica del análisis estructural después del Renacimiento,
puede dividirse en las siguientes etapas o eras:
a) La Era de los Grandes Maestros
Esta es la era de Leonardo de Vinci (1452-1519), Galileo Galilei (1564-1642), Fontana
(1543-1607), y Mimar Sinan (1490-1588), quienes tuvieron gran sentido ñslco acerca de
las estructuras y sus éxitos se basaron en sus talentos innatos. Son dignos de mención
los trabajos de Leonardo (introdujo los conceptos de fuerza y de momento) y el libro de
Galileo "Dos Nuevas Ciencias" acerca de la teorfa de la viga en voladizo.
b) La Era de los Grandes Matemáticos
En esta era los matemáticos, lo mismo que muchos otros, mostraron interés en la
mecánica estructural. Hombres como Hooke (1635-1703), Johann Bernoulli (1667-
1748), Daniel Bernoulli (1700-1782), Euler (1707-1783), y Lagrange (1736-1813)
establecieron los principios fundamentales de energía, la relación entre esfuerzos y
deformaciones, las ecuaciones diferenciales de deformaciones y sus soluciones.
Su interés fue más bien en la teoría matemática de la elasticidad y sus hallazgos, tales
como la ley de esfuerzo - deformación de Hooke, la ecuación de las barras vibrantes de
Bernoulli, el pandeo de columnas de Euler y las ecuaciones de flexión de placas de
Lagrange, contribuyeron sin duda al desarrollo de la teoría de las estructuras.
e) La Era de los Grandes Ingenieros
Esta era puede considerarse como la edad de oro de la ingeniería estructural. Hombres
tales como Navier (1785-1836), Saint-Venant (1797-1886), Clapeyron (1799-1864), Airy
(1801-1892), Maxwell (1831-1879), Castigliano (1847-1884), Mohr (1835-1918), y Muller-
Breslau (1851-1925) utilizaron exitosamente las teorías matemáticas desarrolladas en la
era anterior para la solución de algunos problemas estructurales.
Ellos deben considerarse más como ingenieros que como matemáticos, aunque sus
conocimientos en las ciencias matemáticas fueron sobresalientes. Sus descubrimientos
y teoremas fueron la base para el desarrollo de la teoría de las estructuras en la era
moderna .
1.1 Breve Historia del análisis Estructural
Adaptado de las siguientes referencias:
1) Introducción al Análisis Estructural con Matrices. Hayrettin Kardestuncer. McGraw
HiII.
2) Structural Engineering. White, Gergely¡ Sexsmith. Wiley.
3) Stuctural Analisis. A Unified Classical and Matrix Approach. Ghali, Neville. Intext
Educational Publishers.
4) Métodos Matriciales para Cálculo de Estructuras. R. K. Livesley. Blume.
CAPITULO 1 -Introducción
3
; ..;:,_,_ -..,;'; .'.: :...."_.:. '-- ~
")
')
-)
)
)
)
o:}
~
I
)
)
')
_)
)
-,
-j
~
J
~
.J
)
.;
~
:)
j
¡
1
1
¡ )
~. ~
I -)
)
j ~
¡
¡
r,
I )
)
)
¡
1
(,
-1
)
)
)
')
)
)
)
)
)
)
~
')
)
)
)
-j
)
4
)
)
)
)
)
)
)
J
)
)
)
)
.)
~
")
,.,
;)
")
J
-;l
j
_)
)
._)
~
i~D
J
d) La Era Moderna
A principiosdel sigloXX hombrescomo G.A. Maney,H. Cross,R.W.Southwelly G. Kani
comprendieronque eran necesariosmétodosmás prácticospara analizarlas estructuras
indeterminadas. Ellos introdujeron, respectivamente, los métodos de pendiente -
deflexión (1915), distribución de momentos (1932), relajacióny distribución de fuerza
cortante.
Cada uno de estos métodos parte de un conjuntode hipótesispara obtener soluciones
aproximadas, de los problemas estructurales, que para las herramientas da cálculo
disponiblesen esos años, se considerabancomplejos. Estosmétodos,que simplificanel
cálculo, llegaron a ser muy utilizadosen las oficinas de ingeniarla (aún hoy en dla se
sigue utilizandoel Métodode Crossen las oficinas de diseño)debido a su simplicidady
adaptabilidadpara loscálculosmanuales.
En 1922, K.A. Cafisev publicó un artículo que describia un método de aproximaciones
sucesivas para el análisis de estructuras reticulares, en el que se detennlnan las
rotaciones de los nudos de una estructura por aproximacionessucesivas. De esta
manera los sistemas de numerosas ecuaciones se pueden resolver con cálculos
manuales. Puededecirseque esté métodofue el predecesordel Métodode Cross.
El análisis de las estructuras indeterminadasrecibió un gran impulsoen 1930, año en
que el profesor Hardy Cross de la Universidad de IlIinois, presentó su método de
distribución de momentos. El hecho de que el artículo escrito por Cross constaba de
diez páginas y que iba seguidode una discusiónde 146páginas, Ilustrael gran interés
que produjo dicho artículo. El interés suscitado por el artículo es una indicación del
Impactoque el métodode Crosstuvo en el análisisde lasestructurasindeterminadas.
e) La Era Contemporánea
Hacia la mitad del siglo XX fueron desarrolladospoderososequipos de cálculo, tales
como computadores analógicos y digitales, y los ingenieros fueron impulsados a
establecer métodos que requirieran menos suposiciones y restricciones en el
planteamiento de los problemas, logrando mejores resultados. Fue introducido el
llamado MétodoMatricialde análisisde estructuras.
las ideas en el método matricial no son nuevas; están muy ligadas con los principios
establecidos por Castigliano, Maxwell y Muller-Breslau. La única razón.para que el
método no fuera completamentedesarrolladoy utilizado,se debe a que ésta conlleva la
solución de numerosas ecuaciones simultáneas. Aún para una pequeña y sencilla
estructura, el número de ecuaciones simultáneas podría ser tal que su solución sin
computador,serfasumamentelaboriosa.
Es difícil decir quiénfue el primeroen introducirlos métodosmatricialesen el análisis de
las estructuras. Desdeluego, ningunosurgecon la seguridadde Castiglianoo de Hardy
Cross en otros métodos. Como en otras innovaciones, las mismas ideas parecen
habérseleocurridosimultáneamentea diferentesautores.
Al aparecer los computadoresse crearon de inmediato métodosde análisis adecuados
para el cálculo en computador; el más usado de ellos es el método directo de las
rigideces,creadoen la décadade 1950.
Al princlpio de dichadécada, SamuelLevysugirióalgunas de las ventajasdel métodode
rigidez (desplazamlentos), usando coeficientes de influencia para el análisis de las
estructuras de los aviones. Al mismotiempo,varios investigadoresestaban elaborando
una variedad de métodos para el análisis con base en métodos matriciales, con el
objetivo de aprovecharla capacidadde los computadores. Este confuso conjunto de
métodos se consolidó con el tiempo. En 1954 Turner, Clough, Martin y Topp
presentaron el primertratamientodel métododirecto de las rigideces;demostraronque
4
4
5
1.3 El Objetivo de los Métodos Matriciales
Excepto en algunas estructuras simples, los valores de los esfuerzos internos y
movimientos de los nudos, no pueden hallarse exclusivamente sustituyendo números en
fórmulas algebraicas conocidas.
Se requieren cálculos más complejos, y en muchos casos el ingeniero se encuentra con
una amplia gama de posibles procedimientos. La elección del método a seguir está
normalmente condicionada, en parte, por el grado de aproximación requerido, y, en
parte, por su práctica y sus preferencias. Cuando compara métodos que son igualmente
precisos, la elección suele basarse en dos consideraciones: el trabajo numérico que
llevan eónsigo y la facilidad con que puedan detectarse y rectificarse los posibles errores.
En general, dará preferencia a un método en el que pueda hacer uso de la experiencia
adquirida en el análisis de estructuras semejantes, especialmente si dicho método le
permite emplear juicio de ingeniero para efectuar aproximaciones y reducir pasos
intermedios.
Otro factor que puede guiar la elección, es la preferencia de muchos ingenieros por
emplear cantidades que presenten un significado fisico directo. Este es uno de los
atractivos de métodos tales como los de distribución de momentos (iterativos); a lo largo
de todo el cálculo, el ingeniero siente que está llevando a cabo un proceso que tiene una
realidad física. En tales métodos los errores pueden a menudo detectarse, más por
aplicación del sentido común que por un estricto criterio matemático, ya que los números
representan términos cuyas magnítudes son conocidas, al menos aproximadamente por
el ingeniero.
Todas estas consideraciones están basadas en el supuesto que todo el trabajo,
incluyendo el análisis numérico, es realizado por el propio ingeniero - normalmente una
persona con conocimientos del comportamiento estructural, pero sin demasiado gusto
por el proceso meramente numérico o matemático -. Sin embargo, si se utiliza un
la matriz de rigideces se puede ensamblar superponiendo las rigideces de los elementos
individuales. .
La dualidad de los métodos de las fuerzas o flexibilidad y de los desplazamientos o
rigidez, fue demostrada por Argyris y Kelsey en 1960 en su tratado de los teoremas de
energía.
1.2 El Análisis Matricial
El empleo de la notación matricial presenta dos ventajas en el cálculo de estructuras.
Desde el punto de vista teórico, permite utilizar métodos de cálculo de una forma
compacta, precisa y, al mismo tiempo, completamente general. Esto facilita el
tratamiento de la teoría de estructuras como unidad, sin que los principios fundamentales
se vean oscurecidos por operaciones de cálculo, por un lado, o diferencias fisicas entre
estructuras, por otro lado. Desde el punto de vista práctico, proporciona un sistema
apropiado de análisis de las estructuras y determina una base muy conveniente para el
desarrollo de programas de computadores.
En contraste con estas ventajas, debe admitirse que los métodos matriciales se
caracterizan por una gran cantidad de cálculo sistemático, y su valor en el cálculo
práctico de estructuras se basa en la adecuación de los computadores para llevar a cabo
el trabajo numérico. Se desprende de esto que el principal campo de aplicación está en
el cálculo de grandes y complejas estructuras, en las que los métodos manuales
tradicionales requieren una dosis excesiva de esfuerzo. En problemas simples, en los
que los métodos existentes son plenamente satisfactorios, no se gana mucho con un
tratamiento matricial.
)
)
j
)
.J
->
-::)
)
~
)
)
..)
~
)
-)
! _)
I )
_)
l
)
)
i
)
I )
1 )
I
)
)
)
I
,
!~
i
f.
J
}
)
J
)
.,
J
1
';)..:~.
~(
O
~
¡ )
i )
1 ')
!¡.
)r
~~ )
II¡ )I
i
)
)
)
)
J
)
)
)
)
-j
)
~
)
)
)
)
)
J
J
')
)
)
.>
-3
J
~
..~)
..,.'
J
.)
_.)
)
.)
)
,)
j
t)
)
6
1.4 ¿Qué es un Computador?
Un computador es, esencialmente, una máquina de calcular, controlada por una
secuencia de instrucciones previamente preparadas que conducen a efectuar
sucesivamente diferentes pasos del cálculo en orden correcto. El conjunto de
instrucciones se denomina programa y el trabajo de prepararlases conocido como
programación,
Un programa no está ccndicionado a operar con un conjunto fijo de números (esto
llevarla al computadora efectuarlas mismasoperacionescadavez que se emplea),sino
que los números (datos) que forman el material caracterlsticodel cálculo pueden ser
diferentes en cada ocasión, Por tanto, si existe un programapara un determinadotipo
de cálculo, todos los problemaspara los que dicho cálculoproporcionalos mediospara
su solución,pueden considerarse'resueltos".
Decir, en este sentido, que existe una solución, significa considerablementemás que la
mera existencia de una teoria matemática o una técnica numérica. Significa, que
cualquier problema cubierto por el programa, puede ser resuelto completamente en
términos numéricos introduciendo,simplemente, los datos del problema,junto con el
programa, en el computador. los resultados del problema serán correctos, aunque
quien introdujo los datos del problemasea ignorantedel métodomatemático utilizadoen
el programa; es decir, que todo el proceso de análisis se reduce a una operación
rutinaria de relleno de datos.
Los problemas más sencillos de programar son aquéllos en los cuales los datos
numéricos son tratados en forma sistemática. las operacionesde álgebra lineal, por
ejemplo, son fácilmente ejecutadasen un computador,porqueconsistenen secuencias
de pasos relativamentesimples, repetidas muchas veces. Todos los computadoresde
hoy en día están provistoscon secuenciasde instrucciones,llamadasrutinas,para llevar
a cabo operacionestrpicasdel análisisnumérico.incluidasaquéllasdel álgebra lineal,de
forma que, si un cálculo de estructuraspuede ser puestoen forma de una serie de estas
operaciones, la construccióndel programa completo consiste simplementeen disponer
las rutinasapropiadasen el ordencorrecto,
..1.4.1 El Computador y el Análisis Matricial
El desarrollo de los computadores electrónicos durante las últimas décadas ha
estimulado sobremanerael trabajo de investigaciónen muchasramasde la matemática.
La mayor parte de esta actividadha estado, naturalmente,relacionadacon el desarrollo
I
computadorpara llevar a cabo dicho trabajo numérico,los criteriospor los cuales un
métododebejuzgarse si es "bueno"o "malo"deben ser revisados.
la cuestiónahora no es decidirsi a un ser humanole resultaráel cálculotedioso,sino si
el método es adecuado para ser fácilmente adaptado a una máquina. Si esto último
sucede, entonces el método es "bueno", aunque el número total de operaciones
realizadas sea considerablementesuperior al de otro método de menor facilidad de
mecanizar.
De esto se deduce que el desarrollode los métodosde cálculode estructurasen los que
el trabajo numérico puede ser realizado convenientementeen un computador,lleva a
procedimientosa la vez sistemáticosy generales. El objetivoes, no disminuirel número
total de operaciones aritméticas, sino conseguir métodos que puedan aplicarse a
muchos tipos diferentes de estructuras y que utilicen el máximo posible de
procedimientos numéricos tJpicos para los cuales ya existen rutinas en los
computadores. Para llevar a cabo éstos fines, los conceptosde álgebramatricialson
extremadamenteútiles.
6
7
de los procedimientos numéricos apropiados para el uso de los cornputedores, y en el
campo del análisis de estructuras ha conducido al desarrollo de métodos que utilizan las
ideas del álgebra matricial. .
El hecho de que los métodos matriciales estén ligados con los computadores y que se
emplee en los mismos una notación no familiar a algunos ingenieros. ha llevado a la
creencia de que incluyen nuevos difíciles conceptos matemáticos y estructurales. Esto
no es cierto. Un conocimiento de las operaciones básicas del álgebra matricial es todo
cuanto se requiere, y los únicos principios estructurales necesarios son los básicos
tratados en todos los textos de estructuras.
Los métodos clásicos del análisis estructural. desarrollados en las postrimerfas del siglo
XIX. tienen las cualidades de la generalidad. simplicidad lógica y elegancia matemática.
Desgraciadamente. conducían a menudo a cálculos muy laboriosos cuando se aplicaban
a los casos prácticos. y en aquella época, en la que incluso las máquinas de calcular
eran raras. esto entrañaba un serio defecto. Por esta causa. sucesivas generaciones de
ingenieros consagraron gran parte de su esfuerzo a reducir el conjunto de cálculos
precisos.
Muchas técnicas ingeniosas de gran valor práctico fueron apareciendo, pero la mayor
parte de las mismas eran solamente aplicables a tipos determinados de estructuras, e
inevitablemente el incremento en el número de métodos superficialmente diferentes
llevaron a oscurecer la simplicidad de las ideas fundamentales, de las que todos ellos
originalmente provenían. Puede también suponerse que la necesidad de obtener
técnicas prácticas para el análisis de estructuras lineales desvió a muchos
investigadores que pudieron haber contribuido de otra forma a un mejor entendimiento
del comportamiento real de las estructuras, con el resultado que la investigación de
fenómenos tales como la plasticidad y la inestabilidad. fueron pospuestas.
La principal objeción a los primeros métodos de análisis fue que los mismos conducían a
sistemas con gran número de ecuaciones lineales. diffciles de resolver manualmente.
Con los computadores. capaces de realizar el trabajo numérico, esta objeción ya no tiene
fuerza. mientras que las ventajas de la generalidad de los métodos. permanece. Esto
explica por qué los métodos matriciales deben en su tratamiento básico de las
estructuras más al siglo XIX que al XX.
1.5 E/Ingeniero. El Aná/isis Matricial y el Computador
En la actualidad. el ingeniero que se dedique al diseño de estructuras, debe estar
familiarizado con los métodos del análisis matricial de estructuras. porque constituyen
una herramienta poderosa de análisis.
Al mismo tiempo debe estudiar y entender el uso correcto de esta forma automática de
análisis. El resultado de un análisis por computador es sólo tan bueno como los datos y
el modelo de los cuales se parte. El acrónimo "GIGO" en inglés (Garbage In, Garbage
Out) cuya traducción al castellano podrfa ser BEBS se ha acuñado para recordamos
constantemente que "basura que entra, es igual a basura que sale".
Esto significa que el criterio y la habilidad del ingeniero, nunca podrán automatizarse. El
criterio y el entendimiento del comportamiento de las estructuras siempre deberán estar
presentes cuando se idealice la estructura y se hagan las suposiciones acerca de las
cargas y solicitaciones. el comportamiento del material, las condiciones de apoyo, las
conexiones entre los diversos elementos. Lo mismo se aplica a la interpretación y uso
correcto de los resultados de tales análisis.
)
j
~
}
)
J
)
J
j
'>
:J
-}
~
)
==1
i
)
.~
-J
)
'1

i I
j
_)
)
-l
)
I
)
)
)
'.)
)
')
')
")
)
)
)
)
_)
]
)
)
.)
-j
)
"7
)
)
)
)
)
)
.)
".)
1
)
)
)
J
-j
J
~
.~
J
..)
',;)
.)
)
)
:)
.:J
G)
J
8
1.6.2 Función de una estructura
Existen numerosas funciones, entre ellas:
Salvar un claro (puente vehicular o peatonal).
Encerrar un espacio (los edificios cumplen una función de albergue).
Contener un empuje (muros de contención, tanques, silos, represas).
Infraestructura vial o de transporte (pistas, intercambios viales).
Estética (monumentos).
1.6.3 Los Edificios son el Resultado del Ensamblaje de Diversos Sistemas
Sistema funcional básico.
Sistema estructural.
Sistema sanitario.
Sistema eléctrico.
Sistema de comunicaciones.
Sistema de seguridad.
Sistema de acabados.
Sistemas Electro Mecánicos (Aire acondicionado, calefacción. ascensores,
equipos, maquinarias).
1.6.4 Sistema Estructural de un Edificio de Concreto Armado
La figura a continuación muestra un pequeño edificio típico de concreto armado. Se
indican los principales elementos estructurales verticales (columnas, muros) los
horizontales (vigas, losas) y los elementos estructurales de la cimentación (zapatas
aisladas y corridas). Las columnas y vigas se pueden idealizar como elementos
unidimensionales, mientras que las losas de piso y muros como bidimensionales.
,.3}
8 •
e
1.6 Estructuras (algunas definiciones) ~
1.6.1 Definición General de una Estructura )
Una estructura es un sistema, un conjunto de partes o componentes que se combinan en ')
forma ordenada para cumplir una función. ")
:¡
I
9
Modelo de un pórtico plano 2-D
6 ,
•
I 1
•
. l•
"
• " ti
l. U l2
1 l. t.
""- 1'"
"'"~ ""~
Modelo de una Viga continua 2-D
Modelo de una armadura plana 2-D
1.6.5 Definición de Estructura para un Ingeniero Estructural
Una estructura es un sistema cuya función es transmitir fuerzas (cargas) desde sus
puntos de aplicación al suelo. las fuerzas (cargas) producen en el material de la
estructura:
a) Deformacionesque se manifiestanen distorsionesde la formaoriginal.
b) Esfuerzosinternos.
1.6.6 Definición de Estructura para Análisis Estructural 1
Una estructura es el resultado del ensamblaje de elementos estructuralesdiscretos
conectadosentre si en un númerofinito de puntoso nudos.
Se presentan a continuación, algunos ejemplos de modelos (idealizaciones)
correspondientesa estructurassimples que se ajustan a la definiciónanterior. En las
estructuras mostradas los elementos estructuralesson todos unidimensionales:barras
de armaduraarticuladasen los extremos,vigas, columnas. los elementosestructurales
(barras)se interconectanentre si en los nudosy se conectana "tierra"medianteapoyos
que tambiénson nudos.
9
'} ....::i?E¡t'~j~H::,"i:;:...",,2".-~;·~2l,...:-:_':_.:_.:;::"··:~L·'::¿:,,~~¡,~,:;'~':.:¿.-.~:Cc-~:;;_.~·_-~'.:.:c~ó.c "'::-~.':::.:'-._~ :,::,:,-~.~.~~~-=,_:.L ::'8.:~::~i·X,C:; ..'C':~O_''''''_¡''.''=,,_=~~,~__,=~-_._.
')
)
I
--,
)
J
j
)
_)
)
,
}
)
")
.) ~1
,
}
)
)
)
)
~
)
i
...
-;
')
,)
")
I
)
'""J
}
- Lineal
- No Lineal
10
La Respuesta de una estructura hay que entenderla en un sentido amplio y comprende
diversos aspectos, entre ellos la determinación de:
Deformaciones, desplazamientos de determinados puntos.
Esfuerzos (medios continuos).
Fuerzas internas en barras. Axial, cortante, flexión, torsión.
- Vibraciones.
- Estabilidad.
- Carga de Colapso (análisis límite).
Fatiga.
- Comportamiento bajo condiciones de servicio (fisuración, deflexiones).
~
i~
,~<.;.,
)
)
)
)
)
)
)
)
)
)
.J
)
...::)
)
)
)
)
)
)
)
)
)
)
)
}
.J
~
-}
)
)
)
..~
"j
_)
J
Ó
.~
8
J
'")
,)
~
~
'9
---:l
Respuesta.
Respuesta
............... Desplazamientos
............... Deformaciones
Esfuerzos
Resultantes de los Esfuerzos
Solicitación .....
- Estática
_Dinámica - Elástica
- Inelástica
Estructura
Solicitaciones
Cargas Estancas ~
Cargas Dinamicas ~
Asentamientos
Cambios Termtcos
1.7 Objetivo del Análisis Estructural
El objetivo es el estudio del comportamiento o respuesta de la estructura frente a
detenninadas solicitaciones o acciones externas. El Análisis Estructural no es un fin, es
un medio o herramienta. El fin es el Diseno Estructural.
Estructura
Modelo de un pórtico tridimensional
3-D o espacial
10
1.8 Objetivo del Diseño Estructural
El objetivo es lograr una estructura segura, funcional y económica para satisfacer una
, necesidad o función específica.
Por seguridad se entiende la capacidad resistente de la estructura para servir sin fallas
estructurales durante su vida útil.
Además de la seguridad, la estructura debe comportarse adecuadamente bajo
condiciones normales de servicio. Por eso es necesario prestar atención al control de
las deflexiones, vibraciones, agrietamiento (concreto armado), corrosión, durabilidad.
En resumen las Premisas Fundamentales son:
a) La estructura debe soportar las cargas (acciones, solicitaciones) en forma segura.
b) La estructura debe cumplir los requisitos de funcionalidad, factibilidad, durabilidad,
econornta, estética.
1.8.1 Etapas del Proyecto Estructural
a) Concepción (Ingeniería Conceptual). Se parte de la siguiente premisa: La
estructuración que debería prevalecer, es aquella que satisfaciendo las premisas
fundamentales (seguridad, funcionalidad, durabilidad) tenga el menor costo. La etapa
de laconcepcíón comprende:
- Determinación de la forma general.
Selección del material predominante (intervienen criterios de disponibilidad y
economía).
- Selección del tipo estructural y estructuración preliminar.
Selección del sistema constructivo (prefabricado, en obra).
- Investigación de las cargas. Es necesario identificar las diversas solicitaciones a las
cuales estará expuesta la estructura durante su vida útil. Las magnitudes de las
cargas "usuales" están especificadas generalmente en las Normas, en otros casos es
necesario acudir a la experiencia y a la estimación del ingeniero.
Las cargas que pueden obrar sobre una estructura son: muertas, vivas o de uso,
viento, sismo, nieve, cambios térmicos, cargas temporales que pueden presentarse
durante el proceso constructivo, asentamientos de apoyo, cambios volumétricos, etc.
- Predimensionamiento de los elementos estructurales y conexiones (basado en la
experiencia, reglas empíricas, métodos aproximados).
b) Modelado (idealización) de la Estructura.
c) Análisis Estructural. Geometría, material, secciones, comportamiento esperado de la
estructura (lineal, no lineal), solicitaciones (cargas). Selección de los métodos y
herramientas de análisis.
d) Diseno Estructural. Dependerá del material, Normas.
e) Detallado. De las uniones o conexiones, elementos no estructurales, equipos,
instalaciones, etc.
f) Planos. Producto final del análisis y diseño estructural. El diseñador debe transmitir
al que ejecutará la obra, los resuHadosfinales de su diseño, entre ellos: la concepción
estructural, los esquemas resistentes para las diversas cargas que obran sobre la
estructura, -los refuerzos y dimensiones de todos los elementos estructurales, 'la
posible interacción entre elementos estructurales y no estructurales, las calidades de,
los materiales a utilizar (especificaciones), los detalles especiales, los detalles de las
conexiones entre elementos estructurales y no estructurales, las precauciones a
considerar durante la ejecución de la obra, las sobrecargas de diseño, etc.
11
II
_ ••• ::. --- •• ;.:.. o ~---..,_--..;;__.;.:-.~_ • ...__ ••• _ :',=.: .:;_.-.::_:.• ,,_ ..•.,_ .: •..... ,:. '.~ .:.-:_~ __:"__'_":'.,~; _, ,-__~_..__•..¡__.-.:......:':.,:,,___ :~-2.,:::,_::: _'_ ;; c',.:'::::.-_:':",':_'" .;',::.':";'.":';"':..0::...;.;;;..-..,...-
~
)
)
,)
)
r')
1
,~
)
J
)
"'")
)
)
)
'J
)
-)
)
J
}
j
)
~
_)
)
1
))
)
-)
¡
I
)
j¡
Costos -
Planos de Detalle
1.8.1.a Ejemplo de un Plano de Estructuras
A manera de ejemplo de presentación de planos estructurales se incluye a continuación
una parte del plano de estructuras correspondiente a la planta típica de un edificio simple
en concreto armado. Se puede apreciar, entre otras cosas, información sobre el espesor
del techo aligerado, la sobrecarga usada en el diseno, las secciones de las vigas, la
ubicación de Josmuros (placas), la junta o separación con un edificio (bloque) vecino, el
acero de refuerzo del aligerado. No se trata de un juego completo de planos. falta el
-plano de ·Ia cimentaclón..da las .columnas y-placas, .de-las vigas, el plano -del encofrado
-de la azotea y se han ·obviado 'diversos' detalles importantes. Para completar el
"expediente" es necesario contar con los planos de arquitectura, los planos completos de
estructuras, los planos de instaraciones eléctricas y sanitarias, los planos de
instalaciones electromecánicas (si las hubiera), el estudio de mecánica de suelos y las
especificaciones técnicas.
Modificación
Re - Estructuración
- Material
- Forma general
- Tipo estructural
- Investigación Cargas
- Predimensionamiento
Re - Análisis
(cambios en
las secciones)
Análisis
Estructural
Cargas
.....,. Idealización
- Modelo-
~~--------~~r--------'
I I Modificación I
-..........._~--.,
~ Diseño
- Seguridad
- Resistencia
- Servido
Estructuración
La manera como el diseñador suele transmitir al constructor o ejecutor de la obra toda
esta información, es a través de planos de estructuras. Es obvio que si los planos
resumen todo el trabajo de concepción y diseno, debe prestarse especial cuidado en
la presentación de los mismos. Los planos deben ser claros y no ambiguos, con
abundancia de detalles y especificaciones,· deben contener toda la información
necesaria para una correcta ejecución de la obra. Los planos deben transmitir al lector
la información de tal modo que no haya lugar a interpretaciones erróneas.
g) Determinación de los Costos.
El diagrama a continuación resume las etapas del diseno estructural:
ti)
r'j)
)
')
)
)
)
)
)
)
)
)
-J
-')
..=)
)
)
)
)
)
)
)
)
)
)
. )
)
--J
c:j
----j
)
)
)
J
'j
J
_)
.:J
8
~
)
..,
.)
J
-_., , ..., ._ ..._----.......... I,_ ~_ •••__ ..... _, .... ~.~. ,._.~ -_;:..~.:.:;__:..l.~w
12
...... - ....
•• ". :," '.' •-: ' ~': ': ••1" ..!-..~
. ..._~~J"'5:~~...:.:.....___.;..._._.h _....: ..~-,,~__:.:~_';__;'",;, ...,__,..._:.;. .'-:.:__,.~..~.~~:::::., ..'.;":'.;.".,""__"o' "....:.. _. , ::
!
I
I
;
, :
"
J "
'.~
)
-, N
E
-,
1
en
i
, ~
J
_)
O
O
) í?... U
_) ~
!
¡
i;;:'
)
l'
'-',
)
l.:
)
) O
N
) ci
')
JI
1Js:
)
O
'U o 8
-, ~ c::¡ ~CI>
&.~ •'1;.. ~
)
«
)
J
)
~
,-
_)
)
i
,)
-)
,)
-)
)
1
Iri 1ft
~
)
) 13
13
"
)' ,,"--,-d':~':;;:::,:_,LL:_;:,,:...: ... :_....:i:,l_i;,,_ .::: .,~",~.~~. ::~~_;;;._;:~~';'..:c-_2:"~.~;;::~,.::'L>.. ,,',._,o~ ,"_',. 'o_, ,. ,0
- - - ...,,,,._~- ......-..-. ,,;...~--._..:.:~
)
.,
~
e
~:)
)
')
)
)
)
)
)
)
)
)
-J
')
-::)
)
)
)
)
)
)
)
)
)
)
)
)
-el
c:j
~
)
)
)
)
"'.::)
J
)
~
-j
d
,)
"'")
-c)
~
••• _~:.:"",:,,-".'.¡':":~
En un punto cualquiera de una estructura, existen seis componentes desconocidas de
los esfuerzos (el tensor de esfuerzos en un punto es simétrico) y solamente tres
ecuaciones de equilibrio (suma de fuerzas en X, Y, Z), por lo tanto el problema es
indeterminado. la solución de las ecuaciones diferenciales sólo es posible en el caso de
geometrfas simples, condiciones simples de contorno. estados simples de carga y
comportamiento del material linealmente elástico.
Nótese que aún en el caso de formular y resolver las ecuaciones diferenciales, siempre
será necesario realizar un modelo de la estructura.
En consecuencia no es posible analizar, con las herramientas actuales de análisis, la
estructura real, solo podemos analizar un modelo de la estructura. Sin, embargo, si
podemos determinar el comportamiento (respuesta) de estructuras reales, mediante
ensayos de laboratorio.
b) Modelo de una estructura: Sobre la estructura real se realiza un proceso de
idealización de los elementos componentes, conexiones entre ellos y cargas
actuantes. Se genera así un modelo matemático (físico) sobre el cual se aplican las
herramientas del análisis estructural.
e) ¿Qué se idealiza?
- La geometrla de la estructura.
- Los elementos constituyentes (por ejemplo barras) y suspropledades.
Las conexiones entre los elementos (nudos).
Las propiedades y comportamiento del material.
Las masas (en los problemas dinámicos).
tascarqas (solicitaciones).
Los apoyos y condiciones de contorno.
ro oa: oa:_::,.x:x= + .xy + xz +R =O
LX q, a vx
Ecuación diferencial del equilibrio de la particula en la dirección X
¡
j
I
t
"
1i
!
1.9 Elementos Estructurales v No Estructurales
Los elementos estructurales aportan resistencia y rigidez a la estructura.
- los elementos no estructurales aportan peso y funcionalidad (tabiques, parapetos,
mamparas. etc). Son necesarios para completar la función de la estructura.
1.10 Modelos (idealización) de las Estructuras
Premisa: La confiabilidad o "calidad" del Análisis Estructural, está directamente
relacionada con la fidelidad del modelo utilizado.
a) ¿Porqué son necesarios los modelos estructurales? Si partimos del hecho que
las estructuras son un medio continuo, con infinitas partfculas, con una variación
también continua en las propiedades del material, en las deformaciones y en el
estado de esfuerzos, el comportamiento de la estructura está gobernado por un
conjunto de ecuaciones diferenciales parciales. Una de las ecuaciones diferenciales
del equilibrio de la partícula se indica a continuación y corresponde al equilibrio en X:
14
...-,..:,::.._..._._~-:~.- ""...:,,'::~:,!:.~-~:.~ ',,,~;':':~:,';'~:...:,' .- .. -';~,...:-::.:::~::::.: ., _:..._,-~,-,., _. ,.: ', . _, -'_"._-'
15
..
Fuerzas aXiaJes (kg)
~L, .
", ·i
.~... ",'"",,1··-,,'"'''' -
~...... ~-_. .... .- .....-'_ ... - .'. . .., ~-!; : ..
. ,
Deformada
Para formular el modelo necesitamos, por lo menos: Caracterrsticas de los materiales (E,
tipo de comportamiento, en este caso lineal). características de las barras (área,
material), geometría, cargas aplicadas, apoyos, tipo de conexión entre barras. El
resultado, en este caso, es un modelo tipo armadura o de cables.
Resultados del análisis estructural: Desplazamientos de los nudos (configuración
deformada) y fuerzas en las barras.
Modelo de una
armadura plana 2- P
(Se muestran las coordenadas
de los nudos y las cargas en
el Nudo 2)
.i
I
«,,
!
...¡
¡
,
1.10.1 Algunos modelos de estructuras"simples
1f9deloContinuo 2-D
(gobernado por ecuaciones en
derivadas parciales)
Modelo Discreto 2-D
(gobernado P9C
ecuaciones algebraicas)
Modelo Continuo 3-D
(gobernado por ecuaciones en
derivadas parciales)
1!íJ------~
La interacción entre 'os elementos estructurales y no estructurales,
d) Resultado de la Idealización: Del modelo continuo al discreto.
15
J
1
, )
-
,
J
1
!
! :!
,)
)
3
~
S
S
>,
)
-1
)
)
I
)
j
)
,
)
)
l'
,
)
1
'J
,)
,)
~
J
9
J
)
.
.
-:}
-;
,-4¡
)
.
)
.~
-:)
-3
., 9· .. '.. ,' ,.
; Fuerza cortante (ton);
-3
16
Momento flector (ton-m)
-9 ,_____.
: Fuerza normal (ton) :
r--,--+~.:....3__ -,.- J:I----...;_--rr--l-3
-9' -j
•••• ,. .... ••• ,; . ,_o, , ••
-3
........... _ •• ••• o o" L-
Porqué la estructura se mueve hacia la derecha y no hacia la izquierda?
Deformada
,
1····,··-·-·,oO. 1"
_, .... _, •• _ o.' l....
, "... . i '..-'..
¡
,
j
!, ... .. i 00- _ • _ .. _
! .
~
Para formular el modelo necesitamos, por lo menos: Caracteristicas de los materiales (E,
tipo de comportamiento. en este caso lineal), caracterlsticas de las barras (área,
momento de inercia, material), geometrfa, cargas aplicadas, apoyos, tipo de conexión
entre barras (nudos rfgidos y rótula al centro de la viga). Se formula, en este caso, un
modelo tipo pórtico plano.
Resultados del análisis estructural: Desplazamientos de los nudos (configuración
deformada) y fue~s en las barras.
~
¡
3.' s·.··
" 2.; .. -_ O¡ , :.. -.- -- .• -- .. :O}
" ,
1·0 o •• o _ • o •• ' ••
• • O)
Modelo de un
, . pórtico plano 2- D
,. -_.- " '~'_._'." ... " .- •• _ ...... ~---- •• _ -- .... _ -Ó: _- ... -.-.- _ •• - --~
1.10.2 Otro modelo simple de una estructura plana (pórtico triarticulado).
w=6 ..tlm
16
17
Conversión de un Modelo 3-D a un Modelo de Pórticos Planos 2-D.
A continuación se muestra un pequeño edificio de un piso compuesto de nueve
columnas y doce tramos de vigas. El edificio es de concreto armado y todos los nudos
son rigidos. La estructura es en esencia un pórtico 3-D conformado por elementos
esbeltos.
Asumiendo que los apoyos son empotramientos. el grado de indeterminación estática del
pórtico 3-D es de 72. ya que es necesario efectuar doce cortes en las vigas (por ejemplo
al centro de cada paño) para lograr una estructura isostática y estable. en cada corte se
remueven seis fuerzas de sección.
En contraste, el grado de indeterminación cinemática es de 54 ya que la estructura
posee nueve nudos libres y cada uno de ellos tiene seis grados de libertad.
A pesar de que la estructura es 3-D, es posible reducirla a un ensamblaje de pórticos
-3 planos cada uno de ellos actuando de manera independiente del resto. Con esta
simplificación se reduce de manera importante la complejidad (más bien la laboriosidad)
del análisis estructural. Sin embargo esta "reducción" a pórticos planos tiene varias
inconsistencias importantes. algunas de ellas:
Las rotaciones en los nudos del 20 no son compatibles con los del 3D. es decir cada
nudo del modelo 20 rota de manera independiente. En la estructura real las
rotaciones de cada nudo son únicas.
- Los desplazamientos verticales de los nudos del modelo 20 no son compatibles con
el 30.
- En el modelo 2-0 se pierde la torsión que podría existir en las vigas y columnas.
Los desplazamientos horizontales del modelo 20 no son compatibles con el 3D.
- Si hubiera un diafragma rígido (losa de piso) conectando los pórticos. ¿qué
sucedería con los desplazamientos horizontales de los pórticos?
f
, 1.10.3 Algunos modelos 3-D de Edificios.
)
)
)
-)
)
I
)
J
)
I
)
~
)
,)
J
J
)
-)
)
)
.;;;
-)
.)
}
-,
)
I
,l
1
1
1
¡ )
¡
¡ j
I
1
,
-l
} 1.10.4
18
. 7
IAn.alizar·el modelo
-:Generar un Modelo 2D del
pórtico y aplicar las cargas
(metrado)
)
)
-J
)
~
)
)
)
)
.)
)
)
)
)
)
)
)
~
--!)
~
.)
.)
)
,)
J
_)
,)
:j
)
~
)
.,.)
)
;¡j
~
::)
~
I¡
t.
t
I
1
(
r
t
SeJeccíona,r y
aislar el pórtico
Portico 3D
(simplificado)
Diagrama de momentos
(ton-m)
Deformada
~.----~--~~.I------.-r-5.0 *. 3.0 -1
l
Planta
3.0
I ¡p t(rl()l.I-~-liF.:!::. =:. =l' •
O.30~0.50 9.30x0.50
I ._ i
O.30xO.30 ~
.--_ ~!,.o;.::. r
~.';: .
l ~:
,
" ,
13
~tTl. . .
:::.::':~~O,~::,.~:.,"'.:.~:.~:·;.;'~~~~:'.77',·1"~'~0;oL·:,·:1~~~:~. ...;;..0~. .:.~.~~_:~=-~~~~=~~'.~:-;.. -_~':.~~~.:.;~'~-':;"..-::::~:..~-."L~~~~.~..;..;.:.._.~~;_~.:,,'~.~-=.0,'-, '0',:;.~~_._:;..~~_~._.,~~. __~':.~~..~; :.~:,;::. _;~~~ ".c_~_~~·~_.__;; -;-::;.:70 o---'':- ~.~..::...;.~~.-:.~,~.,._.
! ;1J
1)
O
:)
1
)
)
)
)
)
)
19
Algunas inconsistencias del modelo 20 frente al 3D:
Las mismas del caso anterior (acápite 1.10.4). Adicionalmente la presencia de un
diafragma rígido en su plano (losa de piso) impone restricciones adicionales a los
desplazamientos laterales de los pórticos, es decir los pórticos no pueden desplazarse
lateralmente de manera independiente unos de otros ya que el diafragma de piso
"amarrawlos desplazamientos laterales.
Si hubiera una fuerza lateral actuando en el centro de masas de la losa, ¿cómo se
distribuiría esta fuerza entre los pórticos?
¿El empotramiento de las columnas en la base será perfecto?
¿Los nudos son completamente rígidos?
¿La losa no aporta rigidez a los pórticos?
¿Cómo se comporta la losa, simplemente apoyada en las vigas?
Pórticos 3 Y4Suelo
.."
Ic,Ac
1 (40x25)
" lz
(4 Ox25) h
--@
Pórticos 1 Y2
(25x40
2
IC,Ac
(2Sx40)
1
h
,--@
,Losa Maciza
1.10.5 Otro caso de Modelo 3-D a un Modelo de Pórticos Planos 2-D
f
J
}
J
,
}
»
)
)
_,
)
--,
1
J
I
_)
¡
~ ¡.
I I
II
I
I)
1
)
)
)
)
)
_)
)
~
J.
)
)
J
)
--,
)
) i
I
~ I
)
L)
._~
,
_,.<
Segmento de una torre
de alta tensión o antena
Losa - Parrilla
1
Tanque esférico apoyado sobre columnas
/«.~
,./
f
j
1.10.7 Algunos Modelos 3-D de estructuras
Portico 2-D
~<
Ji JlL-I
Portieo 3-DPortieo - Losa 3DModelo 3-D
/ Estructura Real
UJ
1.10.6 Otro caso de Modelo 3-D a un modelo de pórticos planos 2-D
 20
",:,. -...;.._-::-,;:-:.,-;. -~. -;- -:~-=.:"-.-.-
-"~"·'r •. ·.' :~... r". ·_c.o o', ~" , '''"~ .~.'''''_'' ., ,<. _~ __, ..~ _ ~ __ :... ..:..'
'.. c·:· ...~:;; ..-.·:.-_··_-,·.-:·,··::-:· ... ¡-
• --'~~ r_"""r~ .•. ;..;...,o"" ;,.;. ...
21
En el modelo mostrado en la figura anterior se han hecho las siguientes idealizaciones:
a) El muro, que es un elemento bidimensional, se ha transformado a un elemento
unidimensional. Normalmente será necesario incluir las deformaciones por cortante
en la placa o muro (en la figura, Im es el momento de inercia del muro y Acm el área
de corte), además es conveniente incluir las deformaciones axiales en el muro yen las
columnas.
b) Las vigas cercanas a la placa son de sección variable. Tienen un tramo de longitud
"a" de rigidez infinita (El = (0) y otro tramo de longitud 11 con rigidez Elv. El tramo de
rigidez infinita (brazo rfgido) intenta modelar la conexión entre la placa y la viga y
representa la hipótesis de Navier (secciones planas).
c) Se ha supuesto que la placa está empotrada en la cimentación, esta hipótesis puede
ser cuestionable debido a los grandes momentos flectores que suelen presentarse en
la base de los muros ante la acción de cargas laterales.
A continuación se muestran las configuraciones deformadas que se obtienen al analizar
el pórtico bajo la acción de cargas laterales únicamente, utilizando dos modelos. En el
Modelo 1 se ha supuesto que la viga "entra" hasta el eje de la placa conservando su
sección transversal y en el Modelo 2 se ha modelado la viga utilizando un brazo rlgido
(indeformable) entre el eje de la placa yel borde derecho de la misma. Las diferencias
en la configuración deformada del pórtico para los dos modelos son notables, sobre todo
en la zona de conexión viga - placa.
Modelo del pórtico plano.
(Muro modelado como elemento unidimensional)
Pórtico plano. Muro (placa), columnas y vigas.
1m le
NPT Acm
1 2 3
le le
"
..
"
., .. '1
a tI t2
Muro
(bidimensional) .
9
~--~----~----I
~ a f ~ le
1,2
" Brazo rígido (El =!Xl)F2 .. '1 >¡
F2 7 8
--:0; =--..
I I Brazo rIgido(EI =00
_ _ 1_ _ _ J Fl S
~4 Iv Iv
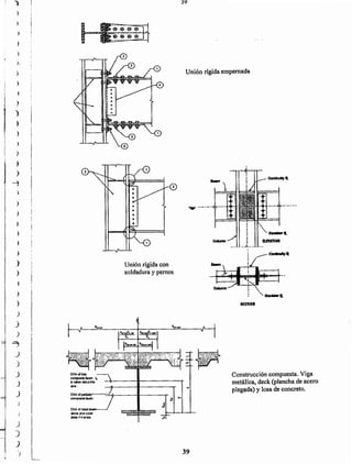
1.10.8 P6rtico 2-D fqlano} con muros de corte oplacas de concreto armado.
Es frecuente utilizar, en zonas slsrnlcas, elementos rfgidos de concreto armado para
controlar las deformaciones laterales del edificio, estos elementos rfgidos suelen ser las
placas o muros de corte. Los muros son elementos bidimensionales. Muchas veces el
muro o placa está conectado mediante vigas a columnas fonnando un pórtico "mixto"
como se indica en la figura a continuación.
En estos casos, un modelo que se suele utilizar con frecuencia, consiste en idealizar la
placa como un elemento unidimensional, al igual que las vigas y columnas. El problema
radica en modelar adecuadamente la zona de conexión entre la viga y la placa.
}
J
)
J
I
¡
J
J
J
~
I }
t
)r
I¡
,I
l
.,
J
,
)
)
)
}
)
r
)
~I
}
?}
I
Jf
L)
)
J
.,
~) ;
I
}
L
)
@
::D
'O
)
1
)
")
)
)
)
)
.)
)
~
-:>
~
)
)
)
)
')
)
)
)
)
)
)
)
d
o
~
.)
)
)
)
-j
_j
,)
·0
)
$
)
~
')
)
•®
;)
-1
. "., I ."~: : .' .
~~.*ii~~:f:,
I
1,
I
I
.: .
I
I
i
•I .'.
'... ~ _.~~_.l;.r'. .t··..
l·: .
(
"
, ~"~"':~:f;':~':.:.~/
;',t~',::.
~ ~ - - ~...",S;.-.,];, ,.: :,:
22

Modelo 2 -Configuracíón deformada, cargas laterales. Viga rígida en la zona de unión con la placa,
22
Modelo' 1- Configuración deformada, cargas laterales. Viga flexible en la zona de unión con la placa.
23
Modelo 1 - Configuración deformada, cargas verticales. Viga flexible en la zona de unión con la placa.
3
I
1
I
I
I
I
,1
: Muro~ ~1
I
1
•I
I,._,. ,. ~ '__'_~_'...._.;-.-
í
"
II
i
Análisis por cargas verticales
,'7/lZ"
2
6·4 $,
r r. r: 1 J I.','i J 1, ! I "¡
~- ~-.,. ..-,. - ,..~~l~J"""'_-lJt-" -,-.~l+l~, L;"""",.''r:-~~.."+'-'-",_.,.l,.,.,·"--";'J!--,' ,-.~I"""--iL:
':' . '1 : '~ " 9
, ,
: 1
,1
I
1
1
i
-'I
1
1
,
J '
: Muro1-..-.-,.-
,;
... -,. ...,.-.,."";;,u.~,,.,.- -,. ---
1
3 t/m,'.
I
A continuación se muestran los resultados del análisis del pórtico, bajo la acción de
cargas verticales únicamente. Se han utilizado tres modelos, los dos primeros son los
mismos descritos anteriormente y el tercero consiste en suponer que las vigas se
encuentran empotradas en el borde de la placa.
.,
r
r
t-
i }¡
¡
1,
1
,
I
)
-')
¡
,
, )
¡ J
)
_)I
I }
1¡
¡
)
)
1
-,
)
)
)
)
.,.
1
)
~,
}
¡
}
I
2
(
)
.i..
,1
)
..,
I)
~)
fD
él
~
.)
)
O)
')
)
")
)
)
)
)
d
1
~
)
)
)
)
)
)
)
)
)
)
)
)
-d
·3
~
)
.)
)
.)
__,
.)
.J
;:J
24
L,ps~'ramas de mO,mento~flec~~respara los tres modelos analizados para cargas
V7ttic~l~s.se lTi~estrana continuaclón.
/
..
Modelo 3 - Configuración deformada, cargas verticales. Vigas,empotradas en el.borde de la placa
3
r.:
I
!
t
t
~.~~--------------------_.
I
f
I
•I
l"
,
Modelo 2 - Configuración deformada. cargas verticales. Viga rígida en la Zona deuni~n con la placa.
. 1.,i .
.------~~~.~.
___________ i._
'M~to
r--~~"-'i;:'~t~';''''''';:~-:!:~~~~-í~~~:'."'.
., l," ;
• l. :
I '.:;:
l' II . ,.
I !
I 1
, I
i ,
I l'
I }
j 4 Ir~-
,::.
i
•I
,.,
•I
•l·"
•I
•I
24
25
Modelo 3 - Diagrama de momentos, cargas verticales. Vigas empotradas en el borde de la placa
-0.9o.~
I
I
I
, I
~------_--------------------~
Modelo 2 - Diagrama de momentos, cargas verticales. Vigas rígidas en la zona de unión con la placa.
05 ·1
I I
.- -- ...... 3~8:'7.4.:..&-=.......~- - -- -.,. ---- -.- _-'
Modelo 1 - Diagrama de momentos (ton-m), cargas verticales. Viga flexible en la zona de unión con la placa.
-0.1
I
I
I
--------~-~"'"!'-.
I
I
,--------- ...- ·4.8
)
J
J
)
J
)

..l~
)
~
.)
">
.}
")
)
-=,
)
;1
..,
.~
i
)
L
J
_j
I
_)I
,
)
)
.,
)
~
.~. ")
¡
1¡
1
¡
)
:>
t
)
1 )I
¡ )
[
¡
')¡
I .,)
J
f
-=:)
! ')
!
¡ )
¡
)~
f )
I )~
1 )
¡
)
~
•
)
I• )
¡
)
)
)
d
~
--:}
)
)
)
i)
=1
.)
., ,);
~
)
~
-')
~
-)
)
~
r'
J
../
h= 3
-¡. 5
MODELO 2D
,
No existe un límite claro o preciso a partir del cual los elementos deban considerarse
como tridimensionales, bidimensionales o unidimensionales. La clasificación y en
consecuencla la idealización de los elementos, queda a juicio del ingeniero y será
función de la "fidelidad" que se pretenda lograr. La figura a continuación ilustra esta idea
utilizando un elemento esbelto, que puede idealizarse como unidimensional, y otro para
el cual esta idealización seria cuestionable.
En general todos los elementos son tridimensionaJes, sin embargo, si la longitud del
elemento es "considerablemente" mayor que sus otras dimensiones, el elemento puede
idealizarse como unidimensional. Este suele ser el caso de las vigas y columnas de los
pórticos 3D 6 2D.
:.;~-::i
t~~
b;:;h
h1 L» (b,h)
-~~.'
b
Viga. columna; armadura (1D)
x
. Losa. cáscara, muro (20)
(3D)
,.~irum
U'
i
1.10.9 Clasificación de las Estructuras
Para el curso de Análisis Estructural 1, hemos definido a las estructuras como un
ensamblaje de elementos estructurales discretos, interconectados entre sJen un número
finito de puntos. Bajo esta definición los· elementos, pueden idealizarse,
independientemente del material y su forma, en:
Unidimensionaies
Bidimensionales
Tridimensionales

26
27
L
Tienen múltiples aplicaciones, desde las armaduras o "cerchas" de madera que se
emplean en viviendas, tijerales de acero en naves industriales hasta puentes de grandes
luces, antenas y torres de atta tensión. .
Su objetivo es el uso más eficiente del material. Si imaginamos que la armadura trabaja
como una viga, soportando esfuerzos de flexión y cortante, al aumentar la altura (peralte)
de la armadura se reducen los esfuerzos debidos a la flexión y al mismo tiempo no es
necesario disponer de un alma sólida, sino que basta con elementos diagonales y
verticales para resistir el cortante.
Armadura Plana.
poyo
1) Estructuras de Barras o Reticulares
Formadas por el ensamblaje de elementos considerados o modelados como 1D.
1a) Armaduras Planas o Espaciales. (Isostáticas o Hiperestáticas)
1.10.10 Grandes grupos en la clasificación de las estructuras
1) Estructuras de Barras (Reticulares).
2) Estructuras Laminares (bidimensionales). Losas, cáscaras, muros.
¡ . 3) Sólidos (3D).
i
! 4) Mixtas.!
I
1 J

V
I
I
I
1 2
'0
V
Elementos ID
Pórtico 2D
vh
3 ti---;I'--v---------....4 h =.L, ..L, L~ 11 10 12 14
I
En general se suele aceptar que si la longitud del elemento es mayor que cuatro á cinco
veces el peralte del mismo, el elemento puede idealizarse como unidimensional. Este
Hmite está ligado a la validez de ia hipótesis de Navier (secciones planas).
Por ejemplo, las vigas de los pórticos de concreto armado se suelen dimensionar de tal
modo que el peralte esté comprendido entre l/lO y 1/14 de la luz, en consecuencia
pueden clasificarse como unidimensionales.
¿I
)
J
)
V
)
)
,
)
)
)
"1
)
!¡
I
I
J
J
)
~
I
I
)
I I
I
I
,
)
I }
,)
)
)
)
)
)
)
J
1
I 1
>)
I
i)
)
)
:J
-)
f.
r(
:':)
)
)
')
)
)
)
)
)
)
)
"7
)
J
)
)
-)
)
:)
)
)
)
)
)
}
)
~
~
;j
)
.}
.)
2J
~
~
iJ
',,
_)
.')
;)
rj
)
:)
.~
Fin.k Compleja'
Howe
Pendiente Doble
Grambrel..Pendiente Simple
. Inglesa Fink
PrattWarren
Otra ventala de las armaduras es su rigidez ya que por su considerable mayor altura en . '.
cornparaelón con una viga de alma llena; los desplazamientos de los nudos suelen ser 1
pequeños. ' ,
Las, principªles ide~UZaciones (~implifi~ciones) que se suelen hacer en el análisis de ;, I
armaduras'y a partir' de las cuales se gefi~ran los modelos son: . '!
- Los elementos son rectos y están conectados entre sí en nudos artlculadoe.' •.' 1
(artleulacíones sin rozamiento). Los nudos articulados permiten el giro relativo de las ;:.i
barras. En ia práctica diflcllrnente se materializa esta hipótesis ya que las uniones ' ..I
suelen ser soldádas o empernadas. :' '1
j
- Las barras' se .unen en sus. extremos, Esta hipótesis no suele cumplirse en los. ;
cordones (bridas) superior é inferior de. la armadura ya que las bridas suelen Ser ..!
continuas cubriendo varios nudos en vez de ser una serie d~ barras cortas entre nudo !
y nudo. Esta práctica tj~n.e,Iª....x~ntaja de simplifi~r las conexiones en los' nudos ya
que no es necesario.eon~i~Jrelemento contínuc.' . . . . . .
":Las carg~s'{Qoncentradas);s$ '~Jican '$ototenlos nudos." Deben eviWFse')ascargas en
, .puntos int~m)ecfjc;>sde 105' el~.neh.osya que inducen flexión en ello$" $i exístiera una .:
~~-concentrada en un elemento, conviene modificar la geomefri~ de la armadura
"'2:~i~";que dicha CatQ~ coincida con un ·nudo. LaS únicas carqas que no están
/8PUcádas en.' los nudos deberían ser las provenientes del peso propio de los
Equilibrio (corte a-a): Ma == T x h Va = V eos ct.
Otra de las ventaj~s de las armaduras es su vel'$atilic;ladpara adaptarse a diVersa~
formas según ras n~césidad.es. Existen numerosas fÓ·tmas.argunas efelas más comunes
se indican a conñnuacíón. .
Dj~8: CU~1pO
tibre Corte a-a
~o
.'''v',_':_ T
f ~,I J' 1
Corte a-a

28
Detalle de uno de)os apoyos interiores (articulado)
Detalle de uno de los nudosArmadura de un puente (Bridas Paralelas)
Las tres figuras a continuación (Godden), muestran un sector de una de las armaduras
(de bridas paralelas) de un puente de acero de una carretera. Dada la magnitud de las
cargas que debe soportar el puente, los. elementos constituyentes, sobre todo las
diagonales y las bridas, son grandes. A la derecha se muestra el detalle de la conexión
de los elementos que concurren a un nudo inferior, los elementos están unidos por
remaches a las cartelas o planchas de enlace. En este caso es claro que no se trata de
un nudo articulado que permite el giro relativo de las barras que concurren. En la parte
inferior se muestra el detalle del apoyo articulado.
1
~i
Fuerzas internas en la barra de
una armadura
N·
J
Si se cumplen las hipótesis anteriores, las barras de una armadura trabajan solamente a
carga axial de tracción o compresión sin cortante ni flexión.
29
)
~j
)
- '"i
, -ii
r)
)
í.
..)
_J
i
l
í
)¡
1
)
)
1
,
~
1
-)
)
---1
I )
)
J
}
)

)
)
)
") 1'"
j !
)
.,',
(1)
()
::)
")
')
)
)
')
')
")
)
)
)
j
)
"l
)
)
_)
)
~
)
')
)
)
)
)
.)
~
J
'J
)
.)
)
~
~
iJ
.)
30
Uniones empernadas

30
./t'
Uniones soldadas
Si se observan las uniones de la figura anterior, se puede concluir que en la práctlca la _;.
hipótesis de nudos articulados es; por lo menos. discutible', Sin embargó en las ;: .
armaduras "normales" la esbeltez dé los elementos suele ser grande, la rigidez a. la' :
flexión pequeña y por lo tanto priman los esfuerzos axiales. Si las cargas están todas ;' i
aplicadas en los nudos, a los esfuerzos que originaria la flexión por la rigidez de la unión. _. I
sel les llama "esfuerzos secundarios" y se suelen ignorar o despreciar en el diseno de los ..' .,1,'
e ementos.
En todo caso si la hipótesis de nudos articulados - para una estructura particular en la -.
cual los perfiles no sean tan esbeltos (caso de armaduras de puentes) y las conexiones ':
no fueran rótulas - no fuera válida. siempre será posibie analizar la estructura dejando de ,i;'
lado esta hipótesis y modelando la rigidez de la conexión. En este caso la'estructura se :;
convierte en un pórtico con cargas en los nudos y lo dificil será modelar la rigidez de la ,:'
conexión.
Finalmente están las armaduras tridimensionales como las empleadas en las torres de,
alta tensión; para las cuales toda la discusión que se ha hecho para las armaduras; -
planas, es aplicable. Una buena parte de estas armaduras puede -analizarse' bajo la '--,.
hipótesis de nudos articulados. sobre .todo. las torres de alta-tensión 'en las cuales las'.,
conexiones suelen ser..empernadas con los pernos colocados en una sola linea. ",
/' ..
-/
I
La figura a continuación muestra algunaS' conexiones "Upicas" de elementos de una 1Iarmadura en los nudos. Nótese que los ejes de los elementos (Uneasde los centroides
de los perfiles) deben coincidir en un'punto, en caso centrarlo se genera excentricidad en l..-/
la unión la que ocasiona un momento que debe ser equilibrado pOJlos perfiles
3

2
Pórtico

1
I ¡;~V V V V¡V Y Y Y V¡V y rJ. 2 3 4 5
w
Los ejes 1-2-3 son ejes locales de la barra y deben ser principales y centrales.
N
1
1b) Pórticos Planos (sistemas planos 2D)
- Formados por el ensamblaje de elementos 1D.
- Elementos conectados entre si en los nudos. Los nudos pueden ser rígidos, semi -
rigidos, o articulados.
- Cargas aplicadas en los nudos y barras. Las cargas están contenidas en el plano del
pórtico.
- Los elementos tienen rigidez axial y por flexión.
- Los apoyos pueden ser de cualquier tipo, inclusive apoyos elásticos.
- Las fuerzas de sección en las barras son: Axial, cortante, momento flector. No existe
momento torsor ya que las cargas están aplicadas en el plano del pórtico.
Elevación cara lateral
Armadura 3D, parte inferior de la Torre Eiffel
Madeja de
Armadura 3D
I
)
)
--,
I

,1
I
J
I
~
I
JI
I
__j
I

)
j
)
)
)1t
;
¡,
!
;
¡
I I
1 ~
1
1 )¡
~
)
i
i
j
: Ir -.
Pórtico de acero con arriostres
Pórtico arriostrado
10
5 6 7 S
t
2 3 4
Pónico con elementos curvos
.'4
Viga Vierendeel
6 10
,..../' ,,
1 s2 3 4
)
)
)
)
)
)
)
)
)
)
"
,)
)
)
)
,~
)
~
)
)
)
)
)
)
)
)
)
)
)
)
)
~¡
,.
~
o
O)
.)
J
j
)
.)
J
~

32
Pértícosde concreto armado,
soporte del tablero de-un puente
Pórtico de concreto armado con
viga prefabricada
Pórtico a dos aguas
2J
!
j
I
&'~"JttJtJtJ¡4JJ'J,
.5
33
I
I
I 1d) Pórticos Tridimensionales (sistemas espaciales 3D)
I - Formados por el ensamblaje de elementos 1D.
¡-Elementos conectados entre sí en los nudos. Los nudos pueden ser rígidos, semi-
'1 rígidos, o articulados.
¡-Cargas aplicadas en los nudos y barras.
i Los elementos tienen rigidez axial, en flexión y en torsión .
! < - los apoyos pueden ser de cualquier tipo, inclusive apoyos elásticos.
 - !.:,as-fuerzasde sección en las barras son: Axial, cortante, momento 'ñector y momento
! .... /tersor. En la figura a continuación se muestran las fuerzas de extremo de barra,
: / referidas a sus ejes locales; los que deben ser principales y centrales.
1'" .
l

1 La parrilla está contenida
en el Plano X-Z
Modelo de unaparrilla
12
.~

1
Los ejes 1-2-3 son ejes locales
del elemento y deben ser
principales y centrales
El plano de la parrilla es el 1-3.
1c) Parrillas (sistemas planos 20)
Formadas por el ensamblaje de elementos 1D. ,
Elementos conectados entre si 'en los nudos. Los nudos pueden ser rígidos, semi-
rígidos, o articulados.
- Cargas aplicadas en los nudos y barras. Las cargas son,perpendiculares al plano de
la parrHla.
Los elementos tienen rigidez en flexión y torsión.
Los apoyos pueden ser de cualquier tipo, inclusive apoyos elásticos. "
Las fuerzas de sección en las barras son: Cortante, momento flector y momento
torsor. No existe fuerza axial en las barras ya que las cargas son perpendiculares al
plano de la párrilla. '.,
33
~
i
I
t
i )
1
)
'l
j"
,
;
~
J
)
)
---')
I )
l
t
,
J
)
}
,)
j
)
I
)
)
_j
)
1I -d
)

j

)
~
~
.)I
! )
)
_J
.J
-'~
J
.."
" !
~f)
¡J
!;~
')
)
)
)
)
)
)
")
)
)
')
)
.,
)
)
_J
)
~
)
)
)
)
)
)
)
-=>
.)
1
)
)
)
.:_J
.)
~
J
)
J
')
j
'")
.)
)
~
Q
-)
34
Mzz
Mzx
M,,"'·'·:. """~ .
El espesor es mucho menor que las otras ~.
Edificio AICQaen Chicago. Grandes ..
diagonales de arriostre ..
3
1
2
34
2) Estrilcturas Laminares (bidimensionales).
dos dimensiones.
- Losas (cargas perpendiculares a su piano):
. ,i:;" •
Torre. de Control en un Aeropuerto
3
2
35
O'z
Puente masivo
O'x
3) Sólidos (tridimensionales). Represas, cimentaciones masivas, piezas de equipos,
-- puentes de mampostería.
- Bóveda$ o C6scara$
,-E$tados planos de esfuerzos (vigas pared, muros o placas) car9as en su plano:
)
)
}
j
,
,
)
)
)
)
)
)
)
~it
IJ
!_)
t
~ 1
1
I
I
j
¡
)
)
)
~
-,
)
)
)
.~
)
-')
)
)
_)
)
_)
)
)
)
)
)
)
)
"j
)
')
)
)
)
J
... )
~
~
)
'.)
).
.)
")
)
)
~
~d
-)
-.
--_. - , ... .. ..
~
. ~
l'
-
Elevación
36
Armadura de vigas y columnas
en un Dudoexterior de una
estructura de concreto armado
Nudo Interior

"
1=
:-1"
;=
1-
,---
L.
'------------
.
Planta
Nudo Exterior
1.10.11 Nudos de Pórticos
a) Pórticos (estructuras) de concreto armado: Los nudos suelen considerarse rígidos.
En estructuras de concreto armado lograr nudos o uniones articuladas suele ser .
problemático ..
Vigas Ycolumnas,
elementos 1D
Nudo Rígido
O"x
Muro o placa,
elemento 2D
crz
ay
Componente o pieza
de un equipo
4) Estructuras mixtas
I¡)
36
1~··.:,.,é:;i"':: .. ',.. :'<'.,~",~:":,.i..'c:::,-,-"_:~',,,-._.. ,,_.,.... ",._"~,.,, ~.",,,. _c,_
1
~
37
Unión viga - viga
BoltsorLoaded beam
Nudo rígido (planchas de acero y pernos)
Nudo de un tijeral de madera
Unión simple columna - viga
Uniones simples columna - viga
Steel U bracket
welded 10Iopor
ate!!1column
Base de una columna de madera
b) Pórticos (estructuras) de madera: Suele ser complicado lograr uniones rígidas,
salvo las uniones encoladas.
37
)
}
)
)
)
)
)
}
)
1(
1
)
.1
1
)
)
)
1
I
~
)
)
I
)¡
I )
)
¡
)
)
-)
)
)
')
)
)
)
)
')
)
')
)
)
-)
)
~
)
')
)
)
" I
)
I
')
)
),
.)
)
)
_o)
'-'
)
/'
::::
/
.)
~.
d
i)
,)
f~
.)
)
)
J
~
®
_o:
38
Unión rígida empernada
t"1-tI ~.
o o
o o
Uniones simples (de cortante)
Unión empernada con
planchas y cartelas
Unión empernada con cartelas soldadas
e) Pórticos (estructuras) de acero: Existe una gran variedad de conexiones: rígidas, t
semi-rfgidas, simples (conexiones de cortante). Existen en esencia dos métodos para
conectar elementos en una estructura metálica: pernos y soldadura, los remaches han
cardo en desuso.
38
.... ",-"., ,',:' '_.'¡~ .. :¡
._. ,.~.~.~,:,:.;c;-;.;~,.,,,-,,,;:;_:.:..;;-;;;'.>·.,,,~~i_,'~.:.,~:;."'::'.-_~'~;:2:~:,~·;;;;:~-<;;::~:Lc~,c:,_~c;.~;,",.:,,:o_,~c:.
l}
~
----_ :':':'~.":_';-=--, ; .... _.
~~.:.!1:;~.:~~.~~·~~2~·l~:~~_~~~~;:.:~~;:~;_;_",-~~~~~.'..~,;~~~.~~._:::,~'~:';;: ':'~":'-;'_:"=~_'_;;~::~: ,:,;._~:.~_:~::;:. ,..-
39
Construcción compuesta. Viga
metálica. deck (plancha de acero
plegada) y losa de concreto.
.mtOI
~._----
Unión rígida empernada
Unión rígida con
soldadura y pernos
)
)
)
)
)
)
)
)
l,}
)
)
)
)
"i
)
"l
)
)
_)
)
..:)
)
)
)
)
)
)
_)
::)
J
)
)
_,¿
)
:0
::¿
~
,j
.)
.)
J
)
1
)
J
~
Q
.:)
40
2.1 Bases del Análisis Estructural
Los problemas más simples del análisis estructural son los estáticamente determinados,
ya que éstos pueden ser resueltos aplicando únicamente las ecuaciones de equilibrio.
La idea central es que en estos problemas las fuerzas internas en los elementos (barras)
pueden ser calculadas sin considerar las deformaciones de la estructura. Esto significa
que el análisis estructural puede ser realizado sin conocer de antemano las propiedades
y comportamiento del material ni las secciones transversales de las barras.
En una estructura hiperestática, las ecuaciones de equilibrio son insuficientes para
determinar las fuerzas internas en los elementos constituyentes, siendo necesario
formular ecuaciones adicionales. Las condiciones de continuidad o compatibilidad de las
deformaciones en la estructura, conducen a las ecuaciones adicionales necesarias.
Adicionalmente se requiere conocer las relaciones fuerza - deformación (relaciones
constitutivas) de los elementos que componen la estructura. Para estructuras linealmente
elásticas, estas relaciones provienen de la ley Hooke.
Las estructuras indeterminadas, que aparecen con mucha frecuencia en los problemas
de análisis estructural, presentan algunas dificultades adicionales para el ingeniero
estructural. En primer lugar, el análisis es bastante más laborioso y complicado en
comparación con las estructuras estáticamente determinadas. En segundo lugar, el
análisis estructural solo puede ser realizado considerando la geometría de las
deformaciones, esto significa que es necesario conocer de antemano las características
mecánicas del material y de los elementos estructurales. Una selección inicial
inadecuada de las caracterfsticas de las barras, puede ser corregida únicamente
realizando una nueva selección y volviendo a realizar el análisis.
En consecuencia, la mayoría de los problemas estructurales deberán realizarse
aplicando las siguientes tres condiciones o principios básicos:
1) Equilibrio: de la estructura, de las barras o elementos y de los nudos.
2) Compatibilidad y Condiciones de Contorno. También llamada las relaciones
Deformación - Desplazamiento. Los movimientos de los extremos de las barras (o !.
elementos) deben ser compatibles con los desplazamientos de los nudos. Esta
condición puede expresarse mediante la siguiente relación: {d} = [A] {D} donde {d} y •
{D} son los movimientos de los extremos de las barras y de los nudos
respectivamente y [A] es la Matriz de Transformación de Desplazamientos (véase el
Acápite 7.3).
3) Relaciones Constitutivas. También llamadas Relaciones Fuerza - Desplazamiento.
las fuerzas (esfuerzos) en cada barra (elemento) y sus desplazamientos deben
satisfacer las ecuaciones derivadas de los diagramas constitutivos (O' - E) del material. '
Esta condición puede expresarse mediante la siguiente relación: {q} = [k] {d} donde ;, ,
{q} son las fuerzas de extremo de barra y {d} los desplazamientos correspondientes ••, '
y [k] es la Matriz de Rigidez de la Barra (véase el Capitulo 4).
la solución de cualquier problema de análisis estructural deberá cumplir con las tres ' '
condiciones o principios básicos mencionados, independientemente de:
- Del método de análisis utilizado (rigidez, flexibilidad, mixto).
, Del comportamiento de la-estructura: elástica, inelástica, deformaciones pequeñas,
deformaciones grandes.
Del material de la estructura: linealmente elástico, elastoplástico, no lineal, etc.
- De las solicitaciones (cargas) que obran sobre la estructura: estática, dinámica,
asentamientos, cambios de temperatura, etc.
CAPITULO 2 -Bases del Análisis Estructural
40
. _.~--- - ~_.._- .-'- ..;_:__--::_--_...: ~__ .:..._.....- "
·... .
;~~:_ .._...._..~-...
41
Compresión
paralela a la fibra
-+-------3> EIIl
Comportamiento de la madera en compresión
paralela a la fibra, E$luerzo o limite de
proporcionalidad ::ti 300 kglcm2
400
300
Barra 1: Madera, compresión paralela a la fibra. E = 100,000kg/cnr', A = 150cm2 (piezade
4"x 6")
~ ~1f'----3·60----,r1
T2.70
J
{ F }3xl = [ K 13X3 {~hx)
[K] es la Matriz de Rigidez Lateral del pórtico plano
A continuación se presentan tres ejempíos simples de la apücaoíón de los tres principios
básicos mencionados.
Ejemplo 2-1 La armadura plana mostrada a continuación está formada por dos barras
dé'dlferente material, la barra hortzontal es de madera y la iliclim:tda de acero. Nótese
que ¡a estructura es isostática. por lo tanto las eouaciones de eqúilibrio son suficientes
para determinar todas las fuerzas internas y reacciones. Sin emb.argo.para determinar
la configur~ción deformada de la estructura, en este caso el movimiento dei nudo 2, será
nece$ano conocer las propiedades de los materiales de las barras y sus secclones
transversales y utilizar los otros dos principios básicos del análisis estructural.

Columna envolado
.IF_ 3 El A
I ---u
l' '
F~
,
) ! /
A.
1 1/
  7T
1
Sección de una viga en flexión pura.
Relación Momento- Curvatura
F3 ' ,
~ ~ 3
Resorte
F=kA
>
M=EI el>F
Los siguientes son algunO$ ejemplos de Relaciones Constitutivas (Fuerza -
Despl~~miento) para estructuras simples linealmente elásticas:
") r '
,
t
)
)
)
-)
;
¡ )
~
j
)
)
)
¡ )
~
,
,
J
1
)
4¡
í )I
¡
)
)
}
)
)
)
)
)
)
)
)
,1
)
~"'I '; }
: 
)
I
)
I
I ,)
I
)
I
/)
)
I
,)
)
"
S)
O
C:}
)
)
)
)
)
-)
)
)
)
)
:-j
')
~
)
)
)
)
)
)
)
)
)
)
)
)
-:j
'~
--}
)
~J
)
)
.)
..)
,)
)
)
j
.)
j
)
)
e
:'ZJ
,,'j
1
42
AH = di = 0.096 cm
d dAv = _2_ + _1- = 0.503 cm
sens tan9
I
 /
<,  I
.......¿Posición final
2' del Nudo 2

d2 = 0.225 cm

dI =0.096 cm
e) Compatibilidad. Las barras deben moverse de tal modo que permanezcan rectas y ,
sigan estando unidas en el nudo 2. Por ser pequeños los desplazamientos del nudo 2, se ;
han sustituido los arcos por sus tangentes "
c¡ = Ee ~ Al = q
I
EA
-4000 x 360 .
di = S =-0.096 cm [acortamientc)
10 ><150
d - 5000 x 450 - O225 ( I . )2 - -. cm a argamtento
2xl0'x5
3,000
2
9 == 36.87 o
q,= -4,000 kg (compresión)
-4000 2
0',= ~ 27 kglcm
150
q2= 5,000 kg (tracción)
0'2= 5000 = 1,000 kglcm2
5
Nótese que las ecuaciones de equilibrio se han planteado sobre la configuración
indeformada de la estructura, es decir, se ha supuesto que los desplazamientos del nudo
2 serán pequeños. Esta hipótesis deberá verificarse cuando se calculen los
desplazamientos del nudo. Adicionalmente los esfuerzos calculados en las barras,
indican que éstas se encuentran en la zona de comportamiento lineal elástico.
b) Relaciones Fuerza - Desplazamiento (O' - 8): Material linealmente elástico.
a) Equilibrio estático: Nudo 2
Q2
Comportamiento del acero en tracción.
Esfuerzo de fluencia 2,500 kglcml
fY= 2500
Barra 2: Tirante de Acero. E = 2xI06 kglcm2 A = 5 cm2 (barrade diámetro el» = 1")
42
o ,Oo.=: ;0:'0":;- :'0' 'O. _ OO': O ,'O'." " ... ~ •• ,......
.....;~~:..:i.;;.:.;...;:..~,,¡:; .,n;. .." .•~;:~I:"O"~",,,,,: •.., ¡.
43
Sección simétrica respecto
del eje y plano de carga
Flexión pura
o-{;$.;-- ...
Ejemplo 2..3 Determinar las relaciones F - 8 (en este caso las relaciones Momento -
curvatura) en una sección sometida a flexión simple.
2 ~=o.225cm
'[:>a::Z::Z::Z:::Z:Z::Z::Z:Z:::¡!:Z:z:::;i!ZZ:z%:z:::r¡q...: ~o 111V
1/
2'~
I Posición final
del Nudo 2
Il = OH
Ilv =..!!.L = 0.375 cm
senü
d2 =0.225 cmdI =0b) Relaciones o- E
c) Compatibilidad
q2 = 5,000 kga) Equilibrio Nudo2: No cambia. ql = - 4,000 kg
6
E=2xlO
A=5 el')
.,'
Se puede apreciar que el desplazamiento del nudo 2 es pequeño comparado con las
dimensiones de la estructura indeformada.
. Ejemplo 2..2 Consideremos la armadura del problema anterior con la diferencia que la
barra 1 es un sólido rlgido (indeformable). Lo interesante de este problema es comprobar
que, dado que la estructura es isostática, las fuerzas en las barras no cambian, sin
embargo el desplazamiento del nudo 2 es dependiente de las propiedades de las barras.
j
JI
.,I
)
, I
1~
I ')
I
1
l
,
j
--}
).
! -4,
, I}
I•í l
I
j
',- I
')
1
!
It If
i
1
t
t
.!
,-,
:l
r
-i :::::./
)
)
!
)
y
cr =-E-x
p
ex= ![crx-U(cry+cr:)]
'crJI = crZ' = O (Supuesto)
a,= E ex
e) Relaciones o - E
EX = IJ - IJ original = (p - y).6.9 - p.6.9
IJ original pA9
:. Ex=-;
Giro relo.tlvo de
elos secciones
veclnQs=M
¿Mz=-M;: = JyO"x dA=O
A
En este caso, las ecuaciones de equilibrio relevantes son:
LFx= IcrxdA=O (1)
A
-Mz = Jy crx dA=O (2)
A
La distribución de los esfuerzos ox debe satisfacer las ecuaciones 1 y 2. El problema
en esencia hiperestático ya que se podría pensar que hay infinitas incógnitas ox en
infinitos puntos de la sección.
b) Compatibilidad. Hipótesis de Navier, las secciones planas permanecen
Pennite reducir la hiperestaticidad a un grado.
¿Fx = J<r;r dA=O (no hay fuerza axial)
JI
¿FY =O~ Automático ya que Txy =O (flexión pura)
¿Fz= O~ Automático asumiendo 't,e =O
¿MX =O~ Automático ya que Txy = T.c =O
¿Ñ6'= JZ<rx dA = O-+ Sección simétrica y esfuerzos simétricos
JI
a) Equilibrio:
44
!
¡
1~
i
¡
r
!!.
45
9'::::: e? - - ~(-
Geometría 2'
Defo nn ada
p2" 9
La ecuación de
equilibrio estático se
fonnuJa sobre la
geometría indeformada
2.2 Hipótesis Básicas del Análisis Estructural
2.2.1 Primera Hipótesis Básica - Desplazamientos Pequeños : También conocida
como Hipótesis de las Dimensiones Iniciales. Plantea que la geometrfa de la estructura
no cambia apreciablemente luego de la aplicación de las cargas.
Supondremos que las barras (elementos) que componen la estructura son lo
suficientemente rrgidas como para no sufrir deformaciones importantes bajo la acci6n de
las cargas (solicitaciones) y la geometrra inicial varia muy poco. Por Jo tanto, las
ecuaciones de equilibrio se pueden plantear a partir de la geometría de la estructura
indeformada.
Dicho de otro modo, supondremos (con cargo a verificar) que los desplazamientos de la
estructura son pequeños y geometrfa inicial no varia significativamente.
Existen diversos métodos de análisis estructural que trabajan sobre la base de las
teorlas de segundo orden (grandes desplazamientos) tomando en cuenta el cambio de la
geometría de la estructura. Estos métodos de análisis, que abordan el comportamiento
de las estructuras con grandes desplazamientos, normalmente trabajan sobre un
esquema iterativo de aproximaciones sucesivas, ya que las ecuaciones de equilibrio no
pueden formularse hasta conocer la configuraci6n deformada de la estructura.
Cuando en una estructura se produce un cambio importante en la geometria, de tal
forma que se afectan las ecuaciones de equilibrio planteadas a partir de la geometria no
deformada, se dice que es una Estructura con No Linealidad Geométrica.
El comportamiento de este tipo de estructuras no lineales, escapa al alcance de estos
apuntes. En consecuencia trabajaremos únicamente con teorfas de primer orden
(desplazamientos pequeños) y siempre será posible verificar, al concluir el análisis, la
validez de esta hipótesis.
A continuación se muestran dos casos simples en los cuales se ilustra el principio de los
desplazamientos pequeños:
Reemplazando ex = -E y Ip en (2)
M=- JyuzdA = E JyldA= E Iz =:> Mz=IElz
A P A P P
Mzy
a =---
x lz
fy dA = O => Eje neutro pasa por el centro de gravedad de la sección
A
JydA=O
A
E
-- IydA=O :::::>
p A
Reemplazando en (1)
45
r
)
-J
)
-l
,
¡ )
¡
),
I
)
)
I)
1,
!
I

:J
)
_)
,
)
)
j
)
_)
)
J
)
-j
)
~
)
..¡J
-::1
)
i
'1
.J
j
;J
,)
s
.-)
.J
}
.})
,.)
)
)
-,
)
.)
)
)
)
)
~)
J
')
)
)
'.)
)
J
)
)
)
)
,)
)
)
:;¡
)
>
)
)
J
-:;)
Para que la superposición sea válida, los desplazamientos deben ser, como
general gruesa. varios órdenes de magnitud menores a la dimensión caracteristica de
estructura. El intervalo en eLcuallos desplazamientos .estáncomprendidos entre 0.01 L .
0.1 L (siendo L la dimensión caracterrstica de la estructura) suele ser una región
transición entre los desplazamientos pequeños y los grandes. Sin embargo
valores son tan solo referenciales y dependen mucho del tipo de estructura y las
actuantes.
Equilibrio en la posición deformada:
MI=P(a+6.)
pero A=f(p)
MI =P a+P (f(P»
:. no hay una relación lineal entre MI y P
Equilibrio en la posición no deformada:
Ml=Pa
:. existe una relación lineal entre MI y P
aJI
Si A « a entonces el momento en la base se puede aproximar, con un
despreciable, mediante MI = Pa. En este caso, ya que el material de la estructura
linealmente elástico, será válido el principio de superposición, por ejemplo, si
duplicara la carga P se duplicarla también el desplazamiento A.
Si no se cumpliera lo anterior, estaríamos frente a un caso de ~~~::!"",!,~.=!,!...J=:"':
debida a una no linealidad geométrica :....recuerde que hemos supuesto que
comportamiento del material es linealmente elástico en todo el rango de repuesta de
estructura - y no seria aplicable el Principio de Superposición. A diferencia del
anterior, si se duplicara la carga, no seria posible afirmar que el desplazamiento tanlDlemjl,/.'
se duplicará.
Conclusión: Cuando una estructura presenta no linealidades geométricas,
aplicable el principio de superposición.
Ejemplo 2-4 Asumimos que el material de la barra es linealmente elástico.
1/ p,¡
/ El," ~ - ~2'
2.2.1.a Algunos ejemplos de No LInealidad Geométrica.
A es Josuficientemente pequefio para poder
despreciar el cambio en la geometría por el
efecto de las cargas aplicadas.
46
9' :::;9
47;
L
_ EA 3 2 2
Pr= I! (A + 3fA +2f A) (B)
La relación no lineal es producto del cambio en la geometría de la estructura por la
acción de la carga P, no es producto del comportamiento del material ya que hemos
supuesto que el material es linealmente elástico para todo el rango de comportamiento.
En este caso el principio o hipótesis de los Desplazamientos Pequeños no es aplicable
ya que para alcanzar el equilibrio es necesario un cambio importante en la geometria de
la estructura, en consecuencia el equilibrio del nudo 3 debe plantearse sobre la
geometría deformada.
En este caso la relación entre la carga y el desplazamiento vertical del nudo 3, es no
lineal (véase ellíbro de White), y viene dada por la ecuación (B).
cr=E&
p
JI
L
- Caso 2: La flecha "f" es pequeña.
L
; I
P=K8
En este caso se puede plantear el equilibrio del nudo 3 en la posición no deformada de la
estructura. la relación entre la carga y el desplazamiento vertical del nudo 3 es del tipo
lineal y viene dada por la ecuación (A).
2EAf2
P= (L2 +f2)3/2 8 (A)
' ¡
,
l : f
j ;
LL
Ejemplo 2-5 Asumimos que el material de las dos barras que conforman la estructura es
linealmente elástico en todo el intervalo de repuesta de la estructura.
- Caso 1: La flecha "f" no es pequeña.
La única repuesta cierta, relativa a cuán pequeños deben ser los desplazamientos, es la
siguiente: Los desplazamientos son pequeños cuando las ecuaciones de equilibrio,
planteadas sobre la geometriá no deformada, dan los mismos resultados que los
obtenidos a partir de las mismas ecuaciones de equilibrio planteadas sobre la geometrla
deformada final.
,,
¡1 I
I I
I :
1 11
I
I~i-)
,,
¡,
?
~___'A
+M:s
Ip :. La relación entre
M y II no es lineal~M
Jb.s>~+ 61
Ms=M+Pb.s
f«pcr ~P
~M E~
.~p-~
Ms=M~
b.s=.f(M.P)
/
EI,EA
; Ejemplo 2-6 los dos ejemplos siguientes, son casos de no - linealidad a los que se les ..
suele llamar Efectos P - A. Asumimos que el material de las barras es linealme IL"·,,·~'l
elástico.
201510
Desplaz ~ (cm)
5o
...----__ !~- _ __.__---~ -_ -- _ ---_ -_ - -
: : ::::variable.................._ - ~ , t- .... .. .. ..
. . -'?"'-----f
..... -- - ; !!"..,~ ..~- !"_ " .. ':.. ~ ; ~ .. - _ ..
. .. .............; - ! .
o~~~~------~:------~;------~
m
Caso 2 - flecha f= 0.05m. Con la ecuación (B) se obtiene:
1 A ~ 7.41 cm (Al f= 1.48)
j
1 K = variable
li' Si se aplicara la ecuación (A) obtendríamos A ~ 32.03 cm, deflexión mucho mayor que la .
f flecha inicial.
Equilibrio en la configuración indeformada: FI = F2 = 40,000kg 0'1 = az = 8,000kglcm2
¡ Equilibrio en la configuración deformada: FI = F2 = 16,150kg (JI = 0'2 =3.230 kg/cm2
1 Por lo tanto no es aplicable el principio de los desplazamientos pequeños. A continuación ·
I se muestra la relación P - Il. para ambos casos. Nótese que, para f (flecha) pequeña; .
11
medida que se incrementa la carga la rigidez tangente del sistema también
incrementa.
20,000 ,-.r------~: - --~:---~:-----,
18,000 . ""'1 ¡ ¡ .
1SJOOD ~ .. -. __••• -._--~-- -- -- ---.- -- - ;-' --_ -- -- _ -- -- -- -_ - ---
f= 1 m : : :.-.. 14,000 .. , : :...............•. : "._.
~ :: ...
.._, 12.000
e,
«1 10,000
co
~ 8,000
6,000
4,000
2,000
Asignemos valores numéricos a esta estructura:
E = 2xl06 kglcm2, A = 5 cm2, L = 2 m, P =2,000kg
Caso 1 - flecha f= 1m. Con la ecuación (A) se obtiene:
A ~ 0.112 cm (6 I f= 0,112%)
K~ 17,890kglcm
Equilibrio configuración indeformada: F, = F2 = 2,236kg 0'1 =0'2 = 447kglcm2
Por Jotanto eS aplicable el principio de los desplazamientos pequeños.
48
49

El /
I
h M- Masa concentrada
k- Rigidez lateral
T- Período de vibración
Se reconoce dos tipos de equilibrio, el estático y el dinámico. Supondremos que las
cargas se aplican lentamente sobre la estructura, gradualmente desde cero hasta su
valor final, de tal modo que la estructura queda en reposo en su configuración
deformada. A partir de ese instante la estructura no sufre cambios en su posición ni en
su forma deformada. A ésta se le llama la posición de equilibrio estático de la estructura.
En el equilibrio estático supondremos que no se producen vibraciones ni fuerzas de
inercia significativas.
Por el contrario, si las cargas se aplican súbitamente o si presentan una variación rápida
en el tiempo, entonces estaremos frente a un problema de equilibrio dinámico en el cual
la solución no es única, la respuesta de la estructura será una función, en algunos casos
compleja, del tiempo.
En resumen, en los problemas de equilibrio estático no se desarrollan fuerzas de inercia
significativas. Las fuerzas internas en las barras deben equilibrar únicamente a las
cargas externas. En los problemas de equilibrio dinámico se desarrollan- fuerzas de
inercia significativas y las fuerzas internas en las barras deben equilibrar no solo a las
cargas externas, sino también a las fuerzas de inercia.
En general, en este curso, el equilibrio estático se aplicará a:
La estructura completa debe estar en equilibrio.
Cada una de las barras debe estar en equilibrio.
Cada uno de los nudos debe estar en equilibrio.
Observemos las diferencias entre el Equilibrio Estático y el Dinámico mediante el ejemplo
simple que se presenta a continuación:
A Ys Dependen de F y P
A
M(y)= Fy+P-¡;y+PtS
2.2.2 Segunda Hipótesis Básica - Equilibrio Estático
Pll.y/h

Fb+ PLl
IP«Pcr
+ b. p
M ¡y
l"tLAY
I h
III
~
I
h...1
,
1
¡ )
j
---}
-)
----)
iI
I
i
i¡
! ,t¡
1
)
)
i
I
f
I
I t
I
I j
I
!
l'¡
)
1
)
--}
J
,1
)
)
~
)
)
}
---j
.)
=9
!
)
-)
~
-=3
~
l)
-"1
...
i
}
0.4 0.11
Tierripo (seg)
0.2 1.00.80.0
..,' ; rlesPlazamiento• • ¡
j ¡ Bst4tico
O.O.JL-----i-----i-----;-· - --....;-. ----j
.-. 0.8
!
~ o.e
10.4
1.0
F(/) = V(t) + M 2(t)
F(t) =k Z(/) + M 2(/)
k Z(/) = F(/) - M 2(t) {B)
La comparación de las ecuaciones (A) y (B) indica que en el caso dinámico, las
internas (V(t) == k Z(t» deben equilibrar no solo a las cargas externas sino también a
fuerzas de inercia que se generan.
La variación en el tiempo del desplazamiento lateral (Z(t» se muestra a
Para la solución se ha supuesto un amortiguamiento pequeño del tipo viscoso de ~== 1
Carga Din~mica.Rampade Oa 8,000 kg en to =0.02 seg
T = 0.1 s tofT '" 0.2 Amortlg'"1%
1.2
V(t)=kZ(t)
La ecuación de equilibrio, en el caso dinámico y asumiendo que no existe
amortiguamiento (~= 0%) será:
Ft-,M
F(t)"r+-FI(t) =MZ<t)
(J
- Ahora asumamos que la carga lateral se aplica rápidamente (fa ~ O). El equilibrio
horizontal de la masa concentrada en el extremo superior requerirá en este caso, la
presencia de fuerzas de inercia (FI (t»:
Z(t)V(t)
La variación en el tiempo de la fuerza cortante y del desplazamiento lateral, cuando la
carga se aplica lentamente será:
F(t) = V(t) F(/)= k Z(t)
k Z(t) =F(t) (A)
k Zmax= Fa
F(t) )jM
~V(t)
- Asumamos que I~ carga lateral se aplica lentamente (to» T). El equilibrio horizontal I
de la masa concentrada en el extremo superior (M) es:
50
Condicionesde contorno
de desplazamientos
prescritosen losnudos
{DI} = {O,O,O}
{04} = {O,a,O}
51
Condiciones de contorno
de fuerzas en los nudos
{F2} = {lO,O,O}
{F3} ::; {O,-20,O}
2.2.4 Cuarta Hipótesis Básica - Condiciones de Contorno
Si no se.jntroducen las condiciones de contorno, los problemas estructurales no estarían
completamente definidos. Estas condiciones se especifican en función de fuerzas (por
ejemplo en los nudos o en los elementos) y en función de los desplazamientos prescritos
en algunos de los nudos.
En el nudo 3 hay dos giros
independientes, por Jotanto las
rotaciones de las barras 2 y 3 no
son iguales. Sí hay compatibiJidad
de desplazamientos en X e Y
En los nudos 2 y 3 hay
compatibilidad de giros y de
desplazamientos.
p-r-
~ r.-,-...--='==-=~=======:::::-:~
F
2.2.3 Tercera Hipótesis Básica - Compatibilidad
la deformaci6n y el desplazamiento de cualquier punto de la estructura. bajo un sistema
de cargas, son únicos y varian de manera ccntlnua..
Este principio se emplea para compatibilizar los desplazamientos de los extremos de los
elementos (barras) que concurren a un nudo con los desplazamientos del mismo. Esta
condición puede expresarse mediante la siguiente relación: {d} = [Al {D} donde {d} y
{D} son los movimientos de los extremos de las barras y de los nudos respectivamente y
[Al es la Matriz de Transformación de Desplazamientos (véase el Acápite 7.3).
)
._!2!.

~29
Solución B
lJ.2°Okg
13.00
1Solución A
52sT
~ 1
~
~7S
[, 2.00 It 2.00 [,
1 '1 1 .~:
Asumamos que el pórtico de la figura anterior es de sección constante, con la viga y .~;
columna de 0.25xOAOm y módulo de elasticidad E = 200,000 kgl cm2• Despreciemos las 1:
deformaciones axiales y las deformaciones por corte de ambos elementos. .
Ambas soluciones están en equilibrio, sin embargo, solo la solución B es válida o.~ .
correcta, ya que la solución A no satisface las.condiciones de contorno. Para demosfrarJ <
esta aseveración; removamos. de ambas soluciones la restricción horizontal que hay en :- ,
el nudo (apoyo) 2, la estructura se convierte en lsostática además de seguir siendo; _
estable. Si la solución A fuera la correcta, al retirar la restricción hoñzontal en el nudo 2 l
y reemplazarla por el valor de la reacción como si fuera una fuerza externa, deberiamos ~
obtener un desplazamiento horizontal nulo en el nudo 2. <
.~
J
Si se restan las dos configuraciones deformadas de la figura anterior, se obtiene la i
estructura sin cargas externas pero deformada, lo cual no es posible; en consecuencia la "1
configuración deformada es única.
Ejemplo 2-7 Muchas veces solemos verificar 10$ resultados del análisis estructural,
comprobando el equilibrio global de la estructura. Esta comprobación simple, no siempre
garantiza que .los resultados son los correctos. Por ejemplo en la figura a continuación,
se muestra una misma estructura con dos juegos de reacciones y sus diagramas de
momentos, ambos en equilibrio.
"
I
J/



'" 

I
------ ~¡
:1
. ¡
I
I
I

------
2.2.5 Quinta Hipótesis Básica - Unicidad de las Soluciones
No son posibles soluciones alternativas a íos problemas de análisis estructural. Para una
estructura sometida a un sistema de cargas, tanto la configuración deformada, las
fuerzas internas y las reacciones (en general la respuesta) tienen un valor único.
Este principio se puede demostrar por la hipótesis del contrario. Supongamos que un
mismo sistema de cargas actuando sobre una estructura, produce dos configuraciones
deformadas en la estructura:
52
Solución
Correcta.

ins.6
53
I
• 17].4
t471.4
171.4.
r
4171
t2:9
En consecuencia a pesar de que ambas soluciones están en equilibrio sólo la B es válida
o correcta ya que la A no satisface las condiciones de contorno (compatibilidad) en los
apoyos. La solución correcta o verdadera es:
I
Solución B en
equilibrio y
compatible.

,


Solución A en equilibrio.
No compatible.

7675
Solución B. El desplazamiento horizontal del nudo 2 resulta nulo
l200



AH :::0.0563 cm 1,200
100 __..~'.__' __:L-_---..._--,
- ---r~ ... 10
 lo _ ~
i -----
525
i67l1
El desplazamiento horizontal en el apoyo 2 debería ser cero. Si calculamos el
desplazamiento hortzontal, utilizando por ejemplo el Método de las Fuerzas Unitarias
(Trabajo Virtual), obtendremos un desplazamiento .de 0.0563 cm, valor que no es
consistente con la condición real en el apoyo 2, por lo tanto la solución A, no es válida.
Isostátiea
y estable
52S
.~ Solución A
,
l
)
}
,
)
)
)
)
)
)
t;l, 
}
¡ )!
1
)
)
,¡
)
)
)
)
--i
)
)
)
)
} f'
")
)
"i
')
4
)
)
)
)
_)
)
)
)
)
)
)
)
-:)
-)
--J
)
'-~
:)
.:
:'
~
j
'
)
J
.
j
Estructura con comportamiento lineal
'Energia extraída o recuperada en el
proceso de-descarga
Trabajo de las
fuerzas externas =
Energfa almacenada
FF
Desde el punto de vista de la energía, la diferencia entre comportamiento lineal y no
lineal se ilustra a continuación:
DefonnaciónDefonnación
No Lineal - InelásticoNo Lineal - Elástico
AcciónAcción
DefonnaciónDefonnación
Lineal - InelásticoLineal - Elástico
AcciónAcción
2.2.6 Sexta Hipótesis Básica - Comportamiento Elástico Lineal
Supondremos que las estructuras se comportan en el rango lineal elástico, es decir que
la relación carga - desplazamiento es lineal. Dicho de otro modo, si todas las cargas
externas que obran sobre la estructura, por ejemplo se duplicaran, el desplazamiento de
cualquier punto también se duplicará.
Esta hipótesis está controlada por la hipótesis de desplazamientos pequeños asl como
por las propiedades mecánicas de los materiales de los cuales la estructura está
construida.
A continuación se muestran algunas de las posibilidades de comportamiento de una
estructura o material constituyente.
¡
¡
¡¡
¡
!
I1
¡
I
- Equilibrio
- Relaciones constitutivas
- Compatibilidad y condiciones de contorno
Conclusión: La solución correcta a cualquier problema estructural, es aquella que
satisface:
54
~,.'7 ~_.'.~" , _,":'''~. ' ~.' "~"'-:-"';:'.' ';~,':"_"_'-":::""'" ',', .. , .._ - . ..;_ .~.- ,~~~.', -:-.. ,,-;7,~;', ..,.~ .
. ~.1.'(""--=-_~~_",~__..-d;_=,"_-::...::. __'::_·__!- r;.~~·:_~=-_;:.:.:;;..~;'-h•.::;.,.-_;:.::'-. - - "" ..;-:.~,
~
~
4)
)
,)
)
)
)
)
)
}
55
0.0040.001 DJlO2 0.003
Conc .. '•• "a1n On.nnJ
Curvas típicas para el concreto simple en
tracción (izquierda) y para el concreto simple
en compresión (derecha)
O.QOIJI
N.rpmiento
PI&Cipe,acl..
con re¡ina '¡
Slraln (inJInJ
Acero de refuerzo para concreto
armado. CUrvasEsfuerzo -
Deformación en traecíón.
Grada 8080
Grada 75
Zona lnelástíca
120
Los materiales que componen una estructura pueden ser elásticos o inelásticos y
pueden ser lineales o no lineales en cuanto se refiere a la relación esfuerzo -
·cteformaci6n, Aún para un material linealmente elástico como el acero estructural, la
relación lineal esfuerzo - deformación es válida hasta cierto punto) normalmente el limite
de proporcionalidad. Por lo tanto, para que la hipótesis de comportamiento lineal elastico
sea válida, los esfuerzos en cualquier punto de una estructura bajo un sistema de cargas
dado, no deben exceder el limite de proporcionalidad del material.
la suposición de comportamiento elástico - lineal del material, suele ser una restricción
·severa de los métodos de análisis estructural que se presentarán. Las desviaciones del
comportamiento real del material con respecto a la hipótesis o suposición de
·comportamiento lineal, suele ser una fuente de discrepancias importante entre los
resultados teóricos y los experimentales.
·Ejemplosde comportamiento de algunos materiales:
ENERotA PERDID....
oDISIPADA
Trabajo de las
fuerzas externas
FF
~
)
)
)
)
)
)
)
-,)

)
1
»
)
)
)
)
)
)
,
J 1!j
t])
~
l?)
)
)
)
)
)
)
)
)
)
)
")
')
fi
">
)
j
)
.:}
)
)
)
)
)
)
)
"j
)
-,
)
,,)
-j
.j
-:~
~
.J
')
.1
)
J
J
J
,)
)
~
Momento - Curvatura
de la SecciónPerfil W18,,55
Ix ~ 37,000 cm"
Sx e 1,600 cm' Zx ~ 1835 cm3
My = fy S" ~ 40 t-m (momento de fluencia)
Mp = fY Zx == 46 t-m (momento plástico)
fy =2,500 kglcm2
ey =0.00125
My=40t-m
Mp=46t-m
I
f
o
~ ~
fy
.k. 2m
"
4m ¡-
€y e.., 11 JI
En el caso analizado las cargas actuantes llevan al material de la estructura a la zona de
comportamiento no lineal. Es claro que en este caso la posición final de la estructura j"".
depende de la Historia de Cargas, en consecuencia no será válido el Principio de .~~:.
Superposición, ~':
Ejemplo 2~8 Otro caso de comportamiento no.lineal de una estructura se presenta a f .
continuación. Se trata de una viga de acero doblemente empotrada que es cargada :~..
hasta la formación de un mecanismo plástlco. Se' ha supuesto que los desplazamientos { ;
son pequeños por lo tanto, el comportamiento no lineal de esta estructura estará .~P
asociado al material y no al cambio de geometría. ':3 ';,
POSICIÓN F'INAL
--~~~-+--------~~
Primero F2, luego FI

2.2.6.a Fuentes de No Linealidad en una Estructura
- No Linealidad Geométrica
- No Linealidad del Material
- Ambas
Algunos casos de No Linealidad Geométrica sepresentaron cuando se explicó el
Principio o Hipótesis de los Despiazamientos Pequeños, los casos que fueron
presentados asumen que el comportamiento del material es linealmente elástico y que la
no-linealidad de la estructura se debe a cambios importantes en fa geometría de la
misma.
A continuación se presentan algunos casos de comportamiento no lineal de una
estructura, asociado al comportamiento del material:
56
- - -- .-, _ ..- " .:- - - - - - - -' ..~;.. ... -
-... ;'-_~:;.~.._...';;&~::..~.:.,-.;_.:.:.~...:::"·.¡L~·~"':;:;¿'o'~'~!;'~.~:·!:·~.:;"";'l' ::;;.~.: ..-,,~;.:-.- .••-_::.-..::~.,~:;_;:~;; ~.~,,~;.,;,..;t,.,.....~~.:c.~~,::.'·'m", ".
.... .. ..-_ _... -. ,... ~- - - . -
.....~~2'"-r-»;»: ".,..-'- ,'~: .;' ';:~~..:....: -. ;.: .. .;.~:...:.::..~., ". .;,.>~~'.~-i;_:;: .' ::<;. ;.i~•..:..; ;~'~...~~::.:'.-:~.-:'.~- ..-
57
Deplaz. Vert. (cm)
10.5 1.5o
70 i j ] ! ] j60 m ••• +..u··· ····1··· ¡ ; ; •.
. . . . .- . . . .
e 50 ¡ ~.....,. ¡ ¡ ¡ ,. .
i::.•••:.:.::.:J:-: :.l.:·••::.::.1•••:••·••:1.·••••:.: ::.::¡
: : : ;': !
10 "" ·······i··· ···.~ : ! ~ ··..• 1
: : ¡
. .
o----~·----+---~----,_--~·~--~
Lagráfica carga vertical (P) contra el desplazamiento correspondiente (óv), se muestra a
continuación. Es claro que en la etapa inicial, cuando aún no se ha formado ninguna
rótula, el comportamiento de la estructura es lineal - elástico. De alll en adelante, la
'. estructura deja de ser lineal. Los desplazamientos verticales son lo suficientemente
pequeñoscomo para suponer teorfa de primer orden.
2
40 t-m
60 ton
::..Tercera rótula ~P = 2.14ton:
31.43___,..
,__./-----,~.86 ,~
·r ~ '{r
2 "<:¡:
~v~0.82cm.
, ,. _Segunda rótula .6.P= 12.86ton:
DMF(ton-m)
26.67
~ ~ --====-=-===
c::z;:~V~ 0.48cm
Deformada
~ 4S ton
"
J
........Lasecuencia de formación de rótulas es la siguiente:
• Primera rótula AP'= 45ton:
57
-:'", • .,..• '=", " •. :-.: '. -.-~ ".'~' !' ;-.-,
-:.:~,.~.,,"~~:':: __:..:--..: !'=!_._-':.:..:~;:i"~-'-!~.~':"..;.~ ,.~ ••: .,.;:;.¡.~;;";';'~"":::;¿~...(~.;.;:_..:.¡:.~·~._:_¡_~:.:.;.;_;;_...:.:;,L~_'~ '--':~~~.-~:'::~:
.~
)
)
¡
..,
1I
I
~I
I
I
I
.:)
1
)
--1
)
C)
~
)
)
)
')
)
')
)
)
)
)
.,
)
}
)
)
j
)
..)
)
)
)
)
)
)
)
7
)
l
.>
.)
-)
_J
-)
~
J
)
)
J
J
')
)
)
~
~
-)
58
Par~.qbi·~el plinciPIQge,superpósici~n~e~v~l!do.debe cumpjrse:
a) 'q:QmPQrtarii¡el1t~Lineal - E:i~$tiCó. No'.hasta que él material o la estructura sea
lio~~;j.qet:>eser ~mb~~nelªs~iº~;,:.~$'d~éir. al des~~rgar I~·estructura, estª debe
se~~¡rI~'ri1j$rn~tiJ'y~pt()ijaq~~~yórq:~ráñ~~el proceso de Cár:9~·
b) Nd.,:~~b~ti.:~~i$tirN9Linealida:de$ ·G~ohié.tricas.es decir debe cumplírée la hipótesis
de d.~$pl~t.E.itjl!~QtgS,.pequeños. . .' .
Si j,a ~~tN~tW(~~Wi,:~slih~~I--elásticE,i. 9,' p.~:n9ipiOde superposición no es apllcable ya
que el comportamiento dependerá, de la hlstorla de cargas.
o
+
r ,
Ója~aml,t de Momentos o
·8.68
+
I
1
Defo~8das
+.
5
: .j .
~
~El
11/
3m El
Q-D

1 4m ~
t t
59
Ejemplo ,2~9 Para el pórtico mostrado se pide calcular los. Cgefic;ientesde tlexibjlidad
páh:.:~r$i$~em~Q ~ D ingj9a~oy la Matriz de J=lexjbilj~ad[Fldél P~óttíc,Q.
Nó,t~~~',qu~,', el pÓ(tipp es ,ij1J~rna y ,~~~rnarn,erlteQ~i~rrnina~o (iso~t~tico), ~n
cons&cú~h.9la ~I c~,tCqlp ~e..'!9s coefici~flte.S de fle)(ibil,igfJd se puede r~~l)g~r
glr~ctr;i,ih(~mte'~~pliéandola definición de coeficiente l;f~ ,flexibilidad. Si la estructura fuese
¡Ilde~~-rmiflaaá,el cálculo dé' dichos coefiCientes," Involu'c:raiía la SQlución' de 'Óh'a
'~$trU~tura.Hipérestática. sin embargo, la definición dé coeñciente de flexibilid¡;¡d sigue
siendo la misma. '
{D} = (F] {Q}
Superposición;
DI= fJI QI + frz Q2
O2 = f21QI +fnQ~
L~~,,'~,q~~ciQnes'.ahteriores ~xpr:e~an que los, desplazamientos, son" combinaciones
lIñeáles:ae las,camas;' '[Fj ~$Ia M~t.rizde 'Flexibmdª<f ~'e'la és.trúqttír~'corre'sponc:Hent~a
,~;~~;g~f~~n~~~$;'~~!I~~¡~'ri~~~~',, " .._. ,
SignifioBcki físico de los CoeficIentes de Flexibilidad: fij es,''~,Id~spla:z~miehtQen ,la
~~lf'~f~~~~~¡~~~~~'J/~~~~~:it~!~~:~~~~enJ~~~~~aad~'~~.;r~F~~xl,p"J,d,~g,:º,~,u~~ i7stru.qtL.!ra~~ pu~de interpretar, COrnO 'el,ºQI1J_yotoqe de$pl~~~m!e@~ps
en tQq~~::na$',:co'()rdena;dasi,deJ:>j9Q'a la aplicación de una úñióa 'carga 'ünitaria·~ri:la
cOoroe:hádá·. " ,:.. ,,,"',,"',, ..' o" ',,' J ,
Las pyih'Cj~ª'I~,$'Próp;edadésde ta"Matriz de Flexibilidad de una e$tructura son:
a)' Lhs:99;e,fid~ntas~~<f!~~¡P¡li~~dfij son simétricos" es d~cir fij'~fji
b) ~o$, ~Q~fib'~~:f1te.~qe,fl~}(ibjliti'~Qde la diagon~1principal son siempre mayores que
,cerD,' e$deCir fii;>,(j~ ,,',' "''', "
c) En'uná'esttuctü@,e§table la'Matriz de FlexibiJidactes defini:9ª positiva, es decir '$U
inversa e~isie, en coñsecuencla el sistema de ecuaclones {Q} = [Fj-J {D} tendrá
'$Ó.I,U9í6n única.
J.'
,Q. lQ2
L~,
+- :J
02 fll fil
" (X QI)
2.2.7~aSuperposición; de Fuéizas.- .t··· . ., "_._. . ... ~ ;.. ,-:::. "}:
>
)
)
}
)
!
~
• 1
, '
-}
)
-4
)
)
)
}
)
)
)
)
)
"
l'
)
)
~
,)
.)
)
J
)
)
)
j
,)
, '
I
L.
)
')
}
)
")
)
)
)
c-j
-)
-4
)
)
)
)
)
)
)
)
)
)
)
)
-j
)
-J
)
,_)
....)
)
~)
d
)
,)
)
.,
J
j
)
)
e
cJ
....~
l
60
f11 = .!.(3)(3)(2) +.!.(3) (4)(2) =3.!.2 2 El
fu = f1, =-.!.(3)( 4) (.!..)= _2-
2 3 El
f =!(1)(4)(~):; 1.333 f = f =-!(4)(1)(.!.)=_ 0.667
22 2 3 El 23 32 2 3 El
f33 =- ~(4)(1)(_ ~)=1~~3
4
f = Jm,m3
13 El
o
4
f - Jm3m3
ll- El
o
Diagrama de momentos
Diagrama de momentos
Diagrama de momentos
3
4
f = ¡m2m)23 El
o
4
f = ¡m2m2
22 El
o
4
f. = ¡m,m2
'2 Elo
Carga unitaria en la coordenada 3
Carga unitaria en la coordenada 2
• (12 ~
Q2 = 1 t1~~:::::::===~~:-
Carga unitaria en la coordenada I
• Coeficientes de Flexibilidad: Se calcularán utilizando el Principio de las Fuerzas
Virtuales (acápite 2.3) considerando únicamente las deformaciones originadas por la
flexión, se desprecian tas deformaciones axiales y por fuerza cortante.
i
)
_)
J .::.
k'::
)
~:- 61
t ~~~~
• Coeficientes de Flexibilidad: Se calcularán utilizando el Principio de las Fuerzas
Virtuales (acápite 2.3) considerando únicamente las deformaciones originadas por la
flexión. se desprecian las deformaciones axiales y por fuerza cortante. La viga, al ser
un elemento indeformable, no acumula energía interna de deformación.
t
"
4mJ

El
3m
-.. ¡:ZZ22ZZ:ZZzzz.zn
1 El = 00
Ejemplo 2-10 Para el pórtico mostrado se pide calcular los coeficientes de flexibilidad
para el Sistema Q - D indicado y la Matriz de Flexibilidad [F] del pórtico. La estructura
está compuesta por una columna deformable por flexión y por una viga que se ha
modelado como indeformable (sólido rfgido).
Al igual que en el Ejemplo 2-9 el pórtico es interna y externamente determinado
(sostanco).
Se sugiere consultar el acápite 6.6 donde se calcula la Matriz de Rigidez del pórtico.
2
o1
9 3
[prJ = [K]= El 2
3
O -
2
• Observaciones relativas a la Matriz de Flexibilidad:
a) La Matriz de Flexibilidad es simétrica (tij = fji). Esto resulta evidente si se observan
las integrales utilizada para el cálculo de los coeficientes de flexibilidad ñ], el producto
de los diagramas de momentos (mi mj) es conmutativo .
b) Los términos de la diagonal principal (fii) son positivos. Esto resulta evidente si se
observan las integrales utilizada para el cálculo de los coeficientes de flexibilidad de la
diagonal principal (mi mi).
c) La Matriz de Flexibilidad es definida positiva (determinante distinto de cero), es decir
su inversa existe. La inversa de la Matriz de Flexibilidad es fa Matriz de Rigidez del
pórtico en el mismo sistema Q-D. La inversa de [F] es:
4 -2]1.333 -0.667
-0.667 1.333
[
21
[F]=_l 4
El
-2
• Matriz de Flexibilidad de la estructura en el Sistema Q-D seleccionado:
61
.)
)
,)
)
..,
_J
)
)
)
)
•....
) ;::
.-
l
)
)
}
}
)
j
-)
}
-1I
iI
)I
I
i
)
)
)
)
)
)
)
')
l
l
}
>
."_
.,
''
8
9
)
)
)
)
)
)
")
)
)
)
.,)
j
)
)
..)
)
~
)
)
)
)
)
)
.)
"j
J
)
)
~3
-")
.~
-=j
;¡jJ
J
.)
)
]
)
')
.)
)
~
62
Se sugiere consultar el acápite 6.6 donde se calcula la Matriz de Rigidez del pórtico.
• Observaciones relativas a la Matriz de Flexibilidad:
Son válidas las mismas observaciones realizadas en el Ejemplo 2-9.
La inversa de la Matriz de Flexibilidad es la Matriz de Rigidez del pórtico en el mismo.
sistema Q-D. La inversa de [F] es:
[Frl = [K]= EI[ :61 !]
l~ .
• Matriz de Flexibilidad del pórtico en el sistema Q-D seleccionado:
[F]__ 1 [9 -18 ]
El -18 48
J 3 fi:0f - jm.m. f - sm.m2 S ~11 - 12- +
O El. o El. o El2
3 fkOf22 = sm2m2 + J m2
O El. o El2
1 (2) 9fll =-(-3)(3) - (-3)=-
2 3 El
48
f22 =(4)(3)(4) =-
El
4
4
3
1("
62
DI+fu X¡ = O
El Método de Flexibilidad se basa en:
- En el principio de superposición aplicado a las fuerzas.
- Las incógnitas son las redundantes estáticas.
- La compatibilidad (externa y/o interna) de la estructura es violada en la estructura
primaria ya que se remueven apoyos o fuerzas internas o una combinación de
ambas.
- El sistema de ecuaciones que conduce a la solución de las redundantes se obtiene
forzando la compatibilidad de desplazamientos externos y/o internos.
{D} + [F] {X} = {O} (ecuación de compatibilidad)
{X} = - or' {D} (solución)
El equilibrio se cumple automáticamente ya que la estructura primaria es isostática y
estable.
La Ecuación de Compatibilidad del Método de Flexibilidad, que permitirá calcular el valor
de la redundante XI es:
(* XI)
Nótese que la Estructura Primaria elegida es isostática y estable. Para el análisis de una
misma estructura, existen diversas posibilidades o alternativas para la elección de la
Estructura Primaria, dependerá de las redundantes estáticas que se elijan para analizar
la estructura. En algunos casos la Estructura Primaria seleccionada para la solución de
la estructura, puede ser hiperestática, pero nunca inestable.
Superposición:
Estructura PRIMARIA
Coordenadas X - D
FF
)
~,
1
)
)
1
)
)
,
1
¡
•
~
)
-}
! )
¡
)
I }
)
)
)
)
)
)
)
)
)
)
)
~

)
)
_j
I
1
?
~
.)
I
)
I
I
~

?
~
, )
2.2.7.b Método de Flexibilidad
El Principio de Superposición, aplicado a las fuerzas, es la base del Método de
Flexibilidad. -
} Por ejemplo, en el pórtico mostrado a continuación, que tiene una sola redundante
estática (XI), el principio de superposición de fuerzas permitirá obtener una ecuación (de
compatibilidad) para calcular el valor de dicha redundante.
63
')
)
64
Deformada
Estructura Primaria
Cargas externas
3
Diagrama de momentos {M} (ton-m)
Estructura Primaria
Cargas externaS
10m
2.0 --l
4
,t)
2)
)
)
')
)
)
)
)
)
)
)
"i
)
,~
)
)
)
')
J
)
)
)
)
)
)
)
'7
,)
)
)
;:~
" )
:9
-d
~
)
')
)
j
)
j
)
)
~
o
~
Estructura Primaria
Coordenadas x, D
8.0m
l
3.0
ó4
• DiagrrilOlaide momentos flectores y deformada en la Estructura Primaria ocasionados ,
por las cargas externas.
• -el. pórtico es externamente indeterminado en segundo grado. Utilizaremos para la r
::·solucí6nla EstrUctura Primaria (ísostátlca y estable) indicada a continuación. Nótese:' ...
<quehay diversas posibilidades para la elección de las redundantes.
Ejeli'lpló .2~11 Resolv~r el pórtico piano mostrado utliizandó el M~todo de FI~xib.mdad.
La $eCti(>o de ías b~iTás .es constante con rig~~z EL Se cóh~ideran únicamente
defonnaciones por flexi6n. es decir, se ignoran las deformaciones ~Iales y por cortante.
;1 S tOñ
2 . 3 +~~----------------------------------~--------
65
.. fl2
§
Defonnada
Estructura Primaria
X2 = 1ton
I
)
Diagrama de momentos {m2}
Estructura Primaria
X2 = 1 ton
)
1
}
j
)
)
/
fu
• Diagrama de momentos flectores y deformada debidos a una carga unitaria en la
coordenada 2.
..
)
V
)
~
 )
_. I
),)
I
j
(
)
I
1_~ I
;)
I?/
1.00 U
Diagrama de momentos {m 1}
Estructura Primaria
X) = 1 ton¡ )
i
,
1
)
l
)
1 ,¡
}¡
¡
J
J )
1
-)
I ),
i
.100
Deformada
Estructura Primaria
Xj = 1ton
1.00If
Diagrama de momentos flectores y deformada debidos a una carga unitaria en la
coordenada 1.
~
1;
t
~ •
i
)
}

)
)
t
)
)
)
.)
~
)
/
")
)
_J
)
.l
}
)
Se sugiere al lector, resolver el pórtico utilizando como incógnitas el momento en el.
empotramiento (nudo 2) y el momento interno a la izquierda del nudo 3.
Diagrama de momentos final (ton-m)
U.7
2
10..00
Deformada final
{M}final = {M}Est.Primaria + {mJ}Xl + {m2} X2
• Los resultados ñnales se pueden obtener por superposición. Por ejemplo, el diagrama
final de momentos se puede obtener mediante:
1 (Xl)(2.22){X} = - [F]' {D} => ~ ton
x, 5.62
Primaria debidos a las cargas externas y .
66
{D} + [F]{X}= {O}
• Desplazamientos en la Estructura
coeficientes de flexibiJidad.
DI = JM."'1 = _ 720
El El
f - ¡m¡m1 _ 81
11 - . -
El El
e - J~~- 170.71.22 - -
. El El
• Ecuacionés de Compatibilidad. Deben reflejar que el desplazamiento del nudo 1 en la ".
estructura real debe ser nulo,
67
f22
_ lx6 _ 2.0_--_-
3El El
Ix6 1.0
f12= ---=--
6EI El
• Deformada debida a una carga unitaria en la coordenada 2. X2 = 1ton-m
f21 = _ lx6 =_1.0
6EI El
fu = lx4 + lx6 = 3.333
3EI 3EI El
• Deformada debida a cargas unitarias en la coordenada 1. XI = 1ton-m
27
El
wtl 27
D = =-
1 24EI El
Rotaciones tramo 2-3:
~!llJlH ¡¡IllIl ili!11l1!~;l
3.0 tf/fn
• Deformada en la Estructura Primaria ocasionada por las cargas externas.
Estructura Primaria. Coordenadas X, D
x., DI
~ ~ ~~
L~~---------------~~~QH:L_----------------------~4~
• • La viga es externamente indeterminada en segundo grado. Utilizaremos para la
solución la Estructura Primaria (isostática y estable) indicada a continuación, en la
cual se han tomado como redundantes los momentos flectores en los nudos 2 y 3.
Nótese que hay diversas posibilidades para la elección de las redundantes.
rl-Oé~---4_C:O m
)
,
)
Resolver la viga de dos tramos mostrada utilizando el ~odo de
,Flexibilidad. El nudo 3 es un empotramiento perfecto. La sección de las barras es
-constantecon rigic;lezEL Se consideran únicamente deformaciones por flexión, es decir.
-...se ignoran las deformaciones por cortante.
í

,
)
I ')
1
)

!
i
¡
¡
)¡
i
}
j )
__,
í
)i
1 )
!: •¡ 
1
}
.>,
}
/
)
-
)
)
-:J
)
~

jI
,J
?_)
I
-)
I
(
)
)
')
)
)
)
)
')
)
)
)
)
.)
)
-)
)
J
)
)
_j
)
.)
)
)
)
)
.)
.)
.)
-j
)
-")
)
~
-1
'3
~
.¡¡
,)
)
)
._
J
.
~
• la viga es externamente lndetermínada en segundo grado. Utilizaremos para la '
solución, la Estructura Primaria (isostática y estable) indicada a continuación, en la ..'
.cual se han tomado como redundantes la fuerza cortante (XI) y el momento
(X2) en el nudo 2. Nótese que hay diversas posibilidades para la elección de laS'
redundantes. .
1 "'C:~:'5~i>"'?;y!:(-;f:%~~~}".;:;,i';;'i,.!;,n
k ----->*~~~----.----4m 6 m
6EI
Ejemplo 2-13 Utilizando el Método de Flexibilidad, resolver la viga de sección variable .., ,'.
doblemente empotrada. El primer tramo (barra 1-2) tiene una rigidez El y el sequndo:
tramo 6 El Se consideran únicamente deformaciones por flexión, es decir, se ignoran
las deformaciones por cortante.
Se sugiere al lector, resolver la viga utilizando como incógnitas las reacciones verticales
en los nudos 1 y 2.
Deformada final
! ------
~l.ll rUn] IU! Illl!1111111l1HIlIlJlll.hl
3.0 tf¡¡n
Diagrama de momentos final (ton-m)
5.746
• los resultados finales se pueden obtener por superposición. Por ejemplo, el diagrama .:
final de momentos se puede obtener mediante:
{M}final = {M}Est.Primaria + {mI} X¡ + {1n2} X2
1 .. (XI) (-4.765){X}= - [F]' {D} => ~. ton-m
Xl 11.118
• Ecuaciones de Compatibilidad. Deben reflejar que la rotación relativa del nudo 2 y la
rotación absoluta del nudo 3, en la estructura real, deben ser nulas.
{O}+[FJ{X}={O} ~(:~7)+ ~(~!~:~~:)(~)=(:)
68
•. -- _. ". ','~' ::" . "- .: .: -_ ,••• ,,,. 7 .,. ..., :: " ::: .. . "." " • .'" ••• ... '" : --:,- _... ~.
-,; ..._.;~:::.._..:....:~....;.:;...--.....~-~:~......:...._..:.:...... ...:_.:..:.....~~ ....:.:.:....:;.:__.__._;,;:_:.,.......:._:;._.~-'-. ~- •..~'......
69
• Losresultados finales se pueden obtener por superposición.
=> (Xl) ~(-4.71 ton)
x, 11.29ton-m
{X} = - [Ffl {D} .
{O} + [F]{X} = {O}
• Ecuaciones de Compatibilidad. Deben reflejar que el desplazamiento relativo y la
rotación relativa en el nudo 2. en la estructura real. deben ser nulos.
El
f lx4 lx6 5.0 ( . • lativa)22:: - +-- ::- rotación re atíva
El 6EI El
f12= lx42 _ 1x62 =_5._0
2EI 2 (6El)
1.Jl m = 1.0
_.--=-=- {_  ~====::=:== __ __.._=>"7"'."
"--+/
• Deformada debida a una carga unitaria en la coordenada 2. X2 = 1ton-m
f21 = lx42 _ 1x62 5.0
2 El 2 (6EI) El
fu:: Ix43 + Ix63 :: 33.333
3EI 3(6EI) El
,
Deformadadebida a cargas unitarias en la coordenada 1. x¡ = 1ton
o :: _IOx42 +0=- 80
. 2 2E! El
D = _IOx43 +0= _ 213.33
'3EI El
¡lO
~V=--:Z-=~,----,-. -----., DI
~
Deformada Estructura Primaria- cargas externas
.., . • Deformada en la Estructura Prímarla ocaslonada por las cargas externas. Nótese que
se ha supuesto que la carga externa está aplicada inmediatamente a la izquierda del
nudo 2.
T?f7rnln__ -----:--.X---+~ X~.....,_:...._t_X2 ~,+:
¡XI
Estructura Primaria. Coordenadas X, D
)
,
! )
I
)
)
l
1
)
¡
I!
I
)
-4
¡
)
I¡
i
'.)
)
)
)
-,
1
t
)
)
t
)
~
J
i
1)
j ;
)

__: 1.)
)
I
)
I
)
I
?:!)
I I
)
I (
70
Las ecuaciones antenores expresan que las cargas son combinaciones lineales de los
desplazamientos. [K] es la Matriz de Rigide~ de la estructura correspondiente a las ..
coordenadas seleccionadas.
Significado ffsico de los Coeficientes de Rigidez: kij es la fuerza en la coordenada i .
debida a un desplazamiento unitario en la coordenada j, manteniendo nulos los ."
desplazamientos en todas las otras coordenadas. Una columna de la Matriz de Rigidez '.
de una estructura, se puede interpretar, como el conjunto de fuerzas necesarias en todas .
las coordenadas, para lograr un desplazamiento unitario en la coordenada j,
manteniendo nulos los desplazamientos en todas las otras coordenadas.
Las principales propiedades.de la Matriz de Rigidez son:
a) Los coeficientes de rigidez kij son simétricos, es.oecír kij = kji
b) Los coeficientes de rigidez de la diagonal principal son siempre mayores que cero,
es decir kii > O.
c) La Matriz de Rigidez es definida positiva. es decir su inversa existe.
[
k k ][K]= )1 12
k21 k22
{Q}= [K] {D}
Superposición:
QI = kll D. + kl2 D2
Q2 = k21 DI+k22D2
(+D2)(*Di)
2.2.r» Superposición de Desplazamientos
Si la viga fuese de sección constante (El) el momento en el empotramiento izquierdo
sería 14.4ton-m,en el empotramiento derecho 9.6ton-my el desplazamiento vertical en el
nudo 2 sería 46.08/EL Es clara la diferencia notable en los resultados.
Se sugiere al lector, resolver la viga de sección variable utilizando como incógnitas los
momentos en los nudos 1y 3.
Diagrama de momentos (ton-m)
Deformada, Desplazamiento vertical del nudo 2 ;::;22.59/EI
~f16'<';41
~.."
)
)
)
')
)
)
)
)
-j
)
~
)
)
)
)
)
)
)
)
)
)
)
)
~
-J
-J
)
_.
.... )
,
J
.;
)
)
)
.~
J
~
-
~
e
.q
--
:;
),
70
71
Ecuaciones provenientes de la superposición de los desplazamientos:
Ql = kl1 DI +k12 D2+ k13D3
O = k21 D1 + k22 D2 +k23 D3 {Q} = (K] {D} {D} = [Krl {Q}
O = k31 DI + k32 D2+ k33 D3
.' Las ecuaciones anteriores representan ecuaciones de equilibrio de nudo en términos de
••....los desplazamientos correspondientes. Nótese que en ninguno momento se han violado
..•las condiciones de compatibilidad internas ni en los apoyos.
.Al resolver las ecuaciones de equilibrio de nudo, se podrán conocer los desplazamientos
de los nudos y a partir de ellos, se puede construir la deformada de la estructura y se
POdráncalcular todas las fuerzas internas en las barras.
Nótese que los tres grados de libertad seleccionados para el análisis por el MétodQ de
Rigidez de esta estructura (un desplazamiento lateral y dos rotaciones). corresponden a
los movimientos esperados de los nudos de la estructura. El lector puede argumentar
... qUe el análisis completo de una estructura lleva consigo la determinación de los
Superposición de los desplazamientos nodales
03= 1D1= I
kJ3
kJ3'-' ,--,1;--=-_...1....-:;)
Configuración
deformada
~
r---~~---x- -:;.:.::.~ ':>~
SistemaQ - O
Estructura
EA=co
Grados de Libertad
El
El
por ejemplo, el pórtico mostrado a continuación, tiene tres grados de libertad (si se
oran las deformaciones axiales). El principio de superposición de desplazamientos
obtener un sistema de tres ecuaciones (equilibrio de nudos) en las cuales las
nitas son los desplazamientos nodales.
2.7.d Método de Rigidez
Principio de Superposición, aplicado a los desplazamientos, es la base del Método de
)
}
7
)
~
.)
)
)
)
_)
)
)
,)
1
j
»
)
)
")
)
-)
>
~
DI
)
----) ~
I
)
I
I
,
 11
kJ~
k21
)
)
)
)
!J)
,~
)
)
)
)
)
)
)
)
)
)
~
O)
-=J
)
)
J
)
.)
)
-
?
-
.
-
J
o
;
,
72
El Método de la Carga Unitaria aplicado a una estructura de barras linealmente elástica '.,~
en la cual se consideran las deformaciones axiales, por flexión y fuerza cortante y por "
torsión se expresa mediante: ,1
(l)Dj= In~ds+ fm M ds+ fv""::!_ds+ Iml Mt ds
EA El G Ac ' GJ
(l)(Dj) = ¿(Bq) d
Donde BQ Y &¡ son las fuerzas virtuales en equilibrio externas e internas'
respectivamente. D Y d son los desplazamientos reales compatibles externos e internos ';:
respectivamente.
Recuerde que este Principio está asociado con la variación virtual del trabajo y la energía ,;
complementaria y SUstituyea las ecuaciones de compatibilidad.
El Método de la Carga Unitaria se deduce directamente del Principio de las Fuerzas
Virtuales haciendo BQ = 1Y permite calcular el desplazamiento real en la coordenada j si t
se conocen los desplazamientos internos reales ocasionados por las solicitaciones:
¿(BQ) D = ¿(Bq) d
í)BQ) D = I(Ba) E dv
Vol
En su forma más simple, para una estructura formada por el ensamblaje de barras ,',,
unidas en los nudos, el Principio de las Fuerzas Virtuales establece:
2.3 Principio de las Fuerzas Virtuales
Conviene recordar el Principio (teorema) de las Fuerzas Virtuales ya que será de utilidad
para la solución de varios de los problemas que se presentan en los capitulos siguientes,
principalmente los relacionados con el Método de Flexibilidad. La expresión general del,
Principio de ías Fuerzas Virtuales es:
esfuerzos y movimientos en cualquiera de sus puntos, sin embargo. en el caso de las
estructuras reticulares (formadas por el ensamblaje de barras) este interés se centra,
principalmente en 'os movImientos de los nudos y en los esfuerzos que actúan en los';
mismos.
L~ razón de esto estriba en que el estado completo de esfuerzos y deformaciones de!
cada barra de una estructura lineal, puede determinarse completamente si son i
conocidas las fuerzas y momentos que actúan en sus extremos. Una vez que éstos han i
sido hallados, el cálculo detallado de las condiciones de puntos intermedios de una barra I
depende exclusivamente de ras caracterrsticas de la misma, y no de la posición que
ocupa en la estructura. En general. se supone que un cálculo ha sido concluido cuando
los movimientos de los nudos son conocidos y las fuerzas y momentos de los extremos I
de las barras han sido determinados. 
En el acapite 6.5 se verá que el principio de superposición. aplicado a los
desplazamientos, permite calcular las fuerzas equivalentes en los nudos (Estado
Primario) cuando la estructura está sometida a cargas en las barras, sin necesidad de
ampliar el sistema Q-D.
72
¡
;
t
j
¡ ,
¡
[
I
I
El Teorema de BeHi tiene numerosas aplicaciones, entre ellas, para la construcción de
Líneas de Influencia. El ejemplo que se presenta a continuación es una muestra de las
diversas aplicaciones que tiene este Teorema.
nI nl
¿Q: n:I = LQ? n: =:> {QI}T {DlI} = {QII}T {DI}
;=1 i= 1
2.5 Teorema de Betti
En una estructura linealmente elástica, sometida a dos sistemas de cargas diferentes, el
trabajo que realizan las fuerzas del Sistema 1 a lo largo de sus desplazamientos
correspondientes en el Sistema JI, es igual al trabajo que realizan las fuerzas del Sistema
II a lo largo de sus desplazamientos correspondientes en el Sistema l.

)
)
)
)
)
)
(1)(0) = ~)q) od
Donde Q y q son las fuerzas reales en equilibrio externas e internas respectivamente.
.."". SD Y od son los desplazamientos virtuales compatibles externos e internos
.' respectivamente.
Recuerdeque este Principio está asociado con la variación virtual del trabajo y la energía
. _realsustituye a las ecuaciones de equilibrio.
.El Método del Desplazamiento Unitario se deduce directamente del Principio de los
Desplazamientos Virtuales haciendo oD = 1 Y permite calcular la fuerza real en la
coordenada} si se conocen las fuerzas internas reales.
¿Q(SD) = f a (OE) dv
Vol
En su forma más simple, para una estructura formada por el ensamblaje de barras
unidasen los nudos, el Principio de los Desplazamientos Virtuales establece:
¿Q(SD) = ¿q(od)
. ·.,2.4 Principio de los Desplazamientos Virtuales
Conviene recordar el Principio (teorema) de los Desplazamientos Virtuales ya que será
.. deutilidad para la solución de varios de los problemas que se presentan en los capitulos
siguientes, principalmente en los relacionados con el Método de Rigidez y con la
. construcción de las Líneas de Influencia. La expresión general del Principio de los
Desplazamientos Virtuales es:
73
'}
J
}
)
~
.)
)
J
.)
.J
)
J
)
J
J
)
i
,
)
)
}
I
;
j
)
'-4
l
)
)
)
)
)
)
)
)
-i
)
~
)
.
:
74
t 1/3
1/2
~
1/3
1x (év C) - 1/3 x 6 = O~ 6v C = 2 cm
+1ton
• Desplazamiento vertical del Nudo C. El Sistema 1 (Sistema Real) no cambia, ';
modificamos solamente el Sistema n. ..
• _ _/.:Cero
{Q!P"lDJI} ={Qll}T {DI} ::::){QII}T {DI}=O
1 x (611C) - 1/2 x 6 = O --+ Mt e= 3 cm.
8eUi:
i
",
r I
, 
II 
. 
, 

Sistema 1

Sistema 11
-mr 11
~
.¡ 1
~112 1/2
6cm
13/4 +3/4
• Desplazamiento horizontal del Nudo C.
Nótese que la estructura es lsostática, en consecuencia, el movimiento del apoyo A
(asumiendo desplazamientos pequeños) no genera ni reacciones en los apoyos ni
fuerzas internas en las barras. Es posible calcular el movimiento del nudo C utilizando'
geometría de desplazamientos pequeños, sin embargo, puede resultar más práctico:
utilizar el Teorema de Betti.
" 4m ,,4m If
~ ~ ~
6m
A
Ejemplo 2..14 En el pórtico triarticulado (rótula interna en el nudo C) mostrado a
continuación, el apoyo A sufre un desplazamiento horizontal hacia la izquierda de 6 cm
Se desea calcular el desplazamiento horizontal, vertical y la rotación relativa del nudo C.
74
III
;
1j"
75
1/6
..........-
1/6
Sistema n
1/6 x 0.06 + 1x 9c = 0-+ 9c = -0.01 Rad
• Giro relativo en el Nudo C. El Sistema 1 no cambia, modificamos solamente el Sistema
n.
)
)
}
)
f 1I
I
t
J
J
)
j
)
--4
1 1
! )
,
)
t ..
)
~~',
r!.
t ~.~"
)
¡'.~
~L) .',
J
~E~..
'."
) ~+,:
~(~
}
8'
i~:
,
~:J, '.
~~;;;
)
~~.
,',1'
1 ~.'
~
.) ~r'.'
":."
~
jI'.;".
.,
",t
..
;¡...:;
,} "
r
) )',.:.
)
~.
.i.::.•
:J':.,
) ~~-
1~~
)
'
i::
J
)
.)
j
)
)
)
)
)
)
)
)
)
)
...:)
")
~
}
)
,)
d
~
-
76
Algunas Funciones de Forma para barras de sección constante, sin deformaciones por
fuerza cortante, se resumen en la Tabla 3.1 inserta al final de este capítulo.
Los valores de las constantes (ai) se obtienen de las condiciones dé borde
(desplazamientos y rotaciones conocidas) de cada barra. Estos polinomios, también
conocidos como Funciones de Forma, son válidos solo para barras de sección constante ':;:.-
sin cargas transversales aplicadas sobre ellas, es decir para el caso en el cual solo hay ;
cargas externas aplicadas en los nudos de la estructura. ..;;
En barras del tipo armadura solamente hay deformaciones longitudinales, en
consecuencia, la Función de Forma será:
I1
3.1 Número de Grados de Libertad de una Estructura~
Para una estructura formada por el ensamblaje de barras conectadas en los nudos, se
define como el número total de desplazamientos índependientes en los nudos de la
estructura. A cada desplazamiento independiente se le denomina redundante
cinemática o grado de libertad o coordenada generalizada.
Un sistema de desplazamíentos o de coordenadas es generalizado si los
desplazamientos son independientes, es decir si cada uno de ellos puede ser variado
arbitrariamente e independientemente de los otros.
Es posible argumentar que el análisis completo de una estructura lleva consigo la .
determinación de los esfuerzos (fuerzas internas) y movimientos en cualquiera de sus
puntos, sin embargo, en el caso de las estructuras reticulares (formadas por el
ensamblaje de barras) este interés se centra principalmente en los movimientos de los
nudos y en los esfuerzos que actúan en los mismos.
La razón de esto estriba en que el estado completo de esfuerzos y deformaciones de
cada barra de una estructura lineal, puede determinarse cómpletamente si son'
conocidas las fuerzas y momentos que actúan en sus extremos. Una vez que éstos han
sido hallados, el cálculo detallado de las condiciones de puntos intermedios de una barra
depende exclusivamente de las caracterlsticas de la misma, y no de la posición que'
ocupa en la estructura. En general, se supone que un cálculo ha sido concluido cuando
los movimientos de los nudos son conocidos 'i las fuerzas y momentos de los extremos'
de las barras han sido determinados.
En consecuencia podemos afirmar que: En una estructura de:,barras, la configuración
deformada está completamente definida por los desplazamientos: de:·/os nudos. En' la,
realidad toda estructura tiene infinitos grados de libertad ya que cada punto de ella tiene "
sus propios grados de libertad, sin embargo si se determinan los desplazamientos de los
nudos, será posible determinar la configuración deformada de cada barra.
La configuración deformada de cada barra puede obtenerse a partir de los
desplazamientos de (os nudos a los cuales concurre la barra Y. a partir de la
configuración deformada, es posible determinar las fuerzas, inn:trnas en ellas. En el
pórtico mostrado a continuación, las configuraciones defOlmadas de.· laS~,b'alTas'
(desplazamientos transversales al eje) se han obtenido a partir de polinomios..cúbicos de
la forma:
1
(
¡
1
i
!t
Ii
CAPITULO 3-lndetermináción Cinemáticá
76
:- _.~-.:..,~ .
..___._~- _- -~
· . _ _ _ __, _':~_._:',:¡,-:·,c-:'::-:-
...._,_!. __.~ .. ~'._' __'::'_._---.-~- .. .. , •...'.'>"_ .•.,.._.... _: •... _ ,._.., .~._ :.• ;:_.~._.-:: __.:__:~~:....--_.•... -0· '~
~':)
,t)
)
.)
Dl
t~  4EID
T 102_,..,.. 1 )
6EI DI
~
1l~I(X)
12 o
~(x)
2E!
D)
1
/11
12EJ D t EAD
1 2
[3 I
77
111
Para D2 (desplazamiento vertical) ~(x) = D2 (l - ~) es el desplazamiento axial.
e
Las fuerzas de extremo de barra correspondientes se pueden calcular a partir de las
qeforrnaCiones de la barra utilizando, por ejempio, la relación Momento - Curvatura
(M= EI4l") los resultados son:
qneX)=-DJ(x)(l- ~ i
",
Grados de Libertad
Sistema O> D
J
Configuración deformada
3
,Si eonslderamos por ejemplo, la barra 1-2, los desplazamientos en su extremo superior
son DI, D2, D3 (los mismos desptazamíentos del nudo 2 al cual concurre) y las
configuraciones deformadas (Función~ de Forma) se muestran ~ contínuaclón junto con
las ecuaciones que permiten calcular ~I desplazamíento transversal de cualquier punto a
lo largo de su eje.
~
.   '1(x)
2
:..:.:4
Estructura:
Geometría y cargas
en nudos.
Barras eón EJ, EA
2
)
-,¡
)
1
)
}
}
)
--l
)
)
)

J ,...-:
00
}
00
J
)
oí
)
}
)
Jf
)[
it
1)1
)
)
1
j
: I
•,1
1
~
I
(
Q2-D2Ql~DIQ-D
EA
2
Q-D
Armadura con 8 g.d.l
- Los apoyos restringen algunos gdl
- Los gdl seleccionados son independientes, se
puede variar cualquiera de ellos manteniendo
fijos los otros.
.,.
s;
¡ Ry
RzOz).Oyo: M
/ Pórtico 3D
Armadura 3D
Parril1a2DPórtico 2P
VU!a2D•Armadura ID
RzJ;__/ Dx
¡
¡
¡

)
)
Nótese que una vez elegido el sistema de coordenadas generalizado (grados de libet1ad)
tanto los desplazamientos de los nudos como las cargas en la estructura deben medirse
en el mismo sistema de coordenadas. Por lo tanto. será necesario utilizar el principio de ,
superposición para calcular las fuerzas equivalentes en los nudos de la estructura .
(Estado Primario del Método de Rigidez) cuando la estructura esté sometida a cargas en
las barras. adicionalmente a fas cargas en los nudos.
3.2 Armáduras Planas· 2D
la determinación de ros grados de libertad en una armadura plana, es tarea simple. _"_","~~,I -
Cada nudo tiene en general dos grados de libertad (desplazamiento en x e y). En los
apoyos se restringen algunos grados de libertad. A continuación se muestran algunos
ejemplos de elección de Sistemas Q-D.
t2 t4 t6 )
~ ~ 5
Por fa tanto, si se determinari los desplazamientos nodales, todas las otras magnitudes
estructurales (deformadas de las barras, fuerzas de extremo de barra, etc.) pueden
calcularse a,partir de esta informaci6n. Esto va/ida la posibilidad de usar un método. en
este caso el de Rigidez. en el cual las incógnitas son los cJ8splazamientosnada/es.
A continuaci6n se muestran los grados de libertad de cada nudo en las estructuras de
barras o reticulares. Los apoyos de la estructura restringen algunos de estos grados de
libertad en determinados nudos y deben eliminar los movimientos de sólido rígido de la
estructura.
,. :.~;::O~;':.~~;.~.~~~;~_~ ~O~~·~~;" ~.~·o~~,~.o~fi:~:.._~::W
-----......_-~
:)
,~
)
)
)
')
)
)
)
)
)
)
-}
')
~
78
_,0,0_0-=- 0_, _00
_0i.-_:¡::..=.__ _:~~_:_-J_~O=~:::"':'-'_='::_ .. _.-:.._ .~ ~.~~_:~O:O~OOO__';'~:~; ,:-_ ...:'-....: __ ~ ~.;_~ 00__; ... ---- ...-..:.--
79
Sistema Q - D
5 64
Pórtico con 16 gdl
7.------,8
3.4.1 Pórticos Planos Ortogonales
La determinación de los grados de libertad en un pórtico plano, es simple. Cada nudo
tiene en general, tres grados de libertad, dos desplazamientos ortogonales en el plano
del pórtico y una rotación perpendicular al plano del mismo. En los apoyos se restringen
algunos grados de libertad. La introducción de restricciones adicionales, tales como el
ignorar las deformaciones axiales en vigas y columnas, reduce el número de grados de
libertad. A continuación se muestran algunos ejemplos de elección de Sistemas Q-D.
- Caso General: Se consideran las deformaciones axiales en todos los elementos.
3.4 Pórticos Planos 2D
Cada nudo tiene en genera', tres grados de libertad, dos traslaciones ortogonales y una
rotación. Los apoyos restringen algunos de los grados de libertad.
Una hipótesis bastante usual en el análisis de pórticos de edificios, es la de ignorar las
deformaciones axiales en las vigas. Esta hipótesis se sustenta fisicamente en el hecho
que usualmente en los edificios, existen losas de piso uniendo a todos los pórticos. Las
losas de piso, cuando se construyen monollticamente con las vigas, pueden
considerarse como diafragmas rfgidos en su plano, es decir, indeformables en su plano.
Si esta hipótesis se cumple, entonces Jos desplazamientos horizontales de todos los
nudos de un pórtico, en un mismo nivel, deben ser iguales. Esto equivale a suponer que
las vigas son axialmente muy rígidas.
Otra hipótesis usual, en el análisis de pórticos de poca altura, es la de ignorar las
deformaciones axiales en las columnas. A diferencia del caso anterior, esta hipótesis no
tiene sustento ffsico, salvo el de aceptar el hecho que en pórticos bajos, las
deformaciones axiales en las columnas no modifican de manera importante la respuesta
de la estructura. Esta hipótesis es equivalente a ignorar o despreciar la energia que se
acumula por fuerza normal en las columnas y considerar únicamente la energía
acumulada por flexión.
Una hipótesis usual en el análisis de vigas sometidas a cargas contenidas en su plano,
es la de ignorar las deformaciones axiales o longitudinales. Si las cargas son
perpendiculares al eje de la viga, esta hipótesis es completamente válida. Si se ignoran
las deformaciones axiales cada nudo tiene solo - dos grados de libertad, un
desplazamiento vertical y una rotación normal al plano de la viga.
VIga con 5 gdl
e 4
~I ~1 ~3 ~5~t------~"""";""':"'---~.,r.-=----4-
3.3 Vigas 2D
Cada nudo tiene en general, tres grados de libertad: dos traslaciones ortogonales y una
rotación. En los apoyos se restringen algunos de los grados de libertad.
_)
..,
:)
)
t
)
)
)
)
)
:>
)
)
~
,J,
I
JI
)
¡ )
1
J
)
j
")
)
t )
! ,
,
j
)
)
~I
I )
¡
I
)
)
,_
: .
j
i
)
,
'1
1
-
¡
.. ,. 1
)
1)
¡-:
)
~
!I

. ,-
D3=1D2=1Dl=l
A contínuaclón se muestran las configuraciones deformadas del pórtico de la figura
anterior (caso de EA = 00) para deepíazamlentos unitarios Impuestos en cada una de las
coordenadas:
Sistema Q - D (EA =00)
a) Con deformaciones axiales gdl= 3x5 nudos = i5
b) Con EA;=::eo envíges gdl = 12
e) Con EA = 00 en.vigas y columnas gdl =7
SistemaQ- D
- Otro ejemplo de pórtico plano.
Pórtico con 8 gdl
SistemaQ-D
- Caso en el cual, adicion~lmen~t se desprecian las ~eformaciones axiales en las
columnas. Posteríormenta se verá que pedría trabajarse también con siete gdl,
ignorando ef gdl 3, ya que ~t~ e~ f~nción de DI y D6.
2 'l}e
,
}.
¡
¡
I
Ii
1

Pórtico con 13 gdl
- Caso de vigas con EA = oo. losa rígida en su plano uniendo á ios ni.Jdosde un mismo
nivel.
80
_" .•.• . .... ...•. _. • ••._ •• -.', ,'., ..... -;, c, ; •.,."'-'" ~_:~':;':- :;~_,::=,:",,:,:-::,:,'~~~...~'.'":~-=~• ._ .•. '__-.-.C •. __ ._~-_.••----,.;- ••_.~ ..: :..••~ "' ...... ,A'-, _
. ";';;'=":'::"";:::·L~;::':-'2:.:c::..:~L."'~L.~::.,.L,::,- ..."2.':::'::':2;;_::::~:~~~':·:::":_::':"_>;'_'~~~"_;""":'~:""'''''c.'> ..... ,""., " ,-,~." " :; ": d~
'.•g
'7:)
 )
1.)1 .
 )
 )
i ')i~
i ;
, ; )
)
)
81
04=1
D2=lD1 =1
Para el sistema Ql- DI las configuraciones deformadas del pórtico para desplazarnlentos
unitarios impuestos en cada una de (as coordenadas son:
Q2-D2Qt-Dl
Si la viga fuera axíalmente rlgicta (EA = 00) como en el caso de la presencia de una losa
de piso (diafragma) uniendo los nudos, entonces deberá cumplirse que DI = D4. El
nuevo sistema de coordenadas será cualquiera de los dos mostrados $ conñnuación.
Pórtico con 6 gdl
07= 1D6>= 1
81
$íS~QlaQ-D
3.4.2 Pólflcos Planos No Ortogonales
- Caso general:
D5=104=1
_,
)
4
j
J
.J
)
_)
, II
r
~
¡
I»
)
I) I
I
'1
!
i
') I
'1
)
}
)
')
)
;;)
.)
)
)
')
J
~
)
.., !
i
J
l)
_.~,
)
) .•..•~"~.~ .....,.'...,..:.~,-'-'i.,-."""'-,L.c.,... ,:,:.~~¡¿:,<..;..,.;'"¡;.,,,,_:c.:;,;,.::.:;.-,,,:o..·:';~·c:.2·~'''···,·:·'~:,·;;L~'.:-:"'::~:.:,:.::~~:;..'::J:"::=_;::';;:.~';.;,·:::~;:2:'=é:;:';;~;::_:::·.:~.i:==:.·.'."'J:0"0:"''':''7.;''''==''
')
')
!)
)
)
/
)
)
)
)
)
J
.~
_
,)
)
iI
82
EA* 00
Sistema Q-D
Pórtico con 6 gdl
En pórticos no ortoponales, cuando se desprecian las deformaciones axiales, el
problema suele estar en la deteni1inación dé los grados de libertad de traslación, ya que
las rotaciones son fáciles de identificar. .
D1;::: 1
Para el sistema Ql- DI las configuraciones deformadas del pórtico para desplazamientos
unítaríos impuestos en cada una de las coordenadas son:
I,
Q2-D2 Q3-D3oi -r»
El sistema Q - D podrla ser cualquiera de los tres mostrados a continuaclén.
I
I
Si se desprecian rasdeformaciones axiales en todos los ~me,n~, el grado de libertad
D2 desaparece y los desplazamientos DI y 04 e$ta~n. rE;!'a.ciQP~()$por 969metrfa y el
sistema no serfa generalizado. La relación entre Di y D4 se mU.éstraa continllc3ci6n:
82
83
SistemaQ-D
Pórtico con 9 gdl Considerando
deformaciones axiales en todos
los elementos.
- Otro ejemplo de un pórtico no ortogonal:
~
I ,
r ,
I ,
,,

/.
,~Polo o centro de rotación
A manera de ejercicio, para el pórtico mostrado a continuación, si se ignoran las
deformaciones axiales en todas las barras, encuentre las relaciones geométricas entre
los desplazamientos 1, 2, 3 Y 4. Si existen dichas relaciones entonces los
desplazamientos no son independientes, por Jo tanto el sistema no es generalizado.
Para investigar la relación geométrica entre los desplazamientos lineales se puede usar
el polo o centro instantáneode rotación,tal como se indica.
Q2-D2 04-04QI-DI o oo
Q3-D3
En consecuencia el sistema Q-D podrla ser cualquiera de los cuatro mostrados a
continuación.:',
;-~.
6
::';.,'
......',,:, .
~.'?
ó
Apoyo
necesario para
estabilizar el
mecanismo
Parael pórtico de la figura anterior, si se asume que EA = 00 en todas las barras, la mejor
manera de identificar los grados de libertad de traslación, es la de crear un mecanismo
inestable (articular todos 10$ nudos rfgidos) e investigar el número rníntmo de
restricciones necesarias para' lograr estab'ilizar el mecanismo creado. En la figura a
continuaciónse ilustra esta idea.
)

J
)
-,
)
)
}
J
l~! ll,:;
1~I ('
, )
~
, t
,)
);
1
j
)
_)
,
-,
)
¡
84
02=1
01 = 1
Para el sistema Q - D de la figura anterior, las configuraciones deformadas del pórtico
para desplazamientos unitarios en cada una de las coordenadas, se indican a
continuación.
 Q-OMecanismo
...
2.
 ,
¡
1

1I
!
Otra posibilidad para estabilizar el mecanismo, es la siguiente:
D4= 1DI = 1
Las configuraciones deformadas para desplazamientos unitarios en las coordenadas
1y 4 del Sistema Q-D, se muestran a continuación:
Mecanismo

¡
I1
I
Q-D
...
f
1
i
¡
!
!
Si se ignoran las deformaciones axiales en todos los elementos (EA = (0) para determinar
el sistema Q-D generalizado, creamos un mecanismo introduciendo rótulas en todos los
nudos y luego, por inspección se determina que son necesarias dos. restricciones
externas para estabilizar el mecanismo creado:
84
;~====~ ... ;:~
,1)
~
)
I )
)
')
")
.)
. )
)
)
.1 )
O. _0
O 0 ~)
~
85
Mecanismo
...ó 7gdl
6 7gdl
... 7 gdl
Mecanismo
- Otro ejemplo de un pórtico no ortogonal, en el cual se ignoran las deformaciones
axiales en todos los elementos.
ó
...
Si se ignoran las deformaciones axiales en todos los elementos (EA = ro) creamos un
mecanismo y por inspección se determina que son necesarias dos restricciones externas
para estabilizarlo.
- Otro ejemplo de un pórtico no ortogonal.
D5= 1
)
J
1
)

~
)
)
)
~)
)
-'--)
)
)
J
)
1
)
)
J
J
)
-')
)
J
II
J
1
}
_)
Q2-02
t
ó
86
Sólido
Rígido
Qt-Ol
Cuando existen elementos de rigidez a flexión muy grande, estos pueden modelarse
bajo la hipótesis de El = co, es decir como si fueran sólidos rfgidos. En este caso debe
modificarse el sistema de coordenadas.
eDirecciónde 01
151= 1 D2 =0
,
" ,
..~ Direcclénde 02,
..¡
,
..
"'V Dirección de 02
Las configuraciones deformadas, para desplazamientos unitarios en el segundo sistema
de coordenadas, se muestran a continuación.
1
I1
j
i
i
Ii
I
,
1I
I¡
ó
los desplazamientos de nudo no necesariamente deben medirse en direcciones
perpendiculares. A continuación se muestra un pórtico en el cual se consideran
deformaciones axiales en todos los elementos. Se indican dos sistemas de coordenadas,
el primero del tipo "convencional" en el cual los desplazamientos lineales de los nudos se
miden en direcciones ortogonales y el segundo en el cual en el nudo izquierdo los
desplazamientos se miden en direcciones no ortogonales.
2
Sóio se necesita este apoyo
para estabilizar el mecanismo
creado
Sistema Ql- D3Sistema Q2- D2
SistemaQI- 01 (EA:' 00)
- Otro ejemPlo de un pórtico no ortogonal, en el cual se ignoran las defomiaciones
axlales en todos los elementos.
86
:- ....'. .".-.......".' .---."':":.,-_...~.~~. ~. ::~~-:..~ .:~'.~.:.~.~=~~~:::~:~.:~~~.:..:;~-'-
....2,r-C;;:·:::::.l;~L,:::.;_;:;~~~~;¿.~;c..::~l~,~~;;.:~~.~.,:,";..l:.:;,_·,:;,;~~,.-,-~,.,.. c'" __"."~ __. ,__ , •. ~_= __ = ,__ .s~_. ~ ...... _ ,~
.~
j)
')
)
')
)
)
)
)
)
)
)
~..:}
i ')
I
i.=)
I .
I
)
)
-
"~~~-"1 c
-
~''"'''''''1~
87
Si existe un diafragma rrgido en su plano (losa de piso) y flexible fuera de su plano. éste
debe moverse como un sólido rigido en su plano, por lo tanto. se generan dependencias
entre los grados de libertad de los nudos. Por ejemplo las rotaciones Ry de todos los
nudos de' un mismo nivel deben ser iguales. De manera similar los desplazamientos Dx
y Dz de todos los nudos del nivel deben ser compatibles con el movimiento de sólido
rígidodel diafragma, tal como se indica a continuación.
3.5 Pórticos Espaciales3D
Cada nudo tiene en general, seis grados de libertad, tres traslaciones ortogonales y tres
rotaciones. Los apoyos restringen algunos de los grados de libertad. El análisis de
estructuras espaciales generalmente conlleva un gran número de grados de libertad.
1[,
'---~l!.-"
Ilz Seis gdl por nudo
~ Total 6 x4 nudos =24 gdl
03= J
DI = 1 D2= 1
17
y para el sistema Q2 - D2:
D3= 1
D2= 1Dl=l
Parael sistema Ql - Di de la figura anterior, las configuraciones deformadas del pórtico
paradesplazamientos unitarios en cada una de las coordenadas, son:
~
.~
..~
~

)
J
l
! )
I
}
,
¡
j
! }I
j
)
-j
l
)
-
1 )
I
)
J
t
_)
)
.)
}
)
J
)
)
--.J
)
I
)
)
)
.)
i~
)
~
.)
)
.)
"]
i l..
1
/)
-;
Pórtico plano simétricorespectoa este eje. El pórtico
I~ también es simétricorespectoal plano y~zperpendícular
",. 1 1 1 1 al plano del papel
I
3.6.1 Tipos de simetría
Existen tres tipos de simetría estructural: simetría con respecto a un eje, con respecto a
un punto y simetrla con respecto a un plano.
3.6.1.1 Simetría respecto a un eje
f
....
~'.~
I~
,
í:,r ~4~X
11 4 I2 m 11
AhIt
el '2 tI
 A
b
1 .• t t "
h
Sistema Q-D para un pórtico espacial con diafragma rígido.
3.6 Estructuras Simétricas
Definición de simetría del Diccionario de la Real Academia: Regularidad en la disposición
de las partes o puntos de un cuerpo o figura, de modo que posea un centro, un eje o un
plano de simetría.
Muchas de las estructuras que se construyen (puentes, edificios, aviones, barcos, etc.)
poseen alguna forma de simetrla. El saber identificar la simetrfa de la estructura permite
analizarla considerando s610una porción de la estructura (la mitad, la cuarta parte y en
algunos casos aún menos) dependiendo del tipo y grado de simetría. La simetría
estructural involucra una configuración "balanceada" de la geometría, propiedades
estructurales y condiciones de borde (apoyos).
A continuación se muestran dos estructuras simétñcas. La simetría puede definirse en
términos de una Rotación de 1800 alrededor del ej~ "y" o de una. Reflección de cada
partícula (punto) de la estructura a través del plano vertical y-z (perpendicular al plano del
papel) que pasa por el punto "A".
4 nudos x 3 +3 = 15 gdl
I¡
¡
1
!!
!
1r
i!
gdl Sólido Rígido
gdl dependientes
89
Rotación de 1800
4
/~x
~ ~
t"i-Eje ele siMetríQ
p~ 1
Un sistema de cargas es simétrico, si al aplicar una rotación alrededor del eje de simetría
se obtiene un sistema de cargas equivalente. Por ejemplo para la estructura 1 de la
figuraanterior, se tiene:
I
rvvvvv'l
L~ lB
12 le hz
J:P kP
VV'l"~~
I
h lA
(1)4 r h,
II 4 12 4 11 4 11 I 11
k ~
*
.• .,
"I1 /2 11 -~
®
,,,",
3.7 EstructUras Simétricas CargadasSimétricamente
P6rtico espacial
<, -, ~ Plo.no ele
SIl"letrTo.
xy
I
Parrilla
Plo.no de
SIMetrío. xy
Pla.no de
SIMetría. yz
Paracualquier punto ·A" existe un punto idéntico "B" ubicado sobre la rectaAO que pasa
por el punto de simetría. En este caso la simetria se comprueba mediante una
operaciónque se llama Inversiónrespectoal centro ·0".
3.6.1.3 Simetrla respecto a un plano
1
Punto de simetría
-, Ah 1,
Ih<,
B -,
.~
1
3.6.1.2 Simetría respecto a un punto
)
)
)
)
)
)
)
)
)
==Ji'
JI
~>,)
)
.,
3>
}
")
>
}
)
J
•~
.'
..~
t
)
)
)
)
- 
)
• ).
j
j
)
--4
I
,~
(J)
:it
")
1
)
,)
')
!')
)
)
)
)
~
)
~
)
)
)
d
:
~
90
Nótese en "la figura anterior, que una rotación de 1800 alrededor del eje de simetria
conduce a un sistema de fuerzas internas equivalente, en consecuencia las fuerzas
internas indicadas en la figura son simétricas. El momento f1ector y la fuerza normal
pueden existir. sin embargo la fuerza cortante debe ser nula en el eje de simetría.
M fuerza simétrica - puede existir
N fuerza simétrica - puede existir
V fuerza simétrica - debe ser nula (suma
de fuerzas verticales
Eje derímetrfa
~MG~~M~
En términos de fuerzas internas en el plano (eje) de simetrfa sabemos que las fuerzas de
sección deben ser simétricas, por lo tanto tendremos lo siguiente para el caso de un
pórtico plano:
3.7.1 Condiciones de Contorno en el Plano (ejel de Simetría. Carga simétrica
En términos de desplazamientos en el plano de simetrfa:
a) No hay desplazamientos normales al plano de simetría.
b) No hay rotaciones alrededor de dos ejes ortogonales contenidos en el plano de
simetria, esto significa que si el plano de simetria es el yz entonces 8y = 9z = O.
f ®_J M:fO e = o
..ti. K N:f0 ilV:fO
  V=O ilH=O
" "
v
11
l.
ÍI
12/t
4
19,1=1941
1821=¡e31
La estructura equivalente (reducida) que se obtiene aprovechando las condiciones de
simetrfa de la estructura y de las cargas, es la siguiente:
Una rotación de 180°
alrededor del ejede
símetrfa produce el
mismo sistema de
fuerzas de sección
+((--+!_o~I
. ..... Eje de Simetría
M - Fuerza simétrica
N - Fuerza simétrica
V - Fuerza simétrica
:. 1:Fv = O =::) V = O
Premisa: En una estructura simétrica cargada simétricamente los desplazamientos
(configuración deformada), reacciones y fuerzas internas son simétricos.
En el eje de símetrta, por ejemplo en el punto O de la estructura 1 yen los puntos A y B
de la estructura 2, mostradas al inicio de este acápite, sucede:
90
91
El uso de Jasimetría, permite reducir el número de grados de libertad y la cantidad total
de elementos. Para el ejemplo analizado. si no se consideran las deformaciones axiales.
el número de gdl se ha reducido de seis a cuatro. Posteriormente veremos que los gdl 3
Y 4 de la figura anterior pueden no considerarse, se les denomina grados de libertad
prescindibles, con lo cual se reduce a dos el número total de gdl de la estructura, tal
como se indica a continuación.
Q-D
M fuerza simétrica - puede existir
íz:J;)I j N fuerza simétrica - puedeexistir
~ 't. TA..B ~V fuerza simé~ica - debesernula(suma
I t de fuerzas verticales
En consecuencia, la estructura equivalente (reducida) que se obtiene aprovechando las
condiciones de simetrfa de la estructura y de las cargas, asumiendo que se ignoran las
deformaciones axiales, es la siguiente:
Adicionalmente en los puntos A y B las tangentes deben ser es horizontales. Las fuerzas
internas en el eje de 'simetrfa, se indican a continuación. La fuerza cortante en los
puntos A y B debe ser nula.
La deformada debe ser simétrica, en consecuencia: la31 = 1041' ¡051=106!
Para los desplazamientos en los puntos A y B, ubicados en el eje de simetrla:
a) o,a =oBX =0
b) SAZ =aBZ =0
112la
2
I
1
Veamos las ventajas que ofrece el aprovechar las condiciones de simetria mediante el
siguiente ejemplo. El pórtico plano, si no se aprovechan las condiciones de simetría de
la estr~ctura y de las cargas, tiene seis grados de libertad (ignorando las deformaciones
axiales en todos los elementos).
}
"1
1
!
)
I »
,
1 ,t
j
)
)
"),
I!
}
¡ )
J
)
--l
I )
}
I )
i )
i
)
)
)
..
)
}
)
-,
:)
)
~

J
~
t
)
I
?)
f
)
¡ I
)
)
l
.,
.)
)
~)
'tD
O
)
)
)
)
)
)
)
)
)
")
~
j
~
)
)
)
)
)
)
)
.>
)
)
)
)
d
:3
~
)
J
~
.)
'-:)
j
.)
j
.)
e
,J
~
.)
)
.~
Q
'3
----)
92
SistemaQ-D
seis gdl
En el eje de simetrla las fuerzas de sección deben ser:
- Momento en las columnas = O(ya que es = 9s = O)
- Cortante V = O
En consecuencia, si se ignoran fas deformaciones axiales en fas vigas, el sistema Q - D
será el mostrado a continuación.con un total de seis gdl.
En los nudos Sy 8 no debe existir
. desplazamiento horizontal y la
tangente debe ser horizontal, es decir.
0HS =oH8 =0
9zS=9za=0
1941=1961, 1971=1991
l- 1 -1- 1 .-.;
La configuración deformada del pórtico se muestra a continuación.
También se pueden aprovechar las condiciones de simetrfa, si se utiliza para la solución
el Método de Flexibilidad. En el caso analizado la estructura tiene seis redundantes
estáticas y si se aprovecha la simetría este númerose reduce a cuatro.
Veamos otro ejemplo del aprovechamiento de las condiciones· de simetrfa de la
estructura y de las cargas. En este caso el eje de simetria coincide con la columna
central del pórtico. Si se consideran las deformaciones axiales, el pórtico tiene un total
de )8 grados de libertad. Si se anulan las deformaciones axiales en las vigas se reduce
a 14gdl y si se ignoran además las deformacionesaxiales en las columnas, el númerode
grados de libertad del pórtico se reduce a ocho.
Sistema Q - D
92
93
5 g.d.l
Q - D (EA =00)
Un solo gdl vertical ya que los
desplazamientos verticales de los nudos 6 y 9
deben ser iguales al considerar EA =eo
Q - D sin deformaciones axiales
en vigas y columnas (12 gdJ)
Q - D sin deformaciones
axiales en vigas (19 gdl)l'
2
.,
Aprovechando la simetría:
Estructura
l
eje
slJlle-t rí Q
No hay que perder de vista que el análisis aprovechando la simetría, se realizapara la
mitad de la estructura. Para la otra mitad, los diagramas de fuerzas de seccióny
reacciones se construyen sobre la base de que los resultados son simétricos. Para la
columna central, que ha sldo analizada con la mitad de la inercia y del área, será
necesaríc duplicar las fuerzas de sección.
A continuación se, presenta otra estructura (pórtico plano) simétrica en geometrlay
cargas. La estructura tiene 24 gdl sí se incluyen las deformaciones axiales, númeroque
se reduce 19si se excluyen las deformaciones axiales en las vigas y a 12si se excluyen
las deformaciones axiales en todos los elementos. Para este último caso, si se
aprovechan las condiciones de simetrla, el número de gdl se reduce a cinco, en
consecuencia hay un gran ahorro en el esfuerzo numérico ya que la Matrizde Rigidezde
la estructura pasa de orden 12x12a orden 5x5.
I
El momento de inercia, en este caso,
es irrelevante ya que M= O
1
Si se ignoran las deformaciones axiales en todos los elementos, tendremossolodosgdl.
93
t

-)
,
)
1
)
1
J
~
.1
)
)
..."
.'>
)
J
i I
I
~
j
~
1~.

i
}
)
J
)
-.

)
1
)
~
I
I ,
í
¡
,
rí
,)
-
J
)
')
)
)
)
)
>
~
)
~
')
. )
)
,)
-)
)
)
)
)
,)
)
i
d
-~
-i
)
,:)
-)
cJ
,')
.d
)
~
)
-~
)
~
)
)
~
,~...J
:-)
94
Q-D(EA~oo) 4gdlQ- D (EA = (0) 1 gdl
Irr elevo.nte
~
Con EA
l
j'
Q - O con EA= 00
m49.dJ
Con EA 3x3=9 9.(;1.1
- Otro ejemplo de un pórtico a dos aguas simétrico en geometrfa y cargas. La diferencia
con el ejemplo anterior estriba en que hay una columna en el eje de simetrfa.
Sistemas Q- D con EA = 00
Q2-02Ql-DI
I
eje
slME?trfQ
1- 1 --1- 1 -1
Grados de libertad:
Con EA gdl = 3x3 = 9
Con EA = 00 gdl = 5
- Ejemplo de un pórtico a dos aguas simétrico en geometrfa y cargas.
w
94
95
,
i
l
N es anfíslmétríco Y!l2 puede existir (suma de fuerzas horizontales en el punto O = O)
Ves antisimétrico y sí puede existir (suma de fuerzas verticales en el punto O = O)
M es antisimétrico Y!!2 puede existir (suma de momentos en el punto O= O)
Nótese en la figura anterior, que una rotación de 1800 alrededor del eje de simetría
conduce a un sistema de fuerzas internas inverso al inicial, en consecuencia las fuerzas
Rotación de 1800 alrededor del
Eje de simetría eje de simetría
~(Vi$~V)7~~?4}tv~
En términos de fuerzas internas en el plano (eje) de simetria sabemos que las fuerzas de
sección deben ser antisimétricas, por lo tanto tendremos lo siguiente para el caso de un
pórtico plano:
Plano de simetría
~ o~ Punto de inflexión o de cambio de
~ curvatura.
Desplazamientos en el plano (eje) de simetria que pasa por el punto o:
a) Dy=O
b) ex= o (no interesa en el caso de pórticos planos)
Premisa: En una estructura simétrica cargada antisimétricamente, los desplazamientos,
la deformada, las reacciones y fuerzas internas son antisimétricas.
3.8.1 Condiciones de Contorno en el Plano (eje} de Simetrfa. Carga Anfisimétrica
En términos de desplazamientos en el plano de simetría:
a) Nohay desplazamiento (traslación) en el plano de simetría.
b) No;hay rotación alrededor de un eje normal al plano de simetría.
La figura a continuación ilustra estas dos condiciones.
3.8 Estructuras Simétricas con Carga Antisiméfrica
Un sistema de camas es antisiniétrico si al aplicar una rotación a la estructura se obtiene
un sistema de cargas inverso al inicial.
'1
7
)
;1
s )
;,
~
)¡
,
j
•)
1
~
,
~
¡
lI
!
r
,
,
)
.)
)
')
)
)
)
)
)
-:)
)
~
)
.
.
-
-
-
Nota:-~'n~rio duplicar
las fuerzas del análisis en la
columna central.
Eje de Simetría
.,tt ,~ liT
0.5 l. 0.5 A
- Otro ejemplo de un pórtico plano, en este caso el eje de simetria coincide con la
columna central: I
Q-D (EA= (0) 6 gdl
96
Estructura simétrica - Cargaantisimétrica
5~ 1----,..,---4 ~
5
Eje de Simetría
,  
Veamos las ventajas que ofrece el aprovechar las condiciones de simetrfa mediante el
ejemplo a continuación. Esta estructura tiene seis grados de libertad si se ignoran las
deformacIones axiales en todos los elementos.
lB
Por lo tanto la estructura se puede reducir a:
t
-p
-: <,
1<,
1 2
O O 3
i__fí 7
/
K A A_ ........X
)
¿

<,
~
 ~ /j,J/ /11
11 IL Il ':J. 1
A /] A 0.512 11 r 0.512 "
intemas indicadas en la figura son antisimétricas. En el eje de simetría solo puede existir
fuerza cortante, el momento flector y la fuerza normal deben ser nulos.
96
-- _. ---
,•. ,c=';,~:..:7$i¡::;';::¡:'~::;'-;;:'::': ':::i:':~-;:~~-"i::z...:-.-_=;:~~"':":~:"::.~~.:::::':"':;;.:.~::'~:..:':~I:"':;'~~:.::~~~'::"::.~=.~:~:---::-=:- -.:, =-':';':~-:.~. ,~'::~-:_.::~.i=..;.~;.,.";:~"--.;:__:__,--.~..-:.-_."':':~'~"~~"':..~':.'~~~'~:':=....-:---=';",_. ~ ...;:_,:,,:,,:_:,.::";.. .::,,:,-..-.~..:..__-:":"_'
. t1}
(iJ)
ri)
._)
)
97
"l
<ID
Nota: Si existe defonnación axial en
la viga, las estructuras I y 2 no son
totalmente equivalentes. La
deformación axial en la viga
modifica los desplazamientos
horizontales de los nudos y en
consecuencia las fuerzas internas.
Q- D (EA = 00)
3 gdl
Q- D (EA = 00)
4gdl
1
I
A
P/t¡
j
3)
Q- D (EA = eo) 4 gdl
2)
I
Eje de S1l"le"trí a
~
Viento
1)
No hay que perder de vista que el análisis aprovechando la simetrla, se realiza para la
mitad de la estructura. Para la otra mitad, los diagramas de fuerzas de sección y
reacciones se construyen sobre-Ia base de que los resultados deben ser antisimétricos.
Para la columna central, que ha sido analizada con la mitad de la inercia y del área, será
necesario duplicar las fuerzas de sección obtenidas del análisis (solo el momento flector
yel cortante ya que la fuerza normal debe ser nula).
A continuación se presentan tres ejemplos de pórticos planos simétricos con elementos
inclinados cargados antisimétricamente.
}
}
)
-.
,)
)
)
)
)
~
,)
)
)
)
)
-)
,
-
J
)
"" S-.'
)
)
........
)
)
.,
)
I
,,
1¡
!
"1I
¡
j
J
)
__J
;
Diagrama de
Momentos
98
, M *0, V = 0, N = O
La estructura equivalente, para las cargas antisimétricas es:

Deformada
M == O, V *O, N *O
Ah = O, Av = O, e;e O
Diagrama de
Momentos
p
Carga Antisimétrica
o
- Carga Antisimétrica:
La estructura equivalente para las cargas simétricas es:
DeformadaCarga Simétrica
3.9 SimetríaRespectoa un Punto
Este tema ya se presentó brevemente en el acápite 3.6.1.2, ahora veremos brevemente
la manera de reducir la estructura aprovechando este tipo de simetrla.
Este tipo de simetría es la más dificil de identificar y también suele ser dificil aprovechar
las condiciones de simetrra para reducir la estructura. A continuación se muestra una
estructura simétrica con respecto al punto o centro ·0" con dos sistemas de carga, uno
simétrico y otro antisimétrioo. También se indican las estructuras reducidas que resultan
de aprovechar las condiciones de simetrfa asl como las condiciones de contorno en el
centro de simetrla.
- Carga Simétrica:
~~
~
~
r)
:1
)
)
)
)
)
)
)
,)
~
.')
~
)
)
)
.)
..)
)
)
)
)
,)
)
)
J
~
-j
J
.C)
-.J
.)
~)
)
-)
~
.)
~
)
..,
)
)
iI
~
-7)
....:.
98
5
20
•
99
e) Armadura simétrica respecto a un punto con carga antisimétrica:
20
•20
e) Armadura simétrica respecto a un punto con carga simétrica:
..
20
•
1020
20
b) Armadura con carga antisimétrica:
202020
3.10 Simetría en Armaduras
a) Armadura con carga simétrica:
99
')
.)
)
'.
)
)
)
)
;>
)
~
.>
)
)
)
)
)
J
J ..
'".
)
')
)
}
J
)
J
)
• ..
r::',,'
) ..,.
)
~
100
l.
b) Panilla con carga antisimétrica:
~ EPlpo1:ro.l'llen1:o
I ele f(exl6n
LBx-O
t(in ~ Vy=O
y Mx;eO
Mz ;eO
Estructura reducida:
V=O Q:Fv=O)
Mt=O (¿M=O)
Condiciones de desplazamientos en el punto O (ver 3.7.1):
a) Dz = O (no interesa por ser una parriUa)
b) Bx=O
e) By::; O (no interesa por ser una parrilla)
T)
H H...... I ePlano efe
~~t·Dt::.. " I ·SIJllett"ro.
Mt U ')"Mt <, '" xyV V
Fucl7BS de
seccjón
simétricas
3.11 Simetría en Parrillas
a) Parrilla con carga simétrica:
too
~
()
'~D
")
l
)
)
')
)
)
)
)
)
-j
)
~
)
)
)
)
)
")
)
)
)
)
)
)
-::J
.cj
-1
.)
.c.)
~j
.~
.'J
..;)
..)
J
)
~
_)
..,
J
J
~
~
:0)
-)
tiz
101
I
""'_-4 Pios B y B <plano xy)
Dz=O
Bx=O
a =0
LP"os A ;. A (Pl:no yz)
Dx=O
~=O
~=O
Plo.no de
SIl'letrfo. xy
3.12 Simetría en Pórticos Espaciales
a) Pórtico espacial con doble plano de simetría y carga simétrica
Dy=O Vy;t: O
9z= O MZ:;é O
9x;t: O Mx = O
Empotramiento de
Torsión Bz = O
Estructura reducida:
Condiciones de desplazamientos en el punto O (ver 3.8.1):
a) Dy=O
b) Bz=O
Fuerzas de sección antisimétricas en el punto O:
~i~(C-----..:....__----,.~N)-- Mt
/tv Mf
101
;
)

')
)
)
)
)
)
)
)
)
=;
)
)
,)
)
,J
)
)
J
"')
__)
)
')
:,
")
}
)
i
..,
~¡
'~.
~
¡
I
)
}f
t )
1
)
I )
¡
1
I 1
J
)
~
1
1) P/2
J -1 1+1 1I 'l,/fe  'Wk V¡¿  "'12.
Eje de SII'Ietr1a
~klr Vkl
 ,
3.13 Descomposición en Carga Simétrica vAntisimétrica
Si se cumple el principio de superposición. entonces una estructura simétrica sometida a
un sistema de carga cualquiera. puede descomponerse en dos estructuras simétricas.
Una de ellas cargada simétricamente y la otra cargada antisimétricamente.
A continuación se muestran tres ejemplos de esta descomposición.
Condiciones de contorno en el punto "O" necesarias para reducir la estructura:
- Caso de carga simétrica (Fuerzas Py P')
a) Dx=O
b) 9y=9z=O
e) Solo existen los desplazamientos Dy, Dz, ex
- Caso de carga antisimétrica (Fuerzas Q y Q')
a) Dy=Dz=O
b) ex= O
e) Solo existen los desplazamientos Dx, 9y, ez
I /
t- ",
",
Las fuerzas Q y Q' están
2 contenidas en el plano xy
]'x
(
I 1 Ptcno de SlMetrfa.
p /~ yz
", I Las fuerzas P y P' son simétricas
6 I Las fuerzas Q y Q' son antisimétricas
I
3
1
5
b) Pórtico espacial con un solo plano de simetría
)
)
)
)
')
">
-)
)
-).
)
)
)
)
)
.)
.
)
)
:>
)
)
~
-)
-
;;;
.~
-:
,:
..
)
)
i
j
)
"
102
__ •. . _ =,;:;¡ _.: .-..... :_... ~..•:,. :.. "--:-C-':.-:,';~ .
.. :".~, ,C:'.; !"C::::''"·;;•• ~::::::~:'~;:::: .•:C":=••'';::_~_;_.:::==~:_;:;.:_~_:';':':': ..~ .':' :'~:::c:::.;,.';;~.".:...:---:.,.~~:~ ==:..~-'-._;.,--:.~::'::;:;"':':_:-":';;;¡'C·..:.:¿·,,;_,-,--,-,-,,~,-,,~~" __.,,-,-:,."~_c':;'"
®
'4
)
)
)
)
1
i
t.
I¡
I
¡
103
3.14 Ejemplo de Simetría y Antisimetría en un Pórtico Plano
Para comprobar numéricamente la validez de la reducción de una estructura simétrica
con carga simétrica o antisimétrica, se ha resuelto el pórtico mostrado a continuación.
Primero se ha resuelto el pórtico completo sin aprovechar las condiciones de simetrla o
antisimetría de las cargas y luego se han resuelto dos pórticos reducidos, uno para las
cargas simétricas y otro para las antisimétricas.
Sll"'Iétricn
 
AntisiP'létrlcQ
-. ..--....!...- -.,...---::I~-,---.
+ 4 4
-. ---.
Si las vigas fuesen axialmente rígidas tendríamos:
)
)
)

') 103

)
2) Pa '% Pek
i
-t :-+ ~ ~
fT/2 . fT/z rrk; - +
)
 ~        
SI~
Pek
~f1~N~ ,~
1 , 13
) 2 2
)
)
)
3)
__'FkP.e
- __'rk
l
)
--+rk
)
~
)1
F7!

~,~ 1 # A
+rr 2 e
,
F7?
Axiales en columnas (ton)
Momentos (ton-m)
Cortantes (ton)
Uf!
11.72.3
,1,1'
Deformada
- Solución de la estructura completa para carga simétrica:
Total 14 gdl
Pórtico simétrico con carga simétrica.
Alturas de entrepiso = 3 m
Longitud vigas = 6 m
E =2.2x] 06 ton/m2
Vigas y columnas de sección 0.30 x 0.60 m
Vigas EA = 00 (sin deformaciones axiales)
Cargas en las vigas w 1 = w2 =4 tlm
)
)
)
)
)
)
)
')
)
)
-3
)
-i
)
")
)
)
)
)
)
)
)
)
)
)
-j
J
~
)
;~
.-7
-i)
:)
.,J
)
)
)
-j
)
"'j
)
J
~
104
3
3
105
Nótese que en la estructura reducida, la íntensidad de la fuerza normal en la columna
central es la mitad de la obtenida para el modelo completo.
Axiales en columnas (ton)
Cortantes (ton)
·15·23o-1.76
12.3
12.1
11.3 12.7
23
Momentos (ton-m)Deformada
Pórtico simétrico reducido con carga simétrica.
Alturas de entrepiso = 3 m
Longitud vigas = 6 m
E =2.2x l 06 tonlm2
Vigas y columnas de sección 0.30 x 0.60 m
Columnas en el eje de simetrfa = 0.15 x 0.60 m
Vigas EA =ClO (sin deformaciones axiales)
Cargas en las vigas wl = w2 = 4 tlm
- Solución de la estructura reducida para carga simétrica:
105
- - •• :- • •• :.......... ". -::.~._ ' ; -~ -: ;_.~~ . ~::.. • - .__ •••• _H •••••• _._ •• _ _ _
_.~~~::'_.:~::;':.'....:.:.:~'.;~d2~L~~~_--;·:., ~=""="" =' ..~~.~~:¿~~.::~~~;;·ii.:.d;;~~:~~~:;~..~~-.._:~~~!~::.:::J_;~~=:~;~=:2-::~'.=;.._~::_2=~;;:.::~-~~~:.-~=-~:~~~~;:~~:~:~~~~~-~_-~.~_~~:.~-.::~:-.~:~,:~:'~=,::_;~.'~~.L.~':~:'L.: -_:,::~-,__:~':,.'::::,";'.'::~';~.~·_
)
J
)
)
)
)
~
)
_)
)
-)
)
)
. )
l
...,
J
)
j
)
)
)
1
)
)
)
")
')
I)
} !
,
106
Axiales en columnas (ton)
.97
IU o 1'"
u .~
o ·1.~
t58
Momentos (ton-m)
Total 14 gdl
FI= 2 ton
F2 =4 ton
Pórtico simétrico con carga antisimétrioa.
Alturas de entrepiso = 3 m
Longitud vigas = 6 m
. E= 22xl06 tonlm2
Vigas y columnas de sección 0.30 x 0.60 m
Vigas EA = 00 (sin deformaciones axiales)
Cortantes (ton)
1.11 1.11 UI2
CI.58
...
1.141.111
un ~.U o
'¡-¡¡-1 Ul
Deformada
I
Eje de- S:ll'Ietr-ra
r,---¿
1
¡:;;---¿¡------r------1
~
- Solución de la estructura completa para cargas antisimétricas:
106
107
;:
Nótese que en la estructura reducida, la intensidad de la fuerza cortante y del momento
.flector en la columna central, son la mitad de las obtenidas para el modelo completo.
Axiales en colwnnas (ton)Cortantes (ton)
o1.5
0.82
u
1.161.84
1.02 a~
0.58
0.92
Deformada
o
U.G
1.:'
0.58
Momentos (ton-m)
Tot.18 gdJ
Pórtico simétrico reducido con carga antisimétrica,
Alturas de ~trepjl!O =3 ID .
Longitud vigas =6 ro
E =2.2x,J06 tOll/ml
Vigas y.columnas de sección 0.30 x 0.60 ID
Colu~as ~ ei "eje de siIDétri¡t = 0.1$ x 0.60 ro
Vig~ EA;: IX) (sin deformaciones axiales)
C~as laterales0.5Fl > J ton 0.5F2= 2 ton
)
)
,
.)
)
1
j
)
)
=;
.)
)
J
_)
.)
)
.-}
J
.)
)
~
O.5F2
~
O.5F¡

)
)
)
!
I
i
1
1
1
)
-4
l
} - Solución de la estructura reducida per« cargas antísim~trioas:
é)
1)
,f1)
)
")
)
)
')
)
)
)
)
)
-1
)
~
)
)
)
)
J
)
)
)
)
)
)
)
-j
)
-J
)
'")
....:)
.J
:)
..J
)
)
)
;~
)
j
)
)
e
:;;)
;)
108
Desplazamiento unitario en A: Al_
y,(x) =1-y(X) = [1-1.5(;)'+0.5(;)'] y
Desplazamiento unitario en B:
y(X) = -; [I-(;JJ
Rotación unitaria en B:
x x x
y(x) = -(1--)(2--)
2 l e - -
Rotación unitaria en A:
y
Desplazamiento unitario en A:
Desplazamiento unitario en B:
. .. x2 ( x)y(x) = -e- l-i
Rotación unitaria en B:
2
y(x) = X(I- ;)
--
Rotación unitaria en A:
Tabla 3.1 Deformadas de Barras de Sección Constante (Funciones de FOlTTla)
108
109
Superposición de los desplazamientos:
QI = kll O, +k'2D2
Q2 = k21DI +k22O2
{Q}=[K]{D} [Kl=(kll k12)
101 k22
Donde [K], la Matriz de Rigidez de esta estructura - que representa la sfntesis de las
propiedades de las barras, geometrla y condiciones de contorno - se obtiene del
equilibrio del nudo. -Nótese que las ecuaciones anteriores representan el equilibrio del
nudo 3 formulado en términos de sus desplazamientos. Los coeficientes de rigidez de la
estructura, kij, se obtienen del equilibrio de Jos nudos, en este caso del nudo 3. Por
ejemplo la primera columna de dicha matriz será:
01=0, D2= 1DI= 1, ~=o
k2 +
>----~~~1t~kll
~
DI = 1
::~1D'=1
;~---_":'¡1t ? k12
kn
Q-D
2
2
4.1 Coeficientes de Rigidez de Barra
En el Método de Rigidez, las ecuaciones de equilibrio de nudo se obtienen a partir de las
fuerzas de extremo de barra que concurren a cada uno de los nudos. Por lo tanto, antes
de plantear el equilibrio de cada nudo, es necesario conocer las relaciones que existen
entre las fuerzas de extremo de barra y sus desplazamientos correspondientes. Estas
relaciones se conocen como los coeficientes de rigidez de barra, coeficientes que no son
otra cosa que las relaciones constitutivas al nivel de la barra.
Las relaciones constitutivas (también llamadas relaciones fuerza - desplazamiento)
establecen que las fuerzas en los extremos de cada barra (elemento) y sus
desplazamientos correspondientes, deben satisfacer las ecuaciones derivadas de los
diagramas constitutivos (O' - E) del material. Esta condición puede expresarse mediante la
relación: {q} = [k] {d} donde {q} son las fuerzas de extremo de barra, {d} son los
desplazamientos correspondientes y [k] es la Matriz de Rigidez de la Barra.
4.2 Barras tipo Armadura
Para ilustrar la idea anterior, supongamos que se desean obtener los coeficientes de
rigidez, .asociados al sistema Q-D elegido, para la armadura plana mostrada a
continuación, en la cual las dos barras tienen la misma área:
CAPITULO 4 - Rigideces de Barra
'..
u-:
,
j
)
J
)
)
)
)
J
)
)
)
~
t
~))
~{?
I ~
i I
~Ii~. I
r:
j ~! }
)
~
I
1 ,
IT¡ }<
)
)
, )
)
.,
)
)
)
'1
)
J
)
)
__
)
~
J
:
1
110
Nótese que en este caso la matriz de rigidez de una barra de armadura" para el sistema
q-d elegido, es,siqgular .."Esto"significaque-dicha matriz' no tiene ¡nyersa y 'por lo tanto no
existe la matriz de flexibilidad de barra. Este hecho se puede comprobar flsicamente si,
aplicando la definición, se inlenta calcular los coeficientes de flexibilidad en el mismo
sistema q-d, la barra es inestable.
-: ]EA[ 1[ k ]barra = -/ -1{q} =[k]barra {d}
EA
ql = -¡-(dl- d2)
EA
qz = -¡-(-dl+d2)
La matriz de rigidez en coordenadas locales de una barra de armadura es:
-EA
k =--21 l
k =EA
1I I
di = 1, d2= O
~
/.'_'k22
.,-J? - EA EA
kl2 kl2=-Z- k2i= "T
dI = 0, d2 = 1
El sistema q - d está definido al nivel de
barra y referido a las coordenadas locales
de la barra.
EA
bt = --cosa sena
12
EA EA
kn = -+-.-cose cose
/1 12
Equilibrio del nudo 3 pata DI =J. D2= O
~ EA (cose)
~12
k21
$>--___'" ~=9kll
EA
1,
En. consecuencia, para poder formular el equilibrio del nudo, no. basta con la
compatibilidad, es necesario calcular previamente los coeficientes de rigidez de barra o
relaciones constitutivas de cada una de ellas (fuerzas de extremo de barra -
desplazamientos correspondientes).
La relación completa, fuerzas de extreme de barra - desplazamientos correspondientes,
conviene expresarla mediante la niatrlz de rigidez de barra, que para el caso de Una
barra tipo armadura (articulada en los extremos) de sección constante y hecha de un
material linealmente elástico, es:
f~
¡
I¡
¡
1
I
!
i
1
1I¡
¡
¡
!
1
110
111
A continuación se presentan diversas aHernativas o procedimientos para calcular la
rigidez al giro de una de sección constante sin deformaciones por cortante.
~'.
Diagrama de cuerpo libre de
la segunda barra:
Si = 1
Sj=O
Segunda columna de la
matriz de rigidez.
Desplazamiento unitario en
coordenada 2. D2 = 1
{Q}= [K]Sx5 {D}
,.;...~,
:'<-."
1.[.' ' 4.3 Barras tipo Viga o Columna - Rigidez al Giro
if:i, Para el caso de vigas, será necesario conocer la relación que existe entre la rotación en
extremo de la barra y el momento flector correspondiente. Por ejemplo, en la viga de
~{. cuatro tramos mostrada a continuación, en la cual el sistema Q-D consiste únicamente1{.
en las rotaciones de los nudos (incógnitas cinemáticas) para calcular los coeficientes de
rigidez de la estructura será necesario conocer previamente la relación que existe entre
las fuerzas de extremo de barra (en este caso momentos) y los desplazamientos
correspondientes (en este caso rotaciones):
s == sen a e = cos a[k]barra =
EA
-¡ (
[kii]
- [kji]
[kij])
[kjj]
2 I 2
e se: -c -sc
I
se s2: -se _S2________J _
_e2 -sc ¡e2 seI
-se _82: se 82
Lamatriz de rigidez en coordenadas globales de una barra de armadura es:
q-d
;::.
1 ;
El sistema q - d está definido al nivel de
barra y referido a las coordenadas globales
de la barra. exes el ángulo de inclinación
de la barra
2
4 l
·~t_·:
~'~:,.':La matriz de rigidez de barra también se puede calcular en el sistema global de
"'~¡;.• coordenadas (sistema XY global). La deducción se deja como ejercicio, el resultado se
Je muestraa continuación .
.";7~-
.g;f
i
)
)
)
!i
f
¡ }
f,
A
J
J
)
1,
--')
)
>
)
)
)
)
)
)
)
)
}
)
)
}
'),
>
)
I
~
(
1
1
)
I1
. . )
M=ke8
M
=> k=-
e 9
1 k = 4EI
ke=- =>
e e 1
112
b) Otra manerade obtener la rigidez al giro (coeficientede rigidez)consisteen aplicar un
momento unitario en el extremo de la barra y calcular la rotación correspondiente. El
momento aplicado puede ser cualquier valor (l, 10,100,1000,etc.) ya que asumimos que
el comportamientode la barra es lineal - elástico.
M--- Pt~cl'o5~r r
~~
(_ Co.lculo.r {1
M= 4E1a
1
XI
k = 4EI
1) 1
En consecuencia,la rigidez al giro de una barra de secci6n constante, es:
4EI(
-/ I .~ "') 2El
~J~l
I 9;;:]
. +6EI i6EI
M=4EI
¡
X
__ 6EI
,- 2
1
¡3
f. =-
11 3EI
Giros.
MI2 13
-+-(X)-O2EI 3EI J-
MI ¡2
- +-(XJ);;:l
El 2EI
Desplaz.
Compatibilidad:
MI
~ ~=Cfx-~ -----4~ =rIt~ +
X-D  M/2
D=--
Estructura Primaria J 2EI
~,
j
1,
~,
f
t
¡
!
La barra es hiperestática en primer grado, utilizaremos el Método de Flexibilidad
(superposición de fuerzas) para la solución. Una de las incógnitas es la magnitud el
momento flector que es necesario aplicar en el extremo izquierdo, para lograr una
rotaciónunitaria:
l
a) Para la barra mostrada a continuación, de sección constante sin defonnaciones por
cortante,el cálculo de la rigidez al giro de la barra, se puede obtenerporvarios caminos,
uno de ellos se muestra a continuación:
M = ? ke -+ Rigidezal giro
~ 9~1 ~ ~ i 9-1 ~ '1
~ ~JJI
}
')
)
)
)
)
)
)
)
)
')
)
")
}
)
_)
)
_)
)
.>
)
)
')
)
)
"j
-')
)
)
r;)
~
=3
-')
~
.)
)
.)
j
j
')
)
J
~
Q
(':3
1I2
113
El
q¡ =-Z (4 di +2 <h)
El
q2 =; (2 di +4d2)
q-d
d) También es posible calcular la rigidez al giro de la barra, utilizando la función de forma
de la Tabla 3.1 (primer caso) y la relación momento - curvatura para barras linealmente
elásticas: M(x) = -El y"(x), basta con derivar dos veces la función de forma.
La relación completa, fuerzas de extremo de barra - desplazamientos correspondientes,
conviene expresarla mediante la matriz de rigidez de barra, que para el caso de una
barra tipo viga (sin desplazamientos relativos entre sus extremos) de sección transversal
constante, sin deformaciones por cortante y hecha de un material linealmente elástico,
es:
6EI 2EI
Compatibilidad: {D}+[F]{X}={O} => XI = f X2=--/-
Resultados que comprueban la aseveración inicial.
/2
f =_
e21 2EI
=-? 1r .r:- 1I3EI
ti
~:::t---~X2
tX-D Xl
Estructura Primaria
Veamos si la aseveración anterior es cierta. Para ello, utilizando el Método de
Flexibilidad, resolvamos la estructura que tiene dos incógnitas estáticas (grado de
hiperestaticidad dos).
e) Los resultados anteriores equivalen al caso de una viga doblemente empotrada en la
cual uno de los empotramientos experimenta una rotaci6n unitaria. es decir:
8=1
4~I(~j~)2~I
6EI¡ e= 1 t6 El
113
)
}
)
)
1
)
)
)
)
,')
')
)
;
)
)
~
)
")
)
)
.)
J
')
)
=,
)
)
)
)
)
)
)
1
M=? El
I~ _,./'I2
~---___.. ~
Ir
La rigidez modificada al giro de la barra es:
gdl prescindible
Rotación
libre
~f----~~-~~---::=>1I
~ 4~
Segunda columna de la
matriz de rigidez D2 = 1
4.4 Barras tipo Viga o Columna - Rigidez al Giro Modificada
Otra situación frecuente se presenta en los casos en los cuales se desea ignorar algunos . .
de Josgdl de rotación en los apoyos de los extremos de vigas y en los apoyos articulados
de pórticos. Por ejemplo, en la viga de tres tramos mostrada, es posible ignorar o
prescindir el gdl asociado a la rotación en el apoyo extremo de la derecha, para ello será
necesario modificar la rigidez al giro de la barra de la derecha.
Nótese que la matriz de rigidez de la barra pudo también calcularse a partir de la de
flexibitidad. En general, cuando la matriz de rigide~ sea dificil de calcular. conviene
generar la de flexibilidad y luego invertirla para calcular la de rigidez.
1"I ' m =).. [21= -U6EI ~:r.fi't."---q-_ d----..4¡ 2 ~~ ~ V4-
fll=l/3EI
Se comprueba que el producto [k][t] = [fj[k] = [IJ, donde [1] es la matriz identidad.
Es fácil comprobar 10$ resultados anteriores utilizando la definición de coeficiente de
flexibilidad. El significado físico de los términos de la matriz de flexibilidad calculada a
partir de la matriz de rigidez, se indica a continuación:
{d}= [f ]barra {q}
l 1
--
[f]barra ;: [k]~ [f]barnl =
1 3 6
El i 1
-- -
6 3
~¡;
It¡
t
A diferencia del caso de la barra de armadura, la matriz de rigidez de una barra tipo viga
como la indicada en la figura anterior, si tiene inversa. Su inversa representa la matriz
de flexibilidad de la barra en el mismo sistema de coordenadas q-d. la inversa es:
EI[ 4[ k ]barra = T 2{q} = [k]barra {d}
114
I1
t
~
. :".- ,_.. _'.
,., __,.,.".~, -,;:" -,._,;;:"'_:~'7'-..,----"".;-'-'---"."- ,-'"''
. '__...._,"._._ __ .•..,..'""";-."0·
. .- ,_,, . .:,,;', ~-~~_·..~,i'-_~~~.:f~~;,__._;,.~~~'.~.,.,~7>~,,-i...~·~_.:.:..::,~.:.. ;..:.-<~_:,:_: .~;_:~~
: ... ,... .,:,.,.._.¿" .• ".;,-.. ~
íill1
e
~
-)
)
)
)
)
)
)
)
)
)
-J
"
,)
j
)
_
115
[k] =_1=3EI
barra fll 1
Ixl
fll=
3EI
Alternativamente se puede calcular la matriz de flexibilidad de la barra en el sistema q --d
indicado en la figura precedente:
q-d
{q} =[k]barra {d}
1"1
"--§,.-------.,.4
La matriz de rigidez de la barra con un extremo articulado. es:
fFl
M=(~ -
B=l 1/2 2E!1l
(~ ~) + <.~ ~
--
4EJ /l 2EI/I El '1 1/2'
3EI/l
(~-
~
-9=1 1/2
Nótese que si se conoce la rigidez al giro de la viga doblemente empotrada. la rigidez
modificada se puede obtener por simple superposición. tal como se indica en la figura a
continuación:
y(x)= e;(1-;)(2-;)
M = k e k =3EI Rigidez al giroo o I .
=:>M= 3EI
1
Estructura Primaria
También es posible obtener la rigidez modificada, utilizado (a definición de rigidez al giro
de una barra y el Método de Flexibilidad como se indica a continuación:
115
..~:¡'¿S;~~~::,:#.:~~~~.:~::(:._-;i·-~~~.;:.::'-~-i~~:~~~:-~·~:I:s~~~;~~~I;.;;s:;i;~~;i~2::i~~~~~~'_:;~.'.'.,''j..~~~. ~~', _._~~..J. -~~~t::=;':.~~~:.~~:.i~::;'-~-'-.~~.':~.7~~~:~ ~S~:_-.~::-.~~;~~:~'l~'~·~:.·:·;";}~,~_~:~'~-='~~-:=·=:~~~
•
J
)
)
')
.)
')
)
-.,
}
)
)
;j
)
-=}
)
}
J
.)
_}
1
-
)
)
)
.J
)
-d
-
---
)
_)
_-}
:
:_
.,
)
El resultado final de la superposición es:
91=0 62=l!J 191 =/!J / 92 =0
Movimiento de 1
sólido rígido
2EI A 4EI A
--1 1 1 1
~ '-F'
=c.>
4EIA 2EIA
~~- ;?,:}+
b) Sin embargo, en este caso resulta más sencillo utilizar la superposición de
desplazamientos, tal como sé indica a continuación:
{D}+[F]{X}={O}
t
JI
¡
í
¡
I .
¡
I
a) Las fuerzas de extremo de barra, para un desplazamiento relativo entre los apoyos, se
pueden calcular utilizando el Método de Flexibilidad tal como se indica:
Primera columna de la Matriz de Rigidez
DJ = 1 fu = O D3= O
Q-D
¿Qué fuerzas
se producen?
4.5 Barras tipo Viga o Columna - Rigidez en Traslación
En muchos casos las estructuras sufren desplazamientos laterales, ya sea por la
asimetrra de las cargas y geometrla o por.la acción de fuerzas laterales. En estos casos
es necesario considerar grados de libertad de traslación y calcular las rigideces de barra
para desplazamientos relativos entre los extremos de la misma.
DI =1
; )
Al----
116
... ,_.,._" , _.,. ,.... _ " .. ,.,.,_, ,..... . ~:.: _, '':''""._ : .~ .,..: :;..;,.: _., .. ': . ·.-.···_~~".~, . .,...,:__"c
'_:~:~L¿::::¿_~~(::~,;~:~::,::=~:~~:~ ;:~:.~~r'~~: .::':":'~.:~~:.'~ ~,~:':"~.'.:;./':.~;~::_:~:_,:~:" .":':";~ .:_~.'_c_~~2:.~~·:::~;-L~2~__ .~±.~..C:~.~i~~:.:.¿""~i·~.~~,:,;_:.~.:;. .~~_ _.;-.;:;~:..;:.~,";~:;;.:_:":~.,';'' .::~~~:.•~,;~·~:...i.;~~~'::'~~~"::'~~~~.~~~. '.,¡~~_.~;.~;_~::;:.~~_..:...~:~.,.~.
~
~J}
~
117
Como ejercicio para el lector, se propone el cálculo de la matriz de.flexibilidad de barra
en el sistema q- d indicado en la figura anterior y a partir de ella, por inversión el cálculo
de la matriz de rigidez de barra. También se propone el cálculo de la matriz de
flexibilidad y de rigidez para el caso en el cual existan brazos rígidos en los dos extremos
de la viga.
4
2+ 6a
b
4 3a2
-(b+3a+-)
b b
2
6a
+-
b
{q} =[k]barra {d}
C"Y;t0@ b 7~
EI=oo El ~rJ
q-d
La relación completa, fuerzas de extremo de barra - desplazamientos correspondientes,
conviene expresarla mediante la matriz de rigidez de barra. que para el caso de una
barra tipo viga (sin desplazamientos relativos entre sus extremos) con un brazo rígido a
la izquierda de longitud, a, y una zona flexible de sección transversal constante de
longitud b, sin deformaciones por cortante y hecha de un material linealmente elástico,
es:
k =4EI
22 b
k = 2EI + 6Ela
9= 1 21 b b 2
(~ ~J
SistemaQ-D
EA =00
kJ2( ~
b
~~-=EI~4J2
q-d
4.6 Barras con Brazos Rigidos - Rigidez al Giro
Para el caso en el cual una viga se apoya, en el mismo plano, en una placa o muro,
hemos mencionado (véase el acápite 1.10.8) que una hipótesis usual para modelar el
pórtico con elementos unidimensionales, es la de asignarle a la viga una rigidez muy
grande en fa zona comprendida entre el borde de la misma y el eje de la placa. En estas
situaciones conviene conocer los coeficientes de rigidez de la viga con brazos rfgidos, se
trata en esencia de un caso de una barra con sección variable.
¡ )
1
)
)
I
¡
1
¡
! -1
}
-)
)
,
)

J
)
)
)
,
}
)
)
)
,
}
~
)
)
)
)
)
.)
J
.)
,
I
,
., i
l_)
)
118
a
=> Xi = 3EI l 3
a +b
fllXJ +Dr= O
a3 b3
f =-+-
11 3EI 3EI
~
~
v
1
~
8=1
,f""ED,=-a ~
a
X-D
Estructura Primaria
Utilizaremos el Método de Flexibilidad, como ejemplo de·aplicación del uso de una fuerza
interna como redundante estática, en este caso la fuerza cortante que hay en la rótula.
Mb/a
1
M=l =>Ke=-
9
M=Ks9M=l~ .,.-
~~~
9=?
M
M~r, -6=1 I I
, I I
Las dos figuras a continuación muestran la definición del coeficiente de rigidez al gire
correspondiente al extremo izquierdo de la barra, el cálculo es simple ya que se trata de
un elemento isostático, el coeficiente de rigidez se puede calcular aplicando, pOI
ejemplo, Trabajo Virtual (Fuerzas Virtuales).
q-d
3
QI-Dl
,
R6-tuln
.,
)
)
)
)
.)
r-1
)
,:;l
)
)
)
,)
J
)
)
)
)
)
~
j
-
,.
_.
la figura a continuación muestra un pórtico en el cual la viga, de sección constante, nen
una discontinuidad interna (una rótula). En este caso es posible ampliar el sistema di
coordenadas tal como se indica (sistema QI-DI), sin embargo, conviene trabajar con o,
menor cantidad posible de gdl, para esto será necesario calcular previamente lo
coeficientes de rigidez de la viga con una rótula interna.
4.7 Barras con Rótulas Internas
118
'-.,~~'-;C-:-:-'"~,._..._~~-,. ,_,- ',':';" ... ----- --- - . -~_.--.-... -... ,','- -- _- - - -_. -- --- . '.:-,,--;- '_.--. - -.0' • .:-=-:-~_.:-;.--:.~ - :-:-"~:..;:::-- ::_._~:~':_.~.~~-.:_~.~.•:.~~~~_:'._~:~_-.~~.;;~t_:_~;~~;.-_;~:::·:~::~:-,~.2~i;'-. .::_:---_~.~:: :.:'..=-.:~_'~~~::~'."'.::':'':~~~~':'~.~:'.':.:~~..; ~._;..:;~...:.:.:.:.:;..:..:;...i~:;.-¿~~::.:.::~~~~~_.~:: .. _',:,', ·~i..~2·..:.;.:~~~:...~~ __~~/-~.::-::;.=.;:::.~.;,~..;~,..:2..~:-:._-:.,...:·~";':'.~:~~-- -r' - _.~ -
--------------~----------- ~
(¡)
,!)
)
)
)
)
119
- Cálculo de los coeficientes kn Y k21 aplicando la definición y considerando s610
deformaciones por flexión:
2m4m
;¡v
1~~-----m------~O~--2E-I--~~~2
)Iv ,r
Ejemplo 4-1 Para la barra mostrada a continuación, con una rótula interna a 4 m del
apoyo izquierdo, se pide calcular la matriz de rigidez de la barra (coeficientes de rigidez)
. para el sistema q-d indicado.
Nótese que en este caso la matriz de rigidez de la barra es singular. Esto significa que
dicha matriz no tiene inversa y por lo tanto no existe la matriz de flexibilidad de barra.
Este hecho se puede comprobar fisicamente si, aplicando la definición, se intenta
.calcular los coeficientes de flexibilidad en el mismo sistema q-d, la barra es inestable por
la presencia de la rótula interna.
En la figura a continuación se muestran las fuerzas de extremo de barra para un
desplazamiento relativo unitario entre los extremos de la barra (rigidez en traslación) su
deducción se deja como ejercicio para el lector.
{q}= [k]barra {d}
3ab ]
3b2
El [3a2
[ k ]barra = al+bl 3ab
Nótese que si a = 1Y b =0 entonces la rigidez al giro resuelta ser 3EIII, resultado que era
de esperarse y que corrobora los cálculos realizados.
Nuevamente, la relación completa, fuerzas de extremo de barra - desplazamientos
. cOrrespondientes, conviene expresarla mediante la matriz de rigidez de barra, que para
el caso de una barra tipo viga (sin desplazamientos relativos entre sus extremos) con
una rótula interior, de sección constante, sin deformaciones por cortante y hecha de un
'. material linealmente elástico, es:
A continuación se resumen los coeficientes de rigidez de esta barra correspondientes a
la rigidez al giro para los extremos izquierdo y derecho.
119
)
")
I
)
)
)
")
"
)
)
~
..J
.'
)
J
)
.)
)
)
)
'.)
)
)
)
)
)
)
}
1
)
)
)
')
)
)
)
'
'}
)
l,
-
)
:
,
I

I
I

II
120
La matriz de flexibilidad de barra no existe ya que la barra es inestable por la presencia
de la rótula interna, esto significa que la matriz de rigidez de barra es singular.
0.353 ]
0.1765
[]
. [ 0.706
k =EI
barra . 0.353
{q} =[k]barra {d}
kl2 :::::0.353 Elk22::::: 0.1765 El
Los otros coeficientes de rigidez de barra (k22 y k12) se calculan de manera similar y los
resultados son:
Dl+fIlX,=O 4+f"X,=0 -+ X,=-0.17647EI
kll = 4 X, kll ~ 0.706 El
k21 =2 XI k21 ~ 0.353 El
f = (4)3 + (2i = 22.667
1I 3EI 6El El
+
9= 1
~...... 1............ 4
........
Utilizando el Método de Flexibilidad considerando como incógnita'la fuerza cortante en la
rótula tendremos: .
kn=?
Otra forma de calcular los coeficientes kll y k21es la siguiente:
9= 1
kll(~ 7 ~)k21
rara este caso particular: k11 = k~J ~ 0.353 el1
k" = -~ O.706EI
e
( )
4 ( )29 =_1_ _l_x) +_1_ _!__xJ ~1.4167
El 48 o 2El 48 o El
1
m,(x)=-x
4
1 .. 1 2 1 ..(1)2 1 2 ( 1 )29 =- J(m,(x»2dx +-- J(m2(x»2(ix = - J -x dx+-. f -x dx
El o 2El o . El o 4 2El o 4¡
I
t
~
!I
f
I
M=I·
~ __ l~~
0.5
1
m =1= ka e =:> ka = kll =-
9
120
_______. , : ;~ :-:-"_...., :._ --.-0----·- C"'-C---_--C--:'-.'-_··_::-- -.; --:;:.-:
. '..~~~~.L~:':';:":...;.:'<':;.;::¿~:,..,-L:.:::·;>: ..,::~.~:.:-";:;:3/~~;;~:;¡~~::..o:';:::;;Li-,:¿,;,-../o¡ __i-~::.~~L::::;.~;~,;~·.;;: ..",l~,,':;;",-,::~;"'¿"'~'~:;¿·"<·~.•;,:;,;,...•:...:...;.¿o .• ~:; •
.;i)
-9
")
)
)
121
También es posible calcular la matriz de flexibilidad de la barra quebrada en el sistema
q - d Y luego por inversión calcular la matriz de rigidez de la misma. En este caso
particular, el cálculo de la matriz de flexibilidad de barra involucra la solución de una
estructura hiperestática en primer grado.
Cabe anotar, que el concepto de rigidez de barra se puede extender a muchas otras
configuraciones, incluyendo a las barras curvas, barras de parrillas, barras de pórticos
espaciales, etc. es decir, prácticamente no hay límite. Inclusive, una porción completa de
una estructura puede tratarse como una barra, en esta idea está basada la técnica de
análisis de estructural por medio de subestructuras.
/
M=lÚ -" "9=1

k" = l/a
/
. "
M=?Ú -'."'9=1

kll =M
ó
Alternativamente se puede proceder como se indica a continuación:
Para el cálculo de la primera columna de la matriz de rigidez de la barra quebrada, es
necesario resolver la siguiente estructura sometida a una rotación unitaria en el apoyo
izquierdo.
q-d
{q} = [k]barra {d}
Sistema Q- D reducido
~' ][
kll
[ k ]barra = k21
,,,,,,,,,,,,,,,,,,,,,,,,,
~'
Q-D EA=oo
4.8 Barras Quebradas
El concepto de coeficiente de rigidez de barra y en consecuencia de matriz de rigidez de
barra, se puede extender-a otras situaciones más complejas. Por ejemplo, en el pórtico
mostrado a continuación, si se ignoran las deformaciones axiales, el sistema de
coordenadas que deberla utilizarse es el mostrado a la izquierda de la figura. Si se
deseara trabajar con un sistema Q -D "reducido" como el mostrado a la derecha en,el
cual no se está considerando el gdl3, sería necesario calcular los coeficientes de rigidez
al giro de la barra quebrada, tal como se indica.
J
)
;)
)
1 ;
¡----1
1
¡
¡
1
l,
¡
I }}
)
)
)
)
)
)
.)
)
~
"J
)
J
->
~
)
,
1
)
)
)
)
")
,8)
":9
)
)
)
:>
)
")
)
)
)
)
...
J
"
--
)
..
122
Nótese que el"ampliar el sistema de coordenadas, conlleva el tener que trabajar con un
mayor número de gdl, en consecuencia, el esfuerzo numérico necesario para resolver la
estructura; es mayor.

(EA =(0)
aJ131
Q-D
Otro caso en el cual es posible "ampliar" el sistema de coordenadas.
1

I!
1
Q-D 
-0....a•J---J:--;)
br
•1 o.
En algunos casos. es posible "ampliar" el sistema de coordenadas para lograr un
ensamblaje de barras de sección constante. Por ejemplo, para los dos pórticos
mostrados, que tienen una variación simple en fa sección de la viga, puede ampliarse el
sistema de coordenadas (sistema QI-DI) y tratar a fos segmentos de la viga como
elementos de sección constante. Sin embargo, esto involucra un mayor número de
incógnitas cinemáticas. Si se desea trabajar con un sistema de coordenadas (Q-D) corrió
el mostrado a la derecha de las figuras, será necesario calcular los coeficientes de
rigidez de la viga.
1!,
1
I
1!
~
t
i!
4.9 Barras de Sección Variable
El cálculo de los coeficientes dé rigidez de barras de sección variable, es un tanto más
.tedioso desde el punto de vista numérico. las ideas generales y definiciones dadas en
los acápites anteriores, siguen siendo completamente válidas.
La figura a continuación muestra algunos elementos (barras) de sección variable. Los
tres casos corresponden a elementos con una variación relativamente simple del
momento de inercia y podrían ser barras que formen parte de un pórtico.
122
I¡
"¡
¡.
I
i
l,
i
123
Pórticos metálicos de alma nena con barras de sección variable


Vigas de concreto armado de
secciónvariable
Aeropuerto de Tacna
Puente con vigas continuas de concreto
annado de sección variable -
Puen~ con vigas continuas de concreto
'nadode seeeíén variable
No siempre es posible o conveniente ampliar el sistema de coordenadas para los
elementos de sección variable, tal es el caso de los elementos con una variación
continua en sus propiedades, como los mostrados en las fotos y JlQurasa continuación,
para estos resulta más conveniente calcular los coeficientes de rigidez de barra.
}
,
)
1
r,
, )¡
i -J
~
)
-4
J I
)
)
..
)
")
)
)
)
-}
-)
)
)
~
)
jr
)
r
)
~)
_>
J
J
)
')
)
)
)
)
)
)
~
J
~
¡I
I
I
I
!


(.
El(?,) )
) h._,.-- ---:.;....;_--"A 2
 q- d 
El resultado anterior confirma que los coeficientes de rigidez de una barra son simétricos
(kij = kji) Y además proporciona la relación básica entre los coeficientes de rigidez y los
factores de transporte.
Para una barra de sección constante, sin deformaciones por cortante, se tiene:
kn = 4EI k22 = 4EI ku= 10.= 2EI
111
1
ftu = fu.=-
2
4.9.2 Coeficientes de Rigidez de Barras de Sección Variable
Existén numerosos métodos para calcular los cceñclentes de rigidez de una barra de
sección variable (Área de Momentos, Viga Conjugada, Analogía de la Columna, etc) en
esencia son variaciones de los mismos conceptos centrales. Para el cálculo de la rigidez
al giro de barras de sección variable, también se pueden aplicar la metodología
presentada en el acápite 4.3.
Uno de los métodos más generares, para una viga de sección variable, sin
desplazamientos relativos entre sus extremos es el siguiente:
¿F.D2 = LF; DI
ku (O)+k21(1) = kn (1)+ lru(O)
la, =k12 => ftu kn = fui k22
Teorema Betti:
Nótese que en la figura anterior se ha definido un nuevo término, el Faclorde Transporte
(ft12 - ñzr). Los factores de transporte serán de utilidad para el Método de Cross, para el
Método de Rigi~ez no son de mucha utilidad. Los Factores de Transporte, asociados
con los grados de libertad de rotación de una barra, se definen del siguiente modo:
la] = ft12 kit :::) ftJ2 = kzt / kn
kJ2 = fuI k22 => ft21 = kI21 la2
F, -D,
~ ) ~I =fttz kn (~ zC
k12 = ft21 k22
q-d
~p-'---------..__--Il~
i - J
4.9.1 Relación entre los Coeficientes de Rigidez de Sartas de Sección Variable
124
I¡
1
l,,
1
e-. '~;:-:... ~, . :-, - ,.-- -:-::-", ..... :::;_.~
.... ". ,-- ... - .....,-_.... '-"-'.-~-'-
• -- .• • .,j,.u__ ...... ~.-- •• ~._ ' __ ' •• _-- - .... r ~ - - ........---..-----~-~ •• -- .~
...,~,.,.:,...._.,;.. :)',,~.,. .:...~ .~-_ .._..~-~
~~
.1T)
)
)
)
125
Ejemplo 4-2 A continuación, y a manera de ejemplo, se muestran dos gráficas
(adaptadas de White) en las cuales se muestran los coeficientes de rigidez al giro y los
factores de transporte de una barra de sección variable. La barra tiene una variación
Los cortantes se
calculan por equilibrio
de la barra
-1 (kll . kl2J[k]2x2= [t]2X2 = bl b2
La única complicación que puede existir en el cálculo de las integrales, radica en la
complejidad de la variación del momento de inercia a lo largo de la barra (I(x). En los
casos en los cuales no sea posible una solución cerrada de la integrales, se debe
emplear alguno de los métodos de integración numérica (rectángulos, trapecios,
parábolas, etc.).
b) Se invierte la matriz de flexibilidad calculada en el paso anterior para hallar la matriz
de rigidez de barra.
f =f = lml m2
12 ~I EI(x)
2
f -J~22 - El(x)
2
f - f.EL1I - EI(x)
Los coeficientes de flexibilidad de la barra, ignorando las deformaciones por cortante,
son:
~f '"21
~f
" '
(~1 mI
a) Se calcula la matriz de flexibilidad [f] de la barra para el sistema q - d (en este caso el
sistema consiste en las rotaciones medidas en los extremos de la barra). Para el cálculo
de esta matriz conviene usar Trabajo Virtual, en este caso Fuerzas.virtuales:
k12 = fuI k22
kz: =ft12 kll
(
kll kl2)[k]2x2 = =?
kn k22
el = 1
kll(~ *"
125
, '.
, I
~
)
-I
".1
)
)
.)
)
.)
.)
""_)
)
..)
)
)
)
)
)
")
.)
I
) L
)
}
)
II1
¡
I1
')
-) r,
"'l
1
i
"-~
... ;~ .c__:.~.~~ ..;~.:·e·...1:~~_;;;;..:~~;~2:S.;;:~_;;;,~~;-.'..:':_=,..: .;: '::':~~~::0-. ~~_·:·~:~;:"~~';'~~~;t~:~;'~.,~;..~ ;_:;:-,;-.=-.:_._.~ _ •...;.;__":":~': ~~...:.~~~'.~.':.7.:.:.;'.:_.:...~._;__;__._:__;';~ "~.:2.:;:.~~ __......:=.:=::~:_::'.~.:'.:.J:'...~. :''.~_':'::::.i.j,~7"::.~
;!i)
'g[)i:;~.:
~~
)
)
)
')
)
)
)
)
)
")
-j
")
=,
-)
)
j
)
_)
)
)
'-
:
-
,
~
-
-
,
J
.;"
126
Factores de transporteCoeficientes de rigidez al giro
973 5
12/11
9357
12111
4.2 0. 4
1
9
8
kll
-Erlll 7
6
S
4
1
10
0.71 ¡,
'1
5.2- 1.0
5.0 0.9
(/
0.8
4.8
k22 0.7
4.6 --EII/!
0.6
4.4
0.5
B
EjemDlo 4-3 Las gráficas a continuación muestran los coeficientes de rigidez al giro y
los faotores de transporte de una barra de sección variable. La variaci6n de la inercia de
la barra a lo largo de su longitud es tal como se muestra en la figura que antecede a las
gráficas, e_1ancho de la barra es constante. Se han considerado únicamente
deformacionespor flexión,
A
Factores de transporteCoeficientes de rigidez al giro
L-~~2--~~3----~~4~.o
12/11
6.042
0.6
".4
0.710.0
k22
EItll
a.o
1/2 1{2
4.8
h l.
A B
1 Ir
AcJc::JB
1/2"2
5.0
2
121 I1
'] (. ---.,. 2-le 7 ~
-m a -d ~
súbita de su sección transversal al centro de tramo. Para la construcciónde las gráficas
se han considerado únicamentedefonnaciones por flexi6n.
126
127
(
kll k12) .
[k]2x2 = bl len == conocida
En la deducción que se presenta, se supone que se conoce la matriz de rigidez en el
sistema q - d indicado a continuación:
1 2
(' -<* ~)
q-d
[k]4x4 =?
q-d
4.'.4 Coeficientes de Rigidez - Barras con ,Desplazamienf!J Rela~o
Si hay desplazamientos relativos entre los extremos, entonces es necesario ampliar el
sistema q - d de las barras para incluir los mencionados desplazamíentos (véase el
acápite 4.5).
, , 4EI ,3Er
ftI2=fhl=O,5 ~ k 11 =-1-(1-O.5~O.5);::::-1-
Comprobemos los resultados aplicando la ecuación anterior a una barra de sección
constante:
's ooslció k' k k12 1,_ k A~ lr~uperpOSICIn: 11= II - -, --lUl = 11- H21J.Z1
k22 '"
Pero: kzr= ftJ2kll ~ k'1I= kn- fuI ft12kn = kll (1- ft)2 fuI)
ft21la1 (,;:I~, ---=--------'-'"?P' 0kn
4.~ ~_. _~ ,
92 ,= k21/ k22
(H=l
kn(k '7
+
, ('kn kU) reeíd[k]2x2 = ' ,:;;:::conecí a
.kn 102
El co
91= 1
k'ri =?(,~';
1 2
( ~"------""'4J
q-d
En Joscasos en los cuales s~ d~~a ignorar ~,gunQsde los gdl de rotación en Josap9YQs
de J9SeXtremqs de·vigas y 'en:iÓ$ ~pOYQSartie~ládos de pórtiCos. -es necesario modíñcar
la rigidez al giro de la barra (véase el acápite 4,4).
En la deducción que se presenta, se supone que se conoce la matriz de rigidez en el
sistema q- d indicadp a continuación:
4.9.3 Rigidez al Giro Modificada. -:o.: -- --. .. .... .. _. __ . ",._
)
1
")
}
1,,
)i
1
I
}¡
¡
J
j
}
~
J
1, )
,
)
)
)
)
)
)
)
}
J
'}
)
~
)
J
)
I
J
J,
-¡)
j
l
_)
J
:;'.
)
.~
;::)
)
.,
)
)
)
)
)
)
)
)
~
)
~
)
)

)
)
)
)
)
)
)
)
)
)
-=j
--7
--7
)
d
-~1
~
,)
~
)
~
)"~"
~
J
~
J
J
¡ff
a
2}
-)
128
92= 191= 1
kll(~ ~)k21=
1
=
91=1 92=1
&¿isi&v _ . _ v
.. 21 AJI
(
kll k12) .
[k]2x2 = =conocida
k21 k22
1~ ,'2
.~r------"4'"
q-d
k14 = 4EI x!(l+O.S)= 6El.
1 1 - - ¡2
4.9.5 RIgidez Data Barras con empotramIento DesliZante
En la deducción que se presenta, se supone que se conoce la matriz de rigidez en el
sistema q- d indicado a coníínuaclón:
Los cortantes en la barra se pueden calcular por equilibrio de la misma a partir de los
momentos en los extremos (k14 y k24). Con los cortantes, se podrán oalcular los
coeficientes k34 y k44.
Comprobemos los resultados aplicando ra ecuación anterior a una barra de secclón
constante:
Superposición de desplazamientos:
~k14=? = 111 '.
~)k24=? ~
t ~ t' 1/~
1k34 IkM
. ... 1
+ (J ~)k22T
1
kt2~
1
k12= k21 la] =fttz ku k.12 = ftil k22
1 1 1 1 - 1
k«=kilI +kl21= 1[ku+k12) == 1(kll +bl) = I kn (1+ftl~)
1 1 1 1 1·.'
k14= 1{2]¡+ lrn! = 1(101+len);= I(kt2+1m)= Ikn (1+fhl)
q-d
EI(x)-
¡crl~I- d4=-1
El (x) - .
Se desea calcular las fue~é:I~de extremo de barra (coefiCi!i!n~ Jc14 y 1a4) que se
producen por un desplazamiento relativo unitarjo (negativo) d~'los apoyos: .
128
129
xr ( .15... :o.. ,X2
'" X - D '" ¡/
Los cortantes de empotramiento se calculan por equilibrio a partir de los momentos de
empotramiento y de las cargas externas.
Puede ser conveniente elegir como redundantes los momentos de extremo de barra, en
cuyo caso, la estructura primaria sería la mostrada a continuación:
{D}+[F]{X}={O} ~ X"X2Compatibilidad:
f. =f = ¡m, m2
12 21 EI(x)
D2= IMm2
EI(x)
2
f - J m2
22 - EI(x)
DI= ¡~~)
2
f. -f~JI - EI(x)
~~_~:>X2
x1t
X-D
Estructura
Primaria
4.9.6 Momentos de Empotramiento en Barras de Sección Variable
Existen numerosos métodos para calcular los momentos de empotramiento de una barra
de sección variable, todos son en esencia variaciones de los mismos conceptos
centrales.
Para el cálculo de los momentos de empotramiento se puede usar el Método de
Flexibilidad tomando como redundantes las fuerzas (cortante y momento) en uno de los
empotramientos. A continuación se muestra la secuencia necesaria para calcular los
momentos de empotramiento utilizando el Método de Flexibilidad:
, 4EI" El
k 11=-(1-0.5)= -
21 1
Comprobemos los resultados aplicando la ecuación anterior a una barra de sección
constante: "
Nota: kJ1 Y ñiz deben calcularse para el doble de la longitud de la barra (21)
•
k 11 =ku- ku = ku-ftn kn
fuik22=ftukn- - " .
,
:. k 11= ku-ftu kit = kll(1- ft12)..I
)
)
¡ )
I )
1
J
)
1¡
!
)
I
j
)
}
---l
t )
f
f )r
¡
}
I
)
)
")
)
)
}
1
.)
)
1
)
~
)
I .)
1
)
'-)
")
)
)
)
)
)
)
")
)
~
)
~.
)
")
)
)
)
)
)
)
)
=3
-7
-1
.
-
.
.
.
.=
~
~
,
~
+
130
Ejemplo 4-5 A continuación se muestran las gráficas de los momentos de
empotramiento de dos barras de sección variable con carga uniformemente distribuida
de intensidad w. Las barras tienen.una variación en su sección transversal igual a las
presentadas en los Ejemplos 4-2 y 4-3.
4EI wf' wlJ wP
U12=-kll(91+ftI292)=-- (--+0.5(--»=--
1 24 El 24El 12
4EI wP wll wP
UlI= -kn(92+ft2,el)=-- ( ---+0.5(--»=+-
1 24El 24El 12
w13
92=---
24 El
w/3
91=--
24El
Ejemplo 4-4 Comprobemos los resultados aplicando las ecuaciones anteriores al
cálculo de los momentos de empotramiento de una viga de sección constante que
soporta una carga uniformemente distribuida de magnitud w:
Superposición: UI2 =- k,I el- ku e2 = - ku el - fbI kafu
fui ka=ftn ku
:. U12= - ku el - ftu ku fu = -lat( el +fb2 Eh)
UlI=-bI9,-h2fu =-ftl2klJ91- knfu
:. UlI = - fuikn el - kn 92 = -h2( fu +fuI el)
el= IM(X) mi
EI(x)
e2=IM(x)nl2
EI(x)
Cálculo de eIyal:
W(x)
If
W(x)
~J....---J-Jf.r1(IJfn~'~~ J
LEl(x) U21 =?
Otro método de aplicación general, que recoge las ideas centrales y que parte de los
coeficientes de rigidez de la barra se presenta a continuación:
130
131
Ejemplo 4-6 Comprobemos Jos resultados aplicando las ecuaciones antenores al
caJc,41Qde los momentos de empotramiento de una viga de sección constante que
soporta una carg~ unltorrnernente distríbuida de magnitud w:
Superposición: UI12 = UI2 - fui 1121 92 = U2tf k22
Para barras de sección constante: U'12 == UI2. - 0.5 U21
,~~U 12=?
EI(x)
1 2
(4 ~)
q-d
1 2
(4"'-, -~i)
q-d
Conozco:
973
12/11
2
0.06
1
0.16
0.14
0.12
J.1 0.10
w /2
0.08
0.06
0.04
1
J.1
W [2
0.10
0.12
la la
A~B
1/2 .//2
131
5
12/JI
4.9.7 Momentos de Empotramiento en Barras de Sección Variable- Extremo
A::rticulaclo
J
}
_)
1
¡,
1
IiI
I
J )
;
")
·1
)
.~
)
J
")
¿;
)
)
J
-,
.)
~
¡
)
I~
!
-:)
l)
-o..
132
Muro o Placa
----ID--~f I
 I Ir._· _:. _ -:- . _
I
EI=oc> 5 6
--lli-4
_..
Iv Iv
1m le
Acm
1 2 3
.l' .. ~ ...1
"a ti 1'].
Modelo del Pórtico Plano.
7 1=00 8 ?
~ ~---------r------I
4.10 Influencia dé las Deformaciones por Fuerzá Córlante
6s común"en él ~(l~li,SISde ~Iém~nto$'-~sbeltQá,~i'~.;;spreciªr lá$ défómtaciones por
fue~~ co~n~'~ri~ a laa defermaclones por ~XJón., Sin ~mbar~Q,ex!~ten,numer9~ª~
shuacíoneé ~n la.$'9Q!il1es las d~forrnaeion~PQf ~ote' pueCfel1lléQ~r a ser jr'ñpo~ot~s
yen consecuencla ~s necesario incluirlas en el a,ri~Jis,is.Un~ sitliáción como la descrita
~ presenta en la,~g4ra a conñnuacíón (véase ei a~pite 1,10.8>'. El muro, que es(un
elemento bjdim~ns¡Qnal,se ha modelado cotnQ' 'un el~~to unídímenslonal y
depen~iendode su e$b.e.ltezpuede ser necesário iocluir en el ahéJi$.,!s las,d~forriiáéion~s
por cortante. Las defQtníaciones por co~nte afectan a la rigidez del mU'fQ y par lo tanto
inciden en 10$d~p.f~amientos lateralesy en la distribución de las fuerzas internas entre
los elementos constituyentes del'pértlco.
~él,. lt . (;2.
" '1 "
U'12=U12 UI2 ,se c~lc.ulaen la viga con longitud '21
'U'2l seobtiene 'por equilibrio,de la viga de longitud l.
1
Presentaremos sqJq él caso de una viga de sección var¡a,*~simétrica con carga también
simétrica. La solución del caso no simétrico puede realizarse con lo expuesto en el
acápite 4.9.6.
4.9~8Moméiitas de Empotramiento en BamiJs de Sección Variable - Extremo,
IÉmpotramiento' DesliZante J, '
.' "'."
,ñYY~ = (IYYVVVYYYYb '
UIj "", 2 ~
- -wl -wl 2
12 12
, wZ2 wP wZ2
uij=-- - -,-, =--' _'
12 24 8
+ (j:l--------,..OQ.j '1i2
--Yi12
24
9j= -¡¡i;(4~I)~~ 4~~]
132
_. _. o~;=-':=.i"":"-=.~;:,,<i- .;:-,;_,. ~-¿::: :"~,::E.:::;;;'~:-::,~.: ',:,t·.-~::..i .:."i:.. ':~~,o'. '::-"-:"::~-:._¡¡:;;':~'~...~~: '::::''':':''-;'':'':0 =--:::_...:......~.::.:i~=._:_:-Z·:.:.':~...-, -=- _~.. : :=~~']':":'~':":::':_:--_ :_-'::"'_~."::-_':'::"'_':~ ..::'--,::,-:::-:".~'"'!'~;''':':::':;'~~:';~:;-,;:.~:.;".i:,--- .__ .,' ....: ,.......:.;;
~~
,J}
,~
1
)
)
)
)
)
)
)
)
)
-J
')
-.:)
)
)
)
)
)
)
}
)
")
)
)
)
~
-c1
~
)
:d
-)
~
~
,J
)
~
O
,6
:
~
)
J
~
I
0
-
133
4.10.2 Elemplo de la Influencia de la Fuerza Cortante
Para cuantificar la influencia que tiene la fuerza cortante, analicemos. una viga
simplemente apoyada sometida a una carga repartida. El propósito es comparar la
deflexión al centro del tramo incluyendo las deformaciones por flexión y por cortante. La
sección de la viga puede ser cualquiera con la condición que tenga un eje de simetría
vertical que coincida con el plano de las cargas aplicadas y está caracterizada por su
peralte h, el momento de inercia 1y el área de corte Ac.
h
)1
v
Ac~2th
t (delgado)
v
tZZ:ZZ%ZJ 2 tfv
5
Ac ~ - brtr
3
...
Ilf~,';v J/ r
bf
- Sección cajón de espesor delgado:
v
- Sección Doble T de espesor delgado, cortante paralelo a las alas;
Ac ~ twhff = Atoúd
Aalma
- Sección circular hueca de pared delgada: ff= 2.0 Ac = 7tRt
- Sección Doble T de espesor delgado, cortante paralelo al alma:
tV
hI:E
....
Ac=5/6 (bh)
Ac=O.9xR2
1 V2
u= 2IGAc as
Algunos Factores de Forma de secciones comunes:
- Sección rectangular: ff = 1.2
- Sección circular sólida: ff = 10/9
Cuando se incluyen las defonnaciones por cortante, es necesario conocer algunas
propiedades mecánicas adicionales de las barras. Por ejemplo en el muro de la figura
anterior _esnecesario conocer:
Módulo de Elasticidad = E Módulo de Poisson =v
Módulo de Rigidez al esfuerzo cortante G = E /2(1+v)
Área de la sección transversal = A Momento de Inercia principal y central = 1
Área de Corte Ac =Al ff. Donde ff es el factor de fonna de la sección.
4.10.1 Factor de Forma de una Sección
El factor dé forma está relacionado con la distribución de los esfuerzos cortantes en la
sección del elemento. La energia que almacena un elemento esbelto por cortante, viene
dada por la expresión presentada a continuación, en la cual Ac es el área de corte de la
sección transversal del elemento.
133
.... ~':..~<.,~-.~....~.:
"~
)
)
_,
)
__,
~
¡'l)
()
1
'l
)
)
)
)
)
)
)
)
-J
:,
-=>
")
)
)
)
"')
)
)
)
)
)
)
)
~
a
~
)
~)
~
~
,.-:)
_)
)
~
)
8)
-)
~
)
)
;~
@
02)
_:)
134
hll ACorteI tiFlexión
1/15 1%
1110 2.2%
1/5 8.8%
1 /4 13.8%
1/3 24.4%
( )
2
tic'- Corte ~ 2.2 ~ -+ Sección rectangular de concreto armado.
/!"CL Flexión 1
La tabla a continuación muestra los cocientes para diversas esbelteces de la viga. Para
este caso es claro que para esbelteces grandes las deformaciones por corte influyen
muy poco en la deflexión al centro del tramo.
En consecuencia la relación se reduce a:
tu: ¡Mm J Vv 5w[4 w/2
./.= m+ GAc = 384EI +8GAc
• .&7..Corte = 96 (E)(_I ) _ 9 6 (E)(_I )(h)2 (*)
.. Aa. Flexión . G [2 Ac -. G h2Ac l
(*) El factor 9.6 depende de las condiciones de apoyo y del tipo de carga externa, el
factor (h'~c)s610depende de las propiedades de la sección y el término (~ rmide la
esbeltez del elemento.
Para elementos de concreto armado Concreto Armado:
~ ~ 2.3 => tiCL Corte =22.08 ( 1 ) (.!!.)2
G &:L Flexión Ac h2 1
bh3
Si consideramos una sección rectangular: _!_ = .l2_ = _!_h2
Ac bh 10
1.2
L..-- _ ____,I 0.5.Y.
~w112
v
M ~
wP/s
~
Real
134
135
q-d
[f]=~_J ~_~,,~:--- El, GAc ~
i2
¡2
2EI
¡J 1
-+--
3EI GAc
/
El
/2
2EI
10.3 Matriz de Rigidez de una Barra con Deformaciones por Corte
calcular la matriz de rigidez de una barra, incluyendo deformaciones por corte,
,..,..""....... generar primero la matriz de flexibilidad de una barra en voladizo y luego por
de ésta calcular la matriz de rigidez para la misma barra en voladizo. Los
nos que faltan se calculan por equilibrio.
.a) Matriz de FJexibilidadpara una barra en voladizo de sección constante.
hll ~Corte I ~FJexión
1/15 0.3%
1/10 0.7%
1/5 2.8%
1/4 4.3%
113 7.7%
I
tabla a continuación muestra los cocientes para diversas esbelteces del muro. Es
que para esbelteces grandes las deformaciones por corte influyen muy poco en la
...deflexión en el extremo superior del muro. Comparando las dos tablas se observa, como
era de esperar, que los cocientes dependen del tipo de elemento, condiciones de apoyo
y de carga.
/le = 2.2 (h)2/lf I
/le (h)2Af:= 0.69 I
rar con el caso anterior: -4y y V Y t
consideramos una sección rectangular:
_¡
( )( )
2
~ /le -69 1 h
Af -. Ae h2 1
/le =22.08( 1 )(~)2/lf . Ae h2 l
E
para G =2.3
Corte
1
una comparación similar a la anterior para la deflexión en el extremo
rior de un muro en voladizo, de peralte h, con una carga concentrada:
I3S
)
",,
;
)
,)
--,
)
-,
)
)
-)
)
-l
)
)
)
}
)
)
)
-)
)
1
1
)
)
)
~
)
.)
)
-
)
)
J
;
~
)
~
)
)
"')
:)
)
)
a
f¡)
o
)
._)
)
)
)
)
)
)
')
)
-)
-')
-2)
)
)
)
)
)
:;
-=
-
.
-~
-
-
136
b
~h
d) Si en la matriz de rigidez anterior se hace a. = O se obtiene la matriz de rigidez de la
barra sin deformaclones por cortante.
Para una sección rectangular. de concreto armado el parámetro a es:
12El
<1= .
¡2GAc
6
2-a
6
4+a -- -
1 1
1 C 6 12 6 12
EI,GAc
t~J -- f -71 El 1 1
[k ]barra = --
q-d 1+« 1 (j
4+«
6
2-(1
_._ -
1 1
6 12 6 12
- -[2 - [2-1 1
Finalmente, débido a la simetría de la barra: k33 =kr 1 k44 = k22
La matriz de rigld~z de barra para el sistema q;.... d indicado es:
k12 yk22 son conocidos.
k42 se calcula por
equilibrio vertical de la:
barra y 102por equillbrio
de momentos
k 6 El í.~ ..li=----~y ~. 6 El
l+a P ;ij--'r+-"-~---'~'1"'!".---t:~)k32=-1·+-I1-[2
k22 ='_g_ El ko =_,_g_ ~l
. 1+11 P l+a P
kt 1Ylal son conocidos.
k41 se calcula por
equilibrio vertical de la
barra y lOJ por equilibrio
de momentos
k _4+I1EIC~ ~)" 2-aEI11- ---o . .... k31 - ....
l+ci l' . . - l+a 1
~ 6 El t 6 El
bl=----· k41=---
1+a. [2 1+(l [2
q-d
El.GA~
e) Significado ñsico de los términos calcutadcs y cálculo de los términos restantes de la-
matriz de rigidez dé barra en el sistema q - d indicado a continuación.
12EI
a=-::---
. zZGAc
b) MatriZ dé Rigidez para una barra en voladizo.
[
-El(4+11)-."
[k] =[fr1 = (1m k12) = _1_ _l
bl b2 1+« 6ill
~7
Es pOsible comprobar que: [fl[k] = [k][f]= [1]
136
j
~
Mj=Mi/2
Si la columna no tiene cargas
transversales y. sólo se incluyen
deformaciones porflexión la columna
trabaja en curvatura doble.
¡tui-0.5
· gn un pórtico sin desplazamientos laterales sujeto a cargas verticales, si s610se incluyen
· qeformaeiQnespor flexión en las barras, las columnas suelen trabalar en curvatura doble.
· ésto signm~ que las momentos en los extremos de las columnas tienen el mismo
". sentidO (horario Li antihotario). En la figura a continuación se muestra la situación
...qescritapara la columna izquierda del primer entrepiso
En la expresión anterior, el factor de transporte puede ser ~gativo dependiendo del
'.,valo~que adopte a. Un valor ~~gativo del factor de transporte .s'gOifica,que el momento
queaparece en el extremo derecho de la barra es negativo para una rotación positiva del
',"extremo izquierdo, tal como se Ilustra en la figura a continuación.
r";,. M11= fU7 Mil
Ml1 .)
.' . ~I 2-41
Factor de transporte l-2 = ftl2 = - =--
ku 4+41
=
2-a El
k:u=---
l+a I
ku = 4+u El
l+a 1~1I (~*"..-r' - ... -7-.----:O-----J..-2~ ) lal - ftl2 kn
1 el = 1
12.EI
a= . .
PGAc
l~ .,' )2
~. '. '.' . .': /}.~
, 11 '
, q~~l '
1Q~4Factores de Transpone en Barras con Deformaciones por Corte
este aC4Pite~exarñ¡ha~~P;'alg!Jnasde las particu¡aridade~qij'~tienen los factores de
~;ttral[1S(lior1:e'enbárras de secCióneonstante con deformaclones por corte.
12EI
a ='-::¡2:-G-A'__"c[k] - 1 EI[4+abarra- ----
. . l+a 1 2-(1
2-a]4+a
s~~encia de cálculo es la misma. es decir, !)e calcula Iª m~triz de flexibiliqad de
."..~IJ e'l sistyema q - d~se ínvíerte dicha ma~ p~'raobt$ñ.er ia matriz de riQic:fe~de
en elmismo slsterna. La deducción se deja como ej~rCicíopara el lector y 10$
resl~lta'laOl$,para una barra de sección constante, son:
1 l.¡r-__""___". --.,¡:a "'2
. -(& q - d '" ¡/
uede ser conveniente, trabajar con el sistema q- d inqicado a CQhtifluación:
131
137

",L2i:·_:';:ó·_·.c..;,,·. . '" "... :.;,.;;;.,~" ,~_...".';;;,;__:, ;; ..",.~,,:...o;~~~~~_:: .~_~:~~~ ..:~'.'~,..•.., .......•;_~, .."-_~_~.""..:,..;;._;;;::::'.::~~::;'::¡,...':':':'.... "·,;,··c"c·,,'::· :'.;"""'''~'='''"''=''~~'''-''-
1
~)
J
)
:9
I }
. I
i 'J
.)
-)
,
')
")
)
1
...,
~)
)
,
.
• t 1D2 I 4 6 5
· .· .• • I • • , , •
s -_ ~.__ ~ : ..•.. -: -:-- :- ~--_ -:- , .
: . ¡ ¡ : : ¡¡2 •••••• : ····~·······t······¡······t··,···¡_·····~··_···t······.
· . . . . .· . . . . .· . . . . .o , • • , j • ,
• • • ~ , i- • ..
, ¡ .,...-r j ····Y·····¡···-r' ·t..·· .
o~~--~~--~~--~~--~~~
Rigidez al giro Kii =(4+IX)I (1+a) (ElIL)
2- a
ftij=--
4+a
Esbeltez (Ion9'pera~e)
• 102 J 4 $ ,o
12 •
:..'·T~:i~··¡.•.•.:•.••r--+.··::··1:.J•••:'1
... :. ': .- _•• :-.•.. - _~... _,<, •... _';" . _.";. 0'_', -: ••••. ' ': " • • ;
. ..: :.. ..-:.. ~: ..: .i' ':. ~
• o" .; ••••• ~. '-!"'! o •••• ~ • • ~.~ • ••••• : , •• ~ ••• ~
~ ..... i- ::::t:::::t::.:::)::::::L::::t:::::J_:::T.::::t:::j3 ....•. ~._~••. ; _.• ~•••••• ~•••..• ¿_.__ :. _.. ! i :.. ._!. . . . . . ; . ~
: .. :¡.::-',t::::::~::::::1::::::~:::::.t.::l.::~:::::::~::::::!• I I • • •
CoeflCierieIX '" 12ElIL"2 GAl:
2-a El
kji=----
l+a 1
ku= 4+a El
l+a 1
9i= I
k¡¡ (~~-. --~~ )lqi=fijk¡¡
~
El, GAc
~j ~h
E 12EI bh
-=2.3 a= Ac=-
G [2 GAc 1.2
I! 1 v
biI )J
Esbeltez = I/ h
ftij = O
4.10.5 Variación de los Coeficientes de Rigidez - Barras de Sección Constante
con Deformaciones por Corte
Para formar una idea más clara de la manera como varían los coeficientes de rigidez al
giro y a la traslación de una barra de sección constante con deformaciones por cortante,
se han construido las cuatro gráficas que se presentan a continuación. la variable en
estudio es la esbeltez de la barra medida como el cociente entre la longitud y el peralte
de la sección. Se ha supuesto que la sección transversal es rectangular y":, se ha
adoptado un valor para el Módulo de Poisson típico para elementos de concreto armado.
ftij es negativo
Mi
Mj=Olt:..__.J ti.
lJ
Mi
ft
.. 2-a
IJ=--
l+a
138
Ir
¡
lt
Si en análisis se incluyen las deformaciones por cortante entonces, dependiendo del
valor del parámetro "e" el momento en la parte inferior de la columna podría ser nulo o
podria ser de sentido contrario ar momento en el extremo superior, con lo cual la
columna trabajarfa en curvatura simple:
~Mi
139
Real
Resolvamos la estructura por el Método de Flexibilidad, tomando como redundante el
momento flector M al centro del tramo. ~
~(Sr Sr~( SI <.~(Dl ~
ñ I ::--·II-rT"T""T'"T""T"T'T",.-¡-'1
~ - - _-::(~"""Y< ~lllllIlIlllv:o
Viga simétrica con carga simétrica
w
Superposición: k'u= k, 1-ft2'1<2,
Pero: kn= ftu ku => ku= ku- fuI ftu kn= kll (1- ft)2 fuI)
4.1.0.7 Momentos de Empotramiento con Deformaciones por Corte:
Las deformaciones por fuerza cortante modifican los momentos de empotramiento. Sin
embargo. cuando la carga es simétricalos momentos de empotramientono se modifican.
A continuación se demuestra, para una viga sometida a una carga uniformemente
distribuida, la razón por la cual los momentosde empotramiento no se modifican.
4.10.6 Rigidez al Giro Modificada de una Barra c()n Deformaciones po_;-~rte
Para calcular la rigidez al giro modiñcaéa por la presencia de una rótula en uno de los
extremos, Sepuede utilizar la misma superposición presentadaen el acápite 4.9.3
......_~= 1
. ~ el = 1
k'llcr*====I,GA~:= kll(K¿ 7'" ~)k21
+
Esbeltez (lcngIpetaHe)
• 10 10a2
.,
o
_.__.:.__ ,--~l
2 -- ~--T-'~: ---r---¡
~ ,.. ...
¡. ¡ ; ~1 ¡ ¡ ¡ ¡ 01
1 ...... r.....:..,...¡-.....!,....,-:.....,.}......¡..·....;.. ..·..r..··'·
., .. ., .. ., ,
,-~-'~.~.-I • •• I . ,
11 ~. !'" '";'"----...:-...-..:--...-0 • ,- - ~ _ ._.~ _. _ _ • • ~•• ;;. _o .... - - __ o
': ::::J::::J:::::t·:::(::+::J:::::t::~t::::t:,·.:11 -..... ¡ ; · +-..·..¡-.... ·~ ··+··..+·,··+··..+..·..I•.'.._-;: ;._:._-_..r ;__-;_;'_--;-_..,'.
s ...... ¡ ~ ~.., ¡ ~ ¡ ·i··----~-..····~--o .
• ••. -_M: ~ •.• "!. t _'-r:_:__,:: ~:""":-"';! .
:s .- .... I·····-~-_ .....···~-·~··..:..·····~-_..···~·····_·~·-- ..-·;·· ,;, .
2 -oo' ~-_ .... ~.. •• .. -r··..·+..·..¡......i..·.._·¡-.... ·j · r: ..
1 .. "':·~··~·~:'-·····~·~"'·"·!~-'-·-i·····'·=~·--·~·:~··'·'!..' "'-~""'"
o~~' --~-'~-'~~'~~'--~'--~'--~~
Rigidez trasll!ción =(12/ (Ha» (El/l/'3)
11
Rigidez Kji - flj Kii ~ (l-a) I (I+a)(EIIl..)
139
)
-,
J
-}
1
)
-.T
)
~

I
')
')
-)
)
-)..•
} I
.., I
J
[)
)
"
i
)-
")
",~,...:.;:i.~~.-:'...: .:....;: _.:--.,:::;~ _.._-':":'.-:':~~";_':'_;'-_'.;:.:':,_;_:::-::!.:~;: ..6;.:':'--:~~:.._:_::_ :..:,,:.;~_~~:--;:,: -.-:-::."-'~:--,-:~~:.-.. '---=~~'_:".~. ..,; ::..,.!.~~:...._;,~....::.~...., ~~:'.:'"'~ .._:::::;'.~::;':'.~:;_,~::_;~~~~:::;.:.:;.'~:":~;'~;":¡;",'¡::~'.'-:- -c: .~',~'::::;':":'~:~:'=..oI.:SZ";
"..i
:;r;
.-:
¡§)
~J)
(}
,)
1

)
)
)
)
)
)
J
-i
,j
~
)
)
)
~
.)
)
)
)
)
)
)
)
3
)
-~ 112
[2
EI[4[k ]barra = -
1 6
1
6 El
¡z
Caso 4
[ k] = EI[11
barra 1
ll.j = //2
r¡_l __ ~~
q-d
Caso 3
~l
'.ar-----IIh_ 111
q-d
9=1~
3EI~~- .) 1/ 2
/
~3EI t
T
Caso 2
Caso 1
1G:'"=r:«~
2
q-d
~ ]
4.11 Resumen de los Casos más Comunes - Coeficientes de Rigidez Vigas dI.
Sección Constante sin Deformaciones por Cortante .
DI- JMm+ JV/O
El ~.-;j O
fu - Jn;,~+ ri?De las ecuaciones anteriores, resulta claro que ni el desplazamiento DI ni el coeficiente
de flexibilidad se ven afectados por la fuerza cortante, en consecuencia los momentos de
empotramiento serán los mismos. es decir: ~j = J.!ji = w 1/12.
Cuando la carga no es simétrica, como por ejemplo en una viga con carga concentrada
no centrada, Jos momentos de empotramiento sf se modifican, sin embargo la
modificación suele ser pequeña y normalmente se ignora.
140
- -- ._ •.•... ~.__ .- _ .. _.... - - .. _.. ----- :;- ._- '..:.'- -=--:::~""""" --:- .::""•. __ ..
. . -·::.:t:==~:-~:~;~.. ,.,_.:~~-1·· _:•.~~~:. :}I·2~·~;~·i~-.:~:_,::.l~·':'__ ,_;:'~,:_--~_ ~.ii~.~.:...":-::.'~::.~..;_l. __ i.;._"~~:"~.;."".,;~-_~:.:....!~~;~.:..~"'"-,~:.: .. _;.. :
141
.)-
.~ _.... _ ...__.... --
3ab ]
3b2
El [3a2
[ k ]barra = a3+b3 3ab
~ El El Oj?,
11' ~2
4.-----])._""7I/f,'- tJ.
q-d
a. b
;',~
;~.;.
~;:Caso 8,!',="
!,}! (rótula interna)
:¡.!¡.••
,'o
~:l
..': ..
[ k] = El
barra b
2+6a
b
4
4 3a2
-(b+3a+-)
b b
2+6a
b.:... .
c .
I":t¡.
Caso 7
(brazo rígido)
4.12 Resumen de los Casos más Comunes - Momentos de Empotramiento en
Vigas de Sección Constante sin Deformaciones por Cortante
. En la Tabla 4.1 inserta a continuación, se presentan las fórmulas para el cálculo de los
momentos de empotramiento perfecto para los casos más comunes que suelen
encontrarse en la práctica.
a b
141
,Ó.=1 ~
t23/~1(r- ~1
l( 4j3 El [4 q-d
T
Ef
3
1
_-,[ k ] barra = -, -7 3
/2
4 2
6 6
I ct3 tP2
1 ,
2 4
6 6
-- -
El , 1
q-d [ k ] barra = -1
6 6 12 12
-- ¡l -f1 I
6 6 12 12
- -12 121 1
....._-,.-"";-.':", -....... . - .__ ._ _._- .
:~:=:...;.:.:.:..;::~~.~.:.~__;_.~ __:_:...:.:..~::r..:,;. =~ ·.r":":::•. ~_:~_':':''::''~._; ..~_~.~.~::.•.'. :~.~~.,:;.l:..~.~.::..=~:::~:.~_~:':::'::'::::'ot.;
f
)
I
)
)
,)
)
)
)
::lJ
)
=;
"
}
)
)
)
)
)
)
J
.)
)¡
,
)
t
)
)
)
)
)
¡
1
~
1
,
-i
l .)
¡
1
. ;;;.-.22~-;::..ti~~2it :'~:;'~~;i;i~,~.~~;;;·";~~=':::4:".:,j¡:;··_:·~··;;:~~:'¿_iS:;2:: ~~.~:~;....' .::.:-..;;:...."~'-.__..:;.~~
)
)
)
)
)
)
)
-;
.)
-7
)
)
)
,)
J
)
)
)
)
)
)
-3
"
:-
:~
'-
.~
~
.
,
.
,
j
)
j
~
,
~
:142
.-~
N
I
+-~
-'
fl~
-E-
Q..IO-'_
-
s
o
.o
+
aS
U
~
,,---....
CdIN
l.
~
'-----'
&!l...l·!
II
1
j
¡
1
II
f
I Q)
-e
N tU
~ .....en...... c:
oo
r:::::
-o
·0
o
~
Q)
"O
en
e!"-
tu
.c
r:::::
Q)
o
1::(1)
'e
e!
"O
EQ)
Q)
-c
ti>
al
t:!
Cl>.
::7
u,
I
....
-tei
ca
Ji
~
,1-en
-8
, 8, O
f :E
¡. I
mI "O
I ~
I o
I
8I
¡:.a
," .~':'.'- ';;-C~-'-'.;",'~'- ••- J ',:","':.-"T"~'e ':-; '.~.~,'.'
_. _ - -- - -- '.::'-- - -- .----- ::: .-,;.:-' -:-.:-:-:-:-:-·',:---c 7:;-: ::"-.:·.~:-._-:_~-~::.Yr~ ~_.: :_ ,._~_~.. .:..~..;::.._ :.::.;~;.,.~.;.....~
.•...,.~; z:,~.~ •• , .... _.. _.... _._. ".cc, ..,-',::.", '. ":';>:". :~.,,,~~~:-,, __,:,",_,,j"-,_. .... "ª':;~.=:":_.~;~:::':~:_¿;:,;,~.e.,-; "._,,¡_~_,i·,_ _' -- ::¿j1
cJ)
L:)
)
)
)¡
)
)
8) ¡:a
~ ~
) -:« lt:.../ :!j...;¡
~I~
000
) :!Ioo
)
)
)
)
~Ig)
:!I'<t
) ~
~ :!I...;¡;
MN
'1
+-/
cO
'9 "O
~j
) 6¡:a
)
4)
-=CI)
.) e4)
J :g ~
o ~J '-.:11
~ :!I..l
~I~ MN
~I"'")
'J
_)
143)
")
~.
~INi
~I~ ~ oo
) 4)
"" <E-
:;;4)
-e
g
~
I
=]o
~
~ o
<.....JI") ~ '-*'-...A
~IN ~IN')
~Ioo}
i!
l
1
J ~I...l000
<E-
-)
¡
Gt
i~
.~
)
)
)
-)
)
')
)
)
)
4
)
J
_
~
,';'" _C: • ;~'.;..:
.~,.,.:.,~.~..•-:-..-:-:.
144
Estas ecuaciones son aplicables a barras de sección constante sin deformaciones por
corte y sin desplazamiento relativo entre sus extremos.
4EI 2EI
Mu=--Si + --9j +Uij
1 1
2EI 4EI
ic:Mu= --9i + --9J +un El -)jl 1 IJ- 4:
6EI 6EI q-d
Vu=---Si - -2-9j+Vij
¡2 1
6EI 6EI
Vjr= ---Si - -2-9j + Vjí
¡2 1
Para la barra i-j la superposición de los desplazamientos de extremo de barra
(rotaciones) conduce a las ecuaciones de Pendiente - Deflexión:

5.2 Ecuaciones de Pendiente - Deflexión. Barras sin Desplazamiento Relativo de
los Extremos
Las ecuaciones de Pendiente - Deflexión (Slope Deflection) fueron presentadas por G.A.
Maney en 1915 como un método de análisis para vigas continuas y pórticos con nudos
rrgidos.
Este método está basado en la superposición de desplazamientos. tomándose como
incógnitas los desplazamientos de los nudos (grados de libertad).
Toma en cuenta las deformaciones por flexión y se ignoran las defonnaciones axiales.
Salvo en casos particulares, se suelen despreciar también las defonnaciones por
cortante.
En este método se plantean las ecuaciones- de equilibrio de nudo en términos de los ,
desplazamientos de los nudos. 
i


1
5.1 Introducción
CAPITULO 5 - Ecuaciones de Pendiente - Dellexión
144
-: _ ....,..-'-:-.. ~_ .. ; _., -r= .; _
...:;_:_~~~.~~~,;,::,~'~~;;~~)~:~_~~'~i'~~.'.~.-:-~'~::-~'.;:,~:~..~,..__;.:.:_:.:.o._;.:..~__ ;_ ._-~ ~-'_,:, z: ._'-_
I
)
j j -.
._,
J
)
145
1
.'.";"
«,
e"
j. 5.3 Solución de Estructuras utilizando las Ecuaciones de Pendiente - Deflexión.
f< Las ecuaciones de Pendiente - Deflexión, por si solas, no permiten resolver una
'''' estructura, es necesario plantear las ecuaciones de equilibrio de nudo en términos de las
incógnitas cinemáticas. A continuación se resumen las principales etapas para la
solución de una estructura empleando estas ecuaciones:
1) Seleccionar el sistema de coordenadas Q-D. Será necesario identificar los gdl de
la estructura.
2) Calcular los momentos de empotramiento de todas las barras.
3) Plantear las ecuaciones de Pendiente - Deflexión de cada barra.
4) Plantear las ecuaciones de equilibrio de los nudos. Para estructuras sin
desplazamiento lateral, bastará con las ecuaciones de equilibrio de momentos en
los nudos. Se obtendrá un sistema de ecuaciones en las cuales las incógnitas
son los desplazamientos seleccionados en el primer paso.
5) Resolver el sistema de ecuaciones. Se obtendrán los "movimientos" de los gdl
seleccionados para el análisis.
6) Con los valores obtenidos en el paso anterior, calcular los momentos de extremo
de barra. Todas las otras fuerzas de sección se pueden obtener por equilibrio de
la barra.
Para barras de sección variable, antes de iniciar el análisis, es necesario calcular los
coeficientes de rigidez de barra, ya que las ecuaciones de Pendiente - Deflexión
.,. presentadas en el acápite anterior corresponden a barras de sección constante.
~~tEs.posible simplificar un poco más las ecuaciones anteriores si se define el término ki
{ti;. que representa la rigidez a flexión de la barra i:
f~~t~.
;s.:. Mij = 2k.i (2ei +9j) + uij
)
l
{Mij}= EI(4 2){ei}+{J-lij}Mji 1 2 4 ej Ilji
6EI
Vji = -- (Si+9j) +Vji
. /2
,Las ecuaciones anteriores indican que si se conocen los desplazamientos de los nudos a
"IOS cuales concurre la barra, será posible calcular las fuerzas de extremo de barra y a
-:_.~-partirde estas todas las fuerzas internas (fuerzas de sección),
~~L'''Lasecuaciones de Pendiente - Deflexión, suelen presentarse del siguiente modo:
2EI
Ms = -1- (2eí +9.i) +Uij
2EI
Mn= -z-(ei + 2ej) + Uji
6EI
v, = -¡;:-(9i+9j) +vs
k.i= Ei Ii (Rigidez de la barra i)
li
J
)
)
I
I )
J
)
)
)
)
)
)
:1
"
)
9
J
)
_)
)
,_)
,)
!
lil·
I
t
I
I
-:(! .
;';,
.....;
':í "
:i: .
j ,';
'~.'
:¡;
.i·
"-,
II
I
I
I
I
1

~
q
)
)
)
)
)
)
)
)
'
)
"
'
"
146
- Ecuaciones de equilibrio de momentos de nudo:
Nudo 3
M34= -6 + 2b (2 e3 + 9.c)
M43= 6 +2b (el + 29.c)
Barra 3:
kl = 1/2
k2 = liS
k3 = 1/6
M2J= -4.792 + 210(0 + e3)
M32= 4.792 + 210 (O+2e3)
Barra 2:
M31 = O+ 2 kl (O + 293)
La estructura es de secci6n
constante. se pueden definir los
valores de ki del siguiente modo:
Barra 1:
- Ecuaciones de Pendiente - Deffexión:
4.792
- Momentos de empotramiento:
i

EleMento ~ost6~co
- Sistema Q-D:
6
E =2 x 106 ton/m2
El = 5,208 ton-nr'
Sección constante O.25mx 0.50m
ÍI 1 í111
5
1
2.5 ct> h=2m
2
N=2ton/M
2tonlton
Ejemplo 5-1 Resolver el pórtico mostrado sin considerar deformaciones axiales en los
elementos.
146
I
147
5.7
6.68
~~~~~~~~~~~~~~~~
0.671® t
5.30
~rvu27.0
3 ::::fCcl"QQS externo.s
2Xl2+H2=27
SAS
- Momentos fledores (ton-m), deformada y fuerzas cortantes (ton):
(rotación horaria)
(rotación anti horaria)
- El sistema de ecuaciones es:
(
3.461 0.333){9l} = _1 {l.208}
0.333 0.667 94 El -3.0
Nótese que la matriz de rigidez es simétrica ( kij= kji ) Yque los elementos de la diagonal
principal son positivos ( kii > O)
- Solución del sistema de ecuaciones:
e3l::$ 0.82/ El ~ 0.1576x 10-3rad
94 ~ -4.911 El ~ -0.943x 10-3rad
. Ecuación 2:
2k1(293) + 4.792 + 2k2(293) + (-6 +2k3(2eJ +94) = O
=> 3.476e3+ 0.3339..= 1.208
El
+6 +2kl (93+29..) =3 => 0.33393 + 0.66794 =-3
Ecuación 1:
M~E K :JE343 
.Nudo 4
l~'
_)
)
.)
'.,
j
!. )
I
t
)
)
~
¡
1:
i;
r
~
5.
~.
~

~
1
-)
~
)
)
)
')
j
rj)
(¡)
t)
.)
)
)
)
)
)
'
)
j
.
_
.
148
Superposición de los desplazamientos de extremo de barra:
Mi =Dj--Di
-Posítívo cuando la cuerda
gira en sentido horario
Di~
~JMJI .........~I
~'{jl__ Cortantepositivo cuando
produce un par horario
5.4 EcuacioneS de Pendiente - Denexlón. Barras con Desplazamiento Relativo de
los Extremos
Nos limitaremos al estudio del caso de barras de sección constante sin deformaciones
por corte.
:. N2 =lo Das = 0.671 ton
EA
10=-
6
DH]= 3.354
EA(1 1) .EA 5+6 Dm= 1.23
N3= 10Das = 0.56 ton
EA
b=-
5
Una posibilidad para' superar este problema, consiste en repartir la reacción horizontal en
el nudo 1 de 1.23 ton, en proporción a la rigidez axial de cada una de las vigas· que
concurren ai nudo 3:
:EFh:R2 +R4 = 1.23 (Infinitas soluciones)
tMo: (R2+R4)* 2 +Momentos de Ias cargas = O
Las dos ecuaciones anteriores representan rectas
paralelas, por lo tanto no tienen solución.
I
Ii
I
~
La reacción horizontal en el nudo 1 se obtiene a partir dél cortante en la barra 1-3y la
reacción vertical a partir de los cortantes en las barras 3-2 y 3-4. Nótese que al haber
ignorado las defonnaciones axiales (se ha supuesto EA = 00), no es posible calcular las
reacciones hcrízontates en los nudos 2 y 4 ya que él problema es indeterminado, como
se indica a continuación:
149
CuandÓ se reaüzan cálculos 'manuales, su~Ie ser conveniente para reducir el trabajo
n~h1éricoJel utilizar el nún:-eróirtfnirno posible de gradQs de Ubertaden la esíructura. Por
ejemplo, en los apoyos aríículadcs de loS extremos de vigas o en 10$ apoyos articulados
de pórticos, es posibl~ ignorar los grados de libertad de rotación en e$OSapoyos,
reduciendo asf el número total de incógnitas.
Por ejemplo, en la viga de dos tramos móstrada, es posible ignorar el grado de libertad
aSociado a la rotaci6n en el apoyo extremo de la derecha, para ello será necesario
modificar la rigidez al giro dé esta barra y sus momentos de empotramiento. En
consecuencia será necesario modificar las ecuaciones de Pendiente - Deflexión.
S.5 Modificación de las Ecuaciones de Pendiente - Deflexión.
En consecuencia las ecuaciones de Pendiente - Deflexióh son:
2 EI( 3AU)MI;; =u··+ -- 291 +9· - _'l IJ l' J 1
2EI( ,38ij)
M.. =u·· + - 9. + 29. --JI JI 1 1 ' J 1
6 EI( 2 AU)V. =v·· - - 9.+9. --1J IJ /2 J J l
V.. = v .. _ 6 EI(9.+ 9. _ 2 Aü)JI JI P 1 J 1
+
~II¡J(~- -~IAIJ)~l!.iJ 9i"'0 Oj-O l!.ij-o
i~II¡J ~ ..
9i=0 9j = 1ªfIeJ(~
t--29~I '
+
ei = 1 ej =0
1
J
)
)
)
+
111
149
ry
)
-
=
~
:
.
.
t
'
3 u.,
v': = v.. + _ _1!.
IJ IJ 2 1
, 1
,.. u· ..= u·..- _'u·..IJ IJ 2 JI
- Cálculo de los momentos de empotramiento u'ij (barras de sección constante):
, 3 El 3 El
Vij = v ..- -2-9¡+ - Aij
~ [ ¡3
r 3 El 3 El
Vji=V .. - --9¡+ -- Aij
JI 12 [3
Mji=O
Las ecuaciones de Pendiente - Deflexión modificadas son, para este caso:
r 3El 3 El
Mij = u .. + -- Si - -- .!lij Ecuaciones modificadas.IJ l- [2
+
y w)
150
a ~
~~
,
a
~
o
~
M1J(1 r'ffh .J.. J
tV¡J J..I¡
~
~:i.~.,;;..~~:....~-:._.~. .:;~:_~.:,:~·::;;:.;i~;::,;.:__ _~-_ .-;~.::-:~..:-.:~~,:.;.. .~;~:.~.-..;.~~~=" ,':',~Ll-~¿
,,~,9
f)
~
')
")
')
)
")
)
)
')
)
)
-i
J
-9
)
)
)
)
.)
)
151
u", = __1 w/2 _ wl xi = _'!'wI2
IJ 12 2 2 3
• 1 2 w/ 1 1 2
u·o =+-wl - -x- =--wl
JI 12 2 2 6
Ejemplo de cálculo de u"ij:
1 wf 1 wfw rr :-m- T 4
*YYVYY~ == (tYYYYYfJ + Q:J--rk)
¡ti J..wl
2'
. /
u·. = u.o + Y·o-
IJ IJ JI 2
- Cálculo de los momentos de empotramiento u"U (barras de sección constante)
ulJ (jI)! (]I)~
(~ r1Tb + ~)uJ1 + (~ ft)
tVIJ v J J. '(jl vJli
MiJ(. 1111II 1 .!. §%)Mji El e.
tv: . .!. M .. = u", +IJ IJ / 1
, IJ
~I=O
Moo= u·o. - Ele,
.!.
JI JI 1 1
U'ljqt ,1111111 §~ Vjj = Y·jj
.!.V~.~=OVij Vjj =0JI
Otro caso en el cual conviene modificar las ecuaciones de Pendiente - Deflexión,
corresponde a las barras que tienen un empotramiento deslizante en algunos de sus
extremos y no se desea considerar el desplazamiento vertical del empotramiento como
grado de libertad. Estos casos se suelen presentar cuando se reducen las estructuras
simétricas cargadas simétricamente.
Ejemplo de cálculo de u'í]:
UlrJ~!oY~ == '(IYYYYYYYYvb)
-wl2 -wl2
12 12
, wl2 wl? wl2
.. Uij=----=--
12 24 8
151
,"..
")
")
')
}
")
)
)
)
)
")
-J
)
9
)
)
J
)
:)
)
c-
J
--'
c
.:
~
.
_
.
oI
I
~-==~r~ eO.134CM
Deformada
Momentos
(ton-m)
1- 2.0I'F---=~--Ir
íf_
1.50 L:r
A continuación se muestra el diagrama de momentos y un esquema de la deformada de
la viga.
CI 3.271 ""' 1 23· 10·-3'Q3 ~----- _- x
El
9 L20~ 045·1·0-'2f':$---1::s. x
El
Ecuaciones:
E=2xl06 totilm2
Sección O.25xO.4Q El = 2,661 ton_1il2
1:f y lYS(i~Y {lYV¡ 3
~ • r
JI 3 ~ 4 ~
2ton/M
Ejemplo 5-2 Resolver la vig~ continua de dos tramos de sección constante incluyendo
como gdlla rotación en el nudo 3.
'f··
(~ dIb ~
r~ dJb
~
uaUl~ r1Tb .i ~)UjlfJ. IJ -
1 1
tV·'J
~ -
" ;1' "v" vj,=O
Nótese que el momento de empotramiento J.L"ij.puede calC,J,~~e.4LiP,Ii~ndola luz.de la
viga olÍ9inaJ y generancJp un sistema de ~r9as simémoo, tál como se indica a
continuación: _.- -
152
- ---------:--_--.,.,_,_';'-"----~;_-' -;
_ ':-~~~i~:;~:~~~>-'~-:-'-;;¿L~~~~~·~--'~-~:c~~'L~~~-:'~~~:~¿L~:=_i_:~~~~~:-T~~~~':~-:,~;_-~-~-:':~~'I~:~~_;:~~C~SI:iL~_::~~~~~-I'-:Z:-;~--_;~~:~--;~:~:-j~~l~~--';~;~i;-_;:~~¡--~--~~-:~~'-~~~i.-;-;~;~~-= ;;-- ---~/ ._-- - i~~:~~~·~
~
~~
!~
)
)
)
153
El mismo resultado obtenido en el ejemplo anterior.
- Cálculo de la rotación en el nudo 3.
I 92 1 2 4 0.6 3.267
Bs= -n··x - - - = -->«2)(4) x- - - ~---
. JI 4El 2 12 4EI El El
M2J +Mn= O
1.5 +2k,(292) -4 + 3k292 = O
4k1B2+3k262 = 2.5
4 El9 +3 El 9 = 2.5
3 2 4 2
6 1 1.2
9 =-x- =-
2 5 El El
- Equilibrio Nudo 2
.Bana2
Barra 1 M12 = -1.5 + 2k¡(B:z)
M21 = 1.5+ 2k,(292)
k = El
2 4
k = El
1 3
- Ecuaciones de Pendiente - Deflexión..
La relación del ~
<p 2 . ~ conocido -:~ . 1.~
~4f;; ~3 ""'ClJlJJY  ~
1.5 1.5 =40 .
8
Momentos de empotramiento Momentos de empotramiento (ton-m)
Q-D
Ejemplo 5-3 Resolver la viga continua de dos tramos del ejemplo anterior sin incluir
como gdl la rotación en el nudo 3. .
153
)
1
)
,,
t
j ,I
I 1
j
~
)
-4,
¡I
1
II
) , .
~::
) ....
1 "
')
)
)
)
1
_)
)
)
=;
J
)
.)
)
)
)
,
,I
l-")
J
')
)
)
")
154
Existen otras situaciones en las cuales por ejemplo." es necesario :plantear
.ecuaciones de nivel, otras donde el"equilibrio de nivel ·.esen la dirección vertical y .
en las cuales puede ser conveniente remplazar la ecuación de equilibriO de nivel por t .
suma da momentos respecto a un punto convenientemente seleccionado ( punto O en .
figura a cbntinuación). En este último caso la ventaja estriba en que al realizar la
p .. r'iYYYYl
~-- ~--
V31 V42
~M42,
J>42M24
a) Demomentos:
Nudo 3 M31+M34 = O (1)
Nudo 4 M43+ M.u"=0 (2)
Ecu.aciones:
...
h
V31 +V4i =P .... (3)
b) De nivel:
2"1
Q-D
. 83
En situaciones como las indicadas en I~.figlJ!'$anterior, en las cuales,la estructura puede
desplazarse lateralniE!n~ P9r la acción de cargas laterales en 16snudos y barras Q por la
asimetría de la geometrfa ylo catg~s, ya no son suficientes las:ecuaoibnes de equilibrio
de momentos é., los nudos, Es" neóesarío plantear ecuaciones adicionales, estas:
ecuaciones SOn"las dé equilibrio de niVel.
La figura a conJinuación. muestra un pórtíco que puede desplazarse lateralmente, se
indican las tres ecuaciones necesarias, dos de equilibrio de momentos y la tercera dé
equilibrio de niVel.
5.6 Estructuras con Desplazamiento Lateral
~
'1)
:~
)
)
)
)
)
)
)
)
)
)
'i
")
~
)
)
)
)
J
)
)
)
)
)
)
)
~
")
--J
)
e"::}
)
_cj}
:)
,J
)
.)
J
"J
J
-')
)
)
e
o
:;:.)
154
155
i
L
l
1212
wl2 3x 62
--- - --- = -9 ton-m
- Momentos de empotramiento:
u12 = U21 = O
u.n = U34 = O
'k 1=6.0m
Solución A: Sin considerar el grado de libertad de traslación. Esta solución equivale a
suponer la presencia de un apoyo que impide el desplazamiento horizontal de la
estructura. Nótese que el pórtico, al ser asimétrico, se desplaza lateralmente hacia la
derecha.
h =3.5 m
E= 2xI06 tonIm2
Sección constante 0.25 x 0.50 m
IV Y y y "'(Y r-:/)J
2 3
h=2.0
3 t.ll'l
Ejemplo 5-4 Resolver el pórtico mostrado utilizando el Método de Pendiente y
Deflexi6n. Se ignoran las deformaciones axiales en todos los elementos.
A. Sin considerar el grado de libertad de traslación horizontal del nivel.
B. Considerando el grado de libertad de traslación.
~ ~
Equilibrio de nivel vertical ~uma de momentos (una
(una ecuación) ecuación)
 
Equilibrio de nivel horizontal
(dos ecuaciones)
de momento respecto al punto O, las fuerzas normales en las barras no participan y por
lo tanto no es necesario calcularlas, mientras que en la ecuación de equilibrio de nivel
(suma de fuerzas horizontales) sí participan. .
~PuntoO
, ~..I ..
, ,
I '
I ~,
I ..
I ..
I "
I ..
I ,
, '.
)
,
}
!
)
)
)
}
);
J
)
)
=;
)
)
)
J
)
)
!
1
)
:)
J
)
)
)
)
,
J
}
~
)
--4
')
")
)
)
)'
)
)
)
)
)
...,
")
~,
)
)
j
)
:)
)
)
)
)
)
)
)
'"j
)
")
.>
J
')
~
~
~
.)
)
J
:)
J
')
)
)
~
zg
·3
156
Cortantes
(ton)
Momentos
(ton-m)
Deformada
~De las ecuaclenss (1) y (2) con El = 5,2Q8 t-ml se obtiene:
al = 4.0~9 !::I O.7851xlO')'rad 9] = -5. 725 ~ -l.Ó99xl 0.3rad
El El
- ReempJaZándQ en las ecuaciones de Pendiente - Deflexi6n de cada barra se obtienen
los momentos en los extremos que se han gr'áficado a centinuaclón:
3.33ton- u' __ " •••• _ . '. _"'''' _..., ..,
M:J2 + M34 = O
El [(0.66793 + 0.33392) + (1.1430])] + 9 = O
El (0.33392 + 1.810 8J) == -9 ;(2)
M21 +M~3 = O
El [2 92 + (0.667 °2 + 0.333 °3)] - 9 = O
El (2.667 92 ;,. 0.333 93) = 9 (1)
Nudo 3:
Nudo 2:
- Equilibrio de nudos:
M2J
~EM21~
r
- ECUaciones de Pendiente y Oefle~ón para cada barra:
4EI 2El .
M 12 = ~91 + ";"'_;;_92 + O = El °2
2· 2
M = 4E1a + 2EJo +0=2Ela
21 2 2 2 J 2
4EI 2E! '.
M23 = 6e2 + 6el - 9 = 0.667 EI.9a + 0.333 Ele] .;9
4EI 2E!
M32 = 6e3 + -6-92 + 9 =0.667 EIO] + 0.333 El92 + 9
M = 4EIe + 2Elo + 0== 1.143 ElO
34 3.5 3 3.5 4 .1
4EI lEI .
M43 = -:-°4 + -. -.~°3 + o = 0.571 Era3
3.5 3.5 ·
156
157
M32 +M34 =0
(O.667EI9J+0.333Ele2 + 9)+ (1.l43EIeJ - 0.490El~) = O
El (0.33392+ 1.81083- 0.4906.)= - 9 (2 )
Nudo 3:
M21 +M23 =0
(2Ele2 -1.5EI.6.)+ (0.667El92 + O.333EI9)- 9)= O
El (2.667e2 +0.33393 - 1.5A)= 9 (1)
- Equilibrio de los nudos:
Mn
Nudo 2: J.') t:
M21~
r
6EI 6EI 12EI
V21=0- -l 92 - - 2 9) + -3-,6, = -1.5El92 + l.SEIa
2 2 2
V = o - 6EI9 _ 6EI9 + 12EI.6.= -0.490Ele + 0.280EI.6.
~ 3.52 3 3.52 4 3.53 3
Momentos de empotramiento. Son los mismos que los calculados para el caso "An•
Ecuaciones de Pendiente y Deflexión para cada barra:
, 4EI . 2EI 6EI
M12= -el + -e2 + o - -2 6}2 = Ele2 -1.5Ela
2 2 2
4EI 2EI 6EI
M21=-62 + -el + o - -2 .6.21 = 2Ele2 -1.5EI.6.
222
4EI 2EI 6EI
Mn= -e2 + -e) - 9 - -2 .6.23= 0.667Ele2 + 0.333EI93 - 9
666
4EI 2EI 6 EI
M32= -eJ + -e2 + 9 - -2 632 = 0.667Ele) + 0.333EI92 + 9
666
4EI 2EI 6EI
M34=-e] + -64 + 0- --2 a34 = 1.143EI63 - 0.490EI.6.
3.5 3.5 3.5
4EI 2EI 6EI
M4J= -94 + -e3 +0- --2.6.0 = 0.571EI9l-0.490EI,6,
3.5 3.5 3.5

º=º 4
Solución B; Considerando el grado de libertad de traslación horizontal.
,.---+---~
La fuerza necesaria para evitar que el pórtico se mueva lateralmente, se puede calcular
a partir de las fuerzas cortantes en las columnas. Esta fuerza es de 3.33 ton
aproximadamente y representa la reacción en ~Iapoyo ficticio que ~e necesario.colocar
en el nivel de la viga, para evitar que el pórtico se desplace lateralmente. El sentido de
la fuerza indica que la tendencia del pórtico es a moverse hacia la derecha.
~.'
·t
}
}
~
I l
)
1
)
t
, ,
r }
¡ -)
1
)
-4
I
Ir
t
i I
)
)
~
)
.)
)
}
)
)
)
>
=;
J
)
)
.J
J
)
¡
.,)
')
.)
J
)
)
)
)
")
)
')
)
')
')
-'j
)
~
)
)
)
J
~
-
158
"
E = 2x 106 ton/m2
Sección constante 0.25 x 0.50 m
l


3,5
4
2
~ ~------------------~5 ton
Ejemplo 5·5 Resolver el pórtico mostrado utilizando el M.étodo de Pendiente
Deflexión. Se ignoran las deformaciones axiales en todos los elementos.
I
I

Cortantes
(ton)
Deformada Momentos
(ton-m)
De (1), (2) Y (3) con El = 5,208t_m2se obtiene:
92 = 6.126/EI = 1.176 x 10.3 rad
93 = ~5.08l/EI = - 0.9756 X 10-3 rad
II = 3.763/EI = 0.7225 x 10-3 m
- Reemplazando en las ecuaciones de Pendiente - Deflexión de cada barra se obtienen
10$ momentos en los extremos que se han graficado a continuación:
V'21 +V)4=0
El (-1.592 + 1.5,6,)+ El (-O.49Q93+0.280,6,)= O
El (~1.5e2- Q.490e3 + 1.780A)= 0 (3)
- Equilibrio de Nivel:
~
---+ ---+
I I
15$
·._ ....:~_.... 0'.: .. _.,. 'O. C.-.:.:;.'.:::C'.. .. . _0.; ... -;".....,..'_.'.- ~•. ,," .. - . ~.. ~.::~.:' ::·_~··~"~:'-.z:·-
'L;-J;~~;;;~~~:..:.::::'"'.::;_:_=___;;_:~~~=:::..~~... .~:.'~..~~~. ,,'~;.,'~.,:::-::~;.~~"~'~~;:;':..:l:'.;...;,",.:~.,..L."i,1;~:."."-::'···c~.-.''''.•.•;,~'~" ,~;,.,_·_,·;._c..·_·;.;;:"~~·=,,:..c..--"-=-'·-~~
,~
'9
159
Momentos (ton-m)
Cortantes (ton)
Deformada
De (1), (2) Y (3) con El = 5,208 t_m2 se obtienen los desplazamientos de los nudos:
82 == 3.058/EI ~ 0.5871 x1O-3rad
93 = 0.970jEI ~ 0.1862 xlO-3rad
.6. = 5.653/EI ~ 1.085 xlO-3 m
V21 +V34 == 5
El (-1.592 + 1.5.6.)+ El (-0.49083 + 0.280.6.)== 5
El (,;.1.582- 0.4909) + 1.7801) = 5 (3)
M32 +M34 =0
El (0.66783 +0.33382) + El (1.14383 - 0.4906) = O
El (0.33382 + l.8108:;-0.490.6.) =0 (2)
M21 +M23 =0
El (282 - 1.5.6.)+El (0.66782 +0.33383) == O
El (2.66782 + 0.33383 - 1.5.6.)= 0 (1)
TT
- Equilibrio de nivel:
Nudo 3:
- Momentos de empotramiento. Son todos nulos ya que no hay cargas en las barras.
- Ecuaciones de Pendiente y Deflexión para cada barra. Son las mismas que las
planteadas en la solución B del Ejemplo 5-4 con la salvedad que los momentos de
empotramiento son todos nulos.
- Equilibrio de los Nudos:
M2J
: ~--
Nudo 2: JJ .J ..
M21
r
1~
·l
1
1
{t" .
,
I
I~ t{
j
)
} ..
..
)
I )
j )
~
)
)
-;
I
)
~
..
)
)
_)
)
)
)
)
)
"-),
)
I
j
1
J
J
>
J?
?)
I
)
I
)
I
)
1)
o
¡r)
-9
)
)
)
)
')
)
)
)
:
tJ~
Estado Primario (ton-m)
Diagrama de momentos y
reacciones del Estado Primario
93=84=0
6
6
"tJ~'T~''''~~11
Deformada del Estado Primario
83=84=0
1.208
Cargas de fijación:
Rl=-1.208 R2=3 t-m
Estado Primario: En este estado se incluyen todas las cargas (acciones externas) que
obran sobre la estructura. Adicionalmente se colocan restricciones, medidas en el
Sistema Q-D, que impidan el movimiento de todos los gdl seleccionados para el análisis.
En la figura a continuación, se muestran las fuerzas Rr y R2 (Cargas de Fijación o de
Restricción) que es necesario agregar para lograr que las rotaciones de los nudos 3 Y 4
sean nulas. Nótese que el Estado Primario es cinemáticamente determinado y que
todas las fuerzas necesarias para impedir el movimiento en los gdl se calculan por
equilibrio de los nudos.
65
EJemplo 5-6 Apliquemos las ideas de los Estados y Primario y Complementario a la
solución de la estructura del Ejemplo 5-1.
lton .
~ ~·2ton /" J,"on
2!YYY0 YYY1JYYYVYYYlls
~ 2 .5 f h = 2
1
Mj = 2ki (26i + 9j)
~i= 2ki (Si +2EJi)

11
l
i
5.7 Estado Primario v Complementarlo
En el método de Pendiente y Deflexi6n puede ser conveniente el empleo de los
denominados Estados Primarioy Complementario. Estos dos estados se utilizarán en la
solución de las estructuras por el Método de Rigidez que se presenta en el Capitulo 6.
La ventaja de utilizar estos dos estados en el Método de Pendiente- Deflexión. es que
las ecuaciones se simplifican ya que tQdas las cargas y, en consecuencia, todos los
momentos de empotramiento(uij) se incluyen en el estado primario.
Las ecuaciones de Pendiente- Deflexión para una barra sin cargas y sin
desplazamientos relativos entre sus extremos son:
L60
',~~~...~'~::".:':.:;~.',:¿..:..:~.i..~.~..:.:.;..•~.;, ..~.~;•.._- ...~.; .•. _ ..~
161
83:::¡0.82/ El :::¡0.1576 x 10.3rad (rotación horaria)
84:::¡-4.91 / El ~ -0.943 x 10.3rad (rotación anti horaria)
(
3.467 0.333){9J} = _1 {t.208}
0.333 0.667 94 El -3.0
Como era de esperar, el sistema de ecuaciones que se obtiene es el mismo del Ejemplo
1 yen consecuencia su solución también será la misma.
Nudo 4
Nudo 3:
1.208
- Equilibrio de nudo:
- Momentos de empotramiento. Las cargas han sido incluidas en el Estado Primario en
consecuencia todos los uij son nulos.
- Ecuaciones de Pendiente - Deflexión para cada barra.
Barra 1: M31 =2k,(293)
Barra 2: M32 = 2k2(293)
Barra 3: M34 = 2k)(29) +9..)
M43 = 2k3(9) +84)
Estado Complementario
- --.
- 31.208
Estado Complementario: Se aplican las fuerzas de restricción (o de fijación) calculadas
:: en el J:stado Prlmarío con senñdc-conírerío, De este modo el) el Estado Complementario
solo existen cargas en los nudos (no hay cargas en barras) aplicadas en el sistema de
-_coordenadas Q-D seleccionado para el análisis de la estructura.
Para este caso en particular se tiene: Ot = -Rl = 1.208ton-m; Q2= -&2 = -3 ton-m
')
)
•
)
:
,
•t,
)¡
I
)
)
).
) ;-
'.
! )
¡
i1,
)
1
,
)
4
)
)
)
I
)
)
)
)
)
)
)
,)
)
)
I
- ~
"'
)
)

}
I
t)
?)
r
/
) j
,.) II
~>
l'-.,
)
)
")
)
)
}
.._
)
)
_
Diagrama de momentos final (ton-m)
71J9
Por ejemplo, el diagrama de momentos flectores se obtiene sumando el diagrama
correspondiente al Estado Primario con el del Complementario, el resultado de la
superposición es:
Los resultados finales, a todo nivel (deformada, fuerzas internas, reacciones, etc.) se
obtienen por superposición del Estado Primario y del Complementario.
Resultados Finales = Primario + Complementario
1
IJ.
t0.89
3
I ::h-J~.".....o:c:LJL..L.L.L..I...I-oH-f-++~L...I..L..LL.J~.......,..,_,...., ....................."T"'I""~- Diagrama de momentos del Estado
....  . Complementario (ton-m)
02!

Deformada del Estado
Complementario
los resultados del Estado Complementario se indican a continuación:
162
I¡
1
{
163
~I
2EA
EA
+; ,~CD ®
"
ti
"
12
"11 í1 11
6.3 Ejemplos Introductorios al Método de Rigidez
gtemplo 6-1 Se desea calcular las fuerzas en las barras del sistema mostrado a
continuación, formado por dos barras deformables axialmente. Para el sistema de
cargas que obra sobre la estructura, no se desarrolla flexión en las barras, en
.. oonsecuencla, la estructura tiene sólo un gdl correspondiente al desplazamiento
horizontaldel nudo central.
6.1 Introducción
En el acápite la sección 2.2.7.b, Superposición de Desplazamientos,se presentaronlas
i~eas principales del Método de Rigidez. Se demostró que la superposición de
desplazamientos conduce a un juego de ecuaciones cuyo significado fisico es que las
cargas nodales (para el Sistema Q - D seleccionado) se pueden expresar como
combinaciones lineales de los desplazamientos nodales. También se definió el
significadofisico de Coeficientede Rigidez,kij.
ElMétodo de Rigidezen grandes rasgos:
Está basado en la Superposiciónde Desplazamientos.
Las incógnitas son los desplazamientos de los nudos o grados de libertad {D}.
- Las fuerzas de extremo de 'barra son forzadas a cumplir las ecuaciones de
equiñbriode nudo.
A través de las ecuaciones de equilibrio de nudo se obtiene un sistema de
ecuaciones lineales (ecuaciones de equilibrio de nudo) en las cuales las
incógnitas son los desplazamientosde los nudos {Q} = [K] {D}.
La compatibilidad siempre está garantizada mediante la correlación entre los
desplazamientos nodales y las deformacionesde extremo de barra que concurren
al nudo (Relaciones D - d). Dicha relación se expresa mediante {d} = [A] {D}
donde [A] es la Matrizde Compatibilidad.
Las Relaciones Constitutivas, a nivel de las barras, se expresan mediante
{q) = [k] {d} donde [k] es la matriz de rigidez de la barra (véase el Capitulo 4).
Es aplicable tanto a estructuras isostáticascomo a hiperestáticas.
6.2 Etapas del Método de Rigidez
a) Selección del sistema Q - D. Es posible utilizar la simetria de la estructura si la
hubiera.
b) Cálculo de las Cargas Nodales Qi y ensamblaje del vector {Q}
e) Ensamblajede la Matriz de Rigidez [K]. En algunos casos será necesariocalcular
previamente los coeficientes de rigidez de barra, como por ejemplo cuando las
barras son de secciónvariable (Relacionesq- d),
d) Solución del sistema de ecuaciones lineales {Q} = [K] {D}. Simbólicamente la
solución se expresamediante: {D} = [Kr' {Q}
e) Cálculo de las fuerzas de extremo de barra {q}.
CAPITULO 6 - Método de Rigidez
163
. - ..,. ',: ~.
..~,:"";....-~..;..,::._.,,_,,.:.....:.....; , ;.... ' ...,-_._._ ....'.
.- ,_o _._.. _:.._._; ..._..... ~.;.:- ~''';~;_ :_~'._~.
}
i
~)
~
j
1
I,
¡j
j ,
J
")
)
)
~
)
}
)
)
)
~
'>
>
i:-
)
J
)
)
1
.'
)
"")
J
')
1
)
l
~
1)
L~.~" ~~',.
)
)
',
)
)
")
')
)
.J
)
-jl
O)
1
)
)
J
_.)
J
)
)
)
)
)
)
,)
"i
J
-:J
.
1,
)
=::;
:J
La barra 1 trabaja en tracción y la barra 2 en compresión.
. D 2EA 2P 1
ql = 1-1-= -l X(2 1)I 1 _+_
t) 12
4) Fuerzas en los extremos de las barras:
I1
Sustituyendo en la ecuación de equilibrio:
-D (EA)
q2 = ·1
2
DI (2EA)
q.
=> ( ~~) -_(_ll)DI{d}=[A]{D} uz
2) Relaciones e - 86 Relaciones 9 - d ({q = [k]{d}). También se les llama
Relaciones Fuerza - Desplazamiento de extremo de barra.
2EAdl EAd2
ql 1 q2 1
J 2
3) Compatibilidad (Relaciones d - D): Los desplazamientos de extremo de barra deben
ser compatibles con el desplazamiento del nudo 2.
d.= DJ dI = ~D.
Ó--~dl t---->Dl
cl2
~ .~~ <fE- @t ~ ~ Q-)o
~ ,
qJ ql ql P Q2 q2 Barra 2 q¿
Barra 1
Nudo 2
1) Equilibrio del nudo 2. Asumimos que las dos barras trabajan en fracción.
DI
1 ~I
..J...-:¡...
I~ j
A 1-....
2
Q'-D
Si se desea, el sistema puede modelarse como él ensamblaje de dos resorte de
rigideces kt y la corno se indica a continuación:
164
--- -_._._ _ ..,._.._._.,.- _, ..__ ._.. , .. "._" -
~:~~~l+.·;:·~:~.~.~¿~~~~_~I~:;-~~~~..~::.jL~~~:~.:·~~-~;:;:ú~.·~~·:ji~~I~~-··-~~~:1.-~:~~·:~~~~d~:r~~~I-·..~~_~;;-.;:,~;:...~~
EAq, =_1 _' (1) =41,667 kg
360
EAq2 =_2 _2 xO.8= 17,778 kg
450
165
O" - & (q - d):
<,
Dt= 1
® <,
P >'<,
...... ,......
....,.,... CD
Compatibilidad (d-D): d, =+1
d2 =cosa
o =kllDI +k'2D2
-3000 = k2,D, +k:uDz
• Coeficientes de rigidez de la estructura:
a) Coeficientes kll y k21
2
• Superposición de desplazamientos de nudo:
• Cargas Nodales.
{Q}={~} ={-3~O}
Q-D
• Sistema Q - D. Grados de libertad de la estructura.
sen (l = 0.6
cos a= 0.8
B8lTa1: Madera
E = 100,000 kglcm2
A = 150 cm2 (6" x 4")
Barra 2: Acero
E = 2x 106 kglcm2
A = 5 cm2
a,.
2"_".
<D
3)000 kg
I¿ V
11
3.60
)J
2.70
165
Ejemplo 6-2 La armadura mostrada está formada por dos barras deformables
axialment~Juna de madera y la otra de acero. Se desea calcular el desplazamientodel
nudo2 Ylas fuerzas internas en las barras.
3
:~
)
)
}
}
-)
)
)
___.
="
.)
.)
)
)
)
J
)
)
")
_)
)
1
-;
.')
-i
J

11
) ,. O', "·";;':::.i;;~:;:".~:=¿:;,,:~~~;:::i;~;,~;;;;,~::C.;.¡_¡.:~,~2'':::,,:;;-__;;c':;'-=c,,~", ~0,- .:,.",~::S~",~c';;".'"~'::"';';:'~',_,,' ",~_:C,.:..,",:...=.l."':::" ,:.:, .",::;:~ ':", :c.:,~.':':-:""::::;:;:=";;'~;ii:-'
)
')
Los resultados se pueden comprobar por equilibrio ya que la estructura.es lsostátíca.
Se sugiere al lector resolver la armadura del Ejemplo 7-2 del Capítulo 7.
• Fuerzas finales en las barras:
{N} = {NI} x DI +{N2}X D2
Barra 1 +41, 667x(--o.096) +0xD2 =>NJ =-4,OOOkg (compresión)
Barra 2 + 17,778x(-O.096) +(-13,333)(-0.503) =>N, = 5~O()Okg (tracción)
D. =-0.096 cm
D2 =-O.5()3cm{ O}. (55,889 -lO,667){D1} =>
-3,000 = -10,667 8,000. D2
• MatriZ de compatibilidad o de transformación de desplazamientos.
{d}=[AJ{D} ~ (dI) =(1 O )(Dt)d2 cos a. -sence D2- .
• {Q}= [K] {D} {D} = [Kr1 {Q}
Fuerzas en barras debidas a D2 =] (kg)ku =13,333xO.6 ~8,OOO kglcm
kt2 =-I3,333xO.8 ~ -10,667
{N2}
Equilibrio de nudo: 13,333
?-~k2i1t k12
cr ~s (q - d): ql = O
q2 =-E~~2 sena=-13,333kg
1~=1
CompatibUidad(d- D): d, = O
d2 =-sena.
b) Coeficientes k2J y k22
+41.667
Fuerzas en barras debidas a D. =] (kg)
ku =41,667 +17, 778xO.8Rf 55,889 kglcm
k21 =-17,778xO.6~ -"10,667 kglcm
{NI}
~78
<J ... o ~ kn
41,667 t·. k21
Equilibrio de nudo;
Betti: (1)~2 +(O)f22+ (0)f32 = (O)fll +{l)f21 +(0)f31
:. f l2 = f21 =>fij= fji
.••.Nótese que en este caso, el cálculo de los coeficientes de flexibilidad de la estructura en
'. el Sistema Q-D, involucra la solución de una estructura hiperestática.
. 6.4.2 Los Términos de la Diagonal Principal (kü) son Positivos
Frsicamente es imposible que un término de la diagonal principal de la matriz de rigidez,
, de una estructura estable (interna y externamente) sea negativo o nulo. En el caso de
. estructuras inestables local o globalmente. si se podrían tener términos en la diagonal
.: PrinCipalnegativos.
: En la columna mostrada, si la carga de compresión P se aproxima a la carga crítica de
pandeo (PCR) , el coeficiente de rigidez se vuelve cero o negativo, es decir el coeficiente
. de rigidez, que es la fuerza necesaria para lograr un desplazamiento unitario, debe ser
.,:haciala izquierda para controlar la tendencia al pandeo.de la barra.
Sistema r
Ql,D1
Sistema 1I
Q", DlI
la estructura anterior para demostrar que los coeficientes de flexibilidad
una estructura también son simétricos:
Betti: kll(O) +!s¡(l)+k31(0) = kI2(l) +k22(O) +k32(O)
:. Is,= kl2 =>kij= kji
Sistema 1I
QII, OH
D2 = J, D, =D) =0
Sistema 1
QI,D1
D, = 1,D2 = D, =O
1 La Matriz de ~igidez es Simétrica
1
propiedades de la Matriz de Rigidez
-'~
t
167
¡=
i,
¡ )¡
¡
1
)
1 )
1
)
!
•,)
~
J
"
,
f
)
)
_}
)
)
)
)
)
)
)
)
~
)
.>
_)
)
I
i
)

_)
)
,__)
~
l'~}
)
)
)
)
)
)
)
-
.
-=
J
.
168
gl El tl
~
f21~fll
13 /2
P2 -Q-D .tQ1=1 1 .3 2
[F]= .-
El /2
1
~w
__ )Q2=1 2
t22 ~ f12
Para que la relación anterior se cumpla, el sistema de coordenadas Q~Dpara el cálculo
de las matrices [K] y [F], debe ser el mismo.
La demostraci6n de esta propiedad es la siguiente:
{Q} == [K] {D}
{D} = [F] {Q} ~ {D} = [F] [K] {D} ~ [F] [K] {D} - {D} = {O}
([F] [K] - [1]) {D} = {O}
Ya que la igualdad anterior debe cumplirse para cualquier valor que torne el vector {D} y
además dicho vector está formado por elementos independientes (el sistema de
coordenadas es generalizado) para que se cumpla la igualdad deberá suceder:
[F] [K] = [1]
A continuación se muestra una barra en volado, de sección constante, para la cual se
han calculado, aplicando estrictamente la definición, las matrices de flexibilidad y rigidez
en el sistema de coordenadas indicado. Se han despreciado las deformaciones por
fuerza cortante.
[K][F] = [1]
[K]= [Fr
[F][K] = [1]
:. [F] = [x]'
6.4.3 El Producto de las Matrices de Rigidez y Flexibilidad es la Matriz Unitaria
Para cualquier estructura debe cumplirse:
Caso de una estructura inestable, el
coeficiente de rigidez KII es nulo
Flexibles
ku < o
P grande
p
Otras situaciones en las cuales los elementos de la diagonal principal pueden ser nulos o
negativos se muestran a continuación.
D1=1
M
r,
!
1¡
j
1~~ji
,.
I

¡
I
I
168
·~...~- _ ......
:.....~, ·...;..:-,..;~r..-~~;::::~~-
169
Q-D
Sí existe lK1
No existe 00-1 y No existe [F]
En una estructura linelamente elástica, el trabajo realizado por las fuerzas externas, si el
sistema es conservativo, se almacena como enel'gfa interna de deformación, la energía
intema puede expresarse en función de las matices de flexibilidad y rigidez de la
estructura, mediante:
W=UI= Y2 {Q}T[F] {K}>O W=UI= ~ {D}T[K] {D}>O
.,.-En consecuencia las matrices [F] y [K] son definidas positivas.
.' oo. La Matriz de Rigidez no es definida positiva en estructuras inestables como por ejemplo
en una estructura sin apoyos como la indicada a continuación.
{X} T [A] {X} > O
}
)
)
)
)
)
6.4.4 La Matriz de Rigidez es Definida Positiva
Si la Matriz de Rigidez [K] de una estructura es definida positiva entonces existirá su
inversa ([Kr1) y el sistema de ecuaciones {Q}= [K] {D} tentrá solución. La solución del
sistema de ecuaciones se expresa mediante: {D} = [Kr1 {Q}.
Una matriz [A] se dice que es definida positiva, si para todo vector {X} "Í' {O} se cumple
que:
J
)
~<[F]+--Problema hiperestático in[K]~ Ensamblaje simple  ~,
 QJ= 1
)
)
..,
J
)
}
}
.. ~
)
J
)
)
J
_)
) i·
)
--4 2
Existenmuchas situaciones en las cuales, para el cálculo de la Matriz de Flexibilidad, es
·0 necesario resolver varias veces (tantas como número de coordenadas existan) una
•estructura hiperestática. Por ejemplo, en el pórtico mostrado, será necesario resolver
tresveces la estructura para calcular todos los coeficientes de flexibilidad, esta matriz es
o de orden 3x3. En contraste el cálculo de la Matriz de Rigidez es relativamente simple.
[F] [K]=[K][F]= (~ ~)
o Se sugiere al lector revisar el acápite 6.6 donde se presentan ejemplos adicionales de
00 o las relaciones entre las matrices [F] y [K].
K21
~~ r:===o, ¡~~ DI= 1
.__: KJ 1
(~ ~)K22 D 2=1
K12
[
12 6]
[K]= El ~ ~
/2 /
}
I ~
1 -~
i,!
j
i
I
..
');
::.~
>,'
)
)
)
)
)
)
)
~
)
-'
)
)
)
170
ya que D)"", D, son independientes
62U__ .:.-1 -=' k
óD.3D. ij
• J
Si la energla interna VI se expresa en función de Di, O2.••• , Do se pueden calcular los
coeficientes de rigidez kij.
6.4.6 La Matriz de Rigidez No Depende del Sistema de Cargas
La matriz de rigidez, en las estructuras linealmente elásticas, no depende del sistema de
cargas ni de la historia de las mismas. La matriz de rigidez depende -sólo de la geometrra
de la estructura, dei material, de Jas'condiciones de apoyo y de las propiedades -de las
barras. - -
¿En qué casos cambia la Matriz de Rigidez? Es decir depende de la historia de cargas:
a) Cuando existen no linealidades geométricas.
b) Cuando existen no linealidades del material.
6.4.5 Relación entre la Energ[a Interna y los- Coeficientes de Rigidez
SU. _
Primer Teorema Castiglíano: 5D. - Q¡
I
[Kt no existe[K] existe
D2= 1DI = 1
____ ~~'='1
~3 7t_
[K] existe [Kr' no existe
I
¡
!
1
I
~f---_EI-....:...J¡~~
Q-D
o cuando la estructura es inestable, como en los dos casos indicados a continuación:
tk12
~')k
02 = 1 22

1
~~----~~~----~
[KJ no es definida positiva si algún término de la diagonal principal es nulo (kii = O)como
en el caso mostrado a continuacióh.
170
Estado Complementario
{Q} = -{R}
+
Q-D
171
~ ¡Il
Di= O i=1,6 {O} = {O}
Cargas de Fijación Ri i= 1,6
Estado Primario
Comportamiento Real =
Pl

Estructura Real
¡Asentamiento Il
Para superar esta aparente limitación del Método de Rigidez, es necesario definir un
estado auxiliar denominado Estado Primario.
6.5.1 Estado Primario y Estado Complementario
Pl

¿Cómo se miden las cargas en las barras en
el sistema Q-D?
La fuerza lateral H es la únicaque se puede
medir en el sistema Q-D.
p ~
w
 :  ,  
Q - D Cargas en nudos DespJazamientos de Josnudos
. ¿Qué sucede si además de las cargas en los nudos hubiera también cargas en las
barras?
6.4.7 El Ensambla'e de la Matriz deRigidez es Fácil de Sistematizar
La matriz de rigidez de una estructura se puede ensamblar sisleméiticamentea partir de
las matrices de'rigidez de las barras que la confOrmany de la conectividad entre ellas.
Esto hace que el método de rigidez sea apropiado para su implementación en
computadoras mediante programas de "análisis automático de estructuras".
6.5 Cargas en Banas
Todas las fuerzas y los desplazamientos correspondientes se deben medir en el sistema
de coordenadas Q-D elegido para el análisis.
)
")
j~.~)
)
)
J
")
¡
I
J ,)
}
)
1
)
)
)
.1
)
~
)
.)
I,
¡
~
!
t
j
!(
i,¡
¡
'p
}
,
}
J
)
I
)
.}
)
_)
} {;
:::~.
)
~~
.... -
~
.'
,
-:;.~.
a
1)
I~
)
-,
)
)
)
)
)
)
)
)
-1
)
-3
)
)
)
)
)
')
)
)
)
o
~
-
-.
_
-
.
:
d
172
RI =-1.17 t-m R2= 2.67 t-mEquilibrio de los nudos 2 y 3:
• Estado Primario.
" '"
If
11
3
A
41""'1
...
Grados de libertad
~
Di c;::.Dz•
~ ~
Q-D
E = 2xl06 tonI m2
Sección O.25x0.40
El = 2,667'Ion. m2
2-ton/M
Ejemplo 6-3 Resolver la viga continua de dos tramos. Se consideran deformaclones
solo por flexión.
la suma de los dos estados indicados en la ñgura anterior, solo es posible si es aplicable
el principio de superposición.
6.5.1.8 Estado Primario (Camas de Fijación}
Consiste en analizar la estructura con todas las solicitaciones externas (cargas en los
nudos, en las barras, asentamientos de apoyos, preesfuerzo, falta de ajuste, etc.)
adicionando un grupo de restricciones denominadas {R} medidas en el sistema de
coordenadas Q-D tales que los desplazamientos en los grados de libertad elegidos para
el análisis sean nulos ({D} = { O}).
Las fuerzas {R} necesarias para impedir los desplazamientos de los nudos se
denominan Cargas de fijación o Vector' de Cargas de Fijación.
El Estado Primario es cinemáticamente determinado ya que los desplazamientos en el
sistema de coordenadas Q-D son nulos.
6.5.1.b Estado Complementario
Consiste en analiza" la estructura sometida úniCámente a las cargas en los nudos
calculadas en el Estado Primario con signo cambiado:
{Q} = -{R}
{ RESULTADO FINAL} ;;: {PRIMARIO} + {COMPLEMENTARIO}
La superposición final es aplicable a todo nivel: deformada, momentos, cortantes,
axiales, reacciones de apoyo, etc.
.,,
i
¡
I
I!
I
¡
172
_. ~ •• _._ •• _ .":_:-:~'."~_ ._.:: •• , •••• ':;'.:'_;'--;_'_~~ ~.'.":-.'_ • '0"
,:;:'.~:z:.~;~~·:·.~··~=~:::.~~~~~O.;.;'~~~~;;:.~~~..~:.~"~.::~'.~~:~:~~:~~~~~.:L::..~.:. ; ~~ ~:~~o.~.:....-:.;i~~~~._~~~l:-_~i¡·:0:.".;.: .:~~~ ..~~::~:..~:..;,::::.~:... o:..';':;':;_~ ~o-..:-;:~·.·~,_:_<
173
La deformada del estado el es conocida.
I
l
Significado físico de k11 y k12
• Coeficientes de Rigidez
EsladoCl: ~ ~.7;;'
 DI=1 
2/3 ku 4/4 k
~ ~ t :).eJ.
4-1) (- tr) (hft) (n-~(~
4 ~
3 4
4 4 7 1
kll = (3"+ 4)EI =3" El 101= "2E1
kn DI +kJ2D2 = 1.17
knDI +k22D2 = -2.67
II
j'
II
II
!
1
1
I
I
En el Estado Complementario solo debe haber cargas en los nudos medidas en el
sistema Q-D. .
• Superposición de desplazamientos
{
1.17}{Q}=-{R} = (ton-m)
-2.67
1.17 l-m 2.67
DI =D2=O Diagrama de momentos correspondiente al
Estado Primario {M}p (ton-m)
Nótese que en el Estado Primario la configuración deformada de la estructura es
conocida.
• Estado Complementario
$ ~7 4:7
"LlJt[DY '4llllJlP"
0.75  1.333 ~
Significado físico de las cargas de fijación:
J
)
)
)
)
-
)
)
}
)
;1
}
,
9~
 ';,
.)
-
j
L
1)
~
L
l
)
~
J
)
J
)
l
t .~,t
!.
¡ )
J
)
_)
¡ ,
s )l
l.
)
)
.,
..
)
_, )
e-
)."
..
)
~':
~--~4.
'-~.'
'. -j".-'~
..
.:::;:,~.
--i.-
.:',
)
;.'~:;
C:~);t
.)
_J
'j
~
)
.J~
,)
~
J
~
)
.)
~-
...j
)
~
"
)
)
)
)
)
)
- Nótese que [K] es simétrica (kij = kji) Yque los kii > O
- Nótese que el sistema de ecuaciones obtenido, como era de esperarse, es el mismo
que obtuvimos al resolver esta estructura utilizando las ecuaciones de Pendiente _
Deflexión.
{_1.17}= EI[~ ~]{DI}2.67 L 1 D2
3
• Matriz de Rigidez y solución del sistema de ecuaciones
D 1.202 451 10'" d,:::.:!-:::.:! • X ra
El
D ~ - 3.271 ~ -1.23xlO·3 rad
2 El
xEI
~
{Mh
1/2 El El
§§j ~~~
44D¡-o De=l
La deformada del estado C2 es conocida.
Diagrama de momentos asociado a D2 = 1 ~ {M}2
Significado físico de k12 y k22
4
kza= -EI=EI
4
4
Estado C2:
xEI
Diagrama de momentos asociado a DI = 1 ~ {M} 1
174
·.....
"::-.- _ •• • - - - - - _-:.o-~-~~~- --;;-- -=_~"-"~.~=-~:'_=L-:'::':;:;~'~:::··:~~~'·~:~'_W_'h_~.-!..: ,.... ~ ~. ':-'.';S;::c.'.:=:;',_'~ :::::,:,7,::.:n.~:;,.,.;;:. ~..... ::: ,,,.'.'~:';.'.;.~. . ._;; :;:__~, ____,,_,_ .._..... _.:. '__•. ' -"_ ._. __~__ ~
tTIlJ
t~
(1)
')
')
)
)
')
)
)
)
)
175
, Los desplazamientos finales en los grados de libertad seleccionados para el análisis (DI,
D2) son los mismos obtenidos en el Estado Complementario, ya que en el Estado
Primario dichos desplazamientos son nulos.
1.34mm
Deformada
Momentos
(too-m)
t3.23
MAX~2.61
~1.62 f
0.7
2.0L50
{M}final = {M}p + {M}c
• Resultados finales:
Deformada final = Primario + Complementaño
Cortantes finales = Primario + Complementaño
Reacciones finales = Primario + Complementaño
Momentos finales = Primario + Complementario
2.67
{M}c
1.603
Diagrama de momentos cotrespondiente al Estado Complementario:
{M}c = {M}¡ XDl + {MhxD2
• Deformada del Estado Complementario
1.17 t-m 2.67
.~~~~==~~~.--------~~~
~-~
175
¡
!
I
J
)
J
}
I 1I
I
l ..)
1
)
_)
¡
j
I
I
)
t
II
I
}
J )
J
)
)
)
J
)
,1
)
~
)
)
)
-")
J
)
)
-
~
.)
)
--"'
'j
)
)
l
)
}
~
iJ)
()
)
-)
)
)
)
}
)
)
)
)
-}
J
--4
'>
)
)
)
)
)
)
)
)
)
)
)
:::J
-j
~
)
d
)
J
,)
_..)
)
~
)
:3
)
~
)
)
~
t27.5
{M}p
{ }={ 18.92}
Q -10.42
10.42
• Estado Complementario
18.92
t20.5
DI =~=O
1.5
~O••2
~2.
~ 10
er)~L27.5
R2 = l0.42 t-m
Innecesarios
E = 2x106 ton/nr'
Sección constante O.30xO.60 m
El = ]0,800 ton-m
Equilibrio de los nudos 4 y 5:
20.42 20.42
~ )
t 17.5 t
{l
~)
t20.5
R¡ = -20.42 + 1.5 = -18.92 t-m
• Estado Primario DI = D2 = O
Q-D
• Grados de Libertad
2 4
73"
Ir11
EA = ex:>
3
5-ton/l'l
Ejemplo 6-4
]76
177
M=V=Okll = ( ~) El:::: 0.286EI
k22 =(~ +~)EI:::: 1.905EI
~M=V=O
x El
{M}¡ DI = 1
Diagrama de momentos asoclado a DI = 1 ~ {M} 1
4/3
i
M·=V=O
M=V=O
D1= 1 D2=0
• Coeficientes de Rigidez
177
-,
")
)
)
)
>
)
)
...,
')
}
)
)
~
)
~
I
)
)
")
)
)
)
}
J
:>
_)
)
)
)
J
)
J
)
r.
.,'.
~
~
(1)
)
)
")
)
)
)
)
)
)
)
~
.)
--::,
.,
)
.)
)
)
)
)
)
)
)
)
)
;;)
-j
-j
)
.)
,)
J
'J
_J
)
:j
)
~
.)
~
)
)
~
6J
<D
--1
178
• Resultados finales
Deformadafinal = Primario + Complementario
Cortantes finaJes= Primario + Complementario
. Reacciones finales = Primario + Complementario
Momentos finales = Primario + Complementario
{M}final = {M}p + {M}c
{M}finaI= {M}p + {M}l x DI + {Mh x D2
4,27
Momentos del Estado
Complemetario (ton-m)
10.42
• Diagrama de momentos correspondiente al Estado Complementario:
{M}c= {M}¡XDl + {Mh xD2
8,55
1.04mm
• Deformada del Estado Complementario
D] =e. ~ 0.594xI0-3 rad
D2 =es 1'1:$ -O.595xl0-3 rad
(
3.238 0.286) {DI} 1 {18.92}
0.286 1.905 n, = 10,800 -10.42
• Matriz de Rigidez y solución del sistema de ecuaciones
[K] {D} = {Q} {D} = [Krl {Q}
{Mh ~= 1
xEI
2/3
4/7
Diagrama de momentos asociado a ~ = 1 => {M}2
178
179
Reacciones
4.27 ~,29
"41--
i
4.29
27.5
-+
4.27
~~~--------.-----------------------r------
...0 ¡
1.27
4.29Cortantes (ton)
-4.27
-17.5
17.5
Momentos (ton-m)
Deformada
A=3.94mm
9. = +0.594 xl0 -3
i-__=-===-~ ~~=====A=026Smm
6=-0.18 mm
as"" - 0.595 "lO .)
)
)
)
)
)
)
)
41, I
_JI
?)
1
)
I
~
I
I
I
'¡
l, )
; r
u "
I •
1 )
t
)
!
~.
,
f,
)
t.
J
)
)
-4
¡ )¡
¡
I )
)
)
j También se pueden utilizar las ecuaciones de Pendiente y Deflexión para calcular
momentos y cortantes finales, en este caso se tiene:
M.. 2EI (3Aij del Pri .lJ =-¡- 29¡+9j - 2)+Momentos e Primario
"'" Complementario
Por ejemplo en el nudo izquierdo de la barra 4 el momento flector viene dado por:
'¡ 4EI 2EI
• #- M.s=-20.42+ - DI + - Dl =-18.59 ton-m
7 7
)
)
)
)
)
-1
)
-
¡
I

180
~fi!ZZZZ2 ~~¡
5)000 1,000
D3=n.=0
D,=O
R, = -5,000 kg.m
R1= -2,OOOx3 - 2,OOOx5=-16,000 kgxm
Significado flsico de los dos estados primarios:
nrv---3----~~~-2--~~
,ó,L=a L ,ó,P
,ó,L= lO-sx 200 x 20 == 0.04 cm
n=EA ~L= ~x 0.04=-2,000 kg
L 200
R 2000 2000
r;,,,,,,,,.."',1.....,..J
b) Caso de carga 2. Aumento de temperatura en las barras 3 y 4.
R, = -5,000 kg.m
• Estados Primarios
a) Caso de carga 1
D1 puede medirse en cualquier
punte) a lo largo de labarra
• Grados de Libertad. Utilizaremos la rotación de la barra rigida. Sin embargo existen
otras alternativas como las indicadas.
3
~~~~o±~DZ~~~
...,F-V 3_M --..rI'-__ 2__ ~;!ODO kg
Caso de carga 1:
Carga de 1,000 kg en el nudo 3
Caso de carga 2:
Aumento de temperatura ~T =20° e
en barras 3 y 4
@ 2
s
Barra 1-2-3 sólido rígido
Barras 3l4:
B=2xlO kglcm2
A=5cml
EA = 107 kg
a= 10-5 ltDC
Ejemplo 6-5
180
I~
181
{::} = {N}p + {n}o,~lx D,
{N)} = {O} + {1.5XI07}x 2.94lx 10.5 = {441} kg
N4 ° 2.5xI07 735
kllDI = QI 17xl07 DI = 5,000
DI = 2.94lxl O-srad
.•• Fuerzas finales en betres. Caso de cargas 1:
• Matriz de Rigidez y solución del sistema de ecuaciones
Caso de carga 1:
k., =(1.5x3 +2.5x5)xl 07
kit = 17xl07 kg·mirad
Equilibrio de la barra rígida:
1.5xl07 2.5x10'
kll t 1r;==~====:!!
EA ro' 7
fl) =-x d, =-x3 = 1.5xl0 kg (trace.)
1 2
107 7
n, =-x 5=2.5xlO kg (trace.)
1
Coeficientes de Rigidez
- -J
D,=?
NJ=? N4 =?
{Q} = {5,000 }
r;S,ooo

Di
Q¡;:::z::z:z:zzz~~
16/000 kg.,....
Estado Complementario. Caso de carga 1.
~T=20°C
D) =n, = -2,000 kg
D. =0
R2 = ~16,OOOkg.m
)
)
)
)
182
La estructura es asimétrica y el sistema de cargas es simétrico, en consecuencia .'.
estructura se desplazará lateralmente. La pregunta es si se mueve hacia la derecha o
hacia la izquierda. Al finalizar el análisis veremos que la estructura se desplaza hacia .,'
izquierda, sin embargo, por simple inspección no es fácil determinar hacia que lado se•
moverá la estructura.
II
21
1
1
Q-D
• Cargas externas y grados de libertad.
3 ton/M
EI.= El) ::;$ 2,667 tonxm1
E1l ::;$ 5,333 tonxm2
2
21
1e 25x'lO
E = 2x 106 ton/m2
EA =00
1
3
e3.---------~2S~x7-40~----------,4
Ejemplo 6-6
O~F====~=5=88=1======~I353
)~@)
La matriz de rigidez de la estructura no cambia ya que no depende del sistema de
cargas, depende solo de la geometr(a, propiedades mecánicas de las barras y del
sistema de coordenadas Q-D adoptado.
kll = 17xl01 kg. mirad
kllDI = 16,000 ~ DI = 9.41 lxl O-srad
Fuerzas finales en barras. Caso de carga 2:
{::}={=~~~~}+ g:~::~:}xDI={:~::}kg
A partir de las fuerzas en las barras 3 y 4 es posible comprobar el equilibrio de la .:
estructura, calcular las fuerzas internas en la barra r(gida y las reacciones en el apoyo.
)
)
. )
)
)
')
)
..j
)
"-4
)
)
)
)
)
)
)
)
)
)
)
)
~
"1
---
l,:.
.
.-
::
,o
)
)
.
"
.
~
'O
:~
-
)D¡ =7
NJ=? N4=?
{Q} = {16,000 }
Caso de cargas 2:
182
183
{M}l (D.=))
6 6x2
~l"'--'---~I~~El
9
• Coeficientes de Rigidez.
{D}={~:}{Q)=U }
• Estado Complementario.
{M}p
9
.",Deformada y diagrama de momentos en el Estado Primario:
9
R3=9ton.mR2= -9ton.mR,=Oc., Equilibriode nudos:
• Estado Primario
183
12 24
kll =-+-= 1.333El
27 27
6
k21 =-- = -0.667 El
9
6x2
kll =--=-1.333EI
9
,I
)
)
-,
.)
")
)
1 ~I - '.....
,
J
,,
.'
)
)
}
i
)
l
)
)
)
_.:¿¡)
.)
)
)
)
_)
)
)
)
--i
)
-;
~
)
")
)
)
l
El = 2.667
6x2
k)) =-T=-1.333EI
2
k23 =- = O.333EI
6
4 4x2
kJ3 =-+- =3.333EI
6 3
2x2
~
D,=-0.522x10-3 m
B3=D2 = 1.746xIO·l rad
B4=DJ =~1.396xIO·3 rad
{
O} (1.333 -0.667 -1.333J{Dl}
9 =El -0.667 2 0.333 D2
-9 -1.333 0.333 3.333 DJ
+
k23 k~ 2/6 4/6 33
k13~1)~~-,-~-++-~(I~
, t 6 t ~
36 6/r~~2
~X2
3
• Matriz de Rigidezy soluci6n del sistema de ecuaciones
[1<] {D} = {Q} {D} = [I(rl {Q}
6
kl2 =--= -0.667 El
9
4 4
kn =-+-=2EI
3 6
2
k32 =-=0.333El
6
4/6
2
3
{Mh (D2=1)
]84
185
9
3.6 3.6
t9Momentos finales (ton-m)
La solución se deja como ejercicio y los resultados se indican a continuación.
w=3 tlm ,...
....
1
".,.
1 1 -egdl prescindible
1= .25 x.40 I
6m 3m Q-D
Elemplo 6-7
Analicemos la estructura del problema anterior (Ejemplo 6-6) cambiando la sección de la
columna derecha a O.25x0.40m. Tendremos una estructura simétrica con carga
simétrica, cuyo análisis se puede realizar sobre la mitad de la misma. La idea es
comparar como cambia el diagrama de momentos flectores.
• Momentos flactores
{Mljnales}= {M}p + {M(}xD, +{M2}xD2 +{M3}xD3
Desplazamiento
Lateral R:I -0.52 mm
Dv ct;::i:I 6.2 mm
• Deformada de la estructura
185
,
J
~
;~
9
:1
J
')
'}
)
)
)
)
)
)
J
1
_)
')
)
)
)
_)
~3
/'
2 2 3
:::::--7- F=?
~
  
[ K ]3x3 es conocida D,=O D2,DJ=?
Otra forma de resolver este problema es mediante la modificación de la Matriz de Rigidez
de la estructura calculada en el Ejemplo 6 en la cual se incluyó el grado de libertad de
desplazamiento lateral. la modificación consiste en hacer nulo el grado de libertad DI Y
calcular la fuerza necesaria, F, para que esto suceda. A continuación se muestran las
operaciones necesarias a efectuar sobre la Matriz de Rigidez:
+
<l=.------------,
0.92
La fuerza lateral de 0.92ton que aparece en el apoyo del nudo 3, es la fuerza necesaria
para que la estructura no se mueva lateralmente.
Si la estructura pudiera desplazarse lateralmente, el comportamiento podrfa obtenerse a -
través de la suma de los dos estados indicados a continuación. En el primer estado se
colocan las cargas externas y adicionalmente una restricción artificial para impedir el
desplazamiento lateral y en el segundo estado se anula dicha restricción. Dado el
sentido de la fuerza lateral del segundo estado, es claro que la estructura se desplaza
hacia la izquierda.
3.36 4.27.c__.,-m-+-
t
4.27
8.69 Momentos finales (ton-m) 9.31
3 ton/A ~~~~------.-----~~~~
0.92
Ejemplo 6-8
Analicemos nuevamente la estructura del Ejemplo 6-6 pero ahora supongamos que no
puede desplazarse lateralmente, por estar, por ejemplo, arriostrada lateralmente por
otros pórticos más ñgidos. la idea es comparar como cambia el diagrama de momentos
flectores por efecto del desplazamiento lateral del pórtico. Recuerde que en este caso el
desplazamiento lateral es consecuencia únicamente de la asimetrfa del pórtico.
El modelo será como el indicado a continuación en el cual, el desplazamiento lateral del
pórtico se ha restringido colocando un apoyo adicional en el nudo 3. El sistema de
coordenadas (Q- D) consistirá en las rotaciones de los nudos 3 y 4.
La solución se deja como ejercicio y Josresultados se indican a continuación.
186
.-,---.-,. -.. - -.~-_.~ --, -~:.=_--~~:::~:.:::.;:_:..
187
t
R¡=O
R, =-15.19 ton- m
R3 =5.06ton·m
• Estado Primario
6
I 11Q-D
21
1
1
3
18 3 ton/m x 6 = 18ton
,~ Ejemplo 6-9
Se trata de la misma estructura analizada en el Ejemplo 6-6, pero con una carga
concentrada colocada asimétricamente de magnitud igual a la resultante de la carga
distribuida. En este caso no es simple predecir el sentido del desplazamiento lateral del
pórtico ya que tanto la' estructura como la carga son asimétricas. Veremos que la
estructura se mueve hacia la derecha.
A esta técnica de solución se le denomina Condensación de la Matriz de Rigidez de una
estructura y se presenta en detalle en el acápite 7.11.1
El(~~:7~~7-:.::: 1~21=ffi-1.333- 0.333 3.333 D3 ~
El (0.:33 ~:!::){~:}-{~:}
Resolviendo el sistema de ecuaciones se obtiene las rotaciones D2 y D3. De la primera
ecuación se obtiene la fuerza F:
D2= 5.0333/EI =1.887xlOl rad
D3=-3.203/EI =-1.20lxI03 rad
El (1.333x O- 0.667 D2 - 1.333D3) = F
F ~ 0.913 ton ok!
187
1
t
r
}
¡
~
)
)
)
)
)
1
j
J
-..::.,
¡ )
I
. }
I
;
.
_1
)
)
J
,
)
}
')
)
~
.J
)
)
,)
_)
_)
)
)
-)
)
. ~42
~
Momentos finales (ton-m)
13.88
9.6
1
Desplazamiento
Lateral = 1.28mm
Dv max <>17.2. mm
• Deformada de la estructura y diagrama de momentos
• Matriz d9 Rigidezy solución del sistema de ecu~ci()[leS
la Matriz de Rigidez es la misma calc~lada en el Ejemplo 6, ésta no cambia ya que no
depende del s;~t~ma de cargas externas, depende sqfO de la geometrra, propiedades
mecánicas de las barras y del sistema de coordenadas Q-D adoptado.
[K] -+ No cambia, su Inversa, [Kfl tampoco cambia
{Q}=[K] {D} {D} =(1<]-l {Ql
DI ~ 1.28x1 0-3 m---+-
D2 ~ 334dO-3 rad
D3 ~ -G.39lxlO-1 rad
{Q} ={15~19}-5.06
• Estado Complementario
Primario
DefoOl'1ádaV diaQrama de momentos en el Estado Primario:
188
(9
,"'2)
1
")
)
)
)
)
}
)
)
)
~
)
J
)
)
_)
)
-)
)
)
)
)
)
)
)
j
")
)
)
'=J
)
~
~
~
~
")
,)
J
J
)
)
)
i2.81
{M}p
t15.19
I
'0 ; ••••• '.' ~ •• -., ,., - •••• ••• , •.,.... •• :. w '.~'-., _-. :;
.··;~:I~_~-;.::~:~'-~ .:.~:·~··~·:~3.:·:.~'''='':~_'.~_.:.:.::::.:.:::' ~'~.~_~7_;:::~':_~.:i...~_.:.~, ,.::.j~~~:~~.:::0~~_;~'~~.' -,,:..::;;' -:
189
7.41 .....'-4.02 12.76 L-~ik4--5.98
~ Momentos finales (ton-m) 1.64
1.64
2.13m-=0.7h
Desplazamiento Lateral
=5.72 mm
1Deformada
4.66
[K] y [Krt -+ no cambian
{Q} = [K]{O} {O}=[Kr' {Q}
DI ;;;;5.72xlO-3 m O2 =1.55xl0-3 rad D3 =2.13xl0-3 rad
Q-D
2I
21
{Q}~rn
)
)
'1
')
'-1
,
;
}
)
)
.o;¡)
_)
,.
)
)
-; 1.84 :::0.6h
)
~
)
)
~
::J
';
'
I
Se trata, de la misma estructura analizada en el Ejemplo 6-6, sometida a una carga
lateral de 10ton. Trabajaremos con el mismo sistema de coordenadas Q-O.
lOtoo. ~~~~~~~~~
1
14.24
Momentos :finales (ton-m)
Fuerza necesaria para queno
se mueva lateralmente la estructura
Ejemplo 6-10
6.7 mm
[
• Si la estructura estuviera fija lateralmente:
lB
189
:)
)
'}
}
)
;
~
,.,
'.)
---i
)
--)
-'"
-::.
~~..
}
;~:
" ..
_)
~.
}
)
)
)
)
)
)
)
J
)
J
)
)
)
)
)
_)
)
)
)
)
)
)
~
-J
~
)
_J
)
)
~)
)
)
~
)
.;,J
-j
~
')
)
~
:J
'.J
--)
190
Caso de carga 2Caso de carga 1
___.,----_
5ton
E = 2x.l06 ton/m" Sección O.25x0.50 El = 5,208 ton-m"
11 36m
1
4
®3.
EjetiJpio6-12
Resolver el pórtico para los' dos estados de cárga independientes mostrados a"
continuación. La viga y las columnas son de sección constante y Se desprecian las
deformaciones axiales (EA = (0).
Momentos finales (ton-m)
1 2I
3 ton/M
EJemplo 6-11
Se trata del pórfíeo ~el Ejemplo 6-6 sometido a un estadQcomblnado de cargas, es decir
a una carga ~partida más una carga latersl, La solución se obtiene por simple
superposición de los resuHados del Ejemplo 6 yel Ejemplo 10
En el dic¡¡gramade momentos ~ ha,n indi~_qo,ª$. P9$ICicm~.~~:19§,puntos de infl~xí6n
(PI) en lá& columnas. Si la viga fuera íQfiJ1~m~D~ rfgi~~'en ij~~;i()n,10$puntos de
inflexión en las co....mnas SEj ubí~rfan al ceíltro de siaaltura~$.iJavi9~]~era muy flexible,
Jospuntos de inflexión se ubicaríanen el ~>4iem().sú~rl()ide I~~qófymri~s.
N6te~ que el- rn9Jl1entocJé VQlteo gené~d() g9f la carga lát~tal (lOx3. = 30 t-m) es
equilibrado parcialmentepor Iqs.roornehtQ8. qú@.~~p~~~nen j~'b~$~de las columnas
(7.41 + 12.76 = 20,17 t-m) la dlf~rencia es equiJIb,rªda por la$ fuerias axiales que se
producen en las columnas (1.64x6 = 9.84 t-m) es decir, los axialeS eqUilibran cerca del
33%del momento de volteo.
190
191
6)(0,75=0,125
36 k31
¡ t )N;+(~12xO.75
216 =1Ic4 Na
6x1.25 ~2XlC5 =0.12
25 125
 4.6x1.25
"-Y 25
,
//1/ {M}p
(ton-m)
k21 6><0.75
~ 36
kl1~f
W
t
(1375'~11~1 = 0.1875
.!_j( 6/l6
•
//1/I
• Coeficientes de Rigidez
....c;__-==f- ---+ ~ 0.75
1
~
4.5
• Estado Complementario - Caso 1
6
11//
, 7.5ton
{
-4.5}
{Q}= -!
Deformada y diagrama de momentos en el Estado Primario (Caso de carga 1):
6 6
Barras 1-3 Y2-4:
M=O, V=O
N3 =7.5 ton
N2 = 4.5 ton
N] cosa =6
Equilibrio del nudo 4:
191
Caso de Caroa 1 Carga w = 2 ton/m ¿Hacia dónde se mueve la estructura?
Estado Primario Caso 1
R2 6 6· 6 %
Rl=:t>f1i--(:YYYYJ~ N4~~~ .
t !! 6· ~N3
+ 
I R. = 4.5 ton (Igual a N 2) 
t R2 = _ 6 ton-m
R] = 6 ton-m
j
)
)
)
)
=,
j
)
)
)
.)
}
}
I
,
)
)
)
)
1
i
}
~
}
)
~.
J --'
)
)
192
Equilibrio de la barra inclinada:
¿M2 : O.3x2+ 2~x 3= H3(4)
H3l'::: 0.1813 El
Equilibrio nudo 4:
N3=V2=1124
N2=H3
LFv : -N. +NJ COSI - V)sena= O N) ~ 0.1421El
:. k" ~ 0.3688El
e) También se puede formular el equilibrio de la barra inclinada en coordenadas
globales, este tipo de equilibrio puede resultar conveniente cuando hay barras inclinadas.•.
)
)
)
)
':;)
)
J
)
)
_)
)
.~
.,
)
)
)
)
)
)
j
')
-')
)
-~
)
.-=;)
o:)
-i1
?)
)
.)
)
)
)
)
)
~
:)
_~~
)
)
)
),
12
ku ---O.12cosa-N)sena.=O
64
kll
b) También se puede hacer equilibrio de nivel:
1._ ~~I
~1U:l I ....
0------=------.LV3=O.12
• ~ I¡~O.1875 ~N3
• Alternativas para calcular k11
a) Equilibrio del nudo 4
V
N ~2 VJ/cosa2.... a.
J~ '.,G N2~V2 tga+ ::.. .. O.1813EI
Y2tga ~~v
N3
1/24
1
N1cosa-0.12EI - 24 sena=O N2 ~O.1813EI
. . 59
kll ~ 0.1813 +0.1875 ~ O.3688EI = 160 El
k2.=0.125·0.375 = -0.25El
k31= -O.175EI
Equilibrio del nudo 4:
192
193
¿M2 (equilbrio de momentos barra 2-4)
H x4=~x3
J 36
H)= 0.125 El
N2= H3 (equilibrio del nudo 4)
.'
Alternativamente el equilibrio de la barra 24 puede formularse en coordenadas globales
tal como se muestra a continuación, con lo cual se simplifica el cálculo de las fuerzas
normales:
6
- tgu = 0.125
36
:. N2 = O.l25EI
"
'"
,'.
','
-,
,~.:
',:
O.3EI
D2 = 1, DI = D3 = O. Segunda columna de la Matriz de Rigidez.
ka!
O.125EI
193
,!:'
)
)
'J
}
)
j
)

)
)
_)
)
)
)
')
)
)
)
,."
_)
,
.)
)
)
_)
J
},
j
.)
-)
:;
j
J
)
...
J
59
-0.25 -0.l75 . 3
r·s}
160
{~:J
DI=-13.2551EI SI:: - 2.545xl 0- m
~ =EI -0.25
5 1
D2= 2.877/EI r::: O.552xIO-3 rad- -
3 3
D3=-6.326/EI f:$ -1.215xIO-3 rad1 22-0.175 -
3 15
194
• Matriz de Rigidez y solución del sistema de ecuaciones. Caso de carga 1.
[K] {D} = {Q} {D}= [lC]-1 {Q}
¿M2 (equlibrio dé momentos barra 2-4):
4 2 6 . .
- + - - -x 3 +Nl" 4 = O
S 5 36
N2= -0.175EI
Alternativamente, el equilibrio de la barra 2-4 puede formularse en Coordenadas'
globales:
2 1
k =-=-EI
23 6 3
4 4 22
k =-+-=-EI
33 6 5 15
~.6..~.~Ít~25
36, 2{.._-~
11 ~
6 1
6 -x--
36 tga 25 cosa
6 6 1
N2= 36 tga - 25'x cosa
N2= -0.175EI
194
195
+s.98
4.11
D.= a] ~ O.889x10-l rad
D2= 904 ~ -O.987xlO·3 rad
4.63
[K]---+- Cambia
{Q}~Cambia
Analicemos como cambia el comportamiento de esta estructura si en el Caso de carga 1
no pudiera moverse lateralmente:
2 ton/M
Momentos finales (ton-m)7.L3
4.87
.- 3.56
i.04
6.41
7.85
Deformada
• Resultados finales. Caso de carga 1.
{Deformada final} = {Def}p + {Def.}x DI +{Defl}xD2 +{Def3} xD)
{Mfi,;.¡cs}={M}p +{MJ}xDJ + {M2}'xD2 +{M3}xD]
~
195
••
I 1
I )
-
i!
¡
¡
J
~
)
4
)
)
)
1
)
)
)
)
)
)
')
">
.~
)
~
j
.l.
)
)
)
J
)
i
)
j
.J
),
1
_; o·;";'·~~S.:_;.:~~:.....:.. __;;_;_:::.:..4~·.·~'-:-o~:o;_no:.""::._~:. ;.,... ,~:: . o :=_.,::0::"o-.•o:::~':~co¿~o:f~i~~~-'::...:;-. :':'~:;~o ;_'-':.:...:2.-i.':' ::'o:~::"";o:':~o__:::.:.:.000o~o~;0:~_~~o ~.i.,-¡,j.:~o~~_••~~~~,~o~ _:O.O__.~. ~~...~/;~..: :'.~;~_~->:';:"'o::•.:S..:.':·:::'::;;.:';,:'-:::'2:.-~;~~--;:'~~',"O
)
)
)
)
)
..j
)
-=i
)
)
)
)
.)
)
')
)
)
)
)
)
;:
'j
-i
)
_._
)
J
"_
..
)
~
)
~
_
'7
~
O
:·
--
196
Momentos (ton-m)
-+ 1--....................--'----'.....
Ston
• Caso de camas combinadas = Superposición de Caso 1 + Caso 2:
2 ton/M ~~
4.83 t=.::;::::;l-.--:-#5
// /1
I 4.13
"1.23 Momentos (ton-m)
Deformada
DI =3xlO·l m
D2 = 0.396x1 O·] rad
D3 = 0.268xlO·3 rad
[K] y [Iq-l -+ No cambian
{Q}~m
--+-.------..
5ton
Para que la estructura no se desplace lateralmente es necesario aplicar una fuerza
horizontal de 4.24 ton. Nótese que este caso también puede resolverse modificando la
Matriz de Rigidez tal como se ~izo en el Ejemplo 6-8. recuerde que la solución
corresponde al estado complementaiio, en consecuencia, para calcular la fuerza lateral
deberá sumarse el estado primario.
• Caso de Cargas 2
196
·.,·::::~L};::.~;::~·;;>::'=~-=·~~=::':::;~L.;;~·.:,,:"',;.~~~_~;.;~Z~:.:~-~~~=;._~Z¿~~.~--;.:_~ ~:.:~~:,~-~~~-~"~._~'"~~~.-~.".~"_~..:"::~~-_=~.:-:~'"'-=~i~~~:C~~.:~:~.;::.~~":-~!:.:.:::~::_~~~.~~~-:~~;:,¿~~~:~_:<::;.::'.~-:.-~~~-~~_...~---;"~;;~~~-~"~~:.-,-_:,.,--~,:,;~"
a
,:)
t~
)
-)
)
)
197
Q-D
ejercicio para el lector se propone resolver esta estructura utilizando el sistema de
adas mostrado a continuación. Es claro que los resultados finales (momentos,
I reacciones) deben ser los.mismos.
el diseño de los elementos es necesario construir las envolventes de momento
• cortante, axial.
Cargas laterales temporales
Carga permanente
)
de carga 2 correspondiera a una fuerza lateral de sismo, es decir a una acción
'. I sobre la estructura, para el diseno del pórtico seria necesario considerar las
•.,'-......~....posibilidades:
5.57
~
t
. 0.72
3,65
//1/
DI :::;-5.5 mm
de cargas combinadas = Superposición de Caso 1 - Caso 2:
197
)
)
)
)
)
)
)
)
)
J
)
...,
)
)
)
)
.)
J
)
j
_)
j
)
)
I
)
)
}
)
. _.. • ;'"".-:, .. ~-_-:...,.:-o-~o-:: •.,..- o __ .. -;.. ;- ... ._ ..•.... -...:- ... :--_._.~ •. _._ .. _._.: ... --:-
-~...:.:..~~k"~~;~:¡.~::.:~~~.~;.-~.~_~.._..-.~i::.::~~-..,___:;.;_::.:.:.~~:..:_.::;:_:._;:_.:;: :::..:.~.::::;.:;";'0- : .:.:::: ••_---~~ - '~ -""=..~..-:-;.'~ ~::~ ~ ;;__.~:~::.:; :__:._-:.:~.~ __;¿;; .:_~.; ~.- ..::..::':;._.~~~·1
:)
f~
·~
~
)
)
)
)
)
)
)
)
)
)
-:1
)
-4
)
)
)
)
)
)
)
)
)
)
)
)
-j
J
----J
)
==)
)
---}
~
~
)
)
.)
j
)
"'j
)
)
rsr' = [K]= El
I
2--3 2
1
_.
O
..
2 .".-
- •...
;:~
:.-:::
.. <~
k kJ1
k ~21
-j'II_.
~
3EI~
3'f k = 3EI = El
3El 11 33 9
T 3EI El
k =--=--
21 32 3
_1_ k31 =0

o
-.1 EI=oo
3m
El
~

'Y
4m 1
1 t
Estructura 2
Dl=1
a2) Matriz de Rigidez
-2 ]
-0.667
1.333
4
1.333
-0.667
[
21
[F]=_l 4
El
-2
a) Para la Estructura 1
Estructura 1
4m

3 m El
¡
!
Ii
1I
¡
¡
a1) Matriz de Flexibilidad. Se calculó en el Ejemplo 2-9 yel resultado es:
1 1
9 3
Para las dos estructuras mostradas se pide:
a) Los coeficientes de flexibilidad para los sistemas Q - D indicados y la Matriz de
Flexibilidad [F].
b) La Matriz de Rigidez [K).
c) Calcular el producto [F].[ K ]
Ejemplo 6-13
6.6 Relaciones entre (FI y lK)
Mediante las dos estructuras sencillas del ejemplo a continuación (Ejemplo 12)
verifiquemos la relación que existe entre las Matrices de Flexibilidad y de Rigidez en una
estructura. Esta relación ya fue presentada en el acápite 6.4.3
198
...,~L:....~..:~
,1
199
.'. b) Para la Estructura 2. La estructura está compuesta por una columna defonnable por
flexión y por una viga que se ha modelado como indeformable (sólido rigido)
b1) Matriz de Flexibilidad. Se calculó en el Ejemplo 2-10 y el resultado es:
[FJ= ;¡[_:8 -~: ] trr' = [KJ= E1[ ~6~ ~ ]
I~
4
1.33
-0.67
-2 J-0.67 El
1.33
o
~
1
-,Y;
2
~
[
21
[F][K] =_1 4
El -2
2
1
o
1 1
-
9 3
[K]= El
]
2--
3
O
1
-
2
kll = O
k2J = 2El = El
4 2
4EI
k)2 =r="
03 = 1 . .
4EI2El
3El El
k =--:=--
12 32 3
k = 4El + 3El =2El
22 4 3
k = 2EI = El
32 4 2
199
I
I1 )
r
)
)
_J
)
)
.,
)
~
)
J
}
~
,)
)
)
"")
.)
}
)
~
")
)
~.
·)
)
_)
~
f)
O
)
')
)
)
)
)
)
)
)
)
-J
J
-4
)
)
)
)
)
)
)
)
)
)
)
)
~
8
-4
.)
-)
.. )
)
,-)
J
J
~
)
-d
..J
~
)
)
'ii)
6.7 Elementos con Discontinuidades - Reducción de Coordenadas
En ~I acápite 5.5 se explicó, que cuando se realizan cálculos manuales, suele ser
conveniente para reducir el trabajo numérico, utilil~r el nÚmeromrnimoposible de grados
de libertad en la estructura. Por ejemplo, en los apoyos articulados de los extremos de
vigas o en los apoyos articulados de pórticos, es posible ignorar los grados de libertad de
rotación en esos apoyos, reduciendo asl el número total de incógnitas y en consecuencia
el esfuerzo en el cálculo numérico.
A los grados de libertad o coordenadas que pueden dejar de considerarse en el análisis
se les denomina Coordenadas Prescindibles y pueden provenir de:
- Apoyos con posibilidad de desplazamiento lIngular (giro) o linear.
- Rótulas internas en algunos de los elementos.
. - Cuando se reducen .Ias estructuras, 'aprovechando las condiciones de símetrfa o
antisimetrra de las cargas de la estructura, aparecen condiciones de borde en el eje
de slmetrfa que conducen a grados de libertad que pueden no considerarse en el
análisis.
x ]){2
-18 JEI[ %
48 ~
[KJ=EI[ %. ~
1 [ 9
[F][K]= El -18
k =EJ
22 12
kl2 tk12
~ ~Z77Z727ZZ7Z1A
~ 4EI(1)
J(j"'--3- 4
6EI(1)~ ~
3' 4 't2~(:)
*
k = 6EI (.!.)= 6EI
12 32 4 36
k x4= 4EI(.!.)22 3 4
. kll .. tk2l
~~ZZ771Z7727Z7a
6EI~
y~~ 12E!
0..1' 3' k _ 12E! _ 12E!
* 11- 33 - 27
 k =(6EI)/4 = 6EI
21 32 36
b2) Matriz de Rigidez
DI = 1
~
k~ r--p::tz2zzm7iZZ3
tkZ1
200
201
4 3 25
k =-+-= - El
11 3 4 12
2/3
kll
4/3 ~ 3/4
(:¡ f) ~!T t) (:¡ f
6/9 3/16
Coeficiente de Rigidez
ku
~.~--~~--~~~~----~~ ~::::;k1l_
 DI =1 1/2  
{M}p (ton-m)
• Estado Complementario
R1
1.5 1.5 ~ 4=w 'Z/8
(+-)~~r;i) ~~4 D (r=-t t4 R,=1.5-4=-,2.5tmrm
t t Sw //8 = 5 3 t=3w lIS
4,0
t~ ~D2=6J= 4;/~I~ 2.:7 
~~~~1 _~
Q-D r:
Prescindible
f(w, DI)
DI =0
• Estado Primario
11
3" "
11
"
2ton/1"'I
Ejemplo 6-14
.En la viga de dos tramos mostrada a continuación, es posible ignorar el grado de libertad
.:_o coordenada asociado a la rotación en el apoyo extremo de la derecha, para ello será
necesario modificar la rigidez al giro de esta barra y sus fuerzas de empotramiento, es
.'. decir es necesario modificar el Estado Primario y el Complementario.
por ejemplo, en la viga de dos tramos del Ejemplo 6--14,es posible ignorar el grado de
. libertad asociado a la rotación en el apoyo extremo de la derecha, para ello será
.necesario modificar la rigidez al giro de esta barra y sus fuerzas de empotramiento.
201
)
}
_)
)
-
')
.";}
)
..)
)
~
)
)
)._,
_)
J
..)
)
)
)
.,,
)
Io...
,1
2'" 'k4
......
y"...-J;t
2 XC>(' Prescindible
~----- f(w,D2• D3)
4
34
• Grados de Libertad aprovechando la simetría de la estructura y de las cargas
Q-D
65
• Grados de Libertad despreciando las deformaciones axiales
2
EI=cte
EA =00
Ir
JI
Ejemplo 6-15
Momentos finales (ton-m)
3.1
• Resultados finales
• Matriz de Rigidez y solución del sistema da ecuaciones
kllD. =2.5 ~~ El DI = 2.5
D = 1.2
t El
...
J
>
.!.-~
.-
)
~~
).-r
)
)
)
)
)
.~
)
")
)
)
----}
)
~
")
)
)
)
)
)
)
)
)
)
)
--J
)
.::_:}
-3
~
.-)
).._
)
)
)
)
)
)
~
4 .., 41'1 v 4 If
JI A
"4ton
e 5 6
2
4
2ton/M
Sección .25x.50
3 4
E = 2xIO 6 ton/m2
El = 5,208 ton-m2
202
203
1.333
El
a3
{M}p2
DI = D2 :;03 = O
22
Rl = 2 t-m
R2 = -8/3 t-m
R.3 = - 6 ton
16/8
~~ ~t
2
1 wl"
~= --~1.333/EI
384 El
Equivale a:
'k4
wP
6
1 wl4
8 El
~ conocido =:: 1.333/EI
• Estado Primario: DI =02 = D3 = O
203
:;
)
)

1
.•~"
) ::~.
)
-_'
)
~
;)
.'
) "
..
~
J
--)
)
~
)
"'1
)
~
"j
"
-)
..l
.
.)
J
_1
~J
;).
r.:t
)
j
"
)
.}
)
)
)
)
)
_)
-)
.:)
)
}
)
)
)
)
)
')
}
),
204
DI = 8.41/EI = 1.615xlO-3 rad
D2 = -l.026/EI = - O.197xlO-3 rad
D3 = 48.82/EI = 9.314xlO-~ m
El = 5.208 ton-m 2
{Q} =[K]{D}
{;~3}= EI( O~5 ~~: -~8J{~:}6 -3/8 O 3/16 D J
x El
{M}¡
1
DI= 1
~ k32
2",..
í),k12 k12= - = O.5EI",..
4
2/4 4 1
k = -+- = 1.5El x El22 4 2
D2= 1
4/4 k32= O {M}z
11/2 =1
1
2
Q k33~
16
~13 6 3..... 3/9..... k =--=--EI.....
ti 13 16 8
k2l=0 3/8
12
b4 12 3 xEJ {M}3k = - = -El
D)= 1 33 64 16
.....
.....
-it!~- -
k23
• Matriz de Rigidez y solución del sistema de ecuaciones
4 4
k =-+-= 2EI
11.4 4
2
kz, =- = O.SEI
4
k =-~= -~EI
31 16 8
204
205
YaqueEA=oo
Sección .25x.50
E =2xlO 6 ton/m2
El = 5,208 ton-m2
4~"'__----I ~ '----+-+---' _.,. 2ton
~
--EA ==co
.. 1"
4
Ejemplo 6-16
Analicemos la estructura del problema anterior (Ejemplo 6-15) cambiando el sistema de
cargas como se indica a continuación.
Momentos finales (ton-m)
."
2.77.- :::;......-............~o:J""T'"'1~_,
8•.0 t
16.1{M}rmal = {M}p+ {M}c
• ResuHados fina/es
Momentos del
Complementario (ton-m)
_)
)
)
.)
)
J
J
)
-¡
1 • Diagrama Momentos Complementario: {M}c = {M}l DI + {M}2 D2 + {M}] DJ
) 14J
I
Deformada PrimarioDeformada Complementario
205
, '::;":.~_~_,~~'••''::.' .' •.-. . ,', ';'.~ : ;--''. ',' ~ ,: -7"'-:--:- ' ,, __,,'';.'':•••,- ""':' ,__ :~. _., _,,_' .. _ __ .•_.. :. _._ _
~:8~¿~~~;~~~:d..:-?.!:::~:;.~.~~~:¡·k:~~it~~;.~ia::~;J.¿j;t;~~~~L~~~:i.,·".',;~__~ ,-o' .:.:: ,/ ~¡:_;,_~:.:~~·~_.2~·2~~~:"-;'.';= .::i~;_,_,~~·;~.;:.-;::-_j: '.~,"~~_~~j¿i.:..:~~'~:'~~,..~~.~~~:~..:::'~'..~':'..,~~:,:~~¡.~.~.~~
(J
;Ql
~
)
)
)
)
)
)
)
)
)
)
-=>I
)
)
1
)
----
)
~
"
-
.
-
3.64
Eiemll./o 6-17 4ton
2
EI=cte. Sección 0.25 x 0.50
'k 'k El = 5,208 ton _m2
4 2
EA=a)
2ton/M
3
....r-
4m 2
Momentos finales (ton-m)
........,.__¡ 2.0
2.91 1 .82
....
+-2.0 ....
t1.B2
4.36
...,4.84 mm
0.745 mm I
Deformada
~-=o::====::::¡9 = S.S85xIO"
1
!
Ij
Q-D
El análisis se puede realizar sin considerar el grado de libertad número 5
correspondiente al apoyo simple. La solución de la estructura se deja como ejercicio.
Tenga en cuenta que con respecto al ejemplo anterior, es necesario modificar la Matriz
de Rigidez asf como el Estado Primario cuyo cálculo en este caso es directo, ya que solo
hay cargas en nudos.
Los resultados, deformaday diagrama de momentos, se presentan a conñnuaclón,
Prescindible-.1....-_.....2ten
EA =00
Tendremos una estructura simétrica con carga antisimétrica, cuyo análisis se puede
realizar sobre la mitad de fa misma si se utilizan las condiciones de contorno apropiadas
en el eje de simetrfa de la estructura.
¡,
¡I
¡
í
I
~
I
I!
¡
206
--:." ',':-,-'_'--:-:- '.:'~ -, ... --_. ' ._.- .---- -:':'. :::::-: :.-
-:"-"<'~:'" . ~~.-.~..:_'~::.:<:'.:;~"'.:: ..',i;~~-:~~::~,:.'.~~~--~":-:~'~~:.:~;:'~~:.:.:'
: '.-:-.- .-.... ;'.-~ '.. ' ..
207
2 .
kl2 = 4 = 0.5 El
k = i+l = 2.5E!22 4 2
3
k32= -2 = 0.75El
(2)
kZ3
k =-~ =-~EI
13 16 8
k =_ 3_ =~EI
23 (2)2 4
k = .E_+_3_ = i_EI
33 (4)3 (2)3 16
k = 4 + i =2EI
11 4 4
2
k21 = - = 0.5EI
4
k =-~ = -~EI
31 16 8
.1= J
36"" 0.75
2/
~k32
~1--- __ ~k.12
• Coeficientes de Rigidez
~ k31
~--~~1
{Q} =-{R} ={-:}. 4.5
• Estado Complementario
2.5 1.5
D) =D2 =03=0
RJ = 2 tonxm
R2 =-1 tonxrn
R3 =- (2.5 +2) = -4.5 ton
• Estado Primario
2
Para la solución de la estructura por el Método de Rigidez. no se utilizará la coordenada
4 correspondiente a la rotación en el nudo 4.
Q-D
Prescindible
Grados de Uberlad despreciandolas deformacionesaxiales
3
207
.)
)
) I
I
~
l-:J
)
--
)
~
)
")
.)
,
;
)
}
--i
)
-)
~)
)
')
'"J
1 •
Momentos finales (ton-m)Deformada
t3.59
t2.43
2.58
Ejemplo 6-18
Analicemos la estructura del problema anterior (Ejemplo 6-17) restringiendo la posibilidad
de movimiento vertical de la estructura. Para esto colocamos un apoyo en el nudo 3 que .
elimine el descenso. Las únicas coordenadas son las rotaciones de los nudos 2 y 3. La .
idea de este ejemplo es apreciar la influencia que tiene el descenso vertical de los nudos
2 y 3 en el comportamiento de la estructura.
La rotación del nudo 4 se puede obtener por superposición del Primario y del
Complementario: 94= 94P+ O(D,) +Q.S(02) +0.75 (D3)
Deformada
Momentos finales (ton-m)
/
0.75 ---.. ;:::1-L-'-L.L.L ........TTT"T"'I"4~
4.01
7
• Resultados finales
D1= 4/EI =O.768xlO~Jrad
D2= -6/EI = -1.152xlO-3 rad
0)= 18.67/EI = 3.584xl0·3 m
{Q}= [K]{D}
{o}= [KtfQ}
• Matriz de Rigidez y soluci6n del sistema de ecuaciones
208
209
wf-cosa,(
12 t l~
I
)wcosa ¡2
12
...-"'-
e. ........-wsena.
w/ sena. _...... ~..-
2 ~
2
Caso 2)
2
12 (
__..~
w/sena. ...
2  Mil cosa.
wp·
I ,r
- w12(
12 rt--
wl
2
wfwcos2a. ~ --
~ JI. 12
..........
.,_....-®( w cosa. sena.
1
=wcosa.
l/coso.w
wlCaso 1)
6.8 Fuerzas de Empotramiento en Elementos Inclinados
Antes de presentar algunos ejemplos de la solución de pórticos con vigas o elementos
inclinados, conviene recordar las fuerzas de empotramiento y las diversas
transformaciones que se pueden realizar en estas fuerzas. A contlnuaclónse presentan
algunos casos tipicos de barrasinclinadas con cargas repartidas.
j3.66
j
2.57
{M}final (ton-m)
2.76
Eiemplo 6-19
Analicemos la estructura del Ejemplo 6-17 permitiendoel desplazamientohorizontalde la
barra 3-4 como se indica a continuación.
209
)
,
-.
-J
)
-4
)
)
)

)
)
, .~~~.
)
:(:
~.:I~.
:..~
)
'~.'.
....
'i~:'
~',;:
::;"
}
-,
)
)
)
...,
) !,"
) ,.
;
} r .
)
"','
~:':'
J ~:.'
J
i
J
..,
~J
)
!
210
Q-D
CD----- ¿Puede existir?:
NO. pues EA = 00
• Grados de Libertad aprovechando la simetrla de la estructura y de las cargas
11
12m..
"
12m
1
8
E = 2xl0 6 too/m2
Sección 0.35 x 0.70
El = 20,008 ton-m2
EA =00
a~22.6°
Pendiente e 42%
5
3
E/emplo 6-20
Al pórtico que se ilustra a continuaci6nse le denomina "pórticoa dos aguas" y su empleo
es bastante común en naves industriales y depósitos. Se pueden cubrir luces y alturas
libres importantes con economías notables en comparación al mismo pórtico con la viga
horizontal.
Para simplificar la parte numérica se ha supuesto que el pórtico es de sección constante
y de concreto armado. En la realidad el pórtico se habría fabricado de acero utilizando
pertiles doble T de sección variable para economizar materialy lograr una estructura más
liviana y en consecuencia de menor costo. Adicionalmente, se ha supuesto que las
deformaciones axiales de todos los elementos son despreciables.
6.9 Pórticos Planos Con Elementos Inclinados
Estudiaremos el comportamiento de este tipo de estructuras con la ayuda de los
ejemplos que se presentana continuaci6n.
2
Caso 3)
210
~
()
,~
'1
)
)
)
)
)
)
)
)
)
-3
)
-7
)
)
->
)
J
)
)
)
)
)
)
)
~
j
--J
)
-.:..:c)
)
-4
.::)
,;)
J
)
,~)
'j
)
j
)
J
~
:j
=)
'
~ wlsena.
<r: 2
~tW1COSa.
2
w
{N}p (ton)
G
-13.29
{M}p (ton-m)
12
R, =-12tonxm
R2 = 14.4 ton
H= 14.4 ton
12
Hx5 = 1" 12" -
2
211
{Q}=-{R}={ 12 }
-14.4

{V}p (ton)
wsenacosa
)
)
)
• Estado Complementario
Dl =D2=0
_..,.
14.4
• Estado Primario

)
)
')
.,
)
• Posibles descomposiciones de la carga extema w = 1 ton/m
211
)
)
_)
)
)
)
.>
)
)
.)
)
=,
.~
)
)
)
_)
)
J
)
_,
)
)
~ _ ;~::~~.~~~_~::..:.:~.~ '; ~~ _~.::..~:~.~:~.,.,~: ~ -~ v-~ ,. '::.~""~:¡,"-, .,...~, __._,._~-.,:.":: ~ :- .--,¡.. --;":-~''':''':''''''''''C "C .•..: ..::: ." ..••• /. "7"'""'.,.. '~':', ':._~... ..: .• , •• ~ .•... ~. _ .•. _, ", .,. "-'-
~ ~_.:..:~;,.~:.!.i.-;¡·---;i.,¡'· ,.¡.~;: .:"~.: :;: ;. ~~..•::'::. ';.:':._-;.;~-:-:-:;.:-:t.;_...::~~j~~~:::: ~.:.:.:.:.;_~~.~~:;,:..::..:-:::':~:~:~--;:;'-:.._..;.::--..~..~~;-:.;..:.:~~:::.:~::.;;..::.:-::.:.~---i:.:~;}~~.-;;__:___.-...;~;~~.::.. -·_;....O~.~
1
I:i Relativo total barra 3-5=2_+ 144 =2.6
13 65
El movimiento de la barra inclinada (3-5) también se puede detenninar utilizando su
centro instantáneo de rotación, tal como se indica a continuación:
2.4
6S
~=l
cos2 ex. 144
a
f 1 .r
6
H::o-
65
4 2
Hx5=-+-
3 13
4 4 21
k =-+-= -El
11 8 13 26
k =_.i.+~= __ 3_EI
21 64 65 2080~r~864
2/B~
{M}t x El
No puede
Bajarl
2/13
• Coeficientes de Rigidez
212
-. -- .-.;--~.~-.,..~~:'":"~:' ¡-: .•...- •__. :~-:: "::"".··'7- ..: --.'.0'-0":- .-- ..- .•. ,_.-: ..• ~••. : • • "'-;-0- •• _ •• --:-::""~:_. ,.. - ._ •••• ,, _: ~ -., .- ;. "- '-:" - .-;.---:_ ••--".--:::-,- --::-----;-; 0'-- - -:-- -; ----7- - 7-·- - ,.
;;·~:;:¿~~·;~~.k~S1::~:·"~::·::·,·:.~.~~.;..;;~~~¿S~::-~:~~:::..~~.':•..:;-;¡~.:_:;.:.:.::.;:;:.;.,::_¡_:.b;.:i.:.~;,:-;;~... t:....:..,,:..~·:~~-;.:~.~;·,=-:i·:::~·;;-_:..¡__:,_·..;:~=.:....:....,,~;,__;.~·f.~~;;.;~:.:;.,..::...:.~~~:;~,,~..;;"'.:.;.~;;•..;c.~=::.::.;_:.:::_..;~:"'''_ -- _..-'OC="'~H-;'
~
~
-:l
)
O)
")
)
)
')
)
)
)
)
~
)
J
)
)
-J
)
-=>
)
)
)
)
)
)
)
,")
J
')
)
~
1
-=;)
.:¿
..iJ
,)
,)
.)
:J
J
)
)
)
~
i
.)
)
.)
J
213
1
{M} ton-m {N} ton
-12
Deformada
29.5
-6.4
1~29mm
• Deformada de la estructura, diagrama de momentos y fuerzas nonnales
{M} ={M}p + {M}. DI + {M}2 D2
D1= 14.43/EI ~ O.72xlO·3rad
D2= -238.2/EI~ -1l.91xl0·3 ro{ } (
21/ -3/ ){}12 726 /2080 D,
-14.4 =EI -3/ 6036xl0 ·l D2
/2080 .
• Matriz de Rigidez y solución del sistema de ecuaciones
{M}lx El
H
19.2
=-ton
520
6~
64 . 12
512
~6/64
213
•)
)
)
)
)
)
)
)
)
)
)
-)
}
)
")
)
)
.)
"'í
_.J
)
,)
)
J
_j
)
)
i
)
-)
. , _::._c:t ...~:.~s~:·::~·~·:_~·: :::·.:,,~:'.':>- -._--~..:.•~..~.f_~:'.-.:.''_.._~~.:.:~_.:~:-_.-.:'~'::__.. ....:~:• .~:___",_::,,:,,:....::~ ;:._:_-~;._,_:_._' -,,__O __ -_-.-_ •• o:. .-. . . ::.:':.:.::....,.....,.._-,..,':. . ...... . -- .. " .. '.,...",..;.....~..,.~~'''-;''__ o _ •• __ ~_. ._____ ~_ -,;. _. _.~ :,:;-'..;.:,.:_:-,. • ...:_. __ ..:__.:::_ ... ::;.:...:_;;.-=-._" ~_::';::_""-__ "",."..:.. -:- •• _,,:.,_ ~ •• ~.., ....__ •__ .II ...
{M} ton-m
Ejemplo 6-22
Veamos como cambia el comportamiento del pórtico a dos aguas del Ejemplo 6-20 si en
lugar de empotramientos en los apoyos de los nudos 1 y 2 existieran articulaciones..
Este tipo de apoyo es bastante común en pórticos a dos aguas construidos con perfiles'.
metálicos.
~__--~----~----------.---------~~----r---~~
~ ~
41.1441.14
---------,----------
1=68 mm
I
Los resultados se indican a continuación y resulta notable la diferencia que existe en el
desplazamiento vertical al centro de la viga (29 contra 68 mm) así como las diferencias en
los momentos negativos y positivos en la viga.
ti)
.f)
'3
1
)
)
)
)
)
)
)
)
)
__,
)
J
)
)
-J
)
~
)
)
)
)
)
)
)
J
)
J
)
-=
)
-::
.~
~
J
)
)
)
)
'
)
J
~
E =2x.J o6 tonlm2
Sección 0.35 x 0.70
El = 20,008 ton-m1
EA=oo
I I
f.----------2<.IlO ...---------~
1111111111111111111111111]11111111111111111111111111111111111111111
-1
I
I
E
§
I
I
j_
w = 1 tonlm
214
Ejemplo 6..21
Para apreciar las ventajas de utilizar, para luces grandes, un pórtico a dos aguas frente a
un pórtico con viga horizontal, analicemos el comportamiento del pórtico mostrado a
contlnuaclón, El pórtico tiene las mismas secciones y material del analizado en el
Ejemplo 6-20, la única diferencia estriba en la viga que es horizontal con una luz de 24 m
y las columnas son de 8 m de altura. Tenga en cuenta que las secciones utilizadas en
este ejemplo no son reales, la idea es comparar el comportamiento de ambas
estructuras.
- - - - --- --- - --.=----- - - --------- -- ------- ------:-:;-.~--- - -
..~.'··:~~:~;~~·=¿;~L;;~-_~.L~j7;i"-,~-:~~·i.~,~-..::::~."i_.,:~""7~,~-:::;':~~; - .,,:..:~:;,.-.-:_._--, -_..:; v-, ".•, ,-"::',~~';'::,'-;,.'~' -~~:__::'-,,-=;~;..:..-=.:.~,~~.:.~~~~~~.:.~..::;-,:;:..:.:;.;-,:.;.:~-.;~.~~.=~-~.~~~~~--~:::¿.-:.
215
 

Simetría. Q-D
2
Cable de acero:
E = 2 x 10onlm2
EI=O
8
Cable
1
5
. Ejemplo 6-23
. Veamos como cambia el comportamiento del pórtico del problema anterior (Ejemplo 6-
22) si se coloca un cable de acero uniendo los nudos 3 y 4. El cable. como veremos.
permite reducir los empujes horizontales que ejercen los elementos inclinados sobre las
»: columnas, reducir la fuerza cortante en la columna y los momentos flectores. El
Inconveniente principal es que el cable reduce la altura libre disponible en el interior del
pórtico.
: La comparación de los resultados finales obtenidos en los Ejemplos 6-20 y 6-22 permite
. observar la sensibilidad del comportamiento de la estructura a ras condiciones de apoyo
-en la base.

t12
{N} ton{M}ton-m
~.
-3.9
Resultados finales.
".. 1212
8
E = 2xl06 ton/m2
Sección 0.35 x 0.70
El = 20.008 ton-m2
EA = ro
a ~22.6°
5
2i5
)
j
)
I
)
--i
J
)
-1
I¡
I
I )
)
)
J
)
)
•
)
)
)
)
--')
...}
)
.)
)
...)
-)
")
)
""j
)
-"1
)
)
~
J
)
---'
1
B
Sección 0.35 x 0.70
E = 2 x 106 tonlm2
El = 20.008 ton-m2
EA=DO
-.5-tan 3
5
Ejemplo 6-U
Analicemos el comportamiento del pórtico del Ejemplo 6-20 sometido a cargas laterales
como se ilustra a continuación.
 

112
{N} ton{M} ton-m
Avert. Nudo 5 = O
-14.8
-15.2
'-16
-12 
NCable =15.2 ton
:::-+-
1.9 
t1c
e) Caso 3, cable de acero de EA= DO(caso extremo).
I(YY:SI
{N} ton{M} ton-m
-11,3
Mor. Nudo 3 ~ 6.2 mm +-
Avert Nudo 5 R$ 14.8 mm. J,
{N} ton
-=-----2,5 
t12
b) Caso 2, cable de acero de área 10cm2•
¡r
í
I
I¡
{M} ton-m
.dhor. Nudo 3 R$ 9.3 mm ~
Avert. Nudo 5 R$ 22.4 mm J,
0.6
a) Caso 1, cable de acero de área 5 cm2•
216
~
;~
~
')
)
)
)
)
')
)
)
)
)
J
')
_)
)
")
)
)
)
)
)
)
)
)
)
)
-::}
~
_J
)
_J
.)
)
,.,:)
)
)
~
)
:;J
'.j
~
-j
.)
'4)
Las componentes
horizontales
deben anularse.
5
N=- ton
676
3
Ncosa=-sena
169
r
~
~
I
, ,  
,
1
-J Q-D
- • Estado Primario R =0) I
-4 R2 =-6 ton
1
i
• Estado ComplementarioI
~
í }
1
)
.)
t
~,
f
• Coeficientes de Rigidez,
l!
i
I~
I
Debe existir N
para lograr I:Fh = O
D2=0
217
cero
4 3 19
kll = - + - = - El
8 13 2 6
6 5 3 6 3
k21= -- - -cosa + -sena = -- = --El
64 676 169 64 32
t~6/64
N
3~p--1---i-- ~
...-?--  ,,a
169
{Q} =-{R} = {~}
• Sistema Q - D. La estructura se ha reducido aprovechando la antisimetría de las
~rgas laterales. Se muestran dos posibles sistemas de coordenadas, Utilizaremos
el sistema Q-D de ia i~quierda.
___..lton
J
)
}
)
- -J
J
__:,
l
)
I
)
)
~ d
~
'>
j
-,
)
~
.)
, ""..,
-=>
')
1
Para este estado o caso de carga, la presencia de un cable horizontal uniendo los nudos
3 y 4 no modificaría los resultados.
{M} ton-m
• Deformada de la estructura, diagrama de momentos y fuerzas normales
DI= 67.46/EI = 3.37xlO-J rad
D2= 525.84/EI = 26.28xlO-3 ni
12 3
k =-=-EI
22 512 128
6 3
k =-- =--EI
21 64 32
:::;> V = _2_
156
3
Vx12=-
13
{~}=EI (~~6 ~2J {~,} EI=20,OO8%2 X28 2
• Matriz de Rigidez y solución del sistema de ecuaciones
DI =0 D2 = 1 Í4~
~12/512
1 1
k ~
~ "
~r~ k =-~EI
12 64
Alternativamente el equilibrio de la barra inclinada se puede formular en coordenadas
globales como se indica a continuación:
218
219
'. Nótese la magnitud del desplazamiento horizontal del pórtico (134 mm aproximadamente)
. y los fuertes momentos flectores en la viga y columna. Estos valores nos indican que
para cargas laterales, la respuesta del pórtico es muy sensible a las condiciones de
apoyo.
{M} ton-m
I
)
)
. el comportamiento. del pórtico del Ejemplo anterior, sometido a cargas
:laterales, modificando las condiciones de apoyo en los nudos 1 y 2 de empotramientos a
íacíones. El objetivo es formarse una idea de la influencia de las condiciones de
~~.al:>oy'oen este tipo de pórtico sometido a cargas laterales.
219
- ,..~,-,',::-- '--: ::-,':'--' -:' .. ,,- :.-~'-'",'-'
.","'--,,,,.c:.~=..;'~"-""""""'..._.."..."':c;"_·.::~~~~.,.' ~_;¡,.•.,c..,c"_''''~'~''';~''''''.. .:_~Et¿h¿jii!~~~i1¡.::.~;..-;~:~~:::~--~~;,:':;.~~:~~'i:~¿:::.-:--~:;:':Z::~:;:::~¿:i!.:::~;j:>:~U~~.;~.:~~
)
")
J
)
)
-)
)
)
)
~
.J
)
)
)
)
)
--+
) 5too
)
)
I 
¡
¡
1
7
) El== 5.ixl0-3
__,
~
e
~
¡)
)
)
)
)
)
)
)
)
)
-j
)
"7
)
)
J
")
.)
)
)
)
)
J
)
)
-j
J
-')
)
~
.
-~
::
~
)
)
.
'
,
-
~
C
.
.. -:!:';;;--:-,.c~
...;.;.:~.:-:...:_:..~
220

+-
10/3 ton
10ton-m
10
{M} ton-m
JO ton
fff
10
a) Caso ,. Corresponde a un caso extremo en el cual las vigas 00-tienen rigidez a la
flexión (El viga = O).Las columnas trabajan en voladizo. La rigidez lateral del pórtico·(KL=
Flatlll = 1012.78) es de 3.6ton/mm aproximadamente.
1/2. AI2
2
3 __. ..........--__;~

SistemaQ - D
Aprovechando la simetrfa del pórtico y la antisimeúla de las cargas, la estructura puede
reducirse a la mostrada a continuación.
A íI"
oc
"
66m

2

3
E = 2x106 ton/m2
Sección columnas 0.30 x 0.60
Altura columnas = 3 m
Se desprecian las deformaciones axiales
(EA =(0)
lO__ro_n~•• r4 5~ ~6
Ejemplo 6-26
El ejemplo que se desarrolla a continuación, pretende dar una idea de la repuesta de un
pequefo pórtico de un piso frente a cargas laterales. No se cubren las numerosas
variables que influyen en la respuesta de los pórticos frente a las cargas laterales.
6.10 Pórticos Planos Sujetos a Cargas Laterales
Las cargas laterales suelen provenir de la acción de un sismo o viento actuando sobre la
estructura. En el caso de sismos, las cargas laterales que se generan en la estructura
provienen del movimiento del suelo y son de naturaleza dinámica. Sin embargo, las
Normas permiten calcular un conjunto de cargas laterales estáticas que intentan simular
la acci6n dinámica máxima que puede producirse en la estructura. La determinación de
.las cargas laterales estáticas "equivalentes" depende de diversos parámetros, entre ellos
se encuentra el perIodo de vibración de la estructura.
220
221
5.7
{M}ton-m
O.64h
0.54/
y
,,.;
c) Caso 3. Corresponde a un caso en el cual las vigas tienen la misma sección que las
columnas (El viga = El columna).Nótese que la columna central toma más cortante que
las extremas (1.36 veces más) también que el punto de inflexión está más bajo. Las
fuerzas axiales que se desarrollan en las columnas, aunque parezcan pequeñas,
equilibran un parte importante del momento volcante total (10 x 3 = 30 ton-m), la
contribución de las fuerzas axiales en las columnas al equilibrio del momento volcante es
cercana al 40% ( 0.98x12 / 30) el 60% restante lo equilibran los momentos flectores en la
base de las columnas. la rigidez lateral del pórtico (10/1.14) es de 8.77ton/mm.

+-
+.16
0.35
....-t3.16
0.35
8.9 ~~~.k
+--3.67
&A
0.8 h
{M}ton-m.:0.9h
1.050.52/
1 :
b) Caso 2. Corresponde a un caso en el cual las vigas tienen una rigidez a la flexión
pequeña (El viga = 0.1 El columna)situación que corresponde a vigas muy flexibles en
" comparación a las columnas; Las columnas trabajan prácticamente en voladizo con
, puntos de inflexión altos. La rigidez lateral del, pórtico (1012.19)es de 4.57 ton/mm
aproximadamente.
22J
"
)
J
)
)
)
)
")
,')
.-'~
222
0.5 h
0.5 h
0.671Ir 1/
A ..
y
e) Caso 5. Corresponde a un caso en el cual las vigas son muy rlgidas en comparación
a las columnas (El viga= 100 El columna). En este caso las columnas trabajan corno
doblemente empotradas y toman la misma fuerza cortante. Este caso corresponde a la
máxima rigidez lateral que puede alcanzar este pórtico en particular, KL = 14.29ton/mm.
los puntos de inflexión en las columnas se ubican exactamente al centro de su altura.
0.52 h

5.0 +--
.3_21
1.21
0.631
.. v
• 111
10EI Il.= 0.758 mm
} } .
")
)
)
)
)
")
)
'j
)
J
")
)
_)
)
":)
)
)
,)
)
)
)
)
'""i
J
-->
)
:.:c}
)
-3
.::)
.¡¡
j
)
')
J
J
)
)
.)
~
CJ
;;-~
{M} ton-m

5.0 +-
.3.32
1.25
d) Caso 4. Corresponde a un caso en el cual las vigas tienen diez veces más inercia
que las columnas (El viga = 10 El columna). Corresponde a una situación de "vigas
robustas" en comparación a las columnas. El desplazamiento lateral del pórtico se ha
reducido considerablemente (compárese con el caso 1) lo cual se traduce en un
aumento importante de la rigidez lateral del pórtico, cuyo valor es 13.19ton/mm. Los
puntos de inflexión en las columnas se ubican prácticamente al centro de su altura.
mientras que en las vigas han experimentado un corrimiento (compárese con el caso 2).
Las fuerzas axiales que se desarrollan en fas columnas equilibran cerca del 50% (1.21x12
/30) del momento volcante.
222
{M} ton-m
~--,-
.... --::.-_:.-:~'.~-.'.-'~=.:::'
El viga I El col
e) Caso 6. Para cuantificar la influencia de las condiciones de apoyo de las columnas,
en la respuesta del pórtico frente a cargas laterales, analicemos nuevamente el Caso 3 -
en el cual las vigas tienen la misma sección que las columnas (El viga = El columna)-
cambiando los empotramientos en la base por articulaciones. La rigidez lateral se
reduce a KL = 1.96ton/mm, este valor es inferior al Caso 1 que tiene vigas de inercia nula.
.. Los puntos de inflexión en las columnas se ubican en la base de las mismas. Es
interesante comparar el diagrama de momentos y las reacciones en la base con las
obtenidas en el Caso 3.
642 108o
· .· .· .· ~ . ..
------ 0 .0 •• '1'·······..0·0 :- - ••• ••• .. -1-··..··---_ 'r-- '0'" ••• 0.-
· .· .· .o.oo+---~·----~---~--~·----~
,......
e
~ 0.20
'!
~ 0.15
!0.10
O.OS
0.25
0.30 ,--------:---~---~--"""""'!"--__,
t • I •....... -.- _ _ ~ <10_ .. " __ _ _"" oO <l 10. ..
t • f t
t • f •
I , • •
I • I •
............... ~ ~ L ~ ... ... ... .. .I • • I
· . .....·············¡-·················f·················r····..·..···..··T·········..······
· .. . .· .._.---._." ~ ~_ - ----r----"."-_ --o,.
223
rLa variación del desplazamiento lateral del pórtico y en consecuencia de su rigidez
lateral, se muestra en la figura a continuación. La figura corresponde a columnas
empotradas en la base.
)
)
J
)
-¡
)
)
~
,~
~
)
)
)
).
)
)
)
)
)
)
~
)
-2)
)
)
)
)
_)
)
)
)
)
)
)
)
d
'j
-i
)
J
)
j
-=)
..)
.)
.,..)
d
)
~
Tercera columna de la
Matriz de Flexibilidad Lateral
1
fl3
/
Segunda columna de la
Matriz de Flexibilidad Lateral
Primera columna de la
Matriz de Flexibilidad Lateral
¡ 1
f2ll i I!-: +----'---+-1 --~
Ql~~I~I_'~ __~i~I -H;1
~f 1 J
01
Las figuras a continuación muestran la construcción de la matriz de Flexibilidad Lateral
eh un pórtico de tres pisos, utilizando la definición de coeficientes de flexibilidad lateral.
aplicando cargas laterales unitarias en cada uno de los gdl.
Pórtico sometido a fuerzas laterales SistemaQ-D
(sólo fuerzas y desplazamientos laterales)
1
I
1
J..
I
I
I
" "
1 ."
""
Establece la relación entre fuerzas laterales y desplazamientos laterales:
{DL} = [FL] {QL}
La matriz de Flexibilidad Lateral ([FL]) es simétrica y d~finida pO$itivs.es de LJtilidaden el
análisis sísmico de edificios sometidos a carga.s laterales. Para su construcción, se
define un sistema de coordenadas reducido eh el cual los gdl que nos interesan son los
desplazamientos laterales del pórtico, tal como se indica a continuación.
6.10.1 Matriz de Flexibilidad Lateral dePórticps Planos
224
.0 • • 0 .0 •• 0._ •••
.- ._~~::~'~~::~':.~.:~~;".: ""o·::'~;.:'..~_:.'.~'.~ ; _.~~~~:.!..~:;..·~.~:~._..., .o~;_;_;~~~..:.~~'~~.~~_;~=~~~:~:~:=.J~~~~.~:j:,,·.~~I~·.,:~:=~:::~;.":~''-~.~~~"'';'':'~__;_:''':~~~'':''_:_::.~:;.~o::._~_j___:__~-__ '~_~ •• _- '.. _, - .:•• ,- :" .<.... j_.~ '".
225
D2 = 1 - Segunda columna de KLD1 = 1 - Primera columna de KL
! ___
las figuras a continuación muestran la construcción de la matriz de Rigidez Lateral en un
pórtico de tres pisos, utilizando la definición de coeficientes de rigidez lateral, aplicando
desplazamientos laterales unitarios en cada uno de los gdl.
Sistema Q-D
(sólo fuerzas y desplazamientos laterales)
Pórtico sometido a fuerzas laterales
"
D~ ~---+-------i
Fl
___..
D~ ~---+-------i
F2___..
. "
,1,.
D~ r-------,------¡
6.10.2 Matriz de Rigidez Lateral de Pórticos Planos
Establece la relación entre desplazamientos laterales y fuerzas laterales:
{QL} = [KL] {DL}
La matriz de Rigidez Lateral ([KL]) es simétrica y definida positiva, es de utilidad en el
análisis sismico de edificios sometidos a cargas laterales. Para su construcción, se
define un sistema de coordenadas reducido en el cual los gdl que nos Interesan son los
,. desplazamientos laterales del pórtico, tal como se indica a continuación.
La matriz de Flexibilidad Lateral se puede generar fácilmente con la ayuda de un
programa para el análisis automático de pórticos planos, definiendo sucesivos estados
de carga, como los tres mostrados en la figura anterior y para cada estado de carga,
basta obtener los desplazamientos laterales de los niveles para ensamblar dicha matriz.
Para el pórtico de tres pisos, tendremos:
{
DI} (fll{DL}=[FL]{QL} ~ D2 = f21
D3 f31
225
¡',y":"' __' ~._:.._...,':_.;':,J,. ,.:..::.... . ..... _ .. ~ _ .::; .;::'"-"",'......,
}
1
}
)
J
)
}
)
~
)
)
)
~
)
)
)
j
)
-,
,J
)
J
)
~
)
--:)
)
)
. "::;.::-:.::=~:..:..:._.~.'.•:"':::'.:.::2..:__:::'~~;_:{.~~:::~~i!:.;':.,.~:.~:'::'::";'~";..:'.::=-~;~.#~ -:~' •• -e _~•..~.::;j.,-~..'_:",-~_.~~'". :",~:.. "._.._~,:.:•.::.__~_..:_~_.~~~_,~~,,:::_.~.2._~_~;".... '-'.:'_;_'.....:__a.~..:.~_~_.__._.n;':·
~
(jJ
:1;)
")
)
)
)
)
)
)
)
)
)
-j
)
~
)
)
)
)
)
)
-
'
--
:
:
.
11/" )¡""v
ElElEl
2
Veamos la manera de abordar el caso de los desplazamientos de apoyo en una
estructura mediante un ejemplo sencillo. Se trata de una viga de tres tramos de luces
iguales y sección constante en la cual el empotramiento izquierdo sufre un descenso de
magnitud d.
Ejemplo6-27
6.11 Efecto del Desplazamiento o Movimiento de Apoyos
Existen situaciones en las cuales es necesario cuantificar el efecto de los
desplazamientos o movimientos de apoyo, en la repuesta de una estructura. Una
situación de este tipo. puede darse en un pórtico en el cual los apoyos (zapatas)
experimentan un asentamientono uniforme (asentamientorelativo o diferencial) producto
de la deformación del suelo en el cual se apoyan las zapatas.
También puede ser de interés analizar el efecto que tiene la rotación o giro de las
zapatas en la respuesta de una estructura sometida a cargas laterales. Este es el caso
de las placas"o muros de corte en los cuales el momento flector que transmiten a la
zapata suele ser elevado y en consecuencia la cimentación gira alejándose de la
hipótesis de empotramientoperfecto que se suele asumir.
El tratamiento de los desplazamientos de apoyo en el Método de Rigidez, es simple ya
que estos efectos se incorporanen el Estado Primario. Lo que no suele ser simple, es la
estimación de ramagnitudde los desplazamientosde los apoyos de una estructura.
[FL] [KL] = [KL] [FL] = [I] ~ [KL]= [FLrL
Existen numerosas técnicas para generar la matriz de Rigidez Lateral de una estructura,
en el acápite 7.11.2 se presentauna metodologíapara ello. Otra manera, que puede ser
conveniente en muchos casos, es por inversión de la matriz de Flexibilidad Lateral, es
decir, aprovechando la relación que existe entre ambas matrices (véanse los ejemplos
del acápite 7.11.2):
D3 = I - Tercera columna de KL
Para el pórtico de tres pisos, tendremos:
{FI} (kllkl2 k13J{OI}{QL}=[KL){OL} ~ F2 = k21 k22 k23 02
F3 k 31 k32 k13 03
226
.~_ ··.---:;.-;,¡;-;c
__ i~-_..
__~"~-L _ - ....-.~~:_~--- ..._~~- -------
227
{M} ton-m
Nétese-que el efecto del desplazamientode apoyo se va "amortiguando" a medida que
nos alejamos de la zona en la cual se produjola "perturbación".
Para darnos una idea de la magnitudde los momentos que se producen en esta viga por
el efecto del asentamiento del apoyo de la izquierda, asumamos algunos valores
correspondientes a una viga de concreto armado:
E = 2xl06 ton / m2 1= 5 m Sección 0.25 x 0.50
El = 5,210 El == 208
/2
Si el asentamiento del apoyo es ~ = 0.05 m el diagrama de momentos es:
29.2
• Diagrama de Momentos final (Primario + Complementario).
2.8
[K] {D}= {Q}
1 ~
D =--
2 5 1
k21 =2EIIl
k22 = SEIIl
4~·D =---,-151
• Coe,_ficientesde Rigidez.,.
kll = SEI 11
kl2 =2EIIl
6EI~ { bhl6}R = R2 =0 {Q} = - ~2I
¡l =>
• Estado Complementario. - 6EI~1 f
~
~
~
4 4
~ I 6EI~ / ¡2 6EI~ I P R)
( ;p- (--+i--'fr-) (~-'i
~ t
DI=~=ORI;:-
AIV ~. ~

• Estado Primario.
227
)
,
)
)
)
1
)
-,
)
J
)
)
)
~
)
)
J
)
)
)
)
)
~
)
I
J
)
_)
j
)
_,
)
J
)
J
J
)
)
")
b) Caso 2. El empotramiento central (nudo 2) sufre un asentamiento instantáneo de
magnitud a = 25 mm. Como era de esperarse, al ser la estructura simétrica asl como la
solicitación, el desplazamiento horizontal de la viga es nulo asl como la rotacióndel nudo
5 y el diagrama de momentos es simétrico. Nótese nuevamente la magnitud de los
momentos flectores que se producen, éstos no son para nada despreciables.
13.93
{M} ton-m
-o
¡:::
a) Caso 1. El empotramiento izquierdo (nudo 1) sufre un asentamiento instantáneo de
magnitud A = 25 111m. La solución se deja como ejercicio para el lector y a continuación
se muestran los resultados. El desplazamiento horizontal de la viga es de 2.46 mm.
Nótese la magnitudde los momentos flectores que se producen, éstos no son para nada
despreciables.
A
u
E = 2xl 06 ton/m"
Secci6n de vigas y columnas OJOx 0.60 m
Altura de las columnas == 3 m
3 Se desprecian las deformaciones axiales (EA = r:x»
~
í.J)
'j)
)
")
)
)
)
)
)
)
)
)
-J
.j
-=l
)
)
)
)
')
)
)
)
)
)
)
)
:;;)
:3
---j
)
-d
)
)
'-J
,J
)
::J
)
61
.)
'")
)
~
228
.. .... 6..6m

5 6
~--------~--------~4
La magnitud del momento flector qUE)aparece en el empotramiento de la izquierda es
bastante elevada, es muy probable que lleve a la falla a la sección del empotramiento.
Eiemplo 6-28
Analicemos el efecto de un desplazamiento (asentamiento) de apoyo en el pórtico del
Ejemplo6-26.
229
Por el contrario, en estructuras hiperestáticas (externa o internamente) los cambios de
temperatura en una o más barras originan desplazamientos en los nudos y esfuerzos en
las barras. Por ejemplo en la armadura mostrada, que es externamente hiperestática e
Apoyo deslizante
&ro .. Esfuerzos en barras {o"}= {O}
Desplazamiento de nudos {D}*" {O}
En estructuras isostáticas (externamente e internamente) los cambios de temperatura,
ATO. no causan esfuerzos en la estructura, sólo desplazamientos de nudos y en
consecuencia cambios en la geometria. Por ejemplo en la armadura mostrada a
continuación, la cual es isostática externa e internamente, un cambio de temperatura en
una o varias barras no causará esfuerzos en las barras.
~ ~~--S~h = __.~ ~._.
EA AT' EAaA'fO
11'fO incremento
+-~ ~__.ATO
decremento
EA a AT'
6.12.1 Cambios uniformes de Temperatura. En una barra del tipo armadura o del tipo
viga, los incrementos uniformes de temperatura generan alargamientos o acortamientos
también uniformes. A continuación se muestran las fuerzas de empotramiento. en este
caso fuerzas normales, para una barra del tipo mencionado de peralte h.
6.12 Efecto dé los Cambios de Temperatura
.. ·.Existensituaciones en las cuales es necesario cuantificar el efecto de los cambios de
....:ternperatura en la repuesta de una estructura. Los incrementos o los descensos de
.•.•..temperatura en una barra de una estructura pueden ser uniformes, es decir todos los
puntos experimentan el mismo camblo, o pueden ser diferenciales.
El tratamiento de los cambios de temperatura en el Método de Rigide~, es simple ya que
estos éfectos se incorporan en el Estado Primario. Lo que no suele ser simple, es la .
estimación de la magnitud de los cambios de temperatura, normalmente es necesario
contar con mediciones de las variaciones térmicas a lo largo del tiempo para estimar los
valores máximos, mínimos y medios.
30.00
_/
_l
)
)
)
)
)
)
J
)
...,
.J
)
J
)
_)
)
I
1
)
)
)
)
~
)
•
)
•
I
i
I
i
)
~
1
•[
~
~
.~,
®
(~
.~
)
')
)
)
)
)
)
)
)
)
.~
J
1
)
)
-J
)
-4
)
)
)
)
)
)
)
j
:)
-:>
)
=)
)
:::}.
"1
~
,;)
:.)
'J
:)
J
)
.)
)
V
i@
';;)230
6.12.2 Gradientes de Temperatura. A continuación se muestran las fuerzas de
empotramiento para una viga de peralte h, sometida a una temperatura inferior (Ti)
menor que la temperatura exterior (Te). Se ha supuesto que la variación de la
temperatura 8. lo alto de la.seccíón es lineal. Situaciones de esta naturaleza se pueden
presentar cuando la superficie exterior está .expuesta al sol mientras que la interior está
protegida. la deducción de las fuerzas de empotramiento se deja como ejercicio al
lector, ésta se puede realizar utilizando el Método de Flexibilidad y Trabajo Virtual (carga
unitaria) para calcular los desplazamientos en las redundantes ocasionados por la
variación de temperatura mostrada.
Isostática externa.
Hiperestática interna.
El mismo procedimiento descrito es aplicable a estructuras isostáticas externamente e
hiperestáticas internamente tal como la armadura mostrada a continuación.
Para la armadura de la figura anterior, que tiene 12 gdl, el cálculo de las Cargas de
Fijación (Estado Primario) es simple. Se Calculan las fuerzas de empotramiento en cada
una de las barras, que en este caso son únicamente fuerzas normales (qi = Ei Ai ai ATiO)
luego por equilibrio de cada uno de los nudos se calculan las magnitudes y sentidos de
las Cargas de Fijación (Rl, i=1,12). La figura a continuación muestra un esquema del
cálculo de dichas cargas. Los desplazamientos de los nudos se obtendrán del Estado
Complementario y las fuerzas finales en las barras de la superposición del Primario y
Complementario.
..... AroI-+ Brida superior (expuesta al sol).
Aro2 -+ Resto de barras.
internamente isostática, un cambio de temperatura originará desplazamientos y
esfuerzos en las barrasl
230
- _:.' .-: ••••• ~•• ~ •• ~ • : •• -.0' _-:- . _ •• O
.•. l' ~:~';:,:.:~L::.:•.;i::i_=~..'-~-~.~;.::.::_:.J2_¿_;~~~ .:.:~.:._:::::::-_:~:~:~'.•:~;;;:.~o:.:.:,.L'';·.~: •• ;~ ..~:",,-:....~.:....::;_ ~"'-. ::..::.~~: ..•• , i,:: ',0';" :.~:,.~ i._~_:::.::,:,.:._o•••,'.'~ ~.: • V
231
Ejemplo 6-29
Para estimar los esfuerzos que se generan en una viga por un aumento de temperatura
o gradiente no uniforme, analicemos la viga de tres tramos mostrada que pertenece al
>_ tablero de un puente continuo. Se ha supuesto que la viga es de concreto armado
f~ (E = 2xI06 tonfm2 a R::1xl0·s l/OC) de sección constante O.40x:1.20 m y que está sometida a
'> un gradiente lineal de temperatura de 30°C, es decir, la parte superior de la viga se
§ encuentra más caliente (50°C) que la inferior (20°C) por estar expuesta directamente al
~. sol.
,
=
Sol
~o
,
Existen situaciones en las cuales puede ser necesario estimar el efecto que produce en
la estructura, un incremento de temperatura solamente en una de las fachadas del
edificio. En la figura a continuación se muestra la configuración deformada de un edificio
de seis pisos en el cual una de las fachadas se encuentra expuesta al sol y la otra en la
sombra. El alargamiento de las columnas por el incremento de temperatura, genera un
movimiento lateral del edificio y esfuerzos en las barras.
'---- Variación lineal (supuesta) de la
temperatura en la altura de la sección.
Te>Ti _
h AT=Te-Ti
)
)
)
J
I
~
)
)
)
•
)
r)
)
)
)
..,
J
")
i
}}
t )
I
1 -,
i )
)
~
j
I }
¡
~
l
)
_)
¡ )
)
It
)
-}
)
~)
)
)
)
)
)
)
)
)
)
-d
)
~
)
)
)
)
.)
)
)
)
)
)
)
)
~
"j
--J
J
.-J
o)
J
j
.,)
,)
¡J-1
_)
"
q
,j
,
'''7
)
.J
~
'O
::?
232
Caso 1. La viga experimenta un Jncrerneeto uniforme de temperatura·de 30°C. Nótese
que..en este caso ;Ia.,estructuray Jas ~argas son simétricas, .por le-tanto el nudo 5 no debe
experimentar ni movimiento horizontal ni rotación, en consecuencia la estructura se
puede reducir considerando un empotramiento en dicho nudo. La solución se deja como
ejercicio para el lector y a continuación se muestran algunos de los resultados.
El sistema Q-D consiste en el desplazamiento horizontal de la viga y las rolaciones de los
nudos 4, 5 Y6. En total la estructura tiene 4 gdl.
JIJI JI
u
"
66moc
 
2 3
5 64
E/emplo 6-30
Para estimar Jos esfuerzos que se generan en un pórtico pequeño por el aumento de
temperatura en algunos de sus elementos, analicemos el siguiente pórtico.
Nótese la magnitud del momento flector en las vigas (cerca de 35ton-m). Si bien es cierto
que en un puente las cargas muertas y vigas suelen causar momentos flectores mayores
que los producidos por el cambio de temperatura analizado, también es cierto que en el
tramo central, los momentos por cambio de temperatura son del mismo signo que los
producidos por las cargas permanentes (momento positivo en el paño central) y en este
caso pueden representar una fracción no despreciable.
{M} ton-m
~t~~~34.56 34.56
1~ J~ Deformada
A ~ ~ A Dv rnax = 1.07 mm
J9.00 m
So)
232
~O
1 9.00 m ! 9.00 m 1
233
Nótese la magnitud del momento f1ectoren las bases de las columnas extremas y en los
extremos de las vigas cercanos al nudo 5.
{M} ton-m
1.44
Deformada
Oh nudo 6 = 2.1 mm
Caso 2. La viga experimenta un gradiente lineal de temperatura de 30oe, es decir, la
parte superior de la viga se encuentra más caliente (50°C) que la inferior (20°C) por estar
expuesta al sol y no contar con protección térmica. Nuevamente la estructura y las
'. cargas son simétricas, por lo tanto el nudo 5 no debe experimentar ni movimiento
horizontal ni rotación, en consecuencia la estructura se puede reducir considerando un
empotramiento en dicho nudo. La solución se deja como ejercicio para el lector y a
continuación se muestran algunos de los resultados.
Nótese la magnitud del momento flector en las bases de las columnas extremas, es
probable que dicha magnitud sea comparable o superior a la ocasionada por las cargas
permanentes en servicio que actúan sobre el pórtico.
233r!
I
)
J
)
-)
_)
)
)
)
)
)
_)
)
)
-,.J
.)
_)
~
:)
.»
.e)
)
)
.J
_)
)
_)
1
)
-,
¡tI)
~
~
)
)
)
)
)
)
}
)
)
)
--}
)
)
.,
)
--j
)
~
-)
)
)
)
)
)
)
~
)
)
)
'"J
)
"3
j
~
::)
)
)
:)
,)
_)
)
)
,~
6.13 Parrillas
Las parrillas son estructuras planas con cargas perpendiculares a su plano. Las barras
se suelen modelar como elementos unidimensionales que trabajan a flexión y torsión.
Las fuerzas de sección en las barras son: Cortante. momento f1ectory momento torsor.
No existe fuerza axial en las barras ya que las cargas son perpendiculares al plano de la
parrilla.
Para analizar este tipo de estructuras mediante el Método de Rigidez. es necesario
considerar tres gdl en cada nudo: dos rotaciones contenidas en el plano de la parrilla y
un desplazamiento vertical perpendicular al plano. La rigidez en flexión de las barras es
la misma que para el caso de los pórticos planos y la rigidez en torsión de las barras (el
cociente entre el momento torsor y el giro correspondiente) se calcula mediante:
Kt= Mt = GJ
9t L
E
G = 2(1+v) (Módulo de Rigidez al esfuerzo cortante)
El término J depende de las caracterrsticas geométricas la sección transversal de la
barra. Para barras de sección circular, J corresponde al momento polar de inercia de la
sección (J = 1t D4 I 32). En las barras de sección rectangular las secciones planas se
alabean por el efecto de la torsión, por lo tanto el cálculo de J es bastante más,complejo,
fa Teorla de la Elasticidad índlca que si se acepta la torsión de Saint-Venant se tendrá:
J=(3hb3 (3~ .!.(l-O.63~)
3 h
En la ecuación anterior b es el lado menor de la sección y h el lado mayor.
{M} ton-m
0.710.37
Deformada
Dh nudo 6 It$ -0.088 mm
Dv nudo 6 ""-0.9 mm
Caso 3. La columna de la derecha experimenta un incremento uniforme de temperatura
de 30°C por estar expuesta al sol. En este caso el sistema de cargas no es simétrico, en
consecuencia, la estructura no se puede reducir. A continuación se muestran algunos de
los resultados.
234
235
R, =-45 ton
R2=0
RJ = 22.5 ton-m
Equilibrio del nudo 3:
JI 7.5
• Estado Primario
J = 0.23(0.8)(0.4)3
Propiedades de las barras:
~~'!'(l-0.63x 0.4) ~ 0.23
3 0.8
OJ~ 12,800ton-m2
El ~ 42,670 ton-ml ~ OJ~ 0.3
" El
Nótese que la rigidez torsional, medida a través de OJ,es bastante menor que la rigidez
a flexión medida a través de El
~:.
E = 2.5xl06 ton/m2 (le = 280 kglcm2)
v ~ 0.15 E/G ~ 2.3 G ~ 1.09xl06 tonlm2
Material (concreto armado):
Sección de las barras3m6m
~ O.30m
0.40
6
Q-D
w = 10 ton/m
5
x
z
2
Eiemplo 6-31
Analicemos la parrilla cuya vista en planta se indica a continuación, que está contenida
en el plano XZ. Las barras son de concreto armado de sección rectangular. Sobre la
barra 2-3-4 actúa una carga repartida vertical de 10 ton/m. Los únicos grados de libertad
de la parrilla pertenecen al nudo 3, un desplazamiento vertical (DI), una rotación
alrededor del eje X (02) Y una rotación alrededor del eje Z (D3). La rotación D2 origina
flexión en la barra 1-3-5 y torsión en 2-3-4 mientras que la rotación 03 produce el efecto
inverso.
)
...,
.)
)
)
}
)
J
J
!
)
"~
)
j
)
co4
)
:1
J
)
.)
)
}
)
,
, .,
~.,
"1 ._
-.

.1
:1
.._
;
,',
J ._
;~,
~
.~:
~,.
.,.
"C
"
__
)-
---}
)
~
)
)
_)
)
,)
)
)
)
)
)
)
)
~
7
-j
)
~
-1
j
I jI
I
¡JI.
1 _)
I -.::)
I
.JI
I ~
_)
~
-)
)
~
Momento Torsor = O(en todas las barras)
~
ll~
6136 ¡j!Jf'__ . kl1 6/9
~ ¡/~+ 6/9
121216 ~ _ kll ,~/
6/36 J2/27
pi
6136
121216
~6/9
• Coeficientes de Rigidez
- DI = 1 2
• Estado Complementario
{Q}=-{R}={ ~ }
-22.5
En el Estado Primario los momentos torsores en todas las barras son nulos.
{M}p
2
Diagrama de momentos en el Estado Primario:
236
237
36
GJ GJ 4 4
k22 =-+-+{-+-)EI = 0.5GJ+2EI=2.15EI
6 3 6 3
kJ2 =0
Vista auxiliar:
6 6
k =---=-O.5EI
12. 36 9
• X~2/3
4/3 ~ ~ 6/9
~
!f
kl2
01/6
~
(}J/3~
~ kll ~(}J13
P.J6~
2/6
- Dz= 1. En la barra 1-3-5se produce flexión yen 2-3-4torsión .
kll
Vistas auxiliares:
237
'-'.
-~:.
~1•
¡.'.
.-
,';"
_,
"
"
)
,)
~~~
t ;2.:
f
) ....
} ;~;~.
.'
..;:¡
1'-::'
l
,~t":.
~.
) ~:::
')
)
)

~.: - - -:- -- --",-'-- ·······.·.,...·.:;-0·.··-.·"·.-- .. - --;-_,._~~., ,-.-.:.--:- .. :.- .._. ._._ __ . __ .-: ._:_,. __._ _. __ . __
_~;¡;t.~~><~~'.~.·:.7Jj;~.;.·:!~:~;~:>~~i_~~~~~t;::~;~~:~·~~~~i.~.-~~:~::~-i~~.~.~.·~~~-=~;j~:~:i~F-.;: ~::-_).<:~~::.~~~~~_.; !.~ -.- ~;---;'-:':_:.;-: ~~-2;;~~-~~-~~--"..~----. ~~_¿~;-;~~.;:-:¿-:::~~~::.~_;._::_~--._~~.'~~~-~-:1;'='=.~.:.~l:.~_:~
34.0
Barra 2-3-4
2 4
26.96
3j.S
16
Barra 1-3-5
Mflector (ton-m)
16.0
34.0
• Diagrama de momentos tteotores y torsores
49.5
{
45 } (1 -0.50.5 J{DI}O =El -0.5 2.15 O D2
-22.5 0.5 O 2.15 DJ.
• Matriz de rigidez y solución del sistema de ecuaciones
D, f1:165.45/EI= 1.534xl0-J m
D2 R:l15.22/ El = 0.357x 10,3 Rad
D) ~ -25.69/EI = -O.602x1O-J Rad
1
Por ia smetrta de la estructura:
kl3 =k21 =0.50J +2Ei =2.1SEI
k2J =kJ2 =0
ki3 = 0.5El
)
)
)
)
)
)
.)
~
)
.,
}
)
--)
,)
',r
'~
)
)
)
')
)
)
.)
':)
,)
~)
)
~
)
~
-~
-j
,)
)
,)
")
)
')
)
)
~
2J.l
- D3= l. En la barra 2-3-4 se produce flexión y en ]-3-5 torsión
'-:-"":";".-;-:-:-;:'_""'::;-- -''i~:''''~''''.~'';;-:::-:-.,.----~.:;----:-:-----::.~'.".': -- ._-_~.-~- -.".•...- -,--;-~:;-._-::--_.::~.•.. - "';:-,- . --:-:--=-:--;-;:- ",.. '; ..,.--::- : -,-
.. '" - ;,:.:~:-=_~-:,:~~'';¿~~~'~~'~.;;;.;'.;..'~.:';'~~.;:-..~:..:..:.:.:.:~-:.;-:~~~.:.::- ;_;~,;_:_~::;::'-.;~.-~~;;"'~~~:::~~::._--':o'. ::L.,¡;:;.,¡¡· ~-;.::;:-::~';''--::;-;,~~_':-:i'
238
239
Fuerza total de 1-3-5sobre 2-34 = 6.18 + l8.94 = 25.12 ton
Calculemos la fuerza que hace la viga (parra 1-3-5}queno tiene carga externa, sobre la
viga cargada (barra 2-3-4)para ello hagamos un diagrama de cuerpo libre del nudo 3:
2Con la viga 1-3-5--+
34
4
49.S
33.75
A~V------------~l-----;:
6 3
22 ~(YYYY;vY' ~4
10 t/m
67.5 = w P/1267.5
Veamos la diferencia de comportamiento de la estructura en el caso en que no hubiera
existido la viga perpendicular (barra 1-3-5). La viga (barra 2-3-4) que es la que soporta
toda la carga externa, trabajarfa como doblemente empotrada tal como se muestra a
continuación:
....
.,
~.;..
~.,
.:'
M torsor (ton-m)
4
.......
239
r·.
;
}
)
i
)
)
)
)
)
¡ }
¡ J
~
J
-4
:t
,1
)
)
)
)
)
-J
)
)
)
)
)
_J
)
~
J
)
)
)
-)
_J
)
) 1
'J
lJ
)
O ·,o~~.~~~~:~:::~T.~~:·~·-:~:j~~Et=~;·~~:~;:~:-:~:2~.L:;o,,~.:-~:.~~:::=L:~:~:o~o!"::.:o:~-~:li~;o-./~~.-i.:.;:~~:o:-:_.~~~~~~o_~~_.~_~_~::~o.:.'-C:~_'o::~~:~~::,::'_~,~;,,::~~¿: ~~~ ~~:~_~~=-;-~O~:~~o_.o":~.o._;_..,.~",.~,~;>-o~~=~=:~L2"~·.::~='-0' .o:o:.._~::'=~-~~
1
')
~)
..,---_...-._-_.-
/~ .....
~t.~:!·
,~
-¡'),-
)
)
)
)
)
)
)
)
}
-j
)
-'7
)
)
)
)<:»
;)
.¡ )
1
)
)
)
)
,)
)
~
")
~
.)
=3
ce)
~
.~
,J
J
,;
.)
.,)
...
.
)
D3 = -28.125/EI ~ -O.659xlO-3 rad
Con OJ=O:
(
1 -0.5 0.5)[K]=El -0.5 2 O
0.5 O 2
Los desplazamientos del nudo 3 son: DI = 67.S/EI ~ 1.582xl0-3 m
D2 = 16.875/EI ~ O.396xlO-l rad
Si GJ = O, también es posible obtener la Matriz de Rigidez de la estructura haciendo nulos
todos los términos que incluyen el parámetro GJ en la matriz de rigidez calculada
previamente:
f5
En el caso de apoyo simple entre ambas vigas, el modelo que podria emplearse para el
análisis se indica a continuación. En este modelo la viga (barra 1-3-5) se ha remplazado
por un resorte de rigidez K cuyo valor puede calcularse como se indica a continuación.
Nudo 3
Si la rigidez torsional de ambas vigas fuera nula, la u.niónentre ellas (nudo 3) equlvaldrla
a un apoyo simple, como se muestra a continuación:
36
~V +V -IV
A- A h
Por lo tanto, el comportamiento de la viga (barra 2-3-5) en términos de flexión y cortante,
es equivalente al mostrado en la figura a continuación, en la cual se ha remplazado la
viga perpendicular por las fuerzas que esta ejerce sobre fa viga 2-3-4.
240
241
GJ = 6,947 ton-m2 ~ GJ ~ 0.152 El
Material (concreto armado): E = 2.5x 106 tonlm2 (fe = 280 kglcm2)
v ~ 0.15 E/O ~ 2.3 G R': 1.09x106 ton/m2
Propiedades de la sección de las barras:
O.30xO.90 -+ El = 45,563 ton--m2
J = f3 h b3 ~ 0.263 x 0.90 x 0.303 = 6.391 x 10-3
3m6m
Q-D Grados de Libertad
Vista en planta (Plano X-Z)
z
'1 .,'1
x
I(] v4m
EJemplo 6-32
Analicemos la parrilla cuya vista en planta se indica a continuación, que está contenida
en el plano XZ; Las vigas son de concreto armado de sección rectangular O.30xO.90 m.
Las dos barras está unidas en el nudo 3 (nudo rrgidO)y forman un ángulo de 60°, Sobre
la barra 2-3-4 actúa una carga repartida vertical de 4 ton/my sobre la barra 3-5 una carga
concentrada de 5 tOD. los únicos grados de libertad de la parrilla pertenecen al nudo 3,
un desplazamiento vertical (D3) , una rotación alrededor del eje X (D]) Y una rotación
alrededor del eje Z (D2). '
26.3
42
Barra 2-3-4
33.8
Mflector (ton-m)
16.9
)
}
)
}
)
1
}
,)
)
j
~
)
)
)
)
)
,..,
J
.J
J
),
.)
j
)
)
j
.)
,)
,~
)
--4
)
'"i)
)
I 241
)
.:S I
~
._~..3i~-~_-~i,"~:~:::/~.~;~i;~~;':J.~i~~~_:.':·:~_¿1.:;-;~-·,,~~~:-.~':~i~.~~.j_::~:~~L-~·~i~~.··~';-~-;;.;~~:;~~~~·:~·~~~;;'~~~:~~:·,;~::_~;~.l~.~~º:~~:~.,~:~:~.~
I~
.)
')
)
)
)
)
)
)
)
)
-j
')
-1
)
)
J
.)
J
)
)
)
,)
)
)
)
=j
J
-J
.>
~i
J
-;j
~
.J
J
,,)
)
j
J
~
)
.)
e
,~
,:::)
--'¡
242
Para no sobrecargar la gráfica de Vectores; los momentos flectores y torsores en el
3 se representarán únicamente en la vista en planta de dicho nudo.
lsen30° (torsión en 1-3-5 )
T D1= 1
Icos3óo (flexión en )-3-5)
Estado Complementario•
{
2.17 }
{R}= 10.25
20.50
Vector de Cargas de Fijación:
R2 = 12 - 3 +2.5 sen 30° = 10.25 ton x m
R3 = 2.5 cos lO° =2.17 ton x m
Equilibrio de momentos del nudo 3 (vista en planta):
Equilibrio vertical del nudo 3: R3 = 2.5+6 + 12= 20.5 ton
Sx4 2 ~~5 = 2.5-= .5 2
8
~
...._
• Estado Primario
. Descomposición del giro unitario en vectores
. perpendiculares a las barras
243
Descomposición del giro unitario en vectores
perpendiculares a las barras
lcos60°
lsen60°
4EI 4EI
k21 =--cos30sen30+-cos30sen30
4 6
• GJ sen30cos30_ GJ sen30cos30
4 6
k21 = - O.180GJ +O.722EI
GJ
-sen30°
6
k = GJ +GJ + 4EI cos! 30 + GJ sen230
I1 3 6 4· 4
+ 4EI cos' 30+ GJ sen230
6 6
k,• = 0.604GJ +1.25EI
Equilibrio de momentos en el nudo 3 (vista en planta):
4EI
-~ ... 6 cos30°
+GJsen300
6EI 300 ~6-COS
62 .
..t 2EI 30°-cos
6 6 6
k3 = 42 COS300--62 cos30o=0.180EI
GJ
1J+-3 -44
Equilibrio vertical del nudo 3:
GJ
... 6 ..
2EI 300
.~4COS
+ ''..GJsen300
4
6EI ~ 4EI
-¡;-cos30· t..--¡-"0$30·
t,
J
)
~
)
.)
)
)
)
)
8
)
)
)
)
-:)
)
2)
)
)
)
)
)
,)
,)
:j
.)
)
,)
~
)
~
-j
-9
J
'.)
.J
")
,S1,)
•.,y
k22 = O.313GJ+2.417El
GJ GJ
+-'-sen260 +-sen260
4 6
k 4EI 4El 4EI 260 4El 260=-+-+-cos +-cos22 6 3 4 6
ku =- 0.180GJ+O.722EI
GJ 4EI
_._. sen60cos60 +-cos60sen60
6 6
GJ 4EI .
kl2 = __o -sen60cos60+-cos60sen60
4 4
Equilibrioverticaldel nudo 3: k32 =~+~cos60o- 6 -~cos600 = - 0.396EI
36 16 9 36
GJ
-sen60°
~
t ~ (4EI/4)cos60°
.¡ tk22 4EI 2EI
±---~J~kI2--1- ,,3 t ~ 3
;(6EI)/32
(4EI/6)cos60°
~~
+ GJ sen600
6
6EI 600 .
-cos
62 t =----f+- (2EI / 6)cos 60°
244
j
,
¡
f
1
(2EI/ 4)cos 60°
~
~
6EI 600-cos
42
245
7.07
22.39
{
10.018} {2.20 x 10.4 }
[K]{D} = - {R} --+ {D} = ~I - 12.911 = - 2.83 X 10.4
-39.899 -8.10x 10'4
• Diagrama de momentos ñectores (ton x rnt)
0.180]
- 0.396
0.743
• Matriz de Rigidez ae la estructura y solución del sistema de ecuaciones:
[
O.604GJ +1.25El -0.180GJ+O.722EI 0.180EI] [1.342 0.695
[K]= -O.180GJ+O.722Ef O.313GJ+2.417EI -0.396EI =EI 0.695 2.465
0.180EI -0.396EI 0.743EI 0.180 -0.396
6666·
k =---+-sen30--sen30=- O.396EJ
13 62 3' 42 62
6 6
kJ3=-2 cos30--2 cos30 = 0.180EI
4 6
...,.Equilibrio de momentos en el nudo 3:
6: ~~6' _~
~ ..
12 12 12 12
kll =-+-+-+-=0.743EI
43 33 63 63
,
12EI
..~
.. ti-
6EI
7 ...~---
245
}
')
)
')
J
,
J
-,
)
)
)
-)
)
~
}
)
J
J
)
--:}
.J
~)
~
)..
JJ
~I
)
)
-:}
)
"1
}
)
_)
)
__)
>
)
)
J
~
,~
:1)
_)
-)
)
')
)
)
)
)
)
')
~
)
~
)
)
)
)
)
)
)
)
)
)
)
J
;)
cj
----1
)
-;J
"~
)
'C)
J
_)
J
)
a
4
Barra 2-3-4
22.88
22.
7.54
2
15.10
• Diagrama de momentos flactores (ton x rnt)
{
11.790}
{D } = _1 _ 13.971 .
El _37.894
0.722
2.417
·0.396
0.180 ]
- 0.396
0.743
= {- !:~::~::]- 8.32 X 10-4
[
1.250
[ K ]= El' 0.722
0.180
Ejemplo 6-33
Resolvamos la parrilla del ejemplo anterior considerando nula la rigidez torsional de
todas las barras. Para esto basta con modificar la matriz de rigidez [K], calculada en el
problema anterior, eliminando todos aquellos términos en los que esté presente el factor .
"OJ". Si la rigidez torsional dé las barras es nula, la unión entre ellas (nudo 3) equivale él - .,
un apoyo simple.
La matriz de rigidez modificada de la estructura es:
• Diagrama de momentos torsores (ton x mt)
2
18.93Barra 2-3-4
4
22.39
246
247
7.42
22.64
• Diagrama de momentos flectores (ton x mt)
{
3.039} {6.67 x 10.5 }
{ D} = ~I - 13.442 = - 2.95 X 10.4
-37.487 -8.23xlO·4
[K] {D} =_ {R} ~
0.4170J + 2EI
- 0.51
O.208EI] r 1.743
-O.5EI =EI O
0.743EI 0.208
o 0.208 ]
- 0.5
0.743
o
2.064
-0.5
a} Caso 1considerando rigidez torsional en todas las barras.
• Matriz de Rigidez
r
0.5GJ + 1.667EI
[K]= O
O.208EI
3m6m
Q-D
1111
","
Vista en planta (plano XZ)6m
w=4 ton/m
2§·~,"*",~~~*7'~*+~E-*-~H~ 4
3
P = 5 ton
5 ""
4m
Ejemplo 6~34
-Para apreciar la influencia que tiene en la respuesta de la estructura la inclinación de 60°
.de la barra 1-3-5 del Ejemplo 6-32. resolvamos nuevamente la parrilla para el caso en
que el cruce en planta de las barras que la conforman es de 90° (perpendicular) en lugar
de los 60°del problema original.
)
1
1
~
)
)
1
)
)
)
)
i
i,
•1
j
}
-,
)
t¡
I )
I )
)
)
)
_J
j
)
)
J
-J
_J
-)
j

._)
J
-; 1)
I )
=; ~
J
)
J
)
_)
_)
{
3.229} {7.09 X 10-5 }
[K] {D} =- {R} - {D} = ~I -13.975 = -3.07x 10-4
- 37.899 - 8.32x 10-4
0.208 ]
-0.5
0.743
o
2
-0.5
[
1.667
[K ]=EI O
0.208
b) Caso 2 sin considerar rigidez torsional en todas las barras (Gl = O).
• Matriz de Rigidez
• Diagrama de momentos torsores (ton x mt)
Barra 1-3-5
4
18.97
Barra 2-3-4
2
22.64
248
l~
o
C)
~
)
)
)
)
)
)
)
)
)
~
)
)
)
)
--;)
)
~
)
)
)
)
)
)
J
)
)
)
)
-=,
)
-:;,
-~)
~
-J
')
.)
)
.J
J
J
')
~
7.42
22.8
15.10
• Diagrama de momentos fleelores (ton x mt)
249
..•.. ;......__.,._~'_..:.-:-."::-.- .---;;-:-";-;'--"~"::-;--:::-:"~':-:-.:-'-~;-- -::-.- -:-"'_-=-- ;---- -~'.- ",,---,_, '--:-_-;-':.--' ;'-:=-.-;-"_'_"_',-:-:' - -- - - -- - •••
• •ss. ~.~~ '-'~!':::~:-:~.~~{~~~~'~.~.=¿~':~_.:;.~;:'~::':~~:~-~:-:~~_~~~i·~'2.~~~:..'.~:=_~~:-~~··:.:_~~~.:;'~~i~=~~~_:.~:_¿¿~ ''':'L-':''-H~~~- ~_;_-_._~;~.~.~.~ ~=:_~~:'~ -.:~--~--~--.'::":-.~--:=~,
) f
1 II
)
)
1
)
J
} 7.54
,
-)
) 22.88
-'> Barra 2-3-4
)
2 4
l', I
I
i
~ I
I
1
j
i
_}
i
I Barra 1-3-5
i 7.54
J !
)
) ..'
)
<
)
~
J
)
j
_J
}
)
)
.)
)
j
j
)
O)
249
1
,
L
Ji)
ct
~
"7
)
,)
')
)
")
')
)
)
)
~
)
1
)
)
-)
)
--4
)
)
J
)
)
)
.)
-,)
)
.}
-=j
,]
-=3
~1
9
-:;1
:)
J
)
J
J
J
)
.. ...
:>"=7.5
Elevación de la placa mostrando
algunas de las esbelteces analizadas
/= 15m
Peralte (h) Esbeltez 11h = ).
1.5 10.0
2.0 7.5
3.0 5.0
5.0 3.0
7.5 2.0
15.0 m 1.0

1
+ +)..=2
h = peralte
Sección de la placa
,---r--,
I I
I I
, I
2 I I
I I
I I
I I
I I
3 J,_ I
V
4
,
I
I I
I ,
I 5 I
I v I
I 1 I
I I I
I I I
I 7.5 in ~
I I 1
I I I
I I I
I I I
 ~.1.
25 ton ~
6
E =2 xl 06 ton/m"
G = 8.7 xlOs ton/m'
1= Altura total de la placa = 1Sm
h = variable (peralte de la placa)
~IO.25
6.14 Deformaciones por Cortante
Este tema fue tratado en el acápite 4.10, en el cual se derivó la matriz de rigidez de una
barra de sección constante, incluyendo las deformaciones por fuerza cortante. En el
Método de Rigidez el incluir detormaclones por cortante en las barras, es tarea simple,
basta con modificar la matriz de rigidez de las barras y los momentos de empotramiento
(véase el acápite 4.11.7) incluyendo las deformaciones por cortante.
Elemplo 6-35
Para formarnos una idea de la influencia de las deformaciones por cortante en la
respuesta de una estructura, se ha analizado una placa o muro de concreto armado en
voladizo de cinco pisos cuyo modelo se muestra a continuación. El análisis ha sido
hecho por el Método de Rigidez utilizando el sistema Q-D .indicado (desplazamiento
horizontal y rotación en cada nudo) para un sistema de cargas laterales con variación
triangular en la altura del muro, este sistema de fuerzas podría representar la acción de
un sismo sobre la estructura. La influencia del cortante se ha cuantificado variando la
esbeltez geométrica de la placa x (cociente entre la altura total y el peralte) y resolviendo
cada caso incluyendo y sin incluir las defonnaciones por cortante.
250
251
0.4 0.8
OesFWl.steral
0.20.0
o._----~----~----~----~--~
..·..·..····..... ·····......·····i::::::-t1lDf¡..······..··m.
12
&beHez10
1.0.81.
1.0.4 0.6
DespIaz LaIeraI
0.8
o._----~----~----~----~--~0.0
··..........·....······..·..···..t::::~I·......······:··
12
EsbeItIlz5
0.21.
1.0.80.4 0.6
Des_l.IIIer.II.
O._----~----~--~~--~----~
............................... ~ .
~
020.01.
0.80.4 0 .6
DespIaz l.ater.II
020.0
................................. ~ .
~ I
o._ ~----~----~-- __~--~i
)
Esbellaz 7.5
0.80.4 0 .6
De6pIazl.atefBJ
0.2
O._----~----~----r_----~--~
0.0
··....····..····················I.....IIe:K._-t·.. ··... ········...... nec
Esbeltez 3
0.60.4 0.6
DespIaz Lallnl
0.20.0
.......................... ~ .
~
15.,.----·
Eabeltarz1
A continuación se muestra. para cada una de las esbelteces analizadas. la deformada de
la estructura (desplazamientos laterales del eje de la placa) con y sin deformaciones por
. cprtante. Para este caso particular. las deformaclones por cortante son importantes para
.esbelteces de hasta 5 aproximadamente, para esbelteces mayores las deformaciones
por corte no modifican sustancialmente el comportamiento de la estructura.
251
l.
•
)
-':)
)
.)
)
..)
)
)
.)
J
)
_)
~
.J
)
)
)
)
-7
J1
;
i
1
j
)
')
)
)
I
)
}
i
1
1
)
J
I I¡,
I
I
. .';., .. 'H." - --::.,. :i"':--=_-'-'~:-":"H'-:-: "CH.----;:::--'-"7"' ..H_ . H: .... , ._.__;_,_. :-... .,......._
H. H_.:L~-·~~-~:~~:·~~·.-1;;~~;;~~~,.:.:~;:-~:~¡~~'~:~:,::_.~-:~,,~:~:'-.:_'~;-'.;~-,~:~';:":;_¿.'~-::"i;~;~~~.;jit¡~::~~~Gi_i:¿·:~:i~·-;::::':':.~.~i:.~_::·;':~·.':':·:_~~_':~i:~;L;-.;-,¿:~~¡__...~:i:" :_~~i~~~~ :.:;.p:,::.~~-__!;~H;·.': ~~~-~~;~.~;~.
l
l¡D
~
~
-')
)
')
)
)
)
')
)
)
)
o~
)
01
)
)
~
)
.-=)
)
)
)
)
)
)
)
-)'o"
;)o.
)
.)
~
J
G
·3
~
·~
:)
J
)
.J
J
.)
)
~
fhl =0.791
k22 = 4.71 BIlIS
b) Barra 2 - 3
ftl2 = 0.449
kll = 8.29 El/lS
Rigidez modificada de la barra 1-2 (ver acápite 4.9.3):
k'22 = k22 x (1 - ft12 x ft21 ) = (6.72 El/15) x ( 1 - 0.70 x 0.47) ~ 4.51 (BIlIS)
Momentos de empotramiento:
J.112 =- 0.0685 ro (15)2 J.121 = 0.117 (J) (15i-
Momentos de empotramiento modificados de la barra 1-2 (ver acápite 4.9.7):
U'IZ = O U' 21 = UZI + fl2x Ul2 = 0.117 x S x 152 +0.70 x ( 0.0685 x 5 x 152 ) .~ 18S.6 tonxm
3.15 ]
6.72
[ k]' ~ El [ 4.48
barra 15 3.15
{q} = [kJbarra {d}
ft21 = 0.47 (factores de transporte)
k22= 6.72 El/IS'
• Coeficientes de rigidez y momentos de empotramiento
Utilizando las Tablas para barras de sección variable de la peA que se resumen en el
Anexo 1 se tiene:
a} Barra 1 .....2
ftü=0.70
kll = 4.48 EIIIS
Q-D
5 ton 1m
11:l
I I I };
yl~ ~ I
* ~
:$:0.90 m
0.90 m
 3
J¿ v I¿ I! J¿
/1
12 m í1j m 11 4.5
11
10.5 m
í1
Ejemplo 6..36
Resolver la viga de dos tramos indicada a continuación. la viga es de ancho constante
igual a 0.35 m. El módulo de elasticidad es B =2.2x106 ton/m2.
Para la solución se utilizará un sistema Q-D reducido que no incluye como grado de
libertad la rotación del nudo 1
!
¡
i.
I¡
l.
6.15 Estructuras con Elementos de Sección Variable
Este tema fue tratado extensamente en el acápite 4.9. en el cual se presentó la
metodologra para obtener la matriz de rigidez de barras de sección variable y los
momentos de empotramiento. En el Método de Rigidez el análisis de estructuras con
barras de sección variable. es tarea simple. basta con calcular previamente las matrices
de rigidez de las barras y sus fuerzas de empotramiento.
252
253
{M}t
0.248 El
0.301 El
k¡ I =0.553 El + 0.301 El = 0.854El
~f0.020 El
0.248 El
kll
OJOl El ~ 0.553 El
T)C~j(F-:;;=- t) C~~ O.058EJ
0.038 El
• Estado Complementario
01 = 1
~-----.._ I'!
f#. ~ F'
70.9
R¡ = 185.6- 147.4= 38.2 ton-m
RI
185.6 ~ 147.4 70.9
~O(I~t;¡¡--r---r-¡ ¡...........--¡ ¡ ~ ~f f~(1 ¡ J ¡ , ¡ 't0 (i--{
~"f~ f ~ f25.16 49.84 T 42.60 32.40
92.44
Momentos de empotramiento:
Ul2 = - 0.131x 5 x 152 ~ -147.4 tonxm U21 = 0.063 x 5 x 152 :::s 70.9 ton x m
• Estado Primario
q-d
3.72 J'
4.71
[ k] El [ 8.29
barra ~ 15 3.72
{q} =[k]barra {d}
253
1
J
I
1
)
)
~

_j
_j
)
)
)
)
-j
.)
,..
)
")
J
j
.)
J
)
...)
)
)
i "
~
.) ~,-~
-""
) ;-:
_)
_)
l
I
')
)
-¡
-·C·C···:.. -:.: .....'..-:-: ..~::.~,.:.--;-;;-;;.-._~_--;.... , ;:--_ __ = -,;::-:-:-.__ _ _
~,..~~~.)y~~::,;~:~'~..,..~:.:'.t·ó;~.~f:>·~:~::i·.i2;·~~·~:;~~·,~~~:¡:bi;l~-_S:.-~t~~,j~&~-:'::~~:~'-i~~-.:.~.~~:'~2;~.;:·::~~~j'..~?:.2'-.::-:~::'.:'_:i:. ;~ ;,;::;;.; ':_¡'-~;,,"-_,;_;=C:;_";
254
Momento flector (ton-m)
H6.K~5.Y m
34.82
t
80.4
.',.:
;~ ,
Nota: Se sugiere al rector resolver esta viga considerando dos grados de libertad (las
rotaciones de los nudos 1y 2). En este Cf;lSOno será necesario modiñcar los coeficientes
de riglcjez de la barra 1 -2.
Eiempió.6-37
Para cuantificar la influencia que tiene la sección variable en la repuesta de la viga del
problema anterior, a continuación se presenta el d.iagramade momentos fleclores para el
caso de sección constante O.35xO.90m, E =2.2xlO6 tonftn2•
l20.5
"r'
• Deformada
67~8 @5.2 m
172.1
• Momento f1eclor (ton-m)
o O O
- 185.6 - 0.301
El x (- 4;~73) =
- 172.1
+
- 147.4 0.553 - 172.1
-70.9 - 0.248 - 59.8
• lJ~spléi.za.rn¡ent()sen fas coordenadas
[K] {D}= - {R} (O.854EI) PI == - 38.2 --+ D1= 92 ~ - 44.73/ El
• Motnentos fináles· en las barras
{M}p + {Mhx D1 = {Mb
2S4
Q)
Q)
::)
)
}
)
)
')
)
')
)
)
)
~
)
")
)
)
---;J
)
,...:)
)
)
J
)
)
)
)
-)
)
")
)
-7
)
~
- ::>
~
,j
J
J
')
)
J
)
)
..,
;9
"7
-,
255
R,= O
R2 = 10ton
R3 = - 40 ton-m
a) Solución en el Sistema O,-DI
• Estado Primario. Las fuerzas en las barras deformables son nulas ya que no hay
deformación axialen ellas. El primario se resuelve por equilibrio del sólido rígido.
fK
1
4m
1
3m
'.-Ejemplo 6-38
Resolveremos la armadura mostrada para los dos sistemas Q- D indicados. La barra 3-4
es un sólido rígido, las otras barras son de acero con E = 2.0xl 07 tonlm2 y área 0.002 m2.
lO ton +
6.16 Estructuras con Elementos Indefonnables
Cuando existen elementos de rigidez a flexión muy grande, estos pueden modelarse
bajo la hipótesis de El = 00, es decir como si fueran sólidos rígidos. En estos casos debe
modificarse el sistema de coordenadas para reflejar la dependencia de los
desplazamientos en los extremos del sólido rfgido. El análisis de este tipo de estructura
se ilustrará' mediante los ejemplos presentados a continuación.
Nota: Se sugiere al lector resolver, por el Método de Rigidez, las vigas de 'los.ejernplos
.• 8~10y 8-11-del Capítulo 8 del Método de Cross.
• Defonnada
~
)
)
'}
)
)
)
)
)
_)
")
}.
)
)
-7
¡)
?
,j
I
,)
t
t
!
f)
l
)
I
.)
¡J}
a)
~
-J
)
, )
)
)
)
")
)
)
)
~
)
)
)
)
~
)
::2)
)
)
)
)
)
}
)
)
,)
)
.)
~.J
,)
,--:J
--j
-:t
~:)
-)
:)
.)
)
J
,)
)
J
:10
"o")
256
kl2 = 4800 x 0.8 = 3,840 = 0.096EA
k22 =2 x 13,333 +4,800 x 0.6
= 29,547 =O.739EA
k32 = - (4,800 x 0.6 + 13,333) x 4
= - 64,853= - 1.62EA
q. = q3 =+(2xI07)(O.002) (1) =13,333= 0.33EA
3
q2 =+(2xl0')(O.002) (0.6) =4,800 =0.12EA
5
x=O.6
1
kll =6400 x 0.8 = 5,120 tonIm = 0.128EA
k21 = 6400 x 0.6 = 3,840 = 0.096EA
k31 = - 3840 x 4 = - 15,360 = - 0.384EA
q2 =+(2xIO')(0.002) (0.8) = +6~400ton/m=O.16EA
5
x=o.s_A
~
1
256
o6,400o
. ..
/'
• Estado Complementario
257
Fuerzas axiales
(ton)
Deformada
- 10
{
22.50 } {5.625 X 10-4 m }
[K] {D}=-{R} -+ {D'}=E~ O = O
7.5 1.875 x 10-4 rad
-15,360]
-64,853
259,413
• Matriz de Rigidez
[ 0.128 0.096 .0.384] [ 5,120 3,840
[K)= EA 0.096 0.739 -1.62 = 3,840 29,547
-0.384 -1.62 6.485 -15,360 -64,853
kJ3= - 19,200x 0.8 = - 15,360 = -O.384EA
k2J =- 53,333 - 19,200x 0.6
= - 64,853 =- 1.62EA
k33 = (53,333 + 19,200 x 0.6) x 4
= 259,413 = 6.485EA
-;: 1"122ZZ ZZ 7tA
- k3J
o 19,200
.. 53,333
ql =0
q2 = - (2x107)(O.OO2>C2.4)=-19,200=-0.48EA
5
q3 = (2X107;(O.002)(4) =-53,333 =-1.33EA
....)
.)
_)
)
)
';..
'~-.:
.J"
.,.-,.,
~"
.;.
~~;'
:r0,,'.,,.
:....~.
)
)
)
")
....~
)
•l;!'
4
):
1 4
257
)
)
'-)
..,- ·.. :.--~._;~·:..::r;·:;:_~~:_.:~;~:t;~:=:¿~~:~~~L,j~·_~~;.::~=~·~~~~~t:j...~~,:~~_:-:-:L:~~~-~~~,~:"-~~~~~.~::';_':":'~.::':.c:...=:_;__::..~_._~~~_~._:_~~__::.¡:.!!. --=-_- ..--:;; :_ .._,_;,:- .~:,:"",, __;,_,_:_"~" '.:.__;~:;;::. -!- ;_::. 1. .-- -.-" ~",._ - . ~
258
qJ =+ (2xl07)(0.OO2) (1)=13,333 ,;"0.33EA
3 .
k)I=6,400 x 0.8 = 5,120 = 0.128EA
k21 = O
k31 = 6,400 x 0.6 = 3,840 = O.096EA
q2 = + (2x107)(O.002) (0.8) = +6,400 = 0.16EA
5
x=o.~
~
1
o
::)
.')
)
)
')
)
)
')
J
)
)
-j
r)
')
)
..,
~
)
)~
)
)
')
)
)
, )
)
.)
.)
)
)
'J
~)
~
'-J
"9
-:::J
)
,)
:)
J
j
)
J
')
'~
.~
258

• Estado Complementario
1,¡
l b) Solución en el Sistema 01- 01
• Estado Primario. Las fuerzas en las barras deformables son nulas ya que no hay
defonnación axial en elfas. El primario se resuelve por equilibrio del sólido rfgido.
"''' ••••• ~ . :.~.-: '-:---- -_ -- - -- - --- • ",:: - :; .-: ... .... ,..: ••• -...,-~::-:--:. --- _. - - o_o, ._:-.':""" - - - __ _ _ - - - - - __ • • _,_,,, __ ,, •• __ : :_. '. :", • • _ ,_. " :_':::: • :.~ •• ::.,.: ••,'" ~,..::._'~"'~-:'--'-
:;:;';;';¡;;';:';;:;_';'-;:.:;';~'~:,:":.:;¡;.:.,,;:.'''; ¡L;.~;~'.:.:::;::.¿::,;:;,~;:;~,'C::,;;__;:_,~:::-;¡:: :::.::::,: <:·.c:·:r~..•. '.:·':'·:L;.;t:·~;·::.c':·<.::~;.::.~:;;~;:';:';f.';:-:: <L/c·;···· .••.';:;;::Li:¿:·;.;i:,··:;c:c::.:....._ .c.::
l~,;!JI
259
Fuerzas axiales
(ton)Defonnada
o
O 0.096] [5,120
1/3 O = O 13,333
O 00405 3,840
{"D} = ~{ 2~.50 } = { 5.62~ X 10-4 m}
- 30,00 -7 .500X 10-4 m
[K] {D} = - {R} ~
3,840]
16,2~3
O
I • Matriz de Rigidez
[
0.128
[K]= EA O
0.096
kl3 =4,800 x 0.8 = 3,840 = 0.096EA.
k23= O
k3J= 13333.33 + 4800?C0.6 = 16,213= OA05EA
q. 2 =+ (2x107)(0.002) (0.6) = 4800 ::;0.12EA
. 5 .
q~=+ (2X101~(0.002)(1) = 13333.33=0.33EA
. x~O.6
1
k12= O
kn == 13,333 = O.33EA
k32 = O
259
)
')
-¡
)
}
)
)
)
)
)
)
}
)
)
)
)
)
)
I
-:
._)
)
)
J
)
)
)
.)
)-
~)
)
_)
)
.-=:)
)
l
I
_)
__)
1
:)
.Jt
.~
.,)
...)
:J
..)
_)
)
J
~
(l)
'~
~
"j
)
)
)
)
.)
")
)
)
)
--j
)
)
)
)
~
.)
A
)
)
)
)
)
)
)
:>
)
)
)
J
)
.:)
--J
,~
--j
1
{M}p
5.33
5.33
R2 = - 5.333t-m
0.89 t
!
~
8
Q-D
• Estado Primario. Nótese la presencia de fuerzas internas en la barra 5-6, estas
fuerzas son necesarias para mantener el equilibrio de los nudos.
(2 GDL)
1
El sistema de coordenadas adoptado para la solución de la estructura es el siguiente y
refleja la presencia del sólido rrgido (barra 5-6).
~2
6m4m
 
2

3
54
3m
6
El = €X)
Ejemplo 6-39
La barra (viga) 5-6 del pórtico mostrado tiene rigidez a flexión infinita (El = IX) ) se
desprecian las deformaciones axiales en todos los elementos. Las columnas y la viga
del tramo 4-5 tienen El = 3,000ton x m2.
Como era de esperarse, la solución para ambos sistemas de coordenadas es la misma.
Nótese que los resultados de las fuerzas finales en las barras, pueden obtenerse por
simple equilibrio ya que la armadura resuelta es isostática.
260
•.. . ~" ..•.• ~ ,.. ,..- ".•,... .~ ._oo :._. • ...~:. oo~_.:~ :_ ~'-;"."_"" :;;,._~ ..:- ..
:!;:...::": :,:;..~;~i~:i'~'~~:'.::"~'~~,:.::.~'~.;."..~'~~~.; ..:.~:~.:~:.:.;¡;>~.::~..':'j~:"; ~.:ji~,
_ •••••• "-:":'-:" .. ..,.•. '.: •.••• _ ••..•. ~ _... _- -_. :.-:;-_.: •• ...-~:- •• _. :-= ~~_ ... _-_._-=-.-
...'.~:.~~~ii:¿!¿iLf.i~~..~.....~.~:::~;:~.~...:::..:7.~..:~~~~:::. ',:~~ ; .,::-: .'~:.~.~..:'~~":'_:".....: ._..
M=V=O
261
M=V=O
2(3000)
i>4~ C!Ztl=Z;(~~0~;:t7Zi11
4x6
2,000
{M}¡
x.> 2(3000)/3
"l
6(3000)
32
k22 4(3000)
~ 4
k2lV)(-i t
.....JI 6(3000)/42
r,;.,. 4(3000)/3
D2 = 1, DI =0
r r·''"'''·''·''·''"''1
2,0002,000
-~.
(
12X3000)kll= 3 x 33 = 4,000 ton/m = 1.333El
k12= - 6x~~00 = _2,000 = -0.667 El
,r:-
12",3000+33 t....:J
32 tI'7 32
12%3000 {
33
'-J
.~
V =667 ~
~j (pfZWWiEOll) c.~
't(_,)6x3000. V 6x3000
k12
~ M=V=O
kll ~I -+ +=
~6x3000
~ 32
12%300:+
33 't.....:J
• Estado Complementario Nótese la presencia de fuerzas internas en la barra 5-6,
estas fuerzas son necesarias para mantener el equilibrio de los nudos.
261
r
·.
)
")
)
)
_j
J
)
>
)
J
J
.)
)
-;)
o,_)
)
..)
.)
..)
}
.)
j
2>
_)
i
~
}
J
)
)
)
)
I ),
!, j.l
¡
1
1
)
-;
,
)1
)
}
)
:'_.!.~~:':~,~~ ~._j_-;:.::lk~;r.=.-.~_.·.,-i;:;;~~~l,::~;_~~:~~~T~:2.·~¿~~:~=··~~-~~'..~~~É.~~··::';~~~~_'~~~.-;~;.~.'.~~·iL~-~~:--~~~)-':~~·~~:.i¿~ ~;~i_;~_~~~:~~;-~:~~·:~;i.-::~j~~~:_~~-~.~.,~~.:~~-~~~~.~~¿::~-::;_:~.~,l~:_·~ .:~~:..- -~~~'~:':,~~;.:;:' :
::)
-7
)
)
)
)
-,
')
)
)
)
.:;)
)
")
)
)
---}
)
~
)
)
)
)
)
)
J
o
)
)
J
-']
J
=3
'-1
#9
-;)
)
,)
J
)
)
,)
)
 
Q-DEl
3m1
Sólido rígido
2 ton/m
Ejemplo 6..40
La estructura mostrada está compuesta por un sólido rígido apoyado sobre una barra
flexible (barra 1-2) en flexión e indeformable axialmente de longitud 3 m
0.890.89
{M}y (ton-m)
6.67 5.78
0.89
• Momentos finales en las barras
{M}F= {M}p+{M"l)xDJ+{M}2xD2
{
D)} { 0.444xl0-3 m }
=:) D2 = 0.889xlO-1 rad[
4000 - 2000 ] {DI} {O }
- 2000 7000 D2 = 5.333
• Matriz de Rigidez
[K] {D} =- {R}
{M}z
6
k21 =- 32 (3000) = -2,000
k22= (~ + :)(3000) = 7tOOO= 2.333 El.
263
Fuerzas en la barra 1-2 (multiplicar por En
12x2
(3)3
6El 12EI 14EI
k =----x2=--~-1.556El
21 (3)2 (3i 9
k = 12E! = 4EI ~ 0.444 El
1I (3)3 9
kll

M=V=O
• Matriz de Rigidez
RI = - 4 ton
R2 = - 8/3 ton-m
4/3 r A
213~
• Estado Primario. Las cargas de fijación se calculan por equilibrio del sólido rígido.
Nótese que en la barra flexible, al no haber deformaciones por flexión, no existen
fuerzas internas.
"
)
)
')
.:~.'
.-
)
, -.-..
»
)
)
)
)
)
}
)
)
-}
_,)
J
_)
)
)
)
J
)
~
J.
I ..;)
)
- _)
I
)
.~
';
)
J
.J
Y
_)
-,
o
1
']
)
)
)
)
)
)
)
)
)
;)
)
)
)
)
---j
)
~
.)
)
.)
)
)
)
)
,J-
-)
)
)
-:)
)
--:)
--j
..,
-0
:)
-:')
-)
'-)
j
.)
J
<~
10.5
3
r = 3Jm1m¡ = lI(5-X)2 dx > 39
11 El El Elo o
5 m,(x) =5-x
• Producto de las Matrices de Flexibilidad y Rigidez
El[4 -14] 1 [ 39
[K][F]=[F][K]=9 -14 52 El 10.5
l
f22 = ¡mam2 = (1)(1)(3)= 2_
o El El
1 [39 103.5][F]= -
El 10.5
f. =f = lJmlm2 = ~(5 +2) = 10.5
12 21 El 2 El
o
m2(x) = 1
-14 ]
52
k __ 12x2_ 6 =_14El
12 - 27 9 9
• Matriz de Flexibilidad de la estructura
[K] = El [ 4
9 -14
12x2 6
-+-
27 9
•12~
-+-
9 3
I 
¡
í
¡
!
~
¡
1
1
Equilibrio del sólido rígido para DI = O.D2 = 1:
265
Fuerzas en la barra 1-2(multiplicar por El)
«>(~)x (~)
61t-x-
(3)2 4
~(%)x{~)
+
RI =_ 4/3 ton
R2 =_ 8/3 ton
1
"1 JI
1 
/ 1"I 
• Matriz de Rigidez
1/4
8/3
4/3

Estado Primario. Las cargas de fijación se calculan por equilibrio del sólido rfgido.
Nótese que en la barra flexible, al no haber deformaciones por flexión, no existen
,fuerzas internas.
 ,ElSólido rígido
1
2 ton/m
-:
" ;
}~'
} f~,
) ;:~
,,'
~::
1 ~~~~
~:
J
t,
W
1 "
_,
"i..
~:<,
•
1
l
'.
}
)
1
J 3m
Ejemplo 6-41
Resolvamos nuevamente la estructura del problema anterior, modificando el sistema de
coordenadas.' '
"i
265
~)
.J
.)
_)
1
J
)
.)
-'.)
,)
J
:': >," ,---;-,--':,'" .",:".~,...:, '-:;-;'" -~"".~-~:,~-"'~="'-:·:,--o-c'~~~ .... ,,. "'.-:-~-' :-; '.', -,-"----' ;-~";-';'- :'- ~ - ','" - ',"'''---- - - '::' ,- '-;-'--""'''--.-- __ o • • -. ~ ,--- _ - ' --.- '-1'" _..,.~.',',._,.-';-~-,_;..------~-""" , ..,_.- . ,.".. :, :__::,o,. ...... __ ''' ..~ '_"'_"_":_' .~._ .. ';_:',: --= .:..,....:r
'. :~;~~~-',:',"~~~;':,~::;,-~~~ ~,~~~-'-,~~;'f.:~:-T~:{j::.!~~-I;'~:,~::-~~_,~.::Z~,·.':~:::~:,':·{~ ;':.~;~:.~~;:}::~·,~::.,:·~~t~~,::;~-E±,:~ii~l:,,~;~2~~~~1::.~:~3~;-~':-.-:::'.:_~~..-.~:~:~~:<~~:;:::":-':~~,-_¿.:;';;..~L:::~~~~~::':·'I':..j~·-:·-;~~;~,:;~;_',.~;~'~,:':'-;~-;~~~::"';'~~
266
• Matriz de Flexibilidad de la estructura
[K] = EI[ 3>S6
-~
k = (.!.)x.!. = El
22 3 4 12
k =(-.!._.!.X4)X.!.= -El
12 3 6 4 4
~ / -~"'''k22
 /
X
/ 
V  _---l.....kI2
,K:::;~}í;
Equilibrio del sólido rfgido para DI = 0, ~ = 1:

DI = O, D2= 1
)
-:)
',)
.~
)
)
)
)
)
(}
)
)
.)
)
)
j
)
-;}
-j
.,
'-J
:)
-3
)
)
)
1 I
1/1
1 I
/1
11
_-I ....kll
~-)
g+~=.!! ~6 4
27 36 18 -+-=}
9 J2
266
k'l =(.!.!.X4 + 1)x.!. = 31EI
18 4 36
,~
~
~
~
)
)
)
)
")
.,
)
)
1 -El
kz, =(-l)x 4 = 4
f' I
. /
X
/ 
[¿_ -_
Equilibrio del sólido rígido para DI = 1, D2 = O:
....
k21
1!
1
f
.. "-:--.' .,,-:;:-,., ••,..",~ ,: ""', ~..,. : ,~.,.,~.,.; .•. ..-=- .. -, -;-_-'--- ~ ,."., e'- .. ..,... _.;- ,.-. - __,_"..-:.--.-: ':"••••-:----: -.., . . -:----. . •. -,...,.---~~-: --:e-- .-; -- .: .. : --¡o :,:, ••_, : , _ •.,. :--~..,':. '". ~:'''' ...,....... ..•• - -.;_.- _. •• .. ~..,..- .='-_.;-::.:-
::,.:"~~~'.~il·;·;~;~;:';~~::~:1~~L~k·~·LiL·~~i····~::·...:;,~~:.':-::~~~·~~_;_~=i_~·_j:~·"-l~·>L~i~ii:·~~~;:~.·~~j¿_~¿_iL:i~·i;·:i:::~~-~~~~..;.:.~_~·¿·¿i;::L.:~.·.~:,~.··.·=:f~~lJ.¡:·~~~~L.~¡~~li.;:.~~.J:~··,~__~~_._~~.i-
267
Ejemplo 6-42
la figura muestra la planta y elevación de una estructura compuesta por una losa maciza
indeformable en su plano (diafragma rfgido) apoyada sobre tres columnas circulares
, empotradas en la base y articuladas en el extremo superior. La rigidez a la flexión de las
.. columnas es El = 5,400 ton-m'.
:,:Calcularemos solamente la Matriz de Rigidez de la estructura.
M21
V31
3
11
3
2
, .:Cada nudo tiene en general, seis grados de libertad, tres traslaciones ortogonales y tres
,;.rotaciones. Los apoyos restringen algunos de los grados de libertad. El análisis de
,','estructuras espaciales por el Método de Rigidez, conlleva un gran número de grados de
,libertad. Su aplicación manual es virtualmente imposible, salvo para el caso de
,.,'estructuras muy simples, por lo que para su solución es prácticamente indispensable
, utilizar un programa de computadora.
Recuerde que las fuerzas de sección en las barras de una estructura espacial son: Axial,
cortante, momento flector y momento torsor. En la figura a continuación se muestran las
fuerzas de extremo de barra, referidas a sus ejes locales, los que deben ser principales y
centrales.
,"
, 6.17 Estructuras Espaciales
• Producto de las Matrices'de Flexibilidad y Rigidez
27 ]
93
[F]- _1 [ 9
El 27
f = lImlm2 = 3$(7 - X)2 dx = 93
22 El El Elo o
f. =f = lJmlm2 = lJ(3-X)(7-X)dx= 27
12 21 El El El
, •. .' o' " o
f = 3Im,ml = 3J{3- X)2 dx =_2_
11 El El ' Elo o
267
)
)
)
)
}
)
)
.)
.,
..,
.)
;
)
)
)
}
_)
)
)
)
)
)
,r;)
~
9
-)
)
)
)
)
-)
)
)
)
)
~
")
J
)
)
-J
.)
~
)
)
.>
)
)
)
)
J
:)
")
)
=)
')
-=1
-~
..-¡)
.J
:_)
J
_)
)
)
-d
~
{;
':j
,
268
kit = 3 x 600::: 1,800 ton/m
k21 =0
kJI = 600 x 3 = 1,800
600
+-
600.._
._600
Equilibrio de la Josa para DI = 1,D2 = D3 = O
3EI 3(5400)
VI= V2=V3= V =-3 (1) = (1) =600 ton/m
3 27
1, !, },
DI = 1, D2 = D3 = O
'-...fII '-...;1f '-.JIf
~ ~ ~
~ZZZZZZZ~Z7ZZZZZ~
ELEVACIÓNC2
•

3m
268
• Cálculo de la Matriz de Rigidez
"PLANTA
4mIr 4m
el
•
f-~I
3
El sistema de coordenadas adoptado consiste en los tres desplazamientos medidos en el
centro de gravedad del diafragma rfgido. Este sistema, obedece a la presencia de un.
diafragma rfgido en su plano (losa de piso). La losa debe moverse como un sólido rfgido :.
en su plano, por lo tanto, se generan dependencias entre los grados de libertad de todos •..
los puntos contenidos en el plano de la losa.
269
Kxy
Kyy
Kay
Kx9]Kye
Kas
kJ3=- V3 +V2 cos(53) +Va cos(53) = 1,800
k23 = - VI sen(53) +V2 sen(S3) = O
k33 = V3 (3) +VI (5) +V2 (5) = 35,400
v. = 3El (3) =3(5400)(3) = 1 800
3 33 27"
v. = v. =3EI (5) = 3(5400)(5) = 3 000
I 2 33 27 '
k22 =·3 x 600 = 1,800
k32=0
1,800 ]
35~400
o
1,800
O
[
1,800
[K]= O
1,800
La matriz de rigidez de la estructura es:
EquIlibrio de lalosa para Da = 1,DI = ~ = O
600.t .~600
~qui(¡brio de la losa para. Í>2 = 1,Di = D3 = O
"l.T V·:_ - 3EJ·· 3(5400)
VI = 2-'- V3 - V =7(1)= 27 (1)=600to~m
600.¡
269
)
)
)
)
)
)
~
_)
';
_)
)
j
._)
)
~
)
)
"1.-
tJ)
O
·9
~
)
)
)
)
)
)
)
)
)
":J
)
j
)
_)
_)
)
:!)
)
)
)
)
.)
)
)
-'j
)
)
)
=)
-)
~
_::~
;;tJ
,)
_)
_)
,)
_)
)
)
-d
~
.."'".-
'i(;J
':'1
270
2) Comportamiento de la Estructura: En todos los problemas resueltos, hemos supuesto _o_.
comportamiento Lineal Elástico, sin embargo, el Método de Rigidez se ha extendido al
ámbito del comportamiento no lineal de las estructuras, pudiéndose abordar problemas ..
de no linealidad geométrica, no linealidad del material o de ambos.
6.19 Ámbito de Aplicación del Método de rigidez
Hoy en día, con el desarrollo de las computadoras y de los programas de análisis
estructuraí.: están desapareciendo de manera acelerada los límites en el ámbito de
aplicación del Método de Rigidez.
1) Tipos de estructuras que es posible analizar
a) Estructuras de barras
• Vigas.
• Pórticos.
• Annaduras Planas.
• Parrillas.
• Armaduras Espaciales.
• Pórticos Espaciales.
b) Medios Continuos ~ Elementos Finitos (estados planos de esfuerzo Y
deformación, losas, cáscaras, sólidos, etc.)
Caso de Carga 1: {R}l -+ {Qh = -{R}¡
Caso de Carga 2: {R}2-+ {Q}2 = -{Rh
Caso de Carga n: {R}n ~ {Q}n = -{R}n
{Q}¡= [K]{Dh => {n}¡=[Iqol{Q}¡ ~ {ah
Estado 1Q-D
~~ ~~'" ~~
Estado 2 A J Estado 3
~ 1
6.18 Análisis para Diversos casos o Estados de Carga II
La matriz de rigidez, [K], de una estructura depende del sistema Q - D seleccionado para I
el análisis, de las condiciones de apoyo, geometrfa, propiedades y conectividad de las !
barras. En una estructura linealmente elástica [K] no depende de las cargas actuantes. I
Esto hace que el análisis de una estructura, como la mostrada a continuación, sometida !
a diversos casos de carga sea simple-ya que lo único que cambiará entre caso y caso I
será el Estado Primario. el Estado Complementario será el mismo para todos los casos
de carga. En consecuencia la inversa de la Matriz de Rigidez, [Krl,no depende del caso
de carga y será necesario calcularla sólo una vez.
271
1 Introducción
el Capitulo 6 se presentaron las ideas centrales del Método de Rigidez aplicado a
ras reticulares. La aplicación del Método de Rigidez se realizó bajo una forma o
es decir, la matriz de rigidez de la
ra se generó aplicando sucesivos desplazamientos unitarios en cada una de las
.....,..""'""'·1"I8S elegidas y los coeficientes de rigidez se obtuvieron por equilibrio de los
o de porciones de la estructura. De manera similar se obtuvieron las cargas
,~:nO~[]i:lJt:l:i(Estado Primario). El procedimiento o metodologfa utilizado en el Capitulo 6,
~_·."'rrT,.r~entender las ideas centrales del Método de Rigidez y darle un significado flsico a
,••<..__ ........ una de las etapas que intervienen en la solución de una estructura utilizando este
;?··...."oyr.no.
análisis de los problemas resueltos en el Capitulo 6, aún en las estructuras simples
que hemos abordado, es fácil concluir que el Método de Rigidez y en general los
os matriciales, se caracterizan por una gran cantidad de cálculo sistemático, y su
en la práctica se basa en la adecuación de los computadores para llevar a cabo
.. o el trabajo numérico. La aplicación del Método de Rigidez conduce a-que aún para
·estructuras pequeñas, el número de ecuaciones simultáneas podría ser tal que su
'.solución sin computador, seria sumamente laboriosa por no decir imposible.
.: El desarrollo de los métodos de cálculo de estructuras en los que el trabajo numérico
.. : puede ser realizado convenientemente en un computador, lleva a procedimientos a la
. vez sistemáticos y generales. E.I objetivo no es el de disminuir el número total de
;• operaciones aritméticas, sino conseguir métodos que puedan aplicarse a muchos tipos
diferentes de estructuras y que utiiicen el máximo posible de procedimientos numéricos
...trpicos para los cuales ya existen rutinas en los computadores. La cuestión ahora no es
·decidir si a un ser humano le resultará el cálculo estructural tedioso, sino si el método es
adecuado para ser fácilmente adaptado a una computadora. Si esto último sucede,
, entonces eí método es "bueno", aunque el número total de operaciones realizadas sea
. considerablemente superior al de otro método de menor facilidad de mecanizar.
·El desarrollo de los equipos de cómputo y del Método de Rigidez ha permitido a los
ingenieros establecer métodos que requirieren menos suposiciones y restricciones en el
..•.planteamiento de los problemas, logrando mejores resultados. En la actualidad, el
•.ingeniero que se dedique al diseño de estructuras, debe estar familiarizado con los
. métodos del análisis matricial de estructuras, porque constituyen una herramienta
poderosa de análisis.
Al mismo tiempo debe estudiar y entender el uso correcto de esta forma automática de
...-anáñsls. El resultado de un análisis por computador es sólo tan bueno como los datos y
el modelo de los cuales se parte. El acrónimo GIGO (del inglés Garbage In, Garbage
Out) cuya traducción al castellano podrfa ser BEBS se ha acuñado para recordarnos
constantemente que "basura que entra, es igual a basura que salen,
Esto significa que el criterio y la habilidad del ingeniero, nunca podrán automatizarse. El
criterio y el entendimiento del comportamiento de las estructuras siempre deberán estar
presentes cuando se idealice la estructura y ·se hagan las suposiciones acerca de las
cargas y solicitaciones, el comportamiento del material, las condiciones de apoyo, las
Conexiones entre los diversos elementos. Lo mismo se aplica a la interpretación y uso
correcto de los resultados de tales análisis.
)
)
")
)
)
CAPITULO 7- Formulación Matricial del Método de Rigidez
271
_.._--_::.._:._._:__-:;-; ._- ;"" ..
.~
.)
~
}
,
)
)
,J
1
.)
)
)
,)
)
)
)
-;
)
...,
)
)
)
_J
)
)
)
~j
J
J
)
l~
~~
(:i)
,J)
.~
)
)
)
)
)
)
)
)
)
-j
)
"7
)
)
)
_)
.)
)
)
)
")
" ,)
)
)
~
J
-)
)
c4
-)
-J
~
.;;
)
)
_)
rj
J
")
)
J
~
{d},;I = [A]nxN {D}Nx 1
Donde [A] es la Matriz de transformación de desplazamientos.
7.3 Matriz de Transformación de Desplazamientos
Siempre que el sistema Q-D sea generalizado, será posible generar una matriz, que
llamaremos matriz [A], que transfotme los desplazamientos medidos en las coordenadas
del sistema Q-D a los desplazamientos medidos en las coordenadas del sistema q-d. La
matriz [Al se genera por geometrfa aplicando desplazamientos unitarios en el sistema
Q-D.
A la matriz [A] de transformación de desplazamientos, también se le denomina Matriz de
_ Compatibilidad _yaque en este-caso relaciona los desplazamientos de los extremos de
- Ias barras con los desplazamientos .de los nudos. Las relaciones de compatibilidad se
expresan mediante:
En estructuras linealmente elásticas se cumple:
W = W· :) .!.{Q}T{D} = _1_{Dr{Q}
2 2
Trabajo Real realizado por las fuerzas externas:
w= ~¿Q¡D¡ = ~{QV {D}
{Q}:::[K]{D} :) {Q}T:::{D}T[Kt [Kt =[K] (la matriz de rigidez es simétrica)
:. W =.!.{D}T [K]{D}
2
Trabajo Complementario realizado por las fuerzas externas:
W'= ~LDiQi = ~{DV{Q}
{D}=[F]{Q} => {D}T={Q}T[Ft [Ft =[F] (lamatrizdeflexibilidadessimétrica)
:. W'=~ {Q}T[F]{Q}
Qi
En este Capítulo se presentan, de manera simple, algunas de las ideas centrales de la
sistematización del Método de Rigidez. Se ha esñrnado conveniente presentar estas
ideas a través de varios ejemplos en orden de complejidad creciente.
7.2 Expresiones del Trabajo Real y del Trabalo Complementario
Antes de abordar el tema de la sistematización en sl, conviene recordar algunas de las
expresiones del trabajo real y del trabajo complementario en estructuras linealmente
elásticas, expresiones que utilizaremos en algunas de las deduccíones posteriores.
272
273
7.4 Ensamblaje dela Matriz de Rigidez
A continuación se mostrará la manera de generar la matriz de rigidez de una estructura a
partir de las matrices de rigidez de las barras que la componen. Para ello utilizaremos un
pórtico simple como el mostrado en la figura a continuación en la cual se indica el
sistema de coordenadas globales Q-D y el sistema de coordenadas locales q-d de la
estructura "desmembrada" que corresponde a las coordenadas locales de cada una de
las barras.
Nótese que el sistema global Q-D, de N grados de libertad (en este caso seis) es
generalizado. mientras que el sistema local q-d, de n grados de libertad (en este caso
doce) no es generalizado ya que existen relaciones entre los desplazamientos, por
ejemplo d, = c4, d)=ds• d9=d12, etc. En el sistema Q-D la matriz de rigidez será definida
positiva (asumiendo que la estructura es estable) mientras que en el sistema q-d la matriz
de rigidez de la estructura "desmembrada" no será definida positiva.
En este caso particular la matriz [A] de transformación de desplazamientos será de
orden 12x6, es decir, doce filas y seis columnas. En general la matriz [A] es de orden
nxN.
D3 = 1 Tercera
columna de [A]
DI = 1 Primera
columna de [A]
Resto cero Resto cero
 q-d
Sistema no generalizado
"n" grados de libertad
Q-D
Sistema generalizado
'"N" grados de libertad
3
52
LOSelementos de la columna "i" de la matriz [A] son los desplazamientos de extremo de
(en el sistema q-d) debidos a la aplicación de un desplazamiento unitario Dj (en el
,,'sistema Q,.D)manteniendo todoelos.otroe desplazamientos Di nulos. Para que exista la
'. ~',matriz [A] es necesario que el sistema Q-D sea generalizado, es decir los
" desplazamientos {D} deben ser independientes para poder variarlos arbitrariamente, por
-:ejemplo hacer Dj = 1manteniendo todos los otros desplazamientos nulos.
, A continuación se muestra a manera de ejemplo, la generación a partir de la definición,
de la primera y tercera columna de la matriz [A], para el pórtico mostrado a continuación.
5 i6 JB --~tl~~ ~;r:7 11
1~3 4
12
273
........ "-_ .
,;.;'::=.:;-:..:..;.:_:~;'::..:.;;;_-~~~ -'---~:':~··:·i..:::-.:..:-:__;:~.~::::;._:;.~~--~:;-;l::..::_~..;;--..s, ~::_.
)
)
)
)
")
i
)
"}
,~
,,;J
I
)
)
)
,)
)
)
")
-')
)
....,
)
)
J
)
J
)
:)
..,
.)
")
~
{)
fl
...~
)
)
)
)
)
)
)
)
)
-j
)
~
)
)
)
_)
)
)
)
)
)
)
)
)
~
J
---1
_)
-=;)
)
-d
~
~
)
)
)
-j
J
j
)
J
La expresión anterior permite "ensamblar" la matriz de rigidez de la estructura, sin
embargo, ya que la matriz [k]n x n contiene muchos ceros, su utilización resulta ineficiente
desde el punto de vista numérico, es mucho más conveniente utilizar la siguiente
expresión:
[K] = [A]T, [k] [A]NxN N x n . n x n n x N
Relación entre los desplazamientos en ambos sistemas:
{d} = [A] {O} :::::> {d}T= {D}T[A]T
Uq-d =.!.., {d}T[k] {d} = !{D}T[A]T[k] [A] {D}
2 2
UQ-D = ! {D}T[K] {D}
2
Ya que la energía interna es la misma en los sistemas Q-D y.q-d, debe cumplirse que:
{D} T [A]T[k] [A] {D} = {D}T[K] {D}
En consecuencia, la matriz de rigidez de la estructura en el sistema Q-D, puede
obtenerse a partir de las matrices de rigidez de las barras que conforman la estructura
mediante la siguiente transformación:
[ O ]
[lq] matriz de rigidez de ia barra i
[kl13X3) [ O ]
[k2] (6x6)
[k3J(Jx3)
12 x 12
[k]=
En el sistema Q-D el trabajo realizado por las cargas externas nadales (cargas aplicadas
en los nudos) se acumula como energía interna de deformación, es decir:
WQ-D = .!..{D}T[K]{D} =U1NTERNA
2
En el sistema q - d debe acumularse la misma energía de deformación.
Wq-d= ~ [d }T[k]{d} = ~ {d}T[q ] =UOOERNA
Donde [k] es la matriz de rigidez de la estructura "desmembrada" o "no ensamblada" y es
del tipo diagonal. Para el caso de la estructura utilizada para esta demostración,
conformada por tres barras, tendrá la siguiente forma:
q-d
Sistema no generalizado
"n" grados de libertad
Q-D
Sistema generalizado
"NU grados delibertad
3
2
3
5 4 8
~5~~~·~6-·-.------~7 11
4;.10
12
2
274
275
~~.,. 7.5 Principio de Contragradlencla
Este principio establece la relación entre las cargas medidas en el sistema Q-D y las
cargas en los extremos de las barras medidas en el sistema q-d (sistema local de
coordenadas).
{d} = [A] {D} ({d} y {D} son compatibles)
Principio de Contragradiencia: {Q} = [A]T {q} ({Q} y {q} están en equilibrio)
Este principio establece que si los vectores {d} y {D} - que representan desplazamientos
compatibles - están relacionados mediante {d} = [A] {D}. entonces los vectores {q} y
{Q} (en equilibrio) que representan las fuerzas correspondientes a {d} y {D} están
relacionados a través de {Q}= [Af {q}.
A continuación se demuestra este Principio:
{d} = [A] {D} => {3d}= [A] {3D}
{3d}T = {3D}T [A]T (1)
Trabajo virtual (desplazamientos virtuales, véase el acápite 2.4) para una estructura
formada por el ensamblaje de barras unidas en los nudos:
¿Q(3D) = ¿q (3d)::) {8D} T {Q} = {&l}T {q} (2)
Reemplazando en (1) en (2): {3D}T {Q} = {BD}T[A]T{q} (3)
Ya que el vector {3D} es arbitrario y la relación .(3) debe cumplirse para cualquier valor
que adopte {5D}, deberá cumplirse necesariamente que {Q} = [A]T {q}.
Esto demuestra también, que el principio de los desplazamientos virtuales transforma las
ecuaciones de compatibilidad, en ecuaciones de equilibrio ya que {Q} = [A]T {q}
representa las ecuaciones de equilibrio de nudo, tal como se comprobará en los
ejemplos que se presentan a continuación.
.e
"0
nxN
[k1] [Al]
[k2] [A2]
nxN
..........
<,
-,'.
[Al]
[A2]
I
I
I
[Áml
Veamos la deducción de esta expresión, asumiendo que la estructura tiene un total de m
barras:
275
r.
.
.
¡.~:
~c
.:.~~:~¿:i-d.~:..:~:~:.:.::.~::::__';;:;;.~_..~j:.~.,;~.¿~_.: :z_.::.;~~..:~:;~,~;
,.
)
)
}
1
,
}
)
)
)
»
)
-")
)
,
J
")
)
:}
j
~i)
j
J
.)
)
~
)
--)
)
)
)
,:":"
)
)
)
)
~
'j,. ,
~
)
,~
7)
.J
"'J
..J
)
,,)
t1
J
~
')
J
8
i:')
.)
-)
)
)
)
)
)
)
)
)
-3
J
~
)
)
)
)
)
)
)
)
. :";:;: ".~:...:-:-
,:' '-.._;;.:....:_:.....•. / ~i._'U...;,'
• Aporte de la barra 1 a la matriz de rigidez de la estructura
[K,] = [A,]" [k,] [A,] "' [ ~ ] [E~~,] [1 O 1 = [ et :]Corno era de esperarse, la transfonnaci6n para la barra 1 es directa ya que el sistema
local de la barra coincide con el sistema global. .
• Matrices de rigidez de barra en el sistema q-d (sistema focal de las barras)
(d1J [1 O](DIJd2 = cosa -sena D2
~'. "
cosa ~'lI'
• Generación de la matriz de transformación de desplazamientos {d} = [A} {D}
q-dQ-D
.K_h.==:::::::::I1 _.. 1

1
• Sistemas de Coordenadas
B~2:
El = lOO, OOQkgfcm2
Al = 15()cm'}.
Ea = 2 x lü 6 kgfcm2
Al::::: 5 cm2
Barra 1:
sen 0.=0.6
cosa=O.8
Apliquemos las ideas expuestas a la solución de la armadura mostrada, Esta armadura
fue resuelta en el Ejemplo 6..2, acápitE.! 6.3. .
3
Eje_mp1.0 !-1
277
Q1 = q1 + q2 COS IX
Q2 = - q2 sen a.
Es fácil comprobar que las ecuaciones anteriores representan las ecuaciones de
equilibrio de fuerzas en el nudo 2 de la armadura.
cos a ] [q. ]-senc q2[~'l= [~
{Q}= [A]T{q} =:>
{D} = [Krl {Q} => DI =- 0.096 cm D2= - 0.503 cm
• Fuerzas en las barras en el sistema q-d
{dj} = [Al] {D} = [1 O]{D} = -0.096 cm
{q¡}= [kj] {dI} = 41,667 x (-0.096) ~ -4,000 kg (compresión)
{d2} = [A21 {D} = [cosa -sene] {D} = cosa DI - sena ~ = 0.225 cm
{q2} = [k21{d2} = 22,222 x 0.225 ~ 5,000 kg (tracción)
Resultados idénticos a los obtenidos en el ejemplo 6-2.
• Verifiquemos el Principio de Contragradiencia:
• Vector de cargas. Ya que solamente existen cargas en los nudos, el vector de cargas
se ensambla de manera directa.
{Q}=(-3.~OOJ
• Solución del sistema de ecuaciones, desplazamientos de la estructura en el sistema
Q-D
=[ 55,889
-10,667
-10,667]
8,000
EA_ cosa sena _2_2
l2
[K] = [K.J+ [K2] =
E1A2 = 2 X 106 X 5 ~ 22,222 kg/cm
.e2 450
Sistema global q'" - d*
• Matriz de rigidez de la estructura en el sistema Q-D
EA
_1 _1~ 41,667 kglcm
.e.
~ 12*
~t_l'
La transformación que se acaba de realizar equivale a calcular la matriz de rigidez de la
barra 2 ([K2]) en el sistema global de coordenadas, sistema que se indica en la figura a
continuación. Este resultado se puede combrobar generando, utilizando la definición, los
coeficientes de rigidez de la barra en el sistema q* - d*.
• Aporte de la barra 2 a la matriz de rigidez de la estructura
[1<.2] = [A2f [k2] [A2]= [ cosa ] [E2 A2] [cosa -sena J "'" E2A2 [ cos2a - cosa sena]
- sena l2 l2 - sena cosa sen'c
277
t
I
)
.)
)
)
"
J
)
-J
)
~
)
J
.)
-)
)
~)
1
-)
~
J
)
1
_)
)
__}
)
1
)
J
-~
)
)
)
_..;._~.:::..'.:..::J~~'.::.
~
~~ 'j
.1), ',o
,_)
,
')
)
)
')
')
)
)
)
-j
1
~
)
)
)
)
.)
}
)
)
)
)
)
)
~
:).
-4
)
d
"1
J
<
.)
.)
'J
J
~
:
~
)
.)
ij
el'.
;~
-i
278
o1ooo
o O O 3/5 4/5
----------------------------- -O 1 O O O
o
dIlO O .0 O
- -----------------------------d2 O 3/5 4/5 O O
- --------------_-------------
[A] = d3 O ~ ~ ~ O____ _
dt ooo3/5
DsDI
• Generación de la matriz de transformación de desplazamientos {d} = [A] {D}
q-dQ.-D
s
3
• Sistemas de Coordenadas
3m _j
32
4m .
5
E = 2xl06 kglcm2
A = lOcm2
Ejemplo 7-2 Resolver la armadura mostrada, todas las barras tienen la misma sección
transversal. Nótese que la armadura es isostática interna y externamente, en
.consecuencia, es posible verificar los resultados calculando fas fuerzas en las barras por
equilibrio de los nudos y calcular los desplazamientos de los nudos utilizando Trabajo
Virtual (fuerzas virtuales).
278
279
{di}=[Aíl {D} {qi} = [k¡] {di}= [k¡] [A¡] {D}
ql -2.25
q2 3.75.
q3 -3.00
{q}= q4 = 3.75 ton
qs -3.75
q6 -2.25
q7 225
• Fuerzas en las barras en el sistema q-d
-0338
2.363
{D} = [KrJ {Q} => {D} = -0.600 mm
2.700
-3.450
• Solución del sistema de ecuaciones, desplazamientos de la estructura en el sistema
Q-D
..,
)
-)
_)
)
)
-.)
)
)
..)
...,
)
.-=¡
i _j
1
~
-:J
:1
I ._-
)
,
)
O
O
{Q}= O
O
• -3
)
• Vector de cargas. Ya que solamente existen cargas en los nudos, el vector de cargas
se ensambla de manera directa.
0.40533 O O -0.07200 -0.09600
O 0.40533 0.09600 -0.33333 O
[IC] = ~] =FA O 0.09600 0.37800 O O
-0.07200 -0333.33 O 0,40533 0.09600
-0.09600 O O 0.09QOO 0,12800
• Matriz de rigidez total de la armadura
s T
[KJsxs = ¿[A¡] [k¡] [Aí]
i= I
Barras 4 Y 5:
Matrices de rigidez de barra en el sistema q-d (sistema local de las barras)
Barras1,2,3: [k¡ ] = [~~ l
r~.. "
...
} ~:::~
•
I )¡
I )
I ~!
i
I
'~
;~
~
)
')
)
)
)
)
)
)
')
)
-)
)
~
)
)
)
)
)
)
)
)
)
)
)
)
-;;)
~
-.:
"
-J
-7
J
;~
_
)
~
.
'8
:
~
)
.
~
d
'D
-
280
01 = -2 q¡ + q2
02= q3
La primera ecuación representa el equilibrio de momentos del brazo rígido y la segunda
el equilibrio de momentos del nudo derecho.
{Q} = [A]T{q} :::)
1
O[~,] =
• Verifiquemos el Principio de Contragradiencia:
Este resultado se puede verificar con el obtenido en el acápite 4.6.
0.88 ]
0.80
[K] = [A]T[k] [A] = El [2.1440.88
• Matriz de rigidez de la barra en el sistema Q-D
• Matriz de rigidez de la zona flexible de la barra en el sistema q-d (sistema loeal)
1 2 3
[
12/53 -6/52 -6/52 ]
[k]=EI -6/52 4/5 2/5
-6/52 2/5 4/5
Matriz de transformación de desplazamientos {d} = [Al {D}•
q-d
Q-D
5m
El 4-)2
1 2m
( 1f$/MiEl =0()
Ejemplo 7-3 Calcular la matriz de rigidez para la barra mostrada conformada por una
zona rígida en flexión de 2 m de longitud y una zona flexible de 5 m. Se consideran
deformaciones por flexión únicamente. Nótese que el sistema loeal de coordenadas está
referido a la parte flexible de la barra.
280
281

DJ= 0, D2= 1
..
o··
[A]=
I 1
 I/r
I  , I
/ I.' /I~
I 
"
:."
• Generación de la matriz de transformación de desplazamientos {d} = [Al {D}
1/4
q-d
 ,
Q-D
""
Barra 1-2 1=3
'1t2
1
• Sistemas de Coordenadas
Barra deformable
Sólido rígido
3m
Ejemplo 7-4
Ensamblar la matriz de rigidez para la estructura mostrada, compuesta por un sólido
rigido apoyado sobre una. barra deformable (barra 1-2) en flexión e indeformable
axialmente, de longitud 3 m. Se sugiere revisar el Ejemplo 6-41.
281
r
·.
.
J
}
-J
)
--)
1,
)
)
)
)
)
"t
)
)
}
-)
.-}
)
J
.)
_)
)
_J
)
.)
)
~ iI
)
I=; I
II
I
j
)
I
_.
Iwjj
l~
.)
)
)
)
}
-"".-'- ..
,.j
@
19
J
")
)
)
")
)
)
)
)
)
)
")
)
')
)
.)
)
)
J
.1',
)
~
)
'.
)
"
-;,: )
)
)
~
~
J
)
)
-J
.}
:;)
)
")
~
)
.::
~
~
... -
)
.Jo•••
.)
~
..)
282
Ejemplo 7-5
Ensamblar la matriz de rigidez para la estructura mostrada, compuesta por un sólido
rrgido (barra 2-3) apoyado sobre una barra deformable (barra 1-2) en flexión e
indeformable axialmente, de longitud 4 ID.
Equilibrlo del sólido rígido:
Ql + Q2= ql
Q2(4) = 'l2
De la figura mostrada a continuación, es fácil comprobar que las ecuaciones anteriores
representan las ecuaciones de equilibrio del sólido rigido.
r----:"I, __. Q2 , , ,, ,,)
,,, ,, 
r: 
, 1I -----Ji" Q1
ql 4 .1''l2
Q¡ = ql-0.25 q2
<h= 0.25 'l2
-1/4] [qj]1/4 q2[~,] = [~{Q}= [A]T {q} =>
• Verifiquemos el Principio de Contragradiencia:
Resultado idéntico al obtenido en el Ejemplo 6-41 del acápite 6.16, en el cual la matriz de
rigidez de la estructura se generó utilizando la definición y aplicando sucesivos
desplazamientos unitarios en las coordenadas.
.• Matriz de rigidez de la estructura en el sistema Q-D
1 1 .-- 4
4 El [ 3"
..!.. 3 -2
4
[ 0
1
[KI] = [AI]Y[kl] [Al] =
• Aporte de la barra 1 a la matriz de rigidez de la estructura
:]
• Matriz de rigidez de barra en el sistema q-d (sistema local de la barra 1-2)
[
12 -~ 1 [4
[k,l= El _{':, != ~I _;
282
283
• Matriz de rigidez de barra en el sistema q-d (sistema local de la barra 1-2)
[
12 6] [3[1<,]- El _t~ _ ~ _ El _I;
f t 8
DI =0, D2=)
q-d

Barra 1-2 1=4
~2
]
4.00m
DI=I, D2=O
di = 1 d2 =0
• Generación de la matriz de transformación de desplazamientos {d} = [A] {D}
El
283
Q-D
• Sistemas de Coordenadas
2
r. 3_00m
)
I
!
J
)
}
-')
-1
)
-1
)
,_)
.)
.;)
)
-)
)
-j
)
-==,
)
)
~
"5
)
'"'1
)
-i
..
~
)
)
)
)
)
"
')
")
)
"
}
.. .'~-¡ .:~.~.t.:..~::.',~_'~~~,~. ~~~¡.,!;~;'.,.-...; "..,,":"'.' '..;"";'. ~·~·.T:..'~~.:~~.~~.~.-::-;.',~:~'~.~::~::;,,,..,,.,,;,¡., o. , "::A~::." ..~ ;.:=:.:~.,.:~~':',.'~~., ~,.~_., :~.:::. ,..:::':='::-.:,:":'~:::r:~:::,,~::-=~_:~--:i¡-:-"".:;'')',. c:i~.~:::'=;¡~;"::::~'-~~.:;=.~.;.:;,:.=:~-=-'.::.,.,,..-.....---
kn= 0.0625Elkt2= 0.09375 El
4Ela
--¡- = 0.25 El
a.=(5/4) /5 = 0.25
_ ...:~"....
.....:~:.:;>-:
~---~_.t ---
.t--4_00m- .....
Dl=O D2=1
k21= 0.09375 Elkll = 0.1875El
6EI
42 = 0.3750 El
12EI
-------7 = 0.1875 El
.t--4_00m---tI k2t=0.375EI/4
• Comprobemos el resultado anterior. ensamblando la matriz de rigidez, utilizando
estrictamente la definición:
DI = 1 D2=0
0.09375 ]
0.06250
3~] [0.18750=EI .
1 0.09375
16
[K]= [K]] = El[ 1:
32
• Matriz de rigidez de la estructura en el sistema Q-D
• Aporte de la barra 1 a la matñz de rigidez·de la estructura
!]El [11 -:][:
284
4).
{f)
,.¡;
~Ji
:] ")
7._:
).;,;:
'~:l ).:<-
"lO.
S§
)~~
~ )
)
)
)
)
)
J
)
_)
")
)
)
)
-J
)
)
)
)
)
)
)
~
;)
:)
)
J
~J
)
'~
)
)
a
)
~-
.~
.~
-j
J
~
l
<:
(.
j
r
(
::/.;
':')
~~;
I'!
':'~~;'~i
t-
l
f-.
;',.....
1:,:;,
'~~t
f_
 I
(
f
c.
~.....,.....
L-r'"
(
C.
(
i
(
F
(
(
m
286
C) a>
.jr-1.50ri1_"..I,.~-4.OD m----.r....
Pla
0.2
on .. :_ ..~•• 9.~ •• •••••• a.•••••••••••• F......~..
1
...
0.5mJ
. Columnaca 3.00
Sxl.5m . 0.25XO,Sm
:. 0.5 m.,
'+
~... ,... '::.....~.,.......
® Viga O.25XO.5m G>20t
Ejemplo 7..7
Resolver el pórtico mostrado, compuesto por un muro o placa (barra 1-3) una columna y
una viga qué se ha modelado con un brazo rígido de 0.75 m a la izquierda. Se ignoran
las deformaciones axiales y por fuerza cortante,
• Resultados finales (axiales y reacciones en toneladas)
Barra [ki] di (q;) ,;",[k¡][di} (Ton)
1-4 EA/5 0.0 0.0
'( 2..3 EA/5 -0.8 DJ -2.220
24 EA/~ -4/3 Di 6.167
0.7206 EA
• Fuerzas en las barras.
{dí} = [Ai] {D}
{qi}= [Id] {di}
{lO}= [0.7206 EA] {DI}
• Desplazamientos en el sistema Q-b
{Q}= [K] {D}
Di = 13.8175/ EA
:E= [K] =
Barra kl~EA/Li [,Ai] [Ar]T Ik~n~1
1-4 EA/S O,Q 0.0 EA .
2.;3 EA/5. .,.0.8 0.128 EA
2-4 EA/3 -4/3 16/11EA...
• Matriz de rigidez de la estructura en el sistema Q-D
286
 1
;.~
t·· "
.1
-0.8 (DI)
4
3
o
DI = 1
285
o
-0.8
4
3
[A]=
DI = 1
i
1 La barra 1-4 no se deforma, sólo experimenta movimiento de sólido rigido (rotación). los
 alegamientos de las barras son positivos y los acortamientos (compresión) negativos.
II

I
!
1
,
• Generación de la matriz de transformación de desplazamientos {d} = [A] {D}.
Recuerde que asumimos desplazamientos pequeños.
1
q-d
3
Q-D
• Sistemas de Coordenadas
l-i~~~~~
'1J!-I.--4.00m--....r..1.
:'..
. .
Ejemplo 7-6
Resolver la estructura mostrada, compuesta por un sólido rígido (barra 1-3-4) y tres
__ barras .tipoarmadura. ..
287
[
12.4444 -18.0000 -0.6667]
L [K] = El -18.0000 37.6680 0 .7813
-0.6667 0 .7813 2.3333
El~ 1. 6~80 O.7~13]
~ 0 .7813 1 .0000
[
0.4444 o -O.666~
El O o O
-0.6667 o 1.3333
[
12 -18 O]
El -018 36 o
o o.
.J
)
}
Barra [Id] [Ai]
12 6
27EI 32
--
1-3 3
[!
o
~]-3- 6
4
t
-?i'
12 6
El 31
--
2-4 3
[!
o
~]3 6
4
o
-'3
12 6 12 6..
42 -4 - 42 -4,.
6
4
6
2
~
-0.75
~
El -- -
3'-4 4 4 1
"4 12 6 12 6 o
- 42 4 4:1: 4 o
6
2
6
4..J -'4 z
[Aí]I [ki][Ai]
• Matrices de rigidez de barra en el sistema q-d (sistema local de coordenadas) y aporte
de cada barra a la matriz de rigidez de la estructura.
[A] =
¡= 1 ~= 1 D3= 1
dl= 1 O O [A1-J]
.....~~~.- ---._-_.~----------_.}-------------~--------_._--------
d]= 1 O O
. ~_~ ~__. ~ ._.__..L_ .._._I~~~)_
ds= o -0.75 O
~= O 1 O
d7= O o o
--_._~~~_.-----_._~_._---------~-_.__ ._.._ ..~---_.-
D3= 1
1
Nótese que en la barra 3 -4 el sistema q - d corresponde a la parte flexible de la barra.
• Generación de la matriz de transformación de desplazamientos {d} = [A] {D}.
Sistemaq - dModelo de la estructura y sistema Q - D
4.00m---l~0.15 m ,,1. ,,1,
1~2
~El ..., t
~::...___1
27E1 El .1
~:
 ,
j
...,
.. >
"="
._" __
..~
,_'
)

,;
.:.~
."
,
"J
)
")
.,
)
.)
)
)
.)
J
'}
}
.)
'-j
";>
-7
)
)
)
:>
)
)
)
.)
')
.)
lI
3.537
!IIi!i!itL '
288
DFC{ton)
• Rigidez lateral del pórtico
KL = ~ = 3.806 El
5.255
49.638 --
4.68i
~
/
/
/
1.892
18.10&--
1
J
18.108
• Diagramas de fuerzas internas finales
24
1-3
lk¡] x El
[ 12 -18)
-18 36
10.4444 -0.6667]
-0.6667 1.3333
r·1975
-0.3750 -0.1875 -0.37S0]-0.3750 1.0000 0.3750 0.5000
-0.1875 0.3750 0.1875 0.3750
-0.3750 0.5000 0.3750 1.0000
3'4
Barra
d"1
5.2551
di 2.4974
di 5.2551
d" 0.6653.. = • 1/ El•
di -1.8730
d" 2.4974
6
od-7 0.6653
di
{di] (TonlEn {q;} ... [k¡)(d;)
{5.255~ {18.107912.497 -4.6853
{S.2551} [1.8921 ]
0.6653 -2.6164
r973O} rS3n}
2.4974 3.5372
o 1.537z
0.6653 2.6164
O
O
O
1 e·ZS51}o .4974,
o .6653
O
1
[
5.2551]
{D} = _!_ 2.4974
El 06653
{D} = [Kr1 {Q}
288
o O
O 1
1 O
{d·l = [A](D}~ fd·} = 00 O
-0.75
O 1
O O
O O
{di} = [Ai] {D}
{qi} = [Id] {di}
• Fuerzas en las barras.
{Q}= [r]
• Desplazamientos en el sistema Q-D
{Q} = [K] {D}
289
[A3_4]T [kj_4][Al-4] - El [g 1.6~80 o.7~131o 0.7813 1 .0000
Se observa que se obtiene el mismo resultado, respecto al aporte de la barra 3-4. En
consecuencia y como era de esperarse, la matriz de rigidez del pórtico en el sistema
Q-D, es fa misma.
Luego. el aporte de la barra 3-4 a la matriz de rigidez del pórtico es:
DI= 1 D2= 1 D3= 1
di = 1 O O [Al-3]
._.__c!~ _~. ..º .._. ..}. ..~ .... _d3= 1 O O
-...~-~.- --------º----.o------Q---------_ ..!.._.o__. ~~~~~_._
ds= O 1 O
dtí= O O 1
[Al =
• Generación de la matriz de transformación de desplazamientos {d} = [A] {D}.
Para las otras dos barras la matriz de rigidez no se modifica.
0.7813]
1.0000
[
4( 0.752) 75]~ _El 4" 4+3·0.75+3· 4 2+6.0'4 _ 1.6680
k3_4- 4 75 - EI~. 7813
2+6.0'4 4
• Matrices de rigidez de barra en el sistema q-d (sistema local de coordenadas).
Nótese que el sistema q- d adoptado para la barra 3-4 involucra la determinación de la
matriz de rigidez de la barra, tal como se hizo en el acápíte 4.6 o en el Ejemplo 7-3.
Dicha matriz de rigidez corresponde. al caso 7 del acápite 4.11, con a= 0.75 m y b =4 m.
Modelo de la estructura y. sistema Q - D
4.00m--;.fO.75m'" ....
1
r ,
~~,.,
3
27 El
1
Nuevo Sistema q- d
3
~1El 3.00 m
21
El
5 r.I!B~-----)64
2 : EI=oo
1~ 3~
• Nuevo sistema q- d. El Sistema Q -D es el mismo que hemos utilizado en el Ejemplo
7-7.
Ejemplo 7-8
Resolveremos nuevamente el pórtico del Ejemplo 7-7, modificando el sistema q - d para
la barra 3-4 (la barra con brazo rigido a la izquierda)
)
)
.)
}
--j
i
}
j
~J
)
~
i
¡
),
j -_;;
~
.)
i
J
j
)
J
1
l
_J
1 }
t _j
~
!
!
Ii
1 1
1 )
290
{di} = [Aí] {D}
{qi}= [ki] {di}
• Fuerzas en las barras.
[
6.1861J
{D} = ~ 2.4450
El 0.9488
{Q)= [rJ
{D} = [Kr1 {Q}
• Desplazamientos en el sistema Q-D
{Q}= [K] {D}
• Matriz de rigidez del pórtico en Q - D [K] = ¿[Ai]T [ki] [Ai]
[
7.5450 -10.6509 -0.66671
[KFlnal1= El -10.6509 26.6443 O.7813
-0.6667 0.7813 2.3333
)
)
.1
)
.)
)
)
)
)
-10.6509 gOl
24.9763
o
• Aporte de la barra 1- 3 a la matriz de rigidez del pórtico
[
7.1006
[kl-3] = [Al-3]T[ki-3][Al-3] = El -10.;509
-10.6S09]
24.9763
12 6
.. 27EI [33 -31] [7.1006
kl-3 = 1 +a _~ 4+« = El -10.6509
32, 3
b
E
- = 2.3 (concreto armado)
G
(h)2 (15)2=:;. a. = 2.76 T = 2.76 -T =0.69
]2 El
a=-::---
POAc
Ac e bh
1.2
~h
()
"~
)
')
)
)
)
.,
)
)
)
)
)
J
")
)
)
--::)
-}
4
)
)
Ejemplo 7-9
Resolveremos nuevamente el pórtico del Ejemplo 7-7, considrando deformaciones por
corte en la barra 1-3 (muro o placa). Con esto podremos formarnos una idea de la
influencia que tienen las deformaciones por corte en la repuesta frente a cargas laterales
de este pórtico pequeño.
• Sistemas Q - D Yq - d. Son los mismos del Ejemplo 7-7.
• Matriz de transformación de desplazamientos {d} = [Al {D}. Es la misma del
Ejemplo 7-7.
• Matrices de rigidez de barra en el sistema q-d (sistema local de coordenadas). Las..
barras 2- 4 Y 3- 4 tienen la misma matriz de rigidez del Ejemplo 7-7. S610 es necesario",
modificar la matriz de la barra 1 -3 incluyendo deformaciones por cortante, para esto,
utilizaremos lo expuesto en el acápite 4.10.3. .
,
.....
290
291
Se sugiere al lector que compare los resultados con los del Ejemplo 7-7, tanto los
desplazamientos como las fuerzas internas y la rigidez lateral. Encontrará que las
fuerzas internas varían poco, la placa toma algo menos de fuerza cortante transfiriendo
la diferencia a la columna. Sin embargo, el desplazamiento lateral del pórtico se
incrementa un 18% con lo cual la rigidez lateral del pórtico se reduce al incluir
deformaciones por cortante en el muro o placa.
• Rigidez lateral del pórtico
KL= 20 ~ 3.233 El
6.1861
DFC(ton)
17.883
DMF(ton-m)
2.11
2.117
-- 3.491
3.607 2.859
!!@iilJt i i
17.883
=)'6.]7,
2.859
• Diagramas de fuerzas internas finales
Barra fkil x El {di} [qi} == [ki] {di}
1~3 ( 7.1006 -10.6509] {6.1861} (17.B832}
-10.6509 24.9763 2.4450 -4.8195
2-4 [0.4444 -0.6667J [6.1861} {2.1168 ]
-0.6667 1 .3333 0.9488 -2.8590
r·107'
-0.3750 -0.1875 -0.3750]
r·S338} r·616'}
3'-4 -0.3750 1 .0000 0.3750 0 .5000 2.4450 3.6071
-0.1875 0.3750 0.1 875 0 .3750 o 1.6165
-0.3750 0.5000 0 .3750 1.0000 0.9488 2.8590
J
_)
)
)
}
)
1
,
"
¡ d~
o o o 1
6.1861
O 1 O
di 2.4450
1 O O
e·1861}
di 6.1861
O O 1 d. 0.9488 * l/El
[del = [A]fo] ~ {d·l = .4450 ' =O -0.75 O d! -1.8338
.9488 ;,
O 1 O des 2.4450
} O O O d; O
O O
da 0.9488
J,
"
-,
-.."
r.-
J
)
,]t
(~
4
)
)
)
">
)
)
)
)
)
)
)
J
)
)
)
-j
;.)
4
)
)
)
)
)
,)
)
)
)
)
)
)
292
o
1
-4 ~][
1
T 3 El
[KI] = [Al] [kl] [Al] = -3 O
(3) 3
• Aporte de las columnas a la matriz de rigidez de la estructura
~ ][k] = 3EI [ 1
h3 O
• Matriz de rigidez de las columnas en el sistema q-d (sistema local de la barra)

DI D2 D3
di 1 O 3
d2 O 1 -4
[AJ)
- ----------------d3 1 O 3
[A2][A] =
dt O 1 4
------------------ds 1 O -3
[A3]d6 O 1 O
• Matriz de transformación de desplazamientos {d} = [A] {D}
Q - D (planta) q- d (Perspectiva)


4m4m
~(
el
f-~1
3
292
Ejemplo 7-10
Ensamblar la Matriz de Rigidez del edificio de un piso del Ejemplo 6-42, acápite 6.17. El
edificio es una estructura compuesta por -una losa maciza indeformable en su plano
(diafragma rrgido) apoyada sobre tres columnas circulares de 3 m de altura, empotradas
en la base y articuladas en el extremosupertor con rigidez a la flexión de El = 5,400t-m2•
Se desprecia la rigidez torsional de las columnas. El sistema global de coordenadas
está referido al centro de gravedad de la losa.
293
La transpuesta de la matriz de transformación de desplazamientos, representa la matriz
de transformación de fuerzas. El aporte de las "m" barras que componen la estructura
viene dado por:
,¡
-1
)
El vector de cargas total, que debe utilizarse para la solución de la estructura, se obtiene
) a partir de:
{Q}totaJ = {Q}nudos + {Q}barras = {Q}nudos - {R}
-: {Q} total= [K] {D} (solucióndel EstadoComplementario)
{d} = [A] {D} Contragradiencia: {Q}= [A]T {q}
Cargas en barras
{Q} barras = - {R}
Cargas en nudos
{Q}nudos
Q-D
Estado Primario para las
cargas en barras:
Cargas de fijación = {R}
w
7.6 Ensamblaje del Vector de Cargas en Nudos
En el Método de Rigidez las cargas sólo pueden estar aplicadas en las coordenadas del
sistema Q-D elegido para el análisis de la estructura. Sobre la estructura pueden actuar
cargas directamente aplicadas a los nudos y al mismo tiempo cargas en las barras. Para
las cargas aplicadas en los nudos el ensamblaje del vector de cargas {Q} es directo,
mientras que para determinar el aporte de las cargas en barras a dicho vector, es
necesario resolver primero el Estado Primario (véase el acápíte 6.5) estado en el cual se
restringen todos los desplazamientos de los nudos medidos en el sistema Q-D y se
calcula el vector de Cargas de Fijación {R}. A partir de este vector se genera el Estado
Complementario, en el cual solo hay cargas en los nudos.
La figura a continuación muestra una estructura con cargas aplicadas directamente en
los nudos en el sistema de coordenadas elegido y cargas en las barras para las cuales
será necesario resolver el Estado Primario antes de proceder a la solución de la
estructura.
3EI[ ~
o
2:J
[K21= [A2]T [k21[A2] = 1
C3i .3 4
r 1
O
-:]T 3 El
1[K3]= [A3] [k3][A3] = -3 O
(3) -3 O
• Matriz de rigidez total de la estructura
.!
5~]- [m[ ~ O 1,800 O 1,800 ]
J
[K] = L [Ai]T [Id] [Ai] = 3 O 1,800
35,~OO
(3)3
3 O 1,800 O
294
'
7.7 Etapas de la FormulacIón Matricial del Método de Rigidez
a) Definir los sistemas de coordenadas Q-D y q-d
b) Generar las matrices [Aj] -+ {di} = [Aj] {D}
e) Generar las matrices de rigidez de barra en el sistema q-d -+ [k¡]
d) Generar los productos [A¡]T [kí] [Aí] -+ aporte de cada una de las barras a [K]
e) Ensamblar la Matriz de Rigidez de la estructura -+ [K] = ¿[A¡]T [Ie¡] [Aí]
f) Ensamblar el vector {Q}nudos-+ (aporte de las cargas en nudos)
g) Calcular las fuerzas de empotramiento debido a las cargas en barras -+ tri}
h) Ensamblar el vector de Cargas de Fijación -. {R} =L [Aj]T [ri] (Estado Primario)
i) Ensamblar el Vector de Cargas -'{Q}total = {Q}nudos- {R}
j) Resolver {D} = [KrJ {Q}totaJ-+ (desplazamientos del Estado Complementario)
k) Calcular los desplazamientos de extremo de barra -+ {di} = [A~ {D}
1) Calcular las fuerzas de extremo de barra del Estado Complementario {q¡} = [k¡] {
m) Calcular' las fuerzas totales de extremo de barra (Complementarlo + Primario)
{q¡}total = [k¡] {di} + tri}
mbarras T
{ Q } = L [A¡] {s.]
i= J
Si extendemos este resultado al Vector de Cargas de Fijación del Estado Primario {R}.,
tendremos: .
mbarras T
{R }= ¿ [A¡) {fi}
i-l
{Qharras = -{R} (aporte de las cargas en barrasal vector {Q})
Donde tri} es el vector de fuerzas de empotramiento en los extremos de cada una de las •
barras.
,,:1)
;~
e
~
)
)
)
.,
)
)
)
)
)
)
J
)
)
)
')
--j
...j
~
)
)
)
)
.>
,
)
")
')
)
)
-3
-
~
~
~
)
)
294
295
DI = 1 ~=I
dI O O
d2 1 O [Al]
[A]= ---------d3 1 O
[A2]
<1. O 1
• Generación de la matrizde transformación de desplazamientos
~1=1 ~=O 0,=0 ~ D¿=1
~I~'- ~:I----~¿__p.,~
~ ~4 z 44
~ (:_1 __ 2 ~
t3 t4 i) ~ -t7--t8. ~,
Sistema q-d alternativo (n = 8)
La desventaja del sistema q-d alternativo, estriba en que las matrices [Ai] contendrían
muchos ceros ya que hay una relación nula entre los desplazamientos DI y ~ con los
desplazamientos d3, <1., d7• dI. Esto hace tedioso los cálculos cuando se desea abordar
de manera manual la solución de la estructura, sin embargo, cuando la solución se
realiza con la ayuda de un computador, se usarla el sistema alternativo ya que este
sistema permitirá calculardirectamente las fuerzas cortantesen las barras.
Nótese que con el sistema q-d elegido, no será posible calcular las fuerzas cortantes en
los extremos de las barras. Estas deberán ser calculadas por equilibrio de cada una de
las barras a partir de los momentos flectores en los extremos de las mismas. Si se
desea conocer directamente los cortantes, será necesario utilizar el sistema q-d
alternativo indicado a continuación:
~
~
~~ el 4)j I/t
Q-D (N=2) q-d barras
~ ~ :il2 7S: 3~ ~~
G) G) 4 
q-d (n =4)
• Sistemas de Coordenadas
4m3m
,.,v
Eiemplo 7-11
Resolver la viga continua de dos tramos mostrada a continuación. Se consideran
deformacione_ssolo por flexión y El es constante. Véase el Ejemplo6-3, acápite6.5
2 ton/m
1
-~
::3
o_)
)
)
)
)
J
1
iI
-:,I
)
I
-==1"'1
I
-,I
)
j
I
__)
)
~
_)
~
t
l
;
¡ )
i
)
1 )
1
I¡
~ ,f,:
._.
¡'o.
.-
296
Aporte de la barra 1:
{R,} = [A,]T {ri} = [~
RI R
~ 2
*-QY YYLD( )Cfiyyy~(~
~ --m1.5 1.5 2.667 2_267
• Ensamblaje del vector de Cargas de Fijación. Estado Primario. fuerzas
empotramiento en el sistema q-d:
] <:a
G)
~2 3~
G)
?iJ4
El [4 :] El [4 !][kl ] =-
[k2 ] = 4 23 2
• Ensamblaje de fa Matriz de Rigidezde la estructura
Aporte de la barra 1:
[KI]= [AI]T [lel] [Al] = [~ 1PI[4 :J[~ O]=EI[4 ~]032 O 3 O
i
1¡
Nuevamente es fácil comprobar que la relación {Q}= [A]T {q} representa las ecuaciones
de equilibrio de momentos de los nudos 2 y 3 de la viga.
• Matrices de rigidez de barra en el sistema q-d
296
dI O O
{d} = [A] {D} -+ _d.!_ 1 O
{~:}= ------
d3 1 O
d.. O 1
<}
r:~
~
é~
)
)
)
)
)
)
)
')
)
)
.)
)
:1
)
)
-:)
.~
~
)
)
)
)
)
)
)
.)
")
)
)
)
)
-:j
')
~
~
~
:)
-J
)
..;:)
:)
.J
::J
~
)
Aporte de la barra 2:
[K2]= [A2]T [1<2] [Al] =
[~ 0pI [4 :J[~ O]=EI [4 :]142 1 4 2
• Matriz de rigidez total: (K] =¿(Ki]
4EI + 4EI 0+ 2EI 7 1
- -3 4 4 3 2
[K] = ¿fki] = =EI
O + 2EI 0+ 4EI 1
1-4 4 2
297
• Diagrama de fuerzas en barras en el Estado Complementario (ton-m)
1.167
J- r;.80 1.601"'16. ":;6~;).667
-r --i) c.: ~) <':0.434 -.J 
2 ] {DI} _{ -0.434 }- ton-m
4 D2 - 2.667
Barra 2:
{
0.80}= ton-m
1.60
2 ] { O } = El { 2 D, }
4 DI 3 4 D,
{q}1 = {qr } = El [ 4
q2 3 2
• Solución del sistema de ecuaciones, desplazamientos de la estructura en sistema Q-D
El
[
7/3 0.5] {DI} = { 1.167 }{Q}= [K] {D}
0.5 1 D 2 -2.667
120 3.267{D} = [I(J-) {Q} => DI = 92 ~ _. - D2 = 93 ~ ---
El El
• Fuerzas en barras en el Estado Complementario
Barra 1: {q}1 = [kl] {dl}= [kl] [Al] {D}
~ _,_~~I,_.J_6_7__ .....~, 2.667
Complementario
{Q}= _{R} = { + 1.167 }
- 2.667
• Vector de Cargas {Q}. Estado Complementario
{
-1.167}{R} = {RJ} + {R2} =
+2.667
Aporte de la barra 2:
(R2}~ [A,jT (r.} = [~ .. ~] { ;~:::; }= { ~~~~7 }
297
)
)
')
)
)
) ',:.
J
)
-)
j
)
--1
)
=4
)
i
)
.)
=.::J
J
)
~.'
~...
.
, ~..
_.
~~~.
1;;,
1~~·
:r-
;.
,
!
1 _)
1
)
_)
~
I
¡
,

¡ }
j
)
~.) ..1,
t ")1 ¡.
I 1¿:'
1
';::'"
..
~
,.
:-=.:'
,':.
.'.
,
_J
-t '.
j
'1'
t)
¿~
:1
)
')
.)
.)
)
)
)
)
)
)
-)
J
)
)
"
-
..;)
-'1
.
298
5~--=--zi>6
-Y G) ~
f q-d (0=6) ~3
E == 2 xl06 ton/m2 EA = CXl
Barras 1y 3 0.25 x 0.40
Barra 2 0.50 x 0.40
El t::# 2, 667 ton-m2
2EI:::s5, 33j ton-nr'
Q-D (N=3)
2 ~3

l
6m
• Sistemas de Coordenadas
...)¡
lele
G)I
1
Ejemplo 7-12
Ensamblar la Matriz de Rigidez y el Vector de Cargas para el pórtico asimétrico
mostrado. Se ignoran las deformaciones axiales y por cortante en todos los elementos.
Este pórtico fue resuelto en el Ejemplo 6-9. acápite 6.5.
Diagonal principal
[O]
[K]=
gdl~ 1 2 3 4 5
[O]
1~ 2~ 3i- 4~ 5~
Q-D
Nótese que las vigas continuas, como la resuelta en este ejemplo, en las cuales se
consideran únicamente grados de libertad de giro, originan matrices de rigidez
denominadas tridiagonales, es decir, todos los elementos no nulos se agrupan en tres
diagonales, la diagonal principal y otras dos "paralelas" a la principal. En este tipo de
estructuras, el ensamblaje de la matriz de rigidez es directo, lo mismo sucede con la
solución del sistema de ecuaciones para lo cual existen algoritmos de solución eficientes.
Primario
1~ 1.sK:' 24.267
+ ~fh."UfLLP"~G:L:LP'",, 
Complementario
1.6
• Fuerzas finales en las barras = Complementario + Primario
{q¡}totaJ = [lq] {di} + {r¡}
298
_._----"' ....------------_ ....
I
1-
1i
.'
299
DI D2 D3
di
1 o o
d2 o o [A']
----------
{d} = [Al {D} [A]=
d3 1 o o
[~]
d, o o
----------
ds o o
[A3]d6 o o
• Generación de la matriz de transformación de desplazamientos. Para este tipo de
pórtico con barras ortogonales, la generación de estas matrices es directa y contienen
únicamente elementos unitarios y elementos nulos.
Sistema q-d con deformaciones
axiales en las barras n = 12
La desventaja del sistema q-d alternativo, estriba en que la matriz [Ai] para la barra 3
contendrá muchos ceros ya que hay una relación nula entre los desplazamientos DI. D2 Y
D3 con los desplazamientos verticales de la barra 3. Esto hace tedioso los cálculos para
esta barra cuando se desea abordar de manera manual la solución de la estructura, sin
embargo, cuando la solución se realiza con la ayuda de un computador, se usaría el
sistema' alternativo ya que este sistema permitirá calcular directamente las fuerzas
cortantes en las barras.
Si fuera necesario considerar deformaciones axiales en las barras, el sistema Q-D
tendría seis grados de libertad (tres en cada nudo libre) y el sistema q-d doce grados de
libertad como se ilustra a continuación. Cuando se realizan cálculos manuales, es
práctica común, ignorar las deformaciones axiales para trabajar con sistemas de
coordenadas más pequeños, sin embargo, cuando los cálculos numéricos los realiza un
computador, no hay ninguna limitación al respecto y se pueden incorporar todos los
grados de libertad que sean necesarios sin necesidad de hacer suposiciones relativas al
tipo de deformación predominante en la estructura.
Sistema q-d alternativo (n = 8)
Nótese que con el sistema q-d elegido, no será posible calcular las fuerzas cortantes en
los extremos de la barra 3, estas deberán ser calculadas por equilibrio de la barra a partir
de los momentos f1ectores en los extremos de la misma. Si se desea conocer
directamente los cortantes, será necesario utilizar el sistema q-d alternativo indicado a
continuación:
,i

.J
I
~
)
}
j.~.
)
)
)
'j
}
..J
}
~
)
}
)
)
)
_)
)
-)
!
)
""'1
I )
J =)
)
)
~
-3
)
',:,
)
-;)
)
-l
.),
1 t~...
,
¡¡)i
~
)
)
)
)
)
')
-
)
)
)
_)
.)
-
)
)
-J
._j
J
)
)
)
)
)
)
)
')
.
)
)
)
-j
1-"
,' .
~
,j
:)
)
-'
~J
,
---=--;¡
..;
._~
...._,
"d
.-:9'
-:»
"
'-J
O O O
O O O
[A3y [k3] [A3]= O
4 2
O = El - -
6 6
O [k312x2) 2 4
O -
6 6
300
Aporte de la Barra 3: afecta únicamente a los gdl globales 2 y 3
% O -fe(3)3 (3)3
[A2f [k2] [A2]= 2EI O O O
-fe O %(3)3
- Barra 3:
G ~6 [k31- El [ 4
!]l 2
Aporte de la Barra 2: afecta solo a los gdl globales 1 y 3
- Barra 2:
4r 12 -6
[k2] = 2EI
(3t (3)2
-6 4
(3y 3
(3x3)
[Al r3X2) [k,1c2lt2) [Al12.r3) = O
O O O
..... en el sistema global
Aporte de la Barra 1: afecta solo a los gdl globales 1 y 2
[k]12x2) O
12 -6
[kl] = El
(3t (3)2
..... en el sistema local
-6 4
(3)2 3
j
i
I
I
¡
¡,
Iri
I
I
300
Es posible comprobar que la relación {Q} = [A]T {q} (Principio de Contragradiencia)
conduce a las siguientes ecuaciones de equilibrio:
Qt =q¡ +Cl3 (equilibrio horizontal del nivel)
Q2= q2+ qs (equilibrio de momentos en el nudo 3)
Q3 = qa +q6 (equilibrio de momentos en el nudo 4)
• Matrices de rigidez de barra en el sistema q-d y aportes a la matriz [K]
- Barra 1:
301
{R} = {- 1~.19} ton-m
+5.06
• Vector de Cargas {Q}. Estado Complementario {Q} = - {R} = { 15~19}
-5.06
o ] {O }
- 15.19
O {+ } = - 15.19 ton-m
1 5.06 + 5.06
Aporte de la Barra 3:
3 T
{R}=¿ [A¡] {r¡}
i=]
r Cizs........._~]8__ ¿) I
CD 15.19 G) 5.06~
• Ensamblaje del vector de Cargas de Fijación {R}. Estado Primario, fuerzas de
empotramiento en el sistema q-d, Solo aporta la barra 3.
- 1.333 ]
0.333
3.333
[
1.333 - 0.667
[K] = El - 0.667 2.0
- 1.333 0.333
3
2
1
GDLglobaid- ~ 1 2 3
12/(3t+ : -6/(3)2 + O +
24/(3i+ 1 O + -12/(3)7.+
O I O I O
-------~------~--------- I I
_6/(3)2+ I 4/3 + 1 O +
0+ 10+ 10+
I I
O 1 4/6 I ~6
I I
-------r------~--------
0+ 10+ 10+
.]2/(3)2+ I O + : 8/3 +
O : 1/6 I 4/6
I I
¡_,.
Nótese que para este tipo de pórtico, conformado por elementos ortogonales, no es
necesario efectuar los productos de las matrices de transformación, basta s610 con
generar la matriz.de rigidez de barra _y lu~go por simple observación o inspección de los
grados de libertad globales que son afectados por la barra en cuestión, colocar en los
"casilleros" apropiados de la Matriz de Rigidez [K] los elementos de la matriz de rigidez
de cada una de las barras e ir sumando los aportes de cada una de ellas. Esta idea se
ilustra a continuación:
DI Ih D3
dI
1 o o
d2 o o [Al]
- ---------------------
d3 1.25 o o
[A2]
<4 o o 1
- --------------------- {d} = [A] {D}
[A]=
ds o o o
d6 o 1 o
d7
0.75 o o [A3]
ds
o o 1
DI=}
Nótese que en la barra 3 (elemento horizontal) se han incluido los grados de libertad
locales 5 y 7, estos son necesarios ya que esta barra aporta, a través de la columna
inclinada, al grado de libertad global 1 así como a los otros dos gdl de rotación. Esta
barra también aporta al vector de cargas asociado a la coordenada global 1.
• Generación de la matriz de transfonnación de desplazamientos.
1.2~
4
q -d (n = 8)Q-D (N=3 )
• Sistemas de Coordenadas
3m6m
E;:;; 2 X 106 tonlm2
Sección 0.25x 0.50
El 1':$ 5,208 ton.m2
EA=C()
2
4
Ejemplo 7·13
Ensamblar la Matriz de Rigidez y el Vector de Cargas para el pórtico mostrado. Se
ignoran las deformaciones axiales y por cortante en todos los elementos. Este pórtico fue
resuelto en el Ejemplo 6-12, acápite 6.5.
302
Aporte de la Barra 2: afecta a los g.d.lglobales 1 y 3.
}
[l.~ nEl [k, 1[ 1.~5 ~]:1 [K,l =[A,f [k,l [A,]= ~ O
) O
}
[K,l =El [
0.15 O -0.3
J
j
O O O
I -0.3 O 0.8

)-
I
)
J
Barra 3: 5 6 7 8
)
~t t 8
12/63 -6/62 -12/63 -6/62
-;)
-6/62 4/6 6/62 2/6) 5 7~ [kJ] =EI
-12/63 6/62 12/63 6/62
)
-6/62 2/6 6/62 4/6J
.~j
Aporte de la Barra 3: afecta a los g.d.l globales 1, 2 y 3.
)
IK,J=[A.]' [k,][A,]= [ ~ ~ ] [k,]
O O O
=, O 0.75
O 1 O'} 1 O
0.75 O O
j
.J O O
"'!f O O 1
:J 303
)
i ')
12 -6
[k2] = El
(S)3 (5)2
-6 4
{st 5
- Barra 2:
(3,,3)
Aporte de la Barra 1: afecta solo a los gdl globales 1 y 2.
2fI 12 -6
[k¡] = El
(4f (4)2
- en el sistema local
-6 4
(4)2
-
4
Nuevamente es posible comprobar que la relación {Q} = [A]T{q} (Principio de
Contragradiencia) conduce a Ias siguientes ecuaciones de equilibrio:
. Ql = q¡ + 1.25 CJ3 +0.75'17 (equilibrio horizontal del nivel)
Q2 = q2 + q6 (equilibrio de momentos en el nudo 3)
Q3 = q4 + qs (equilibrio de momentos en el nudo 4)
• Matrices de rigidez de barra en el sistema q-dy aportes a la matriz de rigidez total [K]
- Barra 1:
•)
)
1
I,

l'
,
}
{
-4.5 }
{Q}= -{R} = _:
{
4.5 }
{R}= -:
{
4.5 }
{R), = [A, r {,,)= -: unidades ton, m
+6
-6
+6
+6
• Ensamblaje del vector de Cargas de Fijación {R}. Estado Primario
Estado Primario, fuerzas de empotramiento en el sistema q-d: Solo aporta la barra 3.
304
[ 0.03125 0.125 0.125
J
[K3] = El 0.125 0.6667 0.3333
0.125 0.3333 0.6667
[K] = [Kt]+ [K21 + [K3 ]
1 2 3
0.1875 +
, -0375 + O +,
0.15 + I
O + -0.3 +1 I
0.03125 I
0.125 0.125I I-------L- _____J________
I I
-0.375 + I ] + I O +
2
I I
[K.] = O +
, O + 1 O +I I
0.125 I 0.fH>1 I 0.3333
." I I$
------~------~--------I I
3 O + I O + I O +
I I
-0.3 + I O + I 0.8 +
0.125
I
0.3333
I
I I 0.«)67
I ,
[K] = EI[
0.36875 - 0.25 - 0.175
J
- 0.25 1.6667 0.3333
-0.175 0.3333 1.4667
305
Q-D
D!
~ ] = [ 1 1 (matriz identidad)
La multiplicación de matrices precedente, es ineficiente por la gran cantidad de ceros
que contiene [Al]' ¿Qué pasa si trabajamos con matrices [Ai] más pequeñas? Matrices
que solo relacionen los desplazamientos locales de la barra con los desplazamientos
globales de la estructura que afecten directamente a la barra en cuestión, por ejemplo
para la barra 1 tendremos:
Para calcular el aporte de la barra 1 a la matriz de rigidezde la estructura, será necesario
efectuar el siguiente productode matrices:
[K. 18x8) = [A1rSx2) [kl 12x2) [A1](2x8) donde [k1] = El [ ~
12
D4 n,
O O
O O
Iniciemos la discusión calculado el aporte de la barra 1 a la Matriz de Rigidez total de la
estructura. Para ello, será necesario construir la matriz de transformación de
desplazamientos {di}= [Al] {D}. Esta matriz relaciona los grados de libertad de la barra
1 en su sistema local (q-d)con todos los grados de libertadde la estructura en el sistema
Q-D (en este caso ocho). Por simple inspección es claro que la matriz [All contendrá
muchos elementos nulos ya que solo los grados de libertadglobales 1 y 2 afectan a esta
barra. A continuación se muestrala matriz completa:
7.8 Sistematización Parcial del Ensamblaje de la Matriz de Rigidez
Los ejemplos presentados permiten formarse una idea de todas las operaciones
matriciales necesarias para ensamblar la matriz de rigidez de una estructura, sin
embargo, es posible sistematizar aún más las operaciones matriciales para la
implementación del Método de Rigidez en computadoras. Para explicar la manera de
sistematizar el ensamblaje de la Matriz de Rigidez usaremosel pórtico plano mostradoa
continuación, compuesto por doce barras. Salvo las barras 11 y 12 todas las otras son
indeformables axialmente.
)
)
_,)
)
J
)
4
_)
-'7
}
J
~
-3
)
)
_.:}
J
-)
1
;
}
)
)
,
1
8 9
Q @
~ 5
l
6 4
8
-)
G) @
2 3 Sistema Q-D (EA =00)
o
j
306
, ,
'_J
Para la barra 4, que afecta a los grados de libertad globales 1, 3, 5 y 7 se m
continuación la ubicación de los 16 elementos de [K.t]:
.SlID.
-12/13
_6/l2
12/f'
El aporte de la barra 4 a la matriz de rigidez de la estructura viene dado por:
[K. ~4X.) = [A4]~4X4) [k4 ~4X4) [A.l4x4) = [k.](4X4)
Veamos el aporte de la barra 4:
7 4
Gt DI D3 D, D7
~:
dI 1 O O O
d2 O 1 O O = [1] ,
,"
[Aa ] =
d3 O O l.¡,. O
d, O O O 1 (4x4)2
Q~D q-d
_--l
'-';
(8x8)
GDL global J.. -t 1 i 2 i 3 4 5 6 7 8
1 LX 1 LX I...;- -'-fx-rLX .,- - ---..---.- -.-.--.
..._...- --·....--...--t----...-..;......_....--..---~-----------....·.._ .....-....---------........--..--
: ! I
[K] Total = : I!
i ~
I I
8 ! I
El aporte de la barra 1 a la matriz de rigidez de la estructura viene dado por:
[ KI ]~x2)= [ Al f2x2) [kJ ](2x2) [~ll2X2) = [ k, ~2l12)
Nótese que en este caso el producto resultante es una matriz de orden 2x2 y el aporte
de la barra 1 no se puede sumar directamente a los aportes de las otras barras de la
estructura. en consecuencia será necesario, por simple observación o inspección
(Ensamblaie de OC] por Inspección) de los grados de libertad globales que son
afectados por la barra en cuestión. colocar en los "casilleros" apropiados de la Matriz de -,
Rigidez [K] los elementos de la matriz de rigidez de cada una de las barras [Ki] e ir
sumando los aportes de cada una de ellas. Esta idea se ilustra a continuación para la
barra 1 que afecta a los grados de libertad globales 1 y 2, se muestra la ubicación de los
cuatro elementos de [KJ]:
,;)
~
O
c_)
)
)
)
)
)
)
)
)
)
')
')
)
)
)
)
J
-3
j
)
,)
)
)
)
)
J
)
)
)
,)
)
_)
J
J
~
~
.)
J
)
J
306
307
D,= 1 05=1
Aporte de la barra 12:
4 7 8 .
Y1
-+ 4
Q-D
S
DI Ds
[A'2 ] [ cosa.
~a ]
=
O
8 (8x8)
7
6
6 8751 : 21 3 : 4
r I I
I I I
2 I¿X, LX,
---- ------..1.-----1--------1-----------------------------------------
3 ILXI LXI_ ___L __l J • _
4 I I
[ K ] Total = ::
5 I r
I I
I ,
I I
I I
I I
I r
I t
Para la barra 7, que afecta a los grados de libertad globales 2 y 3 se muestra a
continuación la ubicación de los cuatro elementos de [K.7]:
~]
~
[A,l=[~zQ2
Veamos el aporte de la barra 7:
!____., ~4 : G 1 C;l G5 t3Q-D q-d
[] [ ] T [k] [1 [k] donde [k7] = E.t.I[24K7 (2x2) = A7 (2x2) 7 (2,,2) A7.1(2)(2) = 7 (2x2)
(8x8)
7
8
3
4
[K] Total = 5
1:23:4 5:67: 8
:EXI LX : LX : LX :
--~-~---~~-~--------~------~----I I I I
¿X: LxI LX : LX :
----t------t--------~------i----I I r I
LXI LXI LX r LXI
I I I I
----r------r--------r------;----6 I I r I
LX: LXI LX : LX:
____~------L--------~ J _
I I I I
I I I I
I I I r
GDL global-I ~
1
-2
307
)
)
'-1
")
J
.}
1
)
)
J .;;)
)
)
)
"'l
)
J
j
)
"'9
.--;)
}
I
j "
~
)
-)
,
¡'
)
)
)
7.8.1 Resumen del procedimiento.- Ensamblaje de fK) por Inspección:
Luego de "recorrer" todas las barras de la estructura y de ir sumando sus aportes en
cada uno de los "casilleros" de la Matriz de Rigidez Total de la estructura, se habrá
concluido el ensamblaje de dicha matriz. Este procedimiento es mucho más eficiente
para su implementación en programas (software) para el análisis de estructuras con -
computadoras. .
En resumen el procedimiento mostrado para ensamblar la Matriz de Rigidez de la
estructura consiste en:
a) Generar, para cada barra. la matriz [A¡] ({di} = [Ai] {D}) considerando solo los
grados de liberad globales que afectan a la barra en cuestión.
b) Generar la matriz de rigidez de la barra [k¡] en el sistema q-d. Esta matriz está
referida al sistema local de coordenadas elegido para la barra.
e) Efectuar el producto [Ki] = [AilT [lq] [A¡]. Este producto equivale a transformar la
matriz de rigidez de barra de sistema local al sistema global de coordenadas.
d) Considerando los grados de libertad globales que son afectados por la barra
(posición o incidencia de la barra en la estructura) colocar en los casilleros
adecuados de [K] los elementos de [Ki] e ir sumándolos a los aportes de fas
barras anteriores.
Nótese que la Matriz de Rigidez es simétrica, en consecuencia, bastará con ensamblar
solo el triángulo superior o inferior de la misma.
Para ensamblar el vector de cargas de fijación (Estado Primario) se utiliza un --
procedimiento completamente análogo al indicado lineas arriba.
7
8
l
4
[ K ]Total = s--
2
Para la barra 12, que afecta a los grados de libertad globales 1 y 5 se muestra a
continuación la ubicación de los cuatro elementos de [K12]:
1 ¡ 2 3 4¡ S! 6 7 8
xx] ¡ LX!
-----f------------------------t-----~------------------
! !!· ,.· ..• l'
i : i· ..; ~.:
: 1:
· ..· ..--E"X! -------------------T-"¿ xr--~------------
-------+---------------------+--------J- --- ..----------· ..· ..I i i~ : I
: : 1
· ..· .., ..· .., .., ..~ ::, ..
[k]=EA[ 112 l _1
308
309
[F2] = ¿?
QI-DI
[F1] conocida
Matriz de Transformación de Fuerzas: {Ql}= [Bl {Q2}
Por Contragradiencia: {D2} = [B]T {DI}
La matriz [B] se genera por equivalencia estática aplicando cargas unitarias sucesivas
en el sistema Q2 - D2, esta matriz transforma las fuerzas del sistema nuevo al sistema
viejo.
Q2-D2
Supongamos que para la armadura mostrada, en la cual el elemento horizontal es
indeformable (sólido rígido), conocemos la Matriz de Flexibilidad, [Fl], en el sistema
Ql - DI Y queremos calcular, a partir de [FI], la Matriz de Flexibilidad de la misma
estructura en el sistema Q2- D2.
2
b) Transformación de la Matriz de Flexibilidad
Matriz de Transformación de Desplazamientos: {DI} = [H] {D2}
Por Contragradiencia: {Q2} = [H]T {Ql}
La matriz [B] se genera por geometría aplicando desplazamientos unitarios sucesivos en
el sistema Q2 - D2, esta matriz transforma los desplazamientos del sistema nuevo al
sistema viejo. Para que exista [H] el sistema Q2- D2 debe ser generalizado, es decir los
desplazamientos {D2} deben ser independientes.
{Ql} = [Kl] {DI} => {Ql}= [Kl] [H] {D2}
[H]T {QI} = [Hf [Kl] [H] {D2} => {Q2} = [H]T [K1] [H] {D2} = [K2] {D2}
:. [K2]= [H]T [Kl] [H]
Q2-D2
[K2]=¿?
Ql -Dl
[Kl] conocida
1.9 Transformación de Coordenadas
a) Transformación de la Matriz de Rigidez
Supongamos que para la armadura mostrada, en la cual el elemento horizontal es
indeformable (sólido rfgido), conocemos la Matriz de Rigidez, [Kl], en el sistema Ql- DI
queremos calcular, a partir de [Kl], la matriz de rigidez de la misma estructura en el
sistema Q2- D2.
309
)
}
,
i f:
) ;.
.;.,
.., -:
"
;,,,
"
)
"
')
e
1<"
..,~
J
3::'
')
_)
"")
)
~
)
)
...,
~
~
''
.
¡
~
i¡
¡
,
:,' .....::.:;¿¿ . ;.';'"":r;i e-,;;"~.:;.~;;."";¿;'.:,;0.:'::...;':;,';;:~.2,..::.L~~:-..,..~~,,~..,;,';;':~'_~"""-'-'''='_'-'"';;..~'';:.;.~:.'.~'~..:'::'_';,.';'",,:;_,....;.~..._~:~..:::.:.:;;:.:;:.:;::·,::.:::c;:::.:,,:: :.:::.""., :" .•.•=,~"'.•~~~~",.......,',,,.__.....__..___
)
)
{DI}= [H] {D2}
• Matriz de trasformaclón de desplazamientos.
[
31
36
[KI]= El 1
4
• Matriz de rigidez en Ql - DI (conocida).
Q2-D2
 v
QI-Dl
Barra deformable
r-_.....,~2
Sólido rígido
1
13m.
EjemPlo 1-14
Para la estructura mostrada - compuesta por un sólidorígido apoyado sobre una barra
defcrmable (barra 1-2) en flexión e indeformable. ~Jtñ~nfe de longitud 3 m - se conoce
,~ matriz .<t~rigiqez en el si~t.emaQl - DI (véase et Ejemplo 7-4), se desea transformar la
matriz de rigict.éz al sistema Q2 - D2. .
Cuando sea complicado g$ne.rar la rnatnz [al (?Qt equivalencia estática, cotWiene
generar por geometrfa la transformáCión {D2} ;:::[Al {Pi}, de acuerdo al PrincipiO de
Contragradiencia se tendrá {Ql} = [AlT {Q2}, en consecuencia [A]T= [B].
{D1}= [PI] {Ql} => {Dl}= [PI] [B) {Q2}-
[Bf {DI} = [B]T[PI] [B] {Q2} => {D2} = mt (F1] [B]{Q2} = [F2] {Q2}
:. [F2] = [8]T (FH (B]
311
-6
lf!
4
1
• Matriz de trasformación de desplazamientos.
{d}] = [H] {d}2
[kI] = El
12
(1)3
-6
(/)2
• Matriz de rigidez en ql - dl (conocida).
~2
 [kl] =conocida
ql-dl
Ejemplo 7-15
Para la barra mostrada - de sección constante El y longitud 1- se conoce la matriz de
rigidez en el sistema q 1 - dí I se desea transformar la matriz de rigidez al sistema q2 - d2.
Resultado que se puede comprobar con el Ejemplo 40 del acápite 6.16.
[K2]= El [4 -14]
9 -14 52
-14 ]
52
-2] = El [ 4
2 9 -14
(DI) [1 -2](DI)D2 I = . 1 2 D2 2
-~ 1[:
12
[K2] = [H]T [Kl] [1-1]
[
31
[ _~ ~] El 316
4
• Matriz de rigidez en Q2- D2.
[H]=
311
j
}
J
)
-.iJ
..J'
-j
)
~
."
J
)
-')
)
~
:)
)
'.
"),
-1
')
r
}
I
i
-"
j 
_)
~  }
~
312
2 ] [ :]=~3EI
4 -- 1
2
[k2]= [1
• Matriz de rigidez en q2 - d2.
[k2] = [H]T[Id] [H]
• Matriz de trasfonnación de desplazamientos.
{d}t = [H] {d}2
{k!] = ~I [ ~ ~ ]
• Matriz de rigidez en ql - di (conocida).
ql-dl ' q2-d2
~1
..1J.....--------~4
(dl)2= 1 -1/2
Ejemplo 7-16
Para la barra mostrada - de sección constante El y longitud 1- se conoce la matriz de
rigidez en el sistema qJ - dJ, se desea transformar la matriz de rigidez al sistema q2- d2.
1
(ql)2 =-- (ql)J
sena
( ql) =[ se~a O ](ql)
q2 2 O 1 q2]
• Relación {q2}= [Hf {ql} (Principio de Contragradiencia): .
• Matriz de rigidez en q2- d2.
[k2] =[H]T [k.l] [H]
)
)
)
,)
)
.J
)
--:}
.)
)
)
)
J
(
)
)
)
,)
)
)
.-)
.~
-}
.
)
J
.)
)
)
')
~
- 6 1
W sena
4
1
12 1
(ti (sena)2
- 6 1
(/)2 sena
[k2]= El
312
313
[k2] = El
6
(1)2
4
1
12
(1)3
6
(/)2
[k2]= [H]T [kI] [H]
:: • Matriz de rigidez en q2 - d2.
(di), = 1//
Matriz de trasformación de desplazamientos.
{dh = [H] {d}2
• Matriz de rigidez en ql-dl (conocida).
[kl] = ~I[~ !]
ql-dl
Los términos de la primera columna corresponden a las rotaciones de las tangentes
medidas con respecto a la cuerda de la barra. como se indica a continuación:
1/
I
~ T
/ 1(dl)2=]
j_

~1 ,,2
.§r--------.......4,¡/
Ejemplo 7-17
-Para la barra mostrada - de sección constante El y longitud 1- se conoce la matriz de
rigidezen el sistema q1- di, se desea transformar la matriz de rigidez al sistema q2 - d2.
313
i,
1
)
, ",
r
; )
"}
").,
.J
-::;7
i
1
I
I
I··1
I
)
)
)
)
)
)
J
.)
i)
)
)
)
-:)
.d
/."1
)
)
)
)
)
)
.>
)
')
.)
)
)
)
-3
:;
)
II
I
I
314
• Matriz de trasformación de desplazamientos.
{D}*= [H] {D}
•DI 1 O O
H:]
D2 O 1 O
=
D3 0.75 O O
D4 O O 1
Nótese que en el sistema Q*-D* las cargas de fijación se calcularon de manera directa.
por simple equilibrio de los nudos, sin necesidad de calcular la fuerza axial en la
barra 2-4.
R; = "-6 too-m
R; = 6 ton
R~ = 6 ton-m
Q*-O*
necesarios.
r
i!
1
I¡
I
¡,
• Estado Primario en el sistema Q*-D* (Este sistema no es generalizado):
R*
¡t~:
6
• Sistemas Auxiliar de Coordenadas: Cuando los cálculos son manuales, puede ser
conveniente trabajar con un sistema "ampllado" o auxiliar que permita simplificar los
cálculos del Estado Primario. Si se revisa el Ejemplo 6-12 (acápite 6.5) se notará que
para calcular la fuerza Rt, es necesario calcular primero la fuerza axial en la barra 2-4,
esto involucra el equilibrio del nudo 4. Si se amplia el sistema de coordenadas, como
se indica a continuación (sistema Q*-D*) los cálculos mencionados ya no son
Q-D
3m6m
1
EA=oo
2
4
Ejemplo 7-18
Calcular, en el sistema Q-D indicado, el vector de cargas de fijación (Estado Primario)
para el pórtico mostrado. Se ignoran las deformaciones axiales y por cortante en todos
ros elementos. Todas las barras son de sección constante con el mismo valor de El.
314
315
o
3
O
3 J [1,800
O = O
59 1,800
1,800 J
35,~00
o
1,800
O
[K] = 3 EI[ ~(3i
3
Matriz de rigidez de las columnas en el sistema Q - D (véase el ejemplo 7-5)
~l
D*2
3/6
-4/6
-1/6
D*,
[H]= ~~ [:::
D3 1/6
D*1 = 1 D*3 = 1
..._---
----------:
, ----- ..._-, ----, --_ ~
, I
, I
I ,
I I
------------------~, ,I ,
-------;------ .-~-- 
,....-.=------"
, ', 1
, I
. ' ;
, -' _--, _-----, _--,__ --
• Matriz de transformación de desplazamientos {D} = [H] {D*}
Q* - D* (Planta)
Q - D (Planta)
'1 1
4mIr 4m
el e,
L.lIl-.I!!...- ---=.=." ____. 1
r-:l3
- Ejemplo 7..19
. Transformar la Matriz de Rigidez del edificio del ejemplo 7-10, calculada en el Si~~ma
.....Q- D al Sistema Q* - D*
}
J
)
j
I
)
}
)
)
")
-~
)
.=)
)
~
1
)
d
.~
)
¡ ,)
.J
)
_)
)
)
r-
J
j
-
J
)
~
1
)

"1
• Matriz de trasformación de fuerzas.
}
_{R} = [H]T {R}*
[~J= U
O
n
O
0.75
[4.5J-6
= -6.0} 1 O
6
1 O O 6.0
6
-e2 -sc : 2
se'C,,
_82
,
s2-se :sc,
•
316
•[k¡¡ka
,,
c2 se: -e2 -se,
t
2: 2
se s : -sc -s
----------r-------- -- =[k*] = [H]T[k][H] = FA
e
Matriz de rigidez de barra en sistema global q* - d* (haciendo s = sena, e= cosa):
Matriz de rigidez de barra en sistema local q - d:
[k] = EA [l .1 ]
!. ·1 1
cosao
osena
La matriz de transformación [H] es:
Id} =[H] {dO} [H] = [~11
q*-d*
(Sistema Global)
4
t .
2t ~__'3
1~~ J
:. EA~~2
~
1~ a
q-'d
(Sistema Local)
7~10 Matrices de Rigidez de Barra en Sistema Global
Para lograr la sistematización total del Método de Rigidez, conviene calcular las matrices ,'.
de rigidez de cada una de las barras que componen la estructura, en el sistema global de.....
coordenadas en lugar del sistema local.
Si se observan los productos [Ai]T [Id] [Ai] presentados en el acápíte 7.8, es fácil concluir
que dichos productos representan la transformación de la matriz de rigidez de la barra "iu
del sistema local de coordenadas al sistema global, en consecuencia, conviene
desarrollar de forma genérica dichos productos para los distintos tipos de barra que
pueden conformar una estructura.
Examinemos la idea del párrafO anterior en una barra del tipo armadura. La matiz de .
rigidez en el sistema local q - d es conocida (véase el acápite 4.2) y su transformación a...:,.,
sistema global se realiza de acuerdo a 7.9 a).
Se sugiere al lector el cálculo de la matriz [K*] utilizando la definición (tal como se hizo
en el Ejemplo 6-42, acápite 6.17) y por el procedimiento utilizado en el Ejemplo 7-10 de
este capítulo.
-1,333
1,933
-1,200
1,200. ]
-1,200
1,800
[
2,533
[K*] = [H]T [K] [H] == -1,333
1,200
()
~)
)
)
)
)
)
")
)
.)
)
1
'
'
-
_
~
• Matriz de rigidez en el sistema de coordenadas Q.- D.
316
,

1


¡
!

1 ~..._"-_.._,=..,-".,,. ===--
(.kij]3K1]
1_l9j]3x) 6x6
317
~'"
I
E1t O O I-~ O O
I
O ~ -<% ¡ O -12Eft ~
_ O -6jf ~ :O ~ 2F1/t
[k] - - ----------------1-----------------
: ~ O O
Simétrica 1 O 12H1 6EJ/
: / 1 If
¡ O ~ ~
I
q-d
(Sistema Local)
.,_
{
"
,'
:>
_:'¡':
.(:
".r,
..:.,
.~....
~,
~¡"
?~.:lo •
":..
r.
317
Para otros tipos de estructuras (armaduras espaciales, pórticos planos y espaciales,
parrillas) la metodologra es la misma, lo que cambia es la matriz de rigidez de barra en
sistema local [k] y la matriz de transformación [H].
Para pórticos planos, considerando deformaciones axiales, la matriz de rigidez en
sistema local es:
I
r
)
j
'1
Conocida la matriz de rigidez de una barra en el sistema global, el determinar su aporte a
la matriz de rigidez total de la estructura, se hace siguiendo la metodología indicada en el
acápite 7.8, el aporte de [k*] dependerá de la posición o incidencia de la barra dentro de
la estructura.
Lo anterior se logra considerando los nudos (a los cuales se han asignado grados de
libertad globales) que son afectados por la barra y colocando en los casilleros adecuados
de la matriz de rigidez total [K], los elementos de [k*] sumándolos a los aportes de las
- otras barras.
Por ejemplo, si la barra "m" conecta a los nudos l, j de la estructura, su contribución a la
matriz de rigidez total se indica a continuación. Nótese que en las columnas i, j hay dos
grados de libertad globales en cada una, por tratarse de una armadura.
Nudo,1..--+ 2 3.................. i. j............. N,. ,
!: ¡
:: l
" ,~ I l., ,
" .l' •
: ! 1 il. •.. ,
i -...-..--....-....--------..------.....-.---------........---~...-.-.---ñi··-i--_·_-_...·too. ··-- ... -~; ..-i.....·..-·-..--..----....--- ....----
¡[k¡¡]2x21 ! [kr ]2x2![ K ]Total = - _ -_ -I--._ •..•••••~•••- •.•_ •.L••• _.U _••.....• _....•,._.. .....••.
¡I t ! ¡'
• I •
: 1 t 1
! ! I i----..-- -- -- - --- ------ -- --_ _4 _ _: .. } _.. L .. --..---.._.
J• 1 kt m ¡ ¡ [k·]m I. I[ 'i]~ . jj 2x2!. - ..- _ _.-._ _....c..:::J._.•••_. ··_f··-·····-1-··-·····-······ -,.,.
! ! ¡ !. , . ¡
j' 1 ; :
: 1 :
N : i : :I • 1 I
t ~ ! !
)
...,
;)
;)
)
)
)
~
)
,)
)
)
)
)
)
)
I
J
)
. .~,-~~;:__:.i_;1..:::ti.?i~t.:i;: ~:,:~__:''::~~~''-;~",:~~::"i:::~~.~:~¡.~~!;~.:..:;::.:~~.~~.;~~.::<- :~.:::~.;.;.::,._.d:.:~~~:~~;~~.:::~:~~~~~'~~';'_~¿~~~~¿~7'~~'~,:_.;'~;;::'~.~.'(~,~;::_.":':_~l.::~~~:.:.J~':-'::';_:;',.':"¡~::~:::;:'. ~;-;~:~_;:~,-"_:';¡_·,t.·': ..~~;~;::_:..;.=.:;;;,:~__.~-,.=<.:..•.- .•_-
)
)
)
)
)
')
)
)
~
')
~
.)
)
)
)
)
)
)
)
)
)
.)
)
-::)
=3
~
)
)
)
.j
:'j
~
:)
~
)
~
.)
~
~
.)
@
€)
.;2.
.,..;
(;¡~.'..~
318
Si asumimos que existen "m" coordenadas con desplazamientos impuestos (m < n)
tendremos:
• [K1l] Submatriz correspondiente a las m coordenadas con desplazamientos
impuestos, de orden m x m.
• [K22] Submatriz correspondiente a las n-ro coordenadas sin desplazamientos
impuestos, de orden (n-m) x (n-m).
=:> ({QI}) = [ [K1l]
{Q2} [K21]
{Q} =[K]{D}
[K12] ]
[K22] nxn
[K12] ]({Dl})
(K22] {D2}
7.11.1 Desplazamientos Impuestos enAlgunas de las Coordenadas
Supongamos que se conoce la matriz de rigidez de una estructura en determinado
sistema Q-D de "n" grados de libertad, si algunos de los desplazamientoe en Q-D son
conocidos o impuestos sobre la estructura, podremos particionar la matriz de rigidez de
la estructura del siguiente modo:
[K] = [[K.l 1]
[K21]
7.11 Conden,aclón de la Matriz de Rigidez
Es una operación que se realiza sobre la matriz de rigidez total de una estructura y que
tiene numerosas aplicaciones. Presentaremos dos casos de interés:
[R]T (.kji] [R][R]T (.kji] [R]
=
[R]T [kit1[R] [R]T I_kij] [R]
La matriz de rigidez en el sistema global será:
cosa sena. O:
I
-senu cosa. 01 [O]Jx3
= [[Rl.w [01" ]
I
O O 1 :
{d} = [H] {d"'} [H] = -------------r-------------I cosa. sena. O
[Ohxl [R13xJI
[O]3x3 I -senn cosa. OI
I
O O 1I
~4
1_~3 q-d 6
(Sistema Local)
 ~4
1-----1Y 6
3 q* -d*
(Sistema Global)
La matriz de transformación [H] viene dada por:
318
319
Si se restringe el desplazamiento lateral en la coordenada 1, equivale a imponer un
desplazamiento DI = 0, la matriz de rigidez particionada es:
3
e 425x40
e
3 <D 25x40
e
sax40
I 1 2
Q-D
6M
{ O} (1.333 -M67 -1.333)r}{Q} = [K]{D} => 9 = El -0.667 2 0.333 D2
-9 -1.333 0.333 3.333 D3
)
)
"1 EJemplo7.20
) Calcularla fuerza necesaria en la coordenada 1 (QI) para lograr que el desplazamiento
-) correspondiente sea nulo. Esta técnica de Condensación de la Matriz de Rigidez, fue
utiñzadaten el Ejemplo 6-8 del Capftulo 6, que se sugiere revisar. A continuación se
reproduce parte del ejemplo.
Si el vector {DI} es nulo.tendremos:
{D2}= [K22rl {Q2}
{QI} = [K12] [K22r1 {Q2}
De la segunda ecuación se obtiene {D~} el vector de desplazamientos desconocidos:
{D2}= [K22rl ({Q2} - (K21]{Dl})
De la primera ecuación se obtiene {Qt} el vector de desplazamientos desconocidos:
{Ql} = [K1l]{Dl} +[K12] ([K22r1 ({Q2} - [K2t]{Dt})
{QI} = [KlI]{DI} + [K12]{D2}
{Q2} = [K21]{DI} +[K22]{D2}
[Kt2] ]({DI})
[K22] {D2}(
{Ql}) = [ [Kit]
{Q2} [K2t]
319
II
i
.,
)
-,
i
J
J
J
-ll
¡
¡
¡
• {Ql} Vector de carga correspondiente a las m coordenadas con desplazamientos
impuestos. Este vector es desconocido y representa las fuerzas necesarias en las m
coordenadas para lograr los desplazamientos impuestos.
• {Q2} Vector de carga correspondiente a las (n- m) coordenadas sin desplazamientos
} impuestos. Este vector es conocido y representa las fuerzas que actúan en las
coordenadas sin desplazamientos impuestos. En algunos casos este vector puede
ser nulo.
• {DI} Vector de desplazamientos impuestos. Este vector es conocido, en algunos
casos este vector puede ser nulo, por ejemplo cuando se trata de apoyos que se
adicionan a la estructura.
• {D2} Vector de desplazamientos desconocidos.
Efectuando los productos en la matriz de rigidez particionada tendremos:
7.11.2 .Cargas Nulas en Algunas de las Coordenadas
Si las cargas aplicadas en varias de las coordenadas son nulas, es posible encontrar,
mediante un proceso de Condensación Estática, la matriz de rigidez "reducida o
condensada" que relacione únicamente las cargas en los grados de libertad con cargas._
no nulas, con sus desplazamientos correspondientes. .
{Q2) = (~) = [K21]{DI}+[K22]{02} => {D2) = _[K22fl[K2Il{Dl}
1 (2 0.333)-1 (-0.667) (0.27143)
{D2}= - El 0.333 3.333 El -1.333 {1}= 0.37282
(
0.27143)
{QI} = [K1l]{Dl} +[K12]{D2}= 1.333EI(1) +El [-0.667 -1.333] 0.37282
De donde Ql ~ 0.655 EI;::¡1,147ton/m. El número que acabamos de calcular es la rigidez ...•..
lateral del pórtico, es decir la fuerza lateral necesaria para lograr un desplazamiento .
lateral unitario. .
Ejemplo 7-21
Resolvamos el pórtico del ejemplo anterior (Ejemplo 7-20) sin cargas en barras y con un
desplazamiento impuesto en la coordenada 1 unitario (DI = 1).
*-{-~!-}-::EiH:ll+~'r---~:t!!-)-*{~;}---
° l-1.333: 0.333 3.333 DJ
I
De donde se obtiene Qlltl 0.913ton.
La fuerza necesaria para lograr que el desplazamiento en la coordenada 1 sea nulo
viene dada por:
1 (5.0333)
{Ql} = [Kll]{Dl} +[Ku]{D2}= [Ku]{D2} = El [-0.667 -1.333] El -3.203
= _1 (5.0333)
El -3.203
{02} = [K22fl {(2) =<> {D2)=(~:J
Al ser el desplazamiento impuesto nulo, tendremos:
{Q2} = [K22}{D2} =<> {~:} = El (0.:33 ~~~~){~:}
[K12] ]({Dl})
[1(22] {D2}(
{Ql}) = [ [K1I]
{Q2} [K21]
a
o
)
)
)
)
)
1
')
")
)
)
-j
)
~
)
)
)
)
_)
)
)
)
)
)
d
~
~
J
,
j
~
?
~
-
320
321
ql-dl
Ejemplo 7-22
Calcular la matriz de rigidez de la barra de sección variable indicada en la figura a
continUación. Se consideran deformaciones por flexión únicamente. Ambos tramos son
de la misma longitud, el primero tiene 2 El Yel segundo El.
De la segunda ecuación se obtiene {D2} el vector de desplazamientos asociado a las
coordenadas con cargas no nulas:
{D2} = - [K.22rl [K21]{DI}
Sustituyendo {D2} en la primera ecuación:
{Ql} = ([K1l] - [K12] [K22rl [K21]) {DI}
{QJ} = [K*] {DI}
[K*](n-m)I[(n-lII) = [KIt] - [K12] [K.22rJ [K21]
[iC*] es la Matriz de Rigidez Condensada (reducida) de la estructura, que relaciona
únicamente los desplazamientos con las cargas en aquellos grados de libertad con
cargas no nulas.
Los procedimientos de Condensación presentados en 7.11.1 y 7.11.2 son
completamente análogos, lo único que los diferencia es la manera como han sido
presentados.
[K.12] ]({Dl})
[K22] {D2}
{QJ}= [K.n]{DI} +[KJ2]{D2}
{O} = [K2J]{Dl}+[K22]{D2}(
{Ql}) = [ [Kll]
{O} [K21]
Efectuando los productos en la matriz de rigidez particionada tendremos:
Si asumimos que existen "m" coordenadas con cargas nulas (m < n) tendremos:
• [Kit] Submatriz correspondiente a las coordenadas con cargas no nulas, de orden
(n-m) x (n-m).
• [K22] Submatriz correspondiente a las "m" coordenadas con cargas nulas, de orden
m x m.
• {Ql} Vector de carga correspondiente a las coordenadas con cargas no nulas.
• {DI} Vector de desplazamientos correspondiente a las coordenadas con cargas no
nulas.
• fD2} Vector de desplazamientos correspondiente a las coordenadas con cargas
nulas.
[K12] ]({Dl})
(K22] {D2}
=> ({Ql}) = [ [KIt]
{Q2} [K2I]
{Q}=[K]{D}
supongamos que se conoce la matriz de rigidez de una estructura en determinado
sistema QwDde "n" grados de libertad, si algunas (o muchas) de las cargas externas son
nulas, podremos particionar la matriz de rigidez de la estructura del siguiente modo:
321
.)
,
)
,
1
)
1
",~
J
}
.;
i!i}
)
)
)
)
.)
.)
)
J
)
)
)
1
~ ¡
I .j
l )
---)
¡
I
oO_;_o2~:::~:~~-?;-:o::!J1i ~:'~:.i~·~;'o ~·;~;~o::i:i:¡.;_o~Lj·~;~oo±:~'~~~~¡;~::~_;~:~~~~~ ".~o2~~-::'o_~:::'~o~~:~l ~o:o~o~~~~;:~:.;;]~I,:~~-:-~~·'-~oo~'_':-~-o":::,~~o';¿_,.~;_o:-S~~;;.:::-~ :.::=:'-::';;~o='':';::¡:¿;~''::'.I';:O.:::!:O¡¡;:.~:~'~~.~;.'~_~..;;~~:~o~.,:~..._~
Calcularemos primero la matriz de rigidez del muro en el sistema Q-D, luego med
condensación "reduciremos" los grados de libertad de giro (grados de libertad 3 y 4
no tienen cargas aplicadas) para obtener la matriz de rigidez lateral del muro en
sistema Q*_ D*.
Q*-D*Q-D
El
h=4m
Ejemplo 7-23
Calcular la matriz de rigidez lateral del muro (placa) en voladizo de dos pisos indicado en
la figura a continuación. Se consideran deformaciones por flexión únicamente. Ambos: ."
pisos tiene la misma altura (4 m) y la misma sección transversal.
El 1 (40 16)[k]= [k*] = -¡11 16 24
• Condensación de la matriz de rigidez de barra calculada en q2- d2:
[k*]2X2 = [ku] - [kL2] [k22r1 [101)
• Matriz de rigidez de la barra en el sistema q1_ dl:
·8 ·O :4 12
[k121]:
= [[k111El O 4 :2 -6
[k] = ,
-.-..·..-.--t.-··.-- ..--. .-
e 4 2 :12 6,
[k2d [k221·12 -6 ¡ 6 36
• Matriz de rigidez de ia barra en el sistema q2 _ d2:
)
)
-7
1
~
')
)
)
)
)
)
)
)
)
)
)
)
~
'3
-7
)
)
)
,-)
,)
..)
")
~
)
-J
)
"'")
)
~
q2-d2
Adoptaremos un sistema auxiliar de coordenadas (q2- d2) en el cual es fácil ensamblar
la matriz de rigidez de la barra y luegó, considerando que en los grados de libertad 3 y 4
no hay cargas, procederemos a "condensar" la matriz de rigidez calculada reduciendo
dichos grados de libertad.
322
fE)
cJ)
l:'
')
')
)
)
)
)
)
--+
I
3
323
Ql=O Q2=1Ql = 1 Q2 = O
,¡m¡+i
I
I. ñz
• Matriz de flexibilidad lateral del muro. Se obtiene aplicando cargas laterales unitarias
en las coordenadas 1 y 2 Ycalculando los desplazamientos laterales.
Í22
D*l = O D*2= 1D*J = 1 D*2 =0
ku
11>i- . _._ ...-_..,.k22
• Significado físico de los términos de la matriz de rigidez lateral calculada (véase el
acápite 6.10.2):
• Condensación de la matriz de rigidez de barra calculada en Q - D, reducción de los
grados de libertad de giro:
[K lat] = [k*]2X2 = [kl1] - [k121 [la2r1 [la])
[K
l' (0.21429 -0.06696) (kIt k12)
at] = El -0.06696 0.02679 = la] k22
.- 0.3750 . -0.1875 ¡ 0.0 0.375.
-0.1875 0.1875 ¡-0.375 -0.375
El ·······················.····i·············...·······
Sim ¡ 2,0 0.5
¡ 0.5 1.0
:
[k] =
• Matriz de rigidez de la estructura en el sistema Q - D, considerando cuatro grados de
libertad, dos desplazamientos laterales y dos giros.
323

)
J
)
)
.)
)
j
)
j
)
~
)
)
}
)
)
)
j
;'
'j
.~
r
J
J
)
1
'j
"')
1
Q-D
, (mitad derecha)
=>
324
• Matriz de rigidez del pórtico en el Sistema Q -D
1~
• Simetrra del pórtico. Para reducir el trabajo numérico aprovecharemos la simetrra del
pórtico, considerando que las cargas laterales son antisimétricas. Trabajaremos con
la mitad derecha del pórtico. 4'
,.-------h--+ 2
1
~-__I_----I---____".. ~m
':r
2 ~ ...-----------.
Ejemplo 7-24
Calcular la matriz de rigidez lateral del pórtico de dos pisos mostrado, por inversión de la
matriz de flexibilidad lateral (correspondiente a los grados de libertad laterales 1 y 2). Se
consideran deformaciones por flexión únicamente. Todas las vigas y columnas tienen el'
mismo valor de El.
El producto [K 1at] [F lat] = [F lat] [K lat] resulta ser la matriz identidad, con lo cual se
comprueba que es posible generar la matriz de rigidez lateral de un pórtico por inversión
de su matriz de flexibilidad lateral.
.-'
)
)
)
)
)
)
-j
]
4
)
)
)
)
.)
)
)
)
)
.)
)
)
d
~
~
)
)
)
_J
,)
.)
:)
d
,)
d
.)
~
}
)
i9
e(:;)
"-~
,
La matriz de flexibilidad lateral del muro es (véase el acápite 6.10.1):
[F)at] = _1 (21.33. 53.33J= (fl J fJ2]
El 53.33 170.70 . 121 f22
324
325
k13=O
1<23 F::S -0.667 El
k33= 4 El /3 +4 El /3 + 3 El /3 + 3 El /5:::::4.266 El
k43 =2 El I (3) ~ 0.667 El
k12 = -12 El/ (3i :::::-0.444 El
k22= 12 El f (3i::::: 0.444 El
k32 =-6 El I (3)2 ~ -0.667 El
k42 = -6 El I (3i ~-0.667 El
kll = 12 El I (3i + 12 El I (3)3:::::0.888 El
k21 = -12 El / (3)3 ~ -0.444 El
k31 =0
k41 = 6 El I (3i ~0.667 El
325
•!
1
)
)
)
i
)
~
)
~-
)
'}
}
)
)
)
J
j
~j
)
~
.,
)
~.t:
",
j
)
,~ ..
} _'
..
.~~
-4 "
i
,
')
)
)
la
:1)
.~
)
'}
)
)
)
)
)
)
)
)
-:)
)
~
)
)
)
)
.)
)
)
')
)
)
)
)
d
:)
-1
)
)
)
-J
J
.,J
)
':3
)
cj
)
~
,j
)
e
~
"'.~
A--,
326
• La matriz dé rigidez lateral del pórtico se calcula invirtiendo [F lat]:
[K lat] = [F lat]" = El (1.3768 -0.5512) = (kt1 k12)
-0.5512 0.3953 kn k22
[F lat] = _1 (1.6443 2.2929)= (ft1 f12)
El 2.2929 5.7271 f21 122
La matriz de flexibilidad lateral del pórtico completo será la mitad de la calculada en el
paso anterior:
(
fll f12)
121 fu
La matriz de flexibilidad lateral de la mitad del pórtico es:
[Fla j mi ,. 1 (3.2886 4.5857)t mitad pórtico = - =
El 4.5857 11.4543
{
An} [ 0.8S8 -0.444 ° 0.667]-1{O} {AlZ} {4.~R57}A22 = El -0.444 0.444 -0.667 -0.667 1 "* 622 = 11.4543 •..!...
A32 o -0.667 4.266 0.667 ° A32 1.5533 El
4142 0.667 -0.667 0.667 2.333 ° A42 1.5196
b) Segunda columna de [F lat]. Aplicamos una carga unitaria en la coordenada 2 y
calculamos los desplazamientos {~} = [Krl {Q}. 61=A12 y f22=822
{
Al1} [ 0.888 -0.444 ° 0.667]-1{1} {A11} {3.2886}A2l = El -0.444 0.444 -0.667 -0.667 ° ~ Aa = 4.5857 •_!_
A31 ° -0.667 4.266 0.667 ° A31 0.6898 El
A41 0.667 -0.667 0.667 2.333 ° A41 0.1736
• Matriz de flexibilidad lateral del pórtico. Se obtiene aplicando cargas laterales
unitarias en las coordenadas 1y 2 Ycalculando los desplazamientos laterales.
a) Primera columna de [F lat). Aplicamos una carga unitaria en la coordenada 1 y
calculamos los desplazamientos {~ } = [Krl {Q}. fll=AIJ Y f21=.621
La Matriz de Rigidez de la mitad de la Estructura es:
r
0.888 -0.4« o 0.667]
Kt = -0.444 0.444 -0.667 -0.667 El
1 o -0.667 4.266 0.667
0.667 -0.667 0.667 2.333
kl4 :::s0.667 El
k24 :::s-0.667 El
k34~ 0.667 El
k« = 4 El /3 +3 El/ (3):::s2.333 El
326
327
[K lat] = El (1.3768 -0.5512) = (kll ki,2)
-0.5512 0.3953 k21 k22
La matriz de rigidez lateral del pórtico completo, se obtine duplicando la matriz calculada
, en el paso anterior:
(
kll k12)
.101 k22
. ( 0.6884 -0.2756)
[K. lat] mitad pórtico = El =
-0.2756 0.1976
'. Condensación de la matriz de rigidez de barra calculada en Q - D, reducción de los
grados de libertad de giro:
[K lat]= [k*]2x2 = [k11] - [kI2] [k22rl [kn]
0.888 -0.444j 0.0 0.667 [k ]
I [ 11
-0.444 0.444 ¡ -0.667 -0.667El _ ~ _._ __ ~_.__.._ _-_.. =
Sim j 4.266 0.667 [k ]
¡ 0.667 2.333 21
.
[k] =
',giemplo 7-25
,',Calcular la matriz de rigidez lateral del pórtico de dos pisos del Ejemplo 7-24 por
: condensaci6n estática de la matriz de rigidez.
,.La matriz de rigidez de la mitad del pórtico fue calculada en el Ejemplo 7-24, mediante
" "reduciremos· los grados de libertad de giro (grados de libertad 3 y 4 que
"no tienen cargas aplicadas) para obtener la matriz de rigidez lateral.
Matriz de rigidez de la mitad del pórtico en el sistema Q - D, considerando cuatro
grados de libertad, dos desplazamientos laterales y dos giros.
327
J
)
;}
)
~
J
)
J
J
)
)
I
)
.,
.3
)
)
")
)
)
)
)
:)
)
)
)
)
)
)
)
d
.::3
--3
)
)
)
_)
']
...)
.)
d
)
~
)
..,
J
3
"e
=>
-.,
~
O
'~
)
)
)
)
)
)
)
}
)
)
-4
1
~
)
328
8.1 Introducción
En 1922, K.A. Calísev publicó un artículo que describfa un método de aproximaciones
sucesivas para el análisis de estructuras reticulares, en el que se determinan las
rotaciones de los nudos de una estructura (pórtico) por aproximaciones sucesivas. De
esta manera los sistemas de numerosas ecuaciones se pueden resolver con cálculos
manuales iterativos. Puede decirse que esté método fue, de algún modo, el predecesor
del Método de Cross o de Distribución de Momentos, aunque pasó casi desapercibido
hasta que Calisev lo publicó nuevamente en 1936.
Es conveniente anotar que los métodos iterativos de solución de sistemas lineales de
ecuaciones fueron desarrollados mucho antes del Método de Calisev. Uno de los
métodos iterativos más conocidos para resolver sistemas lineales de ecuaciones es el de
Gauss - Seidel atribuido a Johann Carl Friedrich Gauss (17n-1855) y Philipp Ludwig
Von Seidel (1821-1896). También destaca el método iterativo desarrollado por Carl
Jacobi (1804 -1851).
El análisis de las estructuras indeterminadas recibió un gran impulso en 1930, año en
que el profesor Hardy Cross (1885 - 1959) de la Universidad de lIIinois, presentó su
Método de Distribución de Momentos. La publicación más conocida de Cross se titula
"Analysis of Continuous Frames by Distributing Fixed End Moments'" publicada en los
Proceedings of the American Society of Civil Engineers (ASCE).
El hecho de que el mencionado artrculo escrito por Cross, constaba de diez páginas y
que fue seguido de una discusión de 146 páginas, ilustra el gran interés que produjo. El
interés suscitado es una indicación del impacto que el método de Cross tuvo en el "
análisis de fas estructuras indeterminadas. :'
En 1930, cuando Cross introdujo el Método de Distribución de Momentos, ya estaban ',.
formulados todos los principales Teoremas de Energra en estructuras y los métodos de
solución de estructuras que de ellos se derivaron. Ya existfa el Método de Flexibilidad, .:
las Ecuaciones de Pendiente - Deflexión, el Método de Rigidez no Sistematizado. Sin ;.. '",:
embargo. todos estos métodos aplicados a estructuras hiperestáticas, conducen .:::~
inevitablemente a un conjunto de ecuaciones lineales cuya solución manual es tediosa y
en muchos casos, dependiendo del número de incógnitas, imposible, aún utilizando ','
esquemas iterativos de solución del sistema de ecuaciones, por ejemplo Gauss - Saidel. ~:1;
Los esquemas iterativos de solución de sistemas de ecuaciones operan sobre las j
incógnitas, que en el caso del Método de Rigidez aplicado a estructuras reticulares, son
los desplazamientos de los nudos. La idea genial de Cross fue la de desarrollar el
Método de Rigidez, tomando como inc6gnitas los momentos en los extremos de las
barras que conforman el pórtico y obtener de manera iterativa dicho conjunto de
incógnitas. Esto significa que las iteraciones, a diferencia del Método de Casilev, no se
llevan a cabo sobre los desplazamientos (rotaciones) desconocidas, se llevan a cabo. "
sobre los momentos en los extremos de las barras hasta lograr el equilibrio de los nudos
y por ende de la estructura.
La solución "exacta" de estructuras hiperestáticas grandes hasta finales de la década de
1960, era una tarea titánica. La mayorfa de ingenieros estructurales acudtan al Método
de Distribución de Momentos para obtener la solución de las fuerzas internas. Esto
cambió con la aparición de las computadoras y su creciente disponibilidad, es decir, las
computadoras salieron de los centros de cómputo, donde unos pocos cientificos tenían
acceso a ellas, y pasaron a formar parte del equipamiento normal en las oficinas de
diseño. Esto, sumado al desarrollo de los Métodos Matriciales, en particular el Método
Sistematizado de Rigidez y los Métodos de Elementos Finitos (FEM), ha conducido al
CAPITULO 8- Método de Cross - Distribución de Momentos
328
.... . .;.~ ._.__ ._..:..:..::. __.....:..:..~~.~.:._...:__ ~~._. __ : _. __ •__.:.. ._.• . ... ~~! • ...¿~... l"::-:;~~:'~:::7·~,..,..... ,,,..., .....:.,.,;",~~..~.A~.~ .... :.:•. ;;~O_.;.".
329
8.3 Ejemplo de Introducción al Método de Cross
Para presentar algunas de las ideas centrales del Método de Cross, tomemos como
ejemplo inicial la viga continua de tres tramos indicada a continuación, solicitada por una
carga concentrada al centro del segundo tramo. No utilizaremos argumentos de simetría
... de la estructura y de las cargas. La resolveremos primero por el Método de Rigidez
... presentado en el Capítulo 6. luego resolveremos el sistema de ecuaciones a las que
COnduce el Método de Rigidez, siguiendo un esquema iterativo o de aproximaciones
sucesivas. Finalmente analizaremos el significado ñslco de cada una de las iteraciones,
para presentar el Método de Cross.
8.2 Algunas Ideas Centrales del Método de Cross
.• No es otra cosa que el Método' de Rigidez con la particularidad que las incógnitas no
son los desplazamientos (rotaciones) de los nudos, son los momentos en los extremos
de las barras.
• El Método de Cross resuelve el Estado Complementario del Método de Rigidez por
iteraciónes o aproximaciones sucesivas. Las iteraciones se realizan sobre los
.momentos desequilibrados en los nudos que aparecen en el Estado Primario del
Método de Rigidez.
¡. • Nunca llega a plantearse de manera explfcita la Matriz de Rigidez de la estructura que
. se está resolviendo. Dicha matriz se encuentra implicita en el procedimiento mismo de
,: la Distribución de Momentos. Esta es otra de las genialidades del Método de Cross.
• En el Método de Cross - Distribución de Momentos - los momentos de empotramiento
(Estado Primario del Método de Rigidez) en las barras que conforman el pórtico, se
distribuyen a las barras adyacentes en un número de iteraciones que conducen
gradualmente a que la estructura alcance su configuración natural de equilibrio.
• El Método de Cross no es un método aproximado de análisis estructural, se puede
alcanzar la precisión deseada en los resultados finales, controlando el número de
iteraciones o de ciclos.
• El Método de Cross sigue en esencia el esquema del Método Iterativo de Jacobi
aplicado al Método de Rigidez o de Desplazamientos.
• Fue ideado para su aplicación en estructuras planas que se deforman
fundamentalmente por flexión, sin embargo, puede extenderse, sin mayores
complicaciones a estructuras en las cuales las deformaciones por cortante sean
importantes. También se pueden analizar estructuras planas con desplazamiento de
traslación en los nudos.
abandono paulatino de los métodos iterativos como el de Cross, sin embargo, durante
casi 50 anos los métodos iterativos y en particular los de Cross y Kani, fueron la
herramienta fundamental para la solución de estructuras.hiperestáticas.
A lo largo de los anos se desarrollaron numerosas variantes del Método de Cross, entre
ellas, un método para modelar o determinar el flujo en redes complejas de distribución de
agua, hasta hace pocos años era el método más común para resolver tales problemas.
El Método de Cross se extendió al análisis de pórticos con desplazamientos laterales, al
análisis de parrillas, al análisis de estructuras espaciales, de barras con sección variable,
•..•.de pórticos con deformaciones axiales, es decir se desarrollaron numerosas aplicaciones
para casos particulares.
329
.' "" ,:;;,.,:":.-,:".:..:,... .
J
330
4,952
3,048
• Diagrama final de momentos (kg-m).
• Solución del Sistema de Ecuaciones: 92 = 3.809 93 = - 3.809
Asumimos, por comodidad un valor arbitrario de El = 1,000
0.25 ]{92}
1.30 93{
+4,OOO} [1.30
-4,000 = El 0.25
[
1 1
{
+4,000} = El "5+ i
-4,000 1
4
{Q}= [K] {D}
• Estado Complementario.
4~OOO .
~ ~ ~ • {Q} =-{R}
R. = -4~000 kg - m
R2 =+4,000 kg - m
92 = 93 = O
Uij O O -4000 +4000 O O~--~,_~~~~~--~---
• Estado Primario.
SistemaQ -D
Momentos de empotramiento uij
14000
+ R2
,
~
I¡
I
I
!
i
330
1 ~
2
i4,OOOkg3
~4~ ¿;)
I 5m 8 5 ,
D1 D2
D1=92
~ ~
g k D2=93
)
)
)
)
)
)
.."
)
~
)
)
,)
)
)
)
)
-: )
.:~.:
)-,
,'.
:~'.~~ )
.t.:"
"
),.
. :.",1'
)
d
~
-J
)
)
)
.)
J
~
J
;~
)'.'
~.
)
..,
r)
j
e
~.
~:2)
~'
1,5241,524
..... _." ...,...., ....
:...~~81C~,¡:·:·:,;··,·;:.~~·.~. .:~,~:~:.~.~::~:~:,2~·~.:·::,·:i~~~iL.:<~-~~-~Z~~~··::~·~·~:··-,~:·.·:¿-:..;;_·~::·:~.J.:~;:~~~~~¡:;:a;~J-~:i_~·;:·~;~~~~·;:~~~:··~·:_{~·~~~~.~;;.;~;,.;·.:.~;..;~.:'P~.~~;.~:~;.:;;~~~~i<..:.~,;-,~~,~~_
331
Solución por Iteraciones: 92= 3,809 93= - 3.809
Nótese que la suma de todos los cambios en las rotaciones (dos últimas columnas de la
tabla anterior) como era de esperarse es igual a lo rotación final del nudo (úftimo ciclo)
Es importante señalar que en cualquier ciclo de la iteración, se pueden calcular los
momentos de extremos de barra, en el Estado Complementario, utilizando por ejemplo,
las ecuaciones de Pendiente - Deflexión para cada barra:
M.. Ei Ji (4ll' 29')U = -- ul+ ~
ti
M·· Ei Ji (2ll' 4ll')~1 = -- ul+ vJ
ti
Si el proceso iterativo se detiene en un ciclo intermedio (por ejemplo en el tercer ciclo) lo
que obtendremos son valores aproximados de los momentos de extremo da barra y en
consecuencia los nudos no estarán en equilibrio. El equilibrio de nudo se logra luego de
un número suficiente de ciclos,
L = 3.809 L = 3.809
Ciclo Eh 93 IA921 IA931
O O
° 1
-- --
1
r·077(Ec. 1)
E
• O 3.077 O
2 3.077 -- -3.669 (Ec. 2)1 O 3.669
3 r782(EC.1l 0.705 O~ -3.669
4 3.782 -- -3.804 (Be. 2) I O 0.135
5 r809 (Ec. 1) -- -3.804 0.027 O
6 3.809 -- -3.809 (Ec. 21 O 0.005.
1.392 + 0.25 93 = 4 ~ Ecuación 1
0.2592 +. 1.39) = -4 ~ Ecuación 2
En la tabla a continuación se muestra un esquema iterativo simple para resolver el
sistema de ecuaciones, Se parte de un valor inicial nulo para ambas rotaciones (Estado
Primario) y se procede sucesivamente a corregir los valores iniciales asumidos hasta
lograr la precisión deseada. Las dos últimas columnas muestran, en valor absoluto, el
cambio en las rotaciones, inicialmente los cambios son grandes y paulatinamente son
cada vez más pequeños hasta que en los últimos ciclos de la iteración son casi nulos.
El = 1,000
4,000 4,000
~------~~~__~f)~ ~_
1 2 ~3 4
• Solución Iterativa del Sistema de Ecuaciones(Estado Complementario)
331
)
}
)
')
)
)
)
)
.)
)
~
)
)
)
_)
.)
_)
>
}
)
)
-)
)
I
i J
¡ -:)
j }
~.
ti)
(I)
~
)
)
)
)
)
)
-)
)
)
)
--i
)
~
)
)
)
)
;)
)
)
)
)
)
.)
. )
-a
-3
--}
)
)
)
-J
-:
._
)
~
.
'j
J
j
)
e
3049 -30433048 -3045Mfin 1524
14 o
~lS~t C4+C5
o72211Mij
.1.92 =0.027
.1.93 =0
CiCI05~~
Deseq. Nudo
Deseq. Nudo
~
.6.92=o
Ciclo 4 .6.9)=-0.135
Mij o o -34 -68 -108 -54
Mfin 1513 3026 -3059 3042 -3043 -1521 C3+C4
C2+C3
o
-1467
176 o
3110 -2935
564 353
3026 -3025
Mij 282
Mfin 1513
Deseq. Nudo
.1.a2= 0.705
Aa] =o
2934 -29352462 -3378 -1467 Cl+C2
o -1835 -2935-917 ~1467Mij O
Mfin 1231
A92 =0
.1.9)=-3.669
Deseq. Nudo
o
O
769 O
4769 O CO+Cl
2462 1539
2462 -2461
Mij ]231
Mfin 1231
.1.92=3.077
Aa3 =0
4000-4000o oooMij
• Significado Hsico de cada Ciclo de la Solución Iterativa
123
CicloO ~ ~ ~
332
'," ", ,',
,o _ jo,
Apuntes del curso analisis estructural i
Apuntes del curso analisis estructural i
Apuntes del curso analisis estructural i
Apuntes del curso analisis estructural i
Apuntes del curso analisis estructural i
Apuntes del curso analisis estructural i
Apuntes del curso analisis estructural i
Apuntes del curso analisis estructural i
Apuntes del curso analisis estructural i
Apuntes del curso analisis estructural i
Apuntes del curso analisis estructural i
Apuntes del curso analisis estructural i
Apuntes del curso analisis estructural i
Apuntes del curso analisis estructural i
Apuntes del curso analisis estructural i
Apuntes del curso analisis estructural i
Apuntes del curso analisis estructural i
Apuntes del curso analisis estructural i
Apuntes del curso analisis estructural i
Apuntes del curso analisis estructural i
Apuntes del curso analisis estructural i
Apuntes del curso analisis estructural i
Apuntes del curso analisis estructural i
Apuntes del curso analisis estructural i
Apuntes del curso analisis estructural i
Apuntes del curso analisis estructural i
Apuntes del curso analisis estructural i
Apuntes del curso analisis estructural i
Apuntes del curso analisis estructural i
Apuntes del curso analisis estructural i
Apuntes del curso analisis estructural i
Apuntes del curso analisis estructural i
Apuntes del curso analisis estructural i
Apuntes del curso analisis estructural i
Apuntes del curso analisis estructural i
Apuntes del curso analisis estructural i
Apuntes del curso analisis estructural i
Apuntes del curso analisis estructural i
Apuntes del curso analisis estructural i
Apuntes del curso analisis estructural i
Apuntes del curso analisis estructural i
Apuntes del curso analisis estructural i
Apuntes del curso analisis estructural i
Apuntes del curso analisis estructural i
Apuntes del curso analisis estructural i
Apuntes del curso analisis estructural i
Apuntes del curso analisis estructural i
Apuntes del curso analisis estructural i
Apuntes del curso analisis estructural i
Apuntes del curso analisis estructural i
Apuntes del curso analisis estructural i
Apuntes del curso analisis estructural i
Apuntes del curso analisis estructural i
Apuntes del curso analisis estructural i
Apuntes del curso analisis estructural i
Apuntes del curso analisis estructural i
Apuntes del curso analisis estructural i
Apuntes del curso analisis estructural i
Apuntes del curso analisis estructural i
Apuntes del curso analisis estructural i
Apuntes del curso analisis estructural i
Apuntes del curso analisis estructural i
Apuntes del curso analisis estructural i
Apuntes del curso analisis estructural i
Apuntes del curso analisis estructural i
Apuntes del curso analisis estructural i
Apuntes del curso analisis estructural i
Apuntes del curso analisis estructural i
Apuntes del curso analisis estructural i
Apuntes del curso analisis estructural i
Apuntes del curso analisis estructural i
Apuntes del curso analisis estructural i
Apuntes del curso analisis estructural i
Apuntes del curso analisis estructural i
Apuntes del curso analisis estructural i
Apuntes del curso analisis estructural i
Apuntes del curso analisis estructural i
Apuntes del curso analisis estructural i
Apuntes del curso analisis estructural i
Apuntes del curso analisis estructural i
Apuntes del curso analisis estructural i
Apuntes del curso analisis estructural i
Apuntes del curso analisis estructural i
Apuntes del curso analisis estructural i
Apuntes del curso analisis estructural i
Apuntes del curso analisis estructural i
Apuntes del curso analisis estructural i
Apuntes del curso analisis estructural i
Apuntes del curso analisis estructural i
Apuntes del curso analisis estructural i
Apuntes del curso analisis estructural i
Apuntes del curso analisis estructural i
Apuntes del curso analisis estructural i
Apuntes del curso analisis estructural i
Apuntes del curso analisis estructural i
Apuntes del curso analisis estructural i
Apuntes del curso analisis estructural i
Apuntes del curso analisis estructural i
Apuntes del curso analisis estructural i
Apuntes del curso analisis estructural i
Apuntes del curso analisis estructural i
Apuntes del curso analisis estructural i
Apuntes del curso analisis estructural i
Apuntes del curso analisis estructural i
Apuntes del curso analisis estructural i
Apuntes del curso analisis estructural i
Apuntes del curso analisis estructural i
Apuntes del curso analisis estructural i

Apuntes del curso analisis estructural i

  • 1.
    2014 Gianfranco Ottazzi Pasino iAPUNTES DEL CURSO ANÁLISIS ESTRUCTURAL I PONTIFICIA UN IV,ERSIDAD CATOJ.ICA DEL PERU FACULTAD DE CIENCIAS E INGENIERíA DEPARTAMENTO DE INGENIERíA SECCiÓN INGENIERíA CIVIL ,) -, ) ) );, . , " .; ) . ; i ) ¡ ) [4 t ) J ,--), ¡ ) ; ; 1 ~¡ ) 1 ¡ J ¡ ) ¡ ,, I ) 1 ), I ¡ ) j j -) ~ } ) ) ) ~ - ?JI ¡ i ?i ) ~ ,) ) f -" ) I ) I 1) J .
  • 2.
  • 3.
    2014 i ) ~---._-_.-- -.--...- -------..-.------- OCTAVAEDICiÓN Gianfranco Ottazzi Pasino -APUNTES DEL CURSO ANÁLISIS ESTRUCTURAL I PONTIFICIA UNIV.ERSIDAD CATO~ICA DEL PERU FACULTAD DE CIENCIAS E INGENIERíA DEPARTAMENTO DE INGENIERfA SECCiÓN INGENIERfA CIVIL } ~ }' , ), ¡ )~ ~ ), J ..... ) J _j ¡ 1 ~ ~ ") ~ ¡ ) j 1 ",- - t 1 ! !¡ ~ t J ) _) ) J ) ) .) ,) :J > --) ) =i I 1, '} ,'1
  • 4.
  • 5.
    76 78 79 72 73 73 40 45 14 14 10 11 3 5 5 6 7 8 Capítulo 3 Indeterminación Cinemática 3.1 Número de Grados de Libertad de una Estructura 3.2 Armaduras Planas - 20 3.3 Vigas 20 Capítulo 1 Introducción 1.1 Breve Historia del Análisis Estructural 1.2 El Análisis Matricial 1.3 El Objetivo de los Métodos Matriciales 1.4 ¿Qué es un Computador? 1.4.1 El Computador y el Análisis Matricial 1.5 El Ingeniero, El Análisis Matricial y el Computador 1.6 Estructuras (algunas definiciones) 1.6.1 Definición General de una Estructuras 1.6.2 Función de una Estructura 1.6.3 Los Edificios son el Resultado del Ensamblaje de Diversos Sistemas 1.6.4 Sistema Estructural de un Edificio de Concreto Armado 1.6.5 Definición de Estructura para un Ingeniero Estructural 1.6.6 Definición de Estructuras para Análisis Estructural 1 1.7 Objetivo del Análisis Estructural 1.8 Objetivo del Diseño Estructural 1.8.1 Etapas del Proyecto Estructural 1.8.1,a Ejemplo de un Plano de Estructuras 1.9 Elementos Estructurales y No Estructurales 1.10 Modelos (idealización) de las Estructuras 1.10.1 Algunos Modelos de Estructuras Simples 1.10.2 Otro Modelo Simple de una Estructura Plana 1.10.3 Algunos Modelos 3-D de Edificios 1.10.4 Conversión de un Modelo 3-D a un Modelo de Pórticos Planos 2-D 1.10.5 otro Caso de Modelo 3-0 a un Modelo de Pórticos Planos 2-D 1.10.6 Otro Caso de Modelo 3-0 a un Modelo de Pórticos Planos 2-D 1.10.7 Algunos Modelos 3-D de Estructuras 1.10.8 Pórtico 2-D (plano) con Muros de Corte o Placas de Concreto Armado 1.10.9 Clasificación de las Estructuras 1.10.1.0 Grandes Grupos en la Clasificación de las Estructuras 1.10.11 Nudos de Pórticos Capítulo 2 Basesdel Análisis Estructural 2.1 Bases del Análisis Estructural 2.2 Hipótesis Básicas del Análisis Estructural 2.2.1 Primera Hipótesis Básica - Desplazamientos Pequeños 2.2.1.a Algunos Ejemplos de No Linealidad Geométrica 2.2.2 Segunda Hipótesis Básica - Equilibrio Estático 2.2.3 Tercera Hipótesis Básica - Compatibilidad 2.2.4 Cuarta Hipótesis Básica - Condiciones de Contorno 2.2.5 Quinta Hipótesis Básica - Unicidad de las Soluciones 2.2.6 Sexta Hipótesis Básica - Comportamiento Elástico Uneal 2.2.6.a Fuentes de No linealidad en una Estructura 2.2.7 Sétima Hipótesis Básica - Principio de Superposición 2.2.7.a Superposición de Fuerzas 2.2.7.b Método de Flexibilidad 2.2.7.c Superposición de Desplazamientos 2.2.7.d Método de Rigidez 2.3 Principio de las Fuerzas Virtuales 2.4 Principio de los Desplazamientos Virtuales 2.5 Teorema de Betti INOleE , j ) _) ) ) t ) I , ) -) j ) -} ) ~ i J J -J ) ,J ) , ) I _) ) J _j !¡ j ~ " ) } )
  • 6.
    ) 3.4 Pórticos Planos2D 79 3.4.1 Pórticos Planos Ortogonales 3.4.2 Pórticos Planos No Ortogonales 3.5 Pórticos Espaciales 3D 87 3.6 Estructuras Simétricas 88 3.6.1 Tipos de Simetría 3.6.1.1 Simetrfa Respecto a un Eje 3.6.1.2 Simetría Respecto a un Punto 3.6.1.3 Simetrfa Respecto a un Plano 3.7 Estructuras Simétricas Cargadas Simétricamente 89 3.7.1 Condiciones de Contorno en el Plano (eje) de Simetrla. Carga Simétrica 3.8 Estructuras Simétricas con Carga Antisimétrica 95 3.8.1 Condiciones de Contorno en el Plano (eje) de Simetrfa. Carga Antislmétrica 83 3.9 Simetrra Respecto a un Punto 98 3.10 Simetrfa de Armaduras 99 3.11 Simetrla en Parrillas 100 3.12 Simetrra en Pórticos Espaciales 101 3.13 Descomposición en Carga Simétrica y Antisimétrica 102 3.14 Ejemplo de Simetrfa y Antisimetrra en un Pórtico Plano 103 Caprtulo 4 Ritrldecesde Barra 4.1 Coeficientes de Rigidez de Barra 109 4.2 Barras Tipo Armadura 109 4.3 Barras Tipo Viga o Columna - Rigidez al Giro 111 4.4 Barras Tipo Viga o Columna - Rigidez al Giro Modificada 114 4.5 Barras Tipo Viga o Columna - Rigidez en Traslación 116 4.6 Barras con Brazos Rígidos - Rigidez al Giro 117 4.7 Barras con Rótulas Internas 118 4.8 Barras Quebradas 121 4.9 Elementos de Sección Variable 122 4.9.1 Relación entre los Coeficientes de Rigidez de Barras de Sección Variable 4.9.2 Coeficientes de Rigidez de Barras de Sección Variable 4.9.3 Rigidez al Giro Modificada 4.9.4 Coeficientes de Rigidez - Barras con Desplazamiento Relativo 4.9.5 Rigidez para Barras con Empotramiento Deslizante 4.9.6 Momento~"de Empotramiento en Barras de Sección Variable 4.9.7 Momento de Empotramiento en Barras de Sección Variable - Extremo Articulado 4.9.8 Momentos de Empotramiento en Barras de Sección Variable .... Extremo Empotramiento Deslizante 4.10 Influencia de las Deformaciones por Fuerza Cortante 132 4.10.1 Factor de Forma de una Sección 4.10.2 Ejemplo de la Influencia de la Fuerza Cortante 4.10.3 Matriz de Rigidez de una Barra con Deformaciones por Corte 4.10.4 Factores de Transporte en Barras con Deformaciones por Corte 4.10.5 Variación de los Coeficientes de Rigidez - Barras de Sección Constante con Deformaciones por Corte 4.10.6 Rigidez al Giro Modificada de una Barra con Deformaciones por Corte 4.10.7 Momentos de Empotramiento con Deformaciones por Corte 4.11 Resumen de los Casos más Comunes - Coeficientes de Rigidez Vigas de Sección Constante sin Deformaciones por Cortante . 140 4.1~Resumen de los Casos más Comunes - Momentos de Empotramiento en Vigas de reCCión Constante sin Deformaciones por Cortante 141 Capítulo S Ecuaciones de Pendiente - Deflexión 5.1 Introducción 144 5.2 Ecuaciones de Pendiente - Deflexiones. Barras sin Desplazamiento Relativo de los I Extremos 144 5.3 Solución de Estructuras Utilizando las Ecuaciones de Pendiente - Deflexión 145 -'11 <:::J (~ ,jf) -::') ) ) ) ') ) ) ) ) ) ) ) _) 1 ) ) --:) ) ~ ) ) ) ,) ) ) ) ') ,) ) ) ) ,.) ~ ,) .,:) ) ,) ,) J II
  • 7.
    271 272 272 273 275 293 294 305 309 316 318 234 250 252 255 267 270 270 226 229 198 200 209 210 220 171 163 163 163 167 Capitulo 7 FormulAciónMatricial del Método de Rigidez 7.1 Introducción 7.2 Expresiones del Trabajo Real y del Trabajo Complementario 7.3 Matriz de Transformación de Desplazamientos 7.4 Ensamblaje de la Matriz de Rigidez 7.5 Principio de Contragradiencia 7.6 Ensamblaje del Vector de Cargas en Nudos 7.7 Etapas de la Formulación Matricial del Método de Rigidez 7.8 Sistematización Parcial del Ensamblaje de la Matriz de Rigidez 7.8.1 Resumen del Procedimiento 7.9 Transformación de Coordenadas 7.10 Matrices de Rigidez de Barra en Sistema Global 7.11 Condensación de la Matriz de Rigidez 7.11.1 Desplazamientos Impuestos en algunas de las Coordenadas 7.11.2 Cargas Nulas en algunas de las Coordenadas 111 5.4 Ecuaciones de Pendiente - Deflexión. Barras con Desplazamiento Relativo de los Extremos 148 5.5 Modificación de las Ecuaciones de Pendiente - Deflexión 149 5.6 Estructuras con Desplazamiento Lateral 154 5.7 Estado Primario y Complementario 160 Capitulo 6 Método de Ril!idez 6.1 Introducción 6.2 Etapas del Método de Rigidez 6.3 Ejemplos Introductorios al Método de Rigidez 6.4 Propiedades de la Matriz de Rigidez 6.4.1 La Matriz de Rigidez es Simétrica 6.4.2 Los Términos de la Diagonal Principal (kii) son Positivos 6.4.3 El Producto de las Matrices de Rigidez y Flexibilidad es la Matriz Unitaria 6.4.4 La Matriz de Rigidez es Definida Positiva 6.4.5 Relación entre la Energía Interna y los Coeficientes de Rigidez 6.4.6 La Matriz de Rigidez No Depende del Sistema de Cargas 6.4.7 El Ensamblaje de la Matriz de Rigidez es Fácil de Sistematizar 6.5 Cargas en Barras 6.5.1- Estado Primario y Estado Complementario 6.5.1.a Estado Primario (cargas de fijación) 6.5.1.b Estado Complementario 6.6 Relaciones entre [F] y [K] 6.7 Elementos con Discontinuidades - Reducción de Coordenadas 6.8 Fuerzas de Empotramiento en Elementos Inclinados 6.9 Pórticos Planos con Elementos Inclinados - 6.10 Pórticos Planos Sujetos a Cargas Laterales 6.10.1 Matriz de Flexibilidad Lateral de Pórticos Planos 6.10.2 Matriz de Rigidez lateral de Pórticos Planos 6.11 Efecto del Desplazamiento o Movimiento de Apoyos 6.12 Efecto de los Cambios de Temperatura 6.12.1 Cambio uniformes de Temperatura 6.12.2 Gradientes de Temperatura 6.13 Parrillas 6.14 Deformaciones por Cortante 6.15 Estructuras con Elementos de Sección Variable 6.16 Estructuras con Elementos Indeformables 6.17 Estructuras Espaciales 6.18 Análisis para Diversos Casos o Estados de Carga 6.19 Ámbito de Aplicación del Método de Rigidez ) _) ) _} ~ J J ) ) ) ) ) J -j _) _.,) ) =J .) d ~ ) -1 , ¡ j I Ii r i
  • 8.
    Nociones de ÁlgebraMatricialAnexo2 Tablas de Rigideces de Barras de Sección VariableAnexo 1 Capítulo 9 Lineas de Influencia (Cargas'Móviles) Capítulo en construcción Capítulo 8. Método de Cross 8.1 Introducción 8.2 Algunas Ideas Centrales del Método de Cross 8.3 Ejemplo de Introducción al Método de Cross 8.4 Definiciones Preliminares en el Método de Cross 8.5 Método de Cross Liberación de Nudo por Nudo 8.6 Método de eross Liberación Simultánea de Nudos 8.7 Pórticos sin Desplazamientos Laterales 8.8 Elementos con Discontinuidades - Reducción de Coordenadas 8.9 Movimientos de Apoyo 8.10 Vigas de Sección Variable 8.11 Estructuras con Desplazamiento (Traslación) de Nudos 8.11.1 Método de Cross Indirecto 8.12 Consideraciones Finales ,) ,:),., •2 328 ) 329 ) 329 ') 333 335 ') 337 ) 341 )348 354 ) 357 ) 365 ) 379 ) ) 380 ) ) ) ) -7 ) -2) ) ) ) ) _) ) ) ) ) ) ) ) ,) -3 ) ~ ::} ) ') .) :) _-) ) . -,) ,~ N
  • 9.
    1 4) Análisis deEstructuras - Métodos Clásico y Matricial. McCormac - Nelson. Segunda Edición. Alfaomega. - Capitulo 1. Introducción. - Capítulo 4. Reacciones. - Capitulo 9. Líneas de Influencia. - Capítulo 11. Deflexiones y rotaciones: métodos de energía. - Capítulo 16. Pendiente - Deñexión: un método de análisis por desplazamientos. 5) Structural Analysis - A Unified Classical and Matrix Approach. Ghali - Neville. Cuarta Edición. E&FN Spon. - Capítulo 2. Introduction to the analysis of statically indetermínate structures - Capitulo 4. Displacement method of analysis. - Capítulo 15. Analysis of Shear - Walls structures. - Capítulo 22. Computer analysis of framed structures. - Capítulo 23. Implementation of computer analysis. 3) Teoría Elemental de Estructuras. Yuan-Yu Hsieh. Prentice Hall. - Capitulo 6. Lineas de influencia para estructuras estáticamente determinadas. - Capítulo 7. Cargas concentradas móviles: Criterios para los valores máximos. - Capítulo 9. Análisis de estructuras estáticamente indeterminadas por el Método de las Deformaciones Compatibles (Método de Flexibilidad). Volumen 2 - Capítulo 8. La esencia del análisis estructural. - Capítulo 14. Distribución de momentos una introducción al Método de Rigidez. 2) Ingenierla Estructural. White, Gergely Sexsmith. Limusa. Volumen 1 - Capítulo 1. La evoluci6n de una estructura. - Capitulo 2. Los objetivos del diseño estructural. - Capitulo 3. Cargas. - Capltulo 4. Forma estructural. - Capitulo 5. Introducción al análisis estructural. - Capítulo 7. Análisis aproximado de estructuras estáticamente indeterminadas. 1) Anexo 2 de estos apuntes. Nociones de Algebra Matricial, tomado del libro Análisis Estructural, Jeffrey P. Laible, McGraw HiII. Lecturas obligatorias: Las lecturas que se señalan a continuación, complementan los aspectos teóricos y prácticos de varios de los temas que serán cubiertos durante el desarrollo del curso. Estas lecturas son de carácter obligatorio y pueden formar parte de la evaluación tanto en las prácticas como en los exámenes. ~ ;) ,) j J ) ) ) ) ) ) I j , --i 1 ~ ) ="1 ) ) ¡ 1 ...; ~ ) .~ t , ) j J _) ) j _) r. ) ) i ,) J } ) ! , } t
  • 10.
    i} ~ ~ 9 -) ) ) ) ) ') ) ) ) ) _) ~) ') ') ) ---J ) ""1 ) ) ) ) ) ) .) ) ") ) ) ) ) :j ) .., ~ .) J .) .) .;3 ) .) :) .:) _) 2 Bibliografía - Ingeniería Estructural(Volúmenes 1 y 2). White, Gergely, Sexsmith. Limusa. - Structural Analysis. A Unified Classical and Matrix Approach. Ghali - Neville. Cuarta Edición. E&FN SPON. - Análisis Estructural. Jeffrey P. Laible. Mc Graw HiII. - Análisis de Estructuras. H.H. West. CECSA. - Teoria Elemental de Estructuras. Yuan-Yu Hsieh. Prentice Hall. - Análisis de Edificios. Angel San Bartolomé. Fondo Editorial PUCP. - Análisis de Estructuras - Métodos Clásico y Matricial. McCormac - Nelson... Segunda Edición. Alfaomega. - Structural Análisis. R.e. Hibbeler. Cuarta Edición. Prentíce Hall. El Contenido del Curso Introducción, Sistemas Estructurales. Principios Fundamentales de Análisis Estructural. Determinación Cinemática de las estructuras. Grados de Libertad. - Ecuaciones de Pendiente - Deflexión. - Método de Rigidez. - Método de Cross. Cargas Móviles. Lineas de Influencia. - Sistematización del Método de Rigidez. Los ObLetivos del Curso 1. Entender las nociones fundamentales del análisis estructural. 2. Entender el comportamiento (respuesta) bajo solicitaciones estáticas de las estructuras simples de barras linealmente elásticas. 3. Aprender a analizar estructuras de barras por el Método de Rigidez (desplazamientos). 4. Aprender el Método de Cross o de Distribución de Momentos. 5. Aprender el concepto y la construcción de las Uneas de Influencia (Cargas Móviles). 6. Mostrar las bases o. fundamentos sobre los cuales funcionan los programas de análisis automático de estructuras. Sistematización del Método de Rigidez. ¿Qué se estudia en el curso? Se estudian los principales métodos para el análisis de estructuras simples, conformadas por el ensamblaje de barras linealmente elásticas. Se hace énfasis en el comportamiento (respuesta) bajo solicitaciones estáticas de este tipo de estructuras. Curso de Análisis Estructurall 2
  • 11.
    3 La historia delanálisis estructural comienza mucho antes de la era antigua de los Egipcios, Romanos y Griegos. Aunque no se consiguen escritos sobre los principios del análisis de estructuras desde esa época, las ruinas actuales indican que ciertos principios de la estática y del análisis estructural fueron conocidos por sus constructores. Por ejemplo, Arqutmedes- (287-212 A.C.) introdujo el concepto de centro de gravedad y llevó a su más simple expresión los principios fundamentales de la estática y el equilibrio. Escritos sobre el análisis estructural se han encontrado solamente- después del RenaCimiento. La tendencia histórica del análisis estructural después del Renacimiento, puede dividirse en las siguientes etapas o eras: a) La Era de los Grandes Maestros Esta es la era de Leonardo de Vinci (1452-1519), Galileo Galilei (1564-1642), Fontana (1543-1607), y Mimar Sinan (1490-1588), quienes tuvieron gran sentido ñslco acerca de las estructuras y sus éxitos se basaron en sus talentos innatos. Son dignos de mención los trabajos de Leonardo (introdujo los conceptos de fuerza y de momento) y el libro de Galileo "Dos Nuevas Ciencias" acerca de la teorfa de la viga en voladizo. b) La Era de los Grandes Matemáticos En esta era los matemáticos, lo mismo que muchos otros, mostraron interés en la mecánica estructural. Hombres como Hooke (1635-1703), Johann Bernoulli (1667- 1748), Daniel Bernoulli (1700-1782), Euler (1707-1783), y Lagrange (1736-1813) establecieron los principios fundamentales de energía, la relación entre esfuerzos y deformaciones, las ecuaciones diferenciales de deformaciones y sus soluciones. Su interés fue más bien en la teoría matemática de la elasticidad y sus hallazgos, tales como la ley de esfuerzo - deformación de Hooke, la ecuación de las barras vibrantes de Bernoulli, el pandeo de columnas de Euler y las ecuaciones de flexión de placas de Lagrange, contribuyeron sin duda al desarrollo de la teoría de las estructuras. e) La Era de los Grandes Ingenieros Esta era puede considerarse como la edad de oro de la ingeniería estructural. Hombres tales como Navier (1785-1836), Saint-Venant (1797-1886), Clapeyron (1799-1864), Airy (1801-1892), Maxwell (1831-1879), Castigliano (1847-1884), Mohr (1835-1918), y Muller- Breslau (1851-1925) utilizaron exitosamente las teorías matemáticas desarrolladas en la era anterior para la solución de algunos problemas estructurales. Ellos deben considerarse más como ingenieros que como matemáticos, aunque sus conocimientos en las ciencias matemáticas fueron sobresalientes. Sus descubrimientos y teoremas fueron la base para el desarrollo de la teoría de las estructuras en la era moderna . 1.1 Breve Historia del análisis Estructural Adaptado de las siguientes referencias: 1) Introducción al Análisis Estructural con Matrices. Hayrettin Kardestuncer. McGraw HiII. 2) Structural Engineering. White, Gergely¡ Sexsmith. Wiley. 3) Stuctural Analisis. A Unified Classical and Matrix Approach. Ghali, Neville. Intext Educational Publishers. 4) Métodos Matriciales para Cálculo de Estructuras. R. K. Livesley. Blume. CAPITULO 1 -Introducción 3 ; ..;:,_,_ -..,;'; .'.: :...."_.:. '-- ~ ") ') -) ) ) ) o:} ~ I ) ) ') _) ) -, -j ~ J ~ .J ) .; ~ :) j ¡ 1 1 ¡ ) ~. ~ I -) ) j ~ ¡ ¡ r, I ) ) ) ¡ 1
  • 12.
    (, -1 ) ) ) ') ) ) ) ) ) ) ~ ') ) ) ) -j ) 4 ) ) ) ) ) ) ) J ) ) ) ) .) ~ ") ,., ;) ") J -;l j _) ) ._) ~ i~D J d) La EraModerna A principiosdel sigloXX hombrescomo G.A. Maney,H. Cross,R.W.Southwelly G. Kani comprendieronque eran necesariosmétodosmás prácticospara analizarlas estructuras indeterminadas. Ellos introdujeron, respectivamente, los métodos de pendiente - deflexión (1915), distribución de momentos (1932), relajacióny distribución de fuerza cortante. Cada uno de estos métodos parte de un conjuntode hipótesispara obtener soluciones aproximadas, de los problemas estructurales, que para las herramientas da cálculo disponiblesen esos años, se considerabancomplejos. Estosmétodos,que simplificanel cálculo, llegaron a ser muy utilizadosen las oficinas de ingeniarla (aún hoy en dla se sigue utilizandoel Métodode Crossen las oficinas de diseño)debido a su simplicidady adaptabilidadpara loscálculosmanuales. En 1922, K.A. Cafisev publicó un artículo que describia un método de aproximaciones sucesivas para el análisis de estructuras reticulares, en el que se detennlnan las rotaciones de los nudos de una estructura por aproximacionessucesivas. De esta manera los sistemas de numerosas ecuaciones se pueden resolver con cálculos manuales. Puededecirseque esté métodofue el predecesordel Métodode Cross. El análisis de las estructuras indeterminadasrecibió un gran impulsoen 1930, año en que el profesor Hardy Cross de la Universidad de IlIinois, presentó su método de distribución de momentos. El hecho de que el artículo escrito por Cross constaba de diez páginas y que iba seguidode una discusiónde 146páginas, Ilustrael gran interés que produjo dicho artículo. El interés suscitado por el artículo es una indicación del Impactoque el métodode Crosstuvo en el análisisde lasestructurasindeterminadas. e) La Era Contemporánea Hacia la mitad del siglo XX fueron desarrolladospoderososequipos de cálculo, tales como computadores analógicos y digitales, y los ingenieros fueron impulsados a establecer métodos que requirieran menos suposiciones y restricciones en el planteamiento de los problemas, logrando mejores resultados. Fue introducido el llamado MétodoMatricialde análisisde estructuras. las ideas en el método matricial no son nuevas; están muy ligadas con los principios establecidos por Castigliano, Maxwell y Muller-Breslau. La única razón.para que el método no fuera completamentedesarrolladoy utilizado,se debe a que ésta conlleva la solución de numerosas ecuaciones simultáneas. Aún para una pequeña y sencilla estructura, el número de ecuaciones simultáneas podría ser tal que su solución sin computador,serfasumamentelaboriosa. Es difícil decir quiénfue el primeroen introducirlos métodosmatricialesen el análisis de las estructuras. Desdeluego, ningunosurgecon la seguridadde Castiglianoo de Hardy Cross en otros métodos. Como en otras innovaciones, las mismas ideas parecen habérseleocurridosimultáneamentea diferentesautores. Al aparecer los computadoresse crearon de inmediato métodosde análisis adecuados para el cálculo en computador; el más usado de ellos es el método directo de las rigideces,creadoen la décadade 1950. Al princlpio de dichadécada, SamuelLevysugirióalgunas de las ventajasdel métodode rigidez (desplazamlentos), usando coeficientes de influencia para el análisis de las estructuras de los aviones. Al mismotiempo,varios investigadoresestaban elaborando una variedad de métodos para el análisis con base en métodos matriciales, con el objetivo de aprovecharla capacidadde los computadores. Este confuso conjunto de métodos se consolidó con el tiempo. En 1954 Turner, Clough, Martin y Topp presentaron el primertratamientodel métododirecto de las rigideces;demostraronque 4 4
  • 13.
    5 1.3 El Objetivode los Métodos Matriciales Excepto en algunas estructuras simples, los valores de los esfuerzos internos y movimientos de los nudos, no pueden hallarse exclusivamente sustituyendo números en fórmulas algebraicas conocidas. Se requieren cálculos más complejos, y en muchos casos el ingeniero se encuentra con una amplia gama de posibles procedimientos. La elección del método a seguir está normalmente condicionada, en parte, por el grado de aproximación requerido, y, en parte, por su práctica y sus preferencias. Cuando compara métodos que son igualmente precisos, la elección suele basarse en dos consideraciones: el trabajo numérico que llevan eónsigo y la facilidad con que puedan detectarse y rectificarse los posibles errores. En general, dará preferencia a un método en el que pueda hacer uso de la experiencia adquirida en el análisis de estructuras semejantes, especialmente si dicho método le permite emplear juicio de ingeniero para efectuar aproximaciones y reducir pasos intermedios. Otro factor que puede guiar la elección, es la preferencia de muchos ingenieros por emplear cantidades que presenten un significado fisico directo. Este es uno de los atractivos de métodos tales como los de distribución de momentos (iterativos); a lo largo de todo el cálculo, el ingeniero siente que está llevando a cabo un proceso que tiene una realidad física. En tales métodos los errores pueden a menudo detectarse, más por aplicación del sentido común que por un estricto criterio matemático, ya que los números representan términos cuyas magnítudes son conocidas, al menos aproximadamente por el ingeniero. Todas estas consideraciones están basadas en el supuesto que todo el trabajo, incluyendo el análisis numérico, es realizado por el propio ingeniero - normalmente una persona con conocimientos del comportamiento estructural, pero sin demasiado gusto por el proceso meramente numérico o matemático -. Sin embargo, si se utiliza un la matriz de rigideces se puede ensamblar superponiendo las rigideces de los elementos individuales. . La dualidad de los métodos de las fuerzas o flexibilidad y de los desplazamientos o rigidez, fue demostrada por Argyris y Kelsey en 1960 en su tratado de los teoremas de energía. 1.2 El Análisis Matricial El empleo de la notación matricial presenta dos ventajas en el cálculo de estructuras. Desde el punto de vista teórico, permite utilizar métodos de cálculo de una forma compacta, precisa y, al mismo tiempo, completamente general. Esto facilita el tratamiento de la teoría de estructuras como unidad, sin que los principios fundamentales se vean oscurecidos por operaciones de cálculo, por un lado, o diferencias fisicas entre estructuras, por otro lado. Desde el punto de vista práctico, proporciona un sistema apropiado de análisis de las estructuras y determina una base muy conveniente para el desarrollo de programas de computadores. En contraste con estas ventajas, debe admitirse que los métodos matriciales se caracterizan por una gran cantidad de cálculo sistemático, y su valor en el cálculo práctico de estructuras se basa en la adecuación de los computadores para llevar a cabo el trabajo numérico. Se desprende de esto que el principal campo de aplicación está en el cálculo de grandes y complejas estructuras, en las que los métodos manuales tradicionales requieren una dosis excesiva de esfuerzo. En problemas simples, en los que los métodos existentes son plenamente satisfactorios, no se gana mucho con un tratamiento matricial. ) ) j ) .J -> -::) ) ~ ) ) ..) ~ ) -) ! _) I ) _) l ) ) i ) I ) 1 ) I ) ) ) I , !~ i f. J } ) J ) ., J 1
  • 14.
    ';)..:~. ~( O ~ ¡ ) i ) 1') !¡. )r ~~ ) II¡ )I i ) ) ) ) J ) ) ) ) -j ) ~ ) ) ) ) ) J J ') ) ) .> -3 J ~ ..~) ..,.' J .) _.) ) .) ) ,) j t) ) 6 1.4 ¿Qué es un Computador? Un computador es, esencialmente, una máquina de calcular, controlada por una secuencia de instrucciones previamente preparadas que conducen a efectuar sucesivamente diferentes pasos del cálculo en orden correcto. El conjunto de instrucciones se denomina programa y el trabajo de prepararlases conocido como programación, Un programa no está ccndicionado a operar con un conjunto fijo de números (esto llevarla al computadora efectuarlas mismasoperacionescadavez que se emplea),sino que los números (datos) que forman el material caracterlsticodel cálculo pueden ser diferentes en cada ocasión, Por tanto, si existe un programapara un determinadotipo de cálculo, todos los problemaspara los que dicho cálculoproporcionalos mediospara su solución,pueden considerarse'resueltos". Decir, en este sentido, que existe una solución, significa considerablementemás que la mera existencia de una teoria matemática o una técnica numérica. Significa, que cualquier problema cubierto por el programa, puede ser resuelto completamente en términos numéricos introduciendo,simplemente, los datos del problema,junto con el programa, en el computador. los resultados del problema serán correctos, aunque quien introdujo los datos del problemasea ignorantedel métodomatemático utilizadoen el programa; es decir, que todo el proceso de análisis se reduce a una operación rutinaria de relleno de datos. Los problemas más sencillos de programar son aquéllos en los cuales los datos numéricos son tratados en forma sistemática. las operacionesde álgebra lineal, por ejemplo, son fácilmente ejecutadasen un computador,porqueconsistenen secuencias de pasos relativamentesimples, repetidas muchas veces. Todos los computadoresde hoy en día están provistoscon secuenciasde instrucciones,llamadasrutinas,para llevar a cabo operacionestrpicasdel análisisnumérico.incluidasaquéllasdel álgebra lineal,de forma que, si un cálculo de estructuraspuede ser puestoen forma de una serie de estas operaciones, la construccióndel programa completo consiste simplementeen disponer las rutinasapropiadasen el ordencorrecto, ..1.4.1 El Computador y el Análisis Matricial El desarrollo de los computadores electrónicos durante las últimas décadas ha estimulado sobremanerael trabajo de investigaciónen muchasramasde la matemática. La mayor parte de esta actividadha estado, naturalmente,relacionadacon el desarrollo I computadorpara llevar a cabo dicho trabajo numérico,los criteriospor los cuales un métododebejuzgarse si es "bueno"o "malo"deben ser revisados. la cuestiónahora no es decidirsi a un ser humanole resultaráel cálculotedioso,sino si el método es adecuado para ser fácilmente adaptado a una máquina. Si esto último sucede, entonces el método es "bueno", aunque el número total de operaciones realizadas sea considerablementesuperior al de otro método de menor facilidad de mecanizar. De esto se deduce que el desarrollode los métodosde cálculode estructurasen los que el trabajo numérico puede ser realizado convenientementeen un computador,lleva a procedimientosa la vez sistemáticosy generales. El objetivoes, no disminuirel número total de operaciones aritméticas, sino conseguir métodos que puedan aplicarse a muchos tipos diferentes de estructuras y que utilicen el máximo posible de procedimientos numéricos tJpicos para los cuales ya existen rutinas en los computadores. Para llevar a cabo éstos fines, los conceptosde álgebramatricialson extremadamenteútiles. 6
  • 15.
    7 de los procedimientosnuméricos apropiados para el uso de los cornputedores, y en el campo del análisis de estructuras ha conducido al desarrollo de métodos que utilizan las ideas del álgebra matricial. . El hecho de que los métodos matriciales estén ligados con los computadores y que se emplee en los mismos una notación no familiar a algunos ingenieros. ha llevado a la creencia de que incluyen nuevos difíciles conceptos matemáticos y estructurales. Esto no es cierto. Un conocimiento de las operaciones básicas del álgebra matricial es todo cuanto se requiere, y los únicos principios estructurales necesarios son los básicos tratados en todos los textos de estructuras. Los métodos clásicos del análisis estructural. desarrollados en las postrimerfas del siglo XIX. tienen las cualidades de la generalidad. simplicidad lógica y elegancia matemática. Desgraciadamente. conducían a menudo a cálculos muy laboriosos cuando se aplicaban a los casos prácticos. y en aquella época, en la que incluso las máquinas de calcular eran raras. esto entrañaba un serio defecto. Por esta causa. sucesivas generaciones de ingenieros consagraron gran parte de su esfuerzo a reducir el conjunto de cálculos precisos. Muchas técnicas ingeniosas de gran valor práctico fueron apareciendo, pero la mayor parte de las mismas eran solamente aplicables a tipos determinados de estructuras, e inevitablemente el incremento en el número de métodos superficialmente diferentes llevaron a oscurecer la simplicidad de las ideas fundamentales, de las que todos ellos originalmente provenían. Puede también suponerse que la necesidad de obtener técnicas prácticas para el análisis de estructuras lineales desvió a muchos investigadores que pudieron haber contribuido de otra forma a un mejor entendimiento del comportamiento real de las estructuras, con el resultado que la investigación de fenómenos tales como la plasticidad y la inestabilidad. fueron pospuestas. La principal objeción a los primeros métodos de análisis fue que los mismos conducían a sistemas con gran número de ecuaciones lineales. diffciles de resolver manualmente. Con los computadores. capaces de realizar el trabajo numérico, esta objeción ya no tiene fuerza. mientras que las ventajas de la generalidad de los métodos. permanece. Esto explica por qué los métodos matriciales deben en su tratamiento básico de las estructuras más al siglo XIX que al XX. 1.5 E/Ingeniero. El Aná/isis Matricial y el Computador En la actualidad. el ingeniero que se dedique al diseño de estructuras, debe estar familiarizado con los métodos del análisis matricial de estructuras. porque constituyen una herramienta poderosa de análisis. Al mismo tiempo debe estudiar y entender el uso correcto de esta forma automática de análisis. El resultado de un análisis por computador es sólo tan bueno como los datos y el modelo de los cuales se parte. El acrónimo "GIGO" en inglés (Garbage In, Garbage Out) cuya traducción al castellano podrfa ser BEBS se ha acuñado para recordamos constantemente que "basura que entra, es igual a basura que sale". Esto significa que el criterio y la habilidad del ingeniero, nunca podrán automatizarse. El criterio y el entendimiento del comportamiento de las estructuras siempre deberán estar presentes cuando se idealice la estructura y se hagan las suposiciones acerca de las cargas y solicitaciones. el comportamiento del material, las condiciones de apoyo, las conexiones entre los diversos elementos. Lo mismo se aplica a la interpretación y uso correcto de los resultados de tales análisis. ) j ~ } ) J ) J j '> :J -} ~ ) ==1 i ) .~ -J ) '1 i I j _) ) -l ) I ) ) ) '.) )
  • 16.
    ') ') ") ) ) ) ) _) ] ) ) .) -j ) "7 ) ) ) ) ) ) .) ".) 1 ) ) ) J -j J ~ .~ J ..) ',;) .) ) ) :) .:J G) J 8 1.6.2 Función deuna estructura Existen numerosas funciones, entre ellas: Salvar un claro (puente vehicular o peatonal). Encerrar un espacio (los edificios cumplen una función de albergue). Contener un empuje (muros de contención, tanques, silos, represas). Infraestructura vial o de transporte (pistas, intercambios viales). Estética (monumentos). 1.6.3 Los Edificios son el Resultado del Ensamblaje de Diversos Sistemas Sistema funcional básico. Sistema estructural. Sistema sanitario. Sistema eléctrico. Sistema de comunicaciones. Sistema de seguridad. Sistema de acabados. Sistemas Electro Mecánicos (Aire acondicionado, calefacción. ascensores, equipos, maquinarias). 1.6.4 Sistema Estructural de un Edificio de Concreto Armado La figura a continuación muestra un pequeño edificio típico de concreto armado. Se indican los principales elementos estructurales verticales (columnas, muros) los horizontales (vigas, losas) y los elementos estructurales de la cimentación (zapatas aisladas y corridas). Las columnas y vigas se pueden idealizar como elementos unidimensionales, mientras que las losas de piso y muros como bidimensionales. ,.3} 8 • e 1.6 Estructuras (algunas definiciones) ~ 1.6.1 Definición General de una Estructura ) Una estructura es un sistema, un conjunto de partes o componentes que se combinan en ') forma ordenada para cumplir una función. ") :¡ I
  • 17.
    9 Modelo de unpórtico plano 2-D 6 , • I 1 • . l• " • " ti l. U l2 1 l. t. ""- 1'" "'"~ ""~ Modelo de una Viga continua 2-D Modelo de una armadura plana 2-D 1.6.5 Definición de Estructura para un Ingeniero Estructural Una estructura es un sistema cuya función es transmitir fuerzas (cargas) desde sus puntos de aplicación al suelo. las fuerzas (cargas) producen en el material de la estructura: a) Deformacionesque se manifiestanen distorsionesde la formaoriginal. b) Esfuerzosinternos. 1.6.6 Definición de Estructura para Análisis Estructural 1 Una estructura es el resultado del ensamblaje de elementos estructuralesdiscretos conectadosentre si en un númerofinito de puntoso nudos. Se presentan a continuación, algunos ejemplos de modelos (idealizaciones) correspondientesa estructurassimples que se ajustan a la definiciónanterior. En las estructuras mostradas los elementos estructuralesson todos unidimensionales:barras de armaduraarticuladasen los extremos,vigas, columnas. los elementosestructurales (barras)se interconectanentre si en los nudosy se conectana "tierra"medianteapoyos que tambiénson nudos. 9 '} ....::i?E¡t'~j~H::,"i:;:...",,2".-~;·~2l,...:-:_':_.:_.:;::"··:~L·'::¿:,,~~¡,~,:;'~':.:¿.-.~:Cc-~:;;_.~·_-~'.:.:c~ó.c "'::-~.':::.:'-._~ :,::,:,-~.~.~~~-=,_:.L ::'8.:~::~i·X,C:; ..'C':~O_''''''_¡''.''=,,_=~~,~__,=~-_._. ') ) I --, ) J j ) _) ) , } ) ") .) ~1 , } ) ) ) ) ~ ) i ... -; ') ,) ") I ) '""J }
  • 18.
    - Lineal - NoLineal 10 La Respuesta de una estructura hay que entenderla en un sentido amplio y comprende diversos aspectos, entre ellos la determinación de: Deformaciones, desplazamientos de determinados puntos. Esfuerzos (medios continuos). Fuerzas internas en barras. Axial, cortante, flexión, torsión. - Vibraciones. - Estabilidad. - Carga de Colapso (análisis límite). Fatiga. - Comportamiento bajo condiciones de servicio (fisuración, deflexiones). ~ i~ ,~<.;., ) ) ) ) ) ) ) ) ) ) .J ) ...::) ) ) ) ) ) ) ) ) ) ) ) } .J ~ -} ) ) ) ..~ "j _) J Ó .~ 8 J '") ,) ~ ~ '9 ---:l Respuesta. Respuesta ............... Desplazamientos ............... Deformaciones Esfuerzos Resultantes de los Esfuerzos Solicitación ..... - Estática _Dinámica - Elástica - Inelástica Estructura Solicitaciones Cargas Estancas ~ Cargas Dinamicas ~ Asentamientos Cambios Termtcos 1.7 Objetivo del Análisis Estructural El objetivo es el estudio del comportamiento o respuesta de la estructura frente a detenninadas solicitaciones o acciones externas. El Análisis Estructural no es un fin, es un medio o herramienta. El fin es el Diseno Estructural. Estructura Modelo de un pórtico tridimensional 3-D o espacial 10
  • 19.
    1.8 Objetivo delDiseño Estructural El objetivo es lograr una estructura segura, funcional y económica para satisfacer una , necesidad o función específica. Por seguridad se entiende la capacidad resistente de la estructura para servir sin fallas estructurales durante su vida útil. Además de la seguridad, la estructura debe comportarse adecuadamente bajo condiciones normales de servicio. Por eso es necesario prestar atención al control de las deflexiones, vibraciones, agrietamiento (concreto armado), corrosión, durabilidad. En resumen las Premisas Fundamentales son: a) La estructura debe soportar las cargas (acciones, solicitaciones) en forma segura. b) La estructura debe cumplir los requisitos de funcionalidad, factibilidad, durabilidad, econornta, estética. 1.8.1 Etapas del Proyecto Estructural a) Concepción (Ingeniería Conceptual). Se parte de la siguiente premisa: La estructuración que debería prevalecer, es aquella que satisfaciendo las premisas fundamentales (seguridad, funcionalidad, durabilidad) tenga el menor costo. La etapa de laconcepcíón comprende: - Determinación de la forma general. Selección del material predominante (intervienen criterios de disponibilidad y economía). - Selección del tipo estructural y estructuración preliminar. Selección del sistema constructivo (prefabricado, en obra). - Investigación de las cargas. Es necesario identificar las diversas solicitaciones a las cuales estará expuesta la estructura durante su vida útil. Las magnitudes de las cargas "usuales" están especificadas generalmente en las Normas, en otros casos es necesario acudir a la experiencia y a la estimación del ingeniero. Las cargas que pueden obrar sobre una estructura son: muertas, vivas o de uso, viento, sismo, nieve, cambios térmicos, cargas temporales que pueden presentarse durante el proceso constructivo, asentamientos de apoyo, cambios volumétricos, etc. - Predimensionamiento de los elementos estructurales y conexiones (basado en la experiencia, reglas empíricas, métodos aproximados). b) Modelado (idealización) de la Estructura. c) Análisis Estructural. Geometría, material, secciones, comportamiento esperado de la estructura (lineal, no lineal), solicitaciones (cargas). Selección de los métodos y herramientas de análisis. d) Diseno Estructural. Dependerá del material, Normas. e) Detallado. De las uniones o conexiones, elementos no estructurales, equipos, instalaciones, etc. f) Planos. Producto final del análisis y diseño estructural. El diseñador debe transmitir al que ejecutará la obra, los resuHadosfinales de su diseño, entre ellos: la concepción estructural, los esquemas resistentes para las diversas cargas que obran sobre la estructura, -los refuerzos y dimensiones de todos los elementos estructurales, 'la posible interacción entre elementos estructurales y no estructurales, las calidades de, los materiales a utilizar (especificaciones), los detalles especiales, los detalles de las conexiones entre elementos estructurales y no estructurales, las precauciones a considerar durante la ejecución de la obra, las sobrecargas de diseño, etc. 11 II _ ••• ::. --- •• ;.:.. o ~---..,_--..;;__.;.:-.~_ • ...__ ••• _ :',=.: .:;_.-.::_:.• ,,_ ..•.,_ .: •..... ,:. '.~ .:.-:_~ __:"__'_":'.,~; _, ,-__~_..__•..¡__.-.:......:':.,:,,___ :~-2.,:::,_::: _'_ ;; c',.:'::::.-_:':",':_'" .;',::.':";'.":';"':..0::...;.;;;..-..,...- ~ ) ) ,) ) r') 1 ,~ ) J ) "'") ) ) ) 'J ) -) ) J } j ) ~ _) ) 1 )) ) -) ¡ I ) j¡
  • 20.
    Costos - Planos deDetalle 1.8.1.a Ejemplo de un Plano de Estructuras A manera de ejemplo de presentación de planos estructurales se incluye a continuación una parte del plano de estructuras correspondiente a la planta típica de un edificio simple en concreto armado. Se puede apreciar, entre otras cosas, información sobre el espesor del techo aligerado, la sobrecarga usada en el diseno, las secciones de las vigas, la ubicación de Josmuros (placas), la junta o separación con un edificio (bloque) vecino, el acero de refuerzo del aligerado. No se trata de un juego completo de planos. falta el -plano de ·Ia cimentaclón..da las .columnas y-placas, .de-las vigas, el plano -del encofrado -de la azotea y se han ·obviado 'diversos' detalles importantes. Para completar el "expediente" es necesario contar con los planos de arquitectura, los planos completos de estructuras, los planos de instaraciones eléctricas y sanitarias, los planos de instalaciones electromecánicas (si las hubiera), el estudio de mecánica de suelos y las especificaciones técnicas. Modificación Re - Estructuración - Material - Forma general - Tipo estructural - Investigación Cargas - Predimensionamiento Re - Análisis (cambios en las secciones) Análisis Estructural Cargas .....,. Idealización - Modelo- ~~--------~~r--------' I I Modificación I -..........._~--., ~ Diseño - Seguridad - Resistencia - Servido Estructuración La manera como el diseñador suele transmitir al constructor o ejecutor de la obra toda esta información, es a través de planos de estructuras. Es obvio que si los planos resumen todo el trabajo de concepción y diseno, debe prestarse especial cuidado en la presentación de los mismos. Los planos deben ser claros y no ambiguos, con abundancia de detalles y especificaciones,· deben contener toda la información necesaria para una correcta ejecución de la obra. Los planos deben transmitir al lector la información de tal modo que no haya lugar a interpretaciones erróneas. g) Determinación de los Costos. El diagrama a continuación resume las etapas del diseno estructural: ti) r'j) ) ') ) ) ) ) ) ) ) ) -J -') ..=) ) ) ) ) ) ) ) ) ) ) . ) ) --J c:j ----j ) ) ) J 'j J _) .:J 8 ~ ) .., .) J -_., , ..., ._ ..._----.......... I,_ ~_ •••__ ..... _, .... ~.~. ,._.~ -_;:..~.:.:;__:..l.~w 12 ...... - .... •• ". :," '.' •-: ' ~': ': ••1" ..!-..~ . ..._~~J"'5:~~...:.:.....___.;..._._.h _....: ..~-,,~__:.:~_';__;'",;, ...,__,..._:.;. .'-:.:__,.~..~.~~:::::., ..'.;":'.;.".,""__"o' "....:.. _. , :: ! I I
  • 21.
    ; , : " J " '.~ ) -,N E -, 1 en i , ~ J _) O O ) í?... U _) ~ ! ¡ i;;:' ) l' '-', ) l.: ) ) O N ) ci ') JI 1Js: ) O 'U o 8 -, ~ c::¡ ~CI> &.~ •'1;.. ~ ) « ) J ) ~ ,- _) ) i ,) -) ,) -) ) 1 Iri 1ft ~ ) ) 13 13 " )' ,,"--,-d':~':;;:::,:_,LL:_;:,,:...: ... :_....:i:,l_i;,,_ .::: .,~",~.~~. ::~~_;;;._;:~~';'..:c-_2:"~.~;;::~,.::'L>.. ,,',._,o~ ,"_',. 'o_, ,. ,0 - - - ...,,,,._~- ......-..-. ,,;...~--._..:.:~ ) .,
  • 22.
    ~ e ~:) ) ') ) ) ) ) ) ) ) ) -J ') -::) ) ) ) ) ) ) ) ) ) ) ) ) -el c:j ~ ) ) ) ) "'.::) J ) ~ -j d ,) "'") -c) ~ ••• _~:.:"",:,,-".'.¡':":~ En unpunto cualquiera de una estructura, existen seis componentes desconocidas de los esfuerzos (el tensor de esfuerzos en un punto es simétrico) y solamente tres ecuaciones de equilibrio (suma de fuerzas en X, Y, Z), por lo tanto el problema es indeterminado. la solución de las ecuaciones diferenciales sólo es posible en el caso de geometrfas simples, condiciones simples de contorno. estados simples de carga y comportamiento del material linealmente elástico. Nótese que aún en el caso de formular y resolver las ecuaciones diferenciales, siempre será necesario realizar un modelo de la estructura. En consecuencia no es posible analizar, con las herramientas actuales de análisis, la estructura real, solo podemos analizar un modelo de la estructura. Sin, embargo, si podemos determinar el comportamiento (respuesta) de estructuras reales, mediante ensayos de laboratorio. b) Modelo de una estructura: Sobre la estructura real se realiza un proceso de idealización de los elementos componentes, conexiones entre ellos y cargas actuantes. Se genera así un modelo matemático (físico) sobre el cual se aplican las herramientas del análisis estructural. e) ¿Qué se idealiza? - La geometrla de la estructura. - Los elementos constituyentes (por ejemplo barras) y suspropledades. Las conexiones entre los elementos (nudos). Las propiedades y comportamiento del material. Las masas (en los problemas dinámicos). tascarqas (solicitaciones). Los apoyos y condiciones de contorno. ro oa: oa:_::,.x:x= + .xy + xz +R =O LX q, a vx Ecuación diferencial del equilibrio de la particula en la dirección X ¡ j I t " 1i ! 1.9 Elementos Estructurales v No Estructurales Los elementos estructurales aportan resistencia y rigidez a la estructura. - los elementos no estructurales aportan peso y funcionalidad (tabiques, parapetos, mamparas. etc). Son necesarios para completar la función de la estructura. 1.10 Modelos (idealización) de las Estructuras Premisa: La confiabilidad o "calidad" del Análisis Estructural, está directamente relacionada con la fidelidad del modelo utilizado. a) ¿Porqué son necesarios los modelos estructurales? Si partimos del hecho que las estructuras son un medio continuo, con infinitas partfculas, con una variación también continua en las propiedades del material, en las deformaciones y en el estado de esfuerzos, el comportamiento de la estructura está gobernado por un conjunto de ecuaciones diferenciales parciales. Una de las ecuaciones diferenciales del equilibrio de la partícula se indica a continuación y corresponde al equilibrio en X: 14 ...-,..:,::.._..._._~-:~.- ""...:,,'::~:,!:.~-~:.~ ',,,~;':':~:,';'~:...:,' .- .. -';~,...:-::.:::~::::.: ., _:..._,-~,-,., _. ,.: ', . _, -'_"._-'
  • 23.
    15 .. Fuerzas aXiaJes (kg) ~L,. ", ·i .~... ",'"",,1··-,,'"'''' - ~...... ~-_. .... .- .....-'_ ... - .'. . .., ~-!; : .. . , Deformada Para formular el modelo necesitamos, por lo menos: Caracterrsticas de los materiales (E, tipo de comportamiento, en este caso lineal). características de las barras (área, material), geometría, cargas aplicadas, apoyos, tipo de conexión entre barras. El resultado, en este caso, es un modelo tipo armadura o de cables. Resultados del análisis estructural: Desplazamientos de los nudos (configuración deformada) y fuerzas en las barras. Modelo de una armadura plana 2- P (Se muestran las coordenadas de los nudos y las cargas en el Nudo 2) .i I «,, ! ...¡ ¡ , 1.10.1 Algunos modelos de estructuras"simples 1f9deloContinuo 2-D (gobernado por ecuaciones en derivadas parciales) Modelo Discreto 2-D (gobernado P9C ecuaciones algebraicas) Modelo Continuo 3-D (gobernado por ecuaciones en derivadas parciales) 1!íJ------~ La interacción entre 'os elementos estructurales y no estructurales, d) Resultado de la Idealización: Del modelo continuo al discreto. 15 J 1 , ) - , J 1 ! ! :! ,) ) 3 ~ S S >, ) -1 ) ) I ) j ) , ) ) l' , ) 1
  • 24.
    'J ,) ,) ~ J 9 J ) . . -:} -; ,-4¡ ) . ) .~ -:) -3 ., 9· ..'.. ,' ,. ; Fuerza cortante (ton); -3 16 Momento flector (ton-m) -9 ,_____. : Fuerza normal (ton) : r--,--+~.:....3__ -,.- J:I----...;_--rr--l-3 -9' -j •••• ,. .... ••• ,; . ,_o, , •• -3 ........... _ •• ••• o o" L- Porqué la estructura se mueve hacia la derecha y no hacia la izquierda? Deformada , 1····,··-·-·,oO. 1" _, .... _, •• _ o.' l.... , "... . i '..-'.. ¡ , j !, ... .. i 00- _ • _ .. _ ! . ~ Para formular el modelo necesitamos, por lo menos: Caracteristicas de los materiales (E, tipo de comportamiento. en este caso lineal), caracterlsticas de las barras (área, momento de inercia, material), geometrfa, cargas aplicadas, apoyos, tipo de conexión entre barras (nudos rfgidos y rótula al centro de la viga). Se formula, en este caso, un modelo tipo pórtico plano. Resultados del análisis estructural: Desplazamientos de los nudos (configuración deformada) y fue~s en las barras. ~ ¡ 3.' s·.·· " 2.; .. -_ O¡ , :.. -.- -- .• -- .. :O} " , 1·0 o •• o _ • o •• ' •• • • O) Modelo de un , . pórtico plano 2- D ,. -_.- " '~'_._'." ... " .- •• _ ...... ~---- •• _ -- .... _ -Ó: _- ... -.-.- _ •• - --~ 1.10.2 Otro modelo simple de una estructura plana (pórtico triarticulado). w=6 ..tlm 16
  • 25.
    17 Conversión de unModelo 3-D a un Modelo de Pórticos Planos 2-D. A continuación se muestra un pequeño edificio de un piso compuesto de nueve columnas y doce tramos de vigas. El edificio es de concreto armado y todos los nudos son rigidos. La estructura es en esencia un pórtico 3-D conformado por elementos esbeltos. Asumiendo que los apoyos son empotramientos. el grado de indeterminación estática del pórtico 3-D es de 72. ya que es necesario efectuar doce cortes en las vigas (por ejemplo al centro de cada paño) para lograr una estructura isostática y estable. en cada corte se remueven seis fuerzas de sección. En contraste, el grado de indeterminación cinemática es de 54 ya que la estructura posee nueve nudos libres y cada uno de ellos tiene seis grados de libertad. A pesar de que la estructura es 3-D, es posible reducirla a un ensamblaje de pórticos -3 planos cada uno de ellos actuando de manera independiente del resto. Con esta simplificación se reduce de manera importante la complejidad (más bien la laboriosidad) del análisis estructural. Sin embargo esta "reducción" a pórticos planos tiene varias inconsistencias importantes. algunas de ellas: Las rotaciones en los nudos del 20 no son compatibles con los del 3D. es decir cada nudo del modelo 20 rota de manera independiente. En la estructura real las rotaciones de cada nudo son únicas. - Los desplazamientos verticales de los nudos del modelo 20 no son compatibles con el 30. - En el modelo 2-0 se pierde la torsión que podría existir en las vigas y columnas. Los desplazamientos horizontales del modelo 20 no son compatibles con el 3D. - Si hubiera un diafragma rígido (losa de piso) conectando los pórticos. ¿qué sucedería con los desplazamientos horizontales de los pórticos? f , 1.10.3 Algunos modelos 3-D de Edificios. ) ) ) -) ) I ) J ) I ) ~ ) ,) J J ) -) ) ) .;;; -) .) } -, ) I ,l 1 1 1 ¡ ) ¡ ¡ j I 1 , -l } 1.10.4
  • 26.
    18 . 7 IAn.alizar·el modelo -:Generarun Modelo 2D del pórtico y aplicar las cargas (metrado) ) ) -J ) ~ ) ) ) ) .) ) ) ) ) ) ) ) ~ --!) ~ .) .) ) ,) J _) ,) :j ) ~ ) .,.) ) ;¡j ~ ::) ~ I¡ t. t I 1 ( r t SeJeccíona,r y aislar el pórtico Portico 3D (simplificado) Diagrama de momentos (ton-m) Deformada ~.----~--~~.I------.-r-5.0 *. 3.0 -1 l Planta 3.0 I ¡p t(rl()l.I-~-liF.:!::. =:. =l' • O.30~0.50 9.30x0.50 I ._ i O.30xO.30 ~ .--_ ~!,.o;.::. r ~.';: . l ~: , " , 13 ~tTl. . . :::.::':~~O,~::,.~:.,"'.:.~:.~:·;.;'~~~~:'.77',·1"~'~0;oL·:,·:1~~~:~. ...;;..0~. .:.~.~~_:~=-~~~~=~~'.~:-;.. -_~':.~~~.:.;~'~-':;"..-::::~:..~-."L~~~~.~..;..;.:.._.~~;_~.:,,'~.~-=.0,'-, '0',:;.~~_._:;..~~_~._.,~~. __~':.~~..~; :.~:,;::. _;~~~ ".c_~_~~·~_.__;; -;-::;.:70 o---'':- ~.~..::...;.~~.-:.~,~.,._. ! ;1J 1) O :) 1 ) ) ) ) ) )
  • 27.
    19 Algunas inconsistencias delmodelo 20 frente al 3D: Las mismas del caso anterior (acápite 1.10.4). Adicionalmente la presencia de un diafragma rígido en su plano (losa de piso) impone restricciones adicionales a los desplazamientos laterales de los pórticos, es decir los pórticos no pueden desplazarse lateralmente de manera independiente unos de otros ya que el diafragma de piso "amarrawlos desplazamientos laterales. Si hubiera una fuerza lateral actuando en el centro de masas de la losa, ¿cómo se distribuiría esta fuerza entre los pórticos? ¿El empotramiento de las columnas en la base será perfecto? ¿Los nudos son completamente rígidos? ¿La losa no aporta rigidez a los pórticos? ¿Cómo se comporta la losa, simplemente apoyada en las vigas? Pórticos 3 Y4Suelo .." Ic,Ac 1 (40x25) " lz (4 Ox25) h --@ Pórticos 1 Y2 (25x40 2 IC,Ac (2Sx40) 1 h ,--@ ,Losa Maciza 1.10.5 Otro caso de Modelo 3-D a un Modelo de Pórticos Planos 2-D f J } J , } » ) ) _, ) --, 1 J I _) ¡ ~ ¡. I I II I I) 1 ) ) ) ) ) _) ) ~ J. ) ) J ) --, ) ) i I ~ I ) L) ._~ ,
  • 28.
    _,.< Segmento de unatorre de alta tensión o antena Losa - Parrilla 1 Tanque esférico apoyado sobre columnas /«.~ ,./ f j 1.10.7 Algunos Modelos 3-D de estructuras Portico 2-D ~< Ji JlL-I Portieo 3-DPortieo - Losa 3DModelo 3-D / Estructura Real UJ 1.10.6 Otro caso de Modelo 3-D a un modelo de pórticos planos 2-D 20 ",:,. -...;.._-::-,;:-:.,-;. -~. -;- -:~-=.:"-.-.- -"~"·'r •. ·.' :~... r". ·_c.o o', ~" , '''"~ .~.'''''_'' ., ,<. _~ __, ..~ _ ~ __ :... ..:..' '.. c·:· ...~:;; ..-.·:.-_··_-,·.-:·,··::-:· ... ¡- • --'~~ r_"""r~ .•. ;..;...,o"" ;,.;. ...
  • 29.
    21 En el modelomostrado en la figura anterior se han hecho las siguientes idealizaciones: a) El muro, que es un elemento bidimensional, se ha transformado a un elemento unidimensional. Normalmente será necesario incluir las deformaciones por cortante en la placa o muro (en la figura, Im es el momento de inercia del muro y Acm el área de corte), además es conveniente incluir las deformaciones axiales en el muro yen las columnas. b) Las vigas cercanas a la placa son de sección variable. Tienen un tramo de longitud "a" de rigidez infinita (El = (0) y otro tramo de longitud 11 con rigidez Elv. El tramo de rigidez infinita (brazo rfgido) intenta modelar la conexión entre la placa y la viga y representa la hipótesis de Navier (secciones planas). c) Se ha supuesto que la placa está empotrada en la cimentación, esta hipótesis puede ser cuestionable debido a los grandes momentos flectores que suelen presentarse en la base de los muros ante la acción de cargas laterales. A continuación se muestran las configuraciones deformadas que se obtienen al analizar el pórtico bajo la acción de cargas laterales únicamente, utilizando dos modelos. En el Modelo 1 se ha supuesto que la viga "entra" hasta el eje de la placa conservando su sección transversal y en el Modelo 2 se ha modelado la viga utilizando un brazo rlgido (indeformable) entre el eje de la placa yel borde derecho de la misma. Las diferencias en la configuración deformada del pórtico para los dos modelos son notables, sobre todo en la zona de conexión viga - placa. Modelo del pórtico plano. (Muro modelado como elemento unidimensional) Pórtico plano. Muro (placa), columnas y vigas. 1m le NPT Acm 1 2 3 le le " .. " ., .. '1 a tI t2 Muro (bidimensional) . 9 ~--~----~----I ~ a f ~ le 1,2 " Brazo rígido (El =!Xl)F2 .. '1 >¡ F2 7 8 --:0; =--.. I I Brazo rIgido(EI =00 _ _ 1_ _ _ J Fl S ~4 Iv Iv 1.10.8 P6rtico 2-D fqlano} con muros de corte oplacas de concreto armado. Es frecuente utilizar, en zonas slsrnlcas, elementos rfgidos de concreto armado para controlar las deformaciones laterales del edificio, estos elementos rfgidos suelen ser las placas o muros de corte. Los muros son elementos bidimensionales. Muchas veces el muro o placa está conectado mediante vigas a columnas fonnando un pórtico "mixto" como se indica en la figura a continuación. En estos casos, un modelo que se suele utilizar con frecuencia, consiste en idealizar la placa como un elemento unidimensional, al igual que las vigas y columnas. El problema radica en modelar adecuadamente la zona de conexión entre la viga y la placa. } J ) J I ¡ J J J ~ I } t )r I¡ ,I l ., J , ) ) ) } ) r ) ~I } ?} I Jf L) ) J ., ~) ; I } L )
  • 30.
    @ ::D 'O ) 1 ) ") ) ) ) ) .) ) ~ -:> ~ ) ) ) ) ') ) ) ) ) ) ) ) d o ~ .) ) ) ) -j _j ,) ·0 ) $ ) ~ ') ) •® ;) -1 . "., I."~: : .' . ~~.*ii~~:f:, I 1, I I .: . I I i •I .'. '... ~ _.~~_.l;.r'. .t··.. l·: . ( " , ~"~"':~:f;':~':.:.~/ ;',t~',::. ~ ~ - - ~...",S;.-.,];, ,.: :,: 22 Modelo 2 -Configuracíón deformada, cargas laterales. Viga rígida en la zona de unión con la placa, 22 Modelo' 1- Configuración deformada, cargas laterales. Viga flexible en la zona de unión con la placa.
  • 31.
    23 Modelo 1 -Configuración deformada, cargas verticales. Viga flexible en la zona de unión con la placa. 3 I 1 I I I I ,1 : Muro~ ~1 I 1 •I I,._,. ,. ~ '__'_~_'...._.;-.- í " II i Análisis por cargas verticales ,'7/lZ" 2 6·4 $, r r. r: 1 J I.','i J 1, ! I "¡ ~- ~-.,. ..-,. - ,..~~l~J"""'_-lJt-" -,-.~l+l~, L;"""",.''r:-~~.."+'-'-",_.,.l,.,.,·"--";'J!--,' ,-.~I"""--iL: ':' . '1 : '~ " 9 , , : 1 ,1 I 1 1 i -'I 1 1 , J ' : Muro1-..-.-,.- ,; ... -,. ...,.-.,."";;,u.~,,.,.- -,. --- 1 3 t/m,'. I A continuación se muestran los resultados del análisis del pórtico, bajo la acción de cargas verticales únicamente. Se han utilizado tres modelos, los dos primeros son los mismos descritos anteriormente y el tercero consiste en suponer que las vigas se encuentran empotradas en el borde de la placa. ., r r t- i }¡ ¡ 1, 1 , I ) -') ¡ , , ) ¡ J ) _)I I } 1¡ ¡ ) ) 1 -, ) ) ) ) .,. 1 ) ~, } ¡ } I 2 ( ) .i.. ,1 ) .., I) ~)
  • 32.
    fD él ~ .) ) O) ') ) ") ) ) ) ) d 1 ~ ) ) ) ) ) ) ) ) ) ) ) ) -d ·3 ~ ) .) ) .) __, .) .J ;:J 24 L,ps~'ramas de mO,mento~flec~~resparalos tres modelos analizados para cargas V7ttic~l~s.se lTi~estrana continuaclón. / .. Modelo 3 - Configuración deformada, cargas verticales. Vigas,empotradas en el.borde de la placa 3 r.: I ! t t ~.~~--------------------_. I f I •I l" , Modelo 2 - Configuración deformada. cargas verticales. Viga rígida en la Zona deuni~n con la placa. . 1.,i . .------~~~.~. ___________ i._ 'M~to r--~~"-'i;:'~t~';''''''';:~-:!:~~~~-í~~~:'."'. ., l," ; • l. : I '.:;: l' II . ,. I ! I 1 , I i , I l' I } j 4 Ir~- ,::. i •I ,., •I •l·" •I •I 24
  • 33.
    25 Modelo 3 -Diagrama de momentos, cargas verticales. Vigas empotradas en el borde de la placa -0.9o.~ I I I , I ~------_--------------------~ Modelo 2 - Diagrama de momentos, cargas verticales. Vigas rígidas en la zona de unión con la placa. 05 ·1 I I .- -- ...... 3~8:'7.4.:..&-=.......~- - -- -.,. ---- -.- _-' Modelo 1 - Diagrama de momentos (ton-m), cargas verticales. Viga flexible en la zona de unión con la placa. -0.1 I I I --------~-~"'"!'-. I I ,--------- ...- ·4.8 ) J J ) J ) ..l~ ) ~ .) "> .} ") ) -=, ) ;1 .., .~ i ) L J _j I _)I , ) ) ., ) ~
  • 34.
    .~. ") ¡ 1¡ 1 ¡ ) :> t ) 1 )I ¡) [ ¡ ')¡ I .,) J f -=:) ! ') ! ¡ ) ¡ )~ f ) I )~ 1 ) ¡ ) ~ • ) I• ) ¡ ) ) ) d ~ --:} ) ) ) i) =1 .) ., ,); ~ ) ~ -') ~ -) ) ~ r' J ../ h= 3 -¡. 5 MODELO 2D , No existe un límite claro o preciso a partir del cual los elementos deban considerarse como tridimensionales, bidimensionales o unidimensionales. La clasificación y en consecuencla la idealización de los elementos, queda a juicio del ingeniero y será función de la "fidelidad" que se pretenda lograr. La figura a continuación ilustra esta idea utilizando un elemento esbelto, que puede idealizarse como unidimensional, y otro para el cual esta idealización seria cuestionable. En general todos los elementos son tridimensionaJes, sin embargo, si la longitud del elemento es "considerablemente" mayor que sus otras dimensiones, el elemento puede idealizarse como unidimensional. Este suele ser el caso de las vigas y columnas de los pórticos 3D 6 2D. :.;~-::i t~~ b;:;h h1 L» (b,h) -~~.' b Viga. columna; armadura (1D) x . Losa. cáscara, muro (20) (3D) ,.~irum U' i 1.10.9 Clasificación de las Estructuras Para el curso de Análisis Estructural 1, hemos definido a las estructuras como un ensamblaje de elementos estructurales discretos, interconectados entre sJen un número finito de puntos. Bajo esta definición los· elementos, pueden idealizarse, independientemente del material y su forma, en: Unidimensionaies Bidimensionales Tridimensionales 26
  • 35.
    27 L Tienen múltiples aplicaciones,desde las armaduras o "cerchas" de madera que se emplean en viviendas, tijerales de acero en naves industriales hasta puentes de grandes luces, antenas y torres de atta tensión. . Su objetivo es el uso más eficiente del material. Si imaginamos que la armadura trabaja como una viga, soportando esfuerzos de flexión y cortante, al aumentar la altura (peralte) de la armadura se reducen los esfuerzos debidos a la flexión y al mismo tiempo no es necesario disponer de un alma sólida, sino que basta con elementos diagonales y verticales para resistir el cortante. Armadura Plana. poyo 1) Estructuras de Barras o Reticulares Formadas por el ensamblaje de elementos considerados o modelados como 1D. 1a) Armaduras Planas o Espaciales. (Isostáticas o Hiperestáticas) 1.10.10 Grandes grupos en la clasificación de las estructuras 1) Estructuras de Barras (Reticulares). 2) Estructuras Laminares (bidimensionales). Losas, cáscaras, muros. ¡ . 3) Sólidos (3D). i ! 4) Mixtas.! I 1 J V I I I 1 2 '0 V Elementos ID Pórtico 2D vh 3 ti---;I'--v---------....4 h =.L, ..L, L~ 11 10 12 14 I En general se suele aceptar que si la longitud del elemento es mayor que cuatro á cinco veces el peralte del mismo, el elemento puede idealizarse como unidimensional. Este Hmite está ligado a la validez de ia hipótesis de Navier (secciones planas). Por ejemplo, las vigas de los pórticos de concreto armado se suelen dimensionar de tal modo que el peralte esté comprendido entre l/lO y 1/14 de la luz, en consecuencia pueden clasificarse como unidimensionales. ¿I ) J ) V ) ) , ) ) ) "1 ) !¡ I I J J ) ~ I I ) I I I I , ) I } ,) ) ) ) ) ) ) J 1 I 1 >) I i) ) ) :J -)
  • 36.
    f. r( :':) ) ) ') ) ) ) ) ) ) ) "7 ) J ) ) -) ) :) ) ) ) ) ) } ) ~ ~ ;j ) .} .) 2J ~ ~ iJ ',, _) .') ;) rj ) :) .~ Fin.k Compleja' Howe Pendiente Doble Grambrel..PendienteSimple . Inglesa Fink PrattWarren Otra ventala de las armaduras es su rigidez ya que por su considerable mayor altura en . '. cornparaelón con una viga de alma llena; los desplazamientos de los nudos suelen ser 1 pequeños. ' , Las, principªles ide~UZaciones (~implifi~ciones) que se suelen hacer en el análisis de ;, I armaduras'y a partir' de las cuales se gefi~ran los modelos son: . '! - Los elementos son rectos y están conectados entre sí en nudos artlculadoe.' •.' 1 (artleulacíones sin rozamiento). Los nudos articulados permiten el giro relativo de las ;:.i barras. En ia práctica diflcllrnente se materializa esta hipótesis ya que las uniones ' ..I suelen ser soldádas o empernadas. :' '1 j - Las barras' se .unen en sus. extremos, Esta hipótesis no suele cumplirse en los. ; cordones (bridas) superior é inferior de. la armadura ya que las bridas suelen Ser ..! continuas cubriendo varios nudos en vez de ser una serie d~ barras cortas entre nudo ! y nudo. Esta práctica tj~n.e,Iª....x~ntaja de simplifi~r las conexiones en los' nudos ya que no es necesario.eon~i~Jrelemento contínuc.' . . . . . . ":Las carg~s'{Qoncentradas);s$ '~Jican '$ototenlos nudos." Deben eviWFse')ascargas en , .puntos int~m)ecfjc;>sde 105' el~.neh.osya que inducen flexión en ello$" $i exístiera una .: ~~-concentrada en un elemento, conviene modificar la geomefri~ de la armadura "'2:~i~";que dicha CatQ~ coincida con un ·nudo. LaS únicas carqas que no están /8PUcádas en.' los nudos deberían ser las provenientes del peso propio de los Equilibrio (corte a-a): Ma == T x h Va = V eos ct. Otra de las ventaj~s de las armaduras es su vel'$atilic;ladpara adaptarse a diVersa~ formas según ras n~césidad.es. Existen numerosas fÓ·tmas.argunas efelas más comunes se indican a conñnuacíón. . Dj~8: CU~1pO tibre Corte a-a ~o .'''v',_':_ T f ~,I J' 1 Corte a-a 28
  • 37.
    Detalle de unode)os apoyos interiores (articulado) Detalle de uno de los nudosArmadura de un puente (Bridas Paralelas) Las tres figuras a continuación (Godden), muestran un sector de una de las armaduras (de bridas paralelas) de un puente de acero de una carretera. Dada la magnitud de las cargas que debe soportar el puente, los. elementos constituyentes, sobre todo las diagonales y las bridas, son grandes. A la derecha se muestra el detalle de la conexión de los elementos que concurren a un nudo inferior, los elementos están unidos por remaches a las cartelas o planchas de enlace. En este caso es claro que no se trata de un nudo articulado que permite el giro relativo de las barras que concurren. En la parte inferior se muestra el detalle del apoyo articulado. 1 ~i Fuerzas internas en la barra de una armadura N· J Si se cumplen las hipótesis anteriores, las barras de una armadura trabajan solamente a carga axial de tracción o compresión sin cortante ni flexión. 29 ) ~j ) - '"i , -ii r) ) í. ..) _J i l í )¡ 1 ) ) 1 , ~ 1 -) ) ---1 I ) ) J } ) ) ) ) ") 1'" j ! )
  • 38.
    .,', (1) () ::) ") ') ) ) ') ') ") ) ) ) j ) "l ) ) _) ) ~ ) ') ) ) ) ) .) ~ J 'J ) .) ) ~ ~ iJ .) 30 Uniones empernadas 30 ./t' Uniones soldadas Sise observan las uniones de la figura anterior, se puede concluir que en la práctlca la _;. hipótesis de nudos articulados es; por lo menos. discutible', Sin embargó en las ;: . armaduras "normales" la esbeltez dé los elementos suele ser grande, la rigidez a. la' : flexión pequeña y por lo tanto priman los esfuerzos axiales. Si las cargas están todas ;' i aplicadas en los nudos, a los esfuerzos que originaria la flexión por la rigidez de la unión. _. I sel les llama "esfuerzos secundarios" y se suelen ignorar o despreciar en el diseno de los ..' .,1,' e ementos. En todo caso si la hipótesis de nudos articulados - para una estructura particular en la -. cual los perfiles no sean tan esbeltos (caso de armaduras de puentes) y las conexiones ': no fueran rótulas - no fuera válida. siempre será posibie analizar la estructura dejando de ,i;' lado esta hipótesis y modelando la rigidez de la conexión. En este caso la'estructura se :; convierte en un pórtico con cargas en los nudos y lo dificil será modelar la rigidez de la ,:' conexión. Finalmente están las armaduras tridimensionales como las empleadas en las torres de, alta tensión; para las cuales toda la discusión que se ha hecho para las armaduras; - planas, es aplicable. Una buena parte de estas armaduras puede -analizarse' bajo la '--,. hipótesis de nudos articulados. sobre .todo. las torres de alta-tensión 'en las cuales las'., conexiones suelen ser..empernadas con los pernos colocados en una sola linea. ", /' .. -/ I La figura a continuación muestra algunaS' conexiones "Upicas" de elementos de una 1Iarmadura en los nudos. Nótese que los ejes de los elementos (Uneasde los centroides de los perfiles) deben coincidir en un'punto, en caso centrarlo se genera excentricidad en l..-/ la unión la que ocasiona un momento que debe ser equilibrado pOJlos perfiles
  • 39.
    3 2 Pórtico 1 I ¡;~V VV V¡V Y Y Y V¡V y rJ. 2 3 4 5 w Los ejes 1-2-3 son ejes locales de la barra y deben ser principales y centrales. N 1 1b) Pórticos Planos (sistemas planos 2D) - Formados por el ensamblaje de elementos 1D. - Elementos conectados entre si en los nudos. Los nudos pueden ser rígidos, semi - rigidos, o articulados. - Cargas aplicadas en los nudos y barras. Las cargas están contenidas en el plano del pórtico. - Los elementos tienen rigidez axial y por flexión. - Los apoyos pueden ser de cualquier tipo, inclusive apoyos elásticos. - Las fuerzas de sección en las barras son: Axial, cortante, momento flector. No existe momento torsor ya que las cargas están aplicadas en el plano del pórtico. Elevación cara lateral Armadura 3D, parte inferior de la Torre Eiffel Madeja de Armadura 3D I ) ) --, I ,1 I J I ~ I JI I __j I ) j ) ) )1t ; ¡, ! ; ¡ I I 1 ~ 1 1 )¡ ~ )
  • 40.
    i i j : Ir -. Pórticode acero con arriostres Pórtico arriostrado 10 5 6 7 S t 2 3 4 Pónico con elementos curvos .'4 Viga Vierendeel 6 10 ,..../' ,, 1 s2 3 4 ) ) ) ) ) ) ) ) ) ) " ,) ) ) ) ,~ ) ~ ) ) ) ) ) ) ) ) ) ) ) ) ) ~¡ ,. ~ o O) .) J j ) .) J ~ 32 Pértícosde concreto armado, soporte del tablero de-un puente Pórtico de concreto armado con viga prefabricada Pórtico a dos aguas 2J ! j I &'~"JttJtJtJ¡4JJ'J, .5
  • 41.
    33 I I I 1d) PórticosTridimensionales (sistemas espaciales 3D) I - Formados por el ensamblaje de elementos 1D. ¡-Elementos conectados entre sí en los nudos. Los nudos pueden ser rígidos, semi- '1 rígidos, o articulados. ¡-Cargas aplicadas en los nudos y barras. i Los elementos tienen rigidez axial, en flexión y en torsión . ! < - los apoyos pueden ser de cualquier tipo, inclusive apoyos elásticos. - !.:,as-fuerzasde sección en las barras son: Axial, cortante, momento 'ñector y momento ! .... /tersor. En la figura a continuación se muestran las fuerzas de extremo de barra, : / referidas a sus ejes locales; los que deben ser principales y centrales. 1'" . l 1 La parrilla está contenida en el Plano X-Z Modelo de unaparrilla 12 .~ 1 Los ejes 1-2-3 son ejes locales del elemento y deben ser principales y centrales El plano de la parrilla es el 1-3. 1c) Parrillas (sistemas planos 20) Formadas por el ensamblaje de elementos 1D. , Elementos conectados entre si 'en los nudos. Los nudos pueden ser rígidos, semi- rígidos, o articulados. - Cargas aplicadas en los nudos y barras. Las cargas son,perpendiculares al plano de la parrHla. Los elementos tienen rigidez en flexión y torsión. Los apoyos pueden ser de cualquier tipo, inclusive apoyos elásticos. " Las fuerzas de sección en las barras son: Cortante, momento flector y momento torsor. No existe fuerza axial en las barras ya que las cargas son perpendiculares al plano de la párrilla. '., 33 ~ i I t i ) 1 ) 'l j" , ; ~ J ) ) ---') I ) l t , J ) } ,) j ) I ) ) _j ) 1I -d ) j ) ~ ~ .)I ! ) ) _J .J -'~ J .."
  • 42.
    " ! ~f) ¡J !;~ ') ) ) ) ) ) ) ") ) ) ') ) ., ) ) _J ) ~ ) ) ) ) ) ) ) -=> .) 1 ) ) ) .:_J .) ~ J ) J ') j '") .) ) ~ Q -) 34 Mzz Mzx M,,"'·'·:. """~. El espesor es mucho menor que las otras ~. Edificio AICQaen Chicago. Grandes .. diagonales de arriostre .. 3 1 2 34 2) Estrilcturas Laminares (bidimensionales). dos dimensiones. - Losas (cargas perpendiculares a su piano): . ,i:;" • Torre. de Control en un Aeropuerto 3 2
  • 43.
    35 O'z Puente masivo O'x 3) Sólidos(tridimensionales). Represas, cimentaciones masivas, piezas de equipos, -- puentes de mampostería. - Bóveda$ o C6scara$ ,-E$tados planos de esfuerzos (vigas pared, muros o placas) car9as en su plano: ) ) } j , , ) ) ) ) ) ) ) ~it IJ !_) t ~ 1 1 I I j ¡
  • 44.
    ) ) ) ~ -, ) ) ) .~ ) -') ) ) _) ) _) ) ) ) ) ) ) ) "j ) ') ) ) ) J ... ) ~ ~ ) '.) ). .) ") ) ) ~ ~d -) -. --_. -, ... .. .. ~ . ~ l' - Elevación 36 Armadura de vigas y columnas en un Dudoexterior de una estructura de concreto armado Nudo Interior " 1= :-1" ;= 1- ,--- L. '------------ . Planta Nudo Exterior 1.10.11 Nudos de Pórticos a) Pórticos (estructuras) de concreto armado: Los nudos suelen considerarse rígidos. En estructuras de concreto armado lograr nudos o uniones articuladas suele ser . problemático .. Vigas Ycolumnas, elementos 1D Nudo Rígido O"x Muro o placa, elemento 2D crz ay Componente o pieza de un equipo 4) Estructuras mixtas I¡) 36 1~··.:,.,é:;i"':: .. ',.. :'<'.,~",~:":,.i..'c:::,-,-"_:~',,,-._.. ,,_.,.... ",._"~,.,, ~.",,,. _c,_ 1 ~
  • 45.
    37 Unión viga -viga BoltsorLoaded beam Nudo rígido (planchas de acero y pernos) Nudo de un tijeral de madera Unión simple columna - viga Uniones simples columna - viga Steel U bracket welded 10Iopor ate!!1column Base de una columna de madera b) Pórticos (estructuras) de madera: Suele ser complicado lograr uniones rígidas, salvo las uniones encoladas. 37 ) } ) ) ) ) ) } ) 1( 1 ) .1 1 ) ) ) 1 I ~ ) ) I )¡ I ) ) ¡
  • 46.
    ) ) -) ) ) ') ) ) ) ) ') ) ') ) ) -) ) ~ ) ') ) ) " I ) I ') ) ), .) ) ) _o) '-' ) /' :::: / .) ~. d i) ,) f~ .) ) ) J ~ ® _o: 38 Unión rígidaempernada t"1-tI ~. o o o o Uniones simples (de cortante) Unión empernada con planchas y cartelas Unión empernada con cartelas soldadas e) Pórticos (estructuras) de acero: Existe una gran variedad de conexiones: rígidas, t semi-rfgidas, simples (conexiones de cortante). Existen en esencia dos métodos para conectar elementos en una estructura metálica: pernos y soldadura, los remaches han cardo en desuso. 38 .... ",-"., ,',:' '_.'¡~ .. :¡ ._. ,.~.~.~,:,:.;c;-;.;~,.,,,-,,,;:;_:.:..;;-;;;'.>·.,,,~~i_,'~.:.,~:;."'::'.-_~'~;:2:~:,~·;;;;:~-<;;::~:Lc~,c:,_~c;.~;,",.:,,:o_,~c:. l} ~ ----_ :':':'~.":_';-=--, ; .... _. ~~.:.!1:;~.:~~.~~·~~2~·l~:~~_~~~~;:.:~~;:~;_;_",-~~~~~.'..~,;~~~.~~._:::,~'~:';;: ':'~":'-;'_:"=~_'_;;~::~: ,:,;._~:.~_:~::;:. ,..-
  • 47.
    39 Construcción compuesta. Viga metálica.deck (plancha de acero plegada) y losa de concreto. .mtOI ~._---- Unión rígida empernada Unión rígida con soldadura y pernos ) ) ) ) )
  • 48.
    ) ) ) l,} ) ) ) ) "i ) "l ) ) _) ) ..:) ) ) ) ) ) ) _) ::) J ) ) _,¿ ) :0 ::¿ ~ ,j .) .) J ) 1 ) J ~ Q .:) 40 2.1 Bases delAnálisis Estructural Los problemas más simples del análisis estructural son los estáticamente determinados, ya que éstos pueden ser resueltos aplicando únicamente las ecuaciones de equilibrio. La idea central es que en estos problemas las fuerzas internas en los elementos (barras) pueden ser calculadas sin considerar las deformaciones de la estructura. Esto significa que el análisis estructural puede ser realizado sin conocer de antemano las propiedades y comportamiento del material ni las secciones transversales de las barras. En una estructura hiperestática, las ecuaciones de equilibrio son insuficientes para determinar las fuerzas internas en los elementos constituyentes, siendo necesario formular ecuaciones adicionales. Las condiciones de continuidad o compatibilidad de las deformaciones en la estructura, conducen a las ecuaciones adicionales necesarias. Adicionalmente se requiere conocer las relaciones fuerza - deformación (relaciones constitutivas) de los elementos que componen la estructura. Para estructuras linealmente elásticas, estas relaciones provienen de la ley Hooke. Las estructuras indeterminadas, que aparecen con mucha frecuencia en los problemas de análisis estructural, presentan algunas dificultades adicionales para el ingeniero estructural. En primer lugar, el análisis es bastante más laborioso y complicado en comparación con las estructuras estáticamente determinadas. En segundo lugar, el análisis estructural solo puede ser realizado considerando la geometría de las deformaciones, esto significa que es necesario conocer de antemano las características mecánicas del material y de los elementos estructurales. Una selección inicial inadecuada de las caracterfsticas de las barras, puede ser corregida únicamente realizando una nueva selección y volviendo a realizar el análisis. En consecuencia, la mayoría de los problemas estructurales deberán realizarse aplicando las siguientes tres condiciones o principios básicos: 1) Equilibrio: de la estructura, de las barras o elementos y de los nudos. 2) Compatibilidad y Condiciones de Contorno. También llamada las relaciones Deformación - Desplazamiento. Los movimientos de los extremos de las barras (o !. elementos) deben ser compatibles con los desplazamientos de los nudos. Esta condición puede expresarse mediante la siguiente relación: {d} = [A] {D} donde {d} y • {D} son los movimientos de los extremos de las barras y de los nudos respectivamente y [A] es la Matriz de Transformación de Desplazamientos (véase el Acápite 7.3). 3) Relaciones Constitutivas. También llamadas Relaciones Fuerza - Desplazamiento. las fuerzas (esfuerzos) en cada barra (elemento) y sus desplazamientos deben satisfacer las ecuaciones derivadas de los diagramas constitutivos (O' - E) del material. ' Esta condición puede expresarse mediante la siguiente relación: {q} = [k] {d} donde ;, , {q} son las fuerzas de extremo de barra y {d} los desplazamientos correspondientes ••, ' y [k] es la Matriz de Rigidez de la Barra (véase el Capitulo 4). la solución de cualquier problema de análisis estructural deberá cumplir con las tres ' ' condiciones o principios básicos mencionados, independientemente de: - Del método de análisis utilizado (rigidez, flexibilidad, mixto). , Del comportamiento de la-estructura: elástica, inelástica, deformaciones pequeñas, deformaciones grandes. Del material de la estructura: linealmente elástico, elastoplástico, no lineal, etc. - De las solicitaciones (cargas) que obran sobre la estructura: estática, dinámica, asentamientos, cambios de temperatura, etc. CAPITULO 2 -Bases del Análisis Estructural 40 . _.~--- - ~_.._- .-'- ..;_:__--::_--_...: ~__ .:..._.....- " ·... . ;~~:_ .._...._..~-...
  • 49.
    41 Compresión paralela a lafibra -+-------3> EIIl Comportamiento de la madera en compresión paralela a la fibra, E$luerzo o limite de proporcionalidad ::ti 300 kglcm2 400 300 Barra 1: Madera, compresión paralela a la fibra. E = 100,000kg/cnr', A = 150cm2 (piezade 4"x 6") ~ ~1f'----3·60----,r1 T2.70 J { F }3xl = [ K 13X3 {~hx) [K] es la Matriz de Rigidez Lateral del pórtico plano A continuación se presentan tres ejempíos simples de la apücaoíón de los tres principios básicos mencionados. Ejemplo 2-1 La armadura plana mostrada a continuación está formada por dos barras dé'dlferente material, la barra hortzontal es de madera y la iliclim:tda de acero. Nótese que ¡a estructura es isostática. por lo tanto las eouaciones de eqúilibrio son suficientes para determinar todas las fuerzas internas y reacciones. Sin emb.argo.para determinar la configur~ción deformada de la estructura, en este caso el movimiento dei nudo 2, será nece$ano conocer las propiedades de los materiales de las barras y sus secclones transversales y utilizar los otros dos principios básicos del análisis estructural. Columna envolado .IF_ 3 El A I ---u l' ' F~ , ) ! / A. 1 1/ 7T 1 Sección de una viga en flexión pura. Relación Momento- Curvatura F3 ' , ~ ~ 3 Resorte F=kA > M=EI el>F Los siguientes son algunO$ ejemplos de Relaciones Constitutivas (Fuerza - Despl~~miento) para estructuras simples linealmente elásticas: ") r ' , t ) ) ) -) ; ¡ ) ~ j ) ) ) ¡ ) ~ , , J 1 ) 4¡ í )I ¡ ) ) } ) ) ) ) ) ) ) ) ,1 ) ~"'I '; } : ) I ) I I ,) I ) I /) ) I ,) ) "
  • 50.
    S) O C:} ) ) ) ) ) -) ) ) ) ) :-j ') ~ ) ) ) ) ) ) ) ) ) ) ) ) -:j '~ --} ) ~J ) ) .) ..) ,) ) ) j .) j ) ) e :'ZJ ,,'j 1 42 AH = di= 0.096 cm d dAv = _2_ + _1- = 0.503 cm sens tan9 I / <, I .......¿Posición final 2' del Nudo 2 d2 = 0.225 cm dI =0.096 cm e) Compatibilidad. Las barras deben moverse de tal modo que permanezcan rectas y , sigan estando unidas en el nudo 2. Por ser pequeños los desplazamientos del nudo 2, se ; han sustituido los arcos por sus tangentes " c¡ = Ee ~ Al = q I EA -4000 x 360 . di = S =-0.096 cm [acortamientc) 10 ><150 d - 5000 x 450 - O225 ( I . )2 - -. cm a argamtento 2xl0'x5 3,000 2 9 == 36.87 o q,= -4,000 kg (compresión) -4000 2 0',= ~ 27 kglcm 150 q2= 5,000 kg (tracción) 0'2= 5000 = 1,000 kglcm2 5 Nótese que las ecuaciones de equilibrio se han planteado sobre la configuración indeformada de la estructura, es decir, se ha supuesto que los desplazamientos del nudo 2 serán pequeños. Esta hipótesis deberá verificarse cuando se calculen los desplazamientos del nudo. Adicionalmente los esfuerzos calculados en las barras, indican que éstas se encuentran en la zona de comportamiento lineal elástico. b) Relaciones Fuerza - Desplazamiento (O' - 8): Material linealmente elástico. a) Equilibrio estático: Nudo 2 Q2 Comportamiento del acero en tracción. Esfuerzo de fluencia 2,500 kglcml fY= 2500 Barra 2: Tirante de Acero. E = 2xI06 kglcm2 A = 5 cm2 (barrade diámetro el» = 1") 42 o ,Oo.=: ;0:'0":;- :'0' 'O. _ OO': O ,'O'." " ... ~ •• ,...... .....;~~:..:i.;;.:.;...;:..~,,¡:; .,n;. .." .•~;:~I:"O"~",,,,,: •.., ¡.
  • 51.
    43 Sección simétrica respecto deleje y plano de carga Flexión pura o-{;$.;-- ... Ejemplo 2..3 Determinar las relaciones F - 8 (en este caso las relaciones Momento - curvatura) en una sección sometida a flexión simple. 2 ~=o.225cm '[:>a::Z::Z::Z:::Z:Z::Z::Z:Z:::¡!:Z:z:::;i!ZZ:z%:z:::r¡q...: ~o 111V 1/ 2'~ I Posición final del Nudo 2 Il = OH Ilv =..!!.L = 0.375 cm senü d2 =0.225 cmdI =0b) Relaciones o- E c) Compatibilidad q2 = 5,000 kga) Equilibrio Nudo2: No cambia. ql = - 4,000 kg 6 E=2xlO A=5 el') .,' Se puede apreciar que el desplazamiento del nudo 2 es pequeño comparado con las dimensiones de la estructura indeformada. . Ejemplo 2..2 Consideremos la armadura del problema anterior con la diferencia que la barra 1 es un sólido rlgido (indeformable). Lo interesante de este problema es comprobar que, dado que la estructura es isostática, las fuerzas en las barras no cambian, sin embargo el desplazamiento del nudo 2 es dependiente de las propiedades de las barras. j JI .,I ) , I 1~ I ') I 1 l , j --} ). ! -4, , I} I•í l I j ',- I ') 1 ! It If i 1 t t .! ,-, :l r -i :::::./ ) ) ! )
  • 52.
    y cr =-E-x p ex= ![crx-U(cry+cr:)] 'crJI= crZ' = O (Supuesto) a,= E ex e) Relaciones o - E EX = IJ - IJ original = (p - y).6.9 - p.6.9 IJ original pA9 :. Ex=-; Giro relo.tlvo de elos secciones veclnQs=M ¿Mz=-M;: = JyO"x dA=O A En este caso, las ecuaciones de equilibrio relevantes son: LFx= IcrxdA=O (1) A -Mz = Jy crx dA=O (2) A La distribución de los esfuerzos ox debe satisfacer las ecuaciones 1 y 2. El problema en esencia hiperestático ya que se podría pensar que hay infinitas incógnitas ox en infinitos puntos de la sección. b) Compatibilidad. Hipótesis de Navier, las secciones planas permanecen Pennite reducir la hiperestaticidad a un grado. ¿Fx = J<r;r dA=O (no hay fuerza axial) JI ¿FY =O~ Automático ya que Txy =O (flexión pura) ¿Fz= O~ Automático asumiendo 't,e =O ¿MX =O~ Automático ya que Txy = T.c =O ¿Ñ6'= JZ<rx dA = O-+ Sección simétrica y esfuerzos simétricos JI a) Equilibrio: 44 ! ¡ 1~ i ¡ r !!.
  • 53.
    45 9'::::: e? -- ~(- Geometría 2' Defo nn ada p2" 9 La ecuación de equilibrio estático se fonnuJa sobre la geometría indeformada 2.2 Hipótesis Básicas del Análisis Estructural 2.2.1 Primera Hipótesis Básica - Desplazamientos Pequeños : También conocida como Hipótesis de las Dimensiones Iniciales. Plantea que la geometrfa de la estructura no cambia apreciablemente luego de la aplicación de las cargas. Supondremos que las barras (elementos) que componen la estructura son lo suficientemente rrgidas como para no sufrir deformaciones importantes bajo la acci6n de las cargas (solicitaciones) y la geometrra inicial varia muy poco. Por Jo tanto, las ecuaciones de equilibrio se pueden plantear a partir de la geometría de la estructura indeformada. Dicho de otro modo, supondremos (con cargo a verificar) que los desplazamientos de la estructura son pequeños y geometrfa inicial no varia significativamente. Existen diversos métodos de análisis estructural que trabajan sobre la base de las teorlas de segundo orden (grandes desplazamientos) tomando en cuenta el cambio de la geometría de la estructura. Estos métodos de análisis, que abordan el comportamiento de las estructuras con grandes desplazamientos, normalmente trabajan sobre un esquema iterativo de aproximaciones sucesivas, ya que las ecuaciones de equilibrio no pueden formularse hasta conocer la configuraci6n deformada de la estructura. Cuando en una estructura se produce un cambio importante en la geometria, de tal forma que se afectan las ecuaciones de equilibrio planteadas a partir de la geometria no deformada, se dice que es una Estructura con No Linealidad Geométrica. El comportamiento de este tipo de estructuras no lineales, escapa al alcance de estos apuntes. En consecuencia trabajaremos únicamente con teorfas de primer orden (desplazamientos pequeños) y siempre será posible verificar, al concluir el análisis, la validez de esta hipótesis. A continuación se muestran dos casos simples en los cuales se ilustra el principio de los desplazamientos pequeños: Reemplazando ex = -E y Ip en (2) M=- JyuzdA = E JyldA= E Iz =:> Mz=IElz A P A P P Mzy a =--- x lz fy dA = O => Eje neutro pasa por el centro de gravedad de la sección A JydA=O A E -- IydA=O :::::> p A Reemplazando en (1) 45 r ) -J ) -l , ¡ ) ¡ ), I ) ) I) 1, ! I :J ) _) , ) ) j ) _) ) J ) -j ) ~ ) ..¡J -::1 ) i
  • 54.
    '1 .J j ;J ,) s .-) .J } .}) ,.) ) ) -, ) .) ) ) ) ) ~) J ') ) ) '.) ) J ) ) ) ) ,) ) ) :;¡ ) > ) ) J -:;) Para que lasuperposición sea válida, los desplazamientos deben ser, como general gruesa. varios órdenes de magnitud menores a la dimensión caracteristica de estructura. El intervalo en eLcuallos desplazamientos .estáncomprendidos entre 0.01 L . 0.1 L (siendo L la dimensión caracterrstica de la estructura) suele ser una región transición entre los desplazamientos pequeños y los grandes. Sin embargo valores son tan solo referenciales y dependen mucho del tipo de estructura y las actuantes. Equilibrio en la posición deformada: MI=P(a+6.) pero A=f(p) MI =P a+P (f(P» :. no hay una relación lineal entre MI y P Equilibrio en la posición no deformada: Ml=Pa :. existe una relación lineal entre MI y P aJI Si A « a entonces el momento en la base se puede aproximar, con un despreciable, mediante MI = Pa. En este caso, ya que el material de la estructura linealmente elástico, será válido el principio de superposición, por ejemplo, si duplicara la carga P se duplicarla también el desplazamiento A. Si no se cumpliera lo anterior, estaríamos frente a un caso de ~~~::!"",!,~.=!,!...J=:"': debida a una no linealidad geométrica :....recuerde que hemos supuesto que comportamiento del material es linealmente elástico en todo el rango de repuesta de estructura - y no seria aplicable el Principio de Superposición. A diferencia del anterior, si se duplicara la carga, no seria posible afirmar que el desplazamiento tanlDlemjl,/.' se duplicará. Conclusión: Cuando una estructura presenta no linealidades geométricas, aplicable el principio de superposición. Ejemplo 2-4 Asumimos que el material de la barra es linealmente elástico. 1/ p,¡ / El," ~ - ~2' 2.2.1.a Algunos ejemplos de No LInealidad Geométrica. A es Josuficientemente pequefio para poder despreciar el cambio en la geometría por el efecto de las cargas aplicadas. 46 9' :::;9
  • 55.
    47; L _ EA 32 2 Pr= I! (A + 3fA +2f A) (B) La relación no lineal es producto del cambio en la geometría de la estructura por la acción de la carga P, no es producto del comportamiento del material ya que hemos supuesto que el material es linealmente elástico para todo el rango de comportamiento. En este caso el principio o hipótesis de los Desplazamientos Pequeños no es aplicable ya que para alcanzar el equilibrio es necesario un cambio importante en la geometria de la estructura, en consecuencia el equilibrio del nudo 3 debe plantearse sobre la geometría deformada. En este caso la relación entre la carga y el desplazamiento vertical del nudo 3, es no lineal (véase ellíbro de White), y viene dada por la ecuación (B). cr=E& p JI L - Caso 2: La flecha "f" es pequeña. L ; I P=K8 En este caso se puede plantear el equilibrio del nudo 3 en la posición no deformada de la estructura. la relación entre la carga y el desplazamiento vertical del nudo 3 es del tipo lineal y viene dada por la ecuación (A). 2EAf2 P= (L2 +f2)3/2 8 (A) ' ¡ , l : f j ; LL Ejemplo 2-5 Asumimos que el material de las dos barras que conforman la estructura es linealmente elástico en todo el intervalo de repuesta de la estructura. - Caso 1: La flecha "f" no es pequeña. La única repuesta cierta, relativa a cuán pequeños deben ser los desplazamientos, es la siguiente: Los desplazamientos son pequeños cuando las ecuaciones de equilibrio, planteadas sobre la geometriá no deformada, dan los mismos resultados que los obtenidos a partir de las mismas ecuaciones de equilibrio planteadas sobre la geometrla deformada final.
  • 57.
    ,, ¡1 I I I I: 1 11 I I~i-) ,, ¡, ?
  • 58.
    ~___'A +M:s Ip :. Larelación entre M y II no es lineal~M Jb.s>~+ 61 Ms=M+Pb.s f«pcr ~P ~M E~ .~p-~ Ms=M~ b.s=.f(M.P) / EI,EA ; Ejemplo 2-6 los dos ejemplos siguientes, son casos de no - linealidad a los que se les .. suele llamar Efectos P - A. Asumimos que el material de las barras es linealme IL"·,,·~'l elástico. 201510 Desplaz ~ (cm) 5o ...----__ !~- _ __.__---~ -_ -- _ ---_ -_ - - : : ::::variable.................._ - ~ , t- .... .. .. .. . . -'?"'-----f ..... -- - ; !!"..,~ ..~- !"_ " .. ':.. ~ ; ~ .. - _ .. . .. .............; - ! . o~~~~------~:------~;------~ m Caso 2 - flecha f= 0.05m. Con la ecuación (B) se obtiene: 1 A ~ 7.41 cm (Al f= 1.48) j 1 K = variable li' Si se aplicara la ecuación (A) obtendríamos A ~ 32.03 cm, deflexión mucho mayor que la . f flecha inicial. Equilibrio en la configuración indeformada: FI = F2 = 40,000kg 0'1 = az = 8,000kglcm2 ¡ Equilibrio en la configuración deformada: FI = F2 = 16,150kg (JI = 0'2 =3.230 kg/cm2 1 Por lo tanto no es aplicable el principio de los desplazamientos pequeños. A continuación · I se muestra la relación P - Il. para ambos casos. Nótese que, para f (flecha) pequeña; . 11 medida que se incrementa la carga la rigidez tangente del sistema también incrementa. 20,000 ,-.r------~: - --~:---~:-----, 18,000 . ""'1 ¡ ¡ . 1SJOOD ~ .. -. __••• -._--~-- -- -- ---.- -- - ;-' --_ -- -- _ -- -- -- -_ - --- f= 1 m : : :.-.. 14,000 .. , : :...............•. : "._. ~ :: ... .._, 12.000 e, «1 10,000 co ~ 8,000 6,000 4,000 2,000 Asignemos valores numéricos a esta estructura: E = 2xl06 kglcm2, A = 5 cm2, L = 2 m, P =2,000kg Caso 1 - flecha f= 1m. Con la ecuación (A) se obtiene: A ~ 0.112 cm (6 I f= 0,112%) K~ 17,890kglcm Equilibrio configuración indeformada: F, = F2 = 2,236kg 0'1 =0'2 = 447kglcm2 Por Jotanto eS aplicable el principio de los desplazamientos pequeños. 48
  • 59.
    49 El / I h M-Masa concentrada k- Rigidez lateral T- Período de vibración Se reconoce dos tipos de equilibrio, el estático y el dinámico. Supondremos que las cargas se aplican lentamente sobre la estructura, gradualmente desde cero hasta su valor final, de tal modo que la estructura queda en reposo en su configuración deformada. A partir de ese instante la estructura no sufre cambios en su posición ni en su forma deformada. A ésta se le llama la posición de equilibrio estático de la estructura. En el equilibrio estático supondremos que no se producen vibraciones ni fuerzas de inercia significativas. Por el contrario, si las cargas se aplican súbitamente o si presentan una variación rápida en el tiempo, entonces estaremos frente a un problema de equilibrio dinámico en el cual la solución no es única, la respuesta de la estructura será una función, en algunos casos compleja, del tiempo. En resumen, en los problemas de equilibrio estático no se desarrollan fuerzas de inercia significativas. Las fuerzas internas en las barras deben equilibrar únicamente a las cargas externas. En los problemas de equilibrio dinámico se desarrollan- fuerzas de inercia significativas y las fuerzas internas en las barras deben equilibrar no solo a las cargas externas, sino también a las fuerzas de inercia. En general, en este curso, el equilibrio estático se aplicará a: La estructura completa debe estar en equilibrio. Cada una de las barras debe estar en equilibrio. Cada uno de los nudos debe estar en equilibrio. Observemos las diferencias entre el Equilibrio Estático y el Dinámico mediante el ejemplo simple que se presenta a continuación: A Ys Dependen de F y P A M(y)= Fy+P-¡;y+PtS 2.2.2 Segunda Hipótesis Básica - Equilibrio Estático Pll.y/h Fb+ PLl IP«Pcr + b. p M ¡y l"tLAY I h III ~ I h...1 , 1 ¡ ) j ---} -) ----) iI I i i¡ ! ,t¡ 1 ) ) i I f I I t I I j I ! l'¡ ) 1 ) --} J ,1 ) ) ~ ) ) } ---j .) =9 ! ) -) ~ -=3 ~ l) -"1 ... i }
  • 60.
    0.4 0.11 Tierripo (seg) 0.21.00.80.0 ..,' ; rlesPlazamiento• • ¡ j ¡ Bst4tico O.O.JL-----i-----i-----;-· - --....;-. ----j .-. 0.8 ! ~ o.e 10.4 1.0 F(/) = V(t) + M 2(t) F(t) =k Z(/) + M 2(/) k Z(/) = F(/) - M 2(t) {B) La comparación de las ecuaciones (A) y (B) indica que en el caso dinámico, las internas (V(t) == k Z(t» deben equilibrar no solo a las cargas externas sino también a fuerzas de inercia que se generan. La variación en el tiempo del desplazamiento lateral (Z(t» se muestra a Para la solución se ha supuesto un amortiguamiento pequeño del tipo viscoso de ~== 1 Carga Din~mica.Rampade Oa 8,000 kg en to =0.02 seg T = 0.1 s tofT '" 0.2 Amortlg'"1% 1.2 V(t)=kZ(t) La ecuación de equilibrio, en el caso dinámico y asumiendo que no existe amortiguamiento (~= 0%) será: Ft-,M F(t)"r+-FI(t) =MZ<t) (J - Ahora asumamos que la carga lateral se aplica rápidamente (fa ~ O). El equilibrio horizontal de la masa concentrada en el extremo superior requerirá en este caso, la presencia de fuerzas de inercia (FI (t»: Z(t)V(t) La variación en el tiempo de la fuerza cortante y del desplazamiento lateral, cuando la carga se aplica lentamente será: F(t) = V(t) F(/)= k Z(t) k Z(t) =F(t) (A) k Zmax= Fa F(t) )jM ~V(t) - Asumamos que I~ carga lateral se aplica lentamente (to» T). El equilibrio horizontal I de la masa concentrada en el extremo superior (M) es: 50
  • 61.
    Condicionesde contorno de desplazamientos prescritosenlosnudos {DI} = {O,O,O} {04} = {O,a,O} 51 Condiciones de contorno de fuerzas en los nudos {F2} = {lO,O,O} {F3} ::; {O,-20,O} 2.2.4 Cuarta Hipótesis Básica - Condiciones de Contorno Si no se.jntroducen las condiciones de contorno, los problemas estructurales no estarían completamente definidos. Estas condiciones se especifican en función de fuerzas (por ejemplo en los nudos o en los elementos) y en función de los desplazamientos prescritos en algunos de los nudos. En el nudo 3 hay dos giros independientes, por Jotanto las rotaciones de las barras 2 y 3 no son iguales. Sí hay compatibiJidad de desplazamientos en X e Y En los nudos 2 y 3 hay compatibilidad de giros y de desplazamientos. p-r- ~ r.-,-...--='==-=~=======:::::-:~ F 2.2.3 Tercera Hipótesis Básica - Compatibilidad la deformaci6n y el desplazamiento de cualquier punto de la estructura. bajo un sistema de cargas, son únicos y varian de manera ccntlnua.. Este principio se emplea para compatibilizar los desplazamientos de los extremos de los elementos (barras) que concurren a un nudo con los desplazamientos del mismo. Esta condición puede expresarse mediante la siguiente relación: {d} = [Al {D} donde {d} y {D} son los movimientos de los extremos de las barras y de los nudos respectivamente y [Al es la Matriz de Transformación de Desplazamientos (véase el Acápite 7.3). )
  • 62.
    ._!2!. ~29 Solución B lJ.2°Okg 13.00 1Solución A 52sT ~1 ~ ~7S [, 2.00 It 2.00 [, 1 '1 1 .~: Asumamos que el pórtico de la figura anterior es de sección constante, con la viga y .~; columna de 0.25xOAOm y módulo de elasticidad E = 200,000 kgl cm2• Despreciemos las 1: deformaciones axiales y las deformaciones por corte de ambos elementos. . Ambas soluciones están en equilibrio, sin embargo, solo la solución B es válida o.~ . correcta, ya que la solución A no satisface las.condiciones de contorno. Para demosfrarJ < esta aseveración; removamos. de ambas soluciones la restricción horizontal que hay en :- , el nudo (apoyo) 2, la estructura se convierte en lsostática además de seguir siendo; _ estable. Si la solución A fuera la correcta, al retirar la restricción hoñzontal en el nudo 2 l y reemplazarla por el valor de la reacción como si fuera una fuerza externa, deberiamos ~ obtener un desplazamiento horizontal nulo en el nudo 2. < .~ J Si se restan las dos configuraciones deformadas de la figura anterior, se obtiene la i estructura sin cargas externas pero deformada, lo cual no es posible; en consecuencia la "1 configuración deformada es única. Ejemplo 2-7 Muchas veces solemos verificar 10$ resultados del análisis estructural, comprobando el equilibrio global de la estructura. Esta comprobación simple, no siempre garantiza que .los resultados son los correctos. Por ejemplo en la figura a continuación, se muestra una misma estructura con dos juegos de reacciones y sus diagramas de momentos, ambos en equilibrio. " I J/ '" I ------ ~¡ :1 . ¡ I I I ------ 2.2.5 Quinta Hipótesis Básica - Unicidad de las Soluciones No son posibles soluciones alternativas a íos problemas de análisis estructural. Para una estructura sometida a un sistema de cargas, tanto la configuración deformada, las fuerzas internas y las reacciones (en general la respuesta) tienen un valor único. Este principio se puede demostrar por la hipótesis del contrario. Supongamos que un mismo sistema de cargas actuando sobre una estructura, produce dos configuraciones deformadas en la estructura: 52
  • 63.
    Solución Correcta. ins.6 53 I • 17].4 t471.4 171.4. r 4171 t2:9 En consecuenciaa pesar de que ambas soluciones están en equilibrio sólo la B es válida o correcta ya que la A no satisface las condiciones de contorno (compatibilidad) en los apoyos. La solución correcta o verdadera es: I Solución B en equilibrio y compatible. , Solución A en equilibrio. No compatible. 7675 Solución B. El desplazamiento horizontal del nudo 2 resulta nulo l200 AH :::0.0563 cm 1,200 100 __..~'.__' __:L-_---..._--, - ---r~ ... 10 lo _ ~ i ----- 525 i67l1 El desplazamiento horizontal en el apoyo 2 debería ser cero. Si calculamos el desplazamiento hortzontal, utilizando por ejemplo el Método de las Fuerzas Unitarias (Trabajo Virtual), obtendremos un desplazamiento .de 0.0563 cm, valor que no es consistente con la condición real en el apoyo 2, por lo tanto la solución A, no es válida. Isostátiea y estable 52S .~ Solución A , l ) } , ) ) ) ) ) ) t;l, } ¡ )! 1 ) ) ,¡ ) ) ) ) --i ) ) ) ) } f'
  • 64.
    ") ) "i ') 4 ) ) ) ) _) ) ) ) ) ) ) ) -:) -) --J ) '-~ :) .: :' ~ j ' ) J . j Estructura con comportamientolineal 'Energia extraída o recuperada en el proceso de-descarga Trabajo de las fuerzas externas = Energfa almacenada FF Desde el punto de vista de la energía, la diferencia entre comportamiento lineal y no lineal se ilustra a continuación: DefonnaciónDefonnación No Lineal - InelásticoNo Lineal - Elástico AcciónAcción DefonnaciónDefonnación Lineal - InelásticoLineal - Elástico AcciónAcción 2.2.6 Sexta Hipótesis Básica - Comportamiento Elástico Lineal Supondremos que las estructuras se comportan en el rango lineal elástico, es decir que la relación carga - desplazamiento es lineal. Dicho de otro modo, si todas las cargas externas que obran sobre la estructura, por ejemplo se duplicaran, el desplazamiento de cualquier punto también se duplicará. Esta hipótesis está controlada por la hipótesis de desplazamientos pequeños asl como por las propiedades mecánicas de los materiales de los cuales la estructura está construida. A continuación se muestran algunas de las posibilidades de comportamiento de una estructura o material constituyente. ¡ ¡ ¡¡ ¡ ! I1 ¡ I - Equilibrio - Relaciones constitutivas - Compatibilidad y condiciones de contorno Conclusión: La solución correcta a cualquier problema estructural, es aquella que satisface: 54 ~,.'7 ~_.'.~" , _,":'''~. ' ~.' "~"'-:-"';:'.' ';~,':"_"_'-":::""'" ',', .. , .._ - . ..;_ .~.- ,~~~.', -:-.. ,,-;7,~;', ..,.~ . . ~.1.'(""--=-_~~_",~__..-d;_=,"_-::...::. __'::_·__!- r;.~~·:_~=-_;:.:.:;;..~;'-h•.::;.,.-_;:.::'-. - - "" ..;-:.~, ~ ~ 4) ) ,) ) ) ) ) ) }
  • 65.
    55 0.0040.001 DJlO2 0.003 Conc.. '•• "a1n On.nnJ Curvas típicas para el concreto simple en tracción (izquierda) y para el concreto simple en compresión (derecha) O.QOIJI N.rpmiento PI&Cipe,acl.. con re¡ina '¡ Slraln (inJInJ Acero de refuerzo para concreto armado. CUrvasEsfuerzo - Deformación en traecíón. Grada 8080 Grada 75 Zona lnelástíca 120 Los materiales que componen una estructura pueden ser elásticos o inelásticos y pueden ser lineales o no lineales en cuanto se refiere a la relación esfuerzo - ·cteformaci6n, Aún para un material linealmente elástico como el acero estructural, la relación lineal esfuerzo - deformación es válida hasta cierto punto) normalmente el limite de proporcionalidad. Por lo tanto, para que la hipótesis de comportamiento lineal elastico sea válida, los esfuerzos en cualquier punto de una estructura bajo un sistema de cargas dado, no deben exceder el limite de proporcionalidad del material. la suposición de comportamiento elástico - lineal del material, suele ser una restricción ·severa de los métodos de análisis estructural que se presentarán. Las desviaciones del comportamiento real del material con respecto a la hipótesis o suposición de ·comportamiento lineal, suele ser una fuente de discrepancias importante entre los resultados teóricos y los experimentales. ·Ejemplosde comportamiento de algunos materiales: ENERotA PERDID.... oDISIPADA Trabajo de las fuerzas externas FF ~ ) ) ) ) ) ) ) -,) ) 1 » ) ) ) ) ) ) , J 1!j
  • 66.
    t]) ~ l?) ) ) ) ) ) ) ) ) ) ) ") ') fi "> ) j ) .:} ) ) ) ) ) ) ) "j ) -, ) ,,) -j .j -:~ ~ .J ') .1 ) J J J ,) ) ~ Momento - Curvatura dela SecciónPerfil W18,,55 Ix ~ 37,000 cm" Sx e 1,600 cm' Zx ~ 1835 cm3 My = fy S" ~ 40 t-m (momento de fluencia) Mp = fY Zx == 46 t-m (momento plástico) fy =2,500 kglcm2 ey =0.00125 My=40t-m Mp=46t-m I f o ~ ~ fy .k. 2m " 4m ¡- €y e.., 11 JI En el caso analizado las cargas actuantes llevan al material de la estructura a la zona de comportamiento no lineal. Es claro que en este caso la posición final de la estructura j"". depende de la Historia de Cargas, en consecuencia no será válido el Principio de .~~:. Superposición, ~': Ejemplo 2~8 Otro caso de comportamiento no.lineal de una estructura se presenta a f . continuación. Se trata de una viga de acero doblemente empotrada que es cargada :~.. hasta la formación de un mecanismo plástlco. Se' ha supuesto que los desplazamientos { ; son pequeños por lo tanto, el comportamiento no lineal de esta estructura estará .~P asociado al material y no al cambio de geometría. ':3 ';, POSICIÓN F'INAL --~~~-+--------~~ Primero F2, luego FI 2.2.6.a Fuentes de No Linealidad en una Estructura - No Linealidad Geométrica - No Linealidad del Material - Ambas Algunos casos de No Linealidad Geométrica sepresentaron cuando se explicó el Principio o Hipótesis de los Despiazamientos Pequeños, los casos que fueron presentados asumen que el comportamiento del material es linealmente elástico y que la no-linealidad de la estructura se debe a cambios importantes en fa geometría de la misma. A continuación se presentan algunos casos de comportamiento no lineal de una estructura, asociado al comportamiento del material: 56 - - -- .-, _ ..- " .:- - - - - - - -' ..~;.. ... - -... ;'-_~:;.~.._...';;&~::..~.:.,-.;_.:.:.~...:::"·.¡L~·~"':;:;¿'o'~'~!;'~.~:·!:·~.:;"";'l' ::;;.~.: ..-,,~;.:-.- .••-_::.-..::~.,~:;_;:~;; ~.~,,~;.,;,..;t,.,.....~~.:c.~~,::.'·'m", ". .... .. ..-_ _... -. ,... ~- - - . - .....~~2'"-r-»;»: ".,..-'- ,'~: .;' ';:~~..:....: -. ;.: .. .;.~:...:.::..~., ". .;,.>~~'.~-i;_:;: .' ::<;. ;.i~•..:..; ;~'~...~~::.:'.-:~.-:'.~- ..-
  • 67.
    57 Deplaz. Vert. (cm) 10.51.5o 70 i j ] ! ] j60 m ••• +..u··· ····1··· ¡ ; ; •. . . . . .- . . . . e 50 ¡ ~.....,. ¡ ¡ ¡ ,. . i::.•••:.:.::.:J:-: :.l.:·••::.::.1•••:••·••:1.·••••:.: ::.::¡ : : : ;': ! 10 "" ·······i··· ···.~ : ! ~ ··..• 1 : : ¡ . . o----~·----+---~----,_--~·~--~ Lagráfica carga vertical (P) contra el desplazamiento correspondiente (óv), se muestra a continuación. Es claro que en la etapa inicial, cuando aún no se ha formado ninguna rótula, el comportamiento de la estructura es lineal - elástico. De alll en adelante, la '. estructura deja de ser lineal. Los desplazamientos verticales son lo suficientemente pequeñoscomo para suponer teorfa de primer orden. 2 40 t-m 60 ton ::..Tercera rótula ~P = 2.14ton: 31.43___,.. ,__./-----,~.86 ,~ ·r ~ '{r 2 "<:¡: ~v~0.82cm. , ,. _Segunda rótula .6.P= 12.86ton: DMF(ton-m) 26.67 ~ ~ --====-=-=== c::z;:~V~ 0.48cm Deformada ~ 4S ton " J ........Lasecuencia de formación de rótulas es la siguiente: • Primera rótula AP'= 45ton: 57 -:'", • .,..• '=", " •. :-.: '. -.-~ ".'~' !' ;-.-, -:.:~,.~.,,"~~:':: __:..:--..: !'=!_._-':.:..:~;:i"~-'-!~.~':"..;.~ ,.~ ••: .,.;:;.¡.~;;";';'~"":::;¿~...(~.;.;:_..:.¡:.~·~._:_¡_~:.:.;.;_;;_...:.:;,L~_'~ '--':~~~.-~:'::~: .~ ) ) ¡ .., 1I I ~I I I I .:) 1 ) --1 )
  • 68.
    C) ~ ) ) ) ') ) ') ) ) ) ) ., ) } ) ) j ) ..) ) ) ) ) ) ) ) 7 ) l .> .) -) _J -) ~ J ) ) J J ') ) ) ~ ~ -) 58 Par~.qbi·~el plinciPIQge,superpósici~n~e~v~l!do.debe cumpjrse: a)'q:QmPQrtarii¡el1t~Lineal - E:i~$tiCó. No'.hasta que él material o la estructura sea lio~~;j.qet:>eser ~mb~~nelªs~iº~;,:.~$'d~éir. al des~~rgar I~·estructura, estª debe se~~¡rI~'ri1j$rn~tiJ'y~pt()ijaq~~~yórq:~ráñ~~el proceso de Cár:9~· b) Nd.,:~~b~ti.:~~i$tirN9Linealida:de$ ·G~ohié.tricas.es decir debe cumplírée la hipótesis de d.~$pl~t.E.itjl!~QtgS,.pequeños. . .' . Si j,a ~~tN~tW(~~Wi,:~slih~~I--elásticE,i. 9,' p.~:n9ipiOde superposición no es apllcable ya que el comportamiento dependerá, de la hlstorla de cargas. o + r , Ója~aml,t de Momentos o ·8.68 + I 1 Defo~8das +. 5 : .j .
  • 69.
    ~ ~El 11/ 3m El Q-D 1 4m~ t t 59 Ejemplo ,2~9 Para el pórtico mostrado se pide calcular los. Cgefic;ientesde tlexibjlidad páh:.:~r$i$~em~Q ~ D ingj9a~oy la Matriz de J=lexjbilj~ad[Fldél P~óttíc,Q. Nó,t~~~',qu~,', el pÓ(tipp es ,ij1J~rna y ,~~~rnarn,erlteQ~i~rrnina~o (iso~t~tico), ~n cons&cú~h.9la ~I c~,tCqlp ~e..'!9s coefici~flte.S de fle)(ibil,igfJd se puede r~~l)g~r glr~ctr;i,ih(~mte'~~pliéandola definición de coeficiente l;f~ ,flexibilidad. Si la estructura fuese ¡Ilde~~-rmiflaaá,el cálculo dé' dichos coefiCientes," Involu'c:raiía la SQlución' de 'Óh'a '~$trU~tura.Hipérestática. sin embargo, la definición dé coeñciente de flexibilid¡;¡d sigue siendo la misma. ' {D} = (F] {Q} Superposición; DI= fJI QI + frz Q2 O2 = f21QI +fnQ~ L~~,,'~,q~~ciQnes'.ahteriores ~xpr:e~an que los, desplazamientos, son" combinaciones lIñeáles:ae las,camas;' '[Fj ~$Ia M~t.rizde 'Flexibmdª<f ~'e'la és.trúqttír~'corre'sponc:Hent~a ,~;~~;g~f~~n~~~$;'~~!I~~¡~'ri~~~~',, " .._. , SignifioBcki físico de los CoeficIentes de Flexibilidad: fij es,''~,Id~spla:z~miehtQen ,la ~~lf'~f~~~~~¡~~~~~'J/~~~~~:it~!~~:~~~~enJ~~~~~aad~'~~.;r~F~~xl,p"J,d,~g,:º,~,u~~ i7stru.qtL.!ra~~ pu~de interpretar, COrnO 'el,ºQI1J_yotoqe de$pl~~~m!e@~ps en tQq~~::na$',:co'()rdena;dasi,deJ:>j9Q'a la aplicación de una úñióa 'carga 'ünitaria·~ri:la cOoroe:hádá·. " ,:.. ,,,"',,"',, ..' o" ',,' J , Las pyih'Cj~ª'I~,$'Próp;edadésde ta"Matriz de Flexibilidad de una e$tructura son: a)' Lhs:99;e,fid~ntas~~<f!~~¡P¡li~~dfij son simétricos" es d~cir fij'~fji b) ~o$, ~Q~fib'~~:f1te.~qe,fl~}(ibjliti'~Qde la diagon~1principal son siempre mayores que ,cerD,' e$deCir fii;>,(j~ ,,',' "''', " c) En'uná'esttuctü@,e§table la'Matriz de FlexibiJidactes defini:9ª positiva, es decir '$U inversa e~isie, en coñsecuencla el sistema de ecuaclones {Q} = [Fj-J {D} tendrá '$Ó.I,U9í6n única. J.' ,Q. lQ2 L~, +- :J 02 fll fil " (X QI) 2.2.7~aSuperposición; de Fuéizas.- .t··· . ., "_._. . ... ~ ;.. ,-:::. "}: > ) ) } ) ! ~ • 1 , ' -} ) -4 ) ) ) } ) ) ) ) ) " l' ) ) ~ ,) .) ) J ) ) ) j ,) , ' I L.
  • 70.
    ) ') } ) ") ) ) ) c-j -) -4 ) ) ) ) ) ) ) ) ) ) ) ) -j ) -J ) ,_) ....) ) ~) d ) ,) ) ., J j ) ) e cJ ....~ l 60 f11 = .!.(3)(3)(2)+.!.(3) (4)(2) =3.!.2 2 El fu = f1, =-.!.(3)( 4) (.!..)= _2- 2 3 El f =!(1)(4)(~):; 1.333 f = f =-!(4)(1)(.!.)=_ 0.667 22 2 3 El 23 32 2 3 El f33 =- ~(4)(1)(_ ~)=1~~3 4 f = Jm,m3 13 El o 4 f - Jm3m3 ll- El o Diagrama de momentos Diagrama de momentos Diagrama de momentos 3 4 f = ¡m2m)23 El o 4 f = ¡m2m2 22 El o 4 f. = ¡m,m2 '2 Elo Carga unitaria en la coordenada 3 Carga unitaria en la coordenada 2 • (12 ~ Q2 = 1 t1~~:::::::===~~:- Carga unitaria en la coordenada I • Coeficientes de Flexibilidad: Se calcularán utilizando el Principio de las Fuerzas Virtuales (acápite 2.3) considerando únicamente las deformaciones originadas por la flexión, se desprecian tas deformaciones axiales y por fuerza cortante.
  • 71.
    i ) _) J .::. k':: ) ~:- 61 t~~~~ • Coeficientes de Flexibilidad: Se calcularán utilizando el Principio de las Fuerzas Virtuales (acápite 2.3) considerando únicamente las deformaciones originadas por la flexión. se desprecian las deformaciones axiales y por fuerza cortante. La viga, al ser un elemento indeformable, no acumula energía interna de deformación. t " 4mJ El 3m -.. ¡:ZZ22ZZ:ZZzzz.zn 1 El = 00 Ejemplo 2-10 Para el pórtico mostrado se pide calcular los coeficientes de flexibilidad para el Sistema Q - D indicado y la Matriz de Flexibilidad [F] del pórtico. La estructura está compuesta por una columna deformable por flexión y por una viga que se ha modelado como indeformable (sólido rfgido). Al igual que en el Ejemplo 2-9 el pórtico es interna y externamente determinado (sostanco). Se sugiere consultar el acápite 6.6 donde se calcula la Matriz de Rigidez del pórtico. 2 o1 9 3 [prJ = [K]= El 2 3 O - 2 • Observaciones relativas a la Matriz de Flexibilidad: a) La Matriz de Flexibilidad es simétrica (tij = fji). Esto resulta evidente si se observan las integrales utilizada para el cálculo de los coeficientes de flexibilidad ñ], el producto de los diagramas de momentos (mi mj) es conmutativo . b) Los términos de la diagonal principal (fii) son positivos. Esto resulta evidente si se observan las integrales utilizada para el cálculo de los coeficientes de flexibilidad de la diagonal principal (mi mi). c) La Matriz de Flexibilidad es definida positiva (determinante distinto de cero), es decir su inversa existe. La inversa de la Matriz de Flexibilidad es fa Matriz de Rigidez del pórtico en el mismo sistema Q-D. La inversa de [F] es: 4 -2]1.333 -0.667 -0.667 1.333 [ 21 [F]=_l 4 El -2 • Matriz de Flexibilidad de la estructura en el Sistema Q-D seleccionado: 61 .) ) ,) ) .., _J ) ) ) ) •.... ) ;:: .- l ) ) } } ) j -) } -1I iI )I I i ) ) ) ) ) ) ) ') l l } > ."_ .,
  • 72.
    '' 8 9 ) ) ) ) ) ) ") ) ) ) .,) j ) ) ..) ) ~ ) ) ) ) ) ) .) "j J ) ) ~3 -") .~ -=j ;¡jJ J .) ) ] ) ') .) ) ~ 62 Se sugiere consultarel acápite 6.6 donde se calcula la Matriz de Rigidez del pórtico. • Observaciones relativas a la Matriz de Flexibilidad: Son válidas las mismas observaciones realizadas en el Ejemplo 2-9. La inversa de la Matriz de Flexibilidad es la Matriz de Rigidez del pórtico en el mismo. sistema Q-D. La inversa de [F] es: [Frl = [K]= EI[ :61 !] l~ . • Matriz de Flexibilidad del pórtico en el sistema Q-D seleccionado: [F]__ 1 [9 -18 ] El -18 48 J 3 fi:0f - jm.m. f - sm.m2 S ~11 - 12- + O El. o El. o El2 3 fkOf22 = sm2m2 + J m2 O El. o El2 1 (2) 9fll =-(-3)(3) - (-3)=- 2 3 El 48 f22 =(4)(3)(4) =- El 4 4 3 1(" 62
  • 73.
    DI+fu X¡ =O El Método de Flexibilidad se basa en: - En el principio de superposición aplicado a las fuerzas. - Las incógnitas son las redundantes estáticas. - La compatibilidad (externa y/o interna) de la estructura es violada en la estructura primaria ya que se remueven apoyos o fuerzas internas o una combinación de ambas. - El sistema de ecuaciones que conduce a la solución de las redundantes se obtiene forzando la compatibilidad de desplazamientos externos y/o internos. {D} + [F] {X} = {O} (ecuación de compatibilidad) {X} = - or' {D} (solución) El equilibrio se cumple automáticamente ya que la estructura primaria es isostática y estable. La Ecuación de Compatibilidad del Método de Flexibilidad, que permitirá calcular el valor de la redundante XI es: (* XI) Nótese que la Estructura Primaria elegida es isostática y estable. Para el análisis de una misma estructura, existen diversas posibilidades o alternativas para la elección de la Estructura Primaria, dependerá de las redundantes estáticas que se elijan para analizar la estructura. En algunos casos la Estructura Primaria seleccionada para la solución de la estructura, puede ser hiperestática, pero nunca inestable. Superposición: Estructura PRIMARIA Coordenadas X - D FF ) ~, 1 ) ) 1 ) ) , 1 ¡ • ~ ) -} ! ) ¡ ) I } ) ) ) ) ) ) ) ) ) ) ) ~ ) ) _j I 1 ? ~ .) I ) I I ~ ? ~ , ) 2.2.7.b Método de Flexibilidad El Principio de Superposición, aplicado a las fuerzas, es la base del Método de Flexibilidad. - } Por ejemplo, en el pórtico mostrado a continuación, que tiene una sola redundante estática (XI), el principio de superposición de fuerzas permitirá obtener una ecuación (de compatibilidad) para calcular el valor de dicha redundante. 63 ') )
  • 74.
    64 Deformada Estructura Primaria Cargas externas 3 Diagramade momentos {M} (ton-m) Estructura Primaria Cargas externaS 10m 2.0 --l 4 ,t) 2) ) ) ') ) ) ) ) ) ) ) "i ) ,~ ) ) ) ') J ) ) ) ) ) ) ) '7 ,) ) ) ;:~ " ) :9 -d ~ ) ') ) j ) j ) ) ~ o ~ Estructura Primaria Coordenadas x, D 8.0m l 3.0 ó4 • DiagrrilOlaide momentos flectores y deformada en la Estructura Primaria ocasionados , por las cargas externas. • -el. pórtico es externamente indeterminado en segundo grado. Utilizaremos para la r ::·solucí6nla EstrUctura Primaria (ísostátlca y estable) indicada a continuación. Nótese:' ... <quehay diversas posibilidades para la elección de las redundantes. Ejeli'lpló .2~11 Resolv~r el pórtico piano mostrado utliizandó el M~todo de FI~xib.mdad. La $eCti(>o de ías b~iTás .es constante con rig~~z EL Se cóh~ideran únicamente defonnaciones por flexi6n. es decir, se ignoran las deformaciones ~Iales y por cortante. ;1 S tOñ 2 . 3 +~~----------------------------------~--------
  • 75.
    65 .. fl2 § Defonnada Estructura Primaria X2= 1ton I ) Diagrama de momentos {m2} Estructura Primaria X2 = 1 ton ) 1 } j ) ) / fu • Diagrama de momentos flectores y deformada debidos a una carga unitaria en la coordenada 2. .. ) V ) ~ ) _. I ),) I j ( ) I 1_~ I ;) I?/ 1.00 U Diagrama de momentos {m 1} Estructura Primaria X) = 1 ton¡ ) i , 1 ) l ) 1 ,¡ }¡ ¡ J J ) 1 -) I ), i .100 Deformada Estructura Primaria Xj = 1ton 1.00If Diagrama de momentos flectores y deformada debidos a una carga unitaria en la coordenada 1. ~ 1; t ~ • i
  • 76.
    ) } ) ) t ) ) ) .) ~ ) / ") ) _J ) .l } ) Se sugiere allector, resolver el pórtico utilizando como incógnitas el momento en el. empotramiento (nudo 2) y el momento interno a la izquierda del nudo 3. Diagrama de momentos final (ton-m) U.7 2 10..00 Deformada final {M}final = {M}Est.Primaria + {mJ}Xl + {m2} X2 • Los resultados ñnales se pueden obtener por superposición. Por ejemplo, el diagrama final de momentos se puede obtener mediante: 1 (Xl)(2.22){X} = - [F]' {D} => ~ ton x, 5.62 Primaria debidos a las cargas externas y . 66 {D} + [F]{X}= {O} • Desplazamientos en la Estructura coeficientes de flexibiJidad. DI = JM."'1 = _ 720 El El f - ¡m¡m1 _ 81 11 - . - El El e - J~~- 170.71.22 - - . El El • Ecuacionés de Compatibilidad. Deben reflejar que el desplazamiento del nudo 1 en la ". estructura real debe ser nulo,
  • 77.
    67 f22 _ lx6 _2.0_--_- 3El El Ix6 1.0 f12= ---=-- 6EI El • Deformada debida a una carga unitaria en la coordenada 2. X2 = 1ton-m f21 = _ lx6 =_1.0 6EI El fu = lx4 + lx6 = 3.333 3EI 3EI El • Deformada debida a cargas unitarias en la coordenada 1. XI = 1ton-m 27 El wtl 27 D = =- 1 24EI El Rotaciones tramo 2-3: ~!llJlH ¡¡IllIl ili!11l1!~;l 3.0 tf/fn • Deformada en la Estructura Primaria ocasionada por las cargas externas. Estructura Primaria. Coordenadas X, D x., DI ~ ~ ~~ L~~---------------~~~QH:L_----------------------~4~ • • La viga es externamente indeterminada en segundo grado. Utilizaremos para la solución la Estructura Primaria (isostática y estable) indicada a continuación, en la cual se han tomado como redundantes los momentos flectores en los nudos 2 y 3. Nótese que hay diversas posibilidades para la elección de las redundantes. rl-Oé~---4_C:O m ) , ) Resolver la viga de dos tramos mostrada utilizando el ~odo de ,Flexibilidad. El nudo 3 es un empotramiento perfecto. La sección de las barras es -constantecon rigic;lezEL Se consideran únicamente deformaciones por flexión, es decir. -...se ignoran las deformaciones por cortante. í , ) I ') 1 ) ! i ¡ ¡ )¡ i } j ) __, í )i 1 ) !: •¡ 1 } .>, } / ) - ) ) -:J ) ~ jI ,J ?_) I -) I ( ) ) ') )
  • 78.
    ) ) ) ') ) ) ) ) .) ) -) ) J ) ) _j ) .) ) ) ) ) .) .) .) -j ) -") ) ~ -1 '3 ~ .¡¡ ,) ) ) ._ J . ~ • la vigaes externamente lndetermínada en segundo grado. Utilizaremos para la ' solución, la Estructura Primaria (isostática y estable) indicada a continuación, en la ..' .cual se han tomado como redundantes la fuerza cortante (XI) y el momento (X2) en el nudo 2. Nótese que hay diversas posibilidades para la elección de laS' redundantes. . 1 "'C:~:'5~i>"'?;y!:(-;f:%~~~}".;:;,i';;'i,.!;,n k ----->*~~~----.----4m 6 m 6EI Ejemplo 2-13 Utilizando el Método de Flexibilidad, resolver la viga de sección variable .., ,'. doblemente empotrada. El primer tramo (barra 1-2) tiene una rigidez El y el sequndo: tramo 6 El Se consideran únicamente deformaciones por flexión, es decir, se ignoran las deformaciones por cortante. Se sugiere al lector, resolver la viga utilizando como incógnitas las reacciones verticales en los nudos 1 y 2. Deformada final ! ------ ~l.ll rUn] IU! Illl!1111111l1HIlIlJlll.hl 3.0 tf¡¡n Diagrama de momentos final (ton-m) 5.746 • los resultados finales se pueden obtener por superposición. Por ejemplo, el diagrama .: final de momentos se puede obtener mediante: {M}final = {M}Est.Primaria + {mI} X¡ + {1n2} X2 1 .. (XI) (-4.765){X}= - [F]' {D} => ~. ton-m Xl 11.118 • Ecuaciones de Compatibilidad. Deben reflejar que la rotación relativa del nudo 2 y la rotación absoluta del nudo 3, en la estructura real, deben ser nulas. {O}+[FJ{X}={O} ~(:~7)+ ~(~!~:~~:)(~)=(:) 68 •. -- _. ". ','~' ::" . "- .: .: -_ ,••• ,,,. 7 .,. ..., :: " ::: .. . "." " • .'" ••• ... '" : --:,- _... ~. -,; ..._.;~:::.._..:....:~....;.:;...--.....~-~:~......:...._..:.:...... ...:_.:..:.....~~ ....:.:.:....:;.:__.__._;,;:_:.,.......:._:;._.~-'-. ~- •..~'......
  • 79.
    69 • Losresultados finalesse pueden obtener por superposición. => (Xl) ~(-4.71 ton) x, 11.29ton-m {X} = - [Ffl {D} . {O} + [F]{X} = {O} • Ecuaciones de Compatibilidad. Deben reflejar que el desplazamiento relativo y la rotación relativa en el nudo 2. en la estructura real. deben ser nulos. El f lx4 lx6 5.0 ( . • lativa)22:: - +-- ::- rotación re atíva El 6EI El f12= lx42 _ 1x62 =_5._0 2EI 2 (6El) 1.Jl m = 1.0 _.--=-=- {_ ~====::=:== __ __.._=>"7"'." "--+/ • Deformada debida a una carga unitaria en la coordenada 2. X2 = 1ton-m f21 = lx42 _ 1x62 5.0 2 El 2 (6EI) El fu:: Ix43 + Ix63 :: 33.333 3EI 3(6EI) El , Deformadadebida a cargas unitarias en la coordenada 1. x¡ = 1ton o :: _IOx42 +0=- 80 . 2 2E! El D = _IOx43 +0= _ 213.33 '3EI El ¡lO ~V=--:Z-=~,----,-. -----., DI ~ Deformada Estructura Primaria- cargas externas .., . • Deformada en la Estructura Prímarla ocaslonada por las cargas externas. Nótese que se ha supuesto que la carga externa está aplicada inmediatamente a la izquierda del nudo 2. T?f7rnln__ -----:--.X---+~ X~.....,_:...._t_X2 ~,+: ¡XI Estructura Primaria. Coordenadas X, D ) , ! ) I ) ) l 1 ) ¡ I! I ) -4 ¡ ) I¡ i '.) ) ) ) -, 1 t ) ) t ) ~ J i 1) j ; ) __: 1.) ) I ) I ) I ?:!) I I ) I (
  • 80.
    70 Las ecuaciones antenoresexpresan que las cargas son combinaciones lineales de los desplazamientos. [K] es la Matriz de Rigide~ de la estructura correspondiente a las .. coordenadas seleccionadas. Significado ffsico de los Coeficientes de Rigidez: kij es la fuerza en la coordenada i . debida a un desplazamiento unitario en la coordenada j, manteniendo nulos los ." desplazamientos en todas las otras coordenadas. Una columna de la Matriz de Rigidez '. de una estructura, se puede interpretar, como el conjunto de fuerzas necesarias en todas . las coordenadas, para lograr un desplazamiento unitario en la coordenada j, manteniendo nulos los desplazamientos en todas las otras coordenadas. Las principales propiedades.de la Matriz de Rigidez son: a) Los coeficientes de rigidez kij son simétricos, es.oecír kij = kji b) Los coeficientes de rigidez de la diagonal principal son siempre mayores que cero, es decir kii > O. c) La Matriz de Rigidez es definida positiva. es decir su inversa existe. [ k k ][K]= )1 12 k21 k22 {Q}= [K] {D} Superposición: QI = kll D. + kl2 D2 Q2 = k21 DI+k22D2 (+D2)(*Di) 2.2.r» Superposición de Desplazamientos Si la viga fuese de sección constante (El) el momento en el empotramiento izquierdo sería 14.4ton-m,en el empotramiento derecho 9.6ton-my el desplazamiento vertical en el nudo 2 sería 46.08/EL Es clara la diferencia notable en los resultados. Se sugiere al lector, resolver la viga de sección variable utilizando como incógnitas los momentos en los nudos 1y 3. Diagrama de momentos (ton-m) Deformada, Desplazamiento vertical del nudo 2 ;::;22.59/EI ~f16'<';41 ~.." ) ) ) ') ) ) ) ) -j ) ~ ) ) ) ) ) ) ) ) ) ) ) ) ~ -J -J ) _. .... ) , J .; ) ) ) .~ J ~ - ~ e .q -- :; ), 70
  • 81.
    71 Ecuaciones provenientes dela superposición de los desplazamientos: Ql = kl1 DI +k12 D2+ k13D3 O = k21 D1 + k22 D2 +k23 D3 {Q} = (K] {D} {D} = [Krl {Q} O = k31 DI + k32 D2+ k33 D3 .' Las ecuaciones anteriores representan ecuaciones de equilibrio de nudo en términos de ••....los desplazamientos correspondientes. Nótese que en ninguno momento se han violado ..•las condiciones de compatibilidad internas ni en los apoyos. .Al resolver las ecuaciones de equilibrio de nudo, se podrán conocer los desplazamientos de los nudos y a partir de ellos, se puede construir la deformada de la estructura y se POdráncalcular todas las fuerzas internas en las barras. Nótese que los tres grados de libertad seleccionados para el análisis por el MétodQ de Rigidez de esta estructura (un desplazamiento lateral y dos rotaciones). corresponden a los movimientos esperados de los nudos de la estructura. El lector puede argumentar ... qUe el análisis completo de una estructura lleva consigo la determinación de los Superposición de los desplazamientos nodales 03= 1D1= I kJ3 kJ3'-' ,--,1;--=-_...1....-:;) Configuración deformada ~ r---~~---x- -:;.:.::.~ ':>~ SistemaQ - O Estructura EA=co Grados de Libertad El El por ejemplo, el pórtico mostrado a continuación, tiene tres grados de libertad (si se oran las deformaciones axiales). El principio de superposición de desplazamientos obtener un sistema de tres ecuaciones (equilibrio de nudos) en las cuales las nitas son los desplazamientos nodales. 2.7.d Método de Rigidez Principio de Superposición, aplicado a los desplazamientos, es la base del Método de ) } 7 ) ~ .) ) ) ) _) ) ) ,) 1 j » ) ) ") ) -) > ~ DI ) ----) ~ I ) I I , 11 kJ~ k21 ) ) ) )
  • 82.
    !J) ,~ ) ) ) ) ) ) ) ) ) ) ~ O) -=J ) ) J ) .) ) - ? - . - J o ; , 72 El Método dela Carga Unitaria aplicado a una estructura de barras linealmente elástica '.,~ en la cual se consideran las deformaciones axiales, por flexión y fuerza cortante y por " torsión se expresa mediante: ,1 (l)Dj= In~ds+ fm M ds+ fv""::!_ds+ Iml Mt ds EA El G Ac ' GJ (l)(Dj) = ¿(Bq) d Donde BQ Y &¡ son las fuerzas virtuales en equilibrio externas e internas' respectivamente. D Y d son los desplazamientos reales compatibles externos e internos ';: respectivamente. Recuerde que este Principio está asociado con la variación virtual del trabajo y la energía ,; complementaria y SUstituyea las ecuaciones de compatibilidad. El Método de la Carga Unitaria se deduce directamente del Principio de las Fuerzas Virtuales haciendo BQ = 1Y permite calcular el desplazamiento real en la coordenada j si t se conocen los desplazamientos internos reales ocasionados por las solicitaciones: ¿(BQ) D = ¿(Bq) d í)BQ) D = I(Ba) E dv Vol En su forma más simple, para una estructura formada por el ensamblaje de barras ,',, unidas en los nudos, el Principio de las Fuerzas Virtuales establece: 2.3 Principio de las Fuerzas Virtuales Conviene recordar el Principio (teorema) de las Fuerzas Virtuales ya que será de utilidad para la solución de varios de los problemas que se presentan en los capitulos siguientes, principalmente los relacionados con el Método de Flexibilidad. La expresión general del, Principio de ías Fuerzas Virtuales es: esfuerzos y movimientos en cualquiera de sus puntos, sin embargo. en el caso de las estructuras reticulares (formadas por el ensamblaje de barras) este interés se centra, principalmente en 'os movImientos de los nudos y en los esfuerzos que actúan en los'; mismos. L~ razón de esto estriba en que el estado completo de esfuerzos y deformaciones de! cada barra de una estructura lineal, puede determinarse completamente si son i conocidas las fuerzas y momentos que actúan en sus extremos. Una vez que éstos han i sido hallados, el cálculo detallado de las condiciones de puntos intermedios de una barra I depende exclusivamente de ras caracterrsticas de la misma, y no de la posición que ocupa en la estructura. En general. se supone que un cálculo ha sido concluido cuando los movimientos de los nudos son conocidos y las fuerzas y momentos de los extremos I de las barras han sido determinados. En el acapite 6.5 se verá que el principio de superposición. aplicado a los desplazamientos, permite calcular las fuerzas equivalentes en los nudos (Estado Primario) cuando la estructura está sometida a cargas en las barras, sin necesidad de ampliar el sistema Q-D. 72 ¡ ; t j ¡ , ¡ [ I I
  • 83.
    El Teorema deBeHi tiene numerosas aplicaciones, entre ellas, para la construcción de Líneas de Influencia. El ejemplo que se presenta a continuación es una muestra de las diversas aplicaciones que tiene este Teorema. nI nl ¿Q: n:I = LQ? n: =:> {QI}T {DlI} = {QII}T {DI} ;=1 i= 1 2.5 Teorema de Betti En una estructura linealmente elástica, sometida a dos sistemas de cargas diferentes, el trabajo que realizan las fuerzas del Sistema 1 a lo largo de sus desplazamientos correspondientes en el Sistema JI, es igual al trabajo que realizan las fuerzas del Sistema II a lo largo de sus desplazamientos correspondientes en el Sistema l. ) ) ) ) ) ) (1)(0) = ~)q) od Donde Q y q son las fuerzas reales en equilibrio externas e internas respectivamente. .."". SD Y od son los desplazamientos virtuales compatibles externos e internos .' respectivamente. Recuerdeque este Principio está asociado con la variación virtual del trabajo y la energía . _realsustituye a las ecuaciones de equilibrio. .El Método del Desplazamiento Unitario se deduce directamente del Principio de los Desplazamientos Virtuales haciendo oD = 1 Y permite calcular la fuerza real en la coordenada} si se conocen las fuerzas internas reales. ¿Q(SD) = f a (OE) dv Vol En su forma más simple, para una estructura formada por el ensamblaje de barras unidasen los nudos, el Principio de los Desplazamientos Virtuales establece: ¿Q(SD) = ¿q(od) . ·.,2.4 Principio de los Desplazamientos Virtuales Conviene recordar el Principio (teorema) de los Desplazamientos Virtuales ya que será .. deutilidad para la solución de varios de los problemas que se presentan en los capitulos siguientes, principalmente en los relacionados con el Método de Rigidez y con la . construcción de las Líneas de Influencia. La expresión general del Principio de los Desplazamientos Virtuales es: 73 '} J } ) ~ .) ) J .) .J ) J ) J J ) i , ) ) } I ; j ) '-4 l )
  • 84.
    ) ) ) ) ) ) ) -i ) ~ ) . : 74 t 1/3 1/2 ~ 1/3 1x (évC) - 1/3 x 6 = O~ 6v C = 2 cm +1ton • Desplazamiento vertical del Nudo C. El Sistema 1 (Sistema Real) no cambia, '; modificamos solamente el Sistema n. .. • _ _/.:Cero {Q!P"lDJI} ={Qll}T {DI} ::::){QII}T {DI}=O 1 x (611C) - 1/2 x 6 = O --+ Mt e= 3 cm. 8eUi: i ", r I , II . , Sistema 1 Sistema 11 -mr 11 ~ .¡ 1 ~112 1/2 6cm 13/4 +3/4 • Desplazamiento horizontal del Nudo C. Nótese que la estructura es lsostática, en consecuencia, el movimiento del apoyo A (asumiendo desplazamientos pequeños) no genera ni reacciones en los apoyos ni fuerzas internas en las barras. Es posible calcular el movimiento del nudo C utilizando' geometría de desplazamientos pequeños, sin embargo, puede resultar más práctico: utilizar el Teorema de Betti. " 4m ,,4m If ~ ~ ~ 6m A Ejemplo 2..14 En el pórtico triarticulado (rótula interna en el nudo C) mostrado a continuación, el apoyo A sufre un desplazamiento horizontal hacia la izquierda de 6 cm Se desea calcular el desplazamiento horizontal, vertical y la rotación relativa del nudo C. 74 III ; 1j"
  • 85.
    75 1/6 ..........- 1/6 Sistema n 1/6 x0.06 + 1x 9c = 0-+ 9c = -0.01 Rad • Giro relativo en el Nudo C. El Sistema 1 no cambia, modificamos solamente el Sistema n. ) ) } ) f 1I I t J J ) j ) --4 1 1 ! ) , ) t .. ) ~~', r!. t ~.~" ) ¡'.~ ~L) .', J ~E~.. '." ) ~+,: ~(~ } 8' i~: , ~:J, '. ~~;;; ) ~~. ,',1' 1 ~.' ~ .) ~r'.' ":." ~ jI'.;". ., ",t .. ;¡...:; ,} " r ) )',.:. ) ~. .i.::.• :J':., ) ~~- 1~~ ) ' i:: J ) .) j ) )
  • 86.
    ) ) ) ) ) ) ) ) ...:) ") ~ } ) ,) d ~ - 76 Algunas Funciones deForma para barras de sección constante, sin deformaciones por fuerza cortante, se resumen en la Tabla 3.1 inserta al final de este capítulo. Los valores de las constantes (ai) se obtienen de las condiciones dé borde (desplazamientos y rotaciones conocidas) de cada barra. Estos polinomios, también conocidos como Funciones de Forma, son válidos solo para barras de sección constante ':;:.- sin cargas transversales aplicadas sobre ellas, es decir para el caso en el cual solo hay ; cargas externas aplicadas en los nudos de la estructura. ..;; En barras del tipo armadura solamente hay deformaciones longitudinales, en consecuencia, la Función de Forma será: I1 3.1 Número de Grados de Libertad de una Estructura~ Para una estructura formada por el ensamblaje de barras conectadas en los nudos, se define como el número total de desplazamientos índependientes en los nudos de la estructura. A cada desplazamiento independiente se le denomina redundante cinemática o grado de libertad o coordenada generalizada. Un sistema de desplazamíentos o de coordenadas es generalizado si los desplazamientos son independientes, es decir si cada uno de ellos puede ser variado arbitrariamente e independientemente de los otros. Es posible argumentar que el análisis completo de una estructura lleva consigo la . determinación de los esfuerzos (fuerzas internas) y movimientos en cualquiera de sus puntos, sin embargo, en el caso de las estructuras reticulares (formadas por el ensamblaje de barras) este interés se centra principalmente en los movimientos de los nudos y en los esfuerzos que actúan en los mismos. La razón de esto estriba en que el estado completo de esfuerzos y deformaciones de cada barra de una estructura lineal, puede determinarse cómpletamente si son' conocidas las fuerzas y momentos que actúan en sus extremos. Una vez que éstos han sido hallados, el cálculo detallado de las condiciones de puntos intermedios de una barra depende exclusivamente de las caracterlsticas de la misma, y no de la posición que' ocupa en la estructura. En general, se supone que un cálculo ha sido concluido cuando los movimientos de los nudos son conocidos 'i las fuerzas y momentos de los extremos' de las barras han sido determinados. En consecuencia podemos afirmar que: En una estructura de:,barras, la configuración deformada está completamente definida por los desplazamientos: de:·/os nudos. En' la, realidad toda estructura tiene infinitos grados de libertad ya que cada punto de ella tiene " sus propios grados de libertad, sin embargo si se determinan los desplazamientos de los nudos, será posible determinar la configuración deformada de cada barra. La configuración deformada de cada barra puede obtenerse a partir de los desplazamientos de (os nudos a los cuales concurre la barra Y. a partir de la configuración deformada, es posible determinar las fuerzas, inn:trnas en ellas. En el pórtico mostrado a continuación, las configuraciones defOlmadas de.· laS~,b'alTas' (desplazamientos transversales al eje) se han obtenido a partir de polinomios..cúbicos de la forma: 1 ( ¡ 1 i !t Ii CAPITULO 3-lndetermináción Cinemáticá 76 :- _.~-.:..,~ . ..___._~- _- -~ · . _ _ _ __, _':~_._:',:¡,-:·,c-:'::-:- ...._,_!. __.~ .. ~'._' __'::'_._---.-~- .. .. , •...'.'>"_ .•.,.._.... _: •... _ ,._.., .~._ :.• ;:_.~._.-:: __.:__:~~:....--_.•... -0· '~ ~':) ,t) ) .)
  • 87.
    Dl t~ 4EID T102_,..,.. 1 ) 6EI DI ~ 1l~I(X) 12 o ~(x) 2E! D) 1 /11 12EJ D t EAD 1 2 [3 I 77 111 Para D2 (desplazamiento vertical) ~(x) = D2 (l - ~) es el desplazamiento axial. e Las fuerzas de extremo de barra correspondientes se pueden calcular a partir de las qeforrnaCiones de la barra utilizando, por ejempio, la relación Momento - Curvatura (M= EI4l") los resultados son: qneX)=-DJ(x)(l- ~ i ", Grados de Libertad Sistema O> D J Configuración deformada 3 ,Si eonslderamos por ejemplo, la barra 1-2, los desplazamientos en su extremo superior son DI, D2, D3 (los mismos desptazamíentos del nudo 2 al cual concurre) y las configuraciones deformadas (Función~ de Forma) se muestran ~ contínuaclón junto con las ecuaciones que permiten calcular ~I desplazamíento transversal de cualquier punto a lo largo de su eje. ~ . '1(x) 2 :..:.:4 Estructura: Geometría y cargas en nudos. Barras eón EJ, EA 2 ) -,¡ ) 1 ) } } ) --l ) ) ) J ,...-: 00 } 00 J ) oí ) } ) Jf )[ it 1)1 ) ) 1 j : I •,1 1 ~ I (
  • 88.
    Q2-D2Ql~DIQ-D EA 2 Q-D Armadura con 8g.d.l - Los apoyos restringen algunos gdl - Los gdl seleccionados son independientes, se puede variar cualquiera de ellos manteniendo fijos los otros. .,. s; ¡ Ry RzOz).Oyo: M / Pórtico 3D Armadura 3D Parril1a2DPórtico 2P VU!a2D•Armadura ID RzJ;__/ Dx ¡ ¡ ¡ ) ) Nótese que una vez elegido el sistema de coordenadas generalizado (grados de libet1ad) tanto los desplazamientos de los nudos como las cargas en la estructura deben medirse en el mismo sistema de coordenadas. Por lo tanto. será necesario utilizar el principio de , superposición para calcular las fuerzas equivalentes en los nudos de la estructura . (Estado Primario del Método de Rigidez) cuando la estructura esté sometida a cargas en las barras. adicionalmente a fas cargas en los nudos. 3.2 Armáduras Planas· 2D la determinación de ros grados de libertad en una armadura plana, es tarea simple. _"_","~~,I - Cada nudo tiene en general dos grados de libertad (desplazamiento en x e y). En los apoyos se restringen algunos grados de libertad. A continuación se muestran algunos ejemplos de elección de Sistemas Q-D. t2 t4 t6 ) ~ ~ 5 Por fa tanto, si se determinari los desplazamientos nodales, todas las otras magnitudes estructurales (deformadas de las barras, fuerzas de extremo de barra, etc.) pueden calcularse a,partir de esta informaci6n. Esto va/ida la posibilidad de usar un método. en este caso el de Rigidez. en el cual las incógnitas son los cJ8splazamientosnada/es. A continuaci6n se muestran los grados de libertad de cada nudo en las estructuras de barras o reticulares. Los apoyos de la estructura restringen algunos de estos grados de libertad en determinados nudos y deben eliminar los movimientos de sólido rígido de la estructura. ,. :.~;::O~;':.~~;.~.~~~;~_~ ~O~~·~~;" ~.~·o~~,~.o~fi:~:.._~::W -----......_-~ :) ,~ ) ) ) ') ) ) ) ) ) ) -} ') ~ 78 _,0,0_0-=- 0_, _00 _0i.-_:¡::..=.__ _:~~_:_-J_~O=~:::"':'-'_='::_ .. _.-:.._ .~ ~.~~_:~O:O~OOO__';'~:~; ,:-_ ...:'-....: __ ~ ~.;_~ 00__; ... ---- ...-..:.--
  • 89.
    79 Sistema Q -D 5 64 Pórtico con 16 gdl 7.------,8 3.4.1 Pórticos Planos Ortogonales La determinación de los grados de libertad en un pórtico plano, es simple. Cada nudo tiene en general, tres grados de libertad, dos desplazamientos ortogonales en el plano del pórtico y una rotación perpendicular al plano del mismo. En los apoyos se restringen algunos grados de libertad. La introducción de restricciones adicionales, tales como el ignorar las deformaciones axiales en vigas y columnas, reduce el número de grados de libertad. A continuación se muestran algunos ejemplos de elección de Sistemas Q-D. - Caso General: Se consideran las deformaciones axiales en todos los elementos. 3.4 Pórticos Planos 2D Cada nudo tiene en genera', tres grados de libertad, dos traslaciones ortogonales y una rotación. Los apoyos restringen algunos de los grados de libertad. Una hipótesis bastante usual en el análisis de pórticos de edificios, es la de ignorar las deformaciones axiales en las vigas. Esta hipótesis se sustenta fisicamente en el hecho que usualmente en los edificios, existen losas de piso uniendo a todos los pórticos. Las losas de piso, cuando se construyen monollticamente con las vigas, pueden considerarse como diafragmas rfgidos en su plano, es decir, indeformables en su plano. Si esta hipótesis se cumple, entonces Jos desplazamientos horizontales de todos los nudos de un pórtico, en un mismo nivel, deben ser iguales. Esto equivale a suponer que las vigas son axialmente muy rígidas. Otra hipótesis usual, en el análisis de pórticos de poca altura, es la de ignorar las deformaciones axiales en las columnas. A diferencia del caso anterior, esta hipótesis no tiene sustento ffsico, salvo el de aceptar el hecho que en pórticos bajos, las deformaciones axiales en las columnas no modifican de manera importante la respuesta de la estructura. Esta hipótesis es equivalente a ignorar o despreciar la energia que se acumula por fuerza normal en las columnas y considerar únicamente la energía acumulada por flexión. Una hipótesis usual en el análisis de vigas sometidas a cargas contenidas en su plano, es la de ignorar las deformaciones axiales o longitudinales. Si las cargas son perpendiculares al eje de la viga, esta hipótesis es completamente válida. Si se ignoran las deformaciones axiales cada nudo tiene solo - dos grados de libertad, un desplazamiento vertical y una rotación normal al plano de la viga. VIga con 5 gdl e 4 ~I ~1 ~3 ~5~t------~"""";""':"'---~.,r.-=----4- 3.3 Vigas 2D Cada nudo tiene en general, tres grados de libertad: dos traslaciones ortogonales y una rotación. En los apoyos se restringen algunos de los grados de libertad. _) .., :) ) t ) ) ) ) ) :> ) ) ~ ,J, I JI ) ¡ ) 1 J ) j ") ) t ) ! , , j ) ) ~I I ) ¡ I ) ) ,_ : . j i ) , '1 1
  • 90.
    - ¡ .. ,. 1 ) 1) ¡-: ) ~ !I .,- D3=1D2=1Dl=l A contínuaclón se muestran las configuraciones deformadas del pórtico de la figura anterior (caso de EA = 00) para deepíazamlentos unitarios Impuestos en cada una de las coordenadas: Sistema Q - D (EA =00) a) Con deformaciones axiales gdl= 3x5 nudos = i5 b) Con EA;=::eo envíges gdl = 12 e) Con EA = 00 en.vigas y columnas gdl =7 SistemaQ- D - Otro ejemplo de pórtico plano. Pórtico con 8 gdl SistemaQ-D - Caso en el cual, adicion~lmen~t se desprecian las ~eformaciones axiales en las columnas. Posteríormenta se verá que pedría trabajarse también con siete gdl, ignorando ef gdl 3, ya que ~t~ e~ f~nción de DI y D6. 2 'l}e , }. ¡ ¡ I Ii 1 Pórtico con 13 gdl - Caso de vigas con EA = oo. losa rígida en su plano uniendo á ios ni.Jdosde un mismo nivel. 80 _" .•.• . .... ...•. _. • ••._ •• -.', ,'., ..... -;, c, ; •.,."'-'" ~_:~':;':- :;~_,::=,:",,:,:-::,:,'~~~...~'.'":~-=~• ._ .•. '__-.-.C •. __ ._~-_.••----,.;- ••_.~ ..: :..••~ "' ...... ,A'-, _ . ";';;'=":'::"";:::·L~;::':-'2:.:c::..:~L."'~L.~::.,.L,::,- ..."2.':::'::':2;;_::::~:~~~':·:::":_::':"_>;'_'~~~"_;""":'~:""'''''c.'> ..... ,""., " ,-,~." " :; ": d~ '.•g '7:) ) 1.)1 . ) ) i ')i~ i ; , ; ) ) )
  • 91.
    81 04=1 D2=lD1 =1 Para elsistema Ql- DI las configuraciones deformadas del pórtico para desplazarnlentos unitarios impuestos en cada una de (as coordenadas son: Q2-D2Qt-Dl Si la viga fuera axíalmente rlgicta (EA = 00) como en el caso de la presencia de una losa de piso (diafragma) uniendo los nudos, entonces deberá cumplirse que DI = D4. El nuevo sistema de coordenadas será cualquiera de los dos mostrados $ conñnuación. Pórtico con 6 gdl 07= 1D6>= 1 81 $íS~QlaQ-D 3.4.2 Pólflcos Planos No Ortogonales - Caso general: D5=104=1 _, ) 4 j J .J ) _) , II r ~ ¡ I» ) I) I I '1 ! i ') I '1 ) } ) ') ) ;;) .) ) ) ') J ~ ) .., ! i J l) _.~, ) ) .•..•~"~.~ .....,.'...,..:.~,-'-'i.,-."""'-,L.c.,... ,:,:.~~¡¿:,<..;..,.;'"¡;.,,,,_:c.:;,;,.::.:;.-,,,:o..·:';~·c:.2·~'''···,·:·'~:,·;;L~'.:-:"'::~:.:,:.::~~:;..'::J:"::=_;::';;:.~';.;,·:::~;:2:'=é:;:';;~;::_:::·.:~.i:==:.·.'."'J:0"0:"''':''7.;''''=='' ') ')
  • 92.
    !) ) ) / ) ) ) ) ) J .~ _ ,) ) iI 82 EA* 00 Sistema Q-D Pórticocon 6 gdl En pórticos no ortoponales, cuando se desprecian las deformaciones axiales, el problema suele estar en la deteni1inación dé los grados de libertad de traslación, ya que las rotaciones son fáciles de identificar. . D1;::: 1 Para el sistema Ql- DI las configuraciones deformadas del pórtico para desplazamientos unítaríos impuestos en cada una de las coordenadas son: I, Q2-D2 Q3-D3oi -r» El sistema Q - D podrla ser cualquiera de los tres mostrados a continuaclén. I I Si se desprecian rasdeformaciones axiales en todos los ~me,n~, el grado de libertad D2 desaparece y los desplazamientos DI y 04 e$ta~n. rE;!'a.ciQP~()$por 969metrfa y el sistema no serfa generalizado. La relación entre Di y D4 se mU.éstraa continllc3ci6n: 82
  • 93.
    83 SistemaQ-D Pórtico con 9gdl Considerando deformaciones axiales en todos los elementos. - Otro ejemplo de un pórtico no ortogonal: ~ I , r , I , ,, /. ,~Polo o centro de rotación A manera de ejercicio, para el pórtico mostrado a continuación, si se ignoran las deformaciones axiales en todas las barras, encuentre las relaciones geométricas entre los desplazamientos 1, 2, 3 Y 4. Si existen dichas relaciones entonces los desplazamientos no son independientes, por Jo tanto el sistema no es generalizado. Para investigar la relación geométrica entre los desplazamientos lineales se puede usar el polo o centro instantáneode rotación,tal como se indica. Q2-D2 04-04QI-DI o oo Q3-D3 En consecuencia el sistema Q-D podrla ser cualquiera de los cuatro mostrados a continuación.:', ;-~. 6 ::';.,' ......',,:, . ~.'? ó Apoyo necesario para estabilizar el mecanismo Parael pórtico de la figura anterior, si se asume que EA = 00 en todas las barras, la mejor manera de identificar los grados de libertad de traslación, es la de crear un mecanismo inestable (articular todos 10$ nudos rfgidos) e investigar el número rníntmo de restricciones necesarias para' lograr estab'ilizar el mecanismo creado. En la figura a continuaciónse ilustra esta idea. ) J ) -, ) ) } J l~! ll,:; 1~I (' , ) ~ , t ,) ); 1 j ) _) , -, ) ¡
  • 94.
    84 02=1 01 = 1 Parael sistema Q - D de la figura anterior, las configuraciones deformadas del pórtico para desplazamientos unitarios en cada una de las coordenadas, se indican a continuación. Q-OMecanismo ... 2. , ¡ 1 1I ! Otra posibilidad para estabilizar el mecanismo, es la siguiente: D4= 1DI = 1 Las configuraciones deformadas para desplazamientos unitarios en las coordenadas 1y 4 del Sistema Q-D, se muestran a continuación: Mecanismo ¡ I1 I Q-D ... f 1 i ¡ ! ! Si se ignoran las deformaciones axiales en todos los elementos (EA = (0) para determinar el sistema Q-D generalizado, creamos un mecanismo introduciendo rótulas en todos los nudos y luego, por inspección se determina que son necesarias dos. restricciones externas para estabilizar el mecanismo creado: 84 ;~====~ ... ;:~ ,1) ~ ) I ) ) ') ") .) . ) ) ) .1 ) O. _0 O 0 ~) ~
  • 95.
    85 Mecanismo ...ó 7gdl 6 7gdl ...7 gdl Mecanismo - Otro ejemplo de un pórtico no ortogonal, en el cual se ignoran las deformaciones axiales en todos los elementos. ó ... Si se ignoran las deformaciones axiales en todos los elementos (EA = ro) creamos un mecanismo y por inspección se determina que son necesarias dos restricciones externas para estabilizarlo. - Otro ejemplo de un pórtico no ortogonal. D5= 1 ) J 1 ) ~ ) ) ) ~) ) -'--) ) ) J ) 1 ) ) J J ) -') ) J II J 1 } _)
  • 96.
    Q2-02 t ó 86 Sólido Rígido Qt-Ol Cuando existen elementosde rigidez a flexión muy grande, estos pueden modelarse bajo la hipótesis de El = co, es decir como si fueran sólidos rfgidos. En este caso debe modificarse el sistema de coordenadas. eDirecciónde 01 151= 1 D2 =0 , " , ..~ Direcclénde 02, ..¡ , .. "'V Dirección de 02 Las configuraciones deformadas, para desplazamientos unitarios en el segundo sistema de coordenadas, se muestran a continuación. 1 I1 j i i Ii I , 1I I¡ ó los desplazamientos de nudo no necesariamente deben medirse en direcciones perpendiculares. A continuación se muestra un pórtico en el cual se consideran deformaciones axiales en todos los elementos. Se indican dos sistemas de coordenadas, el primero del tipo "convencional" en el cual los desplazamientos lineales de los nudos se miden en direcciones ortogonales y el segundo en el cual en el nudo izquierdo los desplazamientos se miden en direcciones no ortogonales. 2 Sóio se necesita este apoyo para estabilizar el mecanismo creado Sistema Ql- D3Sistema Q2- D2 SistemaQI- 01 (EA:' 00) - Otro ejemPlo de un pórtico no ortogonal, en el cual se ignoran las defomiaciones axlales en todos los elementos. 86 :- ....'. .".-.......".' .---."':":.,-_...~.~~. ~. ::~~-:..~ .:~'.~.:.~.~=~~~:::~:~.:~~~.:..:;~-'- ....2,r-C;;:·:::::.l;~L,:::.;_;:;~~~~;¿.~;c..::~l~,~~;;.:~~.~.,:,";..l:.:;,_·,:;,;~~,.-,-~,.,.. c'" __"."~ __. ,__ , •. ~_= __ = ,__ .s~_. ~ ...... _ ,~ .~ j) ') ) ') ) ) ) ) ) ) ) ~..:} i ') I i.=) I . I ) ) - "~~~-"1 c - ~''"'''''''1~
  • 97.
    87 Si existe undiafragma rrgido en su plano (losa de piso) y flexible fuera de su plano. éste debe moverse como un sólido rigido en su plano, por lo tanto. se generan dependencias entre los grados de libertad de los nudos. Por ejemplo las rotaciones Ry de todos los nudos de' un mismo nivel deben ser iguales. De manera similar los desplazamientos Dx y Dz de todos los nudos del nivel deben ser compatibles con el movimiento de sólido rígidodel diafragma, tal como se indica a continuación. 3.5 Pórticos Espaciales3D Cada nudo tiene en general, seis grados de libertad, tres traslaciones ortogonales y tres rotaciones. Los apoyos restringen algunos de los grados de libertad. El análisis de estructuras espaciales generalmente conlleva un gran número de grados de libertad. 1[, '---~l!.-" Ilz Seis gdl por nudo ~ Total 6 x4 nudos =24 gdl 03= J DI = 1 D2= 1 17 y para el sistema Q2 - D2: D3= 1 D2= 1Dl=l Parael sistema Ql - Di de la figura anterior, las configuraciones deformadas del pórtico paradesplazamientos unitarios en cada una de las coordenadas, son: ~ .~ ..~ ~ ) J l ! ) I } , ¡ j ! }I j ) -j l ) - 1 ) I ) J t _) ) .) } ) J ) ) --.J ) I ) ) ) .) i~ ) ~ .) ) .) "] i l.. 1 /) -;
  • 98.
    Pórtico plano simétricorespectoaeste eje. El pórtico I~ también es simétricorespectoal plano y~zperpendícular ",. 1 1 1 1 al plano del papel I 3.6.1 Tipos de simetría Existen tres tipos de simetría estructural: simetría con respecto a un eje, con respecto a un punto y simetrla con respecto a un plano. 3.6.1.1 Simetría respecto a un eje f .... ~'.~ I~ , í:,r ~4~X 11 4 I2 m 11 AhIt el '2 tI A b 1 .• t t " h Sistema Q-D para un pórtico espacial con diafragma rígido. 3.6 Estructuras Simétricas Definición de simetría del Diccionario de la Real Academia: Regularidad en la disposición de las partes o puntos de un cuerpo o figura, de modo que posea un centro, un eje o un plano de simetría. Muchas de las estructuras que se construyen (puentes, edificios, aviones, barcos, etc.) poseen alguna forma de simetrla. El saber identificar la simetrfa de la estructura permite analizarla considerando s610una porción de la estructura (la mitad, la cuarta parte y en algunos casos aún menos) dependiendo del tipo y grado de simetría. La simetría estructural involucra una configuración "balanceada" de la geometría, propiedades estructurales y condiciones de borde (apoyos). A continuación se muestran dos estructuras simétñcas. La simetría puede definirse en términos de una Rotación de 1800 alrededor del ej~ "y" o de una. Reflección de cada partícula (punto) de la estructura a través del plano vertical y-z (perpendicular al plano del papel) que pasa por el punto "A". 4 nudos x 3 +3 = 15 gdl I¡ ¡ 1 !! ! 1r i! gdl Sólido Rígido gdl dependientes
  • 99.
    89 Rotación de 1800 4 /~x ~~ t"i-Eje ele siMetríQ p~ 1 Un sistema de cargas es simétrico, si al aplicar una rotación alrededor del eje de simetría se obtiene un sistema de cargas equivalente. Por ejemplo para la estructura 1 de la figuraanterior, se tiene: I rvvvvv'l L~ lB 12 le hz J:P kP VV'l"~~ I h lA (1)4 r h, II 4 12 4 11 4 11 I 11 k ~ * .• ., "I1 /2 11 -~ ® ,,,", 3.7 EstructUras Simétricas CargadasSimétricamente P6rtico espacial <, -, ~ Plo.no ele SIl"letrTo. xy I Parrilla Plo.no de SIMetrío. xy Pla.no de SIMetría. yz Paracualquier punto ·A" existe un punto idéntico "B" ubicado sobre la rectaAO que pasa por el punto de simetría. En este caso la simetria se comprueba mediante una operaciónque se llama Inversiónrespectoal centro ·0". 3.6.1.3 Simetrla respecto a un plano 1 Punto de simetría -, Ah 1, Ih<, B -, .~ 1 3.6.1.2 Simetría respecto a un punto ) ) ) ) ) ) ) ) ) ==Ji' JI ~>,) ) ., 3> } ") > } ) J •~ .' ..~ t ) ) ) ) - ) • ). j j ) --4 I
  • 100.
    ,~ (J) :it ") 1 ) ,) ') !') ) ) ) ) ~ ) ~ ) ) ) d : ~ 90 Nótese en "lafigura anterior, que una rotación de 1800 alrededor del eje de simetria conduce a un sistema de fuerzas internas equivalente, en consecuencia las fuerzas internas indicadas en la figura son simétricas. El momento f1ector y la fuerza normal pueden existir. sin embargo la fuerza cortante debe ser nula en el eje de simetría. M fuerza simétrica - puede existir N fuerza simétrica - puede existir V fuerza simétrica - debe ser nula (suma de fuerzas verticales Eje derímetrfa ~MG~~M~ En términos de fuerzas internas en el plano (eje) de simetrfa sabemos que las fuerzas de sección deben ser simétricas, por lo tanto tendremos lo siguiente para el caso de un pórtico plano: 3.7.1 Condiciones de Contorno en el Plano (ejel de Simetría. Carga simétrica En términos de desplazamientos en el plano de simetrfa: a) No hay desplazamientos normales al plano de simetría. b) No hay rotaciones alrededor de dos ejes ortogonales contenidos en el plano de simetria, esto significa que si el plano de simetria es el yz entonces 8y = 9z = O. f ®_J M:fO e = o ..ti. K N:f0 ilV:fO V=O ilH=O " " v 11 l. ÍI 12/t 4 19,1=1941 1821=¡e31 La estructura equivalente (reducida) que se obtiene aprovechando las condiciones de simetrfa de la estructura y de las cargas, es la siguiente: Una rotación de 180° alrededor del ejede símetrfa produce el mismo sistema de fuerzas de sección +((--+!_o~I . ..... Eje de Simetría M - Fuerza simétrica N - Fuerza simétrica V - Fuerza simétrica :. 1:Fv = O =::) V = O Premisa: En una estructura simétrica cargada simétricamente los desplazamientos (configuración deformada), reacciones y fuerzas internas son simétricos. En el eje de símetrta, por ejemplo en el punto O de la estructura 1 yen los puntos A y B de la estructura 2, mostradas al inicio de este acápite, sucede: 90
  • 101.
    91 El uso deJasimetría, permite reducir el número de grados de libertad y la cantidad total de elementos. Para el ejemplo analizado. si no se consideran las deformaciones axiales. el número de gdl se ha reducido de seis a cuatro. Posteriormente veremos que los gdl 3 Y 4 de la figura anterior pueden no considerarse, se les denomina grados de libertad prescindibles, con lo cual se reduce a dos el número total de gdl de la estructura, tal como se indica a continuación. Q-D M fuerza simétrica - puede existir íz:J;)I j N fuerza simétrica - puedeexistir ~ 't. TA..B ~V fuerza simé~ica - debesernula(suma I t de fuerzas verticales En consecuencia, la estructura equivalente (reducida) que se obtiene aprovechando las condiciones de simetrfa de la estructura y de las cargas, asumiendo que se ignoran las deformaciones axiales, es la siguiente: Adicionalmente en los puntos A y B las tangentes deben ser es horizontales. Las fuerzas internas en el eje de 'simetrfa, se indican a continuación. La fuerza cortante en los puntos A y B debe ser nula. La deformada debe ser simétrica, en consecuencia: la31 = 1041' ¡051=106! Para los desplazamientos en los puntos A y B, ubicados en el eje de simetrla: a) o,a =oBX =0 b) SAZ =aBZ =0 112la 2 I 1 Veamos las ventajas que ofrece el aprovechar las condiciones de simetria mediante el siguiente ejemplo. El pórtico plano, si no se aprovechan las condiciones de simetría de la estr~ctura y de las cargas, tiene seis grados de libertad (ignorando las deformaciones axiales en todos los elementos). } "1 1 ! ) I » , 1 ,t j ) ) "), I! } ¡ ) J ) --l I ) } I ) i ) i ) ) ) .. ) } ) -, :) ) ~ J ~ t ) I ?) f ) ¡ I ) ) l ., .) )
  • 102.
    ~) 'tD O ) ) ) ) ) ) ) ) ) ") ~ j ~ ) ) ) ) ) ) ) .> ) ) ) ) d :3 ~ ) J ~ .) '-:) j .) j .) e ,J ~ .) ) .~ Q '3 ----) 92 SistemaQ-D seis gdl En eleje de simetrla las fuerzas de sección deben ser: - Momento en las columnas = O(ya que es = 9s = O) - Cortante V = O En consecuencia, si se ignoran fas deformaciones axiales en fas vigas, el sistema Q - D será el mostrado a continuación.con un total de seis gdl. En los nudos Sy 8 no debe existir . desplazamiento horizontal y la tangente debe ser horizontal, es decir. 0HS =oH8 =0 9zS=9za=0 1941=1961, 1971=1991 l- 1 -1- 1 .-.; La configuración deformada del pórtico se muestra a continuación. También se pueden aprovechar las condiciones de simetrfa, si se utiliza para la solución el Método de Flexibilidad. En el caso analizado la estructura tiene seis redundantes estáticas y si se aprovecha la simetría este númerose reduce a cuatro. Veamos otro ejemplo del aprovechamiento de las condiciones· de simetrfa de la estructura y de las cargas. En este caso el eje de simetria coincide con la columna central del pórtico. Si se consideran las deformaciones axiales, el pórtico tiene un total de )8 grados de libertad. Si se anulan las deformaciones axiales en las vigas se reduce a 14gdl y si se ignoran además las deformacionesaxiales en las columnas, el númerode grados de libertad del pórtico se reduce a ocho. Sistema Q - D 92
  • 103.
    93 5 g.d.l Q -D (EA =00) Un solo gdl vertical ya que los desplazamientos verticales de los nudos 6 y 9 deben ser iguales al considerar EA =eo Q - D sin deformaciones axiales en vigas y columnas (12 gdJ) Q - D sin deformaciones axiales en vigas (19 gdl)l' 2 ., Aprovechando la simetría: Estructura l eje slJlle-t rí Q No hay que perder de vista que el análisis aprovechando la simetría, se realizapara la mitad de la estructura. Para la otra mitad, los diagramas de fuerzas de seccióny reacciones se construyen sobre la base de que los resultados son simétricos. Para la columna central, que ha sldo analizada con la mitad de la inercia y del área, será necesaríc duplicar las fuerzas de sección. A continuación se, presenta otra estructura (pórtico plano) simétrica en geometrlay cargas. La estructura tiene 24 gdl sí se incluyen las deformaciones axiales, númeroque se reduce 19si se excluyen las deformaciones axiales en las vigas y a 12si se excluyen las deformaciones axiales en todos los elementos. Para este último caso, si se aprovechan las condiciones de simetrla, el número de gdl se reduce a cinco, en consecuencia hay un gran ahorro en el esfuerzo numérico ya que la Matrizde Rigidezde la estructura pasa de orden 12x12a orden 5x5. I El momento de inercia, en este caso, es irrelevante ya que M= O 1 Si se ignoran las deformaciones axiales en todos los elementos, tendremossolodosgdl. 93 t -) , ) 1 ) 1 J ~ .1 ) ) ..." .'> ) J i I I ~ j ~ 1~. i } ) J ) -. ) 1 ) ~ I I , í ¡ ,
  • 104.
    rí ,) - J ) ') ) ) ) ) > ~ ) ~ ') . ) ) ,) -) ) ) ) ) ,) ) i d -~ -i ) ,:) -) cJ ,') .d ) ~ ) -~ ) ~ ) ) ~ ,~...J :-) 94 Q-D(EA~oo) 4gdlQ-D (EA = (0) 1 gdl Irr elevo.nte ~ Con EA l j' Q - O con EA= 00 m49.dJ Con EA 3x3=9 9.(;1.1 - Otro ejemplo de un pórtico a dos aguas simétrico en geometrfa y cargas. La diferencia con el ejemplo anterior estriba en que hay una columna en el eje de simetrfa. Sistemas Q- D con EA = 00 Q2-02Ql-DI I eje slME?trfQ 1- 1 --1- 1 -1 Grados de libertad: Con EA gdl = 3x3 = 9 Con EA = 00 gdl = 5 - Ejemplo de un pórtico a dos aguas simétrico en geometrfa y cargas. w 94
  • 105.
    95 , i l N es anfíslmétrícoY!l2 puede existir (suma de fuerzas horizontales en el punto O = O) Ves antisimétrico y sí puede existir (suma de fuerzas verticales en el punto O = O) M es antisimétrico Y!!2 puede existir (suma de momentos en el punto O= O) Nótese en la figura anterior, que una rotación de 1800 alrededor del eje de simetría conduce a un sistema de fuerzas internas inverso al inicial, en consecuencia las fuerzas Rotación de 1800 alrededor del Eje de simetría eje de simetría ~(Vi$~V)7~~?4}tv~ En términos de fuerzas internas en el plano (eje) de simetria sabemos que las fuerzas de sección deben ser antisimétricas, por lo tanto tendremos lo siguiente para el caso de un pórtico plano: Plano de simetría ~ o~ Punto de inflexión o de cambio de ~ curvatura. Desplazamientos en el plano (eje) de simetria que pasa por el punto o: a) Dy=O b) ex= o (no interesa en el caso de pórticos planos) Premisa: En una estructura simétrica cargada antisimétricamente, los desplazamientos, la deformada, las reacciones y fuerzas internas son antisimétricas. 3.8.1 Condiciones de Contorno en el Plano (eje} de Simetrfa. Carga Anfisimétrica En términos de desplazamientos en el plano de simetría: a) Nohay desplazamiento (traslación) en el plano de simetría. b) No;hay rotación alrededor de un eje normal al plano de simetría. La figura a continuación ilustra estas dos condiciones. 3.8 Estructuras Simétricas con Carga Antisiméfrica Un sistema de camas es antisiniétrico si al aplicar una rotación a la estructura se obtiene un sistema de cargas inverso al inicial. '1 7 ) ;1 s ) ;, ~ )¡ , j •) 1 ~ , ~ ¡ lI ! r , , )
  • 106.
    .) ) ') ) ) ) ) ) -:) ) ~ ) . . - - - Nota:-~'n~rio duplicar las fuerzasdel análisis en la columna central. Eje de Simetría .,tt ,~ liT 0.5 l. 0.5 A - Otro ejemplo de un pórtico plano, en este caso el eje de simetria coincide con la columna central: I Q-D (EA= (0) 6 gdl 96 Estructura simétrica - Cargaantisimétrica 5~ 1----,..,---4 ~ 5 Eje de Simetría , Veamos las ventajas que ofrece el aprovechar las condiciones de simetrfa mediante el ejemplo a continuación. Esta estructura tiene seis grados de libertad si se ignoran las deformacIones axiales en todos los elementos. lB Por lo tanto la estructura se puede reducir a: t -p -: <, 1<, 1 2 O O 3 i__fí 7 / K A A_ ........X ) ¿ <, ~ ~ /j,J/ /11 11 IL Il ':J. 1 A /] A 0.512 11 r 0.512 " intemas indicadas en la figura son antisimétricas. En el eje de simetría solo puede existir fuerza cortante, el momento flector y la fuerza normal deben ser nulos. 96 -- _. --- ,•. ,c=';,~:..:7$i¡::;';::¡:'~::;'-;;:'::': ':::i:':~-;:~~-"i::z...:-.-_=;:~~"':":~:"::.~~.:::::':"':;;.:.~::'~:..:':~I:"':;'~~:.::~~~'::"::.~=.~:~:---::-=:- -.:, =-':';':~-:.~. ,~'::~-:_.::~.i=..;.~;.,.";:~"--.;:__:__,--.~..-:.-_."':':~'~"~~"':..~':.'~~~'~:':=....-:---=';",_. ~ ...;:_,:,,:,,:_:,.::";.. .::,,:,-..-.~..:..__-:":"_' . t1} (iJ) ri) ._) )
  • 107.
    97 "l <ID Nota: Si existedefonnación axial en la viga, las estructuras I y 2 no son totalmente equivalentes. La deformación axial en la viga modifica los desplazamientos horizontales de los nudos y en consecuencia las fuerzas internas. Q- D (EA = 00) 3 gdl Q- D (EA = 00) 4gdl 1 I A P/t¡ j 3) Q- D (EA = eo) 4 gdl 2) I Eje de S1l"le"trí a ~ Viento 1) No hay que perder de vista que el análisis aprovechando la simetrla, se realiza para la mitad de la estructura. Para la otra mitad, los diagramas de fuerzas de sección y reacciones se construyen sobre-Ia base de que los resultados deben ser antisimétricos. Para la columna central, que ha sido analizada con la mitad de la inercia y del área, será necesario duplicar las fuerzas de sección obtenidas del análisis (solo el momento flector yel cortante ya que la fuerza normal debe ser nula). A continuación se presentan tres ejemplos de pórticos planos simétricos con elementos inclinados cargados antisimétricamente. } } ) -. ,) ) ) ) ) ~ ,) ) ) ) ) -) , - J ) "" S-.' ) ) ........ ) ) ., ) I ,, 1¡ ! "1I ¡ j J ) __J ;
  • 108.
    Diagrama de Momentos 98 , M*0, V = 0, N = O La estructura equivalente, para las cargas antisimétricas es: Deformada M == O, V *O, N *O Ah = O, Av = O, e;e O Diagrama de Momentos p Carga Antisimétrica o - Carga Antisimétrica: La estructura equivalente para las cargas simétricas es: DeformadaCarga Simétrica 3.9 SimetríaRespectoa un Punto Este tema ya se presentó brevemente en el acápite 3.6.1.2, ahora veremos brevemente la manera de reducir la estructura aprovechando este tipo de simetrla. Este tipo de simetría es la más dificil de identificar y también suele ser dificil aprovechar las condiciones de simetrra para reducir la estructura. A continuación se muestra una estructura simétrica con respecto al punto o centro ·0" con dos sistemas de carga, uno simétrico y otro antisimétrioo. También se indican las estructuras reducidas que resultan de aprovechar las condiciones de simetrfa asl como las condiciones de contorno en el centro de simetrla. - Carga Simétrica: ~~ ~ ~ r) :1 ) ) ) ) ) ) ) ,) ~ .') ~ ) ) ) .) ..) ) ) ) ) ,) ) ) J ~ -j J .C) -.J .) ~) ) -) ~ .) ~ ) .., ) ) iI ~ -7) ....:. 98
  • 109.
    5 20 • 99 e) Armadura simétricarespecto a un punto con carga antisimétrica: 20 •20 e) Armadura simétrica respecto a un punto con carga simétrica: .. 20 • 1020 20 b) Armadura con carga antisimétrica: 202020 3.10 Simetría en Armaduras a) Armadura con carga simétrica: 99 ') .) ) '. ) ) ) ) ;> ) ~ .> ) ) ) ) ) J J .. '". ) ') ) } J ) J ) • .. r::',,' ) ..,. ) ~
  • 110.
    100 l. b) Panilla concarga antisimétrica: ~ EPlpo1:ro.l'llen1:o I ele f(exl6n LBx-O t(in ~ Vy=O y Mx;eO Mz ;eO Estructura reducida: V=O Q:Fv=O) Mt=O (¿M=O) Condiciones de desplazamientos en el punto O (ver 3.7.1): a) Dz = O (no interesa por ser una parriUa) b) Bx=O e) By::; O (no interesa por ser una parrilla) T) H H...... I ePlano efe ~~t·Dt::.. " I ·SIJllett"ro. Mt U ')"Mt <, '" xyV V Fucl7BS de seccjón simétricas 3.11 Simetría en Parrillas a) Parrilla con carga simétrica: too ~ () '~D ") l ) ) ') ) ) ) ) ) -j ) ~ ) ) ) ) ) ") ) ) ) ) ) ) -::J .cj -1 .) .c.) ~j .~ .'J ..;) ..) J ) ~ _) .., J J ~ ~ :0) -) tiz
  • 111.
    101 I ""'_-4 Pios By B <plano xy) Dz=O Bx=O a =0 LP"os A ;. A (Pl:no yz) Dx=O ~=O ~=O Plo.no de SIl'letrfo. xy 3.12 Simetría en Pórticos Espaciales a) Pórtico espacial con doble plano de simetría y carga simétrica Dy=O Vy;t: O 9z= O MZ:;é O 9x;t: O Mx = O Empotramiento de Torsión Bz = O Estructura reducida: Condiciones de desplazamientos en el punto O (ver 3.8.1): a) Dy=O b) Bz=O Fuerzas de sección antisimétricas en el punto O: ~i~(C-----..:....__----,.~N)-- Mt /tv Mf 101 ; ) ') ) ) ) ) ) ) ) ) =; ) ) ,) ) ,J ) ) J "') __) ) ') :, ") } ) i .., ~¡ '~. ~ ¡ I ) }f t ) 1 ) I ) ¡ 1 I 1 J ) ~ 1
  • 112.
    1) P/2 J -11+1 1I 'l,/fe 'Wk V¡¿ "'12. Eje de SII'Ietr1a ~klr Vkl , 3.13 Descomposición en Carga Simétrica vAntisimétrica Si se cumple el principio de superposición. entonces una estructura simétrica sometida a un sistema de carga cualquiera. puede descomponerse en dos estructuras simétricas. Una de ellas cargada simétricamente y la otra cargada antisimétricamente. A continuación se muestran tres ejemplos de esta descomposición. Condiciones de contorno en el punto "O" necesarias para reducir la estructura: - Caso de carga simétrica (Fuerzas Py P') a) Dx=O b) 9y=9z=O e) Solo existen los desplazamientos Dy, Dz, ex - Caso de carga antisimétrica (Fuerzas Q y Q') a) Dy=Dz=O b) ex= O e) Solo existen los desplazamientos Dx, 9y, ez I / t- ", ", Las fuerzas Q y Q' están 2 contenidas en el plano xy ]'x ( I 1 Ptcno de SlMetrfa. p /~ yz ", I Las fuerzas P y P' son simétricas 6 I Las fuerzas Q y Q' son antisimétricas I 3 1 5 b) Pórtico espacial con un solo plano de simetría ) ) ) ) ') "> -) ) -). ) ) ) ) ) .) . ) ) :> ) ) ~ -) - ;;; .~ -: ,: .. ) ) i j ) " 102 __ •. . _ =,;:;¡ _.: .-..... :_... ~..•:,. :.. "--:-C-':.-:,';~ . .. :".~, ,C:'.; !"C::::''"·;;•• ~::::::~:'~;:::: .•:C":=••'';::_~_;_.:::==~:_;:;.:_~_:';':':': ..~ .':' :'~:::c:::.;,.';;~.".:...:---:.,.~~:~ ==:..~-'-._;.,--:.~::'::;:;"':':_:-":';;;¡'C·..:.:¿·,,;_,-,--,-,-,,~,-,,~~" __.,,-,-:,."~_c':;'" ® '4 ) ) ) ) 1 i t. I¡ I ¡
  • 113.
    103 3.14 Ejemplo deSimetría y Antisimetría en un Pórtico Plano Para comprobar numéricamente la validez de la reducción de una estructura simétrica con carga simétrica o antisimétrica, se ha resuelto el pórtico mostrado a continuación. Primero se ha resuelto el pórtico completo sin aprovechar las condiciones de simetrla o antisimetría de las cargas y luego se han resuelto dos pórticos reducidos, uno para las cargas simétricas y otro para las antisimétricas. Sll"'Iétricn AntisiP'létrlcQ -. ..--....!...- -.,...---::I~-,---. + 4 4 -. ---. Si las vigas fuesen axialmente rígidas tendríamos: ) ) ) ') 103 ) 2) Pa '% Pek i -t :-+ ~ ~ fT/2 . fT/z rrk; - + ) ~ SI~ Pek ~f1~N~ ,~ 1 , 13 ) 2 2 ) ) ) 3) __'FkP.e - __'rk l ) --+rk ) ~ )1 F7! ~,~ 1 # A +rr 2 e , F7?
  • 114.
    Axiales en columnas(ton) Momentos (ton-m) Cortantes (ton) Uf! 11.72.3 ,1,1' Deformada - Solución de la estructura completa para carga simétrica: Total 14 gdl Pórtico simétrico con carga simétrica. Alturas de entrepiso = 3 m Longitud vigas = 6 m E =2.2x] 06 ton/m2 Vigas y columnas de sección 0.30 x 0.60 m Vigas EA = 00 (sin deformaciones axiales) Cargas en las vigas w 1 = w2 =4 tlm ) ) ) ) ) ) ) ') ) ) -3 ) -i ) ") ) ) ) ) ) ) ) ) ) ) -j J ~ ) ;~ .-7 -i) :) .,J ) ) ) -j ) "'j ) J ~ 104 3 3
  • 115.
    105 Nótese que enla estructura reducida, la íntensidad de la fuerza normal en la columna central es la mitad de la obtenida para el modelo completo. Axiales en columnas (ton) Cortantes (ton) ·15·23o-1.76 12.3 12.1 11.3 12.7 23 Momentos (ton-m)Deformada Pórtico simétrico reducido con carga simétrica. Alturas de entrepiso = 3 m Longitud vigas = 6 m E =2.2x l 06 tonlm2 Vigas y columnas de sección 0.30 x 0.60 m Columnas en el eje de simetrfa = 0.15 x 0.60 m Vigas EA =ClO (sin deformaciones axiales) Cargas en las vigas wl = w2 = 4 tlm - Solución de la estructura reducida para carga simétrica: 105 - - •• :- • •• :.......... ". -::.~._ ' ; -~ -: ;_.~~ . ~::.. • - .__ •••• _H •••••• _._ •• _ _ _ _.~~~::'_.:~::;':.'....:.:.:~'.;~d2~L~~~_--;·:., ~=""="" =' ..~~.~~:¿~~.::~~~;;·ii.:.d;;~~:~~~:;~..~~-.._:~~~!~::.:::J_;~~=:~;~=:2-::~'.=;.._~::_2=~;;:.::~-~~~:.-~=-~:~~~~;:~~:~:~~~~~-~_-~.~_~~:.~-.::~:-.~:~,:~:'~=,::_;~.'~~.L.~':~:'L.: -_:,::~-,__:~':,.'::::,";'.'::~';~.~·_ ) J ) ) ) ) ~ ) _) ) -) ) ) . ) l ..., J ) j ) ) ) 1 ) ) ) ") ') I) } ! ,
  • 116.
    106 Axiales en columnas(ton) .97 IU o 1'" u .~ o ·1.~ t58 Momentos (ton-m) Total 14 gdl FI= 2 ton F2 =4 ton Pórtico simétrico con carga antisimétrioa. Alturas de entrepiso = 3 m Longitud vigas = 6 m . E= 22xl06 tonlm2 Vigas y columnas de sección 0.30 x 0.60 m Vigas EA = 00 (sin deformaciones axiales) Cortantes (ton) 1.11 1.11 UI2 CI.58 ... 1.141.111 un ~.U o '¡-¡¡-1 Ul Deformada I Eje de- S:ll'Ietr-ra r,---¿ 1 ¡:;;---¿¡------r------1 ~ - Solución de la estructura completa para cargas antisimétricas: 106
  • 117.
    107 ;: Nótese que enla estructura reducida, la intensidad de la fuerza cortante y del momento .flector en la columna central, son la mitad de las obtenidas para el modelo completo. Axiales en colwnnas (ton)Cortantes (ton) o1.5 0.82 u 1.161.84 1.02 a~ 0.58 0.92 Deformada o U.G 1.:' 0.58 Momentos (ton-m) Tot.18 gdJ Pórtico simétrico reducido con carga antisimétrica, Alturas de ~trepjl!O =3 ID . Longitud vigas =6 ro E =2.2x,J06 tOll/ml Vigas y.columnas de sección 0.30 x 0.60 ID Colu~as ~ ei "eje de siIDétri¡t = 0.1$ x 0.60 ro Vig~ EA;: IX) (sin deformaciones axiales) C~as laterales0.5Fl > J ton 0.5F2= 2 ton ) ) , .) ) 1 j ) ) =; .) ) J _) .) ) .-} J .) ) ~ O.5F2 ~ O.5F¡ ) ) ) ! I i 1 1 1 ) -4 l } - Solución de la estructura reducida per« cargas antísim~trioas:
  • 118.
    é) 1) ,f1) ) ") ) ) ') ) ) ) ) ) -1 ) ~ ) ) ) ) J ) ) ) ) ) ) ) -j ) -J ) '") ....:) .J :) ..J ) ) ) ;~ ) j ) ) e :;;) ;) 108 Desplazamiento unitario enA: Al_ y,(x) =1-y(X) = [1-1.5(;)'+0.5(;)'] y Desplazamiento unitario en B: y(X) = -; [I-(;JJ Rotación unitaria en B: x x x y(x) = -(1--)(2--) 2 l e - - Rotación unitaria en A: y Desplazamiento unitario en A: Desplazamiento unitario en B: . .. x2 ( x)y(x) = -e- l-i Rotación unitaria en B: 2 y(x) = X(I- ;) -- Rotación unitaria en A: Tabla 3.1 Deformadas de Barras de Sección Constante (Funciones de FOlTTla) 108
  • 119.
    109 Superposición de losdesplazamientos: QI = kll O, +k'2D2 Q2 = k21DI +k22O2 {Q}=[K]{D} [Kl=(kll k12) 101 k22 Donde [K], la Matriz de Rigidez de esta estructura - que representa la sfntesis de las propiedades de las barras, geometrla y condiciones de contorno - se obtiene del equilibrio del nudo. -Nótese que las ecuaciones anteriores representan el equilibrio del nudo 3 formulado en términos de sus desplazamientos. Los coeficientes de rigidez de la estructura, kij, se obtienen del equilibrio de Jos nudos, en este caso del nudo 3. Por ejemplo la primera columna de dicha matriz será: 01=0, D2= 1DI= 1, ~=o k2 + >----~~~1t~kll ~ DI = 1 ::~1D'=1 ;~---_":'¡1t ? k12 kn Q-D 2 2 4.1 Coeficientes de Rigidez de Barra En el Método de Rigidez, las ecuaciones de equilibrio de nudo se obtienen a partir de las fuerzas de extremo de barra que concurren a cada uno de los nudos. Por lo tanto, antes de plantear el equilibrio de cada nudo, es necesario conocer las relaciones que existen entre las fuerzas de extremo de barra y sus desplazamientos correspondientes. Estas relaciones se conocen como los coeficientes de rigidez de barra, coeficientes que no son otra cosa que las relaciones constitutivas al nivel de la barra. Las relaciones constitutivas (también llamadas relaciones fuerza - desplazamiento) establecen que las fuerzas en los extremos de cada barra (elemento) y sus desplazamientos correspondientes, deben satisfacer las ecuaciones derivadas de los diagramas constitutivos (O' - E) del material. Esta condición puede expresarse mediante la relación: {q} = [k] {d} donde {q} son las fuerzas de extremo de barra, {d} son los desplazamientos correspondientes y [k] es la Matriz de Rigidez de la Barra. 4.2 Barras tipo Armadura Para ilustrar la idea anterior, supongamos que se desean obtener los coeficientes de rigidez, .asociados al sistema Q-D elegido, para la armadura plana mostrada a continuación, en la cual las dos barras tienen la misma área: CAPITULO 4 - Rigideces de Barra '.. u-: , j ) J ) ) ) ) J ) ) ) ~ t ~)) ~{? I ~ i I ~Ii~. I r: j ~! } ) ~ I 1 , IT¡ }<
  • 120.
    ) ) , ) ) ., ) ) ) '1 ) J ) ) __ ) ~ J : 1 110 Nótese queen este caso la matriz de rigidez de una barra de armadura" para el sistema q-d elegido, es,siqgular .."Esto"significaque-dicha matriz' no tiene ¡nyersa y 'por lo tanto no existe la matriz de flexibilidad de barra. Este hecho se puede comprobar flsicamente si, aplicando la definición, se inlenta calcular los coeficientes de flexibilidad en el mismo sistema q-d, la barra es inestable. -: ]EA[ 1[ k ]barra = -/ -1{q} =[k]barra {d} EA ql = -¡-(dl- d2) EA qz = -¡-(-dl+d2) La matriz de rigidez en coordenadas locales de una barra de armadura es: -EA k =--21 l k =EA 1I I di = 1, d2= O ~ /.'_'k22 .,-J? - EA EA kl2 kl2=-Z- k2i= "T dI = 0, d2 = 1 El sistema q - d está definido al nivel de barra y referido a las coordenadas locales de la barra. EA bt = --cosa sena 12 EA EA kn = -+-.-cose cose /1 12 Equilibrio del nudo 3 pata DI =J. D2= O ~ EA (cose) ~12 k21 $>--___'" ~=9kll EA 1, En. consecuencia, para poder formular el equilibrio del nudo, no. basta con la compatibilidad, es necesario calcular previamente los coeficientes de rigidez de barra o relaciones constitutivas de cada una de ellas (fuerzas de extremo de barra - desplazamientos correspondientes). La relación completa, fuerzas de extreme de barra - desplazamientos correspondientes, conviene expresarla mediante la niatrlz de rigidez de barra, que para el caso de Una barra tipo armadura (articulada en los extremos) de sección constante y hecha de un material linealmente elástico, es: f~ ¡ I¡ ¡ 1 I ! i 1 1I¡ ¡ ¡ ! 1 110
  • 121.
    111 A continuación sepresentan diversas aHernativas o procedimientos para calcular la rigidez al giro de una de sección constante sin deformaciones por cortante. ~'. Diagrama de cuerpo libre de la segunda barra: Si = 1 Sj=O Segunda columna de la matriz de rigidez. Desplazamiento unitario en coordenada 2. D2 = 1 {Q}= [K]Sx5 {D} ,.;...~, :'<-." 1.[.' ' 4.3 Barras tipo Viga o Columna - Rigidez al Giro if:i, Para el caso de vigas, será necesario conocer la relación que existe entre la rotación en extremo de la barra y el momento flector correspondiente. Por ejemplo, en la viga de ~{. cuatro tramos mostrada a continuación, en la cual el sistema Q-D consiste únicamente1{. en las rotaciones de los nudos (incógnitas cinemáticas) para calcular los coeficientes de rigidez de la estructura será necesario conocer previamente la relación que existe entre las fuerzas de extremo de barra (en este caso momentos) y los desplazamientos correspondientes (en este caso rotaciones): s == sen a e = cos a[k]barra = EA -¡ ( [kii] - [kji] [kij]) [kjj] 2 I 2 e se: -c -sc I se s2: -se _S2________J _ _e2 -sc ¡e2 seI -se _82: se 82 Lamatriz de rigidez en coordenadas globales de una barra de armadura es: q-d ;::. 1 ; El sistema q - d está definido al nivel de barra y referido a las coordenadas globales de la barra. exes el ángulo de inclinación de la barra 2 4 l ·~t_·: ~'~:,.':La matriz de rigidez de barra también se puede calcular en el sistema global de "'~¡;.• coordenadas (sistema XY global). La deducción se deja como ejercicio, el resultado se Je muestraa continuación . .";7~- .g;f i ) ) ) !i f ¡ } f, A J J ) 1, --') ) > ) ) ) ) ) ) ) ) } ) ) } '), > ) I ~ ( 1 1 ) I1 . . )
  • 122.
    M=ke8 M => k=- e 9 1k = 4EI ke=- => e e 1 112 b) Otra manerade obtener la rigidez al giro (coeficientede rigidez)consisteen aplicar un momento unitario en el extremo de la barra y calcular la rotación correspondiente. El momento aplicado puede ser cualquier valor (l, 10,100,1000,etc.) ya que asumimos que el comportamientode la barra es lineal - elástico. M--- Pt~cl'o5~r r ~~ (_ Co.lculo.r {1 M= 4E1a 1 XI k = 4EI 1) 1 En consecuencia,la rigidez al giro de una barra de secci6n constante, es: 4EI( -/ I .~ "') 2El ~J~l I 9;;:] . +6EI i6EI M=4EI ¡ X __ 6EI ,- 2 1 ¡3 f. =- 11 3EI Giros. MI2 13 -+-(X)-O2EI 3EI J- MI ¡2 - +-(XJ);;:l El 2EI Desplaz. Compatibilidad: MI ~ ~=Cfx-~ -----4~ =rIt~ + X-D M/2 D=-- Estructura Primaria J 2EI ~, j 1, ~, f t ¡ ! La barra es hiperestática en primer grado, utilizaremos el Método de Flexibilidad (superposición de fuerzas) para la solución. Una de las incógnitas es la magnitud el momento flector que es necesario aplicar en el extremo izquierdo, para lograr una rotaciónunitaria: l a) Para la barra mostrada a continuación, de sección constante sin defonnaciones por cortante,el cálculo de la rigidez al giro de la barra, se puede obtenerporvarios caminos, uno de ellos se muestra a continuación: M = ? ke -+ Rigidezal giro ~ 9~1 ~ ~ i 9-1 ~ '1 ~ ~JJI } ') ) ) ) ) ) ) ) ) ') ) ") } ) _) ) _) ) .> ) ) ') ) ) "j -') ) ) r;) ~ =3 -') ~ .) ) .) j j ') ) J ~ Q (':3 1I2
  • 123.
    113 El q¡ =-Z (4di +2 <h) El q2 =; (2 di +4d2) q-d d) También es posible calcular la rigidez al giro de la barra, utilizando la función de forma de la Tabla 3.1 (primer caso) y la relación momento - curvatura para barras linealmente elásticas: M(x) = -El y"(x), basta con derivar dos veces la función de forma. La relación completa, fuerzas de extremo de barra - desplazamientos correspondientes, conviene expresarla mediante la matriz de rigidez de barra, que para el caso de una barra tipo viga (sin desplazamientos relativos entre sus extremos) de sección transversal constante, sin deformaciones por cortante y hecha de un material linealmente elástico, es: 6EI 2EI Compatibilidad: {D}+[F]{X}={O} => XI = f X2=--/- Resultados que comprueban la aseveración inicial. /2 f =_ e21 2EI =-? 1r .r:- 1I3EI ti ~:::t---~X2 tX-D Xl Estructura Primaria Veamos si la aseveración anterior es cierta. Para ello, utilizando el Método de Flexibilidad, resolvamos la estructura que tiene dos incógnitas estáticas (grado de hiperestaticidad dos). e) Los resultados anteriores equivalen al caso de una viga doblemente empotrada en la cual uno de los empotramientos experimenta una rotaci6n unitaria. es decir: 8=1 4~I(~j~)2~I 6EI¡ e= 1 t6 El 113 ) } ) ) 1 ) ) ) ) ,') ') ) ; ) ) ~ ) ") ) ) .) J ') ) =, ) ) ) ) ) ) )
  • 124.
    1 M=? El I~ _,./'I2 ~---___..~ Ir La rigidez modificada al giro de la barra es: gdl prescindible Rotación libre ~f----~~-~~---::=>1I ~ 4~ Segunda columna de la matriz de rigidez D2 = 1 4.4 Barras tipo Viga o Columna - Rigidez al Giro Modificada Otra situación frecuente se presenta en los casos en los cuales se desea ignorar algunos . . de Josgdl de rotación en los apoyos de los extremos de vigas y en los apoyos articulados de pórticos. Por ejemplo, en la viga de tres tramos mostrada, es posible ignorar o prescindir el gdl asociado a la rotación en el apoyo extremo de la derecha, para ello será necesario modificar la rigidez al giro de la barra de la derecha. Nótese que la matriz de rigidez de la barra pudo también calcularse a partir de la de flexibitidad. En general, cuando la matriz de rigide~ sea dificil de calcular. conviene generar la de flexibilidad y luego invertirla para calcular la de rigidez. 1"I ' m =).. [21= -U6EI ~:r.fi't."---q-_ d----..4¡ 2 ~~ ~ V4- fll=l/3EI Se comprueba que el producto [k][t] = [fj[k] = [IJ, donde [1] es la matriz identidad. Es fácil comprobar 10$ resultados anteriores utilizando la definición de coeficiente de flexibilidad. El significado físico de los términos de la matriz de flexibilidad calculada a partir de la matriz de rigidez, se indica a continuación: {d}= [f ]barra {q} l 1 -- [f]barra ;: [k]~ [f]barnl = 1 3 6 El i 1 -- - 6 3 ~¡; It¡ t A diferencia del caso de la barra de armadura, la matriz de rigidez de una barra tipo viga como la indicada en la figura anterior, si tiene inversa. Su inversa representa la matriz de flexibilidad de la barra en el mismo sistema de coordenadas q-d. la inversa es: EI[ 4[ k ]barra = T 2{q} = [k]barra {d} 114 I1 t ~ . :".- ,_.. _'. ,., __,.,.".~, -,;:" -,._,;;:"'_:~'7'-..,----"".;-'-'---"."- ,-'"'' . '__...._,"._._ __ .•..,..'""";-."0· . .- ,_,, . .:,,;', ~-~~_·..~,i'-_~~~.:f~~;,__._;,.~~~'.~.,.,~7>~,,-i...~·~_.:.:..::,~.:.. ;..:.-<~_:,:_: .~;_:~~ : ... ,... .,:,.,.._.¿" .• ".;,-.. ~ íill1 e ~ -) ) ) ) ) ) ) ) ) ) -J " ,) j ) _
  • 125.
    115 [k] =_1=3EI barra fll1 Ixl fll= 3EI Alternativamente se puede calcular la matriz de flexibilidad de la barra en el sistema q --d indicado en la figura precedente: q-d {q} =[k]barra {d} 1"1 "--§,.-------.,.4 La matriz de rigidez de la barra con un extremo articulado. es: fFl M=(~ - B=l 1/2 2E!1l (~ ~) + <.~ ~ -- 4EJ /l 2EI/I El '1 1/2' 3EI/l (~- ~ -9=1 1/2 Nótese que si se conoce la rigidez al giro de la viga doblemente empotrada. la rigidez modificada se puede obtener por simple superposición. tal como se indica en la figura a continuación: y(x)= e;(1-;)(2-;) M = k e k =3EI Rigidez al giroo o I . =:>M= 3EI 1 Estructura Primaria También es posible obtener la rigidez modificada, utilizado (a definición de rigidez al giro de una barra y el Método de Flexibilidad como se indica a continuación: 115 ..~:¡'¿S;~~~::,:#.:~~~~.:~::(:._-;i·-~~~.;:.::'-~-i~~:~~~:-~·~:I:s~~~;~~~I;.;;s:;i;~~;i~2::i~~~~~~'_:;~.'.'.,''j..~~~. ~~', _._~~..J. -~~~t::=;':.~~~:.~~:.i~::;'-~-'-.~~.':~.7~~~:~ ~S~:_-.~::-.~~;~~:~'l~'~·~:.·:·;";}~,~_~:~'~-='~~-:=·=:~~~ • J
  • 126.
    ) ) ') .) ') ) -., } ) ) ;j ) -=} ) } J .) _} 1 - ) ) ) .J ) -d - --- ) _) _-} : :_ ., ) El resultado finalde la superposición es: 91=0 62=l!J 191 =/!J / 92 =0 Movimiento de 1 sólido rígido 2EI A 4EI A --1 1 1 1 ~ '-F' =c.> 4EIA 2EIA ~~- ;?,:}+ b) Sin embargo, en este caso resulta más sencillo utilizar la superposición de desplazamientos, tal como sé indica a continuación: {D}+[F]{X}={O} t JI ¡ í ¡ I . ¡ I a) Las fuerzas de extremo de barra, para un desplazamiento relativo entre los apoyos, se pueden calcular utilizando el Método de Flexibilidad tal como se indica: Primera columna de la Matriz de Rigidez DJ = 1 fu = O D3= O Q-D ¿Qué fuerzas se producen? 4.5 Barras tipo Viga o Columna - Rigidez en Traslación En muchos casos las estructuras sufren desplazamientos laterales, ya sea por la asimetrra de las cargas y geometrla o por.la acción de fuerzas laterales. En estos casos es necesario considerar grados de libertad de traslación y calcular las rigideces de barra para desplazamientos relativos entre los extremos de la misma. DI =1 ; ) Al---- 116 ... ,_.,._" , _.,. ,.... _ " .. ,.,.,_, ,..... . ~:.: _, '':''""._ : .~ .,..: :;..;,.: _., .. ': . ·.-.···_~~".~, . .,...,:__"c '_:~:~L¿::::¿_~~(::~,;~:~::,::=~:~~:~ ;:~:.~~r'~~: .::':":'~.:~~:.'~ ~,~:':"~.'.:;./':.~;~::_:~:_,:~:" .":':";~ .:_~.'_c_~~2:.~~·:::~;-L~2~__ .~±.~..C:~.~i~~:.:.¿""~i·~.~~,:,;_:.~.:;. .~~_ _.;-.;:;~:..;:.~,";~:;;.:_:":~.,';'' .::~~~:.•~,;~·~:...i.;~~~'::'~~~"::'~~~~.~~~. '.,¡~~_.~;.~;_~::;:.~~_..:...~:~.,.~. ~ ~J} ~
  • 127.
    117 Como ejercicio parael lector, se propone el cálculo de la matriz de.flexibilidad de barra en el sistema q- d indicado en la figura anterior y a partir de ella, por inversión el cálculo de la matriz de rigidez de barra. También se propone el cálculo de la matriz de flexibilidad y de rigidez para el caso en el cual existan brazos rígidos en los dos extremos de la viga. 4 2+ 6a b 4 3a2 -(b+3a+-) b b 2 6a +- b {q} =[k]barra {d} C"Y;t0@ b 7~ EI=oo El ~rJ q-d La relación completa, fuerzas de extremo de barra - desplazamientos correspondientes, conviene expresarla mediante la matriz de rigidez de barra. que para el caso de una barra tipo viga (sin desplazamientos relativos entre sus extremos) con un brazo rígido a la izquierda de longitud, a, y una zona flexible de sección transversal constante de longitud b, sin deformaciones por cortante y hecha de un material linealmente elástico, es: k =4EI 22 b k = 2EI + 6Ela 9= 1 21 b b 2 (~ ~J SistemaQ-D EA =00 kJ2( ~ b ~~-=EI~4J2 q-d 4.6 Barras con Brazos Rigidos - Rigidez al Giro Para el caso en el cual una viga se apoya, en el mismo plano, en una placa o muro, hemos mencionado (véase el acápite 1.10.8) que una hipótesis usual para modelar el pórtico con elementos unidimensionales, es la de asignarle a la viga una rigidez muy grande en fa zona comprendida entre el borde de la misma y el eje de la placa. En estas situaciones conviene conocer los coeficientes de rigidez de la viga con brazos rfgidos, se trata en esencia de un caso de una barra con sección variable. ¡ ) 1 ) ) I ¡ 1 ¡ ! -1 } -) ) , ) J ) ) ) , } ) ) ) , } ~ ) ) ) ) ) .) J .) , I , ., i l_) )
  • 128.
    118 a => Xi =3EI l 3 a +b fllXJ +Dr= O a3 b3 f =-+- 11 3EI 3EI ~ ~ v 1 ~ 8=1 ,f""ED,=-a ~ a X-D Estructura Primaria Utilizaremos el Método de Flexibilidad, como ejemplo de·aplicación del uso de una fuerza interna como redundante estática, en este caso la fuerza cortante que hay en la rótula. Mb/a 1 M=l =>Ke=- 9 M=Ks9M=l~ .,.- ~~~ 9=? M M~r, -6=1 I I , I I Las dos figuras a continuación muestran la definición del coeficiente de rigidez al gire correspondiente al extremo izquierdo de la barra, el cálculo es simple ya que se trata de un elemento isostático, el coeficiente de rigidez se puede calcular aplicando, pOI ejemplo, Trabajo Virtual (Fuerzas Virtuales). q-d 3 QI-Dl , R6-tuln ., ) ) ) ) .) r-1 ) ,:;l ) ) ) ,) J ) ) ) ) ) ~ j - ,. _. la figura a continuación muestra un pórtico en el cual la viga, de sección constante, nen una discontinuidad interna (una rótula). En este caso es posible ampliar el sistema di coordenadas tal como se indica (sistema QI-DI), sin embargo, conviene trabajar con o, menor cantidad posible de gdl, para esto será necesario calcular previamente lo coeficientes de rigidez de la viga con una rótula interna. 4.7 Barras con Rótulas Internas 118 '-.,~~'-;C-:-:-'"~,._..._~~-,. ,_,- ',':';" ... ----- --- - . -~_.--.-... -... ,','- -- _- - - -_. -- --- . '.:-,,--;- '_.--. - -.0' • .:-=-:-~_.:-;.--:.~ - :-:-"~:..;:::-- ::_._~:~':_.~.~~-.:_~.~.•:.~~~~_:'._~:~_-.~~.;;~t_:_~;~~;.-_;~:::·:~::~:-,~.2~i;'-. .::_:---_~.~:: :.:'..=-.:~_'~~~::~'."'.::':'':~~~~':'~.~:'.':.:~~..; ~._;..:;~...:.:.:.:.:;..:..:;...i~:;.-¿~~::.:.::~~~~~_.~:: .. _',:,', ·~i..~2·..:.;.:~~~:...~~ __~~/-~.::-::;.=.;:::.~.;,~..;~,..:2..~:-:._-:.,...:·~";':'.~:~~-- -r' - _.~ - --------------~----------- ~ (¡) ,!) ) ) ) )
  • 129.
    119 - Cálculo delos coeficientes kn Y k21 aplicando la definición y considerando s610 deformaciones por flexión: 2m4m ;¡v 1~~-----m------~O~--2E-I--~~~2 )Iv ,r Ejemplo 4-1 Para la barra mostrada a continuación, con una rótula interna a 4 m del apoyo izquierdo, se pide calcular la matriz de rigidez de la barra (coeficientes de rigidez) . para el sistema q-d indicado. Nótese que en este caso la matriz de rigidez de la barra es singular. Esto significa que dicha matriz no tiene inversa y por lo tanto no existe la matriz de flexibilidad de barra. Este hecho se puede comprobar fisicamente si, aplicando la definición, se intenta .calcular los coeficientes de flexibilidad en el mismo sistema q-d, la barra es inestable por la presencia de la rótula interna. En la figura a continuación se muestran las fuerzas de extremo de barra para un desplazamiento relativo unitario entre los extremos de la barra (rigidez en traslación) su deducción se deja como ejercicio para el lector. {q}= [k]barra {d} 3ab ] 3b2 El [3a2 [ k ]barra = al+bl 3ab Nótese que si a = 1Y b =0 entonces la rigidez al giro resuelta ser 3EIII, resultado que era de esperarse y que corrobora los cálculos realizados. Nuevamente, la relación completa, fuerzas de extremo de barra - desplazamientos . cOrrespondientes, conviene expresarla mediante la matriz de rigidez de barra, que para el caso de una barra tipo viga (sin desplazamientos relativos entre sus extremos) con una rótula interior, de sección constante, sin deformaciones por cortante y hecha de un '. material linealmente elástico, es: A continuación se resumen los coeficientes de rigidez de esta barra correspondientes a la rigidez al giro para los extremos izquierdo y derecho. 119 ) ") I ) ) ) ") " ) ) ~ ..J .' ) J ) .) ) ) ) '.) ) ) ) ) ) ) } 1 )
  • 130.
    ) ) ') ) ) ) ' '} ) l, - ) : , I I I II 120 La matriz deflexibilidad de barra no existe ya que la barra es inestable por la presencia de la rótula interna, esto significa que la matriz de rigidez de barra es singular. 0.353 ] 0.1765 [] . [ 0.706 k =EI barra . 0.353 {q} =[k]barra {d} kl2 :::::0.353 Elk22::::: 0.1765 El Los otros coeficientes de rigidez de barra (k22 y k12) se calculan de manera similar y los resultados son: Dl+fIlX,=O 4+f"X,=0 -+ X,=-0.17647EI kll = 4 X, kll ~ 0.706 El k21 =2 XI k21 ~ 0.353 El f = (4)3 + (2i = 22.667 1I 3EI 6El El + 9= 1 ~...... 1............ 4 ........ Utilizando el Método de Flexibilidad considerando como incógnita'la fuerza cortante en la rótula tendremos: . kn=? Otra forma de calcular los coeficientes kll y k21es la siguiente: 9= 1 kll(~ 7 ~)k21 rara este caso particular: k11 = k~J ~ 0.353 el1 k" = -~ O.706EI e ( ) 4 ( )29 =_1_ _l_x) +_1_ _!__xJ ~1.4167 El 48 o 2El 48 o El 1 m,(x)=-x 4 1 .. 1 2 1 ..(1)2 1 2 ( 1 )29 =- J(m,(x»2dx +-- J(m2(x»2(ix = - J -x dx+-. f -x dx El o 2El o . El o 4 2El o 4¡ I t ~ !I f I M=I· ~ __ l~~ 0.5 1 m =1= ka e =:> ka = kll =- 9 120 _______. , : ;~ :-:-"_...., :._ --.-0----·- C"'-C---_--C--:'-.'-_··_::-- -.; --:;:.-: . '..~~~~.L~:':';:":...;.:'<':;.;::¿~:,..,-L:.:::·;>: ..,::~.~:.:-";:;:3/~~;;~:;¡~~::..o:';:::;;Li-,:¿,;,-../o¡ __i-~::.~~L::::;.~;~,;~·.;;: ..",l~,,':;;",-,::~;"'¿"'~'~:;¿·"<·~.•;,:;,;,...•:...:...;.¿o .• ~:; • .;i) -9 ") ) )
  • 131.
    121 También es posiblecalcular la matriz de flexibilidad de la barra quebrada en el sistema q - d Y luego por inversión calcular la matriz de rigidez de la misma. En este caso particular, el cálculo de la matriz de flexibilidad de barra involucra la solución de una estructura hiperestática en primer grado. Cabe anotar, que el concepto de rigidez de barra se puede extender a muchas otras configuraciones, incluyendo a las barras curvas, barras de parrillas, barras de pórticos espaciales, etc. es decir, prácticamente no hay límite. Inclusive, una porción completa de una estructura puede tratarse como una barra, en esta idea está basada la técnica de análisis de estructural por medio de subestructuras. / M=lÚ -" "9=1 k" = l/a / . " M=?Ú -'."'9=1 kll =M ó Alternativamente se puede proceder como se indica a continuación: Para el cálculo de la primera columna de la matriz de rigidez de la barra quebrada, es necesario resolver la siguiente estructura sometida a una rotación unitaria en el apoyo izquierdo. q-d {q} = [k]barra {d} Sistema Q- D reducido ~' ][ kll [ k ]barra = k21 ,,,,,,,,,,,,,,,,,,,,,,,,, ~' Q-D EA=oo 4.8 Barras Quebradas El concepto de coeficiente de rigidez de barra y en consecuencia de matriz de rigidez de barra, se puede extender-a otras situaciones más complejas. Por ejemplo, en el pórtico mostrado a continuación, si se ignoran las deformaciones axiales, el sistema de coordenadas que deberla utilizarse es el mostrado a la izquierda de la figura. Si se deseara trabajar con un sistema Q -D "reducido" como el mostrado a la derecha en,el cual no se está considerando el gdl3, sería necesario calcular los coeficientes de rigidez al giro de la barra quebrada, tal como se indica. J ) ;) ) 1 ; ¡----1 1 ¡ ¡ 1 l, ¡ I }} ) ) ) ) ) ) .) ) ~ "J ) J -> ~ ) , 1 ) ) ) ) ")
  • 132.
    ,8) ":9 ) ) ) :> ) ") ) ) ) ) ... J " -- ) .. 122 Nótese que el"ampliarel sistema de coordenadas, conlleva el tener que trabajar con un mayor número de gdl, en consecuencia, el esfuerzo numérico necesario para resolver la estructura; es mayor. (EA =(0) aJ131 Q-D Otro caso en el cual es posible "ampliar" el sistema de coordenadas. 1 I! 1 Q-D -0....a•J---J:--;) br •1 o. En algunos casos. es posible "ampliar" el sistema de coordenadas para lograr un ensamblaje de barras de sección constante. Por ejemplo, para los dos pórticos mostrados, que tienen una variación simple en fa sección de la viga, puede ampliarse el sistema de coordenadas (sistema QI-DI) y tratar a fos segmentos de la viga como elementos de sección constante. Sin embargo, esto involucra un mayor número de incógnitas cinemáticas. Si se desea trabajar con un sistema de coordenadas (Q-D) corrió el mostrado a la derecha de las figuras, será necesario calcular los coeficientes de rigidez de la viga. 1!, 1 I 1! ~ t i! 4.9 Barras de Sección Variable El cálculo de los coeficientes dé rigidez de barras de sección variable, es un tanto más .tedioso desde el punto de vista numérico. las ideas generales y definiciones dadas en los acápites anteriores, siguen siendo completamente válidas. La figura a continuación muestra algunos elementos (barras) de sección variable. Los tres casos corresponden a elementos con una variación relativamente simple del momento de inercia y podrían ser barras que formen parte de un pórtico. 122 I¡ "¡ ¡. I i l, i
  • 133.
    123 Pórticos metálicos dealma nena con barras de sección variable Vigas de concreto armado de secciónvariable Aeropuerto de Tacna Puente con vigas continuas de concreto annado de sección variable - Puen~ con vigas continuas de concreto 'nadode seeeíén variable No siempre es posible o conveniente ampliar el sistema de coordenadas para los elementos de sección variable, tal es el caso de los elementos con una variación continua en sus propiedades, como los mostrados en las fotos y JlQurasa continuación, para estos resulta más conveniente calcular los coeficientes de rigidez de barra. } , ) 1 r, , )¡ i -J ~ ) -4 J I ) ) .. ) ") ) ) ) -} -) ) ) ~ ) jr ) r ) ~) _> J J )
  • 134.
    ') ) ) ) ) ) ) ~ J ~ ¡I I I I ! (. El(?,) ) ) h._,.-----:.;....;_--"A 2 q- d El resultado anterior confirma que los coeficientes de rigidez de una barra son simétricos (kij = kji) Y además proporciona la relación básica entre los coeficientes de rigidez y los factores de transporte. Para una barra de sección constante, sin deformaciones por cortante, se tiene: kn = 4EI k22 = 4EI ku= 10.= 2EI 111 1 ftu = fu.=- 2 4.9.2 Coeficientes de Rigidez de Barras de Sección Variable Existén numerosos métodos para calcular los cceñclentes de rigidez de una barra de sección variable (Área de Momentos, Viga Conjugada, Analogía de la Columna, etc) en esencia son variaciones de los mismos conceptos centrales. Para el cálculo de la rigidez al giro de barras de sección variable, también se pueden aplicar la metodología presentada en el acápite 4.3. Uno de los métodos más generares, para una viga de sección variable, sin desplazamientos relativos entre sus extremos es el siguiente: ¿F.D2 = LF; DI ku (O)+k21(1) = kn (1)+ lru(O) la, =k12 => ftu kn = fui k22 Teorema Betti: Nótese que en la figura anterior se ha definido un nuevo término, el Faclorde Transporte (ft12 - ñzr). Los factores de transporte serán de utilidad para el Método de Cross, para el Método de Rigi~ez no son de mucha utilidad. Los Factores de Transporte, asociados con los grados de libertad de rotación de una barra, se definen del siguiente modo: la] = ft12 kit :::) ftJ2 = kzt / kn kJ2 = fuI k22 => ft21 = kI21 la2 F, -D, ~ ) ~I =fttz kn (~ zC k12 = ft21 k22 q-d ~p-'---------..__--Il~ i - J 4.9.1 Relación entre los Coeficientes de Rigidez de Sartas de Sección Variable 124 I¡ 1 l,, 1 e-. '~;:-:... ~, . :-, - ,.-- -:-::-", ..... :::;_.~ .... ". ,-- ... - .....,-_.... '-"-'.-~-'- • -- .• • .,j,.u__ ...... ~.-- •• ~._ ' __ ' •• _-- - .... r ~ - - ........---..-----~-~ •• -- .~ ...,~,.,.:,...._.,;.. :)',,~.,. .:...~ .~-_ .._..~-~ ~~ .1T) ) ) )
  • 135.
    125 Ejemplo 4-2 Acontinuación, y a manera de ejemplo, se muestran dos gráficas (adaptadas de White) en las cuales se muestran los coeficientes de rigidez al giro y los factores de transporte de una barra de sección variable. La barra tiene una variación Los cortantes se calculan por equilibrio de la barra -1 (kll . kl2J[k]2x2= [t]2X2 = bl b2 La única complicación que puede existir en el cálculo de las integrales, radica en la complejidad de la variación del momento de inercia a lo largo de la barra (I(x). En los casos en los cuales no sea posible una solución cerrada de la integrales, se debe emplear alguno de los métodos de integración numérica (rectángulos, trapecios, parábolas, etc.). b) Se invierte la matriz de flexibilidad calculada en el paso anterior para hallar la matriz de rigidez de barra. f =f = lml m2 12 ~I EI(x) 2 f -J~22 - El(x) 2 f - f.EL1I - EI(x) Los coeficientes de flexibilidad de la barra, ignorando las deformaciones por cortante, son: ~f '"21 ~f " ' (~1 mI a) Se calcula la matriz de flexibilidad [f] de la barra para el sistema q - d (en este caso el sistema consiste en las rotaciones medidas en los extremos de la barra). Para el cálculo de esta matriz conviene usar Trabajo Virtual, en este caso Fuerzas.virtuales: k12 = fuI k22 kz: =ft12 kll ( kll kl2)[k]2x2 = =? kn k22 el = 1 kll(~ *" 125 , '. , I ~ ) -I ".1 ) ) .) ) .) .) ""_) ) ..) ) ) ) ) ) ") .) I ) L ) } ) II1 ¡ I1 ') -) r, "'l 1 i "-~ ... ;~ .c__:.~.~~ ..;~.:·e·...1:~~_;;;;..:~~;~2:S.;;:~_;;;,~~;-.'..:':_=,..: .;: '::':~~~::0-. ~~_·:·~:~;:"~~';'~~~;t~:~;'~.,~;..~ ;_:;:-,;-.=-.:_._.~ _ •...;.;__":":~': ~~...:.~~~'.~.':.7.:.:.;'.:_.:...~._;__;__._:__;';~ "~.:2.:;:.~~ __......:=.:=::~:_::'.~.:'.:.J:'...~. :''.~_':'::::.i.j,~7"::.~
  • 136.
    ;!i) 'g[)i:;~.: ~~ ) ) ) ') ) ) ) ) ) ") -j ") =, -) ) j ) _) ) ) '- : - , ~ - - , J .;" 126 Factores de transporteCoeficientesde rigidez al giro 973 5 12/11 9357 12111 4.2 0. 4 1 9 8 kll -Erlll 7 6 S 4 1 10 0.71 ¡, '1 5.2- 1.0 5.0 0.9 (/ 0.8 4.8 k22 0.7 4.6 --EII/! 0.6 4.4 0.5 B EjemDlo 4-3 Las gráficas a continuación muestran los coeficientes de rigidez al giro y los faotores de transporte de una barra de sección variable. La variaci6n de la inercia de la barra a lo largo de su longitud es tal como se muestra en la figura que antecede a las gráficas, e_1ancho de la barra es constante. Se han considerado únicamente deformacionespor flexión, A Factores de transporteCoeficientes de rigidez al giro L-~~2--~~3----~~4~.o 12/11 6.042 0.6 ".4 0.710.0 k22 EItll a.o 1/2 1{2 4.8 h l. A B 1 Ir AcJc::JB 1/2"2 5.0 2 121 I1 '] (. ---.,. 2-le 7 ~ -m a -d ~ súbita de su sección transversal al centro de tramo. Para la construcciónde las gráficas se han considerado únicamentedefonnaciones por flexi6n. 126
  • 137.
    127 ( kll k12) . [k]2x2= bl len == conocida En la deducción que se presenta, se supone que se conoce la matriz de rigidez en el sistema q - d indicado a continuación: 1 2 (' -<* ~) q-d [k]4x4 =? q-d 4.'.4 Coeficientes de Rigidez - Barras con ,Desplazamienf!J Rela~o Si hay desplazamientos relativos entre los extremos, entonces es necesario ampliar el sistema q - d de las barras para incluir los mencionados desplazamíentos (véase el acápite 4.5). , , 4EI ,3Er ftI2=fhl=O,5 ~ k 11 =-1-(1-O.5~O.5);::::-1- Comprobemos los resultados aplicando la ecuación anterior a una barra de sección constante: 's ooslció k' k k12 1,_ k A~ lr~uperpOSICIn: 11= II - -, --lUl = 11- H21J.Z1 k22 '" Pero: kzr= ftJ2kll ~ k'1I= kn- fuI ft12kn = kll (1- ft)2 fuI) ft21la1 (,;:I~, ---=--------'-'"?P' 0kn 4.~ ~_. _~ , 92 ,= k21/ k22 (H=l kn(k '7 + , ('kn kU) reeíd[k]2x2 = ' ,:;;:::conecí a .kn 102 El co 91= 1 k'ri =?(,~'; 1 2 ( ~"------""'4J q-d En Joscasos en los cuales s~ d~~a ignorar ~,gunQsde los gdl de rotación en Josap9YQs de J9SeXtremqs de·vigas y 'en:iÓ$ ~pOYQSartie~ládos de pórtiCos. -es necesario modíñcar la rigidez al giro de la barra (véase el acápite 4,4). En la deducción que se presenta, se supone que se conoce la matriz de rigidez en el sistema q- d indicadp a continuación: 4.9.3 Rigidez al Giro Modificada. -:o.: -- --. .. .... .. _. __ . ",._ ) 1 ") } 1,, )i 1 I }¡ ¡ J j } ~ J 1, ) , ) ) ) ) ) ) ) } J '} ) ~ ) J ) I J J, -¡) j l _) J :;'. )
  • 138.
    .~ ;::) ) ., ) ) ) ) ) ) ) ) ~ ) ~ ) ) ) ) ) ) ) ) ) ) ) ) -=j --7 --7 ) d -~1 ~ ,) ~ ) ~ )"~" ~ J ~ J J ¡ff a 2} -) 128 92= 191= 1 kll(~~)k21= 1 = 91=1 92=1 &¿isi&v _ . _ v .. 21 AJI ( kll k12) . [k]2x2 = =conocida k21 k22 1~ ,'2 .~r------"4'" q-d k14 = 4EI x!(l+O.S)= 6El. 1 1 - - ¡2 4.9.5 RIgidez Data Barras con empotramIento DesliZante En la deducción que se presenta, se supone que se conoce la matriz de rigidez en el sistema q- d indicado a coníínuaclón: Los cortantes en la barra se pueden calcular por equilibrio de la misma a partir de los momentos en los extremos (k14 y k24). Con los cortantes, se podrán oalcular los coeficientes k34 y k44. Comprobemos los resultados aplicando ra ecuación anterior a una barra de secclón constante: Superposición de desplazamientos: ~k14=? = 111 '. ~)k24=? ~ t ~ t' 1/~ 1k34 IkM . ... 1 + (J ~)k22T 1 kt2~ 1 k12= k21 la] =fttz ku k.12 = ftil k22 1 1 1 1 - 1 k«=kilI +kl21= 1[ku+k12) == 1(kll +bl) = I kn (1+ftl~) 1 1 1 1 1·.' k14= 1{2]¡+ lrn! = 1(101+len);= I(kt2+1m)= Ikn (1+fhl) q-d EI(x)- ¡crl~I- d4=-1 El (x) - . Se desea calcular las fue~é:I~de extremo de barra (coefiCi!i!n~ Jc14 y 1a4) que se producen por un desplazamiento relativo unitarjo (negativo) d~'los apoyos: . 128
  • 139.
    129 xr ( .15...:o.. ,X2 '" X - D '" ¡/ Los cortantes de empotramiento se calculan por equilibrio a partir de los momentos de empotramiento y de las cargas externas. Puede ser conveniente elegir como redundantes los momentos de extremo de barra, en cuyo caso, la estructura primaria sería la mostrada a continuación: {D}+[F]{X}={O} ~ X"X2Compatibilidad: f. =f = ¡m, m2 12 21 EI(x) D2= IMm2 EI(x) 2 f - J m2 22 - EI(x) DI= ¡~~) 2 f. -f~JI - EI(x) ~~_~:>X2 x1t X-D Estructura Primaria 4.9.6 Momentos de Empotramiento en Barras de Sección Variable Existen numerosos métodos para calcular los momentos de empotramiento de una barra de sección variable, todos son en esencia variaciones de los mismos conceptos centrales. Para el cálculo de los momentos de empotramiento se puede usar el Método de Flexibilidad tomando como redundantes las fuerzas (cortante y momento) en uno de los empotramientos. A continuación se muestra la secuencia necesaria para calcular los momentos de empotramiento utilizando el Método de Flexibilidad: , 4EI" El k 11=-(1-0.5)= - 21 1 Comprobemos los resultados aplicando la ecuación anterior a una barra de sección constante: " Nota: kJ1 Y ñiz deben calcularse para el doble de la longitud de la barra (21) • k 11 =ku- ku = ku-ftn kn fuik22=ftukn- - " . , :. k 11= ku-ftu kit = kll(1- ft12)..I ) ) ¡ ) I ) 1 J ) 1¡ ! ) I j ) } ---l t ) f f )r ¡ } I ) ) ") ) ) } 1 .) ) 1 ) ~ ) I .) 1 ) '-) ")
  • 140.
    ) ) ) ) ) ) ") ) ~ ) ~. ) ") ) ) ) ) ) ) ) =3 -7 -1 . - . . . .= ~ ~ , ~ + 130 Ejemplo 4-5 Acontinuación se muestran las gráficas de los momentos de empotramiento de dos barras de sección variable con carga uniformemente distribuida de intensidad w. Las barras tienen.una variación en su sección transversal igual a las presentadas en los Ejemplos 4-2 y 4-3. 4EI wf' wlJ wP U12=-kll(91+ftI292)=-- (--+0.5(--»=-- 1 24 El 24El 12 4EI wP wll wP UlI= -kn(92+ft2,el)=-- ( ---+0.5(--»=+- 1 24El 24El 12 w13 92=--- 24 El w/3 91=-- 24El Ejemplo 4-4 Comprobemos los resultados aplicando las ecuaciones anteriores al cálculo de los momentos de empotramiento de una viga de sección constante que soporta una carga uniformemente distribuida de magnitud w: Superposición: UI2 =- k,I el- ku e2 = - ku el - fbI kafu fui ka=ftn ku :. U12= - ku el - ftu ku fu = -lat( el +fb2 Eh) UlI=-bI9,-h2fu =-ftl2klJ91- knfu :. UlI = - fuikn el - kn 92 = -h2( fu +fuI el) el= IM(X) mi EI(x) e2=IM(x)nl2 EI(x) Cálculo de eIyal: W(x) If W(x) ~J....---J-Jf.r1(IJfn~'~~ J LEl(x) U21 =? Otro método de aplicación general, que recoge las ideas centrales y que parte de los coeficientes de rigidez de la barra se presenta a continuación: 130
  • 141.
    131 Ejemplo 4-6 ComprobemosJos resultados aplicando las ecuaciones antenores al caJc,41Qde los momentos de empotramiento de una viga de sección constante que soporta una carg~ unltorrnernente distríbuida de magnitud w: Superposición: UI12 = UI2 - fui 1121 92 = U2tf k22 Para barras de sección constante: U'12 == UI2. - 0.5 U21 ,~~U 12=? EI(x) 1 2 (4 ~) q-d 1 2 (4"'-, -~i) q-d Conozco: 973 12/11 2 0.06 1 0.16 0.14 0.12 J.1 0.10 w /2 0.08 0.06 0.04 1 J.1 W [2 0.10 0.12 la la A~B 1/2 .//2 131 5 12/JI 4.9.7 Momentos de Empotramiento en Barras de Sección Variable- Extremo A::rticulaclo J } _) 1 ¡, 1 IiI I J ) ; ") ·1 ) .~ ) J ") ¿; ) ) J -, .) ~ ¡ ) I~ ! -:) l) -o..
  • 142.
    132 Muro o Placa ----ID--~fI I Ir._· _:. _ -:- . _ I EI=oc> 5 6 --lli-4 _.. Iv Iv 1m le Acm 1 2 3 .l' .. ~ ...1 "a ti 1']. Modelo del Pórtico Plano. 7 1=00 8 ? ~ ~---------r------I 4.10 Influencia dé las Deformaciones por Fuerzá Córlante 6s común"en él ~(l~li,SISde ~Iém~nto$'-~sbeltQá,~i'~.;;spreciªr lá$ défómtaciones por fue~~ co~n~'~ri~ a laa defermaclones por ~XJón., Sin ~mbar~Q,ex!~ten,numer9~ª~ shuacíoneé ~n la.$'9Q!il1es las d~forrnaeion~PQf ~ote' pueCfel1lléQ~r a ser jr'ñpo~ot~s yen consecuencla ~s necesario incluirlas en el a,ri~Jis,is.Un~ sitliáción como la descrita ~ presenta en la,~g4ra a conñnuacíón (véase ei a~pite 1,10.8>'. El muro, que es(un elemento bjdim~ns¡Qnal,se ha modelado cotnQ' 'un el~~to unídímenslonal y depen~iendode su e$b.e.ltezpuede ser necesário iocluir en el ahéJi$.,!s las,d~forriiáéion~s por cortante. Las defQtníaciones por co~nte afectan a la rigidez del mU'fQ y par lo tanto inciden en 10$d~p.f~amientos lateralesy en la distribución de las fuerzas internas entre los elementos constituyentes del'pértlco. ~él,. lt . (;2. " '1 " U'12=U12 UI2 ,se c~lc.ulaen la viga con longitud '21 'U'2l seobtiene 'por equilibrio,de la viga de longitud l. 1 Presentaremos sqJq él caso de una viga de sección var¡a,*~simétrica con carga también simétrica. La solución del caso no simétrico puede realizarse con lo expuesto en el acápite 4.9.6. 4.9~8Moméiitas de Empotramiento en BamiJs de Sección Variable - Extremo, IÉmpotramiento' DesliZante J, ' .' "'." ,ñYY~ = (IYYVVVYYYYb ' UIj "", 2 ~ - -wl -wl 2 12 12 , wZ2 wP wZ2 uij=-- - -,-, =--' _' 12 24 8 + (j:l--------,..OQ.j '1i2 --Yi12 24 9j= -¡¡i;(4~I)~~ 4~~] 132 _. _. o~;=-':=.i"":"-=.~;:,,<i- .;:-,;_,. ~-¿::: :"~,::E.:::;;;'~:-::,~.: ',:,t·.-~::..i .:."i:.. ':~~,o'. '::-"-:"::~-:._¡¡:;;':~'~...~~: '::::''':':''-;'':'':0 =--:::_...:......~.::.:i~=._:_:-Z·:.:.':~...-, -=- _~.. : :=~~']':":'~':":::':_:--_ :_-'::"'_~."::-_':'::"'_':~ ..::'--,::,-:::-:".~'"'!'~;''':':::':;'~~:';~:;-,;:.~:.;".i:,--- .__ .,' ....: ,.......:.;; ~~ ,J} ,~ 1 ) ) ) ) ) ) ) ) ) -J ') -.:) ) ) ) ) ) ) } ) ") ) ) ) ~ -c1 ~ ) :d -) ~ ~ ,J ) ~ O ,6 : ~ ) J ~ I 0 -
  • 143.
    133 4.10.2 Elemplo dela Influencia de la Fuerza Cortante Para cuantificar la influencia que tiene la fuerza cortante, analicemos. una viga simplemente apoyada sometida a una carga repartida. El propósito es comparar la deflexión al centro del tramo incluyendo las deformaciones por flexión y por cortante. La sección de la viga puede ser cualquiera con la condición que tenga un eje de simetría vertical que coincida con el plano de las cargas aplicadas y está caracterizada por su peralte h, el momento de inercia 1y el área de corte Ac. h )1 v Ac~2th t (delgado) v tZZ:ZZ%ZJ 2 tfv 5 Ac ~ - brtr 3 ... Ilf~,';v J/ r bf - Sección cajón de espesor delgado: v - Sección Doble T de espesor delgado, cortante paralelo a las alas; Ac ~ twhff = Atoúd Aalma - Sección circular hueca de pared delgada: ff= 2.0 Ac = 7tRt - Sección Doble T de espesor delgado, cortante paralelo al alma: tV hI:E .... Ac=5/6 (bh) Ac=O.9xR2 1 V2 u= 2IGAc as Algunos Factores de Forma de secciones comunes: - Sección rectangular: ff = 1.2 - Sección circular sólida: ff = 10/9 Cuando se incluyen las defonnaciones por cortante, es necesario conocer algunas propiedades mecánicas adicionales de las barras. Por ejemplo en el muro de la figura anterior _esnecesario conocer: Módulo de Elasticidad = E Módulo de Poisson =v Módulo de Rigidez al esfuerzo cortante G = E /2(1+v) Área de la sección transversal = A Momento de Inercia principal y central = 1 Área de Corte Ac =Al ff. Donde ff es el factor de fonna de la sección. 4.10.1 Factor de Forma de una Sección El factor dé forma está relacionado con la distribución de los esfuerzos cortantes en la sección del elemento. La energia que almacena un elemento esbelto por cortante, viene dada por la expresión presentada a continuación, en la cual Ac es el área de corte de la sección transversal del elemento. 133 .... ~':..~<.,~-.~....~.: "~ ) ) _, ) __,
  • 144.
    ~ ¡'l) () 1 'l ) ) ) ) ) ) ) ) -J :, -=> ") ) ) ) "') ) ) ) ) ) ) ) ~ a ~ ) ~) ~ ~ ,.-:) _) ) ~ ) 8) -) ~ ) ) ;~ @ 02) _:) 134 hll ACorteI tiFlexión 1/151% 1110 2.2% 1/5 8.8% 1 /4 13.8% 1/3 24.4% ( ) 2 tic'- Corte ~ 2.2 ~ -+ Sección rectangular de concreto armado. /!"CL Flexión 1 La tabla a continuación muestra los cocientes para diversas esbelteces de la viga. Para este caso es claro que para esbelteces grandes las deformaciones por corte influyen muy poco en la deflexión al centro del tramo. En consecuencia la relación se reduce a: tu: ¡Mm J Vv 5w[4 w/2 ./.= m+ GAc = 384EI +8GAc • .&7..Corte = 96 (E)(_I ) _ 9 6 (E)(_I )(h)2 (*) .. Aa. Flexión . G [2 Ac -. G h2Ac l (*) El factor 9.6 depende de las condiciones de apoyo y del tipo de carga externa, el factor (h'~c)s610depende de las propiedades de la sección y el término (~ rmide la esbeltez del elemento. Para elementos de concreto armado Concreto Armado: ~ ~ 2.3 => tiCL Corte =22.08 ( 1 ) (.!!.)2 G &:L Flexión Ac h2 1 bh3 Si consideramos una sección rectangular: _!_ = .l2_ = _!_h2 Ac bh 10 1.2 L..-- _ ____,I 0.5.Y. ~w112 v M ~ wP/s ~ Real 134
  • 145.
    135 q-d [f]=~_J ~_~,,~:--- El,GAc ~ i2 ¡2 2EI ¡J 1 -+-- 3EI GAc / El /2 2EI 10.3 Matriz de Rigidez de una Barra con Deformaciones por Corte calcular la matriz de rigidez de una barra, incluyendo deformaciones por corte, ,..,..""....... generar primero la matriz de flexibilidad de una barra en voladizo y luego por de ésta calcular la matriz de rigidez para la misma barra en voladizo. Los nos que faltan se calculan por equilibrio. .a) Matriz de FJexibilidadpara una barra en voladizo de sección constante. hll ~Corte I ~FJexión 1/15 0.3% 1/10 0.7% 1/5 2.8% 1/4 4.3% 113 7.7% I tabla a continuación muestra los cocientes para diversas esbelteces del muro. Es que para esbelteces grandes las deformaciones por corte influyen muy poco en la ...deflexión en el extremo superior del muro. Comparando las dos tablas se observa, como era de esperar, que los cocientes dependen del tipo de elemento, condiciones de apoyo y de carga. /le = 2.2 (h)2/lf I /le (h)2Af:= 0.69 I rar con el caso anterior: -4y y V Y t consideramos una sección rectangular: _¡ ( )( ) 2 ~ /le -69 1 h Af -. Ae h2 1 /le =22.08( 1 )(~)2/lf . Ae h2 l E para G =2.3 Corte 1 una comparación similar a la anterior para la deflexión en el extremo rior de un muro en voladizo, de peralte h, con una carga concentrada: I3S ) ",, ; ) ,) --, ) -, ) ) -) ) -l ) ) ) } ) ) ) -) ) 1 1 ) ) ) ~ ) .) ) - ) ) J ; ~ ) ~ ) ) "') :) ) )
  • 146.
    a f¡) o ) ._) ) ) ) ) ) ) ') ) -) -') -2) ) ) ) ) ) :; -= - . -~ - - 136 b ~h d) Si enla matriz de rigidez anterior se hace a. = O se obtiene la matriz de rigidez de la barra sin deformaclones por cortante. Para una sección rectangular. de concreto armado el parámetro a es: 12El <1= . ¡2GAc 6 2-a 6 4+a -- - 1 1 1 C 6 12 6 12 EI,GAc t~J -- f -71 El 1 1 [k ]barra = -- q-d 1+« 1 (j 4+« 6 2-(1 _._ - 1 1 6 12 6 12 - -[2 - [2-1 1 Finalmente, débido a la simetría de la barra: k33 =kr 1 k44 = k22 La matriz de rigld~z de barra para el sistema q;.... d indicado es: k12 yk22 son conocidos. k42 se calcula por equilibrio vertical de la: barra y 102por equillbrio de momentos k 6 El í.~ ..li=----~y ~. 6 El l+a P ;ij--'r+-"-~---'~'1"'!".---t:~)k32=-1·+-I1-[2 k22 ='_g_ El ko =_,_g_ ~l . 1+11 P l+a P kt 1Ylal son conocidos. k41 se calcula por equilibrio vertical de la barra y lOJ por equilibrio de momentos k _4+I1EIC~ ~)" 2-aEI11- ---o . .... k31 - .... l+ci l' . . - l+a 1 ~ 6 El t 6 El bl=----· k41=--- 1+a. [2 1+(l [2 q-d El.GA~ e) Significado ñsico de los términos calcutadcs y cálculo de los términos restantes de la- matriz de rigidez dé barra en el sistema q - d indicado a continuación. 12EI a=-::--- . zZGAc b) MatriZ dé Rigidez para una barra en voladizo. [ -El(4+11)-." [k] =[fr1 = (1m k12) = _1_ _l bl b2 1+« 6ill ~7 Es pOsible comprobar que: [fl[k] = [k][f]= [1] 136
  • 147.
    j ~ Mj=Mi/2 Si la columnano tiene cargas transversales y. sólo se incluyen deformaciones porflexión la columna trabaja en curvatura doble. ¡tui-0.5 · gn un pórtico sin desplazamientos laterales sujeto a cargas verticales, si s610se incluyen · qeformaeiQnespor flexión en las barras, las columnas suelen trabalar en curvatura doble. · ésto signm~ que las momentos en los extremos de las columnas tienen el mismo ". sentidO (horario Li antihotario). En la figura a continuación se muestra la situación ...qescritapara la columna izquierda del primer entrepiso En la expresión anterior, el factor de transporte puede ser ~gativo dependiendo del '.,valo~que adopte a. Un valor ~~gativo del factor de transporte .s'gOifica,que el momento queaparece en el extremo derecho de la barra es negativo para una rotación positiva del ',"extremo izquierdo, tal como se Ilustra en la figura a continuación. r";,. M11= fU7 Mil Ml1 .) .' . ~I 2-41 Factor de transporte l-2 = ftl2 = - =-- ku 4+41 = 2-a El k:u=--- l+a I ku = 4+u El l+a 1~1I (~*"..-r' - ... -7-.----:O-----J..-2~ ) lal - ftl2 kn 1 el = 1 12.EI a= . . PGAc l~ .,' )2 ~. '. '.' . .': /}.~ , 11 ' , q~~l ' 1Q~4Factores de Transpone en Barras con Deformaciones por Corte este aC4Pite~exarñ¡ha~~P;'alg!Jnasde las particu¡aridade~qij'~tienen los factores de ~;ttral[1S(lior1:e'enbárras de secCióneonstante con deformaclones por corte. 12EI a ='-::¡2:-G-A'__"c[k] - 1 EI[4+abarra- ---- . . l+a 1 2-(1 2-a]4+a s~~encia de cálculo es la misma. es decir, !)e calcula Iª m~triz de flexibiliqad de ."..~IJ e'l sistyema q - d~se ínvíerte dicha ma~ p~'raobt$ñ.er ia matriz de riQic:fe~de en elmismo slsterna. La deducción se deja como ej~rCicíopara el lector y 10$ resl~lta'laOl$,para una barra de sección constante, son: 1 l.¡r-__""___". --.,¡:a "'2 . -(& q - d '" ¡/ uede ser conveniente, trabajar con el sistema q- d inqicado a CQhtifluación: 131 137 ",L2i:·_:';:ó·_·.c..;,,·. . '" "... :.;,.;;;.,~" ,~_...".';;;,;__:, ;; ..",.~,,:...o;~~~~~_:: .~_~:~~~ ..:~'.'~,..•.., .......•;_~, .."-_~_~.""..:,..;;._;;;::::'.::~~::;'::¡,...':':':'.... "·,;,··c"c·,,'::· :'.;"""'''~'='''"''=''~~'''-''- 1 ~) J ) :9 I } . I i 'J .) -) , ') ") ) 1 ..., ~) )
  • 148.
    , . • t 1D2I 4 6 5 · .· .• • I • • , , • s -_ ~.__ ~ : ..•.. -: -:-- :- ~--_ -:- , . : . ¡ ¡ : : ¡¡2 •••••• : ····~·······t······¡······t··,···¡_·····~··_···t······. · . . . . .· . . . . .· . . . . .o , • • , j • , • • • ~ , i- • .. , ¡ .,...-r j ····Y·····¡···-r' ·t..·· . o~~--~~--~~--~~--~~~ Rigidez al giro Kii =(4+IX)I (1+a) (ElIL) 2- a ftij=-- 4+a Esbeltez (Ion9'pera~e) • 102 J 4 $ ,o 12 • :..'·T~:i~··¡.•.•.:•.••r--+.··::··1:.J•••:'1 ... :. ': .- _•• :-.•.. - _~... _,<, •... _';" . _.";. 0'_', -: ••••. ' ': " • • ; . ..: :.. ..-:.. ~: ..: .i' ':. ~ • o" .; ••••• ~. '-!"'! o •••• ~ • • ~.~ • ••••• : , •• ~ ••• ~ ~ ..... i- ::::t:::::t::.:::)::::::L::::t:::::J_:::T.::::t:::j3 ....•. ~._~••. ; _.• ~•••••• ~•••..• ¿_.__ :. _.. ! i :.. ._!. . . . . . ; . ~ : .. :¡.::-',t::::::~::::::1::::::~:::::.t.::l.::~:::::::~::::::!• I I • • • CoeflCierieIX '" 12ElIL"2 GAl: 2-a El kji=---- l+a 1 ku= 4+a El l+a 1 9i= I k¡¡ (~~-. --~~ )lqi=fijk¡¡ ~ El, GAc ~j ~h E 12EI bh -=2.3 a= Ac=- G [2 GAc 1.2 I! 1 v biI )J Esbeltez = I/ h ftij = O 4.10.5 Variación de los Coeficientes de Rigidez - Barras de Sección Constante con Deformaciones por Corte Para formar una idea más clara de la manera como varían los coeficientes de rigidez al giro y a la traslación de una barra de sección constante con deformaciones por cortante, se han construido las cuatro gráficas que se presentan a continuación. la variable en estudio es la esbeltez de la barra medida como el cociente entre la longitud y el peralte de la sección. Se ha supuesto que la sección transversal es rectangular y":, se ha adoptado un valor para el Módulo de Poisson típico para elementos de concreto armado. ftij es negativo Mi Mj=Olt:..__.J ti. lJ Mi ft .. 2-a IJ=-- l+a 138 Ir ¡ lt Si en análisis se incluyen las deformaciones por cortante entonces, dependiendo del valor del parámetro "e" el momento en la parte inferior de la columna podría ser nulo o podria ser de sentido contrario ar momento en el extremo superior, con lo cual la columna trabajarfa en curvatura simple: ~Mi
  • 149.
    139 Real Resolvamos la estructurapor el Método de Flexibilidad, tomando como redundante el momento flector M al centro del tramo. ~ ~(Sr Sr~( SI <.~(Dl ~ ñ I ::--·II-rT"T""T'"T""T"T'T",.-¡-'1 ~ - - _-::(~"""Y< ~lllllIlIlllv:o Viga simétrica con carga simétrica w Superposición: k'u= k, 1-ft2'1<2, Pero: kn= ftu ku => ku= ku- fuI ftu kn= kll (1- ft)2 fuI) 4.1.0.7 Momentos de Empotramiento con Deformaciones por Corte: Las deformaciones por fuerza cortante modifican los momentos de empotramiento. Sin embargo. cuando la carga es simétricalos momentos de empotramientono se modifican. A continuación se demuestra, para una viga sometida a una carga uniformemente distribuida, la razón por la cual los momentosde empotramiento no se modifican. 4.10.6 Rigidez al Giro Modificada de una Barra c()n Deformaciones po_;-~rte Para calcular la rigidez al giro modiñcaéa por la presencia de una rótula en uno de los extremos, Sepuede utilizar la misma superposición presentadaen el acápite 4.9.3 ......_~= 1 . ~ el = 1 k'llcr*====I,GA~:= kll(K¿ 7'" ~)k21 + Esbeltez (lcngIpetaHe) • 10 10a2 ., o _.__.:.__ ,--~l 2 -- ~--T-'~: ---r---¡ ~ ,.. ... ¡. ¡ ; ~1 ¡ ¡ ¡ ¡ 01 1 ...... r.....:..,...¡-.....!,....,-:.....,.}......¡..·....;.. ..·..r..··'· ., .. ., .. ., , ,-~-'~.~.-I • •• I . , 11 ~. !'" '";'"----...:-...-..:--...-0 • ,- - ~ _ ._.~ _. _ _ • • ~•• ;;. _o .... - - __ o ': ::::J::::J:::::t·:::(::+::J:::::t::~t::::t:,·.:11 -..... ¡ ; · +-..·..¡-.... ·~ ··+··..+·,··+··..+..·..I•.'.._-;: ;._:._-_..r ;__-;_;'_--;-_..,'. s ...... ¡ ~ ~.., ¡ ~ ¡ ·i··----~-..····~--o . • ••. -_M: ~ •.• "!. t _'-r:_:__,:: ~:""":-"';! . :s .- .... I·····-~-_ .....···~-·~··..:..·····~-_..···~·····_·~·-- ..-·;·· ,;, . 2 -oo' ~-_ .... ~.. •• .. -r··..·+..·..¡......i..·.._·¡-.... ·j · r: .. 1 .. "':·~··~·~:'-·····~·~"'·"·!~-'-·-i·····'·=~·--·~·:~··'·'!..' "'-~""'" o~~' --~-'~-'~~'~~'--~'--~'--~~ Rigidez trasll!ción =(12/ (Ha» (El/l/'3) 11 Rigidez Kji - flj Kii ~ (l-a) I (I+a)(EIIl..) 139 ) -, J -} 1 ) -.T ) ~ I ') ') -) ) -)..• } I .., I J [) ) " i )- ") ",~,...:.;:i.~~.-:'...: .:....;: _.:--.,:::;~ _.._-':":'.-:':~~";_':'_;'-_'.;:.:':,_;_:::-::!.:~;: ..6;.:':'--:~~:.._:_::_ :..:,,:.;~_~~:--;:,: -.-:-::."-'~:--,-:~~:.-.. '---=~~'_:".~. ..,; ::..,.!.~~:...._;,~....::.~...., ~~:'.:'"'~ .._:::::;'.~::;':'.~:;_,~::_;~~~~:::;.:.:;.'~:":~;'~;":¡;",'¡::~'.'-:- -c: .~',~'::::;':":'~:~:'=..oI.:SZ";
  • 150.
    "..i :;r; .-: ¡§) ~J) (} ,) 1 ) ) ) ) ) ) J -i ,j ~ ) ) ) ~ .) ) ) ) ) ) ) ) 3 ) -~ 112 [2 EI[4[k ]barra= - 1 6 1 6 El ¡z Caso 4 [ k] = EI[11 barra 1 ll.j = //2 r¡_l __ ~~ q-d Caso 3 ~l '.ar-----IIh_ 111 q-d 9=1~ 3EI~~- .) 1/ 2 / ~3EI t T Caso 2 Caso 1 1G:'"=r:«~ 2 q-d ~ ] 4.11 Resumen de los Casos más Comunes - Coeficientes de Rigidez Vigas dI. Sección Constante sin Deformaciones por Cortante . DI- JMm+ JV/O El ~.-;j O fu - Jn;,~+ ri?De las ecuaciones anteriores, resulta claro que ni el desplazamiento DI ni el coeficiente de flexibilidad se ven afectados por la fuerza cortante, en consecuencia los momentos de empotramiento serán los mismos. es decir: ~j = J.!ji = w 1/12. Cuando la carga no es simétrica, como por ejemplo en una viga con carga concentrada no centrada, Jos momentos de empotramiento sf se modifican, sin embargo la modificación suele ser pequeña y normalmente se ignora. 140 - -- ._ •.•... ~.__ .- _ .. _.... - - .. _.. ----- :;- ._- '..:.'- -=--:::~""""" --:- .::""•. __ .. . . -·::.:t:==~:-~:~;~.. ,.,_.:~~-1·· _:•.~~~:. :}I·2~·~;~·i~-.:~:_,::.l~·':'__ ,_;:'~,:_--~_ ~.ii~.~.:...":-::.'~::.~..;_l. __ i.;._"~~:"~.;."".,;~-_~:.:....!~~;~.:..~"'"-,~:.: .. _;.. :
  • 151.
    141 .)- .~ _.... _...__.... -- 3ab ] 3b2 El [3a2 [ k ]barra = a3+b3 3ab ~ El El Oj?, 11' ~2 4.-----])._""7I/f,'- tJ. q-d a. b ;',~ ;~.;. ~;:Caso 8,!',=" !,}! (rótula interna) :¡.!¡.•• ,'o ~:l ..': .. [ k] = El barra b 2+6a b 4 4 3a2 -(b+3a+-) b b 2+6a b.:... . c . I":t¡. Caso 7 (brazo rígido) 4.12 Resumen de los Casos más Comunes - Momentos de Empotramiento en Vigas de Sección Constante sin Deformaciones por Cortante . En la Tabla 4.1 inserta a continuación, se presentan las fórmulas para el cálculo de los momentos de empotramiento perfecto para los casos más comunes que suelen encontrarse en la práctica. a b 141 ,Ó.=1 ~ t23/~1(r- ~1 l( 4j3 El [4 q-d T Ef 3 1 _-,[ k ] barra = -, -7 3 /2 4 2 6 6 I ct3 tP2 1 , 2 4 6 6 -- - El , 1 q-d [ k ] barra = -1 6 6 12 12 -- ¡l -f1 I 6 6 12 12 - -12 121 1 ....._-,.-"";-.':", -....... . - .__ ._ _._- . :~:=:...;.:.:.:..;::~~.~.:.~__;_.~ __:_:...:.:..~::r..:,;. =~ ·.r":":::•. ~_:~_':':''::''~._; ..~_~.~.~::.•.'. :~.~~.,:;.l:..~.~.::..=~:::~:.~_~:':::'::'::::'ot.; f ) I ) ) ,) ) ) ) ::lJ ) =; " } ) ) ) ) ) ) J .) )¡ , ) t ) ) ) ) ) ¡ 1 ~ 1 , -i l .) ¡ 1 . ;;;.-.22~-;::..ti~~2it :'~:;'~~;i;i~,~.~~;;;·";~~=':::4:".:,j¡:;··_:·~··;;:~~:'¿_iS:;2:: ~~.~:~;....' .::.:-..;;:...."~'-.__..:;.~~
  • 152.
    ) ) ) ) ) ) ) -; .) -7 ) ) ) ,) J ) ) ) ) ) ) -3 " :- :~ '- .~ ~ . , . , j ) j ~ , ~ :142 .-~ N I +-~ -' fl~ -E- Q..IO-'_ - s o .o + aS U ~ ,,---.... CdIN l. ~ '-----' &!l...l·! II 1 j ¡ 1 II f I Q) -e N tU ~.....en...... c: oo r::::: -o ·0 o ~ Q) "O en e!"- tu .c r::::: Q) o 1::(1) 'e e! "O EQ) Q) -c ti> al t:! Cl>. ::7 u, I .... -tei ca Ji ~ ,1-en -8 , 8, O f :E ¡. I mI "O I ~ I o I 8I ¡:.a ," .~':'.'- ';;-C~-'-'.;",'~'- ••- J ',:","':.-"T"~'e ':-; '.~.~,'.' _. _ - -- - -- '.::'-- - -- .----- ::: .-,;.:-' -:-.:-:-:-:-:-·',:---c 7:;-: ::"-.:·.~:-._-:_~-~::.Yr~ ~_.: :_ ,._~_~.. .:..~..;::.._ :.::.;~;.,.~.;.....~ .•...,.~; z:,~.~ •• , .... _.. _.... _._. ".cc, ..,-',::.", '. ":';>:". :~.,,,~~~:-,, __,:,",_,,j"-,_. .... "ª':;~.=:":_.~;~:::':~:_¿;:,;,~.e.,-; "._,,¡_~_,i·,_ _' -- ::¿j1 cJ) L:) ) ) )¡
  • 153.
    ) ) 8) ¡:a ~ ~ )-:« lt:.../ :!j...;¡ ~I~ 000 ) :!Ioo ) ) ) ) ~Ig) :!I'<t ) ~ ~ :!I...;¡; MN '1 +-/ cO '9 "O ~j ) 6¡:a ) 4) -=CI) .) e4) J :g ~ o ~J '-.:11 ~ :!I..l ~I~ MN ~I"'") 'J _) 143) ") ~. ~INi ~I~ ~ oo ) 4) "" <E- :;;4) -e g ~ I =]o ~ ~ o <.....JI") ~ '-*'-...A ~IN ~IN') ~Ioo} i! l 1 J ~I...l000 <E- -) ¡
  • 154.
    Gt i~ .~ ) ) ) -) ) ') ) ) ) 4 ) J _ ~ ,';'" _C: •;~'.;..: .~,.,.:.,~.~..•-:-..-:-:. 144 Estas ecuaciones son aplicables a barras de sección constante sin deformaciones por corte y sin desplazamiento relativo entre sus extremos. 4EI 2EI Mu=--Si + --9j +Uij 1 1 2EI 4EI ic:Mu= --9i + --9J +un El -)jl 1 IJ- 4: 6EI 6EI q-d Vu=---Si - -2-9j+Vij ¡2 1 6EI 6EI Vjr= ---Si - -2-9j + Vjí ¡2 1 Para la barra i-j la superposición de los desplazamientos de extremo de barra (rotaciones) conduce a las ecuaciones de Pendiente - Deflexión: 5.2 Ecuaciones de Pendiente - Deflexión. Barras sin Desplazamiento Relativo de los Extremos Las ecuaciones de Pendiente - Deflexión (Slope Deflection) fueron presentadas por G.A. Maney en 1915 como un método de análisis para vigas continuas y pórticos con nudos rrgidos. Este método está basado en la superposición de desplazamientos. tomándose como incógnitas los desplazamientos de los nudos (grados de libertad). Toma en cuenta las deformaciones por flexión y se ignoran las defonnaciones axiales. Salvo en casos particulares, se suelen despreciar también las defonnaciones por cortante. En este método se plantean las ecuaciones- de equilibrio de nudo en términos de los , desplazamientos de los nudos. i 1 5.1 Introducción CAPITULO 5 - Ecuaciones de Pendiente - Dellexión 144 -: _ ....,..-'-:-.. ~_ .. ; _., -r= .; _ ...:;_:_~~~.~~~,;,::,~'~~;;~~)~:~_~~'~i'~~.'.~.-:-~'~::-~'.;:,~:~..~,..__;.:.:_:.:.o._;.:..~__ ;_ ._-~ ~-'_,:, z: ._'-_
  • 155.
    I ) j j -. ._, J ) 145 1 .'.";" «, e" j.5.3 Solución de Estructuras utilizando las Ecuaciones de Pendiente - Deflexión. f< Las ecuaciones de Pendiente - Deflexión, por si solas, no permiten resolver una '''' estructura, es necesario plantear las ecuaciones de equilibrio de nudo en términos de las incógnitas cinemáticas. A continuación se resumen las principales etapas para la solución de una estructura empleando estas ecuaciones: 1) Seleccionar el sistema de coordenadas Q-D. Será necesario identificar los gdl de la estructura. 2) Calcular los momentos de empotramiento de todas las barras. 3) Plantear las ecuaciones de Pendiente - Deflexión de cada barra. 4) Plantear las ecuaciones de equilibrio de los nudos. Para estructuras sin desplazamiento lateral, bastará con las ecuaciones de equilibrio de momentos en los nudos. Se obtendrá un sistema de ecuaciones en las cuales las incógnitas son los desplazamientos seleccionados en el primer paso. 5) Resolver el sistema de ecuaciones. Se obtendrán los "movimientos" de los gdl seleccionados para el análisis. 6) Con los valores obtenidos en el paso anterior, calcular los momentos de extremo de barra. Todas las otras fuerzas de sección se pueden obtener por equilibrio de la barra. Para barras de sección variable, antes de iniciar el análisis, es necesario calcular los coeficientes de rigidez de barra, ya que las ecuaciones de Pendiente - Deflexión .,. presentadas en el acápite anterior corresponden a barras de sección constante. ~~tEs.posible simplificar un poco más las ecuaciones anteriores si se define el término ki {ti;. que representa la rigidez a flexión de la barra i: f~~t~. ;s.:. Mij = 2k.i (2ei +9j) + uij ) l {Mij}= EI(4 2){ei}+{J-lij}Mji 1 2 4 ej Ilji 6EI Vji = -- (Si+9j) +Vji . /2 ,Las ecuaciones anteriores indican que si se conocen los desplazamientos de los nudos a "IOS cuales concurre la barra, será posible calcular las fuerzas de extremo de barra y a -:_.~-partirde estas todas las fuerzas internas (fuerzas de sección), ~~L'''Lasecuaciones de Pendiente - Deflexión, suelen presentarse del siguiente modo: 2EI Ms = -1- (2eí +9.i) +Uij 2EI Mn= -z-(ei + 2ej) + Uji 6EI v, = -¡;:-(9i+9j) +vs k.i= Ei Ii (Rigidez de la barra i) li J ) ) I I ) J ) ) ) ) ) ) :1 " ) 9 J ) _) ) ,_) ,) ! lil· I t I I
  • 156.
    -:(! . ;';, .....; ':í " :i:. j ,'; '~.' :¡; .i· "-, II I I I I 1 ~ q ) ) ) ) ) ) ) ) ' ) " ' " 146 - Ecuaciones de equilibrio de momentos de nudo: Nudo 3 M34= -6 + 2b (2 e3 + 9.c) M43= 6 +2b (el + 29.c) Barra 3: kl = 1/2 k2 = liS k3 = 1/6 M2J= -4.792 + 210(0 + e3) M32= 4.792 + 210 (O+2e3) Barra 2: M31 = O+ 2 kl (O + 293) La estructura es de secci6n constante. se pueden definir los valores de ki del siguiente modo: Barra 1: - Ecuaciones de Pendiente - Deffexión: 4.792 - Momentos de empotramiento: i EleMento ~ost6~co - Sistema Q-D: 6 E =2 x 106 ton/m2 El = 5,208 ton-nr' Sección constante O.25mx 0.50m ÍI 1 í111 5 1 2.5 ct> h=2m 2 N=2ton/M 2tonlton Ejemplo 5-1 Resolver el pórtico mostrado sin considerar deformaciones axiales en los elementos. 146 I
  • 157.
    147 5.7 6.68 ~~~~~~~~~~~~~~~~ 0.671® t 5.30 ~rvu27.0 3 ::::fCcl"QQSexterno.s 2Xl2+H2=27 SAS - Momentos fledores (ton-m), deformada y fuerzas cortantes (ton): (rotación horaria) (rotación anti horaria) - El sistema de ecuaciones es: ( 3.461 0.333){9l} = _1 {l.208} 0.333 0.667 94 El -3.0 Nótese que la matriz de rigidez es simétrica ( kij= kji ) Yque los elementos de la diagonal principal son positivos ( kii > O) - Solución del sistema de ecuaciones: e3l::$ 0.82/ El ~ 0.1576x 10-3rad 94 ~ -4.911 El ~ -0.943x 10-3rad . Ecuación 2: 2k1(293) + 4.792 + 2k2(293) + (-6 +2k3(2eJ +94) = O => 3.476e3+ 0.3339..= 1.208 El +6 +2kl (93+29..) =3 => 0.33393 + 0.66794 =-3 Ecuación 1: M~E K :JE343 .Nudo 4 l~' _) ) .) '., j !. ) I t ) ) ~ ¡ 1: i; r ~ 5. ~. ~ ~ 1 -) ~ ) ) ) ') j
  • 158.
    rj) (¡) t) .) ) ) ) ) ) ' ) j . _ . 148 Superposición de losdesplazamientos de extremo de barra: Mi =Dj--Di -Posítívo cuando la cuerda gira en sentido horario Di~ ~JMJI .........~I ~'{jl__ Cortantepositivo cuando produce un par horario 5.4 EcuacioneS de Pendiente - Denexlón. Barras con Desplazamiento Relativo de los Extremos Nos limitaremos al estudio del caso de barras de sección constante sin deformaciones por corte. :. N2 =lo Das = 0.671 ton EA 10=- 6 DH]= 3.354 EA(1 1) .EA 5+6 Dm= 1.23 N3= 10Das = 0.56 ton EA b=- 5 Una posibilidad para' superar este problema, consiste en repartir la reacción horizontal en el nudo 1 de 1.23 ton, en proporción a la rigidez axial de cada una de las vigas· que concurren ai nudo 3: :EFh:R2 +R4 = 1.23 (Infinitas soluciones) tMo: (R2+R4)* 2 +Momentos de Ias cargas = O Las dos ecuaciones anteriores representan rectas paralelas, por lo tanto no tienen solución. I Ii I ~ La reacción horizontal en el nudo 1 se obtiene a partir dél cortante en la barra 1-3y la reacción vertical a partir de los cortantes en las barras 3-2 y 3-4. Nótese que al haber ignorado las defonnaciones axiales (se ha supuesto EA = 00), no es posible calcular las reacciones hcrízontates en los nudos 2 y 4 ya que él problema es indeterminado, como se indica a continuación:
  • 159.
    149 CuandÓ se reaüzancálculos 'manuales, su~Ie ser conveniente para reducir el trabajo n~h1éricoJel utilizar el nún:-eróirtfnirno posible de gradQs de Ubertaden la esíructura. Por ejemplo, en los apoyos aríículadcs de loS extremos de vigas o en 10$ apoyos articulados de pórticos, es posibl~ ignorar los grados de libertad de rotación en e$OSapoyos, reduciendo asf el número total de incógnitas. Por ejemplo, en la viga de dos tramos móstrada, es posible ignorar el grado de libertad aSociado a la rotaci6n en el apoyo extremo de la derecha, para ello será necesario modificar la rigidez al giro dé esta barra y sus momentos de empotramiento. En consecuencia será necesario modificar las ecuaciones de Pendiente - Deflexión. S.5 Modificación de las Ecuaciones de Pendiente - Deflexión. En consecuencia las ecuaciones de Pendiente - Deflexióh son: 2 EI( 3AU)MI;; =u··+ -- 291 +9· - _'l IJ l' J 1 2EI( ,38ij) M.. =u·· + - 9. + 29. --JI JI 1 1 ' J 1 6 EI( 2 AU)V. =v·· - - 9.+9. --1J IJ /2 J J l V.. = v .. _ 6 EI(9.+ 9. _ 2 Aü)JI JI P 1 J 1 + ~II¡J(~- -~IAIJ)~l!.iJ 9i"'0 Oj-O l!.ij-o i~II¡J ~ .. 9i=0 9j = 1ªfIeJ(~ t--29~I ' + ei = 1 ej =0 1 J ) ) ) + 111 149
  • 160.
    ry ) - = ~ : . . t ' 3 u., v': =v.. + _ _1!. IJ IJ 2 1 , 1 ,.. u· ..= u·..- _'u·..IJ IJ 2 JI - Cálculo de los momentos de empotramiento u'ij (barras de sección constante): , 3 El 3 El Vij = v ..- -2-9¡+ - Aij ~ [ ¡3 r 3 El 3 El Vji=V .. - --9¡+ -- Aij JI 12 [3 Mji=O Las ecuaciones de Pendiente - Deflexión modificadas son, para este caso: r 3El 3 El Mij = u .. + -- Si - -- .!lij Ecuaciones modificadas.IJ l- [2 + y w) 150 a ~ ~~ , a ~ o ~ M1J(1 r'ffh .J.. J tV¡J J..I¡ ~ ~:i.~.,;;..~~:....~-:._.~. .:;~:_~.:,:~·::;;:.;i~;::,;.:__ _~-_ .-;~.::-:~..:-.:~~,:.;.. .~;~:.~.-..;.~~~=" ,':',~Ll-~¿ ,,~,9 f) ~ ') ") ') ) ") ) ) ') ) ) -i J -9 ) ) ) ) .) )
  • 161.
    151 u", = __1w/2 _ wl xi = _'!'wI2 IJ 12 2 2 3 • 1 2 w/ 1 1 2 u·o =+-wl - -x- =--wl JI 12 2 2 6 Ejemplo de cálculo de u"ij: 1 wf 1 wfw rr :-m- T 4 *YYVYY~ == (tYYYYYfJ + Q:J--rk) ¡ti J..wl 2' . / u·. = u.o + Y·o- IJ IJ JI 2 - Cálculo de los momentos de empotramiento u"U (barras de sección constante) ulJ (jI)! (]I)~ (~ r1Tb + ~)uJ1 + (~ ft) tVIJ v J J. '(jl vJli MiJ(. 1111II 1 .!. §%)Mji El e. tv: . .!. M .. = u", +IJ IJ / 1 , IJ ~I=O Moo= u·o. - Ele, .!. JI JI 1 1 U'ljqt ,1111111 §~ Vjj = Y·jj .!.V~.~=OVij Vjj =0JI Otro caso en el cual conviene modificar las ecuaciones de Pendiente - Deflexión, corresponde a las barras que tienen un empotramiento deslizante en algunos de sus extremos y no se desea considerar el desplazamiento vertical del empotramiento como grado de libertad. Estos casos se suelen presentar cuando se reducen las estructuras simétricas cargadas simétricamente. Ejemplo de cálculo de u'í]: UlrJ~!oY~ == '(IYYYYYYYYvb) -wl2 -wl2 12 12 , wl2 wl? wl2 .. Uij=----=-- 12 24 8 151 ,".. ") ") ')
  • 162.
    } ") ) ) ) ) ") -J ) 9 ) ) J ) :) ) c- J --' c .: ~ . _ . oI I ~-==~r~ eO.134CM Deformada Momentos (ton-m) 1- 2.0I'F---=~--Ir íf_ 1.50L:r A continuación se muestra el diagrama de momentos y un esquema de la deformada de la viga. CI 3.271 ""' 1 23· 10·-3'Q3 ~----- _- x El 9 L20~ 045·1·0-'2f':$---1::s. x El Ecuaciones: E=2xl06 totilm2 Sección O.25xO.4Q El = 2,661 ton_1il2 1:f y lYS(i~Y {lYV¡ 3 ~ • r JI 3 ~ 4 ~ 2ton/M Ejemplo 5-2 Resolver la vig~ continua de dos tramos de sección constante incluyendo como gdlla rotación en el nudo 3. 'f·· (~ dIb ~ r~ dJb ~ uaUl~ r1Tb .i ~)UjlfJ. IJ - 1 1 tV·'J ~ - " ;1' "v" vj,=O Nótese que el momento de empotramiento J.L"ij.puede calC,J,~~e.4LiP,Ii~ndola luz.de la viga olÍ9inaJ y generancJp un sistema de ~r9as simémoo, tál como se indica a continuación: _.- - 152 - ---------:--_--.,.,_,_';'-"----~;_-' -; _ ':-~~~i~:;~:~~~>-'~-:-'-;;¿L~~~~~·~--'~-~:c~~'L~~~-:'~~~:~¿L~:=_i_:~~~~~:-T~~~~':~-:,~;_-~-~-:':~~'I~:~~_;:~~C~SI:iL~_::~~~~~-I'-:Z:-;~--_;~~:~--;~:~:-j~~l~~--';~;~i;-_;:~~¡--~--~~-:~~'-~~~i.-;-;~;~~-= ;;-- ---~/ ._-- - i~~:~~~·~ ~ ~~ !~ ) ) )
  • 163.
    153 El mismo resultadoobtenido en el ejemplo anterior. - Cálculo de la rotación en el nudo 3. I 92 1 2 4 0.6 3.267 Bs= -n··x - - - = -->«2)(4) x- - - ~--- . JI 4El 2 12 4EI El El M2J +Mn= O 1.5 +2k,(292) -4 + 3k292 = O 4k1B2+3k262 = 2.5 4 El9 +3 El 9 = 2.5 3 2 4 2 6 1 1.2 9 =-x- =- 2 5 El El - Equilibrio Nudo 2 .Bana2 Barra 1 M12 = -1.5 + 2k¡(B:z) M21 = 1.5+ 2k,(292) k = El 2 4 k = El 1 3 - Ecuaciones de Pendiente - Deflexión.. La relación del ~ <p 2 . ~ conocido -:~ . 1.~ ~4f;; ~3 ""'ClJlJJY ~ 1.5 1.5 =40 . 8 Momentos de empotramiento Momentos de empotramiento (ton-m) Q-D Ejemplo 5-3 Resolver la viga continua de dos tramos del ejemplo anterior sin incluir como gdl la rotación en el nudo 3. . 153 ) 1 ) ,, t j ,I I 1 j ~ ) -4, ¡I 1 II ) , . ~:: ) .... 1 " ') ) ) ) 1 _) ) ) =; J ) .) ) ) ) , ,I l-") J ') ) ) ")
  • 164.
    154 Existen otras situacionesen las cuales por ejemplo." es necesario :plantear .ecuaciones de nivel, otras donde el"equilibrio de nivel ·.esen la dirección vertical y . en las cuales puede ser conveniente remplazar la ecuación de equilibriO de nivel por t . suma da momentos respecto a un punto convenientemente seleccionado ( punto O en . figura a cbntinuación). En este último caso la ventaja estriba en que al realizar la p .. r'iYYYYl ~-- ~-- V31 V42 ~M42, J>42M24 a) Demomentos: Nudo 3 M31+M34 = O (1) Nudo 4 M43+ M.u"=0 (2) Ecu.aciones: ... h V31 +V4i =P .... (3) b) De nivel: 2"1 Q-D . 83 En situaciones como las indicadas en I~.figlJ!'$anterior, en las cuales,la estructura puede desplazarse lateralniE!n~ P9r la acción de cargas laterales en 16snudos y barras Q por la asimetría de la geometrfa ylo catg~s, ya no son suficientes las:ecuaoibnes de equilibrio de momentos é., los nudos, Es" neóesarío plantear ecuaciones adicionales, estas: ecuaciones SOn"las dé equilibrio de niVel. La figura a conJinuación. muestra un pórtíco que puede desplazarse lateralmente, se indican las tres ecuaciones necesarias, dos de equilibrio de momentos y la tercera dé equilibrio de niVel. 5.6 Estructuras con Desplazamiento Lateral ~ '1) :~ ) ) ) ) ) ) ) ) ) ) 'i ") ~ ) ) ) ) J ) ) ) ) ) ) ) ~ ") --J ) e"::} ) _cj} :) ,J ) .) J "J J -') ) ) e o :;:.) 154
  • 165.
    155 i L l 1212 wl2 3x 62 ---- --- = -9 ton-m - Momentos de empotramiento: u12 = U21 = O u.n = U34 = O 'k 1=6.0m Solución A: Sin considerar el grado de libertad de traslación. Esta solución equivale a suponer la presencia de un apoyo que impide el desplazamiento horizontal de la estructura. Nótese que el pórtico, al ser asimétrico, se desplaza lateralmente hacia la derecha. h =3.5 m E= 2xI06 tonIm2 Sección constante 0.25 x 0.50 m IV Y y y "'(Y r-:/)J 2 3 h=2.0 3 t.ll'l Ejemplo 5-4 Resolver el pórtico mostrado utilizando el Método de Pendiente y Deflexi6n. Se ignoran las deformaciones axiales en todos los elementos. A. Sin considerar el grado de libertad de traslación horizontal del nivel. B. Considerando el grado de libertad de traslación. ~ ~ Equilibrio de nivel vertical ~uma de momentos (una (una ecuación) ecuación) Equilibrio de nivel horizontal (dos ecuaciones) de momento respecto al punto O, las fuerzas normales en las barras no participan y por lo tanto no es necesario calcularlas, mientras que en la ecuación de equilibrio de nivel (suma de fuerzas horizontales) sí participan. . ~PuntoO , ~..I .. , , I ' I ~, I .. I .. I " I .. I , , '. ) , } ! ) ) ) } ); J ) ) =; ) ) ) J ) ) ! 1 ) :) J ) ) ) ) , J } ~ ) --4
  • 166.
    ') ") ) ) )' ) ) ) ) ) ..., ") ~, ) ) j ) :) ) ) ) ) ) ) ) '"j ) ") .> J ') ~ ~ ~ .) ) J :) J ') ) ) ~ zg ·3 156 Cortantes (ton) Momentos (ton-m) Deformada ~De las ecuaclenss(1) y (2) con El = 5,2Q8 t-ml se obtiene: al = 4.0~9 !::I O.7851xlO')'rad 9] = -5. 725 ~ -l.Ó99xl 0.3rad El El - ReempJaZándQ en las ecuaciones de Pendiente - Deflexi6n de cada barra se obtienen los momentos en los extremos que se han gr'áficado a centinuaclón: 3.33ton- u' __ " •••• _ . '. _"'''' _..., .., M:J2 + M34 = O El [(0.66793 + 0.33392) + (1.1430])] + 9 = O El (0.33392 + 1.810 8J) == -9 ;(2) M21 +M~3 = O El [2 92 + (0.667 °2 + 0.333 °3)] - 9 = O El (2.667 92 ;,. 0.333 93) = 9 (1) Nudo 3: Nudo 2: - Equilibrio de nudos: M2J ~EM21~ r - ECUaciones de Pendiente y Oefle~ón para cada barra: 4EI 2El . M 12 = ~91 + ";"'_;;_92 + O = El °2 2· 2 M = 4E1a + 2EJo +0=2Ela 21 2 2 2 J 2 4EI 2E! '. M23 = 6e2 + 6el - 9 = 0.667 EI.9a + 0.333 Ele] .;9 4EI 2E! M32 = 6e3 + -6-92 + 9 =0.667 EIO] + 0.333 El92 + 9 M = 4EIe + 2Elo + 0== 1.143 ElO 34 3.5 3 3.5 4 .1 4EI lEI . M43 = -:-°4 + -. -.~°3 + o = 0.571 Era3 3.5 3.5 · 156
  • 167.
    157 M32 +M34 =0 (O.667EI9J+0.333Ele2+ 9)+ (1.l43EIeJ - 0.490El~) = O El (0.33392+ 1.81083- 0.4906.)= - 9 (2 ) Nudo 3: M21 +M23 =0 (2Ele2 -1.5EI.6.)+ (0.667El92 + O.333EI9)- 9)= O El (2.667e2 +0.33393 - 1.5A)= 9 (1) - Equilibrio de los nudos: Mn Nudo 2: J.') t: M21~ r 6EI 6EI 12EI V21=0- -l 92 - - 2 9) + -3-,6, = -1.5El92 + l.SEIa 2 2 2 V = o - 6EI9 _ 6EI9 + 12EI.6.= -0.490Ele + 0.280EI.6. ~ 3.52 3 3.52 4 3.53 3 Momentos de empotramiento. Son los mismos que los calculados para el caso "An• Ecuaciones de Pendiente y Deflexión para cada barra: , 4EI . 2EI 6EI M12= -el + -e2 + o - -2 6}2 = Ele2 -1.5Ela 2 2 2 4EI 2EI 6EI M21=-62 + -el + o - -2 .6.21 = 2Ele2 -1.5EI.6. 222 4EI 2EI 6EI Mn= -e2 + -e) - 9 - -2 .6.23= 0.667Ele2 + 0.333EI93 - 9 666 4EI 2EI 6 EI M32= -eJ + -e2 + 9 - -2 632 = 0.667Ele) + 0.333EI92 + 9 666 4EI 2EI 6EI M34=-e] + -64 + 0- --2 a34 = 1.143EI63 - 0.490EI.6. 3.5 3.5 3.5 4EI 2EI 6EI M4J= -94 + -e3 +0- --2.6.0 = 0.571EI9l-0.490EI,6, 3.5 3.5 3.5 º=º 4 Solución B; Considerando el grado de libertad de traslación horizontal. ,.---+---~ La fuerza necesaria para evitar que el pórtico se mueva lateralmente, se puede calcular a partir de las fuerzas cortantes en las columnas. Esta fuerza es de 3.33 ton aproximadamente y representa la reacción en ~Iapoyo ficticio que ~e necesario.colocar en el nivel de la viga, para evitar que el pórtico se desplace lateralmente. El sentido de la fuerza indica que la tendencia del pórtico es a moverse hacia la derecha. ~.' ·t } } ~ I l ) 1 ) t , , r } ¡ -) 1 ) -4 I Ir t i I ) ) ~ ) .) ) } ) ) ) > =; J ) ) .J J ) ¡ .,) ') .) J
  • 168.
    ) ) ) ) ") ) ') ) ') ') -'j ) ~ ) ) ) J ~ - 158 " E = 2x106 ton/m2 Sección constante 0.25 x 0.50 m l 3,5 4 2 ~ ~------------------~5 ton Ejemplo 5·5 Resolver el pórtico mostrado utilizando el M.étodo de Pendiente Deflexión. Se ignoran las deformaciones axiales en todos los elementos. I I Cortantes (ton) Deformada Momentos (ton-m) De (1), (2) Y (3) con El = 5,208t_m2se obtiene: 92 = 6.126/EI = 1.176 x 10.3 rad 93 = ~5.08l/EI = - 0.9756 X 10-3 rad II = 3.763/EI = 0.7225 x 10-3 m - Reemplazando en las ecuaciones de Pendiente - Deflexión de cada barra se obtienen 10$ momentos en los extremos que se han graficado a continuación: V'21 +V)4=0 El (-1.592 + 1.5,6,)+ El (-O.49Q93+0.280,6,)= O El (~1.5e2- Q.490e3 + 1.780A)= 0 (3) - Equilibrio de Nivel: ~ ---+ ---+ I I 15$ ·._ ....:~_.... 0'.: .. _.,. 'O. C.-.:.:;.'.:::C'.. .. . _0.; ... -;".....,..'_.'.- ~•. ,," .. - . ~.. ~.::~.:' ::·_~··~"~:'-.z:·- 'L;-J;~~;;;~~~:..:.::::'"'.::;_:_=___;;_:~~~=:::..~~... .~:.'~..~~~. ,,'~;.,'~.,:::-::~;.~~"~'~~;:;':..:l:'.;...;,",.:~.,..L."i,1;~:."."-::'···c~.-.''''.•.•;,~'~" ,~;,.,_·_,·;._c..·_·;.;;:"~~·=,,:..c..--"-=-'·-~~ ,~ '9
  • 169.
    159 Momentos (ton-m) Cortantes (ton) Deformada De(1), (2) Y (3) con El = 5,208 t_m2 se obtienen los desplazamientos de los nudos: 82 == 3.058/EI ~ 0.5871 x1O-3rad 93 = 0.970jEI ~ 0.1862 xlO-3rad .6. = 5.653/EI ~ 1.085 xlO-3 m V21 +V34 == 5 El (-1.592 + 1.5.6.)+ El (-0.49083 + 0.280.6.)== 5 El (,;.1.582- 0.4909) + 1.7801) = 5 (3) M32 +M34 =0 El (0.66783 +0.33382) + El (1.14383 - 0.4906) = O El (0.33382 + l.8108:;-0.490.6.) =0 (2) M21 +M23 =0 El (282 - 1.5.6.)+El (0.66782 +0.33383) == O El (2.66782 + 0.33383 - 1.5.6.)= 0 (1) TT - Equilibrio de nivel: Nudo 3: - Momentos de empotramiento. Son todos nulos ya que no hay cargas en las barras. - Ecuaciones de Pendiente y Deflexión para cada barra. Son las mismas que las planteadas en la solución B del Ejemplo 5-4 con la salvedad que los momentos de empotramiento son todos nulos. - Equilibrio de los Nudos: M2J : ~-- Nudo 2: JJ .J .. M21 r 1~ ·l 1 1 {t" . , I I~ t{ j ) } .. .. ) I ) j ) ~ ) ) -; I ) ~ .. ) ) _) ) ) ) ) ) "-), ) I j 1 J J > J? ?) I ) I ) I ) 1)
  • 170.
    o ¡r) -9 ) ) ) ) ') ) ) ) : tJ~ Estado Primario (ton-m) Diagramade momentos y reacciones del Estado Primario 93=84=0 6 6 "tJ~'T~''''~~11 Deformada del Estado Primario 83=84=0 1.208 Cargas de fijación: Rl=-1.208 R2=3 t-m Estado Primario: En este estado se incluyen todas las cargas (acciones externas) que obran sobre la estructura. Adicionalmente se colocan restricciones, medidas en el Sistema Q-D, que impidan el movimiento de todos los gdl seleccionados para el análisis. En la figura a continuación, se muestran las fuerzas Rr y R2 (Cargas de Fijación o de Restricción) que es necesario agregar para lograr que las rotaciones de los nudos 3 Y 4 sean nulas. Nótese que el Estado Primario es cinemáticamente determinado y que todas las fuerzas necesarias para impedir el movimiento en los gdl se calculan por equilibrio de los nudos. 65 EJemplo 5-6 Apliquemos las ideas de los Estados y Primario y Complementario a la solución de la estructura del Ejemplo 5-1. lton . ~ ~·2ton /" J,"on 2!YYY0 YYY1JYYYVYYYlls ~ 2 .5 f h = 2 1 Mj = 2ki (26i + 9j) ~i= 2ki (Si +2EJi) 11 l i 5.7 Estado Primario v Complementarlo En el método de Pendiente y Deflexi6n puede ser conveniente el empleo de los denominados Estados Primarioy Complementario. Estos dos estados se utilizarán en la solución de las estructuras por el Método de Rigidez que se presenta en el Capitulo 6. La ventaja de utilizar estos dos estados en el Método de Pendiente- Deflexión. es que las ecuaciones se simplifican ya que tQdas las cargas y, en consecuencia, todos los momentos de empotramiento(uij) se incluyen en el estado primario. Las ecuaciones de Pendiente- Deflexión para una barra sin cargas y sin desplazamientos relativos entre sus extremos son: L60 ',~~~...~'~::".:':.:;~.',:¿..:..:~.i..~.~..:.:.;..•~.;, ..~.~;•.._- ...~.; .•. _ ..~
  • 171.
    161 83:::¡0.82/ El :::¡0.1576x 10.3rad (rotación horaria) 84:::¡-4.91 / El ~ -0.943 x 10.3rad (rotación anti horaria) ( 3.467 0.333){9J} = _1 {t.208} 0.333 0.667 94 El -3.0 Como era de esperar, el sistema de ecuaciones que se obtiene es el mismo del Ejemplo 1 yen consecuencia su solución también será la misma. Nudo 4 Nudo 3: 1.208 - Equilibrio de nudo: - Momentos de empotramiento. Las cargas han sido incluidas en el Estado Primario en consecuencia todos los uij son nulos. - Ecuaciones de Pendiente - Deflexión para cada barra. Barra 1: M31 =2k,(293) Barra 2: M32 = 2k2(293) Barra 3: M34 = 2k)(29) +9..) M43 = 2k3(9) +84) Estado Complementario - --. - 31.208 Estado Complementario: Se aplican las fuerzas de restricción (o de fijación) calculadas :: en el J:stado Prlmarío con senñdc-conírerío, De este modo el) el Estado Complementario solo existen cargas en los nudos (no hay cargas en barras) aplicadas en el sistema de -_coordenadas Q-D seleccionado para el análisis de la estructura. Para este caso en particular se tiene: Ot = -Rl = 1.208ton-m; Q2= -&2 = -3 ton-m ') ) • ) : , •t, )¡ I ) ) ). ) ;- '. ! ) ¡ i1, ) 1 , ) 4 ) ) ) I ) ) ) ) ) ) ) ,) ) ) I - ~ "' ) ) } I t) ?) r / ) j ,.) II ~> l'-., )
  • 172.
    ) ") ) ) } .._ ) ) _ Diagrama de momentosfinal (ton-m) 71J9 Por ejemplo, el diagrama de momentos flectores se obtiene sumando el diagrama correspondiente al Estado Primario con el del Complementario, el resultado de la superposición es: Los resultados finales, a todo nivel (deformada, fuerzas internas, reacciones, etc.) se obtienen por superposición del Estado Primario y del Complementario. Resultados Finales = Primario + Complementario 1 IJ. t0.89 3 I ::h-J~.".....o:c:LJL..L.L.L..I...I-oH-f-++~L...I..L..LL.J~.......,..,_,...., ....................."T"'I""~- Diagrama de momentos del Estado .... . Complementario (ton-m) 02! Deformada del Estado Complementario los resultados del Estado Complementario se indican a continuación: 162 I¡ 1 {
  • 173.
    163 ~I 2EA EA +; ,~CD ® " ti " 12 "11í1 11 6.3 Ejemplos Introductorios al Método de Rigidez gtemplo 6-1 Se desea calcular las fuerzas en las barras del sistema mostrado a continuación, formado por dos barras deformables axialmente. Para el sistema de cargas que obra sobre la estructura, no se desarrolla flexión en las barras, en .. oonsecuencla, la estructura tiene sólo un gdl correspondiente al desplazamiento horizontaldel nudo central. 6.1 Introducción En el acápite la sección 2.2.7.b, Superposición de Desplazamientos,se presentaronlas i~eas principales del Método de Rigidez. Se demostró que la superposición de desplazamientos conduce a un juego de ecuaciones cuyo significado fisico es que las cargas nodales (para el Sistema Q - D seleccionado) se pueden expresar como combinaciones lineales de los desplazamientos nodales. También se definió el significadofisico de Coeficientede Rigidez,kij. ElMétodo de Rigidezen grandes rasgos: Está basado en la Superposiciónde Desplazamientos. Las incógnitas son los desplazamientos de los nudos o grados de libertad {D}. - Las fuerzas de extremo de 'barra son forzadas a cumplir las ecuaciones de equiñbriode nudo. A través de las ecuaciones de equilibrio de nudo se obtiene un sistema de ecuaciones lineales (ecuaciones de equilibrio de nudo) en las cuales las incógnitas son los desplazamientosde los nudos {Q} = [K] {D}. La compatibilidad siempre está garantizada mediante la correlación entre los desplazamientos nodales y las deformacionesde extremo de barra que concurren al nudo (Relaciones D - d). Dicha relación se expresa mediante {d} = [A] {D} donde [A] es la Matrizde Compatibilidad. Las Relaciones Constitutivas, a nivel de las barras, se expresan mediante {q) = [k] {d} donde [k] es la matriz de rigidez de la barra (véase el Capitulo 4). Es aplicable tanto a estructuras isostáticascomo a hiperestáticas. 6.2 Etapas del Método de Rigidez a) Selección del sistema Q - D. Es posible utilizar la simetria de la estructura si la hubiera. b) Cálculo de las Cargas Nodales Qi y ensamblaje del vector {Q} e) Ensamblajede la Matriz de Rigidez [K]. En algunos casos será necesariocalcular previamente los coeficientes de rigidez de barra, como por ejemplo cuando las barras son de secciónvariable (Relacionesq- d), d) Solución del sistema de ecuaciones lineales {Q} = [K] {D}. Simbólicamente la solución se expresamediante: {D} = [Kr' {Q} e) Cálculo de las fuerzas de extremo de barra {q}. CAPITULO 6 - Método de Rigidez 163 . - ..,. ',: ~. ..~,:"";....-~..;..,::._.,,_,,.:.....:.....; , ;.... ' ...,-_._._ ....'. .- ,_o _._.. _:.._._; ..._..... ~.;.:- ~''';~;_ :_~'._~. } i ~) ~ j 1 I, ¡j j , J ") ) ) ~ ) } ) ) ) ~ '> > i:- ) J ) ) 1 .' ) "") J ') 1 ) l
  • 174.
    ~ 1) L~.~" ~~',. ) ) ', ) ) ") ') ) .J ) -jl O) 1 ) ) J _.) J ) ) ) ) ) ) ,) "i J -:J . 1, ) =::; :J La barra1 trabaja en tracción y la barra 2 en compresión. . D 2EA 2P 1 ql = 1-1-= -l X(2 1)I 1 _+_ t) 12 4) Fuerzas en los extremos de las barras: I1 Sustituyendo en la ecuación de equilibrio: -D (EA) q2 = ·1 2 DI (2EA) q. => ( ~~) -_(_ll)DI{d}=[A]{D} uz 2) Relaciones e - 86 Relaciones 9 - d ({q = [k]{d}). También se les llama Relaciones Fuerza - Desplazamiento de extremo de barra. 2EAdl EAd2 ql 1 q2 1 J 2 3) Compatibilidad (Relaciones d - D): Los desplazamientos de extremo de barra deben ser compatibles con el desplazamiento del nudo 2. d.= DJ dI = ~D. Ó--~dl t---->Dl cl2 ~ .~~ <fE- @t ~ ~ Q-)o ~ , qJ ql ql P Q2 q2 Barra 2 q¿ Barra 1 Nudo 2 1) Equilibrio del nudo 2. Asumimos que las dos barras trabajan en fracción. DI 1 ~I ..J...-:¡... I~ j A 1-.... 2 Q'-D Si se desea, el sistema puede modelarse como él ensamblaje de dos resorte de rigideces kt y la corno se indica a continuación: 164 --- -_._._ _ ..,._.._._.,.- _, ..__ ._.. , .. "._" - ~:~~~l+.·;:·~:~.~.~¿~~~~_~I~:;-~~~~..~::.jL~~~:~.:·~~-~;:;:ú~.·~~·:ji~~I~~-··-~~~:1.-~:~~·:~~~~d~:r~~~I-·..~~_~;;-.;:,~;:...~~
  • 175.
    EAq, =_1 _'(1) =41,667 kg 360 EAq2 =_2 _2 xO.8= 17,778 kg 450 165 O" - & (q - d): <, Dt= 1 ® <, P >'<, ...... ,...... ....,.,... CD Compatibilidad (d-D): d, =+1 d2 =cosa o =kllDI +k'2D2 -3000 = k2,D, +k:uDz • Coeficientes de rigidez de la estructura: a) Coeficientes kll y k21 2 • Superposición de desplazamientos de nudo: • Cargas Nodales. {Q}={~} ={-3~O} Q-D • Sistema Q - D. Grados de libertad de la estructura. sen (l = 0.6 cos a= 0.8 B8lTa1: Madera E = 100,000 kglcm2 A = 150 cm2 (6" x 4") Barra 2: Acero E = 2x 106 kglcm2 A = 5 cm2 a,. 2"_". <D 3)000 kg I¿ V 11 3.60 )J 2.70 165 Ejemplo 6-2 La armadura mostrada está formada por dos barras deformables axialment~Juna de madera y la otra de acero. Se desea calcular el desplazamientodel nudo2 Ylas fuerzas internas en las barras. 3 :~ ) ) } } -) ) ) ___. =" .) .) ) ) ) J ) ) ") _) ) 1 -; .') -i J 11 ) ,. O', "·";;':::.i;;~:;:".~:=¿:;,,:~~~;:::i;~;,~;;;;,~::C.;.¡_¡.:~,~2'':::,,:;;-__;;c':;'-=c,,~", ~0,- .:,.",~::S~",~c';;".'"~'::"';';:'~',_,,' ",~_:C,.:..,",:...=.l."':::" ,:.:, .",::;:~ ':", :c.:,~.':':-:""::::;:;:=";;'~;ii:-' ) ')
  • 176.
    Los resultados sepueden comprobar por equilibrio ya que la estructura.es lsostátíca. Se sugiere al lector resolver la armadura del Ejemplo 7-2 del Capítulo 7. • Fuerzas finales en las barras: {N} = {NI} x DI +{N2}X D2 Barra 1 +41, 667x(--o.096) +0xD2 =>NJ =-4,OOOkg (compresión) Barra 2 + 17,778x(-O.096) +(-13,333)(-0.503) =>N, = 5~O()Okg (tracción) D. =-0.096 cm D2 =-O.5()3cm{ O}. (55,889 -lO,667){D1} => -3,000 = -10,667 8,000. D2 • MatriZ de compatibilidad o de transformación de desplazamientos. {d}=[AJ{D} ~ (dI) =(1 O )(Dt)d2 cos a. -sence D2- . • {Q}= [K] {D} {D} = [Kr1 {Q} Fuerzas en barras debidas a D2 =] (kg)ku =13,333xO.6 ~8,OOO kglcm kt2 =-I3,333xO.8 ~ -10,667 {N2} Equilibrio de nudo: 13,333 ?-~k2i1t k12 cr ~s (q - d): ql = O q2 =-E~~2 sena=-13,333kg 1~=1 CompatibUidad(d- D): d, = O d2 =-sena. b) Coeficientes k2J y k22 +41.667 Fuerzas en barras debidas a D. =] (kg) ku =41,667 +17, 778xO.8Rf 55,889 kglcm k21 =-17,778xO.6~ -"10,667 kglcm {NI} ~78 <J ... o ~ kn 41,667 t·. k21 Equilibrio de nudo;
  • 177.
    Betti: (1)~2 +(O)f22+(0)f32 = (O)fll +{l)f21 +(0)f31 :. f l2 = f21 =>fij= fji .••.Nótese que en este caso, el cálculo de los coeficientes de flexibilidad de la estructura en '. el Sistema Q-D, involucra la solución de una estructura hiperestática. . 6.4.2 Los Términos de la Diagonal Principal (kü) son Positivos Frsicamente es imposible que un término de la diagonal principal de la matriz de rigidez, , de una estructura estable (interna y externamente) sea negativo o nulo. En el caso de . estructuras inestables local o globalmente. si se podrían tener términos en la diagonal .: PrinCipalnegativos. : En la columna mostrada, si la carga de compresión P se aproxima a la carga crítica de pandeo (PCR) , el coeficiente de rigidez se vuelve cero o negativo, es decir el coeficiente . de rigidez, que es la fuerza necesaria para lograr un desplazamiento unitario, debe ser .,:haciala izquierda para controlar la tendencia al pandeo.de la barra. Sistema r Ql,D1 Sistema 1I Q", DlI la estructura anterior para demostrar que los coeficientes de flexibilidad una estructura también son simétricos: Betti: kll(O) +!s¡(l)+k31(0) = kI2(l) +k22(O) +k32(O) :. Is,= kl2 =>kij= kji Sistema 1I QII, OH D2 = J, D, =D) =0 Sistema 1 QI,D1 D, = 1,D2 = D, =O 1 La Matriz de ~igidez es Simétrica 1 propiedades de la Matriz de Rigidez -'~ t 167 ¡= i, ¡ )¡ ¡ 1 ) 1 ) 1 ) ! •,) ~ J " , f ) ) _} ) ) ) ) ) ) ) ) ~ ) .> _) ) I i ) _) ) ,__) ~ l'~} )
  • 178.
    ) ) ) ) ) ) - . -= J . 168 gl El tl ~ f21~fll 13/2 P2 -Q-D .tQ1=1 1 .3 2 [F]= .- El /2 1 ~w __ )Q2=1 2 t22 ~ f12 Para que la relación anterior se cumpla, el sistema de coordenadas Q~Dpara el cálculo de las matrices [K] y [F], debe ser el mismo. La demostraci6n de esta propiedad es la siguiente: {Q} == [K] {D} {D} = [F] {Q} ~ {D} = [F] [K] {D} ~ [F] [K] {D} - {D} = {O} ([F] [K] - [1]) {D} = {O} Ya que la igualdad anterior debe cumplirse para cualquier valor que torne el vector {D} y además dicho vector está formado por elementos independientes (el sistema de coordenadas es generalizado) para que se cumpla la igualdad deberá suceder: [F] [K] = [1] A continuación se muestra una barra en volado, de sección constante, para la cual se han calculado, aplicando estrictamente la definición, las matrices de flexibilidad y rigidez en el sistema de coordenadas indicado. Se han despreciado las deformaciones por fuerza cortante. [K][F] = [1] [K]= [Fr [F][K] = [1] :. [F] = [x]' 6.4.3 El Producto de las Matrices de Rigidez y Flexibilidad es la Matriz Unitaria Para cualquier estructura debe cumplirse: Caso de una estructura inestable, el coeficiente de rigidez KII es nulo Flexibles ku < o P grande p Otras situaciones en las cuales los elementos de la diagonal principal pueden ser nulos o negativos se muestran a continuación. D1=1 M r, ! 1¡ j 1~~ji ,. I ¡ I I 168 ·~...~- _ ...... :.....~, ·...;..:-,..;~r..-~~;::::~~-
  • 179.
    169 Q-D Sí existe lK1 Noexiste 00-1 y No existe [F] En una estructura linelamente elástica, el trabajo realizado por las fuerzas externas, si el sistema es conservativo, se almacena como enel'gfa interna de deformación, la energía intema puede expresarse en función de las matices de flexibilidad y rigidez de la estructura, mediante: W=UI= Y2 {Q}T[F] {K}>O W=UI= ~ {D}T[K] {D}>O .,.-En consecuencia las matrices [F] y [K] son definidas positivas. .' oo. La Matriz de Rigidez no es definida positiva en estructuras inestables como por ejemplo en una estructura sin apoyos como la indicada a continuación. {X} T [A] {X} > O } ) ) ) ) ) 6.4.4 La Matriz de Rigidez es Definida Positiva Si la Matriz de Rigidez [K] de una estructura es definida positiva entonces existirá su inversa ([Kr1) y el sistema de ecuaciones {Q}= [K] {D} tentrá solución. La solución del sistema de ecuaciones se expresa mediante: {D} = [Kr1 {Q}. Una matriz [A] se dice que es definida positiva, si para todo vector {X} "Í' {O} se cumple que: J ) ~<[F]+--Problema hiperestático in[K]~ Ensamblaje simple ~, QJ= 1 ) ) .., J ) } } .. ~ ) J ) ) J _) ) i· ) --4 2 Existenmuchas situaciones en las cuales, para el cálculo de la Matriz de Flexibilidad, es ·0 necesario resolver varias veces (tantas como número de coordenadas existan) una •estructura hiperestática. Por ejemplo, en el pórtico mostrado, será necesario resolver tresveces la estructura para calcular todos los coeficientes de flexibilidad, esta matriz es o de orden 3x3. En contraste el cálculo de la Matriz de Rigidez es relativamente simple. [F] [K]=[K][F]= (~ ~) o Se sugiere al lector revisar el acápite 6.6 donde se presentan ejemplos adicionales de 00 o las relaciones entre las matrices [F] y [K]. K21 ~~ r:===o, ¡~~ DI= 1 .__: KJ 1 (~ ~)K22 D 2=1 K12 [ 12 6] [K]= El ~ ~ /2 / } I ~ 1 -~ i,! j i I
  • 180.
    .. '); ::.~ >,' ) ) ) ) ) ) ) ~ ) -' ) ) ) 170 ya que D)"",D, son independientes 62U__ .:.-1 -=' k óD.3D. ij • J Si la energla interna VI se expresa en función de Di, O2.••• , Do se pueden calcular los coeficientes de rigidez kij. 6.4.6 La Matriz de Rigidez No Depende del Sistema de Cargas La matriz de rigidez, en las estructuras linealmente elásticas, no depende del sistema de cargas ni de la historia de las mismas. La matriz de rigidez depende -sólo de la geometrra de la estructura, dei material, de Jas'condiciones de apoyo y de las propiedades -de las barras. - - ¿En qué casos cambia la Matriz de Rigidez? Es decir depende de la historia de cargas: a) Cuando existen no linealidades geométricas. b) Cuando existen no linealidades del material. 6.4.5 Relación entre la Energ[a Interna y los- Coeficientes de Rigidez SU. _ Primer Teorema Castiglíano: 5D. - Q¡ I [Kt no existe[K] existe D2= 1DI = 1 ____ ~~'='1 ~3 7t_ [K] existe [Kr' no existe I ¡ ! 1 I ~f---_EI-....:...J¡~~ Q-D o cuando la estructura es inestable, como en los dos casos indicados a continuación: tk12 ~')k 02 = 1 22 1 ~~----~~~----~ [KJ no es definida positiva si algún término de la diagonal principal es nulo (kii = O)como en el caso mostrado a continuacióh. 170
  • 181.
    Estado Complementario {Q} =-{R} + Q-D 171 ~ ¡Il Di= O i=1,6 {O} = {O} Cargas de Fijación Ri i= 1,6 Estado Primario Comportamiento Real = Pl Estructura Real ¡Asentamiento Il Para superar esta aparente limitación del Método de Rigidez, es necesario definir un estado auxiliar denominado Estado Primario. 6.5.1 Estado Primario y Estado Complementario Pl ¿Cómo se miden las cargas en las barras en el sistema Q-D? La fuerza lateral H es la únicaque se puede medir en el sistema Q-D. p ~ w : , Q - D Cargas en nudos DespJazamientos de Josnudos . ¿Qué sucede si además de las cargas en los nudos hubiera también cargas en las barras? 6.4.7 El Ensambla'e de la Matriz deRigidez es Fácil de Sistematizar La matriz de rigidez de una estructura se puede ensamblar sisleméiticamentea partir de las matrices de'rigidez de las barras que la confOrmany de la conectividad entre ellas. Esto hace que el método de rigidez sea apropiado para su implementación en computadoras mediante programas de "análisis automático de estructuras". 6.5 Cargas en Banas Todas las fuerzas y los desplazamientos correspondientes se deben medir en el sistema de coordenadas Q-D elegido para el análisis. ) ") j~.~) ) ) J ") ¡ I J ,) } ) 1 ) ) ) .1 ) ~ ) .) I, ¡ ~ ! t j !( i,¡ ¡ 'p } , } J ) I ) .} ) _) } {; :::~. ) ~~ .... - ~ .' , -:;.~.
  • 182.
    a 1) I~ ) -, ) ) ) ) ) ) ) ) -1 ) -3 ) ) ) ) ) ') ) ) ) o ~ - -. _ - . : d 172 RI =-1.17 t-mR2= 2.67 t-mEquilibrio de los nudos 2 y 3: • Estado Primario. " '" If 11 3 A 41""'1 ... Grados de libertad ~ Di c;::.Dz• ~ ~ Q-D E = 2xl06 tonI m2 Sección O.25x0.40 El = 2,667'Ion. m2 2-ton/M Ejemplo 6-3 Resolver la viga continua de dos tramos. Se consideran deformaclones solo por flexión. la suma de los dos estados indicados en la ñgura anterior, solo es posible si es aplicable el principio de superposición. 6.5.1.8 Estado Primario (Camas de Fijación} Consiste en analizar la estructura con todas las solicitaciones externas (cargas en los nudos, en las barras, asentamientos de apoyos, preesfuerzo, falta de ajuste, etc.) adicionando un grupo de restricciones denominadas {R} medidas en el sistema de coordenadas Q-D tales que los desplazamientos en los grados de libertad elegidos para el análisis sean nulos ({D} = { O}). Las fuerzas {R} necesarias para impedir los desplazamientos de los nudos se denominan Cargas de fijación o Vector' de Cargas de Fijación. El Estado Primario es cinemáticamente determinado ya que los desplazamientos en el sistema de coordenadas Q-D son nulos. 6.5.1.b Estado Complementario Consiste en analiza" la estructura sometida úniCámente a las cargas en los nudos calculadas en el Estado Primario con signo cambiado: {Q} = -{R} { RESULTADO FINAL} ;;: {PRIMARIO} + {COMPLEMENTARIO} La superposición final es aplicable a todo nivel: deformada, momentos, cortantes, axiales, reacciones de apoyo, etc. .,, i ¡ I I! I ¡ 172 _. ~ •• _._ •• _ .":_:-:~'."~_ ._.:: •• , •••• ':;'.:'_;'--;_'_~~ ~.'.":-.'_ • '0" ,:;:'.~:z:.~;~~·:·.~··~=~:::.~~~~~O.;.;'~~~~;;:.~~~..~:.~"~.::~'.~~:~:~~:~~~~~.:L::..~.:. ; ~~ ~:~~o.~.:....-:.;i~~~~._~~~l:-_~i¡·:0:.".;.: .:~~~ ..~~::~:..~:..;,::::.~:... o:..';':;':;_~ ~o-..:-;:~·.·~,_:_<
  • 183.
    173 La deformada delestado el es conocida. I l Significado físico de k11 y k12 • Coeficientes de Rigidez EsladoCl: ~ ~.7;;' DI=1 2/3 ku 4/4 k ~ ~ t :).eJ. 4-1) (- tr) (hft) (n-~(~ 4 ~ 3 4 4 4 7 1 kll = (3"+ 4)EI =3" El 101= "2E1 kn DI +kJ2D2 = 1.17 knDI +k22D2 = -2.67 II j' II II ! 1 1 I I En el Estado Complementario solo debe haber cargas en los nudos medidas en el sistema Q-D. . • Superposición de desplazamientos { 1.17}{Q}=-{R} = (ton-m) -2.67 1.17 l-m 2.67 DI =D2=O Diagrama de momentos correspondiente al Estado Primario {M}p (ton-m) Nótese que en el Estado Primario la configuración deformada de la estructura es conocida. • Estado Complementario $ ~7 4:7 "LlJt[DY '4llllJlP" 0.75 1.333 ~ Significado físico de las cargas de fijación: J ) ) ) ) - ) ) } ) ;1 } , 9~ ';, .) - j L 1) ~ L l ) ~ J ) J ) l t .~,t !. ¡ ) J ) _) ¡ , s )l l.
  • 184.
    ) ) ., .. ) _, ) e- )." .. ) ~': ~--~4. '-~.' '. -j".-'~ .. .:::;:,~. --i.- .:', ) ;.'~:; C:~);t .) _J 'j ~ ) .J~ ,) ~ J ~ ) .) ~- ...j ) ~ " ) ) ) ) ) ) -Nótese que [K] es simétrica (kij = kji) Yque los kii > O - Nótese que el sistema de ecuaciones obtenido, como era de esperarse, es el mismo que obtuvimos al resolver esta estructura utilizando las ecuaciones de Pendiente _ Deflexión. {_1.17}= EI[~ ~]{DI}2.67 L 1 D2 3 • Matriz de Rigidez y solución del sistema de ecuaciones D 1.202 451 10'" d,:::.:!-:::.:! • X ra El D ~ - 3.271 ~ -1.23xlO·3 rad 2 El xEI ~ {Mh 1/2 El El §§j ~~~ 44D¡-o De=l La deformada del estado C2 es conocida. Diagrama de momentos asociado a D2 = 1 ~ {M}2 Significado físico de k12 y k22 4 kza= -EI=EI 4 4 Estado C2: xEI Diagrama de momentos asociado a DI = 1 ~ {M} 1 174 ·..... "::-.- _ •• • - - - - - _-:.o-~-~~~- --;;-- -=_~"-"~.~=-~:'_=L-:'::':;:;~'~:::··:~~~'·~:~'_W_'h_~.-!..: ,.... ~ ~. ':-'.';S;::c.'.:=:;',_'~ :::::,:,7,::.:n.~:;,.,.;;:. ~..... ::: ,,,.'.'~:';.'.;.~. . ._;; :;:__~, ____,,_,_ .._..... _.:. '__•. ' -"_ ._. __~__ ~ tTIlJ t~ (1) ') ') ) ) ') ) ) ) )
  • 185.
    175 , Los desplazamientosfinales en los grados de libertad seleccionados para el análisis (DI, D2) son los mismos obtenidos en el Estado Complementario, ya que en el Estado Primario dichos desplazamientos son nulos. 1.34mm Deformada Momentos (too-m) t3.23 MAX~2.61 ~1.62 f 0.7 2.0L50 {M}final = {M}p + {M}c • Resultados finales: Deformada final = Primario + Complementaño Cortantes finales = Primario + Complementaño Reacciones finales = Primario + Complementaño Momentos finales = Primario + Complementario 2.67 {M}c 1.603 Diagrama de momentos cotrespondiente al Estado Complementario: {M}c = {M}¡ XDl + {MhxD2 • Deformada del Estado Complementario 1.17 t-m 2.67 .~~~~==~~~.--------~~~ ~-~ 175 ¡ ! I J ) J } I 1I I l ..) 1 ) _) ¡ j I I ) t II I } J ) J ) ) ) J ) ,1 ) ~ ) ) ) -") J ) ) - ~ .) ) --"' 'j ) ) l ) }
  • 186.
    ~ iJ) () ) -) ) ) ) } ) ) ) ) -} J --4 '> ) ) ) ) ) ) ) ) ) ) ) :::J -j ~ ) d ) J ,) _..) ) ~ ) :3 ) ~ ) ) ~ t27.5 {M}p { }={ 18.92} Q-10.42 10.42 • Estado Complementario 18.92 t20.5 DI =~=O 1.5 ~O••2 ~2. ~ 10 er)~L27.5 R2 = l0.42 t-m Innecesarios E = 2x106 ton/nr' Sección constante O.30xO.60 m El = ]0,800 ton-m Equilibrio de los nudos 4 y 5: 20.42 20.42 ~ ) t 17.5 t {l ~) t20.5 R¡ = -20.42 + 1.5 = -18.92 t-m • Estado Primario DI = D2 = O Q-D • Grados de Libertad 2 4 73" Ir11 EA = ex:> 3 5-ton/l'l Ejemplo 6-4 ]76
  • 187.
    177 M=V=Okll = (~) El:::: 0.286EI k22 =(~ +~)EI:::: 1.905EI ~M=V=O x El {M}¡ DI = 1 Diagrama de momentos asoclado a DI = 1 ~ {M} 1 4/3 i M·=V=O M=V=O D1= 1 D2=0 • Coeficientes de Rigidez 177 -, ") ) ) ) > ) ) ..., ') } ) ) ~ ) ~ I ) ) ") ) ) ) } J :> _) ) ) ) J ) J )
  • 188.
    r. .,'. ~ ~ (1) ) ) ") ) ) ) ) ) ) ) ~ .) --::, ., ) .) ) ) ) ) ) ) ) ) ) ;;) -j -j ) .) ,) J 'J _J ) :j ) ~ .) ~ ) ) ~ 6J <D --1 178 • Resultados finales Deformadafinal= Primario + Complementario Cortantes finaJes= Primario + Complementario . Reacciones finales = Primario + Complementario Momentos finales = Primario + Complementario {M}final = {M}p + {M}c {M}finaI= {M}p + {M}l x DI + {Mh x D2 4,27 Momentos del Estado Complemetario (ton-m) 10.42 • Diagrama de momentos correspondiente al Estado Complementario: {M}c= {M}¡XDl + {Mh xD2 8,55 1.04mm • Deformada del Estado Complementario D] =e. ~ 0.594xI0-3 rad D2 =es 1'1:$ -O.595xl0-3 rad ( 3.238 0.286) {DI} 1 {18.92} 0.286 1.905 n, = 10,800 -10.42 • Matriz de Rigidez y solución del sistema de ecuaciones [K] {D} = {Q} {D} = [Krl {Q} {Mh ~= 1 xEI 2/3 4/7 Diagrama de momentos asociado a ~ = 1 => {M}2 178
  • 189.
    179 Reacciones 4.27 ~,29 "41-- i 4.29 27.5 -+ 4.27 ~~~--------.-----------------------r------ ...0 ¡ 1.27 4.29Cortantes(ton) -4.27 -17.5 17.5 Momentos (ton-m) Deformada A=3.94mm 9. = +0.594 xl0 -3 i-__=-===-~ ~~=====A=026Smm 6=-0.18 mm as"" - 0.595 "lO .) ) ) ) ) ) ) ) 41, I _JI ?) 1 ) I ~ I I I '¡ l, ) ; r u " I • 1 ) t ) ! ~. , f, ) t. J ) ) -4 ¡ )¡ ¡ I ) ) ) j También se pueden utilizar las ecuaciones de Pendiente y Deflexión para calcular momentos y cortantes finales, en este caso se tiene: M.. 2EI (3Aij del Pri .lJ =-¡- 29¡+9j - 2)+Momentos e Primario "'" Complementario Por ejemplo en el nudo izquierdo de la barra 4 el momento flector viene dado por: '¡ 4EI 2EI • #- M.s=-20.42+ - DI + - Dl =-18.59 ton-m 7 7
  • 190.
    ) ) ) ) ) -1 ) - ¡ I 180 ~fi!ZZZZ2 ~~¡ 5)000 1,000 D3=n.=0 D,=O R,= -5,000 kg.m R1= -2,OOOx3 - 2,OOOx5=-16,000 kgxm Significado flsico de los dos estados primarios: nrv---3----~~~-2--~~ ,ó,L=a L ,ó,P ,ó,L= lO-sx 200 x 20 == 0.04 cm n=EA ~L= ~x 0.04=-2,000 kg L 200 R 2000 2000 r;,,,,,,,,.."',1.....,..J b) Caso de carga 2. Aumento de temperatura en las barras 3 y 4. R, = -5,000 kg.m • Estados Primarios a) Caso de carga 1 D1 puede medirse en cualquier punte) a lo largo de labarra • Grados de Libertad. Utilizaremos la rotación de la barra rigida. Sin embargo existen otras alternativas como las indicadas. 3 ~~~~o±~DZ~~~ ...,F-V 3_M --..rI'-__ 2__ ~;!ODO kg Caso de carga 1: Carga de 1,000 kg en el nudo 3 Caso de carga 2: Aumento de temperatura ~T =20° e en barras 3 y 4 @ 2 s Barra 1-2-3 sólido rígido Barras 3l4: B=2xlO kglcm2 A=5cml EA = 107 kg a= 10-5 ltDC Ejemplo 6-5 180 I~
  • 191.
    181 {::} = {N}p+ {n}o,~lx D, {N)} = {O} + {1.5XI07}x 2.94lx 10.5 = {441} kg N4 ° 2.5xI07 735 kllDI = QI 17xl07 DI = 5,000 DI = 2.94lxl O-srad .•• Fuerzas finales en betres. Caso de cargas 1: • Matriz de Rigidez y solución del sistema de ecuaciones Caso de carga 1: k., =(1.5x3 +2.5x5)xl 07 kit = 17xl07 kg·mirad Equilibrio de la barra rígida: 1.5xl07 2.5x10' kll t 1r;==~====:!! EA ro' 7 fl) =-x d, =-x3 = 1.5xl0 kg (trace.) 1 2 107 7 n, =-x 5=2.5xlO kg (trace.) 1 Coeficientes de Rigidez - -J D,=? NJ=? N4 =? {Q} = {5,000 } r;S,ooo Di Q¡;:::z::z:z:zzz~~ 16/000 kg.,.... Estado Complementario. Caso de carga 1. ~T=20°C D) =n, = -2,000 kg D. =0 R2 = ~16,OOOkg.m ) ) ) )
  • 192.
    182 La estructura esasimétrica y el sistema de cargas es simétrico, en consecuencia .'. estructura se desplazará lateralmente. La pregunta es si se mueve hacia la derecha o hacia la izquierda. Al finalizar el análisis veremos que la estructura se desplaza hacia .,' izquierda, sin embargo, por simple inspección no es fácil determinar hacia que lado se• moverá la estructura. II 21 1 1 Q-D • Cargas externas y grados de libertad. 3 ton/M EI.= El) ::;$ 2,667 tonxm1 E1l ::;$ 5,333 tonxm2 2 21 1e 25x'lO E = 2x 106 ton/m2 EA =00 1 3 e3.---------~2S~x7-40~----------,4 Ejemplo 6-6 O~F====~=5=88=1======~I353 )~@) La matriz de rigidez de la estructura no cambia ya que no depende del sistema de cargas, depende solo de la geometr(a, propiedades mecánicas de las barras y del sistema de coordenadas Q-D adoptado. kll = 17xl01 kg. mirad kllDI = 16,000 ~ DI = 9.41 lxl O-srad Fuerzas finales en barras. Caso de carga 2: {::}={=~~~~}+ g:~::~:}xDI={:~::}kg A partir de las fuerzas en las barras 3 y 4 es posible comprobar el equilibrio de la .: estructura, calcular las fuerzas internas en la barra r(gida y las reacciones en el apoyo. ) ) . ) ) ) ') ) ..j ) "-4 ) ) ) ) ) ) ) ) ) ) ) ) ~ "1 --- l,:. . .- :: ,o ) ) . " . ~ 'O :~ - )D¡ =7 NJ=? N4=? {Q} = {16,000 } Caso de cargas 2: 182
  • 193.
    183 {M}l (D.=)) 6 6x2 ~l"'--'---~I~~El 9 •Coeficientes de Rigidez. {D}={~:}{Q)=U } • Estado Complementario. {M}p 9 .",Deformada y diagrama de momentos en el Estado Primario: 9 R3=9ton.mR2= -9ton.mR,=Oc., Equilibriode nudos: • Estado Primario 183 12 24 kll =-+-= 1.333El 27 27 6 k21 =-- = -0.667 El 9 6x2 kll =--=-1.333EI 9 ,I ) ) -, .) ") ) 1 ~I - '..... , J ,, .' ) ) } i ) l ) ) ) _.:¿¡) .) ) ) ) _) ) ) ) --i ) -; ~ ) ") ) ) l
  • 194.
    El = 2.667 6x2 k))=-T=-1.333EI 2 k23 =- = O.333EI 6 4 4x2 kJ3 =-+- =3.333EI 6 3 2x2 ~ D,=-0.522x10-3 m B3=D2 = 1.746xIO·l rad B4=DJ =~1.396xIO·3 rad { O} (1.333 -0.667 -1.333J{Dl} 9 =El -0.667 2 0.333 D2 -9 -1.333 0.333 3.333 DJ + k23 k~ 2/6 4/6 33 k13~1)~~-,-~-++-~(I~ , t 6 t ~ 36 6/r~~2 ~X2 3 • Matriz de Rigidezy soluci6n del sistema de ecuaciones [1<] {D} = {Q} {D} = [I(rl {Q} 6 kl2 =--= -0.667 El 9 4 4 kn =-+-=2EI 3 6 2 k32 =-=0.333El 6 4/6 2 3 {Mh (D2=1) ]84
  • 195.
    185 9 3.6 3.6 t9Momentos finales(ton-m) La solución se deja como ejercicio y los resultados se indican a continuación. w=3 tlm ,... .... 1 ".,. 1 1 -egdl prescindible 1= .25 x.40 I 6m 3m Q-D Elemplo 6-7 Analicemos la estructura del problema anterior (Ejemplo 6-6) cambiando la sección de la columna derecha a O.25x0.40m. Tendremos una estructura simétrica con carga simétrica, cuyo análisis se puede realizar sobre la mitad de la misma. La idea es comparar como cambia el diagrama de momentos flectores. • Momentos flactores {Mljnales}= {M}p + {M(}xD, +{M2}xD2 +{M3}xD3 Desplazamiento Lateral R:I -0.52 mm Dv ct;::i:I 6.2 mm • Deformada de la estructura 185 , J
  • 196.
    ~ ;~ 9 :1 J ') '} ) ) ) ) ) ) J 1 _) ') ) ) ) _) ~3 /' 2 2 3 :::::--7-F=? ~ [ K ]3x3 es conocida D,=O D2,DJ=? Otra forma de resolver este problema es mediante la modificación de la Matriz de Rigidez de la estructura calculada en el Ejemplo 6 en la cual se incluyó el grado de libertad de desplazamiento lateral. la modificación consiste en hacer nulo el grado de libertad DI Y calcular la fuerza necesaria, F, para que esto suceda. A continuación se muestran las operaciones necesarias a efectuar sobre la Matriz de Rigidez: + <l=.------------, 0.92 La fuerza lateral de 0.92ton que aparece en el apoyo del nudo 3, es la fuerza necesaria para que la estructura no se mueva lateralmente. Si la estructura pudiera desplazarse lateralmente, el comportamiento podrfa obtenerse a - través de la suma de los dos estados indicados a continuación. En el primer estado se colocan las cargas externas y adicionalmente una restricción artificial para impedir el desplazamiento lateral y en el segundo estado se anula dicha restricción. Dado el sentido de la fuerza lateral del segundo estado, es claro que la estructura se desplaza hacia la izquierda. 3.36 4.27.c__.,-m-+- t 4.27 8.69 Momentos finales (ton-m) 9.31 3 ton/A ~~~~------.-----~~~~ 0.92 Ejemplo 6-8 Analicemos nuevamente la estructura del Ejemplo 6-6 pero ahora supongamos que no puede desplazarse lateralmente, por estar, por ejemplo, arriostrada lateralmente por otros pórticos más ñgidos. la idea es comparar como cambia el diagrama de momentos flectores por efecto del desplazamiento lateral del pórtico. Recuerde que en este caso el desplazamiento lateral es consecuencia únicamente de la asimetrfa del pórtico. El modelo será como el indicado a continuación en el cual, el desplazamiento lateral del pórtico se ha restringido colocando un apoyo adicional en el nudo 3. El sistema de coordenadas (Q- D) consistirá en las rotaciones de los nudos 3 y 4. La solución se deja como ejercicio y Josresultados se indican a continuación. 186 .-,---.-,. -.. - -.~-_.~ --, -~:.=_--~~:::~:.:::.;:_:..
  • 197.
    187 t R¡=O R, =-15.19 ton-m R3 =5.06ton·m • Estado Primario 6 I 11Q-D 21 1 1 3 18 3 ton/m x 6 = 18ton ,~ Ejemplo 6-9 Se trata de la misma estructura analizada en el Ejemplo 6-6, pero con una carga concentrada colocada asimétricamente de magnitud igual a la resultante de la carga distribuida. En este caso no es simple predecir el sentido del desplazamiento lateral del pórtico ya que tanto la' estructura como la carga son asimétricas. Veremos que la estructura se mueve hacia la derecha. A esta técnica de solución se le denomina Condensación de la Matriz de Rigidez de una estructura y se presenta en detalle en el acápite 7.11.1 El(~~:7~~7-:.::: 1~21=ffi-1.333- 0.333 3.333 D3 ~ El (0.:33 ~:!::){~:}-{~:} Resolviendo el sistema de ecuaciones se obtiene las rotaciones D2 y D3. De la primera ecuación se obtiene la fuerza F: D2= 5.0333/EI =1.887xlOl rad D3=-3.203/EI =-1.20lxI03 rad El (1.333x O- 0.667 D2 - 1.333D3) = F F ~ 0.913 ton ok! 187 1 t r } ¡ ~ ) ) ) ) ) 1 j J -..::., ¡ ) I . } I ; . _1 ) ) J , ) } ') ) ~ .J ) ) ,) _) _) ) ) -) )
  • 198.
    . ~42 ~ Momentos finales(ton-m) 13.88 9.6 1 Desplazamiento Lateral = 1.28mm Dv max <>17.2. mm • Deformada de la estructura y diagrama de momentos • Matriz d9 Rigidezy solución del sistema de ecu~ci()[leS la Matriz de Rigidez es la misma calc~lada en el Ejemplo 6, ésta no cambia ya que no depende del s;~t~ma de cargas externas, depende sqfO de la geometrra, propiedades mecánicas de las barras y del sistema de coordenadas Q-D adoptado. [K] -+ No cambia, su Inversa, [Kfl tampoco cambia {Q}=[K] {D} {D} =(1<]-l {Ql DI ~ 1.28x1 0-3 m---+- D2 ~ 334dO-3 rad D3 ~ -G.39lxlO-1 rad {Q} ={15~19}-5.06 • Estado Complementario Primario DefoOl'1ádaV diaQrama de momentos en el Estado Primario: 188 (9 ,"'2) 1 ") ) ) ) ) } ) ) ) ~ ) J ) ) _) ) -) ) ) ) ) ) ) ) j ") ) ) '=J ) ~ ~ ~ ~ ") ,) J J ) ) ) i2.81 {M}p t15.19 I '0 ; ••••• '.' ~ •• -., ,., - •••• ••• , •.,.... •• :. w '.~'-., _-. :; .··;~:I~_~-;.::~:~'-~ .:.~:·~··~·:~3.:·:.~'''='':~_'.~_.:.:.::::.:.:::' ~'~.~_~7_;:::~':_~.:i...~_.:.~, ,.::.j~~~:~~.:::0~~_;~'~~.' -,,:..::;;' -:
  • 199.
    189 7.41 .....'-4.02 12.76L-~ik4--5.98 ~ Momentos finales (ton-m) 1.64 1.64 2.13m-=0.7h Desplazamiento Lateral =5.72 mm 1Deformada 4.66 [K] y [Krt -+ no cambian {Q} = [K]{O} {O}=[Kr' {Q} DI ;;;;5.72xlO-3 m O2 =1.55xl0-3 rad D3 =2.13xl0-3 rad Q-D 2I 21 {Q}~rn ) ) '1 ') '-1 , ; } ) ) .o;¡) _) ,. ) ) -; 1.84 :::0.6h ) ~ ) ) ~ ::J '; ' I Se trata, de la misma estructura analizada en el Ejemplo 6-6, sometida a una carga lateral de 10ton. Trabajaremos con el mismo sistema de coordenadas Q-O. lOtoo. ~~~~~~~~~ 1 14.24 Momentos :finales (ton-m) Fuerza necesaria para queno se mueva lateralmente la estructura Ejemplo 6-10 6.7 mm [ • Si la estructura estuviera fija lateralmente: lB 189 :) ) '} } ) ; ~ ,., '.) ---i ) --) -'" -::. ~~.. } ;~: " .. _) ~. }
  • 200.
    ) ) ) ) ) ) ) J ) J ) ) ) ) ) _) ) ) ) ) ) ) ~ -J ~ ) _J ) ) ~) ) ) ~ ) .;,J -j ~ ') ) ~ :J '.J --) 190 Caso de carga2Caso de carga 1 ___.,----_ 5ton E = 2x.l06 ton/m" Sección O.25x0.50 El = 5,208 ton-m" 11 36m 1 4 ®3. EjetiJpio6-12 Resolver el pórtico para los' dos estados de cárga independientes mostrados a" continuación. La viga y las columnas son de sección constante y Se desprecian las deformaciones axiales (EA = (0). Momentos finales (ton-m) 1 2I 3 ton/M EJemplo 6-11 Se trata del pórfíeo ~el Ejemplo 6-6 sometido a un estadQcomblnado de cargas, es decir a una carga ~partida más una carga latersl, La solución se obtiene por simple superposición de los resuHados del Ejemplo 6 yel Ejemplo 10 En el dic¡¡gramade momentos ~ ha,n indi~_qo,ª$. P9$ICicm~.~~:19§,puntos de infl~xí6n (PI) en lá& columnas. Si la viga fuera íQfiJ1~m~D~ rfgi~~'en ij~~;i()n,10$puntos de inflexión en las co....mnas SEj ubí~rfan al ceíltro de siaaltura~$.iJavi9~]~era muy flexible, Jospuntos de inflexión se ubicaríanen el ~>4iem().sú~rl()ide I~~qófymri~s. N6te~ que el- rn9Jl1entocJé VQlteo gené~d() g9f la carga lát~tal (lOx3. = 30 t-m) es equilibrado parcialmentepor Iqs.roornehtQ8. qú@.~~p~~~nen j~'b~$~de las columnas (7.41 + 12.76 = 20,17 t-m) la dlf~rencia es equiJIb,rªda por la$ fuerias axiales que se producen en las columnas (1.64x6 = 9.84 t-m) es decir, los axialeS eqUilibran cerca del 33%del momento de volteo. 190
  • 201.
    191 6)(0,75=0,125 36 k31 ¡ t)N;+(~12xO.75 216 =1Ic4 Na 6x1.25 ~2XlC5 =0.12 25 125 4.6x1.25 "-Y 25 , //1/ {M}p (ton-m) k21 6><0.75 ~ 36 kl1~f W t (1375'~11~1 = 0.1875 .!_j( 6/l6 • //1/I • Coeficientes de Rigidez ....c;__-==f- ---+ ~ 0.75 1 ~ 4.5 • Estado Complementario - Caso 1 6 11// , 7.5ton { -4.5} {Q}= -! Deformada y diagrama de momentos en el Estado Primario (Caso de carga 1): 6 6 Barras 1-3 Y2-4: M=O, V=O N3 =7.5 ton N2 = 4.5 ton N] cosa =6 Equilibrio del nudo 4: 191 Caso de Caroa 1 Carga w = 2 ton/m ¿Hacia dónde se mueve la estructura? Estado Primario Caso 1 R2 6 6· 6 % Rl=:t>f1i--(:YYYYJ~ N4~~~ . t !! 6· ~N3 + I R. = 4.5 ton (Igual a N 2) t R2 = _ 6 ton-m R] = 6 ton-m j ) ) ) ) =, j ) ) ) .) } } I , ) ) ) ) 1 i } ~ } ) ~. J --' ) )
  • 202.
    192 Equilibrio de labarra inclinada: ¿M2 : O.3x2+ 2~x 3= H3(4) H3l'::: 0.1813 El Equilibrio nudo 4: N3=V2=1124 N2=H3 LFv : -N. +NJ COSI - V)sena= O N) ~ 0.1421El :. k" ~ 0.3688El e) También se puede formular el equilibrio de la barra inclinada en coordenadas globales, este tipo de equilibrio puede resultar conveniente cuando hay barras inclinadas.•. ) ) ) ) ':;) ) J ) ) _) ) .~ ., ) ) ) ) ) ) j ') -') ) -~ ) .-=;) o:) -i1 ?) ) .) ) ) ) ) ) ~ :) _~~ ) ) ) ), 12 ku ---O.12cosa-N)sena.=O 64 kll b) También se puede hacer equilibrio de nivel: 1._ ~~I ~1U:l I .... 0------=------.LV3=O.12 • ~ I¡~O.1875 ~N3 • Alternativas para calcular k11 a) Equilibrio del nudo 4 V N ~2 VJ/cosa2.... a. J~ '.,G N2~V2 tga+ ::.. .. O.1813EI Y2tga ~~v N3 1/24 1 N1cosa-0.12EI - 24 sena=O N2 ~O.1813EI . . 59 kll ~ 0.1813 +0.1875 ~ O.3688EI = 160 El k2.=0.125·0.375 = -0.25El k31= -O.175EI Equilibrio del nudo 4: 192
  • 203.
    193 ¿M2 (equilbrio demomentos barra 2-4) H x4=~x3 J 36 H)= 0.125 El N2= H3 (equilibrio del nudo 4) .' Alternativamente el equilibrio de la barra 24 puede formularse en coordenadas globales tal como se muestra a continuación, con lo cual se simplifica el cálculo de las fuerzas normales: 6 - tgu = 0.125 36 :. N2 = O.l25EI " '" ,'. ',' -, ,~.: ',: O.3EI D2 = 1, DI = D3 = O. Segunda columna de la Matriz de Rigidez. ka! O.125EI 193 ,!:' ) ) 'J } ) j ) ) ) _) ) ) ) ') ) ) ) ,." _) , .) ) ) _) J }, j .) -) :; j J ) ... J
  • 204.
    59 -0.25 -0.l75 .3 r·s} 160 {~:J DI=-13.2551EI SI:: - 2.545xl 0- m ~ =EI -0.25 5 1 D2= 2.877/EI r::: O.552xIO-3 rad- - 3 3 D3=-6.326/EI f:$ -1.215xIO-3 rad1 22-0.175 - 3 15 194 • Matriz de Rigidez y solución del sistema de ecuaciones. Caso de carga 1. [K] {D} = {Q} {D}= [lC]-1 {Q} ¿M2 (equlibrio dé momentos barra 2-4): 4 2 6 . . - + - - -x 3 +Nl" 4 = O S 5 36 N2= -0.175EI Alternativamente, el equilibrio de la barra 2-4 puede formularse en Coordenadas' globales: 2 1 k =-=-EI 23 6 3 4 4 22 k =-+-=-EI 33 6 5 15 ~.6..~.~Ít~25 36, 2{.._-~ 11 ~ 6 1 6 -x-- 36 tga 25 cosa 6 6 1 N2= 36 tga - 25'x cosa N2= -0.175EI 194
  • 205.
    195 +s.98 4.11 D.= a] ~O.889x10-l rad D2= 904 ~ -O.987xlO·3 rad 4.63 [K]---+- Cambia {Q}~Cambia Analicemos como cambia el comportamiento de esta estructura si en el Caso de carga 1 no pudiera moverse lateralmente: 2 ton/M Momentos finales (ton-m)7.L3 4.87 .- 3.56 i.04 6.41 7.85 Deformada • Resultados finales. Caso de carga 1. {Deformada final} = {Def}p + {Def.}x DI +{Defl}xD2 +{Def3} xD) {Mfi,;.¡cs}={M}p +{MJ}xDJ + {M2}'xD2 +{M3}xD] ~ 195 •• I 1 I ) - i! ¡ ¡ J ~ ) 4 ) ) ) 1 ) ) ) ) ) ) ') "> .~ ) ~ j .l. ) ) ) J ) i ) j .J ), 1 _; o·;";'·~~S.:_;.:~~:.....:.. __;;_;_:::.:..4~·.·~'-:-o~:o;_no:.""::._~:. ;.,... ,~:: . o :=_.,::0::"o-.•o:::~':~co¿~o:f~i~~~-'::...:;-. :':'~:;~o ;_'-':.:...:2.-i.':' ::'o:~::"";o:':~o__:::.:.:.000o~o~;0:~_~~o ~.i.,-¡,j.:~o~~_••~~~~,~o~ _:O.O__.~. ~~...~/;~..: :'.~;~_~->:';:"'o::•.:S..:.':·:::'::;;.:';,:'-:::'2:.-~;~~--;:'~~',"O
  • 206.
    ) ) ) ) ) ..j ) -=i ) ) ) ) .) ) ') ) ) ) ) ) ;: 'j -i ) _._ ) J "_ .. ) ~ ) ~ _ '7 ~ O :· -- 196 Momentos (ton-m) -+ 1--....................--'----'..... Ston •Caso de camas combinadas = Superposición de Caso 1 + Caso 2: 2 ton/M ~~ 4.83 t=.::;::::;l-.--:-#5 // /1 I 4.13 "1.23 Momentos (ton-m) Deformada DI =3xlO·l m D2 = 0.396x1 O·] rad D3 = 0.268xlO·3 rad [K] y [Iq-l -+ No cambian {Q}~m --+-.------.. 5ton Para que la estructura no se desplace lateralmente es necesario aplicar una fuerza horizontal de 4.24 ton. Nótese que este caso también puede resolverse modificando la Matriz de Rigidez tal como se ~izo en el Ejemplo 6-8. recuerde que la solución corresponde al estado complementaiio, en consecuencia, para calcular la fuerza lateral deberá sumarse el estado primario. • Caso de Cargas 2 196 ·.,·::::~L};::.~;::~·;;>::'=~-=·~~=::':::;~L.;;~·.:,,:"',;.~~~_~;.;~Z~:.:~-~~~=;._~Z¿~~.~--;.:_~ ~:.:~~:,~-~~~-~"~._~'"~~~.-~.".~"_~..:"::~~-_=~.:-:~'"'-=~i~~~:C~~.:~:~.;::.~~":-~!:.:.:::~::_~~~.~~~-:~~;:,¿~~~:~_:<::;.::'.~-:.-~~~-~~_...~---;"~;;~~~-~"~~:.-,-_:,.,--~,:,;~" a ,:) t~ ) -) ) )
  • 207.
    197 Q-D ejercicio para ellector se propone resolver esta estructura utilizando el sistema de adas mostrado a continuación. Es claro que los resultados finales (momentos, I reacciones) deben ser los.mismos. el diseño de los elementos es necesario construir las envolventes de momento • cortante, axial. Cargas laterales temporales Carga permanente ) de carga 2 correspondiera a una fuerza lateral de sismo, es decir a una acción '. I sobre la estructura, para el diseno del pórtico seria necesario considerar las •.,'-......~....posibilidades: 5.57 ~ t . 0.72 3,65 //1/ DI :::;-5.5 mm de cargas combinadas = Superposición de Caso 1 - Caso 2: 197 ) ) ) ) ) ) ) ) ) J ) ..., ) ) ) ) .) J ) j _) j ) ) I ) ) } ) . _.. • ;'"".-:, .. ~-_-:...,.:-o-~o-:: •.,..- o __ .. -;.. ;- ... ._ ..•.... -...:- ... :--_._.~ •. _._ .. _._.: ... --:- -~...:.:..~~k"~~;~:¡.~::.:~~~.~;.-~.~_~.._..-.~i::.::~~-..,___:;.;_::.:.:.~~:..:_.::;:_:._;:_.:;: :::..:.~.::::;.:;";'0- : .:.:::: ••_---~~ - '~ -""=..~..-:-;.'~ ~::~ ~ ;;__.~:~::.:; :__:._-:.:~.~ __;¿;; .:_~.; ~.- ..::..::':;._.~~~·1
  • 208.
    :) f~ ·~ ~ ) ) ) ) ) ) ) ) ) ) -:1 ) -4 ) ) ) ) ) ) ) ) ) ) ) ) -j J ----J ) ==) ) ---} ~ ~ ) ) .) j ) "'j ) ) rsr' = [K]=El I 2--3 2 1 _. O .. 2 .".- - •... ;:~ :.-::: .. <~ k kJ1 k ~21 -j'II_. ~ 3EI~ 3'f k = 3EI = El 3El 11 33 9 T 3EI El k =--=-- 21 32 3 _1_ k31 =0 o -.1 EI=oo 3m El ~ 'Y 4m 1 1 t Estructura 2 Dl=1 a2) Matriz de Rigidez -2 ] -0.667 1.333 4 1.333 -0.667 [ 21 [F]=_l 4 El -2 a) Para la Estructura 1 Estructura 1 4m 3 m El ¡ ! Ii 1I ¡ ¡ a1) Matriz de Flexibilidad. Se calculó en el Ejemplo 2-9 yel resultado es: 1 1 9 3 Para las dos estructuras mostradas se pide: a) Los coeficientes de flexibilidad para los sistemas Q - D indicados y la Matriz de Flexibilidad [F]. b) La Matriz de Rigidez [K). c) Calcular el producto [F].[ K ] Ejemplo 6-13 6.6 Relaciones entre (FI y lK) Mediante las dos estructuras sencillas del ejemplo a continuación (Ejemplo 12) verifiquemos la relación que existe entre las Matrices de Flexibilidad y de Rigidez en una estructura. Esta relación ya fue presentada en el acápite 6.4.3 198 ...,~L:....~..:~ ,1
  • 209.
    199 .'. b) Parala Estructura 2. La estructura está compuesta por una columna defonnable por flexión y por una viga que se ha modelado como indeformable (sólido rigido) b1) Matriz de Flexibilidad. Se calculó en el Ejemplo 2-10 y el resultado es: [FJ= ;¡[_:8 -~: ] trr' = [KJ= E1[ ~6~ ~ ] I~ 4 1.33 -0.67 -2 J-0.67 El 1.33 o ~ 1 -,Y; 2 ~ [ 21 [F][K] =_1 4 El -2 2 1 o 1 1 - 9 3 [K]= El ] 2-- 3 O 1 - 2 kll = O k2J = 2El = El 4 2 4EI k)2 =r=" 03 = 1 . . 4EI2El 3El El k =--:=-- 12 32 3 k = 4El + 3El =2El 22 4 3 k = 2EI = El 32 4 2 199 I I1 ) r ) ) _J ) ) ., ) ~ ) J } ~ ,) ) ) "") .) } ) ~ ") ) ~. ·) ) _)
  • 210.
    ~ f) O ) ') ) ) ) ) ) ) ) ) -J J -4 ) ) ) ) ) ) ) ) ) ) ) ) ~ 8 -4 .) -) .. ) ) ,-) J J ~ ) -d ..J ~ ) ) 'ii) 6.7 Elementoscon Discontinuidades - Reducción de Coordenadas En ~I acápite 5.5 se explicó, que cuando se realizan cálculos manuales, suele ser conveniente para reducir el trabajo numérico, utilil~r el nÚmeromrnimoposible de grados de libertad en la estructura. Por ejemplo, en los apoyos articulados de los extremos de vigas o en los apoyos articulados de pórticos, es posible ignorar los grados de libertad de rotación en esos apoyos, reduciendo asl el número total de incógnitas y en consecuencia el esfuerzo en el cálculo numérico. A los grados de libertad o coordenadas que pueden dejar de considerarse en el análisis se les denomina Coordenadas Prescindibles y pueden provenir de: - Apoyos con posibilidad de desplazamiento lIngular (giro) o linear. - Rótulas internas en algunos de los elementos. . - Cuando se reducen .Ias estructuras, 'aprovechando las condiciones de símetrfa o antisimetrra de las cargas de la estructura, aparecen condiciones de borde en el eje de slmetrfa que conducen a grados de libertad que pueden no considerarse en el análisis. x ]){2 -18 JEI[ % 48 ~ [KJ=EI[ %. ~ 1 [ 9 [F][K]= El -18 k =EJ 22 12 kl2 tk12 ~ ~Z77Z727ZZ7Z1A ~ 4EI(1) J(j"'--3- 4 6EI(1)~ ~ 3' 4 't2~(:) * k = 6EI (.!.)= 6EI 12 32 4 36 k x4= 4EI(.!.)22 3 4 . kll .. tk2l ~~ZZ771Z7727Z7a 6EI~ y~~ 12E! 0..1' 3' k _ 12E! _ 12E! * 11- 33 - 27 k =(6EI)/4 = 6EI 21 32 36 b2) Matriz de Rigidez DI = 1 ~ k~ r--p::tz2zzm7iZZ3 tkZ1 200
  • 211.
    201 4 3 25 k=-+-= - El 11 3 4 12 2/3 kll 4/3 ~ 3/4 (:¡ f) ~!T t) (:¡ f 6/9 3/16 Coeficiente de Rigidez ku ~.~--~~--~~~~----~~ ~::::;k1l_ DI =1 1/2 {M}p (ton-m) • Estado Complementario R1 1.5 1.5 ~ 4=w 'Z/8 (+-)~~r;i) ~~4 D (r=-t t4 R,=1.5-4=-,2.5tmrm t t Sw //8 = 5 3 t=3w lIS 4,0 t~ ~D2=6J= 4;/~I~ 2.:7 ~~~~1 _~ Q-D r: Prescindible f(w, DI) DI =0 • Estado Primario 11 3" " 11 " 2ton/1"'I Ejemplo 6-14 .En la viga de dos tramos mostrada a continuación, es posible ignorar el grado de libertad .:_o coordenada asociado a la rotación en el apoyo extremo de la derecha, para ello será necesario modificar la rigidez al giro de esta barra y sus fuerzas de empotramiento, es .'. decir es necesario modificar el Estado Primario y el Complementario. por ejemplo, en la viga de dos tramos del Ejemplo 6--14,es posible ignorar el grado de . libertad asociado a la rotación en el apoyo extremo de la derecha, para ello será .necesario modificar la rigidez al giro de esta barra y sus fuerzas de empotramiento. 201 ) } _) ) - ') .";} ) ..) ) ~ ) ) )._, _) J ..) ) ) ) .,, ) Io... ,1
  • 212.
    2'" 'k4 ...... y"...-J;t 2 XC>('Prescindible ~----- f(w,D2• D3) 4 34 • Grados de Libertad aprovechando la simetría de la estructura y de las cargas Q-D 65 • Grados de Libertad despreciando las deformaciones axiales 2 EI=cte EA =00 Ir JI Ejemplo 6-15 Momentos finales (ton-m) 3.1 • Resultados finales • Matriz de Rigidez y solución del sistema da ecuaciones kllD. =2.5 ~~ El DI = 2.5 D = 1.2 t El ... J > .!.-~ .- ) ~~ ).-r ) ) ) ) ) .~ ) ") ) ) ----} ) ~ ") ) ) ) ) ) ) ) ) ) ) --J ) .::_:} -3 ~ .-) ).._ ) ) ) ) ) ) ~ 4 .., 41'1 v 4 If JI A "4ton e 5 6 2 4 2ton/M Sección .25x.50 3 4 E = 2xIO 6 ton/m2 El = 5,208 ton-m2 202
  • 213.
    203 1.333 El a3 {M}p2 DI = D2:;03 = O 22 Rl = 2 t-m R2 = -8/3 t-m R.3 = - 6 ton 16/8 ~~ ~t 2 1 wl" ~= --~1.333/EI 384 El Equivale a: 'k4 wP 6 1 wl4 8 El ~ conocido =:: 1.333/EI • Estado Primario: DI =02 = D3 = O 203 :; ) ) 1 .•~" ) ::~. ) -_' ) ~ ;) .' ) " .. ~ J --) ) ~ ) "'1 ) ~ "j " -) ..l . .) J _1
  • 214.
    ~J ;). r.:t ) j " ) .} ) ) ) ) ) _) -) .:) ) } ) ) ) ) ) ') } ), 204 DI = 8.41/EI= 1.615xlO-3 rad D2 = -l.026/EI = - O.197xlO-3 rad D3 = 48.82/EI = 9.314xlO-~ m El = 5.208 ton-m 2 {Q} =[K]{D} {;~3}= EI( O~5 ~~: -~8J{~:}6 -3/8 O 3/16 D J x El {M}¡ 1 DI= 1 ~ k32 2",.. í),k12 k12= - = O.5EI",.. 4 2/4 4 1 k = -+- = 1.5El x El22 4 2 D2= 1 4/4 k32= O {M}z 11/2 =1 1 2 Q k33~ 16 ~13 6 3..... 3/9..... k =--=--EI..... ti 13 16 8 k2l=0 3/8 12 b4 12 3 xEJ {M}3k = - = -El D)= 1 33 64 16 ..... ..... -it!~- - k23 • Matriz de Rigidez y solución del sistema de ecuaciones 4 4 k =-+-= 2EI 11.4 4 2 kz, =- = O.SEI 4 k =-~= -~EI 31 16 8 204
  • 215.
    205 YaqueEA=oo Sección .25x.50 E =2xlO6 ton/m2 El = 5,208 ton-m2 4~"'__----I ~ '----+-+---' _.,. 2ton ~ --EA ==co .. 1" 4 Ejemplo 6-16 Analicemos la estructura del problema anterior (Ejemplo 6-15) cambiando el sistema de cargas como se indica a continuación. Momentos finales (ton-m) ." 2.77.- :::;......-............~o:J""T'"'1~_, 8•.0 t 16.1{M}rmal = {M}p+ {M}c • ResuHados fina/es Momentos del Complementario (ton-m) _) ) ) .) ) J J ) -¡ 1 • Diagrama Momentos Complementario: {M}c = {M}l DI + {M}2 D2 + {M}] DJ ) 14J I Deformada PrimarioDeformada Complementario 205 , '::;":.~_~_,~~'••''::.' .' •.-. . ,', ';'.~ : ;--''. ',' ~ ,: -7"'-:--:- ' ,, __,,'';.'':•••,- ""':' ,__ :~. _., _,,_' .. _ __ .•_.. :. _._ _ ~:8~¿~~~;~~~:d..:-?.!:::~:;.~.~~~:¡·k:~~it~~;.~ia::~;J.¿j;t;~~~~L~~~:i.,·".',;~__~ ,-o' .:.:: ,/ ~¡:_;,_~:.:~~·~_.2~·2~~~:"-;'.';= .::i~;_,_,~~·;~.;:.-;::-_j: '.~,"~~_~~j¿i.:..:~~'~:'~~,..~~.~~~:~..:::'~'..~':'..,~~:,:~~¡.~.~.~~
  • 216.
    (J ;Ql ~ ) ) ) ) ) ) ) ) ) ) -=>I ) ) 1 ) ---- ) ~ " - . - 3.64 Eiemll./o 6-17 4ton 2 EI=cte.Sección 0.25 x 0.50 'k 'k El = 5,208 ton _m2 4 2 EA=a) 2ton/M 3 ....r- 4m 2 Momentos finales (ton-m) ........,.__¡ 2.0 2.91 1 .82 .... +-2.0 .... t1.B2 4.36 ...,4.84 mm 0.745 mm I Deformada ~-=o::====::::¡9 = S.S85xIO" 1 ! Ij Q-D El análisis se puede realizar sin considerar el grado de libertad número 5 correspondiente al apoyo simple. La solución de la estructura se deja como ejercicio. Tenga en cuenta que con respecto al ejemplo anterior, es necesario modificar la Matriz de Rigidez asf como el Estado Primario cuyo cálculo en este caso es directo, ya que solo hay cargas en nudos. Los resultados, deformaday diagrama de momentos, se presentan a conñnuaclón, Prescindible-.1....-_.....2ten EA =00 Tendremos una estructura simétrica con carga antisimétrica, cuyo análisis se puede realizar sobre la mitad de fa misma si se utilizan las condiciones de contorno apropiadas en el eje de simetrfa de la estructura. ¡, ¡I ¡ í I ~ I I! ¡ 206 --:." ',':-,-'_'--:-:- '.:'~ -, ... --_. ' ._.- .---- -:':'. :::::-: :.- -:"-"<'~:'" . ~~.-.~..:_'~::.:<:'.:;~"'.:: ..',i;~~-:~~::~,:.'.~~~--~":-:~'~~:.:~;:'~~:.:.:' : '.-:-.- .-.... ;'.-~ '.. ' ..
  • 217.
    207 2 . kl2 =4 = 0.5 El k = i+l = 2.5E!22 4 2 3 k32= -2 = 0.75El (2) kZ3 k =-~ =-~EI 13 16 8 k =_ 3_ =~EI 23 (2)2 4 k = .E_+_3_ = i_EI 33 (4)3 (2)3 16 k = 4 + i =2EI 11 4 4 2 k21 = - = 0.5EI 4 k =-~ = -~EI 31 16 8 .1= J 36"" 0.75 2/ ~k32 ~1--- __ ~k.12 • Coeficientes de Rigidez ~ k31 ~--~~1 {Q} =-{R} ={-:}. 4.5 • Estado Complementario 2.5 1.5 D) =D2 =03=0 RJ = 2 tonxm R2 =-1 tonxrn R3 =- (2.5 +2) = -4.5 ton • Estado Primario 2 Para la solución de la estructura por el Método de Rigidez. no se utilizará la coordenada 4 correspondiente a la rotación en el nudo 4. Q-D Prescindible Grados de Uberlad despreciandolas deformacionesaxiales 3 207 .) ) ) I I ~ l-:J ) -- ) ~ ) ") .) , ; ) } --i ) -) ~) ) ') '"J 1 •
  • 218.
    Momentos finales (ton-m)Deformada t3.59 t2.43 2.58 Ejemplo6-18 Analicemos la estructura del problema anterior (Ejemplo 6-17) restringiendo la posibilidad de movimiento vertical de la estructura. Para esto colocamos un apoyo en el nudo 3 que . elimine el descenso. Las únicas coordenadas son las rotaciones de los nudos 2 y 3. La . idea de este ejemplo es apreciar la influencia que tiene el descenso vertical de los nudos 2 y 3 en el comportamiento de la estructura. La rotación del nudo 4 se puede obtener por superposición del Primario y del Complementario: 94= 94P+ O(D,) +Q.S(02) +0.75 (D3) Deformada Momentos finales (ton-m) / 0.75 ---.. ;:::1-L-'-L.L.L ........TTT"T"'I"4~ 4.01 7 • Resultados finales D1= 4/EI =O.768xlO~Jrad D2= -6/EI = -1.152xlO-3 rad 0)= 18.67/EI = 3.584xl0·3 m {Q}= [K]{D} {o}= [KtfQ} • Matriz de Rigidez y soluci6n del sistema de ecuaciones 208
  • 219.
    209 wf-cosa,( 12 t l~ I )wcosa¡2 12 ...-"'- e. ........-wsena. w/ sena. _...... ~..- 2 ~ 2 Caso 2) 2 12 ( __..~ w/sena. ... 2 Mil cosa. wp· I ,r - w12( 12 rt-- wl 2 wfwcos2a. ~ -- ~ JI. 12 .......... .,_....-®( w cosa. sena. 1 =wcosa. l/coso.w wlCaso 1) 6.8 Fuerzas de Empotramiento en Elementos Inclinados Antes de presentar algunos ejemplos de la solución de pórticos con vigas o elementos inclinados, conviene recordar las fuerzas de empotramiento y las diversas transformaciones que se pueden realizar en estas fuerzas. A contlnuaclónse presentan algunos casos tipicos de barrasinclinadas con cargas repartidas. j3.66 j 2.57 {M}final (ton-m) 2.76 Eiemplo 6-19 Analicemos la estructura del Ejemplo 6-17 permitiendoel desplazamientohorizontalde la barra 3-4 como se indica a continuación. 209 ) , -. -J ) -4 ) ) ) ) ) , .~~~. ) :(: ~.:I~. :..~ ) '~.'. .... 'i~:' ~',;: ::;" } -, ) ) ) ..., ) !," ) ,. ; } r . ) "',' ~:':' J ~:.' J i J .., ~J ) !
  • 220.
    210 Q-D CD----- ¿Puede existir?: NO.pues EA = 00 • Grados de Libertad aprovechando la simetrla de la estructura y de las cargas 11 12m.. " 12m 1 8 E = 2xl0 6 too/m2 Sección 0.35 x 0.70 El = 20,008 ton-m2 EA =00 a~22.6° Pendiente e 42% 5 3 E/emplo 6-20 Al pórtico que se ilustra a continuaci6nse le denomina "pórticoa dos aguas" y su empleo es bastante común en naves industriales y depósitos. Se pueden cubrir luces y alturas libres importantes con economías notables en comparación al mismo pórtico con la viga horizontal. Para simplificar la parte numérica se ha supuesto que el pórtico es de sección constante y de concreto armado. En la realidad el pórtico se habría fabricado de acero utilizando pertiles doble T de sección variable para economizar materialy lograr una estructura más liviana y en consecuencia de menor costo. Adicionalmente, se ha supuesto que las deformaciones axiales de todos los elementos son despreciables. 6.9 Pórticos Planos Con Elementos Inclinados Estudiaremos el comportamiento de este tipo de estructuras con la ayuda de los ejemplos que se presentana continuaci6n. 2 Caso 3) 210 ~ () ,~ '1 ) ) ) ) ) ) ) ) ) -3 ) -7 ) ) -> ) J ) ) ) ) ) ) ) ~ j --J ) -.:..:c) ) -4 .::) ,;) J ) ,~) 'j ) j ) J ~ :j =) ' ~ wlsena. <r: 2 ~tW1COSa. 2 w
  • 221.
    {N}p (ton) G -13.29 {M}p (ton-m) 12 R,=-12tonxm R2 = 14.4 ton H= 14.4 ton 12 Hx5 = 1" 12" - 2 211 {Q}=-{R}={ 12 } -14.4 {V}p (ton) wsenacosa ) ) ) • Estado Complementario Dl =D2=0 _..,. 14.4 • Estado Primario ) ) ') ., ) • Posibles descomposiciones de la carga extema w = 1 ton/m 211 ) ) _) ) ) ) .> ) ) .) ) =, .~ ) ) ) _) ) J ) _, ) ) ~ _ ;~::~~.~~~_~::..:.:~.~ '; ~~ _~.::..~:~.~:~.,.,~: ~ -~ v-~ ,. '::.~""~:¡,"-, .,...~, __._,._~-.,:.":: ~ :- .--,¡.. --;":-~''':''':''''''''''C "C .•..: ..::: ." ..••• /. "7"'""'.,.. '~':', ':._~... ..: .• , •• ~ .•... ~. _ .•. _, ", .,. "-'- ~ ~_.:..:~;,.~:.!.i.-;¡·---;i.,¡'· ,.¡.~;: .:"~.: :;: ;. ~~..•::'::. ';.:':._-;.;~-:-:-:;.:-:t.;_...::~~j~~~:::: ~.:.:.:.:.;_~~.~~:;,:..::..:-:::':~:~:~--;:;'-:.._..;.::--..~..~~;-:.;..:.:~~:::.:~::.;;..::.:-::.:.~---i:.:~;}~~.-;;__:___.-...;~;~~.::.. -·_;....O~.~
  • 222.
    1 I:i Relativo totalbarra 3-5=2_+ 144 =2.6 13 65 El movimiento de la barra inclinada (3-5) también se puede detenninar utilizando su centro instantáneo de rotación, tal como se indica a continuación: 2.4 6S ~=l cos2 ex. 144 a f 1 .r 6 H::o- 65 4 2 Hx5=-+- 3 13 4 4 21 k =-+-= -El 11 8 13 26 k =_.i.+~= __ 3_EI 21 64 65 2080~r~864 2/B~ {M}t x El No puede Bajarl 2/13 • Coeficientes de Rigidez 212 -. -- .-.;--~.~-.,..~~:'":"~:' ¡-: .•...- •__. :~-:: "::"".··'7- ..: --.'.0'-0":- .-- ..- .•. ,_.-: ..• ~••. : • • "'-;-0- •• _ •• --:-::""~:_. ,.. - ._ •••• ,, _: ~ -., .- ;. "- '-:" - .-;.---:_ ••--".--:::-,- --::-----;-; 0'-- - -:-- -; ----7- - 7-·- - ,. ;;·~:;:¿~~·;~~.k~S1::~:·"~::·::·,·:.~.~~.;..;;~~~¿S~::-~:~~:::..~~.':•..:;-;¡~.:_:;.:.:.::.;:;:.;.,::_¡_:.b;.:i.:.~;,:-;;~... t:....:..,,:..~·:~~-;.:~.~;·,=-:i·:::~·;;-_:..¡__:,_·..;:~=.:....:....,,~;,__;.~·f.~~;;.;~:.:;.,..::...:.~~~:;~,,~..;;"'.:.;.~;;•..;c.~=::.::.;_:.:::_..;~:"'''_ -- _..-'OC="'~H-;' ~ ~ -:l ) O) ") ) ) ') ) ) ) ) ~ ) J ) ) -J ) -=> ) ) ) ) ) ) ) ,") J ') ) ~ 1 -=;) .:¿ ..iJ ,) ,) .) :J J ) ) ) ~
  • 223.
    i .) ) .) J 213 1 {M} ton-m {N}ton -12 Deformada 29.5 -6.4 1~29mm • Deformada de la estructura, diagrama de momentos y fuerzas nonnales {M} ={M}p + {M}. DI + {M}2 D2 D1= 14.43/EI ~ O.72xlO·3rad D2= -238.2/EI~ -1l.91xl0·3 ro{ } ( 21/ -3/ ){}12 726 /2080 D, -14.4 =EI -3/ 6036xl0 ·l D2 /2080 . • Matriz de Rigidez y solución del sistema de ecuaciones {M}lx El H 19.2 =-ton 520 6~ 64 . 12 512 ~6/64 213 •) ) ) ) ) ) ) ) ) ) ) -) } ) ") ) ) .) "'í _.J ) ,) ) J _j ) ) i ) -) . , _::._c:t ...~:.~s~:·::~·~·:_~·: :::·.:,,~:'.':>- -._--~..:.•~..~.f_~:'.-.:.''_.._~~.:.:~_.:~:-_.-.:'~'::__.. ....:~:• .~:___",_::,,:,,:....::~ ;:._:_-~;._,_:_._' -,,__O __ -_-.-_ •• o:. .-. . . ::.:':.:.::....,.....,.._-,..,':. . ...... . -- .. " .. '.,...",..;.....~..,.~~'''-;''__ o _ •• __ ~_. ._____ ~_ -,;. _. _.~ :,:;-'..;.:,.:_:-,. • ...:_. __ ..:__.:::_ ... ::;.:...:_;;.-=-._" ~_::';::_""-__ "",."..:.. -:- •• _,,:.,_ ~ •• ~.., ....__ •__ .II ...
  • 224.
    {M} ton-m Ejemplo 6-22 Veamoscomo cambia el comportamiento del pórtico a dos aguas del Ejemplo 6-20 si en lugar de empotramientos en los apoyos de los nudos 1 y 2 existieran articulaciones.. Este tipo de apoyo es bastante común en pórticos a dos aguas construidos con perfiles'. metálicos. ~__--~----~----------.---------~~----r---~~ ~ ~ 41.1441.14 ---------,---------- 1=68 mm I Los resultados se indican a continuación y resulta notable la diferencia que existe en el desplazamiento vertical al centro de la viga (29 contra 68 mm) así como las diferencias en los momentos negativos y positivos en la viga. ti) .f) '3 1 ) ) ) ) ) ) ) ) ) __, ) J ) ) -J ) ~ ) ) ) ) ) ) ) J ) J ) -= ) -:: .~ ~ J ) ) ) ) ' ) J ~ E =2x.J o6 tonlm2 Sección 0.35 x 0.70 El = 20,008 ton-m1 EA=oo I I f.----------2<.IlO ...---------~ 1111111111111111111111111]11111111111111111111111111111111111111111 -1 I I E § I I j_ w = 1 tonlm 214 Ejemplo 6..21 Para apreciar las ventajas de utilizar, para luces grandes, un pórtico a dos aguas frente a un pórtico con viga horizontal, analicemos el comportamiento del pórtico mostrado a contlnuaclón, El pórtico tiene las mismas secciones y material del analizado en el Ejemplo 6-20, la única diferencia estriba en la viga que es horizontal con una luz de 24 m y las columnas son de 8 m de altura. Tenga en cuenta que las secciones utilizadas en este ejemplo no son reales, la idea es comparar el comportamiento de ambas estructuras. - - - - --- --- - --.=----- - - --------- -- ------- ------:-:;-.~--- - - ..~.'··:~~:~;~~·=¿;~L;;~-_~.L~j7;i"-,~-:~~·i.~,~-..::::~."i_.,:~""7~,~-:::;':~~; - .,,:..:~:;,.-.-:_._--, -_..:; v-, ".•, ,-"::',~~';'::,'-;,.'~' -~~:__::'-,,-=;~;..:..-=.:.~,~~.:.~~~~~~.:.~..::;-,:;:..:.:;.;-,:.;.:~-.;~.~~.=~-~.~~~~~--~:::¿.-:.
  • 225.
    215 Simetría. Q-D 2 Cablede acero: E = 2 x 10onlm2 EI=O 8 Cable 1 5 . Ejemplo 6-23 . Veamos como cambia el comportamiento del pórtico del problema anterior (Ejemplo 6- 22) si se coloca un cable de acero uniendo los nudos 3 y 4. El cable. como veremos. permite reducir los empujes horizontales que ejercen los elementos inclinados sobre las »: columnas, reducir la fuerza cortante en la columna y los momentos flectores. El Inconveniente principal es que el cable reduce la altura libre disponible en el interior del pórtico. : La comparación de los resultados finales obtenidos en los Ejemplos 6-20 y 6-22 permite . observar la sensibilidad del comportamiento de la estructura a ras condiciones de apoyo -en la base. t12 {N} ton{M}ton-m ~. -3.9 Resultados finales. ".. 1212 8 E = 2xl06 ton/m2 Sección 0.35 x 0.70 El = 20.008 ton-m2 EA = ro a ~22.6° 5 2i5 ) j ) I ) --i J ) -1 I¡ I I ) ) ) J ) ) • ) ) ) ) --') ...} ) .) ) ...) -) ") ) ""j ) -"1 ) ) ~ J ) ---'
  • 226.
    1 B Sección 0.35 x0.70 E = 2 x 106 tonlm2 El = 20.008 ton-m2 EA=DO -.5-tan 3 5 Ejemplo 6-U Analicemos el comportamiento del pórtico del Ejemplo 6-20 sometido a cargas laterales como se ilustra a continuación. 112 {N} ton{M} ton-m Avert. Nudo 5 = O -14.8 -15.2 '-16 -12 NCable =15.2 ton :::-+- 1.9 t1c e) Caso 3, cable de acero de EA= DO(caso extremo). I(YY:SI {N} ton{M} ton-m -11,3 Mor. Nudo 3 ~ 6.2 mm +- Avert Nudo 5 R$ 14.8 mm. J, {N} ton -=-----2,5 t12 b) Caso 2, cable de acero de área 10cm2• ¡r í I I¡ {M} ton-m .dhor. Nudo 3 R$ 9.3 mm ~ Avert. Nudo 5 R$ 22.4 mm J, 0.6 a) Caso 1, cable de acero de área 5 cm2• 216 ~ ;~ ~ ') ) ) ) ) ') ) ) ) ) J ') _) ) ") ) ) ) ) ) ) ) ) ) ) -::} ~ _J ) _J .) ) ,.,:) ) ) ~ ) :;J '.j ~ -j .) '4)
  • 227.
    Las componentes horizontales deben anularse. 5 N=-ton 676 3 Ncosa=-sena 169 r ~ ~ I , , , 1 -J Q-D - • Estado Primario R =0) I -4 R2 =-6 ton 1 i • Estado ComplementarioI ~ í } 1 ) .) t ~, f • Coeficientes de Rigidez, l! i I~ I Debe existir N para lograr I:Fh = O D2=0 217 cero 4 3 19 kll = - + - = - El 8 13 2 6 6 5 3 6 3 k21= -- - -cosa + -sena = -- = --El 64 676 169 64 32 t~6/64 N 3~p--1---i-- ~ ...-?-- ,,a 169 {Q} =-{R} = {~} • Sistema Q - D. La estructura se ha reducido aprovechando la antisimetría de las ~rgas laterales. Se muestran dos posibles sistemas de coordenadas, Utilizaremos el sistema Q-D de ia i~quierda. ___..lton J ) } ) - -J J __:, l ) I ) ) ~ d ~ '> j -, ) ~ .) , "".., -=> ') 1
  • 228.
    Para este estadoo caso de carga, la presencia de un cable horizontal uniendo los nudos 3 y 4 no modificaría los resultados. {M} ton-m • Deformada de la estructura, diagrama de momentos y fuerzas normales DI= 67.46/EI = 3.37xlO-J rad D2= 525.84/EI = 26.28xlO-3 ni 12 3 k =-=-EI 22 512 128 6 3 k =-- =--EI 21 64 32 :::;> V = _2_ 156 3 Vx12=- 13 {~}=EI (~~6 ~2J {~,} EI=20,OO8%2 X28 2 • Matriz de Rigidez y solución del sistema de ecuaciones DI =0 D2 = 1 Í4~ ~12/512 1 1 k ~ ~ " ~r~ k =-~EI 12 64 Alternativamente el equilibrio de la barra inclinada se puede formular en coordenadas globales como se indica a continuación: 218
  • 229.
    219 '. Nótese lamagnitud del desplazamiento horizontal del pórtico (134 mm aproximadamente) . y los fuertes momentos flectores en la viga y columna. Estos valores nos indican que para cargas laterales, la respuesta del pórtico es muy sensible a las condiciones de apoyo. {M} ton-m I ) ) . el comportamiento. del pórtico del Ejemplo anterior, sometido a cargas :laterales, modificando las condiciones de apoyo en los nudos 1 y 2 de empotramientos a íacíones. El objetivo es formarse una idea de la influencia de las condiciones de ~~.al:>oy'oen este tipo de pórtico sometido a cargas laterales. 219 - ,..~,-,',::-- '--: ::-,':'--' -:' .. ,,- :.-~'-'",'-' .","'--,,,,.c:.~=..;'~"-""""""'..._.."..."':c;"_·.::~~~~.,.' ~_;¡,.•.,c..,c"_''''~'~''';~''''''.. .:_~Et¿h¿jii!~~~i1¡.::.~;..-;~:~~:::~--~~;,:':;.~~:~~'i:~¿:::.-:--~:;:':Z::~:;:::~¿:i!.:::~;j:>:~U~~.;~.:~~ ) ") J ) ) -) ) ) ) ~ .J ) ) ) ) ) --+ ) 5too ) ) I ¡ ¡ 1 7 ) El== 5.ixl0-3 __,
  • 230.
    ~ e ~ ¡) ) ) ) ) ) ) ) ) ) -j ) "7 ) ) J ") .) ) ) ) ) J ) ) -j J -') ) ~ . -~ :: ~ ) ) . ' , - ~ C . .. -:!:';;;--:-,.c~ ...;.;.:~.:-:...:_:..~ 220 +- 10/3 ton 10ton-m 10 {M}ton-m JO ton fff 10 a) Caso ,. Corresponde a un caso extremo en el cual las vigas 00-tienen rigidez a la flexión (El viga = O).Las columnas trabajan en voladizo. La rigidez lateral del pórtico·(KL= Flatlll = 1012.78) es de 3.6ton/mm aproximadamente. 1/2. AI2 2 3 __. ..........--__;~ SistemaQ - D Aprovechando la simetrfa del pórtico y la antisimeúla de las cargas, la estructura puede reducirse a la mostrada a continuación. A íI" oc " 66m 2 3 E = 2x106 ton/m2 Sección columnas 0.30 x 0.60 Altura columnas = 3 m Se desprecian las deformaciones axiales (EA =(0) lO__ro_n~•• r4 5~ ~6 Ejemplo 6-26 El ejemplo que se desarrolla a continuación, pretende dar una idea de la repuesta de un pequefo pórtico de un piso frente a cargas laterales. No se cubren las numerosas variables que influyen en la respuesta de los pórticos frente a las cargas laterales. 6.10 Pórticos Planos Sujetos a Cargas Laterales Las cargas laterales suelen provenir de la acción de un sismo o viento actuando sobre la estructura. En el caso de sismos, las cargas laterales que se generan en la estructura provienen del movimiento del suelo y son de naturaleza dinámica. Sin embargo, las Normas permiten calcular un conjunto de cargas laterales estáticas que intentan simular la acci6n dinámica máxima que puede producirse en la estructura. La determinación de .las cargas laterales estáticas "equivalentes" depende de diversos parámetros, entre ellos se encuentra el perIodo de vibración de la estructura. 220
  • 231.
    221 5.7 {M}ton-m O.64h 0.54/ y ,,.; c) Caso 3.Corresponde a un caso en el cual las vigas tienen la misma sección que las columnas (El viga = El columna).Nótese que la columna central toma más cortante que las extremas (1.36 veces más) también que el punto de inflexión está más bajo. Las fuerzas axiales que se desarrollan en las columnas, aunque parezcan pequeñas, equilibran un parte importante del momento volcante total (10 x 3 = 30 ton-m), la contribución de las fuerzas axiales en las columnas al equilibrio del momento volcante es cercana al 40% ( 0.98x12 / 30) el 60% restante lo equilibran los momentos flectores en la base de las columnas. la rigidez lateral del pórtico (10/1.14) es de 8.77ton/mm. +- +.16 0.35 ....-t3.16 0.35 8.9 ~~~.k +--3.67 &A 0.8 h {M}ton-m.:0.9h 1.050.52/ 1 : b) Caso 2. Corresponde a un caso en el cual las vigas tienen una rigidez a la flexión pequeña (El viga = 0.1 El columna)situación que corresponde a vigas muy flexibles en " comparación a las columnas; Las columnas trabajan prácticamente en voladizo con , puntos de inflexión altos. La rigidez lateral del, pórtico (1012.19)es de 4.57 ton/mm aproximadamente. 22J " ) J ) ) ) ) ") ,') .-'~
  • 232.
    222 0.5 h 0.5 h 0.671Ir1/ A .. y e) Caso 5. Corresponde a un caso en el cual las vigas son muy rlgidas en comparación a las columnas (El viga= 100 El columna). En este caso las columnas trabajan corno doblemente empotradas y toman la misma fuerza cortante. Este caso corresponde a la máxima rigidez lateral que puede alcanzar este pórtico en particular, KL = 14.29ton/mm. los puntos de inflexión en las columnas se ubican exactamente al centro de su altura. 0.52 h 5.0 +-- .3_21 1.21 0.631 .. v • 111 10EI Il.= 0.758 mm } } . ") ) ) ) ) ") ) 'j ) J ") ) _) ) ":) ) ) ,) ) ) ) ) '""i J --> ) :.:c} ) -3 .::) .¡¡ j ) ') J J ) ) .) ~ CJ ;;-~ {M} ton-m 5.0 +- .3.32 1.25 d) Caso 4. Corresponde a un caso en el cual las vigas tienen diez veces más inercia que las columnas (El viga = 10 El columna). Corresponde a una situación de "vigas robustas" en comparación a las columnas. El desplazamiento lateral del pórtico se ha reducido considerablemente (compárese con el caso 1) lo cual se traduce en un aumento importante de la rigidez lateral del pórtico, cuyo valor es 13.19ton/mm. Los puntos de inflexión en las columnas se ubican prácticamente al centro de su altura. mientras que en las vigas han experimentado un corrimiento (compárese con el caso 2). Las fuerzas axiales que se desarrollan en fas columnas equilibran cerca del 50% (1.21x12 /30) del momento volcante. 222 {M} ton-m ~--,- .... --::.-_:.-:~'.~-.'.-'~=.:::'
  • 233.
    El viga IEl col e) Caso 6. Para cuantificar la influencia de las condiciones de apoyo de las columnas, en la respuesta del pórtico frente a cargas laterales, analicemos nuevamente el Caso 3 - en el cual las vigas tienen la misma sección que las columnas (El viga = El columna)- cambiando los empotramientos en la base por articulaciones. La rigidez lateral se reduce a KL = 1.96ton/mm, este valor es inferior al Caso 1 que tiene vigas de inercia nula. .. Los puntos de inflexión en las columnas se ubican en la base de las mismas. Es interesante comparar el diagrama de momentos y las reacciones en la base con las obtenidas en el Caso 3. 642 108o · .· .· .· ~ . .. ------ 0 .0 •• '1'·······..0·0 :- - ••• ••• .. -1-··..··---_ 'r-- '0'" ••• 0.- · .· .· .o.oo+---~·----~---~--~·----~ ,...... e ~ 0.20 '! ~ 0.15 !0.10 O.OS 0.25 0.30 ,--------:---~---~--"""""'!"--__, t • I •....... -.- _ _ ~ <10_ .. " __ _ _"" oO <l 10. .. t • f t t • f • I , • • I • I • ............... ~ ~ L ~ ... ... ... .. .I • • I · . .....·············¡-·················f·················r····..·..···..··T·········..······ · .. . .· .._.---._." ~ ~_ - ----r----"."-_ --o,. 223 rLa variación del desplazamiento lateral del pórtico y en consecuencia de su rigidez lateral, se muestra en la figura a continuación. La figura corresponde a columnas empotradas en la base. ) ) J ) -¡ )
  • 234.
    ) ~ ,~ ~ ) ) ) ). ) ) ) ) ) ) ~ ) -2) ) ) ) ) _) ) ) ) ) ) ) ) d 'j -i ) J ) j -=) ..) .) .,..) d ) ~ Tercera columna dela Matriz de Flexibilidad Lateral 1 fl3 / Segunda columna de la Matriz de Flexibilidad Lateral Primera columna de la Matriz de Flexibilidad Lateral ¡ 1 f2ll i I!-: +----'---+-1 --~ Ql~~I~I_'~ __~i~I -H;1 ~f 1 J 01 Las figuras a continuación muestran la construcción de la matriz de Flexibilidad Lateral eh un pórtico de tres pisos, utilizando la definición de coeficientes de flexibilidad lateral. aplicando cargas laterales unitarias en cada uno de los gdl. Pórtico sometido a fuerzas laterales SistemaQ-D (sólo fuerzas y desplazamientos laterales) 1 I 1 J.. I I I " " 1 ." "" Establece la relación entre fuerzas laterales y desplazamientos laterales: {DL} = [FL] {QL} La matriz de Flexibilidad Lateral ([FL]) es simétrica y d~finida pO$itivs.es de LJtilidaden el análisis sísmico de edificios sometidos a carga.s laterales. Para su construcción, se define un sistema de coordenadas reducido eh el cual los gdl que nos interesan son los desplazamientos laterales del pórtico, tal como se indica a continuación. 6.10.1 Matriz de Flexibilidad Lateral dePórticps Planos 224 .0 • • 0 .0 •• 0._ ••• .- ._~~::~'~~::~':.~.:~~;".: ""o·::'~;.:'..~_:.'.~'.~ ; _.~~~~:.!..~:;..·~.~:~._..., .o~;_;_;~~~..:.~~'~~.~~_;~=~~~:~:~:=.J~~~~.~:j:,,·.~~I~·.,:~:=~:::~;.":~''-~.~~~"'';'':'~__;_:''':~~~'':''_:_::.~:;.~o::._~_j___:__~-__ '~_~ •• _- '.. _, - .:•• ,- :" .<.... j_.~ '".
  • 235.
    225 D2 = 1- Segunda columna de KLD1 = 1 - Primera columna de KL ! ___ las figuras a continuación muestran la construcción de la matriz de Rigidez Lateral en un pórtico de tres pisos, utilizando la definición de coeficientes de rigidez lateral, aplicando desplazamientos laterales unitarios en cada uno de los gdl. Sistema Q-D (sólo fuerzas y desplazamientos laterales) Pórtico sometido a fuerzas laterales " D~ ~---+-------i Fl ___.. D~ ~---+-------i F2___.. . " ,1,. D~ r-------,------¡ 6.10.2 Matriz de Rigidez Lateral de Pórticos Planos Establece la relación entre desplazamientos laterales y fuerzas laterales: {QL} = [KL] {DL} La matriz de Rigidez Lateral ([KL]) es simétrica y definida positiva, es de utilidad en el análisis sismico de edificios sometidos a cargas laterales. Para su construcción, se define un sistema de coordenadas reducido en el cual los gdl que nos Interesan son los ,. desplazamientos laterales del pórtico, tal como se indica a continuación. La matriz de Flexibilidad Lateral se puede generar fácilmente con la ayuda de un programa para el análisis automático de pórticos planos, definiendo sucesivos estados de carga, como los tres mostrados en la figura anterior y para cada estado de carga, basta obtener los desplazamientos laterales de los niveles para ensamblar dicha matriz. Para el pórtico de tres pisos, tendremos: { DI} (fll{DL}=[FL]{QL} ~ D2 = f21 D3 f31 225 ¡',y":"' __' ~._:.._...,':_.;':,J,. ,.:..::.... . ..... _ .. ~ _ .::; .;::'"-"",'......, } 1 } ) J ) } ) ~ ) ) ) ~ ) ) ) j ) -, ,J ) J ) ~ ) --:) ) ) . "::;.::-:.::=~:..:..:._.~.'.•:"':::'.:.::2..:__:::'~~;_:{.~~:::~~i!:.;':.,.~:.~:'::'::";'~";..:'.::=-~;~.#~ -:~' •• -e _~•..~.::;j.,-~..'_:",-~_.~~'". :",~:.. "._.._~,:.:•.::.__~_..:_~_.~~~_,~~,,:::_.~.2._~_~;".... '-'.:'_;_'.....:__a.~..:.~_~_.__._.n;':·
  • 236.
    ~ (jJ :1;) ") ) ) ) ) ) ) ) ) ) -j ) ~ ) ) ) ) ) ) - ' -- : : . 11/" )¡""v ElElEl 2 Veamos lamanera de abordar el caso de los desplazamientos de apoyo en una estructura mediante un ejemplo sencillo. Se trata de una viga de tres tramos de luces iguales y sección constante en la cual el empotramiento izquierdo sufre un descenso de magnitud d. Ejemplo6-27 6.11 Efecto del Desplazamiento o Movimiento de Apoyos Existen situaciones en las cuales es necesario cuantificar el efecto de los desplazamientos o movimientos de apoyo, en la repuesta de una estructura. Una situación de este tipo. puede darse en un pórtico en el cual los apoyos (zapatas) experimentan un asentamientono uniforme (asentamientorelativo o diferencial) producto de la deformación del suelo en el cual se apoyan las zapatas. También puede ser de interés analizar el efecto que tiene la rotación o giro de las zapatas en la respuesta de una estructura sometida a cargas laterales. Este es el caso de las placas"o muros de corte en los cuales el momento flector que transmiten a la zapata suele ser elevado y en consecuencia la cimentación gira alejándose de la hipótesis de empotramientoperfecto que se suele asumir. El tratamiento de los desplazamientos de apoyo en el Método de Rigidez, es simple ya que estos efectos se incorporanen el Estado Primario. Lo que no suele ser simple, es la estimación de ramagnitudde los desplazamientosde los apoyos de una estructura. [FL] [KL] = [KL] [FL] = [I] ~ [KL]= [FLrL Existen numerosas técnicas para generar la matriz de Rigidez Lateral de una estructura, en el acápite 7.11.2 se presentauna metodologíapara ello. Otra manera, que puede ser conveniente en muchos casos, es por inversión de la matriz de Flexibilidad Lateral, es decir, aprovechando la relación que existe entre ambas matrices (véanse los ejemplos del acápite 7.11.2): D3 = I - Tercera columna de KL Para el pórtico de tres pisos, tendremos: {FI} (kllkl2 k13J{OI}{QL}=[KL){OL} ~ F2 = k21 k22 k23 02 F3 k 31 k32 k13 03 226 .~_ ··.---:;.-;,¡;-;c __ i~-_.. __~"~-L _ - ....-.~~:_~--- ..._~~- -------
  • 237.
    227 {M} ton-m Nétese-que elefecto del desplazamientode apoyo se va "amortiguando" a medida que nos alejamos de la zona en la cual se produjola "perturbación". Para darnos una idea de la magnitudde los momentos que se producen en esta viga por el efecto del asentamiento del apoyo de la izquierda, asumamos algunos valores correspondientes a una viga de concreto armado: E = 2xl06 ton / m2 1= 5 m Sección 0.25 x 0.50 El = 5,210 El == 208 /2 Si el asentamiento del apoyo es ~ = 0.05 m el diagrama de momentos es: 29.2 • Diagrama de Momentos final (Primario + Complementario). 2.8 [K] {D}= {Q} 1 ~ D =-- 2 5 1 k21 =2EIIl k22 = SEIIl 4~·D =---,-151 • Coe,_ficientesde Rigidez.,. kll = SEI 11 kl2 =2EIIl 6EI~ { bhl6}R = R2 =0 {Q} = - ~2I ¡l => • Estado Complementario. - 6EI~1 f ~ ~ ~ 4 4 ~ I 6EI~ / ¡2 6EI~ I P R) ( ;p- (--+i--'fr-) (~-'i ~ t DI=~=ORI;:- AIV ~. ~ • Estado Primario. 227 ) , ) ) ) 1 ) -, ) J ) ) ) ~ ) ) J ) ) ) ) ) ~ ) I J ) _) j ) _, ) J ) J J ) ) ")
  • 238.
    b) Caso 2.El empotramiento central (nudo 2) sufre un asentamiento instantáneo de magnitud a = 25 mm. Como era de esperarse, al ser la estructura simétrica asl como la solicitación, el desplazamiento horizontal de la viga es nulo asl como la rotacióndel nudo 5 y el diagrama de momentos es simétrico. Nótese nuevamente la magnitud de los momentos flectores que se producen, éstos no son para nada despreciables. 13.93 {M} ton-m -o ¡::: a) Caso 1. El empotramiento izquierdo (nudo 1) sufre un asentamiento instantáneo de magnitud A = 25 111m. La solución se deja como ejercicio para el lector y a continuación se muestran los resultados. El desplazamiento horizontal de la viga es de 2.46 mm. Nótese la magnitudde los momentos flectores que se producen, éstos no son para nada despreciables. A u E = 2xl 06 ton/m" Secci6n de vigas y columnas OJOx 0.60 m Altura de las columnas == 3 m 3 Se desprecian las deformaciones axiales (EA = r:x» ~ í.J) 'j) ) ") ) ) ) ) ) ) ) ) -J .j -=l ) ) ) ) ') ) ) ) ) ) ) ) :;;) :3 ---j ) -d ) ) '-J ,J ) ::J ) 61 .) '") ) ~ 228 .. .... 6..6m 5 6 ~--------~--------~4 La magnitud del momento flector qUE)aparece en el empotramiento de la izquierda es bastante elevada, es muy probable que lleve a la falla a la sección del empotramiento. Eiemplo 6-28 Analicemos el efecto de un desplazamiento (asentamiento) de apoyo en el pórtico del Ejemplo6-26.
  • 239.
    229 Por el contrario,en estructuras hiperestáticas (externa o internamente) los cambios de temperatura en una o más barras originan desplazamientos en los nudos y esfuerzos en las barras. Por ejemplo en la armadura mostrada, que es externamente hiperestática e Apoyo deslizante &ro .. Esfuerzos en barras {o"}= {O} Desplazamiento de nudos {D}*" {O} En estructuras isostáticas (externamente e internamente) los cambios de temperatura, ATO. no causan esfuerzos en la estructura, sólo desplazamientos de nudos y en consecuencia cambios en la geometria. Por ejemplo en la armadura mostrada a continuación, la cual es isostática externa e internamente, un cambio de temperatura en una o varias barras no causará esfuerzos en las barras. ~ ~~--S~h = __.~ ~._. EA AT' EAaA'fO 11'fO incremento +-~ ~__.ATO decremento EA a AT' 6.12.1 Cambios uniformes de Temperatura. En una barra del tipo armadura o del tipo viga, los incrementos uniformes de temperatura generan alargamientos o acortamientos también uniformes. A continuación se muestran las fuerzas de empotramiento. en este caso fuerzas normales, para una barra del tipo mencionado de peralte h. 6.12 Efecto dé los Cambios de Temperatura .. ·.Existensituaciones en las cuales es necesario cuantificar el efecto de los cambios de ....:ternperatura en la repuesta de una estructura. Los incrementos o los descensos de .•.•..temperatura en una barra de una estructura pueden ser uniformes, es decir todos los puntos experimentan el mismo camblo, o pueden ser diferenciales. El tratamiento de los cambios de temperatura en el Método de Rigide~, es simple ya que estos éfectos se incorporan en el Estado Primario. Lo que no suele ser simple, es la . estimación de la magnitud de los cambios de temperatura, normalmente es necesario contar con mediciones de las variaciones térmicas a lo largo del tiempo para estimar los valores máximos, mínimos y medios. 30.00 _/ _l ) ) ) ) ) ) J ) ..., .J ) J ) _) ) I 1 ) ) ) ) ~ ) • ) • I i I i ) ~ 1 •[ ~ ~ .~,
  • 240.
    ® (~ .~ ) ') ) ) ) ) ) ) ) ) .~ J 1 ) ) -J ) -4 ) ) ) ) ) ) ) j :) -:> ) =) ) :::}. "1 ~ ,;) :.) 'J :) J ) .) ) V i@ ';;)230 6.12.2 Gradientes deTemperatura. A continuación se muestran las fuerzas de empotramiento para una viga de peralte h, sometida a una temperatura inferior (Ti) menor que la temperatura exterior (Te). Se ha supuesto que la variación de la temperatura 8. lo alto de la.seccíón es lineal. Situaciones de esta naturaleza se pueden presentar cuando la superficie exterior está .expuesta al sol mientras que la interior está protegida. la deducción de las fuerzas de empotramiento se deja como ejercicio al lector, ésta se puede realizar utilizando el Método de Flexibilidad y Trabajo Virtual (carga unitaria) para calcular los desplazamientos en las redundantes ocasionados por la variación de temperatura mostrada. Isostática externa. Hiperestática interna. El mismo procedimiento descrito es aplicable a estructuras isostáticas externamente e hiperestáticas internamente tal como la armadura mostrada a continuación. Para la armadura de la figura anterior, que tiene 12 gdl, el cálculo de las Cargas de Fijación (Estado Primario) es simple. Se Calculan las fuerzas de empotramiento en cada una de las barras, que en este caso son únicamente fuerzas normales (qi = Ei Ai ai ATiO) luego por equilibrio de cada uno de los nudos se calculan las magnitudes y sentidos de las Cargas de Fijación (Rl, i=1,12). La figura a continuación muestra un esquema del cálculo de dichas cargas. Los desplazamientos de los nudos se obtendrán del Estado Complementario y las fuerzas finales en las barras de la superposición del Primario y Complementario. ..... AroI-+ Brida superior (expuesta al sol). Aro2 -+ Resto de barras. internamente isostática, un cambio de temperatura originará desplazamientos y esfuerzos en las barrasl 230 - _:.' .-: ••••• ~•• ~ •• ~ • : •• -.0' _-:- . _ •• O .•. l' ~:~';:,:.:~L::.:•.;i::i_=~..'-~-~.~;.::.::_:.J2_¿_;~~~ .:.:~.:._:::::::-_:~:~:~'.•:~;;;:.~o:.:.:,.L'';·.~: •• ;~ ..~:",,-:....~.:....::;_ ~"'-. ::..::.~~: ..•• , i,:: ',0';" :.~:,.~ i._~_:::.::,:,.:._o•••,'.'~ ~.: • V
  • 241.
    231 Ejemplo 6-29 Para estimarlos esfuerzos que se generan en una viga por un aumento de temperatura o gradiente no uniforme, analicemos la viga de tres tramos mostrada que pertenece al >_ tablero de un puente continuo. Se ha supuesto que la viga es de concreto armado f~ (E = 2xI06 tonfm2 a R::1xl0·s l/OC) de sección constante O.40x:1.20 m y que está sometida a '> un gradiente lineal de temperatura de 30°C, es decir, la parte superior de la viga se § encuentra más caliente (50°C) que la inferior (20°C) por estar expuesta directamente al ~. sol. , = Sol ~o , Existen situaciones en las cuales puede ser necesario estimar el efecto que produce en la estructura, un incremento de temperatura solamente en una de las fachadas del edificio. En la figura a continuación se muestra la configuración deformada de un edificio de seis pisos en el cual una de las fachadas se encuentra expuesta al sol y la otra en la sombra. El alargamiento de las columnas por el incremento de temperatura, genera un movimiento lateral del edificio y esfuerzos en las barras. '---- Variación lineal (supuesta) de la temperatura en la altura de la sección. Te>Ti _ h AT=Te-Ti ) ) ) J I ~ ) ) ) • ) r) ) ) ) .., J ") i }} t ) I 1 -, i ) ) ~ j I } ¡ ~ l ) _) ¡ ) ) It ) -} )
  • 242.
    ~) ) ) ) ) ) ) ) ) ) -d ) ~ ) ) ) ) .) ) ) ) ) ) ) ) ~ "j --J J .-J o) J j .,) ,) ¡J-1 _) " q ,j , '''7 ) .J ~ 'O ::? 232 Caso 1. Laviga experimenta un Jncrerneeto uniforme de temperatura·de 30°C. Nótese que..en este caso ;Ia.,estructuray Jas ~argas son simétricas, .por le-tanto el nudo 5 no debe experimentar ni movimiento horizontal ni rotación, en consecuencia la estructura se puede reducir considerando un empotramiento en dicho nudo. La solución se deja como ejercicio para el lector y a continuación se muestran algunos de los resultados. El sistema Q-D consiste en el desplazamiento horizontal de la viga y las rolaciones de los nudos 4, 5 Y6. En total la estructura tiene 4 gdl. JIJI JI u " 66moc 2 3 5 64 E/emplo 6-30 Para estimar Jos esfuerzos que se generan en un pórtico pequeño por el aumento de temperatura en algunos de sus elementos, analicemos el siguiente pórtico. Nótese la magnitud del momento flector en las vigas (cerca de 35ton-m). Si bien es cierto que en un puente las cargas muertas y vigas suelen causar momentos flectores mayores que los producidos por el cambio de temperatura analizado, también es cierto que en el tramo central, los momentos por cambio de temperatura son del mismo signo que los producidos por las cargas permanentes (momento positivo en el paño central) y en este caso pueden representar una fracción no despreciable. {M} ton-m ~t~~~34.56 34.56 1~ J~ Deformada A ~ ~ A Dv rnax = 1.07 mm J9.00 m So) 232 ~O 1 9.00 m ! 9.00 m 1
  • 243.
    233 Nótese la magnituddel momento f1ectoren las bases de las columnas extremas y en los extremos de las vigas cercanos al nudo 5. {M} ton-m 1.44 Deformada Oh nudo 6 = 2.1 mm Caso 2. La viga experimenta un gradiente lineal de temperatura de 30oe, es decir, la parte superior de la viga se encuentra más caliente (50°C) que la inferior (20°C) por estar expuesta al sol y no contar con protección térmica. Nuevamente la estructura y las '. cargas son simétricas, por lo tanto el nudo 5 no debe experimentar ni movimiento horizontal ni rotación, en consecuencia la estructura se puede reducir considerando un empotramiento en dicho nudo. La solución se deja como ejercicio para el lector y a continuación se muestran algunos de los resultados. Nótese la magnitud del momento flector en las bases de las columnas extremas, es probable que dicha magnitud sea comparable o superior a la ocasionada por las cargas permanentes en servicio que actúan sobre el pórtico. 233r! I ) J ) -) _) ) ) ) ) ) _) ) ) -,.J .) _) ~ :) .» .e) ) ) .J _) ) _) 1 ) -,
  • 244.
    ¡tI) ~ ~ ) ) ) ) ) ) } ) ) ) --} ) ) ., ) --j ) ~ -) ) ) ) ) ) ) ~ ) ) ) '"J ) "3 j ~ ::) ) ) :) ,) _) ) ) ,~ 6.13 Parrillas Las parrillasson estructuras planas con cargas perpendiculares a su plano. Las barras se suelen modelar como elementos unidimensionales que trabajan a flexión y torsión. Las fuerzas de sección en las barras son: Cortante. momento f1ectory momento torsor. No existe fuerza axial en las barras ya que las cargas son perpendiculares al plano de la parrilla. Para analizar este tipo de estructuras mediante el Método de Rigidez. es necesario considerar tres gdl en cada nudo: dos rotaciones contenidas en el plano de la parrilla y un desplazamiento vertical perpendicular al plano. La rigidez en flexión de las barras es la misma que para el caso de los pórticos planos y la rigidez en torsión de las barras (el cociente entre el momento torsor y el giro correspondiente) se calcula mediante: Kt= Mt = GJ 9t L E G = 2(1+v) (Módulo de Rigidez al esfuerzo cortante) El término J depende de las caracterrsticas geométricas la sección transversal de la barra. Para barras de sección circular, J corresponde al momento polar de inercia de la sección (J = 1t D4 I 32). En las barras de sección rectangular las secciones planas se alabean por el efecto de la torsión, por lo tanto el cálculo de J es bastante más,complejo, fa Teorla de la Elasticidad índlca que si se acepta la torsión de Saint-Venant se tendrá: J=(3hb3 (3~ .!.(l-O.63~) 3 h En la ecuación anterior b es el lado menor de la sección y h el lado mayor. {M} ton-m 0.710.37 Deformada Dh nudo 6 It$ -0.088 mm Dv nudo 6 ""-0.9 mm Caso 3. La columna de la derecha experimenta un incremento uniforme de temperatura de 30°C por estar expuesta al sol. En este caso el sistema de cargas no es simétrico, en consecuencia, la estructura no se puede reducir. A continuación se muestran algunos de los resultados. 234
  • 245.
    235 R, =-45 ton R2=0 RJ= 22.5 ton-m Equilibrio del nudo 3: JI 7.5 • Estado Primario J = 0.23(0.8)(0.4)3 Propiedades de las barras: ~~'!'(l-0.63x 0.4) ~ 0.23 3 0.8 OJ~ 12,800ton-m2 El ~ 42,670 ton-ml ~ OJ~ 0.3 " El Nótese que la rigidez torsional, medida a través de OJ,es bastante menor que la rigidez a flexión medida a través de El ~:. E = 2.5xl06 ton/m2 (le = 280 kglcm2) v ~ 0.15 E/G ~ 2.3 G ~ 1.09xl06 tonlm2 Material (concreto armado): Sección de las barras3m6m ~ O.30m 0.40 6 Q-D w = 10 ton/m 5 x z 2 Eiemplo 6-31 Analicemos la parrilla cuya vista en planta se indica a continuación, que está contenida en el plano XZ. Las barras son de concreto armado de sección rectangular. Sobre la barra 2-3-4 actúa una carga repartida vertical de 10 ton/m. Los únicos grados de libertad de la parrilla pertenecen al nudo 3, un desplazamiento vertical (DI), una rotación alrededor del eje X (02) Y una rotación alrededor del eje Z (D3). La rotación D2 origina flexión en la barra 1-3-5 y torsión en 2-3-4 mientras que la rotación 03 produce el efecto inverso. ) ..., .) ) ) } ) J J ! ) "~ ) j ) co4 ) :1 J ) .) ) } ) , , ., ~., "1 ._ -. .1 :1 .._ ; ,', J ._ ;~, ~ .~: ~,. .,. "C " __
  • 246.
    )- ---} ) ~ ) ) _) ) ,) ) ) ) ) ) ) ) ~ 7 -j ) ~ -1 j I jI I ¡JI. 1 _) I-.::) I .JI I ~ _) ~ -) ) ~ Momento Torsor = O(en todas las barras) ~ ll~ 6136 ¡j!Jf'__ . kl1 6/9 ~ ¡/~+ 6/9 121216 ~ _ kll ,~/ 6/36 J2/27 pi 6136 121216 ~6/9 • Coeficientes de Rigidez - DI = 1 2 • Estado Complementario {Q}=-{R}={ ~ } -22.5 En el Estado Primario los momentos torsores en todas las barras son nulos. {M}p 2 Diagrama de momentos en el Estado Primario: 236
  • 247.
    237 36 GJ GJ 44 k22 =-+-+{-+-)EI = 0.5GJ+2EI=2.15EI 6 3 6 3 kJ2 =0 Vista auxiliar: 6 6 k =---=-O.5EI 12. 36 9 • X~2/3 4/3 ~ ~ 6/9 ~ !f kl2 01/6 ~ (}J/3~ ~ kll ~(}J13 P.J6~ 2/6 - Dz= 1. En la barra 1-3-5se produce flexión yen 2-3-4torsión . kll Vistas auxiliares: 237 '-'. -~:. ~1• ¡.'. .- ,';" _, " " ) ,) ~~~ t ;2.: f ) .... } ;~;~. .' ..;:¡ 1'-::' l ,~t":. ~. ) ~::: ') ) ) ~.: - - -:- -- --",-'-- ·······.·.,...·.:;-0·.··-.·"·.-- .. - --;-_,._~~., ,-.-.:.--:- .. :.- .._. ._._ __ . __ .-: ._:_,. __._ _. __ . __ _~;¡;t.~~><~~'.~.·:.7Jj;~.;.·:!~:~;~:>~~i_~~~~~t;::~;~~:~·~~~~i.~.-~~:~::~-i~~.~.~.·~~~-=~;j~:~:i~F-.;: ~::-_).<:~~::.~~~~~_.; !.~ -.- ~;---;'-:':_:.;-: ~~-2;;~~-~~-~~--"..~----. ~~_¿~;-;~~.;:-:¿-:::~~~::.~_;._::_~--._~~.'~~~-~-:1;'='=.~.:.~l:.~_:~
  • 248.
    34.0 Barra 2-3-4 2 4 26.96 3j.S 16 Barra1-3-5 Mflector (ton-m) 16.0 34.0 • Diagrama de momentos tteotores y torsores 49.5 { 45 } (1 -0.50.5 J{DI}O =El -0.5 2.15 O D2 -22.5 0.5 O 2.15 DJ. • Matriz de rigidez y solución del sistema de ecuaciones D, f1:165.45/EI= 1.534xl0-J m D2 R:l15.22/ El = 0.357x 10,3 Rad D) ~ -25.69/EI = -O.602x1O-J Rad 1 Por ia smetrta de la estructura: kl3 =k21 =0.50J +2Ei =2.1SEI k2J =kJ2 =0 ki3 = 0.5El ) ) ) ) ) ) .) ~ ) ., } ) --) ,) ',r '~ ) ) ) ') ) ) .) ':) ,) ~) ) ~ ) ~ -~ -j ,) ) ,) ") ) ') ) ) ~ 2J.l - D3= l. En la barra 2-3-4 se produce flexión y en ]-3-5 torsión '-:-"":";".-;-:-:-;:'_""'::;-- -''i~:''''~''''.~'';;-:::-:-.,.----~.:;----:-:-----::.~'.".': -- ._-_~.-~- -.".•...- -,--;-~:;-._-::--_.::~.•.. - "';:-,- . --:-:--=-:--;-;:- ",.. '; ..,.--::- : -,- .. '" - ;,:.:~:-=_~-:,:~~'';¿~~~'~~'~.;;;.;'.;..'~.:';'~~.;:-..~:..:..:.:.:.:~-:.;-:~~~.:.::- ;_;~,;_:_~::;::'-.;~.-~~;;"'~~~:::~~::._--':o'. ::L.,¡;:;.,¡¡· ~-;.::;:-::~';''--::;-;,~~_':-:i' 238
  • 249.
    239 Fuerza total de1-3-5sobre 2-34 = 6.18 + l8.94 = 25.12 ton Calculemos la fuerza que hace la viga (parra 1-3-5}queno tiene carga externa, sobre la viga cargada (barra 2-3-4)para ello hagamos un diagrama de cuerpo libre del nudo 3: 2Con la viga 1-3-5--+ 34 4 49.S 33.75 A~V------------~l-----;: 6 3 22 ~(YYYY;vY' ~4 10 t/m 67.5 = w P/1267.5 Veamos la diferencia de comportamiento de la estructura en el caso en que no hubiera existido la viga perpendicular (barra 1-3-5). La viga (barra 2-3-4) que es la que soporta toda la carga externa, trabajarfa como doblemente empotrada tal como se muestra a continuación: .... ., ~.;.. ~., .:' M torsor (ton-m) 4 ....... 239 r·. ; } ) i ) ) ) ) ) ¡ } ¡ J ~ J -4 :t ,1 ) ) ) ) ) -J ) ) ) ) ) _J ) ~ J ) ) ) -) _J ) ) 1 'J lJ ) O ·,o~~.~~~~:~:::~T.~~:·~·-:~:j~~Et=~;·~~:~;:~:-:~:2~.L:;o,,~.:-~:.~~:::=L:~:~:o~o!"::.:o:~-~:li~;o-./~~.-i.:.;:~~:o:-:_.~~~~~~o_~~_.~_~_~::~o.:.'-C:~_'o::~~:~~::,::'_~,~;,,::~~¿: ~~~ ~~:~_~~=-;-~O~:~~o_.o":~.o._;_..,.~",.~,~;>-o~~=~=:~L2"~·.::~='-0' .o:o:.._~::'=~-~~ 1 ') ~)
  • 250.
    ..,---_...-._-_.- /~ ..... ~t.~:!· ,~ -¡'),- ) ) ) ) ) ) ) ) } -j ) -'7 ) ) ) )<:» ;) .¡ ) 1 ) ) ) ) ,) ) ~ ") ~ .) =3 ce) ~ .~ ,J J ,; .) .,) ... . ) D3= -28.125/EI ~ -O.659xlO-3 rad Con OJ=O: ( 1 -0.5 0.5)[K]=El -0.5 2 O 0.5 O 2 Los desplazamientos del nudo 3 son: DI = 67.S/EI ~ 1.582xl0-3 m D2 = 16.875/EI ~ O.396xlO-l rad Si GJ = O, también es posible obtener la Matriz de Rigidez de la estructura haciendo nulos todos los términos que incluyen el parámetro GJ en la matriz de rigidez calculada previamente: f5 En el caso de apoyo simple entre ambas vigas, el modelo que podria emplearse para el análisis se indica a continuación. En este modelo la viga (barra 1-3-5) se ha remplazado por un resorte de rigidez K cuyo valor puede calcularse como se indica a continuación. Nudo 3 Si la rigidez torsional de ambas vigas fuera nula, la u.niónentre ellas (nudo 3) equlvaldrla a un apoyo simple, como se muestra a continuación: 36 ~V +V -IV A- A h Por lo tanto, el comportamiento de la viga (barra 2-3-5) en términos de flexión y cortante, es equivalente al mostrado en la figura a continuación, en la cual se ha remplazado la viga perpendicular por las fuerzas que esta ejerce sobre fa viga 2-3-4. 240
  • 251.
    241 GJ = 6,947ton-m2 ~ GJ ~ 0.152 El Material (concreto armado): E = 2.5x 106 tonlm2 (fe = 280 kglcm2) v ~ 0.15 E/O ~ 2.3 G R': 1.09x106 ton/m2 Propiedades de la sección de las barras: O.30xO.90 -+ El = 45,563 ton--m2 J = f3 h b3 ~ 0.263 x 0.90 x 0.303 = 6.391 x 10-3 3m6m Q-D Grados de Libertad Vista en planta (Plano X-Z) z '1 .,'1 x I(] v4m EJemplo 6-32 Analicemos la parrilla cuya vista en planta se indica a continuación, que está contenida en el plano XZ; Las vigas son de concreto armado de sección rectangular O.30xO.90 m. Las dos barras está unidas en el nudo 3 (nudo rrgidO)y forman un ángulo de 60°, Sobre la barra 2-3-4 actúa una carga repartida vertical de 4 ton/my sobre la barra 3-5 una carga concentrada de 5 tOD. los únicos grados de libertad de la parrilla pertenecen al nudo 3, un desplazamiento vertical (D3) , una rotación alrededor del eje X (D]) Y una rotación alrededor del eje Z (D2). ' 26.3 42 Barra 2-3-4 33.8 Mflector (ton-m) 16.9 ) } ) } ) 1 } ,) ) j ~ ) ) ) ) ) ,.., J .J J ), .) j ) ) j .) ,) ,~ ) --4 ) '"i) ) I 241 ) .:S I ~ ._~..3i~-~_-~i,"~:~:::/~.~;~i;~~;':J.~i~~~_:.':·:~_¿1.:;-;~-·,,~~~:-.~':~i~.~~.j_::~:~~L-~·~i~~.··~';-~-;;.;~~:;~~~~·:~·~~~;;'~~~:~~:·,;~::_~;~.l~.~~º:~~:~.,~:~:~.~
  • 252.
    I~ .) ') ) ) ) ) ) ) ) ) -j ') -1 ) ) J .) J ) ) ) ,) ) ) ) =j J -J .> ~i J -;j ~ .J J ,,) ) j J ~ ) .) e ,~ ,:::) --'¡ 242 Para no sobrecargarla gráfica de Vectores; los momentos flectores y torsores en el 3 se representarán únicamente en la vista en planta de dicho nudo. lsen30° (torsión en 1-3-5 ) T D1= 1 Icos3óo (flexión en )-3-5) Estado Complementario• { 2.17 } {R}= 10.25 20.50 Vector de Cargas de Fijación: R2 = 12 - 3 +2.5 sen 30° = 10.25 ton x m R3 = 2.5 cos lO° =2.17 ton x m Equilibrio de momentos del nudo 3 (vista en planta): Equilibrio vertical del nudo 3: R3 = 2.5+6 + 12= 20.5 ton Sx4 2 ~~5 = 2.5-= .5 2 8 ~ ...._ • Estado Primario . Descomposición del giro unitario en vectores . perpendiculares a las barras
  • 253.
    243 Descomposición del girounitario en vectores perpendiculares a las barras lcos60° lsen60° 4EI 4EI k21 =--cos30sen30+-cos30sen30 4 6 • GJ sen30cos30_ GJ sen30cos30 4 6 k21 = - O.180GJ +O.722EI GJ -sen30° 6 k = GJ +GJ + 4EI cos! 30 + GJ sen230 I1 3 6 4· 4 + 4EI cos' 30+ GJ sen230 6 6 k,• = 0.604GJ +1.25EI Equilibrio de momentos en el nudo 3 (vista en planta): 4EI -~ ... 6 cos30° +GJsen300 6EI 300 ~6-COS 62 . ..t 2EI 30°-cos 6 6 6 k3 = 42 COS300--62 cos30o=0.180EI GJ 1J+-3 -44 Equilibrio vertical del nudo 3: GJ ... 6 .. 2EI 300 .~4COS + ''..GJsen300 4 6EI ~ 4EI -¡;-cos30· t..--¡-"0$30· t,
  • 254.
    J ) ~ ) .) ) ) ) ) 8 ) ) ) ) -:) ) 2) ) ) ) ) ) ,) ,) :j .) ) ,) ~ ) ~ -j -9 J '.) .J ") ,S1,) •.,y k22 = O.313GJ+2.417El GJGJ +-'-sen260 +-sen260 4 6 k 4EI 4El 4EI 260 4El 260=-+-+-cos +-cos22 6 3 4 6 ku =- 0.180GJ+O.722EI GJ 4EI _._. sen60cos60 +-cos60sen60 6 6 GJ 4EI . kl2 = __o -sen60cos60+-cos60sen60 4 4 Equilibrioverticaldel nudo 3: k32 =~+~cos60o- 6 -~cos600 = - 0.396EI 36 16 9 36 GJ -sen60° ~ t ~ (4EI/4)cos60° .¡ tk22 4EI 2EI ±---~J~kI2--1- ,,3 t ~ 3 ;(6EI)/32 (4EI/6)cos60° ~~ + GJ sen600 6 6EI 600 . -cos 62 t =----f+- (2EI / 6)cos 60° 244 j , ¡ f 1 (2EI/ 4)cos 60° ~ ~ 6EI 600-cos 42
  • 255.
    245 7.07 22.39 { 10.018} {2.20 x10.4 } [K]{D} = - {R} --+ {D} = ~I - 12.911 = - 2.83 X 10.4 -39.899 -8.10x 10'4 • Diagrama de momentos ñectores (ton x rnt) 0.180] - 0.396 0.743 • Matriz de Rigidez ae la estructura y solución del sistema de ecuaciones: [ O.604GJ +1.25El -0.180GJ+O.722EI 0.180EI] [1.342 0.695 [K]= -O.180GJ+O.722Ef O.313GJ+2.417EI -0.396EI =EI 0.695 2.465 0.180EI -0.396EI 0.743EI 0.180 -0.396 6666· k =---+-sen30--sen30=- O.396EJ 13 62 3' 42 62 6 6 kJ3=-2 cos30--2 cos30 = 0.180EI 4 6 ...,.Equilibrio de momentos en el nudo 3: 6: ~~6' _~ ~ .. 12 12 12 12 kll =-+-+-+-=0.743EI 43 33 63 63 , 12EI ..~ .. ti- 6EI 7 ...~--- 245 } ') ) ') J , J -, ) ) ) -) ) ~ } ) J J ) --:} .J ~) ~ ).. JJ ~I ) ) -:} ) "1 } ) _) ) __) > ) )
  • 256.
    J ~ ,~ :1) _) -) ) ') ) ) ) ) ) ') ~ ) ~ ) ) ) ) ) ) ) ) ) ) ) J ;) cj ----1 ) -;J "~ ) 'C) J _) J ) a 4 Barra 2-3-4 22.88 22. 7.54 2 15.10 • Diagramade momentos flactores (ton x rnt) { 11.790} {D } = _1 _ 13.971 . El _37.894 0.722 2.417 ·0.396 0.180 ] - 0.396 0.743 = {- !:~::~::]- 8.32 X 10-4 [ 1.250 [ K ]= El' 0.722 0.180 Ejemplo 6-33 Resolvamos la parrilla del ejemplo anterior considerando nula la rigidez torsional de todas las barras. Para esto basta con modificar la matriz de rigidez [K], calculada en el problema anterior, eliminando todos aquellos términos en los que esté presente el factor . "OJ". Si la rigidez torsional dé las barras es nula, la unión entre ellas (nudo 3) equivale él - ., un apoyo simple. La matriz de rigidez modificada de la estructura es: • Diagrama de momentos torsores (ton x mt) 2 18.93Barra 2-3-4 4 22.39 246
  • 257.
    247 7.42 22.64 • Diagrama demomentos flectores (ton x mt) { 3.039} {6.67 x 10.5 } { D} = ~I - 13.442 = - 2.95 X 10.4 -37.487 -8.23xlO·4 [K] {D} =_ {R} ~ 0.4170J + 2EI - 0.51 O.208EI] r 1.743 -O.5EI =EI O 0.743EI 0.208 o 0.208 ] - 0.5 0.743 o 2.064 -0.5 a} Caso 1considerando rigidez torsional en todas las barras. • Matriz de Rigidez r 0.5GJ + 1.667EI [K]= O O.208EI 3m6m Q-D 1111 "," Vista en planta (plano XZ)6m w=4 ton/m 2§·~,"*",~~~*7'~*+~E-*-~H~ 4 3 P = 5 ton 5 "" 4m Ejemplo 6~34 -Para apreciar la influencia que tiene en la respuesta de la estructura la inclinación de 60° .de la barra 1-3-5 del Ejemplo 6-32. resolvamos nuevamente la parrilla para el caso en que el cruce en planta de las barras que la conforman es de 90° (perpendicular) en lugar de los 60°del problema original. ) 1 1 ~ ) ) 1 ) ) ) ) i i, •1 j } -, ) t¡ I ) I ) ) ) ) _J j ) ) J -J _J -) j ._) J -; 1) I ) =; ~ J ) J ) _) _)
  • 258.
    { 3.229} {7.09 X10-5 } [K] {D} =- {R} - {D} = ~I -13.975 = -3.07x 10-4 - 37.899 - 8.32x 10-4 0.208 ] -0.5 0.743 o 2 -0.5 [ 1.667 [K ]=EI O 0.208 b) Caso 2 sin considerar rigidez torsional en todas las barras (Gl = O). • Matriz de Rigidez • Diagrama de momentos torsores (ton x mt) Barra 1-3-5 4 18.97 Barra 2-3-4 2 22.64 248 l~ o C) ~ ) ) ) ) ) ) ) ) ) ~ ) ) ) ) --;) ) ~ ) ) ) ) ) ) J ) ) ) ) -=, ) -:;, -~) ~ -J ') .) ) .J J J ') ~ 7.42
  • 259.
    22.8 15.10 • Diagrama demomentos fleelores (ton x mt) 249 ..•.. ;......__.,._~'_..:.-:-."::-.- .---;;-:-";-;'--"~"::-;--:::-:"~':-:-.:-'-~;-- -::-.- -:-"'_-=-- ;---- -~'.- ",,---,_, '--:-_-;-':.--' ;'-:=-.-;-"_'_"_',-:-:' - -- - - -- - ••• • •ss. ~.~~ '-'~!':::~:-:~.~~{~~~~'~.~.=¿~':~_.:;.~;:'~::':~~:~-~:-:~~_~~~i·~'2.~~~:..'.~:=_~~:-~~··:.:_~~~.:;'~~i~=~~~_:.~:_¿¿~ ''':'L-':''-H~~~- ~_;_-_._~;~.~.~.~ ~=:_~~:'~ -.:~--~--~--.'::":-.~--:=~, ) f 1 II ) ) 1 ) J } 7.54 , -) ) 22.88 -'> Barra 2-3-4 ) 2 4 l', I I i ~ I I 1 j i _} i I Barra 1-3-5 i 7.54 J ! ) ) ..' ) < ) ~ J ) j _J } ) ) .) ) j j ) O) 249 1 , L
  • 260.
    Ji) ct ~ "7 ) ,) ') ) ") ') ) ) ) ~ ) 1 ) ) -) ) --4 ) ) J ) ) ) .) -,) ) .} -=j ,] -=3 ~1 9 -:;1 :) J ) J J J ) .. ... :>"=7.5 Elevación dela placa mostrando algunas de las esbelteces analizadas /= 15m Peralte (h) Esbeltez 11h = ). 1.5 10.0 2.0 7.5 3.0 5.0 5.0 3.0 7.5 2.0 15.0 m 1.0 1 + +)..=2 h = peralte Sección de la placa ,---r--, I I I I , I 2 I I I I I I I I I I 3 J,_ I V 4 , I I I I , I 5 I I v I I 1 I I I I I I I I 7.5 in ~ I I 1 I I I I I I I I I ~.1. 25 ton ~ 6 E =2 xl 06 ton/m" G = 8.7 xlOs ton/m' 1= Altura total de la placa = 1Sm h = variable (peralte de la placa) ~IO.25 6.14 Deformaciones por Cortante Este tema fue tratado en el acápite 4.10, en el cual se derivó la matriz de rigidez de una barra de sección constante, incluyendo las deformaciones por fuerza cortante. En el Método de Rigidez el incluir detormaclones por cortante en las barras, es tarea simple, basta con modificar la matriz de rigidez de las barras y los momentos de empotramiento (véase el acápite 4.11.7) incluyendo las deformaciones por cortante. Elemplo 6-35 Para formarnos una idea de la influencia de las deformaciones por cortante en la respuesta de una estructura, se ha analizado una placa o muro de concreto armado en voladizo de cinco pisos cuyo modelo se muestra a continuación. El análisis ha sido hecho por el Método de Rigidez utilizando el sistema Q-D .indicado (desplazamiento horizontal y rotación en cada nudo) para un sistema de cargas laterales con variación triangular en la altura del muro, este sistema de fuerzas podría representar la acción de un sismo sobre la estructura. La influencia del cortante se ha cuantificado variando la esbeltez geométrica de la placa x (cociente entre la altura total y el peralte) y resolviendo cada caso incluyendo y sin incluir las defonnaciones por cortante. 250
  • 261.
    251 0.4 0.8 OesFWl.steral 0.20.0 o._----~----~----~----~--~ ..·..·..····..... ·····......·····i::::::-t1lDf¡..······..··m. 12 &beHez10 1.0.81. 1.0.40.6 DespIaz LaIeraI 0.8 o._----~----~----~----~--~0.0 ··..........·....······..·..···..t::::~I·......······:·· 12 EsbeItIlz5 0.21. 1.0.80.4 0.6 Des_l.IIIer.II. O._----~----~--~~--~----~ ............................... ~ . ~ 020.01. 0.80.4 0 .6 DespIaz l.ater.II 020.0 ................................. ~ . ~ I o._ ~----~----~-- __~--~i ) Esbellaz 7.5 0.80.4 0 .6 De6pIazl.atefBJ 0.2 O._----~----~----r_----~--~ 0.0 ··....····..····················I.....IIe:K._-t·.. ··... ········...... nec Esbeltez 3 0.60.4 0.6 DespIaz Lallnl 0.20.0 .......................... ~ . ~ 15.,.----· Eabeltarz1 A continuación se muestra. para cada una de las esbelteces analizadas. la deformada de la estructura (desplazamientos laterales del eje de la placa) con y sin deformaciones por . cprtante. Para este caso particular. las deformaclones por cortante son importantes para .esbelteces de hasta 5 aproximadamente, para esbelteces mayores las deformaciones por corte no modifican sustancialmente el comportamiento de la estructura. 251 l. • ) -':) ) .) ) ..) ) ) .) J ) _) ~ .J ) ) ) ) -7 J1 ; i 1 j ) ') ) ) I ) } i 1 1 ) J I I¡, I I . .';., .. 'H." - --::.,. :i"':--=_-'-'~:-":"H'-:-: "CH.----;:::--'-"7"' ..H_ . H: .... , ._.__;_,_. :-... .,......._ H. H_.:L~-·~~-~:~~:·~~·.-1;;~~;;~~~,.:.:~;:-~:~¡~~'~:~:,::_.~-:~,,~:~:'-.:_'~;-'.;~-,~:~';:":;_¿.'~-::"i;~;~~~.;jit¡~::~~~Gi_i:¿·:~:i~·-;::::':':.~.~i:.~_::·;':~·.':':·:_~~_':~i:~;L;-.;-,¿:~~¡__...~:i:" :_~~i~~~~ :.:;.p:,::.~~-__!;~H;·.': ~~~-~~;~.~;~.
  • 262.
    l l¡D ~ ~ -') ) ') ) ) ) ') ) ) ) o~ ) 01 ) ) ~ ) .-=) ) ) ) ) ) ) ) -)'o" ;)o. ) .) ~ J G ·3 ~ ·~ :) J ) .J J .) ) ~ fhl =0.791 k22 =4.71 BIlIS b) Barra 2 - 3 ftl2 = 0.449 kll = 8.29 El/lS Rigidez modificada de la barra 1-2 (ver acápite 4.9.3): k'22 = k22 x (1 - ft12 x ft21 ) = (6.72 El/15) x ( 1 - 0.70 x 0.47) ~ 4.51 (BIlIS) Momentos de empotramiento: J.112 =- 0.0685 ro (15)2 J.121 = 0.117 (J) (15i- Momentos de empotramiento modificados de la barra 1-2 (ver acápite 4.9.7): U'IZ = O U' 21 = UZI + fl2x Ul2 = 0.117 x S x 152 +0.70 x ( 0.0685 x 5 x 152 ) .~ 18S.6 tonxm 3.15 ] 6.72 [ k]' ~ El [ 4.48 barra 15 3.15 {q} = [kJbarra {d} ft21 = 0.47 (factores de transporte) k22= 6.72 El/IS' • Coeficientes de rigidez y momentos de empotramiento Utilizando las Tablas para barras de sección variable de la peA que se resumen en el Anexo 1 se tiene: a} Barra 1 .....2 ftü=0.70 kll = 4.48 EIIIS Q-D 5 ton 1m 11:l I I I }; yl~ ~ I * ~ :$:0.90 m 0.90 m 3 J¿ v I¿ I! J¿ /1 12 m í1j m 11 4.5 11 10.5 m í1 Ejemplo 6..36 Resolver la viga de dos tramos indicada a continuación. la viga es de ancho constante igual a 0.35 m. El módulo de elasticidad es B =2.2x106 ton/m2. Para la solución se utilizará un sistema Q-D reducido que no incluye como grado de libertad la rotación del nudo 1 ! ¡ i. I¡ l. 6.15 Estructuras con Elementos de Sección Variable Este tema fue tratado extensamente en el acápite 4.9. en el cual se presentó la metodologra para obtener la matriz de rigidez de barras de sección variable y los momentos de empotramiento. En el Método de Rigidez el análisis de estructuras con barras de sección variable. es tarea simple. basta con calcular previamente las matrices de rigidez de las barras y sus fuerzas de empotramiento. 252
  • 263.
    253 {M}t 0.248 El 0.301 El k¡I =0.553 El + 0.301 El = 0.854El ~f0.020 El 0.248 El kll OJOl El ~ 0.553 El T)C~j(F-:;;=- t) C~~ O.058EJ 0.038 El • Estado Complementario 01 = 1 ~-----.._ I'! f#. ~ F' 70.9 R¡ = 185.6- 147.4= 38.2 ton-m RI 185.6 ~ 147.4 70.9 ~O(I~t;¡¡--r---r-¡ ¡...........--¡ ¡ ~ ~f f~(1 ¡ J ¡ , ¡ 't0 (i--{ ~"f~ f ~ f25.16 49.84 T 42.60 32.40 92.44 Momentos de empotramiento: Ul2 = - 0.131x 5 x 152 ~ -147.4 tonxm U21 = 0.063 x 5 x 152 :::s 70.9 ton x m • Estado Primario q-d 3.72 J' 4.71 [ k] El [ 8.29 barra ~ 15 3.72 {q} =[k]barra {d} 253 1 J I 1 ) ) ~ _j _j ) ) ) ) -j .) ,.. ) ") J j .) J ) ...) ) ) i " ~ .) ~,-~ -"" ) ;-: _) _) l I ') ) -¡ -·C·C···:.. -:.: .....'..-:-: ..~::.~,.:.--;-;;-;;.-._~_--;.... , ;:--_ __ = -,;::-:-:-.__ _ _ ~,..~~~.)y~~::,;~:~'~..,..~:.:'.t·ó;~.~f:>·~:~::i·.i2;·~~·~:;~~·,~~~:¡:bi;l~-_S:.-~t~~,j~&~-:'::~~:~'-i~~-.:.~.~~:'~2;~.;:·::~~~j'..~?:.2'-.::-:~::'.:'_:i:. ;~ ;,;::;;.; ':_¡'-~;,,"-_,;_;=C:;_";
  • 264.
    254 Momento flector (ton-m) H6.K~5.Ym 34.82 t 80.4 .',.: ;~ , Nota: Se sugiere al rector resolver esta viga considerando dos grados de libertad (las rotaciones de los nudos 1y 2). En este Cf;lSOno será necesario modiñcar los coeficientes de riglcjez de la barra 1 -2. Eiempió.6-37 Para cuantificar la influencia que tiene la sección variable en la repuesta de la viga del problema anterior, a continuación se presenta el d.iagramade momentos fleclores para el caso de sección constante O.35xO.90m, E =2.2xlO6 tonftn2• l20.5 "r' • Deformada 67~8 @5.2 m 172.1 • Momento f1eclor (ton-m) o O O - 185.6 - 0.301 El x (- 4;~73) = - 172.1 + - 147.4 0.553 - 172.1 -70.9 - 0.248 - 59.8 • lJ~spléi.za.rn¡ent()sen fas coordenadas [K] {D}= - {R} (O.854EI) PI == - 38.2 --+ D1= 92 ~ - 44.73/ El • Motnentos fináles· en las barras {M}p + {Mhx D1 = {Mb 2S4 Q) Q) ::) ) } ) ) ') ) ') ) ) ) ~ ) ") ) ) ---;J ) ,...:) ) ) J ) ) ) ) -) ) ") ) -7 ) ~ - ::> ~ ,j J J ') ) J ) ) .., ;9 "7 -,
  • 265.
    255 R,= O R2 =10ton R3 = - 40 ton-m a) Solución en el Sistema O,-DI • Estado Primario. Las fuerzas en las barras deformables son nulas ya que no hay deformación axialen ellas. El primario se resuelve por equilibrio del sólido rígido. fK 1 4m 1 3m '.-Ejemplo 6-38 Resolveremos la armadura mostrada para los dos sistemas Q- D indicados. La barra 3-4 es un sólido rígido, las otras barras son de acero con E = 2.0xl 07 tonlm2 y área 0.002 m2. lO ton + 6.16 Estructuras con Elementos Indefonnables Cuando existen elementos de rigidez a flexión muy grande, estos pueden modelarse bajo la hipótesis de El = 00, es decir como si fueran sólidos rígidos. En estos casos debe modificarse el sistema de coordenadas para reflejar la dependencia de los desplazamientos en los extremos del sólido rfgido. El análisis de este tipo de estructura se ilustrará' mediante los ejemplos presentados a continuación. Nota: Se sugiere al lector resolver, por el Método de Rigidez, las vigas de 'los.ejernplos .• 8~10y 8-11-del Capítulo 8 del Método de Cross. • Defonnada ~ ) ) '} ) ) ) ) ) _) ") }. ) ) -7 ¡) ? ,j I ,) t t ! f) l ) I .)
  • 266.
    ¡J} a) ~ -J ) , ) ) ) ) ") ) ) ) ~ ) ) ) ) ~ ) ::2) ) ) ) ) ) } ) ) ,) ) .) ~.J ,) ,--:J --j -:t ~:) -) :) .) ) J ,) ) J :10 "o") 256 kl2 =4800 x 0.8 = 3,840 = 0.096EA k22 =2 x 13,333 +4,800 x 0.6 = 29,547 =O.739EA k32 = - (4,800 x 0.6 + 13,333) x 4 = - 64,853= - 1.62EA q. = q3 =+(2xI07)(O.002) (1) =13,333= 0.33EA 3 q2 =+(2xl0')(O.002) (0.6) =4,800 =0.12EA 5 x=O.6 1 kll =6400 x 0.8 = 5,120 tonIm = 0.128EA k21 = 6400 x 0.6 = 3,840 = 0.096EA k31 = - 3840 x 4 = - 15,360 = - 0.384EA q2 =+(2xIO')(0.002) (0.8) = +6~400ton/m=O.16EA 5 x=o.s_A ~ 1 256 o6,400o . .. /' • Estado Complementario
  • 267.
    257 Fuerzas axiales (ton) Deformada - 10 { 22.50} {5.625 X 10-4 m } [K] {D}=-{R} -+ {D'}=E~ O = O 7.5 1.875 x 10-4 rad -15,360] -64,853 259,413 • Matriz de Rigidez [ 0.128 0.096 .0.384] [ 5,120 3,840 [K)= EA 0.096 0.739 -1.62 = 3,840 29,547 -0.384 -1.62 6.485 -15,360 -64,853 kJ3= - 19,200x 0.8 = - 15,360 = -O.384EA k2J =- 53,333 - 19,200x 0.6 = - 64,853 =- 1.62EA k33 = (53,333 + 19,200 x 0.6) x 4 = 259,413 = 6.485EA -;: 1"122ZZ ZZ 7tA - k3J o 19,200 .. 53,333 ql =0 q2 = - (2x107)(O.OO2>C2.4)=-19,200=-0.48EA 5 q3 = (2X107;(O.002)(4) =-53,333 =-1.33EA ....) .) _) ) ) ';.. '~-.: .J" .,.-,., ~" .;. ~~;' :r0,,'.,,. :....~. ) ) ) ") ....~ ) •l;!' 4 ): 1 4 257 ) ) '-) ..,- ·.. :.--~._;~·:..::r;·:;:_~~:_.:~;~:t;~:=:¿~~:~~~L,j~·_~~;.::~=~·~~~~~t:j...~~,:~~_:-:-:L:~~~-~~~,~:"-~~~~~.~::';_':":'~.::':.c:...=:_;__::..~_._~~~_~._:_~~__::.¡:.!!. --=-_- ..--:;; :_ .._,_;,:- .~:,:"",, __;,_,_:_"~" '.:.__;~:;;::. -!- ;_::. 1. .-- -.-" ~",._ - . ~
  • 268.
    258 qJ =+ (2xl07)(0.OO2)(1)=13,333 ,;"0.33EA 3 . k)I=6,400 x 0.8 = 5,120 = 0.128EA k21 = O k31 = 6,400 x 0.6 = 3,840 = O.096EA q2 = + (2x107)(O.002) (0.8) = +6,400 = 0.16EA 5 x=o.~ ~ 1 o ::) .') ) ) ') ) ) ') J ) ) -j r) ') ) .., ~ ) )~ ) ) ') ) ) , ) ) .) .) ) ) 'J ~) ~ '-J "9 -:::J ) ,) :) J j ) J ') '~ .~ 258 • Estado Complementario 1,¡ l b) Solución en el Sistema 01- 01 • Estado Primario. Las fuerzas en las barras deformables son nulas ya que no hay defonnación axial en elfas. El primario se resuelve por equilibrio del sólido rfgido. "''' ••••• ~ . :.~.-: '-:---- -_ -- - -- - --- • ",:: - :; .-: ... .... ,..: ••• -...,-~::-:--:. --- _. - - o_o, ._:-.':""" - - - __ _ _ - - - - - __ • • _,_,,, __ ,, •• __ : :_. '. :", • • _ ,_. " :_':::: • :.~ •• ::.,.: ••,'" ~,..::._'~"'~-:'--'- :;:;';;';¡;;';:';;:;_';'-;:.:;';~'~:,:":.:;¡;.:.,,;:.'''; ¡L;.~;~'.:.:::;::.¿::,;:;,~;:;~,'C::,;;__;:_,~:::-;¡:: :::.::::,: <:·.c:·:r~..•. '.:·':'·:L;.;t:·~;·::.c':·<.::~;.::.~:;;~;:';:';f.';:-:: <L/c·;···· .••.';:;;::Li:¿:·;.;i:,··:;c:c::.:....._ .c.:: l~,;!JI
  • 269.
    259 Fuerzas axiales (ton)Defonnada o O 0.096][5,120 1/3 O = O 13,333 O 00405 3,840 {"D} = ~{ 2~.50 } = { 5.62~ X 10-4 m} - 30,00 -7 .500X 10-4 m [K] {D} = - {R} ~ 3,840] 16,2~3 O I • Matriz de Rigidez [ 0.128 [K]= EA O 0.096 kl3 =4,800 x 0.8 = 3,840 = 0.096EA. k23= O k3J= 13333.33 + 4800?C0.6 = 16,213= OA05EA q. 2 =+ (2x107)(0.002) (0.6) = 4800 ::;0.12EA . 5 . q~=+ (2X101~(0.002)(1) = 13333.33=0.33EA . x~O.6 1 k12= O kn == 13,333 = O.33EA k32 = O 259 ) ') -¡ ) } ) ) ) ) ) ) } ) ) ) ) ) ) I -: ._) ) ) J ) ) ) .) )- ~) ) _) ) .-=:) ) l I _) __) 1 :) .Jt
  • 270.
    .~ .,) ...) :J ..) _) ) J ~ (l) '~ ~ "j ) ) ) ) .) ") ) ) ) --j ) ) ) ) ~ .) A ) ) ) ) ) ) ) :> ) ) ) J ) .:) --J ,~ --j 1 {M}p 5.33 5.33 R2 = -5.333t-m 0.89 t ! ~ 8 Q-D • Estado Primario. Nótese la presencia de fuerzas internas en la barra 5-6, estas fuerzas son necesarias para mantener el equilibrio de los nudos. (2 GDL) 1 El sistema de coordenadas adoptado para la solución de la estructura es el siguiente y refleja la presencia del sólido rrgido (barra 5-6). ~2 6m4m 2 3 54 3m 6 El = €X) Ejemplo 6-39 La barra (viga) 5-6 del pórtico mostrado tiene rigidez a flexión infinita (El = IX) ) se desprecian las deformaciones axiales en todos los elementos. Las columnas y la viga del tramo 4-5 tienen El = 3,000ton x m2. Como era de esperarse, la solución para ambos sistemas de coordenadas es la misma. Nótese que los resultados de las fuerzas finales en las barras, pueden obtenerse por simple equilibrio ya que la armadura resuelta es isostática. 260 •.. . ~" ..•.• ~ ,.. ,..- ".•,... .~ ._oo :._. • ...~:. oo~_.:~ :_ ~'-;"."_"" :;;,._~ ..:- .. :!;:...::": :,:;..~;~i~:i'~'~~:'.::"~'~~,:.::.~'~.;."..~'~~~.; ..:.~:~.:~:.:.;¡;>~.::~..':'j~:"; ~.:ji~, _ •••••• "-:":'-:" .. ..,.•. '.: •.••• _ ••..•. ~ _... _- -_. :.-:;-_.: •• ...-~:- •• _. :-= ~~_ ... _-_._-=-.- ...'.~:.~~~ii:¿!¿iLf.i~~..~.....~.~:::~;:~.~...:::..:7.~..:~~~~:::. ',:~~ ; .,::-: .'~:.~.~..:'~~":'_:".....: ._..
  • 271.
    M=V=O 261 M=V=O 2(3000) i>4~ C!Ztl=Z;(~~0~;:t7Zi11 4x6 2,000 {M}¡ x.> 2(3000)/3 "l 6(3000) 32 k224(3000) ~ 4 k2lV)(-i t .....JI 6(3000)/42 r,;.,. 4(3000)/3 D2 = 1, DI =0 r r·''"'''·''·''·''"''1 2,0002,000 -~. ( 12X3000)kll= 3 x 33 = 4,000 ton/m = 1.333El k12= - 6x~~00 = _2,000 = -0.667 El ,r:- 12",3000+33 t....:J 32 tI'7 32 12%3000 { 33 '-J .~ V =667 ~ ~j (pfZWWiEOll) c.~ 't(_,)6x3000. V 6x3000 k12 ~ M=V=O kll ~I -+ += ~6x3000 ~ 32 12%300:+ 33 't.....:J • Estado Complementario Nótese la presencia de fuerzas internas en la barra 5-6, estas fuerzas son necesarias para mantener el equilibrio de los nudos. 261 r ·. ) ") ) ) _j J ) > ) J J .) ) -;) o,_) ) ..) .) ..) } .) j 2> _) i ~ } J ) ) ) ) I ), !, j.l ¡ 1 1 ) -; , )1 ) } ) :'_.!.~~:':~,~~ ~._j_-;:.::lk~;r.=.-.~_.·.,-i;:;;~~~l,::~;_~~:~~~T~:2.·~¿~~:~=··~~-~~'..~~~É.~~··::';~~~~_'~~~.-;~;.~.'.~~·iL~-~~:--~~~)-':~~·~~:.i¿~ ~;~i_;~_~~~:~~;-~:~~·:~;i.-::~j~~~:_~~-~.~.,~~.:~~-~~~~.~~¿::~-::;_:~.~,l~:_·~ .:~~:..- -~~~'~:':,~~;.:;:' :
  • 272.
    ::) -7 ) ) ) ) -, ') ) ) ) .:;) ) ") ) ) ---} ) ~ ) ) ) ) ) ) J o ) ) J -'] J =3 '-1 #9 -;) ) ,) J ) ) ,) ) Q-DEl 3m1 Sólido rígido 2ton/m Ejemplo 6..40 La estructura mostrada está compuesta por un sólido rígido apoyado sobre una barra flexible (barra 1-2) en flexión e indeformable axialmente de longitud 3 m 0.890.89 {M}y (ton-m) 6.67 5.78 0.89 • Momentos finales en las barras {M}F= {M}p+{M"l)xDJ+{M}2xD2 { D)} { 0.444xl0-3 m } =:) D2 = 0.889xlO-1 rad[ 4000 - 2000 ] {DI} {O } - 2000 7000 D2 = 5.333 • Matriz de Rigidez [K] {D} =- {R} {M}z 6 k21 =- 32 (3000) = -2,000 k22= (~ + :)(3000) = 7tOOO= 2.333 El.
  • 273.
    263 Fuerzas en labarra 1-2 (multiplicar por En 12x2 (3)3 6El 12EI 14EI k =----x2=--~-1.556El 21 (3)2 (3i 9 k = 12E! = 4EI ~ 0.444 El 1I (3)3 9 kll M=V=O • Matriz de Rigidez RI = - 4 ton R2 = - 8/3 ton-m 4/3 r A 213~ • Estado Primario. Las cargas de fijación se calculan por equilibrio del sólido rígido. Nótese que en la barra flexible, al no haber deformaciones por flexión, no existen fuerzas internas. " ) ) ') .:~.' .- ) , -.-.. » ) ) ) ) ) } ) ) -} _,) J _) ) ) ) J ) ~ J. I ..;) ) - _) I ) .~ '; ) J .J Y _) -,
  • 274.
    o 1 '] ) ) ) ) ) ) ) ) ) ;) ) ) ) ) ---j ) ~ .) ) .) ) ) ) ) ,J- -) ) ) -:) ) --:) --j .., -0 :) -:') -) '-) j .) J <~ 10.5 3 r = 3Jm1m¡= lI(5-X)2 dx > 39 11 El El Elo o 5 m,(x) =5-x • Producto de las Matrices de Flexibilidad y Rigidez El[4 -14] 1 [ 39 [K][F]=[F][K]=9 -14 52 El 10.5 l f22 = ¡mam2 = (1)(1)(3)= 2_ o El El 1 [39 103.5][F]= - El 10.5 f. =f = lJmlm2 = ~(5 +2) = 10.5 12 21 El 2 El o m2(x) = 1 -14 ] 52 k __ 12x2_ 6 =_14El 12 - 27 9 9 • Matriz de Flexibilidad de la estructura [K] = El [ 4 9 -14 12x2 6 -+- 27 9 •12~ -+- 9 3 I ¡ í ¡ ! ~ ¡ 1 1 Equilibrio del sólido rígido para DI = O.D2 = 1:
  • 275.
    265 Fuerzas en labarra 1-2(multiplicar por El) «>(~)x (~) 61t-x- (3)2 4 ~(%)x{~) + RI =_ 4/3 ton R2 =_ 8/3 ton 1 "1 JI 1 / 1"I • Matriz de Rigidez 1/4 8/3 4/3 Estado Primario. Las cargas de fijación se calculan por equilibrio del sólido rfgido. Nótese que en la barra flexible, al no haber deformaciones por flexión, no existen ,fuerzas internas. ,ElSólido rígido 1 2 ton/m -: " ; }~' } f~, ) ;:~ ,,' ~:: 1 ~~~~ ~: J t, W 1 " _, "i.. ~:<, • 1 l '. } ) 1 J 3m Ejemplo 6-41 Resolvamos nuevamente la estructura del problema anterior, modificando el sistema de coordenadas.' ' "i 265 ~) .J .) _) 1 J ) .) -'.) ,) J :': >," ,---;-,--':,'" .",:".~,...:, '-:;-;'" -~"".~-~:,~-"'~="'-:·:,--o-c'~~~ .... ,,. "'.-:-~-' :-; '.', -,-"----' ;-~";-';'- :'- ~ - ','" - ',"'''---- - - '::' ,- '-;-'--""'''--.-- __ o • • -. ~ ,--- _ - ' --.- '-1'" _..,.~.',',._,.-';-~-,_;..------~-""" , ..,_.- . ,.".. :, :__::,o,. ...... __ ''' ..~ '_"'_"_":_' .~._ .. ';_:',: --= .:..,....:r '. :~;~~~-',:',"~~~;':,~::;,-~~~ ~,~~~-'-,~~;'f.:~:-T~:{j::.!~~-I;'~:,~::-~~_,~.::Z~,·.':~:::~:,':·{~ ;':.~;~:.~~;:}::~·,~::.,:·~~t~~,::;~-E±,:~ii~l:,,~;~2~~~~1::.~:~3~;-~':-.-:::'.:_~~..-.~:~:~~:<~~:;:::":-':~~,-_¿.:;';;..~L:::~~~~~::':·'I':..j~·-:·-;~~;~,:;~;_',.~;~'~,:':'-;~-;~~~::"';'~~
  • 276.
    266 • Matriz deFlexibilidad de la estructura [K] = EI[ 3>S6 -~ k = (.!.)x.!. = El 22 3 4 12 k =(-.!._.!.X4)X.!.= -El 12 3 6 4 4 ~ / -~"'''k22 / X / V _---l.....kI2 ,K:::;~}í; Equilibrio del sólido rfgido para DI = 0, ~ = 1: DI = O, D2= 1 ) -:) ',) .~ ) ) ) ) ) (} ) ) .) ) ) j ) -;} -j ., '-J :) -3 ) ) ) 1 I 1/1 1 I /1 11 _-I ....kll ~-) g+~=.!! ~6 4 27 36 18 -+-=} 9 J2 266 k'l =(.!.!.X4 + 1)x.!. = 31EI 18 4 36 ,~ ~ ~ ~ ) ) ) ) ") ., ) ) 1 -El kz, =(-l)x 4 = 4 f' I . / X / [¿_ -_ Equilibrio del sólido rígido para DI = 1, D2 = O: .... k21 1! 1 f .. "-:--.' .,,-:;:-,., ••,..",~ ,: ""', ~..,. : ,~.,.,~.,.; .•. ..-=- .. -, -;-_-'--- ~ ,."., e'- .. ..,... _.;- ,.-. - __,_"..-:.--.-: ':"••••-:----: -.., . . -:----. . •. -,...,.---~~-: --:e-- .-; -- .: .. : --¡o :,:, ••_, : , _ •.,. :--~..,':. '". ~:'''' ...,....... ..•• - -.;_.- _. •• .. ~..,..- .='-_.;-::.:- ::,.:"~~~'.~il·;·;~;~;:';~~::~:1~~L~k·~·LiL·~~i····~::·...:;,~~:.':-::~~~·~~_;_~=i_~·_j:~·"-l~·>L~i~ii:·~~~;:~.·~~j¿_~¿_iL:i~·i;·:i:::~~-~~~~..;.:.~_~·¿·¿i;::L.:~.·.~:,~.··.·=:f~~lJ.¡:·~~~~L.~¡~~li.;:.~~.J:~··,~__~~_._~~.i-
  • 277.
    267 Ejemplo 6-42 la figuramuestra la planta y elevación de una estructura compuesta por una losa maciza indeformable en su plano (diafragma rfgido) apoyada sobre tres columnas circulares , empotradas en la base y articuladas en el extremo superior. La rigidez a la flexión de las .. columnas es El = 5,400 ton-m'. :,:Calcularemos solamente la Matriz de Rigidez de la estructura. M21 V31 3 11 3 2 , .:Cada nudo tiene en general, seis grados de libertad, tres traslaciones ortogonales y tres ,;.rotaciones. Los apoyos restringen algunos de los grados de libertad. El análisis de ,','estructuras espaciales por el Método de Rigidez, conlleva un gran número de grados de ,libertad. Su aplicación manual es virtualmente imposible, salvo para el caso de ,.,'estructuras muy simples, por lo que para su solución es prácticamente indispensable , utilizar un programa de computadora. Recuerde que las fuerzas de sección en las barras de una estructura espacial son: Axial, cortante, momento flector y momento torsor. En la figura a continuación se muestran las fuerzas de extremo de barra, referidas a sus ejes locales, los que deben ser principales y centrales. ," , 6.17 Estructuras Espaciales • Producto de las Matrices'de Flexibilidad y Rigidez 27 ] 93 [F]- _1 [ 9 El 27 f = lImlm2 = 3$(7 - X)2 dx = 93 22 El El Elo o f. =f = lJmlm2 = lJ(3-X)(7-X)dx= 27 12 21 El El El , •. .' o' " o f = 3Im,ml = 3J{3- X)2 dx =_2_ 11 El El ' Elo o 267 ) ) ) ) } ) ) .) ., .., .) ; ) ) ) } _) ) ) ) ) )
  • 278.
    ,r;) ~ 9 -) ) ) ) ) -) ) ) ) ) ~ ") J ) ) -J .) ~ ) ) .> ) ) ) ) J :) ") ) =) ') -=1 -~ ..-¡) .J :_) J _) ) ) -d ~ {; ':j , 268 kit = 3x 600::: 1,800 ton/m k21 =0 kJI = 600 x 3 = 1,800 600 +- 600.._ ._600 Equilibrio de la Josa para DI = 1,D2 = D3 = O 3EI 3(5400) VI= V2=V3= V =-3 (1) = (1) =600 ton/m 3 27 1, !, }, DI = 1, D2 = D3 = O '-...fII '-...;1f '-.JIf ~ ~ ~ ~ZZZZZZZ~Z7ZZZZZ~ ELEVACIÓNC2 • 3m 268 • Cálculo de la Matriz de Rigidez "PLANTA 4mIr 4m el • f-~I 3 El sistema de coordenadas adoptado consiste en los tres desplazamientos medidos en el centro de gravedad del diafragma rfgido. Este sistema, obedece a la presencia de un. diafragma rfgido en su plano (losa de piso). La losa debe moverse como un sólido rfgido :. en su plano, por lo tanto, se generan dependencias entre los grados de libertad de todos •.. los puntos contenidos en el plano de la losa.
  • 279.
    269 Kxy Kyy Kay Kx9]Kye Kas kJ3=- V3 +V2cos(53) +Va cos(53) = 1,800 k23 = - VI sen(53) +V2 sen(S3) = O k33 = V3 (3) +VI (5) +V2 (5) = 35,400 v. = 3El (3) =3(5400)(3) = 1 800 3 33 27" v. = v. =3EI (5) = 3(5400)(5) = 3 000 I 2 33 27 ' k22 =·3 x 600 = 1,800 k32=0 1,800 ] 35~400 o 1,800 O [ 1,800 [K]= O 1,800 La matriz de rigidez de la estructura es: EquIlibrio de lalosa para Da = 1,DI = ~ = O 600.t .~600 ~qui(¡brio de la losa para. Í>2 = 1,Di = D3 = O "l.T V·:_ - 3EJ·· 3(5400) VI = 2-'- V3 - V =7(1)= 27 (1)=600to~m 600.¡ 269 ) ) ) ) ) ) ~ _) '; _) ) j ._) ) ~ ) )
  • 280.
    "1.- tJ) O ·9 ~ ) ) ) ) ) ) ) ) ) ":J ) j ) _) _) ) :!) ) ) ) ) .) ) ) -'j ) ) ) =) -) ~ _::~ ;;tJ ,) _) _) ,) _) ) ) -d ~ .."'".- 'i(;J ':'1 270 2) Comportamiento dela Estructura: En todos los problemas resueltos, hemos supuesto _o_. comportamiento Lineal Elástico, sin embargo, el Método de Rigidez se ha extendido al ámbito del comportamiento no lineal de las estructuras, pudiéndose abordar problemas .. de no linealidad geométrica, no linealidad del material o de ambos. 6.19 Ámbito de Aplicación del Método de rigidez Hoy en día, con el desarrollo de las computadoras y de los programas de análisis estructuraí.: están desapareciendo de manera acelerada los límites en el ámbito de aplicación del Método de Rigidez. 1) Tipos de estructuras que es posible analizar a) Estructuras de barras • Vigas. • Pórticos. • Annaduras Planas. • Parrillas. • Armaduras Espaciales. • Pórticos Espaciales. b) Medios Continuos ~ Elementos Finitos (estados planos de esfuerzo Y deformación, losas, cáscaras, sólidos, etc.) Caso de Carga 1: {R}l -+ {Qh = -{R}¡ Caso de Carga 2: {R}2-+ {Q}2 = -{Rh Caso de Carga n: {R}n ~ {Q}n = -{R}n {Q}¡= [K]{Dh => {n}¡=[Iqol{Q}¡ ~ {ah Estado 1Q-D ~~ ~~'" ~~ Estado 2 A J Estado 3 ~ 1 6.18 Análisis para Diversos casos o Estados de Carga II La matriz de rigidez, [K], de una estructura depende del sistema Q - D seleccionado para I el análisis, de las condiciones de apoyo, geometrfa, propiedades y conectividad de las ! barras. En una estructura linealmente elástica [K] no depende de las cargas actuantes. I Esto hace que el análisis de una estructura, como la mostrada a continuación, sometida ! a diversos casos de carga sea simple-ya que lo único que cambiará entre caso y caso I será el Estado Primario. el Estado Complementario será el mismo para todos los casos de carga. En consecuencia la inversa de la Matriz de Rigidez, [Krl,no depende del caso de carga y será necesario calcularla sólo una vez.
  • 281.
    271 1 Introducción el Capitulo6 se presentaron las ideas centrales del Método de Rigidez aplicado a ras reticulares. La aplicación del Método de Rigidez se realizó bajo una forma o es decir, la matriz de rigidez de la ra se generó aplicando sucesivos desplazamientos unitarios en cada una de las .....,..""'""'·1"I8S elegidas y los coeficientes de rigidez se obtuvieron por equilibrio de los o de porciones de la estructura. De manera similar se obtuvieron las cargas ,~:nO~[]i:lJt:l:i(Estado Primario). El procedimiento o metodologfa utilizado en el Capitulo 6, ~_·."'rrT,.r~entender las ideas centrales del Método de Rigidez y darle un significado flsico a ,••<..__ ........ una de las etapas que intervienen en la solución de una estructura utilizando este ;?··...."oyr.no. análisis de los problemas resueltos en el Capitulo 6, aún en las estructuras simples que hemos abordado, es fácil concluir que el Método de Rigidez y en general los os matriciales, se caracterizan por una gran cantidad de cálculo sistemático, y su en la práctica se basa en la adecuación de los computadores para llevar a cabo .. o el trabajo numérico. La aplicación del Método de Rigidez conduce a-que aún para ·estructuras pequeñas, el número de ecuaciones simultáneas podría ser tal que su '.solución sin computador, seria sumamente laboriosa por no decir imposible. .: El desarrollo de los métodos de cálculo de estructuras en los que el trabajo numérico .. : puede ser realizado convenientemente en un computador, lleva a procedimientos a la . vez sistemáticos y generales. E.I objetivo no es el de disminuir el número total de ;• operaciones aritméticas, sino conseguir métodos que puedan aplicarse a muchos tipos diferentes de estructuras y que utiiicen el máximo posible de procedimientos numéricos ...trpicos para los cuales ya existen rutinas en los computadores. La cuestión ahora no es ·decidir si a un ser humano le resultará el cálculo estructural tedioso, sino si el método es adecuado para ser fácilmente adaptado a una computadora. Si esto último sucede, , entonces eí método es "bueno", aunque el número total de operaciones realizadas sea . considerablemente superior al de otro método de menor facilidad de mecanizar. ·El desarrollo de los equipos de cómputo y del Método de Rigidez ha permitido a los ingenieros establecer métodos que requirieren menos suposiciones y restricciones en el ..•.planteamiento de los problemas, logrando mejores resultados. En la actualidad, el •.ingeniero que se dedique al diseño de estructuras, debe estar familiarizado con los . métodos del análisis matricial de estructuras, porque constituyen una herramienta poderosa de análisis. Al mismo tiempo debe estudiar y entender el uso correcto de esta forma automática de ...-anáñsls. El resultado de un análisis por computador es sólo tan bueno como los datos y el modelo de los cuales se parte. El acrónimo GIGO (del inglés Garbage In, Garbage Out) cuya traducción al castellano podrfa ser BEBS se ha acuñado para recordarnos constantemente que "basura que entra, es igual a basura que salen, Esto significa que el criterio y la habilidad del ingeniero, nunca podrán automatizarse. El criterio y el entendimiento del comportamiento de las estructuras siempre deberán estar presentes cuando se idealice la estructura y ·se hagan las suposiciones acerca de las cargas y solicitaciones, el comportamiento del material, las condiciones de apoyo, las Conexiones entre los diversos elementos. Lo mismo se aplica a la interpretación y uso correcto de los resultados de tales análisis. ) ) ") ) ) CAPITULO 7- Formulación Matricial del Método de Rigidez 271 _.._--_::.._:._._:__-:;-; ._- ;"" .. .~ .) ~ } , ) ) ,J 1 .) ) ) ,) ) ) ) -; ) ..., ) ) ) _J ) ) ) ~j J J )
  • 282.
    l~ ~~ (:i) ,J) .~ ) ) ) ) ) ) ) ) ) -j ) "7 ) ) ) _) .) ) ) ) ") " ,) ) ) ~ J -) ) c4 -) -J ~ .;; ) ) _) rj J ") ) J ~ {d},;I =[A]nxN {D}Nx 1 Donde [A] es la Matriz de transformación de desplazamientos. 7.3 Matriz de Transformación de Desplazamientos Siempre que el sistema Q-D sea generalizado, será posible generar una matriz, que llamaremos matriz [A], que transfotme los desplazamientos medidos en las coordenadas del sistema Q-D a los desplazamientos medidos en las coordenadas del sistema q-d. La matriz [Al se genera por geometrfa aplicando desplazamientos unitarios en el sistema Q-D. A la matriz [A] de transformación de desplazamientos, también se le denomina Matriz de _ Compatibilidad _yaque en este-caso relaciona los desplazamientos de los extremos de - Ias barras con los desplazamientos .de los nudos. Las relaciones de compatibilidad se expresan mediante: En estructuras linealmente elásticas se cumple: W = W· :) .!.{Q}T{D} = _1_{Dr{Q} 2 2 Trabajo Real realizado por las fuerzas externas: w= ~¿Q¡D¡ = ~{QV {D} {Q}:::[K]{D} :) {Q}T:::{D}T[Kt [Kt =[K] (la matriz de rigidez es simétrica) :. W =.!.{D}T [K]{D} 2 Trabajo Complementario realizado por las fuerzas externas: W'= ~LDiQi = ~{DV{Q} {D}=[F]{Q} => {D}T={Q}T[Ft [Ft =[F] (lamatrizdeflexibilidadessimétrica) :. W'=~ {Q}T[F]{Q} Qi En este Capítulo se presentan, de manera simple, algunas de las ideas centrales de la sistematización del Método de Rigidez. Se ha esñrnado conveniente presentar estas ideas a través de varios ejemplos en orden de complejidad creciente. 7.2 Expresiones del Trabajo Real y del Trabalo Complementario Antes de abordar el tema de la sistematización en sl, conviene recordar algunas de las expresiones del trabajo real y del trabajo complementario en estructuras linealmente elásticas, expresiones que utilizaremos en algunas de las deduccíones posteriores. 272
  • 283.
    273 7.4 Ensamblaje delaMatriz de Rigidez A continuación se mostrará la manera de generar la matriz de rigidez de una estructura a partir de las matrices de rigidez de las barras que la componen. Para ello utilizaremos un pórtico simple como el mostrado en la figura a continuación en la cual se indica el sistema de coordenadas globales Q-D y el sistema de coordenadas locales q-d de la estructura "desmembrada" que corresponde a las coordenadas locales de cada una de las barras. Nótese que el sistema global Q-D, de N grados de libertad (en este caso seis) es generalizado. mientras que el sistema local q-d, de n grados de libertad (en este caso doce) no es generalizado ya que existen relaciones entre los desplazamientos, por ejemplo d, = c4, d)=ds• d9=d12, etc. En el sistema Q-D la matriz de rigidez será definida positiva (asumiendo que la estructura es estable) mientras que en el sistema q-d la matriz de rigidez de la estructura "desmembrada" no será definida positiva. En este caso particular la matriz [A] de transformación de desplazamientos será de orden 12x6, es decir, doce filas y seis columnas. En general la matriz [A] es de orden nxN. D3 = 1 Tercera columna de [A] DI = 1 Primera columna de [A] Resto cero Resto cero q-d Sistema no generalizado "n" grados de libertad Q-D Sistema generalizado '"N" grados de libertad 3 52 LOSelementos de la columna "i" de la matriz [A] son los desplazamientos de extremo de (en el sistema q-d) debidos a la aplicación de un desplazamiento unitario Dj (en el ,,'sistema Q,.D)manteniendo todoelos.otroe desplazamientos Di nulos. Para que exista la '. ~',matriz [A] es necesario que el sistema Q-D sea generalizado, es decir los " desplazamientos {D} deben ser independientes para poder variarlos arbitrariamente, por -:ejemplo hacer Dj = 1manteniendo todos los otros desplazamientos nulos. , A continuación se muestra a manera de ejemplo, la generación a partir de la definición, de la primera y tercera columna de la matriz [A], para el pórtico mostrado a continuación. 5 i6 JB --~tl~~ ~;r:7 11 1~3 4 12 273 ........ "-_ . ,;.;'::=.:;-:..:..;.:_:~;'::..:.;;;_-~~~ -'---~:':~··:·i..:::-.:..:-:__;:~.~::::;._:;.~~--~:;-;l::..::_~..;;--..s, ~::_. ) ) ) ) ") i ) "} ,~ ,,;J I ) ) ) ,) ) ) ") -') ) ...., ) ) J ) J ) :) .., .) ")
  • 284.
    ~ {) fl ...~ ) ) ) ) ) ) ) ) ) -j ) ~ ) ) ) _) ) ) ) ) ) ) ) ) ~ J ---1 _) -=;) ) -d ~ ~ ) ) ) -j J j ) J La expresión anteriorpermite "ensamblar" la matriz de rigidez de la estructura, sin embargo, ya que la matriz [k]n x n contiene muchos ceros, su utilización resulta ineficiente desde el punto de vista numérico, es mucho más conveniente utilizar la siguiente expresión: [K] = [A]T, [k] [A]NxN N x n . n x n n x N Relación entre los desplazamientos en ambos sistemas: {d} = [A] {O} :::::> {d}T= {D}T[A]T Uq-d =.!.., {d}T[k] {d} = !{D}T[A]T[k] [A] {D} 2 2 UQ-D = ! {D}T[K] {D} 2 Ya que la energía interna es la misma en los sistemas Q-D y.q-d, debe cumplirse que: {D} T [A]T[k] [A] {D} = {D}T[K] {D} En consecuencia, la matriz de rigidez de la estructura en el sistema Q-D, puede obtenerse a partir de las matrices de rigidez de las barras que conforman la estructura mediante la siguiente transformación: [ O ] [lq] matriz de rigidez de ia barra i [kl13X3) [ O ] [k2] (6x6) [k3J(Jx3) 12 x 12 [k]= En el sistema Q-D el trabajo realizado por las cargas externas nadales (cargas aplicadas en los nudos) se acumula como energía interna de deformación, es decir: WQ-D = .!..{D}T[K]{D} =U1NTERNA 2 En el sistema q - d debe acumularse la misma energía de deformación. Wq-d= ~ [d }T[k]{d} = ~ {d}T[q ] =UOOERNA Donde [k] es la matriz de rigidez de la estructura "desmembrada" o "no ensamblada" y es del tipo diagonal. Para el caso de la estructura utilizada para esta demostración, conformada por tres barras, tendrá la siguiente forma: q-d Sistema no generalizado "n" grados de libertad Q-D Sistema generalizado "NU grados delibertad 3 2 3 5 4 8 ~5~~~·~6-·-.------~7 11 4;.10 12 2 274
  • 285.
    275 ~~.,. 7.5 Principiode Contragradlencla Este principio establece la relación entre las cargas medidas en el sistema Q-D y las cargas en los extremos de las barras medidas en el sistema q-d (sistema local de coordenadas). {d} = [A] {D} ({d} y {D} son compatibles) Principio de Contragradiencia: {Q} = [A]T {q} ({Q} y {q} están en equilibrio) Este principio establece que si los vectores {d} y {D} - que representan desplazamientos compatibles - están relacionados mediante {d} = [A] {D}. entonces los vectores {q} y {Q} (en equilibrio) que representan las fuerzas correspondientes a {d} y {D} están relacionados a través de {Q}= [Af {q}. A continuación se demuestra este Principio: {d} = [A] {D} => {3d}= [A] {3D} {3d}T = {3D}T [A]T (1) Trabajo virtual (desplazamientos virtuales, véase el acápite 2.4) para una estructura formada por el ensamblaje de barras unidas en los nudos: ¿Q(3D) = ¿q (3d)::) {8D} T {Q} = {&l}T {q} (2) Reemplazando en (1) en (2): {3D}T {Q} = {BD}T[A]T{q} (3) Ya que el vector {3D} es arbitrario y la relación .(3) debe cumplirse para cualquier valor que adopte {5D}, deberá cumplirse necesariamente que {Q} = [A]T {q}. Esto demuestra también, que el principio de los desplazamientos virtuales transforma las ecuaciones de compatibilidad, en ecuaciones de equilibrio ya que {Q} = [A]T {q} representa las ecuaciones de equilibrio de nudo, tal como se comprobará en los ejemplos que se presentan a continuación. .e "0 nxN [k1] [Al] [k2] [A2] nxN .......... <, -,'. [Al] [A2] I I I [Áml Veamos la deducción de esta expresión, asumiendo que la estructura tiene un total de m barras: 275 r. . . ¡.~: ~c .:.~~:~¿:i-d.~:..:~:~:.:.::.~::::__';;:;;.~_..~j:.~.,;~.¿~_.: :z_.::.;~~..:~:;~,~; ,. ) ) } 1 , } ) ) ) » ) -") ) , J ") ) :} j ~i) j J .) ) ~ ) --) ) ) )
  • 286.
    ,:":" ) ) ) ) ~ 'j,. , ~ ) ,~ 7) .J "'J ..J ) ,,) t1 J ~ ') J 8 i:') .) -) ) ) ) ) ) ) ) ) -3 J ~ ) ) ) ) ) ) ) ) . :";:;:".~:...:-:- ,:' '-.._;;.:....:_:.....•. / ~i._'U...;,' • Aporte de la barra 1 a la matriz de rigidez de la estructura [K,] = [A,]" [k,] [A,] "' [ ~ ] [E~~,] [1 O 1 = [ et :]Corno era de esperarse, la transfonnaci6n para la barra 1 es directa ya que el sistema local de la barra coincide con el sistema global. . • Matrices de rigidez de barra en el sistema q-d (sistema focal de las barras) (d1J [1 O](DIJd2 = cosa -sena D2 ~'. " cosa ~'lI' • Generación de la matriz de transformación de desplazamientos {d} = [A} {D} q-dQ-D .K_h.==:::::::::I1 _.. 1 1 • Sistemas de Coordenadas B~2: El = lOO, OOQkgfcm2 Al = 15()cm'}. Ea = 2 x lü 6 kgfcm2 Al::::: 5 cm2 Barra 1: sen 0.=0.6 cosa=O.8 Apliquemos las ideas expuestas a la solución de la armadura mostrada, Esta armadura fue resuelta en el Ejemplo 6..2, acápitE.! 6.3. . 3 Eje_mp1.0 !-1
  • 287.
    277 Q1 = q1+ q2 COS IX Q2 = - q2 sen a. Es fácil comprobar que las ecuaciones anteriores representan las ecuaciones de equilibrio de fuerzas en el nudo 2 de la armadura. cos a ] [q. ]-senc q2[~'l= [~ {Q}= [A]T{q} =:> {D} = [Krl {Q} => DI =- 0.096 cm D2= - 0.503 cm • Fuerzas en las barras en el sistema q-d {dj} = [Al] {D} = [1 O]{D} = -0.096 cm {q¡}= [kj] {dI} = 41,667 x (-0.096) ~ -4,000 kg (compresión) {d2} = [A21 {D} = [cosa -sene] {D} = cosa DI - sena ~ = 0.225 cm {q2} = [k21{d2} = 22,222 x 0.225 ~ 5,000 kg (tracción) Resultados idénticos a los obtenidos en el ejemplo 6-2. • Verifiquemos el Principio de Contragradiencia: • Vector de cargas. Ya que solamente existen cargas en los nudos, el vector de cargas se ensambla de manera directa. {Q}=(-3.~OOJ • Solución del sistema de ecuaciones, desplazamientos de la estructura en el sistema Q-D =[ 55,889 -10,667 -10,667] 8,000 EA_ cosa sena _2_2 l2 [K] = [K.J+ [K2] = E1A2 = 2 X 106 X 5 ~ 22,222 kg/cm .e2 450 Sistema global q'" - d* • Matriz de rigidez de la estructura en el sistema Q-D EA _1 _1~ 41,667 kglcm .e. ~ 12* ~t_l' La transformación que se acaba de realizar equivale a calcular la matriz de rigidez de la barra 2 ([K2]) en el sistema global de coordenadas, sistema que se indica en la figura a continuación. Este resultado se puede combrobar generando, utilizando la definición, los coeficientes de rigidez de la barra en el sistema q* - d*. • Aporte de la barra 2 a la matriz de rigidez de la estructura [1<.2] = [A2f [k2] [A2]= [ cosa ] [E2 A2] [cosa -sena J "'" E2A2 [ cos2a - cosa sena] - sena l2 l2 - sena cosa sen'c 277 t I ) .) ) ) " J ) -J ) ~ ) J .) -) ) ~) 1 -) ~ J ) 1 _) ) __} ) 1 ) J -~ ) ) )
  • 288.
    _..;._~.:::..'.:..::J~~'.::. ~ ~~ 'j .1), ',o ,_) , ') ) ) ') ') ) ) ) -j 1 ~ ) ) ) ) .) } ) ) ) ) ) ) ~ :). -4 ) d "1 J < .) .) 'J J ~ : ~ ) .) ij el'. ;~ -i 278 o1ooo oO O 3/5 4/5 ----------------------------- -O 1 O O O o dIlO O .0 O - -----------------------------d2 O 3/5 4/5 O O - --------------_------------- [A] = d3 O ~ ~ ~ O____ _ dt ooo3/5 DsDI • Generación de la matriz de transformación de desplazamientos {d} = [A] {D} q-dQ.-D s 3 • Sistemas de Coordenadas 3m _j 32 4m . 5 E = 2xl06 kglcm2 A = lOcm2 Ejemplo 7-2 Resolver la armadura mostrada, todas las barras tienen la misma sección transversal. Nótese que la armadura es isostática interna y externamente, en .consecuencia, es posible verificar los resultados calculando fas fuerzas en las barras por equilibrio de los nudos y calcular los desplazamientos de los nudos utilizando Trabajo Virtual (fuerzas virtuales). 278
  • 289.
    279 {di}=[Aíl {D} {qi}= [k¡] {di}= [k¡] [A¡] {D} ql -2.25 q2 3.75. q3 -3.00 {q}= q4 = 3.75 ton qs -3.75 q6 -2.25 q7 225 • Fuerzas en las barras en el sistema q-d -0338 2.363 {D} = [KrJ {Q} => {D} = -0.600 mm 2.700 -3.450 • Solución del sistema de ecuaciones, desplazamientos de la estructura en el sistema Q-D .., ) -) _) ) ) -.) ) ) ..) ..., ) .-=¡ i _j 1 ~ -:J :1 I ._- ) , ) O O {Q}= O O • -3 ) • Vector de cargas. Ya que solamente existen cargas en los nudos, el vector de cargas se ensambla de manera directa. 0.40533 O O -0.07200 -0.09600 O 0.40533 0.09600 -0.33333 O [IC] = ~] =FA O 0.09600 0.37800 O O -0.07200 -0333.33 O 0,40533 0.09600 -0.09600 O O 0.09QOO 0,12800 • Matriz de rigidez total de la armadura s T [KJsxs = ¿[A¡] [k¡] [Aí] i= I Barras 4 Y 5: Matrices de rigidez de barra en el sistema q-d (sistema local de las barras) Barras1,2,3: [k¡ ] = [~~ l r~.. " ... } ~:::~ • I )¡ I ) I ~! i I
  • 290.
    '~ ;~ ~ ) ') ) ) ) ) ) ) ') ) -) ) ~ ) ) ) ) ) ) ) ) ) ) ) ) -;;) ~ -.: " -J -7 J ;~ _ ) ~ . '8 : ~ ) . ~ d 'D - 280 01 = -2q¡ + q2 02= q3 La primera ecuación representa el equilibrio de momentos del brazo rígido y la segunda el equilibrio de momentos del nudo derecho. {Q} = [A]T{q} :::) 1 O[~,] = • Verifiquemos el Principio de Contragradiencia: Este resultado se puede verificar con el obtenido en el acápite 4.6. 0.88 ] 0.80 [K] = [A]T[k] [A] = El [2.1440.88 • Matriz de rigidez de la barra en el sistema Q-D • Matriz de rigidez de la zona flexible de la barra en el sistema q-d (sistema loeal) 1 2 3 [ 12/53 -6/52 -6/52 ] [k]=EI -6/52 4/5 2/5 -6/52 2/5 4/5 Matriz de transformación de desplazamientos {d} = [Al {D}• q-d Q-D 5m El 4-)2 1 2m ( 1f$/MiEl =0() Ejemplo 7-3 Calcular la matriz de rigidez para la barra mostrada conformada por una zona rígida en flexión de 2 m de longitud y una zona flexible de 5 m. Se consideran deformaciones por flexión únicamente. Nótese que el sistema loeal de coordenadas está referido a la parte flexible de la barra. 280
  • 291.
    281 DJ= 0, D2=1 .. o·· [A]= I 1 I/r I , I / I.' /I~ I " :." • Generación de la matriz de transformación de desplazamientos {d} = [Al {D} 1/4 q-d , Q-D "" Barra 1-2 1=3 '1t2 1 • Sistemas de Coordenadas Barra deformable Sólido rígido 3m Ejemplo 7-4 Ensamblar la matriz de rigidez para la estructura mostrada, compuesta por un sólido rigido apoyado sobre una. barra deformable (barra 1-2) en flexión e indeformable axialmente, de longitud 3 m. Se sugiere revisar el Ejemplo 6-41. 281 r ·. . J } -J ) --) 1, ) ) ) ) ) "t ) ) } -) .-} ) J .) _) ) _J ) .) ) ~ iI ) I=; I II I j ) I _. Iwjj l~ .) ) ) ) }
  • 292.
    -"".-'- .. ,.j @ 19 J ") ) ) ") ) ) ) ) ) ) ") ) ') ) .) ) ) J .1', ) ~ ) '. ) " -;,: ) ) ) ~ ~ J ) ) -J .} :;) ) ") ~ ) .:: ~ ~ ...- ) .Jo••• .) ~ ..) 282 Ejemplo 7-5 Ensamblar la matriz de rigidez para la estructura mostrada, compuesta por un sólido rrgido (barra 2-3) apoyado sobre una barra deformable (barra 1-2) en flexión e indeformable axialmente, de longitud 4 ID. Equilibrlo del sólido rígido: Ql + Q2= ql Q2(4) = 'l2 De la figura mostrada a continuación, es fácil comprobar que las ecuaciones anteriores representan las ecuaciones de equilibrio del sólido rigido. r----:"I, __. Q2 , , ,, ,,) ,,, ,, r: , 1I -----Ji" Q1 ql 4 .1''l2 Q¡ = ql-0.25 q2 <h= 0.25 'l2 -1/4] [qj]1/4 q2[~,] = [~{Q}= [A]T {q} => • Verifiquemos el Principio de Contragradiencia: Resultado idéntico al obtenido en el Ejemplo 6-41 del acápite 6.16, en el cual la matriz de rigidez de la estructura se generó utilizando la definición y aplicando sucesivos desplazamientos unitarios en las coordenadas. .• Matriz de rigidez de la estructura en el sistema Q-D 1 1 .-- 4 4 El [ 3" ..!.. 3 -2 4 [ 0 1 [KI] = [AI]Y[kl] [Al] = • Aporte de la barra 1 a la matriz de rigidez de la estructura :] • Matriz de rigidez de barra en el sistema q-d (sistema local de la barra 1-2) [ 12 -~ 1 [4 [k,l= El _{':, != ~I _; 282
  • 293.
    283 • Matriz derigidez de barra en el sistema q-d (sistema local de la barra 1-2) [ 12 6] [3[1<,]- El _t~ _ ~ _ El _I; f t 8 DI =0, D2=) q-d Barra 1-2 1=4 ~2 ] 4.00m DI=I, D2=O di = 1 d2 =0 • Generación de la matriz de transformación de desplazamientos {d} = [A] {D} El 283 Q-D • Sistemas de Coordenadas 2 r. 3_00m ) I ! J ) } -') -1 ) -1 ) ,_) .) .;) ) -) ) -j ) -==, ) ) ~ "5 ) '"'1 ) -i .. ~ ) ) ) ) ) " ') ") ) " } .. .'~-¡ .:~.~.t.:..~::.',~_'~~~,~. ~~~¡.,!;~;'.,.-...; "..,,":"'.' '..;"";'. ~·~·.T:..'~~.:~~.~~.~.-::-;.',~:~'~.~::~::;,,,..,,.,,;,¡., o. , "::A~::." ..~ ;.:=:.:~.,.:~~':',.'~~., ~,.~_., :~.:::. ,..:::':='::-.:,:":'~:::r:~:::,,~::-=~_:~--:i¡-:-"".:;'')',. c:i~.~:::'=;¡~;"::::~'-~~.:;=.~.;.:;,:.=:~-=-'.::.,.,,..-.....---
  • 294.
    kn= 0.0625Elkt2= 0.09375El 4Ela --¡- = 0.25 El a.=(5/4) /5 = 0.25 _ ...:~".... .....:~:.:;>-: ~---~_.t --- .t--4_00m- ..... Dl=O D2=1 k21= 0.09375 Elkll = 0.1875El 6EI 42 = 0.3750 El 12EI -------7 = 0.1875 El .t--4_00m---tI k2t=0.375EI/4 • Comprobemos el resultado anterior. ensamblando la matriz de rigidez, utilizando estrictamente la definición: DI = 1 D2=0 0.09375 ] 0.06250 3~] [0.18750=EI . 1 0.09375 16 [K]= [K]] = El[ 1: 32 • Matriz de rigidez de la estructura en el sistema Q-D • Aporte de la barra 1 a la matñz de rigidez·de la estructura !]El [11 -:][: 284 4). {f) ,.¡; ~Ji :] ") 7._: ).;,;: '~:l ).:<- "lO. S§ )~~ ~ ) ) ) ) ) ) J ) _) ") ) ) ) -J ) ) ) ) ) ) ) ~ ;) :) ) J ~J ) '~ ) ) a ) ~- .~ .~ -j J ~
  • 295.
    l <: (. j r ( ::/.; ':') ~~; I'! ':'~~;'~i t- l f-. ;',..... 1:,:;, '~~t f_ I ( f c. ~.....,..... L-r'" ( C. ( i ( F ( ( m 286 C) a> .jr-1.50ri1_"..I,.~-4.ODm----.r.... Pla 0.2 on .. :_ ..~•• 9.~ •• •••••• a.•••••••••••• F......~.. 1 ... 0.5mJ . Columnaca 3.00 Sxl.5m . 0.25XO,Sm :. 0.5 m., '+ ~... ,... '::.....~.,....... ® Viga O.25XO.5m G>20t Ejemplo 7..7 Resolver el pórtico mostrado, compuesto por un muro o placa (barra 1-3) una columna y una viga qué se ha modelado con un brazo rígido de 0.75 m a la izquierda. Se ignoran las deformaciones axiales y por fuerza cortante, • Resultados finales (axiales y reacciones en toneladas) Barra [ki] di (q;) ,;",[k¡][di} (Ton) 1-4 EA/5 0.0 0.0 '( 2..3 EA/5 -0.8 DJ -2.220 24 EA/~ -4/3 Di 6.167 0.7206 EA • Fuerzas en las barras. {dí} = [Ai] {D} {qi}= [Id] {di} {lO}= [0.7206 EA] {DI} • Desplazamientos en el sistema Q-b {Q}= [K] {D} Di = 13.8175/ EA :E= [K] = Barra kl~EA/Li [,Ai] [Ar]T Ik~n~1 1-4 EA/S O,Q 0.0 EA . 2.;3 EA/5. .,.0.8 0.128 EA 2-4 EA/3 -4/3 16/11EA... • Matriz de rigidez de la estructura en el sistema Q-D 286 1 ;.~ t·· " .1
  • 296.
    -0.8 (DI) 4 3 o DI =1 285 o -0.8 4 3 [A]= DI = 1 i 1 La barra 1-4 no se deforma, sólo experimenta movimiento de sólido rigido (rotación). los alegamientos de las barras son positivos y los acortamientos (compresión) negativos. II I ! 1 , • Generación de la matriz de transformación de desplazamientos {d} = [A] {D}. Recuerde que asumimos desplazamientos pequeños. 1 q-d 3 Q-D • Sistemas de Coordenadas l-i~~~~~ '1J!-I.--4.00m--....r..1. :'.. . . Ejemplo 7-6 Resolver la estructura mostrada, compuesta por un sólido rígido (barra 1-3-4) y tres __ barras .tipoarmadura. ..
  • 297.
    287 [ 12.4444 -18.0000 -0.6667] L[K] = El -18.0000 37.6680 0 .7813 -0.6667 0 .7813 2.3333 El~ 1. 6~80 O.7~13] ~ 0 .7813 1 .0000 [ 0.4444 o -O.666~ El O o O -0.6667 o 1.3333 [ 12 -18 O] El -018 36 o o o. .J ) } Barra [Id] [Ai] 12 6 27EI 32 -- 1-3 3 [! o ~]-3- 6 4 t -?i' 12 6 El 31 -- 2-4 3 [! o ~]3 6 4 o -'3 12 6 12 6.. 42 -4 - 42 -4,. 6 4 6 2 ~ -0.75 ~ El -- - 3'-4 4 4 1 "4 12 6 12 6 o - 42 4 4:1: 4 o 6 2 6 4..J -'4 z [Aí]I [ki][Ai] • Matrices de rigidez de barra en el sistema q-d (sistema local de coordenadas) y aporte de cada barra a la matriz de rigidez de la estructura. [A] = ¡= 1 ~= 1 D3= 1 dl= 1 O O [A1-J] .....~~~.- ---._-_.~----------_.}-------------~--------_._-------- d]= 1 O O . ~_~ ~__. ~ ._.__..L_ .._._I~~~)_ ds= o -0.75 O ~= O 1 O d7= O o o --_._~~~_.-----_._~_._---------~-_.__ ._.._ ..~---_.- D3= 1 1 Nótese que en la barra 3 -4 el sistema q - d corresponde a la parte flexible de la barra. • Generación de la matriz de transformación de desplazamientos {d} = [A] {D}. Sistemaq - dModelo de la estructura y sistema Q - D 4.00m---l~0.15 m ,,1. ,,1, 1~2 ~El ..., t ~::...___1 27E1 El .1 ~: , j
  • 298.
    ..., .. > "=" ._" __ ..~ ,_' ) ,; .:.~ ." , "J ) ") ., ) .) ) ) .) J '} } .) '-j ";> -7 ) ) ) :> ) ) ) .) ') .) lI 3.537 !IIi!i!itL' 288 DFC{ton) • Rigidez lateral del pórtico KL = ~ = 3.806 El 5.255 49.638 -- 4.68i ~ / / / 1.892 18.10&-- 1 J 18.108 • Diagramas de fuerzas internas finales 24 1-3 lk¡] x El [ 12 -18) -18 36 10.4444 -0.6667] -0.6667 1.3333 r·1975 -0.3750 -0.1875 -0.37S0]-0.3750 1.0000 0.3750 0.5000 -0.1875 0.3750 0.1875 0.3750 -0.3750 0.5000 0.3750 1.0000 3'4 Barra d"1 5.2551 di 2.4974 di 5.2551 d" 0.6653.. = • 1/ El• di -1.8730 d" 2.4974 6 od-7 0.6653 di {di] (TonlEn {q;} ... [k¡)(d;) {5.255~ {18.107912.497 -4.6853 {S.2551} [1.8921 ] 0.6653 -2.6164 r973O} rS3n} 2.4974 3.5372 o 1.537z 0.6653 2.6164 O O O 1 e·ZS51}o .4974, o .6653 O 1 [ 5.2551] {D} = _!_ 2.4974 El 06653 {D} = [Kr1 {Q} 288 o O O 1 1 O {d·l = [A](D}~ fd·} = 00 O -0.75 O 1 O O O O {di} = [Ai] {D} {qi} = [Id] {di} • Fuerzas en las barras. {Q}= [r] • Desplazamientos en el sistema Q-D {Q} = [K] {D}
  • 299.
    289 [A3_4]T [kj_4][Al-4] -El [g 1.6~80 o.7~131o 0.7813 1 .0000 Se observa que se obtiene el mismo resultado, respecto al aporte de la barra 3-4. En consecuencia y como era de esperarse, la matriz de rigidez del pórtico en el sistema Q-D, es fa misma. Luego. el aporte de la barra 3-4 a la matriz de rigidez del pórtico es: DI= 1 D2= 1 D3= 1 di = 1 O O [Al-3] ._.__c!~ _~. ..º .._. ..}. ..~ .... _d3= 1 O O -...~-~.- --------º----.o------Q---------_ ..!.._.o__. ~~~~~_._ ds= O 1 O dtí= O O 1 [Al = • Generación de la matriz de transformación de desplazamientos {d} = [A] {D}. Para las otras dos barras la matriz de rigidez no se modifica. 0.7813] 1.0000 [ 4( 0.752) 75]~ _El 4" 4+3·0.75+3· 4 2+6.0'4 _ 1.6680 k3_4- 4 75 - EI~. 7813 2+6.0'4 4 • Matrices de rigidez de barra en el sistema q-d (sistema local de coordenadas). Nótese que el sistema q- d adoptado para la barra 3-4 involucra la determinación de la matriz de rigidez de la barra, tal como se hizo en el acápíte 4.6 o en el Ejemplo 7-3. Dicha matriz de rigidez corresponde. al caso 7 del acápite 4.11, con a= 0.75 m y b =4 m. Modelo de la estructura y. sistema Q - D 4.00m--;.fO.75m'" .... 1 r , ~~,., 3 27 El 1 Nuevo Sistema q- d 3 ~1El 3.00 m 21 El 5 r.I!B~-----)64 2 : EI=oo 1~ 3~ • Nuevo sistema q- d. El Sistema Q -D es el mismo que hemos utilizado en el Ejemplo 7-7. Ejemplo 7-8 Resolveremos nuevamente el pórtico del Ejemplo 7-7, modificando el sistema q - d para la barra 3-4 (la barra con brazo rigido a la izquierda) ) ) .) } --j i } j ~J ) ~ i ¡ ), j -_;; ~ .) i J j ) J 1 l _J 1 } t _j ~ ! ! Ii 1 1 1 )
  • 300.
    290 {di} = [Aí]{D} {qi}= [ki] {di} • Fuerzas en las barras. [ 6.1861J {D} = ~ 2.4450 El 0.9488 {Q)= [rJ {D} = [Kr1 {Q} • Desplazamientos en el sistema Q-D {Q}= [K] {D} • Matriz de rigidez del pórtico en Q - D [K] = ¿[Ai]T [ki] [Ai] [ 7.5450 -10.6509 -0.66671 [KFlnal1= El -10.6509 26.6443 O.7813 -0.6667 0.7813 2.3333 ) ) .1 ) .) ) ) ) ) -10.6509 gOl 24.9763 o • Aporte de la barra 1- 3 a la matriz de rigidez del pórtico [ 7.1006 [kl-3] = [Al-3]T[ki-3][Al-3] = El -10.;509 -10.6S09] 24.9763 12 6 .. 27EI [33 -31] [7.1006 kl-3 = 1 +a _~ 4+« = El -10.6509 32, 3 b E - = 2.3 (concreto armado) G (h)2 (15)2=:;. a. = 2.76 T = 2.76 -T =0.69 ]2 El a=-::--- POAc Ac e bh 1.2 ~h () "~ ) ') ) ) ) ., ) ) ) ) ) J ") ) ) --::) -} 4 ) ) Ejemplo 7-9 Resolveremos nuevamente el pórtico del Ejemplo 7-7, considrando deformaciones por corte en la barra 1-3 (muro o placa). Con esto podremos formarnos una idea de la influencia que tienen las deformaciones por corte en la repuesta frente a cargas laterales de este pórtico pequeño. • Sistemas Q - D Yq - d. Son los mismos del Ejemplo 7-7. • Matriz de transformación de desplazamientos {d} = [Al {D}. Es la misma del Ejemplo 7-7. • Matrices de rigidez de barra en el sistema q-d (sistema local de coordenadas). Las.. barras 2- 4 Y 3- 4 tienen la misma matriz de rigidez del Ejemplo 7-7. S610 es necesario", modificar la matriz de la barra 1 -3 incluyendo deformaciones por cortante, para esto, utilizaremos lo expuesto en el acápite 4.10.3. . , ..... 290
  • 301.
    291 Se sugiere allector que compare los resultados con los del Ejemplo 7-7, tanto los desplazamientos como las fuerzas internas y la rigidez lateral. Encontrará que las fuerzas internas varían poco, la placa toma algo menos de fuerza cortante transfiriendo la diferencia a la columna. Sin embargo, el desplazamiento lateral del pórtico se incrementa un 18% con lo cual la rigidez lateral del pórtico se reduce al incluir deformaciones por cortante en el muro o placa. • Rigidez lateral del pórtico KL= 20 ~ 3.233 El 6.1861 DFC(ton) 17.883 DMF(ton-m) 2.11 2.117 -- 3.491 3.607 2.859 !!@iilJt i i 17.883 =)'6.]7, 2.859 • Diagramas de fuerzas internas finales Barra fkil x El {di} [qi} == [ki] {di} 1~3 ( 7.1006 -10.6509] {6.1861} (17.B832} -10.6509 24.9763 2.4450 -4.8195 2-4 [0.4444 -0.6667J [6.1861} {2.1168 ] -0.6667 1 .3333 0.9488 -2.8590 r·107' -0.3750 -0.1875 -0.3750] r·S338} r·616'} 3'-4 -0.3750 1 .0000 0.3750 0 .5000 2.4450 3.6071 -0.1875 0.3750 0.1 875 0 .3750 o 1.6165 -0.3750 0.5000 0 .3750 1.0000 0.9488 2.8590 J _) ) ) } ) 1 , " ¡ d~ o o o 1 6.1861 O 1 O di 2.4450 1 O O e·1861} di 6.1861 O O 1 d. 0.9488 * l/El [del = [A]fo] ~ {d·l = .4450 ' =O -0.75 O d! -1.8338 .9488 ;, O 1 O des 2.4450 } O O O d; O O O da 0.9488
  • 302.
    J, " -, -.." r.- J ) ,]t (~ 4 ) ) ) "> ) ) ) ) ) ) ) J ) ) ) -j ;.) 4 ) ) ) ) ) ,) ) ) ) ) ) ) 292 o 1 -4 ~][ 1 T 3El [KI] = [Al] [kl] [Al] = -3 O (3) 3 • Aporte de las columnas a la matriz de rigidez de la estructura ~ ][k] = 3EI [ 1 h3 O • Matriz de rigidez de las columnas en el sistema q-d (sistema local de la barra) DI D2 D3 di 1 O 3 d2 O 1 -4 [AJ) - ----------------d3 1 O 3 [A2][A] = dt O 1 4 ------------------ds 1 O -3 [A3]d6 O 1 O • Matriz de transformación de desplazamientos {d} = [A] {D} Q - D (planta) q- d (Perspectiva) 4m4m ~( el f-~1 3 292 Ejemplo 7-10 Ensamblar la Matriz de Rigidez del edificio de un piso del Ejemplo 6-42, acápite 6.17. El edificio es una estructura compuesta por -una losa maciza indeformable en su plano (diafragma rrgido) apoyada sobre tres columnas circulares de 3 m de altura, empotradas en la base y articuladas en el extremosupertor con rigidez a la flexión de El = 5,400t-m2• Se desprecia la rigidez torsional de las columnas. El sistema global de coordenadas está referido al centro de gravedad de la losa.
  • 303.
    293 La transpuesta dela matriz de transformación de desplazamientos, representa la matriz de transformación de fuerzas. El aporte de las "m" barras que componen la estructura viene dado por: ,¡ -1 ) El vector de cargas total, que debe utilizarse para la solución de la estructura, se obtiene ) a partir de: {Q}totaJ = {Q}nudos + {Q}barras = {Q}nudos - {R} -: {Q} total= [K] {D} (solucióndel EstadoComplementario) {d} = [A] {D} Contragradiencia: {Q}= [A]T {q} Cargas en barras {Q} barras = - {R} Cargas en nudos {Q}nudos Q-D Estado Primario para las cargas en barras: Cargas de fijación = {R} w 7.6 Ensamblaje del Vector de Cargas en Nudos En el Método de Rigidez las cargas sólo pueden estar aplicadas en las coordenadas del sistema Q-D elegido para el análisis de la estructura. Sobre la estructura pueden actuar cargas directamente aplicadas a los nudos y al mismo tiempo cargas en las barras. Para las cargas aplicadas en los nudos el ensamblaje del vector de cargas {Q} es directo, mientras que para determinar el aporte de las cargas en barras a dicho vector, es necesario resolver primero el Estado Primario (véase el acápíte 6.5) estado en el cual se restringen todos los desplazamientos de los nudos medidos en el sistema Q-D y se calcula el vector de Cargas de Fijación {R}. A partir de este vector se genera el Estado Complementario, en el cual solo hay cargas en los nudos. La figura a continuación muestra una estructura con cargas aplicadas directamente en los nudos en el sistema de coordenadas elegido y cargas en las barras para las cuales será necesario resolver el Estado Primario antes de proceder a la solución de la estructura. 3EI[ ~ o 2:J [K21= [A2]T [k21[A2] = 1 C3i .3 4 r 1 O -:]T 3 El 1[K3]= [A3] [k3][A3] = -3 O (3) -3 O • Matriz de rigidez total de la estructura .! 5~]- [m[ ~ O 1,800 O 1,800 ] J [K] = L [Ai]T [Id] [Ai] = 3 O 1,800 35,~OO (3)3 3 O 1,800 O
  • 304.
    294 ' 7.7 Etapas dela FormulacIón Matricial del Método de Rigidez a) Definir los sistemas de coordenadas Q-D y q-d b) Generar las matrices [Aj] -+ {di} = [Aj] {D} e) Generar las matrices de rigidez de barra en el sistema q-d -+ [k¡] d) Generar los productos [A¡]T [kí] [Aí] -+ aporte de cada una de las barras a [K] e) Ensamblar la Matriz de Rigidez de la estructura -+ [K] = ¿[A¡]T [Ie¡] [Aí] f) Ensamblar el vector {Q}nudos-+ (aporte de las cargas en nudos) g) Calcular las fuerzas de empotramiento debido a las cargas en barras -+ tri} h) Ensamblar el vector de Cargas de Fijación -. {R} =L [Aj]T [ri] (Estado Primario) i) Ensamblar el Vector de Cargas -'{Q}total = {Q}nudos- {R} j) Resolver {D} = [KrJ {Q}totaJ-+ (desplazamientos del Estado Complementario) k) Calcular los desplazamientos de extremo de barra -+ {di} = [A~ {D} 1) Calcular las fuerzas de extremo de barra del Estado Complementario {q¡} = [k¡] { m) Calcular' las fuerzas totales de extremo de barra (Complementarlo + Primario) {q¡}total = [k¡] {di} + tri} mbarras T { Q } = L [A¡] {s.] i= J Si extendemos este resultado al Vector de Cargas de Fijación del Estado Primario {R}., tendremos: . mbarras T {R }= ¿ [A¡) {fi} i-l {Qharras = -{R} (aporte de las cargas en barrasal vector {Q}) Donde tri} es el vector de fuerzas de empotramiento en los extremos de cada una de las • barras. ,,:1) ;~ e ~ ) ) ) ., ) ) ) ) ) ) J ) ) ) ') --j ...j ~ ) ) ) ) .> , ) ") ') ) ) -3 - ~ ~ ~ ) ) 294
  • 305.
    295 DI = 1~=I dI O O d2 1 O [Al] [A]= ---------d3 1 O [A2] <1. O 1 • Generación de la matrizde transformación de desplazamientos ~1=1 ~=O 0,=0 ~ D¿=1 ~I~'- ~:I----~¿__p.,~ ~ ~4 z 44 ~ (:_1 __ 2 ~ t3 t4 i) ~ -t7--t8. ~, Sistema q-d alternativo (n = 8) La desventaja del sistema q-d alternativo, estriba en que las matrices [Ai] contendrían muchos ceros ya que hay una relación nula entre los desplazamientos DI y ~ con los desplazamientos d3, <1., d7• dI. Esto hace tedioso los cálculos cuando se desea abordar de manera manual la solución de la estructura, sin embargo, cuando la solución se realiza con la ayuda de un computador, se usarla el sistema alternativo ya que este sistema permitirá calculardirectamente las fuerzas cortantesen las barras. Nótese que con el sistema q-d elegido, no será posible calcular las fuerzas cortantes en los extremos de las barras. Estas deberán ser calculadas por equilibrio de cada una de las barras a partir de los momentos flectores en los extremos de las mismas. Si se desea conocer directamente los cortantes, será necesario utilizar el sistema q-d alternativo indicado a continuación: ~ ~ ~~ el 4)j I/t Q-D (N=2) q-d barras ~ ~ :il2 7S: 3~ ~~ G) G) 4 q-d (n =4) • Sistemas de Coordenadas 4m3m ,.,v Eiemplo 7-11 Resolver la viga continua de dos tramos mostrada a continuación. Se consideran deformacione_ssolo por flexión y El es constante. Véase el Ejemplo6-3, acápite6.5 2 ton/m 1 -~ ::3 o_) ) ) ) ) J 1 iI -:,I ) I -==1"'1 I -,I ) j I __) ) ~ _) ~ t l ; ¡ ) i ) 1 ) 1 I¡ ~ ,f,: ._. ¡'o. .-
  • 306.
    296 Aporte de labarra 1: {R,} = [A,]T {ri} = [~ RI R ~ 2 *-QY YYLD( )Cfiyyy~(~ ~ --m1.5 1.5 2.667 2_267 • Ensamblaje del vector de Cargas de Fijación. Estado Primario. fuerzas empotramiento en el sistema q-d: ] <:a G) ~2 3~ G) ?iJ4 El [4 :] El [4 !][kl ] =- [k2 ] = 4 23 2 • Ensamblaje de fa Matriz de Rigidezde la estructura Aporte de la barra 1: [KI]= [AI]T [lel] [Al] = [~ 1PI[4 :J[~ O]=EI[4 ~]032 O 3 O i 1¡ Nuevamente es fácil comprobar que la relación {Q}= [A]T {q} representa las ecuaciones de equilibrio de momentos de los nudos 2 y 3 de la viga. • Matrices de rigidez de barra en el sistema q-d 296 dI O O {d} = [A] {D} -+ _d.!_ 1 O {~:}= ------ d3 1 O d.. O 1 <} r:~ ~ é~ ) ) ) ) ) ) ) ') ) ) .) ) :1 ) ) -:) .~ ~ ) ) ) ) ) ) ) .) ") ) ) ) ) -:j ') ~ ~ ~ :) -J ) ..;:) :) .J ::J ~ ) Aporte de la barra 2: [K2]= [A2]T [1<2] [Al] = [~ 0pI [4 :J[~ O]=EI [4 :]142 1 4 2 • Matriz de rigidez total: (K] =¿(Ki] 4EI + 4EI 0+ 2EI 7 1 - -3 4 4 3 2 [K] = ¿fki] = =EI O + 2EI 0+ 4EI 1 1-4 4 2
  • 307.
    297 • Diagrama defuerzas en barras en el Estado Complementario (ton-m) 1.167 J- r;.80 1.601"'16. ":;6~;).667 -r --i) c.: ~) <':0.434 -.J 2 ] {DI} _{ -0.434 }- ton-m 4 D2 - 2.667 Barra 2: { 0.80}= ton-m 1.60 2 ] { O } = El { 2 D, } 4 DI 3 4 D, {q}1 = {qr } = El [ 4 q2 3 2 • Solución del sistema de ecuaciones, desplazamientos de la estructura en sistema Q-D El [ 7/3 0.5] {DI} = { 1.167 }{Q}= [K] {D} 0.5 1 D 2 -2.667 120 3.267{D} = [I(J-) {Q} => DI = 92 ~ _. - D2 = 93 ~ --- El El • Fuerzas en barras en el Estado Complementario Barra 1: {q}1 = [kl] {dl}= [kl] [Al] {D} ~ _,_~~I,_.J_6_7__ .....~, 2.667 Complementario {Q}= _{R} = { + 1.167 } - 2.667 • Vector de Cargas {Q}. Estado Complementario { -1.167}{R} = {RJ} + {R2} = +2.667 Aporte de la barra 2: (R2}~ [A,jT (r.} = [~ .. ~] { ;~:::; }= { ~~~~7 } 297 ) ) ') ) ) ) ',:. J ) -) j ) --1 ) =4 ) i ) .) =.::J J ) ~.' ~... . , ~.. _. ~~~. 1;;, 1~~· :r- ;. , ! 1 _) 1 ) _) ~ I ¡ , ¡ } j ) ~.) ..1, t ")1 ¡. I 1¿:' 1 ';::'" .. ~ ,. :-=.:' ,':. .'. , _J -t '. j
  • 308.
    '1' t) ¿~ :1 ) ') .) .) ) ) ) ) ) ) -) J ) ) " - ..;) -'1 . 298 5~--=--zi>6 -Y G) ~ fq-d (0=6) ~3 E == 2 xl06 ton/m2 EA = CXl Barras 1y 3 0.25 x 0.40 Barra 2 0.50 x 0.40 El t::# 2, 667 ton-m2 2EI:::s5, 33j ton-nr' Q-D (N=3) 2 ~3 l 6m • Sistemas de Coordenadas ...)¡ lele G)I 1 Ejemplo 7-12 Ensamblar la Matriz de Rigidez y el Vector de Cargas para el pórtico asimétrico mostrado. Se ignoran las deformaciones axiales y por cortante en todos los elementos. Este pórtico fue resuelto en el Ejemplo 6-9. acápite 6.5. Diagonal principal [O] [K]= gdl~ 1 2 3 4 5 [O] 1~ 2~ 3i- 4~ 5~ Q-D Nótese que las vigas continuas, como la resuelta en este ejemplo, en las cuales se consideran únicamente grados de libertad de giro, originan matrices de rigidez denominadas tridiagonales, es decir, todos los elementos no nulos se agrupan en tres diagonales, la diagonal principal y otras dos "paralelas" a la principal. En este tipo de estructuras, el ensamblaje de la matriz de rigidez es directo, lo mismo sucede con la solución del sistema de ecuaciones para lo cual existen algoritmos de solución eficientes. Primario 1~ 1.sK:' 24.267 + ~fh."UfLLP"~G:L:LP'",, Complementario 1.6 • Fuerzas finales en las barras = Complementario + Primario {q¡}totaJ = [lq] {di} + {r¡} 298 _._----"' ....------------_ .... I 1- 1i .'
  • 309.
    299 DI D2 D3 di 1o o d2 o o [A'] ---------- {d} = [Al {D} [A]= d3 1 o o [~] d, o o ---------- ds o o [A3]d6 o o • Generación de la matriz de transformación de desplazamientos. Para este tipo de pórtico con barras ortogonales, la generación de estas matrices es directa y contienen únicamente elementos unitarios y elementos nulos. Sistema q-d con deformaciones axiales en las barras n = 12 La desventaja del sistema q-d alternativo, estriba en que la matriz [Ai] para la barra 3 contendrá muchos ceros ya que hay una relación nula entre los desplazamientos DI. D2 Y D3 con los desplazamientos verticales de la barra 3. Esto hace tedioso los cálculos para esta barra cuando se desea abordar de manera manual la solución de la estructura, sin embargo, cuando la solución se realiza con la ayuda de un computador, se usaría el sistema' alternativo ya que este sistema permitirá calcular directamente las fuerzas cortantes en las barras. Si fuera necesario considerar deformaciones axiales en las barras, el sistema Q-D tendría seis grados de libertad (tres en cada nudo libre) y el sistema q-d doce grados de libertad como se ilustra a continuación. Cuando se realizan cálculos manuales, es práctica común, ignorar las deformaciones axiales para trabajar con sistemas de coordenadas más pequeños, sin embargo, cuando los cálculos numéricos los realiza un computador, no hay ninguna limitación al respecto y se pueden incorporar todos los grados de libertad que sean necesarios sin necesidad de hacer suposiciones relativas al tipo de deformación predominante en la estructura. Sistema q-d alternativo (n = 8) Nótese que con el sistema q-d elegido, no será posible calcular las fuerzas cortantes en los extremos de la barra 3, estas deberán ser calculadas por equilibrio de la barra a partir de los momentos f1ectores en los extremos de la misma. Si se desea conocer directamente los cortantes, será necesario utilizar el sistema q-d alternativo indicado a continuación: ,i .J I ~ ) } j.~. ) ) ) 'j } ..J } ~ ) } ) ) ) _) ) -) ! ) ""'1 I ) J =) ) ) ~ -3 ) ',:, ) -;) ) -l
  • 310.
    .), 1 t~... , ¡¡)i ~ ) ) ) ) ) ') - ) ) ) _) .) - ) ) -J ._j J ) ) ) ) ) ) ) ') . ) ) ) -j 1-" ,' . ~ ,j :) ) -' ~J , ---=--;¡ ..; ._~ ...._, "d .-:9' -:» " '-J OO O O O O [A3y [k3] [A3]= O 4 2 O = El - - 6 6 O [k312x2) 2 4 O - 6 6 300 Aporte de la Barra 3: afecta únicamente a los gdl globales 2 y 3 % O -fe(3)3 (3)3 [A2f [k2] [A2]= 2EI O O O -fe O %(3)3 - Barra 3: G ~6 [k31- El [ 4 !]l 2 Aporte de la Barra 2: afecta solo a los gdl globales 1 y 3 - Barra 2: 4r 12 -6 [k2] = 2EI (3t (3)2 -6 4 (3y 3 (3x3) [Al r3X2) [k,1c2lt2) [Al12.r3) = O O O O ..... en el sistema global Aporte de la Barra 1: afecta solo a los gdl globales 1 y 2 [k]12x2) O 12 -6 [kl] = El (3t (3)2 ..... en el sistema local -6 4 (3)2 3 j i I I ¡ ¡, Iri I I 300 Es posible comprobar que la relación {Q} = [A]T {q} (Principio de Contragradiencia) conduce a las siguientes ecuaciones de equilibrio: Qt =q¡ +Cl3 (equilibrio horizontal del nivel) Q2= q2+ qs (equilibrio de momentos en el nudo 3) Q3 = qa +q6 (equilibrio de momentos en el nudo 4) • Matrices de rigidez de barra en el sistema q-d y aportes a la matriz [K] - Barra 1:
  • 311.
    301 {R} = {-1~.19} ton-m +5.06 • Vector de Cargas {Q}. Estado Complementario {Q} = - {R} = { 15~19} -5.06 o ] {O } - 15.19 O {+ } = - 15.19 ton-m 1 5.06 + 5.06 Aporte de la Barra 3: 3 T {R}=¿ [A¡] {r¡} i=] r Cizs........._~]8__ ¿) I CD 15.19 G) 5.06~ • Ensamblaje del vector de Cargas de Fijación {R}. Estado Primario, fuerzas de empotramiento en el sistema q-d, Solo aporta la barra 3. - 1.333 ] 0.333 3.333 [ 1.333 - 0.667 [K] = El - 0.667 2.0 - 1.333 0.333 3 2 1 GDLglobaid- ~ 1 2 3 12/(3t+ : -6/(3)2 + O + 24/(3i+ 1 O + -12/(3)7.+ O I O I O -------~------~--------- I I _6/(3)2+ I 4/3 + 1 O + 0+ 10+ 10+ I I O 1 4/6 I ~6 I I -------r------~-------- 0+ 10+ 10+ .]2/(3)2+ I O + : 8/3 + O : 1/6 I 4/6 I I ¡_,. Nótese que para este tipo de pórtico, conformado por elementos ortogonales, no es necesario efectuar los productos de las matrices de transformación, basta s610 con generar la matriz.de rigidez de barra _y lu~go por simple observación o inspección de los grados de libertad globales que son afectados por la barra en cuestión, colocar en los "casilleros" apropiados de la Matriz de Rigidez [K] los elementos de la matriz de rigidez de cada una de las barras e ir sumando los aportes de cada una de ellas. Esta idea se ilustra a continuación:
  • 312.
    DI Ih D3 dI 1o o d2 o o [Al] - --------------------- d3 1.25 o o [A2] <4 o o 1 - --------------------- {d} = [A] {D} [A]= ds o o o d6 o 1 o d7 0.75 o o [A3] ds o o 1 DI=} Nótese que en la barra 3 (elemento horizontal) se han incluido los grados de libertad locales 5 y 7, estos son necesarios ya que esta barra aporta, a través de la columna inclinada, al grado de libertad global 1 así como a los otros dos gdl de rotación. Esta barra también aporta al vector de cargas asociado a la coordenada global 1. • Generación de la matriz de transfonnación de desplazamientos. 1.2~ 4 q -d (n = 8)Q-D (N=3 ) • Sistemas de Coordenadas 3m6m E;:;; 2 X 106 tonlm2 Sección 0.25x 0.50 El 1':$ 5,208 ton.m2 EA=C() 2 4 Ejemplo 7·13 Ensamblar la Matriz de Rigidez y el Vector de Cargas para el pórtico mostrado. Se ignoran las deformaciones axiales y por cortante en todos los elementos. Este pórtico fue resuelto en el Ejemplo 6-12, acápite 6.5. 302
  • 313.
    Aporte de laBarra 2: afecta a los g.d.lglobales 1 y 3. } [l.~ nEl [k, 1[ 1.~5 ~]:1 [K,l =[A,f [k,l [A,]= ~ O ) O } [K,l =El [ 0.15 O -0.3 J j O O O I -0.3 O 0.8 )- I ) J Barra 3: 5 6 7 8 ) ~t t 8 12/63 -6/62 -12/63 -6/62 -;) -6/62 4/6 6/62 2/6) 5 7~ [kJ] =EI -12/63 6/62 12/63 6/62 ) -6/62 2/6 6/62 4/6J .~j Aporte de la Barra 3: afecta a los g.d.l globales 1, 2 y 3. ) IK,J=[A.]' [k,][A,]= [ ~ ~ ] [k,] O O O =, O 0.75 O 1 O'} 1 O 0.75 O O j .J O O "'!f O O 1 :J 303 ) i ') 12 -6 [k2] = El (S)3 (5)2 -6 4 {st 5 - Barra 2: (3,,3) Aporte de la Barra 1: afecta solo a los gdl globales 1 y 2. 2fI 12 -6 [k¡] = El (4f (4)2 - en el sistema local -6 4 (4)2 - 4 Nuevamente es posible comprobar que la relación {Q} = [A]T{q} (Principio de Contragradiencia) conduce a Ias siguientes ecuaciones de equilibrio: . Ql = q¡ + 1.25 CJ3 +0.75'17 (equilibrio horizontal del nivel) Q2 = q2 + q6 (equilibrio de momentos en el nudo 3) Q3 = q4 + qs (equilibrio de momentos en el nudo 4) • Matrices de rigidez de barra en el sistema q-dy aportes a la matriz de rigidez total [K] - Barra 1: •) ) 1 I, l' , }
  • 314.
    { -4.5 } {Q}= -{R}= _: { 4.5 } {R}= -: { 4.5 } {R), = [A, r {,,)= -: unidades ton, m +6 -6 +6 +6 • Ensamblaje del vector de Cargas de Fijación {R}. Estado Primario Estado Primario, fuerzas de empotramiento en el sistema q-d: Solo aporta la barra 3. 304 [ 0.03125 0.125 0.125 J [K3] = El 0.125 0.6667 0.3333 0.125 0.3333 0.6667 [K] = [Kt]+ [K21 + [K3 ] 1 2 3 0.1875 + , -0375 + O +, 0.15 + I O + -0.3 +1 I 0.03125 I 0.125 0.125I I-------L- _____J________ I I -0.375 + I ] + I O + 2 I I [K.] = O + , O + 1 O +I I 0.125 I 0.fH>1 I 0.3333 ." I I$ ------~------~--------I I 3 O + I O + I O + I I -0.3 + I O + I 0.8 + 0.125 I 0.3333 I I I 0.«)67 I , [K] = EI[ 0.36875 - 0.25 - 0.175 J - 0.25 1.6667 0.3333 -0.175 0.3333 1.4667
  • 315.
    305 Q-D D! ~ ] =[ 1 1 (matriz identidad) La multiplicación de matrices precedente, es ineficiente por la gran cantidad de ceros que contiene [Al]' ¿Qué pasa si trabajamos con matrices [Ai] más pequeñas? Matrices que solo relacionen los desplazamientos locales de la barra con los desplazamientos globales de la estructura que afecten directamente a la barra en cuestión, por ejemplo para la barra 1 tendremos: Para calcular el aporte de la barra 1 a la matriz de rigidezde la estructura, será necesario efectuar el siguiente productode matrices: [K. 18x8) = [A1rSx2) [kl 12x2) [A1](2x8) donde [k1] = El [ ~ 12 D4 n, O O O O Iniciemos la discusión calculado el aporte de la barra 1 a la Matriz de Rigidez total de la estructura. Para ello, será necesario construir la matriz de transformación de desplazamientos {di}= [Al] {D}. Esta matriz relaciona los grados de libertad de la barra 1 en su sistema local (q-d)con todos los grados de libertadde la estructura en el sistema Q-D (en este caso ocho). Por simple inspección es claro que la matriz [All contendrá muchos elementos nulos ya que solo los grados de libertadglobales 1 y 2 afectan a esta barra. A continuación se muestrala matriz completa: 7.8 Sistematización Parcial del Ensamblaje de la Matriz de Rigidez Los ejemplos presentados permiten formarse una idea de todas las operaciones matriciales necesarias para ensamblar la matriz de rigidez de una estructura, sin embargo, es posible sistematizar aún más las operaciones matriciales para la implementación del Método de Rigidez en computadoras. Para explicar la manera de sistematizar el ensamblaje de la Matriz de Rigidez usaremosel pórtico plano mostradoa continuación, compuesto por doce barras. Salvo las barras 11 y 12 todas las otras son indeformables axialmente. ) ) _,) ) J ) 4 _) -'7 } J ~ -3 ) ) _.:} J -) 1 ; } ) ) , 1 8 9 Q @ ~ 5 l 6 4 8 -) G) @ 2 3 Sistema Q-D (EA =00)
  • 316.
    o j 306 , , '_J Para labarra 4, que afecta a los grados de libertad globales 1, 3, 5 y 7 se m continuación la ubicación de los 16 elementos de [K.t]: .SlID. -12/13 _6/l2 12/f' El aporte de la barra 4 a la matriz de rigidez de la estructura viene dado por: [K. ~4X.) = [A4]~4X4) [k4 ~4X4) [A.l4x4) = [k.](4X4) Veamos el aporte de la barra 4: 7 4 Gt DI D3 D, D7 ~: dI 1 O O O d2 O 1 O O = [1] , ," [Aa ] = d3 O O l.¡,. O d, O O O 1 (4x4)2 Q~D q-d _--l '-'; (8x8) GDL global J.. -t 1 i 2 i 3 4 5 6 7 8 1 LX 1 LX I...;- -'-fx-rLX .,- - ---..---.- -.-.--. ..._...- --·....--...--t----...-..;......_....--..---~-----------....·.._ .....-....---------........--..-- : ! I [K] Total = : I! i ~ I I 8 ! I El aporte de la barra 1 a la matriz de rigidez de la estructura viene dado por: [ KI ]~x2)= [ Al f2x2) [kJ ](2x2) [~ll2X2) = [ k, ~2l12) Nótese que en este caso el producto resultante es una matriz de orden 2x2 y el aporte de la barra 1 no se puede sumar directamente a los aportes de las otras barras de la estructura. en consecuencia será necesario, por simple observación o inspección (Ensamblaie de OC] por Inspección) de los grados de libertad globales que son afectados por la barra en cuestión. colocar en los "casilleros" apropiados de la Matriz de -, Rigidez [K] los elementos de la matriz de rigidez de cada una de las barras [Ki] e ir sumando los aportes de cada una de ellas. Esta idea se ilustra a continuación para la barra 1 que afecta a los grados de libertad globales 1 y 2, se muestra la ubicación de los cuatro elementos de [KJ]: ,;) ~ O c_) ) ) ) ) ) ) ) ) ) ') ') ) ) ) ) J -3 j ) ,) ) ) ) ) J ) ) ) ,) ) _) J J ~ ~ .) J ) J 306
  • 317.
    307 D,= 1 05=1 Aportede la barra 12: 4 7 8 . Y1 -+ 4 Q-D S DI Ds [A'2 ] [ cosa. ~a ] = O 8 (8x8) 7 6 6 8751 : 21 3 : 4 r I I I I I 2 I¿X, LX, ---- ------..1.-----1--------1----------------------------------------- 3 ILXI LXI_ ___L __l J • _ 4 I I [ K ] Total = :: 5 I r I I I , I I I I I I I r I t Para la barra 7, que afecta a los grados de libertad globales 2 y 3 se muestra a continuación la ubicación de los cuatro elementos de [K.7]: ~] ~ [A,l=[~zQ2 Veamos el aporte de la barra 7: !____., ~4 : G 1 C;l G5 t3Q-D q-d [] [ ] T [k] [1 [k] donde [k7] = E.t.I[24K7 (2x2) = A7 (2x2) 7 (2,,2) A7.1(2)(2) = 7 (2x2) (8x8) 7 8 3 4 [K] Total = 5 1:23:4 5:67: 8 :EXI LX : LX : LX : --~-~---~~-~--------~------~----I I I I ¿X: LxI LX : LX : ----t------t--------~------i----I I r I LXI LXI LX r LXI I I I I ----r------r--------r------;----6 I I r I LX: LXI LX : LX: ____~------L--------~ J _ I I I I I I I I I I I r GDL global-I ~ 1 -2 307 ) ) '-1 ") J .} 1 ) ) J .;;) ) ) ) "'l ) J j ) "'9 .--;) } I j " ~ ) -) , ¡' ) ) )
  • 318.
    7.8.1 Resumen delprocedimiento.- Ensamblaje de fK) por Inspección: Luego de "recorrer" todas las barras de la estructura y de ir sumando sus aportes en cada uno de los "casilleros" de la Matriz de Rigidez Total de la estructura, se habrá concluido el ensamblaje de dicha matriz. Este procedimiento es mucho más eficiente para su implementación en programas (software) para el análisis de estructuras con - computadoras. . En resumen el procedimiento mostrado para ensamblar la Matriz de Rigidez de la estructura consiste en: a) Generar, para cada barra. la matriz [A¡] ({di} = [Ai] {D}) considerando solo los grados de liberad globales que afectan a la barra en cuestión. b) Generar la matriz de rigidez de la barra [k¡] en el sistema q-d. Esta matriz está referida al sistema local de coordenadas elegido para la barra. e) Efectuar el producto [Ki] = [AilT [lq] [A¡]. Este producto equivale a transformar la matriz de rigidez de barra de sistema local al sistema global de coordenadas. d) Considerando los grados de libertad globales que son afectados por la barra (posición o incidencia de la barra en la estructura) colocar en los casilleros adecuados de [K] los elementos de [Ki] e ir sumándolos a los aportes de fas barras anteriores. Nótese que la Matriz de Rigidez es simétrica, en consecuencia, bastará con ensamblar solo el triángulo superior o inferior de la misma. Para ensamblar el vector de cargas de fijación (Estado Primario) se utiliza un -- procedimiento completamente análogo al indicado lineas arriba. 7 8 l 4 [ K ]Total = s-- 2 Para la barra 12, que afecta a los grados de libertad globales 1 y 5 se muestra a continuación la ubicación de los cuatro elementos de [K12]: 1 ¡ 2 3 4¡ S! 6 7 8 xx] ¡ LX! -----f------------------------t-----~------------------ ! !!· ,.· ..• l' i : i· ..; ~.: : 1: · ..· ..--E"X! -------------------T-"¿ xr--~------------ -------+---------------------+--------J- --- ..----------· ..· ..I i i~ : I : : 1 · ..· .., ..· .., .., ..~ ::, .. [k]=EA[ 112 l _1 308
  • 319.
    309 [F2] = ¿? QI-DI [F1]conocida Matriz de Transformación de Fuerzas: {Ql}= [Bl {Q2} Por Contragradiencia: {D2} = [B]T {DI} La matriz [B] se genera por equivalencia estática aplicando cargas unitarias sucesivas en el sistema Q2 - D2, esta matriz transforma las fuerzas del sistema nuevo al sistema viejo. Q2-D2 Supongamos que para la armadura mostrada, en la cual el elemento horizontal es indeformable (sólido rígido), conocemos la Matriz de Flexibilidad, [Fl], en el sistema Ql - DI Y queremos calcular, a partir de [FI], la Matriz de Flexibilidad de la misma estructura en el sistema Q2- D2. 2 b) Transformación de la Matriz de Flexibilidad Matriz de Transformación de Desplazamientos: {DI} = [H] {D2} Por Contragradiencia: {Q2} = [H]T {Ql} La matriz [B] se genera por geometría aplicando desplazamientos unitarios sucesivos en el sistema Q2 - D2, esta matriz transforma los desplazamientos del sistema nuevo al sistema viejo. Para que exista [H] el sistema Q2- D2 debe ser generalizado, es decir los desplazamientos {D2} deben ser independientes. {Ql} = [Kl] {DI} => {Ql}= [Kl] [H] {D2} [H]T {QI} = [Hf [Kl] [H] {D2} => {Q2} = [H]T [K1] [H] {D2} = [K2] {D2} :. [K2]= [H]T [Kl] [H] Q2-D2 [K2]=¿? Ql -Dl [Kl] conocida 1.9 Transformación de Coordenadas a) Transformación de la Matriz de Rigidez Supongamos que para la armadura mostrada, en la cual el elemento horizontal es indeformable (sólido rfgido), conocemos la Matriz de Rigidez, [Kl], en el sistema Ql- DI queremos calcular, a partir de [Kl], la matriz de rigidez de la misma estructura en el sistema Q2- D2. 309 ) } , i f: ) ;. .;., .., -: " ;,,, " ) " ') e 1<" ..,~ J 3::' ') _) "") ) ~ ) ) ..., ~ ~ '' . ¡ ~ i¡ ¡ , :,' .....::.:;¿¿ . ;.';'"":r;i e-,;;"~.:;.~;;."";¿;'.:,;0.:'::...;':;,';;:~.2,..::.L~~:-..,..~~,,~..,;,';;':~'_~"""-'-'''='_'-'"';;..~'';:.;.~:.'.~'~..:'::'_';,.';'",,:;_,....;.~..._~:~..:::.:.:;;:.:;:.:;::·,::.:::c;:::.:,,:: :.:::.""., :" .•.•=,~"'.•~~~~",.......,',,,.__.....__..___ ) )
  • 320.
    {DI}= [H] {D2} •Matriz de trasformaclón de desplazamientos. [ 31 36 [KI]= El 1 4 • Matriz de rigidez en Ql - DI (conocida). Q2-D2 v QI-Dl Barra deformable r-_.....,~2 Sólido rígido 1 13m. EjemPlo 1-14 Para la estructura mostrada - compuesta por un sólidorígido apoyado sobre una barra defcrmable (barra 1-2) en flexión e indeformable. ~Jtñ~nfe de longitud 3 m - se conoce ,~ matriz .<t~rigiqez en el si~t.emaQl - DI (véase et Ejemplo 7-4), se desea transformar la matriz de rigict.éz al sistema Q2 - D2. . Cuando sea complicado g$ne.rar la rnatnz [al (?Qt equivalencia estática, cotWiene generar por geometrfa la transformáCión {D2} ;:::[Al {Pi}, de acuerdo al PrincipiO de Contragradiencia se tendrá {Ql} = [AlT {Q2}, en consecuencia [A]T= [B]. {D1}= [PI] {Ql} => {Dl}= [PI] [B) {Q2}- [Bf {DI} = [B]T[PI] [B] {Q2} => {D2} = mt (F1] [B]{Q2} = [F2] {Q2} :. [F2] = [8]T (FH (B]
  • 321.
    311 -6 lf! 4 1 • Matriz detrasformación de desplazamientos. {d}] = [H] {d}2 [kI] = El 12 (1)3 -6 (/)2 • Matriz de rigidez en ql - dl (conocida). ~2 [kl] =conocida ql-dl Ejemplo 7-15 Para la barra mostrada - de sección constante El y longitud 1- se conoce la matriz de rigidez en el sistema q 1 - dí I se desea transformar la matriz de rigidez al sistema q2 - d2. Resultado que se puede comprobar con el Ejemplo 40 del acápite 6.16. [K2]= El [4 -14] 9 -14 52 -14 ] 52 -2] = El [ 4 2 9 -14 (DI) [1 -2](DI)D2 I = . 1 2 D2 2 -~ 1[: 12 [K2] = [H]T [Kl] [1-1] [ 31 [ _~ ~] El 316 4 • Matriz de rigidez en Q2- D2. [H]= 311 j } J ) -.iJ ..J' -j ) ~ ." J ) -') ) ~ :) ) '. "), -1 ') r } I i -" j _) ~ } ~
  • 322.
    312 2 ] [:]=~3EI 4 -- 1 2 [k2]= [1 • Matriz de rigidez en q2 - d2. [k2] = [H]T[Id] [H] • Matriz de trasfonnación de desplazamientos. {d}t = [H] {d}2 {k!] = ~I [ ~ ~ ] • Matriz de rigidez en ql - di (conocida). ql-dl ' q2-d2 ~1 ..1J.....--------~4 (dl)2= 1 -1/2 Ejemplo 7-16 Para la barra mostrada - de sección constante El y longitud 1- se conoce la matriz de rigidez en el sistema qJ - dJ, se desea transformar la matriz de rigidez al sistema q2- d2. 1 (ql)2 =-- (ql)J sena ( ql) =[ se~a O ](ql) q2 2 O 1 q2] • Relación {q2}= [Hf {ql} (Principio de Contragradiencia): . • Matriz de rigidez en q2- d2. [k2] =[H]T [k.l] [H] ) ) ) ,) ) .J ) --:} .) ) ) ) J ( ) ) ) ,) ) ) .-) .~ -} . ) J .) ) ) ') ~ - 6 1 W sena 4 1 12 1 (ti (sena)2 - 6 1 (/)2 sena [k2]= El 312
  • 323.
    313 [k2] = El 6 (1)2 4 1 12 (1)3 6 (/)2 [k2]=[H]T [kI] [H] :: • Matriz de rigidez en q2 - d2. (di), = 1// Matriz de trasformación de desplazamientos. {dh = [H] {d}2 • Matriz de rigidez en ql-dl (conocida). [kl] = ~I[~ !] ql-dl Los términos de la primera columna corresponden a las rotaciones de las tangentes medidas con respecto a la cuerda de la barra. como se indica a continuación: 1/ I ~ T / 1(dl)2=] j_ ~1 ,,2 .§r--------.......4,¡/ Ejemplo 7-17 -Para la barra mostrada - de sección constante El y longitud 1- se conoce la matriz de rigidezen el sistema q1- di, se desea transformar la matriz de rigidez al sistema q2 - d2. 313 i, 1 ) , ", r ; ) "} ").,
  • 324.
    .J -::;7 i 1 I I I··1 I ) ) ) ) ) ) J .) i) ) ) ) -:) .d /."1 ) ) ) ) ) ) .> ) ') .) ) ) ) -3 :; ) II I I 314 • Matriz detrasformación de desplazamientos. {D}*= [H] {D} •DI 1 O O H:] D2 O 1 O = D3 0.75 O O D4 O O 1 Nótese que en el sistema Q*-D* las cargas de fijación se calcularon de manera directa. por simple equilibrio de los nudos, sin necesidad de calcular la fuerza axial en la barra 2-4. R; = "-6 too-m R; = 6 ton R~ = 6 ton-m Q*-O* necesarios. r i! 1 I¡ I ¡, • Estado Primario en el sistema Q*-D* (Este sistema no es generalizado): R* ¡t~: 6 • Sistemas Auxiliar de Coordenadas: Cuando los cálculos son manuales, puede ser conveniente trabajar con un sistema "ampllado" o auxiliar que permita simplificar los cálculos del Estado Primario. Si se revisa el Ejemplo 6-12 (acápite 6.5) se notará que para calcular la fuerza Rt, es necesario calcular primero la fuerza axial en la barra 2-4, esto involucra el equilibrio del nudo 4. Si se amplia el sistema de coordenadas, como se indica a continuación (sistema Q*-D*) los cálculos mencionados ya no son Q-D 3m6m 1 EA=oo 2 4 Ejemplo 7-18 Calcular, en el sistema Q-D indicado, el vector de cargas de fijación (Estado Primario) para el pórtico mostrado. Se ignoran las deformaciones axiales y por cortante en todos ros elementos. Todas las barras son de sección constante con el mismo valor de El. 314
  • 325.
    315 o 3 O 3 J [1,800 O= O 59 1,800 1,800 J 35,~00 o 1,800 O [K] = 3 EI[ ~(3i 3 Matriz de rigidez de las columnas en el sistema Q - D (véase el ejemplo 7-5) ~l D*2 3/6 -4/6 -1/6 D*, [H]= ~~ [::: D3 1/6 D*1 = 1 D*3 = 1 ..._--- ----------: , ----- ..._-, ----, --_ ~ , I , I I , I I ------------------~, ,I , -------;------ .-~-- ,....-.=------" , ', 1 , I . ' ; , -' _--, _-----, _--,__ -- • Matriz de transformación de desplazamientos {D} = [H] {D*} Q* - D* (Planta) Q - D (Planta) '1 1 4mIr 4m el e, L.lIl-.I!!...- ---=.=." ____. 1 r-:l3 - Ejemplo 7..19 . Transformar la Matriz de Rigidez del edificio del ejemplo 7-10, calculada en el Si~~ma .....Q- D al Sistema Q* - D* } J ) j I ) } ) ) ") -~ ) .=) ) ~ 1 ) d .~ ) ¡ ,) .J ) _) ) ) r- J j - J ) ~ 1 ) "1 • Matriz de trasformación de fuerzas. } _{R} = [H]T {R}* [~J= U O n O 0.75 [4.5J-6 = -6.0} 1 O 6 1 O O 6.0 6
  • 326.
    -e2 -sc :2 se'C,, _82 , s2-se :sc, • 316 •[k¡¡ka ,, c2 se: -e2 -se, t 2: 2 se s : -sc -s ----------r-------- -- =[k*] = [H]T[k][H] = FA e Matriz de rigidez de barra en sistema global q* - d* (haciendo s = sena, e= cosa): Matriz de rigidez de barra en sistema local q - d: [k] = EA [l .1 ] !. ·1 1 cosao osena La matriz de transformación [H] es: Id} =[H] {dO} [H] = [~11 q*-d* (Sistema Global) 4 t . 2t ~__'3 1~~ J :. EA~~2 ~ 1~ a q-'d (Sistema Local) 7~10 Matrices de Rigidez de Barra en Sistema Global Para lograr la sistematización total del Método de Rigidez, conviene calcular las matrices ,'. de rigidez de cada una de las barras que componen la estructura, en el sistema global de..... coordenadas en lugar del sistema local. Si se observan los productos [Ai]T [Id] [Ai] presentados en el acápíte 7.8, es fácil concluir que dichos productos representan la transformación de la matriz de rigidez de la barra "iu del sistema local de coordenadas al sistema global, en consecuencia, conviene desarrollar de forma genérica dichos productos para los distintos tipos de barra que pueden conformar una estructura. Examinemos la idea del párrafO anterior en una barra del tipo armadura. La matiz de . rigidez en el sistema local q - d es conocida (véase el acápite 4.2) y su transformación a...:,., sistema global se realiza de acuerdo a 7.9 a). Se sugiere al lector el cálculo de la matriz [K*] utilizando la definición (tal como se hizo en el Ejemplo 6-42, acápite 6.17) y por el procedimiento utilizado en el Ejemplo 7-10 de este capítulo. -1,333 1,933 -1,200 1,200. ] -1,200 1,800 [ 2,533 [K*] = [H]T [K] [H] == -1,333 1,200 () ~) ) ) ) ) ) ") ) .) ) 1 ' ' - _ ~ • Matriz de rigidez en el sistema de coordenadas Q.- D. 316 , 1 ¡ ! 1 ~..._"-_.._,=..,-".,,. ===--
  • 327.
    (.kij]3K1] 1_l9j]3x) 6x6 317 ~'" I E1t OO I-~ O O I O ~ -<% ¡ O -12Eft ~ _ O -6jf ~ :O ~ 2F1/t [k] - - ----------------1----------------- : ~ O O Simétrica 1 O 12H1 6EJ/ : / 1 If ¡ O ~ ~ I q-d (Sistema Local) .,_ { " ,' :> _:'¡': .(: ".r, ..:., .~.... ~, ~¡" ?~.:lo • ":.. r. 317 Para otros tipos de estructuras (armaduras espaciales, pórticos planos y espaciales, parrillas) la metodologra es la misma, lo que cambia es la matriz de rigidez de barra en sistema local [k] y la matriz de transformación [H]. Para pórticos planos, considerando deformaciones axiales, la matriz de rigidez en sistema local es: I r ) j '1 Conocida la matriz de rigidez de una barra en el sistema global, el determinar su aporte a la matriz de rigidez total de la estructura, se hace siguiendo la metodología indicada en el acápite 7.8, el aporte de [k*] dependerá de la posición o incidencia de la barra dentro de la estructura. Lo anterior se logra considerando los nudos (a los cuales se han asignado grados de libertad globales) que son afectados por la barra y colocando en los casilleros adecuados de la matriz de rigidez total [K], los elementos de [k*] sumándolos a los aportes de las - otras barras. Por ejemplo, si la barra "m" conecta a los nudos l, j de la estructura, su contribución a la matriz de rigidez total se indica a continuación. Nótese que en las columnas i, j hay dos grados de libertad globales en cada una, por tratarse de una armadura. Nudo,1..--+ 2 3.................. i. j............. N,. , !: ¡ :: l " ,~ I l., , " .l' • : ! 1 il. •.. , i -...-..--....-....--------..------.....-.---------........---~...-.-.---ñi··-i--_·_-_...·too. ··-- ... -~; ..-i.....·..-·-..--..----....--- ....---- ¡[k¡¡]2x21 ! [kr ]2x2![ K ]Total = - _ -_ -I--._ •..•••••~•••- •.•_ •.L••• _.U _••.....• _....•,._.. .....••. ¡I t ! ¡' • I • : 1 t 1 ! ! I i----..-- -- -- - --- ------ -- --_ _4 _ _: .. } _.. L .. --..---.._. J• 1 kt m ¡ ¡ [k·]m I. I[ 'i]~ . jj 2x2!. - ..- _ _.-._ _....c..:::J._.•••_. ··_f··-·····-1-··-·····-······ -,.,. ! ! ¡ !. , . ¡ j' 1 ; : : 1 : N : i : :I • 1 I t ~ ! ! ) ..., ;) ;) ) ) ) ~ ) ,) ) ) ) ) ) ) I J ) . .~,-~~;:__:.i_;1..:::ti.?i~t.:i;: ~:,:~__:''::~~~''-;~",:~~::"i:::~~.~:~¡.~~!;~.:..:;::.:~~.~~.;~~.::<- :~.:::~.;.;.::,._.d:.:~~~:~~;~~.:::~:~~~~~'~~';'_~¿~~~~¿~7'~~'~,:_.;'~;;::'~.~.'(~,~;::_.":':_~l.::~~~:.:.J~':-'::';_:;',.':"¡~::~:::;:'. ~;-;~:~_;:~,-"_:';¡_·,t.·': ..~~;~;::_:..;.=.:;;;,:~__.~-,.=<.:..•.- .•_-
  • 328.
    ) ) ) ) ) ') ) ) ~ ') ~ .) ) ) ) ) ) ) ) ) ) .) ) -::) =3 ~ ) ) ) .j :'j ~ :) ~ ) ~ .) ~ ~ .) @ €) .;2. .,..; (;¡~.'..~ 318 Si asumimos queexisten "m" coordenadas con desplazamientos impuestos (m < n) tendremos: • [K1l] Submatriz correspondiente a las m coordenadas con desplazamientos impuestos, de orden m x m. • [K22] Submatriz correspondiente a las n-ro coordenadas sin desplazamientos impuestos, de orden (n-m) x (n-m). =:> ({QI}) = [ [K1l] {Q2} [K21] {Q} =[K]{D} [K12] ] [K22] nxn [K12] ]({Dl}) (K22] {D2} 7.11.1 Desplazamientos Impuestos enAlgunas de las Coordenadas Supongamos que se conoce la matriz de rigidez de una estructura en determinado sistema Q-D de "n" grados de libertad, si algunos de los desplazamientoe en Q-D son conocidos o impuestos sobre la estructura, podremos particionar la matriz de rigidez de la estructura del siguiente modo: [K] = [[K.l 1] [K21] 7.11 Conden,aclón de la Matriz de Rigidez Es una operación que se realiza sobre la matriz de rigidez total de una estructura y que tiene numerosas aplicaciones. Presentaremos dos casos de interés: [R]T (.kji] [R][R]T (.kji] [R] = [R]T [kit1[R] [R]T I_kij] [R] La matriz de rigidez en el sistema global será: cosa sena. O: I -senu cosa. 01 [O]Jx3 = [[Rl.w [01" ] I O O 1 : {d} = [H] {d"'} [H] = -------------r-------------I cosa. sena. O [Ohxl [R13xJI [O]3x3 I -senn cosa. OI I O O 1I ~4 1_~3 q-d 6 (Sistema Local) ~4 1-----1Y 6 3 q* -d* (Sistema Global) La matriz de transformación [H] viene dada por: 318
  • 329.
    319 Si se restringeel desplazamiento lateral en la coordenada 1, equivale a imponer un desplazamiento DI = 0, la matriz de rigidez particionada es: 3 e 425x40 e 3 <D 25x40 e sax40 I 1 2 Q-D 6M { O} (1.333 -M67 -1.333)r}{Q} = [K]{D} => 9 = El -0.667 2 0.333 D2 -9 -1.333 0.333 3.333 D3 ) ) "1 EJemplo7.20 ) Calcularla fuerza necesaria en la coordenada 1 (QI) para lograr que el desplazamiento -) correspondiente sea nulo. Esta técnica de Condensación de la Matriz de Rigidez, fue utiñzadaten el Ejemplo 6-8 del Capftulo 6, que se sugiere revisar. A continuación se reproduce parte del ejemplo. Si el vector {DI} es nulo.tendremos: {D2}= [K22rl {Q2} {QI} = [K12] [K22r1 {Q2} De la segunda ecuación se obtiene {D~} el vector de desplazamientos desconocidos: {D2}= [K22rl ({Q2} - (K21]{Dl}) De la primera ecuación se obtiene {Qt} el vector de desplazamientos desconocidos: {Ql} = [K1l]{Dl} +[K12] ([K22r1 ({Q2} - [K2t]{Dt}) {QI} = [KlI]{DI} + [K12]{D2} {Q2} = [K21]{DI} +[K22]{D2} [Kt2] ]({DI}) [K22] {D2}( {Ql}) = [ [Kit] {Q2} [K2t] 319 II i ., ) -, i J J J -ll ¡ ¡ ¡ • {Ql} Vector de carga correspondiente a las m coordenadas con desplazamientos impuestos. Este vector es desconocido y representa las fuerzas necesarias en las m coordenadas para lograr los desplazamientos impuestos. • {Q2} Vector de carga correspondiente a las (n- m) coordenadas sin desplazamientos } impuestos. Este vector es conocido y representa las fuerzas que actúan en las coordenadas sin desplazamientos impuestos. En algunos casos este vector puede ser nulo. • {DI} Vector de desplazamientos impuestos. Este vector es conocido, en algunos casos este vector puede ser nulo, por ejemplo cuando se trata de apoyos que se adicionan a la estructura. • {D2} Vector de desplazamientos desconocidos. Efectuando los productos en la matriz de rigidez particionada tendremos:
  • 330.
    7.11.2 .Cargas Nulasen Algunas de las Coordenadas Si las cargas aplicadas en varias de las coordenadas son nulas, es posible encontrar, mediante un proceso de Condensación Estática, la matriz de rigidez "reducida o condensada" que relacione únicamente las cargas en los grados de libertad con cargas._ no nulas, con sus desplazamientos correspondientes. . {Q2) = (~) = [K21]{DI}+[K22]{02} => {D2) = _[K22fl[K2Il{Dl} 1 (2 0.333)-1 (-0.667) (0.27143) {D2}= - El 0.333 3.333 El -1.333 {1}= 0.37282 ( 0.27143) {QI} = [K1l]{Dl} +[K12]{D2}= 1.333EI(1) +El [-0.667 -1.333] 0.37282 De donde Ql ~ 0.655 EI;::¡1,147ton/m. El número que acabamos de calcular es la rigidez ...•.. lateral del pórtico, es decir la fuerza lateral necesaria para lograr un desplazamiento . lateral unitario. . Ejemplo 7-21 Resolvamos el pórtico del ejemplo anterior (Ejemplo 7-20) sin cargas en barras y con un desplazamiento impuesto en la coordenada 1 unitario (DI = 1). *-{-~!-}-::EiH:ll+~'r---~:t!!-)-*{~;}--- ° l-1.333: 0.333 3.333 DJ I De donde se obtiene Qlltl 0.913ton. La fuerza necesaria para lograr que el desplazamiento en la coordenada 1 sea nulo viene dada por: 1 (5.0333) {Ql} = [Kll]{Dl} +[Ku]{D2}= [Ku]{D2} = El [-0.667 -1.333] El -3.203 = _1 (5.0333) El -3.203 {02} = [K22fl {(2) =<> {D2)=(~:J Al ser el desplazamiento impuesto nulo, tendremos: {Q2} = [K22}{D2} =<> {~:} = El (0.:33 ~~~~){~:} [K12] ]({Dl}) [1(22] {D2}( {Ql}) = [ [K1I] {Q2} [K21] a o ) ) ) ) ) 1 ') ") ) ) -j ) ~ ) ) ) ) _) ) ) ) ) ) d ~ ~ J , j ~ ? ~ - 320
  • 331.
    321 ql-dl Ejemplo 7-22 Calcular lamatriz de rigidez de la barra de sección variable indicada en la figura a continUación. Se consideran deformaciones por flexión únicamente. Ambos tramos son de la misma longitud, el primero tiene 2 El Yel segundo El. De la segunda ecuación se obtiene {D2} el vector de desplazamientos asociado a las coordenadas con cargas no nulas: {D2} = - [K.22rl [K21]{DI} Sustituyendo {D2} en la primera ecuación: {Ql} = ([K1l] - [K12] [K22rl [K21]) {DI} {QJ} = [K*] {DI} [K*](n-m)I[(n-lII) = [KIt] - [K12] [K.22rJ [K21] [iC*] es la Matriz de Rigidez Condensada (reducida) de la estructura, que relaciona únicamente los desplazamientos con las cargas en aquellos grados de libertad con cargas no nulas. Los procedimientos de Condensación presentados en 7.11.1 y 7.11.2 son completamente análogos, lo único que los diferencia es la manera como han sido presentados. [K.12] ]({Dl}) [K22] {D2} {QJ}= [K.n]{DI} +[KJ2]{D2} {O} = [K2J]{Dl}+[K22]{D2}( {Ql}) = [ [Kll] {O} [K21] Efectuando los productos en la matriz de rigidez particionada tendremos: Si asumimos que existen "m" coordenadas con cargas nulas (m < n) tendremos: • [Kit] Submatriz correspondiente a las coordenadas con cargas no nulas, de orden (n-m) x (n-m). • [K22] Submatriz correspondiente a las "m" coordenadas con cargas nulas, de orden m x m. • {Ql} Vector de carga correspondiente a las coordenadas con cargas no nulas. • {DI} Vector de desplazamientos correspondiente a las coordenadas con cargas no nulas. • fD2} Vector de desplazamientos correspondiente a las coordenadas con cargas nulas. [K12] ]({Dl}) (K22] {D2} => ({Ql}) = [ [KIt] {Q2} [K2I] {Q}=[K]{D} supongamos que se conoce la matriz de rigidez de una estructura en determinado sistema QwDde "n" grados de libertad, si algunas (o muchas) de las cargas externas son nulas, podremos particionar la matriz de rigidez de la estructura del siguiente modo: 321 .) , ) , 1 ) 1 ",~ J } .; i!i} ) ) ) ) .) .) ) J ) ) ) 1 ~ ¡ I .j l ) ---) ¡ I oO_;_o2~:::~:~~-?;-:o::!J1i ~:'~:.i~·~;'o ~·;~;~o::i:i:¡.;_o~Lj·~;~oo±:~'~~~~¡;~::~_;~:~~~~~ ".~o2~~-::'o_~:::'~o~~:~l ~o:o~o~~~~;:~:.;;]~I,:~~-:-~~·'-~oo~'_':-~-o":::,~~o';¿_,.~;_o:-S~~;;.:::-~ :.::=:'-::';;~o='':';::¡:¿;~''::'.I';:O.:::!:O¡¡;:.~:~'~~.~;.'~_~..;;~~:~o~.,:~..._~
  • 332.
    Calcularemos primero lamatriz de rigidez del muro en el sistema Q-D, luego med condensación "reduciremos" los grados de libertad de giro (grados de libertad 3 y 4 no tienen cargas aplicadas) para obtener la matriz de rigidez lateral del muro en sistema Q*_ D*. Q*-D*Q-D El h=4m Ejemplo 7-23 Calcular la matriz de rigidez lateral del muro (placa) en voladizo de dos pisos indicado en la figura a continuación. Se consideran deformaciones por flexión únicamente. Ambos: ." pisos tiene la misma altura (4 m) y la misma sección transversal. El 1 (40 16)[k]= [k*] = -¡11 16 24 • Condensación de la matriz de rigidez de barra calculada en q2- d2: [k*]2X2 = [ku] - [kL2] [k22r1 [101) • Matriz de rigidez de la barra en el sistema q1_ dl: ·8 ·O :4 12 [k121]: = [[k111El O 4 :2 -6 [k] = , -.-..·..-.--t.-··.-- ..--. .- e 4 2 :12 6, [k2d [k221·12 -6 ¡ 6 36 • Matriz de rigidez de ia barra en el sistema q2 _ d2: ) ) -7 1 ~ ') ) ) ) ) ) ) ) ) ) ) ) ~ '3 -7 ) ) ) ,-) ,) ..) ") ~ ) -J ) "'") ) ~ q2-d2 Adoptaremos un sistema auxiliar de coordenadas (q2- d2) en el cual es fácil ensamblar la matriz de rigidez de la barra y luegó, considerando que en los grados de libertad 3 y 4 no hay cargas, procederemos a "condensar" la matriz de rigidez calculada reduciendo dichos grados de libertad. 322 fE) cJ) l:' ') ') ) ) ) ) ) --+ I 3
  • 333.
    323 Ql=O Q2=1Ql =1 Q2 = O ,¡m¡+i I I. ñz • Matriz de flexibilidad lateral del muro. Se obtiene aplicando cargas laterales unitarias en las coordenadas 1 y 2 Ycalculando los desplazamientos laterales. Í22 D*l = O D*2= 1D*J = 1 D*2 =0 ku 11>i- . _._ ...-_..,.k22 • Significado físico de los términos de la matriz de rigidez lateral calculada (véase el acápite 6.10.2): • Condensación de la matriz de rigidez de barra calculada en Q - D, reducción de los grados de libertad de giro: [K lat] = [k*]2X2 = [kl1] - [k121 [la2r1 [la]) [K l' (0.21429 -0.06696) (kIt k12) at] = El -0.06696 0.02679 = la] k22 .- 0.3750 . -0.1875 ¡ 0.0 0.375. -0.1875 0.1875 ¡-0.375 -0.375 El ·······················.····i·············...······· Sim ¡ 2,0 0.5 ¡ 0.5 1.0 : [k] = • Matriz de rigidez de la estructura en el sistema Q - D, considerando cuatro grados de libertad, dos desplazamientos laterales y dos giros. 323 ) J ) ) .) ) j ) j ) ~ ) ) } ) ) ) j ;' 'j .~ r J J ) 1 'j "') 1
  • 334.
    Q-D , (mitad derecha) => 324 •Matriz de rigidez del pórtico en el Sistema Q -D 1~ • Simetrra del pórtico. Para reducir el trabajo numérico aprovecharemos la simetrra del pórtico, considerando que las cargas laterales son antisimétricas. Trabajaremos con la mitad derecha del pórtico. 4' ,.-------h--+ 2 1 ~-__I_----I---____".. ~m ':r 2 ~ ...-----------. Ejemplo 7-24 Calcular la matriz de rigidez lateral del pórtico de dos pisos mostrado, por inversión de la matriz de flexibilidad lateral (correspondiente a los grados de libertad laterales 1 y 2). Se consideran deformaciones por flexión únicamente. Todas las vigas y columnas tienen el' mismo valor de El. El producto [K 1at] [F lat] = [F lat] [K lat] resulta ser la matriz identidad, con lo cual se comprueba que es posible generar la matriz de rigidez lateral de un pórtico por inversión de su matriz de flexibilidad lateral. .-' ) ) ) ) ) ) -j ] 4 ) ) ) ) .) ) ) ) ) .) ) ) d ~ ~ ) ) ) _J ,) .) :) d ,) d .) ~ } ) i9 e(:;) "-~ , La matriz de flexibilidad lateral del muro es (véase el acápite 6.10.1): [F)at] = _1 (21.33. 53.33J= (fl J fJ2] El 53.33 170.70 . 121 f22 324
  • 335.
    325 k13=O 1<23 F::S -0.667El k33= 4 El /3 +4 El /3 + 3 El /3 + 3 El /5:::::4.266 El k43 =2 El I (3) ~ 0.667 El k12 = -12 El/ (3i :::::-0.444 El k22= 12 El f (3i::::: 0.444 El k32 =-6 El I (3)2 ~ -0.667 El k42 = -6 El I (3i ~-0.667 El kll = 12 El I (3i + 12 El I (3)3:::::0.888 El k21 = -12 El / (3)3 ~ -0.444 El k31 =0 k41 = 6 El I (3i ~0.667 El 325 •! 1 ) ) ) i ) ~ ) ~- ) '} } ) ) ) J j ~j ) ~ ., ) ~.t: ", j ) ,~ .. } _' .. .~~ -4 " i , ') ) )
  • 336.
    la :1) .~ ) '} ) ) ) ) ) ) ) ) -:) ) ~ ) ) ) ) .) ) ) ') ) ) ) ) d :) -1 ) ) ) -J J .,J ) ':3 ) cj ) ~ ,j ) e ~ "'.~ A--, 326 • La matrizdé rigidez lateral del pórtico se calcula invirtiendo [F lat]: [K lat] = [F lat]" = El (1.3768 -0.5512) = (kt1 k12) -0.5512 0.3953 kn k22 [F lat] = _1 (1.6443 2.2929)= (ft1 f12) El 2.2929 5.7271 f21 122 La matriz de flexibilidad lateral del pórtico completo será la mitad de la calculada en el paso anterior: ( fll f12) 121 fu La matriz de flexibilidad lateral de la mitad del pórtico es: [Fla j mi ,. 1 (3.2886 4.5857)t mitad pórtico = - = El 4.5857 11.4543 { An} [ 0.8S8 -0.444 ° 0.667]-1{O} {AlZ} {4.~R57}A22 = El -0.444 0.444 -0.667 -0.667 1 "* 622 = 11.4543 •..!... A32 o -0.667 4.266 0.667 ° A32 1.5533 El 4142 0.667 -0.667 0.667 2.333 ° A42 1.5196 b) Segunda columna de [F lat]. Aplicamos una carga unitaria en la coordenada 2 y calculamos los desplazamientos {~} = [Krl {Q}. 61=A12 y f22=822 { Al1} [ 0.888 -0.444 ° 0.667]-1{1} {A11} {3.2886}A2l = El -0.444 0.444 -0.667 -0.667 ° ~ Aa = 4.5857 •_!_ A31 ° -0.667 4.266 0.667 ° A31 0.6898 El A41 0.667 -0.667 0.667 2.333 ° A41 0.1736 • Matriz de flexibilidad lateral del pórtico. Se obtiene aplicando cargas laterales unitarias en las coordenadas 1y 2 Ycalculando los desplazamientos laterales. a) Primera columna de [F lat). Aplicamos una carga unitaria en la coordenada 1 y calculamos los desplazamientos {~ } = [Krl {Q}. fll=AIJ Y f21=.621 La Matriz de Rigidez de la mitad de la Estructura es: r 0.888 -0.4« o 0.667] Kt = -0.444 0.444 -0.667 -0.667 El 1 o -0.667 4.266 0.667 0.667 -0.667 0.667 2.333 kl4 :::s0.667 El k24 :::s-0.667 El k34~ 0.667 El k« = 4 El /3 +3 El/ (3):::s2.333 El 326
  • 337.
    327 [K lat] =El (1.3768 -0.5512) = (kll ki,2) -0.5512 0.3953 k21 k22 La matriz de rigidez lateral del pórtico completo, se obtine duplicando la matriz calculada , en el paso anterior: ( kll k12) .101 k22 . ( 0.6884 -0.2756) [K. lat] mitad pórtico = El = -0.2756 0.1976 '. Condensación de la matriz de rigidez de barra calculada en Q - D, reducción de los grados de libertad de giro: [K lat]= [k*]2x2 = [k11] - [kI2] [k22rl [kn] 0.888 -0.444j 0.0 0.667 [k ] I [ 11 -0.444 0.444 ¡ -0.667 -0.667El _ ~ _._ __ ~_.__.._ _-_.. = Sim j 4.266 0.667 [k ] ¡ 0.667 2.333 21 . [k] = ',giemplo 7-25 ,',Calcular la matriz de rigidez lateral del pórtico de dos pisos del Ejemplo 7-24 por : condensaci6n estática de la matriz de rigidez. ,.La matriz de rigidez de la mitad del pórtico fue calculada en el Ejemplo 7-24, mediante " "reduciremos· los grados de libertad de giro (grados de libertad 3 y 4 que "no tienen cargas aplicadas) para obtener la matriz de rigidez lateral. Matriz de rigidez de la mitad del pórtico en el sistema Q - D, considerando cuatro grados de libertad, dos desplazamientos laterales y dos giros. 327 J ) ;} ) ~ J ) J J ) ) I ) ., .3 ) ) ") ) )
  • 338.
    ) ) :) ) ) ) ) ) ) ) d .::3 --3 ) ) ) _) '] ...) .) d ) ~ ) .., J 3 "e => -., ~ O '~ ) ) ) ) ) ) ) } ) ) -4 1 ~ ) 328 8.1 Introducción En 1922,K.A. Calísev publicó un artículo que describfa un método de aproximaciones sucesivas para el análisis de estructuras reticulares, en el que se determinan las rotaciones de los nudos de una estructura (pórtico) por aproximaciones sucesivas. De esta manera los sistemas de numerosas ecuaciones se pueden resolver con cálculos manuales iterativos. Puede decirse que esté método fue, de algún modo, el predecesor del Método de Cross o de Distribución de Momentos, aunque pasó casi desapercibido hasta que Calisev lo publicó nuevamente en 1936. Es conveniente anotar que los métodos iterativos de solución de sistemas lineales de ecuaciones fueron desarrollados mucho antes del Método de Calisev. Uno de los métodos iterativos más conocidos para resolver sistemas lineales de ecuaciones es el de Gauss - Seidel atribuido a Johann Carl Friedrich Gauss (17n-1855) y Philipp Ludwig Von Seidel (1821-1896). También destaca el método iterativo desarrollado por Carl Jacobi (1804 -1851). El análisis de las estructuras indeterminadas recibió un gran impulso en 1930, año en que el profesor Hardy Cross (1885 - 1959) de la Universidad de lIIinois, presentó su Método de Distribución de Momentos. La publicación más conocida de Cross se titula "Analysis of Continuous Frames by Distributing Fixed End Moments'" publicada en los Proceedings of the American Society of Civil Engineers (ASCE). El hecho de que el mencionado artrculo escrito por Cross, constaba de diez páginas y que fue seguido de una discusión de 146 páginas, ilustra el gran interés que produjo. El interés suscitado es una indicación del impacto que el método de Cross tuvo en el " análisis de fas estructuras indeterminadas. :' En 1930, cuando Cross introdujo el Método de Distribución de Momentos, ya estaban ',. formulados todos los principales Teoremas de Energra en estructuras y los métodos de solución de estructuras que de ellos se derivaron. Ya existfa el Método de Flexibilidad, .: las Ecuaciones de Pendiente - Deflexión, el Método de Rigidez no Sistematizado. Sin ;.. '",: embargo. todos estos métodos aplicados a estructuras hiperestáticas, conducen .:::~ inevitablemente a un conjunto de ecuaciones lineales cuya solución manual es tediosa y en muchos casos, dependiendo del número de incógnitas, imposible, aún utilizando ',' esquemas iterativos de solución del sistema de ecuaciones, por ejemplo Gauss - Saidel. ~:1; Los esquemas iterativos de solución de sistemas de ecuaciones operan sobre las j incógnitas, que en el caso del Método de Rigidez aplicado a estructuras reticulares, son los desplazamientos de los nudos. La idea genial de Cross fue la de desarrollar el Método de Rigidez, tomando como inc6gnitas los momentos en los extremos de las barras que conforman el pórtico y obtener de manera iterativa dicho conjunto de incógnitas. Esto significa que las iteraciones, a diferencia del Método de Casilev, no se llevan a cabo sobre los desplazamientos (rotaciones) desconocidas, se llevan a cabo. " sobre los momentos en los extremos de las barras hasta lograr el equilibrio de los nudos y por ende de la estructura. La solución "exacta" de estructuras hiperestáticas grandes hasta finales de la década de 1960, era una tarea titánica. La mayorfa de ingenieros estructurales acudtan al Método de Distribución de Momentos para obtener la solución de las fuerzas internas. Esto cambió con la aparición de las computadoras y su creciente disponibilidad, es decir, las computadoras salieron de los centros de cómputo, donde unos pocos cientificos tenían acceso a ellas, y pasaron a formar parte del equipamiento normal en las oficinas de diseño. Esto, sumado al desarrollo de los Métodos Matriciales, en particular el Método Sistematizado de Rigidez y los Métodos de Elementos Finitos (FEM), ha conducido al CAPITULO 8- Método de Cross - Distribución de Momentos 328 .... . .;.~ ._.__ ._..:..:..::. __.....:..:..~~.~.:._...:__ ~~._. __ : _. __ •__.:.. ._.• . ... ~~! • ...¿~... l"::-:;~~:'~:::7·~,..,..... ,,,..., .....:.,.,;",~~..~.A~.~ .... :.:•. ;;~O_.;.".
  • 339.
    329 8.3 Ejemplo deIntroducción al Método de Cross Para presentar algunas de las ideas centrales del Método de Cross, tomemos como ejemplo inicial la viga continua de tres tramos indicada a continuación, solicitada por una carga concentrada al centro del segundo tramo. No utilizaremos argumentos de simetría ... de la estructura y de las cargas. La resolveremos primero por el Método de Rigidez ... presentado en el Capítulo 6. luego resolveremos el sistema de ecuaciones a las que COnduce el Método de Rigidez, siguiendo un esquema iterativo o de aproximaciones sucesivas. Finalmente analizaremos el significado ñslco de cada una de las iteraciones, para presentar el Método de Cross. 8.2 Algunas Ideas Centrales del Método de Cross .• No es otra cosa que el Método' de Rigidez con la particularidad que las incógnitas no son los desplazamientos (rotaciones) de los nudos, son los momentos en los extremos de las barras. • El Método de Cross resuelve el Estado Complementario del Método de Rigidez por iteraciónes o aproximaciones sucesivas. Las iteraciones se realizan sobre los .momentos desequilibrados en los nudos que aparecen en el Estado Primario del Método de Rigidez. ¡. • Nunca llega a plantearse de manera explfcita la Matriz de Rigidez de la estructura que . se está resolviendo. Dicha matriz se encuentra implicita en el procedimiento mismo de ,: la Distribución de Momentos. Esta es otra de las genialidades del Método de Cross. • En el Método de Cross - Distribución de Momentos - los momentos de empotramiento (Estado Primario del Método de Rigidez) en las barras que conforman el pórtico, se distribuyen a las barras adyacentes en un número de iteraciones que conducen gradualmente a que la estructura alcance su configuración natural de equilibrio. • El Método de Cross no es un método aproximado de análisis estructural, se puede alcanzar la precisión deseada en los resultados finales, controlando el número de iteraciones o de ciclos. • El Método de Cross sigue en esencia el esquema del Método Iterativo de Jacobi aplicado al Método de Rigidez o de Desplazamientos. • Fue ideado para su aplicación en estructuras planas que se deforman fundamentalmente por flexión, sin embargo, puede extenderse, sin mayores complicaciones a estructuras en las cuales las deformaciones por cortante sean importantes. También se pueden analizar estructuras planas con desplazamiento de traslación en los nudos. abandono paulatino de los métodos iterativos como el de Cross, sin embargo, durante casi 50 anos los métodos iterativos y en particular los de Cross y Kani, fueron la herramienta fundamental para la solución de estructuras.hiperestáticas. A lo largo de los anos se desarrollaron numerosas variantes del Método de Cross, entre ellas, un método para modelar o determinar el flujo en redes complejas de distribución de agua, hasta hace pocos años era el método más común para resolver tales problemas. El Método de Cross se extendió al análisis de pórticos con desplazamientos laterales, al análisis de parrillas, al análisis de estructuras espaciales, de barras con sección variable, •..•.de pórticos con deformaciones axiales, es decir se desarrollaron numerosas aplicaciones para casos particulares. 329 .' "" ,:;;,.,:":.-,:".:..:,... . J
  • 340.
    330 4,952 3,048 • Diagrama finalde momentos (kg-m). • Solución del Sistema de Ecuaciones: 92 = 3.809 93 = - 3.809 Asumimos, por comodidad un valor arbitrario de El = 1,000 0.25 ]{92} 1.30 93{ +4,OOO} [1.30 -4,000 = El 0.25 [ 1 1 { +4,000} = El "5+ i -4,000 1 4 {Q}= [K] {D} • Estado Complementario. 4~OOO . ~ ~ ~ • {Q} =-{R} R. = -4~000 kg - m R2 =+4,000 kg - m 92 = 93 = O Uij O O -4000 +4000 O O~--~,_~~~~~--~--- • Estado Primario. SistemaQ -D Momentos de empotramiento uij 14000 + R2 , ~ I¡ I I ! i 330 1 ~ 2 i4,OOOkg3 ~4~ ¿;) I 5m 8 5 , D1 D2 D1=92 ~ ~ g k D2=93 ) ) ) ) ) ) .." ) ~ ) ) ,) ) ) ) ) -: ) .:~.: )-, ,'. :~'.~~ ) .t.:" " ),. . :.",1' ) d ~ -J ) ) ) .) J ~ J ;~ )'.' ~. ) .., r) j e ~. ~:2) ~' 1,5241,524 ..... _." ...,...., .... :...~~81C~,¡:·:·:,;··,·;:.~~·.~. .:~,~:~:.~.~::~:~:,2~·~.:·::,·:i~~~iL.:<~-~~-~Z~~~··::~·~·~:··-,~:·.·:¿-:..;;_·~::·:~.J.:~;:~~~~~¡:;:a;~J-~:i_~·;:·~;~~~~·;:~~~:··~·:_{~·~~~~.~;;.;~;,.;·.:.~;..;~.:'P~.~~;.~:~;.:;;~~~~i<..:.~,;-,~~,~~_
  • 341.
    331 Solución por Iteraciones:92= 3,809 93= - 3.809 Nótese que la suma de todos los cambios en las rotaciones (dos últimas columnas de la tabla anterior) como era de esperarse es igual a lo rotación final del nudo (úftimo ciclo) Es importante señalar que en cualquier ciclo de la iteración, se pueden calcular los momentos de extremos de barra, en el Estado Complementario, utilizando por ejemplo, las ecuaciones de Pendiente - Deflexión para cada barra: M.. Ei Ji (4ll' 29')U = -- ul+ ~ ti M·· Ei Ji (2ll' 4ll')~1 = -- ul+ vJ ti Si el proceso iterativo se detiene en un ciclo intermedio (por ejemplo en el tercer ciclo) lo que obtendremos son valores aproximados de los momentos de extremo da barra y en consecuencia los nudos no estarán en equilibrio. El equilibrio de nudo se logra luego de un número suficiente de ciclos, L = 3.809 L = 3.809 Ciclo Eh 93 IA921 IA931 O O ° 1 -- -- 1 r·077(Ec. 1) E • O 3.077 O 2 3.077 -- -3.669 (Ec. 2)1 O 3.669 3 r782(EC.1l 0.705 O~ -3.669 4 3.782 -- -3.804 (Be. 2) I O 0.135 5 r809 (Ec. 1) -- -3.804 0.027 O 6 3.809 -- -3.809 (Ec. 21 O 0.005. 1.392 + 0.25 93 = 4 ~ Ecuación 1 0.2592 +. 1.39) = -4 ~ Ecuación 2 En la tabla a continuación se muestra un esquema iterativo simple para resolver el sistema de ecuaciones, Se parte de un valor inicial nulo para ambas rotaciones (Estado Primario) y se procede sucesivamente a corregir los valores iniciales asumidos hasta lograr la precisión deseada. Las dos últimas columnas muestran, en valor absoluto, el cambio en las rotaciones, inicialmente los cambios son grandes y paulatinamente son cada vez más pequeños hasta que en los últimos ciclos de la iteración son casi nulos. El = 1,000 4,000 4,000 ~------~~~__~f)~ ~_ 1 2 ~3 4 • Solución Iterativa del Sistema de Ecuaciones(Estado Complementario) 331 ) } ) ') ) ) ) ) .) ) ~ ) ) ) _) .) _) > } ) ) -) ) I i J ¡ -:) j } ~.
  • 342.
    ti) (I) ~ ) ) ) ) ) ) -) ) ) ) --i ) ~ ) ) ) ) ;) ) ) ) ) ) .) . ) -a -3 --} ) ) ) -J -: ._ ) ~ . 'j J j ) e 3049 -30433048-3045Mfin 1524 14 o ~lS~t C4+C5 o72211Mij .1.92 =0.027 .1.93 =0 CiCI05~~ Deseq. Nudo Deseq. Nudo ~ .6.92=o Ciclo 4 .6.9)=-0.135 Mij o o -34 -68 -108 -54 Mfin 1513 3026 -3059 3042 -3043 -1521 C3+C4 C2+C3 o -1467 176 o 3110 -2935 564 353 3026 -3025 Mij 282 Mfin 1513 Deseq. Nudo .1.a2= 0.705 Aa] =o 2934 -29352462 -3378 -1467 Cl+C2 o -1835 -2935-917 ~1467Mij O Mfin 1231 A92 =0 .1.9)=-3.669 Deseq. Nudo o O 769 O 4769 O CO+Cl 2462 1539 2462 -2461 Mij ]231 Mfin 1231 .1.92=3.077 Aa3 =0 4000-4000o oooMij • Significado Hsico de cada Ciclo de la Solución Iterativa 123 CicloO ~ ~ ~ 332 '," ", ,', ,o _ jo,