ESCRITORIO EJECUTIVO
Ede Espino 15-0584
PLANTEAMIENTO DEL PROYECTO:
• Diseñar un escritorio para el despacho del director general para la delegación del Caribe, de
una empresa multinacional, dedicada al sector servicio, en concreto a la hoteleria.
OBJETIVOS GENERALES
• Desarrollar un diseño que cumpla todas las expectativas del cliente: conceptuales, funcionales
y económicas.
OBJETIVOS ESPECÍFICOS
• Dicho diseño deberá encajar en un espacio (despacho) ya existente por lo que deberemos
realizar un levantamiento del mismo además, de un estudio del mismo con el fin de optimizar
las soluciones de diseño.
• Realizar la propuesta de acuerdo al concepto marcado e interpretado por el diseñador.
• Para posterior ejecución, conclusión y valoración del proyecto.
JUSTIFICACIÓN
Se debe de reformular y replantear el espacio ya que este se ha quedado absoleto, además de que
el mueble principal, el escritorio, está formado por una serie de módulos los cuales no cumplen
con la función ni la forma deseada.
ALCANCE
• Actualizar el espacio y revalorizarlo mediante el desarrollo de un nuevo concepto y diseño.
LOCALIZACIÓN
• República Dominicana. Provincia La Altagracia, Playa Bàvaro.
UBICACIÓN
• El despacho está ubicado en la zona de las oficinas del Hotel Now Larimar.
Memoria Descriptiva
Memoria Descriptiva
USUARIO
• CEO de NH en la delegación del Caribe y Venezuela.
• Licenciado en Dirección y Gestión de Empresas Hoteleras.
• Maestría en Dirección General por el IS, Universidad de Navarra.
• Señor de 50 años, casado y padre de dos hijos.
• Practica varios deportes, en especial el golf, al cuál lo introdujo su hijo, además acude al
gimnasio todos los días.
• Amante de la buena gastronomía , en, especial de la japonesa.
• También, de los buenos caldos y los licores, su preferido el tequila reposado.
• Disfruta tanto de su vida personal como de la profesional, de ambas se siente muy orgulloso.
• De su carácter destacaremos:
• Positivo
• Emprendedor, decidido
• Sólido, consistencia
• Generosop
• Afable
• Firme
• Inflexible, a veces obtuso
• Seguro de si mismo, líder
• Natural
• Auténtico
• Extrovertido, dinámico
Estas características personales servirán
para desarrollar las intenciones de diseño
y además, para conceptualizar las líneas
de diseño a seguir.
Memoria Descriptiva
INTENCIONES DE DISEÑO
• Resolver los problemas de diseño basándonos en el punto anterior además de, la
funcionalidad que requiere el espacio ya existente y el cliente.
• Una vez el proyecto se haya llevado acabo probablemente, se tendrá que intervenir todo
el espacio y acoplar el resto del mobiliario al nuevo concepto de diseño.
• Plasmar las características más significativas de la personalidad del usuario en el diseño
del escritorio, que este sea un fiel reflejo del mismo:
• Fortaleza
• Decisión
• Consistencia
• Naturalidad
• Autenticidad
• Flexible / Inflexible
• Práctico
Concepto: Líneas rectas y funcionales pero
elegantes.
Materiales: Nobles, flexibles, consistencia y de
alto impacto estético. Representados en la
madera y el acero, similares pero con efectos
distintos los cuales se acoplan a la perfección.
Texturas: lisas, rugosas, brillantes y opacas.
Ébano de MacasarAcero Brillo
• Fortaleza Consistencia
• Solidez
• Naturaleza
• Veta y cambio de color
nos da los cambios en
una personalidad
• Flexible /
inflexible
• Nos servirá
para aligerar y
enriquecer el
diseño.
1. ¿Cuál es la importancia de su empresa?
Empresa dedicada al sector turístico en el área del Caribe, siendo un proyecto de cierta
relevancia en dicha área ya que somos una de las empresas que más proyectos tenemos en
desarrollo tanto en República Dominicana, México y otras áreas que estamos estudiando
con el fin de implantar nuestros servicios.
2. ¿Cuál es la situación financiera de la empresa?
• Bastante estable, asume anualmente sus obligaciones financieras y reparte dividendos a
sus socios en dos de los tres países donde operamos.
3. ¿Capital que maneja?
Los activos ascienden a mas de 700 millones de USD y los revenues anuales rondan los
145 millones de USD.
4. ¿Qué aspectos ofrece la empresa?
Producto turístico de alta calidad y seguridad para el inversionista.
5. ¿Con quien vamos a tratar a lo largo del proceso creativo y de ejecución?
Conmigo personalmente y con mi asistente ejecutiva.
6. ¿Deseos estéticos y funcionales que quiere que posea el escritorio?
• Siento predilección por la madera y el acero, en general por los materiales nobles.
• Tengo un ritmo de trabajo muy fuerte y al mismo tiempo tomo decisiones importantes
en cortos espacios de tiempo por lo que el entorno es clave para mí. Necesito estar
cómodo y tenerlo todo a mano.
• Con respecto a la función en sí, necesito reunirme con 3 personas sin necesidad de usar
la mesa de juntas ya que, recibo a mucha gente y las reuniones deben de ser cortas.
Entrevista con el Cliente
Entrevista con el Cliente
7. ¿Qué idea en general tiene sobre las artes plásticas? , ¿Y Cuál le gusta más?
Me gustan mucho y las disfruto pero no las domino. Me gusta mucho la pintura en
especial los pintores españoles como Goya y Picasso.
8. ¿Qué opina del trabajo de lo Diseñadores de Interiores?, ¿Y la relación con su trabajo?
Absolutamente necesario para el mundo en el que vivimos, el diseño es un valor añadido
para cualquier producto o servicio. Al sector que me dedico, el diseño en un hotel es un
factor decisivo a la hora de posicionarlo en el mercado. El diseñador humaniza sus
espacios y los hace diferenciadores con respecto a los de más, esto es un elemento clave.
9. ¿ Qué características personales quiere destacar con el fin de poder plasmarlas en el
diseño?
Me considero una persona práctica y muy positiva, me gustan las cosas de calidad, le doy el
valor que tienen las cosas por lo que, a la hora de adquirir algún artículo tengo muy en
cuenta tanto, la calidad de sus materiales como su manufactura. Me gustaría que esta
pieza reflejara mi lado práctico y mi lado casi “sibarita”.
10. ¿Le importaría que en un futuro dicho diseño se utilizase en otros espacios?
Lo decidiría llegado el momento.
11. ¿Quién le a asesorado anteriormente en Diseño de Interiores?
Ede espino en la zona del caribe y otros profesionales europeos fuera del caribe.
12. Al intervenir en un espacio solo una pieza de mobiliario, suele ocurrir que
posteriormente el mismo espacio nos pide un cambio integral. ¿Estaría de acuerdo?
Si, por supuesto.
MEDIDAS
MEDIDAS Y ERGONOMÍA
Medidas escritorio ejecutivo:
1.80 m L x 0.90 cm A x 0.75 cm H
2.00 m L x 1 m x 0.75 cm H
SILLAS
PROPUESTAS
SILLAS EJECUTIVAS: Opciones
Proveedor: Improficinas
Modelo: 520 H Caramelo
Referencia: 023
Material: Piel y acero
Precio: 24,000 pesos + ITBIS
Proveedor: Improficinas
Modelo: 519 H Caramelo
Referencia: 004390
Material: Piel y acero
Precio: 18,000 pesos + ITBIS
Proveedor: Improficinas
Modelo: H45 HB/BS Negro
Referencia: 002943
Material: Piel y acero
Precio: 7,250 pesos + ITBIS
SILLAS VISITAS: Opciones
Proveedor: Improficinas
Modelo: Madera PU Negro
Referencia: 004012
Material: Piel, madera y acero
Precio U: 7,350 pesos + ITBIS
Unidades: 6
Proveedor: Improficinas
Modelo: 522 H-O
Referencia: 58349
Material: Piel y acero
Precio U: 16,700 pesos + ITBIS
Unidades: 6
Proveedor: Home Gallery
Modelo: COM C/B RT
Referencia: 0-60971
Material: Piel, madera y acero
Precio U: 13,376 pesos + ITBIS
Unidades: 6
IINTENCIONES DE
DISEÑO
ESCRITORIO + CREDENZA
GONZALO ALCARAZ ZARAGOZA
GAZ
Credenza
Perfiles de acero brillo
• Se conceptualizaron estas piezas para
darle ligereza, continuidad y movimiento
al mobiliario.
• Coincidiendo con el carácter extrovertido
y dinámico.
Escritorio
GAZ
Madera de ébano de Macasar
• Se eligió este material por su fuerza
estética y calidad.
• Coincidiendo con el carácter solido y
consistente del usuario. Además la veta
de la madera nos sugiere, la característica
de flexible/ inflexible.
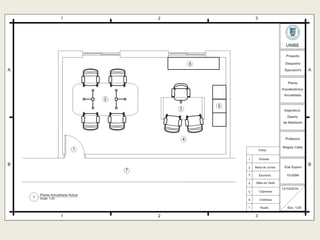
LEVANTAMIENTO
DESPACHO
PROPUESTA DE
DISEÑO
Credenza
Medidas generales
1,90 m L x 0,54cm F x 0,89 cm H
Escritorio
Medidas generales
2,40 m L x 0,91 cm F x 0,87 cm H
Estructura en L
Medidas generales
1,65 m L x 0,50 cm F x 0,71 cm H
Estantería Estructura L
Medidas generales
10,75 cm L x 0,40 cm x 1,90 m H
Credenza
Medidas generales
74”L x 21,26”F x 35,33 “H
Escritorio
Medidas generales
94,29”L x 35,43”F x 34,25”H
Estructura en L
Medidas generales
64,96 “L x 19,68”F x 30,91”H
Estantería Estructura L
Medidas generales
29,53” L x 17,74”x 71,15”H
Escala 1:5
Despiece escritorio y estructura en L
1. Tope
2. Cajonera bajo tope
3. Perfiles de acero x 2 x 2 para patas
tope
4. Perfil de unión de acero entre tope y L
Despiece Estructura L
1. Tope
2. Trasera
3. Tramo inferior
4. Costados x 4 unidades
5. Puertas x 2
6. Perfiles de acero x 2 x 2 x 4
Despiece estantería Estructura en L
1. Perfiles de acero
2. Cajonera bajo tope
3. Perfiles de acero x 4 para patas
tope
Despiece Estructura L
1. Tope
2. Trasera
3. Tramo inferior
4. Costados x 3 unidades
5. Puertas x 4
6. Perfiles de acero x 2 x 2 x 4
Escala 1:5
Justificación de Distribución
1. Aunque la luz debe de venir lateral se
decidió poner el escritorio de manera que
llegara por detrás, el jardín está muy
crecido y tamiza muy bien la luz con lo
cual no es como si llegara desde el lateral.
2. La ventana no tiene ninguna vista
interesante a excepción de las plantas , las
cuales se pusieron como trampa visual ya
que el despacho está cerca de la salida
trasera del lobby bar.
3. La visión del usuario hacia el pasillo es
mayor ya que, si pusiéramos al usuario de
espaldas a la pared perdería visión desde
el lado izquierdo.
4. La relación de las funciones que se desarrollan en ambos espacios, es más fluida y flexible
con esta distribución.
5.Todo aquel material, libros, archivos o aparatos electrónicos que están en la estructura en L
están más organizados y disimulados con esta distribución.
6. Al visitante entrar en el despacho al estar en usuario justo enfrente de la puerta esto le
otorga más jerarquía.
PROPUESTA FINAL
DESPACHO
PROCESO DE
EJECUCIÓN
RESULTADO FINAL
Escala 1:5
Escala 1:5
Credenza para almacenamiento escritorio GAZ
Escala 1:5
Alumna
Ede Espino
Matrícula
15-0584
Asignatura
Diseño de Mobiliario I
Profesora
Magali Caba
Proyecto
Mueble Modular GALA

Diseño de Escritorio

  • 1.
  • 2.
    PLANTEAMIENTO DEL PROYECTO: •Diseñar un escritorio para el despacho del director general para la delegación del Caribe, de una empresa multinacional, dedicada al sector servicio, en concreto a la hoteleria. OBJETIVOS GENERALES • Desarrollar un diseño que cumpla todas las expectativas del cliente: conceptuales, funcionales y económicas. OBJETIVOS ESPECÍFICOS • Dicho diseño deberá encajar en un espacio (despacho) ya existente por lo que deberemos realizar un levantamiento del mismo además, de un estudio del mismo con el fin de optimizar las soluciones de diseño. • Realizar la propuesta de acuerdo al concepto marcado e interpretado por el diseñador. • Para posterior ejecución, conclusión y valoración del proyecto. JUSTIFICACIÓN Se debe de reformular y replantear el espacio ya que este se ha quedado absoleto, además de que el mueble principal, el escritorio, está formado por una serie de módulos los cuales no cumplen con la función ni la forma deseada. ALCANCE • Actualizar el espacio y revalorizarlo mediante el desarrollo de un nuevo concepto y diseño. LOCALIZACIÓN • República Dominicana. Provincia La Altagracia, Playa Bàvaro. UBICACIÓN • El despacho está ubicado en la zona de las oficinas del Hotel Now Larimar. Memoria Descriptiva
  • 3.
    Memoria Descriptiva USUARIO • CEOde NH en la delegación del Caribe y Venezuela. • Licenciado en Dirección y Gestión de Empresas Hoteleras. • Maestría en Dirección General por el IS, Universidad de Navarra. • Señor de 50 años, casado y padre de dos hijos. • Practica varios deportes, en especial el golf, al cuál lo introdujo su hijo, además acude al gimnasio todos los días. • Amante de la buena gastronomía , en, especial de la japonesa. • También, de los buenos caldos y los licores, su preferido el tequila reposado. • Disfruta tanto de su vida personal como de la profesional, de ambas se siente muy orgulloso. • De su carácter destacaremos: • Positivo • Emprendedor, decidido • Sólido, consistencia • Generosop • Afable • Firme • Inflexible, a veces obtuso • Seguro de si mismo, líder • Natural • Auténtico • Extrovertido, dinámico Estas características personales servirán para desarrollar las intenciones de diseño y además, para conceptualizar las líneas de diseño a seguir.
  • 4.
    Memoria Descriptiva INTENCIONES DEDISEÑO • Resolver los problemas de diseño basándonos en el punto anterior además de, la funcionalidad que requiere el espacio ya existente y el cliente. • Una vez el proyecto se haya llevado acabo probablemente, se tendrá que intervenir todo el espacio y acoplar el resto del mobiliario al nuevo concepto de diseño. • Plasmar las características más significativas de la personalidad del usuario en el diseño del escritorio, que este sea un fiel reflejo del mismo: • Fortaleza • Decisión • Consistencia • Naturalidad • Autenticidad • Flexible / Inflexible • Práctico Concepto: Líneas rectas y funcionales pero elegantes. Materiales: Nobles, flexibles, consistencia y de alto impacto estético. Representados en la madera y el acero, similares pero con efectos distintos los cuales se acoplan a la perfección. Texturas: lisas, rugosas, brillantes y opacas. Ébano de MacasarAcero Brillo • Fortaleza Consistencia • Solidez • Naturaleza • Veta y cambio de color nos da los cambios en una personalidad • Flexible / inflexible • Nos servirá para aligerar y enriquecer el diseño.
  • 5.
    1. ¿Cuál esla importancia de su empresa? Empresa dedicada al sector turístico en el área del Caribe, siendo un proyecto de cierta relevancia en dicha área ya que somos una de las empresas que más proyectos tenemos en desarrollo tanto en República Dominicana, México y otras áreas que estamos estudiando con el fin de implantar nuestros servicios. 2. ¿Cuál es la situación financiera de la empresa? • Bastante estable, asume anualmente sus obligaciones financieras y reparte dividendos a sus socios en dos de los tres países donde operamos. 3. ¿Capital que maneja? Los activos ascienden a mas de 700 millones de USD y los revenues anuales rondan los 145 millones de USD. 4. ¿Qué aspectos ofrece la empresa? Producto turístico de alta calidad y seguridad para el inversionista. 5. ¿Con quien vamos a tratar a lo largo del proceso creativo y de ejecución? Conmigo personalmente y con mi asistente ejecutiva. 6. ¿Deseos estéticos y funcionales que quiere que posea el escritorio? • Siento predilección por la madera y el acero, en general por los materiales nobles. • Tengo un ritmo de trabajo muy fuerte y al mismo tiempo tomo decisiones importantes en cortos espacios de tiempo por lo que el entorno es clave para mí. Necesito estar cómodo y tenerlo todo a mano. • Con respecto a la función en sí, necesito reunirme con 3 personas sin necesidad de usar la mesa de juntas ya que, recibo a mucha gente y las reuniones deben de ser cortas. Entrevista con el Cliente
  • 6.
    Entrevista con elCliente 7. ¿Qué idea en general tiene sobre las artes plásticas? , ¿Y Cuál le gusta más? Me gustan mucho y las disfruto pero no las domino. Me gusta mucho la pintura en especial los pintores españoles como Goya y Picasso. 8. ¿Qué opina del trabajo de lo Diseñadores de Interiores?, ¿Y la relación con su trabajo? Absolutamente necesario para el mundo en el que vivimos, el diseño es un valor añadido para cualquier producto o servicio. Al sector que me dedico, el diseño en un hotel es un factor decisivo a la hora de posicionarlo en el mercado. El diseñador humaniza sus espacios y los hace diferenciadores con respecto a los de más, esto es un elemento clave. 9. ¿ Qué características personales quiere destacar con el fin de poder plasmarlas en el diseño? Me considero una persona práctica y muy positiva, me gustan las cosas de calidad, le doy el valor que tienen las cosas por lo que, a la hora de adquirir algún artículo tengo muy en cuenta tanto, la calidad de sus materiales como su manufactura. Me gustaría que esta pieza reflejara mi lado práctico y mi lado casi “sibarita”. 10. ¿Le importaría que en un futuro dicho diseño se utilizase en otros espacios? Lo decidiría llegado el momento. 11. ¿Quién le a asesorado anteriormente en Diseño de Interiores? Ede espino en la zona del caribe y otros profesionales europeos fuera del caribe. 12. Al intervenir en un espacio solo una pieza de mobiliario, suele ocurrir que posteriormente el mismo espacio nos pide un cambio integral. ¿Estaría de acuerdo? Si, por supuesto.
  • 7.
  • 8.
    MEDIDAS Y ERGONOMÍA Medidasescritorio ejecutivo: 1.80 m L x 0.90 cm A x 0.75 cm H 2.00 m L x 1 m x 0.75 cm H
  • 9.
  • 10.
    SILLAS EJECUTIVAS: Opciones Proveedor:Improficinas Modelo: 520 H Caramelo Referencia: 023 Material: Piel y acero Precio: 24,000 pesos + ITBIS Proveedor: Improficinas Modelo: 519 H Caramelo Referencia: 004390 Material: Piel y acero Precio: 18,000 pesos + ITBIS Proveedor: Improficinas Modelo: H45 HB/BS Negro Referencia: 002943 Material: Piel y acero Precio: 7,250 pesos + ITBIS
  • 11.
    SILLAS VISITAS: Opciones Proveedor:Improficinas Modelo: Madera PU Negro Referencia: 004012 Material: Piel, madera y acero Precio U: 7,350 pesos + ITBIS Unidades: 6 Proveedor: Improficinas Modelo: 522 H-O Referencia: 58349 Material: Piel y acero Precio U: 16,700 pesos + ITBIS Unidades: 6 Proveedor: Home Gallery Modelo: COM C/B RT Referencia: 0-60971 Material: Piel, madera y acero Precio U: 13,376 pesos + ITBIS Unidades: 6
  • 12.
    IINTENCIONES DE DISEÑO ESCRITORIO +CREDENZA GONZALO ALCARAZ ZARAGOZA GAZ
  • 13.
    Credenza Perfiles de acerobrillo • Se conceptualizaron estas piezas para darle ligereza, continuidad y movimiento al mobiliario. • Coincidiendo con el carácter extrovertido y dinámico. Escritorio GAZ Madera de ébano de Macasar • Se eligió este material por su fuerza estética y calidad. • Coincidiendo con el carácter solido y consistente del usuario. Además la veta de la madera nos sugiere, la característica de flexible/ inflexible.
  • 14.
  • 18.
  • 22.
    Credenza Medidas generales 1,90 mL x 0,54cm F x 0,89 cm H Escritorio Medidas generales 2,40 m L x 0,91 cm F x 0,87 cm H Estructura en L Medidas generales 1,65 m L x 0,50 cm F x 0,71 cm H Estantería Estructura L Medidas generales 10,75 cm L x 0,40 cm x 1,90 m H
  • 24.
    Credenza Medidas generales 74”L x21,26”F x 35,33 “H Escritorio Medidas generales 94,29”L x 35,43”F x 34,25”H Estructura en L Medidas generales 64,96 “L x 19,68”F x 30,91”H Estantería Estructura L Medidas generales 29,53” L x 17,74”x 71,15”H Escala 1:5
  • 25.
    Despiece escritorio yestructura en L 1. Tope 2. Cajonera bajo tope 3. Perfiles de acero x 2 x 2 para patas tope 4. Perfil de unión de acero entre tope y L Despiece Estructura L 1. Tope 2. Trasera 3. Tramo inferior 4. Costados x 4 unidades 5. Puertas x 2 6. Perfiles de acero x 2 x 2 x 4 Despiece estantería Estructura en L 1. Perfiles de acero 2. Cajonera bajo tope 3. Perfiles de acero x 4 para patas tope Despiece Estructura L 1. Tope 2. Trasera 3. Tramo inferior 4. Costados x 3 unidades 5. Puertas x 4 6. Perfiles de acero x 2 x 2 x 4 Escala 1:5
  • 26.
    Justificación de Distribución 1.Aunque la luz debe de venir lateral se decidió poner el escritorio de manera que llegara por detrás, el jardín está muy crecido y tamiza muy bien la luz con lo cual no es como si llegara desde el lateral. 2. La ventana no tiene ninguna vista interesante a excepción de las plantas , las cuales se pusieron como trampa visual ya que el despacho está cerca de la salida trasera del lobby bar. 3. La visión del usuario hacia el pasillo es mayor ya que, si pusiéramos al usuario de espaldas a la pared perdería visión desde el lado izquierdo. 4. La relación de las funciones que se desarrollan en ambos espacios, es más fluida y flexible con esta distribución. 5.Todo aquel material, libros, archivos o aparatos electrónicos que están en la estructura en L están más organizados y disimulados con esta distribución. 6. Al visitante entrar en el despacho al estar en usuario justo enfrente de la puerta esto le otorga más jerarquía.
  • 27.
  • 32.
  • 36.
  • 37.
  • 38.
  • 39.
    Credenza para almacenamientoescritorio GAZ Escala 1:5
  • 40.
    Alumna Ede Espino Matrícula 15-0584 Asignatura Diseño deMobiliario I Profesora Magali Caba Proyecto Mueble Modular GALA