PORTA
FOLIO
UNIVERSIDAD
NACIONAL
DE
COLOMBIA
-
SEDE
MEDELLIN
ENERO
/10/2022
S C O P R I R E º S C O P R I R E º S C O P R I R E
VALENTINA COAVA FIGUEROA
ESTUDIANTE DE ARQUITECTURA
UNIVERSIDAD NACIONAL DE
COLOMBIA SEDE MEDELLIN
FACULTAD DE ARQUITECTURA
2021 – S2
A las mujeres de mi vida, gracias
por apoyarme siempre, en verano
e invierno. Se los debo todo.
CREDITOS
P R OY E C T I S TA S
Valentina Coava Figueroa
Estudiante de Arquitectura - 19
TALLER III
2021 – S2
Colaboradores
Sara del Pilar Puerta
Jhon Moyano
Angely Ríos
Juan Fernando Ríos
1
Arq. David Guillermo Seba Gómez
Arq. Luis Alfonso Escobar Marín
Arq. Javier Hernández Castañeda
Arq. Marco Aurelio Montes Botero
Consejo Académico
“La arquitectura no tiene
presencia. Una obra es una
ofrenda al Santuario.”
- Louis Kahn
EDITORIAL
Taller del proyecto III, le brindo a los estudiantes
nuevas formas de pensar, experimentar e innovar, las
técnicas básicas del diseño mediante procesos de
experimentación y comprensión de las problemáticas
que hoy en día se presentan en el hábitat
contemporáneo, dejando como responsables a los
estudiantes de crear una nueva arquitectura que
abarque todos los obstáculos que presenta el habitante
de hoy.
Fue interesante poder vivir la experiencia cara a cara
con los profesores, compañeros y entorno académico,
luego de dos semestres que por cuestiones de
pandemia era imposible, aunque haya sido un semestre
acelerado y a escala, los aprendizajes obtenidos en
cada laboratorio nos otorgo un distinto enfoque en
cuanto a la manera de ver y hacer arquitectura. Estos
aprendizajes fueron resultado del sumario de
laboratorios planteados por el cuerpo académico, el
aprender a pensar , comunicar y expresar resaltando
el proceso como pilar fundamental para el aprendizaje.
El presente portafolio expone los distintos procesos
de cada laboratorio que se realizaron a lo largo del
semestre en taller del proyecto III, con el objetivo de
mostrarle al lector las habilidades, procesos de
entendimiento y las herramientas de aprendizaje
proyectuales dentro de la representación.
arquitectónica de las escalas vecinales y domesticas.
2
01ATSMOFERAS
DOMESTISCAS
02 EL CUERPO
DOMESTICO
03ESTRUCTURA
DE LA ESTRUCTURA
04
CONSTRUCCION
DEL LUGAR
05 LA CASA
EXPANDIDA
07 – 08
HACER VISIBLE EL
PENSAMIENTO
06 LA
HABITABILIDAD
ESPECIFICA
CONTENIDO
6 -
1
LABORATORIO I
ATMOFERAS DOMESTICAS
01ATSMOFERAS
DOMESTISCAS
2 EL CUERPO
DOMESTICO
¿ Que aprendí ?
CONTENIDO
➢ Informe Guía Didáctica
➢ Informe lectura “atmospheres”
de Peter Zumthor
➢ Análisis de ejemplares
➢ Transformaciones con
dispositivos para la captura de
las atmósferas
Fue interesante intentar comprender las
distintas atmosferas, no dejar perder
cada detalle fue la clave para concebir
los resultados, aunque no fue fácil la
elaboración de la replica la
orientaciones de profesores fueron clave
para el buen manejo de esta, lo anterior
fue un reto para entender la manera en
que se determinan los espacios.
Dispositivos para la captura de
atmosferas arquitectónicas
“La atmosfera habla a una sensibilidad emocional,una
percepción que funciona a una increíble velocidad y que los
seres humanos tenemos para sobrevivir”
Peter Zumthor
El presente ejercicio propone la meditación desde las
entrañas de una edificación con la condición de lugar
habitable, el análisis de otros aspectos importantes tales
como : la luz, la espacialidad y la composición estén
modulados dentro del espacio, todo lo anterior se concibe
como atmosfera : una forma de percibir emociones a partir
de las cualidades sensoriales. Todo esto como un acto
pensado o bien del resultado de una necesidad.
Posteriormente se experimentara mediante el proceso de
elaboración de una replica de atmosfera seleccionada,
analizando sus detalles, lo tangible e intangible que
envuelven dicha atmosfera y lograr el máximo efecto real
que la caracteriza, las transformaciones realizadas en esta
son resultado de las diversas orientaciones por parte de los
profesores y compañeros de clase.
A PRENDER A VER
5
Dentro del laboratorio se anexan obras de análisis en
relación a sus atmosferas tales com la casa Gilardi de
Luis Barragán, o la iglesia San Giovani de Mario Botta y
la casa Koshino de Tadao Ando, entre otras que se
caracterizan por su particularidad especifica, además
se facilitaron escritos que brindaron una compresión
directa con el tema como lo fue el libro “ Atmospheres”
dePeterZumthor
CASA GILARDI
Luis Barragán
6
CASA KOSHINO
Tadao Ando
El fin de Zumthor en esta lectura radica en resaltar la
medida de la belleza arquitectónica atreves de nueve
principios de arquitectura los cuales plantea como:
convivencia, utilidad, belleza y permanencia
asemejándose a Vitruvio, no obstante la belleza esta
ramificada por materialidad, proporciones, belleza
interior y corazón.
A continuación alguno de sus principios planteados:
Cuerpo de la arquitectura La arquitectura es entonces
como el cuerpo humano, anatómicamente compuesto
por varios órganos y músculos que conforman una
estructura, desde la piel, lo que usamos y sentimos, es
masa corpórea, membrana, recubrimiento y que a su
vez tiene espíritu.
Sonido en el espacio Es lograr que un espacio se
apropie de un sonido, por ejemplo : la ciudad la puede
definir el ruido o una biblioteca esta definida por el
silencio, es decir que el sonido es parte de cada
espacio
Temperatura del espacio El ejemplo utilizado por
Zumthor para explicar la acción de la temperatura a
través de un piano, es el hecho de lograr que un
espacio sea abierto o cerrado por medio de sus
materiales, texturas, pueda tener una propia
temperatura, volviendo un sitio agradable.
ATMOSFERA 8
EXPLICACION ATSMOFERA SELECCIONADA
ANALISIS
DE
EJEMPLARES
Casa
Koshino
–
Tadao
Ando
La casa Koshino despliega fenómenos físicos
tales como la luz natural, una luz que nos
envuelve en un profundo misticismo y su
volumetría generadora, genera una
percepción de relación entre la
arquitectura, el hombre y la naturaleza
misma dentro de toda su composición debido
a su importante vegetación y la forma en
como esta construida sus volúmenes
semienterrados desde su acceso.
ANALISIS
DE
EJEMPLARES La iglesia de Rafael Moneo, maneja fenómenos
físicos que representan paz, pulcritud,
tranquilidad a través de su lisura y pulcridad las
cuales son percibidas al ojo humano, las
emociones que genera el espacio son
congruentes con su tipo, es decir una iglesia; la
luz indirecta en la cubierta se relaciona con la
grandeza de Dios, mientras que el color blanco,
igual que un manto divino cubre quienes estén
presentes, esto gracias al efecto que produce su
arquitectura.
Rafael
Moneo
-
Iglesia
Contraste entre la lisura de la iglesia a diferencia suponiendo que
fuese rugosa, pues no generaría la misma sensación que produce.
Los fenómenos físicos que denota las termas
de vals considero que son la piedra y el agua
para definir de manera ideal su
fenomenología, mientras la piedra funciona
como un envoltorio de la estructura, el agua
se incorpora al espacio que lleve a su paso,
con sus variables de temperatura dándole un
sentido propio de las aguas termales, sin
dejar de lado las ranuras que disipan la luz
natural entre las aristas de la cubierta, las
termas de vals se percibe un espíritu
diferente en cada espacio, esto debido al
juego sensorial que produce cada
componente dentro de ella.
ANALISIS
DE
EJEMPLARES
Termas
de
Vals
–
Peter
Zumthor
Pasillo iluminado por la luz
direccionada desde una
puerta o vano en la esquina
superior derecha que
envuelve una parte del
pasillo y aparte de la fila de
columnas anchas, delgadas
igual que una lamina de
metal, la ausencia de luz se
posa frente del ojo
observador en
consecuencia de la cubierta
o alero que obstaculiza la
incidencia de luz. Los
colores oscuros se
relacionan con la textura
del fondo que a simple vista
podría parecer lisa pero
que por su color y franjas
como si fuesen placas de
concreto creería que tiene
una textura ni tan lisa, ni tan
rugosa, es lo mismo que sucede en
el piso, por el contrario de sus
columnas de aspecto suave como
la seda da la impresión de que
fuesen metalizadas por ende a
partir de sus colores y textura
creería responde a la pregunta de
los materiales utilizados dentro de
este espacio : concreto, metal,
como materiales principales.
Percibo fortaleza y vigorosidad
dentro del espacio. La percepción
del sonido en el espacio me parce
muy silencioso y la temperatura a
su ver un poco húmeda, quizás
algunos 25º C , la relación entre
exterior e interior da el aspecto de
ser una fachada robusta con
gruesos muros. El entorno de esta
arquitectura es versátil, puede
estar dentro de una gran ciudad o
a su vez en un lugar solitario,
desértico.
REPLICA
ATMOSFERA
ORIGINAL
DESCRIPCION
1
LABORATORIO II
EL CUERPO DOMESTICO
02EL CUERPO
DOMESTICO ¿ Que aprendí ?
CONTENIDO
➢ Caracterización del hogar
➢ El pao de las muchachas
nómadas de Tokio
➢ Critica y tranformacion
➢ Manifiesto
Fue interesante intentar comprender las
distintas atmosferas, no dejar perder
cada detalle fue la clave para concebir
los resultados, aunque no fue fácil la
elaboración de la replica la
orientaciones de profesores fueron clave
para el buen manejo de esta, lo anterior
fue un reto para entender la manera en
que se determinan los espacios.
El HOMBRE DE VITRUBIO
Leonardo Da Vinci
La caracterización del hogar consiste en descubrir
nuestro entorno, los espacios que utilizamos en casa,
nuestra habitación lugar de estudio, de aseo y deleite
corpóreo, tomando medidas de cada uno de los y a su
vez representarlo en los planos correspondientes, sin
omitir los muebles y sus medidas, del mismo modo un
escrito que confirmara la descripción del entorno y las
emociones transmitidas, el objetivo de este trabajo será
la exploración de nuestro alrededor y pensar que esta
bien y que no, que se puede cambiar en beneficio del
habitante y que se podría mejorar, en busca de
encontrar las emociones que se desean sentir en
dichos lugares.
El CUERPO DOMESTICO
BOCETOS ESPACIOS DOMESTICOS
Le Corbusier
El laboratorio tiene la intención de denotar los
problemas que hoy en día se presentan en la
arquitectura domestica contemporánea y sus
dispositivos, es por esto que se procederá a
hacer un levantamiento del hogar de cada
estudiantes con el objetivo de hacer una
autocritica y a su vez transformación del
entorno y espacialidades que dan cuenta del
resultado de lecturas tales como el Pao de
Toyo Ito, en el cual se enfatiza la
contemporaneidad domestica y vecinal,
permitirá a los estudiantes introducirlos en
las lógicas de la cohabitación y expansión de
la casa
La caracterización del hogar consiste en descubrir
nuestro entorno, los espacios que utilizamos en casa,
nuestra habitación lugar de estudio, de aseo y deleite
corpóreo, tomando medidas de cada uno de los y a su
vez representarlo en los planos correspondientes, sin
omitir los muebles y sus medidas, del mismo modo un
escrito que confirmara la descripción del entorno y las
emociones transmitidas, el objetivo de este trabajo será
la exploración de nuestro alrededor y pensar que esta
bien y que no, que se puede cambiar en beneficio del
habitante y que se podría mejorar, en busca de
encontrar las emociones que se desean sentir en
dichos lugares.
Caracterización del hogar
BOCETOS ESPACIOS DOMESTICOS
Le Corbusier
Mi Hogar
Mi hogar actualmente esta compuesto por 3
habitaciones, una pequeña sala, una pequeña
cocina y un pequeñísimo baño parecido a una
caja de fosforo, mi habitación es la mas
amplia ( comparado con los demás espacios)
en ella viven 3 personas, todos estudiantes
de distintas carreras, hacemos poco uso de
las zonas comunes, compartimos mas a
menudo el baño, el cual usamos mas
necesidad que por placer propio.
Baño
Cocina
Toyo Ito - PAO de las
muchachas nómadas de
Tokio - 1972
Una imagen de un sujeto inmolado a favor de que el
consumo se encarne en ella misma, un sujeto privilegiado
para explorar los cambios en las relaciones entre lo público
y lo privado.
Su vivienda es una tienda - cabaña, o sea el pao, que se
puede trasladar de un punto a otro, y en cuyo centro está
colocada la cama y otros tres muebles a su alrededor:
Toyo Ito propone desmontar el concepto de el concepto de
vivienda como objeto arquitectónico con una forma
característica donde el espacio interior ya no es el objetivo.
Lo importante son ahora estos muebles o artefactos que
constituyen el medio en que la chica nómada realiza su vida.
El mueble inteligente: Un dispositivo para colocar y
guardar el aparato destinado a obtener información de
lo que ocurre en la ciudad y almacenarla. Es una
cápsula de información para navegar por la ciudad.
Mueble para el coqueteo: Una combinación de tocador y
armario ropero. El espacio urbano es un escenario y
antes de subir a él, ella tiene que maquillarse y
arreglarse.
Mueble para la comida ligera: Una combinación de una
pequeña mesa y de un armario para guardar la vajilla y
los utensilios necesarios para comer
Lo que quiere decir que los objetos diseñados para el pao, tanto
como el pao en sí mismo, reflejan características de la ciudad en
la que se insertan: independencia, fragmentación y liviandad. El
propósito de todo esto es diluir la distinción entre los ámbitos
privado y público (y también, interior y exterior).
CRITICA
Y
TRANSFORMACION
La casa cuenta con tres
habitaciones, dos de las cuales
son extremadamente pequeñas,
donde el espacio transitorio es
reducido, lo mismo sucede con
la cocina. La ventilación es
habitable en las habitaciones y
sala, en la cocina y baño no se
nota mucha ventilación, si
añadimos el espacio reducido
puede deducirse que es
probable que se concentres los
olores por falta de ventilación.
El ambiente de la casa en
general tiene espacios
habitables pero otros no tantos,
que se utilizaran mas bien por
necesidad y no por placer.
CRITICA
TRANSFORMACION
Decidí transformar este espacio porque
considero que es el mas necesario, el baño
tiene unas medidas que a mi parecer son
inhabitables, la ducha tiene una dimensión
de 1 m2, donde no es posible ni siquiera
agacharse completamente, este espacio
genera emociones claustrofóbicas, el baño
no consta de buena ventilación y al tener
unas dimensiones tan mínimas, se
concentran los malos olores. Por otra
parte el lavamanos, mas que una zona
intima, es común ya que esta en un
espacio libre, lo que de cierta forma no
genera privacidad para quien quiera tener
un baño agradable. El propósito de mi
transformación es pasar de usar el baño
netamente por necesidad, a usarlo por
placer, donde el espacio no sea un lugar
de hostigamiento ni de sensaciones
desagradables para quien lo utilice, sino
mas bien usarlo para limpiar nuestro
cuerpo y alma.
ORIGINAL
TRANSFORMADO
Teniendo en cuenta el
espacio a transformar
lo diseñe pensando en
la ubicación de cada
mueble y el espacio
transitable, de tal
forma que la fusión de
ambos elementos
fuese agradable para
su uso, sin generar
hostigamiento.
Extendí las dimensiones y uní los espacios de ducha y
lavamanos, de tal forma que fuese solo un lugar, pero mas
intimo, agregue 80 cm mas de ancho del baño, esto los
tome del espacio de la sala, frente al lavamanos existía un
espacio el cual no tenia utilidad alguna por lo que lo deje
como la entrada hacia el baño, al unir estos dos espacios y
ensanchar un podo el baño sin perjudicar los demás,
considero que logre un lugar de aseo mas habitable y útil
para el espacio intimo, que mas que una necesidad, es el
espacio que debemos tener todos los humanos como zona
de confort, relajación y exploración corporal.
TRANSFORMACION
Muebles CM
Puerta 60x200
Inodoro 60x80
Mueble
inodoro
60x25x16
0
Tina 1,80x70
Espejo 50x40
Lavamanos 60x40
Tapete 40x20
Desde hace mucho tiempo la tendencia
arquitectónica usa los muros o paredes como
elementos de cerramientos e incluso 60 años
atrás era casi imposible dividir la sala del
comedor con los meros muebles, sino
estrictamente con una pared divisoria, cuando
de igual manera los muebles son elementos
que pueden contribuir a la organización
espacial, sin la necesidad de cerrar por
completo los espacios, generando menos
circulación y estancia espacial en algunos
casos . Lo anterior quiere decir que a partir de
un espacio totalmente abierto, los muebles
juegan el papel de elementos divisores del
espacio para un buen orden, y sobre todo
estética y diseño del espacio y su uso. A
continuación podré demostrarlo a través de
un personaje contemporáneo el cual lo
propuesto anteriormente será veraz.
MANIFIESTO
“Muebles =
organización
espacial”
El personaje contemporáneo de la vivienda transformada es una estudiante
de 22 años, estudiante de arquitectura, ella a pesar de ser una mujer
apasionada y dedicada a su arte, también disfruta de varios placeres en sus
ratos libres y posee gustos y necesidades que a continuación se verán
reflejadas en la transformación de la presente casa, la cual cada mueble,
cada venta cada espacio, fue pensado para su confort y habitabilidad.
MANIFIESTO
TARA
El espacio tara es el mas importante de todo el hogar, pues
contiene todas las pasiones de la protagonista de la casa, un
espacio diverso en el cual se pueden hacer distintas
actividades placenteras por las que la chica es totalmente
apasionada, este espacio tara es el espíritu material de la
chica, igual que un santuario de sus pasiones donde se
puede sentir a gusto. En ele espacio tara se pueden realizar
múltiples actividades tales como bailar y escuchar música,
leer, hacer ejercicio, reunirse con sus amigos, observador de
fotografías con enfoque arquitectónico. Y aunque lo dicho
anteriormente suena a un gran espacio, este no es el caso,
solo contiene un mueble en el que hay varios discos de
música, un tocadiscos, fotografías, y libros, una pequeña
fuente con sus matas favoritas con el tranquilizante sonido
del agua caer, el resto es un espacio mediano en el que cada
actividad mencionada anteriormente resultara cómoda.
Cocina La cocina es pequeña, ella casi no cocina y tampoco le
gusta, por lo que era innecesario diseñar una gran cocina
para no usarla, pues quitaría espacio el cual se podría
invertir en una zona mas productiva
Zona Social Un espacio mediano para recibir visita de sus
amigos y familiares los cuales pueden venir algunas tres
veces al mes, esta zona tiene un baño general, para visitas ya
que el balo propio de ella se encuentra en la zona privada y no
sería lógico que todos tengan que recorrer su espacio intimo
para realizar una necesidad, así mismo a la entrada esta
ubicado un lavamanos y perchero, esto con el fin de
depositarlo apenas se llegue a la casa, pues la post pandemia
dejo nuevos hábitos muy necesarios.
Zona de trabajo La zona de trabajo está conformada con
elementos desde el ayer hasta hoy, es decir, actualmente un
estudiante de arquitectura a diferencia de 60 años atrás, está
dotado de tecnología lo cual facilita su trabajo no obstante no
hace menos importante el lugar de trabajo manual, de papel y
lápiz para pensar, por lo tanto posee escritorio y mesa de
dibujo, además de un están de sus libros favoritos de su
pasión.
Zona Intima Esta zona considero que es un espacio para el deleite
corpóreo, es cierto que todo lo que esta fuera es pasión, sin embargo al
cerrar la puerta de la habitación su función es despejar un poco su
mente cuerpo y alma, su habitación igual que los espacios anteriores
están conformados por elementos que ella la apasionan, esta chica es
una mujer muy femenina , por lo que le encanta la moda y el cuidado
femenino, vi necesario entonces un Vestier relativamente amplio para
guardar sus prendas y demás, con un gran espejo en frente, así mismo
contiene un lavadero interno, muy necesario ya que ella cuida mucho de
sus prendas por lo que decide lavarla ella misma para evitar sofocos
con daño de sus prendas, el baño organizado en secuencia lógica para
su comodidad, primero el inodoro y mueble para organizar todo lo
relacionado con los productos de aseo, luego un lavamanos que debido a
su tamaño también es un tocador suficiente para todos sus productos
femeninos, por ultimo y muy placentero un jacuzzi, con vista afuera para
relajar su mente y cuerpo.
MANIFIESTO
MANIFIESTO
Aunque son muchas mas las situaciones en las que esta chica
experimentara en esta casa, aquí plasme algunas de las mas importantes,
este lugar esta diseñado y organizado pensando en cada paso que esta
chica de día tras día a lo largo de su estancia allí. Respondí a todas las
imaginadas a través de lugares, objetos, puertas ventanas, techo. Que
fuese un lugar útil, habitable y confortable.
1
LABORATORIO III
ESTRUCTURA DE LA ESTRUCTURA
03ESTRUCTURA DE
LA ESTRUCTURA ¿ Que aprendí ?
CONTENIDO
➢ Información y análisis
➢ “La estructura de la estructura”
Alberto Campo Baeza
➢ Análisis Final
CASA GERASSI
Paulo Mendes
¿ Que aprendí ?
En el laboratorio dos aprendí a observar,
pensar y cuestionar mi entorno, pensar desde
la comodidad del habitante y sus necesidades,
así mismo reconocer los distinto espacios que
son necesarios en la arquitectura y los usos,
entender que es necesario espacios que
evoque emociones y sentimientos y a su vez
sean pieza clave de unión dentro de los
espacios. No fue fácil para mi reconocer al
instante el diseño y el por que del espacio tara
al principio, pero poco a poco, borrar y volver
a dibujar hizo posible encontrar el camino. Fue
interesante el ejercicio de rediseñar nuestro
entorno, es ponerse a pensar por un momento
en los cambios que se deberían realizar en la
arquitectura que nos habita, pues nosotros
también somo humanos y no es necesario un
bienestar mental y emocional.
ANALISIS AL SISTEMA ORDENADOR DE LA
CASA
En el presente ejercicio se explorara la
estructura espacial-formal de las
actividades al interior del proyecto
arquitectónico seleccionado en este caso (
Casa Gerassi de Paulo Mendes Da Rocha)
con el objetivo de definir el planteamiento
tipológico de la casa, entender su escala
domestica y el carácter residencial , el
estudiante tratara de explicar su forma, sus
espacios y el tiempo, lo anterior utilizadas
como expresiones para resolver los
problemas del hábitat.
Estructura de la estructura
5
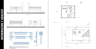
INFORMACION
Y
ANALISIS
La Casa Gerassi es una vivienda ubicada en la ciudad brasileña de São
Paulo. Fue proyectada en 1990 por Paulo Mendes da Rocha y su
construcción fue finalizada en 1991.
Fue construida con bloques prefabricados de hormigón de la compañía
Reago Construções1 y se ha convertido en un punto de visita de
arquitectos que pasan por la ciudad. La casa está inspirada en la
estructura de un puente. Es una obra de compleja simplicidad: un único
volumen elevado sobre una luz de 15 metros. Sus proporciones y las
amplias aberturas que permiten la entrada de luz solar y aire, hacen
que cuente con una muy buena iluminación natural. El propietario del
inmueble es Antônio Gerassi, de quien la casa toma el nombre .
El uso del hormigón armado es la expresión estructural,
vinculado con la ingeniería por la búsqueda de la
racionalización de los procesos constructivos y
posteriormente, por el desarrollo de soluciones modulares. La
preferencia por la honestidad de los materiales y su
visualización por la apariencia estética conforma uno de los
principios del movimiento, donde la ‘verdad estructural’ se
hace evidente a través de la exposición de las marcas del
proceso constructivo (los encofrados de madera transferidos
al hormigón), evitando así la cosificación del edificio como una
imagen desprovista de historia y trabajo humano
INFORMACION
Y
ANALISIS
CASA GERASSI
Paulo Mendes
INFORMACION Y ANALISIS
El sistema técnico utilizado y su
planteamiento no tuvieron demasiados
problemas en sus desarrollo debido a la
regularidad del terreno - este de sección
cuadrada midiendo aproximadamente 32
metros de largo por 21 metros de ancho - la
ubicación de la casa dentro del solar está
hecha de manera centralizada a aprovechar
todo el espacio disponible de la cota cero -
considerada la cota de la calle – como parte
del espacio humanizado y extensión de la
casa.
Croquis inicial por
Paulo Mendes da
Rocha,1989.
De manera sintética se
puede describir el edificio
como un prisma elevado de
base rectangular midiendo
15x14m, el cual está
sostenido por seis pilares
prefabricados de hormigón
armado de 50x50cm que
soportan las vigas y las
losas también prefabricadas
y los cerramientos. El mismo
sistema es aplicado a la
cubierta.
INFORMACION Y ANALISIS
Perspectiva esquemática del sistema pilar/viga
conformando sistema semejante a pórticos.
Casa Gerassi: pilares
prefabricados con
ménsulas tipo gerber.
Esquema de la división de
funciones debido al
posicionamiento de la escalera;
1/3 servicios y 2/3 de social.
Vista de la sala de estar con las aberturas
para iluminación y ventilación.
Corte esquemático demostrando el funcionamiento de las
entradas y salidas de aire
INFORMACION Y ANALISIS
Detalle constructivo de las lozas
alveolares.
Detalle de la disposición de la
mampostería para el
cerramiento
Detalle constructivo del samblaje
entre las piezas alveolares
prefabricadas y el apoyo de las
mismas sobre las vigas.
Bloques de mampostería para el
cerramiento lateral de la casa.
Estrategia técnico constructiva para
independizar la estructura principal
de la superficial.
Detalle de los tipos existentes de
bloques de mampostería para
cerramientos.
INFORMACION
Y
ANALISIS
Lo urbano y el paisaje incorporados al proyecto se encuentran
relacionados con el entorno elementos tales como :
• Rotundidad volumétrica como contenedor del programa – la caja
elevada
• Solución estructural adoptada – horizontalidad y planta libre
• El hormigón y la prefabricación – posibilidad estética formal.
• Continuidad visual y del paseo público – la planta baja liberada
INFORMACION
Y
ANALISIS
INFORMACION
Y
ANALISIS
Campo propone como principio fundamental
establecer un orden en el espacio y que dentro de
este elementos como la gravedad y la luz sean los
temas centrales en la arquitectura, gravedad : como
dueña y estructura del espacio; Luz : como dueña y
constructora del tiempo.
Muchos de nosotros cuando nos preguntamos por
estructura nos imaginamos elementos que son útiles
para soportar cargas , cuando en realidad Alberto nos
muestra que más que un sistema de cargas , es un
ordenador del espacio , creador de un entorno , pues
está no solo es transmisora de cargas sino
generadora del orden .
Sin embargo dentro de los sistemas de cargas
también hay espacios columnados y des columnados,
los cuales unos están templados por la luz , mientras
que otros están templados por la luz y columnas en
busca de resolver problemas funcionales
Por último y no menos importantes dentro de la
arquitectura se implica la memoria, el tiempo, la
historia, la cual está completamente ligada a la
arquitectura, arquitectura es entonces sinónimo de
memoria , sinónimo de gravedad , sinónimo de
garantía, , de continuidad en la creación racional del
hombre
LA
ESTRUCTURA
DE
LA
ESTRUCTURA
1
LABORATORIO IV
CONSTRUCCION DEL LUGAR
04CONSTRUCCION
DEL LUGAR ¿ Que aprendí ?
CONTENIDO
➢ Recolectar, ordenar y analizar el
sitio
➢ Construcción del lugar
➢ Informe “ Genius Loci” – guía
➢ Emplazar
CASA GERASSI
Paulo Mendes
¿ Que aprendí ?
Analizar desde la primera idea en borrador de
una obra, hasta el tipo de hoja que cae en la
terraza de ella misma es excitante, reconocer
los distintos aspectos que se deben tener en
cuenta para desnudar la arquitectura de una
obra, nos enseña lo que nosotros también
debemos y no debemos hacer en ella,
entender por otro lado que la estructura que
debe ejercer la arquitectura no es
simplemente un sistema de cargas y soporte,
sino también un elemento ordenador de esta,
que la luz debe ser inherente a una obra y que
a partir de estudio del entorno es de donde
nacen las primeras ideas.
Emplazar casas de relaciones domesticas
expandidas
El objetivo del presente laboratorio será
comprender la relación pero a su vez diferencia
entre análisis de sitio y construcción del lugar
arquitectónico, este laboratorios se analizara un
sitio, los detalles específicos que contiene y a
partir de allí se podrá emplazar la casa
expandida, la estrategia utilizada para un buen
emplaza miento será utilizar tres conceptos que
logren abarcar el sitio específico : MARCAR –
ORIENTAR-POSICIONAR-DELIMITAR. Comprender
el carácter de esta nociones permitirá actual
sobre el sitio con capacidad técnica, conocimiento
de la geografía y la capacidad de mejorar las
condiciones de la vida domestica CONSTRU CCION
DEL LU GA R
5
RECOLECTAR ORDENAR Y
ANALIZAR EL SITIO
ESTRUCTURANTE NATURAL
UBICACIÓN: Barrio Los colores, Medellín, Antioquia
Está enmarcado por una topografía irregular y
pendiente, que oscila entre 1675 y 1628 metros
sobre el nivel del mar. Las cordilleras que lo
encierran, dan lugar a la formación de diversos
microclimas, saltos de agua, bosques y sitios de
diverso valor paisajístico y ecológico.
ESTRUCTURANTE
NATURAL
ESTRUCTURANTE
NATURAL
el sector se encuentra colindando con el cerro más
importante de la ciudad, con una extensión de 103.26
hectáreas, el cual permite que los vientos se dirigen a
diferentes direcciones ya que actúa como obstáculo, de
igual manera, el cerro es un importante punto de
encuentro de los habitantes para realizar actividades
físicas y salir de la rutina. Cuenta con gran variedad de
árboles y fauna silvestre que se puede apreciar cuando se
acerca al sitio en cuestión. es una maravillosa manera de
escapar del ruido de la ciudad, a medida que se va
adentrando al cerro se van disipando los sonidos de los
automóviles y de la actividad pesada de la ciudad.
Vías principales por donde transitan mayor cantidad de
automóviles y de personas. El sitio en estudio se
encuentra cerca a unas de las vías más importantes, sin
embargo, no está inmediatamente al lado de estas. Por
esa razón no es una zona donde el ruido perturbe a sus
habitantes, pero sí tienen posibilidades de tener una
facilidad en su movilidad por la ciudad.
ESTRUCTURANTE
ARTIFICIAL
ESTRUCTURANTE ARTIFICIAL
MORFOLOGIA URBANA
La zona representa lo mas parecido a un plano octogonal a
base de trazado de calles en su mayoría rectas y
perpendiculares cortándose unas con otras, lo cual
proporciona un aspecto de orden urbano. Gracias a esta
morfología la división de terrenos es menos compleja a
diferencia de otras morfologías urbanas.
La amplitud de las calles son en su mayoría del mismo
tamaño, los corredores están dispuestos de forma regular,
lo que no es inconveniente el paso de los transeúntes.
ESTRUCTURANTE ARTIFICIAL
TIPOLOGIA ARQUITECTONICA
Las similitudes estructurales dentro de la zona, como
por ejemplo en las edificios residenciales los cuales
tienen la misma tipología arquitectónica de pequeñas
residencias en conjunto, lo que genera un vinculo
estructural en ese aspecto.
En la zona hay tipos de vivienda con patio, como lo son
las casas residenciales y tipos de vivienda sin patio
ubicadas en los apartamentos de edificios residenciales.
CONSTRUCCION
DEL
LUGAR
La manzana fue escogida por varios aspectos como :
• No es de uso residencial, es decir que al momento de intervenir el
terreno no será necesario evacuar de sus residencias a las
familias
• Existe una zona muy amplia, que podría tener mejores utilidades
• Esta manzana en las horas de la noches y parte del día permanece
solitaria y con poco fluido de transeúntes.
• Alrededor de la manzana se encuentras conjuntos residenciales
los cuales son tienen zona de socialización, recreación, donde esta
manzana podría ser una alternativa para fomentar las relaciones
sociales y urbanas
CONSTRUCCION
DEL
LUGAR
«Genius loci es un concepto Romano. De acuerdo a las
creencias Romanas antiguas, cada ser independiente
tiene su «Genius», su espíritu guardián. Este espíritu
da vida a la gente y a los lugares, los acompaña desde
el nacimiento hasta la muerte y determina su
carácter o esencia «
GENIUS
LOCI
La orientación del genius loci esta conformados por tres
conceptos básicos los cuales son : senda, distrito y nodo,
la fusión de estos conceptos representa una imagen del
medio, elemento fundamental si hablamos de la
sensación de seguridad y arraigo.
El morar del genius procede estar, la relación entre el
hombre y su entorno, lo que le brinda la oportunidad de
pertenecer a algo definido y a que su vez le proporciona
seguridad y estabilidad, el hombre entonces construye
su estancia o hábitat, dentro de ese espacio es libre,
encontrándose con su propio ser.
Identificación es utilizado para la conformación de los
lugares y cosas, cimentándose en el sentido de
pertenencia humano, esta familiarizados con el entorno
y las cosas que conformas el entorno, a lo que anterior
se le llama relación simbiótica, es decir la identidad
humana es la identidad del lugar, aspecto característico
del hombre moderno, quien es un buscador de lugares
donde pueda satisfacer sus necesidades y poder sentirse
libre
1
LABORATORIO V
LA CASA EXPANDIDA
05LA CASA
EXPANDIDA ¿ Que aprendí ?
CONTENIDO
➢ Manifiesto de la casa expandida – informe
guía
➢ Informe “Casa Moriyama” por Jhonatan
Ospina
➢ Habitantes y diagramas
➢ Directorio de espacios y protoplantas
➢ Anteproyecto
¿ Que aprendí ?
Dentro del laboratorio cuatro
comprendí la relación que existe entre
analizar un sitio y construir en este,
explorar sus detalles específicos y a
partir de eso poder pensar en un
emplazamiento, luego de haber
detallado todas sus necesidades,
ventajas y desventajas del lugar, las
estrategias de orientación fueron de
mucha ayuda para este proceso de
análisis y construcción
El nuevo orden domestico y vecinal de la
cohabitación
El objetivo de la casa expandida será comprender
las nuevas relaciones colaborativas de la
habitación doméstica contemporánea que
reintegran las antiguas viejas nociones de
vecindad, cooperatividad sin dejar de lado la
privacidad como principios éticos esto con el fin
de un rearme de la arquitectura residencial.
Creando espacios mutantes donde se puedan
realizar las nuevas actividades contemporáneas
como el coworking, cohabitación, se busca
emprender una nueva tipología de casa que
atienda a las nuevas problemáticas de la
actualidad
CONSTRU CCION
DEL LU GA R
La casa expandida (o como volver
a querer volver a casa)
La casa expandida es una alternativa del retorno a aquel
lugar físico, seguro amado que hemos dejado en algún lugar,
pero siempre buscamos sentirnos como en ella, pero que
debido a distintas circunstancias es en algunas veces
imposible, es entonces como la casa expandida a través de un
conjunto de experiencias y espacios dan por resultado esa
casa- hogar, así bien desde un punto de vista menos
normativo y que gracias al pasar de los años esta alternativa
ha sido más fácil de acoger, es decir aceptando nuevas
formas de casa-hogar; esto sin intentar transformar el borde
en centro sino mas bien desplazar el centro hacia los borde.
Cuando se habla de nuevas formas de casa-hogar se refiere
según Bauman a la “modernidad liquida” donde supone
cambios de grandes conceptos de fuerza como lo son : familia,
trabajo, escuela, la perdida estructurales de estos grandes
pilares que antes eran incuestionables con el paso del tiempo
se han generado nuevas formas de pensamiento y consigo
nuevos estilos de habitabilidad. lo que por ende la arquitectura
cede al cambio; por un lado la familia que antes era nuclear (
padre, madre e hijos) hoy en día hay diversidad de núcleos
familiares, el trabajo que antes era hasta jubilarse, hoy es
solo una etapa de una parte de nuestras vidas y con ellos
distintas experiencias, distintos espacios y distintas
necesidades en muchos sentidos, el espacio de trabajo hoy se
puede ejercer de manera remota o bien presencial, a
diferencia del tiempo atrás donde era exclusivamente “face to
face”,
esto por ejemplo va generando cambios por ejemplo si se
utiliza la casa como espacio de trabajo, es necesario que
cambie el modelo arquitectónico de dicha casa ya que al
ocupar la mayor parte del día en ese lugar los espacios
deben volverse eficaces y no a diferencia de 50 años atrás
donde se salía por la mañana y regresaba en la noche, es
decir menos necesidades dentro de la casa. La modernidad
liquida fue la consecuencia por ejemplo con la
transformación social japonesa la cual sufrió cambios
drásticos con el estallido de la burbuja económica, los
trabajos a corto termino y los desastres naturales
ocurridos que dio por hecho nuevas transformaciones
sociales.
En entonces que para rediseñar la casa hace falta saber el
concepto de casa y la distinción de hogar. El concepto de
casa se refiere a un espacio construido a través de las
necesidades del individuo su ocupación, alcance y normas
ergonómicas, mientras el concepto de hogar es la relación
simbólica de sujeto – espacio u objetos.
El anterior diagrama quiere decir que casa-hogar no solo es
lo tangible lo que nos hace sentir en ella sino más bien las
experiencias, los objetos que permanecen en ella y que nos
hacen sentir en casa. Por otro lado, la Casa real, a
diferencia de casa busca satisfacer las necesidades
específicas de cada individuo.
Manifiesto
Irigay propone la relación entre sujetos dentro de un hogar
de manera que el espacio de ambos sujetos pese a que hay
una relación y frente a esto un inevitable cambio se pueda
crear dicha relación entre sujetos pero que a su vez no se
interrumpa la posición de ambos sujetos y al mismo tiempo
una operación a dúo.
En la comparación de Margaret a cerca de la teoría Ciberg (
Haraway) la cal consta del limite del ser, es decir no es ni
una cosa ni la otra, manteniendo un equilibrio. Las
relaciones de intervalo de Casa -hogar están asociados a
los espacios – experiencias que dan por resultado la casa
real del sujeto que va más allá de lo físico.
El volver a casa a través de la casa expandida significa
dejar lo normativo atrás y encontrar el retorno en otras
formas de casa hogar a través de las experiencias o bien
de lo que se desea.
Manifiesto
Se propone un modo de vida
distinto a como se venia dando
años atrás, esto a distintos
factores sociales, económicos y
agro urbanísticos, llamado co-
housing en el cual en se
compartes los espacios con
diferentes personas pero que al
mismo tiempo se maneja un esta-
Factores como el
elevado costo de la
tierra, baja
adquisición
monetaria, influye
directamente a la hora
de tener un terreno
en las urbes, lo que ha
traído consecuencias
en cuanto a nuevas
alternativas de
habitabilidad y a su
vez laborales
denominadas como :
co-housing y co-living.
Este surgió en Suecia
hace mas de 50 años
como una alternativa
para los jubilados
debido a factores
como la edad,
espacios mas seguros ,
accesibles y cómodos
exigían otro modo de
vida
do de privacidad entre ellos
mismos, sin embargo lo anterior
gira en torno a la persona y el
contexto. Es así como se practican
nuevas maneras para la
interpretación de un hogar desde el
numero de integrantes hasta la
forma estructural de una casa, mas
bien cohousing.
Resulta interesante como estos nuevos modos de vida
influyen en el bienestar emocional y mental de la
persona, y su vez se crean vínculos afectivos entre ellos
mismos que mitigan la sensación de soledad como hoy
en día viven muchas personas llevándolos a cometer
malas decisiones y que esta nueva alternativa propone
un cambio de vida para muchos que lo necesitan no
obstante definiendo los limites entre lo privado, lo
publico y colectivo, para que este conjunto de
actividades puedan funcionar de forma adecuada.
“Una aldea de capsulas”
En la tesis llamada “ una aldea de capsulas”
de Jonathan Ospina, hace un profundo
análisis de la casa Moriyama construida en
el año 2005, donde exhibe cada centímetro
de esta y a su vez el entorno que la rodea,
mostrando a través de sus dibujos de
análisis lo que propone la casa Moriyama
como un nuevo estilo arquitectónico para
los modos de vida actuales, donde cada
habitante de ella tiene acceso a un recinto
superficial y al mismo tiempo suelo vegetal,
algo nuevo para la arquitectura japonesa
no obstante mantiene su esencia. En el
documental se expone las diferentes
formas de vivir e incluso Jonathan opina
que varios fotogramas son dirigidos con el
fin de exponer las diversas utilidades que
posee la casa
En su tesis, Jonathan Ospina expone otras
construcciones realizadas a partir del modelo o
manifiesto arquitectónico de Moriyama, la casa
Nishinoyama (2009 -2013) es la constatación de que
la propuesta arquitectónica de la casa Moriyama
recoge las necesidades de un modo positivo de vivir.
El documental de la casa Moriyama pone en escena
la vida cotidiana mostrando su forma de vida y a su
vez el ritmo flexible en el que es útil la casa, como un
programa versátil y cambiante. Las ventanas amplias
penetran la profundidad del conjunto habitacional
insinuando continuidad con el paisaje urbano, los
visuales interiores generan conexión con la
comunidad. En lugar de concentrar el programa en
un único volumen, el espacio se ha fragmentado en
unidades autónomas que permiten disponer entre las
piezas pequeños jardines y patios conectados entre
sí, que funcionan como lugares de encuentro para los
inquilinos y acentúan el sentido de pertenencia a una
comunidad vecinal.
A pesar de la proximidad, su
privacidad se ha conseguido
cuidando especialmente la
forma de los recintos, la
posición que ocupan en la
parcela, las distancias que
se establecen entre ellos y
la disposición de los huecos
sobre las fachadas que
evitan enfrentar unos con
otros. Por otra parte, esta
casa genera una estructura
social de vecindario al
interior del conjunto siendo
una vivienda en si misma,
esto a través del concepto
en el entorno urbano, su
actuar y cotidianidad.
Habitantes y diagramas
v
VECINDARIOS
RELACIONES
EXPANDIDAS
DIRECTORIO DE ESPACIOS Y
PROTOPLANTAS
Al comparar las protoplantas nos dimos cuenta que
cada uno de nosotros buscaba un elemento ordenador
que pudiese organizar los espacios de interior a
exterior, en equipo logramos sintetizar todas estas
ideas y convertir de las cuatro una sola.
Protoplantas
Ejercicio rápido de experimentación proyectual
ANTEPROYECTO
Delimitar
El sitio está delimitado por las calles 51 y 51A, y las carreras 71
y 71A. Tiene aproximadamente 2.240 metros cuadrados,
contando las aceras o andenes. Al norte colinda con la
urbanización Escorial 83, al occidente con la urbanización
Escorial, al sur con el Hotel Trip y locales de una sola planta, y
al oriente con urbanización la pirámide, y los mangos. En la
manzana se hace la relación interior-exterior, con la
edificación de 13 metros por 50, y luego el límite que imponen
las calles. Es una relación fluida, debido a que hay múltiples
accesos desde diversas direcciones. La idea es que no posea
muros al exterior, sino ventanales amplios y corredizos, lo que
permite mucha visibilidad pero al mismo tiempo protección
contra la lluvia y los vientos.
En el sector donde se encuentra
la manzana queda cerca de uno
de los parques más importantes
de Medellín con una altitud
máxima de 1.612M de altura. La
zonas verdes alrededor de la
zona no son abundantes,
excepción del cerro el volador
que tiene mucha riqueza natural.
PROYECTO
FINAL
1 planta
2 planta
3 planta
4 planta
v
Fachada Norte
Fachada Sur
ESPACIOS COLECTIVOS
06LA
HABITABILIDAD
ESPECIFICA
¿ Que aprendí ?
CONTENIDO
➢ Taller y Santuario
¿ Que aprendí ?
El laboratorio cinco no fue fácil para
mi, al principio no estaban claras las
ideas con el grupo respecto a la cada
expandida, pero gracias a las
orientaciones d ellos profesores fue
posible establecer un concepto claro y
proyectarlo, los textos fueron de gran
ayuda para expandir las ideas y
conocer las diferentes formas de vida
contemporánea.
Conquistar la atmosfera interior y el
ritual domestico
El laboratorio seis enfatiza en el diseño autónomo
de los espacios y sus dispositivos ya que son
parte fundamental dentro d ellos rituales
domésticos ( cuarto de aguas y dormitorio) asi
mismo los espacios de transición los cuales se
comprenderán como espacios TARA, con un
carácter menos rígido, permitiendo diversidad de
actividades dentro de el mismo. Por otro lado
busca solidificas el diseño de espacio en relación
con la proporción humana, toda estas actividades
será con ayuda de compañeros y orientadores del
curso.
TA L L ER Y
SANTUARIO
EL TALLER Y
SANTUARIO
La caracterización imaginativa y desglosamiento
de los espacios domésticos y de como su
influencia atmosférica se relaciona directamente
con el estado emocional y mental del ser humano
que los habita, es lo que Josep Quetglas aplica en
los episodios de los espacios, sus condiciones
atmosféricas respecto con el taller y santuario.
Estos conceptos logran ser comprendidos a través
de la comparación de las cocinas de cada villa ,
como lo menciona Quetglas ideadas por Le
Corbusier, cada una de estas con una simbología
especifica debido a la disposición de sus objetos
en las tablas de trabajo, y en el que se infiere que
todos estos objetos son resultado de un orden y
equilibrio pese a la diferencia de textura forma y
materialidad
Estas burbujas atmosféricas logran evocar la arquitectura
como generador de espacios en los que se crean conceptos
de fuerza, un ejemplo seria el “taller”, si bien la cocina se
convierte en un espacio dotado de materialidad prima y con
ella maquinaria para convertirla, el habitante se
desenvuelve, dejando fluir su creatividad y habilidades
motoras transformando lo anterior en algo tangible,
necesario para su bienestar.
Otro concepto generados es el de “vecindad” ya que por
naturaleza propia es inherente al ser humano el trabajo, no
es una acción exclusivamente individual, sino colectiva, en
el que la trasformación de los alimentos y el aprendizaje
que radica en el, se vuelve conjunto, compartido y rico en
aprendizaje e ideas múltiples
TALLER Y SANTUARIO
TALLER Y SANTUARIO
Sin embargo el habitante requiere de una relación consigo
mismo en su proceso de experimentación propia, es aquí
donde el santuario cumple su papel, este permite al habitante
explorar un ambiente distinto a dúo: el espacio y el habitante.
Buscando conectar el cuerpo con la naturaleza y lo que lo
rodea, dicho espacio dotado de materialidad, texturas, objetos
apropiados para el deleite corpóreo, fluido de aire , luz natural,
espacios proporcionales que otorguen un espacio de quietud,
para alcanzar un éxtasis de placer corpóreo y meditación
mental.
La arquitectura evocara estos espacios generando sensaciones,
por medio del vapor que empaña los cristales, olores
perfumados y suaves que se esparcen en la sala, el correr del
agua, este ritual permite conocerse en uno mismo y renacer en
un baño, lamentablemente hoy en día la misma arquitectura en
muchos casos obligo al habitante a bañarse por necesidad mas
no por placer corpóreo.
Es un reto para la arquitectura de nuestra generación se
conviertan en experiencias significativas, sobre todo en vista de
los nuevos cambios de vida que la humanidad ha tenido que
pasar últimamente, es necesario que sean retomadas para
volver de nuevo a los talleres y santuarios que se ha perdido a
lo largo del tiempo.
Informe Guía
didáctica
Laboratorio 06: La habitabilidad específica
Las partes del Taller… del Santuario… y de sus
transiciones
La habitabilidad especifica tiene como objetivo
desnudar la arquitectura no solamente en su forma o
volumen, sino en la experiencia misma que se vive
dentro de esta y que los espacios sagrados como
consagrados refiriéndose a espacios y privados y
comunitarios, tenga como fin transportar al individuo a
su origen : naturaleza misma, nuestro origen ( fuego,
agua, tierra) sin lesionar la armonía que se debe
mantener entre la forma del habitar y la naturaleza
propia.
Cada parte del hábitat debe cumplir un rol de manera
tal que se pueda relacionar con las atmosfera y sus
dispositivos que hacen parte de ella. Es así como el
ritual del santuario de donde emerge el ser mismo desde la
naturaleza para el deleite personal y compartido, tiene
como objetivo conectar con la naturaleza íntimamente, la
arquitectura emprende su labor por cumplir estos
fundamentos sin lesionar la experiencia, evocara desde la
vivencia el origen del ser.
Por otra parte el ritual del taller se fundamenta en el
común, en la interacción entre compartir su misma
naturaleza y que a su vez evocan experiencias
subjetivas dentro del mismo espacio.
Todo lo anterior trata de una arquitectura que busque
facilitar las relaciones del hombre con el medio, que a
través de su habitar pueda evocar y compartir
experiencias dentro de sus espacios, incorporando su
identidad personal en ella misma.
Las habitaciones serán un lugar de relajamiento y
encuentro con nosotros mismo para el descanso,
alejarse del entorno después de un largo dia y
sentir la comodidad de nuestra habitación es
indispensable para nuestra salud mental.
He aquí algunos santuarios los cuales están
dotados de comodidad suficiente para el buen
descanso del habitante
HABITACIONES
SANTUARIOS
Con los baños se busca que se dirijan a ellos no
por necesidad como conc el pasar de los años los
cambios en la arquitectura han obligado al hombre
a dejar atrás ese encuentro consigo mismo en el
asearse, en el deleite de explorar nuestros
cuerpos dentro del aseo, por eso queremos volver
a nuestros orígenes sin descartar los dispositivos
de hoy en dia, el baño será un encuentro con
nosotros mismo, con nuestra pareja para el
relamiento de nuestra mente, alma y cuerpo.
CUARTO DE AGUAS
SANTUARIOS
¿ Que aprendí ?
¿ Que aprendí ?
De taller tres puedo decir que fue un proceso
bastante agotador pero que valió la pena cada
momento, noche día, madrugada, no soy la
misma estudiante, ahora soy mas critica,
siento una gran responsabilidad como
arquitecta en formación, de hacer una nueva
arquitectura que se adecue a los cambios o
bien que la arquitectura cambien las formas de
vivir, las formas de trabajar, mis compañeros y
yo tenemos ese deber en un futuro, agradezco
mucho a los profes por abrirnos un poco mas
la mente y conocimientos a este extenso y
fascinante mundo de la arquitectura, y aunque
el proceso no es fácil, siempre pero siempre
vale la pena ver los resultados, porque para la
arquitectura nunca hay un final o un proceso
terminado, siempre queda inconclusa, es
infinita, llena de potencial, gracias 2021 – 2, fue
un gran semestre.

POTAFOLIO TALLER III - UNAL

  • 1.
    PORTA FOLIO UNIVERSIDAD NACIONAL DE COLOMBIA - SEDE MEDELLIN ENERO /10/2022 S C OP R I R E º S C O P R I R E º S C O P R I R E VALENTINA COAVA FIGUEROA ESTUDIANTE DE ARQUITECTURA UNIVERSIDAD NACIONAL DE COLOMBIA SEDE MEDELLIN FACULTAD DE ARQUITECTURA 2021 – S2
  • 2.
    A las mujeresde mi vida, gracias por apoyarme siempre, en verano e invierno. Se los debo todo. CREDITOS P R OY E C T I S TA S Valentina Coava Figueroa Estudiante de Arquitectura - 19 TALLER III 2021 – S2 Colaboradores Sara del Pilar Puerta Jhon Moyano Angely Ríos Juan Fernando Ríos 1 Arq. David Guillermo Seba Gómez Arq. Luis Alfonso Escobar Marín Arq. Javier Hernández Castañeda Arq. Marco Aurelio Montes Botero Consejo Académico
  • 3.
    “La arquitectura notiene presencia. Una obra es una ofrenda al Santuario.” - Louis Kahn EDITORIAL Taller del proyecto III, le brindo a los estudiantes nuevas formas de pensar, experimentar e innovar, las técnicas básicas del diseño mediante procesos de experimentación y comprensión de las problemáticas que hoy en día se presentan en el hábitat contemporáneo, dejando como responsables a los estudiantes de crear una nueva arquitectura que abarque todos los obstáculos que presenta el habitante de hoy. Fue interesante poder vivir la experiencia cara a cara con los profesores, compañeros y entorno académico, luego de dos semestres que por cuestiones de pandemia era imposible, aunque haya sido un semestre acelerado y a escala, los aprendizajes obtenidos en cada laboratorio nos otorgo un distinto enfoque en cuanto a la manera de ver y hacer arquitectura. Estos aprendizajes fueron resultado del sumario de laboratorios planteados por el cuerpo académico, el aprender a pensar , comunicar y expresar resaltando el proceso como pilar fundamental para el aprendizaje. El presente portafolio expone los distintos procesos de cada laboratorio que se realizaron a lo largo del semestre en taller del proyecto III, con el objetivo de mostrarle al lector las habilidades, procesos de entendimiento y las herramientas de aprendizaje proyectuales dentro de la representación. arquitectónica de las escalas vecinales y domesticas. 2
  • 4.
    01ATSMOFERAS DOMESTISCAS 02 EL CUERPO DOMESTICO 03ESTRUCTURA DELA ESTRUCTURA 04 CONSTRUCCION DEL LUGAR 05 LA CASA EXPANDIDA 07 – 08 HACER VISIBLE EL PENSAMIENTO 06 LA HABITABILIDAD ESPECIFICA CONTENIDO 6 -
  • 5.
  • 6.
    01ATSMOFERAS DOMESTISCAS 2 EL CUERPO DOMESTICO ¿Que aprendí ? CONTENIDO ➢ Informe Guía Didáctica ➢ Informe lectura “atmospheres” de Peter Zumthor ➢ Análisis de ejemplares ➢ Transformaciones con dispositivos para la captura de las atmósferas Fue interesante intentar comprender las distintas atmosferas, no dejar perder cada detalle fue la clave para concebir los resultados, aunque no fue fácil la elaboración de la replica la orientaciones de profesores fueron clave para el buen manejo de esta, lo anterior fue un reto para entender la manera en que se determinan los espacios.
  • 7.
    Dispositivos para lacaptura de atmosferas arquitectónicas “La atmosfera habla a una sensibilidad emocional,una percepción que funciona a una increíble velocidad y que los seres humanos tenemos para sobrevivir” Peter Zumthor El presente ejercicio propone la meditación desde las entrañas de una edificación con la condición de lugar habitable, el análisis de otros aspectos importantes tales como : la luz, la espacialidad y la composición estén modulados dentro del espacio, todo lo anterior se concibe como atmosfera : una forma de percibir emociones a partir de las cualidades sensoriales. Todo esto como un acto pensado o bien del resultado de una necesidad. Posteriormente se experimentara mediante el proceso de elaboración de una replica de atmosfera seleccionada, analizando sus detalles, lo tangible e intangible que envuelven dicha atmosfera y lograr el máximo efecto real que la caracteriza, las transformaciones realizadas en esta son resultado de las diversas orientaciones por parte de los profesores y compañeros de clase. A PRENDER A VER 5
  • 8.
    Dentro del laboratoriose anexan obras de análisis en relación a sus atmosferas tales com la casa Gilardi de Luis Barragán, o la iglesia San Giovani de Mario Botta y la casa Koshino de Tadao Ando, entre otras que se caracterizan por su particularidad especifica, además se facilitaron escritos que brindaron una compresión directa con el tema como lo fue el libro “ Atmospheres” dePeterZumthor CASA GILARDI Luis Barragán 6 CASA KOSHINO Tadao Ando
  • 9.
    El fin deZumthor en esta lectura radica en resaltar la medida de la belleza arquitectónica atreves de nueve principios de arquitectura los cuales plantea como: convivencia, utilidad, belleza y permanencia asemejándose a Vitruvio, no obstante la belleza esta ramificada por materialidad, proporciones, belleza interior y corazón. A continuación alguno de sus principios planteados: Cuerpo de la arquitectura La arquitectura es entonces como el cuerpo humano, anatómicamente compuesto por varios órganos y músculos que conforman una estructura, desde la piel, lo que usamos y sentimos, es masa corpórea, membrana, recubrimiento y que a su vez tiene espíritu. Sonido en el espacio Es lograr que un espacio se apropie de un sonido, por ejemplo : la ciudad la puede definir el ruido o una biblioteca esta definida por el silencio, es decir que el sonido es parte de cada espacio Temperatura del espacio El ejemplo utilizado por Zumthor para explicar la acción de la temperatura a través de un piano, es el hecho de lograr que un espacio sea abierto o cerrado por medio de sus materiales, texturas, pueda tener una propia temperatura, volviendo un sitio agradable.
  • 10.
  • 11.
    ANALISIS DE EJEMPLARES Casa Koshino – Tadao Ando La casa Koshinodespliega fenómenos físicos tales como la luz natural, una luz que nos envuelve en un profundo misticismo y su volumetría generadora, genera una percepción de relación entre la arquitectura, el hombre y la naturaleza misma dentro de toda su composición debido a su importante vegetación y la forma en como esta construida sus volúmenes semienterrados desde su acceso.
  • 12.
    ANALISIS DE EJEMPLARES La iglesiade Rafael Moneo, maneja fenómenos físicos que representan paz, pulcritud, tranquilidad a través de su lisura y pulcridad las cuales son percibidas al ojo humano, las emociones que genera el espacio son congruentes con su tipo, es decir una iglesia; la luz indirecta en la cubierta se relaciona con la grandeza de Dios, mientras que el color blanco, igual que un manto divino cubre quienes estén presentes, esto gracias al efecto que produce su arquitectura. Rafael Moneo - Iglesia Contraste entre la lisura de la iglesia a diferencia suponiendo que fuese rugosa, pues no generaría la misma sensación que produce.
  • 13.
    Los fenómenos físicosque denota las termas de vals considero que son la piedra y el agua para definir de manera ideal su fenomenología, mientras la piedra funciona como un envoltorio de la estructura, el agua se incorpora al espacio que lleve a su paso, con sus variables de temperatura dándole un sentido propio de las aguas termales, sin dejar de lado las ranuras que disipan la luz natural entre las aristas de la cubierta, las termas de vals se percibe un espíritu diferente en cada espacio, esto debido al juego sensorial que produce cada componente dentro de ella. ANALISIS DE EJEMPLARES Termas de Vals – Peter Zumthor
  • 14.
    Pasillo iluminado porla luz direccionada desde una puerta o vano en la esquina superior derecha que envuelve una parte del pasillo y aparte de la fila de columnas anchas, delgadas igual que una lamina de metal, la ausencia de luz se posa frente del ojo observador en consecuencia de la cubierta o alero que obstaculiza la incidencia de luz. Los colores oscuros se relacionan con la textura del fondo que a simple vista podría parecer lisa pero que por su color y franjas como si fuesen placas de concreto creería que tiene una textura ni tan lisa, ni tan rugosa, es lo mismo que sucede en el piso, por el contrario de sus columnas de aspecto suave como la seda da la impresión de que fuesen metalizadas por ende a partir de sus colores y textura creería responde a la pregunta de los materiales utilizados dentro de este espacio : concreto, metal, como materiales principales. Percibo fortaleza y vigorosidad dentro del espacio. La percepción del sonido en el espacio me parce muy silencioso y la temperatura a su ver un poco húmeda, quizás algunos 25º C , la relación entre exterior e interior da el aspecto de ser una fachada robusta con gruesos muros. El entorno de esta arquitectura es versátil, puede estar dentro de una gran ciudad o a su vez en un lugar solitario, desértico. REPLICA ATMOSFERA ORIGINAL DESCRIPCION
  • 15.
  • 16.
    02EL CUERPO DOMESTICO ¿Que aprendí ? CONTENIDO ➢ Caracterización del hogar ➢ El pao de las muchachas nómadas de Tokio ➢ Critica y tranformacion ➢ Manifiesto Fue interesante intentar comprender las distintas atmosferas, no dejar perder cada detalle fue la clave para concebir los resultados, aunque no fue fácil la elaboración de la replica la orientaciones de profesores fueron clave para el buen manejo de esta, lo anterior fue un reto para entender la manera en que se determinan los espacios. El HOMBRE DE VITRUBIO Leonardo Da Vinci
  • 17.
    La caracterización delhogar consiste en descubrir nuestro entorno, los espacios que utilizamos en casa, nuestra habitación lugar de estudio, de aseo y deleite corpóreo, tomando medidas de cada uno de los y a su vez representarlo en los planos correspondientes, sin omitir los muebles y sus medidas, del mismo modo un escrito que confirmara la descripción del entorno y las emociones transmitidas, el objetivo de este trabajo será la exploración de nuestro alrededor y pensar que esta bien y que no, que se puede cambiar en beneficio del habitante y que se podría mejorar, en busca de encontrar las emociones que se desean sentir en dichos lugares. El CUERPO DOMESTICO BOCETOS ESPACIOS DOMESTICOS Le Corbusier El laboratorio tiene la intención de denotar los problemas que hoy en día se presentan en la arquitectura domestica contemporánea y sus dispositivos, es por esto que se procederá a hacer un levantamiento del hogar de cada estudiantes con el objetivo de hacer una autocritica y a su vez transformación del entorno y espacialidades que dan cuenta del resultado de lecturas tales como el Pao de Toyo Ito, en el cual se enfatiza la contemporaneidad domestica y vecinal, permitirá a los estudiantes introducirlos en las lógicas de la cohabitación y expansión de la casa
  • 18.
    La caracterización delhogar consiste en descubrir nuestro entorno, los espacios que utilizamos en casa, nuestra habitación lugar de estudio, de aseo y deleite corpóreo, tomando medidas de cada uno de los y a su vez representarlo en los planos correspondientes, sin omitir los muebles y sus medidas, del mismo modo un escrito que confirmara la descripción del entorno y las emociones transmitidas, el objetivo de este trabajo será la exploración de nuestro alrededor y pensar que esta bien y que no, que se puede cambiar en beneficio del habitante y que se podría mejorar, en busca de encontrar las emociones que se desean sentir en dichos lugares. Caracterización del hogar BOCETOS ESPACIOS DOMESTICOS Le Corbusier
  • 19.
    Mi Hogar Mi hogaractualmente esta compuesto por 3 habitaciones, una pequeña sala, una pequeña cocina y un pequeñísimo baño parecido a una caja de fosforo, mi habitación es la mas amplia ( comparado con los demás espacios) en ella viven 3 personas, todos estudiantes de distintas carreras, hacemos poco uso de las zonas comunes, compartimos mas a menudo el baño, el cual usamos mas necesidad que por placer propio. Baño Cocina
  • 20.
    Toyo Ito -PAO de las muchachas nómadas de Tokio - 1972 Una imagen de un sujeto inmolado a favor de que el consumo se encarne en ella misma, un sujeto privilegiado para explorar los cambios en las relaciones entre lo público y lo privado. Su vivienda es una tienda - cabaña, o sea el pao, que se puede trasladar de un punto a otro, y en cuyo centro está colocada la cama y otros tres muebles a su alrededor: Toyo Ito propone desmontar el concepto de el concepto de vivienda como objeto arquitectónico con una forma característica donde el espacio interior ya no es el objetivo. Lo importante son ahora estos muebles o artefactos que constituyen el medio en que la chica nómada realiza su vida.
  • 21.
    El mueble inteligente:Un dispositivo para colocar y guardar el aparato destinado a obtener información de lo que ocurre en la ciudad y almacenarla. Es una cápsula de información para navegar por la ciudad. Mueble para el coqueteo: Una combinación de tocador y armario ropero. El espacio urbano es un escenario y antes de subir a él, ella tiene que maquillarse y arreglarse. Mueble para la comida ligera: Una combinación de una pequeña mesa y de un armario para guardar la vajilla y los utensilios necesarios para comer Lo que quiere decir que los objetos diseñados para el pao, tanto como el pao en sí mismo, reflejan características de la ciudad en la que se insertan: independencia, fragmentación y liviandad. El propósito de todo esto es diluir la distinción entre los ámbitos privado y público (y también, interior y exterior).
  • 22.
    CRITICA Y TRANSFORMACION La casa cuentacon tres habitaciones, dos de las cuales son extremadamente pequeñas, donde el espacio transitorio es reducido, lo mismo sucede con la cocina. La ventilación es habitable en las habitaciones y sala, en la cocina y baño no se nota mucha ventilación, si añadimos el espacio reducido puede deducirse que es probable que se concentres los olores por falta de ventilación. El ambiente de la casa en general tiene espacios habitables pero otros no tantos, que se utilizaran mas bien por necesidad y no por placer. CRITICA TRANSFORMACION Decidí transformar este espacio porque considero que es el mas necesario, el baño tiene unas medidas que a mi parecer son inhabitables, la ducha tiene una dimensión de 1 m2, donde no es posible ni siquiera agacharse completamente, este espacio genera emociones claustrofóbicas, el baño no consta de buena ventilación y al tener unas dimensiones tan mínimas, se concentran los malos olores. Por otra parte el lavamanos, mas que una zona intima, es común ya que esta en un espacio libre, lo que de cierta forma no genera privacidad para quien quiera tener un baño agradable. El propósito de mi transformación es pasar de usar el baño netamente por necesidad, a usarlo por placer, donde el espacio no sea un lugar de hostigamiento ni de sensaciones desagradables para quien lo utilice, sino mas bien usarlo para limpiar nuestro cuerpo y alma. ORIGINAL TRANSFORMADO
  • 23.
    Teniendo en cuentael espacio a transformar lo diseñe pensando en la ubicación de cada mueble y el espacio transitable, de tal forma que la fusión de ambos elementos fuese agradable para su uso, sin generar hostigamiento. Extendí las dimensiones y uní los espacios de ducha y lavamanos, de tal forma que fuese solo un lugar, pero mas intimo, agregue 80 cm mas de ancho del baño, esto los tome del espacio de la sala, frente al lavamanos existía un espacio el cual no tenia utilidad alguna por lo que lo deje como la entrada hacia el baño, al unir estos dos espacios y ensanchar un podo el baño sin perjudicar los demás, considero que logre un lugar de aseo mas habitable y útil para el espacio intimo, que mas que una necesidad, es el espacio que debemos tener todos los humanos como zona de confort, relajación y exploración corporal. TRANSFORMACION Muebles CM Puerta 60x200 Inodoro 60x80 Mueble inodoro 60x25x16 0 Tina 1,80x70 Espejo 50x40 Lavamanos 60x40 Tapete 40x20
  • 24.
    Desde hace muchotiempo la tendencia arquitectónica usa los muros o paredes como elementos de cerramientos e incluso 60 años atrás era casi imposible dividir la sala del comedor con los meros muebles, sino estrictamente con una pared divisoria, cuando de igual manera los muebles son elementos que pueden contribuir a la organización espacial, sin la necesidad de cerrar por completo los espacios, generando menos circulación y estancia espacial en algunos casos . Lo anterior quiere decir que a partir de un espacio totalmente abierto, los muebles juegan el papel de elementos divisores del espacio para un buen orden, y sobre todo estética y diseño del espacio y su uso. A continuación podré demostrarlo a través de un personaje contemporáneo el cual lo propuesto anteriormente será veraz. MANIFIESTO “Muebles = organización espacial”
  • 25.
    El personaje contemporáneode la vivienda transformada es una estudiante de 22 años, estudiante de arquitectura, ella a pesar de ser una mujer apasionada y dedicada a su arte, también disfruta de varios placeres en sus ratos libres y posee gustos y necesidades que a continuación se verán reflejadas en la transformación de la presente casa, la cual cada mueble, cada venta cada espacio, fue pensado para su confort y habitabilidad. MANIFIESTO TARA El espacio tara es el mas importante de todo el hogar, pues contiene todas las pasiones de la protagonista de la casa, un espacio diverso en el cual se pueden hacer distintas actividades placenteras por las que la chica es totalmente apasionada, este espacio tara es el espíritu material de la chica, igual que un santuario de sus pasiones donde se puede sentir a gusto. En ele espacio tara se pueden realizar múltiples actividades tales como bailar y escuchar música, leer, hacer ejercicio, reunirse con sus amigos, observador de fotografías con enfoque arquitectónico. Y aunque lo dicho anteriormente suena a un gran espacio, este no es el caso, solo contiene un mueble en el que hay varios discos de música, un tocadiscos, fotografías, y libros, una pequeña fuente con sus matas favoritas con el tranquilizante sonido del agua caer, el resto es un espacio mediano en el que cada actividad mencionada anteriormente resultara cómoda.
  • 26.
    Cocina La cocinaes pequeña, ella casi no cocina y tampoco le gusta, por lo que era innecesario diseñar una gran cocina para no usarla, pues quitaría espacio el cual se podría invertir en una zona mas productiva Zona Social Un espacio mediano para recibir visita de sus amigos y familiares los cuales pueden venir algunas tres veces al mes, esta zona tiene un baño general, para visitas ya que el balo propio de ella se encuentra en la zona privada y no sería lógico que todos tengan que recorrer su espacio intimo para realizar una necesidad, así mismo a la entrada esta ubicado un lavamanos y perchero, esto con el fin de depositarlo apenas se llegue a la casa, pues la post pandemia dejo nuevos hábitos muy necesarios. Zona de trabajo La zona de trabajo está conformada con elementos desde el ayer hasta hoy, es decir, actualmente un estudiante de arquitectura a diferencia de 60 años atrás, está dotado de tecnología lo cual facilita su trabajo no obstante no hace menos importante el lugar de trabajo manual, de papel y lápiz para pensar, por lo tanto posee escritorio y mesa de dibujo, además de un están de sus libros favoritos de su pasión. Zona Intima Esta zona considero que es un espacio para el deleite corpóreo, es cierto que todo lo que esta fuera es pasión, sin embargo al cerrar la puerta de la habitación su función es despejar un poco su mente cuerpo y alma, su habitación igual que los espacios anteriores están conformados por elementos que ella la apasionan, esta chica es una mujer muy femenina , por lo que le encanta la moda y el cuidado femenino, vi necesario entonces un Vestier relativamente amplio para guardar sus prendas y demás, con un gran espejo en frente, así mismo contiene un lavadero interno, muy necesario ya que ella cuida mucho de sus prendas por lo que decide lavarla ella misma para evitar sofocos con daño de sus prendas, el baño organizado en secuencia lógica para su comodidad, primero el inodoro y mueble para organizar todo lo relacionado con los productos de aseo, luego un lavamanos que debido a su tamaño también es un tocador suficiente para todos sus productos femeninos, por ultimo y muy placentero un jacuzzi, con vista afuera para relajar su mente y cuerpo. MANIFIESTO
  • 27.
    MANIFIESTO Aunque son muchasmas las situaciones en las que esta chica experimentara en esta casa, aquí plasme algunas de las mas importantes, este lugar esta diseñado y organizado pensando en cada paso que esta chica de día tras día a lo largo de su estancia allí. Respondí a todas las imaginadas a través de lugares, objetos, puertas ventanas, techo. Que fuese un lugar útil, habitable y confortable.
  • 28.
  • 29.
    03ESTRUCTURA DE LA ESTRUCTURA¿ Que aprendí ? CONTENIDO ➢ Información y análisis ➢ “La estructura de la estructura” Alberto Campo Baeza ➢ Análisis Final CASA GERASSI Paulo Mendes ¿ Que aprendí ? En el laboratorio dos aprendí a observar, pensar y cuestionar mi entorno, pensar desde la comodidad del habitante y sus necesidades, así mismo reconocer los distinto espacios que son necesarios en la arquitectura y los usos, entender que es necesario espacios que evoque emociones y sentimientos y a su vez sean pieza clave de unión dentro de los espacios. No fue fácil para mi reconocer al instante el diseño y el por que del espacio tara al principio, pero poco a poco, borrar y volver a dibujar hizo posible encontrar el camino. Fue interesante el ejercicio de rediseñar nuestro entorno, es ponerse a pensar por un momento en los cambios que se deberían realizar en la arquitectura que nos habita, pues nosotros también somo humanos y no es necesario un bienestar mental y emocional.
  • 30.
    ANALISIS AL SISTEMAORDENADOR DE LA CASA En el presente ejercicio se explorara la estructura espacial-formal de las actividades al interior del proyecto arquitectónico seleccionado en este caso ( Casa Gerassi de Paulo Mendes Da Rocha) con el objetivo de definir el planteamiento tipológico de la casa, entender su escala domestica y el carácter residencial , el estudiante tratara de explicar su forma, sus espacios y el tiempo, lo anterior utilizadas como expresiones para resolver los problemas del hábitat. Estructura de la estructura 5
  • 31.
    INFORMACION Y ANALISIS La Casa Gerassies una vivienda ubicada en la ciudad brasileña de São Paulo. Fue proyectada en 1990 por Paulo Mendes da Rocha y su construcción fue finalizada en 1991. Fue construida con bloques prefabricados de hormigón de la compañía Reago Construções1 y se ha convertido en un punto de visita de arquitectos que pasan por la ciudad. La casa está inspirada en la estructura de un puente. Es una obra de compleja simplicidad: un único volumen elevado sobre una luz de 15 metros. Sus proporciones y las amplias aberturas que permiten la entrada de luz solar y aire, hacen que cuente con una muy buena iluminación natural. El propietario del inmueble es Antônio Gerassi, de quien la casa toma el nombre .
  • 32.
    El uso delhormigón armado es la expresión estructural, vinculado con la ingeniería por la búsqueda de la racionalización de los procesos constructivos y posteriormente, por el desarrollo de soluciones modulares. La preferencia por la honestidad de los materiales y su visualización por la apariencia estética conforma uno de los principios del movimiento, donde la ‘verdad estructural’ se hace evidente a través de la exposición de las marcas del proceso constructivo (los encofrados de madera transferidos al hormigón), evitando así la cosificación del edificio como una imagen desprovista de historia y trabajo humano INFORMACION Y ANALISIS CASA GERASSI Paulo Mendes
  • 33.
    INFORMACION Y ANALISIS Elsistema técnico utilizado y su planteamiento no tuvieron demasiados problemas en sus desarrollo debido a la regularidad del terreno - este de sección cuadrada midiendo aproximadamente 32 metros de largo por 21 metros de ancho - la ubicación de la casa dentro del solar está hecha de manera centralizada a aprovechar todo el espacio disponible de la cota cero - considerada la cota de la calle – como parte del espacio humanizado y extensión de la casa. Croquis inicial por Paulo Mendes da Rocha,1989. De manera sintética se puede describir el edificio como un prisma elevado de base rectangular midiendo 15x14m, el cual está sostenido por seis pilares prefabricados de hormigón armado de 50x50cm que soportan las vigas y las losas también prefabricadas y los cerramientos. El mismo sistema es aplicado a la cubierta.
  • 34.
  • 35.
    Perspectiva esquemática delsistema pilar/viga conformando sistema semejante a pórticos. Casa Gerassi: pilares prefabricados con ménsulas tipo gerber. Esquema de la división de funciones debido al posicionamiento de la escalera; 1/3 servicios y 2/3 de social. Vista de la sala de estar con las aberturas para iluminación y ventilación. Corte esquemático demostrando el funcionamiento de las entradas y salidas de aire INFORMACION Y ANALISIS
  • 36.
    Detalle constructivo delas lozas alveolares. Detalle de la disposición de la mampostería para el cerramiento Detalle constructivo del samblaje entre las piezas alveolares prefabricadas y el apoyo de las mismas sobre las vigas. Bloques de mampostería para el cerramiento lateral de la casa. Estrategia técnico constructiva para independizar la estructura principal de la superficial. Detalle de los tipos existentes de bloques de mampostería para cerramientos. INFORMACION Y ANALISIS
  • 37.
    Lo urbano yel paisaje incorporados al proyecto se encuentran relacionados con el entorno elementos tales como : • Rotundidad volumétrica como contenedor del programa – la caja elevada • Solución estructural adoptada – horizontalidad y planta libre • El hormigón y la prefabricación – posibilidad estética formal. • Continuidad visual y del paseo público – la planta baja liberada INFORMACION Y ANALISIS
  • 38.
  • 39.
    Campo propone comoprincipio fundamental establecer un orden en el espacio y que dentro de este elementos como la gravedad y la luz sean los temas centrales en la arquitectura, gravedad : como dueña y estructura del espacio; Luz : como dueña y constructora del tiempo. Muchos de nosotros cuando nos preguntamos por estructura nos imaginamos elementos que son útiles para soportar cargas , cuando en realidad Alberto nos muestra que más que un sistema de cargas , es un ordenador del espacio , creador de un entorno , pues está no solo es transmisora de cargas sino generadora del orden . Sin embargo dentro de los sistemas de cargas también hay espacios columnados y des columnados, los cuales unos están templados por la luz , mientras que otros están templados por la luz y columnas en busca de resolver problemas funcionales Por último y no menos importantes dentro de la arquitectura se implica la memoria, el tiempo, la historia, la cual está completamente ligada a la arquitectura, arquitectura es entonces sinónimo de memoria , sinónimo de gravedad , sinónimo de garantía, , de continuidad en la creación racional del hombre LA ESTRUCTURA DE LA ESTRUCTURA
  • 40.
  • 41.
    04CONSTRUCCION DEL LUGAR ¿Que aprendí ? CONTENIDO ➢ Recolectar, ordenar y analizar el sitio ➢ Construcción del lugar ➢ Informe “ Genius Loci” – guía ➢ Emplazar CASA GERASSI Paulo Mendes ¿ Que aprendí ? Analizar desde la primera idea en borrador de una obra, hasta el tipo de hoja que cae en la terraza de ella misma es excitante, reconocer los distintos aspectos que se deben tener en cuenta para desnudar la arquitectura de una obra, nos enseña lo que nosotros también debemos y no debemos hacer en ella, entender por otro lado que la estructura que debe ejercer la arquitectura no es simplemente un sistema de cargas y soporte, sino también un elemento ordenador de esta, que la luz debe ser inherente a una obra y que a partir de estudio del entorno es de donde nacen las primeras ideas.
  • 42.
    Emplazar casas derelaciones domesticas expandidas El objetivo del presente laboratorio será comprender la relación pero a su vez diferencia entre análisis de sitio y construcción del lugar arquitectónico, este laboratorios se analizara un sitio, los detalles específicos que contiene y a partir de allí se podrá emplazar la casa expandida, la estrategia utilizada para un buen emplaza miento será utilizar tres conceptos que logren abarcar el sitio específico : MARCAR – ORIENTAR-POSICIONAR-DELIMITAR. Comprender el carácter de esta nociones permitirá actual sobre el sitio con capacidad técnica, conocimiento de la geografía y la capacidad de mejorar las condiciones de la vida domestica CONSTRU CCION DEL LU GA R 5
  • 43.
    RECOLECTAR ORDENAR Y ANALIZAREL SITIO ESTRUCTURANTE NATURAL UBICACIÓN: Barrio Los colores, Medellín, Antioquia
  • 44.
    Está enmarcado poruna topografía irregular y pendiente, que oscila entre 1675 y 1628 metros sobre el nivel del mar. Las cordilleras que lo encierran, dan lugar a la formación de diversos microclimas, saltos de agua, bosques y sitios de diverso valor paisajístico y ecológico. ESTRUCTURANTE NATURAL
  • 45.
    ESTRUCTURANTE NATURAL el sector seencuentra colindando con el cerro más importante de la ciudad, con una extensión de 103.26 hectáreas, el cual permite que los vientos se dirigen a diferentes direcciones ya que actúa como obstáculo, de igual manera, el cerro es un importante punto de encuentro de los habitantes para realizar actividades físicas y salir de la rutina. Cuenta con gran variedad de árboles y fauna silvestre que se puede apreciar cuando se acerca al sitio en cuestión. es una maravillosa manera de escapar del ruido de la ciudad, a medida que se va adentrando al cerro se van disipando los sonidos de los automóviles y de la actividad pesada de la ciudad. Vías principales por donde transitan mayor cantidad de automóviles y de personas. El sitio en estudio se encuentra cerca a unas de las vías más importantes, sin embargo, no está inmediatamente al lado de estas. Por esa razón no es una zona donde el ruido perturbe a sus habitantes, pero sí tienen posibilidades de tener una facilidad en su movilidad por la ciudad. ESTRUCTURANTE ARTIFICIAL
  • 46.
  • 47.
    MORFOLOGIA URBANA La zonarepresenta lo mas parecido a un plano octogonal a base de trazado de calles en su mayoría rectas y perpendiculares cortándose unas con otras, lo cual proporciona un aspecto de orden urbano. Gracias a esta morfología la división de terrenos es menos compleja a diferencia de otras morfologías urbanas. La amplitud de las calles son en su mayoría del mismo tamaño, los corredores están dispuestos de forma regular, lo que no es inconveniente el paso de los transeúntes. ESTRUCTURANTE ARTIFICIAL TIPOLOGIA ARQUITECTONICA Las similitudes estructurales dentro de la zona, como por ejemplo en las edificios residenciales los cuales tienen la misma tipología arquitectónica de pequeñas residencias en conjunto, lo que genera un vinculo estructural en ese aspecto. En la zona hay tipos de vivienda con patio, como lo son las casas residenciales y tipos de vivienda sin patio ubicadas en los apartamentos de edificios residenciales.
  • 48.
    CONSTRUCCION DEL LUGAR La manzana fueescogida por varios aspectos como : • No es de uso residencial, es decir que al momento de intervenir el terreno no será necesario evacuar de sus residencias a las familias • Existe una zona muy amplia, que podría tener mejores utilidades • Esta manzana en las horas de la noches y parte del día permanece solitaria y con poco fluido de transeúntes. • Alrededor de la manzana se encuentras conjuntos residenciales los cuales son tienen zona de socialización, recreación, donde esta manzana podría ser una alternativa para fomentar las relaciones sociales y urbanas
  • 49.
  • 50.
    «Genius loci esun concepto Romano. De acuerdo a las creencias Romanas antiguas, cada ser independiente tiene su «Genius», su espíritu guardián. Este espíritu da vida a la gente y a los lugares, los acompaña desde el nacimiento hasta la muerte y determina su carácter o esencia « GENIUS LOCI La orientación del genius loci esta conformados por tres conceptos básicos los cuales son : senda, distrito y nodo, la fusión de estos conceptos representa una imagen del medio, elemento fundamental si hablamos de la sensación de seguridad y arraigo. El morar del genius procede estar, la relación entre el hombre y su entorno, lo que le brinda la oportunidad de pertenecer a algo definido y a que su vez le proporciona seguridad y estabilidad, el hombre entonces construye su estancia o hábitat, dentro de ese espacio es libre, encontrándose con su propio ser. Identificación es utilizado para la conformación de los lugares y cosas, cimentándose en el sentido de pertenencia humano, esta familiarizados con el entorno y las cosas que conformas el entorno, a lo que anterior se le llama relación simbiótica, es decir la identidad humana es la identidad del lugar, aspecto característico del hombre moderno, quien es un buscador de lugares donde pueda satisfacer sus necesidades y poder sentirse libre
  • 51.
  • 52.
    05LA CASA EXPANDIDA ¿Que aprendí ? CONTENIDO ➢ Manifiesto de la casa expandida – informe guía ➢ Informe “Casa Moriyama” por Jhonatan Ospina ➢ Habitantes y diagramas ➢ Directorio de espacios y protoplantas ➢ Anteproyecto ¿ Que aprendí ? Dentro del laboratorio cuatro comprendí la relación que existe entre analizar un sitio y construir en este, explorar sus detalles específicos y a partir de eso poder pensar en un emplazamiento, luego de haber detallado todas sus necesidades, ventajas y desventajas del lugar, las estrategias de orientación fueron de mucha ayuda para este proceso de análisis y construcción
  • 53.
    El nuevo ordendomestico y vecinal de la cohabitación El objetivo de la casa expandida será comprender las nuevas relaciones colaborativas de la habitación doméstica contemporánea que reintegran las antiguas viejas nociones de vecindad, cooperatividad sin dejar de lado la privacidad como principios éticos esto con el fin de un rearme de la arquitectura residencial. Creando espacios mutantes donde se puedan realizar las nuevas actividades contemporáneas como el coworking, cohabitación, se busca emprender una nueva tipología de casa que atienda a las nuevas problemáticas de la actualidad CONSTRU CCION DEL LU GA R
  • 54.
    La casa expandida(o como volver a querer volver a casa) La casa expandida es una alternativa del retorno a aquel lugar físico, seguro amado que hemos dejado en algún lugar, pero siempre buscamos sentirnos como en ella, pero que debido a distintas circunstancias es en algunas veces imposible, es entonces como la casa expandida a través de un conjunto de experiencias y espacios dan por resultado esa casa- hogar, así bien desde un punto de vista menos normativo y que gracias al pasar de los años esta alternativa ha sido más fácil de acoger, es decir aceptando nuevas formas de casa-hogar; esto sin intentar transformar el borde en centro sino mas bien desplazar el centro hacia los borde. Cuando se habla de nuevas formas de casa-hogar se refiere según Bauman a la “modernidad liquida” donde supone cambios de grandes conceptos de fuerza como lo son : familia, trabajo, escuela, la perdida estructurales de estos grandes pilares que antes eran incuestionables con el paso del tiempo se han generado nuevas formas de pensamiento y consigo nuevos estilos de habitabilidad. lo que por ende la arquitectura cede al cambio; por un lado la familia que antes era nuclear ( padre, madre e hijos) hoy en día hay diversidad de núcleos familiares, el trabajo que antes era hasta jubilarse, hoy es solo una etapa de una parte de nuestras vidas y con ellos distintas experiencias, distintos espacios y distintas necesidades en muchos sentidos, el espacio de trabajo hoy se puede ejercer de manera remota o bien presencial, a diferencia del tiempo atrás donde era exclusivamente “face to face”,
  • 55.
    esto por ejemplova generando cambios por ejemplo si se utiliza la casa como espacio de trabajo, es necesario que cambie el modelo arquitectónico de dicha casa ya que al ocupar la mayor parte del día en ese lugar los espacios deben volverse eficaces y no a diferencia de 50 años atrás donde se salía por la mañana y regresaba en la noche, es decir menos necesidades dentro de la casa. La modernidad liquida fue la consecuencia por ejemplo con la transformación social japonesa la cual sufrió cambios drásticos con el estallido de la burbuja económica, los trabajos a corto termino y los desastres naturales ocurridos que dio por hecho nuevas transformaciones sociales. En entonces que para rediseñar la casa hace falta saber el concepto de casa y la distinción de hogar. El concepto de casa se refiere a un espacio construido a través de las necesidades del individuo su ocupación, alcance y normas ergonómicas, mientras el concepto de hogar es la relación simbólica de sujeto – espacio u objetos. El anterior diagrama quiere decir que casa-hogar no solo es lo tangible lo que nos hace sentir en ella sino más bien las experiencias, los objetos que permanecen en ella y que nos hacen sentir en casa. Por otro lado, la Casa real, a diferencia de casa busca satisfacer las necesidades específicas de cada individuo. Manifiesto
  • 56.
    Irigay propone larelación entre sujetos dentro de un hogar de manera que el espacio de ambos sujetos pese a que hay una relación y frente a esto un inevitable cambio se pueda crear dicha relación entre sujetos pero que a su vez no se interrumpa la posición de ambos sujetos y al mismo tiempo una operación a dúo. En la comparación de Margaret a cerca de la teoría Ciberg ( Haraway) la cal consta del limite del ser, es decir no es ni una cosa ni la otra, manteniendo un equilibrio. Las relaciones de intervalo de Casa -hogar están asociados a los espacios – experiencias que dan por resultado la casa real del sujeto que va más allá de lo físico. El volver a casa a través de la casa expandida significa dejar lo normativo atrás y encontrar el retorno en otras formas de casa hogar a través de las experiencias o bien de lo que se desea. Manifiesto
  • 57.
    Se propone unmodo de vida distinto a como se venia dando años atrás, esto a distintos factores sociales, económicos y agro urbanísticos, llamado co- housing en el cual en se compartes los espacios con diferentes personas pero que al mismo tiempo se maneja un esta- Factores como el elevado costo de la tierra, baja adquisición monetaria, influye directamente a la hora de tener un terreno en las urbes, lo que ha traído consecuencias en cuanto a nuevas alternativas de habitabilidad y a su vez laborales denominadas como : co-housing y co-living. Este surgió en Suecia hace mas de 50 años como una alternativa para los jubilados debido a factores como la edad, espacios mas seguros , accesibles y cómodos exigían otro modo de vida do de privacidad entre ellos mismos, sin embargo lo anterior gira en torno a la persona y el contexto. Es así como se practican nuevas maneras para la interpretación de un hogar desde el numero de integrantes hasta la forma estructural de una casa, mas bien cohousing.
  • 58.
    Resulta interesante comoestos nuevos modos de vida influyen en el bienestar emocional y mental de la persona, y su vez se crean vínculos afectivos entre ellos mismos que mitigan la sensación de soledad como hoy en día viven muchas personas llevándolos a cometer malas decisiones y que esta nueva alternativa propone un cambio de vida para muchos que lo necesitan no obstante definiendo los limites entre lo privado, lo publico y colectivo, para que este conjunto de actividades puedan funcionar de forma adecuada.
  • 59.
    “Una aldea decapsulas” En la tesis llamada “ una aldea de capsulas” de Jonathan Ospina, hace un profundo análisis de la casa Moriyama construida en el año 2005, donde exhibe cada centímetro de esta y a su vez el entorno que la rodea, mostrando a través de sus dibujos de análisis lo que propone la casa Moriyama como un nuevo estilo arquitectónico para los modos de vida actuales, donde cada habitante de ella tiene acceso a un recinto superficial y al mismo tiempo suelo vegetal, algo nuevo para la arquitectura japonesa no obstante mantiene su esencia. En el documental se expone las diferentes formas de vivir e incluso Jonathan opina que varios fotogramas son dirigidos con el fin de exponer las diversas utilidades que posee la casa
  • 60.
    En su tesis,Jonathan Ospina expone otras construcciones realizadas a partir del modelo o manifiesto arquitectónico de Moriyama, la casa Nishinoyama (2009 -2013) es la constatación de que la propuesta arquitectónica de la casa Moriyama recoge las necesidades de un modo positivo de vivir. El documental de la casa Moriyama pone en escena la vida cotidiana mostrando su forma de vida y a su vez el ritmo flexible en el que es útil la casa, como un programa versátil y cambiante. Las ventanas amplias penetran la profundidad del conjunto habitacional insinuando continuidad con el paisaje urbano, los visuales interiores generan conexión con la comunidad. En lugar de concentrar el programa en un único volumen, el espacio se ha fragmentado en unidades autónomas que permiten disponer entre las piezas pequeños jardines y patios conectados entre sí, que funcionan como lugares de encuentro para los inquilinos y acentúan el sentido de pertenencia a una comunidad vecinal. A pesar de la proximidad, su privacidad se ha conseguido cuidando especialmente la forma de los recintos, la posición que ocupan en la parcela, las distancias que se establecen entre ellos y la disposición de los huecos sobre las fachadas que evitan enfrentar unos con otros. Por otra parte, esta casa genera una estructura social de vecindario al interior del conjunto siendo una vivienda en si misma, esto a través del concepto en el entorno urbano, su actuar y cotidianidad.
  • 61.
  • 65.
  • 66.
  • 67.
    Al comparar lasprotoplantas nos dimos cuenta que cada uno de nosotros buscaba un elemento ordenador que pudiese organizar los espacios de interior a exterior, en equipo logramos sintetizar todas estas ideas y convertir de las cuatro una sola. Protoplantas Ejercicio rápido de experimentación proyectual
  • 69.
  • 71.
    Delimitar El sitio estádelimitado por las calles 51 y 51A, y las carreras 71 y 71A. Tiene aproximadamente 2.240 metros cuadrados, contando las aceras o andenes. Al norte colinda con la urbanización Escorial 83, al occidente con la urbanización Escorial, al sur con el Hotel Trip y locales de una sola planta, y al oriente con urbanización la pirámide, y los mangos. En la manzana se hace la relación interior-exterior, con la edificación de 13 metros por 50, y luego el límite que imponen las calles. Es una relación fluida, debido a que hay múltiples accesos desde diversas direcciones. La idea es que no posea muros al exterior, sino ventanales amplios y corredizos, lo que permite mucha visibilidad pero al mismo tiempo protección contra la lluvia y los vientos. En el sector donde se encuentra la manzana queda cerca de uno de los parques más importantes de Medellín con una altitud máxima de 1.612M de altura. La zonas verdes alrededor de la zona no son abundantes, excepción del cerro el volador que tiene mucha riqueza natural.
  • 74.
  • 76.
    1 planta 2 planta 3planta 4 planta v
  • 77.
  • 78.
  • 82.
    06LA HABITABILIDAD ESPECIFICA ¿ Que aprendí? CONTENIDO ➢ Taller y Santuario ¿ Que aprendí ? El laboratorio cinco no fue fácil para mi, al principio no estaban claras las ideas con el grupo respecto a la cada expandida, pero gracias a las orientaciones d ellos profesores fue posible establecer un concepto claro y proyectarlo, los textos fueron de gran ayuda para expandir las ideas y conocer las diferentes formas de vida contemporánea.
  • 83.
    Conquistar la atmosferainterior y el ritual domestico El laboratorio seis enfatiza en el diseño autónomo de los espacios y sus dispositivos ya que son parte fundamental dentro d ellos rituales domésticos ( cuarto de aguas y dormitorio) asi mismo los espacios de transición los cuales se comprenderán como espacios TARA, con un carácter menos rígido, permitiendo diversidad de actividades dentro de el mismo. Por otro lado busca solidificas el diseño de espacio en relación con la proporción humana, toda estas actividades será con ayuda de compañeros y orientadores del curso. TA L L ER Y SANTUARIO
  • 84.
  • 85.
    La caracterización imaginativay desglosamiento de los espacios domésticos y de como su influencia atmosférica se relaciona directamente con el estado emocional y mental del ser humano que los habita, es lo que Josep Quetglas aplica en los episodios de los espacios, sus condiciones atmosféricas respecto con el taller y santuario. Estos conceptos logran ser comprendidos a través de la comparación de las cocinas de cada villa , como lo menciona Quetglas ideadas por Le Corbusier, cada una de estas con una simbología especifica debido a la disposición de sus objetos en las tablas de trabajo, y en el que se infiere que todos estos objetos son resultado de un orden y equilibrio pese a la diferencia de textura forma y materialidad Estas burbujas atmosféricas logran evocar la arquitectura como generador de espacios en los que se crean conceptos de fuerza, un ejemplo seria el “taller”, si bien la cocina se convierte en un espacio dotado de materialidad prima y con ella maquinaria para convertirla, el habitante se desenvuelve, dejando fluir su creatividad y habilidades motoras transformando lo anterior en algo tangible, necesario para su bienestar. Otro concepto generados es el de “vecindad” ya que por naturaleza propia es inherente al ser humano el trabajo, no es una acción exclusivamente individual, sino colectiva, en el que la trasformación de los alimentos y el aprendizaje que radica en el, se vuelve conjunto, compartido y rico en aprendizaje e ideas múltiples TALLER Y SANTUARIO
  • 86.
    TALLER Y SANTUARIO Sinembargo el habitante requiere de una relación consigo mismo en su proceso de experimentación propia, es aquí donde el santuario cumple su papel, este permite al habitante explorar un ambiente distinto a dúo: el espacio y el habitante. Buscando conectar el cuerpo con la naturaleza y lo que lo rodea, dicho espacio dotado de materialidad, texturas, objetos apropiados para el deleite corpóreo, fluido de aire , luz natural, espacios proporcionales que otorguen un espacio de quietud, para alcanzar un éxtasis de placer corpóreo y meditación mental. La arquitectura evocara estos espacios generando sensaciones, por medio del vapor que empaña los cristales, olores perfumados y suaves que se esparcen en la sala, el correr del agua, este ritual permite conocerse en uno mismo y renacer en un baño, lamentablemente hoy en día la misma arquitectura en muchos casos obligo al habitante a bañarse por necesidad mas no por placer corpóreo. Es un reto para la arquitectura de nuestra generación se conviertan en experiencias significativas, sobre todo en vista de los nuevos cambios de vida que la humanidad ha tenido que pasar últimamente, es necesario que sean retomadas para volver de nuevo a los talleres y santuarios que se ha perdido a lo largo del tiempo.
  • 87.
  • 88.
    Laboratorio 06: Lahabitabilidad específica Las partes del Taller… del Santuario… y de sus transiciones La habitabilidad especifica tiene como objetivo desnudar la arquitectura no solamente en su forma o volumen, sino en la experiencia misma que se vive dentro de esta y que los espacios sagrados como consagrados refiriéndose a espacios y privados y comunitarios, tenga como fin transportar al individuo a su origen : naturaleza misma, nuestro origen ( fuego, agua, tierra) sin lesionar la armonía que se debe mantener entre la forma del habitar y la naturaleza propia. Cada parte del hábitat debe cumplir un rol de manera tal que se pueda relacionar con las atmosfera y sus dispositivos que hacen parte de ella. Es así como el ritual del santuario de donde emerge el ser mismo desde la naturaleza para el deleite personal y compartido, tiene como objetivo conectar con la naturaleza íntimamente, la arquitectura emprende su labor por cumplir estos fundamentos sin lesionar la experiencia, evocara desde la vivencia el origen del ser. Por otra parte el ritual del taller se fundamenta en el común, en la interacción entre compartir su misma naturaleza y que a su vez evocan experiencias subjetivas dentro del mismo espacio. Todo lo anterior trata de una arquitectura que busque facilitar las relaciones del hombre con el medio, que a través de su habitar pueda evocar y compartir experiencias dentro de sus espacios, incorporando su identidad personal en ella misma.
  • 89.
    Las habitaciones seránun lugar de relajamiento y encuentro con nosotros mismo para el descanso, alejarse del entorno después de un largo dia y sentir la comodidad de nuestra habitación es indispensable para nuestra salud mental. He aquí algunos santuarios los cuales están dotados de comodidad suficiente para el buen descanso del habitante HABITACIONES SANTUARIOS
  • 90.
    Con los bañosse busca que se dirijan a ellos no por necesidad como conc el pasar de los años los cambios en la arquitectura han obligado al hombre a dejar atrás ese encuentro consigo mismo en el asearse, en el deleite de explorar nuestros cuerpos dentro del aseo, por eso queremos volver a nuestros orígenes sin descartar los dispositivos de hoy en dia, el baño será un encuentro con nosotros mismo, con nuestra pareja para el relamiento de nuestra mente, alma y cuerpo. CUARTO DE AGUAS SANTUARIOS
  • 91.
    ¿ Que aprendí? ¿ Que aprendí ? De taller tres puedo decir que fue un proceso bastante agotador pero que valió la pena cada momento, noche día, madrugada, no soy la misma estudiante, ahora soy mas critica, siento una gran responsabilidad como arquitecta en formación, de hacer una nueva arquitectura que se adecue a los cambios o bien que la arquitectura cambien las formas de vivir, las formas de trabajar, mis compañeros y yo tenemos ese deber en un futuro, agradezco mucho a los profes por abrirnos un poco mas la mente y conocimientos a este extenso y fascinante mundo de la arquitectura, y aunque el proceso no es fácil, siempre pero siempre vale la pena ver los resultados, porque para la arquitectura nunca hay un final o un proceso terminado, siempre queda inconclusa, es infinita, llena de potencial, gracias 2021 – 2, fue un gran semestre.