INSTALACIONES ELÉCTRICAS DOMICILIARIAS
a) Lo primero es disponer del plano arquitectónico de la casa habitación. Este
plano es solo referencial ya que lo más importante es la instalación eléctrica
que se dibujará sobre él.-
INSTALACIONES ELÉCTRICAS DOMICILIARIAS
¿Cómo se ejecuta una instalación eléctrica en una casa habitación?
b) A continuación se ubican los centros y aparatos que estarán en cada espacio
interior como exterior según el plano.
INSTALACIONES ELÉCTRICAS DOMICILIARIAS
¿Cómo se ejecuta una instalación eléctrica en una casa habitación?
Hoy la normativa vigente exige que los circuitos de enchufes deben estar separados de los
circuitos de alumbrado, se pueden hacer ambos circuitos en un solo plano, pero es
conveniente hacer dos planos, uno con los circuitos de alumbrado y otro con los circuitos
de enchufes. Para el ejemplo el de alumbrado queda así:
INSTALACIONES ELÉCTRICAS DOMICILIARIAS
Algunos alcances para este plano:
La parte de este plano que se indica en la figura, significa que el interruptor
marcado con las letras ab comanda los centros a y b, que es el mismo caso para el
marcado con las letras cd.
En este plano hay tres tipos de circuitos; De un efecto
(9/12), de dos efectos (9/15) y de combinación
(9/24).-
Utilizar como máximo cuatro salidas por caja de
derivación y lograr así comodidad y seguridad en las
conexiones de los conductores y que estas no queden
demasiado llenas facilitando su cierre.- Pero en
ocasiones como excepción se pueden ocupar cinco,
pero tratar de utilizar cuatro aunque signifique una
mayor cantidad de cajas.-
INSTALACIONES ELÉCTRICAS DOMICILIARIAS
¿Cómo se ejecuta una instalación eléctrica en una casa habitación?
El circuito de enchufes
INSTALACIONES ELÉCTRICAS DOMICILIARIAS
¿Cómo se ejecuta una instalación eléctrica en una casa habitación?
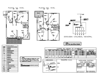
c) El diagrama Unilineal resultante de este plano corresponde al siguiente
INSTALACIONES ELÉCTRICAS DOMICILIARIAS
¿Cómo se ejecuta una instalación eléctrica en una casa
habitación?
d) Realizar un cuadro de cargas con la siguiente información:
Nombre y Rut del propietario, ubicación de la casa habitación,
cantidad de centros del circuito de alumbrado, cantidad de
centros del circuito de enchufes, potencia total de cada
circuito, Voltaje de uso, corriente de cada circuito, etc. y su
estructura es la siguiente:
INSTALACIONES ELÉCTRICAS DOMICILIARIAS
d) Realizar un cuadro de cargas con la siguiente información:
Las dimensiones de este cuadro de cargas
están descritas en el código eléctrico
norma chilena 2/84.
INSTALACIONES ELÉCTRICAS DOMICILIARIAS
d) Realizar un cuadro de cargas con la siguiente información:
INSTALACIONES ELÉCTRICAS DOMICILIARIAS
e) Toda la información anterior se debe presentar en una lámina
técnica llamada Formato. Existen varios tipos de formatos, cada
uno recibe una denominación según las dimensiones que tiene.
La norma 2/84 dice:
A.1.3. La serie normal de formatos se obtiene multiplicando o
dividiendo sucesivamente por dos el formato base. En la tabla Nº 1,
se muestran los formatos normales usados en la presentación de
proyectos.
DOMÓTICA
e)
INSTALACIONES ELÉCTRICAS DOMICILIARIAS
Cabe señalar que estos formatos se utilizan también para otros proyectos no
tan solo eléctricos. El formato a elegir depende de la complejidad del proyecto
eléctrico, lo importante es que debe quedar lo más claro posible.-
DOMÓTICA
Para nuestro caso el plano tendría la siguiente estructura
INSTALACIONES ELÉCTRICAS DOMICILIARIAS
Toda la normativa sobre la presentación de proyectos esta detallado en la
norma 2/84 que está en el código eléctrico.-
INSTALACIONES ELÉCTRICAS DOMICILIARIAS
f) Finalmente se presenta este plano al SEC (Servicio de Electricidad y
Combustibles) en forma digital para su aprobación. Una vez aprobado
se procede a la ejecución de la instalación.
Otros antecedentes
Junto con cumplir con los puntos anteriores hay otros pasos que se deben
realizar, por ejemplo.
Cubicación de materiales: Consiste en contabilizar los materiales que se
utilizaran en la instalación y el costo que involucra. Como sugerencia siempre se
calcula un porcentaje sobre la cantidad obtenida por razones de seguridad, ya
que algunos materiales podrían fallar o destruirse por algún error cometido.-
Mano de obra: Es el valor económico que el técnico instalador le asigna al
trabajo que le demandara la instalación.- Este valor debe considerar valores
reales y sobre todo honestidad y ética profesional.-
INSTALACIONES ELÉCTRICAS DOMICILIARIAS
Es de esperar que este apunte sirva de
apoyo pero lo más importante es nunca
conformarse con lo aprendido, siempre
es necesario saber más y hoy en día, se
necesitan buenos conocimientos para ser
un muy buen estudiante y técnico.-

Clase 6 - Inst Electr Domiciliarias.pptx

  • 1.
    INSTALACIONES ELÉCTRICAS DOMICILIARIAS a)Lo primero es disponer del plano arquitectónico de la casa habitación. Este plano es solo referencial ya que lo más importante es la instalación eléctrica que se dibujará sobre él.-
  • 2.
    INSTALACIONES ELÉCTRICAS DOMICILIARIAS ¿Cómose ejecuta una instalación eléctrica en una casa habitación? b) A continuación se ubican los centros y aparatos que estarán en cada espacio interior como exterior según el plano.
  • 3.
    INSTALACIONES ELÉCTRICAS DOMICILIARIAS ¿Cómose ejecuta una instalación eléctrica en una casa habitación? Hoy la normativa vigente exige que los circuitos de enchufes deben estar separados de los circuitos de alumbrado, se pueden hacer ambos circuitos en un solo plano, pero es conveniente hacer dos planos, uno con los circuitos de alumbrado y otro con los circuitos de enchufes. Para el ejemplo el de alumbrado queda así:
  • 4.
    INSTALACIONES ELÉCTRICAS DOMICILIARIAS Algunosalcances para este plano: La parte de este plano que se indica en la figura, significa que el interruptor marcado con las letras ab comanda los centros a y b, que es el mismo caso para el marcado con las letras cd. En este plano hay tres tipos de circuitos; De un efecto (9/12), de dos efectos (9/15) y de combinación (9/24).- Utilizar como máximo cuatro salidas por caja de derivación y lograr así comodidad y seguridad en las conexiones de los conductores y que estas no queden demasiado llenas facilitando su cierre.- Pero en ocasiones como excepción se pueden ocupar cinco, pero tratar de utilizar cuatro aunque signifique una mayor cantidad de cajas.-
  • 5.
    INSTALACIONES ELÉCTRICAS DOMICILIARIAS ¿Cómose ejecuta una instalación eléctrica en una casa habitación? El circuito de enchufes
  • 6.
    INSTALACIONES ELÉCTRICAS DOMICILIARIAS ¿Cómose ejecuta una instalación eléctrica en una casa habitación? c) El diagrama Unilineal resultante de este plano corresponde al siguiente
  • 7.
    INSTALACIONES ELÉCTRICAS DOMICILIARIAS ¿Cómose ejecuta una instalación eléctrica en una casa habitación? d) Realizar un cuadro de cargas con la siguiente información: Nombre y Rut del propietario, ubicación de la casa habitación, cantidad de centros del circuito de alumbrado, cantidad de centros del circuito de enchufes, potencia total de cada circuito, Voltaje de uso, corriente de cada circuito, etc. y su estructura es la siguiente:
  • 8.
    INSTALACIONES ELÉCTRICAS DOMICILIARIAS d)Realizar un cuadro de cargas con la siguiente información: Las dimensiones de este cuadro de cargas están descritas en el código eléctrico norma chilena 2/84.
  • 9.
    INSTALACIONES ELÉCTRICAS DOMICILIARIAS d)Realizar un cuadro de cargas con la siguiente información:
  • 10.
    INSTALACIONES ELÉCTRICAS DOMICILIARIAS e)Toda la información anterior se debe presentar en una lámina técnica llamada Formato. Existen varios tipos de formatos, cada uno recibe una denominación según las dimensiones que tiene. La norma 2/84 dice: A.1.3. La serie normal de formatos se obtiene multiplicando o dividiendo sucesivamente por dos el formato base. En la tabla Nº 1, se muestran los formatos normales usados en la presentación de proyectos.
  • 11.
    DOMÓTICA e) INSTALACIONES ELÉCTRICAS DOMICILIARIAS Cabeseñalar que estos formatos se utilizan también para otros proyectos no tan solo eléctricos. El formato a elegir depende de la complejidad del proyecto eléctrico, lo importante es que debe quedar lo más claro posible.-
  • 12.
    DOMÓTICA Para nuestro casoel plano tendría la siguiente estructura INSTALACIONES ELÉCTRICAS DOMICILIARIAS Toda la normativa sobre la presentación de proyectos esta detallado en la norma 2/84 que está en el código eléctrico.-
  • 14.
    INSTALACIONES ELÉCTRICAS DOMICILIARIAS f)Finalmente se presenta este plano al SEC (Servicio de Electricidad y Combustibles) en forma digital para su aprobación. Una vez aprobado se procede a la ejecución de la instalación. Otros antecedentes Junto con cumplir con los puntos anteriores hay otros pasos que se deben realizar, por ejemplo. Cubicación de materiales: Consiste en contabilizar los materiales que se utilizaran en la instalación y el costo que involucra. Como sugerencia siempre se calcula un porcentaje sobre la cantidad obtenida por razones de seguridad, ya que algunos materiales podrían fallar o destruirse por algún error cometido.- Mano de obra: Es el valor económico que el técnico instalador le asigna al trabajo que le demandara la instalación.- Este valor debe considerar valores reales y sobre todo honestidad y ética profesional.-
  • 15.
    INSTALACIONES ELÉCTRICAS DOMICILIARIAS Esde esperar que este apunte sirva de apoyo pero lo más importante es nunca conformarse con lo aprendido, siempre es necesario saber más y hoy en día, se necesitan buenos conocimientos para ser un muy buen estudiante y técnico.-