Vivienda Estudio




PFI
Friedemberg, Gustavo Valentín
Mat. 3601-2146                          UM 2012
N




Localización
Ubicación Geográfica: San justo, Pdo. de la matanza




                                                      UM 2012
N




Localización
Ubicación Geográfica: San justo, Pdo. de la matanza




                                                      UM 2012
N




Localización
Ubicación Geográfica: San justo, Pdo. de la matanza




                                                      UM 2012
N




Localización
Calle: Florencio Varela 3337, San justo




                                          UM 2012
N




Medidas del Lote:   10 m x 30.75 m

                                     UM 2012
Casa lindera       Frente sobre Fcio. Varela    Casa lindera




               Vista del interior del terreno


                                                               UM 2012
Valor del terreno: u$s 60.000.- Dólares
                    $260.000.- Pesos

Zona: U1a
Designación: Urbano residencial
Densidad: 250
F.O.S.: 0.6
F.O.T.: 1.4
Retiros: Pulmón de manzana

-U1a (Urbano Residencial de Densidad Baja)

     Ordenanza Nº 7420

Uso Predominante:
· Vivienda unifamiliar.-
Usos Complementarios:
· Servicios de la vivienda.-
· Garaje anexo a la vivienda.-
· Oficina profesional anexa a la vivienda.-

-   Ordenanza Nº 17792


- Decreto Reglamentario 1030 | Ley 13.059 de Acondicionamiento
Térmico en la Construcción en la provincia de Buenos Aires.



                                                                 UM 2012
Programa de necesidades
Vivienda Unifamiliar
Casa estudio, 150 m2                                               Casa estudio, 150 m2

                                                                   Total M2               (147 m2)
Área de Accesos                         Semicubierto de Accesos
                                                                   Valor por M2         $ 3540
Sector Social             (40 m2)       Estar                                          --------------
                                        Comedor                    Valor Total        $520.380
                         (11 m2)        Rincón de Estudio

                         (15 m2)        Cocina
                                        Comedor diario

Sector Privado             (28 m2)      Dormitorio en suite
                          (11 m2)       Dormitorio Hijo
                                        Dormitorio a futuro

Sector de Servicios                     Baño en suite
                          (6 m2)        Baño
                          (1.5 m2)      Toillete
                                        Cochera Descubierta

Circulación                (30 m2)

Expansiones exteriores
                      (20 m2)           Sector de comer exterior
                    -----------------
Total M2             (147 m2)

                                                                                          UM 2012
Proyecto Vivienda

Sobre un terreno regular en un fraccionamiento cerrado de la
ciudad, La vivienda se planta aprovechando las condiciones que el
sitio ofrece.

El proyecto demuestra una geometría franca, el programa
arquitectónico se resuelve de manera clara en dos volúmenes
desfasados y articulados con el espacio de acceso. La imagen sobria
de la fachada principal se cierra hacia la calle dando privacidad a los
espacios interiores que se viven en relación franca con el jardín de la
casa.

El acceso enmarcado con un elemento de concreto aparente entrega
en un pequeño vestíbulo al centro de la casa; este articula de una        Ideas Primarias
manera interesante los dos volúmenes que componen el proyecto.

Desde este espacio central interior/exterior se percibe el proyecto
que favorece la conexión con el exterior al generar espacios
francamente abiertos hacia la luz


Materiales a emplear:

Estructura independiente de vigueta con ladrillos de polietileno para
tener una mayor aislación, se empleara bloques de ladrillo “retak” de
15 x 25 x 50 cm.




                                 Aspecto Funcional
                                                                                UM 2012
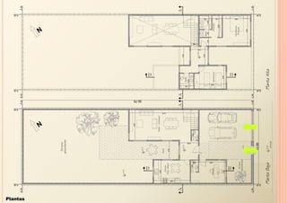
Plantas
Se busco Orientar los
                 dormitorios al ESTE




          Implantación
Plantas
Futuro
          Dormitorio




Plantas
Cortes
Ventilación

                                          Dormitorio
                                   Baño




                          Cocina           Estudio




          Baño

                  Estar
                  Comer
         Cocina




Cortes
Vistas
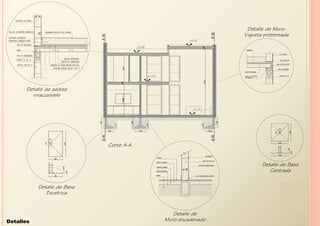
Detalles
Sustentabilidad

En primer lugar se logro tener en cuenta la orientación, se logra
ventilación cruzada mediante ventanas en la azotea que se generan
con el desnivel de los techos, generando así buena ventilación y
climatización.

En segundo lugar se tubo en cuenta los materiales:

-Se utilizo el material “retak” como envolvente de la vivienda ya que
éste logra una transmitancia térmica de 0,60 Kcal/m2hc, el cual
mejoraría un 20% al muro doble con cámara de aire logrando así
poder mejorar ampliamente la climatización de la vivienda.

- En las carpinterías se utilizo con vidrio “DVH”

- Se utilizo termotanque solar en la azotea para el calentamiento de
agua logrando así una menor perdida de energía.
                                                                          Termotanque
- Recolección de aguas grises y lluvias para su reutilización en riegos      solar
y depósitos inodoro.




Recolección
aguas grises
                                                         Carpintería       Ladrillo
                                                          con DVH          “retak”
AUTOCRITICA DE CASAS/ESTUDIO
CASA ESTUDIO
   PUNTOS A ANALIZAR:


   IMPLANTACION
   FUNCIONALIDAD
   DIMENSIONES Y CIRCULACION
   ESTETICA/MATERIALIDAD
   AMPLIACION FUTURA
CASA ESTUDIO / GUSTAVO




                         PLANTA BAJA
CASA ESTUDIO / GUSTAVO




                         PLANTA ALTA
CASA ESTUDIO / GUSTAVO
   EL PROGRAMA SE RESUELVE EN DOS VOLÚMENES DESFASADOS Y
    ARTICULADOS CON EL ESPACIO DE ACCESO. PERO ANALIZANDO LA
    MEMORIA DESCRIPTIVA Y LA PLANTA EL PRISMA DE LA DERECHA SE
    FUSIONA CON EL ACCESO, PERDIENDO LA IDEA DE LOS VOLUMENES
    SEPARADOS RELACIONADOS MEDIANTE EL ACCESO.

   EL ESQUEMA ELEGIDO POR EL PROYECTISTA AYUDA EL BUEN
    FUNCIONAMIENTO DE LA VIVIENDA. ASIMISMO EL ESTUDIO Y VIVIENDA
    NO SE ENCUENTRAN RELACIONADOS FUNCIONALMENTE, SOLO A
    TRAVES DE LA FORMA.

   SE PUEDE OBSERVAR UN PUNTO COMPLEJO DESDE EL PUNTO DE VISTA
    DE LAS CIRCULACIONES, EN LA BASE DE LA COCINA CON LA ENTRADA AL
    ESTUDIO, LA SALIDA DEL BAÑO Y LA ENTRADA EXTERIOR AL ESTUDIO,
    QUE DEBERIA RESOLVERSE.

   EN CUANTO A LAS DIMENSIONES DE ESPACIOS Y CIRCULACIONES
    PARECEN RAZONABLES, PERMITIENDO EL NORMAL DESARROLLO DE
    LAS ACTIVIDADES DENTRO DE LA VIVIENDA.
CASA ESTUDIO / GUSTAVO




                         PLANTA ALTA
                         AMPLIACION
CASA ESTUDIO / GUSTAVO
   LA AMPLIACION FUTURA ES ADECUADA YA QUE NO PRESENTARIA
    GASTOS EXAGERADOS NI MOLESTIAS AL DESARROLLO DE LA
    VIVIENDA.
Friedemberg gustavo final

Friedemberg gustavo final

  • 1.
    Vivienda Estudio PFI Friedemberg, GustavoValentín Mat. 3601-2146 UM 2012
  • 2.
    N Localización Ubicación Geográfica: Sanjusto, Pdo. de la matanza UM 2012
  • 3.
    N Localización Ubicación Geográfica: Sanjusto, Pdo. de la matanza UM 2012
  • 4.
    N Localización Ubicación Geográfica: Sanjusto, Pdo. de la matanza UM 2012
  • 5.
  • 6.
    N Medidas del Lote: 10 m x 30.75 m UM 2012
  • 7.
    Casa lindera Frente sobre Fcio. Varela Casa lindera Vista del interior del terreno UM 2012
  • 8.
    Valor del terreno:u$s 60.000.- Dólares $260.000.- Pesos Zona: U1a Designación: Urbano residencial Densidad: 250 F.O.S.: 0.6 F.O.T.: 1.4 Retiros: Pulmón de manzana -U1a (Urbano Residencial de Densidad Baja) Ordenanza Nº 7420 Uso Predominante: · Vivienda unifamiliar.- Usos Complementarios: · Servicios de la vivienda.- · Garaje anexo a la vivienda.- · Oficina profesional anexa a la vivienda.- - Ordenanza Nº 17792 - Decreto Reglamentario 1030 | Ley 13.059 de Acondicionamiento Térmico en la Construcción en la provincia de Buenos Aires. UM 2012
  • 9.
    Programa de necesidades ViviendaUnifamiliar Casa estudio, 150 m2 Casa estudio, 150 m2 Total M2 (147 m2) Área de Accesos Semicubierto de Accesos Valor por M2 $ 3540 Sector Social (40 m2) Estar -------------- Comedor Valor Total $520.380 (11 m2) Rincón de Estudio (15 m2) Cocina Comedor diario Sector Privado (28 m2) Dormitorio en suite (11 m2) Dormitorio Hijo Dormitorio a futuro Sector de Servicios Baño en suite (6 m2) Baño (1.5 m2) Toillete Cochera Descubierta Circulación (30 m2) Expansiones exteriores (20 m2) Sector de comer exterior ----------------- Total M2 (147 m2) UM 2012
  • 10.
    Proyecto Vivienda Sobre unterreno regular en un fraccionamiento cerrado de la ciudad, La vivienda se planta aprovechando las condiciones que el sitio ofrece. El proyecto demuestra una geometría franca, el programa arquitectónico se resuelve de manera clara en dos volúmenes desfasados y articulados con el espacio de acceso. La imagen sobria de la fachada principal se cierra hacia la calle dando privacidad a los espacios interiores que se viven en relación franca con el jardín de la casa. El acceso enmarcado con un elemento de concreto aparente entrega en un pequeño vestíbulo al centro de la casa; este articula de una Ideas Primarias manera interesante los dos volúmenes que componen el proyecto. Desde este espacio central interior/exterior se percibe el proyecto que favorece la conexión con el exterior al generar espacios francamente abiertos hacia la luz Materiales a emplear: Estructura independiente de vigueta con ladrillos de polietileno para tener una mayor aislación, se empleara bloques de ladrillo “retak” de 15 x 25 x 50 cm. Aspecto Funcional UM 2012
  • 11.
  • 12.
    Se busco Orientarlos dormitorios al ESTE Implantación Plantas
  • 13.
    Futuro Dormitorio Plantas
  • 14.
  • 15.
    Ventilación Dormitorio Baño Cocina Estudio Baño Estar Comer Cocina Cortes
  • 16.
  • 17.
  • 18.
    Sustentabilidad En primer lugarse logro tener en cuenta la orientación, se logra ventilación cruzada mediante ventanas en la azotea que se generan con el desnivel de los techos, generando así buena ventilación y climatización. En segundo lugar se tubo en cuenta los materiales: -Se utilizo el material “retak” como envolvente de la vivienda ya que éste logra una transmitancia térmica de 0,60 Kcal/m2hc, el cual mejoraría un 20% al muro doble con cámara de aire logrando así poder mejorar ampliamente la climatización de la vivienda. - En las carpinterías se utilizo con vidrio “DVH” - Se utilizo termotanque solar en la azotea para el calentamiento de agua logrando así una menor perdida de energía. Termotanque - Recolección de aguas grises y lluvias para su reutilización en riegos solar y depósitos inodoro. Recolección aguas grises Carpintería Ladrillo con DVH “retak”
  • 19.
  • 20.
    CASA ESTUDIO  PUNTOS A ANALIZAR:  IMPLANTACION  FUNCIONALIDAD  DIMENSIONES Y CIRCULACION  ESTETICA/MATERIALIDAD  AMPLIACION FUTURA
  • 21.
    CASA ESTUDIO /GUSTAVO PLANTA BAJA
  • 22.
    CASA ESTUDIO /GUSTAVO PLANTA ALTA
  • 23.
    CASA ESTUDIO /GUSTAVO  EL PROGRAMA SE RESUELVE EN DOS VOLÚMENES DESFASADOS Y ARTICULADOS CON EL ESPACIO DE ACCESO. PERO ANALIZANDO LA MEMORIA DESCRIPTIVA Y LA PLANTA EL PRISMA DE LA DERECHA SE FUSIONA CON EL ACCESO, PERDIENDO LA IDEA DE LOS VOLUMENES SEPARADOS RELACIONADOS MEDIANTE EL ACCESO.  EL ESQUEMA ELEGIDO POR EL PROYECTISTA AYUDA EL BUEN FUNCIONAMIENTO DE LA VIVIENDA. ASIMISMO EL ESTUDIO Y VIVIENDA NO SE ENCUENTRAN RELACIONADOS FUNCIONALMENTE, SOLO A TRAVES DE LA FORMA.  SE PUEDE OBSERVAR UN PUNTO COMPLEJO DESDE EL PUNTO DE VISTA DE LAS CIRCULACIONES, EN LA BASE DE LA COCINA CON LA ENTRADA AL ESTUDIO, LA SALIDA DEL BAÑO Y LA ENTRADA EXTERIOR AL ESTUDIO, QUE DEBERIA RESOLVERSE.  EN CUANTO A LAS DIMENSIONES DE ESPACIOS Y CIRCULACIONES PARECEN RAZONABLES, PERMITIENDO EL NORMAL DESARROLLO DE LAS ACTIVIDADES DENTRO DE LA VIVIENDA.
  • 24.
    CASA ESTUDIO /GUSTAVO PLANTA ALTA AMPLIACION
  • 25.
    CASA ESTUDIO /GUSTAVO  LA AMPLIACION FUTURA ES ADECUADA YA QUE NO PRESENTARIA GASTOS EXAGERADOS NI MOLESTIAS AL DESARROLLO DE LA VIVIENDA.