UNIVERSIDAD PRIVADA DE CIENCIAS APLICADAS
“Año del Bicentenario del Perú: 200 años de Independencia”
TOPOGRAFÍA
Sección: CV25
Profesor: Luis Purizaga
LEVANTAMIENTO TOPOGRÁFICO
INTEGRANTES
Apellidos, Nombres y código
Pantoja Barboza Yoshiro U202110575
Dorado Diaz Jhonatan André U202015262
Medina Zavaleta Harold U202116576
Flores Medina Tomas Alonso U20201F151
Celedonio Montalvo René Enrique U20211A812
2021
ÍNDICE
INTRODUCCIÓN...............................................................................................................................................................1
OBJETIVOS.......................................................................................................................................................................1
UBICACIÓN......................................................................................................................................................................2
MARCO TEÓRICO............................................................................................................................................................2
Planimetría.............................................................................................................................................................2
Altimetría...............................................................................................................................................................2
Taquimetría...........................................................................................................................................................3
Azimut, rumbo y declinación...............................................................................................................................7
Punto de control....................................................................................................................................................8
Perfil longitudinal...............................................................................................................................................10
Curvas de nivel ...................................................................................................................................................10
LEVANTAMIENTO DE PERFILES LONGITUDINALES..........................................................................................10
LEVANTAMIENTO DE SECCIONES TRANSVERSALES........................................................................................11
Escala...................................................................................................................................................................12
Coordenadas Geográficas..................................................................................................................................14
Latitud y longitud...............................................................................................................................................14
Método de radiación.........................................................................................................................................15
Estación Total .....................................................................................................................................................15
Coordenadas UTM.............................................................................................................................................20
PROCEDIMIENTO.........................................................................................................................................................26
De campo:........................................................................................................................................................26
Creación del archivo de trabajo eingreso decoordenadas...........................................................................26
Instalación y nivelación del equipo..................................................................................................................29
Referenciación del equipo.................................................................................................................................38
Levantamiento topográfico...............................................................................................................................43
De gabinete:....................................................................................................................................................45
Procesos del civil 3D...........................................................................................................................................45
Creacion de grupos de puntos..........................................................................................................................48
Continuación procesos del civil ........................................................................................................................50
Creación decurvas denivel...............................................................................................................................54
Creacion de un perfil longitudinal ....................................................................................................................56
Procedimiento desecciones transversales......................................................................................................58
CONCLUSIONES............................................................................................................................................................65
RECOMENDACIONES...................................................................................................................................................65
BIBLIOGRAFÍA...............................................................................................................................................................66
ANEXOS.........................................................................................................................................................................67
GRÁFICOS
Gráfico 1: Ubicación de UPC Villa………………………………………………………………………………...2
Gráfico 2: Distancias en topografía…………………………………………………………………………………..….4
Gráfico 3: Representación del ángulo de deflexión………………………………………………………5
Gráfico 4: Ángulos Horizontales……………………………………………………………………………………6
Gráfico 5: Ángulos Verticales………………………………………………………………………………….……6
Gráfico 6: Representación del azimut…………………………………………………………………………..7
Gráfico 7: Representación del rumbo…………………………………………………………………………..7
Gráfico 8: Representación de la declinación magnética……………………………………………….7
Gráfico 9: Punto de Control………………………………………………………………………………………….8
Gráfico 10: Escala Gráfica…………………………………………………………………………………………..10
Gráfico 11: Ecuador Geográfico………………………………………………………………………………….10
Gráfico 12: Representación de la longitud y latitud……………………………………………………11
Gráfico 13: Estación Total…………………………………………………………………………………………..12
Gráfico 14: Ejemplo de poligonal cerrada…………………………………………………………………..13
Gráfico 15: Tipos de Poligonales…………………………………………………………………………………14
Gráfico 16: Representación de proyecciones en un plano………………………………………….15
Gráfico 17: Proyección cónica…………………………………………………………………………………….16
Gráfico 18: Proyección cilíndrica…………………………………………………………………………………16
Gráfico 19: Proyección planas…………………………………………………………………………………….17
Gráfico 20: Elipsoide Transformado en un cilindro……………………………………………………..18
Gráfico 21: Zonas UTM……………………………………………………………………………………………….18
Gráfico 22: Estación total……………………………………………………………………………………….....19
Gráfico 23: Partes de la estación total………………………………………………………………………..20
Gráfico 24: Brújula……………………………………………………………………………………………………..21
Gráfico 25: Tripie Topográfico……………………………………………………………………………………21
Gráfico 26: Prisma topográfico…………………………………………………………………………………..22
INTRODUCCIÓN
El levantamiento topográfico es un estudio técnico y descriptivo de un terreno,
examinando la superficie terrestre en la cual se tienen en cuenta las características
físicas, geográficas y geológicas del terreno, pero también sus variaciones y
alteraciones. Cada obra de ingeniería comienza con las mediciones en donde se va a
trabajar sobre el terreno; con este conocimiento como punto de partida se elabora
el proyecto. En ese sentido, es importante conocer los procesos, herramientas,
conceptos para un levantamiento topográfico. Asimismo, es necesario entender
estos conceptos desde un punto de vista teórico y empírico, ya que este proceso es
importante para la elaboración de grandes proyectos. Esta situación nos obliga a
conocer a los distintos métodos y conceptos que requiere la topografía y ejercer
técnicas para obtener resultados precisos para llevar a cabo el proyecto de manera
correcta con principios de eficacia y eficiencia. En síntesis, el presente trabajo se
expondrá conceptos teóricos y prácticos para un levantamiento topográfico en
complemento con lo trabajado en un informe anterior, en este ocasión abarcaremos
temas como perfiles longitudinales y curvas de nivel, las cuales tienen una relevancia
en trabajos de ingeniería.
OBJETIVOS
Generales
 Dar a conocer la importancia de un levantamiento topográfico.
 Reconocer cada uno de los pasos para un levantamiento.
Específicos
 Dar a conocer las herramientas y conceptos necesarios para el levantamiento
topográfico.
 Enriquecer nuestros conocimientos de cómo aplicar el levantamiento
topográfico en el proceso de formación para la ingeniería civil.
 Por en práctica todos los conocimientos adquirido durante el curso, tanto
teórico como practico.
 Determinar las configuraciones y pasos para usar los equipos topográficos.
 Plasmar en un software (CIVIL 3D) los datos obtenidos en el campo.
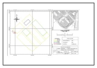
UBICACIÓN
Departamento: Lima
Provincia: Lima
Distrito: Chorrillos
Gráfico 1: Ubicación de UPC Villa
MARCO TEÓRICO
Planimetría
Se llamaplanimetríaal conjuntoal conjuntode los trabajosefectuadospara tomar en
el campo los datosgeométricosnecesariosque permitanconstruirunafigurasemejantea
la del terreno, proyectada sobre un plano horizontal (García, 2003).
Altimetría
Es unarama de latopografíaque estudiael conjuntode métodosyprocedimientospara
determinaryrepresentarlaaltura de cada punto respectode un plano de referencia.Con
la altimetría se consigue representar el relieve de un terreno (Rincón, 2011). Asimismo,
tiene porobjetivorepresentarlaverdaderaformadelterreno,esdecirnosolosuextensión,
límites y obras que lo ocupan sino también la forma de su relieve,haciendo para ello las
operaciones en el terreno y es un aspecto fundamental para la topografía.
Taquimetría
Taquimetríaes la rama de la topografía centrada en el levantamiento de planos a través
del taquímetro(un dispositivo que permite la medición de ángulos y distancias). Se
considera a la taquimetría como un métodopara realizarmediciones con rapidez aunque
sindemasiadaprecisión.Porlogeneral se empleaenaquellassituacionesen lascuales,por
sus características, resulta imposible emplear una cinta métrica.
Medición de distancias
La mediciónde distancias es la base de la Topografía. Aun cuando en un levantamiento
losángulospuedanleerse conprecisiónconequipo muyrefinado,porlomenostiene que
medirse la longitud de una línea para complementar la medición de ángulos en la
localización de los puntos (Rivas, 2017).
Existen diferentes métodos para medir distancias, los cuales son los siguientes:
 Por pasos
 Con odómetro
 Con telémetros
 Con cinta métrica
 Taquimetría
 Con instrumentos electrónicos
 Sistema de Posicionamiento Global(GPS)
De todos estos métodos los que se utilizan con más frecuencia son las mediciones con
cinta, con instrumentos electrónicos los sistemas de satélite. En la actualidad se está
incrementando el uso del Sistema de Posicionamiento Global(GPS)ya que presenta
algunas ventajas frente a los otros métodos tales como precisión y eficiencia.
Mediante otros métodosde control horizontal también se puededeterminar distancias
tales como la triangulación, poligonación, radiación, etc., los cuales se verán en los
siguientes capítulos.
Distancias topográficas
Los levantamientos topográficos se basan en la medición de distancias y ángulos. Las
distancias pueden ser: horizontales, que son las medidas principales en planimetría;
verticales, que se utilizan para establecer las diferencias de nivel; y las inclinadas,
mediciones sobre la superficie terrestre.
En topografía, cuando se hacen mediciones lineales, es importante tener claridad en los
siguientes conceptos:
• Distancia Natural: distancia entre dos puntos siguiendo el relieve del terreno.
• Distancia Geométrica: En el caso de la distancia geométrica, esta se define como la
distancia en línea recta que separa dos puntos. (En este caso no necesariamente sobre el
terreno).Estadistanciaesrealmente complicadoque se use conaplicacióntopográfica,ya
que no se aplica en el desde un punto del suelo hasta otro (Casanova, 2020).
• Distancia Reducida: Esta distancia es la proyección de la distancia geométrica sobre un
plano horizontal. Se puede obtener matemáticamente a partir de una de las otras dos
distancias siempre y cuando nos aporten los suficientes datos (Casanova, 2020).
Gráfico 2: Distancias en topografía
Mediciones Angulares
Los ángulos y los dispositivos de partes angulares se miden en unidades (grados,
minutos y segundos).Por ejemplo un círculos contiene 360 grados, un grado (°)
contiene 60 minutos y un minuto (‘) contiene 60 segundos (“).
El círculo es la base de la medición angular. Todas las herramientas de medición
angular tienen escalas circulares, como es el caso del transportador biselado para
la escuadra de combinación.
Estas mediciones angulares normalmente sehacen apartir de un plano horizontal o
vertical. Al efectuar cualquier medición angular, se debe asegurar que el plano sea
correcto (UNIDEG, 2012).En ese sentido, los ángulos que se miden en topografía se
clasifican en horizontales o verticales, dependiendo del plano.
 Ángulos verticales: También llamados cenitales se usan en la nivelación
trigonométrica, en estadía y para reducir distancias inclinadas con respecto a
la horizontal.
 Ángulos horizontales: son las medidas básicas que se necesitan para
determinar los rumbos y acimut. Los ángulos horizontales que se miden de
manera frecuente son:
 Ángulos interiores: son los ángulos están dentro la un polígono cerrado.
Normalmente, se mide el ángulo en cada vértice del polígono.
 Ángulos a la derecha: son los ángulos medidos en el sentido horario o
de las manecillas del reloj, los cuales se consideran signo positivo, ya
que tienen el mismo sentido del azimut.
 Ángulos de deflexión: Son los ángulos entre la prolongación del
alineamiento anterior y el alineamiento siguiente, puede ser de sentido
izquierdo (-) o derecho (+).
Gráfico 3: Representación de los ángulos de deflexión
Ángulos topográficos
La Topografía tiene por objetomedirextensionesentierra,tomandolos datos necesarios
para poderrepresentarsobre unplanoy a una escalaadecuada,formasy dimensionesdel
terreno, midiendo distancias, ángulos, direcciones, coordenadas, elevaciones, áreas y
volúmenes. La representación se hace utilizando el método de proyección acotada, que
consiste enrepresentarlospuntoscaracterísticos del terrenopor mediode su proyección
ortogonal sobre unplanohorizontal,yporunnúmeroo cota que se escribe al ladode cada
punto para indicar la distancia a que se encuentra del plano de proyección. Las medidas
que se obtienen en Topografía son de dos tipos:
Angulares: son los ángulos horizontales o acimutales y los ángulos verticales o cenitales.
Los instrumentos apropiados para medirlos son el Teodolito y la Estación Total.
Ángulos horizontales: se miden sobre el plano horizontal. Se necesita un norte de
referencia; si es el norte geográfico (o verdadero) se miden acimutes, si es el norte
magnético se miden rumbos y si es un norte arbitrario se miden orientaciones. También
son horizontales los ángulos de deflexión.
Gráfico 4: Ángulos Horizontales
Ángulos verticales: Se miden sobre el plano vertical, el punto que se encuentra en la
vertical sobre nosotrosesel Cenity el punto que se encuentraenla vertical bajonosotros
es el Nadir(contrarioal Cenit).Losángulosverticalessonladistanciacenital (si el cerodel
limbo se encuentra en el cenit) y ángulo de altura o vertical propiamente dicho (si el cero
del limbo se encuentra en el horizonte).
Gráfico 5: Ángulos Verticales
Azimut, rumbo y declinación
Azimut
Es el ángulohorizontal calculadoensentidohorarioque se mide mayormente desde el
Norte, varía de 0° a 360°. Se mide a partir de un meridiano base hasta la línea a medir
(Doble Vía, 2007).
Gráfico 6: Representación del azimut
Rumbo
Permiten definir la orientaciónde una línea respecto del norte o del sur, y su rango es
de 0º a 90º. Si se usa el Norte Geográficose obtendráel Rumbo Verdadero,si se usael
Norte Magnético se obtiene el Rumbo Magnético.
Gráfico 7: Representación del rumbo
Se define como el ángulo que existe entre el norte magnético y el norte verdadero
(geográfico). Se denota como D y se considera positivo cuando el ángulo medido está
hacia el este del norte verdadero, y negativo caso contrario (MTC, 2021).
Gráfico 8: Representación de la declinación magnética
Punto de control
El punto topográfico o punto de control es el punto a partir del cual se realizan las
mediciones lineales y angulares. En ocasiones estospuntos se toman como referencia
para definir la dirección de un alineamiento.
Gráfico 9: Puntos de control
 Punto de control vertical:
Se realiza empleando BMs situados dentro o cerca del área en la cual se va a trabajar.
Para ellose tiende unaredde control vertical mediantelíneasde nivelaciónque parten
de BMs y cierran en BMs. Dependiendo de los requisitos de precisión, los
levantamientos de control vertical pueden ser: de nivelación diferencial,
trigonométricos,barométricosoconGPS. El métodomásprecisoyampliamente usado
esla nivelacióndiferencialde precisión.TodaslasestacionesyBMsse ubicanen puntos
favorables para su empleo futuro. Normalmente están marcados en discos de bronce
de 9cm de diámetro, fijos en concreto o en roca firme.
 Puntos de control horizontal:
Para efectuarel control horizontalesnecesarioubicarel teodolitooestacióntotal sobre
un punto de coordenadas conocidas A(XA,YA) según el sistema de referencia utilizado.
En base a este puntoylosazimutsmedidosse podránobtenerlascoordenadasde otros
puntos. Las posiciones de los puntos de control horizontal se fijan con exactitud
mediante distancias y direcciones, o mediante coordenadas. A(XA,YA) (Reyes, 2019).
Fijación de puntos de control en el terreno:
 Colocar el menor número posible de vértices
 Ubicar los vértices de tal forma que desde cualquiera de ellos pueda verse la
estación anterior y posterior.
 Colocarlos fuera de la zona de trabajo.
 Desde cualquiera de ellos debe observarse la mayor cantidad posible de
detalles.
 Obtención de los puntos de control
Los puntos de control son necesarios para un levantamiento topográfico se pueden
obtener de la siguiente manera.
1. Obtener del IGN (Instituto Geográfico Nacional) las coordenadas UTM (x,y) de dos
puntos, y el BM(z) de alguno de ellos. El norte Geográfico quedaría definido
calculando el azimut de la línea que uno los dos puntos.
SeanA y B dos puntosde control,y  el azimutde
la líneaAB.
𝛼 = arctan( ∆𝑥/∆𝑦)
2. Si no es posible encontrar los puntos o estos se encuentran lejos de la zona de
trabajo, entonces es necesario fijar nuevos puntos de control,para ello existenlos
siguientes métodos.
a. Triangulación
b. Trilateración
c. Poligonales
d. Métodos satelitales
e. Combinaciónde ellos
Perfil longitudinal
Los perfiles longitudinales son la representación de las alturas del suelo a lo largo de la ruta
propuesta.Se utilizanparalalocalización,diseñoyconstrucciónde proyectosalolargode rutas
fijas, tales como carreteras, vías férreas, canales, alcantarillado, etc.
Los perfiles permiten conocer,en el caso de carreteras, el movimiento de tierras que se debe
realizar, conocer la posición de una quebrada, situación y profundidad de drenajes, tuberías,
túneles, canales, etc.
Curvas de nivel
Son líneas que, en un mapa, unen los puntos de la misma altitud, por encima o debajo de una
superficiede referencia,que generalmente coincideconlalíneadel niveldel mar,yque tieneel
finde mostrarel relieve de unterreno.Lascurvasde nivel sonunode losvariadosmétodosque
se utilizan para reflejar la forma tridimensional de la superficie terrestre en un mapa
bidimensional.
LEVANTAMIENTO DE PERFILES LONGITUDINALES
El levantamiento de perfiles, llamándose topografía lineal, se realiza previamente a la
construcción de una obra de tipo lineal. Se llama así a ciertas obras donde su ancho es muy
pequeño comparado con la longitud de las mismas. (Ejemplo: canales, caminos, calles, etc.)
Mediante el levantamientode perfiles, es posible conocer la forma y dimensiones del terreno
enel que se requiererealizarlaobra,compararloconelproyectode ejecutaryasípodercalcular
los volúmenes de suelo a mover, ítem desmonte o excavaciones e ítem terraplén o rellenos
(Reyes,2020).
La precisión con la cual se dibuja el perfil del terreno depende de la distancia entre los puntos
de apoyo de la mira, que a su vez depende de la escala a la cual se va a dibujar el perfil.
Usualmente se utilizaunaescalavertical mucho mayor que la horizontal (porlo general 10:1 o
5:1) a fin de mostrar claramente las diferencias de altura.
Pautaspara el trazode perfiles:Nivelarciertospuntosdentrodel itinerario,como:
• Puntosdonde cambialapendiente.
• Cotas másaltas y másbajas del perfil.
• Puntosextremosde unescalón,taludomurovertical,indicandoque esceroladistancia
horizontal entre ellos.
• Ubicar lamira enlas orillasde losrasgosnaturales(zanjas,estanques,etc.).
• En el cruce con caminos,veredas,arroyosycentrode lascarreteras.
Gráfico 15: Ejemplo de perfil longitudinal
LEVANTAMIENTO DE SECCIONES TRANSVERSALES
Son perfiles cortos, perpendiculares al eje de un proyecto. Suministran información necesaria
para estimarlosmovimientosde tierrasque debenrealizarseparalaconstruccióndel proyecto
(carretera, canal, etc.).
En levantamientosde carreteras,lasseccionestransversalesse tomanaintervalosregulares(15
o 30m) y en los quiebres del perfil correspondiente al eje de la vía.
Las secciones transversales se extienden una distancia suficiente a cada lado del eje logrando
así incluir el área a ser afectada por el proyecto.
En anteproyectosde carreteraslas seccionesse extiendenunos100m a cada lado del eje y en
la etapade proyectoa 20m. En proyectoscomodrenajesyductos,por su angosturasolamente
se necesita un perfil longitudinal.
Gráfico 16: Ejemplo de perfil longitudinal
Escala
La escalapuede serdefinidacomoel factordereducciónque nosdalarelaciónexistente
entre la medida real en el terreno y la misma medida representada en el plano. La
relación de semejanza entre la representación y la realidad está dada por:
Las distanciasque se representanaescalaenel mapano son lasgeométricassinolas
reducidas.
 Escala numérica: Se escribe comoel cocientede ladistanciaentredospuntosenel
mapa, dividida por la distancia reducida entre los puntos correspondientes de la
superficie terrestre. El número que expresa el cociente, suele tener como
numeradorlaunidady el denominadorsermúltiplode 10, 100, 1000. Por ejemplo
un mapa a escala 1/1000, quiere decir que 1 milímetro en el mapa equivale a 1
metro en el terreno.
 Escala gráfica: En losmapasse suele incluirunaescalagráfica,enlacual sobre una
recta se marcan longitudes, una distancia en el plano llevada sobre esa escala
gráfica nos dará la distancia real. De aquí surgen las relaciones que nos permiten
pasar, de una magnitud tomada en el terreno a su correspondiente en el plano y
viceversa.Laventajaesque al hacer reduccionesoampliacioneslaescalatambién
las sufre, de modo que la escala gráfica siempre representa la relación correcta
entre el dibujo y el terreno (Zamarripa, 2010).
Gráfico 7: Escala gráfica
Ecuador Geográfico
Es el conjuntode puntosubicadosenel Ecuadorde laTierrayque equidistande lospolos
geográficos.
Gráfico 10: Ecuador geográfico
Coordenadas Geográficas
Con los dos planos fundamentales, la posición de un punto P queda definida por la
intersección de sus meridianos y paralelosen un sistema de referencia constituidopor el
plano del Ecuador y por el meridiano de Greenwich, que determinan sus coordenadas
geográficas o geodésicas: Latitud y Longitud (Zamarripa, 2010).
Latitud y longitud
Es la posición de un punto respecto al Ecuador Geográfico, pudiendo ser latitud norte o
latitudsur. La longituddefine lalocalizaciónde unpunto al este u oeste de otra líneade
referencia, el meridiano de Greenwich. A diferencia de las líneas de latitud, que se van
acortando a medidaque se acercan a los polos,todaslaslíneasde longitudomeridianos
midenigual de norte a sur y convergenenlospolos.Cualquierpuntodel globose puede
describirentérminosde distanciaangulardesdelospuntosde referenciadelecuador(0º
de latitud) y del meridiano de Greenwich (0º de longitud) (Zamarripa, 2010).
Gráfico 11: Representación de la longitud y latitud
Método de radiación
El métodode radiacionesconsiste enlocalizarunpuntointeriorenel polígono,desde el
cual sea posible medir todas las distancias a los vértices, estas distancias son las
radiaciones y con ellas se divide en triángulos a la poligonal. Las longitudes de los lados
del polígonoylasradiacionesse midende idayde regreso,anotándose losresultadosen
el registro de campo (Zamarripa, 2010).
Estación Total
Una estación total es un instrumento electrónico / óptico que es usado en latopografía
moderna y enla construcciónde edificiosque utilizateodolitoelectrónicode tránsitoen
combinaciónconunmedidorelectrónicode distancia(EDM) yquetambiénestáintegrado
con un microprocesador, un colector electrónico de datos y un sistema de
almacenamiento.
Gráfico 12: Estación Total
4.16 Poligonales topográficas
La poligonaciónesunode losmétodosmás usados para el establecimientodel control
topográfico; consiste en una serie de líneas o lados, cuyas longitudes y direcciones se
miden, así van interconectándose puntos cuyas posiciones van a determinarse
(Zamarripa,2010).
En topografía debemos observar las poligonales como una sucesión de puntos
(estaciones) que están ligadas entre sí por ángulos y distancias. Las poligonales son
usadas para establecer puntos de control y puntos de apoyo para el levantamiento de
detalles,replanteode proyectos y para el control en la ejecución de obras (Quindio,
2021).
Gráfico 13: Ejemplo de poligonal cerrada
Según el Manual de Topografía es necesario seguir tener en cuenta los siguientes
conceptos matemáticos para el correcto cierre de una poligonal.
En forma general, las poligonales pueden ser clasificadas en:
 Poligonales cerradas: en las cuales el punto de inicio es el mismo punto de
cierre, proporcionando por lo tanto control del cierre angular y lineal.
 Poligonal abierta,enlasque se conocenlas coordenadasde lospuntosinicial y
final, y la orientación de las alineaciones inicial y final,siendo también posible
efectuar controles errores angulares y lineales.
Gráfico 14: Tipos de poligonales
El usode poligonalesesunode losprocedimientostopográficosmáscomunes.Se usan
generalmente para establecer puntos de control y puntos de apoyo para el
levantamiento de detalles y elaboración de planos, asimismo para el replanteo de
proyectos y para el control de ejecución de obra.
Luego de establecer los vértices se procede a medir los ángulos internos y sus
distancias.Debidoala imprecisiónde losinstrumentos,condicionesyoperacioneses
necesario establecer conceptos de error angular y tolerancia angular.
4.17 Proyecciones Topográficas
Ya sea que se trate a la tierracomo unaesferao comoun esferoide,se debe transformar
su superficie tridimensional para crear un mapa plano. Esta transformación usualmente
usandoecuacionesmatemáticas,es conocidacomúnmenteconel nombrede sistemasde
proyección.Unaformamásfácil de entendercomolossistemasde proyecciónalteranlas
propiedadesespaciales es hacer una visualización de la proyección de un haz de luz a
través de una superficie esférica (proyección superficial), tal como se observa en la
siguiente figura.
La proyecciónde unmapainvolucrael usodecoordenadasquesondefinidasporfórmulas
de proyección. Las fórmulas pueden transformar una cobertura de origen en una
cobertura de salida que luce similar, pero esta dibujada sobre una proyección
completamentediferente.El resultadomuestraque lasintersecciones,entre meridianos
y paralelos, se mantienen pero los ángulos en los que estas intersecciones ocurren son
diferentes. El siguiente diagrama muestra como las características tridimensionales son
comprimidas para que calcen sobre la superficie plana. También puede ocurrir un
estiramiento (Hernández, 2019).
Gráfico 15: Representación de proyecciones en un plano
Debido a que los mapas son planos, algunos de los sistemas de proyección más simples
se hacen sobre formas geométricas que pueden aplanar, sin estirar, sus superficies.
Ejemplos comunes de formas que usan este criterio son conos, cilindros, y planos. En
realidad, los cilindros y planos son formas limitadas de un cono. Una expresión
matemáticaque proyectasistemáticamente lasposicionesde lasuperficie de unaesfera
para representarlas en un plano es llamada un sistema de proyección.
El primer paso para proyectar de una superficie a otra es crear uno o más puntos de
contacto. Cada uno de estos puntos se denomina puntode tangencia.Como se observa
en la figura, una proyección planar tiene sólo un punto de tangencia. Por otra parte, un
conoo un cilindrotienenlíneasDr.H.Jaime HernándezP.Sistemasde Proyección7de 11
tangencialessobreelglobo.Si elplanode proyeccióninterceptaal globoenvezde tocarlo
tangencialmente, la proyección resultante involucra cálculos de secantes más que de
tangentes.Yaseaque el contactoessecanteotangente,sulocalizaciónesde importancia
debidoa que definenposicionesde distorsiónnula.Estaslíneassonde escalaverdadera
y se les conoce como líneas estándar. En general, la distorsión aumenta en forma
proporcional a la distancia a éstas líneas de contacto.
La mayoría de los sistemas de proyecciónpueden ser clasificados de acuerdo al tipo de
superficie de proyección a utilizar.
 Proyecciones cónicas
 Proyecciones cilíndricas
 Proyecciones planas
 ProyeccionesCónicas
La proyeccióncónicamás simple esaquellaenque el planocónicoes tangente al globo a lo
largode unalíneade latitud.Enunaproyeccióndadaestalíneaesllamadaparaleloestándar.
Los meridianosse proyectanenlasuperficiey se unenenel ápice.Las líneasde paralelosse
proyectan sobre la superficie cónica como anillos consecutivos. A continuación, se corta el
planodel cono enun meridianoconocido,se abre,y se obtienenlaproyecciónfinal,lacual
tiene meridianos rectos que convergen y arcos de círculos concéntricos como paralelos. El
meridiano opuesto a meridiano de corte se conoce como meridiano central (Hernández,
2019).
Gráfico 16: Proyección cónica
En general,lasdistorsionesaumentanal norte yal sur del paralelode tangencia.Porello,
truncandoel cono se obtienenproyeccionesmásprecisas.Ellopuedeserlogrado,al noincluir
lasregionespolaresenlaproyección.
 ProyeccionesCilíndricas
Las proyecciones cilíndricas también pueden tener una línea de tangencia o dos líneas
secantes alrededor del globo. La proyección de Mercator es una de las proyecciones
cilíndricas más comunes, y el Ecuador es usualmente su línea de tangencia. Los meridianos
son proyectados geométricamente en la superficie del cilindro, produciendo un ángulo de
90º en lasinterseccionesconlos paralelos.El cilindropuede ser“cortado” a loslargo de un
meridiano,yabierto,para producirla proyeccióncilíndricafinal.Losmeridianosestánequi-
distanciados,mientrasque el distanciamientoentre losparalelosdisminuye hacialospolos.
Esta proyecciónesde tipoconformalyrepresentadireccionesverdaderasalolargode líneas
rectas (Hernández, 2019).
Gráfico 17: Proyección cilíndrica
En todas lasproyeccionescilíndricas,laslíneas de tangenciaode secante notienendistorsión
y de esta formaconstituyenlíneasde equidistancias.Lasrestantespropiedadesgeográficas
varían dependiendodeltipoespecíficode proyección.
 ProyeccionesCilíndricas
Las proyeccionesde este tipoproyectanlainformaciónsobre superficiesplanasque tocan
tangencialmente el globo.Unaproyecciónplanaresdel mismotipoque lasproyecciones
acimutalesolasproyeccionescenitales.Enestaclase de proyeccionesse usanplanosque
son tangentesal globosólo enunpunto,perotambiénpodríanserde tiposecante.El
puntode contacto puede serel PoloNorte,el PoloSur,unpuntosobre el Ecuador, o algún
puntointermedio.Este puntodeterminael focode proyecciónque definiránlaorientación
y lasfunciones autilizar.El focose identificaporunalongitudylatitudescentrales,ylas
orientacionesposiblesson:polar,ecuatorial yoblicuo(Hernández,2019).
Gráfico 18: Proyección cilíndrica
 Otras Proyecciones
Los sistemas de proyección presentados hasta ahora pueden, conceptualmente, ser creados
proyectandounaforma geométrica(unaesfera) sobre otra(uncono,cilindro,oplano).Existen
muchos otros sistemas que pueden ser relacionados de la forma anterior de forma fácil
Las proyeccionesModificadassonversionesmodificadasde algúntipoconocido.Por ejemplo:
Space Oblique Mercatoresuna modificaciónde laProyecciónde Mercator. Las modificaciones
son incluidasparadisminuirlasdistorsiones,ya menudoincluyenlíneasestándaradicionaleso
patrones de distorsión diferentes(Hernández, 2019).
Las Pseudo-Proyecciones tienen sólo algunas características de algún tipo de proyección
conocido.
Coordenadas UTM
El sistema de coordenadas UTM (Universal Transverse Mercator) es un sistema de
proyección cartográfico basado en cuadrículas con el cual se pueden referenciar puntos
sobre la superficie terrestre.
Se basa puesenunaproyecciónde dichoelipsoide,siendolaproyecciónUTMun sistema
cilíndricoque estangente al elipsoide enunmeridianoorigen: lospuntosdel elipsoidese
proyectan sobre un cilindro tangente a un meridiano establecido (que llamaremos
meridiano central), de forma que al desarrollar el cilindro, el Ecuador se transforma en
una recta que se toma como eje de las X, y el meridiano central se transforma en otra
recta perpendicular a la anterior que será el eje de las Y (Ibáñez,2017).
Para evitar que las deformaciones producidasen la proyección sean demasiado grandes
se divide el elipsoide terrestre en 60 husos de 6º de amplitud, utilizando cada uno su
meridiano central y el Ecuador como ejes de referencia.
Gráfico 19: Elipsoide transformado en un cilindro.
Zonas UTM
Se divide la Tierra en 60 husos de 6º de longitud, la zona de proyección de la UTM se
define entre losparalelos80º S y 84 º N.Cada Huso se numeracon unnúmeroentre el 1
y el 60, estandoel primerhusolimitadoentre laslongitudes180° y 174° W y centradoen
el meridiano 177º W. Cada huso tiene asignado un meridiano central, que es donde se
sitúa el origen de coordenadas, junto con el ecuador. Los husos se numeran en orden
ascendente hacia el este. Por ejemplo, Mexico está situado en los Husos 16 al 11. En el
sistema de coordenadas geográfico,las longitudes se representan tradicionalmente con
valores que van desde los -180º hasta casi 180º (intervalo [-180º, 180)); el valor de
longitud180ºno se corresponde conelhusoUTM60, sinoconel 1,porque enese sistema
180º equivale a -180º.
Bandas UTM
Se divide laTierraen20zonasde 8ºGradosde Latitud,que sedenominanconletrasdesde
la C hasta la X excluyendolasletras"I" y "O", por su parecidocon los númerosuno (1) y
cero (0), respectivamente. Puesto que es un sistema norteamericano (estadounidense),
tampoco se utiliza la letra "Ñ". La zona C coincide con el intervalo de latitudes que va
desde 80º S (o -80º latitud) hasta 72º S (o -72º latitud). Las zonas polares no están
consideradas en este sistema de referencia. Para definir un punto en cualquiera de los
polos, se usa el sistema de coordenadas UPS. Si una zona tiene una letra igual o mayor
que la N, la zona está en el hemisferio norte, mientras que está en el sur si su letra es
menor que la "N".
Gráfico 20: Zonas UTM
1. INSTRUMENTOS Y COMPONENTES
 EstaciónTotal: Es un instrumentoque realizalasfuncionesdel teodolito
electrónicoyundistanciometro,unmedidorde distanciaselectrónicoyun
microprocesadorque realizaráloscálculosnecesariosparadeterminarlas
coordenadasde lospuntosenun terreno.(TorresyVillate,2001).
Gráfico 21: Estación total
Características:
 Con losIEMD (medidoresde distanciaselectrónicos) incorporadosse pueden
medirlongitudesentre 1y 2 Km. con un soloprismaohasta 5 Km.con prismas
triples.
 La resoluciónangularvaríadesde 0.5” enlosinstrumentospara
levantamientosde control hasta20” en los instrumentosparaestacadode
construcciones.
Gráfico 22: Partes principales de la estación total
 Civil 3D metric:
AutoCAD Civil 3D es un software de diseño de ingeniería civil que admite BIM(Building
Information Modeling) con funciones integradas para mejorar el dibujo, el diseño y la
documentación de construcción.
Este software te permite disfrutar de flujos de trabajo más eficientes para el modelado
de superficies,el modeladode obralineal,el diseñode emplazamientos,elalcantarillado
y saneamiento, y la producción y documentación de planos(Esarte Eseverri, 2020).
 Libreta
Este objetonossirvióparael apunte ycálculode lospuntos,proyeccionesycoordenadas
de manera manual debido a la modalidad del trabajo.
 Calculadora:
Objeto importantesparacorroborarloscálculosque hicimosconlosdatosbrindadospor
el docente para el respectivo levantamiento de la poligonal.
 Brújula:
La brújulaes un instrumento de orientación que utiliza unaagujaimantadapara señalar
el norte magnéticoterrestre.Sufuncionamientose basaenel magnetismoterrestre,por
lo que señala el norte magnético que corresponde con el norte geográfico y es
improductivo en las zonas polares norte y sur debido a la convergencia de las líneas de
fuerza del campo magnético terrestre.
Gráfico 23: Brújula topográfica
 Tripíe:
Sirve de soporte al instrumento se fabrican de aluminio o madera con herrajes
metálicos, son de patas extensibles.
Gráfico 24: Tripíe topográfico
 Prisma:
Un prismatopográficoesun aparato, empleadoparamediciónen topografía,de forma
circular que se encuentra constituido por un conjunto de cristales. Así, la función que
cumple dichos cristales es la de proyectar la señal EMD que produce un teodolito
electrónico o una estación total.De esta manera, la distancia se calcula con base en el
tiempo que transcurre en ir y venir al emisor (Zamarripa, 2020).
Gráfico 25: Prisma topográfico
PROCEDIMIENTO
De campo:
Creación del archivo de trabajo e ingreso de coordenadas
 Primeroapretaremosel botónmenúdel panelde laestacióntotal TopconGTS 240,
nos desplazamosalasegundapantallaconel botónF4, allípresionaremosel botónF1
para elegirlaopción“MANEJODE MEM”
 LuegoseleccionaremosconF1 laopciónde empezar a crear el archivo
 Posteriormente procederemosaingresarel nombre conlasteclasde números,para
cambiarel uso de estasteclasentre númerosoletrasdeberemospulsarF1.Para
aceptar damosenel botón F4.
 En la siguiente ventanaescogeremosel tipode coordenadanorte,este ycotacon la
teclaF1
 En la siguiente ventanaapretamosF1paraingresarel primerpunto,el cual
nombraremoscomocorresponda(conlasteclasde númerosde la mismamanera
dichaanteriormente),ydamosal botónF4 para confirmar.
 En la siguiente ventanaingresamoslascoordenadasycotadel puntoque nombramos
anteriormente.Damosenterconel botónF4.
 Podemosingresarel códigodel puntoingresadoconlasteclasdichasanteriormente,
damosF4 para aceptar.
 En la pantallasiguiente que parece damosnuevamente enF1para ingresarahoraun
segundopunto.
 Repetimostodoslospasoshechosenel ingresode datosdel primerpunto
 Una vez ingresadotodoslospuntospodemospulsarel botónlistaconlateclaF2 para
poderversi estatodoingresadocorrectamente
Instalación y nivelación del equipo
Reconocimientodel terreno:
 Se tiene que llevaracabo el reconocimientorespectodel áreadel terrenoatrabajar
 Se ubicarán losvérticesde lapoligonal cerradaarealizar,el cual seráde apoyopara el
futurolevantamientotopográfico.Además,esimportanteque ladescripciónde los
mismosseaensentidoanti horario
 Los vérticestienenque serintervisibles,esdecir,desde el vértice “A”debe serposible
visualizarel vértice posterioryanterior,“B”y “D” respectivamente.
 Para marcar lospuntosse puede utilizartizaoclavos
Gráfico 11: Ejemplo de la poligonal
Referenciación de vértices
 Para llevara cabo el referenciaciónde vérticesesnecesariolocalizardoselementos
fijos,de modoque seafácil guiarse apartir de ellos.
 Una vez ubicadoel primerelementode referencia,procederemosconlawinchaa
medirladistanciade ese punto“M” hasta el vértice que estemostrabajando,eneste
caso vértice “A”
 De lamismamaneraubicaremosotroelementode referencia,mediremosdesdeese
punto“N” hasta el mismovértice que estamostrabajando
 Anotamoslasdistancias obtenidasde lamedición
 Dicho procedimiento lo repetiremos en cada vértice que establecimos
 Si en la siguiente ocasión cuando se vaya a trabajar no se encuentra un vértice en
particular, para ubicarlo tendremos que usar los puntos de referencia, con la medida
obtenida en cada uno haremos círculos respectivos, su intersección será el vértice en
cuestión.
Obtención del norte magnético
 Para realizar este proceso primero colocaremos la brújula en el vértice “A”
 Se nivelará la brújula (nivel esférico)
 Se ira girando gradualmente la brújula hasta que la aguja marque el “0” o el norte
 Una vezculminadodichoprocedimiento,haremosque el brazode labrújulacoincidaen
la línea en el medio del espejo de la misma
 Luego pediremos la ayuda de una segunda persona, esta se distanciará de donde
estemos unos 3 metros como mínimo y colocará un jalón, bastón topográfico o un
elementomuydelgado.Este al igual que el brazodeberácoincidirconlalíneaenmedio
del espejo de la brújula, para esto necesitará de nuestra ayuda. Así es como
obtendremos el norte magnético.
Figura: Estableciendo el norte magnético
Levantamientode lapoligonal cerrada
Instalaciónynivelaciónde laestacióntotal
 Primerodesplegaremoslaspatasdel trípode ylo colocaremosala alturade nuestro
mentón.
 Después abriremoslaspatasylo colocaremosarribadel vértice “A”.Podemosvera
travésdel pequeñohoyodel trípode el clavoparaobtenermayorprecisión.
 Una vez colocado correctamente sobre el vértice a trabajar, aseguraremos una de las
tres patas del trípode. Trataremos que la base del trípode este horizontal.
 Precederemosaabrirel estuche de la estacióntotal para podersacarlo.Lo colocamos
en la base del trípode y lo aseguramos.
 Ahora haremos que la estación total, este exactamente sobre el vértice que estamos
trabajando. Para ello usaremos la plomada laser del equipo que estamos usando, en
este caso laestaciónGTS 240. Para ellose prende laestaciónconel botónverde,luego
se presiona el botón de la estrella. Finalmente, con uno de los botones “F”
seleccionamos la opción del láser.
 Si el láserno cae exactamente sobre el punto,podremosacomodarlomoviendola
estaciónpormediode lasdos patasque dejamossinajustar.Luegoaseguramoslas
mismas.
 Procedemosallevaracabolanivelaciónesférica.Paraellovisualizaremosenel costado
de la estación el nivel circular en el cual hay una burbuja. Alargando o acortando las
patas de la estación debemos hacer que dicha burbuja se encuentre
adentro del círculo.
 Ahoranivelaremosel nivel tubular.Paraesoubicaremoslaestaciónde maneraparalela
a dostornillosnivelantes,allígiraremoslostornillosendireccionesopuestashastaque
la burbuja del nivel tubular se encuentre en medio
 Luegose gira la estacióntotal 90° y se nivelanuevamenteel nivel tubularperoestavez
con el tornilloque noutilizamosanteriormente
 Volvemosagirarla estación90°, utilizamosestavezlostornillosusadosenel principio
 Giramosuna últimavez90° laestación,utilizamosel tornillosobrante nuevamente
para nivelar
 Volvemos a revisar con la plomada laser si continúa coincidiendo la estación con el
vértice que estamos trabajando, de no ser así, volveremosa hacer que coincidan. Si
luegode hacervolvercoincidirel láserconel vértice,el nivel tubularse hadesnivelado,
tendremosque repetirde nuevolosprocesosdescritos,hastaque el lásercoincidayel
nivel tubular este nivelado en todas las posiciones del equipo.
Configuracióndel EDM
 Una vez instaladoyniveladoel equipo(GTS240), configuraremosel EDM,para ello
primeroapretamosel botónestrelladosveces,yluegopulsaremosF4para escogerla
ppm.
 Apretaremos F1 para seleccionar la opción prisma, allí ingresaremos la constante de
prisma que utilizaremos, puede ser 0 mm o -30 mm si es que son prismas Topcon. Y
seleccionamos F4 para guardar la configuración.
 Ahoraseleccionaremoslaopción“T-P”,paramodificarlatemperaturayla presiónde
donde estemostrabajando.Pondremoslosvaloresque obtengamos.
 Una vez configuradoestostresparámetros,obtendremosnuestrappm.Despuésde
ello,presionamosel botónESC.
1.4.2. ObtencióncoordenadapuntoA yazimutA-B
 Para obtenerlacoordenadadel puntoA utilizaremosunGPSnavegador,yanotaremos
la coordenada.
 Para la obtencióndel azimututilizaremoslaestacióntotal.Uncompañeropondráun
bastóntopográficoenel puntoque marcamoscomo norte magnético.Observaremos
por la miray truncaremosel horizontal yvertical conlos frenosde lostornillosdel
mismonombre.
 Con lostornilloshorizontal yvertical haremoscoincidirlamiraexactamente conel
bastón,allíapretaremosel botónde medirángulos,configuramosel ángulohorizontal
a la derechaenel valorde cero(HA-D).Seguidomovemoslaestacióntotal porla
derechay enfocamosexactamente el vértice B,donde deberáhaberotrobastón.
 Anotamosel valorque nosaparece enla estaciónennuestralibreta,ese seráel valor
del azimutde A-B.
Mediciónde distanciasyángulos
 Ponemosunbastón enel punto“D”, miramosdesde lamira de la estaciónenel punto
“A”, lo hacemos coincidir como se explicó anteriormente.
 Ahoracambiamosel bastónporunprisma,subimoslamirade laestaciónhastaenfocar
el prisma
 Oprimimosel botónde mediciónde distanciasde la estación,lamediciónde
obtendremosseráladistanciadel puntoA al puntoD
 Estandoen lamismaposición,ahoraapretamosel botónde mediciónde ángulosde la
estación,calibramosencerode lamismamaneraque enel azimut,unavezque está
encero, movemoslaestaciónhastaenfocarel bastónque estáenvértice B,el ángulo
que apareceráen lapantallaesel ángulointernodel vértice A.
 Ahora pondremos un prisma en el punto B, truncaremos la horizontal y vertical,
hacemoscoincidirexactamente el prismala mira, y procederemosamedirla distancia
comose haexplicadoanteriormente.Todoslosdatosobtenidosdebenserapuntadosen
la libreta.
 Ya que se realizotodoscalculosnecesariosenel vertice A,se procede a reazlizartodos
los mismos procesos en los siguientes vertices (instalación, nivelación, etc)
Referenciación del equipo
 Apretamosel botón“Menúy luegoapretamosF2para entrara la colectorade datos.
 Si no se encuentraenlistael archivoanteriormente creado,damosa ingresarconF1 y
con lasteclasde númerosingresamosel nombreque pusimosalalistacreada. Damos
entercon F4
 ApretaremosF1para ingresarlosdatosdel puntoen el que laestaciónestáinstalada
 Damos al botónF4 enla opciónNEZPE
 Apretaremos F2para elegirunpuntolistadoanteriormente
 Elegimosel puntoenel que se encuentralaestacióndel archivoque creamos
 Verificamosque lascoordenadasesténcorrectasydamosSI
 Ingresamoslaidentificacióndel punto,podemosponerestación,y tambiéncolocamos
la alturainstrumental,esdecir,laalturade laestación,porlocual deberemosmedirla.
 AhoraapretamosF2 para empezaracolocar nuestropuntode referencia
 Realizamoslosmismospasosde elegirel puntoque nosqueramosreferenciarde la
lista,aceptamos,ycolocamossuidentificaciónyestavezpondremoslaalturadel
prismaque estamostrabajando.Damosenter
 Colimamos,esdecir,ubicamosel puntoconlamirade la estacióntotal,unavez
alineadoapretamosF2encero.
 AhoraapretamosF3 enla opciónmedir,luegoapretamosel botónNEZ(F3),la
estaciónempezaraamedir
 Damos a la opciónde no sobrescribirlosdatos,puestoque esoconllevaaerrores.Esto
con la teclaF4. Así el equipoyaestaráreferenciado.
Levantamiento topográfico
Levantamientotopográfico:
 Despuésde realizarel últimopasodel referenciacióndel equipo,nosapareceré de
nuevalaprimeraventana,daremosF3 para empezarel levantamiento
 Ingresamosenlaprimeraopción(PTN) el número 1, en lasegunda(DESCR) la
descripcióndel punto,podemosponerloque deseemos.Enlatercerapondremosla
alturade prismaque estamosutilizando
 Pedimosaalguienque lleve el prismaal puntoque queremoslevantar,yapuntamos
bienconla mira de la estación
 Damos con F3 la opciónmedir,porserel primerpunto.Damosensobrescribirenesta
oportunidad
 Despuésde ellose proseguiráamedirel siguientepunto,automáticamente laestación
pondráel siguiente númerode punto,apuntamosconlamira de nuevo,estavez
damosen F4 (TODO),laestaciónhará lasmedicionesyguardarálosdatos
automáticamente,yde nuevoporsi solaproseguiráconel siguientepunto.
 Repetimosel procesohastalevantartodoslospuntosrequeridos
De gabinete:
Procesos del civil 3D
1) Guardamos elExcel comoTexto(delimitadoportabulaciones).
2) Abrimos el Civil 3D, buscamos laopción punto yle damos click derecho. En la
ventana que nos aparece ledamos clickacrear.
3) En labarra que nos aparece tenemos que seleccionar laopción importar
puntos.
4) Luego nos aparecerá un cuadrado yledaremos click alaopción añadir archivos,
buscamos nuestro archivo yledamos enabrir.
5) Después seleccionamos el formato PNEZD y le damos en aceptar. Luego,
escribimos ZEy presionamos enter.
6) Luegoapareceránlopuntos importados delapoligonal enlapantalla.
7) Presionamos click derecho en un punto yseleccionamos propiedades degrupo de
puntos.
8) Acontinuación, seleccionamos lapizarra azul conel lápizazul enestilopunto.
9) Yseleccionamos elestilode marcapunto, y le damosenaceptar.
10) Despuésseleccionamos laflechaabajo queestáen estilodeetiquetadepunto,
seleccionamosPuntoydescripción yle damosenaceptar.
11) Despuésnosaparecerán lospuntosreferenciadosy ordenados.
Creacion de grupos de puntos
1)Seleccionamoslaopciónde PointGroupsyde damosclickderechodonde
seguidamente seleccionamoslaopciónde Properties
2) Nosapareceráun cuadro donde debemosponerel nombre de losgrupos
específicos
3)Del mismomodoenla opciónincluide
4)El procedimientolorepetimosdependiendolosgruposde puntosque se obtiene yquedara
de la siguiente manera
Continuación procesos del civil
1) Luegopara unir los puntos conlíneas, primero usamosPL.
2) Despuésde unirlos,debemosseleccionartodoydebemosmarcarcopy
clip.
3) A continuación,se creancapasde cada grupode puntos.
4) Luego,cada línease cambiaa la capa correspondiente
5) Después,debemosrepetirel mismoprocedimientoconel segundo
entregable.
6) Cuandotengamosyatodo hecho,debemosseleccionartodoel trabajodel
segundoentregable yusarel comandocopy clip.
7) Para pegarloenel primerentregable,debemosseleccionarPaste toOriginal
coodinates.
8) Damos clickderechoenelnombre delarchivo y seleccionamoseditarconfiguración
dedibujo
9) UsamoselcódigodesistemasdecoordenadasUTM84-185
10) Después nosubicamos enLayout2, le damos click derechoyseleccionamosAdministrador
detareas.
11) Nosapareceráun cuadro donde seleccionamoslayaut2ymodificar
12) Procedemosacambiarla configuraciónde lamaneramás conveniente parael ploteo
13) Ahoraen layaut2agrandamosnuestrocuadro seleccionandounade lasesquinas
Creación de curvas de nivel
1) En prospectorseleccionarlaopciónSurface ydar clicderecho,seleccionarcreate
Surface
2) Ponerunnombre a la superficie ydarok
3) Ahoradamos clicenSurface , en el nombre de lasuperficie que creamos,luegoen
definition,clickderechoenpointsgroups,clickenadd
4) Seleccionamosel grupode puntosparaque las curvas se formen
5) Para agregar etiquetasalascurvas seleccionamosprimerolascurvasformadasy luego
la opciónmultipleslabels
Creacion de un perfil longitudinal
1) Abrirel archivo,crear un aliniamientocomose ve enlasiguiente imagen
2) Este aliniamiento puedeestartotal oparcialmente dentrode lasuperficie dondese
quiere obtenerlainformacióndel perfil. Se le convierteenalineamiento.
3) . Una vez creadoel AlineamientoiraProfile –Create Surface Profile.
4) .En el cuadro se precianlosdatosdel alineamiento.Se completaeste pulsandoel botón
Addy se añade losestilosque correspondan.
5) Se pulsa el botón Draw in profile view, se le asigna el estilo y se asegura no
tener etiquetas(Labels) igual que enel procesoanterior.
Procedimiento de secciones transversales
1. Primerose importan lospuntosque se levantaronconnivel de Ingeniero.El Formatode los
puntoses: PROGRESIVA,DISTANCIA ALEJE,COTA,DESCRIPCION
Points– PointsAlignments –Pointfromfile
2.Seleccionandoel ArchivoSeccionesTransversales.txtse tieneel siguiente resultado
3.Con esta información se crea una superficie, según los procedimientos vistos en la
Sesión.Luegode unarápidaediciónel resultadose debeverasí
4.Luegose generanlaslíneasde muestreo
5.Definimosel espaciamientoyel anchode las secciones,enel Toolbar
● En la plantase dibujara líneastransversalesal eje del alineamiento,de dimensiones
de 6m a cada ladoy espaciadascada5 m.
6.Siguiente pasoescrearlassecciones,paraellose siguen lospasosel Wizard.
7.Con estode crean lasseccionestransversales
● Para las secciones transversales, Teniendo la superficie MDT y el Alineamiento,
se procede amuestrearel terrenocreandopara ellolasSample Lines. (se picael
boron correspondiente enlacinta(Ribbon).
8.Se seleccionael alineamientoyluegose asignanlosestilos
9.Una vezhechoestoaparece el toolbarque permitirácrearlassimple lines,enel botón que
dice By range stationsse editael cuadro.
10.Se aceptay se creanlíneasperpendicularesal alineamiento.A lolargodel mismoenel
ancho y distanciasespecificadas
11. Conesta informaciónprocesadase creanlasSeccionestransversalesenformamúltiple. Se
lesasignalosestilosque correspondan.
12. Despuésde este procesose creanlasseccionestransversales
CONCLUSIONES
- El levantamientotopográficoesnecesarioparallevara cabo proyectospuestoque nos
proporcionainformaciónrelevantedel terrenocomorelieve,ubicaciónde elementosy
una representación gráfica precisa del espacio a trabajar.
- El levantamiento topográfico nos permite crear perfiles longitudinales y secciones
transversales posteriormente, los cuales son de gran importancia para futuros
proyectos de pistas, tuberías, entre otros.
- Los perfiles y secciones generados también nos permiten saber la cantidad de tierra a
rebanar o rellenar, información relevante para construcción de carreteras.
- El correctomanejode losequipos,conocimientosteóricosytécnicos sobretopografíay
el software Civil 3D son esenciales para el correcto levantamiento topográfico de
manera precisa y eficiente; así como también el correcto procesamiento de la
información obtenida para elaborar un buen plano.
- En este trabajo logramos realizar el levantamiento topográficodel Campus Villa, eso
gracias a losconocimientosadquiridosenlasclasessincrónicas.Tambiénrealizamosun
plano de curvas de nivel. Estos dos trabajos se pudieron lograr gracias al programa de
Google Earth, que nos permite exportarcoordenadasUTMde cualquierpuntoy de esa
formaexportarloaCivil 3D.De lamismaformapodemosfinalizardiciendoqueeste tipo
de trabajo es muy importante porque siempre lo efectuaremos en nuestra vida
profesional.
RECOMENDACIONES
- -Asegurarse minuciosamente losparámetrosde referenciaycorreccióningresadosa la
estación total, puesto que de otra manera se induce al error y poca precisión del
levantamiento.
-
- - Trabajar con cuidadoal momentode manipularlosequipos,puestoque estossonmuy
delicados y costosos.
-
- -Crear la poligonal topográfica estratégicamente, puesto que dichos vértices serán
nuestros puntos de control para realizar un correcto levantamiento.
-
- - Levantar los puntos topográficos de los múltiples elementos existentesen el terreno
así como también donde se evidencie cambios de relieve pronunciados.
-
- - Revisarmás de 2 veceslosprocesosque se realicenencampoya que un error puede
perjudicar la continuidad del trabajo.
- - Hacer de manera correcta y ordenadalaexportacióne importaciónde puntos,yaque
esel pasomás importante paralarealizacióndellevantamientotopográficoycurvasde
nivel.
-
BIBLIOGRAFÍA
 Chihuan, A., Córdova, E., Huapaya, H., Mendoza, J., Uribe, J., Muñoz, K., Manco, L.,
Purizaga, L., Torres, M., Silvera, M., Rios, N., Barreto, P., Jimeno , R., & Torres, V.
(2020) Manual de Topografía Pregrado Tradicional. Recuperado de
https://aulavirtual.upc.edu.pe/bbcswebdav/pid-29127047-dt-content-rid-
293263992_1/xid-293263992_1 [Consulta: 16 de septiembre del 2021]
 Chihuan, A., Córdova, E., Huapaya, H., Mendoza, J., Uribe, J., Muñoz, K., Manco, L.,
Purizaga, L., Torres, M., Silvera, M., Rios, N., Barreto, P., Jimeno , R., & Torres, V.
(2020) Manual de Topografía Pregrado Tradicional. Recuperado de
https://aulavirtual.upc.edu.pe/bbcswebdav/pid-29127047-dt-content-rid-
293263992_1/xid-293263992_1 [Consulta: 16 de septiembre del 2021]
 Cordova, L. (2015). Levantamiento topográfico por el método de la poligonal cerrada.
Recuperado de https://doku.pub/documents/informe-n-5-levantamiento-
porpoligonal-cerrada-30j799mgrg0w [Consulta: 28 de Abril].
 Echeveste, H. J. (2018). Manual de levantamiento geológico. Series: Libros de Cátedra.
 Purizaga, L. (2021) Topografía/recording_7. Recuperado de
https://us.bbcollab.com/collab/ui/session/playback [Consulta: 16 de septiembre del
2021]
 Purizaga, L. (2021) Topografía/recording_9. Recuperado de
https://us.bbcollab.com/collab/ui/session/playback [Consulta: 16 de septiembre del
2021]
 Ticeonlinechannel (2019) Instalación de equipo. Recuperado de
https://www.youtube.com/watch?v=mCSnfv9V2DY [Consulta: 15 de septiembre del
2021]
ANEXOS
|
TOPOGRAFÍA TRABAJO FINAL
TOPOGRAFÍA TRABAJO FINAL
TOPOGRAFÍA TRABAJO FINAL
TOPOGRAFÍA TRABAJO FINAL
TOPOGRAFÍA TRABAJO FINAL
TOPOGRAFÍA TRABAJO FINAL

TOPOGRAFÍA TRABAJO FINAL

  • 1.
    UNIVERSIDAD PRIVADA DECIENCIAS APLICADAS “Año del Bicentenario del Perú: 200 años de Independencia” TOPOGRAFÍA Sección: CV25 Profesor: Luis Purizaga LEVANTAMIENTO TOPOGRÁFICO INTEGRANTES Apellidos, Nombres y código Pantoja Barboza Yoshiro U202110575 Dorado Diaz Jhonatan André U202015262 Medina Zavaleta Harold U202116576 Flores Medina Tomas Alonso U20201F151 Celedonio Montalvo René Enrique U20211A812 2021
  • 2.
    ÍNDICE INTRODUCCIÓN...............................................................................................................................................................1 OBJETIVOS.......................................................................................................................................................................1 UBICACIÓN......................................................................................................................................................................2 MARCO TEÓRICO............................................................................................................................................................2 Planimetría.............................................................................................................................................................2 Altimetría...............................................................................................................................................................2 Taquimetría...........................................................................................................................................................3 Azimut, rumboy declinación...............................................................................................................................7 Punto de control....................................................................................................................................................8 Perfil longitudinal...............................................................................................................................................10 Curvas de nivel ...................................................................................................................................................10 LEVANTAMIENTO DE PERFILES LONGITUDINALES..........................................................................................10 LEVANTAMIENTO DE SECCIONES TRANSVERSALES........................................................................................11 Escala...................................................................................................................................................................12 Coordenadas Geográficas..................................................................................................................................14 Latitud y longitud...............................................................................................................................................14 Método de radiación.........................................................................................................................................15 Estación Total .....................................................................................................................................................15 Coordenadas UTM.............................................................................................................................................20 PROCEDIMIENTO.........................................................................................................................................................26 De campo:........................................................................................................................................................26 Creación del archivo de trabajo eingreso decoordenadas...........................................................................26 Instalación y nivelación del equipo..................................................................................................................29 Referenciación del equipo.................................................................................................................................38 Levantamiento topográfico...............................................................................................................................43 De gabinete:....................................................................................................................................................45 Procesos del civil 3D...........................................................................................................................................45 Creacion de grupos de puntos..........................................................................................................................48 Continuación procesos del civil ........................................................................................................................50 Creación decurvas denivel...............................................................................................................................54 Creacion de un perfil longitudinal ....................................................................................................................56 Procedimiento desecciones transversales......................................................................................................58 CONCLUSIONES............................................................................................................................................................65 RECOMENDACIONES...................................................................................................................................................65 BIBLIOGRAFÍA...............................................................................................................................................................66 ANEXOS.........................................................................................................................................................................67
  • 3.
    GRÁFICOS Gráfico 1: Ubicaciónde UPC Villa………………………………………………………………………………...2 Gráfico 2: Distancias en topografía…………………………………………………………………………………..….4 Gráfico 3: Representación del ángulo de deflexión………………………………………………………5 Gráfico 4: Ángulos Horizontales……………………………………………………………………………………6 Gráfico 5: Ángulos Verticales………………………………………………………………………………….……6 Gráfico 6: Representación del azimut…………………………………………………………………………..7 Gráfico 7: Representación del rumbo…………………………………………………………………………..7 Gráfico 8: Representación de la declinación magnética……………………………………………….7 Gráfico 9: Punto de Control………………………………………………………………………………………….8 Gráfico 10: Escala Gráfica…………………………………………………………………………………………..10 Gráfico 11: Ecuador Geográfico………………………………………………………………………………….10 Gráfico 12: Representación de la longitud y latitud……………………………………………………11 Gráfico 13: Estación Total…………………………………………………………………………………………..12 Gráfico 14: Ejemplo de poligonal cerrada…………………………………………………………………..13 Gráfico 15: Tipos de Poligonales…………………………………………………………………………………14 Gráfico 16: Representación de proyecciones en un plano………………………………………….15 Gráfico 17: Proyección cónica…………………………………………………………………………………….16 Gráfico 18: Proyección cilíndrica…………………………………………………………………………………16 Gráfico 19: Proyección planas…………………………………………………………………………………….17 Gráfico 20: Elipsoide Transformado en un cilindro……………………………………………………..18 Gráfico 21: Zonas UTM……………………………………………………………………………………………….18 Gráfico 22: Estación total……………………………………………………………………………………….....19 Gráfico 23: Partes de la estación total………………………………………………………………………..20 Gráfico 24: Brújula……………………………………………………………………………………………………..21 Gráfico 25: Tripie Topográfico……………………………………………………………………………………21 Gráfico 26: Prisma topográfico…………………………………………………………………………………..22
  • 4.
    INTRODUCCIÓN El levantamiento topográficoes un estudio técnico y descriptivo de un terreno, examinando la superficie terrestre en la cual se tienen en cuenta las características físicas, geográficas y geológicas del terreno, pero también sus variaciones y alteraciones. Cada obra de ingeniería comienza con las mediciones en donde se va a trabajar sobre el terreno; con este conocimiento como punto de partida se elabora el proyecto. En ese sentido, es importante conocer los procesos, herramientas, conceptos para un levantamiento topográfico. Asimismo, es necesario entender estos conceptos desde un punto de vista teórico y empírico, ya que este proceso es importante para la elaboración de grandes proyectos. Esta situación nos obliga a conocer a los distintos métodos y conceptos que requiere la topografía y ejercer técnicas para obtener resultados precisos para llevar a cabo el proyecto de manera correcta con principios de eficacia y eficiencia. En síntesis, el presente trabajo se expondrá conceptos teóricos y prácticos para un levantamiento topográfico en complemento con lo trabajado en un informe anterior, en este ocasión abarcaremos temas como perfiles longitudinales y curvas de nivel, las cuales tienen una relevancia en trabajos de ingeniería. OBJETIVOS Generales  Dar a conocer la importancia de un levantamiento topográfico.  Reconocer cada uno de los pasos para un levantamiento. Específicos  Dar a conocer las herramientas y conceptos necesarios para el levantamiento topográfico.  Enriquecer nuestros conocimientos de cómo aplicar el levantamiento topográfico en el proceso de formación para la ingeniería civil.  Por en práctica todos los conocimientos adquirido durante el curso, tanto teórico como practico.  Determinar las configuraciones y pasos para usar los equipos topográficos.  Plasmar en un software (CIVIL 3D) los datos obtenidos en el campo.
  • 5.
    UBICACIÓN Departamento: Lima Provincia: Lima Distrito:Chorrillos Gráfico 1: Ubicación de UPC Villa MARCO TEÓRICO Planimetría Se llamaplanimetríaal conjuntoal conjuntode los trabajosefectuadospara tomar en el campo los datosgeométricosnecesariosque permitanconstruirunafigurasemejantea la del terreno, proyectada sobre un plano horizontal (García, 2003). Altimetría Es unarama de latopografíaque estudiael conjuntode métodosyprocedimientospara determinaryrepresentarlaaltura de cada punto respectode un plano de referencia.Con la altimetría se consigue representar el relieve de un terreno (Rincón, 2011). Asimismo, tiene porobjetivorepresentarlaverdaderaformadelterreno,esdecirnosolosuextensión,
  • 6.
    límites y obrasque lo ocupan sino también la forma de su relieve,haciendo para ello las operaciones en el terreno y es un aspecto fundamental para la topografía. Taquimetría Taquimetríaes la rama de la topografía centrada en el levantamiento de planos a través del taquímetro(un dispositivo que permite la medición de ángulos y distancias). Se considera a la taquimetría como un métodopara realizarmediciones con rapidez aunque sindemasiadaprecisión.Porlogeneral se empleaenaquellassituacionesen lascuales,por sus características, resulta imposible emplear una cinta métrica. Medición de distancias La mediciónde distancias es la base de la Topografía. Aun cuando en un levantamiento losángulospuedanleerse conprecisiónconequipo muyrefinado,porlomenostiene que medirse la longitud de una línea para complementar la medición de ángulos en la localización de los puntos (Rivas, 2017). Existen diferentes métodos para medir distancias, los cuales son los siguientes:  Por pasos  Con odómetro  Con telémetros  Con cinta métrica  Taquimetría  Con instrumentos electrónicos  Sistema de Posicionamiento Global(GPS) De todos estos métodos los que se utilizan con más frecuencia son las mediciones con cinta, con instrumentos electrónicos los sistemas de satélite. En la actualidad se está incrementando el uso del Sistema de Posicionamiento Global(GPS)ya que presenta algunas ventajas frente a los otros métodos tales como precisión y eficiencia. Mediante otros métodosde control horizontal también se puededeterminar distancias tales como la triangulación, poligonación, radiación, etc., los cuales se verán en los siguientes capítulos. Distancias topográficas Los levantamientos topográficos se basan en la medición de distancias y ángulos. Las distancias pueden ser: horizontales, que son las medidas principales en planimetría; verticales, que se utilizan para establecer las diferencias de nivel; y las inclinadas, mediciones sobre la superficie terrestre. En topografía, cuando se hacen mediciones lineales, es importante tener claridad en los siguientes conceptos: • Distancia Natural: distancia entre dos puntos siguiendo el relieve del terreno.
  • 7.
    • Distancia Geométrica:En el caso de la distancia geométrica, esta se define como la distancia en línea recta que separa dos puntos. (En este caso no necesariamente sobre el terreno).Estadistanciaesrealmente complicadoque se use conaplicacióntopográfica,ya que no se aplica en el desde un punto del suelo hasta otro (Casanova, 2020). • Distancia Reducida: Esta distancia es la proyección de la distancia geométrica sobre un plano horizontal. Se puede obtener matemáticamente a partir de una de las otras dos distancias siempre y cuando nos aporten los suficientes datos (Casanova, 2020). Gráfico 2: Distancias en topografía Mediciones Angulares Los ángulos y los dispositivos de partes angulares se miden en unidades (grados, minutos y segundos).Por ejemplo un círculos contiene 360 grados, un grado (°) contiene 60 minutos y un minuto (‘) contiene 60 segundos (“). El círculo es la base de la medición angular. Todas las herramientas de medición angular tienen escalas circulares, como es el caso del transportador biselado para la escuadra de combinación. Estas mediciones angulares normalmente sehacen apartir de un plano horizontal o vertical. Al efectuar cualquier medición angular, se debe asegurar que el plano sea correcto (UNIDEG, 2012).En ese sentido, los ángulos que se miden en topografía se clasifican en horizontales o verticales, dependiendo del plano.
  • 8.
     Ángulos verticales:También llamados cenitales se usan en la nivelación trigonométrica, en estadía y para reducir distancias inclinadas con respecto a la horizontal.  Ángulos horizontales: son las medidas básicas que se necesitan para determinar los rumbos y acimut. Los ángulos horizontales que se miden de manera frecuente son:  Ángulos interiores: son los ángulos están dentro la un polígono cerrado. Normalmente, se mide el ángulo en cada vértice del polígono.  Ángulos a la derecha: son los ángulos medidos en el sentido horario o de las manecillas del reloj, los cuales se consideran signo positivo, ya que tienen el mismo sentido del azimut.  Ángulos de deflexión: Son los ángulos entre la prolongación del alineamiento anterior y el alineamiento siguiente, puede ser de sentido izquierdo (-) o derecho (+). Gráfico 3: Representación de los ángulos de deflexión Ángulos topográficos La Topografía tiene por objetomedirextensionesentierra,tomandolos datos necesarios para poderrepresentarsobre unplanoy a una escalaadecuada,formasy dimensionesdel terreno, midiendo distancias, ángulos, direcciones, coordenadas, elevaciones, áreas y volúmenes. La representación se hace utilizando el método de proyección acotada, que consiste enrepresentarlospuntoscaracterísticos del terrenopor mediode su proyección
  • 9.
    ortogonal sobre unplanohorizontal,yporunnúmeroocota que se escribe al ladode cada punto para indicar la distancia a que se encuentra del plano de proyección. Las medidas que se obtienen en Topografía son de dos tipos: Angulares: son los ángulos horizontales o acimutales y los ángulos verticales o cenitales. Los instrumentos apropiados para medirlos son el Teodolito y la Estación Total. Ángulos horizontales: se miden sobre el plano horizontal. Se necesita un norte de referencia; si es el norte geográfico (o verdadero) se miden acimutes, si es el norte magnético se miden rumbos y si es un norte arbitrario se miden orientaciones. También son horizontales los ángulos de deflexión. Gráfico 4: Ángulos Horizontales Ángulos verticales: Se miden sobre el plano vertical, el punto que se encuentra en la vertical sobre nosotrosesel Cenity el punto que se encuentraenla vertical bajonosotros es el Nadir(contrarioal Cenit).Losángulosverticalessonladistanciacenital (si el cerodel limbo se encuentra en el cenit) y ángulo de altura o vertical propiamente dicho (si el cero del limbo se encuentra en el horizonte). Gráfico 5: Ángulos Verticales
  • 10.
    Azimut, rumbo ydeclinación Azimut Es el ángulohorizontal calculadoensentidohorarioque se mide mayormente desde el Norte, varía de 0° a 360°. Se mide a partir de un meridiano base hasta la línea a medir (Doble Vía, 2007). Gráfico 6: Representación del azimut Rumbo Permiten definir la orientaciónde una línea respecto del norte o del sur, y su rango es de 0º a 90º. Si se usa el Norte Geográficose obtendráel Rumbo Verdadero,si se usael Norte Magnético se obtiene el Rumbo Magnético. Gráfico 7: Representación del rumbo
  • 11.
    Se define comoel ángulo que existe entre el norte magnético y el norte verdadero (geográfico). Se denota como D y se considera positivo cuando el ángulo medido está hacia el este del norte verdadero, y negativo caso contrario (MTC, 2021). Gráfico 8: Representación de la declinación magnética Punto de control El punto topográfico o punto de control es el punto a partir del cual se realizan las mediciones lineales y angulares. En ocasiones estospuntos se toman como referencia para definir la dirección de un alineamiento. Gráfico 9: Puntos de control  Punto de control vertical: Se realiza empleando BMs situados dentro o cerca del área en la cual se va a trabajar. Para ellose tiende unaredde control vertical mediantelíneasde nivelaciónque parten de BMs y cierran en BMs. Dependiendo de los requisitos de precisión, los levantamientos de control vertical pueden ser: de nivelación diferencial, trigonométricos,barométricosoconGPS. El métodomásprecisoyampliamente usado esla nivelacióndiferencialde precisión.TodaslasestacionesyBMsse ubicanen puntos favorables para su empleo futuro. Normalmente están marcados en discos de bronce de 9cm de diámetro, fijos en concreto o en roca firme.
  • 12.
     Puntos decontrol horizontal: Para efectuarel control horizontalesnecesarioubicarel teodolitooestacióntotal sobre un punto de coordenadas conocidas A(XA,YA) según el sistema de referencia utilizado. En base a este puntoylosazimutsmedidosse podránobtenerlascoordenadasde otros puntos. Las posiciones de los puntos de control horizontal se fijan con exactitud mediante distancias y direcciones, o mediante coordenadas. A(XA,YA) (Reyes, 2019). Fijación de puntos de control en el terreno:  Colocar el menor número posible de vértices  Ubicar los vértices de tal forma que desde cualquiera de ellos pueda verse la estación anterior y posterior.  Colocarlos fuera de la zona de trabajo.  Desde cualquiera de ellos debe observarse la mayor cantidad posible de detalles.  Obtención de los puntos de control Los puntos de control son necesarios para un levantamiento topográfico se pueden obtener de la siguiente manera. 1. Obtener del IGN (Instituto Geográfico Nacional) las coordenadas UTM (x,y) de dos puntos, y el BM(z) de alguno de ellos. El norte Geográfico quedaría definido calculando el azimut de la línea que uno los dos puntos. SeanA y B dos puntosde control,y  el azimutde la líneaAB. 𝛼 = arctan( ∆𝑥/∆𝑦) 2. Si no es posible encontrar los puntos o estos se encuentran lejos de la zona de trabajo, entonces es necesario fijar nuevos puntos de control,para ello existenlos siguientes métodos. a. Triangulación b. Trilateración c. Poligonales d. Métodos satelitales e. Combinaciónde ellos
  • 13.
    Perfil longitudinal Los perfileslongitudinales son la representación de las alturas del suelo a lo largo de la ruta propuesta.Se utilizanparalalocalización,diseñoyconstrucciónde proyectosalolargode rutas fijas, tales como carreteras, vías férreas, canales, alcantarillado, etc. Los perfiles permiten conocer,en el caso de carreteras, el movimiento de tierras que se debe realizar, conocer la posición de una quebrada, situación y profundidad de drenajes, tuberías, túneles, canales, etc. Curvas de nivel Son líneas que, en un mapa, unen los puntos de la misma altitud, por encima o debajo de una superficiede referencia,que generalmente coincideconlalíneadel niveldel mar,yque tieneel finde mostrarel relieve de unterreno.Lascurvasde nivel sonunode losvariadosmétodosque se utilizan para reflejar la forma tridimensional de la superficie terrestre en un mapa bidimensional. LEVANTAMIENTO DE PERFILES LONGITUDINALES El levantamiento de perfiles, llamándose topografía lineal, se realiza previamente a la construcción de una obra de tipo lineal. Se llama así a ciertas obras donde su ancho es muy pequeño comparado con la longitud de las mismas. (Ejemplo: canales, caminos, calles, etc.) Mediante el levantamientode perfiles, es posible conocer la forma y dimensiones del terreno enel que se requiererealizarlaobra,compararloconelproyectode ejecutaryasípodercalcular los volúmenes de suelo a mover, ítem desmonte o excavaciones e ítem terraplén o rellenos (Reyes,2020). La precisión con la cual se dibuja el perfil del terreno depende de la distancia entre los puntos de apoyo de la mira, que a su vez depende de la escala a la cual se va a dibujar el perfil.
  • 14.
    Usualmente se utilizaunaescalaverticalmucho mayor que la horizontal (porlo general 10:1 o 5:1) a fin de mostrar claramente las diferencias de altura. Pautaspara el trazode perfiles:Nivelarciertospuntosdentrodel itinerario,como: • Puntosdonde cambialapendiente. • Cotas másaltas y másbajas del perfil. • Puntosextremosde unescalón,taludomurovertical,indicandoque esceroladistancia horizontal entre ellos. • Ubicar lamira enlas orillasde losrasgosnaturales(zanjas,estanques,etc.). • En el cruce con caminos,veredas,arroyosycentrode lascarreteras. Gráfico 15: Ejemplo de perfil longitudinal LEVANTAMIENTO DE SECCIONES TRANSVERSALES Son perfiles cortos, perpendiculares al eje de un proyecto. Suministran información necesaria para estimarlosmovimientosde tierrasque debenrealizarseparalaconstruccióndel proyecto (carretera, canal, etc.). En levantamientosde carreteras,lasseccionestransversalesse tomanaintervalosregulares(15 o 30m) y en los quiebres del perfil correspondiente al eje de la vía. Las secciones transversales se extienden una distancia suficiente a cada lado del eje logrando así incluir el área a ser afectada por el proyecto.
  • 15.
    En anteproyectosde carreteraslasseccionesse extiendenunos100m a cada lado del eje y en la etapade proyectoa 20m. En proyectoscomodrenajesyductos,por su angosturasolamente se necesita un perfil longitudinal. Gráfico 16: Ejemplo de perfil longitudinal Escala La escalapuede serdefinidacomoel factordereducciónque nosdalarelaciónexistente entre la medida real en el terreno y la misma medida representada en el plano. La relación de semejanza entre la representación y la realidad está dada por: Las distanciasque se representanaescalaenel mapano son lasgeométricassinolas reducidas.
  • 16.
     Escala numérica:Se escribe comoel cocientede ladistanciaentredospuntosenel mapa, dividida por la distancia reducida entre los puntos correspondientes de la superficie terrestre. El número que expresa el cociente, suele tener como numeradorlaunidady el denominadorsermúltiplode 10, 100, 1000. Por ejemplo un mapa a escala 1/1000, quiere decir que 1 milímetro en el mapa equivale a 1 metro en el terreno.  Escala gráfica: En losmapasse suele incluirunaescalagráfica,enlacual sobre una recta se marcan longitudes, una distancia en el plano llevada sobre esa escala gráfica nos dará la distancia real. De aquí surgen las relaciones que nos permiten pasar, de una magnitud tomada en el terreno a su correspondiente en el plano y viceversa.Laventajaesque al hacer reduccionesoampliacioneslaescalatambién las sufre, de modo que la escala gráfica siempre representa la relación correcta entre el dibujo y el terreno (Zamarripa, 2010). Gráfico 7: Escala gráfica Ecuador Geográfico Es el conjuntode puntosubicadosenel Ecuadorde laTierrayque equidistande lospolos geográficos. Gráfico 10: Ecuador geográfico
  • 17.
    Coordenadas Geográficas Con losdos planos fundamentales, la posición de un punto P queda definida por la intersección de sus meridianos y paralelosen un sistema de referencia constituidopor el plano del Ecuador y por el meridiano de Greenwich, que determinan sus coordenadas geográficas o geodésicas: Latitud y Longitud (Zamarripa, 2010). Latitud y longitud Es la posición de un punto respecto al Ecuador Geográfico, pudiendo ser latitud norte o latitudsur. La longituddefine lalocalizaciónde unpunto al este u oeste de otra líneade referencia, el meridiano de Greenwich. A diferencia de las líneas de latitud, que se van acortando a medidaque se acercan a los polos,todaslaslíneasde longitudomeridianos midenigual de norte a sur y convergenenlospolos.Cualquierpuntodel globose puede describirentérminosde distanciaangulardesdelospuntosde referenciadelecuador(0º de latitud) y del meridiano de Greenwich (0º de longitud) (Zamarripa, 2010). Gráfico 11: Representación de la longitud y latitud
  • 18.
    Método de radiación Elmétodode radiacionesconsiste enlocalizarunpuntointeriorenel polígono,desde el cual sea posible medir todas las distancias a los vértices, estas distancias son las radiaciones y con ellas se divide en triángulos a la poligonal. Las longitudes de los lados del polígonoylasradiacionesse midende idayde regreso,anotándose losresultadosen el registro de campo (Zamarripa, 2010). Estación Total Una estación total es un instrumento electrónico / óptico que es usado en latopografía moderna y enla construcciónde edificiosque utilizateodolitoelectrónicode tránsitoen combinaciónconunmedidorelectrónicode distancia(EDM) yquetambiénestáintegrado con un microprocesador, un colector electrónico de datos y un sistema de almacenamiento. Gráfico 12: Estación Total 4.16 Poligonales topográficas La poligonaciónesunode losmétodosmás usados para el establecimientodel control topográfico; consiste en una serie de líneas o lados, cuyas longitudes y direcciones se miden, así van interconectándose puntos cuyas posiciones van a determinarse (Zamarripa,2010). En topografía debemos observar las poligonales como una sucesión de puntos (estaciones) que están ligadas entre sí por ángulos y distancias. Las poligonales son
  • 19.
    usadas para establecerpuntos de control y puntos de apoyo para el levantamiento de detalles,replanteode proyectos y para el control en la ejecución de obras (Quindio, 2021). Gráfico 13: Ejemplo de poligonal cerrada Según el Manual de Topografía es necesario seguir tener en cuenta los siguientes conceptos matemáticos para el correcto cierre de una poligonal. En forma general, las poligonales pueden ser clasificadas en:  Poligonales cerradas: en las cuales el punto de inicio es el mismo punto de cierre, proporcionando por lo tanto control del cierre angular y lineal.  Poligonal abierta,enlasque se conocenlas coordenadasde lospuntosinicial y final, y la orientación de las alineaciones inicial y final,siendo también posible efectuar controles errores angulares y lineales. Gráfico 14: Tipos de poligonales El usode poligonalesesunode losprocedimientostopográficosmáscomunes.Se usan generalmente para establecer puntos de control y puntos de apoyo para el levantamiento de detalles y elaboración de planos, asimismo para el replanteo de proyectos y para el control de ejecución de obra. Luego de establecer los vértices se procede a medir los ángulos internos y sus distancias.Debidoala imprecisiónde losinstrumentos,condicionesyoperacioneses necesario establecer conceptos de error angular y tolerancia angular.
  • 20.
    4.17 Proyecciones Topográficas Yasea que se trate a la tierracomo unaesferao comoun esferoide,se debe transformar su superficie tridimensional para crear un mapa plano. Esta transformación usualmente usandoecuacionesmatemáticas,es conocidacomúnmenteconel nombrede sistemasde proyección.Unaformamásfácil de entendercomolossistemasde proyecciónalteranlas propiedadesespaciales es hacer una visualización de la proyección de un haz de luz a través de una superficie esférica (proyección superficial), tal como se observa en la siguiente figura. La proyecciónde unmapainvolucrael usodecoordenadasquesondefinidasporfórmulas de proyección. Las fórmulas pueden transformar una cobertura de origen en una cobertura de salida que luce similar, pero esta dibujada sobre una proyección completamentediferente.El resultadomuestraque lasintersecciones,entre meridianos y paralelos, se mantienen pero los ángulos en los que estas intersecciones ocurren son diferentes. El siguiente diagrama muestra como las características tridimensionales son comprimidas para que calcen sobre la superficie plana. También puede ocurrir un estiramiento (Hernández, 2019). Gráfico 15: Representación de proyecciones en un plano Debido a que los mapas son planos, algunos de los sistemas de proyección más simples se hacen sobre formas geométricas que pueden aplanar, sin estirar, sus superficies. Ejemplos comunes de formas que usan este criterio son conos, cilindros, y planos. En realidad, los cilindros y planos son formas limitadas de un cono. Una expresión matemáticaque proyectasistemáticamente lasposicionesde lasuperficie de unaesfera para representarlas en un plano es llamada un sistema de proyección. El primer paso para proyectar de una superficie a otra es crear uno o más puntos de contacto. Cada uno de estos puntos se denomina puntode tangencia.Como se observa
  • 21.
    en la figura,una proyección planar tiene sólo un punto de tangencia. Por otra parte, un conoo un cilindrotienenlíneasDr.H.Jaime HernándezP.Sistemasde Proyección7de 11 tangencialessobreelglobo.Si elplanode proyeccióninterceptaal globoenvezde tocarlo tangencialmente, la proyección resultante involucra cálculos de secantes más que de tangentes.Yaseaque el contactoessecanteotangente,sulocalizaciónesde importancia debidoa que definenposicionesde distorsiónnula.Estaslíneassonde escalaverdadera y se les conoce como líneas estándar. En general, la distorsión aumenta en forma proporcional a la distancia a éstas líneas de contacto. La mayoría de los sistemas de proyecciónpueden ser clasificados de acuerdo al tipo de superficie de proyección a utilizar.  Proyecciones cónicas  Proyecciones cilíndricas  Proyecciones planas  ProyeccionesCónicas La proyeccióncónicamás simple esaquellaenque el planocónicoes tangente al globo a lo largode unalíneade latitud.Enunaproyeccióndadaestalíneaesllamadaparaleloestándar. Los meridianosse proyectanenlasuperficiey se unenenel ápice.Las líneasde paralelosse proyectan sobre la superficie cónica como anillos consecutivos. A continuación, se corta el planodel cono enun meridianoconocido,se abre,y se obtienenlaproyecciónfinal,lacual tiene meridianos rectos que convergen y arcos de círculos concéntricos como paralelos. El meridiano opuesto a meridiano de corte se conoce como meridiano central (Hernández, 2019). Gráfico 16: Proyección cónica En general,lasdistorsionesaumentanal norte yal sur del paralelode tangencia.Porello, truncandoel cono se obtienenproyeccionesmásprecisas.Ellopuedeserlogrado,al noincluir lasregionespolaresenlaproyección.  ProyeccionesCilíndricas Las proyecciones cilíndricas también pueden tener una línea de tangencia o dos líneas secantes alrededor del globo. La proyección de Mercator es una de las proyecciones cilíndricas más comunes, y el Ecuador es usualmente su línea de tangencia. Los meridianos son proyectados geométricamente en la superficie del cilindro, produciendo un ángulo de 90º en lasinterseccionesconlos paralelos.El cilindropuede ser“cortado” a loslargo de un meridiano,yabierto,para producirla proyeccióncilíndricafinal.Losmeridianosestánequi-
  • 22.
    distanciados,mientrasque el distanciamientoentrelosparalelosdisminuye hacialospolos. Esta proyecciónesde tipoconformalyrepresentadireccionesverdaderasalolargode líneas rectas (Hernández, 2019). Gráfico 17: Proyección cilíndrica En todas lasproyeccionescilíndricas,laslíneas de tangenciaode secante notienendistorsión y de esta formaconstituyenlíneasde equidistancias.Lasrestantespropiedadesgeográficas varían dependiendodeltipoespecíficode proyección.  ProyeccionesCilíndricas Las proyeccionesde este tipoproyectanlainformaciónsobre superficiesplanasque tocan tangencialmente el globo.Unaproyecciónplanaresdel mismotipoque lasproyecciones acimutalesolasproyeccionescenitales.Enestaclase de proyeccionesse usanplanosque son tangentesal globosólo enunpunto,perotambiénpodríanserde tiposecante.El puntode contacto puede serel PoloNorte,el PoloSur,unpuntosobre el Ecuador, o algún puntointermedio.Este puntodeterminael focode proyecciónque definiránlaorientación y lasfunciones autilizar.El focose identificaporunalongitudylatitudescentrales,ylas orientacionesposiblesson:polar,ecuatorial yoblicuo(Hernández,2019). Gráfico 18: Proyección cilíndrica  Otras Proyecciones Los sistemas de proyección presentados hasta ahora pueden, conceptualmente, ser creados proyectandounaforma geométrica(unaesfera) sobre otra(uncono,cilindro,oplano).Existen muchos otros sistemas que pueden ser relacionados de la forma anterior de forma fácil
  • 23.
    Las proyeccionesModificadassonversionesmodificadasde algúntipoconocido.Porejemplo: Space Oblique Mercatoresuna modificaciónde laProyecciónde Mercator. Las modificaciones son incluidasparadisminuirlasdistorsiones,ya menudoincluyenlíneasestándaradicionaleso patrones de distorsión diferentes(Hernández, 2019). Las Pseudo-Proyecciones tienen sólo algunas características de algún tipo de proyección conocido. Coordenadas UTM El sistema de coordenadas UTM (Universal Transverse Mercator) es un sistema de proyección cartográfico basado en cuadrículas con el cual se pueden referenciar puntos sobre la superficie terrestre. Se basa puesenunaproyecciónde dichoelipsoide,siendolaproyecciónUTMun sistema cilíndricoque estangente al elipsoide enunmeridianoorigen: lospuntosdel elipsoidese proyectan sobre un cilindro tangente a un meridiano establecido (que llamaremos meridiano central), de forma que al desarrollar el cilindro, el Ecuador se transforma en una recta que se toma como eje de las X, y el meridiano central se transforma en otra recta perpendicular a la anterior que será el eje de las Y (Ibáñez,2017). Para evitar que las deformaciones producidasen la proyección sean demasiado grandes se divide el elipsoide terrestre en 60 husos de 6º de amplitud, utilizando cada uno su meridiano central y el Ecuador como ejes de referencia. Gráfico 19: Elipsoide transformado en un cilindro.
  • 24.
    Zonas UTM Se dividela Tierra en 60 husos de 6º de longitud, la zona de proyección de la UTM se define entre losparalelos80º S y 84 º N.Cada Huso se numeracon unnúmeroentre el 1 y el 60, estandoel primerhusolimitadoentre laslongitudes180° y 174° W y centradoen el meridiano 177º W. Cada huso tiene asignado un meridiano central, que es donde se sitúa el origen de coordenadas, junto con el ecuador. Los husos se numeran en orden ascendente hacia el este. Por ejemplo, Mexico está situado en los Husos 16 al 11. En el sistema de coordenadas geográfico,las longitudes se representan tradicionalmente con valores que van desde los -180º hasta casi 180º (intervalo [-180º, 180)); el valor de longitud180ºno se corresponde conelhusoUTM60, sinoconel 1,porque enese sistema 180º equivale a -180º. Bandas UTM Se divide laTierraen20zonasde 8ºGradosde Latitud,que sedenominanconletrasdesde la C hasta la X excluyendolasletras"I" y "O", por su parecidocon los númerosuno (1) y cero (0), respectivamente. Puesto que es un sistema norteamericano (estadounidense), tampoco se utiliza la letra "Ñ". La zona C coincide con el intervalo de latitudes que va desde 80º S (o -80º latitud) hasta 72º S (o -72º latitud). Las zonas polares no están consideradas en este sistema de referencia. Para definir un punto en cualquiera de los polos, se usa el sistema de coordenadas UPS. Si una zona tiene una letra igual o mayor que la N, la zona está en el hemisferio norte, mientras que está en el sur si su letra es menor que la "N". Gráfico 20: Zonas UTM
  • 25.
    1. INSTRUMENTOS YCOMPONENTES  EstaciónTotal: Es un instrumentoque realizalasfuncionesdel teodolito electrónicoyundistanciometro,unmedidorde distanciaselectrónicoyun microprocesadorque realizaráloscálculosnecesariosparadeterminarlas coordenadasde lospuntosenun terreno.(TorresyVillate,2001). Gráfico 21: Estación total Características:  Con losIEMD (medidoresde distanciaselectrónicos) incorporadosse pueden medirlongitudesentre 1y 2 Km. con un soloprismaohasta 5 Km.con prismas triples.  La resoluciónangularvaríadesde 0.5” enlosinstrumentospara levantamientosde control hasta20” en los instrumentosparaestacadode construcciones.
  • 26.
    Gráfico 22: Partesprincipales de la estación total  Civil 3D metric: AutoCAD Civil 3D es un software de diseño de ingeniería civil que admite BIM(Building Information Modeling) con funciones integradas para mejorar el dibujo, el diseño y la documentación de construcción. Este software te permite disfrutar de flujos de trabajo más eficientes para el modelado de superficies,el modeladode obralineal,el diseñode emplazamientos,elalcantarillado y saneamiento, y la producción y documentación de planos(Esarte Eseverri, 2020).  Libreta Este objetonossirvióparael apunte ycálculode lospuntos,proyeccionesycoordenadas de manera manual debido a la modalidad del trabajo.  Calculadora: Objeto importantesparacorroborarloscálculosque hicimosconlosdatosbrindadospor el docente para el respectivo levantamiento de la poligonal.  Brújula:
  • 27.
    La brújulaes uninstrumento de orientación que utiliza unaagujaimantadapara señalar el norte magnéticoterrestre.Sufuncionamientose basaenel magnetismoterrestre,por lo que señala el norte magnético que corresponde con el norte geográfico y es improductivo en las zonas polares norte y sur debido a la convergencia de las líneas de fuerza del campo magnético terrestre. Gráfico 23: Brújula topográfica  Tripíe: Sirve de soporte al instrumento se fabrican de aluminio o madera con herrajes metálicos, son de patas extensibles. Gráfico 24: Tripíe topográfico
  • 28.
     Prisma: Un prismatopográficoesunaparato, empleadoparamediciónen topografía,de forma circular que se encuentra constituido por un conjunto de cristales. Así, la función que cumple dichos cristales es la de proyectar la señal EMD que produce un teodolito electrónico o una estación total.De esta manera, la distancia se calcula con base en el tiempo que transcurre en ir y venir al emisor (Zamarripa, 2020). Gráfico 25: Prisma topográfico
  • 29.
    PROCEDIMIENTO De campo: Creación delarchivo de trabajo e ingreso de coordenadas  Primeroapretaremosel botónmenúdel panelde laestacióntotal TopconGTS 240, nos desplazamosalasegundapantallaconel botónF4, allípresionaremosel botónF1 para elegirlaopción“MANEJODE MEM”  LuegoseleccionaremosconF1 laopciónde empezar a crear el archivo  Posteriormente procederemosaingresarel nombre conlasteclasde números,para cambiarel uso de estasteclasentre númerosoletrasdeberemospulsarF1.Para aceptar damosenel botón F4.
  • 30.
     En lasiguiente ventanaescogeremosel tipode coordenadanorte,este ycotacon la teclaF1  En la siguiente ventanaapretamosF1paraingresarel primerpunto,el cual nombraremoscomocorresponda(conlasteclasde númerosde la mismamanera dichaanteriormente),ydamosal botónF4 para confirmar.  En la siguiente ventanaingresamoslascoordenadasycotadel puntoque nombramos anteriormente.Damosenterconel botónF4.
  • 31.
     Podemosingresarel códigodelpuntoingresadoconlasteclasdichasanteriormente, damosF4 para aceptar.  En la pantallasiguiente que parece damosnuevamente enF1para ingresarahoraun segundopunto.  Repetimostodoslospasoshechosenel ingresode datosdel primerpunto  Una vez ingresadotodoslospuntospodemospulsarel botónlistaconlateclaF2 para poderversi estatodoingresadocorrectamente
  • 32.
    Instalación y nivelacióndel equipo Reconocimientodel terreno:  Se tiene que llevaracabo el reconocimientorespectodel áreadel terrenoatrabajar  Se ubicarán losvérticesde lapoligonal cerradaarealizar,el cual seráde apoyopara el futurolevantamientotopográfico.Además,esimportanteque ladescripciónde los mismosseaensentidoanti horario  Los vérticestienenque serintervisibles,esdecir,desde el vértice “A”debe serposible visualizarel vértice posterioryanterior,“B”y “D” respectivamente.  Para marcar lospuntosse puede utilizartizaoclavos Gráfico 11: Ejemplo de la poligonal Referenciación de vértices  Para llevara cabo el referenciaciónde vérticesesnecesariolocalizardoselementos fijos,de modoque seafácil guiarse apartir de ellos.
  • 33.
     Una vezubicadoel primerelementode referencia,procederemosconlawinchaa medirladistanciade ese punto“M” hasta el vértice que estemostrabajando,eneste caso vértice “A”  De lamismamaneraubicaremosotroelementode referencia,mediremosdesdeese punto“N” hasta el mismovértice que estamostrabajando  Anotamoslasdistancias obtenidasde lamedición  Dicho procedimiento lo repetiremos en cada vértice que establecimos  Si en la siguiente ocasión cuando se vaya a trabajar no se encuentra un vértice en particular, para ubicarlo tendremos que usar los puntos de referencia, con la medida obtenida en cada uno haremos círculos respectivos, su intersección será el vértice en cuestión. Obtención del norte magnético  Para realizar este proceso primero colocaremos la brújula en el vértice “A”  Se nivelará la brújula (nivel esférico)  Se ira girando gradualmente la brújula hasta que la aguja marque el “0” o el norte
  • 34.
     Una vezculminadodichoprocedimiento,haremosqueel brazode labrújulacoincidaen la línea en el medio del espejo de la misma  Luego pediremos la ayuda de una segunda persona, esta se distanciará de donde estemos unos 3 metros como mínimo y colocará un jalón, bastón topográfico o un elementomuydelgado.Este al igual que el brazodeberácoincidirconlalíneaenmedio del espejo de la brújula, para esto necesitará de nuestra ayuda. Así es como obtendremos el norte magnético. Figura: Estableciendo el norte magnético
  • 35.
    Levantamientode lapoligonal cerrada Instalaciónynivelacióndelaestacióntotal  Primerodesplegaremoslaspatasdel trípode ylo colocaremosala alturade nuestro mentón.  Después abriremoslaspatasylo colocaremosarribadel vértice “A”.Podemosvera travésdel pequeñohoyodel trípode el clavoparaobtenermayorprecisión.  Una vez colocado correctamente sobre el vértice a trabajar, aseguraremos una de las tres patas del trípode. Trataremos que la base del trípode este horizontal.  Precederemosaabrirel estuche de la estacióntotal para podersacarlo.Lo colocamos en la base del trípode y lo aseguramos.
  • 36.
     Ahora haremosque la estación total, este exactamente sobre el vértice que estamos trabajando. Para ello usaremos la plomada laser del equipo que estamos usando, en este caso laestaciónGTS 240. Para ellose prende laestaciónconel botónverde,luego se presiona el botón de la estrella. Finalmente, con uno de los botones “F” seleccionamos la opción del láser.  Si el láserno cae exactamente sobre el punto,podremosacomodarlomoviendola estaciónpormediode lasdos patasque dejamossinajustar.Luegoaseguramoslas mismas.  Procedemosallevaracabolanivelaciónesférica.Paraellovisualizaremosenel costado de la estación el nivel circular en el cual hay una burbuja. Alargando o acortando las patas de la estación debemos hacer que dicha burbuja se encuentre adentro del círculo.  Ahoranivelaremosel nivel tubular.Paraesoubicaremoslaestaciónde maneraparalela a dostornillosnivelantes,allígiraremoslostornillosendireccionesopuestashastaque la burbuja del nivel tubular se encuentre en medio  Luegose gira la estacióntotal 90° y se nivelanuevamenteel nivel tubularperoestavez con el tornilloque noutilizamosanteriormente
  • 37.
     Volvemosagirarla estación90°,utilizamosestavezlostornillosusadosenel principio  Giramosuna últimavez90° laestación,utilizamosel tornillosobrante nuevamente para nivelar  Volvemos a revisar con la plomada laser si continúa coincidiendo la estación con el vértice que estamos trabajando, de no ser así, volveremosa hacer que coincidan. Si luegode hacervolvercoincidirel láserconel vértice,el nivel tubularse hadesnivelado, tendremosque repetirde nuevolosprocesosdescritos,hastaque el lásercoincidayel nivel tubular este nivelado en todas las posiciones del equipo.
  • 38.
    Configuracióndel EDM  Unavez instaladoyniveladoel equipo(GTS240), configuraremosel EDM,para ello primeroapretamosel botónestrelladosveces,yluegopulsaremosF4para escogerla ppm.  Apretaremos F1 para seleccionar la opción prisma, allí ingresaremos la constante de prisma que utilizaremos, puede ser 0 mm o -30 mm si es que son prismas Topcon. Y seleccionamos F4 para guardar la configuración.  Ahoraseleccionaremoslaopción“T-P”,paramodificarlatemperaturayla presiónde donde estemostrabajando.Pondremoslosvaloresque obtengamos.
  • 39.
     Una vezconfiguradoestostresparámetros,obtendremosnuestrappm.Despuésde ello,presionamosel botónESC. 1.4.2. ObtencióncoordenadapuntoA yazimutA-B  Para obtenerlacoordenadadel puntoA utilizaremosunGPSnavegador,yanotaremos la coordenada.  Para la obtencióndel azimututilizaremoslaestacióntotal.Uncompañeropondráun bastóntopográficoenel puntoque marcamoscomo norte magnético.Observaremos por la miray truncaremosel horizontal yvertical conlos frenosde lostornillosdel mismonombre.  Con lostornilloshorizontal yvertical haremoscoincidirlamiraexactamente conel bastón,allíapretaremosel botónde medirángulos,configuramosel ángulohorizontal a la derechaenel valorde cero(HA-D).Seguidomovemoslaestacióntotal porla derechay enfocamosexactamente el vértice B,donde deberáhaberotrobastón.
  • 40.
     Anotamosel valorquenosaparece enla estaciónennuestralibreta,ese seráel valor del azimutde A-B. Mediciónde distanciasyángulos  Ponemosunbastón enel punto“D”, miramosdesde lamira de la estaciónenel punto “A”, lo hacemos coincidir como se explicó anteriormente.  Ahoracambiamosel bastónporunprisma,subimoslamirade laestaciónhastaenfocar el prisma  Oprimimosel botónde mediciónde distanciasde la estación,lamediciónde obtendremosseráladistanciadel puntoA al puntoD
  • 41.
     Estandoen lamismaposición,ahoraapretamoselbotónde mediciónde ángulosde la estación,calibramosencerode lamismamaneraque enel azimut,unavezque está encero, movemoslaestaciónhastaenfocarel bastónque estáenvértice B,el ángulo que apareceráen lapantallaesel ángulointernodel vértice A.  Ahora pondremos un prisma en el punto B, truncaremos la horizontal y vertical, hacemoscoincidirexactamente el prismala mira, y procederemosamedirla distancia comose haexplicadoanteriormente.Todoslosdatosobtenidosdebenserapuntadosen la libreta.  Ya que se realizotodoscalculosnecesariosenel vertice A,se procede a reazlizartodos los mismos procesos en los siguientes vertices (instalación, nivelación, etc) Referenciación del equipo
  • 42.
     Apretamosel botón“MenúyluegoapretamosF2para entrara la colectorade datos.  Si no se encuentraenlistael archivoanteriormente creado,damosa ingresarconF1 y con lasteclasde númerosingresamosel nombreque pusimosalalistacreada. Damos entercon F4  ApretaremosF1para ingresarlosdatosdel puntoen el que laestaciónestáinstalada  Damos al botónF4 enla opciónNEZPE
  • 43.
     Apretaremos F2paraelegirunpuntolistadoanteriormente  Elegimosel puntoenel que se encuentralaestacióndel archivoque creamos  Verificamosque lascoordenadasesténcorrectasydamosSI
  • 44.
     Ingresamoslaidentificacióndel punto,podemosponerestación,ytambiéncolocamos la alturainstrumental,esdecir,laalturade laestación,porlocual deberemosmedirla.  AhoraapretamosF2 para empezaracolocar nuestropuntode referencia  Realizamoslosmismospasosde elegirel puntoque nosqueramosreferenciarde la lista,aceptamos,ycolocamossuidentificaciónyestavezpondremoslaalturadel prismaque estamostrabajando.Damosenter
  • 45.
     Colimamos,esdecir,ubicamosel puntoconlamiradela estacióntotal,unavez alineadoapretamosF2encero.  AhoraapretamosF3 enla opciónmedir,luegoapretamosel botónNEZ(F3),la estaciónempezaraamedir  Damos a la opciónde no sobrescribirlosdatos,puestoque esoconllevaaerrores.Esto con la teclaF4. Así el equipoyaestaráreferenciado.
  • 46.
    Levantamiento topográfico Levantamientotopográfico:  Despuésderealizarel últimopasodel referenciacióndel equipo,nosapareceré de nuevalaprimeraventana,daremosF3 para empezarel levantamiento  Ingresamosenlaprimeraopción(PTN) el número 1, en lasegunda(DESCR) la descripcióndel punto,podemosponerloque deseemos.Enlatercerapondremosla alturade prismaque estamosutilizando
  • 47.
     Pedimosaalguienque lleveel prismaal puntoque queremoslevantar,yapuntamos bienconla mira de la estación  Damos con F3 la opciónmedir,porserel primerpunto.Damosensobrescribirenesta oportunidad  Despuésde ellose proseguiráamedirel siguientepunto,automáticamente laestación pondráel siguiente númerode punto,apuntamosconlamira de nuevo,estavez damosen F4 (TODO),laestaciónhará lasmedicionesyguardarálosdatos automáticamente,yde nuevoporsi solaproseguiráconel siguientepunto.
  • 48.
     Repetimosel procesohastalevantartodoslospuntosrequeridos Degabinete: Procesos del civil 3D 1) Guardamos elExcel comoTexto(delimitadoportabulaciones).
  • 49.
    2) Abrimos elCivil 3D, buscamos laopción punto yle damos click derecho. En la ventana que nos aparece ledamos clickacrear. 3) En labarra que nos aparece tenemos que seleccionar laopción importar puntos. 4) Luego nos aparecerá un cuadrado yledaremos click alaopción añadir archivos, buscamos nuestro archivo yledamos enabrir. 5) Después seleccionamos el formato PNEZD y le damos en aceptar. Luego, escribimos ZEy presionamos enter.
  • 50.
    6) Luegoapareceránlopuntos importadosdelapoligonal enlapantalla. 7) Presionamos click derecho en un punto yseleccionamos propiedades degrupo de puntos. 8) Acontinuación, seleccionamos lapizarra azul conel lápizazul enestilopunto. 9) Yseleccionamos elestilode marcapunto, y le damosenaceptar.
  • 51.
    10) Despuésseleccionamos laflechaabajoqueestáen estilodeetiquetadepunto, seleccionamosPuntoydescripción yle damosenaceptar. 11) Despuésnosaparecerán lospuntosreferenciadosy ordenados. Creacion de grupos de puntos 1)Seleccionamoslaopciónde PointGroupsyde damosclickderechodonde seguidamente seleccionamoslaopciónde Properties
  • 52.
    2) Nosapareceráun cuadrodonde debemosponerel nombre de losgrupos específicos 3)Del mismomodoenla opciónincluide
  • 53.
    4)El procedimientolorepetimosdependiendolosgruposde puntosquese obtiene yquedara de la siguiente manera Continuación procesos del civil 1) Luegopara unir los puntos conlíneas, primero usamosPL.
  • 54.
    2) Despuésde unirlos,debemosseleccionartodoydebemosmarcarcopy clip. 3)A continuación,se creancapasde cada grupode puntos. 4) Luego,cada línease cambiaa la capa correspondiente 5) Después,debemosrepetirel mismoprocedimientoconel segundo entregable.
  • 55.
    6) Cuandotengamosyatodo hecho,debemosseleccionartodoeltrabajodel segundoentregable yusarel comandocopy clip. 7) Para pegarloenel primerentregable,debemosseleccionarPaste toOriginal coodinates. 8) Damos clickderechoenelnombre delarchivo y seleccionamoseditarconfiguración dedibujo
  • 56.
    9) UsamoselcódigodesistemasdecoordenadasUTM84-185 10) Despuésnosubicamos enLayout2, le damos click derechoyseleccionamosAdministrador detareas. 11) Nosapareceráun cuadro donde seleccionamoslayaut2ymodificar
  • 57.
    12) Procedemosacambiarla configuracióndelamaneramás conveniente parael ploteo 13) Ahoraen layaut2agrandamosnuestrocuadro seleccionandounade lasesquinas Creación de curvas de nivel 1) En prospectorseleccionarlaopciónSurface ydar clicderecho,seleccionarcreate Surface
  • 58.
    2) Ponerunnombre ala superficie ydarok 3) Ahoradamos clicenSurface , en el nombre de lasuperficie que creamos,luegoen definition,clickderechoenpointsgroups,clickenadd 4) Seleccionamosel grupode puntosparaque las curvas se formen
  • 59.
    5) Para agregaretiquetasalascurvas seleccionamosprimerolascurvasformadasy luego la opciónmultipleslabels Creacion de un perfil longitudinal 1) Abrirel archivo,crear un aliniamientocomose ve enlasiguiente imagen 2) Este aliniamiento puedeestartotal oparcialmente dentrode lasuperficie dondese quiere obtenerlainformacióndel perfil. Se le convierteenalineamiento.
  • 60.
    3) . Unavez creadoel AlineamientoiraProfile –Create Surface Profile. 4) .En el cuadro se precianlosdatosdel alineamiento.Se completaeste pulsandoel botón Addy se añade losestilosque correspondan.
  • 61.
    5) Se pulsael botón Draw in profile view, se le asigna el estilo y se asegura no tener etiquetas(Labels) igual que enel procesoanterior. Procedimiento de secciones transversales 1. Primerose importan lospuntosque se levantaronconnivel de Ingeniero.El Formatode los puntoses: PROGRESIVA,DISTANCIA ALEJE,COTA,DESCRIPCION Points– PointsAlignments –Pointfromfile
  • 62.
    2.Seleccionandoel ArchivoSeccionesTransversales.txtse tieneelsiguiente resultado 3.Con esta información se crea una superficie, según los procedimientos vistos en la Sesión.Luegode unarápidaediciónel resultadose debeverasí
  • 63.
    4.Luegose generanlaslíneasde muestreo 5.Definimoselespaciamientoyel anchode las secciones,enel Toolbar
  • 64.
    ● En laplantase dibujara líneastransversalesal eje del alineamiento,de dimensiones de 6m a cada ladoy espaciadascada5 m. 6.Siguiente pasoescrearlassecciones,paraellose siguen lospasosel Wizard.
  • 65.
    7.Con estode creanlasseccionestransversales ● Para las secciones transversales, Teniendo la superficie MDT y el Alineamiento, se procede amuestrearel terrenocreandopara ellolasSample Lines. (se picael boron correspondiente enlacinta(Ribbon). 8.Se seleccionael alineamientoyluegose asignanlosestilos 9.Una vezhechoestoaparece el toolbarque permitirácrearlassimple lines,enel botón que dice By range stationsse editael cuadro.
  • 66.
    10.Se aceptay secreanlíneasperpendicularesal alineamiento.A lolargodel mismoenel ancho y distanciasespecificadas
  • 67.
    11. Conesta informaciónprocesadasecreanlasSeccionestransversalesenformamúltiple. Se lesasignalosestilosque correspondan. 12. Despuésde este procesose creanlasseccionestransversales
  • 68.
    CONCLUSIONES - El levantamientotopográficoesnecesarioparallevaracabo proyectospuestoque nos proporcionainformaciónrelevantedel terrenocomorelieve,ubicaciónde elementosy una representación gráfica precisa del espacio a trabajar. - El levantamiento topográfico nos permite crear perfiles longitudinales y secciones transversales posteriormente, los cuales son de gran importancia para futuros proyectos de pistas, tuberías, entre otros. - Los perfiles y secciones generados también nos permiten saber la cantidad de tierra a rebanar o rellenar, información relevante para construcción de carreteras. - El correctomanejode losequipos,conocimientosteóricosytécnicos sobretopografíay el software Civil 3D son esenciales para el correcto levantamiento topográfico de manera precisa y eficiente; así como también el correcto procesamiento de la información obtenida para elaborar un buen plano. - En este trabajo logramos realizar el levantamiento topográficodel Campus Villa, eso gracias a losconocimientosadquiridosenlasclasessincrónicas.Tambiénrealizamosun plano de curvas de nivel. Estos dos trabajos se pudieron lograr gracias al programa de Google Earth, que nos permite exportarcoordenadasUTMde cualquierpuntoy de esa formaexportarloaCivil 3D.De lamismaformapodemosfinalizardiciendoqueeste tipo de trabajo es muy importante porque siempre lo efectuaremos en nuestra vida profesional. RECOMENDACIONES - -Asegurarse minuciosamente losparámetrosde referenciaycorreccióningresadosa la estación total, puesto que de otra manera se induce al error y poca precisión del levantamiento. - - - Trabajar con cuidadoal momentode manipularlosequipos,puestoque estossonmuy delicados y costosos. - - -Crear la poligonal topográfica estratégicamente, puesto que dichos vértices serán nuestros puntos de control para realizar un correcto levantamiento. - - - Levantar los puntos topográficos de los múltiples elementos existentesen el terreno así como también donde se evidencie cambios de relieve pronunciados. - - - Revisarmás de 2 veceslosprocesosque se realicenencampoya que un error puede perjudicar la continuidad del trabajo. - - Hacer de manera correcta y ordenadalaexportacióne importaciónde puntos,yaque esel pasomás importante paralarealizacióndellevantamientotopográficoycurvasde nivel. -
  • 69.
    BIBLIOGRAFÍA  Chihuan, A.,Córdova, E., Huapaya, H., Mendoza, J., Uribe, J., Muñoz, K., Manco, L., Purizaga, L., Torres, M., Silvera, M., Rios, N., Barreto, P., Jimeno , R., & Torres, V. (2020) Manual de Topografía Pregrado Tradicional. Recuperado de https://aulavirtual.upc.edu.pe/bbcswebdav/pid-29127047-dt-content-rid- 293263992_1/xid-293263992_1 [Consulta: 16 de septiembre del 2021]  Chihuan, A., Córdova, E., Huapaya, H., Mendoza, J., Uribe, J., Muñoz, K., Manco, L., Purizaga, L., Torres, M., Silvera, M., Rios, N., Barreto, P., Jimeno , R., & Torres, V. (2020) Manual de Topografía Pregrado Tradicional. Recuperado de https://aulavirtual.upc.edu.pe/bbcswebdav/pid-29127047-dt-content-rid- 293263992_1/xid-293263992_1 [Consulta: 16 de septiembre del 2021]  Cordova, L. (2015). Levantamiento topográfico por el método de la poligonal cerrada. Recuperado de https://doku.pub/documents/informe-n-5-levantamiento- porpoligonal-cerrada-30j799mgrg0w [Consulta: 28 de Abril].  Echeveste, H. J. (2018). Manual de levantamiento geológico. Series: Libros de Cátedra.  Purizaga, L. (2021) Topografía/recording_7. Recuperado de https://us.bbcollab.com/collab/ui/session/playback [Consulta: 16 de septiembre del 2021]  Purizaga, L. (2021) Topografía/recording_9. Recuperado de https://us.bbcollab.com/collab/ui/session/playback [Consulta: 16 de septiembre del 2021]  Ticeonlinechannel (2019) Instalación de equipo. Recuperado de https://www.youtube.com/watch?v=mCSnfv9V2DY [Consulta: 15 de septiembre del 2021]
  • 70.