1/264
2/264
INDICE
INTRODUCCIÓN:...................................................................................................... 4
Sistema de encendido
Clasificación de sistemas de encendido.
ENCENDIDO CONVENCIONAL:............................................................................. 6
Principio de funcionamiento.
Funcionamiento del encendido.
Oscilograma primario.
Oscilograma secundario.
Bobina de encendido.
Distribuidor de encendido.
Bujías de encendido.
Punto de encendido.
Cables de alta tensión.
ENCENDIDO ELECTRÓNICO TRANSISTORIZADO:......................................... 41
Planteamiento.
Generador de impulsos.
Módulo electrónico de mando.
Verificación y localización de averías.
3/264
ENCENDIDO ELECTRÓNICO INTEGRAL:.......................................................... 84
Principio de funcionamiento.
Sinopsis de funcionamiento.
Captador de régimen y posición.
Captador de presión en la admisión.
Sensor temperatura motor.
Sensor temperatura de aire.
Sensor de detonación.
Selector de octanaje.
Unidad de mando.
Etapa de potencia.
Distribuidor de encendido.
Verificación y localización de averías.
ENCENDIDO ELECTRÓNICO ESTÁTICO:........................................................ 139
Bobina De encendido.
Principio de funcionamiento.
Tipos de bobinas.
Unidad de mando (sensor de fase)
Verificación y localización de averías.
4/264
Sistema de Encendido
Los motores de combustión interna, necesitan para su funcionamiento, un
sistema capaz de encender la mezcla de aire y gasolina que se introduce y
comprime en el interior de sus cilindros. Esto se logra por mediación de una
chispa eléctrica que se hace saltar en la bujía de encendido, que inflama la
mezcla, iniciándose así la combustión. El conjunto de elementos que participan
en la obtención de dicha chispa se denomina CIRCUITO DE ENCENDIDO:
1. Batería.
2. Llave de contacto.
3. Bobina.
4. Distribuidor.
5. Bujías.
— Circuito de baja.
Circuito de alta.
5/264
Clasificación de Encendidos
Interrupción
Corriente primario
Mecanismos
de avance
Distribución
Corriente alta
Contacto
móvil
Convencional Platinos Mecánicos
Componente
Electrónico
(Módulo)
Electrónico
Transistorizado
(EET)
Contacto
móvil
Mecánicos
Electrónico
Integral
(EEI)
Componente
Electrónico
(ECU)
Sensores
Electrónicos
Contacto
móvil
Individualmente
(Bobinas DIS o
Monobobinas)
Componente
Electrónico
(ECU)
Electrónico
Estático
(EEE)
Sensores
Electrónicos
6/264
7/264
Encendido Convencional o Clásico
El encendido clásico destaca particularmente: un ruptor o platinos, de
accionamiento mecánico, que hace posible la transformación de tensión en la
bobina de encendido, un condensador que protege a los contactos del ruptor a
la vez que potencia la chispa y unos dispositivos de variación del avance, que
modifican el momento del salto de chispa en función de las condiciones de
funcionamiento de motor.
Llave de contacto Mecanismo de
avance por vacío
Bobina
Distribuidor
Condensador
Ruptor o platinos
Bujías
8/264
Principio de Funcionamiento I
Faraday demostró que, cuando un conductor corta a las líneas de fuerza
producidas por un campo magnético, se genera en él una fuerza electromotriz
inducida (f.e.m), que es directamente proporcional al flujo cortado, e
inversamente proporcional al tiempo empleado en hacerlo.
Es decir:
(Diferencia de flujo)
(Diferencia de tiempo)
Los mismos efectos se observan si en lugar de aproximar o alejar el imán a la
bobina, es esta la que se mueve acercándose o alejándose del imán. Cambiando
la polaridad del imán, el sentido de la corriente en la bobina es contrario al
obtenido anteriormente.
9/264
Principio de Funcionamiento II
Supongamos circuito formado por dos solenoides, el primero, al que
denominamos bobina primaria, alimentado por una batería y el segundo, al que
denominamos bobina secundaria y cuyo circuito está cerrado por un
amperímetro, tal como se indica en la figura.
Al cerrarse el interruptor, la corriente circula por la bobina primaria y el flujo
en expansión corta el devanado secundario e induce en él una f.e.m.
provocando una corriente eléctrica. Una vez que el flujo está completamente
expandido, es decir, en su valor máximo, no hay variación de flujo en el
secundario, por lo tanto la corriente inducida en este es cero.
10/264
Principio de Funcionamiento III
Al abrirse el interruptor el campo magnético desaparece, dando lugar a la
aparición de una nueva f.e.m., y provocando una corriente eléctrica de sentido
contrario a la anterior. Una vez que el flujo ha desaparecido por completo, no
hay variación de flujo en el secundario, por lo tanto la corriente es cero.
Siempre que haya una variación de flujo que corta las espiras de una
bobina, se induce en esta una f.e.m. inducida, dando lugar a una corriente
eléctrica siempre y cuando el circuito se encuentre cerrado.
11/264
Funcionamiento del Circuito I
• Al accionar la llave de contacto, la
tensión de la batería queda aplicada
al arrollamiento primario (4), de la
bobina de encendido (3). Cuando los
contactos de los platinos o ruptor (7)
están cerrados por la acción de la
leva, la corriente fluye a través de
ellos, creándose en el primario el
consiguiente campo magnético y
almacenamiento de una cierta
cantidad de energía en la bobina.
• Debido a la acción de la leva sobre
los contactos de los platinos, el
circuito se abre, interrumpiéndose la
corriente por el primario y
desapareciendo el campo magnético
• En ese instante se induce una
fuerza electromotriz tanto sobre el
arrollamiento primario como sobre el
secundario de la bobina.
1. Batería
2. Contacto.
3. Bobina.
4. Arrollamiento primario.
5. Arrollamiento secundario.
6. Condensador.
7. Ruptor o platinos.
8. Contacto móvil o pipa.
9. Tapa distribuidor.
10.Bujías.
12/264
Funcionamiento del Circuito II
• El condensador (6) se carga mientras
los contactos de los platinos se
siguen abriendo. Así pues, la
corriente que saltaría de un contacto
a otro en forma de chispa, es
absorbida por el condensador.
• Un instante después, y mientras los
platinos permanecen abiertos,
comienza el circuito oscilante de
descarga y carga del condensador
sobre el primario de la bobina, dando
como consecuencia a cambios
periódicos en el sentido de la
corriente eléctrica por el primario
ocasionando una sucesión de saltos
de chispa en la bujía.
• La alta tensión inducida en el
secundario, es mandada a la pipa o
contacto móvil (8), que la reparte a la
bujía correspondiente a través de los
los cables de alta.
1. Batería
2. Contacto.
3. Bobina.
4. Arrollamiento primario.
5. Arrollamiento secundario.
6. Condensador.
7. Ruptor o platinos.
8. Contacto móvil o pipa.
9. Tapa distribuidor.
10.Bujías.
13/264
Oscilograma Primario
A-B: Carga inicial del condensador debido a la autoinducción en el primario.
B-C: Oscilaciones de carga y descarga del condensador sobre el primario mientras que
existe chispa entre los electrodos de la bujía.
C-D: Fase de amortiguación de las oscilaciones y disipación de la energía una vez
extinguida la chispa.
D-E: Estabilización de la tensión a la de la batería y cierre de contacto en el punto E, por
lo que la tensión es cero.
14/264
Oscilograma Secundario
A-B: Tensión de encendido o de aguja. Tensión necesaria para iniciar la sucesión de chispas
B-C: Bajada de tensión, ya que la resistencia al salto de chispa es menor.
C-D: Tensión de arco. Tensión entre los electrodos mientras se mantiene la chispa.
D-E: Zona de amortiguación donde se disipa la energía almacenada.
E-A: Se inicia la zona de cierre de primario. Representa la f.e.m inducida en el secundario al
establecerse la corriente de nuevo.
15/264
Corriente por el Primario
La corriente por el primario no se establece de una manera instantánea, sino que
debido a la aparición de la f.e.m. autoinducida en el primario, el estableciendo de esta es
lento, alcanzando la corriente máxima en el primario al cabo de un cierto tiempo (t1) desde
el cierre de los contactos.
El tiempo de establecimiento de corriente por el primario (t1) es mayor que el tiempo
de interrupción de corriente (t2) por lo que los valores de f.e.m inducida en el secundario
solo son lo suficientemente grandes, para producir el salto chispa en la bujía, cuando los
platinos se abren y no cuando estos se cierran
16/264
Bobina de Encendido
Misión:
Transformar la tensión existente en los bornes de la batería al valor
necesario para producir la chispa entre los electrodos de las bujías.
Características:
• Primario formado por unas 200 a 300 espiras de hilo grueso aisladas entre sí y del
secundario. Sus extremos están conectados a los bornes de baja.
• Secundario formado aproximadamente de 20.000 a 30.000 espiras de hilo fino de cobre
debidamente aisladas entre sí y del núcleo.
17/264
18/264
Verificación de la Bobina
Resistencia del primario:
Valor teórico: 2 a 5 Ω. Valor real : _________
Resistencia del secundario:
Valor teórico: 6 a 11 kΩ. Valor real : _________
Nula derivación a masa del primario y secundario:
Valor teórico: infinito. Valor real : _________
19/264
Distribuidor
Misión:
Distribuir la corriente de alta a las bujías en el
orden y momento preciso. Incluye otras funciones
fundamentales como, por medio del ruptor,
interrumpir la corriente por el primario de la bobina
y, mediante los mecanismos de regulación del
avance al encendido, determinar el instante preciso
del encendido, en función del régimen de
revoluciones del motor y la carga del mismo.
En su movimiento rotativo, distribuye
la corriente en el conocido “orden de
encendido” 1-3-4-2.
20/264
21/264
Ruptor o Platinos
Misión:
Establecer e interrumpir la corriente por el primario de la bobina, para de
esta forma proceder a su carga y descarga en el momento oportuno.
Características:
• Consta de un contacto móvil llamado martillo y uno fijo denominado yunque.
• Su apertura se realiza por el accionamiento de la leva, y su cierre por medio
de un muelle de lámina.
Portaplatinos
Placa fija
Tornillo de ajuste
Platinos
Acoplamiento
avance por vacío
Cable de masa
22/264
Ciclo de Encendido
Angulo disponible: Es el ángulo de giro del distribuidor del que dispone el
encendido para cargar y descargar la bobina. 360º/Número de cilindros.
360º/6 = 120º360º/4 = 90º
Ángulo de cierre o contacto: Es el ángulo de rotación de la leva durante el
cual los contactos del ruptor permanecen cerrados.
Ángulo Dwell: Es el ángulo de leva expresando en porcentaje respectos al
ángulo disponible.
Ángulo de apertura o chispa: Es el ángulo de rotación de la leva durante el
cual los contactos del ruptor permanecen abiertos.
23/264
Condensador
Misión:
• En el momento de la apertura de contactos, el condensador se carga absorbiendo el
alto voltaje autoinducido, y reduciendo el arco eléctrico que se produce entre los
contactos del ruptor y que ocasionaría su rápida destrucción.
• Una más rápida interrupción del circuito primario, consiguiéndose tensiones
inducidas más elevadas, aproximadamente 20 veces más rápido de lo que lo haría
sin condensador.
• Crea, junto con el arrollamiento primario de la bobina, un circuito oscilante de cargas
y descargas del condensador a través del primario, lo que da lugar a una sucesión de
saltos de chispas entre los electrodos de la bujía, aportando la energía suficiente
para la combustión de la mezcla.
24/264
Bujías de Encendido
Misión:
Tiene como misión hacer que la corriente, producida en el secundario,
salte en forma de chispa entre sus electrodos.
Rosca terminal
Aislador
Anillo de reborde
Barreras de fuga
Cámara de aire
Anillo sellador
Compuesto vítreo
conductor
Electrodo de masa
Electrodo central
Píe del aislador
Anillo sellador
Núcleo central
Cuerpo metálico
Terminal
25/264
Temperatura Funcionamiento Bujía
La temperatura de la bujía ha de estar dentro de unos límites comprendidos entre
los 600º y 800º C. Si la temperatura de la bujía está por encima de la temperatura de
funcionamiento, da lugar a encendidos por incandescencia (autoencendido); si por el
contrario, la temperatura de la bujía es menor de la de funcionamiento, las partículas de
aceite y hollín que se depositan sobre el píe del aislador, no desaparecen por ignición,
pudiéndose originar derivaciones de corriente.
26/264
Grado Térmico de una Bujía
Grado térmico de una bujía se refiere a la clasificación en tipos que se
hace de las bujías, según su capacidad de transferencia del calor desde el
lugar de encendido, en el píe del aislador, hasta el sistema de refrigeración y
al medio ambiente.
Grado térmico bajo Grado térmico altoGrado térmico medio
Las bujías con bajo grado térmico se denominan bujías calientes
Las bujías con alto grado térmico se denominan bujías frías
27/264
28/264
Grado Térmico de una Bujía
29/264
30/264
Temperatura de la bujia
31/264
Control y Reglaje de Bujías
El reglaje deberá realizarse actuando sobre el electrodo de masa y nunca
sobre el electrodo central, para así evitar deterioros en la porcelana aislante.
Lo acercaremos o lo separaremos para darle el reglaje indicado por el
fabricante y lo comprobaremos siempre con una galga de espesores.
NOTA: el fabricante del vehículo, siempre nos recomendará un tipo de bujía,
(marca y modelo) la cual nos garantiza un correcto funcionamiento; de
instalar otro tipo tendremos infinidad de fallos y averías: arranques en frío y
caliente defectuoso, consumo alto, falta de potencia, daños en el motor, etc.
32/264
MONTAJE DE LAS BUJÍAS DE ENCENDIDO
MONTAJE CON LLAVE DINAMOMÉTRICA
MONTAJE SIN LLAVE DINAMOMÉTRICA
33/264
Punto de Encendido
El punto de encendido es el momento en el cual la corriente salta en forma
de chispa entre los electrodos de la bujía.
Desde que salta la chispa y comienzan a inflamarse las capas de mezcla más cercanas
a la bujía, hasta que finaliza la combustión de la totalidad de mezcla, transcurre un cierto
tiempo, tiempo durante el cual el pistón sigue en movimiento. Para conseguir que la mezcla
esté quemada totalmente justo después de que el pistón supere la posición del PMS,
obteniéndose el valor máximo de presión, se le dota al punto de encendido de un avance.
1. Chispa de encendido.
2. Presión de combustión máxima.
34/264
Avances Excesivos y Escasos
Si el avance al encendido es excesivo, la máxima presión de combustión se
conseguirá antes de que el pistón alcance el PMS, frenándole. Como resultado, la
potencia del motor baja y la temperatura del motor aumenta, originando combustiones
espontáneas de la mezcla, con picos de presión que se reflejan en vibraciones y ruido
denominado picado
1a. a: Avance del encendido correcto.
1b. b: Encendido avanzando, Picado.
1c. c: Encendido retardado, baja presión.
Si el avance al encendido es escaso, la máxima presión de combustión será menor
y se conseguirá cuando el pistón ya está lejos del PMS. Esto hace que se reduzca la
potencia del motor y se eleve la temperatura de este.
35/264
36/264Control del Punto de Encendido
El control del punto de encendido se realiza con una lámpara estoboscópica, que
efectúa un destello en el momento de encendido. Al orientar el destello hacía las marcas
de referencia en el motor, dadas por el fabrica, parece que estas fuesen inmóviles.
El ajuste básico del punto de encendido se efectúa en muchos casos el número de
revoluciones de marcha a ralentí (600-900 r.p.m., según indica fabricante). Si se
comprueba que las marcas no coinciden, girar la carcasa del distribuidor hasta la
perfecta coincidencia de las mismas.
Pinza capacitiba
Cilindro 1 ó 4
Pistola estroboscópica
37/264
Variación Punto de Encendido
Desde el inicio de la inflamación de la mezcla hasta su combustión completa,
transcurren unos 2 milisegundos y prácticamente permanece constante mientras la
composición de la mezcla no varíe; sin embargo, al aumentar las revoluciones del motor,
el tiempo de paso del pistón por el PMS se reduce, con lo que la finalización de la
combustión y la máxima presión obtenida se alcanza cada vez más lejos del PMS. Por lo
tanto, según va aumentando la velocidad del motor, el encendido debe “adelantarse”.
Avance inicial
38/264
Por otra parte, cuando el motor funciona bajas o medias cargas, y la mezcla aspirada
por el motor es pobre, la velocidad de inflamación disminuye, por lo que necesitamos
más tiempo para realizar la combustión completa, siendo necesario avanzar el punto de
encendido según la carga del motor.
Avance inicial
+ centrífugo +
por depresión
39/264
Avance Centrífugo
Está localizado en el distribuidor y se encarga de adelantar el punto de encendido a
medida que se incrementa el número de revoluciones del motor. Cuando el motor gira a
ralentí, los muelles mantienen a los contrapesos en reposo, pero cuando el motor va
aumentando de r.p.m. los contrapesos debido a la acción centrífuga se desplazan hacía la
periferia, con lo cual los extremos de los contrapesos hacer girar al manguito de la leva en
el mismo sentido de giro del distribuidor, dando así un cierto avance al encendido.
Contrapesos
Muelles
Leva
40/264
Curva de Avance Centrífugo
El fabricante nos indica el valor del avance al encendido en función de las revoluciones
del distribuidor en una curva característica, en la cual se indica los márgenes aceptables.
Si los dos muelles del conjunto de avance centrífugo, están ajustados sobre los
respectivos pernos, el avance es lineal hasta llegar al tope de la apertura de las masas,
por lo que no se consigue más avance y la curva se hace horizontal.
Si uno de los muelles presenta holgura en uno de los pernos de sujeción, la curva
tendrá dos pendientes, la primera corresponderá a la fuerza que opone el muelle
ajustado y el inicio de la segunda, a la fuerza que oponer los dos muelles una vez
superada la holgura del segundo.
41/264
Avance por Vacío
Está igualmente localizado en el distribuidor y se encarga de adelantar el
punto de encendido en función de la riqueza de mezcla.
Cuando el motor funciona a ralentí, la depresión no actúa sobre la
membrana.
Ralentí
42/264
Avance por Vacío
Al abrirse la mariposa de gases a medias cargas, la depresión en el
colector de admisión llega a la cápsula de vació haciendo girar a la placa
portarruptor en sentido contrario al de giro de la leva, adelantando el punto de
apertura de los contactos del ruptor y por lo tanto avanzando el punto de
encendido.
Medias cargas
43/264
Avance por Vacío
A plena carga, la depresión en el colector de admisión disminuye,
recuperando la placa portarruptor su posición de reposo.
Plenas cargas
44/264
Curva de Avance por Vacío
El fabricante nos indica el valor del avance al encendido en función de la depresión en el
colector de admisión en una curva característica, en la cual se indica los márgenes aceptables.
La curva de avance en grados con respecto a la depresión, en milímetros de
mercurio (mm. Hg) o en milibares (mbar).
El fabricante nos indica los grados de avance en el distribuidor, por lo que hay que
tener presente que: 1 grado de giro del distribuidor = 2º de giro del motor.
45/264
Control Curvas de Avance
Curva de avance centrífugo
Curva de avance por vacío
46/264
Cables de Alta Tensión
Los cables destinados a transmitir la
alta tensión, han de reunir unas
características especiales en cuanto a
su aislamiento, ya que deben tener la
suficiente rigidez dieléctrica para aislar
del exterior la elevada tensión que
soportan. Sin embargo debido a la
pequeña corriente que circula por ellos,
no necesitan gran sección de alma.
Ademas han de ser capaces de
soporta altas temperaturas, sin
agrietamientos ni deterioro del aislante,
y ser perfectamente insensibles a la
humedad e hidrocarburos.
También son antiparasitarios, para
que no puedan interferir con las
emisiones de radio y televisión.
Cable antiparasitario
de encendido
Cable con núcleo
de cobre
47/264
Control Instalación de Alta Tensión
Resistencia y aislamiento de la pipa:
Valor resistencia: 1 kΩ. Valor real : _________
Valor aislamiento: infinito. Valor real : _________
Aislamiento de la tapa del distribuidor:
Valor aislamiento: infinito. Valor real : _________
Resistencia y aislamiento de la pipa:
Valor resistencia: según fabricante (25 - 30 kΩ máximo).
Cable cilindro nº 1: _________
Cable cilindro nº 2: _________
Cable cilindro nº 3: _________
Cable cilindro nº 4: _________
Cable bobina/distriuidor: _________
48/264
Ejemplo de Controles
Modelo Ford Fiesta 1.0
Código motor TKA
Ángulo de apertura y cierre 48º – 52º (53 – 58 %)
Orden de encendido 1-2-4-3
Reglaje de encendido a PMS sin vacío
Avance inicial 10º / 800 r.p.m.
Avance centrífugo 11º - 15º / 2.000 r.p.m.
(Sin vacío y con avance inicial ) 13º - 18º / 3.000 r.p.m.
20º - 25º / 5.000 r.p.m.
Avance por vacío Avance
Variación 10º –18º
Comienzo 67 mbar
Final 300 mbar
Bujías Bosch / NGK
Tipo HR 7 DC / BPR6EFS
Separación entre contactos 0,8 mm
Sistema de encendido SZ
Bobina de encendido Lucas
Tensión de funcionamiento 7 V
Resistencia estabilizadora 1,5 Ω
Resistencia del primario 0,95 – 1,6 Ω
Resistencia del secundario 5 – 9,3 kΩ
Distribuidor de encendido Bosch
Separación del ruptor 0,5 mm
Capacidad del condensador 0,45 µF
49/264
50/264
El Planteamiento
El desreglaje del punto del encendido y el desgaste de los elementos
giratorios confieren al encendido clásico una vida muy corta, con lo cual se hace
necesario el estudio de un nuevo tipo de encendido que suprima en parte los
problemas del encendido clásico y mejore el funcionamiento del motor. se
utilizan bobinas con primarios de poca resistencia óhmica, al poder utilizar en
el circuito primario corrientes más elevadas, de hasta 10 amperios, el campo
magnético generado es mayor al igual que la tensión inducida en el secundario.
10 A
Si, pero ¿por qué
elemento se va sustituir
el ruptor para conseguir
la ruptura de la elevada
corriente por el primario?
51/264
La Solución
La ruptura eléctrica se realizará con un transistor intercalado en el circuito
primario de bobina, de tal manera que el transistor necesitará una débil corriente
de mando en su base para poder comandar la corriente de paso por el primario.
LA SOLUCIÓN ES EL TRANSISTOR
10 A
La solución es el
transistor, pero ¿Cómo
dónde, y de qué manera
damos la señal a la base
del transistor?
52/264
Encendido Electrónico Transistorizado
En el interior del distribuidor se dispone de un generador de impulsos que
hace llegar esos impulsos a un módulo electrónico de mando, en donde
después de tratarlos convenientemente, determina principalmente el ángulo de
cierre y el punto de encendido.
Módulo de
mando
Batería
Llave de
contacto
Bobina
Bujía
Generador
de impulsos
53/264
Generador de Impulsos
Los sistemas de encendido electrónicos transistorizados (EET),
independientemente de la variedad de las soluciones empleadas, se pueden
clasificar según el tipo de generador de impulsos, no obstante nosotros
únicamente nos vamos a referir a los generadores de impulso de mayor
difusión, es decir:
Generador de impulsos por inducción magnética.
Generador de impulsos por efecto hall.
Generador HallGenerador Inductivo
54/264
Generador de Impulsos Inductivo
El generador de impulsos se va situar en el distribuidor, en el lugar del
ruptor. Consta de una parte giratoria o rotor y de una fija o estator.
Rotor
EstatorDisco polar
Conexiones
55/264
Generador de Impulsos Inductivo
Rotor
Bobinado de
inducción
El rotor: Es de acero dulce, magnético, lleva tantos dientes como número
de cilindros hay y es movido por el eje del distribuidor.
El estator: Lleva un imán permanente y una bobina arrollada alrededor de
una masa metálica.
56/264
Funcionamiento (I)
57/264
Funcionamiento (II)
58/264
Funcionamiento (III)
59/264
Funcionamiento (IV)
60/264
Al repetirse nuevamente el ciclo, por cada una de los salientes del rotor,
en un giro completo de éste conseguiremos una tensión alterna como la
representada en la figura, cuyo valor de pico de estará en función de la
velocidad de rotación del distribuidor, pudiendo variar desde 0,5 V a 100 V.
Rotor
Estator Bobinado
61/264
62/264
Avance en el EE Transistorizado
Avance Centrífugo
63/264
Avance en el EE Transistorizado
Avance por Vacío
64/264
Circuito EET con Captador Inductivo
1
2 5 6
3
4
65/264
Generador de Impulsos Hall
El funcionamiento de este generador, se basa en el fenómeno físico
conocido como efecto Hall.
Un semiconductor es recorrido por una corriente entre sus puntos A y B, si
se le aplica un campo magnético N-S, perpendicular al semiconductor, se
genera una pequeña tensión (tensión Hall) entre los puntos E y F debido a la
desviación de las líneas de corriente por el campo magnético, cuando estas
dos condiciones se producen de forma simultánea.
66/264
Constitución:
Pantalla
Imán
Integrado
Tambor
Tambor
Pantalla
Integrado
67/264
68/264
Funcionamiento:
El módulo de mando alimenta de manera constate al integrado Hall, que a
su vez proporciona la corriente necesaria al semiconductor hall, con lo que
sólo hay que variar la intensidad del campo magnético periódicamente en el
ritmo de encendido, para conseguir una tensión hall variable.
69/264
70/264
Integrado Hall (I)
El circuito integrado Hall, actúa como un interruptor, transfiriéndole masa al terminal
neutro (o) con la frecuencia que le indique el semiconductor Hall. Por el terminal (o) el
módulo de mando envía una tensión de referencia, que según el estado de conducción
de la etapa de potencia del integrado Hall, caerá prácticamente a cero o no.
(+)
Etapa de
potencia
Compensación
de temperatura
Amplificador
Estabilizador
De tensión
Convertidor
de señal
(-)
(O)
Semiconductor
Hall
71/264
Integrado Hall (II)
72/264
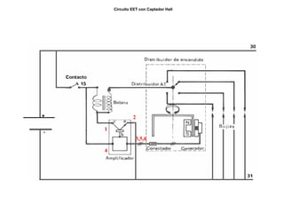
Circuito EET con Captador Hall
1
3,5,6
4
2
73/264
Módulo Electrónico de Mando
Los aparatos de mando de los sistemas de encendido de alta prestación con
captador inductivo o Hall (TZ-I) están construidos casi exclusivamente en
técnica híbrida, ya que reúnen alto espesor de envoltura con reducido peso y
buena fiabilidad.
El circuito va montado en el marco de metal que disipa la pérdida de calor
del circuito a la superficie de anclaje. Los componentes están protegidos de la
suciedad y de posibles daños mecánicos con una tapa.
74/264
Funcionamiento Módulo de Mando
Batería
A
C
D
B
1 2 3 4 5
6 7
a
b
c d
+
El funcionamiento interno de un módulo electrónico de mando se puede
explicar brevemente en un diagrama de bloques como el de la figura.
A: Módulo de mando.
B: Bobina de encendido.
C: Sensor inductivo.
D: Sensor hall.
1. Conformador de impulsos.
2. Regulación ángulo de cierre.
3. Desconexión corriente en reposo.
4. Etapa de excitación o impulso.
5. Etapa de potencia.
6. Etapa de limitación de corriente.
7. Resistencia de captación de corriente.
a: Intensidad de primario.
b: Valor nominal de la corriente primaria.
c: Tiempo regulación tensión efectiva.
d. Tiempo regulación tensón nominal.
75/264Limitación de Corriente por el Primario
Produce una caída de tensión en una resistencia de bajo valor en el cable
del emisor del transistor. A través de una conexión de regulación de limitación
de tensión se ejerce directamente el mando de la etapa de excitación del
transistor de potencia del encendido.
Limitación
76/264
77/264
Variación del Ángulo de Contacto
Mediante un circuito interno se modifica la duración del ángulo de contacto en
función de a la velocidad de giro del motor y de la tensión de alimentación,
aumentando el ángulo de contacto con altos regímenes de giro y ante bajas
tensiones de batería.
Ángulo de cierre
5.000 r.p.m.
Ángulo de cierre
1.000 r.p.m.
78/264
79/264
80/264
Localización del Módulo
El emplazamiento del módulo electrónico
puede ser variado. Se empezó situándole
en una placa de refrigeración de aluminio,
también se instalaba en el mismo soporte
de la bobina de encendido y por último se
ha acabado situando en el propio
distribuidor, haciendo la instalación y el
traslado de la señal más fácil y sencillo.
81/264
Verificación y Localización de Averías
Encendido Electrónico Transistorizado con captador inductivo
82/264
2) chispa fuerte y azul
3) Tensión de alimentación.
1)chispa fuerte y azul
83/264
4) Verificación masa. 5) Tensión primario.
6) Verificar el captador:
Resistencia Aislamiento
84/264
Medir la tensión alterna o obtener la señal del captador.
85/264
7) La función Salida del módulo.
8) Si el diodo parpadea, verificar la bobina.
Primario
Secundario
Excitación del sistema:
Se puede excitar la etapa del módulo, dando al pin 5 ó 6 alimentación a 12 voltios de
una forma pulsatoria, a la vez que se observa el salto de chispa a la salida de la bobina.
86/264
Ejemplo Controles de Encendido (I)
Esquema encendido Citroen AX 1.1/1.4
Modelo Citroen AX 1.1/1.4
Código motor H1A/K1A
Entrehierro 0,3 a 0,5 mm
Orden de encendido 1-3-4-2
Reglaje de encendido a PMS sin vacío (o)
Avance inicial 8º / 750 r.p.m.
Sistema de encendido TZ-i 2ª generación
Bobina de encendido Bosch/Ducelier
Resistencia del primario 0,8 – 1,2 Ω
Resistencia del secundario 8 – 11 kΩ / 6,5 kΩ
Distribuidor de encendido Bosch
Resistencia del captador 320 Ω
87/264
Ejemplo Controles de Encendido (II)
Esquema encendido Fiat Uno 60
Modelo Fiat Uno 60
Código motor 156A
Tipo BAE 506A
Sistema de encendido Breakerless 2º generación
Bobina de encendido M. Marelli
Resistencia del primario 0,7 – 1 Ω
Resistencia del secundario 3,3 – 4,1 kΩ
Distribuidor de encendido M. Marelli
Tipo SE 101 A
Resistencia del captador 758 - 872 Ω
Entrehierro 0,3 a 0,4 mm
Orden de encendido 1-3-4-2
Reglaje de encendido a PMS sin vacío (o)
Avance inicial 10º / 750 r.p.m.
88/264Verificación y Localización de Averías
Encendido Electrónico Transistorizado con captador Hall
89/264
a) Alimentación del captador Hall.
(+)
(-)
(6)
(3)
(o)
(-)
b) Tensión de referencia.
90/264
c) Función salida del captdor Hall.
(-)
(3)
Obtención de la señal del captador Hall.
(6)
(3)
2 - 10 V
Excitación del sistema:
Se puede excitar la etapa del módulo, dando al pin 6 masa de una forma pulsatoria,
a la vez que se observa el salto de chispa a la salida de la bobina.
91/264
Ejemplo Controles de Encendido (III)
Esquema encendido Seat Toledo 1.8
(+)
(o)
(-)ECU inyección
Modelo Seat Toledo 1.8
Código motor RP
Resistencia del secundario 3,4 – 3,5 kΩ
Distribuidor de encendido Bosch
Orden de encendido 1-3-4-2
Sistema de encendido TZ-h
Bobina de encendido BOSCH
Resistencia del primario 0,52 – 0,76 Ω
Reglaje de encendido a PMS sin vacío (o)
Avance inicial 6º ±1 / 750 r.p.m.
Comprobación del avance 0º / 950 - 1.200 rpm
Sin vacío 11º-15º/ 2.600 rpm
Variación avance por vacío 10º-14º
Comienzo 100 mbar
27º- 31º/ 6.000 rpm
Final 260 mbar
92/264
93/264
Encendido Totalmente Electrónico
Si Bien el encendido
transistorizado presenta un neto
progreso respecto al encendido
convencional, no es menos cierto que
el reglaje del punto de avance se
realiza siempre mediante correctores
mecánicos ya sean centrífugos o por
depresión.
El siguiente paso será por tanto
que el avance del encendido sea en
todo momento el adecuado para el
grado de carga del motor y el régimen
de giro, y que todo esto se realice sin
ningún tipo de unión mecánica con el
motor. La solución nos vendrá dada
por la adopción para el encendido de
un “Sistema Electrónico Integral” o
también denominado “Encendido de
Campo Característico”, que suprime
totalmente los dispositivos mecánicos
de corrección del avance, a los que
sustituye por sensores electrónicos.
94/264
Principio de Funcionamiento
Captador de
Velocidad
y posición
Captador de
Velocidad
y posición Cierre y
apertura
del
primario
Cierre y
apertura
del
primario
BOBINABOBINA
UNIDAD
ELECTRÓNICA
DE CONTROL
(ECU)
UNIDADUNIDAD
ELECTRELECTRÓÓNICANICA
DE CONTROLDE CONTROL
(ECU)(ECU)
Captador de
Carga
motor
Captador de
Carga
motor
Otras
salidas
Otras
salidasOtras
entradas
Otras
entradas
95/264
Campo Característico
Los distintos valores son memorizados en la unidad electrónica de control. Su
ilustración gráfica se representa bien como series de puntos en un sistema coordinado de
desarrollo tridimensional denominado mapa tridimensional o por tablas de datos.
Mapa tridimensional
¡Jo!, Qué
rápido soy.
Tabla de datos
Cuanto más alto es el número de puntos o coordenadas que componen un mapa
tridimensional o una tabla de datos, más precisa es la respuesta a cada situación
específica del motor. Además de la precisión del mapa, otro factor importante es la rapidez
de respuesta de la unidad de control a los datos de entrada. Actualmente puede afirmarse
que estos datos son calculados prácticamente en “tiempo real”.
96/264
ECU
Sinopsis del Funcionamiento
Captador régimen
Activación del AC
Captador Posición
Selección octanaje
Captador carga
Presión del turbo
Sensor temp. motor
Sensor temp. aire
Sensor detonación
Contactor mariposa
Selección cambio auto
BOBINA
abre y cierra el primario
Válvula paso mínima
Cuentarrevoluciones
Testigo avería
Toma de diagnosis
Otras funciones
Otras entradas
15
50
31
97/264
Captador de Régimen y posición
Sirven para determinar el número de revoluciones y la sincronización con el
cigüeñal, mediante captadores, existen varias posibilidades en función de la
disposición de los captadores: Si estos van montados en la polea, volante del
cigüeñal o en el distribuidor, y en función del tipo de captador, pudiendo ser
mayoritariamente del tipo inductivo o hall.
Sensor inductivo
en polea Sensor inductivo
en volante
Sensor inductivo
en distribuidor
Sensor Hall
en distribuidor
98/264
Captadores Inductivos
En los montajes de este captador en el volante o polea del cigüeñal, este captador
está constituido por una corona dentada denominada rueda fónica, acoplada en la
periferia del volante o polea, y un captador magnético colocado frente a ella, formado por
una bobina enrollada en un imán permanente.
El giro continuado de la corona produce sucesivas variaciones de flujo debidas al
paso de los dientes y huecos frente al captador, en cuya bobina se induce una tensión
alterna con impulsos positivos y negativos. La frecuencia con que se realizan dichos
impulsos le sirve a la unidad de mando para interpretar el régimen de giro del motor.
99/264
Captador de Régimen
Rueda Fónica con
dientes idénticos
Sensor de régimen
100/264
Captador de Posición o PMS
Sensor de régimen
Rueda Fónica con
dientes enfrentados
101/264Captadores de Régimen y Posición
Rueda Fónica con
tetones de posición
Sensor de régimen
Sensor de posición
102/264Captador de Régimen y Posición
Rueda Fónica con
dientes y huecos dobles
103/264Captador de Régimen y Posición
Rueda Fónica con
ausencia de dientes
Sensor de régimen
104/264
El perfil de los dientes de la corona genera un perfil de tensión alterna, cuya
frecuencia indica a la unidad de mando el régimen de giro del motor. Los dientes dobles
o la falta de dientes, según el caso, genera una señal de referencia que permite a la
unidad de mando reconocer, con un cierto avance, el PMS de la pareja de cilindros 1-4. La
unidad de mando reconoce el PMS de la pareja de cilindros 2-3 gracias al montaje de dos
marcas de referencia enfrentadas o debido al cálculo de la unidad de mando
PMS Cilindros 1- 4
PMS Cilindros 2- 3
20d
50d
1d
105/264
PMS Cilindros 1- 4
PMS Cilindros 2- 3
20d
50d
1d
1 20
PMS Cilindros 1-4
avanceavance
PMS Cilindros 2-3
50
106/264
Los sistemas de encendido con captadores inductivos en el distribuidor
tuvieron inicialmente una gran implantación, sobretodo a la facilidad de
sustitución en los motores existentes de los distribuidores convencionales por
otros con sensores inductivos, más adelante la mayor precisión y el mayor
caudal de datos suministrado por los sensores dispuestos frente a coronas
dentadas solidarias al cigüeñal hizo que éstos se generalizaran finalmente.
Conector
Bobinado e imán
Rueda polarMarca para el
calado
Pipa o contacto móvil
Este distribuidor actúa como
sensor de posición y como
distribuidor de corriente de
alta.
107/264
Captadores Hall
Estos tipos de sensores se utilizan la gran mayoría de veces como sensores
montados en el distribuidor. La señal de régimen se toma directamente del sensor hall,
ya que la señal ya está en forma digital. El intervalo del encendido se obtiene del perfil
de la señal hall en la unidad de control. En una palabra, el propio captador hall hace de
sensor de régimen motor y de sensor de posición.
108/264
Otras veces, únicamente actúa como sensor de posición en combinación
con un sensor inductivo de régimen, ver figura. En el ejemplo el tambor de
captador hall consta de dos ventanas. En su movimiento el tambor cubre y
descubre al captador hall dos veces por vuelta del árbol de leva. Por cada
vuelta del rotor, da origen a dos ondas cuadradas con un determinado desfase
entre ellas (en la figura 90º) que, junto a las señales generadas por el sensor
de régimen, permiten que la unidad de mando reconozca con cierta
anticipación el PMS del cilindro 1.
109/264Conexionado Sensor Régimen
ECU
Sensor Inductivo
Sensor inductivo
Sensor Hall
ECU+5V
o
-
Sensor Hall
110/264
La estrategia DEPHIA.
La estrategia DÉPHIA (DEtección de Fase Integrada al Encendido), se basa en la
adquisición de una señal procedente de las bobinas de encendido jumoestático.
Ud
Se elabora a partir de las tensiones de salida de la
bobina de encendido común a los cilindros 1 y 4.
Cilindro 1 Cilindro 3Cilindro 2 Cilindro 4
FUNCIÓN: INYECCIONLA INFORMACIÓN REFERENCIA CILINDRO.
111/264
- Cilindro 4 en fase compresión y cilindro 1 en fase escape.
Cilindro 1 Cilindro 4
VHT1 = 5 KV
VHT4 = 10 KV
VHT = 15 KV
La estrategia DEPHIA.
FUNCIÓN: INYECCIONLA INFORMACIÓN REFERENCIA CILINDRO.
112/264
Cilindro 1 Cilindro 4
VHT1 = 10 KV
VHT4 = 5 KV
VHT = 15 KV
- Cilindro 1 en fase compresión y cilindro 4 en fase escape.
La estrategia DEPHIA.
FUNCIÓN: INYECCIONLA INFORMACIÓN REFERENCIA CILINDRO.
113/264
- Cilindro 4 en fase compresión y cilindro 1 en fase escape.
La estrategia DEPHIA.
FUNCIÓN: INYECCIONLA INFORMACIÓN REFERENCIA CILINDRO.
Cilindro 1 Cilindro 4
VHT1 = 5 KV VHT4 = 10 KV
VPH =
VHT = 15 KV
7,5 KV7,5 KV
+ 2,5 KV
114/264
VHT1 = 10 KV VHT4 = 5 KV
VPH =
VHT = 15 KV
7,5 KV7,5 KV
- 2,5 KV
- Cilindro 1 en fase compresión y cilindro 4 en fase escape.
La estrategia DEPHIA.
FUNCIÓN: INYECCIONLA INFORMACIÓN REFERENCIA CILINDRO.
Cilindro 1 Cilindro 4
115/264
En función de la tensión VPH, el calculador define un estado lógico llamado FASE:
- Un estado lógico "1" si la tensión VPH es negativa: el cilindro 1 está en fase de
compresión.
- Un estado lógico "0" si la tensión VPH es positiva: el cilindro 4 está en fase de
compresión.
Cilindro 1 Cilindro 4
VPH
La estrategia DEPHIA.
FUNCIÓN: INYECCIONLA INFORMACIÓN REFERENCIA CILINDRO.
116/264
La estrategia DEPHIA.
FUNCIÓN: INYECCIONLA INFORMACIÓN REFERENCIA CILINDRO.
a
b
a
b
VPH < 0
a
b
a
b
VPH > 0
117/264
LA INFORMACIÓN REFERENCIA CILINDRO.FUNCIÓN: INYECCION
La estrategia DEPHIA.
Comando primario bobinas 1 et 4.
Señal DEPHIA.
Voltio
ms
Voltio
118/264
Captador de Presión en la Admisión
El sensor de presión absoluta está conectado al colector de admisión y
proporciona una señal de tensión proporcional a la presión existente en el
colector de admisión.
Atendiendo a su principio de funcionamiento, nos podemos encontrar en
los sistemas de encendido dos tipos de captadores de presión absoluta en la
admisión:
Captador de membrana.
Captador piezoeléctrico cerámico y de pyrex.
Captador digital.
119/264
Captador MAP de Membrana
Cuando se deforma la membrana de la cápsula, desplaza el núcleo, lo que origina
una variación de flujo magnético de la bobina y, en consecuencia, varia la frecuencia
enviada por la unidad electrónica.
120/264
Cuando la depresión actúa sobre la membrana de la cápsula, el núcleo
esta poco metido en la bobina, la frecuencia del oscilador es elevada.
Cuando la presión es idéntica en ambos lados de la membrana, el núcleo
empujado por el muelle está muy introducido en la bobina, entonces la
frecuencia del oscilador es menor.
ALTO VACÍO
BAJO VACÍO
121/264
Captador MAP Pizoeléctrico
La unidad de mando mantiene a 5 voltios la
alimentación del captador. Ante una depresión en
el colector de admisión, provoca que el diafragma
cerámico del sensor se arquee variando el valor
de las resistencias del puente, y haciendo variar
también el valor de la tensión en la salida.
Puente de resistenciasDiafragma
Tensión de alimentación
Tensión
salida
Soporte
122/264
El sensor se instala dentro de un contenedor de plástico, sobre el que se
ha provisto un orificio que, conectado a un tubo de goma se transmite el vacío
del colector hasta el interior del sensor.
A: Negativo alimentación 5V.
B: Señal. Tensión variable.
C: Positivo alimentación 5V.
A: Positivo alimentación 5V.
B: Negativo alimentación 5V.
C: Señal. Tensión variable.
123/264
Captador MAP Digital
Este tipo de sensor, recibe una tensión de alimentación de referencia a 5
voltios, procedente de la unidad de mando, la cual convierte el sensor en una
frecuencia proporcional a la situación de vacío. Esta frecuencia se vuelve a
dirigir a la central de mando teniendo un valor aproximados entre 80 Hz a 0,2
bar y 162 Hz a 1 bar.
Toma de vacío
124/264
Conexionado Sensor MAP
En función del tipo de sensor MAP pizoeléctrico, el conexionado puede
variar.
ECU
5 V
C
B
A
Sensor MAP
ECU
5 V
A
B
C
Sensor MAP
125/264
Existe un gran número de unidades electrónicas de mando que incorporan
al sensor de presión absoluta en su interior, formando un conjunto hermético y
compacto.
126/264
Sensor Temperatura Motor
Su misión es informar directamente a la unidad de mando de la
temperatura motor.
El sensor de temperatura motor, montado con la parte sensible sumergida
en el líquido de refrigeración de motor, está constituido por una resistencia de
coeficiente de temperatura negativo (NTC), Por lo tanto si la temperatura del
sensor aumenta al aumentar la temperatura del líquido de refrigeración, se
produce una disminución del valor de resistencia.
Sensor NTC
127/264
Conexionado Sensor T. Motor
La unidad de mando pone bajo tensión al sensor de temperatura de
refrigerante, que actúa como una resistencia variable en función de la
temperatura. La corriente eléctrica fluye a través del sensor, a masa. En el
sensor se produce una caída de tensión, este valor de tensión corresponde
a una temperatura determinada del motor. La unidad de mando asigna un
valor determinado de temperatura a cada valor de tensión.
ECU
5 V
Sensor temperatura motor
128/264
Sensor Temperatura Aire
El sensor de temperatura de aire puede ir montado en el conducto de admisión
de aire o en la propia carcasa del filtro del aire. Están compuestos, al igual que los
sensores de temperatura de refrigeración, de una resistencia del tipo NTC,
(algunas veces, nos podemos encontrar tanto en sensores de temperatura de
agua como sensores de temperatura de aire, resistencia del tipo PTC).
129/264
Conexionado Sensor T. Aire
Al igual que el sensor de temperatura motor, la unidad de mando controla
las variaciones de resistencia del sensor a través de los cambios de tensión y
obtiene por lo tanto, la información sobre la temperatura del aire aspirado.
Senspr temperatura de aire
ECU
5 V
130/264
Sensor de Detonación
Una de las características negativas relacionadas con los sistemas de
gestión del avance es aquella según la cual, por motivos de precaución, es
necesario siempre mantener un cierto margen de seguridad para evitar que
en condiciones puntuales de funcionamiento del motor pudiesen producir
detonaciones. Estos márgenes de seguridad, a veces excesivos pero de todas
maneras necesarios, no permitían el máximo aprovechamiento del motor.
131/264
Sensor de Detonación
Para solucionar este inconveniente se emplean sensores de detonación que,
montados por lo general en la parte superior del bloque, detectan detonaciones en la
culata. Estos sensores están compuestos de cristales piezoeléctricos que generan una
señal eléctrica cuando perciben el exceso de vibraciones producidas por los fallos de
combustión.
132/264
Sensor de Detonación
La unidad de mando evalúa las señales procedentes del sensor y activa una
estrategia de retraso del encendido de una forma paulatina, hasta que la detonación
desaparece. Posteriormente, se vuelve a situar el momento de encendido, a pequeños
pasos, hacía avance, hasta que queda situado en su valor programado. Si la detonación
apareciese en cualquier momento, la ECU volvería a producir el retraso hasta su
desaparición. Las detonaciones pueden ser diferenciadas cilindro a cilindro, pudiéndose
ajustar el avance individualmente por cilindro.
133/264
Conexionado Sensor de Detonación
El apriete del tornillo de sujección del detector de picado ha de realizarse a
su par correspondientes, ya que de lo contrario emitirá señales inpropias
con el estado de funcionamiento del motor.
ECU
134/264
Selector de Octanaje
Algunos sistema de encendido poseen un conector de servicio, mediante el
cual pueden llevarse a cabo un ajuste del octanaje con ayuda de un cable de
servicio, o simplemente variando la posición de un conmutador. Este puede ser
necesario al utilizar combustible de distinto índice de octano o en caso de un
posible picado del motor.
Este ajuste de octanaje origina una modificación en el avance del momento
de encendido, adoptando un campo característicos distintos.
135/264
Conexionado del selector Octanaje
La selección del tipo de octanaje, varia de unos modelos a otros. He aquí
dos formas distintas de conexionado de selector de octanaje: La unidad de
mando manda una tensión de referencia, normalmente de 5V y en esta, en
función del tipo de conexionado, se producirá una caída de tensión
determinada, identificada por la unidad de mando.
ECU
5 V
Conector de octanaje
ECU
5 V
Conector de octanaje
136/264
Unidad de Mando (ECU)
CIRCUITO
ANALÓGICO
TRATAMIENTO
DE SEÑALES
CIRCUITO
DIGITAL
SENSOR DE
PRESIÓN
SENSOR DE
PRESIÓN
SENSOR DE
R.P.M. Y
POSICIÓN
SENSOR DE
R.P.M. Y
POSICIÓN
Alimentación Alimentación
COMPARADOR
AMPLIFICADOR
Señal de presión
Señal tipo reloj r.p.m.
Señal posición
Señal de mando
CIRCUITO DE
POTENCIA
Hacia el distribuidor
BOBINA DE
ENCENDIDO
137/264
Circuito integrado analógico:
Se divide en dos partes, una de tratamiento de señales encargado de transformar
las señales analógicas que provienen de los captadores en señales digitales y otra de
comparación y amplificación de la señal de mando emitida por el circuito numérico; esta
última es la encargada de gobernar la etapa de potencia, no solamente para determinar
el ángulo de avance al encendido más idóneo, sino para conseguir también:
Mantener constante la energía aportada por la bobina.
Variar el ángulo de contacto según el régimen motor y tensión de alimentación.
Limitar la corriente por el primario.
Circuito integrado numérico:
Comprende un circuito de cálculo y una memoria que guarda el campo característico
del motor. El circuito numérico recibe las señales interpretándolas y comparándolas
con las de su memoria, determina el momento adecuado para abrir o cerrar el circuito
primario de la bobina; para ello envía señales de mando hacía el circuito analógico que
amplifica las señales y gobierna el circuito de potencia.
Circuito de potencia:
Es un montaje de transistores darlington y se encarga de transmitir masa al
terminar (-) de la bobina y de quitárselo cuando llegue el momento del salto de chispa.
138/264
Etapa de Potencia
+ Bobina
Etapa de potencia
AT
COMPARADOR
AMPLIFICADOR
CIRCUITO
ANALÓGICO
139/264
En algunas unidades de mando la etapa de potencia se monta en el
exterior, ya que esta es más susceptible de avería, con lo que se abarata el
coste de la reparación.
140/264
Nos podemos encontrar encendidos electrónicos integrales que van
gobernados por la unidad electrónica de control del sistema de inyección
(realmente serian sistemas de gestión de motor). De igual manera estos
sistemas pueden incorporar la etapa de potencia del encendido en el exterior
de la unidad de mando o bien en el interior.
ECU
Sensor rpm
y posición
Etapa de potencia
Bobina
Distribuidor
Bobina
Sensor rpm
Y posición
ECU
Distribuidor
141/264
Etapa de potencia
En los sistemas de encendido que consten con etapas de potencia exterior,
dichas etapas están excitadas directamente por la unidad de mando mediante
una señal normalmente cuadrada. Podemos diferenciar dos tipos distintos.
- Bobina ECU
+15
- Bobina ECU
La ECU transfiere masa a la etapa de
potencia cuando quiera que esta cargue a
la bobina y le quita la masa en el
momento que dictamine el salto de chispa
en la bujía.
La ECU transfiere positivo a la etapa
de potencia cuando quiera que esta
cargue a la bobina y le quita la masa en el
momento que dictamine el salto de chispa
en la bujía.
142/264
Distribuidor de Encendido
El distribuidor en el encendido electrónico integral suele ser eso,
únicamente un distribuidor de la corriente de alta, aunque podemos encontrar
varios modelos de encendido electrónico integral en los que el captador de
velocidad o posición están incorporados en el propio distribuidor como si se
tratase de un captador de encendido electrónico transistorizado.
Arrastre
Carcasa
Pipa Tapa
Carcasa
Eje
Captador
hall
Arrastre
143/264Sistema de Encendido EZ61-MSTS
1. Sensor r.p.m. y posición.
2. Etapa de potencia.
3. Interruptor de encendido.
4. Batería.
5. Cuentarrevoluciones.
6. Bobina de encendido.
7. Distribuidor.
8. Unidad de mando. ECU.
9. Sensor de temperatura motor.
10. Selector de octanaje.
11. Salida señal para ECU inyección.
12. Pin 10 de la ECU inyección.
13. Interruptor de mariposa.
144/264
Sistema de Encendido EZ PLUS
K20:
K84:
L3:
P23:
P24:
Y10
X5:
X10:
X13:
X15:
Etapa de potencia.
Unidad electrónica de mando.
Bobina de encendido.
Sensor de presión en el colector.
Sensor temperatura de aceite.
Distibuidor con captador Hall.
Conector tablero de instrumentos.
Enchufe codificador, reglaje básico.
Enchufe de diagnosis.
Enchufe de octanaje.
145/264
Sistema de Encendido Digiplex 2
1. Toma de vacío del colector.
2. Unidad electrónica de control (ECU).
3. Bobina de encendido.
4. Distribuidor de alta tensión.
5. Volante motor.
6. Eventual interruptor para reducción avance
7. Eventual interruptor para curva base.
8. Interruptor de mínimo de la mariposa.
9. Batería.
10. Bujías.
11. Cuentarrevoluciones.
12. Válvula de mínima (Cut-off)
13. Toma de diagnosis.
14. Sensor de r.p.m. y P.M.S.
15. Motor de arranque.
16. Centralización de masas.
146/264
Sistema de Encendido Microplex
1. Unidad Electrónica de mando.
2. Toma de vacío de admisión.
3. Bujías.
4. Distribuidor de alta tensión.
5. Bobina de encendido.
6. Etapa de potencia de encendido.
7. Llave de contacto.
8. Cuentarevoluciones.
9. Sensor de posicón PMS.
10.Sensor de régimen.
11.Sensor de detonación.
12.Interruptor seguridad sobrealimentación.
13.Señal tacométrica.
14.Toma de diagnosis.
147/264
Ejemplo Controles de Encendido (I)
Esquema encendido Renault 11 Modelo Renault 11
Código motor C2j L7-17
Orden de encendido 1-3-4-2
Reglaje de encendido a PMS sin vacío (o)
Avance inicial 8º / 700 r.p.m.
Comprobación avance 7º - 9º / 750 rpm
24º - 30º / 4.050 rpm
Sensor regimen y posición
Resistencia 150 – 250 Ω
15º - 23º / 1.750 rpm
Entrehierro 0,5 – 1,5 mm
Sistema de encendido Renix AEI
Bobina de encendido Renix
Resistencia del primario 0,4 – 0,8 Ω
Resistencia del secundario 4 – 5,5 kΩ
Distribuidor de encendido Ducelier
+ bobina - bobina
Conector
sensor
Sensor rpm,posición
ECU
bobina
Sensor
vacío
Conector
alimentación
Cuentarevoluciones
- negativo
+ positivo
Nota: En los últimos modelos de encendido Renix, el conector de alimentación solo
disponía de tres pines (positivo, negativo y señal cuentarevoluciones
148/264
Comprobaciones
2) Sensor régimen y posición:
Sensor Sensor
Conector Conector
Resistencia Aislamiento
1) Alimentación de la unidad de mando (ECU):
Tensión mínima: 10 V (3)
(2)
3) Función salida de la ECU:
(+)
(-)
Al arrancar
parpadea
149/264
Ejemplo Controles de Encendido (II)
Esquema encendido Seat Ibiza- Malaga 1.5 inyección
ECU Encendido
ECU Inyección
Distribuidor
Bobina
Relé taquimétrico
NTC
Etapa de
potencia
Contactor
150/264
Identificación de Pines ECU
Nº DESTINO
1 Masa a través de la etapa de potencia.
2 Salida de masa hacia captador Hall.
3 Alimentación a través de contacto (15).
4 Alimentación captador Hall.
5 Salida señal taquimétrica hacia relé taquimétrico y ECU inyección de gasolina.
6 Entrada señal ralentí desde el contactor de mariposa.
7 Libre
8 Libre
9 Libre
10 Libre
11 Libre
12 Entrada señal desde el generador Hall.
13 Señal de control de la etapa de potencia.
14 Señal de plena carga desde el contactor de mariposa.
15 Entrada información desde la ECU inyección de gasolina
151/264
Comprobaciones
Verificar si existe salto de chispa y el circuito de alta, tal como se explicó en el
apartado de encendido electrónico transistorizado.
1) Verificar la alimentación y la masa de la unidad de mando. Accionar el contacto.
(3)
(1)
Valor: Vbat.
2) Comprobar el captador hall. Con el contacto accionado:
a) Alimentación:
(2)
(4)
Valor: _____
b) Tensión referencia.
(2)
(12)
Valor: _____
c) Función salida.
(2)
(12)
(4)
(12)
152/264
4) Controlar la señal de mando de la ECU hacia la etapa de potencia.:
a) Con lámpara led
(4)
(13)
____
b) Con osciloscopio.
(1 ó masa)
(13)
3) Verificar la alimentación y la masa de la etapa de potencia y de la bobina. Accionar el
contacto.
Valor: Vbat.
Valor: Vbat.
Valor: Vbat.
153/264
5) Verificar la función salida de la
etapa de potencia. Conectar una
lampara led entre el (+) y (-) de la
bobina o entre el pin 4 y 1 de´la
etapa. Accionando el arranque.
(14)
(1)
Valor: Vbat. a plena carga.(6)
(1)
Valor: Vbat. a ralentí.
6) Verificar señal del contactor de mariposa. Accionar el arranque o puentear el relé
taquimétrico entre sus terminales 30 y 87.
7) Comprobar la señal taquimétrica emitida por la ECU.
a) Con lámpara led
(3)
(5)
b) Con osciloscopio.
(1 ó masa)
(5)
154/264
Ajuste Básico del Punto de Encendido
1) Comprobar el sentido de giro del distribuidor y el orden de encendido.
2) Desconectar el conector del contactor de mariposa y hacer un puente entre los tres
terminarles del conector de la instalación.
Conector interruptor de mariposa
3) Conectar una lámpara estroboscópica, arrancar el motor y ajustar el régimen a ralentí
a unas 850 r.pm.
4) Comprobar y ajustar el punto de encendido, si es preciso a 10º de avance.
155/264
156/264
Encendido Electrónico Estático
El encendido electrónico estático contiene las funciones del encendido
electrónico integral y se suprime la distribución de alta tensión por el
distribuidor. La alta tensión es distribuida directamente a a las bujías a través
de bobina doble (o triple para 6 cilindros) o mediante bobinas individuales
(monobobinas) una para cada una de las bujías.
1. Bujía.
2. Bobina doble de encendido.
3. Interruptor de mariposa
4. Unidad de mando.
5. Toma captador de presión.
6. Sensor temperatura motor.
7. Sensor de régimen y posición.
8. Rueda fónica en volante motor.
9. Batería.
10. Llave de contacto.
Las ventajas de este sistema son:
Eliminación del distribuidor.
Reducción del nivel de ruidos.
Menor pérdida de energía.
157/264
Bobina Doble
La bobina doble está formada por dos devanados primarios, gobernados
de forma alternativa cada uno por una etapa de potencia, y dos secundarios,
unido cada uno de ellos por sus extremos, directamente a las bujías. Existen,
por lo tanto, dos circuitos de encendido 1-4 y 2-3 en el motor de cuatro cilindros
y tres circuitos de encendidos 1-5, 4-3 y 2-6 en el motor de seis cilindros.
DIS 6
DIS 4
Al encendido electrónico estático también se le denomina “Encendido de
chispa perdida”, ya que el salto de chispa en una de las bujías no es utilizado
para combustionar la mezcla, aunque si tiene una insignificante perdida de
energía.
158/264
Principio de Funcionamiento
La alta tensión inducida en
los secundarios de forma
alternativa, hace que en
ambas bujías, conectadas en
serie con el secundario en
cuestión, se originen un salto
de chispa. Las bujías de
encendido están ordenadas de
tal manera que una de las
bujías encienda en el tiempo
de trabajo del cilindro, mientras
que la otra encienda en el
tiempo de escape desfasado
360º. Es decir, si la bujía del
cilindro 1 enciende finalizando
la compresión, la del cilindro
numero 4 encenderá
terminando escape. Este
procedimiento se repite
nuevamente una vuelta
después, pero intercambiando
los papeles en los cilindros.
159/264
Polaridad en las bujías
Dado que la dirección del flujo de corriente en el circuito secundario está
regida por el diseño, se alcanzan polaridades diferente del voltaje de
encendido en ambas bujías conectadas a un mismo secundario. Esto significa
que la bujía del cilindro número 1 y 4 tendrán una tensión una positiva y otra
negativa, al igual que en las bujías de los cilindros 2 y 3.
En estos sistemas de encendido se utilizan bujías con un recubrimiento
especial en sus electrodos, debido a la alta tensión que se originan entre ellos.
Igualmente por esto permiten que separación entre electrodos se superior a
las bujías utilizadas en los anteriores sistemas de encendido.
160/264
Tipos de Bobinas de EEE
NANOBOBINADIS 4
DIS 6
VALEO ROCHESTER IAW O MMBA
161/264
Particularidad en Bobinas
162/264
Bobina Individual o Monobobina
Este sistema de encendido estático es la última generación en el desarrollo
de los encendidos. Como ya se ha dicho la generación de alta tensión tiene
lugar mediante una bobina de encendido para cada cilindro y bujía.
1-6 Bujías.
11-16 Monobobinas.
21 Etapa potencia.
22 Etapa potencia.
40 Unidad de mando motronic.
41 Unidad de codificación.
31 Sensor de régimen y posición.
32 Sensor de fase.
33 Sensor de temperatura motor.
34 potenciómetro mariposa.
35 Medidor de masa de aire.
36 Sensor de picado.
37 Sensor de picado.
Este sistema de
encendido está
integrado con el
sistema de inyección
de gasolina
163/264
Monobobinas
Las bobinas de encendido
están montadas directamente en
la bujía y están controladas por
unidades de potencia.
164/264
Constitución de las Monobobinas
Las bobinas constan en su interior de un primario
y un secundario, igual que las bobinas vistas hasta el
momento, pero con la particularidad que en el
secundario se acopla un diodo especial, que solo
permite que la corriente circule por el secundario
cuando la tensión aplicada a este sea elevada, del
orden de kV. Con esto se evita la posibilidad de que
salte una chispa en el momento de restablecer la
corriente por el primario, como consecuencia de la
variación de flujo.
165/264
Unidad de Mando
La unidad de mando del encendido electrónico estático es prácticamente
idéntica a la del encendido electrónico integral. La diferencia existente entre
la unidad de mando de un encendido electrónico integral y un estático, radica
en la necesidad que tiene esta última de disponer de un sensor de fase.
166/264
Unidad de Mando
El sensor de fase suele ser un captador Hall montado en el arbol de
levas, cuya misión es reconocer el momento en que el cilindro número uno
esta realizando la admisión, ya que con el sensor de régimen y posición lo
único que reconoce es que está situado en el PMS, pero no sabe que tiempo
del ciclo está efectuando.
167/264
Localización Etapa de Potencia
ECU
Sensor rpm
y posición
Etapa de potencia
Bobina
Bobina
Sensor rpm
Y posición
ECU
168/264
Etapa de Potencia
Las etapas de potencia, al igual que en el encendido integral, se encargan
de controlar los tiempos de conducción de corriente por los primarios de las
bobinas y también limitan la corriente en el primario de la bobina, para una vez
alcanzado el valor nominal, se mantenga constante hasta el momento del
encendido.
Se pueden agrupar dos o mas
nanobobinas, con sus
correspondientes etapas de
potencia para ser aplicadas a un
motor de cuatro cilindros.
169/264
Unidad de Mando (I)
Etapa de
potencia
170/264
Unidad de Mando (II)
Etapas de
potencia
171/264
Sistema MMBA AEI 450A
1. Batería.
2. Conmutador de arranque.
3. Fusible de protección 15 A.
4. Polea motor de 4 dientes.
5. Sensor rp.m. y PMS.
6. Bobina de encendido cilin. 1-4.
7. Bujías.
8. Placa disipadora de calor.
9. Etapa de potencia de bobina 6.
10. Etapa de potencia de bobina 11.
11. Bobina de encendido cilin. 2-3.
12. Doble relé de alimentación.
13. ECU de encendido e inyección.
14. Sensor de detonación.
15. Sensor de presión absoluta.
Fiat Coupé 1995 16V Turbo
172/264
Sistema Encendido ESC P1 - Ford
1. Sensor r.p.m. y posición.
2. Sensor temperatura motor.
3. Sensor temperatura aire.
4. Selector de octanaje.
5. Toma de vacío.
6. Unidad de mando ESC P1.
7. Bobina de encendido DIS.
173/264Esquema Eléctrico ESC P1 - Ford
1. Sensor r.p.m. y posición.
2. Unidad de mando ESC P1.
3. Interruptor de encendido.
4. Batería.
5. Sensor temperatura motor.
6. Bobina de encendido DIS.
7. Selector de octanaje.
8. cuentarrevoluciones.
9. Bujías.
10. Sensor temperatura aire.
174/264
Identificación de Pines ECU
112
Nº DESTINO
1 Señal captador inductivo de régimen y posición.
2 Señal captador inductivo de régimen y posición.
3 Señal temperatura de aire.
4 Masa sensores.
5 Señal temperatura motor.
6 Codificación para el octanaje.
7 Codificación para el octanaje.
8 Alimentación a través de contacto (15).
9 Masa.
10 Libre
11 Negativo transferido (-) a un primario.
12 Negativo transferido (-) a un primario.
175/264
Comprobaciones
Verificar si existe salto de chispa y el circuito de alta, tal como se explicó en el
apartado de encendido electrónico transistorizado.
1
1) Verificar la alimentación y la masa de la unidad de mando. Accionar el contacto.
(9)
(8)
Valor: Vbat.
2) Comprobar el captador de régimen y posición.
a) Resistencia.
1
(1)
(2)
Valor: _____ Ω
b) Nula derivación.
Valor: _____
1
(1)
(9)
Ω
c) Señal.
1
(1)
(2)
Valor: _______
176/264
También se puede obtener la señal mediante osciloscopio.
1
(2)
(1)
3) Verificar el circuito de los primarios y la alimentación de la bobina. Accionar el
contacto y desconectar la unidad de mando.
Valor: Vbat.
1
(11)
(9)
1
(12)
(9)
4) En caso de no obtener tensión en ninguna
de las dos pruebas, verificar la alimentación
a la entrada de de la bobina, y el estado de
la bobina.
Valor: __________
Valor: __________
177/264
5) Verificar la función salida de la unidad de mando de los dos primarios. Accionando el
arranque.
1
(11)
(8)
1
(12)
(8)
6) Verificar señal del sensor temperatura motor. Medir la resistencia del sensor a
distintas temperturas o medir su caida de tensión con el motor en marcha.
1
(5)
(4)
1
(5)
(4)
Ω
Valor: __________
Valor 20º: ______
80º: ______
7) Verificar el sensor de temperatura de aire igual como el sensor de temperatura motor.
1
(3)
(4)
1
(3)
(4)
Ω
Valor: __________
Valor 20º: ______
0º: ______
178/264
Sistema Inyeción EEC (Motorcraft)
1. Sensor r.p.m. y posición.
2. Módulo E-DIS.
3. Sensor MAP.
4. Potenciómetro mariposa.
5. Caudalímetro.
6. Sensor temperatura motor.
7. Sensor temperatura aire.
8. Conector de servicio.
9. Convertidor de presión.
10. Sonda Lambda.
11. Relé alimentación.
12. Módulo E-DIS.
13. Bobina de encendido DIS.
179/264
Principio Funcionamiento
La señal del sensor de régimen y posición sirve de base para el cálculo. Para
posicionar exactamente el tiempo de cierre del circuito de corriente primario se digitaliza
la señal del sensor de régimen mediante un generador de impulsos en el módulo E-DIS.
El microprocesador del módulo E-DIS determina el momento de cierre requerido a parir
de esta información sobre el régimen motor.
La señal de régimen digitalizada es enviada como señal de onda cuadras,
denominada PIP a la unidad de inyección EEC. La unidad EEC utiliza la señal PIP para
determinar el avance de encendido.
La información de avance al cencendido es transferida como señal SAW al módulo E-
DIS. Esta información es almacenada en una memoria del módulo. El microprocesador
compara los datos SAW con la señal del sensor de régimen digitalizada, y así determina
la posición exacta del avance de encendido. En esta posición, el circuito de corriente
primaria es interrumpido, y las chispas de encendido se disparan mediante la bobina
DIS.
El microprocesador hace uso del desfase de la señal del sensor de régimen a 90º
antes del PMS, con objeto de controlar el circuito primario pertinente, de acuerdo con el
orden de encendido. El cálculo siguiente del avance de encendido o control del circuito
primario se refiere al circuito de encendido 1-4.
La contraetapa electrónica nos facilita la base de control del circuito de encendido 2-3
desfasada en 180º.
180/264
Esquema del Módulo E-DIS
9
EEC IV
1. Sensor r.p.m. y posición.
2. Cuentarevoluciones.
3. Interruptor de encendido.
4. Batería.
5. Unidad de mando inección.
6. Relé alimentación.
7. Bobina de encendido DIS.
8. Bujías.
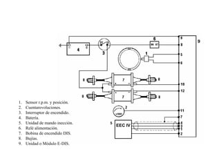
9. Unidad o Módulo E-DIS.
181/264
Identificación de Pines ECU
112
Nº DESTINO
1 Señal PIP de salida hacia la ECU inyección. Señal de avance básico al encendido.
2 Señal EDM. Línea para la autodiagnosis.
3 Señal SAW de entrada al módulo E-DIS. Señal de avance básico del encendido
4 Masa Electrónica
5 Señal captador inductivo de régimen y posición.
6 Señal captador inductivo de régimen y posición.
7 Masa apantallamiento.
8 Alimentación procedente del relé principal.
9 Masa.
10 Negativo transferido (-) a un primario.
11 Señal taquimétrica para el cuentarevoluciones.
12 Negativo transferido (-) a un primario.
182/264
Comprobaciones
Verificar si existe salto de chispa y el circuito de alta, tal como se explicó en el
apartado de encendido electrónico transistorizado.
1
1) Verificar la alimentación y la masa del módulo E-DIS. Accionar el contacto.
(9)
(8)
Valor: Vbat.
2) Comprobar el captador de régimen y posición.
a) Resistencia.
1
(5)
(6)
Valor: _____ Ω
b) Nula derivación.
Valor: _____
1
(5)
(9)
Ω
c) Señal.
1
(5)
(6)
Valor: _______
183/264
También se puede obtener la señal mediante osciloscopio.
1
(6)
(5)
3) Verificar el circuito de los primarios y la alimentación de la bobina. Accionar el
contacto y desconectar la unidad de mando.
Valor: Vbat.
1
(10)
(9)
1
(12)
(9)
4) En caso de no obtener tensión en ninguna
de las dos pruebas, verificar la alimentación
a la entrada de de la bobina, y el estado de
la bobina.
Valor: __________
Valor: __________
184/264
5) Verificar la función salida de la unidad de mando de los dos primarios. Accionando el
arranque.
1
(10)
(8)
1
(12)
(8)
6) Verificar la señal PIP de salida del módulo E-DIS hacía la ECU de inyección.
1
(9)
(1)
7) Verificar la señal SAW de entrada de la unidad de mando hacía el módulo E-DIS
1
(3)
(1)
185/264
Sistema Gestión Motor Sagem SL96
1. Batería.
2. Caja máxifusibles vano motor.
3. Caja fusibles vano motor.
4. Llave de contacto.
5. Caja fusibles habitáculo.
6. Cuadro de instrumentos.
7. Relé doble.
8. Regulador ralentí.
9. Bomba combustible.
10.ECU gestión motor.
11.Conector diagnosis.
12.Recalentador de aire.
13.Sensor temperatura aire.
14.Sensor MAP.
15.Caldeo colector.
16.Electroválvula caníster.
17.Contactor de inercia.
18.Bobina de encendido.
19.Sensor posición mariposa.
20.Sensor temperatura motor.
21.Sonda lambda.
22.Sensor régimen y posición.
23.Sensor detonación.
24.Sensor velocidad vehículo.
25.Inyector cilindro nº 1.
26.Inyector cilindro nº 4.
27.Inyector cilindro nº 2.
28.Inyector cilindro nº 3.
29.Sistema antiarranque.
30.ECU climaticazión.
186/264

Encendido

  • 1.
  • 2.
    2/264 INDICE INTRODUCCIÓN:...................................................................................................... 4 Sistema deencendido Clasificación de sistemas de encendido. ENCENDIDO CONVENCIONAL:............................................................................. 6 Principio de funcionamiento. Funcionamiento del encendido. Oscilograma primario. Oscilograma secundario. Bobina de encendido. Distribuidor de encendido. Bujías de encendido. Punto de encendido. Cables de alta tensión. ENCENDIDO ELECTRÓNICO TRANSISTORIZADO:......................................... 41 Planteamiento. Generador de impulsos. Módulo electrónico de mando. Verificación y localización de averías.
  • 3.
    3/264 ENCENDIDO ELECTRÓNICO INTEGRAL:..........................................................84 Principio de funcionamiento. Sinopsis de funcionamiento. Captador de régimen y posición. Captador de presión en la admisión. Sensor temperatura motor. Sensor temperatura de aire. Sensor de detonación. Selector de octanaje. Unidad de mando. Etapa de potencia. Distribuidor de encendido. Verificación y localización de averías. ENCENDIDO ELECTRÓNICO ESTÁTICO:........................................................ 139 Bobina De encendido. Principio de funcionamiento. Tipos de bobinas. Unidad de mando (sensor de fase) Verificación y localización de averías.
  • 4.
    4/264 Sistema de Encendido Losmotores de combustión interna, necesitan para su funcionamiento, un sistema capaz de encender la mezcla de aire y gasolina que se introduce y comprime en el interior de sus cilindros. Esto se logra por mediación de una chispa eléctrica que se hace saltar en la bujía de encendido, que inflama la mezcla, iniciándose así la combustión. El conjunto de elementos que participan en la obtención de dicha chispa se denomina CIRCUITO DE ENCENDIDO: 1. Batería. 2. Llave de contacto. 3. Bobina. 4. Distribuidor. 5. Bujías. — Circuito de baja. Circuito de alta.
  • 5.
    5/264 Clasificación de Encendidos Interrupción Corrienteprimario Mecanismos de avance Distribución Corriente alta Contacto móvil Convencional Platinos Mecánicos Componente Electrónico (Módulo) Electrónico Transistorizado (EET) Contacto móvil Mecánicos Electrónico Integral (EEI) Componente Electrónico (ECU) Sensores Electrónicos Contacto móvil Individualmente (Bobinas DIS o Monobobinas) Componente Electrónico (ECU) Electrónico Estático (EEE) Sensores Electrónicos
  • 6.
  • 7.
    7/264 Encendido Convencional oClásico El encendido clásico destaca particularmente: un ruptor o platinos, de accionamiento mecánico, que hace posible la transformación de tensión en la bobina de encendido, un condensador que protege a los contactos del ruptor a la vez que potencia la chispa y unos dispositivos de variación del avance, que modifican el momento del salto de chispa en función de las condiciones de funcionamiento de motor. Llave de contacto Mecanismo de avance por vacío Bobina Distribuidor Condensador Ruptor o platinos Bujías
  • 8.
    8/264 Principio de FuncionamientoI Faraday demostró que, cuando un conductor corta a las líneas de fuerza producidas por un campo magnético, se genera en él una fuerza electromotriz inducida (f.e.m), que es directamente proporcional al flujo cortado, e inversamente proporcional al tiempo empleado en hacerlo. Es decir: (Diferencia de flujo) (Diferencia de tiempo) Los mismos efectos se observan si en lugar de aproximar o alejar el imán a la bobina, es esta la que se mueve acercándose o alejándose del imán. Cambiando la polaridad del imán, el sentido de la corriente en la bobina es contrario al obtenido anteriormente.
  • 9.
    9/264 Principio de FuncionamientoII Supongamos circuito formado por dos solenoides, el primero, al que denominamos bobina primaria, alimentado por una batería y el segundo, al que denominamos bobina secundaria y cuyo circuito está cerrado por un amperímetro, tal como se indica en la figura. Al cerrarse el interruptor, la corriente circula por la bobina primaria y el flujo en expansión corta el devanado secundario e induce en él una f.e.m. provocando una corriente eléctrica. Una vez que el flujo está completamente expandido, es decir, en su valor máximo, no hay variación de flujo en el secundario, por lo tanto la corriente inducida en este es cero.
  • 10.
    10/264 Principio de FuncionamientoIII Al abrirse el interruptor el campo magnético desaparece, dando lugar a la aparición de una nueva f.e.m., y provocando una corriente eléctrica de sentido contrario a la anterior. Una vez que el flujo ha desaparecido por completo, no hay variación de flujo en el secundario, por lo tanto la corriente es cero. Siempre que haya una variación de flujo que corta las espiras de una bobina, se induce en esta una f.e.m. inducida, dando lugar a una corriente eléctrica siempre y cuando el circuito se encuentre cerrado.
  • 11.
    11/264 Funcionamiento del CircuitoI • Al accionar la llave de contacto, la tensión de la batería queda aplicada al arrollamiento primario (4), de la bobina de encendido (3). Cuando los contactos de los platinos o ruptor (7) están cerrados por la acción de la leva, la corriente fluye a través de ellos, creándose en el primario el consiguiente campo magnético y almacenamiento de una cierta cantidad de energía en la bobina. • Debido a la acción de la leva sobre los contactos de los platinos, el circuito se abre, interrumpiéndose la corriente por el primario y desapareciendo el campo magnético • En ese instante se induce una fuerza electromotriz tanto sobre el arrollamiento primario como sobre el secundario de la bobina. 1. Batería 2. Contacto. 3. Bobina. 4. Arrollamiento primario. 5. Arrollamiento secundario. 6. Condensador. 7. Ruptor o platinos. 8. Contacto móvil o pipa. 9. Tapa distribuidor. 10.Bujías.
  • 12.
    12/264 Funcionamiento del CircuitoII • El condensador (6) se carga mientras los contactos de los platinos se siguen abriendo. Así pues, la corriente que saltaría de un contacto a otro en forma de chispa, es absorbida por el condensador. • Un instante después, y mientras los platinos permanecen abiertos, comienza el circuito oscilante de descarga y carga del condensador sobre el primario de la bobina, dando como consecuencia a cambios periódicos en el sentido de la corriente eléctrica por el primario ocasionando una sucesión de saltos de chispa en la bujía. • La alta tensión inducida en el secundario, es mandada a la pipa o contacto móvil (8), que la reparte a la bujía correspondiente a través de los los cables de alta. 1. Batería 2. Contacto. 3. Bobina. 4. Arrollamiento primario. 5. Arrollamiento secundario. 6. Condensador. 7. Ruptor o platinos. 8. Contacto móvil o pipa. 9. Tapa distribuidor. 10.Bujías.
  • 13.
    13/264 Oscilograma Primario A-B: Cargainicial del condensador debido a la autoinducción en el primario. B-C: Oscilaciones de carga y descarga del condensador sobre el primario mientras que existe chispa entre los electrodos de la bujía. C-D: Fase de amortiguación de las oscilaciones y disipación de la energía una vez extinguida la chispa. D-E: Estabilización de la tensión a la de la batería y cierre de contacto en el punto E, por lo que la tensión es cero.
  • 14.
    14/264 Oscilograma Secundario A-B: Tensiónde encendido o de aguja. Tensión necesaria para iniciar la sucesión de chispas B-C: Bajada de tensión, ya que la resistencia al salto de chispa es menor. C-D: Tensión de arco. Tensión entre los electrodos mientras se mantiene la chispa. D-E: Zona de amortiguación donde se disipa la energía almacenada. E-A: Se inicia la zona de cierre de primario. Representa la f.e.m inducida en el secundario al establecerse la corriente de nuevo.
  • 15.
    15/264 Corriente por elPrimario La corriente por el primario no se establece de una manera instantánea, sino que debido a la aparición de la f.e.m. autoinducida en el primario, el estableciendo de esta es lento, alcanzando la corriente máxima en el primario al cabo de un cierto tiempo (t1) desde el cierre de los contactos. El tiempo de establecimiento de corriente por el primario (t1) es mayor que el tiempo de interrupción de corriente (t2) por lo que los valores de f.e.m inducida en el secundario solo son lo suficientemente grandes, para producir el salto chispa en la bujía, cuando los platinos se abren y no cuando estos se cierran
  • 16.
    16/264 Bobina de Encendido Misión: Transformarla tensión existente en los bornes de la batería al valor necesario para producir la chispa entre los electrodos de las bujías. Características: • Primario formado por unas 200 a 300 espiras de hilo grueso aisladas entre sí y del secundario. Sus extremos están conectados a los bornes de baja. • Secundario formado aproximadamente de 20.000 a 30.000 espiras de hilo fino de cobre debidamente aisladas entre sí y del núcleo.
  • 17.
  • 18.
    18/264 Verificación de laBobina Resistencia del primario: Valor teórico: 2 a 5 Ω. Valor real : _________ Resistencia del secundario: Valor teórico: 6 a 11 kΩ. Valor real : _________ Nula derivación a masa del primario y secundario: Valor teórico: infinito. Valor real : _________
  • 19.
    19/264 Distribuidor Misión: Distribuir la corrientede alta a las bujías en el orden y momento preciso. Incluye otras funciones fundamentales como, por medio del ruptor, interrumpir la corriente por el primario de la bobina y, mediante los mecanismos de regulación del avance al encendido, determinar el instante preciso del encendido, en función del régimen de revoluciones del motor y la carga del mismo. En su movimiento rotativo, distribuye la corriente en el conocido “orden de encendido” 1-3-4-2.
  • 20.
  • 21.
    21/264 Ruptor o Platinos Misión: Establecere interrumpir la corriente por el primario de la bobina, para de esta forma proceder a su carga y descarga en el momento oportuno. Características: • Consta de un contacto móvil llamado martillo y uno fijo denominado yunque. • Su apertura se realiza por el accionamiento de la leva, y su cierre por medio de un muelle de lámina. Portaplatinos Placa fija Tornillo de ajuste Platinos Acoplamiento avance por vacío Cable de masa
  • 22.
    22/264 Ciclo de Encendido Angulodisponible: Es el ángulo de giro del distribuidor del que dispone el encendido para cargar y descargar la bobina. 360º/Número de cilindros. 360º/6 = 120º360º/4 = 90º Ángulo de cierre o contacto: Es el ángulo de rotación de la leva durante el cual los contactos del ruptor permanecen cerrados. Ángulo Dwell: Es el ángulo de leva expresando en porcentaje respectos al ángulo disponible. Ángulo de apertura o chispa: Es el ángulo de rotación de la leva durante el cual los contactos del ruptor permanecen abiertos.
  • 23.
    23/264 Condensador Misión: • En elmomento de la apertura de contactos, el condensador se carga absorbiendo el alto voltaje autoinducido, y reduciendo el arco eléctrico que se produce entre los contactos del ruptor y que ocasionaría su rápida destrucción. • Una más rápida interrupción del circuito primario, consiguiéndose tensiones inducidas más elevadas, aproximadamente 20 veces más rápido de lo que lo haría sin condensador. • Crea, junto con el arrollamiento primario de la bobina, un circuito oscilante de cargas y descargas del condensador a través del primario, lo que da lugar a una sucesión de saltos de chispas entre los electrodos de la bujía, aportando la energía suficiente para la combustión de la mezcla.
  • 24.
    24/264 Bujías de Encendido Misión: Tienecomo misión hacer que la corriente, producida en el secundario, salte en forma de chispa entre sus electrodos. Rosca terminal Aislador Anillo de reborde Barreras de fuga Cámara de aire Anillo sellador Compuesto vítreo conductor Electrodo de masa Electrodo central Píe del aislador Anillo sellador Núcleo central Cuerpo metálico Terminal
  • 25.
    25/264 Temperatura Funcionamiento Bujía Latemperatura de la bujía ha de estar dentro de unos límites comprendidos entre los 600º y 800º C. Si la temperatura de la bujía está por encima de la temperatura de funcionamiento, da lugar a encendidos por incandescencia (autoencendido); si por el contrario, la temperatura de la bujía es menor de la de funcionamiento, las partículas de aceite y hollín que se depositan sobre el píe del aislador, no desaparecen por ignición, pudiéndose originar derivaciones de corriente.
  • 26.
    26/264 Grado Térmico deuna Bujía Grado térmico de una bujía se refiere a la clasificación en tipos que se hace de las bujías, según su capacidad de transferencia del calor desde el lugar de encendido, en el píe del aislador, hasta el sistema de refrigeración y al medio ambiente. Grado térmico bajo Grado térmico altoGrado térmico medio Las bujías con bajo grado térmico se denominan bujías calientes Las bujías con alto grado térmico se denominan bujías frías
  • 27.
  • 28.
  • 29.
  • 30.
  • 31.
    31/264 Control y Reglajede Bujías El reglaje deberá realizarse actuando sobre el electrodo de masa y nunca sobre el electrodo central, para así evitar deterioros en la porcelana aislante. Lo acercaremos o lo separaremos para darle el reglaje indicado por el fabricante y lo comprobaremos siempre con una galga de espesores. NOTA: el fabricante del vehículo, siempre nos recomendará un tipo de bujía, (marca y modelo) la cual nos garantiza un correcto funcionamiento; de instalar otro tipo tendremos infinidad de fallos y averías: arranques en frío y caliente defectuoso, consumo alto, falta de potencia, daños en el motor, etc.
  • 32.
    32/264 MONTAJE DE LASBUJÍAS DE ENCENDIDO MONTAJE CON LLAVE DINAMOMÉTRICA MONTAJE SIN LLAVE DINAMOMÉTRICA
  • 33.
    33/264 Punto de Encendido Elpunto de encendido es el momento en el cual la corriente salta en forma de chispa entre los electrodos de la bujía. Desde que salta la chispa y comienzan a inflamarse las capas de mezcla más cercanas a la bujía, hasta que finaliza la combustión de la totalidad de mezcla, transcurre un cierto tiempo, tiempo durante el cual el pistón sigue en movimiento. Para conseguir que la mezcla esté quemada totalmente justo después de que el pistón supere la posición del PMS, obteniéndose el valor máximo de presión, se le dota al punto de encendido de un avance. 1. Chispa de encendido. 2. Presión de combustión máxima.
  • 34.
    34/264 Avances Excesivos yEscasos Si el avance al encendido es excesivo, la máxima presión de combustión se conseguirá antes de que el pistón alcance el PMS, frenándole. Como resultado, la potencia del motor baja y la temperatura del motor aumenta, originando combustiones espontáneas de la mezcla, con picos de presión que se reflejan en vibraciones y ruido denominado picado 1a. a: Avance del encendido correcto. 1b. b: Encendido avanzando, Picado. 1c. c: Encendido retardado, baja presión. Si el avance al encendido es escaso, la máxima presión de combustión será menor y se conseguirá cuando el pistón ya está lejos del PMS. Esto hace que se reduzca la potencia del motor y se eleve la temperatura de este.
  • 35.
  • 36.
    36/264Control del Puntode Encendido El control del punto de encendido se realiza con una lámpara estoboscópica, que efectúa un destello en el momento de encendido. Al orientar el destello hacía las marcas de referencia en el motor, dadas por el fabrica, parece que estas fuesen inmóviles. El ajuste básico del punto de encendido se efectúa en muchos casos el número de revoluciones de marcha a ralentí (600-900 r.p.m., según indica fabricante). Si se comprueba que las marcas no coinciden, girar la carcasa del distribuidor hasta la perfecta coincidencia de las mismas. Pinza capacitiba Cilindro 1 ó 4 Pistola estroboscópica
  • 37.
    37/264 Variación Punto deEncendido Desde el inicio de la inflamación de la mezcla hasta su combustión completa, transcurren unos 2 milisegundos y prácticamente permanece constante mientras la composición de la mezcla no varíe; sin embargo, al aumentar las revoluciones del motor, el tiempo de paso del pistón por el PMS se reduce, con lo que la finalización de la combustión y la máxima presión obtenida se alcanza cada vez más lejos del PMS. Por lo tanto, según va aumentando la velocidad del motor, el encendido debe “adelantarse”. Avance inicial
  • 38.
    38/264 Por otra parte,cuando el motor funciona bajas o medias cargas, y la mezcla aspirada por el motor es pobre, la velocidad de inflamación disminuye, por lo que necesitamos más tiempo para realizar la combustión completa, siendo necesario avanzar el punto de encendido según la carga del motor. Avance inicial + centrífugo + por depresión
  • 39.
    39/264 Avance Centrífugo Está localizadoen el distribuidor y se encarga de adelantar el punto de encendido a medida que se incrementa el número de revoluciones del motor. Cuando el motor gira a ralentí, los muelles mantienen a los contrapesos en reposo, pero cuando el motor va aumentando de r.p.m. los contrapesos debido a la acción centrífuga se desplazan hacía la periferia, con lo cual los extremos de los contrapesos hacer girar al manguito de la leva en el mismo sentido de giro del distribuidor, dando así un cierto avance al encendido. Contrapesos Muelles Leva
  • 40.
    40/264 Curva de AvanceCentrífugo El fabricante nos indica el valor del avance al encendido en función de las revoluciones del distribuidor en una curva característica, en la cual se indica los márgenes aceptables. Si los dos muelles del conjunto de avance centrífugo, están ajustados sobre los respectivos pernos, el avance es lineal hasta llegar al tope de la apertura de las masas, por lo que no se consigue más avance y la curva se hace horizontal. Si uno de los muelles presenta holgura en uno de los pernos de sujeción, la curva tendrá dos pendientes, la primera corresponderá a la fuerza que opone el muelle ajustado y el inicio de la segunda, a la fuerza que oponer los dos muelles una vez superada la holgura del segundo.
  • 41.
    41/264 Avance por Vacío Estáigualmente localizado en el distribuidor y se encarga de adelantar el punto de encendido en función de la riqueza de mezcla. Cuando el motor funciona a ralentí, la depresión no actúa sobre la membrana. Ralentí
  • 42.
    42/264 Avance por Vacío Alabrirse la mariposa de gases a medias cargas, la depresión en el colector de admisión llega a la cápsula de vació haciendo girar a la placa portarruptor en sentido contrario al de giro de la leva, adelantando el punto de apertura de los contactos del ruptor y por lo tanto avanzando el punto de encendido. Medias cargas
  • 43.
    43/264 Avance por Vacío Aplena carga, la depresión en el colector de admisión disminuye, recuperando la placa portarruptor su posición de reposo. Plenas cargas
  • 44.
    44/264 Curva de Avancepor Vacío El fabricante nos indica el valor del avance al encendido en función de la depresión en el colector de admisión en una curva característica, en la cual se indica los márgenes aceptables. La curva de avance en grados con respecto a la depresión, en milímetros de mercurio (mm. Hg) o en milibares (mbar). El fabricante nos indica los grados de avance en el distribuidor, por lo que hay que tener presente que: 1 grado de giro del distribuidor = 2º de giro del motor.
  • 45.
    45/264 Control Curvas deAvance Curva de avance centrífugo Curva de avance por vacío
  • 46.
    46/264 Cables de AltaTensión Los cables destinados a transmitir la alta tensión, han de reunir unas características especiales en cuanto a su aislamiento, ya que deben tener la suficiente rigidez dieléctrica para aislar del exterior la elevada tensión que soportan. Sin embargo debido a la pequeña corriente que circula por ellos, no necesitan gran sección de alma. Ademas han de ser capaces de soporta altas temperaturas, sin agrietamientos ni deterioro del aislante, y ser perfectamente insensibles a la humedad e hidrocarburos. También son antiparasitarios, para que no puedan interferir con las emisiones de radio y televisión. Cable antiparasitario de encendido Cable con núcleo de cobre
  • 47.
    47/264 Control Instalación deAlta Tensión Resistencia y aislamiento de la pipa: Valor resistencia: 1 kΩ. Valor real : _________ Valor aislamiento: infinito. Valor real : _________ Aislamiento de la tapa del distribuidor: Valor aislamiento: infinito. Valor real : _________ Resistencia y aislamiento de la pipa: Valor resistencia: según fabricante (25 - 30 kΩ máximo). Cable cilindro nº 1: _________ Cable cilindro nº 2: _________ Cable cilindro nº 3: _________ Cable cilindro nº 4: _________ Cable bobina/distriuidor: _________
  • 48.
    48/264 Ejemplo de Controles ModeloFord Fiesta 1.0 Código motor TKA Ángulo de apertura y cierre 48º – 52º (53 – 58 %) Orden de encendido 1-2-4-3 Reglaje de encendido a PMS sin vacío Avance inicial 10º / 800 r.p.m. Avance centrífugo 11º - 15º / 2.000 r.p.m. (Sin vacío y con avance inicial ) 13º - 18º / 3.000 r.p.m. 20º - 25º / 5.000 r.p.m. Avance por vacío Avance Variación 10º –18º Comienzo 67 mbar Final 300 mbar Bujías Bosch / NGK Tipo HR 7 DC / BPR6EFS Separación entre contactos 0,8 mm Sistema de encendido SZ Bobina de encendido Lucas Tensión de funcionamiento 7 V Resistencia estabilizadora 1,5 Ω Resistencia del primario 0,95 – 1,6 Ω Resistencia del secundario 5 – 9,3 kΩ Distribuidor de encendido Bosch Separación del ruptor 0,5 mm Capacidad del condensador 0,45 µF
  • 49.
  • 50.
    50/264 El Planteamiento El desreglajedel punto del encendido y el desgaste de los elementos giratorios confieren al encendido clásico una vida muy corta, con lo cual se hace necesario el estudio de un nuevo tipo de encendido que suprima en parte los problemas del encendido clásico y mejore el funcionamiento del motor. se utilizan bobinas con primarios de poca resistencia óhmica, al poder utilizar en el circuito primario corrientes más elevadas, de hasta 10 amperios, el campo magnético generado es mayor al igual que la tensión inducida en el secundario. 10 A Si, pero ¿por qué elemento se va sustituir el ruptor para conseguir la ruptura de la elevada corriente por el primario?
  • 51.
    51/264 La Solución La rupturaeléctrica se realizará con un transistor intercalado en el circuito primario de bobina, de tal manera que el transistor necesitará una débil corriente de mando en su base para poder comandar la corriente de paso por el primario. LA SOLUCIÓN ES EL TRANSISTOR 10 A La solución es el transistor, pero ¿Cómo dónde, y de qué manera damos la señal a la base del transistor?
  • 52.
    52/264 Encendido Electrónico Transistorizado Enel interior del distribuidor se dispone de un generador de impulsos que hace llegar esos impulsos a un módulo electrónico de mando, en donde después de tratarlos convenientemente, determina principalmente el ángulo de cierre y el punto de encendido. Módulo de mando Batería Llave de contacto Bobina Bujía Generador de impulsos
  • 53.
    53/264 Generador de Impulsos Lossistemas de encendido electrónicos transistorizados (EET), independientemente de la variedad de las soluciones empleadas, se pueden clasificar según el tipo de generador de impulsos, no obstante nosotros únicamente nos vamos a referir a los generadores de impulso de mayor difusión, es decir: Generador de impulsos por inducción magnética. Generador de impulsos por efecto hall. Generador HallGenerador Inductivo
  • 54.
    54/264 Generador de ImpulsosInductivo El generador de impulsos se va situar en el distribuidor, en el lugar del ruptor. Consta de una parte giratoria o rotor y de una fija o estator. Rotor EstatorDisco polar Conexiones
  • 55.
    55/264 Generador de ImpulsosInductivo Rotor Bobinado de inducción El rotor: Es de acero dulce, magnético, lleva tantos dientes como número de cilindros hay y es movido por el eje del distribuidor. El estator: Lleva un imán permanente y una bobina arrollada alrededor de una masa metálica.
  • 56.
  • 57.
  • 58.
  • 59.
  • 60.
    60/264 Al repetirse nuevamenteel ciclo, por cada una de los salientes del rotor, en un giro completo de éste conseguiremos una tensión alterna como la representada en la figura, cuyo valor de pico de estará en función de la velocidad de rotación del distribuidor, pudiendo variar desde 0,5 V a 100 V. Rotor Estator Bobinado
  • 61.
  • 62.
    62/264 Avance en elEE Transistorizado Avance Centrífugo
  • 63.
    63/264 Avance en elEE Transistorizado Avance por Vacío
  • 64.
    64/264 Circuito EET conCaptador Inductivo 1 2 5 6 3 4
  • 65.
    65/264 Generador de ImpulsosHall El funcionamiento de este generador, se basa en el fenómeno físico conocido como efecto Hall. Un semiconductor es recorrido por una corriente entre sus puntos A y B, si se le aplica un campo magnético N-S, perpendicular al semiconductor, se genera una pequeña tensión (tensión Hall) entre los puntos E y F debido a la desviación de las líneas de corriente por el campo magnético, cuando estas dos condiciones se producen de forma simultánea.
  • 66.
  • 67.
  • 68.
    68/264 Funcionamiento: El módulo demando alimenta de manera constate al integrado Hall, que a su vez proporciona la corriente necesaria al semiconductor hall, con lo que sólo hay que variar la intensidad del campo magnético periódicamente en el ritmo de encendido, para conseguir una tensión hall variable.
  • 69.
  • 70.
    70/264 Integrado Hall (I) Elcircuito integrado Hall, actúa como un interruptor, transfiriéndole masa al terminal neutro (o) con la frecuencia que le indique el semiconductor Hall. Por el terminal (o) el módulo de mando envía una tensión de referencia, que según el estado de conducción de la etapa de potencia del integrado Hall, caerá prácticamente a cero o no. (+) Etapa de potencia Compensación de temperatura Amplificador Estabilizador De tensión Convertidor de señal (-) (O) Semiconductor Hall
  • 71.
  • 72.
    72/264 Circuito EET conCaptador Hall 1 3,5,6 4 2
  • 73.
    73/264 Módulo Electrónico deMando Los aparatos de mando de los sistemas de encendido de alta prestación con captador inductivo o Hall (TZ-I) están construidos casi exclusivamente en técnica híbrida, ya que reúnen alto espesor de envoltura con reducido peso y buena fiabilidad. El circuito va montado en el marco de metal que disipa la pérdida de calor del circuito a la superficie de anclaje. Los componentes están protegidos de la suciedad y de posibles daños mecánicos con una tapa.
  • 74.
    74/264 Funcionamiento Módulo deMando Batería A C D B 1 2 3 4 5 6 7 a b c d + El funcionamiento interno de un módulo electrónico de mando se puede explicar brevemente en un diagrama de bloques como el de la figura. A: Módulo de mando. B: Bobina de encendido. C: Sensor inductivo. D: Sensor hall. 1. Conformador de impulsos. 2. Regulación ángulo de cierre. 3. Desconexión corriente en reposo. 4. Etapa de excitación o impulso. 5. Etapa de potencia. 6. Etapa de limitación de corriente. 7. Resistencia de captación de corriente. a: Intensidad de primario. b: Valor nominal de la corriente primaria. c: Tiempo regulación tensión efectiva. d. Tiempo regulación tensón nominal.
  • 75.
    75/264Limitación de Corrientepor el Primario Produce una caída de tensión en una resistencia de bajo valor en el cable del emisor del transistor. A través de una conexión de regulación de limitación de tensión se ejerce directamente el mando de la etapa de excitación del transistor de potencia del encendido. Limitación
  • 76.
  • 77.
    77/264 Variación del Ángulode Contacto Mediante un circuito interno se modifica la duración del ángulo de contacto en función de a la velocidad de giro del motor y de la tensión de alimentación, aumentando el ángulo de contacto con altos regímenes de giro y ante bajas tensiones de batería. Ángulo de cierre 5.000 r.p.m. Ángulo de cierre 1.000 r.p.m.
  • 78.
  • 79.
  • 80.
    80/264 Localización del Módulo Elemplazamiento del módulo electrónico puede ser variado. Se empezó situándole en una placa de refrigeración de aluminio, también se instalaba en el mismo soporte de la bobina de encendido y por último se ha acabado situando en el propio distribuidor, haciendo la instalación y el traslado de la señal más fácil y sencillo.
  • 81.
    81/264 Verificación y Localizaciónde Averías Encendido Electrónico Transistorizado con captador inductivo
  • 82.
    82/264 2) chispa fuertey azul 3) Tensión de alimentación. 1)chispa fuerte y azul
  • 83.
    83/264 4) Verificación masa.5) Tensión primario. 6) Verificar el captador: Resistencia Aislamiento
  • 84.
    84/264 Medir la tensiónalterna o obtener la señal del captador.
  • 85.
    85/264 7) La funciónSalida del módulo. 8) Si el diodo parpadea, verificar la bobina. Primario Secundario Excitación del sistema: Se puede excitar la etapa del módulo, dando al pin 5 ó 6 alimentación a 12 voltios de una forma pulsatoria, a la vez que se observa el salto de chispa a la salida de la bobina.
  • 86.
    86/264 Ejemplo Controles deEncendido (I) Esquema encendido Citroen AX 1.1/1.4 Modelo Citroen AX 1.1/1.4 Código motor H1A/K1A Entrehierro 0,3 a 0,5 mm Orden de encendido 1-3-4-2 Reglaje de encendido a PMS sin vacío (o) Avance inicial 8º / 750 r.p.m. Sistema de encendido TZ-i 2ª generación Bobina de encendido Bosch/Ducelier Resistencia del primario 0,8 – 1,2 Ω Resistencia del secundario 8 – 11 kΩ / 6,5 kΩ Distribuidor de encendido Bosch Resistencia del captador 320 Ω
  • 87.
    87/264 Ejemplo Controles deEncendido (II) Esquema encendido Fiat Uno 60 Modelo Fiat Uno 60 Código motor 156A Tipo BAE 506A Sistema de encendido Breakerless 2º generación Bobina de encendido M. Marelli Resistencia del primario 0,7 – 1 Ω Resistencia del secundario 3,3 – 4,1 kΩ Distribuidor de encendido M. Marelli Tipo SE 101 A Resistencia del captador 758 - 872 Ω Entrehierro 0,3 a 0,4 mm Orden de encendido 1-3-4-2 Reglaje de encendido a PMS sin vacío (o) Avance inicial 10º / 750 r.p.m.
  • 88.
    88/264Verificación y Localizaciónde Averías Encendido Electrónico Transistorizado con captador Hall
  • 89.
    89/264 a) Alimentación delcaptador Hall. (+) (-) (6) (3) (o) (-) b) Tensión de referencia.
  • 90.
    90/264 c) Función salidadel captdor Hall. (-) (3) Obtención de la señal del captador Hall. (6) (3) 2 - 10 V Excitación del sistema: Se puede excitar la etapa del módulo, dando al pin 6 masa de una forma pulsatoria, a la vez que se observa el salto de chispa a la salida de la bobina.
  • 91.
    91/264 Ejemplo Controles deEncendido (III) Esquema encendido Seat Toledo 1.8 (+) (o) (-)ECU inyección Modelo Seat Toledo 1.8 Código motor RP Resistencia del secundario 3,4 – 3,5 kΩ Distribuidor de encendido Bosch Orden de encendido 1-3-4-2 Sistema de encendido TZ-h Bobina de encendido BOSCH Resistencia del primario 0,52 – 0,76 Ω Reglaje de encendido a PMS sin vacío (o) Avance inicial 6º ±1 / 750 r.p.m. Comprobación del avance 0º / 950 - 1.200 rpm Sin vacío 11º-15º/ 2.600 rpm Variación avance por vacío 10º-14º Comienzo 100 mbar 27º- 31º/ 6.000 rpm Final 260 mbar
  • 92.
  • 93.
    93/264 Encendido Totalmente Electrónico SiBien el encendido transistorizado presenta un neto progreso respecto al encendido convencional, no es menos cierto que el reglaje del punto de avance se realiza siempre mediante correctores mecánicos ya sean centrífugos o por depresión. El siguiente paso será por tanto que el avance del encendido sea en todo momento el adecuado para el grado de carga del motor y el régimen de giro, y que todo esto se realice sin ningún tipo de unión mecánica con el motor. La solución nos vendrá dada por la adopción para el encendido de un “Sistema Electrónico Integral” o también denominado “Encendido de Campo Característico”, que suprime totalmente los dispositivos mecánicos de corrección del avance, a los que sustituye por sensores electrónicos.
  • 94.
    94/264 Principio de Funcionamiento Captadorde Velocidad y posición Captador de Velocidad y posición Cierre y apertura del primario Cierre y apertura del primario BOBINABOBINA UNIDAD ELECTRÓNICA DE CONTROL (ECU) UNIDADUNIDAD ELECTRELECTRÓÓNICANICA DE CONTROLDE CONTROL (ECU)(ECU) Captador de Carga motor Captador de Carga motor Otras salidas Otras salidasOtras entradas Otras entradas
  • 95.
    95/264 Campo Característico Los distintosvalores son memorizados en la unidad electrónica de control. Su ilustración gráfica se representa bien como series de puntos en un sistema coordinado de desarrollo tridimensional denominado mapa tridimensional o por tablas de datos. Mapa tridimensional ¡Jo!, Qué rápido soy. Tabla de datos Cuanto más alto es el número de puntos o coordenadas que componen un mapa tridimensional o una tabla de datos, más precisa es la respuesta a cada situación específica del motor. Además de la precisión del mapa, otro factor importante es la rapidez de respuesta de la unidad de control a los datos de entrada. Actualmente puede afirmarse que estos datos son calculados prácticamente en “tiempo real”.
  • 96.
    96/264 ECU Sinopsis del Funcionamiento Captadorrégimen Activación del AC Captador Posición Selección octanaje Captador carga Presión del turbo Sensor temp. motor Sensor temp. aire Sensor detonación Contactor mariposa Selección cambio auto BOBINA abre y cierra el primario Válvula paso mínima Cuentarrevoluciones Testigo avería Toma de diagnosis Otras funciones Otras entradas 15 50 31
  • 97.
    97/264 Captador de Régimeny posición Sirven para determinar el número de revoluciones y la sincronización con el cigüeñal, mediante captadores, existen varias posibilidades en función de la disposición de los captadores: Si estos van montados en la polea, volante del cigüeñal o en el distribuidor, y en función del tipo de captador, pudiendo ser mayoritariamente del tipo inductivo o hall. Sensor inductivo en polea Sensor inductivo en volante Sensor inductivo en distribuidor Sensor Hall en distribuidor
  • 98.
    98/264 Captadores Inductivos En losmontajes de este captador en el volante o polea del cigüeñal, este captador está constituido por una corona dentada denominada rueda fónica, acoplada en la periferia del volante o polea, y un captador magnético colocado frente a ella, formado por una bobina enrollada en un imán permanente. El giro continuado de la corona produce sucesivas variaciones de flujo debidas al paso de los dientes y huecos frente al captador, en cuya bobina se induce una tensión alterna con impulsos positivos y negativos. La frecuencia con que se realizan dichos impulsos le sirve a la unidad de mando para interpretar el régimen de giro del motor.
  • 99.
    99/264 Captador de Régimen RuedaFónica con dientes idénticos Sensor de régimen
  • 100.
    100/264 Captador de Posicióno PMS Sensor de régimen Rueda Fónica con dientes enfrentados
  • 101.
    101/264Captadores de Régimeny Posición Rueda Fónica con tetones de posición Sensor de régimen Sensor de posición
  • 102.
    102/264Captador de Régimeny Posición Rueda Fónica con dientes y huecos dobles
  • 103.
    103/264Captador de Régimeny Posición Rueda Fónica con ausencia de dientes Sensor de régimen
  • 104.
    104/264 El perfil delos dientes de la corona genera un perfil de tensión alterna, cuya frecuencia indica a la unidad de mando el régimen de giro del motor. Los dientes dobles o la falta de dientes, según el caso, genera una señal de referencia que permite a la unidad de mando reconocer, con un cierto avance, el PMS de la pareja de cilindros 1-4. La unidad de mando reconoce el PMS de la pareja de cilindros 2-3 gracias al montaje de dos marcas de referencia enfrentadas o debido al cálculo de la unidad de mando PMS Cilindros 1- 4 PMS Cilindros 2- 3 20d 50d 1d
  • 105.
    105/264 PMS Cilindros 1-4 PMS Cilindros 2- 3 20d 50d 1d 1 20 PMS Cilindros 1-4 avanceavance PMS Cilindros 2-3 50
  • 106.
    106/264 Los sistemas deencendido con captadores inductivos en el distribuidor tuvieron inicialmente una gran implantación, sobretodo a la facilidad de sustitución en los motores existentes de los distribuidores convencionales por otros con sensores inductivos, más adelante la mayor precisión y el mayor caudal de datos suministrado por los sensores dispuestos frente a coronas dentadas solidarias al cigüeñal hizo que éstos se generalizaran finalmente. Conector Bobinado e imán Rueda polarMarca para el calado Pipa o contacto móvil Este distribuidor actúa como sensor de posición y como distribuidor de corriente de alta.
  • 107.
    107/264 Captadores Hall Estos tiposde sensores se utilizan la gran mayoría de veces como sensores montados en el distribuidor. La señal de régimen se toma directamente del sensor hall, ya que la señal ya está en forma digital. El intervalo del encendido se obtiene del perfil de la señal hall en la unidad de control. En una palabra, el propio captador hall hace de sensor de régimen motor y de sensor de posición.
  • 108.
    108/264 Otras veces, únicamenteactúa como sensor de posición en combinación con un sensor inductivo de régimen, ver figura. En el ejemplo el tambor de captador hall consta de dos ventanas. En su movimiento el tambor cubre y descubre al captador hall dos veces por vuelta del árbol de leva. Por cada vuelta del rotor, da origen a dos ondas cuadradas con un determinado desfase entre ellas (en la figura 90º) que, junto a las señales generadas por el sensor de régimen, permiten que la unidad de mando reconozca con cierta anticipación el PMS del cilindro 1.
  • 109.
    109/264Conexionado Sensor Régimen ECU SensorInductivo Sensor inductivo Sensor Hall ECU+5V o - Sensor Hall
  • 110.
    110/264 La estrategia DEPHIA. Laestrategia DÉPHIA (DEtección de Fase Integrada al Encendido), se basa en la adquisición de una señal procedente de las bobinas de encendido jumoestático. Ud Se elabora a partir de las tensiones de salida de la bobina de encendido común a los cilindros 1 y 4. Cilindro 1 Cilindro 3Cilindro 2 Cilindro 4 FUNCIÓN: INYECCIONLA INFORMACIÓN REFERENCIA CILINDRO.
  • 111.
    111/264 - Cilindro 4en fase compresión y cilindro 1 en fase escape. Cilindro 1 Cilindro 4 VHT1 = 5 KV VHT4 = 10 KV VHT = 15 KV La estrategia DEPHIA. FUNCIÓN: INYECCIONLA INFORMACIÓN REFERENCIA CILINDRO.
  • 112.
    112/264 Cilindro 1 Cilindro4 VHT1 = 10 KV VHT4 = 5 KV VHT = 15 KV - Cilindro 1 en fase compresión y cilindro 4 en fase escape. La estrategia DEPHIA. FUNCIÓN: INYECCIONLA INFORMACIÓN REFERENCIA CILINDRO.
  • 113.
    113/264 - Cilindro 4en fase compresión y cilindro 1 en fase escape. La estrategia DEPHIA. FUNCIÓN: INYECCIONLA INFORMACIÓN REFERENCIA CILINDRO. Cilindro 1 Cilindro 4 VHT1 = 5 KV VHT4 = 10 KV VPH = VHT = 15 KV 7,5 KV7,5 KV + 2,5 KV
  • 114.
    114/264 VHT1 = 10KV VHT4 = 5 KV VPH = VHT = 15 KV 7,5 KV7,5 KV - 2,5 KV - Cilindro 1 en fase compresión y cilindro 4 en fase escape. La estrategia DEPHIA. FUNCIÓN: INYECCIONLA INFORMACIÓN REFERENCIA CILINDRO. Cilindro 1 Cilindro 4
  • 115.
    115/264 En función dela tensión VPH, el calculador define un estado lógico llamado FASE: - Un estado lógico "1" si la tensión VPH es negativa: el cilindro 1 está en fase de compresión. - Un estado lógico "0" si la tensión VPH es positiva: el cilindro 4 está en fase de compresión. Cilindro 1 Cilindro 4 VPH La estrategia DEPHIA. FUNCIÓN: INYECCIONLA INFORMACIÓN REFERENCIA CILINDRO.
  • 116.
    116/264 La estrategia DEPHIA. FUNCIÓN:INYECCIONLA INFORMACIÓN REFERENCIA CILINDRO. a b a b VPH < 0 a b a b VPH > 0
  • 117.
    117/264 LA INFORMACIÓN REFERENCIACILINDRO.FUNCIÓN: INYECCION La estrategia DEPHIA. Comando primario bobinas 1 et 4. Señal DEPHIA. Voltio ms Voltio
  • 118.
    118/264 Captador de Presiónen la Admisión El sensor de presión absoluta está conectado al colector de admisión y proporciona una señal de tensión proporcional a la presión existente en el colector de admisión. Atendiendo a su principio de funcionamiento, nos podemos encontrar en los sistemas de encendido dos tipos de captadores de presión absoluta en la admisión: Captador de membrana. Captador piezoeléctrico cerámico y de pyrex. Captador digital.
  • 119.
    119/264 Captador MAP deMembrana Cuando se deforma la membrana de la cápsula, desplaza el núcleo, lo que origina una variación de flujo magnético de la bobina y, en consecuencia, varia la frecuencia enviada por la unidad electrónica.
  • 120.
    120/264 Cuando la depresiónactúa sobre la membrana de la cápsula, el núcleo esta poco metido en la bobina, la frecuencia del oscilador es elevada. Cuando la presión es idéntica en ambos lados de la membrana, el núcleo empujado por el muelle está muy introducido en la bobina, entonces la frecuencia del oscilador es menor. ALTO VACÍO BAJO VACÍO
  • 121.
    121/264 Captador MAP Pizoeléctrico Launidad de mando mantiene a 5 voltios la alimentación del captador. Ante una depresión en el colector de admisión, provoca que el diafragma cerámico del sensor se arquee variando el valor de las resistencias del puente, y haciendo variar también el valor de la tensión en la salida. Puente de resistenciasDiafragma Tensión de alimentación Tensión salida Soporte
  • 122.
    122/264 El sensor seinstala dentro de un contenedor de plástico, sobre el que se ha provisto un orificio que, conectado a un tubo de goma se transmite el vacío del colector hasta el interior del sensor. A: Negativo alimentación 5V. B: Señal. Tensión variable. C: Positivo alimentación 5V. A: Positivo alimentación 5V. B: Negativo alimentación 5V. C: Señal. Tensión variable.
  • 123.
    123/264 Captador MAP Digital Estetipo de sensor, recibe una tensión de alimentación de referencia a 5 voltios, procedente de la unidad de mando, la cual convierte el sensor en una frecuencia proporcional a la situación de vacío. Esta frecuencia se vuelve a dirigir a la central de mando teniendo un valor aproximados entre 80 Hz a 0,2 bar y 162 Hz a 1 bar. Toma de vacío
  • 124.
    124/264 Conexionado Sensor MAP Enfunción del tipo de sensor MAP pizoeléctrico, el conexionado puede variar. ECU 5 V C B A Sensor MAP ECU 5 V A B C Sensor MAP
  • 125.
    125/264 Existe un grannúmero de unidades electrónicas de mando que incorporan al sensor de presión absoluta en su interior, formando un conjunto hermético y compacto.
  • 126.
    126/264 Sensor Temperatura Motor Sumisión es informar directamente a la unidad de mando de la temperatura motor. El sensor de temperatura motor, montado con la parte sensible sumergida en el líquido de refrigeración de motor, está constituido por una resistencia de coeficiente de temperatura negativo (NTC), Por lo tanto si la temperatura del sensor aumenta al aumentar la temperatura del líquido de refrigeración, se produce una disminución del valor de resistencia. Sensor NTC
  • 127.
    127/264 Conexionado Sensor T.Motor La unidad de mando pone bajo tensión al sensor de temperatura de refrigerante, que actúa como una resistencia variable en función de la temperatura. La corriente eléctrica fluye a través del sensor, a masa. En el sensor se produce una caída de tensión, este valor de tensión corresponde a una temperatura determinada del motor. La unidad de mando asigna un valor determinado de temperatura a cada valor de tensión. ECU 5 V Sensor temperatura motor
  • 128.
    128/264 Sensor Temperatura Aire Elsensor de temperatura de aire puede ir montado en el conducto de admisión de aire o en la propia carcasa del filtro del aire. Están compuestos, al igual que los sensores de temperatura de refrigeración, de una resistencia del tipo NTC, (algunas veces, nos podemos encontrar tanto en sensores de temperatura de agua como sensores de temperatura de aire, resistencia del tipo PTC).
  • 129.
    129/264 Conexionado Sensor T.Aire Al igual que el sensor de temperatura motor, la unidad de mando controla las variaciones de resistencia del sensor a través de los cambios de tensión y obtiene por lo tanto, la información sobre la temperatura del aire aspirado. Senspr temperatura de aire ECU 5 V
  • 130.
    130/264 Sensor de Detonación Unade las características negativas relacionadas con los sistemas de gestión del avance es aquella según la cual, por motivos de precaución, es necesario siempre mantener un cierto margen de seguridad para evitar que en condiciones puntuales de funcionamiento del motor pudiesen producir detonaciones. Estos márgenes de seguridad, a veces excesivos pero de todas maneras necesarios, no permitían el máximo aprovechamiento del motor.
  • 131.
    131/264 Sensor de Detonación Parasolucionar este inconveniente se emplean sensores de detonación que, montados por lo general en la parte superior del bloque, detectan detonaciones en la culata. Estos sensores están compuestos de cristales piezoeléctricos que generan una señal eléctrica cuando perciben el exceso de vibraciones producidas por los fallos de combustión.
  • 132.
    132/264 Sensor de Detonación Launidad de mando evalúa las señales procedentes del sensor y activa una estrategia de retraso del encendido de una forma paulatina, hasta que la detonación desaparece. Posteriormente, se vuelve a situar el momento de encendido, a pequeños pasos, hacía avance, hasta que queda situado en su valor programado. Si la detonación apareciese en cualquier momento, la ECU volvería a producir el retraso hasta su desaparición. Las detonaciones pueden ser diferenciadas cilindro a cilindro, pudiéndose ajustar el avance individualmente por cilindro.
  • 133.
    133/264 Conexionado Sensor deDetonación El apriete del tornillo de sujección del detector de picado ha de realizarse a su par correspondientes, ya que de lo contrario emitirá señales inpropias con el estado de funcionamiento del motor. ECU
  • 134.
    134/264 Selector de Octanaje Algunossistema de encendido poseen un conector de servicio, mediante el cual pueden llevarse a cabo un ajuste del octanaje con ayuda de un cable de servicio, o simplemente variando la posición de un conmutador. Este puede ser necesario al utilizar combustible de distinto índice de octano o en caso de un posible picado del motor. Este ajuste de octanaje origina una modificación en el avance del momento de encendido, adoptando un campo característicos distintos.
  • 135.
    135/264 Conexionado del selectorOctanaje La selección del tipo de octanaje, varia de unos modelos a otros. He aquí dos formas distintas de conexionado de selector de octanaje: La unidad de mando manda una tensión de referencia, normalmente de 5V y en esta, en función del tipo de conexionado, se producirá una caída de tensión determinada, identificada por la unidad de mando. ECU 5 V Conector de octanaje ECU 5 V Conector de octanaje
  • 136.
    136/264 Unidad de Mando(ECU) CIRCUITO ANALÓGICO TRATAMIENTO DE SEÑALES CIRCUITO DIGITAL SENSOR DE PRESIÓN SENSOR DE PRESIÓN SENSOR DE R.P.M. Y POSICIÓN SENSOR DE R.P.M. Y POSICIÓN Alimentación Alimentación COMPARADOR AMPLIFICADOR Señal de presión Señal tipo reloj r.p.m. Señal posición Señal de mando CIRCUITO DE POTENCIA Hacia el distribuidor BOBINA DE ENCENDIDO
  • 137.
    137/264 Circuito integrado analógico: Sedivide en dos partes, una de tratamiento de señales encargado de transformar las señales analógicas que provienen de los captadores en señales digitales y otra de comparación y amplificación de la señal de mando emitida por el circuito numérico; esta última es la encargada de gobernar la etapa de potencia, no solamente para determinar el ángulo de avance al encendido más idóneo, sino para conseguir también: Mantener constante la energía aportada por la bobina. Variar el ángulo de contacto según el régimen motor y tensión de alimentación. Limitar la corriente por el primario. Circuito integrado numérico: Comprende un circuito de cálculo y una memoria que guarda el campo característico del motor. El circuito numérico recibe las señales interpretándolas y comparándolas con las de su memoria, determina el momento adecuado para abrir o cerrar el circuito primario de la bobina; para ello envía señales de mando hacía el circuito analógico que amplifica las señales y gobierna el circuito de potencia. Circuito de potencia: Es un montaje de transistores darlington y se encarga de transmitir masa al terminar (-) de la bobina y de quitárselo cuando llegue el momento del salto de chispa.
  • 138.
    138/264 Etapa de Potencia +Bobina Etapa de potencia AT COMPARADOR AMPLIFICADOR CIRCUITO ANALÓGICO
  • 139.
    139/264 En algunas unidadesde mando la etapa de potencia se monta en el exterior, ya que esta es más susceptible de avería, con lo que se abarata el coste de la reparación.
  • 140.
    140/264 Nos podemos encontrarencendidos electrónicos integrales que van gobernados por la unidad electrónica de control del sistema de inyección (realmente serian sistemas de gestión de motor). De igual manera estos sistemas pueden incorporar la etapa de potencia del encendido en el exterior de la unidad de mando o bien en el interior. ECU Sensor rpm y posición Etapa de potencia Bobina Distribuidor Bobina Sensor rpm Y posición ECU Distribuidor
  • 141.
    141/264 Etapa de potencia Enlos sistemas de encendido que consten con etapas de potencia exterior, dichas etapas están excitadas directamente por la unidad de mando mediante una señal normalmente cuadrada. Podemos diferenciar dos tipos distintos. - Bobina ECU +15 - Bobina ECU La ECU transfiere masa a la etapa de potencia cuando quiera que esta cargue a la bobina y le quita la masa en el momento que dictamine el salto de chispa en la bujía. La ECU transfiere positivo a la etapa de potencia cuando quiera que esta cargue a la bobina y le quita la masa en el momento que dictamine el salto de chispa en la bujía.
  • 142.
    142/264 Distribuidor de Encendido Eldistribuidor en el encendido electrónico integral suele ser eso, únicamente un distribuidor de la corriente de alta, aunque podemos encontrar varios modelos de encendido electrónico integral en los que el captador de velocidad o posición están incorporados en el propio distribuidor como si se tratase de un captador de encendido electrónico transistorizado. Arrastre Carcasa Pipa Tapa Carcasa Eje Captador hall Arrastre
  • 143.
    143/264Sistema de EncendidoEZ61-MSTS 1. Sensor r.p.m. y posición. 2. Etapa de potencia. 3. Interruptor de encendido. 4. Batería. 5. Cuentarrevoluciones. 6. Bobina de encendido. 7. Distribuidor. 8. Unidad de mando. ECU. 9. Sensor de temperatura motor. 10. Selector de octanaje. 11. Salida señal para ECU inyección. 12. Pin 10 de la ECU inyección. 13. Interruptor de mariposa.
  • 144.
    144/264 Sistema de EncendidoEZ PLUS K20: K84: L3: P23: P24: Y10 X5: X10: X13: X15: Etapa de potencia. Unidad electrónica de mando. Bobina de encendido. Sensor de presión en el colector. Sensor temperatura de aceite. Distibuidor con captador Hall. Conector tablero de instrumentos. Enchufe codificador, reglaje básico. Enchufe de diagnosis. Enchufe de octanaje.
  • 145.
    145/264 Sistema de EncendidoDigiplex 2 1. Toma de vacío del colector. 2. Unidad electrónica de control (ECU). 3. Bobina de encendido. 4. Distribuidor de alta tensión. 5. Volante motor. 6. Eventual interruptor para reducción avance 7. Eventual interruptor para curva base. 8. Interruptor de mínimo de la mariposa. 9. Batería. 10. Bujías. 11. Cuentarrevoluciones. 12. Válvula de mínima (Cut-off) 13. Toma de diagnosis. 14. Sensor de r.p.m. y P.M.S. 15. Motor de arranque. 16. Centralización de masas.
  • 146.
    146/264 Sistema de EncendidoMicroplex 1. Unidad Electrónica de mando. 2. Toma de vacío de admisión. 3. Bujías. 4. Distribuidor de alta tensión. 5. Bobina de encendido. 6. Etapa de potencia de encendido. 7. Llave de contacto. 8. Cuentarevoluciones. 9. Sensor de posicón PMS. 10.Sensor de régimen. 11.Sensor de detonación. 12.Interruptor seguridad sobrealimentación. 13.Señal tacométrica. 14.Toma de diagnosis.
  • 147.
    147/264 Ejemplo Controles deEncendido (I) Esquema encendido Renault 11 Modelo Renault 11 Código motor C2j L7-17 Orden de encendido 1-3-4-2 Reglaje de encendido a PMS sin vacío (o) Avance inicial 8º / 700 r.p.m. Comprobación avance 7º - 9º / 750 rpm 24º - 30º / 4.050 rpm Sensor regimen y posición Resistencia 150 – 250 Ω 15º - 23º / 1.750 rpm Entrehierro 0,5 – 1,5 mm Sistema de encendido Renix AEI Bobina de encendido Renix Resistencia del primario 0,4 – 0,8 Ω Resistencia del secundario 4 – 5,5 kΩ Distribuidor de encendido Ducelier + bobina - bobina Conector sensor Sensor rpm,posición ECU bobina Sensor vacío Conector alimentación Cuentarevoluciones - negativo + positivo Nota: En los últimos modelos de encendido Renix, el conector de alimentación solo disponía de tres pines (positivo, negativo y señal cuentarevoluciones
  • 148.
    148/264 Comprobaciones 2) Sensor régimeny posición: Sensor Sensor Conector Conector Resistencia Aislamiento 1) Alimentación de la unidad de mando (ECU): Tensión mínima: 10 V (3) (2) 3) Función salida de la ECU: (+) (-) Al arrancar parpadea
  • 149.
    149/264 Ejemplo Controles deEncendido (II) Esquema encendido Seat Ibiza- Malaga 1.5 inyección ECU Encendido ECU Inyección Distribuidor Bobina Relé taquimétrico NTC Etapa de potencia Contactor
  • 150.
    150/264 Identificación de PinesECU Nº DESTINO 1 Masa a través de la etapa de potencia. 2 Salida de masa hacia captador Hall. 3 Alimentación a través de contacto (15). 4 Alimentación captador Hall. 5 Salida señal taquimétrica hacia relé taquimétrico y ECU inyección de gasolina. 6 Entrada señal ralentí desde el contactor de mariposa. 7 Libre 8 Libre 9 Libre 10 Libre 11 Libre 12 Entrada señal desde el generador Hall. 13 Señal de control de la etapa de potencia. 14 Señal de plena carga desde el contactor de mariposa. 15 Entrada información desde la ECU inyección de gasolina
  • 151.
    151/264 Comprobaciones Verificar si existesalto de chispa y el circuito de alta, tal como se explicó en el apartado de encendido electrónico transistorizado. 1) Verificar la alimentación y la masa de la unidad de mando. Accionar el contacto. (3) (1) Valor: Vbat. 2) Comprobar el captador hall. Con el contacto accionado: a) Alimentación: (2) (4) Valor: _____ b) Tensión referencia. (2) (12) Valor: _____ c) Función salida. (2) (12) (4) (12)
  • 152.
    152/264 4) Controlar laseñal de mando de la ECU hacia la etapa de potencia.: a) Con lámpara led (4) (13) ____ b) Con osciloscopio. (1 ó masa) (13) 3) Verificar la alimentación y la masa de la etapa de potencia y de la bobina. Accionar el contacto. Valor: Vbat. Valor: Vbat. Valor: Vbat.
  • 153.
    153/264 5) Verificar lafunción salida de la etapa de potencia. Conectar una lampara led entre el (+) y (-) de la bobina o entre el pin 4 y 1 de´la etapa. Accionando el arranque. (14) (1) Valor: Vbat. a plena carga.(6) (1) Valor: Vbat. a ralentí. 6) Verificar señal del contactor de mariposa. Accionar el arranque o puentear el relé taquimétrico entre sus terminales 30 y 87. 7) Comprobar la señal taquimétrica emitida por la ECU. a) Con lámpara led (3) (5) b) Con osciloscopio. (1 ó masa) (5)
  • 154.
    154/264 Ajuste Básico delPunto de Encendido 1) Comprobar el sentido de giro del distribuidor y el orden de encendido. 2) Desconectar el conector del contactor de mariposa y hacer un puente entre los tres terminarles del conector de la instalación. Conector interruptor de mariposa 3) Conectar una lámpara estroboscópica, arrancar el motor y ajustar el régimen a ralentí a unas 850 r.pm. 4) Comprobar y ajustar el punto de encendido, si es preciso a 10º de avance.
  • 155.
  • 156.
    156/264 Encendido Electrónico Estático Elencendido electrónico estático contiene las funciones del encendido electrónico integral y se suprime la distribución de alta tensión por el distribuidor. La alta tensión es distribuida directamente a a las bujías a través de bobina doble (o triple para 6 cilindros) o mediante bobinas individuales (monobobinas) una para cada una de las bujías. 1. Bujía. 2. Bobina doble de encendido. 3. Interruptor de mariposa 4. Unidad de mando. 5. Toma captador de presión. 6. Sensor temperatura motor. 7. Sensor de régimen y posición. 8. Rueda fónica en volante motor. 9. Batería. 10. Llave de contacto. Las ventajas de este sistema son: Eliminación del distribuidor. Reducción del nivel de ruidos. Menor pérdida de energía.
  • 157.
    157/264 Bobina Doble La bobinadoble está formada por dos devanados primarios, gobernados de forma alternativa cada uno por una etapa de potencia, y dos secundarios, unido cada uno de ellos por sus extremos, directamente a las bujías. Existen, por lo tanto, dos circuitos de encendido 1-4 y 2-3 en el motor de cuatro cilindros y tres circuitos de encendidos 1-5, 4-3 y 2-6 en el motor de seis cilindros. DIS 6 DIS 4 Al encendido electrónico estático también se le denomina “Encendido de chispa perdida”, ya que el salto de chispa en una de las bujías no es utilizado para combustionar la mezcla, aunque si tiene una insignificante perdida de energía.
  • 158.
    158/264 Principio de Funcionamiento Laalta tensión inducida en los secundarios de forma alternativa, hace que en ambas bujías, conectadas en serie con el secundario en cuestión, se originen un salto de chispa. Las bujías de encendido están ordenadas de tal manera que una de las bujías encienda en el tiempo de trabajo del cilindro, mientras que la otra encienda en el tiempo de escape desfasado 360º. Es decir, si la bujía del cilindro 1 enciende finalizando la compresión, la del cilindro numero 4 encenderá terminando escape. Este procedimiento se repite nuevamente una vuelta después, pero intercambiando los papeles en los cilindros.
  • 159.
    159/264 Polaridad en lasbujías Dado que la dirección del flujo de corriente en el circuito secundario está regida por el diseño, se alcanzan polaridades diferente del voltaje de encendido en ambas bujías conectadas a un mismo secundario. Esto significa que la bujía del cilindro número 1 y 4 tendrán una tensión una positiva y otra negativa, al igual que en las bujías de los cilindros 2 y 3. En estos sistemas de encendido se utilizan bujías con un recubrimiento especial en sus electrodos, debido a la alta tensión que se originan entre ellos. Igualmente por esto permiten que separación entre electrodos se superior a las bujías utilizadas en los anteriores sistemas de encendido.
  • 160.
    160/264 Tipos de Bobinasde EEE NANOBOBINADIS 4 DIS 6 VALEO ROCHESTER IAW O MMBA
  • 161.
  • 162.
    162/264 Bobina Individual oMonobobina Este sistema de encendido estático es la última generación en el desarrollo de los encendidos. Como ya se ha dicho la generación de alta tensión tiene lugar mediante una bobina de encendido para cada cilindro y bujía. 1-6 Bujías. 11-16 Monobobinas. 21 Etapa potencia. 22 Etapa potencia. 40 Unidad de mando motronic. 41 Unidad de codificación. 31 Sensor de régimen y posición. 32 Sensor de fase. 33 Sensor de temperatura motor. 34 potenciómetro mariposa. 35 Medidor de masa de aire. 36 Sensor de picado. 37 Sensor de picado. Este sistema de encendido está integrado con el sistema de inyección de gasolina
  • 163.
    163/264 Monobobinas Las bobinas deencendido están montadas directamente en la bujía y están controladas por unidades de potencia.
  • 164.
    164/264 Constitución de lasMonobobinas Las bobinas constan en su interior de un primario y un secundario, igual que las bobinas vistas hasta el momento, pero con la particularidad que en el secundario se acopla un diodo especial, que solo permite que la corriente circule por el secundario cuando la tensión aplicada a este sea elevada, del orden de kV. Con esto se evita la posibilidad de que salte una chispa en el momento de restablecer la corriente por el primario, como consecuencia de la variación de flujo.
  • 165.
    165/264 Unidad de Mando Launidad de mando del encendido electrónico estático es prácticamente idéntica a la del encendido electrónico integral. La diferencia existente entre la unidad de mando de un encendido electrónico integral y un estático, radica en la necesidad que tiene esta última de disponer de un sensor de fase.
  • 166.
    166/264 Unidad de Mando Elsensor de fase suele ser un captador Hall montado en el arbol de levas, cuya misión es reconocer el momento en que el cilindro número uno esta realizando la admisión, ya que con el sensor de régimen y posición lo único que reconoce es que está situado en el PMS, pero no sabe que tiempo del ciclo está efectuando.
  • 167.
    167/264 Localización Etapa dePotencia ECU Sensor rpm y posición Etapa de potencia Bobina Bobina Sensor rpm Y posición ECU
  • 168.
    168/264 Etapa de Potencia Lasetapas de potencia, al igual que en el encendido integral, se encargan de controlar los tiempos de conducción de corriente por los primarios de las bobinas y también limitan la corriente en el primario de la bobina, para una vez alcanzado el valor nominal, se mantenga constante hasta el momento del encendido. Se pueden agrupar dos o mas nanobobinas, con sus correspondientes etapas de potencia para ser aplicadas a un motor de cuatro cilindros.
  • 169.
    169/264 Unidad de Mando(I) Etapa de potencia
  • 170.
    170/264 Unidad de Mando(II) Etapas de potencia
  • 171.
    171/264 Sistema MMBA AEI450A 1. Batería. 2. Conmutador de arranque. 3. Fusible de protección 15 A. 4. Polea motor de 4 dientes. 5. Sensor rp.m. y PMS. 6. Bobina de encendido cilin. 1-4. 7. Bujías. 8. Placa disipadora de calor. 9. Etapa de potencia de bobina 6. 10. Etapa de potencia de bobina 11. 11. Bobina de encendido cilin. 2-3. 12. Doble relé de alimentación. 13. ECU de encendido e inyección. 14. Sensor de detonación. 15. Sensor de presión absoluta. Fiat Coupé 1995 16V Turbo
  • 172.
    172/264 Sistema Encendido ESCP1 - Ford 1. Sensor r.p.m. y posición. 2. Sensor temperatura motor. 3. Sensor temperatura aire. 4. Selector de octanaje. 5. Toma de vacío. 6. Unidad de mando ESC P1. 7. Bobina de encendido DIS.
  • 173.
    173/264Esquema Eléctrico ESCP1 - Ford 1. Sensor r.p.m. y posición. 2. Unidad de mando ESC P1. 3. Interruptor de encendido. 4. Batería. 5. Sensor temperatura motor. 6. Bobina de encendido DIS. 7. Selector de octanaje. 8. cuentarrevoluciones. 9. Bujías. 10. Sensor temperatura aire.
  • 174.
    174/264 Identificación de PinesECU 112 Nº DESTINO 1 Señal captador inductivo de régimen y posición. 2 Señal captador inductivo de régimen y posición. 3 Señal temperatura de aire. 4 Masa sensores. 5 Señal temperatura motor. 6 Codificación para el octanaje. 7 Codificación para el octanaje. 8 Alimentación a través de contacto (15). 9 Masa. 10 Libre 11 Negativo transferido (-) a un primario. 12 Negativo transferido (-) a un primario.
  • 175.
    175/264 Comprobaciones Verificar si existesalto de chispa y el circuito de alta, tal como se explicó en el apartado de encendido electrónico transistorizado. 1 1) Verificar la alimentación y la masa de la unidad de mando. Accionar el contacto. (9) (8) Valor: Vbat. 2) Comprobar el captador de régimen y posición. a) Resistencia. 1 (1) (2) Valor: _____ Ω b) Nula derivación. Valor: _____ 1 (1) (9) Ω c) Señal. 1 (1) (2) Valor: _______
  • 176.
    176/264 También se puedeobtener la señal mediante osciloscopio. 1 (2) (1) 3) Verificar el circuito de los primarios y la alimentación de la bobina. Accionar el contacto y desconectar la unidad de mando. Valor: Vbat. 1 (11) (9) 1 (12) (9) 4) En caso de no obtener tensión en ninguna de las dos pruebas, verificar la alimentación a la entrada de de la bobina, y el estado de la bobina. Valor: __________ Valor: __________
  • 177.
    177/264 5) Verificar lafunción salida de la unidad de mando de los dos primarios. Accionando el arranque. 1 (11) (8) 1 (12) (8) 6) Verificar señal del sensor temperatura motor. Medir la resistencia del sensor a distintas temperturas o medir su caida de tensión con el motor en marcha. 1 (5) (4) 1 (5) (4) Ω Valor: __________ Valor 20º: ______ 80º: ______ 7) Verificar el sensor de temperatura de aire igual como el sensor de temperatura motor. 1 (3) (4) 1 (3) (4) Ω Valor: __________ Valor 20º: ______ 0º: ______
  • 178.
    178/264 Sistema Inyeción EEC(Motorcraft) 1. Sensor r.p.m. y posición. 2. Módulo E-DIS. 3. Sensor MAP. 4. Potenciómetro mariposa. 5. Caudalímetro. 6. Sensor temperatura motor. 7. Sensor temperatura aire. 8. Conector de servicio. 9. Convertidor de presión. 10. Sonda Lambda. 11. Relé alimentación. 12. Módulo E-DIS. 13. Bobina de encendido DIS.
  • 179.
    179/264 Principio Funcionamiento La señaldel sensor de régimen y posición sirve de base para el cálculo. Para posicionar exactamente el tiempo de cierre del circuito de corriente primario se digitaliza la señal del sensor de régimen mediante un generador de impulsos en el módulo E-DIS. El microprocesador del módulo E-DIS determina el momento de cierre requerido a parir de esta información sobre el régimen motor. La señal de régimen digitalizada es enviada como señal de onda cuadras, denominada PIP a la unidad de inyección EEC. La unidad EEC utiliza la señal PIP para determinar el avance de encendido. La información de avance al cencendido es transferida como señal SAW al módulo E- DIS. Esta información es almacenada en una memoria del módulo. El microprocesador compara los datos SAW con la señal del sensor de régimen digitalizada, y así determina la posición exacta del avance de encendido. En esta posición, el circuito de corriente primaria es interrumpido, y las chispas de encendido se disparan mediante la bobina DIS. El microprocesador hace uso del desfase de la señal del sensor de régimen a 90º antes del PMS, con objeto de controlar el circuito primario pertinente, de acuerdo con el orden de encendido. El cálculo siguiente del avance de encendido o control del circuito primario se refiere al circuito de encendido 1-4. La contraetapa electrónica nos facilita la base de control del circuito de encendido 2-3 desfasada en 180º.
  • 180.
    180/264 Esquema del MóduloE-DIS 9 EEC IV 1. Sensor r.p.m. y posición. 2. Cuentarevoluciones. 3. Interruptor de encendido. 4. Batería. 5. Unidad de mando inección. 6. Relé alimentación. 7. Bobina de encendido DIS. 8. Bujías. 9. Unidad o Módulo E-DIS.
  • 181.
    181/264 Identificación de PinesECU 112 Nº DESTINO 1 Señal PIP de salida hacia la ECU inyección. Señal de avance básico al encendido. 2 Señal EDM. Línea para la autodiagnosis. 3 Señal SAW de entrada al módulo E-DIS. Señal de avance básico del encendido 4 Masa Electrónica 5 Señal captador inductivo de régimen y posición. 6 Señal captador inductivo de régimen y posición. 7 Masa apantallamiento. 8 Alimentación procedente del relé principal. 9 Masa. 10 Negativo transferido (-) a un primario. 11 Señal taquimétrica para el cuentarevoluciones. 12 Negativo transferido (-) a un primario.
  • 182.
    182/264 Comprobaciones Verificar si existesalto de chispa y el circuito de alta, tal como se explicó en el apartado de encendido electrónico transistorizado. 1 1) Verificar la alimentación y la masa del módulo E-DIS. Accionar el contacto. (9) (8) Valor: Vbat. 2) Comprobar el captador de régimen y posición. a) Resistencia. 1 (5) (6) Valor: _____ Ω b) Nula derivación. Valor: _____ 1 (5) (9) Ω c) Señal. 1 (5) (6) Valor: _______
  • 183.
    183/264 También se puedeobtener la señal mediante osciloscopio. 1 (6) (5) 3) Verificar el circuito de los primarios y la alimentación de la bobina. Accionar el contacto y desconectar la unidad de mando. Valor: Vbat. 1 (10) (9) 1 (12) (9) 4) En caso de no obtener tensión en ninguna de las dos pruebas, verificar la alimentación a la entrada de de la bobina, y el estado de la bobina. Valor: __________ Valor: __________
  • 184.
    184/264 5) Verificar lafunción salida de la unidad de mando de los dos primarios. Accionando el arranque. 1 (10) (8) 1 (12) (8) 6) Verificar la señal PIP de salida del módulo E-DIS hacía la ECU de inyección. 1 (9) (1) 7) Verificar la señal SAW de entrada de la unidad de mando hacía el módulo E-DIS 1 (3) (1)
  • 185.
    185/264 Sistema Gestión MotorSagem SL96 1. Batería. 2. Caja máxifusibles vano motor. 3. Caja fusibles vano motor. 4. Llave de contacto. 5. Caja fusibles habitáculo. 6. Cuadro de instrumentos. 7. Relé doble. 8. Regulador ralentí. 9. Bomba combustible. 10.ECU gestión motor. 11.Conector diagnosis. 12.Recalentador de aire. 13.Sensor temperatura aire. 14.Sensor MAP. 15.Caldeo colector. 16.Electroválvula caníster. 17.Contactor de inercia. 18.Bobina de encendido. 19.Sensor posición mariposa. 20.Sensor temperatura motor. 21.Sonda lambda. 22.Sensor régimen y posición. 23.Sensor detonación. 24.Sensor velocidad vehículo. 25.Inyector cilindro nº 1. 26.Inyector cilindro nº 4. 27.Inyector cilindro nº 2. 28.Inyector cilindro nº 3. 29.Sistema antiarranque. 30.ECU climaticazión.
  • 186.