MATERIALES DE PROYECTO
MATERIALES DE PROYECTO l MATERIALES DE CONSTRUCCIÓN l DETALLES
1
Las fichas que aquí se presentan han sido elaboradas por los alumnos en los diferentes cursos impartidos dentro de la Línea de Investiga-
ción “La Forma Moderna”. El material gráfico utilizado procede de material redibujado o fotografías de los mismos alumnos, así como
reproducciones de bibliografías básicas indicadas y originales de archivo.
Programa de Doctorado “La Forma Moderna”. Curso 2003-04.
Escuela Técnica Superior de Arquitectura de Barcelona. Universidad Politécnica de Cataluña
PAULO AMBROSINI / MAXIMILIANO BOLOTNER / OSCAR CARDENAS / GLENN DEULOFEU / MAMEN ESCORIHUELA / ALDO FA-
CHO / MARCELO FAIDEN / ADRIANA FREIRE / EUNICE GARCÍA / Mª EUGENIA GATTI / JUAN PABLO IVANOVIC / MARIO JIMÉNEZ /
MARA KRAMER / CARLOS LARA / JOVAN A. MASLACH / LEONARD MOAD / GERARDO MOSQUEDA / MARCELO RANZINI / MANUEL
ALEJANDRO RIVAS / JOFRE ROCA / PABLO JAVIER ROSAS / CAROLINA RUIZ / GIOFRANCO ANGILIS SAGGIN FONSECA / JUVENAL
SALCEDO / GUSTAVO J. SAPIÑA / MASSIMO SODINI / NÉSTOR SOLDATE / PABLO TENA
Seminario “Teoría de la Forma Moderna”, Febrero 2004. Master Diseño Arquitectónico. Curso 2003-05.
Escuela Técnica Superior de Arquitectura, Pamplona. Universidad de Navarra
JORGE CAMACHO / ALEJANDRO CASAS / JOSÉ CAVALLERO / EDNA ECHANDI / MARCOS ESCARTÍN / FRANCESCA FIORELLI/ AN-
DREA FRANCONETTI / FEDERICO KELLY / PAULA LESTARD / EMMA LÓPEZ / LETICIA PASCHETTA / ROMINA PASQUALE / GABRIELA
QUIÑONES / JUAN LUIS ROQUETTE / BRETT TIPPEY
Edición al cuidado de: Yolanda Ortega
LA FORMA MODERNA, Programa de Doctorado
DEPARTAMENTO DE PROYECTOS ARQUITECTÓNICOS
Responsables: Helio Piñón, Teresa Rovira
LABORATORIO DE ARQUITECTURA. Helio Piñón, Nicanor García
Arq.: Diego López de Haro, Pablo Frontini, Carolina Ruiz, Guillermo Posik, Augusta Hermida
Arqtos. Colab.: Bruno Beltramino, Mássimo Sodini
Avda. Diagonal, 649. 6a Planta. 08028 Barcelona
+34 93 401 10 20 forma.moderna@upc.es
www.upc.es/pa/formamoderna/forma_moderna.htm
ESCUELA TÉCNICA SUPERIOR DE ARQUITECTURA DE BARCELONA
UNIVERSIDAD POLITÉCNICA DE CATALUÑA
BARCELONA, SEPTIEMBRE 2004
PRESENTACIÓN
MATERIALES DE PROYECTO
CHAREAU, PIERRE (BORDEAUX, FRANCIA 1883- 1950)
GROPIUS, WALTER (BERLÍN, ALEMANIA 1883-BOSTON, MASSACHUSETTS 1969)
MIES VAN DER ROHE, LUDWIG (AACHEN, ALEMANIA 1886-CHICAGO, ILLINOIS 1969)
LE CORBUSIER, Charles-Edouard Jeanneret-Gris ( SUIZA 1887-FRANCIA 1965)
NIZZOLI, MARCELLO (BORETTO, ITALIA 1887- GÉNOVA, ITALIA 1969), BERNASCONI, G.A. / FIOCCHI, A.
RIETVELD, G.T. (HOLANDA 1888-1964)
NEUTRA, RICHARD (VIENA 1892-ALEMANIA 1970)
AALTO, ALVAR (KUORTANE, FINLANDIA 1898-HELSINKI, FINLANDIA 1976)
SOM. SKIDMORE (1897-1962), OWINGS (1903-) & MERRILL (1896-1975) (OFICINA, CHICAGO 1936)
BUNSHAFT, GORDON (BUFFALO, NUEVA YORK 1909-) SOM*
KAHN, LOUIS I. (ESTONIA 1901- NUEVA YORK 1974)
BREUER, MARCEL (PECS, HUNGRÍA 1902-NUEVA YORK 1981)
JACOBSEN, ARNE E. (COPENHAGUE, DINAMARCA 1902-1971)
EIRMANN, EGON (ALEMANIA 1904-1970)
TERRAGNI, GIUSEPPE (ITALIA 1904-1943)
EAMES, CHARLES (ST. LOUIS MISSOURI, 1907-1978) RAY EAMES (1912-1988)
JOHNSON, PHILIP (OHIO 1906-)
SAARINEN, EERO ( FINLANDIA 1910-1961)
ALVAREZ, MARIO ROBERTO (ARGENTINA 1913-)
BONET CASTELLANA, A. (BARCELONA 1913-1989)
CODERCH DE SETMENAT, J.A. (BARCELONA 1913-1984)
KONSTANTINIDIS, ARIS (ATENAS, GRECIA 1913-93)
SOTA, ALEJANDRO DE LA (PONTEVEDRA, ESPAÑA 1913- MADRID, ESPAÑA 1996)
LASDUN, DENYS ( INGLATERRA 1914-2001)
SOSTRES, J.M. (BARCELONA, ESPAÑA 1915-1984)
DUHART, EMILIO (CHILE 1917-)
SAÉNZ DE OIZA, FRANCISCO JAVIER (NAVARRA 1918-2000)
CANO LASSO, JULIO (MADRID 1920-1996)
SMITHSON, PETER (INGLATERRA 1923-2002)
HOZ, RAFAEL DE LA (CÓRDOBA, ESPAÑA 1924-MADRID, ESPAÑA 2000)
SOUTO DE MOURA, EDUARDO E.M. (OPORTO, PORTUGAL 1925-)
MENDES DA ROCHA, PAULO (VITÓRIA, BRASIL 1928-)
VACCHINI, LIVIO ( LOCARNO, SUIZA 1933-)
MURCUTT, GLENN (INGLATERRA 1936-)
HERZOG & DE MEURON (SUIZA 1950-)
MANGADO, FRANCISCO (ESTELLA, NAVARRA 1957-)
ABALOS, IÑAQUI ( SAN SEBASTIÁN 1956- ) & HERREROS, JUAN ( MADRID 1958-) (DESPACHO 1984)
ALONSO VERA, DOLORES ( ALICANTE 1951-) & GARCÍA SOLERA, JAVIER (ALICANTE 1958-)
SANCHO OSINAGA, JUAN CARLOS ( SAN SEBASTIÁN 1957-) & MADRIDEJOS, SOL ( MADRID 1958-)
GARCÍA SOLERA, JAVIER (ALICANTE 1958-)
TUÑÓN, EMILIO ( MADRID 1958-) & MORENO MANSILLA, LUIS ( MADRID 1959-)
ALVARO ROCHA, JOAO (VIANA DO CASTELO, PORTUGAL, 1959-)
MENDES RIBEIRO, JOAO (COIMBRA, PORTUGAL, 1960-)
MORALES, JOSÉ (SEVILLA, 1960-) & GONZÁLEZ MARISCAL, JUAN (SEVILLA, 1961-)
ALONSO DEL VAL, MIGUEL ÁNGEL & HERNÁNDEZ MINGUILLÓN, RUFINO
ÍNDICE CRONOLÓGICO DE ARQUITECTOS, OBRAS Y MATERIALES
ÍNDICE
Al situar el proyecto de arquitectura en el ámbito de las ideas, e identificarlas con la manifestación de meras intenciones,
se desvanece su condición esencialmente formal -estructurante, ordenadora-, lo que provoca el eclipse de la noción de materia: en efecto,
la consideración del material constructivo - elementos físicos con que se afronta la construcción- es obviada, en general, por considerarla
un momento secundario respecto de “la idea”, de modo que a menudo esta se describe sin ninguna alusión a la materialidad del objeto.
Pero, paralelamente a esta noción de material de construcción, cabe hablar de material de proyecto, es decir, aquellos
elementos, criterios, o soluciones, pertenecientes a la experiencia propia o ajena, que constituyen la materia prima del proyecto a la que el
sentidodelordendequienproyectaconseguirádotardeestructuraformal.Niquedecirtienequetalnocióndematerialnointervieneenlaprác-
tica convencional del proyecto, a no ser en forma de manipulación -consciente o inconsciente- de soluciones ajenas con criterios “prácticos”.
Naturalmente, en los términos que se propone aquí, la noción de material no se relaciona con criterios oper-
ativos, sino que, por un lado, trata de acentuar la dimensión formadora del proyecto y, por otro, compromete a llegar más allá
en la concepción: en la medida en que se parte de la experiencia de ciertos aspectos elementales del proyecto, se propi-
cia que la acción formadora incida en los niveles esenciales del objeto, aquellos que afectan a su identidad arquitectónica.
La noción de material como materia prima de la acción formadora del autor, es frecuente en la composición musi-
cal, práctica que por su abstracción esencial se apoya en una conciencia clara de la dimensión formal de su quehacer. En el ámbito de
la arquitectura, la asunción de la experiencia ajena como moterial de proyecto fue habitual hasta los primeros años sesenta: a partir
de entonces, una idea compulsiva de “novedad” acabó con ella. La merma en la calidad que tal pretensión es de sobras conocida.
Esta materia tratará de estimular la identificación de materiales de proyecto, de modo que la concepción adqui-
era su auténtica dimensión formativa, trascendiendo la obstinada pasión por descubrir cada vez elementos básicos novedosos.
HELIO PIÑÓN
Catedrático de Proyectos
PRESENTACIÓN. MATERIALES DE PROYECTO
MATERIALES DE PROYECTO
MATERIALES DE PROYECTO l MATERIALES DE CONSTRUCCIÓN l DETALLES
CHAREAU, PIERRE ( Francia 1883-1950) Maison de Verre, París, Francia 1932
CHAREAU, PIERRE ( Francia 1883-1950) Maison de Verre, París, Francia 1932
CHAREAU, PIERRE ( Francia 1883-1950) Maison de Verre, París, Francia 1932
CHAREAU, PIERRE ( Francia 1883-1950) Maison de Verre, París, Francia 1932
GROPIUS, WALTER ( Alemania1883-Massachusetts1969) Embajada EEUU en Atenas, Grecia 1960
MIES VAN DER ROHE, LUDWIG ( Alemania 1886-1969) Casa Resor 1937-38
MIES VAN DER ROHE, LUDWIG ( Alemania 1886-1969) Casa Farnsworth, Chicago, Illinois 1945-50
MIES VAN DER ROHE, LUDWIG ( Alemania 1886-1969) Casa Farnsworth, Chicago, Illinois 1945-50
MIES VAN DER ROHE, LUDWIG ( Alemania 1886-1969) Metalurgical and Chemical Engineering Building IIT 1945-46
MIES VAN DER ROHE, LUDWIG ( Alemania 1886-1969) Lake Shore Drive Apartments, Chicago 1948-51
MIES VAN DER ROHE, LUDWIG ( Alemania 1886-1969) Crown Hall, Illinois Institute of Technology. Chicago1950-56
MIES VAN DER ROHE, LUDWIG ( Alemania 1886-1969) Crown Hall, Illinois Institute of Technology. Chicago1950-56
MIES VAN DER ROHE, LUDWIG ( Alemania 1886-1969) Crown Hall, Illinois Institute of Technology. Chicago1950-56
MIES VAN DER ROHE, LUDWIG ( Alemania 1886-1969) Commonwealth Promenade Apartments, Chicago 1953-56
MIES VAN DER ROHE, LUDWIG ( Alemania 1886-1969) Edificio Seagram, Park Avenue, Nueva York 1954-58
MIES VAN DER ROHE, LUDWIG ( Alemania 1886-1969) Edificio Seagram, Park Avenue, Nueva York 1954-58
MIES VAN DER ROHE, LUDWIG ( Alemania 1886-1969) Viviendas Lafayette Park, Detroit 1955-63
MIES VAN DER ROHE, LUDWIG ( Alemania 1886-1969) National Gallery, Berlín 1962-68
MIES VAN DER ROHE, LUDWIG ( Alemania 1886-1969) Highfield House apartments, Baltimore 1963-65
LE CORBUSIER ( Suiza 1887-Francia 1965) Casa Cook, Boulogne-Sur-Seine 1926
LE CORBUSIER ( Suiza 1887-Francia 1965) Casa Stein, Garches 1927
LE CORBUSIER ( Suiza 1887-Francia 1965) Casa Savoie, Poissy, Francia 1929
LE CORBUSIER ( Suiza 1887-Francia 1965) Pabellón Suizo, Ciudad Universitaria de París 1930-32
LE CORBUSIER ( Suiza 1887-Francia 1965) Pabellón Suizo, Ciudad Universitaria de París 1930-32
LE CORBUSIER ( Suiza 1887-Francia 1965) Inmueble Clarté, Ginebra, Suiza 1930-34
LE CORBUSIER ( Suiza 1887-Francia 1965) Casa de Vacaciones, Les Mathes, Francia 1935
LE CORBUSIER ( Suiza 1887-Francia 1965) Casa para Fin de semana, La Celle-Saint-Cloud, París 1935
1.Paneles prefabricados
de hormigón.
2. Hormigón in situ.
3. Baranda prefabricada
de hormigón.
4. Baldosas de hormigón.
5. Carpinteria fija de vidrio.
6. Puertas de vidrio
totalmente practicables.
7. Banco de madera sobre
radiador
8. Pavimento de madera.
LE CORBUSIER ( Suiza 1887-Francia 1965) Unité d’Habitation, Marsella 1946
LE CORBUSIER ( Suiza 1887-Francia 1965) Casas Jaoul, Neuilly-sur-Seine 1954-56
LE CORBUSIER ( Suiza 1887-Francia 1965) Casa Mr. Sarabhai, Ahmedabad, India 1955
NIZZOLI, MARCELLO ( Italia 1887-1969) BERNASCONI, G.A.; FIOCCHI, A. Sede Olivetti, Milán 1962
RIETVELD, G.T. ( Holanda 1888-1964) Casa Schröeder, Utrecht 1924
NEUTRA, RICHARD ( Austria, Viena 1892-Alemania 1970) Casa Estudio, California, EEUU 1946-48
NEUTRA, RICHARD ( Austria, Viena 1892-Alemania 1970) Casa de Vacaciones 1948
NEUTRA, RICHARD ( Austria, Viena 1892-Alemania 1970) Casa Mr.Elvain 1953
NEUTRA, RICHARD ( Austria, Viena 1892-Alemania 1970) Casa Mr. Slavin 1953
NEUTRA, RICHARD ( Austria, Viena 1892-Alemania 1970) Escuela Elemental Kester Avenue 1955
AALTO, ALVAR ( Finlandia 1898-Alemania 1976) Instituto Finlandés de trabajadores Jubilados, Helsinki 1952-56
SOM. SKIDMORE, OWINGS & MERRILL Oficinas Inland Steel Company 1956-58
SOM. SKIDMORE, OWINGS & MERRILL Oficinas Crown Zellerbach Corporation, San Francisco, California 1957-59
SOM. SKIDMORE, OWINGS & MERRILL Oficinas Grand Rapids, Michigan, USA 1962
SOM. SKIDMORE, OWINGS & MERRILL Edificio Central, Armstrong Cork Co., Lancaster, Pennsylvania 1963-73
SOM. BUNSHAFT, GORDON (NUEVA YORK 1909-) Lever House, Nueva York 1950-52
SOM. BUNSHAFT, GORDON (NUEVA YORK 1909-) Lever House, Nueva York 1950-52
SOM. BUNSHAFT, GORDON (NUEVA YORK 1909-) H.J. Heinz Company, Pittsburg, Pennsylvania 1952
SOM. BUNSHAFT, GORDON (NUEVA YORK 1909-) Reynolds Metals Company, Richmond, Virginia 1958
SOM. BUNSHAFT, GORDON (NUEVA YORK 1909-) Oficinas Pepsi-Cola, Nueva York 1958-59
SOM. BUNSHAFT, GORDON (NUEVA YORK 1909-) Oficinas J. Hancock, Nueva Orleans, Louisiana 1962
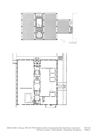
KAHN, LOUIS I. ( Estonia 1901-NY 1974) Galería de Arte, Universidad de Yale, New Haven, Connecticut 1951-53
Oficinas e imprenta, “Tribune Review”, Greensburg. Pennsylvania 1958-61
KAHN, LOUIS I. ( Estonia 1901-NY 1974) Galería de Arte, Universidad de Yale, New Haven, Connecticut 1951-53
KAHN, LOUIS I. ( Estonia 1901-NY 1974) Proyecto Casa Adler, Filadelfia, Pennsylvania 1954
–
KAHN, LOUIS I. ( Estonia 1901-NY 1974) Instituto Salk, La Jolla, California 1959-65
KAHN, LOUIS I. ( Estonia 1901-NY 1974) Museo Kimbell de Bellas Artes, Fortworth, Texas 1967-72
KAHN, LOUIS I. ( Estonia 1901-NY 1974) Museo Kimbell de Bellas Artes, Fortworth, Texas 1967-72
KAHN, LOUIS I. ( Estonia 1901-EEUU 1974) Centro de Arte y Estudios británicos, Universidad de Yale 1969-77
KAHN, LOUIS I. ( Estonia 1901-EEUU 1974) Centro de Arte y Estudios británicos, Universidad de Yale 1969-77
1. Hormigón armado.
2. Aislamiento proyectado.
3. Retorno de aire.
4. Contrachapado.
5. Panel de acero inox. sin pulir
con aislamiento térmico.
6. Panel de cartón-yeso.
1. Solera de hormigón.
2. Mortero.
3. Travertino.
4. Panel de acero inox. sin pulir
con aislamiento térmico.
1. Hormigón armado.
2. Panelde cartón- yeso.
3. Lana de roca.
4. Contrachapado.
5. Panel de acero inox. sin pulir
con aislamiento térmico.
6. Espacio persiana corredera de
madera.
1. Hormigón armado.
2. Aislamiento proyectado.
3. Retorno de aire.
4. Lana de roca.
5. Tabla de madera.
6. Perfil para condensaciones.
7. Vidrio.
8. Rail persiana corredera
de madera.
BREUER, MARCEL ( Hungría 1902- Nueva York 1981) Casa Chamberlain, Wayland, Massachusetts 1939
BREUER, MARCEL ( Hungría 1902- Nueva York 1981) Casa, Exposición MOMA, Nueva York 1948-49
BREUER, MARCEL ( Hungría 1902- Nueva York 1981) Casa, Exposición MOMA, Nueva York 1948-49
BREUER, MARCEL ( Hungría 1902- Nueva York 1981) Casa Stillman I, Litchfield, Connecticut 1950-51
BREUER, MARCEL ( Hungría 1902- Nueva York 1981) Casa Bratti, New Canaan, Connecticut 1951
BREUER, MARCEL ( Hungría 1902- Nueva York 1981) Casa Starkey o Alworth, Duluth, Minnesota 1954
BREUER, MARCEL ( Hungría 1902- Nueva York 1981) Hunter College, Bronx, Nueva York 1955-59
BREUER, MARCEL ( Hungría 1902- Nueva York 1981) Casa Hooper, Baltimore County, Maryland 1960
BREUER, MARCEL ( Hungría 1902- Nueva York 1981) Cottage Wise, Wellfleet, Massachusetts 1963-64
BREUER, MARCEL ( Hungría 1902- Nueva York 1981) Casa Beckhard, Glen Cove, Long Island, Nueva York, 1964
BREUER, MARCEL ( Hungría 1902- Nueva York 1981) Casa Stillman II, Litchfield, Connecticut 1964-65
BREUER, MARCEL ( Hungría 1902- Nueva York 1981) Casa Soriano, Greenwich, Connecticut 1971-73
BREUER, MARCEL ( Hungría 1902- Nueva York 1981) Compañía Telefónica, Torrington, Connecticut 1973
JACOBSEN, ARNE E. ( Dinamarca 1902- 1971) Ayuntamiento de Aarhus, Dinamarca 1937-42
JACOBSEN, ARNE E. ( Dinamarca 1902- 1971) Ayuntamiento de Sollerod, Dinamarca 1939-42
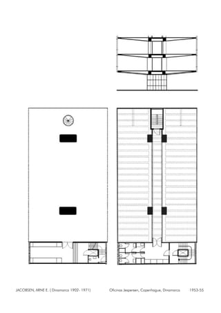
JACOBSEN, ARNE E. ( Dinamarca 1902- 1971) Oficinas Jespersen, Copenhague, Dinamarca 1953-55
JACOBSEN, ARNE E. ( Dinamarca 1902- 1971) Oficinas Jespersen, Copenhague, Dinamarca 1953-55
JACOBSEN, ARNE E. ( Dinamarca 1902- 1971) Oficinas Jespersen, Copenhague, Dinamarca 1953-55
JACOBSEN, ARNE E. ( Dinamarca 1902- 1971) Oficinas Jespersen, Copenhague, Dinamarca 1953-55
JACOBSEN, ARNE E. ( Dinamarca 1902- 1971) Ayuntamiento de Rødovre, Dinamarca 1954-56
JACOBSEN, ARNE E. ( Dinamarca 1902- 1971) Ayuntamiento de Rødovre, Dinamarca 1954-56
JACOBSEN, ARNE E. ( Dinamarca 1902- 1971) Ayuntamiento de Rødovre, Dinamarca 1954-56
JACOBSEN, ARNE E. ( Dinamarca 1902- 1971) Ayuntamiento de Rødovre, Dinamarca 1954-56
JACOBSEN, ARNE E. ( Dinamarca 1902- 1971) Hotel y Terminal Aérea SAS, Copenhague, Dinamarca 1955-60
JACOBSEN, ARNE E. ( Dinamarca 1902- 1971) Hotel y Terminal Aérea SAS, Copenhague, Dinamarca 1955-60
JACOBSEN, ARNE E. ( Dinamarca 1902- 1971) Hotel y Terminal Aérea SAS, Copenhague, Dinamarca 1955-60
JACOBSEN, ARNE E. ( Dinamarca 1902- 1971) Escuela Munkegards, Hellerup, Dinamarca 1948-57
JACOBSEN, ARNE E. ( Dinamarca 1902- 1971) Fábrica Christensen, Aalborg, Dinamarca 1956
JACOBSEN, ARNE E. ( Dinamarca 1902- 1971) Fábrica Christensen, Aalborg, Dinamarca 1956
JACOBSEN, ARNE E. ( Dinamarca 1902- 1971) Proyecto casas-patio, Carlsminde, Sollerod 1955
JACOBSEN, ARNE E. ( Dinamarca 1902- 1971) Casa Rüthwen-Jürgensen, Vedbaek 1956
JACOBSEN, ARNE E. ( Dinamarca 1902- 1971) Casa E. Siesby, Virum 1957
JACOBSEN, ARNE E. ( Dinamarca 1902- 1971) Casa E. Siesby, Virum 1957
JACOBSEN, ARNE E. ( Dinamarca 1902- 1971) Casa E. Siesby, Virum 1957
JACOBSEN, ARNE E. ( Dinamarca 1902- 1971) Viviendas en Ornegardsvej, Gentofte 1957
JACOBSEN, ARNE E. ( Dinamarca 1902- 1971) Casa E. Jensen, Charlottenlund, Gentofte 1956
JACOBSEN, ARNE E. ( Dinamarca 1902- 1971) Proyecto Casa, Statslanshus 1958
JACOBSEN, ARNE E. ( Dinamarca 1902- 1971) Casa, Exposición “Interbau”, Hansaviertel, Berlín 1957
JACOBSEN, ARNE E. ( Dinamarca 1902- 1971) Casas-patio, Bellevue, Klampenborg 1960-61
JACOBSEN, ARNE E. ( Dinamarca 1902- 1971) Pabellón Deportivo, Landskrona, Suecia 1957-64
JACOBSEN, ARNE E. ( Dinamarca 1902- 1971) Pabellón Deportivo, Landskrona, Suecia 1957-64
JACOBSEN, ARNE E. ( Dinamarca 1902- 1971) Escuela Elemental Nyager, Rodovre 1959-64
JACOBSEN, ARNE E. ( Dinamarca 1902- 1971) Escuela Elemental Nyager, Rodovre 1959-64
JACOBSEN, ARNE E. ( Dinamarca 1902- 1971) Oficinas-sede, Hamburgo, Alemania 1962-69
JACOBSEN, ARNE E. ( Dinamarca 1902- 1971) Foyer, Parque Herrenhausen, Hannover, Alemania 1964-65
JACOBSEN, ARNE E. ( Dinamarca 1902- 1971) St. Catherine College, Oxford, Inglaterra 1959-64
JACOBSEN, ARNE E. ( Dinamarca 1902- 1971) Banco Nacional de Dinamarca, Copenhague 1961-71
JACOBSEN, ARNE E. ( Dinamarca 1902- 1971) Kuberflex, sistema de casas de verano 1969-70
JACOBSEN, ARNE E. ( Dinamarca 1902- 1971) Kuberflex, sistema de casas de verano 1969-70
EIERMANN, EGON ( Alemania 1904- 1970) Casa Graf, Ardenberg 1954
EIERMANN, EGON ( Alemania 1904- 1970) Proyecto Estadio Deportivo 1954
EIERMANN, EGON ( Alemania 1904- 1970) Oficinas Lebensversicherungs-AG 1955-57
EIERMANN, EGON ( Alemania 1904- 1970) Viviendas, Internationale Bauaustellung 1957
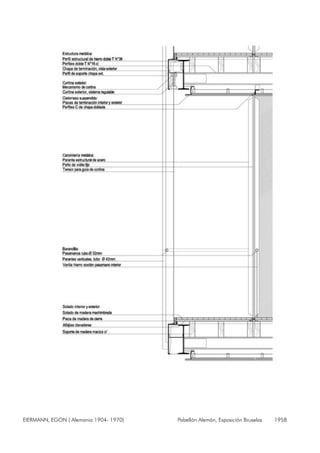
EIERMANN, EGON ( Alemania 1904- 1970) Pabellón Alemán, Exposición Bruselas 1958
EIERMANN, EGON ( Alemania 1904- 1970) Pabellón Alemán, Exposición Bruselas 1958
EIERMANN, EGON ( Alemania 1904- 1970) Pabellón Alemán, Exposición Bruselas 1958
EIERMANN, EGON ( Alemania 1904- 1970) Embajada Alemana en Washington 1958-64
EIERMANN, EGON ( Alemania 1904- 1970) Casa Baden-Baden 1959-62
EIERMANN, EGON ( Alemania 1904- 1970) Proyecto Edificio de Oficinas IBM 1965-66
TERRAGNI, GIUSEPPE ( Italia 1904- 1943) Casa del Facio, Como, Italia 1932-35
TERRAGNI, GIUSEPPE ( Italia 1904- 1943) Casa del Facio, Como, Italia 1932-35
TERRAGNI, GIUSEPPE ( Italia 1904- 1943) Casa del Facio, Como, Italia 1932-35
EAMES, CHARLES ( 1907-1978) EAMES, RAY (1912-1988) Casa Eames, Pacific Palisades, California 1949
JOHNSON, PHILIP ( Ohio 1906-) Proyecto Casa Freestanding 1941
JOHNSON, PHILIP ( Ohio 1906-) Casa Ash. Street 1941-42
JOHNSON, PHILIP ( Ohio 1906-) Casa Oneto 1949-51
JOHNSON, PHILIP ( Ohio 1906-) Casa Richards 1950
SAARINEN, EERO ( Finlandia 1910-1961) General Motors, Warren, Michigan 1948-56
SAARINEN, EERO ( Finlandia 1910-1961) Centro IBM, Rochester, Minnesota 19--
ÁLVAREZ, MARIO ROBERTO ( Argentina 1913-) Viviendas Avda. Libertador, Buenos Aires 1964
ÁLVAREZ, MARIO ROBERTO ( Argentina 1913-) Viviendas Avda. Libertador, Buenos Aires 1964
BONET I CASTELLANA, A. ( Barcelona 1913-1989) Casa Unifamiliar La Ricarda, Barcelona 1950-63
BONET I CASTELLANA, A. ( Barcelona 1913-1989) Casa Oks, Martínez, Buenos Aires 1955-57
CODERCH DE SETMENAT, J.A. ( Barcelona 1913-1984) Casa Catasús, Sitges, Barcelona 1956
CODERCH DE SETMENAT, J.A. ( Barcelona 1913-1984) Casa Uriach, Atmella del Vallès, Barcelona 1961
KONSTANTIDINIS, ARIS ( Grecia 1913-1993) Motel Xenia, Kalambaka, Grecia 1960
KONSTANTIDINIS, ARIS ( Grecia 1913-1993) Motel Xenia, Kalambaka, Grecia 1960
SOTA, ALEJANDRO DE LA ( Pontevedra, España 1913-1996) Gobierno Civil de Tarragona 1954-57
SOTA, ALEJANDRO DE LA ( Pontevedra, España 1913-1996) Edificio Juzgados, Zaragoza 1986
LASDUN, DENYS ( Inglaterra 1914-2001) Real Instituto de Chartered Surveyors 1962
LASDUN, DENYS ( Inglaterra 1914-2001) Teatro Nacional 1967
SOSTRES I MALUQUER, J. M. ( Barcelona 1915-1984) Casa Agustí, Sitges, Barcelona 1953-55
SOSTRES I MALUQUER, J. M. ( Barcelona 1915-1984) Casa Iranzo, Ciudad Diagonal, Barcelona 1955-56
SOSTRES I MALUQUER, J.M. ( Barcelona 1915-1984) Casa Moratiel, Ciudad Diagonal, Barcelona 1955-57
SOSTRES I MALUQUER, J.M. ( Barcelona 1915-1984) Apartamentos en Torredembarra, Tarragona 1955-57
DUHART, EMILIO ( Chile 1917-) Casa c/ Vaticano, Santiago de Chile 1944
DUHART, EMILIO ( Chile 1917-) Casa Francisco Pinto Santa Cruz, Santiago de Chile 1945
DUHART, EMILIO ( Chile 1917-) Casa Andrade, c/ Jorge Sexto, Santiago de Chile 1964
DUHART, EMILIO ( Chile 1917-) Casa Andrade, c/ Jorge Sexto, Santiago de Chile 1964
SÁENZ DE OIZA, F. J. ( Navarra 1918-2000) Sede Banco Bilbao Vizcaya, Madrid 1977
CANO LASSO, JULIO ( Madrid, 1920-1996) Proyecto Unión Industrial Bancaria 1968
SMITHSON, ALISON & PETER ( Inglaterra 1923-2002) Sede “The Economist”, Londres 1964
SMITHSON, ALISON & PETER ( Inglaterra 1923-2002) Sede “The Economist”, Londres 1964
HOZ, RAFAEL DE LA ( Córdoba, España 1924-2000) Torre Castelar, Madrid 1975
HOZ, RAFAEL DE LA ( Córdoba, España 1924-2000) Torre Castelar, Madrid 1975
SOUTO DE MOURA, EDUARDO E.M. ( Portugal 1925- ) Casa Nevogilde, Oporto 1982-85
SOUTO DE MOURA, EDUARDO E.M. ( Portugal 1925- ) Casa Avda.Boavista, Oporto 1987-94
SOUTO DE MOURA, EDUARDO E.M. ( Portugal 1925- ) Casa Miramar I, Vila Nova de Gaia 1987-91
SOUTO DE MOURA, EDUARDO E.M. ( Portugal 1925- ) Casa Miramar I, Vila Nova de Gaia 1987-91
SOUTO DE MOURA, EDUARDO E.M. ( Portugal 1925- ) Casa Alcanena, Torres Novas 1987-92
SOUTO DE MOURA, EDUARDO E.M. ( Portugal 1925- ) Casa Alcanena, Torres Novas 1987-92
SOUTO DE MOURA, EDUARDO E.M. ( Portugal 1925- ) Casa en Baiao, Portugal 1990-93
SOUTO DE MOURA, EDUARDO E.M. ( Portugal 1925- ) Casa en Baiao, Portugal 1990-93
SOUTO DE MOURA, EDUARDO E.M. ( Portugal 1925- ) Casa Moledo, Caminha 1991-96
SOUTO DE MOURA, EDUARDO E.M. ( Portugal 1925- ) Casa Moledo, Caminha 1991-96
SOUTO DE MOURA, EDUARDO E.M. ( Portugal 1925- ) Casa Moledo, Caminha 1991-96
SOUTO DE MOURA, EDUARDO E.M. ( Portugal 1925- ) Casa Moledo, Caminha 1991-96
SOUTO DE MOURA, EDUARDO E.M. ( Portugal 1925- ) Viviendas en Oporto 1992-96
SOUTO DE MOURA, EDUARDO E.M. ( Portugal 1925- ) Viviendas en Oporto 1992-96
MENDES DA ROCHA, PAULO ( Brasil 1928- ) Casa M. Da Rocha, Sao Paulo 1964
MENDES DA ROCHA, PAULO ( Brasil 1928- ) Viviendas en Sao Paulo, Brasil 1984
VACCHINI, LIVIO ( Locarno, Suiza 1933- ) Casa Snider, Verscio 1965-66
VACCHINI, LIVIO ( Locarno, Suiza 1933- ) Casa Vacchini, Coste Tenero 1991-92
MURCUTT, GLENN ( Inglaterra 1936- ) Casa Marie Short, Kempsey, Australia 1974-75
HERZOG & DE MEURON (Suiza 1950-) Centro de Señalización Ferroviaria, Suiza 1989-94
MANGADO, FRANCISCO (Navarra 1957-) Centro de Salud, Pamplona 19--
ABALOS, IÑAQUI (San Sebastián 1956-) HERREROS, JUAN (Madrid 1958-) Estudio Gordillo, Madrid 1993-2002
ALONSO VERA, DOLORES (Alicante 1951-) Clínica de Fertilidad, Valencia 1998-2002
SANCHO, J.C ( 1957-) MADRIDEJOS, SOL ( Madrid 1958-) Ayuntamiento y centro cívico, Madrid 1994-2000
GARCÍA SOLERA, JAVIER (Alicante 1958-) Aulario Tres, Universidad de Alicante 2001
GARCÍA SOLERA, JAVIER (Alicante 1958-) Aulario Tres, Universidad de Alicante 2001
TUÑÓN, EMILIO (Madrid 1958-) & M. MANSILLA, LUIS (Madrid 1959-) Museo de Bellas Artes, Castellón, 1997-2000
TUÑÓN, EMILIO (Madrid 1958-) & M. MANSILLA, LUIS (Madrid 1959-) Museo Arqueología y Bellas Artes, Zamora
ALVARO ROCHA, JOAO ( Portugal 1959-) Renovaciones Parque Urbano, Castelo da Maia 1998-2001
ALVARO ROCHA, JOAO ( Portugal 1959-) Viviendas Sociales, Maia 1997-2000
MENDES RIBEIRO, JOAO ( Portugal 1960-) Casa del Té, Montemor-o-Velho 1997-2000
MORALES, JOSÉ (1960-) & GONZÁLEZ, JUAN ( 1961-) Vivienda Unifamiliar, El Garrobo, Sevilla 1997-99
ALONSO DEL VAL, M.A. & HERNÁNDEZ, RUFINO Pistas deportivas UNAV, Pamplona 1994
ALONSO DEL VAL, M.A. & HERNÁNDEZ, RUFINO Pistas deportivas UNAV, Pamplona 1994
ALONSO DEL VAL, M.A. & HERNÁNDEZ, RUFINO Sede Ericsson-España 1998
ALONSO DEL VAL, M.A. & HERNÁNDEZ, RUFINO Sede Ericsson-España 1998
MP : MATERIAL DE PROYECTO MC : MATERIAL CONSTRUCCIÓN DET : DETALLES CONSTRUCTIVOS
CHAREAU, PIERRE (BORDEAUX, FRANCIA 1883- 1950)
MAISON DE VERRE, PARIS, 1932 MP/MC/DET
GROPIUS, WALTER (BERLÍN, ALEMANIA 1883-BOSTON, MASSACHUSETTS 1969)
EMBAJADA DE ATENAS, GRECIA, 1960 DET
MIES VAN DER ROHE, LUDWIG (AACHEN, ALEMANIA 1886-CHICAGO, ILLINOIS 1969)
CASA RESOR, 1937-38 MP
CASA FARNSWORTH, 1945-50 MC/ DET
METALURGICAL AND CHEMICAL ENGINEERING
BUILDING ITT, CHICAGO1945-46 MC
LAKE SHORE-DRIVE APARTMENTS, CHICAGO 1948-51 MC/DET
CROWN HALL, IIT, CHICAGO, ILLINOIS, 1950-56 MP/ MC/ DET
COMMONWEALTH PROMENADE APARTMENTS, 1953-56 MC
EDIFICIO SEAGRAM, PARK AVENUE,
NUEVA YORK, 1954-58 DET
VIVIENDAS LAFAYETTE PARK, DETROIT, 1955-63 MC/ DET
NATIONAL GALLERY, BERLIN, 1962-68 MC
HIGHFIELD HOUSE APARTAMENTS, BALTIMORE 1963-65 MC
LE CORBUSIER, Charles-Edouard Jeanneret-Gris ( SUIZA 1887-FRANCIA 1965)
VILLA COOK, BOULOGNE-SUR-SEINE, 1926 MP
CASA STEIN EN GARCHES, 1927 MP
VILLA SAVOIE, POISSY, FRANCIA, 1929 MC/DET
PABELLÓN SUIZO, 1930-32 DET
CIUDAD UNIVERSITARIA DE PARÍS
LE INMUEBLE CLARTÉ, GINEBRA, 1930-34 MC
CASA DE VACACIONES, LES MATHES, MP
FRANCIA 1935
CASA PARA FIN DE SEMANA, MP
LA CELLE-SAINT-CLOUD, PARÍS, 1935
UNITÉ D’ HABITATION, MC/DET
MARSELLA, 1946
CASAS JAOUL, NEUILLY-SUR-SEINE, 1954-56 MP
CASA MR. SARABHAI, AHMEDABAD, INDIA, 1955 MP
NIZZOLI, MARCELLO (BORETTO, ITALIA 1887- GÉNOVA, ITALIA 1969) BERNASCONI, G.A. / FIOCCHI, A.
SEDE OLIVETTI, MILÁN, ITALIA, 1962 MC
RIETVELD, G.T. (HOLANDA 1888-1964)
CASA SCHRÖDER, UTRECHT,1924 DET
NEUTRA, RICHARD (VIENA 1892-ALEMANIA 1970)
CASA-ESTUDIO, CALIFORNIA 1946-48 DET
CASA VACACIONES, 1948 MP
CASA MR. ELVAIN, 1953 MP
CASA MR. SLAVIN, 1953 MP
ESCUELA ELEMENTAL KESTER AVENUE, 1955 MP
ÍNDICE CRONOLÓGICO ARQUITECTOS -OBRAS- MATERIALES
AALTO, ALVAR (KUORTANE, FINLANDIA 1898-HELSINKI, FINLANDIA 1976)
INSTITUTO FINLANDÉS DE TRABAJORES JUBILADOS, HELSINKI
CONCURSO 1948. CONSTRUCCIÓN 1952-56 DET
SOM. SKIDMORE (1897-1962), OWINGS (1903-) & MERRILL (1896-1975) (OFICINA, CHICAGO 1936)
OFICINAS INLAND STEEL COMPANY, 1956-58 MP
OFICINAS CROWN ZELLERBACH CORP
., 1957-59 MP/DET
SAN FRANCISCO, CALIFORNIA
EDIFICIO OFICINAS GRAND RAPIDS, MICHIGAN, USA, 1962 MC/ DET
EDIFICIO CENTRAL DE INGENIEROS, ARMSTRONS CORK CO.
LANCASTER, PENNSYLVANIA, 1963-73 MP/ MC/ DET
BUNSHAFT, GORDON (BUFFALO, NUEVA YORK 1909-) SOM*
LEVER HOUSE, NUEVA YORK, 1950-52 MC/DET
H.J. HEINZ COMPANY, PITTSBURG, PENNSYLVANIA, 1952 DET
REYNOLDS METALS COMPANY, RICHMOND, VIRGINIA, 1958 DET
EDIFICIO OFICINAS PEPSI-COLA, NUEVA YORK, 1958-59 MP
EDIFICIO OFICINAS J. HANCOCK MC
NUEVA ORLEANS, LOUISIANA 1962
KAHN, LOUIS I. (ESTONIA 1901- NUEVA YORK 1974)
GALERÍA DE ARTE, UNIVERSIDAD DE YALE, 1951-53 MP/MC
OFICINAS E IMPRENTA « TRIBUNE REVIEW », MC
GREENSBURG, PENNSYLVANIA 1958-61
CASA ADLER, FILADELFIA, CALIFORNIA 1954 MP
INSTITUTO SALK, LA JOLLA CALIFORNIA, 1959-65 MC
MUSEO KIMBELL DE BELLAS ARTES,
FORTWORTH, TEXAS, 1967-72 MP/ MC
CENTRO DE ARTE Y ESTUDIOS BRITÁNICOS,
UNIVERSIDAD DE YALE, 1969-77 MC/ DET
BREUER, MARCEL (PECS, HUNGRÍA 1902-NUEVA YORK 1981)
COTTAGE CHAMBERLAIN, WAYLAND, MASSACHUSETTS, 1939 MP
CASA EXPOSICIÓN MOMA, 1948-49 DET
CASA STILLMAN, LITCHFIELD, CONNECTICUT, 1950-51 DET
CASA BRATTI, NEW CANAAN, CONNECTICUT, 1951 MP
CASA STARKEY (CASA ALWORTH), DULUTH, MINNESOTA, 1954 MC/DET
HUNTER COLLEGE, BRONX, NUEVA YORK, 1955-59 MP
CASA HOOPER, BALTIMORE COUNTY, MARYLAND, 1960 MP
COTTAGE WISE, WELLFLEET, MASSACHUSETTS 1963-64 MP
CASA BECKHARD, GLEN COVE, LONG ISLAND, NUEVA YORK, 1964 MP/MC
CASA STILLMAN II, LITCHFIELD, CONNECTICUT 1964-65 MP
CASA SORIANO, GREENWICH, CONNECTICUT, 1971-73 MP
COMPAÑÍA TELEFÓNICA, TORRINGTON, CONNECTICUT, 1973 MP
JACOBSEN, ARNE E. (COPENHAGUE, DINAMARCA 1902-1971)
AYUNTAMIENTO DE AARHUS, 1937-42 DET
AYUNTAMIENTO DE SØLLERØD, 1939-42 MP
EDIFICIO DE OFICINAS JESPERSEN, 1953-55 MP/ MC/ DET
AYUNTAMIENTO DE RØDOVRE, 1954-56 MP/MC/DET
HOTEL SAS, COPENHAGUE, 1955-60 MP/ DET
ESCUELA MUNKEGARDS, HELLERUP
, 1948-57 MP
FÁBRICA CHRISTENSEN, AALBORG, 1956 MC
CASAS-PATIO CARLSMINDE, SØLLERØD, 1955 MP
CASA RÜTHWEN-JÜRGENSEN, VEDBAEK, 1956 MP
CASA SIESBY, VIRUM, 1957 MP/MC
VIVIENDAS EN ORNEGARDSVEJ 22-50, GENTOFTE, 1957 MC
CASA JENSEN, GENTOFTE, 1956 MP
CASA, STATSLANSHUS, 1958 MP
CASAS, EXPOSICIÓN “INTERBAU”, BERLÍN, 1957 MP
CASAS PATIO, BELLEVUE, KLAMPENBORG, 1960-61 MP
PALACIO DE DEPORTES LANSDKRONA, SUECIA, 1957-64 MP
ESCUELA NYGARD, RØDOVRE, 1959-64 MC/DET
OFICINAS-SEDE, HAMBURGO, 1962-69 MP
SALA EXPOSICIONES, PARQUE HERRENHAUSEN,
HANNOVER, 1964-65 MC
ST. CATHERINE’S COLLEGE, OXFORD, 1959-64 DET
BANCO NACIONAL DE DINAMARCA, 1961-71 DET
VIVIENDAS KUBERFLEX, 1969-70 MP
EIRMANN, EGON (ALEMANIA 1904-1970)
CASA GRAF ARDENBERG, 1954 MP
PROYECTO ESTADIO DEPORTIVO, 1954 MP
EDIFICIO LEBENSVERSICHERUNGS-AG, 1955-57 MP
INTERNATIONALE BAUAUSTELLUNG,1957 MP
PABELLÓN ALEMÁN EN BRUSELAS, 1958 MC
EMBAJADA ALEMANA EN WASHINGTON, 1958-64 DET
CASA BADEN-BADEN, 1959-62 MP
EDIFICIO OFICINAS IBM, PROYECTO 1965-66 MC
TERRAGNI, GIUSEPPE (ITALIA 1904-1943)
CASA DEL FACIO, COMO, 1932-35 MC/ DET
EAMES, CHARLES (ST. LOUIS MISSOURI, 1907-1978) RAY EAMES (1912-1988)
CASA EAMES, PACIFIC PALISADES, CALIFORNIA, 1949 MC
JOHNSON, PHILIP (OHIO 1906-)
CASA FREESTANDING, 1941 MP
CASA ASH. STREET, 1941-42 MP
CASA ONETO, 1949-51 MP
CASA RICHARDS, 1950 MP
SAARINEN, EERO ( FINLANDIA 1910-1961)
GENERAL MOTORS, WARREN, MICHIGAN, 1948-56 DET
CENTRO IBM, ROCHESTER, MINNESOTA, EEUU MC
ALVAREZ, MARIO ROBERTO (ARGENTINA 1913-)
VIVIENDAS AVDA. LIBERTADOR, BUENOS AIRES, 1964 MP
BONET CASTELLANA, A. (BARCELONA 1913-1989)
CASA UNIFAMILIAR LA RICARDA,
EL PRAT DE LLOBREGAT, BARCELONA, 1950-63 MP
CASA OKS, MARTÍNEZ, BUENOS AIRES, 1955-57 MP
CODERCH DE SETMENAT, J.A. (BARCELONA 1913-1984)
CASA CATASÚS, SITGES, BARCELONA, 1956 MP
CASA URIACH, ATMELLA DEL VALLÈS, BARCELONA, 1961 MP
KONSTANTINIDIS, ARIS (ATENAS, GRECIA 1913-93)
MOTEL XENIA KALAMBAKA, GRECIA, 1960 DET
SOTA, ALEJANDRO DE LA (PONTEVEDRA, ESPAÑA 1913- MADRID, ESPAÑA 1996)
GOBIERNO CIVIL DE TARRAGONA, 1954-57 DET
EDIFICIO JUZGADOS, ZARAGOZA, 1986 DET
LASDUN, DENYS ( INGLATERRA 1914-2001)
REAL INSTITUTO DE CHARTERED SURVEYORS, 1962 MP
TEATRO NACIONAL, 1967 MP
SOSTRES, J.M. (BARCELONA 1915-1984)
CASA AGUSTÍ, SITGES, BARCELONA, 1953-55 MP
CASA IRANZO, CIUDAD DIAGONAL,
BARCELONA, 1955-56 MP
CASA MORATIEL, CIUDAD DIAGONAL, MP
BARCELONA, 1955-57
APARTAMENTOS EN TORREDEMBARRA, TARRAGONA, 1955-57 MP
DUHART, EMILIO (CHILE 1917-)
CASA C/ VATICANO, SANTIAGO DE CHILE, 1944 MP
CASA FRANCISCO PINTO SANTA CRUZ, SANTIAGO DE CHILE, 1945MP
CASA ANDRADE, C/JORGE SEXTO, SANTIAGO DE CHILE, 1964 MP
SAÉNZ DE OIZA, FRANCISCO JAVIER (NAVARRA 1918-2000)
BANCO DE BILBAO, MADRID 1977 DET
CANO LASSO, JULIO (MADRID 1920-1996)
UNIÓN INDUSTRIAL BANCARIA, proyecto 1968 MP
SMITHSON, PETER (INGLATERRA 1923-2002)
THE ECONOMIST, LONDRES, 1964 MC/DET
HOZ, RAFAEL DE LA (CÓRDOBA, ESPAÑA 1924-MADRID, ESPAÑA 2000)
TORRE CASTELAR, MADRID, 1975 MC/DET
SOUTO DE MOURA, EDUARDO E.M. (OPORTO, PORTUGAL 1925-)
CASA NEVOGILDE, OPORTO 1982-85 MC
CASA BOAVISTA, PORTO, 1987-94 MC/ DET
CASA EN MIRAMAR I, 1987-91 MC/ DET
CASA EN ALCANENA, TORRES NOVAS, 1987-92 MC/ DET
CASA EN BAIAO, 1990-93 MP/ MC
CASA EN MOLEDO, 1991-96 MP/ MC
EDIFICIO RESIDENCIAL EN OPORTO, 1992-1996 MC / DET
MENDES DA ROCHA, PAULO (VITÓRIA, BRASIL 1928-)
CASA M. DA ROCHA, SAO PAULO, 1964 DET
VIVIENDAS EN SAO PAULO, BRASIL,1984 MP
VACCHINI, LIVIO ( LOCARNO, SUIZA 1933-)
CASA SNIDER, VERSCIO, 1965-66 MP
CASA VACCHINI, COSTE TENERO, 1991-92 MP
MURCUTT, GLENN (INGLATERRA 1936-)
CASA MARIE SHORT, KEMPSEY, AUSTRALIA 1974-75 MP
HERZOG & DE MEURON (SUIZA 1950-)
CENTRO DE SEÑALIZACIÓN FERROVIARIA, 1989-94 MC
MANGADO, FRANCISCO (ESTELLA, NAVARRA 1957-)
CENTRO DE SALUD EN PAMPLONA MC
ABALOS, IÑAQUI ( SAN SEBASTIÁN 1956- ) & HERREROS, JUAN ( MADRID 1958-) (DESPACHO 1984)
ESTUDIO GORDILLO,
VILLANUEVA DE LA CAÑADA, MADRID, 1993-2002 DET
ALONSO VERA, DOLORES ( ALICANTE 1951-) & GARCÍA SOLERA, JAVIER (ALICANTE 1958-)
CLÍNICA DE FERTILIDAD, VALENCIA, 1998-2002 MC
SANCHO OSINAGA, JUAN CARLOS ( SAN SEBASTIÁN 1957-) & MADRIDEJOS, SOL ( MADRID 1958-)
AYUNTAMIENTO Y CENTRO CÍVICO
SAN FERNANDO DE HENARES, MADRID 1994/2000 MC
GARCÍA SOLERA, JAVIER (ALICANTE 1958-)
AULARIO TRES, UNIVERSIDAD DE ALICANTE, 2001 MP
TUÑÓN, EMILIO ( MADRID 1958-) & MORENO MANSILLA, LUIS ( MADRID 1959-)
MUSEO DE BELLAS ARTES, CASTELLÓN 1997-2000 MC
MUSEO ARQUEOLOGÍA Y BELLAS ARTES, ZAMORA MP
ALVARO ROCHA, JOAO (VIANA DO CASTELO, PORTUGAL, 1959-)
RENOVACIONES EN EL PARQUE URBANO DET
DE CASTELO DA MAIA, 1998-2001
VIVIENDAS SOCIALES, MAIA 1997-2000 DET
MENDES RIBEIRO, JOAO (COIMBRA, PORTUGAL, 1960-)
CASA DE TÉ, MONTEMOR-O-VELHO, 1997-2000 MC/DET
MORALES, JOSÉ (SEVILLA, 1960-) & GONZÁLEZ MARISCAL, JUAN (SEVILLA, 1961-)
VIVIENDA UNIFAMILIAR, EL GARROBO, SEVILLA 1997-99 MC
ALONSO DEL VAL, MIGUEL ÁNGEL & HERNÁNDEZ MINGUILLÓN, RUFINO
PISTAS DEPORTIVAS UNAV, PAMPLONA 1994 MC/DET
SEDE ERICSSON ESPAÑA, 1998 MC/DET
LA FORMA MODERNA, Programa de Doctorado
DEPARTAMENTO DE PROYECTOS ARQUITECTÓNICOS
Avda. Diagonal, 649. 6a Planta. 08028 Barcelona
+34 93 401 10 20 forma.moderna@upc.es
www.upc.es/pa/formamoderna/forma_moderna.htm
BARCELONA, SEPTIEMBRE 2004

MDPI.pdf

  • 1.
    MATERIALES DE PROYECTO MATERIALESDE PROYECTO l MATERIALES DE CONSTRUCCIÓN l DETALLES 1
  • 2.
    Las fichas queaquí se presentan han sido elaboradas por los alumnos en los diferentes cursos impartidos dentro de la Línea de Investiga- ción “La Forma Moderna”. El material gráfico utilizado procede de material redibujado o fotografías de los mismos alumnos, así como reproducciones de bibliografías básicas indicadas y originales de archivo. Programa de Doctorado “La Forma Moderna”. Curso 2003-04. Escuela Técnica Superior de Arquitectura de Barcelona. Universidad Politécnica de Cataluña PAULO AMBROSINI / MAXIMILIANO BOLOTNER / OSCAR CARDENAS / GLENN DEULOFEU / MAMEN ESCORIHUELA / ALDO FA- CHO / MARCELO FAIDEN / ADRIANA FREIRE / EUNICE GARCÍA / Mª EUGENIA GATTI / JUAN PABLO IVANOVIC / MARIO JIMÉNEZ / MARA KRAMER / CARLOS LARA / JOVAN A. MASLACH / LEONARD MOAD / GERARDO MOSQUEDA / MARCELO RANZINI / MANUEL ALEJANDRO RIVAS / JOFRE ROCA / PABLO JAVIER ROSAS / CAROLINA RUIZ / GIOFRANCO ANGILIS SAGGIN FONSECA / JUVENAL SALCEDO / GUSTAVO J. SAPIÑA / MASSIMO SODINI / NÉSTOR SOLDATE / PABLO TENA Seminario “Teoría de la Forma Moderna”, Febrero 2004. Master Diseño Arquitectónico. Curso 2003-05. Escuela Técnica Superior de Arquitectura, Pamplona. Universidad de Navarra JORGE CAMACHO / ALEJANDRO CASAS / JOSÉ CAVALLERO / EDNA ECHANDI / MARCOS ESCARTÍN / FRANCESCA FIORELLI/ AN- DREA FRANCONETTI / FEDERICO KELLY / PAULA LESTARD / EMMA LÓPEZ / LETICIA PASCHETTA / ROMINA PASQUALE / GABRIELA QUIÑONES / JUAN LUIS ROQUETTE / BRETT TIPPEY Edición al cuidado de: Yolanda Ortega LA FORMA MODERNA, Programa de Doctorado DEPARTAMENTO DE PROYECTOS ARQUITECTÓNICOS Responsables: Helio Piñón, Teresa Rovira LABORATORIO DE ARQUITECTURA. Helio Piñón, Nicanor García Arq.: Diego López de Haro, Pablo Frontini, Carolina Ruiz, Guillermo Posik, Augusta Hermida Arqtos. Colab.: Bruno Beltramino, Mássimo Sodini Avda. Diagonal, 649. 6a Planta. 08028 Barcelona +34 93 401 10 20 forma.moderna@upc.es www.upc.es/pa/formamoderna/forma_moderna.htm ESCUELA TÉCNICA SUPERIOR DE ARQUITECTURA DE BARCELONA UNIVERSIDAD POLITÉCNICA DE CATALUÑA BARCELONA, SEPTIEMBRE 2004
  • 3.
    PRESENTACIÓN MATERIALES DE PROYECTO CHAREAU,PIERRE (BORDEAUX, FRANCIA 1883- 1950) GROPIUS, WALTER (BERLÍN, ALEMANIA 1883-BOSTON, MASSACHUSETTS 1969) MIES VAN DER ROHE, LUDWIG (AACHEN, ALEMANIA 1886-CHICAGO, ILLINOIS 1969) LE CORBUSIER, Charles-Edouard Jeanneret-Gris ( SUIZA 1887-FRANCIA 1965) NIZZOLI, MARCELLO (BORETTO, ITALIA 1887- GÉNOVA, ITALIA 1969), BERNASCONI, G.A. / FIOCCHI, A. RIETVELD, G.T. (HOLANDA 1888-1964) NEUTRA, RICHARD (VIENA 1892-ALEMANIA 1970) AALTO, ALVAR (KUORTANE, FINLANDIA 1898-HELSINKI, FINLANDIA 1976) SOM. SKIDMORE (1897-1962), OWINGS (1903-) & MERRILL (1896-1975) (OFICINA, CHICAGO 1936) BUNSHAFT, GORDON (BUFFALO, NUEVA YORK 1909-) SOM* KAHN, LOUIS I. (ESTONIA 1901- NUEVA YORK 1974) BREUER, MARCEL (PECS, HUNGRÍA 1902-NUEVA YORK 1981) JACOBSEN, ARNE E. (COPENHAGUE, DINAMARCA 1902-1971) EIRMANN, EGON (ALEMANIA 1904-1970) TERRAGNI, GIUSEPPE (ITALIA 1904-1943) EAMES, CHARLES (ST. LOUIS MISSOURI, 1907-1978) RAY EAMES (1912-1988) JOHNSON, PHILIP (OHIO 1906-) SAARINEN, EERO ( FINLANDIA 1910-1961) ALVAREZ, MARIO ROBERTO (ARGENTINA 1913-) BONET CASTELLANA, A. (BARCELONA 1913-1989) CODERCH DE SETMENAT, J.A. (BARCELONA 1913-1984) KONSTANTINIDIS, ARIS (ATENAS, GRECIA 1913-93) SOTA, ALEJANDRO DE LA (PONTEVEDRA, ESPAÑA 1913- MADRID, ESPAÑA 1996) LASDUN, DENYS ( INGLATERRA 1914-2001) SOSTRES, J.M. (BARCELONA, ESPAÑA 1915-1984) DUHART, EMILIO (CHILE 1917-) SAÉNZ DE OIZA, FRANCISCO JAVIER (NAVARRA 1918-2000) CANO LASSO, JULIO (MADRID 1920-1996) SMITHSON, PETER (INGLATERRA 1923-2002) HOZ, RAFAEL DE LA (CÓRDOBA, ESPAÑA 1924-MADRID, ESPAÑA 2000) SOUTO DE MOURA, EDUARDO E.M. (OPORTO, PORTUGAL 1925-) MENDES DA ROCHA, PAULO (VITÓRIA, BRASIL 1928-) VACCHINI, LIVIO ( LOCARNO, SUIZA 1933-) MURCUTT, GLENN (INGLATERRA 1936-) HERZOG & DE MEURON (SUIZA 1950-) MANGADO, FRANCISCO (ESTELLA, NAVARRA 1957-) ABALOS, IÑAQUI ( SAN SEBASTIÁN 1956- ) & HERREROS, JUAN ( MADRID 1958-) (DESPACHO 1984) ALONSO VERA, DOLORES ( ALICANTE 1951-) & GARCÍA SOLERA, JAVIER (ALICANTE 1958-) SANCHO OSINAGA, JUAN CARLOS ( SAN SEBASTIÁN 1957-) & MADRIDEJOS, SOL ( MADRID 1958-) GARCÍA SOLERA, JAVIER (ALICANTE 1958-) TUÑÓN, EMILIO ( MADRID 1958-) & MORENO MANSILLA, LUIS ( MADRID 1959-) ALVARO ROCHA, JOAO (VIANA DO CASTELO, PORTUGAL, 1959-) MENDES RIBEIRO, JOAO (COIMBRA, PORTUGAL, 1960-) MORALES, JOSÉ (SEVILLA, 1960-) & GONZÁLEZ MARISCAL, JUAN (SEVILLA, 1961-) ALONSO DEL VAL, MIGUEL ÁNGEL & HERNÁNDEZ MINGUILLÓN, RUFINO ÍNDICE CRONOLÓGICO DE ARQUITECTOS, OBRAS Y MATERIALES ÍNDICE
  • 5.
    Al situar elproyecto de arquitectura en el ámbito de las ideas, e identificarlas con la manifestación de meras intenciones, se desvanece su condición esencialmente formal -estructurante, ordenadora-, lo que provoca el eclipse de la noción de materia: en efecto, la consideración del material constructivo - elementos físicos con que se afronta la construcción- es obviada, en general, por considerarla un momento secundario respecto de “la idea”, de modo que a menudo esta se describe sin ninguna alusión a la materialidad del objeto. Pero, paralelamente a esta noción de material de construcción, cabe hablar de material de proyecto, es decir, aquellos elementos, criterios, o soluciones, pertenecientes a la experiencia propia o ajena, que constituyen la materia prima del proyecto a la que el sentidodelordendequienproyectaconseguirádotardeestructuraformal.Niquedecirtienequetalnocióndematerialnointervieneenlaprác- tica convencional del proyecto, a no ser en forma de manipulación -consciente o inconsciente- de soluciones ajenas con criterios “prácticos”. Naturalmente, en los términos que se propone aquí, la noción de material no se relaciona con criterios oper- ativos, sino que, por un lado, trata de acentuar la dimensión formadora del proyecto y, por otro, compromete a llegar más allá en la concepción: en la medida en que se parte de la experiencia de ciertos aspectos elementales del proyecto, se propi- cia que la acción formadora incida en los niveles esenciales del objeto, aquellos que afectan a su identidad arquitectónica. La noción de material como materia prima de la acción formadora del autor, es frecuente en la composición musi- cal, práctica que por su abstracción esencial se apoya en una conciencia clara de la dimensión formal de su quehacer. En el ámbito de la arquitectura, la asunción de la experiencia ajena como moterial de proyecto fue habitual hasta los primeros años sesenta: a partir de entonces, una idea compulsiva de “novedad” acabó con ella. La merma en la calidad que tal pretensión es de sobras conocida. Esta materia tratará de estimular la identificación de materiales de proyecto, de modo que la concepción adqui- era su auténtica dimensión formativa, trascendiendo la obstinada pasión por descubrir cada vez elementos básicos novedosos. HELIO PIÑÓN Catedrático de Proyectos PRESENTACIÓN. MATERIALES DE PROYECTO
  • 7.
    MATERIALES DE PROYECTO MATERIALESDE PROYECTO l MATERIALES DE CONSTRUCCIÓN l DETALLES
  • 8.
    CHAREAU, PIERRE (Francia 1883-1950) Maison de Verre, París, Francia 1932
  • 9.
    CHAREAU, PIERRE (Francia 1883-1950) Maison de Verre, París, Francia 1932
  • 10.
    CHAREAU, PIERRE (Francia 1883-1950) Maison de Verre, París, Francia 1932
  • 11.
    CHAREAU, PIERRE (Francia 1883-1950) Maison de Verre, París, Francia 1932
  • 12.
    GROPIUS, WALTER (Alemania1883-Massachusetts1969) Embajada EEUU en Atenas, Grecia 1960
  • 13.
    MIES VAN DERROHE, LUDWIG ( Alemania 1886-1969) Casa Resor 1937-38
  • 14.
    MIES VAN DERROHE, LUDWIG ( Alemania 1886-1969) Casa Farnsworth, Chicago, Illinois 1945-50
  • 15.
    MIES VAN DERROHE, LUDWIG ( Alemania 1886-1969) Casa Farnsworth, Chicago, Illinois 1945-50
  • 16.
    MIES VAN DERROHE, LUDWIG ( Alemania 1886-1969) Metalurgical and Chemical Engineering Building IIT 1945-46
  • 17.
    MIES VAN DERROHE, LUDWIG ( Alemania 1886-1969) Lake Shore Drive Apartments, Chicago 1948-51
  • 18.
    MIES VAN DERROHE, LUDWIG ( Alemania 1886-1969) Crown Hall, Illinois Institute of Technology. Chicago1950-56
  • 19.
    MIES VAN DERROHE, LUDWIG ( Alemania 1886-1969) Crown Hall, Illinois Institute of Technology. Chicago1950-56
  • 20.
    MIES VAN DERROHE, LUDWIG ( Alemania 1886-1969) Crown Hall, Illinois Institute of Technology. Chicago1950-56
  • 21.
    MIES VAN DERROHE, LUDWIG ( Alemania 1886-1969) Commonwealth Promenade Apartments, Chicago 1953-56
  • 22.
    MIES VAN DERROHE, LUDWIG ( Alemania 1886-1969) Edificio Seagram, Park Avenue, Nueva York 1954-58
  • 23.
    MIES VAN DERROHE, LUDWIG ( Alemania 1886-1969) Edificio Seagram, Park Avenue, Nueva York 1954-58
  • 24.
    MIES VAN DERROHE, LUDWIG ( Alemania 1886-1969) Viviendas Lafayette Park, Detroit 1955-63
  • 25.
    MIES VAN DERROHE, LUDWIG ( Alemania 1886-1969) National Gallery, Berlín 1962-68
  • 26.
    MIES VAN DERROHE, LUDWIG ( Alemania 1886-1969) Highfield House apartments, Baltimore 1963-65
  • 27.
    LE CORBUSIER (Suiza 1887-Francia 1965) Casa Cook, Boulogne-Sur-Seine 1926
  • 28.
    LE CORBUSIER (Suiza 1887-Francia 1965) Casa Stein, Garches 1927
  • 29.
    LE CORBUSIER (Suiza 1887-Francia 1965) Casa Savoie, Poissy, Francia 1929
  • 30.
    LE CORBUSIER (Suiza 1887-Francia 1965) Pabellón Suizo, Ciudad Universitaria de París 1930-32
  • 31.
    LE CORBUSIER (Suiza 1887-Francia 1965) Pabellón Suizo, Ciudad Universitaria de París 1930-32
  • 32.
    LE CORBUSIER (Suiza 1887-Francia 1965) Inmueble Clarté, Ginebra, Suiza 1930-34
  • 33.
    LE CORBUSIER (Suiza 1887-Francia 1965) Casa de Vacaciones, Les Mathes, Francia 1935
  • 34.
    LE CORBUSIER (Suiza 1887-Francia 1965) Casa para Fin de semana, La Celle-Saint-Cloud, París 1935
  • 35.
    1.Paneles prefabricados de hormigón. 2.Hormigón in situ. 3. Baranda prefabricada de hormigón. 4. Baldosas de hormigón. 5. Carpinteria fija de vidrio. 6. Puertas de vidrio totalmente practicables. 7. Banco de madera sobre radiador 8. Pavimento de madera. LE CORBUSIER ( Suiza 1887-Francia 1965) Unité d’Habitation, Marsella 1946
  • 36.
    LE CORBUSIER (Suiza 1887-Francia 1965) Casas Jaoul, Neuilly-sur-Seine 1954-56
  • 37.
    LE CORBUSIER (Suiza 1887-Francia 1965) Casa Mr. Sarabhai, Ahmedabad, India 1955
  • 38.
    NIZZOLI, MARCELLO (Italia 1887-1969) BERNASCONI, G.A.; FIOCCHI, A. Sede Olivetti, Milán 1962
  • 39.
    RIETVELD, G.T. (Holanda 1888-1964) Casa Schröeder, Utrecht 1924
  • 40.
    NEUTRA, RICHARD (Austria, Viena 1892-Alemania 1970) Casa Estudio, California, EEUU 1946-48
  • 41.
    NEUTRA, RICHARD (Austria, Viena 1892-Alemania 1970) Casa de Vacaciones 1948
  • 42.
    NEUTRA, RICHARD (Austria, Viena 1892-Alemania 1970) Casa Mr.Elvain 1953
  • 43.
    NEUTRA, RICHARD (Austria, Viena 1892-Alemania 1970) Casa Mr. Slavin 1953
  • 44.
    NEUTRA, RICHARD (Austria, Viena 1892-Alemania 1970) Escuela Elemental Kester Avenue 1955
  • 45.
    AALTO, ALVAR (Finlandia 1898-Alemania 1976) Instituto Finlandés de trabajadores Jubilados, Helsinki 1952-56
  • 46.
    SOM. SKIDMORE, OWINGS& MERRILL Oficinas Inland Steel Company 1956-58
  • 47.
    SOM. SKIDMORE, OWINGS& MERRILL Oficinas Crown Zellerbach Corporation, San Francisco, California 1957-59
  • 48.
    SOM. SKIDMORE, OWINGS& MERRILL Oficinas Grand Rapids, Michigan, USA 1962
  • 49.
    SOM. SKIDMORE, OWINGS& MERRILL Edificio Central, Armstrong Cork Co., Lancaster, Pennsylvania 1963-73
  • 50.
    SOM. BUNSHAFT, GORDON(NUEVA YORK 1909-) Lever House, Nueva York 1950-52
  • 51.
    SOM. BUNSHAFT, GORDON(NUEVA YORK 1909-) Lever House, Nueva York 1950-52
  • 52.
    SOM. BUNSHAFT, GORDON(NUEVA YORK 1909-) H.J. Heinz Company, Pittsburg, Pennsylvania 1952
  • 53.
    SOM. BUNSHAFT, GORDON(NUEVA YORK 1909-) Reynolds Metals Company, Richmond, Virginia 1958
  • 54.
    SOM. BUNSHAFT, GORDON(NUEVA YORK 1909-) Oficinas Pepsi-Cola, Nueva York 1958-59
  • 55.
    SOM. BUNSHAFT, GORDON(NUEVA YORK 1909-) Oficinas J. Hancock, Nueva Orleans, Louisiana 1962
  • 56.
    KAHN, LOUIS I.( Estonia 1901-NY 1974) Galería de Arte, Universidad de Yale, New Haven, Connecticut 1951-53 Oficinas e imprenta, “Tribune Review”, Greensburg. Pennsylvania 1958-61
  • 57.
    KAHN, LOUIS I.( Estonia 1901-NY 1974) Galería de Arte, Universidad de Yale, New Haven, Connecticut 1951-53
  • 58.
    KAHN, LOUIS I.( Estonia 1901-NY 1974) Proyecto Casa Adler, Filadelfia, Pennsylvania 1954
  • 59.
    – KAHN, LOUIS I.( Estonia 1901-NY 1974) Instituto Salk, La Jolla, California 1959-65
  • 60.
    KAHN, LOUIS I.( Estonia 1901-NY 1974) Museo Kimbell de Bellas Artes, Fortworth, Texas 1967-72
  • 61.
    KAHN, LOUIS I.( Estonia 1901-NY 1974) Museo Kimbell de Bellas Artes, Fortworth, Texas 1967-72
  • 62.
    KAHN, LOUIS I.( Estonia 1901-EEUU 1974) Centro de Arte y Estudios británicos, Universidad de Yale 1969-77
  • 63.
    KAHN, LOUIS I.( Estonia 1901-EEUU 1974) Centro de Arte y Estudios británicos, Universidad de Yale 1969-77 1. Hormigón armado. 2. Aislamiento proyectado. 3. Retorno de aire. 4. Contrachapado. 5. Panel de acero inox. sin pulir con aislamiento térmico. 6. Panel de cartón-yeso. 1. Solera de hormigón. 2. Mortero. 3. Travertino. 4. Panel de acero inox. sin pulir con aislamiento térmico. 1. Hormigón armado. 2. Panelde cartón- yeso. 3. Lana de roca. 4. Contrachapado. 5. Panel de acero inox. sin pulir con aislamiento térmico. 6. Espacio persiana corredera de madera. 1. Hormigón armado. 2. Aislamiento proyectado. 3. Retorno de aire. 4. Lana de roca. 5. Tabla de madera. 6. Perfil para condensaciones. 7. Vidrio. 8. Rail persiana corredera de madera.
  • 65.
    BREUER, MARCEL (Hungría 1902- Nueva York 1981) Casa Chamberlain, Wayland, Massachusetts 1939
  • 66.
    BREUER, MARCEL (Hungría 1902- Nueva York 1981) Casa, Exposición MOMA, Nueva York 1948-49
  • 67.
    BREUER, MARCEL (Hungría 1902- Nueva York 1981) Casa, Exposición MOMA, Nueva York 1948-49
  • 68.
    BREUER, MARCEL (Hungría 1902- Nueva York 1981) Casa Stillman I, Litchfield, Connecticut 1950-51
  • 69.
    BREUER, MARCEL (Hungría 1902- Nueva York 1981) Casa Bratti, New Canaan, Connecticut 1951
  • 70.
    BREUER, MARCEL (Hungría 1902- Nueva York 1981) Casa Starkey o Alworth, Duluth, Minnesota 1954
  • 71.
    BREUER, MARCEL (Hungría 1902- Nueva York 1981) Hunter College, Bronx, Nueva York 1955-59
  • 72.
    BREUER, MARCEL (Hungría 1902- Nueva York 1981) Casa Hooper, Baltimore County, Maryland 1960
  • 73.
    BREUER, MARCEL (Hungría 1902- Nueva York 1981) Cottage Wise, Wellfleet, Massachusetts 1963-64
  • 74.
    BREUER, MARCEL (Hungría 1902- Nueva York 1981) Casa Beckhard, Glen Cove, Long Island, Nueva York, 1964
  • 75.
    BREUER, MARCEL (Hungría 1902- Nueva York 1981) Casa Stillman II, Litchfield, Connecticut 1964-65
  • 76.
    BREUER, MARCEL (Hungría 1902- Nueva York 1981) Casa Soriano, Greenwich, Connecticut 1971-73
  • 77.
    BREUER, MARCEL (Hungría 1902- Nueva York 1981) Compañía Telefónica, Torrington, Connecticut 1973
  • 78.
    JACOBSEN, ARNE E.( Dinamarca 1902- 1971) Ayuntamiento de Aarhus, Dinamarca 1937-42
  • 79.
    JACOBSEN, ARNE E.( Dinamarca 1902- 1971) Ayuntamiento de Sollerod, Dinamarca 1939-42
  • 80.
    JACOBSEN, ARNE E.( Dinamarca 1902- 1971) Oficinas Jespersen, Copenhague, Dinamarca 1953-55
  • 81.
    JACOBSEN, ARNE E.( Dinamarca 1902- 1971) Oficinas Jespersen, Copenhague, Dinamarca 1953-55
  • 82.
    JACOBSEN, ARNE E.( Dinamarca 1902- 1971) Oficinas Jespersen, Copenhague, Dinamarca 1953-55
  • 83.
    JACOBSEN, ARNE E.( Dinamarca 1902- 1971) Oficinas Jespersen, Copenhague, Dinamarca 1953-55
  • 84.
    JACOBSEN, ARNE E.( Dinamarca 1902- 1971) Ayuntamiento de Rødovre, Dinamarca 1954-56
  • 85.
    JACOBSEN, ARNE E.( Dinamarca 1902- 1971) Ayuntamiento de Rødovre, Dinamarca 1954-56
  • 86.
    JACOBSEN, ARNE E.( Dinamarca 1902- 1971) Ayuntamiento de Rødovre, Dinamarca 1954-56
  • 87.
    JACOBSEN, ARNE E.( Dinamarca 1902- 1971) Ayuntamiento de Rødovre, Dinamarca 1954-56
  • 88.
    JACOBSEN, ARNE E.( Dinamarca 1902- 1971) Hotel y Terminal Aérea SAS, Copenhague, Dinamarca 1955-60
  • 89.
    JACOBSEN, ARNE E.( Dinamarca 1902- 1971) Hotel y Terminal Aérea SAS, Copenhague, Dinamarca 1955-60
  • 90.
    JACOBSEN, ARNE E.( Dinamarca 1902- 1971) Hotel y Terminal Aérea SAS, Copenhague, Dinamarca 1955-60
  • 91.
    JACOBSEN, ARNE E.( Dinamarca 1902- 1971) Escuela Munkegards, Hellerup, Dinamarca 1948-57
  • 92.
    JACOBSEN, ARNE E.( Dinamarca 1902- 1971) Fábrica Christensen, Aalborg, Dinamarca 1956
  • 93.
    JACOBSEN, ARNE E.( Dinamarca 1902- 1971) Fábrica Christensen, Aalborg, Dinamarca 1956
  • 94.
    JACOBSEN, ARNE E.( Dinamarca 1902- 1971) Proyecto casas-patio, Carlsminde, Sollerod 1955
  • 95.
    JACOBSEN, ARNE E.( Dinamarca 1902- 1971) Casa Rüthwen-Jürgensen, Vedbaek 1956
  • 96.
    JACOBSEN, ARNE E.( Dinamarca 1902- 1971) Casa E. Siesby, Virum 1957
  • 97.
    JACOBSEN, ARNE E.( Dinamarca 1902- 1971) Casa E. Siesby, Virum 1957
  • 98.
    JACOBSEN, ARNE E.( Dinamarca 1902- 1971) Casa E. Siesby, Virum 1957
  • 99.
    JACOBSEN, ARNE E.( Dinamarca 1902- 1971) Viviendas en Ornegardsvej, Gentofte 1957
  • 100.
    JACOBSEN, ARNE E.( Dinamarca 1902- 1971) Casa E. Jensen, Charlottenlund, Gentofte 1956
  • 101.
    JACOBSEN, ARNE E.( Dinamarca 1902- 1971) Proyecto Casa, Statslanshus 1958
  • 102.
    JACOBSEN, ARNE E.( Dinamarca 1902- 1971) Casa, Exposición “Interbau”, Hansaviertel, Berlín 1957
  • 103.
    JACOBSEN, ARNE E.( Dinamarca 1902- 1971) Casas-patio, Bellevue, Klampenborg 1960-61
  • 104.
    JACOBSEN, ARNE E.( Dinamarca 1902- 1971) Pabellón Deportivo, Landskrona, Suecia 1957-64
  • 105.
    JACOBSEN, ARNE E.( Dinamarca 1902- 1971) Pabellón Deportivo, Landskrona, Suecia 1957-64
  • 106.
    JACOBSEN, ARNE E.( Dinamarca 1902- 1971) Escuela Elemental Nyager, Rodovre 1959-64
  • 107.
    JACOBSEN, ARNE E.( Dinamarca 1902- 1971) Escuela Elemental Nyager, Rodovre 1959-64
  • 108.
    JACOBSEN, ARNE E.( Dinamarca 1902- 1971) Oficinas-sede, Hamburgo, Alemania 1962-69
  • 109.
    JACOBSEN, ARNE E.( Dinamarca 1902- 1971) Foyer, Parque Herrenhausen, Hannover, Alemania 1964-65
  • 110.
    JACOBSEN, ARNE E.( Dinamarca 1902- 1971) St. Catherine College, Oxford, Inglaterra 1959-64
  • 111.
    JACOBSEN, ARNE E.( Dinamarca 1902- 1971) Banco Nacional de Dinamarca, Copenhague 1961-71
  • 112.
    JACOBSEN, ARNE E.( Dinamarca 1902- 1971) Kuberflex, sistema de casas de verano 1969-70
  • 113.
    JACOBSEN, ARNE E.( Dinamarca 1902- 1971) Kuberflex, sistema de casas de verano 1969-70
  • 114.
    EIERMANN, EGON (Alemania 1904- 1970) Casa Graf, Ardenberg 1954
  • 115.
    EIERMANN, EGON (Alemania 1904- 1970) Proyecto Estadio Deportivo 1954
  • 116.
    EIERMANN, EGON (Alemania 1904- 1970) Oficinas Lebensversicherungs-AG 1955-57
  • 117.
    EIERMANN, EGON (Alemania 1904- 1970) Viviendas, Internationale Bauaustellung 1957
  • 118.
    EIERMANN, EGON (Alemania 1904- 1970) Pabellón Alemán, Exposición Bruselas 1958
  • 119.
    EIERMANN, EGON (Alemania 1904- 1970) Pabellón Alemán, Exposición Bruselas 1958
  • 120.
    EIERMANN, EGON (Alemania 1904- 1970) Pabellón Alemán, Exposición Bruselas 1958
  • 121.
    EIERMANN, EGON (Alemania 1904- 1970) Embajada Alemana en Washington 1958-64
  • 122.
    EIERMANN, EGON (Alemania 1904- 1970) Casa Baden-Baden 1959-62
  • 123.
    EIERMANN, EGON (Alemania 1904- 1970) Proyecto Edificio de Oficinas IBM 1965-66
  • 124.
    TERRAGNI, GIUSEPPE (Italia 1904- 1943) Casa del Facio, Como, Italia 1932-35
  • 125.
    TERRAGNI, GIUSEPPE (Italia 1904- 1943) Casa del Facio, Como, Italia 1932-35
  • 126.
    TERRAGNI, GIUSEPPE (Italia 1904- 1943) Casa del Facio, Como, Italia 1932-35
  • 127.
    EAMES, CHARLES (1907-1978) EAMES, RAY (1912-1988) Casa Eames, Pacific Palisades, California 1949
  • 128.
    JOHNSON, PHILIP (Ohio 1906-) Proyecto Casa Freestanding 1941
  • 129.
    JOHNSON, PHILIP (Ohio 1906-) Casa Ash. Street 1941-42
  • 130.
    JOHNSON, PHILIP (Ohio 1906-) Casa Oneto 1949-51
  • 131.
    JOHNSON, PHILIP (Ohio 1906-) Casa Richards 1950
  • 132.
    SAARINEN, EERO (Finlandia 1910-1961) General Motors, Warren, Michigan 1948-56
  • 133.
    SAARINEN, EERO (Finlandia 1910-1961) Centro IBM, Rochester, Minnesota 19--
  • 134.
    ÁLVAREZ, MARIO ROBERTO( Argentina 1913-) Viviendas Avda. Libertador, Buenos Aires 1964
  • 135.
    ÁLVAREZ, MARIO ROBERTO( Argentina 1913-) Viviendas Avda. Libertador, Buenos Aires 1964
  • 136.
    BONET I CASTELLANA,A. ( Barcelona 1913-1989) Casa Unifamiliar La Ricarda, Barcelona 1950-63
  • 137.
    BONET I CASTELLANA,A. ( Barcelona 1913-1989) Casa Oks, Martínez, Buenos Aires 1955-57
  • 138.
    CODERCH DE SETMENAT,J.A. ( Barcelona 1913-1984) Casa Catasús, Sitges, Barcelona 1956
  • 139.
    CODERCH DE SETMENAT,J.A. ( Barcelona 1913-1984) Casa Uriach, Atmella del Vallès, Barcelona 1961
  • 140.
    KONSTANTIDINIS, ARIS (Grecia 1913-1993) Motel Xenia, Kalambaka, Grecia 1960
  • 141.
    KONSTANTIDINIS, ARIS (Grecia 1913-1993) Motel Xenia, Kalambaka, Grecia 1960
  • 142.
    SOTA, ALEJANDRO DELA ( Pontevedra, España 1913-1996) Gobierno Civil de Tarragona 1954-57
  • 143.
    SOTA, ALEJANDRO DELA ( Pontevedra, España 1913-1996) Edificio Juzgados, Zaragoza 1986
  • 144.
    LASDUN, DENYS (Inglaterra 1914-2001) Real Instituto de Chartered Surveyors 1962
  • 145.
    LASDUN, DENYS (Inglaterra 1914-2001) Teatro Nacional 1967
  • 146.
    SOSTRES I MALUQUER,J. M. ( Barcelona 1915-1984) Casa Agustí, Sitges, Barcelona 1953-55
  • 147.
    SOSTRES I MALUQUER,J. M. ( Barcelona 1915-1984) Casa Iranzo, Ciudad Diagonal, Barcelona 1955-56
  • 148.
    SOSTRES I MALUQUER,J.M. ( Barcelona 1915-1984) Casa Moratiel, Ciudad Diagonal, Barcelona 1955-57
  • 149.
    SOSTRES I MALUQUER,J.M. ( Barcelona 1915-1984) Apartamentos en Torredembarra, Tarragona 1955-57
  • 150.
    DUHART, EMILIO (Chile 1917-) Casa c/ Vaticano, Santiago de Chile 1944
  • 151.
    DUHART, EMILIO (Chile 1917-) Casa Francisco Pinto Santa Cruz, Santiago de Chile 1945
  • 152.
    DUHART, EMILIO (Chile 1917-) Casa Andrade, c/ Jorge Sexto, Santiago de Chile 1964
  • 153.
    DUHART, EMILIO (Chile 1917-) Casa Andrade, c/ Jorge Sexto, Santiago de Chile 1964
  • 154.
    SÁENZ DE OIZA,F. J. ( Navarra 1918-2000) Sede Banco Bilbao Vizcaya, Madrid 1977
  • 155.
    CANO LASSO, JULIO( Madrid, 1920-1996) Proyecto Unión Industrial Bancaria 1968
  • 156.
    SMITHSON, ALISON &PETER ( Inglaterra 1923-2002) Sede “The Economist”, Londres 1964
  • 157.
    SMITHSON, ALISON &PETER ( Inglaterra 1923-2002) Sede “The Economist”, Londres 1964
  • 158.
    HOZ, RAFAEL DELA ( Córdoba, España 1924-2000) Torre Castelar, Madrid 1975
  • 159.
    HOZ, RAFAEL DELA ( Córdoba, España 1924-2000) Torre Castelar, Madrid 1975
  • 160.
    SOUTO DE MOURA,EDUARDO E.M. ( Portugal 1925- ) Casa Nevogilde, Oporto 1982-85
  • 161.
    SOUTO DE MOURA,EDUARDO E.M. ( Portugal 1925- ) Casa Avda.Boavista, Oporto 1987-94
  • 162.
    SOUTO DE MOURA,EDUARDO E.M. ( Portugal 1925- ) Casa Miramar I, Vila Nova de Gaia 1987-91
  • 163.
    SOUTO DE MOURA,EDUARDO E.M. ( Portugal 1925- ) Casa Miramar I, Vila Nova de Gaia 1987-91
  • 164.
    SOUTO DE MOURA,EDUARDO E.M. ( Portugal 1925- ) Casa Alcanena, Torres Novas 1987-92
  • 165.
    SOUTO DE MOURA,EDUARDO E.M. ( Portugal 1925- ) Casa Alcanena, Torres Novas 1987-92
  • 166.
    SOUTO DE MOURA,EDUARDO E.M. ( Portugal 1925- ) Casa en Baiao, Portugal 1990-93
  • 167.
    SOUTO DE MOURA,EDUARDO E.M. ( Portugal 1925- ) Casa en Baiao, Portugal 1990-93
  • 168.
    SOUTO DE MOURA,EDUARDO E.M. ( Portugal 1925- ) Casa Moledo, Caminha 1991-96
  • 169.
    SOUTO DE MOURA,EDUARDO E.M. ( Portugal 1925- ) Casa Moledo, Caminha 1991-96
  • 170.
    SOUTO DE MOURA,EDUARDO E.M. ( Portugal 1925- ) Casa Moledo, Caminha 1991-96
  • 171.
    SOUTO DE MOURA,EDUARDO E.M. ( Portugal 1925- ) Casa Moledo, Caminha 1991-96
  • 172.
    SOUTO DE MOURA,EDUARDO E.M. ( Portugal 1925- ) Viviendas en Oporto 1992-96
  • 173.
    SOUTO DE MOURA,EDUARDO E.M. ( Portugal 1925- ) Viviendas en Oporto 1992-96
  • 174.
    MENDES DA ROCHA,PAULO ( Brasil 1928- ) Casa M. Da Rocha, Sao Paulo 1964
  • 175.
    MENDES DA ROCHA,PAULO ( Brasil 1928- ) Viviendas en Sao Paulo, Brasil 1984
  • 176.
    VACCHINI, LIVIO (Locarno, Suiza 1933- ) Casa Snider, Verscio 1965-66
  • 177.
    VACCHINI, LIVIO (Locarno, Suiza 1933- ) Casa Vacchini, Coste Tenero 1991-92
  • 178.
    MURCUTT, GLENN (Inglaterra 1936- ) Casa Marie Short, Kempsey, Australia 1974-75
  • 179.
    HERZOG & DEMEURON (Suiza 1950-) Centro de Señalización Ferroviaria, Suiza 1989-94
  • 180.
    MANGADO, FRANCISCO (Navarra1957-) Centro de Salud, Pamplona 19--
  • 181.
    ABALOS, IÑAQUI (SanSebastián 1956-) HERREROS, JUAN (Madrid 1958-) Estudio Gordillo, Madrid 1993-2002
  • 182.
    ALONSO VERA, DOLORES(Alicante 1951-) Clínica de Fertilidad, Valencia 1998-2002
  • 183.
    SANCHO, J.C (1957-) MADRIDEJOS, SOL ( Madrid 1958-) Ayuntamiento y centro cívico, Madrid 1994-2000
  • 184.
    GARCÍA SOLERA, JAVIER(Alicante 1958-) Aulario Tres, Universidad de Alicante 2001
  • 185.
    GARCÍA SOLERA, JAVIER(Alicante 1958-) Aulario Tres, Universidad de Alicante 2001
  • 186.
    TUÑÓN, EMILIO (Madrid1958-) & M. MANSILLA, LUIS (Madrid 1959-) Museo de Bellas Artes, Castellón, 1997-2000
  • 187.
    TUÑÓN, EMILIO (Madrid1958-) & M. MANSILLA, LUIS (Madrid 1959-) Museo Arqueología y Bellas Artes, Zamora
  • 188.
    ALVARO ROCHA, JOAO( Portugal 1959-) Renovaciones Parque Urbano, Castelo da Maia 1998-2001
  • 189.
    ALVARO ROCHA, JOAO( Portugal 1959-) Viviendas Sociales, Maia 1997-2000
  • 190.
    MENDES RIBEIRO, JOAO( Portugal 1960-) Casa del Té, Montemor-o-Velho 1997-2000
  • 191.
    MORALES, JOSÉ (1960-)& GONZÁLEZ, JUAN ( 1961-) Vivienda Unifamiliar, El Garrobo, Sevilla 1997-99
  • 192.
    ALONSO DEL VAL,M.A. & HERNÁNDEZ, RUFINO Pistas deportivas UNAV, Pamplona 1994
  • 193.
    ALONSO DEL VAL,M.A. & HERNÁNDEZ, RUFINO Pistas deportivas UNAV, Pamplona 1994
  • 194.
    ALONSO DEL VAL,M.A. & HERNÁNDEZ, RUFINO Sede Ericsson-España 1998
  • 195.
    ALONSO DEL VAL,M.A. & HERNÁNDEZ, RUFINO Sede Ericsson-España 1998
  • 197.
    MP : MATERIALDE PROYECTO MC : MATERIAL CONSTRUCCIÓN DET : DETALLES CONSTRUCTIVOS CHAREAU, PIERRE (BORDEAUX, FRANCIA 1883- 1950) MAISON DE VERRE, PARIS, 1932 MP/MC/DET GROPIUS, WALTER (BERLÍN, ALEMANIA 1883-BOSTON, MASSACHUSETTS 1969) EMBAJADA DE ATENAS, GRECIA, 1960 DET MIES VAN DER ROHE, LUDWIG (AACHEN, ALEMANIA 1886-CHICAGO, ILLINOIS 1969) CASA RESOR, 1937-38 MP CASA FARNSWORTH, 1945-50 MC/ DET METALURGICAL AND CHEMICAL ENGINEERING BUILDING ITT, CHICAGO1945-46 MC LAKE SHORE-DRIVE APARTMENTS, CHICAGO 1948-51 MC/DET CROWN HALL, IIT, CHICAGO, ILLINOIS, 1950-56 MP/ MC/ DET COMMONWEALTH PROMENADE APARTMENTS, 1953-56 MC EDIFICIO SEAGRAM, PARK AVENUE, NUEVA YORK, 1954-58 DET VIVIENDAS LAFAYETTE PARK, DETROIT, 1955-63 MC/ DET NATIONAL GALLERY, BERLIN, 1962-68 MC HIGHFIELD HOUSE APARTAMENTS, BALTIMORE 1963-65 MC LE CORBUSIER, Charles-Edouard Jeanneret-Gris ( SUIZA 1887-FRANCIA 1965) VILLA COOK, BOULOGNE-SUR-SEINE, 1926 MP CASA STEIN EN GARCHES, 1927 MP VILLA SAVOIE, POISSY, FRANCIA, 1929 MC/DET PABELLÓN SUIZO, 1930-32 DET CIUDAD UNIVERSITARIA DE PARÍS LE INMUEBLE CLARTÉ, GINEBRA, 1930-34 MC CASA DE VACACIONES, LES MATHES, MP FRANCIA 1935 CASA PARA FIN DE SEMANA, MP LA CELLE-SAINT-CLOUD, PARÍS, 1935 UNITÉ D’ HABITATION, MC/DET MARSELLA, 1946 CASAS JAOUL, NEUILLY-SUR-SEINE, 1954-56 MP CASA MR. SARABHAI, AHMEDABAD, INDIA, 1955 MP NIZZOLI, MARCELLO (BORETTO, ITALIA 1887- GÉNOVA, ITALIA 1969) BERNASCONI, G.A. / FIOCCHI, A. SEDE OLIVETTI, MILÁN, ITALIA, 1962 MC RIETVELD, G.T. (HOLANDA 1888-1964) CASA SCHRÖDER, UTRECHT,1924 DET NEUTRA, RICHARD (VIENA 1892-ALEMANIA 1970) CASA-ESTUDIO, CALIFORNIA 1946-48 DET CASA VACACIONES, 1948 MP CASA MR. ELVAIN, 1953 MP CASA MR. SLAVIN, 1953 MP ESCUELA ELEMENTAL KESTER AVENUE, 1955 MP ÍNDICE CRONOLÓGICO ARQUITECTOS -OBRAS- MATERIALES
  • 198.
    AALTO, ALVAR (KUORTANE,FINLANDIA 1898-HELSINKI, FINLANDIA 1976) INSTITUTO FINLANDÉS DE TRABAJORES JUBILADOS, HELSINKI CONCURSO 1948. CONSTRUCCIÓN 1952-56 DET SOM. SKIDMORE (1897-1962), OWINGS (1903-) & MERRILL (1896-1975) (OFICINA, CHICAGO 1936) OFICINAS INLAND STEEL COMPANY, 1956-58 MP OFICINAS CROWN ZELLERBACH CORP ., 1957-59 MP/DET SAN FRANCISCO, CALIFORNIA EDIFICIO OFICINAS GRAND RAPIDS, MICHIGAN, USA, 1962 MC/ DET EDIFICIO CENTRAL DE INGENIEROS, ARMSTRONS CORK CO. LANCASTER, PENNSYLVANIA, 1963-73 MP/ MC/ DET BUNSHAFT, GORDON (BUFFALO, NUEVA YORK 1909-) SOM* LEVER HOUSE, NUEVA YORK, 1950-52 MC/DET H.J. HEINZ COMPANY, PITTSBURG, PENNSYLVANIA, 1952 DET REYNOLDS METALS COMPANY, RICHMOND, VIRGINIA, 1958 DET EDIFICIO OFICINAS PEPSI-COLA, NUEVA YORK, 1958-59 MP EDIFICIO OFICINAS J. HANCOCK MC NUEVA ORLEANS, LOUISIANA 1962 KAHN, LOUIS I. (ESTONIA 1901- NUEVA YORK 1974) GALERÍA DE ARTE, UNIVERSIDAD DE YALE, 1951-53 MP/MC OFICINAS E IMPRENTA « TRIBUNE REVIEW », MC GREENSBURG, PENNSYLVANIA 1958-61 CASA ADLER, FILADELFIA, CALIFORNIA 1954 MP INSTITUTO SALK, LA JOLLA CALIFORNIA, 1959-65 MC MUSEO KIMBELL DE BELLAS ARTES, FORTWORTH, TEXAS, 1967-72 MP/ MC CENTRO DE ARTE Y ESTUDIOS BRITÁNICOS, UNIVERSIDAD DE YALE, 1969-77 MC/ DET BREUER, MARCEL (PECS, HUNGRÍA 1902-NUEVA YORK 1981) COTTAGE CHAMBERLAIN, WAYLAND, MASSACHUSETTS, 1939 MP CASA EXPOSICIÓN MOMA, 1948-49 DET CASA STILLMAN, LITCHFIELD, CONNECTICUT, 1950-51 DET CASA BRATTI, NEW CANAAN, CONNECTICUT, 1951 MP CASA STARKEY (CASA ALWORTH), DULUTH, MINNESOTA, 1954 MC/DET HUNTER COLLEGE, BRONX, NUEVA YORK, 1955-59 MP CASA HOOPER, BALTIMORE COUNTY, MARYLAND, 1960 MP COTTAGE WISE, WELLFLEET, MASSACHUSETTS 1963-64 MP CASA BECKHARD, GLEN COVE, LONG ISLAND, NUEVA YORK, 1964 MP/MC CASA STILLMAN II, LITCHFIELD, CONNECTICUT 1964-65 MP CASA SORIANO, GREENWICH, CONNECTICUT, 1971-73 MP COMPAÑÍA TELEFÓNICA, TORRINGTON, CONNECTICUT, 1973 MP
  • 199.
    JACOBSEN, ARNE E.(COPENHAGUE, DINAMARCA 1902-1971) AYUNTAMIENTO DE AARHUS, 1937-42 DET AYUNTAMIENTO DE SØLLERØD, 1939-42 MP EDIFICIO DE OFICINAS JESPERSEN, 1953-55 MP/ MC/ DET AYUNTAMIENTO DE RØDOVRE, 1954-56 MP/MC/DET HOTEL SAS, COPENHAGUE, 1955-60 MP/ DET ESCUELA MUNKEGARDS, HELLERUP , 1948-57 MP FÁBRICA CHRISTENSEN, AALBORG, 1956 MC CASAS-PATIO CARLSMINDE, SØLLERØD, 1955 MP CASA RÜTHWEN-JÜRGENSEN, VEDBAEK, 1956 MP CASA SIESBY, VIRUM, 1957 MP/MC VIVIENDAS EN ORNEGARDSVEJ 22-50, GENTOFTE, 1957 MC CASA JENSEN, GENTOFTE, 1956 MP CASA, STATSLANSHUS, 1958 MP CASAS, EXPOSICIÓN “INTERBAU”, BERLÍN, 1957 MP CASAS PATIO, BELLEVUE, KLAMPENBORG, 1960-61 MP PALACIO DE DEPORTES LANSDKRONA, SUECIA, 1957-64 MP ESCUELA NYGARD, RØDOVRE, 1959-64 MC/DET OFICINAS-SEDE, HAMBURGO, 1962-69 MP SALA EXPOSICIONES, PARQUE HERRENHAUSEN, HANNOVER, 1964-65 MC ST. CATHERINE’S COLLEGE, OXFORD, 1959-64 DET BANCO NACIONAL DE DINAMARCA, 1961-71 DET VIVIENDAS KUBERFLEX, 1969-70 MP EIRMANN, EGON (ALEMANIA 1904-1970) CASA GRAF ARDENBERG, 1954 MP PROYECTO ESTADIO DEPORTIVO, 1954 MP EDIFICIO LEBENSVERSICHERUNGS-AG, 1955-57 MP INTERNATIONALE BAUAUSTELLUNG,1957 MP PABELLÓN ALEMÁN EN BRUSELAS, 1958 MC EMBAJADA ALEMANA EN WASHINGTON, 1958-64 DET CASA BADEN-BADEN, 1959-62 MP EDIFICIO OFICINAS IBM, PROYECTO 1965-66 MC TERRAGNI, GIUSEPPE (ITALIA 1904-1943) CASA DEL FACIO, COMO, 1932-35 MC/ DET EAMES, CHARLES (ST. LOUIS MISSOURI, 1907-1978) RAY EAMES (1912-1988) CASA EAMES, PACIFIC PALISADES, CALIFORNIA, 1949 MC JOHNSON, PHILIP (OHIO 1906-) CASA FREESTANDING, 1941 MP CASA ASH. STREET, 1941-42 MP CASA ONETO, 1949-51 MP CASA RICHARDS, 1950 MP SAARINEN, EERO ( FINLANDIA 1910-1961) GENERAL MOTORS, WARREN, MICHIGAN, 1948-56 DET CENTRO IBM, ROCHESTER, MINNESOTA, EEUU MC
  • 200.
    ALVAREZ, MARIO ROBERTO(ARGENTINA 1913-) VIVIENDAS AVDA. LIBERTADOR, BUENOS AIRES, 1964 MP BONET CASTELLANA, A. (BARCELONA 1913-1989) CASA UNIFAMILIAR LA RICARDA, EL PRAT DE LLOBREGAT, BARCELONA, 1950-63 MP CASA OKS, MARTÍNEZ, BUENOS AIRES, 1955-57 MP CODERCH DE SETMENAT, J.A. (BARCELONA 1913-1984) CASA CATASÚS, SITGES, BARCELONA, 1956 MP CASA URIACH, ATMELLA DEL VALLÈS, BARCELONA, 1961 MP KONSTANTINIDIS, ARIS (ATENAS, GRECIA 1913-93) MOTEL XENIA KALAMBAKA, GRECIA, 1960 DET SOTA, ALEJANDRO DE LA (PONTEVEDRA, ESPAÑA 1913- MADRID, ESPAÑA 1996) GOBIERNO CIVIL DE TARRAGONA, 1954-57 DET EDIFICIO JUZGADOS, ZARAGOZA, 1986 DET LASDUN, DENYS ( INGLATERRA 1914-2001) REAL INSTITUTO DE CHARTERED SURVEYORS, 1962 MP TEATRO NACIONAL, 1967 MP SOSTRES, J.M. (BARCELONA 1915-1984) CASA AGUSTÍ, SITGES, BARCELONA, 1953-55 MP CASA IRANZO, CIUDAD DIAGONAL, BARCELONA, 1955-56 MP CASA MORATIEL, CIUDAD DIAGONAL, MP BARCELONA, 1955-57 APARTAMENTOS EN TORREDEMBARRA, TARRAGONA, 1955-57 MP DUHART, EMILIO (CHILE 1917-) CASA C/ VATICANO, SANTIAGO DE CHILE, 1944 MP CASA FRANCISCO PINTO SANTA CRUZ, SANTIAGO DE CHILE, 1945MP CASA ANDRADE, C/JORGE SEXTO, SANTIAGO DE CHILE, 1964 MP SAÉNZ DE OIZA, FRANCISCO JAVIER (NAVARRA 1918-2000) BANCO DE BILBAO, MADRID 1977 DET CANO LASSO, JULIO (MADRID 1920-1996) UNIÓN INDUSTRIAL BANCARIA, proyecto 1968 MP
  • 201.
    SMITHSON, PETER (INGLATERRA1923-2002) THE ECONOMIST, LONDRES, 1964 MC/DET HOZ, RAFAEL DE LA (CÓRDOBA, ESPAÑA 1924-MADRID, ESPAÑA 2000) TORRE CASTELAR, MADRID, 1975 MC/DET SOUTO DE MOURA, EDUARDO E.M. (OPORTO, PORTUGAL 1925-) CASA NEVOGILDE, OPORTO 1982-85 MC CASA BOAVISTA, PORTO, 1987-94 MC/ DET CASA EN MIRAMAR I, 1987-91 MC/ DET CASA EN ALCANENA, TORRES NOVAS, 1987-92 MC/ DET CASA EN BAIAO, 1990-93 MP/ MC CASA EN MOLEDO, 1991-96 MP/ MC EDIFICIO RESIDENCIAL EN OPORTO, 1992-1996 MC / DET MENDES DA ROCHA, PAULO (VITÓRIA, BRASIL 1928-) CASA M. DA ROCHA, SAO PAULO, 1964 DET VIVIENDAS EN SAO PAULO, BRASIL,1984 MP VACCHINI, LIVIO ( LOCARNO, SUIZA 1933-) CASA SNIDER, VERSCIO, 1965-66 MP CASA VACCHINI, COSTE TENERO, 1991-92 MP MURCUTT, GLENN (INGLATERRA 1936-) CASA MARIE SHORT, KEMPSEY, AUSTRALIA 1974-75 MP HERZOG & DE MEURON (SUIZA 1950-) CENTRO DE SEÑALIZACIÓN FERROVIARIA, 1989-94 MC MANGADO, FRANCISCO (ESTELLA, NAVARRA 1957-) CENTRO DE SALUD EN PAMPLONA MC ABALOS, IÑAQUI ( SAN SEBASTIÁN 1956- ) & HERREROS, JUAN ( MADRID 1958-) (DESPACHO 1984) ESTUDIO GORDILLO, VILLANUEVA DE LA CAÑADA, MADRID, 1993-2002 DET ALONSO VERA, DOLORES ( ALICANTE 1951-) & GARCÍA SOLERA, JAVIER (ALICANTE 1958-) CLÍNICA DE FERTILIDAD, VALENCIA, 1998-2002 MC SANCHO OSINAGA, JUAN CARLOS ( SAN SEBASTIÁN 1957-) & MADRIDEJOS, SOL ( MADRID 1958-) AYUNTAMIENTO Y CENTRO CÍVICO SAN FERNANDO DE HENARES, MADRID 1994/2000 MC
  • 202.
    GARCÍA SOLERA, JAVIER(ALICANTE 1958-) AULARIO TRES, UNIVERSIDAD DE ALICANTE, 2001 MP TUÑÓN, EMILIO ( MADRID 1958-) & MORENO MANSILLA, LUIS ( MADRID 1959-) MUSEO DE BELLAS ARTES, CASTELLÓN 1997-2000 MC MUSEO ARQUEOLOGÍA Y BELLAS ARTES, ZAMORA MP ALVARO ROCHA, JOAO (VIANA DO CASTELO, PORTUGAL, 1959-) RENOVACIONES EN EL PARQUE URBANO DET DE CASTELO DA MAIA, 1998-2001 VIVIENDAS SOCIALES, MAIA 1997-2000 DET MENDES RIBEIRO, JOAO (COIMBRA, PORTUGAL, 1960-) CASA DE TÉ, MONTEMOR-O-VELHO, 1997-2000 MC/DET MORALES, JOSÉ (SEVILLA, 1960-) & GONZÁLEZ MARISCAL, JUAN (SEVILLA, 1961-) VIVIENDA UNIFAMILIAR, EL GARROBO, SEVILLA 1997-99 MC ALONSO DEL VAL, MIGUEL ÁNGEL & HERNÁNDEZ MINGUILLÓN, RUFINO PISTAS DEPORTIVAS UNAV, PAMPLONA 1994 MC/DET SEDE ERICSSON ESPAÑA, 1998 MC/DET
  • 203.
    LA FORMA MODERNA,Programa de Doctorado DEPARTAMENTO DE PROYECTOS ARQUITECTÓNICOS Avda. Diagonal, 649. 6a Planta. 08028 Barcelona +34 93 401 10 20 forma.moderna@upc.es www.upc.es/pa/formamoderna/forma_moderna.htm BARCELONA, SEPTIEMBRE 2004