REFORMA INTEGRAL
CLIENTE: Sra. BLANCA FIGUERAS
ANNA PONS AMADES
FECHA: 6 DE JUNIO DEL 2013
MAESTUDIO MADESIGN
Sra. Blanca Figueras
REFORMA INTEGRAL C/ Baluard 57 (Barcelona)
PROYECTO CLIENTA INTERIORISMO FECHA PLANO ESCALA
Pons Amades, Anna
6 de Junio del 2013 Memoria Descriptiva - -
REFORMA INTEGRAL
I. MEMORIA DESCRIPTIVA.
I.1. GENERALIDADES.
El presente proyecto trata de la y reforma de la planta baja y planta tipo de un
bloque de viviendas situado al numero 57, de la calle Baluard, de la Barceloneta, en
Barcelona.
I.2.1. CONDICIONES GENERALES.
I.2.1.1. Solar y superficie.
La superficie construida del edificio actual es de 450 y del suelo 74 Es un tipo de finca
I.2.1.2. Criterios funcionales y compositivos.
Se ha buscado una que favorezca la entre las piezas, reduzca al
los pasos de independice las zonas de de las de noche, unas
proporciones para la del mobiliario y de los movimientos que se
en cada pieza y obtenga la mejor y posible respectando un orden
compositivo exterior
La que se proyecta cumple la Normativa en todos sus aspectos, sin agotar la
El edificio se desenvuelve en una planta baja, que originalmente eran dos viviendas y que
reformada y habilitada para la de una farmacia; y en cinco plantas con dos
El acceso a las viviendas se por la calle Baluard y la entrada al local se por la
calle La escalera actual del edificio reformada con el fin de ajustarla a los
La planta tipo dispone de un comedor con cocina americana en la zona de y una
doble, una individual y un completo en la zona de noche.
Ambas zonas separadas por una puerta corrediza creando la citada
anteriormente entre ellas. La vivienda dispone de dos balconeras, una en el y la otra
en el comedor.
La farmacia se divide en dos zonas. La primera es la entrada a la tienda de al
cliente, des de donde se puede acceder al despacho habilitado para el personal de y
a la segunda zona donde se encuentra el laboratorio y un aseo para el personal.
Por otra lado, esta la entrada de acceso al bloque de viviendas con la escalera que da
acceso a cada vivienda.
La estructura esta formada por forjados unidireccionales apoyados sobre paredes de
carga, con altura libre de planta baja a planta primera de 4 m y entre plantas de 2'70 m.
En la general del edificio se ha seguido el programa de necesidades
planteado por el promotor, cumpliendo la Normativa Vigente.
.
Sra. Blanca Figueras
REFORMA INTEGRAL C/ Baluard 57 (Barcelona)
PROYECTO CLIENTA INTERIORISMO FECHA PLANO ESCALA
Pons Amades, Anna
6 de Junio del 2013 Memoria constructiva - -
REFORMA INTEGRAL
II.1. ACTUCIONES PREVIAS.
Se al desmontaje y retirada de mobiliaro, fusteria, complementos y accesorios. Incluydo el
transporte a vertedero. Trabajos de desmontaje de todos los sanitarios (inodoros y lavabos). Todos los
Trabajos de desmontaje de la de lampisteria en los banyos, tuberias de subminitramiento y
sistema de Trabajos de desmontaje de la iluminacion, cableado, mecanismos,.. Incluidos los
medios auxiliares y el transporte y descarrega de residus al vertedero.
II.2. ENDERROCS.
Se retiraran los aplacados de las paredes de los banyos. Se demoliran las paredes de huecos de los
II.3. ESTRUCTURA.
En la de las partidas de este se consideran incluidos el suministro y de todos los
- Replanteo de las obras.
- Apuntalamiento, encofrado y desencofrado a cualquier altura, vibrado, trabajos de curado. Los elementos de
con de ladrillo hueco de 10 cm. de canto y 14 de espesor, tomado con mortero de C.P. tipo M-80. En
II.4. FORJATS.
La part nova de l'escala de l'edifici es una llosa de i en perpendicular als nervis o
biguetes semiresistents, es una armadura de repartiment d'acer tipus B 500 - S, de 1 6 cada 33
cm. o armadura equivalen.
II.5. DIVISIONES INTERIORES.
Los tabiques de pared de machihembrada Tabiceram de 7 cm de espesor en las particiones
interiores de la vivienda y de 10 cm en las zonas recibidas con cemento cola. El encuentro con el
techo se con yeso. Todos ellos preparados para posterior enlucido. La
II.6. SUELOS
Los pavimentos interiores de la vivienda de parquet de madera de roble de lama ancha, excepto en la
II.7. ALICATADOS.
Los paramentos verticales de los cocina y lavadero aplaca con baldosa esmaltada de color claro de
20x20 o 15x15 cm., Colocada con cemento adhesivo con llana dentada, hasta el techo, de primera
calidad sobre paramento enlucido.
Los bancos de cocina hechos de piezas de artificial "Silestone" de 2 cm. de espesor, reforzadas en
II.8. REVESTIMIENTOS CONTINUOS.
Enlucido de yeso maestreado los paramentos verticales y horizontales, marcando aristas y cantos vivos en todas
las entregas. como enlucido con capa de yeso-cola a los tabiques de Tabiceram, incluido recerclat de agujeros,
cantoneras, aristas, rincones y maestrazgo se En los paramentos que tengan que recibir azulejo
rebozado y maestreado con mortero de cemento mixto.
Las paredes de los locales que deban estar en contacto con el suelo con acabado fino para pintar y
II.8.1. PINTURAS
Sobre los paramentos enfoscados y enyesados un acabado de pintura de base acuosa, a dos
II.9. CERRAMIENTOS DE MADERA.
Los cerramientos interiores todos de madera chapada con cedro de 35 mm de espesor en las puertas y 19
mm en los armarios, barnizada en taller, incluidos los pernos Kubika de satinado y los manubrios de
puertas y tiradores de armarios seran Trend cromado brillante Superinox satinado de Los armarios
del mismo tablero, e forrados en su interior. La puerta de entrada a la vivienda blindada con acabado de
madera de cedro, e con bisagras y cerradura de seguridad de 3 puntos como mirilla de gran angular,
tirador exterior y manubrio interior. La puerta con todo la cerradura de acceso de madera de las mismas
con recortes de vidrio fijo de 5 +5. Los armarios de la misma calidad, para pintar y con
estantes.
La dimensionada para enrasar en un mismo plano con los acabados de las paredes, ya sean
Todos los cierres exterior de aluminio anodizado de 1 .5 mm de espesor, de calidad A-3, E-3, V-3 con
tiradores de manivela y de 70 mm en las correderas, y de 50 mm. a las practicables, colocadas sobre
premarcos de acero galvanizado e interponiendo junta de goma entre los diferentes metales de diferente
II.11. AISLANTES Y IMPERMEABILIZANTES.
Los aislamientos los definidos por la normativa y Aislamiento con lana de vidrio
en los cajones de paso de bajantes para los dormitorios y las salas de estar.
Sra. Blanca Figueras
REFORMA INTEGRAL C/ Baluard 57 (Barcelona)
PROYECTO CLIENTA INTERIORISMO FECHA PLANO ESCALA
Pons Amades, Anna
6 de Junio del 2013 Memoria constructiva - -
REFORMA INTEGRAL
II.12. INSTALACIONES.
II.12.1. ELECTRICIDAD.
Se las medidas de seguridad tanto en las viviendas como en los locales comerciales y de
servicios comunes o usos similares.
El cuadro general de y de contadores del edificio colocado en la zona de
acceso al edificio. Se los puntos de luz, interruptores y enchufes especificados en los planos.
como un punto de luz y un interruptor en cada dependencia y un enchufe para
cada aparato de equipo obligatorio. como dos enchufes en la sala y uno en las
habitaciones. La cocina como tres enchufes. interruptores conmutados en dormitorios,
pasillos, recibidor, y salas-comedor y en la cocina si tiene doble acceso. Se portero
modelo Auta o similar. La antena de TV-FM equipada con a tierra.
tomas en la sala y dormitorio principal. Se la de de acuerdo con la
II.12.3. COMUNICACIONES.
Cada vivienda de un enchufe para antena de TV-FM y portero La antena de
Se las canalizaciones, cableados y las tomas de TV, red interior de internet, interfono y
II.12.4. FONTANERIA.
completa de realizada con tubo de polietileno. Cada grupo de aparatos situados en
La empotrada pero se la estanqueidad a antes de ser tapada
definitivamente.
Contador en el armario situado en la planta baja.
climatizado por bomba de calor con La unidades exteriores se en la
cubierta y las interiores dos unidades por conductos situados sobre el cielo raso del del distribuidor
de los dormitorios.
Se un paso de tubos hasta la cubierta para situar las unidades exteriores los conductos verticales para
el retorno del aire.
El agua que produce el evaporador en invierno, y el condensador en verano, se conduce a la red de
En el instalador de los aparatos se en la de unos tacos de goma para
La cocina un conducto individual de para la de humos, conectado a un extractor
Los gases quemados de calderas y calentadores de potencia igual o superior a 150 Kcal / min. se
II.14. APARATOS SANITARIOS.
Todos los aparatos sanitarios de primera calidad, de porcelana vitrificada, del tipo Roca o similar,
formados por un completo, con grifos de primera calidad, cromadas, tipo monobloc y con sistemas de
Todos los aparatos sanitarios colocados con los correspondientes accesorios de sifones, tapas,
grifos, y todo lo necesario para su correcto funcionamiento.
Los aparatos equipados con mezcladores de agua y caliente. El caudal en el menos un punto de
II.15. CRISTALES.
El cierre de vidrio de doble cristal con 4 +6 +4 mm, en todos los balcones, ventanas y puertas
II.16. PINTURA.
En los paramentos interiores se un acabado de pintura de base acuosa de color claro, a dos
Los cerramientos interiores barnizados en taller con una mano de y dos de barniz. Todas
sobre base acuosa.
Todos los elementos de acero se tallas con pintura antioxidante y en obra con dos capas de
esmalte.
II.17. VARIOS.
La del presente edificio lleva todas las operaciones necesarias para una de
buena calidad.
Todos los materiales empleados en la obra tener el correspondiente certificado de calidad otorgado
por laboratorio ensayos debidamente homologado.
Sra. Blanca Figueras
REFORMA INTEGRAL C/ Baluard 57 (Barcelona)
PROYECTO CLIENTA INTERIORISMO FECHA PLANO ESCALA
Pons Amades, Anna
6 de Junio del 2013 - -
1. Peso propio y cargas permanentes
Cargas a tener en cuenta para el calculo del descenso de cargas:
- Peso propio: peso forjado y estructura.
- Carga permanente: elementos constructivos e instalaciones.
- Sobrecargas de uso: elementos que puedan gravitar en la superficie.
- Sobrecarga de nieve: sobrecarga debida al peso de la nieve.
- Obertura en la pared de 1 m
SOBRECARGA DE USO:
SOBRECARGA DE NIEVE:
2. Descenso de cargas
REFORMA INTEGRAL
- Peso influyente de las paredes de carga:
- Peso total pared planta tipo = 0'61 x 5 plantas = 3'04 kN
TOTAL CARGAS = 110'55 kN + 25'728 kN + 0'045 + 3'04 kN = 139'36 kN
CARGA REPARTIDA = 139'36
1 = 139' 36 kN/m
Mmax =
8 =
8 = 17'4203 kN*m
Wx = 174203 kpcm
2619 kP/cm2
Fmax < L
500 =1000
500 = 2 mm
f = 5*Q*L^4
384*E*l
= 5*139'36*100^4
384*2'1*10^6*573 = 0'15 cm = 1'5 mm --> CUMPLE
Sra. Blanca Figueras
REFORMA INTEGRAL C/ Baluard 57 (Barcelona)
PROYECTO CLIENTA INTERIORISMO FECHA PLANO ESCALA
Pons Amades, Anna
6 de Junio del 2013 - -
REFORMA INTEGRAL
Sra. Blanca Figueras
REFORMA INTEGRAL C/ Baluard 57 (Barcelona)
PROYECTO CLIENTA INTERIORISMO FECHA PLANO ESCALA
Pons Amades, Anna
6 de Junio del 2013 - 1
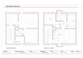
REFORMA INTEGRAL
PLANO EMPLAZAMIENTO
N
PLANTA TIPOPLANTA BAJA
8,30
8,30
0,750,80 1,50 0,90 1,60 1,45
1,172,010,154,680,30
1,30 0,80 1,50 0,90 1,60 0,75 1,45
1,640,302,140,153,780,30
8,30
8,30
1,30 0,80 1,20 1,50 1,30 0,75 1,45
0,301,300,102,380,152,410,101,270,30
1,30 0,80 1,20 1,50 1,30 0,75 1,45
0,151,650,152,880,30
1,30
0,90
0,90
0,73
0,18
1,50
0,83
0,73 2,22
1,71
0,10
1,64
0,70 2,272,79
0,90
0,90
0,90
0,570,13
0,950,502,48
3,64 2,27
0,90
2,85
0,90
0,80
1,39
0,570,23
2,25 3,55
2,95 0,50 2,15
2,88
0,10
0,80
0,90
2,881,952,88
0,30
0,70
0,50
0,90
3,38
0,57
0,95
1,81
0,80
0,30
1,27
0,80
2,010,80
3,55
0,10 0,10
2,072,29
0,10
Sra. Blanca Figueras
REFORMA INTEGRAL C/ Baluard 57 (Barcelona)
PROYECTO CLIENTA INTERIORISMO FECHA PLANO ESCALA
Pons Amades, Anna
6 de Junio del 2013 Plantas acutales 1:50 2
REFORMA INTEGRAL
0,30
0,75
4,682,88
1,50 0,75 1,30
COMEDOR-COCINA AMERICANA
0,303,78
PUERTA ACCESO EDIFICIO
DE VIVIENDAS
0,15
0,30
0,15
0,153,78
0,300,15
0,901,15 1,60
HUECO ESCALERA
1,450,15 0,80
1,50
0,30
1,30
0,150,80
0,901,15
1,30
0,80 1,60
2,88
0,90 0,750,75
0,30
1,600,801,30 1,50 1,45
0,153,780,30
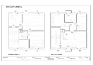
PLANTA BAJA-FARMACIA PLANTA TIPO -VIVIENDA
8,30
1,20 1,50
8,30
0,30
8,30
0,154,68
3,78
1,30
DISTRIBUIDOR
Sra. Blanca Figueras
REFORMA INTEGRAL C/ Baluard 57 (Barcelona)
PROYECTO CLIENTA INTERIORISMO FECHA PLANO ESCALA
Pons Amades, Anna
6 de Junio del 2013 1:50 3
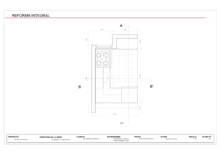
REFORMA INTEGRAL
7,60
4,70
8,30
0,30 2,75 0,15 1,80 0,15 2,85 0,30
0,302,700,304,000,30
1,93 1,07
0,07
8,30
0,15 2,95
0,10
2,75 2,30
0,10
7,60
0,302,70
0,15
0,300,304,00
0,30
0,401,501,000,20
1,00
1,50
1,50
1,10
0,20
1,00
PLANTA TIPOPLANTA BAJA
A'
A
A'
A
B'B B'B
Sra. Blanca Figueras
REFORMA INTEGRAL C/ Baluard 57 (Barcelona)
PROYECTO CLIENTA INTERIORISMO FECHA PLANO ESCALA
Pons Amades, Anna
6 de Junio del 2013 Secciones actuales 1:50 4
REFORMA INTEGRAL
PLANTA TIPOPLANTA BAJA
Sra. Blanca Figueras
REFORMA INTEGRAL C/ Baluard 57 (Barcelona)
PROYECTO CLIENTA INTERIORISMO FECHA PLANO ESCALA
Pons Amades, Anna
6 de Junio del 2013 Planta derribo 1:50 5
REFORMA INTEGRAL
PLANTA BAJA-FARMACIA PLANTA TIPO -VIVIENDA
Sra. Blanca Figueras
REFORMA INTEGRAL C/ Baluard 57 (Barcelona)
PROYECTO CLIENTA INTERIORISMO FECHA PLANO ESCALA
Pons Amades, Anna
6 de Junio del 2013 Planta obra nueva 1:50 6
REFORMA INTEGRAL
PLANTA BAJA PLANTA TIPO
LosadeH.A.
Losa de H.A.Losa de H.A.
Losa de H.A.
Sra. Blanca Figueras
REFORMA INTEGRAL C/ Baluard 57 (Barcelona)
PROYECTO CLIENTA INTERIORISMO FECHA PLANO ESCALA
Pons Amades, Anna
6 de Junio del 2013 Estructura actual 1:50 7
REFORMA INTEGRAL
PLANTA BAJA-FARMACIA PLANTA TIPO -VIVIENDA
Losa de H.A.
Losa de H.A. Losa de H.A.
Sra. Blanca Figueras
REFORMA INTEGRAL C/ Baluard 57 (Barcelona)
PROYECTO CLIENTA INTERIORISMO FECHA PLANO ESCALA
Pons Amades, Anna
6 de Junio del 2013 Estructura obra nueva 1:50 8
REFORMA INTEGRAL
2,70
8,30
4,70 0,30
8,30
0,10
0,300,304,00
7,60
0,30
3,00
0,300,304,00
0,30 0,15 2,95 0,102,68 2,17 0,15
7,60
2,700,30
PLANTA BAJA-FARMACIA PLANTA TIPO -VIVIENDA
A'
A
A'
A
B'B B'B
1,30
0,90
Sra. Blanca Figueras
REFORMA INTEGRAL C/ Baluard 57 (Barcelona)
PROYECTO CLIENTA INTERIORISMO FECHA PLANO ESCALA
Pons Amades, Anna
6 de Junio del 2013 Secciones generales 1:50 9
REFORMA INTEGRAL
Sra. Blanca Figueras
REFORMA INTEGRAL C/ Baluard 57 (Barcelona)
PROYECTO CLIENTA INTERIORISMO FECHA PLANO ESCALA
Pons Amades, Anna
6 de Junio del 2013 1:50 10
REFORMA INTEGRAL
Sra. Blanca Figueras
REFORMA INTEGRAL C/ Baluard 57 (Barcelona)
PROYECTO CLIENTA INTERIORISMO FECHA PLANO ESCALA
Pons Amades, Anna
6 de Junio del 2013 1:50 11
REFORMA INTEGRAL
REJAS DE SALIDA 50x20
REJAS DE SALIDA 50x20
MONTANTS
REJAS DE SALIDA 50x20
REJAS DE SALIDA 50x20
MONTANTS
REJAS DE SALIDA 50x20
Sra. Blanca Figueras
REFORMA INTEGRAL C/ Baluard 57 (Barcelona)
PROYECTO CLIENTA INTERIORISMO FECHA PLANO ESCALA
Pons Amades, Anna
6 de Junio del 2013 1:50 12
REFORMA INTEGRAL
PEC-80
30
PE-80
d-15
P-70
e-7.5
PC-80
15
P-70
e-10
P-70
d-10
PE-80
e-30
PV-80
d-30
PC-80
15
P-70
e-7.5
P-70
d-10
P-70
d-7.5
PV-80
e-10
V-65
30
V-70
30
V-65
30
VF-70
30
VO-65
30
V0-70
30
VO-65
30
VF-70
30
V-50
30
V-50
30
A1
A2
A4
A3
PLANTA BAJA-FARMACIA PLANTA TIPO -VIVIENDA
Sra. Blanca Figueras
REFORMA INTEGRAL C/ Baluard 57 (Barcelona)
PROYECTO CLIENTA INTERIORISMO FECHA PLANO ESCALA
Pons Amades, Anna
6 de Junio del 2013 1:50 13
REFORMA INTEGRAL
PE-80 /d-15
PV-80 /e-30
PC-80 /15P-70 /e-10
0.90
0.05 0.05
0.90
0.050.10
2.20
2.20
0.90
0.80
P-70 /d-10
0.80
0.05 0.70 0.05 0.05 0.80 0.05
0.80
0.05 0.70 0.05
2.20
2.20
2.20
PV-80 /d-30
0.90
0.05 0.05
2.20
P-70 /e-7.5 P-70 /d-7.5
0.80
0.05 0.70 0.05
0.80
0.05 0.70 0.05
2.20
2.20
Sra. Blanca Figueras
REFORMA INTEGRAL
PUERTAS
PE-80 / d-15
P-70 / d-10
P-70 / d-7'5
PC-80 / 15
PV-80 / e-30
TIPO
PUERTA DE ENTRADA
PUERTA INTERIOR
PUERTA INTERIOR
PUERTA CORREDIZA
PUERTA DE VIDRIO
MATERIAL
Hoja batiente de madera barnizada, de 35 mm de
grosor, de caras lisas y estructura interior de madera
Hoja batiente de madera barnizada, de 35 mm de
grosor, de caras lisas y estructura interior de madera
Hoja batiente de madera barnizada, de 35 mm de
grosor, de caras lisas y estructura interior de madera
Hoja batiente de madera barnizada, de 35 mm de
grosor, de caras lisas y estructura interior de madera
Aluminio lacado y moldura DM forrada en el interior
TIPO DE VIDRIO
-
-
-
-
Aislante de dos lunas incoloras de 4 mm
PERSIANA
Enrollable de aluminio de lamas orientables.
Modelo Supergran hermatic.
POMO
-
-
-
-
TREND, cromado, brillante Superinox
TREND, cromado, brillante Superinox
TREND, cromado, brillante Superinox
TREND, de cromado brillante y
BISAGRAS
de perfil y accesorios
de aluminio
KUBIKINA con base CLIP.
SOFT
MARCO APERTURA UNIDADES
5 cm
5 cm
5 cm
5 cm
5 cm
Derecha
P-70 / e-10 PUERTA INTERIOR
Hoja batiente de madera barnizada, de 35 mm de
grosor, de caras lisas y estructura interior de madera - -
TREND, cromado, brillante Superinox
5 cm Izquierda
P-70 / e-7'5 PUERTA INTERIOR
Hoja batiente de madera barnizada, de 35 mm de
grosor, de caras lisas y estructura interior de madera - -
TREND, cromado, brillante Superinox 5 cm
PV-80 / d-30 PUERTA DE VIDRIO Aluminio lacado y moldura DM forrada en el interior
Aislante de dos lunas incoloras de 4 mm Enrollable de aluminio de lamas orientables.
Modelo Supergran hermatic.
TREND, de cromado brillante y KUBIKINA con base CLIP.
SOFT
5 cm
2
PEC-80 / d-30 PUERTA DE VIDRIO Aluminio lacado y moldura DM forrada en el interior
Aislante de dos lunas incoloras de 4 mm KUBIKINA con base CLIP.
SOFT
5 cm- -
1
2
2
1
2
1
1
1
C/ Baluard 57 (Barcelona)
PROYECTO CLIENTA INTERIORISMO FECHA PLANO ESCALA
Pons Amades, Anna
6 de Junio del 2013 1:50 14
Izquierda
Izquierda
Derecha
Derecha
Derecha
Derecha
Derecha
REFORMA INTEGRAL
VO-70 /30 VO-65 /30
0.75
0.64
0.80
0.70
1.20
0.60
VB-65 /30
0.50
1.50
1.50
1.00
1.00
1.00
V-70 /30 V-65 /30
1.00
0.80
0.70
1.450.17
1.001.450.17
VF-70 /30
1.00
0.80
0.70
1.450.17
VENTANAS
VO-70 / 30
VB-50 / 15
TIPO
VENTANA
OSCILOBATIENTE
VENTANA BATIENTE
MATERIAL
Aluminio lacado y moldura DM
forrada en su interior
TIPO DE VIDRIO PERSIANA MANIJA
TREND, cromado, brillante Superinox
BISAGRAS
de perfil y accesorios de
aluminio RETRAC 60/80
UNIDADES
VO-65 / 30
TREND, cromado, brillante Superinox
KUBIKINA con base CLIP.SOFT
1
2
1
VENTANA
OSCILOBATIENTE
Aislante de dos lunas incoloras de 4
mm de grosor y de aire de 8
mm.
Aislante de dos lunas incoloras de 4
mm de grosor y de aire de 8
mm.
Aislante de dos lunas incoloras de 4
mm de grosor y de aire de 8
mm.
Aluminio lacado y moldura DM
forrada en su interior
Aluminio lacado y moldura DM
forrada en su interior
Enrollable de aluminio de lamas
orientales.
Modelo Supergrandhermatic
Enrollable de aluminio de lamas
orientales.
Modelo Supergrandhermatic
Enrollable de aluminio de lamas
orientales.
Modelo Supergrandhermatic
TREND, cromado, brillante Superinox
KUBIKINA con base CLIP.SOFT
MARCO
5 cm
5 cm
5 cm
ANCHURA ALTURA
150 cm
120 cm
150 cm
70 cm
50 cm
65 cm
Sra. Blanca Figueras
REFORMA INTEGRAL C/ Baluard 57 (Barcelona)
PROYECTO CLIENTA INTERIORISMO FECHA PLANO
Pons Amades, Anna
6 de Junio del 2013
ESCALA
1:50 15
V-70 / 30
VF-70 / 30
VENTANA BATIENTE
VENTANA FIJA
Aluminio lacado y moldura DM
forrada en su interior
TREND, cromado, brillante Superinox
de perfil y accesorios de
aluminio RETRAC 60/80
V-65 / 30
TREND, cromado, brillante Superinox
KUBIKINA con base CLIP.SOFT
1
2
1
VENTANA BATIENTE
Aislante de dos lunas incoloras de 4
mm de grosor y de aire de 8
mm.
Aislante de dos lunas incoloras de 4
mm de grosor y de aire de 8
mm.
Aislante de dos lunas incoloras de 4
mm de grosor y de aire de 8
mm.
Aluminio lacado y moldura DM
forrada en su interior
Aluminio lacado y moldura DM
forrada en su interior
Enrollable de aluminio de lamas
orientales.
Modelo Supergrandhermatic
Enrollable de aluminio de lamas
orientales.
Modelo Supergrandhermatic
Enrollable de aluminio de lamas
orientales.
Modelo Supergrandhermatic
TREND, cromado, brillante Superinox
KUBIKINA con base CLIP.SOFT
5 cm
5 cm
5 cm
162 cm
162 cm
162 cm
70 cm
70 cm
65 cm
REFORMA INTEGRAL
A1 A2
A3
A4
B B'
B B' B B'
B B'
A'
A
A'
A
A'
A
A'
A
1.83
0.95
ARMARIOS
A1
A3
TIPO
ARMARIO EMPOTRADO
MATERIAL
Madera de roble barnizada de caras lisas y
estructura interior de madera
MANIJA BISAGRAS UNIDADES
A2
1
1
1
MARCO
5 cm
5 cm
5 cm
ANCHURA ALTURA
240 cm
200 cm
240 cm
95 cm
40 cm
55 cm
Sra. Blanca Figueras
REFORMA INTEGRAL C/ Baluard 57 (Barcelona)
PROYECTO CLIENTA INTERIORISMO FECHA PLANO
Pons Amades, Anna
6 de Junio del 2013
ESCALA
1:50 16
A4
ARMARIO EMPOTRADO
ARMARIO EMPOTRADO
ARMARIO EMPOTRADO
Madera de roble barnizada de caras lisas y
estructura interior de madera
Madera de roble barnizada de caras lisas y
estructura interior de madera
Madera de roble barnizada de caras lisas y
estructura interior de madera
Tirador AKER de VALFER
Tirador AKER de VALFER
Tirador AKER de VALFER
Tirador AKER de VALFER
KUBICA con base CLIP
KUBICA con base CLIP
KUBICA con base CLIP
KUBICA con base CLIP
PUERTAS
3
4
1
4
Cocina
ALTURA POMO
105 cm
105 cm
105 cm
105 cm 50 cm 240 cm 5 cm 1
REFORMA INTEGRAL
PLANTA BAJA-FARMACIA PLANTA TIPO -VIVIENDA
Pavimentos
X
X X
Techos
Paredes
F-t
E-g P-p
F-t
E-b P-p1
T
E-g P-r
F-t
G-c G-c
F-t
E-b P-r
T
E-b P-r
F-t
P-gE-b
E-b P-p
F-t
F-t
E-b P-p
T
E-b P-r
-
- P-e
-
- P-e
Sra. Blanca Figueras
REFORMA INTEGRAL C/ Baluard 57 (Barccelona)
PROYECTO CLIENTA INTERIORISMO FECHA PLANO
Pons Amades, Anna
6 de Junio del 2013 Materiales
ESCALA
- 17
REFORMA INTEGRAL
B B'
A
A'
2,89
2,31
0,80
0.8%
0,301,110,800,10
0,10 0,40 0,90 1,39
0,300,501,41
0,120,180,40
0,27
1,020,10
C C'
2,31
3,00
0,150,240,201,210,150,30
2,700,150,15
0,30 0,51 0,61 0,200,68
Sra. Blanca Figueras
REFORMA INTEGRAL C/ Baluard 57 (Barcelona)
PROYECTO CLIENTA INTERIORISMO FECHA PLANO
Pons Amades, Anna
6 de Junio del 2013
ESCALA
1:20 18
REFORMA INTEGRAL
2,89
1,010,45
2,20
3,00
0,152,700,15
1,39
1,090,10
0,10
0,900,400,10 0,10
3,00
2,89
0,152,700,15
0,35 0,50
2.20
1,100,940,560,15
1,020,10 0,82 0,10
C C'
B B'
Sra. Blanca Figueras
REFORMA INTEGRAL C/ Baluard 57 (Barcelona)
PROYECTO CLIENTA INTERIORISMO FECHA PLANO
Pons Amades, Anna
6 de Junio del 2013
ESCALA
1:20 19
REFORMA INTEGRAL
A
A'
B B'2,58
0,80 0,95
0,40
2,060,550,37
1,80
Sra. Blanca Figueras
REFORMA INTEGRAL C/ Baluard 57 (Barcelona)
PROYECTO CLIENTA INTERIORISMO FECHA PLANO
Pons Amades, Anna
6 de Junio del 2013
ESCALA
1:20 20
REFORMA INTEGRAL
3,00
0,150,300,591,810,15
1,80
0,61 0,300,74 0,15
2,98
3,00
0,20
0,150,302,400,15
0,640,18 0,71 0,71 0,40 0,15
A
A'
B B'
Sra. Blanca Figueras
REFORMA INTEGRAL C/ Baluard 57 (Barcelona)
PROYECTO CLIENTA INTERIORISMO FECHA PLANO
Pons Amades, Anna
6 de Junio del 2013
ESCALA
1:20 21
REFORMA INTEGRAL
1,30
Sra. Blanca Figueras
REFORMA INTEGRAL C/ Baluard 57 (Barcelona)
PROYECTO CLIENTA INTERIORISMO FECHA PLANO
Pons Amades, Anna
6 de Junio del 2013
ESCALA
- 22
REFORMA INTEGRAL
RECIBIDOR
1,30
Sra. Blanca Figueras
REFORMA INTEGRAL C/ Baluard 57 (Barcelona)
PROYECTO CLIENTA INTERIORISMO FECHA PLANO
Pons Amades, Anna
6 de Junio del 2013
ESCALA
- 23
REFORMA INTEGRAL
1,30
Sra. Blanca Figueras
REFORMA INTEGRAL C/ Baluard 57 (Barcelona)
PROYECTO CLIENTA INTERIORISMO FECHA PLANO
Pons Amades, Anna
6 de Junio del 2013
ESCALA
- 24
REFORMA INTEGRAL
1,30
Sra. Blanca Figueras
REFORMA INTEGRAL C/ Baluard 57 (Barcelona)
PROYECTO CLIENTA INTERIORISMO FECHA PLANO
Pons Amades, Anna
6 de Junio del 2013 COCINA
ESCALA
- 25
REFORMA INTEGRAL
COCINA
Sra. Blanca Figueras
REFORMA INTEGRAL C/ Baluard 57 (Barcelona)
PROYECTO CLIENTA INTERIORISMO FECHA PLANO ESCALA
Pons Amades, Anna
6 de Juniol del 2013 - -
Este trabajo nos ha mantenido motivadas durante todo el semestre, ya que hemos podido ejecutarlo
semana a semana la dada en clase. Hemos intentado hacer el proyecto de manera personal ya
Personalmente, nos ha gustado el tema de la de espacios y el de ello, ya que nos
atrae mucho el interior. Plantear distintas distribuciones y con el reducido espacio del cual
ha hecho que apreciemos que hasta los detalles insignificantes son importantes en el
momento de ejecutar la reforma interior de un espacio.
Por otro lado, aun que nos ha interesado la del programa 3D estudio por su capacidad de
transmitir la idea deseada visualmente, hemos tenido muchos problemas en su y en la
de los renders por motivos desconocidos del programa.
La del DAC nos ha dado la oportunidad de trabajar en la parte y de la
Finalmente, disponer de tiempo en la del proyecto nos hubiera servido de ayuda para
REFORMA INTEGRAL

Proyecto reforma interior vivienda

  • 1.
    REFORMA INTEGRAL CLIENTE: Sra.BLANCA FIGUERAS ANNA PONS AMADES FECHA: 6 DE JUNIO DEL 2013 MAESTUDIO MADESIGN
  • 2.
    Sra. Blanca Figueras REFORMAINTEGRAL C/ Baluard 57 (Barcelona) PROYECTO CLIENTA INTERIORISMO FECHA PLANO ESCALA Pons Amades, Anna 6 de Junio del 2013 Memoria Descriptiva - - REFORMA INTEGRAL I. MEMORIA DESCRIPTIVA. I.1. GENERALIDADES. El presente proyecto trata de la y reforma de la planta baja y planta tipo de un bloque de viviendas situado al numero 57, de la calle Baluard, de la Barceloneta, en Barcelona. I.2.1. CONDICIONES GENERALES. I.2.1.1. Solar y superficie. La superficie construida del edificio actual es de 450 y del suelo 74 Es un tipo de finca I.2.1.2. Criterios funcionales y compositivos. Se ha buscado una que favorezca la entre las piezas, reduzca al los pasos de independice las zonas de de las de noche, unas proporciones para la del mobiliario y de los movimientos que se en cada pieza y obtenga la mejor y posible respectando un orden compositivo exterior La que se proyecta cumple la Normativa en todos sus aspectos, sin agotar la El edificio se desenvuelve en una planta baja, que originalmente eran dos viviendas y que reformada y habilitada para la de una farmacia; y en cinco plantas con dos El acceso a las viviendas se por la calle Baluard y la entrada al local se por la calle La escalera actual del edificio reformada con el fin de ajustarla a los La planta tipo dispone de un comedor con cocina americana en la zona de y una doble, una individual y un completo en la zona de noche. Ambas zonas separadas por una puerta corrediza creando la citada anteriormente entre ellas. La vivienda dispone de dos balconeras, una en el y la otra en el comedor. La farmacia se divide en dos zonas. La primera es la entrada a la tienda de al cliente, des de donde se puede acceder al despacho habilitado para el personal de y a la segunda zona donde se encuentra el laboratorio y un aseo para el personal. Por otra lado, esta la entrada de acceso al bloque de viviendas con la escalera que da acceso a cada vivienda. La estructura esta formada por forjados unidireccionales apoyados sobre paredes de carga, con altura libre de planta baja a planta primera de 4 m y entre plantas de 2'70 m. En la general del edificio se ha seguido el programa de necesidades planteado por el promotor, cumpliendo la Normativa Vigente. .
  • 3.
    Sra. Blanca Figueras REFORMAINTEGRAL C/ Baluard 57 (Barcelona) PROYECTO CLIENTA INTERIORISMO FECHA PLANO ESCALA Pons Amades, Anna 6 de Junio del 2013 Memoria constructiva - - REFORMA INTEGRAL II.1. ACTUCIONES PREVIAS. Se al desmontaje y retirada de mobiliaro, fusteria, complementos y accesorios. Incluydo el transporte a vertedero. Trabajos de desmontaje de todos los sanitarios (inodoros y lavabos). Todos los Trabajos de desmontaje de la de lampisteria en los banyos, tuberias de subminitramiento y sistema de Trabajos de desmontaje de la iluminacion, cableado, mecanismos,.. Incluidos los medios auxiliares y el transporte y descarrega de residus al vertedero. II.2. ENDERROCS. Se retiraran los aplacados de las paredes de los banyos. Se demoliran las paredes de huecos de los II.3. ESTRUCTURA. En la de las partidas de este se consideran incluidos el suministro y de todos los - Replanteo de las obras. - Apuntalamiento, encofrado y desencofrado a cualquier altura, vibrado, trabajos de curado. Los elementos de con de ladrillo hueco de 10 cm. de canto y 14 de espesor, tomado con mortero de C.P. tipo M-80. En II.4. FORJATS. La part nova de l'escala de l'edifici es una llosa de i en perpendicular als nervis o biguetes semiresistents, es una armadura de repartiment d'acer tipus B 500 - S, de 1 6 cada 33 cm. o armadura equivalen. II.5. DIVISIONES INTERIORES. Los tabiques de pared de machihembrada Tabiceram de 7 cm de espesor en las particiones interiores de la vivienda y de 10 cm en las zonas recibidas con cemento cola. El encuentro con el techo se con yeso. Todos ellos preparados para posterior enlucido. La II.6. SUELOS Los pavimentos interiores de la vivienda de parquet de madera de roble de lama ancha, excepto en la II.7. ALICATADOS. Los paramentos verticales de los cocina y lavadero aplaca con baldosa esmaltada de color claro de 20x20 o 15x15 cm., Colocada con cemento adhesivo con llana dentada, hasta el techo, de primera calidad sobre paramento enlucido. Los bancos de cocina hechos de piezas de artificial "Silestone" de 2 cm. de espesor, reforzadas en II.8. REVESTIMIENTOS CONTINUOS. Enlucido de yeso maestreado los paramentos verticales y horizontales, marcando aristas y cantos vivos en todas las entregas. como enlucido con capa de yeso-cola a los tabiques de Tabiceram, incluido recerclat de agujeros, cantoneras, aristas, rincones y maestrazgo se En los paramentos que tengan que recibir azulejo rebozado y maestreado con mortero de cemento mixto. Las paredes de los locales que deban estar en contacto con el suelo con acabado fino para pintar y II.8.1. PINTURAS Sobre los paramentos enfoscados y enyesados un acabado de pintura de base acuosa, a dos II.9. CERRAMIENTOS DE MADERA. Los cerramientos interiores todos de madera chapada con cedro de 35 mm de espesor en las puertas y 19 mm en los armarios, barnizada en taller, incluidos los pernos Kubika de satinado y los manubrios de puertas y tiradores de armarios seran Trend cromado brillante Superinox satinado de Los armarios del mismo tablero, e forrados en su interior. La puerta de entrada a la vivienda blindada con acabado de madera de cedro, e con bisagras y cerradura de seguridad de 3 puntos como mirilla de gran angular, tirador exterior y manubrio interior. La puerta con todo la cerradura de acceso de madera de las mismas con recortes de vidrio fijo de 5 +5. Los armarios de la misma calidad, para pintar y con estantes. La dimensionada para enrasar en un mismo plano con los acabados de las paredes, ya sean Todos los cierres exterior de aluminio anodizado de 1 .5 mm de espesor, de calidad A-3, E-3, V-3 con tiradores de manivela y de 70 mm en las correderas, y de 50 mm. a las practicables, colocadas sobre premarcos de acero galvanizado e interponiendo junta de goma entre los diferentes metales de diferente II.11. AISLANTES Y IMPERMEABILIZANTES. Los aislamientos los definidos por la normativa y Aislamiento con lana de vidrio en los cajones de paso de bajantes para los dormitorios y las salas de estar.
  • 4.
    Sra. Blanca Figueras REFORMAINTEGRAL C/ Baluard 57 (Barcelona) PROYECTO CLIENTA INTERIORISMO FECHA PLANO ESCALA Pons Amades, Anna 6 de Junio del 2013 Memoria constructiva - - REFORMA INTEGRAL II.12. INSTALACIONES. II.12.1. ELECTRICIDAD. Se las medidas de seguridad tanto en las viviendas como en los locales comerciales y de servicios comunes o usos similares. El cuadro general de y de contadores del edificio colocado en la zona de acceso al edificio. Se los puntos de luz, interruptores y enchufes especificados en los planos. como un punto de luz y un interruptor en cada dependencia y un enchufe para cada aparato de equipo obligatorio. como dos enchufes en la sala y uno en las habitaciones. La cocina como tres enchufes. interruptores conmutados en dormitorios, pasillos, recibidor, y salas-comedor y en la cocina si tiene doble acceso. Se portero modelo Auta o similar. La antena de TV-FM equipada con a tierra. tomas en la sala y dormitorio principal. Se la de de acuerdo con la II.12.3. COMUNICACIONES. Cada vivienda de un enchufe para antena de TV-FM y portero La antena de Se las canalizaciones, cableados y las tomas de TV, red interior de internet, interfono y II.12.4. FONTANERIA. completa de realizada con tubo de polietileno. Cada grupo de aparatos situados en La empotrada pero se la estanqueidad a antes de ser tapada definitivamente. Contador en el armario situado en la planta baja. climatizado por bomba de calor con La unidades exteriores se en la cubierta y las interiores dos unidades por conductos situados sobre el cielo raso del del distribuidor de los dormitorios. Se un paso de tubos hasta la cubierta para situar las unidades exteriores los conductos verticales para el retorno del aire. El agua que produce el evaporador en invierno, y el condensador en verano, se conduce a la red de En el instalador de los aparatos se en la de unos tacos de goma para La cocina un conducto individual de para la de humos, conectado a un extractor Los gases quemados de calderas y calentadores de potencia igual o superior a 150 Kcal / min. se II.14. APARATOS SANITARIOS. Todos los aparatos sanitarios de primera calidad, de porcelana vitrificada, del tipo Roca o similar, formados por un completo, con grifos de primera calidad, cromadas, tipo monobloc y con sistemas de Todos los aparatos sanitarios colocados con los correspondientes accesorios de sifones, tapas, grifos, y todo lo necesario para su correcto funcionamiento. Los aparatos equipados con mezcladores de agua y caliente. El caudal en el menos un punto de II.15. CRISTALES. El cierre de vidrio de doble cristal con 4 +6 +4 mm, en todos los balcones, ventanas y puertas II.16. PINTURA. En los paramentos interiores se un acabado de pintura de base acuosa de color claro, a dos Los cerramientos interiores barnizados en taller con una mano de y dos de barniz. Todas sobre base acuosa. Todos los elementos de acero se tallas con pintura antioxidante y en obra con dos capas de esmalte. II.17. VARIOS. La del presente edificio lleva todas las operaciones necesarias para una de buena calidad. Todos los materiales empleados en la obra tener el correspondiente certificado de calidad otorgado por laboratorio ensayos debidamente homologado.
  • 5.
    Sra. Blanca Figueras REFORMAINTEGRAL C/ Baluard 57 (Barcelona) PROYECTO CLIENTA INTERIORISMO FECHA PLANO ESCALA Pons Amades, Anna 6 de Junio del 2013 - - 1. Peso propio y cargas permanentes Cargas a tener en cuenta para el calculo del descenso de cargas: - Peso propio: peso forjado y estructura. - Carga permanente: elementos constructivos e instalaciones. - Sobrecargas de uso: elementos que puedan gravitar en la superficie. - Sobrecarga de nieve: sobrecarga debida al peso de la nieve. - Obertura en la pared de 1 m SOBRECARGA DE USO: SOBRECARGA DE NIEVE: 2. Descenso de cargas REFORMA INTEGRAL - Peso influyente de las paredes de carga: - Peso total pared planta tipo = 0'61 x 5 plantas = 3'04 kN TOTAL CARGAS = 110'55 kN + 25'728 kN + 0'045 + 3'04 kN = 139'36 kN CARGA REPARTIDA = 139'36 1 = 139' 36 kN/m Mmax = 8 = 8 = 17'4203 kN*m Wx = 174203 kpcm 2619 kP/cm2 Fmax < L 500 =1000 500 = 2 mm f = 5*Q*L^4 384*E*l = 5*139'36*100^4 384*2'1*10^6*573 = 0'15 cm = 1'5 mm --> CUMPLE
  • 6.
    Sra. Blanca Figueras REFORMAINTEGRAL C/ Baluard 57 (Barcelona) PROYECTO CLIENTA INTERIORISMO FECHA PLANO ESCALA Pons Amades, Anna 6 de Junio del 2013 - - REFORMA INTEGRAL
  • 7.
    Sra. Blanca Figueras REFORMAINTEGRAL C/ Baluard 57 (Barcelona) PROYECTO CLIENTA INTERIORISMO FECHA PLANO ESCALA Pons Amades, Anna 6 de Junio del 2013 - 1 REFORMA INTEGRAL PLANO EMPLAZAMIENTO N
  • 8.
    PLANTA TIPOPLANTA BAJA 8,30 8,30 0,750,801,50 0,90 1,60 1,45 1,172,010,154,680,30 1,30 0,80 1,50 0,90 1,60 0,75 1,45 1,640,302,140,153,780,30 8,30 8,30 1,30 0,80 1,20 1,50 1,30 0,75 1,45 0,301,300,102,380,152,410,101,270,30 1,30 0,80 1,20 1,50 1,30 0,75 1,45 0,151,650,152,880,30 1,30 0,90 0,90 0,73 0,18 1,50 0,83 0,73 2,22 1,71 0,10 1,64 0,70 2,272,79 0,90 0,90 0,90 0,570,13 0,950,502,48 3,64 2,27 0,90 2,85 0,90 0,80 1,39 0,570,23 2,25 3,55 2,95 0,50 2,15 2,88 0,10 0,80 0,90 2,881,952,88 0,30 0,70 0,50 0,90 3,38 0,57 0,95 1,81 0,80 0,30 1,27 0,80 2,010,80 3,55 0,10 0,10 2,072,29 0,10 Sra. Blanca Figueras REFORMA INTEGRAL C/ Baluard 57 (Barcelona) PROYECTO CLIENTA INTERIORISMO FECHA PLANO ESCALA Pons Amades, Anna 6 de Junio del 2013 Plantas acutales 1:50 2 REFORMA INTEGRAL
  • 9.
    0,30 0,75 4,682,88 1,50 0,75 1,30 COMEDOR-COCINAAMERICANA 0,303,78 PUERTA ACCESO EDIFICIO DE VIVIENDAS 0,15 0,30 0,15 0,153,78 0,300,15 0,901,15 1,60 HUECO ESCALERA 1,450,15 0,80 1,50 0,30 1,30 0,150,80 0,901,15 1,30 0,80 1,60 2,88 0,90 0,750,75 0,30 1,600,801,30 1,50 1,45 0,153,780,30 PLANTA BAJA-FARMACIA PLANTA TIPO -VIVIENDA 8,30 1,20 1,50 8,30 0,30 8,30 0,154,68 3,78 1,30 DISTRIBUIDOR Sra. Blanca Figueras REFORMA INTEGRAL C/ Baluard 57 (Barcelona) PROYECTO CLIENTA INTERIORISMO FECHA PLANO ESCALA Pons Amades, Anna 6 de Junio del 2013 1:50 3 REFORMA INTEGRAL
  • 10.
    7,60 4,70 8,30 0,30 2,75 0,151,80 0,15 2,85 0,30 0,302,700,304,000,30 1,93 1,07 0,07 8,30 0,15 2,95 0,10 2,75 2,30 0,10 7,60 0,302,70 0,15 0,300,304,00 0,30 0,401,501,000,20 1,00 1,50 1,50 1,10 0,20 1,00 PLANTA TIPOPLANTA BAJA A' A A' A B'B B'B Sra. Blanca Figueras REFORMA INTEGRAL C/ Baluard 57 (Barcelona) PROYECTO CLIENTA INTERIORISMO FECHA PLANO ESCALA Pons Amades, Anna 6 de Junio del 2013 Secciones actuales 1:50 4 REFORMA INTEGRAL
  • 11.
    PLANTA TIPOPLANTA BAJA Sra.Blanca Figueras REFORMA INTEGRAL C/ Baluard 57 (Barcelona) PROYECTO CLIENTA INTERIORISMO FECHA PLANO ESCALA Pons Amades, Anna 6 de Junio del 2013 Planta derribo 1:50 5 REFORMA INTEGRAL
  • 12.
    PLANTA BAJA-FARMACIA PLANTATIPO -VIVIENDA Sra. Blanca Figueras REFORMA INTEGRAL C/ Baluard 57 (Barcelona) PROYECTO CLIENTA INTERIORISMO FECHA PLANO ESCALA Pons Amades, Anna 6 de Junio del 2013 Planta obra nueva 1:50 6 REFORMA INTEGRAL
  • 13.
    PLANTA BAJA PLANTATIPO LosadeH.A. Losa de H.A.Losa de H.A. Losa de H.A. Sra. Blanca Figueras REFORMA INTEGRAL C/ Baluard 57 (Barcelona) PROYECTO CLIENTA INTERIORISMO FECHA PLANO ESCALA Pons Amades, Anna 6 de Junio del 2013 Estructura actual 1:50 7 REFORMA INTEGRAL
  • 14.
    PLANTA BAJA-FARMACIA PLANTATIPO -VIVIENDA Losa de H.A. Losa de H.A. Losa de H.A. Sra. Blanca Figueras REFORMA INTEGRAL C/ Baluard 57 (Barcelona) PROYECTO CLIENTA INTERIORISMO FECHA PLANO ESCALA Pons Amades, Anna 6 de Junio del 2013 Estructura obra nueva 1:50 8 REFORMA INTEGRAL
  • 15.
    2,70 8,30 4,70 0,30 8,30 0,10 0,300,304,00 7,60 0,30 3,00 0,300,304,00 0,30 0,152,95 0,102,68 2,17 0,15 7,60 2,700,30 PLANTA BAJA-FARMACIA PLANTA TIPO -VIVIENDA A' A A' A B'B B'B 1,30 0,90 Sra. Blanca Figueras REFORMA INTEGRAL C/ Baluard 57 (Barcelona) PROYECTO CLIENTA INTERIORISMO FECHA PLANO ESCALA Pons Amades, Anna 6 de Junio del 2013 Secciones generales 1:50 9 REFORMA INTEGRAL
  • 16.
    Sra. Blanca Figueras REFORMAINTEGRAL C/ Baluard 57 (Barcelona) PROYECTO CLIENTA INTERIORISMO FECHA PLANO ESCALA Pons Amades, Anna 6 de Junio del 2013 1:50 10 REFORMA INTEGRAL
  • 17.
    Sra. Blanca Figueras REFORMAINTEGRAL C/ Baluard 57 (Barcelona) PROYECTO CLIENTA INTERIORISMO FECHA PLANO ESCALA Pons Amades, Anna 6 de Junio del 2013 1:50 11 REFORMA INTEGRAL
  • 18.
    REJAS DE SALIDA50x20 REJAS DE SALIDA 50x20 MONTANTS REJAS DE SALIDA 50x20 REJAS DE SALIDA 50x20 MONTANTS REJAS DE SALIDA 50x20 Sra. Blanca Figueras REFORMA INTEGRAL C/ Baluard 57 (Barcelona) PROYECTO CLIENTA INTERIORISMO FECHA PLANO ESCALA Pons Amades, Anna 6 de Junio del 2013 1:50 12 REFORMA INTEGRAL
  • 19.
    PEC-80 30 PE-80 d-15 P-70 e-7.5 PC-80 15 P-70 e-10 P-70 d-10 PE-80 e-30 PV-80 d-30 PC-80 15 P-70 e-7.5 P-70 d-10 P-70 d-7.5 PV-80 e-10 V-65 30 V-70 30 V-65 30 VF-70 30 VO-65 30 V0-70 30 VO-65 30 VF-70 30 V-50 30 V-50 30 A1 A2 A4 A3 PLANTA BAJA-FARMACIA PLANTATIPO -VIVIENDA Sra. Blanca Figueras REFORMA INTEGRAL C/ Baluard 57 (Barcelona) PROYECTO CLIENTA INTERIORISMO FECHA PLANO ESCALA Pons Amades, Anna 6 de Junio del 2013 1:50 13 REFORMA INTEGRAL
  • 20.
    PE-80 /d-15 PV-80 /e-30 PC-80/15P-70 /e-10 0.90 0.05 0.05 0.90 0.050.10 2.20 2.20 0.90 0.80 P-70 /d-10 0.80 0.05 0.70 0.05 0.05 0.80 0.05 0.80 0.05 0.70 0.05 2.20 2.20 2.20 PV-80 /d-30 0.90 0.05 0.05 2.20 P-70 /e-7.5 P-70 /d-7.5 0.80 0.05 0.70 0.05 0.80 0.05 0.70 0.05 2.20 2.20 Sra. Blanca Figueras REFORMA INTEGRAL PUERTAS PE-80 / d-15 P-70 / d-10 P-70 / d-7'5 PC-80 / 15 PV-80 / e-30 TIPO PUERTA DE ENTRADA PUERTA INTERIOR PUERTA INTERIOR PUERTA CORREDIZA PUERTA DE VIDRIO MATERIAL Hoja batiente de madera barnizada, de 35 mm de grosor, de caras lisas y estructura interior de madera Hoja batiente de madera barnizada, de 35 mm de grosor, de caras lisas y estructura interior de madera Hoja batiente de madera barnizada, de 35 mm de grosor, de caras lisas y estructura interior de madera Hoja batiente de madera barnizada, de 35 mm de grosor, de caras lisas y estructura interior de madera Aluminio lacado y moldura DM forrada en el interior TIPO DE VIDRIO - - - - Aislante de dos lunas incoloras de 4 mm PERSIANA Enrollable de aluminio de lamas orientables. Modelo Supergran hermatic. POMO - - - - TREND, cromado, brillante Superinox TREND, cromado, brillante Superinox TREND, cromado, brillante Superinox TREND, de cromado brillante y BISAGRAS de perfil y accesorios de aluminio KUBIKINA con base CLIP. SOFT MARCO APERTURA UNIDADES 5 cm 5 cm 5 cm 5 cm 5 cm Derecha P-70 / e-10 PUERTA INTERIOR Hoja batiente de madera barnizada, de 35 mm de grosor, de caras lisas y estructura interior de madera - - TREND, cromado, brillante Superinox 5 cm Izquierda P-70 / e-7'5 PUERTA INTERIOR Hoja batiente de madera barnizada, de 35 mm de grosor, de caras lisas y estructura interior de madera - - TREND, cromado, brillante Superinox 5 cm PV-80 / d-30 PUERTA DE VIDRIO Aluminio lacado y moldura DM forrada en el interior Aislante de dos lunas incoloras de 4 mm Enrollable de aluminio de lamas orientables. Modelo Supergran hermatic. TREND, de cromado brillante y KUBIKINA con base CLIP. SOFT 5 cm 2 PEC-80 / d-30 PUERTA DE VIDRIO Aluminio lacado y moldura DM forrada en el interior Aislante de dos lunas incoloras de 4 mm KUBIKINA con base CLIP. SOFT 5 cm- - 1 2 2 1 2 1 1 1 C/ Baluard 57 (Barcelona) PROYECTO CLIENTA INTERIORISMO FECHA PLANO ESCALA Pons Amades, Anna 6 de Junio del 2013 1:50 14 Izquierda Izquierda Derecha Derecha Derecha Derecha Derecha REFORMA INTEGRAL
  • 21.
    VO-70 /30 VO-65/30 0.75 0.64 0.80 0.70 1.20 0.60 VB-65 /30 0.50 1.50 1.50 1.00 1.00 1.00 V-70 /30 V-65 /30 1.00 0.80 0.70 1.450.17 1.001.450.17 VF-70 /30 1.00 0.80 0.70 1.450.17 VENTANAS VO-70 / 30 VB-50 / 15 TIPO VENTANA OSCILOBATIENTE VENTANA BATIENTE MATERIAL Aluminio lacado y moldura DM forrada en su interior TIPO DE VIDRIO PERSIANA MANIJA TREND, cromado, brillante Superinox BISAGRAS de perfil y accesorios de aluminio RETRAC 60/80 UNIDADES VO-65 / 30 TREND, cromado, brillante Superinox KUBIKINA con base CLIP.SOFT 1 2 1 VENTANA OSCILOBATIENTE Aislante de dos lunas incoloras de 4 mm de grosor y de aire de 8 mm. Aislante de dos lunas incoloras de 4 mm de grosor y de aire de 8 mm. Aislante de dos lunas incoloras de 4 mm de grosor y de aire de 8 mm. Aluminio lacado y moldura DM forrada en su interior Aluminio lacado y moldura DM forrada en su interior Enrollable de aluminio de lamas orientales. Modelo Supergrandhermatic Enrollable de aluminio de lamas orientales. Modelo Supergrandhermatic Enrollable de aluminio de lamas orientales. Modelo Supergrandhermatic TREND, cromado, brillante Superinox KUBIKINA con base CLIP.SOFT MARCO 5 cm 5 cm 5 cm ANCHURA ALTURA 150 cm 120 cm 150 cm 70 cm 50 cm 65 cm Sra. Blanca Figueras REFORMA INTEGRAL C/ Baluard 57 (Barcelona) PROYECTO CLIENTA INTERIORISMO FECHA PLANO Pons Amades, Anna 6 de Junio del 2013 ESCALA 1:50 15 V-70 / 30 VF-70 / 30 VENTANA BATIENTE VENTANA FIJA Aluminio lacado y moldura DM forrada en su interior TREND, cromado, brillante Superinox de perfil y accesorios de aluminio RETRAC 60/80 V-65 / 30 TREND, cromado, brillante Superinox KUBIKINA con base CLIP.SOFT 1 2 1 VENTANA BATIENTE Aislante de dos lunas incoloras de 4 mm de grosor y de aire de 8 mm. Aislante de dos lunas incoloras de 4 mm de grosor y de aire de 8 mm. Aislante de dos lunas incoloras de 4 mm de grosor y de aire de 8 mm. Aluminio lacado y moldura DM forrada en su interior Aluminio lacado y moldura DM forrada en su interior Enrollable de aluminio de lamas orientales. Modelo Supergrandhermatic Enrollable de aluminio de lamas orientales. Modelo Supergrandhermatic Enrollable de aluminio de lamas orientales. Modelo Supergrandhermatic TREND, cromado, brillante Superinox KUBIKINA con base CLIP.SOFT 5 cm 5 cm 5 cm 162 cm 162 cm 162 cm 70 cm 70 cm 65 cm REFORMA INTEGRAL
  • 22.
    A1 A2 A3 A4 B B' BB' B B' B B' A' A A' A A' A A' A 1.83 0.95 ARMARIOS A1 A3 TIPO ARMARIO EMPOTRADO MATERIAL Madera de roble barnizada de caras lisas y estructura interior de madera MANIJA BISAGRAS UNIDADES A2 1 1 1 MARCO 5 cm 5 cm 5 cm ANCHURA ALTURA 240 cm 200 cm 240 cm 95 cm 40 cm 55 cm Sra. Blanca Figueras REFORMA INTEGRAL C/ Baluard 57 (Barcelona) PROYECTO CLIENTA INTERIORISMO FECHA PLANO Pons Amades, Anna 6 de Junio del 2013 ESCALA 1:50 16 A4 ARMARIO EMPOTRADO ARMARIO EMPOTRADO ARMARIO EMPOTRADO Madera de roble barnizada de caras lisas y estructura interior de madera Madera de roble barnizada de caras lisas y estructura interior de madera Madera de roble barnizada de caras lisas y estructura interior de madera Tirador AKER de VALFER Tirador AKER de VALFER Tirador AKER de VALFER Tirador AKER de VALFER KUBICA con base CLIP KUBICA con base CLIP KUBICA con base CLIP KUBICA con base CLIP PUERTAS 3 4 1 4 Cocina ALTURA POMO 105 cm 105 cm 105 cm 105 cm 50 cm 240 cm 5 cm 1 REFORMA INTEGRAL
  • 23.
    PLANTA BAJA-FARMACIA PLANTATIPO -VIVIENDA Pavimentos X X X Techos Paredes F-t E-g P-p F-t E-b P-p1 T E-g P-r F-t G-c G-c F-t E-b P-r T E-b P-r F-t P-gE-b E-b P-p F-t F-t E-b P-p T E-b P-r - - P-e - - P-e Sra. Blanca Figueras REFORMA INTEGRAL C/ Baluard 57 (Barccelona) PROYECTO CLIENTA INTERIORISMO FECHA PLANO Pons Amades, Anna 6 de Junio del 2013 Materiales ESCALA - 17 REFORMA INTEGRAL
  • 24.
    B B' A A' 2,89 2,31 0,80 0.8% 0,301,110,800,10 0,10 0,400,90 1,39 0,300,501,41 0,120,180,40 0,27 1,020,10 C C' 2,31 3,00 0,150,240,201,210,150,30 2,700,150,15 0,30 0,51 0,61 0,200,68 Sra. Blanca Figueras REFORMA INTEGRAL C/ Baluard 57 (Barcelona) PROYECTO CLIENTA INTERIORISMO FECHA PLANO Pons Amades, Anna 6 de Junio del 2013 ESCALA 1:20 18 REFORMA INTEGRAL
  • 25.
    2,89 1,010,45 2,20 3,00 0,152,700,15 1,39 1,090,10 0,10 0,900,400,10 0,10 3,00 2,89 0,152,700,15 0,35 0,50 2.20 1,100,940,560,15 1,020,100,82 0,10 C C' B B' Sra. Blanca Figueras REFORMA INTEGRAL C/ Baluard 57 (Barcelona) PROYECTO CLIENTA INTERIORISMO FECHA PLANO Pons Amades, Anna 6 de Junio del 2013 ESCALA 1:20 19 REFORMA INTEGRAL
  • 26.
    A A' B B'2,58 0,80 0,95 0,40 2,060,550,37 1,80 Sra.Blanca Figueras REFORMA INTEGRAL C/ Baluard 57 (Barcelona) PROYECTO CLIENTA INTERIORISMO FECHA PLANO Pons Amades, Anna 6 de Junio del 2013 ESCALA 1:20 20 REFORMA INTEGRAL
  • 27.
    3,00 0,150,300,591,810,15 1,80 0,61 0,300,74 0,15 2,98 3,00 0,20 0,150,302,400,15 0,640,180,71 0,71 0,40 0,15 A A' B B' Sra. Blanca Figueras REFORMA INTEGRAL C/ Baluard 57 (Barcelona) PROYECTO CLIENTA INTERIORISMO FECHA PLANO Pons Amades, Anna 6 de Junio del 2013 ESCALA 1:20 21 REFORMA INTEGRAL
  • 28.
    1,30 Sra. Blanca Figueras REFORMAINTEGRAL C/ Baluard 57 (Barcelona) PROYECTO CLIENTA INTERIORISMO FECHA PLANO Pons Amades, Anna 6 de Junio del 2013 ESCALA - 22 REFORMA INTEGRAL RECIBIDOR
  • 29.
    1,30 Sra. Blanca Figueras REFORMAINTEGRAL C/ Baluard 57 (Barcelona) PROYECTO CLIENTA INTERIORISMO FECHA PLANO Pons Amades, Anna 6 de Junio del 2013 ESCALA - 23 REFORMA INTEGRAL
  • 30.
    1,30 Sra. Blanca Figueras REFORMAINTEGRAL C/ Baluard 57 (Barcelona) PROYECTO CLIENTA INTERIORISMO FECHA PLANO Pons Amades, Anna 6 de Junio del 2013 ESCALA - 24 REFORMA INTEGRAL
  • 31.
    1,30 Sra. Blanca Figueras REFORMAINTEGRAL C/ Baluard 57 (Barcelona) PROYECTO CLIENTA INTERIORISMO FECHA PLANO Pons Amades, Anna 6 de Junio del 2013 COCINA ESCALA - 25 REFORMA INTEGRAL COCINA
  • 32.
    Sra. Blanca Figueras REFORMAINTEGRAL C/ Baluard 57 (Barcelona) PROYECTO CLIENTA INTERIORISMO FECHA PLANO ESCALA Pons Amades, Anna 6 de Juniol del 2013 - - Este trabajo nos ha mantenido motivadas durante todo el semestre, ya que hemos podido ejecutarlo semana a semana la dada en clase. Hemos intentado hacer el proyecto de manera personal ya Personalmente, nos ha gustado el tema de la de espacios y el de ello, ya que nos atrae mucho el interior. Plantear distintas distribuciones y con el reducido espacio del cual ha hecho que apreciemos que hasta los detalles insignificantes son importantes en el momento de ejecutar la reforma interior de un espacio. Por otro lado, aun que nos ha interesado la del programa 3D estudio por su capacidad de transmitir la idea deseada visualmente, hemos tenido muchos problemas en su y en la de los renders por motivos desconocidos del programa. La del DAC nos ha dado la oportunidad de trabajar en la parte y de la Finalmente, disponer de tiempo en la del proyecto nos hubiera servido de ayuda para REFORMA INTEGRAL