II.1
III.1
V.1
V.2
V.3
V.4
V.5
V.6
V.7
VI.1
VI.2
VI.3
VI.4
VI.5
VI.6
FICHA TÉCNICA DE MOBILIARIO ESCOLAR
Fecha de emisión: 11/02/2021 Versión: V1.0
I. DESCRIPCIÓN
I.1
SILLA DE MADERA 5° - 6° PRIMARIA
CÓDIGO: SPW-03
Cuatro (04) lazo lateral.
II. DEFINICIÓN
Silla de madera para el uso en 5° - 6° de primaria en instituciones educativas.
III. APLICACIÓN
Mobiliario utilizado en aulas de 5° - 6° de primaria. Este mobiliario está a disposición del personal de educación.
IV. FOTO
V. PARTES, ACCESORIOS E INSUMOS
Dos (02) montante.
Dos (02) pata.
Tres (03) lazo de respaldar.
Dos (02) lazo frontal/posterior.
Uno (01) asiento.
Dos (02) aplique lateral.
VI. CARACTERÍSTICAS ESPECÍFICAS
Dimensiones aproximadas: (tolerancia máxima de +/- 02 mm)
Ancho: 360 mm
Profundidad: 365 mm
Altura: 740 mm
Asiento de madera:
El asiento será elaborado con tablas de madera e= 22mm, se debe considerar para cada tabla un ancho máximo de 100mm y mínimo 50mm,
debiendo ser las juntas del tipo machihembrado o endentado, se debe encolar en las susperficies de contacto según el tipo de junta.
Para el ensamble que une el asiento con la estructura de la silla (aplique lateral) se utilizarán tornillos spax 3.5 x 35mm.
Las piezas que conforman la estructura de la mesa y la cubierta deben ser de la misma especie y el contenido de humedad al que debe ser secada la
madera será de acuerdo a la ciudad donde prestarà el servicio tomar como referencia el siguiente enlace
http://citemadera.itp.gob.pe/proyectos/che/ estudio. Los ensambles de la estructura de mesa serán con escoplo (caja) y espiga. La profundidad de la
caja debe ser 2mm mayor de la longitud de la espiga, se debe encolar los ecoplos o cajas de las piezas lo necesario para que cubran las superficies de
las paredes.
La madera que será adquirida para la fabricación de mobiliario escolar debe ser de las especies que posean las siguientes propiedades físico y
mecánicas, tal como se establece en la norma NTP 260.015.
Densidad Básica : 0.45 g/cm3– 0.70 g/cm3
Flexión estática : MOR > 501 kg/cm2; MOE > 90 t/cm2
Compresión perpendicular : ELP > 41 kg/cm2
Cizallamiento : > 61 kg/cm2
Dureza en lados : > 301 kg/cm2
Tenacidad : > 1.8 kg – m
Las especies de madera a emplear son las que se listan a continuación, pudiendo utilizar otras que cumplan con las propiedades físicas y mecánicas
establecidas en la Norma NTP 260.015, lo que debe ser avalado por un informe técnico evaluado mediante norma tecnica peruana y emitido por una
institución técnica especializada en la materia.
VI.7
VI.8
VI.9
VI.10
VI.11
VI.12
VI.13
VI.14
VI.15
VI.16
VI.17
VII.1
VII.2
VII.3
VIII.1
IX.1
IX.2
IX.3
IX.4
X.1
•
•
•
•
______________________________ ______________________________
Ing. Kevin Rodríguez Vasquez Arq. Ycela Ancasi Julca
Especialista en gestión I+D+i Especialista Diseño y Desarrollo Productos
Juntas de Tableros: Las juntas de madera para tableros de la mesa y asientos de silla podrán ser de tipo tope a tope, machihembrado, con falsa
lengüeta, endentado o pegado con tecnología que supere los procesos descritos. Cualquiera que sea el proceso elegido debe observarse la precisión
del maquinado, la utilización de herramientas o equipo apropiado para el encolado y la utilización de adhesivos normalizados y frescos.
Lijado: El proceso de alisado de la superficie de madera deberá ser mediante abrasivos, previo al proceso de acabado, lo cual podrá realizarse en
forma manual o mecanizada hasta con un grano mínimo de 150 grit. La superficie de la madera o del mueble debe quedar totalmente lisa y suave al
tacto, libre de astillas, irregularidades, cantos vivos y poros levantados, las aristas serán redondeadas.
Todas las piezas de madera deberán presentar las aristas o bordes boleados y las superficies lisas al tacto.
La madera a utilizar dede ser de la calidad establecida en la NTP 260.015. No se aceptarán los siguientes defectos en las piezas de madera:
Defecto tolerables: Perforaciones,rajaduras,fallas de compresion, nudos muertos,presencia hongos xilofagos e insectos y presencia de medula y
corteza.
Defecto intolerables: Perforaciones,rajaduras,fallas de compresion, nudos muertos,presencia hongos xilofagos e insectos y presencia de medula y
corteza.
Los extremos inferiores de las patas de madera deben ser biselados con un ángulo de 45° y de 5mm para evitar despostillamiento de la madera.
Ninguna.
Acabado: Se podrá emplear barniz o laca transparente, en el caso de ser laca se deberá realizar un sellado previo de los poros de la madera,
quedando finalmente del tipo poro semiabierto. El barniz o laca a emplear debe ser semi-mate y no brillante, imprimiendo una película firme que
proteja la madera tanto en las partes visibles como no visibles del mueble.
Encolado de las piezas: Se realizara con adhesivos monómeros de origen animal o vegetal, o con monómeros o polímeros sintéticos en la cantidad
apropiada y presión hasta que el fraguado o curado del adhesivo se estabilice; tal como se establece en la norma NTP 260.015.
Las dimensiones del mobiliario deben regirse estrictamente a las establecidas en los planos. La tolerancia para dimensiones de las escuadrías de las
piezas será de ± 1mm y para el mueble final armado será de ±2mm.
Ninguna parte del mueble deberá presentar protuberancias ni rebabas, que afecten la seguridad de los usuarios.
Las presentes especificaciones técnicas deben ser seguidas y complementadas con los planos generales de despiece y demás láminas de detalle.
Logotipo institucional
VII. CONDICIONES DE ENTREGA
Esquineros de cartón prensado en las esquinas del producto.
Embalado con stretch film por 1 unidad.
Lugar de entrega a determinar por la depencia.
VIII. CONDICIONES DE PREINSTALACIÓN
Ensayo de carga estática en asiento.
IX. CONTROL DE CALIDAD - INSPECCIÓN
Verificación de dimensiones y tolerancias.
Verificación de contenido de humedad en partes y piezas, y mobiliario terminado.
Verificación de adherencia y calidad del recubrimiento.
Verificación ergonomía en el diseño de respaldo y asiento.
X. NORMATIVA (FACULTATIVA)
Informe técnico de calidad emitido por un Laboratorio con el equipamiento para la realización de los siguientes ensayos:
NTP 260.026 - MUEBLES. Sillas para instituciones educativas. Determinación de la estabilidad, la resistencia y la durabilidad.
Estabilidad frontal.
Estabilidad lateral.
Estabilidad trasera.
Requisitos de materiales ,verificación de presencia defectos en la madera secado,acabado y/o encolado.
Ensayo de carga estática en respaldar.
Ensayo de carga estática en patas delanteras.
Ensayo de carga estática en patas traseras.
Ensayo de impacto sobre asiento.
Ensayo de impacto sobre respaldar.
Ensayo de caída.
COPANT 30:1-19 Descripción de las características generales, macroscópicas y microscópicas de la madera.
Identificación de la especie de madera.
NTP 251.010 MADERA. Métodos para determinar el contenido de humedad.
Contenido de Humedad-Método B.
NTP 260.015 MADERA. Mobiliario escolar para centros educativos. Requisitos.
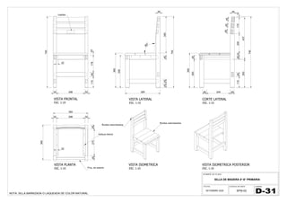
VISTA ISOMETRICA
ESC. 1:10
VISTA FRONTAL
ESC. 1:10
VISTA ISOMETRICA POSTERIOR
ESC. 1:10
VISTA LATERAL
ESC. 1:10
VISTA PLANTA
ESC. 1:10
45
275
45
NOTA: SILLA BARNIZADA O LAQUEADA DE COLOR NATURAL.
LAMINA
NOMBRE DE PLANO:
SILLA DE MADERA 5°-6° PRIMARIA
FECHA: CODIGO DE BIEN:
SETIEMBRE 2020 SPW-02
D-31
Logotipo
32 296 32
CORTE LATERAL
ESC. 1:10
740
32 296 32 115
45
178
22
338
360
45
45
45
740
115
45
45
22
200
170
10
380
437
293
293
45
360
45
45
29 29
740
45 245 45
365
45
365
360
22
22

Silla 5 6 primaria (1)

  • 1.
    II.1 III.1 V.1 V.2 V.3 V.4 V.5 V.6 V.7 VI.1 VI.2 VI.3 VI.4 VI.5 VI.6 FICHA TÉCNICA DEMOBILIARIO ESCOLAR Fecha de emisión: 11/02/2021 Versión: V1.0 I. DESCRIPCIÓN I.1 SILLA DE MADERA 5° - 6° PRIMARIA CÓDIGO: SPW-03 Cuatro (04) lazo lateral. II. DEFINICIÓN Silla de madera para el uso en 5° - 6° de primaria en instituciones educativas. III. APLICACIÓN Mobiliario utilizado en aulas de 5° - 6° de primaria. Este mobiliario está a disposición del personal de educación. IV. FOTO V. PARTES, ACCESORIOS E INSUMOS Dos (02) montante. Dos (02) pata. Tres (03) lazo de respaldar. Dos (02) lazo frontal/posterior. Uno (01) asiento. Dos (02) aplique lateral. VI. CARACTERÍSTICAS ESPECÍFICAS Dimensiones aproximadas: (tolerancia máxima de +/- 02 mm) Ancho: 360 mm Profundidad: 365 mm Altura: 740 mm Asiento de madera: El asiento será elaborado con tablas de madera e= 22mm, se debe considerar para cada tabla un ancho máximo de 100mm y mínimo 50mm, debiendo ser las juntas del tipo machihembrado o endentado, se debe encolar en las susperficies de contacto según el tipo de junta. Para el ensamble que une el asiento con la estructura de la silla (aplique lateral) se utilizarán tornillos spax 3.5 x 35mm. Las piezas que conforman la estructura de la mesa y la cubierta deben ser de la misma especie y el contenido de humedad al que debe ser secada la madera será de acuerdo a la ciudad donde prestarà el servicio tomar como referencia el siguiente enlace http://citemadera.itp.gob.pe/proyectos/che/ estudio. Los ensambles de la estructura de mesa serán con escoplo (caja) y espiga. La profundidad de la caja debe ser 2mm mayor de la longitud de la espiga, se debe encolar los ecoplos o cajas de las piezas lo necesario para que cubran las superficies de las paredes. La madera que será adquirida para la fabricación de mobiliario escolar debe ser de las especies que posean las siguientes propiedades físico y mecánicas, tal como se establece en la norma NTP 260.015. Densidad Básica : 0.45 g/cm3– 0.70 g/cm3 Flexión estática : MOR > 501 kg/cm2; MOE > 90 t/cm2 Compresión perpendicular : ELP > 41 kg/cm2 Cizallamiento : > 61 kg/cm2 Dureza en lados : > 301 kg/cm2 Tenacidad : > 1.8 kg – m Las especies de madera a emplear son las que se listan a continuación, pudiendo utilizar otras que cumplan con las propiedades físicas y mecánicas establecidas en la Norma NTP 260.015, lo que debe ser avalado por un informe técnico evaluado mediante norma tecnica peruana y emitido por una institución técnica especializada en la materia.
  • 2.
    VI.7 VI.8 VI.9 VI.10 VI.11 VI.12 VI.13 VI.14 VI.15 VI.16 VI.17 VII.1 VII.2 VII.3 VIII.1 IX.1 IX.2 IX.3 IX.4 X.1 • • • • ______________________________ ______________________________ Ing. KevinRodríguez Vasquez Arq. Ycela Ancasi Julca Especialista en gestión I+D+i Especialista Diseño y Desarrollo Productos Juntas de Tableros: Las juntas de madera para tableros de la mesa y asientos de silla podrán ser de tipo tope a tope, machihembrado, con falsa lengüeta, endentado o pegado con tecnología que supere los procesos descritos. Cualquiera que sea el proceso elegido debe observarse la precisión del maquinado, la utilización de herramientas o equipo apropiado para el encolado y la utilización de adhesivos normalizados y frescos. Lijado: El proceso de alisado de la superficie de madera deberá ser mediante abrasivos, previo al proceso de acabado, lo cual podrá realizarse en forma manual o mecanizada hasta con un grano mínimo de 150 grit. La superficie de la madera o del mueble debe quedar totalmente lisa y suave al tacto, libre de astillas, irregularidades, cantos vivos y poros levantados, las aristas serán redondeadas. Todas las piezas de madera deberán presentar las aristas o bordes boleados y las superficies lisas al tacto. La madera a utilizar dede ser de la calidad establecida en la NTP 260.015. No se aceptarán los siguientes defectos en las piezas de madera: Defecto tolerables: Perforaciones,rajaduras,fallas de compresion, nudos muertos,presencia hongos xilofagos e insectos y presencia de medula y corteza. Defecto intolerables: Perforaciones,rajaduras,fallas de compresion, nudos muertos,presencia hongos xilofagos e insectos y presencia de medula y corteza. Los extremos inferiores de las patas de madera deben ser biselados con un ángulo de 45° y de 5mm para evitar despostillamiento de la madera. Ninguna. Acabado: Se podrá emplear barniz o laca transparente, en el caso de ser laca se deberá realizar un sellado previo de los poros de la madera, quedando finalmente del tipo poro semiabierto. El barniz o laca a emplear debe ser semi-mate y no brillante, imprimiendo una película firme que proteja la madera tanto en las partes visibles como no visibles del mueble. Encolado de las piezas: Se realizara con adhesivos monómeros de origen animal o vegetal, o con monómeros o polímeros sintéticos en la cantidad apropiada y presión hasta que el fraguado o curado del adhesivo se estabilice; tal como se establece en la norma NTP 260.015. Las dimensiones del mobiliario deben regirse estrictamente a las establecidas en los planos. La tolerancia para dimensiones de las escuadrías de las piezas será de ± 1mm y para el mueble final armado será de ±2mm. Ninguna parte del mueble deberá presentar protuberancias ni rebabas, que afecten la seguridad de los usuarios. Las presentes especificaciones técnicas deben ser seguidas y complementadas con los planos generales de despiece y demás láminas de detalle. Logotipo institucional VII. CONDICIONES DE ENTREGA Esquineros de cartón prensado en las esquinas del producto. Embalado con stretch film por 1 unidad. Lugar de entrega a determinar por la depencia. VIII. CONDICIONES DE PREINSTALACIÓN Ensayo de carga estática en asiento. IX. CONTROL DE CALIDAD - INSPECCIÓN Verificación de dimensiones y tolerancias. Verificación de contenido de humedad en partes y piezas, y mobiliario terminado. Verificación de adherencia y calidad del recubrimiento. Verificación ergonomía en el diseño de respaldo y asiento. X. NORMATIVA (FACULTATIVA) Informe técnico de calidad emitido por un Laboratorio con el equipamiento para la realización de los siguientes ensayos: NTP 260.026 - MUEBLES. Sillas para instituciones educativas. Determinación de la estabilidad, la resistencia y la durabilidad. Estabilidad frontal. Estabilidad lateral. Estabilidad trasera. Requisitos de materiales ,verificación de presencia defectos en la madera secado,acabado y/o encolado. Ensayo de carga estática en respaldar. Ensayo de carga estática en patas delanteras. Ensayo de carga estática en patas traseras. Ensayo de impacto sobre asiento. Ensayo de impacto sobre respaldar. Ensayo de caída. COPANT 30:1-19 Descripción de las características generales, macroscópicas y microscópicas de la madera. Identificación de la especie de madera. NTP 251.010 MADERA. Métodos para determinar el contenido de humedad. Contenido de Humedad-Método B. NTP 260.015 MADERA. Mobiliario escolar para centros educativos. Requisitos.
  • 3.
    VISTA ISOMETRICA ESC. 1:10 VISTAFRONTAL ESC. 1:10 VISTA ISOMETRICA POSTERIOR ESC. 1:10 VISTA LATERAL ESC. 1:10 VISTA PLANTA ESC. 1:10 45 275 45 NOTA: SILLA BARNIZADA O LAQUEADA DE COLOR NATURAL. LAMINA NOMBRE DE PLANO: SILLA DE MADERA 5°-6° PRIMARIA FECHA: CODIGO DE BIEN: SETIEMBRE 2020 SPW-02 D-31 Logotipo 32 296 32 CORTE LATERAL ESC. 1:10 740 32 296 32 115 45 178 22 338 360 45 45 45 740 115 45 45 22 200 170 10 380 437 293 293 45 360 45 45 29 29 740 45 245 45 365 45 365 360 22 22