Guía de Instalación del Sistema DeltaV 
Guía de Instalación del Sistema DeltaV 
Revisión: 
01 
Creó: 
Israel García 
Revisó: 
Martín Ocampo 
Aprobó 
Raúl Álvarez 
Tabla de Contenido 
1.- Objetivo ........................................................................................................ 1 
2.- Bienvenida .................................................................................................... 1 
3.- Condiciones ambientales ............................................................................ 2 
4.- Tierras .......................................................................................................... 3 
5.- Distribución de Voltaje de Corriente Alterna (VCA) ............................. 7 
6.- Distribución de Voltaje de Corriente Directa (VCD) ............................. 10 
7.- Cableado de señales .................................................................................... 15 
8.- Red de Control ............................................................................................ 22 
1.- Objetivo 
Dar a conocer las especificaciones de instalación del sistema DeltaV, para que se tomen las medidas necesarias para la correcta instalación del sistema. Una buena instalación reducirá los problemas que puedan presentarse; es indispensable que se sigan todas las indicaciones, ya que antes de encender el equipo se realizará una revisión al sistema para determinar si la instalación cumple o no con las normas especificadas, no llevar a cabo las especificaciones puede ser motivo de perdida de la garantía de los equipos, ya que éstos estarían trabajando fuera de las condiciones normales de operación. 
2.- Bienvenida 
Gracias por haber escogido el Sistema DeltaV de Emerson Process Management. Este manual contiene la información necesaria para que el sistema de alimentación y tierra sea instalado adecuadamente antes de instalar su sistema DeltaV. 
Dentro de este manual se hacen algunas referencias a otras publicaciones y estándares industriales, Usted deberá referirse a esas publicaciones y estándares para completar la información que necesite. Los documentos de referencia son mencionados abajo. 1
Guía de Instalación del Sistema DeltaV 
Las Hojas de Datos del Producto son muy importantes para poder usar este manual; ya que proveen descripciones, características, beneficios y especificaciones. Por favor lea las especificaciones y téngalas a mano para referencia cuando esté realizando la preparación de su sitio. 
Los otros manuales de referencia son: 
- Installing your DeltaV Automation System 
- Fieldbus Installation in a DeltaV Automation System 
3.- Condiciones ambientales 
El sistema DeltaV debe operar bajo condiciones ambientales controladas, ya que la mayoría de los dispositivos que integran los sistemas son diseñados para trabajar bajo ciertos rangos de humedad, temperatura y clasificación ambiental. Los detalles de los rangos de operación de los productos DeltaV se muestran en la tabla 3.1 de este manual. 
Polvo y vapores corrosivos pueden causar daños a los componentes electrónicos de los equipos. Los ambientes en los cuales se encuentra el equipo pueden ser clasificados desde G1 hasta Gx, si desea ver la clasificación, descripción y condiciones usted puede consultar la norma ISA-S71.04, Condiciones ambientales para medición de procesos y sistemas de control. 
Si la temperatura ambiente, de los lugares donde está instalado el equipo, está fuera de los rangos de operación permitidos será necesario el uso de sistemas de aire acondicionado. Las necesidades del uso de estos sistemas son determinadas a través del cálculo de la carga de calor causada por el sistema, el personal, luces y otras fuentes de calor. Cualquier sistema de aire acondicionado o ventilación deberá tener la capacidad para manejar la carga de calor generada en los cuartos de control. 
La humedad relativa deberá mantenerse dentro de los rangos de operación permitidos. La humedad relativa baja permite la creación de cargas y descargas electrostáticas, lo cual puede dañar los equipo. La humedad relativa alta puede terminar en la condensación de agua en los equipos. Vapores corrosivos en la atmósfera terminarán en condensación y formación de ácidos, la humedad relativa debe ser controlada para prevenir la formación de ácidos, los cuales pueden dañar de forma permanente los equipos. 
Tabla 3. 1 Especificaciones ambientales para el sistema DeltaV. 
Device 
Operating Temperature 
Storage Temperature 
Relative Humidity 
Non condensing 
Airborne Contaminants 
Vibration 
Workstation 
10°C to 35°C max. 
10°C variación / hr 
-20°C to 60°C 
20% to 80%, 
Bottom only: 0.25 g, 0-to-peak, 3 Hz to 200 Hz sweep at 2 octaves/min 
8-port hub 
0°C to 40°C 
-30°C to 60°C 
0% to 90%, 
0.075 mm from 10 Hz to 58 Hz, 1.0 g from 58 Hz to 500 Hz 
12-port hub 
24-port hub 
0°C to 50° 
-30°C to 60°C 
0% to 90%, 
0.075 mm from 10 Hz to 58 Hz, 1.0 g from 58 Hz to 500 Hz 
12 and 24 port twisted pair switch 
8-port fiber optic switch 
0°C to 50°C 
-10°C to 70° 
10% to 95% non 
ISA-S71.04-1985 Airborne Contaminants Class G3 
1 mm peak-to-peak from 5 Hz to 16 Hz, 0.5 g from 16Hz to 150 Hz 
System power supplies, controllers, and pre- Series 2 I/O 
0°C to 60°C 
-40°C to 85°C 
5% to 95%, 
ISA-S71.04-1985 Airborne Contaminants Class G3 
1 mm peak-to-peak from 5 Hz to 16 Hz, 0.5 g from 16Hz to 150 Hz 
Series 2 I/O 
-40°C to 70°C 
-40°C to 85° 
5% to 95%, 
ISA-S71.04-1985 Airborne Contaminants Class G2 
MIL-STD-810D Method 514.3, Category 1, Procedure I 
Bulk power supplies 
0 to 60°C 
-40°C to 85°C 
5% to 95%, 
Fiber Optic Media Converter 
0 to 60° 
-40°C to 85°C 
0% to 95% 
Fieldbus H1 Carrier 
-40°C to 70°C 
-40°C to 85°C 
5% to 95%, 
2
Guía de Instalación del Sistema DeltaV 
4.- Tierras 
La tierra y la red de tierras son una consideración importante para cualquier sistema de control, ya que éste puede eliminar los efectos causados por potenciales deficiencias en el suministro de las fuentes de alimentación. Pobres o deficientes sistemas y redes de tierras son la causa principal de las fallas presentadas en un sistema de control. Una buena tierra conduce corrientes eléctricas, causadas por fallas, a tierra y puede reducir considerablemente el ruido eléctrico, lo cual causa problemas en las señales de control. 
El mejor sistema de tierras es aquel que utiliza varios electrodos de tierra (mayor numero de electrodos mejor sistema), y las razones son las siguientes: 
- Las resistencias de contacto del electrodo a tierra son efectivamente puestas en paralelo, la adición de más electrodos reduce la resistencia del sistema de tierra. 
- Un electrodo provee un elemento de seguridad. El contacto a tierra no depende de un sólo electrodo. 
En caso de utilizar un sistema de tierra de varios electrodos, la distancia entre los mismos deberá ser de dos veces la profundidad a la que están enterrados los electrodos. 
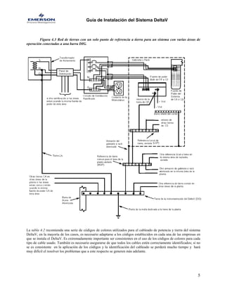
La figura 4.1 muestra un ejemplo de una malla de tierras en una planta. Si la malla existente está accesible, y la resistencia de la malla de tierra hacia la tierra física cumple con los requerimientos, la malla existente puede utilizarse para la tierra del sistema y la instrumentación, en caso de no cumplir será necesaria la implementación de un nuevo sistema de tierras dedicado al sistema de control. 
Un punto dedicado y cercano al sistema (preferentemente un electrodo) es utilizado como el punto de referencia de tierra. El electrodo de tierra es conectado a un electrodo de la red de tierras de la planta con un cable de calibre 4/0 de cobre y además soldado con cupperwell a los electrodos.. Sin embargo, si la malla de tierras no es accesible o la resistencia no está dentro de las especificaciones, es necesario que se instale una nueva malla de tierras. 
Para plataformas usadas en el mar, una de las piernas de la plataforma es considerada como la conexión a tierra; aún en plataformas flotantes, la pierna seguirá siendo usada como referencia. El mar es considerado como el punto de tierra. 
Nota: La resistencia máxima permitida para un sistema de tierras conectado al Sistema DeltaV no deberá exceder tres ohms, idealmente deberá ser menor a un ohm. 
Es recomendable que el sistema de tierra tenga un ohm o menor entre el sistema de tierras de instrumentación y la tierra real. Una resistencia de un ohm o menor reduce los errores fantasma provocados por caídas de voltaje en los sistemas de tierra. 
Figura 4.1 Conexión del sistema de tierras para el DeltaV con la malla de tierras de la planta, siempre que la malla cumpla con las especificaciones. 
Notas: 
Reja de la planta puesta a tierra 
Sistema de instrumentos puestos a tierra 
Conexión de la planta a la reja de tierra 
Cobre 
La conexión a tierra puede ser un solo electrodo o cualquier otro sistema de tierra. 
Todas las líneas de conexiones serán de al menos No. 4 0 AWG (107.2 mm2) 
Subestacion 
De Poder 
3
Guía de Instalación del Sistema DeltaV 
Es importante tomar en consideración la distancia que hay entre el sistema de tierras, el sistema de control y la malla de tierras de la planta, ya que de acuerdo a la distancia es el calibre del cable que los une. La tabla 4.1 indica el calibre que deberá emplearse. Es indispensable que el cable que une a la malla de tierras con la barra Tierra de Instrumentación del sistema DeltaV (DIG) SEA FORRADO, este cable no debe ser desnudo, además debe estar soldado con cupperwell, los únicos puntos donde se desnuda el cable es en las conexiones al electrodo de tierra y a la barra DIG. 
Tabla 4.1 Calibre de cable que deberá ser usado de acuerdo a su longitud. 
Longitud del cable 
Calibre del cable 
Hasta 7.62 m. (25 ft.) 
1/0 (50 mm2) 
Hasta 15.24 m. (50 ft.) 
2/0 (70 mm2) 
Hasta 60.96 m. (200 ft.) 
4/0 (120 mm2) 
La red de tierras es un sistema organizado de cables de tierras que terminan en un sólo punto dedicado al sistema de tierras. Al tener un solo punto de tierras se tendrá una referencia más limpia para el control de las señales dentro del sistema de automatización, esto incrementa la confianza sobre los sistemas que contienen un pobre diseño de red de tierras. Las figuras 4.2 y 4.3 muestran una red de tierras con un solo punto de tierra dedicado, hay que observar la forma en que la parte de CA, la de CD y toda la instrumentación llegan al mismo punto, la barra DIG. La CA esta aterrizada desde el transformador de aislamiento, la CD se aterriza a la salida de cada fuente de CD y todas las barras de shield de los carriers de entradas y salidas también se aterrizan al mismo punto para que toda la instrumentación sea aterrizada aquí y no en campo; y esto es mucho muy importante, la instrumentación deberá ser aterrizada del lado del sistema y nunca en campo. 
Figura 4.2 Red de tierras con un solo punto de referencia a tierra para un sistema DeltaV pequeño. 
4
Guía de Instalación del Sistema DeltaV 
Figura 4.3 Red de tierras con un solo punto de referencia a tierra para un sistema con varias áreas de operación conectadas a una barra DIG. 
La tabla 4.2 recomienda una serie de códigos de colores utilizados para el cableado de potencia y tierra del sistema DeltaV, en la mayoría de los casos, es necesario adaptarse a los códigos establecidos en cada una de las empresas en que se instala el DeltaV. Es extremadamente importante ser consistentes en el uso de los códigos de colores para cada tipo de cable usado. También es necesario asegurarse de que todos los cables estén correctamente identificados; si no se es consistente en la aplicación de los códigos y la identificación del cableado se perderá mucho tiempo y hará muy difícil el resolver los problemas que a este respecto se generen más adelante. 
5
Guía de Instalación del Sistema DeltaV 
Tabla 4.2 Código de colores recomendados para el cableado de potencia y tierra. 
Uso 
Código americano 
Código europeo 
Línea CA 
Negro 
Café 
Neutro CA 
Blanco 
Azul 
Tierra CA 
Verde 
Verde con línea amarilla 
+ 12 VDC 
Azul oscuro 
Azul oscuro 
+ 12 VDC Redundante 
Azul oscuro con línea amarilla 
Azul oscuro con línea amarilla 
- 12 VDC 
Negro con línea amarilla 
Negro con línea amarilla 
+ 24 VDC 
Rojo 
Rojo 
+ 24 VDC Redundante 
Rojo con línea amarilla 
Rojo con línea amarilla 
- 24 VDC 
Negro 
Negro 
Tierra de CD a la referencia local de tierra 
Verde 1 
Verde 
Cable de tierra shield 
Verde claro 
Verde claro 
Sistema de tierra a barra DIG 
Verde 
Verde 
Otro punto importante que debe ser considerado es la manera en que deben aterrizarse los racks y gabinetes que albergan equipo DeltaV, estos también deben estar conectados al mismo punto de referencia que CA, CD e instrumentación, la figura 4.4 ilustra la forma correcta de hacerlo. Al hacer esto correctamente provee protección tanto al personal como al equipo contra daños producidos por descargas eléctricas e interferencias magnéticas. La tierra de los racks y gabinetes deberá permanecer separada de todas las demás tierras de CD. Sí hay un grupo de gabinetes, sus tierras deberán ser dirigidas hacia el gabinete que se encuentre al centro de todos. 
Figura 4.4 Detalle de una Red de tierra para CA y CD tomando como referencia el código NEC/CSA 
1 El verde siempre significa que el cable es una referencia de tierra que no tiene corriente flotante a través de él bajo condiciones normales de operación. 
6
Guía de Instalación del Sistema DeltaV 
La figura 4.5 muestra los requerimientos de tierras para el subsistema de Entradas / Salidas del DeltaV. La barra de shields del carrier de tarjetas de E/S debe conectarse al gabinete. El carrier también puede conectarse a una barra de tierras local. Éstas tierras proveen la tierra eléctrica requerida para las tarjetas de E/S y para la fuente de alimentación intrínsecamente segura. Los cables de alimentación provienen de una fuente de 24 VDC. La terminal de salida negativa de la fuente de 24 VDC esta aterrizada a una barra de tierras local. 
Figura 4.5 Puntos de conexión a tierra para el subsistema de E/S del DeltaV 
5.- Distribución de Voltaje de Corriente Alterna 
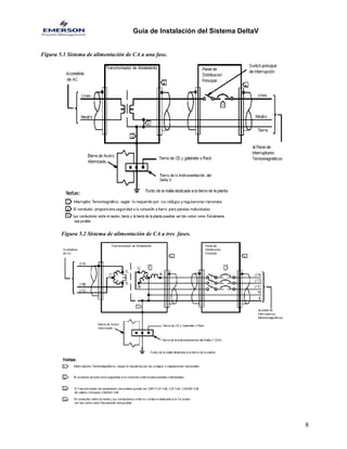
Para mantener una buena calidad de VAC, cosas como perdidas de energía, caídas de voltaje, transcientes, variaciones de voltaje, deberán ser controladas. Es indispensable que la línea de CA suministrada al Sistema DeltaV sea tomada de un sistema de distribución de CA el cual sea aislado de la fuente primaria de alimentación a todas las demás funciones de la planta, tales como motores, variadores de velocidad, alumbrado, etc. Es indispensable el uso de Transformadores de aislamiento2, ya que son un primer elemento de regulación y filtraje de transcientes. Además, cada edificio o sitio que contenga equipo DeltaV deberá tener su propia fuente de alimentación y su propio sistema de respaldo de energía. 
El sistema DeltaV utiliza una fase de alimentación con un rango de voltaje de 85 a 264 volts y un rango de frecuencia de 47 a 63 Hz. También es posible utilizar tres fases de alimentación, si es este el caso, la carga entre las fases deberá estar balanceada en cada panel de alimentación, minimizando cualquier diferencia de voltaje existente entre el Neutro de CA y los conductores de Tierra. El uso de cualquiera de los sistemas de alimentación a una o tres fases se ilustran en las figuras 5.1 y 5.2. 
NOTA 
Es indispensable el uso de un Transformador de aislamiento1, ya que son un primer elemento de regulación y filtraje de transcientes. 
La fuente de alimentación primaria para el sistema DeltaV deberá estar libre de interrupciones de energía mayores a 20 milisegundos, una interrupción mayor a 20 milisegundos puede causar pérdida del control del proceso, datos de configuración del sistema, y datos del proceso en el sistema DeltaV. 
La fuente de alimentación deberá ser capaz de proporcionar toda la energía que el sistema demanda y además contar con al menos un 25% adicional de la energía demandada, de esta forma la fuente de alimentación garantizará la entrega de energía demandada por el sistema. 
7 
2 Un transformador de aislamiento es aquel cuya relación de transferencia de energía es 1:1.
Guía de Instalación del Sistema DeltaV 
Figura 5.1 Sistema de alimentación de CA a una fase. 
Figura 5.2 Sistema de alimentación de CA a tres fases. 
8
Guía de Instalación del Sistema DeltaV 
Nota: 
Para evitar voltajes flotantes entre Línea y Neutro es necesario que se realice una conexión entre Neutro, Tierra, Chasis del transformador de aislamiento y el sistema de tierra, este puente debe hacerse en UNSÓLO PUNTO en todo el sistema de distribución de VCA, y debe ser en el transformador de aislamiento. Esta conexión se ilustra en las figuras 5.2 y 5.1. El voltaje máximo permitido entre Línea y Neutro esde 1 volt. 
La energía necesaria para el funcionamiento del sistema DeltaV pasando antes por una Fuente de Alimentación Ininterrumpible (UPS) o a través de un Acondicionador de Línea, con su punto de tierras de CA establecido en o cerca del acondicionador o UPS. Los cables de los circuitos de CA son, a través de un Panel Principal de Distribución, introducidos a los Centros de Carga para su distribución a los diferentes elementos del sistema. 
Nota: La implementación de un Acondicionador de Línea o de una UPS es indispensable, un sistema que carezca de éstos dos elementos no podrá ser puesto en marcha. 
Dentro de la distribución de CA, se debe hacer énfasis en que los cables de Neutro y Tierra deberán estar aislados del panel de distribución de CA y serán conectados a barras diferentes dentro del panel de distribución de CA. Estas barras son eléctricamente aisladas del panel de distribución de CA y de ellas mismas. A través de todo el sistema, todos los cables de los circuitos de CA (línea, neutro y tierra) son eléctricamente aislados de sus conduits y de sus paneles de distribución de CA. El aislamiento de los cables de los circuitos de CA es mantenido desde la UPS o Transformador de Aislamiento hasta el punto final de conexión de los equipos. 
Los circuitos de CA siempre son dirigidos a fuentes Bulk, a System Power Supplies, a multicontactos y a receptáculos que deberán ser de tierra aislada, un ejemplo de estos receptáculos se muestra en la figura 5.3 en la cual se ilustra la forma correcta de conectar los cables de línea, neutro y tierra. 
Figura 5.3 Conexión de los receptáculos de tierra aislada 
La figura 5.4 muestra la distribución hacia las fuentes de alimentación, estaciones de operación y otros equipos que requieran ser alimentados de VCA, ésta distribución se hace a través de paneles locales de distribución. 
9
Guía de Instalación del Sistema DeltaV 
Figura 5.4 Distribución de VCA para diferentes áreas de la planta. 
6.- Distribución de Voltaje de Corriente Directa 
Los controladores y la electrónica de las tarjetas de Entrada / Salida (E/S) son energizados a través de las Fuentes de Alimentación del Sistema, las cuales proveen 12 VCD para las tarjetas, y 5 y 3.3 VCD para los controladores. 
Cuando ser realice el diseño de la distribución de alimentación del sistema, deberán realizase las revisiones necesarias para asegurarse de que la distribución de CD puede proporcionar la confiabilidad requerida. La correcta revisión determina si la redundancia de alimentación de CD es necesaria. El empleo de fuentes de respaldo de las fuentes de alimentación Bulk y Fuentes de Alimentación del Sistema puede ser aplicado.. 
Si se emplean fuentes Bulk redundantes, la fuente de respaldo deberá estar conectada al mismo punto de tierra que la fuente primaria, además puede estar en un gabinete diferente del de la primaria. De cualquier forma, el calibre y longitud del cable deberá ser seleccionado adecuadamente para reducir la caída de voltaje del 2% o menos. Si se usan fuentes de alimentación del sistema redundante, ambas fuentes deberán estar instaladas en el mismo riel. 
10
Guía de Instalación del Sistema DeltaV 
Las fuentes de alimentación Passtrough del sistema son alimentadas por las fuentes Bulk por alguna otra fuente proveniente de la planta. La fuente de alimentación CD/CD passtrough recibe 12 VDC. La fuente pastrough dual puede aceptar tanto 12 VCD como 24 VCD dependiendo la forma de conectar; la figura 6.1 muestra las conexiones de la fuente Passtrough y la figura 6.2 las de la fuente Passtrough Dual en ambas fuentes. 
Figura 6.1 Conexiones en las fuentes de alimentación Passtrough. 
Figura 6.2 Conexiones en las fuentes de alimentación Passtrough Dual. 
La figura 6.3 muestra la manera correcta de conectar la salida de las fuentes y su conexión a tierra cuando son utilizadas fuentes redundantes, hay que observar que a la salida de las fuentes de 12 ó 24 VDC hay colocados diodos que en caso de falla de una de las fuentes evita que se dañe la otra, es recomendable y es requisito para validación el uso de éstos diodos, ó de un dispositivo que realice ésta función ó de fuentes auto protegidas, para evitar un mayor daño al sistema. 
11
Guía de Instalación del Sistema DeltaV 
Figura 6.3 Arreglo de fuentes redundantes. 
La alimentación al bus de campo es conectada directamente al carrier de las tarjetas de E/S, tal como lo muestra la figura 6.2. Para dispositivos de campo de 24 VCD, se puede utilizar las fuentes Bulk o alguna otra fuente proveniente de la planta. Para los dispositivos de 120 VCA o 240 VCA, puede tomarse la alimentación proveniente del sistema de distribución de VAC. 
Nota: 
Se recomienda que el sistema de alimentación de VAC usado para el bus de campo no sea el mismo que se utiliza para el DeltaV. Usando sistemas de alimentación separados aíslan de ruidos eléctricos (los cuales pueden causar retornos de corrientes parásitas en las líneas de alimentación de relevadores, interruptores y otras cargas que típicamente causan picos) al sistema DeltaV. 
La alimentación del bus de campo puede hacerse utilizando clemas, de preferencia con fusible, la figura 6.4 muestra la forma de hacer este arreglo. No es nada recomendable hacer puentes entre cada conexión, ya que en caso de tener que remover la alimentación de una tarjeta se retirará la de toda la instrumentación que sea parte del mismo bus, lo cual no es nada conveniente. 
Cada carrier de entradas y salidas tiene dos conexiones de alimentación a campo, esto se puede ver en la figura 6.5 y cada conexión será energizada a través de una clema con fusible, también se muestra cual es la polaridad correcta al conectar los cables provenientes de su clema correspondiente, se puede hacer un puente entre las conexiones del mismo conector, sin embargo es recomendable no hacerlo y que cada conexión tenga su propio circuito de alimentación. 
12
Guía de Instalación del Sistema DeltaV 
Figura 6.4 Alimentación de CD y CA del bus de campo de dispositivos alimentados desde el sistema. 
Figura 6.5 Detalles de conexión del conector para el bus de campo a través del carrier de E/S. 
13
Guía de Instalación del Sistema DeltaV 
El cableado de campo para las tarjetas discretas de 32 canales es diferente al del resto de las tarjetas de entrada y salida, es éstas últimas, tanto el cable de señal como el de retorno son conectadas directamente al bloque terminal de la tarjeta; para el caso de las tarjetas de 32 canales, todas las terminales del bloque terminal son utilizadas para el cable de señal, no existe un bloque terminal para los retornos, éstos deberán ser conectados a un juego de clemas interconectadas entre sí, las cuales a su vez se conectan al negativo de la fuente de 24 VDC que alimenta la instrumentación de campo, todos los cables de retorno deberán estar correctamente identificados, esto es un requisito requerido por Emerson Process Management. La forma correcta de hacerlo se muestra en la figura 6.6 
Figura 6.6 Cableado de alimentación del bus de campo de las tarjetas de 32 canales. 
Las fuentes de alimentación para el sistema DeltaV cuentan con un relevador para alarmar al sistema en caso de falla de la fuente. Los relevadores de las fuentes pueden ser conectados en serie, e tal manera cuando cualquier fuente que falle podrá disparar una alarma al sistema; ó bien, cada relevador puede ser conectado individualmente a una entrada del sistema, lo cual permitirá saber exactamente cual fuente falló. En cualquiera de los casos será necesario que en el sistema haya una tarjeta discreta de entrada Dry Contact ó Isolated, ambas de 24 VDC, de la cual se tomarán tantos canales como el arreglo lo requiera. Las figuras 6.7 y 6.8 muestran los diferentes arreglos que pueden realizarse. 
14
Guía de Instalación del Sistema DeltaV 
Figura 6.7 Ejemplo de un grupo de fuentes de alimentación al sistema con un sólo punto de alarma. 
Figura 6.8 Ejemplo de una fuente de alimentación al sistema conectada directamente al sistema. 
7.- Cableado de señales. 
El objetivo de éste capítulo es el de describir algunos métodos para reducir la interferencia eléctrica en las señales y cableado de tierras, y como instalar y rematar el cableado de las señales. He aquí algunas prácticas comunes y recomendaciones que pueden ayudar a instalar un cableado de señales de campo que sea confiable. 
- Los conectores y bloques terminales del sub-sistema de E/S puede aceptar cables o alambres de un calibre 12 AWG o menor. Cables que estén entre 14 y 18 AWG son los más recomendados. Para seleccionar el cable más adecuado, calcule la corriente máxima esperada en cada cable. Entonces, utilizando los códigos locales, determine el calibre del cable requerido para esa específica corriente. 
- Multiconductores deberán tener al menos un par de hilos de reserva. Es recomendable que al menos el 20% de los pares sea dejado como reserva. 
- Para los buses de campo, como Foundation Fieldbus, DeviceNet, Profibus, ASI-Bus, utilice el cable especificado para cada bus. 
- En bloques terminales externos deje al menos un punto de conexión para equipo de prueba. 
- Asegúrese de que los cables que están conectados en los bloques terminales permanezcan sujetos a la canaleta que los contiene. 
- Asegúrese de que todos los empalmes sean soldados y que estén correctamente soldados. 
- Asegúrese de que los ductos que conducen el cableado no corten el forro de aislamiento de los cables. 
- Inspeccione las conexiones en los bloques terminales para estar seguro que el aislante de los cables está cortado limpiamente y que no hay aislante debajo de las conexiones de los cables en los bloques terminales. 
15
Guía de Instalación del Sistema DeltaV 
Reducción de interferencia electromagnética (IE) 
La interferencia electromagnética, puede ser provocada por dispositivos como radios, intercomunicaciones, líneas de alimentación de CA, motores e interruptores de alta capacidad. Los productos del sistema DeltaV cumplen completamente con los estándares electromagnéticos. Están protegidos para reducir la IE a niveles aceptables en condiciones normales de operación. 
Para minimizar la IE inducida por fuentes externas al DeltaV, tome las siguientes precauciones: 
- Utilice Fibra óptica tantas ocasiones como sea posible en las comunicaciones de red de control, especialmente entre edificios; ya que la fibra óptica provee protección óptima contra la IE. 
- Las rutas de los cables deben ser establecidas tan lejos como sea posible de fuentes de IE (motores, generadores, transformadores, etc. ) como una práctica de diseño. 
- Utilice cables con shield individuales, especifique cable par trenzado para termopares, RTD’s, y electrodos de PH para minimizar ruido eléctrico inducido en señales de mili voltaje de éstos dispositivos. Multiconductores con shield pueden ser empleados para señales de campo de 4-20 mA y 1-5 V. 
- Las señales de pulso deberán tener rutas diferentes y cables individuales con par trenzado y shield. 
- El cable de la red de control deberá ser conducido en ductos aterrizados para aislar de la interferencia del ruido externo. 
- Los cables y shields que no se estén usando deberán conectarse a tierra en uno de sus extremos, asegúrese de que sea en un solo lado. 
Nota: 
Para evitar loops de tierra asegúrese de que los shields de todos los cables esténconectados a tierra en un solo extremo. 
- Siempre aterrice la carcasa de los dispositivos. Los dispositivos de campo pueden conectarse a conduit de metal, a la tubería, ya que éstos están eléctricamente aterrizados. La figura 7.1 es un ejemplo. 
Figura 7.1 Conexión a tierra de un transmisor de 4-20 mA y del posicionador de una válvula. 
Protección de las líneas de alimentación de CA. 
La mejor manera de reducir éste tipo de inducción es separar físicamente poner una coraza alrededor de los conductos que contiene los cables de señal y de los equipos para aislar de las líneas de alimentación, transformadores, equipo rotatoria o algún otro equipo de alto consumo de energía. 
Para determinar la protección óptima considere lo siguiente: 
- La tabla 7.1 establece la separación mínima recomendada entre los cables de señal con shield y las líneas de CA. 
16
Guía de Instalación del Sistema DeltaV 
Tabla 7.1 Separación de cables. 
Voltaje 
Amperaje 
Distancia mínima recomendada 
0 a 125 volts 
0 a 10 amp. 
30 cm. 
125 a 250 volts 
1 a 50 amp. 
38 cm. 
250 a 440 volts 
0 a 200 amp. 
46 cm. 
- Los cables de líneas de CA y de señal no deben correr en forma paralela por más de 6 m. Si es necesario que sea de esta manera, incremente la separación de la siguiente manera: por cada 10 metros aumente 30 cm de separación. 
- Los cables de señal deben estar separados de aquellos dispositivos que generen campos magnéticos al menos 1.5 m, de 3 a 4.5 m es lo recomendable. Los cables cuyo shield da 26 vueltas por metro alrededor del cable es 5 o 6 veces mejor que aquellos en los que el shield sólo va al paralelo del cable. 
- Los cables de aquellas señales de bajo nivel deberán correr directamente desde el dispositivos de campo hasta los bloques terminales sin pasar por cajas paso o marshalligs y en ningún momento deberán correr paralelamente a cables de alto amperaje o líneas de voltaje. 
- Si los cables de alimentación son fuente de interferencia, deberán trenzarse para reducir su propio campo. Cuando cables de alimentación y de señal se cruzan, deberán hacerlo a un ángulo de 90°. Ambos tipos de cable deberán trenzase a ambos lados del cruce durante al menos la distancia establecida en la tabla 7.1. 
Éstas son sólo algunas prácticas comunes que deben tomarse en cuanta durante el diseño e instalación de las rutas de cables de señal hacia el sistema. 
Figura 7.2 Cableado y conexiones a tierra conectando directamente al sistema DeltaV 
17
Guía de Instalación del Sistema DeltaV 
Foundation Fieldbus 
Existen ciertas consideraciones que deben tomarse en cuenta durante la instalación de Fieldbus, ya que el 90% de los problemas es provocado por una mala instalación. Los dispositivos de campo de los segmentos de Fieldbus deberán estar aterrizados sólo al sistema de control, la forma correcta de hacerlo se muestra en la figura 7.3. Para el caso de las tarjetas H1serie 2 se deben tener otros cuidados, los cuales se ilustran en la figura 7.4. 
En ambos casos se observa como los shields de los spurs se une en un Junction Block, que a su vez los une al shield del cable Trunk, éste a su vez se conecta al shield de la Power Conditioner, que a su vez se conecta a la barra de shields del carrier de tarjetas de E/S , de esta manera el segmento queda aterrizado en un solo punto. 
Una consideración más es el uso de un circuito de alimentación de 24 VDC para la Power Conditioner, este circuito también se desprende de la fuente de alimentación de 24 VDC para la instrumentación de campo, razón por la cual es indispensable el uso de una clema con fusible para alimentar éste circuito. Se requiere de una clema por cada power conditioner instalada en el sistema. 
Figura 7.3 Cableado de tierras y alimentación de un segmento Fieldbus. 
18
Guía de Instalación del Sistema DeltaV 
Figura 7.4 Cableado de tierras y alimentación de un segmento Fieldbus con tarjetas H1 Serie 2 
Hay varios tipos de cable que pueden ser utilizados, y de acuerdo a la selección se determinará la distancia máxima que puede alcanzar el segmento, el cable que se recomienda es: 
- Par trenzado, con malla y shield, calibre 18, lo cual permite una longitud de segmento de 1900 metros, con una resistencia de 44 ohms/km 
Consideraciones para AS-I Bus 
El Actuator Sensor-Interface (AS-I) es un protocolo de comunicación digital, serial y bidireccional, que interconecta dispositivos sencillos On/Off, tales como actuadores, censores y dispositivos discretos de campo. A través de un par de conductores se proporciona alimentación y señal a los dispositivos. 
Nota: 
Es importante que los dispositivos de campo no se conecten directamente a las terminales de la tarjeta, use un cable para conectar la tarjeta AS-I Bus a la fuente de alimentación y otro más para conectar los dispositivos a la fuente de alimentación. 
Sólo debe haber un punto de tierra como referencia. Este punto de tierra está conectado en la terminal negativa de salida de la fuente de alimentación. Todos los demás dispositivos, el maestro y los dispositivos de campo son aislados de tierra. La electrónica de los dispositivos de campo debe ser aislada de la carcasa de los dispositivos, ésta es una especificación de AS-I Bus. La figura 7.5 muestra la forma en que debe instalarse un segmento AS-I Bus. 19
Guía de Instalación del Sistema DeltaV 
Figura 7.5 Cableado de tierras y alimentación para AS-I Bus. 
Existen varios tipos de cable que pueden ser utilizados en un segmento de ASI-Bus, cualquiera que cumpla con las siguientes especificaciones puede ser utilizado: 
- Resistencia < 90 ohms/m , 167 Khz, y capacitancia < 80 pf/m 
Consideraciones para Profibus-DP 
Profibus es un protocolo de comunicación digital, serial y bidireccional, que comunica dispositivos de campo tanto analógicos como discretos a un sistema de control, en éste caso al sistema DeltaV. A través de dos cables se pasa la señal entre los diferentes dispositivos. Cada dispositivo usa una fuente de alimentación externa. 
La figura 7.6 muestra un ejemplo de la manera en que deben conectarse el sistema de tierras y la alimentación a los dispositivos. La ilustración muestra únicamente un terminador porque el maestro contiene el otro terminador. Si el maestro se encuentra entre los extremos finales del segmento, un terminador deberá ser instalado en cada extremo. 
La longitud máxima del segmento de pende de la velocidad de comunicación, la tabla 7.2 muestra la distancia máxima de acuerdo al baud rate kbits/s. 
Tabla 7.2 Longitud del segmento de acuerdo a la velocidad de comunicación 
Baud rate kbit/ 
9.6 
19.2 
93.75 
187.5 
500 
1500 
Longitud 
1000 m 
1000 m 
1000 m 
1000 m 
400 m 
200 m 
20
Guía de Instalación del Sistema DeltaV 
Figura 7.6 Conexiones a tierra y de alimentación para Profibus. 
La transmisión de información se realiza a través de comunicación serial RS-485, el cable recomendado es aquel que cumpla con las siguientes recomendaciones: 
- Par trenzado, con malla y shield, calibre 18. Impedancia de 135 a 165 ohms, Capacitancia < 30 pf/m, resistencia del loop <= 110 ohms/km, 
Consideraciones para DeviceNet 
DeviceNet, a través de dos cables conecta dispositivos de campo tales como: celdas fotoeléctricas, arrancadores de motores, y drives, a un sistema de control. El DeltaV provee una interfase de control a través de una tarjeta que funciona con el protocolo DeviceNet. Es muy importante que antes de intentar hacer una instalación se conozcan y entiendan las especificaciones establecidas para DeviceNet. 
La figura 7.7 muestra una instalación típica de tierras y alimentación de DeviceNet. Existen algunos puntos importantes que deben cuidarse: 
- Una fuente de alimentación debe conectarse al segmento de DeviceNet. 
- Puede utilizarse más de una fuente de alimentación, esto depende de los requerimientos de corriente de los dispositivos de campo conectados al segmento. 
- Cuando se utilicen varias fuentes de alimentación, el voltaje común entre las fuentes no debe variar más de 5 VDC entre dos puntos cualquiera del segmento. 
- La corriente del segmento no deberá exceder las capacidades del cable y de los conectores. 
- La caída de voltaje entre la fuente de alimentación y cualquier estación asociada no deberá exceder 5 VDC. 
21
Guía de Instalación del Sistema DeltaV 
- Para poder trabajar en grupos de dispositivos, deberá haber uno y sólo un punto de tierra como referencia para la totalidad de la red de dispositivos, y se sugiere que éste punto esté lo más cercano que sea posible al centro del segmento. 
- Para mantener una señal de buena calidad y una correcta aislamiento de tierra, las especificaciones de DeviceNet describen ciertos métodos de aislamiento diseñados dentro de los dispositivos de campo, Sólo podrán usarse dispositivos que fueron diseñados de acuerdo a las especificaciones de DeviceNet. 
Figura 7.7 Conexiones a tierra y de alimentación para DeviceNet. 
8.- Red de Control 
La red de control es una red Ethernet Local (LAN) dedicada al sistema DeltaV. Sólo dispositivos (nodos) DeltaV pueden ser conectados a ella. Las redes de control pueden ser tan grandes o pequeñas como las necesidades del sistema DeltaV lo requieran. Como mínimo, la red de control consiste de Hubs y cables que conectan a las estaciones de trabajo con los controladores. Las redes pueden incluir, además de hubs, switchs, extensores de fibra óptica y otros equipos. 
Un plano de toda la red de control es una ayuda invaluable para la planeación y revisión de la red de control. Este plano deberá indicar todos los cuartos de equipo, cuartos de control y rutas de cableado, el tipo de cable utilizado, y cualquier modificación que pudiera ser necesaria para realizar el cableado de comunicación. 
22
Guía de Instalación del Sistema DeltaV 
Existen ciertos estándares que deben ser respetados cuando se implementa una red LAN, uno de esos estándares es la conocida como la regla 543; ésta regla significa: 
- 5 Segmentos 
- 4 Hubs 
- 3 de los cuatro hubs pueden tener nodos conectados a ellos. 
El DeltaV funciona con redundancia en comunicaciones, razón por la cual se tiene una Red de control primaria y una secundaria, la figura 8.1 nos muestra un ejemplo de éstas redes, Emerson Process Management especifica el uso de identificaciones de las pistas de control, para ello se recurre a la convención de identificar con capuchones color amarillo los cables de la red primaria, y con capuchones color negro los correspondientes a la red de secundaria. 
Figura 8.1 Red de control redundante para DeltaV. 
Otros puntos a considerar son: 
- Todos los cables deberán ser categoría 5 y con una longitud máxima de 100 metros. 
- Todos los cables deberán terminar en conectores RJ-45 EIA/TIA/568B en ambos extremos. 
- Los cables usados para conectar hubs en cascada deberán usar un conector con shield en un extremo y un conector sin shield en el otro extremo. 
- Conectores sin shield deberán usarse en todas las estaciones de operación. 
- Conectores con shield serán usados en todos los controladores y todas las conexiones de los hubs a los diferentes nodos. 
- Todos los cables deberán ser probados para su validación. 
- Todos los cables deberán estar identificados correctamente, indicando a que nodo corresponden y a que puerto se conectan. 
Fibra óptica 
Debido a diferentes circunstancias, en ocasiones es necesario el uso de fibra óptica, si éste es el caso hay ciertas consideraciones que deben cuidarse, ya que son indispensables para su validación: 
- Todos los cables son multi-modo de 62.5/125 micras, graduada, con armadura y una longitud máxima de 2000 mts. 
- Todos los cables estarán rematados con conectores ST o SC. 
- Todos los cables serán probados para verificar su atenuación con un reflectómetro óptico con dominio en el tiempo (OTDR) 
23
Guía de Instalación del Sistema DeltaV 
- Cuando se utilicen convertidores de medio de fibra óptica (multi-modo o uni-modo) deberán seguirse las especificaciones proporcionadas por el proveedor. 
- Si la distancia entre los diferentes puntos excede los 2000 mts. Deberán utilizarse repetidores o convertidores de medios de largo alcance. 
- Se deberá entregar un reporte de las pruebas realizadas a cada cable de fibra óptica que refleje los resultados de las pruebas. 
Servicio de Acceso Remoto (RAS) 
A partir de la versión 5 no es necesario descargar el Setup Data de cada estación de operación, incluso de las estaciones remotas. Con las estaciones remotas cada dato específico del nodo es replicado by el Servidor de RAS utilizando el Servicio de Auto Actualización (Auto Update Service). 
Para llevar a cabo esta actualización, el DeltaV transmite los mensajes a través de Multicast. Multicast es la forma más eficiente de mandar mensajes en la red, ya que evita tráfico innecesario que reduce el rendimiento de la red. 
Par poder establecer una Estación Remota es necesario que todos los equipos (Routers, Bridges, Switchs, etc.) que son utilizados para comunicar la estación remota con la estación que es Servidora de RAS tengan la capacidad de manejar los mensajes a través de Multicast. En algunos equipos éste servicio ya viene habilitado y se hace en forma transparente y automática, en algunos otros es necesario habilitarlo y en otros más es necesario habilitar otros servicios que complementándose realizan el servicio de Multicast. 
24

39011123 instalacion-deltav

  • 1.
    Guía de Instalacióndel Sistema DeltaV Guía de Instalación del Sistema DeltaV Revisión: 01 Creó: Israel García Revisó: Martín Ocampo Aprobó Raúl Álvarez Tabla de Contenido 1.- Objetivo ........................................................................................................ 1 2.- Bienvenida .................................................................................................... 1 3.- Condiciones ambientales ............................................................................ 2 4.- Tierras .......................................................................................................... 3 5.- Distribución de Voltaje de Corriente Alterna (VCA) ............................. 7 6.- Distribución de Voltaje de Corriente Directa (VCD) ............................. 10 7.- Cableado de señales .................................................................................... 15 8.- Red de Control ............................................................................................ 22 1.- Objetivo Dar a conocer las especificaciones de instalación del sistema DeltaV, para que se tomen las medidas necesarias para la correcta instalación del sistema. Una buena instalación reducirá los problemas que puedan presentarse; es indispensable que se sigan todas las indicaciones, ya que antes de encender el equipo se realizará una revisión al sistema para determinar si la instalación cumple o no con las normas especificadas, no llevar a cabo las especificaciones puede ser motivo de perdida de la garantía de los equipos, ya que éstos estarían trabajando fuera de las condiciones normales de operación. 2.- Bienvenida Gracias por haber escogido el Sistema DeltaV de Emerson Process Management. Este manual contiene la información necesaria para que el sistema de alimentación y tierra sea instalado adecuadamente antes de instalar su sistema DeltaV. Dentro de este manual se hacen algunas referencias a otras publicaciones y estándares industriales, Usted deberá referirse a esas publicaciones y estándares para completar la información que necesite. Los documentos de referencia son mencionados abajo. 1
  • 2.
    Guía de Instalacióndel Sistema DeltaV Las Hojas de Datos del Producto son muy importantes para poder usar este manual; ya que proveen descripciones, características, beneficios y especificaciones. Por favor lea las especificaciones y téngalas a mano para referencia cuando esté realizando la preparación de su sitio. Los otros manuales de referencia son: - Installing your DeltaV Automation System - Fieldbus Installation in a DeltaV Automation System 3.- Condiciones ambientales El sistema DeltaV debe operar bajo condiciones ambientales controladas, ya que la mayoría de los dispositivos que integran los sistemas son diseñados para trabajar bajo ciertos rangos de humedad, temperatura y clasificación ambiental. Los detalles de los rangos de operación de los productos DeltaV se muestran en la tabla 3.1 de este manual. Polvo y vapores corrosivos pueden causar daños a los componentes electrónicos de los equipos. Los ambientes en los cuales se encuentra el equipo pueden ser clasificados desde G1 hasta Gx, si desea ver la clasificación, descripción y condiciones usted puede consultar la norma ISA-S71.04, Condiciones ambientales para medición de procesos y sistemas de control. Si la temperatura ambiente, de los lugares donde está instalado el equipo, está fuera de los rangos de operación permitidos será necesario el uso de sistemas de aire acondicionado. Las necesidades del uso de estos sistemas son determinadas a través del cálculo de la carga de calor causada por el sistema, el personal, luces y otras fuentes de calor. Cualquier sistema de aire acondicionado o ventilación deberá tener la capacidad para manejar la carga de calor generada en los cuartos de control. La humedad relativa deberá mantenerse dentro de los rangos de operación permitidos. La humedad relativa baja permite la creación de cargas y descargas electrostáticas, lo cual puede dañar los equipo. La humedad relativa alta puede terminar en la condensación de agua en los equipos. Vapores corrosivos en la atmósfera terminarán en condensación y formación de ácidos, la humedad relativa debe ser controlada para prevenir la formación de ácidos, los cuales pueden dañar de forma permanente los equipos. Tabla 3. 1 Especificaciones ambientales para el sistema DeltaV. Device Operating Temperature Storage Temperature Relative Humidity Non condensing Airborne Contaminants Vibration Workstation 10°C to 35°C max. 10°C variación / hr -20°C to 60°C 20% to 80%, Bottom only: 0.25 g, 0-to-peak, 3 Hz to 200 Hz sweep at 2 octaves/min 8-port hub 0°C to 40°C -30°C to 60°C 0% to 90%, 0.075 mm from 10 Hz to 58 Hz, 1.0 g from 58 Hz to 500 Hz 12-port hub 24-port hub 0°C to 50° -30°C to 60°C 0% to 90%, 0.075 mm from 10 Hz to 58 Hz, 1.0 g from 58 Hz to 500 Hz 12 and 24 port twisted pair switch 8-port fiber optic switch 0°C to 50°C -10°C to 70° 10% to 95% non ISA-S71.04-1985 Airborne Contaminants Class G3 1 mm peak-to-peak from 5 Hz to 16 Hz, 0.5 g from 16Hz to 150 Hz System power supplies, controllers, and pre- Series 2 I/O 0°C to 60°C -40°C to 85°C 5% to 95%, ISA-S71.04-1985 Airborne Contaminants Class G3 1 mm peak-to-peak from 5 Hz to 16 Hz, 0.5 g from 16Hz to 150 Hz Series 2 I/O -40°C to 70°C -40°C to 85° 5% to 95%, ISA-S71.04-1985 Airborne Contaminants Class G2 MIL-STD-810D Method 514.3, Category 1, Procedure I Bulk power supplies 0 to 60°C -40°C to 85°C 5% to 95%, Fiber Optic Media Converter 0 to 60° -40°C to 85°C 0% to 95% Fieldbus H1 Carrier -40°C to 70°C -40°C to 85°C 5% to 95%, 2
  • 3.
    Guía de Instalacióndel Sistema DeltaV 4.- Tierras La tierra y la red de tierras son una consideración importante para cualquier sistema de control, ya que éste puede eliminar los efectos causados por potenciales deficiencias en el suministro de las fuentes de alimentación. Pobres o deficientes sistemas y redes de tierras son la causa principal de las fallas presentadas en un sistema de control. Una buena tierra conduce corrientes eléctricas, causadas por fallas, a tierra y puede reducir considerablemente el ruido eléctrico, lo cual causa problemas en las señales de control. El mejor sistema de tierras es aquel que utiliza varios electrodos de tierra (mayor numero de electrodos mejor sistema), y las razones son las siguientes: - Las resistencias de contacto del electrodo a tierra son efectivamente puestas en paralelo, la adición de más electrodos reduce la resistencia del sistema de tierra. - Un electrodo provee un elemento de seguridad. El contacto a tierra no depende de un sólo electrodo. En caso de utilizar un sistema de tierra de varios electrodos, la distancia entre los mismos deberá ser de dos veces la profundidad a la que están enterrados los electrodos. La figura 4.1 muestra un ejemplo de una malla de tierras en una planta. Si la malla existente está accesible, y la resistencia de la malla de tierra hacia la tierra física cumple con los requerimientos, la malla existente puede utilizarse para la tierra del sistema y la instrumentación, en caso de no cumplir será necesaria la implementación de un nuevo sistema de tierras dedicado al sistema de control. Un punto dedicado y cercano al sistema (preferentemente un electrodo) es utilizado como el punto de referencia de tierra. El electrodo de tierra es conectado a un electrodo de la red de tierras de la planta con un cable de calibre 4/0 de cobre y además soldado con cupperwell a los electrodos.. Sin embargo, si la malla de tierras no es accesible o la resistencia no está dentro de las especificaciones, es necesario que se instale una nueva malla de tierras. Para plataformas usadas en el mar, una de las piernas de la plataforma es considerada como la conexión a tierra; aún en plataformas flotantes, la pierna seguirá siendo usada como referencia. El mar es considerado como el punto de tierra. Nota: La resistencia máxima permitida para un sistema de tierras conectado al Sistema DeltaV no deberá exceder tres ohms, idealmente deberá ser menor a un ohm. Es recomendable que el sistema de tierra tenga un ohm o menor entre el sistema de tierras de instrumentación y la tierra real. Una resistencia de un ohm o menor reduce los errores fantasma provocados por caídas de voltaje en los sistemas de tierra. Figura 4.1 Conexión del sistema de tierras para el DeltaV con la malla de tierras de la planta, siempre que la malla cumpla con las especificaciones. Notas: Reja de la planta puesta a tierra Sistema de instrumentos puestos a tierra Conexión de la planta a la reja de tierra Cobre La conexión a tierra puede ser un solo electrodo o cualquier otro sistema de tierra. Todas las líneas de conexiones serán de al menos No. 4 0 AWG (107.2 mm2) Subestacion De Poder 3
  • 4.
    Guía de Instalacióndel Sistema DeltaV Es importante tomar en consideración la distancia que hay entre el sistema de tierras, el sistema de control y la malla de tierras de la planta, ya que de acuerdo a la distancia es el calibre del cable que los une. La tabla 4.1 indica el calibre que deberá emplearse. Es indispensable que el cable que une a la malla de tierras con la barra Tierra de Instrumentación del sistema DeltaV (DIG) SEA FORRADO, este cable no debe ser desnudo, además debe estar soldado con cupperwell, los únicos puntos donde se desnuda el cable es en las conexiones al electrodo de tierra y a la barra DIG. Tabla 4.1 Calibre de cable que deberá ser usado de acuerdo a su longitud. Longitud del cable Calibre del cable Hasta 7.62 m. (25 ft.) 1/0 (50 mm2) Hasta 15.24 m. (50 ft.) 2/0 (70 mm2) Hasta 60.96 m. (200 ft.) 4/0 (120 mm2) La red de tierras es un sistema organizado de cables de tierras que terminan en un sólo punto dedicado al sistema de tierras. Al tener un solo punto de tierras se tendrá una referencia más limpia para el control de las señales dentro del sistema de automatización, esto incrementa la confianza sobre los sistemas que contienen un pobre diseño de red de tierras. Las figuras 4.2 y 4.3 muestran una red de tierras con un solo punto de tierra dedicado, hay que observar la forma en que la parte de CA, la de CD y toda la instrumentación llegan al mismo punto, la barra DIG. La CA esta aterrizada desde el transformador de aislamiento, la CD se aterriza a la salida de cada fuente de CD y todas las barras de shield de los carriers de entradas y salidas también se aterrizan al mismo punto para que toda la instrumentación sea aterrizada aquí y no en campo; y esto es mucho muy importante, la instrumentación deberá ser aterrizada del lado del sistema y nunca en campo. Figura 4.2 Red de tierras con un solo punto de referencia a tierra para un sistema DeltaV pequeño. 4
  • 5.
    Guía de Instalacióndel Sistema DeltaV Figura 4.3 Red de tierras con un solo punto de referencia a tierra para un sistema con varias áreas de operación conectadas a una barra DIG. La tabla 4.2 recomienda una serie de códigos de colores utilizados para el cableado de potencia y tierra del sistema DeltaV, en la mayoría de los casos, es necesario adaptarse a los códigos establecidos en cada una de las empresas en que se instala el DeltaV. Es extremadamente importante ser consistentes en el uso de los códigos de colores para cada tipo de cable usado. También es necesario asegurarse de que todos los cables estén correctamente identificados; si no se es consistente en la aplicación de los códigos y la identificación del cableado se perderá mucho tiempo y hará muy difícil el resolver los problemas que a este respecto se generen más adelante. 5
  • 6.
    Guía de Instalacióndel Sistema DeltaV Tabla 4.2 Código de colores recomendados para el cableado de potencia y tierra. Uso Código americano Código europeo Línea CA Negro Café Neutro CA Blanco Azul Tierra CA Verde Verde con línea amarilla + 12 VDC Azul oscuro Azul oscuro + 12 VDC Redundante Azul oscuro con línea amarilla Azul oscuro con línea amarilla - 12 VDC Negro con línea amarilla Negro con línea amarilla + 24 VDC Rojo Rojo + 24 VDC Redundante Rojo con línea amarilla Rojo con línea amarilla - 24 VDC Negro Negro Tierra de CD a la referencia local de tierra Verde 1 Verde Cable de tierra shield Verde claro Verde claro Sistema de tierra a barra DIG Verde Verde Otro punto importante que debe ser considerado es la manera en que deben aterrizarse los racks y gabinetes que albergan equipo DeltaV, estos también deben estar conectados al mismo punto de referencia que CA, CD e instrumentación, la figura 4.4 ilustra la forma correcta de hacerlo. Al hacer esto correctamente provee protección tanto al personal como al equipo contra daños producidos por descargas eléctricas e interferencias magnéticas. La tierra de los racks y gabinetes deberá permanecer separada de todas las demás tierras de CD. Sí hay un grupo de gabinetes, sus tierras deberán ser dirigidas hacia el gabinete que se encuentre al centro de todos. Figura 4.4 Detalle de una Red de tierra para CA y CD tomando como referencia el código NEC/CSA 1 El verde siempre significa que el cable es una referencia de tierra que no tiene corriente flotante a través de él bajo condiciones normales de operación. 6
  • 7.
    Guía de Instalacióndel Sistema DeltaV La figura 4.5 muestra los requerimientos de tierras para el subsistema de Entradas / Salidas del DeltaV. La barra de shields del carrier de tarjetas de E/S debe conectarse al gabinete. El carrier también puede conectarse a una barra de tierras local. Éstas tierras proveen la tierra eléctrica requerida para las tarjetas de E/S y para la fuente de alimentación intrínsecamente segura. Los cables de alimentación provienen de una fuente de 24 VDC. La terminal de salida negativa de la fuente de 24 VDC esta aterrizada a una barra de tierras local. Figura 4.5 Puntos de conexión a tierra para el subsistema de E/S del DeltaV 5.- Distribución de Voltaje de Corriente Alterna Para mantener una buena calidad de VAC, cosas como perdidas de energía, caídas de voltaje, transcientes, variaciones de voltaje, deberán ser controladas. Es indispensable que la línea de CA suministrada al Sistema DeltaV sea tomada de un sistema de distribución de CA el cual sea aislado de la fuente primaria de alimentación a todas las demás funciones de la planta, tales como motores, variadores de velocidad, alumbrado, etc. Es indispensable el uso de Transformadores de aislamiento2, ya que son un primer elemento de regulación y filtraje de transcientes. Además, cada edificio o sitio que contenga equipo DeltaV deberá tener su propia fuente de alimentación y su propio sistema de respaldo de energía. El sistema DeltaV utiliza una fase de alimentación con un rango de voltaje de 85 a 264 volts y un rango de frecuencia de 47 a 63 Hz. También es posible utilizar tres fases de alimentación, si es este el caso, la carga entre las fases deberá estar balanceada en cada panel de alimentación, minimizando cualquier diferencia de voltaje existente entre el Neutro de CA y los conductores de Tierra. El uso de cualquiera de los sistemas de alimentación a una o tres fases se ilustran en las figuras 5.1 y 5.2. NOTA Es indispensable el uso de un Transformador de aislamiento1, ya que son un primer elemento de regulación y filtraje de transcientes. La fuente de alimentación primaria para el sistema DeltaV deberá estar libre de interrupciones de energía mayores a 20 milisegundos, una interrupción mayor a 20 milisegundos puede causar pérdida del control del proceso, datos de configuración del sistema, y datos del proceso en el sistema DeltaV. La fuente de alimentación deberá ser capaz de proporcionar toda la energía que el sistema demanda y además contar con al menos un 25% adicional de la energía demandada, de esta forma la fuente de alimentación garantizará la entrega de energía demandada por el sistema. 7 2 Un transformador de aislamiento es aquel cuya relación de transferencia de energía es 1:1.
  • 8.
    Guía de Instalacióndel Sistema DeltaV Figura 5.1 Sistema de alimentación de CA a una fase. Figura 5.2 Sistema de alimentación de CA a tres fases. 8
  • 9.
    Guía de Instalacióndel Sistema DeltaV Nota: Para evitar voltajes flotantes entre Línea y Neutro es necesario que se realice una conexión entre Neutro, Tierra, Chasis del transformador de aislamiento y el sistema de tierra, este puente debe hacerse en UNSÓLO PUNTO en todo el sistema de distribución de VCA, y debe ser en el transformador de aislamiento. Esta conexión se ilustra en las figuras 5.2 y 5.1. El voltaje máximo permitido entre Línea y Neutro esde 1 volt. La energía necesaria para el funcionamiento del sistema DeltaV pasando antes por una Fuente de Alimentación Ininterrumpible (UPS) o a través de un Acondicionador de Línea, con su punto de tierras de CA establecido en o cerca del acondicionador o UPS. Los cables de los circuitos de CA son, a través de un Panel Principal de Distribución, introducidos a los Centros de Carga para su distribución a los diferentes elementos del sistema. Nota: La implementación de un Acondicionador de Línea o de una UPS es indispensable, un sistema que carezca de éstos dos elementos no podrá ser puesto en marcha. Dentro de la distribución de CA, se debe hacer énfasis en que los cables de Neutro y Tierra deberán estar aislados del panel de distribución de CA y serán conectados a barras diferentes dentro del panel de distribución de CA. Estas barras son eléctricamente aisladas del panel de distribución de CA y de ellas mismas. A través de todo el sistema, todos los cables de los circuitos de CA (línea, neutro y tierra) son eléctricamente aislados de sus conduits y de sus paneles de distribución de CA. El aislamiento de los cables de los circuitos de CA es mantenido desde la UPS o Transformador de Aislamiento hasta el punto final de conexión de los equipos. Los circuitos de CA siempre son dirigidos a fuentes Bulk, a System Power Supplies, a multicontactos y a receptáculos que deberán ser de tierra aislada, un ejemplo de estos receptáculos se muestra en la figura 5.3 en la cual se ilustra la forma correcta de conectar los cables de línea, neutro y tierra. Figura 5.3 Conexión de los receptáculos de tierra aislada La figura 5.4 muestra la distribución hacia las fuentes de alimentación, estaciones de operación y otros equipos que requieran ser alimentados de VCA, ésta distribución se hace a través de paneles locales de distribución. 9
  • 10.
    Guía de Instalacióndel Sistema DeltaV Figura 5.4 Distribución de VCA para diferentes áreas de la planta. 6.- Distribución de Voltaje de Corriente Directa Los controladores y la electrónica de las tarjetas de Entrada / Salida (E/S) son energizados a través de las Fuentes de Alimentación del Sistema, las cuales proveen 12 VCD para las tarjetas, y 5 y 3.3 VCD para los controladores. Cuando ser realice el diseño de la distribución de alimentación del sistema, deberán realizase las revisiones necesarias para asegurarse de que la distribución de CD puede proporcionar la confiabilidad requerida. La correcta revisión determina si la redundancia de alimentación de CD es necesaria. El empleo de fuentes de respaldo de las fuentes de alimentación Bulk y Fuentes de Alimentación del Sistema puede ser aplicado.. Si se emplean fuentes Bulk redundantes, la fuente de respaldo deberá estar conectada al mismo punto de tierra que la fuente primaria, además puede estar en un gabinete diferente del de la primaria. De cualquier forma, el calibre y longitud del cable deberá ser seleccionado adecuadamente para reducir la caída de voltaje del 2% o menos. Si se usan fuentes de alimentación del sistema redundante, ambas fuentes deberán estar instaladas en el mismo riel. 10
  • 11.
    Guía de Instalacióndel Sistema DeltaV Las fuentes de alimentación Passtrough del sistema son alimentadas por las fuentes Bulk por alguna otra fuente proveniente de la planta. La fuente de alimentación CD/CD passtrough recibe 12 VDC. La fuente pastrough dual puede aceptar tanto 12 VCD como 24 VCD dependiendo la forma de conectar; la figura 6.1 muestra las conexiones de la fuente Passtrough y la figura 6.2 las de la fuente Passtrough Dual en ambas fuentes. Figura 6.1 Conexiones en las fuentes de alimentación Passtrough. Figura 6.2 Conexiones en las fuentes de alimentación Passtrough Dual. La figura 6.3 muestra la manera correcta de conectar la salida de las fuentes y su conexión a tierra cuando son utilizadas fuentes redundantes, hay que observar que a la salida de las fuentes de 12 ó 24 VDC hay colocados diodos que en caso de falla de una de las fuentes evita que se dañe la otra, es recomendable y es requisito para validación el uso de éstos diodos, ó de un dispositivo que realice ésta función ó de fuentes auto protegidas, para evitar un mayor daño al sistema. 11
  • 12.
    Guía de Instalacióndel Sistema DeltaV Figura 6.3 Arreglo de fuentes redundantes. La alimentación al bus de campo es conectada directamente al carrier de las tarjetas de E/S, tal como lo muestra la figura 6.2. Para dispositivos de campo de 24 VCD, se puede utilizar las fuentes Bulk o alguna otra fuente proveniente de la planta. Para los dispositivos de 120 VCA o 240 VCA, puede tomarse la alimentación proveniente del sistema de distribución de VAC. Nota: Se recomienda que el sistema de alimentación de VAC usado para el bus de campo no sea el mismo que se utiliza para el DeltaV. Usando sistemas de alimentación separados aíslan de ruidos eléctricos (los cuales pueden causar retornos de corrientes parásitas en las líneas de alimentación de relevadores, interruptores y otras cargas que típicamente causan picos) al sistema DeltaV. La alimentación del bus de campo puede hacerse utilizando clemas, de preferencia con fusible, la figura 6.4 muestra la forma de hacer este arreglo. No es nada recomendable hacer puentes entre cada conexión, ya que en caso de tener que remover la alimentación de una tarjeta se retirará la de toda la instrumentación que sea parte del mismo bus, lo cual no es nada conveniente. Cada carrier de entradas y salidas tiene dos conexiones de alimentación a campo, esto se puede ver en la figura 6.5 y cada conexión será energizada a través de una clema con fusible, también se muestra cual es la polaridad correcta al conectar los cables provenientes de su clema correspondiente, se puede hacer un puente entre las conexiones del mismo conector, sin embargo es recomendable no hacerlo y que cada conexión tenga su propio circuito de alimentación. 12
  • 13.
    Guía de Instalacióndel Sistema DeltaV Figura 6.4 Alimentación de CD y CA del bus de campo de dispositivos alimentados desde el sistema. Figura 6.5 Detalles de conexión del conector para el bus de campo a través del carrier de E/S. 13
  • 14.
    Guía de Instalacióndel Sistema DeltaV El cableado de campo para las tarjetas discretas de 32 canales es diferente al del resto de las tarjetas de entrada y salida, es éstas últimas, tanto el cable de señal como el de retorno son conectadas directamente al bloque terminal de la tarjeta; para el caso de las tarjetas de 32 canales, todas las terminales del bloque terminal son utilizadas para el cable de señal, no existe un bloque terminal para los retornos, éstos deberán ser conectados a un juego de clemas interconectadas entre sí, las cuales a su vez se conectan al negativo de la fuente de 24 VDC que alimenta la instrumentación de campo, todos los cables de retorno deberán estar correctamente identificados, esto es un requisito requerido por Emerson Process Management. La forma correcta de hacerlo se muestra en la figura 6.6 Figura 6.6 Cableado de alimentación del bus de campo de las tarjetas de 32 canales. Las fuentes de alimentación para el sistema DeltaV cuentan con un relevador para alarmar al sistema en caso de falla de la fuente. Los relevadores de las fuentes pueden ser conectados en serie, e tal manera cuando cualquier fuente que falle podrá disparar una alarma al sistema; ó bien, cada relevador puede ser conectado individualmente a una entrada del sistema, lo cual permitirá saber exactamente cual fuente falló. En cualquiera de los casos será necesario que en el sistema haya una tarjeta discreta de entrada Dry Contact ó Isolated, ambas de 24 VDC, de la cual se tomarán tantos canales como el arreglo lo requiera. Las figuras 6.7 y 6.8 muestran los diferentes arreglos que pueden realizarse. 14
  • 15.
    Guía de Instalacióndel Sistema DeltaV Figura 6.7 Ejemplo de un grupo de fuentes de alimentación al sistema con un sólo punto de alarma. Figura 6.8 Ejemplo de una fuente de alimentación al sistema conectada directamente al sistema. 7.- Cableado de señales. El objetivo de éste capítulo es el de describir algunos métodos para reducir la interferencia eléctrica en las señales y cableado de tierras, y como instalar y rematar el cableado de las señales. He aquí algunas prácticas comunes y recomendaciones que pueden ayudar a instalar un cableado de señales de campo que sea confiable. - Los conectores y bloques terminales del sub-sistema de E/S puede aceptar cables o alambres de un calibre 12 AWG o menor. Cables que estén entre 14 y 18 AWG son los más recomendados. Para seleccionar el cable más adecuado, calcule la corriente máxima esperada en cada cable. Entonces, utilizando los códigos locales, determine el calibre del cable requerido para esa específica corriente. - Multiconductores deberán tener al menos un par de hilos de reserva. Es recomendable que al menos el 20% de los pares sea dejado como reserva. - Para los buses de campo, como Foundation Fieldbus, DeviceNet, Profibus, ASI-Bus, utilice el cable especificado para cada bus. - En bloques terminales externos deje al menos un punto de conexión para equipo de prueba. - Asegúrese de que los cables que están conectados en los bloques terminales permanezcan sujetos a la canaleta que los contiene. - Asegúrese de que todos los empalmes sean soldados y que estén correctamente soldados. - Asegúrese de que los ductos que conducen el cableado no corten el forro de aislamiento de los cables. - Inspeccione las conexiones en los bloques terminales para estar seguro que el aislante de los cables está cortado limpiamente y que no hay aislante debajo de las conexiones de los cables en los bloques terminales. 15
  • 16.
    Guía de Instalacióndel Sistema DeltaV Reducción de interferencia electromagnética (IE) La interferencia electromagnética, puede ser provocada por dispositivos como radios, intercomunicaciones, líneas de alimentación de CA, motores e interruptores de alta capacidad. Los productos del sistema DeltaV cumplen completamente con los estándares electromagnéticos. Están protegidos para reducir la IE a niveles aceptables en condiciones normales de operación. Para minimizar la IE inducida por fuentes externas al DeltaV, tome las siguientes precauciones: - Utilice Fibra óptica tantas ocasiones como sea posible en las comunicaciones de red de control, especialmente entre edificios; ya que la fibra óptica provee protección óptima contra la IE. - Las rutas de los cables deben ser establecidas tan lejos como sea posible de fuentes de IE (motores, generadores, transformadores, etc. ) como una práctica de diseño. - Utilice cables con shield individuales, especifique cable par trenzado para termopares, RTD’s, y electrodos de PH para minimizar ruido eléctrico inducido en señales de mili voltaje de éstos dispositivos. Multiconductores con shield pueden ser empleados para señales de campo de 4-20 mA y 1-5 V. - Las señales de pulso deberán tener rutas diferentes y cables individuales con par trenzado y shield. - El cable de la red de control deberá ser conducido en ductos aterrizados para aislar de la interferencia del ruido externo. - Los cables y shields que no se estén usando deberán conectarse a tierra en uno de sus extremos, asegúrese de que sea en un solo lado. Nota: Para evitar loops de tierra asegúrese de que los shields de todos los cables esténconectados a tierra en un solo extremo. - Siempre aterrice la carcasa de los dispositivos. Los dispositivos de campo pueden conectarse a conduit de metal, a la tubería, ya que éstos están eléctricamente aterrizados. La figura 7.1 es un ejemplo. Figura 7.1 Conexión a tierra de un transmisor de 4-20 mA y del posicionador de una válvula. Protección de las líneas de alimentación de CA. La mejor manera de reducir éste tipo de inducción es separar físicamente poner una coraza alrededor de los conductos que contiene los cables de señal y de los equipos para aislar de las líneas de alimentación, transformadores, equipo rotatoria o algún otro equipo de alto consumo de energía. Para determinar la protección óptima considere lo siguiente: - La tabla 7.1 establece la separación mínima recomendada entre los cables de señal con shield y las líneas de CA. 16
  • 17.
    Guía de Instalacióndel Sistema DeltaV Tabla 7.1 Separación de cables. Voltaje Amperaje Distancia mínima recomendada 0 a 125 volts 0 a 10 amp. 30 cm. 125 a 250 volts 1 a 50 amp. 38 cm. 250 a 440 volts 0 a 200 amp. 46 cm. - Los cables de líneas de CA y de señal no deben correr en forma paralela por más de 6 m. Si es necesario que sea de esta manera, incremente la separación de la siguiente manera: por cada 10 metros aumente 30 cm de separación. - Los cables de señal deben estar separados de aquellos dispositivos que generen campos magnéticos al menos 1.5 m, de 3 a 4.5 m es lo recomendable. Los cables cuyo shield da 26 vueltas por metro alrededor del cable es 5 o 6 veces mejor que aquellos en los que el shield sólo va al paralelo del cable. - Los cables de aquellas señales de bajo nivel deberán correr directamente desde el dispositivos de campo hasta los bloques terminales sin pasar por cajas paso o marshalligs y en ningún momento deberán correr paralelamente a cables de alto amperaje o líneas de voltaje. - Si los cables de alimentación son fuente de interferencia, deberán trenzarse para reducir su propio campo. Cuando cables de alimentación y de señal se cruzan, deberán hacerlo a un ángulo de 90°. Ambos tipos de cable deberán trenzase a ambos lados del cruce durante al menos la distancia establecida en la tabla 7.1. Éstas son sólo algunas prácticas comunes que deben tomarse en cuanta durante el diseño e instalación de las rutas de cables de señal hacia el sistema. Figura 7.2 Cableado y conexiones a tierra conectando directamente al sistema DeltaV 17
  • 18.
    Guía de Instalacióndel Sistema DeltaV Foundation Fieldbus Existen ciertas consideraciones que deben tomarse en cuenta durante la instalación de Fieldbus, ya que el 90% de los problemas es provocado por una mala instalación. Los dispositivos de campo de los segmentos de Fieldbus deberán estar aterrizados sólo al sistema de control, la forma correcta de hacerlo se muestra en la figura 7.3. Para el caso de las tarjetas H1serie 2 se deben tener otros cuidados, los cuales se ilustran en la figura 7.4. En ambos casos se observa como los shields de los spurs se une en un Junction Block, que a su vez los une al shield del cable Trunk, éste a su vez se conecta al shield de la Power Conditioner, que a su vez se conecta a la barra de shields del carrier de tarjetas de E/S , de esta manera el segmento queda aterrizado en un solo punto. Una consideración más es el uso de un circuito de alimentación de 24 VDC para la Power Conditioner, este circuito también se desprende de la fuente de alimentación de 24 VDC para la instrumentación de campo, razón por la cual es indispensable el uso de una clema con fusible para alimentar éste circuito. Se requiere de una clema por cada power conditioner instalada en el sistema. Figura 7.3 Cableado de tierras y alimentación de un segmento Fieldbus. 18
  • 19.
    Guía de Instalacióndel Sistema DeltaV Figura 7.4 Cableado de tierras y alimentación de un segmento Fieldbus con tarjetas H1 Serie 2 Hay varios tipos de cable que pueden ser utilizados, y de acuerdo a la selección se determinará la distancia máxima que puede alcanzar el segmento, el cable que se recomienda es: - Par trenzado, con malla y shield, calibre 18, lo cual permite una longitud de segmento de 1900 metros, con una resistencia de 44 ohms/km Consideraciones para AS-I Bus El Actuator Sensor-Interface (AS-I) es un protocolo de comunicación digital, serial y bidireccional, que interconecta dispositivos sencillos On/Off, tales como actuadores, censores y dispositivos discretos de campo. A través de un par de conductores se proporciona alimentación y señal a los dispositivos. Nota: Es importante que los dispositivos de campo no se conecten directamente a las terminales de la tarjeta, use un cable para conectar la tarjeta AS-I Bus a la fuente de alimentación y otro más para conectar los dispositivos a la fuente de alimentación. Sólo debe haber un punto de tierra como referencia. Este punto de tierra está conectado en la terminal negativa de salida de la fuente de alimentación. Todos los demás dispositivos, el maestro y los dispositivos de campo son aislados de tierra. La electrónica de los dispositivos de campo debe ser aislada de la carcasa de los dispositivos, ésta es una especificación de AS-I Bus. La figura 7.5 muestra la forma en que debe instalarse un segmento AS-I Bus. 19
  • 20.
    Guía de Instalacióndel Sistema DeltaV Figura 7.5 Cableado de tierras y alimentación para AS-I Bus. Existen varios tipos de cable que pueden ser utilizados en un segmento de ASI-Bus, cualquiera que cumpla con las siguientes especificaciones puede ser utilizado: - Resistencia < 90 ohms/m , 167 Khz, y capacitancia < 80 pf/m Consideraciones para Profibus-DP Profibus es un protocolo de comunicación digital, serial y bidireccional, que comunica dispositivos de campo tanto analógicos como discretos a un sistema de control, en éste caso al sistema DeltaV. A través de dos cables se pasa la señal entre los diferentes dispositivos. Cada dispositivo usa una fuente de alimentación externa. La figura 7.6 muestra un ejemplo de la manera en que deben conectarse el sistema de tierras y la alimentación a los dispositivos. La ilustración muestra únicamente un terminador porque el maestro contiene el otro terminador. Si el maestro se encuentra entre los extremos finales del segmento, un terminador deberá ser instalado en cada extremo. La longitud máxima del segmento de pende de la velocidad de comunicación, la tabla 7.2 muestra la distancia máxima de acuerdo al baud rate kbits/s. Tabla 7.2 Longitud del segmento de acuerdo a la velocidad de comunicación Baud rate kbit/ 9.6 19.2 93.75 187.5 500 1500 Longitud 1000 m 1000 m 1000 m 1000 m 400 m 200 m 20
  • 21.
    Guía de Instalacióndel Sistema DeltaV Figura 7.6 Conexiones a tierra y de alimentación para Profibus. La transmisión de información se realiza a través de comunicación serial RS-485, el cable recomendado es aquel que cumpla con las siguientes recomendaciones: - Par trenzado, con malla y shield, calibre 18. Impedancia de 135 a 165 ohms, Capacitancia < 30 pf/m, resistencia del loop <= 110 ohms/km, Consideraciones para DeviceNet DeviceNet, a través de dos cables conecta dispositivos de campo tales como: celdas fotoeléctricas, arrancadores de motores, y drives, a un sistema de control. El DeltaV provee una interfase de control a través de una tarjeta que funciona con el protocolo DeviceNet. Es muy importante que antes de intentar hacer una instalación se conozcan y entiendan las especificaciones establecidas para DeviceNet. La figura 7.7 muestra una instalación típica de tierras y alimentación de DeviceNet. Existen algunos puntos importantes que deben cuidarse: - Una fuente de alimentación debe conectarse al segmento de DeviceNet. - Puede utilizarse más de una fuente de alimentación, esto depende de los requerimientos de corriente de los dispositivos de campo conectados al segmento. - Cuando se utilicen varias fuentes de alimentación, el voltaje común entre las fuentes no debe variar más de 5 VDC entre dos puntos cualquiera del segmento. - La corriente del segmento no deberá exceder las capacidades del cable y de los conectores. - La caída de voltaje entre la fuente de alimentación y cualquier estación asociada no deberá exceder 5 VDC. 21
  • 22.
    Guía de Instalacióndel Sistema DeltaV - Para poder trabajar en grupos de dispositivos, deberá haber uno y sólo un punto de tierra como referencia para la totalidad de la red de dispositivos, y se sugiere que éste punto esté lo más cercano que sea posible al centro del segmento. - Para mantener una señal de buena calidad y una correcta aislamiento de tierra, las especificaciones de DeviceNet describen ciertos métodos de aislamiento diseñados dentro de los dispositivos de campo, Sólo podrán usarse dispositivos que fueron diseñados de acuerdo a las especificaciones de DeviceNet. Figura 7.7 Conexiones a tierra y de alimentación para DeviceNet. 8.- Red de Control La red de control es una red Ethernet Local (LAN) dedicada al sistema DeltaV. Sólo dispositivos (nodos) DeltaV pueden ser conectados a ella. Las redes de control pueden ser tan grandes o pequeñas como las necesidades del sistema DeltaV lo requieran. Como mínimo, la red de control consiste de Hubs y cables que conectan a las estaciones de trabajo con los controladores. Las redes pueden incluir, además de hubs, switchs, extensores de fibra óptica y otros equipos. Un plano de toda la red de control es una ayuda invaluable para la planeación y revisión de la red de control. Este plano deberá indicar todos los cuartos de equipo, cuartos de control y rutas de cableado, el tipo de cable utilizado, y cualquier modificación que pudiera ser necesaria para realizar el cableado de comunicación. 22
  • 23.
    Guía de Instalacióndel Sistema DeltaV Existen ciertos estándares que deben ser respetados cuando se implementa una red LAN, uno de esos estándares es la conocida como la regla 543; ésta regla significa: - 5 Segmentos - 4 Hubs - 3 de los cuatro hubs pueden tener nodos conectados a ellos. El DeltaV funciona con redundancia en comunicaciones, razón por la cual se tiene una Red de control primaria y una secundaria, la figura 8.1 nos muestra un ejemplo de éstas redes, Emerson Process Management especifica el uso de identificaciones de las pistas de control, para ello se recurre a la convención de identificar con capuchones color amarillo los cables de la red primaria, y con capuchones color negro los correspondientes a la red de secundaria. Figura 8.1 Red de control redundante para DeltaV. Otros puntos a considerar son: - Todos los cables deberán ser categoría 5 y con una longitud máxima de 100 metros. - Todos los cables deberán terminar en conectores RJ-45 EIA/TIA/568B en ambos extremos. - Los cables usados para conectar hubs en cascada deberán usar un conector con shield en un extremo y un conector sin shield en el otro extremo. - Conectores sin shield deberán usarse en todas las estaciones de operación. - Conectores con shield serán usados en todos los controladores y todas las conexiones de los hubs a los diferentes nodos. - Todos los cables deberán ser probados para su validación. - Todos los cables deberán estar identificados correctamente, indicando a que nodo corresponden y a que puerto se conectan. Fibra óptica Debido a diferentes circunstancias, en ocasiones es necesario el uso de fibra óptica, si éste es el caso hay ciertas consideraciones que deben cuidarse, ya que son indispensables para su validación: - Todos los cables son multi-modo de 62.5/125 micras, graduada, con armadura y una longitud máxima de 2000 mts. - Todos los cables estarán rematados con conectores ST o SC. - Todos los cables serán probados para verificar su atenuación con un reflectómetro óptico con dominio en el tiempo (OTDR) 23
  • 24.
    Guía de Instalacióndel Sistema DeltaV - Cuando se utilicen convertidores de medio de fibra óptica (multi-modo o uni-modo) deberán seguirse las especificaciones proporcionadas por el proveedor. - Si la distancia entre los diferentes puntos excede los 2000 mts. Deberán utilizarse repetidores o convertidores de medios de largo alcance. - Se deberá entregar un reporte de las pruebas realizadas a cada cable de fibra óptica que refleje los resultados de las pruebas. Servicio de Acceso Remoto (RAS) A partir de la versión 5 no es necesario descargar el Setup Data de cada estación de operación, incluso de las estaciones remotas. Con las estaciones remotas cada dato específico del nodo es replicado by el Servidor de RAS utilizando el Servicio de Auto Actualización (Auto Update Service). Para llevar a cabo esta actualización, el DeltaV transmite los mensajes a través de Multicast. Multicast es la forma más eficiente de mandar mensajes en la red, ya que evita tráfico innecesario que reduce el rendimiento de la red. Par poder establecer una Estación Remota es necesario que todos los equipos (Routers, Bridges, Switchs, etc.) que son utilizados para comunicar la estación remota con la estación que es Servidora de RAS tengan la capacidad de manejar los mensajes a través de Multicast. En algunos equipos éste servicio ya viene habilitado y se hace en forma transparente y automática, en algunos otros es necesario habilitarlo y en otros más es necesario habilitar otros servicios que complementándose realizan el servicio de Multicast. 24