Taller de tecnología 4: Materiales y procesos constructivos
Profesor Arqto. Luis Goldsack Jarpa



Clase 3: Tipologías constructivas
NECESIDADES DEL               ACTIVIDADES DEL HOMBRE Y DE                 IMPOSICIONES DEL
                          HOMBRE                        LA COMUNIDAD EN EL MEDIO                    MEDIO




REQUERIMIENTOS                    DEFINEN AMBIENTES ARQUITECTONICOS ADECUADOS A DICHAS ACTIVIDADES.
DEL EDIFICIO                      EXPRESION MATERIAL DE UN CONJUNTO DE VARIABLES INTERACTUANTES QUE BUSCA
                                  RESPONDER A IMPOSICIONES, NECESIDADES Y REQUERIMIENTOS




                                  SOLUCIONES CONSTRUCTIVAS
                                  MEDIOS PARA MATERIALIZAR LOS ESPACIOS QUE PROYECTAMOS MEDIANTE:
                                  EL EMPLEO DE MATERIALES
                                  METODOS DE EJECUCION
                                  RESPETO DE PRINCIPIOS FISICOS.



            FUNCION ESTRUCTURAL                                                                MATERIALES
PROPORCIONAR EQUILIBRIO ESTABLE A LA CONSTRUCCION E                          ELEGIDOS Y EMPLEADOS APROVECHANDO SUS
INMOBILIDAD ESPACIAL FRENTE A FUERZAS QUE ACTUAN                             PROPIEDADES INTRINSECAS Y LAS QUE RESULTAN DE SER
PROPIEDADES MECANICAS                                                        UTILIZADOS EN FORMA CONJUNTA
                                                                             PROPIEDADES MECANICAS
                                                                             PROPIEDADES FISICAS
                                                                             PROPIEDADES TECNOLOGICAS
          FUNCION DE CERRAMIENTO
PROPORCIONAR LA DELIMITACION FISICA AL ESPACIO                                          METODOS DE EJECUCION
ACONDICIONAMIENTO FISICO - AMBIENTAL
PROPIEDADES MECANICAS                                                        DETERMINADOS POR LA ELECCION DEL MATERIAL,
PROPIEDADES FISICAS                                                          MODALIDAD DE LA MANO DE OBRA, EQUIPAMIENTO
ROPIEDADES TECNOLOGICAS                                                      MECANICO Y TECNOLOGICO DISPONIBLE, TIPO REPETITIVO
                                                                             O NO DE LA OPERACIÓN Y RECURSO ECONOMICO.


                                                                                          PRINCIPIOS FISICOS
           TIPOLOGIAS MATERIALES
                                                                             PRINCIPIOS A SATISFACER PARA PERMANECER EN EL
MACIZAS      : A BASE DE MUROS RESISTENTES.                                  TIEMPO Y LUGAR CONTRARRESTANDO LA ACCION DE LA
ENTRAMADOS: A BASE DE ESQUELETOS RESISTENTES.                                GRAVEDAD – SISMO, AGENTES CLIMATICOS, DETERIORO
LAMINARES   : A BASE DE SUPERFICIES RESISTENTES.                             POR USO, ETC.
Casa Fontt  Colina, Región metropolitana de Santiago, Chile




Alquinta   Belmar   Brady   Castillo   Contreras   Jara   Morales   Rossel   Torres   Valderrama   Venegas
1. Presentación del caso de estudio
1.1 Ficha técnica



            Cuadro Resumen                                                                Cuadro Resumen
            Definición Caso de Estudio                                                    Entidades Involucradas

            A Datos generales                                                             A Entidades involucradas.
            01 Nombre caso de estudio:                                                    01 Propietario :
                Casa Fontt                                                                   Minvu
                                                                                          02 Mandante:
            02 Programa Actual :
                                                                                              Municipalidad de Colina
                 Inmueble en Deterioro.                                                   03 Encargado:
            03 Usos Anteriores:
                                                                                             Felipe Croxato
                 Vivienda
                                                                                          04 Casa de Estudios:
            04 Año de Construcción:
                                                                                            Universidad de Chile Facultad
                 1890
                                                                                          de Arquitectura y Urbanismo
            05 Programa Propuesto:
                Centro Cultural para la Juventud
            06 Proyectos en curso ( aún no realizado):
               Cancha deportiva en sector
               aledaño
            B Localización
            01 País:
                Chile.
            02 Región:
                 Metropolitana.
            03Provincia:
                Chacabuco
            04Comuna:
                Colina.
            05Loteo:
                San Antonio de Comaico

 :: CASA FONTT                                                                                                                                            ::ANÁLISIS PATOLÓGICO
  Colina, Región metropolitana de Santiago, Chile    Ficha técnica
  U. DE CHILE   _ FAC. DE ARQUITECTURA Y URBANISMO         _Alquinta   _Belmar   _Brady   _Castillo   _Contreras   _Jara   _Morales   _Rossel   _Torres    _Valderrama   _Venegas
4. Levantamientos de información
4.3 Levantamiento Imagen Actual




              A continuación se presentan una serie de fotografías de la Casa Fontt, que muestran el estado
 en que se encuentra la vivienda.
              Se muestran imágenes interiores y exteriores de todos los recintos, dando cuenta del deterioro de
 ciertos componentes de la construcción, así como las buenas condiciones en que se encuentran algunos
 recintos.
              Todas las fotografías aquí presentadas fueron tomadas por alumnos del curso Patología del
 Edificio, impartido por la Universidad de Chile, durante el segundo semestre del año 2005.




  :: CASA FONTT                                                                                                                                          ::ANÁLISIS PATOLÓGICO
  Colina, Región metropolitana de Santiago, Chile    Levantamiento Imagen actual de la vivienda
  U. DE CHILE   _ FAC. DE ARQUITECTURA Y URBANISMO        _Alquinta   _Belmar   _Brady   _Castillo   _Contreras   _Jara   _Morales   _Rossel   _Torres    _Valderrama   _Venegas
4. Levantamientos de información
    4.3 Levantamiento Imagen Actual




Panorámica terreno




       :: CASA FONTT                                                                                                                                          ::ANÁLISIS PATOLÓGICO
       Colina, Región metropolitana de Santiago, Chile    Levantamiento Imagen actual de la vivienda
       U. DE CHILE   _ FAC. DE ARQUITECTURA Y URBANISMO        _Alquinta   _Belmar   _Brady   _Castillo   _Contreras   _Jara   _Morales   _Rossel   _Torres    _Valderrama   _Venegas
4. Levantamientos de información
4.3 Levantamiento Imagen Actual




                                   Capilla desde altura




                               Capilla. Toma posterior



  :: CASA FONTT                                                                                                                                               ::ANÁLISIS PATOLÓGICO
  Colina, Región metropolitana de Santiago, Chile         Levantamiento Imagen actual de la vivienda
  U. DE CHILE   _ FAC. DE ARQUITECTURA Y URBANISMO             _Alquinta   _Belmar   _Brady   _Castillo   _Contreras   _Jara   _Morales   _Rossel   _Torres    _Valderrama   _Venegas
4. Levantamientos de información
    4.3 Levantamiento Imagen Actual




Casa. Vista Nor Oriente




      :: CASA FONTT                                                                                                                                           ::ANÁLISIS PATOLÓGICO
       Colina, Región metropolitana de Santiago, Chile    Levantamiento Imagen actual de la vivienda
       U. DE CHILE   _ FAC. DE ARQUITECTURA Y URBANISMO        _Alquinta   _Belmar   _Brady   _Castillo   _Contreras   _Jara   _Morales   _Rossel   _Torres    _Valderrama   _Venegas
4. Levantamientos de información
   4.3 Levantamiento Imagen Actual




Vista Norte




     :: CASA FONTT                                                                                                                                           ::ANÁLISIS PATOLÓGICO
     Colina, Región metropolitana de Santiago, Chile     Levantamiento Imagen actual de la vivienda
      U. DE CHILE   _ FAC. DE ARQUITECTURA Y URBANISMO        _Alquinta   _Belmar   _Brady   _Castillo   _Contreras   _Jara   _Morales   _Rossel   _Torres    _Valderrama   _Venegas
4. Levantamientos de información
     4.3 Levantamiento Imagen Actual




Panorámica Patio Interior




       :: CASA FONTT                                                                                                                                           ::ANÁLISIS PATOLÓGICO
        Colina, Región metropolitana de Santiago, Chile    Levantamiento Imagen actual de la vivienda
        U. DE CHILE   _ FAC. DE ARQUITECTURA Y URBANISMO        _Alquinta   _Belmar   _Brady   _Castillo   _Contreras   _Jara   _Morales   _Rossel   _Torres    _Valderrama   _Venegas
4. Levantamientos de información
4.3 Levantamiento Imagen Actual




                                   Acceso principal



  :: CASA FONTT                                                                                                                                           ::ANÁLISIS PATOLÓGICO
  Colina, Región metropolitana de Santiago, Chile     Levantamiento Imagen actual de la vivienda
  U. DE CHILE   _ FAC. DE ARQUITECTURA Y URBANISMO         _Alquinta   _Belmar   _Brady   _Castillo   _Contreras   _Jara   _Morales   _Rossel   _Torres    _Valderrama   _Venegas
4. Levantamientos de información
    4.3 Levantamiento Imagen Actual




Panorámica Conjunto. Zona Acceso




      :: CASA FONTT                                                                                                                                          ::ANÁLISIS PATOLÓGICO
      Colina, Región metropolitana de Santiago, Chile    Levantamiento Imagen actual de la vivienda
      U. DE CHILE   _ FAC. DE ARQUITECTURA Y URBANISMO        _Alquinta   _Belmar   _Brady   _Castillo   _Contreras   _Jara   _Morales   _Rossel   _Torres    _Valderrama   _Venegas
4. Levantamientos de información _ 4.4 levantamiento dimensional
4.4.1 Planta general conjunto




  :: CASA FONTT                                                                                                                                          ::ANÁLISIS PATOLÓGICO
  Colina, Región metropolitana de Santiago, Chile    Levantamiento Dimensional
  U. DE CHILE   _ FAC. DE ARQUITECTURA Y URBANISMO        _Alquinta   _Belmar   _Brady   _Castillo   _Contreras   _Jara   _Morales   _Rossel   _Torres    _Valderrama   _Venegas
4. Levantamientos de información _ 4.4 levantamiento dimensional
4.4.2 Planta casona Fontt




  :: CASA FONTT                                                                                                                                          ::ANÁLISIS PATOLÓGICO
  Colina, Región metropolitana de Santiago, Chile    Levantamiento Dimensional
  U. DE CHILE   _ FAC. DE ARQUITECTURA Y URBANISMO        _Alquinta   _Belmar   _Brady   _Castillo   _Contreras   _Jara   _Morales   _Rossel   _Torres    _Valderrama   _Venegas
4. Levantamientos de información _ 4.4 levantamiento dimensional
4.4.2 Planta Zona 1




  :: CASA FONTT                                                                                                                                          ::ANÁLISIS PATOLÓGICO
  Colina, Región metropolitana de Santiago, Chile    Levantamiento Dimensional
  U. DE CHILE   _ FAC. DE ARQUITECTURA Y URBANISMO        _Alquinta   _Belmar   _Brady   _Castillo   _Contreras   _Jara   _Morales   _Rossel   _Torres    _Valderrama   _Venegas
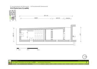
4. Levantamientos de información _ 4.4 levantamiento dimensional
4.4.2 Planta Zona 2 (capilla)




  :: CASA FONTT                                                                                                                                          ::ANÁLISIS PATOLÓGICO
  Colina, Región metropolitana de Santiago, Chile    Levantamiento Dimensional
  U. DE CHILE   _ FAC. DE ARQUITECTURA Y URBANISMO        _Alquinta   _Belmar   _Brady   _Castillo   _Contreras   _Jara   _Morales   _Rossel   _Torres    _Valderrama   _Venegas
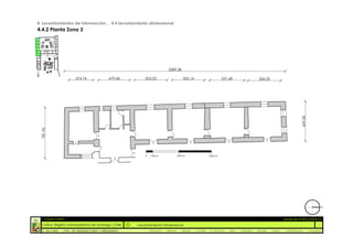
4. Levantamientos de información _ 4.4 levantamiento dimensional
4.4.2 Planta Zona 3




  :: CASA FONTT                                                                                                                                          ::ANÁLISIS PATOLÓGICO
  Colina, Región metropolitana de Santiago, Chile    Levantamiento Dimensional
  U. DE CHILE   _ FAC. DE ARQUITECTURA Y URBANISMO        _Alquinta   _Belmar   _Brady   _Castillo   _Contreras   _Jara   _Morales   _Rossel   _Torres    _Valderrama   _Venegas
4. Levantamientos de información _ 4.4 levantamiento dimensional
4.4.2 Planta Zona 4




  :: CASA FONTT                                                                                                                                          ::ANÁLISIS PATOLÓGICO
  Colina, Región metropolitana de Santiago, Chile    Levantamiento Dimensional
  U. DE CHILE   _ FAC. DE ARQUITECTURA Y URBANISMO        _Alquinta   _Belmar   _Brady   _Castillo   _Contreras   _Jara   _Morales   _Rossel   _Torres    _Valderrama   _Venegas
4. Levantamientos de información _ 4.4 levantamiento dimensional
4.4.2 Planta Zona 5




  :: CASA FONTT                                                                                                                                          ::ANÁLISIS PATOLÓGICO
  Colina, Región metropolitana de Santiago, Chile    Levantamiento Dimensional
  U. DE CHILE   _ FAC. DE ARQUITECTURA Y URBANISMO        _Alquinta   _Belmar   _Brady   _Castillo   _Contreras   _Jara   _Morales   _Rossel   _Torres    _Valderrama   _Venegas
4. Levantamientos de información _ 4.4 levantamiento dimensional
4.4.2 Planta Zona 6




  :: CASA FONTT                                                                                                                                          ::ANÁLISIS PATOLÓGICO
  Colina, Región metropolitana de Santiago, Chile    Levantamiento Dimensional
  U. DE CHILE   _ FAC. DE ARQUITECTURA Y URBANISMO        _Alquinta   _Belmar   _Brady   _Castillo   _Contreras   _Jara   _Morales   _Rossel   _Torres    _Valderrama   _Venegas
4. Levantamientos de información _ 4.4 levantamiento dimensional
4.4.2 Planta Zona 7




  :: CASA FONTT                                                                                                                                          ::ANÁLISIS PATOLÓGICO
  Colina, Región metropolitana de Santiago, Chile    Levantamiento Dimensional
  U. DE CHILE   _ FAC. DE ARQUITECTURA Y URBANISMO        _Alquinta   _Belmar   _Brady   _Castillo   _Contreras   _Jara   _Morales   _Rossel   _Torres    _Valderrama   _Venegas
4. Levantamientos de información _ 4.4 levantamiento dimensional
4.4.3 Elevaciones

Elevación Sur capilla
a partir de ortofotos




  :: CASA FONTT                                                                                                                                          ::ANÁLISIS PATOLÓGICO
  Colina, Región metropolitana de Santiago, Chile    OrtoFotos
  U. DE CHILE   _ FAC. DE ARQUITECTURA Y URBANISMO        _Alquinta   _Belmar   _Brady   _Castillo   _Contreras   _Jara   _Morales   _Rossel   _Torres    _Valderrama   _Venegas
4. Levantamientos de información _ 4.4 levantamiento dimensional
4.4.3 Elevaciones

Elevación Sur capilla




                                                                                                                                                                      225
                                                                              161
                                                                              119




                                                                                                  173
                                                           135
                                                                                                                                                66




                                                                                                                                                                              680
                                                                              218




                                                                                                                                                                      417
                                                                                                        257
                                                     236




                                                                                                                                                           117
  :: CASA FONTT                                                                                                                                                    ::ANÁLISIS PATOLÓGICO
  Colina, Región metropolitana de Santiago, Chile            OrtoFotos
  U. DE CHILE   _ FAC. DE ARQUITECTURA Y URBANISMO                _Alquinta    _Belmar   _Brady    _Castillo   _Contreras   _Jara   _Morales   _Rossel   _Torres    _Valderrama     _Venegas
4. Levantamientos de información _ 4.4 levantamiento dimensional
4.4.3 Elevaciones

Elevación Oriente capilla
a partir de ortofotos




  :: CASA FONTT                                                                                                                                          ::ANÁLISIS PATOLÓGICO
  Colina, Región metropolitana de Santiago, Chile    OrtoFotos
  U. DE CHILE   _ FAC. DE ARQUITECTURA Y URBANISMO        _Alquinta   _Belmar   _Brady   _Castillo   _Contreras   _Jara   _Morales   _Rossel   _Torres    _Valderrama   _Venegas
4. Levantamientos de información _ 4.4 levantamiento dimensional
4.4.3 Elevaciones

Elevación Oriente capilla
a partir de ortofotos
232




                                                                                                                                                                                                  220
                                                                                                                                                                                                  24
33




                                                  208                                 122                                       121
                                                           7 13                                                                                                              120
                                                           35




                                                                                                                                                                                                  349
                                                                                                                       156
                                                                              159




                                                                                                                                        143
                                                                                              148
417




                                                                                                                                                                                      232
                                        284




                                                                                                                                                                       217
                                                           227




                                                                                                                                                                                            112
                                                                                                                                                                                            85
          163
                120




                                                                                                                                                                                                        1°
                                                  165                                 94                                        90                                            88




      :: CASA FONTT                                                                                                                                                    ::ANÁLISIS PATOLÓGICO
      Colina, Región metropolitana de Santiago, Chile             OrtoFotos
      U. DE CHILE     _ FAC. DE ARQUITECTURA Y URBANISMO               _Alquinta    _Belmar   _Brady   _Castillo   _Contreras   _Jara   _Morales   _Rossel   _Torres    _Valderrama     _Venegas
4. Levantamientos de información _ 4.4 levantamiento dimensional
4.4.3 Elevaciones

Elevación Sur bodega
a partir de ortofotos




  :: CASA FONTT                                                                                                                                          ::ANÁLISIS PATOLÓGICO
  Colina, Región metropolitana de Santiago, Chile    OrtoFotos
  U. DE CHILE   _ FAC. DE ARQUITECTURA Y URBANISMO        _Alquinta   _Belmar   _Brady   _Castillo   _Contreras   _Jara   _Morales   _Rossel   _Torres    _Valderrama   _Venegas
4. Levantamientos de información _ 4.4 levantamiento dimensional
4.4.3 Elevaciones

Elevación Sur Bodega
a partir de ortofotos




                                    223                                                               221

                                          68




                                                                                                                                                                    328
                              408




                                                                                                                                               257
                      7°




                                                                                           646

  :: CASA FONTT                                                                                                                                           ::ANÁLISIS PATOLÓGICO
  Colina, Región metropolitana de Santiago, Chile    OrtoFotos
  U. DE CHILE   _ FAC. DE ARQUITECTURA Y URBANISMO        _Alquinta   _Belmar   _Brady   _Castillo   _Contreras   _Jara   _Morales   _Rossel    _Torres    _Valderrama    _Venegas
4. Levantamientos de Información _ 4.5 Levantamiento técnico constructivo
4.5.1 Muros


Si bien la mayoría de los muros de la casa
son construidos en adobe estos se pueden
clasificar en 3 categorías.

Estas categorías están dadas tanto por su
periodo de construcción como en la
manera en que están construidos




Tipo A
Muros de la casa inicial

Tipo B
Muros de la Capilla

Tipo C
Muros de la bodega




  :: CASA FONTT                                                                                                                                          ::ANÁLISIS PATOLÓGICO
  Colina, Región metropolitana de Santiago, Chile    Levantamiento Técnico Constructivo
  U. DE CHILE   _ FAC. DE ARQUITECTURA Y URBANISMO        _Alquinta   _Belmar   _Brady   _Castillo   _Contreras   _Jara   _Morales   _Rossel   _Torres    _Valderrama   _Venegas
4. Levantamientos de Información _ 4.5 Levantamiento técnico constructivo
4.5.1 Muros


Tipo A


Este muro es construido sobre
una fundación de piedras
unidas entre ellas por un
mortero de cemento, sobre                            Hiladas de adobe

esto se colocan hasta 4                              en aparejo tipo
                                                     ingles

hiladas de ladrillos de arcilla
cocida hechos a mano tipo
muralla. Con estas hiladas se
                                                     3 hiladas de Adobes
busca el plano horizontal




                                                                              34
                                                     con aparejo de
                                                     cabeza
para la casa y marcan el
nivel del piso interior. Es así                      Tramo de Ladrillos
                                                     con un aparejo tipo
como en el lado norte de la                          ingles unidos por un




                                                                              30
                                                     mortero de pega de
casa solo existen 2 hiladas ya                       cemento.
                                                     con este tramo se
que es mas alto el terreno.                          busca el plano
                                                     horizontal para
Sobre      estas  hiladas   de                       nivelar la casa


ladrillos comienza el muro de                        Cimiento y



                                                                              45
                                                     Sobrecimiento de
adobe. Las primeras 3 hiladas                        mamposteria unidas
                                                     por mortero de
se usa un aparejo de cabeza                          cemento
                                                     se usan piedras de

y después se continúa con un                         menor tamaño y
                                                     con mayor trabajo
                                                     para nivelar
aparejo tipo inglés




  :: CASA FONTT                                                                                                                                                  ::ANÁLISIS PATOLÓGICO
  Colina, Región metropolitana de Santiago, Chile        Levantamiento Técnico Constructivo
  U. DE CHILE   _ FAC. DE ARQUITECTURA Y URBANISMO                _Alquinta   _Belmar   _Brady   _Castillo   _Contreras   _Jara   _Morales   _Rossel   _Torres    _Valderrama   _Venegas
4. Levantamientos de Información _ 4.5 Levantamiento técnico constructivo
4.5.1 Muros


                                                                                    Mortero de Barro
Tipo A



                                                                                                        Taco de madera de 5’’x5’’ en bruto



                                                                                                                          Revestimiento Alfeizar en Madera, de
                                                                                                                          Álamo



    Bloque de adobe 32x60x10 cm.




         Ladrillos de arcilla
         cocida hechos a mano
         7x22,5x45 cm.


                                                                                                                                        Rocas de Fundación
                          Mortero de Cemento




  :: CASA FONTT                                                                                                                                          ::ANÁLISIS PATOLÓGICO
  Colina, Región metropolitana de Santiago, Chile    Levantamiento Técnico Constructivo
  U. DE CHILE   _ FAC. DE ARQUITECTURA Y URBANISMO        _Alquinta   _Belmar   _Brady   _Castillo   _Contreras   _Jara   _Morales   _Rossel   _Torres    _Valderrama   _Venegas
4. Levantamientos de Información _ 4.5 Levantamiento técnico constructivo
4.5.1 Muros


Tipo A




Esta tipología de muro sólo lleva un refuerzo
superior construido en una carrera continua o
escalerilla de madera que permite darle
continuidad al muro, reforzar las esquinas
además de permitir que la estructura de techo
sea clavada a ésta




Las esquinas en todos los tipo de muros se
construyen con los bloques trabado para darle
mayor resistencia independiente del tipo de
aparejo usado en el muro. Las esquinas llevan
también refuerzos en madera o esquineros.
Cada seis o diez hiladas




  :: CASA FONTT                                                                                                                                          ::ANÁLISIS PATOLÓGICO
  Colina, Región metropolitana de Santiago, Chile    Levantamiento Técnico Constructivo
  U. DE CHILE   _ FAC. DE ARQUITECTURA Y URBANISMO        _Alquinta   _Belmar   _Brady   _Castillo   _Contreras   _Jara   _Morales   _Rossel   _Torres    _Valderrama   _Venegas
4. Levantamientos de Información _ 4.5 Levantamiento técnico constructivo
4.5.1 Muros


Tipo B




Muro construido sobre una fundación de
grandes rocas. Sobre esto, sin ningún tipo de
sobrecimiento o protección contra la humedad,
se comienza el muro de adobe con un aparejo
de cabeza. Luego de 11 hiladas aparece un
refuerzo horizontal compuesto de una escalerilla
de madera, la cual se repite 10 hiladas mas
arriba, a la cual se clava parte de la estructura
del alero.
Dos hiladas mas arriba aparece la carrera
superior constituida por 2 cuartones unidos,
cada cierto tiempo, transversalmente por tablas
menores a la cual se clava la estructura de
techumbre y colabora en amarrar y rigidizar el
muro.
                                                                                                                                                  0   10    20   30   40   50




  :: CASA FONTT                                                                                                                                            ::ANÁLISIS PATOLÓGICO
  Colina, Región metropolitana de Santiago, Chile    Levantamiento Técnico Constructivo
  U. DE CHILE   _ FAC. DE ARQUITECTURA Y URBANISMO        _Alquinta   _Belmar   _Brady   _Castillo   _Contreras   _Jara   _Morales   _Rossel   _Torres      _Valderrama         _Venegas
4. Levantamientos de Información _ 4.5 Levantamiento técnico constructivo
4.5.1 Muros


Tipo B




                                                                                                                               Enlucido de Yeso y Cal entre 1 y 2
                                                                                                                               cm. de espesor



                  Bloque de adobe 32x60x10 cm.
                                                                                                                              Escalerilla de refuerzo




                                                                                                                              Mortero de Barro




                                                                                                                                Rocas de Fundación




  :: CASA FONTT                                                                                                                                          ::ANÁLISIS PATOLÓGICO
  Colina, Región metropolitana de Santiago, Chile    Levantamiento Técnico Constructivo
  U. DE CHILE   _ FAC. DE ARQUITECTURA Y URBANISMO        _Alquinta   _Belmar   _Brady   _Castillo   _Contreras   _Jara   _Morales   _Rossel   _Torres    _Valderrama   _Venegas
4. Levantamientos de Información _ 4.5 Levantamiento técnico constructivo
4.5.1 Muros


Tipo B




Esta tipología presenta por una cara un elucido
a la cal sobre revoque de barro con paja por el
lado poniente y por el lado Oriente y Sur (que                                                       Foto Fachada Poniente

da a la plaza de acceso) el mismo enlucido a
la cal pintado color rojo colonial sobre revoque
de barro con paja y un revoque de
cemento/arena en la parte inferior imitando un
sobrecimiento, además de presentar mayor
terminación en los aleros.




                                                                                                     Foto Fachada Sur y Oriente


  :: CASA FONTT                                                                                                                                           ::ANÁLISIS PATOLÓGICO
  Colina, Región metropolitana de Santiago, Chile    Levantamiento Técnico Constructivo
  U. DE CHILE   _ FAC. DE ARQUITECTURA Y URBANISMO        _Alquinta   _Belmar   _Brady   _Castillo    _Contreras   _Jara   _Morales   _Rossel   _Torres    _Valderrama   _Venegas
4. Levantamientos de Información _ 4.5 Levantamiento técnico constructivo
4.5.1 Muros


Tipo C
                                                                      Refuerzo de
                                                                        Madera


                                                                      Refuerzo de
                                                                        Madera




El muro de la bodega presenta características
muy similares a las del caso B pero se
diferencian en que en este caso el cimiento de
piedra sube entre 20 y 15 cm. sobre el nivel de
terreno natural. Además presenta un refuerzo                          Refuerzo de
                                                                        Madera
extra de madera a un metro de altura.




                                                                      Sobrecimiento




  :: CASA FONTT                                                                                                                                          ::ANÁLISIS PATOLÓGICO
  Colina, Región metropolitana de Santiago, Chile    Levantamiento Técnico Constructivo
  U. DE CHILE   _ FAC. DE ARQUITECTURA Y URBANISMO        _Alquinta   _Belmar   _Brady   _Castillo   _Contreras   _Jara   _Morales   _Rossel   _Torres    _Valderrama   _Venegas
4. Levantamientos de Información _ 4.5 Levantamiento técnico constructivo
4.5.2 Cubierta




Al Igual que en el caso de los muros los
techos se pueden clasificar en 3 topologías
dada su condición actual




Tipo A

Tipo B

Tipo C




  :: CASA FONTT                                                                                                                                          ::ANÁLISIS PATOLÓGICO
  Colina, Región metropolitana de Santiago, Chile    Levantamiento Técnico Constructivo
  U. DE CHILE   _ FAC. DE ARQUITECTURA Y URBANISMO        _Alquinta   _Belmar   _Brady   _Castillo   _Contreras   _Jara   _Morales   _Rossel   _Torres    _Valderrama   _Venegas
4. Levantamientos de Información _ 4.5 Levantamiento técnico constructivo
4.5.2 Cubierta


Tipo A


Esta tipología de techo esta compuesta
de una estructura en base a cerchas
cuyas piernas y tirante inferior son de
roble aserrado en bruto 6’’x6’’, también
presentan un tirante intermedio en roble
de igual categoría pero menor
dimensión. Estas cerchas son amarradas
por una viga cumbrera y en la base.
Sobre las piernas existe un encoliguado,
el cual sirve de soporte para un
ensordinado de barro y paja, sobre el
cual se asientan las tejas de arcilla
cocida hechas a mano.

Junto con esto es posible encontrar un
alero de estructura independiente el
resto de la techumbre, sobre esta
estructura hay un entablado de álamo
                                                                      0   10   20   30   40   50
en tablas de 1’’x 5’’ en bruto. Sobre este
entablado se repite el mismo esquema
de ensordinado y tejas.




  :: CASA FONTT                                                                                                                                                    ::ANÁLISIS PATOLÓGICO
  Colina, Región metropolitana de Santiago, Chile    Levantamiento Técnico Constructivo
  U. DE CHILE   _ FAC. DE ARQUITECTURA Y URBANISMO        _Alquinta   _Belmar       _Brady         _Castillo   _Contreras   _Jara   _Morales   _Rossel   _Torres    _Valderrama   _Venegas
4. Levantamientos de Información _ 4.5 Levantamiento técnico constructivo
4.5.2 Cubierta                                                                                                  Pierna cercha 6''x6'' Roble

                                                                                                                                                            Tejas de arcilla cocida
Tipo A                                                                                                                                                          Encoliguado
                                                     Tirante cercha 6''x2'' Roble

                                                                                                                                                                        Ensordinado
                                                                                                                                                                        de barro con
                                                                                                                                                                        paja




                                                                                 Tirante cercha 6''x6'' Roble


                                                                                         Escalerilla

                                                                                           Entablado 6’’x1’’ de Álamo en bruto




Foto Encoliguado




  :: CASA FONTT                                                                                                                                                     ::ANÁLISIS PATOLÓGICO
  Colina, Región metropolitana de Santiago, Chile            Levantamiento Técnico Constructivo
  U. DE CHILE   _ FAC. DE ARQUITECTURA Y URBANISMO                 _Alquinta   _Belmar     _Brady   _Castillo   _Contreras   _Jara   _Morales   _Rossel   _Torres    _Valderrama   _Venegas
4. Levantamientos de Información _ 4.5 Levantamiento técnico constructivo
4.5.2 Cubierta


Tipo B




Esta tipología es muy similar a la anterior
solo que se diferencia en que el
entablado no solo cubre la estructura
del alero sino hasta la cumbrera, pero el
alero esta cubierto por tablas de mejor
calidad y el resto incluso se han usado
“tapas” para su elaboración. Este tipo
habla de un método constructivo
posterior al del encoliguado por lo que
se presume que esta tipología a sido
aplicada como reparación en muchos
casos.


                                                                 0    10   20   30   40   50




  :: CASA FONTT                                                                                                                                                ::ANÁLISIS PATOLÓGICO
  Colina, Región metropolitana de Santiago, Chile    Levantamiento Técnico Constructivo
  U. DE CHILE   _ FAC. DE ARQUITECTURA Y URBANISMO        _Alquinta    _Belmar       _Brady    _Castillo   _Contreras   _Jara   _Morales   _Rossel   _Torres    _Valderrama   _Venegas
4. Levantamientos de Información _ 4.5 Levantamiento técnico constructivo
  4.5.2 Cubierta


  Tipo B                   Pierna cercha 6''x6'' Roble

                                                         Tejas de arcilla cocida

Tirante                                                     Entablado 6’’x1’’ de Alamo en bruto
cercha
6''x2''                                                         Ensordinado
Roble                                                           de barro con
                                                                paja




      Tirante cercha 6''x6'' Roble

                         Escalerilla




                                                                                                                                                                 Foto Entablado




    :: CASA FONTT                                                                                                                                              ::ANÁLISIS PATOLÓGICO
     Colina, Región metropolitana de Santiago, Chile       Levantamiento Técnico Constructivo
     U. DE CHILE   _ FAC. DE ARQUITECTURA Y URBANISMO           _Alquinta   _Belmar   _Brady   _Castillo   _Contreras   _Jara   _Morales   _Rossel   _Torres    _Valderrama   _Venegas
4. Levantamientos de Información _ 4.5 Levantamiento técnico constructivo
4.5.2 Cubierta


Tipo C




Manteniendo el mismo sistema de
cerchas y entablado del Tipo B, se
agrega un listoneado en el sentido
transversal a las cerchas sobre el cual se
clavan     las    planchas    de     fierro
galvanizado o en su ausencia planchas
de fibro cemento sobre la bodega.

En este caso se prescinde del
ensordinado de barro y paja. De igual
manera que el Tipo B se presume que
esta tipología surge de una intervención
o reparación posterior, menos en el
caso de bodega (volumen a la derecha
del acceso), ya que corresponde a
métodos y materiales posteriores.




  :: CASA FONTT                                                                                                                                          ::ANÁLISIS PATOLÓGICO
  Colina, Región metropolitana de Santiago, Chile    Levantamiento Técnico Constructivo
  U. DE CHILE   _ FAC. DE ARQUITECTURA Y URBANISMO        _Alquinta   _Belmar   _Brady   _Castillo   _Contreras   _Jara   _Morales   _Rossel   _Torres    _Valderrama   _Venegas
4. Levantamientos de Información _ 4.5 Levantamiento técnico constructivo
4.5.2 Cubierta

                            Pierna cercha 6''x6'' Roble    Plancha de fibro-cemento o
                                                           fierro galbanizado
Tipo C
Tirante                                                      Entablado 6’’x1’’ de Alamo en
cercha                                                       bruto
6''x2''
Roble

                                                                           Costaneras de
                                                                           2’’x2’’




                                                                                                                                            Foto Techo de Fierro Galvanizado
      Tirante cercha 6''x6'' Roble

                        Escalerilla




                                                                                                                                 Foto Techo de Planchas de Fibro Cemento



  :: CASA FONTT                                                                                                                                                ::ANÁLISIS PATOLÓGICO
   Colina, Región metropolitana de Santiago, Chile        Levantamiento Técnico Constructivo
   U. DE CHILE   _ FAC. DE ARQUITECTURA Y URBANISMO            _Alquinta    _Belmar   _Brady   _Castillo   _Contreras   _Jara   _Morales   _Rossel   _Torres    _Valderrama   _Venegas
4. Levantamientos de Información _ 4.5 Levantamiento técnico constructivo
4.5.3 Tabiquería y muros menores


Existen principalmente dos zonas con
tabiquerías. Una está dentro de la
casona,     la  cual   fue   construida
tardíamente como divisiones de algunas
habitaciones. Son bastante pobres en su
conformación ya que poseen pies
derechos a mucha distancia, una o dos
cadenetas y diagonales para rigidizar el
sistema, por fuera son revestidos con
planchas de yeso cartón por ambos
lados. No poseen ningún tipo de
aislación.




  :: CASA FONTT                                                                                                                                          ::ANÁLISIS PATOLÓGICO
  Colina, Región metropolitana de Santiago, Chile    Levantamiento Técnico Constructivo
  U. DE CHILE   _ FAC. DE ARQUITECTURA Y URBANISMO        _Alquinta   _Belmar   _Brady   _Castillo   _Contreras   _Jara   _Morales   _Rossel   _Torres    _Valderrama   _Venegas
4. Levantamientos de Información _ 4.5 Levantamiento técnico constructivo
4.5.3 Tabiquería y muros menores


La segunda tipología se ubica al exterior
de la casona en las construcciones que
están a un costado de la capilla. Tienen
un carácter y un sistema constructivo
mas propio a la expresión de la casa.
Se componen por pies derechos de
pino, cubiertos a ambos lados por un
entablado        distanciado         con
aproximadamente el espesor de la
misma tabla de separación y recubiertos
por ambas caras con barro con paja.




                                                                                         Pie derecho




                                                                                          Entablado



                                                                                         Revoque de barro con paja




  :: CASA FONTT                                                                                                                                           ::ANÁLISIS PATOLÓGICO
  Colina, Región metropolitana de Santiago, Chile    Levantamiento Técnico Constructivo
  U. DE CHILE   _ FAC. DE ARQUITECTURA Y URBANISMO        _Alquinta   _Belmar   _Brady    _Castillo   _Contreras   _Jara   _Morales   _Rossel   _Torres    _Valderrama   _Venegas
4. Levantamientos de Información _ 4.5 Levantamiento técnico constructivo
4.5.4 Elementos de Terminación



 Pisos                                                                                           Baldosa cerámica cuadrada

                                                                                                                                          Piso no terminado


 Esquema de distribución de pisos en los
 diversos recintos de la casona.

 Se puede observar que en las zonas
 intermedias o semi exteriores bajo los
                                                                                                                                          Parquet de madera
 corredores se utilizan pisos generalmente
 en baldosas de diversos tamaños y
 colores.

 En zonas interiores se utilizan básicamente
 entablados de madera, como son los
 recintos que estaban orientados a las                                                                                                    Alfombra

 zonas de estar y dormitorios.

 Actualmente hay recintos que poseen
 alfombra producto de algunos dormitorios
 que se remodelaron posteriormente.
                                                                                                                                         Entablado de madera

 Hay zonas en que no existe pavimento
 alguno, estando directo al mismo terreno.



                                                                                                                                         Baldosa cerámica

  :: CASA FONTT                                                                                                                                          ::ANÁLISIS PATOLÓGICO
  Colina, Región metropolitana de Santiago, Chile    Levantamiento Técnico Constructivo
  U. DE CHILE   _ FAC. DE ARQUITECTURA Y URBANISMO        _Alquinta   _Belmar   _Brady   _Castillo   _Contreras   _Jara   _Morales   _Rossel   _Torres    _Valderrama   _Venegas
4. Levantamientos de Información _ 4.5 Levantamiento técnico constructivo
4.5.4 Elementos de Terminación



 Pisos


 En el sector de la capilla existe un
 entablado de madera puesto sobre
 envigado. Posee dos niveles con una
 diferencia de 75 cm. entre uno y otro que
 responden al desnivel que tiene el terreno.




                                                                                                                                                 Piso Capilla




  :: CASA FONTT                                                                                                                                          ::ANÁLISIS PATOLÓGICO
  Colina, Región metropolitana de Santiago, Chile    Levantamiento Técnico Constructivo
  U. DE CHILE   _ FAC. DE ARQUITECTURA Y URBANISMO        _Alquinta   _Belmar   _Brady   _Castillo   _Contreras   _Jara   _Morales   _Rossel   _Torres    _Valderrama   _Venegas
4. Levantamientos de Información _ 4.5 Levantamiento técnico constructivo
4.5.4 Elementos de Terminación




 Pilares


 Constituyen elementos significativos de la casa y
 se encuentran en la fachada principal y en el
 contorno de todos los corredores del patio
 posterior generando galerías.
 Son cuadrados, hechos de madera con base de
 hormigón. Esta posee sus cantos biselados para
 permitir el escurrimiento del agua y evitar que esta
 se acumule y pudra la zona inferior del pilar.




  :: CASA FONTT                                                                                                                                          ::ANÁLISIS PATOLÓGICO
  Colina, Región metropolitana de Santiago, Chile    Levantamiento Técnico Constructivo
  U. DE CHILE   _ FAC. DE ARQUITECTURA Y URBANISMO        _Alquinta   _Belmar   _Brady   _Castillo   _Contreras   _Jara   _Morales   _Rossel   _Torres    _Valderrama   _Venegas
4. Levantamientos de Información _ 4.5 Levantamiento técnico constructivo
4.5.4 Elementos de Terminación


 Cielos
 Esquema de zonificación de los cielos
 significativos según cada recinto de la
                                                                                           Entablado de madera amarillo
 casona.

 Se destacan dos tipologías principales.
 En primer lugar en los recintos de estar                                                                                            Entablado de madera en corredor

 cocina y dormitorios existen entablados
 de raulí con cornisas perimetrales. Son
 pintados de diversos colores.
 Están seriamente dañados en recintos
 con lesiones o desplomes en la cubierta.
 Esta tipología, está revestida sobre el                                                                                              Tijerales a la vista
 entablado por un ensordinado de barra
 y paja que es utilizado como aislante
 térmico.

 La segunda tipología es la de tijerales a
 la vista, de madera en bruto los cuales
 se encuentran en el corredor principal o
 en algunos dormitorios que no fueron                                                                                                 Entablado de madera azul

 terminados.




                                                                                                                                      Entablado de madera blanco


  Tijerales a la vista

  :: CASA FONTT                                                                                                                                          ::ANÁLISIS PATOLÓGICO
  Colina, Región metropolitana de Santiago, Chile    Levantamiento Técnico Constructivo
  U. DE CHILE   _ FAC. DE ARQUITECTURA Y URBANISMO        _Alquinta   _Belmar   _Brady   _Castillo   _Contreras   _Jara   _Morales   _Rossel   _Torres    _Valderrama   _Venegas
4. Levantamientos de Información _ 4.5 Levantamiento técnico constructivo
4.5.4 Elementos de Terminación



 Cielos


 En el volumen de la capilla encontramos
 un entablado tosco alineado a base de
 pino, cuyas tablas son de 4 pulgadas,
 con cornisas.
 Sobre el entablado se coloca un
 ensordinado de barro y paja que ayuda
 en la aislación térmica.

 Se encuentra con claros daños producto
 de    la    humedad,      debido    al
 desprendimiento de la cubierta.

                                                                                                                                                 Cielo Capilla




  :: CASA FONTT                                                                                                                                          ::ANÁLISIS PATOLÓGICO
  Colina, Región metropolitana de Santiago, Chile    Levantamiento Técnico Constructivo
  U. DE CHILE   _ FAC. DE ARQUITECTURA Y URBANISMO        _Alquinta   _Belmar   _Brady   _Castillo   _Contreras   _Jara   _Morales   _Rossel   _Torres    _Valderrama   _Venegas
4. Levantamientos de Información _ 4.5 Levantamiento técnico constructivo
4.5.4 Elementos de Terminación



 Muros


 Como revestimientos de muro por lo
 general se utiliza un enlucido de barro,                         Papel mural            Papel mural                      Enlucido de barro pintado
 sobre el cual se coloca papel del diario
 y luego se pinta o se coloca un
 revestimiento.    Esta   solución   esta
 presente en los corredores tanto interior                                                                                                        Enlucido de barro pintado

 como exterior donde se pinta con un
 color rojizo.

 En los dormitorios se utiliza por lo general
 papel mural y en las zonas húmedas se
 observan revestimientos con palmetas
 cerámicas.

                                                                                                                                        Cerámica




                                                                                                                                                 Enlucido de barro pintado

  :: CASA FONTT                                                                                                                                           ::ANÁLISIS PATOLÓGICO
  Colina, Región metropolitana de Santiago, Chile    Levantamiento Técnico Constructivo
  U. DE CHILE   _ FAC. DE ARQUITECTURA Y URBANISMO        _Alquinta   _Belmar   _Brady   _Castillo   _Contreras   _Jara    _Morales   _Rossel   _Torres    _Valderrama   _Venegas
4. Levantamientos de Información _ 4.5 Levantamiento técnico constructivo
4.5.4 Elementos de Terminación



 Puertas y ventanas


 Las puertas son tableriadas de álamo y
 poseen un sistema de cierro y chapas
 retirado del plomo exterior con pilastras.

 Tienen una altura desde el piso de
 2,53mt incluyendo el marco, mientras
 que la hoja sola mide 2,39mt.

 Todas poseen una españoleta de fierro
 fundido como se observa en la foto y
 por lo general se han conservado en
 bastante buen estado.

 No existen referencias acerca de la
 estructura que estas tienen.




                                                                                          Tipología de puertas utilizadas en la Casona




  :: CASA FONTT                                                                                                                                          ::ANÁLISIS PATOLÓGICO
  Colina, Región metropolitana de Santiago, Chile    Levantamiento Técnico Constructivo
  U. DE CHILE   _ FAC. DE ARQUITECTURA Y URBANISMO        _Alquinta   _Belmar   _Brady   _Castillo   _Contreras   _Jara   _Morales   _Rossel   _Torres    _Valderrama   _Venegas
4. Levantamientos de Información _ 4.5 Levantamiento técnico constructivo
4.5.4 Elementos de Terminación


                                                                                                                                      dintel
 Puertas y ventanas


 Las ventanas se componen desde el
 zócalo por 4 hiladas hasta el alfeizar,
 luego 14 hiladas hasta llegar al dintel.

 Los tacos permiten que la ventana se
 pueda pegar, estos se apoyan a la vez
 sobre tablillas.

 El dintel se compone por dos troncos y                                                                                                     tacos
 unos travesaños.

 Sobre ellos se coloca el marco y
 finalmente las pilastras que son las que
 cubren toda esta estructura.
                                                                                                                                           tablillas




                                                                                                                          alfeizar                marco




  :: CASA FONTT                                                                                                                                           ::ANÁLISIS PATOLÓGICO
  Colina, Región metropolitana de Santiago, Chile    Levantamiento Técnico Constructivo
  U. DE CHILE   _ FAC. DE ARQUITECTURA Y URBANISMO        _Alquinta   _Belmar   _Brady   _Castillo   _Contreras   _Jara    _Morales   _Rossel   _Torres    _Valderrama   _Venegas
4. Levantamientos de Información _ 4.5 Levantamiento técnico constructivo
4.5.4 Elementos de Terminación



 Puertas y ventanas


 Vista 3d vano de ventana y foto




  :: CASA FONTT                                                                                                                                          ::ANÁLISIS PATOLÓGICO
  Colina, Región metropolitana de Santiago, Chile    Levantamiento Técnico Constructivo
  U. DE CHILE   _ FAC. DE ARQUITECTURA Y URBANISMO        _Alquinta   _Belmar   _Brady   _Castillo   _Contreras   _Jara   _Morales   _Rossel   _Torres    _Valderrama   _Venegas
Iglesia de Achaúta
                                                                    Análisis Patológico del Edificio




Pablo Alvestegui   /   Daniela Chávez   /   José Manuel Dörr   /   Soledad Hernández   /     Nicolás
                                              Miranda
Levantamiento Imagen Actual




      Levantamiento Imagen Actual
3.4
Levantamiento Imagen Actual


  Es importante además destacar que el caserío, que actualmente
  también se encuentra en ruinas, contribuye al valor patrimonial del
  inmueble, constituyendo un conjunto que en un futuro puede ser
  recuperado con el fin de nombrarlo monumento histórico.




                                                                        N




                                                                            Levantamiento Imagen Actual
                                                                                       3.4
Levantamiento Imagen Actual




La totalidad de las fachadas y el
campanil están actualmente en pie,
no obstante, se encuentran muy
deteriorados.   Sin  embargo,    las
lesiones del techo, tanto de la
estructura como de la cubierta de
paja requieren mayor recuperación.




                                       Levantamiento Imagen Actual
                                                  3.4
Levantamiento Imagen Actual




      Levantamiento Imagen Actual
3.4
Descripciones / Proporciones

    Las proporciones se tomaron en función de la base del
    campanil, asignándole un valor A a su medida en planta.
                                                                                         A
    Podemos ver la relación que existe entre el campanil y la
    iglesia.
    Al analizarlo en planta, vemos como este valor está en la
    fachada dos veces y junto con los volúmenes adosados
    forma el cuádruplo del campanil. A lo largo se repite 6
                                                                    A                    A   A
    veces.
    En el campanil vemos como el decrecimiento de sus borde
    a medida que crece es proporcional en un valor C                                             6A
    asignado.                                                                            A


          C                                                                              A



          C                                                                              A


                                                                        A   A        A   A




                                                                                                      Descripción proporciones
          C                                                     A
A                                                                               4A
                                                   A
          C

                                               A

                                          A             A
           A




                                                                                                               2.3
Descripciones / Planimétrica

La iglesia se compone de una planta
geometrizada y muy simple, hecha en
base a un rectángulo que corresponde a
la nave central, con don espacios
adyacentes, lo que genera un eje de
simetría en toda su longitud. Este en sus
extremos contiene dos puntos muy
importantes dentro del templo: el acceso y
el altar.




                                             Descripción Planimétrica
                                                      2.4
Levantamiento Dimensional

Corte Iglesia




                            Levantamiento Dimensional
                                     3.5
Levantamiento Dimensional

Elevación Frontal Iglesia




                            Levantamiento Dimensional
                                      3.5
Levantamiento Dimensional

Elevación Posterior Iglesia




                              Levantamiento Dimensional
                                        3.5
Levantamiento Dimensional

Elevación Lateral
Iglesia




                            Levantamiento Dimensional
                                     3.5
Levantamiento Dimensional

Elevación Lateral
Iglesia




                            Levantamiento Dimensional
                                     3.5
Levantamiento Dimensional

Elevación Lateral Iglesia




                            Levantamiento Dimensional
                                     3.5
Levantamiento Dimensional

Elevación Lateral Iglesia




                            Levantamiento Dimensional
                                     3.5
Levantamiento Dimensional

1   Elevación frontal
                                1




                                    Levantamiento Dimensional
                                             3.5
Levantamiento Dimensional

2    Elevación Posterior
                                2




                                    Levantamiento Dimensional
                                             3.5
Levantamiento Dimensional

3    Elevación lateral




                                3




                                    Levantamiento Dimensional
                                             3.5
Levantamiento Constructivo

4. Cubierta
La cubierta es a dos aguas a base de estructura
resistente de madera de Cactus conformando un
sistema de par y nudillo unidos con encordados
de cuero. Sobre la estructura      se disponen
costaneras en madera de Cactus amarradas al
estructura principal
                                                            Revestimiento de Paja Brava
Los tijerales se apoyan sobre una solera de piedra
canteada.                                            Amarre cuadrado de cuero de guanaco
                                                        Costra de Paja Brava con barro
Como revestimiento, la estructura recibe un tejido
vegetal sobre el cual se apoya una costra de
paja brava mezclada con barro, que sustenta un                      Costanera de cactus
segundo revestimiento de paja brava.

                                                                          Tejido vegetal

                                                                     Tijerales de cactus




                                                                                           Levantamiento Constructivo
      Corte iglesia




                                                                                                     3.6
Levantamiento Constructivo

                             Tejido vegetal
         Amarre cuadrado de cuero de
         guanaco
                 Revestimiento de Paja Brava
                         Tijerales de cactus

                        Costanera de cactus

              Costra de Paja Brava con barro   Solera de piedra canteada



                                               Albañilería simple de bloques
                                               de tierra cruda
                                               Mortero simple          de
                                               barro

                                               Zócalo de albañilería simple en




                                                                                 Levantamiento Constructivo
                                               bloques de piedra irregular

                                               Revestimiento de barro
Observación: Debido a la
irregularidad de la mayoría de los
materiales y elementos que
conforman la iglesia, se omitirá la
especificación de algunas
dimensiones.                                   Fundación asimétrica de piedra




                                                                                           3.6
  Escantillón Iglesia
Levantamiento Constructivo
   La torre del campanil tienen una estructura       Albañilería de adobe
 resistente a base de muros resistentes en
 albañilería simple de bloques de barro crudo y
 de piedra canteada sobre un zócalo continuo
 de dicho material.

   La torre presenta cuatro partes desde la
 fundación hasta la cúpula los cuales son:
                                                             Piedra laja
                                                             Viga de madera de cactus
                                                             Arco de adobe en
 1. Zócalo en piedra
                                                             dintel
 2. Primer cuerpo en muros resistentes de
 albañilería simple en bloques de piedra unidos
 por un mortero de barro, revestido con una
 capa delgada de barro (aprox. 2 cms.)                         Mortero simple            de
 3. Segundo cuerpo montado sobre el primero
                                                               barro
                                                               Mampostería
 en la misma tipología del anterior.
                                                               irregular natural
 4. Tercer cuerpo que corona la torre es forma
 de pirámide, a manera de cubierta, en muros
 resistentes en albañilería simple de bloques de
 barro crudo.

                                                               Piedra laja




                                                                                              Levantamiento Constructivo
 En la materialidad también se cuenta con
 piedra laja que es utilizada en lugares de
 mayor esfuerzo estructural, como la parte
 superior del túnel y la continuación del arco
 superior de las ventanas (dintel) que también
 es reforzado mediante madera de cactus
 empotrada en los muros. Otra parte donde se
 utilizó piedra laja fue en la huella de los                    Peldaño de piedra laja
 peldaños, donde se talló para dejarlas más                     tallada
 planas. Luego mediante mortero se adhirió a
 las piedras de del volumen inferior del edificio.
                                                               Mampostería




                                                                                                        3.6
                                                               irregular natural
Levantamiento Constructivo

  1. Fundaciones                                                  2. Piso
  Fundación continua, son de piedras grandes
                                                                  El piso es de tierra, no esta compactada.
  canteadas en 2 o 3 caras, que se prolongan hacia
                                                                  No existen indicios si antes estuvo revestido.
  arriba para juntarse con el muro de adobe. Esta
                                                                  El la zona anterior al altar existe un pequeño
  prolongación ayuda a evitar el contacto directo
                                                                  desnivel. Además, por el perímetro interior
  del adobe con la humedad del terreno.
                                                                  de los muros hay un zócalo




                                                                                                                   Levantamiento Constructivo
                                     Prolongación
                                     cimiento para
                                     construir el muro
                                     sobre el




                              Fundación asimétrica,
                              reparte la carga hacia
                              un lado                                                              Piedras
                                                         Desnivel 20cm                             sedimentadas




                                                                                                                             3.6
Levantamiento Constructivo
3. Muros
Muros resistentes de albañilería simple de bloques de
tierra compactada, apoyados sobre zócalo de piedra
siendo un poco mas gruesos en su base. Estos, están
revestidos con una fina capa de barro en su exterior e    Solera de piedra
interior, estando pintado solo el interior.
- No poseen contrafuertes, sin embargo, los muros están
levemente inclinados para contrarrestar esfuerzos.
- Resisten solo al esfuerzo de compresión
                                                                                           Revestimiento
- Alta inercia térmica y conductividad térmica baja                                        interior barro y
                                                                                           pintura
                                                               Adobe
                                                                                                          2.65m




                                                          Revestimiento
                                                          exterior barro
                                                          Piedra canteada




                                                                                                                  Levantamiento Constructivo
                                                                   Fundaciones de piedra
   Fachada posterior




                                                                                                                            3.6
   Se puede ver como a medida que crece el
   muro las piedras son mas pequeñas
Universidad de Chile
Facultad de Arquitectura y Urbanismo
Departamento de Ciencias de la Construcción
Estructura Av. II _ Análisis Patológico del Edificio
Profesores: V. Veas _ L. Goldsack _ P. González _ H. Elgueta _ G. Muñoz




                                                                             Ex Cervecería de Andrés Ebner
                                                                                                                         Independencia _ Santiago




            : : Karla González : : Alicia Hernández : : Carlos Maldonado : : Alejandra Marambio : : Miguel Maura : : Ximena Orellana : : Pilar Sepúlveda : :
1. Presentación del Inmueble


     El presente informe es el resultado de un trabajo de investigación
basado en los edificios de la Ex Cervecería de Andrés Ebner,
Monumento Nacional, ubicado en la comuna de Independencia,
Santiago.
    Actualmente el edificio se encuentra deshabitado y en
progresivo estado de deterioro, por lo que se hace imprescindible
para una posible restauración, el rápido accionar que detenga dicho
proceso. Posteriormente, y para una completa rehabilitación del
inmueble se deberá asignar a él un programa que asegure su uso
constante. Lo que esta ya propuesto por sus actuales propietarios
como un edificio de uso comercial.
     El edificio forma parte del patrimonio arquitectónico de la
comuna de Independencia, de aquí la importancia por poner en
valor dicho monumento.




                                                                                                   Imágenes: Cervecería Ebner/ Colección personal

                                Facultad de Arquitectura y Urbanismo               Departamento de Ciencias de la Construcción
 Universidad De Chile

 Patología                      Ex Cervecería Andrés Ebner                         Presentación del Inmueble
        : : Karla González : : Alicia Hernández : : Carlos Maldonado : : Alejandra Marambio : : Miguel Maura : : Ximena Orellana : : Pilar Sepúlveda : :
Nombre del                  Cervecería
                                                                                      Inmueble                    Andrés Ebner
                                                                                      Arquitecto                  Adolfo Möler
 1.1 Ficha Técnica
                                                                                      Programa
                                                                                      actual                      Desuso

                                                               Antecede               Usos Anteriores             Industrial
                                                                 ntes                 Año de
                                                                                                                  1885-1888
                                                               Generales              construcción
                                                                                      Monumento
                                                                                      Nacional                    Nº 271

                                                                                      Nº Decreto
                                                                                                                  DS 646 de
                                                                                                                  26.10.1984
                                                                                      Programa                    Proyecto
                                                                                      Propuesto                   Comercial
                                                                                      País                        Chile
                                                                                      Región                      Metropolitana

                                                              Localizaci
                                                                                      Provincia                   Santiago
                                                              ón                      Comuna                      Independencia
                                                                                                                 Av.
Cervecería Ebner/ Colección personal                                                  Ubicación                  Independencia
                                                                                                                 Nº565
                                                                                                             Fuente: Consejo de Monumento Nacionales
                                  Facultad de Arquitectura y Urbanismo               Departamento de Ciencias de la Construcción
  Universidad De Chile

  Patología                       Ex Cervecería Andrés Ebner                         Presentación del Inmueble / Ficha Técnica
          : : Karla González : : Alicia Hernández : : Carlos Maldonado : : Alejandra Marambio : : Miguel Maura : : Ximena Orellana : : Pilar Sepúlveda : :
4. Levantamiento de Información

                           Facultad de Arquitectura y Urbanismo          Departamento de Ciencias de la Construcción
Universidad De Chile
                                                                                                                                                    FICHA
Patología                  Ex Cervecería Andrés Ebner                    Desglose de Contenidos
 : : Karla González : : Alicia Hernández : : Carlos Maldonado : : Alejandra Marambio : : Miguel Maura : : Ximena Orellana : : Pilar Sepúlveda : :
                                                                                                                                                     2
4. Levantamiento de Información
4.1 Levantamiento Histórico


DESARROLLO DE LA INDUSTRIA DE LA CERVEZA EN CHILE


HASTA      Industria poco desarrollada, solo se fabrica
    cerveza
MEDIADOS en Valparaíso        con    el   procedimiento     de
   fermentación
SIGLO XIX en      caliente, principalmente     destinado     al
    consumo              de extranjeros.


1847        Carlos   Naumann establece       en Ercilla    una
    fábrica de          cerveza


1850          Valentín Koch y Andrés Ebner establecen una
              cervecería en la ribera norte del Mapocho

1851          Karl Andwanter funda en Valdivia la industria                          La fábrica de Cerveza Plagemannn de Valparaíso
    más       importante de cerveza.                                                                 y sus premios. De un anuncio en el
                                                                                           Almanaque Comercial para el año de 1884.
1857        Existen 5 Cervecerías en            Valparaíso,                                  Valparaíso, Imprenta de La Patria, 1883, 43.
    tres de ellas de    propiedad de alemanes y dos de
    italianos. Una de ellas, la Cervecería de Plagemann,
    situada en la       calle   Chacabuco      había    sido
    fundada en 1849, y se            la considera como la
    primera de las cervecerías       modernas.
                                                                                                                Fuente: www.scielo.cl



                          Facultad de Arquitectura y Urbanismo    Departamento de Ciencias de la Construcción
  Universidad De Chile
                                                                                                                                            FICHA
  Patología               Ex Cervecería Andrés Ebner              Aproximación Geográfica / Contexto Comunal
                                                                                                                                             8
4. Levantamiento de Información
  4.1 Levantamiento Histórico


1872       Se forma la Sociedad Fabrica de Cerveza
    Andrés Ebner


1874       Gustavo Keller funda en Concepción una
           cerveceria, situada en Agua de las Niñas, en la
           ribera norte del Biobío sobre la línea del
    ferrocarril.


1876        En La Serena existe la cervecería de
            Floto y   Kleinschmidt, fundada por Federico
    Floto o Flotow la más importante de la zona.


1883      Augusto Gubler, funda la fabrica de
          cerveza Gubler        & Cousiño, ubicada en
          un terreno junto a la confluencia del Canal
    San Carlos con el Rio       Mapocho.

1883        Carlos   Hoffmann funda    en   Limache    otra
    fábrica de          cerveza.


1891         Fuchs y Plath fundan otra cervecería en
    Artificio,         pueblo vecino a La Calera.                               Cubierta de la partitura de la galopa “Malta Blanca”.
                                                                                        Biblioteca Central de la Universidad de Chile.


1894       La Cervecería Ebner se ubica en               La
           Cañadilla (actual Av. Independencia)
                                                                                                               Fuente: www.scielo.cl



                          Facultad de Arquitectura y Urbanismo   Departamento de Ciencias de la Construcción
   Universidad De Chile
                                                                                                                                         FICHA
   Patología              Ex Cervecería Andrés Ebner             Aproximación Geográfica / Contexto Comunal
                                                                                                                                          8
4. Levantamiento de Información
 4.1 Levantamiento Histórico


    DESARROLLO FABRICA DE ANDRÉS EBNER
     Andrés Ebner nace en Baviera, Alemania, el 4 de enero de 1849, y
llega a Chile en 1869.
      Asociado a Otto Schleyer monta una fábrica de cerveza en Talca,
y con las ganancias compra en 1878 la fabrica de cerveza de Salvador
Koch ubicada en la Cañadilla (Actual Av. Independencia). Importa
nuevas maquinarias y adquiere la fábrica de Malta La Estrella que
traslada a su fábrica.
     Entre 1885 y 1888, construye su casa que ubica paralela a la
calzada de Av. Independencia, la que a pesar de tener uso mixto de
                                                                                                     Vista Actual desde extremo sur poniente del edificio
oficina en primer nivel y habitaciones en el segundo, tiene rasgos de
                                                                                                                     principal hacia Av. Independencia.
mansión. Ebner fallece en 1908, periodo de mayor expansión de la
fábrica, cuyo terreno alcanza 3 hectáreas hacia 1910.
     Se presume que el Arquitecto fue Adolfo Móller. La residencia se
destaca por su composición lineal que alcanza los 50 metros. En su
extremo sur gira hacia el interior de la manzana, en un cuerpo de planta
diagonal, y cuyo segundo piso estaba destinado a vivienda del
administrador. Es de carácter ecléctico propio del período, es una fusión
de neo-renacimiento, rasgos italianizantes y manieristas y toque de
fantasía en su torre de la esquina norte. Modulada en el 1° piso por un
juego de arquería.
     La CCU compra todo este complejo industrial en 1916, mantuvo la
fabrica en plena producción hasta 1978. Desde 1980 la propiedad
pertenece a la Inmobiliaria Forestal filial de CCU. El sector Industrial fue
desmantelado en 1982.

    Fuente: Chile, Registro de Monumentos Nacionales, Ficha Nª157, Ed. Dirección de                  Vista Actual desde extremo nor poniente del edificio
                                                                Arquitectura MOP.                                     principal hacia Av. Independencia.

                               Facultad de Arquitectura y Urbanismo          Departamento de Ciencias de la Construcción
   Universidad De Chile
                                                                                                                                                    FICHA
   Patología                   Ex Cervecería Andrés Ebner                    Aproximación Geográfica / Contexto Comunal
                                                                                                                                                       8
4. Levantamiento de Información
4.2 Levantamiento de la Imagen Actual


     Este levantamiento se realiza a través de fotografías, tanto interiores como exteriores, de ambos niveles del cuerpo
principal, que dan cuenta de la situación en la que se encuentra actualmente la edificación.
     Actualmente el gran terreno ha sufrido un subdivisiones y un amplio porcentaje de los galpones interiores de la
antigua fabrica son utilizados como centro de acopio por alquiler.
    Luego de pasar por los dueños de la CCU y tras la paralización de su actividad productiva en 1982, el inmueble,
desde aquel entonces solo ha sido victima del descuido y del deterioro:
    En 1985, un importante sector sucumbió al terremoto, y en 1995 su segundo piso fue afectado por un incendio
“accidental”.




                                                                                                              Fuente: Colección Propia


                         Facultad de Arquitectura y Urbanismo   Departamento de Ciencias de la Construcción
  Universidad De Chile
                                                                                                                                  FICHA
  Patología              Ex Cervecería Andrés Ebner             Aproximación Geográfica / Contexto Comunal
                                                                                                                                    8
4. Levantamiento de Información
4.2 Levantamiento de la Imagen Actual


     EXTERIOR




     Vista elevada desde el extremo sur poniente del edificio principal, en la fachada hacia
Av. Independencia.


                                                                                                              Fuente: Colección Propia


                         Facultad de Arquitectura y Urbanismo   Departamento de Ciencias de la Construcción
  Universidad De Chile
                                                                                                                                  FICHA
  Patología              Ex Cervecería Andrés Ebner             Aproximación Geográfica / Contexto Comunal
                                                                                                                                    8
4. Levantamiento de Información
4.2 Levantamiento de la Imagen Actual




    Vista desde el extremo nor poniente del edificio principal, en la fachada hacia Av.
Independencia.


                                                                                                              Fuente: Colección Propia


                         Facultad de Arquitectura y Urbanismo   Departamento de Ciencias de la Construcción
  Universidad De Chile
                                                                                                                                  FICHA
  Patología              Ex Cervecería Andrés Ebner             Aproximación Geográfica / Contexto Comunal
                                                                                                                                    8
4. Levantamiento de Información
4.2 Levantamiento de la Imagen Actual




    Vista desde el extremo sur poniente del edificio principal, en la fachada hacia Av.
Independencia.


                                                                                                             Fuente: Colección Propia


                        Facultad de Arquitectura y Urbanismo   Departamento de Ciencias de la Construcción
 Universidad De Chile
                                                                                                                                FICHA
 Patología              Ex Cervecería Andrés Ebner             Aproximación Geográfica / Contexto Comunal
                                                                                                                                   8
4. Levantamiento de Información
4.2 Levantamiento de la Imagen Actual




     Vista desde el extremo sur oriente del patio de acceso.



                                                                                                             Fuente: Colección Propia


                        Facultad de Arquitectura y Urbanismo   Departamento de Ciencias de la Construcción
 Universidad De Chile
                                                                                                                                FICHA
 Patología              Ex Cervecería Andrés Ebner             Aproximación Geográfica / Contexto Comunal
                                                                                                                                   8
4. Levantamiento de Información
4.2 Levantamiento de la Imagen Actual




     Vista interior del cuerpo sur, en la fachada hacia el patio central.



                                                                                                              Fuente: Colección Propia


                         Facultad de Arquitectura y Urbanismo   Departamento de Ciencias de la Construcción
 Universidad De Chile
                                                                                                                                 FICHA
 Patología               Ex Cervecería Andrés Ebner             Aproximación Geográfica / Contexto Comunal
                                                                                                                                    8
4. Levantamiento de Información
4.2 Levantamiento de la Imagen Actual




     Vista interior del cuerpo sur hacia el oriente.



                                                                                                               Fuente: Colección Propia


                          Facultad de Arquitectura y Urbanismo   Departamento de Ciencias de la Construcción
 Universidad De Chile
                                                                                                                                  FICHA
 Patología                Ex Cervecería Andrés Ebner             Aproximación Geográfica / Contexto Comunal
                                                                                                                                     8
4. Levantamiento de Información
4.2 Levantamiento de la Imagen Actual




     Vista del cuerpo principal, fachada hacia el patio interior.



                                                                                                              Fuente: Colección Propia


                         Facultad de Arquitectura y Urbanismo   Departamento de Ciencias de la Construcción
 Universidad De Chile
                                                                                                                                 FICHA
 Patología               Ex Cervecería Andrés Ebner             Aproximación Geográfica / Contexto Comunal
                                                                                                                                    8
4. Levantamiento de Información
4.2 Levantamiento de la Imagen Actual


     PRIMER NIVEL




     Corredor entre ejes 3 y4.



                                                                                                              Fuente: Colección Propia


                         Facultad de Arquitectura y Urbanismo   Departamento de Ciencias de la Construcción
 Universidad De Chile
                                                                                                                                 FICHA
 Patología               Ex Cervecería Andrés Ebner             Aproximación Geográfica / Contexto Comunal
                                                                                                                                    8
4. Levantamiento de Información
4.2 Levantamiento de la Imagen Actual




     Corredor entre ejes 2 y 3.



                                                                                                              Fuente: Colección Propia


                         Facultad de Arquitectura y Urbanismo   Departamento de Ciencias de la Construcción
 Universidad De Chile
                                                                                                                                 FICHA
 Patología               Ex Cervecería Andrés Ebner             Aproximación Geográfica / Contexto Comunal
                                                                                                                                    8
4. Levantamiento de Información
4.2 Levantamiento de la Imagen Actual




     Eje 4, fachada hacia el patio central.


                                                                                                             Fuente: Colección Propia


                        Facultad de Arquitectura y Urbanismo   Departamento de Ciencias de la Construcción
 Universidad De Chile
                                                                                                                                FICHA
 Patología              Ex Cervecería Andrés Ebner             Aproximación Geográfica / Contexto Comunal
                                                                                                                                   8
4. Levantamiento de Información
4.2 Levantamiento de la Imagen Actual




     Recinto interior


                                                                                                             Fuente: Colección Propia


                        Facultad de Arquitectura y Urbanismo   Departamento de Ciencias de la Construcción
 Universidad De Chile
                                                                                                                                FICHA
 Patología              Ex Cervecería Andrés Ebner             Aproximación Geográfica / Contexto Comunal
                                                                                                                                   8
4. Levantamiento de Información
4.2 Levantamiento de la Imagen Actual




     Corredor entre ejes 3 y 4.


                                                                                                              Fuente: Colección Propia


                         Facultad de Arquitectura y Urbanismo   Departamento de Ciencias de la Construcción
 Universidad De Chile
                                                                                                                                 FICHA
 Patología               Ex Cervecería Andrés Ebner             Aproximación Geográfica / Contexto Comunal
                                                                                                                                    8
4. Levantamiento de Información
4.2 Levantamiento de la Imagen Actual


     SEGUNDO NIVEL




     Corredor entre ejes 2 y 3, vista hacia el norte.
                                                                                                              Fuente: Colección Propia


                         Facultad de Arquitectura y Urbanismo   Departamento de Ciencias de la Construcción
 Universidad De Chile
                                                                                                                                 FICHA
 Patología               Ex Cervecería Andrés Ebner             Aproximación Geográfica / Contexto Comunal
                                                                                                                                    8
4. Levantamiento de Información
4.2 Levantamiento de la Imagen Actual




     Corredor entre ejes 2 y 3, vista hacia el sur.



                                                                                                               Fuente: Colección Propia


                          Facultad de Arquitectura y Urbanismo   Departamento de Ciencias de la Construcción
 Universidad De Chile
                                                                                                                                  FICHA
 Patología                Ex Cervecería Andrés Ebner             Aproximación Geográfica / Contexto Comunal
                                                                                                                                     8
4. Levantamiento de Información
4.2 Levantamiento de la Imagen Actual




     Corredor entre ejes 2 y 3.

                                                                                                              Fuente: Colección Propia


                         Facultad de Arquitectura y Urbanismo   Departamento de Ciencias de la Construcción
 Universidad De Chile
                                                                                                                                 FICHA
 Patología               Ex Cervecería Andrés Ebner             Aproximación Geográfica / Contexto Comunal
                                                                                                                                    8
4. Levantamiento de Información
4.2 Levantamiento de la Imagen Actual




     Recinto interior del segundo nivel.

                                                                                                              Fuente: Colección Propia


                         Facultad de Arquitectura y Urbanismo   Departamento de Ciencias de la Construcción
 Universidad De Chile
                                                                                                                                 FICHA
 Patología               Ex Cervecería Andrés Ebner             Aproximación Geográfica / Contexto Comunal
                                                                                                                                    8
4. Levantamiento de Información
4.2 Levantamiento de la Imagen Actual




     Recinto interior del segundo nivel.

                                                                                                              Fuente: Colección Propia


                         Facultad de Arquitectura y Urbanismo   Departamento de Ciencias de la Construcción
 Universidad De Chile
                                                                                                                                 FICHA
 Patología               Ex Cervecería Andrés Ebner             Aproximación Geográfica / Contexto Comunal
                                                                                                                                    8
4. Levantamiento de Información
4.2 Levantamiento de la Imagen Actual




     Recinto interior del segundo nivel.

                                                                                                              Fuente: Colección Propia


                         Facultad de Arquitectura y Urbanismo   Departamento de Ciencias de la Construcción
 Universidad De Chile
                                                                                                                                 FICHA
 Patología               Ex Cervecería Andrés Ebner             Aproximación Geográfica / Contexto Comunal
                                                                                                                                    8
4. Levantamiento de Información
4.2 Levantamiento de la Imagen Actual




     Recinto interior del segundo nivel.                                                                      Fuente: Colección Propia


                         Facultad de Arquitectura y Urbanismo   Departamento de Ciencias de la Construcción
 Universidad De Chile
                                                                                                                                 FICHA
 Patología               Ex Cervecería Andrés Ebner             Aproximación Geográfica / Contexto Comunal
                                                                                                                                    8
4. Levantamiento de Información
4.2 Levantamiento de la Imagen Actual




  Vista del patio central, desde el segundo nivel.




                                                                                                             Fuente: Colección Propia


                        Facultad de Arquitectura y Urbanismo   Departamento de Ciencias de la Construcción
 Universidad De Chile
                                                                                                                                FICHA
 Patología              Ex Cervecería Andrés Ebner             Aproximación Geográfica / Contexto Comunal
                                                                                                                                   8
4. Levantamientos de información _ 4.3 levantamiento dimensional arquitectónico
4.3.1 Planta edificio principal




                  Planta primer nivel




                 Planta segundo nivel


                            Facultad de Arquitectura y Urbanismo         Departamento de Ciencias de la Construcción
 Universidad De Chile                                                                                                    112
 Patología                  Ex Cervecería Andrés Ebner                   Levantamiento dimensional arquitectónico
   ::                ::                  ::                    ::                  ::             ::                ::     ::
4. Levantamientos de información _ 4.3 levantamiento dimensional arquitectónico
4.3.2 Elevaciones Ejes




 Elevación fachada principal eje A, vista desde Independencia




                            Facultad de Arquitectura y Urbanismo         Departamento de Ciencias de la Construcción
 Universidad De Chile                                                                                                    113
 Patología                  Ex Cervecería Andrés Ebner                   Levantamiento dimensional arquitectónico
   ::                ::                  ::                    ::                  ::             ::                ::     ::
4. Levantamientos de información _ 4.3 levantamiento dimensional arquitectónico
4.3.4 Elevación ejes




        Elevación Eje B, vista desde Independencia




        Elevación Eje B, vista desde patio interior



                            Facultad de Arquitectura y Urbanismo         Departamento de Ciencias de la Construcción
 Universidad De Chile                                                                                                    114
 Patología                  Ex Cervecería Andrés Ebner                   Levantamiento dimensional arquitectónico
   ::                 ::                 ::                    ::                  ::             ::                ::     ::
4. Levantamientos de información _ 4.3 levantamiento dimensional arquitectónico
4.3.4 Elevación ejes




        Elevación Eje C, vista desde Independencia




        Elevación Eje C, vista desde patio interior



                            Facultad de Arquitectura y Urbanismo         Departamento de Ciencias de la Construcción
 Universidad De Chile                                                                                                    115
 Patología                  Ex Cervecería Andrés Ebner                   Levantamiento dimensional arquitectónico
   ::                ::                  ::                    ::                  ::             ::                ::     ::
4. Levantamientos de información _ 4.3 levantamiento dimensional arquitectónico
4.3.4 Elevación ejes




 Elevación Eje D, vista desde Independencia




 Elevación Eje D, vista desde patio interior




                            Facultad de Arquitectura y Urbanismo         Departamento de Ciencias de la Construcción
 Universidad De Chile                                                                                                    116
 Patología                  Ex Cervecería Andrés Ebner                   Levantamiento dimensional arquitectónico
   ::                ::                  ::                    ::                  ::             ::                ::     ::
4. Levantamientos de información _ 4.3 levantamiento dimensional arquitectónico
4.3.3 Corte




   Sección transversal



                            Facultad de Arquitectura y Urbanismo         Departamento de Ciencias de la Construcción
 Universidad De Chile                                                                                                    117
 Patología                  Ex Cervecería Andrés Ebner                   Levantamiento dimensional arquitectónico
   ::                ::                  ::                    ::                  ::             ::                ::     ::
4. Levantamientos de información _ 4.4 levantamiento dimensional estructural
   4.4.1 Elevaciones Ejes Estructurales




      Los ejes estructurales del volumen principal (caso de
estudio), son cuatro, y se denominarán A, B, C y D, desde la
fachada principal hacia el interior.

                                                                 EJE D




                                                                 EJE C




                                                                 EJE B




                                                                 EJE A




                                Facultad de Arquitectura y Urbanismo          Departamento de Ciencias de la Construcción
     Universidad De Chile                                                                                                     118
     Patología                  Ex Cervecería Andrés Ebner                    Levantamiento dimensional arquitectónico
      ::                ::                   ::                    ::                   ::             ::                ::     ::
4. Levantamientos de información _ 4.4 levantamiento dimensional estructural

4.4.1 Elevaciones Ejes Estructurales




                                                                                                                             Eje A




                                                                                                                             Eje B




                             Facultad de Arquitectura y Urbanismo          Departamento de Ciencias de la Construcción
 Universidad De Chile                                                                                                      119
 Patología                   Ex Cervecería Andrés Ebner                    Levantamiento dimensional arquitectónico
   ::                ::                   ::                    ::                   ::             ::                ::     ::
4. Levantamientos de información _ 4.4 levantamiento dimensional estructural

4.4.1 Elevaciones Ejes Estructurales




                                                                                                                            Eje C




                                                                                                                           Eje D




                             Facultad de Arquitectura y Urbanismo          Departamento de Ciencias de la Construcción
 Universidad De Chile                                                                                                      120
 Patología                   Ex Cervecería Andrés Ebner                    Levantamiento dimensional arquitectónico
   ::                ::                   ::                    ::                   ::             ::                ::     ::
4.5. levantamiento técnico constructivo
Planimetría detallada de un módulo

 Modulo
 A continuación se presentará la planimetría detallada
 de un módulo del cuerpo principal de la Cervecería,
 para entender los sistemas constructivos y a la vez
 obtener un análisis mas acabado.




                        Facultad de Arquitectura y Urbanismo   Departamento de Ciencias de la Construcción
 Universidad De Chile                                                                                                   121
 Patología              Ex Cervecería Andrés Ebner             Levantamiento técnico constructivo/ Planimetría modulo
4.5. levantamiento técnico constructivo
Planimetría detallada de un módulo

 Planta Modulo




                        Facultad de Arquitectura y Urbanismo   Departamento de Ciencias de la Construcción
 Universidad De Chile                                                                                                   122
 Patología              Ex Cervecería Andrés Ebner             Levantamiento técnico constructivo/ Planimetría modulo
4.5. levantamiento técnico constructivo
Planimetría detallada de un módulo

 Elevaciones Eje 1




                        Facultad de Arquitectura y Urbanismo   Departamento de Ciencias de la Construcción
 Universidad De Chile                                                                                                   123
 Patología              Ex Cervecería Andrés Ebner             Levantamiento técnico constructivo/ Planimetría modulo
4.5. levantamiento técnico constructivo
Planimetría detallada de un módulo

 Elevaciones Eje 2




                        Facultad de Arquitectura y Urbanismo   Departamento de Ciencias de la Construcción
 Universidad De Chile                                                                                                   124
 Patología              Ex Cervecería Andrés Ebner             Levantamiento técnico constructivo/ Planimetría modulo
4.5. levantamiento técnico constructivo
Planimetría detallada de un módulo
Elevaciones Eje 3




                        Facultad de Arquitectura y Urbanismo   Departamento de Ciencias de la Construcción
 Universidad De Chile                                                                                                   125
 Patología              Ex Cervecería Andrés Ebner             Levantamiento técnico constructivo/ Planimetría modulo
4.5. levantamiento técnico constructivo
Planimetría detallada de un módulo
Elevaciones




                        Facultad de Arquitectura y Urbanismo   Departamento de Ciencias de la Construcción
 Universidad De Chile                                                                                                   126
 Patología              Ex Cervecería Andrés Ebner             Levantamiento técnico constructivo/ Planimetría modulo
4.5. levantamiento técnico constructivo
  4.5.1 Muros




En el levantamiento constructivo se tomó un
muro tipo, que se repetirá constantemente         Ladrillo dimensiones 30x15x7.5
en los recintos de la cervecería. La mayoría
de los muros estructurales se conforman a
partir de ladrillos de 30x15x7.5 unidos con
mortero de cemento y revestidos con
revoque de barro con paja, enlucido a la
cal y pintura como terminación.
                                                Capa de pintura de 1mm
En algunos recintos los muros varían pero no
en dimensión sino que algunos de ellos no
cuentan con revestimiento o pintura,
presentándose el ladrillo desnudo, sin ningún                 Capa recubrimiento en revoque de
tipo de tratamiento.                                          barro con paja de 3cm




                                                                                   Mortero de pega 3.5cm




                                 Facultad de Arquitectura y Urbanismo              Departamento de Ciencias de la Construcción
    Universidad De Chile                                                                                                         127
    Patología                    Ex Cervecería Andrés Ebner                        Levantamiento técnico constructivo/ Muros
4.5. levantamiento técnico constructivo
4.5.2 Arcos




Arcos
Es de tipo simple curvo con características elípticas y
rebajado. La importancia de este elemento radica en
el hecho de que funciona como un mecanismo de
transporte de las cargas que recibe, tanto
provenientes del peso propio como de sobrecargas
del segundo piso hasta los pilares, los que a su vez las
llevaran al terreno. Por su propia morfología trabaja
básicamente sometido a compresión, por lo cual tiene
la particularidad de crear empujes horizontales hacia
el exterior en los puntos de apoyo, de forma que
tiende a provocar la desestabilización de éstos por
vuelco, efecto que será contrarestado con el esfuerzo
del arco continuo.
Este elemento estructural esta construido en
albañilería de ladrillo, ya que este material posee gran
resistencia a la compresión. El equilibrio se logra con la
colocación de la clave en el arco.                                         Arco elíptico del pasillo central.

El arco funcionara entonces, transmitiendo la carga
de una dovela a otra a través de la junta de mortero.
En determinados casos se han utilizado ladrillos
especiales en forma de cuña.




                          Facultad de Arquitectura y Urbanismo   Departamento de Ciencias de la Construcción
 Universidad De Chile                                                                                           128
 Patología                Ex Cervecería Andrés Ebner             Levantamiento técnico constructivo/ Arcos
4.5. levantamiento técnico constructivo
4.5.2 Arcos




Descripción Arco

Consta de 2 filas de 61 ladrillos (40x20x6 cm.), la elipse
tiene un alto de 40 cm. conformado por lados de
ladrillos de 40 cm. y 2 de 20 cm.




                                                                   Vista descriptiva del Arco elíptico, conformado por los 61 ladrillos




Lado 20 - 20        Lado 40




                          Facultad de Arquitectura y Urbanismo   Departamento de Ciencias de la Construcción
 Universidad De Chile                                                                                                   129
 Patología                Ex Cervecería Andrés Ebner             Levantamiento técnico constructivo/ Arcos
4.5. levantamiento técnico constructivo
4.5.3 Pilares




Pilares
Se presentan a lo largo de todo el primer nivel, con
secciones de 1 m. Están hechos de albañilería en
ladrillo de 20 x 40 x 6 cm. con un mortero de 3 cm. de
espesor. Su distanciamiento es de 3,5 m.
Existe una continuidad estructural entre las líneas de
los pilares del primer nivel, respecto a los muros del
segundo nivel, los que disminuyen de sección
respecto a los pilares.
Existen 3 tipos de pilares ubicados dentro de los ejes sin
ningún orden específico, creemos que corresponden
a aplicaciones posteriores.




                                                                            Vista de pilares en pasillo




                          Facultad de Arquitectura y Urbanismo   Departamento de Ciencias de la Construcción
 Universidad De Chile                                                                                          130
 Patología                Ex Cervecería Andrés Ebner             Levantamiento técnico constructivo/ Pilares
4.5. levantamiento técnico constructivo
4.5.3 Pilares

Tipo 1

Corresponde al modelo base de todos los tipos de
pilares, esta conformado por 2 capas de aparejos
distintas de los ladrillos ubicadas una encima de la
otra, sucesivamente.
Su base es:




Capa Aparejo 1                     Capa Aparejo 2




                        Facultad de Arquitectura y Urbanismo   Departamento de Ciencias de la Construcción
 Universidad De Chile                                                                                        131
 Patología              Ex Cervecería Andrés Ebner             Levantamiento técnico constructivo/ Pilares
4.5. levantamiento técnico constructivo
4.5.3 Pilares


 Aparejo de Ladrillos, Detalle
  Capa 1.
                                        Mortero de pega     Ladrillo 20x40x6 cm.




                         Facultad de Arquitectura y Urbanismo   Departamento de Ciencias de la Construcción
 Universidad De Chile                                                                                         132
 Patología               Ex Cervecería Andrés Ebner             Levantamiento técnico constructivo/ Pilares
4.5. levantamiento técnico constructivo
4.5.3 Pilares

                                                           Ladrillo 20x40x6 cm.
 Capa 2.
                                    Mortero de pega




                        Facultad de Arquitectura y Urbanismo   Departamento de Ciencias de la Construcción
 Universidad De Chile                                                                                        133
 Patología              Ex Cervecería Andrés Ebner             Levantamiento técnico constructivo/ Pilares
4.5. levantamiento técnico constructivo
4.5.3 Pilares

Tipo 2

Se Basa en el mismo modelo anterior, salvo que tiene 2
columnas agregadas de ladrillos de 20x20x6 cm. Es de
planta cuadrada. Este agregado tiene una cota de
1.62 cm.




             Ladrillos agregados




                              Facultad de Arquitectura y Urbanismo   Departamento de Ciencias de la Construcción
 Universidad De Chile                                                                                              134
 Patología                    Ex Cervecería Andrés Ebner             Levantamiento técnico constructivo/ Pilares
3. Desarrollo del expediente
Desglose de Contenidos                                                       3.1 Descripción volumétrica
                                                                             3.2 Descripción espacial
1. Presentación del inmueble                                                 3.3 Descripción formal
     1.1 Ficha técnica                                                       3.4 Descripción programática
     1.2 Objetivo del estudio                                                3.5 Descripción Estructural, Constructiva y
                1.2.1 Objetivos generales                                    de material
                1.2.2 Objetivos Específicos
     1.3 Metodología                                                   4. Levantamientos de Información
2. Antecedentes Generales                                                   4.1 Levantamiento histórico
    2.1 Aproximación Geográfica                                             4.2 Levantamiento de la imagen actual
               2.1.1 El contexto comunal                                    4.3 Levantamiento dimensional
                      Ubicación, superficie y                               arquitectónico
    demografía                                                                          4.3.1 Planta Conjunto
                      Clima
                      Hidrografía                                                       4.3.2 Plantas edificio principal
                      Desarrollo Histórico                                              4.3.3 Elevaciones
                      Vialidad                                                          4.3.4 Cortes
                      Plan Regulador                                        4.4 Levantamiento dimensional estructural
                      Edificios de Valor histórico                                      4.4.1 Elevaciones Ejes
                      Proyecto Inmobiliario                                 Estructurales
               2.1.2 El edificio en su contexto
                      Catastro en terreno Uso de Suelo                      4.5 Levantamiento técnico constructivo
                      Catastro en terreno Alturas de                                    4.5.1 Muros
    Edificación
                                                                                        4.5.2 Arcos
                      Catastro en terreno Resistencia al
    Cambio                                                                              4.5.3 Pilares
                      Catastro en terreno Estado de                         4.6 Levantamiento de lesiones
    Conservación
                      Catastro en terreno Edificios                                     4.6.1 Lesiones de Fachada
    Importantes y
                                 Discordantes                               Principal
    2.2. Normativa vigente                                                              4.6.2 Lesiones de Fachada
                                                                            Poniente Interior
               2.2.1 El plan regulador comunal,
    entorno inmediato                                                                   4.6.3 Lesiones de Primer Piso
                                                                                        4.6.4 Prótesis
                                                                       5. Análisis patológico
                                                                            5.1 Análisis Patológico
                                                                            5.2 Criterios de intervención
                          Facultad de Arquitectura y Urbanismo   Departamento de Ciencias de la Construcción
 Universidad De Chile                                                                                                                 135
                                                                                                                                                 FICHA
 Patología                Ex Cervecería Andrés Ebner             Desglose de Contenidoslevantamiento de lesiones lesiones de fachada principal
                                                                                                                                                  1
4. Levantamientos de Información _ 4.5 Levantamiento técnico
constructivo

 4.5.1 Muro tipo




                                             Ladrillo dimensiones 30x15x7.5




                                         Capa de pintura de 1mm



                                                         Capa recubrimiento en revoque de
                                                         barro con paja de 3cm




                                                                              Mortero de pega 3.5cm




                            Facultad de Arquitectura y Urbanismo              Departamento de Ciencias de la Construcción
Universidad De Chile                                                                                                        136
                                                                                                                                  FICHA
Patología                   Ex Cervecería Andrés Ebner                        Levantamiento técnico constructivo/ muros
                                                                                                                                   1
4. Levantamientos de Información
4.6 Levantamiento de Lesiones




     En el nivel se identifican tres tipos de lesiones:
     a) Lesiones físicas, producto de humedad capilar, suciedad producto de aguas lluvias y erosión por
la acción atmosférica, que provoca perdida de material como pintura y revoque
     b) Lesiones mecánicas, como desprendimiento de material
     c) Lesiones químicas, como eflorescencias en algunas zonas.
    El estudio de lesiones permitió constatar modificaciones dentro de la estructura original de la obra,
específicamente rellenos y prótesis.
     En cuanto a los rellenos, es importante mencionar que son del mismo material en que se construyo
la obra, es decir ladrillo y cemento, su “mimesis” con los elementos originales hacen presumir que serian
modificaciones realizadas en la misma fecha de construcción.
    A diferencia de lo anterior las prótesis, se expresan de manera notoria, en diversos puntos del edificio
y con otra materialidad.




                            Facultad de Arquitectura y Urbanismo   Departamento de Ciencias de la Construcción
 Universidad De Chile                                                                                            137
                                                                                                                       FICHA
 Patología                  Ex Cervecería Andrés Ebner             Levantamiento de lesiones
4. Levantamientos de Información
        4.6 Levantamiento de Lesiones




            Perdidas de material




            Vegetación                        Rastros de humedad               Esflorescencias



                          Facultad de Arquitectura y Urbanismo   Departamento de Ciencias de la Construcción
Universidad De Chile                                                                                           138
                                                                                                                     FICHA
Patología                 Ex Cervecería Andrés Ebner             Levantamiento de lesiones
4.5. levantamiento técnico constructivo
  4.5.3 Pilares

   Tipo 3

  Se Basa en el Tipo 1, de planta cuadrada, Se
  conforma por el cubo hasta la cota 1.75 recubierto en
  los 4 lados por mortero de 2.5 cm, y una capa de
  pintura.




                  Planta cuadrada 1.06mX1.06m



                   Mortero 2.5 cm.


Ladrillo
40x20x6cm.




                                     Pintura




                              Facultad de Arquitectura y Urbanismo   Departamento de Ciencias de la Construcción
    Universidad De Chile                                                                                           139
    Patología                 Ex Cervecería Andrés Ebner             Levantamiento técnico constructivo/ Pilares
4. Levantamientos de Información _ 4.6 Levantamiento de Lesiones
4.6.1 Lesiones de Fachada Principal




        La fachada principal se divide en zonas para analizar las lesiones.




                            Facultad de Arquitectura y Urbanismo              Departamento de Ciencias de la Construcción
Universidad De Chile                                                                                                                     140
                                                                                                                                               FICHA
Patología                   Ex Cervecería Andrés Ebner                        Levantamiento de lesiones/ lesiones de fachada principal
Arquitecto
                                                CASA EN EL TABO
PATRICIO OSORIO




             “Construir en madera me da la
              posibilidad de crear texturas y
     calidades espaciales distintas a las de
        otro material, me gusta su color, su
                                    aroma…”
                           PATRICIO OSORIO




  Curso: Construcción Avanzado I
  “Diseño constructivo en madera”
   Profesor: Luis Goldsack Jarpa
DESCRIPCION DEL EDIFICIO
Espacial




           Bajo el entrepiso; espacios humedos, iluminados       hall de acceso; espacio de doble altura que
           por vanos que dan hacia el oriente, y un espacio     conecta visualmente con el segundo piso. Bien
           destinado a dormitorio, el cual se funde con la      iluminado gracias a los ventanales del frontis de
           luminosidad del hall                                 la casa

           .




            No se percibe una fuerte segmentación espacial,
                    al contrario, la poca cantidad de limites
                  espacio-visuales permite tener una visión
                                       unitaria del conjunto.
DESCRIPCION DEL EDIFICIO

Espacial




           En el segundo piso se ubica el sector
           privado, conformado por dos dormitorios
           limitados por un perchero de 1mt de
           largo. La escalera se presenta como el
           articulador espacial entre ambos niveles.
DESCRIPCION DEL EDIFICIO

Espacial



                                      Corte
PROCESO CONSTRUCTIVO EN ETAPAS ESQUEMÁTICAS
PROCESO CONSTRUCTIVO EN ETAPAS ESQUEMÁTICAS
PROCESO CONSTRUCTIVO EN ETAPAS ESQUEMÁTICAS
PROCESO CONSTRUCTIVO EN ETAPAS ESQUEMÁTICAS
PROCESO CONSTRUCTIVO EN ETAPAS ESQUEMÁTICAS
PROCESO CONSTRUCTIVO EN ETAPAS ESQUEMÁTICAS
PROCESO CONSTRUCTIVO EN ETAPAS ESQUEMÁTICAS
PROCESO CONSTRUCTIVO EN ETAPAS ESQUEMÁTICAS
PROCESO CONSTRUCTIVO EN ETAPAS ESQUEMÁTICAS
PROCESO CONSTRUCTIVO EN ETAPAS ESQUEMÁTICAS
DESCRIPCIÓN ESTRUCTURAL
           Estructura de tabiques
           Tabique lateral oriente

Tabique arriostrado
con diagonales. Este
tabique une dos pisos
y en la separación se
observa una corrida                  INCLINACIÓN DE
                                     CUBIERTA
de vigas (pino radiata
45 x 700 mm) que
descansan sobre la                   30º
solera superior del
primer piso y sobre
este envigado
aparece una solera
inferior que toma los
pie derecho de la
                                                      INCLINACIÓN DE
continuación del
                                                      CUBIERTA
tabique en el segundo
piso. Pie derechos
modificados según                                     72º
vanos).
Consta de tres
corridas de cadenetas
separadas a 50 cms
en altura.
En la parte inferior
presenta dos vanos y
en la parte superior
solo uno.
Las costaneras se
encuentran a 60cm de
distancia.

 Menú     inicio    salir
DESCRIPCIÓN ESTRUCTURAL
          Planta de fundaciones
          Estructura de tabiques
          Tabique lateral poniente


Tabique arriostrado
con diagonales. Este
tabique une dos pisos                       INCLINACIÓN DE
y en la separación se                             CUBIERTA
observa una corrida
de vigas (pino radiata                              30º
45 x 700 mm) que
descansan sobre la
solera superior del
primer piso y sobre
este envigado
aparece una solera         INCLINACIÓN DE
inferior que toma los            CUBIERTA
pie derecho de la
continuación del
tabique en el segundo
                                  72º
piso. Pie derechos
modificados según
vanos).
Consta de tres
corridas de cadenetas
separadas a 50 cms
en altura.
En la parte inferior
presenta un vano en
el primer piso y otro
en la parte superior.




Menú     inicio    salir
DESCRIPCIÓN ESTRUCTURAL
         Planta de fundaciones
         Estructura de tabiques
         Tabique frontal



Viga armada en
pino radiata. Pie
derechos de 45 x
75 mm,
diagonales de
igual escuadría.

Tabique arriostrado
con diagonales. Pie
derechos de 75 x 75
mm, diagonales de
45 x 75 mm.




 Menú   inicio      salir
DESCRIPCIÓN ESTRUCTURAL
         Ubicación de escantillones


En esta etapa
destacamos
encuentros                  ESCANTILLÓN 1
                                                   ESCANTILLÓN 3
importantes y              Detalle fundación,
                                                   Detalle tabique frontal,
detalles                 encuentro tijeral con
                                                   encuentro tijeral con
constructivos                             pilar
                                                   solera superior
significativos en la
obra.
                               ESCANTILLÓN 0

                          Corte completo desde
                                fundación hasta
                          cubierta. Estructura y
                                 revestimientos.               ESCANTILLÓN 2

                                                               Detalle encuentro tijeral
                                                               con soleras y encastres




Menú    inicio   salir
DESCRIPCIÓN ESTRUCTURAL
                  ESCANTILLÓN 1
                        Detalle fundación


                                                           Viga secundaria en Pino radiata
                                   Pilar en pino radiata                     45 X 90 mm
                                            70 x 70 mm


                                 Viga maestra en Roble
                                        45 X 140 mm




                                            Cadeneta
                                     (maestra) en pino
                                               radiata
                                         45 x 140 mm



                                                                                         DETALLE DE
                                     Pilote de hormigón                           FUNDACIÓN EN OBRA
                                            prefabricado
                                             Diámetro 8”




Menú   inicio   salir                                                           Volver
DESCRIPCIÓN ESTRUCTURAL
                ESCANTILLÓN 1
                 Detalle fundación


                                                                                      Detalle fundación terraza


                                                    Viga maestra en Roble
                                                                                                Espárrago ø 20 mm
                                                    45 x 140 mm

                                                     Cadeneta en Pino Radiata             Viga maestra en Roble
                                                     5 x 70 mm                                    45 x 140 mm




                                                                                            Pilote de hormigón ø 8”
                                                            Espárrago ø 20
                                                            5 x 70 mm

                                                            Pilote de hormigón ø 8”




                                     Detalle espárrago en
                                       pilote dehormigón
Menú   inicio    salir                                                                                                Volver
DESCRIPCIÓN ESTRUCTURAL
                    ESCANTILLÓN 1                 Costanera en pino radiata          Tijeral en pino radiata
                Encuentro de tijeral con solera                45 x 70 mm            45 x 140 mm




                                                   Solera superior en pino radiata
                                                                      45 x 70 mm




                                                                                              Encastre en Viga
                                                                                             (tijeral) para evitar
                                                                                               deslizamiento de
                                                                                                          la pieza




Menú   inicio        salir                                                               Volver
DESCRIPCIÓN ESTRUCTURAL
        Planta de fundaciones      Encastre en tijerasl para evitar
                                     el deslizamiento de la pieza




Menú   inicio   salir                                                 Volver
DESCRIPCIÓN ESTRUCTURAL
            Encuentro tijeral con solera
                     inferior




                                 Viga maestra en Roble
                                         45 x 140 mm

                                Espárrago metálico
                                         ø 12 mm


                          Tijeral en pino radiata
                                   45 x 140 mm

                                                         Pilote de hormigón




Menú   inicio   salir                                                    Volver
DESCRIPCIÓN ESTRUCTURAL
         Detalle encastre del tijeral con la solera




                               A la viga se le hace un
                               calado (hombro) para
                               evitar el desplazamiento
                               por la pendiente que
                               trae ltoda a cubierta




Menú   inicio   salir                                     Volver
DESCRIPCIÓN ESTRUCTURAL
         Detalle conector tijerales




                                  Conector metálico en L
                                             Fe - 3 mm




                                      Tijeral en pino radiata
                                               45 x 140 mm



                                Costanera en pino radiata
                                             45 x 75 mm




Menú   inicio   salir                                           Volver
DESCRIPCIÓN ESTRUCTURAL
        Entramado estructural de la cubierta




Menú   inicio   salir                          Volver
DESCRIPCIÓN ESTRUCTURAL
         Axonométrico tabique frontal
           Planta estructura 2º piso

                                        Detalle de amarre de la viga
Este tabique
recibe una
importante carga
de cubierta que es
asumida por una
viga armada de
67 de alto, luego
las cargas
descienden por
unos pilares (pino
radiata 70 x 70
mm), para
finalmente llegar a
la viga maestra y
a la fundación
mediante estas.




 Menú   inicio   salir                       Volver
DESCRIPCIÓN ESTRUCTURAL
        Detalle de amarre de la viga de
        segundo piso con el tabique




Menú   inicio   salir                     Volver
DESCRIPCIÓN ESTRUCTURAL
        Detalle encuentro del Tijeral   A la viga se le hace un
                                        encastrado (hombro)
        con la solera superior          para evitar el
                                        desplazamiento de la
                                        cubierta




Menú   inicio   salir                                 Volver
PROGRAMA DE ESPACIOS PUBLICOS -2007
 PLAZA PATRIMONIALES CALETA TORTEL ZONA TIPICA
PLAZAS CALETA TORTEL ZONA TIPICA
           PROYECTO




                                                                                                                                                                                                                                                                                                                                                                                                                                                                                                                                                                                                                                                                                                                                                                                                                                                                                                                                                                                                                                                                                                                                                                                                                                                                                                                                                                                                                                                                                                                                                                                                                                                                                                                                                                         L 10
                                                                                                                                                                                                                                                                                                                                                                                                                                                                                                                                                                                                                                                                                                                                                                                                                                                                                                                                                                                                                                                                                                                                                                                                                                                                                                                                                                                                                                                                                                                                                                                                                                                                                                                                                                  L ON T UD NA
                                                                                                                                                                                                                                                                                                                                                                                                                                                                                                                                                                                                                                                                                                                                                                                                                                                                                                                                                                                                                                                                                                                                                                                                                                                                                                                                                                                                                                                                                                                                                                                                                                                                                                                                                                      GI   I




                                                                                                                                                                                                                                                                                                                                                                                                                                                                                                                                                                                                                                                                                                                                                                                                                                                                                                                                                                                                                                                                                                                                                                                                                                                                                                                                                                                                                                                                                                                                                                                                                                                                                                                                                                                                                                                                                                                                                                                                                                                                                                                                          ICO
                                                                                                                                                                                                                                                                                                                                                                                                                                                                                                                                                                                                                                                                                                                                                                                                                                                                                                                                                                                                                                                                                                                                                                                                                                                                                                                                                                                                                                                                                                                                                                                                                                                                                                                                                                                                                                                                                                                                                                                                                                                                                                                                      PUBL




                                                                                                                                                                                                                                                                                                                                                                                                                                                                                                                                                                                                                                                                                                                                                                                                                                                                                                                                                                                                                                                                                                                                                                                                                                                                                                                                                                                                                                                                                                                                                                                                                                                                                                                                                                                                                                                                                                                                                                                                                                                                                                                                                          E
                                                                                                                                                                                                                                                                                                                                                                                                                                                                                                                                                                                                                                                                                                                                                                                                                                                                                                                                                                                                                                                                                                                                                                                                                                                                                                                                                                                                                                                                                                                                                                                                                                                                                                                                                                                                                                                                                                                                                                                                                                                                                                                                                     H RAN
                                                                                                                                                                                                                                                                                                                                                                                                                                                                                                                                                                                                                                                                                                                                                                                                                                                                                                                                                                                                                                                                                                                                                                                                                                                                                                                                                                                                                                                                                                                                                                                                                                                                                                                                                                                                                                                                                                                                                                                                                                                                                                                                INO




                                                                                                                                                                                                                                                                                                                                                                                                                                                                                                                                                                                                                                                                                                                                                                                                                                                                                                                                                                                                                                                                                                                                                                                                                                                                                                                                                                                                                                                                                                                                                                                                                                                                                                                                                                                                                                                                                                                                                                                                                                                                                                                                                                           ICO
                                                                                                                                                                                                                                                                                                                                                                                                                                                                                                                                                                                                                                                                                                                                                                                                                                                                                                                                                                                                                                                                                                                                                                                                                                                                                                                                                                                                                                                                                                                                                                                                                                                                                                                                                                                                                                                                                                                                                                                                                                                                                                                                                A COC
                                                                                                                                                                                                                                                                                                                                                                                                                                                                                                                                                                                                                                                                                                                                                                                                                                                                                                                                                                                                                                                                                                                                                                                                                                                                                                                                                                                                                                                                                                                                                                                                                                                                                                                                                                                                                                                                                                                                                                                                                                                                                                                             CAM




                                                                                                                                                                                                                                                                                                                                                                                                                                                                                                                                                                                                                                                                                                                                                                                                                                                                                                                                                                                                                                                                                                                                                                                                                                                                                                                                                                                                                                                                                                                                                                                                                                                                                                                                                                                                                                                                                                                                                                                                                                                                                                                                                                    PUBL
                                                                                                                                                                                                                                                                                                                                                                                                                                                                                                                                                                                                                                                                                                                                                                                                                                                                                                                                                                                                                                                                                                                                                                                                                                                                                                                                                                                                                                                                                                                                                                                                                                                                                                                                           L 40




                                                                                                                                                                                                                                                                                                                                                                                                                                                                                                                                                                                                                                                                                                                                                                                                                                                                                                                                                                                                                                                                                                                                                                                                                                                                                                                                                                                                                                                                                                                                                                                                                                                                                                                                                                                                                                                                                                                                                                                                                                                                                                                      FAJA
                                                                                                                                                                                                                                                                                                                                                                                                                                                                                                                                                                                                                                                                                                                                                                                                                                                                                                                                                                                                                                                                                                                                                                                                                                                                                                                                                                                                                                                                                                                                                                                                                                                                                                                                  V RS
                                                                                                                                                                                                                                                                                                                                                                                                                                                                                                                                                                                                                                                                                                                                                                                                                                                                                                                                                                                                                                                                                                                                                                                                                                                                                                                                                                                                                                                                                                                                                                                                                                                                                                                                NS E
                                                                                                                                                                                                                                                                                                                                                                                                                                                                                                                                                                                                                                                                                                                                                                                                                                                                                                                                                                                                                                                                                                                                                                                                                                                                                                                                                                                                                                                                                                                                                                                                                                                                                                                                      A




                                                                                                                                                                                                                                                                                                                                                                                                                                                                                                                                                                                                                                                                                                                                                                                                                                                                                                                                                                                                                                                                                                                                                                                                                                                                                                                                                                                                                                                                                                                                                                                                                                                                                                                                                                                                                                                                                                                                                                                                                                                                                                                                                                 I NO
                                                                                                                                                                                                                                                                                                                                                                                                                                                                                                                                                                                                                                                                                                                                                                                                                                                                                                                                                                                                                                                                                                                                                                                                                                                                                                                                                                                                                                                                                                                                                                                                                                                                                                                       TRA




                                                                                                                                                                                                                                                                                                                                                                                                                                                                                                                                                                                                                                                                                                                                                                                                                                                                                                                                                                                                                                                                                                                                                                                                                                                                                                                                                                                                                                                                                                                                                                                                                                                                                                                                                                                                                                                                                                                                                                                                                                                                                                                                                              CAM
                                                                                                                                                                                                                                                                                                                                                                                                                                                                                                                                                                                                                                                                                                                                                                                                                                                                                                                                                                                                                                                                                                                                                                                                                                                                                                                                                                                                                                                                                                                                                                                                                                                                                                                                                                                                                                                                                                                                                                                                                                                                                                                                                       FAJA
                                                                                                                                                                                                                                                                                                                                                                                                                                                                                                                                                                                                                                                                                                                                                                                                                                                                                                                                                                                                                                                                                                                                                                                                                                                                                                                                                                                                                                                                                                                                                                                                                                                                                                                                                                                                                                                                                                                                                                                                                                                                                                   CO
                                                                                                                                                                                                                                                                                                                                                                                                                                                                                                                                                                                                                                                                                                                                                                                                                                                                                                                                                                                                                                                                                                                                                                                                                                                                                                                                                                                                                                                                                                                                                                                                                                                                                                                                                                                                                                                                                                                                                                                                                                                                                              PUBLI
                                                                                                                                                                                                                                                                                                                                                                                                                                                                                                                                                                                                                                                                                                                                                                                                                                                                                                                                                                                                                                                                                                                                                                                                                                                                                                                                                                                                                                                                                                                                                                                                                                                                                                                                                                                                                                                                                                                                                                                                                                                                                         NO
                                                                                                                                                                                                                                                                                                                                                                                                                                                                                                                                                                                                                                                                                                                                                                                                                                                                                                                                                                                                                                                                                                                                                                                                                                                                                                                                                                                                                                                                                                                                                                                                                                                                                                                                                                                                                                                                                                                                                                                                                                                                                 C AMI
                                                                                                                                                                                                                                                                                                                                                                                                                                                                                                                                                                                                                                                                                                                                                                                                                                                                                                                                                                                                                                                                                                                                                                                                                                                                                                                                                                                                                                                                                                                                                                                                                                                                                                                                                                                                                                                                                                                                                                                                                                                       FAJA
                                                                                                                                                                                                                                                                                                                                                                                                                                                                                                                                                                                                                                                                                                                                                                                                                                                                                                                                                                                                                                                                                                                                                                                                                                                                                                                                                                                                                                                                                                                                                                                                                                                                                                                                                                                                                                                                                                                                                                                                                                                                                                 O
                                                                                                                                                                                                                                                                                                                                                                                                                                                                                                                                                                                                                                                                                                                                                                                                                                                                                                                                                                                                                                                                                                                                                                                                                                                                                                                                                                                                                                                                                                                                                                                                                                                                                                                                                                                                                                                                                                                                                                                                                                                                                          BLIC
                                                                                                                                                                                                                                                                                                                                                                                                                                                                                                                                                                                                                                                                                                                                                                                                                                                                                                                                                                                                                                                                                                                                                                                                                                                                                                                                                                                                                                                                                                                                                                                                                                                                                                                                                                                                                                                                                                                                                                                                                                                                                   O PU
                                                                                                                                                                                                                                                                                                                                                                                                                                                                                                                                                                                                                                                                                                                                                                                                                                                                                                                                                                                                                                                                                                                                                                                                                                                                                                                                                                                                                                                                                                                                                                                                                                                                                                                                                                                                                                                                                                                                                                                                                                                         CAMIN                                               CO
                                                                                                                                                                                                                                                                                                                                                                                                                                                                                                                                                                                                                                                                                                                                                                                                                                                                                                                                                                                                                                                                                                                                                                                                                                                                                                                                                                                                                                                                                                                                                                                                                                                                                                                                                                                                                                                                                                                                                                                                                                                                                                      UBLI
                                                                                                                                                                                                                                                                                                                                                                                                                                                                                                                                                                                                                                                                                                                                                                                                                                                                                                                                                                                                                                                                                                                                                                                                                                                                                                                                                                                                                                                                                                                                                                                                                                                                                                                                                                                                                                                                                                                                                                                                                                                                                                 OP
                                                                                                                                                                                                                                                                                                                                                                                                                                                                                                                                                                                                                                                                                                                                                                                                                                                                                                                                                                                                                                                                                                                                                                                                                                                                                                                                                                                                                                                                                                                                                                                                                                                                                                                                                                                                                                                                                                                                                                                                                                                                                       A CAMIN
                                                                                                                                                                                                                                                                                                                                                                                                                                                                                                                                                                                                                                                                                                                                                                                                                                                                                                                                                                                                                                                                                                                                                                                                                                                                                                                                                                                                                                                                                                                                                                                                                                                                                                                                                                                                                                                                                                                                                                                                                                                                                 FAJ




                                                                                                                                                                                                                                                                                                                                                                                                                                                                                                                                                                                                                                                                                                                                                                                                                                                                                                                                                                                                                                                                                                                                                                                                                                                                                                                                                                                                                                                                                                                                                                                                                                     A L 16
                                                                                                                                                                                                                                                                                                                                                                                                                                                                                                                                                                                                                                                                                                                                                                                                                                                                                                                                                                                                                                                                                                                                                                                                                                                                                                                                                                                                                                                                                                                                                                                                                                  DIN
                                                                                                                                                                                                                                                                                                                                                                                                                                                                                                                                                                                                                                                                                                                                                                                                                                                                                                                                                                                                                                                                                                                                                                                                                                                                                                                                                                                                                                                                                                                                                                                                                              GT U
                                                                                                                                                                                                                                                                                                                                                                                                                                                                                                                                                                                                                                                                                                                                                                                                                                                                                                                                                                                                                                                                                                                                                                                                                                                                                                                                                                                                                                                                                                                                                                                                                               I
                                                                                                                                                                                                                                                                                                                                                                                                                                                                                                                                                                                                                                                                                                                                                                                                                                                                                                                                                                                                                                                                                                                                                                                                                                                                                                                                                                                                                                                                                                                                                                                                                          LON




                                                                                                                                                                                                                                                                                                                                                                                                                                                                                                                                                                                                                                                                                                                                                                                                                                                                                                                                                                                                                                                                                                                                                                                                                                                                                                                                                                                                                                                                                                                                                                                                                                                                                                                                                                                                                                                                                                        TORTEL
                                                                                                                                                                                                                                                                                                                                                                                                                                                                                                                                                                                                                                                                                                                                                                                                                                                                                                                                                                                                                                                                                                                                                                                                                                                                                                                                                                                                                                                                                                                                                                                                                                                                                                                                                     UDI A L 10
                                                                                                                                                                                                                                                                                                                                                                                                                                                                                                                                                                                                                                                                                                                                                                                                                                                                                                                                                                                                                                                                                                                                                                                                                                                                                                                                                                                                                                                                                                                                                                                                                                                                                                                                                       N
                                                                                                                                                                                                                                                                                                                                                                                                                                                                                                                                                                                                                                                                                                                                                                                                                                                                                                                                                                                                                                                                                                                                                                                                                                                                                                                                                                                                                                                                                                                                                                                                                                                                                                                                                       T
                                                                                                                                                                                                                                                                                                                                                                                                                                                                                                                                                                                                                                                                                                                                                                                                                                                                                                                                                                                                                                                                                                                                                                                                                                                                                                                                                                                                                                                                                                                                                                                                                                                                                                                                                  L ONGI




                                                                                                                                                                                                                                                                                                                                                                                                                                                                                                                                                                                                                                                                                                                                                                                                                                                                                                                                                                                                                                                                                                                                                                                                                                                                                                                                                                                                                                                                                                                                                                                                                                                                                                                                                                                                                                                                                          A A CALETA
                                                                                                                                                                                                                                                                                                                                                                                                                                                                                                                                                                                                                                                                                                                                                                                                                                                                                                                                                                                                                                                                                                                                                                                                                                                                                                                                                                                                                                                                                                                                                                                                                                                                                                            L
                                                                                                                                                                                                                                                                                                                                                                                                                                                                                                                                                                                                                                                                                                                                                                                                                                                                                                                                                                                                                                                                                                                                                                                                                                                                                                                                                                                                                                                                                                                                                                                                                                                                                                           A 39
                                                                                                                                                                                                                                                                                                                                                                                                                                                                                                                                                                                                                                                                                                                                                                                                                                                                                                                                                                                                                                                                                                                                                                                                                                                                                                                                                                                                                                                                                                                                                                                                                                                                                                   SVERS
                                                                                                                                                                                                                                                                                                                                                                                                                                                                                                                                                                                                                                                                                                                                                                                                                                                                                                                                                                                                                                                                                                                                                                                                                                                                                                                                                                                                                                                                                                                                                                                                                                                                                             T RA N




                                                                                                                                                                                                                                                                                                                                                                                                                                                                                                                                                                                                                                                                                                                                                                                                                                                                                                                                                                                                                                                                                                                                                                                                                                                                                                                                                                                                                                                                                                                                                                                                                                              TR
                                                                                                                                                                                                                                                                                                                                                                                                                                                                                                                                                                                                                                                                                                                                                                                                                                                                                                                                                                                                                                                                                                                                                                                                                                                                                                                                                                                                                                                                                                                                                                                                                                                AN
                                                                                                                                                                                                                                                                                                                                                                                                                                                                                                                                                                                                                                                                                                                                                                                                                                                                                                                                                                                                                                                                                                                                                                                                                                                                                                                                                                                                                                                                                                                                                                                                                                                  S VER
                                                                                                                                                                                                                                                                                                                                                                                                                                                                                                                                                                                                                                                                                                                                                                                                                                                                                                                                                                                                                                                                                                                                                                                                                                                                                                                                                                                                                                                                                                                                                                                                                                                          SA
                                                                                                                                                                                                                                                                                                                                                                                                                                                                                                                                                                                                                                                                                                                                                                                                                                                                                                                                                                                                                                                                                                                                                                                                                                                                                                                                                                                                                                                                                                                                                                                                                                                               L38




                                                                                                                                                                                                                                                                                                                                                                                                                                                                                                                                                                                                                                                                                                                                                                                                                                                                                                                                                                                                                                                                                                                                                                                                                                                                                                                                                                                                                                                                                                                                                                                                                                                                                                                                                                                                                                                                                    LLEGAD
                                                                                                                                                                                                                                                                                                                                                                                                                                                                                                                                                                                                                                                                                                                                                                                                                                                                                                                                                                                                                                                                                                                                                                                                                                                                                                                                                                                                                                                                                                                                                                                                                                                                                                                                            POSTA

                                                                                                                                                                                                                                                                                                                                                                                                                                                                                                                                                                                                                                                                                                                                                                                                                                                                                                                                                                                                                                                                                                                                                                                                                                                                                                                                                                                                                                                                                                                                                    T RA
                                                                                                                                                                                                                                                                                                                                                                                                                                                                                                                                                                                                                                                                                                                                                                                                                                                                                                                                                                                                                                                                                                                                                                                                                                                                                                                                                                                                                                                                                                                                                        NS VE    RS A 36
                                                                                                                                                                                                                                                                                                                                                                                                                                                                                                                                                                                                                                                                                                                                                                                                                                                                                                                                                                                                                                                                                                                                                                                                                                                                                                                                                                                                                                                                                                                                                                     L




                                                                                                                                                                                                                                                                                                                                                                                                                                                                                                                                                                                                                                                                                                                                                                                                                                                                                                                                                                                                                                                                                                                                                                                                                                                                                                                                                                                                                                                                                                                                                                                                                                                                                                                                                                                                                                                                                                                          N L 13
                                                                                                                                                                                                                                                                                                                                                                                                                                                                                                                                                                                                                                                                                                                                                                                                                                                                                                                                                                                                                                                                                                                                                                                                                                                                                                                                                                                                                                                                                                                                                                                                                                                                                                                                                                                                                                                                                                                           AUDI
                                                                                                                                                                                                                                                                                                                                                                                                                                                                                                                                                                                                                                                                                                                                                                                                                                                                                                                                                                                                                                                                                                                                                                                                                                                                                                                                                                                                                                                                                                                                                                                                                                                                                                                                                                                                                                                                                                                    L ONGI T
                                                                                                                                                                                                                                                                                                                                                                                                                                                                                                                                                                                                                                                                                                                                                                                                                                                                                                                                                                                                                                                                                                                                                                                                                                                                                                                                                                                                                                                                                                                                                                                                                                                                                                                                                                                                                                                             LON




                                                                                                                                                                                                                                                                                                                                                                                                                                                                                                                                                                                                                                                                                                                                                                                                                                                                                                                                                                                                                                                                                                                                                                                                                                                                                                                                                                                                                                                                                                                                                                                                                                                                   10
                                                                                                                                                                                                                                                                                                                                                                                                                                                                                                                                                                                                                                                                                                                                                                                                                                                                                                                                                                                                                                                                                                                                                                                                                                                                                                                                                                                                                                                                                                                                                                                                                                                                                                                                                                                                                                                                    GT
                                                                                                                                                                                                                                                                                                                                                                                                                                                                                                                                                                                                                                                                                                                                                                                                                                                                                                                                                                                                                                                                                                                                                                                                                                                                                                                                                                                                                                                                                                                                                                                                                                                                                                                                                                                                                                                                     I U




                                                                                                                                                                                                                                                                                                                                                                                                                                                                                                                                                                                                                                                                                                                                                                                                                                                                                                                                                                                                                                                                                                                                                                                                                                                                                                                                                                                                                                                                                                                                                                                                                                                               NA L
                                                                                                                                                                                                                                                                                                                                                                                                                                                                                                                                                                                                                                                                                                                                                                                                                                                                                                                                                                                                                                                                                                                                                                                                                                                                                                                                                                                                                                                                                                                                                                                                                                                                                                                                                                                                                                                                        DIN
                                                                                                                                                                                                                                                                                                                                                                                                                                                                                                                                                                                                                                                                                                                                                                                                                                                                                                                                                                                                                                                                                                                                                                                                                                                                                                                                                                                                                                                                                                                                                                                                                                                                                                                                                                                                                                                                           A L 42
                                                                                                                                                                                                                                                                                                                                                                                                                                                                                                                                                                                                                                                                                                                                                                                                                                                                                                                                                                                                                                                                                                                                                                                                                                                                                                                                                                                                                                                                                                                                                                                                                                                                             T R NS V E S A 3 7
                                                                                                                                                                                                                                                                                                                                                                                                                                                                                                                                                                                                                                                                                                                                                                                                                                                                                                                                                                                                                                                                                                                                                                                                                                                                                                                                                                                                                                                                                                                                                                                                                                                                                       R L




                                                                                                                                                                                                                                                                                                                                                                                                                                                                                                                                                                                                                                                                                                                                                                                                                                                                                                                                                                                                                                                                                                                                                                                                                                                                                                                                                                                                                                                                                                                                                                                                                                                             UDI
                                                                                                                                                                                                                                                                                                                                                                                                                                                                                                                                                                                                                                                                                                                                                                                                                                                                                                                                                                                                                                                                                                                                                                                                                                                                                                                                                                                                                                                                                                                                                                                                                                                                                A




                                                                                                                                                                                                                                                                                                                                                                                                                                                                                                                                                                                                                                                                                                                                                                                                                                                                                                                                                                                                                                                                                                                                                                                                                                                                                                                                                                                                                                                                                                                                                                                                                                                         GI T
                                                                                                                                                                                                                                                                                                                                                                                                                                                                                                                                                                                                                                                                                                                                                                                                                                                                                                                                                                                                                                                                                                                                                                                                                                                                                                                                                                                                                                                                                                                                                                                                                                                     L ON
                                                                                                                                                                                                                                                                                                                                                                                                                                                                                                                                                                                                                                                                                                                                                                                                                                                                                                                                                                                                                                                                                                                                                                                                                                                                                                                                                                                                                                                                                                                                                               11
                                                                                                                                                                                                                                                                                                                                                                                                                                                                                                                                                                                                                                                                                                                                                                                                                                                                                                                                                                                                                                                                                                                                                                                                                                                                                                                                                                                                                                                                                                                                                             AL
                                                                                                                                                                                                                                                                                                                                                                                                                                                                                                                                                                                                                                                                                                                                                                                                                                                                                                                                                                                                                                                                                                                                                                                                                                                                                                                                                                                                                                                                                                                                                          DIN
                                                                                                                                                                                                                                                                                                                                                                                                                                                                                                                                                                                                                                                                                                                                                                                                                                                                                                                                                                                                                                                                                                                                                                                                                                                                                                                                                                                                                                                                                                                                                       I TU
                                                                                                                                                                                                                                                                                                                                                                                                                                                                                                                                                                                                                                                                                                                                                                                                                                                                                                                                                                                                                                                                                                                                                                                                                                                                                                                                                                                                                                                                                                                                                     NG
                                                                                                                                                                                                                                                                                                                                                                                                                                                                                                                                                                                                                                                                                                                                                                                                                                                                                                                                                                                                                                                                                                                                                                                                                                                                                                                                                                                                                                                                                                                                                    LO
                                                                                                                                                                                                                                                                                                                                                                                                                                                                                                                                                                                                                                                                                                                                                                                                                                                                                                                                                                                                                                                                                                                                                                                                                                                                                                                                                                                                                                                                                                                                                                                                                                                                                                                                                                                                                                                                                                                                                                                                                                          L ON
                                                                                                                                                                                                                                                                                                                                                                                                                                                                                                                                                                                                                                                                                                                                                                                                                                                                                                                                                                                                                                                                                                                                                                                                                                                                                                                                                                                                                                                                                                                                                                                                                                                                                                                                                                                                                                                                                                                                                                                                                                                 GT
                                                                                                                                                                                                                                                                                                                                                                                                                                                                                                                                                                                                                                                                                                                                                                                                                                                                                                                                                                                                                                                                                                                                                                                                                                                                                                                                                                                                                                                                                                                                                                                                                                                                                                                                                                                                                                                                                                                                                                                                                                                  I UD
                                                                                                                                                                                                                                                                                                                                                                                                                                                                                                                                                                                                                                                                                                                                                                                                                                                                                                                                                                                                                                                                                                                                                                                                                                                                                                                                                                                                                                                                                                                                                                                                                                                                                                                                                                                                                                                                                                                                                                                                                                                      INAL    42




                                                                                                                                                                                                                                                                                                                                                                                                                                                                                                                                                                                                                                                                                                                                                                                                                                                                                                                                                                                                                                                                                                                                                                                                                                                                                                                                                                                                                                                                                                                                                                                                                                                                                                                                                                                                                         A L 12
                                                                                                                                                                                                                                                                                                                                                                                                                                                                                                                                                                                                                                                                                                                                                                                                                                                                                                                                                                                                                                                                                                                                                                                                                                                                                                                                                                                                                                                                                                                                                                                                                                                                                                                                                                                                                      DIN
                                                                                                                                                                                                                                                                                                                                                                                                                                                                                                                                                                                                                                                                                                                                                                                                                                                                                                                                                                                                                                                                                                                                                                                                                                                                                                                                                                                                                                                                                                                                               TRA NS V
                                                                                                                                                                                                                                                                                                                                                                                                                                                                                                                                                                                                                                                                                                                                                                                                                                                                                                                                                                                                                                                                                                                                                                                                                                                                                                                                                                                                                                                                                                                                                       E RS A 3 5
                                                                                                                                                                                                                                                                                                                                                                                                                                                                                                                                                                                                                                                                                                                                                                                                                                                                                                                                                                                                                                                                                                                                                                                                                                                                                                                                                                                                                                                                                                                                                             L




                                                                                                                                                                                                                                                                                                                                                                                                                                                                                                                                                                                                                                                                                                                                                                                                                                                                                                                                                                                                                                                                                                                                                                                                                                                                                                                                                                                                                                                                                                                                                                                                                                                                                                                                                                                                                    TU
                                                                                                                                                                                                                                                                                                                                                                                                                                                                                                                                                                                                                                                                                                                                                                                                                                                                                                                                                                                                                                                                                                                                                                                                                                                                                                                                                                                                                                                                                                                                                                                                                                                                                                                                                                                                                   GI
                                                                                                                                                                                                                                                                                                                                                                                                                                                                                                                                                                                                                                                                                                                                                                                                                                                                                                                                                                                                                                                                                                                                                                                                                                                                                                                                                                                                                                                                                                                                                                                                                                                                                                                                       A
                                                                                                                                                                                                                                                                                                                                                                                                                                                                                                                                                                                                                                                                                                                                                                                                                                                                                                                                                                                                                                                                                                                                                                                                                                                                                                                                                                                                                                                                                                                                                                                                                               42




                                                                                                                                                                                                                                                                                                                                                                                                                                                                                                                                                                                                                                                                                                                                                                                                                                                                                                                                                                                                                                                                                                                                                                                                                                                                                                                                                                                                                                                                                                                                                                                                                                                                                                                                   10-
                                                                                                                                                                                                                                                                                                                                                                                                                                                                                                                                                                                                                                                                                                                                                                                                                                                                                                                                                                                                                                                                                                                                                                                                                                                                                                                                                                                                                                                                                                                                                                                                                              1.




                                                                                                                                                                                                                                                                                                                                                                                                                                                                                                                                                                                                                                                                                                                                                                                                                                                                                                                                                                                                                                                                                                                                                                                                                                                                                                                                                                                                                                                                                                                                                                                                                                                                                                                                                                                                             LON
                                                                                                                                                                                                                                                                                                                                                                                                                                                                                                                                                                                                                                                                                                                                                                                                                                                                                                                                                                                                                                                                                                                                                                                                                                                                                                                                                                                                                                                                                                                                                                                                                                                                                                                                                                                                                                               TR




                                                                                                                                                                                                                                                                                                                                                                                                                                                                                                                                                                                                                                                                                                                                                                                                                                                                                                                                                                                                                                                                                                                                                                                                                                                                                                                                                                                                                                                                                                                                                                                                                                                                                                                                N AL
                                                                                                                                                                                                                                                                                                                                                                                                                                                                                                                                                                                                                                                                                                                                                                                                                                                                                                                                                                                                                                                                                                                                                                                                                                                                                                                                                                                                                                                                                                                                                                                                                                                                                                                                                                                                                                                 AN
                                                                                                                                                                                                                                                                                                                                                                                                                                                                                                                                                                                                                                                                                                                                                                                                                                                                                                                                                                                                                                                                                                                                                                                                                                                                                                                                                                                                                                                                                                                                                                                                                                                                                                                                                                                                                                                   S VE




                                                                                                                                                                                                                                                                                                                                                                                                                                                                                                                                                                                                                                                                                                                                                                                                                                                                                                                                                                                                                                                                                                                                                                                                                                                                                                                                                                                                                                                                                                                                                                                                                                                                                                                                I
                                                                                                                                                                                                                                                                                                                                                                                                                                                                                                                                                                                                                                                                                                                                                                                                                                                                                                                                                                                                                                                                                                                                                                                                                                                                                                                                                                                                                                                                                                                                                                                                                                                                                                                        I TUD
                                                                                                                                                                                                                                                                                                                                                                                                                                                                                                                                                                                                                                                                                                                                                                                                                                                                                                                                                                                                                                                                                                                                                                                                                                                                                                                                                                                                                                                                                                                                                                                                                                                                                                                                                                                                                                                          R
                                                                                                                                                                                                                                                                                                                                                                                                                                                                                                                                                                                                                                                                                                                                                                                                                                                                                                                                                                                                                                                                                                                                                                                                                                                                                                                                                                                                                                                                                                                                                                                                                                                                                                                                                                                                                                                           SA L




                                                                                                                                                                                                                                                                                                                                                                                                                                                                                                                                                                                                                                                                                                                                                                                                                                                                                                                                                                                                                                                                                                                                                                                                                                                                                                                                                                                                                                                                                                                                                                                                                                                                                                                   NG
                                                                                                                                                                                                                                                                                                                                                                                                                                                                                                                                                                                                                                                                                                                                                                                                                                                                                                                                                                                                                                                                                                                                                                                                                                                                                                                                                                                                                                                                                                                                                                                                                                                                                                                                                                                                                                                               43




                                                                                                                                                                                                                                                                                                                                                                                                                                                                                                                                                                                                                                                                                                                                                                                                                                                                                                                                                                                                                                                                                                                                                                                                                                                                                                                                                                                                                                                                                                                                                                                                                                                                                                                  LO




                                                                                                                                                                                                                                                                                                                                                                                                                                                                                                                                                                                                                                                                                                                                                                                                                                                                                                                                                                                                                                                                                                                                                                                                                                                                                                                                                                                                                                                                                                                                                                                                                                                                                                                                                                                                                                                                                                                                                                                                                   15
                                                                                                                                                                                                                                                                                                                                                                                                                                                                                                                                                                                                                                                                                                                                                                                                                                                                                                                                                                                                                                                                                                                                                                                                                                                                                                                                                                                                                                                                                                                                                                                                                                                                                                                                                                                                                                                                                                                                                                       L1 4




                                                                                                                                                                                                                                                                                                                                                                                                                                                                                                                                                                                                                                                                                                                                                                                                                                                                                                                                                                                                                                                                                                                                                                                                                                                                                                                                                                                                                                                                                                                                                                                                                                                                                                                                                                                                                                                                                                                                                                                                                  NA L
                                                                                                                                                                                                                                                                                                                                                                                                                                                                                                                                                                                                                                                                                                                                                                                                                                                                                                                                                                                                                                                                                                                                                                                                                                                                                                                                                                                                                                                                                                                                                                                                                                                                                                                                                                                                                                                                                                                                                                        NA




                                                                                                                                                                                                                                                                                                                                                                                                                                                                                                                                                                                                                                                                                                                                                                                                                                                                                                                                                                                                                                                                                                                                                                                                                                                                                                                                                                                                                                                                                                                                                                                                                                                                                                                                                                                                                                                                                                                                                                                                               TUDI
                                                                                                                                                                                                                                                                                                                                                                                                                                                                                                                                                                                                                                                                                                                                                                                                                                                                                                                                                                                                                                                                                                                                                                                                                                                                                                                                                                                                                                                                                                                                                                                                                                                                                                                                                                                                                                                                                                                                                                    T UDI




                                                                                                                                                                                                                                                                                                                                                                                                                                                                                                                                                                                                                                                                                                                                                                                                                                                                                                                                                                                                                                                                                                                                                                                                                                                                                                                                                                                                                                                                                                                                                                                                                                                                                                                                                                                                                                                                                                                                                                                                           LONGI
                                                                                                                                                                                                                                                                                                                                                                                                                                                                                                                                                                                                                                                                                                                                                                                                                                                                                                                                                                                                                                                                                                                                                                                                                                                                                                                                                                                                                                                                                                                                                                                                                                                                                                                                                                                                                                                                                                                                                               L ONGI
                                                                                                                                                                                                                                                                                                                                                                                                                                                                                                                                                                                                                                                                                                                                                                                                                                                                                                                                                                                                                                                                                                                                                                                                                                                                                                                                                                                                                                                                                                                                        10
                                                                                                                                                                                                                                                                                                                                                                                                                                                                                                                                                                                                                                                                                                                                                                                                                                                                                                                                                                                                                                                                                                                                                                                                                                                                                                                                                                                                                                                                                                                                      AL
                                                                                                                                                                                                                                                                                                                                                                                                                                                                                                                                                                                                                                                                                                                                                                                                                                                                                                                                                                                                                                                                                                                                                                                                                                                                                                                                                                                                                                                                                                                                 DN
                                                                                                                                                                                                                                                                                                                                                                                                                                                                                                                                                                                                                                                                                                                                                                                                                                                                                                                                                                                                                                                                                                                                                                                                                                                                                                                                                                                                                                                                                                                                  I
                                                                                                                                                                                                                                                                                                                                                                                                                                                                                                                                                                                                                                                                                                                                                                                                                                                                                                                                                                                                                                                                                                                                                                                                                                                                                                                                                                                                                                                                                                                              GI TU
                                                                                                                                                                                                                                                                                                                                                                                                                                                                                                                                                                                                                                                                                                                                                                                                                                                                                                                                                                                                                                                                                                                                                                                                                                                                                                                                                                                                                                                                                                                           LON




                                                                                                                                                                                                                                                                                                                                                                                                                                                                                                                                                                                                                                                                                                                                                                                                                                                                                                                                                                                                                                                                                                                                                                                                                                                                                                                                                                                                                                                                                                                                                                                                                                                                                                                                                                                                                             A
                                                                                                                                                                                                                                                                                                                                                                                                                                                                                                                                                                                                                                                                                                                                                                                                                                                                                                                                                                                                                                                                                                                                                                                                                                                                                                                                                                                                                                                                                                                                                                                                                                                                                                                                                                                                                          E C
                                                                                                                                                                                                                                                                                                                                                                                                                                                                                                                                                                                                                                                                                                                                                                                                                                                                                                                                                                                                                                                                                                                                                                                                                                                                                                                                                                                                                                                                                                                                                                                                                                                                                                                                                                                                                           S
                                                                                                                                                                                                                                                                                                                                                                                                                                                                                                                                                                                                                                                                                                                                                                                                                                                                                                                                                                                                                                                                                                                                                                                                                                                                                                                                                                                                                                                                                                                                                                                                                                                                                                                                                                                                                        EP
                                                                                                                                                                                                                                                                                                                                                                                                                                                                                                                                                                                                                                                                                                                                                                                                                                                                                                                                                                                                                                                                                                                                                                                                                                                                                                                                                                                                                                                                                                                                                                                                                                                                                                                                                                                                                 BR C L
                                                                                                                                                                                                                                                                                                                                                                                                                                                                                                                                                                                                                                                                                                                                                                                                                                                                                                                                                                                                                                                                                                                                                                                                                                                                                                                                                                                                                                                                                                                                                                                                                                                                                                                                                                                                               UM S A
                                                                                                                                                                                                                                                                                                                                                                                                                                                                                                                                                                                                                                                                                                                                                                                                                                                                                                                                                                                                                                                                                                                                                                                                                                                                                                                                                                                                                                                                                                                                                                                                                                                                                                                                                                                                                     ED
                                                                                                                                                                                                                                                                                                                                                                                                                                                                                                                                                                                                                                                                                                                                                                                                                                                                                                                                                                                                                                                                                                                                                                                                                                                                                                                                                                                                                                                                                                                                                                                                                                                                                                                                                                                                            I D O FI
                                                                                                                                                                                                                                                                                                                                                                                                                                                                                                                                                                                                                                                                                                                                                                                                                                                                                                                                                                                                                                                                                                                                                                                                                                                                                                                                                                                                                                                                                                                                                                                                                                                                                                                                                                                                          RV N
                                                                                                                                                                                                                                                                                                                                                                                                                                                                                                                                                                                                                                                                                                                                                                                                                                                                                                                                                                                                                                                                                                                                                                                                                                                                                                                                                                                                                                                                                                                                                                                                                                                                                                                                                                                                        SE R E
                                                                                                                                                                                                                                                                                                                                                                                                                                                                                                                                                                                                                                                                                                                                                                                                                                                                                                                                                                                                                                                                                                                                                                                                                                                                                                                                                                                                                                                                             TRA                                                                                                                                                                                                                                                                                                                                                                                                                                                                        T RA V
                                                                                                                                                                                                                                                                                                                                                                                                                                                                                                                                                                                                                                                                                                                                                                                                                                                                                                                                                                                                                                                                                                                                                                                                                                                                                                                                                                                                                                                                                                                                                                                                                                                                                                                                                                                                                                                                                                                                                            NS




                                                                                                                                                                                                                                                                                                                                                                                                                                                                                                                                                                                                                                                                                                                                                                                                                                                                                                                                                                                                                                                                                                                                                                                                                                                                                                                                                                                                                                                                                                                                                                                                                                                                                                                                                                                                            R
                                                                                                                                                                                                                                                                                                                                                                                                                                                                                                                                                                                                                                                                                                                                                                                                                                                                                                                                                                                                                                                                                                                                                                                                                                                                                                                                                                                                                                                                                                                                                                                                                                                                                                                                                                                                                                                                                                                                                                  E A 44
                                                                                                                                                                                                                                                                                                                                                                                                                                                                                                                                                                                                                                                                                                                                                                                                                                                                                                                                                                                                                                                                                                                                                                                                                                                                                                                                                                                                                                                                                                                                                                                                                                                                                                                                                                                                                                                                                                                                                                   RS L
                                                                                                                                                                                                                                                                                                                                                                                                                                                                                                                                                                                                                                                                                                                                                                                                                                                                                                                                                                                                                                                                                                                                                                                                                                                                                                                                                                                                                                                                                   NSV




                                                                                                                                                                                                                                                                                                                                                                                                                                                                                                                                                                                                                                                                                                                                                                                                                                                                                                                                                                                                                                                                                                                                                                                                                                                                                                                                                                                                                                                                                                                                                                                                                                                                                                                                                                                                         TE




                                                                                                                                                                                                                                                                                                                                                                                                                                                                                                                                                                                                                                                                                                                                                                                                                                                                                                                                                                                                                                                                                                                                                                                                                                                                                                                                                                                                                                                                                                                                                                                                                                                                                                                                                                                                                                             A 13
                                                                                                                                                                                                                                                                                                                                                                                                                                                                                                                                                                                                                                                                                                                                                                                                                                                                                                                                                                                                                                                                                                                                                                                                                                                                                                                                                                                                                                                                                     ERSA




                                                                                                                                                                                                                                                                                                                                                                                                                                                                                                                                                                                                                                                                                                                                                                                                                                                                                                                                                                                                                                                                                                                                                                                                                                                                                                                                                                                                                                                                                                                                                                                                                                                                                                                                                                                                                                              L
                                                                                                                                                                                                                                                                                                                                                                                                                                                                                                                                                                                                                                                                                                                                                                                                                                                                                                                                                                                                                                                                                                                                                                                                                                                                                                                                                                                                                                                                                                                                                                                                            A
                                                                                                                                                                                                                                                                                                                                                                                                                                                                                                                                                                                                                                                                                                                                                                                                                                                                                                                                                                                                                                                                                                                                                                                                                                                                                                                                                                                                                                                                                                                                                                                                         E C




                                                                                                                                                                                                                                                                                                                                                                                                                                                                                                                                                                                                                                                                                                                                                                                                                                                                                                                                                                                                                                                                                                                                                                                                                                                                                                                                                                                                                                                                                                                                                                                                                                                                                                                                                                                                                                          N
                                                                                                                                                                                                                                                                                                                                                                                                                                                                                                                                                                                                                                                                                                                                                                                                                                                                                                                                                                                                                                                                                                                                                                                                                                                                                                                                                                                                                                                                                                                                                                                         L                S




                                                                                                                                                                                                                                                                                                                                                                                                                                                                                                                                                                                                                                                                                                                                                                                                                                                                                                                                                                                                                                                                                                                                                                                                                                                                                                                                                                                                                                                                                                                                                                                                                                                                                                                                                                                                                                         DI
                                                                                                                                                                                                                                                                                                                                                                                                                                                                                                                                                                                                                                                                                                                                                                                                                                                                                                                                                                                                                                                                                                                                                                                                                                                                                                                                                                                                                                                                                            L                                                                                       S A EP
                                                                                                                                                                                                                                                                                                                                                                                                                                                                                                                                                                                                                                                                                                                                                                                                                                                                                                                                                                                                                                                                                                                                                                                                                                                                                                                                                                                                                                                                                             34                                                                                    FI C D




                                                                                                                                                                                                                                                                                                                                                                                                                                                                                                                                                                                                                                                                                                                                                                                                                                                                                                                                                                                                                                                                                                                                                                                                                                                                                                                                                                                                                                                                                                                                                                                                                                                                                                                                                                                                                                     GI TU
                                                                                                                                                                                                                                                                                                                                                                                                                                                                                                                                                                                                                                                                                                                                                                                                                                                                                                                                                                                                                                                                                                                                                                                                                                                                                                                                                                                                                                                                                               -A                                                                                      E
                                                                                                                                                                                                                                                                                                                                                                                                                                                                                                                                                                                                                                                                                                                                                                                                                                                                                                                                                                                                                                                                                                                                                                                                                                                                                                                                                                                                                                                                                                                                                                               E O MB R
                                                                                                                                                                                                                                                                                                                                                                                                                                                                                                                                                                                                                                                                                                                                                                                                                                                                                                                                                                                                                                                                                                                                                                                                                                                                                                                                                                                                                                                                                                                                                                                N                                                                                                                                                                                       PA
                                                                                                                                                                                                                                                                                                                                                                                                                                                                                                                                                                                                                                                                                                                                                                                                                                                                                                                                                                                                                                                                                                                                                                                                                                                                                                                                                                                                                                                                                                                                                                             RR IDU                                                                                                                                                                                       SA




                                                                                                                                                                                                                                                                                                                                                                                                                                                                                                                                                                                                                                                                                                                                                                                                                                                                                                                                                                                                                                                                                                                                                                                                                                                                                                                                                                                                                                                                                                                                                                                                                                                                                                                                                                                                                                  LON
                                                                                                                                                                                                                                                                                                                                                                                                                                                                                                                                                                                                                                                                                                                                                                                                                                                                                                                                                                                                                                                                                                                                                                                                                                                                                                                                                                                                                                                                                                                                                                          T E RV
                                                                                                                                                                                                                                                                                                                                                                                                                                                                                                                                                                                                                                                                                                                                                                                                                                                                                                                                                                                                                                                                                                                                                                                                                                                                                                                                                                                                                                                                                                                                                                             E
                                                                                                                                                                                                                                                                                                                                                                                                                                                                                                                                                                                                                                                                                                                                                                                                                                                                                                                                                                                                                                                                                                                                                                                                                                                                                                                                                                                                                                                                                                                                                                                                                                                                                                                                                                            R    E LA
                                                                                                                                                                                                                                                                                                                                                                                                                                                                                                                                                                                                                                                                                                                                                                                                                                                                                                                                                                                                                                                                                                                                                                                                                                                                                                                                                                                                                                                                                                                                                                            S                                                                                                                                                                                                           C OS
                                                                                                                                                                                                                                                                                                                                                                                                                                                                                                                                                                                                                                                                                                                                                                                                                                                                                                                                                                                                                                                                                                                                                                                                                                                                                                                                                                                                                                                                                                                                                                                                                                                                                                                                                                                            TAN   ERA



                                                                                                                                                                                                                                                                                                                                                                                                                                                                                                                                                                                                                                                                                                                                                                                                                                                                                                                                                                                                                                                                                                                                                                                                                                                                                                                                                                                                                                                                                                                                                A
                                                                                                                                                                                                                                                                                                                                                                                                                                                                                                                                                                                                                                                                                                                                                                                                                                                                                                                                                                                                                                                                                                                                                                                                                                                                                                                                                                                                                                                                                                                                             N R
                                                                                                                                                                                                                                                                                                                                                                                                                                                                                                                                                                                                                                                                                                                                                                                                                                                                                                                                                                                                                                                                                                                                                                                                                                                                                                                                                                                                                                                                                                                                              E
                                                                                                                                                                                                                                                                                                                                                                                                                                                                                                                                                                                                                                                                                                                                                                                                                                                                                                                                                                                                                                                                                                                                                                                                                                                                                                                                                                                                                                                                                                                                        TA
                                                                                                                                                                                                                                                                                                                                                                                                                                                                                                                                                                                                                                                                                                                                                                                                                                                                                                                                                                                                                                                                                                                                                                                                                                                                                                                                                                                                                                                                                                                                 COS
                                                                                                                                                                                                                                                                                                                                                                                                                                                                                                                                                                                                                                                                                                                                                                                                                                                                                                                                                                                                                                                                                                                                                                                                                                                                                                                                                                                                                                                                                                                            LA
                                                                                                                                                                                                                                                                                                                                                                                                                                                                                                                                                                                                                                                                                                                                                                                                                                                                                                                                                                                                                                                                                                                                                                                                                                                                                                                                                                                                                                                                                                                          RE
                                                                                                                                                                                                                                                                                                                                                                                                                                                                                                                                                                                                                                                                                                                                                                                                                                                                                                                                                                                                                                                                                                                                                                                                                                                                                                                                                                                                                                                                                                                   PASA

                                                                                                                                                                                                                                                                                                                                                                                                                                                                                                                                                                                                                                                                                                                                                                                                                                                                                                                                                                                                                                                                                                                                                                                                                                                                                                                                                                                                                                                                                                                                                                                                                                                                                                                                                                                                                                                                                                                                                 T RA NS E RS
                                                                                                                                                                                                                                                                                                                                                                                                                                                                                                                                                                                                                                                                                                                                                                                                                                                                                                                                                                                                                                                                                                                                                                                                                                                                                                                                                                                                                                                                                                                                                                                                                                                                                                                                                                                                                                                                                                                                                        V    A L 45




                                                                                                                                                                                                                                                                                                                                                                                                                                                                                                                                                                                                                                                                                                                                                                                                                                                                                                                                                                                                                                                                                                                                                                                                                                                                                                                                                                                                                     T RAN
                                                                                                                                                                                                                                                                                                                                                                                                                                                                                                                                                                                                                                                                                                                                                                                                                                                                                                                                                                                                                                                                                                                                                                                                                                                                                                                                                                                                                             SVER
                                                                                                                                                                                                                                                                                                                                                                                                                                                                                                                                                                                                                                                                                                                                                                                                                                                                                                                                                                                                                                                                                                                                                                                                                                                                                                                                                                                                                                    SAL




                                                                                                                                                                                                                                                                                                                                                                                                                                                                                                                                                                                                                                                                                                                                                                                                                                                                                                                                                                                                                                                                                                                                                                                                                                                                                                                                                                                                                                                                                                                                                                                                                                                                                                                                                                                                                                                                                                                                          L 14
                                                                                                                                                                                                                                                                                                                                                                                                                                                                                                                                                                                                                                                                                                                                                                                                                                                                                                                                                                                                                                                                                                                                                                                                                                                                                                                                                                                                                                          34




                                                                                                                                                                                                                                                                                                                                                                                                                                                                                                                                                                                                                                                                                                                                                                                                                                                                                                                                                                                                                                                                                                                                                                                                                                                                                                                                                                                                                                                                                                                                                                                                                                                                                                                                                                                                                                                                                                                                     INA
                                                                                                                                                                                                                                                                                                                                                                                                                                                                                                                                                                                                                                                                                                                                                                                                                                                                                                                                                                                                                                                                                                                                                                                                                                                                                                                                                                                                                                                                                                                                                                                                                                                                                                                                                                                                                                                                                                                                    TUD
                                                                                                                                                                                                                                                                                                                                                                                                                                                                                                                                                                                                                                                                                                                                                                                                                                                                                                                                                                                                                                                                                                                                                                                                                                                                                                                                                                                                                                                                                                                                                                                                                                                                                                                                                                                                                                                                                                                                   GI
                                                                                                                                                                                                                                                                                                                                                                                                                                                                                                                                                                                                                                                                                                                                                                                                                                                                                                                                                                                                                                                                                                                                                                                                                                                                                                                                                         TR




                                                                                                                                                                                                                                                                                                                                                                                                                                                                                                                                                                                                                                                                                                                                                                                                                                                                                                                                                                                                                                                                                                                                                                                                                                                                                                                                                                                                                                                                                                                                                                                                                                                                                                                                                                                                                                                                                                                             LON
                                                                                                                                                                                                                                                                                                                                                                                                                                                                                                                                                                                                                                                                                                                                                                                                                                                                                                                                                                                                                                                                                                                                                                                                                                                                                                                                                                AN
                                                                                                                                                                                                                                                                                                                                                                                                                                                                                                                                                                                                                                                                                                                                                                                                                                                                                                                                                                                                                                                                                                                                                                                                                                                                                                                                                                       SVE
                                                                                                                                                                                                                                                                                                                                                                                                                                                                                                                                                                                                                                                                                                                                                                                                                                                                                                                                                                                                                                                                                                                                                                                                                                                                                                                                                                             RSAL
                                                                                                                                                                                                                                                                                                                                                                                                                                                                                                                                                                                                                                                                                                                                                                                                                                                                                                                                                                                                                                                                                                                                                                                                                                                                                                                                                                                                33
                                                                                                                                                                                                                                                                                                                                                                                                                                                                                                                                                                                                                                                                                                                                                                                                                                                                                                                                                                                                                                                                                                                                                                                                                                                                                                                                                                                                                                                                                                                                                                                                                                                                                                                                                                                                                                                                                                                                                                                                          E R A L 46
                                                                                                                                                                                                                                                                                                                                                                                                                                                                                                                                                                                                                                                                                                                                                                                                                                                                                                                                                                                                                                                                                                                                                                                                                                                                                                                                                                                                                                                                                                                                                                                                                                                                                                                                                                                                                                                                                                                                                                                                             S
                                                                                                                                                                                                                                                                                                                                                                                                                                                                                                                                                                                                                                                                                                                                                                                                                                                                                                                                                                                                                                                                                                                                                                                                                                                                                                                                                                                                                                                                                                                                                                                                                                                                                                                                                                                                                                                                                                                                                                                                 T RA V
                                                                                                                                                                                                                                                                                                                                                                                                                                                                                                                                                                                                                                                                                                                                                                                                                                                                                                                                                                                                                                                                                                                                                                                                                                                                                                                                                                                                                                                                                                                                                                                                                                                                                                                                                                                                                                                                                                                                                                                                     NS




                                                                                                                                                                                                                                                                                                                                                                                                                                                                                                                                                                                                                                                                                                                                                                                                                                                                                                                                                                                                                                                                                                                                                                                                                                                                                                                                                                                                                                                                                                                                                                                                                                                                                                                                                                                                                                                                                                                                                                              PAS
                                                                                                                                                                                                                                                                                                                                                                                                                                                                                                                                                                                                                                                                                                                                                                                                                                                                                                                                                                                                                                                                                                                                                                                                                                                                                                                                                                                                                                                                                                                                                                                                                                                                                                                                                                                                                                                                                                                                                                               A RE A
                                                                                                                                                                                                                                                                                                                                                                                                                                                                                                                                                                                                                                                                                                                                                                                                                                                                                                                                                                                                                                                                                                                                                                                                                                                                                                                                                                                                                                                                                                                                                                                                                                                                                                                                                                                                                                                                                                                                                                                   LCOS T
                                                                                                                                                                                                                                                                                                                                                                                                                                                                                                                                                                                                                                                                                                                                                                                                                                                                                                                                                                                                                                                                                                                                                                                                                                                                                                                                                                                                                                                                                                                                                                                                                                                                                                                                                                                                                                                                                                                                                                                         A R
                                                                                                                                                                                                                                                                                                                                                                                                                                                                                                                                                                                                                                                                                                                                                                                                                                                                                                                                                                                                                                                                                                                                                                                                                                                                                                                                                                                                                                                                                                                                                                                                                                                                                                                                                                                                                                                                                                                                                                                          NE A
                                                                                                                                                                                                                                                                                                                                                                                                                                                                                                                                                                                                                                                                                                                                                                                                                                                                                                                                                                                                                                                                                                                                                                                                                                                                                                                                                                                                                                                                                                                                                                                                                                                                                                                                                                                                                                                                                          T RR I UMB RE
                                                                                                                                                                                                                                                                                                                                                                                                                                                                                                                                                                                                                                                                                                                                                                                                                                                                                                                                                                                                                                                                                                                                                                                                                                                                                                                                                                                                                                                                                                                                                                                                                                                                                                                                                                                                                                                                                           S RV
                                                                                                                                                                                                                                                                                                                                                                                                                                                                                                                                                                                                                                                                                                                                                                                                                                                                                                                                                                                                                                                                                                                                                                                                                                                                                                                                                                                                                                                                                                                                                                                                                                                                                                                                                                                                                                                                                           E
                                                                                                                                                                                                                                                                                                                                                                                                                                                                                                                                                                                                                                                                                                                                                                                                                                                                                                                                                                                                                                                                                                                                                                                                                                                                                                                                                                                                                                                                                                                                                                                                                                                                                                                                                                                                                                                                                            E
                                                                                                                                                                                                                                                                                                                                                                                                                                                                                                                                                                                                                                                                                                                                                                                                                                                                                                                                                                                                                                                                                                                                                                                                                                                                                                                                                                                                                                                                                                                                                                                                                                                                                                                                                                                                                                                                                              E NO F
                                                                                                                                                                                                                                                                                                                                                                                                                                                                                                                                                                                                                                                                                                                                                                                                                                                                                                                                                                                                                                                                                                                                                                                                                                                                                                                                                                                                                                                                                                                                                                                                                                                                                                                                                                                                                                                                                                D
                                                                                                                                                                                                                                                                                                                                                                                                                                                                                                                                                                                                                                                                                                                                                                                                                                                                                                                                                                                                                                                                                                                                                                                                                                                                                                                                                                                                                                                                                                                                                                                                                                                                                                                                                                                                                                                                                                    I S DE P E CA
                                                                                                                                                                                                                                                                                                                                                                                                                                                                                                                                                                                                                                                                                                                                                                                                                                                                                                                                                                                                                                                                                                                                                                                                                                                                                                                                                                                                                                                                                                                                                                                                                                                                                                                                                                                                                                                                                                       CA L   S
                                                                                                                                                                                                                                                                                                                                                                                                                                                                                                                                                                                                                                                                                                                                                                                                                                                                                                                                                                                                                                                                                                                                                                                                     A
                                                                                                                                                                                                                                                                                                                                                                                                                                                                                                                                                                                                                                                                                                                                                                                                                                                                                                                                                                                                                                                                                                                                                                                                   ER
                                                                                                                                                                                                                                                                                                                                                                                                                                                                                                                                                                                                                                                                                                                                                                                                                                                                                                                                                                                                                                                                                                                                                                                               TAN
                                                                                                                                                                                                                                                                                                                                                                                                                                                                                                                                                                                                                                                                                                                                                                                                                                                                                                                                                                                                                                                                                                                                                                                             COS
                                                                                                                                                                                                                                                                                                                                                                                                                                                                                                                                                                                                                                                                                                                                                                                                                                                                                                                                                                                                                                                                                                                                                                               R ELA
                                                                                                                                                                                                                                                                                                                                                                                                                                                                                                                                                                                                                                                                                                                                                                                                                                                                                                                                                                                                                                                                                                                                                                      PA SA
                                                                                                                                                                                                                                                                                                                                                                                                                                                                                                                                                                                                                                                                                                                                                                                                                                                                                                                                                                                                                                                                                                                                                                                                                                                                                                                                                                                                                                                                                                                                                                                                                                                                                                                                                                                                                                                                                                                                                                                                                                                                                                                  O




                                                                                                                                                                                                                                                                                                                                                                                                                                                                                                                                                                                                                                                                                                                                                                                                                                                                                                                                                                                                                                                                                                                                                                                                                                                                                                                                                                                                                                                                                                                                                                                                                                                                                                                                                                                                                                                                                                                                                                                                                                                        PASA RE LA COS T A
                                                                                                                                                                                                                                                                                                                                                                                                                                                                                                                                                                                                                                                                                                                                                                                                                                                                                                                                                                                                                                                                                                                                                                                                                                                                                                                                                                                                                                                                                                                                                                                                                                                                                                                                                                                                                                                                                                                                                                                                                                                                          NERA
                                                                                                                                                                                                                                                                                                                                                                                                                                                                                                                                                                                                                                                                                                                                                                                                                                                                                                                                                                                                                                                                T R A S V E S A L 32
                                                                                                                                                                                                                                                                                                                                                                                                                                                                                                                                                                                                                                                                                                                                                                                                                                                                                                                                                                                                                                                                     N     R




                                                                                                                                                                                                                                                                                                                                                                                                                                                                                                                                                                                                                                                                                                                                                                                                                                                                                                                                                                                                                                                                                                                                                                                                                                                                                                                                                                                                                                                                                                                                                                                                                                                                                                                                                                                                                                                                                                                                                                                                            TER R
                                                                                                                                                                                                                                                                                                                                                                                                                                                                                                                                                                                                                                                                                                                                                                                                                                                                                                                                                                                                                                                                                                                                                                                                                                                                                                                                                                                                                                                                                                                                                                                                                                                                                                                                                                                                                                                                                                                                                                                                              SE
                                                                                                                                                                                                                                                                                                                                                                                                                                                                                                                                                                                                                                                                                                                                                                                                                                                                                                                                                                                                                                                                                                                                                                                                                                                                                                                                                                                                                                                                                                                                                                                                                                                                                                                                                                                                                                                                                                                                                                                                                R EN U
                                                                                                                                                                                                                                                                                                                                                                                                                                                                                                                                                                                                                                                                                                                                                                                                                                                                                                                                                                                                                                                                                                                                                                                                                                                                                                                                                                                                                                                                                                                                                                                                                                                                                                                                                                                                                                                                                                                                                                                                                  VI
                                                                                                                                                                                                                                                                                                                                                                                                                                                                                                                                                                                                                                                                                                                                                                                                                                                                                                                                                                                                                                                                                                                                                                                                                                                                                                                                                                                                                                                                                                                                                                                                                                                                                                                                                                                                                                                                                                                                                                                                                    D
                                                                                                                                                                                                                                                                                                                                                                                                                                                                                                                                                                                                                                                                                                                                                                                                                                                                                                                                                                                                                                                                                                                                                                                                                                                                                                                                                                                                                                                                                                                                                                                                                                                                                                                                                                                                                                                                                                                                                                                                                     O MB R
                                                                                                                                                                                                                                                                                                                                                                                                                                                                                                                                                                                                                                                                                                                                                                                                                                                                                                                                                                                                                                                                                                                                                                                                                                                                                                                                                                                                                                                                                                                                                                                                                                                                                                                                                                                                                                                                                                                                                                                                                       FI SC E D
                                                                                                                                                                                                                                                                                                                                                                                                                                                                                                                                                                                                                                                                                                                                                                                                                                                                                                                                                                                                                                                                                                                                                                                                                                                                                                                                                                                                                                                                                                                                                                                                                                                                                                                                                                                                                                                                                                                                                                                                                            A L EP
                                                                                                                                                                                                                                                                                                                                                                                                                                                                                                                                                                                                                                                                                                                                                                                                                                                                                                                                                                                                                                                                                                                                                                                                                                                                                                                                                                                                                                                                                                                                                                                                                                                                                                                                                                                                                                                                                                                                                                                                                                ESC
                                                                                                                                                                                                                                                                                                                                                                                                                                                                                                                                                                                                                                                                                                                                                                                                                                                                                                                                                                                                                                                                                                                                                                                                                                                                                                                                                                                                                                                                                                                                                                                                                                                                                                                                                                                                                                                                                                                                                                                                                                      A
                                                                                                                                                                                                                                                                                                                                                                                                                                                                                                                                                                                                                                                                                                                                                                                                                                                                                                                                                                                                                                                                                                                                                                                                                             A
                                                                                                                                                                                                                                                                                                                                                                                                                                                                                                                                                                                                                                                                                                                                                                                                                                                                                                                                                                                                                                                                                                                                                                                                                                  ER
                                                                                                                                                                                                                                                                                                                                                                                                                                                                                                                                                                                                                                                                                                                                                                                                                                                                                                                                                                                                                                                                                                                                                                                                                                   TAN
                                                                                                                                                                                                                                                                                                                                                                                                                                                                                                                                                                                                                                                                                                                                                                                                                                                                                                                                                                                                                                                                                                                                                                                                                                         OS
                                                                                                                                                                                                                                                                                                                                                                                                                                                                                                                                                                                                                                                                                                                                                                                                                                                                                                                                                                                                                                                                                                                                                                                                                                       AC
                                                                                                                                                                                                                                                                                                                                                                                                                                                                                                                                                                                                                                                                                                                                                                                                                                                                                                                                                                                                                                                                                                                                                                                                                                          EL
                                                                                                                                                                                                                                                                                                                                                                                                                                                                                                                                                                                                                                                                                                                                                                                                                                                                                                                                                                                                                                                                                                                                                                                                                                              S AR
                                                                                                                                                                                                                                                                                                                                                                                                                                                                                                                                                                                                                                                                                                                                                                                                                                                                                                                                                                                                                                                                                                                                                                                                                                                 PA
                                                                                                                                                                                                                                                                                                                                                                                                                                                                                                                                                                                                                                                                                                                                                                                                                                                                                                                                                                                                                                                                                                                                                                                                                          31
                                                                                                                                                                                                                                                                                                                                                                                                                                                                                                                                                                                                                                                                                                                                                                                                                                                                                                                                                                                                                                                                                                                                                                                                                       S L
                                                                                                                                                                                                                                                                                                                                                                                                                                                                                                                                                                                                                                                                                                                                                                                                                                                                                                                                                                                                                                                                                                                                                                                                                        A
                                                                                                                                                                                                                                                                                                                                                                                                                                                                                                                                                                                                                                                                                                                                                                                                                                                                                                                                                                                                                                                                                                                                                                                                           ER
                                                                                                                                                                                                                                                                                                                                                                                                                                                                                                                                                                                                                                                                                                                                                                                                                                                                                                                                                                                                                                                                                                                                                                                                       NS V
                                                                                                                                                                                                                                                                                                                                                                                                                                                                                                                                                                                                                                                                                                                                                                                                                                                                                                                                                                                                                                                                                                                                                                                                   TR A




                                                                                                                                                                                                                                                                                                                                                                                                                                                                                                                                                                                                                                                                                                                                                                                                                                                                                                                                                                                                                                                                                                                                                                                                                                                                                                                                                                       SCA
                                                                                                                                                                                                                                                                                                                                                                                                                                                                                                                                                                                                                                                                                                                                                                                                                                                                                                                                                                                                                                                                                                                                                                                                                                                                                                                                                               I C E E
                                                                                                                                                                                                                                                                                                                                                                                                                                                                                                                                                                                                                                                                                                                                                                                                                                                                                                                                                                                                                                                                                                                                                                                                                                                                                                                                                            OF S E D P
                                                                                                                                                                                                                                                                                                                                                                                                                                                                                                                                                                                                                                                                                                                                                                                                                                                                                                                                                                                                                                                                                                                                                                                                                                                                                                                                                                  AL
                                                                                                                                                                                                                                                                                                                                                                                                                                                                                                                                                                                                                                                                                                                                                                                                                                                                                                                                                                                                                                                                                                                                                                                                                                                                                                                                                                R
                                                                                                                                                                                                                                                                                                                                                                                                                                                                                                                                                                                                                                                                                                                                                                                                                                                                                                                                                                                                                                                                                                                                                                                                                                                                                                                                                   TE R I D U MB
                                                                                                                                                                                                                                                                                                                                                                                                                                                                                                                                                                                                                                                                                                                                                                                                                                                                                                                                                                                                                                                                                                                                                                                                                                                                                                                                                       R N
                                                                                                                                                                                                                                                                                                                                                                                                                                                                                                                                                                                                                                                                                                                                                                                                                                                                                                                                                                                                                                                                                                                                                                                                                                                                                                                                                        E
                                                                                                                                                                                                                                                                                                                                                                                                                                                                                                                                                                                                                                                                                                                                                                                                                                                                                                                                                                                                                                                                                                                                                                                                                                                                                                                                                     E RV
                                                                                                                                                                                                                                                                                                                                                                                                                                                                                                                                                                                                                                                                                                                                                                                                                                                                                                                                                                                                                                                                                                                                                                                                                                                                                              L30




                                                                                                                                                                                                                                                                                                                                                                                                                                                                                                                                                                                                                                                                                                                                                                                                                                                                                                                                                                                                                                                                                                                                                                                                                                                                                                                                                    S
                                                                                                                                                                                                                                                                                                                                                                                                                                                                                                                                                                                                                                                                                                                                                                                                                                                                                                                                                                                                                                                                                                                                                                                                                                                                                     ERSA
                                                                                                                                                                                                                                                                                                                                                                                                                                                                                                                                                                                                                                                                                                                                                                                                                                                                                                                                                                                                                                                                                                                                                                                                                                                                             NSV
                                                                                                                                                                                                                                                                                                                                                                                                                                                                                                                                                                                                                                                                                                                                                                                                                                                                                                                                                                                                                                                                                                                                                                                                                                                                       TRA
                                                                                                                                                                                                                                                                                                                                                                                                                                                                                                                                                                                                                                                                                                                                                                                                                                                                                                                                                                                                                                                                                                                                                                                                                                                        25
                                                                                                                                                                                                                                                                                                                                                                                                                                                                                                                                                                                                                                                                                                                                                                                                                                                                                                                                                                                                                                                                                                                                                                                                                                                     37 .




                                                                                                                                                                                                                                                                                                                                                                                                                                                                                                                                                                                                                                                                                                                                                                                                                                                                                                                                                                                                                                                                                                                                                                                                                                                                                                                                         3 0. 94




                                                                                                                                                                                                                                                                                                                                                                                                                                                                                                                                                                                                                                                                                                                                                                                                                                                                                                                                                                                                                                                                                                                                                                                                                                                                                                                                                                                                           2 1. 87
                                                                                                                                                                                                                                                                                                                                                                                                                                                                                                                                                                                                                                                                                                                                                                                                                                                                                                                                                                                                                                                                                                                                                                                                                                                                                                                                                   34. 3 6
                                                                                                                                                                                                                                                                                                                                                                                                                                                                                                                                                                                                                                                                                                                                                                                                                                                                                                                                                                                                                                                                                                                                                                                                                                                                                                                                                             3 4. 36
                                                                                                                                                                                                                                                                                                                                                                                                                                                                                                                                                                                                                                                                                                                                                                                                                                                                                                                                                                                                                                                                                                                                                                                                                                                                                                                                                                                                                                                 P ASAR

                                                                                                                                                                                                                                                                                                                                                                                                                                                                                                                                                                                                                                                                                                                                                                                                                                                                                                                                                                                                                                                                                                                                                                                                                                                                                                                                                                                                                                                          ELA
                                                                                                                                                                                                                                                                                                                                                                                                                                                                                                                                                                                                                                                                                                                                                                                                                                                                                                                                                                                                                                                                                                                                                                                                                                                                                                                                                                                                                                                                CO
                                                                                                                                                                                                                                                                                                                                                                                                                                                                                                                                                                                                                                                                                                                                                                                                                                                                                                                                                                                                                                                                                                                                                                                                                                                                                                                                                                                                                                                                     STANE
                                                                                                                                                                                                                                                                                                                                                                                                                                                                                                                                                                                                                                                                                                                                                                                                                                                                                                                                                                                                                                                                                                                                                                                                                                                                                                                                                                                                                                                                         R
                                                                                                                                                                                                                                                                                                                                                                                                                                                                                                                                                                                                                                                                                                                                                                                                                                                                                                                                                                                                                                                                                                                                                                                                                                                                                                                                                                                                                                                                             A




                                                                                                                                                                                                                                                                                                                                                                                                                                                                                                                                                                                                                                                                                                                                                                                                                                                                                                                                                                                                                                                                                                                                                                                                                                                                                                                                                                                                 1 4. 30
                                                                                                                                                                                                                                                                                                                                                                                                                                                                                                                                                                                                                                                                                                                                                                                                                                                                                                                                                                                                                                                                                                                                                                                                                                              TRA NS
                                                                                                                                                                                                                                                                                                                                                                                                                                                                                                                                                                                                                                                                                                                                                                                                                                                                                                                                                                                                                                                                                                                                                                                                                                                    V E RS
                                                                                                                                                                                                                                                                                                                                                                                                                                                                                                                                                                                                                                                                                                                                                                                                                                                                                                                                                                                                                                                                                                                                                                                                                                                          A L 29
                                                                                                                                                                                                                                                                                                                                                                                                                                                                                                                                                                                                                                                                                                                                                                                                                                                                                                                                                                                                                                                                                                                                                                                                                                                                                                                                                                                                                                                                                                                                                                                                   TER
                                                                                                                                                                                                                                                                                                                                                                                                                                                                                                                                                                                                                                                                                                                                                                                                                                                                                                                                                                                                                                                                                                                                                                                                                                                                                                                                                                                                                                                                                                                                                                                                 SER RE
                                                                                                                                                                                                                                                                                                                                                                                                                                                                                                                                                                                                                                                                                                                                                                                                                                                                                                                                                                                                                                                                                                                                                                                                                                                                                                                                                                                                                                                                                                                                                                                                     VI NO
                                                                                                                                                                                                                                                                                                                                                                                                                                                                                                                                                                                                                                                                                                                                                                                                                                                                                                                                                                                                                                                                                                                                                                                                                                                                                                                                                                                                                                                                                                                                                                                                       DU F
                                                                                                                                                                                                                                                                                                                                                                                                                                                                                                                                                                                                                                                                                                                                                                                                                                                                                                                                                                                                                                                                                                                                                                                                                                                                                                                                                                                                                                                                                                                                                                                                         M SCI
                                                                                                                                                                                                                                                                                                                                                                                                                                                                                                                                                                                                                                                                                                                                                                                                                                                                                                                                                                                                                                                                                                                                                                                                                                                                                                                                                                                                                                                                                                                                                                                                          BRE    AL
                                                                                                                                                                                                                                                                                                                                                                                                                                                                                                                                                                                                                                                                                                                                                                                                                                                                                                                                                                                                                                                                                                                                                                                                                                                                                                                                                                                                                                                                                                                                                                                                            D
                                                                                                                                                                                                                                                                                                                                                                                                                                                                                                                                                                                                                                                                                                                                                                                                                                                                                                                                                                                                                                                                                                                                                                                                                                                                                                                                                                                                                                                                                                                                                                                                                 E PESC
                                                                                                                                                                                                                                                                                                                                                                                                                                                                                                                                                                                                                                                                                                                                                                                                                                                                                                                                                                                                                                                                                                                                                                                                                                                                                                                                                                                                                                                                                                                                                                                                                          A




                                                                                                                                                                                                                                                                                                                                                                                                                                                                                                                                                                                                                                                                                                                                                                                                                                                                                                                                                                                                                                                                                                                                                                                                                   NA L 8




                                                                                                                                                                                                                                                                                                                                                                                                                                                                                                                                                                                                                                                                                                                                                                                                                                                                                                                                                                                                                                                                                                                                                                                                                                                                                                                                                                               LONGI T U NA 9
                                                                                                                                                                                                                                                                                                                                                                                                                                                                                                                                                                                                                                                                                                                                                                                                                                                                                                                                                                                                                                                                                                                                                                                                                                                                                                                                                                                        DI L
                                                                                                                                                                                                                                                                                                                                                                                                                                                                                                                                                                                                                                                                                                                                                                                                                                                                                                                                                                                                                                                                                                                                                                                                          L ONGI UDI
                                                                                                                                                                                                                                                                                                                                                                                                                                                                                                                                                                                                                                                                                                                                                                                                                                                                                                                                                                                                                                                                                                                                                                                                               T




                                                                                                                                                                                                                                                                                                                                                                                                                                                                                                                                                                                                                                                                                                                                                                                                                                                                                                                                                                                                                                                                                                                                                                                                                                                                                                                                                                                                                                                                                                            E OR
                                                                                                                                                                                                                                                                                                                                                                                                                                                                                                                                                                                                                                                                                                                                                                                                                                                                                                                                                                                                                                                                                                                                                                                                                                                                                                                                                                                                                                                                                                             RI
                                                                                                                                                                                                                                                                                                                                                                                                                                                                                                                                                                                                                                                                                                                                                                                                                                                                                                                                                                                                                                                                                                                                                                                                                                                                                                                                                                                                                                                                                                             T
                                                                                                                                                                                                                                                                                                                                                                                                                                                                                                                                                                                                                                                                                                                                                                                                                                                                                                                                                                                                                                                                                                                                                                                                                                                                                                                                                                                                                                                                                                          AIN
                                                                                                                                                                                                                                                                                                                                                                                                                                                                                                                                                                                                                                                                                                                                                                                                                                                                                                                                                                                                                                                                                                                                                                                                                                                                                                                                                                                                                                                                                                     AR L
                                                                                                                                                                                                                                                                                                                                                                                                                                                                                                                                                                                                                                                                                                                                                                                                                                                                                                                                                                                                                                                                                                                                                                                                                                                                                                                                                                                                                                                                                                      S
                                                                                                                                                                                                                                                                                                                                                                                                                                                                                                                                                                                                                                                                                                                                                                                                                                                                                                                                                                                                                                                                                                                                                                                                                                                                                                                                                                                                                                                                                                       E
                                                                                                                                                                                                                                                                                                                                                                                                                                                                                                                                                                                                                                                                                                                                                                                                                                                                                                                                                                                                                                                                                                                                                                                                                                                                                                                                                                                                                                                                                                    PA




                                                                                                                                                                                                                                                                                                                                                                                                                                                                                                                                                                                                                                                                                                                                                                                                                                                                                                                                                                                                                                                                                                                                                                                                                                                                                                                                                                                                                                                                                                                                                                                                                                                       PA
                                                                                                                                                                                                                                                                                                                                                                                                                                                                                                                                                                                                                                                                                                                                                                                                                                                                                                                                                                                                                                                                                                                                                                                                                                                                                                                                                                                                                                                                                                                                                                                                                                                         SAR
                                                                                                                                                                                                                                                                                                                                                                                                                                                                                                                                                                                                                                                                                                                                                                                                                                                                                                                                                                                                                                                                                                                                                                                                                                                                                                                                                                                                                                                                                                                                                                                                                                                            E LA
                                                                                                                                                                                                                                                                                                                                                                                                                                                                                                                                                                                                                                                                                                                                                                                                                                                                                                                                                                                                                                                                                                                                                                                                                                                                                                                                                                                                                                                                                                                                                                                                                                                                COS  TA NE
                                                                                                                                                                                                                                                                                                                                                                                                                                                                                                                                                                                                                                                                                                                                                                                                                                                                                                                                                                                                                                                                                                                                                                                                                                                                                                                                                                                                                                                                                                                                                                                                                                                                        RA
                                                                                                                                                                                                                                                                                                                                                                                                                                                                                                                                                                                                                                                                                                                                                                                                                                                                                                                                                                                                                                                                                                                                                                                                                                                                                                                                                                                                                                                                                                                                             T RA V E
                                                                                                                                                                                                                                                                                                                                                                                                                                                                                                                                                                                                                                                                                                                                                                                                                                                                                                                                                                                                                                                                                                                                                                                                                                                                                                                                                                                                                                                                                                                                                 NS RS        A L 28


                                                                                                                                                                                                                                                                                                                                                                                                                                                                                                                                                                                                                                                                                                                                                                                                                                                                                                                                                                                                                                                                                                                                                   TR
                                                                                                                                                                                                                                                                                                                                                                                                                                                                                                                                                                                                                                                                                                                                                                                                                                                                                                                                                                                                                                                                                                                                                        AN




                                                                                                                                                                                                                                                                                                                                                                                                                                                                                                                                                                                                                                                                                                                                                                                                                                                                                                                                                                                                                                                                                                                                                                                                                                                                                                                                                                                                                                                                                                                                                                                 E R S A 2 8-A
                                                                                                                                                                                                                                                                                                                                                                                                                                                                                                                                                                                                                                                                                                                                                                                                                                                                                                                                                                                                                                                                                                                                                             SV
                                                                                                                                                                                                                                                                                                                                                                                                                                                                                                                                                                                                                                                                                                                                                                                                                                                                                                                                                                                                                                                                                                                                                                  ER
                                                                                                                                                                                                                                                                                                                                                                                                                                                                                                                                                                                                                                                                                                                                                                                                                                                                                                                                                                                                                                                                                                                                                                         SAL




                                                                                                                                                                                                                                                                                                                                                                                                                                                                                                                                                                                                                                                                                                                                                                                                                                                                                                                                                                                                                                                                                                                                                                                                                                                                      7
                                                                                                                                                                                                                                                                                                                                                                                                                                                                                                                                                                                                                                                                                                                                                                                                                                                                                                                                                                                                                                                                                                                                                                                                                                                                    AL




                                                                                                                                                                                                                                                                                                                                                                                                                                                                                                                                                                                                                                                                                                                                                                                                                                                                                                                                                                                                                                                                                                                                                                                                                                                                                                                                                                                                                                                                                                                                                                                        L
                                                                                                                                                                                                                                                                                                                                                                                                                                                                                                                                                                                                                                                                                                                                                                                                                                                                                                                                                                                                                                                                                                                                                                                    27




                                                                                                                                                                                                                                                                                                                                                                                                                                                                                                                                                                                                                                                                                                                                                                                                                                                                                                                                                                                                                                                                                                                                                                                                                                                                 DIN
                                                                                                                                                                                                                                                                                                                                                                                                                                                                                                                                                                                                                                                                                                                                                                                                                                                                                                                                                                                                                                                                                                                                                                                                                                                             GT U




                                                                                                                                                                                                                                                                                                                                                                                                                                                                                                                                                                                                                                                                                                                                                                                                                                                                                                                                                                                                                                                                                                                                                                                                                                                                                                                                                                                                                                                                                                                                                                       TR A N S V
                                                                                                                                                                                                                                                                                                                                                                                                                                                                                                                                                                                                                                                                                                                                                                                                                                                                                                                                                                                                                                                                                                                                                                                                                                                              I
                                                                                                                                                                                                                                                                                                                                                                                                                                                                                                                                                                                                                                                                                                                                                                                                                                                                                                                                                                                                                                                                                                                                                                                                                                                       LON
                                                                                                                                                                                                                                                                                                                                                                                                                                                                                                                                                                                                                                                                                                                                                                                                                                                                                                                                                                                                                                                                                                                                                                                                                                                                                                   5
                                                                                                                                                                                                                                                                                                                                                                                                                                                                                                                                                                                                                                                                                                                                                                                                                                                                                                                                                                                                                                                                                                                                                                                                                                                                                             NAL
                                                                                                                                                                                                                                                                                                                                                                                                                                                                                                                                                                                                                                                                                                                                                                                                                                                                                                                                                                                                                                                                                                                                                                                                                                                                                        DI
                                                                                                                                                                                                                                                                                                                                                                                                                                                                                                                                                                                                                                                                                                                                                                                                                                                                                                                                                                                                                                                                                                                                                                                                                                                                                   TU
                                                                                                                                                                                                                                                                                                                                                                                                                                                                                                                                                                                                                                                                                                                                                                                                                                                                                                                                                                                                                                                                                                                                                                                                                                                                                   I
                                                                                                                                                                                                                                                                                                                                                                                                                                                                                                                                                                                                                                                                                                                                                                                                                                                                                                                                                                                                                                                                                                                                                                                                                                                                             NG
                                                                                                                                                                                                                                                                                                                                                                                                                                                                                                                                                                                                                                                                                                                                                                                                                                                                                                                                                                                                                                                                                                                                                                                                                                                                      LO




                                                                                                                                                                                                                                                                                                                                                                                                                                                                                                                                                                                                                                                                                                                                                                                                                                                                                                                                                                                                                                                                                                                                                                                                                                                                                                                                                                                                                                                 TE
                                                                                                                                                                                                                                                                                                                                                                                                                                                                                                                                                                                                                                                                                                                                                                                                                                                                                                                                                                                                                                                                                                                                                                                                                                                                                                                                                                                                                                               SER RRE
                                                                                                                                                                                                                                                                                                                                                                                                                                                                                                                                                                                                                                                                                                                                                                                                                                                                                                                                                                                                                                                                                                                                                                                                                                                      T RA                                                                                                                                                                                         VI NO
                                                                                                                                                                                                                                                                                                                                                                                                                                                                                                                                                                                                                                                                                                                                                                                                                                                                                                                                                                                                                                                                                                                                                                                                                                                          NS V                                                                                                                                                                                       DUM
                                                                                                                                                                                                                                                                                                                                                                                                                                                                                                                                                                                                                                                                                                                                                                                                                                                                                                                                                                                                                                                                                                                                                                                                                                                              E RS                                                                                                                                                                                          FI
                                                                                                                                                                                                                                                                                                                                                                                                                                                                                                                                                                                                                                                                                                                                                                                                                                                                                                                                                                                                                                                                                                                                                                                                                                                                  A L2                                                                                                                                                                                    BR SCAL




                                                                                                                                                                                                                                                                                                                                                                                                                                                                                                                                                                                                                                                                                                                                                                                                                                                                                                                                                                                                                                                                                                                                                                                                                                                                                                                                     A
                                                                                                                                                                                                                                                                                                                                                                                                                                                                                                                                                                                                                                                                                                                                                                                                                                                                                                                                                                                                                                                                                                                                                                                                                                                                                      6




                                                                                                                                                                                                                                                                                                                                                                                                                                                                                                                                                                                                                                                                                                                                                                                                                                                                                                                                                                                                                                                                                                                                                                                                                                                                                                                               NER
                                                                                                                                                                                                                                                                                                                                                                                                                                                                                                                                                                                                                                                                                                                                                                                                                                                                                                                                                                                                                                                                                                                                                                                                                                                                                                                                                                                                                                                             E
                                                                                                                                                                                                                                                                                                                                                                                                                                                                                                                                                                                                                                                                                                                                                                                                                                                                                                                                                                                                                                                                                                                                                                                                                                                                                                                                                                                                                                                               DE




                                                                                                                                                                                                                                                                                                                                                                                                                                                                                                                                                                                                                                                                                                                                                                                                                                                                                                                                                                                                                                                                                                                                                                                                                                                                                                                         STA
                                                                                                                                                                                                                                                                                                                                                                                                                                                                                                                                                                                                                                                                                                                                                                                                                                                                                                                                                                                                                                                                                                                                                                                                                                                                                                                                                                                                                                                                  PESCA




                                                                                                                                                                                                                                                                                                                                                                                                                                                                                                                                                                                                                                                                                                                                                                                                                                                                                                                                                                                                                                                                                                                                                                                                                                                                                                                        O
                                                                                                                                                                                                                                                                                                                                                                                                                                                                                                                                                                                                                                                                                                                                                                                                                                                                                                                                                                                                                                                                                                                                                                                                                                                                                                                        C
                                                                                                                                                                                                                                                                                                                                                                                                                                                                                                                                                                                                                                                                                                                                                                                                                                                                                                                                                                                                                                                                                                                                                                                                                                                                                                                  ELA
                                                                                                                                                                                                                                                                                                                                                                                                                                                                                                                                                                                                                                                                                                                                                                                                                                                                                                                                                                                                                                                                                                                                                                                                                                                                                                             AR
                                                                                                                                                                                                                                                                                                                                                                                                                                                                                                                                                                                                                                                                                                                                                                                                                                                                                                                                                                                                                                                                                                                                                                                                                                                                                                       PAS
                                                                                                                                                                                                                                                                                                                                                                                                                                                                                                                                                                                                                                                                                                                                                                                                                                                                                                                                                                                                                                                                                                                                                                                                                                                                                                                                                                                                                                                                                                                               PA
                                                                                                                                                                                                                                                                                                                                                                                                                                                                                                                                                                                                                                                                                                                                                                                                                                                                                                                                                                                                                                                                                                                                                                                                                                                                                                                                                                                                                                                                                                                                      S R
                                                                                                                                                                                                                                                                                                                                                                                                                                                                                                                                                                                                                                                                                                                                                                                                                                                                                                                                                                                                                                                                                                                                                                                                                                                                                                                                                                                                                                                                                                                                       A
                                                                                                                                                                                                                                                                                                                                                                                                                                                                                                                                                                                                                                                                                                                                                                                                                                                                                                                                                                                                                                                                                                                                                                                                                                                                                                                                                                                                                                                                                                                                             E A
                                                                                                                                                                                                                                                                                                                                                                                                                                                                                                                                                                                                                                                                                                                                                                                                                                                                                                                                                                                                                                                                                                                                                                                                                                                                                                                                                                                                                                                                                                                                              L C
                                                                                                                                                                                                                                                                                                                                                                                                                                                                                                                                                                                                                                                                                                                                                                                                                                                                                                                                                                                                                                                                                                                                                                                                                                                                                                                                                                                                                                                                                                                                                    O TA
                                                                                                                                                                                                                                                                                                                                                                                                                                                                                                                                                                                                                                                                                                                                                                                                                                                                                                                                                                                                                                                                                                                                                                                                                                                                                                                                                                                                                                                                                                                                                     S N
                                                                                                                                                                                                                                                                                                                                                                                                                                                                                                                                                                                                                                                                                                                                                                                                                                                                                                                                                                                                                                                                                                                                                                                                                                                                                                                                                                                                                                                                                                                                                         E RA




                                                                                                                                                                                                                                                                                                                                                                                                                                                                                                                                                                                                                                                                                                                                                                                                                                                                                                                                                                                                                                                                                                          A 25
                                                                                                                                                                                                                                                                                                                                                                                                                                                                                                                                                                                                                                                                                                                                                                                                                                                                                                                                                                                                                                                                                                           L            RS
                                                                                                                                                                                                                                                                                                                                                                                                                                                                                                                                                                                                                                                                                                                                                                                                                                                                                                                                                                                                                                                                                                                     SVE
                                                                                                                                                                                                                                                                                                                                                                                                                                                                                                                                                                                                                                                                                                                                                                                                                                                                                                                                                                                                                                                                                                               T RA N
                                                                                                                                                                                                                                                                                                                                                                                                                                                                                                                                                                                                                                                                                                                                                                                                                                                                                                                                                                                                                                                                                                                             T RA V E A 2 4
                                                                                                                                                                                                                                                                                                                                                                                                                                                                                                                                                                                                                                                                                                                                                                                                                                                                                                                                                                                                                                                                                                                                                                            23




                                                                                                                                                                                                                                                                                                                                                                                                                                                                                                                                                                                                                                                                                                                                                                                                                                                                                                                                                                                                                                                                                                                                 NS RS L
                                                                                                                                                                                                                                                                                                                                                                                                                                                                                                                                                                                                                                                                                                                                                                                                                                                                                                                                                                                                                                                                                                                                                                  SAL
                                                                                                                                                                                                                                                                                                                                                                                                                                                                                                                                                                                                                                                                                                                                                                                                                                                                                                                                                                                                                                                                                                                                                             ER
                                                                                                                                                                                                                                                                                                                                                                                                                                                                                                                                                                                                                                                                                                                                                                                                                                                                                                                                                                                                                                                                                                                                                        SV




                                                                                                                                                                                                                                                                                                                                                                                                                                                                                                                                                                                                                                                                                                                                                                                                                                                                                                                                                                                                                                                                                       AL 6
                                                                                                                                                                                                                                                                                                                                                                                                                                                                                                                                                                                                                                                                                                                                                                                                                                                                                                                                                                                                                                                                                                                                                   AN
                                                                                                                                                                                                                                                                                                                                                                                                                                                                                                                                                                                                                                                                                                                                                                                                                                                                                                                                                                                                                                                                                                                                              TR




                                                                                                                                                                                                                                                                                                                                                                                                                                                                                                                                                                                                                                                                                                                                                                                                                                                                                                                                                                                                                                                                                    DIN




                                                                                                                                                                                                                                                                                                                                                                                                                                                                                                                                                                                                                                                                                                                                                                                                                                                                                                                                                                                                                                                                                                         A 5
                                                                                                                                                                                                                                                                                                                                                                                                                                                                                                                                                                                                                                                                                                                                                                                                                                                                                                                                                                                                                                                                                                          L
                                                                                                                                                                                                                                                                                                                                                                                                                                                                                                                                                                                                                                                                                                                                                                                                                                                                                                                                                                                                                                                                                  TU




                                                                                                                                                                                                                                                                                                                                                                                                                                                                                                                                                                                                                                                                                                                                                                                                                                                                                                                                                                                                                                                                                                     DN
                                                                                                                                                                                                                                                                                                                                                                                                                                                                                                                                                                                                                                                                                                                                                                                                                                                                                                                                                                                                                                                                                 GI




                                                                                                                                                                                                                                                                                                                                                                                                                                                                                                                                                                                                                                                                                                                                                                                                                                                                                                                                                                                                                                                                                                      I
                                                                                                                                                                                                                                                                                                                                                                                                                                                                                                                                                                                                                                                                                                                                                                                                                                                                                                                                                                                                                                                                               LON




                                                                                                                                                                                                                                                                                                                                                                                                                                                                                                                                                                                                                                                                                                                                                                                                                                                                                                                                                                                                                                                                                                 GI TU
                                                                                                                                                                                                                                                                                                                                                                                                                                                                                                                                                                                                                                                                                                                                                                                                                                                                                                                                                                                                                                                                                              LON
                                                                                                                                                                                                                                                                                                                                                                                                                                                                                                                                                                                                                                                                                                                                                                                                                                                                                                                                                                                                                                     NS
                                                                                                                                                                                                                                                                                                                                                                                                                                                                                                                                                                                                                                                                                                                                                                                                                                                                                                                                                                                                                                 T RA V E R A L 22
                                                                                                                                                                                                                                                                                                                                                                                                                                                                                                                                                                                                                                                                                                                                                                                                                                                                                                                                                                                                                                           S




                                                                                                                                                                                                                                                                                                                                                                                                                                                                                                                                                                                                                                                                                                                                                                                                                                                                                                                                    T RANS   VERS    L
                                                                                                                                                                                                                                                                                                                                                                                                                                                                                                                                                                                                                                                                                                                                                                                                                                                                                                                                                    A 21




                                                                                                                                                                                                                                                                                                                                                                                                                                                                                                                                                                                                                                                                                                                                                                                                                                                                                                                                                                                                                                                                                                                                                                                                                     P A A RE A
                                                                                                                                                                                                                                                                                                                                                                                                                                                                                                                                                                                                                                                                                                                                                                                                                                                                                                                                                                                                                                                                                                                                                                                                                        S    L
                                                                                                                                                                                                                                                                                                                                                                                                                                                                                                                                                                                                                                                                                                                                                                                                                                                                                                                                                                                                                                                                                                                                                                                                              C T NE
                                                                                                                                                                                                                                                                                                                                                                                                                                                                                                                                                                                                                                                                                                                                                                                                                                                                                                                                                                                                                                                                                                                                                                                                               OS A RA
                                                                                                                                                                                                                                                                                                                                                                                                                                                                                                                                                                                                                                                                                                                                                                                                                                                                                                                                                                                                                                                                                                                                                                  S RV I D
                                                                                                                                                                                                                                                                                                                                                                                                                                                                                                                                                                                                                                                                                                                                                                                                                                                                                                                                                                                                                                                                                                                                                                  T E R NO F
                                                                                                                                                                                                                                                                                                                                                                                                                                                                                                                                                                                                                                                                                                                                                                                                                                                                                                                                                                                                                                                                                                                                                                   E
                                                                                                                                                                                                                                                                                                                                                                                                                                                                                                                                                                                                                                                                                                                                                                                                                                                                                                                                                                                                                                                                                                                                                                       RE
                                                                                                                                                                                                                                                                                                                                                                                                                                                                                                                                                                                                                                                                                                                                                                                                                                                                                                                                                                                                                                                                                                                                                                          UMB RE D
                                                                                                                                                                                                                                                                                                                                                                                                                                                                                                                                                                                                                                                                                                                                                                                                                                                                                                                                                                                                                                                                                                                                                                              IS L
                                                                                                                                                                                                                                                                                                                                                                                                                                                                                                                                                                                                                                                                                                                                                                                                                                                                                                                                                                                                                                                                                                                                                                                CA
                                                                                                                                                                                                                                                                                                                                                                                                                                                                                                                                                                                                                                                                                                                                                                                                                                                                                                                                                                                                                                                                                                                                                                                   E P S
                                                                                                                                                                                                                                                                                                                                                                                                                                                                                                                                                                                                                                                                                                                                                                                                                                                                                                                                                                                                                                                                                                                                                                                      E CA
                                                                                                                                                                                                                                                                                                                                                                                                                                                                                                                                                                                                                                                                                                                                                                                                                                                                                                                                                                                                                                                                   UDI A L 5
                                                                                                                                                                                                                                                                                                                                                                                                                                                                                                                                                                                                                                                                                                                                                                                                                                                                                                                                                                                                                                                                     N
                                                                                                                                                                                                                                                                                                                                                                                                                                                                                                                                                                                                                                                                                                                                                                                                                                                                                                                                                                                                                                                                     T
                                                                                                                                                                                                                                                                                                                                                                                                                                                                                                                                                                                                                                                                                                                                                                                                                                                                                                                                                                                                                                                                L ONGI
                                                                                                                                                                                                                                                                                                                                                                                                                                                                                                                                                                                                                                                                                                                                                                                                                                                                                                                                                           T RA N V E RS L 19
                                                                                                                                                                                                                                                                                                                                                                                                                                                                                                                                                                                                                                                                                                                                                                                                                                                                                                                                                                 S      A
                                                                                                                                                                                                                                                                                                                                                                                                                                                                                                                                                                                                                                                                                                                                                                                                                                                                                               T RANS   VERS                 A 18
                                                                                                                                                                                                                                                                                                                                                                                                                                                                                                                                                                                                                                                                                                                                                                                                                                                                                                                              L
                                                                                                                                                                                                                                                                                                                                                                                                                                                                                                                                                                                                                                                                                                                                                                                                                                                                                                                                                                                                                               E RS L 20
                                                                                                                                                                                                                                                                                                                                                                                                                                                                                                                                                                                                                                                                                                                                                                                                                                                                                                                                                                                                                                   A
                                                                                                                                                                                                                                                                                                                                                                                                                                                                                                                                                                                                                                                                                                                                                                                                                                                                                                                                                                                                                    T RA NSV



                                                                                                                                                                                                                                                                                                                                                                                                                                                                                                                                                                                                                                                                                                                                                                                                                                                                                                                                                                                                                                                                                                                                                         CA. PUERTO




                                                                                                                                                                                                                                                                                                                                                                                                                                                                                                                                                                                                                                                                                                                                                                                                                                                                                                                                                                                                    T RA
                                                                                                                                                                                                                                                                                                                                                                                                                                                                                                                                                                                                                                                                                                                                                                                                                                                                                                                                                                                                        NS V




                                                                                                                                                                                                                                                                                                                                                                                                                                                                                                                                                                                                                                                                                                                                                                                                                                                                                                                                                                                                                                                                                                                                                                                                                                                         TE R VI D
                                                                                                                                                                                                                                                                                                                                                                                                                                                                                                                                                                                                                                                                                                                                                                                                                                                                                                                                                                                                                                                                                                                                                                                                                                                          S ER
                                                                                                                                                                                                                                                                                                                                                                                                                                                                                                                                                                                                                                                                                                                                                                                                                                                                                                                                                                                                            E RS




                                                                                                                                                                                                                                                                                                                                                                                                                                                                                                                                                                                                                                                                                                                                                                                                                                                                                                                                                                                                                                                                                                                                                                                     E A




                                                                                                                                                                                                                                                                                                                                                                                                                                                                                                                                                                                                                                                                                                                                                                                                                                                                                                                                                                                                                                                                                                                                                                                                                                                             RE U
                                                                                                                                                                                                                                                                                                                                                                                                                                                                                                                                                                                                                                                                                                                                                                                                                                                                                                                                                                                                                                                                                                                                                                                      R
                                                                                                                                                                                                                                                                                                                                                                                                                                                                                                                                                                                                                                                                                                                                                                                                                                                                                                                                                                                                                A




                                                                                                                                                                                                                                                                                                                                                                                                                                                                                                                                                                                                                                                                                                                                                                                                                                                                                                                                                                                                                                                                                                                                                                                                                                                                 N MB R
                                                                                                                                                                                                                                                                                                                                                                                                                                                                                                                                                                                                                                                                                                                                                                                                                                                                                                                                                                                                                                                                                                                                                                                N
                                                                                                                                                                                                                                                                                                                                                                                                                                                                                                                                                                                                                                                                                                                                                                                                                                                                                                                                                                                                              L 17




                                                                                                                                                                                                                                                                                                                                                                                                                                                                                                                                                                                                                                                                                                                                                                                                                                                                                                                                                                                                                                                                                                                                                                                                                                                                  O FI E
                                                                                                                                                                                                                                                                                                                                                                                                                                                                                                                                                                                                                                                                                                                                                                                                                                                                                                                                                                                                                                                                                                                                                                            OSTA




                                                                                                                                                                                                                                                                                                                                                                                                                                                                                                                                                                                                                                                                                                                                                                                                                                                                                                                                                                                                                                                                                                                                                                                                                                                                     SC D
                                                                                                                                                                                                                                                                                                                                                                                                                                                                                                                                                                                                                                                                                                                                                                                                                                                                                                                                                                                                                                                                                                                                                                                                                                                                       A L E P ESC
                                                                                                                                                                                                                                                                                                                                                                                                                                                                                                                                                                                                                                                                                                                                                                                                                                                                                                                                                                                                                                                                                                                                                                    L AC
                                                                                                                                                                                                                                                                                                                                                                                                                                                                                                                                                                                                                                                                                                                                                                                                                                                                                                                                                                                                                       MUNICIPALIDAD




                                                                                                                                                                                                                                                                                                                                                                                                                                                                                                                                                                                                                                                                                                                                                                                                                                                                                                                                                                                                                                                                                                                                                                A RE
                                                                                                                                                                                                                                                                                                                                                                                                                                                                                                                                                                                                                                                                                                                                                                                                                                                                                                                                                                                                                                                                                                                                                             PAS




                                                                                                                                                                                                                                                                                                                                                                                                                                                                                                                                                                                                                                                                                                                                                                                                                                                                                                                                                                                                                                                                                                                                                                                                                                                                                   A
                                                                                                                                                                                                                                                                                                                                                                                                                                                                                                                                                                                                                                                                                                                                                                                                                                                                                                                                                                                T NS E RS L 15
                                                                                                                                                                                                                                                                                                                                                                                                                                                                                                                                                                                                                                                                                                                                                                                                                                                                                                                                                                                 RA V
                                                                                                                                                                                                                                                                                                                                                                                                                                                                                                                                                                                                                                                                                                                                                                                                                                                                                                                                                                                                                                                          TRA
                                                                                                                                                                                                                                                                                                                                                                                                                                                                                                                                                                                                                                                                                                                                                                                                                                                                                                                                                                                                                                                                NS E
                                                                                                                                                                                                                                                                                                                                                                                                                                                                                                                                                                                                                                                                                                                                                                                                                                                                                                                                                                                                                                                                  V RS          A 1
                                                                                                                                                                                                                                                                                                                                                                                                                                                                                                                                                                                                                                                                                                                                                                                                                                                                                                                                                                                                                                                                                 L 6




                                                                                                                                                                                                                                                                                                                                                                                                                                                                                                                                                                                                                                                                                                                                                                                                                                                                                                                                                                                         A
                                                                                                                                                                                                                                                                                                                                                                                                                                                                                                                                                                                                                                                                                                                                                                                                                                                                                                                                                                                                 LONGI T
                                                                                                                                                                                                                                                                                                                                                                                                                                                                                                                                                                                                                                                                                                                                                                                                                                                                                                                                                                                                        UDI NA 5
                                                                                                                                                                                                                                                                                                                                                                                                                                                                                                                                                                                                                                                                                                                                                                                                                                                                                                                                                                                                              L




                                                                                                                                                                                                                                                                                                                                                                                                                                                                                                                                                                                                                                                                                                                                                                                                                                                                                                                                                                                                                                        RE
                                                                                                                                                                                                                                                                                                                                                                                                                                                                                                                                                                                                                                                                                                                                                                                                                                                                                                                                                                                                                                 P A S A LA COS
                                                                                                                                                                                                                                                                                                                                                                                                                                                                                                                                                                                                                                                                                                                                                                                                                                                                                                                                                                                                                                               T A RA
                                                                                                                                                                                                                                                                                                                                                                                                                                                                                                                                                                                                                                                                                                                                                                                                                                                                                                                                                                                                                                                  NE




                                                                                                                                                                                                                                                                                                                                                                                                                                                                                                                                                                                                                                                                                                                                                                                                                                                                                                                                                                                                                               ECA
                                                                                                                                                                                                                                                                                                                                                                                                                                                                                                                                                                                                                                                                                                                                                                                                                                                                                                         P A A RE A COS T
                                                                                                                                                                                                                                                                                                                                                                                                                                                                                                                                                                                                                                                                                                                                                                                                                                                                                                            S    L




                                                                                                                                                                                                                                                                                                                                                                                                                                                                                                                                                                                                                                                                                                                                                                                                                                                                                                                                                                                                                                                  1 5-A
                                                                                                                                                                                                                                                                                                                                                                                                                                                                                                                                                                                                                                                                                                                                                                                                                                                                                                                         A




                                                                                                                                                                                                                                                                                                                                                                                                                                                                                                                                                                                                                                                                                                                                                                                                                                                                                                                                                                                                                                                 SAL
                                                                                                                                                                                                                                                                                                                                                                                                                                                                                                                                                                                                                                                                                                                                                                                                                                                                                                        NE




                                                                                                                                                                                                                                                                                                                                                                                                                                                                                                                                                                                                                                                                                                                                                                                                                                                                                                                                                                                                                                              VER
                                                                                                                                                                                                                                                                                                                                                                                                                                                                                                                                                                                                                                                                                                                                                                                                                                                                                                          RA




                                                                                                                                                                                                                                                                                                                                                                                                                                                                                                                                                                                                                                                                                                                                                                                                                                                                                                                                                                                                                                            NS
                                                                                                                                                                                                                                                                                                                                                                                                                                                                                                                                                                                                                                                                                                                                                                                                                                                                                                                                                                                                                                             A
                                                                                                                                                                                                                                                                                                                                                                                                                                                                                                                                                                                                                                                                                                                                                                                                                                                                                                                                                                                                                                           TR
                                                                                                                                                                                                                                                                                                                                                                                                                                                                                                                                                                                                                                                                                                                                                                                                                                           TR A
                                                                                                                                                                                                                                                                                                                                                                                                                                                                                                                                                                                                                                                                                                                                                                                                                                                  NSV   ER A
                                                                                                                                                                                                                                                                                                                                                                                                                                                                                                                                                                                                                                                                                                                                                                                                                                                          S L
                                                                                                                                                                                                                                                                                                                                                                                                                                                                                                                                                                                                                                                                                                                                                                                                                                                              14
  T E RRE
   S RV I DU B
    E


                            P A S RE LA COS A RA
                                 A
          NO F S CA
            M RE DE P S C
              I    L

                                           T NE




                                                                                                                                                                                                                                                                                                                                                                                                                                                                                                                                                                                                                                                                                                                                                                                                                                                                                    A L E CA
                                                                                                                                                                                                                                                                                                                                                                                                                                                                                                                                                                                                                                                                                                                                                                                                                                                                              FI S C D P S
                                                                                                                                                                                                                                                                                                                                                                                                                                                                                                                                                                                                                                                                                                                                                                                                                                                                         E O       E E
                     E A




                                                                                                                                                                                                                                                                                                                                                                                                                                                                                                                                                                                                                                                                                                                                                                                                                                                                          N
                                                                                                                                                                                                                                                                                                                                                                                                                                                                                                                                                                                                                                                                                                                                                                                                                                                                      RR
                                                                                                                                                                                                                                                                                                                                                                                                                                                                                                                                                                                                                                                                                                                                                                                                                                                                   T E V D U MB
                                                                                                                                                                                                                                                                                                                                                                                                                                                                                                                                                                                                                                                                                                                                                                                                                                                                                  R
                                                                                                                                                                                                                                                                                                                                                                                                                                                                                                                                                                                                                                                                                                                                                                                                                                                                          I
                                                                                                                                                                                                                                                                                                                                                                                                                                                                                                                                                                                                                                                                                                                                                                                                                                                                    S R
                                                                                                                                                                                                                                                                                                                                                                                                                                                                                                                                                                                                                                                                                                                                                                                                                                                                     E




                                                                                                                                                                                                                                                                                                                                                                                                                                                                                                                                                                                                                                                                                                                                                                                                                                   4
                                                                                                                                                                                                                                                                                                                                                                                                                                                                                                                                                                                                                                                                                                                                                                                                                            I AL
                                                                                                                                                                                                                                                                                                                                                                                                                                                                                                                                                                                                                                                                                                                                                                                                                           DN
                                                                                                                                                                                                                                                                                                                                                                                                                                                                                                                                                                                                                                                                                                                                                                                                                      TU
                                                                                                                                                                                                                                                                                                                                                                                                                                                                                                                                                                                                                                                                                                                                                                                                                     GI
                                                                                                                                                                                                                                                                                                                                                                                                                                                                                                                                                                                                                                                                                                                                                                                                               LON
                                                                                                                  2
                                                                                                           TRANSVERAL
                                                   TR ANSVERSAL 1




                                                                                                                                                                                                                                                                                                                                                                                                                                                                                                                                                                                                                                                                                                                                                                              L4
                                                                                                                                                                                                                                                                                                                                                                                                                                                                                                                                                                                                                                                                                                                                                                       DINA
                                                                                                                                                                                                                                                                                                                                                                                                                                                                                                                                                                                                                                                                                                                                                                    I U
                                                                                                                                                                                                                                                                                                                                                                                                                                                                                                                                                                                                                                                                                                                                                                   GT
                                                                                                                                                                                                                                                                                                                                                                                                                                                                                                                                                                                                                                                                                                                                                            LON




                                                                                 L ONGI   TUD   IN L
                                                                                                  A    1
                                                                                                                                                                                                                                                                                                                                                                                                                                                                                                                                                                                                                                                                                                               11L
                                                                                                                                                                                                                                                                                                                                                                                                                                                                                                                                                                                                                                                                                                             RS A




                                                                                                                                                                                                                                                                                                                                                                                                                                                                                                                                                                                                                                                                                                                                                                                                        A 13
                                                                                                                                                                                                                                                                                                                                                                                                                                                                                                                                                                                                                                                                                                       NS V E




                                                                                                                                                                                                                                                                                                                                                                                                                                                                                                                                                                                                                                                                                                                                                                                                         L
                                                                                                                                                                                                                                                                                                                                                                                                                                                                                                                                                                                                                                                                                                                                                                                                       NS RS
                                                                                                                                                                                                                                                                                                                                                                                                                                                                                                                                                                                                                                                                                                   T RA




                                                                                                                                                                                   L ONGI UDI
                                                                                                                                                                                        T
                                                                                                                                                                                                                                                                                                                                                                                                                                                                                                                                                                                                                                                                                                                                                                                                   T RA V E




                                                                                                                                                                                            NA L 1
                                                                                                                                                                                                                                                                4
                                                                                                                                                                                                                                                         RSAL
                                                                                                                                                                                                                                               TRANSVE




                                                                                                                                                                                                                                                                                                                                                                                                                                                                                                                                                                                                                                                                                                                     LONGI   T U NA
                                                                                                                                                                                                                                                                                                                                                                                                                                                                                                                                                                                                                                                                                                                                DI L 3
                                                                                                                                                                                                                                                                                                          LO
                                                                                                                                                                                                                                                                                                                    NGI




                                                                                                                                                                                                                                                                                                                                                                                                                                                                                                                                                                                                                                                                                                                                                                   12
                                                                                                                                                                                                                                                                                                                                                                                                                                                                                                                                                                                                                                                                                                                                                            S AL
                                                                                                                                                                                                                                                                                                                          TUD




                                                                                                                                                                                                                                                                                                                                                                                                                                                                                                                                                                                                                                                                                                                                                           R
                                                                                                                                                                                                                                                                                                                                                                                                                                                                                                                                                                                                                                                                                                                                                    S VE
                                                                                                                                                                                                                                                                                                                                IN




                                                                                                                                                                                                                                                                                                                                                                                                                                                                                                                                                                                                                                                                                                                                                  AN
                                                                                                                        T RA




                                                                                                                                                                                                                         LO




                                                                                                                                                                                                                                                                                                                                 AL




                                                                                                                                                                                                                                                                                                                                                                                                                                                                                                                                                                                                                                                                                                                                             TR
                                                                                                                                                                                                                                                                                                                                   1




                                                                                                                                                                                                                                                                                                                                                                                                                                                                                                                                                                                                TR
                                                                                                                                                                                                                           NGI




                                                                                                                                                                                                                                                                                                                                                                                                                                                                                                                                                                                                  AN                                                             3
                                                                                                                            NS




                                                                                                                                                                                                                                                                                                                                                                                                                                                                                                                                                                                                    S VER                                                      AL
                                                                                                                                                                                                                                                                                                                                                                                                                                                                                                                                                                                                                                                            DIN
                                                                                                                                                                                                                           TU
                                                                                                                           VE A




                                                                                                                                                                                                     C   A                                                                                                                                                                                                                                                                                                                                                                                                  SA                                            TU
                                                                                                                                                                                                                                                                                                                                                                                                                                                                                                                                                                                                                                                          I
                                                                                                                                                                                                                             DI




                                                                                                                                                                                                L  ES                                                                                                                                                                                                                                                                                                                                                                                                                                                NG
                                                                                                                             RS L




                                                                                                                                                                                            S A EP
                                                                                                                                                                                             C                                                                                                                                                                                                                                                                                                                                                                                                                   L10
                                                                                                                                                                                                                                                                                                                                                                                                                                                                                                                                                                                                                                                   LO
                                                                                                                                                                                                                                 NA 2




                                                                                                                                                                                       NO FI R E D                                                                                           5
                                                                                                                                                                                                                                   L




                                                                                                                                                                                   R E U MB                                                                                            SAL
                                                                                                                                 3




                                                                                                                                                                               TE R V D
                                                                                                                                                                                   R I
                                                                                                                                                                                SE                                                                                              SVER
                                                                    PA
                                                                     SAR




                                                                                                                                                                                                                                                                         TRAN
                                                                           ELA




                                                                                                                                                                                                                                                                                                                                                                                                                                                                                                                                                                                                                                                                                                                                   TE
                                                                                                                                                                                                                                                                                                                                                                                                                                                                                                                                                                                                                                                                                                                                 S E RR NE
                                                                                 CO




                                                                                                                                                                        AL 2                                                                                                                                                                                                                                                                                                                                                                                                                                                                                                                                                        R V I O FI                                                                                     N ERA
                                                                                                                                                                    U IN                                                                                                                                                                                                                                                                                                                                                                                                                                                                                                                                                                D U MB S
                                                                                  STAN




                                                                                                                                                                     D                                                                                                                                                                                                                                                                                                                                                                                                                                                                                                                                                                          C
                                                                                                                                                             GI T                                                                                                                                                                                                                                                                                                                                                                                                                                                                                                                                                                             RE AL
                                                                                                                                                                                                                                                                                                                                                                                                                                                                                                                                                                                                                                                                                                                                                                                            L 13




                                                                                                                                                         L ON                                                                                                                                                                                                                                                                                                                                                                                                                                                                                                                                                                                    DE                                                                           C OSTA
                                                                                         ERA




                                                                                                                                                                                                                                                                                                                                                                                                                                                                                                                                                                                                                                                                                                                                                    P S
                                                                                                                                                                                                                                                                                                                                                                                                                                                                                                                                                                                                                                                                                                                                                     E C
                                                                                                                                                                                                                                                                                                                                                                                                                                                                                                                                                                                                                                                                                                                                                                                        E A
                                                                                                                                                                                                                                                                                                                                                                                                                                                                                                                                                                                                                                                                                                                                                                                    NS V RS




                                                                                                                                                                                                                                                                                                                                                                                                                                                                                                                                                                                                                                                                                                                                                            A                                                          RELA
                                                                                                                                                                                                                                                                                                                                                                                                                                                                                                                                                                                                                                              09
                                                                                                                                                                                                                                                                                                                                                                                                                                                                                                                                                                                                                                       1 1.                                                                                                                                                                     PASA
                                                                                                                                                                                                                                                                                                                                                                                                                                                                                                                                                                                                                                                                                                                                                                                   TRA
                                                                                                                                     T RA N V E RS




                                                                                                                                                                                                                                                                                                                                                                                                                                                                                                                                                                                                                                              67
                                                                                                                                                                                                                                                                                                                                                                                                                                                                                                                                                                                                                                       1 1.
                                                                                                                                           S




                                                                                                                                                                                                                                                                                                                                                                                                                                                                                                                                                                                         L1
                                                                                                                                                                                                                                                                                                                                                                                                                                                                                                                                                                                      INA




                                                                                                                                                                                                                                                                                                                                                                                                                                                                                                                                                                                                                                                                     P A S RE
                                                                                                                                                  AL 3




                                                                                                                                                                                                                                                                                                                                                                                                                                                                                                                                                                                                                                                                          A     LA C
                                                                                                                                                                                                                                                                                                                                                                                                                                                                                                                                                                                  T UD




                                                                                                                                                                                                                                                                                                                                                                                                                                                                                                                                                                                                                                                                                    OS TA   NERA
                                                                                                                                                                                                                                                                                                                                                                                                                                                                                                                                                                                 GI
                                                                                                                                                                                                                                                                                                                                                                                                                                                                                                                                                                               LON
                                                                                                                                                                                                                                                                                                                                                                                LONGI T U NA 1
                                                                                                                                                                                                                          5




                                                                                                                                                                                                                                                                                                 L ON T UDI A L 2
                                                                                                                                                                                                                      SA L




                                                                                                                                                                                                                                                                                                                                                                                         DI L
                                                                                                                                                                                                                                                                                                     GI
                                                                                                                                                                                                                    ER
                                                                                                                                                                                                               N SV
                                                                                                                                                                                                                A




                                                                                                                                                                                                                                                                                                          N
                                                                                                                                                                                                              TR




                                                                                                                                                                                                                                                                                                                                                                                                                                                                                                                                                                                                       TR
                                                                                                                                                                                                                                                                                                                                                                                                                                                                                                                                                                                                            AN
                                                                                                                                                                                                                                                                                                                                                                                                                                                                                                                                                                                                                 SVE
                                                                                                                                                                                                                                                                                                                                                                                                                                                                                                                                                                                                                       RSA
                                                                                                                                                                                                                                                                                                                                                                                                                                                                                                                                                                                                                             L9
                                                                                                                                                                                                                                                                                                                                                                                                                                                                                                                                                                                                                                  -A




                                                                                                                                                                                                                                                                                                                                                                                                                     LONGI TUDI NA 1
                                                                                                                                                                                                                                                                                                                                                                                                                                  L


                                                                                                                                                                                                                                                                                                                                                                                                 6
                                                                                                                                                                                                                                                                                                                                                                              SA L
                                                                                                                                                                                                                                                                                                                                                                         ER                                                                                                          LONGI T UD NA 1
                                                                                                                                                                                                                                                                                                                                                                                                                                                                                               I L
                                                                                                                                                                                                                                                                                                                                                                    SV
                                                                                                                                                                                                                                                                                                                                                               AN
                                                                                                                                                                                                                                                                                                                                                          TR                                                                                                                                                                11.
                                                                                                                                                                                                                                                                                                                                                                                                                                                                                                                                  55
                                                                                                                                                                                                                                                                                                                                                                                                                                                                                                                                                                                            A
                                                                                                                                                                                                                                                                                                                                                                                                                                                                                                                                                                                     ANER
                                                                                                                                                                                                                                                                                                                                       L ONGI UDI A L 2




                                                                                                                                                                                                                                                                                                                                                                                                                                                                                                                                                                                 ST
                                                                                                                                                                                                                                                                                                                                                                                                                                                                                                                                                                               CO
                                                                                                                                                                                                                                                                                                                                            T




                                                                                                                                                                                                                                                                                                                                                                                                                                                                                                                                                                         ELA




                                                                                                                                                                                                                                                                    PA                                                                                                                                                                                                                                                                 TRA
                                                                                                                                                                                                                                                                         SA R
                                                                                                                                                                                                                                                                                                                                                                                                                                                                                                                                                                   SAR
                                                                                                                                                                                                                                                                                                                                                N




                                                                                                                                                                                                                                                                             E LA                                                                                                                                                                                                                                                            NS
                                                                                                                                                                                                                                                                                                                                                                                                                                                                                                                                                  VER
                                                                                                                                                                                                                                                                                                                                                                                                                                                                                                                                                                  PA




                                                                                                                                                                                                                                                                                    CO
                                                                                                                                                                                                                                                                                      S TAN                                                                                                                                                                                                                                                             SAL
                                                                                                                                                                                                                                                                                                 ER                                                                                                                                                                                                                                                           9
                                                                                                                                                                                                                                                                                                             A
                                                                                                                                                                                                                                                                                                                                                                                                                                                                                                       T RAN
                                                                                                                                                                                                                                                                                                                                                                                                                                                                                                               SV
                                                                                                                                                                                                                                                                                                                                                                                                                                                                                                                ERS
                                                                                                                                                                                                                                                                                                                                                                                                                                                                                                                      AL
                                                                                                                                                                                                                                                                                                                                                                                                                                                                                                                        8
                                                                                                                                                                                                                                                                                                                                                                                                              AL 7




                                                                                                                                                                                                                                                                                                                                                                                                                                                                  TE RRE
                                                                                                                                                                                                                                                                                                                                                                                                     T NS E RS




                                                                                                                                                                                                                                                                                                                                                                                                                                                                          NO F I
                                                                                                                                                                                                                                                                                                                                                                                                                                                                               S L
                                                                                                                                                                                                                                                                                                                                                                                                                                                                 S E R I DUMB R CA
                                                                                                                                                                                                                                                                                                                                                                                                                                                                      V          E DE P E CA
                                                                                                                                                                                                                                                                                                                                                                                                                                       P A S RE LA
                                                                                                                                                                                                                                                                                                                                                                                                                                            A                                            S
                                                                                                                                                                                                                                                                                                                                                                                                      RA V




                                                                                                                                                                                                                                                                                                                                                                                                                                                     COS A R
                                                                                                                                                                                                                                                                                                                                                                                                                                                        T NE A
                                                                                                                                                                                                                                          A
                                                                                                                                                                                                                                          AY
                                                                                                                                                                                                                                        PL
                                                                                                                                                                                                                LA
                                                                                                                                                                                                             RE
                                                                                                                                                                                                     SA
                                                                                                                                                                                           PA
PLAZAS CALETA TORTEL ZONA TIPICA
           PROYECTO
PLAZAS CALETA TORTEL ZONA TIPICA
           PROYECTO
PLAZAS CALETA TORTEL ZONA TIPICA
        SITUACION ACTUAL
3talca   tipologias constructivas
3talca   tipologias constructivas
3talca   tipologias constructivas
3talca   tipologias constructivas
3talca   tipologias constructivas
3talca   tipologias constructivas
3talca   tipologias constructivas
3talca   tipologias constructivas
3talca   tipologias constructivas
3talca   tipologias constructivas
3talca   tipologias constructivas
3talca   tipologias constructivas
3talca   tipologias constructivas
3talca   tipologias constructivas
3talca   tipologias constructivas
3talca   tipologias constructivas
3talca   tipologias constructivas
3talca   tipologias constructivas
3talca   tipologias constructivas
3talca   tipologias constructivas
3talca   tipologias constructivas

3talca tipologias constructivas

  • 1.
    Taller de tecnología4: Materiales y procesos constructivos Profesor Arqto. Luis Goldsack Jarpa Clase 3: Tipologías constructivas
  • 2.
    NECESIDADES DEL ACTIVIDADES DEL HOMBRE Y DE IMPOSICIONES DEL HOMBRE LA COMUNIDAD EN EL MEDIO MEDIO REQUERIMIENTOS DEFINEN AMBIENTES ARQUITECTONICOS ADECUADOS A DICHAS ACTIVIDADES. DEL EDIFICIO EXPRESION MATERIAL DE UN CONJUNTO DE VARIABLES INTERACTUANTES QUE BUSCA RESPONDER A IMPOSICIONES, NECESIDADES Y REQUERIMIENTOS SOLUCIONES CONSTRUCTIVAS MEDIOS PARA MATERIALIZAR LOS ESPACIOS QUE PROYECTAMOS MEDIANTE: EL EMPLEO DE MATERIALES METODOS DE EJECUCION RESPETO DE PRINCIPIOS FISICOS. FUNCION ESTRUCTURAL MATERIALES PROPORCIONAR EQUILIBRIO ESTABLE A LA CONSTRUCCION E ELEGIDOS Y EMPLEADOS APROVECHANDO SUS INMOBILIDAD ESPACIAL FRENTE A FUERZAS QUE ACTUAN PROPIEDADES INTRINSECAS Y LAS QUE RESULTAN DE SER PROPIEDADES MECANICAS UTILIZADOS EN FORMA CONJUNTA PROPIEDADES MECANICAS PROPIEDADES FISICAS PROPIEDADES TECNOLOGICAS FUNCION DE CERRAMIENTO PROPORCIONAR LA DELIMITACION FISICA AL ESPACIO METODOS DE EJECUCION ACONDICIONAMIENTO FISICO - AMBIENTAL PROPIEDADES MECANICAS DETERMINADOS POR LA ELECCION DEL MATERIAL, PROPIEDADES FISICAS MODALIDAD DE LA MANO DE OBRA, EQUIPAMIENTO ROPIEDADES TECNOLOGICAS MECANICO Y TECNOLOGICO DISPONIBLE, TIPO REPETITIVO O NO DE LA OPERACIÓN Y RECURSO ECONOMICO. PRINCIPIOS FISICOS TIPOLOGIAS MATERIALES PRINCIPIOS A SATISFACER PARA PERMANECER EN EL MACIZAS : A BASE DE MUROS RESISTENTES. TIEMPO Y LUGAR CONTRARRESTANDO LA ACCION DE LA ENTRAMADOS: A BASE DE ESQUELETOS RESISTENTES. GRAVEDAD – SISMO, AGENTES CLIMATICOS, DETERIORO LAMINARES : A BASE DE SUPERFICIES RESISTENTES. POR USO, ETC.
  • 4.
    Casa Fontt Colina, Región metropolitana de Santiago, Chile Alquinta Belmar Brady Castillo Contreras Jara Morales Rossel Torres Valderrama Venegas
  • 5.
    1. Presentación delcaso de estudio 1.1 Ficha técnica Cuadro Resumen Cuadro Resumen Definición Caso de Estudio Entidades Involucradas A Datos generales A Entidades involucradas. 01 Nombre caso de estudio: 01 Propietario : Casa Fontt Minvu 02 Mandante: 02 Programa Actual : Municipalidad de Colina Inmueble en Deterioro. 03 Encargado: 03 Usos Anteriores: Felipe Croxato Vivienda 04 Casa de Estudios: 04 Año de Construcción: Universidad de Chile Facultad 1890 de Arquitectura y Urbanismo 05 Programa Propuesto: Centro Cultural para la Juventud 06 Proyectos en curso ( aún no realizado): Cancha deportiva en sector aledaño B Localización 01 País: Chile. 02 Región: Metropolitana. 03Provincia: Chacabuco 04Comuna: Colina. 05Loteo: San Antonio de Comaico :: CASA FONTT ::ANÁLISIS PATOLÓGICO Colina, Región metropolitana de Santiago, Chile Ficha técnica U. DE CHILE _ FAC. DE ARQUITECTURA Y URBANISMO _Alquinta _Belmar _Brady _Castillo _Contreras _Jara _Morales _Rossel _Torres _Valderrama _Venegas
  • 6.
    4. Levantamientos deinformación 4.3 Levantamiento Imagen Actual A continuación se presentan una serie de fotografías de la Casa Fontt, que muestran el estado en que se encuentra la vivienda. Se muestran imágenes interiores y exteriores de todos los recintos, dando cuenta del deterioro de ciertos componentes de la construcción, así como las buenas condiciones en que se encuentran algunos recintos. Todas las fotografías aquí presentadas fueron tomadas por alumnos del curso Patología del Edificio, impartido por la Universidad de Chile, durante el segundo semestre del año 2005. :: CASA FONTT ::ANÁLISIS PATOLÓGICO Colina, Región metropolitana de Santiago, Chile Levantamiento Imagen actual de la vivienda U. DE CHILE _ FAC. DE ARQUITECTURA Y URBANISMO _Alquinta _Belmar _Brady _Castillo _Contreras _Jara _Morales _Rossel _Torres _Valderrama _Venegas
  • 7.
    4. Levantamientos deinformación 4.3 Levantamiento Imagen Actual Panorámica terreno :: CASA FONTT ::ANÁLISIS PATOLÓGICO Colina, Región metropolitana de Santiago, Chile Levantamiento Imagen actual de la vivienda U. DE CHILE _ FAC. DE ARQUITECTURA Y URBANISMO _Alquinta _Belmar _Brady _Castillo _Contreras _Jara _Morales _Rossel _Torres _Valderrama _Venegas
  • 8.
    4. Levantamientos deinformación 4.3 Levantamiento Imagen Actual Capilla desde altura Capilla. Toma posterior :: CASA FONTT ::ANÁLISIS PATOLÓGICO Colina, Región metropolitana de Santiago, Chile Levantamiento Imagen actual de la vivienda U. DE CHILE _ FAC. DE ARQUITECTURA Y URBANISMO _Alquinta _Belmar _Brady _Castillo _Contreras _Jara _Morales _Rossel _Torres _Valderrama _Venegas
  • 9.
    4. Levantamientos deinformación 4.3 Levantamiento Imagen Actual Casa. Vista Nor Oriente :: CASA FONTT ::ANÁLISIS PATOLÓGICO Colina, Región metropolitana de Santiago, Chile Levantamiento Imagen actual de la vivienda U. DE CHILE _ FAC. DE ARQUITECTURA Y URBANISMO _Alquinta _Belmar _Brady _Castillo _Contreras _Jara _Morales _Rossel _Torres _Valderrama _Venegas
  • 10.
    4. Levantamientos deinformación 4.3 Levantamiento Imagen Actual Vista Norte :: CASA FONTT ::ANÁLISIS PATOLÓGICO Colina, Región metropolitana de Santiago, Chile Levantamiento Imagen actual de la vivienda U. DE CHILE _ FAC. DE ARQUITECTURA Y URBANISMO _Alquinta _Belmar _Brady _Castillo _Contreras _Jara _Morales _Rossel _Torres _Valderrama _Venegas
  • 11.
    4. Levantamientos deinformación 4.3 Levantamiento Imagen Actual Panorámica Patio Interior :: CASA FONTT ::ANÁLISIS PATOLÓGICO Colina, Región metropolitana de Santiago, Chile Levantamiento Imagen actual de la vivienda U. DE CHILE _ FAC. DE ARQUITECTURA Y URBANISMO _Alquinta _Belmar _Brady _Castillo _Contreras _Jara _Morales _Rossel _Torres _Valderrama _Venegas
  • 12.
    4. Levantamientos deinformación 4.3 Levantamiento Imagen Actual Acceso principal :: CASA FONTT ::ANÁLISIS PATOLÓGICO Colina, Región metropolitana de Santiago, Chile Levantamiento Imagen actual de la vivienda U. DE CHILE _ FAC. DE ARQUITECTURA Y URBANISMO _Alquinta _Belmar _Brady _Castillo _Contreras _Jara _Morales _Rossel _Torres _Valderrama _Venegas
  • 13.
    4. Levantamientos deinformación 4.3 Levantamiento Imagen Actual Panorámica Conjunto. Zona Acceso :: CASA FONTT ::ANÁLISIS PATOLÓGICO Colina, Región metropolitana de Santiago, Chile Levantamiento Imagen actual de la vivienda U. DE CHILE _ FAC. DE ARQUITECTURA Y URBANISMO _Alquinta _Belmar _Brady _Castillo _Contreras _Jara _Morales _Rossel _Torres _Valderrama _Venegas
  • 14.
    4. Levantamientos deinformación _ 4.4 levantamiento dimensional 4.4.1 Planta general conjunto :: CASA FONTT ::ANÁLISIS PATOLÓGICO Colina, Región metropolitana de Santiago, Chile Levantamiento Dimensional U. DE CHILE _ FAC. DE ARQUITECTURA Y URBANISMO _Alquinta _Belmar _Brady _Castillo _Contreras _Jara _Morales _Rossel _Torres _Valderrama _Venegas
  • 15.
    4. Levantamientos deinformación _ 4.4 levantamiento dimensional 4.4.2 Planta casona Fontt :: CASA FONTT ::ANÁLISIS PATOLÓGICO Colina, Región metropolitana de Santiago, Chile Levantamiento Dimensional U. DE CHILE _ FAC. DE ARQUITECTURA Y URBANISMO _Alquinta _Belmar _Brady _Castillo _Contreras _Jara _Morales _Rossel _Torres _Valderrama _Venegas
  • 16.
    4. Levantamientos deinformación _ 4.4 levantamiento dimensional 4.4.2 Planta Zona 1 :: CASA FONTT ::ANÁLISIS PATOLÓGICO Colina, Región metropolitana de Santiago, Chile Levantamiento Dimensional U. DE CHILE _ FAC. DE ARQUITECTURA Y URBANISMO _Alquinta _Belmar _Brady _Castillo _Contreras _Jara _Morales _Rossel _Torres _Valderrama _Venegas
  • 17.
    4. Levantamientos deinformación _ 4.4 levantamiento dimensional 4.4.2 Planta Zona 2 (capilla) :: CASA FONTT ::ANÁLISIS PATOLÓGICO Colina, Región metropolitana de Santiago, Chile Levantamiento Dimensional U. DE CHILE _ FAC. DE ARQUITECTURA Y URBANISMO _Alquinta _Belmar _Brady _Castillo _Contreras _Jara _Morales _Rossel _Torres _Valderrama _Venegas
  • 18.
    4. Levantamientos deinformación _ 4.4 levantamiento dimensional 4.4.2 Planta Zona 3 :: CASA FONTT ::ANÁLISIS PATOLÓGICO Colina, Región metropolitana de Santiago, Chile Levantamiento Dimensional U. DE CHILE _ FAC. DE ARQUITECTURA Y URBANISMO _Alquinta _Belmar _Brady _Castillo _Contreras _Jara _Morales _Rossel _Torres _Valderrama _Venegas
  • 19.
    4. Levantamientos deinformación _ 4.4 levantamiento dimensional 4.4.2 Planta Zona 4 :: CASA FONTT ::ANÁLISIS PATOLÓGICO Colina, Región metropolitana de Santiago, Chile Levantamiento Dimensional U. DE CHILE _ FAC. DE ARQUITECTURA Y URBANISMO _Alquinta _Belmar _Brady _Castillo _Contreras _Jara _Morales _Rossel _Torres _Valderrama _Venegas
  • 20.
    4. Levantamientos deinformación _ 4.4 levantamiento dimensional 4.4.2 Planta Zona 5 :: CASA FONTT ::ANÁLISIS PATOLÓGICO Colina, Región metropolitana de Santiago, Chile Levantamiento Dimensional U. DE CHILE _ FAC. DE ARQUITECTURA Y URBANISMO _Alquinta _Belmar _Brady _Castillo _Contreras _Jara _Morales _Rossel _Torres _Valderrama _Venegas
  • 21.
    4. Levantamientos deinformación _ 4.4 levantamiento dimensional 4.4.2 Planta Zona 6 :: CASA FONTT ::ANÁLISIS PATOLÓGICO Colina, Región metropolitana de Santiago, Chile Levantamiento Dimensional U. DE CHILE _ FAC. DE ARQUITECTURA Y URBANISMO _Alquinta _Belmar _Brady _Castillo _Contreras _Jara _Morales _Rossel _Torres _Valderrama _Venegas
  • 22.
    4. Levantamientos deinformación _ 4.4 levantamiento dimensional 4.4.2 Planta Zona 7 :: CASA FONTT ::ANÁLISIS PATOLÓGICO Colina, Región metropolitana de Santiago, Chile Levantamiento Dimensional U. DE CHILE _ FAC. DE ARQUITECTURA Y URBANISMO _Alquinta _Belmar _Brady _Castillo _Contreras _Jara _Morales _Rossel _Torres _Valderrama _Venegas
  • 23.
    4. Levantamientos deinformación _ 4.4 levantamiento dimensional 4.4.3 Elevaciones Elevación Sur capilla a partir de ortofotos :: CASA FONTT ::ANÁLISIS PATOLÓGICO Colina, Región metropolitana de Santiago, Chile OrtoFotos U. DE CHILE _ FAC. DE ARQUITECTURA Y URBANISMO _Alquinta _Belmar _Brady _Castillo _Contreras _Jara _Morales _Rossel _Torres _Valderrama _Venegas
  • 24.
    4. Levantamientos deinformación _ 4.4 levantamiento dimensional 4.4.3 Elevaciones Elevación Sur capilla 225 161 119 173 135 66 680 218 417 257 236 117 :: CASA FONTT ::ANÁLISIS PATOLÓGICO Colina, Región metropolitana de Santiago, Chile OrtoFotos U. DE CHILE _ FAC. DE ARQUITECTURA Y URBANISMO _Alquinta _Belmar _Brady _Castillo _Contreras _Jara _Morales _Rossel _Torres _Valderrama _Venegas
  • 25.
    4. Levantamientos deinformación _ 4.4 levantamiento dimensional 4.4.3 Elevaciones Elevación Oriente capilla a partir de ortofotos :: CASA FONTT ::ANÁLISIS PATOLÓGICO Colina, Región metropolitana de Santiago, Chile OrtoFotos U. DE CHILE _ FAC. DE ARQUITECTURA Y URBANISMO _Alquinta _Belmar _Brady _Castillo _Contreras _Jara _Morales _Rossel _Torres _Valderrama _Venegas
  • 26.
    4. Levantamientos deinformación _ 4.4 levantamiento dimensional 4.4.3 Elevaciones Elevación Oriente capilla a partir de ortofotos 232 220 24 33 208 122 121 7 13 120 35 349 156 159 143 148 417 232 284 217 227 112 85 163 120 1° 165 94 90 88 :: CASA FONTT ::ANÁLISIS PATOLÓGICO Colina, Región metropolitana de Santiago, Chile OrtoFotos U. DE CHILE _ FAC. DE ARQUITECTURA Y URBANISMO _Alquinta _Belmar _Brady _Castillo _Contreras _Jara _Morales _Rossel _Torres _Valderrama _Venegas
  • 27.
    4. Levantamientos deinformación _ 4.4 levantamiento dimensional 4.4.3 Elevaciones Elevación Sur bodega a partir de ortofotos :: CASA FONTT ::ANÁLISIS PATOLÓGICO Colina, Región metropolitana de Santiago, Chile OrtoFotos U. DE CHILE _ FAC. DE ARQUITECTURA Y URBANISMO _Alquinta _Belmar _Brady _Castillo _Contreras _Jara _Morales _Rossel _Torres _Valderrama _Venegas
  • 28.
    4. Levantamientos deinformación _ 4.4 levantamiento dimensional 4.4.3 Elevaciones Elevación Sur Bodega a partir de ortofotos 223 221 68 328 408 257 7° 646 :: CASA FONTT ::ANÁLISIS PATOLÓGICO Colina, Región metropolitana de Santiago, Chile OrtoFotos U. DE CHILE _ FAC. DE ARQUITECTURA Y URBANISMO _Alquinta _Belmar _Brady _Castillo _Contreras _Jara _Morales _Rossel _Torres _Valderrama _Venegas
  • 29.
    4. Levantamientos deInformación _ 4.5 Levantamiento técnico constructivo 4.5.1 Muros Si bien la mayoría de los muros de la casa son construidos en adobe estos se pueden clasificar en 3 categorías. Estas categorías están dadas tanto por su periodo de construcción como en la manera en que están construidos Tipo A Muros de la casa inicial Tipo B Muros de la Capilla Tipo C Muros de la bodega :: CASA FONTT ::ANÁLISIS PATOLÓGICO Colina, Región metropolitana de Santiago, Chile Levantamiento Técnico Constructivo U. DE CHILE _ FAC. DE ARQUITECTURA Y URBANISMO _Alquinta _Belmar _Brady _Castillo _Contreras _Jara _Morales _Rossel _Torres _Valderrama _Venegas
  • 30.
    4. Levantamientos deInformación _ 4.5 Levantamiento técnico constructivo 4.5.1 Muros Tipo A Este muro es construido sobre una fundación de piedras unidas entre ellas por un mortero de cemento, sobre Hiladas de adobe esto se colocan hasta 4 en aparejo tipo ingles hiladas de ladrillos de arcilla cocida hechos a mano tipo muralla. Con estas hiladas se 3 hiladas de Adobes busca el plano horizontal 34 con aparejo de cabeza para la casa y marcan el nivel del piso interior. Es así Tramo de Ladrillos con un aparejo tipo como en el lado norte de la ingles unidos por un 30 mortero de pega de casa solo existen 2 hiladas ya cemento. con este tramo se que es mas alto el terreno. busca el plano horizontal para Sobre estas hiladas de nivelar la casa ladrillos comienza el muro de Cimiento y 45 Sobrecimiento de adobe. Las primeras 3 hiladas mamposteria unidas por mortero de se usa un aparejo de cabeza cemento se usan piedras de y después se continúa con un menor tamaño y con mayor trabajo para nivelar aparejo tipo inglés :: CASA FONTT ::ANÁLISIS PATOLÓGICO Colina, Región metropolitana de Santiago, Chile Levantamiento Técnico Constructivo U. DE CHILE _ FAC. DE ARQUITECTURA Y URBANISMO _Alquinta _Belmar _Brady _Castillo _Contreras _Jara _Morales _Rossel _Torres _Valderrama _Venegas
  • 31.
    4. Levantamientos deInformación _ 4.5 Levantamiento técnico constructivo 4.5.1 Muros Mortero de Barro Tipo A Taco de madera de 5’’x5’’ en bruto Revestimiento Alfeizar en Madera, de Álamo Bloque de adobe 32x60x10 cm. Ladrillos de arcilla cocida hechos a mano 7x22,5x45 cm. Rocas de Fundación Mortero de Cemento :: CASA FONTT ::ANÁLISIS PATOLÓGICO Colina, Región metropolitana de Santiago, Chile Levantamiento Técnico Constructivo U. DE CHILE _ FAC. DE ARQUITECTURA Y URBANISMO _Alquinta _Belmar _Brady _Castillo _Contreras _Jara _Morales _Rossel _Torres _Valderrama _Venegas
  • 32.
    4. Levantamientos deInformación _ 4.5 Levantamiento técnico constructivo 4.5.1 Muros Tipo A Esta tipología de muro sólo lleva un refuerzo superior construido en una carrera continua o escalerilla de madera que permite darle continuidad al muro, reforzar las esquinas además de permitir que la estructura de techo sea clavada a ésta Las esquinas en todos los tipo de muros se construyen con los bloques trabado para darle mayor resistencia independiente del tipo de aparejo usado en el muro. Las esquinas llevan también refuerzos en madera o esquineros. Cada seis o diez hiladas :: CASA FONTT ::ANÁLISIS PATOLÓGICO Colina, Región metropolitana de Santiago, Chile Levantamiento Técnico Constructivo U. DE CHILE _ FAC. DE ARQUITECTURA Y URBANISMO _Alquinta _Belmar _Brady _Castillo _Contreras _Jara _Morales _Rossel _Torres _Valderrama _Venegas
  • 33.
    4. Levantamientos deInformación _ 4.5 Levantamiento técnico constructivo 4.5.1 Muros Tipo B Muro construido sobre una fundación de grandes rocas. Sobre esto, sin ningún tipo de sobrecimiento o protección contra la humedad, se comienza el muro de adobe con un aparejo de cabeza. Luego de 11 hiladas aparece un refuerzo horizontal compuesto de una escalerilla de madera, la cual se repite 10 hiladas mas arriba, a la cual se clava parte de la estructura del alero. Dos hiladas mas arriba aparece la carrera superior constituida por 2 cuartones unidos, cada cierto tiempo, transversalmente por tablas menores a la cual se clava la estructura de techumbre y colabora en amarrar y rigidizar el muro. 0 10 20 30 40 50 :: CASA FONTT ::ANÁLISIS PATOLÓGICO Colina, Región metropolitana de Santiago, Chile Levantamiento Técnico Constructivo U. DE CHILE _ FAC. DE ARQUITECTURA Y URBANISMO _Alquinta _Belmar _Brady _Castillo _Contreras _Jara _Morales _Rossel _Torres _Valderrama _Venegas
  • 34.
    4. Levantamientos deInformación _ 4.5 Levantamiento técnico constructivo 4.5.1 Muros Tipo B Enlucido de Yeso y Cal entre 1 y 2 cm. de espesor Bloque de adobe 32x60x10 cm. Escalerilla de refuerzo Mortero de Barro Rocas de Fundación :: CASA FONTT ::ANÁLISIS PATOLÓGICO Colina, Región metropolitana de Santiago, Chile Levantamiento Técnico Constructivo U. DE CHILE _ FAC. DE ARQUITECTURA Y URBANISMO _Alquinta _Belmar _Brady _Castillo _Contreras _Jara _Morales _Rossel _Torres _Valderrama _Venegas
  • 35.
    4. Levantamientos deInformación _ 4.5 Levantamiento técnico constructivo 4.5.1 Muros Tipo B Esta tipología presenta por una cara un elucido a la cal sobre revoque de barro con paja por el lado poniente y por el lado Oriente y Sur (que Foto Fachada Poniente da a la plaza de acceso) el mismo enlucido a la cal pintado color rojo colonial sobre revoque de barro con paja y un revoque de cemento/arena en la parte inferior imitando un sobrecimiento, además de presentar mayor terminación en los aleros. Foto Fachada Sur y Oriente :: CASA FONTT ::ANÁLISIS PATOLÓGICO Colina, Región metropolitana de Santiago, Chile Levantamiento Técnico Constructivo U. DE CHILE _ FAC. DE ARQUITECTURA Y URBANISMO _Alquinta _Belmar _Brady _Castillo _Contreras _Jara _Morales _Rossel _Torres _Valderrama _Venegas
  • 36.
    4. Levantamientos deInformación _ 4.5 Levantamiento técnico constructivo 4.5.1 Muros Tipo C Refuerzo de Madera Refuerzo de Madera El muro de la bodega presenta características muy similares a las del caso B pero se diferencian en que en este caso el cimiento de piedra sube entre 20 y 15 cm. sobre el nivel de terreno natural. Además presenta un refuerzo Refuerzo de Madera extra de madera a un metro de altura. Sobrecimiento :: CASA FONTT ::ANÁLISIS PATOLÓGICO Colina, Región metropolitana de Santiago, Chile Levantamiento Técnico Constructivo U. DE CHILE _ FAC. DE ARQUITECTURA Y URBANISMO _Alquinta _Belmar _Brady _Castillo _Contreras _Jara _Morales _Rossel _Torres _Valderrama _Venegas
  • 37.
    4. Levantamientos deInformación _ 4.5 Levantamiento técnico constructivo 4.5.2 Cubierta Al Igual que en el caso de los muros los techos se pueden clasificar en 3 topologías dada su condición actual Tipo A Tipo B Tipo C :: CASA FONTT ::ANÁLISIS PATOLÓGICO Colina, Región metropolitana de Santiago, Chile Levantamiento Técnico Constructivo U. DE CHILE _ FAC. DE ARQUITECTURA Y URBANISMO _Alquinta _Belmar _Brady _Castillo _Contreras _Jara _Morales _Rossel _Torres _Valderrama _Venegas
  • 38.
    4. Levantamientos deInformación _ 4.5 Levantamiento técnico constructivo 4.5.2 Cubierta Tipo A Esta tipología de techo esta compuesta de una estructura en base a cerchas cuyas piernas y tirante inferior son de roble aserrado en bruto 6’’x6’’, también presentan un tirante intermedio en roble de igual categoría pero menor dimensión. Estas cerchas son amarradas por una viga cumbrera y en la base. Sobre las piernas existe un encoliguado, el cual sirve de soporte para un ensordinado de barro y paja, sobre el cual se asientan las tejas de arcilla cocida hechas a mano. Junto con esto es posible encontrar un alero de estructura independiente el resto de la techumbre, sobre esta estructura hay un entablado de álamo 0 10 20 30 40 50 en tablas de 1’’x 5’’ en bruto. Sobre este entablado se repite el mismo esquema de ensordinado y tejas. :: CASA FONTT ::ANÁLISIS PATOLÓGICO Colina, Región metropolitana de Santiago, Chile Levantamiento Técnico Constructivo U. DE CHILE _ FAC. DE ARQUITECTURA Y URBANISMO _Alquinta _Belmar _Brady _Castillo _Contreras _Jara _Morales _Rossel _Torres _Valderrama _Venegas
  • 39.
    4. Levantamientos deInformación _ 4.5 Levantamiento técnico constructivo 4.5.2 Cubierta Pierna cercha 6''x6'' Roble Tejas de arcilla cocida Tipo A Encoliguado Tirante cercha 6''x2'' Roble Ensordinado de barro con paja Tirante cercha 6''x6'' Roble Escalerilla Entablado 6’’x1’’ de Álamo en bruto Foto Encoliguado :: CASA FONTT ::ANÁLISIS PATOLÓGICO Colina, Región metropolitana de Santiago, Chile Levantamiento Técnico Constructivo U. DE CHILE _ FAC. DE ARQUITECTURA Y URBANISMO _Alquinta _Belmar _Brady _Castillo _Contreras _Jara _Morales _Rossel _Torres _Valderrama _Venegas
  • 40.
    4. Levantamientos deInformación _ 4.5 Levantamiento técnico constructivo 4.5.2 Cubierta Tipo B Esta tipología es muy similar a la anterior solo que se diferencia en que el entablado no solo cubre la estructura del alero sino hasta la cumbrera, pero el alero esta cubierto por tablas de mejor calidad y el resto incluso se han usado “tapas” para su elaboración. Este tipo habla de un método constructivo posterior al del encoliguado por lo que se presume que esta tipología a sido aplicada como reparación en muchos casos. 0 10 20 30 40 50 :: CASA FONTT ::ANÁLISIS PATOLÓGICO Colina, Región metropolitana de Santiago, Chile Levantamiento Técnico Constructivo U. DE CHILE _ FAC. DE ARQUITECTURA Y URBANISMO _Alquinta _Belmar _Brady _Castillo _Contreras _Jara _Morales _Rossel _Torres _Valderrama _Venegas
  • 41.
    4. Levantamientos deInformación _ 4.5 Levantamiento técnico constructivo 4.5.2 Cubierta Tipo B Pierna cercha 6''x6'' Roble Tejas de arcilla cocida Tirante Entablado 6’’x1’’ de Alamo en bruto cercha 6''x2'' Ensordinado Roble de barro con paja Tirante cercha 6''x6'' Roble Escalerilla Foto Entablado :: CASA FONTT ::ANÁLISIS PATOLÓGICO Colina, Región metropolitana de Santiago, Chile Levantamiento Técnico Constructivo U. DE CHILE _ FAC. DE ARQUITECTURA Y URBANISMO _Alquinta _Belmar _Brady _Castillo _Contreras _Jara _Morales _Rossel _Torres _Valderrama _Venegas
  • 42.
    4. Levantamientos deInformación _ 4.5 Levantamiento técnico constructivo 4.5.2 Cubierta Tipo C Manteniendo el mismo sistema de cerchas y entablado del Tipo B, se agrega un listoneado en el sentido transversal a las cerchas sobre el cual se clavan las planchas de fierro galvanizado o en su ausencia planchas de fibro cemento sobre la bodega. En este caso se prescinde del ensordinado de barro y paja. De igual manera que el Tipo B se presume que esta tipología surge de una intervención o reparación posterior, menos en el caso de bodega (volumen a la derecha del acceso), ya que corresponde a métodos y materiales posteriores. :: CASA FONTT ::ANÁLISIS PATOLÓGICO Colina, Región metropolitana de Santiago, Chile Levantamiento Técnico Constructivo U. DE CHILE _ FAC. DE ARQUITECTURA Y URBANISMO _Alquinta _Belmar _Brady _Castillo _Contreras _Jara _Morales _Rossel _Torres _Valderrama _Venegas
  • 43.
    4. Levantamientos deInformación _ 4.5 Levantamiento técnico constructivo 4.5.2 Cubierta Pierna cercha 6''x6'' Roble Plancha de fibro-cemento o fierro galbanizado Tipo C Tirante Entablado 6’’x1’’ de Alamo en cercha bruto 6''x2'' Roble Costaneras de 2’’x2’’ Foto Techo de Fierro Galvanizado Tirante cercha 6''x6'' Roble Escalerilla Foto Techo de Planchas de Fibro Cemento :: CASA FONTT ::ANÁLISIS PATOLÓGICO Colina, Región metropolitana de Santiago, Chile Levantamiento Técnico Constructivo U. DE CHILE _ FAC. DE ARQUITECTURA Y URBANISMO _Alquinta _Belmar _Brady _Castillo _Contreras _Jara _Morales _Rossel _Torres _Valderrama _Venegas
  • 44.
    4. Levantamientos deInformación _ 4.5 Levantamiento técnico constructivo 4.5.3 Tabiquería y muros menores Existen principalmente dos zonas con tabiquerías. Una está dentro de la casona, la cual fue construida tardíamente como divisiones de algunas habitaciones. Son bastante pobres en su conformación ya que poseen pies derechos a mucha distancia, una o dos cadenetas y diagonales para rigidizar el sistema, por fuera son revestidos con planchas de yeso cartón por ambos lados. No poseen ningún tipo de aislación. :: CASA FONTT ::ANÁLISIS PATOLÓGICO Colina, Región metropolitana de Santiago, Chile Levantamiento Técnico Constructivo U. DE CHILE _ FAC. DE ARQUITECTURA Y URBANISMO _Alquinta _Belmar _Brady _Castillo _Contreras _Jara _Morales _Rossel _Torres _Valderrama _Venegas
  • 45.
    4. Levantamientos deInformación _ 4.5 Levantamiento técnico constructivo 4.5.3 Tabiquería y muros menores La segunda tipología se ubica al exterior de la casona en las construcciones que están a un costado de la capilla. Tienen un carácter y un sistema constructivo mas propio a la expresión de la casa. Se componen por pies derechos de pino, cubiertos a ambos lados por un entablado distanciado con aproximadamente el espesor de la misma tabla de separación y recubiertos por ambas caras con barro con paja. Pie derecho Entablado Revoque de barro con paja :: CASA FONTT ::ANÁLISIS PATOLÓGICO Colina, Región metropolitana de Santiago, Chile Levantamiento Técnico Constructivo U. DE CHILE _ FAC. DE ARQUITECTURA Y URBANISMO _Alquinta _Belmar _Brady _Castillo _Contreras _Jara _Morales _Rossel _Torres _Valderrama _Venegas
  • 46.
    4. Levantamientos deInformación _ 4.5 Levantamiento técnico constructivo 4.5.4 Elementos de Terminación Pisos Baldosa cerámica cuadrada Piso no terminado Esquema de distribución de pisos en los diversos recintos de la casona. Se puede observar que en las zonas intermedias o semi exteriores bajo los Parquet de madera corredores se utilizan pisos generalmente en baldosas de diversos tamaños y colores. En zonas interiores se utilizan básicamente entablados de madera, como son los recintos que estaban orientados a las Alfombra zonas de estar y dormitorios. Actualmente hay recintos que poseen alfombra producto de algunos dormitorios que se remodelaron posteriormente. Entablado de madera Hay zonas en que no existe pavimento alguno, estando directo al mismo terreno. Baldosa cerámica :: CASA FONTT ::ANÁLISIS PATOLÓGICO Colina, Región metropolitana de Santiago, Chile Levantamiento Técnico Constructivo U. DE CHILE _ FAC. DE ARQUITECTURA Y URBANISMO _Alquinta _Belmar _Brady _Castillo _Contreras _Jara _Morales _Rossel _Torres _Valderrama _Venegas
  • 47.
    4. Levantamientos deInformación _ 4.5 Levantamiento técnico constructivo 4.5.4 Elementos de Terminación Pisos En el sector de la capilla existe un entablado de madera puesto sobre envigado. Posee dos niveles con una diferencia de 75 cm. entre uno y otro que responden al desnivel que tiene el terreno. Piso Capilla :: CASA FONTT ::ANÁLISIS PATOLÓGICO Colina, Región metropolitana de Santiago, Chile Levantamiento Técnico Constructivo U. DE CHILE _ FAC. DE ARQUITECTURA Y URBANISMO _Alquinta _Belmar _Brady _Castillo _Contreras _Jara _Morales _Rossel _Torres _Valderrama _Venegas
  • 48.
    4. Levantamientos deInformación _ 4.5 Levantamiento técnico constructivo 4.5.4 Elementos de Terminación Pilares Constituyen elementos significativos de la casa y se encuentran en la fachada principal y en el contorno de todos los corredores del patio posterior generando galerías. Son cuadrados, hechos de madera con base de hormigón. Esta posee sus cantos biselados para permitir el escurrimiento del agua y evitar que esta se acumule y pudra la zona inferior del pilar. :: CASA FONTT ::ANÁLISIS PATOLÓGICO Colina, Región metropolitana de Santiago, Chile Levantamiento Técnico Constructivo U. DE CHILE _ FAC. DE ARQUITECTURA Y URBANISMO _Alquinta _Belmar _Brady _Castillo _Contreras _Jara _Morales _Rossel _Torres _Valderrama _Venegas
  • 49.
    4. Levantamientos deInformación _ 4.5 Levantamiento técnico constructivo 4.5.4 Elementos de Terminación Cielos Esquema de zonificación de los cielos significativos según cada recinto de la Entablado de madera amarillo casona. Se destacan dos tipologías principales. En primer lugar en los recintos de estar Entablado de madera en corredor cocina y dormitorios existen entablados de raulí con cornisas perimetrales. Son pintados de diversos colores. Están seriamente dañados en recintos con lesiones o desplomes en la cubierta. Esta tipología, está revestida sobre el Tijerales a la vista entablado por un ensordinado de barra y paja que es utilizado como aislante térmico. La segunda tipología es la de tijerales a la vista, de madera en bruto los cuales se encuentran en el corredor principal o en algunos dormitorios que no fueron Entablado de madera azul terminados. Entablado de madera blanco Tijerales a la vista :: CASA FONTT ::ANÁLISIS PATOLÓGICO Colina, Región metropolitana de Santiago, Chile Levantamiento Técnico Constructivo U. DE CHILE _ FAC. DE ARQUITECTURA Y URBANISMO _Alquinta _Belmar _Brady _Castillo _Contreras _Jara _Morales _Rossel _Torres _Valderrama _Venegas
  • 50.
    4. Levantamientos deInformación _ 4.5 Levantamiento técnico constructivo 4.5.4 Elementos de Terminación Cielos En el volumen de la capilla encontramos un entablado tosco alineado a base de pino, cuyas tablas son de 4 pulgadas, con cornisas. Sobre el entablado se coloca un ensordinado de barro y paja que ayuda en la aislación térmica. Se encuentra con claros daños producto de la humedad, debido al desprendimiento de la cubierta. Cielo Capilla :: CASA FONTT ::ANÁLISIS PATOLÓGICO Colina, Región metropolitana de Santiago, Chile Levantamiento Técnico Constructivo U. DE CHILE _ FAC. DE ARQUITECTURA Y URBANISMO _Alquinta _Belmar _Brady _Castillo _Contreras _Jara _Morales _Rossel _Torres _Valderrama _Venegas
  • 51.
    4. Levantamientos deInformación _ 4.5 Levantamiento técnico constructivo 4.5.4 Elementos de Terminación Muros Como revestimientos de muro por lo general se utiliza un enlucido de barro, Papel mural Papel mural Enlucido de barro pintado sobre el cual se coloca papel del diario y luego se pinta o se coloca un revestimiento. Esta solución esta presente en los corredores tanto interior Enlucido de barro pintado como exterior donde se pinta con un color rojizo. En los dormitorios se utiliza por lo general papel mural y en las zonas húmedas se observan revestimientos con palmetas cerámicas. Cerámica Enlucido de barro pintado :: CASA FONTT ::ANÁLISIS PATOLÓGICO Colina, Región metropolitana de Santiago, Chile Levantamiento Técnico Constructivo U. DE CHILE _ FAC. DE ARQUITECTURA Y URBANISMO _Alquinta _Belmar _Brady _Castillo _Contreras _Jara _Morales _Rossel _Torres _Valderrama _Venegas
  • 52.
    4. Levantamientos deInformación _ 4.5 Levantamiento técnico constructivo 4.5.4 Elementos de Terminación Puertas y ventanas Las puertas son tableriadas de álamo y poseen un sistema de cierro y chapas retirado del plomo exterior con pilastras. Tienen una altura desde el piso de 2,53mt incluyendo el marco, mientras que la hoja sola mide 2,39mt. Todas poseen una españoleta de fierro fundido como se observa en la foto y por lo general se han conservado en bastante buen estado. No existen referencias acerca de la estructura que estas tienen. Tipología de puertas utilizadas en la Casona :: CASA FONTT ::ANÁLISIS PATOLÓGICO Colina, Región metropolitana de Santiago, Chile Levantamiento Técnico Constructivo U. DE CHILE _ FAC. DE ARQUITECTURA Y URBANISMO _Alquinta _Belmar _Brady _Castillo _Contreras _Jara _Morales _Rossel _Torres _Valderrama _Venegas
  • 53.
    4. Levantamientos deInformación _ 4.5 Levantamiento técnico constructivo 4.5.4 Elementos de Terminación dintel Puertas y ventanas Las ventanas se componen desde el zócalo por 4 hiladas hasta el alfeizar, luego 14 hiladas hasta llegar al dintel. Los tacos permiten que la ventana se pueda pegar, estos se apoyan a la vez sobre tablillas. El dintel se compone por dos troncos y tacos unos travesaños. Sobre ellos se coloca el marco y finalmente las pilastras que son las que cubren toda esta estructura. tablillas alfeizar marco :: CASA FONTT ::ANÁLISIS PATOLÓGICO Colina, Región metropolitana de Santiago, Chile Levantamiento Técnico Constructivo U. DE CHILE _ FAC. DE ARQUITECTURA Y URBANISMO _Alquinta _Belmar _Brady _Castillo _Contreras _Jara _Morales _Rossel _Torres _Valderrama _Venegas
  • 54.
    4. Levantamientos deInformación _ 4.5 Levantamiento técnico constructivo 4.5.4 Elementos de Terminación Puertas y ventanas Vista 3d vano de ventana y foto :: CASA FONTT ::ANÁLISIS PATOLÓGICO Colina, Región metropolitana de Santiago, Chile Levantamiento Técnico Constructivo U. DE CHILE _ FAC. DE ARQUITECTURA Y URBANISMO _Alquinta _Belmar _Brady _Castillo _Contreras _Jara _Morales _Rossel _Torres _Valderrama _Venegas
  • 55.
    Iglesia de Achaúta Análisis Patológico del Edificio Pablo Alvestegui / Daniela Chávez / José Manuel Dörr / Soledad Hernández / Nicolás Miranda
  • 56.
    Levantamiento Imagen Actual Levantamiento Imagen Actual 3.4
  • 57.
    Levantamiento Imagen Actual Es importante además destacar que el caserío, que actualmente también se encuentra en ruinas, contribuye al valor patrimonial del inmueble, constituyendo un conjunto que en un futuro puede ser recuperado con el fin de nombrarlo monumento histórico. N Levantamiento Imagen Actual 3.4
  • 58.
    Levantamiento Imagen Actual Latotalidad de las fachadas y el campanil están actualmente en pie, no obstante, se encuentran muy deteriorados. Sin embargo, las lesiones del techo, tanto de la estructura como de la cubierta de paja requieren mayor recuperación. Levantamiento Imagen Actual 3.4
  • 59.
    Levantamiento Imagen Actual Levantamiento Imagen Actual 3.4
  • 60.
    Descripciones / Proporciones Las proporciones se tomaron en función de la base del campanil, asignándole un valor A a su medida en planta. A Podemos ver la relación que existe entre el campanil y la iglesia. Al analizarlo en planta, vemos como este valor está en la fachada dos veces y junto con los volúmenes adosados forma el cuádruplo del campanil. A lo largo se repite 6 A A A veces. En el campanil vemos como el decrecimiento de sus borde a medida que crece es proporcional en un valor C 6A asignado. A C A C A A A A A Descripción proporciones C A A 4A A C A A A A 2.3
  • 61.
    Descripciones / Planimétrica Laiglesia se compone de una planta geometrizada y muy simple, hecha en base a un rectángulo que corresponde a la nave central, con don espacios adyacentes, lo que genera un eje de simetría en toda su longitud. Este en sus extremos contiene dos puntos muy importantes dentro del templo: el acceso y el altar. Descripción Planimétrica 2.4
  • 62.
    Levantamiento Dimensional Corte Iglesia Levantamiento Dimensional 3.5
  • 63.
    Levantamiento Dimensional Elevación FrontalIglesia Levantamiento Dimensional 3.5
  • 64.
    Levantamiento Dimensional Elevación PosteriorIglesia Levantamiento Dimensional 3.5
  • 65.
  • 66.
  • 67.
    Levantamiento Dimensional Elevación LateralIglesia Levantamiento Dimensional 3.5
  • 68.
    Levantamiento Dimensional Elevación LateralIglesia Levantamiento Dimensional 3.5
  • 69.
    Levantamiento Dimensional 1 Elevación frontal 1 Levantamiento Dimensional 3.5
  • 70.
    Levantamiento Dimensional 2 Elevación Posterior 2 Levantamiento Dimensional 3.5
  • 71.
    Levantamiento Dimensional 3 Elevación lateral 3 Levantamiento Dimensional 3.5
  • 72.
    Levantamiento Constructivo 4. Cubierta Lacubierta es a dos aguas a base de estructura resistente de madera de Cactus conformando un sistema de par y nudillo unidos con encordados de cuero. Sobre la estructura se disponen costaneras en madera de Cactus amarradas al estructura principal Revestimiento de Paja Brava Los tijerales se apoyan sobre una solera de piedra canteada. Amarre cuadrado de cuero de guanaco Costra de Paja Brava con barro Como revestimiento, la estructura recibe un tejido vegetal sobre el cual se apoya una costra de paja brava mezclada con barro, que sustenta un Costanera de cactus segundo revestimiento de paja brava. Tejido vegetal Tijerales de cactus Levantamiento Constructivo Corte iglesia 3.6
  • 73.
    Levantamiento Constructivo Tejido vegetal Amarre cuadrado de cuero de guanaco Revestimiento de Paja Brava Tijerales de cactus Costanera de cactus Costra de Paja Brava con barro Solera de piedra canteada Albañilería simple de bloques de tierra cruda Mortero simple de barro Zócalo de albañilería simple en Levantamiento Constructivo bloques de piedra irregular Revestimiento de barro Observación: Debido a la irregularidad de la mayoría de los materiales y elementos que conforman la iglesia, se omitirá la especificación de algunas dimensiones. Fundación asimétrica de piedra 3.6 Escantillón Iglesia
  • 74.
    Levantamiento Constructivo La torre del campanil tienen una estructura Albañilería de adobe resistente a base de muros resistentes en albañilería simple de bloques de barro crudo y de piedra canteada sobre un zócalo continuo de dicho material. La torre presenta cuatro partes desde la fundación hasta la cúpula los cuales son: Piedra laja Viga de madera de cactus Arco de adobe en 1. Zócalo en piedra dintel 2. Primer cuerpo en muros resistentes de albañilería simple en bloques de piedra unidos por un mortero de barro, revestido con una capa delgada de barro (aprox. 2 cms.) Mortero simple de 3. Segundo cuerpo montado sobre el primero barro Mampostería en la misma tipología del anterior. irregular natural 4. Tercer cuerpo que corona la torre es forma de pirámide, a manera de cubierta, en muros resistentes en albañilería simple de bloques de barro crudo. Piedra laja Levantamiento Constructivo En la materialidad también se cuenta con piedra laja que es utilizada en lugares de mayor esfuerzo estructural, como la parte superior del túnel y la continuación del arco superior de las ventanas (dintel) que también es reforzado mediante madera de cactus empotrada en los muros. Otra parte donde se utilizó piedra laja fue en la huella de los Peldaño de piedra laja peldaños, donde se talló para dejarlas más tallada planas. Luego mediante mortero se adhirió a las piedras de del volumen inferior del edificio. Mampostería 3.6 irregular natural
  • 75.
    Levantamiento Constructivo 1. Fundaciones 2. Piso Fundación continua, son de piedras grandes El piso es de tierra, no esta compactada. canteadas en 2 o 3 caras, que se prolongan hacia No existen indicios si antes estuvo revestido. arriba para juntarse con el muro de adobe. Esta El la zona anterior al altar existe un pequeño prolongación ayuda a evitar el contacto directo desnivel. Además, por el perímetro interior del adobe con la humedad del terreno. de los muros hay un zócalo Levantamiento Constructivo Prolongación cimiento para construir el muro sobre el Fundación asimétrica, reparte la carga hacia un lado Piedras Desnivel 20cm sedimentadas 3.6
  • 76.
    Levantamiento Constructivo 3. Muros Murosresistentes de albañilería simple de bloques de tierra compactada, apoyados sobre zócalo de piedra siendo un poco mas gruesos en su base. Estos, están revestidos con una fina capa de barro en su exterior e Solera de piedra interior, estando pintado solo el interior. - No poseen contrafuertes, sin embargo, los muros están levemente inclinados para contrarrestar esfuerzos. - Resisten solo al esfuerzo de compresión Revestimiento - Alta inercia térmica y conductividad térmica baja interior barro y pintura Adobe 2.65m Revestimiento exterior barro Piedra canteada Levantamiento Constructivo Fundaciones de piedra Fachada posterior 3.6 Se puede ver como a medida que crece el muro las piedras son mas pequeñas
  • 77.
    Universidad de Chile Facultadde Arquitectura y Urbanismo Departamento de Ciencias de la Construcción Estructura Av. II _ Análisis Patológico del Edificio Profesores: V. Veas _ L. Goldsack _ P. González _ H. Elgueta _ G. Muñoz Ex Cervecería de Andrés Ebner Independencia _ Santiago : : Karla González : : Alicia Hernández : : Carlos Maldonado : : Alejandra Marambio : : Miguel Maura : : Ximena Orellana : : Pilar Sepúlveda : :
  • 78.
    1. Presentación delInmueble El presente informe es el resultado de un trabajo de investigación basado en los edificios de la Ex Cervecería de Andrés Ebner, Monumento Nacional, ubicado en la comuna de Independencia, Santiago. Actualmente el edificio se encuentra deshabitado y en progresivo estado de deterioro, por lo que se hace imprescindible para una posible restauración, el rápido accionar que detenga dicho proceso. Posteriormente, y para una completa rehabilitación del inmueble se deberá asignar a él un programa que asegure su uso constante. Lo que esta ya propuesto por sus actuales propietarios como un edificio de uso comercial. El edificio forma parte del patrimonio arquitectónico de la comuna de Independencia, de aquí la importancia por poner en valor dicho monumento. Imágenes: Cervecería Ebner/ Colección personal Facultad de Arquitectura y Urbanismo Departamento de Ciencias de la Construcción Universidad De Chile Patología Ex Cervecería Andrés Ebner Presentación del Inmueble : : Karla González : : Alicia Hernández : : Carlos Maldonado : : Alejandra Marambio : : Miguel Maura : : Ximena Orellana : : Pilar Sepúlveda : :
  • 79.
    Nombre del Cervecería Inmueble Andrés Ebner Arquitecto Adolfo Möler 1.1 Ficha Técnica Programa actual Desuso Antecede Usos Anteriores Industrial ntes Año de 1885-1888 Generales construcción Monumento Nacional Nº 271 Nº Decreto DS 646 de 26.10.1984 Programa Proyecto Propuesto Comercial País Chile Región Metropolitana Localizaci Provincia Santiago ón Comuna Independencia Av. Cervecería Ebner/ Colección personal Ubicación Independencia Nº565 Fuente: Consejo de Monumento Nacionales Facultad de Arquitectura y Urbanismo Departamento de Ciencias de la Construcción Universidad De Chile Patología Ex Cervecería Andrés Ebner Presentación del Inmueble / Ficha Técnica : : Karla González : : Alicia Hernández : : Carlos Maldonado : : Alejandra Marambio : : Miguel Maura : : Ximena Orellana : : Pilar Sepúlveda : :
  • 87.
    4. Levantamiento deInformación Facultad de Arquitectura y Urbanismo Departamento de Ciencias de la Construcción Universidad De Chile FICHA Patología Ex Cervecería Andrés Ebner Desglose de Contenidos : : Karla González : : Alicia Hernández : : Carlos Maldonado : : Alejandra Marambio : : Miguel Maura : : Ximena Orellana : : Pilar Sepúlveda : : 2
  • 88.
    4. Levantamiento deInformación 4.1 Levantamiento Histórico DESARROLLO DE LA INDUSTRIA DE LA CERVEZA EN CHILE HASTA Industria poco desarrollada, solo se fabrica cerveza MEDIADOS en Valparaíso con el procedimiento de fermentación SIGLO XIX en caliente, principalmente destinado al consumo de extranjeros. 1847 Carlos Naumann establece en Ercilla una fábrica de cerveza 1850 Valentín Koch y Andrés Ebner establecen una cervecería en la ribera norte del Mapocho 1851 Karl Andwanter funda en Valdivia la industria La fábrica de Cerveza Plagemannn de Valparaíso más importante de cerveza. y sus premios. De un anuncio en el Almanaque Comercial para el año de 1884. 1857 Existen 5 Cervecerías en Valparaíso, Valparaíso, Imprenta de La Patria, 1883, 43. tres de ellas de propiedad de alemanes y dos de italianos. Una de ellas, la Cervecería de Plagemann, situada en la calle Chacabuco había sido fundada en 1849, y se la considera como la primera de las cervecerías modernas. Fuente: www.scielo.cl Facultad de Arquitectura y Urbanismo Departamento de Ciencias de la Construcción Universidad De Chile FICHA Patología Ex Cervecería Andrés Ebner Aproximación Geográfica / Contexto Comunal 8
  • 89.
    4. Levantamiento deInformación 4.1 Levantamiento Histórico 1872 Se forma la Sociedad Fabrica de Cerveza Andrés Ebner 1874 Gustavo Keller funda en Concepción una cerveceria, situada en Agua de las Niñas, en la ribera norte del Biobío sobre la línea del ferrocarril. 1876 En La Serena existe la cervecería de Floto y Kleinschmidt, fundada por Federico Floto o Flotow la más importante de la zona. 1883 Augusto Gubler, funda la fabrica de cerveza Gubler & Cousiño, ubicada en un terreno junto a la confluencia del Canal San Carlos con el Rio Mapocho. 1883 Carlos Hoffmann funda en Limache otra fábrica de cerveza. 1891 Fuchs y Plath fundan otra cervecería en Artificio, pueblo vecino a La Calera. Cubierta de la partitura de la galopa “Malta Blanca”. Biblioteca Central de la Universidad de Chile. 1894 La Cervecería Ebner se ubica en La Cañadilla (actual Av. Independencia) Fuente: www.scielo.cl Facultad de Arquitectura y Urbanismo Departamento de Ciencias de la Construcción Universidad De Chile FICHA Patología Ex Cervecería Andrés Ebner Aproximación Geográfica / Contexto Comunal 8
  • 90.
    4. Levantamiento deInformación 4.1 Levantamiento Histórico DESARROLLO FABRICA DE ANDRÉS EBNER Andrés Ebner nace en Baviera, Alemania, el 4 de enero de 1849, y llega a Chile en 1869. Asociado a Otto Schleyer monta una fábrica de cerveza en Talca, y con las ganancias compra en 1878 la fabrica de cerveza de Salvador Koch ubicada en la Cañadilla (Actual Av. Independencia). Importa nuevas maquinarias y adquiere la fábrica de Malta La Estrella que traslada a su fábrica. Entre 1885 y 1888, construye su casa que ubica paralela a la calzada de Av. Independencia, la que a pesar de tener uso mixto de Vista Actual desde extremo sur poniente del edificio oficina en primer nivel y habitaciones en el segundo, tiene rasgos de principal hacia Av. Independencia. mansión. Ebner fallece en 1908, periodo de mayor expansión de la fábrica, cuyo terreno alcanza 3 hectáreas hacia 1910. Se presume que el Arquitecto fue Adolfo Móller. La residencia se destaca por su composición lineal que alcanza los 50 metros. En su extremo sur gira hacia el interior de la manzana, en un cuerpo de planta diagonal, y cuyo segundo piso estaba destinado a vivienda del administrador. Es de carácter ecléctico propio del período, es una fusión de neo-renacimiento, rasgos italianizantes y manieristas y toque de fantasía en su torre de la esquina norte. Modulada en el 1° piso por un juego de arquería. La CCU compra todo este complejo industrial en 1916, mantuvo la fabrica en plena producción hasta 1978. Desde 1980 la propiedad pertenece a la Inmobiliaria Forestal filial de CCU. El sector Industrial fue desmantelado en 1982. Fuente: Chile, Registro de Monumentos Nacionales, Ficha Nª157, Ed. Dirección de Vista Actual desde extremo nor poniente del edificio Arquitectura MOP. principal hacia Av. Independencia. Facultad de Arquitectura y Urbanismo Departamento de Ciencias de la Construcción Universidad De Chile FICHA Patología Ex Cervecería Andrés Ebner Aproximación Geográfica / Contexto Comunal 8
  • 91.
    4. Levantamiento deInformación 4.2 Levantamiento de la Imagen Actual Este levantamiento se realiza a través de fotografías, tanto interiores como exteriores, de ambos niveles del cuerpo principal, que dan cuenta de la situación en la que se encuentra actualmente la edificación. Actualmente el gran terreno ha sufrido un subdivisiones y un amplio porcentaje de los galpones interiores de la antigua fabrica son utilizados como centro de acopio por alquiler. Luego de pasar por los dueños de la CCU y tras la paralización de su actividad productiva en 1982, el inmueble, desde aquel entonces solo ha sido victima del descuido y del deterioro: En 1985, un importante sector sucumbió al terremoto, y en 1995 su segundo piso fue afectado por un incendio “accidental”. Fuente: Colección Propia Facultad de Arquitectura y Urbanismo Departamento de Ciencias de la Construcción Universidad De Chile FICHA Patología Ex Cervecería Andrés Ebner Aproximación Geográfica / Contexto Comunal 8
  • 92.
    4. Levantamiento deInformación 4.2 Levantamiento de la Imagen Actual EXTERIOR Vista elevada desde el extremo sur poniente del edificio principal, en la fachada hacia Av. Independencia. Fuente: Colección Propia Facultad de Arquitectura y Urbanismo Departamento de Ciencias de la Construcción Universidad De Chile FICHA Patología Ex Cervecería Andrés Ebner Aproximación Geográfica / Contexto Comunal 8
  • 93.
    4. Levantamiento deInformación 4.2 Levantamiento de la Imagen Actual Vista desde el extremo nor poniente del edificio principal, en la fachada hacia Av. Independencia. Fuente: Colección Propia Facultad de Arquitectura y Urbanismo Departamento de Ciencias de la Construcción Universidad De Chile FICHA Patología Ex Cervecería Andrés Ebner Aproximación Geográfica / Contexto Comunal 8
  • 94.
    4. Levantamiento deInformación 4.2 Levantamiento de la Imagen Actual Vista desde el extremo sur poniente del edificio principal, en la fachada hacia Av. Independencia. Fuente: Colección Propia Facultad de Arquitectura y Urbanismo Departamento de Ciencias de la Construcción Universidad De Chile FICHA Patología Ex Cervecería Andrés Ebner Aproximación Geográfica / Contexto Comunal 8
  • 95.
    4. Levantamiento deInformación 4.2 Levantamiento de la Imagen Actual Vista desde el extremo sur oriente del patio de acceso. Fuente: Colección Propia Facultad de Arquitectura y Urbanismo Departamento de Ciencias de la Construcción Universidad De Chile FICHA Patología Ex Cervecería Andrés Ebner Aproximación Geográfica / Contexto Comunal 8
  • 96.
    4. Levantamiento deInformación 4.2 Levantamiento de la Imagen Actual Vista interior del cuerpo sur, en la fachada hacia el patio central. Fuente: Colección Propia Facultad de Arquitectura y Urbanismo Departamento de Ciencias de la Construcción Universidad De Chile FICHA Patología Ex Cervecería Andrés Ebner Aproximación Geográfica / Contexto Comunal 8
  • 97.
    4. Levantamiento deInformación 4.2 Levantamiento de la Imagen Actual Vista interior del cuerpo sur hacia el oriente. Fuente: Colección Propia Facultad de Arquitectura y Urbanismo Departamento de Ciencias de la Construcción Universidad De Chile FICHA Patología Ex Cervecería Andrés Ebner Aproximación Geográfica / Contexto Comunal 8
  • 98.
    4. Levantamiento deInformación 4.2 Levantamiento de la Imagen Actual Vista del cuerpo principal, fachada hacia el patio interior. Fuente: Colección Propia Facultad de Arquitectura y Urbanismo Departamento de Ciencias de la Construcción Universidad De Chile FICHA Patología Ex Cervecería Andrés Ebner Aproximación Geográfica / Contexto Comunal 8
  • 99.
    4. Levantamiento deInformación 4.2 Levantamiento de la Imagen Actual PRIMER NIVEL Corredor entre ejes 3 y4. Fuente: Colección Propia Facultad de Arquitectura y Urbanismo Departamento de Ciencias de la Construcción Universidad De Chile FICHA Patología Ex Cervecería Andrés Ebner Aproximación Geográfica / Contexto Comunal 8
  • 100.
    4. Levantamiento deInformación 4.2 Levantamiento de la Imagen Actual Corredor entre ejes 2 y 3. Fuente: Colección Propia Facultad de Arquitectura y Urbanismo Departamento de Ciencias de la Construcción Universidad De Chile FICHA Patología Ex Cervecería Andrés Ebner Aproximación Geográfica / Contexto Comunal 8
  • 101.
    4. Levantamiento deInformación 4.2 Levantamiento de la Imagen Actual Eje 4, fachada hacia el patio central. Fuente: Colección Propia Facultad de Arquitectura y Urbanismo Departamento de Ciencias de la Construcción Universidad De Chile FICHA Patología Ex Cervecería Andrés Ebner Aproximación Geográfica / Contexto Comunal 8
  • 102.
    4. Levantamiento deInformación 4.2 Levantamiento de la Imagen Actual Recinto interior Fuente: Colección Propia Facultad de Arquitectura y Urbanismo Departamento de Ciencias de la Construcción Universidad De Chile FICHA Patología Ex Cervecería Andrés Ebner Aproximación Geográfica / Contexto Comunal 8
  • 103.
    4. Levantamiento deInformación 4.2 Levantamiento de la Imagen Actual Corredor entre ejes 3 y 4. Fuente: Colección Propia Facultad de Arquitectura y Urbanismo Departamento de Ciencias de la Construcción Universidad De Chile FICHA Patología Ex Cervecería Andrés Ebner Aproximación Geográfica / Contexto Comunal 8
  • 104.
    4. Levantamiento deInformación 4.2 Levantamiento de la Imagen Actual SEGUNDO NIVEL Corredor entre ejes 2 y 3, vista hacia el norte. Fuente: Colección Propia Facultad de Arquitectura y Urbanismo Departamento de Ciencias de la Construcción Universidad De Chile FICHA Patología Ex Cervecería Andrés Ebner Aproximación Geográfica / Contexto Comunal 8
  • 105.
    4. Levantamiento deInformación 4.2 Levantamiento de la Imagen Actual Corredor entre ejes 2 y 3, vista hacia el sur. Fuente: Colección Propia Facultad de Arquitectura y Urbanismo Departamento de Ciencias de la Construcción Universidad De Chile FICHA Patología Ex Cervecería Andrés Ebner Aproximación Geográfica / Contexto Comunal 8
  • 106.
    4. Levantamiento deInformación 4.2 Levantamiento de la Imagen Actual Corredor entre ejes 2 y 3. Fuente: Colección Propia Facultad de Arquitectura y Urbanismo Departamento de Ciencias de la Construcción Universidad De Chile FICHA Patología Ex Cervecería Andrés Ebner Aproximación Geográfica / Contexto Comunal 8
  • 107.
    4. Levantamiento deInformación 4.2 Levantamiento de la Imagen Actual Recinto interior del segundo nivel. Fuente: Colección Propia Facultad de Arquitectura y Urbanismo Departamento de Ciencias de la Construcción Universidad De Chile FICHA Patología Ex Cervecería Andrés Ebner Aproximación Geográfica / Contexto Comunal 8
  • 108.
    4. Levantamiento deInformación 4.2 Levantamiento de la Imagen Actual Recinto interior del segundo nivel. Fuente: Colección Propia Facultad de Arquitectura y Urbanismo Departamento de Ciencias de la Construcción Universidad De Chile FICHA Patología Ex Cervecería Andrés Ebner Aproximación Geográfica / Contexto Comunal 8
  • 109.
    4. Levantamiento deInformación 4.2 Levantamiento de la Imagen Actual Recinto interior del segundo nivel. Fuente: Colección Propia Facultad de Arquitectura y Urbanismo Departamento de Ciencias de la Construcción Universidad De Chile FICHA Patología Ex Cervecería Andrés Ebner Aproximación Geográfica / Contexto Comunal 8
  • 110.
    4. Levantamiento deInformación 4.2 Levantamiento de la Imagen Actual Recinto interior del segundo nivel. Fuente: Colección Propia Facultad de Arquitectura y Urbanismo Departamento de Ciencias de la Construcción Universidad De Chile FICHA Patología Ex Cervecería Andrés Ebner Aproximación Geográfica / Contexto Comunal 8
  • 111.
    4. Levantamiento deInformación 4.2 Levantamiento de la Imagen Actual Vista del patio central, desde el segundo nivel. Fuente: Colección Propia Facultad de Arquitectura y Urbanismo Departamento de Ciencias de la Construcción Universidad De Chile FICHA Patología Ex Cervecería Andrés Ebner Aproximación Geográfica / Contexto Comunal 8
  • 112.
    4. Levantamientos deinformación _ 4.3 levantamiento dimensional arquitectónico 4.3.1 Planta edificio principal Planta primer nivel Planta segundo nivel Facultad de Arquitectura y Urbanismo Departamento de Ciencias de la Construcción Universidad De Chile 112 Patología Ex Cervecería Andrés Ebner Levantamiento dimensional arquitectónico :: :: :: :: :: :: :: ::
  • 113.
    4. Levantamientos deinformación _ 4.3 levantamiento dimensional arquitectónico 4.3.2 Elevaciones Ejes Elevación fachada principal eje A, vista desde Independencia Facultad de Arquitectura y Urbanismo Departamento de Ciencias de la Construcción Universidad De Chile 113 Patología Ex Cervecería Andrés Ebner Levantamiento dimensional arquitectónico :: :: :: :: :: :: :: ::
  • 114.
    4. Levantamientos deinformación _ 4.3 levantamiento dimensional arquitectónico 4.3.4 Elevación ejes Elevación Eje B, vista desde Independencia Elevación Eje B, vista desde patio interior Facultad de Arquitectura y Urbanismo Departamento de Ciencias de la Construcción Universidad De Chile 114 Patología Ex Cervecería Andrés Ebner Levantamiento dimensional arquitectónico :: :: :: :: :: :: :: ::
  • 115.
    4. Levantamientos deinformación _ 4.3 levantamiento dimensional arquitectónico 4.3.4 Elevación ejes Elevación Eje C, vista desde Independencia Elevación Eje C, vista desde patio interior Facultad de Arquitectura y Urbanismo Departamento de Ciencias de la Construcción Universidad De Chile 115 Patología Ex Cervecería Andrés Ebner Levantamiento dimensional arquitectónico :: :: :: :: :: :: :: ::
  • 116.
    4. Levantamientos deinformación _ 4.3 levantamiento dimensional arquitectónico 4.3.4 Elevación ejes Elevación Eje D, vista desde Independencia Elevación Eje D, vista desde patio interior Facultad de Arquitectura y Urbanismo Departamento de Ciencias de la Construcción Universidad De Chile 116 Patología Ex Cervecería Andrés Ebner Levantamiento dimensional arquitectónico :: :: :: :: :: :: :: ::
  • 117.
    4. Levantamientos deinformación _ 4.3 levantamiento dimensional arquitectónico 4.3.3 Corte Sección transversal Facultad de Arquitectura y Urbanismo Departamento de Ciencias de la Construcción Universidad De Chile 117 Patología Ex Cervecería Andrés Ebner Levantamiento dimensional arquitectónico :: :: :: :: :: :: :: ::
  • 118.
    4. Levantamientos deinformación _ 4.4 levantamiento dimensional estructural 4.4.1 Elevaciones Ejes Estructurales Los ejes estructurales del volumen principal (caso de estudio), son cuatro, y se denominarán A, B, C y D, desde la fachada principal hacia el interior. EJE D EJE C EJE B EJE A Facultad de Arquitectura y Urbanismo Departamento de Ciencias de la Construcción Universidad De Chile 118 Patología Ex Cervecería Andrés Ebner Levantamiento dimensional arquitectónico :: :: :: :: :: :: :: ::
  • 119.
    4. Levantamientos deinformación _ 4.4 levantamiento dimensional estructural 4.4.1 Elevaciones Ejes Estructurales Eje A Eje B Facultad de Arquitectura y Urbanismo Departamento de Ciencias de la Construcción Universidad De Chile 119 Patología Ex Cervecería Andrés Ebner Levantamiento dimensional arquitectónico :: :: :: :: :: :: :: ::
  • 120.
    4. Levantamientos deinformación _ 4.4 levantamiento dimensional estructural 4.4.1 Elevaciones Ejes Estructurales Eje C Eje D Facultad de Arquitectura y Urbanismo Departamento de Ciencias de la Construcción Universidad De Chile 120 Patología Ex Cervecería Andrés Ebner Levantamiento dimensional arquitectónico :: :: :: :: :: :: :: ::
  • 121.
    4.5. levantamiento técnicoconstructivo Planimetría detallada de un módulo Modulo A continuación se presentará la planimetría detallada de un módulo del cuerpo principal de la Cervecería, para entender los sistemas constructivos y a la vez obtener un análisis mas acabado. Facultad de Arquitectura y Urbanismo Departamento de Ciencias de la Construcción Universidad De Chile 121 Patología Ex Cervecería Andrés Ebner Levantamiento técnico constructivo/ Planimetría modulo
  • 122.
    4.5. levantamiento técnicoconstructivo Planimetría detallada de un módulo Planta Modulo Facultad de Arquitectura y Urbanismo Departamento de Ciencias de la Construcción Universidad De Chile 122 Patología Ex Cervecería Andrés Ebner Levantamiento técnico constructivo/ Planimetría modulo
  • 123.
    4.5. levantamiento técnicoconstructivo Planimetría detallada de un módulo Elevaciones Eje 1 Facultad de Arquitectura y Urbanismo Departamento de Ciencias de la Construcción Universidad De Chile 123 Patología Ex Cervecería Andrés Ebner Levantamiento técnico constructivo/ Planimetría modulo
  • 124.
    4.5. levantamiento técnicoconstructivo Planimetría detallada de un módulo Elevaciones Eje 2 Facultad de Arquitectura y Urbanismo Departamento de Ciencias de la Construcción Universidad De Chile 124 Patología Ex Cervecería Andrés Ebner Levantamiento técnico constructivo/ Planimetría modulo
  • 125.
    4.5. levantamiento técnicoconstructivo Planimetría detallada de un módulo Elevaciones Eje 3 Facultad de Arquitectura y Urbanismo Departamento de Ciencias de la Construcción Universidad De Chile 125 Patología Ex Cervecería Andrés Ebner Levantamiento técnico constructivo/ Planimetría modulo
  • 126.
    4.5. levantamiento técnicoconstructivo Planimetría detallada de un módulo Elevaciones Facultad de Arquitectura y Urbanismo Departamento de Ciencias de la Construcción Universidad De Chile 126 Patología Ex Cervecería Andrés Ebner Levantamiento técnico constructivo/ Planimetría modulo
  • 127.
    4.5. levantamiento técnicoconstructivo 4.5.1 Muros En el levantamiento constructivo se tomó un muro tipo, que se repetirá constantemente Ladrillo dimensiones 30x15x7.5 en los recintos de la cervecería. La mayoría de los muros estructurales se conforman a partir de ladrillos de 30x15x7.5 unidos con mortero de cemento y revestidos con revoque de barro con paja, enlucido a la cal y pintura como terminación. Capa de pintura de 1mm En algunos recintos los muros varían pero no en dimensión sino que algunos de ellos no cuentan con revestimiento o pintura, presentándose el ladrillo desnudo, sin ningún Capa recubrimiento en revoque de tipo de tratamiento. barro con paja de 3cm Mortero de pega 3.5cm Facultad de Arquitectura y Urbanismo Departamento de Ciencias de la Construcción Universidad De Chile 127 Patología Ex Cervecería Andrés Ebner Levantamiento técnico constructivo/ Muros
  • 128.
    4.5. levantamiento técnicoconstructivo 4.5.2 Arcos Arcos Es de tipo simple curvo con características elípticas y rebajado. La importancia de este elemento radica en el hecho de que funciona como un mecanismo de transporte de las cargas que recibe, tanto provenientes del peso propio como de sobrecargas del segundo piso hasta los pilares, los que a su vez las llevaran al terreno. Por su propia morfología trabaja básicamente sometido a compresión, por lo cual tiene la particularidad de crear empujes horizontales hacia el exterior en los puntos de apoyo, de forma que tiende a provocar la desestabilización de éstos por vuelco, efecto que será contrarestado con el esfuerzo del arco continuo. Este elemento estructural esta construido en albañilería de ladrillo, ya que este material posee gran resistencia a la compresión. El equilibrio se logra con la colocación de la clave en el arco. Arco elíptico del pasillo central. El arco funcionara entonces, transmitiendo la carga de una dovela a otra a través de la junta de mortero. En determinados casos se han utilizado ladrillos especiales en forma de cuña. Facultad de Arquitectura y Urbanismo Departamento de Ciencias de la Construcción Universidad De Chile 128 Patología Ex Cervecería Andrés Ebner Levantamiento técnico constructivo/ Arcos
  • 129.
    4.5. levantamiento técnicoconstructivo 4.5.2 Arcos Descripción Arco Consta de 2 filas de 61 ladrillos (40x20x6 cm.), la elipse tiene un alto de 40 cm. conformado por lados de ladrillos de 40 cm. y 2 de 20 cm. Vista descriptiva del Arco elíptico, conformado por los 61 ladrillos Lado 20 - 20 Lado 40 Facultad de Arquitectura y Urbanismo Departamento de Ciencias de la Construcción Universidad De Chile 129 Patología Ex Cervecería Andrés Ebner Levantamiento técnico constructivo/ Arcos
  • 130.
    4.5. levantamiento técnicoconstructivo 4.5.3 Pilares Pilares Se presentan a lo largo de todo el primer nivel, con secciones de 1 m. Están hechos de albañilería en ladrillo de 20 x 40 x 6 cm. con un mortero de 3 cm. de espesor. Su distanciamiento es de 3,5 m. Existe una continuidad estructural entre las líneas de los pilares del primer nivel, respecto a los muros del segundo nivel, los que disminuyen de sección respecto a los pilares. Existen 3 tipos de pilares ubicados dentro de los ejes sin ningún orden específico, creemos que corresponden a aplicaciones posteriores. Vista de pilares en pasillo Facultad de Arquitectura y Urbanismo Departamento de Ciencias de la Construcción Universidad De Chile 130 Patología Ex Cervecería Andrés Ebner Levantamiento técnico constructivo/ Pilares
  • 131.
    4.5. levantamiento técnicoconstructivo 4.5.3 Pilares Tipo 1 Corresponde al modelo base de todos los tipos de pilares, esta conformado por 2 capas de aparejos distintas de los ladrillos ubicadas una encima de la otra, sucesivamente. Su base es: Capa Aparejo 1 Capa Aparejo 2 Facultad de Arquitectura y Urbanismo Departamento de Ciencias de la Construcción Universidad De Chile 131 Patología Ex Cervecería Andrés Ebner Levantamiento técnico constructivo/ Pilares
  • 132.
    4.5. levantamiento técnicoconstructivo 4.5.3 Pilares Aparejo de Ladrillos, Detalle Capa 1. Mortero de pega Ladrillo 20x40x6 cm. Facultad de Arquitectura y Urbanismo Departamento de Ciencias de la Construcción Universidad De Chile 132 Patología Ex Cervecería Andrés Ebner Levantamiento técnico constructivo/ Pilares
  • 133.
    4.5. levantamiento técnicoconstructivo 4.5.3 Pilares Ladrillo 20x40x6 cm. Capa 2. Mortero de pega Facultad de Arquitectura y Urbanismo Departamento de Ciencias de la Construcción Universidad De Chile 133 Patología Ex Cervecería Andrés Ebner Levantamiento técnico constructivo/ Pilares
  • 134.
    4.5. levantamiento técnicoconstructivo 4.5.3 Pilares Tipo 2 Se Basa en el mismo modelo anterior, salvo que tiene 2 columnas agregadas de ladrillos de 20x20x6 cm. Es de planta cuadrada. Este agregado tiene una cota de 1.62 cm. Ladrillos agregados Facultad de Arquitectura y Urbanismo Departamento de Ciencias de la Construcción Universidad De Chile 134 Patología Ex Cervecería Andrés Ebner Levantamiento técnico constructivo/ Pilares
  • 135.
    3. Desarrollo delexpediente Desglose de Contenidos 3.1 Descripción volumétrica 3.2 Descripción espacial 1. Presentación del inmueble 3.3 Descripción formal 1.1 Ficha técnica 3.4 Descripción programática 1.2 Objetivo del estudio 3.5 Descripción Estructural, Constructiva y 1.2.1 Objetivos generales de material 1.2.2 Objetivos Específicos 1.3 Metodología 4. Levantamientos de Información 2. Antecedentes Generales 4.1 Levantamiento histórico 2.1 Aproximación Geográfica 4.2 Levantamiento de la imagen actual 2.1.1 El contexto comunal 4.3 Levantamiento dimensional Ubicación, superficie y arquitectónico demografía 4.3.1 Planta Conjunto Clima Hidrografía 4.3.2 Plantas edificio principal Desarrollo Histórico 4.3.3 Elevaciones Vialidad 4.3.4 Cortes Plan Regulador 4.4 Levantamiento dimensional estructural Edificios de Valor histórico 4.4.1 Elevaciones Ejes Proyecto Inmobiliario Estructurales 2.1.2 El edificio en su contexto Catastro en terreno Uso de Suelo 4.5 Levantamiento técnico constructivo Catastro en terreno Alturas de 4.5.1 Muros Edificación 4.5.2 Arcos Catastro en terreno Resistencia al Cambio 4.5.3 Pilares Catastro en terreno Estado de 4.6 Levantamiento de lesiones Conservación Catastro en terreno Edificios 4.6.1 Lesiones de Fachada Importantes y Discordantes Principal 2.2. Normativa vigente 4.6.2 Lesiones de Fachada Poniente Interior 2.2.1 El plan regulador comunal, entorno inmediato 4.6.3 Lesiones de Primer Piso 4.6.4 Prótesis 5. Análisis patológico 5.1 Análisis Patológico 5.2 Criterios de intervención Facultad de Arquitectura y Urbanismo Departamento de Ciencias de la Construcción Universidad De Chile 135 FICHA Patología Ex Cervecería Andrés Ebner Desglose de Contenidoslevantamiento de lesiones lesiones de fachada principal 1
  • 136.
    4. Levantamientos deInformación _ 4.5 Levantamiento técnico constructivo 4.5.1 Muro tipo Ladrillo dimensiones 30x15x7.5 Capa de pintura de 1mm Capa recubrimiento en revoque de barro con paja de 3cm Mortero de pega 3.5cm Facultad de Arquitectura y Urbanismo Departamento de Ciencias de la Construcción Universidad De Chile 136 FICHA Patología Ex Cervecería Andrés Ebner Levantamiento técnico constructivo/ muros 1
  • 137.
    4. Levantamientos deInformación 4.6 Levantamiento de Lesiones En el nivel se identifican tres tipos de lesiones: a) Lesiones físicas, producto de humedad capilar, suciedad producto de aguas lluvias y erosión por la acción atmosférica, que provoca perdida de material como pintura y revoque b) Lesiones mecánicas, como desprendimiento de material c) Lesiones químicas, como eflorescencias en algunas zonas. El estudio de lesiones permitió constatar modificaciones dentro de la estructura original de la obra, específicamente rellenos y prótesis. En cuanto a los rellenos, es importante mencionar que son del mismo material en que se construyo la obra, es decir ladrillo y cemento, su “mimesis” con los elementos originales hacen presumir que serian modificaciones realizadas en la misma fecha de construcción. A diferencia de lo anterior las prótesis, se expresan de manera notoria, en diversos puntos del edificio y con otra materialidad. Facultad de Arquitectura y Urbanismo Departamento de Ciencias de la Construcción Universidad De Chile 137 FICHA Patología Ex Cervecería Andrés Ebner Levantamiento de lesiones
  • 138.
    4. Levantamientos deInformación 4.6 Levantamiento de Lesiones Perdidas de material Vegetación Rastros de humedad Esflorescencias Facultad de Arquitectura y Urbanismo Departamento de Ciencias de la Construcción Universidad De Chile 138 FICHA Patología Ex Cervecería Andrés Ebner Levantamiento de lesiones
  • 139.
    4.5. levantamiento técnicoconstructivo 4.5.3 Pilares Tipo 3 Se Basa en el Tipo 1, de planta cuadrada, Se conforma por el cubo hasta la cota 1.75 recubierto en los 4 lados por mortero de 2.5 cm, y una capa de pintura. Planta cuadrada 1.06mX1.06m Mortero 2.5 cm. Ladrillo 40x20x6cm. Pintura Facultad de Arquitectura y Urbanismo Departamento de Ciencias de la Construcción Universidad De Chile 139 Patología Ex Cervecería Andrés Ebner Levantamiento técnico constructivo/ Pilares
  • 140.
    4. Levantamientos deInformación _ 4.6 Levantamiento de Lesiones 4.6.1 Lesiones de Fachada Principal La fachada principal se divide en zonas para analizar las lesiones. Facultad de Arquitectura y Urbanismo Departamento de Ciencias de la Construcción Universidad De Chile 140 FICHA Patología Ex Cervecería Andrés Ebner Levantamiento de lesiones/ lesiones de fachada principal
  • 141.
    Arquitecto CASA EN EL TABO PATRICIO OSORIO “Construir en madera me da la posibilidad de crear texturas y calidades espaciales distintas a las de otro material, me gusta su color, su aroma…” PATRICIO OSORIO Curso: Construcción Avanzado I “Diseño constructivo en madera” Profesor: Luis Goldsack Jarpa
  • 142.
    DESCRIPCION DEL EDIFICIO Espacial Bajo el entrepiso; espacios humedos, iluminados hall de acceso; espacio de doble altura que por vanos que dan hacia el oriente, y un espacio conecta visualmente con el segundo piso. Bien destinado a dormitorio, el cual se funde con la iluminado gracias a los ventanales del frontis de luminosidad del hall la casa . No se percibe una fuerte segmentación espacial, al contrario, la poca cantidad de limites espacio-visuales permite tener una visión unitaria del conjunto.
  • 143.
    DESCRIPCION DEL EDIFICIO Espacial En el segundo piso se ubica el sector privado, conformado por dos dormitorios limitados por un perchero de 1mt de largo. La escalera se presenta como el articulador espacial entre ambos niveles.
  • 144.
  • 145.
    PROCESO CONSTRUCTIVO ENETAPAS ESQUEMÁTICAS
  • 146.
    PROCESO CONSTRUCTIVO ENETAPAS ESQUEMÁTICAS
  • 147.
    PROCESO CONSTRUCTIVO ENETAPAS ESQUEMÁTICAS
  • 148.
    PROCESO CONSTRUCTIVO ENETAPAS ESQUEMÁTICAS
  • 149.
    PROCESO CONSTRUCTIVO ENETAPAS ESQUEMÁTICAS
  • 150.
    PROCESO CONSTRUCTIVO ENETAPAS ESQUEMÁTICAS
  • 151.
    PROCESO CONSTRUCTIVO ENETAPAS ESQUEMÁTICAS
  • 152.
    PROCESO CONSTRUCTIVO ENETAPAS ESQUEMÁTICAS
  • 153.
    PROCESO CONSTRUCTIVO ENETAPAS ESQUEMÁTICAS
  • 154.
    PROCESO CONSTRUCTIVO ENETAPAS ESQUEMÁTICAS
  • 155.
    DESCRIPCIÓN ESTRUCTURAL Estructura de tabiques Tabique lateral oriente Tabique arriostrado con diagonales. Este tabique une dos pisos y en la separación se observa una corrida INCLINACIÓN DE CUBIERTA de vigas (pino radiata 45 x 700 mm) que descansan sobre la 30º solera superior del primer piso y sobre este envigado aparece una solera inferior que toma los pie derecho de la INCLINACIÓN DE continuación del CUBIERTA tabique en el segundo piso. Pie derechos modificados según 72º vanos). Consta de tres corridas de cadenetas separadas a 50 cms en altura. En la parte inferior presenta dos vanos y en la parte superior solo uno. Las costaneras se encuentran a 60cm de distancia. Menú inicio salir
  • 156.
    DESCRIPCIÓN ESTRUCTURAL Planta de fundaciones Estructura de tabiques Tabique lateral poniente Tabique arriostrado con diagonales. Este tabique une dos pisos INCLINACIÓN DE y en la separación se CUBIERTA observa una corrida de vigas (pino radiata 30º 45 x 700 mm) que descansan sobre la solera superior del primer piso y sobre este envigado aparece una solera INCLINACIÓN DE inferior que toma los CUBIERTA pie derecho de la continuación del tabique en el segundo 72º piso. Pie derechos modificados según vanos). Consta de tres corridas de cadenetas separadas a 50 cms en altura. En la parte inferior presenta un vano en el primer piso y otro en la parte superior. Menú inicio salir
  • 157.
    DESCRIPCIÓN ESTRUCTURAL Planta de fundaciones Estructura de tabiques Tabique frontal Viga armada en pino radiata. Pie derechos de 45 x 75 mm, diagonales de igual escuadría. Tabique arriostrado con diagonales. Pie derechos de 75 x 75 mm, diagonales de 45 x 75 mm. Menú inicio salir
  • 158.
    DESCRIPCIÓN ESTRUCTURAL Ubicación de escantillones En esta etapa destacamos encuentros ESCANTILLÓN 1 ESCANTILLÓN 3 importantes y Detalle fundación, Detalle tabique frontal, detalles encuentro tijeral con encuentro tijeral con constructivos pilar solera superior significativos en la obra. ESCANTILLÓN 0 Corte completo desde fundación hasta cubierta. Estructura y revestimientos. ESCANTILLÓN 2 Detalle encuentro tijeral con soleras y encastres Menú inicio salir
  • 159.
    DESCRIPCIÓN ESTRUCTURAL ESCANTILLÓN 1 Detalle fundación Viga secundaria en Pino radiata Pilar en pino radiata 45 X 90 mm 70 x 70 mm Viga maestra en Roble 45 X 140 mm Cadeneta (maestra) en pino radiata 45 x 140 mm DETALLE DE Pilote de hormigón FUNDACIÓN EN OBRA prefabricado Diámetro 8” Menú inicio salir Volver
  • 160.
    DESCRIPCIÓN ESTRUCTURAL ESCANTILLÓN 1 Detalle fundación Detalle fundación terraza Viga maestra en Roble Espárrago ø 20 mm 45 x 140 mm Cadeneta en Pino Radiata Viga maestra en Roble 5 x 70 mm 45 x 140 mm Pilote de hormigón ø 8” Espárrago ø 20 5 x 70 mm Pilote de hormigón ø 8” Detalle espárrago en pilote dehormigón Menú inicio salir Volver
  • 161.
    DESCRIPCIÓN ESTRUCTURAL ESCANTILLÓN 1 Costanera en pino radiata Tijeral en pino radiata Encuentro de tijeral con solera 45 x 70 mm 45 x 140 mm Solera superior en pino radiata 45 x 70 mm Encastre en Viga (tijeral) para evitar deslizamiento de la pieza Menú inicio salir Volver
  • 162.
    DESCRIPCIÓN ESTRUCTURAL Planta de fundaciones Encastre en tijerasl para evitar el deslizamiento de la pieza Menú inicio salir Volver
  • 163.
    DESCRIPCIÓN ESTRUCTURAL Encuentro tijeral con solera inferior Viga maestra en Roble 45 x 140 mm Espárrago metálico ø 12 mm Tijeral en pino radiata 45 x 140 mm Pilote de hormigón Menú inicio salir Volver
  • 164.
    DESCRIPCIÓN ESTRUCTURAL Detalle encastre del tijeral con la solera A la viga se le hace un calado (hombro) para evitar el desplazamiento por la pendiente que trae ltoda a cubierta Menú inicio salir Volver
  • 165.
    DESCRIPCIÓN ESTRUCTURAL Detalle conector tijerales Conector metálico en L Fe - 3 mm Tijeral en pino radiata 45 x 140 mm Costanera en pino radiata 45 x 75 mm Menú inicio salir Volver
  • 166.
    DESCRIPCIÓN ESTRUCTURAL Entramado estructural de la cubierta Menú inicio salir Volver
  • 167.
    DESCRIPCIÓN ESTRUCTURAL Axonométrico tabique frontal Planta estructura 2º piso Detalle de amarre de la viga Este tabique recibe una importante carga de cubierta que es asumida por una viga armada de 67 de alto, luego las cargas descienden por unos pilares (pino radiata 70 x 70 mm), para finalmente llegar a la viga maestra y a la fundación mediante estas. Menú inicio salir Volver
  • 168.
    DESCRIPCIÓN ESTRUCTURAL Detalle de amarre de la viga de segundo piso con el tabique Menú inicio salir Volver
  • 169.
    DESCRIPCIÓN ESTRUCTURAL Detalle encuentro del Tijeral A la viga se le hace un encastrado (hombro) con la solera superior para evitar el desplazamiento de la cubierta Menú inicio salir Volver
  • 170.
    PROGRAMA DE ESPACIOSPUBLICOS -2007 PLAZA PATRIMONIALES CALETA TORTEL ZONA TIPICA
  • 171.
    PLAZAS CALETA TORTELZONA TIPICA PROYECTO L 10 L ON T UD NA GI I ICO PUBL E H RAN INO ICO A COC CAM PUBL L 40 FAJA V RS NS E A I NO TRA CAM FAJA CO PUBLI NO C AMI FAJA O BLIC O PU CAMIN CO UBLI OP A CAMIN FAJ A L 16 DIN GT U I LON TORTEL UDI A L 10 N T L ONGI A A CALETA L A 39 SVERS T RA N TR AN S VER SA L38 LLEGAD POSTA T RA NS VE RS A 36 L N L 13 AUDI L ONGI T LON 10 GT I U NA L DIN A L 42 T R NS V E S A 3 7 R L UDI A GI T L ON 11 AL DIN I TU NG LO L ON GT I UD INAL 42 A L 12 DIN TRA NS V E RS A 3 5 L TU GI A 42 10- 1. LON TR N AL AN S VE I I TUD R SA L NG 43 LO 15 L1 4 NA L NA TUDI T UDI LONGI L ONGI 10 AL DN I GI TU LON A E C S EP BR C L UM S A ED I D O FI RV N SE R E TRA T RA V NS R E A 44 RS L NSV TE A 13 ERSA L A E C N L S DI L S A EP 34 FI C D GI TU -A E E O MB R N PA RR IDU SA LON T E RV E R E LA S C OS TAN ERA A N R E TA COS LA RE PASA T RA NS E RS V A L 45 T RAN SVER SAL L 14 34 INA TUD GI TR LON AN SVE RSAL 33 E R A L 46 S T RA V NS PAS A RE A LCOS T A R NE A T RR I UMB RE S RV E E E NO F D I S DE P E CA CA L S A ER TAN COS R ELA PA SA O PASA RE LA COS T A NERA T R A S V E S A L 32 N R TER R SE R EN U VI D O MB R FI SC E D A L EP ESC A A ER TAN OS AC EL S AR PA 31 S L A ER NS V TR A SCA I C E E OF S E D P AL R TE R I D U MB R N E E RV L30 S ERSA NSV TRA 25 37 . 3 0. 94 2 1. 87 34. 3 6 3 4. 36 P ASAR ELA CO STANE R A 1 4. 30 TRA NS V E RS A L 29 TER SER RE VI NO DU F M SCI BRE AL D E PESC A NA L 8 LONGI T U NA 9 DI L L ONGI UDI T E OR RI T AIN AR L S E PA PA SAR E LA COS TA NE RA T RA V E NS RS A L 28 TR AN E R S A 2 8-A SV ER SAL 7 AL L 27 DIN GT U TR A N S V I LON 5 NAL DI TU I NG LO TE SER RRE T RA VI NO NS V DUM E RS FI A L2 BR SCAL A 6 NER E DE STA PESCA O C ELA AR PAS PA S R A E A L C O TA S N E RA A 25 L RS SVE T RA N T RA V E A 2 4 23 NS RS L SAL ER SV AL 6 AN TR DIN A 5 L TU DN GI I LON GI TU LON NS T RA V E R A L 22 S T RANS VERS L A 21 P A A RE A S L C T NE OS A RA S RV I D T E R NO F E RE UMB RE D IS L CA E P S E CA UDI A L 5 N T L ONGI T RA N V E RS L 19 S A T RANS VERS A 18 L E RS L 20 A T RA NSV CA. PUERTO T RA NS V TE R VI D S ER E RS E A RE U R A N MB R N L 17 O FI E OSTA SC D A L E P ESC L AC MUNICIPALIDAD A RE PAS A T NS E RS L 15 RA V TRA NS E V RS A 1 L 6 A LONGI T UDI NA 5 L RE P A S A LA COS T A RA NE ECA P A A RE A COS T S L 1 5-A A SAL NE VER RA NS A TR TR A NSV ER A S L 14 T E RRE S RV I DU B E P A S RE LA COS A RA A NO F S CA M RE DE P S C I L T NE A L E CA FI S C D P S E O E E E A N RR T E V D U MB R I S R E 4 I AL DN TU GI LON 2 TRANSVERAL TR ANSVERSAL 1 L4 DINA I U GT LON L ONGI TUD IN L A 1 11L RS A A 13 NS V E L NS RS T RA L ONGI UDI T T RA V E NA L 1 4 RSAL TRANSVE LONGI T U NA DI L 3 LO NGI 12 S AL TUD R S VE IN AN T RA LO AL TR 1 TR NGI AN 3 NS S VER AL DIN TU VE A C A SA TU I DI L ES NG RS L S A EP C L10 LO NA 2 NO FI R E D 5 L R E U MB SAL 3 TE R V D R I SE SVER PA SAR TRAN ELA TE S E RR NE CO AL 2 R V I O FI N ERA U IN D U MB S STAN D C GI T RE AL L 13 L ON DE C OSTA ERA P S E C E A NS V RS A RELA 09 1 1. PASA TRA T RA N V E RS 67 1 1. S L1 INA P A S RE AL 3 A LA C T UD OS TA NERA GI LON LONGI T U NA 1 5 L ON T UDI A L 2 SA L DI L GI ER N SV A N TR TR AN SVE RSA L9 -A LONGI TUDI NA 1 L 6 SA L ER LONGI T UD NA 1 I L SV AN TR 11. 55 A ANER L ONGI UDI A L 2 ST CO T ELA PA TRA SA R SAR N E LA NS VER PA CO S TAN SAL ER 9 A T RAN SV ERS AL 8 AL 7 TE RRE T NS E RS NO F I S L S E R I DUMB R CA V E DE P E CA P A S RE LA A S RA V COS A R T NE A A AY PL LA RE SA PA
  • 172.
    PLAZAS CALETA TORTELZONA TIPICA PROYECTO
  • 173.
    PLAZAS CALETA TORTELZONA TIPICA PROYECTO
  • 174.
    PLAZAS CALETA TORTELZONA TIPICA SITUACION ACTUAL