Fecha de Emisión: 30 de Octubre de 2017
CERTIFICADO DE AVALÚO FISCAL
Avalúos en pesos del SEGUNDO SEMESTRE DE 2017
Comuna : VINA DEL MAR
Número de Rol de Avalúo : 01593 − 00294
Dirección o Nombre del bien raíz : PRINCIPAL 45
Destino del bien raíz : HABITACION
AVALÚO TOTAL : $ 9.482.551
AVALÚO EXENTO DE IMPUESTO : $ 9.482.551
AVALÚO AFECTO A IMPUESTO : $ 0
El avalúo que se certifica ha sido determinado según el procedimiento de tasación fiscal para el cálculo del
impuesto territorial, de acuerdo a la legislación vigente, y por tanto no corresponde a una tasación comercial de la
propiedad.
Por Orden del Director
CERTIFICADO GRATUITO
1/1
Página 1
MEMORIA DE CÁLCULO ESTRUCTURAL
VIVIENDA UNIFAMILIAR
PROPIEDAD DESTINO HABITACION ROL 1593-294
PRINCIPAL # 45, CHORRILLOS
Viña del Mar
REGIÓN DE VALPARAÍSO
Página 2
INDICE
MEMORIA DE CÁLCULO ESTRUCTURAL ......................................................................................................................1
VIVIENDA UNIFAMILIAR................................................................................................................................................1
1.- INTRODUCCION .............................................................................................................................................3
2.- DATOS GLOBALES DE LA ESTRUCTURA ..................................................................................................................3
3.- NORMAS CONSIDERADAS ......................................................................................................................................3
4.- ACCIONES CONSIDERADAS.....................................................................................................................................3
4.1.- Gravitatorias....................................................................................................................................................3
4.2.- Viento..............................................................................................................................................................3
4.3.- Sismo ...............................................................................................................................................................4
4.3.1.- Datos generales de sismo.........................................................................................................................4
4.4.- Hipótesis de carga ...........................................................................................................................................6
5.- ESTADOS LÍMITE.....................................................................................................................................................6
6.- SITUACIONES DE PROYECTO ..................................................................................................................................6
6.1.- Coeficientes parciales de seguridad (γ) y coeficientes de combinación (ψ)...................................................7
6.2.- Combinaciones................................................................................................................................................8
7.- DATOS GEOMÉTRICOS DE GRUPOS Y PLANTAS ...................................................................................................10
8.- DATOS GEOMÉTRICOS DE PILARES, PANTALLAS Y MUROS .................................................................................10
8.1.- Pilares............................................................................................................................................................10
9.- DIMENSIONES, COEFICIENTES DE EMPOTRAMIENTO Y COEFICIENTES DE PANDEO PARA CADA PLANTA .........11
10.- MATERIALES UTILIZADOS...................................................................................................................................13
10.1.- Hormigones.................................................................................................................................................13
10.2.- Aceros por elemento y posición..................................................................................................................13
10.2.1.- Aceros en barras...................................................................................................................................13
10.2.2.- Aceros en perfiles.................................................................................................................................13
11.- CONCLUSIÓN MEMORIA Y ALCANCES ..............................................................................................14
Página 3
1.- INTRODUCCION
Se ha solicitado realizar el diseño estructural de vivienda unifamiliar ubicada en la periferia suroriente de la
comuna de Viña del Mar, en las cercanías de la cota +148.00 m. Categoría de uso general. Destino Vivienda.
2.- DATOS GLOBALES DE LA ESTRUCTURA
La obra es de tres pisos de altura, sin niveles intermedios. Su destino es habitacional en Vivienda Unifamiliar.
Está estructurada en base a albañilería confinada de ladrillo -tipo princesa- en sus muros perimetrales e
interiores y marcos rígidos de hormigón armado según estándar vigente. La estructura primaria descansa
sobre mejoramiento –bajo fundación corrida de hormigón armado- y pilares -sin vinculación exterior-.
En su interior la vivienda cuenta con pisos de hormigón armado de tipo radier en primer nivel, envigados de
hormigón armado y losas en pisos superiores y envigado sin losa en la azotea.
La techumbre está conformada por estructuras reticuladas de madera según estándar vigente.
3.- NORMAS CONSIDERADAS
NCh427 Estructuras de acero - diseño y cálculo -- laminados metálicos.
NCh430 Of2008 Hormigón armado - Requisitos de diseño y cálculo. INN, Chile.
NCh431 Of1977 Construcción – Sobrecargas de nieve. INN, Chile.
NCh432 Of1971 Cálculo de la acción del viento sobre las construcciones. INN, Chile.
NCh433 Of1996 Diseño sísmico de edificios. INN, Chile. NCh433 Of1996 modificada en 2009.
Decreto N°61, 2011.
NCh1198 Of2006 Madera – Construcciones en madera – Cálculo. INN, Chile.
NCh1537 Of2009 Diseño estructural de edificios -Cargas permanentes y sobrecargas de Uso. INN,
Chile.
NCh1928 Of1993 Albañilería Armada – Requisitos para el diseño y cálculo. INN, Chile. NCh1928
Of1993 modificada en 2003.
NCh3171 Of2010 Diseño estructural – Disposiciones generales y combinaciones de carga. INN,
Chile.
ACI 318-99 Building Code Requirements for Structural Concrete and Commentary.
AISC 2005 Specification for structural steel buildings. American Institute of Steel
Construction.
4.- ACCIONES CONSIDERADAS
4.1.- Gravitatorias
Planta
S.C.U
(t/m²)
Cargas muertas
(t/m²)
azotea 0.20 0.20
segundo piso 0.20 0.20
primer piso 0.20 0.20
subterraneo 0.20 0.20
Cimentación 0.00 0.00
4.2.- Viento
NCh432-2010
Diseño estructural. Cargas de viento
Categoría del terreno: Categoría D
Página 4
Velocidad básica del viento: 67.00 m/s
Categoría de uso: Categoría II
Tipo de terreno: Escarpaduras
Dirección transversal (X)
Tipo de terreno: Descendente
Xp: 3.00 m
Hd: 2.50 m
Ld: 16.00 m
Dirección longitudinal (Y)
Tipo de terreno: Llano
Anchos de banda
Plantas
Ancho de banda Y
(m)
Ancho de banda X
(m)
En todas las plantas 19.00 7.00
No se realiza análisis de los efectos de 2º orden
Coeficientes de Cargas
+X: 1.00 -X:1.00
+Y: 1.00 -Y:1.00
Cargas de viento
Planta
Viento X
(t)
Viento Y
(t)
azotea 7.241 2.211
segundo piso 13.920 4.212
primer piso 13.682 4.123
subterraneo 8.237 2.482
4.3.- SISMO
Norma utilizada: NCh433.Of1996 Mod.2009 (Dº nº61, de 2011)
Norma Chilena Oficial
Diseño Sísmico de Edificios
(Incluye modificaciones del decreto nº 61 (V. y U.) de 2011)
Método de cálculo: Análisis modal espectral (NCh433.Of1996 Mod.2009 (Dº nº61, de 2011), 6.3)
4.3.1.- Datos generales de sismo
Caracterización del emplazamiento
Zona sísmica (NCh433.Of1996 Mod.2009, 4.1): 3
Clase de suelo (Dº nº61 de 2011, Artículo 6): B
Sistema estructural
R0X: Factor de modificación de respuesta (X) (NCh433.Of1996 Mod.2009, 5.7)
R0Y: Factor de modificación de respuesta (Y) (NCh433.Of1996 Mod.2009, 5.7)
Categoría del edificio (NCh433.Of1996 Mod.2009, 4.3): Categoría II
Parámetros de cálculo
Número de modos de vibración que intervienen en el análisis: Según norma
Fracción de sobrecarga de uso
Fracción de sobrecarga de nieve
Factor multiplicador del espectro
Verificación de la condición de cortante basal: Según norma
No se realiza análisis de los efectos de 2º orden
Criterio de armado a aplicar por ductilidad: Según
Direcciones de análisis
Acción sísmica según X
Acción sísmica según Y
Proyección en planta de la obra
Zona sísmica (NCh433.Of1996 Mod.2009, 4.1): 3
Clase de suelo (Dº nº61 de 2011, Artículo 6): B
: Factor de modificación de respuesta (X) (NCh433.Of1996 Mod.2009, 5.7)
: Factor de modificación de respuesta (Y) (NCh433.Of1996 Mod.2009, 5.7)
(NCh433.Of1996 Mod.2009, 4.3): Categoría II
Número de modos de vibración que intervienen en el análisis: Según norma
Verificación de la condición de cortante basal: Según norma
No se realiza análisis de los efectos de 2º orden
Criterio de armado a aplicar por ductilidad: Según NCh430.Of2008, Capítulo 21
Página 5
R0X : 11.00
R0Y : 11.00
: 0.50
: 0.50
: 1.00
Página 6
4.4.- Hipótesis de carga
Automáticas Peso propio
Cargas muertas
Sobrecarga de uso
Sismo X
Sismo Y
Viento +X exc.+
Viento +X exc.-
Viento -X exc.+
Viento -X exc.-
Viento +Y exc.+
Viento +Y exc.-
Viento -Y exc.+
Viento -Y exc.-
5.- ESTADOS LÍMITE
E.L.U. de rotura. Hormigón
E.L.U. de rotura. Hormigón en cimentaciones
ACI 318-99 (Chile)
Tensiones sobre el terreno
Desplazamientos
Acciones características
6.- SITUACIONES DE PROYECTO
Para las distintas situaciones de proyecto, las combinaciones de acciones se definirán de acuerdo con los
siguientes criterios:
- Situaciones persistentes o transitorias
- Situaciones sísmicas
- Donde:
Gk Acción permanente
Pk Acción de pretensado
Qk Acción variable
AE Acción sísmica
γG Coeficiente parcial de seguridad de las acciones permanentes
γP Coeficiente parcial de seguridad de la acción de pretensado
γQ,1 Coeficiente parcial de seguridad de la acción variable principal
γQ,i Coeficiente parcial de seguridad de las acciones variables de acompañamiento
γAE Coeficiente parcial de seguridad de la acción sísmica
≥ ≥
γ + γ + γ∑ ∑Gj kj P k Qi ki
j 1 i 1
G P Q
≥ ≥
γ + γ + γ + γ∑ ∑EGj kj P k A E Qi ki
j 1 i 1
G P A Q
Página 7
6.1.- Coeficientes parciales de seguridad (γ) y coeficientes de combinación (ψ)
Para cada situación de proyecto y estado límite los coeficientes a utilizar serán:
E.L.U. de rotura. Hormigón: ACI 318-99 (Chile)
E.L.U. de rotura. Hormigón en cimentaciones: ACI 318-99 (Chile)
Situación 1
Coeficientes parciales de seguridad (γ)
Favorable Desfavorable
Carga permanente (G) 0.900 1.400
Sobrecarga (Q) 0.000 1.700
Viento (Q)
Situación 2
Coeficientes parciales de seguridad (γ)
Favorable Desfavorable
Carga permanente (G) 1.050 1.050
Sobrecarga (Q) 0.000 1.275
Viento (Q) 1.275 1.275
Situación 3
Coeficientes parciales de seguridad (γ)
Favorable Desfavorable
Carga permanente (G) 0.900 0.900
Sobrecarga (Q)
Viento (Q) 1.300 1.300
Situación 4
Coeficientes parciales de seguridad (γ)
Favorable Desfavorable
Carga permanente (G) 0.900 1.400
Sobrecarga (Q) 0.000 1.400
Viento (Q)
Sismo (E) -1.400 1.400
Tensiones sobre el terreno
Acciones variables sin sismo
Coeficientes parciales de seguridad (γ)
Favorable Desfavorable
Carga permanente (G) 1.000 1.000
Sobrecarga (Q) 0.000 1.000
Viento (Q) 0.000 1.000
Página 8
Sísmica
Coeficientes parciales de seguridad (γ)
Favorable Desfavorable
Carga permanente (G) 1.000 1.000
Sobrecarga (Q) 0.000 1.000
Viento (Q)
Sismo (E) -1.000 1.000
Desplazamientos
Acciones variables sin sismo
Coeficientes parciales de seguridad (γ)
Favorable Desfavorable
Carga permanente (G) 1.000 1.000
Sobrecarga (Q) 0.000 1.000
Viento (Q) 0.000 1.000
Sísmica
Coeficientes parciales de seguridad (γ)
Favorable Desfavorable
Carga permanente (G) 1.000 1.000
Sobrecarga (Q) 0.000 1.000
Viento (Q)
Sismo (E) -1.000 1.000
6.2.- Combinaciones
Nombres de las hipótesis
PP Peso propio
CM Cargas muertas
Qa Sobrecarga de uso
V(+X exc.+) Viento +X exc.+
V(+X exc.-) Viento +X exc.-
V(-X exc.+) Viento -X exc.+
V(-X exc.-) Viento -X exc.-
V(+Y exc.+) Viento +Y exc.+
V(+Y exc.-) Viento +Y exc.-
V(-Y exc.+) Viento -Y exc.+
V(-Y exc.-) Viento -Y exc.-
SX Sismo X
SY Sismo Y
E.L.U. de rotura. Hormigón
Página 9
E.L.U. de rotura. Hormigón en cimentaciones
Comb. PP CM Qa V(+X exc.+) V(+X exc.-) V(-X exc.+) V(-X exc.-) V(+Y exc.+) V(+Y exc.-) V(-Y exc.+) V(-Y exc.-) SX SY
1 0.900 0.900
2 1.400 1.400
3 0.900 0.900 1.700
4 1.400 1.400 1.700
5 1.050 1.050 1.275
6 1.050 1.050 1.275 1.275
7 1.050 1.050 1.275
8 1.050 1.050 1.275 1.275
9 1.050 1.050 1.275
10 1.050 1.050 1.275 1.275
11 1.050 1.050 1.275
12 1.050 1.050 1.275 1.275
13 1.050 1.050 1.275
14 1.050 1.050 1.275 1.275
15 1.050 1.050 1.275
16 1.050 1.050 1.275 1.275
17 1.050 1.050 1.275
18 1.050 1.050 1.275 1.275
19 1.050 1.050 1.275
20 1.050 1.050 1.275 1.275
21 0.900 0.900 1.300
22 0.900 0.900 1.300
23 0.900 0.900 1.300
24 0.900 0.900 1.300
25 0.900 0.900 1.300
26 0.900 0.900 1.300
27 0.900 0.900 1.300
28 0.900 0.900 1.300
29 0.900 0.900 -1.400
30 1.400 1.400 -1.400
31 0.900 0.900 1.400 -1.400
32 1.400 1.400 1.400 -1.400
33 0.900 0.900 1.400
34 1.400 1.400 1.400
35 0.900 0.900 1.400 1.400
36 1.400 1.400 1.400 1.400
37 0.900 0.900 -1.400
38 1.400 1.400 -1.400
39 0.900 0.900 1.400 -1.400
40 1.400 1.400 1.400 -1.400
41 0.900 0.900 1.400
42 1.400 1.400 1.400
43 0.900 0.900 1.400 1.400
44 1.400 1.400 1.400 1.400
Tensiones sobre el terreno
Desplazamientos
Comb. PP CM Qa V(+X exc.+) V(+X exc.-) V(-X exc.+) V(-X exc.-) V(+Y exc.+) V(+Y exc.-) V(-Y exc.+) V(-Y exc.-) SX SY
1 1.000 1.000
2 1.000 1.000 1.000
3 1.000 1.000 1.000
Página 10
Comb. PP CM Qa V(+X exc.+) V(+X exc.-) V(-X exc.+) V(-X exc.-) V(+Y exc.+) V(+Y exc.-) V(-Y exc.+) V(-Y exc.-) SX SY
4 1.000 1.000 1.000 1.000
5 1.000 1.000 1.000
6 1.000 1.000 1.000 1.000
7 1.000 1.000 1.000
8 1.000 1.000 1.000 1.000
9 1.000 1.000 1.000
10 1.000 1.000 1.000 1.000
11 1.000 1.000 1.000
12 1.000 1.000 1.000 1.000
13 1.000 1.000 1.000
14 1.000 1.000 1.000 1.000
15 1.000 1.000 1.000
16 1.000 1.000 1.000 1.000
17 1.000 1.000 1.000
18 1.000 1.000 1.000 1.000
19 1.000 1.000 -1.000
20 1.000 1.000 1.000 -1.000
21 1.000 1.000 1.000
22 1.000 1.000 1.000 1.000
23 1.000 1.000 -1.000
24 1.000 1.000 1.000 -1.000
25 1.000 1.000 1.000
26 1.000 1.000 1.000 1.000
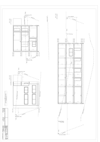
7.- DATOS GEOMÉTRICOS DE GRUPOS Y PLANTAS
Grupo Nombre del grupo Planta Nombre planta Altura Cota
4 azotea 4 azotea 2.45 7.85
3 segundo piso 3 segundo piso 2.45 5.40
2 primer piso 2 primer piso 2.45 2.95
1 subterraneo 1 subterraneo 0.50 0.50
0 Cimentación 0.00
8.- DATOS GEOMÉTRICOS DE PILARES, PANTALLAS Y MUROS
8.1.- Pilares
GI: grupo inicial
GF: grupo final
Ang: ángulo del pilar en grados sexagesimales
Datos de los pilares
Referencia Coord(P.Fijo) GI- GF Vinculación exterior Ang. Punto fijo
C1 ( -2.20, 18.49) 0-4 Sin vinculación exterior 0.0 Esq. inf. izq.
C2 ( 1.25, 18.49) 0-4 Sin vinculación exterior 0.0 Esq. inf. izq.
C3 ( 3.49, 18.49) 0-3 Sin vinculación exterior 0.0 Esq. inf. izq.
C4 ( -2.20, 16.05) 0-4 Sin vinculación exterior 0.0 Esq. inf. izq.
C5 ( 3.71, 16.05) 0-3 Sin vinculación exterior 0.0 Esq. inf. izq.
C6 ( -2.20, 13.30) 0-4 Sin vinculación exterior 0.0 Esq. inf. izq.
C7 ( 1.40, 13.30) 0-4 Sin vinculación exterior 0.0 Esq. inf. izq.
Página 11
Referencia Coord(P.Fijo) GI- GF Vinculación exterior Ang. Punto fijo
C8 ( 3.47, 13.50) 0-4 Sin vinculación exterior 0.0 Esq. sup. izq.
C9 ( -2.20, 10.45) 0-4 Sin vinculación exterior 0.0 Esq. inf. izq.
C10 ( 3.47, 10.35) 0-4 Sin vinculación exterior 0.0 Esq. inf. izq.
C11 ( -3.05, 7.60) 0-4 Sin vinculación exterior 0.0 Esq. inf. izq.
C12 ( -2.20, 7.60) 0-4 Sin vinculación exterior 0.0 Esq. inf. izq.
C13 ( 0.00, 7.60) 0-4 Sin vinculación exterior 0.0 Esq. inf. izq.
C14 ( 1.35, 7.60) 0-4 Sin vinculación exterior 0.0 Esq. inf. izq.
C15 ( 3.00, 7.60) 0-4 Sin vinculación exterior 0.0 Esq. inf. izq.
C16 ( -3.05, 4.45) 0-4 Sin vinculación exterior 0.0 Esq. inf. izq.
C17 ( -2.20, 4.45) 0-4 Sin vinculación exterior 0.0 Esq. inf. izq.
C18 ( -1.22, 4.45) 0-4 Sin vinculación exterior 0.0 Esq. inf. izq.
C19 ( 0.00, 4.00) 0-4 Sin vinculación exterior 0.0 Esq. inf. izq.
C20 ( 1.84, 4.45) 0-4 Sin vinculación exterior 0.0 Esq. inf. izq.
C21 ( 3.06, 4.45) 0-4 Sin vinculación exterior 0.0 Esq. inf. izq.
C22 ( 4.26, 4.35) 0-4 Sin vinculación exterior 0.0 Esq. inf. izq.
C23 ( 4.14, 5.53) 0-4 Sin vinculación exterior 0.0 Esq. inf. izq.
C24 ( 4.87, 5.53) 0-4 Sin vinculación exterior 0.0 Esq. inf. izq.
C25 ( 4.73, 7.60) 0-4 Sin vinculación exterior 0.0 Esq. inf. izq.
C26 ( 0.00, 1.40) 0-4 Sin vinculación exterior 0.0 Esq. inf. izq.
C27 ( 3.58, 1.72) 0-4 Sin vinculación exterior 0.0 Esq. inf. izq.
C28 ( 4.26, 1.72) 0-4 Sin vinculación exterior 0.0 Esq. inf. izq.
C29 ( 0.00, 0.00) 0-4 Sin vinculación exterior 0.0 Esq. inf. izq.
C30 ( 2.95, 0.00) 0-4 Sin vinculación exterior 0.0 Esq. inf. izq.
C31 ( -2.20, 0.00) 0-2 Sin vinculación exterior 0.0 Esq. inf. izq.
C32 ( 7.18, 0.00) 0-2 Sin vinculación exterior 0.0 Esq. inf. der.
C33 ( 7.18, 5.73) 0-2 Sin vinculación exterior 0.0 Esq. sup. der.
C34 ( 6.98, 1.72) 0-2 Sin vinculación exterior 0.0 Esq. inf. izq.
C35 ( 1.40, 16.00) 0-2 Sin vinculación exterior 0.0 Esq. inf. izq.
C36 ( -1.02, 13.30) 2-4 Sin vinculación exterior 0.0 Esq. inf. izq.
C37 ( -1.02, 10.45) 2-4 Sin vinculación exterior 0.0 Esq. inf. izq.
C38 ( -1.02, 8.90) 2-4 Sin vinculación exterior 0.0 Esq. inf. izq.
C39 ( 1.40, 8.90) 2-4 Sin vinculación exterior 0.0 Esq. inf. izq.
C40 ( 4.47, 18.69) 3-4 Sin vinculación exterior 0.0 Esq. sup. der.
C41 ( 4.47, 16.25) 3-4 Sin vinculación exterior 0.0 Esq. sup. der.
C42 ( 4.47, 10.75) 3-4 Sin vinculación exterior 0.0 Esq. sup. der.
C43 ( 4.27, 12.40) 0-3 Sin vinculación exterior 0.0 Esq. inf. izq.
C44 ( 3.47, 12.90) 0-3 Sin vinculación exterior 0.0 Esq. inf. izq.
C45 ( 3.35, 5.53) 0-3 Sin vinculación exterior 0.0 Esq. inf. der.
C47 ( 4.47, 13.50) 0-4 Sin vinculación exterior 0.0 Esq. sup. der.
9.- DIMENSIONES, COEFICIENTES DE EMPOTRAMIENTO Y COEFICIENTES DE PANDEO
PARA CADA PLANTA
Pilar Planta
Dimensiones
(cm)
Coeficiente de empotramiento Coeficiente de pandeo
Coeficiente de rigidez axil
Cabeza Pie X Y
C1, C2
4 35x20 0.30 1.00 1.00 1.00 2.00
3 35x20 1.00 1.00 1.00 1.00 2.00
Página 12
Pilar Planta
Dimensiones
(cm)
Coeficiente de empotramiento Coeficiente de pandeo
Coeficiente de rigidez axil
Cabeza Pie X Y
2 35x20 1.00 1.00 1.00 1.00 2.00
1 35x20 1.00 1.00 1.00 1.00 2.00
C3
3 42x20 0.30 1.00 1.00 1.00 2.00
2 42x20 1.00 1.00 1.00 1.00 2.00
1 42x20 1.00 1.00 1.00 1.00 2.00
C4, C6, C7, C9, C11,
C13, C16, C17, C18,
C20, C21, C24, C26,
C27
4 20x20 0.30 1.00 1.00 1.00 2.00
3 20x20 1.00 1.00 1.00 1.00 2.00
2 20x20 1.00 1.00 1.00 1.00 2.00
1 20x20 1.00 1.00 1.00 1.00 2.00
C5, C44
3 20x20 0.30 1.00 1.00 1.00 2.00
2 20x20 1.00 1.00 1.00 1.00 2.00
1 20x20 1.00 1.00 1.00 1.00 2.00
C8, C47
4 45x20 0.30 1.00 1.00 1.00 2.00
3 45x20 1.00 1.00 1.00 1.00 2.00
2 45x20 1.00 1.00 1.00 1.00 2.00
1 45x20 1.00 1.00 1.00 1.00 2.00
C10
4 20x40 0.30 1.00 1.00 1.00 2.00
3 20x40 1.00 1.00 1.00 1.00 2.00
2 20x40 1.00 1.00 1.00 1.00 2.00
1 20x40 1.00 1.00 1.00 1.00 2.00
C12
4 20x90 0.30 1.00 1.00 1.00 2.00
3 20x90 1.00 1.00 1.00 1.00 2.00
2 20x90 1.00 1.00 1.00 1.00 2.00
1 20x90 1.00 1.00 1.00 1.00 2.00
C14
4 25x20 0.30 1.00 1.00 1.00 2.00
3 25x20 1.00 1.00 1.00 1.00 2.00
2 25x20 1.00 1.00 1.00 1.00 2.00
1 25x20 1.00 1.00 1.00 1.00 2.00
C15
4 103x20 0.30 1.00 1.00 1.00 2.00
3 103x20 1.00 1.00 1.00 1.00 2.00
2 103x20 1.00 1.00 1.00 1.00 2.00
1 103x20 1.00 1.00 1.00 1.00 2.00
C19
4 20x65 0.30 1.00 1.00 1.00 2.00
3 20x65 1.00 1.00 1.00 1.00 2.00
2 20x65 1.00 1.00 1.00 1.00 2.00
1 20x65 1.00 1.00 1.00 1.00 2.00
C22, C28
4 20x30 0.30 1.00 1.00 1.00 2.00
3 20x30 1.00 1.00 1.00 1.00 2.00
2 20x30 1.00 1.00 1.00 1.00 2.00
1 20x30 1.00 1.00 1.00 1.00 2.00
C23
4 32x20 0.30 1.00 1.00 1.00 2.00
3 32x20 1.00 1.00 1.00 1.00 2.00
2 32x20 1.00 1.00 1.00 1.00 2.00
1 32x20 1.00 1.00 1.00 1.00 2.00
C25
4 34x20 0.30 1.00 1.00 1.00 2.00
3 34x20 1.00 1.00 1.00 1.00 2.00
2 34x20 1.00 1.00 1.00 1.00 2.00
1 34x20 1.00 1.00 1.00 1.00 2.00
C29
4 60x20 0.30 1.00 1.00 1.00 2.00
3 60x20 1.00 1.00 1.00 1.00 2.00
Página 13
Pilar Planta
Dimensiones
(cm)
Coeficiente de empotramiento Coeficiente de pandeo
Coeficiente de rigidez axil
Cabeza Pie X Y
2 60x20 1.00 1.00 1.00 1.00 2.00
1 60x20 1.00 1.00 1.00 1.00 2.00
C30
4 83x20 0.30 1.00 1.00 1.00 2.00
3 83x20 1.00 1.00 1.00 1.00 2.00
2 83x20 1.00 1.00 1.00 1.00 2.00
1 83x20 1.00 1.00 1.00 1.00 2.00
C31, C32, C33, C34
2 20x60 0.30 1.00 1.00 1.00 2.00
1 20x60 1.00 1.00 1.00 1.00 2.00
C35
2 20x30 0.30 1.00 1.00 1.00 2.00
1 20x30 1.00 1.00 1.00 1.00 2.00
C36, C37, C38, C39
4 20x20 0.30 1.00 1.00 1.00 2.00
3 20x20 1.00 1.00 1.00 1.00 2.00
C40, C41 4 20x30 0.30 1.00 1.00 1.00 2.00
C42 4 20x40 0.30 1.00 1.00 1.00 2.00
C43
3 20x70 0.30 1.00 1.00 1.00 2.00
2 20x70 1.00 1.00 1.00 1.00 2.00
1 20x70 1.00 1.00 1.00 1.00 2.00
C45
3 35x20 0.30 1.00 1.00 1.00 2.00
2 35x20 1.00 1.00 1.00 1.00 2.00
1 35x20 1.00 1.00 1.00 1.00 2.00
10.- MATERIALES UTILIZADOS
10.1.- Hormigones
Elemento Hormigón
fck
(kp/cm²)
γc
Tamaño máximo del árido
(mm)
Ec
(kp/cm²)
Todos H25 200 1.00 15 212132
10.2.- Aceros por elemento y posición
10.2.1.- Aceros en barras
Elemento Acero
fyk
(kp/cm²)
γs
Todos A-63-42H 4200 1.00
10.2.2.- Aceros en perfiles
Tipo de acero para perfiles Acero
Límite elástico
(kp/cm²)
Módulo de elasticidad
(kp/cm²)
Acero conformado ASTM A36 2530 2100000
Acero laminado ASTM A36 2530 2100000
Página 14
11.- CONCLUSIÓN MEMORIA Y ALCANCES
Para el análisis y diseño se utilizó el método estático que estipula la norma NCh 433 vigente, obteniendo los
resultados reflejados en los planos estructurales.
Se ha realizado el estudio dinámico y los análisis de desempeño mecánico en base a las categorías de suelo y
factores definidos para la región y uso, además de informaciones previas extendidas por el mandante. La
inspección de obras idónea será subcontratada por el propietario a terceros.
Las labores se desarrollan en el contexto de una regularización.
JUAN-LUIS MENARES RODRIGUEZ
ARQUITECTO ICA 10867
Página 15
ESPECIFICACIONES TECNICAS
Obra : Vivienda Unifamiliar
Ubicación : Calle Principal #936, Chorrillos
Comuna : Vina del Mar
Propietario : Evelyn Olivares Olivares
Rol : 1593-294
1.- INSTALACION DE FAENAS:
1.1 Limpieza y escarpe:
Se considera la limpieza y roce del terreno, en una superficie de 15 x 20 m, en el lugar que se
emplazara la vivienda.
Se escarpará en un espesor de 0.2 m en un área equivalente a la planta del edificio con un sobreancho
de 0,3 m.
1.2 Instalación de faenas:
Se instalará en el predio una construcción provisoria con paneles de madera prensada,
aproximadamente de 45 m2.
1.3 Servicios provisorios:
Se considera la instalación de baños exclusivos para el uso de todo el personal de la obra, todo de
acuerdo a las normas sanitarias, ambientales y de seguridad vigentes.
Los consumos de agua y corriente eléctrica deberán ser de costo del proyectista.
1.4 Aseo final y entrega:
La obra se entregará completamente limpia y aseada. Los recintos deberán ser encerados, vidrios
limpios, claramente libres de chorreos y manchas etc.
El exterior deberá ser entregado libre de escombros y desperdicios.
2.- OBRAS DE CONSTRUCCION
2.1 Obra Gruesa:
2.1.1 Replanteo trazado y niveles:
Para el trazado de los ejes de fundación se procederá a colocar niveletas; estas serán en tablas de
pino cepillado de 1" x 3", los ejes se indicaran con clavos de 3" y estarán claramente representados
con números y letras respectivamente.-
Todos los trazados deberán ser ejecutados de acuerdo a los planos respectivos. En cualquier etapa de
la obra deben hacerse verificaciones que aseguren el correcto emplazamiento de los elementos de la
misma.-
2.1.2 Excavaciones y rellenos:
Se ejecutarán a mano; los fondos serán planos y horizontales, los cortes serán rectos, libres de terreno
suelto y de materia orgánica en descomposición.- La dimensión exacta se definirá en terreno, de
acuerdo al estudio de mecánica de suelos y al cálculo estructural.
No se aceptarán rellenos por errores de cota de niveles.
Los excesos de excavación deberán compactarse debidamente en capas de 20 cm.
Todo relleno se hará en capas de 20 cm., se utilizará material proveniente de las excavaciones, libre de
materia orgánica, desechos o escombros.
El material proveniente de los suelos podrá ser mejorado con áridos (ripio y arena).
El material de relleno deberá ser humedecido hasta alcanzar la humedad óptima, para ser
compactado.
Los rellenos que servirán de base a pavimentos, serán de ripio compactado en capas de espesor 10
cm.
2.1.3 Cimientos:
Los cimientos se ejecutarán con hormigón revuelto mecánicamente. La dimensión y dosificación será
de acuerdo al proyecto estructural.
Previo al hormigonado de los cimientos se sellará la excavación con un emplantillado de acuerdo a
planos estructurales y sus especificaciones.
En ampliaciones se realizara fundación aislada en poyos de hormigón armado y pilotes según proyecto
de estructuras.
2.1.4 Sobrecimientos:
La dimensión del sobrecimiento, el tipo y cantidad de fierro será de acuerdo a planos de cálculo
estructural.- Se utilizará hormigón H-25 y será vibrado mecánicamente.-
Los moldajes en todos los elementos de hormigón, podrán ser de madera, metálicos o de otro material
suficientemente rígido, resistente y estanco capaz de soportar el propio peso, sobrecargas y peso del
hormigón fresco.-
2.1.5 Extracción de escombros:
Los escombros deberán ser retirados de obra y depositados en botaderos autorizados, bajo las
indicaciones de la Dirección de Obras Municipales, debiendo quedar la nueva construcción totalmente
libre de ellos.
2.1.6 Cama de ripio:
Previo al radier, se colocará una capa de ripio de 8 cm., el cual será compactado mecánicamente.- Se
cubrirá con una capa de polietileno de 0,2 mm. en toda el área con traslapos de 15 cm.
2.1.7 Pisos:
Se consideran realizados en madera según proyecto de estructuras.
2.1.8 Tabiquería:
La totalidad de los paramentos no estructurales se ejecutarán con tabiquerías formadas por estructuras
en pino de 2”x3” con revestimiento interior de placa tipo Volcanita de 12 mm, u otro material
incombustible de acuerdo a normas de seguridad, aprobado por el proyectista.
Para el exterior y zonas húmedas, la tabiquería será con placa de terciado estructural de 22 mm,
revestida con plancha de fibrocemento de 6 mm. de espesor, libre de asbesto.
Previo a la colocación de revestimientos consulta la colocación de fieltro de 16 lb.
Como aislamiento térmico consulta la aplicación de polietileno expandido de 50 mm.
Si corresponde se podrá utilizar en los paramentos albañilería de ladrillo tipo princesa o similar, hecho
a máquina, de 7x14x29, pegado con mortero de pega de dosificación cemento: arena de 1:3.-
El resto de las albañilerías se ejecutarán, de acuerdo a indicaciones de planos de estructuras.
Cada tres hiladas se colocarán fierro de 6 mm. o escalerilla tipo Acma, soldados a los perfiles
metálicos que conforman los marcos, que encierran las albañilerías.
Los perfiles metálicos serán perfil tipo C 150x50x3 mm.
2.1.9 Escalas y entrepisos:
Se consultan todos los indicadas en los planos. Se ejecutarán de acuerdo a proyecto de estructuras y
detalles asociados.
Los peldaños se consultan de acuerdo a plano de arquitectura. Ante diferencia con estas
especificaciones, se deberá respetar lo indicado en proyecto.
2.1.10 Hormigón armado:
Consulta la construcción de marco rígido perimetral en hormigón armado, el cual tendrá su dimensión
de acuerdo a los planos de cálculo estructural.
Los hormigones serán vibrados mecánicamente, y se deberán proteger durante los primeros ocho días
de evaporación -cambios bruscos de temperatura, sol directo, etc-. Los hormigones frescos se deberán
proteger con membrana de curado autorizada. En todo caso deberán mantenerse húmedos durante la
etapa de fraguado.
Los hormigones podrán ser fabricados en terreno con revoltura mecánica en lo posible y deberán
cumplir con los tipos y dosificaciones indicados en el proyecto de cálculo.-
Las terminaciones de losa y/o radieres deberán tener un perfecto acabado y nivelado para dar
terminación vista, no se permitirá sobrelosa, debiendo darse si fuese necesario una terminación de piso
de tipo vinilico o similar.
Para la ejecución de las losas se debe tener en cuenta que previo hormigonado se deberán dejar todas
las tuberías embutidas (electricidad, agua potable, alcantarillado) o en su defecto las pasadas
necesarias para la ejecución de las redes sin tener que recurrir a futuro picado de la estructura,
cuidando de no dejar en contacto acero con cañerías de cobre.
Los hormigones deberán ser del tipo y dosificación indicadas en los planos estructurales.
El transporte del hormigón dentro de la obra podrá realizarse mediante carretillas y sistemas manuales
que den garantía de eficiencia, seguridad y limpieza.
Con referencia al moldaje y descimbrado se deberá tener en cuenta la recomendación del calculista.
Los moldajes de la losa para la contención del hormigón tanto inferiores como laterales serán de fierro
ó placa terciada o de otro material suficientemente rígido, resistente y estanco, capaz de soportar las
cargas del propio peso, sobrecargas y peso del hormigón fresco.
Se deberá considerar la imprimación de moldajes con anti desmoldante.
2.1.11 Estructura de techumbre:
Consulta en cerchas de pino sulfatado de con costaneras dispuestas y ejecutadas de acuerdo a las
indicaciones de sección y armado de los planos de cálculo estructural. La cubierta será del mismo
standard existente.
2.1.12 Impermeabilización:
Se utilizará impermeabilizante o sello superficial en las losas que se encuentren expuestas a la
humedad y que no tengan otro tipo de revestimiento. Se aplicará de acuerdo a las especificaciones del
proveedor, cualquier sellante asfáltico tipo Igol, (imprimante y un sellante) o similar aprobado por el
proyectista.
2.1.13 Canales y Bajadas:
Consultan canales de Zincalum de 0.4 mm. de espesor con soldadura de tipo Sikaflex con desarrollo
según detalle.-
Las canaletas que recogen las aguas lluvias de los techos se consultan en zinc con todos los
accesorios correspondientes al igual que las bajadas de aguas.-
En los encuentros entre techumbres y muros se ejecutará protección con planchas de Zincalum de 40
cm. de desarrollo. Se consulta la instalación de sombreretes en Zincalum en todas las ventilaciones y
extractor eólico.
2.2 Terminaciones:
2.2.1 Revestimiento interior:
Los elementos de hormigón por su acabada terminación no consultan revestimiento. En zonas
húmedas se ejecutarán revestimientos cerámicos que serán pegados con adhesivo Bekron o similar
aplicado mediante una llana dentada y siguiendo estrictamente las indicaciones del fabricante. Se
aplicará fragüe del mismo color que la cerámica. Las albañilerías de tipo fiscal deberá ser estucadas
con mortero de relación cemento/ arena 1:3.
2.2.2 Terminación de piso:
En las ampliaciones se utilizará el mismo acabado existente. Para zonas húmedas se contempla la
utilización de cerámicos
2.2.3 Puertas marcos y hojas:
Se instalarán marcos en madera de 70 x 20 mm que recibirán las puertas, los cuales irán anclados
mediante tirafondos.
Consulta la colocación de puertas en carpintería de madera o del tipo Placarol de terciado con batiente
hacia el interior.
2.2.4 Ventanas:
Consulta marcos de ventana en perfiles metálicos de 2 mm. los que irán debidamente anclado a la
estructura.
Las ventanas de proyección al oriente se ejecutarán en carpintería de madera según estándar
existente. Los marcos de las ventanas serán del mismo material. Podrá utilizarse la alternativa de
marcos y ventanas en perfiles de aluminio
2.2.5 Cerrajería y quincallería:
En las puertas consulta la instalación de bisagras de 3" x 3" de fabricación nacional será de 3 por hoja.
Las cerraduras serán tipo Scanavini o similar.
2.2.6 Vidrios:
Consulta vidrios lisos y transparentes con espesor de acuerdo a dimensión según normas, fijados a los
marcos con junquillo metálico o de madera y sellado con silicona transparente.
En zonas de baños y duchas consulta vidrios tipo semilla o similar.
2.2.7 Guardapolvos:
Consulta guardapolvos de pino finger-joint de 3" x 3/4" los cuales se fijarán al muro mediante la
colocación de tarugo y punta de 2".- Guardapolvo de cerámica consulta en los pasillos del segundo
piso, cocina y baños, los que serán pegados con mortero de pega para cerámica, según indicaciones
del fabricante.
2.2.8 Pinturas:
Se consulta la aplicación de esmalte sintético en todas las hojas y marcos metálicos tanto de puertas
como de ventanas.- Se consulta la aplicación de óleo sintético en las áreas de cielo y muro en baños y
cocina.-
Los hormigones consultan protección de pintura de acuerdo a indicaciones del Arquitecto, en todo caso
los elementos de hormigón deberán ser a la vista.-
Los elementos de madera se pintarán con barniz transparente, antihongos e hidrorepelente.
3. INSTALACIONES:
3.1 Agua Potable:
3.1.1 Instalación de arranque domiciliario:
Las instalaciones de agua potable deberán estar conectadas a los empalmes existentes. Para ello el
ejecutor de la obra, deberá realizar las gestiones correspondientes ante Esval, para determinar si fuese
necesario la modificación del arranque existente.
3.1.2 Red de distribución interior:
Consulta la instalación de redes interiores de agua potable en tubería de cobre tipo L con diámetros
según cálculo, aprobados por el servicio correspondiente.-
Las tuberías de cobre por ningún motivo se dejarán en contacto con otros metales, especialmente el
fierro.-
Deberán colocarse llaves de corte en cada circuito o ramal, una por cada sanitario, lavaplatos, etc.-
En las cañerías de cobre las soldaduras se harán con soldadura que contenga al menos un 50% de
estaño.-
El medidor general irá protegido por un nicho de las medidas reglamentarias y contará con dos válvulas
de bola del mismo diámetro, una antes y la otra después del medidor.
Se deberán ejecutar pruebas a las instalaciones para asegurar totalmente su absoluta
impermeabilidad, esto es, sometiéndola a pruebas de presión hidráulica, debiendo cumplirla
exitosamente.
Dicha prueba podrá efectuarse por tramos de longitud no inferior a 20 mts. debiendo instalar siempre la
bomba en el extremo inferior al tramo y el manómetro en el extremo superior.- En todo caso la
instalación deberá conectarse al empalme existente.-
3.2 Alcantarillado domiciliario:
3.2.1 Red Colector Interior:
Consulta la instalación de redes de alcantarillado en tubería de PVC tipo Vinilit, de diámetro según lo
indicado en planos. Las cámaras a ejecutar se realizarán en albañilería en sitio, ó prefabricadas de
hormigón, según planos aprobados por el Servicio respectivo.
3.3. Artefactos:
3.3.1 Consulta la colocación de artefactos de fabricación nacional o importada que cumpla con las exigencias
establecidas y a plena conformidad del proyectista. Su distribución y emplazamiento se ajustarán a las
indicaciones de los planos de arquitectura y/o estructurales, se deberá comprobar su correcta fijación,
nivelación y estanqueidad.
Los accesorios de unión, soldaduras, abrazaderas y otros elementos que sea preciso utilizar deberán
garantizar el cumplimiento de las cualidades generales de la instalación domiciliaria.
- WC blanco con fittings y asiento plástico, modelo Verona o similar.
- Lavamanos blanco con pedestal aprobado por el proyectista.
Los accesorios de unión, soldaduras, abrazaderas y otros elementos que sea preciso utilizar, deberán
garantizar el cumplimiento de la ordenanza general de instalaciones domiciliarias.-
3.4. Instalaciones eléctricas:
3.4.1 Canalización y distribución:
Se colocará tubería conduit de PVC en toda la red, la que deberá ir embutida tanto en cielos y muros.-
Los conductores serán de 1.5 mm. con aislación tipo NYA, para los circuitos de alumbrado y 2.5 mm.
para los circuitos de enchufes.
Todas las uniones de cables se harán en las cajas de distribución, por ningún motivo pueden quedar
uniones dentro de los ductos. Para esto, se usará soldadura con cinta aisladora vinílica y de goma.
Toda obra sujeta a las indicaciones del proyectista y el expediente aprobado por Chilquinta o prestador
de servicio eléctrico vigente.
3.4.2 Instalaciones telefónicas y otros:
Se consideran conductos independientes para la canalización de las redes telefónicas y otras.
Las salidas se indicarán de acuerdo a requerimientos.
3.5 Instalaciones de combustible:
3.5.1 Gas
Se consulta una red de gas que alimente la cocina y los calefonts en cañería de cobre tipo L Madeco y
debe cumplir con los requerimientos del SEC.-
3.5.2 Nicho de gas:
En caso de utilizar balones de gas licuado, se deberá consultar nicho de albañilería con puertas
metálicas. En caso de utilizar estanques para el almacenamiento de gas, se deberá considerar cierro
de protección, radieres, distanciamiento, seguridad, etc., de acuerdo a normas.
4. SEGURIDAD
4.1 Resistencia al Fuego
De acuerdo a lo descrito en la OGUC -artículos 4.3.2 y 4.3.3- la vivienda cumple con las normas
mínimas de seguridad contra el fuego para edificación con destino habitacional -solución clase "d"-
en las siguientes aplicaciones de materiales:
Elemento Resistencia Materialidad
Muros Cortafuego F-120 Albañilería confinada
Muros zona vertical No considera No considera
Muros caja ascensores No considera No considera
Muros divisorios unidades F-60 Tabiquería Madera revest. fibrocemento
/ Albañilería confinada
Elementos soportantes verticales F-30 Tabiquería Madera revest. fibrocemento
Pilares de hormigón armado
Muros no soportantes y tabiques Sin restricción Tabiques madera y yeso carton 12 mm
Escaleras Sin restricción Madera pino MDF
Elementos soportantes horizontales F-30 Entramado de madera, cadena perimetral
Techumbre y cielo falso F-15 Cubierta acero galv. Cercha de madera.
Cielo de madera -tinglado-
4.2 Aislamiento Térmico
Conforme a lo indicado en la OGUC -articulo 4.1.10-, el Listado Oficial de Soluciones Constructivas
para Acondicionamiento Térmico -MINVU-, y lo especificado en laminas y documentos; la vivienda
cumple con las normas mínimas de aislación (zona térmica "2") en las siguientes aplicaciones
materiales:
Elemento U Rt R100 Materiales aislantes
Techumbre 0,60 1,67 141 Madera/ Lana mineral
Muros 3,00 0,33 23 Vulcanita / Madera/ Polietileno/ Ladrillo
Pisos Ventilados 0,87 1,15 98 Madera/ Polietileno
En relación a los vidrios utilizados se cumple con las exigencias en los siguientes parámetros.
Área de vidrio Material Área de muros % permitido % existente
14,13 m2 Vidrio Monolítico 139,12 m2 40,00 % 10,16 %
No considera doble vidriado hermético en ninguno de los paños.
Juan-Luis Menares Rodríguez Evelyn Olivares Olivares
Arquitecto Propietario
Santiago Diciembre de 2017
e!.s Q
0006012-z€ {)f,oltrlJ
soJaerol ep solcefio.r6 [ pep11;q;1ceJ ap plsllBuV
zoNnw zsneruoou o9ruoou
')ealeal e olce,(old ep odrl |e epuodse.uoc ul6es
Irldunc ugraqop es selenc se1 'e[oq e]sa ep osro^al le oxeue la ue seplcalqe]se saleraue6 seclucg1 ,{ sent}etlstulupe
souotctpuoc sel uoc elueulelduoc es ,{ peprcede3 rod selqesloquroa5 seyody e ola[ns el]uancuo es opec4lpa3 alsf
'sat!q9q
seJp 0L ap oulxgt.u oze;d un uo opesaJslur 1e epe6ellue gJos ellnsuoc e; e elsendseJ el'peplllqgcel op opec4tpaC
|opo]aunu|oopuBclpul@:|leul|eoJe^|apewA,9LZauoNouno||ecuoepmlqn|e!3JotUoc
eulc[o op s?^et] e 'sorotruas so^onN ap Ecruc?] edg p o]ucso rod opeltctlos gJoqap opeseJs]ur lo leno ol eled 'so]ce{old
sol op ugtceloqelo el ep oluauoul le u-elecrpur es 'oluaLuncop olse ue sepeleuos sec;1qgd sopeJ sel ep ugtceclqn el
.WCIU
op /0 olnclpe le uo olsendsrp ol uoc pepluJoluoc ap 'eluerpuodsaJroc erqurnprrues el op uglcnltlsuoc el esJeltpolce
gJoqep osec o,(nc ue 'oue1e1doJd ollo ep orperd ;a opueso^erle ;euorcelrnero eurJoj ua poJ el B orcrruos 1e asreu;edue
ugtqulel grpod'ourg;4 Jod'eJo[1 (l) eun ep ouJruJru opolred un ue eurleduo op olund;e anbuelSe la uo sepelnu.lnce
septruos sen6e se; lencene ered opeuorsuorulp Jes gJoqap uglce^elo ep euelsrs;e enb o1ue1 ua'seJoq (7;) acop
ap oultxgtu ugtcualeJ ep opopad un ered opeuorsuaurp -eros ugrcelntunce op enbuelse lep uotrnlol 13 'octlqqd Jolcoloo
;e e6lecsep el ap leuotcelrnel6 olueruurJJncse 1a elru.red anb ;e1 eloc eun e epenlrs Jelse gJoqop enb e1 'ugtccedsut ep
eJetugc eun e gleDlecsep ugrs;ndur ep eJleqnl el 'osec elso uf 'ero1ce,{e o eJopelalo elue;d eun ap otpaul lod eu;edue
ep olund le gJence^e es enb lo 'olqonurur lep ordord uglcelnurnce ap anbuelse un e aluoulleuolcelgnerO ugle6lecsep
os selsg 'peplllq[ce] ep opecllryac lo ue opeleuas eu;edLue ep olund lB leuoroe]r^er6 eulo; ua sepenoe^o Jos
uepend ou alqenuul un ap sepr^Jas senbe sel enb olue^o ;e u3 'pepe;dord e; ep euerllcluop uglun el enbtqn as enb ue
eJolos ap eloc eun e louedns eloc eun Jaue] ugroqap uglsrLupe ap secoq sel enb B aluoJalal ol ue (WOtU) opellr.reluec1y
,( epqelo6 en6y ep seuetlnlloc sauorcelelsul ep oluerue;OoE lep 98 olnclye 1e ue olsendsrp ol e o1ue1u.tt;dunc leq
lVdlCNlUd elleo ue ppeclqn ''ut 8'l, ep Bpeullss peptpunlo.td eun uoc 'ollaugtp
ep'utu gZl ep ''durog'uleC ep ElJeUEc el :gres V'S lvnsf ep opelluelueole ep seper sel e eurledue ep olund g3
@
'WOIU lap 08 'UB ;e uoc.tt;dunc oqap opeserolu! lo 'osec
opo] uf 'otJeJotl oLxlxguJ otrnsuoc 1e eled BlJoqn] el oJqos ouorJo] op lanlu E eplpeur'ecu.r gL op so ugtxouoc ep olund
;e ua oduatl la ue Jauolueu epend eserdue e; enb e;qruodslp ;eer ugrserd el 'lVdlONlUd ellPc ue epeclqn 'oJleulglp
ap uur 00I ep ''r.ueg 'qsy ep elJeUEc el :gJes 'V'S IVASf ep e;qelod en6e ap sepel sel e ugtxouoc ep olund 13
:elqPloo enDE ap u9lxeuoc
:sauotceJaprsuoc
seluegnbrs se; eluesald iauo] opuerqap 'sep!russ sen6e ep opellUeluec;e I alqelod enbe ep oc;;q4d olc!rues
lB opeloauoc Jas ep ppplllqlloel euerl 'JrnJlsuoc epafold es enb epuellll e; 'elcuencesuoc ue '[ ;euolceledo
opolgrel ns ep oJluep prluencue es 'UVl l -1:lg VNn ep eunuoc 'S3'lInV-13 SOt elesed ,( SOOtOg SOf
af f
ec arlua '9, slol '?62-069 ! lor '9, .N
-IVdlgNlud ellec ua opectqn elqanulut ;e enb ecgtpec 'V'S lvn S3 'LLOZ1OLl1t,
eqce] ap gOgBZZ.N peplllqlloel ap pnlrcrlos ns e elsendser ue I S3UVAIIO SfUVAI-IO NA-1343 ep oluatupenber y
LL0ZIltl9l' eqcol
v?gttt oN
'0EE[ueS '6 0sld 'E1g Epau0l'rl 'souElruES s0r]r^raS ap eEUapua]urJadns
e; e'aluaureuetptsqns'rt errrlradsar souelruES sDrorruas ap esardu.r3 Bl ap sEu!xllo sEl E asrEurp'saleuotrtpe sellnsuoJ ErEd
'Aal Bl auil"l-]ralap anb sasaralur a salsnlEar s0lrnlrul aqap DslDquraal l:'alrode
la afltata as
anh uB Bqtal El ap ltUBd E 'saltqer.l selF 0 L Bp orrrHgrx ozEld un ua alueuode le sopebs4ua upras osloqtlaar ap soluatr-lnr0p sol .
sEUE g l. 3p
olualLUltuaA ap 0urxEr,rl ozeld un uor ri sa;qesopuauEas anh soluaLrnrop uarEsloqluaa.] uaqap as otaurp ap so]ur]slp sapode so1
6E/E9f o N NOC:Nltil S0 'sEtuel ap Ial El ap oluauretEaU tap ttt otntlt p (q
BB/gL o N do t! t1o 'spluel aF rtal
?t
a-! tLll.llll 1: _ -:salEtral solxal saluarnnrs
sgl ua septualuoo uelluan3uts as UJU ap eu-lslsrs lap uq!rErldE e1 uelnEat anb seueluauBlEal A salE0al sau0tors0dstp sel .
soluvltHus sotf tAUls lo vlfNloHllNIUldns
fu I u ) sl ts u sto gtr{l :tu sou I tr H u ilt I s I lu odu lu I os Ho t3u I sHt
ovol'il8rrcvJ 30 oovcHrruf3
.V'
S BJ
eluerrreluelB Bpn[Bs '-relncrlred oJ]o urs
.JEIN
Iep eUIA 'VLT'I "g
rn8el"ry aIIBc ue sepecrqn seprrreruoc serrrcgo se;lsenu ue
ol[,@ocIII94ceIooeJJocIBoIoZZtIZ.Zt,oouoJ9Ie}1e.o1ucsns
Ie uoc sr;lrezrleet sorueJocepe:8e 's9-relur oJlsenl ep BrJelBru BJlo n pEpTIIq]]cBJ
EI ep pnlrc{os EI rroc BpBuorsBIeJ BrJeJBru EI eJqos E}Insuoc e"4o .rernblBnc e}uv
'€rusru BI ep ugrsrue ep
BqceJ BI apsep sopeluoc soprrroc sEIp 0t ap ercuaBrl Bun eueq pBpIIrqrl.sEJ Elsg
'rrelrtu:ed o1
sBcruJgl seuoErpuoc sEI opuBnc ,( e-rdruers 'epeztlerrpl^lpuT salrrB rrglcseJlp EI ue
EcrJlcgle e18-reue JeJlsruruns 'alueulecrucgl eIqIlcBJ se enb EcUr1:eJ 'peprcr-r1ce1e
ap oc4qqd orcllJes Iep erreuorsecuoc Z - 000'tVl'16 orerunu olJBlnqrrl ocruEl IoJ
'V'S EcrJlcglg €zrend op 1euorce111 elgeduro3 snb pelsn B sourBrurogur olcedsal IV
'Borrrglcellnb"re wg:lcezrreln8e; ep o1ce,(o-rd olenu B:ed 'uotsusl eleq ue olr]rurJep
euledure un E BcT4c91e e18-reue JBJlsruruns E opEurlsep 'IZBTO8"N eceld
BI uoo opecgr;uepl 'gdVNOC ep uglcnql4slp ep per EI ap elsod 1e epsep '"re141
Iep BUIA ep Brrnruoc 'so1p-r-roqC g, IedrcurJd ue ocrseJouoru erupdure un ep
ugrcBlelsur el e.red BJrrrcg] pEplIIqIlcBJ ep pnlrcllos Bun ep eruroJuT sou IBnr IB ue
'LIOZ ep erqnlco ep Ot Ie oprclrcar tgg1zgg oN oluerurrenbe; ns B sourreJar soN
:ugrcEJeprsuoJ EJlsenu ec
rBI I Iep BSIA
@
sollrrroqc s, Pdrcurrd
seJEuetr l uEnll
rogas
LIOZ ep erqnlco op 0t
!JYr.I,tA
g eryreduro3
ff utttrv
'TBIAI Iep BUIA
FOLIO N°
Cod. Comuna
USO OFICINA INE
1 2
3 4
RUT
FORMULARIO UNICO DE ESTADISTICAS DE EDIFICACION
(LLENAR SEGÚN INSTRUCTIVO)
Fecha N° Formulario de1 1
2.- INFORMACION DEL PROPIETARIO
NOMBRE O RAZON SOCIAL PROPIETARIO
1.-IDENTIFICACION ESTADISTICA(uso exclusivo D.O.M) Completar por informante
Permiso N° Fecha Rol Avaluo S.I.I. 1593-294
Recepcion N°
5
7 8
9 10
11 12 13 14
RUT llenar según corresponda en
cuadro respectivo
DIRECCION FONO CELULAR
NOMBRE O RAZON SOCIAL PROPIETARIO
USO OFICINA INEGESTOR INMOBILIARIO
EVELYN OLIVARES OLIVARES 13.331.443-1
RUT
EVELYN OLIVARES OLIVARES 13.331.443-1
VALPARAISO
AVENIDA PRINCIPAL 936 (LOTE 45) NO CONSIDERA 941055309
SECTOR 1
3.-INFORMACION DE LA PROPIEDAD REGION PROVINCIA
VALPARAISO2 AREA11 12 13 14
15 16
17 #
18 19 20 21
EDIFICACION CONSTRUIDA ANTERIORMENTE
22 SUPERFICIE (m2) 23 TOTAL N°PISOS
VALPARAISO
VINA DEL MAR VINA DEL MAR
SECTOR 1
1.-PUBLICO
2.-PRIVADO
1.-URBANA
2.-RURAL
DIRECCION
COMUNA LOCALIDAD
VALPARAISO2 AREA
Esta referida a toda construccion anterior al permiso actual,
que cuenta con la autorizacion respectiva
CONTRAFRENTE (m) FONDO MEDIO (m) SUPERFICIE (m2)
10.00 10.00 25,53 267,00
FRENTE TERRENO(m)
936PRINCIPAL CHORRILLOS
4.- TIPO DE TRAMITE
24 PERMISO 25
26 27OBRA PLANIFICADA (FECHAS ESTIMADAS) OBRA EJECUTADA RECIBIDA
1
1.-DEFINITIVA TOTAL
carasteristicas del permiso original, de lo contrario llenar formulario
1.- OBRA NUEVA 3.-AMPLIACION
2.- REGULARIZACION 4.-REGULARIZACION
OBRA NUEVA AMPLIACION DE
(Uso exclusivo D.O.M.) llenar este cuadro, cuando la recepcion replique las
RECEPCION
2.-DEFINITIVA PARCIAL
ETAPA
26 27
28 29 30 31 32 33 34 35 36 37
E E
T T
A A
P P
A A
1
OBRA PLANIFICADA (FECHAS ESTIMADAS) OBRA EJECUTADA RECIBIDA
COSTO
REAL
OBRA
MILES ($)
Clasificacion
de la Obra
SUPERFICIE
RECIBIDA
(m2)
CANTIDAD
DE
UNIDADES
FECHA
INICIO
FECHA
TERMINO
CANTIDAD
UNIDADES
DOMINIO
EXCLUSIVO
SUPERFICIE
m2
(mas areas
comunes)
FECHA
INICIO
FECHA
TERMINO
01-08-201801-03-2018 1 227,00
227,00TOTAL38A TOTAL38B
***DE FECHA***REMPLAZA PERMISO N°
FIRMA DIRECTOR D.O.M FIRMA SOLICITANTE
39 40
X
ACOGIDOS A LEYES CODIGO (USO INTERNO)
1. AISLADO
2. PAREADO
3.CONTINUO
AGRUPAMIENTO (marca X solo casas)
* * *
* * *
* * *
5.- DOTACION DE LA INFRAESTRUCTURA DE URBANIZACION
41 42 ALCANTARILLADO 43 GAS
44 45 46
1. RED PUBLICA
2. SIST.PRIVADO COLECTIVO
3. SISTEMA INDIVIDUAL
1. RED PUBLICA
2. SIST.PRIVADO COLECTIVO
3. SISTEMA INDIVIDUAL
1. RED PUBLICA
2. SIST.PRIVADO COLECTIVO
3. SISTEMA INDIVIDUAL
1AGUA POTABLE 1
PAVIMENTACION EVACUACION AGUAS LLUVIAS
3
3.CONTINUO* * *
ELECTRICIDAD 1 1 444 45 46
47
1. COLECTOR PUBLICO
2. SISTEMA PRIVADO COLECTIVO
3.DRENAJE INDIVIDUAL
4. NO TIENE
1. HORMIGON
2.ASFALTO
3. ARTICULADO
4.-HORMIGON
5.-ASFALTO
6.-ARTICULADO
TELEFONIA 3
1. RED AEREA
2. RED SUBTERRANEA
3.NO TIENE
ESPECIFICAR
7. NO TIENE PAVIMENTACION
8. OTROS
PUBLICA PRIVADA
2. RED SUBTERRANEA
1.RED AEREA
3. GENERADOR
4. NO TIENE
5. OTROS
ESPECIFICAR
PAVIMENTACION EVACUACION AGUAS LLUVIASELECTRICIDAD 1 1 4
48 49 50 51 52 53
codigo
destino
codigo
Codigo Según
tipo y cantidad
de los locales
habitables
Cantidad de
unidades de
dominio exclusivo
(casas,
N° DE
PISOS
Clasificacion
de la
estructura
(según minvu)
Superficie
(m2)
a construir sin
espacios ley
Uso oficina ine
Cantidad de
locales
habitables por
vivienda
3.NO TIENE
6.- DESTINO, CLASIFICACION Y CATEGORIA
6.1 RESUMEN DE LAS UNIDADES A CONSTRUIR OCONSTRUIDAS(resumende dominio exclusivo del proyecto)
54 55TOTAL 1 2 TOTAL 227,00 6
habitables (casas,
oficinas,etc)
(según minvu)
6
espacios
comunes
vivienda
C 227,005 1 2
56 57 58 59 60 61 62
Superficie
m2 según
Clasificacion
(con espacios
comunes)
6.2.- DESTINO, CLASFICACION Y CATEGORIA : ordenar, según campo 48, separandolos codigos de la clasificacion de la
estructura según materialidad (ver intrucciones) condicion especial
Codigo según
tipo y cantidad
de locales
habitables
(campo 48)
Destino
Codigo
destino
Clasificacion
de la
estructura
(según minvu)
Categoria
predominante
Condicion
especial
(ver instrucciones)
63 TOTAL 227,00
comunes)
5 VIVIENDA 101 C 3 N.A. 227,00
(campo 48)
(según minvu)
Marcar el porcentaje respectivo en los campos 64 al 67 y con una cruz los campos del 68 al 71, según clasificación
especificada en el cuadro 6.2. Si la estructura es mixta, al separar las clasificaciones de esta repetir los codigos de
7.- MATERIALES PREDOMINANTES SEGÚN CODIGO DE DESTINO Y CLASIFICACION DE LA ESTRUCTURA (CAMPOS 58 Y
64 65
1.- METAL PANEL PREFORMADO
2.- HORMIGON
3.- LADRILLO ARTESANAL
4.-LADRILLO MAQUINA
1.-YESO - CARTON
2.- MADERA
3.- LADRILLO ARTESANAL
CODIGO DE DESTINO CODIGO DE DESTINO
40%
PORCENTAJE
%
PORCENTAJE
% 101
4.- LADRILLO MAQUINA 60%60%
40%
especificada en el cuadro 6.2. Si la estructura es mixta, al separar las clasificaciones de esta repetir los codigos de
destino, según cuadro 6.2)
MUROS-CERRAMIENTO (indique hasta 2 productos) DIVISIONES INTERIORES (indique hasta 3 productos)
101
11.-PLACAS ALUMINIO/ CERAMICA
(muro cortina)
4.-LADRILLO MAQUINA
5.- BLOQUE CEMENTO
9.- PANEL STEEL FRAME/ OSB
4.- LADRILLO MAQUINA
5.- ALBANILERIA PANDERETA
60%
6.- PANEL FERRO CEMENTO
7.- BLOQUE VIDRIO
8.-METAL VIDRIO
60%
8.- PANEL FERRO CEMENTO
11.- OTRA especifique
9.- ADOBE
10.- MADERA 10.-PANEL POLIEST. EXP. ARMADO
6.- PIEDRA
7.- METAL-VIDRIO (muro-cortina)
66 67
(muro cortina)
PORCENTAJE CODIGO DE DESTINO
12.-PANEL POLIEST. EXP. ARMADO
ESTUCABLE
%
PORCENTAJE CODIGO DE DESTINO
PAVIMENTOS (indique hasta 3 productos)
101
CUBIERTA (indique hasta 3 productos)
% 101
13.- OTRA especifique
3.-MADERA FLOTANTE
4.-ALFRONBRA
5.-PLASTICO MODULAR
2.-PARQUET
6.-PLASTICO CONTINUO
7.-BALDOSA ARCILLA
8.-BALDOSA LIQUIDO8.-TEJUELA MADERA
100%
% 101
1.-ENTABLADO
% 101
3.-PANEL METAL PERFORADO
4.-LOSA H.A. IMPERMEABILIZADO
5.-FIBRO CEMENTO ONDA
1.-FE GALV. LISO EMBALLEETADO
6.-FIBRO CEMENTO TEJUELAS
7.-TEJUELA ASFALTICA
2.-FE GALVANIZADO ONDA
68 69PUERTAS (indique hasta 3 productos) VENTANAS (indique hasta 3 productos)
11.-PORCELANATO
14.-VINILICO
15.-OTRO: AFINADO HORMIGON 70%
10.-CERAMICA
12.-PIEDRA
13.-MARMOL
30%
8.-BALDOSA LIQUIDO
9.-BALDOSA MICROFIBRA
8.-TEJUELA MADERA
14.-METAL-VIDRIO
11.-COBRE
12.-POLICARBONATO
15.-OTRA
9.-TEJA ARCILLA
10.-TEJA CEMENTO
13.-FIBRA DE VIDRIO
68 69
X X
3.-PUERTAS CRISTAL
4.-PUERTAS MADERA TABLEREADAS
5.-VENTANA BLOQUE VIDRIO
6.-TERMOPANELES
3.-VENTANA MADERA
4.-VENTANA PVCX
MARCAR CON UNA CRUZ
X
CODIGO DE DESTINO
101
1.-VENTANA ACERO1.-PUERTAS ACERO
101
2.-VENTANA ALUMINIO
PUERTAS (indique hasta 3 productos) VENTANAS (indique hasta 3 productos)
CODIGO DE DESTINO
X
MARCAR CON UNA CRUZ
6.-PUERTAS CONTRA INCENDIO
2.-PUERTAS ALUMINIO
5.-PUERTAS MADERA PANEL
7.-OTRA 7.-OTRA
6.-TERMOPANELES6.-PUERTAS CONTRA INCENDIO
70 71
MARCAR CON UNA CRUZ
ARTEFACTOS (indique hasta 3 productos) ACCESORIOS (indique hasta 3 productos)
CODIGO DE DESTINO
X 101
MARCAR CON UNA CRUZ CODIGO DE DESTINO
X 101
3.-AIRE ACONDICIONADOFAN COIL
4.-AIRE ACON. INYEC- EXTRACCION
5.-SISTEMA ALARMA
6.-CIRCUITOCERRADO TV.
7.-SENSORES INCENDIO
8.-PISO FLOTANTE REGISTRABLE
9.-TINAS HIDROMASAJES
X
X
X
5.-VANITORIO CUBIERTA RESINA
6.-GRIFERIA ECONOMICA
7.-GRIFERIA ESTANDAR
8.-GRIFERIA ALTA CALIDAD
9.-MOBILIARIO COCINA ESTANDAR
3.-SANITARIOS ALTA CALIDAD
4.-VANITORIO CUBIERTA NORMAL
2.-SANITARIOS ESTANDAR 2.-ESTUFA GAS MURAL
1.-SANITARIOS ECONOMICOS X 1.-CALEFACCION CENTRAL
X 101X 101
15.-OTRA
11.-OTRA
14.-ESPEJOS Y/O JUEGOS DE AGUA
12.-REVEST. EXTERIOR GRANITO
13.-ILUMINACION FACHADAS
9.-TINAS HIDROMASAJES
10.-REJA AUTOMATICA
11.-REVEST. EXTERIOR MARMOL
X9.-MOBILIARIO COCINA ESTANDAR
10.-MOB. COCINA ALTA CALIDAD
72 73
74 75 eduardosalasvenegas@yahoo,com
NOMBRE DEL CONSTRUCTOR O RAZON SOCIAL RUT
EVELYN OLIVARES OLIVARES
AVENIDA PRINCIPAL 936 (LOTE 45)
DIRECCION E-MAILFONO
13.331.443-1
NO CONSIDERA
9.- DATOS DEL PROYECTISTA,(ARQUITECTO Y/ O INGENIERO)
EL PATROCINANTE DE LA OBRA DECLARA BAJO JURAMENTO QUE LOS DATOS REGISTRADOS EN ESTA ENCUESTA
8.-DATOS DEL CONSTRUCTOR Y/O EMPRESA
76 77
78
79 80 81
FONO
15069551-1
E-MAIL
322623765 MENARESJL@GMAIL,COM
NOMBRE PROYECTISTA, ARQUITECTO Y/O
EL PATROCINANTE DE LA OBRA DECLARA BAJO JURAMENTO QUE LOS DATOS REGISTRADOS EN ESTA ENCUESTA
CORRESPONDEN FIELMENTE A LA REALIDAD
JOSÉ MIGUEL CARRERA 1861B, VIÑA DEL MAR
JUAN LUIS MENARES RODRÍGUEZ
CELULAR
941055309
FIRMA
DIRECCION
RUT
79 80 81322623765 MENARESJL@GMAIL,COM
OBSERVACIONES:
941055309
TIMBRE
V°B° FIRMA DIRECTOR DE OBRAS
MUNICIPALES
TIMBRE
LISTADO DE DOCUMENTOS:
1.- Oficio conductor
2.- Listado de Documentos
3.- Solicitud de permiso de edificación
4.- Fotocopia del Certificado de Informaciones Previas vigente.
5.- Fotocopia Escritura
6.- Formulario único de estadísticas de edificación.
7.- Especificaciones Técnicas
8.- Certificado de factibilidad de dación de servicios de fuerza eléctrica
9.- Certificado de factibilidad de dación de servicios de agua potable y alcantarillado
10.- Patente Profesional
11.- Proyecto de cálculo estructural
12.- Informe Calidad de Subsuelo
13.- Planos de estructura
14.- Planos de arquitectura
Evelyn Olivares Olivares Juan-Luis Menares Rodríguez
Propietario Arquitecto ICA 10867
Diciembre de 2017
SOLICITUD DE PERMISO DE EDIFICACION
ANT: No considera
MAT: Ingreso expediente
A: SR. JULIO DOMINGO VENTURA BECERRA, DIRECTOR DE OBRAS
DE: EVELYN OLIVARES OLIVARES PROPIETARIO
JUAN-LUIS MENARES RODRIGUEZ ARQUITECTO
Estimado Sr. Julio Domingo Ventura Becerra
Director de Obras
Ilustre Municipalidad de Vina del Mar
Mediante la presente, hacemos entrega a usted -y su equipo- de los antecedentes atingentes a solicitud de
permiso de edificación. Esta correspondiente a obras de Vivienda Unifamiliar ubicada en Calle Principal # 936,
Población Cardenal Caro, Chorrillos, Viña del Mar.
Tenemos a bien informar, respecto de los presentes documentos, que se adjunta Informe de Calidad de
Subsuelo y copia de la Escritura de la Propiedad -documentos adicionales a lo estipulado en el formulario único
de solicitud MINVU-.
Sin otro particular y de antemano agradeciendo el valor de su tiempo, le saludan:
Evelyn Olivares Olivares Juan-Luis Menares Rodríguez
Propietario Arquitecto ICA 10867
Adjunta:
Expediente.-
Santiago, Diciembre de 2017
Arquitecto Valparaíso
Arquitecto Valparaíso
Arquitecto Valparaíso
Arquitecto Valparaíso

Arquitecto Valparaíso

  • 2.
    Fecha de Emisión:30 de Octubre de 2017 CERTIFICADO DE AVALÚO FISCAL Avalúos en pesos del SEGUNDO SEMESTRE DE 2017 Comuna : VINA DEL MAR Número de Rol de Avalúo : 01593 − 00294 Dirección o Nombre del bien raíz : PRINCIPAL 45 Destino del bien raíz : HABITACION AVALÚO TOTAL : $ 9.482.551 AVALÚO EXENTO DE IMPUESTO : $ 9.482.551 AVALÚO AFECTO A IMPUESTO : $ 0 El avalúo que se certifica ha sido determinado según el procedimiento de tasación fiscal para el cálculo del impuesto territorial, de acuerdo a la legislación vigente, y por tanto no corresponde a una tasación comercial de la propiedad. Por Orden del Director CERTIFICADO GRATUITO 1/1
  • 3.
    Página 1 MEMORIA DECÁLCULO ESTRUCTURAL VIVIENDA UNIFAMILIAR PROPIEDAD DESTINO HABITACION ROL 1593-294 PRINCIPAL # 45, CHORRILLOS Viña del Mar REGIÓN DE VALPARAÍSO
  • 4.
    Página 2 INDICE MEMORIA DECÁLCULO ESTRUCTURAL ......................................................................................................................1 VIVIENDA UNIFAMILIAR................................................................................................................................................1 1.- INTRODUCCION .............................................................................................................................................3 2.- DATOS GLOBALES DE LA ESTRUCTURA ..................................................................................................................3 3.- NORMAS CONSIDERADAS ......................................................................................................................................3 4.- ACCIONES CONSIDERADAS.....................................................................................................................................3 4.1.- Gravitatorias....................................................................................................................................................3 4.2.- Viento..............................................................................................................................................................3 4.3.- Sismo ...............................................................................................................................................................4 4.3.1.- Datos generales de sismo.........................................................................................................................4 4.4.- Hipótesis de carga ...........................................................................................................................................6 5.- ESTADOS LÍMITE.....................................................................................................................................................6 6.- SITUACIONES DE PROYECTO ..................................................................................................................................6 6.1.- Coeficientes parciales de seguridad (γ) y coeficientes de combinación (ψ)...................................................7 6.2.- Combinaciones................................................................................................................................................8 7.- DATOS GEOMÉTRICOS DE GRUPOS Y PLANTAS ...................................................................................................10 8.- DATOS GEOMÉTRICOS DE PILARES, PANTALLAS Y MUROS .................................................................................10 8.1.- Pilares............................................................................................................................................................10 9.- DIMENSIONES, COEFICIENTES DE EMPOTRAMIENTO Y COEFICIENTES DE PANDEO PARA CADA PLANTA .........11 10.- MATERIALES UTILIZADOS...................................................................................................................................13 10.1.- Hormigones.................................................................................................................................................13 10.2.- Aceros por elemento y posición..................................................................................................................13 10.2.1.- Aceros en barras...................................................................................................................................13 10.2.2.- Aceros en perfiles.................................................................................................................................13 11.- CONCLUSIÓN MEMORIA Y ALCANCES ..............................................................................................14
  • 5.
    Página 3 1.- INTRODUCCION Seha solicitado realizar el diseño estructural de vivienda unifamiliar ubicada en la periferia suroriente de la comuna de Viña del Mar, en las cercanías de la cota +148.00 m. Categoría de uso general. Destino Vivienda. 2.- DATOS GLOBALES DE LA ESTRUCTURA La obra es de tres pisos de altura, sin niveles intermedios. Su destino es habitacional en Vivienda Unifamiliar. Está estructurada en base a albañilería confinada de ladrillo -tipo princesa- en sus muros perimetrales e interiores y marcos rígidos de hormigón armado según estándar vigente. La estructura primaria descansa sobre mejoramiento –bajo fundación corrida de hormigón armado- y pilares -sin vinculación exterior-. En su interior la vivienda cuenta con pisos de hormigón armado de tipo radier en primer nivel, envigados de hormigón armado y losas en pisos superiores y envigado sin losa en la azotea. La techumbre está conformada por estructuras reticuladas de madera según estándar vigente. 3.- NORMAS CONSIDERADAS NCh427 Estructuras de acero - diseño y cálculo -- laminados metálicos. NCh430 Of2008 Hormigón armado - Requisitos de diseño y cálculo. INN, Chile. NCh431 Of1977 Construcción – Sobrecargas de nieve. INN, Chile. NCh432 Of1971 Cálculo de la acción del viento sobre las construcciones. INN, Chile. NCh433 Of1996 Diseño sísmico de edificios. INN, Chile. NCh433 Of1996 modificada en 2009. Decreto N°61, 2011. NCh1198 Of2006 Madera – Construcciones en madera – Cálculo. INN, Chile. NCh1537 Of2009 Diseño estructural de edificios -Cargas permanentes y sobrecargas de Uso. INN, Chile. NCh1928 Of1993 Albañilería Armada – Requisitos para el diseño y cálculo. INN, Chile. NCh1928 Of1993 modificada en 2003. NCh3171 Of2010 Diseño estructural – Disposiciones generales y combinaciones de carga. INN, Chile. ACI 318-99 Building Code Requirements for Structural Concrete and Commentary. AISC 2005 Specification for structural steel buildings. American Institute of Steel Construction. 4.- ACCIONES CONSIDERADAS 4.1.- Gravitatorias Planta S.C.U (t/m²) Cargas muertas (t/m²) azotea 0.20 0.20 segundo piso 0.20 0.20 primer piso 0.20 0.20 subterraneo 0.20 0.20 Cimentación 0.00 0.00 4.2.- Viento NCh432-2010 Diseño estructural. Cargas de viento Categoría del terreno: Categoría D
  • 6.
    Página 4 Velocidad básicadel viento: 67.00 m/s Categoría de uso: Categoría II Tipo de terreno: Escarpaduras Dirección transversal (X) Tipo de terreno: Descendente Xp: 3.00 m Hd: 2.50 m Ld: 16.00 m Dirección longitudinal (Y) Tipo de terreno: Llano Anchos de banda Plantas Ancho de banda Y (m) Ancho de banda X (m) En todas las plantas 19.00 7.00 No se realiza análisis de los efectos de 2º orden Coeficientes de Cargas +X: 1.00 -X:1.00 +Y: 1.00 -Y:1.00 Cargas de viento Planta Viento X (t) Viento Y (t) azotea 7.241 2.211 segundo piso 13.920 4.212 primer piso 13.682 4.123 subterraneo 8.237 2.482 4.3.- SISMO Norma utilizada: NCh433.Of1996 Mod.2009 (Dº nº61, de 2011) Norma Chilena Oficial Diseño Sísmico de Edificios (Incluye modificaciones del decreto nº 61 (V. y U.) de 2011) Método de cálculo: Análisis modal espectral (NCh433.Of1996 Mod.2009 (Dº nº61, de 2011), 6.3) 4.3.1.- Datos generales de sismo Caracterización del emplazamiento
  • 7.
    Zona sísmica (NCh433.Of1996Mod.2009, 4.1): 3 Clase de suelo (Dº nº61 de 2011, Artículo 6): B Sistema estructural R0X: Factor de modificación de respuesta (X) (NCh433.Of1996 Mod.2009, 5.7) R0Y: Factor de modificación de respuesta (Y) (NCh433.Of1996 Mod.2009, 5.7) Categoría del edificio (NCh433.Of1996 Mod.2009, 4.3): Categoría II Parámetros de cálculo Número de modos de vibración que intervienen en el análisis: Según norma Fracción de sobrecarga de uso Fracción de sobrecarga de nieve Factor multiplicador del espectro Verificación de la condición de cortante basal: Según norma No se realiza análisis de los efectos de 2º orden Criterio de armado a aplicar por ductilidad: Según Direcciones de análisis Acción sísmica según X Acción sísmica según Y Proyección en planta de la obra Zona sísmica (NCh433.Of1996 Mod.2009, 4.1): 3 Clase de suelo (Dº nº61 de 2011, Artículo 6): B : Factor de modificación de respuesta (X) (NCh433.Of1996 Mod.2009, 5.7) : Factor de modificación de respuesta (Y) (NCh433.Of1996 Mod.2009, 5.7) (NCh433.Of1996 Mod.2009, 4.3): Categoría II Número de modos de vibración que intervienen en el análisis: Según norma Verificación de la condición de cortante basal: Según norma No se realiza análisis de los efectos de 2º orden Criterio de armado a aplicar por ductilidad: Según NCh430.Of2008, Capítulo 21 Página 5 R0X : 11.00 R0Y : 11.00 : 0.50 : 0.50 : 1.00
  • 8.
    Página 6 4.4.- Hipótesisde carga Automáticas Peso propio Cargas muertas Sobrecarga de uso Sismo X Sismo Y Viento +X exc.+ Viento +X exc.- Viento -X exc.+ Viento -X exc.- Viento +Y exc.+ Viento +Y exc.- Viento -Y exc.+ Viento -Y exc.- 5.- ESTADOS LÍMITE E.L.U. de rotura. Hormigón E.L.U. de rotura. Hormigón en cimentaciones ACI 318-99 (Chile) Tensiones sobre el terreno Desplazamientos Acciones características 6.- SITUACIONES DE PROYECTO Para las distintas situaciones de proyecto, las combinaciones de acciones se definirán de acuerdo con los siguientes criterios: - Situaciones persistentes o transitorias - Situaciones sísmicas - Donde: Gk Acción permanente Pk Acción de pretensado Qk Acción variable AE Acción sísmica γG Coeficiente parcial de seguridad de las acciones permanentes γP Coeficiente parcial de seguridad de la acción de pretensado γQ,1 Coeficiente parcial de seguridad de la acción variable principal γQ,i Coeficiente parcial de seguridad de las acciones variables de acompañamiento γAE Coeficiente parcial de seguridad de la acción sísmica ≥ ≥ γ + γ + γ∑ ∑Gj kj P k Qi ki j 1 i 1 G P Q ≥ ≥ γ + γ + γ + γ∑ ∑EGj kj P k A E Qi ki j 1 i 1 G P A Q
  • 9.
    Página 7 6.1.- Coeficientesparciales de seguridad (γ) y coeficientes de combinación (ψ) Para cada situación de proyecto y estado límite los coeficientes a utilizar serán: E.L.U. de rotura. Hormigón: ACI 318-99 (Chile) E.L.U. de rotura. Hormigón en cimentaciones: ACI 318-99 (Chile) Situación 1 Coeficientes parciales de seguridad (γ) Favorable Desfavorable Carga permanente (G) 0.900 1.400 Sobrecarga (Q) 0.000 1.700 Viento (Q) Situación 2 Coeficientes parciales de seguridad (γ) Favorable Desfavorable Carga permanente (G) 1.050 1.050 Sobrecarga (Q) 0.000 1.275 Viento (Q) 1.275 1.275 Situación 3 Coeficientes parciales de seguridad (γ) Favorable Desfavorable Carga permanente (G) 0.900 0.900 Sobrecarga (Q) Viento (Q) 1.300 1.300 Situación 4 Coeficientes parciales de seguridad (γ) Favorable Desfavorable Carga permanente (G) 0.900 1.400 Sobrecarga (Q) 0.000 1.400 Viento (Q) Sismo (E) -1.400 1.400 Tensiones sobre el terreno Acciones variables sin sismo Coeficientes parciales de seguridad (γ) Favorable Desfavorable Carga permanente (G) 1.000 1.000 Sobrecarga (Q) 0.000 1.000 Viento (Q) 0.000 1.000
  • 10.
    Página 8 Sísmica Coeficientes parcialesde seguridad (γ) Favorable Desfavorable Carga permanente (G) 1.000 1.000 Sobrecarga (Q) 0.000 1.000 Viento (Q) Sismo (E) -1.000 1.000 Desplazamientos Acciones variables sin sismo Coeficientes parciales de seguridad (γ) Favorable Desfavorable Carga permanente (G) 1.000 1.000 Sobrecarga (Q) 0.000 1.000 Viento (Q) 0.000 1.000 Sísmica Coeficientes parciales de seguridad (γ) Favorable Desfavorable Carga permanente (G) 1.000 1.000 Sobrecarga (Q) 0.000 1.000 Viento (Q) Sismo (E) -1.000 1.000 6.2.- Combinaciones Nombres de las hipótesis PP Peso propio CM Cargas muertas Qa Sobrecarga de uso V(+X exc.+) Viento +X exc.+ V(+X exc.-) Viento +X exc.- V(-X exc.+) Viento -X exc.+ V(-X exc.-) Viento -X exc.- V(+Y exc.+) Viento +Y exc.+ V(+Y exc.-) Viento +Y exc.- V(-Y exc.+) Viento -Y exc.+ V(-Y exc.-) Viento -Y exc.- SX Sismo X SY Sismo Y E.L.U. de rotura. Hormigón
  • 11.
    Página 9 E.L.U. derotura. Hormigón en cimentaciones Comb. PP CM Qa V(+X exc.+) V(+X exc.-) V(-X exc.+) V(-X exc.-) V(+Y exc.+) V(+Y exc.-) V(-Y exc.+) V(-Y exc.-) SX SY 1 0.900 0.900 2 1.400 1.400 3 0.900 0.900 1.700 4 1.400 1.400 1.700 5 1.050 1.050 1.275 6 1.050 1.050 1.275 1.275 7 1.050 1.050 1.275 8 1.050 1.050 1.275 1.275 9 1.050 1.050 1.275 10 1.050 1.050 1.275 1.275 11 1.050 1.050 1.275 12 1.050 1.050 1.275 1.275 13 1.050 1.050 1.275 14 1.050 1.050 1.275 1.275 15 1.050 1.050 1.275 16 1.050 1.050 1.275 1.275 17 1.050 1.050 1.275 18 1.050 1.050 1.275 1.275 19 1.050 1.050 1.275 20 1.050 1.050 1.275 1.275 21 0.900 0.900 1.300 22 0.900 0.900 1.300 23 0.900 0.900 1.300 24 0.900 0.900 1.300 25 0.900 0.900 1.300 26 0.900 0.900 1.300 27 0.900 0.900 1.300 28 0.900 0.900 1.300 29 0.900 0.900 -1.400 30 1.400 1.400 -1.400 31 0.900 0.900 1.400 -1.400 32 1.400 1.400 1.400 -1.400 33 0.900 0.900 1.400 34 1.400 1.400 1.400 35 0.900 0.900 1.400 1.400 36 1.400 1.400 1.400 1.400 37 0.900 0.900 -1.400 38 1.400 1.400 -1.400 39 0.900 0.900 1.400 -1.400 40 1.400 1.400 1.400 -1.400 41 0.900 0.900 1.400 42 1.400 1.400 1.400 43 0.900 0.900 1.400 1.400 44 1.400 1.400 1.400 1.400 Tensiones sobre el terreno Desplazamientos Comb. PP CM Qa V(+X exc.+) V(+X exc.-) V(-X exc.+) V(-X exc.-) V(+Y exc.+) V(+Y exc.-) V(-Y exc.+) V(-Y exc.-) SX SY 1 1.000 1.000 2 1.000 1.000 1.000 3 1.000 1.000 1.000
  • 12.
    Página 10 Comb. PPCM Qa V(+X exc.+) V(+X exc.-) V(-X exc.+) V(-X exc.-) V(+Y exc.+) V(+Y exc.-) V(-Y exc.+) V(-Y exc.-) SX SY 4 1.000 1.000 1.000 1.000 5 1.000 1.000 1.000 6 1.000 1.000 1.000 1.000 7 1.000 1.000 1.000 8 1.000 1.000 1.000 1.000 9 1.000 1.000 1.000 10 1.000 1.000 1.000 1.000 11 1.000 1.000 1.000 12 1.000 1.000 1.000 1.000 13 1.000 1.000 1.000 14 1.000 1.000 1.000 1.000 15 1.000 1.000 1.000 16 1.000 1.000 1.000 1.000 17 1.000 1.000 1.000 18 1.000 1.000 1.000 1.000 19 1.000 1.000 -1.000 20 1.000 1.000 1.000 -1.000 21 1.000 1.000 1.000 22 1.000 1.000 1.000 1.000 23 1.000 1.000 -1.000 24 1.000 1.000 1.000 -1.000 25 1.000 1.000 1.000 26 1.000 1.000 1.000 1.000 7.- DATOS GEOMÉTRICOS DE GRUPOS Y PLANTAS Grupo Nombre del grupo Planta Nombre planta Altura Cota 4 azotea 4 azotea 2.45 7.85 3 segundo piso 3 segundo piso 2.45 5.40 2 primer piso 2 primer piso 2.45 2.95 1 subterraneo 1 subterraneo 0.50 0.50 0 Cimentación 0.00 8.- DATOS GEOMÉTRICOS DE PILARES, PANTALLAS Y MUROS 8.1.- Pilares GI: grupo inicial GF: grupo final Ang: ángulo del pilar en grados sexagesimales Datos de los pilares Referencia Coord(P.Fijo) GI- GF Vinculación exterior Ang. Punto fijo C1 ( -2.20, 18.49) 0-4 Sin vinculación exterior 0.0 Esq. inf. izq. C2 ( 1.25, 18.49) 0-4 Sin vinculación exterior 0.0 Esq. inf. izq. C3 ( 3.49, 18.49) 0-3 Sin vinculación exterior 0.0 Esq. inf. izq. C4 ( -2.20, 16.05) 0-4 Sin vinculación exterior 0.0 Esq. inf. izq. C5 ( 3.71, 16.05) 0-3 Sin vinculación exterior 0.0 Esq. inf. izq. C6 ( -2.20, 13.30) 0-4 Sin vinculación exterior 0.0 Esq. inf. izq. C7 ( 1.40, 13.30) 0-4 Sin vinculación exterior 0.0 Esq. inf. izq.
  • 13.
    Página 11 Referencia Coord(P.Fijo)GI- GF Vinculación exterior Ang. Punto fijo C8 ( 3.47, 13.50) 0-4 Sin vinculación exterior 0.0 Esq. sup. izq. C9 ( -2.20, 10.45) 0-4 Sin vinculación exterior 0.0 Esq. inf. izq. C10 ( 3.47, 10.35) 0-4 Sin vinculación exterior 0.0 Esq. inf. izq. C11 ( -3.05, 7.60) 0-4 Sin vinculación exterior 0.0 Esq. inf. izq. C12 ( -2.20, 7.60) 0-4 Sin vinculación exterior 0.0 Esq. inf. izq. C13 ( 0.00, 7.60) 0-4 Sin vinculación exterior 0.0 Esq. inf. izq. C14 ( 1.35, 7.60) 0-4 Sin vinculación exterior 0.0 Esq. inf. izq. C15 ( 3.00, 7.60) 0-4 Sin vinculación exterior 0.0 Esq. inf. izq. C16 ( -3.05, 4.45) 0-4 Sin vinculación exterior 0.0 Esq. inf. izq. C17 ( -2.20, 4.45) 0-4 Sin vinculación exterior 0.0 Esq. inf. izq. C18 ( -1.22, 4.45) 0-4 Sin vinculación exterior 0.0 Esq. inf. izq. C19 ( 0.00, 4.00) 0-4 Sin vinculación exterior 0.0 Esq. inf. izq. C20 ( 1.84, 4.45) 0-4 Sin vinculación exterior 0.0 Esq. inf. izq. C21 ( 3.06, 4.45) 0-4 Sin vinculación exterior 0.0 Esq. inf. izq. C22 ( 4.26, 4.35) 0-4 Sin vinculación exterior 0.0 Esq. inf. izq. C23 ( 4.14, 5.53) 0-4 Sin vinculación exterior 0.0 Esq. inf. izq. C24 ( 4.87, 5.53) 0-4 Sin vinculación exterior 0.0 Esq. inf. izq. C25 ( 4.73, 7.60) 0-4 Sin vinculación exterior 0.0 Esq. inf. izq. C26 ( 0.00, 1.40) 0-4 Sin vinculación exterior 0.0 Esq. inf. izq. C27 ( 3.58, 1.72) 0-4 Sin vinculación exterior 0.0 Esq. inf. izq. C28 ( 4.26, 1.72) 0-4 Sin vinculación exterior 0.0 Esq. inf. izq. C29 ( 0.00, 0.00) 0-4 Sin vinculación exterior 0.0 Esq. inf. izq. C30 ( 2.95, 0.00) 0-4 Sin vinculación exterior 0.0 Esq. inf. izq. C31 ( -2.20, 0.00) 0-2 Sin vinculación exterior 0.0 Esq. inf. izq. C32 ( 7.18, 0.00) 0-2 Sin vinculación exterior 0.0 Esq. inf. der. C33 ( 7.18, 5.73) 0-2 Sin vinculación exterior 0.0 Esq. sup. der. C34 ( 6.98, 1.72) 0-2 Sin vinculación exterior 0.0 Esq. inf. izq. C35 ( 1.40, 16.00) 0-2 Sin vinculación exterior 0.0 Esq. inf. izq. C36 ( -1.02, 13.30) 2-4 Sin vinculación exterior 0.0 Esq. inf. izq. C37 ( -1.02, 10.45) 2-4 Sin vinculación exterior 0.0 Esq. inf. izq. C38 ( -1.02, 8.90) 2-4 Sin vinculación exterior 0.0 Esq. inf. izq. C39 ( 1.40, 8.90) 2-4 Sin vinculación exterior 0.0 Esq. inf. izq. C40 ( 4.47, 18.69) 3-4 Sin vinculación exterior 0.0 Esq. sup. der. C41 ( 4.47, 16.25) 3-4 Sin vinculación exterior 0.0 Esq. sup. der. C42 ( 4.47, 10.75) 3-4 Sin vinculación exterior 0.0 Esq. sup. der. C43 ( 4.27, 12.40) 0-3 Sin vinculación exterior 0.0 Esq. inf. izq. C44 ( 3.47, 12.90) 0-3 Sin vinculación exterior 0.0 Esq. inf. izq. C45 ( 3.35, 5.53) 0-3 Sin vinculación exterior 0.0 Esq. inf. der. C47 ( 4.47, 13.50) 0-4 Sin vinculación exterior 0.0 Esq. sup. der. 9.- DIMENSIONES, COEFICIENTES DE EMPOTRAMIENTO Y COEFICIENTES DE PANDEO PARA CADA PLANTA Pilar Planta Dimensiones (cm) Coeficiente de empotramiento Coeficiente de pandeo Coeficiente de rigidez axil Cabeza Pie X Y C1, C2 4 35x20 0.30 1.00 1.00 1.00 2.00 3 35x20 1.00 1.00 1.00 1.00 2.00
  • 14.
    Página 12 Pilar Planta Dimensiones (cm) Coeficientede empotramiento Coeficiente de pandeo Coeficiente de rigidez axil Cabeza Pie X Y 2 35x20 1.00 1.00 1.00 1.00 2.00 1 35x20 1.00 1.00 1.00 1.00 2.00 C3 3 42x20 0.30 1.00 1.00 1.00 2.00 2 42x20 1.00 1.00 1.00 1.00 2.00 1 42x20 1.00 1.00 1.00 1.00 2.00 C4, C6, C7, C9, C11, C13, C16, C17, C18, C20, C21, C24, C26, C27 4 20x20 0.30 1.00 1.00 1.00 2.00 3 20x20 1.00 1.00 1.00 1.00 2.00 2 20x20 1.00 1.00 1.00 1.00 2.00 1 20x20 1.00 1.00 1.00 1.00 2.00 C5, C44 3 20x20 0.30 1.00 1.00 1.00 2.00 2 20x20 1.00 1.00 1.00 1.00 2.00 1 20x20 1.00 1.00 1.00 1.00 2.00 C8, C47 4 45x20 0.30 1.00 1.00 1.00 2.00 3 45x20 1.00 1.00 1.00 1.00 2.00 2 45x20 1.00 1.00 1.00 1.00 2.00 1 45x20 1.00 1.00 1.00 1.00 2.00 C10 4 20x40 0.30 1.00 1.00 1.00 2.00 3 20x40 1.00 1.00 1.00 1.00 2.00 2 20x40 1.00 1.00 1.00 1.00 2.00 1 20x40 1.00 1.00 1.00 1.00 2.00 C12 4 20x90 0.30 1.00 1.00 1.00 2.00 3 20x90 1.00 1.00 1.00 1.00 2.00 2 20x90 1.00 1.00 1.00 1.00 2.00 1 20x90 1.00 1.00 1.00 1.00 2.00 C14 4 25x20 0.30 1.00 1.00 1.00 2.00 3 25x20 1.00 1.00 1.00 1.00 2.00 2 25x20 1.00 1.00 1.00 1.00 2.00 1 25x20 1.00 1.00 1.00 1.00 2.00 C15 4 103x20 0.30 1.00 1.00 1.00 2.00 3 103x20 1.00 1.00 1.00 1.00 2.00 2 103x20 1.00 1.00 1.00 1.00 2.00 1 103x20 1.00 1.00 1.00 1.00 2.00 C19 4 20x65 0.30 1.00 1.00 1.00 2.00 3 20x65 1.00 1.00 1.00 1.00 2.00 2 20x65 1.00 1.00 1.00 1.00 2.00 1 20x65 1.00 1.00 1.00 1.00 2.00 C22, C28 4 20x30 0.30 1.00 1.00 1.00 2.00 3 20x30 1.00 1.00 1.00 1.00 2.00 2 20x30 1.00 1.00 1.00 1.00 2.00 1 20x30 1.00 1.00 1.00 1.00 2.00 C23 4 32x20 0.30 1.00 1.00 1.00 2.00 3 32x20 1.00 1.00 1.00 1.00 2.00 2 32x20 1.00 1.00 1.00 1.00 2.00 1 32x20 1.00 1.00 1.00 1.00 2.00 C25 4 34x20 0.30 1.00 1.00 1.00 2.00 3 34x20 1.00 1.00 1.00 1.00 2.00 2 34x20 1.00 1.00 1.00 1.00 2.00 1 34x20 1.00 1.00 1.00 1.00 2.00 C29 4 60x20 0.30 1.00 1.00 1.00 2.00 3 60x20 1.00 1.00 1.00 1.00 2.00
  • 15.
    Página 13 Pilar Planta Dimensiones (cm) Coeficientede empotramiento Coeficiente de pandeo Coeficiente de rigidez axil Cabeza Pie X Y 2 60x20 1.00 1.00 1.00 1.00 2.00 1 60x20 1.00 1.00 1.00 1.00 2.00 C30 4 83x20 0.30 1.00 1.00 1.00 2.00 3 83x20 1.00 1.00 1.00 1.00 2.00 2 83x20 1.00 1.00 1.00 1.00 2.00 1 83x20 1.00 1.00 1.00 1.00 2.00 C31, C32, C33, C34 2 20x60 0.30 1.00 1.00 1.00 2.00 1 20x60 1.00 1.00 1.00 1.00 2.00 C35 2 20x30 0.30 1.00 1.00 1.00 2.00 1 20x30 1.00 1.00 1.00 1.00 2.00 C36, C37, C38, C39 4 20x20 0.30 1.00 1.00 1.00 2.00 3 20x20 1.00 1.00 1.00 1.00 2.00 C40, C41 4 20x30 0.30 1.00 1.00 1.00 2.00 C42 4 20x40 0.30 1.00 1.00 1.00 2.00 C43 3 20x70 0.30 1.00 1.00 1.00 2.00 2 20x70 1.00 1.00 1.00 1.00 2.00 1 20x70 1.00 1.00 1.00 1.00 2.00 C45 3 35x20 0.30 1.00 1.00 1.00 2.00 2 35x20 1.00 1.00 1.00 1.00 2.00 1 35x20 1.00 1.00 1.00 1.00 2.00 10.- MATERIALES UTILIZADOS 10.1.- Hormigones Elemento Hormigón fck (kp/cm²) γc Tamaño máximo del árido (mm) Ec (kp/cm²) Todos H25 200 1.00 15 212132 10.2.- Aceros por elemento y posición 10.2.1.- Aceros en barras Elemento Acero fyk (kp/cm²) γs Todos A-63-42H 4200 1.00 10.2.2.- Aceros en perfiles Tipo de acero para perfiles Acero Límite elástico (kp/cm²) Módulo de elasticidad (kp/cm²) Acero conformado ASTM A36 2530 2100000 Acero laminado ASTM A36 2530 2100000
  • 16.
    Página 14 11.- CONCLUSIÓNMEMORIA Y ALCANCES Para el análisis y diseño se utilizó el método estático que estipula la norma NCh 433 vigente, obteniendo los resultados reflejados en los planos estructurales. Se ha realizado el estudio dinámico y los análisis de desempeño mecánico en base a las categorías de suelo y factores definidos para la región y uso, además de informaciones previas extendidas por el mandante. La inspección de obras idónea será subcontratada por el propietario a terceros. Las labores se desarrollan en el contexto de una regularización. JUAN-LUIS MENARES RODRIGUEZ ARQUITECTO ICA 10867
  • 17.
  • 31.
    ESPECIFICACIONES TECNICAS Obra :Vivienda Unifamiliar Ubicación : Calle Principal #936, Chorrillos Comuna : Vina del Mar Propietario : Evelyn Olivares Olivares Rol : 1593-294 1.- INSTALACION DE FAENAS: 1.1 Limpieza y escarpe: Se considera la limpieza y roce del terreno, en una superficie de 15 x 20 m, en el lugar que se emplazara la vivienda. Se escarpará en un espesor de 0.2 m en un área equivalente a la planta del edificio con un sobreancho de 0,3 m. 1.2 Instalación de faenas: Se instalará en el predio una construcción provisoria con paneles de madera prensada, aproximadamente de 45 m2. 1.3 Servicios provisorios: Se considera la instalación de baños exclusivos para el uso de todo el personal de la obra, todo de acuerdo a las normas sanitarias, ambientales y de seguridad vigentes. Los consumos de agua y corriente eléctrica deberán ser de costo del proyectista. 1.4 Aseo final y entrega: La obra se entregará completamente limpia y aseada. Los recintos deberán ser encerados, vidrios limpios, claramente libres de chorreos y manchas etc. El exterior deberá ser entregado libre de escombros y desperdicios. 2.- OBRAS DE CONSTRUCCION 2.1 Obra Gruesa: 2.1.1 Replanteo trazado y niveles: Para el trazado de los ejes de fundación se procederá a colocar niveletas; estas serán en tablas de pino cepillado de 1" x 3", los ejes se indicaran con clavos de 3" y estarán claramente representados con números y letras respectivamente.- Todos los trazados deberán ser ejecutados de acuerdo a los planos respectivos. En cualquier etapa de la obra deben hacerse verificaciones que aseguren el correcto emplazamiento de los elementos de la misma.- 2.1.2 Excavaciones y rellenos: Se ejecutarán a mano; los fondos serán planos y horizontales, los cortes serán rectos, libres de terreno suelto y de materia orgánica en descomposición.- La dimensión exacta se definirá en terreno, de acuerdo al estudio de mecánica de suelos y al cálculo estructural. No se aceptarán rellenos por errores de cota de niveles. Los excesos de excavación deberán compactarse debidamente en capas de 20 cm. Todo relleno se hará en capas de 20 cm., se utilizará material proveniente de las excavaciones, libre de materia orgánica, desechos o escombros. El material proveniente de los suelos podrá ser mejorado con áridos (ripio y arena).
  • 32.
    El material derelleno deberá ser humedecido hasta alcanzar la humedad óptima, para ser compactado. Los rellenos que servirán de base a pavimentos, serán de ripio compactado en capas de espesor 10 cm. 2.1.3 Cimientos: Los cimientos se ejecutarán con hormigón revuelto mecánicamente. La dimensión y dosificación será de acuerdo al proyecto estructural. Previo al hormigonado de los cimientos se sellará la excavación con un emplantillado de acuerdo a planos estructurales y sus especificaciones. En ampliaciones se realizara fundación aislada en poyos de hormigón armado y pilotes según proyecto de estructuras. 2.1.4 Sobrecimientos: La dimensión del sobrecimiento, el tipo y cantidad de fierro será de acuerdo a planos de cálculo estructural.- Se utilizará hormigón H-25 y será vibrado mecánicamente.- Los moldajes en todos los elementos de hormigón, podrán ser de madera, metálicos o de otro material suficientemente rígido, resistente y estanco capaz de soportar el propio peso, sobrecargas y peso del hormigón fresco.- 2.1.5 Extracción de escombros: Los escombros deberán ser retirados de obra y depositados en botaderos autorizados, bajo las indicaciones de la Dirección de Obras Municipales, debiendo quedar la nueva construcción totalmente libre de ellos. 2.1.6 Cama de ripio: Previo al radier, se colocará una capa de ripio de 8 cm., el cual será compactado mecánicamente.- Se cubrirá con una capa de polietileno de 0,2 mm. en toda el área con traslapos de 15 cm. 2.1.7 Pisos: Se consideran realizados en madera según proyecto de estructuras. 2.1.8 Tabiquería: La totalidad de los paramentos no estructurales se ejecutarán con tabiquerías formadas por estructuras en pino de 2”x3” con revestimiento interior de placa tipo Volcanita de 12 mm, u otro material incombustible de acuerdo a normas de seguridad, aprobado por el proyectista. Para el exterior y zonas húmedas, la tabiquería será con placa de terciado estructural de 22 mm, revestida con plancha de fibrocemento de 6 mm. de espesor, libre de asbesto. Previo a la colocación de revestimientos consulta la colocación de fieltro de 16 lb. Como aislamiento térmico consulta la aplicación de polietileno expandido de 50 mm. Si corresponde se podrá utilizar en los paramentos albañilería de ladrillo tipo princesa o similar, hecho a máquina, de 7x14x29, pegado con mortero de pega de dosificación cemento: arena de 1:3.- El resto de las albañilerías se ejecutarán, de acuerdo a indicaciones de planos de estructuras. Cada tres hiladas se colocarán fierro de 6 mm. o escalerilla tipo Acma, soldados a los perfiles metálicos que conforman los marcos, que encierran las albañilerías.
  • 33.
    Los perfiles metálicosserán perfil tipo C 150x50x3 mm. 2.1.9 Escalas y entrepisos: Se consultan todos los indicadas en los planos. Se ejecutarán de acuerdo a proyecto de estructuras y detalles asociados. Los peldaños se consultan de acuerdo a plano de arquitectura. Ante diferencia con estas especificaciones, se deberá respetar lo indicado en proyecto. 2.1.10 Hormigón armado: Consulta la construcción de marco rígido perimetral en hormigón armado, el cual tendrá su dimensión de acuerdo a los planos de cálculo estructural. Los hormigones serán vibrados mecánicamente, y se deberán proteger durante los primeros ocho días de evaporación -cambios bruscos de temperatura, sol directo, etc-. Los hormigones frescos se deberán proteger con membrana de curado autorizada. En todo caso deberán mantenerse húmedos durante la etapa de fraguado. Los hormigones podrán ser fabricados en terreno con revoltura mecánica en lo posible y deberán cumplir con los tipos y dosificaciones indicados en el proyecto de cálculo.- Las terminaciones de losa y/o radieres deberán tener un perfecto acabado y nivelado para dar terminación vista, no se permitirá sobrelosa, debiendo darse si fuese necesario una terminación de piso de tipo vinilico o similar. Para la ejecución de las losas se debe tener en cuenta que previo hormigonado se deberán dejar todas las tuberías embutidas (electricidad, agua potable, alcantarillado) o en su defecto las pasadas necesarias para la ejecución de las redes sin tener que recurrir a futuro picado de la estructura, cuidando de no dejar en contacto acero con cañerías de cobre. Los hormigones deberán ser del tipo y dosificación indicadas en los planos estructurales. El transporte del hormigón dentro de la obra podrá realizarse mediante carretillas y sistemas manuales que den garantía de eficiencia, seguridad y limpieza. Con referencia al moldaje y descimbrado se deberá tener en cuenta la recomendación del calculista. Los moldajes de la losa para la contención del hormigón tanto inferiores como laterales serán de fierro ó placa terciada o de otro material suficientemente rígido, resistente y estanco, capaz de soportar las cargas del propio peso, sobrecargas y peso del hormigón fresco. Se deberá considerar la imprimación de moldajes con anti desmoldante. 2.1.11 Estructura de techumbre: Consulta en cerchas de pino sulfatado de con costaneras dispuestas y ejecutadas de acuerdo a las indicaciones de sección y armado de los planos de cálculo estructural. La cubierta será del mismo standard existente. 2.1.12 Impermeabilización: Se utilizará impermeabilizante o sello superficial en las losas que se encuentren expuestas a la humedad y que no tengan otro tipo de revestimiento. Se aplicará de acuerdo a las especificaciones del proveedor, cualquier sellante asfáltico tipo Igol, (imprimante y un sellante) o similar aprobado por el proyectista.
  • 34.
    2.1.13 Canales yBajadas: Consultan canales de Zincalum de 0.4 mm. de espesor con soldadura de tipo Sikaflex con desarrollo según detalle.- Las canaletas que recogen las aguas lluvias de los techos se consultan en zinc con todos los accesorios correspondientes al igual que las bajadas de aguas.- En los encuentros entre techumbres y muros se ejecutará protección con planchas de Zincalum de 40 cm. de desarrollo. Se consulta la instalación de sombreretes en Zincalum en todas las ventilaciones y extractor eólico. 2.2 Terminaciones: 2.2.1 Revestimiento interior: Los elementos de hormigón por su acabada terminación no consultan revestimiento. En zonas húmedas se ejecutarán revestimientos cerámicos que serán pegados con adhesivo Bekron o similar aplicado mediante una llana dentada y siguiendo estrictamente las indicaciones del fabricante. Se aplicará fragüe del mismo color que la cerámica. Las albañilerías de tipo fiscal deberá ser estucadas con mortero de relación cemento/ arena 1:3. 2.2.2 Terminación de piso: En las ampliaciones se utilizará el mismo acabado existente. Para zonas húmedas se contempla la utilización de cerámicos 2.2.3 Puertas marcos y hojas: Se instalarán marcos en madera de 70 x 20 mm que recibirán las puertas, los cuales irán anclados mediante tirafondos. Consulta la colocación de puertas en carpintería de madera o del tipo Placarol de terciado con batiente hacia el interior. 2.2.4 Ventanas: Consulta marcos de ventana en perfiles metálicos de 2 mm. los que irán debidamente anclado a la estructura. Las ventanas de proyección al oriente se ejecutarán en carpintería de madera según estándar existente. Los marcos de las ventanas serán del mismo material. Podrá utilizarse la alternativa de marcos y ventanas en perfiles de aluminio 2.2.5 Cerrajería y quincallería: En las puertas consulta la instalación de bisagras de 3" x 3" de fabricación nacional será de 3 por hoja. Las cerraduras serán tipo Scanavini o similar. 2.2.6 Vidrios: Consulta vidrios lisos y transparentes con espesor de acuerdo a dimensión según normas, fijados a los marcos con junquillo metálico o de madera y sellado con silicona transparente. En zonas de baños y duchas consulta vidrios tipo semilla o similar. 2.2.7 Guardapolvos: Consulta guardapolvos de pino finger-joint de 3" x 3/4" los cuales se fijarán al muro mediante la colocación de tarugo y punta de 2".- Guardapolvo de cerámica consulta en los pasillos del segundo piso, cocina y baños, los que serán pegados con mortero de pega para cerámica, según indicaciones del fabricante.
  • 35.
    2.2.8 Pinturas: Se consultala aplicación de esmalte sintético en todas las hojas y marcos metálicos tanto de puertas como de ventanas.- Se consulta la aplicación de óleo sintético en las áreas de cielo y muro en baños y cocina.- Los hormigones consultan protección de pintura de acuerdo a indicaciones del Arquitecto, en todo caso los elementos de hormigón deberán ser a la vista.- Los elementos de madera se pintarán con barniz transparente, antihongos e hidrorepelente. 3. INSTALACIONES: 3.1 Agua Potable: 3.1.1 Instalación de arranque domiciliario: Las instalaciones de agua potable deberán estar conectadas a los empalmes existentes. Para ello el ejecutor de la obra, deberá realizar las gestiones correspondientes ante Esval, para determinar si fuese necesario la modificación del arranque existente. 3.1.2 Red de distribución interior: Consulta la instalación de redes interiores de agua potable en tubería de cobre tipo L con diámetros según cálculo, aprobados por el servicio correspondiente.- Las tuberías de cobre por ningún motivo se dejarán en contacto con otros metales, especialmente el fierro.- Deberán colocarse llaves de corte en cada circuito o ramal, una por cada sanitario, lavaplatos, etc.- En las cañerías de cobre las soldaduras se harán con soldadura que contenga al menos un 50% de estaño.- El medidor general irá protegido por un nicho de las medidas reglamentarias y contará con dos válvulas de bola del mismo diámetro, una antes y la otra después del medidor. Se deberán ejecutar pruebas a las instalaciones para asegurar totalmente su absoluta impermeabilidad, esto es, sometiéndola a pruebas de presión hidráulica, debiendo cumplirla exitosamente. Dicha prueba podrá efectuarse por tramos de longitud no inferior a 20 mts. debiendo instalar siempre la bomba en el extremo inferior al tramo y el manómetro en el extremo superior.- En todo caso la instalación deberá conectarse al empalme existente.- 3.2 Alcantarillado domiciliario: 3.2.1 Red Colector Interior: Consulta la instalación de redes de alcantarillado en tubería de PVC tipo Vinilit, de diámetro según lo indicado en planos. Las cámaras a ejecutar se realizarán en albañilería en sitio, ó prefabricadas de hormigón, según planos aprobados por el Servicio respectivo. 3.3. Artefactos: 3.3.1 Consulta la colocación de artefactos de fabricación nacional o importada que cumpla con las exigencias establecidas y a plena conformidad del proyectista. Su distribución y emplazamiento se ajustarán a las indicaciones de los planos de arquitectura y/o estructurales, se deberá comprobar su correcta fijación, nivelación y estanqueidad. Los accesorios de unión, soldaduras, abrazaderas y otros elementos que sea preciso utilizar deberán garantizar el cumplimiento de las cualidades generales de la instalación domiciliaria. - WC blanco con fittings y asiento plástico, modelo Verona o similar. - Lavamanos blanco con pedestal aprobado por el proyectista.
  • 36.
    Los accesorios deunión, soldaduras, abrazaderas y otros elementos que sea preciso utilizar, deberán garantizar el cumplimiento de la ordenanza general de instalaciones domiciliarias.- 3.4. Instalaciones eléctricas: 3.4.1 Canalización y distribución: Se colocará tubería conduit de PVC en toda la red, la que deberá ir embutida tanto en cielos y muros.- Los conductores serán de 1.5 mm. con aislación tipo NYA, para los circuitos de alumbrado y 2.5 mm. para los circuitos de enchufes. Todas las uniones de cables se harán en las cajas de distribución, por ningún motivo pueden quedar uniones dentro de los ductos. Para esto, se usará soldadura con cinta aisladora vinílica y de goma. Toda obra sujeta a las indicaciones del proyectista y el expediente aprobado por Chilquinta o prestador de servicio eléctrico vigente. 3.4.2 Instalaciones telefónicas y otros: Se consideran conductos independientes para la canalización de las redes telefónicas y otras. Las salidas se indicarán de acuerdo a requerimientos. 3.5 Instalaciones de combustible: 3.5.1 Gas Se consulta una red de gas que alimente la cocina y los calefonts en cañería de cobre tipo L Madeco y debe cumplir con los requerimientos del SEC.- 3.5.2 Nicho de gas: En caso de utilizar balones de gas licuado, se deberá consultar nicho de albañilería con puertas metálicas. En caso de utilizar estanques para el almacenamiento de gas, se deberá considerar cierro de protección, radieres, distanciamiento, seguridad, etc., de acuerdo a normas. 4. SEGURIDAD 4.1 Resistencia al Fuego De acuerdo a lo descrito en la OGUC -artículos 4.3.2 y 4.3.3- la vivienda cumple con las normas mínimas de seguridad contra el fuego para edificación con destino habitacional -solución clase "d"- en las siguientes aplicaciones de materiales: Elemento Resistencia Materialidad Muros Cortafuego F-120 Albañilería confinada Muros zona vertical No considera No considera Muros caja ascensores No considera No considera Muros divisorios unidades F-60 Tabiquería Madera revest. fibrocemento / Albañilería confinada Elementos soportantes verticales F-30 Tabiquería Madera revest. fibrocemento Pilares de hormigón armado Muros no soportantes y tabiques Sin restricción Tabiques madera y yeso carton 12 mm Escaleras Sin restricción Madera pino MDF Elementos soportantes horizontales F-30 Entramado de madera, cadena perimetral Techumbre y cielo falso F-15 Cubierta acero galv. Cercha de madera. Cielo de madera -tinglado- 4.2 Aislamiento Térmico Conforme a lo indicado en la OGUC -articulo 4.1.10-, el Listado Oficial de Soluciones Constructivas para Acondicionamiento Térmico -MINVU-, y lo especificado en laminas y documentos; la vivienda
  • 37.
    cumple con lasnormas mínimas de aislación (zona térmica "2") en las siguientes aplicaciones materiales: Elemento U Rt R100 Materiales aislantes Techumbre 0,60 1,67 141 Madera/ Lana mineral Muros 3,00 0,33 23 Vulcanita / Madera/ Polietileno/ Ladrillo Pisos Ventilados 0,87 1,15 98 Madera/ Polietileno En relación a los vidrios utilizados se cumple con las exigencias en los siguientes parámetros. Área de vidrio Material Área de muros % permitido % existente 14,13 m2 Vidrio Monolítico 139,12 m2 40,00 % 10,16 % No considera doble vidriado hermético en ninguno de los paños. Juan-Luis Menares Rodríguez Evelyn Olivares Olivares Arquitecto Propietario Santiago Diciembre de 2017
  • 50.
    e!.s Q 0006012-z€ {)f,oltrlJ soJaerolep solcefio.r6 [ pep11;q;1ceJ ap plsllBuV zoNnw zsneruoou o9ruoou ')ealeal e olce,(old ep odrl |e epuodse.uoc ul6es Irldunc ugraqop es selenc se1 'e[oq e]sa ep osro^al le oxeue la ue seplcalqe]se saleraue6 seclucg1 ,{ sent}etlstulupe souotctpuoc sel uoc elueulelduoc es ,{ peprcede3 rod selqesloquroa5 seyody e ola[ns el]uancuo es opec4lpa3 alsf 'sat!q9q seJp 0L ap oulxgt.u oze;d un uo opesaJslur 1e epe6ellue gJos ellnsuoc e; e elsendseJ el'peplllqgcel op opec4tpaC |opo]aunu|oopuBclpul@:|leul|eoJe^|apewA,9LZauoNouno||ecuoepmlqn|e!3JotUoc eulc[o op s?^et] e 'sorotruas so^onN ap Ecruc?] edg p o]ucso rod opeltctlos gJoqap opeseJs]ur lo leno ol eled 'so]ce{old sol op ugtceloqelo el ep oluauoul le u-elecrpur es 'oluaLuncop olse ue sepeleuos sec;1qgd sopeJ sel ep ugtceclqn el .WCIU op /0 olnclpe le uo olsendsrp ol uoc pepluJoluoc ap 'eluerpuodsaJroc erqurnprrues el op uglcnltlsuoc el esJeltpolce gJoqep osec o,(nc ue 'oue1e1doJd ollo ep orperd ;a opueso^erle ;euorcelrnero eurJoj ua poJ el B orcrruos 1e asreu;edue ugtqulel grpod'ourg;4 Jod'eJo[1 (l) eun ep ouJruJru opolred un ue eurleduo op olund;e anbuelSe la uo sepelnu.lnce septruos sen6e se; lencene ered opeuorsuorulp Jes gJoqap uglce^elo ep euelsrs;e enb o1ue1 ua'seJoq (7;) acop ap oultxgtu ugtcualeJ ep opopad un ered opeuorsuaurp -eros ugrcelntunce op enbuelse lep uotrnlol 13 'octlqqd Jolcoloo ;e e6lecsep el ap leuotcelrnel6 olueruurJJncse 1a elru.red anb ;e1 eloc eun e epenlrs Jelse gJoqop enb e1 'ugtccedsut ep eJetugc eun e gleDlecsep ugrs;ndur ep eJleqnl el 'osec elso uf 'ero1ce,{e o eJopelalo elue;d eun ap otpaul lod eu;edue ep olund le gJence^e es enb lo 'olqonurur lep ordord uglcelnurnce ap anbuelse un e aluoulleuolcelgnerO ugle6lecsep os selsg 'peplllq[ce] ep opecllryac lo ue opeleuas eu;edLue ep olund lB leuoroe]r^er6 eulo; ua sepenoe^o Jos uepend ou alqenuul un ap sepr^Jas senbe sel enb olue^o ;e u3 'pepe;dord e; ep euerllcluop uglun el enbtqn as enb ue eJolos ap eloc eun e louedns eloc eun Jaue] ugroqap uglsrLupe ap secoq sel enb B aluoJalal ol ue (WOtU) opellr.reluec1y ,( epqelo6 en6y ep seuetlnlloc sauorcelelsul ep oluerue;OoE lep 98 olnclye 1e ue olsendsrp ol e o1ue1u.tt;dunc leq lVdlCNlUd elleo ue ppeclqn ''ut 8'l, ep Bpeullss peptpunlo.td eun uoc 'ollaugtp ep'utu gZl ep ''durog'uleC ep ElJeUEc el :gres V'S lvnsf ep opelluelueole ep seper sel e eurledue ep olund g3 @ 'WOIU lap 08 'UB ;e uoc.tt;dunc oqap opeserolu! lo 'osec opo] uf 'otJeJotl oLxlxguJ otrnsuoc 1e eled BlJoqn] el oJqos ouorJo] op lanlu E eplpeur'ecu.r gL op so ugtxouoc ep olund ;e ua oduatl la ue Jauolueu epend eserdue e; enb e;qruodslp ;eer ugrserd el 'lVdlONlUd ellPc ue epeclqn 'oJleulglp ap uur 00I ep ''r.ueg 'qsy ep elJeUEc el :gJes 'V'S IVASf ep e;qelod en6e ap sepel sel e ugtxouoc ep olund 13 :elqPloo enDE ap u9lxeuoc :sauotceJaprsuoc seluegnbrs se; eluesald iauo] opuerqap 'sep!russ sen6e ep opellUeluec;e I alqelod enbe ep oc;;q4d olc!rues lB opeloauoc Jas ep ppplllqlloel euerl 'JrnJlsuoc epafold es enb epuellll e; 'elcuencesuoc ue '[ ;euolceledo opolgrel ns ep oJluep prluencue es 'UVl l -1:lg VNn ep eunuoc 'S3'lInV-13 SOt elesed ,( SOOtOg SOf af f ec arlua '9, slol '?62-069 ! lor '9, .N -IVdlgNlud ellec ua opectqn elqanulut ;e enb ecgtpec 'V'S lvn S3 'LLOZ1OLl1t, eqce] ap gOgBZZ.N peplllqlloel ap pnlrcrlos ns e elsendser ue I S3UVAIIO SfUVAI-IO NA-1343 ep oluatupenber y LL0ZIltl9l' eqcol v?gttt oN '0EE[ueS '6 0sld 'E1g Epau0l'rl 'souElruES s0r]r^raS ap eEUapua]urJadns e; e'aluaureuetptsqns'rt errrlradsar souelruES sDrorruas ap esardu.r3 Bl ap sEu!xllo sEl E asrEurp'saleuotrtpe sellnsuoJ ErEd 'Aal Bl auil"l-]ralap anb sasaralur a salsnlEar s0lrnlrul aqap DslDquraal l:'alrode la afltata as anh uB Bqtal El ap ltUBd E 'saltqer.l selF 0 L Bp orrrHgrx ozEld un ua alueuode le sopebs4ua upras osloqtlaar ap soluatr-lnr0p sol . sEUE g l. 3p olualLUltuaA ap 0urxEr,rl ozeld un uor ri sa;qesopuauEas anh soluaLrnrop uarEsloqluaa.] uaqap as otaurp ap so]ur]slp sapode so1 6E/E9f o N NOC:Nltil S0 'sEtuel ap Ial El ap oluauretEaU tap ttt otntlt p (q BB/gL o N do t! t1o 'spluel aF rtal ?t a-! tLll.llll 1: _ -:salEtral solxal saluarnnrs sgl ua septualuoo uelluan3uts as UJU ap eu-lslsrs lap uq!rErldE e1 uelnEat anb seueluauBlEal A salE0al sau0tors0dstp sel . soluvltHus sotf tAUls lo vlfNloHllNIUldns fu I u ) sl ts u sto gtr{l :tu sou I tr H u ilt I s I lu odu lu I os Ho t3u I sHt ovol'il8rrcvJ 30 oovcHrruf3
  • 51.
    .V' S BJ eluerrreluelB Bpn[Bs'-relncrlred oJ]o urs .JEIN Iep eUIA 'VLT'I "g rn8el"ry aIIBc ue sepecrqn seprrreruoc serrrcgo se;lsenu ue ol[,@ocIII94ceIooeJJocIBoIoZZtIZ.Zt,oouoJ9Ie}1e.o1ucsns Ie uoc sr;lrezrleet sorueJocepe:8e 's9-relur oJlsenl ep BrJelBru BJlo n pEpTIIq]]cBJ EI ep pnlrc{os EI rroc BpBuorsBIeJ BrJeJBru EI eJqos E}Insuoc e"4o .rernblBnc e}uv '€rusru BI ep ugrsrue ep BqceJ BI apsep sopeluoc soprrroc sEIp 0t ap ercuaBrl Bun eueq pBpIIrqrl.sEJ Elsg 'rrelrtu:ed o1 sBcruJgl seuoErpuoc sEI opuBnc ,( e-rdruers 'epeztlerrpl^lpuT salrrB rrglcseJlp EI ue EcrJlcgle e18-reue JeJlsruruns 'alueulecrucgl eIqIlcBJ se enb EcUr1:eJ 'peprcr-r1ce1e ap oc4qqd orcllJes Iep erreuorsecuoc Z - 000'tVl'16 orerunu olJBlnqrrl ocruEl IoJ 'V'S EcrJlcglg €zrend op 1euorce111 elgeduro3 snb pelsn B sourBrurogur olcedsal IV 'Borrrglcellnb"re wg:lcezrreln8e; ep o1ce,(o-rd olenu B:ed 'uotsusl eleq ue olr]rurJep euledure un E BcT4c91e e18-reue JBJlsruruns E opEurlsep 'IZBTO8"N eceld BI uoo opecgr;uepl 'gdVNOC ep uglcnql4slp ep per EI ap elsod 1e epsep '"re141 Iep BUIA ep Brrnruoc 'so1p-r-roqC g, IedrcurJd ue ocrseJouoru erupdure un ep ugrcBlelsur el e.red BJrrrcg] pEplIIqIlcBJ ep pnlrcllos Bun ep eruroJuT sou IBnr IB ue 'LIOZ ep erqnlco ep Ot Ie oprclrcar tgg1zgg oN oluerurrenbe; ns B sourreJar soN :ugrcEJeprsuoJ EJlsenu ec rBI I Iep BSIA @ sollrrroqc s, Pdrcurrd seJEuetr l uEnll rogas LIOZ ep erqnlco op 0t !JYr.I,tA g eryreduro3 ff utttrv 'TBIAI Iep BUIA
  • 52.
    FOLIO N° Cod. Comuna USOOFICINA INE 1 2 3 4 RUT FORMULARIO UNICO DE ESTADISTICAS DE EDIFICACION (LLENAR SEGÚN INSTRUCTIVO) Fecha N° Formulario de1 1 2.- INFORMACION DEL PROPIETARIO NOMBRE O RAZON SOCIAL PROPIETARIO 1.-IDENTIFICACION ESTADISTICA(uso exclusivo D.O.M) Completar por informante Permiso N° Fecha Rol Avaluo S.I.I. 1593-294 Recepcion N° 5 7 8 9 10 11 12 13 14 RUT llenar según corresponda en cuadro respectivo DIRECCION FONO CELULAR NOMBRE O RAZON SOCIAL PROPIETARIO USO OFICINA INEGESTOR INMOBILIARIO EVELYN OLIVARES OLIVARES 13.331.443-1 RUT EVELYN OLIVARES OLIVARES 13.331.443-1 VALPARAISO AVENIDA PRINCIPAL 936 (LOTE 45) NO CONSIDERA 941055309 SECTOR 1 3.-INFORMACION DE LA PROPIEDAD REGION PROVINCIA VALPARAISO2 AREA11 12 13 14 15 16 17 # 18 19 20 21 EDIFICACION CONSTRUIDA ANTERIORMENTE 22 SUPERFICIE (m2) 23 TOTAL N°PISOS VALPARAISO VINA DEL MAR VINA DEL MAR SECTOR 1 1.-PUBLICO 2.-PRIVADO 1.-URBANA 2.-RURAL DIRECCION COMUNA LOCALIDAD VALPARAISO2 AREA Esta referida a toda construccion anterior al permiso actual, que cuenta con la autorizacion respectiva CONTRAFRENTE (m) FONDO MEDIO (m) SUPERFICIE (m2) 10.00 10.00 25,53 267,00 FRENTE TERRENO(m) 936PRINCIPAL CHORRILLOS 4.- TIPO DE TRAMITE 24 PERMISO 25 26 27OBRA PLANIFICADA (FECHAS ESTIMADAS) OBRA EJECUTADA RECIBIDA 1 1.-DEFINITIVA TOTAL carasteristicas del permiso original, de lo contrario llenar formulario 1.- OBRA NUEVA 3.-AMPLIACION 2.- REGULARIZACION 4.-REGULARIZACION OBRA NUEVA AMPLIACION DE (Uso exclusivo D.O.M.) llenar este cuadro, cuando la recepcion replique las RECEPCION 2.-DEFINITIVA PARCIAL ETAPA 26 27 28 29 30 31 32 33 34 35 36 37 E E T T A A P P A A 1 OBRA PLANIFICADA (FECHAS ESTIMADAS) OBRA EJECUTADA RECIBIDA COSTO REAL OBRA MILES ($) Clasificacion de la Obra SUPERFICIE RECIBIDA (m2) CANTIDAD DE UNIDADES FECHA INICIO FECHA TERMINO CANTIDAD UNIDADES DOMINIO EXCLUSIVO SUPERFICIE m2 (mas areas comunes) FECHA INICIO FECHA TERMINO 01-08-201801-03-2018 1 227,00 227,00TOTAL38A TOTAL38B ***DE FECHA***REMPLAZA PERMISO N° FIRMA DIRECTOR D.O.M FIRMA SOLICITANTE
  • 53.
    39 40 X ACOGIDOS ALEYES CODIGO (USO INTERNO) 1. AISLADO 2. PAREADO 3.CONTINUO AGRUPAMIENTO (marca X solo casas) * * * * * * * * * 5.- DOTACION DE LA INFRAESTRUCTURA DE URBANIZACION 41 42 ALCANTARILLADO 43 GAS 44 45 46 1. RED PUBLICA 2. SIST.PRIVADO COLECTIVO 3. SISTEMA INDIVIDUAL 1. RED PUBLICA 2. SIST.PRIVADO COLECTIVO 3. SISTEMA INDIVIDUAL 1. RED PUBLICA 2. SIST.PRIVADO COLECTIVO 3. SISTEMA INDIVIDUAL 1AGUA POTABLE 1 PAVIMENTACION EVACUACION AGUAS LLUVIAS 3 3.CONTINUO* * * ELECTRICIDAD 1 1 444 45 46 47 1. COLECTOR PUBLICO 2. SISTEMA PRIVADO COLECTIVO 3.DRENAJE INDIVIDUAL 4. NO TIENE 1. HORMIGON 2.ASFALTO 3. ARTICULADO 4.-HORMIGON 5.-ASFALTO 6.-ARTICULADO TELEFONIA 3 1. RED AEREA 2. RED SUBTERRANEA 3.NO TIENE ESPECIFICAR 7. NO TIENE PAVIMENTACION 8. OTROS PUBLICA PRIVADA 2. RED SUBTERRANEA 1.RED AEREA 3. GENERADOR 4. NO TIENE 5. OTROS ESPECIFICAR PAVIMENTACION EVACUACION AGUAS LLUVIASELECTRICIDAD 1 1 4 48 49 50 51 52 53 codigo destino codigo Codigo Según tipo y cantidad de los locales habitables Cantidad de unidades de dominio exclusivo (casas, N° DE PISOS Clasificacion de la estructura (según minvu) Superficie (m2) a construir sin espacios ley Uso oficina ine Cantidad de locales habitables por vivienda 3.NO TIENE 6.- DESTINO, CLASIFICACION Y CATEGORIA 6.1 RESUMEN DE LAS UNIDADES A CONSTRUIR OCONSTRUIDAS(resumende dominio exclusivo del proyecto) 54 55TOTAL 1 2 TOTAL 227,00 6 habitables (casas, oficinas,etc) (según minvu) 6 espacios comunes vivienda C 227,005 1 2 56 57 58 59 60 61 62 Superficie m2 según Clasificacion (con espacios comunes) 6.2.- DESTINO, CLASFICACION Y CATEGORIA : ordenar, según campo 48, separandolos codigos de la clasificacion de la estructura según materialidad (ver intrucciones) condicion especial Codigo según tipo y cantidad de locales habitables (campo 48) Destino Codigo destino Clasificacion de la estructura (según minvu) Categoria predominante Condicion especial (ver instrucciones) 63 TOTAL 227,00 comunes) 5 VIVIENDA 101 C 3 N.A. 227,00 (campo 48) (según minvu)
  • 54.
    Marcar el porcentajerespectivo en los campos 64 al 67 y con una cruz los campos del 68 al 71, según clasificación especificada en el cuadro 6.2. Si la estructura es mixta, al separar las clasificaciones de esta repetir los codigos de 7.- MATERIALES PREDOMINANTES SEGÚN CODIGO DE DESTINO Y CLASIFICACION DE LA ESTRUCTURA (CAMPOS 58 Y 64 65 1.- METAL PANEL PREFORMADO 2.- HORMIGON 3.- LADRILLO ARTESANAL 4.-LADRILLO MAQUINA 1.-YESO - CARTON 2.- MADERA 3.- LADRILLO ARTESANAL CODIGO DE DESTINO CODIGO DE DESTINO 40% PORCENTAJE % PORCENTAJE % 101 4.- LADRILLO MAQUINA 60%60% 40% especificada en el cuadro 6.2. Si la estructura es mixta, al separar las clasificaciones de esta repetir los codigos de destino, según cuadro 6.2) MUROS-CERRAMIENTO (indique hasta 2 productos) DIVISIONES INTERIORES (indique hasta 3 productos) 101 11.-PLACAS ALUMINIO/ CERAMICA (muro cortina) 4.-LADRILLO MAQUINA 5.- BLOQUE CEMENTO 9.- PANEL STEEL FRAME/ OSB 4.- LADRILLO MAQUINA 5.- ALBANILERIA PANDERETA 60% 6.- PANEL FERRO CEMENTO 7.- BLOQUE VIDRIO 8.-METAL VIDRIO 60% 8.- PANEL FERRO CEMENTO 11.- OTRA especifique 9.- ADOBE 10.- MADERA 10.-PANEL POLIEST. EXP. ARMADO 6.- PIEDRA 7.- METAL-VIDRIO (muro-cortina) 66 67 (muro cortina) PORCENTAJE CODIGO DE DESTINO 12.-PANEL POLIEST. EXP. ARMADO ESTUCABLE % PORCENTAJE CODIGO DE DESTINO PAVIMENTOS (indique hasta 3 productos) 101 CUBIERTA (indique hasta 3 productos) % 101 13.- OTRA especifique 3.-MADERA FLOTANTE 4.-ALFRONBRA 5.-PLASTICO MODULAR 2.-PARQUET 6.-PLASTICO CONTINUO 7.-BALDOSA ARCILLA 8.-BALDOSA LIQUIDO8.-TEJUELA MADERA 100% % 101 1.-ENTABLADO % 101 3.-PANEL METAL PERFORADO 4.-LOSA H.A. IMPERMEABILIZADO 5.-FIBRO CEMENTO ONDA 1.-FE GALV. LISO EMBALLEETADO 6.-FIBRO CEMENTO TEJUELAS 7.-TEJUELA ASFALTICA 2.-FE GALVANIZADO ONDA 68 69PUERTAS (indique hasta 3 productos) VENTANAS (indique hasta 3 productos) 11.-PORCELANATO 14.-VINILICO 15.-OTRO: AFINADO HORMIGON 70% 10.-CERAMICA 12.-PIEDRA 13.-MARMOL 30% 8.-BALDOSA LIQUIDO 9.-BALDOSA MICROFIBRA 8.-TEJUELA MADERA 14.-METAL-VIDRIO 11.-COBRE 12.-POLICARBONATO 15.-OTRA 9.-TEJA ARCILLA 10.-TEJA CEMENTO 13.-FIBRA DE VIDRIO 68 69 X X 3.-PUERTAS CRISTAL 4.-PUERTAS MADERA TABLEREADAS 5.-VENTANA BLOQUE VIDRIO 6.-TERMOPANELES 3.-VENTANA MADERA 4.-VENTANA PVCX MARCAR CON UNA CRUZ X CODIGO DE DESTINO 101 1.-VENTANA ACERO1.-PUERTAS ACERO 101 2.-VENTANA ALUMINIO PUERTAS (indique hasta 3 productos) VENTANAS (indique hasta 3 productos) CODIGO DE DESTINO X MARCAR CON UNA CRUZ 6.-PUERTAS CONTRA INCENDIO 2.-PUERTAS ALUMINIO 5.-PUERTAS MADERA PANEL 7.-OTRA 7.-OTRA 6.-TERMOPANELES6.-PUERTAS CONTRA INCENDIO
  • 55.
    70 71 MARCAR CONUNA CRUZ ARTEFACTOS (indique hasta 3 productos) ACCESORIOS (indique hasta 3 productos) CODIGO DE DESTINO X 101 MARCAR CON UNA CRUZ CODIGO DE DESTINO X 101 3.-AIRE ACONDICIONADOFAN COIL 4.-AIRE ACON. INYEC- EXTRACCION 5.-SISTEMA ALARMA 6.-CIRCUITOCERRADO TV. 7.-SENSORES INCENDIO 8.-PISO FLOTANTE REGISTRABLE 9.-TINAS HIDROMASAJES X X X 5.-VANITORIO CUBIERTA RESINA 6.-GRIFERIA ECONOMICA 7.-GRIFERIA ESTANDAR 8.-GRIFERIA ALTA CALIDAD 9.-MOBILIARIO COCINA ESTANDAR 3.-SANITARIOS ALTA CALIDAD 4.-VANITORIO CUBIERTA NORMAL 2.-SANITARIOS ESTANDAR 2.-ESTUFA GAS MURAL 1.-SANITARIOS ECONOMICOS X 1.-CALEFACCION CENTRAL X 101X 101 15.-OTRA 11.-OTRA 14.-ESPEJOS Y/O JUEGOS DE AGUA 12.-REVEST. EXTERIOR GRANITO 13.-ILUMINACION FACHADAS 9.-TINAS HIDROMASAJES 10.-REJA AUTOMATICA 11.-REVEST. EXTERIOR MARMOL X9.-MOBILIARIO COCINA ESTANDAR 10.-MOB. COCINA ALTA CALIDAD 72 73 74 75 eduardosalasvenegas@yahoo,com NOMBRE DEL CONSTRUCTOR O RAZON SOCIAL RUT EVELYN OLIVARES OLIVARES AVENIDA PRINCIPAL 936 (LOTE 45) DIRECCION E-MAILFONO 13.331.443-1 NO CONSIDERA 9.- DATOS DEL PROYECTISTA,(ARQUITECTO Y/ O INGENIERO) EL PATROCINANTE DE LA OBRA DECLARA BAJO JURAMENTO QUE LOS DATOS REGISTRADOS EN ESTA ENCUESTA 8.-DATOS DEL CONSTRUCTOR Y/O EMPRESA 76 77 78 79 80 81 FONO 15069551-1 E-MAIL 322623765 MENARESJL@GMAIL,COM NOMBRE PROYECTISTA, ARQUITECTO Y/O EL PATROCINANTE DE LA OBRA DECLARA BAJO JURAMENTO QUE LOS DATOS REGISTRADOS EN ESTA ENCUESTA CORRESPONDEN FIELMENTE A LA REALIDAD JOSÉ MIGUEL CARRERA 1861B, VIÑA DEL MAR JUAN LUIS MENARES RODRÍGUEZ CELULAR 941055309 FIRMA DIRECCION RUT 79 80 81322623765 MENARESJL@GMAIL,COM OBSERVACIONES: 941055309 TIMBRE V°B° FIRMA DIRECTOR DE OBRAS MUNICIPALES TIMBRE
  • 56.
    LISTADO DE DOCUMENTOS: 1.-Oficio conductor 2.- Listado de Documentos 3.- Solicitud de permiso de edificación 4.- Fotocopia del Certificado de Informaciones Previas vigente. 5.- Fotocopia Escritura 6.- Formulario único de estadísticas de edificación. 7.- Especificaciones Técnicas 8.- Certificado de factibilidad de dación de servicios de fuerza eléctrica 9.- Certificado de factibilidad de dación de servicios de agua potable y alcantarillado 10.- Patente Profesional 11.- Proyecto de cálculo estructural 12.- Informe Calidad de Subsuelo 13.- Planos de estructura 14.- Planos de arquitectura Evelyn Olivares Olivares Juan-Luis Menares Rodríguez Propietario Arquitecto ICA 10867 Diciembre de 2017
  • 57.
    SOLICITUD DE PERMISODE EDIFICACION ANT: No considera MAT: Ingreso expediente A: SR. JULIO DOMINGO VENTURA BECERRA, DIRECTOR DE OBRAS DE: EVELYN OLIVARES OLIVARES PROPIETARIO JUAN-LUIS MENARES RODRIGUEZ ARQUITECTO Estimado Sr. Julio Domingo Ventura Becerra Director de Obras Ilustre Municipalidad de Vina del Mar Mediante la presente, hacemos entrega a usted -y su equipo- de los antecedentes atingentes a solicitud de permiso de edificación. Esta correspondiente a obras de Vivienda Unifamiliar ubicada en Calle Principal # 936, Población Cardenal Caro, Chorrillos, Viña del Mar. Tenemos a bien informar, respecto de los presentes documentos, que se adjunta Informe de Calidad de Subsuelo y copia de la Escritura de la Propiedad -documentos adicionales a lo estipulado en el formulario único de solicitud MINVU-. Sin otro particular y de antemano agradeciendo el valor de su tiempo, le saludan: Evelyn Olivares Olivares Juan-Luis Menares Rodríguez Propietario Arquitecto ICA 10867 Adjunta: Expediente.- Santiago, Diciembre de 2017