CIMENTACIONES SUPERFICIALES
Ing. Samuel HUAQUISTO CÁCERES
CIMENTACIONES SUPERFICIALES
1.Conceptos generales
2.Capacidad de carga
3.Cimentaciones excéntricas
4.Cimentaciones en suelo estratificado
5.Cimentaciones sobre un talud
6.Cimentaciones sobre roca
7.Capacidad de carga a partir de pruebas de campo
8.Asentamientos en edificaciones
9.Losas para cimentaciones
Cimentación
El Reglamento Nacional de Edificaciones, E-050 Suelos y cimentaciones, define a la cimentación
como parte de la edificación que transmite al subsuelo las cargas de la estructura.
De acuerdo a la norma una cimentación es superficial cuando la relación profundidad ancho es
menor o igual a cinco, con profundidad de desplante mínimo de 0.8m. Terzaghi (1943), la relación Df
a B es de tres o cuatro para cimentaciones superficiales.
1. CONCEPTOS GENERALES
El suelo es menos resistente y mas deformable
que el concreto, por tanto no puede resistir las
mismas tensiones y resulta preciso dotar a la
estructura de unos apoyos que repartan y
transmitan al terreno unas presiones que sean
compatibles con su resistencia y
deformabilidad.
En la cimentación superficial se evalúa la
capacidad de carga última, que es la carga por
área unitaria de la cimentación bajo la cual
ocurre la falla por corte en el suelo.
Para un comportamiento satisfactorio la
cimentación debe ser segura contra falla por
corte general y no experimentar asentamiento
excesivo. (a) supuesta; (b) real para suelos granulares
(c) real para suelos cohesivos.
Criterios generales de diseño.
a) Que sea estable, es decir, que el coeficiente de
seguridad disponible (relación entre la carga que
produciría el agotamiento de la resistencia del terreno
y el hundimiento de la cimentación), sea adecuado y
segura frente a una falla por corte general.
b) Que sus deformaciones sean admisibles, o que los
movimientos (asientos, desplazamientos horizontales,
giros) causados por la deformación del terreno
sometido a tensiones transmitidas por la cimentación,
sean tolerables por la estructura. No debe
experimentar un asentamiento excesivo.
c) Que no afecte a construcciones cercanas, los
efectos originados en el terreno por una cimentación
no se hagan notar más allá de los límites estrictos de
la estructura a construir. Por tanto, hay que asegurar
que no afecte negativamente a construcciones
vecinas.
d) Que sea perdurable, las premisas anteriores perduren durante la vida útil de la estructura,
lo que hace necesario considerar la posible evolución de las condiciones iniciales debida a:
Cambios de volumen espontáneos, como en el caso del colapso de rellenos mal
compactados o suelos naturalmente colapsables (loess, algunos limos yesíferos, etc.)
Cambios de volumen debidos a modificaciones en el estado de humedad de terrenos
arcillosos potencialmente expansivos.
Socavación en los causes y orillas de los ríos.
Erosión interna del terreno por rotura de colectores u otras conducciones de agua.
Deterioro del concreto del cimiento en contacto con terrenos o aguas subálveas
agresivas.
Oscilaciones del nivel del agua que puedan dar lugar a cambios en los niveles de
tensiones efectivas o a alteraciones de la resistencia y deformabilidad del suelo.
• Deslizamientos si la estructura se sitúa en una ladera inestable.
Naturaleza de falla en el suelo.
Según la naturaleza de falla en suelos por capacidad de
carga se presentan tres casos. (Vesic, 1973).
Falla general por corte. En arenas densas o suelo
cohesivo firme.
Falla local por corte.
Suelo arenoso o arcilloso medianamente compactado.
Falla de corte por punzonamiento. Suelo bastante
suelto.
2. CAPACIDAD DE CARGA
La carga de trabajo del
terreno debe
determinarse por medio
de experiencias y
sondajes a cargo de un
especialista en Mecánica
de Suelos. En la Tabla,
se presentan algunos
valores aproximados de
la carga de trabajo para
diferentes tipos de
terrenos. Estos se
utilizan sólo para diseños
preliminares. (Harsem,
2002)
Factores de capacidad de carga, Terzaghi.
La superficie de falla del suelo bajo carga última para falla
general por corte y para una cimentación corrida, de
acuerdo a la teoría general de Terzaghi (1943) se presenta
como:
Falla local por corte modificado de las ecuaciones de Terzaghi.
Modificación de las ecuaciones de la capacidad de carga por nivel freático.
CIMENTACIONES CON EXCENTRICIDAD DE UNA DIRECCION
La distribución de la presión por la cimentación sobre el suelo no es uniforme.
3. CIMENTACIONES EXCÉNTRICAS
CIMENTACIONES CON EXCENTRICIDAD DE DOS DIRECCIONES
𝑞 =
𝑄
𝐴
±
𝑀 𝑥 𝐶 𝑦
𝐼 𝑥
±
𝑀 𝑦 𝐶 𝑥
𝐼 𝑦
𝐼 𝑦 =
𝐵𝐿3
12
𝐼 𝑥 =
𝐿𝐵3
12
𝑀 𝑥 = 𝑄𝑒 𝑦 𝑀 𝑦 = 𝑄𝑒 𝑥
𝑞 =
𝑄
𝐵𝐿
1 ±
6𝑒 𝑦
𝐵
±
6𝑒 𝑥
𝐿
6𝑒 𝑦/𝐵 + 6𝑒 𝑥/𝐿 ≤1
𝑞 𝑚á𝑥 ≤ 𝑞 𝑎𝑑𝑚(𝑛𝑒𝑡𝑎)
𝑞 𝑚í𝑛 ≥ 0
𝐶 𝑥 =
𝐿
2
𝐶 𝑦 =
𝐵
2
L1 y L2 se determinan con la siguiente figura:
B1 y B2 se determinan con la siguiente figura:
B2 y L2 se determinan con la siguiente figura:
Según el Reglamento Nacional de Edificaciones E 050 Suelos y cimentaciones, para estos
casos se simplifica el cálculo, teniendo en consideración lo siguiente:
Capacidad de carga de suelos estratificados.
1.- Suelo más fuerte sobre suelo más débil. Cuando q2/q1 < 1. Para una cimentación se
presentan 2 casos: Cuando H < B y H > B.
Meyerhof and Hanna (1978) and Meyerhof(1974)
4. CIMENTACIONES EN SUELO ESTRATIFICADO
q1=c1Nc(1)+0.5γ1BNγ(1)
q2=c2Nc(2)+0.5γ2BNγ(2)
Para determinar Ks y Ca, Meyerhof and Hanna (1978)
Suelo más débil sobre suelo más fuerte.
Cuando q2/q1 > 1.
La relación H/B es relativamente pequeña
la superficie de falla en el suelo ante carga
ultima pasará a través de las 2 capas de
suelo.
Para relaciones H/B mayores, la superficie
de falla estará ubicada por completo en el
estrato superior del suelo más débil.
Capacidad de carga de cimentaciones sobre un talud
Método de Meyerhof
La capacidad de soporte sobre taludes se puede calcular
mediante la expresión (Meyerhof, 1957): cimentaciones
continuas.
Donde:
Ncq y Nγq son los factores de capacidad de soporte, los
cuales se pueden obtener de acuerdo a la figura.
5. CIMENTACIONES SOBRE UN TALUD
RNE E 050. En el caso de cimientos ubicados en terrenos próximos a
taludes o sobre taludes o en terreno inclinado, la ecuación de capacidad
de carga debe ser calculada teniendo en cuenta la inclinación de la
superficie y la inclinación de la base de la cimentación, si la hubiera.
Adicionalmente debe verificarse la estabilidad del talud, considerando la
presencia de la estructura.
u
Cálculo de factores para la capacidad de soporte sobre taludes (Meyerhof, 1957).
H: Altura del talud
Suelo granular
Suelo cohesivo
Si B < H, utilizar las curvas para Ns=0
Si B ≥ H, utilizar las curvas para Ns calculado
Método de Bowles
La capacidad de soporte puede calcularse utilizando la ecuación de Hansen, modificada por
Bowles: (1996)
Los factores N’c y N’q se obtienen de la tabla
Los valores de sc y sq se suponen iguales a 1.0
El factor sγ se calcula de la siguiente forma:
sγ = 1.0 para cargas lineales
sγ = 0.6 para cimientos circulares
sγ = 0.8 para cimientos cuadrados
El factor N’γ se obtiene reduciendo el valor de Nγ
de la ecuación de Hansen (Tabla) en la forma
siguiente:
Kmin y Kmax son los coeficientes de presión pasiva
hacia afuera y hacia adentro del talud.
Una simplificación conservativa consiste en utilizar.
Si b/B ≥ 2 no se requiere reducir el valor de Nγ
Los factores ic, iq, iγ para el método de Bowles se obtienen del procedimiento de Hansen
(ver Figura).
Los valores aproximados de ic, iq, iγ también pueden calcularse utilizando el
procedimiento simplificado de Meyerhof:
Método del código francés
Este método consiste en calcular la capacidad de soporte suponiendo un terreno plano y
afectarla por un factor de reducción, de acuerdo a la pendiente del talud y la localización y
tamaño del cimiento (Garnier y otros, 2000). La expresión analítica para el coeficiente de
reducción iβ para la capacidad de soporte de cimientos rectangulares o continuos cerca a
taludes es la siguiente:
Donde:
Cf = 1-0.4B/L (factor de forma del cimiento)
β = ángulo de talud
d = distancia entre el cimiento y la cresta del talud
iβ = coeficiente de reducción de la capacidad de soporte calculada en terreno plano.
Cuando los suelos son puramente cohesivos, el factor de reducción de capacidad de
soporte es menor. La utilización del coeficiente de reducción es muy utilizada, pero no
ha sido muy bien validada (Garnier y otros, 2000).
En los últimos años se ha realizado una cantidad de estudios sobre el tema,
especialmente para el diseño de estribos de puentes y es posible que en los años
venideros se obtengan coeficientes de reducción o metodologías más precisas para la
determinación de la capacidad de soporte de cimentaciones sobre taludes.
6. CIMENTACIONES SOBRE ROCA
ɣr
RQD
c
La resistencia a compresión simple y el Angulo de fricción de las rocas puede variar en gran medida.
Donde quc resistencia a compresión simple de la roca.
El límite superior de la capacidad de carga ultima permisible no debe sobre pasar f’c del concreto a las 28 días.
Método de Serrano y Olalla.
OTROS CÓDIGOS
Para el caso d) donde se presentan juntas verticales por debajo de la zona de contacto
o incluso cavidades de poca profundidad, se utilizan dependiendo de la geometría de
la zapata, las siguientes fórmulas.
7. CAPACIDAD DE CARGA A PARTIR DE PRUEBAS DE CAMPO
Fd
Capacidad de carga considerando el CPT
http://www.fernandeztadeo.com/dataf.htm
http://www.piezocono.com/CPT.aspx
Capacidad de carga considerando la prueba de carga en campo PLT
Asentamiento inmediato con el ensayo de placa
Método de Terzaghi-Peck (1967) valido solo en
arenas
Sz: Asentamiento de la zapata (cm)
Sp: Asentamiento medido en la prueba (cm)
Bz: Ancho de la zapata (m)
Bp: Ancho de la placa (m)
Método de Bond (1961)
Sz: asentamiento de la zapata (cm)
Sp: Asentamiento medido en la prueba (cm)
Bz: Ancho de la zapata (m)
Bp: Ancho de la placa (m)
n: Coeficietne que depende del suelo
Arcilla: n= 0.03 a 0.05
Arcilla arenosa: n= 0.08 a 0.10
Arena densa: n= 0.40 a 0.50
Arena media a densa: n= 0.25 a 0.35
Arena suelta: n= 0.20 a 0.25
En la mayoría de los casos de construcción, el
subsuelo no es homogéneo y la carga soportada por
varias cimentaciones superficiales de una estructura
dada puede variar en gran medida. Como resultado, es
razonable esperar grados diversos de asentamientos
en partes diferentes de un edificio dado.
En el RNE E 050 Suelos y cimentaciones se indica:
En todo EMS se deberá indicar el asentamiento
tolerable que se ha considerado para la edificación o
estructura motivo del estudio. El Asentamiento
Diferencial no debe ocasionar una distorsión angular
mayor que la indicada en la Tabla.
En el caso de suelos granulares el asentamiento
diferencial se puede estimar como el 75% del
asentamiento total.
8. ASENTAMIENTOS EN EDIFICACIONES
Estos edificios de
Amsterdam no se
hundieron sino que fueron
construidos así, según
ordenanzas de la alcaldía
de los siglos XVIII y XIX,
para facilitar el traslado de
enseres y equipos a los
pisos más altos por lo
estrecho de las escaleras.
El sistema de fundación
(como todo en Amsterdam)
es pilotes.
https://www.forocoches.com/foro/showthread.php?t=3246533
En 1956, Skempton y
McDonald propusieron los
valores límites siguientes
para el asentamiento
máximo y la distorsión
angular máxima, que se
deben aplicar para fines de
construcción:
En el Soviet Code of
Practice de 1955 se indican
los valores permisibles
siguientes:
Bjerrum (1963) recomendó la
distorsión angular límite
siguiente, Bmáx, para varias
estructuras:
El European Committee for
Standardization también
proporcionó valores límite para la
calidad de servicio y los
movimientos de la cimentación
máximos aceptados.
En general se usan:
Cuando un suelo tiene baja capacidad de
carga (suelo fino limo arcilloso).
Cuando área de las zapatas exceden en más
del 70% del área construida
Para edificaciones de gran altura.
Las losas pueden ser de los siguientes tipos:
1º zapata combinada
rectangular.
2º zapata combinada
trapezoidal.
3º zapata con viga de
amarre.
4º zapata combinada en T.
5º losa de cimentación.
9. LOSAS PARA CIMENTACIONES
Zapata rectangular combinada.
Cuando las cargas soportada por una columna y la capacidad de carga del suelo son tales que
el diseño de la zapata asilada requerida una extensión la cual soporta dos o más columnas. Si
se conoce la carga neta admisible del suelo las dimensiones B y L se calculan de la siguiente
manera.
Zapata trapezoidal combinada.
Se usa como una cimentación aislada para una columna que soporta una gran carga donde el
espacio es reducido. Si el tamaño de la cimentación que distribuirá uniformemente la presión del
suelo se obtiene de la siguiente manera:
Zapata combinada en T
El predimensionamiento de puede
realizar de la siguiente manera:
Zapata en voladizo.
Este tipo de construcción se usa para conectar una cimentación de columna excéntricamente
cargada con la cimentación de una columna interior.
Se usa cuando la capacidad de
apoyo admisible del suelo es
moderadamente aceptable y
las distancias entre las
columnas es grande.
Losa de cimentación.
Es una zapata combinada y cubre
toda la superficie bajo una estructura
que soporta varias columnas y
muros, en ocasiones son soportadas
por pilotes que ayudan a reducir el
asentamiento de la estructura
construida sobre el suelo altamente
compresible.
Cuando el N.F. es alto las losas se
colocan a menudo sobre pilotes para
controlar a flotabilidad.
Entre los distintos tipos de losas
tenemos:
a.- de placa plana.
b.- de placa plana con mayor espesor
en las columnas.
c.- losa con vigas.
d.- losa de placa plana con
pedestales.
e.- losa con muros de sótano.
f.- losa sobre pilotes.
Capacidad de carga para losas de cimentación.
La capacidad de carga última es la misma que para las cimentaciones superficiales.
Criterio conservador para Fd=1
Para un asentamiento de 50mm y asentamiento diferencial de 19mm
Para suelo granular se determina a partir de los números de resistencia por penetración estándar:
Cimentaciones compensadas.
Una cimentación se compensa aumentando la profundidad de empotramiento Df el cual es
importante para losas sobre arcillas blandas donde grandes asentamientos por consolidación son
de esperarse.
Cimentaciones superficiales
Cimentaciones superficiales
Cimentaciones superficiales
Cimentaciones superficiales
Cimentaciones superficiales
Cimentaciones superficiales
Cimentaciones superficiales
Cimentaciones superficiales

Cimentaciones superficiales

  • 1.
    CIMENTACIONES SUPERFICIALES Ing. SamuelHUAQUISTO CÁCERES CIMENTACIONES SUPERFICIALES 1.Conceptos generales 2.Capacidad de carga 3.Cimentaciones excéntricas 4.Cimentaciones en suelo estratificado 5.Cimentaciones sobre un talud 6.Cimentaciones sobre roca 7.Capacidad de carga a partir de pruebas de campo 8.Asentamientos en edificaciones 9.Losas para cimentaciones
  • 2.
    Cimentación El Reglamento Nacionalde Edificaciones, E-050 Suelos y cimentaciones, define a la cimentación como parte de la edificación que transmite al subsuelo las cargas de la estructura. De acuerdo a la norma una cimentación es superficial cuando la relación profundidad ancho es menor o igual a cinco, con profundidad de desplante mínimo de 0.8m. Terzaghi (1943), la relación Df a B es de tres o cuatro para cimentaciones superficiales. 1. CONCEPTOS GENERALES
  • 3.
    El suelo esmenos resistente y mas deformable que el concreto, por tanto no puede resistir las mismas tensiones y resulta preciso dotar a la estructura de unos apoyos que repartan y transmitan al terreno unas presiones que sean compatibles con su resistencia y deformabilidad. En la cimentación superficial se evalúa la capacidad de carga última, que es la carga por área unitaria de la cimentación bajo la cual ocurre la falla por corte en el suelo. Para un comportamiento satisfactorio la cimentación debe ser segura contra falla por corte general y no experimentar asentamiento excesivo. (a) supuesta; (b) real para suelos granulares (c) real para suelos cohesivos.
  • 4.
    Criterios generales dediseño. a) Que sea estable, es decir, que el coeficiente de seguridad disponible (relación entre la carga que produciría el agotamiento de la resistencia del terreno y el hundimiento de la cimentación), sea adecuado y segura frente a una falla por corte general. b) Que sus deformaciones sean admisibles, o que los movimientos (asientos, desplazamientos horizontales, giros) causados por la deformación del terreno sometido a tensiones transmitidas por la cimentación, sean tolerables por la estructura. No debe experimentar un asentamiento excesivo. c) Que no afecte a construcciones cercanas, los efectos originados en el terreno por una cimentación no se hagan notar más allá de los límites estrictos de la estructura a construir. Por tanto, hay que asegurar que no afecte negativamente a construcciones vecinas.
  • 5.
    d) Que seaperdurable, las premisas anteriores perduren durante la vida útil de la estructura, lo que hace necesario considerar la posible evolución de las condiciones iniciales debida a: Cambios de volumen espontáneos, como en el caso del colapso de rellenos mal compactados o suelos naturalmente colapsables (loess, algunos limos yesíferos, etc.) Cambios de volumen debidos a modificaciones en el estado de humedad de terrenos arcillosos potencialmente expansivos. Socavación en los causes y orillas de los ríos. Erosión interna del terreno por rotura de colectores u otras conducciones de agua. Deterioro del concreto del cimiento en contacto con terrenos o aguas subálveas agresivas. Oscilaciones del nivel del agua que puedan dar lugar a cambios en los niveles de tensiones efectivas o a alteraciones de la resistencia y deformabilidad del suelo. • Deslizamientos si la estructura se sitúa en una ladera inestable.
  • 6.
    Naturaleza de fallaen el suelo. Según la naturaleza de falla en suelos por capacidad de carga se presentan tres casos. (Vesic, 1973). Falla general por corte. En arenas densas o suelo cohesivo firme.
  • 7.
    Falla local porcorte. Suelo arenoso o arcilloso medianamente compactado.
  • 8.
    Falla de cortepor punzonamiento. Suelo bastante suelto.
  • 9.
  • 10.
    La carga detrabajo del terreno debe determinarse por medio de experiencias y sondajes a cargo de un especialista en Mecánica de Suelos. En la Tabla, se presentan algunos valores aproximados de la carga de trabajo para diferentes tipos de terrenos. Estos se utilizan sólo para diseños preliminares. (Harsem, 2002)
  • 17.
    Factores de capacidadde carga, Terzaghi. La superficie de falla del suelo bajo carga última para falla general por corte y para una cimentación corrida, de acuerdo a la teoría general de Terzaghi (1943) se presenta como:
  • 18.
    Falla local porcorte modificado de las ecuaciones de Terzaghi.
  • 19.
    Modificación de lasecuaciones de la capacidad de carga por nivel freático.
  • 24.
    CIMENTACIONES CON EXCENTRICIDADDE UNA DIRECCION La distribución de la presión por la cimentación sobre el suelo no es uniforme. 3. CIMENTACIONES EXCÉNTRICAS
  • 27.
  • 28.
    𝑞 = 𝑄 𝐴 ± 𝑀 𝑥𝐶 𝑦 𝐼 𝑥 ± 𝑀 𝑦 𝐶 𝑥 𝐼 𝑦 𝐼 𝑦 = 𝐵𝐿3 12 𝐼 𝑥 = 𝐿𝐵3 12 𝑀 𝑥 = 𝑄𝑒 𝑦 𝑀 𝑦 = 𝑄𝑒 𝑥 𝑞 = 𝑄 𝐵𝐿 1 ± 6𝑒 𝑦 𝐵 ± 6𝑒 𝑥 𝐿 6𝑒 𝑦/𝐵 + 6𝑒 𝑥/𝐿 ≤1 𝑞 𝑚á𝑥 ≤ 𝑞 𝑎𝑑𝑚(𝑛𝑒𝑡𝑎) 𝑞 𝑚í𝑛 ≥ 0 𝐶 𝑥 = 𝐿 2 𝐶 𝑦 = 𝐵 2
  • 30.
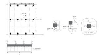
    L1 y L2se determinan con la siguiente figura:
  • 31.
    B1 y B2se determinan con la siguiente figura:
  • 32.
    B2 y L2se determinan con la siguiente figura:
  • 33.
    Según el ReglamentoNacional de Edificaciones E 050 Suelos y cimentaciones, para estos casos se simplifica el cálculo, teniendo en consideración lo siguiente:
  • 35.
    Capacidad de cargade suelos estratificados. 1.- Suelo más fuerte sobre suelo más débil. Cuando q2/q1 < 1. Para una cimentación se presentan 2 casos: Cuando H < B y H > B. Meyerhof and Hanna (1978) and Meyerhof(1974) 4. CIMENTACIONES EN SUELO ESTRATIFICADO q1=c1Nc(1)+0.5γ1BNγ(1) q2=c2Nc(2)+0.5γ2BNγ(2)
  • 37.
    Para determinar Ksy Ca, Meyerhof and Hanna (1978)
  • 38.
    Suelo más débilsobre suelo más fuerte. Cuando q2/q1 > 1. La relación H/B es relativamente pequeña la superficie de falla en el suelo ante carga ultima pasará a través de las 2 capas de suelo. Para relaciones H/B mayores, la superficie de falla estará ubicada por completo en el estrato superior del suelo más débil.
  • 40.
    Capacidad de cargade cimentaciones sobre un talud Método de Meyerhof La capacidad de soporte sobre taludes se puede calcular mediante la expresión (Meyerhof, 1957): cimentaciones continuas. Donde: Ncq y Nγq son los factores de capacidad de soporte, los cuales se pueden obtener de acuerdo a la figura. 5. CIMENTACIONES SOBRE UN TALUD RNE E 050. En el caso de cimientos ubicados en terrenos próximos a taludes o sobre taludes o en terreno inclinado, la ecuación de capacidad de carga debe ser calculada teniendo en cuenta la inclinación de la superficie y la inclinación de la base de la cimentación, si la hubiera. Adicionalmente debe verificarse la estabilidad del talud, considerando la presencia de la estructura. u
  • 41.
    Cálculo de factorespara la capacidad de soporte sobre taludes (Meyerhof, 1957). H: Altura del talud Suelo granular Suelo cohesivo Si B < H, utilizar las curvas para Ns=0 Si B ≥ H, utilizar las curvas para Ns calculado
  • 42.
    Método de Bowles Lacapacidad de soporte puede calcularse utilizando la ecuación de Hansen, modificada por Bowles: (1996) Los factores N’c y N’q se obtienen de la tabla Los valores de sc y sq se suponen iguales a 1.0 El factor sγ se calcula de la siguiente forma: sγ = 1.0 para cargas lineales sγ = 0.6 para cimientos circulares sγ = 0.8 para cimientos cuadrados
  • 45.
    El factor N’γse obtiene reduciendo el valor de Nγ de la ecuación de Hansen (Tabla) en la forma siguiente: Kmin y Kmax son los coeficientes de presión pasiva hacia afuera y hacia adentro del talud. Una simplificación conservativa consiste en utilizar.
  • 46.
    Si b/B ≥2 no se requiere reducir el valor de Nγ Los factores ic, iq, iγ para el método de Bowles se obtienen del procedimiento de Hansen (ver Figura). Los valores aproximados de ic, iq, iγ también pueden calcularse utilizando el procedimiento simplificado de Meyerhof:
  • 47.
    Método del códigofrancés Este método consiste en calcular la capacidad de soporte suponiendo un terreno plano y afectarla por un factor de reducción, de acuerdo a la pendiente del talud y la localización y tamaño del cimiento (Garnier y otros, 2000). La expresión analítica para el coeficiente de reducción iβ para la capacidad de soporte de cimientos rectangulares o continuos cerca a taludes es la siguiente:
  • 48.
    Donde: Cf = 1-0.4B/L(factor de forma del cimiento) β = ángulo de talud d = distancia entre el cimiento y la cresta del talud iβ = coeficiente de reducción de la capacidad de soporte calculada en terreno plano. Cuando los suelos son puramente cohesivos, el factor de reducción de capacidad de soporte es menor. La utilización del coeficiente de reducción es muy utilizada, pero no ha sido muy bien validada (Garnier y otros, 2000). En los últimos años se ha realizado una cantidad de estudios sobre el tema, especialmente para el diseño de estribos de puentes y es posible que en los años venideros se obtengan coeficientes de reducción o metodologías más precisas para la determinación de la capacidad de soporte de cimentaciones sobre taludes.
  • 49.
    6. CIMENTACIONES SOBREROCA ɣr RQD c
  • 50.
    La resistencia acompresión simple y el Angulo de fricción de las rocas puede variar en gran medida. Donde quc resistencia a compresión simple de la roca. El límite superior de la capacidad de carga ultima permisible no debe sobre pasar f’c del concreto a las 28 días.
  • 52.
  • 56.
  • 59.
    Para el casod) donde se presentan juntas verticales por debajo de la zona de contacto o incluso cavidades de poca profundidad, se utilizan dependiendo de la geometría de la zapata, las siguientes fórmulas.
  • 60.
    7. CAPACIDAD DECARGA A PARTIR DE PRUEBAS DE CAMPO
  • 61.
  • 63.
    Capacidad de cargaconsiderando el CPT http://www.fernandeztadeo.com/dataf.htm http://www.piezocono.com/CPT.aspx
  • 64.
    Capacidad de cargaconsiderando la prueba de carga en campo PLT
  • 65.
    Asentamiento inmediato conel ensayo de placa Método de Terzaghi-Peck (1967) valido solo en arenas Sz: Asentamiento de la zapata (cm) Sp: Asentamiento medido en la prueba (cm) Bz: Ancho de la zapata (m) Bp: Ancho de la placa (m) Método de Bond (1961) Sz: asentamiento de la zapata (cm) Sp: Asentamiento medido en la prueba (cm) Bz: Ancho de la zapata (m) Bp: Ancho de la placa (m) n: Coeficietne que depende del suelo Arcilla: n= 0.03 a 0.05 Arcilla arenosa: n= 0.08 a 0.10 Arena densa: n= 0.40 a 0.50 Arena media a densa: n= 0.25 a 0.35 Arena suelta: n= 0.20 a 0.25
  • 66.
    En la mayoríade los casos de construcción, el subsuelo no es homogéneo y la carga soportada por varias cimentaciones superficiales de una estructura dada puede variar en gran medida. Como resultado, es razonable esperar grados diversos de asentamientos en partes diferentes de un edificio dado. En el RNE E 050 Suelos y cimentaciones se indica: En todo EMS se deberá indicar el asentamiento tolerable que se ha considerado para la edificación o estructura motivo del estudio. El Asentamiento Diferencial no debe ocasionar una distorsión angular mayor que la indicada en la Tabla. En el caso de suelos granulares el asentamiento diferencial se puede estimar como el 75% del asentamiento total. 8. ASENTAMIENTOS EN EDIFICACIONES
  • 67.
    Estos edificios de Amsterdamno se hundieron sino que fueron construidos así, según ordenanzas de la alcaldía de los siglos XVIII y XIX, para facilitar el traslado de enseres y equipos a los pisos más altos por lo estrecho de las escaleras. El sistema de fundación (como todo en Amsterdam) es pilotes. https://www.forocoches.com/foro/showthread.php?t=3246533
  • 69.
    En 1956, Skemptony McDonald propusieron los valores límites siguientes para el asentamiento máximo y la distorsión angular máxima, que se deben aplicar para fines de construcción: En el Soviet Code of Practice de 1955 se indican los valores permisibles siguientes:
  • 70.
    Bjerrum (1963) recomendóla distorsión angular límite siguiente, Bmáx, para varias estructuras: El European Committee for Standardization también proporcionó valores límite para la calidad de servicio y los movimientos de la cimentación máximos aceptados.
  • 71.
    En general seusan: Cuando un suelo tiene baja capacidad de carga (suelo fino limo arcilloso). Cuando área de las zapatas exceden en más del 70% del área construida Para edificaciones de gran altura. Las losas pueden ser de los siguientes tipos: 1º zapata combinada rectangular. 2º zapata combinada trapezoidal. 3º zapata con viga de amarre. 4º zapata combinada en T. 5º losa de cimentación. 9. LOSAS PARA CIMENTACIONES
  • 72.
    Zapata rectangular combinada. Cuandolas cargas soportada por una columna y la capacidad de carga del suelo son tales que el diseño de la zapata asilada requerida una extensión la cual soporta dos o más columnas. Si se conoce la carga neta admisible del suelo las dimensiones B y L se calculan de la siguiente manera.
  • 73.
    Zapata trapezoidal combinada. Seusa como una cimentación aislada para una columna que soporta una gran carga donde el espacio es reducido. Si el tamaño de la cimentación que distribuirá uniformemente la presión del suelo se obtiene de la siguiente manera:
  • 74.
    Zapata combinada enT El predimensionamiento de puede realizar de la siguiente manera:
  • 75.
    Zapata en voladizo. Estetipo de construcción se usa para conectar una cimentación de columna excéntricamente cargada con la cimentación de una columna interior. Se usa cuando la capacidad de apoyo admisible del suelo es moderadamente aceptable y las distancias entre las columnas es grande.
  • 76.
    Losa de cimentación. Esuna zapata combinada y cubre toda la superficie bajo una estructura que soporta varias columnas y muros, en ocasiones son soportadas por pilotes que ayudan a reducir el asentamiento de la estructura construida sobre el suelo altamente compresible. Cuando el N.F. es alto las losas se colocan a menudo sobre pilotes para controlar a flotabilidad.
  • 77.
    Entre los distintostipos de losas tenemos: a.- de placa plana. b.- de placa plana con mayor espesor en las columnas. c.- losa con vigas. d.- losa de placa plana con pedestales. e.- losa con muros de sótano. f.- losa sobre pilotes.
  • 78.
    Capacidad de cargapara losas de cimentación. La capacidad de carga última es la misma que para las cimentaciones superficiales.
  • 79.
    Criterio conservador paraFd=1 Para un asentamiento de 50mm y asentamiento diferencial de 19mm Para suelo granular se determina a partir de los números de resistencia por penetración estándar:
  • 80.
    Cimentaciones compensadas. Una cimentaciónse compensa aumentando la profundidad de empotramiento Df el cual es importante para losas sobre arcillas blandas donde grandes asentamientos por consolidación son de esperarse.