AutoCAD 2D MANUAL TEÓRICO Y PRÁCTICA
“ Prof.: Luis Miguel Chuquimia Quispe Cel: 952362002 - Correo: sagilmc1988@gmail.com 1
Tacna - Perú
AUTOCAD BÁSICO
MANUAL TEÓRICO Y PRÁCTICO
“El conocimiento es de todos, compártelo”
Elaborado por: Prof. Luis Miguel Chuquimia Q. - Correo: sagilmc1988@gmail.com
“El conocimiento es de todos, compártelo”
AUTODESK
AutoCAD 2D MANUAL TEÓRICO Y PRÁCTICA
“ Prof.: Luis Miguel Chuquimia Quispe Cel: 952362002 - Correo: sagilmc1988@gmail.com 2
ÍNDICE
AUTOCAD.................................................................................................................... 04
TIPOS DE FICHEROS DE DIBUJO ..................................................................... 04
CAPÍTULO 1 ................................................................................................................ 05
1.1. ASPECTOS PRELIMINAR.................................................................................... 05
INTERFAZ DEL USUAR ...................................................................................... 05
PARTES DEL ESPACIO DE TRABA ................................................................... 07
1.2. CONFIGURACIÓN DEL ESPACIO DE TRABAJO............................................... 08
VISTA PREVIA................................................................................................... 08
GUARDAR PREDETERMINADO....................................................................... 11
REFERENCIA A OBJETOS .............................................................................. 12
UNIDADES DE DIBUJO..................................................................................... 13
CAPÍTULO 2 ................................................................................................................ 15
2.1.USO DE LA BARRA DE HERRAMIENTAS........................................................... 15
BARRA DE HERRAMIENTA DIBUJO ................................................................... 15
HERRAMIENTA LÍNEA...................................................................................... 15
MOUSE Y SU UTILIDAD ................................................................................... 16
MODO ORTO (F8) ............................................................................................. 17
HERRAMIENTA POLILINEA ............................................................................. 17
PRACTICA Nº 1 ................................................................................................. 19
HERRAMIENTA POLÍGONO ............................................................................ 24
HERRAMIENTA CÍRCULO ................................................................................ 25
PRACTICA Nº 2 ................................................................................................. 27
HERRAMIENTA TANGENTE, TANGENTE, RADIO.......................................... 29
HERRAMIENTA TANGENTE, TANGENTE, TANGENTE.................................. 30
HERRAMIENTA RECTÁNGULO ....................................................................... 30
HERRAMIENTA ARCO...................................................................................... 32
HERRAMIENTA CREAR BLOQUE.................................................................... 34
PRACTICA Nº 3 ................................................................................................. 35
HERRAMIENTA ELIPSE.................................................................................... 37
HERRAMIENTA SOMBREADO......................................................................... 39
PRACTICA Nº 4 ................................................................................................. 42
HERRAMIENTA DEGRADADO ......................................................................... 43
PRACTICA Nº 5 ................................................................................................. 45
HERRAMIENTA TEXTO .................................................................................... 47
2.2. TÉCNICAS DE DIBUJO....................................................................................... 51
DOS FORMA DE SELECCIONAR FIGURAS.......................................... 51
FINALIZAR PROCESO ........................................................................... 52
ACCESO RÁPIDO................................................................................... 52
CREAR POLILÍNEA ................................................................................ 52
2.3. BARRA DE HERRAMIENTA MODIFICAR .......................................................... 53
HERRAMIENTA COPIAR .................................................................................. 53
HERRAMIENTA SIMETRÍA ............................................................................... 54
PRACTICA Nº 6 ................................................................................................. 55
HERRAMIENTA DESFASE .............................................................................. 62
HERRAMIENTA MATRIZ................................................................................... 63
PRACTICA Nº 7 ................................................................................................. 67
HERRAMIENTA DESPLAZAR .......................................................................... 68
HERRAMIENTA GIRAR..................................................................................... 68
HERRAMIENTA ESCALA ................................................................................. 70
AutoCAD 2D MANUAL TEÓRICO Y PRÁCTICA
“ Prof.: Luis Miguel Chuquimia Quispe Cel: 952362002 - Correo: sagilmc1988@gmail.com 3
HERRAMIENTA RECORTAR, ALARGAR ......................................................... 73
BARRA DE PROPIEDADES......................................................................................... 75
HERRAMIENTA ESTIRAR................................................................................. 76
PRACTICA Nº 8....................................................................................... 77
HERRAMIENTA CHAFLÁN..................................................................... 85
HERRAMIENTA EMPALME .................................................................... 86
PRACTICA Nº 9....................................................................................... 87
HERRAMIENTA DESCOMPONER ......................................................... 90
BARRA DE HERRAMIENTA ACOTAR......................................................................... 90
HERRAMIENTA ACOTAR LINEAL.................................................................... 91
HERRAMIENTA ACOTAR ALINEADA............................................................... 92
HERRAMIENTA ACOTAR RADIO..................................................................... 92
HERRAMIENTA COTA DIAMETRO .................................................................. 93
HERRAMIENTA COTA ANGULAR.................................................................... 94
HERRAMIENTA COTA CONTINUAR................................................................ 94
PRACTICA Nº 10 ............................................................................................... 95
PRACTICA Nº 11 ............................................................................................... 97
PRACTICA Nº 12 ............................................................................................... 101
CAPÍTULO 3 ................................................................................................................ 104
3.1. PLANOS, CORTES, ELEVACIONES E IMPRESIÓN (PLOTEER)....................... 104
CONFIGURACIÓN DE COTAS.............................................................................. 104
CREAR ESTILO DE COTA 1/100 ...................................................................... 105
CUADRO GENERAL DE ESTILOS DE COTAS ................................................ 109
BARRA DE HERRAMIENTA CAPAS..................................................................... 110
ADMINISTRADOR DE LÍNEAS.............................................................................. 113
PROYECTO Nº 1 ................................................................................................... 115
IMPRIMIR DESDE EL ESPACIO MODELO........................................................... 116
TABLA GENERAL DE ESCALAS DE IMPRESIÓN ............................................... 117
CONFIGURACIÓN DE PRESENTACIÓN DE PÁGINA ........................................ 117
CREACIÓN DE ROTULO ...................................................................................... 121
PRACTICA Nº 13 ................................................................................................... 122
PRACTICA Nº 14 ................................................................................................... 130
ELEVACIONES ..................................................................................................... 131
CORTES ................................................................................................................ 132
PRACTICA Nº 15 ................................................................................................... 134
PROYECTO Nº 2 ................................................................................................... 135
PROYECTO Nº 3 ................................................................................................... 136
PROYECTO Nº 4 ................................................................................................... 137
PROYECTO Nº 5 ................................................................................................... 139
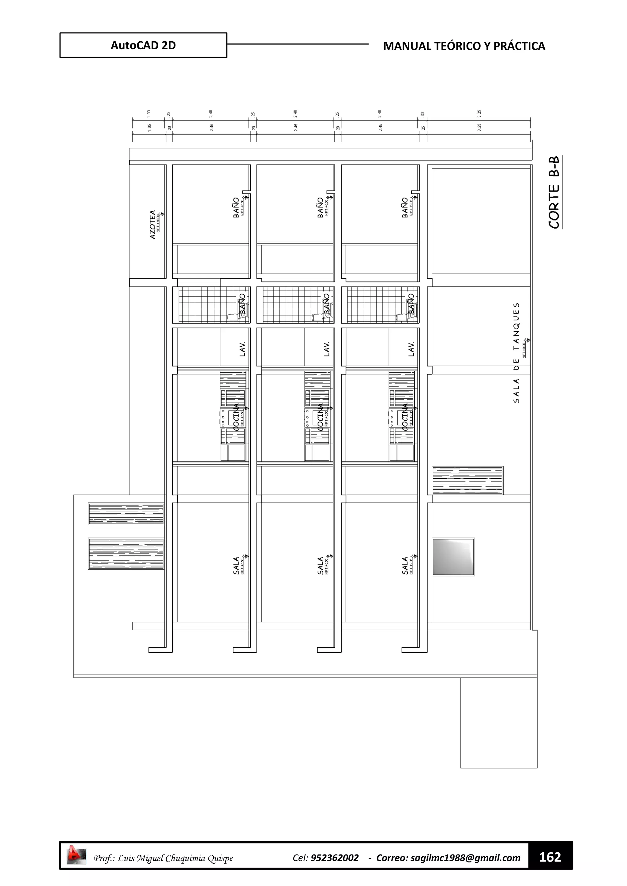
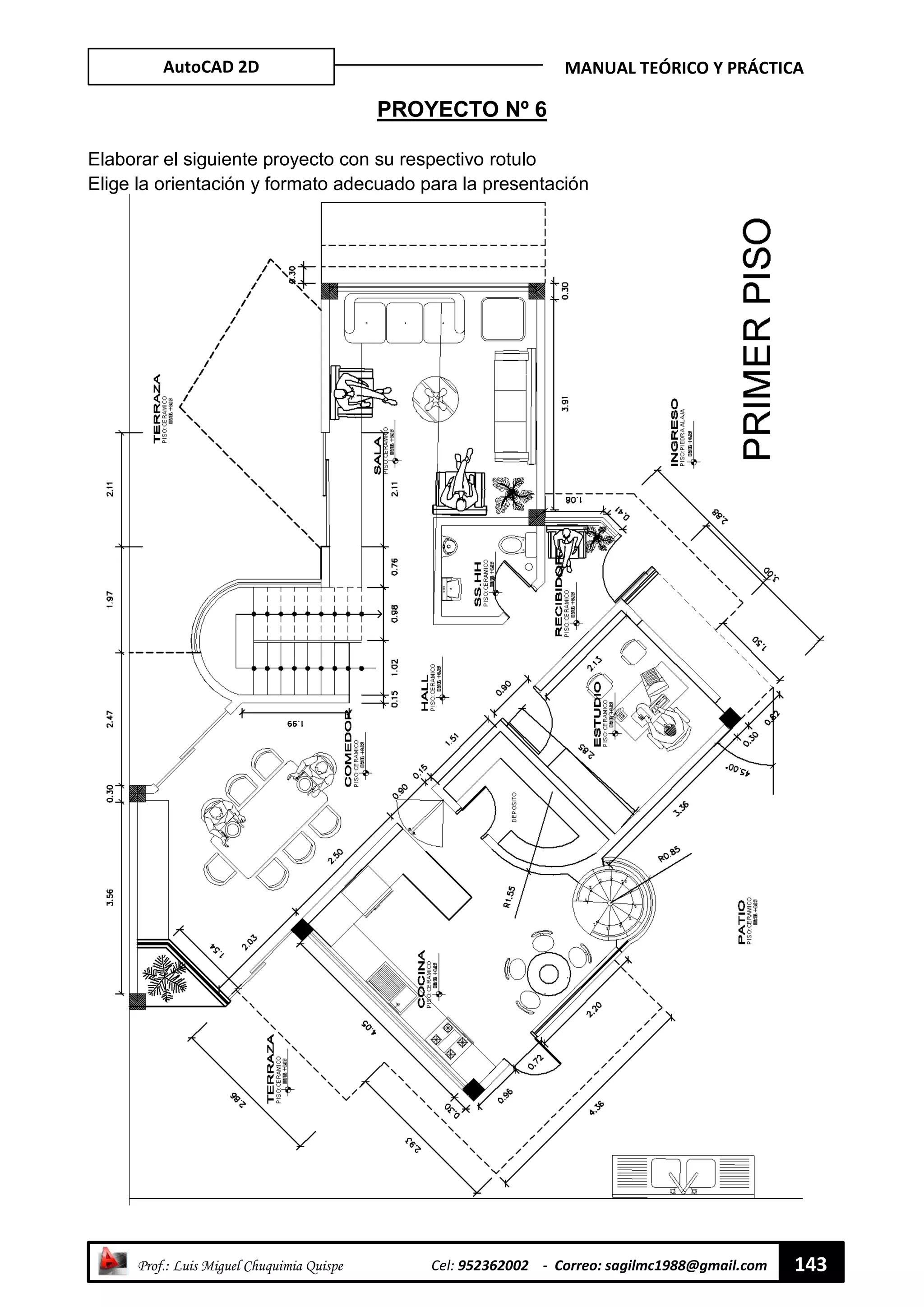
PROYECTO Nº 6 ................................................................................................... 143
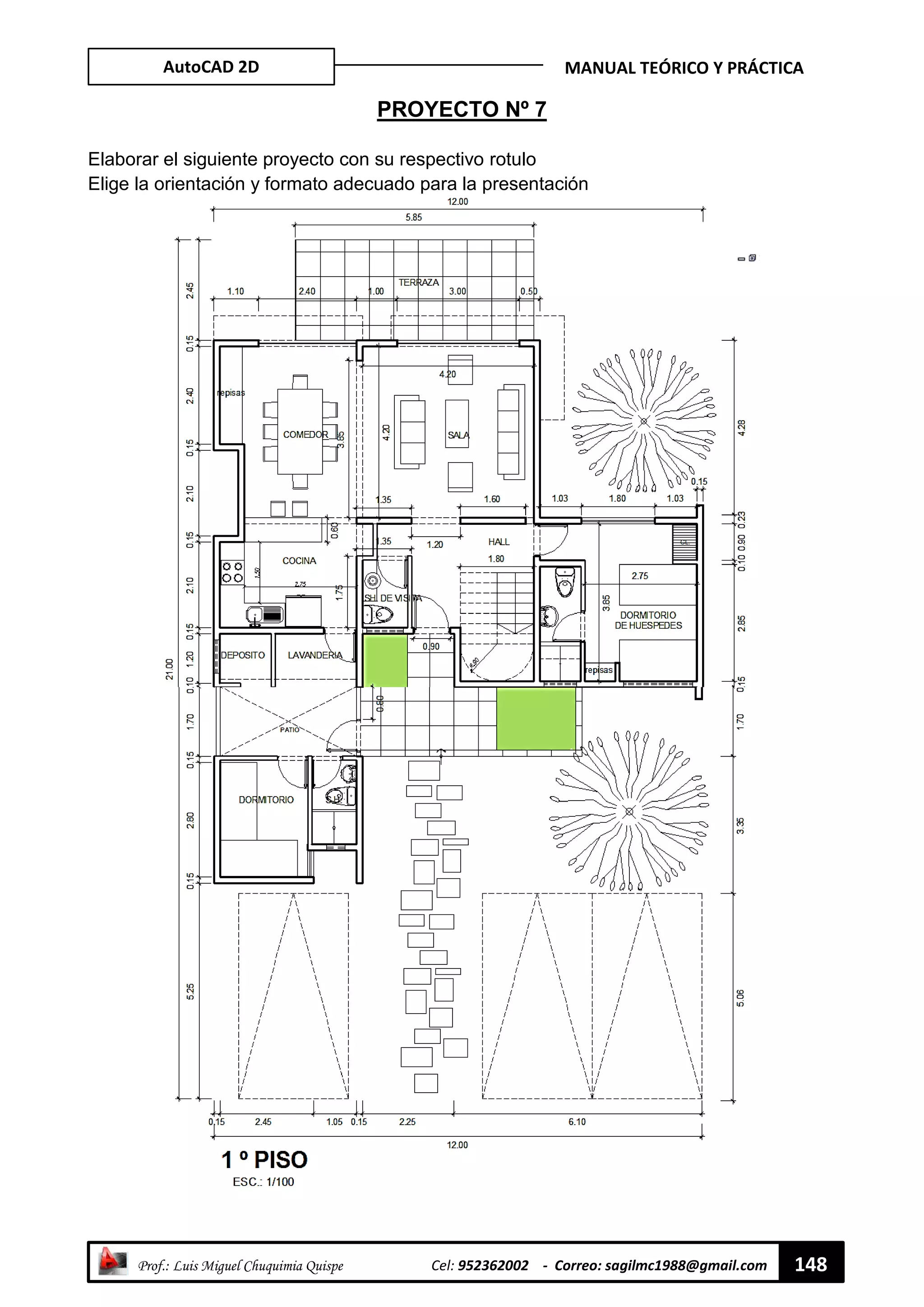
PROYECTO Nº 7 ................................................................................................... 148
PROYECTO Nº 8 ................................................................................................... 150
PROYECTO Nº 9 ................................................................................................... 154
PROYECTO Nº 10 ................................................................................................. 158
PROYECTO Nº 11 ................................................................................................. 165
AutoCAD 2D MANUAL TEÓRICO Y PRÁCTICA
“ Prof.: Luis Miguel Chuquimia Quispe Cel: 952362002 - Correo: sagilmc1988@gmail.com 4
AUTOCAD
Los Ingenieros en la actualidad necesitan constantemente
de la representación gráfica para sus proyectos, por lo que urge
el uso de software de diseño de Ingeniería que permita facilitar el
trabajo que día a día se implementa dentro de la industria.
Este es un curso básico de iniciación para cualquier
persona sea o no arquitecto o ingeniero, que quiera tener un
primer contacto con este programa, pero quiera adquirir los
mínimos conocimientos para enfrentarse a un proyecto sencillo.
AUTODESK© es una firma comercial importante en el desarrollo de programas CAD
y su control directo sobre el producto
Ventajas de un programa CAD respecto a dibujo técnico tradicional
1. Producción de dibujos más rápida
2. Mayor precisión en los dibujos
3. Dibujos más limpios
4. Dibujos no repetidos y aprovechamiento en dibujos similares, librerías de símbolos, etc..
5. Técnicas especiales de dibujo que no son posibles por medios convencionales.
Autocad es una palabra compuesta por la marca que desarrollo el producto (Autodesk) y
las siglas Cad que significan: Computer Aided Desing (diseño asistido por computadora).
TIPOS DE FICHEROS DE DIBUJO
Los tipos de archivos básicos con los que trabaja AutoCAD® son los que se describen a
continuación:
 DWG: El predeterminado y de trabajo de AutoCAD®. Siempre que no se indique lo
contrario, se utilizará para guardar los trabajos.
 DXF: Utilizado para intercambio entre programas, ya que es un formato “universal”.
Para poder grabar en este formato deberemos seleccionarlo previamente en la
ventana “Guardar dibujo como” en el desplegable “Archivos de tipo”.
 DWF: Para visualizar dibujos en Internet, ocupan poco. Necesita un programa
especial que se instala en nuestro navegador de Internet.
AutoCAD 2D MANUAL TEÓRICO Y PRÁCTICA
“ Prof.: Luis Miguel Chuquimia Quispe Cel: 952362002 - Correo: sagilmc1988@gmail.com 5
CAPÍTULO 1
1.1. ASPECTOS PRELIMINARES
INTERFAZ DEL USUARIO
La mayoría de los usuarios trabaja en el espacio clásico, donde se visualiza las
herramientas en barras y menús como las anterior versión 2007. En este espacio de trabajo,
incluye solamente las herramientas básicas, se debe de activar las herramientas restantes.
El nuevo espacio actualizado muestra las herramientas en cintas (pestañas),
ubicados en la parte superior y a su vez están clasificados en categorías.
Muestra todas las herramientas básicas y avanzadas.
Para poder cambiar a este espacio de trabajo, ubícate en la barra, cambio de
espacio.
AutoCAD 2D MANUAL TEÓRICO Y PRÁCTICA
“ Prof.: Luis Miguel Chuquimia Quispe Cel: 952362002 - Correo: sagilmc1988@gmail.com 6
Como puedes observar es muy diferente al espacio clásico.
Cambiar nuevamente al espacio de Trabajo Clásico.
Se cambia el estilo visual 2D
 Menú ver/ Estilos Visuales/ Estructura alámbrica 2D
Esto permite que la estructura del espacio este en 2D. El fondo cambia de color.
AutoCAD 2D MANUAL TEÓRICO Y PRÁCTICA
“ Prof.: Luis Miguel Chuquimia Quispe Cel: 952362002 - Correo: sagilmc1988@gmail.com 7
PARTES DEL ESPACIO DE TRABAJO
Es muy importante saber las partes principales del interfaz de AutoCad 2010
1) Barra de Herramientas de Acceso Rápido
2) Menús
3) Barra de Título
4) Centro de Información
5) Botones de Título
6) Barra de Herramienta Estándar
7) Propiedades y Estilos de línea
8) Barra de Estilos de Texto
9) Barra de Capas
10) Barra de Dibujo
11) Barra de Modificado
12) Línea de Comandos
13) Barra de Estado de Aplicación de Dibujo
1 3
2
4 5
6
7
8
9
10 11
12 13
AutoCAD 2D MANUAL TEÓRICO Y PRÁCTICA
“ Prof.: Luis Miguel Chuquimia Quispe Cel: 952362002 - Correo: sagilmc1988@gmail.com 8
1.2. CONFIGURACIÓN DEL ESPACIO DE TRABAJO
Es muy importante ubicar los archivos recientes, por tal motivo, AutoCad 2010 ofrece la
busque y orden de los archivos reciente por Orden de lista, por fecha de acceso, por
tamaño, por tipo de formato.
Presionar el botón de AutoCad 2D
Vista Previa
Visualiza los archivos por iconos (formato) e imágenes (contenido), para ver el
contenido del proyecto adecuada mente.
Para ver los archivos
recientes de acuerdo
a la categoría
Tipo de vista en
miniatura
AutoCAD 2D MANUAL TEÓRICO Y PRÁCTICA
“ Prof.: Luis Miguel Chuquimia Quispe Cel: 952362002 - Correo: sagilmc1988@gmail.com 9
Visualización del espacio de trabajo (configuración de colores)
La visualización del espacio de trabajo permito modificar las propiedades visuales
de acuerdo al usuario, para poder identificar tal vez con colores, resolución de pantalla,
textura, etc.
Ojo: tener mucho cuidado con las configuraciones que realiza, por más que cierre o reinicie
la PC las modificaciones realizadas prevalecerán.
Por defecto, muestra la pestaña visual, y a su vez las propiedades que permiten modificar
el espacio visual.
Presionar
Opciones
Presionar el
botón principal
de AUTOCAD
AutoCAD 2D MANUAL TEÓRICO Y PRÁCTICA
“ Prof.: Luis Miguel Chuquimia Quispe Cel: 952362002 - Correo: sagilmc1988@gmail.com 10
Visualiza los colores de ventana de dibujo
Clic en botón colores:
Esta opción es para
cambiar las propiedades de
color
Galería de colores
AutoCAD 2D MANUAL TEÓRICO Y PRÁCTICA
“ Prof.: Luis Miguel Chuquimia Quispe Cel: 952362002 - Correo: sagilmc1988@gmail.com 11
CONTEXTO ELEMENTOS DE
INTERFAZ
COLOR
Es el espacio de trabajo
que queremos modificar.
Espacio modelado 2D,
es el espacio donde
diseñamos los planos y
bloques
Elementos que existen
en el espacio de trabajo
Lista desplegable para elegir el
color que deseamos
Ojo: solamente
modificamos, espacio
modelado 2D.
Ojo: de preferencia,
modificar el fondo
uniforme
Ojo: elegir colores diferentes,
ya que ayuda a diferencias de
los distintos elementos que
existen.
Una vez realizado las modificaciones presionas el botón
Guardar predeterminado
A lo largo de los años las versiones de AUTOCAD ha ido mejorando y cambiando el interfaz
de abrir y guardar.
No hay ningún problema al abrir un archivo de formato con versiones anteriores, el problema
existe, que un archivo de una versión nueva abrir con una versión anterior, al no reconocer
el formato.
Versiones
 AUTOCAD 2010
 AUTOCAD 2011
 AUTOCAD 2012
 AUTOCAD 2013
 AUTOCAD 2014
 AUTOCAD 2015
 AUTOCAD 2016
 AUTOCAD 2017
 AUTOCAD 2018
Por tal motivo debemos de configurar el formato de guardado del proyecto
Ahora cambiamos de pestaña, presiona la pestaña Abrir y Guardar
______________________________________________________________________
Cambiamos a otra
opción: Abrir y Guardar
AutoCAD 2D MANUAL TEÓRICO Y PRÁCTICA
“ Prof.: Luis Miguel Chuquimia Quispe Cel: 952362002 - Correo: sagilmc1988@gmail.com 12
Referencia a objetos
Cada vez que inicies AutoCad 2010 activa la referencia a objetos.
Facilita para guiar elementos de:
Clic derecho
Clic en
Parámetros
AutoCAD 2D MANUAL TEÓRICO Y PRÁCTICA
“ Prof.: Luis Miguel Chuquimia Quispe Cel: 952362002 - Correo: sagilmc1988@gmail.com 13
Unidades de dibujo
Al igual que en el dibujo tradicional utilizas las reglas para medir, que están graduadas en
algún tipo de unidades, en Acad debes de definir las unidades con las que vas a trabajar.
Proceso:
1. Menú formato/Unidades
Activa todas las
referencias.
Activa las 2 casillas
AutoCAD 2D MANUAL TEÓRICO Y PRÁCTICA
“ Prof.: Luis Miguel Chuquimia Quispe Cel: 952362002 - Correo: sagilmc1988@gmail.com 14
Tipos
Tanto en Longitud como en Ángulo
puedes definir el tipo de unidad y su
precisión.
Como tipo de Longitud existen:
 Científicas
 Decimales
 Fraccionarias
 Pies y Pulgadas
Como tipo de Ángulo existen:
 Gra/Min/Seg
 Grados
 Grados decimales
 Radianes
 Unidades topográficas
Dependiendo de tu trabajo ya sabes
cual elegir.
Precisión
 Las casillas de precisión son más por la parte de cómo te
muestra visualmente las unidades en la introducción de datos
y coordenadas, que por la parte de precisión real de cálculo.
 Elige el número de decimales que quieras manejar en
pantalla, los cálculos realmente los hace con todos los
decimales posible para una representación EXACTA del
modelo.
Escala de inserción
 La Escala de inserción se refiere a la unidad de medida de los
bloques y dibujos que se insertan en el dibujo actual.
 Durante la inserción, se ajustará la escala de los bloques o
dibujos creados con unidades distintas de las especificadas
en esta opción.
AutoCAD 2D MANUAL TEÓRICO Y PRÁCTICA
“ Prof.: Luis Miguel Chuquimia Quispe Cel: 952362002 - Correo: sagilmc1988@gmail.com 15
 La escala de inserción es la relación entre las unidades del bloque o dibujo y las
unidades utilizadas en el dibujo actual.
Iluminación
También tienes la posibilidad de elegir las unidades de
iluminación que utilizas en tus proyectos.
Estas se refieren al tipo de luz que se utilizara en las
composiciones con luces fotométricas.
Aquí puedes elegir entre:
 Internacional
 Americana
 Genérica
Es muy importante que sepas definir tus unidades de dibujo correctamente al trabajo que
estas realizando, algo que seguro ya estás haciendo por la importancia de base que eso
tiene.
CAPÍTULO 2
2.1. USO DE LA BARRA DE HERRAMIENTAS
BARRA DE HERRAMIENTA DIBUJO
HERRAMIENTA LÍNEA (L)
Una de las principales herramientas que se utilizara a lo largo del curso. No solamente para
el dibujo, a su vez utiliza como ejes y guías.
Puede crear una secuencia de segmentos de línea de manera que se junten el primer y
último segmento de dicha secuencia.
Puede asignar propiedades a las líneas, incluyendo color, tipo y grosor de línea.
AutoCAD 2D MANUAL TEÓRICO Y PRÁCTICA
“ Prof.: Luis Miguel Chuquimia Quispe Cel: 952362002 - Correo: sagilmc1988@gmail.com 16
Proceso:
1. Haga clic en la Dibujo Línea.
2. Designe el punto inicial.
3. Aliar en sentido horizontal
a. Puede utilizar el dispositivo señalador o escribir valores
4. Para la inclinación, presionar la tecla Tab
5. Presionar la tecla Enter.
Nuevamente presionar la tecla Enter, para finalizar
Veras que el segmento es un tamaño muy reducido.
Mouse y su utilidad
 Al girar el Scroll Aumenta/Disminuye el tamaño de la pantalla.
 Presiona doble clic para ver todos los gráficos en la pantalla.
 Cuando presionas se activa la herramienta mano, para que puedas mover el espacio
de trabajo
Punto A Punto B
Cantidad designa
Ángulo de inclinación
Ingresar los datos
Presionar para
mover el espacio de
trabajo
Bloquea la medida
del segmento
AutoCAD 2D MANUAL TEÓRICO Y PRÁCTICA
“ Prof.: Luis Miguel Chuquimia Quispe Cel: 952362002 - Correo: sagilmc1988@gmail.com 17
Modo orto (F8)
El modo Orto se utiliza para precisar un ángulo o distancia mediante dos puntos utilizando
un dispositivo señalador. En modo Orto, el movimiento del cursor se restringe a la dirección
horizontal o vertical relativa al SCP.
En el ejemplo se ha dibujado una línea utilizando el modo Orto. El punto 1 es el primer
punto precisado y el punto 2 es la posición del cursor al designar el segundo punto.
Presionando la tecla F8 o el icono, Modo Orto
Se considera horizontal la dirección paralela al eje X del SCP y vertical la dirección paralela
al eje Y.
HERRAMIENTA POLILINEA
Este comando nos permite trazar rectas y arcos en forma seguida o alternada, pero con la
característica que se constituyen en un solo trazo.
Para modificar Polilíneas, es posible cerrarlas o abrirlas, y desplazar, añadir o borrar
vértices individuales. Si lo desea, puede alisar la Polilínea entre dos de los vértices
existentes y activar o desactivar el tipo de línea de modo que aparezca un guión delante y
detrás de cada vértice.
Proceso:
1. Activa Modo Orto(F8)
2. Haga clic en la Dibujo Polilínea
3. Designe el punto inicial.
4. Presionar la tecla Enter, después de colocar la cantidad.
5. Dibuja un cuadrado, finalizando el tercer lado, presiona la tecla C y la después la
tecla Enter.
Asigna la cantidad
AutoCAD 2D MANUAL TEÓRICO Y PRÁCTICA
“ Prof.: Luis Miguel Chuquimia Quispe Cel: 952362002 - Correo: sagilmc1988@gmail.com 18
Cuando pases el puntero de mouse sobre los lados del cuadrado, verás que
muestra las líneas descontinuas.
Resultado final.
Arco - Polilínea
1. Haga clic en la Dibujo Polilínea
2. Designe el punto inicial.
3. Presionar la tecla Enter, después de colocar la cantidad.
Asigna la cantidad
AutoCAD 2D MANUAL TEÓRICO Y PRÁCTICA
“ Prof.: Luis Miguel Chuquimia Quispe Cel: 952362002 - Correo: sagilmc1988@gmail.com 19
4. Presiona clic derecho, tendrás varias
opciones para elegir. Marca la opción
Arco.
5. Coloca la cantidad(diámetro) 15
6. Clic derecho/marca la opción Línea
7. Coloca la cantidad de longitud 25
8. Presiona la tecla C y luego la tecla Enter para finalizar.
PRACTICA Nº 1
Elaborar los siguientes gráficos
Asigna la cantidad
AutoCAD 2D MANUAL TEÓRICO Y PRÁCTICA
“ Prof.: Luis Miguel Chuquimia Quispe Cel: 952362002 - Correo: sagilmc1988@gmail.com 20
AutoCAD 2D MANUAL TEÓRICO Y PRÁCTICA
“ Prof.: Luis Miguel Chuquimia Quispe Cel: 952362002 - Correo: sagilmc1988@gmail.com 21
AutoCAD 2D MANUAL TEÓRICO Y PRÁCTICA
“ Prof.: Luis Miguel Chuquimia Quispe Cel: 952362002 - Correo: sagilmc1988@gmail.com 22
Figuras Polilíneas
AutoCAD 2D MANUAL TEÓRICO Y PRÁCTICA
“ Prof.: Luis Miguel Chuquimia Quispe Cel: 952362002 - Correo: sagilmc1988@gmail.com 23
AutoCAD 2D MANUAL TEÓRICO Y PRÁCTICA
“ Prof.: Luis Miguel Chuquimia Quispe Cel: 952362002 - Correo: sagilmc1988@gmail.com 24
HERRAMIENTA POLÍGONO
Proceso:
1. Haga clic en la Dibujo polígono.
2. Indique número de lados
3. Designe el punto.
Inscrito en un círculo
Especifica el radio de un círculo donde se encuentran todos los
vértices del polígono.
Precise radio de círculo: Indique un punto (2) o escriba un valor
Circunscrito alrededor del círculo
Precisa la distancia que hay desde el centro del polígono hasta
los puntos medios de los lados del polígono.
Precise radio de círculo: Especifique una distancia
4. Elige la opción, Inscrito en un círculo
Numero de
lados
Muestra 2 opciones
para elegir
Colocar el
radio 10
AutoCAD 2D MANUAL TEÓRICO Y PRÁCTICA
“ Prof.: Luis Miguel Chuquimia Quispe Cel: 952362002 - Correo: sagilmc1988@gmail.com 25
Arista
Define un polígono a partir de los puntos finales del primer lado.
Proceso:
1. Haga clic en la Dibujo Polígono.
2. Indique número de lados 6.
3. Clic derecho y elige la opción de lado
HERRAMIENTA CÍRCULO (C)
Para crear círculos, especifique varias combinaciones de centro, radio, diámetro, puntos en
la circunferencia y puntos en otros objetos.
Se pueden crear círculos de distintas formas. El método por defecto consiste en especificar
el centro y el radio. En la ilustración se muestran otras tres formas de dibujar un círculo.
Colocar la
distancia de 10
AutoCAD 2D MANUAL TEÓRICO Y PRÁCTICA
“ Prof.: Luis Miguel Chuquimia Quispe Cel: 952362002 - Correo: sagilmc1988@gmail.com 26
Un punto tangente es el punto donde un objeto toca a otro objeto sin llegar a intersecarlo.
Para crear un círculo tangente a otros objetos, seleccione los objetos y después especifique
el radio del círculo.
Proceso:
4. Haga clic en la Dibujo Círculo.
5. Designe el punto.
6. Presionar la tecla Enter para finalizar.
Designar el radio del
círculo
AutoCAD 2D MANUAL TEÓRICO Y PRÁCTICA
“ Prof.: Luis Miguel Chuquimia Quispe Cel: 952362002 - Correo: sagilmc1988@gmail.com 27
En caso de un diámetro
1. Haga clic en la Dibujo Círculo.
2. Designe el punto.
3. Clic derecho elegir la opción Diámetro,
4. Presionar la tecla Enter para finalizar.
PRACTICA Nº 2
Elaborar los siguientes gráficos.
Designar el
diámetro del círculo
AutoCAD 2D MANUAL TEÓRICO Y PRÁCTICA
“ Prof.: Luis Miguel Chuquimia Quispe Cel: 952362002 - Correo: sagilmc1988@gmail.com 28
AutoCAD 2D MANUAL TEÓRICO Y PRÁCTICA
“ Prof.: Luis Miguel Chuquimia Quispe Cel: 952362002 - Correo: sagilmc1988@gmail.com 29
HERRAMIENTA TANGENTE, TANGENTE, RADIO
Proceso:
1. Dibujar 2 círculos con los siguientes valores
1. Menú Dibujo/ círculo/ Tangente, Tangente, Radio.
2. Clic en la tangente del primer círculo,
3. Clic en la tangente del segundo circulo
4. Asignar el radio(20) y presionar Enter
AutoCAD 2D MANUAL TEÓRICO Y PRÁCTICA
“ Prof.: Luis Miguel Chuquimia Quispe Cel: 952362002 - Correo: sagilmc1988@gmail.com 30
HERRAMIENTA TANGENTE, TANGENTE, TANGENTE
Proceso:
1. Dibujar 1 Polígono con los siguientes valores
2. Menú Dibujo/Círculo/
Adicionalmente la herramienta círculo tiene sub herramientas
Investiga que función cumple las herramientas adicionales y como se utilizan:
Menú Dibujo/Círculo/
HERRAMIENTA RECTÁNGULO
La herramienta rectángulo es para crear polilíneas cerradas con forma rectangular, puede
especificar los parámetros del rectángulo (longitud, anchura, rotación)
Tangente
referencial
1
2
3
AutoCAD 2D MANUAL TEÓRICO Y PRÁCTICA
“ Prof.: Luis Miguel Chuquimia Quispe Cel: 952362002 - Correo: sagilmc1988@gmail.com 31
Proceso:
1. Haga clic en la Dibujo Rectángulo
2. Designe el punto.
3. Presione la tecla Tab
4. Presione la tecla Enter para finalizar
El resultado será un polígono cuadrado
Repita el paso 1 y 2, luego presiona clic derecho del mouse, para visualizar 3 opciones
como:
Área
Crea un rectángulo utilizando el área y una longitud o una anchura. Si las opciones
Chaflán o Empalme están activas, el área incluye el efecto de los chaflanes o
empalmes de las esquinas del rectángulo.
La distancia de la
Base
La distancia de la
Altura
AutoCAD 2D MANUAL TEÓRICO Y PRÁCTICA
“ Prof.: Luis Miguel Chuquimia Quispe Cel: 952362002 - Correo: sagilmc1988@gmail.com 32
 Precise área del rectángulo con las unidades actuales <100>: Introduzca un valor
positivo
 Calcular cotas del rectángulo en función de [Longitud/Anchura] <Longitud>:
Escriba l o a
 Precise longitud del rectángulo <10>: Escriba un valor distinto de cero O
 Precise anchura del rectángulo <10>: Escriba un valor distinto de cero
 Precise esquina opuesta o [áRea/Cotas/rOtación]: Mueva el cursor para mostrar
una de las cuatro posibles ubicaciones del rectángulo y haga clic en la que
desee.
Cotas
Crea un rectángulo usando valores de altura y anchura.
 Precise longitud para rectángulos <0.0000> Escriba un valor distinto de
cero
 Precise altura para rectángulos <0.0000>Escriba un valor distinto de cero
 Precise esquina opuesta o [áRea/Cotas/rOtación]: Mueva el cursor para
mostrar una de las cuatro posibles ubicaciones del rectángulo y haga clic
en la que desee.
Rotación
Crea un rectángulo con el ángulo de rotación especificado.
 Precise ángulo de rotación o [Designar puntos] <0>: Especifique un ángulo
introduciendo un valor, precisando un punto o escribiendo d y precisando
dos puntos
 Precise esquina opuesta o [áRea/Cotas/rOtación]: Mueva el cursor para
mostrar una de las cuatro posibles ubicaciones del rectángulo y haga clic
en la que desee
HERRAMIENTA ARCO
Para crear arcos, puede especificar varias combinaciones de
valores de centro, punto final, punto inicial, radio, ángulo, longitud
de cuerda y dirección.
Puede crear arcos de varias maneras. Con la excepción del primer
método, los arcos se dibujan en sentido contrario a las agujas del
reloj desde el punto inicial al punto final.
Utilizando distintas opciones, puede especificar en primer lugar
el punto de inicio o el punto central.
La opción común de cómo aplicar la herramienta Arco, 3 puntos
AutoCAD 2D MANUAL TEÓRICO Y PRÁCTICA
“ Prof.: Luis Miguel Chuquimia Quispe Cel: 952362002 - Correo: sagilmc1988@gmail.com 33
Creando una puerta
Elabora la siguiente figura
Proceso:
1. Haga clic en la Dibujo Arco
2. Tres puntos
Al igual que la herramienta Círculo, la
herramienta Arco, adicionalmente tiene sub
herramienta:
Menú dibujo/Arco/
FIGURA MEDIDAS
1
2 3
AutoCAD 2D MANUAL TEÓRICO Y PRÁCTICA
“ Prof.: Luis Miguel Chuquimia Quispe Cel: 952362002 - Correo: sagilmc1988@gmail.com 34
HERRAMIENTA CREAR BLOQUE
Esta herramienta es muy útil para crear bloques que se utilizan en diseño de gráficos y
planos. Junta las líneas, círculos, etc.
La puerta es un bloque que se utiliza para el diseño de planos, que se utiliza generalmente
las mismas dimensiones.
Proceso:
Dibuja la puerta
1. Haga clic en la Dibujo Crear Bloque, Visualiza un cuadro de propiedades
2. Selecciona el objeto y presiona la tecla Enter.
3. Asigna el punto base (permite mover el bloque) y presiona la tecla Enter.
4. Presiona el botón Aceptar para finalizar.
5. Selecciona la puerta y veras que es un solo bloque
El nombre es de acuerdo al
bloque y medida
Selecciona el objeto (bloque)Punto base
El punto
base
AutoCAD 2D MANUAL TEÓRICO Y PRÁCTICA
“ Prof.: Luis Miguel Chuquimia Quispe Cel: 952362002 - Correo: sagilmc1988@gmail.com 35
PRACTICA Nº 3
Elaborar los siguientes gráficos.
AutoCAD 2D MANUAL TEÓRICO Y PRÁCTICA
“ Prof.: Luis Miguel Chuquimia Quispe Cel: 952362002 - Correo: sagilmc1988@gmail.com 36
AutoCAD 2D MANUAL TEÓRICO Y PRÁCTICA
“ Prof.: Luis Miguel Chuquimia Quispe Cel: 952362002 - Correo: sagilmc1988@gmail.com 37
HERRAMIENTA ELIPSE
La forma de una elipse viene determinada por dos ejes que definen su longitud y su grosor.
El eje más largo se denomina eje mayor, mientras que el más corto recibe el nombre de eje
menor.
Las siguientes ilustraciones muestran dos elipses diferentes creadas mediante la
especificación de una distancia y un eje determinados. El tercer punto solamente especifica
una distancia y no designa necesariamente el punto final del eje.
Proceso:
Dibuja el siguiente círculo
AutoCAD 2D MANUAL TEÓRICO Y PRÁCTICA
“ Prof.: Luis Miguel Chuquimia Quispe Cel: 952362002 - Correo: sagilmc1988@gmail.com 38
1. Haga clic en la Dibujo Elipse
2. 2 puntos de forma horizontal y coloca la distancia 25
Nuevamente:
1. Haga clic en la Dibujo Elipse
2. 2 puntos de forma vertical y coloca la distancia 25.
Si está dibujando sobre un plano isométrico para simular un objeto tridimensional,
puede emplear una elipse para representar los círculos isométricos vistos desde un ángulo
oblicuo. Primero necesita activar Resolución isométrica en el cuadro de diálogo Parámetros
de dibujo.
1
2
La distancia 25
Resultado Final
AutoCAD 2D MANUAL TEÓRICO Y PRÁCTICA
“ Prof.: Luis Miguel Chuquimia Quispe Cel: 952362002 - Correo: sagilmc1988@gmail.com 39
HERRAMIENTA SOMBREADO
Encontraras todos los bloques creados y de una manera fácil volver a utilizarlo
HERRAMIENTA SOMBREADO
Proceso:
1. Dibujo el siguiente gráfico.
2. Active la herramienta Sombreado
Clic para asignar el
punto
Lista de bloques
AutoCAD 2D MANUAL TEÓRICO Y PRÁCTICA
“ Prof.: Luis Miguel Chuquimia Quispe Cel: 952362002 - Correo: sagilmc1988@gmail.com 40
3. Presionar la tecla Enter para confirmar
4. Seleccionar la textura
5. Luego presionar aceptar
6. Configurar la escala (0.01)
7. Para ver como quedara el resultado, presiona el botón Previsualizar.
8. Luego presionar Aceptar, para finalizar.
Los bordes muestran
con líneas descontinuas
Para reducir y aumentar el
tamaño de textura.
Ángulo de
inclinación
Presiona un clic en
muestra
Presione un clic en esta
sección
AutoCAD 2D MANUAL TEÓRICO Y PRÁCTICA
“ Prof.: Luis Miguel Chuquimia Quispe Cel: 952362002 - Correo: sagilmc1988@gmail.com 41
Color solido
1. Active la herramienta Sombreado
2. Elige el circulo restante
3. Presiona el estilo/muestra
4. Elige el tipo de muestra, Solido
5. Presiona el botón Aceptar. Una vez realizado este proceso, veras que cambia el
estilo de muestra.
6. Finalmente presiona el botón Aceptar.
Clic para asignar el
punto
Clic en el espacio
vacío
Clic, tipo de
relleno
Elige el color
rojo
En caso de elegir
otro color
AutoCAD 2D MANUAL TEÓRICO Y PRÁCTICA
“ Prof.: Luis Miguel Chuquimia Quispe Cel: 952362002 - Correo: sagilmc1988@gmail.com 42
PRACTICA Nº 4
Elaborar los siguientes gráficos con sus respectivas texturas.
Texturas AR-SAND(ESC/0.01), HONEY(ESC/0.5), NET(ESC/0.5), GOST_GROUND
(ESC/0.2)
AutoCAD 2D MANUAL TEÓRICO Y PRÁCTICA
“ Prof.: Luis Miguel Chuquimia Quispe Cel: 952362002 - Correo: sagilmc1988@gmail.com 43
HERRAMIENTA DEGRADADO
Proceso:
1. Dibujo el siguiente gráfico
2. Active la herramienta Degradado
Clic para asignar
el punto
Las opciones son para
elegir un color y dos
colores
Estilos de degrado para
elegir
Editar el ángulo de
inclinación
AutoCAD 2D MANUAL TEÓRICO Y PRÁCTICA
“ Prof.: Luis Miguel Chuquimia Quispe Cel: 952362002 - Correo: sagilmc1988@gmail.com 44
3. Elige el color que deseas
4. Asigna a los diferentes estación un tipo de degradado diferente
Resultado final
Clic para asignar
el color
Matizado/Colores
de muestra
AutoCAD 2D MANUAL TEÓRICO Y PRÁCTICA
“ Prof.: Luis Miguel Chuquimia Quispe Cel: 952362002 - Correo: sagilmc1988@gmail.com 45
PRACTICA Nº 5
Elaborar los siguientes gráficos
AutoCAD 2D MANUAL TEÓRICO Y PRÁCTICA
“ Prof.: Luis Miguel Chuquimia Quispe Cel: 952362002 - Correo: sagilmc1988@gmail.com 46
AutoCAD 2D MANUAL TEÓRICO Y PRÁCTICA
“ Prof.: Luis Miguel Chuquimia Quispe Cel: 952362002 - Correo: sagilmc1988@gmail.com 47
HERRAMIENTA TEXTO
Criterios
Los textos cumplen una función importante en la presentación de los gráficos y planos, se
debe considerar lo siguiente:
 El tamaño debe ser legible y claro desde el punto de vista del observador.
 Debe existir relación proporcional entre los textos, gráficos y la escala del dibujo.
 En la relación a los tipos de textos, tienen que ser adecuados y consecuente con el
estilo arquitectónico.
 Las alturas de los textos serán determinados en milímetros de 0.1, 0.2, 0.3, 0.4, 0.5,
0.6, 0.7, 0.8, 0.9, 1.0, evitándose usar proporcionales en cualquier escala. Por
ejemplo, se necesita un texto que tenga de altura 2mm eb escala 1/50, debe
seleccionar el resultado cuyo valor es 0.1.
A continuación la tabla:
CUADRO GENERAL DE ALTURAS DE TEXTO
ALTURA
EN mm
ESCALAS GRÁFICAS
1/25 1/50 1/75 1/100 1/125 1/200 1/250 1/500
1 mm 0.025 0.05 0.075 0.1 0.125 0.2 0.25 0.5
2 mm 0.05 0.1 0.15 0.2 0.25 0.4 0.5 1.0
3 mm 0.075 0.15 0.225 0.3 0.375 0.6 0.75 1.5
4 mm 0.1 0.2 0.3 0.4 0.5 0.8 1.0 2.0
5 mm 0.125 0.25 0.375 0.5 0.625 1.0 1.25 2.5
6 mm 0.15 0.3 0.45 0.6 0.75 1.2 1.5 3.0
7 mm 0.175 0.35 0.525 0.7 0.875 1.4 1.75 3.5
8 mm 0.2 0.4 0.6 0.8 1.0 1.6 2.0 4.0
9 mm 0.225 0.45 0.675 0.9 1.125 1.8 2.25 4.5
10 mm 0.25 0.5 0.75 1.0 1.25 2.0 2.5 5.0
AutoCAD 2D MANUAL TEÓRICO Y PRÁCTICA
“ Prof.: Luis Miguel Chuquimia Quispe Cel: 952362002 - Correo: sagilmc1988@gmail.com 48
ADMINISTRADOR DE ESTILOS DE TEXTO
Todas las acciones se hacen a través del administrador de ESTILOS DE TEXTO.
Proceso:
1. Presiona en icono
1) Estilos.- Muestra la lista de estilos del dibujo.
2) Filtro de lista de estilos.- La lista desplegable específica si se muestran todos
los estilos que están en uso en la lista de estilos.
3) Nombre del tipo de Letra.- Muestra un alista con el nombre de estilos de
fuente.
4) Estilo tipo de Letra.- Indica el formato de carácter del tipo de letra (cursiva,
negrita o regular).
5) Definir actual.- Establece como actual el estilo seleccionado.
6) Nuevo.- Muestra el cuadro de dialogo Nuevo Estilo de texto.
7) Altura.- Establece la altura de texto.
8) Relación anchura/altura.- Establece el espacio entre caracteres.
9) Angulo oblicuo.- Establece el ángulo de inclinación.
10)Aplicar.- aplica los cambios de estilo realizados en el cuadro de dialogo.
Lista de Estilos de
Texto
1
2
3 4
7
8
5
6
10
9
AutoCAD 2D MANUAL TEÓRICO Y PRÁCTICA
“ Prof.: Luis Miguel Chuquimia Quispe Cel: 952362002 - Correo: sagilmc1988@gmail.com 49
Proceso:
1. Presiona el botón Nuevo
2. Presiona el botón Aceptar
3. Presiona el botón Aplicar y Cerrar.
Como insertar texto
Proceso:
Dibuja un cuadrado de 40 * 40
1. Presiona la herramienta Texto.
2. Insertar el cuadro de texto debajo del cuadrado.
Visualiza la ventana de propiedades de la herramienta texto
Colocar el
nombre del estilo
Cambiar las
propiedades, de
acuerdo al gráfico
EL Estilo de
fuente Confirmación
La altura del texto
AutoCAD 2D MANUAL TEÓRICO Y PRÁCTICA
“ Prof.: Luis Miguel Chuquimia Quispe Cel: 952362002 - Correo: sagilmc1988@gmail.com 50
3. Escribe el texto
4. Presiona el botón Aceptar
Lo más recomendable es crear 5 fuentes diferentes para poder diferenciar el texto de cada
figura.
Resultado final
Resultado final
Aumenta o
reduce el espacio
de texto
AutoCAD 2D MANUAL TEÓRICO Y PRÁCTICA
“ Prof.: Luis Miguel Chuquimia Quispe Cel: 952362002 - Correo: sagilmc1988@gmail.com 51
2.2. TÉCNICAS DE DIBUJO
Dos Forma De Seleccionar Figuras
Dibuja 2 círculos
Para seleccionar un polígono. Simplemente presionar un clic en el borde de la
figura y selecciona el objeto.
Cuando se quiere seleccionar varios objetos, existen 2 maneras de selección.
Selección de izquierda a derecha
 La selección es de color Azul con los bordes continuos
 Para seleccionar varios objetos, debes de cubrir por completo los objetos
Selección de derecha a izquierda
 La selección es de color Verde con los bordes descontinuos
 Para seleccionar varios objetos, solo debes de cubrir una mínima parte del
objeto.
AutoCAD 2D MANUAL TEÓRICO Y PRÁCTICA
“ Prof.: Luis Miguel Chuquimia Quispe Cel: 952362002 - Correo: sagilmc1988@gmail.com 52
Finalizar Proceso
Cada vez que seleccionas una herramienta y terminas el proceso, presionar la tecla Enter.
 Este proceso se reemplaza, presionando el botón derecho del mouse para finalizar
proceso.
Acceso rápido
Cuando se emplea seguido varias herramientas, se almacena en una lista de proceso.
 Presiona clic derecho del Mouse/Entrada Reciente
Crear Polilínea
Elaborar los siguientes gráficos con la herramienta línea.
1. Menú Modificar/Objeto/
2. Selecciona cualquier linea y aparecera una pregunta ¿lo quiere transformar en
una? S, Pulse Enter para confirmar.
3. Ahora seleccionar todas las líneas y pulsa Enter y luego la tecla Esc
Lista de herramientas
usadas
Elige la opciones
Juntar
AutoCAD 2D MANUAL TEÓRICO Y PRÁCTICA
“ Prof.: Luis Miguel Chuquimia Quispe Cel: 952362002 - Correo: sagilmc1988@gmail.com 53
2.3. BARRA DE HERRAMIENTA MODIFICAR
HERRAMIENTA COPIAR
Puede duplicar objetos a una distancia y dirección determinadas de los originales. Se repite
automáticamente de forma predeterminada.
Grafica la siguiente figura
Proceso:
1. Haga clic en la Modificar > Copiar.
2. Designe el Círculo para la Copia y presione la tecla Enter.
AutoCAD 2D MANUAL TEÓRICO Y PRÁCTICA
“ Prof.: Luis Miguel Chuquimia Quispe Cel: 952362002 - Correo: sagilmc1988@gmail.com 54
3. Precise el punto base (centro) y copia a cada esquina del cuadrado.
4. Para finalizar presione la tecla Enter o Esc.
HERRAMIENTA SIMETRÍA
Es posible pasar de un objeto a otro sobre un eje determinado para crear una imagen
simétrica reflejada.
La reflexión en simetría resulta útil para crear objetos simétricos, ya que puede dibujar
rápidamente la mitad del objeto y después reflejarlo en vez de dibujar el objeto entero.
Proceso:
Grafica la siguiente figura
1. Haga clic en la Modificar Simetría.
2. Designa el gráfico.
FIGURA
MEDIDAS
AutoCAD 2D MANUAL TEÓRICO Y PRÁCTICA
“ Prof.: Luis Miguel Chuquimia Quispe Cel: 952362002 - Correo: sagilmc1988@gmail.com 55
3. Precise el primer punto del eje de simetría.
4. Designe el segundo punto.
5. Pulse Enter para conservar los objetos originales o escriba S para borrarlos.
Haga los mismos pasos para generar el siguiente gráfico.
PRACTICA Nº 6
Elaborar los siguientes gráficos
Eje
Elemento primario
AutoCAD 2D MANUAL TEÓRICO Y PRÁCTICA
“ Prof.: Luis Miguel Chuquimia Quispe Cel: 952362002 - Correo: sagilmc1988@gmail.com 56
Elemento primario
Elemento primario
Elemento primario
AutoCAD 2D MANUAL TEÓRICO Y PRÁCTICA
“ Prof.: Luis Miguel Chuquimia Quispe Cel: 952362002 - Correo: sagilmc1988@gmail.com 57
Elemento primario
AutoCAD 2D MANUAL TEÓRICO Y PRÁCTICA
“ Prof.: Luis Miguel Chuquimia Quispe Cel: 952362002 - Correo: sagilmc1988@gmail.com 58
Elemento primario
AutoCAD 2D MANUAL TEÓRICO Y PRÁCTICA
“ Prof.: Luis Miguel Chuquimia Quispe Cel: 952362002 - Correo: sagilmc1988@gmail.com 59
AutoCAD 2D MANUAL TEÓRICO Y PRÁCTICA
“ Prof.: Luis Miguel Chuquimia Quispe Cel: 952362002 - Correo: sagilmc1988@gmail.com 60
AutoCAD 2D MANUAL TEÓRICO Y PRÁCTICA
“ Prof.: Luis Miguel Chuquimia Quispe Cel: 952362002 - Correo: sagilmc1988@gmail.com 61
AutoCAD 2D MANUAL TEÓRICO Y PRÁCTICA
“ Prof.: Luis Miguel Chuquimia Quispe Cel: 952362002 - Correo: sagilmc1988@gmail.com 62
HERRAMIENTA DESFASE (DF)
Desfase un objeto para crear un objeto nuevo cuya forma sea paralela a la forma del objeto
original.
DESFASE crea un objeto nuevo cuya forma es paralela a la forma de un objeto designado.
Al desfasar un círculo o arco se crea un círculo o arco mayor o menor, dependiendo de qué
lado se especifique para realizar el desfase.
Una técnica de dibujo muy eficaz es desfasar objetos y, después, recortar o alargar sus
extremos.
Proceso:
Grafica el siguiente objeto
Gráfico
Medidas
AutoCAD 2D MANUAL TEÓRICO Y PRÁCTICA
“ Prof.: Luis Miguel Chuquimia Quispe Cel: 952362002 - Correo: sagilmc1988@gmail.com 63
1. Haga clic en la Modificar Desfase.
2. Precise la distancia de desplazamiento.
3. Designe el objeto que desee desfasar.
4. Precise un punto en el lado en el que desea situar los nuevos objetos.
5. Designe otro objeto para desfasarlo o pulse la tecla Enter para terminar.
HERRAMIENTA MATRIZ
Se pueden crear copias de objetos en un patrón rectangular o polar (circular) denominado
matriz.
En las matrices rectangulares, podrá controlar el número de filas y columnas y la distancia
que debe mediar entre ellas. En el caso de las matrices polares, podrá controlar el número
de copias del objeto y si las copias pueden girarse. Para crear muchos objetos con el mismo
espaciado, es más rápido utilizar una matriz que copiarlos manualmente.
Designa la cantidad de desfase
(10) y pulsa Enter
Resultado final
AutoCAD 2D MANUAL TEÓRICO Y PRÁCTICA
“ Prof.: Luis Miguel Chuquimia Quispe Cel: 952362002 - Correo: sagilmc1988@gmail.com 64
CREACIÓN DE MATRICES RECTANGULARES
Se crea una matriz rectangular a lo largo de la
línea de base definida por el ángulo de rotación
de referencia actual. Por defecto, dicho ángulo
viene definido con el valor cero, lo que supone
que las filas y columnas de una matriz
rectangular sean ortogonales con respecto a
los ejes X e Y. El parámetro predeterminado de
la dirección del ángulo 0 se puede modificar en
UNIDADES.
Proceso:
Grafica el siguiente objeto
1. Haga clic en la Modificar Matriz.
2. En el cuadro de diálogo Matriz, seleccione Matriz rectangular.
Resultado final
Designar las
cantidades
Designar el circulo y
pulsa Enter
Ver el resultado
preliminar
AutoCAD 2D MANUAL TEÓRICO Y PRÁCTICA
“ Prof.: Luis Miguel Chuquimia Quispe Cel: 952362002 - Correo: sagilmc1988@gmail.com 65
CREACIÓN DE MATRICES POLARES
Al crear una matriz polar, dicha matriz se dibuja en el sentido de las agujas del reloj o en el
contrario, según introduzca un valor negativo o positivo para los grados cubiertos.
Proceso:
Grafica el siguiente objeto
La distancia marca,
desde el centro del
círculo.
AutoCAD 2D MANUAL TEÓRICO Y PRÁCTICA
“ Prof.: Luis Miguel Chuquimia Quispe Cel: 952362002 - Correo: sagilmc1988@gmail.com 66
1. Haga clic en la Modificar Matriz
2. En el cuadro de diálogo Matriz, seleccione Matriz polar.
3. Designar las cantidades que muestra en el cuadro de propiedades
4. Haga clic en el botón Designar centro. Se cierra el cuadro de diálogo Matriz y se le
solicita que designe los objetos. Utilice el dispositivo señalador para designar el
centro de la matriz polar.
Resultado final
Cantidad de grados
Centro del eje
AutoCAD 2D MANUAL TEÓRICO Y PRÁCTICA
“ Prof.: Luis Miguel Chuquimia Quispe Cel: 952362002 - Correo: sagilmc1988@gmail.com 67
PRACTICA Nº 7
Elaborar los siguientes gráficos
AutoCAD 2D MANUAL TEÓRICO Y PRÁCTICA
“ Prof.: Luis Miguel Chuquimia Quispe Cel: 952362002 - Correo: sagilmc1988@gmail.com 68
HERRAMIENTA DESPLAZAR
Puede desplazar objetos a una distancia y dirección
determinadas de los originales.
Desplace un objeto mediante la distancia y la dirección
especificada a través de un punto base seguido de un segundo
punto.
1. Haga clic en la Modificar > Desplazar.
2. Seleccione los objetos que desee desplazar.
3. Precise un punto base para el desplazamiento.
4. Designe un segundo punto.
HERRAMIENTA GIRAR
Los objetos incluidos en un dibujo se pueden girar alrededor de un punto base especificada.
Para determinar el ángulo de rotación, puede introducir un valor de ángulo, arrastrar el
objeto con el cursor o especificar un ángulo de referencia para alinearlo con un ángulo
absoluto.
Por ejemplo, puede rotar la vista en planta de una casa designando los objetos (1),
precisando un punto base (2) y especificando un ángulo de rotación arrastrando a otro punto
(3).
Punto Base
AutoCAD 2D MANUAL TEÓRICO Y PRÁCTICA
“ Prof.: Luis Miguel Chuquimia Quispe Cel: 952362002 - Correo: sagilmc1988@gmail.com 69
Proceso:
Grafica el siguiente objeto
1. Haga clic en Modificar > Girar
2. Designe el objeto y pulsa Enter
3. Especifique el punto base de la rotación.
4. Pulsa Enter para finalizar
Escala Referencial
Utiliza la misma figura y traza una línea con un ángulo de inclinación de 73º
Punto Base
Angulo de inclinación
(45)
FIGURA MEDIDAS
AutoCAD 2D MANUAL TEÓRICO Y PRÁCTICA
“ Prof.: Luis Miguel Chuquimia Quispe Cel: 952362002 - Correo: sagilmc1988@gmail.com 70
Mueve el cuadrado como muestra en la figura
1. Haga clic en Modificar > Girar
2. Designe el objeto y pulsa Enter
3. Especifique el punto base de la rotación.
4. Escribe la letra R(referencia) y pulsa Enter
5. Especifique 2 puntos base.
6. El segundo punto, alinea al vector inclinado
HERRAMIENTA ESCALA
Puede ajustar el tamaño de los objetos para alargarlos o acortarlos en una sola dirección,
o bien, hacerlos proporcionalmente mayores o menores.
También puede estirar ciertos objetos desplazando un punto final incluido, vértice o punto
de apoyo
1
2
2 Punto Resultado final
AutoCAD 2D MANUAL TEÓRICO Y PRÁCTICA
“ Prof.: Luis Miguel Chuquimia Quispe Cel: 952362002 - Correo: sagilmc1988@gmail.com 71
Proceso:
Grafica el siguiente objeto
1. Haga clic en la Modificar > Escala
2. Designe el objeto y pulse la tecla Enter
3. Precise el punto base.
4. Indique el factor de escala o arrastre y haga clic para especificar una escala nueva.
CUADRO DE ESCALAS DE ALARGAR O ACORTAR LOS OBJETOS
ESCALA OPERACIÓN DETALLE
1/25 4 Aumenta la escala en 4 veces su tamaño
1/50 2 Aumenta la escala en 2 veces su tamaño
1/100 1/1 Escala normal
1/225 1/2 o 0.5 Reduce la escala en la mitad
1/500 1/4 o 0.25 Reduce la escala en un cuarto
Punto Base
Reduce la escala a la
mitad
FIGURA MEDIDAS
AutoCAD 2D MANUAL TEÓRICO Y PRÁCTICA
“ Prof.: Luis Miguel Chuquimia Quispe Cel: 952362002 - Correo: sagilmc1988@gmail.com 72
Escala en una medida exacta
Por ejemplo, tenemos un objeto o plano con decimales y deseamos aumentar o reducir en
una medida exacta.
Las medidas de estados unidos, no son las mismas medidas de los latinoamericanos.
 Se utiliza básicamente en bloques (muebles) para darle una medida exacta de
acuerdo en el lugar donde habitas
Proceso:
Grafica el siguiente objeto
Se dará en un diámetro de 10
1. Haga clic en la Modificar > Escala
2. Designe el circulo y línea, pulse la tecla Enter
3. Precise el punto base.
4. Escribe la letra R y presiona la tecla Enter.
Escala normal
Punto Base
AutoCAD 2D MANUAL TEÓRICO Y PRÁCTICA
“ Prof.: Luis Miguel Chuquimia Quispe Cel: 952362002 - Correo: sagilmc1988@gmail.com 73
5. Precise 2 puntos base y coloca la cantidad 10 y presiona la tecla Enter.
Resultado Final
HERRAMIENTA RECORTAR , ALARGAR
Puede acortar o alargar objetos para que se encuentren con las aristas de otros objetos.
Esto significa que primero puede crear un objeto, como una línea, y después ajustarlo con precisión
entre otros objetos.
 Los objetos seleccionados como aristas de corte o de contorno no son imprescindibles para
intersecar el objeto que se va a recortar. Puede recortar o alargar un objeto hasta una arista
proyectada o una intersección extrapolada; es decir, donde los objetos deberían intersecarse
si se alargaran.
1
Cantidad 10
2
RECORTAR
ALARGAR
AutoCAD 2D MANUAL TEÓRICO Y PRÁCTICA
“ Prof.: Luis Miguel Chuquimia Quispe Cel: 952362002 - Correo: sagilmc1988@gmail.com 74
Proceso Recortar:
Elaborar el siguiente gráfico:
1. Haga clic en la Modificar > Recortar.
2. Seleccionar todo el gráfico y Pulsa Enter.
3. Designe los objetos que desee recortar.
4. Para terminar, presione la tecla Enter o Esc.
Resultado final
Gráfico
Medidas
Agrega textura y los detalles
Objetos a recortar
AutoCAD 2D MANUAL TEÓRICO Y PRÁCTICA
“ Prof.: Luis Miguel Chuquimia Quispe Cel: 952362002 - Correo: sagilmc1988@gmail.com 75
Proceso Alargar:
Elaborar el siguiente gráfico:
1. Haga clic en la Modificar > Alargar.
2. Seleccionar todo el gráfico y Pulsa Enter.
3. Designe los objetos que desee alargar.
4. Para terminar, presione la tecla Enter o Esc.
BARRA DE PROPIEDADES
Es importante diferenciar las líneas y objetos, para una buena apreciación, por tal motivo
se modifica las líneas y objetos de acuerdo a la necesidad. Ojo se emplea cuando no se
utiliza capas.
Gráfico
Medidas
Color de línea Tipo de línea Grosor de línea
Se activa mostrar
grosor de líneaColor rojo,
grosor 0.80 mm.
Color magenta,
grosor 0.50 mm.
Color Azul,
grosor 0.05 mm.
AutoCAD 2D MANUAL TEÓRICO Y PRÁCTICA
“ Prof.: Luis Miguel Chuquimia Quispe Cel: 952362002 - Correo: sagilmc1988@gmail.com 76
HERRAMIENTA ESTIRAR
Puede acortar o alargar objetos que sean dibujas con la herramienta Polilínea.
Proceso:
Elaborar el siguiente gráfico con la herramienta Polilínea:
1. Haga clic en la Modificar > Estirar
2. Seleccionar la sección que desea estirar y Pulsa Enter.
3. Designe el punto de partida y coloque la cantidad de 20 y Pulse Enter
Seleccione de derecha -
izquierda
Punto de partida y
estirar hacia la derecha
AutoCAD 2D MANUAL TEÓRICO Y PRÁCTICA
“ Prof.: Luis Miguel Chuquimia Quispe Cel: 952362002 - Correo: sagilmc1988@gmail.com 77
PRACTICA Nº 8
Elaborar los siguientes gráficos
AutoCAD 2D MANUAL TEÓRICO Y PRÁCTICA
“ Prof.: Luis Miguel Chuquimia Quispe Cel: 952362002 - Correo: sagilmc1988@gmail.com 78
AutoCAD 2D MANUAL TEÓRICO Y PRÁCTICA
“ Prof.: Luis Miguel Chuquimia Quispe Cel: 952362002 - Correo: sagilmc1988@gmail.com 79
AutoCAD 2D MANUAL TEÓRICO Y PRÁCTICA
“ Prof.: Luis Miguel Chuquimia Quispe Cel: 952362002 - Correo: sagilmc1988@gmail.com 80
AutoCAD 2D MANUAL TEÓRICO Y PRÁCTICA
“ Prof.: Luis Miguel Chuquimia Quispe Cel: 952362002 - Correo: sagilmc1988@gmail.com 81
AutoCAD 2D MANUAL TEÓRICO Y PRÁCTICA
“ Prof.: Luis Miguel Chuquimia Quispe Cel: 952362002 - Correo: sagilmc1988@gmail.com 82
AutoCAD 2D MANUAL TEÓRICO Y PRÁCTICA
“ Prof.: Luis Miguel Chuquimia Quispe Cel: 952362002 - Correo: sagilmc1988@gmail.com 83
AutoCAD 2D MANUAL TEÓRICO Y PRÁCTICA
“ Prof.: Luis Miguel Chuquimia Quispe Cel: 952362002 - Correo: sagilmc1988@gmail.com 84
AutoCAD 2D MANUAL TEÓRICO Y PRÁCTICA
“ Prof.: Luis Miguel Chuquimia Quispe Cel: 952362002 - Correo: sagilmc1988@gmail.com 85
HERRAMIENTA CHAFLÁN
Un chaflán conecta dos objetos para que se encuentren en una esquina aplastada o
biselada.
Un chaflán conecta dos objetos con una línea en ángulo. Normalmente se utiliza para
representar un borde biselado en una esquina.
Puede achaflanar:
 Líneas
 Polilíneas
 Rayos
 líneas auxiliares
 3D (sólidos).
Se puede utilizar CHAFLAN para biselar todas las esquinas de una Polilínea mediante un
único comando.
Proceso:
Crear el siguiente gráfico
.
1. Haga clic en la Modificar Chaflán.
2. Escriba d (Distancia) y pulsa Enter.
3. Escriba la distancia del primer chaflán, 15 y pulsa Enter.
4. Escriba la distancia del segundo chaflán, 20 y pulsa Enter.
5. Designe las líneas que desee achaflanar.
AutoCAD 2D MANUAL TEÓRICO Y PRÁCTICA
“ Prof.: Luis Miguel Chuquimia Quispe Cel: 952362002 - Correo: sagilmc1988@gmail.com 86
Resultado Final
HERRAMIENTA EMPALME
Un empalme conecta dos objetos mediante un arco que es tangente a los objetos y tiene
un radio determinado.
Una esquina interior se denomina empalme y una esquina exterior se denomina
redondeo.
Puede empalmar:
 Arcos
 Círculos
 Elipses y arcos elípticos
 Líneas
 Polilíneas
 Rayos
 Splines
 Líneas auxiliares
 3d (sólidos)
AutoCAD 2D MANUAL TEÓRICO Y PRÁCTICA
“ Prof.: Luis Miguel Chuquimia Quispe Cel: 952362002 - Correo: sagilmc1988@gmail.com 87
Proceso:
Crear el siguiente gráfico
1. Haga clic en la Modificar Empalme.
2. Escriba ra (Radio) y pulsa Enter.
3. Defina el radio del empalme, 10 y pulsa Enter.
4. Designe los objetos que desee empalmar.
Resultado Final
PRACTICA Nº 9
Elaborar los siguientes gráficos.
Dibujo original
AutoCAD 2D MANUAL TEÓRICO Y PRÁCTICA
“ Prof.: Luis Miguel Chuquimia Quispe Cel: 952362002 - Correo: sagilmc1988@gmail.com 88
AutoCAD 2D MANUAL TEÓRICO Y PRÁCTICA
“ Prof.: Luis Miguel Chuquimia Quispe Cel: 952362002 - Correo: sagilmc1988@gmail.com 89
AutoCAD 2D MANUAL TEÓRICO Y PRÁCTICA
“ Prof.: Luis Miguel Chuquimia Quispe Cel: 952362002 - Correo: sagilmc1988@gmail.com 90
HERRAMIENTA DESCOMPONER
Si necesita modificar por separado uno o más objetos incluidos en un bloque, puede
desensamblar, o descomponer, la referencia a bloque en sus componentes. Después de
realizar los cambios, puede
 Crear una nueva definición de bloque
 Redefinir la definición de bloque existente
 No combinar los componentes para utilizarlos en otra ocasión
Puede descomponer automáticamente referencias a bloque a medida que las inserta
seleccionando la opción Descomponer en el cuadro de diálogo Insertar.
Proceso:
1. Haga clic en la Modificar > Descomponer
2. Seleccione el bloque que desea descomponer. Pulse Enter.
La referencia a bloque se desensambla en sus componentes; no obstante, la definición de
bloque todavía existe en el dibujo y se podrá insertar posteriormente.
BARRA DE HERRAMIENTA ACOTAR
La acotación es el proceso por medio del cual se añaden anotaciones de medida a un
dibujo.
VISUALIZAR LA BARRA DE ACOTAR:
 Menú herramienta/Barras de Herramientas/AUTOCAD/Acotar
Puede crear cotas para una gran variedad de tipos de objeto en muchas orientaciones.
Los tipos básicos de cotas son:
 Lineal
 Radial (radio, diámetro y con recodo)
 Angular
 Coordenada
 Longitud de arco
AutoCAD 2D MANUAL TEÓRICO Y PRÁCTICA
“ Prof.: Luis Miguel Chuquimia Quispe Cel: 952362002 - Correo: sagilmc1988@gmail.com 91
Las cotas lineales pueden ser horizontales, verticales, alineadas, giradas, de línea base o
continuas (en cadena). En la ilustración se muestran algunos ejemplos.
Se va considerar solamente las herramientas importantes y más comunes, investiga las
herramientas restantes. En cuanto las alturas de texto, se trabajara con escalas.
HERRAMIENTA ACOTAR LINEAL
Se puede acotar de forma vertical y horizontal a las ubicaciones u objetos que especifique.
1. Haga clic en la Acotar lineal
2. Designe un segmento, especifique los orígenes de la primera y segunda línea de
referencia.
 Introduzca las opciones según sea necesario en caso que quiera
modificar la cantidad o introducir texto.
 Para editar el contenido del texto de cota, escriba t (texto) o m (texto de líneas
múltiples). Si edita el texto dentro de los corchetes (<>) o los sobrescribe, se
cambia o se elimina el valor de la cota. Si añade texto antes o después de los
corchetes, éste se agregará antes o después del valor de la cota.
AutoCAD 2D MANUAL TEÓRICO Y PRÁCTICA
“ Prof.: Luis Miguel Chuquimia Quispe Cel: 952362002 - Correo: sagilmc1988@gmail.com 92
HERRAMIENTA ACOTAR ALINEADA
Se pueden crear cotas paralelas a las ubicaciones u objetos que especifique.
Las cotas alineadas se caracterizan porque la línea de cota es paralela a los orígenes de
las líneas de referencia. La ilustración muestra dos ejemplos de cotas alineadas. Se designa
un objeto (1) y se indica el emplazamiento de la cota alineada (2). Las líneas de referencia
se dibujan de forma automática.
1. Haga clic en la Acotar Alineada.
2. Designe un segmento, especifique los orígenes de la primera y segunda línea de
referencia.
 Introduzca las opciones según sea necesario en caso que quiera
modificar la cantidad o introducir texto.
 Para editar el contenido del texto de cota, escriba t (texto) o m (texto de líneas
múltiples). Si edita el texto dentro de los corchetes (<>) o los sobrescribe, se
cambia o se elimina el valor de la cota. Si añade texto antes o después de los
corchetes, éste se agregará antes o después del valor de la cota.
HERRAMIENTA ACOTAR RADIO
Una cota radial indica el radio de un arco o un círculo con líneas de centro o marcas de
centro opcionales.
Mide el radio de un arco o un círculo y muestra el texto de cota con la letra R delante.
AutoCAD 2D MANUAL TEÓRICO Y PRÁCTICA
“ Prof.: Luis Miguel Chuquimia Quispe Cel: 952362002 - Correo: sagilmc1988@gmail.com 93
Proceso:
1. Haga clic en la Acotar Radio.
2. Designe un segmento de arco de Polilínea, un círculo o un arco.
 Introduzca las opciones según sea necesario en caso que quiera
modificar la cantidad o introducir texto.
 Para editar el contenido del texto de cota, escriba t (texto) o m (texto de líneas
múltiples). Si edita el texto dentro de los corchetes (<>) o los sobrescribe, se
cambia o se elimina el valor de la cota. Si añade texto antes o después de los
corchetes, éste se agregará antes o después del valor de la cota.
HERRAMIENTA COTA DIAMETRO
Una cota radial indica el diámetro de un arco o un círculo con líneas de centro o marcas de
centro opcionales.
Mide el diámetro de un arco o círculo y muestra el texto de cota con el símbolo de diámetro
delante.
Proceso:
1. Haga clic en la Acotar Diámetro.
2. Designe el arco o el círculo que desea acotar.
 Introduzca las opciones según sea necesario en caso que quiera
modificar la cantidad o introducir texto.
 Para editar el contenido del texto de cota, escriba t (texto) o m (texto de líneas
múltiples). Si edita el texto dentro de los corchetes (<>) o los sobrescribe, se
cambia o se elimina el valor de la cota. Si añade texto antes o después de los
corchetes, éste se agregará antes o después del valor de la cota.
AutoCAD 2D MANUAL TEÓRICO Y PRÁCTICA
“ Prof.: Luis Miguel Chuquimia Quispe Cel: 952362002 - Correo: sagilmc1988@gmail.com 94
HERRAMIENTA COTA ANGULAR
Las cotas angulares miden el ángulo formado por dos líneas o tres puntos.
1. Haga clic en la Acotar Angular.
2. Emplee uno de los siguientes métodos:
 Para acotar un círculo, designe éste en el primer punto final del ángulo y, a
continuación, precise el segundo punto final del ángulo.
 Para acotar cualquier otro objeto, designe la primera línea y luego la segunda.
HERRAMIENTA COTA CONTINUAR
Las cotas de línea base son conjuntos de cotas cuyas medidas se toman a partir de la
misma línea base. Las cotas continuas son conjuntos de cotas encadenadas.
Proceso:
1. Haga clic en la ficha Anotar panel Cotas Continuar.
El programa utiliza el origen de la segunda línea de referencia correspondiente a la
cota actual como el primer origen de la línea de referencia.
2. Utilice referencias a objetos para designar orígenes adicionales de líneas de
referencia.
3. Pulse Enter dos veces para terminar el comando.
AutoCAD 2D MANUAL TEÓRICO Y PRÁCTICA
“ Prof.: Luis Miguel Chuquimia Quispe Cel: 952362002 - Correo: sagilmc1988@gmail.com 95
PRACTICA Nº 10
Elaborar los siguientes gráficos con sus respectivas cotas.
AutoCAD 2D MANUAL TEÓRICO Y PRÁCTICA
“ Prof.: Luis Miguel Chuquimia Quispe Cel: 952362002 - Correo: sagilmc1988@gmail.com 96
AutoCAD 2D MANUAL TEÓRICO Y PRÁCTICA
“ Prof.: Luis Miguel Chuquimia Quispe Cel: 952362002 - Correo: sagilmc1988@gmail.com 97
PRACTICA Nº 11
Elaborar los siguientes gráficos, coloca las medidas de los detalles de acuerdo a tu criterio.
AutoCAD 2D MANUAL TEÓRICO Y PRÁCTICA
“ Prof.: Luis Miguel Chuquimia Quispe Cel: 952362002 - Correo: sagilmc1988@gmail.com 98
AutoCAD 2D MANUAL TEÓRICO Y PRÁCTICA
“ Prof.: Luis Miguel Chuquimia Quispe Cel: 952362002 - Correo: sagilmc1988@gmail.com 99
AutoCAD 2D MANUAL TEÓRICO Y PRÁCTICA
“ Prof.: Luis Miguel Chuquimia Quispe Cel: 952362002 - Correo: sagilmc1988@gmail.com 100
AutoCAD 2D MANUAL TEÓRICO Y PRÁCTICA
“ Prof.: Luis Miguel Chuquimia Quispe Cel: 952362002 - Correo: sagilmc1988@gmail.com 101
PRACTICA Nº 12
Elaborar los siguientes gráficos, coloca las medidas de los detalles de acuerdo a tu criterio.
AutoCAD 2D MANUAL TEÓRICO Y PRÁCTICA
“ Prof.: Luis Miguel Chuquimia Quispe Cel: 952362002 - Correo: sagilmc1988@gmail.com 102
AutoCAD 2D MANUAL TEÓRICO Y PRÁCTICA
“ Prof.: Luis Miguel Chuquimia Quispe Cel: 952362002 - Correo: sagilmc1988@gmail.com 103
AutoCAD 2D MANUAL TEÓRICO Y PRÁCTICA
“ Prof.: Luis Miguel Chuquimia Quispe Cel: 952362002 - Correo: sagilmc1988@gmail.com 104
CAPÍTULO 3
3.1. PLANOS, CORTES, ELEVACIONES E IMPRESIÓN (PLOTEER)
En este capítulo se trabaja todo referente a la elaboración de proyectos de vivienda,
presentación y escalas.
CONFIGURACIÓN DE COTAS
Para visualizar la barra de herramienta de cotas, realizamos los siguientes pasos.
 Menú herramienta/Barras de Herramientas/AUTOCAD/Acotar
Cuando se trabaja con pequeños dibujos, las cotas no son de acuerdo al dibujo, por tal
motivo es necesario crear estilos de cotas.
Ejemplo:
El texto disminuye de tamaño, esto permite ver todas las medidas del plano, a su vez se
visualiza de manera ordenada y limpia al momento de Plotter.
Gráfico
Cotas ISO-25
Cotas escala 1/75
Estilos de Cotas
AutoCAD 2D MANUAL TEÓRICO Y PRÁCTICA
“ Prof.: Luis Miguel Chuquimia Quispe Cel: 952362002 - Correo: sagilmc1988@gmail.com 105
CREAR ESTILO DE COTA 1/100
Proceso:
1. Presiona estilos de cota
Inmediatamente se visualizara el
listado de cotas por defecto y la vista
previa
 Anotativo (que no se usara)
 Standard (que no se usara)
 ISO-25 que será la base de
creación de estilos de cotas
Además se muestra un grupo de
acciones básicas.
Siempre se creara un nuevo estilo a partir del estilo de Cota ISO-25. Este es un estilo
predominado del programa y será el punto de partida para crear más estilos de cotas. Si no
está seleccionada, proceda a seleccionar.
Estilos Visuales
Estilos Visuales
AutoCAD 2D MANUAL TEÓRICO Y PRÁCTICA
“ Prof.: Luis Miguel Chuquimia Quispe Cel: 952362002 - Correo: sagilmc1988@gmail.com 106
2. En este caso haga clic en Nuevo y luego, coloca como nombre “COTAS 1-100”
y presiona Continuar.
Ahora se visualizara todas las pestañas y vista preliminar donde se van
actualizando los campos. Se modificaran los parámetros en el siguiente
orden:
3ro 2do 1ro 4to 5to
LÍNEAS
SÍMBOLO Y
FLECHAS
TEXTO AJUSTAR
UNIDADES
PRIMARIAS
3. Ingresar los siguientes datos
AutoCAD 2D MANUAL TEÓRICO Y PRÁCTICA
“ Prof.: Luis Miguel Chuquimia Quispe Cel: 952362002 - Correo: sagilmc1988@gmail.com 107
4. Cambiar los parámetros de la pestaña Símbolos y flechas.
5. Cambiar los parámetros de la pestaña Líneas.
AutoCAD 2D MANUAL TEÓRICO Y PRÁCTICA
“ Prof.: Luis Miguel Chuquimia Quispe Cel: 952362002 - Correo: sagilmc1988@gmail.com 108
6. Cambiar los parámetros de la pestaña Ajustar.
7. Cambiar los parámetros de la pestaña Unidades Principales.
8. Una vez cambiado los parámetros pulso el botón Aceptar.
AutoCAD 2D MANUAL TEÓRICO Y PRÁCTICA
“ Prof.: Luis Miguel Chuquimia Quispe Cel: 952362002 - Correo: sagilmc1988@gmail.com 109
9. Una vez terminado, te darás cuenta que en estilos, muestra COTAS 1-100.
CUADRO GENERAL DE ESTILOS DE COTAS
APARTADO OPCIONES
ESCALAS
1/25 1/50 1/75 1/100 1/125
TEXTO
Estilo de texto
Seleccione estilo de texto: Normal
u otro Disponible
Altura de texto 0.05 0.1 0.15 0.2 0.25
Ubicación del texto
vertical
Exterior
0.04 0.08 0.12 0.16 0.20
SÍMBOLO Y
FLECHAS
Extremos de cota De acuerdo al diseño de plano
Tamaño de fecha 0.025 0.05 0.075 0.1 0.125
LÍNEAS
Intervalo de línea base 0.025 0.05 0.075 0.1 0.125
Ampliar líneas de cotas 0.025 0.05 0.075 0.1 0.125
Desfase desde el origen 0.025 0.05 0.075 0.1 0.125
Líneas de referencia de
longitud fija
0.1 0.2 0.3 0.4 0.5
AJUSTAR Opciones de ajuste
Elegir Siempre
Mantener el texto entre líneas
de referencia
UNIDADES
PRIMARIAS
Separador decimal Periodo
Supresión de cotas Desactivar a la derecha
Acotaciones angulares 2 decimales (0.00)
Para finalizar presiona
Cerrar
AutoCAD 2D MANUAL TEÓRICO Y PRÁCTICA
“ Prof.: Luis Miguel Chuquimia Quispe Cel: 952362002 - Correo: sagilmc1988@gmail.com 110
BARRA DE HERRAMIENTA CAPAS
Las capas se utilizan para agrupar información de un
dibujo según sea su función y para reforzar los tipos de
línea, el color y otros parámetros.
Las capas son equivalentes a las hojas transparentes que
se utilizan en el diseño sobre papel. Las capas son la
herramienta organizativa principal empleada en el dibujo.
Las capas se utilizan para agrupar información por función
y para imponer el tipo de línea, el color y otras normas.
Mediante la creación de capas, es posible asociar tipos similares de objetos asignándolos
a la misma capa. Por ejemplo, se pueden poner líneas auxiliares, texto, cotas y cuadros de
rotulación en diferentes capas. De esta forma podrá controlar los siguientes aspectos:
 Si los objetos que hay en una capa son visibles o están atenuados en cualquier
ventana gráfica.
 Si los objetos se trazan y cómo lo hacen.
 Qué color se asigna a todos los objetos de una capa.
 Qué tipo y grosor de línea predeterminados se asignan a todos los objetos de una
capa.
 Si los objetos de una capa pueden modificarse.
Todos los dibujos incluyen una capa denominada 0. La capa 0 no se puede suprimir ni
cambiar de nombre. Esta capa cumple dos funciones:
 Garantizar que todos los dibujos incluyen al menos una capa
 Proporcionar una capa especial relacionada con el control de colores en bloques
Proceso:
Presiona el administrador de capas
AutoCAD 2D MANUAL TEÓRICO Y PRÁCTICA
“ Prof.: Luis Miguel Chuquimia Quispe Cel: 952362002 - Correo: sagilmc1988@gmail.com 111
1. Nueva capa
2. Crea una nueva capa y la inutiliza en todas las ventanas graficas de
presentación
3. Suprime las capas seleccionas
4. Establece la capa designada como actual
5. Muestra el estado de la capa
6. Cambia el nombre de la capa
7. Activa o desactiva la capa
8. Inutiliza y reutiliza la capa
9. Bloquea o desbloquea la capa
10.Cambia el color de la capa
11.Cambia el tipo de línea
12.Cambia el grosor de la línea
13.Cambia el estilo de impresión
14.Determina si la capa se puede imprimir o no.
15.Inutiliza la capa en las nuevas ventanas gráficas creadas
16.Cambia la descripción en todo el dibujo
 Crear una la nueva capa
1 2 3 4
5 6 7 8 9 10 11 12 13 14 15 16
En esta zona se usan
filtros de capas a manera
de agrupamientos sobre
capas creadas
En esta zona se crean, modifican y
organizan las propiedades de la capas en
uso. De esto depende en gran parte de la
productividad de los gráficos realizados
Pulsa nueva capa
AutoCAD 2D MANUAL TEÓRICO Y PRÁCTICA
“ Prof.: Luis Miguel Chuquimia Quispe Cel: 952362002 - Correo: sagilmc1988@gmail.com 112
 Ingresa el nombre cambia el color de capa rojo
 Cambia el grosor de la línea
 Crear las siguientes capas, tomar en cuenta el color (de acuerdo a tu criterio) y el
grosor de línea.
Los bloques que muestran en el proyecto nº1 los puedes solicitar al docente o descargar
de internet
Asigna el nombre: MUROS BAJOS
Cambia el color
AutoCAD 2D MANUAL TEÓRICO Y PRÁCTICA
“ Prof.: Luis Miguel Chuquimia Quispe Cel: 952362002 - Correo: sagilmc1988@gmail.com 113
ADMINISTRADOR DE LÍNEAS
Con la barra de herramienta propiedades, tipo de línea presiona la opción Otros…
Venta de administrador de líneas, por defecto solo debe de mostrar
 Por capa
 Por boque
 Continuous
Para agregar una nueva línea presiona el botón Cargar
Para agregar líneas
Elige el punto y el trazo
para los cortes
Aceptar para
confirmar
Presiona doble clic para
cambiar el Nombre
AutoCAD 2D MANUAL TEÓRICO Y PRÁCTICA
“ Prof.: Luis Miguel Chuquimia Quispe Cel: 952362002 - Correo: sagilmc1988@gmail.com 114
Ejemplo de utilización de tipos de línea
Para aumentar o disminuir el tipo de línea, presiona las Teclas Ctrl + 1 para ver las
propiedades de la línea.
Líneas
Ventana alta,
Baño
Expresa vacío,
Patio
Escala de
modificación
AutoCAD 2D MANUAL TEÓRICO Y PRÁCTICA
“ Prof.: Luis Miguel Chuquimia Quispe Cel: 952362002 - Correo: sagilmc1988@gmail.com 115
PROYECTO Nº 1
Elaborar el siguiente proyecto y colocar cada elemento a la capa que le corresponda
AutoCAD 2D MANUAL TEÓRICO Y PRÁCTICA
“ Prof.: Luis Miguel Chuquimia Quispe Cel: 952362002 - Correo: sagilmc1988@gmail.com 116
Desfase de la ventana
IMPRIMIR DESDE EL ESPACIO MODELO
SE PUEDE acceder para imprimir mediante las siguientes opciones
 Menú Archivo/ Trazar
O
 Presionando las teclas Ctrl + P
Herramienta de acceso rápido
Visualizara la venta de parámetros de impresión
Usar la herramienta Desfase
Elige el tipo de impresora, en caso que no exista una
impresora elegir: DWG6 ePlot o DWG To PDF
Elige el modo de impresión,
colores o solo tinta negra
El formato y tamaño de
presentación de la impresión
Área de impresión, de
preferencia la opción
ventana (Eliges la zona
que deseas imprimir)
Orientación de la hoja,
vertical y Horizontal
La escala de impresión
personalizada
Ver vista preliminar
antes de imprimir
Activar para centrar el
grafico
AutoCAD 2D MANUAL TEÓRICO Y PRÁCTICA
“ Prof.: Luis Miguel Chuquimia Quispe Cel: 952362002 - Correo: sagilmc1988@gmail.com 117
TABLA GENERAL DE ESCALAS DE IMPRESIÓN
ESCALA FRACCIÓN
1 en 25 1000/25
1 en 50 1000/50
1 en 100 1000 /100
1 en 125 1000/125
1 en 200 1000/200
1 en 250 1000/250
1 en 500 1000/500
1 en 1000 1000/1000
1 en 2000 1000/2000
1 en 2500 1000/2500
1 en 5000 1000/5000
CONFIGURACIÓN DE PRESENTACIÓN DE PÁGINA
Algunos parámetros repiten de modo de impresión Modelo, el modo presentación es la
preparación de la impresión estable con la ventaja de tener varias vistas con diferentes
escalas.
Presiona en la pestaña
Presentación1
Observa que muestra
el plano en tono el
espacio de la hoja
AutoCAD 2D MANUAL TEÓRICO Y PRÁCTICA
“ Prof.: Luis Miguel Chuquimia Quispe Cel: 952362002 - Correo: sagilmc1988@gmail.com 118
Proceso:
Presiona doble clic para cambiar el Nombre
Presiona clic derecho en la Pestaña/Administrador de configuración de página
Visualiza las presentaciones disponibles para modificar.
Colocar los siguientes parámetros
Presiona el botón
modificar.
Presiona el botón
Aceptar y Cerrar
AutoCAD 2D MANUAL TEÓRICO Y PRÁCTICA
“ Prof.: Luis Miguel Chuquimia Quispe Cel: 952362002 - Correo: sagilmc1988@gmail.com 119
El espacio y la alineación se modifico
 Activamos la barra de herramientas Estilos Visuales
 Menú Herramientas/Barra de Herramientas/AutoCad/ Estilos Visuales
Borrar la ventana
gráfica
Ingresa una nueva
venta
Dibuja una
ventana, tal como
muestra en la
imagen
AutoCAD 2D MANUAL TEÓRICO Y PRÁCTICA
“ Prof.: Luis Miguel Chuquimia Quispe Cel: 952362002 - Correo: sagilmc1988@gmail.com 120
 Selecciona la ventana gráfica y colocar en la barra de Escala 1000/100
La figura aumenta el tamaño a escala 1 en 100
 Para mover el gráfico, presiona doble clic en el centro de la ventana
 El borde del marco aumenta de grosor, puedes aumentar, disminuir y mover el
gráfico.
 Para salir, presionar doble clic fuera de la ventana gráfica.
Selecciona la ventana
gráfica y aumentar el
tamaño para que
ingrese el grafico.
Puntos de
modificación
Aumenta el
borde de la
ventana
Doble clic fuera
de la ventana
gráfica
AutoCAD 2D MANUAL TEÓRICO Y PRÁCTICA
“ Prof.: Luis Miguel Chuquimia Quispe Cel: 952362002 - Correo: sagilmc1988@gmail.com 121
Ahora dibuja dos ventanas gráficas con las escalas señaladas
CREACIÓN DE ROTULO
Los rótulos son etiquetas identificadoras que permiten ver los datos generales del proyecto.
Es como tener una caratula del proyecto.
Ejemplo:
AutoCAD 2D MANUAL TEÓRICO Y PRÁCTICA
“ Prof.: Luis Miguel Chuquimia Quispe Cel: 952362002 - Correo: sagilmc1988@gmail.com 122
PRACTICA Nº 13
Elaborar los siguientes rótulos en una hoja
AutoCAD 2D MANUAL TEÓRICO Y PRÁCTICA
“ Prof.: Luis Miguel Chuquimia Quispe Cel: 952362002 - Correo: sagilmc1988@gmail.com 123
Organizar los bloques con sus respectivos rótulos
AutoCAD 2D MANUAL TEÓRICO Y PRÁCTICA
“ Prof.: Luis Miguel Chuquimia Quispe Cel: 952362002 - Correo: sagilmc1988@gmail.com 124
AutoCAD 2D MANUAL TEÓRICO Y PRÁCTICA
“ Prof.: Luis Miguel Chuquimia Quispe Cel: 952362002 - Correo: sagilmc1988@gmail.com 125
AutoCAD 2D MANUAL TEÓRICO Y PRÁCTICA
“ Prof.: Luis Miguel Chuquimia Quispe Cel: 952362002 - Correo: sagilmc1988@gmail.com 126
AutoCAD 2D MANUAL TEÓRICO Y PRÁCTICA
“ Prof.: Luis Miguel Chuquimia Quispe Cel: 952362002 - Correo: sagilmc1988@gmail.com 127
AutoCAD 2D MANUAL TEÓRICO Y PRÁCTICA
“ Prof.: Luis Miguel Chuquimia Quispe Cel: 952362002 - Correo: sagilmc1988@gmail.com 128
AutoCAD 2D MANUAL TEÓRICO Y PRÁCTICA
“ Prof.: Luis Miguel Chuquimia Quispe Cel: 952362002 - Correo: sagilmc1988@gmail.com 129
AutoCAD 2D MANUAL TEÓRICO Y PRÁCTICA
“ Prof.: Luis Miguel Chuquimia Quispe Cel: 952362002 - Correo: sagilmc1988@gmail.com 130
PRACTICA Nº 14
Presenta el Proyecto Nº 1 con la hoja de presentación A3 en una escala en 1 en 75 con su
respectivo rotulo.
AutoCAD 2D MANUAL TEÓRICO Y PRÁCTICA
“ Prof.: Luis Miguel Chuquimia Quispe Cel: 952362002 - Correo: sagilmc1988@gmail.com 131
ELEVACIONES
 Realiza una copia del plano para crear la elevación de la fachada
 Proyecta líneas en los límites, tal como muestra en la imagen
 Dibuja los detalles tal como muestra en la imagen
Proyección de
líneas, 3 a 4
mm
Trazar una línea Horizontal y borra
las líneas que sobran
Borra las líneas
de proyección
AutoCAD 2D MANUAL TEÓRICO Y PRÁCTICA
“ Prof.: Luis Miguel Chuquimia Quispe Cel: 952362002 - Correo: sagilmc1988@gmail.com 132
Elevación frontal
CORTES
 Es el mismo procedimiento de las elevaciones.
 Con la diferencia que predominan los muros
CORTE A-A
 Realiza una copia y gira la imagen
Expresa la dirección de
visualización
Traza una línea y corta
toda la sección de abajo
AutoCAD 2D MANUAL TEÓRICO Y PRÁCTICA
“ Prof.: Luis Miguel Chuquimia Quispe Cel: 952362002 - Correo: sagilmc1988@gmail.com 133
El resultado es el siguiente:
 Ahora traza las líneas
 Dibuja los detalles tal como muestra en la imagen
CORTE A-A
Escala 1/100
Trazar una línea Horizontal y borra
las líneas que sobran
AutoCAD 2D MANUAL TEÓRICO Y PRÁCTICA
“ Prof.: Luis Miguel Chuquimia Quispe Cel: 952362002 - Correo: sagilmc1988@gmail.com 134
PRACTICA Nº 15
Presenta el Proyecto Nº 1 con la hoja de presentación A3 de acuerdo a las escalas
que muestra.
AutoCAD 2D MANUAL TEÓRICO Y PRÁCTICA
“ Prof.: Luis Miguel Chuquimia Quispe Cel: 952362002 - Correo: sagilmc1988@gmail.com 135
PROYECTO Nº 2
Elaborar el siguiente proyecto con su respectivo rotulo, en una escala de 1 en 75
Elige la orientación y formato adecuado para la presentación
AutoCAD 2D MANUAL TEÓRICO Y PRÁCTICA
“ Prof.: Luis Miguel Chuquimia Quispe Cel: 952362002 - Correo: sagilmc1988@gmail.com 136
PROYECTO Nº 3
Elaborar el siguiente proyecto con su respectivo rotulo, en una escala de 1 en 75
Elige la orientación y formato adecuado para la presentación
AutoCAD 2D MANUAL TEÓRICO Y PRÁCTICA
“ Prof.: Luis Miguel Chuquimia Quispe Cel: 952362002 - Correo: sagilmc1988@gmail.com 137
PROYECTO Nº 4
Elaborar el siguiente proyecto con su respectivo rotulo
Elige la orientación y formato adecuado para la presentación
AutoCAD 2D MANUAL TEÓRICO Y PRÁCTICA
“ Prof.: Luis Miguel Chuquimia Quispe Cel: 952362002 - Correo: sagilmc1988@gmail.com 138
AutoCAD 2D MANUAL TEÓRICO Y PRÁCTICA
“ Prof.: Luis Miguel Chuquimia Quispe Cel: 952362002 - Correo: sagilmc1988@gmail.com 139
PROYECTO Nº 5
Elaborar el siguiente proyecto con su respectivo rotulo
Elige la orientación y formato adecuado para la presentación
AutoCAD 2D MANUAL TEÓRICO Y PRÁCTICA
“ Prof.: Luis Miguel Chuquimia Quispe Cel: 952362002 - Correo: sagilmc1988@gmail.com 140
AutoCAD 2D MANUAL TEÓRICO Y PRÁCTICA
“ Prof.: Luis Miguel Chuquimia Quispe Cel: 952362002 - Correo: sagilmc1988@gmail.com 141
AutoCAD 2D MANUAL TEÓRICO Y PRÁCTICA
“ Prof.: Luis Miguel Chuquimia Quispe Cel: 952362002 - Correo: sagilmc1988@gmail.com 142
AutoCAD 2D MANUAL TEÓRICO Y PRÁCTICA
“ Prof.: Luis Miguel Chuquimia Quispe Cel: 952362002 - Correo: sagilmc1988@gmail.com 143
PROYECTO Nº 6
Elaborar el siguiente proyecto con su respectivo rotulo
Elige la orientación y formato adecuado para la presentación
AutoCAD 2D MANUAL TEÓRICO Y PRÁCTICA
“ Prof.: Luis Miguel Chuquimia Quispe Cel: 952362002 - Correo: sagilmc1988@gmail.com 144
AutoCAD 2D MANUAL TEÓRICO Y PRÁCTICA
“ Prof.: Luis Miguel Chuquimia Quispe Cel: 952362002 - Correo: sagilmc1988@gmail.com 145
AutoCAD 2D MANUAL TEÓRICO Y PRÁCTICA
“ Prof.: Luis Miguel Chuquimia Quispe Cel: 952362002 - Correo: sagilmc1988@gmail.com 146
AutoCAD 2D MANUAL TEÓRICO Y PRÁCTICA
“ Prof.: Luis Miguel Chuquimia Quispe Cel: 952362002 - Correo: sagilmc1988@gmail.com 147
AutoCAD 2D MANUAL TEÓRICO Y PRÁCTICA
“ Prof.: Luis Miguel Chuquimia Quispe Cel: 952362002 - Correo: sagilmc1988@gmail.com 148
PROYECTO Nº 7
Elaborar el siguiente proyecto con su respectivo rotulo
Elige la orientación y formato adecuado para la presentación
AutoCAD 2D MANUAL TEÓRICO Y PRÁCTICA
“ Prof.: Luis Miguel Chuquimia Quispe Cel: 952362002 - Correo: sagilmc1988@gmail.com 149
AutoCAD 2D MANUAL TEÓRICO Y PRÁCTICA
“ Prof.: Luis Miguel Chuquimia Quispe Cel: 952362002 - Correo: sagilmc1988@gmail.com 150
PROYECTO Nº 8
Elaborar el siguiente proyecto con su respectivo rotulo
Elige la orientación y formato adecuado para la presentación. Tema Duplex
AutoCAD 2D MANUAL TEÓRICO Y PRÁCTICA
“ Prof.: Luis Miguel Chuquimia Quispe Cel: 952362002 - Correo: sagilmc1988@gmail.com 151
AutoCAD 2D MANUAL TEÓRICO Y PRÁCTICA
“ Prof.: Luis Miguel Chuquimia Quispe Cel: 952362002 - Correo: sagilmc1988@gmail.com 152
AutoCAD 2D MANUAL TEÓRICO Y PRÁCTICA
“ Prof.: Luis Miguel Chuquimia Quispe Cel: 952362002 - Correo: sagilmc1988@gmail.com 153
AutoCAD 2D MANUAL TEÓRICO Y PRÁCTICA
“ Prof.: Luis Miguel Chuquimia Quispe Cel: 952362002 - Correo: sagilmc1988@gmail.com 154
PROYECTO Nº 9
Elaborar el siguiente proyecto con su respectivo rotulo
Elige la orientación y formato adecuado para la presentación. Tema-vivienda familiar
PRIMERAPLANTA
AutoCAD 2D MANUAL TEÓRICO Y PRÁCTICA
“ Prof.: Luis Miguel Chuquimia Quispe Cel: 952362002 - Correo: sagilmc1988@gmail.com 155
SEGUNDA PLANTA
AutoCAD 2D MANUAL TEÓRICO Y PRÁCTICA
“ Prof.: Luis Miguel Chuquimia Quispe Cel: 952362002 - Correo: sagilmc1988@gmail.com 156
AutoCAD 2D MANUAL TEÓRICO Y PRÁCTICA
“ Prof.: Luis Miguel Chuquimia Quispe Cel: 952362002 - Correo: sagilmc1988@gmail.com 157
AutoCAD 2D MANUAL TEÓRICO Y PRÁCTICA
“ Prof.: Luis Miguel Chuquimia Quispe Cel: 952362002 - Correo: sagilmc1988@gmail.com 158
PROYECTO Nº 10
Elaborar el siguiente proyecto con su respectivo rotulo en escala 1/50
AutoCAD 2D MANUAL TEÓRICO Y PRÁCTICA
“ Prof.: Luis Miguel Chuquimia Quispe Cel: 952362002 - Correo: sagilmc1988@gmail.com 159
AutoCAD 2D MANUAL TEÓRICO Y PRÁCTICA
“ Prof.: Luis Miguel Chuquimia Quispe Cel: 952362002 - Correo: sagilmc1988@gmail.com 160
AutoCAD 2D MANUAL TEÓRICO Y PRÁCTICA
“ Prof.: Luis Miguel Chuquimia Quispe Cel: 952362002 - Correo: sagilmc1988@gmail.com 161
AutoCAD 2D MANUAL TEÓRICO Y PRÁCTICA
“ Prof.: Luis Miguel Chuquimia Quispe Cel: 952362002 - Correo: sagilmc1988@gmail.com 162
AutoCAD 2D MANUAL TEÓRICO Y PRÁCTICA
“ Prof.: Luis Miguel Chuquimia Quispe Cel: 952362002 - Correo: sagilmc1988@gmail.com 163
AutoCAD 2D MANUAL TEÓRICO Y PRÁCTICA
“ Prof.: Luis Miguel Chuquimia Quispe Cel: 952362002 - Correo: sagilmc1988@gmail.com 164
AutoCAD 2D MANUAL TEÓRICO Y PRÁCTICA
“ Prof.: Luis Miguel Chuquimia Quispe Cel: 952362002 - Correo: sagilmc1988@gmail.com 165
PROYECTO Nº 11
Elaborar el siguiente proyecto con su respectivo rotulo en la escala indicada
AutoCAD 2D MANUAL TEÓRICO Y PRÁCTICA
“ Prof.: Luis Miguel Chuquimia Quispe Cel: 952362002 - Correo: sagilmc1988@gmail.com 166
AutoCAD 2D MANUAL TEÓRICO Y PRÁCTICA
“ Prof.: Luis Miguel Chuquimia Quispe Cel: 952362002 - Correo: sagilmc1988@gmail.com 167
AutoCAD 2D MANUAL TEÓRICO Y PRÁCTICA
“ Prof.: Luis Miguel Chuquimia Quispe Cel: 952362002 - Correo: sagilmc1988@gmail.com 168
AutoCAD 2D MANUAL TEÓRICO Y PRÁCTICA
“ Prof.: Luis Miguel Chuquimia Quispe Cel: 952362002 - Correo: sagilmc1988@gmail.com 169

MANUAL PRACTICO DE AUTOCAD 2D

  • 1.
    AutoCAD 2D MANUALTEÓRICO Y PRÁCTICA “ Prof.: Luis Miguel Chuquimia Quispe Cel: 952362002 - Correo: sagilmc1988@gmail.com 1 Tacna - Perú AUTOCAD BÁSICO MANUAL TEÓRICO Y PRÁCTICO “El conocimiento es de todos, compártelo” Elaborado por: Prof. Luis Miguel Chuquimia Q. - Correo: sagilmc1988@gmail.com “El conocimiento es de todos, compártelo” AUTODESK
  • 2.
    AutoCAD 2D MANUALTEÓRICO Y PRÁCTICA “ Prof.: Luis Miguel Chuquimia Quispe Cel: 952362002 - Correo: sagilmc1988@gmail.com 2 ÍNDICE AUTOCAD.................................................................................................................... 04 TIPOS DE FICHEROS DE DIBUJO ..................................................................... 04 CAPÍTULO 1 ................................................................................................................ 05 1.1. ASPECTOS PRELIMINAR.................................................................................... 05 INTERFAZ DEL USUAR ...................................................................................... 05 PARTES DEL ESPACIO DE TRABA ................................................................... 07 1.2. CONFIGURACIÓN DEL ESPACIO DE TRABAJO............................................... 08 VISTA PREVIA................................................................................................... 08 GUARDAR PREDETERMINADO....................................................................... 11 REFERENCIA A OBJETOS .............................................................................. 12 UNIDADES DE DIBUJO..................................................................................... 13 CAPÍTULO 2 ................................................................................................................ 15 2.1.USO DE LA BARRA DE HERRAMIENTAS........................................................... 15 BARRA DE HERRAMIENTA DIBUJO ................................................................... 15 HERRAMIENTA LÍNEA...................................................................................... 15 MOUSE Y SU UTILIDAD ................................................................................... 16 MODO ORTO (F8) ............................................................................................. 17 HERRAMIENTA POLILINEA ............................................................................. 17 PRACTICA Nº 1 ................................................................................................. 19 HERRAMIENTA POLÍGONO ............................................................................ 24 HERRAMIENTA CÍRCULO ................................................................................ 25 PRACTICA Nº 2 ................................................................................................. 27 HERRAMIENTA TANGENTE, TANGENTE, RADIO.......................................... 29 HERRAMIENTA TANGENTE, TANGENTE, TANGENTE.................................. 30 HERRAMIENTA RECTÁNGULO ....................................................................... 30 HERRAMIENTA ARCO...................................................................................... 32 HERRAMIENTA CREAR BLOQUE.................................................................... 34 PRACTICA Nº 3 ................................................................................................. 35 HERRAMIENTA ELIPSE.................................................................................... 37 HERRAMIENTA SOMBREADO......................................................................... 39 PRACTICA Nº 4 ................................................................................................. 42 HERRAMIENTA DEGRADADO ......................................................................... 43 PRACTICA Nº 5 ................................................................................................. 45 HERRAMIENTA TEXTO .................................................................................... 47 2.2. TÉCNICAS DE DIBUJO....................................................................................... 51 DOS FORMA DE SELECCIONAR FIGURAS.......................................... 51 FINALIZAR PROCESO ........................................................................... 52 ACCESO RÁPIDO................................................................................... 52 CREAR POLILÍNEA ................................................................................ 52 2.3. BARRA DE HERRAMIENTA MODIFICAR .......................................................... 53 HERRAMIENTA COPIAR .................................................................................. 53 HERRAMIENTA SIMETRÍA ............................................................................... 54 PRACTICA Nº 6 ................................................................................................. 55 HERRAMIENTA DESFASE .............................................................................. 62 HERRAMIENTA MATRIZ................................................................................... 63 PRACTICA Nº 7 ................................................................................................. 67 HERRAMIENTA DESPLAZAR .......................................................................... 68 HERRAMIENTA GIRAR..................................................................................... 68 HERRAMIENTA ESCALA ................................................................................. 70
  • 3.
    AutoCAD 2D MANUALTEÓRICO Y PRÁCTICA “ Prof.: Luis Miguel Chuquimia Quispe Cel: 952362002 - Correo: sagilmc1988@gmail.com 3 HERRAMIENTA RECORTAR, ALARGAR ......................................................... 73 BARRA DE PROPIEDADES......................................................................................... 75 HERRAMIENTA ESTIRAR................................................................................. 76 PRACTICA Nº 8....................................................................................... 77 HERRAMIENTA CHAFLÁN..................................................................... 85 HERRAMIENTA EMPALME .................................................................... 86 PRACTICA Nº 9....................................................................................... 87 HERRAMIENTA DESCOMPONER ......................................................... 90 BARRA DE HERRAMIENTA ACOTAR......................................................................... 90 HERRAMIENTA ACOTAR LINEAL.................................................................... 91 HERRAMIENTA ACOTAR ALINEADA............................................................... 92 HERRAMIENTA ACOTAR RADIO..................................................................... 92 HERRAMIENTA COTA DIAMETRO .................................................................. 93 HERRAMIENTA COTA ANGULAR.................................................................... 94 HERRAMIENTA COTA CONTINUAR................................................................ 94 PRACTICA Nº 10 ............................................................................................... 95 PRACTICA Nº 11 ............................................................................................... 97 PRACTICA Nº 12 ............................................................................................... 101 CAPÍTULO 3 ................................................................................................................ 104 3.1. PLANOS, CORTES, ELEVACIONES E IMPRESIÓN (PLOTEER)....................... 104 CONFIGURACIÓN DE COTAS.............................................................................. 104 CREAR ESTILO DE COTA 1/100 ...................................................................... 105 CUADRO GENERAL DE ESTILOS DE COTAS ................................................ 109 BARRA DE HERRAMIENTA CAPAS..................................................................... 110 ADMINISTRADOR DE LÍNEAS.............................................................................. 113 PROYECTO Nº 1 ................................................................................................... 115 IMPRIMIR DESDE EL ESPACIO MODELO........................................................... 116 TABLA GENERAL DE ESCALAS DE IMPRESIÓN ............................................... 117 CONFIGURACIÓN DE PRESENTACIÓN DE PÁGINA ........................................ 117 CREACIÓN DE ROTULO ...................................................................................... 121 PRACTICA Nº 13 ................................................................................................... 122 PRACTICA Nº 14 ................................................................................................... 130 ELEVACIONES ..................................................................................................... 131 CORTES ................................................................................................................ 132 PRACTICA Nº 15 ................................................................................................... 134 PROYECTO Nº 2 ................................................................................................... 135 PROYECTO Nº 3 ................................................................................................... 136 PROYECTO Nº 4 ................................................................................................... 137 PROYECTO Nº 5 ................................................................................................... 139 PROYECTO Nº 6 ................................................................................................... 143 PROYECTO Nº 7 ................................................................................................... 148 PROYECTO Nº 8 ................................................................................................... 150 PROYECTO Nº 9 ................................................................................................... 154 PROYECTO Nº 10 ................................................................................................. 158 PROYECTO Nº 11 ................................................................................................. 165
  • 4.
    AutoCAD 2D MANUALTEÓRICO Y PRÁCTICA “ Prof.: Luis Miguel Chuquimia Quispe Cel: 952362002 - Correo: sagilmc1988@gmail.com 4 AUTOCAD Los Ingenieros en la actualidad necesitan constantemente de la representación gráfica para sus proyectos, por lo que urge el uso de software de diseño de Ingeniería que permita facilitar el trabajo que día a día se implementa dentro de la industria. Este es un curso básico de iniciación para cualquier persona sea o no arquitecto o ingeniero, que quiera tener un primer contacto con este programa, pero quiera adquirir los mínimos conocimientos para enfrentarse a un proyecto sencillo. AUTODESK© es una firma comercial importante en el desarrollo de programas CAD y su control directo sobre el producto Ventajas de un programa CAD respecto a dibujo técnico tradicional 1. Producción de dibujos más rápida 2. Mayor precisión en los dibujos 3. Dibujos más limpios 4. Dibujos no repetidos y aprovechamiento en dibujos similares, librerías de símbolos, etc.. 5. Técnicas especiales de dibujo que no son posibles por medios convencionales. Autocad es una palabra compuesta por la marca que desarrollo el producto (Autodesk) y las siglas Cad que significan: Computer Aided Desing (diseño asistido por computadora). TIPOS DE FICHEROS DE DIBUJO Los tipos de archivos básicos con los que trabaja AutoCAD® son los que se describen a continuación:  DWG: El predeterminado y de trabajo de AutoCAD®. Siempre que no se indique lo contrario, se utilizará para guardar los trabajos.  DXF: Utilizado para intercambio entre programas, ya que es un formato “universal”. Para poder grabar en este formato deberemos seleccionarlo previamente en la ventana “Guardar dibujo como” en el desplegable “Archivos de tipo”.  DWF: Para visualizar dibujos en Internet, ocupan poco. Necesita un programa especial que se instala en nuestro navegador de Internet.
  • 5.
    AutoCAD 2D MANUALTEÓRICO Y PRÁCTICA “ Prof.: Luis Miguel Chuquimia Quispe Cel: 952362002 - Correo: sagilmc1988@gmail.com 5 CAPÍTULO 1 1.1. ASPECTOS PRELIMINARES INTERFAZ DEL USUARIO La mayoría de los usuarios trabaja en el espacio clásico, donde se visualiza las herramientas en barras y menús como las anterior versión 2007. En este espacio de trabajo, incluye solamente las herramientas básicas, se debe de activar las herramientas restantes. El nuevo espacio actualizado muestra las herramientas en cintas (pestañas), ubicados en la parte superior y a su vez están clasificados en categorías. Muestra todas las herramientas básicas y avanzadas. Para poder cambiar a este espacio de trabajo, ubícate en la barra, cambio de espacio.
  • 6.
    AutoCAD 2D MANUALTEÓRICO Y PRÁCTICA “ Prof.: Luis Miguel Chuquimia Quispe Cel: 952362002 - Correo: sagilmc1988@gmail.com 6 Como puedes observar es muy diferente al espacio clásico. Cambiar nuevamente al espacio de Trabajo Clásico. Se cambia el estilo visual 2D  Menú ver/ Estilos Visuales/ Estructura alámbrica 2D Esto permite que la estructura del espacio este en 2D. El fondo cambia de color.
  • 7.
    AutoCAD 2D MANUALTEÓRICO Y PRÁCTICA “ Prof.: Luis Miguel Chuquimia Quispe Cel: 952362002 - Correo: sagilmc1988@gmail.com 7 PARTES DEL ESPACIO DE TRABAJO Es muy importante saber las partes principales del interfaz de AutoCad 2010 1) Barra de Herramientas de Acceso Rápido 2) Menús 3) Barra de Título 4) Centro de Información 5) Botones de Título 6) Barra de Herramienta Estándar 7) Propiedades y Estilos de línea 8) Barra de Estilos de Texto 9) Barra de Capas 10) Barra de Dibujo 11) Barra de Modificado 12) Línea de Comandos 13) Barra de Estado de Aplicación de Dibujo 1 3 2 4 5 6 7 8 9 10 11 12 13
  • 8.
    AutoCAD 2D MANUALTEÓRICO Y PRÁCTICA “ Prof.: Luis Miguel Chuquimia Quispe Cel: 952362002 - Correo: sagilmc1988@gmail.com 8 1.2. CONFIGURACIÓN DEL ESPACIO DE TRABAJO Es muy importante ubicar los archivos recientes, por tal motivo, AutoCad 2010 ofrece la busque y orden de los archivos reciente por Orden de lista, por fecha de acceso, por tamaño, por tipo de formato. Presionar el botón de AutoCad 2D Vista Previa Visualiza los archivos por iconos (formato) e imágenes (contenido), para ver el contenido del proyecto adecuada mente. Para ver los archivos recientes de acuerdo a la categoría Tipo de vista en miniatura
  • 9.
    AutoCAD 2D MANUALTEÓRICO Y PRÁCTICA “ Prof.: Luis Miguel Chuquimia Quispe Cel: 952362002 - Correo: sagilmc1988@gmail.com 9 Visualización del espacio de trabajo (configuración de colores) La visualización del espacio de trabajo permito modificar las propiedades visuales de acuerdo al usuario, para poder identificar tal vez con colores, resolución de pantalla, textura, etc. Ojo: tener mucho cuidado con las configuraciones que realiza, por más que cierre o reinicie la PC las modificaciones realizadas prevalecerán. Por defecto, muestra la pestaña visual, y a su vez las propiedades que permiten modificar el espacio visual. Presionar Opciones Presionar el botón principal de AUTOCAD
  • 10.
    AutoCAD 2D MANUALTEÓRICO Y PRÁCTICA “ Prof.: Luis Miguel Chuquimia Quispe Cel: 952362002 - Correo: sagilmc1988@gmail.com 10 Visualiza los colores de ventana de dibujo Clic en botón colores: Esta opción es para cambiar las propiedades de color Galería de colores
  • 11.
    AutoCAD 2D MANUALTEÓRICO Y PRÁCTICA “ Prof.: Luis Miguel Chuquimia Quispe Cel: 952362002 - Correo: sagilmc1988@gmail.com 11 CONTEXTO ELEMENTOS DE INTERFAZ COLOR Es el espacio de trabajo que queremos modificar. Espacio modelado 2D, es el espacio donde diseñamos los planos y bloques Elementos que existen en el espacio de trabajo Lista desplegable para elegir el color que deseamos Ojo: solamente modificamos, espacio modelado 2D. Ojo: de preferencia, modificar el fondo uniforme Ojo: elegir colores diferentes, ya que ayuda a diferencias de los distintos elementos que existen. Una vez realizado las modificaciones presionas el botón Guardar predeterminado A lo largo de los años las versiones de AUTOCAD ha ido mejorando y cambiando el interfaz de abrir y guardar. No hay ningún problema al abrir un archivo de formato con versiones anteriores, el problema existe, que un archivo de una versión nueva abrir con una versión anterior, al no reconocer el formato. Versiones  AUTOCAD 2010  AUTOCAD 2011  AUTOCAD 2012  AUTOCAD 2013  AUTOCAD 2014  AUTOCAD 2015  AUTOCAD 2016  AUTOCAD 2017  AUTOCAD 2018 Por tal motivo debemos de configurar el formato de guardado del proyecto Ahora cambiamos de pestaña, presiona la pestaña Abrir y Guardar ______________________________________________________________________ Cambiamos a otra opción: Abrir y Guardar
  • 12.
    AutoCAD 2D MANUALTEÓRICO Y PRÁCTICA “ Prof.: Luis Miguel Chuquimia Quispe Cel: 952362002 - Correo: sagilmc1988@gmail.com 12 Referencia a objetos Cada vez que inicies AutoCad 2010 activa la referencia a objetos. Facilita para guiar elementos de: Clic derecho Clic en Parámetros
  • 13.
    AutoCAD 2D MANUALTEÓRICO Y PRÁCTICA “ Prof.: Luis Miguel Chuquimia Quispe Cel: 952362002 - Correo: sagilmc1988@gmail.com 13 Unidades de dibujo Al igual que en el dibujo tradicional utilizas las reglas para medir, que están graduadas en algún tipo de unidades, en Acad debes de definir las unidades con las que vas a trabajar. Proceso: 1. Menú formato/Unidades Activa todas las referencias. Activa las 2 casillas
  • 14.
    AutoCAD 2D MANUALTEÓRICO Y PRÁCTICA “ Prof.: Luis Miguel Chuquimia Quispe Cel: 952362002 - Correo: sagilmc1988@gmail.com 14 Tipos Tanto en Longitud como en Ángulo puedes definir el tipo de unidad y su precisión. Como tipo de Longitud existen:  Científicas  Decimales  Fraccionarias  Pies y Pulgadas Como tipo de Ángulo existen:  Gra/Min/Seg  Grados  Grados decimales  Radianes  Unidades topográficas Dependiendo de tu trabajo ya sabes cual elegir. Precisión  Las casillas de precisión son más por la parte de cómo te muestra visualmente las unidades en la introducción de datos y coordenadas, que por la parte de precisión real de cálculo.  Elige el número de decimales que quieras manejar en pantalla, los cálculos realmente los hace con todos los decimales posible para una representación EXACTA del modelo. Escala de inserción  La Escala de inserción se refiere a la unidad de medida de los bloques y dibujos que se insertan en el dibujo actual.  Durante la inserción, se ajustará la escala de los bloques o dibujos creados con unidades distintas de las especificadas en esta opción.
  • 15.
    AutoCAD 2D MANUALTEÓRICO Y PRÁCTICA “ Prof.: Luis Miguel Chuquimia Quispe Cel: 952362002 - Correo: sagilmc1988@gmail.com 15  La escala de inserción es la relación entre las unidades del bloque o dibujo y las unidades utilizadas en el dibujo actual. Iluminación También tienes la posibilidad de elegir las unidades de iluminación que utilizas en tus proyectos. Estas se refieren al tipo de luz que se utilizara en las composiciones con luces fotométricas. Aquí puedes elegir entre:  Internacional  Americana  Genérica Es muy importante que sepas definir tus unidades de dibujo correctamente al trabajo que estas realizando, algo que seguro ya estás haciendo por la importancia de base que eso tiene. CAPÍTULO 2 2.1. USO DE LA BARRA DE HERRAMIENTAS BARRA DE HERRAMIENTA DIBUJO HERRAMIENTA LÍNEA (L) Una de las principales herramientas que se utilizara a lo largo del curso. No solamente para el dibujo, a su vez utiliza como ejes y guías. Puede crear una secuencia de segmentos de línea de manera que se junten el primer y último segmento de dicha secuencia. Puede asignar propiedades a las líneas, incluyendo color, tipo y grosor de línea.
  • 16.
    AutoCAD 2D MANUALTEÓRICO Y PRÁCTICA “ Prof.: Luis Miguel Chuquimia Quispe Cel: 952362002 - Correo: sagilmc1988@gmail.com 16 Proceso: 1. Haga clic en la Dibujo Línea. 2. Designe el punto inicial. 3. Aliar en sentido horizontal a. Puede utilizar el dispositivo señalador o escribir valores 4. Para la inclinación, presionar la tecla Tab 5. Presionar la tecla Enter. Nuevamente presionar la tecla Enter, para finalizar Veras que el segmento es un tamaño muy reducido. Mouse y su utilidad  Al girar el Scroll Aumenta/Disminuye el tamaño de la pantalla.  Presiona doble clic para ver todos los gráficos en la pantalla.  Cuando presionas se activa la herramienta mano, para que puedas mover el espacio de trabajo Punto A Punto B Cantidad designa Ángulo de inclinación Ingresar los datos Presionar para mover el espacio de trabajo Bloquea la medida del segmento
  • 17.
    AutoCAD 2D MANUALTEÓRICO Y PRÁCTICA “ Prof.: Luis Miguel Chuquimia Quispe Cel: 952362002 - Correo: sagilmc1988@gmail.com 17 Modo orto (F8) El modo Orto se utiliza para precisar un ángulo o distancia mediante dos puntos utilizando un dispositivo señalador. En modo Orto, el movimiento del cursor se restringe a la dirección horizontal o vertical relativa al SCP. En el ejemplo se ha dibujado una línea utilizando el modo Orto. El punto 1 es el primer punto precisado y el punto 2 es la posición del cursor al designar el segundo punto. Presionando la tecla F8 o el icono, Modo Orto Se considera horizontal la dirección paralela al eje X del SCP y vertical la dirección paralela al eje Y. HERRAMIENTA POLILINEA Este comando nos permite trazar rectas y arcos en forma seguida o alternada, pero con la característica que se constituyen en un solo trazo. Para modificar Polilíneas, es posible cerrarlas o abrirlas, y desplazar, añadir o borrar vértices individuales. Si lo desea, puede alisar la Polilínea entre dos de los vértices existentes y activar o desactivar el tipo de línea de modo que aparezca un guión delante y detrás de cada vértice. Proceso: 1. Activa Modo Orto(F8) 2. Haga clic en la Dibujo Polilínea 3. Designe el punto inicial. 4. Presionar la tecla Enter, después de colocar la cantidad. 5. Dibuja un cuadrado, finalizando el tercer lado, presiona la tecla C y la después la tecla Enter. Asigna la cantidad
  • 18.
    AutoCAD 2D MANUALTEÓRICO Y PRÁCTICA “ Prof.: Luis Miguel Chuquimia Quispe Cel: 952362002 - Correo: sagilmc1988@gmail.com 18 Cuando pases el puntero de mouse sobre los lados del cuadrado, verás que muestra las líneas descontinuas. Resultado final. Arco - Polilínea 1. Haga clic en la Dibujo Polilínea 2. Designe el punto inicial. 3. Presionar la tecla Enter, después de colocar la cantidad. Asigna la cantidad
  • 19.
    AutoCAD 2D MANUALTEÓRICO Y PRÁCTICA “ Prof.: Luis Miguel Chuquimia Quispe Cel: 952362002 - Correo: sagilmc1988@gmail.com 19 4. Presiona clic derecho, tendrás varias opciones para elegir. Marca la opción Arco. 5. Coloca la cantidad(diámetro) 15 6. Clic derecho/marca la opción Línea 7. Coloca la cantidad de longitud 25 8. Presiona la tecla C y luego la tecla Enter para finalizar. PRACTICA Nº 1 Elaborar los siguientes gráficos Asigna la cantidad
  • 20.
    AutoCAD 2D MANUALTEÓRICO Y PRÁCTICA “ Prof.: Luis Miguel Chuquimia Quispe Cel: 952362002 - Correo: sagilmc1988@gmail.com 20
  • 21.
    AutoCAD 2D MANUALTEÓRICO Y PRÁCTICA “ Prof.: Luis Miguel Chuquimia Quispe Cel: 952362002 - Correo: sagilmc1988@gmail.com 21
  • 22.
    AutoCAD 2D MANUALTEÓRICO Y PRÁCTICA “ Prof.: Luis Miguel Chuquimia Quispe Cel: 952362002 - Correo: sagilmc1988@gmail.com 22 Figuras Polilíneas
  • 23.
    AutoCAD 2D MANUALTEÓRICO Y PRÁCTICA “ Prof.: Luis Miguel Chuquimia Quispe Cel: 952362002 - Correo: sagilmc1988@gmail.com 23
  • 24.
    AutoCAD 2D MANUALTEÓRICO Y PRÁCTICA “ Prof.: Luis Miguel Chuquimia Quispe Cel: 952362002 - Correo: sagilmc1988@gmail.com 24 HERRAMIENTA POLÍGONO Proceso: 1. Haga clic en la Dibujo polígono. 2. Indique número de lados 3. Designe el punto. Inscrito en un círculo Especifica el radio de un círculo donde se encuentran todos los vértices del polígono. Precise radio de círculo: Indique un punto (2) o escriba un valor Circunscrito alrededor del círculo Precisa la distancia que hay desde el centro del polígono hasta los puntos medios de los lados del polígono. Precise radio de círculo: Especifique una distancia 4. Elige la opción, Inscrito en un círculo Numero de lados Muestra 2 opciones para elegir Colocar el radio 10
  • 25.
    AutoCAD 2D MANUALTEÓRICO Y PRÁCTICA “ Prof.: Luis Miguel Chuquimia Quispe Cel: 952362002 - Correo: sagilmc1988@gmail.com 25 Arista Define un polígono a partir de los puntos finales del primer lado. Proceso: 1. Haga clic en la Dibujo Polígono. 2. Indique número de lados 6. 3. Clic derecho y elige la opción de lado HERRAMIENTA CÍRCULO (C) Para crear círculos, especifique varias combinaciones de centro, radio, diámetro, puntos en la circunferencia y puntos en otros objetos. Se pueden crear círculos de distintas formas. El método por defecto consiste en especificar el centro y el radio. En la ilustración se muestran otras tres formas de dibujar un círculo. Colocar la distancia de 10
  • 26.
    AutoCAD 2D MANUALTEÓRICO Y PRÁCTICA “ Prof.: Luis Miguel Chuquimia Quispe Cel: 952362002 - Correo: sagilmc1988@gmail.com 26 Un punto tangente es el punto donde un objeto toca a otro objeto sin llegar a intersecarlo. Para crear un círculo tangente a otros objetos, seleccione los objetos y después especifique el radio del círculo. Proceso: 4. Haga clic en la Dibujo Círculo. 5. Designe el punto. 6. Presionar la tecla Enter para finalizar. Designar el radio del círculo
  • 27.
    AutoCAD 2D MANUALTEÓRICO Y PRÁCTICA “ Prof.: Luis Miguel Chuquimia Quispe Cel: 952362002 - Correo: sagilmc1988@gmail.com 27 En caso de un diámetro 1. Haga clic en la Dibujo Círculo. 2. Designe el punto. 3. Clic derecho elegir la opción Diámetro, 4. Presionar la tecla Enter para finalizar. PRACTICA Nº 2 Elaborar los siguientes gráficos. Designar el diámetro del círculo
  • 28.
    AutoCAD 2D MANUALTEÓRICO Y PRÁCTICA “ Prof.: Luis Miguel Chuquimia Quispe Cel: 952362002 - Correo: sagilmc1988@gmail.com 28
  • 29.
    AutoCAD 2D MANUALTEÓRICO Y PRÁCTICA “ Prof.: Luis Miguel Chuquimia Quispe Cel: 952362002 - Correo: sagilmc1988@gmail.com 29 HERRAMIENTA TANGENTE, TANGENTE, RADIO Proceso: 1. Dibujar 2 círculos con los siguientes valores 1. Menú Dibujo/ círculo/ Tangente, Tangente, Radio. 2. Clic en la tangente del primer círculo, 3. Clic en la tangente del segundo circulo 4. Asignar el radio(20) y presionar Enter
  • 30.
    AutoCAD 2D MANUALTEÓRICO Y PRÁCTICA “ Prof.: Luis Miguel Chuquimia Quispe Cel: 952362002 - Correo: sagilmc1988@gmail.com 30 HERRAMIENTA TANGENTE, TANGENTE, TANGENTE Proceso: 1. Dibujar 1 Polígono con los siguientes valores 2. Menú Dibujo/Círculo/ Adicionalmente la herramienta círculo tiene sub herramientas Investiga que función cumple las herramientas adicionales y como se utilizan: Menú Dibujo/Círculo/ HERRAMIENTA RECTÁNGULO La herramienta rectángulo es para crear polilíneas cerradas con forma rectangular, puede especificar los parámetros del rectángulo (longitud, anchura, rotación) Tangente referencial 1 2 3
  • 31.
    AutoCAD 2D MANUALTEÓRICO Y PRÁCTICA “ Prof.: Luis Miguel Chuquimia Quispe Cel: 952362002 - Correo: sagilmc1988@gmail.com 31 Proceso: 1. Haga clic en la Dibujo Rectángulo 2. Designe el punto. 3. Presione la tecla Tab 4. Presione la tecla Enter para finalizar El resultado será un polígono cuadrado Repita el paso 1 y 2, luego presiona clic derecho del mouse, para visualizar 3 opciones como: Área Crea un rectángulo utilizando el área y una longitud o una anchura. Si las opciones Chaflán o Empalme están activas, el área incluye el efecto de los chaflanes o empalmes de las esquinas del rectángulo. La distancia de la Base La distancia de la Altura
  • 32.
    AutoCAD 2D MANUALTEÓRICO Y PRÁCTICA “ Prof.: Luis Miguel Chuquimia Quispe Cel: 952362002 - Correo: sagilmc1988@gmail.com 32  Precise área del rectángulo con las unidades actuales <100>: Introduzca un valor positivo  Calcular cotas del rectángulo en función de [Longitud/Anchura] <Longitud>: Escriba l o a  Precise longitud del rectángulo <10>: Escriba un valor distinto de cero O  Precise anchura del rectángulo <10>: Escriba un valor distinto de cero  Precise esquina opuesta o [áRea/Cotas/rOtación]: Mueva el cursor para mostrar una de las cuatro posibles ubicaciones del rectángulo y haga clic en la que desee. Cotas Crea un rectángulo usando valores de altura y anchura.  Precise longitud para rectángulos <0.0000> Escriba un valor distinto de cero  Precise altura para rectángulos <0.0000>Escriba un valor distinto de cero  Precise esquina opuesta o [áRea/Cotas/rOtación]: Mueva el cursor para mostrar una de las cuatro posibles ubicaciones del rectángulo y haga clic en la que desee. Rotación Crea un rectángulo con el ángulo de rotación especificado.  Precise ángulo de rotación o [Designar puntos] <0>: Especifique un ángulo introduciendo un valor, precisando un punto o escribiendo d y precisando dos puntos  Precise esquina opuesta o [áRea/Cotas/rOtación]: Mueva el cursor para mostrar una de las cuatro posibles ubicaciones del rectángulo y haga clic en la que desee HERRAMIENTA ARCO Para crear arcos, puede especificar varias combinaciones de valores de centro, punto final, punto inicial, radio, ángulo, longitud de cuerda y dirección. Puede crear arcos de varias maneras. Con la excepción del primer método, los arcos se dibujan en sentido contrario a las agujas del reloj desde el punto inicial al punto final. Utilizando distintas opciones, puede especificar en primer lugar el punto de inicio o el punto central. La opción común de cómo aplicar la herramienta Arco, 3 puntos
  • 33.
    AutoCAD 2D MANUALTEÓRICO Y PRÁCTICA “ Prof.: Luis Miguel Chuquimia Quispe Cel: 952362002 - Correo: sagilmc1988@gmail.com 33 Creando una puerta Elabora la siguiente figura Proceso: 1. Haga clic en la Dibujo Arco 2. Tres puntos Al igual que la herramienta Círculo, la herramienta Arco, adicionalmente tiene sub herramienta: Menú dibujo/Arco/ FIGURA MEDIDAS 1 2 3
  • 34.
    AutoCAD 2D MANUALTEÓRICO Y PRÁCTICA “ Prof.: Luis Miguel Chuquimia Quispe Cel: 952362002 - Correo: sagilmc1988@gmail.com 34 HERRAMIENTA CREAR BLOQUE Esta herramienta es muy útil para crear bloques que se utilizan en diseño de gráficos y planos. Junta las líneas, círculos, etc. La puerta es un bloque que se utiliza para el diseño de planos, que se utiliza generalmente las mismas dimensiones. Proceso: Dibuja la puerta 1. Haga clic en la Dibujo Crear Bloque, Visualiza un cuadro de propiedades 2. Selecciona el objeto y presiona la tecla Enter. 3. Asigna el punto base (permite mover el bloque) y presiona la tecla Enter. 4. Presiona el botón Aceptar para finalizar. 5. Selecciona la puerta y veras que es un solo bloque El nombre es de acuerdo al bloque y medida Selecciona el objeto (bloque)Punto base El punto base
  • 35.
    AutoCAD 2D MANUALTEÓRICO Y PRÁCTICA “ Prof.: Luis Miguel Chuquimia Quispe Cel: 952362002 - Correo: sagilmc1988@gmail.com 35 PRACTICA Nº 3 Elaborar los siguientes gráficos.
  • 36.
    AutoCAD 2D MANUALTEÓRICO Y PRÁCTICA “ Prof.: Luis Miguel Chuquimia Quispe Cel: 952362002 - Correo: sagilmc1988@gmail.com 36
  • 37.
    AutoCAD 2D MANUALTEÓRICO Y PRÁCTICA “ Prof.: Luis Miguel Chuquimia Quispe Cel: 952362002 - Correo: sagilmc1988@gmail.com 37 HERRAMIENTA ELIPSE La forma de una elipse viene determinada por dos ejes que definen su longitud y su grosor. El eje más largo se denomina eje mayor, mientras que el más corto recibe el nombre de eje menor. Las siguientes ilustraciones muestran dos elipses diferentes creadas mediante la especificación de una distancia y un eje determinados. El tercer punto solamente especifica una distancia y no designa necesariamente el punto final del eje. Proceso: Dibuja el siguiente círculo
  • 38.
    AutoCAD 2D MANUALTEÓRICO Y PRÁCTICA “ Prof.: Luis Miguel Chuquimia Quispe Cel: 952362002 - Correo: sagilmc1988@gmail.com 38 1. Haga clic en la Dibujo Elipse 2. 2 puntos de forma horizontal y coloca la distancia 25 Nuevamente: 1. Haga clic en la Dibujo Elipse 2. 2 puntos de forma vertical y coloca la distancia 25. Si está dibujando sobre un plano isométrico para simular un objeto tridimensional, puede emplear una elipse para representar los círculos isométricos vistos desde un ángulo oblicuo. Primero necesita activar Resolución isométrica en el cuadro de diálogo Parámetros de dibujo. 1 2 La distancia 25 Resultado Final
  • 39.
    AutoCAD 2D MANUALTEÓRICO Y PRÁCTICA “ Prof.: Luis Miguel Chuquimia Quispe Cel: 952362002 - Correo: sagilmc1988@gmail.com 39 HERRAMIENTA SOMBREADO Encontraras todos los bloques creados y de una manera fácil volver a utilizarlo HERRAMIENTA SOMBREADO Proceso: 1. Dibujo el siguiente gráfico. 2. Active la herramienta Sombreado Clic para asignar el punto Lista de bloques
  • 40.
    AutoCAD 2D MANUALTEÓRICO Y PRÁCTICA “ Prof.: Luis Miguel Chuquimia Quispe Cel: 952362002 - Correo: sagilmc1988@gmail.com 40 3. Presionar la tecla Enter para confirmar 4. Seleccionar la textura 5. Luego presionar aceptar 6. Configurar la escala (0.01) 7. Para ver como quedara el resultado, presiona el botón Previsualizar. 8. Luego presionar Aceptar, para finalizar. Los bordes muestran con líneas descontinuas Para reducir y aumentar el tamaño de textura. Ángulo de inclinación Presiona un clic en muestra Presione un clic en esta sección
  • 41.
    AutoCAD 2D MANUALTEÓRICO Y PRÁCTICA “ Prof.: Luis Miguel Chuquimia Quispe Cel: 952362002 - Correo: sagilmc1988@gmail.com 41 Color solido 1. Active la herramienta Sombreado 2. Elige el circulo restante 3. Presiona el estilo/muestra 4. Elige el tipo de muestra, Solido 5. Presiona el botón Aceptar. Una vez realizado este proceso, veras que cambia el estilo de muestra. 6. Finalmente presiona el botón Aceptar. Clic para asignar el punto Clic en el espacio vacío Clic, tipo de relleno Elige el color rojo En caso de elegir otro color
  • 42.
    AutoCAD 2D MANUALTEÓRICO Y PRÁCTICA “ Prof.: Luis Miguel Chuquimia Quispe Cel: 952362002 - Correo: sagilmc1988@gmail.com 42 PRACTICA Nº 4 Elaborar los siguientes gráficos con sus respectivas texturas. Texturas AR-SAND(ESC/0.01), HONEY(ESC/0.5), NET(ESC/0.5), GOST_GROUND (ESC/0.2)
  • 43.
    AutoCAD 2D MANUALTEÓRICO Y PRÁCTICA “ Prof.: Luis Miguel Chuquimia Quispe Cel: 952362002 - Correo: sagilmc1988@gmail.com 43 HERRAMIENTA DEGRADADO Proceso: 1. Dibujo el siguiente gráfico 2. Active la herramienta Degradado Clic para asignar el punto Las opciones son para elegir un color y dos colores Estilos de degrado para elegir Editar el ángulo de inclinación
  • 44.
    AutoCAD 2D MANUALTEÓRICO Y PRÁCTICA “ Prof.: Luis Miguel Chuquimia Quispe Cel: 952362002 - Correo: sagilmc1988@gmail.com 44 3. Elige el color que deseas 4. Asigna a los diferentes estación un tipo de degradado diferente Resultado final Clic para asignar el color Matizado/Colores de muestra
  • 45.
    AutoCAD 2D MANUALTEÓRICO Y PRÁCTICA “ Prof.: Luis Miguel Chuquimia Quispe Cel: 952362002 - Correo: sagilmc1988@gmail.com 45 PRACTICA Nº 5 Elaborar los siguientes gráficos
  • 46.
    AutoCAD 2D MANUALTEÓRICO Y PRÁCTICA “ Prof.: Luis Miguel Chuquimia Quispe Cel: 952362002 - Correo: sagilmc1988@gmail.com 46
  • 47.
    AutoCAD 2D MANUALTEÓRICO Y PRÁCTICA “ Prof.: Luis Miguel Chuquimia Quispe Cel: 952362002 - Correo: sagilmc1988@gmail.com 47 HERRAMIENTA TEXTO Criterios Los textos cumplen una función importante en la presentación de los gráficos y planos, se debe considerar lo siguiente:  El tamaño debe ser legible y claro desde el punto de vista del observador.  Debe existir relación proporcional entre los textos, gráficos y la escala del dibujo.  En la relación a los tipos de textos, tienen que ser adecuados y consecuente con el estilo arquitectónico.  Las alturas de los textos serán determinados en milímetros de 0.1, 0.2, 0.3, 0.4, 0.5, 0.6, 0.7, 0.8, 0.9, 1.0, evitándose usar proporcionales en cualquier escala. Por ejemplo, se necesita un texto que tenga de altura 2mm eb escala 1/50, debe seleccionar el resultado cuyo valor es 0.1. A continuación la tabla: CUADRO GENERAL DE ALTURAS DE TEXTO ALTURA EN mm ESCALAS GRÁFICAS 1/25 1/50 1/75 1/100 1/125 1/200 1/250 1/500 1 mm 0.025 0.05 0.075 0.1 0.125 0.2 0.25 0.5 2 mm 0.05 0.1 0.15 0.2 0.25 0.4 0.5 1.0 3 mm 0.075 0.15 0.225 0.3 0.375 0.6 0.75 1.5 4 mm 0.1 0.2 0.3 0.4 0.5 0.8 1.0 2.0 5 mm 0.125 0.25 0.375 0.5 0.625 1.0 1.25 2.5 6 mm 0.15 0.3 0.45 0.6 0.75 1.2 1.5 3.0 7 mm 0.175 0.35 0.525 0.7 0.875 1.4 1.75 3.5 8 mm 0.2 0.4 0.6 0.8 1.0 1.6 2.0 4.0 9 mm 0.225 0.45 0.675 0.9 1.125 1.8 2.25 4.5 10 mm 0.25 0.5 0.75 1.0 1.25 2.0 2.5 5.0
  • 48.
    AutoCAD 2D MANUALTEÓRICO Y PRÁCTICA “ Prof.: Luis Miguel Chuquimia Quispe Cel: 952362002 - Correo: sagilmc1988@gmail.com 48 ADMINISTRADOR DE ESTILOS DE TEXTO Todas las acciones se hacen a través del administrador de ESTILOS DE TEXTO. Proceso: 1. Presiona en icono 1) Estilos.- Muestra la lista de estilos del dibujo. 2) Filtro de lista de estilos.- La lista desplegable específica si se muestran todos los estilos que están en uso en la lista de estilos. 3) Nombre del tipo de Letra.- Muestra un alista con el nombre de estilos de fuente. 4) Estilo tipo de Letra.- Indica el formato de carácter del tipo de letra (cursiva, negrita o regular). 5) Definir actual.- Establece como actual el estilo seleccionado. 6) Nuevo.- Muestra el cuadro de dialogo Nuevo Estilo de texto. 7) Altura.- Establece la altura de texto. 8) Relación anchura/altura.- Establece el espacio entre caracteres. 9) Angulo oblicuo.- Establece el ángulo de inclinación. 10)Aplicar.- aplica los cambios de estilo realizados en el cuadro de dialogo. Lista de Estilos de Texto 1 2 3 4 7 8 5 6 10 9
  • 49.
    AutoCAD 2D MANUALTEÓRICO Y PRÁCTICA “ Prof.: Luis Miguel Chuquimia Quispe Cel: 952362002 - Correo: sagilmc1988@gmail.com 49 Proceso: 1. Presiona el botón Nuevo 2. Presiona el botón Aceptar 3. Presiona el botón Aplicar y Cerrar. Como insertar texto Proceso: Dibuja un cuadrado de 40 * 40 1. Presiona la herramienta Texto. 2. Insertar el cuadro de texto debajo del cuadrado. Visualiza la ventana de propiedades de la herramienta texto Colocar el nombre del estilo Cambiar las propiedades, de acuerdo al gráfico EL Estilo de fuente Confirmación La altura del texto
  • 50.
    AutoCAD 2D MANUALTEÓRICO Y PRÁCTICA “ Prof.: Luis Miguel Chuquimia Quispe Cel: 952362002 - Correo: sagilmc1988@gmail.com 50 3. Escribe el texto 4. Presiona el botón Aceptar Lo más recomendable es crear 5 fuentes diferentes para poder diferenciar el texto de cada figura. Resultado final Resultado final Aumenta o reduce el espacio de texto
  • 51.
    AutoCAD 2D MANUALTEÓRICO Y PRÁCTICA “ Prof.: Luis Miguel Chuquimia Quispe Cel: 952362002 - Correo: sagilmc1988@gmail.com 51 2.2. TÉCNICAS DE DIBUJO Dos Forma De Seleccionar Figuras Dibuja 2 círculos Para seleccionar un polígono. Simplemente presionar un clic en el borde de la figura y selecciona el objeto. Cuando se quiere seleccionar varios objetos, existen 2 maneras de selección. Selección de izquierda a derecha  La selección es de color Azul con los bordes continuos  Para seleccionar varios objetos, debes de cubrir por completo los objetos Selección de derecha a izquierda  La selección es de color Verde con los bordes descontinuos  Para seleccionar varios objetos, solo debes de cubrir una mínima parte del objeto.
  • 52.
    AutoCAD 2D MANUALTEÓRICO Y PRÁCTICA “ Prof.: Luis Miguel Chuquimia Quispe Cel: 952362002 - Correo: sagilmc1988@gmail.com 52 Finalizar Proceso Cada vez que seleccionas una herramienta y terminas el proceso, presionar la tecla Enter.  Este proceso se reemplaza, presionando el botón derecho del mouse para finalizar proceso. Acceso rápido Cuando se emplea seguido varias herramientas, se almacena en una lista de proceso.  Presiona clic derecho del Mouse/Entrada Reciente Crear Polilínea Elaborar los siguientes gráficos con la herramienta línea. 1. Menú Modificar/Objeto/ 2. Selecciona cualquier linea y aparecera una pregunta ¿lo quiere transformar en una? S, Pulse Enter para confirmar. 3. Ahora seleccionar todas las líneas y pulsa Enter y luego la tecla Esc Lista de herramientas usadas Elige la opciones Juntar
  • 53.
    AutoCAD 2D MANUALTEÓRICO Y PRÁCTICA “ Prof.: Luis Miguel Chuquimia Quispe Cel: 952362002 - Correo: sagilmc1988@gmail.com 53 2.3. BARRA DE HERRAMIENTA MODIFICAR HERRAMIENTA COPIAR Puede duplicar objetos a una distancia y dirección determinadas de los originales. Se repite automáticamente de forma predeterminada. Grafica la siguiente figura Proceso: 1. Haga clic en la Modificar > Copiar. 2. Designe el Círculo para la Copia y presione la tecla Enter.
  • 54.
    AutoCAD 2D MANUALTEÓRICO Y PRÁCTICA “ Prof.: Luis Miguel Chuquimia Quispe Cel: 952362002 - Correo: sagilmc1988@gmail.com 54 3. Precise el punto base (centro) y copia a cada esquina del cuadrado. 4. Para finalizar presione la tecla Enter o Esc. HERRAMIENTA SIMETRÍA Es posible pasar de un objeto a otro sobre un eje determinado para crear una imagen simétrica reflejada. La reflexión en simetría resulta útil para crear objetos simétricos, ya que puede dibujar rápidamente la mitad del objeto y después reflejarlo en vez de dibujar el objeto entero. Proceso: Grafica la siguiente figura 1. Haga clic en la Modificar Simetría. 2. Designa el gráfico. FIGURA MEDIDAS
  • 55.
    AutoCAD 2D MANUALTEÓRICO Y PRÁCTICA “ Prof.: Luis Miguel Chuquimia Quispe Cel: 952362002 - Correo: sagilmc1988@gmail.com 55 3. Precise el primer punto del eje de simetría. 4. Designe el segundo punto. 5. Pulse Enter para conservar los objetos originales o escriba S para borrarlos. Haga los mismos pasos para generar el siguiente gráfico. PRACTICA Nº 6 Elaborar los siguientes gráficos Eje Elemento primario
  • 56.
    AutoCAD 2D MANUALTEÓRICO Y PRÁCTICA “ Prof.: Luis Miguel Chuquimia Quispe Cel: 952362002 - Correo: sagilmc1988@gmail.com 56 Elemento primario Elemento primario Elemento primario
  • 57.
    AutoCAD 2D MANUALTEÓRICO Y PRÁCTICA “ Prof.: Luis Miguel Chuquimia Quispe Cel: 952362002 - Correo: sagilmc1988@gmail.com 57 Elemento primario
  • 58.
    AutoCAD 2D MANUALTEÓRICO Y PRÁCTICA “ Prof.: Luis Miguel Chuquimia Quispe Cel: 952362002 - Correo: sagilmc1988@gmail.com 58 Elemento primario
  • 59.
    AutoCAD 2D MANUALTEÓRICO Y PRÁCTICA “ Prof.: Luis Miguel Chuquimia Quispe Cel: 952362002 - Correo: sagilmc1988@gmail.com 59
  • 60.
    AutoCAD 2D MANUALTEÓRICO Y PRÁCTICA “ Prof.: Luis Miguel Chuquimia Quispe Cel: 952362002 - Correo: sagilmc1988@gmail.com 60
  • 61.
    AutoCAD 2D MANUALTEÓRICO Y PRÁCTICA “ Prof.: Luis Miguel Chuquimia Quispe Cel: 952362002 - Correo: sagilmc1988@gmail.com 61
  • 62.
    AutoCAD 2D MANUALTEÓRICO Y PRÁCTICA “ Prof.: Luis Miguel Chuquimia Quispe Cel: 952362002 - Correo: sagilmc1988@gmail.com 62 HERRAMIENTA DESFASE (DF) Desfase un objeto para crear un objeto nuevo cuya forma sea paralela a la forma del objeto original. DESFASE crea un objeto nuevo cuya forma es paralela a la forma de un objeto designado. Al desfasar un círculo o arco se crea un círculo o arco mayor o menor, dependiendo de qué lado se especifique para realizar el desfase. Una técnica de dibujo muy eficaz es desfasar objetos y, después, recortar o alargar sus extremos. Proceso: Grafica el siguiente objeto Gráfico Medidas
  • 63.
    AutoCAD 2D MANUALTEÓRICO Y PRÁCTICA “ Prof.: Luis Miguel Chuquimia Quispe Cel: 952362002 - Correo: sagilmc1988@gmail.com 63 1. Haga clic en la Modificar Desfase. 2. Precise la distancia de desplazamiento. 3. Designe el objeto que desee desfasar. 4. Precise un punto en el lado en el que desea situar los nuevos objetos. 5. Designe otro objeto para desfasarlo o pulse la tecla Enter para terminar. HERRAMIENTA MATRIZ Se pueden crear copias de objetos en un patrón rectangular o polar (circular) denominado matriz. En las matrices rectangulares, podrá controlar el número de filas y columnas y la distancia que debe mediar entre ellas. En el caso de las matrices polares, podrá controlar el número de copias del objeto y si las copias pueden girarse. Para crear muchos objetos con el mismo espaciado, es más rápido utilizar una matriz que copiarlos manualmente. Designa la cantidad de desfase (10) y pulsa Enter Resultado final
  • 64.
    AutoCAD 2D MANUALTEÓRICO Y PRÁCTICA “ Prof.: Luis Miguel Chuquimia Quispe Cel: 952362002 - Correo: sagilmc1988@gmail.com 64 CREACIÓN DE MATRICES RECTANGULARES Se crea una matriz rectangular a lo largo de la línea de base definida por el ángulo de rotación de referencia actual. Por defecto, dicho ángulo viene definido con el valor cero, lo que supone que las filas y columnas de una matriz rectangular sean ortogonales con respecto a los ejes X e Y. El parámetro predeterminado de la dirección del ángulo 0 se puede modificar en UNIDADES. Proceso: Grafica el siguiente objeto 1. Haga clic en la Modificar Matriz. 2. En el cuadro de diálogo Matriz, seleccione Matriz rectangular. Resultado final Designar las cantidades Designar el circulo y pulsa Enter Ver el resultado preliminar
  • 65.
    AutoCAD 2D MANUALTEÓRICO Y PRÁCTICA “ Prof.: Luis Miguel Chuquimia Quispe Cel: 952362002 - Correo: sagilmc1988@gmail.com 65 CREACIÓN DE MATRICES POLARES Al crear una matriz polar, dicha matriz se dibuja en el sentido de las agujas del reloj o en el contrario, según introduzca un valor negativo o positivo para los grados cubiertos. Proceso: Grafica el siguiente objeto La distancia marca, desde el centro del círculo.
  • 66.
    AutoCAD 2D MANUALTEÓRICO Y PRÁCTICA “ Prof.: Luis Miguel Chuquimia Quispe Cel: 952362002 - Correo: sagilmc1988@gmail.com 66 1. Haga clic en la Modificar Matriz 2. En el cuadro de diálogo Matriz, seleccione Matriz polar. 3. Designar las cantidades que muestra en el cuadro de propiedades 4. Haga clic en el botón Designar centro. Se cierra el cuadro de diálogo Matriz y se le solicita que designe los objetos. Utilice el dispositivo señalador para designar el centro de la matriz polar. Resultado final Cantidad de grados Centro del eje
  • 67.
    AutoCAD 2D MANUALTEÓRICO Y PRÁCTICA “ Prof.: Luis Miguel Chuquimia Quispe Cel: 952362002 - Correo: sagilmc1988@gmail.com 67 PRACTICA Nº 7 Elaborar los siguientes gráficos
  • 68.
    AutoCAD 2D MANUALTEÓRICO Y PRÁCTICA “ Prof.: Luis Miguel Chuquimia Quispe Cel: 952362002 - Correo: sagilmc1988@gmail.com 68 HERRAMIENTA DESPLAZAR Puede desplazar objetos a una distancia y dirección determinadas de los originales. Desplace un objeto mediante la distancia y la dirección especificada a través de un punto base seguido de un segundo punto. 1. Haga clic en la Modificar > Desplazar. 2. Seleccione los objetos que desee desplazar. 3. Precise un punto base para el desplazamiento. 4. Designe un segundo punto. HERRAMIENTA GIRAR Los objetos incluidos en un dibujo se pueden girar alrededor de un punto base especificada. Para determinar el ángulo de rotación, puede introducir un valor de ángulo, arrastrar el objeto con el cursor o especificar un ángulo de referencia para alinearlo con un ángulo absoluto. Por ejemplo, puede rotar la vista en planta de una casa designando los objetos (1), precisando un punto base (2) y especificando un ángulo de rotación arrastrando a otro punto (3). Punto Base
  • 69.
    AutoCAD 2D MANUALTEÓRICO Y PRÁCTICA “ Prof.: Luis Miguel Chuquimia Quispe Cel: 952362002 - Correo: sagilmc1988@gmail.com 69 Proceso: Grafica el siguiente objeto 1. Haga clic en Modificar > Girar 2. Designe el objeto y pulsa Enter 3. Especifique el punto base de la rotación. 4. Pulsa Enter para finalizar Escala Referencial Utiliza la misma figura y traza una línea con un ángulo de inclinación de 73º Punto Base Angulo de inclinación (45) FIGURA MEDIDAS
  • 70.
    AutoCAD 2D MANUALTEÓRICO Y PRÁCTICA “ Prof.: Luis Miguel Chuquimia Quispe Cel: 952362002 - Correo: sagilmc1988@gmail.com 70 Mueve el cuadrado como muestra en la figura 1. Haga clic en Modificar > Girar 2. Designe el objeto y pulsa Enter 3. Especifique el punto base de la rotación. 4. Escribe la letra R(referencia) y pulsa Enter 5. Especifique 2 puntos base. 6. El segundo punto, alinea al vector inclinado HERRAMIENTA ESCALA Puede ajustar el tamaño de los objetos para alargarlos o acortarlos en una sola dirección, o bien, hacerlos proporcionalmente mayores o menores. También puede estirar ciertos objetos desplazando un punto final incluido, vértice o punto de apoyo 1 2 2 Punto Resultado final
  • 71.
    AutoCAD 2D MANUALTEÓRICO Y PRÁCTICA “ Prof.: Luis Miguel Chuquimia Quispe Cel: 952362002 - Correo: sagilmc1988@gmail.com 71 Proceso: Grafica el siguiente objeto 1. Haga clic en la Modificar > Escala 2. Designe el objeto y pulse la tecla Enter 3. Precise el punto base. 4. Indique el factor de escala o arrastre y haga clic para especificar una escala nueva. CUADRO DE ESCALAS DE ALARGAR O ACORTAR LOS OBJETOS ESCALA OPERACIÓN DETALLE 1/25 4 Aumenta la escala en 4 veces su tamaño 1/50 2 Aumenta la escala en 2 veces su tamaño 1/100 1/1 Escala normal 1/225 1/2 o 0.5 Reduce la escala en la mitad 1/500 1/4 o 0.25 Reduce la escala en un cuarto Punto Base Reduce la escala a la mitad FIGURA MEDIDAS
  • 72.
    AutoCAD 2D MANUALTEÓRICO Y PRÁCTICA “ Prof.: Luis Miguel Chuquimia Quispe Cel: 952362002 - Correo: sagilmc1988@gmail.com 72 Escala en una medida exacta Por ejemplo, tenemos un objeto o plano con decimales y deseamos aumentar o reducir en una medida exacta. Las medidas de estados unidos, no son las mismas medidas de los latinoamericanos.  Se utiliza básicamente en bloques (muebles) para darle una medida exacta de acuerdo en el lugar donde habitas Proceso: Grafica el siguiente objeto Se dará en un diámetro de 10 1. Haga clic en la Modificar > Escala 2. Designe el circulo y línea, pulse la tecla Enter 3. Precise el punto base. 4. Escribe la letra R y presiona la tecla Enter. Escala normal Punto Base
  • 73.
    AutoCAD 2D MANUALTEÓRICO Y PRÁCTICA “ Prof.: Luis Miguel Chuquimia Quispe Cel: 952362002 - Correo: sagilmc1988@gmail.com 73 5. Precise 2 puntos base y coloca la cantidad 10 y presiona la tecla Enter. Resultado Final HERRAMIENTA RECORTAR , ALARGAR Puede acortar o alargar objetos para que se encuentren con las aristas de otros objetos. Esto significa que primero puede crear un objeto, como una línea, y después ajustarlo con precisión entre otros objetos.  Los objetos seleccionados como aristas de corte o de contorno no son imprescindibles para intersecar el objeto que se va a recortar. Puede recortar o alargar un objeto hasta una arista proyectada o una intersección extrapolada; es decir, donde los objetos deberían intersecarse si se alargaran. 1 Cantidad 10 2 RECORTAR ALARGAR
  • 74.
    AutoCAD 2D MANUALTEÓRICO Y PRÁCTICA “ Prof.: Luis Miguel Chuquimia Quispe Cel: 952362002 - Correo: sagilmc1988@gmail.com 74 Proceso Recortar: Elaborar el siguiente gráfico: 1. Haga clic en la Modificar > Recortar. 2. Seleccionar todo el gráfico y Pulsa Enter. 3. Designe los objetos que desee recortar. 4. Para terminar, presione la tecla Enter o Esc. Resultado final Gráfico Medidas Agrega textura y los detalles Objetos a recortar
  • 75.
    AutoCAD 2D MANUALTEÓRICO Y PRÁCTICA “ Prof.: Luis Miguel Chuquimia Quispe Cel: 952362002 - Correo: sagilmc1988@gmail.com 75 Proceso Alargar: Elaborar el siguiente gráfico: 1. Haga clic en la Modificar > Alargar. 2. Seleccionar todo el gráfico y Pulsa Enter. 3. Designe los objetos que desee alargar. 4. Para terminar, presione la tecla Enter o Esc. BARRA DE PROPIEDADES Es importante diferenciar las líneas y objetos, para una buena apreciación, por tal motivo se modifica las líneas y objetos de acuerdo a la necesidad. Ojo se emplea cuando no se utiliza capas. Gráfico Medidas Color de línea Tipo de línea Grosor de línea Se activa mostrar grosor de líneaColor rojo, grosor 0.80 mm. Color magenta, grosor 0.50 mm. Color Azul, grosor 0.05 mm.
  • 76.
    AutoCAD 2D MANUALTEÓRICO Y PRÁCTICA “ Prof.: Luis Miguel Chuquimia Quispe Cel: 952362002 - Correo: sagilmc1988@gmail.com 76 HERRAMIENTA ESTIRAR Puede acortar o alargar objetos que sean dibujas con la herramienta Polilínea. Proceso: Elaborar el siguiente gráfico con la herramienta Polilínea: 1. Haga clic en la Modificar > Estirar 2. Seleccionar la sección que desea estirar y Pulsa Enter. 3. Designe el punto de partida y coloque la cantidad de 20 y Pulse Enter Seleccione de derecha - izquierda Punto de partida y estirar hacia la derecha
  • 77.
    AutoCAD 2D MANUALTEÓRICO Y PRÁCTICA “ Prof.: Luis Miguel Chuquimia Quispe Cel: 952362002 - Correo: sagilmc1988@gmail.com 77 PRACTICA Nº 8 Elaborar los siguientes gráficos
  • 78.
    AutoCAD 2D MANUALTEÓRICO Y PRÁCTICA “ Prof.: Luis Miguel Chuquimia Quispe Cel: 952362002 - Correo: sagilmc1988@gmail.com 78
  • 79.
    AutoCAD 2D MANUALTEÓRICO Y PRÁCTICA “ Prof.: Luis Miguel Chuquimia Quispe Cel: 952362002 - Correo: sagilmc1988@gmail.com 79
  • 80.
    AutoCAD 2D MANUALTEÓRICO Y PRÁCTICA “ Prof.: Luis Miguel Chuquimia Quispe Cel: 952362002 - Correo: sagilmc1988@gmail.com 80
  • 81.
    AutoCAD 2D MANUALTEÓRICO Y PRÁCTICA “ Prof.: Luis Miguel Chuquimia Quispe Cel: 952362002 - Correo: sagilmc1988@gmail.com 81
  • 82.
    AutoCAD 2D MANUALTEÓRICO Y PRÁCTICA “ Prof.: Luis Miguel Chuquimia Quispe Cel: 952362002 - Correo: sagilmc1988@gmail.com 82
  • 83.
    AutoCAD 2D MANUALTEÓRICO Y PRÁCTICA “ Prof.: Luis Miguel Chuquimia Quispe Cel: 952362002 - Correo: sagilmc1988@gmail.com 83
  • 84.
    AutoCAD 2D MANUALTEÓRICO Y PRÁCTICA “ Prof.: Luis Miguel Chuquimia Quispe Cel: 952362002 - Correo: sagilmc1988@gmail.com 84
  • 85.
    AutoCAD 2D MANUALTEÓRICO Y PRÁCTICA “ Prof.: Luis Miguel Chuquimia Quispe Cel: 952362002 - Correo: sagilmc1988@gmail.com 85 HERRAMIENTA CHAFLÁN Un chaflán conecta dos objetos para que se encuentren en una esquina aplastada o biselada. Un chaflán conecta dos objetos con una línea en ángulo. Normalmente se utiliza para representar un borde biselado en una esquina. Puede achaflanar:  Líneas  Polilíneas  Rayos  líneas auxiliares  3D (sólidos). Se puede utilizar CHAFLAN para biselar todas las esquinas de una Polilínea mediante un único comando. Proceso: Crear el siguiente gráfico . 1. Haga clic en la Modificar Chaflán. 2. Escriba d (Distancia) y pulsa Enter. 3. Escriba la distancia del primer chaflán, 15 y pulsa Enter. 4. Escriba la distancia del segundo chaflán, 20 y pulsa Enter. 5. Designe las líneas que desee achaflanar.
  • 86.
    AutoCAD 2D MANUALTEÓRICO Y PRÁCTICA “ Prof.: Luis Miguel Chuquimia Quispe Cel: 952362002 - Correo: sagilmc1988@gmail.com 86 Resultado Final HERRAMIENTA EMPALME Un empalme conecta dos objetos mediante un arco que es tangente a los objetos y tiene un radio determinado. Una esquina interior se denomina empalme y una esquina exterior se denomina redondeo. Puede empalmar:  Arcos  Círculos  Elipses y arcos elípticos  Líneas  Polilíneas  Rayos  Splines  Líneas auxiliares  3d (sólidos)
  • 87.
    AutoCAD 2D MANUALTEÓRICO Y PRÁCTICA “ Prof.: Luis Miguel Chuquimia Quispe Cel: 952362002 - Correo: sagilmc1988@gmail.com 87 Proceso: Crear el siguiente gráfico 1. Haga clic en la Modificar Empalme. 2. Escriba ra (Radio) y pulsa Enter. 3. Defina el radio del empalme, 10 y pulsa Enter. 4. Designe los objetos que desee empalmar. Resultado Final PRACTICA Nº 9 Elaborar los siguientes gráficos. Dibujo original
  • 88.
    AutoCAD 2D MANUALTEÓRICO Y PRÁCTICA “ Prof.: Luis Miguel Chuquimia Quispe Cel: 952362002 - Correo: sagilmc1988@gmail.com 88
  • 89.
    AutoCAD 2D MANUALTEÓRICO Y PRÁCTICA “ Prof.: Luis Miguel Chuquimia Quispe Cel: 952362002 - Correo: sagilmc1988@gmail.com 89
  • 90.
    AutoCAD 2D MANUALTEÓRICO Y PRÁCTICA “ Prof.: Luis Miguel Chuquimia Quispe Cel: 952362002 - Correo: sagilmc1988@gmail.com 90 HERRAMIENTA DESCOMPONER Si necesita modificar por separado uno o más objetos incluidos en un bloque, puede desensamblar, o descomponer, la referencia a bloque en sus componentes. Después de realizar los cambios, puede  Crear una nueva definición de bloque  Redefinir la definición de bloque existente  No combinar los componentes para utilizarlos en otra ocasión Puede descomponer automáticamente referencias a bloque a medida que las inserta seleccionando la opción Descomponer en el cuadro de diálogo Insertar. Proceso: 1. Haga clic en la Modificar > Descomponer 2. Seleccione el bloque que desea descomponer. Pulse Enter. La referencia a bloque se desensambla en sus componentes; no obstante, la definición de bloque todavía existe en el dibujo y se podrá insertar posteriormente. BARRA DE HERRAMIENTA ACOTAR La acotación es el proceso por medio del cual se añaden anotaciones de medida a un dibujo. VISUALIZAR LA BARRA DE ACOTAR:  Menú herramienta/Barras de Herramientas/AUTOCAD/Acotar Puede crear cotas para una gran variedad de tipos de objeto en muchas orientaciones. Los tipos básicos de cotas son:  Lineal  Radial (radio, diámetro y con recodo)  Angular  Coordenada  Longitud de arco
  • 91.
    AutoCAD 2D MANUALTEÓRICO Y PRÁCTICA “ Prof.: Luis Miguel Chuquimia Quispe Cel: 952362002 - Correo: sagilmc1988@gmail.com 91 Las cotas lineales pueden ser horizontales, verticales, alineadas, giradas, de línea base o continuas (en cadena). En la ilustración se muestran algunos ejemplos. Se va considerar solamente las herramientas importantes y más comunes, investiga las herramientas restantes. En cuanto las alturas de texto, se trabajara con escalas. HERRAMIENTA ACOTAR LINEAL Se puede acotar de forma vertical y horizontal a las ubicaciones u objetos que especifique. 1. Haga clic en la Acotar lineal 2. Designe un segmento, especifique los orígenes de la primera y segunda línea de referencia.  Introduzca las opciones según sea necesario en caso que quiera modificar la cantidad o introducir texto.  Para editar el contenido del texto de cota, escriba t (texto) o m (texto de líneas múltiples). Si edita el texto dentro de los corchetes (<>) o los sobrescribe, se cambia o se elimina el valor de la cota. Si añade texto antes o después de los corchetes, éste se agregará antes o después del valor de la cota.
  • 92.
    AutoCAD 2D MANUALTEÓRICO Y PRÁCTICA “ Prof.: Luis Miguel Chuquimia Quispe Cel: 952362002 - Correo: sagilmc1988@gmail.com 92 HERRAMIENTA ACOTAR ALINEADA Se pueden crear cotas paralelas a las ubicaciones u objetos que especifique. Las cotas alineadas se caracterizan porque la línea de cota es paralela a los orígenes de las líneas de referencia. La ilustración muestra dos ejemplos de cotas alineadas. Se designa un objeto (1) y se indica el emplazamiento de la cota alineada (2). Las líneas de referencia se dibujan de forma automática. 1. Haga clic en la Acotar Alineada. 2. Designe un segmento, especifique los orígenes de la primera y segunda línea de referencia.  Introduzca las opciones según sea necesario en caso que quiera modificar la cantidad o introducir texto.  Para editar el contenido del texto de cota, escriba t (texto) o m (texto de líneas múltiples). Si edita el texto dentro de los corchetes (<>) o los sobrescribe, se cambia o se elimina el valor de la cota. Si añade texto antes o después de los corchetes, éste se agregará antes o después del valor de la cota. HERRAMIENTA ACOTAR RADIO Una cota radial indica el radio de un arco o un círculo con líneas de centro o marcas de centro opcionales. Mide el radio de un arco o un círculo y muestra el texto de cota con la letra R delante.
  • 93.
    AutoCAD 2D MANUALTEÓRICO Y PRÁCTICA “ Prof.: Luis Miguel Chuquimia Quispe Cel: 952362002 - Correo: sagilmc1988@gmail.com 93 Proceso: 1. Haga clic en la Acotar Radio. 2. Designe un segmento de arco de Polilínea, un círculo o un arco.  Introduzca las opciones según sea necesario en caso que quiera modificar la cantidad o introducir texto.  Para editar el contenido del texto de cota, escriba t (texto) o m (texto de líneas múltiples). Si edita el texto dentro de los corchetes (<>) o los sobrescribe, se cambia o se elimina el valor de la cota. Si añade texto antes o después de los corchetes, éste se agregará antes o después del valor de la cota. HERRAMIENTA COTA DIAMETRO Una cota radial indica el diámetro de un arco o un círculo con líneas de centro o marcas de centro opcionales. Mide el diámetro de un arco o círculo y muestra el texto de cota con el símbolo de diámetro delante. Proceso: 1. Haga clic en la Acotar Diámetro. 2. Designe el arco o el círculo que desea acotar.  Introduzca las opciones según sea necesario en caso que quiera modificar la cantidad o introducir texto.  Para editar el contenido del texto de cota, escriba t (texto) o m (texto de líneas múltiples). Si edita el texto dentro de los corchetes (<>) o los sobrescribe, se cambia o se elimina el valor de la cota. Si añade texto antes o después de los corchetes, éste se agregará antes o después del valor de la cota.
  • 94.
    AutoCAD 2D MANUALTEÓRICO Y PRÁCTICA “ Prof.: Luis Miguel Chuquimia Quispe Cel: 952362002 - Correo: sagilmc1988@gmail.com 94 HERRAMIENTA COTA ANGULAR Las cotas angulares miden el ángulo formado por dos líneas o tres puntos. 1. Haga clic en la Acotar Angular. 2. Emplee uno de los siguientes métodos:  Para acotar un círculo, designe éste en el primer punto final del ángulo y, a continuación, precise el segundo punto final del ángulo.  Para acotar cualquier otro objeto, designe la primera línea y luego la segunda. HERRAMIENTA COTA CONTINUAR Las cotas de línea base son conjuntos de cotas cuyas medidas se toman a partir de la misma línea base. Las cotas continuas son conjuntos de cotas encadenadas. Proceso: 1. Haga clic en la ficha Anotar panel Cotas Continuar. El programa utiliza el origen de la segunda línea de referencia correspondiente a la cota actual como el primer origen de la línea de referencia. 2. Utilice referencias a objetos para designar orígenes adicionales de líneas de referencia. 3. Pulse Enter dos veces para terminar el comando.
  • 95.
    AutoCAD 2D MANUALTEÓRICO Y PRÁCTICA “ Prof.: Luis Miguel Chuquimia Quispe Cel: 952362002 - Correo: sagilmc1988@gmail.com 95 PRACTICA Nº 10 Elaborar los siguientes gráficos con sus respectivas cotas.
  • 96.
    AutoCAD 2D MANUALTEÓRICO Y PRÁCTICA “ Prof.: Luis Miguel Chuquimia Quispe Cel: 952362002 - Correo: sagilmc1988@gmail.com 96
  • 97.
    AutoCAD 2D MANUALTEÓRICO Y PRÁCTICA “ Prof.: Luis Miguel Chuquimia Quispe Cel: 952362002 - Correo: sagilmc1988@gmail.com 97 PRACTICA Nº 11 Elaborar los siguientes gráficos, coloca las medidas de los detalles de acuerdo a tu criterio.
  • 98.
    AutoCAD 2D MANUALTEÓRICO Y PRÁCTICA “ Prof.: Luis Miguel Chuquimia Quispe Cel: 952362002 - Correo: sagilmc1988@gmail.com 98
  • 99.
    AutoCAD 2D MANUALTEÓRICO Y PRÁCTICA “ Prof.: Luis Miguel Chuquimia Quispe Cel: 952362002 - Correo: sagilmc1988@gmail.com 99
  • 100.
    AutoCAD 2D MANUALTEÓRICO Y PRÁCTICA “ Prof.: Luis Miguel Chuquimia Quispe Cel: 952362002 - Correo: sagilmc1988@gmail.com 100
  • 101.
    AutoCAD 2D MANUALTEÓRICO Y PRÁCTICA “ Prof.: Luis Miguel Chuquimia Quispe Cel: 952362002 - Correo: sagilmc1988@gmail.com 101 PRACTICA Nº 12 Elaborar los siguientes gráficos, coloca las medidas de los detalles de acuerdo a tu criterio.
  • 102.
    AutoCAD 2D MANUALTEÓRICO Y PRÁCTICA “ Prof.: Luis Miguel Chuquimia Quispe Cel: 952362002 - Correo: sagilmc1988@gmail.com 102
  • 103.
    AutoCAD 2D MANUALTEÓRICO Y PRÁCTICA “ Prof.: Luis Miguel Chuquimia Quispe Cel: 952362002 - Correo: sagilmc1988@gmail.com 103
  • 104.
    AutoCAD 2D MANUALTEÓRICO Y PRÁCTICA “ Prof.: Luis Miguel Chuquimia Quispe Cel: 952362002 - Correo: sagilmc1988@gmail.com 104 CAPÍTULO 3 3.1. PLANOS, CORTES, ELEVACIONES E IMPRESIÓN (PLOTEER) En este capítulo se trabaja todo referente a la elaboración de proyectos de vivienda, presentación y escalas. CONFIGURACIÓN DE COTAS Para visualizar la barra de herramienta de cotas, realizamos los siguientes pasos.  Menú herramienta/Barras de Herramientas/AUTOCAD/Acotar Cuando se trabaja con pequeños dibujos, las cotas no son de acuerdo al dibujo, por tal motivo es necesario crear estilos de cotas. Ejemplo: El texto disminuye de tamaño, esto permite ver todas las medidas del plano, a su vez se visualiza de manera ordenada y limpia al momento de Plotter. Gráfico Cotas ISO-25 Cotas escala 1/75 Estilos de Cotas
  • 105.
    AutoCAD 2D MANUALTEÓRICO Y PRÁCTICA “ Prof.: Luis Miguel Chuquimia Quispe Cel: 952362002 - Correo: sagilmc1988@gmail.com 105 CREAR ESTILO DE COTA 1/100 Proceso: 1. Presiona estilos de cota Inmediatamente se visualizara el listado de cotas por defecto y la vista previa  Anotativo (que no se usara)  Standard (que no se usara)  ISO-25 que será la base de creación de estilos de cotas Además se muestra un grupo de acciones básicas. Siempre se creara un nuevo estilo a partir del estilo de Cota ISO-25. Este es un estilo predominado del programa y será el punto de partida para crear más estilos de cotas. Si no está seleccionada, proceda a seleccionar. Estilos Visuales Estilos Visuales
  • 106.
    AutoCAD 2D MANUALTEÓRICO Y PRÁCTICA “ Prof.: Luis Miguel Chuquimia Quispe Cel: 952362002 - Correo: sagilmc1988@gmail.com 106 2. En este caso haga clic en Nuevo y luego, coloca como nombre “COTAS 1-100” y presiona Continuar. Ahora se visualizara todas las pestañas y vista preliminar donde se van actualizando los campos. Se modificaran los parámetros en el siguiente orden: 3ro 2do 1ro 4to 5to LÍNEAS SÍMBOLO Y FLECHAS TEXTO AJUSTAR UNIDADES PRIMARIAS 3. Ingresar los siguientes datos
  • 107.
    AutoCAD 2D MANUALTEÓRICO Y PRÁCTICA “ Prof.: Luis Miguel Chuquimia Quispe Cel: 952362002 - Correo: sagilmc1988@gmail.com 107 4. Cambiar los parámetros de la pestaña Símbolos y flechas. 5. Cambiar los parámetros de la pestaña Líneas.
  • 108.
    AutoCAD 2D MANUALTEÓRICO Y PRÁCTICA “ Prof.: Luis Miguel Chuquimia Quispe Cel: 952362002 - Correo: sagilmc1988@gmail.com 108 6. Cambiar los parámetros de la pestaña Ajustar. 7. Cambiar los parámetros de la pestaña Unidades Principales. 8. Una vez cambiado los parámetros pulso el botón Aceptar.
  • 109.
    AutoCAD 2D MANUALTEÓRICO Y PRÁCTICA “ Prof.: Luis Miguel Chuquimia Quispe Cel: 952362002 - Correo: sagilmc1988@gmail.com 109 9. Una vez terminado, te darás cuenta que en estilos, muestra COTAS 1-100. CUADRO GENERAL DE ESTILOS DE COTAS APARTADO OPCIONES ESCALAS 1/25 1/50 1/75 1/100 1/125 TEXTO Estilo de texto Seleccione estilo de texto: Normal u otro Disponible Altura de texto 0.05 0.1 0.15 0.2 0.25 Ubicación del texto vertical Exterior 0.04 0.08 0.12 0.16 0.20 SÍMBOLO Y FLECHAS Extremos de cota De acuerdo al diseño de plano Tamaño de fecha 0.025 0.05 0.075 0.1 0.125 LÍNEAS Intervalo de línea base 0.025 0.05 0.075 0.1 0.125 Ampliar líneas de cotas 0.025 0.05 0.075 0.1 0.125 Desfase desde el origen 0.025 0.05 0.075 0.1 0.125 Líneas de referencia de longitud fija 0.1 0.2 0.3 0.4 0.5 AJUSTAR Opciones de ajuste Elegir Siempre Mantener el texto entre líneas de referencia UNIDADES PRIMARIAS Separador decimal Periodo Supresión de cotas Desactivar a la derecha Acotaciones angulares 2 decimales (0.00) Para finalizar presiona Cerrar
  • 110.
    AutoCAD 2D MANUALTEÓRICO Y PRÁCTICA “ Prof.: Luis Miguel Chuquimia Quispe Cel: 952362002 - Correo: sagilmc1988@gmail.com 110 BARRA DE HERRAMIENTA CAPAS Las capas se utilizan para agrupar información de un dibujo según sea su función y para reforzar los tipos de línea, el color y otros parámetros. Las capas son equivalentes a las hojas transparentes que se utilizan en el diseño sobre papel. Las capas son la herramienta organizativa principal empleada en el dibujo. Las capas se utilizan para agrupar información por función y para imponer el tipo de línea, el color y otras normas. Mediante la creación de capas, es posible asociar tipos similares de objetos asignándolos a la misma capa. Por ejemplo, se pueden poner líneas auxiliares, texto, cotas y cuadros de rotulación en diferentes capas. De esta forma podrá controlar los siguientes aspectos:  Si los objetos que hay en una capa son visibles o están atenuados en cualquier ventana gráfica.  Si los objetos se trazan y cómo lo hacen.  Qué color se asigna a todos los objetos de una capa.  Qué tipo y grosor de línea predeterminados se asignan a todos los objetos de una capa.  Si los objetos de una capa pueden modificarse. Todos los dibujos incluyen una capa denominada 0. La capa 0 no se puede suprimir ni cambiar de nombre. Esta capa cumple dos funciones:  Garantizar que todos los dibujos incluyen al menos una capa  Proporcionar una capa especial relacionada con el control de colores en bloques Proceso: Presiona el administrador de capas
  • 111.
    AutoCAD 2D MANUALTEÓRICO Y PRÁCTICA “ Prof.: Luis Miguel Chuquimia Quispe Cel: 952362002 - Correo: sagilmc1988@gmail.com 111 1. Nueva capa 2. Crea una nueva capa y la inutiliza en todas las ventanas graficas de presentación 3. Suprime las capas seleccionas 4. Establece la capa designada como actual 5. Muestra el estado de la capa 6. Cambia el nombre de la capa 7. Activa o desactiva la capa 8. Inutiliza y reutiliza la capa 9. Bloquea o desbloquea la capa 10.Cambia el color de la capa 11.Cambia el tipo de línea 12.Cambia el grosor de la línea 13.Cambia el estilo de impresión 14.Determina si la capa se puede imprimir o no. 15.Inutiliza la capa en las nuevas ventanas gráficas creadas 16.Cambia la descripción en todo el dibujo  Crear una la nueva capa 1 2 3 4 5 6 7 8 9 10 11 12 13 14 15 16 En esta zona se usan filtros de capas a manera de agrupamientos sobre capas creadas En esta zona se crean, modifican y organizan las propiedades de la capas en uso. De esto depende en gran parte de la productividad de los gráficos realizados Pulsa nueva capa
  • 112.
    AutoCAD 2D MANUALTEÓRICO Y PRÁCTICA “ Prof.: Luis Miguel Chuquimia Quispe Cel: 952362002 - Correo: sagilmc1988@gmail.com 112  Ingresa el nombre cambia el color de capa rojo  Cambia el grosor de la línea  Crear las siguientes capas, tomar en cuenta el color (de acuerdo a tu criterio) y el grosor de línea. Los bloques que muestran en el proyecto nº1 los puedes solicitar al docente o descargar de internet Asigna el nombre: MUROS BAJOS Cambia el color
  • 113.
    AutoCAD 2D MANUALTEÓRICO Y PRÁCTICA “ Prof.: Luis Miguel Chuquimia Quispe Cel: 952362002 - Correo: sagilmc1988@gmail.com 113 ADMINISTRADOR DE LÍNEAS Con la barra de herramienta propiedades, tipo de línea presiona la opción Otros… Venta de administrador de líneas, por defecto solo debe de mostrar  Por capa  Por boque  Continuous Para agregar una nueva línea presiona el botón Cargar Para agregar líneas Elige el punto y el trazo para los cortes Aceptar para confirmar Presiona doble clic para cambiar el Nombre
  • 114.
    AutoCAD 2D MANUALTEÓRICO Y PRÁCTICA “ Prof.: Luis Miguel Chuquimia Quispe Cel: 952362002 - Correo: sagilmc1988@gmail.com 114 Ejemplo de utilización de tipos de línea Para aumentar o disminuir el tipo de línea, presiona las Teclas Ctrl + 1 para ver las propiedades de la línea. Líneas Ventana alta, Baño Expresa vacío, Patio Escala de modificación
  • 115.
    AutoCAD 2D MANUALTEÓRICO Y PRÁCTICA “ Prof.: Luis Miguel Chuquimia Quispe Cel: 952362002 - Correo: sagilmc1988@gmail.com 115 PROYECTO Nº 1 Elaborar el siguiente proyecto y colocar cada elemento a la capa que le corresponda
  • 116.
    AutoCAD 2D MANUALTEÓRICO Y PRÁCTICA “ Prof.: Luis Miguel Chuquimia Quispe Cel: 952362002 - Correo: sagilmc1988@gmail.com 116 Desfase de la ventana IMPRIMIR DESDE EL ESPACIO MODELO SE PUEDE acceder para imprimir mediante las siguientes opciones  Menú Archivo/ Trazar O  Presionando las teclas Ctrl + P Herramienta de acceso rápido Visualizara la venta de parámetros de impresión Usar la herramienta Desfase Elige el tipo de impresora, en caso que no exista una impresora elegir: DWG6 ePlot o DWG To PDF Elige el modo de impresión, colores o solo tinta negra El formato y tamaño de presentación de la impresión Área de impresión, de preferencia la opción ventana (Eliges la zona que deseas imprimir) Orientación de la hoja, vertical y Horizontal La escala de impresión personalizada Ver vista preliminar antes de imprimir Activar para centrar el grafico
  • 117.
    AutoCAD 2D MANUALTEÓRICO Y PRÁCTICA “ Prof.: Luis Miguel Chuquimia Quispe Cel: 952362002 - Correo: sagilmc1988@gmail.com 117 TABLA GENERAL DE ESCALAS DE IMPRESIÓN ESCALA FRACCIÓN 1 en 25 1000/25 1 en 50 1000/50 1 en 100 1000 /100 1 en 125 1000/125 1 en 200 1000/200 1 en 250 1000/250 1 en 500 1000/500 1 en 1000 1000/1000 1 en 2000 1000/2000 1 en 2500 1000/2500 1 en 5000 1000/5000 CONFIGURACIÓN DE PRESENTACIÓN DE PÁGINA Algunos parámetros repiten de modo de impresión Modelo, el modo presentación es la preparación de la impresión estable con la ventaja de tener varias vistas con diferentes escalas. Presiona en la pestaña Presentación1 Observa que muestra el plano en tono el espacio de la hoja
  • 118.
    AutoCAD 2D MANUALTEÓRICO Y PRÁCTICA “ Prof.: Luis Miguel Chuquimia Quispe Cel: 952362002 - Correo: sagilmc1988@gmail.com 118 Proceso: Presiona doble clic para cambiar el Nombre Presiona clic derecho en la Pestaña/Administrador de configuración de página Visualiza las presentaciones disponibles para modificar. Colocar los siguientes parámetros Presiona el botón modificar. Presiona el botón Aceptar y Cerrar
  • 119.
    AutoCAD 2D MANUALTEÓRICO Y PRÁCTICA “ Prof.: Luis Miguel Chuquimia Quispe Cel: 952362002 - Correo: sagilmc1988@gmail.com 119 El espacio y la alineación se modifico  Activamos la barra de herramientas Estilos Visuales  Menú Herramientas/Barra de Herramientas/AutoCad/ Estilos Visuales Borrar la ventana gráfica Ingresa una nueva venta Dibuja una ventana, tal como muestra en la imagen
  • 120.
    AutoCAD 2D MANUALTEÓRICO Y PRÁCTICA “ Prof.: Luis Miguel Chuquimia Quispe Cel: 952362002 - Correo: sagilmc1988@gmail.com 120  Selecciona la ventana gráfica y colocar en la barra de Escala 1000/100 La figura aumenta el tamaño a escala 1 en 100  Para mover el gráfico, presiona doble clic en el centro de la ventana  El borde del marco aumenta de grosor, puedes aumentar, disminuir y mover el gráfico.  Para salir, presionar doble clic fuera de la ventana gráfica. Selecciona la ventana gráfica y aumentar el tamaño para que ingrese el grafico. Puntos de modificación Aumenta el borde de la ventana Doble clic fuera de la ventana gráfica
  • 121.
    AutoCAD 2D MANUALTEÓRICO Y PRÁCTICA “ Prof.: Luis Miguel Chuquimia Quispe Cel: 952362002 - Correo: sagilmc1988@gmail.com 121 Ahora dibuja dos ventanas gráficas con las escalas señaladas CREACIÓN DE ROTULO Los rótulos son etiquetas identificadoras que permiten ver los datos generales del proyecto. Es como tener una caratula del proyecto. Ejemplo:
  • 122.
    AutoCAD 2D MANUALTEÓRICO Y PRÁCTICA “ Prof.: Luis Miguel Chuquimia Quispe Cel: 952362002 - Correo: sagilmc1988@gmail.com 122 PRACTICA Nº 13 Elaborar los siguientes rótulos en una hoja
  • 123.
    AutoCAD 2D MANUALTEÓRICO Y PRÁCTICA “ Prof.: Luis Miguel Chuquimia Quispe Cel: 952362002 - Correo: sagilmc1988@gmail.com 123 Organizar los bloques con sus respectivos rótulos
  • 124.
    AutoCAD 2D MANUALTEÓRICO Y PRÁCTICA “ Prof.: Luis Miguel Chuquimia Quispe Cel: 952362002 - Correo: sagilmc1988@gmail.com 124
  • 125.
    AutoCAD 2D MANUALTEÓRICO Y PRÁCTICA “ Prof.: Luis Miguel Chuquimia Quispe Cel: 952362002 - Correo: sagilmc1988@gmail.com 125
  • 126.
    AutoCAD 2D MANUALTEÓRICO Y PRÁCTICA “ Prof.: Luis Miguel Chuquimia Quispe Cel: 952362002 - Correo: sagilmc1988@gmail.com 126
  • 127.
    AutoCAD 2D MANUALTEÓRICO Y PRÁCTICA “ Prof.: Luis Miguel Chuquimia Quispe Cel: 952362002 - Correo: sagilmc1988@gmail.com 127
  • 128.
    AutoCAD 2D MANUALTEÓRICO Y PRÁCTICA “ Prof.: Luis Miguel Chuquimia Quispe Cel: 952362002 - Correo: sagilmc1988@gmail.com 128
  • 129.
    AutoCAD 2D MANUALTEÓRICO Y PRÁCTICA “ Prof.: Luis Miguel Chuquimia Quispe Cel: 952362002 - Correo: sagilmc1988@gmail.com 129
  • 130.
    AutoCAD 2D MANUALTEÓRICO Y PRÁCTICA “ Prof.: Luis Miguel Chuquimia Quispe Cel: 952362002 - Correo: sagilmc1988@gmail.com 130 PRACTICA Nº 14 Presenta el Proyecto Nº 1 con la hoja de presentación A3 en una escala en 1 en 75 con su respectivo rotulo.
  • 131.
    AutoCAD 2D MANUALTEÓRICO Y PRÁCTICA “ Prof.: Luis Miguel Chuquimia Quispe Cel: 952362002 - Correo: sagilmc1988@gmail.com 131 ELEVACIONES  Realiza una copia del plano para crear la elevación de la fachada  Proyecta líneas en los límites, tal como muestra en la imagen  Dibuja los detalles tal como muestra en la imagen Proyección de líneas, 3 a 4 mm Trazar una línea Horizontal y borra las líneas que sobran Borra las líneas de proyección
  • 132.
    AutoCAD 2D MANUALTEÓRICO Y PRÁCTICA “ Prof.: Luis Miguel Chuquimia Quispe Cel: 952362002 - Correo: sagilmc1988@gmail.com 132 Elevación frontal CORTES  Es el mismo procedimiento de las elevaciones.  Con la diferencia que predominan los muros CORTE A-A  Realiza una copia y gira la imagen Expresa la dirección de visualización Traza una línea y corta toda la sección de abajo
  • 133.
    AutoCAD 2D MANUALTEÓRICO Y PRÁCTICA “ Prof.: Luis Miguel Chuquimia Quispe Cel: 952362002 - Correo: sagilmc1988@gmail.com 133 El resultado es el siguiente:  Ahora traza las líneas  Dibuja los detalles tal como muestra en la imagen CORTE A-A Escala 1/100 Trazar una línea Horizontal y borra las líneas que sobran
  • 134.
    AutoCAD 2D MANUALTEÓRICO Y PRÁCTICA “ Prof.: Luis Miguel Chuquimia Quispe Cel: 952362002 - Correo: sagilmc1988@gmail.com 134 PRACTICA Nº 15 Presenta el Proyecto Nº 1 con la hoja de presentación A3 de acuerdo a las escalas que muestra.
  • 135.
    AutoCAD 2D MANUALTEÓRICO Y PRÁCTICA “ Prof.: Luis Miguel Chuquimia Quispe Cel: 952362002 - Correo: sagilmc1988@gmail.com 135 PROYECTO Nº 2 Elaborar el siguiente proyecto con su respectivo rotulo, en una escala de 1 en 75 Elige la orientación y formato adecuado para la presentación
  • 136.
    AutoCAD 2D MANUALTEÓRICO Y PRÁCTICA “ Prof.: Luis Miguel Chuquimia Quispe Cel: 952362002 - Correo: sagilmc1988@gmail.com 136 PROYECTO Nº 3 Elaborar el siguiente proyecto con su respectivo rotulo, en una escala de 1 en 75 Elige la orientación y formato adecuado para la presentación
  • 137.
    AutoCAD 2D MANUALTEÓRICO Y PRÁCTICA “ Prof.: Luis Miguel Chuquimia Quispe Cel: 952362002 - Correo: sagilmc1988@gmail.com 137 PROYECTO Nº 4 Elaborar el siguiente proyecto con su respectivo rotulo Elige la orientación y formato adecuado para la presentación
  • 138.
    AutoCAD 2D MANUALTEÓRICO Y PRÁCTICA “ Prof.: Luis Miguel Chuquimia Quispe Cel: 952362002 - Correo: sagilmc1988@gmail.com 138
  • 139.
    AutoCAD 2D MANUALTEÓRICO Y PRÁCTICA “ Prof.: Luis Miguel Chuquimia Quispe Cel: 952362002 - Correo: sagilmc1988@gmail.com 139 PROYECTO Nº 5 Elaborar el siguiente proyecto con su respectivo rotulo Elige la orientación y formato adecuado para la presentación
  • 140.
    AutoCAD 2D MANUALTEÓRICO Y PRÁCTICA “ Prof.: Luis Miguel Chuquimia Quispe Cel: 952362002 - Correo: sagilmc1988@gmail.com 140
  • 141.
    AutoCAD 2D MANUALTEÓRICO Y PRÁCTICA “ Prof.: Luis Miguel Chuquimia Quispe Cel: 952362002 - Correo: sagilmc1988@gmail.com 141
  • 142.
    AutoCAD 2D MANUALTEÓRICO Y PRÁCTICA “ Prof.: Luis Miguel Chuquimia Quispe Cel: 952362002 - Correo: sagilmc1988@gmail.com 142
  • 143.
    AutoCAD 2D MANUALTEÓRICO Y PRÁCTICA “ Prof.: Luis Miguel Chuquimia Quispe Cel: 952362002 - Correo: sagilmc1988@gmail.com 143 PROYECTO Nº 6 Elaborar el siguiente proyecto con su respectivo rotulo Elige la orientación y formato adecuado para la presentación
  • 144.
    AutoCAD 2D MANUALTEÓRICO Y PRÁCTICA “ Prof.: Luis Miguel Chuquimia Quispe Cel: 952362002 - Correo: sagilmc1988@gmail.com 144
  • 145.
    AutoCAD 2D MANUALTEÓRICO Y PRÁCTICA “ Prof.: Luis Miguel Chuquimia Quispe Cel: 952362002 - Correo: sagilmc1988@gmail.com 145
  • 146.
    AutoCAD 2D MANUALTEÓRICO Y PRÁCTICA “ Prof.: Luis Miguel Chuquimia Quispe Cel: 952362002 - Correo: sagilmc1988@gmail.com 146
  • 147.
    AutoCAD 2D MANUALTEÓRICO Y PRÁCTICA “ Prof.: Luis Miguel Chuquimia Quispe Cel: 952362002 - Correo: sagilmc1988@gmail.com 147
  • 148.
    AutoCAD 2D MANUALTEÓRICO Y PRÁCTICA “ Prof.: Luis Miguel Chuquimia Quispe Cel: 952362002 - Correo: sagilmc1988@gmail.com 148 PROYECTO Nº 7 Elaborar el siguiente proyecto con su respectivo rotulo Elige la orientación y formato adecuado para la presentación
  • 149.
    AutoCAD 2D MANUALTEÓRICO Y PRÁCTICA “ Prof.: Luis Miguel Chuquimia Quispe Cel: 952362002 - Correo: sagilmc1988@gmail.com 149
  • 150.
    AutoCAD 2D MANUALTEÓRICO Y PRÁCTICA “ Prof.: Luis Miguel Chuquimia Quispe Cel: 952362002 - Correo: sagilmc1988@gmail.com 150 PROYECTO Nº 8 Elaborar el siguiente proyecto con su respectivo rotulo Elige la orientación y formato adecuado para la presentación. Tema Duplex
  • 151.
    AutoCAD 2D MANUALTEÓRICO Y PRÁCTICA “ Prof.: Luis Miguel Chuquimia Quispe Cel: 952362002 - Correo: sagilmc1988@gmail.com 151
  • 152.
    AutoCAD 2D MANUALTEÓRICO Y PRÁCTICA “ Prof.: Luis Miguel Chuquimia Quispe Cel: 952362002 - Correo: sagilmc1988@gmail.com 152
  • 153.
    AutoCAD 2D MANUALTEÓRICO Y PRÁCTICA “ Prof.: Luis Miguel Chuquimia Quispe Cel: 952362002 - Correo: sagilmc1988@gmail.com 153
  • 154.
    AutoCAD 2D MANUALTEÓRICO Y PRÁCTICA “ Prof.: Luis Miguel Chuquimia Quispe Cel: 952362002 - Correo: sagilmc1988@gmail.com 154 PROYECTO Nº 9 Elaborar el siguiente proyecto con su respectivo rotulo Elige la orientación y formato adecuado para la presentación. Tema-vivienda familiar PRIMERAPLANTA
  • 155.
    AutoCAD 2D MANUALTEÓRICO Y PRÁCTICA “ Prof.: Luis Miguel Chuquimia Quispe Cel: 952362002 - Correo: sagilmc1988@gmail.com 155 SEGUNDA PLANTA
  • 156.
    AutoCAD 2D MANUALTEÓRICO Y PRÁCTICA “ Prof.: Luis Miguel Chuquimia Quispe Cel: 952362002 - Correo: sagilmc1988@gmail.com 156
  • 157.
    AutoCAD 2D MANUALTEÓRICO Y PRÁCTICA “ Prof.: Luis Miguel Chuquimia Quispe Cel: 952362002 - Correo: sagilmc1988@gmail.com 157
  • 158.
    AutoCAD 2D MANUALTEÓRICO Y PRÁCTICA “ Prof.: Luis Miguel Chuquimia Quispe Cel: 952362002 - Correo: sagilmc1988@gmail.com 158 PROYECTO Nº 10 Elaborar el siguiente proyecto con su respectivo rotulo en escala 1/50
  • 159.
    AutoCAD 2D MANUALTEÓRICO Y PRÁCTICA “ Prof.: Luis Miguel Chuquimia Quispe Cel: 952362002 - Correo: sagilmc1988@gmail.com 159
  • 160.
    AutoCAD 2D MANUALTEÓRICO Y PRÁCTICA “ Prof.: Luis Miguel Chuquimia Quispe Cel: 952362002 - Correo: sagilmc1988@gmail.com 160
  • 161.
    AutoCAD 2D MANUALTEÓRICO Y PRÁCTICA “ Prof.: Luis Miguel Chuquimia Quispe Cel: 952362002 - Correo: sagilmc1988@gmail.com 161
  • 162.
    AutoCAD 2D MANUALTEÓRICO Y PRÁCTICA “ Prof.: Luis Miguel Chuquimia Quispe Cel: 952362002 - Correo: sagilmc1988@gmail.com 162
  • 163.
    AutoCAD 2D MANUALTEÓRICO Y PRÁCTICA “ Prof.: Luis Miguel Chuquimia Quispe Cel: 952362002 - Correo: sagilmc1988@gmail.com 163
  • 164.
    AutoCAD 2D MANUALTEÓRICO Y PRÁCTICA “ Prof.: Luis Miguel Chuquimia Quispe Cel: 952362002 - Correo: sagilmc1988@gmail.com 164
  • 165.
    AutoCAD 2D MANUALTEÓRICO Y PRÁCTICA “ Prof.: Luis Miguel Chuquimia Quispe Cel: 952362002 - Correo: sagilmc1988@gmail.com 165 PROYECTO Nº 11 Elaborar el siguiente proyecto con su respectivo rotulo en la escala indicada
  • 166.
    AutoCAD 2D MANUALTEÓRICO Y PRÁCTICA “ Prof.: Luis Miguel Chuquimia Quispe Cel: 952362002 - Correo: sagilmc1988@gmail.com 166
  • 167.
    AutoCAD 2D MANUALTEÓRICO Y PRÁCTICA “ Prof.: Luis Miguel Chuquimia Quispe Cel: 952362002 - Correo: sagilmc1988@gmail.com 167
  • 168.
    AutoCAD 2D MANUALTEÓRICO Y PRÁCTICA “ Prof.: Luis Miguel Chuquimia Quispe Cel: 952362002 - Correo: sagilmc1988@gmail.com 168
  • 169.
    AutoCAD 2D MANUALTEÓRICO Y PRÁCTICA “ Prof.: Luis Miguel Chuquimia Quispe Cel: 952362002 - Correo: sagilmc1988@gmail.com 169