126
PLANOS DE PROPUESTAS ARQUITECTÓNICAS
127
PROPUESTA “A”, MUSEO WINAKIRIKA
Planta de conjunto PRA-01
Planta arquitectónica PRA-02
Elevaciones y secciones PRA-03,04,05
Planos de caseta de vigilancia PRA-06
Planta estructural de techo PRA-07
Perspectivas PRA-08,09
Detalle de gabión PRA-10
Planta de fundaciones PRA-11
Detalles estructurales PRA-12
Planta eléctrica exterior PRA-13
Planta eléctrica interior PRA-14
Cuadro de carga eléctrica PRA-15
Detalle de luminaria exterior PRA-16
Instalaciones de caseta PRA-17
Planta hidráulica de museo PRA-18
ESCALA:
1 : 400
FECHA DE IMPRESION:
FEB. 2013
HOJA:
PRA-01
UNIVERSIDAD DE EL
SALVADOR
FACULTAD DE INGENIERIA Y
ARQUITECTURA
ESCUELA DE ARQUITECTURA
PROPUESTA:
MUSEO
WINAKIRIKA
PROPIETARIO:
ALCALDIA
MUNICIPAL DE
CACAOPERA
PRESENTAN:
GUZMÁN GONZALEZ,
WILFREDO EDUARDO
LOPEZ CRUZ,
BORIS ALFREDO
LOPEZ RIVAS,
PATRICIA CAROLINA
CONTENIDO:
PERSPECTIVA NOROESTE
PLANTA DE CONJUNTO
Acceso a
Terreno
Caseta de
vigilancia
Perspectiva Noroeste de
Museo Winakirika
Planta de Conjunto
de Museo Winakirika
Esc 1 : 400
Plaza de Acceso
Acceso
Estacionamiento
para Autobus o
Camion
Bahia para descarga
de Personas
45%
45%
45%
45% 45%
45%
45%
45%
45% 45%
45%
45%
ESCALA:
1 : 125
FECHA DE IMPRESION:
FEB. 2013
HOJA:
PRA-02
UNIVERSIDAD DE EL
SALVADOR
FACULTAD DE INGENIERIA Y
ARQUITECTURA
ESCUELA DE ARQUITECTURA
PROPUESTA:
MUSEO
WINAKIRIKA
PROPIETARIO:
ALCALDIA
MUNICIPAL DE
CACAOPERA
PRESENTAN:
GUZMÁN GONZALEZ,
WILFREDO EDUARDO
LOPEZ CRUZ,
BORIS ALFREDO
LOPEZ RIVAS,
PATRICIA CAROLINA
CONTENIDO:
PLANTA ARQUITECTONICA
GA B C D E F
1
3
4
5
6
7
2
Salida de
Emergencia Salida de
Emergencia
NPT 0+0.00 m
Recepcion y
mantenimiento
4,65m 8m 2,15m 4,65m 5,13m 4,64m
4,65m1,78m3,23m2,6m2,53m4,65m
19,45m
Patio centrado
Rocas
Existentes
NPT 0-0.02 m
NPT 0+0.00 m
NPT 0+0.00 m
Admistración
Recepcion
NPT 0+0.00 m
Bodega
NPT 0+0.60 m
Exhibicion Historica
Exhibicion popular
NPT 0+0.00 m
NPT 0+0.00 m
NPT 0+0.00 m
NPT 0+0.00 m
NPT 0+0.00 m
S.S. Mujeres
S.S. Hombres
NPT 0+0.00 m
Exhibicion
Arqueologica
Sube 10%
Sube 10%
Sube 10%
Acceso
Plaza de Acceso
NPT 0-0.80 m
A
B
C
ESCALA:
1 : 125
FECHA DE IMPRESION:
FEB. 2013
HOJA:
PRA-03
UNIVERSIDAD DE EL
SALVADOR
FACULTAD DE INGENIERIA Y
ARQUITECTURA
ESCUELA DE ARQUITECTURA
PROPUESTA:
MUSEO
WINAKIRIKA
PROPIETARIO:
ALCALDIA
MUNICIPAL DE
CACAOPERA
PRESENTAN:
GUZMÁN GONZALEZ,
WILFREDO EDUARDO
LOPEZ CRUZ,
BORIS ALFREDO
LOPEZ RIVAS,
PATRICIA CAROLINA
CONTENIDO:
SECCION A-A
ELEVACION NORTE
Elevacion Norte de Museo Winakirika
Seccion A-A de
Museo Winakirika
GA B D E F
GA B D E F
NPT 0+0.00 m
Rocas existentes
NPT 0-0.80 m
4,12m
7,6m
1,92m4,96m
1,56m
2,95m
1m2,57m
Columna con enchapado tipo
enladrillado, con galleta de barro
Cubierta de Teja de Barro
cocido artesanal, con
estructura metálica de Viga
maconver y varillas de 3/8"
Estructura de madera,
recubierta con regla pacha Pared tipo gabion con
Estructura Metálica
Pared tipo gabion con
Estructura Metálica
Paredes de ladrillo de barro
cocido
artesanal adobado con
repello al interior y exterior
Paredes con enchape de
piedra
6,04m
ESCALA:
1 : 125
FECHA DE IMPRESION:
FEB. 2013
HOJA:
PRA-04
UNIVERSIDAD DE EL
SALVADOR
FACULTAD DE INGENIERIA Y
ARQUITECTURA
ESCUELA DE ARQUITECTURA
PROPUESTA:
MUSEO
WINAKIRIKA
PROPIETARIO:
ALCALDIA
MUNICIPAL DE
CACAOPERA
PRESENTAN:
GUZMÁN GONZALEZ,
WILFREDO EDUARDO
LOPEZ CRUZ,
BORIS ALFREDO
LOPEZ RIVAS,
PATRICIA CAROLINA
CONTENIDO:
SECCION B-B
ELEVACION ESTE
Seccion B-B de Museo Winakirika
Elevacion Este de Museo Winakirika
ABDEF
7431
Sube 10%
Rocas existentes
NPT 0+0.00 m
NPT 0-0.80 m
7,6m
4,4m
4,47m1,92m
Viga maconver
Pared tipo gabion con
Estructura Metálica Estructura de madera,
recubierta con regla pacha
Como cielo falso
en el acceso,
tabla roca
Columna con enchapado tipo
enladrillado, con galleta de barro
Paredes de ladrillo de barro cocido
artesanal adobado con repello al
interior y exterior
Cubierta de Teja de Barro cocido artesanal, con estructura
metálica de Viga maconver y varillas de 3/8"
Ventana tipo sifón
Ventana hasta el piso,
abatible de 2 hojas
Ventana abatible
de 2 hojas
ESCALA:
1 : 125
FECHA DE IMPRESION:
FEB. 2013
HOJA:
PRA-05
UNIVERSIDAD DE EL
SALVADOR
FACULTAD DE INGENIERIA Y
ARQUITECTURA
ESCUELA DE ARQUITECTURA
PROPUESTA:
MUSEO
WINAKIRIKA
PROPIETARIO:
ALCALDIA
MUNICIPAL DE
CACAOPERA
PRESENTAN:
GUZMÁN GONZALEZ,
WILFREDO EDUARDO
LOPEZ CRUZ,
BORIS ALFREDO
LOPEZ RIVAS,
PATRICIA CAROLINA
CONTENIDO:
SECCION C-C
ELEVACION OESTE
Elevacion Oeste de Museo Winakirika
Seccion C-C de Museo Winakirika
7 6 5 4 3 1
7 4 3 1
NPT 0-0.80 m
Rocas existentes
NPT 0+0.00 m
NPT 0+0.60 m
4,96m1,92m
Estructura de madera,
recubierta con regla pacha
Cubierta de Teja de Barro
cocido artesanal, con
estructura metálica de Viga
maconver y varillas de 3/8"
Pared tipo gabion con
Estructura Metálica
Paredes de ladrillo de barro cocido
artesanal adobado con repello al
interior y exterior
ESCALA:
1 : 50
FECHA DE IMPRESION:
FEB. 2013
HOJA:
PRA-06
UNIVERSIDAD DE EL
SALVADOR
FACULTAD DE INGENIERIA Y
ARQUITECTURA
ESCUELA DE ARQUITECTURA
PROPUESTA:
MUSEO
WINAKIRIKA
PROPIETARIO:
ALCALDIA
MUNICIPAL DE
CACAOPERA
PRESENTAN:
GUZMÁN GONZALEZ,
WILFREDO EDUARDO
LOPEZ CRUZ,
BORIS ALFREDO
LOPEZ RIVAS,
PATRICIA CAROLINA
CONTENIDO:
PLANTA ESTRUCTURAL DE
TECHOS
PLANTA ARQUITECTONICA
A
1
B C
2
3,7m
6m
3,3m 2,7m
A
1
C
2
N.P.T.: 0.0+3.80m
N.P.T.: 0.0-3.98m
45%
45%
45%
45%
V1
V1
V1
V1
V1 V1 V1 V1
P1 P1 P1 P1
P1
P1
P1
45% 45%
N.P.T.: 0.0+3.80mN.P.T.: 0.0+3.80m
A C 1 2
A B C
S.S.
N.P.T.: 0.0+3.80m
N.P.T.: 0.0-3.98m
Cabina
de
Seguridad
ELEVACIÓN SUROESTE
ELEVACIÓN NOROESTEA
SECCIÓN A-A
PLANTA ESTRUCTURAL DE
TECHOS
PLANTA ARQUITECTONICA
DE CASETA DE VIGILANCIA
ELEVACIÓN SUROESTE ELEVACIÓN NOROESTE
SECCIÓN A-A
Paredes de ladrillo de barro cocido
artesanal adobado con repello al
interior y exterior
Cubierta de Teja de Barro cocido
artesanal, con estructura metálica de
Viga maconver y varillas de 3/8"
Ventana tipo sifón. (Aplicable en
servicios sanitarios)Ventana abatible
de 2 hojas
Ventana abatible
de 2 hojas
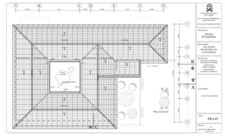
CASETA DE VIGILANCIA
ESCALA:
1 : 125
FECHA DE IMPRESION:
FEB. 2013
HOJA:
PRA-07
UNIVERSIDAD DE EL
SALVADOR
FACULTAD DE INGENIERIA Y
ARQUITECTURA
ESCUELA DE ARQUITECTURA
PROPUESTA:
MUSEO
WINAKIRIKA
PROPIETARIO:
ALCALDIA
MUNICIPAL DE
CACAOPERA
PRESENTAN:
GUZMÁN GONZALEZ,
WILFREDO EDUARDO
LOPEZ CRUZ,
BORIS ALFREDO
LOPEZ RIVAS,
PATRICIA CAROLINA
CONTENIDO:
PLANTA DE TECHOS
Rocas
Existentes
45%
45%
45%
45%
45%
45%
45%
45%
45%
45% 45%45%
Acceso
GA B C D E F
1
3
4
5
6
7
2
4,65m 8m 2,15m 4,65m 5,13m 4,64m
4,65m1,78m3,23m2,6m2,53m4,65m
19,45m
Cumbrera Cumbrera
Cumbrera
Cumbrera
Cumbrera
BALL
Canal
BALL
BALLBALL
Canal
V1 V1 V1 V1 V1 V1 V1 V1 V1 V1 V1 V1 V1 V1 V1 V1 V1 V1 V1 V1 V1 V1 V1 V1 V1 V1 V1 V1 V1
P1P1P1P1P1P1P1P1 P1P1P1P1P1P1P1P1 P1P1P1P1P1P1P1P1P1P1P1P1P1P1P1P1
V1 V1 V1 V1 V1 V1 V1 V1 V1 V1 V1 V1 V1 V1 V1 V1 V1 V1 V1
V1
V1
V1
V1
V1
V1
V1
V1
V1
V1
V1
V1
V1
V1
V1
V1
V1
V1
V1
V1
V1
V1
V1
V1
V1
V1 V1 V1 V1 V1
P1
P1
P1
P1
P1
P1
Plaza de Acceso
V2
V2
V2
V2
Estructura de madera
A
B
C
ESCALA:
Sin Escala
FECHA DE IMPRESION:
FEB. 2013
HOJA:
PRA-08
UNIVERSIDAD DE EL
SALVADOR
FACULTAD DE INGENIERIA Y
ARQUITECTURA
ESCUELA DE ARQUITECTURA
PROPUESTA:
MUSEO
WINAKIRIKA
PROPIETARIO:
ALCALDIA
MUNICIPAL DE
CACAOPERA
PRESENTAN:
GUZMÁN GONZALEZ,
WILFREDO EDUARDO
LOPEZ CRUZ,
BORIS ALFREDO
LOPEZ RIVAS,
PATRICIA CAROLINA
CONTENIDO:
PERSPECTIVAS DE CANAL DE
A.LL. EN ESTRUCTURA DE
GABION
Detalles de Estructura de Gabión
Detalle 1
Detalle 2
La tuberia se oculta
dentro de la pared de gabión
Detalle 2
Detalle 1
Canal de A.LL.
Canal de A.LL.
ESCALA:
Sin Escala
FECHA DE IMPRESION:
FEB. 2013
HOJA:
PRA-09
UNIVERSIDAD DE EL
SALVADOR
FACULTAD DE INGENIERIA Y
ARQUITECTURA
ESCUELA DE ARQUITECTURA
PROPUESTA:
MUSEO
WINAKIRIKA
PROPIETARIO:
ALCALDIA
MUNICIPAL DE
CACAOPERA
PRESENTAN:
GUZMÁN GONZALEZ,
WILFREDO EDUARDO
LOPEZ CRUZ,
BORIS ALFREDO
LOPEZ RIVAS,
PATRICIA CAROLINA
CONTENIDO:
PERSPECTIVA DE
ESTRUCTURA DE DUCTO DE
MADERA
Vista superior de esquina de
canaleta oculta
Estructura de techo a base
de viga maconver y varilla de 3/8
Vista seccionada de
canaleta oculta
Vista de estructura interna de ducto de madera,
sobre patio central
Detalles de Estructura de madera
PERSPECTIVA DE
ESTRUCTURA DE TECHO
ESCALA:
1 : 125
FECHA DE IMPRESION:
FEB. 2013
HOJA:
PRA-10
UNIVERSIDAD DE EL
SALVADOR
FACULTAD DE INGENIERIA Y
ARQUITECTURA
ESCUELA DE ARQUITECTURA
PROPUESTA:
MUSEO
WINAKIRIKA
PROPIETARIO:
ALCALDIA
MUNICIPAL DE
CACAOPERA
PRESENTAN:
GUZMÁN GONZALEZ,
WILFREDO EDUARDO
LOPEZ CRUZ,
BORIS ALFREDO
LOPEZ RIVAS,
PATRICIA CAROLINA
CONTENIDO:
DETALLE CONSTRUCTIVO
DE ESTRUCTURA DE
GABION
Malla electrosoldada o malla ciclón
Viga maconver tipo V2
Viga maconver tipo V2
Viga maconver tipo V2
Malla electrosoldada de Ø1/4" o malla ciclón
Piedra cuarta
Piedra cuarta
Detalles de Estructura de Gabión
DETALLE CONSTRUCTIVO
DE PARED DE GABIÓN
ESCALA:
1 : 125
FECHA DE IMPRESION:
FEB. 2013
HOJA:
PRA-11
UNIVERSIDAD DE EL
SALVADOR
FACULTAD DE INGENIERIA Y
ARQUITECTURA
ESCUELA DE ARQUITECTURA
PROPUESTA:
MUSEO
WINAKIRIKA
PROPIETARIO:
ALCALDIA
MUNICIPAL DE
CACAOPERA
PRESENTAN:
GUZMÁN GONZALEZ,
WILFREDO EDUARDO
LOPEZ CRUZ,
BORIS ALFREDO
LOPEZ RIVAS,
PATRICIA CAROLINA
CONTENIDO:
PLANTA ESTRUCTUTRAL DE
FUNDACIONES
GA B C D E F
1
3
4
5
6
7
2
4,65m 8m 2,15m 4,65m 5,13m 4,64m
4,65m1,78m3,23m2,6m2,53m4,65m
19,45m
SF-1
SF-1
SF-1 SF-1
SF-1 SF-1
SF-1 SF-1
SF-1
SF-1
SF-1
SF-1
SF-1
SF-1
SF-1SF-1
SF-1
SF-1
SF-1
SF-1
SF-1
SF-1
SF-1 SF-1
T-1 T-1
T-1 T-1
T-1
T-1T-1
T-1
SF-1 SF-1
SF-1
SF-1 SF-1 SF-1
SF-1
SF-1SF-1
SF-1
SF-1 SF-1
SF-1
SF-1 SF-1
SF-1
Rocas
Existentes
Acceso
Plaza de Acceso
C1 C1
C1C1
SF-1
SF-1
SF-1
SF-1
ESCALA:
La Indicada
FECHA DE IMPRESION:
FEB. 2013
HOJA:
PRA-12
UNIVERSIDAD DE EL
SALVADOR
FACULTAD DE INGENIERIA Y
ARQUITECTURA
ESCUELA DE ARQUITECTURA
PROPUESTA:
MUSEO
WINAKIRIKA
PROPIETARIO:
ALCALDIA
MUNICIPAL DE
CACAOPERA
PRESENTAN:
GUZMÁN GONZALEZ,
WILFREDO EDUARDO
LOPEZ CRUZ,
BORIS ALFREDO
LOPEZ RIVAS,
PATRICIA CAROLINA
CONTENIDO:
DETALLES ESTRUCTURALES
0,2m
0,2m
0,45m
0,45m
0,2m
0,25m
0,08m
0,15m
COLUMNAS CENTRALES
Estribo Ø 3/8" a 15 cm
6 Ø de 1/2"
0,4m
0,4m
0,15m
0,2m
0,1m
0,15m
0,15m
TENSOR
Estribo Ø 1/4" a 13 cm
6 Ø de 3/8"
Escala 1: 10
Escala 1: 5
0,55m
0,35m
0,5m
0,3m
NERVIO
Estribo Ø 1/4" a 15 cm
2 Ø de 3/8"
Escala 1: 5
SOLERA INTERMEDIA
Y CORONAMIENTO
Estribo Ø 1/4" a 15 cm
4 Ø de 3/8"
Escala 1: 5
SOLERA DE FUNDACIÓN
Estribo Ø 3/8" a 15 cm
6 Ø de 1/2"
Escala 1: 10
0,3m
0,51m
0,13m
0,12m
0,03m
VIGA N° 2
Escala 1: 10
Ángulo de 1 1/2" con
refuerzo triangular Ø 3/8",
de 30 cm de altura
VIGA N° 1
Escala 1: 5
Ángulo de 1 1/2" con
refuerzo triangular Ø 3/8",
de 13 cm de altura
C1
SF1
ESCALA:
1 : 125
FECHA DE IMPRESION:
FEB. 2013
HOJA:
PRA-13
UNIVERSIDAD DE EL
SALVADOR
FACULTAD DE INGENIERIA Y
ARQUITECTURA
ESCUELA DE ARQUITECTURA
PROPUESTA:
MUSEO
WINAKIRIKA
PROPIETARIO:
ALCALDIA
MUNICIPAL DE
CACAOPERA
PRESENTAN:
GUZMÁN GONZALEZ,
WILFREDO EDUARDO
LOPEZ CRUZ,
BORIS ALFREDO
LOPEZ RIVAS,
PATRICIA CAROLINA
CONTENIDO:
PLANTA ELECTRICA
EXTERIOR
M
Acceso
Plaza de Acceso
A
A
A
A
B
B
NOTA: Toda la distribucion
externa de energia electrica
será subterranea
Planta Electrica Exterior
de Museo Winakirika
Esc 1 : 200
ESCALA:
1 : 125
FECHA DE IMPRESION:
FEB. 2013
HOJA:
PRA-14
UNIVERSIDAD DE EL
SALVADOR
FACULTAD DE INGENIERIA Y
ARQUITECTURA
ESCUELA DE ARQUITECTURA
PROPUESTA:
MUSEO
WINAKIRIKA
PROPIETARIO:
ALCALDIA
MUNICIPAL DE
CACAOPERA
PRESENTAN:
GUZMÁN GONZALEZ,
WILFREDO EDUARDO
LOPEZ CRUZ,
BORIS ALFREDO
LOPEZ RIVAS,
PATRICIA CAROLINA
CONTENIDO:
PLANTA ELECTRICA
INTERIOR
2
2
7
2
2
A B
2
2
BAAB
4
2
A
2
2
2
2
5
2
A A B1
2
M
2 2
2 2
6
2
B A
2
2
A
B
BB
2
2
2
22
2
3
Acceso
Plaza de Acceso
N°deCircuito
Espacios
Fases
Ocupados
Voltaje
111 110
Hilos
CargaInstal.
500
A
4.55
(Watts)
B
-
en Barras
(Amperios)
Corriente
Marcade
G.E.
Disyuntor
Polos Amp
20
Proteccion
L : Luminarias
T : Tomacorr.
Descrip. de Cargas
L:5
22 700 - 6.36 20 L:4 S:3
33 600 5.45 - L:6
44 700 - 6.36 L:7
55 400 3.63 -
66 500 - 4.55 L:5
77 500 4.55 - L:5
8-108 1050 4.77 4.77
L:3 T:199 400 3.63 -
10
11
A B
1 2
3 4
5 6
7 8
9 10
11 12
1
1
1
1
1
1
2
1
110
110
110
110
110
110
220
110
2
2
2
2
2
2
2
3
2
G.E.
G.E.
G.E.
G.E.
G.E.
G.E.
G.E.
G.E.
1
1
1
1
1
1
1
2
1
R:6 175w c/u
20
20
20
20
20
20
20
5350
0.80
4280 21.26 17.63 Fecha:02/2013
ΣD
F.D
D.M
Alimentador:
2THHN#8+
Calculo:WEGG
Reviso: WGV
22.0426.58
0.80 0.80
1THHN#10
N
R : Reflector
S : Spot
M : Motor
L:4
12 Futura Exp.
Futura Exp.
Futura Exp.
ESCALA:
1 : 125
FECHA DE IMPRESION:
FEB. 2013
HOJA:
PRA-15
UNIVERSIDAD DE EL
SALVADOR
FACULTAD DE INGENIERIA Y
ARQUITECTURA
ESCUELA DE ARQUITECTURA
PROPUESTA:
MUSEO
WINAKIRIKA
PROPIETARIO:
ALCALDIA
MUNICIPAL DE
CACAOPERA
PRESENTAN:
GUZMÁN GONZALEZ,
WILFREDO EDUARDO
LOPEZ CRUZ,
BORIS ALFREDO
LOPEZ RIVAS,
PATRICIA CAROLINA
CONTENIDO:
CUADRO DE CARGA
ELECTRICA PARA MUSEO
SIMBOLOGIA
ELECTRICA
Interruptor sencillo
Interruptor Doble
Interruptor Triple
2
3
Luminaria ahorrativa
Luminaria Exterior
Luminaria hacia arriba
8
Número de circuito
Poste a colocar
Poste Existente
2 Tomacorriente doble
Linea interna
Linea de distribuidora
Conductor
3 THHN #12
Conductor
2 THHN #10
1 THHN #12
Ø=3/4"
3"- 4"
1.20m4.5-5m
Poste de tubo
galvanizado o
decorativo a elección
Caja Cuadrada
Lampara
Detalle de Luminaria
Externa
Sin Escala
Reflectores
ESCALA:
SIN ESCALA
FECHA DE IMPRESION:
FEB. 2013
HOJA:
PRA-16
UNIVERSIDAD DE EL
SALVADOR
FACULTAD DE INGENIERIA Y
ARQUITECTURA
ESCUELA DE ARQUITECTURA
PROPUESTA:
MUSEO
WINAKIRIKA
PROPIETARIO:
ALCALDIA
MUNICIPAL DE
CACAOPERA
PRESENTAN:
GUZMÁN GONZALEZ,
WILFREDO EDUARDO
LOPEZ CRUZ,
BORIS ALFREDO
LOPEZ RIVAS,
PATRICIA CAROLINA
CONTENIDO:
DETALLE DE LUMINARIA
EXTERIOR
CUADRO DE SIMBOLOGIA
ELECTRICA
ESCALA:
1 : 50
FECHA DE IMPRESION:
FEB. 2013
HOJA:
PRA-17
UNIVERSIDAD DE EL
SALVADOR
FACULTAD DE INGENIERIA Y
ARQUITECTURA
ESCUELA DE ARQUITECTURA
PROPUESTA:
MUSEO
WINAKIRIKA
PROPIETARIO:
ALCALDIA
MUNICIPAL DE
CACAOPERA
PRESENTAN:
GUZMÁN GONZALEZ,
WILFREDO EDUARDO
LOPEZ CRUZ,
BORIS ALFREDO
LOPEZ RIVAS,
PATRICIA CAROLINA
CONTENIDO:
PLANTA ELECTRICA
PLANO ESTRUCTURAL DE
FUNDACIONES
2
2
A
19
B PVC Ø1/2"
PVCØ6"
PVCØ1/2"
SF-1
SF-1 SF-1
SF-1
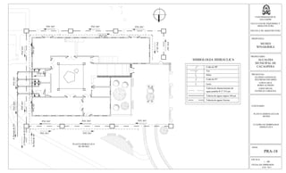
PLANO HIDRAULICO
PLANO HIDRAULICO
PLANO ESTRUCTURAL DE
FUNDACIONES
PLANTA ELECTRICA
PVCØ6"
Hacia drenaje de A.N.
CASETA DE VIGILANCIA
ESCALA:
1 : 200
FECHA DE IMPRESION:
FEB. 2013
HOJA:
PRA-18
UNIVERSIDAD DE EL
SALVADOR
FACULTAD DE INGENIERIA Y
ARQUITECTURA
ESCUELA DE ARQUITECTURA
PROPUESTA:
MUSEO
WINAKIRIKA
PROPIETARIO:
ALCALDIA
MUNICIPAL DE
CACAOPERA
PRESENTAN:
GUZMÁN GONZALEZ,
WILFREDO EDUARDO
LOPEZ CRUZ,
BORIS ALFREDO
LOPEZ RIVAS,
PATRICIA CAROLINA
CONTENIDO:
PLANTA HIDRAULICA DE
MUSEO
PVCØ1/2"
PVCØ4"
PVC Ø4"
ADrenajedeAN
PVC Ø4" PVC Ø4"PVC Ø4"
ADrenajedeALL
DeReddeAP
PVCØ4"
PVCØ4"PVCØ4"
PVCØ4"
PVC Ø4"PVC Ø4"PVC Ø4"
PVC Ø2" PVC Ø2"
PVCØ2"PVCØ2"
PVC Ø2"
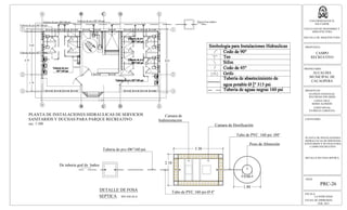
SIMBOLOGIA HIDRAULICA
Codo de 90°
Tee
Sifon
Codo de 45°
Grifo
Tuberia de abastecimiento de
agua potable Ø 1
2" 315 psi
Tuberia de aguas negras 160 psi
Tuberia de aguas Lluvias
CUADRO DE SIMBOLOGIA
HIDRAULICA
PLANTA HIDRAULICA
DE MUSEO
145
PROPUESTA “B”, MERCADO DE ARTESANIAS
Planta de conjunto y techos PRB-01
Planta de conjunto sin techos PRB-02
Detalle zona comercial PRB-03
Detalle zona vestibular PRB-04
Detalle zona de apoyo PRB-05
Planta arq. y sección de anfiteatro PRB-06
Planta arq. y techos de admin. PRB-07
Elevaciones de admin. PRB-08
Planta arq. y techos de talleres PRB-09
Elevaciones de talleres PRB-10
Planta arq. y techos de locales PRB-11
Elevaciones de locales PRB-12
Planta arq. y techos de cafetería PRB-13
Elevaciones de cafetería PRB-14
Planta arq. y techos de S.S. PRB-15
Elevaciones de S.S. PRB-16
Planos de caseta de vigilancia PRB-17
Planta eléctrica exterior PRB-18
Cuadro de carga eléctrica PRB-19
Detalle de luminaria exterior PRB-20
Planta eléctrica anfiteatro PRB-21
Planta eléct., fund. e hidra. admin. PRB-22
Planta eléct. y fund. talleres PRB-23
Planta eléct., fund. e hidra. S.S. PRB-24
Planta eléct. y fund. locales PRB-25
Planta eléct., fund. e hidra. cocina PRB-26
Planta eléct., fund. e hidra. caseta. PRB-27
Planta hidráulica de conjunto PRB-28
Sección fosa séptica PRB-29
Detalle en planta de fosa séptica PRB-30
Detalle de pérgolas PRB-31,32
Detalles estructurales PRB-33
ESCALA:
1 : 500
FECHA DE IMPRESION:
FEB. 2013
HOJA:
PRB-01
UNIVERSIDAD DE EL
SALVADOR
FACULTAD DE INGENIERIA Y
ARQUITECTURA
ESCUELA DE ARQUITECTURA
PROPUESTA:
MERCADO DE
ARTESANIAS
PROPIETARIO:
ALCALDIA
MUNICIPAL DE
CACAOPERA
PRESENTAN:
GUZMÁN GONZALEZ,
WILFREDO EDUARDO
LOPEZ CRUZ,
BORIS ALFREDO
LOPEZ RIVAS,
PATRICIA CAROLINA
CONTENIDO:
PLANO DE CONJUNTO Y
TECHOS
N.P.T.: 0.0+0.0m
Bahia para descarga
de Personas
N.P.T.: 0.0-5.20m
N.P.T.: 0.0-4.0m
N.P.T.: 0.0-5.0mN.P.T.: 0.0-6.0m
N.P.T.: 0.0-3.0m
N.P.T.: 0.0-3.80m
Estacionamiento
Vehicular
Estacionamiento de
Autobuses
Área de carga y descarga
durante horarios
determinados
45%
45%
45%
45%
45%
45%
45%
45%
45%
45%
45%
45%
45%
45%
45%
45%
45%
45%
45%
45%
Locales
Comerciales
Servicios
Sanitarios
Cafetería Anfiteatro
Administración
Talleres de
enseñanza
Acceso a
Terreno
B S
S
B
B
S S
B
S
S
B
Caseta de
vigilancia
Pergolas
S
S
B
B
Acceso
Principal
PergolasPergolas
Pergola Curva
Pergola Recta
ESCALA:
1 : 500
FECHA DE IMPRESION:
FEB. 2013
HOJA:
PRB-02
UNIVERSIDAD DE EL
SALVADOR
FACULTAD DE INGENIERIA Y
ARQUITECTURA
ESCUELA DE ARQUITECTURA
PROPUESTA:
MERCADO DE
ARTESANIAS
PROPIETARIO:
ALCALDIA
MUNICIPAL DE
CACAOPERA
PRESENTAN:
GUZMÁN GONZALEZ,
WILFREDO EDUARDO
LOPEZ CRUZ,
BORIS ALFREDO
LOPEZ RIVAS,
PATRICIA CAROLINA
CONTENIDO:
PLANO DE CONJUNTO SIN
TECHOS
N.P.T.: 0.0+0.0m
Bahia para descarga
de Personas
N.P.T.: 0.0-5.20m
N.P.T.: 0.0-4.0mN.P.T.: 0.0-5.0mN.P.T.: 0.0-6.0m
N.P.T.: 0.0-3.0m
N.P.T.: 0.0-3.80m
Estacionamiento
Vehicular
Estacionamiento de
Autobuses
Área de carga y descarga
durante horarios
determinados
Acceso a
Terreno
Plaza
Vestibular
Plaza Comercial
Plaza
de Tejido
Anfiteatro
Cafetería
Locales
Comerciales
Servicios
Sanitarios
Administración
Talleres de
enseñanza
B S
S
B
B
S S
B
S
S
B
Caseta de
vigilancia
S
S
B
B
Acceso
Principal
Columnas de
Pergolas
Columnas de
Pergolas
ESCALA:
1 : 250
FECHA DE IMPRESION:
FEB. 2013
HOJA:
PRB-03
UNIVERSIDAD DE EL
SALVADOR
FACULTAD DE INGENIERIA Y
ARQUITECTURA
ESCUELA DE ARQUITECTURA
PROPUESTA:
MERCADO DE
ARTESANIAS
PROPIETARIO:
ALCALDIA
MUNICIPAL DE
CACAOPERA
PRESENTAN:
GUZMÁN GONZALEZ,
WILFREDO EDUARDO
LOPEZ CRUZ,
BORIS ALFREDO
LOPEZ RIVAS,
PATRICIA CAROLINA
CONTENIDO:
DETALLE DE ZONA
COMERCIAL
N.P.T.: 0.0-5.20m
N.P.T.: 0.0-4.60m
Anfiteatro
Plaza
Vestibular
N.P.T.: 0.0-4.0m
N.P.T.: 0.0-3.0m
N.P.T.: 0.0-6.0m Plaza Comercial N.P.T.: 0.0-5.0m
S.S.
Mujeres
S.S.
Hombres
Local 1
Local 2
Local 3
Local 4
Local 5
Local "a"
Local "b"
Local "c" Cafetería
S
B
B
S S
S
B
S
B
Acceso a
Posterior
10°
10°
10°10°
10°
ESCALA:
1 : 200
FECHA DE IMPRESION:
FEB. 2013
HOJA:
PRB-04
UNIVERSIDAD DE EL
SALVADOR
FACULTAD DE INGENIERIA Y
ARQUITECTURA
ESCUELA DE ARQUITECTURA
PROPUESTA:
MERCADO DE
ARTESANIAS
PROPIETARIO:
ALCALDIA
MUNICIPAL DE
CACAOPERA
PRESENTAN:
GUZMÁN GONZALEZ,
WILFREDO EDUARDO
LOPEZ CRUZ,
BORIS ALFREDO
LOPEZ RIVAS,
PATRICIA CAROLINA
CONTENIDO:
DETALLE DE ZONA
VESTIBULAR Y ANFITEATRO
N.P.T.: 0.0-5.20m
N.P.T.: 0.0-4.60m
Anfiteatro
B
Plaza
Vestibular
N.P.T.: 0.0-4.0m
S S
B N.P.T.: 0.0-3.0m
S
N.P.T.: 0.0-3.80m
N.P.T.: 0.0-3.0m
N.P.T.: 0.0-5.0m
Plaza
de Tejido
Servicios
Sanitarios
Administración
N.P.T.: 0.0-4.0m
N.P.T.: 0.0-3.0m
10°
10°
10°
ESCALA:
1 : 200
FECHA DE IMPRESION:
FEB. 2013
HOJA:
PRB-04
UNIVERSIDAD DE EL
SALVADOR
FACULTAD DE INGENIERIA Y
ARQUITECTURA
ESCUELA DE ARQUITECTURA
PROPUESTA:
MERCADO DE
ARTESANIAS
PROPIETARIO:
ALCALDIA
MUNICIPAL DE
CACAOPERA
PRESENTAN:
GUZMÁN GONZALEZ,
WILFREDO EDUARDO
LOPEZ CRUZ,
BORIS ALFREDO
LOPEZ RIVAS,
PATRICIA CAROLINA
CONTENIDO:
DETALLE DE ZONA DE
APOYO
Plaza
de Tejido
N.P.T.: 0.0-3.80m
Plaza
Vestibular
Administración
Bodega y
mantenimiento
Taller 1
Taller 2
Bodega
de materiales
S.S.
Hombres
S.S.
Mujeres
N.P.T.: 0.0-4.0mN.P.T.: 0.0-4.0m
N.P.T.: 0.0-3.0m
N.P.T.: 0.0-5.20m
N.P.T.: 0.0-4.60m
Anfiteatro
N.P.T.: 0.0-3.0m
N.P.T.: 0.0-3.0m
S
B
B
10°
10°
ESCALA:
LA INDICADA
FECHA DE IMPRESION:
FEB. 2013
HOJA:
PRB-06
UNIVERSIDAD DE EL
SALVADOR
FACULTAD DE INGENIERIA Y
ARQUITECTURA
ESCUELA DE ARQUITECTURA
PROPUESTA:
MERCADO DE
ARTESANIAS
PROPIETARIO:
ALCALDIA
MUNICIPAL DE
CACAOPERA
PRESENTAN:
GUZMÁN GONZALEZ,
WILFREDO EDUARDO
LOPEZ CRUZ,
BORIS ALFREDO
LOPEZ RIVAS,
PATRICIA CAROLINA
CONTENIDO:
PLANTA ARQUITECTONICA
DE ANFITEATRO
A
Pared enchapada
con piedra
Escenario
0,8m
0,4m
1,2m
2,5m
1,2m
5,1m
3m 6,06m
Pared enchapada
con piedra
N.P.T.: 0.0-5.20m
N.P.T.: 0.0-4.60m
S
B
Plaza
Vestibular
N.P.T.: 0.0-4.0m
10°
Columnas de
Pergolas
Acceso a
Anfiteatro
N.P.T.: 0.0-4.40m
N.P.T.: 0.0-4.80m Graderios
Graderios
Escenario
S
S
10°
10°
S
B
10°
S
S
10°
10°
Graderios
Graderios
Graderios
SECCIÓN DE ANFITEATRO
SECCIÓN A-A DE ANFITEATRO
ESC: 1 : 125
GRADERIOS DE ANFITEATRO
ESC: 1 : 50
PLANTA ARQUITECTONICA DE
ANFITEATRO
ESC: 1 : 125
DETALLE DE GRADERIOS
Pergola
G
raderios
3m
1,5m
2,65m
12,78m
ESCALA:
1 : 100
FECHA DE IMPRESION:
FEB. 2013
HOJA:
PRB-07
UNIVERSIDAD DE EL
SALVADOR
FACULTAD DE INGENIERIA Y
ARQUITECTURA
ESCUELA DE ARQUITECTURA
PROPUESTA:
MERCADO DE
ARTESANIAS
PROPIETARIO:
ALCALDIA
MUNICIPAL DE
CACAOPERA
PRESENTAN:
GUZMÁN GONZALEZ,
WILFREDO EDUARDO
LOPEZ CRUZ,
BORIS ALFREDO
LOPEZ RIVAS,
PATRICIA CAROLINA
CONTENIDO:
PLANTA ESTRUCTURAL DE
TECHOS DE
ADMINISTRACION
A
16,18m
2,38m
Administración
S.S.
Hombres
Bodega y
Mantenimiento
N.P.T.: 0.0-2.95m
S.S.
Mujeres
N.P.T.: 0.0-3.0m
B C D E
1
4
3
2
6,4m
2,5m
1,95m2,08m2,38m
5,65m 5,65m
A E
1
4
45%
45%
45% 45%
Cumbrera
PLANTA ARQUITECTONICA
DE ADMINISTRACIÓN
P1 P1 P1 P1 P1 P1 P1 P1 P1 P1 P1 P1 P1 P1 P1
P1
P1
P1
P1
P1
P1
P1
P1
V1
V1
V1
V1
V1
V1
V1
V1
V1
V1
V1
V1
V1V1V1V1V1
V1V1V1V1V1V1
PLANTA ESTRUCTURAL DE
TECHOS DE
ADMINISTRACION
PLANTA ARQUITECTONICA
DE ADMINISTRACIÓN
ESCALA:
1 : 100
FECHA DE IMPRESION:
FEB. 2013
HOJA:
PRB-08
UNIVERSIDAD DE EL
SALVADOR
FACULTAD DE INGENIERIA Y
ARQUITECTURA
ESCUELA DE ARQUITECTURA
PROPUESTA:
MERCADO DE
ARTESANIAS
PROPIETARIO:
ALCALDIA
MUNICIPAL DE
CACAOPERA
PRESENTAN:
GUZMÁN GONZALEZ,
WILFREDO EDUARDO
LOPEZ CRUZ,
BORIS ALFREDO
LOPEZ RIVAS,
PATRICIA CAROLINA
CONTENIDO:
ELEVACIÓN NORTE DE
ADMINISTRACIÓN
A B E
1 4
N.P.T.: 0.0-2.95m N.P.T.: 0.0-3.0m
45%
45%
N.P.T.: 0.0-2.95m N.P.T.: 0.0-3.0m
ELEVACIÓN ESTE DE
ADMINISTRACIÓN
ELEVACIÓN NORTE DE
ADMINISTRACIÓN
ELEVACIÓN ESTE DE
ADMINISTRACIÓN
3,36m1,88m
3,36m1,88m
Paredes de ladrillo de barro cocido
artesanal adobado con repello al
interior y exterior
Cubierta de Teja de Barro cocido
artesanal, con estructura metálica de
Viga maconver y varillas de 3/8"
Columna con enchapado tipo
enladrillado, con galleta de barro
Paredes de ladrillo de barro cocido
artesanal adobado con repello al
interior y exterior
Ventana abatible
de 2 hojas
Ventana tipo sifón
ESCALA:
1 : 125
FECHA DE IMPRESION:
FEB. 2013
HOJA:
PRB-09
UNIVERSIDAD DE EL
SALVADOR
FACULTAD DE INGENIERIA Y
ARQUITECTURA
ESCUELA DE ARQUITECTURA
PROPUESTA:
MERCADO DE
ARTESANIAS
PROPIETARIO:
ALCALDIA
MUNICIPAL DE
CACAOPERA
PRESENTAN:
GUZMÁN GONZALEZ,
WILFREDO EDUARDO
LOPEZ CRUZ,
BORIS ALFREDO
LOPEZ RIVAS,
PATRICIA CAROLINA
CONTENIDO:
PLANTA ESTRUCTURAL DE
TECHOS DE TALLERES DE
ENSEÑANZA
PLANTA ARQUITECTONICA
DE TALLERES DE
ENSEÑANZA
Taller 1 Taller 2
Bodega de materiales
N.P.T.: 0.0-2.95m
N.P.T.: 0.0-3.0m
45%
45%
Cumbrera
45% 45%
P1 P1 P1 P1 P1 P1 P1 P1 P1 P1 P1 P1 P1 P1 P1 P1 P1 P1 P1 P1 P1
V1
V1
V1
V1
V1
V1
V1
V1
V1
V1
V1
V1
V1
V1
V1
P1
P1
P1
P1
P1
P1
P1
P1
P1
P1
V1 V1 V1 V1
V1 V1 V1 V1
A B C D
1
2
3
A D
1
3
PLANTA ESTRUCTURAL DE
TECHOS DE TALLERES DE
ENSEÑANZA
PLANTA ARQUITECTONICA
DE TALLERES DE
ENSEÑANZA
15,92m
3,2m 6,36m 6,36m
7,18m
3,34m3,84m
ESCALA:
1 : 100
FECHA DE IMPRESION:
FEB. 2013
HOJA:
PRB-10
UNIVERSIDAD DE EL
SALVADOR
FACULTAD DE INGENIERIA Y
ARQUITECTURA
ESCUELA DE ARQUITECTURA
PROPUESTA:
MERCADO DE
ARTESANIAS
PROPIETARIO:
ALCALDIA
MUNICIPAL DE
CACAOPERA
PRESENTAN:
GUZMÁN GONZALEZ,
WILFREDO EDUARDO
LOPEZ CRUZ,
BORIS ALFREDO
LOPEZ RIVAS,
PATRICIA CAROLINA
CONTENIDO:
ELEVACIÓN NORTE DE
TALLERES DE ENSEÑANZA
ELEVACIÓN ESTE DE
TALLERES DE ENSEÑANZA
45%
45%
N.P.T.: 0.0-2.95m N.P.T.: 0.0-3.0m
N.P.T.: 0.0-3.0mN.P.T.: 0.0-2.95m
ELEVACIÓN NORTE DE
TALLERES DE ENSEÑANZA
ELEVACIÓN ESTE DE
TALLERES DE ENSEÑANZA
DA
1 3
3,36m2,4m
3,36m2,4m
0,98m
Paredes de ladrillo de barro cocido
artesanal adobado con repello al
interior y exterior
Cubierta de Teja de Barro cocido
artesanal, con estructura metálica de
Viga maconver y varillas de 3/8"
Columna con enchapado tipo
enladrillado, con galleta de barro
Paredes de ladrillo de barro cocido
artesanal adobado con repello al
interior y exterior
Ventana abatible
de 2 hojas
ESCALA:
1 : 100
FECHA DE IMPRESION:
FEB. 2013
HOJA:
PRB-11
UNIVERSIDAD DE EL
SALVADOR
FACULTAD DE INGENIERIA Y
ARQUITECTURA
ESCUELA DE ARQUITECTURA
PROPUESTA:
MERCADO DE
ARTESANIAS
PROPIETARIO:
ALCALDIA
MUNICIPAL DE
CACAOPERA
PRESENTAN:
GUZMÁN GONZALEZ,
WILFREDO EDUARDO
LOPEZ CRUZ,
BORIS ALFREDO
LOPEZ RIVAS,
PATRICIA CAROLINA
CONTENIDO:
PLANTA ESTRUCTURAL DE
TECHOS DE LOCALES
COMERCIALES
PLANTA ARQUITECTONICA
DE LOCALES COMERCIALES
A
1
B C D E F
2
3
N.P.T.: 0.0-4.95m
N.P.T.: 0.0-5.0m
A
1
F
N.P.T.: 0.0-4.92m
Local 1
N.P.T.: 0.0-4.92m
Local 2
N.P.T.: 0.0-4.92m
Local 3
N.P.T.: 0.0-4.92m
Local 4
N.P.T.: 0.0-4.92m
Local 5
11,75m
2,35m 2,35m 2,35m 2,35m 2,35m
5,38m
3m2,38m
45%
45%
Cumbrera
45%45%
V1
V1
V1
V1
V1
V1
V1
V1
P1 P1 P1 P1 P1 P1 P1 P1 P1 P1 P1 P1 P1
V1V1V1
V1V1
V1V1V1V1
P1
P1
P1
P1
P1
P1
3
PLANTA ESTRUCTURAL DE
TECHOS DE LOCALES
COMERCIALES
PLANTA ARQUITECTONICA
DE LOCALES COMERCIALES
V1
V1
V1
ESCALA:
1 : 100
FECHA DE IMPRESION:
FEB. 2013
HOJA:
PRB-12
UNIVERSIDAD DE EL
SALVADOR
FACULTAD DE INGENIERIA Y
ARQUITECTURA
ESCUELA DE ARQUITECTURA
PROPUESTA:
MERCADO DE
ARTESANIAS
PROPIETARIO:
ALCALDIA
MUNICIPAL DE
CACAOPERA
PRESENTAN:
GUZMÁN GONZALEZ,
WILFREDO EDUARDO
LOPEZ CRUZ,
BORIS ALFREDO
LOPEZ RIVAS,
PATRICIA CAROLINA
CONTENIDO:
ELEVACIÓN NORTE DE
LOCALES COMERCIALES
ELEVACIÓN ESTE DE
LOCALES COMERCIALES
A F
1 2 3
N.P.T.: 0.0-3.0mN.P.T.: 0.0-2.95m
N.P.T.: 0.0-3.0mN.P.T.: 0.0-2.95m
45%
45%
3,36m1,68m
3,36m1,68m
ELEVACIÓN NORTE DE
LOCALES COMERCIALES
ELEVACIÓN ESTE DE
LOCALES COMERCIALES
Paredes de ladrillo de barro cocido
artesanal adobado con repello al
interior y exterior
Cubierta de Teja de Barro cocido
artesanal, con estructura metálica de
Viga maconver y varillas de 3/8"
Columna con enchapado tipo
enladrillado, con galleta de barro
Puertas con persianas de madera,
plegadizas de 4 cuerpos
ESCALA:
1 : 125
FECHA DE IMPRESION:
FEB. 2013
HOJA:
PRB-13
UNIVERSIDAD DE EL
SALVADOR
FACULTAD DE INGENIERIA Y
ARQUITECTURA
ESCUELA DE ARQUITECTURA
PROPUESTA:
MERCADO DE
ARTESANIAS
PROPIETARIO:
ALCALDIA
MUNICIPAL DE
CACAOPERA
PRESENTAN:
GUZMÁN GONZALEZ,
WILFREDO EDUARDO
LOPEZ CRUZ,
BORIS ALFREDO
LOPEZ RIVAS,
PATRICIA CAROLINA
CONTENIDO:
PLANTA ESTRUCTURAL DE
TECHOS DE CAFETERIA
PLANTA ARQUITECTONICA
DE CAFETERIA
N.P.T.: 0.0-5.0m
N.P.T.: 0.0-4.95m
Local 6 Local 7 Local 8
Cocina
Área de Mesas
Cocina Cocina
Entrada posterior Entrada posterior Entrada posterior
45%
45%
Cumbrera
45%45%
P1 P1 P1 P1 P1 P1 P1 P1 P1 P1 P1 P1 P1 P1
V1
V1
V1
V1
V1
V1
V1
V1
V1
V1
V1
V1
V1
V1
V1
P1
P1
P1
P1
P1
P1
P1
P1
P1
P1
V1 V1 V1 V1
V1 V1 V1 V1
A
1
B C D
2
3
PLANTA ESTRUCTURAL DE
TECHOS DE CAFETERIA
PLANTA ARQUITECTONICA
DE CAFETERIA
A
1
3
D
9,96m
3,32m 3,32m 3,32m
7,78m
2,92m4,86m
ESCALA:
1 : 100
FECHA DE IMPRESION:
FEB. 2013
HOJA:
PRB-14
UNIVERSIDAD DE EL
SALVADOR
FACULTAD DE INGENIERIA Y
ARQUITECTURA
ESCUELA DE ARQUITECTURA
PROPUESTA:
MERCADO DE
ARTESANIAS
PROPIETARIO:
ALCALDIA
MUNICIPAL DE
CACAOPERA
PRESENTAN:
GUZMÁN GONZALEZ,
WILFREDO EDUARDO
LOPEZ CRUZ,
BORIS ALFREDO
LOPEZ RIVAS,
PATRICIA CAROLINA
CONTENIDO:
ELEVACIÓN SUR DE
CAFETERIA
ELEVACIÓN OESTE DE
CAFETERIA
N.P.T.: 0.0-5.0mN.P.T.: 0.0-4.95m
45%
45%
N.P.T.: 0.0-5.0mN.P.T.: 0.0-4.95m
ELEVACIÓN SUR DE
CAFETERIA
ELEVACIÓN OESTE DE
CAFETERIA
A D
31
Paredes de ladrillo de barro cocido
artesanal adobado con repello al
interior y exterior
Cubierta de Teja de Barro cocido
artesanal, con estructura metálica de
Viga maconver y varillas de 3/8"
Columna con enchapado tipo
enladrillado, con galleta de barro
Ventanas con persianas de madera,
plegadizas de 7 cuerpos
Ventana abatible
de 2 hojas
ESCALA:
1 : 100
FECHA DE IMPRESION:
FEB. 2013
HOJA:
PRB-15
UNIVERSIDAD DE EL
SALVADOR
FACULTAD DE INGENIERIA Y
ARQUITECTURA
ESCUELA DE ARQUITECTURA
PROPUESTA:
MERCADO DE
ARTESANIAS
PROPIETARIO:
ALCALDIA
MUNICIPAL DE
CACAOPERA
PRESENTAN:
GUZMÁN GONZALEZ,
WILFREDO EDUARDO
LOPEZ CRUZ,
BORIS ALFREDO
LOPEZ RIVAS,
PATRICIA CAROLINA
CONTENIDO:
PLANTA ESTRUCTURAL DE
TECHOS DE SERVICIOS
SANITARIOS
PLANTA ARQUITECTONICA
DE SERVICIOS SANITARIOS
45%
45%
Cumbrera
45%45%
V1
V1
V1
V1
V1
V1
V1
V1
V1
V1
V1
V1P1 P1 P1 P1 P1 P1 P1 P1
V1V1V1V1V1V1
V1V1V1V1V1V1
P1
P1
P1
P1
P1
P1
P1
P1
A B C
1
4
3
2
5
8,1m
4,05m 4,05m
7,44m
1,87m1,07m1,35m3,15m
A C
1
5
PLANTA ESTRUCTURAL DE
TECHOS DE SERVICIOS
SANITARIOS
PLANTA ARQUITECTONICA
DE SERVICIOS SANITARIOS
S.S.
Hombres
S.S.
Mujeres
Lavadero de
Trapiadores
N.P.T.: 0.0-4.95m
N.P.T.: 0.0-5.0m
ESCALA:
1 : 100
FECHA DE IMPRESION:
FEB. 2013
HOJA:
PRB-16
UNIVERSIDAD DE EL
SALVADOR
FACULTAD DE INGENIERIA Y
ARQUITECTURA
ESCUELA DE ARQUITECTURA
PROPUESTA:
MERCADO DE
ARTESANIAS
PROPIETARIO:
ALCALDIA
MUNICIPAL DE
CACAOPERA
PRESENTAN:
GUZMÁN GONZALEZ,
WILFREDO EDUARDO
LOPEZ CRUZ,
BORIS ALFREDO
LOPEZ RIVAS,
PATRICIA CAROLINA
CONTENIDO:
ELEVACIÓN NORTE DE
SERVICIOS SANITARIOS
ELEVACIÓN ESTE DE
SERVICIOS SANITARIOS
A C
1 4 5
ELEVACIÓN NORTE DE
SERVICIOS SANITARIOS
ELEVACIÓN ESTE DE
SERVICIOS SANITARIOS
N.P.T.: 0.0-5.0mN.P.T.: 0.0-4.95m
N.P.T.: 0.0-5.0mN.P.T.: 0.0-4.95m
45%
45%
Paredes de ladrillo de barro cocido
artesanal adobado con repello al
interior y exterior
Cubierta de Teja de Barro cocido
artesanal, con estructura metálica de
Viga maconver y varillas de 3/8"
Columna con enchapado tipo
enladrillado, con galleta de barro
Ventana tipo sifón. (Aplicable en
servicios sanitarios)
ESCALA:
1 : 50
FECHA DE IMPRESION:
FEB. 2013
HOJA:
PRB-17
UNIVERSIDAD DE EL
SALVADOR
FACULTAD DE INGENIERIA Y
ARQUITECTURA
ESCUELA DE ARQUITECTURA
PROPUESTA:
MERCADO DE
ARTESANIAS
PROPIETARIO:
ALCALDIA
MUNICIPAL DE
CACAOPERA
PRESENTAN:
GUZMÁN GONZALEZ,
WILFREDO EDUARDO
LOPEZ CRUZ,
BORIS ALFREDO
LOPEZ RIVAS,
PATRICIA CAROLINA
CONTENIDO:
PLANTA ESTRUCTURAL DE
TECHOS
PLANTA ARQUITECTONICA
A
1
B C
2
3,7m
6m
3,3m 2,7m
A
1
C
2
N.P.T.: 0.0+3.80m
N.P.T.: 0.0-3.98m
45%
45%
45%
45%
V1
V1
V1
V1
V1 V1 V1 V1
P1 P1 P1 P1
P1
P1
P1
45% 45%
N.P.T.: 0.0+3.80mN.P.T.: 0.0+3.80m
A C 1 2
A B C
S.S.
N.P.T.: 0.0+3.80m
N.P.T.: 0.0-3.98m
Cabina
de
Seguridad
ELEVACIÓN SUROESTE
ELEVACIÓN NOROESTEA
SECCIÓN A-A
PLANTA ESTRUCTURAL DE
TECHOS
PLANTA ARQUITECTONICA
ELEVACIÓN SUROESTE ELEVACIÓN NOROESTE
SECCIÓN A-A
Paredes de ladrillo de barro cocido
artesanal adobado con repello al
interior y exterior
Cubierta de Teja de Barro cocido
artesanal, con estructura metálica de
Viga maconver y varillas de 3/8"
Ventana tipo sifón. (Aplicable en
servicios sanitarios)Ventana abatible
de 2 hojas
Ventana abatible
de 2 hojas
CASETA DE VIGILANCIA
ESCALA:
1 : 500
FECHA DE IMPRESION:
FEB. 2013
HOJA:
PRB-18
UNIVERSIDAD DE EL
SALVADOR
FACULTAD DE INGENIERIA Y
ARQUITECTURA
ESCUELA DE ARQUITECTURA
PROPUESTA:
MERCADO DE
ARTESANIAS
PROPIETARIO:
ALCALDIA
MUNICIPAL DE
CACAOPERA
PRESENTAN:
GUZMÁN GONZALEZ,
WILFREDO EDUARDO
LOPEZ CRUZ,
BORIS ALFREDO
LOPEZ RIVAS,
PATRICIA CAROLINA
CONTENIDO:
PLANO ELECTRICO DE
INSTALACIONES EXTERIORES
Bahia para descarga
de Personas
Estacionamiento
Vehicular
Estacionamiento de
Autobuses
Locales
Comerciales
Servicios
Sanitarios
Administración
Talleres de
enseñanza
Acceso a
Terreno
Caseta de
vigilancia
Acceso
Principal
Poste y Linea de
Distribuidora
Cafetería
Anfiteatro
24
25
23
NOTA: DEBIDO A QUE LA CARGA ELECTRICA ES
ALTA, LA DISTRIBUIDORA PODRIA SOLICITARÁ
EL RESPECTIVO ANALISIS Y DISEÑO DE UNA
SUBESTACION ELECTRICA PARA EL MERCADO
22
N°deCircuito
Espacios
Fases
Ocupados
Voltaje
111 110
Hilos
CargaInstal.
500
A
4.55
(Watts)
B
-
en Barras
(Amperios)
Corriente
Marcade
G.E.
Disyuntor
Polos Amp
20
Proteccion
L : Luminarias
T : Tomacorr.
Descrip. de Cargas
L:5
22 600 - 5.45 20 L:6
33 600 5.45 - T:6
44 500 - 4.55 T:5
55 600 5.45 -
66 500 - 4.55 T:5
77 500 4.55 - T:5
8 600 - 5.45
L:999 900 8.18 -
A B
1 2
3 4
5 6
7 8
9 10
11 12
1
1
1
1
1
1
1
1
110
110
110
110
110
110
110
110
2
2
2
2
2
2
2
2
2
G.E.
G.E.
G.E.
G.E.
G.E.
G.E.
G.E.
G.E.
1
1
1
1
1
1
1
1
1
L:6
20
20
20
20
20
20
20
18,925
0.80
15,140 69.55 68.09 Fecha:02/2013
ΣD
F.D
D.M
Alimentador:
2THHN#8+
Calculo:WEGG
Reviso: WGV
85.1186.93
0.80 0.80
1THHN#10
N
R : Reflector
S : Spot
M : Motor
L:6
8
T:41010 400 - 3.641 110 2 G.E. 1 20
T:51111 500 4.55 -1 110 2 G.E. 1 20
L:51212 500 - 4.551 110 2 G.E. 1 20
L:313 300 2.73 -1 110 2 G.E. 1 20
T:514 500 - 4.551 110 2 G.E. 1 20
T:515 500 4.55 -1 110 2 G.E. 1 20
T:516 500 - 4.551 110 2 G.E. 1 20
L:1017 1000 9.09 -1 110 2 G.E. 1 20
L:818 800 - 7.271 110 2 G.E. 1 20
L:3 T:119 400 3.64 -1 110 2 G.E. 1 20
L:4 T:320 700 - 6.361 110 2 G.E. 1 20
21-2321 700 3.18 3.182 220 3 G.E. 2 20
22 1925 8.75 G.E. 20
23 G.E. 20
24 1575 7.16 G.E. 20
25 7.95 G.E. 20
26
27
22-24
25-27
26-28
29-31
2 220 3 2
2 220 3 2
2 220 3 2
2 220 3 2
R:4 175w c/u
R:11 175w c/u
13 14
15 16
17 18
19 20
21 22
23 24
25 26
27 28
13
14
15
16
17
18
19
20
29 30
31 32
33 34
1575
1750
8.75
7.16
7.95
R:9 175w c/u
R:9 175w c/u
R:10 175w c/u
7.16 7.16
ESCALA:
SIN ESCALA
FECHA DE IMPRESION:
FEB. 2013
HOJA:
PRB-19
UNIVERSIDAD DE EL
SALVADOR
FACULTAD DE INGENIERIA Y
ARQUITECTURA
ESCUELA DE ARQUITECTURA
PROPUESTA:
MERCADO DE
ARTESANIAS
PROPIETARIO:
ALCALDIA
MUNICIPAL DE
CACAOPERA
PRESENTAN:
GUZMÁN GONZALEZ,
WILFREDO EDUARDO
LOPEZ CRUZ,
BORIS ALFREDO
LOPEZ RIVAS,
PATRICIA CAROLINA
CONTENIDO:
CUADRO DE CARGA
ELECTRICA PARA MERCADO
DE ARTESANIAS
SIMBOLOGIA
ELECTRICA
Interruptor sencillo
Interruptor Doble
Interruptor Triple
2
3
Luminaria ahorrativa
Luminaria Exterior
Luminaria hacia arriba
8
Número de circuito
Poste a colocar
Poste Existente
2 Tomacorriente doble
Linea interna
Linea de distribuidora
Conductor
3 THHN #12
Conductor
2 THHN #10
1 THHN #12
Ø=3/4"
3"- 4"
1.20m4.5-5m
Poste de tubo
galvanizado o
decorativo a elección
Caja Cuadrada
Lampara
Detalle de Luminaria
Externa
Sin Escala
Reflectores
ESCALA:
SIN ESCALA
FECHA DE IMPRESION:
FEB. 2013
HOJA:
PRB-20
UNIVERSIDAD DE EL
SALVADOR
FACULTAD DE INGENIERIA Y
ARQUITECTURA
ESCUELA DE ARQUITECTURA
PROPUESTA:
MERCADO DE
ARTESANIAS
PROPIETARIO:
ALCALDIA
MUNICIPAL DE
CACAOPERA
PRESENTAN:
GUZMÁN GONZALEZ,
WILFREDO EDUARDO
LOPEZ CRUZ,
BORIS ALFREDO
LOPEZ RIVAS,
PATRICIA CAROLINA
CONTENIDO:
DETALLE DE LUMINARIA
EXTERIOR
CUADRO DE SIMBOLOGIA
ELECTRICA
ESCALA:
1 : 100
FECHA DE IMPRESION:
FEB. 2013
HOJA:
PRB-21
UNIVERSIDAD DE EL
SALVADOR
FACULTAD DE INGENIERIA Y
ARQUITECTURA
ESCUELA DE ARQUITECTURA
PROPUESTA:
MERCADO DE
ARTESANIAS
PROPIETARIO:
ALCALDIA
MUNICIPAL DE
CACAOPERA
PRESENTAN:
GUZMÁN GONZALEZ,
WILFREDO EDUARDO
LOPEZ CRUZ,
BORIS ALFREDO
LOPEZ RIVAS,
PATRICIA CAROLINA
CONTENIDO:
PLANTA ELECTRICA DE
ANFITEATRO
Acceso a
Anfiteatro
2 2
2
20
21
2
B
A A
B
BA
2
Acceso a
Anfiteatro
Graderios
Escenario
Graderios
Graderios
ESCALA:
La Indicada
FECHA DE IMPRESION:
FEB. 2013
HOJA:
PRB-22
UNIVERSIDAD DE EL
SALVADOR
FACULTAD DE INGENIERIA Y
ARQUITECTURA
ESCUELA DE ARQUITECTURA
PROPUESTA:
MERCADO DE
ARTESANIAS
PROPIETARIO:
ALCALDIA
MUNICIPAL DE
CACAOPERA
PRESENTAN:
GUZMÁN GONZALEZ,
WILFREDO EDUARDO
LOPEZ CRUZ,
BORIS ALFREDO
LOPEZ RIVAS,
PATRICIA CAROLINA
CONTENIDO:
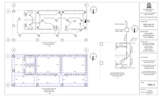
PLANTA ELECTRICA DE
ADMINISTRACIÓN
PLANO ESTRUCTURAL DE
FUNDACIONES DE
ADMINISTRACIÓN
SF-1
SF-1
SF-1 SF-1
SF-1
SF-1
SF-1
SF-1
SF-1
SF-1
SF-1
SF-1
SF-1
SF-1
SF-1
SF-1
SF-1
SF-1
SF-1
SF-1
SF-1
SF-1
M
2
2
22 2
2
BA BA
22
B B BA
A
A E
1
4
PLANO HIDRAULICO DE
SERVICIOS SANITARIOS DE
ADMINISTRACIÓN
PVCØ1/2"PVCØ1/2"
PVC Ø1/2"
PV
C
Ø
4"
PVC Ø4"
PVCØ4"
Hacia Fosa Septica
Caja de recepción
de aguas negras
PVC Ø1/2"
PLANTA ELECTRICA DE
ADMINISTRACIÓN
PLANO ESTRUCTURAL DE
FUNDACIONES DE
ADMINISTRACIÓN
PLANO HIDRAULICO DE
SERVICIOS SANITARIOS DE
ADMINISTRACIÓN
1 : 75
1 : 100
1 : 100
A E
1
4
1
2
3
2
ESCALA:
1 : 125
FECHA DE IMPRESION:
FEB. 2013
HOJA:
PRB-23
UNIVERSIDAD DE EL
SALVADOR
FACULTAD DE INGENIERIA Y
ARQUITECTURA
ESCUELA DE ARQUITECTURA
PROPUESTA:
MERCADO DE
ARTESANIAS
PROPIETARIO:
ALCALDIA
MUNICIPAL DE
CACAOPERA
PRESENTAN:
GUZMÁN GONZALEZ,
WILFREDO EDUARDO
LOPEZ CRUZ,
BORIS ALFREDO
LOPEZ RIVAS,
PATRICIA CAROLINA
CONTENIDO:
PLANTA ELECTRICA DE
TALLERES DE ENSEÑANZA
PLANO ESTRUCTURAL DE
FUNDACIONES DE TALLERES
DE ENSEÑANZA
A D
1
3
A D
1
3
SF-1
SF-1
SF-1
SF-1SF-1
SF-1
SF-1
SF-1
SF-1SF-1
SF-1 SF-1
SF-1
SF-1
SF-1
SF-1
SF-1
22
2
A
B
4
2
A A A
B B B
5
2 2 2 2
22
A A A
B B B
2 22
PLANO ESTRUCTURAL DE
FUNDACIONES DE TALLERES
DE ENSEÑANZA
PLANTA ELECTRICA DE
TALLERES DE ENSEÑANZA
6 7
8
ESCALA:
La Indicada
FECHA DE IMPRESION:
FEB. 2013
HOJA:
PRB-24
UNIVERSIDAD DE EL
SALVADOR
FACULTAD DE INGENIERIA Y
ARQUITECTURA
ESCUELA DE ARQUITECTURA
PROPUESTA:
MERCADO DE
ARTESANIAS
PROPIETARIO:
ALCALDIA
MUNICIPAL DE
CACAOPERA
PRESENTAN:
GUZMÁN GONZALEZ,
WILFREDO EDUARDO
LOPEZ CRUZ,
BORIS ALFREDO
LOPEZ RIVAS,
PATRICIA CAROLINA
CONTENIDO:
PLANTA ELECTRICA DE
SERVICIOS SANITARIOS
PLANO ESTRUCTURAL DE
FUNDACIONES DE SERVICIOS
SANITARIOS
PLANO HIDRAULICO DE
SERVICIOS SANITARIOS
PVC Ø1/2"
PVCØ1/2"
PVC Ø6"
PVCØ6"
PVC Ø6"
PVC Ø6"
PVCØ8"
Hacia Fosa Septica
PVC Ø2"
PVCØ6"
PVC Ø6"
PVC Ø2"
PVC Ø1/2"
1 : 75
PLANO HIDRAULICO DE
SERVICIOS SANITARIOS
PLANO ESTRUCTURAL DE
FUNDACIONES DE SERVICIOS
SANITARIOS
PLANTA ELECTRICA DE
SERVICIOS SANITARIOS
1 : 100
1 : 100
9
2
2
A
B
C
3
10
2
2
A
B
C
3
A C
1
5
A C
1
5
SF-1
SF-1
SF-1
SF-1 SF-1
SF-1
SF-1
SF-1
SF-1
SF-1
SF-1
SF-1
SF-1
SF-1
SF-1
SF-1
ESCALA:
1 : 100
FECHA DE IMPRESION:
FEB. 2013
HOJA:
PRB-25
UNIVERSIDAD DE EL
SALVADOR
FACULTAD DE INGENIERIA Y
ARQUITECTURA
ESCUELA DE ARQUITECTURA
PROPUESTA:
MERCADO DE
ARTESANIAS
PROPIETARIO:
ALCALDIA
MUNICIPAL DE
CACAOPERA
PRESENTAN:
GUZMÁN GONZALEZ,
WILFREDO EDUARDO
LOPEZ CRUZ,
BORIS ALFREDO
LOPEZ RIVAS,
PATRICIA CAROLINA
CONTENIDO:
PLANTA ELECTRICA DE
LOCALES COMERCIALES
PLANO ESTRUCTURAL DE
FUNDACIONES DE LOCALES
COMERCIALES
A
1
F
3
A
1
F
2
3A B C
13
11
2 2 2 2
12
SF-1 SF-1 SF-1 SF-1 SF-1
SF-1 SF-1
SF-1
SF-1
SF-1
SF-1
SF-1
SF-1
SF-1
SF-1
SF-1
SF-1 SF-1
SF-1
SF-1 SF-1
SF-1SF-1
PLANTA ELECTRICA DE
LOCALES COMERCIALES
PLANO ESTRUCTURAL DE
FUNDACIONES DE LOCALES
COMERCIALES
3
ESCALA:
La Indicada
FECHA DE IMPRESION:
FEB. 2013
HOJA:
PRB-26
UNIVERSIDAD DE EL
SALVADOR
FACULTAD DE INGENIERIA Y
ARQUITECTURA
ESCUELA DE ARQUITECTURA
PROPUESTA:
MERCADO DE
ARTESANIAS
PROPIETARIO:
ALCALDIA
MUNICIPAL DE
CACAOPERA
PRESENTAN:
GUZMÁN GONZALEZ,
WILFREDO EDUARDO
LOPEZ CRUZ,
BORIS ALFREDO
LOPEZ RIVAS,
PATRICIA CAROLINA
CONTENIDO:
PLANTA ELECTRICA DE
CAFETERIA
PLANO ESTRUCTURAL DE
FUNDACIONES DE
CAFETERIA
1 : 75
1 : 125
PLANO HIDRAULICO DEL
SECTOR DE COCINAS DE
CAFETERIA
SF-1SF-1
SF-1SF-1 SF-1 SF-1
SF-1
SF-1SF-1SF-1
SF-1 SF-1 SF-1
SF-1SF-1SF-1
SF-1
B
2
AA
B
3
A
A
B C
B C
2 2
2
2
2
B
2
AA
B
2 2
2
2
2
B
2
AA
B
2 2
2
2
2
1514 17 18
16
1 : 100
Entrada de A.P.PVC Ø1/2" PVC Ø1/2"
PVC Ø4"PVC Ø4" PVC Ø4"
Hacia Fosa Septica
PVC Ø4"
PLANO HIDRAULICO DEL
SECTOR DE COCINAS DE
CAFETERIA
PLANO ESTRUCTURAL DE
FUNDACIONES DE
CAFETERIA
PLANTA ELECTRICA DE
CAFETERIA
A D
Local 6
Local 7 Local 8
Cocina Cocina
Cocina
1
3
A D
1
3
1
D
ESCALA:
1 : 50
FECHA DE IMPRESION:
FEB. 2013
HOJA:
PRB-27
UNIVERSIDAD DE EL
SALVADOR
FACULTAD DE INGENIERIA Y
ARQUITECTURA
ESCUELA DE ARQUITECTURA
PROPUESTA:
MERCADO DE
ARTESANIAS
PROPIETARIO:
ALCALDIA
MUNICIPAL DE
CACAOPERA
PRESENTAN:
GUZMÁN GONZALEZ,
WILFREDO EDUARDO
LOPEZ CRUZ,
BORIS ALFREDO
LOPEZ RIVAS,
PATRICIA CAROLINA
CONTENIDO:
PLANTA ELECTRICA DE
CASETA DE VIGILANCIA
PLANO ESTRUCTURAL DE
FUNDACIONES DE CASETA
DE VIGILANCIA
2
2
A
19
B PVC Ø1/2" PVC Ø1/2"
PVCØ6"
Hacia Fosa Septica
PVCØ6"
PVCØ1/2"
SF-1
SF-1 SF-1
SF-1
PLANO HIDRAULICO DE
CASETA DE VIGILANCIA
PLANO HIDRAULICO DE
CASETA DE VIGILANCIA
PLANO ESTRUCTURAL DE
FUNDACIONES DE CASETA
DE VIGILANCIA
PLANTA ELECTRICA DE
CASETA DE VIGILANCIA
ESCALA:
1 : 500
FECHA DE IMPRESION:
FEB. 2013
HOJA:
PRB-28
UNIVERSIDAD DE EL
SALVADOR
FACULTAD DE INGENIERIA Y
ARQUITECTURA
ESCUELA DE ARQUITECTURA
PROPUESTA:
MERCADO DE
ARTESANIAS
PROPIETARIO:
ALCALDIA
MUNICIPAL DE
CACAOPERA
PRESENTAN:
GUZMÁN GONZALEZ,
WILFREDO EDUARDO
LOPEZ CRUZ,
BORIS ALFREDO
LOPEZ RIVAS,
PATRICIA CAROLINA
CONTENIDO:
PLANO HIDRAULICO DE A.P.
Y DRENAJE DE A.LL. DEL
MERCADO DE ARTESANIAS
Bahia para descarga
de Personas
Estacionamiento
Vehicular
Estacionamiento de
Autobuses
Locales
Comerciales
Servicios
Sanitarios
Administración
Talleres de
enseñanza
Acceso a
Terreno
Caseta de
vigilancia
Acceso
Principal
Cafetería
Anfiteatro
PVC Ø10"
PVC Ø10"
PVC
Ø10"
PVCØ10"
PVC Ø6"
PVC Ø10"
PVC Ø10"
PVC Ø10" PVC Ø6" PVC Ø6"
Drenaje de A.LL
Hacia el Rio
PVC Ø1/2"
Servicio de A.P.
PVC Ø1/2"
PVCØ1/2"
PV
C
Ø
1/2"
PV
C
Ø
1/2"
PVCØ1/2"
TUBO DE PVC
DIAMETRO 4"
PIEDRA CUARTA
GRAVA
ARENA
FOSA SEPTICA
ESCALA:
1 : 50
FECHA DE IMPRESION:
FEB. 2013
HOJA:
PRB-29
UNIVERSIDAD DE EL
SALVADOR
FACULTAD DE INGENIERIA Y
ARQUITECTURA
ESCUELA DE ARQUITECTURA
PROPUESTA:
MERCADO DE
ARTESANIAS
PROPIETARIO:
ALCALDIA
MUNICIPAL DE
CACAOPERA
PRESENTAN:
GUZMÁN GONZALEZ,
WILFREDO EDUARDO
LOPEZ CRUZ,
BORIS ALFREDO
LOPEZ RIVAS,
PATRICIA CAROLINA
CONTENIDO:
SECCION DE INSTALACION
DE FOSA SEPTICA
POZO DE ABSORCION CAJA DE REGISTRO
SECCION DE
INSTALACION
DE FOSA
SEPTICA
2,4m
6,3m
TUBO DE VENTILACION
DE FIERRO DIAMETRO = 2"
REGISTRO
60cm X 60cm FoFo
. .
..
. .
..
. .
..
. .
..
CAMPO DE
DISTRIBUCION ABSORCION
POZO DE
PROPORCION 1 : 5
MORTERO CEMENTO GRIS - A.RIO
REGISTRO
60cm X 60cm FoFo
TUBO DE PVC
DIAMETRO = 4"
MURO TEZON
ENJARRE PULIDO
Fosa Séptica
A'A
SIMBOLOGIA HIDRAULICA
Codo de 90°
Tee
Sifon
Codo de 45°
Grifo
Tuberia de abastecimiento de agua potable Ø
1
2" 315 psi
Tuberia de aguas negras 160 psi
Tuberia de aguas Lluvias
ESCALA:
1 : 50
FECHA DE IMPRESION:
FEB. 2013
HOJA:
PRB-30
UNIVERSIDAD DE EL
SALVADOR
FACULTAD DE INGENIERIA Y
ARQUITECTURA
ESCUELA DE ARQUITECTURA
PROPUESTA:
MERCADO DE
ARTESANIAS
PROPIETARIO:
ALCALDIA
MUNICIPAL DE
CACAOPERA
PRESENTAN:
GUZMÁN GONZALEZ,
WILFREDO EDUARDO
LOPEZ CRUZ,
BORIS ALFREDO
LOPEZ RIVAS,
PATRICIA CAROLINA
CONTENIDO:
DETALLE EN PLANTA DE
FOSA SEPTICA
CUADRO DE SIMBOLOGIA
HIDRAULICA
3.0
0.20
4.0
Canaleta
Sub-estructura
Estructura
Metálica
Adoquín
Ecológico
Veranera
0.20
0.10
Estructura
Metálica
Adoquin
Ecologico
Parrilla
Protección
Canaleta
0.10
ESCALA:
1 : 50
FECHA DE IMPRESION:
FEB. 2013
HOJA:
PRB-31
UNIVERSIDAD DE EL
SALVADOR
FACULTAD DE INGENIERIA Y
ARQUITECTURA
ESCUELA DE ARQUITECTURA
PROPUESTA:
MERCADO DE
ARTESANIAS
PROPIETARIO:
ALCALDIA
MUNICIPAL DE
CACAOPERA
PRESENTAN:
GUZMÁN GONZALEZ,
WILFREDO EDUARDO
LOPEZ CRUZ,
BORIS ALFREDO
LOPEZ RIVAS,
PATRICIA CAROLINA
CONTENIDO:
DETALLE DE ANCLAJE DE
PERGOLA CURVA
SECCION TRANSVERSAL DE
PERGOLA CURVA
SECCION TRANSVERSAL DE
PERGOLA CURVA
DETALLE DE ANCLAJE DE
PERGOLA CURVA
1 : 50
SIN ESCALA
ESCALA:
La Indicada
FECHA DE IMPRESION:
FEB. 2013
HOJA:
PRB-32
UNIVERSIDAD DE EL
SALVADOR
FACULTAD DE INGENIERIA Y
ARQUITECTURA
ESCUELA DE ARQUITECTURA
PROPUESTA:
MERCADO DE
ARTESANIAS
PROPIETARIO:
ALCALDIA
MUNICIPAL DE
CACAOPERA
PRESENTAN:
GUZMÁN GONZALEZ,
WILFREDO EDUARDO
LOPEZ CRUZ,
BORIS ALFREDO
LOPEZ RIVAS,
PATRICIA CAROLINA
CONTENIDO:
DETALLE DE ANCLAJES DE
PERGOLA RECTA
PERSPECTIVA DE PERGOLA
RECTA0,20m
0,10m
0,40m 0,20m
PERSPECTIVA DE PERGOLA
RECTA
Sin Escala
Empalme de maderas en tramos
largos
Escala 1 : 10
Anclaje de base de columnas de
pergola
Escala 1 : 10
Anclaje superior de columnas de
pergola
Escala 1 : 10
2,50m
Placa de acero de
20x10 cm en L de
50mm de espesor
Agujeros para perno
de Ø1/2"Placa de acero de
20x10 cm en L de
50mm de espesor
Agujeros para clavos
Empalme Tipo Rayo de Jupiter
ESCALA:
La Indicada
FECHA DE IMPRESION:
FEB. 2013
HOJA:
PRB-33
UNIVERSIDAD DE EL
SALVADOR
FACULTAD DE INGENIERIA Y
ARQUITECTURA
ESCUELA DE ARQUITECTURA
PROPUESTA:
MERCADO DE
ARTESANIAS
PROPIETARIO:
ALCALDIA
MUNICIPAL DE
CACAOPERA
PRESENTAN:
GUZMÁN GONZALEZ,
WILFREDO EDUARDO
LOPEZ CRUZ,
BORIS ALFREDO
LOPEZ RIVAS,
PATRICIA CAROLINA
CONTENIDO:
DETALLES ESTRUCTURALES
0,2m
0,2m
0,45m
0,45m
0,2m
0,25m
0,08m
0,15m
COLUMNAS CENTRALES
Estribo Ø 3/8" a 15 cm
6 Ø de 1/2"
0,4m
0,4m
0,15m
0,2m
0,1m
0,15m
0,15m
TENSOR T-1
Estribo Ø 1/4" a 13 cm
6 Ø de 3/8"
Escala 1: 10
Escala 1: 5
0,55m
0,35m
0,5m
0,3m
NERVIO
Estribo Ø 1/4" a 15 cm
2 Ø de 3/8"
Escala 1: 5
SOLERA INTERMEDIA
Y CORONAMIENTO
Estribo Ø 1/4" a 15 cm
4 Ø de 3/8"
Escala 1: 5
SOLERA DE FUNDACIÓN
Estribo Ø 3/8" a 15 cm
6 Ø de 1/2"
Escala 1: 10
0,3m
0,51m
0,13m
0,12m
0,03m
VIGA N° 2
Escala 1: 10
Ángulo de 1 1/2" con
refuerzo triangular Ø 3/8",
de 30 cm de altura
VIGA N° 1
Escala 1: 5
Ángulo de 1 1/2" con
refuerzo triangular Ø 3/8",
de 13 cm de altura
C1
SF1
178
PROPUESTA “C”, CAMPO RECREATIVO
Planta de conjunto y techos PRC-01
Distribución de zonas PRC-02
Planta de zona de piscinas PRC-03
Detalle de duchas, inst. hidra. piscinas PRC-04
Detalle de equipo hidroneumatico PRC-05
Planta arq. de administración PRC-06
Planta arq. y techos de admin. PRC-07
Elevaciones e inst. elec. de admin. PRC-08
Planta hidráulica admin. PRC-09
Planta arq. y techos de S.S. PRC-10
Elev. de inst. de tratam de A.N. PRC-11
Planta hidra. de S.S. PRC-12
Elevaciones de inst. hidra. S.S. PRC-13
Planta de conjunto cafetería PRC-14
Elevaciones de cafetería PRC-15
Planta eléctrica cafetería PRC-17
Planta hidráulica de cafetería PRC-18
Planta arq. de locales PRC-19
Planta de techos de locales PRC-20
Elevación norte de locales PRC-21
Planta eléct., de locales PRC-22
Planta arq. de S.S. y duchas PRC-23
Planta de techos de S.S. y duchas PRC-24
Planta hidra. de S.S. y duchas PRC-25
Planta eléct., exterior del campo PRC-26
Detalle de luminaria exterior PRC-27
Perspectiva de cafetería PRC-16
R6.00
R6.00
R6.00
M1
M2
M3
M4
M7
ACCESO
PRINCIPAL
CASCO
URBANO
C
A
B
D
SAN FRANCISCO
GOTERA
YOLOAIQUIN
DELICIAS DE
CONCEPCION
CHILANGA
CA
7
CACAOPERA
PARQUE
RECREATIVO
C
B
A
D
CASCO URBANO
DE CACAOPERA
RIO TOROLA
RIO TOROLA
LONGITUDINAL
DEL NORTE
PROYECCION DE CALLE
LONGITUDINAL DEL
NORTE
HACIA
JOATECA
HACIA SAN
FRANCISCO GOTERA
ESCALA:
LA INDICADA
FECHA DE IMPRESION:
FEB. 2013
HOJA:
PRC-01
UNIVERSIDAD DE EL
SALVADOR
FACULTAD DE INGENIERIA Y
ARQUITECTURA
ESCUELA DE ARQUITECTURA
PROPUESTA:
PROPIETARIO:
ALCALDIA
MUNICIPAL DE
CACAOPERA
PRESENTAN:
GUZMÁN GONZALEZ,
WILFREDO EDUARDO
LOPEZ CRUZ,
BORIS ALFREDO
LOPEZ RIVAS,
PATRICIA CAROLINA
CONTENIDO:
PLANTA DE CONJUNTO,
PROPUESTA DE
ARBORIZACION Y
SEÑALIZACION PARA CAMPO
RECREATIVO
PLANTA DE CONJUNTO, PROPUESTA DE ARBORIZACION Y SEÑALIZACION PARA
CAMPO RECREATIVO
ESC. 1:1250
CAMPO
RECREATIVO
No. TIPO DE ARBOL
1
2
CUADRO DE ARBOLES PLANTAR EN EL PROYECTO
MANGO
MARAÑÓN
3 CROTO
4 ANONA ROJA
5 MADRE CACAO
6 LAUREL
7 CEDRO
8 ALMENDRO DE RIO
9 JOCOTE
10 SINCUYA
11 ZUNZA
M1
M2
M3
M4
M7
ACCESO
PRINCIPAL
ESCALA:
LA INDICADA
FECHA DE IMPRESION:
FEB. 2013
HOJA:
PRC-02
UNIVERSIDAD DE EL
SALVADOR
FACULTAD DE INGENIERIA Y
ARQUITECTURA
ESCUELA DE ARQUITECTURA
PROPUESTA:
CAMPO
RECREATIVO
PROPIETARIO:
ALCALDIA
MUNICIPAL DE
CACAOPERA
PRESENTAN:
GUZMÁN GONZALEZ,
WILFREDO EDUARDO
LOPEZ CRUZ,
BORIS ALFREDO
LOPEZ RIVAS,
PATRICIA CAROLINA
CONTENIDO:
PLANO DE DISTRIBUCION DE
ZONAS EN EL CAMPO
RECREATIVO
CUADRO DE ARBOLES
CUADRO DE SEÑALIZACIÓN
ZONA "A"
�������������ACCESO PRINCIPAL DE VEHÍCULOS Y PEATONAL.
�������������ESTACIONAMIENTO.
�������������ÁREA DE CARGA Y DESCARGA.
ZONA "B"
�������������PLAZA PRINCIPAL.
�������������ADMINISTRACIÓN.
�������������CAFETERÍA.
�������������LOCALES COMERCIALES.
ZONA "C"
�������������PISCINAS.
�������������ÁREA DE ESTAR.
�������������CAFETERÍA.
�������������AREA DE DUCHAS, SANITARIOS Y VESTIDORES.
�������������AREA DEPORTIVA.
ESCALA: 1:2000
SEÑALIZACION DE PARQUE RECREATIVO
PLANO DE DISTRIBUCION DE
ZONAS EN EL CAMPO
RECREATIVO
M2
30%
30%
30%
30%
30%
30%
30%
30%
26.45
13.55
30%
30%
30%
ESCALA:
1:500
FECHA DE IMPRESION:
FEB. 2013
HOJA:
PRC-03
UNIVERSIDAD DE EL
SALVADOR
FACULTAD DE INGENIERIA Y
ARQUITECTURA
ESCUELA DE ARQUITECTURA
PROPUESTA:
CAMPO
RECREATIVO
PROPIETARIO:
ALCALDIA
MUNICIPAL DE
CACAOPERA
PRESENTAN:
GUZMÁN GONZALEZ,
WILFREDO EDUARDO
LOPEZ CRUZ,
BORIS ALFREDO
LOPEZ RIVAS,
PATRICIA CAROLINA
CONTENIDO:
VISTA EN PLANTA DE ÁREA
DE PISCINAS Y ÁREA
DEPORTIVA
VISTA EN PLANTA DE ÁREA DE PISCINAS Y ÁREA DEPORTIVA
ESC. 1:500
1.50
1.31
1.21
1.40
6.25
1.501.40
0.83
DETALLE DE
BANCAS Sin Escala
ESCALA:
LA INDICADA
FECHA DE IMPRESION:
FEB. 2013
HOJA:
PRC-04
UNIVERSIDAD DE EL
SALVADOR
FACULTAD DE INGENIERIA Y
ARQUITECTURA
ESCUELA DE ARQUITECTURA
PROPUESTA:
CAMPO
RECREATIVO
PROPIETARIO:
ALCALDIA
MUNICIPAL DE
CACAOPERA
PRESENTAN:
GUZMÁN GONZALEZ,
WILFREDO EDUARDO
LOPEZ CRUZ,
BORIS ALFREDO
LOPEZ RIVAS,
PATRICIA CAROLINA
CONTENIDO:
DETALLE DE BANCA EN
ZONA RECREATIVA
PERSPECTIVA ZONA DE
PISCINA
PERSPECTIVA DE ÁREA DE PISCINAS
PERSPECTIVA DE BANCAS
13.55
..
..
..
..
..
..
..
..
Duchas
Caja de Tratamientos
Caja para Estanque
Plantas Acuáticas (papiro,
carrizo, tifa, lirio acuático)
Tubería de pvc para
drenaje de Ø 4", 160 psi
PLANTA DE INSTALACIONES
HIDRAULICAS EN DUCHAS
esc. 1:125
ESCALA:
LA INDICADA
FECHA DE IMPRESION:
FEB. 2013
HOJA:
PRC-05
UNIVERSIDAD DE EL
SALVADOR
FACULTAD DE INGENIERIA Y
ARQUITECTURA
ESCUELA DE ARQUITECTURA
PROPUESTA:
CAMPO
RECREATIVO
PROPIETARIO:
ALCALDIA
MUNICIPAL DE
CACAOPERA
PRESENTAN:
GUZMÁN GONZALEZ,
WILFREDO EDUARDO
LOPEZ CRUZ,
BORIS ALFREDO
LOPEZ RIVAS,
PATRICIA CAROLINA
CONTENIDO:
DETALLE DE DUCHAS
PLANTA DE INSTALACIONES
HIDRAULICAS DE PISCINAS
PARQUE RECREATIVO
VISTA EN PLANTA DE INSTALACIONES
HIDRAULICAS EN PISCINA ESC. 1:500
DETALLE DE INSTALACIONES HIDRÁULICAS EN PISCINAS
sin escala
1.000.85
0.30
Detalle de Bebederos en Zona Deportiva
Escala 1:50
0.35 0.35
0.73
3.00
2.80
3.06
2.80
Bomba centrifuga
para piscinas yduchas
Tanque de cloro
Tanque Hidroneumatico
Bomba centrifuga para
abastecimiento de agua potable
Tableros de control de Equipos
VISTA EN PLANTA DE EQUIPOS HIDRONEUMATICOS
PARA ABASTECIMIENTO DE AGUA
sin escala
ESCALA:
LA INDICADA
FECHA DE IMPRESION:
FEB. 2013
HOJA:
PRC-06
UNIVERSIDAD DE EL
SALVADOR
FACULTAD DE INGENIERIA Y
ARQUITECTURA
ESCUELA DE ARQUITECTURA
PROPUESTA:
CAMPO
RECREATIVO
PROPIETARIO:
ALCALDIA
MUNICIPAL DE
CACAOPERA
PRESENTAN:
GUZMÁN GONZALEZ,
WILFREDO EDUARDO
LOPEZ CRUZ,
BORIS ALFREDO
LOPEZ RIVAS,
PATRICIA CAROLINA
CONTENIDO:
DETALLE EN PLATA DE
EQUIPO HIDRONEUMATICO
DETALLE DE EQUIPO
HIDRONEUMATICOS
DETALLE DE BEBEDEROS
RECEPCION
GERENTE
CAFE
SALA DE
REUNIONES
AREA DE
MANTENIMIENTO
GENERAL
CONTABILIDAD
PROYECCION DE ALERO
PROYECCION DE ALERO
PROYECCIONDEALERO
PROYECCIONDEALERO
PLANTA ARQUITECTÓNICA DE
ADMINISTRACIÓN CAMPO RECREATIVO
esc. 1:100
2.15 3.00
8.04
4.00
2.89
1.55
3.36
9.11
4.56 3.48
8.04
A B C D
A B C D
1
2
3
4
1
2
3
4
8.91
A A
PLANTA ARQUITECTÓNICA DE TECHOS DE
ADMINISTRACIÓN CAMPO RECREATIVO
esc. 1:100
9.11
8.04
A B C D
A B C D
1
2
3
4
1
2
3
4
8.91
A A
30%
30%
30%
30%
ESCALA:
LA INDICADA
FECHA DE IMPRESION:
FEB. 2013
HOJA:
PRC-07
UNIVERSIDAD DE EL
SALVADOR
FACULTAD DE INGENIERIA Y
ARQUITECTURA
ESCUELA DE ARQUITECTURA
PROPUESTA:
CAMPO
RECREATIVO
PROPIETARIO:
ALCALDIA
MUNICIPAL DE
CACAOPERA
PRESENTAN:
GUZMÁN GONZALEZ,
WILFREDO EDUARDO
LOPEZ CRUZ,
BORIS ALFREDO
LOPEZ RIVAS,
PATRICIA CAROLINA
CONTENIDO:
PLANTA ARQUITECTÓNICA Y
PLANTA DE TECHOS DE
ADMINISTRACIÓN CAMPO
RECREATIVO
RECEPCION
GERENTE
CAFE
SALA DE
REUNIONES
AREA DE
MANTENIMIENTO
GENERAL
CONTABILIDAD
PLANTA DE INSTALACIONES ELECTRICAS PARA
ADMINISTRACIÓN CAMPO RECREATIVO esc. :100
8.04
9.11
4.56 3.48
8.04
A B C D
A B C D
1
2
3
4
1
2
3
4
$
$
$
$
$
$₂
$
2
2
2
2
2 2
2 2
2
2
2 2
2.15 3.00
8.04
2.89
A C DB
3.00
1.25
4.40
ELEVACIÓN NORTE DE ADMINISTRACIÓN
PARA CAMPO RECREATIVO esc. 1:75
2.15 3.00
8.04
2.89
A C DB
3.15
1.00
4.00
CONTABILIDAD RECEPCION GERENTE
SECCION A-A DE ADMINISTRACIÓN
PARA PARQUERECREATIVO esc. 1:75
ESCALA:
LA INDICADAS
FECHA DE IMPRESION:
FEB. 2013
HOJA:
PRC-08
UNIVERSIDAD DE EL
SALVADOR
FACULTAD DE INGENIERIA Y
ARQUITECTURA
ESCUELA DE ARQUITECTURA
PROPUESTA:
CAMPO
RECREATIVO
PROPIETARIO:
ALCALDIA
MUNICIPAL DE
CACAOPERA
PRESENTAN:
GUZMÁN GONZALEZ,
WILFREDO EDUARDO
LOPEZ CRUZ,
BORIS ALFREDO
LOPEZ RIVAS,
PATRICIA CAROLINA
CONTENIDO:
PLANTA DE INSTALACIONES
ELECTRICAS PARA
ADMINISTRACIÓN PARQUE
RECREATIVO
ELEVACION NORTE DE
ADMINISTRACION PARQUE
RECREATIVO
RECEPCION
GERENTE
CAFE
SALA DE
REUNIONES
AREA DE
MANTENIMIENTO
GENERAL
CONTABILIDAD
PLANTA DE INSTALACIONES HIDRAULICAS
PARA ADMINISTRACIÓN CAMPO RECREATIVO
esc. 1:75
8.04
9.11
4.56 3.48
8.04
A B C D
A B C D
1
2
3
4
1
2
3
4
Hacia planta de
tratamientos de aguas
Codo de 90°
Tee
Sifon
Codo de 45°
Grifo
Tuberia de aguas negras 160 psi
Tuberia de abastecimiento de
agua potable Ø 1
2" 315 psi
Simbologia para Instalaciones Hidraulicas
Simbologia para Instalaciones Electricas
2
$
$2
Luminaria 100w
Toma corriente sencillo
Toma corriente doble
Interruptor sencillo
Interruptor doble
Caja para termicos
Conductor THHN # 12
Conductor THHN # 10
2.90 0.801.20 2.20
DETALLE DE PLANTA DE
TRATAMIENTO DE AGUAS Esc. :100
ESCALA:
LA INDICADA
FECHA DE IMPRESION:
FEB. 2013
HOJA:
PRC-09
UNIVERSIDAD DE EL
SALVADOR
FACULTAD DE INGENIERIA Y
ARQUITECTURA
ESCUELA DE ARQUITECTURA
PROPUESTA:
CAMPO
RECREATIVO
PROPIETARIO:
ALCALDIA
MUNICIPAL DE
CACAOPERA
PRESENTAN:
GUZMÁN GONZALEZ,
WILFREDO EDUARDO
LOPEZ CRUZ,
BORIS ALFREDO
LOPEZ RIVAS,
PATRICIA CAROLINA
CONTENIDO:
PLANTA DE INSTALACIONES
HIDRAULICAS PARA
ADMINISTRACIÓN CAMPO
RECREATIVO
SIMBOLOGIA
PROYECCION DE ALERO
PROYECCION DE ALERO
PROYECCIONDEALERO
PROYECCIONDEALERO
2.28
1.80
2.28
6.35
4.15
1.60 1.35 1.20
4.15
PLANTA ARQUITECTÓNICA DE SERVICIOS
SANITARIOS PARQUE RECREATIVO
esc. 1:75
4.35
6.55
A B
A B
1
2
3
4
1
2
3
4
AA
2.28
1.80
2.28
6.35
4.15
1.60 1.35 1.20
4.15
PLANTA DE TECHOS DE SERVICIOS
SANITARIOS PARQUE RECREATIVO
esc. 1:75
4.35
6.55
30%
30%
30%
30%
A B
A B
1
2
3
4
1
2
3
4
A
ESCALA:
LA INDICADA
FECHA DE IMPRESION:
FEB. 2013
HOJA:
PRC-10
UNIVERSIDAD DE EL
SALVADOR
FACULTAD DE INGENIERIA Y
ARQUITECTURA
ESCUELA DE ARQUITECTURA
PROPUESTA:
CAMPO
RECREATIVO
PROPIETARIO:
ALCALDIA
MUNICIPAL DE
CACAOPERA
PRESENTAN:
GUZMÁN GONZALEZ,
WILFREDO EDUARDO
LOPEZ CRUZ,
BORIS ALFREDO
LOPEZ RIVAS,
PATRICIA CAROLINA
CONTENIDO:
PLANTA ARQUITECTÓNICA Y
PLANTA DE TECHOS DE
SERVICIOS SANITARIOS
CAMPO RECREATIVO
2.15 3.00
8.04
2.89
A C DB
3.15
1.00
4.00
CONTABILIDAD RECEPCION
SECCION PARA INSTALACIONES DE TRATAMIENTO DE AGUAS
PARA ADMINISTRACIÓN PARA CAMPO RECREATIVO Esc. 1:75
CAFÉ
2.281.802.28
6.35
1234
3.00
3.97
SECCIÓN A-A DE SERVICIOS
SANITARIOS CAMPO RECREATIVO Esc. 1:75
ESCALA:
LA INDICADAS
FECHA DE IMPRESION:
FEB. 2013
HOJA:
PRC-11
UNIVERSIDAD DE EL
SALVADOR
FACULTAD DE INGENIERIA Y
ARQUITECTURA
ESCUELA DE ARQUITECTURA
PROPUESTA:
CAMPO
RECREATIVO
PROPIETARIO:
ALCALDIA
MUNICIPAL DE
CACAOPERA
PRESENTAN:
GUZMÁN GONZALEZ,
WILFREDO EDUARDO
LOPEZ CRUZ,
BORIS ALFREDO
LOPEZ RIVAS,
PATRICIA CAROLINA
CONTENIDO:
SECCION PARA
INSTALACIONES DE
TRATAMIENTO DE AGUAS
4.15
1.60 1.35 1.20
4.15
PLANTA INSTALACIONES HIDRAULICAS DE
SERVICIOS SANITARIOS CAMPO RECREATIVO
esc. 1:75
4.35
6.55
A B
A B
1
2
3
4
..
. .
..
. .
..
. .
..
. .
3.30
2.10
0.66
1.80
ESCALA:
LA INDICADA
FECHA DE IMPRESION:
FEB. 2013
HOJA:
PRC-12
UNIVERSIDAD DE EL
SALVADOR
FACULTAD DE INGENIERIA Y
ARQUITECTURA
ESCUELA DE ARQUITECTURA
PROPUESTA:
CAMPO
RECREATIVO
PROPIETARIO:
ALCALDIA
MUNICIPAL DE
CACAOPERA
PRESENTAN:
GUZMÁN GONZALEZ,
WILFREDO EDUARDO
LOPEZ CRUZ,
BORIS ALFREDO
LOPEZ RIVAS,
PATRICIA CAROLINA
CONTENIDO:
PLANTA DE INSTALACIONES
HIDRAULICAS DE SERVICIOS
SANITARIOS CAMPO
RECREATIVO
Camara de
Sedimentación
Camara de Dosificación
Pozo de Absorción
Tubo de PVC 160 psi Ø 4"
Tubo de PVC 160 psi Ø 4"
Tuberia de PVC 315 psi Ø 1
2", para
Abastecimiento de Agua Potable
ELEVACION DE INSTALACIONES HIDRAULICAS
DE SERVICIOS SANITARIOSCAMPO RECREATIVO
SIN ESCALA
Piedra Cuarta
Grava
Arena
Tubo de pvc Ø 4"
ESCALA:
LA INDICADA
FECHA DE IMPRESION:
FEB. 2013
HOJA:
PRC-13
UNIVERSIDAD DE EL
SALVADOR
FACULTAD DE INGENIERIA Y
ARQUITECTURA
ESCUELA DE ARQUITECTURA
PROPUESTA:
CAMPO
RECREATIVO
PROPIETARIO:
ALCALDIA
MUNICIPAL DE
CACAOPERA
PRESENTAN:
GUZMÁN GONZALEZ,
WILFREDO EDUARDO
LOPEZ CRUZ,
BORIS ALFREDO
LOPEZ RIVAS,
PATRICIA CAROLINA
CONTENIDO:
ELEVACION DE
INSTALACIONES
HIDRAULICAS DE SERVICIOS
SANITARIOS CAMPO
RECREATIVO
ESCALA:
LA INDICADA
FECHA DE IMPRESION:
FEB. 2013
HOJA:
PRC-14
UNIVERSIDAD DE EL
SALVADOR
FACULTAD DE INGENIERIA Y
ARQUITECTURA
ESCUELA DE ARQUITECTURA
PROPUESTA:
CAMPO
RECREATIVO
PROPIETARIO:
ALCALDIA
MUNICIPAL DE
CACAOPERA
PRESENTAN:
GUZMÁN GONZALEZ,
WILFREDO EDUARDO
LOPEZ CRUZ,
BORIS ALFREDO
LOPEZ RIVAS,
PATRICIA CAROLINA
CONTENIDO:
PLANO DE CONJUNTO DE
CAFETERIA
30 %
30 %
30%
30%
30%
30%
30 %
30 %
PLANTA DE CONJUNTO DE CAFETERIA PARA EL CAMPO RECREATIVO ESC. 1:1250
CAJA
DESPACHO
COCINA Y PREPARACION
ALACENA
ÁREA DE MESAS
ÁREA DE MESAS
4
5
6
7
A B
PLANTA ARQUITECTONICA DE CAFETERIA PARA PROPUESTA
ARQUITECTONICA DE CAMPO RECREATIVO EN CACAOPERA
esc. 1:100
4.58 4.58
C
9.15
4.00
4.00
4.00
RECEPCIÓN DE ALIMENTOS
A B C
4
5
6
7
12.00
GD E F H
2.07 2.25 2.30
S.S.
HOMBRES
S.S.
S.S.
DAMAS
GD E F H
1
2
3
1
2
3
2.70
1.45
4.15
6.62
DISCAPACITADOS
ESCALA:
LA INDICADA
FECHA DE IMPRESION:
FEB. 2013
HOJA:
PRC-15
UNIVERSIDAD DE EL
SALVADOR
FACULTAD DE INGENIERIA Y
ARQUITECTURA
ESCUELA DE ARQUITECTURA
PROPUESTA:
CAMPO
RECREATIVO
PROPIETARIO:
ALCALDIA
MUNICIPAL DE
CACAOPERA
PRESENTAN:
GUZMÁN GONZALEZ,
WILFREDO EDUARDO
LOPEZ CRUZ,
BORIS ALFREDO
LOPEZ RIVAS,
PATRICIA CAROLINA
CONTENIDO:
PLANTA ARQUITECTONICA
DE CAFETERIA
3.00
1.68
4.00 4.00 4.00
14.40
1.201.20
4.68
4567
9.15
A B C
3.00
1.68
ESCALA:
1: 75
FECHA DE IMPRESION:
FEB. 2013
HOJA:
PRC-16
UNIVERSIDAD DE EL
SALVADOR
FACULTAD DE INGENIERIA Y
ARQUITECTURA
ESCUELA DE ARQUITECTURA
PROPUESTA:
PROPIETARIO:
ALCALDIA
MUNICIPAL DE
CACAOPERA
PRESENTAN:
GUZMÁN GONZALEZ,
WILFREDO EDUARDO
LOPEZ CRUZ,
BORIS ALFREDO
LOPEZ RIVAS,
PATRICIA CAROLINA
CONTENIDO:
ELEVACIONES
CAMPO
RECREATIVO
ELEVACION OESTE DE CAFETERIA (CAMPO RECREATIVO) ESC. 1:75
ELEVACION SUR DE CAFETERIA PARA EL CAMPO RECREATIVO ESC. 1:75
ESCALA:
LA INDICADA
FECHA DE IMPRESION:
FEB. 2013
HOJA:
PRC-17
UNIVERSIDAD DE EL
SALVADOR
FACULTAD DE INGENIERIA Y
ARQUITECTURA
ESCUELA DE ARQUITECTURA
PROPUESTA:
CAMPO
RECREATIVO
PROPIETARIO:
ALCALDIA
MUNICIPAL DE
CACAOPERA
PRESENTAN:
GUZMÁN GONZALEZ,
WILFREDO EDUARDO
LOPEZ CRUZ,
BORIS ALFREDO
LOPEZ RIVAS,
PATRICIA CAROLINA
CONTENIDO:
PERSPECTIVAS DE
CAFETERIA
PERSPECTIVA DE CAFETERÍA, PARA PROPUESTA ARQUITECTÓNICA DEL CAMPO
RECREATIVO
PERSPECTIVA DE CAFETERÍA, PARA PROPUESTA ARQUITECTÓNICA DEL CAMPO RECREATIVO
CAJA
DESPACHO
COCINA Y PREPARACION
ALACENA
ÁREA DE MESAS
ÁREA DE MESAS
4
5
6
7
A B
PLANTA DE INSTALACIONES ELECTRICAS DE CAFETERIA PARA
PROPUESTA ARQUITECTONICA DE CAMPO RECREATIVO EN CACAOPERA
esc. 1:100
4.58 4.58
C
9.15
4.00
4.00
4.00
RECEPCIÓN DE ALIMENTOS
A B C
4
5
6
7
12.00
$
2
$
$
$
2
2
2
2
22
ESCALA:
LA INDICADA
FECHA DE IMPRESION:
FEB. 2013
HOJA:
PRC-18
UNIVERSIDAD DE EL
SALVADOR
FACULTAD DE INGENIERIA Y
ARQUITECTURA
ESCUELA DE ARQUITECTURA
PROPUESTA:
PROPIETARIO:
ALCALDIA
MUNICIPAL DE
CACAOPERA
PRESENTAN:
GUZMÁN GONZALEZ,
WILFREDO EDUARDO
LOPEZ CRUZ,
BORIS ALFREDO
LOPEZ RIVAS,
PATRICIA CAROLINA
CONTENIDO:
PLANTA DE INSTALACIONES
ELECTRICAS DE CAFETERIA
CAMPO
RECREATIVO
CAJA
DESPACHO
COCINA Y PREPARACION
ALACENA
ÁREA DE MESAS
ÁREA DE MESAS
4
5
6
7
A B
PLANTA DE INSTALACIONES HIDRAULICAS DE CAFETERIA PARA
PROPUESTA ARQUITECTONICA DE CAMPO RECREATIVO EN CACAOPERA
e sc.1:125
4.58 4.58
C
4.00
4.00
4.00
RECEPCIÓN DE ALIMENTOS
4
5
6
7
12.00
Caja para Estanque
Tubo de Ø 2" hacia Cajas de
tratamiento de Aguas Grises2.90
0.80
1.20
2.20
Plantas Acuáticas (papiro,
carrizo, tifa, lirio acuático)
Plantas Acuáticas (papiro,
carrizo, tifa, lirio acuático)
Trampa de Grasas
Caja de Tratamientos
Codo de 90°
Tee
Sifon
Codo de 45°
Grifo
Tuberia de abastecimiento de
agua potable Ø 1
2" 315 psi
Tuberia de aguas negras 160 psi
Simbologia para Instalaciones Hidraulicas
S.S.
HOMBRES
S.S.
S.S.
DAMAS
GD E F H
1
2
3
1
2
3
2.70
1.45
4.15
6.62
DISCAPACITADOS
..
..
..
..
..
..
..
..
3.30
2.10
0.661.80
ESCALA:
LA INDICADA
FECHA DE IMPRESION:
FEB. 2013
HOJA:
PRC-19
UNIVERSIDAD DE EL
SALVADOR
FACULTAD DE INGENIERIA Y
ARQUITECTURA
ESCUELA DE ARQUITECTURA
PROPUESTA:
CAMPO
RECREATIVO
PROPIETARIO:
ALCALDIA
MUNICIPAL DE
CACAOPERA
PRESENTAN:
GUZMÁN GONZALEZ,
WILFREDO EDUARDO
LOPEZ CRUZ,
BORIS ALFREDO
LOPEZ RIVAS,
PATRICIA CAROLINA
CONTENIDO:
PLANTA DE INSTALACIONES
HIDRAULICAS DE CAFETERIA
A
LOCAL COMERCIAL 1 LOCAL COMERCIAL 2 LOCAL COMERCIAL 3
B C D F
A B C D F
1
2
3
4.20 4.20 4.20 4.20
17.00
4.20
2.85
7.05
PLANTA ARQUITECTÓNICA DE LOCALES
COMERCIALES, PARA PROPUESTA DE PARQUE RECREATIVO
esc. 1:75
LOCAL COMERCIAL 4
1
2
3
4.20
2.85
7.05
ESCALA:
LA INDICADA
FECHA DE IMPRESION:
FEB. 2013
HOJA:
PRC-20
UNIVERSIDAD DE EL
SALVADOR
FACULTAD DE INGENIERIA Y
ARQUITECTURA
ESCUELA DE ARQUITECTURA
PROPUESTA:
CAMPO
RECREATIVO
PROPIETARIO:
ALCALDIA
MUNICIPAL DE
CACAOPERA
PRESENTAN:
GUZMÁN GONZALEZ,
WILFREDO EDUARDO
LOPEZ CRUZ,
BORIS ALFREDO
LOPEZ RIVAS,
PATRICIA CAROLINA
CONTENIDO:
PLANTA ARQUITECTONICA
DE LOCALES COMERCIALES
PLANTA DE TECHOS DE LOCALES
COMERCIALES, PARA PROPUESTA DE PARQUE RECREATIVO
esc. 1:75
30%
30%
30%
30%
A B C D F
A B C D F
1
2
3
17.00
7.05
1
2
3
ESCALA:
LA INDICADA
FECHA DE IMPRESION:
FEB. 2013
HOJA:
PRC-21
UNIVERSIDAD DE EL
SALVADOR
FACULTAD DE INGENIERIA Y
ARQUITECTURA
ESCUELA DE ARQUITECTURA
PROPUESTA:
CAMPO
RECREATIVO
PROPIETARIO:
ALCALDIA
MUNICIPAL DE
CACAOPERA
PRESENTAN:
GUZMÁN GONZALEZ,
WILFREDO EDUARDO
LOPEZ CRUZ,
BORIS ALFREDO
LOPEZ RIVAS,
PATRICIA CAROLINA
CONTENIDO:
PLANO DE TECHO DE
LOCALES COMERCIALES
A B C D F
4.20 4.20
3.00
4.41
1.41
ELEVACIÓN NORTE DE LOCALES
COMERCIALES, PARA PROPUESTA DE PARQUE RECREATIVO
esc. 1:75
4.20 4.20
16.80
30%
ESCALA:
1: 75
FECHA DE IMPRESION:
FEB. 2013
HOJA:
PRC-22
UNIVERSIDAD DE EL
SALVADOR
FACULTAD DE INGENIERIA Y
ARQUITECTURA
ESCUELA DE ARQUITECTURA
PROPUESTA:
PROPIETARIO:
ALCALDIA
MUNICIPAL DE
CACAOPERA
PRESENTAN:
GUZMÁN GONZALEZ,
WILFREDO EDUARDO
LOPEZ CRUZ,
BORIS ALFREDO
LOPEZ RIVAS,
PATRICIA CAROLINA
CONTENIDO:
ELEVACION DE LOS LOCALES
COMERCIALES
CAMPO
RECREATIVO
A
LOCAL COMERCIAL 1 LOCAL COMERCIAL 2 LOCAL COMERCIAL 3
B C D F
A B C D F
1
2
3
4.20 4.20 4.20 4.20
17.00
4.20
2.85
7.05
PLANTA INSTALACIONES ELECTRICAS DE LOCALES
COMERCIALES, PARA PROPUESTA DE PARQUE RECREATIVO
esc. 1:75
LOCAL COMERCIAL 4
1
2
3
4.20
2.85
7.05
$
2
2
2
2
2
2
2
2
2
2
2
2
$ $ $
Simbologia para Instalaciones Electricas
2
$
$2
Luminaria 100w
Toma corriente sencillo
Toma corriente doble
Interruptor sencillo
Interruptor doble
Caja para termicos
Conductor THHN # 12
Conductor THHN # 10
Reflector
ESCALA:
LA INDICADA
FECHA DE IMPRESION:
FEB. 2013
HOJA:
PRC-23
UNIVERSIDAD DE EL
SALVADOR
FACULTAD DE INGENIERIA Y
ARQUITECTURA
ESCUELA DE ARQUITECTURA
PROPUESTA:
CAMPO
RECREATIVO
PROPIETARIO:
ALCALDIA
MUNICIPAL DE
CACAOPERA
PRESENTAN:
GUZMÁN GONZALEZ,
WILFREDO EDUARDO
LOPEZ CRUZ,
BORIS ALFREDO
LOPEZ RIVAS,
PATRICIA CAROLINA
CONTENIDO:
PLANTA ELECTRICA DE
LOCALES COMERCIALES
12.00
4.60
6.50
A E
1
1.70
2
3
A E
1
2
3
PLANTA ARQUITECTÓNICA DE SERVICIOS
SANITARIOS Y DUCHAS PARA PARQUE RECREATIVO
esc. 1:75
12.20
6.56
ESCALA:
LA INDICADA
FECHA DE IMPRESION:
FEB. 2013
HOJA:
PRC-24
UNIVERSIDAD DE EL
SALVADOR
FACULTAD DE INGENIERIA Y
ARQUITECTURA
ESCUELA DE ARQUITECTURA
PROPUESTA:
CAMPO
RECREATIVO
PROPIETARIO:
ALCALDIA
MUNICIPAL DE
CACAOPERA
PRESENTAN:
GUZMÁN GONZALEZ,
WILFREDO EDUARDO
LOPEZ CRUZ,
BORIS ALFREDO
LOPEZ RIVAS,
PATRICIA CAROLINA
CONTENIDO:
PLANTA ARQUITECTÓNICA
DE SERVICIOS SANITARIOS Y
DUCHAS PARA PARQUE
RECREATIVO
12.00
4.60
6.50
A E
1
2
3
A E
1
2
3
PLANTA DE TECHOS DE SERVICIOS
SANITARIOS Y DUCHAS PARA PARQUE RECREATIVO
esc. 1:75
12.20
6.56
ESCALA:
LA INDICADA
FECHA DE IMPRESION:
FEB. 2013
HOJA:
PRC-25
UNIVERSIDAD DE EL
SALVADOR
FACULTAD DE INGENIERIA Y
ARQUITECTURA
ESCUELA DE ARQUITECTURA
PROPUESTA:
CAMPO
RECREATIVO
PROPIETARIO:
ALCALDIA
MUNICIPAL DE
CACAOPERA
PRESENTAN:
GUZMÁN GONZALEZ,
WILFREDO EDUARDO
LOPEZ CRUZ,
BORIS ALFREDO
LOPEZ RIVAS,
PATRICIA CAROLINA
CONTENIDO:
PLANTA DE TECHOS DE
SERVICIOS SANITARIOS Y
DUCHAS PARA PARQUE
RECREATIVO
30%
30%
30% 30%
4.60
6.50
A E
1
1.70
2
3
A E
1
2
3
PLANTA DE INSTALACIONES HIDRAULICAS DE SERVICIOS
SANITARIOS Y DUCHAS PARA PARQUE RECREATIVO
esc. 1:100
12.20
6.56
Tuberia de pvc Ø2"160 psi
Tuberia de pvc Ø4"160 psi
Tuberia de pvc Ø4"160 psi Tuberia de pvc Ø6"160 psi Hacia fosa septica
. .
..
. .
..
. .
..
. .
..
Pozo de Absorción
Tubo de PVC 160 psi Ø4"
Camara de
Sedimentación
Camara de Dosificación
3.30
2.10
0.66
1.80
Tubo de PVC 160 psi Ø 4"
Tuberia de pvc Ø6"160 psi
De tuberia gral de baños
ESCALA:
LA INDICADAS
FECHA DE IMPRESION:
FEB. 2013
HOJA:
PRC-26
UNIVERSIDAD DE EL
SALVADOR
FACULTAD DE INGENIERIA Y
ARQUITECTURA
ESCUELA DE ARQUITECTURA
PROPUESTA:
CAMPO
RECREATIVO
PROPIETARIO:
ALCALDIA
MUNICIPAL DE
CACAOPERA
PRESENTAN:
GUZMÁN GONZALEZ,
WILFREDO EDUARDO
LOPEZ CRUZ,
BORIS ALFREDO
LOPEZ RIVAS,
PATRICIA CAROLINA
CONTENIDO:
PLANTA DE INSTALACIONES
HIDRAULICAS DE SERVICIOS
SANITARIOS Y DUCHAS PARA
CAMPO RECREATIVO
DETALLE DE FOSA
SEPTICA SIN ESCALA
DETALLE DE FOSA SEPTICA
ESCALA:
LA INDICADA
FECHA DE IMPRESION:
FEB. 2013
HOJA:
PRC-28
UNIVERSIDAD DE EL
SALVADOR
FACULTAD DE INGENIERIA Y
ARQUITECTURA
ESCUELA DE ARQUITECTURA
PROPUESTA:
CAMPO
RECREATIVO
PROPIETARIO:
ALCALDIA
MUNICIPAL DE
CACAOPERA
PRESENTAN:
GUZMÁN GONZALEZ,
WILFREDO EDUARDO
LOPEZ CRUZ,
BORIS ALFREDO
LOPEZ RIVAS,
PATRICIA CAROLINA
CONTENIDO:
DETALLE DE LUMINARIA
EXTERIOR
206
PROPUESTA “D”, CASA MUNICIPAL DE LA CULTURA
Planta arq. actual PRB-01
Planta de techos actual PRB-02
Secciones actuales PRB-03
Planta de intervención PRB-04
Planta arq. primer nivel PRA-05
Planta arq. segundo nivel PRA-06
Planta de techos PRA-07
Secciones PRA-08
Elevaciones y secciones PRD-09
Perspectiva PRA-10
Planta de fundaciones PRB-11
Planta estruct. segundo nivel PRB-12
Planta estruct. de techos PRB-13
Detalles estructurales PRB-14
Planta eléctrica primer nivel PRB-15
Planta eléctrica segundo nivel PRB-16
Planta hidráulica PRB-17
ESCALA:
1 : 200
FECHA DE IMPRESION:
FEB. 2013
HOJA:
PRD-01
UNIVERSIDAD DE EL
SALVADOR
FACULTAD DE INGENIERIA Y
ARQUITECTURA
ESCUELA DE ARQUITECTURA
PROPUESTA:
CASA MUNICIPAL
DE LA CULTURA
PROPIETARIO:
ALCALDIA
MUNICIPAL DE
CACAOPERA
PRESENTAN:
GUZMÁN GONZALEZ,
WILFREDO EDUARDO
LOPEZ CRUZ,
BORIS ALFREDO
LOPEZ RIVAS,
PATRICIA CAROLINA
CONTENIDO:
PLANTA
ARQUITECTONICA ACTUAL
N.P.T.:0.0-0.03 m
Servicios Sanitarios
N.P.T.:0.0-0.20 m
1
2
2.21m5.65m1.60m
A B
3.30m
COLINDANTE
COLINDANTE
Jardín
ACCESO
N.P.T.:0.0-2.20 m
Tarima
N.P.T.:0.0+0.60 m
Area de
usos multiples
N.P.T.:0.0+0.0 m
Biblioteca
Bodega
N.P.T.:0.0+0.37 m
Admin.
A-A
3
N.P.T.:0.0-0.20 m
Árbol de Mango
Existente
3,97m
B-B
D
N.P.T.:0.0-0.80m
C
E
6
Mini Museo
Sala 2
Mini Museo
Sala 1
5.22m
5.10
2,35m
2.34m
4
5
6.50m4.57m
4.96m
4.57m4.57m
4.60m
CALLE DOBLE
SENTIDO
Planta Arquitectonica Actual
ESCALA:
1 : 200
FECHA DE IMPRESION:
FEB. 2013
HOJA:
PRD-02
UNIVERSIDAD DE EL
SALVADOR
FACULTAD DE INGENIERIA Y
ARQUITECTURA
ESCUELA DE ARQUITECTURA
PROPUESTA:
CASA MUNICIPAL
DE LA CULTURA
PROPIETARIO:
ALCALDIA
MUNICIPAL DE
CACAOPERA
PRESENTAN:
GUZMÁN GONZALEZ,
WILFREDO EDUARDO
LOPEZ CRUZ,
BORIS ALFREDO
LOPEZ RIVAS,
PATRICIA CAROLINA
CONTENIDO:
PLANTA DE TECHOS ACTUAL
COLINDANTE
CALLE DOBLE
SENTIDO
B-B
ACCESO
N.P.T.:0.0-2.20 m
Árbol de Mango
Existente
Árbol de Mango
Existente
Árbol de Mango
Existente
30% 30%
Cumbrera
10%
Cumbrera
10%
10%
3
C
E
6
4
5
2
1
A B
A-A
Jardín
D
10%
COLINDANTE
Planta de Techos Actual
CASAS
ESCALA:
1 : 125
FECHA DE IMPRESION:
FEB. 2013
HOJA:
PRD-03
UNIVERSIDAD DE EL
SALVADOR
FACULTAD DE INGENIERIA Y
ARQUITECTURA
ESCUELA DE ARQUITECTURA
PROPUESTA:
CASA MUNICIPAL
DE LA CULTURA
PROPIETARIO:
ALCALDIA
MUNICIPAL DE
CACAOPERA
PRESENTAN:
GUZMÁN GONZALEZ,
WILFREDO EDUARDO
LOPEZ CRUZ,
BORIS ALFREDO
LOPEZ RIVAS,
PATRICIA CAROLINA
CONTENIDO:
SECCION A-A ACTUAL DEL
MUSEO
Sección A-A Actual de la Casa Municipal de la Cultura
Sección B-B Actual de la Casa Municipal de la Cultura
1
3.24m
2.67m
NPT 0-0.20 m
3
NPT 0-0.00 m
7.86m
4.31m
4
NPT 0-0.20 m
NPT 0-0.80 m
NPT 0-2.20 m
30%
6
3.65m
3.48m
11.07m
SECCION B-B ACTUAL DEL
MUSEO
A B
3.30m
4.31m
2.16m
NPT 0-0.20 m
NPT 0-0.00 m
3,48m
2,67m
Mini Museo
Sala 1
NPT 0-0.80 m
D
10%
C
17.93 m
E
2.34 m 2.23 m 2.73 m
ESCALA:
1 : 200
FECHA DE IMPRESION:
FEB. 2013
HOJA:
PRD-04
UNIVERSIDAD DE EL
SALVADOR
FACULTAD DE INGENIERIA Y
ARQUITECTURA
ESCUELA DE ARQUITECTURA
PROPUESTA:
CASA MUNICIPAL
DE LA CULTURA
PROPIETARIO:
ALCALDIA
MUNICIPAL DE
CACAOPERA
PRESENTAN:
GUZMÁN GONZALEZ,
WILFREDO EDUARDO
LOPEZ CRUZ,
BORIS ALFREDO
LOPEZ RIVAS,
PATRICIA CAROLINA
CONTENIDO:
PLANTA DE
INTERVENCION
COLINDANTE
CALLE DOBLE
SENTIDO
ACCESO
N.P.T.:0.0-2.20 m
Árbol de Mango
Existente
Árbol de Mango
Existente
Árbol de Mango
Existente
COLINDANTE
CASAS
PARED
A
DEMOLER
ÁREA A
ENCEMENTAR
PARED A
DEMOLER
PARED
EXISTENTE A
CONSERVAR
PARED A
DEMOLER
PARED A
DEMOLERN.P.T.:0.0-0.20 m
PARED A
DEMOLER
N.P.T.:0.0+0.07 m
Bodega
N.P.T.:0.0+0.37 m
PISOS A
DEMOLER
PARED A
DEMOLER
PARED A
DEMOLER
PARED
EXISTENTE A
CONSERVAR
PARED A
DEMOLER
COLUMNA A
REMOVER
PARED A
DEMOLER
Servicios Sanitarios
Tarima
N.P.T.:0.0+0.60 m
PARED A
DEMOLER
1
2
3
Mini Museo
Sala 2
Paredes a
aumentar altura
Paredes a
aumentar altura
COLUMNA
A
REMOVER
N.P.T.:0.0-0.80m
Mini Museo
Sala 1
COLUMNA A
REMOVER
C
E
6
4
5
Paredes a
aumentar altura
PARED
EXISTENTE A
CONSERVARArea de usos multiples
N.P.T.:0.0+0.0 m
PARED
EXISTENTE A
CONSERVAR
A B
N.P.T.:0.0-0.03 m
PARED A
DEMOLER
D
Planta de Intervención
ESCALA:
LA INDICADA
FECHA DE IMPRESION:
FEB. 2013
HOJA:
PRD-05
UNIVERSIDAD DE EL
SALVADOR
FACULTAD DE INGENIERIA Y
ARQUITECTURA
ESCUELA DE ARQUITECTURA
PROPUESTA:
PROPIETARIO:
ALCALDIA
MUNICIPAL DE
CACAOPERA
PRESENTAN:
GUZMÁN GONZALEZ,
WILFREDO EDUARDO
LOPEZ CRUZ,
BORIS ALFREDO
LOPEZ RIVAS,
PATRICIA CAROLINA
CONTENIDO:
Sube10%
Salón de usos múltiples
NPT 0+0.00 m
NPT 0+0.60 m
Escenario
NPT 0-0.20 m
NPT 0-0.80 m
Sube
Bodega inferior
NPT 0+0.07 m
NPT 0+0.37 m
Área de
carga y
descarga
Sube10%
NPT 0+0.00 m
Sube 10% Sube 10%
Sube10%
S.S.
Hombre
S.S.
Mujer
S.S.
Discapacitado
Jardín
Jardín
Banca
NPT 0-0.20 m
6
7
8
4.60m
ESCALA:
LA INDICADA
FECHA DE IMPRESION:
HOJA:
UNIVERSIDAD DE EL
SALVADOR
FACULTAD DE INGENIERIA Y
ARQUITECTURA
ESCUELA DE ARQUITECTURA
PROPUESTA:
CASA MUNICIPAL
DE LA CULTURA
PROPIETARIO:
ALCALDIA
MUNICIPAL DE
CACAOPERA
PRESENTAN:
GUZMÁN GONZALEZ,
WILFREDO EDUARDO
LOPEZ CRUZ,
BORIS ALFREDO
LOPEZ RIVAS,
PATRICIA CAROLINA
CONTENIDO:
PLANTA ARQUITECTONICA
PRIMER NIVEL DE LA
AMPLIAICON DE LA CASA DE
LA CULTURA
Planta Arquitectonica de primer nivel
de ampliación de la Casa de la Cultura
NPT 0+0.03 m
Ludoteca
Sala 2
Ludoteca
Sala 1
S.S.
Mujer
6
7
8
4.60m6.50m
ACCESO
N.P.T.:0.0-2.20 mN.P.T.:0.0-2.20 m
C E6.30 m
COLINDANTE
CALLE DOBLE
SENTIDO
COLINDANTE
2.18m4.50m1.19m1.46m
2
3
4
5
1
4.71 m 14.68 m
3.25 mA B
D F G
1.90 m
C
B
A
Esc 1 : 200
ESCALA:
LA INDICADA
FECHA DE IMPRESION:
FEB. 2013
HOJA:
PRD-06
UNIVERSIDAD DE EL
SALVADOR
FACULTAD DE INGENIERIA Y
ARQUITECTURA
ESCUELA DE ARQUITECTURA
PROPUESTA:
CASA MUNICIPAL
DE LA CULTURA
PROPIETARIO:
ALCALDIA
MUNICIPAL DE
CACAOPERA
PRESENTAN:
GUZMÁN GONZALEZ,
WILFREDO EDUARDO
LOPEZ CRUZ,
BORIS ALFREDO
LOPEZ RIVAS,
PATRICIA CAROLINA
CONTENIDO:
Planta Arquitectonica de segundo
nivel de ampliación de la Casa de la Cultura
Esc 1 : 200
NPT 0+3.40 m
NPT 0+3.40 m
Baja
Bodega
Biblioteca
Sala de Lectura Área de
Cómputo
Nicho
NPT 0+3.40 m
4.71 m 14.68 m
3.25 m
2.18m4.50m1.19m1.46m
Directora
COLINDANTE
ACCESO
N.P.T.:0.0-2.20 m
CALLE DOBLE
SENTIDO
COLINDANTE
2
3
4
5
C
B
A
30% 30%
Cumbrera
A B
D
ESCALA:
LA INDICADA
FECHA DE IMPRESION:
HOJA:
UNIVERSIDAD DE EL
SALVADOR
FACULTAD DE INGENIERIA Y
ARQUITECTURA
ESCUELA DE ARQUITECTURA
PROPUESTA:
PROPIETARIO:
ALCALDIA
MUNICIPAL DE
CACAOPERA
PRESENTAN:
GUZMÁN GONZALEZ,
WILFREDO EDUARDO
LOPEZ CRUZ,
BORIS ALFREDO
LOPEZ RIVAS,
PATRICIA CAROLINA
CONTENIDO:
PLANTA ARQUITECTONICA
SEGUNDO NIVEL DE
AMPLIACION DE LA CASA
DE LA CULTURA
Esc 1 : 200
N.P.T.:0.0-2.20 m
30% 30%
Cumbrera
30 %
F
C E6.30 m
G
1.90 m
1
ESCALA:
LA INDICADA
FECHA DE IMPRESION:
FEB. 2013
HOJA:
PRD-07
UNIVERSIDAD DE EL
SALVADOR
FACULTAD DE INGENIERIA Y
ARQUITECTURA
ESCUELA DE ARQUITECTURA
PROPUESTA:
CASA MUNICIPAL
DE LA CULTURA
PROPIETARIO:
ALCALDIA
MUNICIPAL DE
CACAOPERA
PRESENTAN:
GUZMÁN GONZALEZ,
WILFREDO EDUARDO
LOPEZ CRUZ,
BORIS ALFREDO
LOPEZ RIVAS,
PATRICIA CAROLINA
CONTENIDO:
Planta de conjunto de Propuesta
de ampliación de la Casa de la Cultura
Esc 1 : 200
45 %
Cumbrera
45 %
30 %
30% 30%
Cumbrera
45 % 45 %
COLINDANTE
CALLE DOBLE
SENTIDO
ACCESO
N.P.T.:0.0-2.20 m
Jardín
CASAS
COLINDANTE
C
B
A
PLANTA DE CONJUNTO
DE PROPUESTA DE
AMPLIAICON DE LA
CASA DE LA CULTURA
N.P.T.:0.0-2.20 m
ESCALA:
LA INDICADA
FECHA DE IMPRESION:
FEB. 2013
HOJA:
PRD-08
UNIVERSIDAD DE EL
SALVADOR
FACULTAD DE INGENIERIA Y
ARQUITECTURA
ESCUELA DE ARQUITECTURA
PROPUESTA:
CASA MUNICIPAL
DE LA CULTURA
PROPIETARIO:
ALCALDIA
MUNICIPAL DE
CACAOPERA
PRESENTAN:
GUZMÁN GONZALEZ,
WILFREDO EDUARDO
LOPEZ CRUZ,
BORIS ALFREDO
LOPEZ RIVAS,
PATRICIA CAROLINA
CONTENIDO:
SECCION A-A DE PROPUESTA
DE AMPLIACION DE LA CASA
DE LA CULTURA
45 %
Sección A-A de Propuesta de ampliación de la Casa
de la Cultura
Sección B-B de Propuesta de ampliación de la Casa de la Cultura
Esc 1 : 125
Esc 1 : 125
SECCION B-B DE PROPUESTA
DE AMPLIACION DE LA CASA
DE LA CULTURA
3.28m3,8m0,15m
NPT 0+3.40 m
6,85m
NPT 0+0.00 m
NPT 0+0.60 m
3,8m
NPT 0-0.03 m
Cubierta de Teja de Barro cocido artesanal,
con estructura metálica de Viga Maconver
NPT 0-0.20 m
NPT 0+0.80 m
7.05m2.50m
A B F
3,45m
4.05m
3,57m
3,58m
7.05m2.50m
A B F
G
ESCALA:
LA INDICADA
FECHA DE IMPRESION:
FEB. 2013
HOJA:
PRD-09
UNIVERSIDAD DE EL
SALVADOR
FACULTAD DE INGENIERIA Y
ARQUITECTURA
ESCUELA DE ARQUITECTURA
PROPUESTA:
CASA MUNICIPAL
DE LA CULTURA
PROPIETARIO:
ALCALDIA
MUNICIPAL DE
CACAOPERA
PRESENTAN:
GUZMÁN GONZALEZ,
WILFREDO EDUARDO
LOPEZ CRUZ,
BORIS ALFREDO
LOPEZ RIVAS,
PATRICIA CAROLINA
CONTENIDO:
SECCION C-C DE PROPUESTA
DE AMPLIACION DE LA CASA
DE LA CULTURA
Elevación Este de Propuesta de ampliación de la
Casa de la Cultura Esc 1 : 125
Sección C-C de Propuesta de ampliación de la Casa de la Cultura
Esc 1 : 125
ELEVACION ESTE DE
PROPUESTA DE AMPLIACION
DE LA CASA DE LA CULTURA
Paredes de ladrillo de barro cocido
artesanal adobado con repello al exterior
Cubierta de Teja de Barro cocido artesanal,
con estructura metálica de Viga Maconver
45 %
45 %
Cubierta de Teja de Barro cocido artesanal, con estructura
metálica de Viga Maconver
1.54m3.69m
7.05m2.5m
1.54m3.69m
NPT 0+0.0 m
NPT 0+3.40 m
7.41m
3.24m
3.39m
3.82m
NPT 0+0.80 m
NPT 0-0.20 m
45 %
1 4 5
1 4 5
ESCALA:
LA INDICADA
FECHA DE IMPRESION:
HOJA:
UNIVERSIDAD DE EL
SALVADOR
FACULTAD DE INGENIERIA Y
ARQUITECTURA
ESCUELA DE ARQUITECTURA
PROPUESTA:
CASA MUNICIPAL
DE LA CULTURA
PROPIETARIO:
ALCALDIA
MUNICIPAL DE
CACAOPERA
PRESENTAN:
GUZMÁN GONZALEZ,
WILFREDO EDUARDO
LOPEZ CRUZ,
BORIS ALFREDO
LOPEZ RIVAS,
PATRICIA CAROLINA
CONTENIDO:
PERSPECTIVA
ESCALA:
LA INDICADA
FECHA DE IMPRESION:
FEB. 2013
HOJA:
PRD-10
UNIVERSIDAD DE EL
SALVADOR
FACULTAD DE INGENIERIA Y
ARQUITECTURA
ESCUELA DE ARQUITECTURA
PROPUESTA:
PROPIETARIO:
ALCALDIA
MUNICIPAL DE
CACAOPERA
PRESENTAN:
GUZMÁN GONZALEZ,
WILFREDO EDUARDO
LOPEZ CRUZ,
BORIS ALFREDO
LOPEZ RIVAS,
PATRICIA CAROLINA
PERSPECTIVA
Perspectiva de La Casa de La Cultura
ESCALA:
LA INDICADA
FECHA DE IMPRESION:
FEB. 2013
HOJA:
PRD-11
UNIVERSIDAD DE EL
SALVADOR
FACULTAD DE INGENIERIA Y
ARQUITECTURA
ESCUELA DE ARQUITECTURA
PROPUESTA:
CASA MUNICIPAL
DE LA CULTURA
PROPIETARIO:
ALCALDIA
MUNICIPAL DE
CACAOPERA
PRESENTAN:
GUZMÁN GONZALEZ,
WILFREDO EDUARDO
LOPEZ CRUZ,
BORIS ALFREDO
LOPEZ RIVAS,
PATRICIA CAROLINA
CONTENIDO:
PLANTA ESTRUCTURAL DE
FUNDACIONES
Z-1SF
Existente
SF
Existente
SF
Existente
SF
Existente
SF
Existente
SF
Existente
SF
Existente
SF
Existente
SF
Existente
SF
Existente
SF
Existente
SF
Existente
SF
Existente
T-1
SF-1
Z-1 Z-1
Z-1
Z-1Z-1Z-1Z-1Z-1
Z-1
Z-1 Z-1
C-1
C-2 C-2 C-2
C-2 C-2
C-2
C-2
C-2
C-2
C-2
C-1
C-1
C-1 C-1 C-1 C-1 C-1
C-1
C-1
C-1C-1C-1
SF
Existente
SF
Existente
SF
Existente
SF
Existente
SF
Existente
SF
Existente
SF
Existente
SF
Existente
SF
Existente
SF
Existente
SF
Existente
SF-1
SF-1
C-1
C-1
C-1
Z-1
Z-1
Z-1
SF-1
SF-1
SF-1
Planta Estructural Primer Nivel
de la Casa de la Cultura
CALLE DOBLE
SENTIDOCASAS
COLINDANTE
COLINDANTE
Jardín
Area de
usos multiples
N.P.T.:0.0+0.0 m
Tarima
N.P.T.:0.0+0.60 m
N.P.T.: 0.0-0.80m
N.P.T.:0.0-0.80m
N.P.T.: 0.0-0.80m
N.P.T.:0.0+0.0 m
N.P.T.:0.0-0.03 m
N.P.T.:0.0-0.03 m
N.P.T.:0.0-0.20 m
ACCESO
N.P.T.:0.0-2.20 m
Árbol Existente
a Podar
Esc 1 : 200
ESCALA:
LA INDICADA
FECHA DE IMPRESION:
FEB. 2013
HOJA:
PRD-12
UNIVERSIDAD DE EL
SALVADOR
FACULTAD DE INGENIERIA Y
ARQUITECTURA
ESCUELA DE ARQUITECTURA
PROPUESTA:
CASA MUNICIPAL
DE LA CULTURA
PROPIETARIO:
ALCALDIA
MUNICIPAL DE
CACAOPERA
PRESENTAN:
GUZMÁN GONZALEZ,
WILFREDO EDUARDO
LOPEZ CRUZ,
BORIS ALFREDO
LOPEZ RIVAS,
PATRICIA CAROLINA
CONTENIDO:
PLANTA ESTRUCTURAL
SEGUNDO NIVEL
VT1-15
VT1-15
V-1 V-1
V-1
V-1
V-1
V-1
V-1
V-1
V-1
V-1
V-1
V-1
V-1 V-1 V-1
V-1V-1V-1
V-1 V-1 V-1 V-1
V-1V-1
V-1V-1
V-1
V-1
V-1
V-1
V-1 V-1 V-1
V-1 V-1
Planta Estructural Segundo
Nivel de la Casa de la Cultura
V-1
CALLE DOBLE
SENTIDO
CASAS
COLINDANTE
COLINDANTE
Jardín
Árbol Existente
a Podar
ACCESO
N.P.T.:0.0-2.20 m
Esc 1 : 200
30% 30%
Cumbrera
VT1-15
VT1-15
VT1-15VT1-15
VT1-15
VT1-15
VT1-15
VT1-15
ESCALA:
LA INDICADA
FECHA DE IMPRESION:
FEB. 2013
HOJA:
PRD-13
UNIVERSIDAD DE EL
SALVADOR
FACULTAD DE INGENIERIA Y
ARQUITECTURA
PROPUESTA:
CASA MUNICIPAL
DE LA CULTURA
PROPIETARIO:
PRESENTAN:
GUZMÁN GONZALEZ,
WILFREDO EDUARDO
LOPEZ CRUZ,
BORIS ALFREDO
LOPEZ RIVAS,
PATRICIA CAROLINA
CONTENIDO:
PLANTA ESTRUCTURAL DE
TECHOS
Planta Estructural de Techos
de Casa de la Cultura
45%
45%
Cumbrera
Techo
existente
V1
P1
P1
P1
P1
P1
P1
P1
P1
P1
P1
P1
P1
P1
P1
V1 V1 V1 V1 V1 V1 V1 V1 V1 V1 V1 V1 V1 V1 V1 V1 V1 V1V1
1
2
3
5 6
7
8
A B D GF
C E
4
4.71 m 14.68 m 3.25 m 1.90 m
6.30 m
2.18m4.50m1.191.46m
4.60m6.50m
P1
P1
P1
P1
P1
P1
P1
P1
P1
P1
P1
P1
P1
P1
P1P1P1P1P1P1P1P1P1P1P1P1P1P1
V1
V1
V1
V1
V1
V1
V1
V1
V1
V1
V1
V1
V1
V1
V1
V1
V1
V1
P1P1P1P1P1P1P1P1P1P1P1P1P1
Esc 1 : 200
CALLE DOBLE
SENTIDO
CASAS
COLINDANTE
COLINDANTE
ACCESO
N.P.T.:0.0-2.20 m
ALCALDIA
MUNICIPAL DE
CACAOPERA
ESCALA:
LA INDICADA
FECHA DE IMPRESION:
FEB. 2013
HOJA:
PRD-14
UNIVERSIDAD DE EL
SALVADOR
FACULTAD DE INGENIERIA Y
ARQUITECTURA
ESCUELA DE ARQUITECTURA
PROPUESTA:
CASA MUNICIPAL
DE LA CULTURA
PROPIETARIO:
ALCALDIA
MUNICIPAL DE
CACAOPERA
PRESENTAN:
GUZMÁN GONZALEZ,
WILFREDO EDUARDO
LOPEZ CRUZ,
BORIS ALFREDO
LOPEZ RIVAS,
PATRICIA CAROLINA
CONTENIDO:
DETALLES
ESTRUCTURALES
0.45m
COLUMNAS CENTRALES
Estribo Ø 3/8" a 15 cm
6 Ø de 1/2"
0.45m
0.40m
0.40m
SOLERA DE FUNDACIÓN
Estribo Ø 3/8" a 15 cm
6 Ø de 1/2"
Escala 1: 10
0.55m
0.35m
0.55m
0.50m
0.30m
SOLERA INTERMEDIA Y
CORONAMIENTO
Estribo Ø 1/4" a 15 cm
4 Ø de 3/8"
Escala 1: 05
0.20m
0.20m
0.15m
0.15m
0.20m
0.25m
0.20m
0.15m
COLUMNAS
Estribo Ø 1/4" a 13 cm
6 Ø de 3/8"
Escala 1: 05
ALACRAN
Estribo Ø 1/4" a 15 cm
2 Ø de 3/8"
Escala 1: 05
0.08m
0.15m
0.10m
ESCALA:
LA INDICADA
FECHA DE IMPRESION:
FEB. 2013
HOJA:
PRD-15
UNIVERSIDAD DE EL
SALVADOR
FACULTAD DE INGENIERIA Y
ARQUITECTURA
ESCUELA DE ARQUITECTURA
PROPUESTA:
CASA MUNICIPAL
DE LA CULTURA
PROPIETARIO:
ALCALDIA
MUNICIPAL DE
CACAOPERA
PRESENTAN:
GUZMÁN GONZALEZ,
WILFREDO EDUARDO
LOPEZ CRUZ,
BORIS ALFREDO
LOPEZ RIVAS,
PATRICIA CAROLINA
CONTENIDO:
PLANTA DE
INSTALACIONES
ELECTRICAS
PRIMER NIVEL
Planta Electrica de Primer Nivel de
Ampliación de la Casa de la Cultura
Esc 1 : 200
2
2
2
2
3
A
B
A
B
BA C
A
A B
B
A
A
B
B
M
2 2
2
2
2
2
2
2 2
22
2
3
Colindante
Colindante
Calle Doble
Sentido
ACCESO
N.P.T.:0.0-2.20 m
Poste y Linea de
Distribuidora
2
2
7
6
1
N°deCircuito
Espacios
Fases
Ocupados
Voltaje
111 110
Hilos
CargaInstal.
700
A
6.36
(Watts)
B
-
en Barras
(Amperios)
Corriente
Marcade
G.E.
Disyuntor
Polos Amp
20
Proteccion
L : Luminarias
T : Tomacorr.
Descrip. de Cargas
L:4
22 600 - 5.45 20 L:5
33 500 4.55 - L:4
44 800 - 7.27 L:5
55 600 5.45 -
66 600 - 5.45 T:2
77 600 5.45 - T:6
88 600 - 5.45 T:6
99 500 4.55 -
10
11
A B
1 2
3 4
5 6
7 8
9 10
11 12
1
1
1
1
1
1
1
1
110
110
110
110
110
110
110
110
2
2
2
2
2
2
2
2
2
G.E.
G.E.
G.E.
G.E.
G.E.
G.E.
G.E.
G.E.
1
1
1
1
1
1
1
1
1 T:6
20
20
20
20
20
20
20
5500
0.80
4400 21.09 18.90 Fecha:12/2012
ΣD
F.D
D.M
Alimentador:
2THHN#8+
Calculo:WEGG
Reviso: WGV
23.6226.36
0.80 0.80
1THHN#10
N
R : Reflector
S : Spot
M : Motor
L:6
12 Futura Exp.
Futura Exp.
Futura Exp.
ESCALA:
LA INDICADA
FECHA DE IMPRESION:
FEB. 2013
HOJA:
PRD-16
UNIVERSIDAD DE EL
SALVADOR
FACULTAD DE INGENIERIA Y
ARQUITECTURA
ESCUELA DE ARQUITECTURA
PROPUESTA:
CASA MUNICIPAL
DE LA CULTURA
PROPIETARIO:
ALCALDIA
MUNICIPAL DE
CACAOPERA
PRESENTAN:
GUZMÁN GONZALEZ,
WILFREDO EDUARDO
LOPEZ CRUZ,
BORIS ALFREDO
LOPEZ RIVAS,
PATRICIA CAROLINA
CONTENIDO:
2 3
A
B
B
C
A
A
A C
C
3
C
B
B
A
B
2
Planta Electrica de Segundo Nivel de
Ampliación de la Casa de la Cultura
Esc 1 : 200
2
2
2
2
2 2
2
2
2
2
2
Colindante
Calle Doble
Sentido
PLANTA DE
INSTALACIONES
ELECTRICAS SEGUNDO
NIVEL
SIMBOLOGIA ELECTRICA
Interruptor sencillo
Interruptor Doble
Interruptor Triple
2
3
Luminaria ahorrativa
Luminaria Exterior
Luminaria hacia arriba
8 Número de circuito
Poste a colocar
Poste Existente
2 Tomacorriente doble
Linea interna
Linea de distribuidora
SIMBOLOGIA ELECTRICA
ACCESO
N.P.T.:0.0-2.20 m
4
5
8
9
Colindante
CUADRO DE CARGAS
ESCALA:
LA INDICADA
FECHA DE IMPRESION:
FEB. 2013
HOJA:
PRD-17
UNIVERSIDAD DE EL
SALVADOR
FACULTAD DE INGENIERIA Y
ARQUITECTURA
ESCUELA DE ARQUITECTURA
PROPUESTA:
CASA MUNICIPAL
DE LA CULTURA
PROPIETARIO:
ALCALDIA
MUNICIPAL DE
CACAOPERA
PRESENTAN:
GUZMÁN GONZALEZ,
WILFREDO EDUARDO
LOPEZ CRUZ,
BORIS ALFREDO
LOPEZ RIVAS,
PATRICIA CAROLINA
CONTENIDO:
Planta Electrica de Primer Nivel de
Ampliación de la Casa de la Cultura
Esc 1 : 200
Acceso
PVC Ø 4"
PVCØ4"
PVC Ø4"
PVCØ4"
PVC Ø2"
PVC
Ø
6"
PVCØ6"
PV
C
Ø
4"
PVCØ4"
PVC Ø1/2"
PV
C
Ø
1/2"
PVCØ1/2"
PVC Ø1/2"
Salida de ALL
a Drenaje
Entrada de
AP
Salida de AN
a Drenaje
SIMBOLOGIA HIDRAULICA
Codo de 90°
Tee
Sifon
Codo de 45°
Grifo
Tuberia de abastecimiento de
agua potable Ø 1
2" 315 psi
Tuberia de aguas negras 160 psi
Tuberia de aguas Lluvias
PLANTA DE
INSTALACIONES
HIDRAULICAS
SIMBOLOGIA
HIDRAULICA
Colindante
Colindante
Calle Doble
Sentido
223
BIBLIOGRAFIA Y FUENTES DE INFORMACION
Entrevistas:
� Sr. Miguel Ángel Amaya Amaya. (Presidente de La Asociación).
� Sr. Ramiro Argueta. (Miembro del Consejo Municipal de Cacaopera).
� Sra. Dolores Josefina Molina (Miembro del Consejo Municipal de Cacaopera).
Libros y Tesis.
� Evelyn Helen Julián Luna, Eduardo Arturo Portillo Sandoval, DESARROLLO DE LAS INSTALACIONES
ARQUITECTÓNICAS DEL PARQUE NACIONAL MONTECRISTO. Trabajo de graduación, Universidad de El
Salvador, marzo 1979, 146 páginas.
� Cesar Alexander Cuellar Meléndez, Oscar Rene Romero Magaña, Guillermo José Zavala Arteaga, PROPUESTA DE
RENOVACIÓN URBANA Y RUTA TURISTICA PARA LOS CENTROS HISTORICOS DE LA CIUDAD LINEAL
“LOS NONUALCOS”. Trabajo de graduación, Universidad de El Salvador, abril 2010, 312 páginas.
� Sonia Elizabeth Bolaños Maradiaga, Héctor Andrés Rivera Zavala, Luis Amilton Rodríguez Guerra, ANTEPROYECTO
URBANOARQUITECTONICO PARA EL PARQUE ECOTURISTICO EL ESPINO”. Trabajo de graduación,
Universidad de El Salvador, febrero 2010, 171 páginas.
� José Rutilio Alemán Vásquez, Sandra Yolibeth Iraheta Miranda, Guillermo Antonio Osorio Rodríguez,
“ANTEPROYECTO URBANO ARQUITECTONICO PARA EL DESARROLLO TURISTICO DE LA MICRO
REGION LA PALMA-SAN IGNACIO, CHALATENANGO”. Trabajo de graduación, Universidad de El Salvador, Junio
2011, 235 páginas.
� Enciclopedia de Arquitectura Plazola, Volumen 1, Alfredo Plazola Cisneros, Ingeniero Arquitecto, 544 páginas.
� Miguel Ángel Amaya Amaya. HISTORIA DE CACAOPERA. Primera Edición, Ministerio de Educación, San Salvador
1985, 205 páginas.
� Fundación de Apoyo a Municipios de El Salvador FUNDAMUNI, Comité de Desarrollo Municipio de Cacaopera,
CODEM, PLAN ESTRATEGICO PARTICIPATIVO DE DESARROLLO, CACAOPERA, noviembre 2006, 65 paginas.
�
224
� Banco Interamericano de Desarrollo, EL TURISMO EN AMERICA LATINA Y EL CARIBE Y LA EXPERIENCIA
DEL BID, Serie de informes del departamento de desarrollo Sostenible, 44 paginas.
� Plan de Inversión del municipio de Cacaopera.
� Resultados CENSO FISDL en 32 municipios en pobreza extrema severa e inversión en infraestructura, Municipio de
Joateca. FISDL 2005.
Legislación.
� El Salvador. Ley del Medio Ambiente 05/1998, 4 de mayo, num. 3, 12 y 13. P.35.
� El Salvador. Ley Forestal 07/1986, 31 de julio, num. 5 y 10. P. 28.
� El Salvador. Ley de Turismo 12/2005, 20 de diciembre, num. 3 y 5, p. 16.
� Ordenanza para la Protección y Conservación del Medio Ambiente del Municipio de Cacaopera.Art. 19, 24. 32, 51
Información Electrónica:
� PROPUESTA DE UN DISEÑO DE PLAN DE DESARROLLO TURISTICO PARA INCENTIVAR EL TURISMO EN
LA PLAYA EL ESPINO DEL MUNICIPIO DE JUCUARAN DEPARTAMENTO DE USULUTAN,
www.univo.edu.sv:8081/tesis/019198/019198_Cap5.pdf
� Wikipedia. Información en línea de Pág. Web: http://es.wikipedia.org [Consulta: 12 de Marzo de 2012].
� FISDL. Disponible en Web: �http://www.fisdl.gob.sv/servicios/en-linea/ciudadano/conoce-tu-municipio/san-
salvador/654.html�
� SNET. Clima en El Salvador, en línea, disponible en Web:
�http://www.snet.gob.sv/ver/meteorologia/clima+en+el+salvador/�
225
A N E X O S
x
x La
Terrestre
Tierra x
Asfaltado
Empedrada Camión
4 x 4
x
x
Transporte
Frecuencia
x
Eventual
Causas:
5. Estado de conservación del entorno 8. Historia
Alterado No alterado En proceso de
deterioroDeteriorado Conservado
En los periodos coloniales esta cueva se utilizaba para la realizacion de ceremonias y ritos, en este
lugar se realizaban actividades curativas de forma natural y ceremonial.
Durante el conflicto armado este se utilizaba para refugio de los excombatiente. Hoy en día es visitada
por muchos turistas debido a su forma y la cantidad de historias que las personas recuerdan y son
expresadas durante el recorrido y la visita a esta cueva.R M Diaria Semanal
Auto Bus
Causas:
6. Infraestructura vial y de acceso
Tipo Sub tipo
B
Estado de via
3. Caracteristicas fisicas del atractivo Altura (m.s.n.m.): 715
Alterado No alterado En proceso de
deterioroDeteriorado Conservado
Temperatura (C°): 30
4. Estado de conservación del atractivo
Cercano al Caserio: Cercano a Calle: HACIA JOATECA
Municipio: Cacaopera Canton: GUACHIPILIN
Nombre del atractivo: CUEVA DEL MUERTO
Ficha para Inventario de Atractivos Turisticos
1. Datos Generales 7. Ubicación
Encuestador: WILFREDO GUZMAN
Longitud:
Propietario:
Categoría:
TURISTICO
Tipo: NATURAL TURISTICO
Sub-tipo: CUEVA
88°02.012'W2. Ubicación Latitud: 13°51.789'N
9. Fotografia
Sendero
Terrestre
Tierra x
xAutomovil
4 x 4 x
X
X
Nombre del atractivo: CUEVA YARRAWALAGI
Ficha para Inventario de Atractivos Turisticos
1. Datos Generales 7. Ubicación
Encuestador: PATRICIA RIVAS
Propietario:
Categoría:
NATURAL
Tipo: HISTORIA-NATURAL
Sub-tipo: -
88°04.581'W
Cercano al Caserio: Agus Blanca Cercano a Calle: -
Municipio: Cacaopera Canton: Guachipilin
2. Ubicación Latitud: 13°85.180'N Longitud:
3. Caracteristicas fisicas del atractivo Altura (m.s.n.m.): 837
Alterado No alterado En proceso de
deterioroDeteriorado Conservado
Temperatura (C°): 27
4. Estado de conservación del atractivo
Causas:
5. Estado de conservación del entorno 8. Historia
Alterado No alterado En proceso de
deterioro
Cuentan las personas de edad adulta que antes de la guerra interna en el pais, en esta cueva vivia una
señora que se llamaba Victoria, la cual tenia como mascota una culebra de gran tamaño, y se creia que
ella cuidaba de Doña Victoria y que en una ocasion personas ajenas lastimaron la culebra y desde
entonces Doña Victoria enloquesio a causa de el daño que le habian hecho a la culebra. En la
actualidad este sitio funciona como luugar de descazo para las personas que viaja por senderos ya que
es una cueva de facil acceso y da un ambiente agradable para el descanzo.
Deteriorado Conservado
Causas:
6. Infraestructura vial y de acceso
Tipo Sub tipo
Estado de via
Transporte
Frecuencia
B R M Diaria Semanal Eventual
Auto Bus X
Empedrada Camión
Asfaltado
4 x 4 X
Terrestre
Tierra 4 x 4 X
Automovil
9. Fotografia
Sendero X
Terrestre
Tierra
X
X
Latitud: 13°52.067'N Longitud: 88°02.428'W
XTierra
Semanal Eventual
4 x 4
Camión
Auto Bus X
Empedrada
B R
Causas:
Frecuencia
Cuentan las personas de edad adulta que antes de la guerra interna en el pais, en esta cueva vivia una
señora que se llamaba Victoria, la cual tenia como mascota una culebra de gran tamaño, y se creia que
ella cuidaba de Doña Victoria y que en una ocasion personas ajenas lastimaron la culebra y desde
entonces Doña Victoria enloquesio a causa de el daño que le habian hecho a la culebra. En la
actualidad este sitio funciona como luugar de descazo para las personas que viaja por senderos ya que
es una cueva de facil acceso y da un ambiente agradable para el descanzo.
M Diaria
6. Infraestructura vial y de acceso
Tipo Sub tipo
Estado de via
Transporte
Terrestre
Asfaltado
5. Estado de conservación del entorno 8. Historia
Alterado No alterado En proceso de
deterioroDeteriorado Conservado
No alterado En proceso de
deterioroDeteriorado Conservado
Causas:
888
Temperatura (C°): 25
Cacaopera Canton:
Cercano al Caserio: Cercano a Calle: -
Ficha para Inventario de Atractivos Turisticos
1. Datos Generales 7. Ubicación
Encuestador: PATRICIA RIVAS
Nombre del atractivo: CUEVA LA VICTORIA
Alterado
3. Caracteristicas fisicas del atractivo Altura (m.s.n.m.):
Propietario:
Categoría:
2. Ubicación
NATURAL
Tipo: HISTORIA-NATURAL
Sub-tipo: -
4. Estado de conservación del atractivo
Municipio:
9. Fotografia
X
Sendero X Automovil
Tierra 4 x 4
Terrestre
X
X
Terrestre
Tierra
Asfaltado X
Empedrada Camión
4 x 4
X
X
X
Transporte
Frecuencia
Eventual
Causas:
5. Estado de conservación del entorno 8. Historia
Alterado No alterado En proceso de
deterioroDeteriorado Conservado
Poza vissitada por gran cantidad de turistas, que se dirijen en los caminos de Cacaopera hacia el
Canton Potrero Grande, ya que se encuentra a la orilla de la calle
R M Diaria Semanal
Auto Bus
Causas:
6. Infraestructura vial y de acceso
Tipo Sub tipo
B
Estado de via
3. Caracteristicas fisicas del atractivo Altura (m.s.n.m.): 397
Alterado No alterado En proceso de
deterioroDeteriorado Conservado
Temperatura (C°): 30
4. Estado de conservación del atractivo
Cercano al Caserio: Cercano a Calle: -
Municipio: Cacaopera Canton:
Nombre del atractivo: POZA EL LAGARTO
Ficha para Inventario de Atractivos Turisticos
1. Datos Generales 7. Ubicación
Encuestador: WILFREDO GUZMAN
Longitud:
Propietario:
Categoría:
TURISTICO-NATURAL
Tipo: RIO
Sub-tipo: -
88°02.432'W2. Ubicación Latitud: 13°48.001'N
9. Fotografia
Sendero
Terrestre
Tierra
Automovil X
4 x 4 X
X
X
Terrestre
Tierra x
Asfaltado
Empedrada Camión
4 x 4 x
Transporte
Frecuencia
Eventual
Causas:
5. Estado de conservación del entorno 8. Historia
Alterado No alterado En proceso de
deterioroDeteriorado Conservado
Este ha sido y es un lugar de grandes hechos historicos ya que es aquí donde aun se conservan
actividades de ceremonias de la comunidad Winaka, ademas de tener una gran cantidad de
petrograbados y otros elementos que hacen de este lugar un atractivo historico-cultural
R M Diaria Semanal
Auto Bus
Causas:
6. Infraestructura vial y de acceso
Tipo Sub tipo
B
Estado de via
3. Caracteristicas fisicas del atractivo Altura (m.s.n.m.): 349
Alterado No alterado En proceso de
deterioroDeteriorado Conservado
Temperatura (C°): 27
4. Estado de conservación del atractivo
Cercano al Caserio: Cercano a Calle: -
Municipio: Cacaopera Canton:
Nombre del atractivo: Cueva Unamá
Ficha para Inventario de Atractivos Turisticos
1. Datos Generales 7. Ubicación
Encuestador: Boris Lopez Cruz
Longitud:
Propietario:
Categoría: Tipo:
Sub-tipo: -
88°05.430'W2. Ubicación Latitud: 13°47.860'N
9. Fotografia
Sendero
Terrestre
Tierra x
Automovil
4 x 4 x
x
x
x
88°02.432'W
7. Ubicación
8. Historia
9. Fotografia
Automovil
Transporte
DiariaR M
Auto Bus
xTierra x 4 x 4
Sendero
Causas:
6. Infraestructura vial y de acceso
Asfaltado
Semanal Eventual
Frecuencia
x
B
Terrestre
Empedrada Camión
x
5. Estado de conservación del entorno
Alterado No alterado En proceso de
deterioroDeteriorado Conservado
Tipo Sub tipo
Estado de via
Sub-tipo: -
Sitio Natural
Ficha para Inventario de Atractivos Turisticos
Temperatura (C°): 27
Altura (m.s.n.m.):3. Caracteristicas fisicas del atractivo 397
Canton: La Estancia
Cercano a Calle: -
Municipio:
1. Datos Generales
Encuestador:
Nombre del atractivo:
Propietario:
Categoría:
Boris Lopez Cruz
Poza El Lucero
Tipo: Rio
LaPoza El Lucero es parte del Rio Torola, esta es visitada por turistas extranjeros y locales, por su
amplio caudal y ser agua fresca
2. Ubicación Latitud: Longitud:13°48.001'N
Cercano al Caserio:
Cacaopera
El Rodeo
4. Estado de conservación del atractivo
Alterado
Deteriorado
No alterado
Conservado
En proceso de
deterioro
Causas:
232
LEYES Y REGLAMENTOS A CONSIDERAR.
Constitución Política de El Salvador.
Art. 1.El Salvador reconoce a la persona humana como el origen y el fin de la actividad del Estado, que está organizado para la
consecución de Lajusticia, de la seguridad y del bien común.
En consecuencia, es obligación del Estado asegurar a los habitantes de la República, el goce de la libertad, la salud, la cultura, el
bienestar económico y la justicia social.
Art. 53.El derecho a la educación y a la cultura es inherente a la persona humana; en consecuencia, es obligación y finalidad
primordial del Estado su conservación, fomento y difusión.
Código municipal.
Art. 2.El municipio constituye una unidad política administrativa; organizado bajo un ordenamiento jurídico que garantiza la
participación popular en la formación y conducción de la sociedad local.
Art. 21.Compete a las municipalidades velar en sus respectivas localidades la creación, impulso y regulación de servicios que faciliten
el mercadeo y abastecimiento de productos de consumo de primera necesidad como mercados, tianguis y mataderos.
Ley de Turismo, Ministerio de Turismo. MITUR
Art. 1. La Ley tiene por objeto fomentar, promover y regular la industria y los servicios turísticos del país, prestados por personas
naturales o jurídicas nacionales o extranjeras.
Art. 8.Los recursos naturales, arqueológicos y culturales que integren el inventario turístico del país, serán preservados y resguardados
por las instituciones a quienes legalmente correspondan tales atribuciones. Las entidades y organismos del Estado o de las
municipalidades que tengan la atribución legal de autorizar construcciones, edificaciones o cualquier otro tipo de infraestructura,
estarán obligadas a respetar y mantener la vocación turística de tales recursos y las de su ámbito de influencia, para lo cual las
construcciones, edificaciones e infraestructuras que se autoricen deberán ser compatibles con los elementos necesarios para el
desarrollo turístico de las mismas.
233
Art. 20. Los beneficios e incentivos que se establecen en la Ley están dirigidos a promover el desarrollo turístico del país, el
incremento de inversiones nacionales y extranjeras para ese fin, y la descentralización y aumento de oportunidades de empleo en zonas
turísticas del país.
INSTITUCIÓN FUNCIONES
Alcaldía Municipal de
Cacaopera
Dirige el gobierno y Administración Municipal, ejecuta e Inspeccionar los servicios y obras municipales; dicta y hace
cumplir reglamentos, decretos, resoluciones y demás actos administrativos de la entidad.
MITUR Elabora, formula, planifica y ejecuta la política y el plan nacional de turismo, así como formula los proyectos
normativos; atiende las cuestiones pertinentes al turismo y lo que se relaciona con ello en materias atribuidas a otros
Ministerios; fomenta las industrias del turismo; actúa como el ente coordinador y contralor del turismo; y fomenta el
turismo interno y hacia el país.
Ministerio del Medio
Ambiente y Recursos
Naturales
Revertir la degradación ambiental y reducir los riesgos liderando una gestión ambiental pública enérgica, articulada,
incluyente, responsable y transparente. Buscando los Mecanismos para lograrlo eficientemente.
Viceministerio de
Vivienda
Diseñar y proponer la Política General de Ordenamiento Territorial y desarrollo urbano en apoyo al Sistema Urbano-
Territorial Nacional.
Proponer y evaluar los instrumentos normativos en materia de ordenamiento territorial y desarrollo urbano.
Promover el crecimiento sostenible de los centros poblados, facilitando el acceso formal al suelo.
Promover la inversión Pública y Privada en ordenamiento territorial y el desarrollo Urbano.
Ministerio de Salud Conducir estratégicamente los servicios de salud con enfoque familiar y comunitario, basado en la estrategia de
Atención Primaria de Salud Integral, para asegurar la provisión de los servicios de salud en el Nivel Regional y
Local, y promover que la ciudadanía organizada incida en las determinantes sociales de la salud.

Planos arquitectonicos 1 aaa

  • 1.
    126 PLANOS DE PROPUESTASARQUITECTÓNICAS
  • 2.
    127 PROPUESTA “A”, MUSEOWINAKIRIKA Planta de conjunto PRA-01 Planta arquitectónica PRA-02 Elevaciones y secciones PRA-03,04,05 Planos de caseta de vigilancia PRA-06 Planta estructural de techo PRA-07 Perspectivas PRA-08,09 Detalle de gabión PRA-10 Planta de fundaciones PRA-11 Detalles estructurales PRA-12 Planta eléctrica exterior PRA-13 Planta eléctrica interior PRA-14 Cuadro de carga eléctrica PRA-15 Detalle de luminaria exterior PRA-16 Instalaciones de caseta PRA-17 Planta hidráulica de museo PRA-18
  • 3.
    ESCALA: 1 : 400 FECHADE IMPRESION: FEB. 2013 HOJA: PRA-01 UNIVERSIDAD DE EL SALVADOR FACULTAD DE INGENIERIA Y ARQUITECTURA ESCUELA DE ARQUITECTURA PROPUESTA: MUSEO WINAKIRIKA PROPIETARIO: ALCALDIA MUNICIPAL DE CACAOPERA PRESENTAN: GUZMÁN GONZALEZ, WILFREDO EDUARDO LOPEZ CRUZ, BORIS ALFREDO LOPEZ RIVAS, PATRICIA CAROLINA CONTENIDO: PERSPECTIVA NOROESTE PLANTA DE CONJUNTO Acceso a Terreno Caseta de vigilancia Perspectiva Noroeste de Museo Winakirika Planta de Conjunto de Museo Winakirika Esc 1 : 400 Plaza de Acceso Acceso Estacionamiento para Autobus o Camion Bahia para descarga de Personas 45% 45% 45% 45% 45% 45% 45% 45% 45% 45% 45% 45%
  • 4.
    ESCALA: 1 : 125 FECHADE IMPRESION: FEB. 2013 HOJA: PRA-02 UNIVERSIDAD DE EL SALVADOR FACULTAD DE INGENIERIA Y ARQUITECTURA ESCUELA DE ARQUITECTURA PROPUESTA: MUSEO WINAKIRIKA PROPIETARIO: ALCALDIA MUNICIPAL DE CACAOPERA PRESENTAN: GUZMÁN GONZALEZ, WILFREDO EDUARDO LOPEZ CRUZ, BORIS ALFREDO LOPEZ RIVAS, PATRICIA CAROLINA CONTENIDO: PLANTA ARQUITECTONICA GA B C D E F 1 3 4 5 6 7 2 Salida de Emergencia Salida de Emergencia NPT 0+0.00 m Recepcion y mantenimiento 4,65m 8m 2,15m 4,65m 5,13m 4,64m 4,65m1,78m3,23m2,6m2,53m4,65m 19,45m Patio centrado Rocas Existentes NPT 0-0.02 m NPT 0+0.00 m NPT 0+0.00 m Admistración Recepcion NPT 0+0.00 m Bodega NPT 0+0.60 m Exhibicion Historica Exhibicion popular NPT 0+0.00 m NPT 0+0.00 m NPT 0+0.00 m NPT 0+0.00 m NPT 0+0.00 m S.S. Mujeres S.S. Hombres NPT 0+0.00 m Exhibicion Arqueologica Sube 10% Sube 10% Sube 10% Acceso Plaza de Acceso NPT 0-0.80 m A B C
  • 5.
    ESCALA: 1 : 125 FECHADE IMPRESION: FEB. 2013 HOJA: PRA-03 UNIVERSIDAD DE EL SALVADOR FACULTAD DE INGENIERIA Y ARQUITECTURA ESCUELA DE ARQUITECTURA PROPUESTA: MUSEO WINAKIRIKA PROPIETARIO: ALCALDIA MUNICIPAL DE CACAOPERA PRESENTAN: GUZMÁN GONZALEZ, WILFREDO EDUARDO LOPEZ CRUZ, BORIS ALFREDO LOPEZ RIVAS, PATRICIA CAROLINA CONTENIDO: SECCION A-A ELEVACION NORTE Elevacion Norte de Museo Winakirika Seccion A-A de Museo Winakirika GA B D E F GA B D E F NPT 0+0.00 m Rocas existentes NPT 0-0.80 m 4,12m 7,6m 1,92m4,96m 1,56m 2,95m 1m2,57m Columna con enchapado tipo enladrillado, con galleta de barro Cubierta de Teja de Barro cocido artesanal, con estructura metálica de Viga maconver y varillas de 3/8" Estructura de madera, recubierta con regla pacha Pared tipo gabion con Estructura Metálica Pared tipo gabion con Estructura Metálica Paredes de ladrillo de barro cocido artesanal adobado con repello al interior y exterior Paredes con enchape de piedra 6,04m
  • 6.
    ESCALA: 1 : 125 FECHADE IMPRESION: FEB. 2013 HOJA: PRA-04 UNIVERSIDAD DE EL SALVADOR FACULTAD DE INGENIERIA Y ARQUITECTURA ESCUELA DE ARQUITECTURA PROPUESTA: MUSEO WINAKIRIKA PROPIETARIO: ALCALDIA MUNICIPAL DE CACAOPERA PRESENTAN: GUZMÁN GONZALEZ, WILFREDO EDUARDO LOPEZ CRUZ, BORIS ALFREDO LOPEZ RIVAS, PATRICIA CAROLINA CONTENIDO: SECCION B-B ELEVACION ESTE Seccion B-B de Museo Winakirika Elevacion Este de Museo Winakirika ABDEF 7431 Sube 10% Rocas existentes NPT 0+0.00 m NPT 0-0.80 m 7,6m 4,4m 4,47m1,92m Viga maconver Pared tipo gabion con Estructura Metálica Estructura de madera, recubierta con regla pacha Como cielo falso en el acceso, tabla roca Columna con enchapado tipo enladrillado, con galleta de barro Paredes de ladrillo de barro cocido artesanal adobado con repello al interior y exterior Cubierta de Teja de Barro cocido artesanal, con estructura metálica de Viga maconver y varillas de 3/8" Ventana tipo sifón Ventana hasta el piso, abatible de 2 hojas Ventana abatible de 2 hojas
  • 7.
    ESCALA: 1 : 125 FECHADE IMPRESION: FEB. 2013 HOJA: PRA-05 UNIVERSIDAD DE EL SALVADOR FACULTAD DE INGENIERIA Y ARQUITECTURA ESCUELA DE ARQUITECTURA PROPUESTA: MUSEO WINAKIRIKA PROPIETARIO: ALCALDIA MUNICIPAL DE CACAOPERA PRESENTAN: GUZMÁN GONZALEZ, WILFREDO EDUARDO LOPEZ CRUZ, BORIS ALFREDO LOPEZ RIVAS, PATRICIA CAROLINA CONTENIDO: SECCION C-C ELEVACION OESTE Elevacion Oeste de Museo Winakirika Seccion C-C de Museo Winakirika 7 6 5 4 3 1 7 4 3 1 NPT 0-0.80 m Rocas existentes NPT 0+0.00 m NPT 0+0.60 m 4,96m1,92m Estructura de madera, recubierta con regla pacha Cubierta de Teja de Barro cocido artesanal, con estructura metálica de Viga maconver y varillas de 3/8" Pared tipo gabion con Estructura Metálica Paredes de ladrillo de barro cocido artesanal adobado con repello al interior y exterior
  • 8.
    ESCALA: 1 : 50 FECHADE IMPRESION: FEB. 2013 HOJA: PRA-06 UNIVERSIDAD DE EL SALVADOR FACULTAD DE INGENIERIA Y ARQUITECTURA ESCUELA DE ARQUITECTURA PROPUESTA: MUSEO WINAKIRIKA PROPIETARIO: ALCALDIA MUNICIPAL DE CACAOPERA PRESENTAN: GUZMÁN GONZALEZ, WILFREDO EDUARDO LOPEZ CRUZ, BORIS ALFREDO LOPEZ RIVAS, PATRICIA CAROLINA CONTENIDO: PLANTA ESTRUCTURAL DE TECHOS PLANTA ARQUITECTONICA A 1 B C 2 3,7m 6m 3,3m 2,7m A 1 C 2 N.P.T.: 0.0+3.80m N.P.T.: 0.0-3.98m 45% 45% 45% 45% V1 V1 V1 V1 V1 V1 V1 V1 P1 P1 P1 P1 P1 P1 P1 45% 45% N.P.T.: 0.0+3.80mN.P.T.: 0.0+3.80m A C 1 2 A B C S.S. N.P.T.: 0.0+3.80m N.P.T.: 0.0-3.98m Cabina de Seguridad ELEVACIÓN SUROESTE ELEVACIÓN NOROESTEA SECCIÓN A-A PLANTA ESTRUCTURAL DE TECHOS PLANTA ARQUITECTONICA DE CASETA DE VIGILANCIA ELEVACIÓN SUROESTE ELEVACIÓN NOROESTE SECCIÓN A-A Paredes de ladrillo de barro cocido artesanal adobado con repello al interior y exterior Cubierta de Teja de Barro cocido artesanal, con estructura metálica de Viga maconver y varillas de 3/8" Ventana tipo sifón. (Aplicable en servicios sanitarios)Ventana abatible de 2 hojas Ventana abatible de 2 hojas CASETA DE VIGILANCIA
  • 9.
    ESCALA: 1 : 125 FECHADE IMPRESION: FEB. 2013 HOJA: PRA-07 UNIVERSIDAD DE EL SALVADOR FACULTAD DE INGENIERIA Y ARQUITECTURA ESCUELA DE ARQUITECTURA PROPUESTA: MUSEO WINAKIRIKA PROPIETARIO: ALCALDIA MUNICIPAL DE CACAOPERA PRESENTAN: GUZMÁN GONZALEZ, WILFREDO EDUARDO LOPEZ CRUZ, BORIS ALFREDO LOPEZ RIVAS, PATRICIA CAROLINA CONTENIDO: PLANTA DE TECHOS Rocas Existentes 45% 45% 45% 45% 45% 45% 45% 45% 45% 45% 45%45% Acceso GA B C D E F 1 3 4 5 6 7 2 4,65m 8m 2,15m 4,65m 5,13m 4,64m 4,65m1,78m3,23m2,6m2,53m4,65m 19,45m Cumbrera Cumbrera Cumbrera Cumbrera Cumbrera BALL Canal BALL BALLBALL Canal V1 V1 V1 V1 V1 V1 V1 V1 V1 V1 V1 V1 V1 V1 V1 V1 V1 V1 V1 V1 V1 V1 V1 V1 V1 V1 V1 V1 V1 P1P1P1P1P1P1P1P1 P1P1P1P1P1P1P1P1 P1P1P1P1P1P1P1P1P1P1P1P1P1P1P1P1 V1 V1 V1 V1 V1 V1 V1 V1 V1 V1 V1 V1 V1 V1 V1 V1 V1 V1 V1 V1 V1 V1 V1 V1 V1 V1 V1 V1 V1 V1 V1 V1 V1 V1 V1 V1 V1 V1 V1 V1 V1 V1 V1 V1 V1 V1 V1 V1 V1 P1 P1 P1 P1 P1 P1 Plaza de Acceso V2 V2 V2 V2 Estructura de madera A B C
  • 10.
    ESCALA: Sin Escala FECHA DEIMPRESION: FEB. 2013 HOJA: PRA-08 UNIVERSIDAD DE EL SALVADOR FACULTAD DE INGENIERIA Y ARQUITECTURA ESCUELA DE ARQUITECTURA PROPUESTA: MUSEO WINAKIRIKA PROPIETARIO: ALCALDIA MUNICIPAL DE CACAOPERA PRESENTAN: GUZMÁN GONZALEZ, WILFREDO EDUARDO LOPEZ CRUZ, BORIS ALFREDO LOPEZ RIVAS, PATRICIA CAROLINA CONTENIDO: PERSPECTIVAS DE CANAL DE A.LL. EN ESTRUCTURA DE GABION Detalles de Estructura de Gabión Detalle 1 Detalle 2 La tuberia se oculta dentro de la pared de gabión Detalle 2 Detalle 1 Canal de A.LL. Canal de A.LL.
  • 11.
    ESCALA: Sin Escala FECHA DEIMPRESION: FEB. 2013 HOJA: PRA-09 UNIVERSIDAD DE EL SALVADOR FACULTAD DE INGENIERIA Y ARQUITECTURA ESCUELA DE ARQUITECTURA PROPUESTA: MUSEO WINAKIRIKA PROPIETARIO: ALCALDIA MUNICIPAL DE CACAOPERA PRESENTAN: GUZMÁN GONZALEZ, WILFREDO EDUARDO LOPEZ CRUZ, BORIS ALFREDO LOPEZ RIVAS, PATRICIA CAROLINA CONTENIDO: PERSPECTIVA DE ESTRUCTURA DE DUCTO DE MADERA Vista superior de esquina de canaleta oculta Estructura de techo a base de viga maconver y varilla de 3/8 Vista seccionada de canaleta oculta Vista de estructura interna de ducto de madera, sobre patio central Detalles de Estructura de madera PERSPECTIVA DE ESTRUCTURA DE TECHO
  • 12.
    ESCALA: 1 : 125 FECHADE IMPRESION: FEB. 2013 HOJA: PRA-10 UNIVERSIDAD DE EL SALVADOR FACULTAD DE INGENIERIA Y ARQUITECTURA ESCUELA DE ARQUITECTURA PROPUESTA: MUSEO WINAKIRIKA PROPIETARIO: ALCALDIA MUNICIPAL DE CACAOPERA PRESENTAN: GUZMÁN GONZALEZ, WILFREDO EDUARDO LOPEZ CRUZ, BORIS ALFREDO LOPEZ RIVAS, PATRICIA CAROLINA CONTENIDO: DETALLE CONSTRUCTIVO DE ESTRUCTURA DE GABION Malla electrosoldada o malla ciclón Viga maconver tipo V2 Viga maconver tipo V2 Viga maconver tipo V2 Malla electrosoldada de Ø1/4" o malla ciclón Piedra cuarta Piedra cuarta Detalles de Estructura de Gabión DETALLE CONSTRUCTIVO DE PARED DE GABIÓN
  • 13.
    ESCALA: 1 : 125 FECHADE IMPRESION: FEB. 2013 HOJA: PRA-11 UNIVERSIDAD DE EL SALVADOR FACULTAD DE INGENIERIA Y ARQUITECTURA ESCUELA DE ARQUITECTURA PROPUESTA: MUSEO WINAKIRIKA PROPIETARIO: ALCALDIA MUNICIPAL DE CACAOPERA PRESENTAN: GUZMÁN GONZALEZ, WILFREDO EDUARDO LOPEZ CRUZ, BORIS ALFREDO LOPEZ RIVAS, PATRICIA CAROLINA CONTENIDO: PLANTA ESTRUCTUTRAL DE FUNDACIONES GA B C D E F 1 3 4 5 6 7 2 4,65m 8m 2,15m 4,65m 5,13m 4,64m 4,65m1,78m3,23m2,6m2,53m4,65m 19,45m SF-1 SF-1 SF-1 SF-1 SF-1 SF-1 SF-1 SF-1 SF-1 SF-1 SF-1 SF-1 SF-1 SF-1 SF-1SF-1 SF-1 SF-1 SF-1 SF-1 SF-1 SF-1 SF-1 SF-1 T-1 T-1 T-1 T-1 T-1 T-1T-1 T-1 SF-1 SF-1 SF-1 SF-1 SF-1 SF-1 SF-1 SF-1SF-1 SF-1 SF-1 SF-1 SF-1 SF-1 SF-1 SF-1 Rocas Existentes Acceso Plaza de Acceso C1 C1 C1C1 SF-1 SF-1 SF-1 SF-1
  • 14.
    ESCALA: La Indicada FECHA DEIMPRESION: FEB. 2013 HOJA: PRA-12 UNIVERSIDAD DE EL SALVADOR FACULTAD DE INGENIERIA Y ARQUITECTURA ESCUELA DE ARQUITECTURA PROPUESTA: MUSEO WINAKIRIKA PROPIETARIO: ALCALDIA MUNICIPAL DE CACAOPERA PRESENTAN: GUZMÁN GONZALEZ, WILFREDO EDUARDO LOPEZ CRUZ, BORIS ALFREDO LOPEZ RIVAS, PATRICIA CAROLINA CONTENIDO: DETALLES ESTRUCTURALES 0,2m 0,2m 0,45m 0,45m 0,2m 0,25m 0,08m 0,15m COLUMNAS CENTRALES Estribo Ø 3/8" a 15 cm 6 Ø de 1/2" 0,4m 0,4m 0,15m 0,2m 0,1m 0,15m 0,15m TENSOR Estribo Ø 1/4" a 13 cm 6 Ø de 3/8" Escala 1: 10 Escala 1: 5 0,55m 0,35m 0,5m 0,3m NERVIO Estribo Ø 1/4" a 15 cm 2 Ø de 3/8" Escala 1: 5 SOLERA INTERMEDIA Y CORONAMIENTO Estribo Ø 1/4" a 15 cm 4 Ø de 3/8" Escala 1: 5 SOLERA DE FUNDACIÓN Estribo Ø 3/8" a 15 cm 6 Ø de 1/2" Escala 1: 10 0,3m 0,51m 0,13m 0,12m 0,03m VIGA N° 2 Escala 1: 10 Ángulo de 1 1/2" con refuerzo triangular Ø 3/8", de 30 cm de altura VIGA N° 1 Escala 1: 5 Ángulo de 1 1/2" con refuerzo triangular Ø 3/8", de 13 cm de altura C1 SF1
  • 15.
    ESCALA: 1 : 125 FECHADE IMPRESION: FEB. 2013 HOJA: PRA-13 UNIVERSIDAD DE EL SALVADOR FACULTAD DE INGENIERIA Y ARQUITECTURA ESCUELA DE ARQUITECTURA PROPUESTA: MUSEO WINAKIRIKA PROPIETARIO: ALCALDIA MUNICIPAL DE CACAOPERA PRESENTAN: GUZMÁN GONZALEZ, WILFREDO EDUARDO LOPEZ CRUZ, BORIS ALFREDO LOPEZ RIVAS, PATRICIA CAROLINA CONTENIDO: PLANTA ELECTRICA EXTERIOR M Acceso Plaza de Acceso A A A A B B NOTA: Toda la distribucion externa de energia electrica será subterranea Planta Electrica Exterior de Museo Winakirika Esc 1 : 200
  • 16.
    ESCALA: 1 : 125 FECHADE IMPRESION: FEB. 2013 HOJA: PRA-14 UNIVERSIDAD DE EL SALVADOR FACULTAD DE INGENIERIA Y ARQUITECTURA ESCUELA DE ARQUITECTURA PROPUESTA: MUSEO WINAKIRIKA PROPIETARIO: ALCALDIA MUNICIPAL DE CACAOPERA PRESENTAN: GUZMÁN GONZALEZ, WILFREDO EDUARDO LOPEZ CRUZ, BORIS ALFREDO LOPEZ RIVAS, PATRICIA CAROLINA CONTENIDO: PLANTA ELECTRICA INTERIOR 2 2 7 2 2 A B 2 2 BAAB 4 2 A 2 2 2 2 5 2 A A B1 2 M 2 2 2 2 6 2 B A 2 2 A B BB 2 2 2 22 2 3 Acceso Plaza de Acceso
  • 17.
    N°deCircuito Espacios Fases Ocupados Voltaje 111 110 Hilos CargaInstal. 500 A 4.55 (Watts) B - en Barras (Amperios) Corriente Marcade G.E. Disyuntor PolosAmp 20 Proteccion L : Luminarias T : Tomacorr. Descrip. de Cargas L:5 22 700 - 6.36 20 L:4 S:3 33 600 5.45 - L:6 44 700 - 6.36 L:7 55 400 3.63 - 66 500 - 4.55 L:5 77 500 4.55 - L:5 8-108 1050 4.77 4.77 L:3 T:199 400 3.63 - 10 11 A B 1 2 3 4 5 6 7 8 9 10 11 12 1 1 1 1 1 1 2 1 110 110 110 110 110 110 220 110 2 2 2 2 2 2 2 3 2 G.E. G.E. G.E. G.E. G.E. G.E. G.E. G.E. 1 1 1 1 1 1 1 2 1 R:6 175w c/u 20 20 20 20 20 20 20 5350 0.80 4280 21.26 17.63 Fecha:02/2013 ΣD F.D D.M Alimentador: 2THHN#8+ Calculo:WEGG Reviso: WGV 22.0426.58 0.80 0.80 1THHN#10 N R : Reflector S : Spot M : Motor L:4 12 Futura Exp. Futura Exp. Futura Exp. ESCALA: 1 : 125 FECHA DE IMPRESION: FEB. 2013 HOJA: PRA-15 UNIVERSIDAD DE EL SALVADOR FACULTAD DE INGENIERIA Y ARQUITECTURA ESCUELA DE ARQUITECTURA PROPUESTA: MUSEO WINAKIRIKA PROPIETARIO: ALCALDIA MUNICIPAL DE CACAOPERA PRESENTAN: GUZMÁN GONZALEZ, WILFREDO EDUARDO LOPEZ CRUZ, BORIS ALFREDO LOPEZ RIVAS, PATRICIA CAROLINA CONTENIDO: CUADRO DE CARGA ELECTRICA PARA MUSEO
  • 18.
    SIMBOLOGIA ELECTRICA Interruptor sencillo Interruptor Doble InterruptorTriple 2 3 Luminaria ahorrativa Luminaria Exterior Luminaria hacia arriba 8 Número de circuito Poste a colocar Poste Existente 2 Tomacorriente doble Linea interna Linea de distribuidora Conductor 3 THHN #12 Conductor 2 THHN #10 1 THHN #12 Ø=3/4" 3"- 4" 1.20m4.5-5m Poste de tubo galvanizado o decorativo a elección Caja Cuadrada Lampara Detalle de Luminaria Externa Sin Escala Reflectores ESCALA: SIN ESCALA FECHA DE IMPRESION: FEB. 2013 HOJA: PRA-16 UNIVERSIDAD DE EL SALVADOR FACULTAD DE INGENIERIA Y ARQUITECTURA ESCUELA DE ARQUITECTURA PROPUESTA: MUSEO WINAKIRIKA PROPIETARIO: ALCALDIA MUNICIPAL DE CACAOPERA PRESENTAN: GUZMÁN GONZALEZ, WILFREDO EDUARDO LOPEZ CRUZ, BORIS ALFREDO LOPEZ RIVAS, PATRICIA CAROLINA CONTENIDO: DETALLE DE LUMINARIA EXTERIOR CUADRO DE SIMBOLOGIA ELECTRICA
  • 19.
    ESCALA: 1 : 50 FECHADE IMPRESION: FEB. 2013 HOJA: PRA-17 UNIVERSIDAD DE EL SALVADOR FACULTAD DE INGENIERIA Y ARQUITECTURA ESCUELA DE ARQUITECTURA PROPUESTA: MUSEO WINAKIRIKA PROPIETARIO: ALCALDIA MUNICIPAL DE CACAOPERA PRESENTAN: GUZMÁN GONZALEZ, WILFREDO EDUARDO LOPEZ CRUZ, BORIS ALFREDO LOPEZ RIVAS, PATRICIA CAROLINA CONTENIDO: PLANTA ELECTRICA PLANO ESTRUCTURAL DE FUNDACIONES 2 2 A 19 B PVC Ø1/2" PVCØ6" PVCØ1/2" SF-1 SF-1 SF-1 SF-1 PLANO HIDRAULICO PLANO HIDRAULICO PLANO ESTRUCTURAL DE FUNDACIONES PLANTA ELECTRICA PVCØ6" Hacia drenaje de A.N. CASETA DE VIGILANCIA
  • 20.
    ESCALA: 1 : 200 FECHADE IMPRESION: FEB. 2013 HOJA: PRA-18 UNIVERSIDAD DE EL SALVADOR FACULTAD DE INGENIERIA Y ARQUITECTURA ESCUELA DE ARQUITECTURA PROPUESTA: MUSEO WINAKIRIKA PROPIETARIO: ALCALDIA MUNICIPAL DE CACAOPERA PRESENTAN: GUZMÁN GONZALEZ, WILFREDO EDUARDO LOPEZ CRUZ, BORIS ALFREDO LOPEZ RIVAS, PATRICIA CAROLINA CONTENIDO: PLANTA HIDRAULICA DE MUSEO PVCØ1/2" PVCØ4" PVC Ø4" ADrenajedeAN PVC Ø4" PVC Ø4"PVC Ø4" ADrenajedeALL DeReddeAP PVCØ4" PVCØ4"PVCØ4" PVCØ4" PVC Ø4"PVC Ø4"PVC Ø4" PVC Ø2" PVC Ø2" PVCØ2"PVCØ2" PVC Ø2" SIMBOLOGIA HIDRAULICA Codo de 90° Tee Sifon Codo de 45° Grifo Tuberia de abastecimiento de agua potable Ø 1 2" 315 psi Tuberia de aguas negras 160 psi Tuberia de aguas Lluvias CUADRO DE SIMBOLOGIA HIDRAULICA PLANTA HIDRAULICA DE MUSEO
  • 21.
    145 PROPUESTA “B”, MERCADODE ARTESANIAS Planta de conjunto y techos PRB-01 Planta de conjunto sin techos PRB-02 Detalle zona comercial PRB-03 Detalle zona vestibular PRB-04 Detalle zona de apoyo PRB-05 Planta arq. y sección de anfiteatro PRB-06 Planta arq. y techos de admin. PRB-07 Elevaciones de admin. PRB-08 Planta arq. y techos de talleres PRB-09 Elevaciones de talleres PRB-10 Planta arq. y techos de locales PRB-11 Elevaciones de locales PRB-12 Planta arq. y techos de cafetería PRB-13 Elevaciones de cafetería PRB-14 Planta arq. y techos de S.S. PRB-15 Elevaciones de S.S. PRB-16 Planos de caseta de vigilancia PRB-17 Planta eléctrica exterior PRB-18 Cuadro de carga eléctrica PRB-19 Detalle de luminaria exterior PRB-20 Planta eléctrica anfiteatro PRB-21 Planta eléct., fund. e hidra. admin. PRB-22 Planta eléct. y fund. talleres PRB-23 Planta eléct., fund. e hidra. S.S. PRB-24 Planta eléct. y fund. locales PRB-25 Planta eléct., fund. e hidra. cocina PRB-26 Planta eléct., fund. e hidra. caseta. PRB-27 Planta hidráulica de conjunto PRB-28 Sección fosa séptica PRB-29 Detalle en planta de fosa séptica PRB-30 Detalle de pérgolas PRB-31,32 Detalles estructurales PRB-33
  • 22.
    ESCALA: 1 : 500 FECHADE IMPRESION: FEB. 2013 HOJA: PRB-01 UNIVERSIDAD DE EL SALVADOR FACULTAD DE INGENIERIA Y ARQUITECTURA ESCUELA DE ARQUITECTURA PROPUESTA: MERCADO DE ARTESANIAS PROPIETARIO: ALCALDIA MUNICIPAL DE CACAOPERA PRESENTAN: GUZMÁN GONZALEZ, WILFREDO EDUARDO LOPEZ CRUZ, BORIS ALFREDO LOPEZ RIVAS, PATRICIA CAROLINA CONTENIDO: PLANO DE CONJUNTO Y TECHOS N.P.T.: 0.0+0.0m Bahia para descarga de Personas N.P.T.: 0.0-5.20m N.P.T.: 0.0-4.0m N.P.T.: 0.0-5.0mN.P.T.: 0.0-6.0m N.P.T.: 0.0-3.0m N.P.T.: 0.0-3.80m Estacionamiento Vehicular Estacionamiento de Autobuses Área de carga y descarga durante horarios determinados 45% 45% 45% 45% 45% 45% 45% 45% 45% 45% 45% 45% 45% 45% 45% 45% 45% 45% 45% 45% Locales Comerciales Servicios Sanitarios Cafetería Anfiteatro Administración Talleres de enseñanza Acceso a Terreno B S S B B S S B S S B Caseta de vigilancia Pergolas S S B B Acceso Principal PergolasPergolas Pergola Curva Pergola Recta
  • 23.
    ESCALA: 1 : 500 FECHADE IMPRESION: FEB. 2013 HOJA: PRB-02 UNIVERSIDAD DE EL SALVADOR FACULTAD DE INGENIERIA Y ARQUITECTURA ESCUELA DE ARQUITECTURA PROPUESTA: MERCADO DE ARTESANIAS PROPIETARIO: ALCALDIA MUNICIPAL DE CACAOPERA PRESENTAN: GUZMÁN GONZALEZ, WILFREDO EDUARDO LOPEZ CRUZ, BORIS ALFREDO LOPEZ RIVAS, PATRICIA CAROLINA CONTENIDO: PLANO DE CONJUNTO SIN TECHOS N.P.T.: 0.0+0.0m Bahia para descarga de Personas N.P.T.: 0.0-5.20m N.P.T.: 0.0-4.0mN.P.T.: 0.0-5.0mN.P.T.: 0.0-6.0m N.P.T.: 0.0-3.0m N.P.T.: 0.0-3.80m Estacionamiento Vehicular Estacionamiento de Autobuses Área de carga y descarga durante horarios determinados Acceso a Terreno Plaza Vestibular Plaza Comercial Plaza de Tejido Anfiteatro Cafetería Locales Comerciales Servicios Sanitarios Administración Talleres de enseñanza B S S B B S S B S S B Caseta de vigilancia S S B B Acceso Principal Columnas de Pergolas Columnas de Pergolas
  • 24.
    ESCALA: 1 : 250 FECHADE IMPRESION: FEB. 2013 HOJA: PRB-03 UNIVERSIDAD DE EL SALVADOR FACULTAD DE INGENIERIA Y ARQUITECTURA ESCUELA DE ARQUITECTURA PROPUESTA: MERCADO DE ARTESANIAS PROPIETARIO: ALCALDIA MUNICIPAL DE CACAOPERA PRESENTAN: GUZMÁN GONZALEZ, WILFREDO EDUARDO LOPEZ CRUZ, BORIS ALFREDO LOPEZ RIVAS, PATRICIA CAROLINA CONTENIDO: DETALLE DE ZONA COMERCIAL N.P.T.: 0.0-5.20m N.P.T.: 0.0-4.60m Anfiteatro Plaza Vestibular N.P.T.: 0.0-4.0m N.P.T.: 0.0-3.0m N.P.T.: 0.0-6.0m Plaza Comercial N.P.T.: 0.0-5.0m S.S. Mujeres S.S. Hombres Local 1 Local 2 Local 3 Local 4 Local 5 Local "a" Local "b" Local "c" Cafetería S B B S S S B S B Acceso a Posterior 10° 10° 10°10° 10°
  • 25.
    ESCALA: 1 : 200 FECHADE IMPRESION: FEB. 2013 HOJA: PRB-04 UNIVERSIDAD DE EL SALVADOR FACULTAD DE INGENIERIA Y ARQUITECTURA ESCUELA DE ARQUITECTURA PROPUESTA: MERCADO DE ARTESANIAS PROPIETARIO: ALCALDIA MUNICIPAL DE CACAOPERA PRESENTAN: GUZMÁN GONZALEZ, WILFREDO EDUARDO LOPEZ CRUZ, BORIS ALFREDO LOPEZ RIVAS, PATRICIA CAROLINA CONTENIDO: DETALLE DE ZONA VESTIBULAR Y ANFITEATRO N.P.T.: 0.0-5.20m N.P.T.: 0.0-4.60m Anfiteatro B Plaza Vestibular N.P.T.: 0.0-4.0m S S B N.P.T.: 0.0-3.0m S N.P.T.: 0.0-3.80m N.P.T.: 0.0-3.0m N.P.T.: 0.0-5.0m Plaza de Tejido Servicios Sanitarios Administración N.P.T.: 0.0-4.0m N.P.T.: 0.0-3.0m 10° 10° 10°
  • 26.
    ESCALA: 1 : 200 FECHADE IMPRESION: FEB. 2013 HOJA: PRB-04 UNIVERSIDAD DE EL SALVADOR FACULTAD DE INGENIERIA Y ARQUITECTURA ESCUELA DE ARQUITECTURA PROPUESTA: MERCADO DE ARTESANIAS PROPIETARIO: ALCALDIA MUNICIPAL DE CACAOPERA PRESENTAN: GUZMÁN GONZALEZ, WILFREDO EDUARDO LOPEZ CRUZ, BORIS ALFREDO LOPEZ RIVAS, PATRICIA CAROLINA CONTENIDO: DETALLE DE ZONA DE APOYO Plaza de Tejido N.P.T.: 0.0-3.80m Plaza Vestibular Administración Bodega y mantenimiento Taller 1 Taller 2 Bodega de materiales S.S. Hombres S.S. Mujeres N.P.T.: 0.0-4.0mN.P.T.: 0.0-4.0m N.P.T.: 0.0-3.0m N.P.T.: 0.0-5.20m N.P.T.: 0.0-4.60m Anfiteatro N.P.T.: 0.0-3.0m N.P.T.: 0.0-3.0m S B B 10° 10°
  • 27.
    ESCALA: LA INDICADA FECHA DEIMPRESION: FEB. 2013 HOJA: PRB-06 UNIVERSIDAD DE EL SALVADOR FACULTAD DE INGENIERIA Y ARQUITECTURA ESCUELA DE ARQUITECTURA PROPUESTA: MERCADO DE ARTESANIAS PROPIETARIO: ALCALDIA MUNICIPAL DE CACAOPERA PRESENTAN: GUZMÁN GONZALEZ, WILFREDO EDUARDO LOPEZ CRUZ, BORIS ALFREDO LOPEZ RIVAS, PATRICIA CAROLINA CONTENIDO: PLANTA ARQUITECTONICA DE ANFITEATRO A Pared enchapada con piedra Escenario 0,8m 0,4m 1,2m 2,5m 1,2m 5,1m 3m 6,06m Pared enchapada con piedra N.P.T.: 0.0-5.20m N.P.T.: 0.0-4.60m S B Plaza Vestibular N.P.T.: 0.0-4.0m 10° Columnas de Pergolas Acceso a Anfiteatro N.P.T.: 0.0-4.40m N.P.T.: 0.0-4.80m Graderios Graderios Escenario S S 10° 10° S B 10° S S 10° 10° Graderios Graderios Graderios SECCIÓN DE ANFITEATRO SECCIÓN A-A DE ANFITEATRO ESC: 1 : 125 GRADERIOS DE ANFITEATRO ESC: 1 : 50 PLANTA ARQUITECTONICA DE ANFITEATRO ESC: 1 : 125 DETALLE DE GRADERIOS Pergola G raderios 3m 1,5m 2,65m 12,78m
  • 28.
    ESCALA: 1 : 100 FECHADE IMPRESION: FEB. 2013 HOJA: PRB-07 UNIVERSIDAD DE EL SALVADOR FACULTAD DE INGENIERIA Y ARQUITECTURA ESCUELA DE ARQUITECTURA PROPUESTA: MERCADO DE ARTESANIAS PROPIETARIO: ALCALDIA MUNICIPAL DE CACAOPERA PRESENTAN: GUZMÁN GONZALEZ, WILFREDO EDUARDO LOPEZ CRUZ, BORIS ALFREDO LOPEZ RIVAS, PATRICIA CAROLINA CONTENIDO: PLANTA ESTRUCTURAL DE TECHOS DE ADMINISTRACION A 16,18m 2,38m Administración S.S. Hombres Bodega y Mantenimiento N.P.T.: 0.0-2.95m S.S. Mujeres N.P.T.: 0.0-3.0m B C D E 1 4 3 2 6,4m 2,5m 1,95m2,08m2,38m 5,65m 5,65m A E 1 4 45% 45% 45% 45% Cumbrera PLANTA ARQUITECTONICA DE ADMINISTRACIÓN P1 P1 P1 P1 P1 P1 P1 P1 P1 P1 P1 P1 P1 P1 P1 P1 P1 P1 P1 P1 P1 P1 P1 V1 V1 V1 V1 V1 V1 V1 V1 V1 V1 V1 V1 V1V1V1V1V1 V1V1V1V1V1V1 PLANTA ESTRUCTURAL DE TECHOS DE ADMINISTRACION PLANTA ARQUITECTONICA DE ADMINISTRACIÓN
  • 29.
    ESCALA: 1 : 100 FECHADE IMPRESION: FEB. 2013 HOJA: PRB-08 UNIVERSIDAD DE EL SALVADOR FACULTAD DE INGENIERIA Y ARQUITECTURA ESCUELA DE ARQUITECTURA PROPUESTA: MERCADO DE ARTESANIAS PROPIETARIO: ALCALDIA MUNICIPAL DE CACAOPERA PRESENTAN: GUZMÁN GONZALEZ, WILFREDO EDUARDO LOPEZ CRUZ, BORIS ALFREDO LOPEZ RIVAS, PATRICIA CAROLINA CONTENIDO: ELEVACIÓN NORTE DE ADMINISTRACIÓN A B E 1 4 N.P.T.: 0.0-2.95m N.P.T.: 0.0-3.0m 45% 45% N.P.T.: 0.0-2.95m N.P.T.: 0.0-3.0m ELEVACIÓN ESTE DE ADMINISTRACIÓN ELEVACIÓN NORTE DE ADMINISTRACIÓN ELEVACIÓN ESTE DE ADMINISTRACIÓN 3,36m1,88m 3,36m1,88m Paredes de ladrillo de barro cocido artesanal adobado con repello al interior y exterior Cubierta de Teja de Barro cocido artesanal, con estructura metálica de Viga maconver y varillas de 3/8" Columna con enchapado tipo enladrillado, con galleta de barro Paredes de ladrillo de barro cocido artesanal adobado con repello al interior y exterior Ventana abatible de 2 hojas Ventana tipo sifón
  • 30.
    ESCALA: 1 : 125 FECHADE IMPRESION: FEB. 2013 HOJA: PRB-09 UNIVERSIDAD DE EL SALVADOR FACULTAD DE INGENIERIA Y ARQUITECTURA ESCUELA DE ARQUITECTURA PROPUESTA: MERCADO DE ARTESANIAS PROPIETARIO: ALCALDIA MUNICIPAL DE CACAOPERA PRESENTAN: GUZMÁN GONZALEZ, WILFREDO EDUARDO LOPEZ CRUZ, BORIS ALFREDO LOPEZ RIVAS, PATRICIA CAROLINA CONTENIDO: PLANTA ESTRUCTURAL DE TECHOS DE TALLERES DE ENSEÑANZA PLANTA ARQUITECTONICA DE TALLERES DE ENSEÑANZA Taller 1 Taller 2 Bodega de materiales N.P.T.: 0.0-2.95m N.P.T.: 0.0-3.0m 45% 45% Cumbrera 45% 45% P1 P1 P1 P1 P1 P1 P1 P1 P1 P1 P1 P1 P1 P1 P1 P1 P1 P1 P1 P1 P1 V1 V1 V1 V1 V1 V1 V1 V1 V1 V1 V1 V1 V1 V1 V1 P1 P1 P1 P1 P1 P1 P1 P1 P1 P1 V1 V1 V1 V1 V1 V1 V1 V1 A B C D 1 2 3 A D 1 3 PLANTA ESTRUCTURAL DE TECHOS DE TALLERES DE ENSEÑANZA PLANTA ARQUITECTONICA DE TALLERES DE ENSEÑANZA 15,92m 3,2m 6,36m 6,36m 7,18m 3,34m3,84m
  • 31.
    ESCALA: 1 : 100 FECHADE IMPRESION: FEB. 2013 HOJA: PRB-10 UNIVERSIDAD DE EL SALVADOR FACULTAD DE INGENIERIA Y ARQUITECTURA ESCUELA DE ARQUITECTURA PROPUESTA: MERCADO DE ARTESANIAS PROPIETARIO: ALCALDIA MUNICIPAL DE CACAOPERA PRESENTAN: GUZMÁN GONZALEZ, WILFREDO EDUARDO LOPEZ CRUZ, BORIS ALFREDO LOPEZ RIVAS, PATRICIA CAROLINA CONTENIDO: ELEVACIÓN NORTE DE TALLERES DE ENSEÑANZA ELEVACIÓN ESTE DE TALLERES DE ENSEÑANZA 45% 45% N.P.T.: 0.0-2.95m N.P.T.: 0.0-3.0m N.P.T.: 0.0-3.0mN.P.T.: 0.0-2.95m ELEVACIÓN NORTE DE TALLERES DE ENSEÑANZA ELEVACIÓN ESTE DE TALLERES DE ENSEÑANZA DA 1 3 3,36m2,4m 3,36m2,4m 0,98m Paredes de ladrillo de barro cocido artesanal adobado con repello al interior y exterior Cubierta de Teja de Barro cocido artesanal, con estructura metálica de Viga maconver y varillas de 3/8" Columna con enchapado tipo enladrillado, con galleta de barro Paredes de ladrillo de barro cocido artesanal adobado con repello al interior y exterior Ventana abatible de 2 hojas
  • 32.
    ESCALA: 1 : 100 FECHADE IMPRESION: FEB. 2013 HOJA: PRB-11 UNIVERSIDAD DE EL SALVADOR FACULTAD DE INGENIERIA Y ARQUITECTURA ESCUELA DE ARQUITECTURA PROPUESTA: MERCADO DE ARTESANIAS PROPIETARIO: ALCALDIA MUNICIPAL DE CACAOPERA PRESENTAN: GUZMÁN GONZALEZ, WILFREDO EDUARDO LOPEZ CRUZ, BORIS ALFREDO LOPEZ RIVAS, PATRICIA CAROLINA CONTENIDO: PLANTA ESTRUCTURAL DE TECHOS DE LOCALES COMERCIALES PLANTA ARQUITECTONICA DE LOCALES COMERCIALES A 1 B C D E F 2 3 N.P.T.: 0.0-4.95m N.P.T.: 0.0-5.0m A 1 F N.P.T.: 0.0-4.92m Local 1 N.P.T.: 0.0-4.92m Local 2 N.P.T.: 0.0-4.92m Local 3 N.P.T.: 0.0-4.92m Local 4 N.P.T.: 0.0-4.92m Local 5 11,75m 2,35m 2,35m 2,35m 2,35m 2,35m 5,38m 3m2,38m 45% 45% Cumbrera 45%45% V1 V1 V1 V1 V1 V1 V1 V1 P1 P1 P1 P1 P1 P1 P1 P1 P1 P1 P1 P1 P1 V1V1V1 V1V1 V1V1V1V1 P1 P1 P1 P1 P1 P1 3 PLANTA ESTRUCTURAL DE TECHOS DE LOCALES COMERCIALES PLANTA ARQUITECTONICA DE LOCALES COMERCIALES V1 V1 V1
  • 33.
    ESCALA: 1 : 100 FECHADE IMPRESION: FEB. 2013 HOJA: PRB-12 UNIVERSIDAD DE EL SALVADOR FACULTAD DE INGENIERIA Y ARQUITECTURA ESCUELA DE ARQUITECTURA PROPUESTA: MERCADO DE ARTESANIAS PROPIETARIO: ALCALDIA MUNICIPAL DE CACAOPERA PRESENTAN: GUZMÁN GONZALEZ, WILFREDO EDUARDO LOPEZ CRUZ, BORIS ALFREDO LOPEZ RIVAS, PATRICIA CAROLINA CONTENIDO: ELEVACIÓN NORTE DE LOCALES COMERCIALES ELEVACIÓN ESTE DE LOCALES COMERCIALES A F 1 2 3 N.P.T.: 0.0-3.0mN.P.T.: 0.0-2.95m N.P.T.: 0.0-3.0mN.P.T.: 0.0-2.95m 45% 45% 3,36m1,68m 3,36m1,68m ELEVACIÓN NORTE DE LOCALES COMERCIALES ELEVACIÓN ESTE DE LOCALES COMERCIALES Paredes de ladrillo de barro cocido artesanal adobado con repello al interior y exterior Cubierta de Teja de Barro cocido artesanal, con estructura metálica de Viga maconver y varillas de 3/8" Columna con enchapado tipo enladrillado, con galleta de barro Puertas con persianas de madera, plegadizas de 4 cuerpos
  • 34.
    ESCALA: 1 : 125 FECHADE IMPRESION: FEB. 2013 HOJA: PRB-13 UNIVERSIDAD DE EL SALVADOR FACULTAD DE INGENIERIA Y ARQUITECTURA ESCUELA DE ARQUITECTURA PROPUESTA: MERCADO DE ARTESANIAS PROPIETARIO: ALCALDIA MUNICIPAL DE CACAOPERA PRESENTAN: GUZMÁN GONZALEZ, WILFREDO EDUARDO LOPEZ CRUZ, BORIS ALFREDO LOPEZ RIVAS, PATRICIA CAROLINA CONTENIDO: PLANTA ESTRUCTURAL DE TECHOS DE CAFETERIA PLANTA ARQUITECTONICA DE CAFETERIA N.P.T.: 0.0-5.0m N.P.T.: 0.0-4.95m Local 6 Local 7 Local 8 Cocina Área de Mesas Cocina Cocina Entrada posterior Entrada posterior Entrada posterior 45% 45% Cumbrera 45%45% P1 P1 P1 P1 P1 P1 P1 P1 P1 P1 P1 P1 P1 P1 V1 V1 V1 V1 V1 V1 V1 V1 V1 V1 V1 V1 V1 V1 V1 P1 P1 P1 P1 P1 P1 P1 P1 P1 P1 V1 V1 V1 V1 V1 V1 V1 V1 A 1 B C D 2 3 PLANTA ESTRUCTURAL DE TECHOS DE CAFETERIA PLANTA ARQUITECTONICA DE CAFETERIA A 1 3 D 9,96m 3,32m 3,32m 3,32m 7,78m 2,92m4,86m
  • 35.
    ESCALA: 1 : 100 FECHADE IMPRESION: FEB. 2013 HOJA: PRB-14 UNIVERSIDAD DE EL SALVADOR FACULTAD DE INGENIERIA Y ARQUITECTURA ESCUELA DE ARQUITECTURA PROPUESTA: MERCADO DE ARTESANIAS PROPIETARIO: ALCALDIA MUNICIPAL DE CACAOPERA PRESENTAN: GUZMÁN GONZALEZ, WILFREDO EDUARDO LOPEZ CRUZ, BORIS ALFREDO LOPEZ RIVAS, PATRICIA CAROLINA CONTENIDO: ELEVACIÓN SUR DE CAFETERIA ELEVACIÓN OESTE DE CAFETERIA N.P.T.: 0.0-5.0mN.P.T.: 0.0-4.95m 45% 45% N.P.T.: 0.0-5.0mN.P.T.: 0.0-4.95m ELEVACIÓN SUR DE CAFETERIA ELEVACIÓN OESTE DE CAFETERIA A D 31 Paredes de ladrillo de barro cocido artesanal adobado con repello al interior y exterior Cubierta de Teja de Barro cocido artesanal, con estructura metálica de Viga maconver y varillas de 3/8" Columna con enchapado tipo enladrillado, con galleta de barro Ventanas con persianas de madera, plegadizas de 7 cuerpos Ventana abatible de 2 hojas
  • 36.
    ESCALA: 1 : 100 FECHADE IMPRESION: FEB. 2013 HOJA: PRB-15 UNIVERSIDAD DE EL SALVADOR FACULTAD DE INGENIERIA Y ARQUITECTURA ESCUELA DE ARQUITECTURA PROPUESTA: MERCADO DE ARTESANIAS PROPIETARIO: ALCALDIA MUNICIPAL DE CACAOPERA PRESENTAN: GUZMÁN GONZALEZ, WILFREDO EDUARDO LOPEZ CRUZ, BORIS ALFREDO LOPEZ RIVAS, PATRICIA CAROLINA CONTENIDO: PLANTA ESTRUCTURAL DE TECHOS DE SERVICIOS SANITARIOS PLANTA ARQUITECTONICA DE SERVICIOS SANITARIOS 45% 45% Cumbrera 45%45% V1 V1 V1 V1 V1 V1 V1 V1 V1 V1 V1 V1P1 P1 P1 P1 P1 P1 P1 P1 V1V1V1V1V1V1 V1V1V1V1V1V1 P1 P1 P1 P1 P1 P1 P1 P1 A B C 1 4 3 2 5 8,1m 4,05m 4,05m 7,44m 1,87m1,07m1,35m3,15m A C 1 5 PLANTA ESTRUCTURAL DE TECHOS DE SERVICIOS SANITARIOS PLANTA ARQUITECTONICA DE SERVICIOS SANITARIOS S.S. Hombres S.S. Mujeres Lavadero de Trapiadores N.P.T.: 0.0-4.95m N.P.T.: 0.0-5.0m
  • 37.
    ESCALA: 1 : 100 FECHADE IMPRESION: FEB. 2013 HOJA: PRB-16 UNIVERSIDAD DE EL SALVADOR FACULTAD DE INGENIERIA Y ARQUITECTURA ESCUELA DE ARQUITECTURA PROPUESTA: MERCADO DE ARTESANIAS PROPIETARIO: ALCALDIA MUNICIPAL DE CACAOPERA PRESENTAN: GUZMÁN GONZALEZ, WILFREDO EDUARDO LOPEZ CRUZ, BORIS ALFREDO LOPEZ RIVAS, PATRICIA CAROLINA CONTENIDO: ELEVACIÓN NORTE DE SERVICIOS SANITARIOS ELEVACIÓN ESTE DE SERVICIOS SANITARIOS A C 1 4 5 ELEVACIÓN NORTE DE SERVICIOS SANITARIOS ELEVACIÓN ESTE DE SERVICIOS SANITARIOS N.P.T.: 0.0-5.0mN.P.T.: 0.0-4.95m N.P.T.: 0.0-5.0mN.P.T.: 0.0-4.95m 45% 45% Paredes de ladrillo de barro cocido artesanal adobado con repello al interior y exterior Cubierta de Teja de Barro cocido artesanal, con estructura metálica de Viga maconver y varillas de 3/8" Columna con enchapado tipo enladrillado, con galleta de barro Ventana tipo sifón. (Aplicable en servicios sanitarios)
  • 38.
    ESCALA: 1 : 50 FECHADE IMPRESION: FEB. 2013 HOJA: PRB-17 UNIVERSIDAD DE EL SALVADOR FACULTAD DE INGENIERIA Y ARQUITECTURA ESCUELA DE ARQUITECTURA PROPUESTA: MERCADO DE ARTESANIAS PROPIETARIO: ALCALDIA MUNICIPAL DE CACAOPERA PRESENTAN: GUZMÁN GONZALEZ, WILFREDO EDUARDO LOPEZ CRUZ, BORIS ALFREDO LOPEZ RIVAS, PATRICIA CAROLINA CONTENIDO: PLANTA ESTRUCTURAL DE TECHOS PLANTA ARQUITECTONICA A 1 B C 2 3,7m 6m 3,3m 2,7m A 1 C 2 N.P.T.: 0.0+3.80m N.P.T.: 0.0-3.98m 45% 45% 45% 45% V1 V1 V1 V1 V1 V1 V1 V1 P1 P1 P1 P1 P1 P1 P1 45% 45% N.P.T.: 0.0+3.80mN.P.T.: 0.0+3.80m A C 1 2 A B C S.S. N.P.T.: 0.0+3.80m N.P.T.: 0.0-3.98m Cabina de Seguridad ELEVACIÓN SUROESTE ELEVACIÓN NOROESTEA SECCIÓN A-A PLANTA ESTRUCTURAL DE TECHOS PLANTA ARQUITECTONICA ELEVACIÓN SUROESTE ELEVACIÓN NOROESTE SECCIÓN A-A Paredes de ladrillo de barro cocido artesanal adobado con repello al interior y exterior Cubierta de Teja de Barro cocido artesanal, con estructura metálica de Viga maconver y varillas de 3/8" Ventana tipo sifón. (Aplicable en servicios sanitarios)Ventana abatible de 2 hojas Ventana abatible de 2 hojas CASETA DE VIGILANCIA
  • 39.
    ESCALA: 1 : 500 FECHADE IMPRESION: FEB. 2013 HOJA: PRB-18 UNIVERSIDAD DE EL SALVADOR FACULTAD DE INGENIERIA Y ARQUITECTURA ESCUELA DE ARQUITECTURA PROPUESTA: MERCADO DE ARTESANIAS PROPIETARIO: ALCALDIA MUNICIPAL DE CACAOPERA PRESENTAN: GUZMÁN GONZALEZ, WILFREDO EDUARDO LOPEZ CRUZ, BORIS ALFREDO LOPEZ RIVAS, PATRICIA CAROLINA CONTENIDO: PLANO ELECTRICO DE INSTALACIONES EXTERIORES Bahia para descarga de Personas Estacionamiento Vehicular Estacionamiento de Autobuses Locales Comerciales Servicios Sanitarios Administración Talleres de enseñanza Acceso a Terreno Caseta de vigilancia Acceso Principal Poste y Linea de Distribuidora Cafetería Anfiteatro 24 25 23 NOTA: DEBIDO A QUE LA CARGA ELECTRICA ES ALTA, LA DISTRIBUIDORA PODRIA SOLICITARÁ EL RESPECTIVO ANALISIS Y DISEÑO DE UNA SUBESTACION ELECTRICA PARA EL MERCADO 22
  • 40.
    N°deCircuito Espacios Fases Ocupados Voltaje 111 110 Hilos CargaInstal. 500 A 4.55 (Watts) B - en Barras (Amperios) Corriente Marcade G.E. Disyuntor PolosAmp 20 Proteccion L : Luminarias T : Tomacorr. Descrip. de Cargas L:5 22 600 - 5.45 20 L:6 33 600 5.45 - T:6 44 500 - 4.55 T:5 55 600 5.45 - 66 500 - 4.55 T:5 77 500 4.55 - T:5 8 600 - 5.45 L:999 900 8.18 - A B 1 2 3 4 5 6 7 8 9 10 11 12 1 1 1 1 1 1 1 1 110 110 110 110 110 110 110 110 2 2 2 2 2 2 2 2 2 G.E. G.E. G.E. G.E. G.E. G.E. G.E. G.E. 1 1 1 1 1 1 1 1 1 L:6 20 20 20 20 20 20 20 18,925 0.80 15,140 69.55 68.09 Fecha:02/2013 ΣD F.D D.M Alimentador: 2THHN#8+ Calculo:WEGG Reviso: WGV 85.1186.93 0.80 0.80 1THHN#10 N R : Reflector S : Spot M : Motor L:6 8 T:41010 400 - 3.641 110 2 G.E. 1 20 T:51111 500 4.55 -1 110 2 G.E. 1 20 L:51212 500 - 4.551 110 2 G.E. 1 20 L:313 300 2.73 -1 110 2 G.E. 1 20 T:514 500 - 4.551 110 2 G.E. 1 20 T:515 500 4.55 -1 110 2 G.E. 1 20 T:516 500 - 4.551 110 2 G.E. 1 20 L:1017 1000 9.09 -1 110 2 G.E. 1 20 L:818 800 - 7.271 110 2 G.E. 1 20 L:3 T:119 400 3.64 -1 110 2 G.E. 1 20 L:4 T:320 700 - 6.361 110 2 G.E. 1 20 21-2321 700 3.18 3.182 220 3 G.E. 2 20 22 1925 8.75 G.E. 20 23 G.E. 20 24 1575 7.16 G.E. 20 25 7.95 G.E. 20 26 27 22-24 25-27 26-28 29-31 2 220 3 2 2 220 3 2 2 220 3 2 2 220 3 2 R:4 175w c/u R:11 175w c/u 13 14 15 16 17 18 19 20 21 22 23 24 25 26 27 28 13 14 15 16 17 18 19 20 29 30 31 32 33 34 1575 1750 8.75 7.16 7.95 R:9 175w c/u R:9 175w c/u R:10 175w c/u 7.16 7.16 ESCALA: SIN ESCALA FECHA DE IMPRESION: FEB. 2013 HOJA: PRB-19 UNIVERSIDAD DE EL SALVADOR FACULTAD DE INGENIERIA Y ARQUITECTURA ESCUELA DE ARQUITECTURA PROPUESTA: MERCADO DE ARTESANIAS PROPIETARIO: ALCALDIA MUNICIPAL DE CACAOPERA PRESENTAN: GUZMÁN GONZALEZ, WILFREDO EDUARDO LOPEZ CRUZ, BORIS ALFREDO LOPEZ RIVAS, PATRICIA CAROLINA CONTENIDO: CUADRO DE CARGA ELECTRICA PARA MERCADO DE ARTESANIAS
  • 41.
    SIMBOLOGIA ELECTRICA Interruptor sencillo Interruptor Doble InterruptorTriple 2 3 Luminaria ahorrativa Luminaria Exterior Luminaria hacia arriba 8 Número de circuito Poste a colocar Poste Existente 2 Tomacorriente doble Linea interna Linea de distribuidora Conductor 3 THHN #12 Conductor 2 THHN #10 1 THHN #12 Ø=3/4" 3"- 4" 1.20m4.5-5m Poste de tubo galvanizado o decorativo a elección Caja Cuadrada Lampara Detalle de Luminaria Externa Sin Escala Reflectores ESCALA: SIN ESCALA FECHA DE IMPRESION: FEB. 2013 HOJA: PRB-20 UNIVERSIDAD DE EL SALVADOR FACULTAD DE INGENIERIA Y ARQUITECTURA ESCUELA DE ARQUITECTURA PROPUESTA: MERCADO DE ARTESANIAS PROPIETARIO: ALCALDIA MUNICIPAL DE CACAOPERA PRESENTAN: GUZMÁN GONZALEZ, WILFREDO EDUARDO LOPEZ CRUZ, BORIS ALFREDO LOPEZ RIVAS, PATRICIA CAROLINA CONTENIDO: DETALLE DE LUMINARIA EXTERIOR CUADRO DE SIMBOLOGIA ELECTRICA
  • 42.
    ESCALA: 1 : 100 FECHADE IMPRESION: FEB. 2013 HOJA: PRB-21 UNIVERSIDAD DE EL SALVADOR FACULTAD DE INGENIERIA Y ARQUITECTURA ESCUELA DE ARQUITECTURA PROPUESTA: MERCADO DE ARTESANIAS PROPIETARIO: ALCALDIA MUNICIPAL DE CACAOPERA PRESENTAN: GUZMÁN GONZALEZ, WILFREDO EDUARDO LOPEZ CRUZ, BORIS ALFREDO LOPEZ RIVAS, PATRICIA CAROLINA CONTENIDO: PLANTA ELECTRICA DE ANFITEATRO Acceso a Anfiteatro 2 2 2 20 21 2 B A A B BA 2 Acceso a Anfiteatro Graderios Escenario Graderios Graderios
  • 43.
    ESCALA: La Indicada FECHA DEIMPRESION: FEB. 2013 HOJA: PRB-22 UNIVERSIDAD DE EL SALVADOR FACULTAD DE INGENIERIA Y ARQUITECTURA ESCUELA DE ARQUITECTURA PROPUESTA: MERCADO DE ARTESANIAS PROPIETARIO: ALCALDIA MUNICIPAL DE CACAOPERA PRESENTAN: GUZMÁN GONZALEZ, WILFREDO EDUARDO LOPEZ CRUZ, BORIS ALFREDO LOPEZ RIVAS, PATRICIA CAROLINA CONTENIDO: PLANTA ELECTRICA DE ADMINISTRACIÓN PLANO ESTRUCTURAL DE FUNDACIONES DE ADMINISTRACIÓN SF-1 SF-1 SF-1 SF-1 SF-1 SF-1 SF-1 SF-1 SF-1 SF-1 SF-1 SF-1 SF-1 SF-1 SF-1 SF-1 SF-1 SF-1 SF-1 SF-1 SF-1 SF-1 M 2 2 22 2 2 BA BA 22 B B BA A A E 1 4 PLANO HIDRAULICO DE SERVICIOS SANITARIOS DE ADMINISTRACIÓN PVCØ1/2"PVCØ1/2" PVC Ø1/2" PV C Ø 4" PVC Ø4" PVCØ4" Hacia Fosa Septica Caja de recepción de aguas negras PVC Ø1/2" PLANTA ELECTRICA DE ADMINISTRACIÓN PLANO ESTRUCTURAL DE FUNDACIONES DE ADMINISTRACIÓN PLANO HIDRAULICO DE SERVICIOS SANITARIOS DE ADMINISTRACIÓN 1 : 75 1 : 100 1 : 100 A E 1 4 1 2 3 2
  • 44.
    ESCALA: 1 : 125 FECHADE IMPRESION: FEB. 2013 HOJA: PRB-23 UNIVERSIDAD DE EL SALVADOR FACULTAD DE INGENIERIA Y ARQUITECTURA ESCUELA DE ARQUITECTURA PROPUESTA: MERCADO DE ARTESANIAS PROPIETARIO: ALCALDIA MUNICIPAL DE CACAOPERA PRESENTAN: GUZMÁN GONZALEZ, WILFREDO EDUARDO LOPEZ CRUZ, BORIS ALFREDO LOPEZ RIVAS, PATRICIA CAROLINA CONTENIDO: PLANTA ELECTRICA DE TALLERES DE ENSEÑANZA PLANO ESTRUCTURAL DE FUNDACIONES DE TALLERES DE ENSEÑANZA A D 1 3 A D 1 3 SF-1 SF-1 SF-1 SF-1SF-1 SF-1 SF-1 SF-1 SF-1SF-1 SF-1 SF-1 SF-1 SF-1 SF-1 SF-1 SF-1 22 2 A B 4 2 A A A B B B 5 2 2 2 2 22 A A A B B B 2 22 PLANO ESTRUCTURAL DE FUNDACIONES DE TALLERES DE ENSEÑANZA PLANTA ELECTRICA DE TALLERES DE ENSEÑANZA 6 7 8
  • 45.
    ESCALA: La Indicada FECHA DEIMPRESION: FEB. 2013 HOJA: PRB-24 UNIVERSIDAD DE EL SALVADOR FACULTAD DE INGENIERIA Y ARQUITECTURA ESCUELA DE ARQUITECTURA PROPUESTA: MERCADO DE ARTESANIAS PROPIETARIO: ALCALDIA MUNICIPAL DE CACAOPERA PRESENTAN: GUZMÁN GONZALEZ, WILFREDO EDUARDO LOPEZ CRUZ, BORIS ALFREDO LOPEZ RIVAS, PATRICIA CAROLINA CONTENIDO: PLANTA ELECTRICA DE SERVICIOS SANITARIOS PLANO ESTRUCTURAL DE FUNDACIONES DE SERVICIOS SANITARIOS PLANO HIDRAULICO DE SERVICIOS SANITARIOS PVC Ø1/2" PVCØ1/2" PVC Ø6" PVCØ6" PVC Ø6" PVC Ø6" PVCØ8" Hacia Fosa Septica PVC Ø2" PVCØ6" PVC Ø6" PVC Ø2" PVC Ø1/2" 1 : 75 PLANO HIDRAULICO DE SERVICIOS SANITARIOS PLANO ESTRUCTURAL DE FUNDACIONES DE SERVICIOS SANITARIOS PLANTA ELECTRICA DE SERVICIOS SANITARIOS 1 : 100 1 : 100 9 2 2 A B C 3 10 2 2 A B C 3 A C 1 5 A C 1 5 SF-1 SF-1 SF-1 SF-1 SF-1 SF-1 SF-1 SF-1 SF-1 SF-1 SF-1 SF-1 SF-1 SF-1 SF-1 SF-1
  • 46.
    ESCALA: 1 : 100 FECHADE IMPRESION: FEB. 2013 HOJA: PRB-25 UNIVERSIDAD DE EL SALVADOR FACULTAD DE INGENIERIA Y ARQUITECTURA ESCUELA DE ARQUITECTURA PROPUESTA: MERCADO DE ARTESANIAS PROPIETARIO: ALCALDIA MUNICIPAL DE CACAOPERA PRESENTAN: GUZMÁN GONZALEZ, WILFREDO EDUARDO LOPEZ CRUZ, BORIS ALFREDO LOPEZ RIVAS, PATRICIA CAROLINA CONTENIDO: PLANTA ELECTRICA DE LOCALES COMERCIALES PLANO ESTRUCTURAL DE FUNDACIONES DE LOCALES COMERCIALES A 1 F 3 A 1 F 2 3A B C 13 11 2 2 2 2 12 SF-1 SF-1 SF-1 SF-1 SF-1 SF-1 SF-1 SF-1 SF-1 SF-1 SF-1 SF-1 SF-1 SF-1 SF-1 SF-1 SF-1 SF-1 SF-1 SF-1 SF-1 SF-1SF-1 PLANTA ELECTRICA DE LOCALES COMERCIALES PLANO ESTRUCTURAL DE FUNDACIONES DE LOCALES COMERCIALES 3
  • 47.
    ESCALA: La Indicada FECHA DEIMPRESION: FEB. 2013 HOJA: PRB-26 UNIVERSIDAD DE EL SALVADOR FACULTAD DE INGENIERIA Y ARQUITECTURA ESCUELA DE ARQUITECTURA PROPUESTA: MERCADO DE ARTESANIAS PROPIETARIO: ALCALDIA MUNICIPAL DE CACAOPERA PRESENTAN: GUZMÁN GONZALEZ, WILFREDO EDUARDO LOPEZ CRUZ, BORIS ALFREDO LOPEZ RIVAS, PATRICIA CAROLINA CONTENIDO: PLANTA ELECTRICA DE CAFETERIA PLANO ESTRUCTURAL DE FUNDACIONES DE CAFETERIA 1 : 75 1 : 125 PLANO HIDRAULICO DEL SECTOR DE COCINAS DE CAFETERIA SF-1SF-1 SF-1SF-1 SF-1 SF-1 SF-1 SF-1SF-1SF-1 SF-1 SF-1 SF-1 SF-1SF-1SF-1 SF-1 B 2 AA B 3 A A B C B C 2 2 2 2 2 B 2 AA B 2 2 2 2 2 B 2 AA B 2 2 2 2 2 1514 17 18 16 1 : 100 Entrada de A.P.PVC Ø1/2" PVC Ø1/2" PVC Ø4"PVC Ø4" PVC Ø4" Hacia Fosa Septica PVC Ø4" PLANO HIDRAULICO DEL SECTOR DE COCINAS DE CAFETERIA PLANO ESTRUCTURAL DE FUNDACIONES DE CAFETERIA PLANTA ELECTRICA DE CAFETERIA A D Local 6 Local 7 Local 8 Cocina Cocina Cocina 1 3 A D 1 3 1 D
  • 48.
    ESCALA: 1 : 50 FECHADE IMPRESION: FEB. 2013 HOJA: PRB-27 UNIVERSIDAD DE EL SALVADOR FACULTAD DE INGENIERIA Y ARQUITECTURA ESCUELA DE ARQUITECTURA PROPUESTA: MERCADO DE ARTESANIAS PROPIETARIO: ALCALDIA MUNICIPAL DE CACAOPERA PRESENTAN: GUZMÁN GONZALEZ, WILFREDO EDUARDO LOPEZ CRUZ, BORIS ALFREDO LOPEZ RIVAS, PATRICIA CAROLINA CONTENIDO: PLANTA ELECTRICA DE CASETA DE VIGILANCIA PLANO ESTRUCTURAL DE FUNDACIONES DE CASETA DE VIGILANCIA 2 2 A 19 B PVC Ø1/2" PVC Ø1/2" PVCØ6" Hacia Fosa Septica PVCØ6" PVCØ1/2" SF-1 SF-1 SF-1 SF-1 PLANO HIDRAULICO DE CASETA DE VIGILANCIA PLANO HIDRAULICO DE CASETA DE VIGILANCIA PLANO ESTRUCTURAL DE FUNDACIONES DE CASETA DE VIGILANCIA PLANTA ELECTRICA DE CASETA DE VIGILANCIA
  • 49.
    ESCALA: 1 : 500 FECHADE IMPRESION: FEB. 2013 HOJA: PRB-28 UNIVERSIDAD DE EL SALVADOR FACULTAD DE INGENIERIA Y ARQUITECTURA ESCUELA DE ARQUITECTURA PROPUESTA: MERCADO DE ARTESANIAS PROPIETARIO: ALCALDIA MUNICIPAL DE CACAOPERA PRESENTAN: GUZMÁN GONZALEZ, WILFREDO EDUARDO LOPEZ CRUZ, BORIS ALFREDO LOPEZ RIVAS, PATRICIA CAROLINA CONTENIDO: PLANO HIDRAULICO DE A.P. Y DRENAJE DE A.LL. DEL MERCADO DE ARTESANIAS Bahia para descarga de Personas Estacionamiento Vehicular Estacionamiento de Autobuses Locales Comerciales Servicios Sanitarios Administración Talleres de enseñanza Acceso a Terreno Caseta de vigilancia Acceso Principal Cafetería Anfiteatro PVC Ø10" PVC Ø10" PVC Ø10" PVCØ10" PVC Ø6" PVC Ø10" PVC Ø10" PVC Ø10" PVC Ø6" PVC Ø6" Drenaje de A.LL Hacia el Rio PVC Ø1/2" Servicio de A.P. PVC Ø1/2" PVCØ1/2" PV C Ø 1/2" PV C Ø 1/2" PVCØ1/2"
  • 50.
    TUBO DE PVC DIAMETRO4" PIEDRA CUARTA GRAVA ARENA FOSA SEPTICA ESCALA: 1 : 50 FECHA DE IMPRESION: FEB. 2013 HOJA: PRB-29 UNIVERSIDAD DE EL SALVADOR FACULTAD DE INGENIERIA Y ARQUITECTURA ESCUELA DE ARQUITECTURA PROPUESTA: MERCADO DE ARTESANIAS PROPIETARIO: ALCALDIA MUNICIPAL DE CACAOPERA PRESENTAN: GUZMÁN GONZALEZ, WILFREDO EDUARDO LOPEZ CRUZ, BORIS ALFREDO LOPEZ RIVAS, PATRICIA CAROLINA CONTENIDO: SECCION DE INSTALACION DE FOSA SEPTICA POZO DE ABSORCION CAJA DE REGISTRO SECCION DE INSTALACION DE FOSA SEPTICA 2,4m 6,3m
  • 51.
    TUBO DE VENTILACION DEFIERRO DIAMETRO = 2" REGISTRO 60cm X 60cm FoFo . . .. . . .. . . .. . . .. CAMPO DE DISTRIBUCION ABSORCION POZO DE PROPORCION 1 : 5 MORTERO CEMENTO GRIS - A.RIO REGISTRO 60cm X 60cm FoFo TUBO DE PVC DIAMETRO = 4" MURO TEZON ENJARRE PULIDO Fosa Séptica A'A SIMBOLOGIA HIDRAULICA Codo de 90° Tee Sifon Codo de 45° Grifo Tuberia de abastecimiento de agua potable Ø 1 2" 315 psi Tuberia de aguas negras 160 psi Tuberia de aguas Lluvias ESCALA: 1 : 50 FECHA DE IMPRESION: FEB. 2013 HOJA: PRB-30 UNIVERSIDAD DE EL SALVADOR FACULTAD DE INGENIERIA Y ARQUITECTURA ESCUELA DE ARQUITECTURA PROPUESTA: MERCADO DE ARTESANIAS PROPIETARIO: ALCALDIA MUNICIPAL DE CACAOPERA PRESENTAN: GUZMÁN GONZALEZ, WILFREDO EDUARDO LOPEZ CRUZ, BORIS ALFREDO LOPEZ RIVAS, PATRICIA CAROLINA CONTENIDO: DETALLE EN PLANTA DE FOSA SEPTICA CUADRO DE SIMBOLOGIA HIDRAULICA
  • 52.
    3.0 0.20 4.0 Canaleta Sub-estructura Estructura Metálica Adoquín Ecológico Veranera 0.20 0.10 Estructura Metálica Adoquin Ecologico Parrilla Protección Canaleta 0.10 ESCALA: 1 : 50 FECHADE IMPRESION: FEB. 2013 HOJA: PRB-31 UNIVERSIDAD DE EL SALVADOR FACULTAD DE INGENIERIA Y ARQUITECTURA ESCUELA DE ARQUITECTURA PROPUESTA: MERCADO DE ARTESANIAS PROPIETARIO: ALCALDIA MUNICIPAL DE CACAOPERA PRESENTAN: GUZMÁN GONZALEZ, WILFREDO EDUARDO LOPEZ CRUZ, BORIS ALFREDO LOPEZ RIVAS, PATRICIA CAROLINA CONTENIDO: DETALLE DE ANCLAJE DE PERGOLA CURVA SECCION TRANSVERSAL DE PERGOLA CURVA SECCION TRANSVERSAL DE PERGOLA CURVA DETALLE DE ANCLAJE DE PERGOLA CURVA 1 : 50 SIN ESCALA
  • 53.
    ESCALA: La Indicada FECHA DEIMPRESION: FEB. 2013 HOJA: PRB-32 UNIVERSIDAD DE EL SALVADOR FACULTAD DE INGENIERIA Y ARQUITECTURA ESCUELA DE ARQUITECTURA PROPUESTA: MERCADO DE ARTESANIAS PROPIETARIO: ALCALDIA MUNICIPAL DE CACAOPERA PRESENTAN: GUZMÁN GONZALEZ, WILFREDO EDUARDO LOPEZ CRUZ, BORIS ALFREDO LOPEZ RIVAS, PATRICIA CAROLINA CONTENIDO: DETALLE DE ANCLAJES DE PERGOLA RECTA PERSPECTIVA DE PERGOLA RECTA0,20m 0,10m 0,40m 0,20m PERSPECTIVA DE PERGOLA RECTA Sin Escala Empalme de maderas en tramos largos Escala 1 : 10 Anclaje de base de columnas de pergola Escala 1 : 10 Anclaje superior de columnas de pergola Escala 1 : 10 2,50m Placa de acero de 20x10 cm en L de 50mm de espesor Agujeros para perno de Ø1/2"Placa de acero de 20x10 cm en L de 50mm de espesor Agujeros para clavos Empalme Tipo Rayo de Jupiter
  • 54.
    ESCALA: La Indicada FECHA DEIMPRESION: FEB. 2013 HOJA: PRB-33 UNIVERSIDAD DE EL SALVADOR FACULTAD DE INGENIERIA Y ARQUITECTURA ESCUELA DE ARQUITECTURA PROPUESTA: MERCADO DE ARTESANIAS PROPIETARIO: ALCALDIA MUNICIPAL DE CACAOPERA PRESENTAN: GUZMÁN GONZALEZ, WILFREDO EDUARDO LOPEZ CRUZ, BORIS ALFREDO LOPEZ RIVAS, PATRICIA CAROLINA CONTENIDO: DETALLES ESTRUCTURALES 0,2m 0,2m 0,45m 0,45m 0,2m 0,25m 0,08m 0,15m COLUMNAS CENTRALES Estribo Ø 3/8" a 15 cm 6 Ø de 1/2" 0,4m 0,4m 0,15m 0,2m 0,1m 0,15m 0,15m TENSOR T-1 Estribo Ø 1/4" a 13 cm 6 Ø de 3/8" Escala 1: 10 Escala 1: 5 0,55m 0,35m 0,5m 0,3m NERVIO Estribo Ø 1/4" a 15 cm 2 Ø de 3/8" Escala 1: 5 SOLERA INTERMEDIA Y CORONAMIENTO Estribo Ø 1/4" a 15 cm 4 Ø de 3/8" Escala 1: 5 SOLERA DE FUNDACIÓN Estribo Ø 3/8" a 15 cm 6 Ø de 1/2" Escala 1: 10 0,3m 0,51m 0,13m 0,12m 0,03m VIGA N° 2 Escala 1: 10 Ángulo de 1 1/2" con refuerzo triangular Ø 3/8", de 30 cm de altura VIGA N° 1 Escala 1: 5 Ángulo de 1 1/2" con refuerzo triangular Ø 3/8", de 13 cm de altura C1 SF1
  • 55.
    178 PROPUESTA “C”, CAMPORECREATIVO Planta de conjunto y techos PRC-01 Distribución de zonas PRC-02 Planta de zona de piscinas PRC-03 Detalle de duchas, inst. hidra. piscinas PRC-04 Detalle de equipo hidroneumatico PRC-05 Planta arq. de administración PRC-06 Planta arq. y techos de admin. PRC-07 Elevaciones e inst. elec. de admin. PRC-08 Planta hidráulica admin. PRC-09 Planta arq. y techos de S.S. PRC-10 Elev. de inst. de tratam de A.N. PRC-11 Planta hidra. de S.S. PRC-12 Elevaciones de inst. hidra. S.S. PRC-13 Planta de conjunto cafetería PRC-14 Elevaciones de cafetería PRC-15 Planta eléctrica cafetería PRC-17 Planta hidráulica de cafetería PRC-18 Planta arq. de locales PRC-19 Planta de techos de locales PRC-20 Elevación norte de locales PRC-21 Planta eléct., de locales PRC-22 Planta arq. de S.S. y duchas PRC-23 Planta de techos de S.S. y duchas PRC-24 Planta hidra. de S.S. y duchas PRC-25 Planta eléct., exterior del campo PRC-26 Detalle de luminaria exterior PRC-27 Perspectiva de cafetería PRC-16
  • 56.
    R6.00 R6.00 R6.00 M1 M2 M3 M4 M7 ACCESO PRINCIPAL CASCO URBANO C A B D SAN FRANCISCO GOTERA YOLOAIQUIN DELICIAS DE CONCEPCION CHILANGA CA 7 CACAOPERA PARQUE RECREATIVO C B A D CASCOURBANO DE CACAOPERA RIO TOROLA RIO TOROLA LONGITUDINAL DEL NORTE PROYECCION DE CALLE LONGITUDINAL DEL NORTE HACIA JOATECA HACIA SAN FRANCISCO GOTERA ESCALA: LA INDICADA FECHA DE IMPRESION: FEB. 2013 HOJA: PRC-01 UNIVERSIDAD DE EL SALVADOR FACULTAD DE INGENIERIA Y ARQUITECTURA ESCUELA DE ARQUITECTURA PROPUESTA: PROPIETARIO: ALCALDIA MUNICIPAL DE CACAOPERA PRESENTAN: GUZMÁN GONZALEZ, WILFREDO EDUARDO LOPEZ CRUZ, BORIS ALFREDO LOPEZ RIVAS, PATRICIA CAROLINA CONTENIDO: PLANTA DE CONJUNTO, PROPUESTA DE ARBORIZACION Y SEÑALIZACION PARA CAMPO RECREATIVO PLANTA DE CONJUNTO, PROPUESTA DE ARBORIZACION Y SEÑALIZACION PARA CAMPO RECREATIVO ESC. 1:1250 CAMPO RECREATIVO
  • 57.
    No. TIPO DEARBOL 1 2 CUADRO DE ARBOLES PLANTAR EN EL PROYECTO MANGO MARAÑÓN 3 CROTO 4 ANONA ROJA 5 MADRE CACAO 6 LAUREL 7 CEDRO 8 ALMENDRO DE RIO 9 JOCOTE 10 SINCUYA 11 ZUNZA M1 M2 M3 M4 M7 ACCESO PRINCIPAL ESCALA: LA INDICADA FECHA DE IMPRESION: FEB. 2013 HOJA: PRC-02 UNIVERSIDAD DE EL SALVADOR FACULTAD DE INGENIERIA Y ARQUITECTURA ESCUELA DE ARQUITECTURA PROPUESTA: CAMPO RECREATIVO PROPIETARIO: ALCALDIA MUNICIPAL DE CACAOPERA PRESENTAN: GUZMÁN GONZALEZ, WILFREDO EDUARDO LOPEZ CRUZ, BORIS ALFREDO LOPEZ RIVAS, PATRICIA CAROLINA CONTENIDO: PLANO DE DISTRIBUCION DE ZONAS EN EL CAMPO RECREATIVO CUADRO DE ARBOLES CUADRO DE SEÑALIZACIÓN ZONA "A" �������������ACCESO PRINCIPAL DE VEHÍCULOS Y PEATONAL. �������������ESTACIONAMIENTO. �������������ÁREA DE CARGA Y DESCARGA. ZONA "B" �������������PLAZA PRINCIPAL. �������������ADMINISTRACIÓN. �������������CAFETERÍA. �������������LOCALES COMERCIALES. ZONA "C" �������������PISCINAS. �������������ÁREA DE ESTAR. �������������CAFETERÍA. �������������AREA DE DUCHAS, SANITARIOS Y VESTIDORES. �������������AREA DEPORTIVA. ESCALA: 1:2000 SEÑALIZACION DE PARQUE RECREATIVO PLANO DE DISTRIBUCION DE ZONAS EN EL CAMPO RECREATIVO
  • 58.
    M2 30% 30% 30% 30% 30% 30% 30% 30% 26.45 13.55 30% 30% 30% ESCALA: 1:500 FECHA DE IMPRESION: FEB.2013 HOJA: PRC-03 UNIVERSIDAD DE EL SALVADOR FACULTAD DE INGENIERIA Y ARQUITECTURA ESCUELA DE ARQUITECTURA PROPUESTA: CAMPO RECREATIVO PROPIETARIO: ALCALDIA MUNICIPAL DE CACAOPERA PRESENTAN: GUZMÁN GONZALEZ, WILFREDO EDUARDO LOPEZ CRUZ, BORIS ALFREDO LOPEZ RIVAS, PATRICIA CAROLINA CONTENIDO: VISTA EN PLANTA DE ÁREA DE PISCINAS Y ÁREA DEPORTIVA VISTA EN PLANTA DE ÁREA DE PISCINAS Y ÁREA DEPORTIVA ESC. 1:500
  • 59.
    1.50 1.31 1.21 1.40 6.25 1.501.40 0.83 DETALLE DE BANCAS SinEscala ESCALA: LA INDICADA FECHA DE IMPRESION: FEB. 2013 HOJA: PRC-04 UNIVERSIDAD DE EL SALVADOR FACULTAD DE INGENIERIA Y ARQUITECTURA ESCUELA DE ARQUITECTURA PROPUESTA: CAMPO RECREATIVO PROPIETARIO: ALCALDIA MUNICIPAL DE CACAOPERA PRESENTAN: GUZMÁN GONZALEZ, WILFREDO EDUARDO LOPEZ CRUZ, BORIS ALFREDO LOPEZ RIVAS, PATRICIA CAROLINA CONTENIDO: DETALLE DE BANCA EN ZONA RECREATIVA PERSPECTIVA ZONA DE PISCINA PERSPECTIVA DE ÁREA DE PISCINAS PERSPECTIVA DE BANCAS
  • 60.
    13.55 .. .. .. .. .. .. .. .. Duchas Caja de Tratamientos Cajapara Estanque Plantas Acuáticas (papiro, carrizo, tifa, lirio acuático) Tubería de pvc para drenaje de Ø 4", 160 psi PLANTA DE INSTALACIONES HIDRAULICAS EN DUCHAS esc. 1:125 ESCALA: LA INDICADA FECHA DE IMPRESION: FEB. 2013 HOJA: PRC-05 UNIVERSIDAD DE EL SALVADOR FACULTAD DE INGENIERIA Y ARQUITECTURA ESCUELA DE ARQUITECTURA PROPUESTA: CAMPO RECREATIVO PROPIETARIO: ALCALDIA MUNICIPAL DE CACAOPERA PRESENTAN: GUZMÁN GONZALEZ, WILFREDO EDUARDO LOPEZ CRUZ, BORIS ALFREDO LOPEZ RIVAS, PATRICIA CAROLINA CONTENIDO: DETALLE DE DUCHAS PLANTA DE INSTALACIONES HIDRAULICAS DE PISCINAS PARQUE RECREATIVO VISTA EN PLANTA DE INSTALACIONES HIDRAULICAS EN PISCINA ESC. 1:500
  • 61.
    DETALLE DE INSTALACIONESHIDRÁULICAS EN PISCINAS sin escala 1.000.85 0.30 Detalle de Bebederos en Zona Deportiva Escala 1:50 0.35 0.35 0.73 3.00 2.80 3.06 2.80 Bomba centrifuga para piscinas yduchas Tanque de cloro Tanque Hidroneumatico Bomba centrifuga para abastecimiento de agua potable Tableros de control de Equipos VISTA EN PLANTA DE EQUIPOS HIDRONEUMATICOS PARA ABASTECIMIENTO DE AGUA sin escala ESCALA: LA INDICADA FECHA DE IMPRESION: FEB. 2013 HOJA: PRC-06 UNIVERSIDAD DE EL SALVADOR FACULTAD DE INGENIERIA Y ARQUITECTURA ESCUELA DE ARQUITECTURA PROPUESTA: CAMPO RECREATIVO PROPIETARIO: ALCALDIA MUNICIPAL DE CACAOPERA PRESENTAN: GUZMÁN GONZALEZ, WILFREDO EDUARDO LOPEZ CRUZ, BORIS ALFREDO LOPEZ RIVAS, PATRICIA CAROLINA CONTENIDO: DETALLE EN PLATA DE EQUIPO HIDRONEUMATICO DETALLE DE EQUIPO HIDRONEUMATICOS DETALLE DE BEBEDEROS
  • 62.
    RECEPCION GERENTE CAFE SALA DE REUNIONES AREA DE MANTENIMIENTO GENERAL CONTABILIDAD PROYECCIONDE ALERO PROYECCION DE ALERO PROYECCIONDEALERO PROYECCIONDEALERO PLANTA ARQUITECTÓNICA DE ADMINISTRACIÓN CAMPO RECREATIVO esc. 1:100 2.15 3.00 8.04 4.00 2.89 1.55 3.36 9.11 4.56 3.48 8.04 A B C D A B C D 1 2 3 4 1 2 3 4 8.91 A A PLANTA ARQUITECTÓNICA DE TECHOS DE ADMINISTRACIÓN CAMPO RECREATIVO esc. 1:100 9.11 8.04 A B C D A B C D 1 2 3 4 1 2 3 4 8.91 A A 30% 30% 30% 30% ESCALA: LA INDICADA FECHA DE IMPRESION: FEB. 2013 HOJA: PRC-07 UNIVERSIDAD DE EL SALVADOR FACULTAD DE INGENIERIA Y ARQUITECTURA ESCUELA DE ARQUITECTURA PROPUESTA: CAMPO RECREATIVO PROPIETARIO: ALCALDIA MUNICIPAL DE CACAOPERA PRESENTAN: GUZMÁN GONZALEZ, WILFREDO EDUARDO LOPEZ CRUZ, BORIS ALFREDO LOPEZ RIVAS, PATRICIA CAROLINA CONTENIDO: PLANTA ARQUITECTÓNICA Y PLANTA DE TECHOS DE ADMINISTRACIÓN CAMPO RECREATIVO
  • 63.
    RECEPCION GERENTE CAFE SALA DE REUNIONES AREA DE MANTENIMIENTO GENERAL CONTABILIDAD PLANTADE INSTALACIONES ELECTRICAS PARA ADMINISTRACIÓN CAMPO RECREATIVO esc. :100 8.04 9.11 4.56 3.48 8.04 A B C D A B C D 1 2 3 4 1 2 3 4 $ $ $ $ $ $₂ $ 2 2 2 2 2 2 2 2 2 2 2 2 2.15 3.00 8.04 2.89 A C DB 3.00 1.25 4.40 ELEVACIÓN NORTE DE ADMINISTRACIÓN PARA CAMPO RECREATIVO esc. 1:75 2.15 3.00 8.04 2.89 A C DB 3.15 1.00 4.00 CONTABILIDAD RECEPCION GERENTE SECCION A-A DE ADMINISTRACIÓN PARA PARQUERECREATIVO esc. 1:75 ESCALA: LA INDICADAS FECHA DE IMPRESION: FEB. 2013 HOJA: PRC-08 UNIVERSIDAD DE EL SALVADOR FACULTAD DE INGENIERIA Y ARQUITECTURA ESCUELA DE ARQUITECTURA PROPUESTA: CAMPO RECREATIVO PROPIETARIO: ALCALDIA MUNICIPAL DE CACAOPERA PRESENTAN: GUZMÁN GONZALEZ, WILFREDO EDUARDO LOPEZ CRUZ, BORIS ALFREDO LOPEZ RIVAS, PATRICIA CAROLINA CONTENIDO: PLANTA DE INSTALACIONES ELECTRICAS PARA ADMINISTRACIÓN PARQUE RECREATIVO ELEVACION NORTE DE ADMINISTRACION PARQUE RECREATIVO
  • 64.
    RECEPCION GERENTE CAFE SALA DE REUNIONES AREA DE MANTENIMIENTO GENERAL CONTABILIDAD PLANTADE INSTALACIONES HIDRAULICAS PARA ADMINISTRACIÓN CAMPO RECREATIVO esc. 1:75 8.04 9.11 4.56 3.48 8.04 A B C D A B C D 1 2 3 4 1 2 3 4 Hacia planta de tratamientos de aguas Codo de 90° Tee Sifon Codo de 45° Grifo Tuberia de aguas negras 160 psi Tuberia de abastecimiento de agua potable Ø 1 2" 315 psi Simbologia para Instalaciones Hidraulicas Simbologia para Instalaciones Electricas 2 $ $2 Luminaria 100w Toma corriente sencillo Toma corriente doble Interruptor sencillo Interruptor doble Caja para termicos Conductor THHN # 12 Conductor THHN # 10 2.90 0.801.20 2.20 DETALLE DE PLANTA DE TRATAMIENTO DE AGUAS Esc. :100 ESCALA: LA INDICADA FECHA DE IMPRESION: FEB. 2013 HOJA: PRC-09 UNIVERSIDAD DE EL SALVADOR FACULTAD DE INGENIERIA Y ARQUITECTURA ESCUELA DE ARQUITECTURA PROPUESTA: CAMPO RECREATIVO PROPIETARIO: ALCALDIA MUNICIPAL DE CACAOPERA PRESENTAN: GUZMÁN GONZALEZ, WILFREDO EDUARDO LOPEZ CRUZ, BORIS ALFREDO LOPEZ RIVAS, PATRICIA CAROLINA CONTENIDO: PLANTA DE INSTALACIONES HIDRAULICAS PARA ADMINISTRACIÓN CAMPO RECREATIVO SIMBOLOGIA
  • 65.
    PROYECCION DE ALERO PROYECCIONDE ALERO PROYECCIONDEALERO PROYECCIONDEALERO 2.28 1.80 2.28 6.35 4.15 1.60 1.35 1.20 4.15 PLANTA ARQUITECTÓNICA DE SERVICIOS SANITARIOS PARQUE RECREATIVO esc. 1:75 4.35 6.55 A B A B 1 2 3 4 1 2 3 4 AA 2.28 1.80 2.28 6.35 4.15 1.60 1.35 1.20 4.15 PLANTA DE TECHOS DE SERVICIOS SANITARIOS PARQUE RECREATIVO esc. 1:75 4.35 6.55 30% 30% 30% 30% A B A B 1 2 3 4 1 2 3 4 A ESCALA: LA INDICADA FECHA DE IMPRESION: FEB. 2013 HOJA: PRC-10 UNIVERSIDAD DE EL SALVADOR FACULTAD DE INGENIERIA Y ARQUITECTURA ESCUELA DE ARQUITECTURA PROPUESTA: CAMPO RECREATIVO PROPIETARIO: ALCALDIA MUNICIPAL DE CACAOPERA PRESENTAN: GUZMÁN GONZALEZ, WILFREDO EDUARDO LOPEZ CRUZ, BORIS ALFREDO LOPEZ RIVAS, PATRICIA CAROLINA CONTENIDO: PLANTA ARQUITECTÓNICA Y PLANTA DE TECHOS DE SERVICIOS SANITARIOS CAMPO RECREATIVO
  • 66.
    2.15 3.00 8.04 2.89 A CDB 3.15 1.00 4.00 CONTABILIDAD RECEPCION SECCION PARA INSTALACIONES DE TRATAMIENTO DE AGUAS PARA ADMINISTRACIÓN PARA CAMPO RECREATIVO Esc. 1:75 CAFÉ 2.281.802.28 6.35 1234 3.00 3.97 SECCIÓN A-A DE SERVICIOS SANITARIOS CAMPO RECREATIVO Esc. 1:75 ESCALA: LA INDICADAS FECHA DE IMPRESION: FEB. 2013 HOJA: PRC-11 UNIVERSIDAD DE EL SALVADOR FACULTAD DE INGENIERIA Y ARQUITECTURA ESCUELA DE ARQUITECTURA PROPUESTA: CAMPO RECREATIVO PROPIETARIO: ALCALDIA MUNICIPAL DE CACAOPERA PRESENTAN: GUZMÁN GONZALEZ, WILFREDO EDUARDO LOPEZ CRUZ, BORIS ALFREDO LOPEZ RIVAS, PATRICIA CAROLINA CONTENIDO: SECCION PARA INSTALACIONES DE TRATAMIENTO DE AGUAS
  • 67.
    4.15 1.60 1.35 1.20 4.15 PLANTAINSTALACIONES HIDRAULICAS DE SERVICIOS SANITARIOS CAMPO RECREATIVO esc. 1:75 4.35 6.55 A B A B 1 2 3 4 .. . . .. . . .. . . .. . . 3.30 2.10 0.66 1.80 ESCALA: LA INDICADA FECHA DE IMPRESION: FEB. 2013 HOJA: PRC-12 UNIVERSIDAD DE EL SALVADOR FACULTAD DE INGENIERIA Y ARQUITECTURA ESCUELA DE ARQUITECTURA PROPUESTA: CAMPO RECREATIVO PROPIETARIO: ALCALDIA MUNICIPAL DE CACAOPERA PRESENTAN: GUZMÁN GONZALEZ, WILFREDO EDUARDO LOPEZ CRUZ, BORIS ALFREDO LOPEZ RIVAS, PATRICIA CAROLINA CONTENIDO: PLANTA DE INSTALACIONES HIDRAULICAS DE SERVICIOS SANITARIOS CAMPO RECREATIVO
  • 68.
    Camara de Sedimentación Camara deDosificación Pozo de Absorción Tubo de PVC 160 psi Ø 4" Tubo de PVC 160 psi Ø 4" Tuberia de PVC 315 psi Ø 1 2", para Abastecimiento de Agua Potable ELEVACION DE INSTALACIONES HIDRAULICAS DE SERVICIOS SANITARIOSCAMPO RECREATIVO SIN ESCALA Piedra Cuarta Grava Arena Tubo de pvc Ø 4" ESCALA: LA INDICADA FECHA DE IMPRESION: FEB. 2013 HOJA: PRC-13 UNIVERSIDAD DE EL SALVADOR FACULTAD DE INGENIERIA Y ARQUITECTURA ESCUELA DE ARQUITECTURA PROPUESTA: CAMPO RECREATIVO PROPIETARIO: ALCALDIA MUNICIPAL DE CACAOPERA PRESENTAN: GUZMÁN GONZALEZ, WILFREDO EDUARDO LOPEZ CRUZ, BORIS ALFREDO LOPEZ RIVAS, PATRICIA CAROLINA CONTENIDO: ELEVACION DE INSTALACIONES HIDRAULICAS DE SERVICIOS SANITARIOS CAMPO RECREATIVO
  • 69.
    ESCALA: LA INDICADA FECHA DEIMPRESION: FEB. 2013 HOJA: PRC-14 UNIVERSIDAD DE EL SALVADOR FACULTAD DE INGENIERIA Y ARQUITECTURA ESCUELA DE ARQUITECTURA PROPUESTA: CAMPO RECREATIVO PROPIETARIO: ALCALDIA MUNICIPAL DE CACAOPERA PRESENTAN: GUZMÁN GONZALEZ, WILFREDO EDUARDO LOPEZ CRUZ, BORIS ALFREDO LOPEZ RIVAS, PATRICIA CAROLINA CONTENIDO: PLANO DE CONJUNTO DE CAFETERIA 30 % 30 % 30% 30% 30% 30% 30 % 30 % PLANTA DE CONJUNTO DE CAFETERIA PARA EL CAMPO RECREATIVO ESC. 1:1250
  • 70.
    CAJA DESPACHO COCINA Y PREPARACION ALACENA ÁREADE MESAS ÁREA DE MESAS 4 5 6 7 A B PLANTA ARQUITECTONICA DE CAFETERIA PARA PROPUESTA ARQUITECTONICA DE CAMPO RECREATIVO EN CACAOPERA esc. 1:100 4.58 4.58 C 9.15 4.00 4.00 4.00 RECEPCIÓN DE ALIMENTOS A B C 4 5 6 7 12.00 GD E F H 2.07 2.25 2.30 S.S. HOMBRES S.S. S.S. DAMAS GD E F H 1 2 3 1 2 3 2.70 1.45 4.15 6.62 DISCAPACITADOS ESCALA: LA INDICADA FECHA DE IMPRESION: FEB. 2013 HOJA: PRC-15 UNIVERSIDAD DE EL SALVADOR FACULTAD DE INGENIERIA Y ARQUITECTURA ESCUELA DE ARQUITECTURA PROPUESTA: CAMPO RECREATIVO PROPIETARIO: ALCALDIA MUNICIPAL DE CACAOPERA PRESENTAN: GUZMÁN GONZALEZ, WILFREDO EDUARDO LOPEZ CRUZ, BORIS ALFREDO LOPEZ RIVAS, PATRICIA CAROLINA CONTENIDO: PLANTA ARQUITECTONICA DE CAFETERIA
  • 71.
    3.00 1.68 4.00 4.00 4.00 14.40 1.201.20 4.68 4567 9.15 AB C 3.00 1.68 ESCALA: 1: 75 FECHA DE IMPRESION: FEB. 2013 HOJA: PRC-16 UNIVERSIDAD DE EL SALVADOR FACULTAD DE INGENIERIA Y ARQUITECTURA ESCUELA DE ARQUITECTURA PROPUESTA: PROPIETARIO: ALCALDIA MUNICIPAL DE CACAOPERA PRESENTAN: GUZMÁN GONZALEZ, WILFREDO EDUARDO LOPEZ CRUZ, BORIS ALFREDO LOPEZ RIVAS, PATRICIA CAROLINA CONTENIDO: ELEVACIONES CAMPO RECREATIVO ELEVACION OESTE DE CAFETERIA (CAMPO RECREATIVO) ESC. 1:75 ELEVACION SUR DE CAFETERIA PARA EL CAMPO RECREATIVO ESC. 1:75
  • 72.
    ESCALA: LA INDICADA FECHA DEIMPRESION: FEB. 2013 HOJA: PRC-17 UNIVERSIDAD DE EL SALVADOR FACULTAD DE INGENIERIA Y ARQUITECTURA ESCUELA DE ARQUITECTURA PROPUESTA: CAMPO RECREATIVO PROPIETARIO: ALCALDIA MUNICIPAL DE CACAOPERA PRESENTAN: GUZMÁN GONZALEZ, WILFREDO EDUARDO LOPEZ CRUZ, BORIS ALFREDO LOPEZ RIVAS, PATRICIA CAROLINA CONTENIDO: PERSPECTIVAS DE CAFETERIA PERSPECTIVA DE CAFETERÍA, PARA PROPUESTA ARQUITECTÓNICA DEL CAMPO RECREATIVO PERSPECTIVA DE CAFETERÍA, PARA PROPUESTA ARQUITECTÓNICA DEL CAMPO RECREATIVO
  • 73.
    CAJA DESPACHO COCINA Y PREPARACION ALACENA ÁREADE MESAS ÁREA DE MESAS 4 5 6 7 A B PLANTA DE INSTALACIONES ELECTRICAS DE CAFETERIA PARA PROPUESTA ARQUITECTONICA DE CAMPO RECREATIVO EN CACAOPERA esc. 1:100 4.58 4.58 C 9.15 4.00 4.00 4.00 RECEPCIÓN DE ALIMENTOS A B C 4 5 6 7 12.00 $ 2 $ $ $ 2 2 2 2 22 ESCALA: LA INDICADA FECHA DE IMPRESION: FEB. 2013 HOJA: PRC-18 UNIVERSIDAD DE EL SALVADOR FACULTAD DE INGENIERIA Y ARQUITECTURA ESCUELA DE ARQUITECTURA PROPUESTA: PROPIETARIO: ALCALDIA MUNICIPAL DE CACAOPERA PRESENTAN: GUZMÁN GONZALEZ, WILFREDO EDUARDO LOPEZ CRUZ, BORIS ALFREDO LOPEZ RIVAS, PATRICIA CAROLINA CONTENIDO: PLANTA DE INSTALACIONES ELECTRICAS DE CAFETERIA CAMPO RECREATIVO
  • 74.
    CAJA DESPACHO COCINA Y PREPARACION ALACENA ÁREADE MESAS ÁREA DE MESAS 4 5 6 7 A B PLANTA DE INSTALACIONES HIDRAULICAS DE CAFETERIA PARA PROPUESTA ARQUITECTONICA DE CAMPO RECREATIVO EN CACAOPERA e sc.1:125 4.58 4.58 C 4.00 4.00 4.00 RECEPCIÓN DE ALIMENTOS 4 5 6 7 12.00 Caja para Estanque Tubo de Ø 2" hacia Cajas de tratamiento de Aguas Grises2.90 0.80 1.20 2.20 Plantas Acuáticas (papiro, carrizo, tifa, lirio acuático) Plantas Acuáticas (papiro, carrizo, tifa, lirio acuático) Trampa de Grasas Caja de Tratamientos Codo de 90° Tee Sifon Codo de 45° Grifo Tuberia de abastecimiento de agua potable Ø 1 2" 315 psi Tuberia de aguas negras 160 psi Simbologia para Instalaciones Hidraulicas S.S. HOMBRES S.S. S.S. DAMAS GD E F H 1 2 3 1 2 3 2.70 1.45 4.15 6.62 DISCAPACITADOS .. .. .. .. .. .. .. .. 3.30 2.10 0.661.80 ESCALA: LA INDICADA FECHA DE IMPRESION: FEB. 2013 HOJA: PRC-19 UNIVERSIDAD DE EL SALVADOR FACULTAD DE INGENIERIA Y ARQUITECTURA ESCUELA DE ARQUITECTURA PROPUESTA: CAMPO RECREATIVO PROPIETARIO: ALCALDIA MUNICIPAL DE CACAOPERA PRESENTAN: GUZMÁN GONZALEZ, WILFREDO EDUARDO LOPEZ CRUZ, BORIS ALFREDO LOPEZ RIVAS, PATRICIA CAROLINA CONTENIDO: PLANTA DE INSTALACIONES HIDRAULICAS DE CAFETERIA
  • 75.
    A LOCAL COMERCIAL 1LOCAL COMERCIAL 2 LOCAL COMERCIAL 3 B C D F A B C D F 1 2 3 4.20 4.20 4.20 4.20 17.00 4.20 2.85 7.05 PLANTA ARQUITECTÓNICA DE LOCALES COMERCIALES, PARA PROPUESTA DE PARQUE RECREATIVO esc. 1:75 LOCAL COMERCIAL 4 1 2 3 4.20 2.85 7.05 ESCALA: LA INDICADA FECHA DE IMPRESION: FEB. 2013 HOJA: PRC-20 UNIVERSIDAD DE EL SALVADOR FACULTAD DE INGENIERIA Y ARQUITECTURA ESCUELA DE ARQUITECTURA PROPUESTA: CAMPO RECREATIVO PROPIETARIO: ALCALDIA MUNICIPAL DE CACAOPERA PRESENTAN: GUZMÁN GONZALEZ, WILFREDO EDUARDO LOPEZ CRUZ, BORIS ALFREDO LOPEZ RIVAS, PATRICIA CAROLINA CONTENIDO: PLANTA ARQUITECTONICA DE LOCALES COMERCIALES
  • 76.
    PLANTA DE TECHOSDE LOCALES COMERCIALES, PARA PROPUESTA DE PARQUE RECREATIVO esc. 1:75 30% 30% 30% 30% A B C D F A B C D F 1 2 3 17.00 7.05 1 2 3 ESCALA: LA INDICADA FECHA DE IMPRESION: FEB. 2013 HOJA: PRC-21 UNIVERSIDAD DE EL SALVADOR FACULTAD DE INGENIERIA Y ARQUITECTURA ESCUELA DE ARQUITECTURA PROPUESTA: CAMPO RECREATIVO PROPIETARIO: ALCALDIA MUNICIPAL DE CACAOPERA PRESENTAN: GUZMÁN GONZALEZ, WILFREDO EDUARDO LOPEZ CRUZ, BORIS ALFREDO LOPEZ RIVAS, PATRICIA CAROLINA CONTENIDO: PLANO DE TECHO DE LOCALES COMERCIALES
  • 77.
    A B CD F 4.20 4.20 3.00 4.41 1.41 ELEVACIÓN NORTE DE LOCALES COMERCIALES, PARA PROPUESTA DE PARQUE RECREATIVO esc. 1:75 4.20 4.20 16.80 30% ESCALA: 1: 75 FECHA DE IMPRESION: FEB. 2013 HOJA: PRC-22 UNIVERSIDAD DE EL SALVADOR FACULTAD DE INGENIERIA Y ARQUITECTURA ESCUELA DE ARQUITECTURA PROPUESTA: PROPIETARIO: ALCALDIA MUNICIPAL DE CACAOPERA PRESENTAN: GUZMÁN GONZALEZ, WILFREDO EDUARDO LOPEZ CRUZ, BORIS ALFREDO LOPEZ RIVAS, PATRICIA CAROLINA CONTENIDO: ELEVACION DE LOS LOCALES COMERCIALES CAMPO RECREATIVO
  • 78.
    A LOCAL COMERCIAL 1LOCAL COMERCIAL 2 LOCAL COMERCIAL 3 B C D F A B C D F 1 2 3 4.20 4.20 4.20 4.20 17.00 4.20 2.85 7.05 PLANTA INSTALACIONES ELECTRICAS DE LOCALES COMERCIALES, PARA PROPUESTA DE PARQUE RECREATIVO esc. 1:75 LOCAL COMERCIAL 4 1 2 3 4.20 2.85 7.05 $ 2 2 2 2 2 2 2 2 2 2 2 2 $ $ $ Simbologia para Instalaciones Electricas 2 $ $2 Luminaria 100w Toma corriente sencillo Toma corriente doble Interruptor sencillo Interruptor doble Caja para termicos Conductor THHN # 12 Conductor THHN # 10 Reflector ESCALA: LA INDICADA FECHA DE IMPRESION: FEB. 2013 HOJA: PRC-23 UNIVERSIDAD DE EL SALVADOR FACULTAD DE INGENIERIA Y ARQUITECTURA ESCUELA DE ARQUITECTURA PROPUESTA: CAMPO RECREATIVO PROPIETARIO: ALCALDIA MUNICIPAL DE CACAOPERA PRESENTAN: GUZMÁN GONZALEZ, WILFREDO EDUARDO LOPEZ CRUZ, BORIS ALFREDO LOPEZ RIVAS, PATRICIA CAROLINA CONTENIDO: PLANTA ELECTRICA DE LOCALES COMERCIALES
  • 79.
    12.00 4.60 6.50 A E 1 1.70 2 3 A E 1 2 3 PLANTAARQUITECTÓNICA DE SERVICIOS SANITARIOS Y DUCHAS PARA PARQUE RECREATIVO esc. 1:75 12.20 6.56 ESCALA: LA INDICADA FECHA DE IMPRESION: FEB. 2013 HOJA: PRC-24 UNIVERSIDAD DE EL SALVADOR FACULTAD DE INGENIERIA Y ARQUITECTURA ESCUELA DE ARQUITECTURA PROPUESTA: CAMPO RECREATIVO PROPIETARIO: ALCALDIA MUNICIPAL DE CACAOPERA PRESENTAN: GUZMÁN GONZALEZ, WILFREDO EDUARDO LOPEZ CRUZ, BORIS ALFREDO LOPEZ RIVAS, PATRICIA CAROLINA CONTENIDO: PLANTA ARQUITECTÓNICA DE SERVICIOS SANITARIOS Y DUCHAS PARA PARQUE RECREATIVO
  • 80.
    12.00 4.60 6.50 A E 1 2 3 A E 1 2 3 PLANTADE TECHOS DE SERVICIOS SANITARIOS Y DUCHAS PARA PARQUE RECREATIVO esc. 1:75 12.20 6.56 ESCALA: LA INDICADA FECHA DE IMPRESION: FEB. 2013 HOJA: PRC-25 UNIVERSIDAD DE EL SALVADOR FACULTAD DE INGENIERIA Y ARQUITECTURA ESCUELA DE ARQUITECTURA PROPUESTA: CAMPO RECREATIVO PROPIETARIO: ALCALDIA MUNICIPAL DE CACAOPERA PRESENTAN: GUZMÁN GONZALEZ, WILFREDO EDUARDO LOPEZ CRUZ, BORIS ALFREDO LOPEZ RIVAS, PATRICIA CAROLINA CONTENIDO: PLANTA DE TECHOS DE SERVICIOS SANITARIOS Y DUCHAS PARA PARQUE RECREATIVO 30% 30% 30% 30%
  • 81.
    4.60 6.50 A E 1 1.70 2 3 A E 1 2 3 PLANTADE INSTALACIONES HIDRAULICAS DE SERVICIOS SANITARIOS Y DUCHAS PARA PARQUE RECREATIVO esc. 1:100 12.20 6.56 Tuberia de pvc Ø2"160 psi Tuberia de pvc Ø4"160 psi Tuberia de pvc Ø4"160 psi Tuberia de pvc Ø6"160 psi Hacia fosa septica . . .. . . .. . . .. . . .. Pozo de Absorción Tubo de PVC 160 psi Ø4" Camara de Sedimentación Camara de Dosificación 3.30 2.10 0.66 1.80 Tubo de PVC 160 psi Ø 4" Tuberia de pvc Ø6"160 psi De tuberia gral de baños ESCALA: LA INDICADAS FECHA DE IMPRESION: FEB. 2013 HOJA: PRC-26 UNIVERSIDAD DE EL SALVADOR FACULTAD DE INGENIERIA Y ARQUITECTURA ESCUELA DE ARQUITECTURA PROPUESTA: CAMPO RECREATIVO PROPIETARIO: ALCALDIA MUNICIPAL DE CACAOPERA PRESENTAN: GUZMÁN GONZALEZ, WILFREDO EDUARDO LOPEZ CRUZ, BORIS ALFREDO LOPEZ RIVAS, PATRICIA CAROLINA CONTENIDO: PLANTA DE INSTALACIONES HIDRAULICAS DE SERVICIOS SANITARIOS Y DUCHAS PARA CAMPO RECREATIVO DETALLE DE FOSA SEPTICA SIN ESCALA DETALLE DE FOSA SEPTICA
  • 83.
    ESCALA: LA INDICADA FECHA DEIMPRESION: FEB. 2013 HOJA: PRC-28 UNIVERSIDAD DE EL SALVADOR FACULTAD DE INGENIERIA Y ARQUITECTURA ESCUELA DE ARQUITECTURA PROPUESTA: CAMPO RECREATIVO PROPIETARIO: ALCALDIA MUNICIPAL DE CACAOPERA PRESENTAN: GUZMÁN GONZALEZ, WILFREDO EDUARDO LOPEZ CRUZ, BORIS ALFREDO LOPEZ RIVAS, PATRICIA CAROLINA CONTENIDO: DETALLE DE LUMINARIA EXTERIOR
  • 84.
    206 PROPUESTA “D”, CASAMUNICIPAL DE LA CULTURA Planta arq. actual PRB-01 Planta de techos actual PRB-02 Secciones actuales PRB-03 Planta de intervención PRB-04 Planta arq. primer nivel PRA-05 Planta arq. segundo nivel PRA-06 Planta de techos PRA-07 Secciones PRA-08 Elevaciones y secciones PRD-09 Perspectiva PRA-10 Planta de fundaciones PRB-11 Planta estruct. segundo nivel PRB-12 Planta estruct. de techos PRB-13 Detalles estructurales PRB-14 Planta eléctrica primer nivel PRB-15 Planta eléctrica segundo nivel PRB-16 Planta hidráulica PRB-17
  • 85.
    ESCALA: 1 : 200 FECHADE IMPRESION: FEB. 2013 HOJA: PRD-01 UNIVERSIDAD DE EL SALVADOR FACULTAD DE INGENIERIA Y ARQUITECTURA ESCUELA DE ARQUITECTURA PROPUESTA: CASA MUNICIPAL DE LA CULTURA PROPIETARIO: ALCALDIA MUNICIPAL DE CACAOPERA PRESENTAN: GUZMÁN GONZALEZ, WILFREDO EDUARDO LOPEZ CRUZ, BORIS ALFREDO LOPEZ RIVAS, PATRICIA CAROLINA CONTENIDO: PLANTA ARQUITECTONICA ACTUAL N.P.T.:0.0-0.03 m Servicios Sanitarios N.P.T.:0.0-0.20 m 1 2 2.21m5.65m1.60m A B 3.30m COLINDANTE COLINDANTE Jardín ACCESO N.P.T.:0.0-2.20 m Tarima N.P.T.:0.0+0.60 m Area de usos multiples N.P.T.:0.0+0.0 m Biblioteca Bodega N.P.T.:0.0+0.37 m Admin. A-A 3 N.P.T.:0.0-0.20 m Árbol de Mango Existente 3,97m B-B D N.P.T.:0.0-0.80m C E 6 Mini Museo Sala 2 Mini Museo Sala 1 5.22m 5.10 2,35m 2.34m 4 5 6.50m4.57m 4.96m 4.57m4.57m 4.60m CALLE DOBLE SENTIDO Planta Arquitectonica Actual
  • 86.
    ESCALA: 1 : 200 FECHADE IMPRESION: FEB. 2013 HOJA: PRD-02 UNIVERSIDAD DE EL SALVADOR FACULTAD DE INGENIERIA Y ARQUITECTURA ESCUELA DE ARQUITECTURA PROPUESTA: CASA MUNICIPAL DE LA CULTURA PROPIETARIO: ALCALDIA MUNICIPAL DE CACAOPERA PRESENTAN: GUZMÁN GONZALEZ, WILFREDO EDUARDO LOPEZ CRUZ, BORIS ALFREDO LOPEZ RIVAS, PATRICIA CAROLINA CONTENIDO: PLANTA DE TECHOS ACTUAL COLINDANTE CALLE DOBLE SENTIDO B-B ACCESO N.P.T.:0.0-2.20 m Árbol de Mango Existente Árbol de Mango Existente Árbol de Mango Existente 30% 30% Cumbrera 10% Cumbrera 10% 10% 3 C E 6 4 5 2 1 A B A-A Jardín D 10% COLINDANTE Planta de Techos Actual CASAS
  • 87.
    ESCALA: 1 : 125 FECHADE IMPRESION: FEB. 2013 HOJA: PRD-03 UNIVERSIDAD DE EL SALVADOR FACULTAD DE INGENIERIA Y ARQUITECTURA ESCUELA DE ARQUITECTURA PROPUESTA: CASA MUNICIPAL DE LA CULTURA PROPIETARIO: ALCALDIA MUNICIPAL DE CACAOPERA PRESENTAN: GUZMÁN GONZALEZ, WILFREDO EDUARDO LOPEZ CRUZ, BORIS ALFREDO LOPEZ RIVAS, PATRICIA CAROLINA CONTENIDO: SECCION A-A ACTUAL DEL MUSEO Sección A-A Actual de la Casa Municipal de la Cultura Sección B-B Actual de la Casa Municipal de la Cultura 1 3.24m 2.67m NPT 0-0.20 m 3 NPT 0-0.00 m 7.86m 4.31m 4 NPT 0-0.20 m NPT 0-0.80 m NPT 0-2.20 m 30% 6 3.65m 3.48m 11.07m SECCION B-B ACTUAL DEL MUSEO A B 3.30m 4.31m 2.16m NPT 0-0.20 m NPT 0-0.00 m 3,48m 2,67m Mini Museo Sala 1 NPT 0-0.80 m D 10% C 17.93 m E 2.34 m 2.23 m 2.73 m
  • 88.
    ESCALA: 1 : 200 FECHADE IMPRESION: FEB. 2013 HOJA: PRD-04 UNIVERSIDAD DE EL SALVADOR FACULTAD DE INGENIERIA Y ARQUITECTURA ESCUELA DE ARQUITECTURA PROPUESTA: CASA MUNICIPAL DE LA CULTURA PROPIETARIO: ALCALDIA MUNICIPAL DE CACAOPERA PRESENTAN: GUZMÁN GONZALEZ, WILFREDO EDUARDO LOPEZ CRUZ, BORIS ALFREDO LOPEZ RIVAS, PATRICIA CAROLINA CONTENIDO: PLANTA DE INTERVENCION COLINDANTE CALLE DOBLE SENTIDO ACCESO N.P.T.:0.0-2.20 m Árbol de Mango Existente Árbol de Mango Existente Árbol de Mango Existente COLINDANTE CASAS PARED A DEMOLER ÁREA A ENCEMENTAR PARED A DEMOLER PARED EXISTENTE A CONSERVAR PARED A DEMOLER PARED A DEMOLERN.P.T.:0.0-0.20 m PARED A DEMOLER N.P.T.:0.0+0.07 m Bodega N.P.T.:0.0+0.37 m PISOS A DEMOLER PARED A DEMOLER PARED A DEMOLER PARED EXISTENTE A CONSERVAR PARED A DEMOLER COLUMNA A REMOVER PARED A DEMOLER Servicios Sanitarios Tarima N.P.T.:0.0+0.60 m PARED A DEMOLER 1 2 3 Mini Museo Sala 2 Paredes a aumentar altura Paredes a aumentar altura COLUMNA A REMOVER N.P.T.:0.0-0.80m Mini Museo Sala 1 COLUMNA A REMOVER C E 6 4 5 Paredes a aumentar altura PARED EXISTENTE A CONSERVARArea de usos multiples N.P.T.:0.0+0.0 m PARED EXISTENTE A CONSERVAR A B N.P.T.:0.0-0.03 m PARED A DEMOLER D Planta de Intervención
  • 89.
    ESCALA: LA INDICADA FECHA DEIMPRESION: FEB. 2013 HOJA: PRD-05 UNIVERSIDAD DE EL SALVADOR FACULTAD DE INGENIERIA Y ARQUITECTURA ESCUELA DE ARQUITECTURA PROPUESTA: PROPIETARIO: ALCALDIA MUNICIPAL DE CACAOPERA PRESENTAN: GUZMÁN GONZALEZ, WILFREDO EDUARDO LOPEZ CRUZ, BORIS ALFREDO LOPEZ RIVAS, PATRICIA CAROLINA CONTENIDO: Sube10% Salón de usos múltiples NPT 0+0.00 m NPT 0+0.60 m Escenario NPT 0-0.20 m NPT 0-0.80 m Sube Bodega inferior NPT 0+0.07 m NPT 0+0.37 m Área de carga y descarga Sube10% NPT 0+0.00 m Sube 10% Sube 10% Sube10% S.S. Hombre S.S. Mujer S.S. Discapacitado Jardín Jardín Banca NPT 0-0.20 m 6 7 8 4.60m ESCALA: LA INDICADA FECHA DE IMPRESION: HOJA: UNIVERSIDAD DE EL SALVADOR FACULTAD DE INGENIERIA Y ARQUITECTURA ESCUELA DE ARQUITECTURA PROPUESTA: CASA MUNICIPAL DE LA CULTURA PROPIETARIO: ALCALDIA MUNICIPAL DE CACAOPERA PRESENTAN: GUZMÁN GONZALEZ, WILFREDO EDUARDO LOPEZ CRUZ, BORIS ALFREDO LOPEZ RIVAS, PATRICIA CAROLINA CONTENIDO: PLANTA ARQUITECTONICA PRIMER NIVEL DE LA AMPLIAICON DE LA CASA DE LA CULTURA Planta Arquitectonica de primer nivel de ampliación de la Casa de la Cultura NPT 0+0.03 m Ludoteca Sala 2 Ludoteca Sala 1 S.S. Mujer 6 7 8 4.60m6.50m ACCESO N.P.T.:0.0-2.20 mN.P.T.:0.0-2.20 m C E6.30 m COLINDANTE CALLE DOBLE SENTIDO COLINDANTE 2.18m4.50m1.19m1.46m 2 3 4 5 1 4.71 m 14.68 m 3.25 mA B D F G 1.90 m C B A Esc 1 : 200
  • 90.
    ESCALA: LA INDICADA FECHA DEIMPRESION: FEB. 2013 HOJA: PRD-06 UNIVERSIDAD DE EL SALVADOR FACULTAD DE INGENIERIA Y ARQUITECTURA ESCUELA DE ARQUITECTURA PROPUESTA: CASA MUNICIPAL DE LA CULTURA PROPIETARIO: ALCALDIA MUNICIPAL DE CACAOPERA PRESENTAN: GUZMÁN GONZALEZ, WILFREDO EDUARDO LOPEZ CRUZ, BORIS ALFREDO LOPEZ RIVAS, PATRICIA CAROLINA CONTENIDO: Planta Arquitectonica de segundo nivel de ampliación de la Casa de la Cultura Esc 1 : 200 NPT 0+3.40 m NPT 0+3.40 m Baja Bodega Biblioteca Sala de Lectura Área de Cómputo Nicho NPT 0+3.40 m 4.71 m 14.68 m 3.25 m 2.18m4.50m1.19m1.46m Directora COLINDANTE ACCESO N.P.T.:0.0-2.20 m CALLE DOBLE SENTIDO COLINDANTE 2 3 4 5 C B A 30% 30% Cumbrera A B D ESCALA: LA INDICADA FECHA DE IMPRESION: HOJA: UNIVERSIDAD DE EL SALVADOR FACULTAD DE INGENIERIA Y ARQUITECTURA ESCUELA DE ARQUITECTURA PROPUESTA: PROPIETARIO: ALCALDIA MUNICIPAL DE CACAOPERA PRESENTAN: GUZMÁN GONZALEZ, WILFREDO EDUARDO LOPEZ CRUZ, BORIS ALFREDO LOPEZ RIVAS, PATRICIA CAROLINA CONTENIDO: PLANTA ARQUITECTONICA SEGUNDO NIVEL DE AMPLIACION DE LA CASA DE LA CULTURA Esc 1 : 200 N.P.T.:0.0-2.20 m 30% 30% Cumbrera 30 % F C E6.30 m G 1.90 m 1
  • 91.
    ESCALA: LA INDICADA FECHA DEIMPRESION: FEB. 2013 HOJA: PRD-07 UNIVERSIDAD DE EL SALVADOR FACULTAD DE INGENIERIA Y ARQUITECTURA ESCUELA DE ARQUITECTURA PROPUESTA: CASA MUNICIPAL DE LA CULTURA PROPIETARIO: ALCALDIA MUNICIPAL DE CACAOPERA PRESENTAN: GUZMÁN GONZALEZ, WILFREDO EDUARDO LOPEZ CRUZ, BORIS ALFREDO LOPEZ RIVAS, PATRICIA CAROLINA CONTENIDO: Planta de conjunto de Propuesta de ampliación de la Casa de la Cultura Esc 1 : 200 45 % Cumbrera 45 % 30 % 30% 30% Cumbrera 45 % 45 % COLINDANTE CALLE DOBLE SENTIDO ACCESO N.P.T.:0.0-2.20 m Jardín CASAS COLINDANTE C B A PLANTA DE CONJUNTO DE PROPUESTA DE AMPLIAICON DE LA CASA DE LA CULTURA N.P.T.:0.0-2.20 m
  • 92.
    ESCALA: LA INDICADA FECHA DEIMPRESION: FEB. 2013 HOJA: PRD-08 UNIVERSIDAD DE EL SALVADOR FACULTAD DE INGENIERIA Y ARQUITECTURA ESCUELA DE ARQUITECTURA PROPUESTA: CASA MUNICIPAL DE LA CULTURA PROPIETARIO: ALCALDIA MUNICIPAL DE CACAOPERA PRESENTAN: GUZMÁN GONZALEZ, WILFREDO EDUARDO LOPEZ CRUZ, BORIS ALFREDO LOPEZ RIVAS, PATRICIA CAROLINA CONTENIDO: SECCION A-A DE PROPUESTA DE AMPLIACION DE LA CASA DE LA CULTURA 45 % Sección A-A de Propuesta de ampliación de la Casa de la Cultura Sección B-B de Propuesta de ampliación de la Casa de la Cultura Esc 1 : 125 Esc 1 : 125 SECCION B-B DE PROPUESTA DE AMPLIACION DE LA CASA DE LA CULTURA 3.28m3,8m0,15m NPT 0+3.40 m 6,85m NPT 0+0.00 m NPT 0+0.60 m 3,8m NPT 0-0.03 m Cubierta de Teja de Barro cocido artesanal, con estructura metálica de Viga Maconver NPT 0-0.20 m NPT 0+0.80 m 7.05m2.50m A B F 3,45m 4.05m 3,57m 3,58m 7.05m2.50m A B F G
  • 93.
    ESCALA: LA INDICADA FECHA DEIMPRESION: FEB. 2013 HOJA: PRD-09 UNIVERSIDAD DE EL SALVADOR FACULTAD DE INGENIERIA Y ARQUITECTURA ESCUELA DE ARQUITECTURA PROPUESTA: CASA MUNICIPAL DE LA CULTURA PROPIETARIO: ALCALDIA MUNICIPAL DE CACAOPERA PRESENTAN: GUZMÁN GONZALEZ, WILFREDO EDUARDO LOPEZ CRUZ, BORIS ALFREDO LOPEZ RIVAS, PATRICIA CAROLINA CONTENIDO: SECCION C-C DE PROPUESTA DE AMPLIACION DE LA CASA DE LA CULTURA Elevación Este de Propuesta de ampliación de la Casa de la Cultura Esc 1 : 125 Sección C-C de Propuesta de ampliación de la Casa de la Cultura Esc 1 : 125 ELEVACION ESTE DE PROPUESTA DE AMPLIACION DE LA CASA DE LA CULTURA Paredes de ladrillo de barro cocido artesanal adobado con repello al exterior Cubierta de Teja de Barro cocido artesanal, con estructura metálica de Viga Maconver 45 % 45 % Cubierta de Teja de Barro cocido artesanal, con estructura metálica de Viga Maconver 1.54m3.69m 7.05m2.5m 1.54m3.69m NPT 0+0.0 m NPT 0+3.40 m 7.41m 3.24m 3.39m 3.82m NPT 0+0.80 m NPT 0-0.20 m 45 % 1 4 5 1 4 5
  • 94.
    ESCALA: LA INDICADA FECHA DEIMPRESION: HOJA: UNIVERSIDAD DE EL SALVADOR FACULTAD DE INGENIERIA Y ARQUITECTURA ESCUELA DE ARQUITECTURA PROPUESTA: CASA MUNICIPAL DE LA CULTURA PROPIETARIO: ALCALDIA MUNICIPAL DE CACAOPERA PRESENTAN: GUZMÁN GONZALEZ, WILFREDO EDUARDO LOPEZ CRUZ, BORIS ALFREDO LOPEZ RIVAS, PATRICIA CAROLINA CONTENIDO: PERSPECTIVA ESCALA: LA INDICADA FECHA DE IMPRESION: FEB. 2013 HOJA: PRD-10 UNIVERSIDAD DE EL SALVADOR FACULTAD DE INGENIERIA Y ARQUITECTURA ESCUELA DE ARQUITECTURA PROPUESTA: PROPIETARIO: ALCALDIA MUNICIPAL DE CACAOPERA PRESENTAN: GUZMÁN GONZALEZ, WILFREDO EDUARDO LOPEZ CRUZ, BORIS ALFREDO LOPEZ RIVAS, PATRICIA CAROLINA PERSPECTIVA Perspectiva de La Casa de La Cultura
  • 95.
    ESCALA: LA INDICADA FECHA DEIMPRESION: FEB. 2013 HOJA: PRD-11 UNIVERSIDAD DE EL SALVADOR FACULTAD DE INGENIERIA Y ARQUITECTURA ESCUELA DE ARQUITECTURA PROPUESTA: CASA MUNICIPAL DE LA CULTURA PROPIETARIO: ALCALDIA MUNICIPAL DE CACAOPERA PRESENTAN: GUZMÁN GONZALEZ, WILFREDO EDUARDO LOPEZ CRUZ, BORIS ALFREDO LOPEZ RIVAS, PATRICIA CAROLINA CONTENIDO: PLANTA ESTRUCTURAL DE FUNDACIONES Z-1SF Existente SF Existente SF Existente SF Existente SF Existente SF Existente SF Existente SF Existente SF Existente SF Existente SF Existente SF Existente SF Existente T-1 SF-1 Z-1 Z-1 Z-1 Z-1Z-1Z-1Z-1Z-1 Z-1 Z-1 Z-1 C-1 C-2 C-2 C-2 C-2 C-2 C-2 C-2 C-2 C-2 C-2 C-1 C-1 C-1 C-1 C-1 C-1 C-1 C-1 C-1 C-1C-1C-1 SF Existente SF Existente SF Existente SF Existente SF Existente SF Existente SF Existente SF Existente SF Existente SF Existente SF Existente SF-1 SF-1 C-1 C-1 C-1 Z-1 Z-1 Z-1 SF-1 SF-1 SF-1 Planta Estructural Primer Nivel de la Casa de la Cultura CALLE DOBLE SENTIDOCASAS COLINDANTE COLINDANTE Jardín Area de usos multiples N.P.T.:0.0+0.0 m Tarima N.P.T.:0.0+0.60 m N.P.T.: 0.0-0.80m N.P.T.:0.0-0.80m N.P.T.: 0.0-0.80m N.P.T.:0.0+0.0 m N.P.T.:0.0-0.03 m N.P.T.:0.0-0.03 m N.P.T.:0.0-0.20 m ACCESO N.P.T.:0.0-2.20 m Árbol Existente a Podar Esc 1 : 200
  • 96.
    ESCALA: LA INDICADA FECHA DEIMPRESION: FEB. 2013 HOJA: PRD-12 UNIVERSIDAD DE EL SALVADOR FACULTAD DE INGENIERIA Y ARQUITECTURA ESCUELA DE ARQUITECTURA PROPUESTA: CASA MUNICIPAL DE LA CULTURA PROPIETARIO: ALCALDIA MUNICIPAL DE CACAOPERA PRESENTAN: GUZMÁN GONZALEZ, WILFREDO EDUARDO LOPEZ CRUZ, BORIS ALFREDO LOPEZ RIVAS, PATRICIA CAROLINA CONTENIDO: PLANTA ESTRUCTURAL SEGUNDO NIVEL VT1-15 VT1-15 V-1 V-1 V-1 V-1 V-1 V-1 V-1 V-1 V-1 V-1 V-1 V-1 V-1 V-1 V-1 V-1V-1V-1 V-1 V-1 V-1 V-1 V-1V-1 V-1V-1 V-1 V-1 V-1 V-1 V-1 V-1 V-1 V-1 V-1 Planta Estructural Segundo Nivel de la Casa de la Cultura V-1 CALLE DOBLE SENTIDO CASAS COLINDANTE COLINDANTE Jardín Árbol Existente a Podar ACCESO N.P.T.:0.0-2.20 m Esc 1 : 200 30% 30% Cumbrera VT1-15 VT1-15 VT1-15VT1-15 VT1-15 VT1-15 VT1-15 VT1-15
  • 97.
    ESCALA: LA INDICADA FECHA DEIMPRESION: FEB. 2013 HOJA: PRD-13 UNIVERSIDAD DE EL SALVADOR FACULTAD DE INGENIERIA Y ARQUITECTURA PROPUESTA: CASA MUNICIPAL DE LA CULTURA PROPIETARIO: PRESENTAN: GUZMÁN GONZALEZ, WILFREDO EDUARDO LOPEZ CRUZ, BORIS ALFREDO LOPEZ RIVAS, PATRICIA CAROLINA CONTENIDO: PLANTA ESTRUCTURAL DE TECHOS Planta Estructural de Techos de Casa de la Cultura 45% 45% Cumbrera Techo existente V1 P1 P1 P1 P1 P1 P1 P1 P1 P1 P1 P1 P1 P1 P1 V1 V1 V1 V1 V1 V1 V1 V1 V1 V1 V1 V1 V1 V1 V1 V1 V1 V1V1 1 2 3 5 6 7 8 A B D GF C E 4 4.71 m 14.68 m 3.25 m 1.90 m 6.30 m 2.18m4.50m1.191.46m 4.60m6.50m P1 P1 P1 P1 P1 P1 P1 P1 P1 P1 P1 P1 P1 P1 P1P1P1P1P1P1P1P1P1P1P1P1P1P1 V1 V1 V1 V1 V1 V1 V1 V1 V1 V1 V1 V1 V1 V1 V1 V1 V1 V1 P1P1P1P1P1P1P1P1P1P1P1P1P1 Esc 1 : 200 CALLE DOBLE SENTIDO CASAS COLINDANTE COLINDANTE ACCESO N.P.T.:0.0-2.20 m ALCALDIA MUNICIPAL DE CACAOPERA
  • 98.
    ESCALA: LA INDICADA FECHA DEIMPRESION: FEB. 2013 HOJA: PRD-14 UNIVERSIDAD DE EL SALVADOR FACULTAD DE INGENIERIA Y ARQUITECTURA ESCUELA DE ARQUITECTURA PROPUESTA: CASA MUNICIPAL DE LA CULTURA PROPIETARIO: ALCALDIA MUNICIPAL DE CACAOPERA PRESENTAN: GUZMÁN GONZALEZ, WILFREDO EDUARDO LOPEZ CRUZ, BORIS ALFREDO LOPEZ RIVAS, PATRICIA CAROLINA CONTENIDO: DETALLES ESTRUCTURALES 0.45m COLUMNAS CENTRALES Estribo Ø 3/8" a 15 cm 6 Ø de 1/2" 0.45m 0.40m 0.40m SOLERA DE FUNDACIÓN Estribo Ø 3/8" a 15 cm 6 Ø de 1/2" Escala 1: 10 0.55m 0.35m 0.55m 0.50m 0.30m SOLERA INTERMEDIA Y CORONAMIENTO Estribo Ø 1/4" a 15 cm 4 Ø de 3/8" Escala 1: 05 0.20m 0.20m 0.15m 0.15m 0.20m 0.25m 0.20m 0.15m COLUMNAS Estribo Ø 1/4" a 13 cm 6 Ø de 3/8" Escala 1: 05 ALACRAN Estribo Ø 1/4" a 15 cm 2 Ø de 3/8" Escala 1: 05 0.08m 0.15m 0.10m
  • 99.
    ESCALA: LA INDICADA FECHA DEIMPRESION: FEB. 2013 HOJA: PRD-15 UNIVERSIDAD DE EL SALVADOR FACULTAD DE INGENIERIA Y ARQUITECTURA ESCUELA DE ARQUITECTURA PROPUESTA: CASA MUNICIPAL DE LA CULTURA PROPIETARIO: ALCALDIA MUNICIPAL DE CACAOPERA PRESENTAN: GUZMÁN GONZALEZ, WILFREDO EDUARDO LOPEZ CRUZ, BORIS ALFREDO LOPEZ RIVAS, PATRICIA CAROLINA CONTENIDO: PLANTA DE INSTALACIONES ELECTRICAS PRIMER NIVEL Planta Electrica de Primer Nivel de Ampliación de la Casa de la Cultura Esc 1 : 200 2 2 2 2 3 A B A B BA C A A B B A A B B M 2 2 2 2 2 2 2 2 2 22 2 3 Colindante Colindante Calle Doble Sentido ACCESO N.P.T.:0.0-2.20 m Poste y Linea de Distribuidora 2 2 7 6 1
  • 100.
    N°deCircuito Espacios Fases Ocupados Voltaje 111 110 Hilos CargaInstal. 700 A 6.36 (Watts) B - en Barras (Amperios) Corriente Marcade G.E. Disyuntor PolosAmp 20 Proteccion L : Luminarias T : Tomacorr. Descrip. de Cargas L:4 22 600 - 5.45 20 L:5 33 500 4.55 - L:4 44 800 - 7.27 L:5 55 600 5.45 - 66 600 - 5.45 T:2 77 600 5.45 - T:6 88 600 - 5.45 T:6 99 500 4.55 - 10 11 A B 1 2 3 4 5 6 7 8 9 10 11 12 1 1 1 1 1 1 1 1 110 110 110 110 110 110 110 110 2 2 2 2 2 2 2 2 2 G.E. G.E. G.E. G.E. G.E. G.E. G.E. G.E. 1 1 1 1 1 1 1 1 1 T:6 20 20 20 20 20 20 20 5500 0.80 4400 21.09 18.90 Fecha:12/2012 ΣD F.D D.M Alimentador: 2THHN#8+ Calculo:WEGG Reviso: WGV 23.6226.36 0.80 0.80 1THHN#10 N R : Reflector S : Spot M : Motor L:6 12 Futura Exp. Futura Exp. Futura Exp. ESCALA: LA INDICADA FECHA DE IMPRESION: FEB. 2013 HOJA: PRD-16 UNIVERSIDAD DE EL SALVADOR FACULTAD DE INGENIERIA Y ARQUITECTURA ESCUELA DE ARQUITECTURA PROPUESTA: CASA MUNICIPAL DE LA CULTURA PROPIETARIO: ALCALDIA MUNICIPAL DE CACAOPERA PRESENTAN: GUZMÁN GONZALEZ, WILFREDO EDUARDO LOPEZ CRUZ, BORIS ALFREDO LOPEZ RIVAS, PATRICIA CAROLINA CONTENIDO: 2 3 A B B C A A A C C 3 C B B A B 2 Planta Electrica de Segundo Nivel de Ampliación de la Casa de la Cultura Esc 1 : 200 2 2 2 2 2 2 2 2 2 2 2 Colindante Calle Doble Sentido PLANTA DE INSTALACIONES ELECTRICAS SEGUNDO NIVEL SIMBOLOGIA ELECTRICA Interruptor sencillo Interruptor Doble Interruptor Triple 2 3 Luminaria ahorrativa Luminaria Exterior Luminaria hacia arriba 8 Número de circuito Poste a colocar Poste Existente 2 Tomacorriente doble Linea interna Linea de distribuidora SIMBOLOGIA ELECTRICA ACCESO N.P.T.:0.0-2.20 m 4 5 8 9 Colindante CUADRO DE CARGAS
  • 101.
    ESCALA: LA INDICADA FECHA DEIMPRESION: FEB. 2013 HOJA: PRD-17 UNIVERSIDAD DE EL SALVADOR FACULTAD DE INGENIERIA Y ARQUITECTURA ESCUELA DE ARQUITECTURA PROPUESTA: CASA MUNICIPAL DE LA CULTURA PROPIETARIO: ALCALDIA MUNICIPAL DE CACAOPERA PRESENTAN: GUZMÁN GONZALEZ, WILFREDO EDUARDO LOPEZ CRUZ, BORIS ALFREDO LOPEZ RIVAS, PATRICIA CAROLINA CONTENIDO: Planta Electrica de Primer Nivel de Ampliación de la Casa de la Cultura Esc 1 : 200 Acceso PVC Ø 4" PVCØ4" PVC Ø4" PVCØ4" PVC Ø2" PVC Ø 6" PVCØ6" PV C Ø 4" PVCØ4" PVC Ø1/2" PV C Ø 1/2" PVCØ1/2" PVC Ø1/2" Salida de ALL a Drenaje Entrada de AP Salida de AN a Drenaje SIMBOLOGIA HIDRAULICA Codo de 90° Tee Sifon Codo de 45° Grifo Tuberia de abastecimiento de agua potable Ø 1 2" 315 psi Tuberia de aguas negras 160 psi Tuberia de aguas Lluvias PLANTA DE INSTALACIONES HIDRAULICAS SIMBOLOGIA HIDRAULICA Colindante Colindante Calle Doble Sentido
  • 102.
    223 BIBLIOGRAFIA Y FUENTESDE INFORMACION Entrevistas: � Sr. Miguel Ángel Amaya Amaya. (Presidente de La Asociación). � Sr. Ramiro Argueta. (Miembro del Consejo Municipal de Cacaopera). � Sra. Dolores Josefina Molina (Miembro del Consejo Municipal de Cacaopera). Libros y Tesis. � Evelyn Helen Julián Luna, Eduardo Arturo Portillo Sandoval, DESARROLLO DE LAS INSTALACIONES ARQUITECTÓNICAS DEL PARQUE NACIONAL MONTECRISTO. Trabajo de graduación, Universidad de El Salvador, marzo 1979, 146 páginas. � Cesar Alexander Cuellar Meléndez, Oscar Rene Romero Magaña, Guillermo José Zavala Arteaga, PROPUESTA DE RENOVACIÓN URBANA Y RUTA TURISTICA PARA LOS CENTROS HISTORICOS DE LA CIUDAD LINEAL “LOS NONUALCOS”. Trabajo de graduación, Universidad de El Salvador, abril 2010, 312 páginas. � Sonia Elizabeth Bolaños Maradiaga, Héctor Andrés Rivera Zavala, Luis Amilton Rodríguez Guerra, ANTEPROYECTO URBANOARQUITECTONICO PARA EL PARQUE ECOTURISTICO EL ESPINO”. Trabajo de graduación, Universidad de El Salvador, febrero 2010, 171 páginas. � José Rutilio Alemán Vásquez, Sandra Yolibeth Iraheta Miranda, Guillermo Antonio Osorio Rodríguez, “ANTEPROYECTO URBANO ARQUITECTONICO PARA EL DESARROLLO TURISTICO DE LA MICRO REGION LA PALMA-SAN IGNACIO, CHALATENANGO”. Trabajo de graduación, Universidad de El Salvador, Junio 2011, 235 páginas. � Enciclopedia de Arquitectura Plazola, Volumen 1, Alfredo Plazola Cisneros, Ingeniero Arquitecto, 544 páginas. � Miguel Ángel Amaya Amaya. HISTORIA DE CACAOPERA. Primera Edición, Ministerio de Educación, San Salvador 1985, 205 páginas. � Fundación de Apoyo a Municipios de El Salvador FUNDAMUNI, Comité de Desarrollo Municipio de Cacaopera, CODEM, PLAN ESTRATEGICO PARTICIPATIVO DE DESARROLLO, CACAOPERA, noviembre 2006, 65 paginas. �
  • 103.
    224 � Banco Interamericanode Desarrollo, EL TURISMO EN AMERICA LATINA Y EL CARIBE Y LA EXPERIENCIA DEL BID, Serie de informes del departamento de desarrollo Sostenible, 44 paginas. � Plan de Inversión del municipio de Cacaopera. � Resultados CENSO FISDL en 32 municipios en pobreza extrema severa e inversión en infraestructura, Municipio de Joateca. FISDL 2005. Legislación. � El Salvador. Ley del Medio Ambiente 05/1998, 4 de mayo, num. 3, 12 y 13. P.35. � El Salvador. Ley Forestal 07/1986, 31 de julio, num. 5 y 10. P. 28. � El Salvador. Ley de Turismo 12/2005, 20 de diciembre, num. 3 y 5, p. 16. � Ordenanza para la Protección y Conservación del Medio Ambiente del Municipio de Cacaopera.Art. 19, 24. 32, 51 Información Electrónica: � PROPUESTA DE UN DISEÑO DE PLAN DE DESARROLLO TURISTICO PARA INCENTIVAR EL TURISMO EN LA PLAYA EL ESPINO DEL MUNICIPIO DE JUCUARAN DEPARTAMENTO DE USULUTAN, www.univo.edu.sv:8081/tesis/019198/019198_Cap5.pdf � Wikipedia. Información en línea de Pág. Web: http://es.wikipedia.org [Consulta: 12 de Marzo de 2012]. � FISDL. Disponible en Web: �http://www.fisdl.gob.sv/servicios/en-linea/ciudadano/conoce-tu-municipio/san- salvador/654.html� � SNET. Clima en El Salvador, en línea, disponible en Web: �http://www.snet.gob.sv/ver/meteorologia/clima+en+el+salvador/�
  • 104.
    225 A N EX O S
  • 105.
    x x La Terrestre Tierra x Asfaltado EmpedradaCamión 4 x 4 x x Transporte Frecuencia x Eventual Causas: 5. Estado de conservación del entorno 8. Historia Alterado No alterado En proceso de deterioroDeteriorado Conservado En los periodos coloniales esta cueva se utilizaba para la realizacion de ceremonias y ritos, en este lugar se realizaban actividades curativas de forma natural y ceremonial. Durante el conflicto armado este se utilizaba para refugio de los excombatiente. Hoy en día es visitada por muchos turistas debido a su forma y la cantidad de historias que las personas recuerdan y son expresadas durante el recorrido y la visita a esta cueva.R M Diaria Semanal Auto Bus Causas: 6. Infraestructura vial y de acceso Tipo Sub tipo B Estado de via 3. Caracteristicas fisicas del atractivo Altura (m.s.n.m.): 715 Alterado No alterado En proceso de deterioroDeteriorado Conservado Temperatura (C°): 30 4. Estado de conservación del atractivo Cercano al Caserio: Cercano a Calle: HACIA JOATECA Municipio: Cacaopera Canton: GUACHIPILIN Nombre del atractivo: CUEVA DEL MUERTO Ficha para Inventario de Atractivos Turisticos 1. Datos Generales 7. Ubicación Encuestador: WILFREDO GUZMAN Longitud: Propietario: Categoría: TURISTICO Tipo: NATURAL TURISTICO Sub-tipo: CUEVA 88°02.012'W2. Ubicación Latitud: 13°51.789'N 9. Fotografia Sendero Terrestre Tierra x xAutomovil 4 x 4 x
  • 106.
    X X Nombre del atractivo:CUEVA YARRAWALAGI Ficha para Inventario de Atractivos Turisticos 1. Datos Generales 7. Ubicación Encuestador: PATRICIA RIVAS Propietario: Categoría: NATURAL Tipo: HISTORIA-NATURAL Sub-tipo: - 88°04.581'W Cercano al Caserio: Agus Blanca Cercano a Calle: - Municipio: Cacaopera Canton: Guachipilin 2. Ubicación Latitud: 13°85.180'N Longitud: 3. Caracteristicas fisicas del atractivo Altura (m.s.n.m.): 837 Alterado No alterado En proceso de deterioroDeteriorado Conservado Temperatura (C°): 27 4. Estado de conservación del atractivo Causas: 5. Estado de conservación del entorno 8. Historia Alterado No alterado En proceso de deterioro Cuentan las personas de edad adulta que antes de la guerra interna en el pais, en esta cueva vivia una señora que se llamaba Victoria, la cual tenia como mascota una culebra de gran tamaño, y se creia que ella cuidaba de Doña Victoria y que en una ocasion personas ajenas lastimaron la culebra y desde entonces Doña Victoria enloquesio a causa de el daño que le habian hecho a la culebra. En la actualidad este sitio funciona como luugar de descazo para las personas que viaja por senderos ya que es una cueva de facil acceso y da un ambiente agradable para el descanzo. Deteriorado Conservado Causas: 6. Infraestructura vial y de acceso Tipo Sub tipo Estado de via Transporte Frecuencia B R M Diaria Semanal Eventual Auto Bus X Empedrada Camión Asfaltado 4 x 4 X Terrestre Tierra 4 x 4 X Automovil 9. Fotografia Sendero X Terrestre Tierra
  • 107.
    X X Latitud: 13°52.067'N Longitud:88°02.428'W XTierra Semanal Eventual 4 x 4 Camión Auto Bus X Empedrada B R Causas: Frecuencia Cuentan las personas de edad adulta que antes de la guerra interna en el pais, en esta cueva vivia una señora que se llamaba Victoria, la cual tenia como mascota una culebra de gran tamaño, y se creia que ella cuidaba de Doña Victoria y que en una ocasion personas ajenas lastimaron la culebra y desde entonces Doña Victoria enloquesio a causa de el daño que le habian hecho a la culebra. En la actualidad este sitio funciona como luugar de descazo para las personas que viaja por senderos ya que es una cueva de facil acceso y da un ambiente agradable para el descanzo. M Diaria 6. Infraestructura vial y de acceso Tipo Sub tipo Estado de via Transporte Terrestre Asfaltado 5. Estado de conservación del entorno 8. Historia Alterado No alterado En proceso de deterioroDeteriorado Conservado No alterado En proceso de deterioroDeteriorado Conservado Causas: 888 Temperatura (C°): 25 Cacaopera Canton: Cercano al Caserio: Cercano a Calle: - Ficha para Inventario de Atractivos Turisticos 1. Datos Generales 7. Ubicación Encuestador: PATRICIA RIVAS Nombre del atractivo: CUEVA LA VICTORIA Alterado 3. Caracteristicas fisicas del atractivo Altura (m.s.n.m.): Propietario: Categoría: 2. Ubicación NATURAL Tipo: HISTORIA-NATURAL Sub-tipo: - 4. Estado de conservación del atractivo Municipio: 9. Fotografia X Sendero X Automovil Tierra 4 x 4 Terrestre
  • 108.
    X X Terrestre Tierra Asfaltado X Empedrada Camión 4x 4 X X X Transporte Frecuencia Eventual Causas: 5. Estado de conservación del entorno 8. Historia Alterado No alterado En proceso de deterioroDeteriorado Conservado Poza vissitada por gran cantidad de turistas, que se dirijen en los caminos de Cacaopera hacia el Canton Potrero Grande, ya que se encuentra a la orilla de la calle R M Diaria Semanal Auto Bus Causas: 6. Infraestructura vial y de acceso Tipo Sub tipo B Estado de via 3. Caracteristicas fisicas del atractivo Altura (m.s.n.m.): 397 Alterado No alterado En proceso de deterioroDeteriorado Conservado Temperatura (C°): 30 4. Estado de conservación del atractivo Cercano al Caserio: Cercano a Calle: - Municipio: Cacaopera Canton: Nombre del atractivo: POZA EL LAGARTO Ficha para Inventario de Atractivos Turisticos 1. Datos Generales 7. Ubicación Encuestador: WILFREDO GUZMAN Longitud: Propietario: Categoría: TURISTICO-NATURAL Tipo: RIO Sub-tipo: - 88°02.432'W2. Ubicación Latitud: 13°48.001'N 9. Fotografia Sendero Terrestre Tierra Automovil X 4 x 4 X
  • 109.
    X X Terrestre Tierra x Asfaltado Empedrada Camión 4x 4 x Transporte Frecuencia Eventual Causas: 5. Estado de conservación del entorno 8. Historia Alterado No alterado En proceso de deterioroDeteriorado Conservado Este ha sido y es un lugar de grandes hechos historicos ya que es aquí donde aun se conservan actividades de ceremonias de la comunidad Winaka, ademas de tener una gran cantidad de petrograbados y otros elementos que hacen de este lugar un atractivo historico-cultural R M Diaria Semanal Auto Bus Causas: 6. Infraestructura vial y de acceso Tipo Sub tipo B Estado de via 3. Caracteristicas fisicas del atractivo Altura (m.s.n.m.): 349 Alterado No alterado En proceso de deterioroDeteriorado Conservado Temperatura (C°): 27 4. Estado de conservación del atractivo Cercano al Caserio: Cercano a Calle: - Municipio: Cacaopera Canton: Nombre del atractivo: Cueva Unamá Ficha para Inventario de Atractivos Turisticos 1. Datos Generales 7. Ubicación Encuestador: Boris Lopez Cruz Longitud: Propietario: Categoría: Tipo: Sub-tipo: - 88°05.430'W2. Ubicación Latitud: 13°47.860'N 9. Fotografia Sendero Terrestre Tierra x Automovil 4 x 4 x
  • 110.
    x x x 88°02.432'W 7. Ubicación 8. Historia 9.Fotografia Automovil Transporte DiariaR M Auto Bus xTierra x 4 x 4 Sendero Causas: 6. Infraestructura vial y de acceso Asfaltado Semanal Eventual Frecuencia x B Terrestre Empedrada Camión x 5. Estado de conservación del entorno Alterado No alterado En proceso de deterioroDeteriorado Conservado Tipo Sub tipo Estado de via Sub-tipo: - Sitio Natural Ficha para Inventario de Atractivos Turisticos Temperatura (C°): 27 Altura (m.s.n.m.):3. Caracteristicas fisicas del atractivo 397 Canton: La Estancia Cercano a Calle: - Municipio: 1. Datos Generales Encuestador: Nombre del atractivo: Propietario: Categoría: Boris Lopez Cruz Poza El Lucero Tipo: Rio LaPoza El Lucero es parte del Rio Torola, esta es visitada por turistas extranjeros y locales, por su amplio caudal y ser agua fresca 2. Ubicación Latitud: Longitud:13°48.001'N Cercano al Caserio: Cacaopera El Rodeo 4. Estado de conservación del atractivo Alterado Deteriorado No alterado Conservado En proceso de deterioro Causas:
  • 111.
    232 LEYES Y REGLAMENTOSA CONSIDERAR. Constitución Política de El Salvador. Art. 1.El Salvador reconoce a la persona humana como el origen y el fin de la actividad del Estado, que está organizado para la consecución de Lajusticia, de la seguridad y del bien común. En consecuencia, es obligación del Estado asegurar a los habitantes de la República, el goce de la libertad, la salud, la cultura, el bienestar económico y la justicia social. Art. 53.El derecho a la educación y a la cultura es inherente a la persona humana; en consecuencia, es obligación y finalidad primordial del Estado su conservación, fomento y difusión. Código municipal. Art. 2.El municipio constituye una unidad política administrativa; organizado bajo un ordenamiento jurídico que garantiza la participación popular en la formación y conducción de la sociedad local. Art. 21.Compete a las municipalidades velar en sus respectivas localidades la creación, impulso y regulación de servicios que faciliten el mercadeo y abastecimiento de productos de consumo de primera necesidad como mercados, tianguis y mataderos. Ley de Turismo, Ministerio de Turismo. MITUR Art. 1. La Ley tiene por objeto fomentar, promover y regular la industria y los servicios turísticos del país, prestados por personas naturales o jurídicas nacionales o extranjeras. Art. 8.Los recursos naturales, arqueológicos y culturales que integren el inventario turístico del país, serán preservados y resguardados por las instituciones a quienes legalmente correspondan tales atribuciones. Las entidades y organismos del Estado o de las municipalidades que tengan la atribución legal de autorizar construcciones, edificaciones o cualquier otro tipo de infraestructura, estarán obligadas a respetar y mantener la vocación turística de tales recursos y las de su ámbito de influencia, para lo cual las construcciones, edificaciones e infraestructuras que se autoricen deberán ser compatibles con los elementos necesarios para el desarrollo turístico de las mismas.
  • 112.
    233 Art. 20. Losbeneficios e incentivos que se establecen en la Ley están dirigidos a promover el desarrollo turístico del país, el incremento de inversiones nacionales y extranjeras para ese fin, y la descentralización y aumento de oportunidades de empleo en zonas turísticas del país. INSTITUCIÓN FUNCIONES Alcaldía Municipal de Cacaopera Dirige el gobierno y Administración Municipal, ejecuta e Inspeccionar los servicios y obras municipales; dicta y hace cumplir reglamentos, decretos, resoluciones y demás actos administrativos de la entidad. MITUR Elabora, formula, planifica y ejecuta la política y el plan nacional de turismo, así como formula los proyectos normativos; atiende las cuestiones pertinentes al turismo y lo que se relaciona con ello en materias atribuidas a otros Ministerios; fomenta las industrias del turismo; actúa como el ente coordinador y contralor del turismo; y fomenta el turismo interno y hacia el país. Ministerio del Medio Ambiente y Recursos Naturales Revertir la degradación ambiental y reducir los riesgos liderando una gestión ambiental pública enérgica, articulada, incluyente, responsable y transparente. Buscando los Mecanismos para lograrlo eficientemente. Viceministerio de Vivienda Diseñar y proponer la Política General de Ordenamiento Territorial y desarrollo urbano en apoyo al Sistema Urbano- Territorial Nacional. Proponer y evaluar los instrumentos normativos en materia de ordenamiento territorial y desarrollo urbano. Promover el crecimiento sostenible de los centros poblados, facilitando el acceso formal al suelo. Promover la inversión Pública y Privada en ordenamiento territorial y el desarrollo Urbano. Ministerio de Salud Conducir estratégicamente los servicios de salud con enfoque familiar y comunitario, basado en la estrategia de Atención Primaria de Salud Integral, para asegurar la provisión de los servicios de salud en el Nivel Regional y Local, y promover que la ciudadanía organizada incida en las determinantes sociales de la salud.