Prototipos de casa
residencial
Casa Ka / Bonina Arquitetura
• Arquitectos: Bonina Arquitetura
• Ubicación: Cotia - SP, Brasil
• Autor: Maurício Takahashi
• Colaboradores: Denise Yumi Hino,
Rosa Fumie Satomi, Roger Hitoshi
Takahashi
• Área: 350.0 m2
• Año: 2015
• Fotografías: Tony Chen
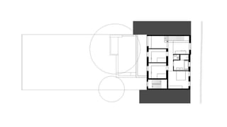
Descripción de los arquitectos. La casa fue implantada en un
terreno en pendiente, al interior de un condominio cerrado en
la región metropolitana de la ciudad de São Paulo.
• Paisajismo: Erica Nagashima
Paisagismo
• Jefe de Obra: Bonina
Arquitetura
• Gestión de Proyecto: Tony Chen
• Área del Terreno: 504 m2
El programa de residencia se ha resuelto a través de los desniveles
naturales del terreno. Con una ligera pendiente en la parte posterior del
lote, la entrada y el garaje se encuentra al nivel de la calle. En el nivel
medio bajo, se encuentra el área social y los servicios. Y el nivel medio
alto, la zona íntima.
Estos desniveles fueron salvados a través de rampas, entregando una falsa sensación
de una casa de dos pisos. La circulación fluye a través del espacio, los árboles, un
espejo de agua y las rampas, de modo que no se percibe esta brecha vertical.
La planta baja frente al área social está rodeada de patios que
integran el interior con el exterior, definiendo los niveles de
exposición y su integración. El patio de la piscina cuenta con
una sala de estar, cocina y barbacoa.
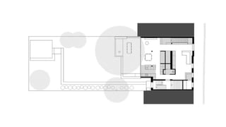
Una chimenea al aire libre, jardines y la caída
del espejo de agua crean un ambiente más
reservado y contemplativo. Un árbol
de Jabuticabeira sirve como punto de
referencia dentro de la residencia, además
de controlar la entrada de luz en la sala de
estar del nivel superior y proteger la
residencia de las vistas hacia y desde la calle.
Casa en Viena / bogenfeld Architektur
• Arquitectos: bogenfeld
Architektur
• Ubicación: Vienna, Austria
• Año Proyecto: 2013
• Fotografías: Violetta
Wakolbinger
Descripción de los arquitectos. La aspiración a
lograr lo aparentemente imposible, es decir, que
vivir en la ciudad mientras se está en un oasis
verde
La casa sin pretensiones dejó margen suficiente
para remodelar: el garaje se convirtió en la
entrada principal; una escalera pasa justo en la
zona de estar de planta abierta con jardín.
El piso de arriba se utiliza para dormir y trabajar.
En el deseo expreso de los propietarios del edificio
se hicieron esfuerzos para poner en práctica los
principios de construcción ecológica en la medida
de lo posible.
Esto significa un producto de alta tecnología ecológica en el
centro de la ciudad, con calefacción y agua caliente casi sin
combustibles fósiles.
HDJ65 / T38 Studio
• Arquitectos:
Alfonso Medina,
Oscar González
• Ubicación: México,
Tijuana, Baja
California
• Equipo: Mauricio
Kuri, Sara Díaz
• Área: 340.0 m2
• Año Proyecto:
2011
• Fotografías:
Alfresco
En un terreno con pendiente pronunciada y una vista privilegiada de la
ciudad de Tijuana, diseñamos una casa para una joven familia. Uno de
los hilos conductores del proyecto es que la busqueda de las
intersecciones entre los interiores y los exteriores, el diluir barreras.
• Esto sucede en todos
los niveles de la casa,
ya sea a través de
jardines o terrazas.
Otros espacios se
abren hacia el
exterior por su
extenso uso de vidrio
que aprovecha las
vistas panoramicas
del sitio.
• Por la forma irregular del
terreno, la casa se
compone por dos
volumenes intersectados
perpendicularmente que
se rodean por jardines y
se abren hacia las vistas.
Aprovechando la
pendiente del sitio, los
volúmenes se parten en
medios niveles, con un
núcleo de circulación
vertical como el centro
del proyecto, este núcleo
conecta e ilumina todos
los niveles de la casa.
• En el acceso se encuentra el
espacio de sala comedor que
se abre hacia la alberca que
esta medio nivel arriba. En un
segundo piso está un espacio
abierto que alberga la cocina y
un área social. En el último
nivel se encuentra un espacio
de oficina, un cuartode
televisión y una terraza con
vistas de 270 grados
Prototipos de casa residencial
Prototipos de casa residencial
Prototipos de casa residencial

Prototipos de casa residencial

  • 1.
  • 2.
    Casa Ka /Bonina Arquitetura • Arquitectos: Bonina Arquitetura • Ubicación: Cotia - SP, Brasil • Autor: Maurício Takahashi • Colaboradores: Denise Yumi Hino, Rosa Fumie Satomi, Roger Hitoshi Takahashi • Área: 350.0 m2 • Año: 2015 • Fotografías: Tony Chen
  • 3.
    Descripción de losarquitectos. La casa fue implantada en un terreno en pendiente, al interior de un condominio cerrado en la región metropolitana de la ciudad de São Paulo. • Paisajismo: Erica Nagashima Paisagismo • Jefe de Obra: Bonina Arquitetura • Gestión de Proyecto: Tony Chen • Área del Terreno: 504 m2
  • 4.
    El programa deresidencia se ha resuelto a través de los desniveles naturales del terreno. Con una ligera pendiente en la parte posterior del lote, la entrada y el garaje se encuentra al nivel de la calle. En el nivel medio bajo, se encuentra el área social y los servicios. Y el nivel medio alto, la zona íntima.
  • 5.
    Estos desniveles fueronsalvados a través de rampas, entregando una falsa sensación de una casa de dos pisos. La circulación fluye a través del espacio, los árboles, un espejo de agua y las rampas, de modo que no se percibe esta brecha vertical.
  • 6.
    La planta bajafrente al área social está rodeada de patios que integran el interior con el exterior, definiendo los niveles de exposición y su integración. El patio de la piscina cuenta con una sala de estar, cocina y barbacoa.
  • 7.
    Una chimenea alaire libre, jardines y la caída del espejo de agua crean un ambiente más reservado y contemplativo. Un árbol de Jabuticabeira sirve como punto de referencia dentro de la residencia, además de controlar la entrada de luz en la sala de estar del nivel superior y proteger la residencia de las vistas hacia y desde la calle.
  • 9.
    Casa en Viena/ bogenfeld Architektur
  • 10.
    • Arquitectos: bogenfeld Architektur •Ubicación: Vienna, Austria • Año Proyecto: 2013 • Fotografías: Violetta Wakolbinger
  • 11.
    Descripción de losarquitectos. La aspiración a lograr lo aparentemente imposible, es decir, que vivir en la ciudad mientras se está en un oasis verde
  • 12.
    La casa sinpretensiones dejó margen suficiente para remodelar: el garaje se convirtió en la entrada principal; una escalera pasa justo en la zona de estar de planta abierta con jardín. El piso de arriba se utiliza para dormir y trabajar. En el deseo expreso de los propietarios del edificio se hicieron esfuerzos para poner en práctica los principios de construcción ecológica en la medida de lo posible.
  • 16.
    Esto significa unproducto de alta tecnología ecológica en el centro de la ciudad, con calefacción y agua caliente casi sin combustibles fósiles.
  • 17.
  • 18.
    • Arquitectos: Alfonso Medina, OscarGonzález • Ubicación: México, Tijuana, Baja California • Equipo: Mauricio Kuri, Sara Díaz • Área: 340.0 m2 • Año Proyecto: 2011 • Fotografías: Alfresco
  • 19.
    En un terrenocon pendiente pronunciada y una vista privilegiada de la ciudad de Tijuana, diseñamos una casa para una joven familia. Uno de los hilos conductores del proyecto es que la busqueda de las intersecciones entre los interiores y los exteriores, el diluir barreras.
  • 20.
    • Esto sucedeen todos los niveles de la casa, ya sea a través de jardines o terrazas. Otros espacios se abren hacia el exterior por su extenso uso de vidrio que aprovecha las vistas panoramicas del sitio.
  • 21.
    • Por laforma irregular del terreno, la casa se compone por dos volumenes intersectados perpendicularmente que se rodean por jardines y se abren hacia las vistas. Aprovechando la pendiente del sitio, los volúmenes se parten en medios niveles, con un núcleo de circulación vertical como el centro del proyecto, este núcleo conecta e ilumina todos los niveles de la casa.
  • 22.
    • En elacceso se encuentra el espacio de sala comedor que se abre hacia la alberca que esta medio nivel arriba. En un segundo piso está un espacio abierto que alberga la cocina y un área social. En el último nivel se encuentra un espacio de oficina, un cuartode televisión y una terraza con vistas de 270 grados