INGENIERIAS Y ARQUITECTURA
FACULTA DE INGENIERIA CIVIL
Curso: Arquitectura
Tema: Proceso de diseño de una vivienda unifamiliar
Docente: julio Ramírez Núñez
Ciclo: VII
Alumno: Sembrera Zevallos Martin
Tumbes – 2014
INDICE
Introducción
Objetivo
Hipótesis del proyecto
Descripción de la edificación
- Estudios preliminares
- Anteproyecto (Diseño)
- Planos y especificaciones técnicas
- Presupuesto aproximado
- Visado del Plano ante el CIP
- Permiso de Construcción
- Certificado de finalización de Obra
- Antecedentes
- Características de la edificación
Normas del reglamento nacional de edificaciones
Análisis de la vivienda
Ambientes fundamentales
Circulación
Zonificación y coordinación
Asoleamiento
Conclusiones
PROCESO DE DISEÑO DE UNA VIVIENDA
UNIFAMILIAR
Introducción
El diseño arquitectónico no solo debe depender de las habilidades del
individuo, ni ser un proceso intuitivo, es necesario seguir una metodología
para obtener los resultados más adecuados.
El fin deseado para un buen proceso de diseño no es solamente crear un
espacio funcional, donde puedan consumirse las necesidades generadas por el
usuario, si no saber aprovechar lo que nos brinda la naturaleza ya sea por el
sol o por el viento entre otros conceptos fundamentales.
El siguiente análisis nos mostrara todos los pasos a seguir para el correcto
diseño de una vivienda unifamiliar, en cuanto a función, relación entre
ambientes, necesidades del usuario, distribución, adaptación al terreno y
otros requerimientos que debemos tener en cuenta para el correcto desarrollo
del diseño de una vivienda.
Objetivo:
El presente trabajo se realizara con el motivo de poder entender el
funcionamiento y proceso de diseño de una vivienda unifamiliar para así
poder realizar cualquier tipo de proyecto arquitectónico.
Adquirir habilidades para observar, analizar y proponer soluciones a obras
sencillas.
Interpretar el concepto de función vivienda, organigrama y zonificación,
distribución de espacios, circulación, asoleamiento, etc.
Tener un conocimiento preciso de lo que existe, qué aciertos o desaciertos se
presenta, para mejorar y corregir nuestro planteamiento de solución.
Hipótesis del proyecto
Por medio de este trabajo se pretende resolver el diseño de una vivienda
unifamiliar tipo alto residencial de una manera inteligente, dinámica e
innovadora; que respete y sepa integrarse a su contexto e impulse a los
usuarios a disfrutar de momentos de socialización, contemplación y diversión.
Para satisfacer dicha demanda se contemplan en toda medida las necesidades
del cliente, como es el caso de la inclinación del cliente por el estilo
californiano.
Se llevara al limite la funcionalidad a la hora de diseñar cada espacio para
logra el mayor confort, brindando placer y satisfacción al realizar las
actividades designadas para los espacios en cuestión.
Se buscara obtener comunicación entre espacios para fortalecer la interacción
familiar, haciendo un buen uso de los espacios que tengas dicha funciones
tales como: vestíbulos y escaleras.
Se realizara un diseño adquiriendo el significado del concepto mediante la
identidad de sus usuarios conciliándolo con los aportes tecnológicos de hoy en
día.
Dentro del área constructiva se aplicaran desde sistemas constructivos
tradicionales para losas y muros, hasta la configuración de cimentación por
concreto armado. Las losas inclinadas jugaran un rol importante de modo que
se logre el juego armonioso entre fachadas, plantas arquitectónicas, sin dejar
de lado, por supuesto, las áreas verdes.
Dentro del proceso de diseño, se contemplaran las medidas básicas para la
iluminación, la cual será conseguida por medio de aberturas adecuadas en
fachadas y con base a la orientación solar que tiene el predio; de igual
manera, la ventilación, se lograra a partir de un buen flujo de aire que corra a
través del interior de la construcción por medio de puertas y ventanas,
también se tomaran en cuenta aspectos de seguridad, identidad, comodidad,
armonía, equilibrio; nunca olvidándonos de la funcionalidad que corresponde
al conjunto de características que hacen que algo sea practico y utilitario, esto
se ganara por medio de espacios amplios óptimos e inteligentemente ubicados
y distribuidos correctamente.
En general lo que se pretende es la conjunción de funcionalidad e identidad
dentro del proyecto, manteniendo una constante relación entre estos
conceptos. Que el proyecto administre, distribuya y organice espacios.
Propietario
- Fecha:
13 de agosto del 2014.
- Nombre y apellido:
Sr. Cesar seminario Peña
Sra. RosaPreciado Risco
- Domicilio:
Barrio nuevo - corrales.
- Teléfono:
Celular: 962246589; Rpm: #962246589
- Lugar y hora donde se puede se puede visitar al propietario:
Lugar: Av. Lima - corrales.
Hora: A partir de las 8:30 hasta las 10:30 de la noche.
Ocupantes de la vivienda unifamiliar
Integrantes de la familia:
- Esposos:
Sr. Cesar seminario Peña
Sra. Rosa Preciado Risco
- Hijos:
Juan Seminario Risco 15 años.
Carlos Seminario Risco 11 años.
Cesar Seminario Risco 17 años.
- Sexo:
Masculino: 4.
Femenino: 1.
- Tiempo de permanencia:
7 horas por día.
Descripción de la edificación:
Para realizar el diseño de la vivienda unifamiliar se recomienda que contrate a
un ingeniero o a un profesional que esté debidamente registrado en el Colegio
de Ingenieros del Perú. El profesional seleccionado deberá analizar las
condiciones del terreno y las necesidades del cliente para conceptualizar el
diseño de la obra. En esta etapa es fundamental la comunicación entre el
cliente y el profesional para asegurar que el diseño satisfaga todas las
necesidades (técnicas, funcionalidad, presupuesto, etc.)El diseño de la
vivienda se divide en varias etapas, cada una de ellas tiene un alcance y un
costo específico (el costo se indica como porcentaje del valor estimado de la
obra).
Estudios preliminares: verificar la factibilidad de la realización del
proyecto en el terreno seleccionado, tomando en cuenta las restricciones de
ley y/o uso del terreno.
Anteproyecto (Diseño): propuesta espacial, técnica y funcional, que define
el carácter e identidad de un proyecto; debe cumplir con las necesidades
establecidas y con las regulaciones y reglamentos vigentes.
Planos y especificaciones técnicas: los planos de construcción son el
conjunto de elementos gráficos que definen con claridad el carácter y la
finalidad de una obra, y que permiten construirla bajo la dirección de un
profesional responsable. Estos planos deben comprender los aspectos de
distribución, de estructuración e instalaciones, respaldadas por sus
respectivos cálculos. Las especificaciones técnicas definen las características
de los materiales a utilizar en la obra.
Presupuesto aproximado: La realización del presupuesto es opcional, en
el presupuesto se calcula el valor de la obra a precio de mercado incluyendo
costos de materiales, mano de obra y costos indirectos.
CIP: Colegio de Ingenieros del Perú
Visado del Plano ante el CIP
Una vez concluido el diseño de la vivienda, es necesario solicitar el visado de
los planos ante el Colegio de Ingenieros del Perú para que quede acreditada la
responsabilidad del Profesional en esa obra.
Es necesario presentar los siguientes documentos:
Contrato de consultoría firmado entre el propietario y el Profesional
Responsable de la Obra
3 Copias de los planos de la obra
Copia del Plano de Catastrado
Declaración Jurada del cumplimiento de la normativa del Ministerio de Salud
(cuando aplique)
Adicionalmente se debe comprar la bitácora que utilizará el Profesional
Responsable durante la etapa constructiva.
Permiso de Construcción
Una vez visado los planos por el CIP se debe obtener el permiso de
construcción que otorga la municipalidad correspondiente.
Es necesario presentar los siguientes documentos:
Solicitud del permiso de construcción.
Informe registral de la propiedad o fotocopia de la escritura.
Fotocopia del plano catastrado visado por la municipalidad.
Fotocopia de la cédula del solicitante.
Certificación del área contable de la municipalidad indicando que está al día
en todos los tributos municipales.
• Planos constructivo visado por el CIP.
• Póliza de Riesgos del Trabajo ya cancelada, contrato del CIP
Certificado de finalización de Obra
La entrega del proyecto debe hacerse de manera formal involucrando al
profesional responsable, al constructor y al propietario para comprobar la
conformidad de todas las partes con respecto a lo contratado.
Además, el Profesional Responsable deberá entregarle una copia de la
Bitácora de la obra; en ella encontrará el detalle del trabajo realizado, así
como cualquier situación especial que se haya presentado durante el proceso
constructivo.
El proyecto a construirse, es una edificación para uso de vivienda unifamiliar,
que cuenta con un primer y segundo piso y además una azotea y que
complementa la funcionabilidad de la misma.
Antecedentes:
El presente proyecto a construirse, ha surgido como una necesidad del
propietario para satisfacer sus necesidades de vivienda, confort y seguridad
para él y su familia.
El proyecto, materia de construcción, ha sido proyectado por un alumno de
Ing. Civil, de acuerdo a los lineamientos de distribución, espacio,
dimensionamiento conforme lo estipula el Reglamento Nacional de
edificaciones (RNE).
A continuación se mencionará algunas normas del reglamento nacional
de edificaciones para un buen diseño, uso y funcionamiento de una
edificación:
Título I
- Norma G.010
Consideraciones básicas
Artículo 5°:
Para garantizar la seguridad de las personas, la calidad de vida y la protección
del medio ambiente, las habilitaciones urbanas y edificaciones deberá
proyectarse y construirse, satisfaciendo las siguientes condiciones:
a) Seguridad
- seguridad estructural: de manera que se garantice la permanencia y la
estabilidad de la estructura.
- seguridad en caso de siniestros: de manera que las personas puedan
evacuar las edificaciones en condiciones seguras en caso de
emergencias. Cuenten con sistemas contra incendio y permitan la
actuación de los equipos de rescate.
- Seguridad de uso: de manera que en su uso cotidiano en condiciones
normales, no exista riesgo de accidentes para las personas
b) Funcionalidad
- uso: de modo que las dimensiones y disposiciones de los espacios, así
como la dotación de las instalaciones y equipamiento, posibiliten la
adecuada realización de las funciones para las que está proyectada la
dimensión.
- accesibilidad: de manera que permitan el acceso y la circulación a las
personas con discapacidad.
c) Habitabilidad
- salubridad e higiene: de manera que aseguren la salud integral y confort
de las personas.
- protección térmica y sonora: de manera que la temperatura interior y el
ruido que se perciban en ellas no atente contra el confort y la salud de
las personas permitiéndoles realizar satisfactoriamente sus actividades.
d) Adecuación al entorno y protección del medio ambiente
- adecuación al entorno: de manera que se integre a las características de
la zona de manera armónica.
- protección del medio ambiente: de manera que la localización y el
funcionamiento de las edificaciones no degrade el medio ambiente.
Título III
ARQUITECTURA
- Norma A.010
Consideraciones generales de diseño
Capítulo I – características de diseño
Artículo 1:
La presente norma establece los criterios y requisitos mínimos de diseño
arquitectónico que deberán cumplir las edificaciones con la finalidad de
garantizar lo estipulado en n el art. 5ª de la norma G.010 del TITULO I del
presente reglamento.
Artículo 3:
Las obra de edificación deberá tener calidad arquitectónica, la misma que se
alcanza con una respuesta funcional y estética acorde con el propósito de la
edificación, con el logro de de condiciones de seguridad, con la resistencia
estructural al fuego, con la eficiencia del proceso constructivo a emplearse y
con el cumplimiento de la norma vigente.
Las edificaciones corresponderán a las condiciones responderán a los
requisitos funcionales de las actividades que se realicen en ellas, en términos
de dimensiones de los ambientes, relaciones entre ellos, circulaciones y
condiciones de uso.
Se ejecutaran con materiales, competentes y con equipos de calidad que
garanticen seguridad, durabilidad y estabilidad.
En las edificaciones se respetara el entorno inmediato, conformado por las
edificaciones colindantes, referente a la altura, acceso y salida de vehículos,
entregándose a las características de las zona de manera armónica.
En las edificaciones de propondrá soluciones técnicas apropiadas a la
características del clima, del paisaje, del suelo y del medio ambiente en
general.
En las edificaciones se tomara en cuenta el desarrollo futuro de zona, en
cuanto a vías públicas, servicios de las ciudades, renovación urbana y
zonificación.
Artículo 4:
Los parámetros urbanísticos y edificatorios de los predios urbanos deben
estar definidos en el plan urbano. Los certificados de parámetros deben
consignar la siguiente información.
a) Zonificación
b) Sección de vías actuales, en su caso, de vías previstas en el plan urbano
de la localidad.
c) Usos del suelo permitido
d) Coeficiente de edificación
e) Porcentaje mínimo de área libre
f) Altura de edificio expresada en metros
g) Retiros
h) Área del lote normativo, aplicable a la subdivisión de lotes.
i) Densidad neta expresadas en habitantes por hectárea o en área mínima
de las unidades que conformaran la edificación
j) Existencias de estacionamiento para cada unjo de los usos permitidos
k) Aéreas de riesgo o de protección que pudieran afectarlo.
l) Calificación de bien cultural inmueble, de ser el caso.
m)Condiciones particulares
Capítulo IV – Dimensiones mínimas de los ambientes
Artículo 21:
Las dimensiones de los ambientes de las edificaciones deben ser suficientes
para:
a) Realizar las funciones para las que son destinados.
b) Albergar al número de personas propuesto para realizar dichas
funciones.
c) Tener el volumen de aire requerido por ocupante y garantizar su
renovación natural o artificial.
d) Permitir la circulación de las personas así como su evacuación en casos
de emergencia.
e) Distribuir el mobiliario o equipamiento previsto.
f) Contar con iluminación natural o artificial suficiente.
Artículo 22:
Los ambientes con techos horizontales, tendrán una altura mínima de piso
terminado a cielo raso de 3.0 m. Las partes más bajas de los techos inclinados
podrán tener una altura menor.
Artículo 23:
Los ambientes para equipos o espacios para instalaciones mecánicas, podrán
tener una altura menor, siempre que permitan el ingreso y permanencia de
personas de pie (parados) para la instalación, reparación o mantenimiento.
Artículo 24:
Las vigas y dinteles, tendrán una altura mínima de piso terminado a la cara
inferior del elemento de 2.80 m.
Capítulo VI – Servicios Sanitarios
Artículo 39:
Los servicios sanitarios de las edificaciones deberán cumplir con los
siguientes requisitos.
a) La distancia máxima de recorrido para acceder a un servicio sanitario
será de 10m.
b) Los materiales de acabado de los ambientes para servicios sanitarios
serán antideslizantes en pisos e impermeables en paredes, y de
superficie lavable.
Capitulo IX – requisitos de ventilación y acondicionamiento
ambiental
Artículo 51:
Todos los ambientes deberán tener al menos un vano que permita la entrada
del aire desde el interior. Los ambientes destinados a servicios sanitarios,
pasajes de circulación, depósito y almacenamiento donde se realice
actividades en los que ingresen personas de manera eventual, podrán tener
una solución de ventilación mecánica a través de ductos exclusivos u otro
ambiente.
Artículo52:
Los elementos de ventilación de los ambientes deberán tener los siguientes
requisitos.
a) El área de abertura del vano hacia el exterior no será inferior al 5 % de
la superficie de la habitación que se ventila.
b) Los servicios sanitarios, almacenes y depósitos pueden ser ventilados
por medios mecánicos o mediantes conductos de ventilación.
Artículo 53:
Los ambientes que en su condición de funcionamiento normal no tengan
ventilación directa hacia el exterior, deberán contar con un sistema mecánico
de renovación de aire.
- Norma A.020
VIVIENDA
Capítulo I – generalidades
Artículo 5:
Para el cálculo de la densidad habitacional, el número de habitantes de una
vivienda, está en función del número de dormitorios, según lo siguiente:
Vivienda número de habitantes
De un dormitorio 2
De dos dormitorios 3
De tres dormitorios o más 5
Capítulo II – condiciones de diseño
Artículo 7:
Las dimensiones de los ambientes que constituyen la vivienda serán aquellas
capaces de permitir el amueblamiento mínimo requerido para la función
propuesta, acorde con el número de habitantes de la vivienda. Las
dimensiones de los muebles se sustentan en las características
antropométricas de las personas que la habitarán.
Artículo 10:
Las escaleras y corredores al interior de las viviendas, que se desarrollen entre
muros deberántener un ancho mínimo de 0.90 m.
Las escaleras que se desarrollen en un tramo con un lado abierto o en dos
tramos sin muros podrán tener un ancho libre mínimo de 0.80m.
Artículo 12:
El acceso a las viviendas unifamiliares deberá tener un ancho mínimo de
0.90m.
Los accesos a las edificaciones multifamiliares y aquellas que forman parte de
conjuntos residenciales, deberán tener un ancho mínimo de 1.00 m.
Capítulo III – características de las viviendas
Artículo 19:
Las ventanas que dan a los ambientes iluminación y ventilación deberán tener
un cierre adecuado a las condiciones del clima, y contar con carpintería de
materiales compatibles con los materiales del cerramiento.
Los vidrios que no cuenten con carpintería de soporte en todos sus lados,
deberán ser templados.
La ventanas deberán ser de fácil operación y en todos los casos permitir su
limpieza desde la habitación de ventilan.
El alfeizar una ventana tendrá una altura como minina de 0.90m. En caso que
esta altura sea menor, la parte de la ventana entre el nivel de alfeizar y los
0.90 m deberá ser fija y el vidrio templado con una baranda de protección
interior o exterior con elementos espaciados un máximo de 0.15 m.
Artículo 23:
Las cubiertas deberán ser resistentes al viento y evitar la filtración de agua
hacia el interior de la vivienda, y estar fijadas a la estructura de manera de
resistir la acción de los vientos dominantes.
Los techos, azoteas o terrazas transitables, deberán contar con parapetos de
protección de un mínimo de1.10 m de altura.
El último techo de una vivienda unifamiliar de varios pisos o multifamiliar,
deberá tener un aislamiento térmico que permita un nivel de confort similar
al de los demás pisos.
Los techos deben contar con un sistema de evacuación del agua de lluvias
hasta el suelo o hasta el sistema de alcantarillado. Deberá evitarse el posible
empozamiento de agua de lluvias.
Las cubiertas inclinadas deben ser capaces de soportar el uso de personas
para reparación o mantenimiento.
Artículo 24:
Las edificaciones para viviendas estarán provistas de servicios sanitarios,
según las siguientes cantidades mínimas.
Vivienda hasta 25 m2. 1 inodoro, 1 ducha, 1 lavadero.
Vivienda con más de25 m2. 1 inodoro, 1 lavatorio, 1 ducha y 1 lavadero.
Para realizar una edificación tenemos que tener en cuenta tres
zonas fundamentales que son las siguientes:
Donde:
Zona social:
- Sala – estar
- Comedor
- Oficina
- Hall
Zona servicios:
- Cocina
- Patio de servicios
- Baños
Zona privada:
- Cuartos
- Baños privados
Características de la edificación:
Ubicación del terreno:
La vivienda unifamiliar se encuentra ubicada actualmente en pról. Hilario
Carrasco en la provincia de Tumbes - corrales.
La ubicación de esta vivienda presenta muy bien alternativas para un buen
vivir ya que los medios para transportarse son óptimos.
Orientación del terreno:
El terreno se encuentra orientado al Este en el cual sacaremos ventaja para
reunir las mejores condiciones a la vivienda y a los que en ella habitaran,
teniendo en cuenta los factores importantes como la iluminación natural,
asoleamiento, ventilación.
Terreno:
- Ancho: 8 m.
- Largo: 15 m.
- Área: 120 m.
- Perímetro: 46 m.
Áreas a construirse:
- Área a construirse en primer piso : 88.94 m²
- Área a construirse en segundo piso : 88.16 m²
- Área a construirse azotea : 34.00 m²
- Área total : 211.10 m²
Ambientes de la vivienda:
 Primer piso:
- Un hall de entrada
- Un estudio
- Una sala estar
- Un comedor
- Una cocina
- - Un patio de servicio
- Un dormitorio
- Un s.h de visita
- Una escalera que lleva al segundo piso
 Segundo piso:
- Dos balcones
- Una sala estar
- Un hall
- Un cuarto principal con su baño.
- Un cuarto doble
- Un cuarto simple
- Un baño con piscina
- Una escalera que lleva a la azotea
 Azotea:
- Una terraza
- Un dormitorio y un baño
- Una lava mano
Análisis del diseño de la vivienda unifamiliar
Análisis fundamental de la vivienda unifamiliar
Ambientes fundamentales
Zona social de la vivienda unifamiliar:
Hall:
Se llama hall, recibidora la pieza de la vivienda situada junto a la entrada y
que da acceso al resto de habitaciones de la casa. Como también puede haber
un hall situado en los siguientes pisos que tiene la función de distribuir a los
diferentes ambientes de la vivienda.
Diseño:
El hall suele ser de pequeñas dimensiones pero cumple algunas funciones
importantes relacionadas con la preparación para entrar o salir de la vivienda:
recoger las prendas de abrigo, paraguas o bolsos, guardar las llaves, recoger
la correspondencia, etc.
Como su propio nombre indica, el hall es la habitación que acoge a los
visitantes y la parte visible de la casa para quienes se quedan en la puerta.
Constituye la tarjeta de presentación de la vivienda por lo que, a pesar de ser
una sala interior y de paso, debe ser luminoso y acogedor.
Análisis:
En esta vivienda unifamiliar veremos las funciones que cumple el hall:
Estudio:
El estudio puede ser un ambiente integrado con la sala estar, comunicando
con el hall de entrada o una habitación que ofrezca total independencia, del
resto de la casa.
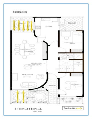
Iluminación:
La iluminación se puede lograr de dos maneras: natural y artificial.
La iluminación natural se logra a través de ventanas o vanos y desniveles
en las losas (cenital), se prefiere que la luz venga de la parte de enfrente del
usuario y del lado izquierdo. Las disposiciones para el área mínima de vanos
para iluminación indican 1/5 de la superficie del piso del local; La fuente
inicial de la iluminación natural es el sol.
La iluminación artificial se puede dar de varias maneras, dependiendo del
tipo de los aparatos de alumbrado.
Ventilación:
Todos los locales dentro de una vivienda requieren de una ventilación que
permita la renovación total del aire cuando menos de 2 a 4 por hora. Por lo
tanto en el estudio tenemos una ventana de:
Ancho: 1.80 m.
Alto: 1.30 m.
Alfeizar: 1.00 m.
Por lo tanto el ambiente de estudio tiene una muy buena ventilación ya que
tiene una ventilación de aire de entrada por la ventana y una salida por la
puerta tanto así que nos permite una comodidad excelente para el profesional
y para el cliente en el momento que realicemos cualquier actividad.
Circulación:
Debe de tener un espacio necesario para poder trasladarse y para hacer
actividades en ese local. Observando en nuestro diseño podemos decir que es
un ambiente acto para poder circular normalmente.
Análisis:
El estudio en esta vivienda unifamiliar cumple un rol importante ya que el
profesional puede atender a sus clientes sin la necesidad de llevarlos al centro
de la vivienda y así poder proteger su privacidad y en cuanto a su diseño
podemos decir que está bien diseñado por que tiene una muy buena
iluminación ya que tiene una ventana al lado izquierdo comunicado con el
hall de entada.
Iluminación:
Iluminación:
Ventilación:
Ventilación:
Sala – estar
Uno de los usos más comunes es para referir a aquel espacio de la casa en el
cual se concentra la vida social de los integrantes de la familia. Por ejemplo,
en la sala la familia suele reunirse para ver la televisión, para charlar sobre
sus eventos del día, recibir a sus invitados, entre otras actividades. La misma
suele estar equipada con sofás o sillones, una mesa, sillas, muebles que hacen
de soporte para la tevé, etc.
Diseño:
Para un buen diseño de una sal estar lo primero que debemos de tener en
cuanta es en los muebles que vamos a poner, tiene que tener una buena
ventilación e iluminación y por ultimo tiene que ser un ambiente acogedor y
cómodo.
Circulación:
Se procura tener un amplió ambiente y no debe tener comodidades al
momento de la circulación.
Iluminación:
Debe tener una buena iluminación para poder satisfacer a la familia y amigos.
Ventilación:
Posee una ventana mampara delante de la vivienda para una buena
ventilación e iluminación.
Análisis:
La sala estar de esta vivienda unifamiliar es un sitio cómodo y bien ventilado
e iluminado que tiene una muy buena relación con el comedor, satisfaciendo
así a toda la familia.
De la circulación podemos decir que los muebles están en un muy buen sitio y
además no existe congestión o molestia por el paso de otras personas ya que
el diseño de la sala esta una esquina de la vivienda como podemos apreciar en
la siguiente imagen:
Iluminación:
Iluminación:
Ventilación:
Ventilación:
Lugar para comer
El comedor representa un lugar familiar importante por ser donde se reúne la
familia para tomar los alimentos.
Los principales factores que se deben considerar para su diseño, son:
- Número de personas que lo van a ocupar.
- Espacio que ocupan estas personas sobre la mesa.
- Espacio para las sillas y la circulación entre ellas.
- Distribución de los asientos.
- Tamaño y tipo de mobiliario.
Circulación:
Tiene que tener una buena circulación y no bebe de tener un choque de
personas al momento de pararse de la silla u toros.
Iluminación:
Es un aspecto muy importante porque hace sentir a la familia cómoda y
satisfecha y para así poder tomar sus alimentos sin contratiempos.
Ventilación:
Muy importante en un diseño ya que el ser humano transpira y por parte del
vient0 esos olores se van y se puede comer sin problemas.
Análisis:
El ambiente para tomar los alimentos de esta vivienda cuenta con una
mampara por donde entra el aire en la sala estar y contamos con otra
mampara al fondo del lugar para comer por donde sale el aire; tenemos que
tener en cuenta que el ambiente para tomar los alimentos tiene que tener una
relación con la cocina y la sala estar.
Iluminación:
Iluminación:
Ventilación:
Ventilación:
Zona de servicio de la vivienda unifamiliar:
Cocina:
La cocina no es solamente un local de trabajo especializado, ya que se dan
diferentes actividades en este espacio.
Se usa para la preparación y conservación de los alimentos, almacenamiento
de comida y utensilios, etc.
Diseño:
Se debe reducir en lo posible la circulación dentro de la cocina; las
interferencias al funcionamiento deben eliminarse. El diseño de la cocina
debe ser funcional y optimizar los movimientos del usuario, evitando los
estiramientos forzados y las frecuentes e incomodas agachadas.
Orientación:
La cocina debe orientarse, en lo posible, al Norte o al Noroeste y permitir la
incidencia directa de los vientos dominantes para una correcta ventilación.
Iluminación:
Se recomienda que la iluminación sea directa y dirigida a las zonas de trabajo.
Además, debe de haber una iluminación general difusa de todo el local,
tratando de evitar los espacios sombreados.
Ventilación:
Este es uno de los locales de la vivienda que requieren un mayor índice de
ventilación. Se recomienda que sea del orden de 15 cambios de volumen total
del aire en una hora. En caso de que no exista el viento necesario para
favorecer estos cambios, se recomienda que se auxilie con una campana
extractora o con ventiladores mecánicos.
Análisis:
Podemos decir que se ha cumplido con todo lo recomendado.
Iluminación:
Iluminación:
Ventilación:
Ventilación:
Patio de servicio:
El patio de servicio es el espacio más importante en el funcionamiento de una
casa, debido a las diferentes funciones que se realizan en el, generalmente
contiene el lavadero y el calentador de agua, la bomba y casi siempre la
cisterna, la mejor ubicación es junto a la cocina y la mejor orientación es
dependiendo del clima de tu región pero generalmente es orientado hacia el
este o sureste.
Diseño:
Para un patio de servicios unas buenas dimensiones serían 12m2 que son
3x4m y una dimensión mínima seria 6.25 m2 que son 2.5 x 2.5 m.
Los instrumentos instalados o acomodados en el patio de servicio deberán
tener una buena distribución para no generar malestar ni contratiempos.
Ventilación:
Debe de tener una buena ventilación pero generalmente este ambiente se
diseña con una relación al jardín y con la cocina.
Iluminación:
Tiene que tener una iluminación necesaria para realizar cualquier actividad
sin problemas, esta iluminación la aprovecharemos por medio del sol.
Análisis:
El patio de servicio de esta vivienda unifamiliar tiene una buena relación con
la cocina que es lo recomendado pero por otra parte podemos decir que falla
en su dimensión ya que tiene una dimensión mínima de 2.20 x 2.50 m, donde
la circulación no será muy buena.
Iluminación:
Iluminación:
Ventilación:
Ventilación:
Baño de visitas – primer nivel:
En términos generales, el baño se considera como un lugar de aseo personal.
Las actividades más comunes son lavarse las manos, la cara, el cabello, etc.
Diseño:
En este baño es donde se usa un lavabo y un inodoro. Se puede distribuir
fácilmente en una superficie de 1.50 a 2.40 m2.
Iluminación:
El alumbrado debe ser adecuado para toda las funciones, para el arreglo
personal es esencial que la iluminación principal este dirigida a la cara y se
disperse hacia los demás ángulos.
Es necesario que las ventanas proporcionen suficiente luz en el día.
Ventilación:
La ventilación es esencial en el baño, ya que además de disipar los olores,
ayuda a reducir la humedad en el cuarto. En todos los casos se debe de
minimizar las corrientes de aire.
Análisis:
El baño de visita de esta vivienda unifamiliar cuenta con una dimensión de
2.50 m2, por lo que podemos decir que existe una buena distribución –
circulación. Y que cuenta con una ventana para disipar los olores y un traga
luz esencial.
Iluminación:
Iluminación:
Ventilación:
Ventilación:
Zona privada de la vivienda unifamiliar:
Dormitorios y baños
En la actualidad los dormitorios además de utilizarse para dormir, sirven para
realizar otras actividades que requieren de mobiliarios, tales como para leer,
estudiar, etc. La dimensión básica de un dormitorio depende del número de
camas.
Diseño:
Para un buen diseño de un dormitorio se tomaran algunas recomendaciones:
- Se recomienda que las camas se orienten en dirección norte-sur.
- Deben ser paralelas a la ventana principal de la habitación.
- Tiene que tener una relación directa con los baños.
- La edad y sexo de los hijos a ocuparlos.
- Las actividades y costumbres de los ocupantes e esos dormitorios.
- Sus dimensiones mínimas de un dormitorio se calculara por las camas
y los espacios para una buena circulación.
Ventilación:
Para los dormitorios es esencial tener una buena iluminación para que los
ocupantes ya que se sentirán augustos y cómodos.
Circulación:
Tener una buena circulación al momento de hacer cualquier tipo de actividad.
Analisis:
Los dormitorios de esta vivienda tiene una muy buena ventilacion de entrada
pero no de salida y un muy buena distribucion de los ambientes. A
continuacion se vera el analisis de los ambientes:
Iluminación de los dormitorios y baños:
Iluminación:
Segundo nivel:
Ventilación:
Iluminación:
Terraza:
Iluminación:
Ventilación de los dormitorios y baños:
Ventilación:
Segundo nivel:
Ventilación:
Terraza:
Ventilación:
Vanos:
Puertas de entrada:
Su diseño no deberá ser lugar a dudas con respecto a la diferencia con la
entrada de servicio. El ancho no será menor de 90 cm. Es deseable proveerlas
de algún depósito que permita observar desde dentro y sin abrirlas, el exterior
de la casa.
Puertas de comunicación:
Su ancho se hace oscilar entre 65 y 85 cm. Es mejor que las puertas no abran
sobre los pasillos, deben abrirse junto al muro o dejar el espacio suficiente
para algún mueble. Si las puertas son dos, debe tratarse de que no se
interfieran al abrirse.
Ventanas:
Cumplirá su función de modo eficaz, cuando la cantidad de aire, luz y sol que
por ella penetre sea la necesaria para el ambiente a que corresponda y la vista
lograda a su través, la más satisfactoria. Se tratara de que los dinteles lleguen
lo más cerca posible al cielo raso, para asegurar la renovación de aire y evitar
la formación de una capa de aire vaciado.
Al momento de relacionar la puerta con los ambientes no deberán de existir
un tránsito entre personas (choques de personas).
Cuadro de vanos de la vivienda unifamiliar:
Tener en cuenta la siguiente relación:
Circulación de la vivienda unifamiliar:
Existen dos tipos de circulaciones: horizontales y verticales; ambas deben
planearse con la mayor eficiencia para garantizar el correcto funcionamiento
de los espacios y sus interrelaciones.
Las circulaciones horizontales presentan problemas con los obstáculos que
encuentran a su paso. Por esto deben analizarse cuidadosamente los límites
de separación entre un local y una circulación para permitir el paso
libremente. Y las verticales las escaleras.
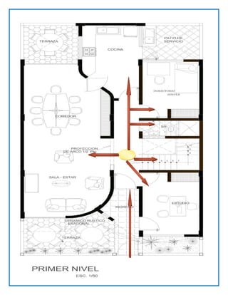
Circulación del Primer nivel:
Circulación:
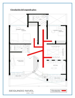
Circulación del segundo piso:
Circulación:
Circulación de la terraza:
Circulación:
Zonificación de la vivienda unificación:
A. Social:
A. privada:
A. servicios:
A. privada:
A. servicios privados:
Coordinación de la vivienda unifamiliar:
Primer nivel:
Mayor Frecuencia: (líneas 10)
Media Frecuencia: (líneas 5)
Poca Frecuencia: (líneas 3)
Segundo piso:
Mayor Frecuencia: (líneas 8)
Media Frecuencia: (líneas 5)
Poca Frecuencia: (líneas 3)
Terraza:
Mayor Frecuencia: (líneas 6)
Media Frecuencia: (líneas 4)
Poca Frecuencia: (líneas 3)
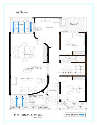
Asoleamiento de la vivienda unifamiliar:
Para poder lograr un asoleamiento adecuado es necesario conocer de
geometría solar para prever la cantidad de horas que estará asoleado un local
mediante la radiación solar que pase a través de ventanas y otras superficies
no opacas. Es probable que luego de un estudio de asoleamiento se requiera
controlar el ingreso de radiación solar mediante una adecuada protección
solar y así poder regular el efecto del sol y su capacidad de calentar el interior
de locales habitables. Indistintamente necesita asolearse o protegerse del sol
una superficie vidriada o una superficie opaca. En cada caso será
sensiblemente diferente el modo en que el calor del sol se transmitirá al
interior del local.
Análisis de Asoleamiento
Este análisis nos servirá para identificar cuáles son las zonas de las viviendas
de mayor asoleamiento los meses de más calor, vemos:
En las fachadas que están orientadas mirando al Suroeste los rayos de sol
inciden directamente en los meses de noviembre, diciembre, enero y febrero
en las horas de la tarde hasta las últimas horas del día.
En las fachadas que están orientadas mirando al Noreste, los rayos de sol
inciden directamente en los meses de mayo, junio, julio, agosto en las
primeras horas del día hasta el mediodía.
En las fachas que están orientadas mirando al Sureste que es el caso de las
viviendas en esquina, los rayos de sol inciden directamente en las primeras
horas del día de los meses de noviembre, diciembre, enero y febrero.
En las fachadas que están orientadas mirando al Noroeste que es el caso de
las viviendas en esquina los rayos de sol inciden directamente en las horas de
más color por la tarde en los meses de mayo, junio, julio y agosto.
Todo esto que estamos viendo condiciona en el diseño de la vivienda.
Orientación de los Ambientes fundamentales:
Norte: orientar estar, comer, terrazas y galerías Asia el mejor sol.
Este: orientar dormitorios, cocinas, comedor diario. Actividades que se
desarrollan más por la mañana.
Oeste: orientar hall de acceso, k también podría ir asía el sur sin problema,
sala de juegos, estudio.
Asia al este u oeste pueden haber como una estancia o comedores.
Sur: orientar todo lo que es servicio, baños, lavaderos, escaleras, pasillos. Para
protegernos del frio y del viento, estos son lugares que necesitan poca
iluminación.
A continuación hallaremos la pared caliente de la vivienda unifamiliar:
Primer nivel:
Pared caliente:
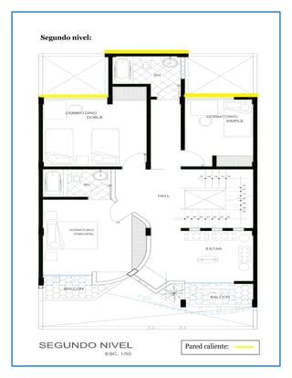
Segundo nivel:
Pared caliente:
Terraza:
Pared caliente:
Conclusión:
Primer nivel:
En el primer nivel podemos decir que se encuentra con buena iluminación en
los ambientes requeridos pero con una media ventilación, y en el baño de
visita hay una ventilación de entrada pero no de salida, esto lo podemos
arreglar poniéndole un tubo de ventilación de Ø2” donde podemos dispersar
los malos olores a otro lado y así no afecte otros ambientes.
Segundo nivel:
En el segundo nivel tenemos una buena iluminación en los ambientes
requeridos pero una media ventilación, nuevamente decimos que en los baños
tenemos que corregir la ventilación de salida poniéndole un tubo de Ø2” para
dispersar los malos alores a otro lado y así no afecte otros ambientes.
Terraza:
En la terraza tenemos una buena iluminación y ventilación. Ya se es el último
nivel de la casa.
Por último decimos que existen problemas con el asoleamiento, será
necesario proteger los muros que son afectados directamente con los rayos
solares.
Si se toman en cuenta lo señalado anteriormente se podrá lograr el objetivo
propuesto que no es principalmente que el profesional gane buen dinero, sino
que el cliente quede satisfecho con lo realizado y que el trabajo sea de calidad,
para que así pueda recomendar, y se pueda confiar en que si te recomienda es
porque de verdad le gustó tu trabajo.
Bibliografía:
 Reglamento Nacional de Edificaciones
- Título III - Arquitectura
 Como se Proyecta una Vivienda
- Arq. José Luis Moia
 Las Medidas de una casa – Antropometría de la vivienda
- Xavier-Fonseca
 Manual del Arquitecto
- Johan Van Lengen
 El Arte de Proyectar en Arquitectura
- Neufert

trabajo-proceso-de-diseno-de-una-vivienda-unifamiliar

  • 1.
    INGENIERIAS Y ARQUITECTURA FACULTADE INGENIERIA CIVIL Curso: Arquitectura Tema: Proceso de diseño de una vivienda unifamiliar Docente: julio Ramírez Núñez Ciclo: VII Alumno: Sembrera Zevallos Martin Tumbes – 2014
  • 2.
    INDICE Introducción Objetivo Hipótesis del proyecto Descripciónde la edificación - Estudios preliminares - Anteproyecto (Diseño) - Planos y especificaciones técnicas - Presupuesto aproximado - Visado del Plano ante el CIP - Permiso de Construcción - Certificado de finalización de Obra - Antecedentes - Características de la edificación Normas del reglamento nacional de edificaciones Análisis de la vivienda Ambientes fundamentales Circulación Zonificación y coordinación Asoleamiento Conclusiones
  • 3.
    PROCESO DE DISEÑODE UNA VIVIENDA UNIFAMILIAR Introducción El diseño arquitectónico no solo debe depender de las habilidades del individuo, ni ser un proceso intuitivo, es necesario seguir una metodología para obtener los resultados más adecuados. El fin deseado para un buen proceso de diseño no es solamente crear un espacio funcional, donde puedan consumirse las necesidades generadas por el usuario, si no saber aprovechar lo que nos brinda la naturaleza ya sea por el sol o por el viento entre otros conceptos fundamentales. El siguiente análisis nos mostrara todos los pasos a seguir para el correcto diseño de una vivienda unifamiliar, en cuanto a función, relación entre ambientes, necesidades del usuario, distribución, adaptación al terreno y otros requerimientos que debemos tener en cuenta para el correcto desarrollo del diseño de una vivienda. Objetivo: El presente trabajo se realizara con el motivo de poder entender el funcionamiento y proceso de diseño de una vivienda unifamiliar para así poder realizar cualquier tipo de proyecto arquitectónico. Adquirir habilidades para observar, analizar y proponer soluciones a obras sencillas. Interpretar el concepto de función vivienda, organigrama y zonificación, distribución de espacios, circulación, asoleamiento, etc. Tener un conocimiento preciso de lo que existe, qué aciertos o desaciertos se presenta, para mejorar y corregir nuestro planteamiento de solución.
  • 4.
    Hipótesis del proyecto Pormedio de este trabajo se pretende resolver el diseño de una vivienda unifamiliar tipo alto residencial de una manera inteligente, dinámica e innovadora; que respete y sepa integrarse a su contexto e impulse a los usuarios a disfrutar de momentos de socialización, contemplación y diversión. Para satisfacer dicha demanda se contemplan en toda medida las necesidades del cliente, como es el caso de la inclinación del cliente por el estilo californiano. Se llevara al limite la funcionalidad a la hora de diseñar cada espacio para logra el mayor confort, brindando placer y satisfacción al realizar las actividades designadas para los espacios en cuestión. Se buscara obtener comunicación entre espacios para fortalecer la interacción familiar, haciendo un buen uso de los espacios que tengas dicha funciones tales como: vestíbulos y escaleras. Se realizara un diseño adquiriendo el significado del concepto mediante la identidad de sus usuarios conciliándolo con los aportes tecnológicos de hoy en día. Dentro del área constructiva se aplicaran desde sistemas constructivos tradicionales para losas y muros, hasta la configuración de cimentación por concreto armado. Las losas inclinadas jugaran un rol importante de modo que se logre el juego armonioso entre fachadas, plantas arquitectónicas, sin dejar de lado, por supuesto, las áreas verdes. Dentro del proceso de diseño, se contemplaran las medidas básicas para la iluminación, la cual será conseguida por medio de aberturas adecuadas en fachadas y con base a la orientación solar que tiene el predio; de igual manera, la ventilación, se lograra a partir de un buen flujo de aire que corra a través del interior de la construcción por medio de puertas y ventanas, también se tomaran en cuenta aspectos de seguridad, identidad, comodidad, armonía, equilibrio; nunca olvidándonos de la funcionalidad que corresponde al conjunto de características que hacen que algo sea practico y utilitario, esto
  • 5.
    se ganara pormedio de espacios amplios óptimos e inteligentemente ubicados y distribuidos correctamente. En general lo que se pretende es la conjunción de funcionalidad e identidad dentro del proyecto, manteniendo una constante relación entre estos conceptos. Que el proyecto administre, distribuya y organice espacios.
  • 6.
    Propietario - Fecha: 13 deagosto del 2014. - Nombre y apellido: Sr. Cesar seminario Peña Sra. RosaPreciado Risco - Domicilio: Barrio nuevo - corrales. - Teléfono: Celular: 962246589; Rpm: #962246589 - Lugar y hora donde se puede se puede visitar al propietario: Lugar: Av. Lima - corrales. Hora: A partir de las 8:30 hasta las 10:30 de la noche.
  • 7.
    Ocupantes de lavivienda unifamiliar Integrantes de la familia: - Esposos: Sr. Cesar seminario Peña Sra. Rosa Preciado Risco - Hijos: Juan Seminario Risco 15 años. Carlos Seminario Risco 11 años. Cesar Seminario Risco 17 años. - Sexo: Masculino: 4. Femenino: 1. - Tiempo de permanencia: 7 horas por día.
  • 8.
    Descripción de laedificación: Para realizar el diseño de la vivienda unifamiliar se recomienda que contrate a un ingeniero o a un profesional que esté debidamente registrado en el Colegio de Ingenieros del Perú. El profesional seleccionado deberá analizar las condiciones del terreno y las necesidades del cliente para conceptualizar el diseño de la obra. En esta etapa es fundamental la comunicación entre el cliente y el profesional para asegurar que el diseño satisfaga todas las necesidades (técnicas, funcionalidad, presupuesto, etc.)El diseño de la vivienda se divide en varias etapas, cada una de ellas tiene un alcance y un costo específico (el costo se indica como porcentaje del valor estimado de la obra). Estudios preliminares: verificar la factibilidad de la realización del proyecto en el terreno seleccionado, tomando en cuenta las restricciones de ley y/o uso del terreno. Anteproyecto (Diseño): propuesta espacial, técnica y funcional, que define el carácter e identidad de un proyecto; debe cumplir con las necesidades establecidas y con las regulaciones y reglamentos vigentes. Planos y especificaciones técnicas: los planos de construcción son el conjunto de elementos gráficos que definen con claridad el carácter y la finalidad de una obra, y que permiten construirla bajo la dirección de un profesional responsable. Estos planos deben comprender los aspectos de distribución, de estructuración e instalaciones, respaldadas por sus respectivos cálculos. Las especificaciones técnicas definen las características de los materiales a utilizar en la obra. Presupuesto aproximado: La realización del presupuesto es opcional, en el presupuesto se calcula el valor de la obra a precio de mercado incluyendo costos de materiales, mano de obra y costos indirectos. CIP: Colegio de Ingenieros del Perú
  • 9.
    Visado del Planoante el CIP Una vez concluido el diseño de la vivienda, es necesario solicitar el visado de los planos ante el Colegio de Ingenieros del Perú para que quede acreditada la responsabilidad del Profesional en esa obra. Es necesario presentar los siguientes documentos: Contrato de consultoría firmado entre el propietario y el Profesional Responsable de la Obra 3 Copias de los planos de la obra Copia del Plano de Catastrado Declaración Jurada del cumplimiento de la normativa del Ministerio de Salud (cuando aplique) Adicionalmente se debe comprar la bitácora que utilizará el Profesional Responsable durante la etapa constructiva. Permiso de Construcción Una vez visado los planos por el CIP se debe obtener el permiso de construcción que otorga la municipalidad correspondiente. Es necesario presentar los siguientes documentos: Solicitud del permiso de construcción. Informe registral de la propiedad o fotocopia de la escritura. Fotocopia del plano catastrado visado por la municipalidad. Fotocopia de la cédula del solicitante. Certificación del área contable de la municipalidad indicando que está al día en todos los tributos municipales. • Planos constructivo visado por el CIP. • Póliza de Riesgos del Trabajo ya cancelada, contrato del CIP
  • 10.
    Certificado de finalizaciónde Obra La entrega del proyecto debe hacerse de manera formal involucrando al profesional responsable, al constructor y al propietario para comprobar la conformidad de todas las partes con respecto a lo contratado. Además, el Profesional Responsable deberá entregarle una copia de la Bitácora de la obra; en ella encontrará el detalle del trabajo realizado, así como cualquier situación especial que se haya presentado durante el proceso constructivo. El proyecto a construirse, es una edificación para uso de vivienda unifamiliar, que cuenta con un primer y segundo piso y además una azotea y que complementa la funcionabilidad de la misma. Antecedentes: El presente proyecto a construirse, ha surgido como una necesidad del propietario para satisfacer sus necesidades de vivienda, confort y seguridad para él y su familia. El proyecto, materia de construcción, ha sido proyectado por un alumno de Ing. Civil, de acuerdo a los lineamientos de distribución, espacio, dimensionamiento conforme lo estipula el Reglamento Nacional de edificaciones (RNE). A continuación se mencionará algunas normas del reglamento nacional de edificaciones para un buen diseño, uso y funcionamiento de una edificación: Título I - Norma G.010 Consideraciones básicas Artículo 5°: Para garantizar la seguridad de las personas, la calidad de vida y la protección del medio ambiente, las habilitaciones urbanas y edificaciones deberá proyectarse y construirse, satisfaciendo las siguientes condiciones:
  • 11.
    a) Seguridad - seguridadestructural: de manera que se garantice la permanencia y la estabilidad de la estructura. - seguridad en caso de siniestros: de manera que las personas puedan evacuar las edificaciones en condiciones seguras en caso de emergencias. Cuenten con sistemas contra incendio y permitan la actuación de los equipos de rescate. - Seguridad de uso: de manera que en su uso cotidiano en condiciones normales, no exista riesgo de accidentes para las personas b) Funcionalidad - uso: de modo que las dimensiones y disposiciones de los espacios, así como la dotación de las instalaciones y equipamiento, posibiliten la adecuada realización de las funciones para las que está proyectada la dimensión. - accesibilidad: de manera que permitan el acceso y la circulación a las personas con discapacidad. c) Habitabilidad - salubridad e higiene: de manera que aseguren la salud integral y confort de las personas. - protección térmica y sonora: de manera que la temperatura interior y el ruido que se perciban en ellas no atente contra el confort y la salud de las personas permitiéndoles realizar satisfactoriamente sus actividades. d) Adecuación al entorno y protección del medio ambiente - adecuación al entorno: de manera que se integre a las características de la zona de manera armónica. - protección del medio ambiente: de manera que la localización y el funcionamiento de las edificaciones no degrade el medio ambiente.
  • 12.
    Título III ARQUITECTURA - NormaA.010 Consideraciones generales de diseño Capítulo I – características de diseño Artículo 1: La presente norma establece los criterios y requisitos mínimos de diseño arquitectónico que deberán cumplir las edificaciones con la finalidad de garantizar lo estipulado en n el art. 5ª de la norma G.010 del TITULO I del presente reglamento. Artículo 3: Las obra de edificación deberá tener calidad arquitectónica, la misma que se alcanza con una respuesta funcional y estética acorde con el propósito de la edificación, con el logro de de condiciones de seguridad, con la resistencia estructural al fuego, con la eficiencia del proceso constructivo a emplearse y con el cumplimiento de la norma vigente. Las edificaciones corresponderán a las condiciones responderán a los requisitos funcionales de las actividades que se realicen en ellas, en términos de dimensiones de los ambientes, relaciones entre ellos, circulaciones y condiciones de uso. Se ejecutaran con materiales, competentes y con equipos de calidad que garanticen seguridad, durabilidad y estabilidad. En las edificaciones se respetara el entorno inmediato, conformado por las edificaciones colindantes, referente a la altura, acceso y salida de vehículos, entregándose a las características de las zona de manera armónica. En las edificaciones de propondrá soluciones técnicas apropiadas a la características del clima, del paisaje, del suelo y del medio ambiente en general.
  • 13.
    En las edificacionesse tomara en cuenta el desarrollo futuro de zona, en cuanto a vías públicas, servicios de las ciudades, renovación urbana y zonificación. Artículo 4: Los parámetros urbanísticos y edificatorios de los predios urbanos deben estar definidos en el plan urbano. Los certificados de parámetros deben consignar la siguiente información. a) Zonificación b) Sección de vías actuales, en su caso, de vías previstas en el plan urbano de la localidad. c) Usos del suelo permitido d) Coeficiente de edificación e) Porcentaje mínimo de área libre f) Altura de edificio expresada en metros g) Retiros h) Área del lote normativo, aplicable a la subdivisión de lotes. i) Densidad neta expresadas en habitantes por hectárea o en área mínima de las unidades que conformaran la edificación j) Existencias de estacionamiento para cada unjo de los usos permitidos k) Aéreas de riesgo o de protección que pudieran afectarlo. l) Calificación de bien cultural inmueble, de ser el caso. m)Condiciones particulares
  • 14.
    Capítulo IV –Dimensiones mínimas de los ambientes Artículo 21: Las dimensiones de los ambientes de las edificaciones deben ser suficientes para: a) Realizar las funciones para las que son destinados. b) Albergar al número de personas propuesto para realizar dichas funciones. c) Tener el volumen de aire requerido por ocupante y garantizar su renovación natural o artificial. d) Permitir la circulación de las personas así como su evacuación en casos de emergencia. e) Distribuir el mobiliario o equipamiento previsto. f) Contar con iluminación natural o artificial suficiente. Artículo 22: Los ambientes con techos horizontales, tendrán una altura mínima de piso terminado a cielo raso de 3.0 m. Las partes más bajas de los techos inclinados podrán tener una altura menor. Artículo 23: Los ambientes para equipos o espacios para instalaciones mecánicas, podrán tener una altura menor, siempre que permitan el ingreso y permanencia de personas de pie (parados) para la instalación, reparación o mantenimiento. Artículo 24: Las vigas y dinteles, tendrán una altura mínima de piso terminado a la cara inferior del elemento de 2.80 m.
  • 15.
    Capítulo VI –Servicios Sanitarios Artículo 39: Los servicios sanitarios de las edificaciones deberán cumplir con los siguientes requisitos. a) La distancia máxima de recorrido para acceder a un servicio sanitario será de 10m. b) Los materiales de acabado de los ambientes para servicios sanitarios serán antideslizantes en pisos e impermeables en paredes, y de superficie lavable. Capitulo IX – requisitos de ventilación y acondicionamiento ambiental Artículo 51: Todos los ambientes deberán tener al menos un vano que permita la entrada del aire desde el interior. Los ambientes destinados a servicios sanitarios, pasajes de circulación, depósito y almacenamiento donde se realice actividades en los que ingresen personas de manera eventual, podrán tener una solución de ventilación mecánica a través de ductos exclusivos u otro ambiente. Artículo52: Los elementos de ventilación de los ambientes deberán tener los siguientes requisitos. a) El área de abertura del vano hacia el exterior no será inferior al 5 % de la superficie de la habitación que se ventila. b) Los servicios sanitarios, almacenes y depósitos pueden ser ventilados por medios mecánicos o mediantes conductos de ventilación.
  • 16.
    Artículo 53: Los ambientesque en su condición de funcionamiento normal no tengan ventilación directa hacia el exterior, deberán contar con un sistema mecánico de renovación de aire. - Norma A.020 VIVIENDA Capítulo I – generalidades Artículo 5: Para el cálculo de la densidad habitacional, el número de habitantes de una vivienda, está en función del número de dormitorios, según lo siguiente: Vivienda número de habitantes De un dormitorio 2 De dos dormitorios 3 De tres dormitorios o más 5 Capítulo II – condiciones de diseño Artículo 7: Las dimensiones de los ambientes que constituyen la vivienda serán aquellas capaces de permitir el amueblamiento mínimo requerido para la función propuesta, acorde con el número de habitantes de la vivienda. Las dimensiones de los muebles se sustentan en las características antropométricas de las personas que la habitarán. Artículo 10: Las escaleras y corredores al interior de las viviendas, que se desarrollen entre muros deberántener un ancho mínimo de 0.90 m.
  • 17.
    Las escaleras quese desarrollen en un tramo con un lado abierto o en dos tramos sin muros podrán tener un ancho libre mínimo de 0.80m. Artículo 12: El acceso a las viviendas unifamiliares deberá tener un ancho mínimo de 0.90m. Los accesos a las edificaciones multifamiliares y aquellas que forman parte de conjuntos residenciales, deberán tener un ancho mínimo de 1.00 m. Capítulo III – características de las viviendas Artículo 19: Las ventanas que dan a los ambientes iluminación y ventilación deberán tener un cierre adecuado a las condiciones del clima, y contar con carpintería de materiales compatibles con los materiales del cerramiento. Los vidrios que no cuenten con carpintería de soporte en todos sus lados, deberán ser templados. La ventanas deberán ser de fácil operación y en todos los casos permitir su limpieza desde la habitación de ventilan. El alfeizar una ventana tendrá una altura como minina de 0.90m. En caso que esta altura sea menor, la parte de la ventana entre el nivel de alfeizar y los 0.90 m deberá ser fija y el vidrio templado con una baranda de protección interior o exterior con elementos espaciados un máximo de 0.15 m. Artículo 23: Las cubiertas deberán ser resistentes al viento y evitar la filtración de agua hacia el interior de la vivienda, y estar fijadas a la estructura de manera de resistir la acción de los vientos dominantes. Los techos, azoteas o terrazas transitables, deberán contar con parapetos de protección de un mínimo de1.10 m de altura.
  • 18.
    El último techode una vivienda unifamiliar de varios pisos o multifamiliar, deberá tener un aislamiento térmico que permita un nivel de confort similar al de los demás pisos. Los techos deben contar con un sistema de evacuación del agua de lluvias hasta el suelo o hasta el sistema de alcantarillado. Deberá evitarse el posible empozamiento de agua de lluvias. Las cubiertas inclinadas deben ser capaces de soportar el uso de personas para reparación o mantenimiento. Artículo 24: Las edificaciones para viviendas estarán provistas de servicios sanitarios, según las siguientes cantidades mínimas. Vivienda hasta 25 m2. 1 inodoro, 1 ducha, 1 lavadero. Vivienda con más de25 m2. 1 inodoro, 1 lavatorio, 1 ducha y 1 lavadero.
  • 19.
    Para realizar unaedificación tenemos que tener en cuenta tres zonas fundamentales que son las siguientes: Donde: Zona social: - Sala – estar - Comedor - Oficina - Hall Zona servicios: - Cocina - Patio de servicios - Baños Zona privada: - Cuartos - Baños privados
  • 20.
    Características de laedificación: Ubicación del terreno: La vivienda unifamiliar se encuentra ubicada actualmente en pról. Hilario Carrasco en la provincia de Tumbes - corrales. La ubicación de esta vivienda presenta muy bien alternativas para un buen vivir ya que los medios para transportarse son óptimos. Orientación del terreno: El terreno se encuentra orientado al Este en el cual sacaremos ventaja para reunir las mejores condiciones a la vivienda y a los que en ella habitaran, teniendo en cuenta los factores importantes como la iluminación natural, asoleamiento, ventilación. Terreno: - Ancho: 8 m. - Largo: 15 m. - Área: 120 m. - Perímetro: 46 m. Áreas a construirse: - Área a construirse en primer piso : 88.94 m² - Área a construirse en segundo piso : 88.16 m² - Área a construirse azotea : 34.00 m² - Área total : 211.10 m² Ambientes de la vivienda:  Primer piso: - Un hall de entrada - Un estudio
  • 21.
    - Una salaestar - Un comedor - Una cocina - - Un patio de servicio - Un dormitorio - Un s.h de visita - Una escalera que lleva al segundo piso  Segundo piso: - Dos balcones - Una sala estar - Un hall - Un cuarto principal con su baño. - Un cuarto doble - Un cuarto simple - Un baño con piscina - Una escalera que lleva a la azotea  Azotea: - Una terraza - Un dormitorio y un baño - Una lava mano
  • 22.
    Análisis del diseñode la vivienda unifamiliar
  • 25.
    Análisis fundamental dela vivienda unifamiliar Ambientes fundamentales Zona social de la vivienda unifamiliar: Hall: Se llama hall, recibidora la pieza de la vivienda situada junto a la entrada y que da acceso al resto de habitaciones de la casa. Como también puede haber un hall situado en los siguientes pisos que tiene la función de distribuir a los diferentes ambientes de la vivienda. Diseño: El hall suele ser de pequeñas dimensiones pero cumple algunas funciones importantes relacionadas con la preparación para entrar o salir de la vivienda: recoger las prendas de abrigo, paraguas o bolsos, guardar las llaves, recoger la correspondencia, etc. Como su propio nombre indica, el hall es la habitación que acoge a los visitantes y la parte visible de la casa para quienes se quedan en la puerta. Constituye la tarjeta de presentación de la vivienda por lo que, a pesar de ser una sala interior y de paso, debe ser luminoso y acogedor. Análisis: En esta vivienda unifamiliar veremos las funciones que cumple el hall:
  • 29.
    Estudio: El estudio puedeser un ambiente integrado con la sala estar, comunicando con el hall de entrada o una habitación que ofrezca total independencia, del resto de la casa. Iluminación: La iluminación se puede lograr de dos maneras: natural y artificial. La iluminación natural se logra a través de ventanas o vanos y desniveles en las losas (cenital), se prefiere que la luz venga de la parte de enfrente del usuario y del lado izquierdo. Las disposiciones para el área mínima de vanos para iluminación indican 1/5 de la superficie del piso del local; La fuente inicial de la iluminación natural es el sol. La iluminación artificial se puede dar de varias maneras, dependiendo del tipo de los aparatos de alumbrado. Ventilación: Todos los locales dentro de una vivienda requieren de una ventilación que permita la renovación total del aire cuando menos de 2 a 4 por hora. Por lo tanto en el estudio tenemos una ventana de: Ancho: 1.80 m. Alto: 1.30 m. Alfeizar: 1.00 m. Por lo tanto el ambiente de estudio tiene una muy buena ventilación ya que tiene una ventilación de aire de entrada por la ventana y una salida por la puerta tanto así que nos permite una comodidad excelente para el profesional y para el cliente en el momento que realicemos cualquier actividad.
  • 30.
    Circulación: Debe de tenerun espacio necesario para poder trasladarse y para hacer actividades en ese local. Observando en nuestro diseño podemos decir que es un ambiente acto para poder circular normalmente. Análisis: El estudio en esta vivienda unifamiliar cumple un rol importante ya que el profesional puede atender a sus clientes sin la necesidad de llevarlos al centro de la vivienda y así poder proteger su privacidad y en cuanto a su diseño podemos decir que está bien diseñado por que tiene una muy buena iluminación ya que tiene una ventana al lado izquierdo comunicado con el hall de entada.
  • 31.
  • 32.
  • 33.
    Sala – estar Unode los usos más comunes es para referir a aquel espacio de la casa en el cual se concentra la vida social de los integrantes de la familia. Por ejemplo, en la sala la familia suele reunirse para ver la televisión, para charlar sobre sus eventos del día, recibir a sus invitados, entre otras actividades. La misma suele estar equipada con sofás o sillones, una mesa, sillas, muebles que hacen de soporte para la tevé, etc. Diseño: Para un buen diseño de una sal estar lo primero que debemos de tener en cuanta es en los muebles que vamos a poner, tiene que tener una buena ventilación e iluminación y por ultimo tiene que ser un ambiente acogedor y cómodo. Circulación: Se procura tener un amplió ambiente y no debe tener comodidades al momento de la circulación. Iluminación: Debe tener una buena iluminación para poder satisfacer a la familia y amigos. Ventilación: Posee una ventana mampara delante de la vivienda para una buena ventilación e iluminación. Análisis: La sala estar de esta vivienda unifamiliar es un sitio cómodo y bien ventilado e iluminado que tiene una muy buena relación con el comedor, satisfaciendo así a toda la familia. De la circulación podemos decir que los muebles están en un muy buen sitio y además no existe congestión o molestia por el paso de otras personas ya que el diseño de la sala esta una esquina de la vivienda como podemos apreciar en la siguiente imagen:
  • 34.
  • 35.
  • 36.
    Lugar para comer Elcomedor representa un lugar familiar importante por ser donde se reúne la familia para tomar los alimentos. Los principales factores que se deben considerar para su diseño, son: - Número de personas que lo van a ocupar. - Espacio que ocupan estas personas sobre la mesa. - Espacio para las sillas y la circulación entre ellas. - Distribución de los asientos. - Tamaño y tipo de mobiliario. Circulación: Tiene que tener una buena circulación y no bebe de tener un choque de personas al momento de pararse de la silla u toros. Iluminación: Es un aspecto muy importante porque hace sentir a la familia cómoda y satisfecha y para así poder tomar sus alimentos sin contratiempos. Ventilación: Muy importante en un diseño ya que el ser humano transpira y por parte del vient0 esos olores se van y se puede comer sin problemas. Análisis: El ambiente para tomar los alimentos de esta vivienda cuenta con una mampara por donde entra el aire en la sala estar y contamos con otra mampara al fondo del lugar para comer por donde sale el aire; tenemos que tener en cuenta que el ambiente para tomar los alimentos tiene que tener una relación con la cocina y la sala estar.
  • 37.
  • 38.
  • 39.
    Zona de serviciode la vivienda unifamiliar: Cocina: La cocina no es solamente un local de trabajo especializado, ya que se dan diferentes actividades en este espacio. Se usa para la preparación y conservación de los alimentos, almacenamiento de comida y utensilios, etc. Diseño: Se debe reducir en lo posible la circulación dentro de la cocina; las interferencias al funcionamiento deben eliminarse. El diseño de la cocina debe ser funcional y optimizar los movimientos del usuario, evitando los estiramientos forzados y las frecuentes e incomodas agachadas. Orientación: La cocina debe orientarse, en lo posible, al Norte o al Noroeste y permitir la incidencia directa de los vientos dominantes para una correcta ventilación. Iluminación: Se recomienda que la iluminación sea directa y dirigida a las zonas de trabajo. Además, debe de haber una iluminación general difusa de todo el local, tratando de evitar los espacios sombreados. Ventilación: Este es uno de los locales de la vivienda que requieren un mayor índice de ventilación. Se recomienda que sea del orden de 15 cambios de volumen total del aire en una hora. En caso de que no exista el viento necesario para favorecer estos cambios, se recomienda que se auxilie con una campana extractora o con ventiladores mecánicos. Análisis: Podemos decir que se ha cumplido con todo lo recomendado.
  • 40.
  • 41.
  • 42.
    Patio de servicio: Elpatio de servicio es el espacio más importante en el funcionamiento de una casa, debido a las diferentes funciones que se realizan en el, generalmente contiene el lavadero y el calentador de agua, la bomba y casi siempre la cisterna, la mejor ubicación es junto a la cocina y la mejor orientación es dependiendo del clima de tu región pero generalmente es orientado hacia el este o sureste. Diseño: Para un patio de servicios unas buenas dimensiones serían 12m2 que son 3x4m y una dimensión mínima seria 6.25 m2 que son 2.5 x 2.5 m. Los instrumentos instalados o acomodados en el patio de servicio deberán tener una buena distribución para no generar malestar ni contratiempos. Ventilación: Debe de tener una buena ventilación pero generalmente este ambiente se diseña con una relación al jardín y con la cocina. Iluminación: Tiene que tener una iluminación necesaria para realizar cualquier actividad sin problemas, esta iluminación la aprovecharemos por medio del sol. Análisis: El patio de servicio de esta vivienda unifamiliar tiene una buena relación con la cocina que es lo recomendado pero por otra parte podemos decir que falla en su dimensión ya que tiene una dimensión mínima de 2.20 x 2.50 m, donde la circulación no será muy buena.
  • 43.
  • 44.
  • 45.
    Baño de visitas– primer nivel: En términos generales, el baño se considera como un lugar de aseo personal. Las actividades más comunes son lavarse las manos, la cara, el cabello, etc. Diseño: En este baño es donde se usa un lavabo y un inodoro. Se puede distribuir fácilmente en una superficie de 1.50 a 2.40 m2. Iluminación: El alumbrado debe ser adecuado para toda las funciones, para el arreglo personal es esencial que la iluminación principal este dirigida a la cara y se disperse hacia los demás ángulos. Es necesario que las ventanas proporcionen suficiente luz en el día. Ventilación: La ventilación es esencial en el baño, ya que además de disipar los olores, ayuda a reducir la humedad en el cuarto. En todos los casos se debe de minimizar las corrientes de aire. Análisis: El baño de visita de esta vivienda unifamiliar cuenta con una dimensión de 2.50 m2, por lo que podemos decir que existe una buena distribución – circulación. Y que cuenta con una ventana para disipar los olores y un traga luz esencial.
  • 46.
  • 47.
  • 48.
    Zona privada dela vivienda unifamiliar: Dormitorios y baños En la actualidad los dormitorios además de utilizarse para dormir, sirven para realizar otras actividades que requieren de mobiliarios, tales como para leer, estudiar, etc. La dimensión básica de un dormitorio depende del número de camas. Diseño: Para un buen diseño de un dormitorio se tomaran algunas recomendaciones: - Se recomienda que las camas se orienten en dirección norte-sur. - Deben ser paralelas a la ventana principal de la habitación. - Tiene que tener una relación directa con los baños. - La edad y sexo de los hijos a ocuparlos. - Las actividades y costumbres de los ocupantes e esos dormitorios. - Sus dimensiones mínimas de un dormitorio se calculara por las camas y los espacios para una buena circulación. Ventilación: Para los dormitorios es esencial tener una buena iluminación para que los ocupantes ya que se sentirán augustos y cómodos. Circulación: Tener una buena circulación al momento de hacer cualquier tipo de actividad. Analisis: Los dormitorios de esta vivienda tiene una muy buena ventilacion de entrada pero no de salida y un muy buena distribucion de los ambientes. A continuacion se vera el analisis de los ambientes:
  • 49.
    Iluminación de losdormitorios y baños: Iluminación:
  • 50.
  • 51.
  • 52.
    Ventilación de losdormitorios y baños: Ventilación:
  • 53.
  • 54.
  • 55.
    Vanos: Puertas de entrada: Sudiseño no deberá ser lugar a dudas con respecto a la diferencia con la entrada de servicio. El ancho no será menor de 90 cm. Es deseable proveerlas de algún depósito que permita observar desde dentro y sin abrirlas, el exterior de la casa. Puertas de comunicación: Su ancho se hace oscilar entre 65 y 85 cm. Es mejor que las puertas no abran sobre los pasillos, deben abrirse junto al muro o dejar el espacio suficiente para algún mueble. Si las puertas son dos, debe tratarse de que no se interfieran al abrirse. Ventanas: Cumplirá su función de modo eficaz, cuando la cantidad de aire, luz y sol que por ella penetre sea la necesaria para el ambiente a que corresponda y la vista lograda a su través, la más satisfactoria. Se tratara de que los dinteles lleguen lo más cerca posible al cielo raso, para asegurar la renovación de aire y evitar la formación de una capa de aire vaciado. Al momento de relacionar la puerta con los ambientes no deberán de existir un tránsito entre personas (choques de personas).
  • 56.
    Cuadro de vanosde la vivienda unifamiliar:
  • 57.
    Tener en cuentala siguiente relación:
  • 58.
    Circulación de lavivienda unifamiliar: Existen dos tipos de circulaciones: horizontales y verticales; ambas deben planearse con la mayor eficiencia para garantizar el correcto funcionamiento de los espacios y sus interrelaciones. Las circulaciones horizontales presentan problemas con los obstáculos que encuentran a su paso. Por esto deben analizarse cuidadosamente los límites de separación entre un local y una circulación para permitir el paso libremente. Y las verticales las escaleras.
  • 59.
    Circulación del Primernivel: Circulación:
  • 60.
    Circulación del segundopiso: Circulación:
  • 61.
    Circulación de laterraza: Circulación:
  • 62.
    Zonificación de lavivienda unificación: A. Social: A. privada: A. servicios:
  • 63.
  • 65.
    Coordinación de lavivienda unifamiliar: Primer nivel: Mayor Frecuencia: (líneas 10) Media Frecuencia: (líneas 5) Poca Frecuencia: (líneas 3)
  • 66.
    Segundo piso: Mayor Frecuencia:(líneas 8) Media Frecuencia: (líneas 5) Poca Frecuencia: (líneas 3)
  • 67.
    Terraza: Mayor Frecuencia: (líneas6) Media Frecuencia: (líneas 4) Poca Frecuencia: (líneas 3)
  • 68.
    Asoleamiento de lavivienda unifamiliar: Para poder lograr un asoleamiento adecuado es necesario conocer de geometría solar para prever la cantidad de horas que estará asoleado un local mediante la radiación solar que pase a través de ventanas y otras superficies no opacas. Es probable que luego de un estudio de asoleamiento se requiera controlar el ingreso de radiación solar mediante una adecuada protección solar y así poder regular el efecto del sol y su capacidad de calentar el interior de locales habitables. Indistintamente necesita asolearse o protegerse del sol una superficie vidriada o una superficie opaca. En cada caso será sensiblemente diferente el modo en que el calor del sol se transmitirá al interior del local. Análisis de Asoleamiento Este análisis nos servirá para identificar cuáles son las zonas de las viviendas de mayor asoleamiento los meses de más calor, vemos: En las fachadas que están orientadas mirando al Suroeste los rayos de sol inciden directamente en los meses de noviembre, diciembre, enero y febrero en las horas de la tarde hasta las últimas horas del día. En las fachadas que están orientadas mirando al Noreste, los rayos de sol inciden directamente en los meses de mayo, junio, julio, agosto en las primeras horas del día hasta el mediodía. En las fachas que están orientadas mirando al Sureste que es el caso de las viviendas en esquina, los rayos de sol inciden directamente en las primeras horas del día de los meses de noviembre, diciembre, enero y febrero. En las fachadas que están orientadas mirando al Noroeste que es el caso de las viviendas en esquina los rayos de sol inciden directamente en las horas de más color por la tarde en los meses de mayo, junio, julio y agosto. Todo esto que estamos viendo condiciona en el diseño de la vivienda. Orientación de los Ambientes fundamentales:
  • 69.
    Norte: orientar estar,comer, terrazas y galerías Asia el mejor sol. Este: orientar dormitorios, cocinas, comedor diario. Actividades que se desarrollan más por la mañana. Oeste: orientar hall de acceso, k también podría ir asía el sur sin problema, sala de juegos, estudio. Asia al este u oeste pueden haber como una estancia o comedores. Sur: orientar todo lo que es servicio, baños, lavaderos, escaleras, pasillos. Para protegernos del frio y del viento, estos son lugares que necesitan poca iluminación. A continuación hallaremos la pared caliente de la vivienda unifamiliar:
  • 70.
  • 71.
  • 72.
  • 73.
    Conclusión: Primer nivel: En elprimer nivel podemos decir que se encuentra con buena iluminación en los ambientes requeridos pero con una media ventilación, y en el baño de visita hay una ventilación de entrada pero no de salida, esto lo podemos arreglar poniéndole un tubo de ventilación de Ø2” donde podemos dispersar los malos olores a otro lado y así no afecte otros ambientes. Segundo nivel: En el segundo nivel tenemos una buena iluminación en los ambientes requeridos pero una media ventilación, nuevamente decimos que en los baños tenemos que corregir la ventilación de salida poniéndole un tubo de Ø2” para dispersar los malos alores a otro lado y así no afecte otros ambientes. Terraza: En la terraza tenemos una buena iluminación y ventilación. Ya se es el último nivel de la casa. Por último decimos que existen problemas con el asoleamiento, será necesario proteger los muros que son afectados directamente con los rayos solares. Si se toman en cuenta lo señalado anteriormente se podrá lograr el objetivo propuesto que no es principalmente que el profesional gane buen dinero, sino que el cliente quede satisfecho con lo realizado y que el trabajo sea de calidad, para que así pueda recomendar, y se pueda confiar en que si te recomienda es porque de verdad le gustó tu trabajo.
  • 74.
    Bibliografía:  Reglamento Nacionalde Edificaciones - Título III - Arquitectura  Como se Proyecta una Vivienda - Arq. José Luis Moia  Las Medidas de una casa – Antropometría de la vivienda - Xavier-Fonseca  Manual del Arquitecto - Johan Van Lengen  El Arte de Proyectar en Arquitectura - Neufert