Vivienda
       “Los Juan”
Integrantes: Equipo 5
Belis R. Iris C. C.I. - 20.123.313
García C. Angheidri I. C.I. - 20.123.367
Roa G. Noris E. C.I.-21.637.32
Medina Mayrene. C.I.- 16.321.319
Sección: 1

Profesora: Marjorie Ruiz


   SAN CRISTOBAL, ABRIL DEL 2011
Búsqueda y análisis de los problemas funcionales,
ambientales y formales en la vivienda unifamiliar
“Los Juan” ubicada en Pirineos I de San Cristóbal
estado Táchira durante el lapso académico 2010-III
de Arquitectura de la Universidad Nacional
Experimental del Táchira.
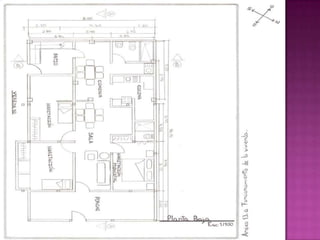
   Emplazamiento: la vivienda se encuentra ubicada en una
    topografía plana.
   Orientación: con respecto a los puntos cardinales, la vivienda se
    encuentra aproximadamente al nor-oeste de la ciudad.
   Incidencia de los vientos: los vientos inciden a la vivienda de
    forma inclinada por el lado de la fachada secundaria en sentido
    nor-oeste.
   Relieve: está conformado por tres tipos de paisajes: montaña,
    caracterizado por una topografía escarpada e irregular que ocupa
    el 64,5% de la superficie del estado; piedemonte, de configuración
    menos accidentada abarca el 15%, y la planicie aluvial que
    comprende el 20,5%.
   Clima: Predomina el clima templado con una temperatura
    promedio que oscila entre los 12 C y 26 C.
   Vegetación: se encuentra la gramínea y arbusto exteriormente y las
    plantas de masetas que son floreadas es la vegetación interna.
   Adaptación de la edificación a las necesidades de los usuarios:
    Los espacios que tiene la vivienda permite la satisfacción a las
    necesidades de los miembros de la familia y según el código
    nacional de habitabilidad para la vivienda y entorno las
    necesidades son: afecto, protección, participación, recreación entre
    otras.
   Personalización: No hay certeza que la vivienda fue diseñada por
    un arquitecto ya que fue adquirida por el gobierno pero es de
    suponerse que sí. Las remodelaciones que se han realizado en la
    planta baja han sido a gusto de la Abuela. En cambio las
    remodelaciones de la planta alta han sido realizadas a gusto de
    toda la familia.
   Uso de los espacios: Cada espacio está siendo utilizado
    adecuadamente a lo que corresponde su uso.
   Escenario Conductual: como espacio construido o “Milieu” es el
    comedor ubicado en la planta baja, es el espacio más usado por todos los
    habitantes de la vivienda. La dimensión temporal se realizo el martes
    1ero de marzo de 2011 desde las 12:00m hasta las 2:00pm y también
    según los habitantes de la vivienda son las horas con mayor estadía en
    dicho espacio. Los patrones de comportamiento que se dan en el espacio
    son de comer, compartir y dialogar. Y sobre “Synomorphy” o
    congruencia entre el “Milieu” y el comportamiento de los usuarios, el
    espacio si tiene relación con la actividad que se realiza por lo general.
Condiciones de habitabilidad de la edificación:
   La vivienda está construida con materiales estables y durables los cuales son los ladrillos y la
    cubierta es de machimbre, tiene acceso a agua potable, se encuentra una instalación de aseo al
    salir de la vereda y está instalada la electricidad.
   En los balcones y en el patio ubicado en la planta baja hay cuerdas para secar la ropa.
   Con respecto al transporte es de fácil acceso ya que al salir de la vereda (que es a poco metros)
    pasa todo tipo de transporte y frecuentemente.
   Cada miembro de la familia tiene la disponibilidad de tener una habitación con todas las
    comodidades, luz y ventilación.
   La vivienda es segura pero para acceder a la vivienda de noche no es segura ya que hay que
    pasar una vereda que es oscura porque la luz del poste siempre esta quemada.
   Se encuentran en la vivienda tanto espacios sociales (balcones, porche, salas) como espacios
    privados (habitaciones y baños).
   Hace falta un cuarto de estudio ya que los miembros de la familia estudian en cada habitación
    la cual solo debería utilizarse para descansar y ver tv.
   Referente a los olores que dan los servicios en la vivienda se encuentra todo muy bien pero
    con respecto al tema del control de ruidos si es malo ya que cuando caminan o se cae algo
    estando en la planta alta se escucha todo en la planta baja.
   Si hay disponibilidad a los medios de comunicación por medio de los televisores, los
    teléfonos, los equipos de sonido, las computadoras, el internet, el tele-cable y cerca de la
    vivienda se encuentra un quiosquito de venta de periódicos.
   Por último, no hay un cuarto para juegos pero si hay espacio para la diversión y el tiempo
    libre.
Agrada
Todo    Sala     Pared de piedra         Ubicación vivienda



                     17%
                                   33%

               17%



                           33%



                           Desagrada
 Nada     Piso de las habitaciones        Balcon     Reja del porche



                           16%       17%


                     17%


                                     50%
Agregaria
Nada      Habitacion en un tercer piso     Pared de piedra en la sala



                         17%         17%




                                66%




                                 Quitaria
       Nada     Uno de los balcones        Cocina y baño de la planta baja



                               17%


                         17%
                                             66%
Dejaria
Todo   Porche, cocina, habitaciones, sala, balcones




          34%



                            66%
Funcionalidad, Iluminación y Diseño:


   Funcionalidad: la necesidad de realizar un cuarto de estudio ya que las
    tres personas que conviven en la planta alta no tienen lugar para estudiar
    sino la actividad la realizan en las habitaciones.


   Iluminación: se encuentra el problema que la habitación principal de la
    planta alta tiene poca iluminación y ventilación ya que solo se encuentra
    una ventana alargada ente el espacio que existe entre la cubierta de
    platabanda y la cubierta de machimbre.


   Diseño: uno de los balcones específicamente el que tiene forma cuadrada
    fue realizado con la primera construcción de la vivienda y no se le ha
    hecho ninguna modificación entonces en forma de estética tiene mal
    aspecto.
   El paisaje cultural lo definen las actividades a realizar en un espacio, basadas en los
    gustos y necesidades del los usuarios, de modo que estas acciones generen un cambio en
    el ambiente natural del lugar; en este caso: el estudio de la vivienda “Los Juan” nos
    propone un análisis tanto del entorno urbano como de la edificación en su generalidad.

   La vivienda se ha ido ajustando a las necesidades que han ido surgiendo con el paso del
    tiempo, por esta razón el logro en la realización de las modificaciones genera una gran
    satisfacción en los usuarios.

   La inconformidad de algunos de los usuarios es por falta de un espacio que les permita
    creación y recreación, ya que es importante para los jóvenes tener un lugar en el cual
    realizar sus actividades de estudio y sentirse en comodidad al momento de realizarlas.

   La prioridad está en solucionar pequeños detalles como el piso de las habitaciones de
    planta alta, así como la ventilación e iluminación de la habitación principal de planta
    alta, y las puertas de las dos habitaciones de planta alta. Por último el trabajo de diseño
    de la tercera planta.

   Lo más importante de esta vivienda es el aprovechamiento del espacio que se le ha dado
    según las posibilidades económicas de modificaciones que han ido surgiendo.
Equipo 5
Equipo 5
Equipo 5
Equipo 5
Equipo 5
Equipo 5
Equipo 5
Equipo 5
Equipo 5
Equipo 5
Equipo 5
Equipo 5
Equipo 5
Equipo 5
Equipo 5
Equipo 5
Equipo 5

Equipo 5

  • 1.
    Vivienda “Los Juan” Integrantes: Equipo 5 Belis R. Iris C. C.I. - 20.123.313 García C. Angheidri I. C.I. - 20.123.367 Roa G. Noris E. C.I.-21.637.32 Medina Mayrene. C.I.- 16.321.319 Sección: 1 Profesora: Marjorie Ruiz SAN CRISTOBAL, ABRIL DEL 2011
  • 2.
    Búsqueda y análisisde los problemas funcionales, ambientales y formales en la vivienda unifamiliar “Los Juan” ubicada en Pirineos I de San Cristóbal estado Táchira durante el lapso académico 2010-III de Arquitectura de la Universidad Nacional Experimental del Táchira.
  • 3.
    Emplazamiento: la vivienda se encuentra ubicada en una topografía plana.  Orientación: con respecto a los puntos cardinales, la vivienda se encuentra aproximadamente al nor-oeste de la ciudad.  Incidencia de los vientos: los vientos inciden a la vivienda de forma inclinada por el lado de la fachada secundaria en sentido nor-oeste.  Relieve: está conformado por tres tipos de paisajes: montaña, caracterizado por una topografía escarpada e irregular que ocupa el 64,5% de la superficie del estado; piedemonte, de configuración menos accidentada abarca el 15%, y la planicie aluvial que comprende el 20,5%.  Clima: Predomina el clima templado con una temperatura promedio que oscila entre los 12 C y 26 C.  Vegetación: se encuentra la gramínea y arbusto exteriormente y las plantas de masetas que son floreadas es la vegetación interna.
  • 4.
    Adaptación de la edificación a las necesidades de los usuarios: Los espacios que tiene la vivienda permite la satisfacción a las necesidades de los miembros de la familia y según el código nacional de habitabilidad para la vivienda y entorno las necesidades son: afecto, protección, participación, recreación entre otras.  Personalización: No hay certeza que la vivienda fue diseñada por un arquitecto ya que fue adquirida por el gobierno pero es de suponerse que sí. Las remodelaciones que se han realizado en la planta baja han sido a gusto de la Abuela. En cambio las remodelaciones de la planta alta han sido realizadas a gusto de toda la familia.  Uso de los espacios: Cada espacio está siendo utilizado adecuadamente a lo que corresponde su uso.
  • 5.
    Escenario Conductual: como espacio construido o “Milieu” es el comedor ubicado en la planta baja, es el espacio más usado por todos los habitantes de la vivienda. La dimensión temporal se realizo el martes 1ero de marzo de 2011 desde las 12:00m hasta las 2:00pm y también según los habitantes de la vivienda son las horas con mayor estadía en dicho espacio. Los patrones de comportamiento que se dan en el espacio son de comer, compartir y dialogar. Y sobre “Synomorphy” o congruencia entre el “Milieu” y el comportamiento de los usuarios, el espacio si tiene relación con la actividad que se realiza por lo general.
  • 6.
    Condiciones de habitabilidadde la edificación:  La vivienda está construida con materiales estables y durables los cuales son los ladrillos y la cubierta es de machimbre, tiene acceso a agua potable, se encuentra una instalación de aseo al salir de la vereda y está instalada la electricidad.  En los balcones y en el patio ubicado en la planta baja hay cuerdas para secar la ropa.  Con respecto al transporte es de fácil acceso ya que al salir de la vereda (que es a poco metros) pasa todo tipo de transporte y frecuentemente.  Cada miembro de la familia tiene la disponibilidad de tener una habitación con todas las comodidades, luz y ventilación.  La vivienda es segura pero para acceder a la vivienda de noche no es segura ya que hay que pasar una vereda que es oscura porque la luz del poste siempre esta quemada.  Se encuentran en la vivienda tanto espacios sociales (balcones, porche, salas) como espacios privados (habitaciones y baños).  Hace falta un cuarto de estudio ya que los miembros de la familia estudian en cada habitación la cual solo debería utilizarse para descansar y ver tv.  Referente a los olores que dan los servicios en la vivienda se encuentra todo muy bien pero con respecto al tema del control de ruidos si es malo ya que cuando caminan o se cae algo estando en la planta alta se escucha todo en la planta baja.  Si hay disponibilidad a los medios de comunicación por medio de los televisores, los teléfonos, los equipos de sonido, las computadoras, el internet, el tele-cable y cerca de la vivienda se encuentra un quiosquito de venta de periódicos.  Por último, no hay un cuarto para juegos pero si hay espacio para la diversión y el tiempo libre.
  • 7.
    Agrada Todo Sala Pared de piedra Ubicación vivienda 17% 33% 17% 33% Desagrada Nada Piso de las habitaciones Balcon Reja del porche 16% 17% 17% 50%
  • 8.
    Agregaria Nada Habitacion en un tercer piso Pared de piedra en la sala 17% 17% 66% Quitaria Nada Uno de los balcones Cocina y baño de la planta baja 17% 17% 66%
  • 9.
    Dejaria Todo Porche, cocina, habitaciones, sala, balcones 34% 66%
  • 10.
    Funcionalidad, Iluminación yDiseño:  Funcionalidad: la necesidad de realizar un cuarto de estudio ya que las tres personas que conviven en la planta alta no tienen lugar para estudiar sino la actividad la realizan en las habitaciones.  Iluminación: se encuentra el problema que la habitación principal de la planta alta tiene poca iluminación y ventilación ya que solo se encuentra una ventana alargada ente el espacio que existe entre la cubierta de platabanda y la cubierta de machimbre.  Diseño: uno de los balcones específicamente el que tiene forma cuadrada fue realizado con la primera construcción de la vivienda y no se le ha hecho ninguna modificación entonces en forma de estética tiene mal aspecto.
  • 11.
    El paisaje cultural lo definen las actividades a realizar en un espacio, basadas en los gustos y necesidades del los usuarios, de modo que estas acciones generen un cambio en el ambiente natural del lugar; en este caso: el estudio de la vivienda “Los Juan” nos propone un análisis tanto del entorno urbano como de la edificación en su generalidad.  La vivienda se ha ido ajustando a las necesidades que han ido surgiendo con el paso del tiempo, por esta razón el logro en la realización de las modificaciones genera una gran satisfacción en los usuarios.  La inconformidad de algunos de los usuarios es por falta de un espacio que les permita creación y recreación, ya que es importante para los jóvenes tener un lugar en el cual realizar sus actividades de estudio y sentirse en comodidad al momento de realizarlas.  La prioridad está en solucionar pequeños detalles como el piso de las habitaciones de planta alta, así como la ventilación e iluminación de la habitación principal de planta alta, y las puertas de las dos habitaciones de planta alta. Por último el trabajo de diseño de la tercera planta.  Lo más importante de esta vivienda es el aprovechamiento del espacio que se le ha dado según las posibilidades económicas de modificaciones que han ido surgiendo.