III UNIDAD
Metodología del Diseño
Curso: Teoría dela Arquitectura
ETAPA DE INVESTIGACIÓN:
 En esta etapa , se realiza el acopio de información necesaria para
le entendimiento del problema.
 Información de sus causas y orígenes.
 Información del contexto en el cual se desenvuelve.
 Así como la proyección o secuencia que va ha tener.
ETAPA DE ANÁLISIS Y EVALUACIÓN:
 se define premisas que nos dan el marco para ala formulación de
los alcances y limitación del proyecto
ETAPA DE METODOLOGÍA DEL DISEÑO:
 se ejecuta un método que nos permita sintetizar y visualizar
ordenadamente los factores analizados y su interpretación como
factores “CUANTO” y “QUE”, es decir cantidad y cualidad
ETAPA CONCEPTUAL:
 Concepto generatriz de la solución del problema
ETAPA DEL DISEÑO
 Se formula la propuesta de solución al problema en una forma
tangible, reproducible y ordenada,
ETAPA DE
INVESTIGACIÓN
ETAPA DE
METODOLOGÍA
DEL DISEÑO
ETAPA DE
ANÁLISIS Y
EVALUACIÓN
ETAPA CONCEPTUAL
ETAPA DEL
DISEÑO
 PLANTEAMIENTO DEL TEMA:
 Definición del genero y tipo del proyecto
 Entendimiento del Tema a desarrollar
 Genero arquitectónico
 Datos conocidos
 Análisis de edificaciones similares y
contextos diferentes
 Antecedentes del proyecto
 Análisis de los medios donde se sitúa el
proyecto, así como los niveles que
interactúan .
MEDIO
NATURAL
MEDIO
ARTIFICIAL
MEDIO
CULTURAL
MEDIO
LEGAL
NORMATIVO
 Criterios de diseño
 Arquitectónicos, Estructurales, funcionales,
ambientales, normativos,
 Condicionantes y determinantes de diseño
 Premisas lógicas
 Método del diseño
 Necesidades, actividades usuario, etc
 Planteamiento del programa arquitectónico
 Cualificación y cuantificación del programa
arquitectónico
 Elaboración de diagramas del proyecto :
organigramas, flujogramas , etc.
Elaboración del concepto arquitectónico
 El concepto del diseño es una idea que guía
el proceso y sirve para asegurar una o varias
cualidades del proyecto: imagen,
funcionalidad, Economía, semántica, etc…
 Analogía con la naturaleza:
 Analogía con otros proyectos:
Metáforas formales;
 Relaciona su diseño con objetos conocidos,
sin copiarlos idénticamente.
 Se puede asumir la silueta característica,
como realizar una escala con especifico
detalle.
 Elaboración del anteproyecto arquitectónico
 Correcciones y ajustes del programa
arquitectónico.
 Proyecto arquitectónico elaboración y
edición en medio reproducible.
 Representación genérica y de manera preliminar
de las características del proyecto
 Son planos, maquetas, representaciones en
medio digital, simuladores virtuales, etc. que
nos dan una idea muy aproximada del proyecto
final y definitivo.
 Su carácter preliminar no disminuye su
importancia ya que al ser el desarrollo de una
idea estudiada y analizada, se constituye en un
solido punto de partida par la solución final del
proyecto.
 Es susceptible de modificaciones y ajustes de
acuerdo a los requerimientos del programa
arquitectónico o el usuario.

 Sirve para describir detalladamente la
concepción general del edificio: forma
funciones, distribución sistema constructivo.
 Se especifica en planos de obra o
documentos donde se consigna medidas y
especificaciones técnicas que permitan su
entendimiento y posterior ejecución
 Viene acompañado de documentos como
memorias descriptivas, estudios de suelos
presupuestos y otros.
PROCESO DE DISEÑO ARQUITECTONICO

PROCESO DE DISEÑO ARQUITECTONICO

  • 1.
    III UNIDAD Metodología delDiseño Curso: Teoría dela Arquitectura
  • 2.
    ETAPA DE INVESTIGACIÓN: En esta etapa , se realiza el acopio de información necesaria para le entendimiento del problema.  Información de sus causas y orígenes.  Información del contexto en el cual se desenvuelve.  Así como la proyección o secuencia que va ha tener. ETAPA DE ANÁLISIS Y EVALUACIÓN:  se define premisas que nos dan el marco para ala formulación de los alcances y limitación del proyecto ETAPA DE METODOLOGÍA DEL DISEÑO:  se ejecuta un método que nos permita sintetizar y visualizar ordenadamente los factores analizados y su interpretación como factores “CUANTO” y “QUE”, es decir cantidad y cualidad ETAPA CONCEPTUAL:  Concepto generatriz de la solución del problema ETAPA DEL DISEÑO  Se formula la propuesta de solución al problema en una forma tangible, reproducible y ordenada,
  • 3.
    ETAPA DE INVESTIGACIÓN ETAPA DE METODOLOGÍA DELDISEÑO ETAPA DE ANÁLISIS Y EVALUACIÓN ETAPA CONCEPTUAL ETAPA DEL DISEÑO
  • 4.
     PLANTEAMIENTO DELTEMA:  Definición del genero y tipo del proyecto  Entendimiento del Tema a desarrollar  Genero arquitectónico  Datos conocidos  Análisis de edificaciones similares y contextos diferentes  Antecedentes del proyecto  Análisis de los medios donde se sitúa el proyecto, así como los niveles que interactúan . MEDIO NATURAL MEDIO ARTIFICIAL MEDIO CULTURAL MEDIO LEGAL NORMATIVO
  • 5.
     Criterios dediseño  Arquitectónicos, Estructurales, funcionales, ambientales, normativos,  Condicionantes y determinantes de diseño  Premisas lógicas
  • 6.
     Método deldiseño  Necesidades, actividades usuario, etc  Planteamiento del programa arquitectónico  Cualificación y cuantificación del programa arquitectónico  Elaboración de diagramas del proyecto : organigramas, flujogramas , etc.
  • 7.
    Elaboración del conceptoarquitectónico  El concepto del diseño es una idea que guía el proceso y sirve para asegurar una o varias cualidades del proyecto: imagen, funcionalidad, Economía, semántica, etc…
  • 8.
     Analogía conla naturaleza:  Analogía con otros proyectos:
  • 9.
    Metáforas formales;  Relacionasu diseño con objetos conocidos, sin copiarlos idénticamente.  Se puede asumir la silueta característica, como realizar una escala con especifico detalle.
  • 10.
     Elaboración delanteproyecto arquitectónico  Correcciones y ajustes del programa arquitectónico.  Proyecto arquitectónico elaboración y edición en medio reproducible.
  • 11.
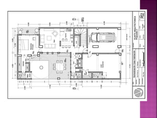
     Representación genéricay de manera preliminar de las características del proyecto  Son planos, maquetas, representaciones en medio digital, simuladores virtuales, etc. que nos dan una idea muy aproximada del proyecto final y definitivo.  Su carácter preliminar no disminuye su importancia ya que al ser el desarrollo de una idea estudiada y analizada, se constituye en un solido punto de partida par la solución final del proyecto.  Es susceptible de modificaciones y ajustes de acuerdo a los requerimientos del programa arquitectónico o el usuario. 
  • 13.
     Sirve paradescribir detalladamente la concepción general del edificio: forma funciones, distribución sistema constructivo.  Se especifica en planos de obra o documentos donde se consigna medidas y especificaciones técnicas que permitan su entendimiento y posterior ejecución  Viene acompañado de documentos como memorias descriptivas, estudios de suelos presupuestos y otros.