INSTITUCIÓN EDUCATIVA TÉCNICA INDUSTRIAL
“RAFAEL NAVIA VARÓN”
DISEÑO Y MEDIOS VISUALES
Eje Temático: EL DIBUJO COMO EXPRESION
Esp. Sonia Caicedo Valencia
Grado: 11
Unidad Temática: Taller de Lenguaje Arquitectónico
Representación gráfica de planos arquitectónicos
SIMBOLOGÍA
El dibujo de arquitectura es un lenguaje gráfico constituido esencialmente por líneas y símbolos,
concebidos en tal forma que no sea posible dar lugar a distintas interpretaciones.
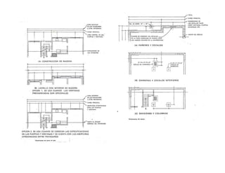
 SIMBOLOS DE PUERTAS
 SIMBOLOS DE VENTANAS
 OTRAS SIMBOLOGÍAS
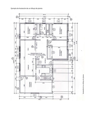
ACOTACIÓN
La acotaciónesel procesode anotar, mediante líneas,cifras,signosysímbolos,las mediadas de un objeto,
sobre un dibujo previo del mismo, siguiendo una serie de reglas y convencionalismos, establecidos
mediante normas1
.
Estudie detenidamente losdetallesrelacionadosconlaaplicaciónde las normas del acotado en los dibujos
arquitectónicos.
1 http://www.dibujotecnico.com/saladeestudios/teoria/normalizacion/acotacion/acotaciongeelcla.php
Ejemplo de Acotación de un dibujo de planta
PLANOS ARQUITECTÓNICOS
 PLANTA DE LOCALIZACIÓN2
Los planos topográficos contemplan un
planode ubicación y localización, el cual
proporciona la información acerca de la
ubicación física de la construcción
referida, no sólo al terreno o parcela en
que se piensa construir, sino a la
situación general dentro de un amplio
entorno que facilita la localización de la
vivienda.
Esta información puede estar contenida
en un solo gráfico o en dos gráficos
distintos,dependiendode la escala en la
que estén representados y el grado de
explicación que proporcionan.
Las escalas utilizadas en este tipo de planos dependerán del tamaño de la construcción y del terreno
correspondiente, así como del entorno urbanístico que permita una fácil identificación del lugar. Las
escalas más usuales son 1:50, 1:750 y 1:1000.
2 Dibujo Arquitectónico: http://html.rincondelvago.com/dibujo-arquitectonico_1.html
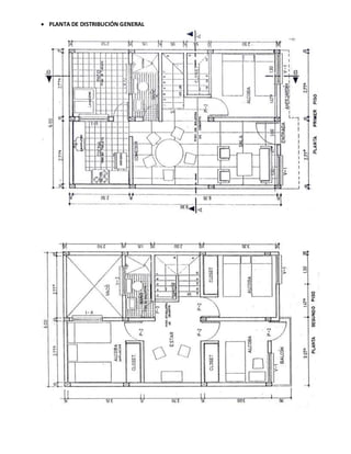
 PLANTA DE DISTRIBUCIÓN GENERAL
 CORTES O ELEVACIONES
CORTE A – A´
CORTE TRANSVERSAL
CORTE B – B´
CORTE LONGITUDINAL
 FACHADAS
 DETALLES
 PLANTA DE CUBIERTA
Planoendonde se proyectala vistaenplantade cómo se verán las cubiertas finales una vez terminadas.
Fuente 3
3 http://www.slideshare.net/arquitectovaldez/planta-de-techos
PLANOS DE INSTALACIONES
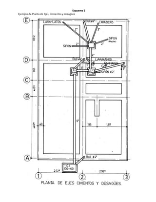
 PLANTA DE EJES, CIMIENTOS Y DESAGÜES
Hay 2 formas de lograr esta representación. El esquema 1, es la representación normal en la que se
detallan todos los accesorios, la dirección y la forma de empate de éstos. El esquema 2, representa en
forma sencilla un sistema Unifilar, es decir de un solo hilo.
Esquema 1
Esquema 2
Ejemplo de Planta de Ejes, cimientos y desagües
 PLANTA DE INSTALACIONESHIDRAÚLICAS
Al igual que lasinstalacionesde desagüesesindispensableprever,enlosplanosconstructivos,losdetalles
de conexión y suministro de agua caliente, fría o gas, con el fin de contar con esa información en el
momento de realizar una obra. Estos detalles de conexión y distribución se indican aplicando
convencionesysímbolosque se muestranenel cuadroa continuación,donde aparecen además los tipos
de unión más empleados en este proceso.
 PLANTA DE INSTALACIONES ELECTRICAS
Las instalaciones Eléctricaspuedensercomerciales u hogareñas, nuevas o para refacción, monofásicas o
trifásicas, siempre respetando las normas de seguridad vigentes.

Representación gráfica de planos arquitectónicos

  • 1.
    INSTITUCIÓN EDUCATIVA TÉCNICAINDUSTRIAL “RAFAEL NAVIA VARÓN” DISEÑO Y MEDIOS VISUALES Eje Temático: EL DIBUJO COMO EXPRESION Esp. Sonia Caicedo Valencia Grado: 11 Unidad Temática: Taller de Lenguaje Arquitectónico Representación gráfica de planos arquitectónicos SIMBOLOGÍA El dibujo de arquitectura es un lenguaje gráfico constituido esencialmente por líneas y símbolos, concebidos en tal forma que no sea posible dar lugar a distintas interpretaciones.  SIMBOLOS DE PUERTAS
  • 2.
  • 3.
     OTRAS SIMBOLOGÍAS ACOTACIÓN Laacotaciónesel procesode anotar, mediante líneas,cifras,signosysímbolos,las mediadas de un objeto, sobre un dibujo previo del mismo, siguiendo una serie de reglas y convencionalismos, establecidos mediante normas1 . Estudie detenidamente losdetallesrelacionadosconlaaplicaciónde las normas del acotado en los dibujos arquitectónicos. 1 http://www.dibujotecnico.com/saladeestudios/teoria/normalizacion/acotacion/acotaciongeelcla.php
  • 5.
    Ejemplo de Acotaciónde un dibujo de planta
  • 6.
    PLANOS ARQUITECTÓNICOS  PLANTADE LOCALIZACIÓN2 Los planos topográficos contemplan un planode ubicación y localización, el cual proporciona la información acerca de la ubicación física de la construcción referida, no sólo al terreno o parcela en que se piensa construir, sino a la situación general dentro de un amplio entorno que facilita la localización de la vivienda. Esta información puede estar contenida en un solo gráfico o en dos gráficos distintos,dependiendode la escala en la que estén representados y el grado de explicación que proporcionan. Las escalas utilizadas en este tipo de planos dependerán del tamaño de la construcción y del terreno correspondiente, así como del entorno urbanístico que permita una fácil identificación del lugar. Las escalas más usuales son 1:50, 1:750 y 1:1000. 2 Dibujo Arquitectónico: http://html.rincondelvago.com/dibujo-arquitectonico_1.html
  • 7.
     PLANTA DEDISTRIBUCIÓN GENERAL
  • 8.
     CORTES OELEVACIONES CORTE A – A´ CORTE TRANSVERSAL CORTE B – B´ CORTE LONGITUDINAL
  • 9.
  • 10.
     PLANTA DECUBIERTA Planoendonde se proyectala vistaenplantade cómo se verán las cubiertas finales una vez terminadas. Fuente 3 3 http://www.slideshare.net/arquitectovaldez/planta-de-techos
  • 12.
    PLANOS DE INSTALACIONES PLANTA DE EJES, CIMIENTOS Y DESAGÜES Hay 2 formas de lograr esta representación. El esquema 1, es la representación normal en la que se detallan todos los accesorios, la dirección y la forma de empate de éstos. El esquema 2, representa en forma sencilla un sistema Unifilar, es decir de un solo hilo. Esquema 1
  • 13.
    Esquema 2 Ejemplo dePlanta de Ejes, cimientos y desagües
  • 15.
     PLANTA DEINSTALACIONESHIDRAÚLICAS Al igual que lasinstalacionesde desagüesesindispensableprever,enlosplanosconstructivos,losdetalles de conexión y suministro de agua caliente, fría o gas, con el fin de contar con esa información en el momento de realizar una obra. Estos detalles de conexión y distribución se indican aplicando convencionesysímbolosque se muestranenel cuadroa continuación,donde aparecen además los tipos de unión más empleados en este proceso.
  • 16.
     PLANTA DEINSTALACIONES ELECTRICAS Las instalaciones Eléctricaspuedensercomerciales u hogareñas, nuevas o para refacción, monofásicas o trifásicas, siempre respetando las normas de seguridad vigentes.